direct naar inhoud van Toelichting
Plan: Spijt, hoek Hondsklauw Sint-Michielsgestel
Status: vastgesteld
Plantype: bestemmingsplan
IMRO-idn: NL.IMRO.0845.BP2014SMGCENTRP105-VA01

Toelichting

Hoofdstuk 1 Inleiding

1.1 Aanleiding en doel

Initiatief

Bouwvereniging Huis en Erf heeft het voornemen aan de noordzijde van het Spijt in Sint-Michielsgestel 8 grondgebonden senioren woningen te bouwen. De oorspronkelijke huurwoningen op de locatie voldeden niet langer aan de actuele woonwensen en zijn intussen gesaneerd. Deze huurwoningen waren in eigendom bij de bouwvereniging Huis en Erf. De gemeente Sint-Michielsgestel en de initiatiefnemer hebben overeenstemming over de planologische en ruimtelijke invulling van het terrein en het bouwplan.

Doel

Om medewerking aan het initiatief te kunnen verlenen is een herziening van het bestemmingsplan nodig. Voorliggend bestemmingsplan Spijt, hoek Hondsklauw Sint-Michielsgestel voorziet in de ruimtelijke onderbouwing en een juridisch-planologische regeling.

1.2 Ligging plangebied

De locatie is gesitueerd aan de noordzijde van het Spijt op de hoek Hondsklauw / Spijt.

afbeelding "i_NL.IMRO.0845.BP2014SMGCENTRP105-VA01_0001.jpg"

Figuur 1.1. Ligging plangebied

1.3 Leeswijzer

De opzet van de toelichting van het plan is als volgt.

  • In hoofdstuk 2 wordt de huidige situatie beknopt beschreven aan de hand van de luchtfoto en het geldende juridisch-planologisch regime.
  • Hoofdstuk 3 geeft een globaal beeld van de beoogde situatie.
  • In hoofdstuk 4 is de ontwikkeling belicht aan de hand van het beleidskader van de verschillende overheden.
  • De milieu- en waardenaspecten worden in beeld gebracht in hoofdstuk 5. Het gaat dan om aspecten zoals Archeologie, Cultuurhistorie, Bodem, Verkeer, Geluid, Luchtkwaliteit, Externe veiligheid, Bedrijven en milieuzonering, Flora en fauna, Water en Kabels en leidingen en de eventuele noodzaak voor een M.e.r. beoordeling.
  • In hoofdstuk 6 is ingegaan op de gekozen juridisch-planologische regeling waarmee de ontwikkeling mogelijk wordt gemaakt.
  • Hoofdstuk 7 belicht de financieel - economische uitvoerbaarheid.
  • Tot slot is in hoofdstuk 8 een verslag van de maatschappelijke uitvoerbaarheid opgenomen. Dit hoofdstuk zal gaandeweg de juridisch-planologische procedure worden gevuld.

Hoofdstuk 2 Huidige situatie

2.1 Huidige situatie

De locatie ligt op de kruising van het Spijt en de Hondsklauw (figuur 2.1.). Het Spijt is een van de historische uitloopstraten van het centrum met kleinschalige, individuele bebouwing met verschillende functies. Hierbij kan worden gedacht aan horeca en winkels (nabij Nieuwstraat). Ook vervult het gebied een belangrijke woonfunctie.

afbeelding "i_NL.IMRO.0845.BP2014SMGCENTRP105-VA01_0002.jpg"

Figuur 2.1. Google Street view kruising Hondsklauw / Spijt

Ten noorden van de locatie liggen de woonstraten Hondsklauw en Beekgraaf. De bestaande woningen in de omgeving bestaan uit één tot twee bouwlagen en een kap. Aan het Spijt komt een differentiatie van woningen voor. Ten oosten van de projectlocatie staat een vrijstaande woning. Aan de overzijde van het Spijt is een appartementencomplex gerealiseerd. Dit appartementencomplex is 9 meter hoog, de liftkolom is 10,3 meter. De woningen zijn gelieerd aan De Beemden. Aan de overkant van het projectgebied, op de andere hoek Hondsklauw – Spijt, is een cafetaria gevestigd.

2.2 Vigerend bestemmingsplan

Ter plaatse geldt momenteel het bestemmingsplan Petrus Dondersplein/Heesakkers e.o. dat op 20 september 1990 door de gemeenteraad is vastgesteld. De provincie heeft dat plan gedeeltelijk goedgekeurd op 26 april 1991 en de Kroon heeft op 28 oktober 1992 eveneens gedeeltelijk goedkeuring onthouden aan het plan. Het GS- en het Koninklijk besluit zijn echter niet relevant voor het plangebied van het nieuwe bestemmingsplan.

De beoogde ontwikkeling is binnen dat bestemmingsplan niet mogelijk. Ter plaatse worden namelijk geen aaneengebouwde woningen voorzien. Er liggen deels geen bouwvlakken. Het bestemmingsplan voorziet niet in een wijzigingsbevoegdheid, noch andere flexibiliteitsbepalingen. Het opstellen van een op de ontwikkeling afgestemd bestemmingsplan is noodzakelijk. Voorliggend bestemmingsplan Spijt, hoek Hondsklauw Sint-Michielsgestel voorziet hierin.

afbeelding "i_NL.IMRO.0845.BP2014SMGCENTRP105-VA01_0003.png"

Figuur 2.2. Fragment bestemmingsplan Petrus Dondersplein/Heesakkers e.o.

Hoofdstuk 3 Toekomstige situatie

3.1 Toekomstige situatie

Algemeen

Het project van bouwvereniging Huis en Erf voorziet in de realisering van 8 grondgebonden senioren woningen. De woningen bestaan uit één bouwlaag met een kap. De eerste bouwlaag heeft een hoogte van circa 3,3 meter. De bouwhoogte is in totaal circa 7,3 meter. Op de begane grond is een volledig woonprogramma gedacht. Een deel van de dakvlakken van de woningen zal worden voorzien van zonnepanelen.

afbeelding "i_NL.IMRO.0845.BP2014SMGCENTRP105-VA01_0004.png"

afbeelding "i_NL.IMRO.0845.BP2014SMGCENTRP105-VA01_0005.png"

Figuur 3.1. Indicatieve weergave gevels.

Inpassing in de omgeving

Spijt

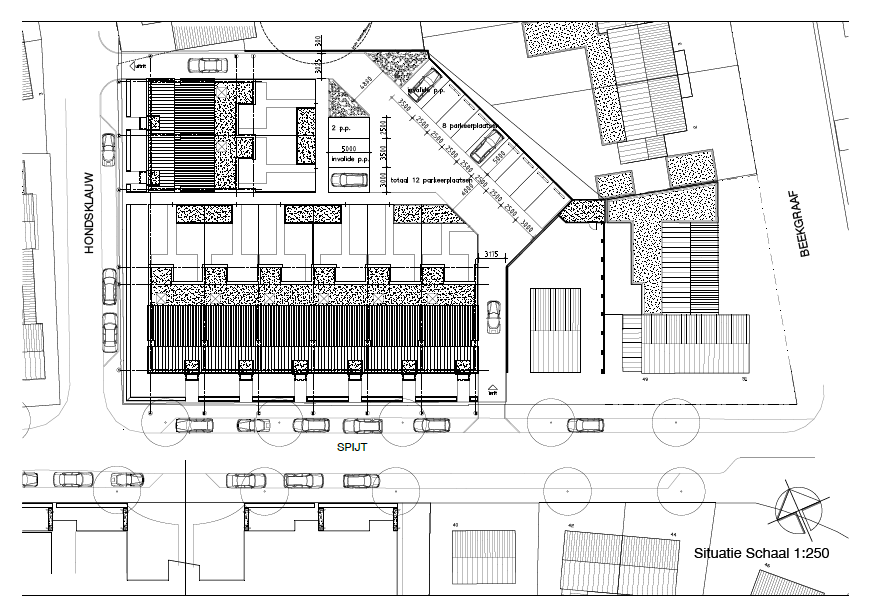
Georiënteerd op het Spijt worden 6 woningen gerealiseerd. De woningen zijn beoogd op enige afstand van de rijbaan. Voor de woningen is een voortuin gelegen met een diepte van circa 3 meter. Aan de oostzijde van het plangebied is een inrit voorzien naar een achterterrein met parkeerplaatsen.

afbeelding "i_NL.IMRO.0845.BP2014SMGCENTRP105-VA01_0006.png"

Figuur 3.2. Beoogd project in de omgeving (bron: Omni architecten, indicatieve tekening)

Hondsklauw

Georiënteerd op Hondsklauw zijn twee woningen gedacht. Ook deze woningen zijn op enige afstand van de weg geprojecteerd. Langs de noordzijde van de projectlocatie is een uitrit voor de achter het plangebied geprojecteerde parkeerplaats.

Achterterrein

Achter de woningen zijn losse bergingen en tuinen geprojecteerd. Op het achterterrein is ruimte voor twaalf parkeerplaatsen, waarvan 2 ten behoeve van het parkeren voor minder validen. Er is daarnaast ruimte voor groenvoorzieningen in de overhoeken. Verwezen wordt ook naar afbeelding 3.2, waarop de inrichting indicatief is aangeduid. Langs de noord- en oostzijde van het plangebied is een gemetselde muur voorzien. Er is sprake van een gering hoogteverschil tussen het omliggende terrein en het plangebied. De muur is daardoor aan de ene zijde 2,4 meter en aan de andere zijde 2 meter hoog. Met de omwonenden zijn hierover afspraken gemaakt. Ook ten aanzien van de ontsluiting van het achterterrein zijn afspraken gemaakt.

3.2 Verkeer en parkeren

Ontsluiting

Het plangebied is ontsloten via Spijt. De gronden liggen direct aan het Spijt en Hondsklauw. Hierin is na realisering van de ontwikkeling geen verandering voorzien. Voor een onderbouwing van de verkeersafwikkeling wordt verwezen naar paragraaf 5.4.

Parkeren

Uitgangspunt is het parkeren zoveel mogelijk op eigen terrein te realiseren. Er worden ten behoeve van de locatie voldoende parkeerplaatsen voorzien. Ten aanzien van de onderbouwing van het aantal parkeerplaatsen wordt verwezen naar paragraaf 5.4.3.

Hoofdstuk 4 Beleid

4.1 Rijksbeleid

4.1.1 Structuurvisie Infrastructuur en Ruimte (SVIR) & Besluit algemene regels ruimtelijke ordening (Barro) (2012)

Analyse

Nederland concurrerend, bereikbaar, leefbaar & veilig. Daar streeft het Rijk naar met een aanpak die ruimte geeft aan regionaal maatwerk, de gebruiker voorop zet, investeringen scherp prioriteert en ruimtelijke ontwikkelingen en infrastructuur met elkaar verbindt. Een actualisatie van het ruimtelijk- en mobiliteitsbeleid is daarvoor nodig. De verschillende beleidsnota's op het gebied van ruimte en mobiliteit waren gedateerd door nieuwe politieke accenten en veranderende omstandigheden zoals de economische crisis, klimaatverandering en toenemende regionale verschillen onder andere omdat groei, stagnatie en krimp gelijktijdig plaatsvinden. De nieuwe Structuurvisie Infrastructuur en Ruimte (2012) geeft een nieuw, integraal kader voor het ruimtelijk- en mobiliteitsbeleid op rijksniveau en is de 'kapstok' voor bestaand en nieuw rijksbeleid met ruimtelijke consequenties.

In de structuurvisie Infrastructuur en Ruimte formuleert het Rijk drie hoofddoelen om Nederland concurrerend, bereikbaar, leefbaar & veilig te houden voor de middellange termijn (2028):

  • het vergroten van de concurrentiekracht van Nederland door het versterken van de ruimtelijk-economische structuur van Nederland;
  • het verbeteren, in stand houden en ruimtelijk zekerstellen van de bereikbaarheid waarbij de gebruiker voorop staat;
  • het waarborgen van een leefbare en veilige omgeving waarin unieke natuurlijke en cultuurhistorische waarden behouden zijn.

Het Besluit algemene regels ruimtelijke ordening (Barro) bevat vooral opdrachten aan de provincie om bepaalde onderwerpen nader uit te werken. Daarnaast bevat het regels waaraan bestemmingsplannen moeten voldoen. Het gaat om regels voor onder meer het bundelen van verstedelijking, de bufferzones, nationale landschappen, de Ecologische Hoofdstructuur, de kust, grote rivieren en militaire terreinen. Met de AMvB Ruimte maakt het Rijk proactief duidelijk waar provinciale verordeningen en gemeentelijke bestemmingsplannen aan moeten voldoen. In en nabij het bestemmingsplangebied zijn geen bepalingen uit het Barro relevant.

Toetsing en conclusie

Voorliggend bestemmingsplan ziet toe op de vervangende nieuwbouw van woningen. De nationale beleidsdoelstellingen worden niet geschaad of belemmerd. Er wordt gebruik gemaakt van beschikbare ruimte binnen bestaand stedelijk gebied, waarmee invulling wordt gegeven aan de algemene beleidsuitgangspunten zoals duurzame verstedelijking en zuinig ruimtegebruik. Het realiseren van de woningen past binnen de woningbouwplanning.

4.1.2 Ladder voor duurzame verstedelijking

De ladder van duurzame verstedelijking gaat in op het volgende.

a. Er wordt beschreven dat de voorgenomen stedelijke ontwikkeling voorziet in een actuele regionale behoefte.

Verwezen wordt naar het gemeentelijk beleid; daarin is een uitvoerige beschrijving opgenomen, waaruit blijkt dat sprake is van een actuele behoefte.

b. Indien uit de beschrijving, bedoeld in onderdeel a, blijkt dat sprake is van een actuele regionale behoefte, wordt beschreven in hoeverre in die behoefte binnen het bestaand stedelijk gebied van de betreffende regio kan worden voorzien door benutting van beschikbare gronden door herstructurering, transformatie of anderszins, en;

De ontwikkeling vindt volledig plaats binnen bestaand stedelijk gebied. Er is sprake van een locatie waar in het verleden reeds woningen zijn geamoveerd, omdat deze niet toekomstbestendig waren (niet duurzaam, hoog energieverbruik en sterk gedateerd). Ter plaatse zijn nu 8 levensloopbestendige seniorenwoningen voorzien. De ontwikkeling vindt plaats binnen de bestaande stedelijke structuur.

c. Indien uit de beschrijving, bedoeld in onderdeel b, blijkt dat de stedelijke ontwikkeling niet binnen het bestaand stedelijk gebied van de betreffende regio kan plaatsvinden, wordt beschreven in hoeverre wordt voorzien in die behoefte op locaties die, gebruikmakend van verschillende middelen van vervoer, passend ontsloten zijn of als zodanig worden ontwikkeld.

Niet van toepassing, nu wordt voorzien in een ontwikkeling binnen het bestaand stedelijk gebied.

4.2 Provinciaal beleid

4.2.1 Structuurvisie 2014 en Provinciale Ruimtelijke Verordening 2014

Analyse

De provincie Noord-Brabant heeft de Structuurvisie en de Provinciale Ruimtelijke Verordening vastgesteld. Noord-Brabant heeft de ambitie om een goede mix van wonen, werken en voorzieningen te creëren. De leefbaarheid moet van voldoende kwaliteit zijn. Dynamische stadscentra, eigen identiteit en regionale afstemming zijn enkele uitgangspunten. Daarnaast dienen er voldoende veilige en goed bereikbare werkplekken te zijn voor de bevolking. Steden moeten aantrekkelijk blijven voor diverse bevolkingsgroepen en dienen garant te staan voor het aanbieden van (bovenlokale) voorzieningen.

Toetsing en conclusie

Met het voorliggende bestemmingsplan wordt invulling gegeven aan de wens ontwikkelingen zoveel mogelijk binnen bestaand stedelijk gebied te laten plaatsvinden. Gebruik wordt gemaakt van een bestaande woningbouwlocatie binnen bestaand stedelijk gebied. Het beoogd woningbouwprogramma laat de herontwikkeling van 8 woningen ter plaatse toe. De voormalige woonbebouwing is inmiddels gesloopt. In hoofdstuk 5 is aangetoond dat sectorale aspecten geen belemmering vormen voor de herontwikkeling van woningbouw op de beoogde locatie. Het beoogd bouwplan (zie ook de beschrijving in paragraaf 3.1) past binnen de stedelijke context. Kwaliteitsverbetering betreft de herontwikkeling van een bestaande locatie. Hierdoor is opnieuw sprake van een attractief woon- en leefmilieu. Er vindt geen aantasting van de kwaliteit van het landschap plaats door de binnenstedelijke ligging van de locatie.

Verordening Ruimte 2014

In de Verordening Ruimte 2014 worden in artikel 3 regels gegeven ter bevordering van de ruimtelijke kwaliteit. Deze regels gelden voor alle bestemmingsplannen.

Analyse

in lid 1 is aangeduid dat:

  • a. het plan bijdraagt aan de zorg voor het behoud en de bevordering van de ruimtelijke kwaliteit van het daarbij betrokken gebied en de naaste omgeving;
  • b. toepassing is gegeven aan het principe van zorgvuldig ruimtegebruik.

Toetsing

  • a. Het plan past in de omgeving; het is zorgvuldig ingepast voor wat betreft maat en schaal en voldoet aan de door de gemeente gestelde eisen. In de anterieure overeenkomst is verder vastgesteld dat per sociale woning een bedrag van € 500,- wordt bijgedragen aan het gemeentelijk groenfonds. In de anterieure overeenkomst zijn verder afspraken gemaakt over de openbare ruimte in en nabij de directe omgeving van het plangebied. Gesteld wordt zodoende dat het project bijdraagt aan een verhoging van de ruimtelijke kwaliteit. In de toelichting is verder aandacht gegeven aan de reguliere sectorale en beleidsmatige aspecten, waaruit blijkt dat het project goed past in de omgeving, waarbij het project geen belemmering vormt voor de omgeving en vice versa.
  • b. Zorgvuldig ruimtegebruik blijkt uit het feit dat de ladder van duurzame verstedelijking is toegepast. De ontwikkeling vindt plaats binnen bestaand stedelijk gebied en heeft betrekking op vervangende nieuwbouw van enkele jaren geleden gesloopte woningen. De woningen die nu worden voorzien passen binnen de actuele behoefteraming van de gemeente en zijn bovendien levensloopbestendig.

4.3 Gemeentelijk beleid

4.3.1 Structuurvisie Sint-Michielsgestel 2025

Op basis van de gemeentelijke toekomstvisie “Zieners van 2025”, die op 13 oktober 2009 is vastgesteld, is de structuurvisie Sint-Michielsgestel 2025 opgesteld. Doel van de structuurvisie is het toekomstbeeld te vertalen in een ruimtelijk plan met status, dat voldoet aan de eisen uit de Wet ruimtelijke ordening. Tegelijk met de structuurvisie is de Woonvisie opgesteld. Dit document wordt in een volgende paragraaf behandeld.

Op basis van een analyse van de huidige situatie worden in de structuurvisie een aantal belangrijke kwaliteiten, maar ook knelpunten onderscheiden. Belangrijke kwaliteiten betreffen de ligging binnen de invloedssfeer van met name de stad 's-Hertogenbosch, maar ook Eindhoven en Tilburg, de landschappelijke en groene kwaliteiten zowel binnen de gemeente als daar net buiten (Groene Woud), de hiermee samenhangende recreatieve potentie en het prettig leefklimaat. De belangrijkste knelpunten betreffen de beperkte toegankelijkheid en bereikbaarheid van de natuur en recreatiegebieden, de lage differentiatie in woonmilieus, het ontbreken van een sterke ruimtelijke kwaliteit en identiteit van de dorpscentra en de ongeschikte locatie van bedrijven die qua aard en schaal niet op die specifieke plek thuis horen. De beperkte variatie in woonmilieus laat zich voelen in het beperkte woningaanbod voor starters/jongeren en senioren.

Om de kwaliteiten uit te bouwen, de kansen te benutten en de knelpunten en bedreigingen zo adequaat mogelijk te bestrijden, is een ruimtelijk structuurbeeld vervaardigd waaraan een aantal speerpunten is gekoppeld.

Eén van de speerpunten betreft de bouwopgave. Er wordt geconcludeerd dat de woningaantallen uit het gemeentelijk woningbouwprogramma tot 2020 (inmiddels tot en met 2021) in principe toereikend zijn om te bouwen voor migratiesaldo 0. Er is echter een bouwachterstand, waardoor de wachtlijsten zijn opgelopen.

Bovendien worden er verdere vertragingen verwacht. Er wordt voor gekozen de bouwopgave ook af te stemmen op de woningbehoefte uit 's-Hertogenbosch, omdat de gemeente deze stedelingen een goed woonmilieu op korte afstand van de stad te bieden heeft.

Dit leidt tot de keuze te bouwen bij alle dorpen. Dit heeft de wens als achtergrond om toekomst te bieden aan de dorpen, de dorpsgemeenschappen, de dorpsvoorzieningen en kleine werkgelegenheid. Dit heeft een sociale en humane achtergrond. De dorpen moeten de gelegenheid krijgen om op een waardige en respectvolle wijze en voor alle bevolkingsgroepen te bouwen aan hun eigen toekomst. Verder ligt de nadruk sterk op de kwalitatieve woningbehoefte. Er moet meer worden gebouwd naar de wensen en behoeften van de inwoners. Hiertoe is onder meer een woonwensenonderzoek uitgevoerd. Duidelijk is in elk geval dat kleinschalig wonen van belang is voor de dorpse uitstraling van de kernen.

In de structuurvisie wordt aangegeven dat er bijzondere aandacht nodig is voor woonzorgcombinaties, omdat hier een tekort aan zal ontstaan. De “rode” ontwikkelingen dienen te allen tijde in balans te zijn met de groene kwaliteiten van de gemeente. Deze kwaliteiten vormen de basis van de aantrekkelijkheid van de gemeente. Landschap is daarin belangrijk, maar ook duurzaamheid en ecologie. Duurzaamheid en ecologisch evenwicht worden als randvoorwaarden gehanteerd bij alle ruimtelijke ontwikkelingen.

De visie op hoofdlijnen is uitgewerkt per gemeentelijke kern. De kern Sint-Michielsgestel is een uitgesproken forensendorp geworden, waar Koninklijke Kentalis (voorheen Instituut voor Doven) sinds jaar en dag één van de belangrijkste werkgevers is. De kern Sint-Michielsgestel met circa 10.500 inwoners heeft een goed voorzieningenniveau op het gebied van onderwijs, sport, bedrijvigheid, zorg, sociaal-culturele en maatschappelijke voorzieningen. Het centrumplan moet leiden tot en verbetering van het voorzieningenaanbod en de openbare beleving, waardoor een aantrekkelijk woon-, winkel- en verblijfsgebied ontstaat.

4.3.2 Woonvisie 2010-2025 (Verdiepingsslag)

Tijdens de raadsvergadering van 13 oktober 2011 heeft de raad de nieuwe Structuurvisie en Woonvisie vastgesteld. Daarbij heeft de gemeenteraad het college verzocht om de Woonvisie verder uit te werken tot op het niveau van de kerkdorpen. Met deze verdere uitwerking van de Woonvisie is beoogd om de woningbouwbehoefte per kerkdorp vast te stellen. Door deze verdere uitwerking van de Woonvisie kan het woningbouwprogramma beter worden afgestemd op de woningbouwbehoefte.

Het rapport “Woningbouw- en toetsingskader voor de dorpen” en de “Uitvoeringsnota Wonen voor het jaar 2013” met daarin de verdere uitwerking van de Woonvisie zijn tezamen het resultaat van deze verdiepingsslag. De Uitvoeringsnota wordt jaarlijks geactualiseerd.

Woningbouw- en toetsingskader voor de dorpen

Het woningbouw- en toetsingskader voor de dorpen bevat een analyse van bestaand beleid en beschikbare gegevens betreffende de woningmarkt met als doel enerzijds duidelijk maken wat de meer specifieke woonbehoeften per dorp zijn. Anderzijds moet worden bepaald wat nodig is aan woningbouw per dorp om aan de behoeften op lange en korte termijn tegemoet te komen.

Voor de dorpen wordt een richtinggevend woningbouwkader meegegeven, gericht op de doelgroepen starters, doorstromers en ouderen:

  • Voor starters wordt voorgesteld een meersporenbeleid te voeren. Een te zwaar accent in de nieuwbouw leidt tot meer van hetzelfde dan al aanwezig is in de voorraad. In beginsel zijn er voldoende kleine gezinswoningen geschikt voor starters aanwezig, maar ze komen onvoldoende beschikbaar voor verhuur of koop.
  • Andere sporen die het voor starters makkelijker moeten maken om toe te treden tot de woningmarkt zijn onder andere: eventuele verkoop van huurwoningen (hoewel het aandeel beperkt is), bouwen voor de doorstroming waardoor er lucht komt in de goedkopere marktsegmenten en (indien mogelijk) het faciliteren van (collectief) particulier opdrachtgeverschap.
  • Ruimte voor jonge doorstromers: de doorstromers vormen de grootste doelgroep binnen de gemeente. Daarbij moet onderscheid gemaakt worden in doorstromers tot ongeveer 60 jaar en de groep daarboven. De groep doorstromers tot 60 jaar zijn de mensen die een kwaliteitsstap willen zetten in hun wooncarrière en zorgen voor vrijkomend aanbod. Zij willen vaak een ruime woning met meer comfort en/of luxe. De oudere groep is voornamelijk op zoek naar een functioneel geschikte woning.
  • Inspelen op vergrijzing: door voldoende én gedifferentieerd aanbod levensloopbestendige woningen nabij voorzieningen voor oudere doorstromers en mensen met een zorgvraag te bieden. Dit is niet overal haalbaar. Voor de mensen die in de eigen woning willen blijven wonen is het zaak dat de benodigde (zorg)dienstverlening en hulpverlening zoveel mogelijk aan huis wordt aangeboden. Het actief stimuleren van woningaanpassing (zowel in advies als promotie) is een voor de hand liggende doelstelling.

Bovenstaand richtinggevend woningbouwkader is vertaald naar de verschillende dorpen. Voor Sint-Michielsgestel is het volgende opgenomen. Een van de belangrijkste kernkwaliteiten van Sint-Michielsgestel is het feit dat het dorp naam en faam heeft: je kunt er wonnen in een landelijk, groen en 'beschermd' woonmilieu, ook nog eens in de nabijheid van belangrijke voorzieningen. Hierdoor is Sint-Michielsgestel ook in staat vestigers aan te trekken en te concurreren met 's-Hertogenbosch en woonplaatsen als Vught, vooral op een gunstiger prijs- kwaliteitverhouding.

Er is behoorlijk wat keus op de lokale woningmarkt. Waarvoor opgelet moet worden is dat de prijssprongen niet te groot worden, waardoor de woonconsument noodgedwongen moet blijven zitten waar hij zit. De sprongen van een rijwoning nar een tweekapper, of tweekapper naar vrijstaand, zijn substantieel. Aandacht voor meer prijsdiversiteit is gewenst.

De nog op stapel staande plannen zijn vrijwel allemaal inbreidingslocaties met als gevolg dat er gestapeld wordt gebouwd en hetgeen grondgebonden wordt gerealiseerd een stenig karakter krijgt. Dit staat in contrast met de overwegend groene woonmilieus. Van belang is dat deze wat meer stedelijk dorpse nieuwbouwkwaliteit (relatief nieuw voor de gemeente) ook goed tot uitdrukking komt en zo toch kan concurreren met aanbod in de bestaande woningvoorraad.

In kwantitatieve zin is gesteld dat er in de periode 2012 tot 2025 in Sint-Michielsgestel ca. 380 woningen aan de woningvoorraad moeten worden toegevoegd.

Uitvoeringsnota Woningbouw voor het jaar 2013

De uitvoeringsnota Woningbouw voor het jaar 2013 is een concretisering van het rapport “Woningbouw- en toetsingskader voor de dorpen”. De plancapaciteit in de dorpen wordt geconfronteerd met het richtinggevend woningbouwkader dat in het rapport “Woningbouw- en toetsingskader voor de dorpen” is opgenomen en geeft concreet aan waar en hoe bijsturing gewenst is. Hierbij wordt specifiek ingegaan op de verschillende woningbouwplannen. In totaal stelt het kader de bouw van ca. 380 woningen voor. De planvoorraad voor Sint-Michielsgestel bedroeg 448 woningen, waarvan 346 'hard'.

In de uitvoeringsnota wordt geconcludeerd:

  • In het huursegment wordt redelijk gebouwd.
  • Het aantal sociale eengezinswoningen blijft achter, zodat dit segment de nodige aandacht behoeft.
  • Het goedkope koopsegment vraagt eveneens aandacht.
  • Het aantal middeldure appartementen is naar verhouding hoog.
  • Het aantal dure eengezinswoningen is naar verhouding hoog.
  • Omdat de plancapaciteit voor een groot deel hard is, zijn er weinig mogelijkheden tot bijstelling.

Het project Spijt/Hondsklauw, dat voorziet in de realisatie van 8 sociale huurwoningen voor senioren, past in de aanbevelingen van de uitvoeringsnota. Het project is een 'zacht' plan, omdat er nog geen bestemmingsplan is vastgesteld. Het plan vormt een goede aanvulling op de 'harde' plannen, vanwege de doelgroep 'senioren sociale huur'. De raad heeft op 16 mei 2013 besloten het plan op te nemen in het gemeentelijk meerjaren woningbouwprogramma 2013 tot en met 2021.

4.4 Conclusies

De geldende beleidskaders vormen, met uitzondering van het feitelijke juridisch-planologische regime, waarin de gebruiks- en bouwregels een beperking vormen, geen belemmering voor de voorgestane herontwikkeling van de locatie aan het Spijt. Onder andere de volgende overwegingen liggen hieraan ten grondslag.

  • Er is sprake van bestaand stedelijk gebied. Er wordt geïnvesteerd in een goede kwaliteit van de woonomgeving, waarbij de mate van investering is vastgelegd in een anterieure overeenkomst.
  • Het rijks, provinciaal en gemeentelijk beleid is gericht op het versterken van bestaand stedelijk gebied door middel van zuinig ruimtegebruik en gebruik maken van inbreidingslocaties.
  • Het programma sluit aan op het gewenste woningbouwprogramma zoals in het gemeentelijk beleid is vastgelegd. Er wordt bovendien voldaan aan de ladder van duurzame verstedelijking.
  • Er is sprake van een woonprogramma voor een specifieke doelgroep. Deze locatie ligt nabij een locatie (De beemden) waar deze doelgroep - op termijn en voor zover nodig- op korte afstand de zorg kan halen die benodigd zou kunnen zijn. De locatie ligt ook in het centrum van de kern nabij andere centrumvoorzieningen.

Hoofdstuk 5 Milieu- en waardenaspecten

5.1 Archeologie

5.1.1 Beleid en normstelling

De gemeente heeft op 14 oktober 2010 besloten tot de vaststelling van:

  • de Erfgoedverordening gemeente Sint-Michielsgestel 2010;
  • de archeologische verwachtingskaart;
  • de archeologische beleidsadvieskaart;
  • het archeologiebeleid gemeente Sint-Michielsgestel.
5.1.2 Toetsing / onderzoek

In december 2013 is door Aeres Milieu een archeologisch bureauonderzoek uitgevoerd voor de locatie Spijt (ong.) te Sint-Michielsgestel. Dit bureauonderzoek resulteerde in een specifiek verwachtingsmodel voor deze locatie. Door het bevoegd gezag is in januari 2014 geadviseerd dat ter plaatse van het plangebied, voorafgaand aan bodemingrepen vervolgonderzoek in de vorm van proefboringen wenselijk was.

Op basis van de bekende gegevens omtrent archeologische waarden in het gebied en de geografische ligging moet worden geconcludeerd dat voor het plangebied een hoge verwachting geldt voor zowel vuursteenvindplaatsen uit het laat-paleolithicum tot en met het mesolithicum als voor nederzettingsresten uit de periode neolithicum tot en met de vroege middeleeuwen en uit de periode late middeleeuwen tot en met de nieuwe tijd. Deze verwachting vloeit voort uit de landschappelijke ligging van het plangebied op een hoger gelegen dekzandvlakte in combinatie met de aanwezigheid van een plaggendek dat een beschermende (afdekkende) invloed heeft op eventueel aanwezige archeologische resten. De hoge verwachting voor de genoemde perioden wordt versterkt door het grote aantal vondsten uit de periode neolithicum tot en met de nieuwe tijd die in de directe omgeving van het plangebied bekend zijn.

In januari 2013 is ter plaatse een verkennend booronderzoek uitgevoerd om het opgestelde verwachtingsmodel te toetsen. Dit onderzoek is opgenomen in bijlage 1.

Tijdens het veldonderzoek is een A-C profiel aangetroffen, waarbij de top van de originele bodemopbouw is opgenomen in het verstoorde pakket. Hierdoor zullen naar verwachting geen archeologische resten in situ behouden zijn, indien deze in eerste instantie überhaupt al aanwezig waren. Gezien de afwezigheid van een intact bodemprofiel vormt de voorgenomen ingreep geen bedreiging voor het bodemarchief. Daarom luidt het advies dat verder archeologisch onderzoek niet noodzakelijk wordt geacht.

5.1.3 Conclusie

Op basis van de beantwoording van de onderzoeksvragen uit de rapportage wordt het volgende geconcludeerd.

  • Is er sprake van stratigrafische lagen die potentieel archeologische waarden kunnen bevatten?

    Nee. Het terrein is verstoord tot in de C-Horizont.

  • In hoeverre zijn deze lagen intact en hoe reflecteert dit de kwaliteit van de mogelijk aanwezige archeologische resten?

    Gezien de verstoorde aard zullen geen in situ resten verwacht worden.

  • Wat is de diepteligging van mogelijke archeologische resten en wat is de daadwerkelijke bedreiging van deze resten door de voorgenomen bodemingrepen?

    Gezien de afwezigheid van een intact bodemprofiel vormt de voorgenomen ingreep geen bedreiging voor het bodemarchief.

Archeologie vormt geen belemmering voor de voorgenomen ontwikkeling.

De gemeente heeft als bevoegd gezag de onderzoeken beoordeeld. Daarbij deelt de gemeente de conclusies. De selectiebesluiten ten aanzien van het aanvullend onderzoek (22 februari 2014) en het selectiebesluit geen verder onderzoek uit te voeren (17 maart 2014) zijn opgenomen in bijlagen 2 en 3.

Inmiddels is de Heemkundekring gecontacteerd. De Heemkundekring heeft echter geen aanleiding gezien te reageren. In overleg met de gemeente is gemeend dat dit betekent dat de Heemkundekring heeft ingestemd met de rapportage.

5.2 Cultuurhistorie

5.2.1 Beleid en normstelling

Wet modernisering monumentenzorg

De Wet modernisering monumentenzorg heeft onder andere tot doel dat cultuurhistorische waarden in een vroegtijdig stadium in een ruimtelijk plan worden betrokken. In de toelichting van een ruimtelijk plan dient een beschrijving opgenomen te worden van de in het plangebied voorkomende cultuurhistorische waarden. Indien het gemeentebestuur dat wenselijk acht, kan ervoor gekozen worden om de aanwezige cultuurhistorische waarden te beschermen in een eventuele regeling (indien er een bestemmingsplan opgesteld wordt).

In het Besluit ruimtelijke ordening (artikel 3.1.6 Bro) staat expliciet dat niet alleen archeologie maar ook 'in het gebied aanwezige cultuurhistorische waarden' moeten worden betrokken bij de belangenafweging en hierover verantwoording moet worden afgelegd in de plantoelichting.

De gemeente heeft op 14 oktober 2010 besloten tot de vaststelling van de Erfgoedverordening gemeente Sint-Michielsgestel 2010. Tevens beschikt de gemeente over de welstandsnota, waarin actuele cultuurhistorische waarden zijn vastgesteld.

De provincie Noord-Brabant

De provincie koestert haar ruimtelijk erfgoed, zoals landgoederen, heidevelden, oude klooster- en fabriekscomplexen, vestingwerken, monumentale bomen en bodemvondsten. De provincie ziet dit erfgoed als belangrijk onderdeel van haar identiteit en wil het een plaats geven in de verdere ontwikkeling van Brabant. Daarom heeft ze haar ruimtelijk erfgoed opgenomen op de Cultuurhistorische Waardenkaart (CHW).

Provinciaal belang

Op de CHW is ook het 'provinciaal cultuurhistorisch belang' weergegeven. Het gaat hierbij om erfgoed dat van belang is voor de regionale identiteit. Het provinciaal cultuurhistorisch belang hangt nauw samen met het provinciaal ruimtelijk belang, zoals benoemd in de provinciale Structuurvisie ruimtelijke ordening. Het is beperkt tot het landelijk gebied, waar de provincie haar belangrijkste taak heeft. De kaartlagen ‘cultuurhistorische vlakken’ en ‘complexen van cultuurhistorisch belang’ zijn ook opgenomen in de Verordening ruimte Noord-Brabant.

Overige erfgoedwaarden

De CHW geeft verder de meest recente erfgoedinformatie van het rijk, met archeologische en bouwkundige monumenten, met archeologische verwachtingswaarden en met beschermde stads- en dorpsgezichten.

Toetsing / onderzoek

Welstandsnota

Het initiatief is getoetst aan de gemeentelijke welstandsnota. Geconcludeerd is dat het project past binnen de omgeving. De omgeving maakt deel uit van de zogenoemde tuindorpen. Er is sprake van geconcentreerde ontwikkeling. Langs onder meer het Spijt, de Heesakkerstraat, Hondsklauw, Beekgraaf, Molenbergstraat zijn deze woningen terug te vinden. Deze bebouwing bestaat uit kleine rijtjes, veelal in twee bouwlagen met kap (zadeldak). De verkaveling is ruim. Vooral aan de achterzijde van de woningen komen diepe achtertuinen voor. Deze vervulden vroeger en ten dele ook nu de functie van moestuin. De detaillering van de gevels is eenvoudig. De gevels hebben een overwegend gesloten karakter, gemetselde muren en bestaan uit bakstenen en dakpannen. De in deze periode gerealiseerde vrijstaande woningen binnen deze zone tonen een zekere vormovereenkomst met de geschakelde woningen. Er zijn geen specifieke cultuurhistorische waarden benoemd.

Provinciaal beleid

afbeelding "i_NL.IMRO.0845.BP2014SMGCENTRP105-VA01_0007.jpg"

Figuur 5.1 Uitsnede Cultuurhistorische waardenkaart Provincie

Op basis van de CHW van de provincie worden de volgende constateringen gedaan (zie ook figuur 5.1).

  • Het Spijt is lijn met redelijk hoge cultuurhistorische kwaliteit. Deze lijn wordt niet in het bijzonder aangetast. De al geamoveerde woningen veroorzaken een tijdelijke onderbreking van de straatwand, maar door de beoogde herbouw wordt de lijn weer terug opgepakt en in standgehouden.
  • De bebouwing is niet van cultuurhistorische waarde.
  • Het perceel maakt geen onderdeel uit van de historische kern Sint-Michielsgestel.

Conclusie

In het plangebied vormt cultuurhistorie geen belemmering voor ontwikkeling.

5.3 Bodem

5.3.1 Beleid en normstelling

Besluit ruimtelijke ordening

Op grond van het Besluit ruimtelijke ordening dient in verband met de uitvoerbaarheid van een plan rekening gehouden te worden met de bodemgesteldheid in het plangebied. Bij functiewijzigingen dient te worden bekeken of de bodemkwaliteit voldoende is voor de beoogde functie en moet worden vastgesteld of er sprake is van een saneringsnoodzaak. In de Wet bodembescherming is bepaald dat indien de desbetreffende bodemkwaliteit niet voldoet aan de norm voor de beoogde functie, de grond zodanig dient te worden gesaneerd dat zij kan worden gebruikt door de desbetreffende functie (functiegericht saneren). Nieuwe bestemmingen dienen bij voorkeur op schone grond te worden gerealiseerd.

Ten behoeve van ruimtelijke plannen dient ten minste het eerste deel van het verkennend bodemonderzoek, het historisch onderzoek, te worden verricht. Indien uit het historisch onderzoek wordt geconcludeerd dat op de betreffende locatie sprake is geweest van activiteiten met een verhoogd risico op verontreiniging dient een volledig verkennend bodemonderzoek te worden uitgevoerd.

Nota Bodembeleid en Regionale Bodemkwaliteitskaart

Het doel van de regionale bodemkwaliteitskaart en Nota bodembeleid is het vastleggen van het bodembeleid voor de deelnemende gemeenten conform het Besluit bodemkwaliteit en de Regeling bodemkwaliteit. Door de vaststelling van bodemkwaliteitskaart en Nota bodembeleid wordt het verplaatsen van grond binnen de regio van de deelnemende gemeenten, waaronder Sint-Michielsgestel eenvoudiger en goedkoper. Daarnaast zijn lokale bodemambities en bodemthema's opgenomen.

5.3.2 Toetsing / onderzoek

Door MILON bv te Schijndel is in opdracht van de heer ing. E. Bressers, namens Huis & Erf te Schijndel, december 2013 en januari 2014 een verkennend bodemonderzoek uitgevoerd (zie bijlage 4).

De onderzoekslocatie is gelegen aan het Spijt ong. te Sint-Michielsgestel. Het onderzoek is uitgevoerd in verband met de bouwplannen op de locatie, met als leidraad het onderzoeksprotocol NEN 5740. Omdat op de locatie al een bodemonderzoek is uitgevoerd (MILON bv, rapport met nummer 25487, d.d. 26 september 2005) hoeft conform het beleid van de gemeente Sint-Michielsgestel alleen de bovengrond geactualiseerd te worden. Hieronder zijn de onderzoeksresultaten samengevat.

Vooronderzoek

De onderzoekslocatie bevindt zich in het centrum van Sint-Michielsgestel. De locatie is braakliggend en geheel onbebouwd. In het verleden hebben woonhuizen op de onderzoekslocatie gelegen. Op basis van het vooronderzoek wordt ter plaatse van de onderzoekslocatie geen bodemverontreiniging verwacht. De totale oppervlakte van de onderzoekslocatie bedraagt circa 2.030 m2.

Onderzoeksresultaten

Tijdens de veldwerkzaamheden zijn in de bovengrond bijmengingen puin waargenomen. Op de locatie is een depot grond gelegen. De herkomst van het depot is onbekend en is niet meegenomen binnen dit onderzoek. Voor het overige zijn geen bijzonderheden waargenomen die duiden op een mogelijke verontreiniging van de bodem. Er is geen asbestverdacht materiaal aangetroffen. Hierna zijn de onderzoeksresultaten grond en grondwater samengevat.

Onderzoeksresultaten grond  
bovengrond   kwik en lood   licht verhoogd  

Conclusie en aanbevelingen

Het onderzoek heeft geleid tot een goed beeld van de bodemkwaliteit ter plaatse van de onderzoekslocatie. Een noemenswaardige verontreiniging is niet aangetroffen. Wat betreft de milieuhygiënische bodemkwaliteit bestaat er geen belemmering voor het huidige en toekomstige gebruik van de locatie.

Vervolgonderzoek naar de licht verhoogde concentraties wordt niet zinvol geacht. Dit verkennend

bodemonderzoek is geen bewijsmiddel zoals bedoeld in het Besluit bodemkwaliteit.

Afhankelijk van de bestemming en toepassing bij afvoer van de grond kan een partijkeuring

(AP04) noodzakelijk zijn.

5.3.3 Conclusie

In het onderzoek wordt verwezen naar een partij grond op de locatie waarvan de herkomst niet bekend is. Deze partij grond is afkomstig van de bouw  (de Beemden, Spijt 32 t/m 38) aan de overkant in 2005 (eigenaar Huis en Erf).

Voor deze locatie is in 2003 onderzoek gedaan waaruit wordt geconcludeerd dat er geen verontreiniging in de boven en ondergrond aanwezig is. Het is daarom niet waarschijnlijk dat deze partij grond is verontreinigd, en vormt daarom geen belemmering.

Gezien ook de overige resultaten van het onderzoek van MILON bv bestaan geen belemmeringen ten aanzien van de voorgenomen ontwikkeling.

5.4 Verkeer

5.4.1 Verkeersstructuur

Ontsluiting gemotoriseerd verkeer

De locatie wordt voor gemotoriseerd verkeer ontsloten door het Spijt en Hondsklauw. Het Spijt en Hondsklauw zijn erftoegangswegen met een dorps profiel (rijloper met gemengde verkeersafwikkeling en aan beide zijden een trottoir). Ter plekke geldt een snelheid van 30 km/uur. De primaire ontsluiting is via Spijt gericht op de Schijndelseweg. Deze gebiedsontsluitingsweg maakt deel uit van de hoofdinfrastructuur binnen de gemeente Sint Michielsgestel. In oostelijke richting loopt de weg over in de Gestelseweg, die aansluit op de provinciale weg N617. Via de N617 wordt verder ontsloten richting Schijndel (in het zuidoosten) en de A2 (in het noorden). In westelijke richting sluit de Schijndelseweg aan op het Petrus Dondersplein/Nieuwstraat en Esscheweg / Theerestraat. Deze wegen leiden respectievelijk naar het centrumgebied en de wijk Theereheide.

De Schijndelseweg is gecategoriseerd als gebiedsontsluitingsweg binnen de bebouwde kom met een maximum snelheid van 50 km/uur. Deze weg maakt onderdeel uit van de hoofdinfrastructuur binnen de gemeente Sint Michielsgestel.

Ontsluiting langzaam verkeer

Het langzaam verkeer wordt afgewikkeld over dezelfde wegen als het gemotoriseerd verkeer. Ter plaatse wordt het fietsverkeer gemengd afgewikkeld met het autoverkeer. Voor voetgangers is aan weerszijden van de weg een trottoir aanwezig. De Schijndelseweg, onderdeel van het regionaal fietsnetwerk, beschikt over fietsstroken op de rijbaan.

Ontsluiting openbaar vervoer

In nabijheid van de ontwikkeling liggen bushaltes aan de Schijndelseweg, ter hoogte van het kruispunt met De Beemden en aan de Nieuwstraat. Hier halteren bussen in de richting van Eindhoven, Den Bosch, Oirschot en Veghel.

afbeelding "i_NL.IMRO.0845.BP2014SMGCENTRP105-VA01_0008.jpg"

Figuur 5.2 Verkeersstructuur omgeving

5.4.2 Verkeersgeneratie en verkeersafwikkeling

Verkeersaantrekkende werking

Binnen het voorliggende bestemmingsplan wordt de mogelijkheid geboden 8 grondgebonden woningen te realiseren. De nieuwe ontwikkeling heeft een verkeersaantrekkende werking die in de gebruikte verkeersintensiteiten voor de sectorale toetsen is meegenomen.

De verkeersgeneratie van de ontwikkeling is bepaald op basis van CROW publicatie 317 ('Kencijfers parkeren en verkeersgeneratie', 2012). Deze is afgestemd op het aantal te ontwikkelen woningen en het gebiedstype waarin de ontwikkeling ligt. De beoogde ontwikkeling ligt in de schil rond het centrum van Sint Michielsgestel. Verder geldt volgens het CBS een ligging in een weinig stedelijke omgeving. Voor grondgebonden geschakelde woningen geldt op basis daarvan een verkeersgeneratie van 6,9 tot 7,7 mvt/weekdagetmaal. De verkeersgeneratie voor de 8 te ontwikkelen woningen bedraagt zodoende 55 tot 62 mvt/weekdagetmaal.

Verkeersintensiteit

De verkeersintensiteiten (exclusief beoogde ontwikkeling) op het Spijt en de Schijndelseweg zijn ontleend aan verkeersmodelcijfers van de gemeente Sint-Michielsgestel. Dit verkeersmodel is tevens gebruikt voor het bestemmingsplan Centrum Sint-Michielsgestel 2010. Hierin is een verkeersprognose opgenomen voor 2020. Op basis van een autonome groei van 1% per jaar is een doorrekening gemaakt naar het planjaar 2024. Vervolgens is hier de maximale verkeersgeneratie van de ontwikkeling bij opgeteld. Het is niet bekend hoe de verkeersgeneratie van de ontwikkeling zich over het wegennet zal verdelen. Er is gekozen voor een slechtst denkbaar scenario die uitgaat van een maximale toename op de relevante wegen (Spijt, Schijndelseweg). In tabel 5.1 zijn de verkeersintensiteiten van de relevante wegen inclusief en exclusief ontwikkeling weergegeven.

Tabel 5.1. Verkeersintensiteiten (afgerond op tientallen)

weg   2020   2024   2024 incl. ontwikkeling  
Spijt (Heesakkerstraat – Beekgraaf)   1.760   1.830   1.900  
Schijndelseweg (De Beemden – Spijt)   9.830   10.230   10.300  

Geconstateerd wordt dat de capaciteit van de wegen toereikend is voor het opvangen van de toename van de verkeersintensiteit die voortkomt uit de beoogde ontwikkeling.

5.4.3 Parkeren

Het plan voorziet in de realisatie van acht grondgebonden seniorenwoningen. Voor geschakelde woningen geldt binnen het omschreven gebiedstype een parkeernorm van 1,4 tot 2,2 parkeerplaatsen per woning. Omdat het de realisatie van seniorenwoningen betreft kan uitgegaan worden van de minimale norm. Dit levert een parkeerbehoefte op van 12 parkeerplaatsen.

De gemeente heeft als voorwaarde gesteld dat, omdat het seniorenwoningen betreft, ten minste 2 van het totaal aantal te ontwikkelen parkeerplaatsen binnen het plan invalidenparkeerplaatsen moet betreffen. De 12 parkeerplaatsen, waarvan 2 ten behoeve van het parkeren voor minder validen, worden gerealiseerd op het achterterrein. Zodoende wordt de parkeerbehoefte opgevangen binnen het plangebied. Er wordt geen beroep gedaan op de al aanwezige parkeercapaciteit rondom de ontwikkeling, waardoor de parkeerdruk in het omliggend gebied niet zal toenemen.

Om de aanleg van de parkeerplaatsen te garanderen, is dit in de regels van dit bestemmingsplan dwingend voorgeschreven (zie ook paragraaf 6.3.3).

5.4.4 Conclusie

Het aspect verkeer en parkeren vormt geen belemmering voor de vaststelling van het bestemmingsplan.

5.5 Geluid

Het plan voorziet in de realisatie van 8 grondgebonden woningen. Woningen zijn volgens de Wet geluidhinder geluidgevoelige functies waarvoor, indien deze gelegen zijn binnen de geluidzone van een gezoneerde weg, akoestisch onderzoek uitgevoerd moet worden. De woningen zijn gelegen binnen de geluidzone van de Schijndelseweg.

5.5.1 Beleid en normstelling

Normstelling

Langs alle wegen - met uitzondering van 30 km/uur-wegen en woonerven - bevinden zich op grond van de Wet geluidhinder (Wgh) geluidzones waarbinnen de geluidhinder vanwege de weg moet worden getoetst. De breedte van de geluidzone is afhankelijk van het aantal rijstroken en van binnen- of buitenstedelijke ligging. De geluidhinder wordt berekend aan de hand van de Europese dosismaat Lden (L day-evening-night). Deze dosismaat wordt weergegeven in dB. Deze waarde vertegenwoordigt het gemiddelde geluidniveau over een etmaal.

Nieuwe situaties

Voor de geluidbelasting aan de buitengevels van woningen binnen de wettelijke geluidzone van een weg geldt een voorkeursgrenswaarde van 48 dB. In bepaalde gevallen is vaststelling van een hogere waarde mogelijk. Hogere grenswaarden kunnen alleen worden verleend nadat is onderbouwd dat maatregelen om de geluidbelasting aan de gevel van geluidgevoelige bestemmingen terug te dringen onvoldoende doeltreffend zijn, dan wel overwegende bezwaren ontmoeten van stedenbouwkundige, verkeerskundige, vervoerskundige, landschappelijke of financiële aard. Deze hogere grenswaarde mag de uiterste grenswaarde niet te boven gaan. De uiterste grenswaarde is op grond van artikel 83 Wgh afhankelijk van de ligging van de woningen (binnen- of buitenstedelijk). Voor de beoogde binnenstedelijke ontwikkeling geldt een maximaal toelaatbare hogere waarde van 63 dB voor wegverkeerslawaai. De geluidwaarde binnen de geluidsgevoelige bestemming (binnenwaarde) dient in alle gevallen te voldoen aan de in het Bouwbesluit neergelegde norm van 33 dB.

30 km/uur-wegen

Zoals gesteld zijn wegen met een maximumsnelheid van 30 km/uur of lager op basis van de Wgh niet-gezoneerd. Akoestisch onderzoek zou achterwege kunnen blijven. Op basis van jurisprudentie dient in het kader van een goede ruimtelijke ordening inzichtelijk te worden gemaakt of er sprake is van een aanvaardbaar akoestisch klimaat. Indien dit niet het geval is, dient te worden onderbouwd of maatregelen ter beheersing van de geluidbelasting aan de gevels noodzakelijk, mogelijk en/of doelmatig zijn. Ter onderbouwing van de aanvaardbaarheid van de geluidbelasting wordt bij gebrek aan wettelijke normen aangesloten bij de benaderingswijze die de Wgh hanteert voor gezoneerde wegen. Vanuit dat oogpunt wordt de voorkeursgrenswaarde en de uiterste grenswaarde als referentiekader gehanteerd. De voorkeursgrenswaarde geldt hierbij als richtwaarde en de uiterste grenswaarde als maximaal aanvaardbare waarde. In dit kader is rekening gehouden met de ligging van het pand aan het Spijt. Op deze weg geldt een maximumsnelheid van 30 km/uur.

Aftrek ex artikel 3.4 RMG 2012

Krachtens artikel 3.4 van het Reken- en Meetvoorschrift Geluidhinder (RMG) 2012 mag het berekende geluidniveau van het wegverkeer worden gecorrigeerd in verband met de verwachting dat motorvoertuigen in de toekomst stiller zullen worden. Voor wegen met een representatief te achten snelheid lager dan 70 km/uur geldt een aftrek van 5 dB. Voor wegen met een representatief te achten snelheid van 70 km/uur of hoger geldt een aftrek van 2 dB. Op de voor de ontwikkeling relevante wegen (Schijndelseweg en het Spijt), gelden maximumsnelheden van 50 km/uur en 30 km/uur. Hiervoor vindt dus een aftrek plaats van 5 dB.

5.5.2 Toetsing / onderzoek

Uitgangspunten

De ontwikkeling is gelegen binnen de wettelijke geluidzone van de Schijndelseweg. Deze weg heeft een geluidzone van 200 meter uitgaande van twee rijstroken en een binnenstedelijke ligging. Tevens is de ontwikkeling direct aan het Spijt gelegen. Deze weg is niet gezoneerd (maximumsnelheid 30 km/uur). Voor deze weg is in het kader van een goede ruimtelijke ordening beoordeeld of er sprake is van een aanvaardbaar akoestisch klimaat. De woningen worden uitgevoerd in één bouwlaag met kap. Zodoende is een berekening uitgevoerd voor de waarneemhoogten 1,5 meter en 4,5 meter.

Voor het akoestisch onderzoek dienen de verkeersintensiteiten voor het jaar 2024 gehanteerd te worden. Voor de intensiteiten op de relevante wegen is aangesloten bij de verkeersintensiteiten uit de verkeersparagraaf (tabel 5.1, kolom 4). De gehanteerde voertuig- en etmaalverdeling zijn ontleend aan het verkeersmodel Sint-Michielsgestel. Deze zijn weergegeven in tabel 5.2.

Tabel 5.2. Voertuig- en etmaalverdeling

weg   voertuigverdeling (%)
(Licht/Middelzwaar/Zwaar)  
dag-, avond-, nachtpercentages  
Schijndelseweg   Dag: 90,36/6,28/3,35
Avond: 90,36/6,28/3,35
Nacht: 90,36/6,28/3,35  

6,70/2,70/1,10  
Spijt   Dag: 95,23/4,53/0,24
Avond: 95,23/4,53/0,24
Nacht: 95,23/4,53/0,24  

7,00/2,60/0,70  

De maximumsnelheid op de Schijndelseweg bedraagt 50 km/uur en op het Spijt 30 km/uur. Op de Schijndelseweg is de verhardingssoort referentieasfalt / dicht asfalt beton (DAB) toegepast en op het Spijt een klinkerverharding.

Rekenmethode

Het akoestisch onderzoek is uitgevoerd volgens Standaard Rekenmethode I (SRM I) conform het Reken- en Meetvoorschrift Geluidhinder 2012. In bijlage 5) zijn de betreffende rekenbladen met de invoergegevens en de resultaten opgenomen. Voor de Schijndelseweg is de 48 dB contour berekend. Tussen de ontwikkeling en deze weg is afschermende bebouwing aanwezig. Binnen het SRM I model wordt geen rekening gehouden met deze afscherming. Met een berekening van de 48 dB contour kan echter wel inzichtelijk gemaakt worden of de ontwikkeling binnen deze contour ligt. Voor het Spijt is een berekening gemaakt van de geluidbelasting op de gevel van het pand, waarbij de kortste afstand tot de bron is aangehouden (worstcase benadering).

Gezoneerde Schijndelseweg

De 48 dB contour van de Schijndelseweg ligt op maximaal 77 meter van de as van de weg bij een maatgevende waarneemhoogte van 4,5 meter. De kortste afstand tussen de ontwikkeling en de as van de weg bedraagt circa 160 meter. De ontwikkeling ligt dus buiten de 48 dB contour van de Schijndelseweg. De voorkeursgrenswaarde wordt, ook uitgaande van een vrije veld situatie, niet overschreden.

Gedezoneerde Spijt

In tabel 5.3. is de geluidbelasting op de gevels van de nieuwe woningen aan het Spijt weergegeven, inclusief de afstand tot de wegas en de verschillende waarneemhoogtes.

Tabel 5.3. Overzicht geluidbelasting gevel

  afstand wegas   waarneemhoogte   geluidbelasting  
Spijt   6,5 meter   1,5 meter   53 dB  
    4,5 meter   53 dB  

De hoogst berekende geluidbelasting aan de gevels van de nieuwe woningen ten gevolge van het wegverkeerslawaai van de niet gezoneerde Spijt bedraagt 53 dB. De geluidbelasting ligt lager dan de uiterste grenswaarde van 63 dB.

Maatregelonderzoek Spijt

Voor de ontwikkeling is sprake van een hogere geluidbelasting dan 48 dB ten gevolge van het Spijt. Bezien is of met maatregelen de geluidbelasting doelmatig kan worden teruggedrongen. Er is een aantal maatregelen ter reductie van de geluidbelasting denkbaar. Een mogelijkheid is om de functie van de weg, samenstelling van het verkeer of de maximumsnelheid te wijzigen. De functie als erftoegangsweg met de daarbij behorende maximumsnelheid van 30 km/uur dient behouden te blijven voor de ontsluiting van het omliggende gebied. Erftoegangswegen behoren tot de laagste wegcategorie. Wijziging hiervan of van de samenstelling van het verkeer ten behoeve van verdere geluidreductie is daarom niet wenselijk.

Verder zijn erftoegangswegen hoofdzakelijk voorzien van een klinkerverharding. Asfalteren van deze wegen is om verkeerskundige redenen niet wenselijk. Klinkerverharding draagt bij aan het verblijfskarakter en heeft een snelheidsremmend effect. Een asfaltverharding is om die reden niet wenselijk. Maatregelen in het overdrachtsgebied zoals geluidschermen zijn niet inpasbaar. Ook is het vergroten van de afstand tussen de wegas en de ontwikkeling niet mogelijk; het bouwplan is dan niet meer inpasbaar.

5.5.3 Conclusie

Uit het onderzoek blijkt dat de ontwikkeling is gelegen buiten de 48 dB contour van de Schijndelseweg. De voorkeursgrenswaarde van 48 dB zal ten gevolge van verkeer op deze weg niet worden overschreden. Ten aanzien van de niet gezoneerde Spijt bedraagt de geluidbelasting op de gevel maximaal 53 dB. De richtwaarde van 48 dB wordt overschreden. Maatregelen ter reductie van de geluidbelasting zijn niet mogelijk of doelmatig. Omdat de maximaal aanvaardbare waarde van 63 dB niet wordt overschreden, is er sprake van een acceptabel akoestisch klimaat. Omdat 30 km/uur-wegen niet gezoneerd zijn, zijn in het kader van de Wgh geen aanvullende procedures noodzakelijk. Bovendien is er geen sprake van overschrijding van de voorkeursgrenswaarde ten gevolge van gezoneerde wegen.

Het aspect wegverkeerslawaai staat de ontwikkeling dan ook niet in de weg.

5.6 Luchtkwaliteit

5.6.1 Beleid en normstelling

Wet milieubeheer

In het kader van een goede ruimtelijke ordening wordt bij het opstellen van een ruimtelijk plan uit het oogpunt van de bescherming van de gezondheid van de mens rekening gehouden met de luchtkwaliteit.

Het toetsingskader voor luchtkwaliteit wordt gevormd door hoofdstuk 5, titel 5.2 van de Wet milieubeheer. Dit onderdeel van de Wet milieubeheer (Wm) bevat grenswaarden voor zwaveldioxide, stikstofdioxide en stikstofoxiden, fijn stof, lood, koolmonoxide en benzeen. Hierbij zijn in de ruimtelijke ordeningspraktijk langs wegen vooral de grenswaarden voor stikstofdioxide (jaargemiddelde) en fijn stof (jaar- en daggemiddelde) van belang. De grenswaarden van de laatstgenoemde stoffen zijn in tabel 5.4 weergegeven.

Tabel 5.4. Grenswaarden maatgevende stoffen Wm

stof   toetsing van   grenswaarde   geldig  
stikstofdioxide (NO2) 1)   jaargemiddelde concentratie   60 µg/m³   2010 tot en met 2014  
  jaargemiddelde concentratie   40 µg/m³   vanaf 2015  
fijn stof (PM10) 2)   jaargemiddelde concentratie   40 µg/m³   vanaf 11 juni 2011  
  24-uurgemiddelde concentratie   max. 35 keer p.j. meer dan 50 µg/m³   vanaf 11 juni 2011  
  • 1. De toetsing van de grenswaarde voor de uurgemiddelde concentratie NO2 is niet relevant aangezien er pas meer overschrijdingsuren dan het toegestane aantal van 18 per jaar zullen optreden als de jaargemiddelde concentratie NO2 de waarde van 82 µg/m³ overschrijdt. Dit is nergens in Nederland het geval.
  • 2. Bij de beoordeling hiervan blijven de aanwezige concentraties van zeezout buiten beschouwing (volgens de bij de Wlk behorende Regeling beoordeling Luchtkwaliteit 2007).

Op grond van artikel 5.16 van de Wm kunnen bestuursorganen bevoegdheden, die gevolgen kunnen hebben voor de luchtkwaliteit (zoals de vaststelling van een bestemmingsplan), uitoefenen indien:

  • de bevoegdheden/ontwikkelingen niet leiden tot een overschrijding van de grenswaarden (lid 1 onder a);
  • de concentratie in de buitenlucht van de desbetreffende stof als gevolg van de uitoefening van die bevoegdheden per saldo verbetert of ten minste gelijk blijft (lid 1 onder b1);
  • bij een beperkte toename van de concentratie van de desbetreffende stof, door een met de uitoefening van de betreffende bevoegdheid samenhangende maatregel of een door die uitoefening optredend effect, de luchtkwaliteit per saldo verbetert (lid 1 onder b2);
  • de bevoegdheden/ontwikkelingen niet in betekenende mate bijdragen aan de concentratie in de buitenlucht (lid 1 onder c);
  • het voorgenomen besluit is genoemd in of past binnen het omschreven Nationaal Samenwerkingsprogramma Luchtkwaliteit (NSL) of een vergelijkbaar programma dat gericht is op het bereiken van de grenswaarden (lid 1 onder d).

NIBM

In het Besluit niet in betekenende mate is bepaald in welke gevallen een project vanwege de gevolgen voor de luchtkwaliteit niet aan de grenswaarden hoeft te worden getoetst. Hierbij worden 2 situaties onderscheiden:

  • een project heeft een toename van minder dan 3% van de jaargemiddelde concentratie NO2 en PM10 (= 1,2 µg/m³);
  • een project valt in een categorie die is vrijgesteld aan toetsing aan de grenswaarden; deze categorieën betreffen onder andere woningbouw met niet meer dan 1.500 woningen aan één ontsluitingsweg of kantoorlocaties met maximaal 100.000 m2 bvo bij één ontsluitingsweg.
5.6.2 Toetsing / onderzoek

Wet milieubeheer

De ontwikkeling betreft de realisatie van 8 grondgebonden woningen. De ontwikkeling betreft daarmee een project als genoemd in het Besluit niet in betekenende mate en aan de grenswaarden hoeft niet te worden getoetst. Het project draagt niet in betekenende mate bij aan de luchtkwaliteit en nader onderzoek is daarom niet noodzakelijk.

In het kader van een goede ruimtelijke ordening is een indicatie van de luchtkwaliteit ter plaatse van het plangebied gegeven. Dit is gedaan aan de hand van de monitoringstool (http://www.nsl-monitoring.nl/viewer/) die bij het Nationaal Samenwerkingsprogramma Luchtkwaliteit hoort. Hieruit blijkt dat zowel in 2011 als in 2020 voldaan wordt aan de voor dit jaar geldende normen uit de Wet Milieubeheer zoals weergegeven in tabel 5.4.

Het maximale gehalte stikstofdioxide in het jaar 2011 bedraagt 29,1 µg/m³, voor fijnstof bedraagt dit maximaal 28,0 µg/m³ en het maximaal aantal overschrijdingsdagen van het 24-uurs gemiddelde voor fijnstof bedraagt 24 dagen.

Voor het jaar 2020 bedraagt het gehalte stikstofdioxide maximaal 19,7 µg/m³, voor fijnstof bedraagt dit 22,7µg/m³ en het maximale aantal overschrijdingsdagen van het 24-uurs gemiddelde voor fijnstof bedraagt 12 dagen. In figuur 5.3 zijn de rekenpunten voor het plangebied weergegeven.

afbeelding "i_NL.IMRO.0845.BP2014SMGCENTRP105-VA01_0009.png"

Figuur 5.3. Luchtkwaliteit o.b.v. NSL-monitoringstool.

Direct langs deze wegen wordt aan de grenswaarden voldaan, dit zal ook ter plaatse van de beoogde woningen het geval zijn. Concentraties luchtverontreinigende stoffen nemen immers af naarmate een locatie verder van de weg ligt.

5.6.3 Conclusie

Het aspect luchtkwaliteit vormt geen belemmering voor de vaststelling van het bestemmingsplan.

5.7 Externe veiligheid

5.7.1 Beleid en normstelling

Bij ruimtelijke plannen dient ten aanzien van externe veiligheid naar verschillende aspecten te worden gekeken, namelijk:

  • bedrijven waar opslag, gebruik en/of productie van gevaarlijke stoffen plaatsvindt;
  • vervoer van gevaarlijke stoffen over wegen, spoor, water of leidingen.

In het externe veiligheidsbeleid wordt doorgaans onderscheid gemaakt tussen het plaatsgebonden risico (PR) en het groepsrisico (GR).

Het PR is de kans per jaar dat een persoon op een bepaalde plaats overlijdt als rechtstreeks gevolg van een ongeval met gevaarlijke stoffen, indien hij onafgebroken (dat wil zeggen vierentwintig uur per dag en gedurende het gehele jaar) en onbeschermd op die plaats zou verblijven. Het PR wordt weergegeven met risicocontouren rondom een inrichting of langs een vervoersas. Het GR drukt de kans per jaar uit dat een groep mensen van minimaal een bepaalde omvang overlijdt als rechtstreeks gevolg van een ongeval met gevaarlijke stoffen.

5.7.2 Toetsing / onderzoek

Het plangebied is niet gelegen in het invloedsgebied van risicovolle inrichtingen, transportroutes en/of leidingen en vormt daarmee geen belemmering.

5.7.3 Conclusie

Op basis van analyses wordt geconcludeerd dat het aspect externe veiligheid de uitvoering van het project niet in de weg staat.

5.8 Bedrijven en milieuzonering

5.8.1 Beleid en Normstelling

Bij realisering van nieuwe hindergevoelige functies (woningen) dient rekening te worden gehouden met eventuele milieuhinder van bedrijfsactiviteiten in de omgeving. Uitgangspunt daarbij is dat ter plaatse van de woningen sprake is van een aanvaardbaar woon- en leefklimaat en dat bedrijven niet in hun bedrijfsvoering worden beperkt.

Afstemming van bestaande en nieuwe functies gebeurt door het aanhouden van zogenaamde richtafstanden. Hierbij kan gebruik worden gemaakt van de publicatie 'Bedrijven en Milieuzonering' van de VNG (herziene versie, 2009). Bij deze richtafstanden wordt rekening gehouden met milieuaspecten als geur-, stof en geluidhinder. De richtafstanden gelden ten opzichte van een rustige woonwijk. Uit jurisprudentie en de genoemde VNG-publicatie blijkt dat in het geval van een gemengd gebied verkleinde richtafstanden gelden.

5.8.2 Toetsing / onderzoek

In de omgeving van het projectgebied bevinden zich twee horecabedrijven die van invloed kunnen zijn op het woon- en leefklimaat van de geprojecteerde grondgebonden woningen. Het betreft de volgende horecabedrijven.

straat   nr.   naam   typering   categorie van S.v.H.  
Spijt   39   Ton's Snackland   Cafetaria   1  
Spijt   49/51   Café Ons Moeder   Café   2  

Cafetaria

De afstand van het cafetaria tot de grondgebonden woningen is dusdanig (10 meter) dat hiervan geen hinder kan worden ondervonden voor wat betreft het woon- en leefklimaat. Ook de bedrijfsvoering van de cafetaria zal niet nadelig worden beïnvloed door de bouw van de woningen. De afstand van de oorspronkelijke woningen tot de cafetaria is dezelfde afstand als de afstand tussen de beoogde woningen en de cafetaria.

Café

Naast het café, ter plaatse van de oorspronkelijke woningen, is enkele jaren geleden een nieuwe woning gerealiseerd. Aanvullend is aan de westzijde van het café een overkapping aangebracht. Hiermee worden nadelige effecten voor woon- en leefklimaat en de bedrijfsvoering voorkomen. Belangrijk is voorts dat de bouw van de grondgebonden woningen plaatsvindt op een afstand van minimaal 15 meter. Uit de verrichte onderzoeken ten behoeve van de gerealiseerde woning is gebleken dat geen hinder zal worden ondervonden van de horeca-activiteiten. De al recent gerealiseerde woning is daarbij ten opzichte van de nu geprojecteerde 8 woningen bovendien de maatgevende woning. Er is zodoende sprake van een goed en aanvaardbaar woon- en leefklimaat ter plaatse van de geprojecteerde woningen. Ook de bedrijfsvoering van het café wordt niet onevenredig belemmerd.

5.8.3 Conclusie

Er is sprake van een goed woon - en leefmilieu. Ook de horeca-activiteiten van het café en de cafetaria worden niet onevenredig aangetast. Er is sprake van een goede ruimtelijke ordening.

5.9 Flora en fauna

5.9.1 Beleid en Normstelling

Bij de voorbereiding van een ruimtelijk plan dient onderzocht te worden of de Flora- en faunawet, de Natuurbeschermingswet 1998 en het beleid van de provincie ten aanzien van de Ecologische Hoofdstructuur de uitvoering van het plan niet in de weg staan.

5.9.2 Toetsing /Onderzoek

Huidige situatie

Het plangebied bestaat uit een braakliggend terrein in de bebouwde kom dat recent in gebruik is als bouwterrein.

Beoogde ontwikkelingen

In het plangebied worden 8 grondgebonden woningen met erf en tuin en parkeerplaatsen gerealiseerd. Hiervoor moeten de volgende werkzaamheden worden uitgevoerd:

  • bouwrijp maken;
  • bouwwerkzaamheden;
  • gebruik van het gebied.

Toetsingskader

Gebiedsbescherming: Natuurbeschermingswet 1998

Voor de gebiedsbescherming vormt de Natuurbeschermingswet 1998 (Nbw) het juridisch kader. Onderzocht moet worden of de ontwikkeling negatieve effecten kan hebben op beschermde gebieden (binnen en buiten plangebied).

Gebiedsbescherming: Ecologische hoofdstructuur

De EHS is een samenhangend netwerk van bestaande en te ontwikkelen natuurgebieden. Het netwerk wordt gevormd door kerngebieden, natuurontwikkelingsgebieden en ecologische verbindingszones. De EHS is op provinciaal niveau uitgewerkt in de Provinciale Ecologische Hoofdstructuur (PEHS). Aantasting van de kwaliteiten van de EHS is in principe niet toegestaan.

Soortbescherming Flora- en faunawet

Voor de soortenbescherming is de Flora- en faunawet van toepassing. Deze wet is gericht op de bescherming van dier- en plantensoorten in hun natuurlijke leefgebied. De Flora- en faunawet bevat onder meer verbodsbepalingen met betrekking tot het aantasten, verontrusten of verstoren van beschermde dier- en plantensoorten, hun nesten, holen en andere voortplantings- of vaste rust- en verblijfsplaatsen.

Onderzoek

Door Rho adviseurs voor leefruimte is onderzoek verricht (zie bijlage 6). Dit onderzoek is integraal opgenomen in de bijlage. Hierna zijn uitsluitend de bevindingen opgenomen.

  • Bouwrijp maken. Het bouwrijp maken van het terrein leidt mogelijk tot verstoring van broedvogels, kleine zoogdieren en amfibieën. Voor de algemene soorten van tabel 1 van de Flora- en faunawet geldt een vrijstelling. Verstoring van broedvogels is niet toegestaan. Wel dient gewerkt te worden volgens de principes van “zorgvuldig handelen”.
  • De aantasting en verstoring van vogels dienen te worden voorkomen door werkzaamheden buiten het broedseizoen (broedseizoen is globaal van 15 maart tot en met 15 juli) te laten starten.
  • De functie van foerageergebied voor vleermuizen wordt door de bebouwing niet structureel aangetast en is ook geen beschermde functie. Het foerageergebiedje heeft bovendien een beperkte omvang en is zodoende van ondergeschikt belang.
  • Bouw van woningen. De bouw van de woningen zal niet leiden tot een kans op verstoring van beschermde soorten omdat deze niet aanwezig zijn.
  • Gebruik van het gebied. Het gebruik van het woongebied zal niet leiden tot een kans op verstoring van beschermde natuurwaarden in de omgeving. De omgeving kent immers hetzelfde gebruik.
5.9.3 Conclusie

Geconcludeerd wordt dat voor de beoogde werkzaamheden geen ontheffing in het kader van de Flora- en faunawet is vereist. Hierbij dient wel gewerkt te worden volgens het principe van zorgvuldig handelen; broedvogels mogen niet worden verstoord. Indien de vereiste maatregelen worden genomen, zal de Flora- en faunawet de uitvoering van de werkzaamheden niet in de weg staan.

Wat de gebiedsbescherming betreft wordt geconcludeerd dat zowel de Natuurbeschermingswet 1998 als de Ecologische hoofdstructuur geen beletsel vormen voor de ontwikkeling.

5.10 Water

5.10.1 Beleid en Normstelling

Het is verplicht om bij ruimtelijke ingrepen de watertoets te doorlopen. Hierin dient inzicht te worden geboden in de effecten van het initiatief op de waterhuishouding. In het kader van de watertoets dient de gemeente wateradvies in te winnen bij de waterbeheerder. De gemeente en het waterschap kunnen praktische afspraken maken over de wijze waarop het aspect water in het ruimtelijk plan wordt opgenomen. Hiermee wordt voorkomen dat ruimtelijke ontwikkelingen in strijd zijn met duurzaam waterbeheer. Het plangebied ligt binnen het beheersgebied van het waterschap De Dommel, verantwoordelijk voor het waterkwantiteits- en waterkwaliteitsbeheer. Bij het tot stand komen van deze waterparagraaf wordt overleg gevoerd met de waterbeheerder over deze waterparagraaf. De opmerkingen van de waterbeheerder zijn vervolgens verwerkt in deze waterparagraaf. Het waterschap heeft per e-mail van 16 juli 2014 ingestemd met de waterparagraaf. Per brief van 9 februari 2015 heeft het waterschap in het kader van het watertoetsproces ingestemd met het bestemmingsplan. Wel zijn enkele opmerkingen gemaakt over de benodigde waterberging en de afvoer van hemelwater. De brief is opgenomen in bijlage 8.

Beleid duurzaam stedelijk waterbeheer

Op verschillende bestuursniveaus zijn de afgelopen jaren beleidsnota's verschenen aangaande de waterhuishouding, allen met als doel een duurzaam waterbeheer (kwalitatief en kwantitatief). Deze paragraaf geeft een overzicht van de voor het plangebied relevante nota's, waarbij het beleid van het waterschap nader wordt behandeld.

Europa:

  • Kaderrichtlijn Water (KRW)

Nationaal:

  • Nationaal Waterplan (NW)
  • Waterbeleid voor de 21ste eeuw (WB21)
  • Nationaal Bestuursakkoord Water (NBW)
  • Waterwet

Provinciaal

  • Provinciaal Waterplan 2010-2015

Waterschapsbeleid

Het waterbeheerplan 2010-2015 beschrijft hoe het waterschap samen met andere partijen invulling willen geven aan het waterbeheer in de planperiode. Dit waterbeheerplan is een strategisch document. Hierin wordt aangegeven wat de doelen zijn voor de periode 2010-2015 en hoe die bereikt moeten worden. Het betreft alle aspecten rondom het beheer van de watergangen, stuwen, gemalen, transportstelsels en rioolwaterzuiveringen, zowel onder normale omstandigheden als in het geval van calamiteiten. Het plan is afgestemd op het Stroomgebiedsbeheerplan Maas, het Nationaal Waterplan en het Provinciaal Waterplan. Aan de basis van dit waterbeheerplan staan de waterprogramma's. Deze kwamen in 2007-2008 in samenwerking met andere overheden en belangenpartijen in ons gebied tot stand en richten zich op alle waterdoelen in ons beheergebied.

Er wordt een indeling gemaakt in de volgende thema's:

  • droge voeten;
  • voldoende water;
  • natuurlijk water;
  • schoon water;
  • schone waterbodem;
  • mooi water.

Om deze taak goed uit te voeren, zijn wettelijke regels nodig, ook op en langs het water. Deze regels staan in de keur van het waterschap en gelden voor iedereen binnen het gebied van Waterschap De Dommel. De regels zijn vastgelegd in de Keur Waterschap De Dommel 2009. De Keur bevat regels met daarin verboden en verplichtingen ten aanzien van oppervlaktewater en grondwater.

De verboden in de Keur zijn onder andere:

  • Het graven, dempen en verleggen van waterlopen.
  • Het leggen, verplaatsen of weghalen van duikers, stuwen, bruggen en dergelijke.
  • Op stroken van vier meter breed naast de hoofdwaterlopen (zgn. A-wateren) obstakels, bouwwerken en beplantingen neerzetten, omdat dit het onderhoud belemmert.
  • Op stroken van 25 meter langs beken met een natuurfunctie bouwwerken plaatsen die beekherstel bemoeilijken of zelfs onmogelijk maken.
  • Op kaden ploegen, spitten, graven, motorrijden etcetera. waardoor de kade minder stevig wordt.
  • Onttrekken van grondwater.
  • Draineren in en rondom natte natuurparels.

De verplichtingen in de Keur zijn onder andere.:

  • Wie onderhoudsplichtig is.
  • Het regelmatig schoonmaken van de waterlopen.
  • Bij beweiding plaatsen van een afrastering.
  • Het opruimen van specie en maaisel uit de waterlopen nadat deze zijn schoongemaakt.

Afwijken van de verboden en verplichtingen is mogelijk. Hiervoor dient een watervergunning aangevraagd te worden.

Waterschap De Dommel hanteert het principe Hydrologisch Neutraal Ontwikkelen. Hydrologisch neutraal ontwikkelen houdt in dat de ontwikkeling geen hydrologische achteruitgang ten opzichte van de referentiesituatie tot gevolg heeft. Er mogen geen hydrologische knelpunten worden gecreëerd voor de te handhaven en de vastgelegde toekomstige landgebruikfuncties in het plangebied en het beïnvloedingsgebied. Concreet betekent dit dat:

  • de afvoer uit het gebied niet groter is dan in de referentiesituatie;
  • de omvang van grondwateraanvulling in het plangebied gelijk blijft of toeneemt;
  • de grond- en oppervlaktewaterstanden in de omgeving gelijk blijven, of verbeteren voor de huidige en toekomstige landgebruiksfuncties;
  • de (grond)waterstanden in het plangebied moeten aansluiten op de (nieuwe) functie(s) van het plangebied zelf;
  • het plangebied zo moet worden ingericht, dat de gevolgen van vastgestelde toekomstige ontwikkelingen in de omgeving, die van invloed zijn op de (grond)waterstanden, niet leiden tot knelpunten in het plangebied.
5.10.2 Toetsing / onderzoek

Het huidige watersysteem

De locatie ligt op de kruising van het Spijt en de Hondsklauw. De maaiveldhoogte ter plaatse bedraagt circa NAP +5 m en de bodem in het plangebied bestaat uit zand. Volgens de Bodemkaart van Nederland geldt in het plangebied grondwatertrap VI. Dat betekent dat de gemiddeld hoogste grondwaterstand hier tussen 0,4 en 0,8 m beneden het maaiveld ligt, terwijl de gemiddeld laagste grondwaterstand meer dan 1,2 m beneden het maaiveld ligt. De bodem en grondwaterstanden zijn geschikt om water te kunnen infiltreren in de bodem.

In de huidige situatie was tot voor kort bebouwing aanwezig, deze is inmiddels gesloopt. De voormalige bebouwing was aangesloten op het gemeentelijk gemengde rioleringsstelsel. Er zijn geen problemen met het grondwater. In de (directe) omgeving van het plangebied is geen bijzondere natuur aanwezig, op grond waarvan sprake zou kunnen zijn van een bufferzone.

Toekomstig watersysteem

De Watertoets signaleert 11 thema's die, indien relevant, belicht dienen te worden. Deze thema's zijn weergegeven in de Handreiking Watertoets (RIZA, et al. 2001). Aan de hand van deze thema's is nagegaan of de beoogde ontwikkeling strijdig is met waterdoelstellingen c.q. noodzaakt tot waterhuishoudkundige maatregelen.

thema   beoogde functiewijziging  
veiligheid (waterkering)   Niet van toepassing.  
wateroverlast   Voor dit plan is het principe `waterneutraal bouwen´ gevolgd. Dit wil zeggen dat als het verhard oppervlak toeneemt, compenserende maatregelen worden genomen om piekafvoeren op te vangen. Dit kan door het vasthouden of bergen van het water door het aanleggen van een waterberging of een infiltratievoorziening. Het verhard oppervlak zal toenemen met circa 950 m2.
Om de extra verharding te bepalen is uitgegaan van 100% verharding ter plaatse van de bouwvlakken en de functie verkeer, en 50% verharding ter plaatse van de functie tuin en de functie wonen buiten het bouwvlak. Deze 50% verharding wordt gehanteerd in verband met de realisatie van tuinpaden, parkeerplaatsen en overige tuinverharding.

Voor het plangebied geldt de afvoernorm voor stedelijk gebied. De maximale afvoer uit het gebied is daarbij 4,0 l/s/ha bij een neerslagsituatie met een herhalingstijd van 100 jaar. Bij een herhalingstijd van 10 jaar is de afvoernorm 2,0 l/s/ha.

Voor het berekenen van de bergingsopgave is de HNO-tool (beschikbaar via de website van het waterschap) gebruikt. De HNO-tool berekening is opgenomen in bijlage 7. Hieruit blijkt dat de benodigde berging 38 m3 bedraagt bij een T=10 scenario.

In overeenstemming met de gemeente is besloten om een grijs watersysteem te hanteren. Een dergelijk systeem voorziet in twee rioleringssystemen, één ten behoeve van het afvalwater en één ten behoeve van het hemelwater. Beide rioolafvoeren worden gescheiden aangeboden ter plaatse van de gemeentelijke riolering. Indien het gemeentelijk riool vervolgens vervangen wordt door een gescheiden rioleringsstelsel, dan zal de ontwikkeling hier op aansluiten.

Bij deze variant wordt zoveel mogelijk getracht om hergebruik te stimuleren, zo kan het hemelwater onder andere gebruikt worden om de toiletten door te spoelen, en voor het besproeien van de tuin.  
riolering   In het plangebied wordt in de toekomstige situatie het schone hemelwater zoveel mogelijk hergebruikt, het overige hemelwater zal worden afgevoerd op de gescheiden riolering. Het huishoudelijke afvalwater wordt binnen het plangebied ingezameld en vervolgens afgevoerd naar het gemeentelijke riool.
Bij de bouw van de woningen zal een gescheiden binnenriolering worden aangelegd (om later bij vervanging van de bestaande gemengde riolering eenvoudig een gescheiden stelsel te realiseren).
Hiermee wordt in het plangebied invulling gegeven aan het principe om schone en vuile waterstromen optimaal te scheiden.
De locatie is gelegen aan een eindpunt van de riolering. Deze gaat op relatief korte afstand over in het grote rioolstelsel van de Schijndelseweg.  
watervoorziening   In de omliggende stedelijke bebouwing van het plangebied is enkel de standaard watervoorziening aanwezig. Dit wordt doorgezet in het plangebied. Opgevangen afstromend hemelwater water wordt niet benut voor een zogenaamd grijswatercircuit (spoelwater voor toilet) voor het toekomstige gebouw. De kosten van de aanleg van een systeem voor hergebruik wegen niet op tegen de baten.  
grondwateroverlast   Om te voorkomen dat in de toekomst grondwateroverlast ontstaat in het plangebied dient er voor de verschillende onderdelen (wegen, tuinen, bebouwing) voldoende ontwatering te worden gerealiseerd. Hydrologisch neutraal bouwen blijft het uitgangspunt, waarbij drainage achterwege blijft.  
volksgezondheid   Binnen het plangebied bestaan er op dit moment, maar ook voor de toekomst, geen risico's voor de volksgezondheid als gevolg van een zeer slechte waterkwaliteit. Er is geen permanent open water aanwezig en er zijn ook geen riooloverstorten.  
bodemdaling   Bodemdaling zal niet optreden. Er vindt geen aanpassing van polderpeilen plaats.  
oppervlaktewaterkwaliteit   Bij de bouw zullen duurzame, niet uitlogende bouwmaterialen worden gebruikt. Hierdoor zal de vracht aan zware metalen die via het gescheiden stelsel wordt afgevoerd zeer gering zijn.  
verdroging   Verdroging speelt geen rol van betekenis in het plangebied. Het is niet bekend, maar ook niet waarschijnlijk, dat het gebied een ecohydrologische relatie heeft met benedenstrooms gelegen (natte)natuurgebieden. De bestemmingswijziging van het plangebied zal dan ook geen verdroging tot gevolg hebben.  
natte natuur   Het plangebied grenst niet aan nat natuurgebied. Maatregelen zijn niet nodig.  
onderhoud waterlopen   Niet van toepassing.  
5.10.3 Conclusie

Geconcludeerd wordt dat het bestemmingsplan geen negatieve gevolgen heeft voor de bestaande waterhuishoudkundige situatie. De ontwikkeling voldoet dan ook aan de doelstellingen van duurzaam waterbeheer.

5.11 Kabels en leidingen

5.11.1 Beleid

Planologisch relevante buisleidingen dienen in het bestemmingsplan te worden bestemd en voorzien van stroken waarbinnen mogelijke beperkingen gelden. Planologisch relevante leidingen zijn hoofdtransportleidingen waarmee de navolgende producten worden vervoerd:

  • gas, olie, olieproducten, chemische producten en vaste stoffen/goederen;
  • aardgas;
  • defensiebrandstoffen;
  • warmte en afvalwater, ruwwater of halffabricaat voor de drink- en
  • industriewatervoorziening; met een diameter groter of gelijk aan 18 inch.
5.11.2 Toetsing / onderzoek

In en nabij het plangebied komen leidingen en kabels voor (rioolleidingen, leidingen nutsvoorzieningen, drainageleidingen). Deze kabels en leidingen zijn veelal aangelegd langs/in combinatie met infrastructuur. Er zijn in het plangebied geen planologisch relevante leidingen aanwezig.

5.11.3 Conclusie

Er wordt geconcludeerd dat het aspect kabels en leidingen geen belemmering oplevert voor de vaststelling van dit bestemmingsplan.

5.12 M.e.r. beoordeling

5.12.1 Beleid en Normstelling

In onderdeel C en D van de bijlage bij het Besluit m.e.r. is aangegeven welke activiteiten in het kader van het omgevingsvergunning planmer-plichtig, projectmer-plichtig of mer-beoordelingsplichtig zijn. Voor deze activiteiten zijn in het Besluit m.e.r. drempelwaarden opgenomen. Daarnaast dient het bevoegd gezag bij de betreffende activiteiten die niet aan de bijbehorende drempelwaarden voldoen, na te gaan of sprake kan zijn van belangrijke nadelige gevolgen voor het milieu, gelet op de omstandigheden als bedoeld in bijlage III van de EEG-richtlijn milieueffectbeoordeling. Deze omstandigheden betreffen:

  • de kenmerken van de projecten;
  • de plaats van de projecten;
  • de kenmerken van de potentiële effecten.
5.12.2 Toetsing/ onderzoek

Gelet op de kenmerken van het plan (zoals het kleinschalige karakter in vergelijking met de drempelwaarden uit het Besluit m.e.r.), de plaats van het plan en de kenmerken van de potentiële effecten zullen geen belangrijke negatieve milieugevolgen optreden. Dit blijkt ook uit de onderzoeken van de verschillende milieuaspecten zoals deze in de vorige paragrafen zijn opgenomen.

5.12.3 Conclusie

Voor dit bestemmingsplan is geen mer-procedure of mer-beoordelingsprocedure noodzakelijk conform het Besluit m.e.r.

Hoofdstuk 6 Juridische toelichting

6.1 Algemeen

Het bestemmingsplan bestaat uit een verbeelding (plankaart; met legenda) en planregels, vergezeld van een toelichting. De verbeelding en de planregels vormen het juridisch bindende deel van het bestemmingsplan. De verbeelding heeft de rol van visualisering van de bestemmingen. De planregels regelen de gebruiksmogelijkheden van de gronden, de bouwmogelijkheden en de gebruiksmogelijkheden van de aanwezige en/of op te richten bebouwing. De toelichting heeft weliswaar geen bindende werking, maar heeft wel een belangrijke functie bij de weergave en onderbouwing van het bestemmingsplan en bij de uitleg van de verbeelding en planregels. In de volgende twee paragrafen wordt de systematiek van de planregels uiteengezet en wordt een uitleg per bestemming gegeven.

6.2 Systematiek

De Wro bepaalt dat ruimtelijke plannen digitaal en analoog beschikbaar moeten zijn. Dit brengt met zich mee dat bestemmingsplannen digitaal uitwisselbaar en op vergelijkbare wijze moeten worden gepresenteerd. Met het oog hierop stellen de Wro en de onderliggende regelgeving eisen waaraan digitale en analoge plannen moeten voldoen. Zo bevat de Standaard Vergelijkbare Bestemmingsplannen (SVBP2012) bindende afspraken waaraan het bestemmingsplan moet voldoen. De SVBP2012 kent (onder meer) hoofdgroepen van bestemmingen, een lijst met functie- en bouwaanduidingen, gebiedsaanduidingen en een verplichte opbouw van de regels en het renvooi.

6.2.1 Inleidende regels

Conform SVBP bevatten de inleidende regels artikelen met de begripsbepalingen en de wijze van meten.

Begrippen

In de 'begrippen' worden omschrijvingen gegeven van de in het bestemmingsplan gebruikte begrippen. Deze zijn opgenomen om interpretatieverschillen te voorkomen. Alleen die begrippen zijn opgenomen die gebruikt worden in de regels en die tot verwarring of voor meerdere uitleg vatbaar zijn.

Wijze van meten

De wijze van meten bevat technische regelingen met betrekking tot het bepalen van oppervlaktes, percentages, hoogtes, diepten, breedtes en dergelijke waarmee op een eenduidige manier uitleg wordt gegeven wat onder de diverse begrippen wordt verstaan.

6.2.2 Bestemmingsregels

De toekomstige situatie die is beschreven in paragraaf 3.1 is vertaald in de bestemmingen Tuin, Verkeer en Wonen - 1. De regels van deze bestemmingen zijn opgenomen in hoofdstuk 2 Bestemmingsregels. Overeenkomstig SVBP2012 (zie hiervoor) zijn de bestemmingen alfabetisch gerangschikt. De gehanteerde bestemmingen zijn zogenoemde positieve bestemmingen. Dat betekent dat gebruik van de gronden voor zover passend binnen de bestemming direct mogelijk is. Bovendien betekent het dat oprichting van gebouwen direct mogelijk is nadat een omgevingsvergunning is verleend. Een omgevingsvergunning voor bouwactiviteiten wordt verleend indien zij voldoet aan onder meer de regels van het bestemmingsplan, het Bouwbesluit en de Bouwverordening. Er is één voorwaarde aan het oprichten van woningen opgenomen, namelijk dat er binnen het plangebied voldoende parkeerplaatsen worden aangelegd. In paragraaf 6.3.3 wordt hier nader op ingegaan.

De opbouw van de bestemmingen ziet er in beginsel als volgt uit:

  • Bestemmingsomschrijving;
  • Bouwregels;
  • Afwijken van de bouwregels;
  • Specifieke gebruiksregels;
  • Afwijken van de gebruiksregels;
  • Omgevingsvergunning voor het uitvoeren van werken, geen bouwwerk zijnde, of van werkzaamheden;
  • Wijzigingsbevoegdheid.

Een bestemmingsregel behoeft niet alle voorgeschreven elementen te bevatten. Dit is afhankelijk van de aard van de bestemming. Alle bestemmingen bevatten wel een bestemmingsomschrijving en bouwregels.

Hieronder volgt per bestemmingsonderdeel een korte toelichting.

Bestemmingsomschrijving
De bestemmingsomschrijving bevat de omschrijving van de doeleinden die met de bestemming aan de grond worden toegekend. Hierbij gaat het in beginsel om een beschrijving van de aan de grond toegekende functies zoals wonen, groen en groenvoorzieningen;tuin, verkeer, (open) water, waterberging en waterhuishoudkundige voorzieningen. De aard van de toegelaten inrichtingen van gronden (bouwwerken en werken, geen bouwwerken zijnde) vloeit dan voort uit de toegelaten functies.

De hoofdfuncties worden als eerste genoemd. Indien van toepassing worden ook de aan de hoofdfuncties ondergeschikte functies mogelijk gemaakt. De ondergeschiktheid wordt weergegeven door de zinsnede 'met daaraan ondergeschikt'. Tevens wordt aangegeven welke functies bij de bestemming behoren door middel van de zinsnede 'met daarbij bijbehorende'. Het betreft hier functies zoals tuinen en erven. De opsomming is niet limitatief.

De bestemmingsomschrijving is niet alleen functioneel, maar bevat ook inrichtingsaspecten.

Bouwregels
In de bouwregels wordt aangegeven welke bebouwingsmogelijkheden er op een perceel bestaan. Daarbij wordt onderscheid gemaakt tussen gebouwen en bouwwerken, geen gebouwen zijnde.

Afwijken van de bouwregels
Door het opnemen van een afwijkingsregeling bestaat de mogelijkheid af te wijken van de algemeen toegestane bouwregelingen. Voor elke afwijking wordt aangegeven waarvan de afwijking van de bouwregels wordt verleend, de maximale afwijking die met de afwijking kan worden toegestaan en eventueel de situaties of voorwaarden waaronder afwijking wordt verleend.

Het gaat hier om afwijkingsbevoegdheden voor een specifieke bestemming. Indien afwijkingsbevoegdheden ook gelden voor andere bestemmingen, dan wel een algemene strekking hebben worden deze geplaatst in hoofdstuk 3 (de algemene afwijkingsregels). In dit plan is hiervan sprake.

Specifieke gebruiksregels
In de Wet algemene bepalingen omgevingsrecht is bepaald dat het verboden is (zonder omgevingsvergunning) gronden of bouwwerken te gebruiken in strijd met de bestemming. In de meeste gevallen is direct duidelijk dat een activiteit of gebruik in strijd is met de bestemming. Er zijn echter situatie waarvan dat niet op voorhand duidelijk is. In de specifieke gebruiksregels kan worden aangegeven welke vormen van gebruik men in ieder geval strijdig acht met de bestemming. Hierin worden niet alle mogelijke strijdig gebruiksvormen genoemd, maar alleen die waarvan het niet op voorhand duidelijk is dat deze in strijd zijn met de bestemming. Ook kunnen nuanceringen ten aanzien van het toegestane gebruik worden aangeduid, bijvoorbeeld een minimum aantal parkeerplaatsen voor een bepaalde functie. Het gaat hierbij in feite om een aanvulling op de bestemmingsomschrijving.

Afwijken van de gebruiksregels
Een afwijking van een gebruiksregel mag niet leiden tot een feitelijke wijziging van de bestemming. Dat wil zeggen, dat wel een afwijking kan worden verleend ten behoeve van functies, die inherent zijn aan de in de bestemmingsomschrijving opgenomen functies. Via een afwijking kunnen geen 'nieuwe' functies worden toegestaan. Met andere woorden: de afwijkingsregeling kan worden opgenomen voor kleinere, planologisch minder ingrijpende, onderwerpen. Functiewijzigingen en grotere, ingrijpende ruimtelijke ingrepen worden geregeld via een wijzigingsbevoegdheid. In dit plan is in artikel Wonen - 1, lid 5.5 een afwijkingsbevoegdheid van de gebruiksregels opgenomen.

Omgevingsvergunning voor het uitvoeren van werken, geen bouwwerk zijnde, of van werkzaamheden
Specifieke inrichtingsactiviteiten, niet bestaande uit bouwen, dienen soms aan een omgevingsvergunning gebonden te worden. Het gaat daarbij om gevallen waarbij er geen noodzaak bestaat om werken, geen bouwwerken zijnde, of werkzaamheden geheel uit te sluiten, maar waarbij de toelaatbaarheid afhangt van de omstandigheden in een concreet geval. Een omgevingsvergunningstelsel voor het uitvoeren van werken, geen bouwwerk zijnde, of van werkzaamheden wordt opgenomen om extra bescherming aan bijvoorbeeld een leiding te geven of aan een specifieke waarde van de bestemming, zoals landschappelijke of natuurlijke waarden of de groen en/of waterstructuur.

Deze regels zijn in het voorliggende plan Spijt, hoek Hondsklauw Sint-Michielsgestel niet opgenomen, vanwege het ontbreken van specifieke waarden die beschermd zouden moeten worden.

6.2.3 Algemene regels

Anti-dubbeltelregel
Deze regel, opgenomen in artikel 6, is verplicht voorgeschreven en opgenomen om te voorkomen dat, wanneer volgens een bestemmingsplan bepaalde gebouwen en bouwwerken niet meer dan een bepaald deel van een bouwperceel mogen beslaan, het opengebleven terrein nog eens meetelt bij het toestaan van een ander gebouw of bouwwerk, waaraan een soortgelijke eis wordt gesteld.

Algemene bouwregels

Met de regels inzake overschrijding bouwgrenzen mogen in afwijking van aanduidingen, aanduidingsgrenzen en regels bouwgrenzen onder voorwaarden worden overschreden door ondergeschikte bouwdelen. Met de regels inzake bestaande maten wordt voorkomen dat (ondergeschikte) afwijkingen onder het overgangsrecht komen te vallen. Omdat het onderhavige bestemmingsplan een nieuwe stedenbouwkundige invulling regelt, is deze bepaling niet nodig en dus niet opgenomen.

Algemene afwijkingsregels
In deze in artikel 7 opgenomen bepaling wordt aan het bevoegd gezag de bevoegdheid gegeven om door middel van een omgevingsvergunning af te wijken van het bestemmingsplan ten behoeve van niet-ingrijpende (bouw)activiteiten. De criteria, die bij toepassing van de afwijkingsbevoegdheid in acht moeten worden genomen, zijn daarbij aangegeven.

Algemene wijzigingsregels

In artikel 8 lid 8.1 is een algemene flexibiliteitsbepaling opgenomen om voor bepaalde onderdelen van bestemmingen of gebouwen dan wel bouwwerken af te wijken van de bestemmingsgrenzen, voor zover dit van belang is voor een technisch betere realisering van bestemmingen of bouwwerken dan wel voor zover dit noodzakelijk is in verband met de werkelijke toestand van het terrein. Deze bepaling gaat verder dan die van artikel 7. Vandaar dat hier altijd een wijziging voor nodig is van burgemeester en wethouders. Overigens geldt ook hier dat deze bepalingen als algemene regel gelden voor alle bestemmingen.

Het criterium 'in verband met de werkelijke toestand van het terrein' is vooral aan de orde in situaties waarbij een terrein of gebied een geheel nieuwe inrichting krijgt en waarbij in het veld maar weinig aanknopingspunten zijn. Bij het uitzetten van het gebied blijkt dat de afmetingen niet exact gelijk zijn aan de coördinaten op tekening/in het digitale bestand en dat de situering van de nieuwe openbare wegen en de uitgeefbare percelen iets moet worden aangepast. Gezien de nauwkeurigheid van tegenwoordig, gaat het daarbij om centimeters in plaats van meters.

6.2.4 Overgangs- en slotregels

Overgangsrecht
In artikel 10 is het overgangsrecht ten aanzien van het gebruik en het bouwen in strijd met het plan geregeld. In lid 10.1 is de in artikel 3.2.1 Bro voorgeschreven bepaling omtrent het overgangsrecht voor bouwwerken opgenomen. In lid 10.2 is de in artikel 3.2.2 Bro voorgeschreven bepaling omtrent het overgangsrecht voor gebruik opgenomen.

Slotregel
Als laatste is de slotregel opgenomen. Deze regel bevat zowel de titel van het plan als de vaststellingsbepaling.

6.3 Systematiek per bestemming

6.3.1 Tuin

Deze bestemming is gelegd op de voortuinen bij de geprojecteerde woningen. Op deze gronden zijn gebouwen in beginsel niet toegestaan. Onder bepaalde voorwaarden kunnen erkers worden gebouwd. Daarnaast zijn voor erf- en terreinafscheidingen regels opgenomen.

6.3.2 Verkeer

De parkeerruimte achter de woningen en de toegang daartoe zijn geregeld in deze bestemming. De regels zijn erop gericht geen bebouwing toegestaan, met uitzondering van overige bouwwerken. Hiervoor zijn bouwregels opgenomen. De beoogde tuinmuur op de perceelsgrens kan zodoende worden gerealiseerd binnen deze bestemming, een afzonderlijke aanduiding is niet noodzakelijk.

6.3.3 Wonen - 1

Algemeen

Binnen deze bestemming is wonen de hoofdfunctie. Als ondergeschikte functie aan het wonen zijn onder bepaalde voorwaarden aan-huis-verbonden beroepen toegestaan. Deze voorwaarden zijn neergelegd in de specifieke gebruiksregels. De beroepsuitoefening mag niet meer bedragen dan 30% van de gezamenlijke vloeroppervlakte van de bebouwing met een maximum aan vierkante meters gekoppeld aan de oppervlakte van het bouwperceel.

Bouwregels

Hoofdgebouwen dienen te worden opgericht binnen het op de verbeelding aangegeven bouwvlak. In de bouwvlakken is de bebouwingskarakteristiek aangegeven, zijnde aaneengebouwd. Ook is het maximaal aantal woningen vastgelegd. Dit is gedaan voor sturing van de ruimtelijke ontwikkeling alsmede in relatie tot de parkeerbalans.

In de bouwregels is de voorwaarde opgenomen dat een omgevingsvergunning voor het bouwen van woningen uitsluitend kan worden verleend indien binnen het plangebied voldoende parkeerplaatsen worden aangelegd. Een dergelijke regeling is noodzakelijk omdat via een “Reparatiewet BZK” (29 november 2014) de grondslag in de Woningwet om stedenbouwkundige bepalingen in de Bouwverordening op te nemen, is verdwenen. Dit betekent dat voor plannen de stedenbouwkundige bepalingen uit de Bouwverordening geen aanvullende werking meer hebben. Dit betreft met name de bepalingen over het parkeren (en laden en lossen). Immers, bij elke bouwaanvraag kwam via de toetsing aan de Bouwverordening de vraag aan de orde of bij het bouwplan wel voldoende parkeergelegenheid wordt of kan worden gerealiseerd. Nu de grondslag aan deze bepalingen in de Bouwverordening is komen te vervallen, kan hier ook niet meer aan worden getoetst. Dit betekent dat dit moet worden geregeld het bestemmingsplan.

Wat de aan- en uitbouwen en bijgebouwen betreft, is een relatie gelegd met de omvang van het bouwperceel. Het schema laat dat zien.

aan- en uitbouwen en bijgebouwen   percelen tot 300 m²   percelen vanaf 300 m² tot 2.000 m²   percelen vanaf 2.000 m²  
totale oppervlakte buiten het bouwvlak   65 m² +10%   (maximaal 150 m²) +10%   (maximaal 250 m²)  

Voor de hoogte van bijgebouwen gelden de volgende maxima:

  • een goothoogte van 3 m;
  • een (nok)hoogte van 5 m.

De terreinen behorende bij de woonhuizen (gelegen zowel voor en/of naast het woonhuis) waar geen bebouwing is gewenst, zijn opgenomen binnen de bestemming 'Tuin' (zie hiervoor). Deze gronden worden, gezien de afzonderlijke ligging, niet meegeteld bij de perceelsoppervlakte waaraan wordt gerelateerd met betrekking tot de maximale bebouwde oppervlakte aan bijgebouwen en aan- en uitbouwen.

Mantelzorg

Door de provincie Noord-Brabant is de maatschappelijke vraag geconstateerd naar huisvesting ten behoeve van mantelzorg. Binnen het bestaande beleid en regelgeving bieden de volgende twee vormen op korte termijn een oplossing, namelijk de bestaande vorm van inwoning en een nieuwe vorm, omschreven als 'afhankelijke woonruimte'.

Inwoning

De voorkeur gaat uit naar vormen van huisvesting in de woning zelf (inwoning). Inwoning wordt in de bestemmingsplannen rechtstreeks toegestaan. Door de mogelijkheden voor aan- en uitbouw optimaal te benutten, kan de vorm van inwonen in veel gevallen een oplossing bieden aan de behoefte van tijdelijke huisvesting ten behoeve van mantelzorg.

Afhankelijke woonruimte

In de praktijk blijkt ook behoefte te bestaan aan een meer zelfstandige (in de vorm van een eigen toegang en eigen voorzieningen) woonvorm in een (vrijstaand of aangebouwd) bijgebouw. Deze zogenaamde 'afhankelijke woonruimte' moet dienen voor de opvang van iemand met een aantoonbare vraag naar verzorging. Om per situatie een goede afweging te maken, wordt de voorkeur gegeven aan een ontheffingsmogelijkheid in het bestemmingsplan.

De provinciale voorbeeldregeling is in de regels opgenomen.

In de voorbeeldregeling wordt aangesloten bij de gangbare begripsomschrijving dat een 'woning geschikt en bestemd is voor de zelfstandige huisvesting van niet meer dan één huishouden'.

In verband hiermee zijn aan de begripsomschrijvingen de begrippen 'afhankelijke woonruimte' en 'mantelzorg' toegevoegd. In het begrip 'afhankelijke woonruimte' is vastgelegd dat het moet gaan om een bijgebouw dat qua ligging een ruimtelijke eenheid vormt met de woning. Bovendien is kenbaar gemaakt dat het gaat om de huisvesting van een gedeelte van het huishouden. Er kan dus nooit sprake zijn van een zelfstandige woning.

In de voorbeeldregeling wordt aangesloten bij het gebruikelijke gebruiksverbod tot het gebruik van 'vrijstaande bijgebouwen voor zelfstandige bewoning'. In aanvulling hierop is aan de gebruiksbepaling een nieuw gebruiksverbod geïntroduceerd, namelijk het verbod tot gebruik van bijgebouwen als 'afhankelijke woonruimte'. Dit gebruiksverbod is nodig om een sluitende regeling te verkrijgen. Zonder verbod kan immers geen ontheffing worden verleend.

Bovendien is de intrekking van de ontheffing geregeld zodra de op het tijdstip van verlenen van de ontheffing bestaande noodzaak van mantelzorg niet meer aanwezig is. Deze mogelijkheid tot intrekking is essentieel.

Gelet op het provinciaal beleid wordt terughoudendheid betracht bij de toepassing ervan.

Hoofdstuk 7 Financieel-economische verantwoording

7.1 Kostenverhaal

7.1.1 Regelgeving

Belangrijk onderdeel van de Wet ruimtelijke ordening (Wro) is de Grondexploitatiewet, waarbij een exploitatieplan verplicht wordt gesteld indien nieuwe bouwplannen rechtstreeks mogelijk worden gemaakt door middel van een bestemmingsplan en er voor de gemeente sprake is van verhaalbare kosten (kostensoortenlijst Besluit ruimtelijke ordening). Een exploitatieplan is niet vereist indien het kostenverhaal anderszins is verzekerd (bijvoorbeeld door het sluiten van overeenkomsten van grondexploitatie met alle eigenaren in het exploitatiegebied, waar bouwmogelijkheden gerealiseerd kunnen worden of volledig grondeigendom).

7.1.2 Toetsing

Voor de beoogde ontwikkeling is tussen initiatiefnemer en de gemeente een privaatrechtelijke overeenkomst gesloten waarin de (financiële) afspraken over het plan zijn vastgelegd, inclusief kostenverhaal. Deze overeenkomst wordt aangemerkt als anterieure overeenkomst.

7.1.3 Conclusie

De gemeente heeft met de initiatiefnemer voor de vaststelling van het bestemmingsplan al een anterieure overeenkomst gesloten. De Grondexploitatiewet vormt daarmee geen belemmering voor de beoogde ontwikkeling.

7.2 Financiële uitvoerbaarheid

7.2.1 Regelgeving

In artikel 3.1.6. van het Bro is bepaald dat in de toelichting van het bestemmingsplan inzicht moet worden gegeven in de uitvoerbaarheid. Hieronder wordt mede de financiële uitvoerbaarheid verstaan.

7.2.2 Toetsing

De kosten die samenhangen met de realisering van het project (inclusief eventuele planschade aanvragen ten gevolge van of samenhangend met het project en kosten voor de planologische procedure) komen geheel ten laste van de initiatiefnemer. De gemeente heeft met de initiatiefnemer voor de vaststelling van het bestemmingsplan een anterieure overeenkomst gesloten waarin deze kosten ook zijn benoemd en vastgelegd. Initiatiefnemer heeft aangetoond te beschikken over voldoende budget, waarmee de economische uitvoerbaarheid voldoende is aangetoond.

7.2.3 Conclusie

De financiële uitvoerbaarheid van het bestemmingsplan is voldoende verzekerd.

Hoofdstuk 8 Maatschappelijke uitvoerbaarheid

8.1 Inspraak

Inspraak is in de Wet ruimtelijke ordening niet verplicht gesteld. Het is uiteraard van groot belang dat burgers, bedrijven en maatschappelijke organisaties worden betrokken bij de totstandkoming van een bestemmingsplan.

Het bestemmingsplan Spijt, hoek Hondsklauw Sint-Michielsgestel wordt niet ter inzage gelegd als voorontwerp. In het kader van de procedure van het ontwerpbestemmingsplan wordt gelegenheid gegeven te reageren op het bestemmingsplan.

In de 'Nota Zienswijzen' (die als separate bijlage bij dit bestemmingsplan wordt opgenomen), worden de ingekomen zienswijzen (voor zover deze worden ingediend) samengevat en voorzien van commentaar.

Op 15 september 2014 heeft op initiatief  van woningcorporatie Huis en Erf een informatiebijeenkomst plaatsgevonden voor de omwonenden waarin het plan is toegelicht en vragen zijn beantwoord.

8.2 Overleg

Het plan is toegezonden aan de overlegpartners; daaruit is het volgende naar voren gekomen.

Waterschap De Dommel (reactie per e-mail d.d. 13 juni 2014)

Samenvatting

  • 1. Op hoofdlijnen ziet de paragraaf water er goed uit. De belangrijkste elementen die onderdeel van het toekomstig watersysteem moeten uitmaken, zijn benoemd en beschreven.
  • 2. Ten aanzien van het berekenen van de maatgevende berging de volgende opmerking. In de bijgevoegde berekening is alleen uitgegaan van de toename van het verhard oppervlak (950 m2). Ik wil u verzoeken omdat de huidige locatie geheel onbebouwd is en sprake is van nieuwbouw van 8 woningen te rekenen met het totaal aan toekomstig verhard oppervlak (1.594 m2). In dat geval bedraagt de maatgevende berging bij de situatie T=10+10% geen 38 maar 64 m3.
  • 3. In het plan wordt niet aangegeven op welke wijze de berekende maatgevende hoeveelheid neerslag (64 m3) binnen het plangebied wordt geborgen en zo veel mogelijk geïnfiltreerd. Het voorontwerp beschrijft enkel het aanleggen van een gescheiden rioolstelsel tot aan de erfgrens (om dit later aan te takken op het gemengd riool van de gemeente). Ik wil u verzoeken om gegeven de zandige bodemopbouw en variatie in grondwaterstanden aan te geven op welke wijze zo veel mogelijk hemelwater in de onverzadigde zone boven de gemiddeld hoogste grondwaterstand (GHG) geïnfiltreerd of anderszins verwerkt wordt.
  • 4. Artikel 3 (Wonen), 4 (Tuin) en 5 (Wonen-1) maakt de aanleg van (open)water en waterhuishoudkundige voorzieningen mogelijk. Om die reden wil ik u vragen om in artikel 1 (Begrippen) een definitiebeschrijving van “(open)water” en “waterhuishoudkundige voorzieningen” op te nemen. Deze ontbreekt nog. Desgewenst kunnen wij u van een voorbeeld van een definitiebeschrijving van beide begrippen toezenden.

Reactie gemeente

  • 1. Ingestemd wordt met deze constatering.
  • 2. De gemeente is met ontwikkelaar al lang betrokken bij de herontwikkeling van deze locatie. Bij start van de herontwikkeling was bebouwing aanwezig. Om deze reden is geen sprake van een uitleglocatie.
  • 3. Omtrent deze locatie zijn afspraken gemaakt op welke wijze in de toekomstige situatie met hemelwater wordt omgegaan. Daaruit vloeit voort de gevraagde maatgevende berging van 38 m3. Gebleken is dat het plangebied qua bodemgesteldheid en GHG ongeschikt is om te infiltreren. Ruimtelijk zijn er geen mogelijkheden in het platte vlak voor waterberging. Volstaan kan worden met een maatgevende berging van 38 m3. De gekozen oplossingen zijn overlegd met het waterschap en akkoord bevonden.
  • 4. In het plangebied komen waterhuishoudkundige voorzieningen voor of zijn waterhuishoudkundige voorzieningen en/of (open)water toegestaan. Waterhuishoudkundige voorzieningen zijn voorzieningen die nodig zijn ten behoeve van een goede waterkering, wateraanvoer, waterafvoer, waterberging, waterinfiltratie en waterkwaliteit. Hierbij kan onder meer gedacht worden aan infiltratievoorzieningen (zoals infiltratiekratten, wadi's, infiltratiegreppels, doorlatende bestrating en infiltratie- en transportriolen) dijken, dammen, grondwallen, duikers, stuwen, gemalen, inlaten etc.. Om waterhuishoudkundige voorzieningen mogelijk te maken, is in de bestemmingsomschrijving van een aantal bestemmingen het begrip "waterhuishoudkundige voorzieningen" en "open water" opgenomen. Echter, aangezien per bestemming de waterhuishoudkundige voorzieningen (kunnen) verschillen, is ervoor gekozen om het begrip "waterhuishoudkundige voorzieningen" niet op te nemen in de begrippenlijst (artikel 1 van de regels).

Het waterschap heeft per e-mail van 16 juli 2014 ingestemd met de reactie van de gemeente.

Provincie Noord-Brabant (brief d.d. 26 juni 2014)

Samenvatting

Het bestemmingsplan geeft de provincie geen aanleiding tot het maken van opmerkingen.

Reactie

Gemeente neemt kennis van het provinciaal standpunt.

8.3 Vaststelling

Het ontwerpbestemmingsplan met de daarop betrekking hebbende stukken heeft van vrijdag 23 januari tot en met donderdag 5 maart 2015 voor een ieder ter inzage gelegen. Binnen de genoemde termijn van terinzagelegging kon een ieder een schriftelijke of mondelinge zienswijze bij de gemeenteraad indienen. Er zijn geen zienswijzen ingekomen. Het bestemmingsplan is vervolgens op 11 juni 2015 ongewijzigd door de gemeenteraad vastgesteld.