direct naar inhoud van Toelichting
Plan: Dennelaan 1-1A
Status: ontwerp
Plantype: bestemmingsplan
IMRO-idn: NL.IMRO.0866.BP00217-0201

Toelichting

Hoofdstuk 1 Inleiding

1.1 Aanleiding

De eigenaren (hierna: initiatiefnemers) van het perceel Dennelaan 1-1A in Waalre zijn voornemens om de bestaande bebouwing te slopen en twee vrijstaande woningen te realiseren. De betreffende gronden vormen een zelfstandig kadastraal perceel, welke nog gesplitst dient te worden. Aangezien het initiatief niet past binnen het geldende bestemmingsplan moet een nieuw bestemmingsplan worden opgesteld. Het onderhavige bestemmingsplan voorziet hierin.

1.2 Ligging plangebied

Het plangebied is gelegen aan de Dennelaan 1-1A in het kerkdorp Aalst te Waalre. Het plangebied staat kadastraal bekend als gemeente Aalst, sectie C, nr. 1477. Het heeft een omvang van circa 2.707 m2 en wordt als volgt begrensd:

  • Noordzijde: de bedrijfsbestemming (camperstallingsbedrijf) aan de Valkenswaardseweg 15A;
  • Oostzijde: de achterzijde van de woonpercelen Irenelaan 4, 2E en 2D;
  • Zuidzijde: de Dennelaan;
  • Westzijde: de oostelijke perceelsgrens van het woonperceel Dennelaan 2.

Op navolgende afbeeldingen is de globale ligging en begrenzing van het plangebied weergegeven:

afbeelding "i_NL.IMRO.0866.BP00217-0201_0001.png"

Globale ligging plangebied (rode druppel, Bron: maps.google.nl)

afbeelding "i_NL.IMRO.0866.BP00217-0201_0002.png"

Globale begrenzing plangebied (blauwe omkadering)

Voor de exacte begrenzing van het plangebied wordt verwezen naar de verbeelding.

1.3 Onderdelen bestemmingsplan

Het bestemmingsplan bestaat uit de toelichting, de regels en de verbeelding. De toelichting heeft geen juridisch bindende werking. De toelichting maakt juridisch dan ook geen onderdeel uit van het bestemmingsplan. Dit onderdeel heeft wel een belangrijke functie bij de weergave en onderbouwing van het plan en bij de uitleg van bepaalde bestemmingen en regels.

De regels bevatten het juridisch instrumentarium voor het regelen van het gebruik van de gronden, gebouwen en bouwwerken. De regels zijn onderverdeeld in vier hoofdstukken waarin de diverse bepalingen artikelsgewijs worden besproken. De regels vormen samen met de verbeelding het juridische bindende gedeelte van dit bestemmingsplan.

1.4 Geldend bestemmingsplan

Ter plaatse van de gronden in het plangebied geldt het bestemmingsplan 'Aalst', zoals de gemeenteraad dat op 25 juni 2013 heeft vastgesteld. Het plangebied heeft binnen dit bestemmingsplan de bestemming 'Kantoor' (artikel 14).

afbeelding "i_NL.IMRO.0866.BP00217-0201_0003.png"

Uitsnede geldend bestemmingsplan met globale begrenzing plangebied (rode omkadering)

Verder geldt voor het hele plangebied de dubbelbestemming 'Waarde - Archeologie'.

Omdat binnen de bestemming 'Kantoor' het realiseren van burgerwoningen in het algemeen niet is toegestaan, wordt het bestemmingsplan voor de gronden in het plangebied herzien.

1.5 Leeswijzer

Het relevante beleidskader staat centraal in hoofdstuk 2. In dit bestemmingsplan volgt een beschrijving van de huidige situatie van het plangebied (situering en begrenzing, ruimtelijke opzet en ontwikkelingen) in hoofdstuk 3, gevolgd door de beschrijving van het plan (voorwaarden, visie en beeldkwaliteit) in hoofdstuk 4. De uitgevoerde onderzoeken zijn samengevat en voorzien van een conclusie in hoofdstuk 5. Uiteindelijk is dit bestemmingsplan juridisch vastgelegd met behulp van de regels en de verbeelding. De opzet hiervan is beschreven in hoofdstuk 6. De uitvoerbaarheid van het plan (economisch en handhaving) komt in hoofdstuk 7 aan de orde, waarna de procedure van het plan uiteen is gezet in hoofdstuk 8.

Hoofdstuk 2 Beleidskaders

2.1 Nationaal beleid

2.1.1 Nationale Omgevingsvisie

De Nationale Omgevingsvisie (NOVI) is de opvolger van de Structuurvisie Infrastructuur en Ruimte (SVIR), waarin het Rijk een lange termijn visie geeft op de toekomstige ontwikkeling van de leefomgeving in Nederland. De NOVI geeft richting en helpt keuzes te maken. Bij de afweging van keuzes wordt bij voorkeur gekozen voor slimme combinaties van functies, wordt uitgegaan van de specifieke kenmerken en kwaliteiten van gebieden en worden beslissingen niet uitgesteld of doorgeschoven.

De nationale belangen en opgaven waarop het Rijk wil sturen en richting wil geven, komen samen in de volgende vier prioriteiten:

  • Ruimte maken voor klimaatadaptatie en energietransitie;
  • De economie van Nederland verduurzamen en ons groeipotentieel behouden;
  • Steden en regio's sterker en leefbaarder maken;
  • Het landelijk gebied toekomstbestendig ontwikkelen.

Planspecifiek
De voorgenomen ontwikkeling is niet in strijd met de prioriteiten uit de NOVI. De NOVI vormt geen belemmering voor dit plan.

2.1.2 Besluit algemene regels ruimtelijke ordening

Het Besluit algemene regels ruimtelijke ordening (Barro) borgt een aantal van de nationale ruimtelijke belangen die deel uitmaken van het beleid, zoals beschreven in de voorganger van de NOVI, oftewel de SVIR. Op het moment dat de Omgevingswet in werking treedt, vervalt het Barro. De regels van het Barro worden dan vervangen door het Besluit kwaliteit leefomgeving (BKL). Het BKL wordt de uitwerking, in regelgeving, van het beleid dat in de NOVI staat. Zolang de Omgevingswet nog niet van kracht is, is het Barro nog van toepassing.

In het Barro, ook wel bekend als de AMvB Ruimte, zijn 14 nationale belangen opgenomen die juridische borging vereisen. Het besluit is gericht op doorwerking van de nationale belangen in provinciaal beleid en gemeentelijke bestemmingsplannen. Dat betekent dat het Barro voor de opgenomen onderwerpen regels geeft over bestemmingen en het gebruik van gronden. Daarnaast kan zij aan de gemeente opdragen in de toelichting bij een bestemmingsplan bepaalde zaken uitdrukkelijk te motiveren.

Planspecifiek
Dit bestemmingsplan heeft geen relatie met de nationale belangen, zoals deze in het Barro zijn opgenomen.

2.1.3 Ladder voor duurzame verstedelijking

De in de Structuurvisie Infrastructuur en Ruimte geïntroduceerde 'ladder voor duurzame verstedelijking' is als procesvereiste vastgelegd in het Besluit ruimtelijke ordening (Bro). In het geval van een nieuwe stedelijke ontwikkeling moet in de toelichting een onderbouwing opgenomen worden van nut en noodzaak van de nieuwe stedelijke ruimtevraag en de ruimtelijke inpassing. Hierbij wordt uitgegaan van de 'ladder voor duurzame verstedelijking'. De ladder wordt in artikel 3.1.6, lid 2 Bro als volgt omschreven:

'De toelichting bij een bestemmingsplan dat een nieuwe stedelijke ontwikkeling mogelijk maakt, bevat een beschrijving van de behoefte aan die ontwikkeling, en, indien het bestemmingsplan die ontwikkeling mogelijk maakt buiten het bestaand stedelijk gebied, een motivering waarom niet binnen het bestaand stedelijk gebied in die behoefte kan worden voorzien.'

In het kader van de ladder wordt ten aanzien van de definitie van bestaand stedelijk gebied de definitie uit de Bro gehanteerd: 'bestaand stedenbouwkundig samenstel van bebouwing ten behoeve van wonen, dienstverlening, bedrijvigheid, detailhandel of horeca, alsmede de daarbij behorende openbare of sociaal-culturele voorzieningen, stedelijk groen en infrastructuur.' Volgens de nota van toelichting bij het Bro moet worden bekeken of door het benutten van leegstaande verstedelijkingsruimte in bestaand stedelijk gebied kan worden voorzien in de behoefte. Zoals ook volgt uit onder andere de uitspraak met het nummer 201303578/1/R4 kunnen, naar het oordeel van de Raad van State, planologische mogelijkheden waarvan nog geen gebruik is gemaakt, als leegstaande verstedelijkingsruimte worden aangemerkt. Een dergelijke locatie wordt gezien als onderdeel van het bestaand stedelijk gebied. Conform actuele jurisprudentie wordt een ontwikkeling van 12 woningen of meer gezien als stedelijke ontwikkeling.

Planspecifiek
Onderhavig initiatief betreft de realisatie van twee extra woningen. Daarmee is geen sprake van een stedelijke ontwikkeling en hoeft niet getoetst te worden aan de ladder voor duurzame verstedelijking.

2.1.4 Conclusie

In het plangebied zijn geen nationale belangen in het geding.

2.2 Provinciaal beleid

2.2.1 Omgevingsvisie Noord-Brabant

Provinciale Staten van Noord-Brabant hebben op 14 december 2018 de omgevingsvisie 'De kwaliteit van Brabant' vastgesteld. Hierin geeft de provincie Noord-Brabant haar visie op de toekomst van de Brabantse leefomgeving. Tot aan 2050 focust de provincie op vier grote maatschappelijke opgaven, te weten:

  • Werken aan de Brabantse energietransitie: Klimaatverandering heeft nu al een grote impact op de Brabantse leefomgeving en gaat in de toekomst nog meer van zich doen gelden. De verbranding van fossiele brandstoffen levert een grote bijdrage aan de uitstoot van broeikasgassen. Besparing in het gebruik van fossiele brandstoffen en grondstoffen en het overschakelen naar duurzame vormen van energieopwekking zijn de belangrijkste manieren om vanuit Brabant een bijdrage te leveren aan de beperking van de CO2-uitstoot. Daarom zetten we in op het besparen en verduurzamen van de energievoorziening. Met 50% CO2-equivalenten reductie en tenminste 50% duurzame energie als doel in 2030, en een energieneutraal Brabant in 2050.
  • Werken aan een klimaatproof Brabant: de klimaatverandering heeft een grote impact op Brabant. Het wordt steeds natter, droger, warmer en de zeespiegel stijgt. Daarom is het nodig dat Brabant in 2030 klimaatproof handelt, om in 2050 klimaatproof te zijn. Dit houdt in dat we bij pieken van teveel water zorgen dat we het kwijt kunnen zonder het te verplaatsen naar lager gelegen delen. Het beeklandschap voorkomt overlast in het bebouwd gebied. We houden water zo veel mogelijk vast om het in tijden van droogte te kunnen benutten. We zorgen in steden voor voldoende afkoeling. We zorgen dat de grote rivieren voldoende ruimte hebben zodat ze geen overlast veroorzaken.
  • Werken aan de slimme netwerkstad: de bereikbaarheid in Brabant staat onder druk, en steden en omliggende kernen krijgen te maken met verandering van woon- en winkelbehoeften, gevolgen van klimaat en verslechterde omgevingskwaliteit. Daarom spelen we in op de transformatie van stedelijke gebieden en hun omgeving, en slimme mobiliteit. Zodat Brabant in 2050 een goed functionerend netwerk is van stedelijke en landelijke gebieden, waarbij fysieke, sociale en digitale netwerken elkaar op de verschillende schaalniveaus versterken. Het doel is dat het handelen hiernaar in 2030 door de vele verschillende partijen in Brabant vanzelfsprekend is.
  • Werken aan een concurrerende, duurzame economie: De behoefte aan grondstoffen neemt alleen maar toe terwijl grondstoffen schaarser worden. Steeds duidelijker wordt de noodzaak om duurzamer met de beschikbare grondstoffen om te gaan. Dat is beter voor onze leefomgeving maar is ook in toenemende mate een kwestie van economie. Daarom zetten we in op een Brabantse economie waarin herbruikbaarheid van grondstoffen en het behoud van natuurlijke hulpbronnen het uitgangspunt is in 2050. Het streven naar waardecreatie voor mens, natuur en economie gaan daarbij hand in hand. Richting 2030 willen we samen met maatschappelijke partners het gebruik van primaire grondstoffen verminderen.

Planspecifiek
De provincie zet in op een energieneutrale gebouwde omgeving, beginnend bij energiebesparing. De beoogde ontwikkeling sluit hierop aan, aangezien de nieuwe woningen zonder aardgasaansluiting worden gerealiseerd.

In de omgevingsvisie zijn verder geen specifieke doelstellingen geformuleerd ten aanzien van de voorgenomen ontwikkeling in het plangebied. Vandaar dat de omgevingsvisie geen belemmering vormt voor de realisatie van het plan.

2.2.2 Interim Omgevingsverordening Noord-Brabant

Provinciale Staten van Noord-Brabant hebben op 11 maart 2022 de laatste wijziging van de ‘Interim omgevingsverordening Noord-Brabant - actualisatie april 2022’ vastgesteld. Naar aanleiding hiervan is er op 15 april 2022 een geconsolideerde versie van de 'Interim omgevingsverordening Noord-Brabant' vastgesteld. Net zoals de Omgevingswet een groot aantal wetten vervangt, zo vervangt de Brabantse omgevingsverordening een aantal provinciale verordeningen. Naast een omgevingsvisie moet de provincie vanuit de Omgevingswet ook een omgevingsverordening vaststellen voor haar grondgebied. In de omgevingsvisie staat wat de provincie wil bereiken en wat ze wil doen om dat te bereiken. Soms vraagt dat om een nadere uitwerking van beleid en maatregelen in een (beleids)programma, soms zijn er regels nodig om de ambities te realiseren.

In de Interim omgevingsverordening zijn de bestaande regels samengevoegd van de Provinciale milieuverordening, Verordening natuurbescherming, Verordening Ontgrondingen, Verordening ruimte, Verordening water en de Verordening wegen.

De Interim omgevingsverordening is beleidsneutraal van karakter. Dat betekent dat de huidige regels zijn gehandhaafd met het huidige beschermingsniveau en dat er in beginsel geen nieuwe beleidswijzigingen zijn doorgevoerd.

In hoofdstuk 3 zijn de instructieregels aan gemeenten opgenomen. De volgende regels zijn relevant voor het plangebied.

Afdeling 3.5 Stedelijke ontwikkeling en mobiliteit
Een bestemmingsplan dat voorziet in de ontwikkeling van een locatie wonen, werken of voorzieningen gelegen in het stedelijk gebied bevat een onderbouwing dat de ontwikkeling past binnen de regionale afspraken. Daarbij dient ook sprake te zijn van een duurzame stedelijke ontwikkeling.

De uitgangspunten van een duurzame stedelijke ontwikkeling zijn opgenomen in artikel 3.42 van de Interim omgevingsverordening. Deze zijn:

  • a. het bevorderen van een goede omgevingskwaliteit met een veilige en gezonde leefomgeving;
  • b. het bevorderen van zorgvuldig ruimtegebruik, waaronder de transformatie van verouderde stedelijke gebieden;
  • c. het optimaal invulling geven aan de mogelijkheden voor productie en gebruik van duurzame energie;
  • d. rekening houden met klimaatverandering, waaronder het tegengaan van hittestress en voldoende ruimte voor de opvang van water;
  • e. het optimaal invulling geven aan de mogelijkheden voor duurzame mobiliteit;
  • f. bijdragen aan een duurzame, concurrerende economie.

Afdeling 3.2 Basis op orde

Paragraaf 3.2.1 Waterwinning voor menselijke consumptie
Naast de rechtstreeks werkende regels die zijn opgenomen in hoofdstuk 2 gelden er regels voor de toedeling van functies binnen de waterwinning voor menselijke consumptie. De regels hebben een verschillend karakter en vullen elkaar aan. De rechtstreeks werkende regels reguleren concrete activiteiten binnen de gebieden.

Vanuit een oogpunt van eenduidige regelgeving is het niet logisch dat een bestemmingsplan functies toedeelt in die gebieden, die de bodem en het zich daarin bevindende grondwater aantasten.

Artikel 3.12 Boringsvrije zone
In de boringsvrije zone geldt een beperkte bescherming, namelijk behoud van de beschermende kleilaag in de bodem. Hiertoe zijn concrete regels gesteld in hoofdstuk 2 van de verordening. Over het algemeen is het voor boringsvrije zones niet noodzakelijk om inhoudelijke bescherming via het ruimtelijk spoor op te nemen aangezien in hoofdstuk 2 van de omgevingsverordening voorziet in een systeem van melding van activiteiten. Desondanks is opname van de zone in het bestemmingsplan zinvol vanwege mogelijke beperkingen die er gelden voor bijvoorbeeld de ontwikkeling van bodemenergiesystemen bij de ontwikkeling van nieuwe functies.

Planspecifiek
Duurzame stedelijke ontwikkeling

Eén van de uitgangspunten in artikel 3.42 van de Interim omgevingsverordening is dat er rekening wordt gehouden met klimaatverandering, waaronder het tegengaan van hittestress en voldoende ruimte voor de opvang van water. In de regels van het bestemmingsplan is een voorwaardelijke verplichting (regen)waterberging opgenomen (zie artikel 5.2.8 van de regels). Dit regenwater zal zoveel mogelijk worden hergebruikt dan wel worden geïnfiltreerd.

Boringsvrije zone

Er is een boringsvrije zone in het bestemmingsplan vastgelegd, zowel op de verbeelding als in de planregels (zie artikel 10.1 van de regels).

2.2.3 Conclusie

In het plangebied zijn geen provinciale belangen in het geding.

2.3 Gemeentelijk beleid

2.3.1 Omgevingsvisie Waalre

Op 16 december 2021 heeft de gemeenteraad de structuurvisie 'Omgevingsvisie Waalre' vastgesteld. In deze Omgevingsvisie worden drie integrale kernopgaven richting 2040 vastgelegd:

  • Het versterken van een kwalitatief hoogwaardige woongemeente;
  • Het behouden en versterken van het groene karakter;
  • Werken aan een vitale gemeente.

Deze kernopgaven zijn verder uitgewerkt en vertaald in ruimtelijke keuzes en gebiedsopgaven.

Het versterken van een kwalitatief hoogwaardige woongemeente

Een echt kwalitatieve woongemeente gaat over een toegankelijke woningmarkt en het creëren van een gezonde en duurzame woonomgeving. Om deze ambities te verwezenlijken zijn slimme gebiedsgerichte strategieën nodig, die niet alleen gaan over het toevoegen van nieuwe woningen, maar ook over aanpassing en kwaliteitsverbetering van de bestaande woonomgeving en transformatie van gebieden.

Dit komt erop neer dat binnen de gemeentegrenzen er voor iedereen geschikte woonruimte is te vinden, zodat het voor iedere inwoner in elke levensfase mogelijk is om in de gemeente te komen of blijven wonen. De gemeente zet hierbij in op de ontwikkeling van hoogwaardig en groen-dorps wonen op de geplande uitbreidingslocaties, centraal dorps wonen in en aan de randen van Waalre en Aalst (goed bereikbaar en dicht bij voorzieningen) en landelijk wonen in het buitengebied. Het aanbod moet bestaan uit zowel betaalbare woningen als woningen in een hoger segment. De gemeente streeft daarbij naar gemengde woonmilieus met differentiatie aan woningtypen en prijsklassen. Dit draagt bij aan een inclusieve samenleving. Bovendien moeten de woningen en woonomgeving in Waalre zijn aangepast aan de eisen van de tijd. Zo moeten woningen worden verduurzaamd en de wijken een gezond en veilig leefklimaat bieden. Het moet voor elke inwoner mogelijk zijn om dicht bij huis te sporten, te bewegen en elkaar te ontmoeten. Bovendien is er ruimte voor herontwikkeling en transformatie in bestaand stedelijk gebied en in het buitengebied. De bosvillagebieden behouden hun hoogwaardige en groene karakter.

Planspecifiek
Het plangebied ligt binnen het deelgebied 'Centrum Wonen' uit de Omgevingsvisie Waalre. In dit gebied is er veel ruimte voor het veranderen en opnieuw inrichten van bedrijfslocaties naar wonen. Vrijkomende of leegstaande gebouwen kunnen worden gebruikt voor transformatie naar wonen. In dit geval komt een ter plaatse minder passende kantoorfunctie te vervallen en komt hier een meer passende woonfunctie voor terug. De beoogde woningen, die zich in (de nabijheid van) bosvillagebied bevinden, worden landschappelijk ingepast en daarmee behoudt het gebied haar hoogwaardige en groene karakter.

2.3.2 Beleidsnotitie Duurzame nieuwbouw 2022

Bij de gemeente Waalre staat duurzaamheid al jaren hoog in het vaandel. De gemeente zet zich daarom actief in voor een leefbare omgeving, voor nu en in de toekomst. Het duurzame nieuwbouwbeleid is hier een onderdeel van. In de beleidsnotitie Duurzame nieuwbouw (vastgesteld in de gemeenteraad, maart 2022) zijn ambities vertaald naar concrete speerpunten en accenten voor de toekomstige nieuwbouw in gemeente Waalre.

Gemeente Waalre wil dat duurzaamheid leidend is bij de keuzes in het ontwikkelen en realiseren van nieuwbouw. Daarbij wil Waalre ook innovatief zijn en actuele kennisontwikkelingen verwerken in haar beleid. Daarom heeft de gemeente Waalre voor twee thema's speerpunten met eisen en ambities geformuleerd waaraan toekomstige nieuwbouw in gemeente Waalre moet voldoen.

Het betreft de volgende thema's:

  • Materiaal (circulariteit);
  • Energie.

Gemeente Waalre wil daarnaast een tweetal aanvullende thema's toevoegen aan haar duurzame nieuwbouwbeleid, namelijk natuurinclusief bouwen en klimaatadaptief bouwen. Deze twee thema's worden bewust minder zwaar aangezet in deze beleidsnotitie, omdat de maatregelen hiervoor vooral betrekking hebben op gebiedsniveau. Deze notitie richt zich op gebouwniveau. Daarom stelt de gemeente geen specifieke eisen voor deze thema's.

afbeelding "i_NL.IMRO.0866.BP00217-0201_0004.png"

Planspecifiek
Bij de uitwerking van de bouwplannen is de gemeentelijke GPR systematiek voor gebouwen van toepassing. In ieder geval zullen de nieuwe woningen gasloos moeten worden uitgevoerd en moeten voldoen aan de BENG-normen op het gebied van isolatie en energieprestatie, die sinds 1 januari 2021 van kracht zijn.

Het hemelwater van het dak van alle nieuwe bebouwing in het plangebied wordt waar mogelijk in het plangebied geïnfiltreerd.

2.4 Conclusie

Het voorliggende bestemmingsplan is in overeenstemming met het hierboven genoemde beleid.

Hoofdstuk 3 Huidige situatie

Het plangebied bestaat in de huidige situatie uit een met bomen omringd, grotendeels verhard perceel met een kleinschalig bedrijfsverzamelgebouw, met daarin diverse kantoorruimtes.

afbeelding "i_NL.IMRO.0866.BP00217-0201_0005.png"

Luchtfoto plangebied (Bron: Street Smart, Cyclomedia)

afbeelding "i_NL.IMRO.0866.BP00217-0201_0006.png"

Impressie vanaf de Dennelaan (Bron: Street Smart, Cyclomedia)

Van bovenaf ziet het plangebied er schematisch als volgt uit:

afbeelding "i_NL.IMRO.0866.BP00217-0201_0007.png"

Impressie bestaande situatie (Bron: basisregistratie grootschalige topografie)

Hoofdstuk 4 Planbeschrijving

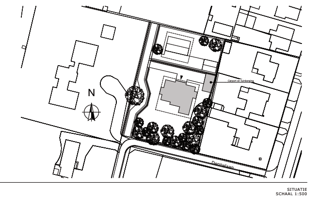
De initiatiefnemers zijn voornemens om, op het perceel aan de Dennelaan 1-1A, de huidige bebouwing te slopen en twee nieuwe vrijstaande woningen te realiseren. Het plangebied vormt een zelfstandig kadastraal perceel welke nog gesplitst dient te worden in twee percelen van 1.659 m2 respectievelijk 747 m2.. Het plangebied is onderdeel van de (bos)villabebouwing in de Dennelaan met vrijstaande woningen in een groene omgeving. Aan de linkerzijde van het plangebied wordt een ontsluitingsweg gerealiseerd.

afbeelding "i_NL.IMRO.0866.BP00217-0201_0008.png"

De zuidelijkst gelegen woning wordt met de voorgevel naar het noorden geprojecteerd waardoor er een diepe tuin op het zuiden richting Dennelaan wordt gecreëerd. Tegen de perceelsgrens van het woonperceel Irenelaan 2e wordt een carport/tuinberging gerealiseerd.

afbeelding "i_NL.IMRO.0866.BP00217-0201_0009.png"

Impressie achterzijde zuidelijkst gelegen woning bezien vanaf de Dennelaan (Bron: Margry Arts Architecten)

afbeelding "i_NL.IMRO.0866.BP00217-0201_0010.png"

Impressie voorzijde zuidelijkst gelegen woning (Bron: Margry Arts Architecten)

De noordelijke woning wordt met de voorgevel naar de ontsluitingsweg geprojecteerd.

afbeelding "i_NL.IMRO.0866.BP00217-0201_0011.png"

Impressie voorzijde van mogelijk planvoornemen voor noordelijk gelegen woning (bron: initiatiefnemer)

afbeelding "i_NL.IMRO.0866.BP00217-0201_0012.png"

Impressie achterzijde van mogelijk planvoornemen voor noordelijk gelegen woning (bron: initiatiefnemer)

Hoofdstuk 5 Onderzoek planeffecten

5.1 Verkeer & parkeren

5.1.1 Verkeer

Om inzicht te bieden in de mate van verkeerstoename als gevolg van de ontwikkeling, die met dit bestemmingsplan wordt gefaciliteerd, moet de verkeersaantrekkende werking worden bepaald. Daarvoor is gebruik gemaakt van de CROW-publicatie 381 'Toekomstbestendig parkeren. Van parkeerkencijfers naar parkeernormen'. Voor de verkeersgeneratie wordt uitgegaan van een gemiddelde weekdag.

Om de verkeersgeneratie te bepalen is gekeken naar de ligging van het plangebied. De gemeente Waalre is qua stedelijkheidsgraad aan te merken als "matig stedelijk' gebied en het plangebied maakt onderdeel uit van de 'rest bebouwde kom', waardoor de verkeersgeneratie (uitgaande van het gemiddelde van de aangegeven bandbreedtes) uitkomt op:

  • 8,2 voertuigbewegingen per vrijstaande woning, koop;

In de toekomstige situatie neemt het aantal woningen, die worden ontsloten op de Dennelaan, in het plangebied met twee woningen toe. Dit betekent dat het aantal voertuigbewegingen slechts beperkt toeneemt met 16,4 extra voertuigbewegingen per weekdag. Daar staat bovendien tegenover dat de voertuigbewegingen als gevolg van de voormalige kantooractiviteiten in het plangebied komen te vervallen. De capaciteit van de Dennelaan is voldoende om het aantal voertuigbewegingen op te vangen.

Het aspect 'verkeer' vormt geen belemmering voor de uitvoerbaarheid van dit bestemmingsplan.

5.1.2 Parkeren

Ook voor wat betreft de parkeerbehoefte als gevolg van de ontwikkeling is aansluiting gezocht bij CROW-publicatie 381 'Toekomstbestendig parkeren. Van parkeerkencijfers naar parkeernormen'. De parkeerkencijfers uit de publicaties van CROW worden weergegeven in de vorm van een bandbreedte. Uitgaande van het midden van deze bandbreedte komt de parkeerbehoefte van onderhavige ontwikkeling, in 'matig stedelijk gebied' en 'rest bebouwde kom', neer op:

  • 2,2 parkeerplaatsen per woning (koop)

Uitgaande van twee woningen betekent dit dat er 2 x 2,2 = 4,4 parkeerplaatsen nodig zijn om te voldoen aan de parkeernorm.

Het uitgangspunt is dat de parkeervraag voor een nieuwe ontwikkeling op eigen terrein wordt opgelost. Beide (nog te splitsen) percelen worden voorzien van 3 parkeerplaatsen op eigen terrein.

Het aspect 'parkeren' vormt geen belemmering voor de uitvoerbaarheid van dit bestemmingsplan.

5.2 Bodem

5.2.1 Regelgeving

Op grond van het Besluit ruimtelijke ordening (Bro) moet in verband met de uitvoerbaarheid van een project rekening worden gehouden met de bodemgesteldheid. Bij functiewijzigingen moet worden bekeken of de bodemkwaliteit voldoende is voor de beoogde functie en moet worden vastgesteld of er sprake is van een saneringsnoodzaak. In de Wet bodembescherming is bepaald dat indien de desbetreffende bodemkwaliteit niet voldoet aan de norm voor de beoogde functie, de grond zodanig moet worden gesaneerd, dat zij kan worden gebruikt door de desbetreffende functie (functiegericht saneren). De Wet bodembescherming heeft betrekking op landbodems; waterbodems vallen onder de Waterwet. Op grond van de Woningwet en de Bouwverordening moet voor elke individuele bouwlocatie aangetoond te worden dat de bodem geschikt is voor de beoogde bebouwing, alvorens een omgevingsvergunning verleend kan worden.

Bij het opstellen van een bestemmingsplan is de vraag of de aanwezige bodemkwaliteit past bij het huidige of toekomstige gebruik van die bodem en of deze optimaal op elkaar kunnen worden afgestemd. Het uitgangspunt hierbij is dat eventueel aanwezige bodemverontreiniging geen onaanvaardbaar risico oplevert voor de gebruikers van de bodem en dat de bodemkwaliteit niet verslechtert door grondverzet. Dit is het zogenaamde stand still-beginsel. Het vaststellen van de bodemkwaliteit wordt bij het opstellen/wijzigen van een bestemmingsplan dan ook alleen van belang geacht voor de locaties waar ontwikkelingen gepland zijn (zoals functiewijzigingen, bouwen, graven/ophogen).

5.2.2 Doorvertaling bestemmingsplan

Er is een verkennend bodem- en asbestonderzoek uitgevoerd in het plangebied. De rapportage is als Bijlage 1 bij deze toelichting opgenomen.

Algemeen

De bodem op de locatie bestaat tot de verkende diepte van 4,5 m-mv overwegend uit matig fijn, matig siltig zand. Met name de bovengrond is humushoudend. Ter plaatse van boring B07 is op een diepte van 0 – 0,3 m-mv menggranulaat aangetroffen. In de overige boringen zijn in de uitkomende grond geen waarnemingen gedaan die duiden op de mogelijke aanwezigheid van verontreinigende stoffen in de bodem.

Grond

In de bovengrond zijn analytisch licht verhoogde gehalten met cadmium, koper, lood, zink en PCB aangetoond. Deze concentraties overschrijden de achtergrondwaarden, doch overschrijden de interventiewaarden niet.

In de ondergrond zijn analytisch geen van de onderzochte parameters in verhoogde mate aangetoond. Alle liggen onder de achtergrondwaarden.

Op basis van het Besluit bodemkwaliteit kan de milieuhygiënische kwaliteit van de bovengrond indicatief als klasse AW2000 dan wel industrie en de ondergrond indicatief als klasse AW2000 beschouwd worden.

Asbest

In het menggranulaat ter plaatse van asbestgaten ABG1 en ABG2 zijn in de fijne fractie (indicatief) analytisch asbesthoudende materialen aangetoond. Dit gehalte overschrijdt de detectiegrens, doch ligt onder de helft van de interventiewaarde. Formeel wordt het menggranulaat als niet-asbestverdacht beschouwd.

Grondwater

In het grondwater is analytisch een matig verhoogd gehalte met zink en licht verhoogde gehalten met barium en cadmium aangetoond.

Formeel gezien is de bodem op de locatie niet geheel vrij van bodemverontreiniging en is een nader bodemonderzoek noodzakelijk naar het voorkomen van zink in het grondwater. Dit wordt echter niet zinvol geacht en wel om de navolgende redenen:

  • In de vaste bodem wordt geen slechts een lichte verhoging met zink aangetoond. Er zal derhalve geen sprake zijn van een bron op de locatie die in verband kan worden gebracht met de aangetoonde verontreiniging;
  • Het filter van de peilbuis is direct geplaatst onder de bodemlaag, waarin van nature metalen in verhoogde mate worden aangetroffen, als gevolg van natuurlijke uitloging;
  • In de huidige situatie zijn er geen humane risico’s.

Nader bodemonderzoek

Op basis van voornoemde samenvatting en conclusies is nader bodemonderzoek vanuit milieuhygiënisch oogpunt gezien niet aan de orde.

Het aspect 'bodem' vormt geen belemmering voor de uitvoerbaarheid van dit bestemmingsplan.

5.3 Geluid

5.3.1 Regelgeving

Belangrijke basis voor de ruimtelijke afweging van het aspect geluid is de Wet geluidhinder (Wgh). Overeenkomstig de Wgh zijn (spoor-)wegen en industrieterreinen waar zich grote lawaaimakers kunnen vestigen voorzien van zones. Het gebied binnen deze zones geldt als akoestisch aandachtsgebied waar een toetsing uitgevoerd moet worden. Daarbij beperkt de Wgh zich tot een toetsing ter plaatse van zogenaamde geluidsgevoelige objecten. Dit zijn onder andere woningen, onderwijsgebouwen, gezondheidszorggebouwen, kinderdagverblijven, woonwagenstandplaatsen en ligplaatsen voor woonboten.

Voor de geluidsgevoelige gebouwen en terreinen die binnen bepaalde afstanden (zones) van de verschillende geluidsbronnen liggen, schrijft de Wgh voor dat een aangewezen bevoegd gezag (meestal Burgemeester en Wethouders) (maatwerk)grenswaarden bepaalt. De terminologie die de wet hiervoor hanteert is: ten hoogste toelaatbare geluidsbelasting. De getalsmatige invulling van deze grenswaarden voor nieuwe of bestaande geluidgevoelige bestemmingen verschillen per locatie en per geluidssoort. Naast grenswaarden op de gevels van de geluidsgevoelige gebouwen, zijn er in de Wgh ook grenswaarden gericht op de bescherming van het akoestische klimaat binnen de bestaande gebouwen.

Regelgeving
In de Wgh en het Besluit geluidhinder (Bgh) is de zonering van wegen en het daarbij horende normenstelsel geregeld. Een zone is het akoestisch aandachtsgebied. Volgens de Wgh bevinden zich langs alle wegen wettelijke geluidzones, met uitzondering van woonerven en 30-km/uur-gebieden.

Bij vaststelling van een bestemmingsplan moet voor alle wegen waarvan de zone een overlap met het plangebied kent, een akoestisch onderzoek worden verricht (artikel 76, lid 1 Wgh). De breedte van deze zone is afhankelijk van het aantal rijstroken en de aard van de omgeving (stedelijk of buitenstedelijk), zie navolgende tabel.

afbeelding "i_NL.IMRO.0866.BP00217-0201_0013.png"

Overzicht zonebreedtes (vanaf de as van de weg tot de volgende breedte aan weerszijden van de weg)

De definities van het buitenstedelijk en stedelijk gebied zijn opgenomen in artikel 1 van de Wgh. Als buitenstedelijk gebied wordt aangemerkt het gebied buiten de bebouwde kom en het gebied binnen de zone van een autoweg of autosnelweg, die binnen de bebouwde kom ligt. Voor nieuwe woningen bedraagt de wettelijke (voorkeurs)grenswaarde 48 dB.

5.3.2 Doorvertaling bestemmingsplan

De twee woningen zijn geluidgevoelige bestemmingen die zijn gelegen in de geluidszone van de Valkenswaardseweg, Eindhovenseweg en Koningin Julianalaan. Er is daarom een akoestisch onderzoek wegverkeerslawaai uitgevoerd, waarbij in het kader van een goede ruimtelijke ordening tevens de nabijgelegen niet-gezoneerde wegen Koningin Wilhelminalaan, Irenelaan en Dennelaan zijn betrokken. Dit onderzoek is als Bijlage 2 bij deze toelichting gevoegd.

De geluidsbelasting op de nieuw te bouwen woningen bedraagt maximaal 46 dB. Er vindt geen overschrijding van de ten hoogste toelaatbare geluidsbelasting van 48 dB plaats. Er gelden vanuit akoestisch oogpunt geen belemmeringen voor de realisatie van het plan.

Het aspect 'wegverkeerslawaai' vormt geen belemmering voor de uitvoerbaarheid van dit bestemmingsplan.

5.4 Milieuzonering

5.4.1 Regelgeving

Wanneer ruimtelijke ontwikkelingen in de directe omgeving van inrichtingen en/of bedrijven worden gerealiseerd, zal een milieukundig onderzoek uit moeten wijzen in hoeverre er sprake is van mogelijke beperkingen ten gevolge van de aanwezige inrichtingen en of bedrijven. Maar ook andersom moet aandacht worden besteed aan de rechten van de aanwezige inrichtingen en/of bedrijven. Het is immers niet de bedoeling dat nieuwe ontwikkelingen de huidige bedrijfsvoering in de directe omgeving zullen beperken. Datzelfde geldt uiteraard ook voor de situatie dat inrichtingen en/of bedrijven wijzigen in de nabijheid van bestaande gevoelige functies.

Via de milieuwetgeving wordt milieuhinder zoveel mogelijk voorkomen. Alle bedrijven en inrichtingen die in potentie hinder zouden kunnen veroorzaken, moeten een vergunning hebben in het kader van de Wet milieubeheer of moeten middels een melding aantonen dat zij aan de hierin gestelde richtwaarden kunnen voldoen. De gestelde richtwaarden zijn veelal vertaald in minimale afstanden tussen de inrichtingen waar activiteiten plaatsvinden en de milieugevoelige functies in de directe omgeving. Behalve van de aard en omvang van een bedrijf of inrichting, is deze mede afhankelijk van de omgevingskarakteristiek. Voor een rustige woonomgeving gelden andere afstanden (strengere eisen) dan voor bijvoorbeeld drukke woonwijken of een gemengd gebied.

Voor het vaststellen van de genoemde minimum richtafstanden tussen inrichtingen en milieugevoelige functies worden in de regel de lijsten zoals deze zijn opgenomen in de handreiking 'Bedrijven en milieuzonering' gebruikt. Bedrijven zijn in de VNG-handreiking ingedeeld in een aantal categorieën met bijbehorende gewenste richtafstanden tot milieugevoelige functies. De categorieën geven de zwaarte van bedrijvigheid en mogelijke milieuhinder weer. De richtafstanden kunnen, zonder dat dit ten koste gaat van het woon- en leefklimaat, met één afstandstap worden verlaagd indien sprake is van omgevingstype gemengd gebied.

afbeelding "i_NL.IMRO.0866.BP00217-0201_0014.jpg" Richtafstanden VNG-publicatie 'Bedrijven en milieuzonering'

Bovenstaande tabel geeft een overzicht van de richtafstanden voor verschillende bedrijfscategorieën ten opzichte van een woonwijk en gemengd gebied. Indien de richtafstand niet wordt overschreden, kan verdere toetsing voor het aspect in beginsel achterwege blijven: inpassing is dan mogelijk. Indien niet aan de richtafstanden wordt voldaan, is een nadere beschouwing danwel onderzoek nodig.

5.4.2 Doorvertaling bestemmingsplan

Er is een akoestisch onderzoek industrielawaai in het kader van het aspect milieuzonering uitgevoerd in het plangebied. Dit onderzoek is als Bijlage 3 bij deze toelichting opgenomen.

Het akoestisch onderzoek heeft als doel het bepalen van de geluidsbelasting op de woningen ten gevolgen van omliggende bedrijvigheid en deze te toetsen aan de grenswaarden uit de VNG-publicatie. De beoogde geluidsgevoelige bestemmingen vallen binnen de richtafstand van 30 m van een camperverhuurbedrijf dat ten noorden ligt van de onderzoekslocatie.

Voor de inpasbaarheid in relatie tot de activiteiten en geluidbelastingen afkomstig van het camperverhuurbedrijf kan de VNG-publicatie ‘Bedrijven en milieuzonering’ worden gehanteerd. Voor de beoogde woningen gelden conform de VNG-publicatie in beginsel de richtwaarden volgens stap 2 voor het langtijdgemiddeld beoordelingsniveau (LAr,LT), het maximale geluidsniveau (LAmax) en de verkeersaantrekkende werking (Lih). De omgeving wordt als een 'rustige woonwijk' getypeerd.

Het langtijdgemiddeld beoordelingsniveau, het maximale geluidsniveau en de indirecte hinder voldoen in elke periode aan de richtwaardes uit de VNG-publicatie. De berekeningen zijn uitgevoerd conform methode II.8 van de Handleiding meten en rekenen industrielawaai (VROM, 1999) met behulp van het softwarepakket Geomilieu versie 2022.1.

Het aspect 'milieuzonering' vormt geen belemmering voor de uitvoerbaarheid van dit bestemmingsplan.

5.5 Luchtkwaliteit

5.5.1 Regelgeving

Op 15 november 2007 is de wijziging van de Wet milieubeheer in werking getreden. Deze wet vervangt het 'Besluit luchtkwaliteit 2005' en is één van de maatregelen die de overheid heeft getroffen om:

  • negatieve effecten op de volksgezondheid als gevolg van te hoge niveaus van luchtverontreiniging aan te pakken.
  • mogelijkheden voor ruimtelijke ontwikkeling te creëren ondanks de overschrijdingen van de Europese grenswaarden voor luchtkwaliteit.

De paragraaf luchtkwaliteit in de Wet milieubeheer voorziet onder meer in een gebiedsgerichte aanpak van de luchtkwaliteit via het Nationaal Samenwerkingsprogramma Luchtkwaliteit (NSL). De programma-aanpak zorgt voor een flexibele koppeling tussen ruimtelijke activiteiten en milieugevolgen. Van bepaalde projecten met getalsmatige grenzen is vastgesteld dat deze 'niet in betekenende mate' (NIBM) bijdragen aan de luchtverontreiniging. Deze mogen zonder toetsing aan de grenswaarden voor luchtkwaliteit uitgevoerd worden. Luchtkwaliteitseisen vormen onder de nieuwe 'Wet luchtkwaliteit' geen belemmering voor ruimtelijke ontwikkeling als:

  • er geen sprake is van een feitelijke of dreigende overschrijding van een grenswaarde.
  • een project, al dan niet per saldo, niet tot een verslechtering van de luchtkwaliteit leidt.
  • een project 'niet in betekenende mate' bijdraagt aan de luchtverontreiniging (meer dan 3 % ten opzichte van de grenswaarde). Het gaat hier bijvoorbeeld om woningbouwlocaties met één ontsluitingsweg en niet meer dan 1.500 nieuwe woningen, dan wel, in geval van twee ontsluitingswegen met een gelijkmatige verkeersverdeling, netto niet meer dan 3.000 woningen.
  • een project is opgenomen in een regionaal programma van maatregelen of in het NSL, dat in werking is getreden nadat de EU in april 2009 derogatie heeft verleend.

Als aannemelijk kan worden gemaakt dat aan één of meerdere van de bovengenoemde criteria wordt voldaan, kan het project zonder toetsing aan de gestelde grenswaarden voor luchtkwaliteit worden uitgevoerd.

In de Ministeriële regeling 'niet in betekenende mate bijdragen' zijn voor verschillende categorieën van projecten grenzen gesteld aan de projectomvang, waaronder een project met zekerheid NIBM bijdraagt aan de concentraties luchtverontreinigende stoffen in de buitenlucht.

Gevoelige bestemmingen als scholen, kinderdagverblijven, bejaarden- en zorgtehuizen genieten op grond van het Besluit gevoelige bestemmingen (luchtkwaliteitseisen) extra bescherming: substantiële uitbreiding of nieuwvestiging binnen 50 m van een provinciale weg of 300 m van een rijksweg is alleen toegestaan als de concentraties luchtvervuilende stoffen zich onder de grenswaarden bevinden, waardoor geen onacceptabele gezondheidsrisico's optreden. De zones worden afgemeten vanaf de rand van de weg. In de context van dit besluit worden ziekenhuizen, woningen en sportaccommodaties dus niet als gevoelige bestemming gezien.

5.5.2 Doorvertaling bestemmingsplan

Met dit bestemmingsplan wordt de realisatie van twee vrijstaande koopwoningen mogelijk gemaakt. In subparagraaf 5.1.1 Verkeer is bepaald dat er slechts een beperkte toename van het aantal voertuigbewegingen plaatsvindt. Een berekening met de NIBM-tool (versie 6 april 2021) toont aan dat sprake is van een NIBM-bijdrage aan de verslechtering van de luchtkwaliteit:

afbeelding "i_NL.IMRO.0866.BP00217-0201_0015.png"

Er is ook geen sprake van het realiseren van gevoelige bestemmingen zoals opgenomen in het 'Besluit gevoelige bestemmingen'.

Tevens blijkt uit raadpleging van de NSL-monitoringstool dat de luchtkwaliteit wat betreft NO2 en PM10 in en om het plangebied in het jaar 2020 met <35 µg/m³ ruimschoots aan de norm van 40 µg/m³ voldoet. Wat betreft de concentratie PM2,5 wordt met een waarde van <20 µg/m³ ook ruimschoots aan de betreffende norm van 25 µg/m³ voldaan.

Het aspect 'luchtkwaliteit' vormt geen belemmering voor de uitvoerbaarheid van dit bestemmingsplan.

5.6 Externe veiligheid

5.6.1 Regelgeving

Externe veiligheid gaat over het beheersen van de risico's die ontstaan voor de omgeving bij het gebruik, de opslag en het vervoer van gevaarlijke stoffen als vuurwerk, lpg en munitie over weg, water en spoor en door buisleidingen. Het beleid rondom externe veiligheid is vastgelegd in circulaires, regelingen, AMvB's en wetten.

In Nederland worden twee maten gehanteerd voor externe veiligheidsrisico's, namelijk het plaatsgebonden risico en het groepsrisico. Bij het plaatsgebonden risico (PR) gaat het om de kans per jaar dat een denkbeeldig persoon overlijdt als rechtstreeks gevolg van een ongeval met gevaarlijke stoffen als deze persoon zich onafgebroken en onbeschermd in de nabijheid van een risicovolle inrichting of transportas bevindt. Het plaatsgebonden risico wordt weergegeven als een contour rondom de risicovolle inrichting of de transportas.

Het groepsrisico (GR) is de cumulatieve kans dat een (werkelijk) aanwezige groep van 10, 100 of 1.000 personen overlijdt als rechtstreeks gevolg van een ongeval met gevaarlijke stoffen. Het groepsrisico moet verantwoord worden voor het gebied waarbinnen zich de gevolgen van een incident met gevaarlijke stoffen voordoen. Dit is de zogenaamde 1 %-letaliteitsgrens; de afstand vanaf een risicobedrijf waarop nog slechts 1 % van de blootgestelde mensen in de omgeving overlijdt bij een ongeval op het risicobedrijf (invloedsgebied).

Het Besluit externe veiligheid inrichtingen (Bevi) legt veiligheidsnormen op aan bedrijven die een risico vormen voor personen buiten het bedrijfsterrein, bijvoorbeeld rondom chemische fabrieken, LPG-tankstations en spoorwegemplacementen waar goederentreinen met gevaarlijke stoffen rangeren. Deze bedrijven verrichten soms risicovolle activiteiten dichtbij woningen, kantoren, ziekenhuizen, scholen of winkels. Het besluit verplicht gemeenten en provincies wettelijk vanaf de inwerkingtreding van het besluit bij het verlenen van milieuvergunningen en het maken van ruimtelijke plannen met externe veiligheid rekening te houden. Het gaat daarbij niet alleen om het oprichten van of veranderen van inrichtingen of projecteren van nieuwe bestemmingen. Ook bij het vaststellen of herzien van een bestemmingsplan moet de externe veiligheid worden beoordeeld.

In het Besluit externe veiligheid buisleidingen (Bevb) is geregeld hoe een gemeente moet omgaan met risico’s langs relevante buisleidingen. De hogedruk gasleidingen van Gasunie zijn het meest relevant. De risico’s worden vooral bepaald door de maximale druk en diameter van de leiding, maar ook door getroffen maatregelen.

De Wet basisnet voorziet in een wijziging van de Wet vervoer gevaarlijke stoffen ('Wvgs') ter verankering van een landelijk basisnet voor het vervoer van gevaarlijke stoffen. Het basisnet is een samenstel van wegen, binnenwateren en hoofdspoorwegen waaraan een bepaalde risicoruimte voor het vervoer van gevaarlijke stoffen wordt toegekend. Als deze risicoruimte, de zogenaamde risicoplafonds, door een groei van het vervoer van gevaarlijke stoffen wordt overschreden of dreigt te worden overschreden, moet de minister maatregelen nemen. De risicoplafonds moeten daarnaast in acht worden genomen bij het toestaan van nieuwe ruimtelijke ontwikkelingen in de omgeving van basisnetroutes. Op deze manier kan de veiligheid langs de transportroutes voor gevaarlijke stoffen in toenemende mate worden gegarandeerd. Gelijktijdig met de Wet Basisnet zijn ook andere regelingen in werking getreden zoals de wijziging van het Besluit vervoer gevaarlijke stoffen (Bvgs), de Regeling basisnet en het Besluit externe veiligheid transportroutes (Bevt). In het Besluit externe veiligheid transportroutes (Bevt) is een aandachtsgebied gedefinieerd waarbinnen het groepsrisico verantwoord moet worden (200 m). Buiten deze zone hoeft in het invloedsgebied alleen ingegaan te worden op de bestrijdbaarheid en zelfredzaamheid (beperkte verantwoording).

5.6.2 Doorvertaling bestemmingsplan

Op navolgende afbeelding is een uitsnede weergegeven van de provinciale risicokaart. Hierop is informatie weergegeven ten aanzien van inrichtingen met gevaarlijke stoffen, transportroutes en buisleidingen:

afbeelding "i_NL.IMRO.0866.BP00217-0201_0016.png"

Uitsnede risicokaart met globale aanduiding plangebied (blauwe omcirkeling, Bron: www.risicokaart.nl)

In (de directe nabijheid van) het plangebied bevinden zich geen risicovolle inrichtingen en/of objecten dan wel routes van gevaarlijke stoffen, die mogelijk risico's kunnen opleveren voor de personen die zich in het plangebied bevinden.

Dit betekent dat het standaardadvies van de Veiligheidsregio Brabant Zuidoost (VRBZO) van toepassing is:

  • Communiceer actief met de omwonenden in het plangebied over de risico’s van de gevaarlijke stoffen. Geef daarbij aan wat omwonenden moeten doen bij een incident, namelijk vluchten van de risicobron af. Dit bevordert de zelfredzaamheid van omwonenden.
  • Pas de beleidsregels bereikbaarheid en bluswatervoorziening van de VRBZO toe. Wanneer een beoogde oplossing aan de beleidsregels voldoet, kan de gemeente ervan uitgaan dat een goede bereikbaarheid voor de hulpdiensten en een adequate bluswatervoorziening gerealiseerd wordt.

Bij bestemmingplannen waarbij zich een toxisch scenario (giftige schadelijke stoffen) kan voordoen adviseert de VRBZO tevens de volgende maatregelen:

  • Nieuw op te richten gebouwen moeten aan het Bouwbesluit 2012 voldoen. In dit besluit is geregeld dat gebouwen uitgevoerd moeten worden met een mechanische ventilatie die uitgezet kan worden. Aanvullend op deze regelgeving adviseert de VRBZO om de aanzuigopeningen van deze ventilatie bij voorkeur hoog en afgekeerd van de risicobron te realiseren.

De gemeente Waalre neemt de aanbevelingen uit het advies voor zover mogelijk over en past de beleidsregels bereikbaarheid en bluswatervoorziening van de VRBZO toe op de beoogde ontwikkelingen in het plangebied.

Het aspect 'externe veiligheid' vormt geen belemmering voor de uitvoerbaarheid van dit bestemmingsplan.

5.7 Ecologie

5.7.1 Regelgeving

Op 1 januari 2017 is de Wet natuurbescherming (Wnb) in werking getreden. De Wnb kent drie algemene beschermingsregimes waarin de voorschriften van de Vogelrichtlijn, Habitatrichtlijn en twee verdragen (Bern en Bonn) zijn geïmplementeerd en waarin aanvullende voorschriften zijn gesteld voor de dier- en plantensoorten die niet onder die specifieke voorschriften vallen, maar wel bescherming behoeven. In hoofdstuk 3 van de Wnb zijn de beschermingsregimes in drie aparte paragrafen neergelegd. Per beschermingsregime is bepaald welke verboden er gelden en onder welke voorwaarden ontheffing of vrijstelling kan worden verleend door het bevoegd gezag. Het gaat om de volgende beschermingsregimes:

  • 1. Vogels (paragraaf 3.1): alle vogels in de zin van de Vogelrichtlijn;
  • 2. Dieren en planten (paragraaf 3.2): alle dieren en planten, genoemd in de bijlagen bij de Habitatrichtlijn en de verdragen van Bern en Bonn;
  • 3. Overige soorten (paragraaf 3.3): soorten genoemd in de bijlage bij de Wnb, die niet onder de reikwijdte van paragraaf 3.2 vallen.

De verboden en afwijkingsmogelijkheden die zijn opgenomen in de paragrafen 3.1 en 3.2, zijn direct overgenomen uit de genoemde richtlijnen en verdragen. Deze bepalingen zijn dus ook uitsluitend van toepassing op de soorten waarvoor dit onmiddellijk voortvloeit uit deze richtlijnen en verdragen. De bepalingen in paragraaf 3.3 zien op de 'overige soorten' die zijn genoemd in de bijlagen A en B bij de Wnb. Laatstgenoemde groep is te vergelijken met de Tabel 2-soorten uit de Flora- en faunawet.

afbeelding "i_NL.IMRO.0866.BP00217-0201_0017.png" Verbodsbepalingen Wet natuurbescherming

De Wnb brengt voor de bescherming van soorten in ieder geval de volgende drie voor de praktijk belangrijke wijzigingen met zich:

  • 1. Allereerst is onder de Wnb niet langer de minister van Economische Zaken, maar zijn Gedeputeerde Staten van de provincies het bevoegd gezag voor het verlenen van ontheffingen.
  • 2. Ten tweede kunnen de in de praktijk gehanteerde “tabelsoorten” niet langer gebruikt worden. In plaats daarvan wordt met de nieuwe indeling van de Wnb gewerkt.
  • 3. Tot derde is de inhoud van de verboden en de ontheffingsgrondslagen gewijzigd.

In de Wet natuurbescherming zijn de bevoegdheden van het rijk (Rijksdienst voor Ondernemend Nederland (RVO)) aan de provincies overgedragen. Zij maken dan de afwegingen voor de vergunningen en ontheffingen. De beschermde status van soorten kan per provincie verschillen. Provincies hebben de bevoegdheid om bij provinciale verordening vrijstelling te verlenen voor nationaal beschermde soorten. Er is dan geen ontheffing nodig voor werkzaamheden.

Onder de Wet natuurbescherming geldt een zorgplicht voor alle in het wild levende dieren. De zorgplicht houdt in dat werkzaamheden, die nadelig kunnen zijn voor dieren en planten, in redelijkheid zo veel mogelijk worden nagelaten of maatregelen genomen om onnodige schade aan dieren en planten te voorkomen.

Wet Stikstofreductie en Natuurverbetering
Op 1 juli 2021 is de wet Stikstofreductie en Natuurverbetering (Wsn) in werking getreden. Onderdeel van deze wet is de vrijstelling voor bouw-, sloop- en eenmalige aanlegactiviteiten, met inbegrip van de daarmee samenhangende vervoersbewegingen, in het kort de bouwvrijstelling. Er is een knip gemaakt tussen de bouw en het gebruik van een bouwwerk. De milieubelasting tijdens de bouw is tijdelijk, terwijl het gebruik een permanent karakter heeft. Vanwege de vrijstelling is het niet langer nodig een activiteit met tijdelijke emissies te toetsen op stikstof. Dit betekent dat voor het aspect stikstof alleen nog de depositie in de gebruiksfase een rol speelt. De vrijstelling geldt expliciet alleen voor stikstof en niet voor andere negatieve effecten die tijdens de bouwfase als gevolg van geluid, licht en trillingen op Natura 2000-gebieden kunnen optreden.

5.7.2 Doorvertaling bestemmingsplan

Quickscan ecologie
Er is een oriënterend onderzoek naar beschermde flora en fauna uitgevoerd in het plangebied. Dit onderzoek is als Bijlage 4 bij deze toelichting opgenomen.

Gebiedsbescherming
Het plangebied maakt geen onderdeel uit van een Natura 2000-gebied of het Natuurnetwerk Brabant. Het dichtstbijzijnde Natura 2000-gebied is ‘Leenderbos, Groote Heide & De Plateaux’, circa 450 meter van het plangebied. Vanwege de kleinschalige aard van de ontwikkeling en de afstand tussen het plangebied en het Natura 2000-gebied, worden geen significante nadelige effecten, als gevolg van verstoring door geluid, licht, trillingen en dergelijke, op de aangewezen habitatypen en doelsoorten van dit Natura 2000-gebied verwacht. Zekerheidshalve zijn deze mogelijke storingsfactoren toch middels de effectenindicator onderzocht. Zie hiervoor p. 19 van Bijlage 4.

Hoewel externe effecten als gevolg van een toename van stikstofdepositie naar stikstofgevoelige habitattypen binnen Natura 2000-gebieden door de beperkte omvang van de beoogde ontwikkelingen in beginsel op voorhand zijn uit te sluiten, is toch een stikstofdepositieonderzoek uitgevoerd. Zie Bijlage 8 bij de toelichting. Voor de aanleg- en gebruiksfase is door middel van een AERIUS berekening vastgesteld of er sprake is van een melding- of vergunningplicht. Zie Bijlage 9 (aanlegfase) en Bijlage 10 (gebruiksfase) bij de toelichting. Uit de berekening blijkt dat het projecteffect op de Natura 2000-gebieden ten gevolge van de gebruiksfase kleiner dan of gelijk is aan 0,00 mol/ha/jaar. Bij een dergelijk projecteffect zorgt het beoogde plan niet voor een significante toename in stikstofdepositie en kunnen negatieve effecten worden uitgesloten. Op basis van het onderzoek blijkt dat er geen vergunning Wet natuurbescherming (gebiedsbescherming) benodigd is voor het aspect stikstof. 

Soortenbescherming
Uit de quickscan ecologie (Bijlage 4) blijkt dat de sloop van de bebouwing en kap van enkele bomen ten behoeve van de bouw van twee woonhuizen niet leidt tot overtreding van verbodsbepalingen omtrent gebiedsbescherming en houtopstanden in het kader van de Wet natuurbescherming. Er dienen enkele algemene maatregelen worden getroffen ten aanzien van de algemene zorgplicht, foeragerende vleermuizen en algemene broedvogels. Aangezien er kierende dak- en kantpannen in de te slopen bebouwing aanwezig zijn, dient voorafgaand aan de werkzaamheden met aanvullend onderzoek te worden vastgesteld of de te slopen bebouwing een relevante functie heeft voor vleermuizen en huismus (soortenbescherming). Dit nader onderzoek heeft plaatsgevonden en is als Bijlage 5 bij de toelichting gevoegd. In dit onderzoek wordt geconcludeerd dat gedurende het vleermuisonderzoek geen vleermuisverblijfplaatsen zijn vastgesteld en gedurende het huismusonderzoek geen huismusnesten zijn vastgesteld. Wel is er tijdens het onderzoek mogelijk een kleine marterachtige (wezel) waargenomen op het dak van de Dennelaan 1/1A. Als gevolg van deze waarneming heeft een dakzolderinspectie plaatsgevonden. De resultaten van deze dakzolderinspectie zijn neergelegd in een notitie die als Bijlage 6 bij deze toelichting is gevoegd. Tijdens deze inspectie zijn er oude en recentelijke keutels van een steenmarter waargenomen. Door de aanwezigheid van de nieuw aangetroffen keutels kan er geconcludeerd worden dat er een vaste verblijfplaats aanwezig is op de planlocatie. Voor de voorgenomen ontwikkeling is derhalve een ontheffing op grond van de Wet natuurbescherming benodigd voor de steenmarter vanwege het verlies van een steenmarterverblijfplaats. Hiertoe is een mitigatieplan opgesteld (zie Bijlage 7) en een ontheffingsaanvraag ingediend bij het bevoegd gezag, Omgevingsdienst Brabant Noord. Verwacht wordt dat met het nemen van mitigerende maatregelen een ontheffing op de Wet natuurbescherming verkregen kan worden. De ontwikkeling is uitvoerbaar zoals bepaald in de Wro (art. 3.1.6 Bro).

Het aspect 'ecologie' vormt geen belemmering voor de uitvoerbaarheid van dit bestemmingsplan.

5.8 Archeologie & cultuurhistorie

5.8.1 Regelgeving

In artikel 3.1.6 lid 5 van het Besluit ruimtelijke ordening is bepaald dat in de toelichting van een ruimtelijk plan ten minste een beschrijving wordt opgenomen van de wijze waarop met de in het gebied aanwezige cultuurhistorische waarden en in de grond aanwezige of te verwachten monumenten rekening is gehouden.

Op 1 juli 2016 is de Erfgoedwet in werking getreden. Met deze wetswijziging wordt de huidige Monumentenwet 1988 opgesplitst: een gedeelte (dat ziet op de fysieke leefomgeving) zal opgaan in de Omgevingswet, het overige gedeelte is opgenomen in de nieuwe Erfgoedwet. Daarbij is voorzien in overgangsrecht. De bedoeling is dat in de Erfgoedwet een betere integratie met verschillende soorten erfgoed komt. Daarnaast worden de procedures uniformer en daarmee overzichtelijker.

Onderdelen van de Monumentenwet 1988 met betrekking tot de fysieke leefomgeving, worden opgenomen in de Omgevingswet. De aanwijzing van ruimtelijk cultureel erfgoed - beschermde stads- en dorpsgezichten en cultuurlandschappen - en omgang met het cultureel erfgoed in de fysieke leefomgeving, komen in de Omgevingswet terecht en zijn dus niet in de Erfgoedwet geregeld. Hierbij wordt wel als vuistregel gehanteerd: omgang met het erfgoed in de Omgevingswet, duiding van het erfgoed in de Erfgoedwet.

De inwerkingtreding van de Omgevingswet staat vooralsnog gepland voor 2022. Voor de onderdelen die in de Omgevingswet zullen worden opgenomen is een overgangsregeling in de Erfgoedwet opgenomen voor de periode 2016 - 2022. De bepalingen uit de Monumentenwet 1988 die naar de Omgevingswet over zullen gaan, blijven van kracht tot de Omgevingswet in werking treedt.

Het Besluit ruimtelijke ordening en de Erfgoedwet schrijven niet voor in welke mate met archeologie rekening moet worden gehouden. De gemeente heeft wat dit betreft beleidsvrijheid en kan het archeologische belang afwegen ten opzichte van andere belangen, de belangen van de burger en van de gemeente.

5.8.2 Doorvertaling bestemmingsplan

Archeologie
Er is een archeologisch vooronderzoek in de vorm van een bureau- en verkennend booronderzoek uitgevoerd in het plangebied. Dit onderzoek is als Bijlage 11 bij de toelichting gevoegd.

  • In het bureauonderzoek is vastgesteld dat het plangebied zich bevindt op een dekzandrug met een mogelijk landduin in het zuiden van het gebied. Het ligt tevens op ongeveer 300 meter afstand van het beekdal van de Tongelreep. Archeologisch gezien betekent dit dat de ligging van het plangebied gunstig was voor bewoning vanaf de vorming van het landschap. Op grond van de ouderdom van de verwachte afzettingen in het gebied, kunnen in theorie archeologische waarden vanaf het Laat Paleolithicum tot de Nieuwe tijd worden aangetroffen. In de omgeving van het plangebied zijn archeologische vondsten gedaan uit vrijwel alle periodes vanaf het Laat Paleolithicum. De meeste vondsten en sporen zijn gedateerd tot de Romeinse tijd en Vroege Middeleeuwen. De verwachting op archeologische waarden uit de periode Laat-Paleolithicum – Vroege Middeleeuwen in het plangebied is daarom hoog. De verwachting op archeologische resten uit de Late Middeleeuwen – Nieuwe Tijd is daarentegen laag door het ontbreken van bebouwing in het gebied op de historische kaarten. Het fe it dat het plangebied gekarteerd was als heide tussen 1811 en 1832 en dus nog niet ontgonnen, doet vermoeden dat hier ook geen bebouwing was voor het begin van de 19e eeuw.
  • Uit de resultaten van het veldonderzoek blijkt dat deze verwachting gehandhaafd kan blijven. Resten uit het Laat Paleolithicum en Mesolithicum bevinden zich in de top van het dekzand, waarin bodemvorming heeft plaatsgevonden in het zuiden van het plangebied. De verwachting is dat deze resten zich in het gehele onbebouwde gedeelte van he t plangebied zullen bevinden. Voor de periode vanaf het Neolithicum zijn ook sporen te verwachten in de C-horizont van het dekzand. In alle boringen is deze horizont aangetroffen, waarin diepere grondsporen (zoals paalkuilen en waterputten) vanaf het Neolithicum nog aanwezig kunnen zijn. Gezien de diepte van de verdere verstoringen in het plangebied (boringen en de verstoringsdiepte van de funderingen), kunnen deze sporen nog in het hele plangebied aangetroffen worden. Hierdoor blijft de verwachting voor de periode Neolithicum – Vroege Middeleeuwen hoog.

Advies
De hoge verwachting leidt ertoe dat in het plangebied vanaf een diepte van 30 cm –Mv met de aanwezigheid van archeologische resten rekening gehouden moet worden. In het kader van een toekomstige vergunningsverlening betekent dit dat aanvullende onderzoeksinspanning benodigd is om deze verwachting te toetsen (het vaststellen of en in hoeverre in het plangebied sprake is van een behoudenswaardige vindplaats (IVO, karterende/waarderende fase)). Dit onderzoek kan het beste plaatsvinden met behulp van proefsleuven (IVO-P). Na afloop van dit onderzoek kan worden vastgesteld of er in het plangebied sprake is van een waardevolle vindplaats of niet. Ook kan worden bepaald of er aanvullend onderzoek nodig is en zo ja in welke vorm. Voor een proefsleuvenonderzoek dient, evenals ander gravend onderzoek, de werkwijze te worden vastgelegd in een Programma van Eisen (PvE), dat door de gemeente Waalre dient te worden beoordeeld en goedgekeurd. Zie Bijlage 12 voor dit door de gemeente beoordeeld en goedgekeurd PvE.

Totdat er een aanvullend archeologisch onderzoek is uitgevoerd blijft de bestaande dubbelbestemming 'Waarde - Archeologie' gehandhaafd voor het hele plangebied.

Cultuurhistorie
Uit de cultuurhistorische waardenkaart (CHW) van de provincie Noord-Brabant blijkt dat ter plaatse van het plangebied geen waardevolle monumenten of andere cultuurhistorische waarden aanwezig zijn. Door de beoogde ontwikkeling worden geen cultuurhistorische waarden aangetast, omdat de vrijstaande woningen aansluitend op de omvang en situering van de bestaande bebouwing gerealiseerd worden.

Het aspect 'cultuurhistorie' vormt geen belemmering voor de uitvoerbaarheid van dit bestemmingsplan.

5.8.3 Conclusie

De archeologische dubbelbestemming uit het geldende bestemmingsplan blijft gehandhaafd in het hele plangebied tot de resultaten van het archeologisch onderzoek bekend zijn.

Het aspect 'cultuurhistorie' vormt geen belemmering voor de vaststelling van dit bestemmingsplan.

5.9 Waterhuishouding

5.9.1 Regelgeving

Rijk

Mede ten gevolge van de waterproblemen die in een aantal winters aan het eind van de 20e eeuw in Nederland optraden ten gevolge van hevige regenval, is het besef gegroeid dat water een belangrijke plaats verdient in toekomstige ruimtelijke plannen. Om het hoofd te kunnen bieden aan zeespiegelstijging, toenemende neerslag en rivierwaterafvoer en verdergaande bodemdaling, nu en in de toekomst, is het van essentieel belang dat het waterbeheer een belangrijke plaats inneemt in de ruimtelijke ordening. Sleutelbegrippen hierbij zijn: meer ruimte voor water en waterbewust bouwen en inrichten.

Directe aanleiding voor het kabinetsstandpunt 'Anders omgaan met water, waterbeleid in de 21e eeuw' (WB21)', is de zorg over het toenemende hoogwater in de rivieren, wateroverlast en de versnelde stijging van de zeespiegel. Het kabinet is van mening dat er een aanscherping in het denken over water dient plaats te vinden. Nadrukkelijker zal rekening moeten worden gehouden met de (ruimtelijke) eisen die het water aan de inrichting van Nederland stelt.

Op 22 december 2009 is de Waterwet in werking getreden. Ingevolge artikel 3.5 Waterwet is de perceeleigenaar in beginsel zelf verantwoordelijk voor het verwerken van regenwater dat op het eigen perceel valt.

Waterschap

Onderhavig plangebied ligt binnen het beheergebied van het Waterschap De Dommel. Het waterschapsbeleid is onder meer beschreven in het Waterbeheerprogramma 2022 – 2027 (WBP 2015). Het waterbeheerplan 'Water als basis voor een toekomstbestendige leefomgeving' is een strategisch document. Hierin wordt aangegeven wat de doelen zijn voor de periode 2022 - 2027 en hoe het waterschap dit wil bereiken. Een belangrijk principe is 'elke druppel vasthouden en infiltreren waar deze valt'. Op deze manier wordt gewerkt aan een klimaatrobuuste waterhuishouding en wordt voorkomen dat er een watertekort voor groen en landbouw in droge perioden en overstromingen in natte perioden ontstaan. Het plan is afgestemd op het Stroomgebiedsbeheerplan Maas, het Nationaal Waterprogramma en het Provinciaal Waterplan.

Met betrekking tot hydrologisch neutraal ontwikkelen hebben de 3 Brabantse waterschappen Aa en Maas, De Dommel en Brabantse Delta hun beleid sinds 1 maart 2015 geharmoniseerd. In de Keur 2015 zijn nieuwe beleidsuitgangspunten opgenomen voor hydrologisch neutraal bouwen. De nieuwe beleidsregels zijn opgenomen in de regeling ‘Hydrologische uitgangspunten bij de Keurregels voor afvoeren van hemelwater, Brabantse waterschappen’. De keur is een verordening met de regels die het waterschap hanteert bij de bescherming van waterkeringen, watergangen (sloten, beken en rivieren) en bijbehorende kunstwerken (gemalen, stuwen). De nieuwe keur is eenvoudiger en er is minder vaak een vergunning nodig dan voorheen. Activiteiten rondom kleine watergangen zijn in veel gevallen zelfs vrijgesteld van regels. Daarnaast gelden nog algemene regels (omtrent de vrijstelling van een vergunningplicht) en beleidsregels voor waterkering, waterkwantiteit en grondwater.

In de Keur, de algemene regels (art. 15) en de beleidsregels (art. 13) worden bergingseisen gesteld: voor nieuw verhard oppervlak geldt het uitgangspunt dat een bergings-/infiltratievoorziening wordt aangelegd met 60 mm (60 liter per m2) berging.

Gemeente

Het gemeentelijke waterbeleid is opgenomen in het Verbreed gemeentelijk rioleringsplan 2018 - 2022. Voor nieuwbouw is in de huidige bouwverordening opgenomen dat vuilwater en hemelwater gescheiden moet worden aangeleverd.

Bij de afweging voor de verwerking van hemelwater houdt de gemeente rekening met de in de Wet Milieubeheer genoemde voorkeursvolgorde:

  • Vasthouden;
  • Bergen of infiltreren;
  • Afvoeren.

Hemelwater is in principe schoon genoeg voor directe lozing zonder zuivering. Daar waar zuivering toch nodig is, zal de gemeente aanvullende maatregelen treffen of voorschrijven aan de perceeleigenaar. Welke maatregelen de gemeente in redelijkheid toepast, zal lokaal en per geval kunnen verschillen.

Voor nieuwbouw geldt verder dat het bij in- en uitbreidingsgebieden verplicht is het hemelwater op eigen terrein te verwerken om de pieken bij (hevige) neerslag op te vangen. Dit tenzij aangetoond wordt dat infiltratie niet mogelijk is en het niet doelmatig is. Dit kan betekenen dat het hemelwater uiteindelijk toch via de (gescheiden) riolering afgevoerd moet worden. Het gemeentelijke beleid is daarmee strenger dan het beleid van het waterschap.

Tot slot is in de Beleidsnotitie 'Duurzame nieuwbouw Waalre' vastgelegd dat de gemeente streeft naar een hydrologische neutrale situatie bij nieuwbouw. Dit wordt gerealiseerd door bij nieuwbouw een waterberging van 60 mm waterberging per m2 verhard oppervlak te eisen.

Watertoets
Onderdeel van het rijksbeleid is de invoering van de watertoets. De watertoets dient te worden toegepast op nieuwe ruimtelijke plannen. Als een gemeente een ruimtelijk plan wil opstellen, stelt zij de waterbeheerder vroegtijdig op de hoogte van dit voornemen. De waterbeheerders stellen dan een zogenaamd wateradvies op. Het ruimtelijk plan geeft in de waterparagraaf aan hoe is omgegaan met dit wateradvies.

5.9.2 Doorvertaling bestemmingsplan

Bodem

De bodem op de locatie bestaat tot een diepte van 4,5 m-mv overwegend uit matig fijn, matig siltig zand. Met name de bovengrond is humushoudend.

Grondwater

De grondwaterspiegel bevindt zich op een diepte van circa 3 m -mv. De grondwaterstromingsrichting in het ondiepe (freatische) grondwater stroomt regionaal gezien in overwegend noordelijke richting. De onderzoekslocatie is gelegen binnen een boringsvrije zone.

Oppervlaktewater
Er is geen oppervlaktewater in of nabij het plangebied aanwezig.

Afvalwater
Uitgangspunt is dat het vuile afvalwater en het schone hemelwater worden gescheiden. Hemelwater wordt afgekoppeld van het rioleringsstelsel. Het vuile afvalwater wordt op het bestaande rioolstelsel aangesloten.

Hemelwater
Om te kunnen bepalen of er compensatie moet plaatsvinden is gekeken naar het verhard oppervlak in zowel de huidige situatie als de toekomstige situatie.

In de huidige situatie is vrijwel het hele plangebied verhard, behalve een kleine groene zone met bomen aan weerszijden van het plangebied. In de toekomstige situatie wordt het verhard oppervlak beduidend minder. Hiertoe is een verhardingsbalans opgesteld om te laten zien hoe de bestaande situatie en de toekomstige situatie zich tot elkaar verhouden:

Oppervlaktes   Huidig m2   Toekomstig m2  
Daken   725   450  
Terreinverharding   1250   585  
Onverhard terrein   775   1715  
Totaal   2750   2750  

Uit de verhardingsbalans blijkt dat de hoeveelheid verhard oppervlak (1035 m2) afneemt ten opzichte van de bestaande situatie (1975 m2).

Wat de waterbergingsopgave betreft, komt een toekomstige verharding van 1035 m2 neer op 1035 x 0,06 = 62,1 m3.

Deze opgave is ruimtelijk inpasbaar. Zie ook het landschappelijk inpassingsplan, dat als Bijlage 1 bij de regels is gevoegd, en waarin veel ruimte is voor groen en beplanting. Bij de technische uitwerking in het kader van de omgevingsvergunningaanvraag voor bouwen worden uitgezocht of en hoe deze berging bovengronds in het plan verwerkt kan worden.

Het aspect 'waterhuishouding' vormt geen belemmering voor de vaststelling van dit bestemmingsplan.

5.10 Leidingen

5.10.1 Regelgeving

Planologisch relevante leidingen en hoogspanningsverbindingen moeten worden gewaarborgd. Tevens moet rond dergelijke leidingen rekening worden gehouden met zones waarbinnen mogelijke beperkingen gelden. Planologisch relevante leidingen zijn leidingen waarin de navolgende producten worden vervoerd:

  • gas, olie, olieproducten, chemische producten, vaste stoffen/goederen;
  • aardgastransportleiding met een diameter groter of gelijk aan 18”;
  • defensiebrandstoffen;
  • warmte en afvalwater, ruwwater of halffabrikaat voor de drink- en industriewatervoorziening met een diameter groter of gelijk aan 18”.

5.10.2 Doorvertaling bestemmingsplan

In of in de directe omgeving van het plangebied zijn geen hoofdtransportleidingen of persleidingen van water, olie, aardgas, brandstof en/of hoogspanningsverbindingen gelegen, die in het kader van het bestemmingsplan op de verbeelding met bijbehorende bebouwingsvrije zones moeten worden opgenomen.

 

5.11 Vormvrije MER-beoordeling

5.11.1 Regelgeving

Op 1 april 2011 is het gewijzigde Besluit milieueffectrapportage in werking getreden. Een belangrijke wijziging betreft het indicatief maken van de drempelwaarden in onderdeel D (betreft de m.e.r.-beoordeling) van de bijlage bij het Besluit milieueffectrapportage. Concreet betekent dit dat, ook wanneer ontwikkelingen onder de in bijlage D opgenomen drempelwaarden blijven, het bevoegd gezag zich er nog steeds van moet vergewissen of activiteiten geen aanzienlijke milieugevolgen kunnen hebben, de zogenaamde 'vergewisplicht'.

De consequentie van de nieuwe regeling is dat in elk besluit of plan dat betrekking heeft op activiteiten die voorkomen op de D-lijst aandacht moet worden besteed aan m.e.r. Het komt er op neer dat voor elk besluit of plan dat betrekking heeft op activiteit(en) die beneden de drempelwaarden vallen uit de D-lijst, een toets moet worden uitgevoerd of belangrijke nadelige milieugevolgen kunnen worden uitgesloten. Voor deze toets, die dus een nieuw element is in de m.e.r.-regelgeving, wordt de term vormvrije m.e.r.-beoordeling gehanteerd. Deze vormvrije m.e.r.-beoordeling kan tot twee conclusies leiden:

  • belangrijke nadelige milieugevolgen zijn uitgesloten: er is geen m.e.r.(-beoordeling) noodzakelijk;
  • belangrijke nadelige gevolgen voor het milieu zijn niet uitgesloten: er moet een m.e.r.-beoordeling plaatsvinden of er kan direct worden gekozen voor m.e.r.

5.11.2 Doorvertaling bestemmingsplan

In bijlage D van het Besluit m.e.r. is een groot aantal activiteiten genoemd waarvoor een m.e.r.-beoordelingsplicht geldt. Eén van de genoemde activiteiten betreft ‘de aanleg, wijziging of uitbreiding van een stedelijk ontwikkelingsproject, met inbegrip van de bouw van winkelcentra of parkeerterreinen’ (activiteit D11.2). Deze activiteit is m.e.r.-beoordelingsplichtig indien deze betrekking heeft op een oppervlakte van 100 ha of meer of een aangesloten gebied van 2.000 woningen of meer omvat of een bedrijfsvloeroppervlakte van 200.000 m2 of meer.

De voorgenomen activiteiten in dit bestemmingsplan liggen met twee vrijstaande koopwoningen ruim onder de plandrempel waarvoor conform het Besluit m.e.r. een m.e.r.-beoordeling noodzakelijk is. Bovendien verdwijnt er planologisch gezien een kantoorpand uit het plangebied. Gelet hierop, wordt geconcludeerd dat de drempelwaarden niet worden overschreden, waardoor in onderhavig plan kan worden volstaan met het uitvoeren van een zogenaamde ‘vormvrije m.e.r.-beoordeling’. De in dit hoofdstuk beschreven onderzoeksresultaten voldoen niet alleen aan de onderzoeksverplichting van het Besluit ruimtelijke ordening, maar kunnen ook worden opgevat als de vormvrije m.e.r.-beoordeling. Daarbij wordt geconcludeerd dat belangrijke nadelige milieugevolgen zijn uitgesloten.

Hoofdstuk 6 Juridische planopzet

De verschillende bestemmingen en bouwmogelijkheden zoals verwoord in de voorgaande hoofdstukken, zijn vastgelegd in de regels en verbeelding. Dit hoofdstuk beschrijft de juridische vormgeving van voorliggend bestemmingsplan.

6.1 Planregels

6.1.1 Inleidende regels

Begrippen
In artikel 1 is een omschrijving gegeven van de in het bestemmingsplan gebruikte begrippen. Deze worden opgenomen om interpretatieverschillen te voorkomen.

Wijze van meten
In artikel 2 is een omschrijving gegeven van de te gebruiken wijze van meten.

6.1.2 Bestemmingsregels

De regels in verband met de bestemmingen kennen allemaal een gelijke opbouw (voor zover van toepassing). De bestemmingsomschrijving betreft de centrale bepaling van elke bestemming. Het betreft een omschrijving waarin limitatief de functies worden genoemd, die binnen de bestemming zijn toegestaan.

De bouwregels zijn direct gerelateerd aan de bestemmingsomschrijving. Ook het gebruik van gronden en bebouwing is gekoppeld aan de bestemmingsomschrijving. In de bouwregels staan uitsluitend bepalingen die betrekking hebben op het bouwen. Bouwregels zijn dan ook alleen van toepassing bij de toetsing van aanvragen van een omgevingsvergunning voor het bouwen. De afwijking van de bouwregels geven burgemeester en wethouders de bevoegdheid om onder voorwaarden door middel van een omgevingsvergunning af te wijken van een specifieke regel.

De specifieke gebruiksregels vormen een nadere concretisering van het toegestane gebruik. In het kader van een omgevingsvergunningstelsel zijn bepaalde werken en werkzaamheden niet toegestaan zonder dat hiervoor een omgevingsvergunning is verkregen van het daartoe bevoegde gezag.

Artikel 3 Groen

De structurele groenvoorzieningen zijn bestemd als 'Groen' en zijn gelegen aan de westzijde van het (nog te splitsen) perceel rondom de erfgrens en de toegangsweg. Binnen deze bestemming zijn behalve groenvoorzieningen ook paden, speelvoorzieningen, nutsvoorzieningen en waterhuishoudkundige voorzieningen toeegstaan. Gebouwen zijn binnen deze bestemming niet toegestaan met uitzondering van gebouwen ten behoeve van nutsvoorzieningen. Voor zover ten dienste van de bestemming zijn bouwwerken, geen gebouwen zijnde, wel toegestaan.

Artikel 4 Verkeer

De ontsluitingsweg in het plangebied krijgt de bestemming 'Verkeer'. Binnen de bestemming zijn naast de verkeersfunctie tevens groenvoorzieningen en waterhuishoudkundige doeleinden toegestaan, alsmede nutsvoorzieningen en parkeervoorzieningen. Kleine bouwwerken, alsmede gebouwen ten behoeve van voorziening van openbaar nut met een beperkt oppervlak zijn binnen deze bestemming toegestaan.

Artikel 5 Wonen
De gronden die bestemd zijn als 'Wonen' zijn primair bedoeld voor het wonen in grondgebonden woningen.

Hoofdgebouwen
De hoofdgebouwen moeten binnen het bouwvlak worden gebouwd. Het aantal woningen en de maximum bouwhoogte zijn weergegeven op de verbeelding. De bouwvlakken mogen volledig worden bebouwd.

Aan- en uitbouwen, bijgebouwen
Aan- en uitbouwen en bijgebouwen zijn binnen en buiten het bouwvlak toegestaan. Er zijn regels met maximum goot- en bouwhoogtes en oppervlaktes opgenomen. Wat vrijstaande woningen betreft, mag buiten het bouwvlak aan maximaal één zijde van het hoofdgebouw worden aangebouwd.

Kelders

Bij iedere woning mogen één of meer kelders worden gebouwd die vanuit de woning of een aangebouwd bijgebouw bereikbaar moeten zijn. De oppervlakte van de kelders mag in totaal niet meer bedragen dan 1,5 maal de oppervlakte van de woning, exclusief aan- en bijgebouwen. De bovenkant van een kelder gelegen buiten de bebouwing dient geheel gelegen te zijn beneden maaiveld.

Bouwwerken, geen gebouwen zijnde

Voor erfafscheidingen, bouwwerken, geen gebouwen en geen erfafscheidingen zijnde, en overkappingen zijn tevens maximum bouwhoogtes en maximum oppervlaktes opgenomen.

Zwembad

Er is maximaal 1 niet-overdekt zwembad toegestaan per bouwperceel waarvan de oppervlakte maximaal 10% van het gedeelte van het bouwperceel met de bestemming 'Wonen' mag bedragen met een maximum van 100 m². Er mag geen bedrijfsmatige exploitatie van het zwembad plaatsvinden.

Via een omgevingsvergunning wordt een bedrijf aan huis onder voorwaarden toegestaan.

Er zijn in dit artikel twee voorwaardelijke verplichtingen opgenomen: een voorwaardelijke verplichting waterberging (artikel 5.2.8) en een voorwaardelijke verplichting landschappelijke inpassing (artikel 5.4.3).

Artikel 6 Waarde - Archeologie (dubbelbestemming)
Voor terreinen met een middelhoge tot hoge archeologische verwachting wordt duurzaam behoud nagestreefd. Het behoud in situ van archeologische vindplaatsen geschiedt mede door een op het behoud afgestemd beheer.

6.1.3 Algemene regels

In hoofdstuk 3 van de regels is een aantal standaardbepalingen opgenomen te weten, de anti-dubbeltelbepaling, algemene bouwregels, algemene gebruiksregels en algemene afwijkingsregels.

Anti-dubbeltelregel
De anti-dubbeltelregel is opgenomen om te voorkomen dat, wanneer volgens een bestemmingsplan bepaalde gebouwen en bouwwerken niet meer dan een bepaald deel van een bouwperceel mogen beslaan, het opengebleven terrein niet nog eens meetelt bij het toestaan van een ander gebouw of bouwwerk, waaraan een soortgelijke eis wordt gesteld.

Algemene bouwregels
In de algemene bouwregels is een regeling opgenomen voor ondergeschikte bouwdelen.

Algemene gebruiksregels
De regels met betrekking tot strijdig gebruik zijn opgenomen in de algemene gebruiksregels.

Algemene aanduidingsregels
In dit artikel zijn de aanduidingen opgenomen die over meerdere bestemmingen zijn gelegen. Het betreft in dit plan regels voor de boringsvrije zone.

Algemene afwijkingsregels
In dit artikel is aan burgemeester en wethouders de bevoegdheid gegeven om af te wijken van de in het plan genoemde goothoogten, bouwhoogten (met uitzondering van goot- en bouwhoogten van bijgebouwen), oppervlakte- en inhoudsmaten, percentages en afstandseisen, met maximaal 10%.

Tevens is de bevoegdheid opgenomen om door middel van een omgevingsvergunning af te kunnen wijken van de bouwhoogte voor bouwwerken geen gebouwen zijnde ten behoeve van kunstwerken en zend-, ontvang- en/of sirenemasten.

6.1.4 Overgangs- en slotregels

Overgangsrecht
In deze bepaling is vorm en inhoud gegeven aan het overgangsrecht. Het overgangsrecht is een standaardbepaling welke is overgenomen uit het Besluit ruimtelijke ordening.

Slotregel
Als laatste is de slotregel opgenomen. Deze bepaling omschrijft de titel van het plan.

Hoofdstuk 7 Uitvoerbaarheid

In dit hoofdstuk wordt de uitvoerbaarheid beschreven. Indien het bestemmingsplan voorziet in de uitvoering van werken door de gemeente en derden moet de economische uitvoerbaarheid hiervan worden aangetoond.

7.1 Economische uitvoerbaarheid

Alle kosten die gemaakt moeten worden voor het opstellen van het bestemmingplan zijn voor rekening van de initiatiefnemer. Hierover is een overeenkomst met de initiatiefnemer afgesloten. Daarnaast is afgesproken dat de (eventuele) kosten voor tegemoetkoming in planschade voor rekening van de initiatiefnemer komen. Daarmee is het plan economisch uitvoerbaar.

7.2 Handhaving

Het ontwikkelen van beleid en de vertaling daarvan in een bestemmingsplan heeft geen zin, indien na de vaststelling van het bestemmingsplan geen handhaving plaatsvindt. Daarom is het belangrijk om reeds ten tijde van het opstellen van een bestemmingsplan aandacht te besteden aan de handhaafbaarheid van de voorgeschreven regels. Drie factoren zijn van wezenlijk belang voor een goede handhaving.

  • a. Voldoende kenbaarheid van het plan
    Een goed handhavingsbeleid begint bij de kenbaarheid van het bestemmingsplan bij degenen die het moeten naleven. De Algemene wet bestuursrecht (Awb), afdeling 3.4 bevat enkele waarborgen ten aanzien van de te volgen procedure. In de bestemmingsplanprocedure zijn conform de gemeentelijke inspraakprocedure en conform afdeling 3.4 van de Awb een aantal inspraakmomenten ingebouwd.
  • b. Realistische en inzichtelijke regeling
    Een juridische regeling moet inzichtelijk en realistisch zijn; dat wil zeggen niet onnodig beperkend of inflexibel. Bovendien moeten de bepalingen goed controleerbaar zijn. De regels moeten derhalve niet meer regelen dan noodzakelijk is.
  • c. Actief handhavingsbeleid
    Het sluitstuk van een goed handhavingsbeleid is voldoende controle van de feitelijke situatie in het plangebied. Daarnaast moeten adequate maatregelen worden getroffen indien de regels worden overtreden. Indien dit wordt nagelaten, ontstaat een grote mate van rechtsonzekerheid.

Hoofdstuk 8 Procedure

8.1 Inspraak en vooroverleg

Inspraak
In het kader van de beoogde ontwikkeling is door de initiatiefnemers met de bewoners van Irenelaan 2B, 2C, 2D, 2E, 4 en 6, Dennelaan 2 en 3 en Valkenswaardseweg 15 gesproken en zij hebben hen geïnformeerd over de bestemmingswijziging en de te realiseren woningen conform het landschappelijk inpassingsplan, dat als Bijlage 1 bij de regels is gevoegd. Deze omwonenden hebben geen bezwaar tegen de plannen. Bij de bewoners van Koningin Wilhelminalaan 6 is een brief met het planvoornemen in de brievenbus gedaan, maar zij hebben hier (nog) niet op gereageerd.

Vooroverleg
In het kader van het vooroverleg is het bestemmingsplan toegezonden aan de provincie Noord-Brabant en het waterschap De Dommel. Beide organisaties hebben een vooroverlegreactie ingediend.

Provincie

In haar reactie van 29 maart 2023 geeft de provincie aan dat zij ten aanzien van de voorwaarden, zoals die worden genoemd in artikel 3.42 van de Interim omgevingsverordening, een voorwaardelijke verplichting (regen)waterberging opgenomen wenst te zien. Deze is opgenomen in artikel 5.2.8 van de regels. Ook vraagt de provincie aandacht voor de verplichting het regenwater zoveel mogelijk te hergebruiken of te infiltreren. Hier is in paragraaf 2.2.2 van de toelichting aandacht aan besteed.

Waterschap

Het waterschap verzoekt om in de toelichting het huidig en toekomstig verhard oppervlak middels een tabel inzichtelijk te maken en aan te geven wat de omvang van de waterberging is. Ook vraagt zij in de toelichting aandacht te besteden aan de Waterwet, het waterbeheerprogramma 2022-2027 (WBP5) van het waterschap en het gemeentelijk beleid. Paragraaf 5.9.2 is aangepast naar aanleiding van deze opmerkingen. Daarnaast verzoekt zij in de regels een voorwaardelijke verplichting waterberging op te nemen. Deze is opgenomen in artikel 5.2.8 van de regels.

8.2 Vaststelling

Gedurende de wettelijke zienswijzenperiode van 6 weken kan iedereen een schriftelijke of mondelinge zienswijze naar voren brengen bij de gemeenteraad.

Te zijner tijd zullen eventueel ingediende zienswijzen hier of in een separate nota van een gemeentelijke reactie worden voorzien.

8.3 Beroep

Na vaststelling van het bestemmingsplan kan binnen 6 weken na bekendmaking beroep worden ingediend bij de Afdeling Bestuursrechtspraak van de Raad van State. Er staat echter geen beroep open als geen zienswijze is ingediend, tenzij het beroep zich richt tegen wijziging bij vaststelling van het bestemmingsplan.