direct naar inhoud van Toelichting
Plan: Beekhuizenseweg 1a Rozendaal
Status: ontwerp
Plantype: bestemmingsplan
IMRO-idn: NL.IMRO.0277.BPROZEND2023001-0001

Toelichting

Hoofdstuk 1 Inleiding

1.1 Aanleiding en doel

Aan de Beekhuizenseweg 1a te Rozendaal is het voornemen om een woning te realiseren. Hiervoor wordt er in het plangebied bestaande bebouwing gedeeltelijk gesloopt. Het bestaande woonhuis wordt gesloopt, het monumentale bijgebouw wordt behouden en de ondergrondse wijnkelder gerestaureerd. Tevens wordt er uitvoer gegeven aan het, bij dit bestemmingsplan behorende, landschappelijk inrichtingsplan. De voorgenomen plannen zijn niet uitvoerbaar binnen het geldend bestemmingsplan "Rozendaal 2019".

De nieuwe woning wordt opgericht buiten het bestaande bouwvlak. Om het planvoornemen mogelijk te maken, is daarom een herziening van het bestemmingsplan noodzakelijk waarin het bouwblok zoals opgenomen in het bestemmingsplan 'Rozendaal 2019' wordt verplaatst. Deze toelichting voorziet in de onderbouwing van een goede ruimtelijke ordening en vormt samen met de regels en verbeelding de juridische basis om het voornemen mogelijk te maken.

1.2 Ligging en begrenzing plangebied

Het plangebied bevindt zich aan de Beekhuizenseweg 1a. Het plangebied omvat de de gronden op dit adres welke in het bestemmingsplan "Rozendaal 2019" de bestemming "Wonen" en "Tuin" hebben gekregen. Grofweg betreft het de percelen 2162, 2369, 2370, 2371 en 2373. Het plangebied is ca. 0,5 ha in oppervlakte groot.

afbeelding "i_NL.IMRO.0277.BPROZEND2023001-0001_0001.png"

Globale ligging plangebied

1.3 Geldend bestemmingsplan

Voor vaststelling van het onderhavige bestemmingsplan is het bestemmingsplan 'Rozendaal 2019', vastgesteld op 26 mei 2020 door de gemeente Rozendaal, van kracht op het plangebied. Op grond van dit bestemmingsplan rustten op de bestemming de enkelbestemmingen 'Wonen' en 'Tuin'. Daarnaast zijn de dubbelbestemmingen 'Waarde - Archeologie 2', en 'Waarde - Cultuurhistorie - beschermd dorpsgezicht Kasteeldorp' op het plangebied van toepassing. Verder is er een bouwvlak met de bouwaanduiding 'vrijstaand' aanwezig. Ten slotte is in het plangebied ook een bouwaanduiding 'specifieke bouwaanduiding - monument' aanwezig.

afbeelding "i_NL.IMRO.0277.BPROZEND2023001-0001_0002.png" Uitsnede uit het vigerende bestemmingsplan met in rood de plancontour van het voorliggende plan.

1.4 Opzet van de toelichting

Deze toelichting is opgebouwd uit zes hoofdstukken. Na het inleidende hoofdstuk wordt in Hoofdstuk 2 ingegaan op de bestaande en toekomstige situatie. In Hoofdstuk 3 worden de beleidskaders geschetst. Hoofdstuk 4 omvat de toetsing aan de planologische haalbaarheidsaspecten en milieuaspecten. De toelichting besluit met hoofdstukken over de opbouw van de planregels als ook de economische en maatschappelijke uitvoerbaarheid in respectievelijk Hoofdstuk 5 en Hoofdstuk 6.

Hoofdstuk 2 Beschrijving bestaande situatie

2.1 Historie

De geschiedenis van Rozendaal is verbonden met de geschiedenis van het kasteel. Het gehele grondgebied dat nu tot de gemeente Rozendaal behoort, vormde eeuwenlang “de heerlijkheid Rosendael”, een situatie die tot omstreeks de Tweede Wereldoorlog duurde. In het reliëfrijke terrein werd rond het jaar 1300 het kasteel Rosendael gesticht.

In de 19e eeuw bestond de bebouwing van het dorp uit een lint van verspreid staande bebouwing langs de Kerklaan en de Rosendaalselaan. Ook in de 20ste eeuw bestond het dorp Rozendaal hoofdzakelijk uit bebouwing langs de Kerklaan en Rosendaalselaan. Dwars over de glooiende akkers ten westen van de Rosendaalselaan liep de Binnenweg (nu De Genestetlaan), waarvan paden aftakten naar de hier verspreid gelegen - meestal agrarische - bebouwing en naar de waterpompen, die verspreid stonden in het dorp.

Het perceel waarop nu de Beekhuizenseweg 1a is gelegen maakte vroeger deel uit van landgoed Rozendael. Een stille getuige hiervan is de nog altijd op het terrein aanwezige wagenschuur. Deze wagenschuur is aangewezen als Rijksmonument. De wagenschuur is gebouwd als koetshuis bij het (in 2007 gesloopte) Hotel Rosendaal, voorheen het Logement genaamd, dat was gebouwd door kasteelheer Assueer Lubbert Adolph Torck (later Hotel Kraaijensteijn). Het Logement speelde met zijn bijgebouwen een belangrijke rol in het landschappelijke park en was functioneel sterk verbonden met het kasteel en het omringende park.

afbeelding "i_NL.IMRO.0277.BPROZEND2023001-0001_0003.png"

TopoTijdreis-kaart 1910. Boven de naam Rozendaal bevindt zich hotel Kraaijensteijn.

De wagenschuur werd in 1910-1913, ter vervanging van een grotere schuur met stallen, gebouwd als bijgebouw van hotel Kraijesteijn. Doordat het hotel is gesloopt en is vervangen door een (op zichzelf staand) appartementencomplex, is de primaire historische context van de wagenschuur verdwenen. De wagenschuur is in haar huidige verschijningsvorm kenmerkend voor de architectuur die vanaf circa 1910 in Nederland in trek raakt.

Ten westen van de wagenschuur staat een woonhuis. Dit woonhuis dateert uit 1904, maar is in 1962 ingrijpend verbouwd. Het woonhuis heeft geen monumentale status. Meteen ten oosten van dit woonhuis bevinden zich enkele negentiende-eeuwse wijnkelders. Er is sprake van twee kelderruimtes. De oudste kelder is terug te voeren tot circa 1860 en ligt volledig weggewerkt in de glooiing van het landschap. Aan het begin van de twintigste is aan de noordzijde een kelder toegevoegd, geplaatst onder een troggengewelf met stalen liggers. Het vloerniveau van deze ruimte ligt ietwat hoger en aan de buitenzijde is de kelder herkenbaar aan de lage opbouw onder zadeldak. De wijnkelders zijn bereikbaar via een deur in de aanbouw van het hiervoor genoemde woonhuis. De wijnkelders zijn opgericht door Abraham Kraijesteijn, uitbater van het hotel. Al vrij snel nadat hij zich op Rosendael vestigde, richtte hij een wijnhandel op.

afbeelding "i_NL.IMRO.0277.BPROZEND2023001-0001_0004.png"

TopoTijdreis-kaart 2019

2.2 Huidige situatie

2.2.1 Omgeving

Het plangebied ligt binnen de bebouwde kom van Rozendaal. Het plangebied bevindt zich aan de noordzijde van de bebouwde kom. Het plangebied wordt grotendeels omzoomd door bos. Ten noorden van het plangebied bevindt zich landgoed Rozendael.

De beoogde ontwikkeling aan de Beekhuizenseweg te Rozendaal bevindt zich in een open bosruimte aan een aftakking van de Beekhuizenseweg op de stuwwal. In deze bosruimte bevindt zich de Bistrobar Beaune, een appartementengebouw en een woongebouw. Op de locatie van het woongebouw wordt de hierboven genoemde ontwikkeling beoogd.

Het plangebied wordt aan de noordzijde begrenst door een stuk bos welk door de Boerenallee wordt gescheiden van landgoed Rosendael. Aan de oost- en zuidzijde wordt het plangebied begrenst door bos. Aan de zuidzijde bevindt zich tevens een parkeerplaats. Ten westen van het plangebied bevindt zich een appartementengebouw en een horecagelegenheid.

afbeelding "i_NL.IMRO.0277.BPROZEND2023001-0001_0005.png"

De globale ligging van het plangebied binnen Rozendaal

2.2.2 Plangebied

In het plangebied bevindt zich één woning. Ondergronds bevindt zich een oude wijnkelder. Hiernaast is binnen het plangebied ook een rijksmonument aanwezig. Het betreft hier een oude wagenschuur, vroeger behorende bij het hotel dat tegenwoordig is verdwenen. Verder is een groot gedeelte van het plangebied ingericht als tuin.

afbeelding "i_NL.IMRO.0277.BPROZEND2023001-0001_0006.png"

Luchtfoto van het plangebied

2.3 Planvoornemen

De wijzigingen van het voorliggende bestemmingsplan ten opzichte van het bestemmingsplan "Rozendaal 2019" zijn zeer beperkt. De bestaande woonfunctie en tuinfunctie zullen behouden blijven. Het binnen het plangebied aanwezige monument zal ook aanwezig blijven.

De initiatiefnemer is voornemens om een nieuwe woning te bouwen. De huidige bestaande woning zal worden gesloopt en hiervoor in de plaats zal een nieuwe woning teruggebouwd worden. Tevens wil de initiatiefnemer de al aanwezige historische wijnkelder restaureren en weer in gebruik nemen.

De nieuwe woning zal ten opzichte van de bestaande woning naar het oosten worden verplaatst. De woning zal middels een hal verbonden worden met de op het terrein aanwezige wagenschuur. Een deel van de wagenschuur is in dusdanig verval dat deze gesloopt zal worden. De westelijke zijde van de wagenschuur blijft met dit plan behouden en zal verbonden worden met de woning.

Ten behoeve van het initiatief is tevens een inrichtingsplan opgesteld. Dit inrichtingsplan maakt onderdeel uit van dit bestemmingsplan en is als bijlage toegevoegd. Aan de realisatie van dit initiatief is de uitvoer van het landschappelijk inrichtingsplan als voorwaardelijke verplichting verbonden.

2.4 Landschappelijke inpassing

In het voortraject van het voornemen is een landschappelijke inpassing gecreëerd voor het voornemen. De landschappelijke inpassing is besproken en afgestemd met het samenwerkingsverband cultuurhistorie. Dit document is toegevoegd als Bijlage 1 bij deze toelichting. In de Nota ruimtelijke kwaliteit van de gemeente Rozendaal is het voornemen gelegen binnen de zone 'Kasteeldorp'. Gedefinieerde landschappelijke kwaliteiten en uitgangspunten voor het plangebied zijn als volgt:

  • De landschappelijke structuur wordt bepaald door de hoogteverschillen, de aanwezigheid van beek en waterpartijen en het contrast tussen de met bomen begroeide hellingen van de Koningsberg;
  • De open, glooiende grasvelden in de dalen;
  • De markante situering van vrij geplaatste bebouwing draagt bij aan de beleving van de hoogteverschillen;
  • Behoud en herstel van landschappelijke elementen als houtwallen, lanen, haagjes en weilanden is het uitgangspunt;
  • Duidelijk markeren van het onderscheid tussen openbaar en privégebied.

afbeelding "i_NL.IMRO.0277.BPROZEND2023001-0001_0007.png" De toekomstige situatie zoals weergegeven in het landschappelijk inrichtingsplan

2.5 Wijzigingen bestemmingsplan

Het voorliggende bestemmingsplan bevat ten opzichte van het bestemmingsplan "Rozendaal 2019" slechts beperkte wijzigingen.

De binnen het plan toegekende functies en aanduidingen blijven ongewijzigd. Uitzondering hierop vormt het aanwezige bouwvlak. In het bestemmingsplan 'Rozendaal 2019' bevindt zich aan de zuidwestzijde van het perceel een bouwvlak. In het voorliggende bestemmingsplan is dit bouwvlak verplaatst. Dit is gedaan om de bouw van de woning ten zuiden van de wagenschuur mogelijk te maken. Om de wijzigingen ruimtelijk en landschappelijk aanvaardbaar te maken is er een voorwaardelijke verplichting tot de uitvoer- en instandhouding van het bij het bestemmingsplan bijgevoegde landschappelijk inrichtingsplan opgenomen.

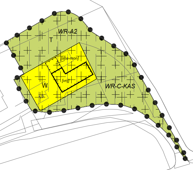
Behalve de wijzigingen aan het bouwvlak en de toevoeging van een voorwaardelijke verplichting aan de planregels bevat het voorliggende bestemmingsplan geen wijzigingen ten opzichte van het bestemmingsplan 'Rozendaal 2019'. Ter vergelijking zijn hieronder een afbeelding van de verbeelding behorende bij het bestemmingsplan 'Rozendaal 2019' en de verbeelding van het plan 'Beekhuizenseweg 1a' toegevoegd.

afbeelding "i_NL.IMRO.0277.BPROZEND2023001-0001_0008.png"

Uitsnede van de verbeelding behorende bij het bestemmingsplan 'Rozendaal 2019'.

afbeelding "i_NL.IMRO.0277.BPROZEND2023001-0001_0009.png"

Uitsnede van de verbeelding behorende bij het bestemmingsplan 'Beekhuizenseweg 1a'

Hoofdstuk 3 Beleidskader

3.1 Inleiding

Bij het opstellen van ruimtelijke plannen, zoals een bestemmingsplan, moet rekening worden gehouden met het beleid van de hogere overheden. Gezien de relatief kleinschalige ontwikkeling die in voorliggend bestemmingsplan wordt beoogd, wordt slechts kort ingegaan op het rijksbeleid, provinciale beleid en gemeentelijke beleid.

3.2 Rijksbeleid

3.2.1 Nationale omgevingsvisie (NOVI)

De nationale omgevingsvisie (NOVI) is op 11 september 2020 vastgesteld. Deze visie is door het rijk opgesteld in het kader van de nieuwe Omgevingswet, die per 1 januari 2022 in werking treedt. Aan de hand van een toekomstperspectief is hierin de langetermijnvisie in beeld gebracht. Op nationale belangen wil het Rijk (net als nu) sturen en richting geven. Hiervoor worden de volgende vier prioriteiten onderscheiden:

  • 1. Ruimte voor klimaat adaptatie.
  • 2. Duurzaam economisch groeipotentieel.
  • 3. Sterke en gezonde steden en regio's.
  • 4. Toekomstigbestendige ontwikkeling van het landelijk gebied.

Om invulling te kunnen geven aan deze vier prioriteiten hanteert het rijk de volgende drie afwegingsprincipes:

  • I. Combinaties van functies gaat voor enkelvoudige functies.
  • II. Kenmerken en identiteit van een gebied staan centraal.
  • III. Afwentelen wordt voorkomen.

Met de NOVI wordt gebouwd aan sterke, aantrekkelijke en gezonde steden, waarbij wordt gestreefd naar de verdere ontwikkeling van het Stedelijk Netwerk Nederland. De wens is om daar naar toe te groeien en een goed bereikbaar netwerk van steden en regio's te realiseren. De grote actuele woningbehoefte vraagt tegelijkertijd om oplossingen op korte termijn. Het kabinet heeft voor de korte termijn daarom een pakket aan maatregelen voorgesteld om de woningbouw een nieuwe, stevige impuls te geven. De locatie bevindt zich in het Stedelijk Netwerk Nederland. De ontwikkeling vindt plaats in lijn met de ambities van de integrale verstedelijkingsstrategie, zo veel mogelijk in bestaand stedelijk gebied, klimaatbestendig en natuurinclusief. Grote open ruimten tussen de steden houden hun groene karakter. Het aanbod en de kwaliteit van het groen in de stad worden versterkt en de aansluiting op het groene gebied buiten de stad wordt verbeterd.

De opgave is daarbij om de veiligheid en gezondheid van onze leefomgeving zodanig te verbeteren dat in 2050 negatieve omgevingseffecten op onze gezondheid naar een verwaarloosbaar laag niveau zijn gebracht. Daarnaast streeft het kabinet ernaar om in 2030 te voldoen aan de huidige WHO-advieswaarden.

De ontwikkeling is dusdanig kleinschalig, dat geen directe strijdigheden met het NOVI-beleid te verwachten zijn. De ontwikkeling zorgt bovendien voor een passende, toekomstbestendige ontwikkeling voor de locatie. Hiermee ligt het plan in lijn met de NOVI.

3.2.2 Besluit algemene regels ruimtelijke ordening

In het Besluit algemene regels ruimtelijke ordening (Barro) ook wel bekend als de AMvB Ruimte, zijn 13 nationale belangen opgenomen die juridische borging vereisen met het oog op een goede ruimtelijke ordening.

Het besluit is gericht op doorwerking van de nationale belangen in gemeentelijke bestemmingsplannen. Dit betreft onder meer het Nationale Natuurnetwerk (voorheen de Ecologische Hoofdstructuur) en Erfgoederen van uitzonderlijke universele waarde.

Rondom het plangebied zijn gronden gelegen behorend bij Natura 2000- en NNN-gebied. Op de ligging van het plangebied aangrenzend aan Natura 2000- en NNN-gebied wordt verder ingegaan in paragraaf 4.7 Ecologie'.

De door het Barro beschermde belangen vormen geen beletsel voor de uitvoerbaarheid van het voorliggende plan.

3.2.3 Waterbeleid

Europese Kaderrichtlijn Water

Een ander belangrijk onderwerp in het rijksbeleid is duurzaam waterbeheer. De Europese Kaderrichtlijn Water, die sinds 2000 van kracht is, speelt hierbij een belangrijke rol. De richtlijn moet er immers voor zorgen dat de kwaliteit van het oppervlakte- en grondwater in Europa in 2027 op orde is. Dit betekent dat de rijksoverheid streeft naar een watersysteem dat zoveel mogelijk de natuurlijke situatie (zonder ingrepen van de mens) benadert. Het streven is onder andere gericht op het behouden en vergroten van de ruimte voor water, waar mogelijk vasthouden van water en verbetering van de waterkwaliteit. De waterbeheerders spelen hierbij een belangrijke rol.

Relatie met het plangebied

In de ruimtelijke plannen, waaronder het bestemmingsplan, wordt een waterparagraaf opgenomen. In hoofdstuk 5 wordt hier nader op ingegaan.

Nationaal Waterplan

Het Nationaal Waterplan is het formele rijksplan voor het nationale waterbeleid. In de Waterwet is vastgelegd dat het rijk dit plan eens in de zes jaar opstelt. Het is de opvolger van de Vierde Nota waterhuishouding uit 1998 en vervangt alle voorgaande nota's waterhuishouding. Het Nationaal Waterplan bevat tevens de stroomgebiedbeheersplannen die op grond van de Kaderrichtlijn Water zijn opgesteld. Op basis van de Wet ruimtelijke ordening is het Nationaal Waterplan voor de ruimtelijke aspecten tevens structuurvisie. De grondgedachte voor duurzaam waterbeheer wordt 'meebewegen met natuurlijke processen waar het kan, weerstand bieden waar het moet en kansen voor welvaart en welzijn benutten'. Voor een duurzaam en integraal waterbeleid is het belangrijk om waar nodig en mogelijk water de ruimte te geven en mee te bewegen met en gebruik te maken van natuurlijke processen, zoals dit bijvoorbeeld wordt toegepast bij Ruimte voor de Rivier. Het rijk vindt het daarbij van belang dat bij alle wateropgaven en -maatregelen maximaal wordt meegekoppeld met andere opgaven en maatregelen en dat problemen zo min mogelijk worden afgewenteld.

Relatie met het plangebied

Bij het opstellen van ruimtelijke plannen is diverse (milieu)wetgeving van toepassing, waaronder de Wet luchtkwaliteit, Wet natuurbescherming, Erfgoedwet, Wet geluidhinder, etc. Op deze aspecten zal in hoofdstuk 4 nader worden ingegaan.

3.2.4 Rijksbeschermde historische buitenplaats Kasteel Rosendael

Het perceel binnen dit plangebied maakt onderdeel uit van het Rijksbeschermde complex de Historische buitenplaats Kasteel Rosendael onder complexnummer 528473.

Primair genieten het kasteelpark en het beekdal bescherming. Deze structuren zijn ook vastgelegd in de beschermde waarden van het beschermd dorpsgezicht ‘kasteeldorp’. Op de verbeelding is hiertoe de dubbelbestemming ‘Waarde - Cultuurhistorie - beschermd dorpsgezicht Kasteeldorp’ opgenomen.

Daarnaast valt het kasteelpark onder rijksmonumentale bescherming. Het kasteel en het omringende park is als rijksmonumentaal complex beschermd vanwege o.a. de bijzondere ligging tegen de Veluwewal en de vele waterpartijen:

• Hoge kwaliteit van de aanleg en de complexonderdelen met onderlinge samenhang;

• Grote invloed op aanleg van buitenplaatsen in de 17e, 18e en 19e eeuw;

• Gaafheid van het complex;

• Ouderdom van het complex.

Relatie met het plangebied

De rijksmonumentale bescherming van de historische buitenplaats is buiten dit bestemmingsplan vastgelegd. Binnen het plangebied is het rijksmonument met monumentnummer 528483 gelegen. Dit rijksmonument maakt onderdeel uit van het beschermd complex. In paragraaf 4.9 wordt verder ingegaan op dit rijksmonument en de ligging binnen het rijksbeschermde historische buitenplaats Kasteel Rosendael.

3.3 Provinciaal beleid

3.3.1 Omgevingsvisie Gaaf Gelderland

Op 19 december 2018 hebben Provinciale Staten de ‘Omgevingsvisie Gaaf Gelderland’ vastgesteld. Hiermee is de Omgevingsvisie uit 2014 komen te vervallen en wordt vooruitgelopen op de aankomende Omgevingswet. De Omgevingsvisie beschrijft de lange termijn ambities en beleidsdoelen voor de fysiek leefomgeving. De provincie legt in deze visie de focus op een duurzaam, verbonden en een economisch krachtig Gelderland.

Om dit te bereiken worden zeven met elkaar samenhangende ambities nagestreefd:

  • 1. Energietransitie: van fossiel naar duurzaam. Een versnelde energietransitie gericht op forse vergroting van het aandeel duurzame energie en passend bij de Gelderse kwaliteiten;
  • 2. Klimaatadaptatie: omgaan met veranderend weer. Een op de toekomst toegerust klimaatbeleid (klimaatbestendig);
  • 3. Circulaire economie: sluiten van kringlopen; Een voortvarend en innovatief circulair beleid zonder afval.
  • 4. Biodiversiteit: werken met de natuur en een beschermend beleid voor biodiversiteit.
  • 5. Bereikbaarheid: Efficiënte, duurzame en innovatieve bereikbaarheid, toegesneden op de veranderende vraag.
  • 6. Vestigingsklimaat: Een duurzaam, dynamisch en toegankelijk economisch vestigingsklimaat, waar voor ondernemers en inwoners een sterke aantrekkingskracht vanuit gaat.
  • 7. Woon- en leefomgeving: Een duurzaam en divers woon- en leefklimaat en anticiperend op ontwikkelingen.

Hoewel de Omgevingsvisie met deze ambities vooral een visie op hoofdlijnen betreft, is ook een vijftal wettelijke planfiguren in de Omgevingsvisie opgenomen: ruimte, natuur, water, milieu en verkeer en vervoer. Deze planfiguren waren ook al in de voorgaande Omgevingsvisie (vanaf 2014) opgenomen en worden daarmee gecontinueerd. Het gaat daarbij onder andere om de aanwijzing van functies van regionale oppervlaktewateren, van gebieden waar milieukwaliteit bijzondere bescherming behoeft, van Natura 2000-gebieden en van bijzondere natuurgebieden, en de aanwijzing van locaties voor de mogelijkheden om zon en windenergie op te wekken. In dit kader zijn een viertal themakaarten opgesteld (Themakaart Ruimtelijk beleid, Themakaart Waterbeleid, Themakaart Milieubeleid en Themakaart Natuur- en landschapsbeleid) die bij de uitvoering van het provinciale beleid uit de Omgevingsvisie 2018 een belangrijke rol spelen.

Het plangebied is gelegen binnen de Groene ontwikkelingszone van het Gelders Natuurnetwerk. Over de implicaties van de ligging van het plangebied binnen de Groene ontwikkelingszone wordt verder ingegaan in 4.7.1. Gelet op deze conslusies, ligt het plan verder in lijn met de Omgevingsvisie Gaaf Gelderland; er wordt een toekomstbestendige ontwikkeling mogelijk gemaakt voor een bestaand woonperceel.

3.3.2 Omgevingsverordening Gelderland

De Omgevingsverordening betreft de juridische vertaling van de provinciale omgevingsvisie en heeft als doel om provinciale belangen op het gebied van de ruimtelijke ordening te laten doorwerken naar het gemeentelijk niveau. De provincie richt zich hierbij op onderwerpen die van provinciaal belang zijn, zoals verstedelijking, landbouw/veehouderij, natuur en landschap, grond- en drinkwater, milieu, verkeer en energie.

Relatie met het plangebied

In relatie tot het voorliggende bestemmingsplan, waarin een actuele, overzichtelijke en uniforme juridische regeling voor zowel de kern Rozendaal (‘de kom’) alsook het buitengebied van de gemeente het uitgangspunt is, zijn vooral de (beschermings-)regels behorend bij de aspecten / kaarten ‘Natuur’, ‘Water- en milieu’, 'Erfgoed' en 'Regels veilige leefomgeving' van belang. Andere (ruimtelijke) aspecten uit de Verordening zijn niet in het geding, te meer omdat voorliggend bestemmingsplan vooral ook een conserverend karakter heeft en is afgestemd op de huidige (planologische) situatie.

Natuur en landschap

Het plangebied maakt geen onderdeel uit van het Gelders Natuurnetwerk maar wel van een groene ontwikkelingszone (GO). Dit betekend dat de instructieregel behorende bij deze zone voor dit bestemmingsplan in acht genomen dienen te worden. Kort samengevat bepaald de Omgevingsverordening dat:

Artikel 2.52 (beschermen Groene ontwikkelingszone)
Voor zover een bestemmingsplan van toepassing is op locaties binnen de Groene ontwikkelingszone, laat het een nieuwe activiteit of ontwikkeling alleen toe als uit onderzoek blijkt dat:

  • a. de kernkwaliteiten of ontwikkelingsdoelen, genoemd in bijlage Kernkwaliteiten Gelders natuurnetwerk en Groene ontwikkelingszone, per saldo en naar rato van de ingreep worden versterkt; en
  • b. de samenhang niet verloren gaat.

Als bijlage bij dit bestemmingsplan is een landschappelijk inrichtingsplan toegevoegd. De uitvoer van dit langschappelijk inrichtingsplan is als voorwaardelijke verplichting aan de bouw van de woning verbonden. Middels dit landschappelijk inrichtingsplan worden de kernkwaliteiten en ontwikkelingsdoelen van de groene ontwikkelingszonde versterkt zonder dat de samenhang hiervan verloren gaat. Met betrekking tot de ligging nabij GNN en Natura 2000 wordt verder ingegaan in par. 4.7.1

Dit onderdeel vorm geen beperking voor de uitvoer van het bestemmingsplan.

Water- en milieu

Het plangebied is gelegen nabij een waterwingebied. Rondom dit waterwingebied zijn in de verordening enkele zones aangeduid beschermd met beschermingszones die geleidelijk een minder strikt regime kennen. Het plangebied is gelegen binnen de zone die is aangeduid als ‘intrekgebied’. Binnen het intrekgebied is het niet toegestaan om werken tot stand te brengen of handelingen te verrichten ten behoeven van de winning van fossiele energie.

afbeelding "i_NL.IMRO.0277.BPROZEND2023001-0001_0010.png"

Uitsnede van ruimtelijke plannen.nl

3.3.3 Conclusie provinciaal beleid

Bovengenoemde beschermingszones leveren op voorhand geen belemmering op voor voorliggend bestemmingsplan. Voor de volledigheid wordt gemeld dat de provinciale omgevingsvisie en -verordening een directe werking hebben. Bij het verlenen van een omgevingsvergunning dient daarom ook aan de verordening getoetst te worden.

3.4 Gemeentelijk beleid

3.4.1 Integrale visie ruimtelijke ontwikkeling (2002)

De ‘Integrale Visie Ruimtelijke Ontwikkeling’ is een integrale visie voor de ruimtelijke ontwikkelingen in de gemeente Rozendaal, zowel de kern als het buitengebied.

Het behoud van het landschap van de bebouwde kern met zijn kenmerkende open plekken, de lanenstructuur, het beeldbepalende groen en de geaccidenteerdheid dient bepalend te blijven voor de verdere ontwikkeling van Rozendaal. Het behoud en mogelijke verbetering van de landschappelijke onderlegger geldt als voorwaarde en toetsingskader voor ontwikkeling en beheer. De kwaliteit van de woonbebouwing dient in stand te worden gehouden en waar mogelijk te worden verbeterd. Er is geen sprake van (grootschalige) uitbreiding van Rozendaal, maar alleen van twee mogelijke inbreidingslocaties.

Ruimtelijke maatregelen ter bevordering van de werkgelegenheid worden niet beoogd. De huidige bedrijvigheid krijgt de kans om binnen bepaalde kaders te functioneren op de bestaande locaties. Het voorzieningenniveau binnen de gemeentegrenzen kan worden verbeterd (o.a. medische en welzijnsvoorzieningen).

Met betrekking tot de infrastructuur is het beleid gericht op het beheer van de infrastructuur en de optimalisering van de (duurzame) verkeersveiligheid.

Het voorgenomen plan past binnen de kaders van de Integrale visie ruimtelijke ontwikkelingen. Er is geen sprake van een grootschalige uitbreiding. Binnen de planlocatie is een woning aanwezig. Deze woning wordt gesloopt en elders op het terrein wordt een nieuwe woning gerealiseerd. In het ontwerp is het monument geïntergreerd zodat deze weer een functie krijgt en de instandhouding beter is gewaarborgd. Dit alles wordt landschappelijk ingepast. Hiermee wordt de kwaliteit van de bestaande woonbebouwing verbeterd. Het plan is in lijn met de Integrale visie ruimtelijke ontwikkeling.

3.4.2 Waterplan Rheden en Rozendaal (2005)

De hoofddoelstelling van het Waterplan Rheden en Rozendaal is: “Afgestemd beleid en samenwerking op het gebied van water en riolering tussen de gemeenten, de waterschappen en andere partijen, zodat maatregelen worden gerealiseerd met een optimaal milieurendement tegen de laagste maatschappelijke kosten en met een zo groot mogelijk draagvlak”. Om dit te concretiseren zijn ambities aangegeven voor het waterbeleid. Deze ambities zijn gerangschikt onder de volgende acht thema’s: beperken verdroging, tegengaan wateroverlast, verbeteren oppervlaktewaterkwaliteit, zuinig omgaan met grondwater (kwaliteit en kwantiteit), beleven van water, adequate inzameling en transport afvalwater, ecologisch gezond water en natte landnatuur en water bij ruimtelijke inrichting.

De belangrijkste maatregel uit het waterplan Rheden en Rozendaal behoort tot het thema verbeteren oppervlaktewaterkwaliteit. Het is een onderzoeks- /uitvoeringsmaatregel geïnitieerd vanuit het waterhuishoudingsplan.

3.4.3 Nota ruimtelijke kwaliteit gemeente Rozendaal

In 2017 is de nieuwe nota Ruimtelijke kwaliteit vastgesteld, die de welstandsnota uit 2004 vervangt. Laatste was toe aan actualisatie, in verband met gewijzigde regelgeving (Wabo), de komst van nieuwe wetgeving (Omgevingswet), maar ook met een veranderende kijk op de toepassing van welstandstoezicht. Waar mogelijk krijgen burgers meer ruimte krijgen bij het realiseren van hun bouwplannen. Anderzijds wil de gemeente bestaande bijzondere ruimtelijke kwaliteiten en met name de cultuurhistorische waarden en identiteit, kunnen waarborgen. Dit vraagt om een welstandsbeleid op maat. Het vormt een toetsingskader voor de kleinere plannen, maar is tegelijkertijd een stimulerend kader voor de grotere ruimtelijke opgaven. Dit vraagt ook om integratie met landschaps- en monumentenbeleid, waarmee de nota Ruimtelijke Kwaliteit als het ware is getransformeerd naar een integrale ‘nota Ruimtelijke Kwaliteit’.

Het welstandsbeleid – vastgelegd in de nota ruimtelijke kwaliteit is bedoeld om in alle openheid een bijdrage leveren aan de schoonheid en de aantrekkelijkheid van Rozendaal.

Met welstandstoezicht beschikt de gemeente als regisseur over een belangrijk wettelijk sturingsinstrument. Bij iedere aanvraag voor een omgevingsvergunning wordt beoordeeld of het betreffende bouwwerk niet in strijd is met ‘redelijke eisen van welstand.

Hiertoe adviseert een onafhankelijke commissie – de Commissie Ruimtelijke Kwaliteit (CRK) van het Gelders Genootschap – aan het college van B&W.

De nota Ruimtelijke Kwaliteit bevat richtlijnen en criteria waar aanvragen om omgevingsvergunning voor het onderdeel bouwen aan worden getoetst. Hierbij wordt onderscheid gemaakt in:

• Criteria voor kleine bouwwerken;

• Richtlijnen voor grotere bouwopgaven.

In de nota wordt onderscheid gemaakt in een zevental deelgebieden. Naast een compacte beschrijving van de ruimtelijke situatie worden per deelgebied de kernkwaliteiten beschreven en de richtlijnen aangereikt. Afhankelijk van de kwetsbaarheid of juist draagkracht van een gebied, wordt meer vrijheid geboden of juist meer zorgvuldigheid gevraagd. Dit komt ook tot uitdrukking in de ambities, waarin een drietal niveaus gelden. De niveaus onderscheiden zich in de mate van vrijheid in de omgang met de bestaande stedenbouwkundige of landelijke structuur en architectuur. De volgende beleidsniveaus zijn van toepassing.

1. Keuze
Verandering en handhaving van het (bebouwings)beeld zijn beide mogelijk, zowel naar structuur als naar architectuur, maar altijd met behoud van stedenbouwkundige en/of landschappelijke waarden.

2. Respect
Essentiële kenmerken van de aanwezige bebouwings- en omgevingskarakteristiek op het gebied van stedenbouw, landschap en architectuur worden gerespecteerd, én nemen ook de beeldbepalende elementen over.

3. Behoud (van toepassing bij beschermde monumenten en gebieden)
Behoud en herstel van het aanwezige of oorspronkelijke bebouwingsbeeld en het versterken van de bestaande of historische karakteristiek van stedenbouw, architectuur, landschap of cultuurhistorie zijn uitgangspunt.

De nota Ruimtelijke kwaliteit maakt vervolgens onderscheid in zeven deelgebieden in Rozendaal. Ieder met een eigen kernkwaliteit en verschijning. Binnen deze zeven deelgebieden is sprake van voorgaande beleidsniveaus.

afbeelding "i_NL.IMRO.0277.BPROZEND2023001-0001_0011.png"

Het plangebied ligt in het gebied 1 (Kasteeldorp). Tevens bevindt zich binnen het plangebied een rijksmonumentaal beschermd object. Bij de (bouw)vergunningverlening zal conform deze systematiek getoetst worden.

Advies Samenwerkingsverband cultuurhistorie Gelderland

Als onderdeel van de planvorming heeft het samenwerkingsverband cultuurhistorie Gelderland een advies uitgebracht over de wenselijkheid van het initiatief.

In haar advies spreekt het samenwerkingsverband cultuurhistorie Gelderland zich positief uit over de ontwikkeling. De commissie benoemd een aantal positieve punten aan de ontwikkeling. In haar advies stelt het samenwerkingsverband dat de sloop van een deel van de wagenloods niet de voorkeur verdiend maar dat de commissie, dit gezien de staat van de loods zich wel voor kan stellen. Inmiddels is het betreffende deel van de loods, vanwege de genoemde slechte staat, echter ingestort.

Geconcludeerd kan worden dat het Samenwerkingsverband cultuurhistorie Gelderland positief tegenover het initiatief staat.

3.4.4 Archeologie

Met betrekking tot het onderdeel archeologie beschikt de gemeente Rozendaal over een eigen kaderbeleid, met in het verlengde daarvan een archeologische beleidsadvieskaart. Dit is opgenomen in de rapportage ‘Archeologische waarden- en verwachtingenkaart en beleidskaart gemeente Rozendaal 2018’ dat op 30 oktober 2018 door de gemeenteraad is vastgesteld. Op basis van een analyse van landschappelijke, bodemkundige en archeologische informatie is een vlakdekkende kaart van archeologische waarden en verwachtingen opgesteld. Binnen het grondgebied van de gemeente zijn enkele terreinen met bekende archeologische waarden (Wettelijk beschermde archeologische monumenten, AMK-terreinen en dorpskern) aanwezig. Daarnaast worden twee archeologische verwachtingszones onderscheiden.

Ook kunnen gebieden worden aangemerkt waarvoor geen archeologische verwachting geldt. Het betreft gebieden waar reeds archeologisch onderzoek heeft plaatsgevonden en niets is aangetroffen, gebieden die zijn afgegraven of ontgrond. Aan de verschillende te onderscheiden gebieden met archeologische waarden of verwachtingswaarden is een diepte- en oppervlakte ondergrens gekoppeld.

De verschillende (verwachtings)waarden uit het gemeentelijk archeologiebeleid in relatie tot het plangebied komt in paragraaf 4.8 van deze plantoelichting aan de orde.

3.4.5 Beschermde dorpsgezichten gemeente Rozendaal

Het plangebied is gelegen binnen het beschermde dorpsgezicht 'Kasteeldorp'. Het doel van dit beschermde dorpsgezicht is de instandhouding van de karakteristieke, met de historische ontwikkeling samenhangende ruimtelijke structuur en stedenbouwkundige kwaliteit van het beschermd dorpsgezicht. Het dorpsgezicht bestaat uit de volgende waarden:

Hoofdstructuur:

a. De hoofdstructuur van Rosendael bevat:

  • 1. het lanenstelsel van de Rosendaalselaan en Kerklaan, zich voortzettend tot en met de Kapellenberg;
  • 2. het kasteelpark met de 18e eeuwse lanen en de 19e eeuwse parkaanleg in Engelse landschapsstijl;
  • 3. het bosgebied ten oosten van het Kasteelpark, met de Smidsberg en de begraafplaats;
  • 4. het open beekdal met het verloop van de Rozendaalse beek;
  • 5. de Koningsberg met het lanenstelsel uit de 18e en 19e eeuw.

Lineaire structuren:

b. De lineaire structuren van Rosendael bestaande uit:

  • 1. het verloop, het profiel en de beplanting van de verschillende lanen;
  • 2. het zicht vanaf de Rosendaelselaan tot op de Torckschool en op de voormalige schoolmeesterwoning tegen de bosrand;
  • 3. het zicht naar en vanaf het logement op de Smidsberg.

Objecten en complexen:

c. Van belang zijn de volgende objecten en complexen:

  • 1. het bebouwingsbeeld: overwegend vrijstaande woningen op ruime kavels, waaronder een drietal grote villa's aan de Rosendaelselaan, de Torckschool en het huis Heuveloord, de historische dorpsbebouwing nabij de samenkomst van de Rosendaalselaan en Kerklaan en de verspreid gelegen bebouwing binnen het kasteelpark en direct ten oosten daarvan;
  • 2. de historische panden in het beekdal, waaronder het complex van voormalige wasserijgebouwen, waaraan de industriële betekenis die de Rozendaalse beek heeft gehad, als aandrijver van papier- en watermolens, nog is af te lezen.

Overig:

d. Daarnaast zijn voor het karakter van het beschermd dorpsgezicht de volgende punten nog van belang:

  • 1. het groene karakter van de voortuinen, het zicht door de voortuinen op de bebouwing, de lage hagen als erfafscheiding;
  • 2. de kunstmatig opgeworpen heuvels buiten het kasteelpark (Kapellenberg, Koningsberg), die uitkijkplaatsen vormden naar de kasteeltuin en naar de ruime omgeving en waarvandaan de hoogteverschillen sterk werden ervaren.

Het voorliggende bestemmingsplan bevat slechts onderschikte wijzigingen ten opzichte van het bestemmingsplan 'Rozendaal 2019'. De regels ter bescherming van het beschermd dorpsgezicht in het voorliggende bestemmingsplan zijn overgenomen uit het bestemmingsplan 'Rozendaal 2019'. Hiermee wordt aangesloten bij het bestaande beleid van de gemeente Rozendaal omtrent het beschermde dorpsgezicht.

Advies Samenwerkingsverband cultuurhistorie Gelderland

Als onderdeel van de planvorming heeft het samenwerkingsverband cultuurhistorie Gelderland een advies uitgebracht over de wenselijkheid van het initiatief.

In haar advies spreekt het samenwerkingsverband cultuurhistorie Gelderland zich positief uit over de ontwikkeling. De commissie benoemd een aantal positieve punten aan de ontwikkeling. In haar advies stelt het samenwerkingsverband dat de sloop van een deel van de wagenloods niet de voorkeur verdiend maar dat de commissie, dit gezien de staat van de loods zich wel voor kan stellen. Inmiddels is het betreffende deel van de loods, vanwege de genoemde slechte staat, echter ingestort.

Geconcludeerd kan worden dat het Samenwerkingsverband cultuurhistorie Gelderland positief tegenover het initiatief staat.

Hoofdstuk 4 Milieuaspecten - Randvoorwaarden

In dit hoofdstuk wordt een aantal milieuonderwerpen en omgevingsaspecten toegelicht. In zijn algemeenheid kan worden gesteld dat het een beschrijving in hoofdlijnen betreft, te meer omdat in voorliggend bestemmingsplan in hoofdzaak uitgegaan wordt van de bestaande (planologische) situatie. Voorliggend bestemmingsplan ziet slechts op de verplaatsing van het bouwvlak binnen de woonbestemming.

Na een algemene beschrijving, gebaseerd op beleid en regelgeving, wordt voor elk onderdeel ingegaan op de relatie met het plangebied.

4.1 Bedrijven en milieuzonering (omgevingsanalyse)

4.1.1 Beleid en regelgeving

Om tot een ruimtelijk relevante toetsing van bedrijfsvestigingen op milieuhygiënische aspecten te komen wordt het begrip milieuzonering gehanteerd. De milieuzonering zorgt voor een voldoende afstand tussen milieubelastende activiteiten (zoals bedrijven) en milieugevoelige functies (zoals woningen) in ruimtelijke plannen. Hiertoe zijn bedrijven voorzien van een zone waar mogelijke nadelige effecten zijn voor woningen. Maatgevend zijn de thema’s geur, geluid, stof en gevaar. Vanuit het oogpunt van een goede ruimtelijke ordening is het voorkomen van voorzienbare hinder door milieubelastende activiteiten van belang. Daarnaast mogen bedrijven niet worden beperkt in hun mogelijkheden.

Om mogelijke hinder van niet-agrarische bedrijven voor bewoners te voorkomen wordt de daarvoor algemeen aanvaarde VNG-uitgave ‘Bedrijven en milieuzonering’ (2009) gebruikt. In deze uitgave is de potentiële milieubelasting voor een hele reeks van bedrijven bepaald aan de hand van een aantal milieuaspecten, zoals geur, stof, geluid en gevaar. De milieubelasting is voor die aspecten vertaald in richtlijnen voor aan te houden afstanden tussen milieubelastende en milieugevoelige functies. Deze afstanden kunnen als basis worden gehanteerd, maar zijn indicatief: er kan gemotiveerd van worden afgeweken. Bovendien zijn deze afstanden alleen van toepassing op nieuwe situaties en niet op bestaande situaties.

Hoe gevoelig een gebied is voor bedrijfsactiviteiten is mede afhankelijk van het omgevingstype. De in de bedrijvenlijst geadviseerde afstanden zijn gericht op het omgevingstype "rustige woonwijk" of een vergelijkbaar omgevingstype, zoals een “rustig buitengebied”. Op basis van de ‘grootste afstand’ tot woonbebouwing zijn de bedrijven ingedeeld in categorieën. Deze worden weergegeven in de onderstaande tabel.

afbeelding "i_NL.IMRO.0277.BPROZEND2023001-0001_0012.png"

4.1.2 Milieuzonering in relatie tot het plangebied

Het bestemmingsplan maakt geen nieuwe milieugevoelige functies mogelijk. Weliswaar vindt er een verschuiving van het bouwvlak plaats maar de onderliggende bestemmingen blijven gehandhaafd. Er worden dus geen nieuwe (milieugevoelige)functies mogelijk gemaakt binnen het plangebied. Bovendien betekend de verplaatsing van het bouwvlak dat de afstand van de woning ten opzichte van het dichtstbijzijnde bedrijf (het nabijgelegen restaurant) wordt vergroot.

4.1.3 Conclusie

Er zijn geen belemmeringen vanuit het aspect milieuzonering voor het plan.

4.2 Geluid

4.2.1 Beleid en regelgeving

Bij ruimtelijke ontwikkelingen dient op basis van de Wet geluidhinder (Wgh) te worden onderzocht of sprake is van geluidsoverlast, in het bijzonder in verband met verkeer, spoor of bedrijven. In de Wet geluidhinder is bepaald dat ten aanzien van zogenaamde 'geluidsgevoelige objecten' wettelijke eisen gelden ten aanzien van de maximale belasting.

In het kader van dit bestemmingsplan is alleen het aspect wegverkeer van belang. Er liggen in het bestemmingsplan of in de directe omgeving geen gezoneerde bedrijventerreinen of spoorwegen. Om deze reden wordt in paragraaf 4.2.2 ingegaan op het aspect wegverkeerslawaai

4.2.2 Geluid in relatie tot het plangebied

Wegverkeerslawaai
In de Wgh is bepaald dat elke weg van rechtswege een geluidszone heeft (art. 74 lid 1). Een uitzondering hierop zijn wegen die zijn gelegen in een 30 km/uur-zone of in een woonerf. De breedte van de geluidszones is afhankelijk van het aantal rijstroken en de ligging van een weg. Zie de onderstaande tabel.

afbeelding "i_NL.IMRO.0277.BPROZEND2023001-0001_0013.png"

Omliggende wegen bij het plangebied zijn 30 km/uur wegen. Hiermee ligt het plangebied niet binnen de geluidzone van een weg.

4.2.3 Conclusie

In of nabij de planlocatie zijn geen doorgaande wegen, spoorwegen of bedrijven gevestigd. Omliggende wegen zijn 30 km/uur wegen. Het complex van woonzorgeenheden veroorzaakt geen geluidshinder. Derhalve is het aspect "geluid" geen belemmering voor de realisatie van het plan.

4.3 Luchtkwaliteit

4.3.1 Beleid en regelgeving

De hoofdlijnen van de regelgeving voor luchtkwaliteit zijn te vinden in hoofdstuk 5, titel 5.2 van de Wet milieubeheer, ook wel de Wet luchtkwaliteit genoemd. De regelgeving is uitgewerkt in onderliggende Algemene Maatregelen van Bestuur (AMvB’s) en Ministeriële Regelingen. In de Wet Luchtkwaliteit zijn luchtkwaliteitseisen opgenomen in de vorm van grenswaarden en richtwaarden voor een aantal luchtverontreinigende stoffen. De belangrijkste zijn fijn stof (PM10 en PM2,5) en stikstofdioxide (NO2) omdat deze in Nederland soms worden overschreden. De grenswaarden van de overige stoffen worden, op enkele uitzonderingen na, in de regel niet overschreden. De grenswaarde van PM10 of NO2bedraagt 40 µg/³. De grenswaarde van PM2,5 ligt op 25 µg/³.

Besluit niet in betekende mate (NIBM)

In dit besluit is bepaald in welke gevallen een ruimtelijke ontwikkeling vanwege de gevolgen voor de luchtkwaliteit niet hoeft te worden getoetst aan de grenswaarden. Een project draagt ‘niet in betekende mate’ bij aan de luchtverontreiniging als de zogenaamde 3% grens niet wordt overschreden. De 3% grens is gedefinieerd als 3% van de grenswaarde voor de jaargemiddelde concentratie van fijn stof of stikstofdioxide. Deze grenswaarde is gesteld op 40 µg/m3. Dit komt overeen met 1,2 microgram/m3 voor zowel PM10 als NO2.

Als de 3% grens voor PM10 of NO2 niet wordt overschreden is het project NIBM, en hoeft geen verdere toetsing aan grenswaarden plaats te vinden. In de Regeling NIBM is de bovengenoemde 3%-grens uitgewerkt in concrete getallen. Zo ligt voor woningbouwplannen de grens van 3% bij 1.500 woningen bij één ontsluitingsweg.

Besluit gevoelige bestemmingen

Het besluit gevoelige bestemmingen is gericht op bescherming van mensen met een verhoogde gevoeligheid voor fijn stof en stikstofdioxide, met name kinderen, ouderen en zieken. Daartoe voorziet het besluit in zones waarbinnen luchtkwaliteitsonderzoek nodig is: 300 meter aan weerszijden van rijkswegen en 50 meter langs provinciale wegen, in beide gevallen gemeten vanaf de rand van de weg. Als in een onderzoekszone de grenswaarden voor fijn stof of stikstofdioxide (dreigen te) worden overschreden, mag het totaal aantal mensen dat hoort bij een ‘gevoelige bestemming’ niet toenemen.

4.3.2 Luchtkwaliteit in relatie tot het plangebied

Het bestemmingsplan staat geen nieuwe woonfunctie toe. De bestaande woonfunctie wordt gehandhaafd. Het plan draagt daardoor 'niet in betekende mate' bij aan de luchtverontreiniging. Op grond van de regeling NIBM wordt een project tot 1.500 woningen aan één ontsluitingsweg gerekend tot een zogenoemd 'niet in betekende mate' project.

Dit betekend dat er geen nader onderzoek en toetsing aan de in de Wet luchtkwaliteit gestelde grenswaarden hoeft plaats te vinden. Met andere woorden, de beoogde ontwikkeling voldoet aan het wettelijk kader en deze vormt geen beletsel voor het plan.

4.3.3 Conclusie

Er zijn geen belemmeringen vanuit het aspect luchtkwaliteit voor het plan.

4.4 Externe veiligheid

4.4.1 Beleid en regelgeving

Bij externe veiligheid gaat het om de gevaren die de directe omgeving loopt in het geval er iets mis mocht gaan tijdens de productie, het behandelen of het vervoer van gevaarlijke stoffen. De daaraan verbonden risico's moeten aanvaardbaar blijven. De wetgeving rond externe veiligheid richt zich op het beschermen van kwetsbare en beperkt kwetsbare objecten. Kwetsbaar zijn onder meer woningen, onderwijs- en gezondheidsinstellingen, en kinderopvang- en dagverblijven. beperkt kwetsbaar zijn onder meer kantoren, winkels, horeca en parkeerterreinen. Bij externe veiligheid wordt onderscheid gemaakt tussen inrichtingen waar gevaarlijke stoffer worden bewaard en/of bewerkt, transportroutes waarlangs gevaarlijke stoffen worden vervoerd en ondergrondse buisleidingen.

De risico's worden onderverdeeld in plaatsgebonden risico (PR) en het groepsrisico (GR).

  • Het plaatsgebonden risico (PR) richt zich als maat voor het risico vanwege activiteiten met gevaarlijke stoffen vooral op de basisveiligheid voor personen in de omgeving van die activiteiten. Aan het PR is een wettelijke grenswaarde verbonden die niet mag worden overschreden. Het PR wordt “vertaald” als een risicocontour rondom een risicovolle activiteit, waarbinnen geen kwetsbare objecten (bijv. woningen) mogen liggen.
  • Het groepsrisico (GR) is een maat voor de maatschappelijke ontwrichting als gevolg van een calamiteit met gevaarlijke stoffen. Rondom een risicobron wordt een invloedsgebied gedefinieerd, waarbinnen grenzen worden gesteld aan het maximaal aanvaardbare aantal doden, de z.g. oriënterende waarde (OW). Dit is een richtwaarde, waarvan het bevoegd gezag, mits afdoende gemotiveerd, kan afwijken. Deze verantwoordingsplicht geldt voor elke toename van het GR, ook als de OW niet wordt overschreden.
4.4.2 Externe veiligheid in relatie tot het plangebied

Op basis van de landelijke risicokaart is een inventarisatie van de risicobronnen in en om het plangebied gemaakt. Hieronder is een uitsnede van de risicokaart met rood omcirkeld het plangebied opgenomen.

afbeelding "i_NL.IMRO.0277.BPROZEND2023001-0001_0014.png"

Risicovolle inrichtingen
Er zijn om de nabijheid van het plangebied geen risicovolle inrichtingen aanwezig, waarvan de risicocontouren het plangebied beïnvloeden

Transportroutes gevaarlijke stoffen
De afstand tot de meest nabij gelegen routes over de weg, het spoor en het water, waarover vervoer van gevaarlijke stoffen kan plaatsvinden, is zodanig groot dat het plangebied niet wordt beïnvloed.

Buisleidingen
In of nabij het plangebied zijn geen buisleidingen gelegen, waarvan de
risicocontouren invloed hebben op het plangebied.

Hoogspanningslijnen
In en in de nabijheid van het plangebied zijn geen hoogspanningsleidingen aanwezig. Dergelijke leidingen vormen daarom geen belemmeringen voor het bestemmingsplan.

4.4.3 Conclusie

Gezien het voorgaande kan geconcludeerd worden dat er vanuit het aspect externe veiligheid geen belemmeringen zijn voor het planvoornemen.

4.5 Bodem

4.5.1 Algemeen

Het is wettelijk (via de bouwverordening) geregeld dat nieuwbouw pas kan plaatsvinden als de bodem geschikt is (of geschikt is gemaakt) voor het beoogde doel. Om deze reden dient bij iedere nieuwbouwactiviteit de bodemkwaliteit door middel van onderzoek (conform NEN5740) in beeld te worden gebracht. Als blijkt uit het onderzoek dat de bodem niet geschikt is dan zal voor aanvang van de werkzaamheden een sanering moeten worden uitgevoerd, om de bodem wel geschikt te maken. Voor verlening van een vergunning van de bouw van de woning zal een bodemonderzoek uitgevoerd moeten worden. In het kader van dit bestemmingsplan kan een dergelijk onderzoek achterwege blijven nu de onderliggende bestemmingen van het plangebied ongewijzigd blijven.

4.5.2 Conclusie

Een bodemonderzoek kan in het kader van dit bestemmingsplan achterwege blijven nu de onderliggende bestemmingen ongewijzigd blijven. Bij een nieuwbouwactiviteit zal een bodemonderzoek uitgevoerd moeten worden. Als blijkt uit het onderzoek dat de bodem niet geschikt is dan zal voor aanvang van de werkzaamheden een sanering moeten worden uitgevoerd, om de bodem wel geschikt te maken.

Het aspect bodem vormt geen belemmering voor dit bestemmingsplan.

4.6 Water

4.6.1 Waterbeheer en plantoets

Het is sinds 2003 verplicht om bij ruimtelijke plannen en besluiten een beschrijving op te nemen van de wijze waarop rekening is gehouden met de gevolgen van het plan voor de waterhuishouding. De watertoets is een proces waarbij de initiatiefnemer van een ruimtelijk plan en de waterbeheerder in een zo vroeg mogelijk stadium afspraken maken over de toepassing en uitvoering van het waterhuishoudkundige en ruimtelijke beleid. Het waterschap is het eerste aanspreekpunt in het watertoets proces, waarbij het waterschap rekening houdt met het provinciale grondwaterbeleid.

In het Besluit ruimtelijke ordening is de 'watertoets' wettelijk verankerd. Deze heeft tot doel om ruimtelijke ontwikkelingen te toetsen aan het vigerende waterbeleid en de wateraspecten volwaardig mee te laten wegen bij de besluitvorming omtrent een goede ruimtelijke ordening. Dit proces komt in samenwerking tussen de gemeente en waterbeheerder tot stand.
In de gemeente Rozendaal is het waterschap Rijn en IJssel verantwoordelijk voor het waterbeheer.

4.6.2 beleidskader

Eind jaren negentig vond er een omslag plaats in denken en beleid over de omgang met water. In plaats van voort te borduren op het vertrouwde denken in waterbeheersing door technische ingrepen gericht op het veilig en snel afvoeren van water, kwam de nadruk te liggen op het aansluiten op de natuurlijke potenties van het landschap en het watersysteem. Bij dit nieuwe waterdenken staat duurzaamheid voorop. Daarmee wordt bedoeld dat er zo min mogelijk inspanningen van buitenaf nodig zijn om het watersysteem in stand te houden en overlast te voorkomen. In de praktijk betekent dit dat natuurlijke processen zoals infiltratie en kwel, het zelfreinigende vermogen van waterlopen etc. worden hersteld. Externe negatieve effecten, zoals toename van verharding en riooloverstorten met afvalwater, worden voorkomen of gecompenseerd. Op verschillende bestuursniveaus zijn de afgelopen jaren dan ook beleidsnota's verschenen aangaande de waterhuishouding, alle met als doel een duurzaam waterbeheer (kwalitatief en kwantitatief). Deze paragraaf geeft een overzicht van de relevante nota's.

Europa

  • Kaderrichtlijn Water (KRW).

Nationaal

  • Nationaal waterprogramma 2022-2027 (NW);
  • Waterbeleid voor de 21e eeuw (WB21);
  • Nationaal bestuursakkoord Water (NBW);
  • Deltaprogramma;
  • Waterwet.

Provinciaal

  • Omgevingsvisie Gaaf Gelderland;
  • Omgevingsverordening Gelderland.

Regionaal/Lokaal

  • Waterbeheerprogramma 2022-2027.

De opdracht is te zorgen voor voldoende water, schoon water en voor veilig wonen en werken op de taakvelden watersysteem, waterketen en veiligheid. Het waterschap houdt daarbij rekening met agrarische, economische, ecologische en recreatieve belangen. Aandachtspunten zijn het verbeteren van ecologische en chemische waterkwaliteit (terugdringen van oppervlaktewatervervuiling) en het voorkomen van wateroverlast, waarbij rekening wordt gehouden met het veranderende klimaat. In zowel landelijk als stedelijk gebied kunnen ruimtelijke ontwikkelingen een positief maar ook een negatief effect hebben op het watersysteem.

In het algemeen zoekt het waterschap naar duurzame oplossingen. Uitgangspunt is dat het water zoveel mogelijk binnen een plangebied wordt vastgehouden en dat relatief schoonwater ook relatief schoon blijft. Daarbij geldt dat het regenwater, dat op verharde oppervlaktes valt en schoon genoeg is (zoals van gevels en daken), zoveel mogelijk wordt vastgehouden of wordt geborgen.

Het waterschap Rijn en IJssel is primair verantwoordelijk voor de waterhuishouding in het plangebied. Onder de verantwoordelijkheden vallen onder andere beveiliging tegen hoog water, peilbeheer en aan- en afvoer van water. Daarnaast wordt geadviseerd hoe om te gaan met hemelwater. De gemeente heeft een zorgplicht voor de inzameling, transport en verwerking van stedelijk afvalwater en regenwater en voor de aanpak van grondwaterproblemen.

4.6.3 Water in relatie tot het plangebied

Het plangebied is gelegen nabij het waterwingebied de Pinkenberg. Het plangebied zelf is gelegen binnen het intrekgebied die dit wingebied in brede context beschermd. Het plangebied grenst aan de in het vigerende bestemmingsplan aangewezen gebiedsaanduiding 'milieuzone - beschermingsgebied grondwater' maar ligt net buiten dit gebied.

Het intrekgebied heeft geen directe ruimtelijke gevolgen en is niet in voorliggende bestemmingsplan opgenomen. Desalniettemin heeft de provinciale verordening te allen tijden een directe werking en vormt een toetsingskader bij eventuele vergunningverlening.

Het rioleringsstelsel in Rozendaal is overwegend uitgevoerd als een gemengd stelsel. het afvalwater van de dorpskern wordt afgevoerd naar de waterzuiveringsinstallatie Nieuwgraaf. In de gemeente zijn alle overstorten opgeheven of gesaneerd.

Het is gewenst om afkoppeling van de hemelwaterafvoer van het riool te realiseren. Dat biedt de mogelijkheid om zoveel mogelijk (schoon) hemelwater via de bodem te laten infiltreren. De bodem is hier geschikt voor. Daarom zal er een infiltratievoorziening worden gerealiseerd. Dit heeft echter wel gevolgen voor de toe te passen materialen bij het bouwen. Gebruik van zink, lood of andere uitlogende materialen dient zoveel mogelijk voorkomen te worden om vervuiling van de bodem en grondwater te voorkomen.

4.6.4 Conclusie

Het bestemmingsplan maakt, binnen de bestaande bestemming, mogelijk dat de woning op een andere locatie gebouwd wordt. Hierbij is slechts beperkt sprake van toenemende verharding. In het waterhuishoudingsysteem zijn geen wijzigingen. het onderdeel water vormt geen belemmeringen voor de uitvoering van het bestemmingsplan.

4.7 Ecologie

In de paragraaf natuur wordt toegelicht of wijzigingen binnen het plangebied mogelijk kunnen leiden tot overtreding van de natuurwetgeving. Dit wordt gedaan aan de hand van de bespreking van bescherming van gebieden en de bescherming van soorten. Het gebiedsbeschermingregime bestaat uit gronden behorend bij Natura 2000 en Gelders Natuurnetwerk

4.7.1 Gebiedsbescherming

Het plangebied is gedeeltelijk gelegen binnen beschermd Natura 2000-gebied. Wel is het plangebied omgeven door gronden behorend bij het Natura 2000-gebied 'Veluwe'. Het plangebied is tevens gelegen binnen de Groene ontwikkelingszone en aangrenzend aan gronden behorend bij het Gelders Natuurnetwerk.

4.7.1.1 Natura 2000

Het plangebied is gedeeltelijk gelegen binnen beschermd Natura 2000-gebied, te weten het grondgebied van de 'Veluwe'. De Veluwe is het grootste aaneengesloten bos van Nederland en bestaat overwegend uit droge bossen, droge en natte heide, vennen en stuifzanden. Het plangebied is gelegen aan de zuidelijke rand van de Veluwe, de Veluwezoom.

Hoewel de begrenzing van het plangebied gelegen is binnen Natura 2000, vinden de beoogde ontwikkelingen plaats binnen een enclave die niet behoort tot Natura 2000.

afbeelding "i_NL.IMRO.0277.BPROZEND2023001-0001_0015.png"

4.7.1.2 Gelders Natuurnetwerk

Het grondgebied van het Gelders Natuurnetwerk is geborgd in de Omgevingsverordening Gelderland. In de Omgevingsverordening Gelderland van 1 februari 2022 maakt het plangebied, waaronder het bouwvlak, grotendeels deel uit van het Gelders Natuurnetwerk. Om het voornemen mogelijk te maken, heeft er herbegrenzing van het GNN-gebied binnen het plangebied plaatsgevonden, zoals weergegeven in Bijlage 3 van deze toelichting. Hiermee is binnen het bouwvlak enkel nog sprake van Groene ontwikkelingszone. Ontwikkelingen binnen de Groene ontwikkelingszone zijn mogelijk, zolang deze per saldo de kernkwaliteiten van het desbetreffende deelgebied van het Gelders Natuurnetwerk versterken. Het deelgebied waarin het plangebied is gelegen is het deelgebied 'Rozendaal - Beekhuizen'. Kernkwaliteiten voor dit gebied zijn als volgt:

  • Onderdeel van grootschalig aaneengesloten gebied van droge, voedselarme bossen, zandverstuivingen en heide; hier vooral bos, grotendeels oude boskernen met overgangen naar de enk van Rheden;
  • onderdeel van Nationaal Landschap Veluwe;
  • onderdeel van Natura 2000-gebied Veluwe met de bijbehorende habitats en soorten;
  • oostelijk deel onderdeel van Nationaal Park Veluwezoom;
  • beken met bijzondere fauna;
  • groot wild: m.n. edelherten, wilde zwijnen;
  • leefgebied das;
  • leefgebied kamsalamander;
  • cultuurhistorische waarden van landgoederen Rozendaal en Beekhuizen (o.m. park, sprengen, lanen, ijskelder), oude ontginningen, hakhout, houtwallen en boerderijen;
  • abiotiek: aardkundige waarden, kwel, bodem, grondwaterreservoir;
  • rust, ruimte, duisternis.

In Bijlage 1 wordt toegelicht hoe de kernkwaliteiten van het deelgebied worden versterkt met het voornemen. Deze landschappelijke inrichting is als voorwaardelijke verplichting opgenomen in dit bestemmingsplan, waarmee garant gestaan wordt voor uitvoering van deze versterking van kernkwaliteiten voor ingebruikname van het planvoornemen.

Bureau Bleijerveld heeft in opdracht van Buro BOOT een Quickscan Wnb (d.d. 26 september 2022) uitgevoerd. De rapportage 'Quickscan Wnb Beekhuizenseweg 1a Rozendaal' is toegevoegd als Bijlage 4.

Het plangebied maakt deel uit van de Groene Ontwikkelingszone, het Gelders Natuurnetwerk (GNN) en van Natura 2000-gebied Veluwe. De nieuwe woning komt ten zuiden van de schuur en ten oosten van de huidige woning te staan. Dit gedeelte van het terrein heeft de status Natuurnetwerk. De woning overlapt niet met het Natura 2000-gebied maar grenst hier wel aan.

De nieuwbouw heeft oppervlakteverlies van het GNN tot gevolg. Omdat deze locatie in gebruik is als gazon en tuin kan op voorhand worden gesteld dat het plan niet van invloed is op bestaande ecotopen die worden genoemd als kernkwaliteit. Omdat er wel oppervlakteverlies optreedt is een nadere toetsing van het plan aan het natuurbeleid noodzakelijk.

4.7.1.3 Stikstof

De planlocatie ligt omringt met het Natura 2000-gebied 'Veluwe'. Een toename in stikstofdepositie kan een negatief indirect effect sorteren op kwetsbare en gevoelige habittypen of leefgebieden binnen Natura 2000-gebieden.

Gezien de uit te voeren activiteiten, sloop en nieuwbouw, is een afzondelijke notitie beoordeling stikstofeffecten opgesteld door Blom Ecologie (rapportnummer: 2023-0527; d.d. 7 december; Bijlage 5). Middels een berekening met de AERIUS Calculator wordt rekenkundig inzichtelijk gemaakt of de voorgenomen ontwikkeling resulteert in een verhoging van stikstofdepositie binnen stikstofgevoelige habitattypen of leefgebieden van Natura 2000-gebieden. De nieuwe habitatkartering afkomstig uit het Wijzigingsbesluit Habitatrichtlijngebieden is op 25 november 2022 vastgesteld.

Stikstofemissie gebruiksfase

Verwarming

In de huidige situatie wordt er gebruik gemaakt van een gas aansluiting. In de nieuwe situatie wordt de woning zonder een gasaansluiting gerealiseerd. Het CPB hanteert vastgestelde waardes voor stikstofemissie per woningcategorie. Voor de woning betreft een vrijstaande woning. De jaarlijkse uitstoot per vrijstaande woning betreft 3,59 kg NOx per jaar en een uitstoot van 0,47 NH3 in kg/jaar. Voor de berekening van de stikstof emissie is gebruik gemaakt van interne saldering.

Verkeer

De beoogde ontwikkeling betreft de sloop van de woning en de realisatie van een nieuwe woning. De woning wordt geclassificeerd als vrijstaand koophuis in niet stedelijk in rest bebouwde kom. Ten opzichte van de huidige situatie leidt de beoogde ingreep worst-case tot een toename van circa 8,6 verkeersbewegingen (CROW Toekomstbestendig parkeren, 2012). Er is nog sprake van een gebruikte woning met daarbij behorende verkeersbewegingen. Door de realisatie van de nieuwe woning wordt de oude woning gesloopt. Derhalve is in de berekening interne saldering op de huidige verkeersbewegingen door de sloop van de woning toegepast. Voor de aangetrokken verkeersbewegingen worden deze voor 100% in westelijke richting, totdat deze verkeersbewegingen opgaan in het heersende verkeersbeeld. Hiervan is sprake indien het aan- en afrijdende verkeer zich door zijn snelheid en rij- en stopgedrag nog niet dan wel niet meer onderscheidt van het overige verkeer dat zich op de betrokken weg kan bevinden. Of zich daar daadwerkelijk ander verkeer bevindt, is niet relevant in het kader van de vraag of de gevolgen voor het milieu van het af- en aanrijdende verkeer aan de beoogde ontwikkeling kunnen worden toegerekend.

Resultaten gebruiksfase

Op basis van de onderzoeksresulaten is er sprake van afname van stikstofdepositie ten gevolge van de beoogde ruimtelijke ingreep van 0,34 mol N/ha/jr in de gebruiksfase.

Stikstofemissie aanleg-/ gebruiksfase

Gedurende de sloopfase en de aanlegfase wordt een tijdelijke toename in stikstofemissie verwacht. Deze stikstofemissie komt ten gevolge van:

  • 1. De inzet van machines op de werklocatie en;
  • 2. Het aan- en afvoeren van personeel, materiaal en machines middels verkeersbewegingen.

De beoogde ruimtelijke ontwikkeling in de realisatiefase wordt uitgevoerd met volledige elektrische maschines. Verder zal de toename van stikstof depositie beperkt worden door de aanvoer van materialen en machines efficiënt uit te voeren. Alle machines worden éénmalig aangevoerd en alle machines en de afvoer van bouwmaterialen wordt na afronding van de realisatie uitgevoerd. Daarnaast wordt er voor het aan en afvoer van personeel buiten de planlocatie een parkeerplaats aangewezen (figuur 4 in Bijlage 5). Vanaf de aangewezen locatie zal het vervoer van personeel volledig brandstofvrij plaatsvinden. Derhalve is er geen overschrijding van de stikstofdepositie waarde in het stikstof gevoelige natura2000- gebied 'Veluwe'.

Resultaten aanlegfase

Op basis van de rekenresultaten is er sprake van afname van stikstofdepositie ten gevolge van de beoogde ruimtelijke ingreep van 0,35 mol N/ha/jr in de realisatiefase.

Samenvatting Stikstof

Op basis van de in dit rapport beschreven berekeningen is de beoogde ontwikkeling wat betreft stikstofdepositie en gebiedsbescherming gedurende de gebruiksfase en de aanlegfase uitvoerbaar in het kader van de Wet natuurbescherming. Aangezien de stikstof depositiewaardes in de ‘Veluwe’ in meerdere gebieden ruim boven de kritische depositie waardes liggen (KDW) is het noodzakelijk dat de beoogde ruimtelijk ontwikkeling in de realisatiefase wordt uitgevoerd met volledig elektrische machines. Daarnaast is het noodzakelijk om het aantal verkeersbewegingen in de realisatiefase te beperkte. Hiervoor is spreiden van de verkeersbewegingen in dit rapport opgenomen waardoor de stikstofdepositie beperkt blijft. Derhalve is er geen vergunning nodig en zijn er voor stikstof geen verdere vervolgstappen noodzakelijk.

De permanente stikstofdepositie verlaagd de stikstofdepositie van het Natura 2000-gebied `Veluwe’ met 0,34 mol N/ha/jr. Derhalve is er voor stikstof in de gebruiksfase geen verdere vervolgstappen noodzakelijk.

4.7.1.4 Conclusie Gebiedsbescherming

Het plangebied maakt deel uit van de Groene Ontwikkelingszone, het Gelders Natuurnetwerk (GNN) en van Natura 2000-gebied Veluwe. De nieuwe woning komt ten zuiden van de schuur en ten oosten van de huidige woning te staan. Dit gedeelte van het terrein heeft de status Natuurnetwerk. De woning overlapt niet met het Natura 2000-gebied maar grenst hier wel aan.

De nieuwbouw heeft oppervlakteverlies van het GNN tot gevolg. Omdat deze locatie in gebruik is als gazon en tuin kan op voorhand worden gesteld dat het plan niet van invloed is op bestaande ecotopen die worden genoemd als kernkwaliteit. Omdat er wel oppervlakteverlies optreedt is een nadere toetsing van het plan aan het natuurbeleid noodzakelijk.

Op basis van het stikstofonderzoek kunnen negatieve effect als gevolg van een toename van stikstofdepositie op de instandhoudingsdoelen van Natura 2000-gebied worden uitgesloten, waardoor een vergunning in het kader van de Wet natuurbescherming niet vereist is.

4.7.2 Soortenbescherming

De soortenbescherming is eveneens geregeld in de Wnb. Het doel van de Wnb is het instandhouden en beschermen van in het wild voorkomende planten- en diersoorten. De Wnb kent zowel een zorgplicht als verbodsbepalingen. De zorgplicht geldt te allen tijde voor alle in het wild levende dieren en planten en hun leefomgeving. De verbodsbepalingen zijn gebaseerd op het ‘nee, tenzij’-principe. Alle schadelijke handelingen ten aanzien van beschermde planten- en diersoorten zijn in principe verboden, maar er kunnen vrijstellingen en ontheffingen (door het bevoegd gezag) worden verleend van de verbodsbepalingen.

De Wnb kent een apart beschermingsregime voor Vogelrichtlijnsoorten (alle vogels), Habitatrichtlijnsoorten en nationaal beschermde soorten. Voor Vogel- en Habitatrichtlijnsoorten geldt een strikte bescherming. Voor de nationaal beschermde soorten hebben provincies de bevoegdheid om in het kader van ruimtelijke inrichting of ontwikkeling van gebieden een vrijstelling te verlenen van de verbodsbepalingen. Dit moet worden geregeld in een provinciale verordening. Bij nieuwe ontwikkelingen moet worden nagegaan, c.q. onderbouwd worden, of zich in het betreffende gebied beschermde soorten bevinden.

In het onderzoek van Bureau Bleijerveld 'Quickscan Wnb Beekhuizenseweg 1a Rozendaal' (d.d. 26 september 2022, Bijlage 4) is er ook aandacht besteed aan mogelijke beschermde soorten.

In het plangebied komen mogelijk verschillende soorten voor die zijn beschermd onder paragrafen 3.1 en 3.5 onder de Vogelrichtlijn van de Wet natuurbescherming.

In het plangebied is het voorkomen van algemene, licht beschermde kleine zoogdieren en amfibieën niet uit te sluiten. Voor de te verwachten soorten geldt algemene vrijstelling in geval van ruimtelijke ingrepen. Een aantal soorten reptielen kan rond de erfgrens in het plangebied aanwezig zijn maar als leefgebied is het terrein niet geschikt. In de opgaande begroeiing en de gebouwen kunnen algemene vogels zonder vaste nestplaats tot broeden komen. Onder het dak van de woning is de aanwezigheid van vaste verblijfplaatsen van vleermuizen, huismus en gierzwaluw niet uit te sluiten.

afbeelding "i_NL.IMRO.0277.BPROZEND2023001-0001_0016.png"  
Tabel: Beschermde soorten die binnen de planlocatie worden verwacht op basis van bestaande gegevens en het veldbezoek  

4.7.3 Conclusie ecologie

In het plangebied komen mogelijk verschillende soorten voor die zijn beschermd onder paragrafen 3.1 en 3.5 onder de Vogelrichtlijn van de Wet natuurbescherming. Geconcludeerd kan worden dat overtreding van de Wet natuurbescherming voorkomen dient te worden. Om dit te voorkomen zijn maatregelen en vervolgacties noodzakelijk. Deze worden hieronder omschreven.

Vleermuizen (Wnb-Vogelrichtlijn, art. 3.5)

Door de sloop kunnen verblijfplaatsen verloren gaan en verstoring en sterfte van dieren optreden. Dit is verboden volgens de Wnb. Daarom dient nader onderzoek plaats te vinden naar de eventuele functies van de gebouwen voor vleermuizen. Dit onderzoek dient uitgevoerd te worden in de periode van 15 mei tot 30 september.

Broedvogels zonder vaste nestplaatsen (Wnb-Vogelrichtlijn, art. 3.1)

Door het rooien van begroeiing of het slopen van gebouwen tijdens het broedseizoen kan sterfte van vogels en verstoring van broedsels optreden. Dit is verboden volgens de Wnb. Daarom dienen dergelijke ingrepen buiten het broedseizoen plaats te vinden tenzij een controle uitwijst dat geen broedsels aanwezig zijn. De piek van het broedseizoen beslaat de periode van 15 maart tot 15 juli, maar eerdere en vooral latere broedgevallen zijn mogelijk. In de periode van 1 september tot 1 maart is de kans op broedgevallen gering.

Door de sloop van de woning kunnen vaste nestplaatsen verloren gaan. Dit is verboden volgens de Wnb. Daarom dient nader onderzoek plaats te vinden naar de functies van het gebouw voor huismus en gierzwaluw. Hiervoor is nader onderzoek gewenst in de periode 15 mrt – 15 mei respectievelijk 15 mei – 15 juli.

afbeelding "i_NL.IMRO.0277.BPROZEND2023001-0001_0017.png"  
Tabel: Overzicht maatregelen en vervolgacties n.a.v. quick scan  

4.7.4 Nader onderzoek naar Broedvogels en Vleermuizen

Voor het uiteindelijke uitvoeren van de sloopwerkzaamheden en het realiseren van het het planvoeren is nader onderzoek vereist. De vervolgonderzoeken zullen bij de sloop van de bestaande bebouwing in gang worden gezet om de benodigde maatregelen te bepalen. Dit is in de regels van het bestemmingsplan geborgd (zie artikel 12.2 Onderzoek broedvogels en vleermuizen).

Het nader onderzoek naar vleermuis, huismus bestaat uit enkele onderzoeksrondes. Het najaarsonderzoek zal worden uitgevoerd tussen half augustus en eind september 2023. Tussen half maart en half juni 2024 zal vervolgens het voorjaarsonderzoek worden uitgevoerd. De uiteindelijke rapportage van het nader onderzoek, als aanvulling op deze paragraaf is te verwachten in de 2e helft van juni 2024.

Wanneer er eventuele broedplaatsen of verblijfplaatsen van vleermuizen, de huismus of gierzwaluw geconstateerd worden, zullen mitigerende maatregelen worden genomen. Door de groene bosrijke omgeving en het ruime perceel zijn er voldoende mogelijkheden om uitwijkmogelijkheden voor vogels en vleermuizen te bieden. De uitvoerbaarheid van het plan is hiermee geborgd.

Vooruitlopend op het onderzoek, kan het plan worden vastgesteld, middels de voorwaarde om te voldoen aan de Wet Natuurbescherming bij de realisatie van het voornemen.

Tussenconclusie Nader onderzoek Broedvogels en Vleermuizen

Het najaarszonderzoek naar vleermuizen is reeds uitgevoerd. Tijdens het najaarsonderzoek zijn er geen paarverblijfplaats vastgesteld.

Het voorjaaronderzoek volgt komend voorjaar, alsmede het onderzoek naar nestplaatsen van de huismus.

4.7.5 Conclusie

Het aspect Natuur vormt hiermee geen belemmering voor het planvoornemen. Deze conclusie is natuurlijk afhankelijk van de verdere resultaten van het vervolgonderzoek.

4.8 Archeologie

4.8.1 Algemeen

Als gevolg van het Verdrag van Malta (Valetta) zijn overheden verplicht om in het ruimtelijke beleid zorgvuldig om te gaan met het archeologisch erfgoed. Voor gebieden waar archeologische waarden voorkomen of waar een reële verwachting bestaat dat er archeologische waarden aanwezig zijn dient, voordat er bodemingrepen plaatsvinden, een archeologisch onderzoek uit te worden gevoerd.

De zorgplicht voor archeologisch erfgoed is vastgelegd in de Wet op de archeologische monumentenzorg (Wamz), die is geïmplementeerd in de Monumentenwet 1988. De wet regelt:

  • Bescherming van archeologisch erfgoed in de bodem;
  • inpassen van archeologisch erfgoed in de ruimtelijke ordening;
  • financiering onderzoek: de veroorzaker betaald.

Op 1 juli 2016 is de nieuwe Erfgoedwet in werking getreden. Deze wet vervangt onder meer de Monumentenwet 1988. In artikel 9.1 van de Erfgoedwet is echter bepaald dat tot het tijdstip waarop de nieuwe Omgevingswet in werking is getreden de bepalingen uit de Monumentenwet 1988 met betrekking tot archeologie van toepassing blijven. Naar verwachting zal de Omgevingswet in 2022 in werking treden.

Gemeentelijk beleid

De Wamz heeft ertoe geleid dat de gemeente Rozendaal eigen archeologisch beleid heeft opgesteld. dit is opgenomen in de rapportage 'Archeologische waarden- en verwachtingenkaart en beleidskaart gemeente Rozendaal 2018. Die op 30 oktober 2018 door de gemeenteraad is vastgesteld. Op basis van een analyse van de landschappelijke, bodemkundigen en archeologische informatie is een vlakdekkende kaart van archeologische waarden en verwachtingen opgesteld, waaraan ook beleid voor het uitvoeren van archeologisch onderzoek bij bodemingrepen is gekoppeld. In paragraaf 3.4.4 is hier al nader op ingegaan.

afbeelding "i_NL.IMRO.0277.BPROZEND2023001-0001_0018.png"

Archeologische waardenkaart. Globale plangebied is groen omcirkelt.

4.8.2 Beleidskader

In bijgaande figuur is een uitsnede van de gemeentelijke archeologische beleidskaart weergegeven. Er worden een aantal archeologische zones onderscheiden:

  • Terrein van hoge archeologische waarde;
  • terrein van archeologische waarde;
  • terrein van hogere archeologische verwachting;
  • lagere archeologische verwachting; en
  • geen archeologische verwachting.

De verschillende archeologische zones zijn vertaald in een aantal dubbelbestemmingen 'Waarde-archeologie'. In bijgaande tabel is aangegeven welke dubbelbestemming bij welke (verwachtings)waarde hoort:

afbeelding "i_NL.IMRO.0277.BPROZEND2023001-0001_0019.png"

4.8.3 Archeologie in relatie tot het plangebied

Op de archeologische waardenkaart heeft het plangebied de aanduiding van terrein met archeologische waarde. Dit betekend dat er een maximaal verstoringsoppervlakte is van 30m2 met een maximale diepte van 0,3 meter.

Op de verbeelding van dit bestemmingsplan is voor het plangebied, ten behoeve van de bestemming van de (mogelijk aanwezige) archeologische waarde, de dubbelbestemming 'Waarde - Archeologie 2' opgenomen.

Als gevolg van het plan, waarbij het bouwvlak wordt verplaatst, wordt het mogelijk om een woning te bouwen op een locatie waar dit voorheen niet mogelijk was. Het maximaal verstoringsoppervlak en de diepte worden hiermee overschreden. Dit betekend dat nader archeologisch onderzoek vereist is. Dit onderzoek wordt nader toegelicht in de volgende paragrafen.

4.8.4 Inventariserend archeologisch bureau- en booronderzoek

Door Bureau voor Archeologie is er in opdracht van BOOT een archeologisch bureau- en inventariserend booronderzoek (rapportnummer 1251, d.d. 20 oktober 2022) uitgevoerd. Het archeologisch rapport is toegevoegd als Bijlage 6.

Resultaten bureauonderzoek

Op grond van de landschappelijke ligging moet in het plangebied rekening worden gehouden met resten uit de periodes van landbouwsamenlevingen en staatssamenlevingen tot aan de 18e eeuw. Deze verwachting is echter vrij breed: er zijn geen vondstmeldingen of archeologische terreinvormen zoals celtic fields of ijzerkuilen in of in de directe omgeving van het plangebied bekend die wijzen op specifieke menselijke activiteiten.

Wel bevindt zich in het terrein een opmerkelijk ronde verhoging van ongeveer twee meter hoog en met een doorsnede van tien meter. Er is een (kleine) kans dat dit een grafheuvel is (Bronstijd en IJzertijd).

De ronde terreinverhoging die op het AHN te zien is en mogelijk een grafheuvel is, bleek tijdens het veldwerk niet (meer) aanwezig, mogelijk als gevolg van de grondwerkzaamheden tijdens het verwijderen van vegetatie.

afbeelding "i_NL.IMRO.0277.BPROZEND2023001-0001_0020.png"  
Figuur: Detail in het terrein dat op een grafheuvel lijkt  

Behoudenswaardige archeologische resten uit de periode van jager-verzamelaars worden niet verwacht omdat sporen uit deze periode zeer ondiep zijn en dus kwetsbaar voor bodemingrepen, terwijl het terrein al ruim honderdvijftig jaar onderdeel is van een erf waarbij de top van het bodemprofiel is bewerkt of vergraven.

In de 18e eeuw ligt het plangebied in het landgoed bij kasteel Rozendaal. Er zijn echter geen aanwijzingen dat het plangebied iets anders dan bos is geweest. Vanaf midden 19e eeuw heeft bebouwing bij en in het plangebied gestaan en is het plangebied onderdeel van een erf.

Resultaten booronderzoek

Uit het booronderzoek blijkt dat in het plangebied waarschijnlijk geen behoudenswaardige archeologische resten zijn. Het bodemprofiel blijkt sterker verstoord dan op basis van het bureauonderzoek werd verwacht. Met het booronderzoek kan niet worden uitgesloten dat sprake is van een archeologische vindplaats die zich alleen als sporenniveau manifesteert. Gezien de aanwezigheid van een verstoord bodemprofiel is de kans echter klein dat dergelijke vindplaatsen bewaard kunnen zijn gebleven.

Conclusie

Op basis van de resultaten van het uitgevoerde onderzoek adviseert Bureau voor Archeologie het plangebied archeologisch vrij te geven voor de voorgenomen ontwikkeling.

4.8.5 Aanvullende boringen grafheuvel

Het bovenstaande archeologische rapport is ter goedkeuring voorgelegd aan de bevoegde overheid en Regioarcheoloog van de gemeente Rozendaal. Op basis van het bovenstaande rapport waren er nog onduidelijkheden met betrekking nog een mogelijke grafheuvel. Met uitzondering van de locatie van de grafheuvel kon het plangebied worden vrijgegeven voor toekomstige ontwikkelingen.

De regioarcheoloog heeft hierop gevraagd om twee aanvullende boringen ter hoogte van de mogelijke grafheuvel te plaatsen om te bepalen of er in de ondergrond nog mogelijke resten hiervan aanwezig zijn.

Het bovenstaande rapport is aangevuld met twee extra boringen ter hoogte van de mogelijke grafheuvel. Er is een boring net buiten de voormalige grafheuvel en een boring binnen de heuvel gezet. Het bovenstaande rapport is aangevuld met twee boringen en toegevoegd als Bijlage 7.

Uit de resultaten van de twee extra boringen blijkt dat de ondergrond ter hoogte van de mogelijke grafheuvel is verstoord. Hieruit volgt dat de locatie met betrekking tot archeologie kan worden vrijgegeven voor de voorgenomen ontwikkeling. De regioarcheoloog heeft het aangevulde rapport goedgekeurd.

4.8.6 Conclusie

Het aspect archeologie vormt hiermee geen belemmering voor het planvoornemen.

4.9 Cultuurhistorie

4.9.1 Algemeen

Goede ruimtelijke ordening betekent dat er onder meer bij het opstellen van bestemmingsplannen, een integrale afweging plaatsvindt van alle belangen die effect hebben op de kwaliteit van de ruimte. Een van die belangen is de cultuurhistorie. Het bestemmingsplan is daarbij een belangrijk instrument om cultuurhistorische waarden in een gebied te beschermen. Door de wijziging per 1 januari 2012 van het Besluit ruimtelijke ordening (art. 3.1.6) dienen cultuurhistorische waarden uitdrukkelijk te worden meegewogen bij het vaststellen van bestemmingsplannen.

4.9.2 Cultuurhistorie in relatie tot het plangebied

Beschermd dorpsgezicht

In het algemeen is de totstandkoming van Rozendaal sterk verbonden met het kasteel Rozendael. In de structuur van de huidige kern is nog duidelijk de parkaanleg van het kasteel herkenbaar en is om die reden met een specifieke dubbelbestemming bestemd. Het plangebied maakt onderdeel uit van dit beschermde dorpsgezicht.

afbeelding "i_NL.IMRO.0277.BPROZEND2023001-0001_0021.png"

Waarde cultuurhistorie (Kasteeldorp)

Deze dubbelbestemming houdt in dat de in het plangebied aanwezige gronden, behalve voor de andere daar voorkomende bestemmingen, mede bestemd zijn voor instandhouding van de karakteristieke met de historische ontwikkeling samenhangende ruimtelijke structuur en stedenbouwkundige kwaliteit van het beschermd dorpsgezicht. Het gaat hierbij om de volgende waarden:

Hoofdstructuur:

a. De hoofdstructuur van Rosendael bevat:

  • 1. het lanenstelsel van de Rosendaalselaan en Kerklaan, zich voortzettend tot en met de Kapellenberg;
  • 2. het kasteelpark met de 18e eeuwse lanen en de 19e eeuwse parkaanleg in Engelse landschapsstijl;
  • 3. het bosgebied ten oosten van het Kasteelpark, met de Smidsberg en de begraafplaats;
  • 4. het open beekdal met het verloop van de Rozendaalse beek;
  • 5. de Koningsberg met het lanenstelsel uit de 18e en 19e eeuw.

Lineaire structuren:

b. De lineaire structuren van Rosendael bestaande uit:

  • 1. het verloop, het profiel en de beplanting van de verschillende lanen;
  • 2. het zicht vanaf de Rosendaelselaan tot op de Torckschool en op de voormalige schoolmeesterwoning tegen de bosrand;
  • 3. het zicht naar en vanaf het logement op de Smidsberg.

Objecten en complexen:

c. Van belang zijn de volgende objecten en complexen:

  • 1. het bebouwingsbeeld: overwegend vrijstaande woningen op ruime kavels, waaronder een drietal grote villa's aan de Rosendaelselaan, de Torckschool en het huis Heuveloord, de historische dorpsbebouwing nabij de samenkomst van de Rosendaalselaan en Kerklaan en de verspreid gelegen bebouwing binnen het kasteelpark en direct ten oosten daarvan;
  • 2. de historische panden in het beekdal, waaronder het complex van voormalige wasserijgebouwen, waaraan de industriële betekenis die de Rozendaalse beek heeft gehad, als aandrijver van papier- en watermolens, nog is af te lezen.

Overig:

d. Daarnaast zijn voor het karakter van het beschermd dorpsgezicht de volgende punten nog van belang:

  • 1. het groene karakter van de voortuinen, het zicht door de voortuinen op de bebouwing, de lage hagen als erfafscheiding;
  • 2. de kunstmatig opgeworpen heuvels buiten het kasteelpark (Kapellenberg, Koningsberg), die uitkijkplaatsen vormden naar de kasteeltuin en naar de ruime omgeving en waarvandaan de hoogteverschillen sterk werden ervaren.

Het voorliggende plan doet geen afbreuk aan de hierboven genoemde waarden. Het voorliggende plan versterkt de aanwezige waarden juist. Net als in de uitsgangssituatie is er sprake van vrijstaande bebouwing in een groene omgeving. In het voorliggende plan wordt er echter aansluiting gezocht bij het op het terrein aanwezige rijksmonument. Hiermee wordt de positie van dit monument verstevigd. Daarnaast zorgt het landschappelijke inrichtingsplan voor een passende inpassing van het plan in de parkachtige omgeving. Gesteld kan worden dat dit plan bijdraagt aan de doelstellingen van het beschermde dorpsgezicht.

De planregels met betrekking tot het beschermde dorpsgezicht zijn overgenomen uit het bestemmingsplan 'Rozendaal 2019' naar het voorliggende bestemmingsplan. Hiermee wordt de continuering van het beschermde dorpsgezicht in de nieuwe situatie gewaarborgd.

Rijksmonument en Rijksbeschermd complex

Op het terrein is een voormalige wagenschuur aanwezig. Deze schuur is een Rijksmonument (monumentnummer 528483). Het gebied en de wagenschuur maken tevens onderdeel uit van het Rijksbeschermde complex de Historische buitenplaats Kasteel Rosendael onder complexnummer 528473.

De rijksmonumentale bescherming (conform de Erfgoedwet) heeft een rechtstreekse werking op vergunningverlening en is formeel geen onderdeel van het bestemmingsplan. Evenwel is in het bestemmingsplan een aan de monumentale status gekoppelde bepaling, die toeziet op bescherming van de ruimtelijke kwaliteiten in de omgeving van gemeentelijke en rijksmonumenten. Deze bepaling is opgenomen in artikel 8.5 van dit bestemmingsplan.

De wagenschuur vormt een integraal onderdeel van het inititiatief. Door de nieuwe functie die wordt toegekend aan de wagenschuur als onderdeel van de nieuwe ontwikkeling wordt het behoud van de wagenschuur, ook naar de toekomst toe geborgd. Zowel als beschermd rijksmonument als onderdeel van het Rijksbeschermde complex de Historische buitenplaats Kasteel Rosendael.

4.9.3 Conclusie

De cultuurhistorische waarden staan de verdere vaststelling van voorliggende bestemmingsplan niet in de weg.

4.10 Vormvrije M.E.R.-Beoordeling

4.10.1 Normstelling en beleid

De procedure van een milieueffectrapportage (m.e.r.) is volgens de Wet milieubeheer verplicht bij de voorbereiding van plannen en besluiten van de overheid over initiatieven en activiteiten van publieke en private partijen die belangrijke nadelige gevolgen voor het milieu kunnen hebben. Welke activiteiten dat betreft is aangegeven in het Besluit m.e.r. en de daarbij behorende bijlage. In de bijlage is onderscheid gemaakt tussen een:

  • C-lijst met m.e.r.-plichtige activiteiten en daarbij behorende drempelwaarden;
  • D-lijst met m.e.r.-beoordelingsplichtige activiteiten en de daarbij behorende drempelwaarden.

Het doel van de m.e.r. is het milieubelang volwaardig mee te laten wegen bij de vaststelling van deze plannen en besluiten. Een belangrijk product van de m.e.r.- procedure is het milieueffectrapport (MER). Bij sommige besluiten is niet meteen duidelijk of sprake kan zijn van belangrijke nadelige gevolgen voor het milieu. In deze grensgevallen moet eerst worden beoordeeld of sprake is van een m.e.r.- plicht. Dit gebeurt door middel van een aparte procedure, de zogenoemde m.e.r.- beoordeling.

Deze m.e.r.-beoordeling is ook vereist voor activiteiten die onder de drempelwaarden van het Besluit m.e.r. liggen. In dat geval gelden er geen vormvoorschriften en is sprake van een vormvrije m.e.r.-beoordeling.

Bij de vormvrije m.e.r.-beoordeling moet er volgens bijlage III van de EEG-richtlijn milieueffectbeoordeling worden getoetst aan de 3 volgende hoofdcriteria:

1. de kenmerken van het project;
2. de plaats van het project;
3. de kenmerken van de potentiële effecten.

4.10.2 Toetsing aan het bestemmingsplan

In het Besluit m.e.r. is opgenomen dat de aanleg, wijziging of uitbreiding van een stedelijk ontwikkelingsproject (onderdeel D11.2) mer-beoordelingsplichtig is in gevallen waarin de activiteit betrekking heeft op de volgende gevallen (indicatieve drempelwaarden):

  • een oppervlakte van 100 hectare of meer;
  • een aaneengesloten gebied en 2.000 of meer woningen omvat; of
  • een bedrijfsvloeroppervlakte van 200.000m2 of meer.

Met voorliggend bestemmingsplan wordt slechts één woning voorzien. Hiermee valt deze ontwikkeling ruim onder de genoemde drempelwaarden.

Op grond van bovenstaande kan geconcludeerd worden dat in het kader van voorliggend plan geen m.e.r.-procedure vereist is.

4.10.3 conclusie

Voor dit bestemmingsplan is geen m.e.r.-procedure vereist.

Hoofdstuk 5 Juridische aspecten

5.1 Inleiding

5.1.1 Algemeen

Dit hoofdstuk geeft inzicht hoe het beleid voor het landelijk gebied is vertaald in juridisch bindende regels, met hieraan gekoppeld een verbeelding. De regels bevatten het juridische instrumentarium voor de gebruiksmogelijkheden en bouwmogelijkheden. De verbeelding heeft een ondersteunende rol voor de toepassing van deze regels evenals de functie van visualisering van de bestemmingen. De toelichting heeft geen juridisch bindende werking, maar heeft wel een belangrijke functie bij de onderbouwing van het plan en soms voor de uitleg van bepaalde bestemmingen en regels.

Het belangrijkste onderdeel van een bestemmingsplan is de bestemming. Aan alle in het plan begrepen gronden worden ten behoeve van een goede ruimtelijke ordening bestemmingen toegewezen. Zo nodig worden aan deze bestemmingen regels gekoppeld omtrent het gebruik van de in het plan begrepen gronden en van de zich daarop bevindende opstallen. Naast de bestemmingen kunnen ook dubbelbestemmingen voorkomen. Deze overlappen de 'gewone' bestemmingen en geven eigen regels, waarbij er sprake is van een rangorde tussen de bestemmingen en de dubbelbestemmingen.

Bij bestemmingen kunnen aanduidingen voorkomen met als doel bepaalde zaken nader of specifieker te regelen. Aanduidingen zijn terug te vinden op de verbeelding en hebben een juridische betekenis in het bestemmingsplan. Alle overige op de verbeelding voorkomende zaken worden verklaringen genoemd. Verklaringen hebben geen juridische betekenis, maar zijn op de verbeelding opgenomen om deze beter leesbaar te maken (bijvoorbeeld topografische ondergrond). Verklaringen worden in de digitale verbeelding niet uitgewisseld, waardoor die informatie de burger via de digitale weg niet zal bereiken.

5.1.2 Digitaliseringsvereisten

Met de inwerkingtreding van de Wet ruimtelijke ordening (Wro) zijn ook digitaliseringsverplichtingen aan een bestemmingsplan gesteld. De regels en de verbeelding dienen daarom te zijn opgesteld volgens IMRO en SVBP, onderdeel van de zogenaamde RO Standaarden.

IMRO staat voor Informatie Model Ruimtelijke Ordening en heeft betrekking op de inrichting van de ruimtelijke instrumenten van de Wro. Het is het informatiemodel voor het opstellen en het uitwisselen van visies, plannen, besluiten, verordeningen en algemene regels op alle bestuurlijke niveaus. Het model is geschikt voor uitwisseling van informatie tussen de organisaties op het gebied van de ruimtelijke ordening en aanverwante werkterreinen. SVBP staat voor Standaard Vergelijkbare Bestemmingsplannen. Doel van deze standaard is het op vergelijkbare wijze inrichten, vormgeven en verbeelden van bestemmingsplannen en de daarbij behorende uitwerkings- en wijzigingsbesluiten.

Vanaf 1 juli 2013 zijn de RO standaarden 2012 verplicht. Concreet betekent dit dat nieuwe bestemmingsplannen vanaf die datum volgens deze nieuwe standaard opgesteld en gepubliceerd moeten worden.

Het voorliggende bestemmingsplan is overeenkomstig deze nieuwe vereisten opgesteld en is hiermee gereed om digitaal beschikbaar te stellen voor eenieder.

5.2 Opbouw regels en verbeelding

5.2.1 regels

De planregels zijn opgesteld volgens het SVBP2012 en voldoen tevens aan de eisen van de Wet algemene bepalingen omgevingsrecht (Wabo) die op 1 oktober 2010 in werking is getreden. Daarbij is een standaard hoofdstukindeling aangehouden die begint met Inleidende regels (begrippen en wijze van meten), vervolgens met de bestemmingsregels, de algemene regels (de regels die voor alle bestemmingen gelden) en de overgangs- en slotregels. Daarbij staan de verschillende bestemmingen op alfabetische volgorde.

Ook de regels van een bestemming kennen een standaardopbouw en worden als volgt benoemd:

  • bestemmingsomschrijving;
  • bouwregels;
  • nadere eisen;
  • afwijking van de bouwregels;
  • Specifieke gebruiksregels
  • afwijking van de gebruiksregels;
  • omgevingsvergunning voor de uitvoering van een werk, geen gebouw zijnde of van werkzaamheden;
  • wijzigingsbevoegdheid.

Opgemerkt wordt dan een bestemmingsregel niet alle elementen bevat, dit verschilt per bestemming.

5.2.2 Analoge verbeelding (plankaart)

Uit de SVBP2012 volgen diverse verplichtingen voor wat betreft de verbeelding, zoals de kleur van de ondergrond (grijs) en minimaal weer te geven aspecten op de ondergrond. Ook de diverse kleuren van de bestemmingen, evenals de verhouding van de op de verbeelding voorkomende lijndiktes, zijn verplicht voorgeschreven.

Voor wat betreft de ondergrond van de verbeelding is gebruik gemaakt van de Basisregistratie Grootschalige Topografie (BGT), waar nodig aangevuld met de Digitale Kadastrale Kaart (DKK).

5.3 Artikelsgewijze Toelichting

In deze paragraaf wordt waar dat noodzakelijk en nuttig wordt geacht een nadere toelichting gegeven op specifieke onderdelen van de planregels. Sommige regelingen zijn daarom hierna niet opgenomen: deze worden geacht voor zich te spreken.

5.3.1 Artikel 1 en 2 - Begrippen en wijze van meten

Voor de begripsomschrijvingen en wijze van meten is aangesloten bij de SVBP2012. Hierbij heeft afstemming plaatsgevonden met het bestemmingsplan ‘Rozendaal 2019’.

5.3.2 Artikel 3 - Tuin

De bestemming ‘Tuin’ is in de regel opgenomen voor de tuinen voor de voorgevel van de woning. Ook komt deze voor op andere delen van tuinen die grenzen aan openbaar gebied. Door het hanteren van een afzonderlijke bestemming ‘Tuin’ wordt een duidelijk en ‘groen’ beeld gecreëerd. In de tuin zijn geen woningen of bijgebouwen toegestaan. Deze moeten worden gebouwd binnen de bestemming ‘Wonen’. Op deze manier ontstaat een duidelijke tweedeling: de woonbestemming waarbinnen de woning en de bijbehorende bouwwerken mogen worden gebouwd en de tuin waar slechts andere bouwwerken (zoals erf- en terreinafscheidingen) mogen worden gebouwd.

Via een buitenplanse afwijking kunnen worden toegelaten in (voor-, zij- en achter)tuinen:

  • aan de woning aangebouwde gebouwen, zoals erkers en ingangspartijen; en
  • erf- en terreinafscheidingen tot 2 meter hoog ('bij recht' is dit 1 meter).

In artikel 4 (wonen) is de voorwaardelijke verplichting opgenomen tot uitvoering van het landschappelijk inpassingsplan welke als bijlage aan de regels is toegevoegd. De uitvoer van dit landschappelijk inrichtingsplan zal (grotendeels) binnen de bestemming tuin plaatsvinden.

5.3.3 Artikel 4 - Wonen

De bestemming Wonen is toegekend aan de bestaande woning in het plangebied. De locatie van de woonbestemming is ongewijzigd ten opzichte van het plan 'Rozendaal 2019'. Door middel van een nadere aanduiding wordt binnen de woonbestemming onderscheid gemaakt tussen de verschillende bouwwijzen van de woningen. De aanduiding ‘[vrij]’ staat voor vrijstaande woningen. Woningen mogen uitsluitend op de aangeduide bouwwijze worden gebouwd en het bestaande aantal woningen is maatgevend.

Bouwregels
De woonbestemming is vastgelegd in bouwvlakken. Hiervoor is aangesloten bij de bouwplannen zoals bekend in september 2022.

Het hoofdgebouw van de woning is uitsluitend binnen het bouwvlak toegestaan. In de bouwregels zijn algemene regels opgenomen welke de maximale omvang van het hoofdgebouw. Aan- en uitbouwen aan het hoofdgebouw, zoals in dit geval de monumentale wagenschuur.

Andere bouwwerken, zoals een bijgebouw of overkapping, zijn buiten het bouwvlak toegestaan. In dit geval is buiten het bouwvlak een monumentale wagenschuur aanwezig.

In de bouwregels bij deze bestemming is tevens een voorwaardelijke verplichting voor het bouwen van een woongebouw opgenomen:

Artikel 4.2.5 (voorwaarden woongebouw)

Woongebouwen mogen uitsluitend worden gebouwd indien:

  • a. binnen de bestemming de al aanwezige woning is gesloopt;
  • b. binnen de bestemming de landschappelijke inpassing wordt gerealiseerd zoals opgenomen in 'Bijlage 2 Landschappelijk inrichtingsplan Beekhuizenseweg 1a' bij deze regels met dien verstande dat:
    • 1. de landschappelijke inpassing dient te zijn gerealiseerd alvorens een vergunning voor de bouw van het woongebouw verleend kan worden;
    • 2. de landschappelijke inpassing na realisatie ervan duurzaam in stand wordt gehouden.

Deze voorwaardelijke verplichting is tweeledig. Allereerst bestaat de verplichting om, voordat de vergunning voor de bouw van een nieuw woongebouw kan worden verleend, de oude nog aanwezige woning binnen te bestemming te slopen. Pas als de oude woning gesloopt is kan er een vergunning worden verleend voor de bouw van een nieuwe woning. Hiervoor is gekozen om te waarborgen dat er ten aller tijden maximaal één woning op het perceel aanwezig is.

Het tweede deel van de voorwaardelijke verplichting bestaat uit de verplichting tot uitvoer van het landschappelijk inrichtingsplan. Binnen één jaar na realisatie van de woning dient er uitvoer gegeven te zijn aan het landschappelijk inrichtingsplan zoals opgenomen in de bijlage van de planregels. De uitvoer van dit landschappelijk inrichtingsplan is noodzakelijk om de uitvoer van het bouwplan ruimtelijk aanvaardbaar te maken. Het bestemmingsplan bevat tevens de plicht tot instandhouding van de landschappelijke inrichting van het inrichtingsplan.

Ter verduidelijking van deze voorwaardelijke verplichting is op de verbeelding bij de planregels tevens de aanduiding 'overige zone - voorwaardelijke verplichting' aangebracht. Deze aanduiding verwijst naar de voorwaardelijke verplichting zoals vastgelegd in artikel 4.2.5 en artikel 8.1 van de planregels.

Beroep- of bedrijf aan huis
Conform de plansystematiek uit het bestemmingsplan ‘Rozendaal 2019’ is in dit plan onderscheid gemaakt tussen beroepsmatige- en bedrijfsmatige activiteiten in de woning en de bijbehorende bijgebouwen. Bij beroepsmatige activiteiten gaat het met name om de ‘vrije beroepen’. Daarbij is slechts in ondergeschikte mate detailhandel toegestaan; horeca is daarbij uitgesloten.

In de begrippen die als onderdeel van de planregels zijn opgenomen is het 'beroep aan huis' nader gedefinieerd.

Bij bedrijfsmatige activiteiten gaat het om het bedrijfsmatig verlenen van diensten en het uitoefenen van ambachtelijke bedrijvigheid die, in tegenstelling tot beroepsmatige activiteiten, is gericht op consumentenverzorging. Hierbij is detailhandel als ondergeschikte nevenactiviteit toegestaan, hierin is ook toegestaan horeca, doch uitsluitend in de vorm van het bieden van eenvoudige overnachtingsgelegenheid met ontbijt (bed and breakfast). Ook het begrip ‘bedrijf aan huis’ is in de regels nader gedefinieerd. Daarbij wordt ook verwezen naar een 'Staat van bedrijfsactiviteiten' die als bijlage bij de regels is toegevoegd.

Beroepsmatige activiteiten zijn als recht toegestaan tot een beperkte bruto vloeroppervlakte (30% van het totaal van woning plus bijgebouwen, met een maximum van 75 m²). De qua karakter iets ‘zwaardere’ bedrijfsmatige activiteiten kunnen onder voorwaarden worden toegestaan door middel van een binnenplase afwijking. Ook daarvoor gelden dezelfde oppervlakteregels. Bij deze afwijkingsmogelijkheid is onder meer bepaald dat buitenopslag van goederen niet is toegestaan, de verkeers- en parkeerdruk niet wezenlijk groter mogen worden en dat het parkeren (zowel voor het bedrijf als de eigen woning) uitsluitend op eigen terrein dient plaats te vinden.
De vestiging van een Bed and Breakfast wordt in vrijstaande bijgebouwen niet toegestaan (geen recreatiehuisjes).

5.3.4 Artikel 5 - Waarde - Archeologie 2

De dubbelbestemming ‘Waarde – Archeologie 2’ is toegekend aan de gronden waar ingevolge de gemeentelijke archeologische beleidskaart sprake is van een archeologische waarde (AMK-terrein, dorpskern), waarbij de bestemming ‘Waarde – Archeologie 2’ voorrang heeft op de andere daar voorkomende bestemmingen.

In het bestemmingsplan 'Rozendaal 2019' rust op het volledige plangebied van het voorliggende bestemmingsplan de dubbelbestemming 'Waarde - Archeologie 2'. In het voorliggende bestemmingsplan wordt deze dubbelbestemming overgenomen.

Op deze gronden geldt ter bescherming van de archeologische waarden een bouwverbod. Dit de diepte niet meer dan 30 cm onder het bestaande maaiveld bedraagt en voor bebouwing waarvan de oppervlakte niet meer dan 30 m² bedraagt.
Andere uitzonderingen op dit verbod gelden voor bebouwing ten behoeve van archeologisch onderzoek en de verbouwing en/of sloop- en nieuwbouw van bestaande bebouwing, mits de bestaande fundering weer wordt gebruikt en de bestaande oppervlakte niet wordt vergroot. Een laatste uitzondering op het verbod geldt voor gronden waarvan uit documenten blijkt dat deze reeds eerder verstoord zijn op een diepte van meer dan 30 cm.

Van het bouwverbod kan middels het verlenen van een omgevingsvergunning worden afgeweken als op basis van archeologisch onderzoek is aangetoond dat ter plaatse geen behoudenswaardige archeologische waarden aanwezig zijn, de archeologische waarden niet worden verstoord of dat deze voldoende kunnen worden beschermd door voorschriften aan de vergunning te verbinden. Deze voorschriften kunnen de verplichting inhouden om technische maatregelen te treffen om de archeologische waarden in de bodem te behouden. Maar ook om opgravingen te doen of de bodemverstorende activiteit te laten begeleiden door een deskundige op het terrein van de archeologische monumentenzorg. Voordat wordt overgegaan tot het verlenen van een vergunning dient het bevoegd gezag advies in te winnen bij een archeologisch deskundige. Het archeologisch onderzoek dient te worden aangeleverd door de aanvrager van de omgevingsvergunning.

Binnen de bestemming geldt ook een omgevingsvergunningenstelsel voor het uitvoeren van bepaalde werken of werkzaamheden ter de bescherming van de archeologische waarden. Alleen als op basis van archeologisch onderzoek is aangetoond dat ter plaatse geen behoudenswaardige archeologische waarden aanwezig zijn, de archeologische waarden niet worden verstoord of dat deze voldoende kunnen worden beschermd door voorschriften aan de vergunning te verbinden kan de omgevingsvergunning worden verleend. De voorschriften betreffen hetzelfde soort voorschriften als die aan een omgevingsvergunning voor een afwijken van het bouwverbod kunnen worden verbonden. Uitgezonderd van de vergunningplicht zijn onder meer werken en werkzaamheden die behoren tot het normale onderhoud en beheer van de gronden, het archeologisch onderzoek betreffen, die niet dieper reiken dan 30 cm onder het bestaande maaiveld of een gezamenlijke oppervlakte hebben van niet meer dan 30 m². Eveneens geldt een uitzondering van de vergunningplicht voor werken en werkzaamheden die worden uitgevoerd op gronden waarvan uit documenten blijkt dat deze reeds eerder verstoord zijn op een diepte van meer dan 30 cm.

5.3.5 Artikel 6 - Waarde - Cultuurhistorie - beschermd dorpsgezicht Kasteeldorp

Het beschermde dorpsgezicht van het dorp Rozendaal (waaronder het kasteel Rosendael, de gemeentelijke begraafplaats en het gebied aan weerszijden van de Kerklaan en Rosendaalselaan), is opgenomen binnen de dubbelbestemming ‘Waarde – Cultuurhistorie – beschermd dorpsgezicht Kasteeldorp’. De begrenzing van het beschermd dorpsgezicht is aangegeven op de verbeelding en is afgestemd op ‘nota Ruimtelijke kwaliteit’ van de gemeente Rozendaal.
Naast de andere hier voorkomende bestemmingen zijn de gronden hier mede bestemd voor de instandhouding van de cultuurhistorische waarden, met dien verstande dat de betreffende waarden in deze dubbelbestemming specifiek zijn afgestemd op het beschermd dorpsgezicht van het kasteeldorp.
Binnen deze bestemming mag uitsluitend worden gebouwd als de cultuurhistorische waarden niet oneveneredig worden geschaad en er geldt een vergunningsplicht voor het uitvoeren van werken, geen bouwwerken zijnde, en werkzaamheden (voorheen aanlegvergunning). Daarmee is aangegeven dat de cultuurhistorische waarden prioriteit genieten boven de andere bestemmingen.

In het bestemmingsplan 'Rozendaal 2019' rust op het volledige plangebied van het voorliggende bestemmingsplan de dubbelbestemming 'Waarde - Cultuurhistorie - beschermd dorpsgezicht Kasteeldorp'. In het voorliggende bestemmingsplan wordt deze dubbelbestemming overgenomen.

5.3.6 Artikel 7 - Anti-dubbeltelregel

In het Besluit ruimtelijke ordening (Bro) is hiervoor een standaard bepaling opgenomen. Het Bro verplicht om deze bepaling in het bestemmingsplan op te nemen.

5.3.7 Artikel 8 - Algemene bouwregels

In dit artikel zijn bouwregels opgenomen die voor alle bestemmingen gelden. Zo is hier onder meer een regeling opgenomen voor afwijkende maatvoeringen en situering van bestaande bouwwerken, waarvoor in het verleden omgevingsvergunningen voor het bouwen (voorheen bouwvergunningen) zijn verleend. Deze vergunde overschrijdingen zijn hier positief bestemd. Anders dan onder het overgangsrecht geldt voor deze positief bestemde overschrijdingen dus niet de beperking dat slechts een gedeeltelijke vervanging mag plaatsvinden. Sloop en vervangende nieuwbouw is gewoon toegestaan, mits wel wordt voldaan aan de andere regels uit het bestemmingsplan.

Verder zijn ook regels opgenomen voor ondergrondse bebouwing. Daarbij geldt dat ondergrondse bebouwing alleen is toegestaan voor zover deze wordt gecombineerd met bovengrondse bebouwing. Met andere woorden, het realiseren van zelfstandige ondergrondse bebouwing is niet toegestaan.

Binnen het plangebied is een historische wijnkelder aanwezig. Dit artikel staat de bouw van nieuwe ondergrondse bebouwing niet toe. Het artikel staat echter niet in de weg aan het aanwezig hebben en onderhouden van de al voor dit plan aanwezige ondergrondse bouwwerken.

Tot slot zijn regels voor de (beperkte) overschrijding van ondergeschikte bouwdelen opgenomen.

5.3.8 Artikel 9 - Algemene gebruiksregels

In dit artikel van de planregels zijn algemene gebruiksregels opgenomen, welke gelden in aanvulling op de algemene regel die in artikel 2.1, lid 1 onder c van de Wet algemene bepalingen omgevingsrecht is opgenomen. Deze bepaling is van toepassing op het gebruik binnen alle in het plan voorkomende bestemmingen. Aangegeven is welke vormen van gebruik in ieder geval als gebruik in strijd met het bestemmingsplan worden aangemerkt. Naast de algemene gebruiksregels, die voor elke bestemming gelden, bevat het bestemmingsplan ook specifieke gebruiksregels. Deze zijn opgenomen n de bestemming waar ze van toepassing zijn.

5.3.9 Artikel 10 - Algemene afwijkingsregels

Dit artikel voorziet in afwijkingsregels die kleine afwijkingen middels een omgevingsvergunning van het bestemmingsplan mogelijk maken, indien daar behoefte aan is. Onder meer is het mogelijk om bestemmings- en/of, bouw- en/of aanduidingsgrenzen in geringe mate te overschrijden indien een meetverschil in het terrein daartoe aanleiding geeft.

5.3.10 Artikel 11 - Algemene wijzigingsregels

De regels bevatten een aantal wijzigingsbevoegdheden als bedoeld in artikel 3.1 van de Wet ruimtelijke ordening. het betreft wijzigingsbevoegdheden voor:

  • het in geringe mate wijzigen van de ligging van grenzen van bestemmings- en bouwvlakken.
5.3.11 Artikel 12 - Overige regels

Door de inwerkingtreding van de 'Reparatiewet BZK 2014' (Staatsblad 2014, 458) per 29 november 2014 is de bouwverordening voor het bestemmingsplan niet meer van toepassing. Regelingen met betrekking tot parkeren dienen daarom in het bestemmingsplan te worden opgenomen. Daartoe is de regeling van de parkeerbepaling in de bouwverordening nu materieel overgenomen in dit bestemmingsplan. Een en ander leidt niet tot een inhoudelijke wijziging van de beoogde toetsing. Aan het Besluit ruimtelijke ordening is mede in verband met het intrekken van toetsing aan de bouwverordening de mogelijkheid opgenomen om voor de invulling van de eis van voldoende parkeren in concrete situaties gebruik te maken van beleidsregels (zie artikel 3.1.2 lid 2 onder a Bro), zoals dit ook onder de werking van de bouwverordening mogelijk was. Omdat de gemeente Rozendaal niet over een eigen parkeernota beschikt, wordt in dit artikel verwezen naar CROW publicatie 381.

5.3.12 Artikel 13 - Overgangsrecht

Deze overgangsregels zijn overgenomen uit het Besluit ruimtelijke ordening. De grootste verandering ten opzichte van de tot voor kort gebruikelijke overgangsregels is dat de peildatum voor bouwen en gebruik, gelijk is getrokken. Ook voor het bouwen is nu de datum van inwerkingtreding van het bestemmingsplan beslissend. Dat was voorheen de datum van de terinzagelegging van het ontwerpbestemmingsplan. De wetgever heeft met die gelijkschakeling beoogd eenduidigheid te scheppen.

Indien bouwwerken die onder het overgangsrecht vallen teniet gaan ten gevolge van een calamiteit, dan bestaat de mogelijkheid om terug te bouwen. Onder een calamiteit wordt hier verstaan: een verwoesting door een onvermijdelijk, eenmalig, buiten de schuld van de indiener van de aanvraag voor het bouwen veroorzaakt onheil.

5.3.13 Artikel 14 - Slotregel

Hier is bepaald hoe de regels van dit voorliggende bestemmingsplan kunnen worden aangehaald.

Hoofdstuk 6 Economische uitvoerbaarheid

Tegelijkertijd met de vaststelling van een bestemmingsplan kunnen exploitatieplannen (ex. art. 6.12 Wro) worden vastgesteld. Op basis van het exploitatieplan kunnen (plan)kosten worden verhaald.

Een exploitatieplan hoeft niet opgesteld te worden als het kostenverhaal ‘anderszins verzekerd’ is, door middel van bijvoorbeeld anterieure overeenkomsten of als de gemeente eigenaar is van de gronden. Eveneens hoeft geen exploitatieplan te worden opgesteld als:

  • er geen sprake is van een bouwplan als bedoeld in artikel 6:12 lid 1 van de Wro;
  • het totaal der exploitatiebijdragen dat met de toepassing van artikel 6.19 van de Wro kan worden verhaald minder bedraagt dan €10.000;
  • er geen verhaalbare kosten zijn als bedoeld in artikel 6.2.4, onderdelen b tot en met f, van het Bro;
  • de verhaalbare kosten, als bedoeld in artikel 6.2.4, onderdelen b tot en met f van het Bro, uitsluitend de aansluiting van een bouwperceel op de openbare ruimte of de aansluiting op nutsvoorzieningen betreffen.

Het voorliggende bestemmingsplan betreft het wijziging van het bouwvlak binnen een bestaande woonbestemming. Dit met het doel het bouwen van een nieuwe woning op een andere locatie dan de bestaande woning mogelijk te maken.

Het plan betreft een particulier initiatief. De financiering van de bestemmingsplanherziening, alsmede alle kosten die verbonden zijn aan de uitvoering van het bestemmingsplan - zoals -planschade - komen dan ook voor rekening van de initiatiefnemer. Er zijn derhalve geen kosten voor de gemeente verbonden aan de uitvoering van het bestemmingsplan.

Geconcludeerd kan worden dat het vaststellen van een exploitatieplan niet noodzakelijk is en het bestemmingsplan economisch uitvoerbaar is.

Bovenstaande betekend dat bij de vastelling van voorliggend bestemmingsplan geen exploitatieplan wordt vastgesteld.

Hoofdstuk 7 Maatschappelijke uitvoerbaarheid

7.1 Vooroverleg ex artikel 3.1.1 BRO en inspraak

In het kader van artikel 3.1.1 Besluit ruimtelijke ordening (Bro) zal overleg gevoerd worden over het (concept)ontwerpbestemmingsplan met de gebruikelijke overlegpartners. Zodra de resultaten van dit overleg bekend zijn, zullen deze vermeld worden.

In het kader van het participatiebeleid van de gemeente Rozendaal dienen de plannen besproken te worden met omwonenden. In het kader van dit participatiebeleid dienen in ieder geval de omliggende percelen welke binnen een straal van 150 meter van het plangebied liggen vooraf bij de plannen betrokken te worden.

In de oriënterende fase heeft de initiatief gesproken met omwonenden in een straal van 150 meter rond de beoogde woning. Tussen 22 mei en 1 juni 2023 hebben er verschillende gesprekken met de buurtbewoners plaatsgevonden. Uit deze gesprekken bleek dat er, bij de omwonenden, geen bezwaren waren tegen de voorgenomen ontwikkeling. De omwonenden hebben een formulier van geen bezwaar ondertekend waarin ze aangeven geen bezwaren te hebben tegen de voorgenomen ontwikkeling. Hiertoe behoren ook de bewoners van de appartementen aan de Beekhuizenseweg 1a. De ontvangen formulieren zijn geanonimiseerd en samengevoegd en als Bijlage 8 bij dit bestemmingsplan toegevoegd.

Naast de buurtbewoners is in het kader van de omgevingsdialoog ook de Stichting Gelders Landschap en Kastelen benaderd. Stichting Gelders Landschap en Kastelen is eigenaar van 2 woningen aan de Rozendael 2a en 4. Beide woningen zijn door de gemeente aangewezen als 'belanghebbend' voor deze ontwikkeling. Naast de verklaringen van geen bezwaar heeft het Gelders landschap op 14 augustus ook een positieve verklaring afgegeven. In de verklaring per mail geeft het Gelderland lanschap geen bezwaar te hebben tegen het plan.

Alle buurtbewoners en belanghebbenden zijn hiermee geïnformeerd over de plannen en in de gelegenheid gesteld een reactie te geven op deze ontwikkeling. Mocht iemand alsnog bedenkingen hebben ten aanzien van het project dan kan een zienswijze kenbaar worden gemaakt tegen het ontwerp bestemmingsplan dat zes weken ter inzage zal worden gelegd, zie ook Paragraaf 7.2.

7.2 Zienswijzen ontwerp bestemmingsplan

Na ter inzage legging kan hier een nadere toelichting over de procedure van- en zienswijzen op het ontwerp bestemmingsplan worden gegeven.