direct naar inhoud van Toelichting
Plan: Achterveld en omgeving
Status: ontwerp
Plantype: bestemmingsplan
IMRO-idn: NL.IMRO.0353.201506Achterveld-On01

Toelichting

Hoofdstuk 1 Inleiding

1.1 Aanleiding

Voor Achterveld en omgeving geldt een verouderd bestemmingsplan. Voorliggend plan vormt de feitelijke actualisatie van de regeling voor het gebied.

1.2 Doelstelling en planvorm

Het hoofddoel van het bestemmingsplan is een adequate en actuele regeling waarin het meest recente ruimtelijke beleid in een juridisch bindende vorm is neergelegd.

Net als het huidige bestemmingsplan is gekozen voor een gedetailleerde planvorm, waarbij de ruimtelijke en functionele kaders helder zijn. Enerzijds worden de karakteristieken van het plangebied beschermd door een duidelijk ruimtelijk en functioneel kader, anderzijds biedt het bestemmingsplan flexibiliteit waar dit niet op ruimtelijke bezwaren stuit.

Daarbij is het bestemmingsplan hoofdzakelijk conserverend van aard, dat wil zeggen dat de huidige functionele en ruimtelijke situatie als uitgangspunt heeft gediend voor de juridische regeling. Bouwinitiatieven en gebruikswijzigingen die passen binnen de reguliere bestemmingslegging blijven uiteraard mogelijk. Het voorliggend bestemmingsplan voorziet op twee locaties in een kleinschalige ontwikkeling. Het betreft een kleine uitbreiding van de kinderboerderij in het plangebied en de realisatie van een woning.

1.3 Leeswijzer

In hoofdstuk 2 volgt een beschrijving van het beleidskader dat relevant is voor het plangebied. Hoofdstuk 3 bevat de planbeschrijving. In dit hoofdstuk is een ruimtelijke en functionele analyse van het plangebied gegeven en wordt ingegaan op de doorvertaling van deze aspecten en het beleidskader in het bestemmingsplan. Vervolgens komen in hoofdstuk 4 de omgevingsaspecten (zoals milieu, ecologie, water en archeologie) aan de orde. Hoofdstuk 5 gaat in op de economische uitvoerbaarheid van het plan en hoofdstuk 6 op het aspect handhaving. In hoofdstuk 7 is de juridische planbeschrijving opgenomen waarin de regels op het plan worden toegelicht. Hoofdstuk 8 bevat de resultaten uit het overleg met instanties zoals bedoeld in artikel 3.1.1 van het Besluit ruimtelijke ordening.

Hoofdstuk 2 Beleidskader

2.1 Inleiding

In dit hoofdstuk is een samenvatting gegeven van het ruimtelijk relevante beleid voor het plangebied. Hierin is onderscheid gemaakt tussen het beleid van rijk, provincie, regio en gemeente. Per beleidsdocument wordt aangegeven in hoeverre dit doorwerkt in het bestemmingsplan.

2.2 Rijksbeleid

2.2.1 Structuurvisie Infrastructuur en Ruimte (2012)

In de structuurvisie Infrastructuur en Ruimte formuleert het Rijk drie hoofddoelen om Nederland concurrerend, bereikbaar, leefbaar en veilig te houden voor de middellange termijn (2028):

  • 1. het vergroten van de concurrentiekracht van Nederland door het versterken van de ruimtelijk-economische structuur van Nederland;
  • 2. het verbeteren, in stand houden en ruimtelijk zeker stellen van de bereikbaarheid waarbij de gebruiker voorop staat;
  • 3. het waarborgen van een leefbare en veilige omgeving waarin unieke natuurlijke en cultuurhistorische waarden behouden blijven.

Doorwerking naar het bestemmingsplan
Er is geen specifiek beleid voor het plangebied geformuleerd. Er zijn in het voorliggende bestemmingsplan zodoende geen nationale belangen in het geding. Het bestemmingsplan ondervindt geen belemmeringen vanuit het beleid zoals dat geformuleerd is in de SVIR.  

2.2.2 Besluit algemene regels ruimtelijke ordening (2012)

De structuurvisie Infrastructuur en Ruimte is vertaald in het Besluit algemene regels ruimtelijke ordening (Barro). Dit besluit omvat alle ruimtelijke rijksbelangen die juridisch doorwerken op het niveau van bestemmingsplannen.

Doorwerking naar het bestemmingsplan
Het Barro heeft geen raakvlakken met het bestemmingsplan.  

2.2.3 Artikel 3.1.6 Besluit Ruimtelijke ordening (2017)

De 'Ladder voor duurzame verstedelijking' is in de Structuurvisie Infrastructuur en Ruimte (SVIR) geïntroduceerd en vastgelegd als procesvereiste in het Besluit ruimtelijke ordening (Bro). Het Bro bepaalt dat overheden een nieuwe stedelijke ontwikkeling in de toelichting van het bestemmingsplan moeten motiveren. Op 1 juli 2017 is het Bro gewijzigd, waarbij een nieuwe laddersystematiek geldt.

Doorwerking naar het bestemmingsplan
Het bestemmingsplan is hoofdzakelijk consoliderend van aard en maakt geen nieuwe stedelijke ontwikkelingen mogelijk. Wel wordt de uitbreiding van de kinderboerderij mogelijk gemaakt. Deze uitbreiding wordt niet gezien als een nieuwe stedelijke ontwikkeling. Derhalve is de ladder voor duurzame verstedelijking niet van toepassing.  

2.3 Provinciaal beleid

2.3.1 Provinciale Ruimtelijke Structuurvisie, herijking 2016 (2013)

De provincie beschrijft in zijn Provinciale Ruimtelijke structuurvisie (PRS) het ruimtelijk beleid tot 2028. Deze structuurvisie is in februari 2013 vastgesteld waarna in december 2016 de herijking is vastgesteld. In de PRS zijn de doelstellingen beschreven, het bijbehorende beleid en de uitvoering van het beleid. Uitvoering van het beleid wordt deels via de Provinciale Ruimtelijke Verordening geregeld.

De provincie wil aantrekkelijk zijn om te wonen, werken en recreëren.

Hierop wordt ingezet op drie belangrijke pijlers: een duurzame leefomgeving, vitale dorpen en steden en een landelijk gebied met kwaliteit. Deze pijlers leiden tot de volgende twee beleidsuitgangspunten:

  • Accent op de binnenstedelijke opgave
    De provincie wil ten minste 2/3 van de woningbouwopgave binnenstedelijk realiseren. Dit sluit aan bij de vraag, vergroot het draagvlak voor voorzieningen en het openbaar vervoer en vermindert de druk op het landelijk gebied. Ook het verminderen van kantoren en het herstructureren van bedrijventerreinen vallen binnen deze binnenstedelijke opgave.
  • Behoud en versterking kwaliteit landelijk gebied
    De binnenstedelijke opgave vraagt als contramal ook om een aantrekkelijk en bereikbaar landelijk gebied met hoge kwaliteit van landschap, natuur en recreatieve voorzieningen. De zware terugval van financiële middelen voor natuur en recreatie om de stad kan onder andere worden opvangen door hier rood voor groenconstructies mogelijk te maken. De cultuurhistorische waarden van onder meer de linies, de buitenplaatsen en het agrarische landschap dragen bij aan een aantrekkelijk landelijk gebied. De landbouw is een belangrijke drager van het agrarische cultuurlandschap. Die rol vergt ruimte voor een economisch duurzame landbouw. De aanwezigheid van zo'n 1,2 miljoen inwoners biedt afzetmogelijkheden voor de producten die dit oplevert. Bij dit alles is het kunnen beleven van rust en ruimte van belang.
Doorwerking naar het bestemmingsplan
Het plangebied ligt binnen de bebouwingcontour voor het stedelijk gebied. Het bestemmingsplan is daarnaast hoofdzakelijk conserverend van aard. Geconcludeerd wordt dat het plan daarom voldoet aan de Provinciale Ruimtelijke Structuurvisie.  

2.3.2 Provinciale Ruimtelijke Verordening, herijking 2016 (2013)

In de Provinciale Ruimtelijke Verordening (PRV) zijn de belangrijke beleidsuitgangspunten die zijn opgenomen in de PRS vastgelegd. In de PRV zijn regels opgenomen die direct doorwerken in de ruimtelijke plannen van gemeenten.

Voor het plangebied is uitsluitend kaart 2 Bodem en water relevant. Op kaart 2 van de verordening is ter hoogte van de Hollandse IJssel en de Groene Dijk een regionale waterkering opgenomen, zie figuur 2.1. Daarbij valt het plangebied binnen het overstroombaar gebied, dit houdt in dat bij een ruimtelijk besluit voor deze gronden rekening wordt gehouden met overstromingsrisico's.

afbeelding "i_NL.IMRO.0353.201506Achterveld-On01_0001.png"

Figuur 2.1 Uitsnede kaart 2 Bodem en Water (bron: provincie Utrecht)

Artikel 1.12 'Vrijwaringszone versterking regionale waterkering' bepaalt dat een ruimtelijk plan bestemmingen of regels omvat die de waterkerende functie beschermen en voorzien in een vrijwaringszone aan weerszijden van de waterkering.

Doorwerking naar het bestemmingsplan
De regionale waterkeringen zijn in dit bestemmingsplan opgenomen door middel van de dubbelbestemming 'Waterstaat - Waterkering'. Hiermee voldoet het bestemmingsplan aan artikel 1.12 van de Provinciale Ruimtelijke Verordening. Verder zijn er geen provinciale belangen in het geding.  
2.3.3 Thematische Structuurvisie Kantoren 2015-2017

De aanleiding voor het maken van deze thematische structuurvisie is de grote leegstand op de

kantorenmarkt. De thematische structuurvisie bevat aanvullend beleid ten opzichte van de (integrale) PRS en de Provinciale Ruimtelijke Verordening 2013 – 2028 (PRV). Na vaststelling van de thematische structuurvisie wordt gestart met de voorbereiding van inpassingsplannen voor locaties met een overcapaciteit aan kantoren.

Doorwerking naar het bestemmingsplan
Het plangebied ligt niet binnen een van de locaties waarvoor de provincie een inpassingsplan zal opstellen. Tevens bevinden zich geen grote kantorenlocaties in het plangebied en deze worden ook niet mogelijk gemaakt. De thematische structuurvisie vormt daarom geen belemmering voor het bestemmingsplan.  

2.4 Regionaal beleid

2.4.1 Regionaal Structuurplan 2005-2015 (2005)

In dit plan staat in grote lijnen hoe de regio Utrecht zich moet gaan ontwikkelen op het gebied van wonen, werken, groen en bereikbaarheid. Het RSP gaat in op kansen en bedreigingen die alleen

op regionaal niveau zijn op te pakken of te bestrijden. Daarnaast is het een belangrijk instrument voor overleg met rijk en provincie over de in te zetten middelen. Het structuurplan dient tevens als toetsingskader voor gemeentelijke structuur- en bestemmingsplannen.

Doorwerking naar het bestemmingsplan
Gelet op het consoliderende karakter van het bestemmingsplan wordt geconcludeerd dat het Regionaal Structuurplan geen directe doorwerking heeft naar het plan.  

2.5 Gemeentelijk beleid

2.5.1 Toekomstvisie IJsselstein Dichtbij (2010)

De Toekomstvisie 2025: IJsselstein Dichtbij is opgesteld om richting te kunnen geven aan het keerpunt in de geschiedenis waarin de gemeente IJsselstein zich bevindt. Deze richting vertaald zich in een viertal doelen die voor IJsselstein Dichtbij 2025 zijn geformuleerd:

  • 1. Een vitale samenleving van bewoners en ondernemers;
  • 2. Herkenbare historische en ruimtelijke structuren;
  • 3. Dichtbij groen en de stedelijke omgeving;
  • 4. Een duurzame samenleving en duurzame omgeving.

Doorwerking naar het bestemmingsplan
De herkenbare ruimtelijke structuren in dit bestemmingsplan worden opnieuw bevestigd door een gedetailleerde bestemmingslegging. Hiermee is het bestemmingsplan in lijn met de Toekomstvisie.  

2.5.2 Structuurvisie IJsselstein 'Kwaliteit met karakter' (2003)

De structuurvisie zet in op versterking van kwaliteit en karakter van de gemeente, na een periode van

sterke groei. De volgende doelstellingen staan centraal:

  • 1. Versterking van de eigen identiteit van IJsselstein binnen de stadsregio als een middelgrote dynamische stad met een historisch karakter aan de Hollandse IJssel en als poort naar het Groene Hart;
  • 2. Werken aan een duurzaam leefbare stad, met aandacht voor kwaliteit en een gedifferentieerd aanbod van woningen, arbeidsplaatsen en voorzieningen, met respect voor landschap en natuur en een duidelijke plaats voor water;
  • 3. Benutten van de potenties van de Hollandse IJssel voor wonen, recreatie en natuur.

Voor het bestaand stedelijk gebied is het uitgangspunt kwaliteitsverbetering, herstructurering, een zekere intensivering van het ruimtegebruik en meer differentiatie in woonmilieus.

Doorwerking naar het bestemmingsplan
Het bestemmingsplan legt hoofdzakelijk de bestaande situatie opnieuw vast. Daarnaast wordt de uitbreiding van de kinderboerderij mogelijk gemaakt. De kwaliteit van de kinderboerderij wordt hiermee versterkt. Kwaliteitsverbetering en herstructurering zijn mogelijk binnen de randvoorwaarden van het bestemmingsplan. Intensivering van het ruimtegebruik vindt plaats via afzonderlijke planologische procedures.  

2.5.3 Woonvisie IJsselstein (2008)

In de woonvisie schets de gemeente de gewenste ontwikkelingen van de gemeente in de verdere toekomst. De visie geeft een beschrijving van de gemeentelijke ambities.

Doorwerking naar het bestemmingsplan
Woningbouwontwikkelingen zijn niet voorzien in het bestemmingsplan. Hierdoor zijn er verder geen raakvlakken met de Woonvisie IJsselstein.  

2.5.4 Economische visie 2015-2020 (2015)

‘Ontmoeten’ is het centrale thema in de economische visie 2015-2020. De gemeente IJsselstein beoogt met de Economische visie de aantrekkelijkheid van de stad te verhogen om te winkelen, wonen, werken en recreëren. Hierdoor wenst zij met de economische partners uitvoering te geven aan een gezamenlijk uitvoeringsprogramma. De visie is uitgewerkt in drie thema's: Inspireren, bereiken en beleven.

Doorwerking naar het bestemmingsplan
De bestaande economische functies in het plangebied zijn in het bestemmingsplan positief bestemd. De implementatie van het uitvoeringsprogramma is hierbinnen goed mogelijk. Hiermee is het bestemmingsplan in overeenstemming met de Economische visie.  
2.5.5 Detailhandelsvisie IJsselstein 2017

Omdat de detailhandel de laatste jaren sterk onderhevig is geweest aan nationale en internationale ontwikkelingen en trends, is het voor een vitaal detailhandelsbeleid van belang om met regelmaat het beleid te toetsen op de actualiteit. In de Detailhandelsvisie wordt gestreefd naar een vitale binnenstad waarbij horeca en detailhandel met verenigde krachten een aantrekkelijk verblijfsgebied creëeren voor inwoners en bezoekers. Even belangrijk, maar meer gericht op de dagelijkse voorzieningen en de leefbaarheid van de wijken, zijn de ondersteunende winkelgebieden.

Binnen het plangebied ligt winkelcentrum Achterveld, samen met winkelcentrum de Clinckhoeff heeft IJsselstein twee complete wijkwinkelcentra die de inwoners een gevarieerd aanbod bieden. Daarnaast bevindt zich nog een winkelstrip binnen het plangebied aan de Kasteellaan. De vraag die al langere tijd speelt is in hoeverre het waarde toevoegt aan de winkelstructuur van IJsselstein dat op de Kasteellaan enkele winkels gevestigd zijn. Er wordt soms gekeken naar verplaatsing naar de binnenstad, maar de winkelstrip aan de Kasteellaan heeft wel zijn functie in het gebied waar deze ligt.

Voor het plangebied zijn de volgende actiepunten van belang:

  • 1. De belangrijkste uitdagingen voor de Clinckhoeff en Achterveld liggen op het gebied van parkeergelegenheid (zowel auto als fiets), de fysieke uitbreidingsruimte in relatie tot de uitstraling van de openbare ruimte en het optimaliseren van laad- en losmogeljkheden. Beide centra zijn erg naar binnen toe gericht. Het trekt de bezoeker niet direct aan, wanneer niet bekend is wat daar is. Hier kunnen beide centra aan werken, wellicht in samenwerking met stadsmarketing IJsselstein.
  • 2. In de uitwerking van de visie op de binnenstad, kan de Kasteellaan betrokken worden. Een verkenning ten aanzien van de toekomst van de Kasteellaan moet opgestart worden. Zoals ondernemers ook zelf zeggen, er moeten keuzes gemaakt worden. Of we accepteren deze winkelstrip in haar huidige vorm en voeren geen verdere discussie erover, of we (ondernemers, vastgoedeigenaren en gemeente) investeren met elkaar in een plan dat verplaatsing mogelijk maakt.
  • 3. De verbinding en samenwerking tussen de verschillende winkelgebieden kan verhoogd worden. Door krachten te bundelen op het gebied van marketing en promotie, maar ook op het gebied van nieuwe initiatieven, pop-up stores en activiteiten. Op deze manier kan de sociale functie van ontmoeten ook in de wijkcentra versterkt worden.

Doorwerking naar het bestemmingsplan
De genoemde winkelgebieden in het plangebied zijn in het bestemmingsplan positief bestemd door middel van de bestemming Detailhandel.
Het winkelcentrum Achterveld heeft recentelijk een metamorfose ondergaan. Zo is onder ander de passage aangepast: de bestrating, verlichting en overkapping zijn vernieuwd. De volgende fase betreft de herinrichting van de parkeerplaatsen. Het bestemmingsplan maakt dit niet onmogelijk. De modernisering van het winkelcentrum is dus in overeenstemming met de Detailhandelsvisie en het bestemmingsplan.  
2.5.6 Nota bedrijvigheid in woonwijken (2010)

Deze nota dient als grondslag voor alle nieuwe bestemmingsplannen voor de woonkern IJsselstein met betrekking tot beroeps- en bedrijfsmatig gebruik van woningen. In principe kunnen alle 'vrije beroepen' en 'bedrijfsmatige activiteiten' zich vestigen in wijken met primair een woonfunctie. Indien er aan een aantal toetsingscriteria wordt voldaan. Voor beroeps- of bedrijfsmatig gebruik van een woning dat naar aard en/of omvang van zodanig ondergeschikte betekenis is dat het niet leidt tot afwijkend gebruik van de woonbestemming, is geen gemeentelijke toestemming vereist. Mocht de activiteit niet passend zijn dan dient er een omgevingsvergunning ter afwijking worden aangevraagd.

De volgende criteria worden daarvoor gehanteerd en daarnaast is een aandachtspunt dat er geen

verstoring mag plaatsvinden in de evenwichtige opbouw van de voorzieningenstructuur.

  • de woonfunctie van de woningen en aan- en bijgebouwen dient in overwegende mate te worden gehandhaafd;
  • de gebruiker van de woning, moet ook degene zijn die het aan huis verbonden beroep of bedrijf uitgeoefend;
  • het bebouwde oppervlak van een woning en aan- en bijgebouwen, die voor het aan huis gebonden beroep of bedrijf worden benut, mag maximaal 30 % van het woonoppervlak bedragen, met een maximum van 50 m2;
  • het gebruik mag geen onevenredige hinder voor het woonmilieu opleveren c.q. afbreuk doen aan het karakter van de woonwijk of buurt;
  • alleen aan huis verbonden activiteiten die vallen onder categorie A van Staat van Bedrijfsactiviteiten functiemenging zijn toegestaan, of daar vergelijkbaar mee is;
  • geen medewerking wordt verleend aan detailhandel, uitgezonderd beperkte verkoop i.v.m. bedrijfsactiviteit;
  • geen medewerking wordt verleend aan horeca-, prostitutie- of seksinrichtingen;
  • het gebruik mag niet leiden tot een onevenredige aantasting van de verkeersontsluiting en de parkeersituatie ter plaatse;
  • de activiteit dient qua aard, omvang en uitstraling te passen in de woonomgeving;
  • het college van burgemeester en wethouders kan aan de omgevingsvergunning nadere regels verbinden.

In de nota wordt daarnaast verder uitleg gegeven over kinderopvang aan huis en gevelreclame aan huis. Daarnaast is er in de bijlage van de nota een voorstel gedaan voor in het bestemmingsplan op te nemen een eenduidige regeling voor de aan huis verbonden activiteiten.

Doorwerking naar het bestemmingsplan
De regeling voor de aan huis verbonden beroep- en bedrijfsactiviteiten is verwerkt in het bestemmingsplan binnen de bestemming 'Wonen'. Hiermee geeft het bestemmingsplan uitvoering aan de Nota bedrijvigheid in woonwijken.  
2.5.7 Nota bouwhoogten IJsselstein (2004)

De Nota bouwhoogten beoogt in geval van nieuwbouw binnen de bestaande kern een globaal kader te geven voor de bouwhoogten in de bebouwde kom van IJsselstein. De aandacht ligt hierbij op hoogbouw, waaronder verstaan wordt meer dan vijf bouwlagen.

Doorwerking naar het bestemmingsplan
In de nota zijn een aantal uitwerkingsgebieden aangemerkt. Uitwerkingsgebied IV (Sportparken) valt gedeeltelijk in het plangebied van dit bestemmingsplan. Het bestemmingsplan voorziet echter niet in nieuwe hoogbouw ontwikkelingen. De Nota bouwhoogten is daarom niet relevant voor het bestemmingsplan.  
2.5.8 Groenstructuurplan 2020 'Groen met karakter' (2009)

Het Groenstructuurplan (GSP) van IJsselstein geeft vorm aan het beleidskader en de planningsrichting voor het openbare groen. Het groenstructuurplan is een visiedocument en levert de randvoorwaarden en uitgangspunten voor de beleids- en beheerplannen voor alle groene deelproducten. Het plan geeft richting aan de belangenafwegingen ten opzichte van andere ruimtelijke claims. Enerzijds bestaat het groenstructuurplan uit voorstellen voor de inrichting, anderzijds zijn er de groene structuren in aangegeven. De beleidsuitgangspunten van het GSP is onder meer het behouden en versterken van structuurbepalende beplantingen. Daarbij wordt gestreefd naar een hoge belevingswaarde van het groen, waarbij de relatie tussen stad en land op het gebied van natuur en recreatie moet worden versterkt.

Doorwerking naar het bestemmingsplan
De hoofdgroenstructuur in het plangebied is bestemd als 'Groen'. Groen wat geen onderdeel uitmaakt van de hoofdstructuur ('snippergroen') valt over het algemeen binnen de bestemming 'Verkeer'. Binnen deze bestemming zijn naast wegen en parkeervoorzieningen ook groenvoorzieningen toegestaan. Verder hebben de beleidsuitgangspunten uit het groenstructuurplan geen directe doorwerking naar het bestemmingsplan.  
2.5.9 Gemeentelijk Verkeers- en Vervoersplan IJsselstein (2006)

Het Gemeentelijk Verkeers- en Vervoersplan (GVVP) heeft tot hoofddoelstelling een betrouwbare bereikbaarheid te garanderen nu en in de toekomst ten behoeve van het sociaal en economisch functioneren van de gemeente IJsselstein. Hierbij worden eisen op het gebied van milieu, veiligheid en leefbaarheid als uitgangspunt genomen.

Doorwerking naar het bestemmingsplan
De bestaande verkeersstructuur in het plangebied is bestemd voor 'Verkeer'. De tramverbinding heeft de bestemming 'Verkeer - Railverkeer'. Hiermee geeft het bestemmingsplan impliciet uitvoering aan de genoemde hoofddoelstelling uit het GVVP ten aanzien van de bereikbaarheid van IJsselstein.  
2.5.10 Parkeerbeleidsplan IJsselstein (2007)

Het doel van het parkeerbeleidsplan is om strategische keuzes voor de komende jaren inzichtelijk te maken. Hiermee is het parkeerbeleidsplan een leidraad voor de manier waarop de parkeervraagstukken tot 2020 worden behandeld.

Voor de woonwijken van IJsselstein geeft het parkeerbeleidsplan aan dat de parkeerdruk nog niet zo hoog is dat grootschalige aanleg van parkeervoorzieningen nodig is. Daar waar de bezettingsgraden hoog zijn, zal naar verwachting een beperkte uitbreiding van parkeerruimte op lokaal niveau de problemen verhelpen. Op verkeersaantrekkende locaties zoals wijkwinkelcentra, de sporthal en religieuze gebouwen lijkt een concrete oplossing voor parkeerproblemen niet nodig.

Doorwerking naar het bestemmingsplan
De openbare parkeervoorzieningen in het plangebied zijn bestemd voor 'Verkeer'. Daarnaast zijn binnen de verschillende bestemmingen zoals Maatschappelijk, Sport en Wonen ook parkeervoorzieningen mogelijk. Het bestemmingsplan vormt zodoende geen belemmering voor de uitvoering van het parkeerbeleidsplan. De parkeernormen uit het beleid zijn vastgelegd in de algemene regels van dit bestemmingsplan.  
2.5.11 Archeologiebeleid IJsselstein

In 2012 heeft de gemeente IJsselstein haar gemeentelijk beleid op het gebied van archeologie geactualiseerd. Het doel van deze actualisatie is drieledig:

  • 1. Het actualiseren van de archeologische verwachtingszones op basis van het onderzoek dat sinds 2004 is uitgevoerd;
  • 2. De heroverweging van de beleidsregels ten aanzien van vrijstellingsnormen(oppervlaktegrens en dieptegrens), gebaseerd op voortschrijdend inzicht en de opgedane ervaringen met het bestaande beleid;
  • 3. Heroverweging van de toe te passen onderzoeksmethoden in gebieden waar al referentieonderzoeken hebben plaatsgevonden.

Het archeologisch beleid van de gemeente IJsselstein is opgenomen in de archeologische verwachtings- en beleidsadvieskaart. Op basis van een analyse van landschappelijke, bodemkundige en archeologische informatie is een kaart van archeologische waarden en verwachtingen opgesteld. Binnen het gemeentelijke beleid worden 3 verschillende Archeologische waardes onderscheiden. Ten eerste zijn er de AMK terreinen met planologische bescherming (zie onderstaande tekst), de archeologische AMK terreinen zonder bescherming en de waardevolle kades en dijken. Daarnaast kunnen er vier archeologische verwachtingszones worden onderscheiden:

  • 1. zone met hoge archeologische verwachting binnenstad;
  • 2. zone hoge archeologische verwachting buitengebied;
  • 3. zone met middelhoge archeologische verwachting;
  • 4. zone met lage archeologische verwachting.

Doorwerking naar het bestemmingsplan
In de paragraaf Archeologie zijn de voor het plangebied relevante verwachtingszones beschreven. De archeologische waarden in het plangebied zijn beschermd door een archeologische dubbelbestemming. Hiermee geeft het bestemmingsplan concreet invulling aan het archeologiebeleid.  

2.6 Conclusie beleidskader

Het rijksbeleid heeft geen specifieke raakvlakken met het bestemmingsplan. Ook het provinciaal beleid heeft nauwelijks invloed op het bestemmingsplan, aangezien het plangebied een bestaand binnenstedelijk gebied betreft, waarbinnen hoofdzakelijk geen ruimtelijke ontwikkelingen worden mogelijk gemaakt. De kleinschalige uitbreiding van de kinderboerderij is in lijn met de relevante beleidskaders. Dit geldt ook voor de ontwikkeling van één woning. Verwezen wordt naar bijlage 1.

De diverse beleidsstukken op regionaal en gemeentelijk niveau geven ieder op hun eigen onderwerp specifieke bouwstenen mee voor het bestemmingsplan. Geconcludeerd wordt dat het bestemmingsplan in overeenstemming is met dit beleid.

Hoofdstuk 3 Visie op het plangebied

3.1 Inleiding

In dit hoofdstuk wordt enerzijds ingegaan op de huidige situatie van het plangebied en anderzijds op de toekomst van het plangebied en de betekenis daarvan voor het bestemmingsplan.

3.2 Ligging en begrenzing plangebied

Het bestemmingsplan Achterveld en omgeving heeft betrekking op het gebied in het noordwesten van de kern IJsselstein. Het plangebied wordt aan de oostzijde begrensd door de Hollandse IJssel en de Zuid IJsseldijk. De noordelijke grens wordt gevormd door de woonpercelen in het uiterste noorden van de wijk Achterveld en de Broeksdijk. In het westen is de Zijde Wetering Noord de plangrens. De zuidelijke plangrens wordt gevormd door de Baronieweg, Benschopperweg en Touwlaan. De ligging van plangebied is weergegeven in figuur 3.1.

afbeelding "i_NL.IMRO.0353.201506Achterveld-On01_0002.jpg"

Figuur 3.1. Ligging plangebied

3.3 Vigerende regelingen

Voor het plangebied vigeren momenteel de volgende bestemmingsplannen:

Bestemmingsplan   Vastgesteld  
Achterveld en omgeving   1 februari 2007  
Eerste partiële herziening Achterveld en omgeving, Vicarielaan   30 juni 2011  
Tweede partiële herziening bestemmingsplan Achterveld en omgeving, Eksterweg   20 september 2012  

Voorliggende plannen worden volledig vervangen door dit nieuwe bestemmingsplan.

3.4 Ruimtelijke en functionele analyse plangebied

Ruimtelijke analyse

Grenzen

In het oosten vormt de Hollandse IJssel hoofdzakelijk de begrenzing van het plangebied. In het zuiden is de begrenzing minder duidelijk. Deze wordt gevormd door de Baronieweg, Benschopperweg en Touwlaan. Langs de noord- en westkant van het plangebied is de begrenzing zeer duidelijk: een harde overgang naar de open ruimte van de Lopikerwaard. Deze wordt in het noorden uitsluitend onderbroken door het bebouwingslint van de Achtersloot.

Buurten

Het plangebied ligt in het noordwesten van de kern IJsselstein en bestaat uit verschillende woonwijken.

Achterveld is een grootschalig opgezette woonwijk die vanaf het einde van de jaren '70 tot midden jaren '90 van de vorige eeuw in zes fasen is gebouwd. Achterveld is een typische gezinswijk met een voor die tijd kenmerkende stedenbouwkundige opzet. In het centrum van Achterveld zijn alle voorzieningen gevestigd. Kenmerkend voor de wijk is de groene kern en een waterrijke en ruime opzet, met veel binnenplaatsen en daaromheen eengezinswoningen. Achterveld bestaat uit vier buurten: Achterveld-Noord, Achterveld-Oost, Achterveld-Zuid, Achterveld-West.

De wijk Groenvliet ten zuiden van Achterveld maakt tevens onderdeel uit van het plangebied. Deze wijk bestaat hoofdzakelijk uit eengezinswoningen en is gebouwd tussen 1974 en 1978 en dus iets ouder dan Achterveld.

Kasteelkwartier ten oosten van Groenvliet dateert uit de periode eind jaren 50, begin jaren 60. De

woningen in deze buurt bestaan over het algemeen afwisselend uit flats en wat kleinere

eengezinswoningen.

Temidden van deze uitbreidingswijken ligt het historische lint Achtersloot, herkenbaar aan de overwegend vrijstaande woningen op veelal ruime kavels. In de loop der tijd heeft hier verdichting plaatsgevonden.

Functionele analyse

Wonen

In het plangebied wordt vooral gewoond, waarbij veel verschillende woningtypen voorkomen.

In Achterveld is 75% van de woningen een koopwoning. In Achterveld-Oost- en Zuid staan de meeste huurwoningen (bron: Wijkatlas IJsselstein West (2015).

Voorzieningen

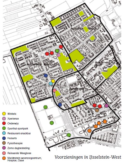
In het plangebied zijn verschillende voorzieningen aanwezig. Op de onderstaande kaart uit de 'Wijkatlas Achterveld-Groeneveld' zijn de voorzieningen weergegeven.

afbeelding "i_NL.IMRO.0353.201506Achterveld-On01_0003.jpg"

Figuur 3.2 Voorzieningen in IJsselstein-West (bron: wijkatlas Achterveld-Groeneveld)

Centraal in het plangebied aan de Heemradenlaan ligt het wijkwinkelcentrum Achterveld met winkelvoorzieningen. Ook is hier horeca gevestigd. Overige winkelvoorzieningen in het plangebied zijn gevestigd aan de Kasteellaan waar enkele buurtwinkels in de onderste bouwlaag van een flat zijn gevestigd. Verder zijn er dienstverlenende functies als een bank, postkantoor en uitzendbureau gevestigd aan Achtersloot-Touwlaan.

In het zuidelijke deel van het plangebied ligt aan de Benschopperweg bebouwing van welzijns- en zorgvoorzieningen. De onderwijsvoorzieningen in het plangebied zijn basisscholen aan de Lage Biezen, aan de Johan Willem Frisolaan, aan het Teenschillerpad en de Heemradenlaan. Hier staat tevens de sporthal ’t Heem waarin ook een wijkactiviteitencentrum is gevestigd.

In het zuidwestelijke deel van het plangebied liggen de sportvelden van sportpark Groenvliet. Overige sportvoorzieningen in het plangebied zijn de tennisbanen aan de Groene Dijk.

Bedrijven

In het zuidwestelijke deel van het plangebied zijn enkele bedrijven aanwezig die een ontsluiting hebben aan de Baronieweg. Tevens bevindt zich een autobedrijf aan de Eiteren.

Groen en water

In het plangebied is openbaar groen enerzijds aanwezig als boombeplanting en groenstroken in de straten en langs het sneltramtracé, de Hollandse IJssel en de langzaamverkeersroutes. Daarnaast zijn er de grotere groenvoorzieningen als een sportpark (sportpark Groenvliet), begraafplaatsen (aan de Lage Biezen en Eiteren), parken en plantsoenen (o.a. wijkpark Achterveld).

In deze groenstructuur neemt oppervlaktewater een belangrijke plaats in. Het plangebied wordt aan de oostzijde en westzijde begrensd door water. Aan de westzijde is dat een noord-zuid georiënteerde watergang langs de Zijde Wetering Noord, aan de oostzijde ligt de Hollandse IJssel (eveneens

noord-zuid georiënteerd). Ook langs Achtersloot ligt een watergang. Haaks op deze watergangen

liggen in de diverse wijken enkele sloten in oost-westrichting.

Verkeer

Auto- en fietsverkeer

De wegen in het plangebied zijn onder te verdelen in twee typen, namelijk gebiedsontsluitingswegen

en erftoegangswegen. De gebiedsontsluitingswegen zorgen voor de verbinding tussen verblijfsgebieden. Een verblijfsgebied is een aaneengesloten ruimtelijk gebied waar de verkeersfunctie ondergeschikt is aan de verblijfsfunctie. Voor het plangebied geldt dat de Baronieweg, de Heemradenlaan-Kerspellaan en de Lage Biezen- Duizendblad de functie hebben van gebiedsontsluitingsweg. De overige wegen in het

plangebied zijn veelal woonstraten en hebben een verblijfsfunctie (erftoegangswegen).

Openbaar vervoer

Door het plangebied loopt de sneltramlijn van IJsselstein via Nieuwegein naar Utrecht CS.

Haltes bevinden zich bij het winkelcentrum Achterveld en bij de Kerspellaan (Eiteren). Daarnaast beschikt het plangebied over bushaltes vanwaar naar Utrecht en De Uithof kan worden gereden. De ontsluiting van het plangebied is dan ook goed te noemen.

3.5 Uitgangspunten voor het bestemmingsplan

Het bestemmingsplan is consoliderend van aard. Dit houdt in dat de bestaande ruimtelijke en functionele situatie voorzien wordt van een passende bestemmingslegging. Voor het openbaar gebied betekent dit dat het groen, de watergangen en de wegen en straten als zodanig zijn bestemd. Ook voorzieningen zijn specifiek bestemd: bijvoorbeeld als Maatschappelijk of Detailhandel.

Voor de woonpercelen vormen de geldende planologische rechten het uitgangspunt. Bij woonpercelen kunnen uitbreidingen plaatsvinden in de vorm van aan- en uitbouwen en bijgebouwen (binnen bepaalde randvoorwaarden) en andere toevoegingen zoals dakkapellen. De voorkomende woningtypes zijn voorzien van verschillende bouwaanduidingen: bijvoorbeeld 'aaneengebouwd' voor rijenwoningen en 'vrijstaand' voor de vrijstaande woningen. Ook gestapelde woningen en twee-onder-één kapwoningen zijn specifiek aangeduid. Een en ander sluit zoveel mogelijk aan op de reguliere wijze van bestemmen binnen de gemeente.

Op de verbeelding zijn bouwvlakken opgenomen binnen de bestemmingen. Binnen het bouwvlak mag gebouwd worden. In de regels is verder bepaald welke afstanden tot zij- en achtererfgrenzen dienen te worden aangehouden.

Ten aanzien van het vigerende bestemmingsplan plan zijn daarnaast een aantal onderwerpen aan dit bestemmingsplan toegevoegd:

  • Met betrekking tot de mogelijkheden voor uitbreiding/erfbebouwing op het zij-, achter- en voorerf wordt zoveel mogelijk aangesloten op andere recente bestemmingsplannen in de gemeente IJsselstein. Hiermee wordt meer flexibiliteit bereikt.
  • De terminologie van de planregels is geactualiseerd aan de Wet algemene bepalingen omgevingsrecht (Wabo) en de SVBP2012.
  • Verleende vrijstellingen zijn op het kaartbeeld en in de regels verwerkt.
  • De gemeente heeft strookjes openbaar groen verkocht aan particulieren. Deze stukjes 'snippergroen' hebben - afhankelijk van de locatie - de bestemming 'Tuin' / 'Wonen' gekregen. De stroken die kunnen worden aangemerkt als 'achterferfgebied' zijn bestemd voor 'Wonen'. Het betreffen hoofdzakelijk stroken aan de achterzijde van de woning. De overige stroken hebben de bestemming 'Tuin' gekregen.
  • De eerste en tweede partiële herziening zijn integraal opgenomen in het bestemmingsplan.
  • Vanwege het vervallen van de stedenbouwkundige bepalingen (waaronder de parkeernormenbepaling) in de bouwverordening, wordt voor de parkeernormenbepaling in het bestemmingsplan verwezen naar de gemeentelijke parkeernota.
  • Het bestemmingsplan is afgestemd op actueel gemeentelijk beleid ten aanzien van ruimtelijke/planologische aspecten waaronder de archeologische beleidskaart en de regeling voor aan huis verbonden beroepen en bedrijven.
3.5.1 Kinderboerderij 't Eiterse Hofje

In de wijk Achterveld bevindt zich kinderboerderij 't Eiterse Hofje. Sinds 2000 was ter plaatse een dierenweide gevestigd. In 2015 stopte de toenmalige eigenaar met het beheer waarop de Stichting Kinderboerderij IJsselstein werd opgericht. Deze stichting nam de dierenweide over en breidde deze uit tot een volwaardige kinderboerderij.

De stichting heeft de wens het stuk grond ten westen van de kinderboerderij uit te breiden. Dit zal een uitbreiding van ongeveer 600 m2 worden. Momenteel is dit stuk grond openbaar groen. Deze uitbreiding zal naar verwachting plaats bieden voor speeltoestellen, een konijnenverblijf van ongeveer 14 m2 en twee kippenrennen van ieder 8 m2. Op een klein voetpad na zal het nieuwe deel van de kinderboerderij onverhard blijven.

afbeelding "i_NL.IMRO.0353.201506Achterveld-On01_0004.png"

Figuur 3.3: Bestaande kinderboerderij (oranje) met beoogde uitbreiding (rood)

Deze uitbreiding is niet mogelijk binnen de bestemming Groen. In dit bestemmingsplan zal dit stuk grond met de bestemming Groen omgezet worden naar de bestemming Maatschappelijk waarmee dit aansluit bij de bestemming van de huidige kinderboerderij. Hiermee wordt de uitbreiding van de kinderboerderij juridisch planologisch mogelijk gemaakt.

afbeelding "i_NL.IMRO.0353.201506Achterveld-On01_0005.jpg"

Figuur 3.4: Schetsontwerp indeling uitbreiding kinderboerderij

Figuur 3.4 geeft een schetsontwerp van de uitbreiding van de kinderboerderij weer. In dit deel komt een konijnenverblijf en twee kippenrennen. Deze stonden reeds op de kinderboerderij en worden dus verplaatst, er komen geen dieren bij.

3.5.2 Zuid IJsseldijk tussen 10 en 16

Aan de Zuid IJsseldijk wordt tussen nummers 16 en 10 de bouw van één woning mogelijk gemaakt door het toevoegen van een bouwvlak. Deze gronden zijn nog in gebruik als moestuin. Het bouwplan voor de

woning voorziet in de bouw van een hoofdbouwvolume van één bouwlaag met kap. Het perceel waarop de nieuwe woning wordt gerealiseerd heeft een diepte van ca. 17 meter en een oppervlakte van ca. 295 m². De nieuw te bouwen woning betreft een kleinschalige vrijstaande woning en heeft een oppervlakte van ca. 117 m².

afbeelding "i_NL.IMRO.0353.201506Achterveld-On01_0006.jpg"
Figuur 3.5 Situering nieuwe woning (bron: Project Consultancy)

Voor deze ontwikkeling is aparte ruimtelijke onderbouwing opgesteld die is opgenomen in bijlage 1.

Hoofdstuk 4 Omgevingsaspecten

4.1 Inleiding

In dit hoofdstuk wordt een toelichting gegeven op de omgevingsaspecten die van invloed zijn op het plangebied. Per aspect wordt eerst de algemene relatie met dit bestemmingsplan aangegeven. Vervolgens wordt specifiek ingegaan op de situatie in het plangebied.

4.2 Archeologie

Wat is de relatie tussen dit omgevingsaspect en het bestemmingsplan?

In 1992 heeft Nederland het Europese Verdrag van Malta ondertekend en in 1998 geratificeerd. Doel van dit verdrag is een betere bescherming van het Europese archeologische erfgoed door een structurele inpassing van de archeologie in ruimtelijke ordeningstrajecten. Eén van de belangrijkste uitgangspunten van het Verdrag van Malta is dat archeologische waarden zoveel mogelijk in situ in de bodem bewaard dienen te blijven. Alleen als behoud in situ niet mogelijk is, wordt overgegaan tot behoud van de archeologische informatie ex situ, door middel van opgraven en bewaren in depot. Een ander uitgangspunt is dat het onderzoek naar de aanwezigheid van archeologische waarden in een zo vroeg mogelijk stadium dient plaats te vinden, zodat hiermee bij de planontwikkeling rekening gehouden kan worden. Een derde uitgangspunt is het 'de verstoorder betaalt principe'. Alle kosten die samenhangen met archeologisch onderzoek dienen worden betaald door de initiatiefnemer van de geplande bodemingrepen. Ten slotte richt het Verdrag van Malta zich tevens op een toename van kennis, herkenbaarheid en beleefbaarheid van het archeologische erfgoed.

De Erfgoedwet heeft betrekking op archeologie op het land en onder water. Samen met de toekomstige Omgevingswet maakt de Erfgoedwet een integrale bescherming van ons cultureel erfgoed mogelijk. Op grond van Hoofdstuk 9 Overgangsrecht blijft artikel 38a van de Monumentenwet 1988 van toepassing tot inwerkingtreding van de Omgevingswet. Artikel 38a schrijft voor dat in een bestemmingsplan rekening moet worden gehouden met in de grond te aanwezige dan wel te verwachten archeologische resten.

Gemeentelijk beleid

Om aan de wettelijke verplichtingen met betrekking tot de archeologische monumentenzorg (AMZ) te kunnen voldoen, heeft de gemeente IJsselstein een beleidsnota archeologie en een gemeentedekkende archeologische beleidskaart ontwikkeld. Dit beleid is toegelicht in paragraaf 2.5.11.

Situatie plangebied

Het gemeentelijke beleid maakt onderscheid tussen verschillende Archeologische waardes en

verwachtingszones. Deze waardes en zones hebben in het gemeentelijke beleid verschillende vrijstellingen van archeologische onderzoek bij bodemingrepen. Deze vrijstellingen zijn vertaald in verschillende dubbelbestemmingen en gebiedsaanduidingen. De gebieden, waar archeologische waarden zijn aangetoond (d.m.v. vondsten, waarnemingen) of waar een hoge verwachting geldt zijn bestemd met een dubbelbestemming. Gebieden, waar wel een verwachting geldt, maar nog niet is aangetoond zijn aangeduid met een gebiedsaanduiding. Blijkt uit onderzoek dat er geen waarden aanwezig zijn, dan geldt er geen archeologische bestemming meer.

Bij de AMK terreinen en waardevolle kades en dijken zijn geen bodemingrepen toegestaan. Bij de dubbelbestemmingen Waarde– Archeologie 2 en 3 is archeologisch onderzoek noodzakelijk bij respectievelijk ingrepen bij een plangebied groter dan 20 m² en dieper dan 30 cm en een plangebied groter dan 100 m² en dieper dan 30 cm. Bij de gebiedsaanduidingen, de lagere archeologische verwachtingen, worden deze vrijstellingen steeds groter en is minder snel archeologisch vooronderzoek vereist. In het plangebied komen de dubbelbestemmingen Waarde - Archeologie 1, Waarde - Archeologie 3, Waarde - Archeologie 4, Waarde - Archeologie 5 en Waarde - Archeologie 6 voor, en de gebiedsaanduidingen archeologische waardevol gebied 1 t/m 3. In figuur 4.1 en tabel 4.1 staan de verschillende waardes en vrijstellingsvoorwaarden weergegeven.

afbeelding "i_NL.IMRO.0353.201506Achterveld-On01_0007.jpg"

Figuur 4.1 Uitsnede archeologische beleidsadvieskaart

In het plangebied komen de in onderstaande tabel genoemde waarden voor. Tevens is het beleidsadvies opgenomen.

Tabel 4.1 Verwachtingzones archeologie

    Plangebied groter dan   Bodemingreep dieper dan   Regeling bestemmingsplan  
1   Terrein van hoge archeologische waarde (AMK)   0 m2   geen   Waarde - Archeologie 1  
2   Waardevolle kades en dijken   0 m2     Waarde - Archeologie 1  
3   Hoge archeologische verwachting   100 m2   30 cm   Waarde - Archeologie 3  
4   Middelhoge archeologische verwachting 1   > 2.500 m2   30 cm   Waarde - Archeologie 4  
5   Middelhoge archeologische verwachting 2   > 2.500 m2   200 cm   Waarde - Archeologie 5  
6   Lage archeologische verwachting   > 10.000 m2   30 cm   Waarde - Archeologie 6  

Een omgevingsvergunning kan in beginsel slechts worden verleend indien uit archeologisch onderzoek blijkt dat er geen verstoring van archeologische waarden plaatsvindt. De archeologische waarden worden binnen onderhavig bestemmingsplan voldoende beschermd. Ondanks dat bepaalde (beperkte) bodemingrepen bij voorbaat worden vrijgesteld van archeologisch onderzoek, blijft hier en in reeds archeologisch onderzochte en vrijgegeven terreinen wel de algemene meldingsplicht bij het aantreffen van oudheden van toepassing. Op basis van de Erfgoedwet (artikel 5.10) moet een persoon die anders dan bij het verrichten van opgravingen een vondst doet waarvan hij weet dan wel redelijkerwijs moet vermoeden dat het een archeologische vondst betreft, dit zo spoedig mogelijk melden bij Onze Minister.

Kinderboerderij 't Eiterse Hofje

Het plangebied valt binnen het gebied archeologie 4. De uitbreiding van kinderboerderij 't Eiterse Hofje betreft enkel het vergroten van het perceel, er worden geen gebouwen geplaatst en of andere bodemingrepen gedaan. Dit betekent dat er voor de ontwikkeling geen archeologisch onderzoek hoeft te worden verricht. Het aspect archeologie vormt derhalve geen belemmering voor de beoogde ontwikkeling.

4.3 Cultuurhistorie

Wat is de relatie tussen dit omgevingsaspect en het bestemmingsplan?

In de 'Visie erfgoed en Ruimte' is door het rijk een visie gegeven over op de wijze waarop met de cultuurhistorische kwaliteiten van gebieden en objecten in de toekomstige ruimtelijke ontwikkeling in Nederland kan worden omgegaan. Het behoud en de benutting van het cultureel erfgoed is van grote betekenis, omdat het kwaliteit toevoegt aan de culturele dimensie van de ruimtelijke inrichting.

De voornaamste opgave is dan ook het vinden van een verantwoord evenwicht tussen de diverse ruimtelijke opgaven en de bestaande cultuurhistorische kwaliteiten.

Met de inwerkingtreding van de Erfgoedwet in juli 2016 zijn de wetten en regelingen op het gebied van archeologie en cultuurhistorie gebundeld. In de Erfgoedwet staat beschreven wat cultureel erfgoed is, hoe Nederland omgaat met roerend cultureel erfgoed, wie welke verantwoordelijkheden heeft en hoe Nederland daar toezicht op houdt. Hoe er in de ruimtelijke ordening met erfgoed wordt omgegaan staat in het Besluit ruimtelijke ordening. Hierin staat dat in de toelichting van een bestemmingsplan een beschrijving staat van de wijze waarop met de in het gebied aanwezige cultuurhistorische waarden en in de grond aanwezige of te verwachten monumenten rekening is gehouden.

Situatie plangebied

Monumenten

In het plangebied ligt één Rijksmonument (Achtersloot 120). Daarnaast zijn er verschillende gemeentelijke monumenten aanwezig. Deze monumenten zijn via een specifieke bouwaanduiding op de verbeelding aangeduid. Op deze manier is voor iedereen die gebruik maakt van dit bestemmingsplan, snel te achterhalen of een bepaald pand een monument is. Via de monumentenwetgeving wordt de monumentale waarde van het betreffende object gewaarborgd.

Beeldbepalende bouwwerken

In het plangebied zijn verschillende beepldbepalende panden aanwezig. Het overzicht van alle monumenten en beeldbepalende panden is in navolgende tabel opgenomen.

afbeelding "i_NL.IMRO.0353.201506Achterveld-On01_0008.jpg"

Onder beeldbepalende bouwwerken wordt verstaan, panden en/of bouwwerken die geen gemeente- of rijksmonument zijn, maar vanuit stedenbouwkundig/cultuurhistorisch oogpunt wel behoudenswaardig zijn. Deze bouwwerken zijn op de verbeelding aangeduid als beeldbepalend bouwwerk. Voor deze bouwwerken zijn een aantal beschermende bepalingen opgenomen. Het gaat daarbij in de eerste plaats om bouwregels die slechts een gedeeltelijke vernieuwing en/of verandering van beeldbepalende bouwwerken toestaan, waarbij als voorwaarde geldt dat het uitwendig karakter van het pand niet mag

worden aangetast.

Afwijking van deze beperkende bouwregels kan slechts worden verleend na advies door de Commissie voor Ruimtelijke Kwaliteit. Daarnaast is een bevoegdheid opgenomen voor burgemeester en wethouders om nadere eisen te stellen aan de situering en afmetingen van andere bouwwerken op het bouwperceel waarop zich een beeldbepalend bouwwerk bevindt. Met deze bevoegdheid kan voorkomen worden dat de cultuurhistorische waarden van een beeldbepalend bouwwerk worden aangetast door ontsierde bouwwerken in de directe omgeving. Tot slot is een aanlegvergunningplicht op genomen voor de gehele of gedeeltelijke sloop van karakteristiek bouwwerken. Vergunning kan slechts verleend worden na advies door de Commissie voor Ruimtelijke Kwaliteit.

Het bestemmingsplan draagt hiermee in positieve zin bij aan de bescherming van cultuurhistorisch waardevolle objecten in het gebied.

Kinderboerderij 't Eiterse Hofje

De uitbreiding van de kinderboerderij omvat geen ontwikkeling van een monument of beeldbepalend bouwwerk. Het aspect cultuurhistorie vormt daarom geen belemmering voor de beoogde ontwikkeling.

4.4 Bedrijven en milieuzonering

Wat is de relatie tussen dit omgevingsaspect en het bestemmingsplan?

In het kader van dit bestemmingsplan is het van belang dat bij de aanwezigheid van bedrijven in de omgeving van milieugevoelige functies zoals woningen:

  • ter plaatse van de woningen een goed woon- en leefmilieu kan worden gegarandeerd;
  • rekening wordt gehouden met de bedrijfsvoering en de milieuruimte van de betreffende bedrijven.

Om in de bestemmingsregeling de belangenafweging tussen bedrijvigheid en gevoelige functies met betrekking tot milieu in voldoende mate mee te nemen, wordt in dit bestemmingsplan gebruikgemaakt van een milieuzonering. Deze milieuzonering vindt plaats aan de hand van een Staat van Bedrijfsactiviteiten (SvB). Dit is een lijst waarin de meest voorkomende bedrijven en bedrijfsactiviteiten zijn gekoppeld aan een mate van milieubelasting. De Staat van Bedrijfsactiviteiten is opgesteld met behulp van de VNG-publicatie Bedrijven en milieuzonering (editie 2009).

In gebieden waar bedrijfsactiviteiten en hindergevoelige functies naast elkaar voorkomen en zelfs gewenst zijn, wordt dus gebruikgemaakt van de Staat van Bedrijfsactiviteiten. Bij deze lijst wordt per bedrijfsactiviteit bekeken in welke mate deze direct naast woningen toelaatbaar is. Voor een nadere toelichting op de aanpak van de milieuzonering met behulp van de Staat van Bedrijfsactiviteiten wordt verwezen naar bijlage 3.

Situatie plangebied

In het plangebied komen nauwelijks bedrijven voor. Er is overwegend sprake van een rustige woonwijk. Ter plaatse van Baronieweg 23 zijn Terberg Matec Nederland en Terberg King Lifter gevestigd. Terberg Matec Nederland gaat verplaatsen naar de locatie Industrieweg 3 te IJsselstein. Deze locatie ligt buiten het plangebied. Terberg King Lifter betreft een fabrikant van heftrucks. Gelet op de ligging van het bedrijf binnen een gebied met veel milieugevoelige functies in de omgeving, is er een spanningsveld aanwezig met het gebruik ten opzichte van de maximaal toegestane milieucategorie voortkomend uit de VNG-publicatie Bedrijven- en milieuzonering 2009. In principe zijn maximaal bedrijven uit milieucategorie 2 van de bij dit bestemmingsplan behorende Staat van Bedrijfsactiviteiten toegestaan. Het betreffende bedrijf valt in een hogere categorie dan algemeen toelaatbaar is. Om die reden zijn de bestaande bedrijfsactiviteiten mogelijk gemaakt met behulp van een specifieke aanduiding.

Daarnaast bevinden zich op enkele locaties binnen het plangebied nutsvoorzieningen die groter zijn dan 15 m2 of hoger zijn dan 3 m. Deze maatvoering is in de Wabo bepaald. Gebouwen die kleiner zijn, mogen vergunningvrij worden gebouwd. Deze nutsvoorzieningen zijn ook opgenomen binnen de bestemming Bedrijf en hebben een aanduiding 'nutsvoorziening' (nv) gekregen. Ter plaatse van deze aanduidingen zijn uitsluitend nutsvoorzieningen toegestaan en geen zelfstandig bedrijf.

Afwijken van de gebruiksregels

De toelaatbaarheid zoals deze hierboven is beschreven betekent niet dat de uitoefening van activiteiten uit een hogere categorie in alle gevallen onaanvaardbaar is. De Staat van Bedrijfsactiviteiten geeft namelijk een vrij grove indeling van de hinderlijkheid van bedrijven. De situatie bij een specifiek bedrijf kan daarvan afwijken. Met name komt het voor dat een bedrijf als gevolg van de geringe omvang van hinderlijke (deel)activiteiten of door een milieuvriendelijke werkwijze minder hinder veroorzaakt dan in de Staat van Bedrijfsactiviteiten is verondersteld. In dat geval kan bij omgevingsvergunning worden afgeweken van de algemene toelaatbaarheid. Op die manier kan een dergelijk bedrijf worden toegestaan. Dit kan alleen voor bedrijfsactiviteiten uit de milieucategorie die 1 stap hoger ligt dan de algemene toelaatbaarheid. Ingeval van het afwijken dient wel te worden aangetoond dat deze bedrijfsactiviteiten naar aard en invloed op de omgeving vergelijkbaar zijn met de bedrijfsactiviteiten genoemd in de lagere algemeen toegelaten milieucategorieën.

Door het toepassen van een milieuzonering worden nieuwe hindersituaties voorkomen. Het bestemmingsplan draagt op deze wijze positief bij aan een aanvaardbaar woon- en leefklimaat enerzijds en het functioneren van bedrijven anderzijds.


Kinderboerderij 't Eiterse Hofje

Overeenkomstig de VNG-publicatie geldt voor een kinderboerderij een richtafstand van 30 meter in een rustige woonwijk. De afstand tot de dichtstbijzijnde woning betreft 22 meter. Aan de richtafstand wordt niet voldaan. Echter wordt in de huidige situatie ook al niet voldaan aan de richtafstand. De maatgevende aspecten zijn geur en geluid. Om de volgende redenen zal ter plaatse van de nabijgelegen woning sprake zijn van een aanvaardbaar woon- en leefklimaat:

  • De beperkte omvang van de beoogde uitbreiding;
  • Het aantal bezoekers neemt niet toe;
  • Het aantal dieren is zeer beperkt en neemt in de beoogde situatie niet toe;
  • Geuremissie bij het houden van kippen en konijnen is met name afkomstig uit het nachtverblijf/kippenren. De kippenren en het konijnenverblijf bevinden zich op ruime afstand van de dichtstbijzijnde woning (respectievelijk 30 en 22 meter). Hierdoor zal ook geen relevante geluidhinder ontstaan
  • Ter voorkoming van geluidsoverlast wordt de haan voor een gedeelte van de ochtend in het nachtverblijf gezet.

4.5 Bodemkwaliteit

Wat is de relatie tussen dit omgevingsaspect en het bestemmingsplan?

Op grond van het Besluit ruimtelijke ordening (Bro) dient in verband met de uitvoerbaarheid van bestemmingsplannen rekening te worden gehouden met de bodemgesteldheid in het betreffende gebied. Bij functiewijzigingen dient te worden bekeken of de bodemkwaliteit voldoende is voor de beoogde functie en moet worden vastgesteld of er sprake is van een saneringsnoodzaak. In de Wet bodembescherming is bepaald dat indien de desbetreffende bodemkwaliteit niet voldoet aan de norm voor de beoogde functie, de grond zodanig dient te worden gesaneerd dat zij kan worden gebruikt door de desbetreffende functie (functiegericht saneren). Nieuwe bestemmingen dienen bij voorkeur op schone grond te worden gerealiseerd.

Situatie plangebied

Afgezien van de kinderboerderij, maakt het bestemmingsplan geen nieuwe ontwikkelingen mogelijk. Bodemonderzoek is dan ook niet aan de orde. Door de gedetailleerde bestemmingslegging treden daarnaast geen negatieve effectieven op ten aanzien van het aspect bodemkwaliteit.

Kinderboerderij 't Eiterse Hofje

Ter plaatse van de beoogde ontwikkeling geldt momenteel de bestemming Groen. Gezien deze bestemming is het niet waarschijnlijk dat er bodem verontreinigende activiteiten hebben plaatsgevonden. Wel is een kinderboerderij een meer gevoelige functie dan groen, daarom is een verkennend bodemonderzoek uitgevoerd. Dit onderzoek is opgenomen in bijlage 2.

Conclusie

Aan de hand van de resultaten van het onderzoek kan het volgende worden geconcludeerd:

  • In de grond zijn plaatselijk bijmengingen met bodemvreemde materialen waargenomen.
  • Op het maaiveld en in het opgeboorde bodemmateriaal zijn zintuiglijk geen asbestverdachte materialen waargenomen.
  • De bovengrond is licht verontreinigd met kwik en PAK.
  • De ondergrond is niet verontreinigd met de onderzochte parameters.
  • Het grondwater is licht verontreinigd met barium.
  • Analytisch is geen asbest aangetoond.

Gelet op de onderzoeksresultaten, te weten de aangetoonde overschrijdingen van de betreffende achtergrondwaarden (grond) en/of de aangetoonde overschrijdingen van de betreffende streefwaarden (grondwater) dient de hypothese onverdacht voor de onderzoekslocatie formeel te worden verworpen. Echter, de gemeten waarden zijn dermate gering dat aanvullend onderzoek naar het voorkomen van deze stoffen in de bodem op het perceel ingevolge de Wet bodembescherming, niet noodzakelijk is.

Beperkingen inzake het verlenen van een omgevingsvergunning (activiteit bouwen), alsmede de voortzetting van het huidige bodemgebruik, worden op basis van de onderzoeksresultaten uit milieuhygiënisch oogpunt niet voorzien.

Het aspect bodem vormt derhalve geen belemmering voor het bestemmingsplan.

4.6 Ecologie

Wat is de relatie tussen dit omgevingsaspect en het bestemmingsplan?

Het aspect ecologie heeft zowel betrekking op de bescherming van natuurgebieden als op de bescherming van dier- en plantensoorten.

Met de Wet natuurbescherming (hierna: Wnb) zijn alle bepalingen met betrekking tot de bescherming van natuurgebieden en dier- en plantensoorten samengebracht in één wet. De Wnb implementeert diverse Europeesrechtelijke regelgeving, zoals de Vogelrichtlijn en de Habitatrichtlijn in de Nederlandse wetgeving.


Gebiedsbescherming

De Wnb kent diverse soorten natuurgebieden, te weten:

  • Natura-2000 gebieden;
  • Natuurnetwerk Nederland (NNN).


Natura-2000 gebieden

De Minister van Economische Zaken (EZ) wijst gebieden aan die deel uitmaken van het Europese netwerk van natuurgebieden: Natura 2000. Een dergelijk besluit bevat de instandhoudingsdoelstellingen voor de leefgebieden van vogelsoorten (Vogelrichtlijn) en de instandhoudingsdoelstellingen voor de natuurlijke habitats en habitats van soorten (Habitatrichtlijn).


Een bestemmingsplan dat afzonderlijk of in combinatie met andere plannen of projecten significante gevolgen kan hebben voor een Natura 2000-gebied, kan uitsluitend vastgesteld worden indien uit een passende beoordeling de zekerheid is verkregen dat het plan, onderscheidenlijk het project de natuurlijke kenmerken van het gebied niet zal aantasten. Indien deze zekerheid niet is verkregen, kan het plan worden vastgesteld, indien wordt voldaan aan de volgende drie voorwaarden:

  • alternatieve oplossingen zijn niet voor handen;
  • het plan is nodig om dwingende redenen van groot openbaar belang, met inbegrip van redenen van sociale of economische aard, en
  • de nodige compenserende maatregelen worden getroffen om te waarborgen dat de algehele samenhang van het Natura 2000-netwerk bewaard blijft.


De bescherming van deze gebieden heeft externe werking, zodat ook ingrepen die buiten deze gebieden plaatsvinden verstoring kunnen veroorzaken en moeten worden getoetst op het effect van de ingreep op soorten en habitats.


Natuurnetwerk Nederland (NNN)

Gebieden die deel uitmaken van het Natuurnetwerk Nederland (NNN) worden aangewezen in de provinciale verordening. Voor dit soort gebieden geldt het 'nee, tenzij' principe, wat inhoudt dat binnen deze gebieden in beginsel geen nieuwe ruimtelijke ontwikkelingen mogen plaatsvinden.


Soortenbescherming

In de Wnb wordt een onderscheid gemaakt tussen:

  • soorten die worden beschermd in de Vogelrichtlijn;
  • soorten die worden beschermd in de Habitatrichtlijn;
  • overige soorten.


De Wnb bevat onder andere verbodsbepalingen ten aanzien van het opzettelijk vernielen of beschadigen van nesten, eieren en rustplaatsen van vogels als bedoeld in artikel 1 van de Vogelrichtlijn. Gedeputeerde Staten (hierna: GS) kunnen hiervan ontheffing verlenen en bij verordening kunnen Provinciale Staten (hierna: PS) vrijstelling verlenen van dit verbod. De voorwaarden waaraan voldaan moet worden om ontheffing of vrijstelling te kunnen verlenen zijn opgenomen in de Wnb en vloeien direct voort uit de Vogelrichtlijn. Verder is het verboden in het wild levende dieren van soorten, genoemd in bijlage IV, onderdeel a, bij de Habitatrichtlijn, bijlage II bij het Verdrag van Bern of bijlage I bij het Verdrag van Bonn, in hun natuurlijk verspreidingsgebied opzettelijk te doden of te vangen of te verstoren. GS kunnen hiervan ontheffing verlenen en bij verordening kunnen PS vrijstelling verlenen van dit verbod. De gronden voor verlening van ontheffing of vrijstelling zijn opgenomen in de Wnb en vloeien direct voort uit de Habitatrichtlijn.

Ten slotte is een verbodsbepaling opgenomen voor overige soorten. Deze soorten zijn opgenomen in de bijlage onder de onderdelen A en B bij de Wnb. De provincie kan ontheffing verlenen van deze verboden. Verder kan bij provinciale verordening vrijstelling worden verleend van de verboden. De noodzaak tot ontheffing of vrijstelling kan hierbij ook verband houden met handelingen in het kader van de ruimtelijke inrichting of ontwikkeling van gebieden.

Uitwerking Verordening uitvoering Wet natuurbescherming Utrecht

In de provincie Utrecht wordt vrijstelling verleend voor het weiden van vee en voor het in of op de bodem brengen van meststoffen. In het kader van de ruimtelijke inrichting of ontwikkeling van gebieden, daaronder begrepen het daarop volgende gebruik van het ingerichte of ontwikkelde gebied, ter voorkoming of bestrijding van onnodig lijden van zieke of gebrekkige dieren, bestendig beheer of onderhoud in de landbouw of bosbouw, bestendig beheer of onderhoud aan vaarwegen, watergangen, waterkeringen, waterstaatswerken, oevers, vliegvelden, wegen, spoorwegen of bermen, of natuurbeheer, of bestendig beheer of onderhoud van de landschappelijke kwaliteiten van een bepaald gebied worden vrijstellingen verleend ten aanzien van de soorten genoemd in bijlage II bij deze verordening. Het betreft aardmuis, bastaardkikker, bosmuis, bunzing, bruine kikker, dwergmuis, dwergspitsmuis, egel, gewone bosspitsmuis, gewone pad, haas, hermelijn, huisspitsmuis, kleine watersalamander, konijn, meerkikker, ondergrondse woelmuis, ree, rosse woelmuis, tweekleurige bosspitsmuis, veldmuis, vos, wezel en woelrat.

Situatie plangebied

Ondanks dat het plan conserverend van aard is zijn kleine ontwikkelingen niet uit te sluiten, deze moeten individueel worden getoetst aan de Wet Natuurbescherming. In de nabijheid van het plangebied komen geen Natura 2000 gebieden voor. Ook het NNN (Natuur Netwerk Nederland) ligt niet in de buurt van het plangebied.

Kinderboerderij 't Eiterse Hofje
De ontwikkeling van de kinderboerderij bevindt zich niet in de nabijheid van een Natura 2000 of Natuur Netwerk Nederland gebied. Daarnaast worden er geen gebouwen gesloopt of bomen gekapt. De invloed van de uitbreiding heeft dan ook geen negatieve effecten op beschermde plant- en diersoorten.

De uitbreiding van de kinderboerderij vindt plaats op een geheel gecultiveerde groenstrook die grotendeels bestaat uit gazon. Op basis hiervan kunnen strikt beschermde planten worden uitgesloten. Verder staat er een strook met struiken en staan er verschillende bomen die nog niet een zodanige omvang hebben bereikt dat zich hierin een vleermuisverblijfplaats zal bevinden. Er bestaat derhalve geen kans op verstoring van strikt beschermde soorten. Het aspect ecologie vormt daarom geen belemmering voor de beoogde ontwikkeling.

4.7 Externe veiligheid

Wat is de relatie tussen dit omgevingsaspect en het bestemmingsplan?

In het kader van dit bestemmingsplan dient ten aanzien van externe veiligheid naar verschillende aspecten te worden gekeken, namelijk:

  • bedrijven waar opslag, gebruik en/of productie van gevaarlijke stoffen plaatsvindt;
  • vervoer van gevaarlijke stoffen over weg, spoor of water en door buisleidingen.


Voor zowel bedrijvigheid als vervoer van gevaarlijke stoffen over weg, spoor, water en door buisleidingen zijn twee aspecten van belang, te weten het plaatsgebonden risico (PR) en het groepsrisico (GR). Het PR is de kans per jaar dat een persoon dodelijk wordt getroffen door een ongeval, indien hij zich onafgebroken (dat wil zeggen 24 uur per dag gedurende het hele jaar) en onbeschermd op een bepaalde plaats zou bevinden. Het PR wordt weergegeven met risicocontouren rondom een inrichting dan wel infrastructuur. Het GR drukt de kans per jaar uit dat een groep van minimaal een bepaalde omvang overlijdt als direct gevolg van een ongeval waarbij gevaarlijke stoffen betrokken zijn. De norm voor het GR is een oriëntatiewaarde. Het bevoegd gezag heeft een verantwoordingsplicht als het GR toeneemt en/of de oriëntatiewaarde overschrijdt.


Situatie plangebied


In het plangebied en de directe omgeving bevinden zich volgens de risicokaart geen risicovolle inrichtingen. Het kan zijn dat bedrijfsmatige activiteiten in het plangebied worden uitgevoerd welke afstandsnormen uit het Activiteitenbesluit bezitten. Dit kunnen bijvoorbeeld bovengrondse brandstoftanks of gasdrukregelstations zijn van de gasnetbeheerder. Deze activiteiten hebben in een aantal gevallen een afstandsnorm. Het is aan de gebruiker of beheerder de verantwoording om te voldoen aan deze afstandsnorm.


Conform de risicokaart zijn geen buisleidingen, rijkswegen, spoorwegen of vaarwegen gelegen die op gebied van externe veiligheid een probleem opleveren. Voor de gemeentelijke en provinciale wegen is in de gemeente IJsselstein een routering voor gevaarlijke stoffen vastgesteld. De betreffende route grenst ten zuidwesten aan het plangebied Figuur 4.2. Het maatgevende invloedsgebied voor het groepsrisico bedraagt 355 m. Het plangebied ligt deels binnen het invloedsgebied. Omdat in het invloedsgebied geen ontwikkelingen mogelijk worden gemaakt, heeft het bestemmingsplan geen invloed op de hoogte van het groepsrisico. Er is dan ook geen berekening van het groepsrisico nodig. Wel is vanwege de ligging binnen het invloedsgebied een verantwoording van het groepsrisico noodzakelijk. Daarin dient aandacht te worden besteed aan zelfredzaamheid en de mogelijkheden voor hulpverleners om in geval van een incident te kunnen optreden.

afbeelding "i_NL.IMRO.0353.201506Achterveld-On01_0009.png"

Figuur 4.2 routering gevaarlijke stoffen nabij plangebied (rode lijn)


Voor noodzakelijk transport ten behoeve van laden en/of lossen van gevaarlijke stoffen buiten de vastgestelde routes is een ontheffing nodig. Aan deze ontheffing kunnen voorwaarden worden verbonden om een veiligere leefomgeving te realiseren. Er kan daarom langs het plangebied transport van gevaarlijke stoffen plaatsvinden van niet-routeplichtige stoffen (zoals benzine) en routeplichtige stoffen (zoals propaan), maar de frequentie daarvan is (door het lokale karakter van het transport) dermate laag dat daardoor geen risico's ontstaan die ruimtelijk relevant zijn.


Verantwoording groepsrisico
Over deze beknopte verantwoording is advies aan de regionale brandweer/veiligheidsregio gevraagd.


Bestrijdbaarheid en bereikbaarheid
Zowel voor de bereikbaarheid en bestrijdbaarheid van 'dagelijkse incidenten', zoals brand of wateroverlast, als voor calamiteiten op het gebied van externe veiligheid, is het van belang dat de bereikbaarheid voor de hulpdiensten en bluswatervoorzieningen voldoende geborgd zijn.


De bestrijdbaarheid is afhankelijk van de inzetbaarheid van hulpverleningsdiensten. De brandweer moet in staat zijn om hun taken goed uit te kunnen voeren om daarmee verdere escalatie van en incident te voorkomen. Hierbij kan gedacht worden aan het voldoende/ adequaat aanwezig zijn van aanvalswegen en bluswatervoorzieningen. Tevens speelt een snelle alarmering ten allen tijde een belangrijke rol.


Het invloedsgebied van de route van gevaarlijke stoffen reikt over het zuidwestelijk deel van het plangebied. Hier zijn enkele woningen, sportverenigingen en een bedrijf gelegen. Via meerdere wegen is dit gebied te bereiken, waaronder de Baronieweg, Groene Dijk en Heemradenlaan. Aanwezige personen kunnen daarom via meerdere wegen van de bron af vluchten. Daarnaast komt het gedegen wegennetwerk ook de bestrijdbaarheid ten goede. Zo kan bijvoorbeeld via meerdere aanvalswegen een mogelijke brand geblust worden.


Zelfredzaamheid
De aanwezige personen zullen over het algemeen zelfredzaam zijn. Aanwezige kinderen en ouderen worden wel beschouwd als verminderd zelfredzame personen. Hierbij wordt ervan uitgegaan dat de ouders/verzorgers de kinderen en ouderen kunnen begeleiden.


Maatregelen
Omdat geen ontwikkelingen mogelijk worden gemaakt in het invloedsgebied van het groepsrisico zijn verdere maatregelen aan gebouwen (zoals een geautomatiseerde afsluiting van ramen en deuren, vergroten brandwerendheid ramen of creëren van een ' safe haven') niet opportuun. Maatregelen aan de bron vallen buiten de scope van het bestemmingsplan en zijn daarmee eveneens niet opportuun.


De externe veiligheidssituatie in het plangebied is positief te noemen.

Kinderboerderij 't Eiterse Hofje
Zoals hiervoor beschreven worden geen ontwikkelingen mogelijk gemaakt binnen het invloedsgebied van het groepsrisico van de gemeentelijke routering voor gevaarlijke stoffen. In de verantwoording van het groepsrisico hoeft dan ook niet te worden ingegaan op de beoogde uitbreiding van de kinderboerderij.

4.8 Luchtkwaliteit

Wat is de relatie tussen dit omgevingsaspect en het bestemmingsplan?

In het kader van een goede ruimtelijke ordening wordt bij het opstellen van een bestemmingsplan uit het oogpunt van de bescherming van de gezondheid van de mens rekening gehouden met de luchtkwaliteit. Het toetsingskader voor luchtkwaliteit wordt gevormd door hoofdstuk 5, titel 5.2 van de Wet milieubeheer. Dit onderdeel van de Wet milieubeheer (Wm) bevat grenswaarden voor zwaveldioxide, stikstofdioxide en stikstofoxiden, fijn stof, lood, koolmonoxide en benzeen. Hierbij zijn in de ruimtelijke ordeningspraktijk langs wegen vooral de grenswaarden voor stikstofdioxide (jaargemiddelde) en fijn stof (jaar- en daggemiddelde) van belang. De grenswaarden van de laatstgenoemde stoffen zijn in tabel 4.2 weergegeven.

Tabel 4.2 Grenswaarden maatgevende stoffen Wm

stof   toetsing van   grenswaarde  
stikstofdioxide (NO2) 1)   jaargemiddelde concentratie   40 µg/m³  
fijn stof (PM10) 2)   jaargemiddelde concentratie   40 µg/m³  
  24-uurgemiddelde concentratie   max. 35 keer p.j. Meer dan 50 µg/m³  
fijn stof (PM2,5)   jaargemiddelde concentratie   25 µg/m³  
  • 1. De toetsing van de grenswaarde voor de uurgemiddelde concentratie NO2 is niet relevant aangezien er pas meer overschrijdingsuren dan het toegestane aantal van 18 per jaar zullen optreden als de jaargemiddelde concentratie NO2 de waarde van 82 µg/m³ overschrijdt. Dit is nergens in Nederland het geval.
  • 2. Bij de beoordeling hiervan blijven de aanwezige concentraties van zeezout buiten beschouwing (volgens de bij de Wlk behorende Regeling beoordeling Luchtkwaliteit 2007).

Op grond van artikel 5.16 van de Wm kunnen bestuursorganen bevoegdheden die gevolgen kunnen hebben voor de luchtkwaliteit onder andere uitoefenen indien de bevoegdheden/ontwikkelingen niet leiden tot een overschrijding van de grenswaarden of de bevoegdheden/ontwikkelingen niet in betekenende mate bijdragen aan de concentratie in de buitenlucht.

Besluit niet in betekenende mate

In het Besluit niet in betekenende mate is bepaald in welke gevallen een project vanwege de gevolgen voor de luchtkwaliteit niet aan de grenswaarden hoeft te worden getoetst. Hierbij worden twee situaties onderscheiden:

  • een project heeft een toename van minder dan 3% van de jaargemiddelde concentratie NO2 en PM10 (= 1,2 µg/m³);
  • een project valt in een categorie die is vrijgesteld aan toetsing aan de grenswaarden; deze categorieën betreffen onder andere woningbouw met niet meer dan 1.500 woningen aan één ontsluitingsweg of kantoorlocaties met maximaal 100.000 m² bvo bij één ontsluitingsweg.

Situatie plangebied

Het bestemmingsplan is consoliderend van aard, en voorziet niet in ontwikkelingen. Hierdoor zal er ten gevolge van het bestemmingsplan dan ook geen sprake zijn van een verkeerstoename. Het bestemmingsplan draagt dan ook niet in betekenende mate bij aan de luchtkwaliteit. Nader onderzoek is hierdoor niet noodzakelijk.

In het kader van een goede ruimtelijke ordening is een indicatie van de luchtkwaliteit ter plaatse van het plangebied onderzocht. Dit is gedaan aan de hand van de NSL-monitoringstool 2017 (www.nsl-monitoring.nl) die bij het Nationaal Samenwerkingsprogramma Luchtkwaliteit hoort. Hieruit blijkt dat in 2016 de jaargemiddelde concentraties stikstofdioxide en fijn stof direct langs de wegen in en langs het plangebied ruimschoots onder de grenswaarden uit de wetgeving liggen. Ook uit de luchtkaarten van de Omgevingsdienst Utrecht (figuur 4.3, 4.4 en 4.5) blijkt dat de concentraties stikstofdioxide en fijn stof ruimschoots onder de grenswaarden lagen.

afbeelding "i_NL.IMRO.0353.201506Achterveld-On01_0010.png"

Figuur 4.3 Luchtkwaliteit plangebied 2015 (NO2), (bron: Geoloket Omgevingsdienst Utrecht)

afbeelding "i_NL.IMRO.0353.201506Achterveld-On01_0011.png"

Figuur 4.4 Luchtkwaliteit plangebied 2015 (PM10) (bron: Geoloket Omgevingsdienst Utrecht)

afbeelding "i_NL.IMRO.0353.201506Achterveld-On01_0012.png"

Figuur 4.5 Luchtkwaliteit plangebied 2015 (PM2,5) (bron: Geoloket Omgevingsdienst Utrecht)

Vanuit het oogpunt van luchtkwaliteit is sprake van aanvaardbaar woon- en leefklimaat.

Kinderboerderij 't Eiterse Hofje
Gezien de grootte van de beoogde ontwikkeling is er geen sprake van een negatief effect op de luchtkwaliteit.

4.9 Planologisch relevante leidingen

Wat is de relatie tussen dit omgevingsaspect en het bestemmingsplan?

Planologisch relevante leidingen en hoogspanningsverbindingen dienen te worden gewaarborgd. Tevens dient rond dergelijke leidingen rekening te worden gehouden met zones waarbinnen mogelijke beperkingen gelden.

Situatie plangebied

In het plangebied zijn geen planologisch relevante leidingen aanwezig. Ook zijn er geen hoogspanningslijnen in de omgeving van het plangebied gelegen. In het plangebied bevinden zich op een aantal plaatsen antennes. De afstanden welke voor antennes gelden verschillen per antenne en opstelling. Bij ontwikkelingen of plaatsing van nieuwe antennes is het raadzaam om aandacht te besteden aan dit aspect. Het is niet aannemelijk dat er antennes aanwezig zijn welke overschrijdingen van de geldende blootstellingslimieten voor elektrische en magnetische veldsterkten veroorzaken.

Kinderboerderij 't Eiterse Hofje

Ook voor het plangebied ter plaatse van de kinderboerderij geldt dat er geen planologisch relevante leidingen aanwezig zijn.

4.10 Waterhuishouding

Wat is de relatie tussen dit omgevingsaspect en het bestemmingsplan?

In bestemmingsplannen dient aandacht te worden besteed aan het aspect waterhuishouding. Hiervoor dient de 'watertoets' te worden doorlopen. Hiermee wordt voorkomen dat ruimtelijke plannen in strijd zijn met duurzaam waterbeheer. Het plangebied ligt binnen het beheersgebied van het Hoogheemraadschap De Stichtse Rijnlanden, verantwoordelijk voor het waterkwantiteits- en waterkwaliteitsbeheer. Bij het tot stand komen van dit bestemmingsplan wordt overleg gevoerd met de waterbeheerder over deze waterparagraaf. De opmerkingen van de waterbeheerder worden vervolgens verwerkt in deze waterparagraaf.

Beleid duurzaam stedelijk waterbeheer

Op verschillende bestuursniveaus zijn de afgelopen jaren beleidsnota's verschenen aangaande de waterhuishouding, allen met als doel een duurzaam waterbeheer (kwalitatief en kwantitatief). Deze paragraaf geeft een overzicht van de voor het plangebied relevante nota's, waarbij het beleid van het hoogheemraadschap en de gemeente nader wordt behandeld.

Europa

  • Kaderrichtlijn Water (KRW)

Nationaal:

  • Nationaal Waterplan (NW)
  • Nationaal Bestuursakkoord Water (NBW)
  • Waterwet

Provinciaal

  • Provinciaal Waterplan

Waterschapsbeleid

Waterkoers 2016-2021

Hoogheemraadschap de Stichtse Rijnlanden heeft haar ambities en langetermijnvisie vastgelegd in

het waterbeheerplan Waterkoers 2016–2021 (http://www.waterschaponline.nl/hdsr/). De Waterkoers

is een koersdocument om te sturen op hoofdlijnen met als overkoepelende doel Samen werken aan

een veilige, gezonde en prettige leefomgeving. In de Waterkoers wordt op een niet-planmatige manier over het waterschapswerk gesproken. Waterschapswerk is hierbij breder dan enkel beheer van water.

Water is een belangrijke pijler van een veilige, gezonde en prettige leefomgeving. Vanuit die achtergrond werkt Hoogheemraadschap de Stichtse Rijnlanden samen met de ruimtelijke ordening

aan bescherming tegen overstromingen, een gezond grond- en oppervlaktewatersysteem en het

zuiveren van afvalwater.

Voor ruimtelijke ontwikkelingen geldt het principe van ruimtelijke adaptatie (Deltabeslissing,

www.ruimtelijkeadaptatie.nl):

  • De bebouwde omgeving is in 2050 nog steeds aantrekkelijk om te leven;
  • Uiterlijk in 2020 zijn ruimtelijke ingrepen klimaatbestendig opgebouwd en getoetst.

Het minimale uitgangspunt voor planontwikkelingen is dat het plan hydrologisch neutraal moet worden ontwikkeld met als doel geen gevolgen voor de waterveiligheid, het grond- en oppervlaktewater en de waterkwaliteit en ecologie. Daarmee wordt geborgd dat de ontwikkeling van het gebied met betrekking tot wateraspecten duurzaam is.

Ruimtelijke adaptatie

Het klimaat verandert: Hogere temperaturen, een sneller stijgende zeespiegel, nattere winters, heftigere buien en kans op drogere zomers. Daar moeten we ook volgens het KNMI, in de toekomst in Nederland rekening mee houden. De verwachting van het KNMI is dat het klimaat in Nederland in 2050 ongeveer overeen zal komen met het huidige klimaat in Zuid-Frankrijk. Maar ook nu al is de klimaatverandering merkbaar.

Extreme neerslag, droogte en hitte kunnen leiden tot maatschappelijke ontwrichting. Dit geeft aanleiding om aanpassing van de inrichting van de bebouwde omgeving aan het veranderende klimaat te agenderen en aan te werken. Dit beleid is in 2015 vastgelegd in de Deltabeslissing voor Nederland. In de deltabeslissing Ruimtelijke adaptatie heeft het Deltaprogramma voorstellen opgenomen om de ruimtelijke inrichting van Nederland klimaatbestendig en waterrobuust te maken. Alle overheden en marktpartijen zijn daar samen verantwoordelijk voor. De Deltabeslissing Ruimtelijke Adaptatie heeft als doel:

  • De bebouwde omgeving is in 2050 nog steeds aantrekkelijk om te leven;
  • Uiterlijk in 2020 zijn ruimtelijke ingrepen klimaatbestendig opgebouwd en getoetst.

Klimaatverandering heeft effecten op grote schaal maar ook op de kleine schaal van een stad. Door de toenemende hoeveelheid verharding in steden wordt het steeds moeilijker om water makkelijk weg te krijgen.

Beleidsregels Keur 2009

Beleidsregel 13

Deze beleidsregel is van toepassing in het gehele beheersgebied van het waterschap en geldt zowel binnen als buiten de bebouwde kom. Doel van het beleid is om effecten van nieuwe stedelijke uitbreidingen te neutraliseren. Om te voorkomen dat individuele bewoners voor kleine voorzieningen zoals serres, tuinschuurtjes of enkele woningen, moeten compenseren, is een ondergrens ingesteld. De minimale oppervlakte waarvoor deze beleidsregel geldt, bedraagt binnen de bebouwde kom 500 m² nieuw verhard oppervlak waarvan het hemelwater direct of indirect op het oppervlaktewater wordt geloosd en buiten de bebouwde kom 1000 m² nieuw verhard oppervlak (zie Besluit algemene regels keur HDSR 2009, algemene regel 14).

Uitbreiding van verhard oppervlak moet, vanuit hydrologische optiek gezien, waterbalansneutraal plaatsvinden. Indien dit niet kan door infiltratie in de bodem, kan dat door nieuwe bergingscapaciteit aan te leggen die de extra afvoer van het nieuwe verharde oppervlak als het ware neutraliseert dan wel de piekafvoer opvangt. De aanvrager (veroorzakerprincipe) moet zelf bij de vergunningaanvraag aangeven hoe en welke voorzieningen getroffen zullen worden om de lozing terug te brengen tot de maatgevende afvoer. Daarvoor moet een beheerplan te worden verlegd. Indien dat niet mogelijk is zijn de volgende maatregelen (in volgorde van belangrijkheid) mogelijk:

  • a. compenseren direct bij het lozingspunt; indien niet mogelijk gemotiveerd uitwijken naar b;
  • b. compenseren in het zelfde peilgebied; indien niet mogelijk, gemotiveerd uitwijken naar c;
  • c. compenseren in aangrenzend benedenstrooms peilgebied (met lager peil dus); indien niet mogelijk, gemotiveerd uitwijken naar d;
  • d. compenseren in aangrenzend bovenstrooms peilgebied (met hoger peil); indien niet mogelijk, gemotiveerd uitwijken naar e;
  • e. compenseren in het zelfde bemalingsgebied.

Het waterschap kan tijdens een watertoetsproces, of in het vooroverleg van de vergunningaanvraag, adviseren bij het maken van keuzes.

Gemeentelijk beleid

De gemeenteraad van IJsselstein heeft op 15 maart 2007 het Stedelijk Waterplan IJsselstein vastgesteld. Het heeft als doel dat het watersysteem schoon, veilig en gezond is, waarbij voldoende water zonder wateroverlast aanwezig is. Ook de samenwerking en kennisuitwisseling van de verschillende waterpartners worden verbeterd. Om dit doel te kunnen realiseren, worden diverse maatregelen genomen die terug te vinden zijn in het uitvoeringsprogramma behorende bij het Waterplan. Op 23 april 2007 hebben diverse partijen waaronder het HDSR, de gemeente IJsselstein en waterbedrijf Vitens een convenant waarin uitvoeringsafspraken zijn opgenomen, ondertekend.

Situatie plangebied

Algemeen

Het plangebied is gelegen in het noordwesten van de kern IJsselstein en bestaat hoofdzakelijk uit woongebied. Volgens de Bodemkaart van Nederland bestaat de bodem ter plaatse uit klei met zware tussenlaag of ondergrond. In het plangebied is sprake van drie grondwatertrappen. In figuur 4.6 zijn de grondwatertrappen binnen het plangebied weergegeven. Grondwatertrap III wil zeggen dat de gemiddelde hoogste grondwaterkeur stand op minder dan 0,4 m beneden het maaiveld ligt en de gemiddeld laagste grondwaterstand varieert tussen de 0,5 en 0,8 m beneden het maaiveld. Grondwatertrap Vb wil zeggen dat de gemiddeld hoogste grondwaterstand varieert tussen de 0,25 en 0,4 m beneden het maaiveld en de gemiddeld laagste grondwaterstand meer dan 1,2 m beneden het maaiveld ligt. Grondwatertrap VI wil zeggen dat de gemiddeld hoogste grondwaterstand varieert tussen de 0,4 en 0,8 m beneden het maaiveld en de gemiddeld laagste grondwaterstand meer dan 1,2 m beneden het maaiveld ligt.

afbeelding "i_NL.IMRO.0353.201506Achterveld-On01_0013.jpg"

Figuur 4.6 Grondwatertrappen binnen plangebied

Waterkwantiteit

Binnen het plangebied zijn diverse primaire en tertiaire watergangen aanwezig. Voor primaire watergangen geldt een beschermingszone van 5 m. Voor tertiaire watergangen betreft dit 2 m. Binnen deze zones gelden beperkingen voor bouwen en aanleggen om onderhoud aan de watergang mogelijk te houden.


Veiligheid en waterkeringen

Direct ten oosten van het plangebied, langs de Hollandse IJssel, en direct ten zuiden van het plangebied, langs de Benschopperwetering is een regionale waterkering gelegen. Het bestemmingsplan ligt binnen de kern- en beschermingszone van deze keringen. Daarnaast is er in het zuidwesten van het plan ook een overige waterkering aanwezig. Het plangebied ligt binnen de beschermingszone van deze waterkering.

Binnen deze zones gelden beperkingen voor bouwen en aanleggen om te voorkomen dat de stabiliteit, het profiel en/of de veiligheid wordt aangetast.


Afvalwaterketen en riolering

Het plangebied is aangesloten op het gemeentelijke rioolstelsel.


Toekomstige ontwikkelingen

Het bestemmingsplan is hoofdzakelijk consoliderend van aard. Dit betekent dat geen grootschalige functieveranderingen en/of herinrichtingen zijn gepland. Binnen de vigerende bestemmingen bestaat wel de mogelijkheid tot kleinschalige ontwikkelingen. Het gaat dan bijvoorbeeld om het bouwen van aan- of bijgebouwen (al of niet vergunningplichtig) of het aanleggen van paden of verhardingen.


Vanwege de consoliderende aard van het bestemmingsplan en het feit dat deze niet voorziet in nieuwe ontwikkelingen, wordt de waterhuishouding niet verstoord. Als in de toekomst ruimtelijke ontwikkelingen plaatsvinden, is het uitgangspunt dat de waterhuishoudkundige situatie niet mag verslechteren. Dit betekent bijvoorbeeld dat de waterhuishouding kan worden verbeterd door het afkoppelen van schoon verhard oppervlak, hiermee wordt voorkomen dat schoon hemelwater wordt afgevoerd naar de rioolwaterzuiveringsinstallatie. Dit betekent ook dat toename van het verharde oppervlak en/of dempingen binnen het gebied moeten worden gecompenseerd. Ook combinaties met andere functies zoals groen en recreatie liggen voor de hand. Door de aanleg van natuurvriendelijke en ecologische oevers wordt bijvoorbeeld meer waterberging gerealiseerd. Daarnaast is het van belang om bij eventuele ontwikkeling diffuse verontreinigingen te voorkomen door het gebruik van duurzame, niet-uitloogbare materialen (geen zink, lood, koper en PAK's-houdende materialen), zowel gedurende de bouw- als de gebruiksfase.


Waterbeheer

Voor aanpassingen aan het bestaande watersysteem dient bij het hoogheemraadschap vergunning te worden aangevraagd op grond van de "Keur". Dit geldt dus bijvoorbeeld voor het graven van nieuwe watergangen, het aanbrengen van een stuw of het afvoeren van hemelwater naar het oppervlaktewater. In de Keur is ook geregeld dat een beschermingszone voor watergangen en waterkeringen in acht dient te worden genomen. Dit betekent dat binnen de beschermingszone niet zonder ontheffing van het hoogheemraadschap gebouwd, geplant of opgeslagen mag worden. De genoemde bepaling beoogt te voorkomen dat de stabiliteit, het profiel en/of de veiligheid wordt aangetast, de aan- of afvoer en/of berging van water wordt gehinderd dan wel het onderhoud wordt gehinderd. Voor de onderhavige woningbouw is dan ook een ontheffing noodzakelijk. Ook voor het onderhoud gelden bepalingen uit de "Keur". Het onderhoud en de toestand van de (hoofd)watergangen worden tijdens de jaarlijkse schouw gecontroleerd en gehandhaafd.


Water en Waterstaat in het bestemmingsplan

In het bestemmingsplan wordt het oppervlaktewater in het plangebied bestemd als 'Water'. Voor waterkeringen (kernzone) inclusief de beschermingszones geldt een zogenaamde dubbelbestemming, deze hebben de bestemming 'Waterstaat - Waterkering' toebedeeld gekregen.

Kinderboerderij 't Eiterse Hofje

Ter plaatse van de beoogde ontwikkeling bevindt zich een duiker. De duiker kan worden behouden, omdat er geen ingrepen in de bodem zullen plaats vinden. De aanwezige duiker vormt daarom geen belemmering voor de beoogde ontwikkeling.

afbeelding "i_NL.IMRO.0353.201506Achterveld-On01_0014.png"

Figuur 4.7 Uitsnede legger oppervlaktewater HDSR

4.11 Wegverkeerslawaai

Wat is de relatie tussen dit omgevingsaspect en het bestemmingsplan?

Langs alle wegen – met uitzondering van 30 km/h-wegen en woonerven – bevinden zich op grond van de Wet geluidhinder (Wgh) geluidszones waarbinnen de geluidshinder vanwege de weg getoetst moet worden. De breedte van de geluidszone is afhankelijk van het aantal rijstroken en van binnen- of buitenstedelijke ligging. Toetsing in het kader van een bestemmingsplan aan de Wet geluidhinder is alleen aan de orde indien nieuwe geluidgevoelige bestemmingen - zoals woningen - mogelijk worden gemaakt.

Situatie plangebied

In figuur 4.8 zijn de geluidscontouren van het wegverkeer voor het jaar 2025 weergegeven.

afbeelding "i_NL.IMRO.0353.201506Achterveld-On01_0015.png"

Figuur 4.8 Geluidscontouren wegverkeer 2025 plangebied (bron: Geoloket Omgevingsdienst Utrecht)

Er worden geen nieuwe geluidsgevoelige ontwikkelingen, zoals woningen, mogelijk gemaakt in het plangebied. Tevens vinden er geen reconstructies van wegen plaats of worden nieuwe wegen aangelegd. Door het uitblijven van deze ontwikkelingen kan een toetsing aan de Wet geluidhinder achterwege blijven.

Kinderboerderij 't Eiterse Hofje
Een kinderboerderij is geen geluidsgevoelige functie zoals bedoeld in Wgh. Ook is de uitbreiding niet of nauwelijks verkeersaantrekkend. Het aspect wegverkeerslawaai vormt daarom geen belemmering voor de ontwikkeling.

4.12 Duurzaamheid

Ondanks dat onderhavig bestemmingsplan conserverend van aard is, is het alsnog wenselijk voldoende aandacht aan dit aspect te besteden. Er vanuit gaande dat ook een conserverend bestemmingsplan nieuwbouw toe staat ('lege bouwvlakken', sloop en herbouw) is het goed om kaders en mogelijkheden voor duurzaamheid zichtbaar te maken. Hiermee worden mogelijke initiatiefnemers ook via deze weg hierover geïnformeerd in de fase vooruitlopend op ontwerp en realisatie. Om deze reden wordt hier op nationaal, provinciaal en lokaal niveau inzicht gegeven in het geldend beleid en de wetgeving ten aanzien van dit aspect.

Nationaal beleid en wettelijk kader

Lente-akkoord Energiezuinige Nieuwbouw

Het Lente akkoord Energiezuinige Nieuwbouw (d.d. 22 april 2008, herijking d.d. 28 juni 2012) is een afspraak tussen de Rijksoverheid (Ministerie van Binnenlandse zaken, VROM) en marktpartijen (Bouwend Nederland, NEPROM, NVB en AEDES) om op korte termijn steeds energiezuiniger te gaan bouwen rekening houdend met het klimaat, eindige brandstoffen en woonlasten.

De volgende ambities zijn afgesproken:

  • In 2015 zijn de nieuwbouwwoningen die we realiseren 50% energiezuiniger dan volgens de bouweisen van 2007.
  • In 2015 is het commercieel vastgoed dat we realiseren 50% energiezuiniger dan volgens de bouweisen van 2007.

Vanaf 2020 is het realiseren van energieneutrale gebouwen met het tekenen van het Lente akkoord afgesproken (EPC= 0,0). Let wel: dit geldt alleen voor gebouwgebonden energie. Gebruikersenergie is hierin niet meegenomen.

Wettelijk kader: Bouwbesluit 2012

Het bouwbesluit 2012 stelt per type gebouw eisen in kader van duurzaamheid.

Het bouwbesluit van 2012 stelt de volgende eisen aan nieuwbouw en/of verbouwingen van woningen.

  • Minimale isolatiewaarden (Rc) voor dichte uitwendige scheidingsconstructies, per onderdeel van de schil - 4,5 m²K/W voor gevel, 6 m²K/W voor het dak en 3,5 m²K/W voor de vloer;
  • Een maximale warmtedoorgangscoëfficiënt voor ramen en deuren (U-waarde). Hierbij geldt een maximum van 2,2 W/m²K per onderdeel met een gemiddelde van 1,65 W/m²K.
  • Een maximale EPC waarde afhankelijk van het type gebouw. De EPC dient berekent te worden middels de EPG methodiek. Voor woningen geldt een EPC-waarde van maximaal 0,4.
  • Ook de milieu-uitstoot van het gebouw moet gekwantificeerd te worden. De zogenaamde milieuprestatie van het gebouw. Dit punt wordt hieronder nader toegelicht.

Het kwantificeren van milieu-uitstoot van het gebouw

In het Bouwbesluit is opgenomen dat voor gebouwen met een woon- of kantoorfunctie groter dan 100m² de milieu-uitstoot gekwantificeerd dient te worden. Dit betekent dat de uitstoot van broeikasgassen en de uitputting van grondstoffen door de constructieonderdelen van deze bebouwing bepaald dient te worden. Het betreft hiermee de materiaalgebonden CO2 uitstoot. Hiertoe geldt de Bepalingsmethode Milieuprestatie Gebouwen en GWW-werken. Hiervoor kan de tool GPR-gebouw gebruikt worden.

Duurzame Grond- Weg en Waterbouw sector (duurzaam inkopen)

Voor de Grond-, Weg- en Waterbouw wordt binnen duurzaam inkopen 15 productgroepen uit de GWW-sector zijn duurzaamheidscriteria vastgesteld door het ministerie van Infrastructuur en Milieu.

De Rijksoverheid heeft als ambitie om in 2010 bij 100 procent van haar inkopen duurzaamheid mee te nemen: voor provincies en waterschappen is dit 50 procent, voor gemeenten 75 procent. Alle partijen streven naar 100 procent in 2015.

Provinciaal beleid

Het provinciaal beleid is vastgelegd in de Provinciaal Ruimtelijke Structuurvisie 2013-2028 herijking 2016 als vastgesteld op 12 december 2016. In dit beleid wordt ingegaan op ruimtelijke maatregelen inzake de klimaatverandering en anderzijds energiebesparing door het gebruik van duurzame energiebronnen te stimuleren. Het beleid is gericht op het stimuleren hiervan bij ruimtelijke ontwikkelingen. Ingezet wordt op het ruimtelijk mogelijk maken van opwekking en distributie van duurzame energie.

Daarnaast geldt de provinciale ambitie om in 2040 klimaatneutraal te zijn. Hierbij gaat het om zowel CO2-reductie alsook het onafhankelijk zijn van de beperkt beschikbare fossiele brandstoffen. Bij gebiedsontwikkelingen wordt daarom gestreefd naar zelfvoorzienendheid voor energie. Om deze reden geldt bij verstedelijking, renovatie, herstructurering, transformatie en uitbreiding de voorwaarde dat omschreven wordt op welke wijze invulling wordt gegeven aan energiebesparing en de inzet van duurzame energie.

afbeelding "i_NL.IMRO.0353.201506Achterveld-On01_0016.png"

Figuur 4.9 Uitsnede kaart PRV

In de Provinciale Ruimtelijke Verordening 2016 is de eis opgenomen dat bestemmingsplannen voor woningbouw, renovatie, (herstructuring) bedrijventerreinen, kantoorfuncties en glastuinbouw een beschrijven moeten bevatten van de wijze waarop invulling wordt gegeven aan energiebesparing en inzet van duurzame energie. Hieronder wordt mede verstaan het gebruik van restwarmte, Warmte Koude Opslag en aardwarmte, zonne-energie en biomassa. Nieuwe verstedelijking of uitbreiding van bestaande verstedelijking dient aan eisen van duurzaam bouwen te voldoen.

Gezien de conserverende aard van dit bestemmingsplan kan voldaan worden met een beschrijving van het geldend beleid en wettelijk kader. Benadrukt wordt dat bij ontwikkelingen in afwijking van dit bestemmingsplan voldoende aandacht besteed moet worden aan het aspect duurzaamheid. Er moet onderbouwd zijn welke keuzes op dit vlak gemaakt worden.

Gemeentelijk beleid

Gemeente IJsselstein heeft haar beleid ten aanzien van onder meer duurzaam bouwen vastgelegd in het Duurzaamheidsprogramma IJsselstein 2016-2020. Dit programma is nodig om stappen te zetten naar een klimaatneutrale gemeente. Hieruit blijkt een gemeentelijke ambitie op basis van de duurzaamheidsscore berekend met de tool GPR gebouw van gemiddeld 8, dit was voorheen 7,5.

Op het moment dat er sprake is van een initiatief kan door middel van gebruik van de tool GPR gebouw een berekening uitgevoerd worden waarmee een totale duurzaamheidscore voor het plan blijkt.

Aanbod gemeente

Om deze gemeentelijke ambitie te realiseren biedt de gemeente ondersteuning in dit kader, hiertoe wordt het volgende aangeboden

Gebruik software GPR gebouw

Het gebruik van GPR wordt gratis door de gemeente beschikbaar gesteld. Hiermee kan inzicht worden verkregen in de kansen voor duurzaamheid. Voor een licentie kan contact op worden genomen met de de Omgevingsdienst regio Utrecht. Er wordt dan vrijblijvend een wachtwoord en gebruikersnaam toegestuurd. Met een licentie kan initiatiefnemer gebruik maken van het computerprogramma GPR gebouw (www.gprgebouw.nl) en hiermee kijken in hoeverre maatregelen voor het gebouw een invulling geven aan duurzaamheid. Dit programma is ook goed toepasbaar voor bestaande bouw.

Het instrument GPR Gebouw vertaalt concrete maatregelen in een prestatiescore voor duurzaam bouwen. Het is een hulpmiddel om duurzaamheidambities van tevoren te bepalen. Om een bepaalde GPR Gebouw score te bereiken zijn er veel verschillende mogelijkheden die zelf te bepalen zijn door de bouwende partij. Scores variëren van 0 t/m 10. GPR Gebouw is geschikt voor zowel bestaande bouw als nieuwbouw en opgebouwd uit vijf verschillende thema's: energie, milieu, gezondheid, gebruikskwaliteit en toekomstwaarde (GPR Gebouw versie 4.2).

Duurzaamheidscentrum
Om de bewoners van IJsselstein een fysiek informatiepunt te geven, is het duurzaamheidscentrum 'Greenspot' ontwikkeld. Hier kan iedereen terecht met vragen over duurzaam (ver)bouwen, milieuvriendelijk tuinieren, waterberging en afvalscheiding. Zo kan men elkaar stimuleren om IJsselstein duurzaam te maken.

4.13 Vormvrije m.e.r.-beoordeling

Wat is de relatie tussen het Besluit mer en het bestemmingsplan?

In dit bestemmingsplan wordt de uitbreiding van een kinderboerderij en de realisatie van één woning mogelijk gemaakt. Deze ontwikkelingen vallen onder categorie D11.2, ofwel de aanleg, wijziging of uitbreiding van een stedelijk ontwikkelingsproject. Een stedelijk ontwikkelingsproject is m.e.r.-beoordelingsplichtig wanneer het project betrekking heeft op 2.000 of meer woningen, een oppervlakte van 100 hectare of meer of een bedrijfsvloeroppervlakte van 200.000 m2 of meer. De beoogde ontwikkelingen blijven ruimschoots onder deze drempelwaarden. Daarnaast valt de kinderboerderij ook onder categorie D14, ofwel de oprichting, wijziging of uitbreiding van een installatie voor het fokken, mesten of houden van dieren. In deze categorie worden verschillende drempelwaarden genoemd, zoals 40.000 stuks pluimvee, 1000 stuks voedsters of 6000 vlees- en opfokkonijnen tot dekleeftijd. De beoogde ontwikkeling blijft ruimschoots onder deze drempelwaarden.

Omdat de beoogde ontwikkelingen onder de drempelwaarden blijven wordt volstaan met een vormvrije m.e.r-beoordeling. Deze paragraaf voorziet daarin. Op basis hiervan kan door de gemeente een m.e.r-beoordelingsbeslissing worden genomen, waarin wordt aangegeven of wel of geen MER nodig is, gelet op de kenmerken van het project, de plaats van het project en de kenmerken van de potentiële (milieu)effecten en mogelijke mitigerende maatregelen.

Plaats van het project

Het bestemmingsplan Achterveld en omgeving heeft betrekking op het gebied in het noordwesten van de kern IJsselstein, zoals weergegeven in figuur 3.1. Het plangebied ligt niet in kwetsbaar gebied en/of gebied met een beschermde status en heeft geen bijzondere rijkdom aan natuurlijke hulpbronnen.

Daarnaast ligt het plangebied en omgeving niet in een gebied waar de bij communautaire wetgeving vastgestelde normen (EU-normen, bijvoorbeeld met betrekking tot luchtkwaliteit) inzake milieukwaliteit reeds worden overschreden.

Kenmerken van het project

Het voorliggend bestemmingsplan voorziet op twee locaties in een kleinschalige ontwikkeling. Het betreft een kleine uitbreiding van de kinderboerderij 't Eiterse Hofje en het mogelijk maken van een bouwvlak voor een woning tussen nummers 16 en 10 aan de Zuid IJsseldijk, zoals beschreven in paragraaf 3.5. Voor de realisatie van de beoogde woning en uitbreiding van de boerderij worden de gebruikelijke bouwmaterialen en natuurlijke hulpbronnen benut. Afvalstoffen zullen ontstaan tijdens de aanleg- en gebruiksfase. Afvalstromen zullen zoveel mogelijk worden gescheiden ten behoeve van hergebruik.

Cumulatie met andere projecten

In de omgeving zijn geen vaststaande autonome ontwikkelingen voorzien die van invloed kunnen zijn op de effectbeoordeling van de beoogde ontwikkelingen in het plangebied.

Kenmerken van de milieueffecten

Verkeer en parkeren

De uitbreiding van de kinderboerderij leidt niet tot een toename van verkeer. De extra woning die mogelijk wordt gemaakt leidt tot een zeer beperkte verkeerstoename waardoor geen knelpunten in de verkeersafwikkeling worden verwacht. Parkeren wordt op eigen terrein opgelost.

Geluid en geur

De beperkte verkeerstoename ten gevolge van de woning leidt niet niet tot relevante uitstralingseffecten. Er wordt niet voldaan aan de richtafstand uit de VNG-publicatie Bedrijven en milieuzonering (editie 2009) voor een kinderboerderij. Echter wordt in de huidige situatie al niet voldaan aan de richtafstand. Daarnaast is de uitbreiding van de kinderboerderij dermate kleinschalig dat hierdoor geen relevante geur- of geluidseffecten zullen optreden (zie ook paragraaf 4.4).

Luchtkwaliteit

De beperkte verkeersgeneratie draagt niet in betekenende mate bij aan de concentraties luchtverontreinigende stoffen. Daarnaast blijkt uit de NSL-Monitoringstool dat langs de maatgevende wegen in 2016 ruimschoots aan de grenswaarden uit de Wet milieubeheer wordt voldaan.

Risico's op zware ongevallen of rampen en risico's voor de menselijke gezondheid

Externe veiligheid

De beoogde woning en kinderboerderij bevinden zich niet binnen een risicocontour van een risicobron.

Risico's op rampen door klimaatverandering

De beoogde woning en kinderboerderij liggen in bestaand stedelijk gebied. Risico's op rampen door klimaatadaptatie nemen niet toe.

Risico's voor de menselijke gezondheid

Uit toetsing van de verschillende milieuthema's op het gebied van leefomgevingskwaliteit en verkeer blijkt dat de beoogde ontwikkeling niet leidt tot belangrijke toename van risico's voor de menselijke gezondheid. Er wordt voldaan aan de normen voor geluid, externe veiligheid en luchtkwaliteit.

Bodem

Ter plaatse van de beoogde uitbreiding van de kinderboerderij is bodemonderzoek uitgevoerd (zie paragraaf 4.5). Daaruit blijkt dat de bodem geschikt is voor de beoogde ontwikkeling. Ter plaatse van de beoogde woning is een vooronderzoek en terreininspectie uitgevoerd waaruit blijkt dat de bodem geschikt is voor de beoogde woning. De uitbreiding van de kinderboerderij en de beoogde woning hebben geen nadelige gevolgen voor de bodem.

Water

Aan de noordwestzijde van de kinderboederij bevindt zich een duiker. De duiker kan worden behouden, omdat er geen ingrepen in de bodem zullen plaatsvinden. Daarnaast wordt de kinderboerderij ten noorden en westen begrensd door een primaire watergang met een beschermingszone van 5 meter. Met deze beschermingszone wordt rekening gehouden. Watercompenserende maatregelen zijn noodzakelijk bij toename van verharding met meer dan 500 m2. Hiervan zal geen sprake zijn. De beoogde woning bevindt zich in de beschermingszone van een waterkering waardoor een vergunning nodig is op basis van de Keur. Middels deze vergunning wordt gewaarborgd dat de beoogde woning geen nadelige gevolgen heeft voor de waterkering. Nabij de kinderboerderij is geen waterkering aanwezig. Voor beide locaties geldt dat geen lozing plaatsvindt van verontreinigingen en/of verontreinigd water naar oppervlaktewater.

Natuur

Soortenbescherming

In de nabijheid van het plangebied komen geen Natura 2000 gebieden voor. Ook het NNN (Natuur Netwerk Nederland) ligt niet in de buurt van het plangebied. Het dichtstbijzijnde Natura 2000-gebied "Uiterwaarden Lek" bevindt zich op meer dan 5 km afstand van de ontwikkelingen in het plangebied. De beoogde ontwikkelingen leiden dan ook niet tot signficant negatieve effecten op deze natuurgebieden.

Gebiedsbescherming

Ter plaatse van de kinderboerderij worden geen gebouwen gesloopt of bomen gekapt. De invloed van de uitbreiding heeft dan ook geen negatieve effecten op beschermde plant- en diersoorten. De uitbreiding van de kinderboerderij vindt plaats op een geheel gecultiveerde groenstrook die grotendeels bestaat uit gazon. Op basis hiervan kunnen strikt beschermde planten worden uitgesloten. Verder staat er een strook met struiken en staan er verschillende bomen die nog niet een zodanige omvang hebben bereikt dat zich hierin vleermuisverblijfplaatsen bevinden. Er bestaat derhalve geen kans op verstoring van strikt beschermde soorten.

Ten behoeve van de beoogde woning is een natuurtoets uitgevoerd waaruit blijkt dat geen soorten aanwezig zijn waarvoor ontheffing noodzakelijk is. Wel dient rekening te worden gehouden met kwetsbare periodes van mogelijk aanwezige soorten en geldt de algemene zorgplicht.

Archeologie

Ter plaatse van de kinderboerderij zullen geen bodemingrepen plaatsvinden waardoor geen archeologische resten worden geschaad. Ter plaatse van de beoogde woning geldt een middelhoge archeologische verwachtingswaarde waar nader onderzoek nodig is bij bodemingrepen met een oppervlakte groter dan 2.500 m². Het perceel van de beoogde woning heeft een totale oppervlakte van circa 295 m², nader onderzoek is derhalve niet noodzakelijk.

Cultuurhistorie

De uitbreiding van de kinderboerderij omvat geen ontwikkeling van een monument of beeldbepalend bouwwerk. Volgens de cultuurhistorische Atlas van de Provincie Utrecht is het perceel van de beoogde woning gelegen in het ‘Agrarisch cultuurlandschap’. Dit landschap wordt gelet op de ligging en omvang van de beoogde woning niet aangetast. Verder zijn geen cultuurhistorische waarden aanwezig.

Sloop- en aanlegwerkzaamheden

Gelet op de tijdelijkheid van sloop- en aanlegwerkzaamheden kunnen blijvende negatieve milieueffecten uitgesloten worden. Tevens zal vanwege de kleinschaligheid ook geen sprake zijn van significante negatieve milieueffecten, zoals geluid- en stofoverlast, ten tijde van de werkzaamheden.

Mitigerende maatregelen

Uit voorgaande analyse blijkt dat rekening moet worden gehouden met kwetsbare periodes van soorten. Verder zijn geen aanvullende mitigerende maatregelen noodzakelijk.

Conclusie

Uit de informatie in deze paragraaf blijkt dat gelet op de kenmerken van het project, de plaats van het project en de kenmerken van de potentiële effecten geen belangrijke negatieve milieugevolgen optreden. Ervan uitgaande dat rekening wordt gehouden met de hiervoor beschreven mitigerende maatregel is het doorlopen van een volledige m.e.r.-procedure niet noodzakelijk.

Hoofdstuk 5 Uitvoerbaarheid

5.1 Economische uitvoerbaarheid

Het bestemmingsplan wordt geactualiseerd en is consoliderend van aard. Het actualiseren van het bestemmingsplan Achterveld en omgeving is een gemeentelijke taak. De met deze actualisatie samenhangende kosten zijn vanuit gemeentelijke budgetten gedekt. Ingevolge de Grondexploitatiewet (onderdeel van de Wro), stelt de gemeenteraad een grondexploitatieplan vast voor gronden waarop een bij algemene maatregel van bestuur aangewezen bouwplan is voorgenomen. Aangezien er geen ontwikkelingen zijn of bouwplannen conform artikel 6.2.1 Bro hoeft er derhalve geen exploitatieplan zoals bedoeld in de Wro te worden opgesteld en de economische uitvoerbaarheid is daarmee gegarandeerd. Uitzondering betreft de nieuwe woning aan de Zuid IJsseldijk.

5.2 Maatschappelijke uitvoerbaarheid

In het bestemmingsplan wordt de bestaande situatie vastgelegd. Aangezien er in beginsel geen wezenlijke veranderingen optreden ten opzichte van de bestaande situatie en de vigerende regelingen, wordt het plan maatschappelijk uitvoerbaar geacht.

Hoofdstuk 6 Handhaving

De gemeente heeft als taak erop toe te zien dat de regels van een bestemmingsplan worden nageleefd. In verband hiermee is één van de uitgangspunten bij de ontwikkeling van een bestemmingsplan dat de in het plan opgenomen regels handhaafbaar moeten zijn. Handhaving van het ruimtelijk beleid verdient meer aandacht, omdat het een voorwaarde is voor het behoud en de ontwikkeling van de ruimtelijke kwaliteit in het plangebied. Belangrijk voor de handhaafbaarheid van een bestemmingsplan is dat de juridische regeling inzichtelijk en realistisch is. Dit houdt in: helder van opzet en niet onnodig beperkend of inflexibel. Daarbij moet wel voorkomen worden dat de regels zo vaag worden dat ze niet meer te controleren zijn. De regels moeten dan ook niet meer beogen te regelen dan strikt noodzakelijk is. Bij de totstandkoming van het bestemmingsplan is aandacht besteed aan de handhaafbaarheid van de in het plan opgenomen regels; de regels zijn helder van opzet en niet onnodig beperkend of inflexibel. Het bestemmingsplan is het enige juridisch bindende plan voor burgers en bedrijven. Het bestemmingsplan is een openbaar plan en een ieder heeft dan ook de mogelijkheid kennis te nemen van de toelichting, de verbeelding en de regels van het bestemmingsplan. Indien er onduidelijkheden zijn ten aanzien van het bestemmingsplan, kan men zich hierover laten informeren.

Hoofdstuk 7 Juridische planbeschrijving

7.1 Wettelijk kader

In de Wet ruimtelijke ordening (Wro) en het Besluit ruimtelijke ordening (Bro) is geregeld dat alle nieuwe ruimtelijke plannen, waaronder bestemmingsplannen, digitaal moeten worden vervaardigd, met inachtneming van de daartoe wettelijk verplicht gestelde standaarden (thans SVBP2012, IMRO2012, STRI2012). Op die wijze zijn bestemmingsplannen onderling vergelijkbaar en ook digitaal uitwisselbaar.

Ook de Wet algemene bepalingen omgevingsrecht (Wabo) is van belang voor bestemmingsplannen.

7.2 Opzet van de bestemmingsregeling

Ten aanzien van de opzet van de bestemmingsregeling is het volgende van belang.

Verbeelding

Eisen aan de verbeelding

Belangrijke eis is dat het bestemmingsplan dient te voldoen aan de eis van rechtszekerheid. Dit betekent dat een bestemmingsregeling duidelijk en voor één uitleg vatbaar dient te zijn. In aansluiting hierop en in relatie tot de digitale verplichting verdient het de voorkeur zoveel mogelijk onderdelen van de regeling op de verbeelding zichtbaar te maken en de regels zo transparant mogelijk te houden.

Daarnaast zijn de volgende eisen van toepassing:

  • de ondergrond waarop de verbeelding is gebaseerd, geeft informatie over de actuele (kadastrale) situatie;
  • op de verbeelding wordt met de bestemming en de aanduidingen aangegeven of, en zo ja welke bebouwing is toegestaan;
  • op het renvooi wordt de betekenis aangegeven van de bestemmingen en de aanduidingen;
  • de volgorde van de bestemmingen in het renvooi komt overeen met de volgorde zoals van de regels (alfabetisch).

De bestemming wordt door middel van hoofdletters aangeduid, zoals 'M' voor 'Maatschappelijk'. Verder geldt het volgende:

  • gebouwen mogen (uitsluitend) binnen het op de verbeelding aangeduide 'bouwvlak' worden opgericht, tenzij anders in de planregels is aangegeven;
  • maatvoeringsaanduidingen zoals de maximum goot- of bouwhoogte worden aangegeven door middel van een matrix bij het bouwvlak;
  • ten slotte kunnen er op de verbeelding aanduidingen, zoals een plangrens of een gebied met gebiedsaanduiding worden aangegeven.

De gehanteerde bestemmingen

In het voorliggende bestemmingsplan wordt de bestaande situatie vastgelegd en worden vigerende planologische rechten opnieuw opgenomen. Dit betekent dat iedere functie een op een maat gesneden bestemming heeft gekregen. Hiermee wordt het karakter van het plangebied behouden.

Regels

Op grond van SVBP2012 hebben de hoofdstukken waarin de regels zijn opgenomen, de volgende vaste volgorde.

  • In de Inleidende regels worden in de regels gehanteerde begrippen, voor zover nodig, gedefinieerd en wordt de wijze van meten bepaald.
  • In de Bestemmingsregels worden in alfabetische volgorde van de naam van de bestemmingen de regels gegeven waarmee die bestemmingen zoals die op de verbeelding voorkomen, nader worden omschreven.
  • Algemene regels bevat een aantal regels (voorheen bepalingen genoemd) die voor alle bestemmingen gelden, zoals een anti-dubbeltelbepaling of de bepaling welke wettelijke regeling van toepassing.
  • Overgangs- en slotregels ten slotte geven overgangsrecht voor bestaand gebruik en bestaande bebouwing en de titel van het plan.

Ook bij de opstelling van een bestemmingsbepaling (Hoofdstuk 2 van de regels) moet een vaste volgorde gebruikt worden: Een bestemmingsregel behoeft niet alle voorgeschreven elementen te bevatten. Dit is afhankelijk van de aard van de bestemming. Alle bestemmingen bevatten wel een bestemmingsomschrijving en bouwregels.

Daarnaast is in het Besluit ruimtelijke ordening (Bro) een aantal bepalingen opgenomen waaraan de regels van het bestemmingsplan moeten voldoen. Het gaat hierbij om een aantal begrippen, regels ten aanzien van het overgangsrecht en de anti-dubbeltelbepaling.

Tot slot dienen de regels zoveel mogelijk aan te sluiten bij de modelregels voor bestemmingsplannen die onder andere ook voor andere bestemmingsplannen in de gemeente IJsselstein zijn gehanteerd.

7.3 Toelichting op de inleidende regels

Begrippen (Artikel 1)

De begrippen die in het bestemmingsplan gebruikt worden zijn in dit artikel gedefinieerd. Dit wordt gedaan om interpretatieverschillen te voorkomen.

Wijze van meten (Artikel 2)

Dit artikel maakt duidelijk hoe de lengte, breedte, hoogte, diepte en oppervlakte en dergelijke van gronden en bouwwerken worden gemeten of berekend. Alle begrippen waarin maten en waarden voorkomen worden in dit artikel verklaard.

7.4 Toelichting op de gehanteerde bestemmingen

Het hoofdstuk Bestemmingsregels bevat de regels die specifiek gelden voor de bestemmingen in dit plan.

Algemeen

Bouwvlak

De (hoofd)gebouwen dienen binnen de op de verbeelding aangegeven bouwvlakken te worden gebouwd. De bouwvlakken mogen geheel worden bebouwd, tenzij een maximum bebouwingspercentage is aangegeven. Bij een aantal bestemmingen mogen buiten het bouwvlak bijbehorende bouwwerken worden opgericht.

Bouw- en goothoogte

In de bouwregels van de verschillende bestemmingen of op de verbeelding is aangegeven wat de maximum goot- en bouwhoogte is.

Hieronder volgt per bestemming een korte toelichting.

Bedrijf (Artikel 3)

De bestemming 'Bedrijf' is toegekend aan het bedrijf aan de Baronieweg. Ook de wat grootschaligere nutsvoorzieningen, hebben de bestemming 'Bedrijf'.

Binnen de bedrijfsbestemming zijn bedrijven uit categorie 2 van de Staat van Bedrijfsactiviteiten algemeen toegestaan. Bij verhuizing of beëindiging van het ene bedrijf, kan een ander bedrijf uit deze categorieën zich ter plaatse vestigen. Aangezien het bestaande bedrijf aan de Baronieweg in een hogere categorie valt dan algemeen toelaatbaar, is een functieaanduiding 'specifieke vorm van bedrijf' opgenomen. Bij beëindiging of verhuizing een dergelijke bedrijf, kan alleen eenzelfde type bedrijf terugkomen dan wel een bedrijf dat binnen de algemeen toelaatbare categorie past.

Specifieke gebruiksregels

Het Besluit externe veiligheid inrichtingen (Bevi) is in de specifieke gebruiksregels geïmplementeerd door middel van het uitsluiten van risicovolle inrichtingen. In de begrippen is het begrip 'Bevi-inrichting' verklaard. Daarnaast zijn geluidshinderlijke inrichtingen (Wgh-inrichtingen) eveneens niet toegestaan.

Afwijken van de gebruiksregels

Het bevoegd gezag kan bij een omgevingsvergunning afwijken van de regels om bedrijfsactiviteiten toe te staan die genoemd worden in één categorie hoger dan algemeen toelaatbaar is en voor bedrijven die niet genoemd worden in de Staat van Bedrijfsactiviteiten, op voorwaarde dat deze bedrijfsactiviteiten (als gevolg van de geringe omvang van hinderlijke (deel)activiteiten of door een milieuvriendelijke werkwijze) naar aard en invloed op de omgeving vergelijkbaar zijn met de bedrijfsactiviteiten genoemd in de lagere algemeen toegelaten milieucategorieën.

Detailhandel (Artikel 4)

Deze bestemming is toegekend aan het winkelcentrum Achterveld, een winkelstrip aan de Kasteellaan en een winkel aan de Achtersloot. Ter plaatse van de aanduiding 'wonen' is wonen op de eerste verdieping toegestaan.

Dienstverlening (Artikel 5)

Dienstverlenende bedrijven zoals banken hebben de bestemming 'Dienstverlening'. Ter plaatse van de aanduiding 'wonen' is wonen op de eerste verdieping toegestaan.

Groen (Artikel 6)

De bestemming Groen is gegeven aan beeld- of structuurbepalend groen. Het gaat dan om gronden die in gebruik zijn als plantsoenen, bermen en voet- en fietspaden. Ter bescherming van enkele waardevolle boomgaarden is de aanduiding 'cultuurhistorische waarde' opgenomen.

Horeca (Artikel 7)

De horecavoorziening naast winkelcentrum Achterveld is als 'Horeca' bestemd. Ter plaatse is uitsluitend lichte horeca toegestaan. Hiervoor wordt gebruik gemaakt van een Staat van Horeca-activiteiten. Voor een toelichting op deze Staat van Horeca-activiteiten wordt verwezen naar bijlage 4.

Kantoor (Artikel 8)

De in het plangebied aanwezige kantoorlocatie aan de Achtersloot is als zodanig bestemd.

Maatschappelijk (Artikel 9)

De in het plangebied aanwezige maatschappelijke voorzieningen voor onder andere onderwijs en zorg zijn als zodanig bestemd door middel van de bestemming Maatschappelijk. De bestemming Maatschappelijk is een brede bestemming, die uiteenlopende functies op cultureel, educatief, medisch, sport en recreatief, sociaal en levensbeschouwelijk vlak toestaat, alsmede voorzieningen ten behoeve van openbare dienstverlening en verenigingsleven.

Sport (Artikel 10)

Het sportcomplex Groenvliet is als 'Sport' bestemd. Binnen deze bestemming zijn sportaccommodaties en veldsporten toegestaan. Tevens is ondergeschikte een aan de sport gerelateerde lichte horeca toegestaan.

Tuin (Artikel 11)

De tuinbestemming is gelegd op de bij de woningen behorende gronden waarop in principe geen bebouwing is toegestaan. Dit betreffen de gronden gelegen aan de voorzijde van de woning.

Verkeer (Artikel 12) en Verkeer - Railverkeer (Artikel 13)

De wegen in het plangebied zijn bestemd als 'Verkeer'. De trambaan is als 'Verkeer - Railverkeer' bestemd. Binnen deze bestemmingen zijn de daarbij passende vormen van gebruik en gebouwen en bouwwerken toegestaan.

Water (Artikel 14

Hoofdwatergangen en grootschalige waterpartijen zijn bestemd voor Water.

Wonen (Artikel 15)

De woonfunctie is de belangrijkste functie in het plangebied.

Hoofdgebouwen

Het hoofdgebouw van de woning mag uitsluitend binnen het op de verbeelding aangegeven bouwvlak gerealiseerd worden. De breedte en diepte van het bouwvlak wordt bepaald door de bestaande breedte en diepte van het hoofdgebouw.

Bijbehorende bouwwerken

Buiten het hoofdgebouw mogen op het perceel zowel binnen als buiten het bouwvlak bijbehorende bouwwerken worden opgericht. Dit betreft bijgebouwen, uit- of aanbouwen en overkappingen. Deze bouwwerken mogen, met uitzondering van erkers, alleen op het achtererfgebied worden gerealiseerd. Dit betreft het 'erf aan de achterkant en de niet naar de openbaar toegankelijk gebied gekeerde zijkant, op meer dan 1 m van de voorkant van het hoofdgebouw'.

Bouwwerken, geen gebouwen zijnde

Voor bouwwerken, geen gebouwen zijnde, zoals erfafscheidingen, is een aparte maximale maatvoering opgenomen.

Beroep- en bedrijf-aan-huis

Daar waar de gronden zijn bestemd voor wonen is de uitoefening van een 'aan-huis-verbonden beroep of bedrijf' onder voorwaarden toegestaan. Deze voorwaarden zijn afgestemd op het gemeentelijke beleid. Zie ook paragraaf 2.5.6.

Waarde - Archeologie 1,3 4, 5 en 6 (Artikel 16 tot en met Artikel 20)

In het plangebied zijn gebieden aanwezig waar op grond van de gemeentelijke archeologiekaart een archeologische verwachting geldt (zie voor een toelichting paragraaf 4.2) Afhankelijk van de betreffende verwachtingswaarde is de dubbelbestemming Waarde - Archeologie opgenomen.

Bouw- en grondwerkzaamheden zijn uitsluitend toegestaan wanneer (verkennend) archeologisch onderzoek is uitgevoerd waaruit blijkt dat er geen archeologische waarden worden geschaad.

Er is een beperkt aantal uitzonderingen op deze regeling, onder andere voor werkzaamheden die niet dieper reiken dan of niet groter zijn dan een bepaalde maat. Deze maat is per beleidszone anders, al naar gelang de verwachtingswaarde. Werkzaamheden die kunnen worden aangemerkt als regulier beheer en onderhoud zijn in ieder geval van deze verplichting gevrijwaard.

Waterstaat - Waterkering (Artikel 21)

De in het plangebied aanwezige gronden die zijn aangewezen voor waterstaatkundige doeleinden worden beschermd via de dubbelbestemming 'Waterstaat - Waterkering'. Het oprichten van bouwwerken binnen deze bestemmingen is in principe niet toegestaan. Burgemeester en wethouders kunnen een omgevingsvergunning voor het afwijken van het bestemmingsplan verlenen van deze bepaling. Voorafgaand aan het verlenen van een omgevingsvergunning wint het college advies in bij de waterbeheerder. Daarnaast moet er ontheffing op basis van de Keur aangevraagd worden bij de waterbeheerder.

7.5 Algemene regels

Deze algemene regels bestaan uit een aantal algemene, niet aan specifieke bestemmingen gekoppelde, bepalingen.

Anti-dubbeltelregel (Artikel 22)

Deze bepaling is ingevolge artikel 3.2.4 van het Bro vast voorgeschreven. Doel van deze bepaling is te voorkomen dat er meer wordt gebouwd dan het bestemmingsplan beoogt, bijvoorbeeld ingeval (onderdelen van) percelen van eigenaar wisselen. Om hiervan een voorbeeld te geven: binnen de bestemming Wonen mag een bepaald percentage van het erf worden bebouwd. Indien het absolute oppervlak (uitgedrukt in m²) niet is bereikt, kan door het bijkopen van een stuk erf van het aangrenzend perceel extra bebouwing tot dit maximum worden gerealiseerd. De anti-dubbeltelregel voorkomt dat het overgedragen erf nog eens in de beoordeling van de bouwmogelijkheden op het oorspronkelijk deel erf kan worden betrokken.

Algemene bouwregels (Artikel 23)

Dit artikel bevat drie algemene bepalingen. De eerst bepaling betreft 'Overschrijding bouwgrenzen'. Dit is een regeling voor beperkte en ondergeschikte overschrijding van de grenzen van bouwvlakken. Deze bouwvlakken zijn op de verbeelding aangeduid met een dikke lijn.

De tweede bepaling heeft betrekking op de bestaande maten. Bepaald is dat bestaande maten, die meer of minder bedragen dan in hoofdstuk 2 is voorgeschreven, als ten hoogste toelaatbaar mogen worden aangehouden. Herbouw is uitsluitend mogelijk indien deze op dezelfde plaats plaatsvindt. Op de genoemde afwijkingen is daarnaast het overgangsrecht niet van toepassing.

Algemene afwijkingsregels (Artikel 24)

In dit artikel wordt een opsomming gegeven van de regels waarvan bij een omgevingsvergunning kan worden afgeweken. Het gaat hierbij om de bevoegdheid om af te wijken van de regels die gelden voor alle bestemmingen in het plan.

Algemene wijzigingsregels (Artikel 25)

In dit artikel wordt een opsomming gegeven van de regels waarmee door middel van een wijzigingsbevoegdheid ex artikel 3.6 Wro, het mogelijk is enige flexibiliteit in het plan aan te brengen. Het gaat hierbij om een bevoegdheid en houdt geen verplichting in. Deze bevoegdheid mag nadrukkelijk niet worden gebruikt om zodanig aanzienlijke wijzigingen van bestemmingen te bewerkstelligen, dat daarmee de essentie van het plan wezenlijk wordt veranderd.

Overige regels (Artikel 26)

De eerste bepaling, betreft "Werking wettelijke regeling". In een aantal gevallen wordt in de regels van bestemmingsplannen verwezen naar een (andere) wettelijke regeling of wordt een procedure, begrip en / of functie uit die andere regeling van toepassing verklaard). Ook in de begripsbepalingen komen die verwijzingen voor. Op grond van jurisprudentie mag een bestemmingsplan slechts volgens de vereiste procedure van de Wro worden gewijzigd. Het impliciet wijzigen van een bestemmingsplan door wijzigingen in wetgeving in de bepalingen waarnaar wordt verwezen is niet toegestaan. Het is dan ook nodig dat verwijzingen naar toepasbare wettelijke regelingen worden gefixeerd, namelijk naar de tekst ervan zoals die op het moment van vaststelling van het plan gold. Uit praktische overwegingen is er voor gekozen in dit hoofdstuk van de regels een artikel "Wettelijke regelingen" op te nemen, waarin is bepaald dat alle wettelijke regelingen waarnaar in de regels wordt verwezen, gelden zoals deze luidden op het moment van vaststelling van het plan. Hierdoor behoeft niet meer telkens te worden verwezen naar publicaties in het staatsblad.

De tweede en derde bepaling hebben betrekking op het waarborgen van voldoende parkeergelegenheid en laad- en losruimte. Deze bepalingen zijn opgenomen vanwege het feit dat de stedenbouwkundige bepalingen uit de bouwverordening zijn komen te vervallen.

De vierde bepaling heeft betrekking op de panden die in het plangebied zijn aangeduid met de 'specifieke bouwaanduiding - beeldbepalend pand'. Onder beeldbepalende bouwwerken wordt verstaan, panden en/of bouwwerken die geen gemeente- of rijksmonument zijn, maar vanuit stedenbouwkundig/cultuurhistorisch oogpunt wel behoudenswaardig zijn. Voor deze bouwwerken zijn een aantal beschermende bepalingen opgenomen. Het gaat daarbij in de eerste plaats om bouwregels die slechts een gedeeltelijke vernieuwing en/of verandering van beeldbepalende bouwwerken toestaan,

waarbij als voorwaarde geldt dat het uitwendig karakter van het pand niet mag worden aangetast.

Afwijking van deze beperkende bouwregels kan slechts worden verleend na advies door de Commissie voor Ruimtelijke Kwaliteit. Voorts is een bevoegdheid opgenomen om nadere eisen te stellen aan de situering en afmetingen van andere bouwwerken op het bouwperceel waarop zich een beeldbepalend

bouwwerk bevindt. Met deze bevoegdheid kan voorkomen worden dat de cultuurhistorische waarden van een beeldbepalend bouwwerk worden aangetast door ontsierde bouwwerken in de directe omgeving. Tot slot is een omgevingsvergunningplicht op genomen voor de gehele of gedeeltelijke sloop van karakteristiek bouwwerken. Vergunning kan slechts verleend worden na advies door de Commissie voor Ruimtelijke Kwaliteit.

De laatste bepaling regelt de duiding van de rijks- en gemeentelijke monumenten. De bescherming van deze monumenten is op basis van aparte wetgeving geregeld.

7.6 Toelichting op de overgangs- en slotregels

In artikel 27 Overgangsrecht is het overgangsrecht ten aanzien van het gebruik en het bouwen in strijd met het plan geregeld. In lid 27.1 is de in artikel 3.2.1 Bro voorgeschreven bepaling omtrent het overgangsrecht voor bouwwerken opgenomen. In lid 27.2 is de in artikel 3.2.2 Bro voorgeschreven bepaling omtrent het overgangsrecht voor gebruik opgenomen.

De slotregel (artikel 28) beschrijft op welke wijze de regels aangehaald moeten worden.

Hoofdstuk 8 Resultaten inspraak en wettelijk vooroverleg

In het kader van het vooroverleg artikel 3.1.1 van het Besluit ruimtelijke ordening (Bro) is het voorontwerpbestemmingsplan Achterveld en omgeving toegezonden aan de overlegpartners van de gemeente IJsselstein. Daarnaast bestond de mogelijkheid om een inspraakreactie in te dienen op het plan. De ingekomen reacties zijn in dit hoofdstuk samengevat en van een beantwoording voorzien.

Vooroverlegreactie

In het kader van artikel 3.1.1. Besluit ruimtelijke ordening is er aan het Hoogheemraadschap De Stichtse Rijnlanden een vooroverlegreactie gevraagd. Het Hoogheemraadschap heeft hierop gereageerd met een positief advies; de waterbelangen zijn goed opgenomen in het bestemmingsplan, waardoor de ruimtelijke ontwikkeling minimale gevolgen heeft voor water. Dit is opgenomen in Bijlage 5. De vooroverlegreactie leidt derhalve niet tot wijzigingen.

Ook is er een vooroverlegreactie gevraagd aan de Provincie Utrecht. De provincie heeft positief op het bestemmingsplan gereageerd. Er zijn geen provinciale belangen in het geding. De vooroverlegreactie van de Provincie Utrecht leidt daarom niet tot aanpassingen in het bestemmingsplan.

Inspraakreactie

Er is 1 inspraakreactie ingediend. De indiener heeft de wens om bij de woning aan de Groene Dijk 48 een bijgebouw te bouwen om zorg op maat te kunnen leveren. Wanneer dit gebouw niet meer als mantelzorgwoning gebruikt kan worden wil de indiener de mogelijkheid hebben om dit te gebruiken als kantoor aan thuis, of bed & breakfastwoning, of een atelier aan huis, of een bedrijf aan huis. Indiener verzoekt dit in het bestemmingsplan op te nemen.

Beantwoording gemeente

Het bijgebouw ligt in het achtererfgebied. Mantelzorg is reeds vergunningsvrij in het achterfgebied mogelijk. Ook de andere functies zijn mogelijk op basis van het bestemmingsplan mits aan de voorwaarden wordt voldaan. De gemeente zal het bijgebouw niet specifiek bestemmen.