1.1 Aanleiding
De initiatiefnemer, woningcorporatie Provides, is voornemens om op het perceel Hitteschild 6 in IJsselstein een appartementengebouw ten behoeve van (zorg-)woningen te realiseren. Ter plaatse staat een voormalig schoolgebouw. Sinds 1992 is het pand in gebruik door Stichting de Tussenvoorziening (BOKA), voor tijdelijk onderdak voor mensen die plotseling dakloos zijn geraakt en praktische hulp en begeleiding nodig hebben. Omdat het voormalig schoolgebouw inmiddels verouderd is en in een technisch slechte staat verkeerd, is het voornemen het voormalig schoolgebouw te verwijderen. Er is een verkenning uitgevoerd door Compositie 5 naar de ontwikkelingsmogelijkheden van de terreinen Hitteschild 2-4 en Hitteschild 6 (memo d.d. 10 april 2019): zie
bijlagen bij toelichting, bijlage 1. Naar aanleiding hiervan wordt een appartementengebouw voorgesteld met twee en drie bouwlagen. Het gebouw omvat ca. 30 zorgwoningen en enkele algemene ruimtes voor dezelfde doelgroep als in de huidige situatie. Met het oog op de toekomst wil initiatiefnemer de mogelijkheid hebben de zorgwoningen op termijn om te zetten naar sociale huurwoningen.
De gemeenteraad van de gemeente IJsselstein heeft 6 september 2019 te kennen gegeven in principe in te kunnen stemmen met de ontwikkeling aan de Hitteschild 6.
Het initiatief past echter niet binnen de mogelijkheden van het geldende bestemmingsplan 'Noordoost'. Op dit moment is het betreffende pand in dat bestemmingsplan voorzien van de bestemming 'Maatschappelijk'. Om de hierboven geschetste ontwikkeling mogelijk te maken wordt voorgesteld om de bestemming 'Maatschappelijk' om te zetten naar 'Wonen'.
1.2 Ligging plangebied
Het plangebied bevindt zich aan de Hitteschild binnen de grenzen van de gemeente IJsselstein. Het plangebied ligt aan de noordzijde van IJsselstein en is kadastraal bekend perceelnummer 2483, sectie D met een oppervlakte van ca. 3.700 m². Ten behoeve van het verbeteren van de ontsluiting is tevens een perceelsgedeelte richting de Ruimtevaartbaan onderdeel van het plangebied (perceelnummer 4997, sectie D). Het plangebied heeft een totale oppervlakte van circa 5.000 m².
Op de navolgende afbeelding is de ligging zowel globaal als meer in detail weergegeven.
Situering plangebied in IJsselstein (rode cirkel, bron: Google Maps), met een detail met een globale aanduiding van de plangrens
1.3 Geldend bestemmingsplan
Voor de gronden in het plangebied geldt het bestemmingsplan 'Noordoost'. De gemeenteraad heeft dit bestemmingsplan op 8 mei 2013 vastgesteld. De gronden hebben de bestemmingen 'Maatschappelijk', 'Groen' en 'Verkeer'. Verder zijn de gronden voorzien van de gebiedsaanduiding 'archeologisch waardevol gebied - 3'.
Navolgende afbeelding geeft een uitsnede van het bestemmingsplan 'Noordoost' weer.
Uitsnede verbeelding bestemmingsplan 'Noordoost' (bron: ruimtelijkeplannen.nl)
De voor 'Maatschappelijk' aangewezen gronden zijn bestemd voor maatschappelijke voorzieningen met bijbehorende gebouwen, bouwwerken, geen gebouwen zijnde, wegen en paden, parkeervoorzieningen, water en voorzieningen voor de waterhuishouding, tuinen en erven. Binnen de bestemming 'Maatschappelijk' is een bouwvlak opgenomen waarbinnen gebouwen met een maximum goothoogte van 4 m zijn toegestaan.
De voor 'Groen' aangewezen gronden zijn bestemd voor groenvoorzieningen, bermen, beplanting, paden, water en voorzieningen voor de waterhuishouding, nutsvoorzieningen en speelvoorzieningen. De voor 'Verkeer' aangewezen gronden zijn bestemd voor wegen, straten, wandel- en fietspaden, parkeer-, groen-, en speelvoorzieningen, water en huishoudkundige voorzieningen, waterberging, waterlopen en nutsvoorzieningen.
Tevens is het plangebied voorzien van de gebiedsaanduiding 'archeologisch waardevol gebied - 3', deze gronden zijn mede bestemd voor de bescherming en de veiligstelling van archeologische waarden.
1.4 Leeswijzer
Na dit inleidende hoofdstuk wordt in hoofdstuk 2 de huidige situatie en de gewenste ontwikkeling beschreven. In hoofdstuk 3 is een beschrijving van het relevante nationale, provinciale, en gemeentelijke beleid en de relevante wet- en regelgeving opgenomen. In hoofdstuk 4 wordt het project inhoudelijk op haalbaarheid getoetst aan de hand van het geldende beleid en (milieu)wetgeving. In hoofdstuk 5 wordt vervolgens een juridische planbeschrijving gegeven. In hoofdstuk 6 wordt ingegaan op de economische haalbaarheid van het plan. Tot slot bevat hoofdstuk 7 de maatschappelijke uitvoerbaarheid van het plan, waarbij de uitkomsten van de inspraak en overlegmomenten zijn opgenomen.
2.1 Huidige situatie
Omgeving
Het plangebied is gelegen in de wijk IJsselveld-Oost, grenzend aan de noordoostzijde van het centrum van IJsselstein. De omgeving van het plangebied bestaat voornamelijk uit rijwoningen en appartementengebouwen. Aan de noord- en westzijde van het plangebied zijn rijwoningen gelegen bestaande uit twee bouwlagen en een kap. Aan de zuidzijde zijn appartementengebouwen gelegen bestaande uit vier bouwlagen. Aan de westzijde is een voormalig schoolgebouw gelegen, op dit moment heeft het gebouw een maatschappelijke functie. De gemeente IJsselstein is voornemens ook dit schoolgebouw op termijn te transformeren naar woningbouw. Verder grenst het plangebied aan de zuidzijde aan een watergang met daaraan de fietsverbinding Hitteschild. Aan weerszijden van het plangebied zijn langzaamverkeersverbindingen over de watergang aanwezig (Tourmalijnpad en Satelietpad). Net buiten het plangebied is veel opgaande beplanting aanwezig.
De navolgende afbeelding geeft een impressie van het plangebied en zijn omgeving in de huidige situatie weer.
Impressie huidige situatie gezien vanuit het noorden (bron: Google Maps)
Plangebied
Binnen het plangebied bevindt zich een voormalig schoolgebouw met een bruto vloeroppervlakte van ongeveer 1.340 m². Het gebouw bestaat uit één bouwlaag, met een platte afdekking. De entree bevindt zich aan de noordoostzijde van het pand.
De randen van het perceel zijn groen ingericht, met grasvelden, struiken en bomen. De Basishof aan de westzijde is uitsluitend bestemd voor de woningen die daar gelegen zijn. Ter hoogte van het plangebied is een ‘knip’ aangebracht, met alleen een doorgang voor fietsers en voetgangers. De verkeersontsluiting bestaat uit een wegverbinding met de Ruimtevaartbaan gelegen aan de oostzijde van de locatie. Daar is ook het parkeerterrein aanwezig. Het pand verkeert technisch in een slechte staat en voldoet niet geheel voor de huidige functie.
De navolgende afbeelding geeft een impressie van de bebouwing binnen het plangebied.
Impressie huidige situatie bebouwing binnen het plangebied
Huidig gebruik
Binnen het plangebied is een voormalig schoolgebouw gelegen. Voorheen was het pand ook als dusdanig in gebruik. Sinds 1992 heeft Stichting de Tussenvoorziening/BOKA het voormalig schoolgebouw in gebruik voor mensen die tijdelijk onderdak nodig hebben omdat ze plotseling dakloos zijn geraakt en praktische hulp en begeleiding nodig hebben. Het zorgaspect is primair gericht op het stabiliseren van de woonsituatie. Er is hierbij geen sprake van 24-uur zorg of therapie. Ook biedt Stichting de Tussenvoorziening geen dagbesteding aan: dat heeft eventueel 'buitenshuis' plaats. De bewoners leven in zelfstandige woonunits. Hierdoor ligt het bestaande gebruik van het voormalig schoolgebouw veeleer in de lijn van een reguliere woonbestemming en in mindere mate in de lijn van de geldende maatschappelijke bestemming.
2.2 Toekomstige situatie
Het voorgenomen plan betreft de sloop van het voormalig schoolgebouw en de realisatie van een appartementengebouw bestaande uit ca. 30 appartementen. Het appartementengebouw wordt gebruikt voor de tijdelijke opvang van dak- en thuislozen. Ten behoeve van het zorgaspect zal een ruimte ingericht worden als kantoor voor medewerkers van Stichting de Tussenvoorziening/BOKA en er zal een ruimte als groepsruimte worden ingericht. Het gebouw kan evenwel op termijn ook voor 'reguliere' sociale huurwoningen worden benut.
Het plangebied is grotendeels eigendom van Provides, het perceel ter plaatse van de toekomstige bebouwing is geheel eigendom van Provides. Ten behoeve van de omliggende gronden is een grondtransactie met de gemeente IJsselstein nodig., dit zal afgestemd worden met de gemeente IJsselstein.
Het appartementengebouw heeft een u-vorm met een gezamenlijke binnentuin. Het appartementengebouw bestaat, grenzend aan de bestaande woningen aan de noordwestzijde, uit twee bouwlagen. Aan de zuidoostzijde bestaat het appartementengebouw uit 3 bouwlagen.
Ten behoeve van het voorgenomen plan is door Tree-o-logic boomtechnisch onderzoek & advies een adviesnotitie opgesteld omtrent de bestaande bomen, zie
bijlagen bij toelichting, bijlage 2. Geconcludeerd wordt dat de meeste bomen behouden kunnen blijven. Een vijftal bomen dient verwijderd te worden omdat die te dicht tegen de toekomstige bebouwing gesitueerd zijn. Tevens dient een vijftal bomen verwijderd te worden vanuit beheeroogpunt.
Onderstaande afbeelding toont de plattegrond en gevelimpressies van de beoogde situatie.
Plattegrond beoogde situatie (bron: Kokon d.d. 23 -01-2020)
Impressie vanaf Tourmalijnpad (bron: Kokon d.d. 12-12-2019)

Impressie vanaf hitteschild (bron: Kokon d.d. 12-12-2019)
Impressie vanaf Smaragdhof (bron: Kokon d.d. 12-12-2019)
Programma en doelgroep
Het plan voorziet in de realisatie van ca. 30 driekamerappartementen ten behoeve van mensen die plotseling dakloos zijn geraakt. De appartementen hebben een oppervlakte van ca. 65 m². Tevens wordt er een kantoor voor medewerkers van Stichting de Tussenvoorziening en een groepsruimte gerealiseerd. Beide ruimtes hebben een oppervlakte van ca. 65 m². In de toekomst is het mogelijk dat de zorgfunctie van de appartementen wijzigt naar appartementen in sociale huursector.
Beeldkwaliteit
De gemeente IJsselstein stelt een notitie op over de beoogde beeldkwaliteit. Bij de verdere uitwerkingen zal daar mee rekening worden gehouden.
Verkeer en parkeren
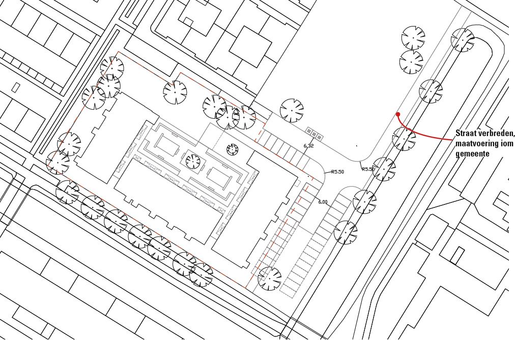
Het plangebied wordt vergelijkbaar met de huidige situatie ontsloten via de Basishof op de Ruimtevaartbaan. De Basishof aan de westzijde is, gelijk aan de huidige situatie, uitsluitend bestemd voor woningen die daar gelegen zijn. Ter hoogte van het plangebied zal de bestaande ' knip' gehandhaafd blijven. De Basishof aan de oostzijde geldt als ontsluitingsweg van het plangebied. Ten behoeve van het voorgenomen plan zal de toegangsweg vanaf de Ruimtevaartsbaan (met een breedte van 3,5 m) verbreed worden tot een breedte van 5,5 m.
Onderstaande afbeelding toont de betreffende verkeerssituatie.
Toekomstige situatie verkeerssituatie plangebied (bron: Buro SRO, 29 januari 2020)
Ten behoeve van de zorgwoningen zullen ten oosten van het gebouw, ter plaatse van het huidige parkeerterrein, 18 parkeerplaatsen worden gerealiseerd, passend bij de afgesproken parkeernorm van 0,6 per woning. Indien de zorgwoningen worden omgezet naar sociale huurwoningen zal het aantal parkeerplaatsen worden vergroot naar in totaal 36 parkeerplaatsen, passend bij de parkeernorm van 1,2 per woning. In paragraaf 4.11.2 Parkeren wordt hier nader op ingegaan.
Conform het beleid van de gemeente zal rekening gehouden worden met voldoende fietsparkeervoorzieningen. Per appartement zal het mogelijk zijn om twee fietsen inpandig te stallen. Ook zullen er fietsklemmen in de openbare ruimte worden geplaatst. Daarmee kan worden voldaan aan de Fietsparkeerkencijfers 2019 – Fietsberaad/CROW van 2 - 3 fietsen per woning, waarbij tevens ruimte is voor het benodigde bezoekersfietsparkeren.
Sociale veiligheid
Om de sociale veiligheid in de buurt te waarborgen heeft er geregeld overleg plaats tussen de omwonenden en Stichting de Tussenvoorziening.
Bestemming
De voorgenomen ontwikkeling betreft de realisatie van 30 zorgwoningen dan wel 30 sociale huurwoningen. Omdat het huidige en het beoogde gebruik niet geheel in lijn is met de bestaande maatschappelijke bestemming en met het oog op de toekomst waar mogelijk de zorgwoningen worden omgezet naar sociale huurwoningen, is het voornemen de bestemming 'Maatschappelijk' te wijzigen naar de bestemming 'Wonen'. Relevant hierbij is dat uit jurisprudentie blijkt dat “naast zelfstandige bewoning door een gezin, ook minder traditionele woonvormen zich met de woonbestemming verdragen, indien daarbij sprake is van nagenoeg zelfstandige bewoning met een zekere mate van verbondenheid tussen de bewoners.” Criteria die hierbij een rol spelen zijn:
- de dagbesteding of het werk buitenshuis plaatsvindt;
- er geen sprake is van 24-uur zorg of therapie;
- er geen sprake is van verplichte aan de bewoning gekoppelde zorg;
- de begeleiding is gericht op de dagelijkse bezigheden van de bewoners;
- de begeleiding er niet op is gericht om bewoners te leren later zelfstandig te gaan wonen;
- indien de bewoners gezamenlijk eten;
- er gemeenschappelijke ruimtes en/of voorzieningen zijn waar de bewoners gebruik van kunnen maken.
In de huidige en toekomstige situatie van Stichting de Tussenvoorziening/BOKA wordt aan deze criteria voldaan, zodat het geëigend is om de bestemming 'Wonen' toe te passen.
De randen worden waar mogelijk voorzien van de bestemming 'Groen'. De bestaande bestemming 'Verkeer' wordt uitgebreid om in de toekomst voldoende parkeerplaatsen te kunnen waarborgen.
3.1.1 Structuurvisie Infrastructuur en Ruimte
De Structuurvisie Infrastructuur en Ruimte (SVIR) is op 13 maart 2012 in werking getreden. In deze visie schetst het Rijk de ambities tot 2040 en de doelen, belangen en opgaven tot 2028. Daarmee moet Nederland concurrerend, bereikbaar en veilig worden. Anders dan in de Nota Ruimte gaat de structuurvisie uit van het adagium 'decentraal, tenzij'. Het rijk kiest voor een selectievere inzet van rijksbeleid op slechts 13 nationale belangen. Voor deze belangen is het Rijk verantwoordelijk en wil het resultaten boeken. Buiten deze 13 belangen hebben decentrale overheden beleidsvrijheid. Afspraken over verstedelijking, groene ruimte en landschap laat het Rijk over aan de provincies en gemeenten. Gemeenten krijgen ruimte voor kleinschalige natuurlijke groei en voor het bouwen van huizen die aansluiten bij de woonwensen van mensen. Bij het beheren en ontwikkelen van natuur krijgen boeren en particulieren in het landelijk gebied een grotere rol.
Om zorgvuldig ruimtegebruik te bevorderen heeft het Rijk enkel nog een 'ladder voor duurzame verstedelijking’ opgenomen. Hierdoor neemt de bestuurlijke drukte af en ontstaat er ruimte voor regionaal maatwerk.
Planspecifiek
Doordat de beoogde ontwikkeling geen rijksverantwoordelijkheid omvat zijn er geen raakvlakken met het Rijksbeleid.
3.1.2 Besluit algemene regels ruimtelijke ordening
Op 30 december 2011 is het Besluit algemene regels ruimtelijke ordening (Barro) in werking getreden en op 1 oktober 2012, 1 juli 2014 en 1 juli 2016 op onderdelen aangevuld. Voortaan moeten gemeenten bij het vaststellen van bestemmingsplannen, wijzigingsplannen en uitwerkingsplannen rekening houden met het Barro. Doel van het Barro is bepaalde onderwerpen uit de Structuurvisie Infrastructuur en Ruimte te verwezenlijken.
In het Barro wordt een aantal projecten die van Rijksbelang zijn met name genoemd en exact ingekaderd. Per project worden vervolgens regels gegeven, waaraan bestemmingsplannen zullen moeten voldoen. Het nationale belang dat het stellen van regels voor deze onderwerpen rechtvaardigt, is vastgelegd in de Structuurvisie Infrastructuur en Ruimte.
Planspecifiek
Het plan valt niet binnen één van de projecten aangewezen in het Barro. Daarnaast is het plan dusdanig klein van schaal dat het niet van nationaal belang is. Vanuit het Barro zijn er dan ook geen specifieke randvoorwaarden voor dit plan.
3.1.3 Ladder voor duurzame verstedelijking
In het Besluit ruimtelijke ordening (Bro) is de verplichting opgenomen om in het geval van een nieuwe stedelijke ontwikkeling in de toelichting een onderbouwing op te nemen van nut en noodzaak van de nieuwe stedelijke ruimtevraag en de ruimtelijke inpassing. Hierbij wordt uitgegaan van de 'ladder voor duurzame verstedelijking'.
De 'stappen van de ladder' worden in artikel 3.1.6, leden 2 - 4 Bro als volgt omschreven:
- De toelichting bij een bestemmingsplan dat een nieuwe stedelijke ontwikkeling mogelijk maakt, bevat een beschrijving van de behoefte aan die ontwikkeling, en, indien het bestemmingsplan die ontwikkeling mogelijk maakt buiten het bestaand stedelijk gebied, een motivering waarom niet binnen het bestaand stedelijk gebied in die behoefte kan worden voorzien.
- Indien in een bestemmingsplan als bedoeld in het tweede lid toepassing is gegeven aan artikel 3.6, eerste lid, onder a of b, van de wet kan bij dat bestemmingsplan worden bepaald dat de beschrijving van de behoefte aan een nieuwe stedelijke ontwikkeling en een motivering als bedoeld in het tweede lid eerst wordt opgenomen in de toelichting bij het wijzigings- of het uitwerkingsplan als bedoeld in dat artikel.
- Een onderzoek naar de behoefte als bedoeld in het tweede lid, heeft, in het geval dat een bestemmingsplan als bedoeld in het tweede lid, ziet op de vestiging van een dienst als bedoeld in artikel 1 van de Dienstenwet en dit onderzoek betrekking heeft op de economische behoefte, de marktvraag of de beoordeling van de mogelijke of actuele economische gevolgen van die vestiging, slechts tot doel na te gaan of de vestiging van een dienst in overeenstemming is met een goede ruimtelijke ordening.
Planspecifiek
Conform artikel 1.1.1, eerste lid onder i van het Bro wordt onder een stedelijke ontwikkeling verstaan: een 'ruimtelijke ontwikkeling van een bedrijventerrein of zeehaventerrein, of van kantoren, detailhandel, woningbouwlocaties of andere stedelijke voorzieningen.' Uit jurisprudentie van de Afdeling bestuursrechtspraak van de Raad van State blijkt dat de ondergrens van wat als nieuwe stedelijke ontwikkeling moet worden gezien, ligt tussen de 9 en 14 nieuwe woningen afhankelijk van de omgeving waarin de ontwikkeling plaatsvindt. De voorgenomen herontwikkeling maakt planologisch 30 (zorg)woningen mogelijk en wordt daarom aangemerkt als een stedelijke ontwikkeling. Derhalve zal navolgend de behoefte van de ontwikkeling worden onderbouwd.
Behoefte
Op 4 juli 2019 is de Woonvisie 2019 – 2030 vastgesteld door de gemeenteraad van de gemeente IJsselstein. In de woonvisie wordt ingegaan op de behoefte aan zorgwoningen dan wel woningen in sociale huursector. Tot 2030 zet de gemeente in op het realiseren van minimaal 2.500 woningen, met het doel het inwonertal minimaal te laten groeien en te komen tot een meer evenwichtige bevolkingsopbouw. Van de in totaal 2.500 woningen wordt er ingezet op de realisatie van 600 - 800 woningen binnenstedelijk.
Om te voorzien in de behoefte aan sociale huur zal minimaal 30% van de nieuwbouw in de sociale huur plaatsvinden, ofwel ca. 750 woningen tot 2030. Binnen het sociale segment is er aandacht voor vormen van wonen met zorg. Vernieuwing van het aanbod in de vorm van nieuwe concepten is nodig om aan te sluiten bij de kwantitatieve opgave en de veranderende wensen van vooral de nieuwe generatie ouderen. Door de gemeente IJsselstein is op 27 augustus 2018 de 'Bouwstenen voor de woonvisie' vastgesteld. Hieruit blijkt dat er behoefte is aan 'wonen met zorg', tot 2035 betreft de behoefte ca. 850 woningen.
Bestaand stedelijk gebied
Het plangebied ligt binnen bestaand stads- en dorpsgebied waar reeds een school is gesitueerd. Er is dus sprake van herstructurering van bestaand bebouwd gebied.
Gezien voorgaande kan gesteld worden dat de ontwikkeling voldoet aan de ladder voor duurzame verstedelijking.
3.2.1 Provinciale Ruimtelijke Structuurvisie
Op 12 december 2016 hebben Provinciale Staten van de provincie Utrecht de Provinciale Ruimtelijke Structuurvisie 2013 -2028 (herijking 2016) (PRS) vastgesteld. In deze herijking zijn een drietal documenten integraal opgenomen, waarmee het ruimtelijk beleid van de provincie Utrecht per december 2016 volledig in één document is opgenomen.
In de PRS beschrijft de provincie Utrecht haar ruimtelijk beleid voor de periode tot 2028. Deze periode sluit aan bij de Structuurvisie Infrastructuur en Ruimte van het Rijk. De provincie Utrecht geeft aan welke doelstellingen zij voor welke gebieden van provinciaal belang achten, welk beleid bij deze doelstellingen hoort en hoe zij uitvoering geven aan dit beleid. Deels wordt uitvoering gegeven aan het beleid via de Provinciale Ruimtelijke Verordening welke tegelijk met de PRS is opgesteld.
In de Provinciale ruimtelijke structuurvisie zijn de volgende pijlers vastgelegd:
- Duurzame leefomgeving
- Beschermen kwaliteiten
- Vitale dorpen en steden
- Dynamisch landelijk gebied
De pijlers ‘duurzame leefomgeving’ en ‘beschermen kwaliteiten’ leggen de basis waarbinnen de ontwikkelingen in de ‘vitale dorpen en steden’ en het ‘dynamisch landelijk gebied’ plaats kunnen vinden. Het samenspel tussen deze pijlers leidt tot de volgende twee belangrijkste beleidsopgaven; opgaven die nodig zijn om Utrecht aantrekkelijk te houden als vestigingsplaats:
Accent op de binnenstedelijke opgave
De provincie wil ten minste 2/3 van de woningbouwopgave binnenstedelijk realiseren. Dit sluit aan bij de vraag naar (woningen in) stedelijke woonmilieus, vergroot het draagvlak voor voorzieningen en openbaar vervoer en vermindert de druk op het landelijk gebied. Verminderen van het overschot aan kantoren en winkelpanden en herstructurering van bedrijventerreinen, maken ook deel uit van de binnenstedelijke opgave.
Behoud en versterken kwaliteit landelijk gebied
De provincie heeft een aantrekkelijk landelijk gebied. De provincie wil deze kwaliteit behouden en versterken, zowel voor het landelijk gebied zelf, als voor het stedelijk gebied. De binnenstedelijke opgave vraagt als contramal ook om een aantrekkelijk en bereikbaar landelijk gebied met hoge kwaliteit van landschap, natuur en recreatieve voorzieningen. De cultuurhistorische waarden van onder meer de linies, de buitenplaatsen en het agrarische landschap dragen bij aan een aantrekkelijk landelijk gebied. De landbouw is een belangrijke drager van het agrarische cultuurlandschap. Die rol vergt ruimte voor een economisch duurzame landbouw.
Planspecifiek
Op onderhavig initiatief is met name de pijler ‘Vitale dorpen en steden’ van belang. Er wordt gestreefd naar een provincie waar ruimte is voor goed wonen, werken en natuur. In onderhavig geval wordt met de realisatie van ca. 30 (zorg-)woningen gebruikgemaakt van bestaand stedelijk gebied in de kern van IJsselstein. Bovendien wordt een verouderd voormalig schoolgebouw gesaneerd en daarvoor in de plaats wordt een appartementengebouw gerealiseerd. Hiermee past de ontwikkeling binnen het beleid van de provincie om steden aantrekkelijker te maken.
3.2.2 Provinciale Ruimtelijke Verordening
Bij de nieuwe structuurvisie hoort ook de herziende versie van de Provinciale Ruimtelijke Verordening (PRV). De PRV is gelijktijdig met de PRS vastgesteld en bevat regels voor gemeenten. De gemeenten moeten deze regels in acht nemen bij het maken van ruimtelijke plannen. De regels zijn nodig om het provinciale ruimtelijke beleid te kunnen realiseren. De bepalingen zoals deze zijn opgenomen in de Provinciale Ruimtelijke Verordening hebben met name betrekking op ontwikkelingen in stedelijk gebied of in het landelijk gebied.
Planspecifiek
Uit de kaart 'Wonen en werken' blijkt dat het plangebied onderdeel uitmaakt van het 'stedelijk gebied'. De grens van de aanduiding ' stedelijk gebied' wordt ook wel de 'rode contour' genoemd. In artikel 4.1 'Stedelijk gebied' staat dat een ruimtelijk plan in een dergelijk gebied bestemmingen en regels kan bevatten voor verstedelijking.
Onderstaande afbeelding toont de ligging binnen het bestaand stedelijk gebied.
Ligging plangebied binnen bestaand stedelijk gebied (bron: ruimtelijkeplannen.provincie-utrecht.nl)
Aangezien de ontwikkeling binnen de 'rode contour' van het 'stedelijk gebied' valt is een nadere toets niet noodzakelijk.
3.3.1 Toekomstvisie 2025 IJsselstein Dichtbij
Op 21 januari 2010 heeft de gemeenteraad van IJsselstein de Toekomstvisie ‘IJsselstein Dichtbij’ vastgesteld. De gemeente IJsselstein kenmerkt zich onder meer door drie belangrijke kwaliteiten:
- IJsselstein is een stad met een sterke sociale samenhang. Mensen zijn zeer betrokken bij de gemeenschap en bij elkaar. Dit geldt voor zowel inwoners als ondernemers. De samenhang komt onder meer tot uitdrukking in een actief verenigingsleven en tal van evenementen.
- IJsselstein is een stad met een karakteristieke historische ruimtelijke kwaliteit. Belangrijke kenmerken in deze ruimtelijke kwaliteit zijn de historische binnenstad met monumenten en de Hollandse IJssel die door de stad stroomt.
- IJsselstein heeft een unieke ligging in zowel het Groene Hart als het stedelijk gebied van Utrecht. Hierdoor combineert de stad de rust en ruimte van het groene buitengebied met de economische dynamiek van een stad.
Voor 2025 wil de gemeente deze kwaliteiten verder versterken. De gemeente wil de nabijheid van de ruimtelijke kwaliteiten in de stad meer benutten, door inhoud te geven aan de volgende ambities:
- versterken van de historische binnenstad;
- groen en water meer verweven met de stad;
- continue werken aan vitale woonwijken;
- bevorderen zorgvuldig ruimtegebruik.
Planspecifiek
In de huidige situatie is het voormalig schoolgebouw in gebruik bij Stichting de Tussenvoorziening/BOKA. Met het realiseren van een appartementengebouw ten behoeve van ca. 30 (zorg-)woningen, wordt het plangebied beter benut dan in de huidige situatie. Het gaat hierbij eveneens om tijdelijke opvang, een maatschappelijke functie die bijdraagt aan vitale woonwijken. Dat geldt ook voor de reguliere sociale huurwoningen die op termijn wellicht beoogd worden. De beoogde ontwikkeling voldoet hiermee aan de toekomstvisie van de gemeente.
3.3.2 Woonvisie gemeente IJsselstein 2019 - 2030
De gemeenteraad van de gemeente IJsselstein heeft de Woonvisie 2019 – 2030 vastgesteld op 4 juli 2019. In de Woonvisie 2019 – 2030 legt de gemeente IJsselstein de prioriteiten van het lokale woonbeleid voor de komende jaren vast. De visie geeft inhoud en richting aan de ontwikkelingen op de woningmarkt. Daarbij wordt concreet ingezet op de komende vijf jaar, met een doorkijk naar de jaren daarna richting 2030. De doelen uit de woonvisie zijn uitgewerkt in een vijftal pijlers:
- Evenwichtige bevolkingsopbouw vraagt extra groei
- Gevarieerde en bereikbare woonmilieus
- Voorkomen verdringing kwetsbare groepen op de woningmarkt
- Toekomstbestendige en duurzame wijken
- Langer thuis wonen ondersteunen
Om invulling te geven aan de hierboven genoemde pijlers zijn de doelen uitgewerkt naar beleid. Dit is door de gemeente IJsselstein gedaan aan de hand van een aantal thema's waarop beleidssturing mogelijk is. De drie thema's zijn:
- Passend kwalitatief woningbouwprogramma
- Aanpak bestaande woningvoorraad
- Aanpak voor langer zelfstandig wonen
De woonvisie wordt ten uitvoer gebracht via een tweejaarlijks uitvoeringsprogramma. Dit programma vormt de leidraad bij de activiteiten die de gemeente oppakt. Tweejaarlijks monitort en actualiseert de gemeente het programma. Daarbij wordt nagegaan in welke mate de gestelde doelen zijn bereikt en of actuele ontwikkelingen vragen om bijstelling van de uitvoering, gericht op het bereiken van de doelen.
Planspecifiek
Het voorgenomen plan betreft de realisatie van een appartementengebouw ten behoeve van 30 zorgwoningen. Waarbij de mogelijkheid bestaat dat de appartementen in de toekomst als sociale huurwoningen worden gebruikt.
Uit de woonvisie blijkt dat er behoefte is aan ca. 750 sociale huurwoningen tot 2030, met het voorgenomen plan wordt er op de langere termijn invulling gegeven aan deze behoefte. In eerste instantie voorziet het voorgenomen plan in de realisatie van ca. 30 zorgwoningen. Uit de woonvisie blijkt dat de bestaande tijdelijke opvang van de BOKA binnen de grenzen van het plangebied niet toereikend is. Er is behoefte aan vormen van wonen onder toezicht en begeleiding, de overgang naar (volledig) zelfstandig wonen valt zorgbehoevenden zwaar. Met het voorgenomen plan wordt er ingespeeld op deze behoefte door de capaciteit uit te breiden naar ca. 30 zorgwoningen.
De beoogde ontwikkeling van een appartementengebouw is niet in strijd met de Woonvisie 2019 – 2030 en vindt aansluiting bij verschillende onderdelen uit de visie.
3.3.3 Structuurvisie IJsselveld-Oost 2025
Op 15 september 2011 is de structuurvisie IJsselveld-Oost vastgesteld door de gemeente IJsselstein. Deze structuurvisie is een vertaling van de Ontwikkelingsvisie IJsselveld-Oost die op 13 april 2010 is vastgesteld door de gemeente IJsselstein.
De structuurvisie geeft richting en samenhang aan de toekomstige ontwikkelingen. De structuurvisie voor IJsselveld-Oost is geen blauwdruk, maar dient als inspiratie en ruimtelijk raamwerk voor de toekomstige planontwikkelingen. Het is daarom belangrijk de nodige flexibiliteit in acht te nemen. De structuurvisiekaart vormt hiermee het toetsingskader voor verdere uitwerking.
Planspecifiek
Onderstaande afbeelding toont een uitsnede van de structuurvisiekaart, het plangebied is aangewezen als een gebied met de hoofdfunctie 'wonen (herstructurering)' en voor 'groen (water en verharding)'.
Uitsnede structuurvisiekaart, plangebied zwart omkaderd (bron: ruimtelijkeplannen.nl)
Het voorgenomen plan past niet geheel binnen de gestelde kaders van de structuurvisie IJsselveld-Oost omdat niet het gehele plangebied is aanduid als locatie voor herstructurering naar woningbouw. Tevens is de toekomstige doelgroep niet geheel in lijn met de structuurvisie IJsselveld-Oost. Echter wordt de structuurvisie ook niet als blauwdruk gezien, maar meer als inspiratie. In de structuurvisie is bepaald dat de structuurvisiekaart als toetsingskader geldt bij ruimtelijke ontwikkelingen. Het plangebied is deels gelegen als gebied waar herstructurering tot wonen gewenst is. Met het voorgenomen plan wordt een verouderd schoolgebouw gesaneerd en hiervoor in de plaats een appartementengebouw gerealiseerd. Daarmee past het initiatief op hoofdlijnen binnen de structuurvisie IJsselveld-Oost 2025. Bovendien blijkt uit
toelichting paragraaf 3.3.2 dat de beoogde ontwikkeling in lijn is met de meer recente woonvisie van de gemeente IJsselstein omdat er juist vraag is naar zorgwoningen of sociale huurwoningen.
3.3.4 Welstandsnota IJsselstein
De Welstandsnota 2013 is op 19 december 2013 vastgesteld door de gemeenteraad van de gemeente IJsselstein. Op grond van deze nota kan het plangebied worden aangemerkt als 'woongebied' Voor het initiatief zijn onder andere de volgende criteria relevant:
- Bij renovatie of (vervangende) nieuwbouw wordt aangesloten op de bestaande architectuur en de architectuur van naastgelegen panden. Bestaande gevelritmes, goothoogten en nokhoogten in hoofdzaak respecteren.
- Gevelindeling en -opbouw evenwichtig en samenhangend.
- Op- en aanbouwen zijn ondergeschikt en vormgegeven in lijn en architectuur van het geheel.
- Bij individuele woningbouw (veelal vrijstaand, tweekappers of korte rijen): behoud van het individuele karakter van de afzonderlijke panden of series van panden, zonder dat dit afsteekt tegen de omgeving.
- Aanpassingen mogen, in overleg, ook op een eigentijdse wijze gebeuren en mits van een hoog niveau.
- Toevoegingen zoals een schotelantenne, een airco-unit of andere (technische) installaties o.i.d. zijn toegestaan, mits passend bij de beeldkwaliteit van het bouwwerk.
- Bij een toevoeging blijft het oorspronkelijke dakvlak goed herkenbaar; de randen van de bestaande dakvlakken blijven gehandhaafd.
- Andere, niet oorspronkelijke materialen (zoals kunststof), zijn toegestaan voor kozijnen, ramen, betimmeringen met behoud van bestaande indeling.
Gestapelde bouw
Bij gestapelde bouw in de woongebieden wordt geen onderscheid gemaakt tussen een welstandsluwe en welstandsplichtige zone. Bij alle bouwplannen is een welstandstoets van toepassing. Deze toets wordt ambtelijk uitgevoerd. Hieronder de aanvullende criteria voor gestapelde bebouwing.
- Gezien het alzijdig karakter van de gestapelde bebouwing, wordt elke gevel van een complex als een voorgevel beschouwd.
- De plint (begane grond) kan een andere vormgeving krijgen ten opzichte van de bovengelegen verdiepingen.
- Voor entreepartijen is een afwijkende architectuur mogelijk mits in harmonie met de vormgevingskarakteristiek.
Planspecifiek
De gemeente IJsselstein stelt een notitie op over de beoogde beeldkwaliteit. Bij de verdere uitwerkingen zal daar mee rekening worden gehouden. Bij de aanvraag van de omgevingsvergunning zal het voorgenomen plan getoetst worden aan de hand van de van toepassing zijnde welstandscriteria.
Vooruitlopend daar op kan gesteld worden dat het beoogde appartementengebouw qua maatvoering en positionering aansluit op de karakteristieken van de zone aan Hitteschild. Er zijn dan ook op voorhand geen belemmeringen te verachten vanuit het aspect welstand/beeldkwaliteit.
3.3.5 Beleidsplan Duurzaamheid Gemeente IJsselstein
Het Beleidsplan Duurzaamheid Gemeente IJsselstein is op 9 juni 2016 door de gemeenteraad van de gemeente IJsselstein vastgesteld. Eind 2015 heeft de gemeenteraad een motie aangenomen om de Klimaatverklaring (Parijsverklaring) te ondertekenen. Door ondertekening van de klimaatverklaring heeft de gemeente zich gecommitteerd te werken aan de volgende hoofdambitie:
- In 2050 is IJsselstein klimaatneutraal
- In 2030 is de gemeentelijke organisatie CO2 neutraal
In het beleidsplan zijn voor de thema’s wonen en verkeer en het jaartal 2020 de volgende relevante doelstellingen opgenomen:
- besparing gasverbruik met 1,5% per jaar;
- 8% duurzame energie lokaal opgewekt tegenover 2% nu, waaronder:
- vertienvoudiging zonne-energie
- verdubbeling adressen met zonnepanelen;
- alle nieuwe gebouwen zijn (bijna) energieneutraal (EPC ≤ 0,2);
- alle nieuwe gebouwen worden duurzaam gebouwd en hebben een score minimaal GPR = 8
- het gebruik van het aantal deelauto’s is met 20% toegenomen ten opzichte van 2016;
Planspecifiek
De beoogde ontwikkeling geeft invulling aan het Beleidsplan Duurzaamheid. Voor een nadere toelichting wordt verwezen naar
toelichting paragraaf 4.10.
4 Milieu- en omgevingsaspecten
4.1 Milieueffectrapportage
De milieueffectrapportage (m.e.r.) is een hulpmiddel om bij diverse procedures het milieubelang een volwaardige plaats in de besluitvorming te geven. Een m.e.r. is verplicht bij de voorbereiding van plannen en besluiten van de overheid over initiatieven en activiteiten van publieke en private partijen die belangrijke nadelige gevolgen voor het milieu kunnen hebben. De m.e.r. is wettelijk verankerd in hoofdstuk 7 van de Wet milieubeheer. Naast de Wet milieubeheer is het Besluit m.e.r. belangrijk om te kunnen bepalen of bij de voorbereiding van een plan of een besluit de m.e.r.-procedure moet worden doorlopen. Bij toetsing aan het Besluit m.e.r. zijn er vier mogelijkheden:
- het plan of besluit is direct m.e.r.- plichtig;
- het plan of besluit bevat activiteiten uit kolom 1 van onderdeel D, en ligt boven de (indicatieve) drempelwaarden, zoals beschreven in kolom 2 ‘gevallen’, van onderdeel D. Het besluit moet eerst worden beoordeeld om na te gaan of er sprake is van m.e.r.-plicht: het besluit is dan m.e.r.-beoordelingsplichtig. Voor een plan in kolom 3 ‘plannen’ geldt geen m.e.r-beoordelingsplicht, maar direct een (plan-)m.e.r.-plicht;
- het plan of besluit bevat wel de activiteiten uit kolom 1, maar ligt beneden de drempelwaarden, zoals beschreven in kolom 2 ‘gevallen’, van onderdeel D: er dient in overleg met de aanvrager van het bijbehorende plan of besluit beoordeeld te worden of er aanleiding is voor het uitvoeren van een m.e.r.-beoordeling (als sprake is van een besluit) of het direct uitvoeren van een m.e.r. (als sprake is van een plan). Deze keuze wordt uiteindelijk in het bijbehorende plan of besluit gemotiveerd;
- de activiteit(en) of het betreffende plan en/of besluit worden niet genoemd in het Besluit m.e.r.: er geldt geen m.e.r.-(beoordelings)plicht.
Sinds 16 mei 2017 geldt er een directe werking van het Europees recht. Daarom is per 7 juli 2017 het gewijzigde Besluit m.e.r. in werking getreden. In de gewijzigde Besluit m.e.r. staat de nieuwe procedure voor de vormvrije m.e.r.-beoordeling. Voor elke aanvraag, waarbij een vormvrije m.e.r.-beoordeling aan de orde is, moet:
- Door de initiatiefnemer een aanmeldingsnotitie worden opgesteld;
- Het bevoegd gezag binnen 6 weken een m.e.r.-beoordelingsbesluit nemen. Dit besluit hoeft niet in de Staatscourant gepubliceerd te worden;
- De initiatiefnemer het (vormvrije) m.e.r.-beoordelingsbesluit bij de vergunningaanvraag voegen (Artikel 7.28 Wet milieubeheer).
De artikelen 7.16 tot en met 7.20a Wm zijn in de nieuwe wetgeving voor alle in het Besluit m.e.r. genoemde activiteiten van de D-lijst van toepassing.
Planspecifiek
Uit toetsing aan het Besluit m.e.r. volgt dat het besluit tot vaststelling van dit bestemmingsplan valt onder mogelijkheid c. Het besluit bevat namelijk wel een activiteit uit kolom 1 (de aanleg, wijziging of uitbreiding van een stedelijk ontwikkelingsproject met inbegrip van de bouw van winkelcentra of parkeerterreinen), maar er wordt niet voldaan aan de gegeven drempelwaarde van 2000 of meer woningen. De voorgenomen ontwikkeling bevat namelijk de realisatie van ca. 30 (zorg)woningen. Er kan daarmee worden afgezien van een m.e.r.-beoordeling en volstaan kan worden met een vormvrije m.e.r.-beoordeling. Deze vormvrije m.e.r.-beoordeling kan tot twee conclusies leiden:
- belangrijke nadelige milieugevolgen zijn uitgesloten: er is geen m.e.r.(-beoordeling) noodzakelijk;
- belangrijke nadelige gevolgen voor het milieu zijn niet uitgesloten: er moet toch een m.e.r.-beoordeling plaatsvinden of er kan direct worden gekozen voor een m.e.r.
In het kader van de voorgenomen ontwikkeling zijn de belangrijkste milieuaspecten waaronder bodem, luchtkwaliteit, geluid, externe veiligheid en ecologie in beeld gebracht in voorliggend hoofdstuk 4. Geconcludeerd wordt dat er geen sprake is van een ontwikkeling die een forse invloed heeft op het milieu. Belangrijke milieugevolgen kunnen worden uitgesloten. De huidige onderzoeken geven voldoende inzicht in de milieugevolgen om een gewogen besluit omtrent dit bestemmingsplan en een eventueel op te stellen m.e.r. te nemen. Het opstellen van een milieueffectrapportage zal geen verder inzicht verschaffen op de relevante milieuaspecten.
Het bevoegd gezag kan op basis van deze plantoelichting een besluit nemen over de uitkomst van de m.e.r.-beoordeling, of er al dan niet een m.e.r. nodig is en publiceert dit in een m.e.r.- beoordelingsbesluit.
4.2 Bodem
In het kader van een ruimtelijk plan dient aangetoond te worden dat de kwaliteit van de bodem en het grondwater in het plangebied in overeenstemming zijn met het beoogde gebruik. De bodemkwaliteit kan namelijk van invloed zijn op de beoogde functie van het plangebied. Indien sprake is van een functiewijziging zal er soms een bodemonderzoek moeten worden uitgevoerd in het plangebied. Ontwikkelingen kunnen pas plaatsvinden als de bodem waarop deze ontwikkelingen plaatsvinden geschikt is of geschikt is gemaakt voor het beoogde doel.
Bij een bestemmingswijziging is een bodemonderzoek slechts noodzakelijk, indien de bestemmingswijziging tevens een wijziging naar een strenger bodemgebruik inhoudt. Bij een bestemmingswijziging die een gelijkblijvend of minder streng bodemgebruik oplevert, is de bodemkwaliteit in het kader van de bestemmingswijziging niet relevant en is bodemonderzoek niet noodzakelijk.
Planspecifiek
Het plangebied heeft in het vigerende bestemmingsplan de bestemming 'Maatschappelijk'. De beoogde ontwikkeling, het realiseren van ca. 30 appartementen, betreft een wijziging naar een strenger bodemgebruik. In dit kader heeft er een verkennend bodemonderzoek plaatsgevonden (Grondslag, verkennend bodemonderzoek Hitteschild 2-4 en 6 te IJsselstein, d.d. 15 augustus 2019,
bijlagen bij toelichting bijlage 2).
De milieuhygiënische kwaliteit van de bodem ter plaatse van de onderzoekslocatie Hitteschild 6 te IJsselstein is vastgelegd. Daarnaast is bepaald of het asfalt op een deel van de weg Basishof PAK houdend is.
Verkennend bodemonderzoek
Ter plaatse van de onderzoekslocatie zijn in de boven- en ondergrond sporen bijmengingen aangetroffen tot een diepte van 1 m-mv. Mogelijk betreft het een opgebrachte ophooglaag. Ter plaatse van de demping is geen verdacht dempingsmateriaal gevonden. De gestelde hypothese dat in de bovengrond verhogingen aan bestrijdingsmiddelen kunnen worden verwacht in verband met de vroegere aanwezigheid van boomgaarden/kwekerijen op de locatie is deels bevestigd. Er zijn in de bovengrond van Hitteschild 6 lichte verhogingen aan bestrijdingsmiddelen aangetoond. De hypothese dat de bovengrond voor andere stoffen niet verdacht is, is niet bevestigd. In de bovengrond van de onderzoekslocatie is een lichte verhoging aan minerale olie aangetoond. De verontreiniging wordt veroorzaakt door een middelzware olie. De oliesoort is op basis van het oliechromatogram niet te duiden.
Het is niet bekend waardoor deze verhoging is veroorzaakt. De gestelde hypothese dat geen verontreiniging in de ondergrond wordt verwacht is eveneens niet bevestigd. In de ondergrond van Hitteschild 6 is een lichte
verhoging aan PCB vastgesteld. In het grondwater is een lichte verhoging aan barium vastgesteld. Hoewel niet bekend is wat de bron is van de minerale olie verhoging, geeft de gevolgde onderzoeksstrategie in voldoende mate de milieuhygiënische situatie ter plaatse van de onderzoekslocatie weer. Aangenomen wordt dat de verhoging met minerale olie een relatie heeft met de bijmengingen en heterogeen aanwezig is. Er is derhalve geen aanleiding tot het uitvoeren van een aanvullend onderzoek.
Ter plaatse van de parkeerplaatsen (deellocatie d en e) bestaat het cunet uit zand. Ter plaatse van de parkeerplaats aan de Basishof is onder de klinkers een laag zand van ca. 0,7 m dik aanwezig (0,08-0,8 m-mv). Tijdens het onderzoek zijn geen waarnemingen gedaan die kunnen duiden op de aanwezigheid an een verontreiniging met asbest. De hypothese van een asbestonverdachte locatie wordt gehandhaafd.
Asfaltonderzoek
Bij een eventuele verwijdering van de asfaltweg zal circa 575 ton asfalt moeten worden afgevoerd. Uit de PAK marker onderzoek blijkt dat de bovenste laag van circa 5 à 6,5 cm bestaat uit dichtasfaltbeton (dab) en minder dan 250 mg/kg PAK heeft. De onderste laag asfalt is verbrokkeld en heeft een dikte van 3,5 cm. Deze is deels PAK-houdend. Om de bovenste laag asfalt als teervrij te kunnen afvoeren is nog een extra GCMS analyse nodig waarbij het definitieve PAK gehalte kan worden bepaald.
Conclusie en aanbeveling
De onderzoeksresultaten vormen geen belemmeringen voor de afgifte van een omgevingsvergunning. De afgifte van de omgevingsvergunning blijft echter een beleidsmatige afweging van de gemeente zelf.
Aanbevolen wordt om de grond die tijdens de werkzaamheden vrijkomt te hergebruiken binnen de perceelsgrenzen. Indien dit niet mogelijk is kan de grond op basis van dit rapport worden afgevoerd naar een grondbank of -depot. Hiervoor kan het noodzakelijk zijn dat de grond nog onderzocht dient te worden op PFAS. Als de grond wordt afgevoerd voor hergebruik elders, is (normaliter) eerst een keuring (incl. PFAS) nodig conform het Besluit Bodemkwaliteit. Met name bij grotere partijen grond is dit laatste voordeliger dan afvoeren naar een grondbank of -depot. De gemeente beschikt over een bodemkwaliteitskaart, waardoor in sommige gevallen en onder voorwaarden hergebruik mogelijk is zonder aanvullend onderzoek.
Het aspect 'bodem' vormt geen belemmering voor het voorgenomen plan.
4.3 Geluid
De mate waarin het geluid, het woonmilieu mag belasten, is geregeld in de Wet geluidhinder (Wgh). De kern van de wet is dat geluidsgevoelige objecten worden beschermd tegen geluidhinder uit de omgeving. In de Wgh worden de volgende objecten beschermd (artikel 1 Wgh):
- woningen;
- geluidsgevoelige terreinen (terreinen die behoren bij andere gezondheidszorggebouwen dan categorale en academische ziekenhuizen, verpleeghuizen, woonwagenstandplaatsen);
andere geluidsgevoelige gebouwen, waaronder onderwijsgebouwen, ziekenhuizen en verpleeghuizen, andere gezondheidszorggebouwen dan ziekenhuizen en verpleeghuizen die zijn aangegeven in artikel 1.2 van het Besluit geluidhinder (Bgh):
- verzorgingstehuizen;
- psychiatrische inrichtingen;
- medisch centra;
- poliklinieken;
- medische kleuterdagverblijven.
Het beschermen van deze geluidsgevoelige objecten gebeurt aan de hand van vastgestelde zoneringen. De belangrijkste geluidsbronnen die in de Wet geluidhinder worden geregeld zijn: industrielawaai, wegverkeerslawaai en spoorweglawaai. Verder gaat deze wet onder meer ook in op geluidwerende voorzieningen en geluidbelastingkaarten en actieplannen.
Planspecifiek
Het initiatief bevindt zich binnen de bebouwde kom van IJsselstein binnen de wettelijk vastgestelde geluidszones van De Baan, de Televisiebaan en de Edelstenenbaan. De Ruimtevaartbaan betreft een 30 km-weg zonder geluidzone. De overige 30 km-wegen in de nabijheid hebben een zeer lage verkeersintensiteit en zijn niet van belang.
Omdat dit plan voorziet in nieuwbouw van woningen moet gekeken worden naar het effect van wegverkeerslawaai. Ten behoeve van het plan is een akoestisch onderzoek uitgevoerd naar wegverkeerslawaai (Adviesburo Van der Boom, d.d. 13 februari 2020): zie
bijlagen bij toelichting bijlage 6. Uit het onderzoek komt naar voren dat de geluidbelasting door wegverkeer op De Baan ten hoogste 32 dB bedraagt, na aftrek van 5 dB ex art 110-g Wgh. De geluidbelasting door wegverkeer op de Televisiebaan bedraagt ten hoogste 27 dB na aftrek van 5 dB ex art 110-g Wgh. De geluidbelasting door wegverkeer op de Edelstenenbaan bedraagt ten hoogste 17 dB na aftrek van 5 dB ex art 110-g Wgh.
De voorkeursgrenswaarde van 48 dB wordt door wegverkeer op deze wegen niet overschreden. Er hoeft voor de appartementen geen hogere waarde te worden verleend.
Bij het bepalen van de benodigde geluidwering mag geen aftrek plaatsvinden ex. artikel 110-g Wgh. De gevels van de woningen ondervinden een geluidbelasting van ten hoogste 38 dB zonder aftrek. Voor gevels met een geluidbelasting van ten hoogste 53 dB zonder aftrek, bedraagt de benodigde karakteristieke geluidwering GA;k 20 dB. Dit is de minimale waarde conform het Bouwbesluit. Voor de gevels van de woning zijn geen aanvullende geluidwerende voorzieningen nodig.
Het aspect geluid vormt geen belemmering voor het onderhavige initiatief.
4.4 Milieuzonering
Het aspect bedrijven en milieuzonering gaat in op de invloed die bedrijven kunnen hebben op hun omgeving. Deze invloed is afhankelijk van de afstand tussen een gevoelige bestemming en de bedrijvigheid. Milieugevoelige bestemmingen zijn gebouwen en terreinen die naar hun aard bestemd zijn voor het verblijf van personen gedurende de dag of nacht of een gedeelte daarvan (bijvoorbeeld woningen). Daarnaast kunnen ook landelijke gebieden en/of andere landschappen belangrijk zijn bij een zonering tot andere, minder gevoelige, functies zoals bedrijven.
Bij een ruimtelijke ontwikkeling kan sprake zijn van reeds aanwezige bedrijvigheid en van nieuwe bedrijvigheid. Milieuzonering zorgt er voor dat nieuwe bedrijven een juiste plek in de nabijheid van de gevoelige functie krijgen en dat de (nieuwe) gevoelige functie op een verantwoorde afstand van bedrijven komen te staan. Doel hiervan is het waarborgen van de veiligheid en het garanderen van de continuïteit van de bedrijven als ook een goed klimaat voor de gevoelige functie.
Milieuzonering beperkt zich tot milieuaspecten met een ruimtelijke dimensie zoals: geluid, geur, gevaar en stof. De mate waarin de milieuaspecten gelden en waaraan de milieucontour wordt vastgesteld, is voor elk type bedrijvigheid verschillend. De 'Vereniging van Nederlandse Gemeenten' (VNG) geeft sinds 1986 de publicatie 'Bedrijven en Milieuzonering' uit. In deze publicatie is een lijst opgenomen, met daarin de minimale richtafstanden tussen een gevoelige bestemming en bedrijven. Indien van deze richtafstanden afgeweken wordt dient een nadere motivatie gegeven te worden waarom dat wordt gedaan.
Het belang van milieuzonering wordt steeds groter aangezien functiemenging steeds vaker voorkomt. Hierbij is het motto: 'scheiden waar het moet, mengen waar het kan'. Het scheiden van milieubelastende en milieugevoelige bestemmingen dient twee doelen:
- het reeds in het ruimtelijk spoor voorkomen of zoveel mogelijk beperken van hinder en gevaar bij gevoelige bestemmingen;
- het bieden van voldoende zekerheid aan de milieubelastende activiteiten (bijvoorbeeld bedrijven) zodat zij de activiteiten duurzaam, en binnen aanvaardbare voorwaarden, kunnen uitoefenen.
Planspecifiek
De voorgenomen ontwikkeling op deze locatie voorziet in de realisatie van ca. 30 (zorg)woningen. Deze worden in het kader van bedrijven en milieuzonering gezien als een gevoelige bestemming. Derhalve is aan de hand van het geldende bestemmingsplan 'Noordoost' gekeken naar milieubelastende activiteiten in de omgeving van de locatie.
Percelen horende bij Ruimtevaartbaan 7a, 9 en 11
Ten noorden van het plangebied is een agrarische bestemming gelegen met daarbinnen een agrarisch bouwvlak. Binnen deze agrarische bestemming is het toegestaan om een volwaardig agrarisch bedrijf uit te oefenen zoals akkerbouw, tuinbouw (volle grond en glas), fruitteelt en veehouderij.
Op grond van de Wet geurhinder en veehouderij (Wgv) dient tussen een emissiepunt van een dierenverblijf waarin melkrundvee wordt gehouden en een geurgevoelig object binnen de bebouwde kom een afstand van 100 meter te worden aangehouden. Het plangebied is op een afstand van ca. 130 m tot het agrarische bouwvlak gelegen. Derhalve wordt aan de richtafstand voldaan. Bovendien zijn in de huidige situatie reeds woningen dichter tegen het agrarisch bouwvlak aan gelegen, op een afstand van ca. 35 m. Gesteld kan worden dat de agrarische bestemming geen belemmering vormt voor het initiatief.
Hitteschild 4
Op de percelen horende bij Hitteschild 4 geldt de bestemming 'Maatschappelijk'. Ter plaatse is een buurthuis gevestigd. Een buurthuis betreft conform de VNG-handreiking een milieucategorie 2 activiteit vanwege het aspect ‘geluid’. De richtafstand voor het omgevingstype ‘rustige woonwijk’ betreft 30 m. Het plangebied is op een afstand van ca. 50 m gelegen, waarmee voldaan wordt aan de richtafstand. Overigens is het voornemen om het pand Hitteschild 4 te slopen en ook hier woningen te realiseren.
Overige inrichtingen bevinden zich op een grotere afstand en zijn niet van invloed op het plangebied. Bovendien vormt het initiatief zelf geen belemmering voor functies in de omgeving. Hiermee vormt het aspect milieuzonering geen belemmering voor de uitvoerbaarheid van de voorgenomen ontwikkeling.
4.5 Externe veiligheid
Sommige activiteiten brengen risico's op zware ongevallen met mogelijk grote gevolgen voor de omgeving met zich mee. Externe veiligheid richt zich op het beheersen van deze risico's. Het gaat daarbij om onder meer de productie, opslag, transport en het gebruik van gevaarlijke stoffen. Dergelijke activiteiten kunnen een beperking opleggen aan de omgeving. Door voldoende afstand tot de risicovolle activiteiten aan te houden kan voldaan worden aan de normen. Aan de andere kant is de ruimte schaars en het rijksbeleid erop gericht de schaarse ruimte zo efficiënt mogelijk te benutten. Het ruimtelijk beleid en het externe veiligheidsbeleid moeten dus goed worden afgestemd. De wetgeving rond externe veiligheid richt zich op de volgende risico’s:
- risicovolle (Bevi-)inrichtingen;
- vervoer gevaarlijke stoffen door buisleidingen;
- vervoer gevaarlijke stoffen over weg, water of spoor.
Daarnaast wordt er in de wetgeving onderscheid gemaakt tussen de begrippen kwetsbaar en beperkt kwetsbaar en plaatsgebonden risico en groepsrisico.
Kwetsbaar en beperkt kwetsbaar
Kwetsbaar zijn onder meer woningen, onderwijs- en gezondheidsinstellingen, kinderopvang- en dagverblijven en grote kantoorgebouwen (>1.500 m²). Beperkt kwetsbaar zijn onder meer kleine kantoren, winkels, horeca en parkeerterreinen. De volledige lijst wat onder (beperkt) kwetsbaar wordt verstaan is in het Besluit externe veiligheid inrichtingen (Bevi) opgenomen.
Plaatsgebonden risico en groepsrisico
Het plaatsgebonden risico wordt uitgedrukt in een contour van 10-6 als grenswaarde. Het realiseren van kwetsbare objecten binnen deze contour is niet toegestaan. Het realiseren van beperkt kwetsbare objecten binnen deze contour is in principe ook niet toegestaan. Echter, voor beperkte kwetsbare objecten is deze 10-6 contour een richtwaarde. Mits goed gemotiveerd kan worden afgeweken van deze waarde tot de 10-5 contour.
Het groepsrisico is gedefinieerd als de cumulatieve kansen per jaar dat ten minste 10, 100 of 1.000 personen overlijden als rechtstreeks gevolg van hun aanwezigheid in het invloedsgebied van een inrichting en een ongewoon voorval binnen die inrichting waarbij een gevaarlijke stof betrokken is. Voor het groepsrisico geldt geen grenswaarde, maar een zogenaamde oriëntatiewaarde. Daarnaast geldt voor het groepsrisico een verantwoordingsplicht. Het bevoegd gezag moet aangeven welke mogelijkheden er zijn om het groepsrisico in de nabije toekomst te beperken, het moet aangeven op welke manier hulpverlening, zelfredzaamheid en bestrijdbaarheid zijn ingevuld. Het bevoegd gezag moet tevens aangeven waarom de risico's verantwoord zijn, en de veiligheidsregio moet in de gelegenheid zijn gesteld een brandweeradvies te geven. Hierbij geldt hoe hoger het groepsrisico, hoe groter het belang van een goede groepsrisicoverantwoording.
Risicovolle (Bevi-)inrichtingen
Voor (de omgeving van) de meest risicovolle bedrijven is het Besluit externe veiligheid inrichtingen (Bevi) van belang. Het Bevi legt veiligheidsnormen op aan bedrijven die een risico vormen voor mensen buiten de inrichting. Het Bevi is opgesteld om de risico's, waaraan burgers in hun leefomgeving worden blootgesteld vanwege risicovolle bedrijven, te beperken. Het besluit heeft tot doel zowel individuele als groepen burgers een minimaal (aanvaard) beschermingsniveau te bieden. Via een bijhorende ministeriële regeling (Revi) worden diverse veiligheidsafstanden tot kwetsbare en beperkt kwetsbare objecten gegeven. Aanvullend op het Bevi zijn in het Vuurwerkbesluit en het Activiteitenbesluit (Besluit algemene regels inrichtingen milieubeheer) veiligheidsafstanden genoemd die rond minder risicovolle inrichtingen moeten worden aangehouden.
Vervoer gevaarlijke stoffen door buisleidingen
Met betrekking tot het beleid en de regelgeving voor het vervoer van gevaarlijke stoffen door buisleidingen zijn er de afgelopen jaren verschillende ontwikkelingen geweest. Zo is er een nieuw Besluit externe veiligheid buisleidingen (Bevb) en een Structuurvisie buisleidingen. Deze structuurvisie bevat een lange termijnvisie op het buisleidingentransport van gevaarlijke stoffen.
Het Bevb en de bijbehorende Regeling externe veiligheid buisleidingen (Revb) regelen onder andere welke veiligheidsafstanden moeten worden aangehouden rond buisleidingen met gevaarlijke stoffen. Op basis van het Bevb wordt het voor gemeenten verplicht om bij de vaststelling van een bestemmingsplan, op basis waarvan de aanleg van een buisleiding of een kwetsbaar object of een risicoverhogend object mogelijk is, de grenswaarde voor het plaatsgebonden risico in acht te nemen en het groepsrisico te verantwoorden.
Vervoer gevaarlijke stoffen over weg, water en spoor
Het Besluit externe veiligheid transportroutes (Bevt) stelt regels aan transportroutes en de omgeving daarvan. Zo moet een basisveiligheidsniveau rond transportassen (plaatsgebonden risico) en een transparante afweging van het groepsrisico worden gewaarborgd.
Als onderdeel van het Bevt is op 1 april 2015 tevens het basisnet in werking getreden. Het basisnet verhoogt de veiligheid van mensen die wonen of werken in de buurt van rijksinfrastructuur (auto-, spoor- en vaarwegen) waarover gevaarlijke stoffen worden vervoerd. In de regeling ligt vast wat de maximale risico’s voor omwonenden mogen zijn. Die begrenzing was er tot nu toe niet. Bovendien zorgt het basisnet ervoor dat gevaarlijke stoffen tussen de belangrijkste industriële locaties in Nederland en het buitenland vervoerd kunnen blijven worden.
Indien een bestemmingsplan betrekking heeft op een gebied dat geheel of gedeeltelijk gelegen is binnen 200 m van een (basisnet)transportroute voor gevaarlijke stoffen, moet in de toelichting ingegaan worden op de dichtheid van personen in het invloedsgebied van de transportroute op het tijdstip waarop het plan wordt vastgesteld. Hierbij moet rekening worden gehouden met de personen die a) in dat gebied reeds aanwezig zijn, b) in dat gebied op grond van het geldende bestemmingsplan redelijkerwijs te verwachten zijn en c) de redelijkerwijs te verwachten verandering van de dichtheid van personen in het gebied waarop dat plan betrekking heeft.
Planspecifiek
In het Besluit externe veiligheid inrichtingen (Bevi) is bepaald dat woningen kwetsbare objecten zijn. Voor de beoordeling of in de omgeving van het plangebied risicovolle inrichtingen, buisleidingen en/of transportroutes gevaarlijke stoffen aanwezig zijn is de risicokaart geraadpleegd. De navolgende afbeelding toont een uitsnede van deze kaart:
Uitsnede risicokaart, plangebied zwart omkaderd (bron: risicokaart.nl)
Transport gevaarlijke stoffen
Rijksweg A2 is aangewezen als transportroute van toxische stoffen. Het plangebied is gelegen op een afstand van ca. 700 m van de A2. Hieruit kan worden geconcludeerd dat het plangebied binnen het invloedsgebied van de A2 is gelegen. Op basis van het Besluit externe veiligheid transportroutes (Bevt) wordt geborgd dat, ondanks een kleine kans, ook het effect van een ongeval met gevaarlijke stoffen wordt beoordeeld op de punten bestrijdbaarheid en zelfredzaamheid. Bij een dergelijke calamiteit met een giftige gaswolk zijn geen bijzondere voorzieningen nodig om de omvang van een ramp te beperken en om de aanwezige personen veiligheid te bieden. Het sluiten van ramen, deuren en ventilatieroosters, en zoveel mogelijk uitschakelen van ventilatiesystemen na alarmering door de Veiligheidsregio of bericht van NL-Alert, is daarvoor voldoende. Voor hulpdiensten is de toegang tot het plangebied gegarandeerd middels de Basishof.
PM advies VRU verwerken
Aan de noordwestzijde van het plangebied ligt een tankstation. Hier vindt verkoop van LPG plaats met een maximale jaarlijkse doorzet van tussen de 500 en 1.000 m³. De risicoafstand PR 10-6 ligt op 35 m vanaf het vulpunt. Voor het groepsrisico geldt een afstand tot de grens van het invloedsgebied van 150 m. De afstand vanaf het vulpunt gerekend tot aan de grens van het plangebied bedraagt ca. 750 m, waarmee het op voldoende afstand ligt. Ten zuidwesten van het plangebied bevindt zich Zwembad de Hooghe Waerd op een afstand van circa 350 m. Het plangebied is niet gelegen binnen het invloedsgebied van de inrichting.
Uit de risicokaart komt naar voren dat in de nabijheid van het plangebied, op ca. 180 m van het plangebied, buisleidingen zijn gelegen. Het betreft een aardgasleiding, waardoor transport van gevaarlijke stoffen plaatsvindt. Het plangebied is gelegen op voldoende afstand van de aardgasleiding
Gezien het voorgaande vormt het aspect externe veiligheid geen belemmering voor de voorgenomen ontwikkeling.
4.6 Luchtkwaliteit
In de Wet milieubeheer gaat paragraaf 5.2 over luchtkwaliteit en staat ook wel bekend als de ‘Wet luchtkwaliteit’. Deze wet maakt onderscheid tussen 'kleine' en 'grote' projecten. Kleine projecten dragen 'niet in betekenende mate' (NIBM) bij aan de verslechtering van de luchtkwaliteit. Een paar honderd grote projecten dragen juist wel 'in betekenende mate' bij aan de verslechtering van de luchtkwaliteit. Het gaat hierbij vooral om bedrijventerreinen en infrastructuur (wegen).
Wat het begrip 'in betekenende mate' precies inhoudt, staat in de algemene maatregel van bestuur ‘Niet in betekenende mate bijdragen’ (Besluit NIBM). Op hoofdlijnen komt het erop neer dat 'grote' projecten die jaarlijks meer dan 3 % bijdragen aan de jaargemiddelde norm voor fijnstof (PM10) en stikstofdioxide (NO2) (1,2 µg/m³) een 'betekenend' negatief effect hebben op de luchtkwaliteit. 'Kleine' projecten die minder dan 3 % bijdragen, kunnen doorgaan zonder toetsing. Dat betekent bijvoorbeeld dat lokale overheden een woonwijk van minder dan 1.500 woningen niet hoeven te toetsen aan de normen voor luchtkwaliteit. Deze kwantitatieve vertaling naar verschillende functies is neergelegd in de 'Regeling niet in betekenende mate bijdragen'.
Een belangrijk onderdeel voor de verbetering van de luchtkwaliteit is het Nationale Samenwerkingsprogramma Luchtkwaliteit (NSL). Binnen dit NSL, dat sinds 1 augustus 2009 in werking is, werken het Rijk, de provincies en gemeenten samen om de Europese eisen voor luchtkwaliteit te realiseren.
Vanaf 1 januari 2015 geldt er ook een grenswaarde voor een kleinere fractie van fijnstof, namelijk PM2,5. De grenswaarde voor PM2,5 bedraagt 25 µg/m³. Gezien het grote verschil tussen de grenswaarde en de achtergrondconcentratie zullen overschrijdingen van deze grenswaarde niet vaak voorkomen. Het blijkt dat als de grenswaarde voor PM10 niet wordt overschreden, er geen overschrijding van de grenswaarde voor PM2,5 zal zijn. Het is de verwachting dat door het schoner worden van de autotechniek de concentratie van met name stikstofdioxide in de toekomst nog verder afneemt.
Besluit gevoelige bestemmingen
Op 16 januari 2009 is het Besluit gevoelige bestemmingen in werking getreden. Het Besluit gevoelige bestemmingen is gebaseerd op artikel 5.16a van de Wet milieubeheer. Met het Besluit wordt de vestiging van zogeheten 'gevoelige bestemmingen' in de nabijheid van provinciale- en rijkswegen beperkt. Dit heeft consequenties voor de ruimtelijke ordening.
Het Besluit is gericht op bescherming van mensen met een verhoogde gevoeligheid voor fijnstof (PM10) en stikstofdioxide (NO2), in het bijzonder kinderen, ouderen en zieken. Indien een project betrekking heeft op een gevoelige bestemming en geheel of gedeeltelijk is gelegen op een afstand van 300 m aan weerszijden van rijkswegen en 50 m langs provinciale wegen (gemeten vanaf de rand van de weg) mag het totaal aantal mensen dat hoort bij een gevoelige bestemming niet toenemen als overschrijding van de grenswaarden voor PM10 of NO2 dreigt/plaatsvindt.
De volgende gebouwen met de bijbehorende terreinen zijn aangemerkt als gevoelige bestemming:
- scholen;
- kinderdagverblijven;
- verzorgings-, verpleeg- en bejaardentehuizen.
Het gaat niet om bestemmingen in de meest enge zin van het woord, maar om alle vergelijkbare functies, ongeacht de exacte aanduiding ervan in bestemmingsplannen en andere besluiten.
In het kader van het opstellen van een bestemmingsplan moeten er twee aspecten in beeld gebracht worden. Ten eerste of de luchtkwaliteit de nieuwe functie toelaat. Ten tweede moet bekeken worden of als gevolg van het plan de luchtkwaliteit ‘niet in betekenende mate’ verslechtert. Indien het plan wel ‘in betekenende mate’ bijdraagt aan verslechtering van de luchtkwaliteit, is het van belang om te toetsen of de grenswaarden niet overschreden worden. Indien geen overschrijding van de grenswaarden plaatsvindt, kan het plan alsnog gerealiseerd worden.
Planspecifiek
Met de voorgenomen ontwikkeling worden ca. 30 (zorg-)woningen gerealiseerd De ontwikkeling kan derhalve, gezien de beperkte omvang, aangemerkt worden als een NIBM-project. Toetsing van het aspect luchtkwaliteit is daardoor, op grond van artikel 4 van de Regeling NIBM, niet noodzakelijk. Het project heeft ‘niet in betekenende mate’ invloed op de luchtkwaliteit ter plaatse.
Wel is, met behulp van de Atlas Leefomgeving, gekeken naar de luchtkwaliteit in en rondom het plangebied. Hieruit blijkt dat de luchtkwaliteit ter plaatse ruim voldoet aan de gestelde grenswaarde van 40 µg/m3 voor zowel fijnstof als stikstofdioxide. De specifieke concentraties over 2017 van fijnstof
(PM10), fijnstof (PM2,5) en stikstofdioxide (NO2) in het plangebied bedragen respectievelijk 19.27 μg/m³ PM10, 11.88 μg/m³ PM2,5 en 21.92 μg/m³ NO2. Daarmee worden de wettelijke grenswaarden niet overschreden. De advieswaarden van de GGD en WHO (20 μg/m³ PM10 en 10 μg/m³ PM2,5) worden deels gehaald; er wordt immers voldaan aan de advieswaarde voor PM10 maar niet voor PM2,5. Omdat het gaat om een lichte overschrijding is de verwachting dat door verbetering van de autotechniek er in de toekomst voldaan wordt aan deze waarden. Daaruit volgt dat er sprake is van een goed woon- en leefklimaat.
Derhalve kan gesteld worden dat het aspect luchtkwaliteit geen belemmering vormt voor het voorgenomen plan.
4.7 Ecologie
Bij ruimtelijke ingrepen dient rekening te worden gehouden met de natuurwaarden ter plaatse. Daarbij wordt onderscheid gemaakt tussen gebiedsbescherming en soortenbescherming. Gebiedsbescherming kan volgen uit de aanwijzing van een gebied. Wat betreft soortenbescherming is per 1 januari 2017 de huidige Flora- en faunawet samen met de Boswet en Natuurbeschermingswet vervangen door de Wet natuurbescherming (Wnb). Onder de Wet natuurbescherming vervallen de huidige tabellen 1, 2 en 3 waarin de beschermde soorten zijn opgenomen. Tevens zijn er circa 200 soorten niet langer beschermd en worden enkele bedreigde soorten toegevoegd. De soortenbescherming binnen de Wet natuurbescherming is opgedeeld in de volgende beschermingsregimes: Vogelrichtlijnsoorten, Habitatrichtlijnsoorten en andere soorten. Voor alle beschermde soorten geldt een ontheffingsplicht. Het bevoegd gezag (de provincie) kan voor de soorten die zijn opgenomen in het ‘beschermingsregime andere soorten’ een vrijstellingsbesluit nemen en hierin onderscheid maken tussen meer en minder strikt beschermde soorten.
Daarnaast geldt voor iedereen in Nederland altijd, dus ook los van het voorliggende beoogde ruimtelijke project, dat de zorgplicht nageleefd moet worden bij het verrichten van werkzaamheden. Voor menig soort geldt dat indien deze zorgplicht nagekomen wordt een bepaald beoogd project uitvoerbaar is.
Planspecifiek
Er is een oriënterend onderzoek naar beschermde flora en fauna (Blom Ecologie, nr. BE/2019/179/r, d.d. 5 april 2019,
bijlagen bij toelichting bijlage 4) uitgevoerd. Onderstaand de resultaten van het oriënterend onderzoek.
De werkzaamheden leiden (met voorbehoud ten aanzien van vleermuizen) niet tot aantasting van beschermde natuurwaarden en/of beschermde gebieden. Voorafgaand aan de werkzaamheden dient middels aanvullend onderzoek te worden vastgesteld of de te slopen bebouwing een relevante functie heeft voor vleermuizen. Mogelijk dient in het verlengde hiervan een ontheffing te worden aangevraagd. Tijdens de uitvoering van de werkzaamheden dient rekening te worden gehouden met de (mogelijke) aanwezigheid van foeragerende vleermuizen en algemene broedvogels. Voor deze soorten dienen eventueel maatregelen te worden getroffen om effecten te voorkomen. De aanwezigheid van beschermde soorten (Wet-Nb, andere soorten, art. 3.10) en hun leefgebied vormen geen bezwaar voor de beoogde ontwikkelingen (vrijstellingsbesluit). Gezien het voorgaande onderzoek is er geen reden om aan te nemen dat eventueel benodigde ontheffingen, mits de juiste maatregelen worden getroffen en een wettelijk belang kan worden aangevoerd, niet verkregen zouden kunnen worden.
StikstofdepositieIn de Wet natuurbescherming is voorgeschreven dat voor alle activiteiten die mogelijk een negatief effect hebben op Natura 2000-gebieden een vergunning vereist is. Verzuring en vermesting is één van die mogelijk negatieve effecten. Voor ieder habitattype binnen een Natura 2000-gebied dat gevoelig is voor verzuring en/of vermesting is een kritische depositiewaarde (KDW) vastgesteld. De KDW geeft de grens aan waarboven het risico bestaat dat de kwaliteit van het habitat significant wordt aangetast door de verzurende en/of vermestende invloed van atmosferische stikstofdepositie. Op 29 mei 2019 heeft de Afdeling bestuursrechtspraak Raad van State uitspraak gedaan omtrent de PAS. Het PAS mag niet meer gebruikt worden als basis voor toestemming voor ‘activiteiten’. Hiermee is het PAS buiten werking gesteld. In de nieuwe Aerius Calculator van september 2019 zijn de bezwaren van de Afdeling bestuursrechtspraak zoals verwoord in de uitspraak van 29 mei 2019 weggenomen.
Het initiatief gaat in de bouw- en de gebruiksfase gepaard met enige uitstoot van stikstof. Om die reden zijn Aeriusberekeningen uitgevoerd, gebruik makend van de nieuwe Aerius Calculator: zie
bijlagen bij toelichting, bijlage 5. Uit de berekeningen blijkt dat de stikstofdepositie vanwege de beoogde ontwikkeling geen significante gevolgen heeft voor Natura 2000-gebieden. Daarmee is er geen vergunning nodig in het kader van de Wet natuurbescherming. Met het oog op de Wet natuurbescherming is het plan uitvoerbaar.
Conclusie
De beoogde sanering van de bebouwing aan het Hitteschild 4–6 te IJsselstein leidt, mits vooraf aan de werkzaamheden aanvullend onderzoek wordt uitgevoerd ten aanzien van vleermuizen, bij aanwezigheid van deze soorten een ontheffing wordt verleend en enkele algemene maatregelen worden getroffen ten aanzien van zorgplicht en algemene broedvogels, niet tot overtreding van de Wet natuurbescherming. Het aanvullend onderzoek naar de vleermuis is opgestart, inmiddels zijn twee observaties uitgevoerd. Tijdens de eerste twee observaties zijn geen verblijfplekken van de vleermuis geconstateerd. Het aanvullend onderzoek naar de vleermuis zal in juli 2020 worden afgerond.
Te treffen maatregelen
- Tijdens de werkzaamheden moet voorzichtig worden gehandeld met alle voorkomende flora en fauna (Zorgplicht).
- Wanneer ondanks zorgvuldig handelen, onderzoek en advies schade lijkt te ontstaan voor beschermde flora en fauna, dient direct contact opgenomen te worden met een ter zake deskundige.
- Alle aanwezige vegetatie of bodemmateriaal (takken, stronken) gefaseerd verwijderen. Dit om bodembewonende dieren de kans te bieden in de nabijgelegen omgeving een ander leefgebied te benutten.
- Er wordt gelegenheid gegeven aan dieren, die tijdens de werkzaamheden worden gevonden, te vluchten of zich te verplaatsen naar een schuilplaats buiten het bereik van de werkzaamheden.
- Ten aanzien van vleermuizen dient de aan- dan wel afwezigheid van vaste rust- en/of verblijfplaatsen vastgesteld te worden middels aanvullend onderzoek. Dit kan middels vijf gerichte veldbezoeken in de periode mei-oktober. Daarnaast dient de planlocatie tijdens de werkzaamheden en in de nieuwe situatie bij voorkeur minimaal verlicht te worden en hierbij een vleermuisvriendelijke verlichtingswijze toe te passen (amberkleurig licht, lichtbundel nederwaarts richten, toepassen geconvergeerde lichtbundel) en de werkzaamheden in de periode april-oktober tussen zonsopgang en zonsondergang uitvoeren (buiten schemerperiodes).
- De werkzaamheden opstarten/uitvoeren buiten het broedseizoen van vogels (medio maart t/m medio juli). Indien de werkzaamheden in het broedseizoen worden uitgevoerd dient voor de aanvang door een ter zake deskundig gecontroleerd te worden of er broedvogels aanwezig zijn. E.e.a. op aanwijzing van deskundige. Indien dit niet mogelijk is dienen de potentiële nestlocaties buiten het broedseizoen ongeschikt gemaakt te worden.
4.8 Waterhuishouding
Het aspect water is van groot belang binnen de ruimtelijke ordening. Door verstandig om te gaan met het water kan verdroging en wateroverlast (waaronder ook risico van overstromingen e.d.) voorkomen worden en de kwaliteit van het water hoog gehouden worden.
4.8.1 Generiek beleid
Op Rijksniveau en Europees niveau zijn de laatste jaren veel plannen en wetten gemaakt met betrekking tot water. De belangrijkste hiervan zijn het Waterbeleid voor de 21e eeuw, de Waterwet en het Nationaal Waterplan.
Waterbeleid voor de 21e eeuw
De Commissie Waterbeheer 21ste eeuw heeft in augustus 2000 advies uitgebracht over het toekomstige waterbeleid in Nederland. De adviezen van de commissie staan in het rapport ‘Anders omgaan met water, Waterbeleid voor de 21ste eeuw’ (WB21). De kern van het rapport WB21 is dat water de ruimte moet krijgen, voordat het die ruimte zelf neemt. In het Waterbeleid voor de 21e eeuw worden twee principes (drietrapsstrategieën) voor duurzaam waterbeheer geïntroduceerd:
- vasthouden, bergen en afvoeren: dit houdt in dat overtollig water zoveel mogelijk bovenstrooms wordt vastgehouden in de bodem en in het oppervlaktewater. Vervolgens wordt zo nodig het water tijdelijk geborgen in bergingsgebieden en pas als vasthouden en bergen te weinig opleveren wordt het water afgevoerd.
- schoonhouden, scheiden en zuiveren: hier gaat het erom dat het water zoveel mogelijk schoon wordt gehouden. Vervolgens worden schoon en vuil water zoveel mogelijk gescheiden en als laatste komt het zuiveren van verontreinigd water aan bod.
Waterwet
Centraal in de Waterwet staat een integraal waterbeheer op basis van de ‘watersysteembenadering’. Deze benadering gaat uit van het geheel van relaties binnen watersystemen. Denk hierbij aan de relaties tussen waterkwaliteit, -kwantiteit, oppervlakte- en grondwater, maar ook aan de samenhang tussen water, grondgebruik en watergebruikers. Het doel van de Waterwet is het integreren van acht bestaande wetten voor waterbeheer. Door middel van één watervergunning regelt de wet het beheer van oppervlaktewater en grondwater en de juridische implementatie van Europese richtlijnen, waaronder de Kaderrichtlijn Water. Via de Waterwet gelden verschillende algemene regels. Niet alles is onder algemene regels te vangen en daarom is er de integrale watervergunning. In deze integrale watervergunning zijn zes vergunningen uit eerdere wetten (inclusief keurvergunning) opgegaan in één aparte watervergunning.
Nationaal Waterplan
Op basis van de Waterwet is het Nationaal Waterplan vastgesteld door het kabinet. Het Nationaal Waterplan geeft op hoofdlijnen aan welk beleid het Rijk in de periode 2016 - 2021 voert om te komen tot een duurzaam waterbeheer. Het Nationaal Waterplan richt zich op bescherming tegen overstromingen, beschikbaarheid van voldoende en schoon water en de diverse vormen van gebruik van water. Het geeft maatregelen die in de periode 2016-2021 genomen moeten worden om Nederland ook voor toekomstige generaties veilig en leefbaar te houden en de kansen die water biedt te benutten.
4.8.2 Beleid Hoogheemraadschap De Stichtse Rijnlanden
Waterbeheerplan
Voor de planperiode 2016-2021 is het Waterbeheerplan (WBP) van De Stichtse Rijnlanden van toepassing. In dit plan geeft De Stichtse Rijnlanden aan wat haar ambities voor deze planperiode zijn en welke maatregelen in het watersysteem worden getroffen. Het WBP legt meer dan voorheen accent op uitvoering. De vijf hoofdthema's zijn:
- waterveiligheid;
- voldoende water;
- gezond water;
- gezuiverd afvalwater;
- genieten van water.
Wat betreft veiligheid is het cruciaal dat de waterkeringen voldoen aan de veiligheidseisen en dat bij dijkverbeteringenswerken wordt uitgegaan van een duurzaam en robuust ontwerp. Wat betreft voldoende water gaat het erom het complete watersysteem goed in te richten, goed te beheren en goed te onderhouden, zodat het gebied geschikt is om te wonen, werken en recreëren. Daarbij wil De Stichtse Rijnlanden dat het watersysteem op orde en toekomstvast wordt gemaakt, rekening houdend met klimaatverandering. Immers, de verandering van het klimaat leidt naar verwachting tot meer lokale en heviger buien, perioden van langdurige droogte en zeespiegelrijzing.
Gezond water is voor De Stichtse Rijnlanden gezond als er een grote diversiteit aan planten en dieren in kan leven, als het veilig gebruikt kan worden voor recreatie of als grondstof voor drinkwater. Het water kan alleen zo schoon mogelijk gehouden worden als de (natuurvriendelijke) inrichtingen, het beheer en onderhoud van watersystemen worden aangepast. Europese regelgeving (de Kaderrichtlijn Water) is hierbij kaderstellend. Het voorkómen van verontreiniging en een goede inrichting van oppervlaktewateren dragen in belangrijke mate bij aan gezond water. Met het oog op het zuiveren van afvalwater beheert De Stichtse Rijnlanden rioolgemalen, persleidingen en zuiveringsinstallaties.
Het laatste thema betreft genieten van water. Hoewel dit geen kerntaak voor het waterschap is, is het onderwerp zeer belangrijk omdat deze in relatie staat tot het watersysteem en het waterbeheer. Recreatie en in het bijzonder 'genieten van water' neemt in de Nederlandse samenleving een steeds belangrijkere plaats in. Het waterschap wil de bewoners en bezoekers van het gebied laten genieten van water in een gezonde en veilige omgeving. Zo kan het waterschap ook zijn werk zichtbaar maken voor de bewoners. Het vaarwegbeheer is een wettelijke taak van het waterschap, voor de overige recreatieve thema's neemt het waterschap een adviserende en faciliterende rol aan.
Keur en uitvoeringsregels
In de Keur van het Hoogheemraadschap De Stichtse Rijnlanden (2018) staan verboden en geboden die betrekking hebben op oppervlaktewaterlichamen, waterkeringen en grondwater. De verboden betreffen die handelingen en gedragingen die in principe onwenselijk zijn voor de constructie of de functie van oppervlaktewaterlichamen, waterkeringen of grondwaterlichamen. De geboden geven de verplichtingen aan om deze waterstaatswerken in stand te houden. Een gebod kan bijvoorbeeld betrekking hebben op een onderhoudsverplichting. Hiermee vermeldt de Keur expliciet welke handelingen vergunningplichtig zijn en welke aan algemene regels of aan de zorgplicht moeten voldoen. In de Uitvoeringsregels die bij de Keur horen is dit nader uitgewerkt.
Voor oppervlakken tot 500 m² in stedelijk gebied en 1000 m² in niet stedelijk gebied gelden algemene regels. Wordt er nieuwe verharding of uitbreiding van bestaande verharding aangebracht boven de gestelde ondergrens (500 m² in stedelijk gebied en 1000 m² in niet stedelijk gebied), moeten er compenserende maatregelen worden getroffen. In de watervergunning worden hierover voorwaarden opgenomen.
Beleid hemel- en afvalwater
Bij de afvoer van overtollig hemelwater is infiltratie van water in de bodem het uitgangspunt, omdat dit het meest duurzaam is. Oppervlakkige afvoer naar de infiltratievoorziening en infiltratie via wadi's heeft daarbij de voorkeur. Als oppervlakkige infiltratie niet mogelijk is, is ondergrondse infiltratie door middel van bijvoorbeeld een infiltratieriool een optie. Als infiltratie niet mogelijk is, kan hemelwater via een bodempassage worden geloosd op oppervlaktewater. Schoon hemelwater (bijvoorbeeld vanaf dakoppervlakken) kan direct worden afgevoerd naar oppervlaktewater. Speciale aandacht wordt besteed aan duurzaam bouwen en een duurzaam gebruik van de openbare ruimte om een goede kwaliteit van het afgekoppelde hemelwater te garanderen.
4.8.3 Watertoets
In Nederland heeft water een eigen plaats gekregen in de ruimtelijke besluitvorming via de watertoets. De watertoets houdt in dat bij het maken van ruimtelijke plannen al in een vroeg stadium bekeken moet worden wat de gevolgen zijn voor water en de ruimtelijke ordening. De watertoets is een proces waarbij overleg wordt gevoerd met de waterbeheerder. De waterbeheerder stelt in dit proces de kaders vast en geeft een wateradvies voor verschillende waterhuishoudkundige aspecten. De watertoets resulteert uiteindelijk in een waterparagraaf, die in de toelichting van het ruimtelijke plan wordt opgenomen.
Planspecifiek
Op 4 oktober 2019 is de digitale watertoets uitgevoerd. Uit de digitale watertoets blijkt dat het ruimtelijk plan geen groot effect heeft op het water. Op basis van de uitkomsten van de watertoets blijkt dat de beoogde ontwikkeling voldoet aan de belangrijkste minimale voorwaarde: "het standstill beginsel". Dit beginsel houdt in dat door het plan geen verslechtering van de waterhuishouding ontstaat. De ontwikkelingen die door het plan mogelijk worden gemaakt, hebben een geringe invloed op de waterhuishouding en de afvalwaterketen.
Watergangen
Ten noorden van het plangebied is een watergang gelegen die in onderhoud is bij het waterschap. De breedte van de beschermingszone betreft 5 m, de beschermingszone van deze watergang reikt niet tot het plangebied. Ten zuiden van het plangebied is een watergang gelegen waarvoor ook een beschermingszone van 5 m geldt, het plangebied is op voldoende afstand van de watergang gelegen.
Onderstaande afbeelding toont een uitsnede van de leggerkaart van HDSR.
Uitsnede leggerkaart (bron: hdsr.nl)
Verhard oppervlak
Een belangrijk deel van het plangebied is in de huidige situatie reeds verhard (bebouwing en verhardingen). In de nieuwe situatie neemt het verharde oppervlak enigszins toe, maar er heeft geen toename aan verharding plaats van meer dan 500 m². Conform de eisen van HDSR hoeft niet voorzien te worden in compensatie door middel van de aanleg van (extra) waterberging.
Waterafvoer
Hemelwater wordt geïnfiltreerd in de bodem. In het waterbeleid is afvoer van overtollig hemelwater door middel van infiltratie in de bodem het uitgangspunt. Oppervlakkige afvoer naar de infiltratievoorziening en infiltratie via wadi's heeft daarbij de voorkeur. Als oppervlakkige infiltratie niet mogelijk is, is ondergrondse infiltratie door middel van bijvoorbeeld een infiltratieriool een optie. Afvalwater kan worden afgevoerd naar vuilwaterriool. Hierbij wordt geen gebruik gemaakt van uitlogende bouwmaterialen. Het afvalwater wordt afgevoerd via het gemeentelijk rioolstelsel.
Het aspect water vormt geen belemmering voor onderhavige ontwikkeling.
4.9 Archeologie en cultuurhistorie
In 1992 is in Valletta (Malta) het Europees Verdrag inzake de bescherming van het archeologisch erfgoed (Verdrag van Malta) ondertekend. Het Verdrag van Malta voorziet in bescherming van het Europees archeologisch erfgoed onder meer door de risico's op aantasting van dit erfgoed te beperken. Per 1 juli 2016 is de Erfgoedwet ingegaan totdat de Omgevingswet in werking treedt. De Erfgoedwet bundelt bestaande wet- en regelgeving voor behoud en beheer van het cultureel erfgoed in Nederland. Onder andere de Monumentenwet is hierin overgegaan. Op basis van de Erfgoedwet zijn mogelijke (toevals)vondsten bij het verrichten van werkzaamheden in de bodem altijd beschermd. Artikel 5.10 lid 1 van de Erfgoedwet stelt namelijk: 'Degene die anders dan bij het verrichten van opgravingen een vondst doet waarvan hij weet dan wel redelijkerwijs moet vermoeden dat het een archeologische vondst betreft, meldt dit zo spoedig mogelijk bij Onze Minister'.
Planspecifiek
Archeologie
Het plangebied is binnen het geldende bestemmingsplan 'Noordoost', vastgesteld door de gemeenteraad d.d. 8 mei 2013, gelegen binnen de gebiedsaanduiding ‘archeologisch waardevol gebied – 3’. Binnen deze gebiedsaanduiding zijn gronden tevens bestemd voor bescherming en veiligstelling van archeologische (verwachtings-)waarden. Conform de gebiedsaanduiding is het verboden om op of in deze gronden zonder of in afwijking van een omgevingsvergunning aanleg werken en werkzaamheden de volgende werkzaamheden of werken, niet zijnde bouwwerken uit te voeren:
- afgraven, woelen, mengen, diepploegen, egaliseren, ontginnen, ophogen en aanleggen van drainage op een grotere diepte dan 30 cm;
- heiwerkzaamheden en het op een of andere wijze indrijven van voorwerpen;
- verlagen of verhogen van het waterpeil;
- aanleggen of rooien van bos of boomgaard waarbij stobben worden verwijderd
- aanleggen van ondergrondse kabels en leidingen en het aanbrengen van daarmee verband houdende constructies, installaties of apparatuur;
- het aanbrengen of verwijderen van diepgewortelde beplantingen.
Dit verbod is niet van toepassing indien de werkzaamheden of werken een oppervlakte beslaan van ten hoogste 10 ha. Onderhavig plangebied heeft een oppervlakte van ca. 4.600 m², ver beneden de drempelwaarde. Archeologisch onderzoek is dan ook niet nodig. De mogelijk aanwezige archeologische waarden dienen wel in het op te stellen bestemmingsplan ten behoeve van onderhavige ontwikkeling door middel van een gebiedsaanduiding te worden veiliggesteld. Hierin voorziet de dubbelbestemming 'Waarde - archeologie 3'.
Cultuurhistorie
Binnen het plangebied zijn geen monumenten aanwezig. Voorliggende bestemmingsplan maakt de bouw van een appartementengebouw met ca. 30 (zorg-)woningen mogelijk. In fysieke zin worden hiermee geen cultuurhistorische kwaliteiten in de omgeving aangetast.
4.10 Duurzaamheid
Het Rijk sluit aan bij de Europese doelstelling om te komen tot een 20 % reductie van de CO2-uitstoot in 2020 ten opzichte van 1990. In 2020 dient verder de bijdrage van duurzame energie 14 % van het totale energieverbruik te zijn. De gebouwde omgeving is goed voor 30 % van het totale energieverbruik in Nederland, heeft een groot besparingspotentieel en kan daardoor een belangrijke bijdrage leveren aan het realiseren van de bovengenoemde doelstellingen, ook op de langere termijn.
Nederland in 2050 vrij van aardgas
Per 1 juli 2018 is de Gaswet veranderd. Hierdoor krijgen nieuwe gebouwen geen gasaansluiting meer. Dit komt door een verandering van de gasaansluitplicht. De wetswijziging heeft invloed op nieuwe gebouwen waarvan de bouwvergunning is aangevraagd na 30 juni 2018. Deze verandering geldt voor alle kleinverbruikers (max 40 m3gas/uur), zoals woningen en kleine bedrijfsgebouwen.
Energie (EPC)
De rijksoverheid stimuleert duurzaam bouwen vooral op het aspect energie. Sinds 1995 worden in het Bouwbesluit eisen gesteld ten aanzien van de energiezuinigheid van een gebouw. De energie efficiëntie wordt uitgedrukt in de Energie Prestatie Coëfficiënt (EPC). Vanaf 1 januari 2015 geldt voor woningen een wettelijke EPC van 0,4.
Voor alle nieuwbouw, zowel woningbouw als utiliteitsbouw, geldt dat de vergunningaanvragen vanaf 1 januari 2020 moeten voldoen aan de eisen voor bijna energieneutrale gebouwen (BENG). BENG vloeit voort uit het Energieakkoord voor duurzame groei en uit de Europese richtlijn EPBD.
Milieuprestatie Gebouw (MPG)
Vanaf 2013 geldt vanuit het Bouwbesluit de verplichting om bij de aanvraag omgevingsvergunning Bouwen een berekening aan te leveren van de Milieuprestatie van een gebouw. De verplichting geldt voor alle woningen, woongebouwen en kantoorgebouwen (groter dan 100 m²).
GPR Gebouw
Een meetinstrument voor duurzame ontwikkeling en het benutten van het besparingspotentieel is GPR Gebouw. GPR Gebouw is een manier om duurzaam bouwen te concretiseren en doet dit door een rapportcijfer te geven op vijf thema’s: Energie, Milieu, Gezondheid, Gebruikskwaliteit en Toekomstwaarde. Hierbij geldt, hoe hoger het cijfer, hoe duurzamer het gebouw. Door de GPR Gebouw in te vullen wordt meer nagedacht over duurzaamheid tijdens het ontwerpen en (ver)bouwen van gebouwen. GPR Gebouw kan ook gebruikt worden om bestaande woningen en gebouwen te verduurzamen. Na invoering van gegevens in GPR Gebouw betreffende de woningen worden prestaties zichtbaar op de thema’s Energie, Milieu, Gezondheid, Gebruikskwaliteit en Toekomstwaarde.
Beleidsplan Duurzaamheid
In het Beleidsplan Duurzaamheid Gemeente IJsselstein, Actualisatie Visiedocument IJsselstein Duurzaam (2016) wordt gestreefd naar toekomstbestendige gebouwen waar gekozen is voor duurzaamheid, flexibiliteit, multifunctionaliteit en een goed binnenklimaat (minimaal frisse scholen klasse C). Gedacht kan worden aan hoge plafonds, meer daglicht, energiezuinige systemen, hogere eisen aan ventilatie, verlichting en isolatie, zo min mogelijk dragende binnenmuren en het makkelijk kunnen splitsen en samenvoegen van ruimtes. Bovendien wordt voor alle nieuwe gebouwen uitgegaan van een score van minimaal GPR = 8.
Planspecifiek
Het voorliggende initiatief past volledig binnen de doelstellingen van het Beleidsplan Duurzaamheid. Met de voorgenomen ontwikkeling wordt aangesloten bij dit streven. Qua duurzaamheid zal worden voldaan aan de eisen voor bijna energieneutrale gebouwen (BENG). De concrete maatregelen die hiervoor worden getroffen zijn nog niet bekend. Wel zal de ontwikkeling aardgasloos worden uitgevoerd.
4.11.1 Verkeer
Voor het maken van een inschatting van de hoeveelheid autoverkeer dat wordt gegenereerd bij ruimtelijke ontwikkelingen, zijn kencijfers verkeersgeneratie ontwikkeld. Onder verkeersgeneratie wordt hierbij verstaan de totale hoeveelheid gemotoriseerd verkeer (exclusief openbaar vervoer) die gedurende een gekozen tijdsperiode naar de beoogde ontwikkeling toe rijdt en hiervan wegrijdt.
Het nationale kennisplatform voor infrastructuur, verkeer, vervoer en openbare ruimte (CROW) geeft in publicatie 381 'Toekomstbestendig parkeren, van parkeerkencijfers naar parkeernormen' kencijfers voor verkeersgeneratie. In de richtlijnen wordt onderscheid gemaakt op basis van de functie van de ontwikkeling (wonen, bedrijf, etc.) en op basis van de locatiekenmerken. Zodoende kan bij ruimtelijke ontwikkelingen voor vrijwel elke locatie een goed beeld worden verkregen wat de totale verkeersaantrekkende werking bedraagt
Planspecifiek
Het plangebied wordt vergelijkbaar met de huidige situatie ontsloten via de Basishof op de Ruimtevaartbaan. De Basishof aan de westzijde is, gelijk aan de huidige situatie, uitsluitend bestemd voor woningen die daar gelegen zijn. Ter hoogte van het plangebied zal de bestaande ' knip' gehandhaafd blijven. De Basishof aan de oostzijde geldt als ontsluitingsweg van het plangebied. Ten behoeve van het voorgenomen plan zal de bestaande asfaltweg met een breedte van 3,5 m vervangen worden voor toegangsweg van betonstraatstenen met een breedte van 5,5 m.
Het plangebied is gelegen grenzend aan de Hitteschild en Basishof binnen de bebouwde kom van IJsselstein. De Basishof is een 30 km/u-weg en vormt de toegangsweg tot het plangebied. In de bestaande situatie is het plangebied bebouwd met een schoolgebouw. CROW-publicatie 381 geeft hiervoor geen cijfers van de bijbehorende verkeersgeneratie. Binnen de mogelijkheden van het geldende bestemmingsplan 'Noordoost' is het mogelijk ter plaatse een wijkcentrum te realiseren. Uitgaande van de categorieën 'rest bebouwde kom' en 'sterk stedelijk' bedraagt de maximale verkeersgeneratie van een wijkcentrum (gemiddeld) met een oppervlakte van ca. 1.340 m² volgens CROW-publicatie 381 ca. 819 verkeersbewegingen per etmaal. Als uitgegaan wordt van het voormalige gebruik als basisschool dan ligt dat cijfer lager.
De beoogde situatie betreft de realisatie van ca. 30 (zorg-)woningen. Hiervoor geldt een verkeersgeneratie van ca. 108 verkeersbewegingen per etmaal, uitgaande van sociale huurwoningen volgens de CROW-publicatie 381. De bestaande infrastructuur is in staat om deze verkeersgeneratie te verwerken, mede omdat ten opzichte van de voormalige (planologische) situatie geen sprake zal zijn van een wezenlijke toename.
Het aspect 'verkeer' vormt derhalve geen belemmering voor de voorgenomen ontwikkeling.
4.11.2 Parkeren
Onderdeel van een goede ruimtelijke ordening is het onderzoeken en beschrijven van het effect van een beoogd nieuw project op het parkeren in en rondom het plangebied. Hierbij hanteert de gemeente IJsselstein het 'Parkeerbeleidsplan IJsselstein' (2006), zoals ook vastgelegd in het 'Paraplubestemmingsplan parkeernormen IJsselstein' (2018).
Het 'Parkeerbeleidsplan IJsselstein' van de gemeente IJsselstein bevat de gemeentelijke parkeernormen die aangehouden dienen te worden bij een ontwikkeling. Deze parkeernormen zijn uitgangspunt voor de voorgenomen ontwikkeling. Het plangebied is gelegen binnen het gebiedstype 'rest bebouwde kom'. De parkeerbehoefte voor de ca. 30 (zorg)woningen wordt berekend aan de hand van de parkeernomen horende bij 'sociale huurwoningen'.
Voor zorgwoningen geldt een parkeernorm van 0,6 per woning. In totaal betreft de parkeerbehoefte in dat geval 18 parkeerplaatsen. Het beoogde initiatief voorziet in voldoende parkeerplaatsen op eigen terrein (zie onderstaande afbeelding).
Beoogde situatie ontsluiting en parkeren met gestippeld de mogelijke uitbreiding van het parkeerterein (bron: Kokon 23 januari 2020)
Als het gebouw op termijn voor 'reguliere' sociale huurwoningen wordt benut, dient conform het parkeerbeleid van de gemeente IJsselstein uitgegaan te worden van een parkeernorm van 1,2 - 1,5 parkeerplaatsen per woning. Op basis van eerdere verkenningen door de gemeente IJsselstein mag hier uitgegaan worden van een parkeernorm van 1,2. De parkeerbehoefte bedraagt in dat geval 36 parkeerplaatsen. Het voorliggende bestemmingsplan speelt in op de mogelijkheid het aantal parkeerplaatsen uit te breiden binnen het plangebied (zie afbeelding). Hierin voorziet de bestemming 'Verkeer' aan de oostkant van het woongebouw.
Het aspect 'parkeren' vormt geen belemmering voor de voorgenomen ontwikkeling.
5 Juridische planbeschrijving
5.1 Algemeen
Voor het bestemmingsplan is gebruik gemaakt van de in de Wet ruimtelijke ordening opgenomen standaardvorm van de Standaard Vergelijkbare Bestemmingplannen 2012 (SVBP 2012).
Dit bestemmingsplan bestaat uit een verbeelding, planregels en een toelichting. De verbeelding en de planregels vormen samen het juridisch bindende gedeelte van het bestemmingsplan. Beide planonderdelen dienen in onderlinge samenhang te worden bezien en toegepast. Op de verbeelding zijn de bestemmingen aangewezen. Aan deze bestemmingen zijn bouwregels en regels betreffende het gebruik gekoppeld.
5.2 Toelichting
De toelichting heeft geen rechtskracht, maar vormt niettemin een belangrijk onderdeel van het plan. De toelichting van dit bestemmingsplan geeft een weergave van de beweegredenen, de onderzoeksresultaten en de beleidsuitgangspunten die aan het bestemmingsplan ten grondslag liggen. Ook is de toelichting van wezenlijk belang voor een juiste interpretatie en toepassing van het bestemmingsplan. Tot slot maakt een eventuele bijlage onlosmakelijk onderdeel uit van het bestemmingsplan.
5.3 Verbeelding
Op de verbeelding worden de bestemmingen weergegeven met daarbij andere bepalingen als gebiedsaanduidingen, bouwaanduidingen, bouwvlakken etc. Voor de analoge verbeelding is gebruik gemaakt van een digitale ondergrond (Grootschalige Basiskaart en/of kadastrale kaart).
5.4 Planregels
De planregels zijn onderverdeeld in vier hoofdstukken. Hoofdstuk 1 bevat de inleidende regels voor het hele plangebied. Hoofdstuk 2 geeft de bestemmingsregels. Hoofdstuk 3 geeft vervolgens de algemene regels waaronder (mogelijke) flexibiliteitsbepalingen in de vorm van wijzigings- en afwijkingsbevoegdheden. In dit derde hoofdstuk kunnen belangrijke algemene bepalingen zijn opgenomen die van invloed zijn op het bepaalde in hoofdstuk 2. Ten slotte regelt hoofdstuk 4 de overgangs- en slotbepalingen. In de volgende paragraaf worden de afzonderlijke bestemmingen behandeld.
Voor de planregels is de gestandaardiseerde opbouw uit de Standaard Vergelijkbare Bestemmingsplannen 2012 gebruikt. In de planregels is een standaard hoofdstukindeling aangehouden die begint met 'Inleidende regels' (begrippen en wijze van meten), vervolgens met de 'Bestemmingsregels', de 'Algemene regels' (de regels die voor alle bestemmingen gelden) en de 'Overgangs- en slotregels'. In het tweede hoofdstuk, de Bestemmingsregels, staan de verschillende bestemmingen op alfabetische volgorde.
Ook de regels van een bestemming kennen een standaardopbouw en worden als volgt benoemd:
- Bestemmingsomschrijving (in elk bestemmingsplan);
- Bouwregels (bestemmingsplanafhankelijk);
- Afwijken van de bouwregels (bestemmingsplanafhankelijk);
- Specifieke gebruiksregels (bestemmingsplanafhankelijk);
- Afwijken van de gebruiksregels (bestemmingsplanafhankelijk);
- Omgevingsvergunning voor het uitvoeren van een werk, geen bouwwerk zijnde, of van werkzaamheden (bestemmingsplanafhankelijk).
5.5 Wijze van bestemmen
Voorliggend bestemmingsplan bevat de volgende (dubbel)bestemmingen, waarbij inhoudelijk is aangesloten op de mogelijkheden van het geldende bestemmingsplan 'Noordoost':
De voor 'Groen' aangewezen gronden zijn bestemd voor groenvoorzieningen, bermen en beplanting, paden, water en voorzieningen voor de waterhuishouding. Tevens zijn binnen deze bestemming nuts- en speelvoorzieningen en de bijbehorende bouwwerken, geen gebouwen zijnde, en verhardingen toegestaan.
Verder mag slechts ten dienste van de bestemming worden gebouwd en er zijn bouwwerken, geen gebouwen zijnde toegelaten, zoals lichtmasten, speeltoestellen e.d..
Verkeer
De voor 'Verkeer' aangewezen gronden zijn bestemd voor wegen, straten, wandel- en fietspaden met een functie gericht op zowel verblijf als op de afwikkeling van het verkeer. Tevens zijn binnen deze bestemming parkeer-, groen- en speelvoorzieningen, water, waterhuishoudkundige voorzieningen, waterberging, waterlopen en nutsvoorzieningen toegestaan. Verder mag slechts ten dienste van de bestemming worden gebouwd en er zijn bouwwerken, geen gebouwen zijnde toegelaten, zoals lichtmasten, speeltoestellen e.d..
Wonen
Aan het te realiseren appartementengebouw is de bestemming 'Wonen' toegekend. Er is een bouwvlak aangeduid,
waarbinnen het hoofdgebouw moet worden opgericht. Voor het hoofdgebouw zijn twee verschillende bouwhoogten opgenomen, hierdoor zal het appartementengebouw aansluiten op de bouwhoogte van de woningen in de omgeving. Op de verbeelding is verder middels een aanduiding het aantal wooneenheden en de type woningen geregeld. Binnen de bestemming 'Wonen' is het mogelijk zowel woningen als zorgwoningen te realiseren. Tevens is het mogelijk ten behoeve van de zorgwoningen bijbehorende algemene en maatschappelijke ruimtes te realiseren.
Bij gestapelde woningen mogen geen aan- en uitbouwen, bijgebouwen en overkappingen buiten het bouwvlak worden gebouwd, met uitzondering van een (gezamenlijke) berging van ten hoogste 20 m² en van balkons.
Verder gelden de in de gemeente gebruikelijke mogelijkheden voor niet-publieksgerichte aan huis verbonden beroeps- of bedrijfsactiviteiten. In de Algemene gebruiksregels is een bepaling opgenomen voor het parkeren.
Voor het gehele plangebied is de dubbelbestemming 'Waarde - Archeologie 3' opgenomen. De gronden zijn mede bestemd voor de bescherming en de veiligstelling van archeologische waarden.
6 Economische uitvoerbaarheid
Bij de voorbereiding van een bestemmingsplan, een wijzigingsplan als bedoeld in artikel 3.6, eerste lid Wro of naar aanleiding van een omgevingsvergunning waarbij met toepassing van artikel 2.12, eerste lid, onder a, 3°van de Wabo wordt afgeweken van het bestemmingsplan of de beheersverordening, dient, op grond van artikel 3.1.6 lid 1, sub f van het Bro, onderzoek plaats te vinden naar de (economische) uitvoerbaarheid van het plan.
In principe dient bij vaststelling van een ruimtelijk besluit tevens een exploitatieplan vastgesteld te worden om verhaal van plankosten zeker te stellen. Op basis van artikel 6.12, lid 2 van de Wro kan de gemeenteraad bij het besluit tot vaststelling van het bestemmingsplan echter besluiten geen exploitatieplan vast te stellen indien:
- het verhaal van kosten van de grondexploitatie over de in het plan of besluit begrepen gronden anderszins verzekerd is;
- het bepalen van een tijdvak of fasering als bedoeld in artikel 6.13, eerste lid, onder c, 4°, onderscheidenlijk 5°, niet noodzakelijk is;
- het stellen van eisen, regels, of een uitwerking van regels als bedoeld in artikel 6.13, tweede lid, onderscheidenlijk b, c of d, niet noodzakelijk is.
Dit bestemmingsplan heeft gelet op artikel 6.2.1 Bro betrekking op een bij algemene maatregel van bestuur aangewezen bouwplan. Er wordt immers een appartementengebouw gebouwd. De gemeente heeft ten behoeve van de voorgenomen ontwikkeling een anterieure overeenkomst afgesloten met de initiatiefnemer. In deze overeenkomst wordt de betaling van de eventuele tegemoetkoming in de planschade, die het nieuwe planologisch kader kan veroorzaken, geregeld. De overige kosten worden door middel van leges op de initiatiefnemer verhaald. Het bestemmingsplan is hierdoor economisch uitvoerbaar.
7 Maatschappelijk uitvoerbaarheid
7.1 Algemeen
Bij de voorbereiding van een ontwerp bestemmingsplan dient op grond van artikel 3.1.6 lid 1 Wro sub c overleg te worden gevoerd als bedoeld in artikel 3.1.1 Bro. Op basis van het eerste lid van dit artikel wordt overleg gevoerd met waterschappen en met die diensten van provincie en Rijk die betrokken zijn bij de zorg voor de ruimtelijke ordening of belast zijn met de behartiging van belangen welke in het plan in het geding zijn. Voor wat kleinere plannen kan, in overleg, afgezien worden van dit overleg.
Een ontwerpbestemmingsplan dient conform afdeling 3.4 Awb gedurende 6 weken ter inzage gelegd worden. Hierbij is er de mogelijkheid voor een ieder om zienswijzen in te dienen op het plan. Na vaststelling door de Raad wordt het vaststellingsbesluit bekend gemaakt. Het bestemmingsplan ligt na bekendmaking 6 weken ter inzage. Gedurende deze termijn is er de mogelijkheid beroep in te dienen bij de Afdeling bestuursrechtspraak van de Raad van State. Het bestemmingsplan treedt vervolgens de dag na afloop van de tervisielegging in werking als er geen beroep is ingesteld. Is er wel beroep ingesteld dan treedt het bestemmingsplan ook in werking, tenzij naast het indienen van een beroepschrift ook om een voorlopige voorziening is gevraagd. De schorsing van de inwerkingtreding eindigt indien de voorlopige voorziening wordt afgewezen. De procedure eindigt met het besluit van de Afdeling bestuursrechtspraak van de Raad van State.
Participatie
Het voorgenomen plan is op verschillende keren met de bewoners in omgeving besproken middels een inloopavond op 8 en 22 mei 2019 en 17 juli 2019. De bewoners in de omgeving hebben de voorkeur voor het instandhouden van de huidige situatie. Deze wens is deels overgenomen met het voorgenomen plan door de bestaande ontsluiting, de ligging van de parkeerplaatsen en groenrand te behouden. Tevens is de toekomstige bebouwing afgestemd met de bewoners in de omgeving.
7.2 Inspraak
Te zijner tijd zullen eventueel ingediende inspraakreacties hier van een gemeentelijke reactie worden voorzien.
7.3 Vooroverleg
Te zijner tijd zullen eventueel ingediende vooroverlegreacties hier van een gemeentelijke reactie worden voorzien.
7.4 Zienswijzen
Te zijner tijd zullen eventueel ingediende zienswijzen hier van een gemeentelijke reactie worden voorzien.