direct naar inhoud van Toelichting
Plan: Brandweerkazerne en nevenlocatie Voederheil, Zeeland
Status: ontwerp
Plantype: bestemmingsplan
IMRO-idn: NL.IMRO.1685.bpzee2021brandweer-OW01

Toelichting

Hoofdstuk 1 Inleiding

1.1 Aanleiding

De Veiligheidsregio Brabant-Noord (hierna: VRBN), gevestigd in Den Bosch, is voornemens om naast de hoofdlocatie in Den Bosch een tweede brandweervoorziening te realiseren aan de Voederheil, in het dorp Zeeland, gemeente Landerd. Deze nevenlocatie gaat, als steunpunt van de hoofdvestiging, onder andere dienst doen als opleidingscentrum en biedt plaats aan overlegruimtes, kantoorflexwerkplekken, werkplaatsen en opslagruimtes. Daarnaast is het de bedoeling om de huidige uit 1982 daterende brandweerkazerne aan de Langenboomseweg in Zeeland te verplaatsen naar de Voederheil.

Om de beoogde ontwikkeling mogelijk te maken, moet het geldende bestemmingsplan voor de gronden in het plangebied worden herzien. Onderhavig bestemmingsplan voorziet hierin.

1.2 Ligging plangebied

Het plangebied is gelegen aan de Voederheil, tussen nummer 14 en 16, in het dorp Zeeland, in de gemeente Landerd. Kadastraal bekend als gemeente Zeeland, sectie K, nummer 1557. Het plangebied heeft een oppervlakte van circa 14.600 m2 en wordt begrensd door:

  • Noordzijde: de Landweer en het kadastrale bedrijfsperceel nummer 1558;
  • Oostzijde: de achterzijde van de bedrijfspercelen aan Hogeweg 1 en 5 en de zijdelingse woonperceelsgrens van Voederheil 14;
  • Zuidzijde: de Voederheil en de achterzijde van het woonperceel Voederheil 14;
  • Westzijde: de zijdelingse woon/agrarische perceelgrens van Voederheil 16 en een deel van het buiten het plangebied gelegen gedeelte van het kadastrale perceel nummer 1557.

Navolgende afbeeldingen tonen globaal de ligging en begrenzing van het plangebied in de omgeving. Voor de exacte begrenzing van het plangebied wordt verwezen naar de verbeelding.

afbeelding "i_NL.IMRO.1685.bpzee2021brandweer-OW01_0001.jpg" Globale ligging plangebied (rode stip)

afbeelding "i_NL.IMRO.1685.bpzee2021brandweer-OW01_0002.jpg" Globale begrenzing plangebied (rode omkadering)

1.3 Geldend bestemmingsplan

Ter plaatse van het plangebied geldt het bestemmingsplan 'Bedrijventerrein Voederheil II', zoals de gemeenteraad dat op 18 april 2013 heeft vastgesteld. De gronden in het plangebied hebben volgens dit bestemmingsplan de bestemming 'Agrarisch'.

In aanvulling op het bestemmingsplan geldt voor het hele plangebied ook een zogenaamd parapluplan, te weten het bestemmingsplan 'Parapluplan wonen en parkeren Landerd', vastgesteld door de gemeenteraad op 27 juni 2019. In dit parapluplan is de te hanteren parkeernormering voor de hele gemeente Landerd vastgelegd.

afbeelding "i_NL.IMRO.1685.bpzee2021brandweer-OW01_0003.jpg" Uitsnede geldend bestemmingsplan met globale begrenzing plangebied (rode omkadering)

Binnen de bestemming 'Agrarisch' is het realiseren van een brandweerkazerne en een nevenlocatie niet toegestaan. De beoogde ontwikkeling past niet binnen de bouw- en gebruiksregels van de geldende bestemming. Om de gewenste ontwikkeling juridisch-planologisch mogelijk te maken, is de vaststelling van een nieuw bestemmingsplan voor dit gebied noodzakelijk.

1.4 Leeswijzer

Het bestemmingsplan bestaat uit meerdere onderdelen: een verbeelding waarop de bestemmingen in het plangebied zijn aangegeven en regels waarin de bepalingen voor de op de verbeelding vermelde bestemmingen zijn opgenomen. Het bestemmingsplan gaat vergezeld van een toelichting waarin de achtergronden van het bestemmingsplan zijn beschreven. De verbeelding vormt samen met de regels het juridische bindende deel van het bestemmingsplan. In de toelichting worden de keuzes die in het bestemmingsplan worden gemaakt nader gemotiveerd en verantwoord. De toelichting kan globaal opgedeeld worden in vier delen:

Inleiding en gebiedsvisie
In hoofdstuk 1 zijn de aanleidingen en het kader voor de planherziening beschreven. Hoofdstukken 2 en 3 geven een beschrijving van de huidige en toekomstige situatie in het plangebied.

Verantwoording
Hoofdstukken 4 en 5 geven de achtergronden, toelichting en motivatie op de gemaakte keuzen weer die uiteindelijk hebben geleid tot de uitgewerkte planopzet. In dit planonderdeel worden het (beleids)kader en de milieuaspecten uiteengezet.

Juridische planbeschrijving
In hoofdstuk 6 wordt de juridische planopzet beschreven. Doel is een nadere onderbouwing te geven wat met het plan wordt beoogd en hoe de instrumenten regels en verbeelding hierbij worden gehanteerd.

Uitvoerbaarheid
Hoofdstuk 7 gaat in op de financieel-economische en maatschappelijke uitvoerbaarheid van het plan.

Hoofdstuk 2 Huidige situatie

Het plangebied is een (nog) onbebouwd perceel, te midden van de lintbebouwing aan de Voederheil en onderdeel van bedrijventerrein 'Voederheil II Zeeland'. Het perceel is een omheind weiland, tussen twee woningen in (Voederheil 14 en 16). Aan de westzijde is een klein deel van het plangebied verhard ten behoeve van een oprit naar het weiland.

Ten noorden van het plangebied bevindt zich de Landweer, dit is de ontsluitingsweg van bedrijventerrein Voederheil II. Op het bedrijventerrein en op het naastgelegen bedrijventerrein Voederheil I zijn bedrijven tot en met milieucategorie 3.1 en 3.2 toegestaan. Aan weerszijden van de Voederheil is woonbebouwing aanwezig, in combinatie of afgewisseld met (agrarische) bedrijvigheid. Op navolgende afbeeldingen is schematisch de bestaande situatie in en om het plangebied weergegeven, evenals een impressie van het plangebied.

afbeelding "i_NL.IMRO.1685.bpzee2021brandweer-OW01_0004.jpg" Uitsnede kaart BGT met globale aanduiding plangebied (blauwe omkadering)

afbeelding "i_NL.IMRO.1685.bpzee2021brandweer-OW01_0005.jpg"

afbeelding "i_NL.IMRO.1685.bpzee2021brandweer-OW01_0006.jpg" Impressie plangebied

Brandweerkazerne Langenboomseweg
De huidige brandweerkazerne aan de Langenboomsweg 73 in Zeeland dateert uit 1982 en is in eigendom van de VRBN. De kazerne is verouderd en voldoet op verschillende aspecten niet aan de eisen van deze tijd. Gelet op de staat van het gebouw en de vestiging van de nevenlocatie van de VRBN op bedrijventerrein Voederheil II, is ervoor gekozen om de huidige kazerne te verplaatsen naar de Voederheil en te combineren met de regionale nevenlocatie. Een nieuwe bestemming voor de huidige kazerne is nog niet bepaald. Mocht de VRBN geen functie meer hebben voor deze kazerne dan zal deze als eerste te koop worden aangeboden aan de gemeente, zoals vastgelegd in de akte van levering van 31 december 2019. Navolgende afbeelding toont de huidige en toekomstige locatie van de brandweerkazerne en geeft een impressie van de huidige kazerne.

afbeelding "i_NL.IMRO.1685.bpzee2021brandweer-OW01_0007.jpg" Huidige (zuidelijke rode omkadering) en toekomstige (noordelijke rode omkadering) locatie van de brandweerkazerne en een impressie van de huidige brandweerkazerne

Hoofdstuk 3 Toekomstige situatie

Voor de realisatie van de lokale brandweerkazerne en de regionale nevenlocatie wordt één gebouw van circa 3.500 m2 opgericht. De noordzijde van het perceel is momenteel niet in eigendom van de VRBN, maar de VRBN heeft wel een optie op dit gedeelte in verband met eventuele uitbreiding in de toekomst. De noordzijde van het perceel wordt derhalve wel meegenomen in het onderhavig bestemmingsplan. In het geval de brandweer geen gebruik gaat maken van deze gronden, zijn deze te verkopen/gebruiken voor reguliere bedrijfsfuncties.

De brandweerkazerne biedt plaats aan een instructielokaal, een nabespreekruimte c.q. 'HOME' voor de vrijwilligers, een werkplek, stallingsplaatsen, een ruimte voor uitrukkleding, douche- en sanitaire ruimtes, werkplaatsen, opslagruimtes en een alarmcentrale c.q. verbindingsruimte.

De nevenlocatie, als steunpunt van de hoofdvestiging in Den Bosch, gaat onder andere dienst doen als opleidingscentrum en biedt plaats aan overlegruimtes, kantoorflexwerkplekken, een kantine met keuken, een arbo-ruimte, een garderobe, sanitaire ruimtes, werkplaatsen en opslagruimtes.

De buitenruimte bij het gebouw moet beschikken over een opstelplaats voor brandweerauto's, stallingsruimte voor voertuigen en bakwagens, containerruimte, fietsenstallingen en voldoende parkeergelegenheid voor bezoekers, vrijwilligers, medewerkers en ROL-functionarissen.

Ruimtelijke inpassing
Het plangebied ligt aan de zuidelijke rand van bedrijventerrein Voederheil II en vormt zodoende een zichtlocatie voor de presentatie van het bedrijventerrein naar buiten toe. Vandaar dat het beoogde gebouw voor de brandweerkazerne en de nevenlocatie, op de Voederheil georiënteerd wordt en een representatieve gevel krijgt.

Het beoogde gebouw is bovendien onderdeel van de lintbebouwing langs de Voederheil. Om het bebouwingslint te versterken wordt met de situering en de landschappelijke inpassing van het gebouw aangesloten op de bestaande bebouwing en de bestaande landschappelijke elementen. Navolgende afbeelding geeft de visie voor het lint Voederheil weer.

afbeelding "i_NL.IMRO.1685.bpzee2021brandweer-OW01_0008.jpg" Visie bebouwingslint Voederheil

De visie laat zien dat de bebouwing langs de Voederheil niet direct aan de weg grenst en divers is qua functie en grootte. Ook valt op dat het lint aan weerszijde een groene uitstraling heeft. Vanwege de voortuinen met beplanting, de groenstroken en de hagen en bomen langs de weg. Navolgende afbeelding toont de visie voor de brandweerkazerne en nevenlocatie, waarin de benoemde elementen uit de visie voor het bebouwingslint zijn meegenomen.

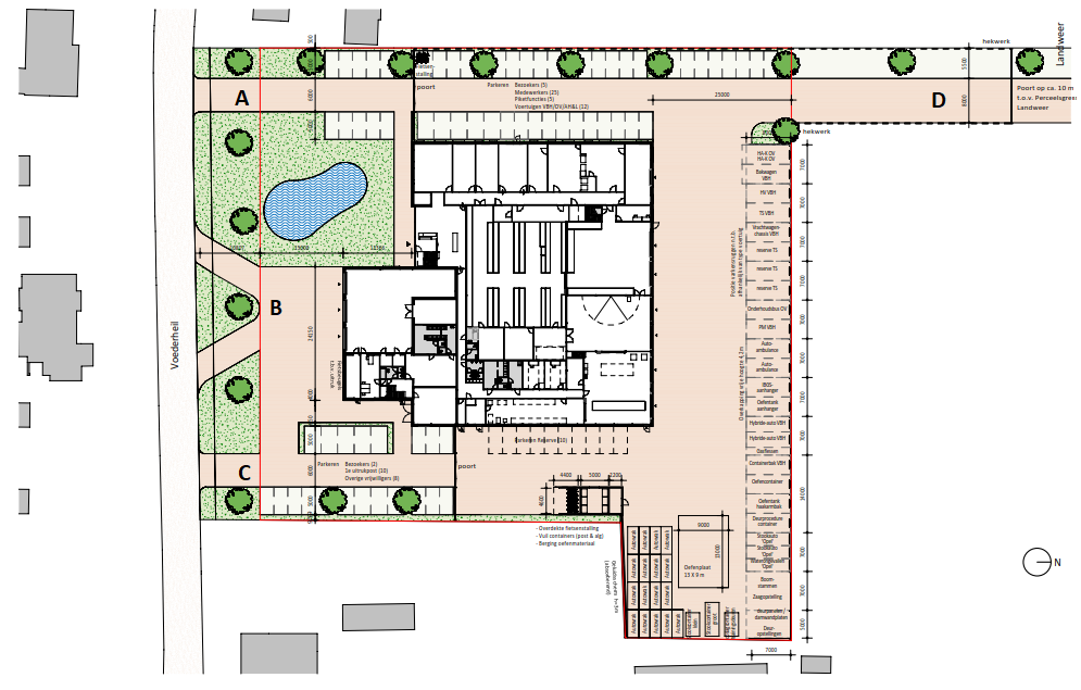
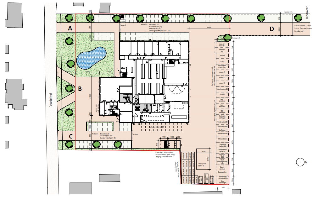
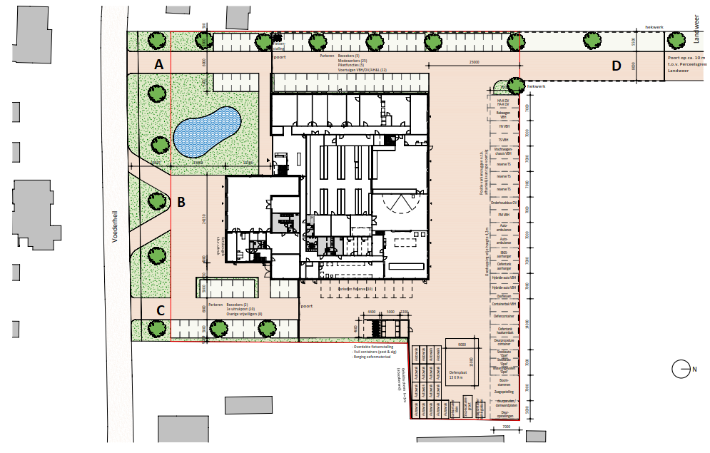
afbeelding "i_NL.IMRO.1685.bpzee2021brandweer-OW01_0009.png" Visie brandweerkazerne en nevenlocatie

afbeelding "i_NL.IMRO.1685.bpzee2021brandweer-OW01_0010.png"

Inrichtingstekening brandweerkazerne en nevenlocatie

De groene uitstraling van het lint wordt doorgezet in het plangebied. Langs de Voederheil komt een strook (openbaar) groen van 8 m. De strook wordt onderbroken door 3 inritten. De eerste inrit (inrit A) wordt alleen gebruikt door personen die het terrein niet regulier bezoeken. Deze inrit is bedoeld voor post- en pakketdiensten en voor eenmalige bezoekers voor de Veiligheidsregio. Tussen inrit A en inrit D wordt aan het eind van het groene voorterrein een poort gerealiseerd om te voorkomen dat men gebruik gaat maken van inrit A om het achterste gedeelte van het terrein te bereiken. De tweede inrit (inrit B) wordt gebruikt ten behoeve van de uitruk. Het betreft een gesplitste inrit waarvoor gekozen is om het binnenschijnen van koplampen bij de tegenoverliggende woning te voorkomen. Een derde inrit (inrit C) wordt alleen gebruikt door de vrijwilligers die arriveren bij een uitruk. Aan de noordkant, vanaf de Landweer, komt een vierde inrit (inrit D) voor het reguliere logistieke verkeer en voor cursisten, bezoekers en medewerkers van de regionale nevenlocatie.

Achter de genoemde openbare groenstrook langs de Voederheil komt een voorruimte van 15 m. Deze ruimte is bedoeld voor de opstelplaats voor brandweervoertuigen en wordt daarnaast benut voor groen en parkeren. Langs de randen, waar het plangebied grenst aan de percelen van de naastgelegen woningen (Voederheil 14 en 16), is eveneens groen voorzien, om de brandweerkazerne en nevenlocatie aan het zicht te onttrekken.

Door de groenstrook en de groene voorruimte krijgt het plangebied niet alleen een groene uitstraling, maar wordt ook de onderlinge afstand tussen het gebouw en de weg bewaard. Zodoende ligt het gebouw op een andere rooilijn dan de naastgelegen bebouwing in aansluiting op de wisselende rooilijn langs de lintstructuur van de Voederheil.

Ten opzichte van het plangebied heeft het gebouw een compacte bouwmassa, voor een open zichtrelatie met het achterliggende gebied en om het vrijstaande individuele karakter van de bebouwing te benadrukken. Zie Bijlage 1 voor een impressie.

Duurzaamheid en klimaatadaptatie

De ontwikkeling zal overeenkomstig de BENG normering worden gerealiseerd. Het gebouw wordt gasloos uitgevoerd met een sedemdak (in verband met de waterberging) en zonnepanelen. Het regenwater wordt hergebruikt voor bluswater, proceswater voor het wassen van materieel en materiaal, het testen van pompen en ten behoeve van oefeningen.

Hoofdstuk 4 Beleidskaders

4.1 Nationaal beleid

4.1.1 Nationale Omgevingsvisie

De Nationale Omgevingsvisie (NOVI) is de opvolger van de Structuurvisie Infrastructuur en Ruimte (SVIR), waarin het Rijk een lange termijn visie geeft op de toekomstige ontwikkeling van de leefomgeving in Nederland. De NOVI geeft richting en helpt keuzes te maken. Bij de afweging van keuzes wordt bij voorkeur gekozen voor slimme combinaties van functies, wordt uitgegaan van de specifieke kenmerken en kwaliteiten van gebieden en worden beslissingen niet uitgesteld of doorgeschoven.

De nationale belangen en opgaven waarop het Rijk wil sturen en richting wil geven, komen samen in de volgende vier prioriteiten:

  • Ruimte maken voor klimaatadaptatie en energietransitie;
  • De economie van Nederland verduurzamen en ons groeipotentieel behouden;
  • Steden en regio's sterker en leefbaarder maken;
  • Het landelijk gebied toekomstbestendig ontwikkelen.

Planspecifiek
In de voorganger van de NOVI, de SVIR, was een deel van het plangebied aangewezen als locatie voor militaire activiteiten, vanwege vliegbasis Volkel. Dit is één van de twee Nederlandse F-16-bases. De belangrijkste taak van vliegbasis Volkel is het leveren van luchtsteun en luchtverdediging. Militaire activiteiten ten behoeve van de krijgsmacht vormen een nationale verantwoordelijkheid. Het Rijk wil voldoende ruimte bieden voor deze activiteiten voor gereedstelling en instandhouding. Deze activiteiten hebben daarbij soms beperkende gevolgen voor andere ruimtelijke functies en zij dienen dan ook zorgvuldig te worden ingepast, zie subparagraaf 4.1.2.
afbeelding "i_NL.IMRO.1685.bpzee2021brandweer-OW01_0011.jpg" Uitsnede kaart SVIR, met globale aanduiding plangebied (rode omkadering)

4.1.2 Besluit algemene regels ruimtelijke ordening

Het Besluit algemene regels ruimtelijke ordening (Barro), ook wel bekend als de AMvB Ruimte, borgt een aantal van de nationale ruimtelijke belangen die deel uitmaken van het beleid, zoals beschreven in de voorganger van de NOVI, oftewel de SVIR. Op het moment dat de Omgevingswet in werking treedt, vervalt het Barro. De regels van het Barro worden dan vervangen door het Besluit kwaliteit leefomgeving (Bkl). Het Bkl wordt de uitwerking, in regelgeving, van het beleid dat in de NOVI staat. Zolang de Omgevingswet nog niet van kracht is, is het Barro nog van toepassing.

In het Barro zijn 14 nationale belangen opgenomen die juridische borging vereisen. Het besluit is gericht op doorwerking van de nationale belangen in provinciaal beleid en gemeentelijke bestemmingsplannen. Dat betekent dat het Barro voor de opgenomen onderwerpen regels geeft over bestemmingen en het gebruik van gronden. Daarnaast kan zij aan de gemeente opdragen in de toelichting bij een bestemmingsplan bepaalde zaken uitdrukkelijk te motiveren.

Planspecifiek
Voor het plangebied geldt dat in het Barro regels zijn opgenomen inzake de uitoefening van defensietaken. Vanwege de ligging van het plangebied nabij vliegbasis Volkel, is het plangebied deels gelegen in het 'obstakelbeheergebied' van dit militaire luchtvaartterrein. Een obstakelbeheergebied bij een militair luchtvaartterrein kenmerkt zich door vlakken, waarvan de hoogte oploopt met het toenemen van de afstand tot het luchtvaartterrein. In het gebied gelden beperkingen ten aanzien van de hoogte van objecten. Binnen het plangebied worden geen objecten gerealiseerd die een obstakel vormen voor het functioneren van vliegbasis Volkel.

4.1.3 Ladder voor duurzame verstedelijking

De in de Structuurvisie Infrastructuur en Ruimte geïntroduceerde 'ladder voor duurzame verstedelijking' is als procesvereiste vastgelegd in het Besluit ruimtelijke ordening (Bro). In het geval van een nieuwe stedelijke ontwikkeling moet in de toelichting een onderbouwing opgenomen worden van nut en noodzaak van de nieuwe stedelijke ruimtevraag en de ruimtelijke inpassing. Hierbij wordt uitgegaan van de 'ladder voor duurzame verstedelijking'. De ladder wordt in artikel 3.1.6, lid 2 Bro als volgt omschreven:

'De toelichting bij een bestemmingsplan dat een nieuwe stedelijke ontwikkeling mogelijk maakt, bevat een beschrijving van de behoefte aan die ontwikkeling, en, indien het bestemmingsplan die ontwikkeling mogelijk maakt buiten het bestaand stedelijk gebied, een motivering waarom niet binnen het bestaand stedelijk gebied in die behoefte kan worden voorzien.'

In het kader van de ladder wordt ten aanzien van de definitie van bestaand stedelijk gebied de definitie uit de Bro gehanteerd: 'bestaand stedenbouwkundig samenstel van bebouwing ten behoeve van wonen, dienstverlening, bedrijvigheid, detailhandel of horeca, alsmede de daarbij behorende openbare of sociaal-culturele voorzieningen, stedelijk groen en infrastructuur.' Volgens de nota van toelichting bij het Bro moet worden bekeken of door het benutten van leegstaande verstedelijkingsruimte in bestaand stedelijk gebied kan worden voorzien in de behoefte. Zoals ook volgt uit onder andere de uitspraak met het nummer 201303578/1/R4 kunnen, naar het oordeel van de Raad van State, planologische mogelijkheden waarvan nog geen gebruik is gemaakt, als leegstaande verstedelijkingsruimte worden aangemerkt. Een dergelijke locatie wordt gezien als onderdeel van het bestaand stedelijk gebied.

Planspecifiek

Met dit plan wordt de realisatie van een brandweerkazerne en nevenlocatie met een bruto vloeroppervlakte van circa 3.500 m² mogelijk gemaakt. Daarmee is sprake van een stedelijke ontwikkeling, welke getoetst moet worden aan de ladder voor duurzame verstedelijking.

Ten aanzien van de eerste trede van de ladder kan worden gesteld dat het voorliggende plan voorziet in een behoefte. De VRBN wil vanuit een evenwichtige regionale verdeling van taken, naast de hoofdvestiging in Den Bosch, een tweede steunpunt creeren in de driehoek Uden-Zeeland-Mill. Nadat eerder in 2018 een beoogde locatie in Uden afviel, omdat het een te kleine kavel betrof, is de VRBN op zoek gegeaan naar een nieuwe geschikte locatie voor de nevenlocatie. Uit een onderzoek van negen aangeboden locaties door de gemeenten in de driehoek Uden-Zeeland-Mill is uiteindelijk onderhavig perceel aan de Voederheil als beste beoordeeld. Het dagelijks bestuur van de VRBN heeft op 2 oktober 2019 ingestemd met de aankoop van het perceel aan de Voederheil in Zeeland.

De nevenlocatie wordt gecombineerd met de nieuwbouw van de lokale brandweerkazerne. De realisatie van een nieuwe brandweerkazerne is nodig, omdat het huidige gebouw aan de Langenboomseweg in Zeeland is verouderd. Het gebouw dateert uit 1982 en is bijna geheel afgeschreven. Vanwege de huidige Arbo eisen en aanpassingen in het brandweermaterieel is een rigoureuze renovatie van de kazerne benodigd. Gezien de vestiging van de nevenlocatie in de nabijheid van de huidige kazerne, is verplaatsing van de kazerne en het combineren van de aan elkaar gerelateerde lokale en regionale taken, een toekomstbestendige en efficiënte keuze.

Wat betreft de tweede trede is sprake van een ontwikkeling binnen bestaand stedelijk gebied. Het plangebied is gelegen aan een doorgaande weg en is onderdeel van het bebouwingslint langs deze weg. Ook is het plangebied omgeven door woningen en (agrarische) bedrijven en is het onderdeel van bedrijventerrein Voederheil II. Tevens bestaat het voornemen om aan de zuidzijde van de Voederheil een toekomstig woongebied te realiseren (Repelakker). Gelet op de huidige ruimtelijke structuren en bebouwing rondom het plangebied kan geconcludeerd worden dat het plangebied binnen bestaand stedelijk gebied is gelegen. Het plan voldoet daarmee aan de eisen van de ladder voor duurzame verstedelijking.

4.1.4 Conclusie

In het plangebied zijn geen nationale belangen in het geding.

4.2 Provinciaal beleid

4.2.1 Omgevingsvisie Noord-Brabant

De Provinciale Staten van Noord-Brabant heeft op 14 december 2018 de omgevingsvisie 'De kwaliteit van Brabant' vastgesteld. Deze omgevingsvisie bevat de belangrijkste ambities voor de fysieke leefomgeving voor de komende jaren, met een doorkijk naar 2050. De basisopgave is de totstandkoming van een veilige en gezonde leefomgeving met een goede omgevingskwaliteit. Elke ontwikkeling in Brabant, klein of groot en waar dan ook, draagt bij aan de omgevingskwaliteit. De vier hoofdopgaven zijn:

  • Werken aan de Brabantse energietransitie
  • Werken aan een klimaatproof Brabant
  • Werken aan de slimme netwerkstad
  • Werken aan een concurrerende, duurzame economie

Deze vier hoofdopgaven zijn belangrijk voor heel Brabant en spelen in de hele provincie. Dat betekent niet dat deze Brabantbreed op dezelfde manier worden opgepakt. Bij het uitwerken van een aanpak is het belangrijk om vanuit een gebiedspecifieke benadering te werk te gaan.

Planspecifiek
In relatie tot de beoogde ontwikkeling wordt in de omgevingsvisie aangegeven dat de komende decennia het toekomstbestendig maken van dorpen en steden de kernopgave is geworden. In plaats van het op zorgvuldige wijze accommoderen van de groei van de bevolking, de economie en de mobiliteit, zoals de afgelopen decennia centraal stond. Transformatie van het stedelijk gebied wordt een belangrijke opgave. Het 'up to date' houden van het bestaand stedelijk gebied is essentieel voor een duurzame, sociale en economische ontwikkeling van de steden en dorpen van Brabant. De provincie zet in op duurzame verstedelijking. Dat betekent dat uitbreiding van het bestaande stedelijk gebied in steden en dorpen alleen wenselijk is vanuit kwalitatieve overwegingen en bij een concrete marktvraag. Herbestemmen is het nieuwe bouwen. Het beleid van de provincie richt zich dan ook op het opvangen van de lokale behoefte voor verstedelijking (wonen, werken en voorzieningen) in de bestaande kernen. Door de verstedelijking te concentreren zijn er meer mogelijkheden om een hoog voorzieningenniveau in stand te houden en verder te ontwikkelen.

Voorliggend bestemmingsplan voorziet in de realisatie van een lokale brandweerkazerne en een regionale nevenlocatie op het bedrijventerrein aan de Voederheil. Het betreft, geheel in lijn met de provinciale visie, een toekomstbestendige concentratie van brandweervoozieningen in bestaand stedelijk gebied. In de omgevingsvisie zijn verder geen specifieke doelstellingen geformuleerd ten aanzien van de voorgenomen ontwikkeling in het plangebied. Vandaar dat de omgevingsvisie geen belemmering vormt voor de realisatie van het plan.

4.2.2 Interim Omgevingsverordening Noord-Brabant

Naast een omgevingsvisie moet een provincie, vanuit de Omgevingswet, ook een omgevingsverordening vaststellen voor haar grondgebied. In de omgevingsvisie staat wat de provincie wil bereiken en wat ze wil doen om dat te bereiken. Soms vraagt dat om een nadere uitwerking van beleid en maatregelen in een (beleids)programma, soms zijn er regels nodig om de ambities te realiseren. Als het vanuit het beleid van de provincie nodig is om regels op te nemen voor ruimtelijke ontwikkelingen, dan staan die in de omgevingsverordening.

De Provinciale Staten van Noord-Brabant heeft op 25 oktober 2019 de 'Interim omgevingsverordening Noord-Brabant' (hierna: IOV) vastgesteld (geconsolideerde versie d.d. 8 december 2020). Net zoals de Omgevingswet een groot aantal wetten vervangt, vervangt de Brabantse omgevingsverordening een aantal provinciale verordeningen. In de IOV zijn de bestaande regels samengevoegd van de Provinciale milieuverordening, Verordening natuurbescherming, Verordening Ontgrondingen, Verordening ruimte, Verordening water en de Verordening wegen.

Gezien de ligging van het plangebied binnen landelijk gebied met de aanduiding 'verstedelijking afweegbaar' zijn de volgende regels uit de IOV relevant voor het plangebied:

Artikel 3.42 Duurzame stedelijke ontwikkeling

  • 1. Een bestemmingsplan dat voorziet in de ontwikkeling van een locatie voor wonen, werken of voorzieningen ligt binnen Stedelijk gebied en bevat een onderbouwing dat:
  • a. de ontwikkeling past binnen de regionale afspraken, bedoeld in afdeling 5.4 Regionaal samenwerken;
  • b. het een duurzame stedelijke ontwikkeling is.

  • 2. Een duurzame stedelijke ontwikkeling voor wonen, werken of voorzieningen:
  • a. bevordert een goede omgevingskwaliteit met een veilige en gezonde leefomgeving;
  • b. bevordert zorgvuldig ruimtegebruik, waaronder de transformatie van verouderde stedelijke gebieden;
  • c. geeft optimaal invulling aan de mogelijkheden voor productie en gebruik van duurzame energie;
  • d. houdt rekening met klimaatverandering, waaronder het tegengaan van hittestress en voldoende ruimte voor de opvang van water;
  • e. geeft optimaal invulling aan de mogelijkheden voor duurzame mobiliteit;
  • f. draagt bij aan een duurzame, concurrerende economie.

  • 3. Om zorgvuldig ruimtegebruik te bevorderen op een bedrijventerrein, bevat het bestemmingsplan regels over:
  • a. een bij de aard van het bedrijventerrein en de toe te laten functies passende kavelomvang;
  • b. het beperken van ontwikkelingen die een effectief gebruik van het bedrijventerrein beperken, waaronder:
  • 1. bedrijfswoningen;
  • 2. bedrijven die doelmatig gevestigd kunnen worden in gemengde gebieden tenzij deze bedrijven concept-versterkend werken en geclusterd worden;
  • 3. voorzieningen die gelet op hun publieksaantrekkende werking thuishoren in centrumgebieden tenzij deze concept-versterkend werken en geclusterd worden.

Artikel 3.43 Afwijkende regels verstedelijking afweegbaar

In afwijking van artikel 3.42 Duurzame stedelijke ontwikkeling, eerste lid, kan een bestemmingsplan, ter plaatse van Verstedelijking afweegbaar voorzien in de nieuwvestiging van een duurzame stedelijke ontwikkeling als:

  • a. binnen Stedelijk Gebied feitelijk of vanuit kwalitatieve overwegingen onvoldoende ruimte beschikbaar is;
  • b. transformatie van cultuurhistorisch waardevol of geschikt leegstaand vastgoed niet tot de mogelijkheden behoort;
  • c. de ontwikkeling past binnen de regionale afspraken, bedoeld in afdeling 5.4 Regionaal samenwerken;
  • d. de stedenbouwkundige- en landschappelijke inrichting rekening houdt met de omgevingskwaliteit en structuren in het gebied en de naaste omgeving waaronder een duurzame afronding van het Stedelijk Gebied.

Artikel 3.9 Kwaliteitsverbetering landschap

  • 1. Een bestemmingsplan dat een ruimtelijke ontwikkeling mogelijk maakt in Landelijk Gebied bepaalt dat die ruimtelijke ontwikkeling gepaard gaat met een fysieke verbetering van de landschappelijke kwaliteit van het gebied of de omgeving;
  • 2. Het bestemmingsplan motiveert dat de verbetering past binnen de gewenste ontwikkeling van het gebied én op welke wijze de uitvoering is geborgd door dat:
  • a. dit financieel, juridisch en feitelijk is geborgd in het plan; of
  • b. de afspraken uit het regionaal overleg, bedoeld in afdeling 5.4 Regionaal samenwerken, worden nagekomen.
  • 3. Een verbetering van de landschappelijke kwaliteit kan mede de volgende aspecten omvatten:
  • a. de op grond van deze verordening verplichte landschappelijke inpassing;
  • b. het toevoegen, versterken of herstellen van landschapselementen die een bijdrage leveren aan de versterking van de landschapsstructuur of de relatie stad-land;
  • c. het behoud of herstel van cultuurhistorisch waardevolle bebouwing of terreinen;
  • d. het wegnemen van verharding;
  • e. het slopen van bebouwing;
  • f. de realisering van het Natuur Netwerk Brabant en ecologische verbindingszones;
  • g. het aanleggen van extensieve recreatieve mogelijkheden.
  • 4. Ingeval er toepassing wordt gegeven aan het tweede lid onder b geldt dat een passende financiële bijdrage in een landschapsfonds is verzekerd én over de besteding van dat fonds periodiek verslag wordt gedaan in het regionaal overleg, bedoeld in afdeling 5.4 Regionaal samenwerken.

Planspecifiek
Op grond van de IOV ligt het plangebied in landelijk gebied met de aanduiding 'verstedelijking afweegbaar'. Hoewel de gemeente voorbereidingen treft om het bedrijventerrein Voederheil II, waartoe het plangebied behoort, uit te breiden (fase 2) waardoor in de toekomst sprake is van stedelijk gebied, is op dit moment sprake van landelijk gebied waarin verstedelijking wel afweegbaar is.

De locatie is passend voor de beoogde ontwikkeling. Het biedt de benodigde ruimte om de lokale brandweerkazerne te combineren met de regionale nevenlocatie en het is een goed ontsloten locatie. Bovendien is de beoogde ontwikkeling, in lijn met de bepalingen uit de omgevingsverordening, passend binnen de regionale afspraken en wordt het gebouw met bijbehorende voorzieningen stedenbouwkundig en landschappelijk ingepast in de lintbebouwing aan de Voederheil (zie ook Hoofdstuk 3).

Verder wordt ook recht gedaan aan de landschapsinvesteringsregeling (artikel 3.9 IOV) en de gemeentelijke nota kwaliteitsverbetering die hieruit voortvloeit. Ingevolge de regionale landschapsinvesteringsregeling geldt een kwaliteitsbijdrage van 1% van de uitgifteprijs, mits sprake is van een stedelijke ontwikkeling. Met dit bestemmingsplan loopt de gemeente vooruit op de stedelijke ontwikkeling van het bedrijventerrein Voederheil II (fase 2). Hiertoe zijn reeds concrete voorbereidingen getroffen. De gemeenteraad heeft immers een voorbereidingskrediet beschikbaar gesteld en aan een extern bureau is opdracht gegeven om een bestemmingsplan op te stellen. Bovendien is er een conceptvisie voor het gebied opgesteld die begin oktober 2020 is gebruikt voor het voeren van de omgevingsdialoog als onderdeel van de bestemmingsplanprocedure Voederheil II (fase 2).

Om de kwaliteitsbijdrage te borgen, wordt daarom een kwaliteitsbijdrage van 1% van de uitgifteprijs gereserveerd. Omdat de gemeente echter formeel geen landschapsfonds heeft, wordt binnen de grondexploitatie van Voederheil II, fase 2 voor de planologische inpassing een kostenpost opgenomen die gelijk is aan 1% van de opbrengst van de in exploitatie te nemen gronden. Op deze wijze is in onze ogen voldoende gewaarborgd dat onderhavige ontwikkeling bijdraagt aan een verantwoorde landschappelijke inpassing van de totale ontwikkeling Voederheil II, fase 2.

Gelet hierop wordt de beoogde ontwikkeling passend geacht binnen de kaders van de Interim Omgevingsverordening.

4.2.3 Conclusie

Het bestemmingsplan is passend binnen de provinciale beleidskaders.

4.3 Gemeentelijk beleid

4.3.1 Structuurvisie Landerd

Op 30 januari 2014 heeft de gemeenteraad de Structuurvisie Landerd vastgesteld. De visie schrijft vanuit de bestaande situatie naar een wensbeeld. De gemeente maakt onderscheid in beleid voor gebieden en beleid per thema. Voor dit plan is vooral het beleidsveld economie (o.a. bedrijven) relevant, aangezien een brandweerkazerne en nevenlocatie primair als bedrijf wordt gezien.

De economie van Landerd rust op vier pijlers die elk hun eigen dynamiek kennen:

  • De reguliere bedrijven, veelal gevestigd op de verschillende bedrijventerreinen;
  • De agrarische sector, van oudsher een belangrijke economische speler in de gemeente;
  • De op verzorging en dienstverlening gerichte ondernemingen, die overwegend in de centra van de kernen zijn gevestigd; onder dienstverlening wordt in dit verband bedoeld detailhandel, middenstand en kantoorfuncties;
  • De toeristisch-recreatieve sector.

De gemeente faciliteert en probeert kaders te scheppen waarbinnen ontwikkelingen mogelijk zijn. De beoogde ontwikkeling van een brandweerkazerne en nevenlocatie op bedrijventerrein Voederheil II behoort tot de eerste pijler. Voor bedrijventerreinen wordt het in de 'Structuurvisie Bedrijventerreinen/de Ruimteplanner' vastgelegde beleid gecontinueerd. Dit beleid is gericht op:

  • Het (waar mogelijk) faciliteren van de bestaande bedrijven;
  • Het doelmatig blijven benutten van de bestaande terreinen.

Bedrijven in de gemeente Landerd worden waar mogelijk ruimtelijk gefaciliteerd om in de gemeente te kunnen blijven ondernemen. Daarbij dient primair gebruik te worden gemaakt van de mogelijkheden die bestaande bedrijventerreinen binnen de dorpen bieden. Bedrijvigheid hoort thuis op het bedrijventerrein. De gemeente Landerd werkt binnen de wettelijke (milieu)kaders mee aan nieuwvestiging, verplaatsing of uitbreiding van bedrijvigheid op de bedrijventerreinen binnen de gemeente. Voor de solitaire vestiging van bedrijven wordt gekeken naar mogelijke maatwerkoplossingen, waarbij in de afweging centraal staan:

  • De toekomst van het bedrijf;
  • De aard en kwaliteit van de locatie.

Tot 'bedrijventerrein' worden de als zodanig voor bedrijven ingerichte gebieden gerekend. Solitaire bedrijfsvestigingen buiten de bedrijventerreinen zijn opgenomen bij het gebied waar ze gelegen zijn.

De gemeente Landerd heeft drie bedrijventerreinen:

  • De Louwstraat te Schaijk;
  • Voederheil I / II te Zeeland en
  • De Roskam te Zeeland.

Deze bedrijventerreinen zijn primair bedoeld voor traditionele bedrijvigheid. De gemeente laat, veelal onder voorwaarden, ook andere functies toe op het bedrijventerrein. Het gaat daarbij onder andere over voorzieningen die bijvoorbeeld qua omvang of verkeersaantrekkende werking niet op andere plekken in de gemeente (zoals de centra) thuishoren.

Planspecifiek
Door de nieuwbouw van de brandweerkazerne aan de Voederheil, wordt de huidige solitaire gevestigde brandweerkazerne aan de Langenboomsweg in Zeeland verplaatst. Aansluitend op het beleid van de gemeente vestigd de brandweerkazerne, alszijnde een bedrijf, op bedrijventerrein Voederheil II. Door de brandweerkazerne en nevenlocatie op de beoogde locatie te faciliteren wordt het bedrijventerrein benut zoals bedoeld. Vandaar dat de beoogde ontwikkeling passend wordt geacht binnen de kaders van de gemeentelijke structuurvisie.

4.4 Conclusies

Het voorliggende bestemmingsplan is in overeenstemming met het hierboven genoemde beleid.

Hoofdstuk 5 Milieu- & omgevingsaspecten

5.1 Verkeer & parkeren

5.1.1 Verkeer

Het plangebied wordt voor motorvoertuigen ontsloten via drie inritten aan de Voederheil (inrit A-B-C) en één inrit aan de Landweer (inrit D), die uitkomt op de Voederheil. De Voederheil sluit aan op de ontsluitingsweg Bergmaas en via de Kerkstraat op de Peelweg (N277).

afbeelding "i_NL.IMRO.1685.bpzee2021brandweer-OW01_0012.png"

Voor het aspect verkeer moet nagegaan worden of de verkeersaantrekkende werking als gevolg van de brandweerkazerne en de nevenlocatie opgevangen kan worden op de Voederheil.

In de tabel hieronder wordt het aantal voertuigbewegingen weergegeven.

Brandweerkazerne (lokaal) en nevenlocatie (regionaal)  
  Verkeersbewegingen   Frequentie   Verkeersbewegingen p/j  
  Vrachtverkeer   Autoverkeer     Vrachtverkeer   Autoverkeer  
Uitruk   6   44   70 keer per jaar   420   3.080  
Oefening   6   44   40 keer per jaar   240   1.760  
Cursisten     136   140 keer per jaar     19.040  
Pakketdiensten/ incidentele bezoekers     8   365 keer per jaar     2.920  
Bevoorrading   40     365 keer per jaar   14.600    
Wasstraat   4     365 keer per jaar   1.460    
Totaal         16.720   26.800  

Gemiddeld 70 keer per jaar zal een uitruk plaatsvinden. Bij een uitruk verlaten (afhankelijk van de situatie) een tankautospuit, een haakarmvoertuig en een manschappenvoertuig de inrichting via inrit B. Dit zijn in totaal zes voertuigbewegingen. Bij een uitruk wordt het terrein door maximaal 22 vrijwilligers bezocht via inrit C. Deze komen met de personenwagen, maar ook met de fiets, brommer of scooter. Worst-case wordt ervan uitgegaan dat die 22 vrijwilligers allen het terrein bezoeken en verlaten met een personenwagen. Dit zijn in totaal 44 voertuigbewegingen.

Bovenstaande voertuigbewegingen vinden ook plaats als sprake is van een oefening (maximaal 40 keer per jaar, externe oefenlocatie).

Maximaal 140 keer per jaar is sprake van een cursusavond. Bij een cursusavond wordt het terrein door maximaal 32 medewerkers en 36 bezoekers met de personenwagen bezocht via inrit D. Dit zijn in totaal 136 voertuigbewegingen.

Per dag kan sprake zijn van enkele bezoeken door een kleine pakketdienst of door incidentele bezoekers. Deze personen maken gebruik van inrit A. Uitgegaan wordt van maximaal 4 bezoeken. Dit zijn in totaal 8 bewegingen.

Per dag wordt het terrein via inrit D maximaal 15 keer bezocht door een vrachtwagen voor logistieke bevoorrading en maximaal 5 keer per dag bezocht voor het halen en brengen van oefenmateriaal. Dit zijn in totaal 40 voertuigbewegingen.

Per dag wordt het terrein via inrit D maximaal 2 keer bezocht door materieel dat naar de wasstraat gaat. Dit zijn in totaal 4 voertuigbewegingen.

Verkeersbewegingen op een gemiddelde weekdag bedragen dus op grond van bovenstaande cijfers (16.720+26.800):365 = 119.

De bestaande wegenstructuur rondom het plangebied kan het aantal voertuigbewegingen naar en van de nieuwe ontwikkeling aan.

Door de gemeente zal bovendien een verkeerskundig onderzoek worden uitgevoerd voor een eventuele nieuwe ontsluitingsweg van het bedrijventerrein Voederheil en een daarmee samenhangende eventuele herinrichting van de weg Voederheil.

Het aspect 'verkeer' vormt geen belemmering voor de vaststelling van dit bestemmingsplan.

5.1.2 Parkeren

Op basis van het bestemmingsplan 'Parapluplan wonen en parkeren Landerd' moet voor het bepalen van de parkeerbehoefte uitgegaan worden van de publicatie 381 'Toekomstbestendig parkeren' van het CROW. Op het plangebied zijn de 'parkeernormen bebouwde kom' van toepassing. Het CROW heeft geen specifieke parkeernormen opgenomen voor een brandweerkazerne inclusef een nevenlocatie. Daarom is de volgende parkeerbalans opgesteld:

Functie   Oppervlakte (m2 BVO)   Norm per 100m2   benodigde pp  
Kantoor zonder baliefunctie   938   2,55   23,92  
Bedrijf arbeidsextensief/bezoekersextensief   1784   1,05   18,73  
Avondonderwijs (norm per 10 studenten)   20   6,8   13,6  
Post (vrijwilligers 1e uitruk)   744     10  
Post (vrijwilligers overige)       12  
Post (bezoekers)       2  
       
Totaal   3.486     80  

Op basis van bovenstaande parkeerbalans zouden er dus 80 parkeerplaatsen nodig zijn. Er dient echter een correctie wegens dubbelgebruik van parkeerplaatsen te worden gemaakt, te weten gebruik ten behoeve van de kantoorfunctie en van het avondonderwijs. Immers, de parkeerplaatsen die overdag worden gebruikt door de werknemers van het kantoor kunnen 's avonds worden gebruikt door studenten van het avondonderwijs.

In totaal worden daarom in het plangebied 71 parkeerplaatsen gerealiseerd volgens onderstaand schema:

Parkeren  
Groep   Aantal  
Algemeen   47  
Post Zeeland   24  
Totaal   71  

Zie ook de navolgende afbeelding voor de locatie van de verschillende parkeerplaatsen:

afbeelding "i_NL.IMRO.1685.bpzee2021brandweer-OW01_0013.png"

5.2 Bodem

5.2.1 Regelgeving

Op grond van het Besluit ruimtelijke ordening (Bro) moet in verband met de uitvoerbaarheid van een project rekening worden gehouden met de bodemgesteldheid. Bij functiewijzigingen moet worden bekeken of de bodemkwaliteit voldoende is voor de beoogde functie en moet worden vastgesteld of er sprake is van een saneringsnoodzaak. In de Wet bodembescherming is bepaald dat indien de desbetreffende bodemkwaliteit niet voldoet aan de norm voor de beoogde functie, de grond zodanig moet worden gesaneerd, dat zij kan worden gebruikt door de desbetreffende functie (functiegericht saneren). De Wet bodembescherming heeft betrekking op landbodems; waterbodems vallen onder de Waterwet. Op grond van de Woningwet en de Bouwverordening moet voor elke individuele bouwlocatie aangetoond te worden dat de bodem geschikt is voor de beoogde bebouwing, alvorens een omgevingsvergunning verleend kan worden.

Bij het opstellen van een bestemmingsplan is de vraag of de aanwezige bodemkwaliteit past bij het huidige of toekomstige gebruik van die bodem en of deze optimaal op elkaar kunnen worden afgestemd. Het uitgangspunt hierbij is dat eventueel aanwezige bodemverontreiniging geen onaanvaardbaar risico oplevert voor de gebruikers van de bodem en dat de bodemkwaliteit niet verslechtert door grondverzet. Dit is het zogenaamde stand still-beginsel. Het vaststellen van de bodemkwaliteit wordt bij het opstellen/wijzigen van een bestemmingsplan dan ook alleen van belang geacht voor de locaties waar ontwikkelingen gepland zijn (zoals functiewijzigingen, bouwen, graven/ophogen).

5.2.2 Doorvertaling bestemmingsplan

Er is een bodemonderzoek conform de NEN 5740 (onverdachte grootschalige strategie) en een onderzoek naar asbest uitgevoerd in het plangebied. Het plangebied is onderdeel van een groter onderzoek, die als Bijlage 2 bij de toelichting is gevoegd. Voor het agrarische akker-/grasland, ter plaatse van het plangebied, is de hypothese gesteld van een onverdachte locatie met betrekking tot het voorkomen van bodem- en asbestverontreiniging. Op basis van de onderzoeksresultaten blijkt dat de grond inderdaad geschikt is voor de beoogde functie en kan worden vrijgegeven voor de beoogde ontwikkeling. In het grondwater zijn maximaal licht verhoogde gehalten voor barium aangetoond. In de boven- en ondergrond zijn geen verhoogde gehalten aangetoond ten opzichte van de betreffende achtergrondwaarden. Ook zijn zowel op maaiveld als in de opgeboorde grond, geen asbestverdachte materialen waargenomen.

Het aspect 'bodem' vormt geen belemmering voor de uitvoerbaarheid van dit bestemmingsplan.

5.3 Geluid

5.3.1 Regelgeving

Belangrijke basis voor de ruimtelijke afweging van het aspect geluid is de Wet geluidhinder (Wgh). Overeenkomstig de Wgh zijn (spoor-)wegen en industrieterreinen waar zich grote lawaaimakers kunnen vestigen voorzien van zones. Het gebied binnen deze zones geldt als akoestisch aandachtsgebied waar een toetsing uitgevoerd moet worden. Daarbij beperkt de Wgh zich tot een toetsing ter plaatse van zogenaamde geluidsgevoelige objecten. Dit zijn onder andere woningen, onderwijsgebouwen, gezondheidszorggebouwen, kinderdagverblijven, woonwagenstandplaatsen en ligplaatsen voor woonboten.

Voor de geluidsgevoelige gebouwen en terreinen die binnen bepaalde afstanden (zones) van de verschillende geluidsbronnen liggen, schrijft de Wgh voor dat een aangewezen bevoegd gezag (meestal Burgemeester en Wethouders) (maatwerk)grenswaarden bepaalt. De terminologie die de wet hiervoor hanteert is: ten hoogste toelaatbare geluidsbelasting. De getalsmatige invulling van deze grenswaarden voor nieuwe of bestaande geluidgevoelige bestemmingen verschillen per locatie en per geluidssoort. Naast grenswaarden op de gevels van de geluidsgevoelige gebouwen, zijn er in de Wgh ook grenswaarden gericht op de bescherming van het akoestische klimaat binnen de bestaande gebouwen.

Wegverkeerslawaai

In de Wgh en het Besluit geluidhinder (Bgh) is de zonering van wegen en het daarbij horende normenstelsel geregeld. Een zone is het akoestisch aandachtsgebied. Volgens de Wgh bevinden zich langs alle wegen wettelijke geluidzones, met uitzondering van woonerven en 30-km/uur-gebieden.

Bij vaststelling van een bestemmingsplan moet voor alle wegen waarvan de zone een overlap met het plangebied kent, een akoestisch onderzoek worden verricht (artikel 76 lid 1 Wgh). De breedte van deze zone is afhankelijk van het aantal rijstroken en de aard van de omgeving (stedelijk of buitenstedelijk), zie navolgende tabel.

afbeelding "i_NL.IMRO.1685.bpzee2021brandweer-OW01_0014.png" Overzicht zonebreedtes (vanaf de as van de weg tot de volgende breedte aan weerszijden van de weg)

De definities van het buitenstedelijk en stedelijk gebied zijn opgenomen in artikel 1 van de Wgh. Als buitenstedelijk gebied wordt aangemerkt het gebied buiten de bebouwde kom en het gebied binnen de zone van een autoweg of autosnelweg, die binnen de bebouwde kom ligt.

5.3.2 Doorvertaling bestemmingsplan

De brandweerkazerne en nevenlocatie zijn gelegen aan de Voederheil (max. 60 km/u). Het betreft echter geen woning, ander geluidsgevoelig gebouw of geluidsgevoelig terrein in de zin van art. 1 Wgh en art. 1.2 Bgh. Akoestisch onderzoek naar wegverkeerslawaai is derhalve niet noodzakelijk.

De eventuele geluidhinder die het voorliggende initiatief (waaronder de verkeersaantrekkende werking) veroorzaakt naar omliggende geluidsgevoelige objecten is beoordeeld in paragraaf 5.4.

Het aspect 'geluid' vormt geen belemmering voor de uitvoerbaarheid van dit bestemmingsplan.

5.4 Milieuzonering

5.4.1 Regelgeving

Wanneer ruimtelijke ontwikkelingen in de directe omgeving van inrichtingen en/of bedrijven worden gerealiseerd, zal een milieukundig onderzoek uit moeten wijzen in hoeverre er sprake is van mogelijke beperkingen ten gevolge van de aanwezige inrichtingen en of bedrijven. Maar ook andersom moet aandacht worden besteed aan de rechten van de aanwezige inrichtingen en/of bedrijven. Het is immers niet de bedoeling dat nieuwe ontwikkelingen de huidige bedrijfsvoering in de directe omgeving zullen beperken. Datzelfde geldt uiteraard ook voor de situatie dat inrichtingen en/of bedrijven wijzigen in de nabijheid van bestaande gevoelige functies.

Via de milieuwetgeving wordt milieuhinder zoveel mogelijk voorkomen. Alle bedrijven en inrichtingen die in potentie hinder zouden kunnen veroorzaken, moeten een vergunning hebben in het kader van de Wet milieubeheer of moeten middels een melding aantonen dat zij aan de hierin gestelde richtwaarden kunnen voldoen. De gestelde richtwaarden zijn veelal vertaald in minimale afstanden tussen de inrichtingen waar activiteiten plaatsvinden en de milieugevoelige functies in de directe omgeving. Behalve van de aard en omvang van een bedrijf of inrichting, is deze mede afhankelijk van de omgevingskarakteristiek. Voor een rustige woonomgeving gelden andere afstanden (strengere eisen) dan voor bijvoorbeeld drukke woonwijken of een gemengd gebied.

Voor het vaststellen van de genoemde minimum richtafstanden tussen inrichtingen en milieugevoelige functies worden in de regel de lijsten zoals deze zijn opgenomen in de handreiking 'Bedrijven en milieuzonering' gebruikt. Bedrijven zijn in de VNG-handreiking ingedeeld in een aantal categorieën met bijbehorende gewenste richtafstanden (voor geur, stof, geluid en gevaar) tot milieugevoelige functies. De categorieën geven de zwaarte van bedrijvigheid en mogelijke milieuhinder weer. De richtafstanden kunnen, zonder dat dit ten koste gaat van het woon- en leefklimaat, met één afstandstap worden verlaagd (behalve voor het aspect gevaar) indien sprake is van omgevingstype gemengd gebied.

afbeelding "i_NL.IMRO.1685.bpzee2021brandweer-OW01_0015.jpg" Richtafstanden VNG-publicatie 'Bedrijven en milieuzonering'

Bovenstaande tabel geeft een overzicht van de richtafstanden voor verschillende bedrijfscategorieën ten opzichte van een woonwijk en gemengd gebied. Indien de richtafstand niet wordt overschreden, kan verdere toetsing voor het aspect in beginsel achterwege blijven: inpassing is dan mogelijk. Indien niet aan de richtafstanden wordt voldaan, is aanvullend onderzoek noodzakelijk.

5.4.2 Doorvertaling bestemmingsplan

Het plangebied is gelegen aan de Voederheil, op bedrijventerrein Voederheil II en wordt omgeven door woningen en (agrarische) bedrijvigheid. De omgeving van het plangebied is daarmee te typeren als een 'gemengd gebied'. Dit betekent dat de richtafstanden met één afstandstap kunnen worden verlaagd.

Voor het in de maak zijnde bestemmingsplan 'Voederheil III' is een onderzoek Bedrijven en milieuzonering opgesteld, zie Bijlage 3. In dit onderzoek is voor het hele gebied Voederheil III (dus inclusief het onderhavig plangebied) uitgegaan van omgevingstype gemengd gebied.

afbeelding "i_NL.IMRO.1685.bpzee2021brandweer-OW01_0016.png"

Milieuzonering Voederheil III, met globale aanduiding plangebied (zwarte omkadering)

Een brandweerkazerne valt onder milieucategorie 3.1 met een richtafstand van 30 m in gemengd gebied.

Vanwege de nabijheid van enkele geluidgevoelige objecten (woningen) is een akoestisch onderzoek naar inrichtingslawaai waarin de geluidniveaus door de brandweerpost zijn berekend, uitgevoerd. Zie Bijlage 4.

Uit de rekenresultaten blijkt dat sprake is van een aanvaardbaar woon- en leefklimaat ter plaatse van de woningen in de omgeving. Alleen in de situatie dat sprake is van het gebruik van sirenes in de avond- en nachtperiode, is sprake van overschrijdingen ten aanzien van indirecte hinder. De sirenes worden aangezet als sprake is van een situatie met prioriteit én als dit noodzakelijk blijkt vanwege de verkeerssituatie. Wanneer de verkeerssituatie het toelaat (bijvoorbeeld in de nachtperiode) wordt geen gebruik gemaakt van sirenes. Een situatie met sirenes in bijvoorbeeld de nachtperiode zal zich dus niet veelvuldig voordoen. In het onderzoek is echter wel rekening gehouden met die situatie.

De hoogste overschrijding doet zich voor op de verdieping van de woningen aan Voederheil 12 en 14, te weten 55,4 dB(A) in de nachtperiode. Uit artikel 2.17, lid 1 van het Activiteitenbesluit is op te maken dat bij een equivalent geluidniveau van 25 dB(A) in de nachtperiode in gebouwen sprake is van een aanvaardbaar woon- en verblijfsklimaat. Om tot een aanvaardbaar woon- en leefklimaat in de woning te komen moet de geluidwering van een gevel die een scheiding vormt tussen een verblijfsgebied en de buitenlucht minstens de berekende waarde op die gevel minus 25 dB(A) zijn. Aan de voorzijde van de woningen aan Voederheil 12 en 14 moet de geluidwering dan 55 – 25 = 30 dB(A) bedragen voor zover daar sprake is van een verblijfsruimte. Deze waarde voor de geluidwering is in de praktijk goed haalbaar, maar niet gegarandeerd voor bestaande bouw. Wanneer zich een situatie met sirenes in de avond- of dagperiode voordoet, leidt dit tot een vereiste geluidwering van respectievelijk 25 dB(A) en 20 dB(A). Deze waarde voor de geluidwering is in de praktijk goed haalbaar, ook bij bestaande bouw.

Vanwege de omstandigheid dat het gebruik van sirenes in de nachtperiode zich niet vaak voor zal doen en dat door de ligging van de betrokken woningen op korte afstand van de openbare weg verondersteld kan worden dat de geluidbelasting vanwege het reguliere verkeer op de openbare weg maatgevend is voor de hinderbeleving ter plaatse van die woningen, wordt een aanvullend onderzoek naar geluidwering van de gevels niet noodzakelijk geacht.

De toekomstige brandweerkazerne en nevenlocatie ondervinden geen overlast van bedrijvigheid, omdat het geen milieugevoelige functies betreft.

Het aspect 'milieuzonering' vormt, mits voldaan wordt aan de richtafstanden, geen belemmering voor de uitvoerbaarheid van dit bestemmingsplan.

5.5 Luchtkwaliteit

5.5.1 Regelgeving

Op 15 november 2007 is de wijziging van de Wet milieubeheer in werking getreden. Deze wet vervangt het 'Besluit luchtkwaliteit 2005' en is één van de maatregelen die de overheid heeft getroffen om:

  • negatieve effecten op de volksgezondheid als gevolg van te hoge niveaus van luchtverontreiniging aan te pakken.
  • mogelijkheden voor ruimtelijke ontwikkeling te creëren ondanks de overschrijdingen van de Europese grenswaarden voor luchtkwaliteit.

De paragraaf luchtkwaliteit in de Wet milieubeheer voorziet onder meer in een gebiedsgerichte aanpak van de luchtkwaliteit via het Nationaal Samenwerkingsprogramma Luchtkwaliteit (NSL). De programma-aanpak zorgt voor een flexibele koppeling tussen ruimtelijke activiteiten en milieugevolgen. Van bepaalde projecten met getalsmatige grenzen is vastgesteld dat deze 'niet in betekenende mate' (NIBM) bijdragen aan de luchtverontreiniging. Deze mogen zonder toetsing aan de grenswaarden voor luchtkwaliteit uitgevoerd worden. Luchtkwaliteitseisen vormen onder de nieuwe 'Wet luchtkwaliteit' geen belemmering voor ruimtelijke ontwikkeling als:

  • er geen sprake is van een feitelijke of dreigende overschrijding van een grenswaarde.
  • een project, al dan niet per saldo, niet tot een verslechtering van de luchtkwaliteit leidt.
  • een project 'niet in betekenende mate' bijdraagt aan de luchtverontreiniging (meer dan 3 % ten opzichte van de grenswaarde). Het gaat hier bijvoorbeeld om woningbouwlocaties met één ontsluitingsweg en niet meer dan 1.500 nieuwe woningen, dan wel, in geval van twee ontsluitingswegen met een gelijkmatige verkeersverdeling, netto niet meer dan 3.000 woningen.
  • een project is opgenomen in een regionaal programma van maatregelen of in het NSL, dat in werking is getreden nadat de EU in april 2009 derogatie heeft verleend.

Als aannemelijk kan worden gemaakt dat aan één of meerdere van de bovengenoemde criteria wordt voldaan, kan het project zonder toetsing aan de gestelde grenswaarden voor luchtkwaliteit worden uitgevoerd.

In de Ministeriële regeling 'niet in betekenende mate bijdragen' zijn voor verschillende categorieën van projecten grenzen gesteld aan de projectomvang, waaronder een project met zekerheid NIBM bijdraagt aan de concentraties luchtverontreinigende stoffen in de buitenlucht.

Gevoelige bestemmingen als scholen, kinderdagverblijven, bejaarden- en zorgtehuizen genieten op grond van het Besluit gevoelige bestemmingen (luchtkwaliteitseisen) extra bescherming: substantiële uitbreiding of nieuwvestiging binnen 50 m van een provinciale weg of 300 m van een rijksweg is alleen toegestaan als de concentraties luchtvervuilende stoffen zich onder de grenswaarden bevinden, waardoor geen onacceptabele gezondheidsrisico's optreden. De zones worden afgemeten vanaf de rand van de weg. In de context van dit besluit worden ziekenhuizen, woningen en sportaccommodaties dus niet als gevoelige bestemming gezien.

5.5.2 Doorvertaling bestemmingsplan

In subparagraaf 5.1.1 is gebleken dat door de nieuwbouw van de brandweerkazerne en nevenlocatie een toename van het aantal voertuigbewegingen optreedt. Uit een berekening uitgevoerd met de NIBM-tool blijkt dat, ondanks de extra voertuigbewegingen, sprake is van een 'niet in betekenende mate bijdragen' aan de verslechtering van de luchtkwaliteit.

afbeelding "i_NL.IMRO.1685.bpzee2021brandweer-OW01_0017.png"

Tevens blijkt uit raadpleging van de NSL-monitoringstool dat de luchtkwaliteit rond het plangebied, in het jaar 2020, wat betreft de concentratie NO2 en PM10, met een waarde van <35 µg/m³, ruimschoots aan de norm van 40 µg/m³ voldoet. Wat betreft de concentratie PM2,5 wordt met een waarde van <20 µg/m³ eveneens ruimschoots aan de betreffende norm van 25 µg/m³ voldaan. Er is geen sprake van een (dreigende) overschrijding van de grenswaarden.

Het aspect 'luchtkwaliteit' vormt geen belemmering voor de uitvoerbaarheid van dit bestemmingsplan.

5.6 Geur

5.6.1 Regelgeving

Wet geurhinder en veehouderij
De Wet geurhinder en veehouderij (Wgv) bevat het beoordelingskader voor geurhinder van veehouderijen die vergunningsplichtig zijn op basis van de Wet milieubeheer (Wm). Het beoordelingskader is als volgt:

  • voor diercategorieën waarvan de geuremissie per dier is vastgesteld (in de Regeling geurhinder en veehouderij (Rgv)) geldt een maximale geurbelasting) op een geurgevoelig object;
  • voor andere diercategorieën geldt een minimale afstand van de dierenverblijven ten opzichte van geurgevoelige objecten.

Daarbij wordt onderscheid gemaakt tussen concentratiegebieden (conform Reconstructiewet) en niet-concentratiegebieden en tussen situaties binnen de bebouwde kom en buiten de bebouwde kom. De wet beschrijft in artikel 3 de maximale norm voor geurbelasting van een veehouderij ten opzichte van een gevoelig object in vier situaties, zie onderstaande tabel.

    Concentratiegebied   Niet-concentratiegebied  
Binnen bebouwde kom   diercategorieën Rgv   maximum 3 ouE/m³   maximum 2 ouE/m³  
  andere diercategorieën   minimum 100 m t.o.v. geurgevoelig object   minimum 100 m t.o.v. geurgevoelig object  
Buiten bebouwde kom   diercategorieën Rgv   maximum 14 ouE/m³   maximum 8 ouE/m³  
  andere diercategorieën   minimum 50 m t.o.v. geurgevoelig object   minimum 50 m t.o.v. geurgevoelig object  

Geurnormen Wgv

De Wgv biedt gemeenten de mogelijkheid om afwijkende geurnormen vast te stellen voor (delen van) het grondgebied. Op deze wijze kan de gemeente een geurhinderbeleid vaststellen dat is afgestemd op de plaatselijke situatie.

Regeling geurhinder en veehouderij
In de Regeling geurhinder en veehouderij (Rgv) is de wijze vastgelegd waarop:

  • de geurbelasting wordt bepaald;
  • de afstand tussen veehouderij en geurgevoelig object) wordt gemeten.

Activiteitenbesluit
Per 1 januari 2013 zijn agrarische activiteiten onder de werkingssfeer van het Activiteitenbesluit gebracht. In het Activiteitenbesluit zijn voor alle agrarische activiteiten, waaronder akkerbouwbedrijven en veehouderijen, eisen opgenomen. Voor de veehouderijen is aangesloten bij de systematiek uit de Wgv, dat wil zeggen dat in bepaalde gevallen een maximaal toegestane geurbelastingen geldt (diercategorieën waarvoor een geuremissiefactor is vastgesteld, bijvoorbeeld varkens en pluimvee) en in andere gevallen vaste afstandseisen gelden (diercategorieën waarvoor geen geuremissiefactor is vastgesteld, waaronder melkrundvee).

Geur bij niet-agrarische bedrijven
Het voorkomen van (nieuwe) geurhinder is het algemene uitgangspunt in het rijksbeleid. Dit uitgangspunt is uitgewerkt in het landelijk informatiedocument ‘Handleiding Geur Industrie’ en beschrijft de methodiek voor de bepaling van het aanvaardbaar hinderniveau voor geur ten gevolge van bedrijfsmatige activiteiten. Vanwege het lokale aspect van geurhinder is de hoogte van het aanvaardbaar hinderniveau niet landelijk vastgelegd. Het bevoegd gezag moet daar een eigen afweging in maken.

Gemeentelijke verordening geurhinder en veehouderij

Op 8 februari 2021 is de Verordening geurhinder en veehouderij gemeente Landerd, partiële wijziging 2021 in werking getreden. Deze partiële wijziging zorgt ervoor dat de vaste afstanden bij bedrijven zonder geuremissiefactor (zoals melkveebedrijven en paardenhouderijen) ten opzichte van de voorgaande verordening geurhinder en veehouderij worden teruggebracht van 100 m naar 50 m in relatie tot geurgevoelige objecten op het bedrijventerrein Voederheil II.

5.6.2 Doorvertaling bestemmingsplan

De brandweerkazerne en nevenlocatie zijn geurgevoelige objecten. In het beoogde gebouw werken gedurende langere tijd, vrijwel dagelijks, meerdere mensen. Ten behoeve van de toekomstige uitbreiding van bedrijventerrein Voederheil II (fase 2), waarvan ook het onderhavige plangebied deel uitmaakt, is een geuronderzoek uitgevoerd vanwege nabij gelegen veehouderijen Dit onderzoek is als Bijlage 5 bij de toelichting gevoegd.

Afstanden

Op onderstaande afbeelding zijn de diverse veehouderijen in de nabijheid van de toekomstige uitbreiding van het bedrijventerrein Voederheil II (fase 2) met bijbehorende afstandscontouren in beeld gebracht.

afbeelding "i_NL.IMRO.1685.bpzee2021brandweer-OW01_0018.png"

Zoals hierboven is te zien, zijn met name de veehouderijen aan Voederheil 13 en 15 relevant voor de onderhavige ontwikkeling. Deze veehouderijen houden dieren waarvoor in de Rvg geen omrekeningsfactoren zijn vastgesteld, zoals melkrundvee, vrouwelijk jongvee en paarden. Vandaar dat voor het plangebied conform de gemeentelijke verordening geurhinder en veehouderij een vaste afstandscontour van 50 m tussen het emissiepunt van een dierenverblijf en de gevel van een geurgevoelig object van toepassing is.

afbeelding "i_NL.IMRO.1685.bpzee2021brandweer-OW01_0019.png"

Afstandscontouren Voederheil 13 & 15, met globale aanduiding plangebied (rode omkadering)

Ten aanzien van afstanden van Voederheil 13 is duidelijk dat de veehouderij niet in haar belangen wordt geschaad wanneer geurgevoelige objecten binnen het plangebied worden gerealiseerd. De 50 meter afstandscontour grenst reeds aan Voederheil 11, 14 en 15 (de 100 meter afstandscontour geeft daarmee al overbelasting op bestaande geurgevoelige objecten). De veehouderij heeft daarom geen mogelijkheden om emissiepunten van stallen dichterbij het plangebied te realiseren dan nu al het geval is.

Ten aanzien van de afstanden van Voederheil 15 is tevens duidelijk dat de veehouderij niet in haar belangen wordt geschaad. De 50 meter afstandscontour grenst reeds aan Voederheil 13 en overschrijdt het woonhuis van Voederheil 19 en 21. De 100 meter afstandscontour overschrijdt het woonhuis van Voederheil 16 en geeft daarmee al overbelasting op bestaande geurgevoelige objecten. De veehouderij heeft daarom geen mogelijkheden om emissiepunten van stallen dichterbij het plangebied te realiseren dan nu al het geval is.

Voorgrondbelasting

De geurbelasting van een individuele veehouderij wordt ‘voorgrondbelasting’ genoemd. De geurbelasting is afkomstig van dieren waarvoor in de Regeling geurhinder en veehouderij (Rgv) een omrekeningsfactor is vastgesteld, zoals varkens, vleesvee, pluimvee, schapen en geiten. De veehouderijen die in de omgeving van het plangebied zijn gelegen en waarvan een omrekeningsfactor van toepassing is, zijn:

  • Voederheil 13: Op de dichtsbijzijnde rand van het plangebied (waarvoor een geurnorm van 6 ouE/m3 geldt) is een geurbelasting van hoogstens 0,6 ouE/m3 berekend. Het woon- en verblijfsklimaat ter plaatse van de te realiseren geurgevoelige objecten is 'zeer goed'. Vanwege bestaande beperkingen met betrekking tot afstanden en vanwege de strenge geurnorm van 1,0 ouE/m3 op het bestaande bedrijventerrein aan de oostzijde, is overigens geen scenario denkbaar waarin de geurcontour van 6,0 ouE/m3 het plangebied kan bereiken.
  • Voederheil 15: Op de dichtsbijzijnde rand van het plangebied (waarvoor een geurnorm van 6 ouE/m3 geldt) is een geurbelasting van hoogstens 10 ouE/m3 berekend. Het woon- en verblijfsklimaat ter plaatse van de te realiseren geurgevoelige objecten is 'matig'. De veehouderij zal echter niet in haar belangen worden geschaad omdat er bestaande geurgevoelige objecten binnen de geurcontour van 9 ouE/m3 (buitengebied, ten zuiden van Voederheil) aanwezig zijn. Ook wordt de geurnorm van 6 ouE/m3 bij de woning aan Voederheil 16 overschreden. Deze woning ligt in de richting van het plangebied, de geurbelasting op deze woning moet (bij een wijziging bij de veehouderij aan Voederheil 15) worden teruggebracht middels de 50%-regeling. Dit resulteert ook een lagere geurbelasting ter plaatse van het plangebied.

afbeelding "i_NL.IMRO.1685.bpzee2021brandweer-OW01_0020.jpg" Voorgrondbelasting Voederheil 13 & 15, met globale aanduiding plangebied (rode omkadering)

Achtergrondbelasting

De achtergrondbelasting wordt gevormd door de geurbelasting van alle veehouderijen samen. De geuremissie is afkomstig van dieren waarvoor in de Regeling geurhinder en veehouderij (Rgv) een omrekeningsfactor is vastgesteld, zoals varkens, vleesvee, pluimvee, schapen en geiten.

afbeelding "i_NL.IMRO.1685.bpzee2021brandweer-OW01_0021.png"

Achtergrondbelasting met globale aanduiding plangebied (rode omkadering)

De berekende geurbelasting ter plaatse van het meest zuidelijke gebied van plangebied bedraagt op het hoogste 12 ouE/m3. Dit komt overeen met een ‘redelijk goed’ woon- en verblijfsklimaat. De achtergrondbelasting vormt geen belemmering voor het plan.

Conclusie

Er is sprake van een aanvaardbaar woon- en verblijfsklimaat en de veehouderijen worden door de beoogde ontwikkeling niet in hun belangen geschaad.

Het aspect 'geur' vormt geen belemmering voor de uitvoerbaarheid van dit bestemmingsplan.

5.7 Externe veiligheid

5.7.1 Regelgeving

Externe veiligheid gaat over het beheersen van de risico's die ontstaan voor de omgeving bij het gebruik, de opslag en het vervoer van gevaarlijke stoffen als vuurwerk, lpg en munitie over weg, water en spoor en door buisleidingen. Het beleid rondom externe veiligheid is vastgelegd in circulaires, regelingen, AMvB's en wetten.

In Nederland worden twee maten gehanteerd voor externe veiligheidsrisico's, namelijk het plaatsgebonden risico en het groepsrisico. Bij het plaatsgebonden risico (PR) gaat het om de kans per jaar dat een denkbeeldig persoon overlijdt als rechtstreeks gevolg van een ongeval met gevaarlijke stoffen als deze persoon zich onafgebroken en onbeschermd in de nabijheid van een risicovolle inrichting of transportas bevindt. Het plaatsgebonden risico wordt weergegeven als een contour rondom de risicovolle inrichting of de transportas.

Het groepsrisico (GR) is de cumulatieve kans dat een (werkelijk) aanwezige groep van 10, 100 of 1.000 personen overlijdt als rechtstreeks gevolg van een ongeval met gevaarlijke stoffen. Het groepsrisico moet verantwoord worden voor het gebied waarbinnen zich de gevolgen van een incident met gevaarlijke stoffen voordoen. Dit is de zogenaamde 1 %-letaliteitsgrens; de afstand vanaf een risicobedrijf waarop nog slechts 1 % van de blootgestelde mensen in de omgeving overlijdt bij een ongeval op het risicobedrijf (invloedsgebied).

Het Besluit externe veiligheid inrichtingen (Bevi) legt veiligheidsnormen op aan bedrijven die een risico vormen voor personen buiten het bedrijfsterrein, bijvoorbeeld rondom chemische fabrieken, LPG-tankstations en spoorwegemplacementen waar goederentreinen met gevaarlijke stoffen rangeren. Deze bedrijven verrichten soms risicovolle activiteiten dichtbij woningen, kantoren, ziekenhuizen, scholen of winkels. Het besluit verplicht gemeenten en provincies wettelijk vanaf de inwerkingtreding van het besluit bij het verlenen van milieuvergunningen en het maken van ruimtelijke plannen met externe veiligheid rekening te houden. Het gaat daarbij niet alleen om het oprichten van of veranderen van inrichtingen of projecteren van nieuwe bestemmingen. Ook bij het vaststellen of herzien van een bestemmingsplan moet de externe veiligheid worden beoordeeld.

In het Besluit externe veiligheid buisleidingen (Bevb) is geregeld hoe een gemeente moet omgaan met risico’s langs relevante buisleidingen. De hogedruk gasleidingen van Gasunie zijn het meest relevant. De risico’s worden vooral bepaald door de maximale druk en diameter van de leiding, maar ook door getroffen maatregelen.

De Wet basisnet voorziet in een wijziging van de Wet vervoer gevaarlijke stoffen ('Wvgs') ter verankering van een landelijk basisnet voor het vervoer van gevaarlijke stoffen. Het basisnet is een samenstel van wegen, binnenwateren en hoofdspoorwegen waaraan een bepaalde risicoruimte voor het vervoer van gevaarlijke stoffen wordt toegekend. Als deze risicoruimte, de zogenaamde risicoplafonds, door een groei van het vervoer van gevaarlijke stoffen wordt overschreden of dreigt te worden overschreden, moet de minister maatregelen nemen. De risicoplafonds moeten daarnaast in acht worden genomen bij het toestaan van nieuwe ruimtelijke ontwikkelingen in de omgeving van basisnetroutes. Op deze manier kan de veiligheid langs de transportroutes voor gevaarlijke stoffen in toenemende mate worden gegarandeerd. Gelijktijdig met de Wet Basisnet zijn ook andere regelingen in werking getreden zoals de wijziging van het Besluit vervoer gevaarlijke stoffen (Bvgs), de Regeling basisnet en het Besluit externe veiligheid transportroutes (Bevt). In het Besluit externe veiligheid transportroutes (Bevt) is een aandachtsgebied gedefinieerd waarbinnen het groepsrisico verantwoord moet worden (200 m). Buiten deze zone hoeft in het invloedsgebied alleen ingegaan te worden op de bestrijdbaarheid en zelfredzaamheid (beperkte verantwoording).

5.7.2 Doorvertaling bestemmingsplan

Op navolgende afbeelding is een uitsnede weergegeven van de provinciale risicokaart.
afbeelding "i_NL.IMRO.1685.bpzee2021brandweer-OW01_0022.jpg" Uitsnede risicokaart, met globale aanduiding plangebied (blauwe omkadering)

In de nabijheid van het plangebied bevinden zich geen risicovolle inrichtingen en/of objecten, dan wel routes van gevaarlijke stoffen, die mogelijk risico's kunnen opleveren voor de personen die zich in het plangebied bevinden.

De meest nabijgelegen risicovolle inrichting betreft het LPG-reservoir, vulpunt en afleverinstallatie aan Kerkstraat 117 in Zeeland, met een risicocontour van respectievelijk 25 m, 25 m en 15 m. Gezien de afstand van meer dan 300 m tot de rand van het plangebied, is deze inrichting niet van invloed op de beoogde ontwikkeling.

Het aspect 'externe veiligheid' vormt geen belemmering voor de uitvoerbaarheid van dit bestemmingsplan.

5.8 Ecologie

5.8.1 Regelgeving

Op 1 januari 2017 is de Wet natuurbescherming (Wnb) in werking getreden. De Wnb kent drie algemene beschermingsregimes waarin de voorschriften van de Vogelrichtlijn, Habitatrichtlijn en twee verdragen (Bern en Bonn) zijn geïmplementeerd en waarin aanvullende voorschriften zijn gesteld voor de dier- en plantensoorten die niet onder die specifieke voorschriften vallen, maar wel bescherming behoeven. In hoofdstuk 3 van de Wnb zijn de beschermingsregimes in drie aparte paragrafen neergelegd. Per beschermingsregime is bepaald welke verboden er gelden en onder welke voorwaarden ontheffing of vrijstelling kan worden verleend door het bevoegd gezag. Het gaat om de volgende beschermingsregimes:

  • 1. Vogels (paragraaf 3.1): alle vogels in de zin van de Vogelrichtlijn;
  • 2. Dieren en planten (paragraaf 3.2): alle dieren en planten, genoemd in de bijlagen bij de Habitatrichtlijn en de verdragen van Bern en Bonn;
  • 3. Overige soorten (paragraaf 3.3): soorten genoemd in de bijlage bij de Wnb, die niet onder de reikwijdte van paragraaf 3.2 vallen.

De verboden en afwijkingsmogelijkheden die zijn opgenomen in de paragrafen 3.1 en 3.2, zijn direct overgenomen uit de genoemde richtlijnen en verdragen. Deze bepalingen zijn dus ook uitsluitend van toepassing op de soorten waarvoor dit onmiddellijk voortvloeit uit deze richtlijnen en verdragen. De bepalingen in paragraaf 3.3 zien op de 'overige soorten' die zijn genoemd in de bijlagen A en B bij de Wnb. Laatstgenoemde groep is te vergelijken met de Tabel 2-soorten uit de Flora- en faunawet.

afbeelding "i_NL.IMRO.1685.bpzee2021brandweer-OW01_0023.png" Verbodsbepalingen Wet natuurbescherming

De Wnb brengt voor de bescherming van soorten in ieder geval de volgende drie voor de praktijk belangrijke wijzigingen met zich:

  • 1. Allereerst is onder de Wnb niet langer de minister van Economische Zaken, maar zijn Gedeputeerde Staten van de provincies het bevoegd gezag voor het verlenen van ontheffingen.
  • 2. Ten tweede kunnen de in de praktijk gehanteerde “tabelsoorten” niet langer gebruikt worden. In plaats daarvan wordt met de nieuwe indeling van de Wnb gewerkt.
  • 3. Tot derde is de inhoud van de verboden en de ontheffingsgrondslagen gewijzigd.

In de Wet natuurbescherming zijn de bevoegdheden van het rijk (Rijksdienst voor Ondernemend Nederland (RVO)) aan de provincies overgedragen. Zij maken dan de afwegingen voor de vergunningen en ontheffingen. De beschermde status van soorten kan per provincie verschillen. Provincies hebben de bevoegdheid om bij provinciale verordening vrijstelling te verlenen voor nationaal beschermde soorten. Er is dan geen ontheffing nodig voor werkzaamheden.

Onder de Wet natuurbescherming geldt een zorgplicht voor alle in het wild levende dieren. De zorgplicht houdt in dat werkzaamheden, die nadelig kunnen zijn voor dieren en planten, in redelijkheid zo veel mogelijk worden nagelaten of maatregelen genomen om onnodige schade aan dieren en planten te voorkomen.

Op 1 juli 2021 is de wet Stikstofreductie en Natuurverbetering (Wsn) in werking getreden. Onderdeel van deze wet is de vrijstelling voor bouw-, sloop- en eenmalige aanlegactiviteiten, met inbegrip van de daarmee samenhangende vervoersbewegingen, in het kort de bouwvrijstelling. Er is een knip gemaakt tussen de bouw en het gebruik van een bouwwerk. De milieubelasting tijdens de bouw is tijdelijk, terwijl het gebruik een permanent karakter heeft. Vanwege de vrijstelling is het niet langer nodig een activiteit met tijdelijke emissies te toetsen op stikstof. Dit betekent dat voor het aspect stikstof alleen nog de depositie in de gebruiksfase een rol speelt. De vrijstelling geldt expliciet alleen voor stikstof en niet voor andere  negatieve effecten die tijdens de bouwfase als gevolg van geluid, licht en trillingen op Natura 2000-gebieden kunnen optreden.

5.8.2 Doorvertaling bestemmingsplan

Soortenbescherming

Er is een quickscan naar de aanwezige flora en fauna uitgevoerd in het plangebied. Het plangebied is onderdeel van een groter onderzoek, dat als Bijlage 6 bij de toelichting is gevoegd.

Het plangebied heeft geen essentiële betekenis voor beschermde soorten. Het is mogelijk geschikt leefgebied voor algemene zoogdieren, foeragerende vleermuizen, amfibieën, insecten en broedvogels welke niet beschermd zijn (behoudens de Algemene zorgplicht) onder de Wet natuurbescherming. Er dienen enkele algemene maatregelen worden getroffen ten aanzien van de Algemene zorgplicht, foeragerende vleermuizen en algemene broedvogels.

Houtopstanden

Op de planlocatie zijn geen houtopstanden aanwezig waarvoor bij kap een meldingsplicht geldt in het kader van de Wet natuurbescherming.

Gebiedsbescherming
Het plangebied maakt geen onderdeel uit van een Natura 2000-gebied of het Natuurnetwerk Brabant. Gelet op de aard van de werkzaamheden, de afstand tot de gebieden en de beoogde situatie is van externe werking op omliggende Natura 2000-gebieden geen sprake.

Ten aanzien van de stikstofdepositie naar stikstofgevoelige habitattypen binnen Natura 2000-gebieden is een onderzoek uitgevoerd. Dit onderzoek is uitgevoerd voor de inwerkingtreding van de wet Stikstofreductie en Natuurverbetering (Wsn), waarna er een vrijstelling geldt voor de aanlegfase. De resultaten zijn opgenomen in Bijlage 7 bij de toelichting. Uit de berekeningen blijkt dat door het plan geen sprake is van stikstofdepositie ter plaatse van rekenpunten op 4,9 km van de stikstofbronnen (in alle windrichtingen) voor zowel de aanleg- als de gebruiksfase. De dichtstbijzijnde voor stikstof gevoelige habitattypen liggen op ongeveer 17 kilometer van het plangebied en zijn gelegen binnen het Natura 2000-gebied 'Sint Jansberg'. Aangezien op 4,9 km geen sprake is van stikstofdepositie, is ook ter plaatse van de Natura 2000-gebieden geen sprake van stikstofdepositie.

Het aspect 'ecologie' vormt geen belemmering voor de uitvoerbaarheid van dit bestemmingsplan.

 

5.9 Archeologie & cultuurhistorie

5.9.1 Regelgeving

In artikel 3.1.6 lid 5 van het Besluit ruimtelijke ordening is bepaald dat in de toelichting van een ruimtelijk plan ten minste een beschrijving wordt opgenomen van de wijze waarop met de in het gebied aanwezige cultuurhistorische waarden en in de grond aanwezige of te verwachten monumenten rekening is gehouden.

Op 1 juli 2016 is de Erfgoedwet in werking getreden. Met deze wetswijziging is de huidige Monumentenwet 1988 opgesplitst: een gedeelte (dat ziet op de fysieke leefomgeving) zal opgaan in de Omgevingswet, het overige gedeelte is opgenomen in de nieuwe Erfgoedwet. Daarbij is voorzien in overgangsrecht. De bedoeling is dat in de Erfgoedwet een betere integratie met verschillende soorten erfgoed komt. Daarnaast worden de procedures uniformer en daarmee overzichtelijker.

Onderdelen van de Monumentenwet 1988 met betrekking tot de fysieke leefomgeving, worden opgenomen in de Omgevingswet. De aanwijzing van ruimtelijk cultureel erfgoed - beschermde stads- en dorpsgezichten en cultuurlandschappen - en omgang met het cultureel erfgoed in de fysieke leefomgeving, komen in de Omgevingswet terecht en zijn dus niet in de Erfgoedwet geregeld. Hierbij wordt wel als vuistregel gehanteerd: omgang met het erfgoed in de Omgevingswet, duiding van het erfgoed in de Erfgoedwet.

De inwerkingtreding van de Omgevingswet staat gepland voor 2021. Voor de onderdelen die in de Omgevingswet zullen worden opgenomen is een overgangsregeling in de Erfgoedwet opgenomen voor de tussengelegen periode. De bepalingen uit de Monumentenwet 1988 die naar de Omgevingswet over zullen gaan, blijven van kracht tot de Omgevingswet in werking treedt.

Het Besluit ruimtelijke ordening en de Erfgoedwet schrijven niet voor in welke mate met archeologie rekening moet worden gehouden. De gemeente heeft wat dit betreft beleidsvrijheid en kan het archeologische belang afwegen ten opzichte van andere belangen, de belangen van de burger en van de gemeente.

5.9.2 Archeologie

In het geldende bestemmingsplan heeft het plangebied geen archeologische dubbelbestemming. Het plangebied kent dus geen archeologische verwachtingswaarde. Derhalve is archeologisch onderzoek ter plaatse van het plangebied is niet noodzakelijk.


Het aspect 'archeologie' vormt geen belemmering voor de uitvoerbaarheid van dit bestemmingsplan.

5.9.3 Cultuurhistorie

In het plangebied is geen sprake van monumentale bebouwing of andere cultuurhistorische waardevolle objecten danwel structuren. Het gebied betreft geen waardevol agrarisch landschap.

Het aspect 'cultuurhistorie' vormt geen belemmering voor de uitvoerbaarheid van dit bestemmingsplan.

 

5.10 Waterhuishouding

5.10.1 Regelgeving

Nationaal waterbeleid
Het 'Nationaal Waterplan 2016 - 2021' beschrijft de hoofdlijnen van het nationale waterbeleid tot 2021, met een vooruitblik richting 2050. Het Rijk speelt proactief in op de verwachte klimaatveranderingen op lange termijn, om overstromingen te voorkomen. Binnen de planperiode gaan realistische maatregelen in uitvoering die een antwoord bieden op de opgaven voor de korte termijn en voldoende mogelijkheden openlaten om op langere termijn verdere stappen te zetten. Om een duurzaam en klimaatbestendig watersysteem te bereiken moet het water meer bepalend zijn bij de besluitvorming over grote ruimtelijke opgaven dan voorheen. De mate van bepalendheid wordt afhankelijk gesteld van, onder meer, de omvang en de aard van de ingrepen, bestaande functies, nieuwe andere ruimteclaims en de bodemgesteldheid van een gebied.

Provinciaal waterbeleid
Het 'Provinciaal milieu- en waterplan 2016 - 2021' (PMWP), met de titel 'Sámen naar een duurzaam gezonde en veilige leefomgeving in Brabant', integreert de milieu- en de wateropgave en maakt inzichtelijk hoe de provincie Noord-Brabant de komende jaren gaat werken aan een veilig en gezond milieu. De doelen van het PMWP zijn:

  • voldoende water voor mens, plant en dier
  • schone en gezonde leefomgeving (bodem, water en lucht)
  • bescherming van Brabant tegen overstromingen en externe risico's
  • verduurzaming van grondstoffen-, energie- en voedselvoorziening

Gemeentelijk waterbeleid
Het beleid van de gemeente Landerd voor wat betreft de waterhuishouding sluit aan op het landelijke en provinciale beleid. Het belangrijkste uitgangspunt is dat nieuwe ontwikkelingen geen belemmering mogen vormen voor het vasthouden, bergen en afvoeren van water in het deelstroomgebied. Daarnaast is het van belang dat bij inpassing wordt voorkomen dat afwenteling op andere delen van het deelstroomgebied plaatsvindt. Nieuwe rioolstelsels van enige omvang dienen als gescheiden te worden uitgevoerd. Verder dient bij nieuwe ontwikkelingen hemelwater, afkomstig van ‘schoon’ afvoerend oppervlak, waar mogelijk, afgekoppeld te worden naar een waterbergingsvoorziening.


Beleid waterschap
Het plangebied ligt in het beheersgebied van Waterschap Aa en Maas. Het Waterbeheerplan 2016-2021 beschrijft de doelen die door het waterschap worden nagestreefd:

  • Veilig en bewoonbaar beheergebied
  • Voldoende water en robuust watersysteem
  • Gezond en natuurlijk water
  • Schoon water

Brabant Keur
Voor het beheersgebieden van waterschap Aa en Maas geldt de Brabant Keur. De keur is een aanvulling op regels uit de Waterwet. De Keur is van toepassing op de rivieren, beken, sloten, grondwater en dijken (waterkeringen) die in beheer zijn bij het waterschap.

Omtrent de toename van het verhard oppervlak is in de algemene regels bij de keur het volgende opgenomen:

  • Bij een toename van het verhard oppervlak van minder dan 2000 m² stelt het waterschap geen nadere eisen aan de verwerking van het hemelwater.
  • Bij een toename van het verhard oppervlak van meer dan 2000 m² maar minder dan 10.000 m² moeten compenserende maatregelen ten aanzien van de verwerking van het hemelwater worden getroffen conform de rekenregel: benodigde compensatie (in m³) = toename verhard oppervlak (in m²) x gevoeligheidsfactor x 0,06 (in m)
  • Bij een toename van het verhard oppervlak van meer dan 10.000 m² is een watervergunning nodig.


Watertoets
De 'watertoets' is een instrument dat waterhuishoudkundige belangen op een evenwichtige wijze laat meewegen bij het opstellen van ruimtelijke plannen en besluiten. Het is niet een toets achteraf, maar een proces dat de initiatiefnemer van een ruimtelijk plan en de waterbeheerder met elkaar in gesprek brengt in een zo vroeg mogelijk stadium. Het doel van de watertoets is het voorkomen van waterproblemen, zoals wateroverlast en verdroging, nu en in de toekomst. De initiatiefnemer verwoordt in een waterparagraaf zijn afweging van de waterhuishoudkundige aspecten. Het waterschap geeft hierover een wateradvies.

De beleidsnota ‘Uitgangspunten watertoets waterschap Aa en Maas’ bevat acht uitgangspunten:

  • Wateroverlastvrij bestemmen
  • Hydrologisch neutraal ontwikkelen
  • Voorkomen van vervuiling
  • Gescheiden houden van schoon en vuil water
  • Doorlopen van de afwegingsstappen: "hergebruik - infiltratie - buffering - afvoer"
  • Meervoudig ruimtegebruik
  • Water als kans
  • Waterschapsbelangen

5.10.2 Doorvertaling bestemmingsplan

In het kader va nde uitbreiding van het bedrijventerrein Voederheil, waar het plangebied deel van uitmaakt, is een wateronderzoek uitgevoerd (Econsultancy, 18 november 2020). Dit onderzoek is als Bijlage 8 bij deze toelichting gevoegd. Hieronder worden de conclusie en aanbevelingen weergegeven.

In het kader van de planontwikkeling is het proces van de digitale watertoets doorlopen. Op basis van de digitale procedure blijkt dat het plan diverse waterbelangen raakt. Vooroverleg met het waterschap is noodzakelijk. Daarnaast is bij een toename van verhard oppervlak of een af te koppelen oppervlak van meer dan 10.000 m2 een watervergunning nodig. Ten aanzien van het plan en de omgang met hemelwater zijn de volgende uitgangspunten gehanteerd:

  • 100% afkoppeling van verhard oppervlak.
  • Niet afwentelen op anderen in ruimte en tijd.
  • Toepassen voorkeursvolgorde waterkwantiteit (vasthouden, bergen en afvoeren).
  • Toepassen voorkeursvolgorde waterkwaliteit (schoonhouden, scheiden, zuiveren).
  • De ontwikkeling dient hydrologisch neutraal plaats te vinden (HNO).
  • De wateropgave baseren op de daadwerkelijke toekomstig verhard oppervlak. Vooralsnog is uitgegaan van 33.600 m2.
  • Infiltratie- en bergingsvoorzieningen in het plan dimensioneren conform 60 mm gerekend over het aantal m2.
  • Aanlegdiepte bergingsvoorzieningen boven de GHG.
  • GHG is ingeschat op 0,8 - 1,4 m -mv.
  • Elke demping moet voor 100% gecompenseerd worden.
  • Bouwen volgens Duurzaam Bouwen (DuBo) principe.

In de toekomstige situatie zal het schone hemelwater (zogenaamde hemelwaterafvoer; HWA) niet op het vuilwater (zogenaamde droogweerafvoer; DWA) worden aangesloten maar separaat worden verwerkt. De gemeente Landerd is voornemens om de wateropgave voor heel Voederheil robuust op te lossen door gebruik te maken van de voorzieningen die er al zijn (en die eventueel uit te breiden) en het aanleggen van een (nieuw) hemelwaterstelsel. Het uitgangspunt hierbij is om voor het hele gebied een robuust en klimaatbestendig systeem te krijgen. De randvoorwaarden en uitgangspunten uit de watertoets dienen hierbij meegenomen te worden. Onderstaande is een schets opgenomen waarin met gele arcering zoekgebieden voor een nieuwe waterstructuur zijn aangegeven.

afbeelding "i_NL.IMRO.1685.bpzee2021brandweer-OW01_0024.png"

Zoekgebieden nieuwe hemelwaterstructuur (bron: gemeente Landerd)

Aangezien er sprake is van een plan met een toename van verhard oppervlak groter dan 10.000 m2 dient in overleg met het waterschap bekeken te worden hoe compensatie plaats kan vinden. Voor de ontwikkeling dient tevens een vergunning bij het waterschap aangevraagd te worden.

Het regenwater wordt opgevangen en hergebruikt voor bluswater, proceswater voor het wassen van materieel en materiaal, het testen van pompen en ten behoeve van oefeningen. Ook in de (verbrede) berm van Voederheil zal worden voorzien in hemelwaterberging.

Indien in overleg met de gemeente en het waterschap water als onderdeel van het bestemmingsplan wordt vastgelegd, worden er vanuit het oogpunt van de waterhuishouding geen belemmering verwacht ten aanzien van de beoogde bestemmingswijziging. In de regels is dan ook een voorwaardelijke verplichting opgenomen.

Het aspect 'waterhuishouding' vormt geen belemmering voor de vaststelling van dit bestemmingsplan.

5.11 Leidingen

5.11.1 Regelgeving

Planologisch relevante leidingen en hoogspanningsverbindingen moeten worden gewaarborgd. Tevens moet rond dergelijke leidingen rekening worden gehouden met zones waarbinnen mogelijke beperkingen gelden. Planologisch relevante leidingen zijn leidingen waarin de navolgende producten worden vervoerd:

  • gas, olie, olieproducten, chemische producten, vaste stoffen/goederen;
  • aardgastransportleiding met een diameter groter of gelijk aan 18”;
  • defensiebrandstoffen;
  • warmte en afvalwater, ruwwater of halffabrikaat voor de drink- en industriewatervoorziening met een diameter groter of gelijk aan 18”.

5.11.2 Doorvertaling bestemmingsplan

In of in de directe omgeving van het plangebied zijn geen hoofdtransportleidingen of persleidingen van water, olie, aardgas, brandstof en/of hoogspanningsverbindingen gelegen, die in het kader van het bestemmingsplan op de verbeelding met bijbehorende bebouwingsvrije zones moeten worden opgenomen.

 

5.12 Vormvrije MER-beoordeling

5.12.1 Regelgeving

Op 1 april 2011 is het gewijzigde Besluit milieueffectrapportage in werking getreden. Een belangrijke wijziging betreft het indicatief maken van de drempelwaarden in onderdeel D (betreft de m.e.r.-beoordeling) van de bijlage bij het Besluit milieueffectrapportage. Concreet betekent dit dat, ook wanneer ontwikkelingen onder de in bijlage D opgenomen drempelwaarden blijven, het bevoegd gezag zich er nog steeds van moet vergewissen of activiteiten geen aanzienlijke milieugevolgen kunnen hebben, de zogenaamde 'vergewisplicht'.

De consequentie van de nieuwe regeling is dat in elk besluit of plan dat betrekking heeft op activiteiten die voorkomen op de D-lijst aandacht moet worden besteed aan m.e.r. Het komt er op neer dat voor elk besluit of plan dat betrekking heeft op activiteit(en) die beneden de drempelwaarden vallen uit de D-lijst, een toets moet worden uitgevoerd of belangrijke nadelige milieugevolgen kunnen worden uitgesloten. Voor deze toets, die dus een nieuw element is in de m.e.r.-regelgeving, wordt de term vormvrije m.e.r.-beoordeling gehanteerd. Deze vormvrije m.e.r.-beoordeling kan tot twee conclusies leiden:

  • belangrijke nadelige milieugevolgen zijn uitgesloten: er is geen m.e.r.(-beoordeling) noodzakelijk;
  • belangrijke nadelige gevolgen voor het milieu zijn niet uitgesloten: er moet een m.e.r.-beoordeling plaatsvinden of er kan direct worden gekozen voor m.e.r.

5.12.2 Doorvertaling bestemmingsplan

In bijlage D van het Besluit m.e.r. is een groot aantal activiteiten genoemd waarvoor een m.e.r.-beoordelingsplicht geldt. Eén van de genoemde activiteiten betreft ‘de aanleg, wijziging of uitbreiding van een stedelijk ontwikkelingsproject, met inbegrip van de bouw van winkelcentra of parkeerterreinen’ (activiteit D11.2). Deze activiteit is m.e.r.-beoordelingsplichtig indien deze betrekking heeft op een oppervlakte van 100 ha of meer of een aangesloten gebied van 2.000 woningen of meer omvat of een bedrijfsvloeroppervlakte van 200.000 m2 of meer.

De beoogde activiteiten in dit bestemmingsplan liggen met het toevoegen van een brandweerkazerne en nevenlocatie ruim onder de plandrempel waarvoor conform het Besluit m.e.r. een m.e.r.-beoordeling noodzakelijk is. Gelet hierop, wordt geconcludeerd dat de drempelwaarden niet worden overschreden, waardoor in onderhavig plan kan worden volstaan met het uitvoeren van een zogenaamde ‘vormvrije m.e.r.-beoordeling’. De in dit hoofdstuk beschreven onderzoeksresultaten voldoen niet alleen aan de onderzoeksverplichting van het Besluit ruimtelijke ordening, maar kunnen ook worden opgevat als de vormvrije m.e.r.-beoordeling en bevestigen dit oordeel. Daarbij wordt geconcludeerd dat belangrijke nadelige milieugevolgen zijn uitgesloten.

Hoofdstuk 6 Juridische planopzet

De verschillende bestemmingen en bouwmogelijkheden zoals verwoord in de voorgaande hoofdstukken, zijn vastgelegd in de regels en verbeelding. Dit hoofdstuk beschrijft de juridische vormgeving van het voorliggende bestemmingsplan.

6.1 Planregels

6.1.1 Inleidende regels

Begrippen
In deze bepaling zijn omschrijvingen gegeven van de in de bestemmingsregels gebruikte begrippen. Deze worden opgenomen om interpretatieverschillen te voorkomen. Begripsbepalingen zijn alleen nodig voor begrippen die tot verwarring kunnen leiden of voor meerderlei uitleg vatbaar zijn.

Wijze van meten
Om op een eenduidige manier afstanden, oppervlakten en inhoud van gebouwen en/of bouwwerken, geen gebouwen zijnde, te bepalen wordt in de wijze van meten uitleg gegeven wat onder de diverse begrippen wordt verstaan.

6.1.2 Bestemmingsregels

De bestemmingsregels kennen, voor zover van toepassing, allemaal een gelijke opbouw.

Bestemmingsomschrijving 
De bestemmingsomschrijving betreft de centrale bepaling van elke bestemming. Het is een omschrijving waarin limitatief de functies worden genoemd, die binnen de bestemming zijn toegestaan.

Bouwregels
De bouwregels worden voor alle hoofdgebouwen, bijgebouwen en bouwwerken, geen gebouwen zijnde gesteld. Waar en met welke maatvoering mag worden gebouwd, wordt hier vastgelegd. Indien mogelijk wordt verwezen naar bouwvlakken en aanduidingen op de verbeelding.

Afwijken van de bouwregels
De afwijking van de bouwregels geven burgemeester en wethouders de bevoegdheid om onder voorwaarden door middel van een omgevingsvergunning af te wijken van een specifieke regel.

Specifieke gebruiksregels
De specifieke gebruiksregels vormen een nadere concretisering van het toegestane gebruik. In het kader van een omgevingsvergunningstelsel zijn bepaalde werken en werkzaamheden niet toegestaan zonder dat hiervoor een omgevingsvergunning is verkregen van het daartoe bevoegde gezag.

Afwijken van de gebruiksregels 
De afwijkingen van de gebruiksregels zijn afwijkingsbevoegdheden die worden toegekend aan het bevoegd gezag ten aanzien van bepaalde gebruiksregels.

6.1.3 Algemene regels

De algemene regels zijn een aantal standaardbepalingen.

Anti-dubbeltelregel
De anti-dubbeltelregel is opgenomen om te voorkomen dat, wanneer volgens een bestemmingsplan bepaalde gebouwen en bouwwerken niet meer dan een bepaald deel van een bouwperceel mogen beslaan, het opengebleven terrein niet nog eens meetelt bij het toestaan van een ander gebouw of bouwwerk, waaraan een soortgelijke eis wordt gesteld.

Algemene bouwregels
In de algemene bouwregels zijn regelingen opgenomen voor ondergronds bouwen, ondergeschikte bouwdelen, bestaande afstanden en andere maten en uitsluiting aanvullende werking bouwverordening.

Algemene afwijkingsregels
In de algemene afwijkingsregels is een regel opgenomen voor welke afwijkingen het bevoegd gezag een omgevingsvergunning kan verlenen.

Algemene wijzigingsregels
In de algemene wijzigingsregels is een regel opgenomen dat Burgemeester en wethouders de in het bestemmingsplan opgenomen bestemmingsgrenzen mogen wijzigen.

Overige regels
In deze bepaling zijn de regels uit het paraplubestemmingsplan voor parkeren overgenomen.

6.1.4 Overgangs- en slotregels

Overgangsrecht
In deze bepaling is vorm en inhoud gegeven aan het overgangsrecht. Het overgangsrecht is een standaardbepaling welke is overgenomen uit het Besluit ruimtelijke ordening.

Slotregel
Als laatste is de slotregel opgenomen. Deze bepaling omschrijft de titel van het plan.

6.2 Bestemmingen

Het bestemmingsplan kent twee enkelbestemmingen.

Bedrijf
Deze bestemming is geënt op de regeling in het geldende bestemmingsplan 'Bedrijventerrein Voederheil II'. Door de toevoeging van diverse functieaanduidingen, te weten 'bedrijf tot en met categorie 2', 'bedrijf tot en met categorie 3.1' en 'bedrijf tot en met categorie 3.2' en 'brandweerkazerne' mag binnen het plangebied een brandweerkazerne (van milieucategorie 3.1) worden toegevoegd. Ter plaatse van de aanduiding 'brandweerkazerne' zijn tevens een opleidingscentrum en kantoren mede ten behoeve van hulpdiensten toegestaan.

Groen
Deze bestemming is gelijk aan de regeling in het geldende bestemmingsplan 'Bedrijventerrein Voederheil II' en dient ter borging van de groenstrook aan de zuidzijde van het plangebied. In deze groenbestemming zijn uitritten mogelijk.

Hoofdstuk 7 Uitvoerbaarheid

7.1 Economische uitvoerbaarheid

De Wet ruimtelijke ordening maakt het vaststellen van een exploitatieplan verplicht voor een aantal bouwactiviteiten, wanneer de bouw planologisch mogelijk wordt gemaakt in een bestemmingsplan of een projectafwijkingsbesluit. De bouwplannen waarbij een exploitatieplan verplicht is staan in artikel 6.2.1 van het Besluit ruimtelijke ordening (Bro):

  • de bouw van één of meer woningen;
  • de bouw van één of meer andere hoofdgebouwen;
  • de uitbreiding van een hoofdgebouw met ten minste 1.000 m² of met één of meer woningen;
  • de verbouwing van één of meer aangesloten gebouwen die voor andere doeleinden in gebruik of ingericht waren, voor woondoeleinden, mits ten minste 10 woningen worden gerealiseerd;
  • de verbouwing van één of meer aaneengesloten gebouwen die voor andere doeleinden in gebruik of ingericht waren, voor detailhandel, dienstverlening, kantoor of horecadoeleinden, mits de cumulatieve oppervlakte van de nieuwe functies ten minste 1.000 m² bedraagt;
  • de bouw van kassen met een oppervlakte van ten minste 1.000 m².

Bovendien is een exploitatieplan nodig als locatie-eisen gesteld moeten worden en/of het bepalen van een tijdvak of fasering noodzakelijk is.

Alle kosten die gemaakt moet worden voor het opstellen van een bestemmingplan zijn voor rekening van de initiatiefnemers. Hiervoor is een overeenkomst afgesloten, waarin ook de afwikkeling van eventuele verzoeken tot tegemoetkoming in planschade is geregeld. Daarmee is de financiële haalbaarheid voor de gemeente afdoende geregeld.

7.2 Maatschappelijke uitvoerbaarheid

7.2.1 Overleg

In het Besluit ruimtelijke ordening (Bro) staat dat de gemeente bij de voorbereiding van een ruimtelijke ontwikkeling overleg moet plegen met de besturen van betrokken gemeenten en waterschappen en met die diensten van provincie en Rijk, die betrokken zijn bij de zorg voor ruimtelijke ordening of belast zijn met de behartiging van belangen welke in het plan in het geding zijn.

Ter uitvoering daarvan zijn alle betrokken instanties per e-mail in staat gesteld om te reageren op het ontwerpbestemmingsplan.

Provincie Noord-Brabant heeft 2 juni 2021 in het kader van het wettelijk vooroverleg opmerkingen gemaakt en nadere vragen gesteld. De provincie geeft onder meer aan dat zij nader onderbouwd wil zien waarom op deze locatie een stedelijke ontwikkeling (zijnde een brandweerkazerne en een nevenlocatie) afweegbaar is en op welke wijze wordt bijgedragen aan kwaliteitsverbetering van het landschap. Verder heeft de provincie vragen over de verhouding bebouwing - omvang van het plangebied, contact met omringende gemeenten in verband met de meest geschikte locatie, ambities op het gebied van duurzaamheid en ideeën voor de oude brandwerkazerne.

Deze nadere vragen zijn op 9 juni 2021 beantwoord en samen met de gemaakte opmerkingen in hoofdstuk 2, 3 en 4.2.2 van de toelichting van het bestemmingsplan verwerkt. De provincie heeft aangegeven in te stemmen met het plan, mits haar opmerkingen en de antwoorden op de gestelde vragen in het bestemmingsplan worden verwerkt.

Verder is op 7 mei 2021 conform de regionale afspraken afstemming gezocht met regiogemeenten. De conclusie was dat vanwege de maatschappelijk georienteerde functie van de brandweerkazerne (en nevenlocatie) en de omstandigheid dat deze locatie reeds in een eerder stadium in de driehoek Uden-Zeeland-Mill als meest geschikt uit de bus kwam, verdere regionale afstemming niet nodig is.

7.2.2 Inspraak

Te zijner tijd zal het ontwerpbestemmingsplan gedurende zes weken ter inzage worden gelegd. De zienswijzen zullen hier of in een separate nota zienswijzen van een gemeentelijke reactie worden voorzien.

Voorafgaand aan de terinzagelegging heeft de initiatiefnemer in samenspraak met de gemeente een zogenaamde omgevingsdialoog met omwonenden gevoerd. In dat kader heeft op 8 oktober 2020 een bijeenkomst plaatsgevonden. Tijdens deze bijeenkomst zijn de omwonenden door de initiatiefnemer en de gemeente bijgepraat over de plannen voor (onder meer) de realisatie van de brandweerkazerne en nevenlocatie. De omwonenden gaven in hun reactie aan dat zij met name zorgen hebben over de extra verkeersgeneratie en de daarmee gepaard gaande onveilige situaties op de Voederheil. Ook bestaat bij enkele bewoners het beeld dat brandweerlieden met hoge snelheden naar de kazerne komen bij spoedgevallen. De Voederheil nodigt al uit tot hard rijden en de vrees bestaat dat dit in deze situatie niet anders zal zijn. Ook zijn er zorgen over de herrie van uitrukkende brandweerwagens (ook 's nachts met sirenes). Omwonenden zijn van mening dat hier heldere afspraken over gemaakt moeten worden.

Vanuit de gemeente is (in samenspraak met de initiatiefnemer) op 23 december 2020 per brief op deze reacties gereageerd (zie Bijlage 9). In deze brief wordt benadrukt dat het aantal uitrukken (zeker de prio 1 uitrukken in de nacht) beperkt is. De geluidsoverlast van uitrukkende brandweerauto’s zal bovendien beperkt zijn, omdat de sirenes bij het wegrijden doorgaans niet direct worden aangezet. Dit gebeurt meestal pas zodra de voertuigen de grote weg oprijden. In dit geval is dat de Bergmaas. Ook op de bestaande locatie van de brandweerkazerne aan de Langenboomseweg inZeeland wordt weinig tot geen overlast ervaren van omwonenden. Dit bleek ook uit enkele reacties tijdens de omgevingsdialoog. Ook wordt opgemerkt dat brandweerlieden zich, net als iedereen, aan de verkeersregels moeten houden als zij bij spoedgevallen naar de kazerne komen.

De brandweerkazerne en het regionale steunpunt zullen inderdaad extra verkeer genereren. Door de gemeente zal in het kader van de ontwikkeling van het bedrijventerrein een verkeerskundig onderzoek worden uitgevoerd voor een eventuele nieuwe ontsluitingsweg en een daarmee samenhangende eventuele herinrichting van de weg Voederheil.

In de brief wordt verder opgemerkt dat aan de Voederheil maximaal drie inritten ten behoeve van de uitruk, de lokale vrijwilligers en pakketdiensten en kantoorbezoekers zullen komen en dat de positie hiervan nader te bepalen is. Hierbij zal rekening moeten worden gehouden met de veiligheid van onder andere fietsers op de weg Voederheil en wordt geprobeerd rekening te houden met eventuele lichthinder. Vanwege dit laatste aspect heeft op 4 juni 2021 een gesprek plaatsgevonden tussen initiatiefnemer en gemeente en de bewoner van Voederheil 13 (overbuurman), hetgeen geresulteerd heeft in een gesplitste inrit (zie de inrichtingstekening in hoofdstuk 3).

Tot slot is in de brief aangegeven dat er aandacht is voor de inrichting van de voorkant van het perceel in verband met een goede overgang van het bedrijventerrein naar het lint Voederheil. In het onderhavig plan is voorzien in een brede openbare groenstrook van 8 m, die moet voorkomen dat er een hard beeld aan de voorkant ontstaat. Dit betekent niet dat de brandweerkazerne niet zichtbaar mag zijn. Integendeel, de gemeente vindt het juist wenselijk dat de representatieve bebouwing zichtbaar is, alleen wordt dit beeld enigszins verzacht door groen en enkele bomen. Tijdens de omgevingsdialoog was te zien dat het nieuwe gebouw een goede overgang is tussen het lint en het bedrijventerrein.