direct naar inhoud van Toelichting
Plan: Baroniestraat 24 Boxtel
Status: ontwerp
Plantype: bestemmingsplan
IMRO-idn: NL.IMRO.0757.BP06BARONIESTR-OTW1

Toelichting

Hoofdstuk 1 Inleiding

1.1 Aanleiding

Op de hoek van de Baroniestraat en de Annastraat in Boxtel staat de Heilig Hartkerk met bijbehorende pastorie en achterliggende tuin. Sinds begin 2015 worden er geen (ere)diensten meer gehouden in de kerk en ook de pastorie heeft haar functie verloren. Voor de renovatie en transformatie van de pastorie naar woonzorgappartementen is al vergunning verleend. De pastorie maakt geen onderdeel uit van het plangebied van dit bestemmingsplan.

Dit bestemmingsplan maakt, in de pastorietuin, de realisatie van 48 woonzorgappartementen in twee gebouwen mogelijk voor senioren en mensen met dementie. De gewenste ontwikkelingen zijn niet mogelijk op basis van het geldende bestemmingsplan 'Boxtel Noord'. De gemeente Boxtel heeft aangegeven in principe medewerking te willen verlenen aan de wijziging van het bestemmingsplan. Het doel van voorliggend bestemmingsplan is een passend juridisch-planologisch kader te scheppen op basis waarvan de voorgestane ontwikkeling kan worden gerealiseerd.

1.2 Plangebied

Het plangebied is gelegen aan de Baroniestraat, in de bebouwde kom van Boxtel, ten noordwesten van het centrum. De Baroniestraat is één van de doorgaande verbindingsroutes in Boxtel.

Dit bestemmingsplangebied voorziet in de tuin van de pastorie. De zuidelijke begrenzing van het plangebied wordt gevormd door de Baroniestraat zelf. De westelijke plangrens wordt gevormd door het perceel behorende bij de Heilig Hartkerk met de pastorie en de aldaar aanwezige begraafplaats. De noordelijke grens wordt gevormd door watergang het Smalwater en ten oosten van het plangebied staat het voormalig St. Ursulaklooster. Dit klooster is ook niet meer als zodanig in gebruik, maar wordt ingezet als een centrum voor zorg, welzijn en cultuur. Onder andere zijn hier gevestigd: het Jongerencentrum B-Town, het Centrum voor Jeugd en Gezin, bureau Halt en de GGD. Ook het Boxtels Museum Mubo is hier gehuisvest.

In figuur 1.1 is de globale ligging van het plangebied weergegeven.

afbeelding "i_NL.IMRO.0757.BP06BARONIESTR-OTW1_0001.png"

Figuur 1.1 Globale ligging plangebied (bron: ESRI Nederland, i.s.m. ruimtelijkeplannen en Kadaster)

1.3 Vigerend bestemmingsplan

Ter plaatse van het plangebied vigeert het bestemmingsplan 'Boxtel Noord', vastgesteld op 2 december 2010 en ook onherroepelijk sinds die datum. Ter plaatse van het plangebied gelden de bestemmingen 'Groen', 'Maatschappelijk' en 'Water'.

De gronden binnen de maatschappelijke bestemming zijn breed bestemd, onder andere voor sport en spel, gezondheidszorg, cultuur, welzijn, onderwijs en religie. (Reguliere) woningbouw is op basis van het geldend bestemmingsplan ter hoogte van de het terrein achter de pastorie niet toelaatbaar.

Aan de noordzijde van het plangebied, grenzend aan het Smalwater, geldt de bestemming 'Groen -1'. De gronden zijn onder andere bestemd voor groenvoorzieningen, bermen en beplanting, waterlopen en waterpartijen. Ook binnen deze bestemming is het gebruik van de gronden ten behoeve van het (zorg)wonen niet toegestaan.

Ook aan de noordzijde van het plangebied is het Smalwater zelf bestemd als 'Water'. Deze gronden zijn bestemd voor waterhuishouding, waterlopen, waterpartijen en waterberging maar tevens voor groenvoorzieningen en extensief recreatief gebruik. Aangezien ter plaatse ook de functieaanduiding 'ecologische waarde' is opgenomen, zijn deze gronden tevens bestemd voor het behoud, herstel of de duurzame ontwikkeling van de ecologische waarden.

afbeelding "i_NL.IMRO.0757.BP06BARONIESTR-OTW1_0002.png"

Figuur 1.2 Uitsnede vigerend bestemmingsplan Boxtel Noord --> kaart aanpassen

1.4 Bij het plan behorende stukken

Dit bestemmingsplan bestaat uit drie delen:

  • a. Toelichting, waarin de keuzes die in het bestemmingsplan worden gemaakt nader worden gemotiveerd en verantwoord. Hierin staat ook beschreven wat het vigerend beleid inhoudt en hoe bij de ontwikkeling met (milieu)planologische aspecten rekening is gehouden.
  • b. Regels, waarin de bouw- en gebruiksmogelijkheden van de op de verbeelding vermelde bestemmingen zijn opgenomen.
  • c. Verbeelding, waarop onder meer de bestemmingen in het plangebied zijn aangegeven. De verbeelding vormt samen met de regels het juridisch bindende deel van het bestemmingsplan.

1.5 Leeswijzer

Hoofdstuk 2 geeft een beschrijving van de huidige situatie en het planvoornemen. In hoofdstuk 3 wordt de beoogde ontwikkeling getoetst aan de beleidskaders van het Rijk, de provincie Noord-Brabant en de gemeente Boxtel. In hoofdstuk 4 worden diverse milieuhygiënische en planologische aspecten verantwoord. In hoofdstuk 5 wordt de economische en maatschappelijke uitvoerbaarheid beschreven. Hoofdstuk 6 gaat in op de juridische planopzet.

Hoofdstuk 2 Planbeschrijving

Voor het opstellen van een bestemmingsplan is het van belang dat de uitgangssituatie, ofwel de bestaande situatie, goed in beeld wordt gebracht. In dit hoofdstuk volgt een beschrijving van deze situatie. Ook wordt nader ingegaan op het planvoornemen en de toekomstige situatie.

2.1 Huidige situatie

2.1.1 Algemeen

Meer dan honderd jaar was de Heilig Hartkerk aan de Baroniestraat in Boxtel, gebouwd en in gebruik genomen in 1901, het thuis voor een deel van de gelovige gemeenschap in Boxtel. Sinds 2015 worden er geen kerkelijke erediensten meer gehouden en is ook de pastorie niet meer als zodanig in gebruik. In het achter gelegen terrein bevindt zich de tuin waar nog enkele bomen aanwezig zijn (zie ook paragraaf 3.4.8).

afbeelding "i_NL.IMRO.0757.BP06BARONIESTR-OTW1_0003.png"

Figuur 2.1: Foto bestaande pastorie

afbeelding "i_NL.IMRO.0757.BP06BARONIESTR-OTW1_0004.png"

Vogelvluchtfoto van de kerk, de pastorie en, het plangebied, de pastorietuin (bron: cyclomedia, 2021)

2.1.2 Rijksmonument

Algemeen

De pastorie, een aangewezen Rijksmonument, werd gebouwd in 1900-1901 naar een ontwerp van C. Franssen. De pastorie maakt echter geen onderdeel uit van het bestemmingsplangebied. Dit bestemmingsplan heeft dan ook geen invloed op de instandhouding van het Rijksmonument. Wel is de waarde van de pastorie, het rond de pastorie lopende smeedijzeren sierhekwerk in combinatie met de pastorietuin van belang. Zie ook Bijlage 1 voor de beschrijving van het monument.

Het geheel heeft namelijk een cultuurhistorische waarde als bijzondere uitdrukking van de ontwikkeling van de rooms-katholieke kerk in de late negentiende en de vroege twintigste eeuw voor wat betreft bestemming en verschijningsvorm. Het heeft ensemblewaarden als essentieel onderdeel van een historisch gegroeid religieus geheel, bestaande uit de kerk ten westen van de pastorie met de pastorietuin, de begraafplaats, de (graf-)sculpturen en het belendende St. Ursulaklooster. Dit ensemble vormt een belangwekkend onderdeel van de Boxtelse stationswijk, die rond 1900 uitgroeide tot een afzonderlijke parochie.

2.1.3 Omgeving plangebied

Het plangebied ligt in de wijk Breukelen. Breukelen is de oude kern van de gemeente Boxtel. De wijk ligt tegen het centrum van Boxtel, is grotendeels een woonwijk, met een eigen voorzieningenstructuur. Zo is aan de overzijde van de Baroniestraat de basisschool Angelaschool gevestigd. Tevens bevindt zich hier een uitvaartonderneming. Op de hoek van de Sint Annastraat en Baroniestraat is café de Adelaar gevestigd. Het Sint Ursulaklooster is tegenwoordig niet meer in gebruik als klooster maar wordt ingezet als een centrum voor zorg, welzijn en cultuur. Onder andere zijn hier gevestigd: het Jongerencentrum B-Town, het Centrum voor Jeugd en Gezin, bureau Halt en de GGD. Ook het Boxtels museum Mubo is hier gehuisvest.

2.2 Planvoornemen

2.2.1 Stedenbouwkundige opzet

De tuin van de voormalige pastorie wordt herontwikkeld tot een woongebied waar 48 woonzorgappartementen worden gerealiseerd. Figuur 2.2 geeft een beeld van de beoogde inrichting.

afbeelding "i_NL.IMRO.0757.BP06BARONIESTR-OTW1_0005.png"

Figuur 2.2: Beoogde inrichting (Bron: Vrijborg, december 2022)

Het ontwerp van twee geschakelde woonzorghuizen is zorgvuldig ingepast tussen het bestaande ensemble van kerk, pastorie en klooster. In korrelgrootte en verschijningsvorm zal het passend zijn bij het naastgelegen Sint Ursulaklooster alsmede bij de nieuwbouw Bracbant. Het nieuwe woonzorghuis heeft een wisselende massaopbouw door deels de derde bouwlaag in een optische kap uit te voeren. Hiermee worden ook stedenbouwkundig accenten gemaakt die het gebouw een overhoekse uitstraling geeft en de entrees accentueren.  

afbeelding "i_NL.IMRO.0757.BP06BARONIESTR-OTW1_0006.png"

Figuur 2.3: (concept) Impressie gevel aan de Baroniestraat (Bron: Vrijborg, december 2022)

afbeelding "i_NL.IMRO.0757.BP06BARONIESTR-OTW1_0007.png"

Figuur 2.4: (concept) Impressie gevel aan de ontsluitingsweg van Bracbant (Bron: Vrijborg, december 2022)

2.2.2 Beeldkwaliteit

De stijlkeuze en materialisering sluit aan bij de bestaande bebouwing door gebruik van rood metselwerk en kozijnen met roeden en een lijnenspel wat verwijst naar de laat-negentiende-eeuwse architectuur van de belendingen.

 

De entrees van beide woonzorghuizen aan het Bracbant en de Baroniestraat, krijgen een extra accent door het metselwerk op te trekken en te voorzien van horizontale en verticale gevelbanden. De kleur van het metselwerk en het dubbele woonzorghuis sluiten aan bij de kleur en textuur van het Sint Ursulaklooster. De bovenste bouwlaag wordt gedeeltelijk bekleed met antracietkleurige keramische gevelpannen en betimmerde goten. De hemelwaterafvoeren en kaders rondom de dakramen zijn van zink of een materiaal met deze uitstraling. In het nieuwe gebouw zullen verblijfplaatsen voor vleermuizen, gierzwaluwen en huismussen worden opgenomen. Door de ligging tegen de door Vrijborg te realiseren corridor in de EVZ draagt het gebouw met haar verblijfplaatsen voor bedreigde soorten bij aan het instandhouden en uitbreiden van deze soorten. Het gebouw wordt duurzaam en natuurinclusief opgetrokken en zal het duurzaamheidscertificaat Breeam 'Very Good' krijgen.

2.2.3 Ontsluiting en parkeren

Voor de ontsluiting van de woonzorgvilla wordt gebruik gemaakt van de bestaande inrit ten behoeve van het Sint Ursulaklooster en de (zorg)woningen Bracbant.

Binnen het plangebied worden 29 parkeerplaatsen gerealiseerd. In paragraaf 4.7 wordt daar nader op ingegaan.

2.2.4 Natuur en groen

In afstemming met de provincie Noord-Brabant, waterschap De Dommel en de gemeente Boxtel is overleg gevoerd over het ontwikkelen van natuur in het plangebied nabij de rivier Smalwater direct ten noorden van het plangebied. Daarbij is afgesproken om de bebouwingsvrije zone te verruimen en het initiatief hierop aan te passen (van 10m naar 25m).

Een inrichtingsschets inclusief het document "Inrichting ecologische verbindingszone" is opgesteld. Het beleidsdocument "Groene Levensader door Boxtel" is hiervoor als onderlegger gebruikt. Het plangebied maakt onderdeel uit van een Nat Kralensnoer en bestaat uit corridors en/of stapstenen. Stapstenen worden door elkaar verbonden door corridors. Nabij de planlocatie is al een stapsteen aanwezig. Het plangebied is daarom benaderd als corridor.

De inrichtingsvoorwaarden betreffen een niet toegankelijke natuurvriendelijke oever met struikenrij. Daarnaast zijn de inrichtingsvoorwaarden gebaseerd op soorten die een midden tot groot belang hebben in het gebied, gekeken naar de corridor-functie van het Smalwater.

De te ontwikkelen natuur in het plangebied krijgt de bestemming 'Natuur'. Daarnaast wordt in de regels van het bestemmingsplan een voorwaardelijke verplichting opgenomen voor realisatie en inrichting van deze natuur. De gronden met de bestemming 'Natuur' worden overgedragen aan de gemeente. De gemeente wordt daarmee verantwoordelijk voor het beheer en het onderhoud. In overleg met de gemeente wordt momenteel een onderhoudsplan opgesteld.

De inrichtingsschets van de natuurzone is in figuur 2.5 weergegeven (zie ook bijlage 1 bij de regels). In figuur 2.6 is het dwarsprofiel opgenomen.

afbeelding "i_NL.IMRO.0757.BP06BARONIESTR-OTW1_0008.png"

Figuur 2.5: Inrichtingsschets corridor t.p.v. het plangebied (Bron: Vrijborg, november 2022)

afbeelding "i_NL.IMRO.0757.BP06BARONIESTR-OTW1_0009.png"

Figuur 2.6 Dwarsprofiel (Bron: Vrijborg, november 2022)

De inrichting van deze natuurzone, of een nadere uitwerking hiervan, is verankerd in de regels van dit bestemmingsplan. In overleg met de verschillende betrokken instanties wordt deze inrichtingsschets namelijk nog nader uitgewerkt. Daarbij wordt rekening gehouden met de randvoorwaarden voor de inrichting van het gebied en het beheer en onderhoud zoals opgenomen in bijlage 2 en 3 van de toelichting.

Daarnaast zal het groen binnen het plangebied voornamelijk bestaan uit de tuinen bij de woonzorgappartementen. De bestaande bomenstructuur met de karakteristieke bomenlaan direct ten oosten van het plangebied blijft gehandhaafd. Er is een boomeffectanalyse uitgevoerd. De rapportage van die analyse is opgenomen in bijlage 4 bij deze toelichting. In dit bestemmingsplan zal de handhaving en bescherming van de betreffende bomen juridisch worden verankerd. Tijdens de werkzaamheden worden de bomen eveneens beschermd. Ook de bestaande groenstructuur aangrenzend aan de Baroniestraat met het hekwerk blijft in de beoogde situatie gehandhaafd.

Water

De woonzorgvilla kijkt aan de noordzijde uit op de waterloop Smalwater. Binnen het plangebied zelf wordt als onderdeel van de ecologische verbindingszone, oppervlaktewater gerealiseerd (zie ook paragraaf 4.3 en figuur 2.5 hiervoor).

2.2.5 Programma en doelgroep

De woonzorgappartementen bieden plaats aan senioren met een zorgvraag en specifiek voor mensen met dementie. De gebouwen worden geëxploiteerd door Wonen bij September. Om bij Wonen bij September te komen wonen, is een indicatie van het Centrum Indicatiestelling Zorg (CIZ) nodig. Wonen bij September levert kwalitatief hoogwaardige zorg voor mensen met indicatie VV04 of 05.

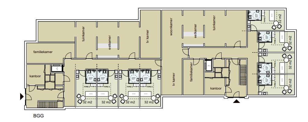
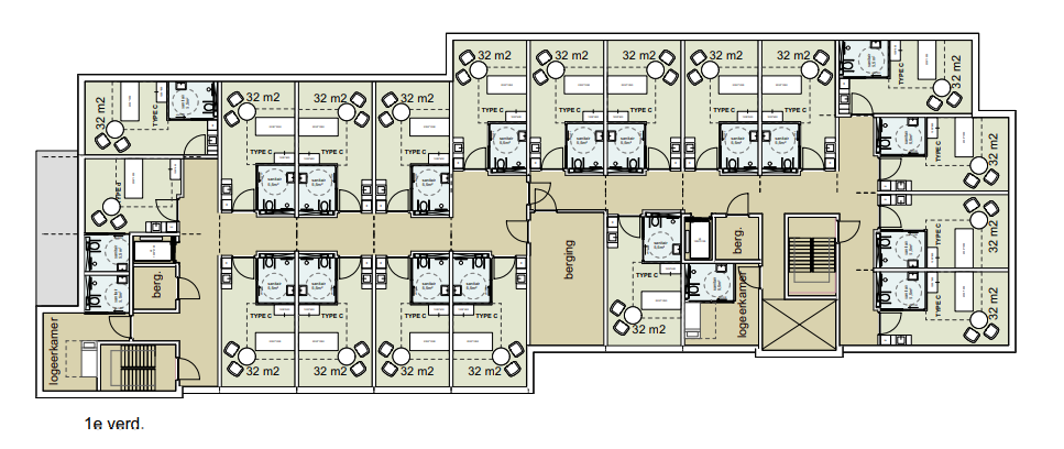
Het woonzorgcomplex bestaat feitelijk uit twee afzonderlijke delen (noord- en zuid) die tegen elkaar gebouwd zijn. Beide gedeelten bestaan uit 3 verdiepingen met per verdieping het volgende programma voor de beide delen tezamen:

  • Begane grond: 8 woonzorgeenheden, en gezamenlijke ruimten zoals familiekamers, tuinkamers, eetkamers, woonkamers en tv-kamers. Daarnaast bevinden zich hier een kantoor en sanitaire- en technische ruimten.
  • 1e verdieping: 19 woonzorgeenheden, kantoren, bergingen en sanitaire ruimten;
  • 2e verdieping: 21 woonzorgeenheden, een berging en sanitaire ruimten.

In totaal worden er dus 48 woonzorgeenheden gerealiseerd: 24 voor het noordelijke bouwdeel en 24 voor het zuidelijke bouwdeel.

afbeelding "i_NL.IMRO.0757.BP06BARONIESTR-OTW1_0010.png"

afbeelding "i_NL.IMRO.0757.BP06BARONIESTR-OTW1_0011.png"

afbeelding "i_NL.IMRO.0757.BP06BARONIESTR-OTW1_0012.png"

Figuur 2.6: (concept) plattegronden per verdieping (bron: Vrijborg december 2022)

Hoofdstuk 3 Beleidskaders

3.1 Inleiding

De beoogde ontwikkeling moet worden getoetst aan het nu geldende rijks-, provinciaal en gemeentelijk beleid. Hieronder is dit beleid nader beschreven.

3.2 Rijksbeleid

3.2.1 Nationale Omgevingsvisie (2020)

De Nationale Omgevingsvisie, kortweg NOVI, loopt vooruit op de inwerkingtreding van de Omgevingswet en vervangt op Rijksniveau de Structuurvisie Infrastructuur en Ruimte (SVIR). Uitgangspunt in de nieuwe aanpak is dat ingrepen in de leefomgeving niet los van elkaar plaatsvinden, maar in samenhang. Zo kunnen in gebieden betere, meer geïntegreerde keuzes worden gemaakt.

Aan de hand van een toekomstperspectief op 2050 brengt de NOVI de langetermijnvisie van het Rijk in beeld. Op nationale belangen wil het Rijk sturen en richting geven. Dit komt samen in vier prioriteiten:

  • a. Ruimte voor klimaatadaptatie en energietransitie
  • b. Duurzaam economisch groeipotentieel
  • c. Sterke en gezonde steden en regio's
  • d. Toekomstbestendige ontwikkeling van het landelijk gebied

De druk op de fysieke leefomgeving in Nederland is zo groot, dat belangen soms botsen. Het streven is combinaties te maken en win-win situaties te creëren, maar dit is niet altijd mogelijk. Soms zijn er scherpe keuzes nodig en moeten belangen worden afgewogen. Hiertoe gebruikt de NOVI drie afwegingsprincipes:

  • a. Combinaties van functies gaan voor enkelvoudige functies: in het verleden is scheiding van functies vaak te rigide gehanteerd. Met de NOVI wordt gezocht naar maximale combinatiemogelijkheden tussen functies, gericht op een efficiënt en zorgvuldig gebruik van onze ruimte;
  • b. Kenmerken en identiteit van een gebied staan centraal: wat de optimale balans is tussen bescherming en ontwikkeling, tussen concurrentiekracht en leefbaarheid, verschilt van gebied tot gebied. Sommige opgaven en belangen wegen in het ene gebied zwaarder dan in het andere;
  • c. Afwentelen wordt voorkomen: het is van belang dat onze leefomgeving zoveel mogelijk voorziet in mogelijkheden en behoeften van de huidige generatie van inwoners zonder dat dit ten koste gaat van die van toekomstige generaties.

Toetsing

De NOVI wordt gekenmerkt door een hoog abstractie- en schaalniveau. Eén van de nationale belangen die relevant is voor het voorliggende bestemmingsplan is een zorgvuldige afweging en transparante besluitvorming. Hier wordt aan voldaan. Voor het overige is geen concreet beleid op nationaal niveau geformuleerd dat van belang is voor het voorliggend bestemmingsplan. De in de NOVI genoemde nationale belangen worden door de voorgenomen ontwikkelingen niet geschaad.

3.2.2 Besluit algemene regels ruimtelijke ordening

Het Barro is de juridische vertaling van het beleid dat geschetst is in het SVIR. Dit beleidsdocument bevat regels die doorwerken naar lagere overheden. Dit betekent dat de regels uit het Barro ook geïmplementeerd moeten worden in provinciale en gemeentelijke ruimtelijke plannen. Evenals de SVIR wordt het Barro gekenmerkt door een hoog abstractie- en schaalniveau. Het Barro bevat regels voor bijvoorbeeld de mainportontwikkeling van Rotterdam, het kustfundament en defensie.

Toetsing

Op het plangebied zijn op basis van het Barro geen voorwaarden van toepassing.

3.2.3 Besluit en ministeriële regeling algemene regels ruimtelijke ordening (Barro en Rarro)

Het Barro is de juridische vertaling van het beleid dat geschetst is in de NOVI. Dit beleidsdocument bevat regels die doorwerken naar lagere overheden. Dit betekent dat de regels uit het Barro ook geïmplementeerd moeten worden in provinciale en gemeentelijke ruimtelijke plannen. Evenals de NOVI wordt het Barro gekenmerkt door een hoog abstractie- en schaalniveau. Het Barro bevat regels voor bijvoorbeeld de mainportontwikkeling van Rotterdam, het kustfundament en defensie.

Het kabinet heeft in de NOVI vastgesteld dat voor een beperkt aantal onderwerpen, bijvoorbeeld voor defensie en waterveiligheid, de bevoegdheid om algemene regels te stellen moet worden ingezet. Het gaat daarbij om het beschermen van de nationale belangen. Naar aanleiding van een advies van de Raad van State voorziet het Barro ook in een bij dit besluit behorende ministeriële regeling (Rarro).

Toetsing en conclusie

De NOVI, het Barro en het Rarro worden gekenmerkt door een hoog abstractie- en schaalniveau en hebben geen directe belangen die geborgd moeten worden ten aanzien van het plangebied. De ontwikkeling draagt ook niet bij aan het verwezenlijken van dit beleid.

De beoogde ontwikkeling betreft wel een nieuwe stedelijke ontwikkeling in het kader van de Ladder voor duurzame verstedelijking. Toetsing daarvan heeft in paragraaf 3.2.4 plaatsgevonden.

3.2.4 Bro en Ladder voor duurzame verstedelijking

De ladder is als procesvereiste opgenomen in het Besluit ruimtelijke ordening (Bro). In de Ladder voor duurzame verstedelijking is opgenomen dat de toelichting van een bestemmingsplan dat een nieuwe stedelijke ontwikkeling mogelijk maakt, een beschrijving bevat van de behoefte aan de voorgenomen stedelijke ontwikkeling. Indien blijkt dat de stedelijke ontwikkeling niet binnen het bestaand stedelijk gebied kan worden voorzien, moet in de toelichting worden gemotiveerd waarom niet binnenstedelijk in de behoefte kan worden voorzien.

In het geval van de voorgenomen ontwikkeling gaat het om de bouw van 48 onzelfstandige woonzorgeenheden. Omdat de functiewijziging groter is dan 500 m2 bvo, is sprake van een stedelijke ontwikkeling. Een toets aan de Ladder is dan ook noodzakelijk.

Aangezien de beoogde stedelijke herontwikkeling is voorzien binnen het bestaand stedelijk gebied is hierna de behoefte beschreven.

Beschrijving behoefte

De behoefte aan de zorgeenheden blijkt uit de provinciale prognose, de gemeentelijke prestatieafspraken en de concrete belangstelling voor en invulling van deze eenheden. In paragraaf 3.3.3 wordt specifiek ingegaan op de behoefte aan zorgwoningen. De zorgwoningen die in dit bestemmingsplan mogelijk gemaakt worden, zijn geschikt voor bewoners met zorgprofiel VV4 en VV5. In de bevolkings- en woningbehoefteprognose is beschreven dat er een concrete behoefte bestaat aan 17.400 wooneenheden voor intramuraal wonen.

Een groeiende groep mensen in Nederland krijgt te maken met dementie. Het gaat hierbij om de mensen met dementie zelf, en hun naasten. Voor al deze mensen heeft dementie een grote impact op hun leven. Door het stijgen van het aantal mensen met dementie neemt de druk op de zorg toe. Dit geldt voor bijvoorbeeld de verpleeghuiszorg en de wijkverpleging. Overheid, wetenschap en verschillende zorgpartijen zoeken naar oplossingen om de druk op de zorg te verlagen. Zij kijken naar preventie, risicoprofilering, betere medicatie en betere organisatie van zorg. Om zorg voor mensen met dementie goed te kunnen organiseren, is het belangrijk de populatie goed in beeld te hebben. Om hoeveel mensen gaat het? Hoe oud zijn zij? Waar wonen ze en van welke zorg maken zij gebruik?

Vektis heeft eind 2021 naar aanleiding van nieuwe inzichten de methode herijkt, waarmee de dementiepopulatie wordt bepaald. In de gemeente Boxtel hebben 600 mensen met dementie, waarvan 355 thuiswonend en 245 in een instelling.

Verder blijkt ook uit cijfers van Alzheimer Nederland (Mensen met dementie per gemeente, Alzheimer Nederland, januari 2020) dat door de vergrijzing het aantal dementie patiënten fors toeneemt.

De cijfers geven een indicatie van het aantal mensen met dementie in 2020. Op basis van voorspellingen van de toekomstige bevolkingsopbouw, is ook een prognose gemaakt van het aantal mensen met dementie in de toekomst. In 2050 zullen in Nederland 620.000 mensen aan dementie lijden. Deze berekening is gemaakt door ABF Research in opdracht van Alzheimer Nederland.

afbeelding "i_NL.IMRO.0757.BP06BARONIESTR-OTW1_0013.jpg"

afbeelding "i_NL.IMRO.0757.BP06BARONIESTR-OTW1_0014.jpg"

Figuur 3.1: prognose mensen met dementie in Boxtel

Het aantal mensen met dementie groeit de komende decennia explosief naar meer dan een half miljoen in 2040. Gemeenten in de regio doen hun best om daar op in te spelen. Maar het is nog lang niet genoeg, vindt Alzheimer Nederland. In de regio's Den Bosch, Meierij en Bommelerwaard stijgt het aantal mensen met dementie de komende tijd in een kleine 20 jaar tot meer dan 10.000. Dat is bijna een verdubbeling ten opzichte van de huidige situatie (5.550).

De gemeente Boxtel heeft prestatieafspraken gemaakt met woonstichting JOOST en HuurdersBelangenVereniging Boxtel/Liempde (Prestatieafspraken 2020-2024) over de huisvesting van bijzondere doelgroepen. Een aantal doelgroepen is in het bijzonder afhankelijk van specifiek aanbod in de (sociale of particuliere) huursector. Onder deze doelgroepen worden onder andere verstaan de kwetsbare ouderen die een beroep doen op specifieke woonvormen, omdat zelfstandig wonen niet meer mogelijk is.


De beoogde ontwikkeling voorziet in de behoefte aan zorgwoningen door 48 woonzorgappartementen mogelijk te maken. Deze eenheden zijn geschikt voor de verhuur aan mensen met een zorgvraag en specifiek dementie.

Conclusie

Op basis van bovenstaande blijkt dat er behoefte bestaat aan zorgwoningen zoals voorzien in dit plan. Het planvoornemen voldoet daarmee aan de uitgangspunten zoals opgenomen in de Ladder voor duurzame verstedelijking.

Tot slot vindt de voorgenomen ontwikkeling plaats binnen het bestaand stedelijk gebied van Boxtel. De voorgenomen ontwikkeling voldoet daarmee aan de Ladder voor duurzame verstedelijking.

3.3 Provinciaal beleid

3.3.1 Omgevingsvisie Noord-Brabant

In de Omgevingsvisie Noord-Brabant is het provinciaal beleid ten aanzien van de ruimtelijke ontwikkelingen in de provincie Noord-Brabant op hoofdlijnen uiteengezet voor de periode tot 2050. Naast een beeld van het Noord-Brabant van nu is een beeld geschetst van het welvarend, verbonden, klimaatproof en vernieuwend Noord-Brabant van 2050. Hieruit zijn vier hoofdopgaven onderscheiden die nauw met elkaar samenhangen:

  • Werken aan de Brabantse energietransitie
  • Werken aan een klimaatproof Brabant
  • Werken aan de slimme netwerkstad
  • Werken aan een concurrerende, duurzame economie

Samen met andere partijen, zoals gemeenten en bedrijven, wil de provincie uitvoering geven aan projecten die passen binnen deze opgaven. Van belang is dat het in de toekomst ook goed wonen, werken en verblijven blijft. Werken aan een goede omgevingskwaliteit zowel in de bebouwde als in de onbebouwde omgeving is het uitgangspunt.

Toetsing en conclusie

Stedelijke ontwikkelingen dienen in principe plaats te vinden binnen 'bestaand stedelijk gebied'. Herbestemmen wordt gezien als het nieuwe bouwen: als gevolg van economische, technologische en maatschappelijke ontwikkelingen staan de steden en dorpen van Brabant steeds vaker voor (omvangrijke) herbestemmings- en transformatieopgaven in hun bebouwde gebied. Hier liggen namelijk de kansen om de forse woningbouwopgave van circa 120.000 woningen in de komende tien jaar te realiseren. De beoogde ontwikkeling draagt hier op bescheiden wijze aan bij.

3.3.2 Interim Omgevingsverordening (geconsolideerde versie 2022)

Gedeputeerde Staten van Noord-Brabant hebben op 25 oktober 2019 de Interim omgevingsverordening Noord-Brabant (hierna: Iov N-B) vastgesteld. Deze verordening is per 5 november 2019 in werking getreden.


Op 1 januari 2023 treedt de Omgevingswet in werking. Vanwege de Omgevingswet moet de provincie haar regelsysteem aanpassen. Straks heeft de provincie nog maar één verordening waarin alle regels zijn opgenomen over de fysieke leefomgeving. De Iov N-B is een eerste stap op weg naar de definitieve omgevingsverordening. Hierin worden de bestaande verordeningen over de fysieke leefomgeving samengevoegd tot één Interim omgevingsverordening, waaronder de huidige Verordening ruimte.


De Iov N-B is beleidsneutraal van karakter. Dat betekent dat er geen nieuwe beleidswijzigingen zijn doorgevoerd, behalve als deze voortvloeien uit vastgesteld beleid, zoals de omgevingsvisie. In beginsel zijn de huidige regels met het huidige beschermingsniveau gehandhaafd.


In hoofdstuk 3 van Iov N-B zijn de instructieregels opgenomen die gemeenten moeten toepassen in hun bestemmingsplannen. Hierin staan de regels die nu nog zijn opgenomen in de Verordening ruimte. Vooruitlopend op de Omgevingswet richten de instructieregels zich op een evenwichtige toedeling van functies (in plaats van het bestemmen van ontwikkelingen). Dit betekent dat de regels ook vanuit functies (van gebieden) zijn opgebouwd. Daarnaast richten de regels zich op een goede omgevingskwaliteit, inclusief een veilige en gezonde leefomgeving (in plaats van een goede ruimtelijke kwaliteit). Tevens zijn een aantal algemene basisprincipes opgenomen.


In de Iov N-B zijn regels voor ontwikkelingen gekoppeld aan werkgebieden (structuren) en aanduidingen.

afbeelding "i_NL.IMRO.0757.BP06BARONIESTR-OTW1_0015.png"

Figuur 3.2: Uitsnede kaart 3 Iov N-B: Instructieregels gemeenten: stedelijke ontwikkeling en erfgoed

Het plangebied ligt binnen het 'Stedelijk gebied' zoals weergegeven in figuur 3.2. Daarnaast ligt het noordelijk deel van het plangebied (gelegen tegen het Smalwater) binnen de zone 'behoud en herstel watersystemen' en als 'Natuur Netwerk Brabant - evz' (ecologische verbindingszone) (figuur 3.3.).

afbeelding "i_NL.IMRO.0757.BP06BARONIESTR-OTW1_0016.png"Figuur 3.3: Uitsnede kaart 4 Iov Noord-Brabant: Instructieregels gemeenten: natuur en stiltegebieden

Voor het planvoornemen zijn onderstaande regels en basisprincipes uit de Interim omgevingsverordening van toepassing.

Artikel 3.42 Duurzame stedelijke ontwikkeling

  • 1. Een bestemmingsplan dat voorziet in de ontwikkeling van een locatie voor wonen, werken of voorzieningen ligt binnen Stedelijk gebied en bevat een onderbouwing dat:
    • a. de ontwikkeling past binnen de regionale afspraken, bedoeld in afdeling 5.4 Regionaal samenwerken;
    • b. het een duurzame stedelijke ontwikkeling is.
  • 2. Een duurzame stedelijke ontwikkeling voor wonen, werken of voorzieningen:
    • a. bevordert een goede omgevingskwaliteit met een veilige en gezonde leefomgeving;
    • b. bevordert zorgvuldig ruimtegebruik, waaronder de transformatie van verouderde stedelijke gebieden;
    • c. geeft optimaal invulling aan de mogelijkheden voor productie en gebruik van duurzame energie;
    • d. houdt rekening met klimaatverandering, waaronder het tegengaan van hittestress en voldoende ruimte voor de opvang van water;
    • e. geeft optimaal invulling aan de mogelijkheden voor duurzame mobiliteit;
    • f. draagt bij aan een duurzame, concurrerende economie.

Toetsing

In dit geval is sprake van een duurzame stedelijke ontwikkeling van zorgeenheden binnen het bestaand stedelijk gebied van Boxtel. Het betreft de transformatie van vrijgekomen stedelijk gebied. Het Natuur Netwerk Brabant wordt met de ontwikkeling van een corridor verder vorm gegeven en de bebouwing blijft buiten deze zone. Met de realisatie van de nieuwbouw van het woonzorgcomplex wordt rekening gehouden met de klimaatverandering en duurzame energie.

Basisprincipes voor een evenwichtige toedeling van functies

Vooruitlopend op de Omgevingswet richten de instructieregels zich op een evenwichtige toedeling van functies. Dit betekent dat de regels ook vanuit functies (van gebieden) zijn opgebouwd. Daarnaast richten de regels zich op een goede omgevingskwaliteit, inclusief een veilige en gezonde leefomgeving (in plaats van een goede ruimtelijke kwaliteit).

artikel 3.5 Zorgplicht voor een goede omgevingskwaliteit;

artikel 3.6 Zorgvuldig ruimtegebruik;

artikel 3.7 Toepassing van de lagenbenadering;

artikel 3.8 Meerwaardecreatie.

Toetsing aan artikel 3.5 zorgplicht voor een goede omgevingskwaliteit

  • 1. Een bestemmingsplan geeft bij de evenwichtige toedeling van functies invulling aan een goede omgevingskwaliteit met een veilige, gezonde leefomgeving.
  • 2. Voor een goede omgevingskwaliteit en een veilige, gezonde leefomgeving wordt rekening gehouden met:
    • a. zorgvuldig ruimtegebruik;
    • b. de waarden in een gebied door toepassing van de lagenbenadering;
    • c. meerwaardecreatie.

Deze aspecten worden hierna beschreven.

Artikel 3.6 Zorgvuldig ruimtegebruik

  • 1. Zorgvuldig ruimtegebruik houdt in dat:
    • a. de toedeling van functies in beginsel plaatsvindt binnen bestaand ruimtebeslag voor bebouwing, behalve in de gevallen dat:
    • b. nieuwvestiging mogelijk is op grond van de bepalingen in dit hoofdstuk;
    • c. er feitelijk of vanuit kwalitatieve overwegingen onvoldoende ruimte is en uitbreiding, al dan niet gelijktijdig met de vestiging van een functie, op grond van de bepalingen in dit hoofdstuk is toegestaan;
    • d. bij stedelijke ontwikkeling toepassing is gegeven aan artikel 3.1.6, tweede lid, Besluit ruimtelijke ordening (ladder voor duurzame verstedelijking);
    • e. gebouwen, bijbehorende bouwwerken en andere permanente voorzieningen worden geconcentreerd binnen een bouwperceel.
  • 2. Onder bestaand ruimtebeslag voor bebouwing wordt verstaan het werkingsgebied Stedelijk Gebied of een bestaand bouwperceel.

Toetsing

Met het herontwikkelen van een vrijgekomen binnenstedelijke locatie wordt voldaan aan de regels voor zorgvuldig ruimtegebruik.

Artikel 3.7 Toepassing van de lagenbenadering

  • 1. De toepassing van de lagenbenadering omvat het effect van de ontwikkeling op de lagen in onderlinge wisselwerking met elkaar en het actief benutten van de factor tijd.
  • 2. De lagenbenadering omvat de effecten op:
    • a. de ondergrond, zoals de bodem, het grondwater en archeologische waarden;
    • b. de netwerklaag, zoals infrastructuur, natuurnetwerk, energienetwerk, waterwegen waaronder een goede, multimodale afwikkeling van het personen- en goederenvervoer.
    • c. de bovenste laag zoals cultuurhistorische en landschappelijke waarden, de omvang van de functie en de bebouwing, de effecten op bestaande en toekomstige functies, de effecten op volksgezondheid, veiligheid en milieu.
  • 3. Door de factor tijd actief te benutten wordt rekening gehouden met de herkomstwaarde, vanuit het verleden, de (on)omkeerbaarheid van optredende effecten en de toekomstwaarde gelet op duurzaamheid en toekomstbestendigheid.

Toetsing

De toepassing van de lagenbenadering is een hulpmiddel om de effecten van een ontwikkeling in beeld te brengen. Het gaat daarbij om het effect op de lagen in wisselwerking met elkaar waarbij de factor tijd actief wordt benut. Het is van belang om te weten hoe de omgeving in elkaar steekt en te kijken naar alle lagen: de ondergrond, de netwerklaag, de bovenlaag en de tijdsdimensie. Tussen deze lagen bestaat een wisselwerking. Iedere laag kent zijn eigen dynamiek, verschillende veranderingssnelheid en mate van omkeerbaarheid bij ingrepen. Voor een aantal aspecten die bij de lagenbenadering betrokken worden, bevat de Iov N-B specifieke regels, zoals het Natuur Netwerk, de groenblauwe mantel, cultuurhistorische- en aardkundige waarden, stiltegebied en delen van het watersysteem.

In dit geval is sprake van een stedelijke ontwikkeling binnen bestaand stedelijk gebied van Boxtel. Op de ecologische verbindingszone is bij de toetsing aan artikel 3.25 en 3.27 ingegaan.

Artikel 3.8 Meerwaardecreatie  

  • 1. Meerwaardecreatie omvat een evenwichtige benadering van de economische, ecologische en sociale aspecten die in een gebied en bij een ontwikkeling zijn betrokken, waaronder:
    • a. de mogelijkheid om opgaven en ontwikkelingen te combineren waardoor er meerwaarde ontstaat;
    • b. de bijdrage van een ontwikkeling aan andere opgaven en belangen dan die rechtstreeks met de ontwikkeling gemoeid zijn.
  • 2. De fysieke verbetering van de landschappelijke kwaliteit, bedoeld in Artikel 3.9 Kwaliteitsverbetering landschap kan deel uitmaken van de meerwaardecreatie.

Toetsing

Met de voorgenomen ontwikkeling wordt meerwaarde gecreëerd door het toekennen van een nieuwe duurzame vervolgfunctie waar behoefte aan is, namelijk zorgwonen.

Artikel 3.25 Natuur Netwerk Brabant - ecologische verbindingszone

  • 1. Een bestemmingsplan van toepassing op Natuur Netwerk Brabant - ecologische verbindingszone strekt tot verwezenlijking, het behoud en het beheer van een ecologische verbindingszone met een breedte van:
    • a. ten minste 50 meter in Stedelijk Gebied en in Verstedelijking Afweegbaar;
    • b. ten minste 25 meter in alle overige gebieden.
  • 2. Een bestemmingsplan als bedoeld in het eerste lid stelt regels, om te voorkomen dat het gebied minder geschikt wordt voor de verwezenlijking, het behoud en het beheer van een ecologische verbindingszone, die in ieder geval:
    • a. het oprichten van bebouwing beperken;
    • b. het aanbrengen van oppervlakteverhardingen of verharde oppervlakten beperken.
  • 3. Na realisatie van de ecologische verbindingszone is Artikel 3.15 Bescherming Natuur Netwerk Brabant van overeenkomstige toepassing.

Toetsing

Het planvoornemen voorziet binnen de aanduiding Natuur Netwerk Brabant in de ontwikkeling/verwezenlijking van een corridor als onderdeel van de ecologische verbindingszone. In afstemming met de provincie Noord-Brabant, waterschap De Dommel en de gemeente Boxtel de ontwikkeling van natuur in het plangebied nabij de rivier Smalwater direct ten noorden van het plangebied uitgewerkt. Daarbij is afgesproken om de bebouwingsvrije zone (ten opzichte van een eerder initiatief) te verruimen en het plan hierop aan te passen (van 10m naar 25m).

Een inrichtingsschets inclusief beplantingsvoorstel is opgesteld. Het beleidsdocument "Groene Levensader door Boxtel" is hiervoor als onderlegger gebruikt. Het plangebied maakt onderdeel uit van een Nat Kralensnoer en bestaat uit corridors en/of stapstenen. Stapstenen worden door elkaar verbonden door corridors. Nabij de planlocatie is al een stapsteen aanwezig. Het plangebied is daarom benaderd als corridor.

De inrichtingsvoorwaarden betreffen een niet toegankelijke natuurvriendelijke oever met struikenrij. Daarnaast zijn de inrichtingsvoorwaarden gebaseerd op soorten die een midden tot groot belang hebben in het gebied, gekeken naar de corridor-functie van het Smalwater.

De te ontwikkelen natuur in het plangebied krijgt de bestemming 'Natuur'. Daarnaast wordt in de regels van dit bestemmingsplan een voorwaardelijke verplichting opgenomen (zie artikel 5.3.2 en bijlage 1 bij de regels) voor realisatie en inrichting van deze natuur. De gronden met de bestemming 'Natuur' worden overgedragen aan de gemeente. De gemeente wordt daarmee verantwoordelijk voor het beheer en het onderhoud. In overleg met de gemeente wordt momenteel een onderhoudsplan opgesteld.

In het kader van voorgenomen ontwikkeling is tevens een quickscan flora en fauna uitgevoerd ter hoogte van deze zone. Uit dit onderzoek komt naar voren dat de kernkwaliteiten of andere waarden van het netwerk niet worden bedreigd door de ontwikkeling. De rapportage van de quickscan is opgenomen in bijlage 14 bij deze toelichting. De conclusies uit het onderzoek worden in paragraaf 4.10 beschreven.

Het afwijken van de minimale breedte van 50 meter van een ecologische verbindingszone in stedelijk wordt als volgt gemotiveerd:

In het streekplan Noord-Brabant (1991) zijn de Dommel en Smalwater aangeduid als ecologische verbindingszones voor landnatuur. De gemeente Boxtel en Waterschap de Dommel hebben in 1999 een plan opgesteld met een totaalvisie voor de ecologische verbindingszones Dommel en Smalwater door Boxtel genaamd “de Groene Levensader door Boxtel”. Het rapport beschrijft verschillende ontwikkelmogelijkheden die zijn uitgewerkt in een inrichtingsvisie om het streefbeeld te realiseren.

Uiteindelijk fungeert de visie als toetsingskader voor toekomstige ontwikkelingen en de exacte invulling vindt plaats bij de uitwerking van maatregelen in nog op te stellen inrichtingsplannen rond de zone.

De provincie Noord-Brabant heeft in 1996 een aantal uitgangspunten aangegeven in de “Leidraad Realisering Ecologische Verbindingszones”, die de invulling en realisering van ecologische verbindingszones kunnen beïnvloeden. Dit is een belangrijk beleidsdocument in de Groene Levensader door Boxtel en mede op basis hiervan is door de Provincie in 2009 een voorbeeldenboek uitgegeven, “Groene Schakels”. Hierin zijn een aantal inrichtingsmodellen uitgewerkt voor ecologische verbindingszones. Voor de Dommel en Smalwater is uit dit beleidsdocument het model “Nat Kralensnoer” van toepassing.

Habitus is als onafhankelijk adviseur gevraagd de opdrachtgever te adviseren bij de inrichting van het plangebied zodat invulling wordt gegeven aan de doelstellingen van de ecologische verbindingszone. Bovenstaande documenten vormen, samen met de uitwerking van de Groene Levensader door Boxtel (Uitwerkingsvisie en Inrichtingsplan van Dommel en Smalwater door Boxtel 2007), het vertrekpunt.

De provincie hanteert als uitgangspunt dat een ecologische verbindingszone (in de stad) een gemiddelde breedte heeft van circa 50 meter. In de praktijk moet binnen dit beleid worden gestreefd naar een flexibele invulling van 2 à 2,5 hectare per strekkende kilometer in de vorm van een corridor met stapstenen.

• Corridors zijn langgerekte aaneengesloten linten tussen twee natuurgebieden met een breedte van 10 tot 25 meter;

• Stapstenen zijn vlakvormige landschapselementen met een oppervlakte van 0,5 tot 1,5 hectare. De onderlinge afstand tussen de stapstenen is maximaal 300 tot 400 meter.

afbeelding "i_NL.IMRO.0757.BP06BARONIESTR-OTW1_0017.png"

Op minder dan 50m ten noordoosten van het onderhavige plangebied aan de Baroniestraat/ het Smalwater is al een stapsteen ingericht achter het Ursulaklooster. Zie daartoe de rapportage van Habitus (bijlage 2) “Inrichting ecologische verbindingszone Baronietuin te Boxtel”. Gezien de korte afstand van het plangebied tot de bestaande stapsteen, is door de ecologen van Habitus bepaald dat er geen andere stapsteen nodig is ter plaatse van het plangebied en hier kan worden volstaan met een corridor functie. Een corridor moet volgens eerdergenoemde beleidsdocumenten een breedte hebben van minimaal 10 meter. Als de corridor op de juiste manier wordt ingericht, acht Habitus een habitat van 10 meter voor de doelsoorten ook voldoende. Een bredere zone van bijvoorbeeld 50 meter is voor een corridorfunctie niet noodzakelijk.

Op basis van de biotoopeisen van de doelsoorten heeft Habitus een aantal inrichtingsvoorwaarden gesteld voor het plangebied. Deze zijn verwerkt in de inrichtingsschets (figuur 2.5) en staan beschreven in de rapportage in bijlage 2. Aan de westzijde van het plangebied is de corridor 12 meter breed vanaf de insteek, aan de oostzijde is deze ruim 26 meter breed. De bebouwing staat op ruim 25 vanuit de insteek.

Belangrijkste vraag voor het waterschap is hoe voorkomen kan worden dat het Smalwater in functie verslechtert door de voorgenomen ontwikkeling en eventuele ecologische waarden worden aangetast. Met het inrichtingsplan (zie bijlage 1 bij de regels), of een nadere uitwerking daarvan, wordt de met provincie, waterschap en gemeente afgestemde nieuwe inrichting van de ecologische verbindingszone in dit bestemmingsplan vastgelegd. Met deze inrichting wordt de situatie ter plaatse voor zowel de waterhuishouding als de ecologische waarden verbetert.

Artikel 3.27 Behoud en herstel van watersystemen

  • 1. Een bestemmingsplan van toepassing op Behoud en herstel van watersystemen strekt mede tot de verwezenlijking en het behoud, beheer en herstel van watersystemen.
  • 2. Een bestemmingsplan als bedoeld in het eerste lid stelt regels die:
    • a. het oprichten van bebouwing beperken;
    • b. het aanbrengen van oppervlakteverhardingen of verharde oppervlakten beperken;
    • c. het ophogen van gronden beperken.

Toetsing

In dit bestemmingsplan is in overleg met de provincie, waterschap en gemeente gekomen tot een nieuwe inrichting van het gebied aangrenzend aan Smalwater. Waterbergingscapaciteit wordt toegevoegd en een gedeelte van het plangebied wordt ingericht ten behoeve van een ecologische corridor. Met die nieuwe inrichting wordt een bijdrage geleverd aan het behoud en het herstel van het watersysteem ter plaatse.

Conclusie

De ontwikkeling voldoet aan de voorwaarden uit de Iov N-b.

3.3.3 Bevolkings- en woningbehoefteprognose Noord-Brabant, actualisering 2020

Voor een actueel beeld van de toekomstige bevolkingsontwikkelingen, veranderingen in de leeftijds- en huishoudenssamenstelling en de hiermee samenhangende woningbehoefte in Noord-Brabant, actualiseert de provincie Noord-Brabant - zoals is vastgelegd in de Iov Noord-Brabant - regelmatig de bevolkings- en woningbehoefteprognose.

De actuele gegevens uit de provinciale bevolkings- en woningbehoefteprognose vormen ook belangrijke ingrediënten voor de Brabantse Agenda Wonen (zie paragraaf 3.3.4).

In het kader van een duurzaam verstedelijkingsbeleid (zorgvuldig en zuinig ruimtegebruik) vindt de provincie het van belang, dat de mogelijkheden om het woningbouwprogramma in te zetten op binnenstedelijke locaties en voor het herbestemmen van leegstaand vastgoed goed worden benut.

Wonen met zorg en welzijn

Samenhangend met de vergrijzing liggen er in Brabant forse opgaven op het vlak van ‘wonen met zorg en welzijn’. Voorzien moet worden in een breed palet aan woonvormen, nodig om in te spelen op de woonwensen van ouderen.

Met de actualisering van de provinciale bevolkings- en woningbehoefteprognose is ook een indicatie gegeven van de (regionale) opgaven die er in Noord-Brabant liggen op het vlak van wonen met zorg en welzijn. Hierbij is onderscheid gemaakt in ‘beschermd wonen’, ‘beschut wonen’ en ‘geschikt wonen’. De vooruitberekeningen hebben betrekking op alle huishoudens (met gradaties van mobiliteitsbeperkingen) en op ouderen in instellingen (‘Verpleging’ en 'Verzorging, afgekort VV) en beslaan de periode 2015 tot 2045. In de prognose is rekening gehouden met de ontwikkelingen in het rijksbeleid, waardoor een groot deel van de verzorgingshuiszorg is geëxtramuraliseerd. Sinds 2014 worden er alleen nog nieuwe indicaties afgegeven voor VV4. Het aantal plaatsen in verzorgingshuizen (VV1-4, oftewel het ‘beschut wonen’) is in Brabant inmiddels nog maar ruim een derde over ten opzichte van 2010 (van 12.200 naar 4.500 plaatsen). Daarmee is de afbouw bijna geheel gerealiseerd.

Het aantal plaatsen in verpleeghuizen (VV5-10, oftewel het ‘beschermd wonen’) is in de periode 2010 tot 2015 in Noord-Brabant gegroeid van zo’n 12.000 naar 15.000 plaatsen, vooral door de toename van het aantal 75+ers. Dit komt doordat hospices niet meer onder het beschermd wonen vallen en doordat de vraag minder is gestegen, omdat mensen later naar het verpleeghuis gaan en er ook korter verblijven.


Maar wellicht is ook de vraag minder toegenomen, omdat meer ouderen gebruik maken van een ‘Volledig Pakket Thuis’ (VPT). Hierbij krijgen ouderen de verpleeg- en verzorgingshuiszorg aan huis of in een geclusterde woonvorm (het betreft zelfstandige woningen, dus geen instellingsplaatsen).

De komende jaren liggen er stevige opgaven op het vlak van wonen met zorg en welzijn. In figuur 3.4 is een tabel en grafiek opgenomen waarin de ontwikkeling van de vraag naar beschermd, beschut en geschikt wonen in Noord-Brabant is weergegeven.

afbeelding "i_NL.IMRO.0757.BP06BARONIESTR-OTW1_0018.png"

afbeelding "i_NL.IMRO.0757.BP06BARONIESTR-OTW1_0019.png"

Figuur 3.4: Ontwikkeling van de vraag naar beschermd, beschut en geschikt wonen in Noord-Brabant, 2012-2045 (2018=100)

Verhoudingsgewijs ligt de sterkste groei bij het beschermd wonen. Het aanbod tussen 2015 en 2045 zal bijna moeten verdubbelen. Voor het beschermd wonen, waar de zwaardere, intensievere vormen van zorg worden geboden, komt de vraagraming in 2045 14.500 plaatsen hoger uit dan het aanbod van 14.750 (intramurale) plaatsen in 2018.

De extramuralisering van verzorgingshuizen is bijna afgerond. Tussen 2018 en 2021 neemt de capaciteit in verzorgingshuizen in de provincie nog (verder) af, met zo’n 200 plaatsen. Samenhangend met de toenemende vergrijzing van de Brabantse bevolking neemt de vraag in de loop van de jaren ’20 echter wel weer toe, omdat ook op termijn nog een groot deel (75%) van de ‘VV-04’ beschut kan wonen. Tussen 2021 en 2045 zal de vraag naar beschut wonen met 3.100 plaatsen toenemen.

In landelijke gemeenten (zoals Boxtel) is de groei van de vraag naar wonen met zorg en welzijn relatief sterker dan in stedelijke gemeenten. Dat geldt vooral voor de intramurale vraag en de vraag naar geclusterde ouderenwoningen. Dit hangt samen met de vergrijzing, die in landelijke gemeenten sterker is dan in stedelijke gemeenten.

De zorgaanbieder die het woonzorgcomplex zal exploiteren biedt woonzorg aan mensen met een zorgprofiel VV4 en VV5 (VV4 valt onder beschut wonen, VV5 valt onder beschermd wonen). Zoals uit de prognose blijkt, zal er tot 2045 een forse groei zijn de behoefte aan beschut en beschermd wonen. Het planvoornemen voorziet daarom in een concrete behoefte.

Conclusie

Het planvoornemen voorziet binnenstedelijk in de realisatie van 48 onzelfstandige (zorg)woningen. De prognose gaat uit van een behoefte aan 17.400 intramurale plaatsen. Het planvoornemen sluit nadrukkelijk aan op het beleid van de provincie en voorziet in de behoefte aan zorgwoningen.

3.3.4 Brabantse Agenda Wonen

Versnelling van de woningbouwproductie, vernieuwing en verduurzaming van de bestaande woningvoorraad en het ombouwen van leegstaand vastgoed naar woningen. Dat zijn belangrijke doelen van de Brabantse Agenda Wonen. Met deze agenda geven Gedeputeerde Staten aan welke accenten er de komende jaren liggen bij het bouwen en wonen en hoe de provincie zich hiervoor gaat inzetten.

De Brabantse woningmarkt kent grote uitdagingen. Zo moet de woningvoorraad de komende 10 tot 15 jaar met 11%, ofwel zo’n 120.000 woningen, toenemen. De afgelopen jaren zijn te weinig woningen gebouwd. Bovendien verandert de vraag naar woonruimte sterk. Zo bestaat ruim 40% van de huishoudens in 2040 uit eenpersoonshuishoudens en is er een grote behoefte aan kleinere, betaalbare woonruimten. Ook het bouwen van voldoende woningen voor het middensegment op de woningmarkt –betaalbare koop en middeldure huur – blijft punt van aandacht. Verder vragen initiatieven voor nieuwe woonvormen als flexwonen, tiny houses, tijdelijk wonen en nieuwe combinaties van wonen, werken en zorg steeds vaker van overheden om experimenteerruimte te bieden.

Transformatie, herstructurering en inbreiding krijgen prioriteit

Woningbouw is het enige type vastgoed waar de komende jaren nog een behoorlijke vraag naar is, in tegenstelling tot bijvoorbeeld winkels, kantoren en maatschappelijk vastgoed. In paragraaf 3.3.3 is aangetoond dat wel sprake is van behoefte aan zorgwoningen zoals in dit bestemmingsplan mogelijk worden gemaakt. Woningbouw kan ook een substantiële bijdrage leveren aan maatschappelijke en ruimtelijke vraagstukken als verduurzaming en het terugdringen van leegstand. Na 2030 neemt de groei van de woningbehoefte sterk af, en verdwijnt ook de kans om werk te maken van transformatie, herstructuering en inbreiding. Dus de urgentie om in de komende paar jaar de vraag naar woningen slim te benutten is heel groot.

In de regionale woningbouwafspraken wil de provincie daarom prioriteit geven aan plannen voor herbestemming van leegstaande gebouwen of plannen voor inbreidingslocaties. Een principe dat ook iets kan betekenen voor bestaande woningbouwplannen, die dan niet, pas later, of na aanpassing kunnen worden gerealiseerd. Ook voert de provincie een brede inventarisatie uit naar potentiële transformatielocaties in steden en dorpen. Bij complexe transformaties kan de provincie mee investeren via het provinciale Ontwikkelbedrijf. Concrete keuzes daarvoor zijn in 2018 gemaakt.

De provincie geeft gemeente dus ruim baan bij transformaties. Om het gemeente gemakkelijk te maken mag er in centra veel meer gebouwd worden.

De gemeente heeft met de regiogemeenten uit Noordoost Brabant West en de provincie Noord-Brabant als onderdeel van de Brabantse Agenda Wonen nadere afspraken gemaakt in het document 'Wonen in Regionaal Perspectief - Noordoost Brabant West' uit november 2018.

Conclusie

Met de toevoeging van onzelfstandige woningen voorziet het planvoornemen in een concrete behoefte. Het plangebied betreft een inbreidings- en transformatielocatie waarmee gehoor wordt gegeven aan de prioritering van de provincie.

3.4 Gemeentelijk beleid

3.4.1 Structuurvisie Verfrissend Boxtel 2011-2020

In de gemeentelijke structuurvisie zijn de ruimtelijke verbanden onderzocht en vertaald. Hierbij zijn keuzes gemaakt op diverse terreinen zoals infrastructuur, bedrijventerreinen, vitalisering buitengebied, woongebieden, regionale positionering en op financieel-economisch vlak. Het doel van de structuurvisie is om een beleidskader te stellen voor ruimtelijke ontwikkeling: enerzijds als toetsing bij nieuwe ontwikkelingen, anderzijds als basis voor concrete projecten.

De structuurvisie bestaat uit drie hoofdproducten, een Atlas met een beschrijving van de gemeente, een inventarisatie van bestaand beleid en een analyse op een viertal thema’s: ‘wonen en leven’, ‘beleven’, ‘ondernemen’ en ‘verbinden’. Dit is vertaald naar een Agenda met een visie per deelgebied en een Bedrijfsplan met een uitvoeringsprogramma en Structuurkaart.

Toetsing en conclusie

De ontwikkeling valt binnen het programma 'wonen en leven'. De woonkwaliteit vormt de basis voor Boxtel om stabiel te blijven en om nog te kunnen groeien. Een aantrekkelijke leefomgeving en een sterk ‘herkenbaar’ centrum vormen de dragers, voor bestaande en voor nieuwe bewoners. Boxtel is een niche tussen stad en dorp; dat geeft intimiteit en maat en schaal aan woningen en voorzieningen. De woonomgeving in Boxtel is gevarieerd. De opgave voor het woningaanbod is te komen tot meer differentiatie en variatie. De beoogde ontwikkeling voorziet hierin met zorgeenheden ten behoeve van een groeiende doelgroep.

3.4.2 Woonvisie 2016-2025 (2016)

De woonvisie moet kaders bieden die de gemeente de komende jaren nodig heeft om samen met betrokken partijen zoals woningcorporaties vorm te geven aan het wonen in Boxtel. In de woonvisie zijn vijf opgaven benoemd die de komende jaren centraal staan in het woonbeleid:

  • een betaalbare woning voor iedereen;
  • verbeteren kwaliteit, geschiktheid, duurzaamheid woningvoorraad;
  • huisvesting bijzondere (zorg)doelgroepen;
  • vraaggericht bouwen met oog op de toekomst;
  • Boxtel aantrekkelijke woongemeente.

De gemeente streeft naar een woningbouwprogramma dat aansluit bij de actuele vraag. De programmering van woningtypologieën is daarbij maatwerk en vraagt om een zekere flexibiliteit. Initiatieven gericht op voorkomen van (langdurige) leegstand in cultuurhistorisch waardevolle gebouwen worden gestimuleerd, net als particuliere wooninitiatieven in het stedelijke gebied.

De vraag naar woningen verandert door demografische ontwikkelingen. Het aandeel jongeren neemt af. Nieuwbouw voor starters is dan ook beperkt noodzakelijk. Het aantal huishoudens dat kleiner en meer betaalbaar wil wonen neemt toe. Ook groeit de groep ouderen de komende jaren. Gestimuleerd wordt ouderen tijdig te laten verhuizen naar een geschikte levensloopbestendige woning.

Prestatieafspraken

De gemeente Boxtel, Woonstichting JOOST en Huurders Belangen Vereniging Boxtel maken op basis van de woonvisie 2016-2025 jaarlijks prestatieafspraken. Met betrekking tot huisvesting van bijzondere doelgroepen, waaronder de zorgwoningen vallen, is het volgende vastgelegd.

Er moeten voldoende woningen beschikbaar zijn om statushouders en bijzondere doelgroepen in sociale huurwoningen te kunnen huisvesten. Een aantal doelgroepen is in het bijzonder afhankelijk van specifiek aanbod in de (sociale of particuliere) huursector. Onder deze doelgroepen worden onder andere verstaan de kwetsbare ouderen die een beroep doen op specifieke woonvormen, omdat zelfstandig wonen niet meer mogelijk is.

Toetsing en conclusie

Per wijk is er een woningbouwopgave uiteengezet in de woonvisie. Het plangebied ligt in Boxtel Noord. Meer diversiteit in de wijk door het realiseren van huurwoningen voor middeninkomens om de doorstroming te bevorderen staat, naast het toevoegen van ouderenhuisvesting, centraal.

De beoogde ontwikkeling voorziet in de realisatie van woningen voor bijzondere zorgdoelgroepen. Dit is in overeenstemming met de woonvisie en de prestatieafspraken.

3.4.3 Visie: De Groene Levensader (1999)

Totstandkoming

De vergadering van ingelanden van het Waterschap De Dommel heeft op 15 december 1999 ingestemd met de inrichtingsvisie voor de Dommel en het Smalwater. Het rapport 'Groene Levensader door Boxtel; Inrichtingsvisie Dommel en Smalwater door Boxtel' (hierna: de Groene Levensader) vigeert nog steeds.

Status van de visie

De inrichtingsvisie dient als onderlegger voor uitwerking van deelprojecten. Per plan betekent dit dat in de toekomst een integrale afweging van alle aspecten plaats vindt. De inrichtingsvisie geeft een streefbeeld weer hoe de toekomst zou kunnen zijn, zulks met respectering van de huidige situatie en bestemming.

Uit het voorwoord van het rapport de Groene Levensader blijkt dat dit rapport is bedoeld als een visie voor de inrichting van de ecologische verbindingszone Dommel en Smalwater door Boxtel. Het doel van deze inrichtingsvisie is om een totaalvisie te geven op de ecologische verbindingszone Dommel en Smalwater, waarin is aangegeven op welke manier de ecologisch verbindingszone gecombineerd kan worden met de stedenbouwkundige en recreatieve functies van de Dommel en Smalwater. Op pagina 1 van de visie is het volgende opgenomen: "Het plan beoogt het opstellen van een totaalvisie voor de ecologische verbindingszones Dommel en Smalwater door Boxtel. Tevens heeft de visie een strategisch karakter binnen het gemeentelijk ruimtelijk ordeningsbeleid. De visie fungeert als toetsingskader voor toekomstige ontwikkelingen zodat de ecologische kwaliteiten van Dommel en Smalwater worden veiliggesteld."

Het planvoornemen is niet in strijd met de Groene Levensader, voor de inrichtingsschets is de Groene Ader als onderlegger gebruikt. Bebouwing van de tuin achter de pastorie wordt in de visie niet als onmogelijk beschouwd (zie onderstaande tekstpassage 1). Wel wordt als oplossingsrichting voorgesteld om de tuin in te richten als stapsteen (zie onderstaande tekstpassage 2 uit de visie). Dit is echter niet meer dan een oplossingsrichting. Daarnaast zijn de locaties van de streefbeelden in de Groene Levensader enkel indicatief. De exacte invulling vindt dan ook plaats bij de uitwerking van maatregelen in nog op te stellen inrichtingsplannen, zoals bijvoorbeeld gedaan is bij De Dommelvisie 2007. De concrete uitwerking van de Groene Levensader is vertaald in De Dommelvisie 2007. In deze visie staat dat langs het Smalwater een stapsteen wordt ingericht op een deel van de voormalige sportvelden. Nu deze stapsteen is gerealiseerd, is het niet noodzakelijk om op andere plekken langs het Smalwater een stapsteen in te richten.

Tekstpassage 1 (pagina 10 van de Groene Levensader)

“Reeds geruime tijd bestaan er plannen voor de bouw van enkele woningen in de tuin achter de pastorie van de Heilig Hartkerk. Daarnaast komt (op termijn) ruimte vrij achter de Bracbant-Havo waar eventueel gebouwd zou kunnen worden. Om het – beschermd straatbeeld – (Monumentenwet) van de Baroniestraat niet aan te tasten is er in het verleden voor gekozen de nieuwe woningen in de Pastorietuin langs de oever van het Smalwater te projecteren. Gedeputeerde Staten hebben hiervoor geen verklaring van geen bezwaar afgegeven omdat onvoldoende ruimte was gereserveerd voor de toekomstige ecologische verbindingszone. Of bebouwing in de pastorie tot de mogelijkheid behoort, kan nu nog niet worden aangegeven. Op korte termijn zal moeten worden gestart met voorbereidingen om te komen tot een visie en een bestemmingsplan voor het gebied Zandvliet.”

Tekstpassage 2 (pagina 56 van de Groene Levensader)

“Indien de (voormalige) bouwplannen zouden worden verwezenlijkt, worden de mogelijkheden voor de aanleg van stapstenen en flauwe oevers zeer beperkt. Binnen dit traject van Smalwater zijn enkele goed functionerende stapstenen noodzakelijk voor een redelijk functionerende ecologische verbindingszone. De mogelijkheden voor herinrichting langs en op het kerkhof zijn waarschijnlijk minimaal. Hier dient vooral gekeken te worden naar natuurvriendelijk beheer en kleine stapstenen ten behoeve van droge natuur. Oplossingsrichting: tuin achter de pastorie en terrein achter Bracbant-Havo inrichten als stapsteen, waar mogelijk natuurlijkvriendelijk beheer toepassen.”

Het rapport Groene levensader door Boxtel heeft door de jaren heen een strategisch karakter binnen het gemeentelijk ruimtelijke ordeningsbeleid gekregen. De visie uit het rapport fungeert als toetsingskader voor toekomstige ontwikkelingen zodat de ecologische kwaliteiten van Dommel en Smalwater worden veiliggesteld. In de StructuurvisiePlus uit 2002 is de Groene Levensader verwerkt. De centrale doelstelling van de StructuurvisiePlus is een kwaliteitsslag te maken, waarin de ruimtelijke kwaliteit integraal wordt benaderd. Onderhavige uitwerkingsvisie en inrichtingsplan sluiten aan op de Groene Levensader en de StructuurvisiePlus en geven een concrete invulling van de beoogde herinrichting van de beekdalen van Dommel en Smalwater door Boxtel.

Dat uit de tekst blijkt dat woningbouw in de tuin tot de mogelijkheden behoort, is hierboven uiteengezet. Ook is duidelijk dat de deeltrajectkaarten zijn opgesteld ter illustratie en zijn ondergeschikt aan de tekst daarvan. Deze lezing wordt ook bevestigd in de Uitspraak van de voorzieningenrechter van 19 november 2007 (zaaknummers: AWB 07/3369 en AWB 07/3370).

In afstemming met de provincie Noord-Brabant, waterschap De Dommel en de gemeente Boxtel is de inrichting van de toe te voegen natuur besproken. Daarbij is het plangebied op basis van het principe Nat Kralensnoer benaderd als corridor, en niet als stapsteen zoals uit het rapport de Groene Levensader kan worden opgemaakt.

Tijdens de overleggen heeft de provincie gemeente en waterschap geadviseerd om de Groene Levensader te actualiseren en af te stemmen op het provinciaal beleid. Dit staat los van voorliggend initiatief.

3.4.4 Boxtel 2020, duurzaam en dynamisch centrum in het Groene Woud

In deze strategische visie van 29 juni 2009 is aangegeven in welke richting de gemeente Boxtel zich in de periode 2010-2020 wil ontwikkelen. De visie spreekt een zestal ambities uit:

  • 1. Boxtel blijft voorop met duurzaamheid;
  • 2. Boxtel ontwikkelt toerisme en recreatie tot een volwaardige bedrijfstak;
  • 3. Boxtel versterkt zijn positie als werkgelegenheidsgemeente;
  • 4. Boxtel werkt aan een sterk centrum;
  • 5. Boxtel is ook in 2020 een prima woongemeente;
  • 6. Boxtel heeft een modern bestuur.

Toetsing

Voor voorliggende ontwikkeling zijn met name de ambities genoemd onder 1. en 5. van belang. Het planvoornemen draagt bij aan de ambitie om voorop te lopen op het gebied van duurzaamheid in Boxtel (zie ook paragraaf 4.11).

Daarnaast draagt het planvoornemen bij aan de ambitie om ook in 2020 een prima woongemeente te zijn. Er wordt een bijdrage geleverd aan de behoefte aan (zorg)woningen. Hierdoor is doorstroming mogelijk en worden indirect dus mogelijkheden geboden aan starters om een woning in Boxtel te kunnen betrekken.

3.4.5 Boxtel Energie Neutraal 2040 (2011)

In het uitvoeringsprogramma ‘Boxtel Energie Neutraal 2040’ wordt er ingegaan op specifieke activiteiten en beoogde resultaten voor verschillende perioden tot en met 2020. Voor woningbouw geldt dat in elk bestemmingsplan een duurzaamheidsparagraaf wordt opgenomen. In zowel onderhavige paragraaf, paragraaf 3.4.6 alsmede paragraaf 4.11 wordt uitgebreid stilgestaan bij het aspect duurzaamheid.

Projectontwikkelaars en bouwpartijen geven bij hun bouwplannen een onderbouwing van de mogelijkheden voor duurzaam gebruik, zodat de gemeente deze kan screenen qua energiegebruik.

In het kader van de duurzaamheid zijn tussen de gemeente en de initiatiefnemer afspraken gemaakt over hoe met energie en duurzaamheid wordt omgegaan. Deze afspraken zijn in een anterieure overeenkomst vastgelegd.

3.4.6 Visie Duurzaam Boxtel 2030 (2017)

De gemeente Boxtel is na het uitvoeringsprogramma Boxtel Energie Neutraal 2040 samen met haar inwoners, ondernemers en maatschappelijke instellingen bezig met nieuw beleid omtrent energie en duurzaamheid. In 2017 is de visie ‘Duurzaam Boxtel 2030’ opgesteld. De visie bestaat uit vier thema’s, te weten: Samen leven in Boxtel, groen leven in Boxtel, ondernemend leven in Boxtel en energiek leven in Boxtel.

In het thema Samen leven in Boxtel staat het sociale aspect van duurzaamheid centraal. Binnen dit thema zijn er een viertal doelstellingen geformuleerd:

  • de zichtbaarheid van initiatieven, voorzieningen en activiteiten moet worden verbeterd;
  • er moet meer aandacht komen voor (spontane) ontmoetingen in de wijk;
  • meer kruisbestuiving en samenwerking tussen verschillende initiatieven;
  • de openbare ruimte en voorzieningen moeten bereikbaar zijn voor iedereen.

In het thema Groen leven in Boxtel staat het ecologische aspect van duurzaamheid centraal. Binnen dit thema wordt er ingezet op de volgende doelstellingen:

  • naast het vergroenen van de openbare ruimte activeert de gemeente haar samenleving om eigen gronden te vergoenen;
  • de kwaliteitsverbetering van het groen vormt een uitgangspunt voor de leefomgeving. Hierbij is het van belang dat de kwaliteitsverbetering een bijdrage dient te leveren aan klimaatadaptatie en biodiversiteit;
  • de thema’s klimaatadaptatie, biodiversiteit en voedsel dienen integraal benaderd te worden. Een investering in één van deze thema’s dienen een bijdrage te leveren voor een ander thema;
  • duurzaam gebruik van restafval door het beperken van restafval, het beter scheiden van afval en het hergebruiken van restafval en grondstoffen.

In het thema Ondernemend leven in Boxtel staat het economische aspect van duurzaamheid centraal. Ondernemers hebben een zeer bepalende rol in de duurzame ontwikkeling. De gemeente moet bedrijven en ondernemers mee krijgen om te verduurzamen en coördineert de acties. Dit doet de gemeente door:

  • te faciliteren in duurzaamheidsinitiatieven, ook duurzame initiatieven die strijdig zijn met het rijks- of provinciaal beleid;
  • de huidige situatie in beeld te brengen;
  • verduurzaming door bedrijven te belonen door een financieringsconstructie.

In dit thema staat het aspect energie centraal. Boxtel wil als gemeente in 2030 energieneutraal zijn. Om dit te bereiken wil de gemeente:

  • duurzame energieoplossingen zichtbaar maken;
  • de voordelen en de mogelijkheden van het besparen van energie positief uitdragen;
  • focussen op meest kansrijke bronnen, te weten biomassa, wind, zon en rest- en omgevingswarmte;
  • grootschalige energieplannen aan het sociaal energieplan te toetsen.

In het plangebied wordt een tot dusverre privaat perceel gedeeltelijk openbaar toegankelijk gemaakt. Daarbij wordt veel aandacht geschonken aan een groene aankleding met zoveel mogelijk behoud van bestaande bomen en waar dat niet mogelijk is in de verkaveling, het vervangen door nieuwe bomen. Ook wordt ter plaatse de ecologische zone uitgebreid waardoor meer groen- en natuurkwaliteit ontstaat.

De afspraken over energie en duurzaamheid zijn zoals boven beschreven in de anterieure overeenkomst vastgelegd.

3.4.7 Welstandsnota 2016

Het bestemmingsplan treedt regelend op voor wat betreft functie, plaatsing en maatvoering van gebouwen en andere bouwwerken. Bij vergunningverlening wordt een ingediend plan eerst getoetst aan het bestemmingsplan. Indien een plan in principe voldoet aan het bestemmingsplan vindt welstandstoetsing plaats volgens de Welstandsnota uit 2016.

De gemeente Boxtel kent een groot aantal rijks- en gemeentelijke monumenten, evenals cultuurhistorisch waardevolle gebouwen en beeldbepalende panden. De genoemde panden en objecten met monumentale waarde zijn onder een bijzonder welstandsregime geplaatst.

Toetsing

Uit de Welstandsnota blijkt dat het plangebied valt onder het deelgebied 'bijzondere bebouwing, instellingen en instituten'. Instellingen en instituten hebben een sterke eigen identiteit, in enkele gevallen zijn ze in dezelfde stijl als de omliggende woonwijk ontworpen. Een sterke eigen architectonische expressie is daarbij van belang. Instituten vormen daarnaast met hun ruime groene setting een belangrijke kwaliteit voor de wijde omgeving. Bij nieuwbouw wordt de voorkeur gegeven aan ontwikkeling in één stijl passend in de eigen omgeving, bij voorkeur geclusterd of anderszins in onderlinge samenhang. Hoofdgebouwen worden daarnaast bij voorkeur naar de straatzijde georiënteerd. Ontwikkelingen moeten een bijdrage leveren aan de karakteristieken van de omgeving.

In paragraaf 2.2 wordt de beoogde ontwikkeling uitgebreid beschreven. Het beoogde plan is in overeenstemming met de redelijk eisen van welstand.

Conclusie

Het planvoornemen is op het gebied van welstand als passend binnen zijn omgeving beoordeeld. Er wordt aansluiting gezocht op de bouwstijlen in de directe omgeving (zie ook paragraaf 2.2).

3.4.8 Bomenbeleidsplan 'Beeldbepalend groen in de tijd’

De gemeente Boxtel heeft in 2007 het Bomenbeleidsplan vastgesteld. Het bomenbeleid heeft als doel om de kwaliteit van de leefomgeving en de beeldkwaliteit in de gemeente te handhaven en te bevorderen. Het beleid is daarnaast gericht op een toename van de biodiversiteit, ecologische waarde en duurzaamheid. Het beleid voor bomen sluit aan op aan de cultuurhistorische, landschappelijke, ecologische en architectonische waarde en houdt rekening met gebruikswaarde en toekomstige waarde. In het beleid wordt een hoofdboomstructuur onderscheiden die aansluit op de structuurlijnen uit de structuurvisie van de gemeente Boxtel.

Toetsing

In Boxtel staan oude beeldbepalende bomen die bijzondere bescherming verdienen. Van deze monumentale en bijzondere bomen heeft de gemeente een lijst opgesteld. Ter hoogte van de tuin achter de pastorie zijn twee door de gemeente aangewezen 'bijzondere bomen' aanwezig. Het betreft een notenboom en een esdoorn. Behoud en bescherming van bijzondere bomen is een belangrijk uitgangspunt bij de verdere planontwikkeling. De notenboom is mogelijk door de vorige eigenaar al verwijderd en is niet ter plaatse aangetroffen. Tussen initiatiefnemer en gemeente is een herplantplicht afgesproken ter compensatie van eerder gerooide bomen. Het inrichtingsplan (uitwerking) wordt ter goedkeuring aan het college van burgemeester en wethouders voorgelegd. De esdoorn wordt behouden en beschermd (conform bijlage 5).

Ook de bomenrij (8 Hollandse Lindes) ten oosten van het plangebied zal behouden blijven en tijdens de bouwwerkzaamheden worden beschermd. Daarbij wordt voldaan aan de aanbevelingen zoals opgenomen in bijlage 5 bij deze toelichting. Uit de Boomeffectanalyse blijkt dat, door gebruik te maken van de juiste bescherming, deze bomen goed behouden kunnen blijven.

3.4.9 Gemeentelijk verkeers- en vervoerplan 2008-2020

Het Gemeentelijk verkeers- en vervoerplan 2008-2020 (GVVP) geeft een overzicht van maatregelen die nodig zijn om de gemeente Boxtel voor de komende jaren leefbaar, verkeersveilig en bereikbaar te houden. De gemeente Boxtel heeft haar parkeerbeleid in 2007 vastgelegd in de notitie ‘Parkeernormen Gemeente Boxtel’.

Toetsing

Toetsing van de beoogde ontwikkeling aan de geldende parkeernormen is opgenomen in paragraaf 4.7.

Hoofdstuk 4 Milieuhygiënische- en planologische verantwoording

4.1 Bodem

4.1.1 Beleid en normstelling

Op grond van het Besluit ruimtelijke ordening dient in verband met de uitvoerbaarheid van een plan rekening gehouden te worden met de bodemgesteldheid in het plangebied. Bij functiewijziging dient te worden bekeken of de bodemkwaliteit voldoende is voor de beoogde functie en moet worden vastgesteld of er sprake is van een saneringsnoodzaak. In de Wet bodembescherming is bepaald dat indien de desbetreffende bodemkwaliteit niet voldoet aan de norm voor de beoogde functie, de grond zodanig dient te worden gesaneerd dat zij kan worden gebruikt door de desbetreffende functie (functiegericht saneren).

4.1.2 Onderzoek en conclusie

Ten behoeve van onderhavige ontwikkeling is een verkennend bodemonderzoek uitgevoerd. Het onderzoek is opgenomen als bijlage 6 bij deze toelichting.

Op basis van het onderzoek kan het volgende worden geconcludeerd.

Algemene bevindingen veldwerkzaamheden

In de uitkomende grond zijn geen waarnemingen gedaan die duiden op de mogelijke aanwezigheid van verontreinigende stoffen in de bodem. Tijdens de uitvoering van de veldwerkzaamheden is geen aanvullende informatie naar voren gekomen welke tot een aanpassing van de boorstrategie heeft geleid.

Grond

In de bovengrond zijn licht verhoogde gehalten aan lood, kwik en PAK aanwezig. In de ondergrond zijn geen verhoogde gehalten aangetoond.

Grondwater

In het grondwater is barium in een licht verhoogd gehalte gemeten. Tevens is een licht verhoogd gehalte aan zink aangetoond.

Nader bodemonderzoek

Op basis van voornoemde bevindingen is nader bodemonderzoek vanuit milieuhygiënisch oogpunt gezien niet aan de orde.

Pfas

Het plangebied is over het algemeen laag gelegen. Ter plaatse zullen gronden worden aangebracht om hoogteverschillen op te heffen. Er zullen dus geen gronden worden afgevoerd.

Actualisatie

Vanwege de leeftijd van het eerder uitgevoerde bodemonderzoek is een historisch vooronderzoek uitgevoerd (bijlage 7). Op basis van het vooronderzoek wordt geconcludeerd dat voldoende inzicht is verkregen in de mogelijke aanwezigheid van verontreinigingen op de onderzoekslocatie. De locatie is niet verdacht op het voorkomen van een bodemverontreiniging. Voor zover bekend zijn geen activiteiten op het perceel uitgevoerd die kunnen hebben geleid tot een bodemverontreiniging in de periode na 2016. De conclusies uit het onderzoek van 2016 blijven hierdoor van toepassing.

4.1.3 Conclusie

Uit het bodemonderzoek blijkt dat de bodem geschikt is voor de beoogde ontwikkeling. Het aspect bodem vormt derhalve geen belemmering. Deze conclusie wordt bevestigd in het recent uitgevoerd historisch vooronderzoek.

Indien er werkzaamheden in of aan de waterkant van 'Smalwater' uitgevoerd worden, is naar alle waarschijnlijkheid een waterbodemonderzoek nodig. Indien dit het geval is, wordt contact opgenomen met Waterschap de Dommel.

4.2 Milieueffectrapportage

4.2.1 Toetsingskader

In onderdeel C en D van de bijlage bij het Besluit milieueffectrapportage (hierna: Besluit m.e.r.) is aangegeven welke activiteiten in het kader van het omgevingsvergunning planmer-plichtig, projectmer-plichtig of mer-beoordelingsplichtig zijn. Voor deze activiteiten zijn in het Besluit m.e.r. drempelwaarden opgenomen. Daarnaast dient het bevoegd gezag bij de betreffende activiteiten die niet aan de bijbehorende drempelwaarden voldoen, na te gaan of sprake kan zijn van belangrijke nadelige gevolgen voor het milieu, gelet op de omstandigheden als bedoeld in bijlage III van de EEG-richtlijn milieueffectbeoordeling. Deze omstandigheden betreffen:

  • de kenmerken van de projecten;
  • de plaats van de projecten;
  • de kenmerken van de potentiële effecten.

Per 16 mei 2017 is de regelgeving voor de MER en m.e.r.-beoordeling gewijzigd met daarin een nieuwe procedure voor de vormvrije m.e.r.-beoordeling. Zo moet voor de ontwerpbestemmingsplanfase een m.e.r-beoordelingsbeslissing worden genomen, waarin wordt aangegeven of wel of geen MER nodig is, gelet op de kenmerken van het project, de plaats van het project en de kenmerken van de potentiële (milieu)effecten en mogelijke mitigerende maatregelen.

4.2.2 Onderzoek

In het Besluit m.e.r. is opgenomen dat de aanleg, wijziging of uitbreiding van een stedelijk ontwikkelingsproject m.e.r.-beoordelingsplichtig is in gevallen waarin de activiteit betrekking heeft op 2000 of meer woningen. De beoogde ontwikkeling betreft de realisatie van maximaal 48 zorgwoningen en blijft daarmee ruim onder de drempelwaarde. Dit betekent dat kan worden volstaan met een zogenaamde 'vormvrije m.e.r.-beoordeling'. Dit document is opgenomen als bijlage 8 bij deze toelichting. Daaruit blijkt dat, gelet op de kenmerken van het project, de plaats van het project en de kenmerken van de potentiële effecten geen belangrijke negatieve milieugevolgen zullen optreden. Er is dan ook geen aanleiding voor het doorlopen van een volledige m.e.r.-procedure. De gemeente dient dit te bevestigen door middel van een besluit dat als bijlage bij deze plantoelichting zal worden opgenomen. De vormvrije mer-beoordeling is uitgevoerd voor de totale ontwikkeling (inclusief pastorie).

Het m.e.r.-beoordelingsbesluit is opgenomen in bijlage 9.

4.3 Water

4.3.1 Waterbeheer en watertoets

De initiatiefnemer dient in een vroeg stadium overleg te voeren met de waterbeheerder over een ruimtelijk planvoornemen. Hiermee wordt voorkomen dat ruimtelijke ontwikkelingen in strijd zijn met duurzaam waterbeheer. Het plangebied ligt binnen het beheergebied van het waterschap De Dommel, die verantwoordelijk is voor het waterkwantiteits- en waterkwaliteitsbeheer. Bij het tot stand komen van het plan wordt overleg gevoerd met de waterbeheerder over deze waterparagraaf. De opmerkingen van de waterbeheerder worden vervolgens verwerkt in deze waterparagraaf.

4.3.2 Beleid duurzaam stedelijk waterbeheer

Op verschillende bestuursniveaus zijn de afgelopen jaren beleidsnota's verschenen aangaande de waterhuishouding, allen met als doel een duurzaam waterbeheer (kwalitatief en kwantitatief). Deze paragraaf geeft een overzicht van de voor het plangebied relevante nota's, waarbij het beleid van het waterschap en de gemeente nader wordt behandeld.

Europa:

  • Kaderrichtlijn Water (KRW).

Nationaal:

  • Nationaal Waterplan (NW).
  • Nationaal Bestuursakkoord Water (NBW).
  • Waterwet.

Provinciaal:

  • Omgevingsvisie Noord-Brabant c.q. het Provinciaal Milieu en Waterplan 2016-2021.

Waterschapsbeleid

Met het Waterbeheerprogramma 2022-2027 start Waterschap De Dommel met de 'watertransitie'; op weg naar een toekomstbestendige waterhuishouding. Uiterlijk in 2050 is de waterhuishouding in ons hele beheergebied toekomstbestendig. Dit betekent een waterhuishouding die in een goede waterkwaliteit voorziet. En een waterhuishouding die robuust, wendbaar en in balans is met de omgeving. Zowel in het bebouwde als het landelijke gebied en van de beekdalen tot en met de hoge zandruggen. Het grond- en oppervlaktewatersysteem kan de grotere weersextremen opvangen door maximaal gebruik te maken van de dempende sponswerking van de bodem/ondergrond en de natuurlijke hoogteverschillen voor het vasthouden van water.

We hanteren drie principes die inhoudelijke sturing geven aan de watertransitie:

  • Elke druppel vasthouden en infiltreren waar deze valt
  • Functies passen zich aan het bodem- en watersysteem aan
  • Wat schoon is moet schoon blijven

We moeten ons, nog meer dan voorheen, aanpassen aan de veranderende leefomgeving en op zoek gaan naar nieuwe oplossingen en antwoorden. Juist de voor Midden-Brabant zo karakteristieke verwevenheid van bebouwing, landbouw en natuur is een kans om de wateropgaven slim in te passen. Dit vereist een integrale, gebiedsgerichte aanpak samen met alle partijen. Een gebiedsgerichte aanpak is alleen succesvol als naast de wateropgaven ook de opgaven vanuit natuur, stikstof, economie, landbouwtransitie, energietransitie, biodiversiteit, mobiliteit en woningbouw onderdeel van de aanpak zijn. Niet sectoraal, maar integraal. Alleen dan gaan we oplossingen vinden voor een leefbaar Midden-Brabant met een duurzaam en toekomstbestendig watersysteem dat goed is voor inwoners, bedrijven, landbouw en natuur. De grote uitdaging zit hem vooral in de vraag hoe we dit gaan bereiken. Meer dan voorheen gaan we daarbij:

  • van beekdalgericht naar gebiedsgericht; onze aandacht gaat naast het beekdal ook uit naar de flanken, de hoge zandruggen en bebouwd gebied.
  • van sectoraal naar integraal; samen met overheden en gebiedspartners maken we keuzes over meerdere opgaven in een gebied.
  • van water afvoeren naar elke druppel telt; maximaal water conserveren, minder grondwater gebruiken en slimmer sturen.

Verbreed Gemeentelijk Rioleringsplan 2020-2024

Het VGRP is een beleidsplan dat op hoofdlijnen de invulling van de gemeentelijke watertaken weergeeft. Door middel van het VGRP legt de gemeente vast wat zij wil bereiken en wat de rol van burgers en bedrijven is ten aanzien van afval-, hemel-, en grondwater.

De gemeente heeft wettelijke zorgplichten ten aanzien van afval-, hemel- en grondwater. De ambitie is om in het verlengde van de zorgplichten bij te dragen aan gemeenschappelijke doelen zoals een klimaatbestendige en duurzame omgeving en een doelbewuste samenwerking met inwoners/bedrijven en regionale waterpartners.

Om invulling te geven aan deze ambities en de toekomstvisie zijn voor de aankomende planperiode de volgende speerpunten geformuleerd:

  • 1. Klimaatbestendig Boxtel
  • 2. Wijkgerichte rioolvervanging
  • 3. Samenwerken met inwoners, bedrijven en waterpartners
  • 4. Verankeren water- en rioolbeheer in de Omgevingswet
  • 5. Water plaatselijk zuiveren en hergebruiken
  • 6. Grondwaterhuishouding

Per speerpunt is een ambitie en een strategie geformuleerd. Voor de beoogde ontwikkeling gaat het in het bijzonder om het gescheiden inzamelen van stedelijk afval- en hemelwater, hydrologisch neutraal ontwikkelen en het kiezen voor slimme bovengrondse oplossingen in de vorm van groenvoorzieningen en wadi's en het stroomlijnen van oppervlakkige afvoer.

Watervisie Boxtel

Samen met de gemeente Sint-Michielsgestel en Waterschap De Dommel heeft de gemeente Boxtel een Watervisie opgesteld. Het plan biedt een overzicht van de maatregelen die genomen moeten worden voor een goed waterbeheer. Daarbij gaat het om maatregelen op de korte en de lange termijn.

De Watervisie Boxtel is een afgeleide van het Waterbeheerplan en vormt als zodanig het kader voor de nadere uitwerking van onderliggende plannen, waaronder het verbreed Gemeentelijk Rioleringsplan (hierna: vGRP). De thema’s en streefbeelden uit het Waterbeheerplan zijn geëvalueerd en waar nodig in de visie geactualiseerd. Dit betekent onder meer dat er ‘hydrologisch neutraal’ moet worden gebouwd conform de Hydrologische uitgangspunten bij de keurregels voor afvoeren van hemelwater, Brabantse waterschappen.

Op planniveau geldt voor de herontwikkeling met een bijkomend verhard oppervlak kleiner dan 500 m² een vrijstelling voor de realisatie van de compensatie vanuit het waterschap maar kan door de gemeente een specifieke invulling, afhankelijk van de mogelijkheden ter plaatse, geëist worden. De gemeente kiest er bewust voor hemelwater in openbaar gebied te verwerken en kiest er niet voor verwerking van hemelwater op particulier terrein. Op deze manier wordt goed gebruik gemaakt van de deskundigheid van de gemeente en blijft het systeem beheersbaar. Bovendien wordt de particulier op deze manier ontzorgd. Eventuele compensatie, geëist door de gemeente, dient plaats te vinden volgens de voorkeursvolgorde: infiltreren, retentie binnen plangebied, retentie buiten plangebied of berging in bestaand watersysteem. Deze watertoets dient derhalve aangeleverd te worden ter goedkeuring aan het waterschap. Als een voorziening wordt aangelegd, kan een (indicatief) onderzoek naar de infiltratiecapaciteit van de bodem noodzakelijk zijn. In eerste instantie is de perceeleigenaar zelf verantwoordelijk voor de verwerking op zijn terrein.

Verbreed Gemeentelijke Rioleringsplan 2020-2024 (VGRP)

Het Verbreed Gemeentelijk Rioleringsplan 2020-2024 (VGRP) is een beleidsplan dat op hoofdlijnen

de invulling van de gemeentelijke watertaken weergeeft. Door middel van het VGRP legt de gemeente

vast wat zij wil bereiken en wat de rol van burgers en bedrijven is ten aanzien van afval-, hemel-

en grondwater. De gemeentelijke zorg voor het beheer van afvloeiend hemelwater heeft betrekking op het afvloeiend hemelwater van openbaar terrein en afvloeiend hemelwater wat niet op particulier terrein kan worden verwerkt. De eigenaar van het terrein waarop het hemelwater valt is primair verantwoordelijk voor de verwerking van het hemelwater. Vertrekpunt voor de afvoer van hemelwater geldt het uitgangspunt 'hydrologisch neutraal ontwikkelen' en het principe dat stedelijk afval- en hemelwater gescheiden worden ingezameld. Dit houdt in dat het hemelwater dat op daken en verhardingen valt, niet versneld mag worden afgevoerd naar oppervlaktewater. Voor behandeling van dit water hanteren we de waterkwantiteitstrits, waarbij optie 1 het meest wenselijk en optie 5 het minst wenselijk is:

1. hergebruik;

2. vasthouden / infiltreren;

3. bergen;

4. afvoeren naar oppervlaktewater;

5. afvoeren naar de riolering.

De initiatiefnemer dient de trits te doorlopen en te beargumenteren voor welke optie wordt gekozen. 'Vasthouden' betekent infiltratie in de bodem. Nummer 1 en 2 zijn overeenkomstig met vasthouden uit de trits vasthouden --> bergen --> afvoeren van de stichting Rioned, nummer 3 met bergen en nummer 4 en 5 met afvoeren. Als hergebruik en (volledige) infiltratie niet mogelijk zijn, is afvoer naar een oppervlaktewater / riolering mogelijk. In dit geval kan een compenserende berging noodzakelijk zijn. Bij een compenserende berging kan worden gedacht aan een vijver, een infiltratievoorziening of buffersloot met een geknepen afvoer naar een watergang. Bergingsvoorzieningen dienen te worden gedimensioneerd conform de richtlijnen van de waterschappen De Dommel in de Keur 2015.

Gezien de geohydrologische omstandigheden binnen de gemeente Boxtel wordt het uitgangspunt gehanteerd dat perceeleigenaren in nieuw- en herbouw situaties (uit- en inbreidingen) hun hemelwater altijd redelijkerwijs zelf kunnen verwerken. Dit betekent het kunnen bergen/verwerken van de neerslaggebeurtenissen uit de Keur (bergingseis van 60mm). De gemeente hanteert als ondergrens een toename van 250 m2 , in plaats van 500 m2 uit de Keur.

4.3.3 Huidige situatie

Algemeen

Het plangebied is gelegen aan de Baroniestraat, in de bebouwde kom van Boxtel, ten noordwesten van het centrum (figuur 1.1). Het plangebied omvat het terrein achter de pastorie en is grotendeels onverhard. Omdat het plangebied binnen de bebouwde kom van Boxtel ligt is het plangebied niet gekarteerd. Uit het bodemonderzoek (zie paragraaf 4.1) blijkt dat de bodem uit matig fijn siltig zand bestaat.

Er is een watertoets uitgevoerd. Deze toets is opgenomen in bijlage 10.

Waterkwantiteit

Het Smalwater is op de legger van het Waterschap de Dommel aangegeven als primaire watergang (A-watergang), zoals zichtbaar in figuur 4.1. Deze primaire watergang heeft aan weerszijden een beschermingszone van 5 meter. Binnen de beschermingszones gelden beperkingen voor bouwen en aanleggen om onderhoud aan de watergangen mogelijk te houden. De primaire watergang heeft, op basis van de hier aanwezige natte natuurzone, ook een profiel van vrije ruimte van 10 meter. Het profiel van vrije ruimte is de ruimte die nodig is volgens de beheerder voor toekomstige verbeteringen. In het profiel van vrije ruimte is het verboden zonder vergunning werken te plaatsen, wijzigen of behouden.

Figuur 4.1 Uitsnede vastgestelde legger oppervlaktelichamen Waterschap de Dommel

Veiligheid en waterkeringen

Het plangebied is niet gelegen binnen de kern- en beschermingszone van een regionale/primaire waterkering.

Afvalwaterketen en riolering

Het plangebied is deels aangesloten op het gemeentelijk rioolstelsel.

4.3.4 Toekomstige situatie

Waterkwantiteit

Bij toename van verhard oppervlak met meer dan 500 m2 zijn volgens De Keur watercompenserende maatregelen noodzakelijk. Het planvoornemen voorziet in extra verharding met een oppervlakte van 1.900 m2. Conform het beleid van het waterschap en de gemeente Boxtel is ten aanzien van de ontwikkeling een compenserende berging benodigd van circa 114 m3 (1.900 m2 x 60 mm / 1000). In overleg met het waterschap zijn maatregelen verwerkt waarmee extra waterbergende capaciteit wordt toegevoegd. Ook vanwege de ligging aan de A-watergang en in de nabijheid van het profiel van vrije ruimte. De maatregelen leiden tevens tot een verbetering van de aanwezige ecologische verbindingszone. Binnen het plangebied wordt de ecologische verbindingszone ingericht met natuurlijke waterberging.

Watersysteemkwaliteit en ecologie

Ter voorkoming van diffuse verontreinigingen van water en bodem is het van belang om duurzame, niet-uitloogbare materialen te gebruiken, zowel gedurende de bouw- als de gebruiksfase.

Veiligheid en waterkeringen

De ontwikkeling heeft geen invloed op de waterveiligheid in de omgeving.

Afvalwaterketen en riolering

Conform de Leidraad Riolering en vigerend waterschapsbeleid wordt de nieuwbouw voorzien worden van een gescheiden rioleringsstelsel. Hiermee wordt voorkomen dat schoon hemelwater bij een rioolzuiveringsinstallatie terecht komt.

Al het hemelwater van daken, parkeerplaatsen en erven binnen het plangebied wordt ook binnen het plangebied geborgen in een ondergrondse of bovengrondse voorziening. In de watertoets (bijlage 10) is aangetoond dat de toename van verharding kan worden gecompenseerd met een ondergrondse voorziening. Het waterschap geeft de voorkeur aan een bovengrondse voorziening. De initiatiefnemer neemt dit mee in de uitwerking van het plan. In de planregels is een voorwaardelijke verplichting opgenomen voor het bergen van water. De uitvoerbaarheid is daarmee geborgd.

Het vuilwater (zogenaamde droogweerafvoer; DWA) zal in de toekomstige situatie worden aangesloten op het bestaande rioleringsstelsel in de omgeving. De mogelijkheden en wijze van aansluiting zal in overleg met de gemeente besproken moeten worden. Tevens zal voor de aansluiting een vergunning aangevraagd moeten worden.

In afstemming met de provincie Noord-Brabant, waterschap De Dommel en de gemeente Boxtel is overleg gevoerd over het ontwikkelen van natuur in het plangebied nabij de rivier Smalwater direct ten noorden van het plangebied. Daarbij is afgesproken om de bebouwingsvrije zone te verruimen en het initiatief hierop aan te passen (van 10m naar 25m). Zie paragraaf 2.2 en figuur 2.5 van de toelichting alsmede artikel5.3.2 en bijlage 1 bij de regels.

De betreffende inrichting, inclusief de realisatie van een poel, nat graslanden een natuurvriendelijke oever, wordt als voorwaardelijke verplichting in de regels vastgelegd. De poel biedt voldoende ruimte voor de realisatie van 114 m³ extra waterbergingscapaciteit.

De openbare ruimte en de corridor wordt onderhouden door gemeente. De watergang wordt door het waterschap onderhouden. In de legger zijn beschermingszones ten behoeve van dat onderhoud van de watergang opgenomen. Voor regulier onderhoud is dat 1 meter vanaf de insteek. Voor buitengewoon onderhoud is dat normaal gesproken 5 meter. Omdat het onderhoud vanaf de overkant van Smalwater (buiten het plangebied) wordt uitgevoerd, geldt hier een beschermingszone van 0 meter.

Waterbeheer

Voor aanpassingen aan het bestaande watersysteem dient bij het waterschap vergunning te worden aangevraagd op grond van de "Keur". Dit geldt dus bijvoorbeeld voor het graven van nieuwe watergangen, het aanbrengen van een stuw of het afvoeren van hemelwater naar het oppervlaktewater. In de Keur is ook geregeld dat een beschermingszone voor watergangen en waterkeringen in acht dient te worden genomen.

Ten aanzien van het beoogde planvoornemen zullen zeer waarschijnlijk voor de onderstaande onderdelen een watervergunning worden aangevraagd of geldt tenminste een meldingsplicht (tenzij voldaan wordt aan de Algemene Regels (artikel 14 en 15) uit het Keur):

- Toename verhard oppervlak;

- Lozen van hemelwater op het oppervlaktewater;

- Tijdelijke grondwateronttrekkingen;

- Tijdelijke lozingen van bemalingswater;

- Werkzaamheden in het profiel van de vrije ruimte.

4.3.5 Conclusie

Op basis van deze invulling is de ontwikkeling in zowel ruimte als tijd hydrologisch positief uit te voeren. Er worden dan ook vanuit het oogpunt van de waterhuishouding geen belemmering verwacht ten aanzien van de ruimtelijke procedure en uitvoering van het plan. Voor de werkzaamheden in het profiel van de vrije ruimte, voor de realisatie van de ecologische verbindingszone, geldt een watervergunningplicht.

4.4 Bedrijvigheid en milieuzonering

4.4.1 Beleid en normstelling

In het kader van een goede ruimtelijke ordening is het van belang dat bij de aanwezigheid van bedrijven in de omgeving van milieugevoelige functies zoals woningen:

  • ter plaatse van de woningen een goed woon- en leefmilieu kan worden gegarandeerd;
  • rekening wordt gehouden met de bedrijfsvoering en milieuruimte van de betreffende bedrijven.

Om in de bestemmingsregeling de belangenafweging tussen bedrijvigheid en nieuwe woningen in voldoende mate mee te nemen, wordt in dit plan gebruik gemaakt van de VNG-publicatie Bedrijven en milieuzonering (editie 2009). In deze publicatie is een lijst opgenomen, waarin de meest voorkomende bedrijven en bedrijfsactiviteiten zijn gerangschikt naar mate van milieubelasting. Voor elke bedrijfsactiviteit is de maximale richtafstand ten opzichte van milieugevoelige functies aangegeven op grond waarvan de categorie-indeling heeft plaatsgevonden. De richtafstanden gelden ten opzichte van het omgevingstype 'rustige woonwijk'. Milieuzonering beperkt zich tot de milieuaspecten met een ruimtelijke dimensie: geluid, geur, gevaar en stof.

4.4.2 Onderzoek

Voor milieuzonering moet je formeel meten van het bouwvlak (van bijvoorbeeld een woning) tot aan de bestemmingsgrens/perceelsgrens van de milieuhinderlijke functie. Gezien de diversiteit aan functies (wonen in combinatie met maatschappelijke functies) in en rondom de planlocatie en de ligging van het plangebied nabij de drukke weg (Baroniestraat) kan het gebied worden aangemerkt als een 'gemengd gebied'.


Voor de begraafplaats geldt een richtafstand van 0 meter in gemengd gebied. Voor de kerk geldt een richtafstand van 10 meter in gemengd gebied. De afstand van de kerk tot de pastorietuin bedraagt minimaal 30 meter afstand. De beoogde ontwikkeling is daarmee op voldoende afstand gelegen. In de Heilig Hartkerk in Boxtel worden overigens sinds begin 2015 geen kerkelijke (ere)diensten meer gehouden. Wel zijn er sindsdien diverse activiteiten georganiseerd, zoals de uitvoering van een musical. Naast religieuze activiteiten zijn ter plaatse van de kerk op dit moment ook juridisch-planologisch andere functies toegestaan zoals ten behoeve van sport en spel, gezondheidszorg, onderwijs etc. Deze activiteiten kennen allemaal een maximale richtafstand van 10 meter ten opzichte van een gemengd gebied (milieucategorie 2). Hieraan wordt voldaan.


Aan de overzijde van de Baroniestraat, op ruim 20 meter afstand is de basisschool Angelaschool gevestigd. Deze afstand is gemeten vanaf het bouwvlak van het nieuwe woonzorgcomplex tot de perceelsgrens van de school. Voor een basisschool geldt een richtafstand van 10 meter ten opzichte van gemengd gebied. Aan deze richtafstand wordt voldaan. Tevens wordt het schoolplein aan de zuidzijde van de Angelaschool afgeschermd door de bebouwing van de Angelaschool. De school veroorzaakt dan ook geen relevante milieuhinder ter plaatse van het plangebied.


Ten oosten van het plangebied is het St. Ursulaklooster gelegen met daarin diverse dienstverlenende/maatschappelijke functies, waaronder de GGD, bureau Halt en het Centrum voor Jeugd en gezin. Voor deze activiteiten geldt een richtafstand van 0 meter in een gemengd gebied. Naast de huidige activiteiten zijn ter plaatse van het klooster ook juridisch-planologisch andere functies toegestaan. Deze activiteiten kennen, net als bij de kerk, allemaal een richtafstand van 10 meter ten opzichte van een gemengd gebied. Ook daaraan wordt voldaan.

4.4.3 Conclusie

Geconcludeerd wordt dat ter plaatse van de beoogde woningen sprake zal zijn van een aanvaardbaar woon- en leefklimaat en dat in de omgeving geen bedrijven aanwezig zijn die door de woningbouwontwikkeling in hun bedrijfsvoering worden beperkt.

4.5 Externe veiligheid

4.5.1 Beleid en normstelling

Bij ruimtelijke plannen dient ten aanzien van externe veiligheid naar verschillende aspecten te worden gekeken, namelijk:

  • bedrijven waar activiteiten plaatsvinden die gevolgen hebben voor de externe veiligheid;
  • vervoer van gevaarlijke stoffen over wegen, spoor, water of door buisleidingen.

Voor zowel bedrijvigheid als vervoer van gevaarlijke stoffen zijn twee aspecten van belang, te weten het plaatsgebonden risico (hierna: PR) en het groepsrisico (hierna: GR). Het PR is de kans per jaar dat een persoon dodelijk wordt getroffen door een ongeval, indien hij zich onafgebroken (dat wil zeggen 24 uur per dag gedurende het hele jaar) en onbeschermd op een bepaalde plaats zou bevinden. Het PR wordt weergegeven met risicocontouren rondom een inrichting, dan wel infrastructuur. Het GR drukt de kans per jaar uit dat een groep van minimaal een bepaalde omvang overlijdt als direct gevolg van een ongeval waarbij gevaarlijke stoffen betrokken zijn. De norm voor het GR is een oriëntatiewaarde. Het bevoegd gezag heeft een verantwoordingsplicht als het GR toeneemt en/of de oriëntatiewaarde overschrijdt.

Risicovolle inrichtingen

Het Besluit externe veiligheid inrichtingen (hierna: Bevi) geeft een wettelijke grondslag aan het externe veiligheidsbeleid rondom risicovolle inrichtingen. Op basis van het Bevi geldt voor het PR een grenswaarde voor kwetsbare objecten en een richtwaarde voor beperkt kwetsbare objecten. Beide liggen op een niveau van 10-6 per jaar. Bij de vaststelling van een bestemmingsplan moet aan deze normen worden voldaan, ongeacht of het een bestaande of nieuwe situatie betreft.

Het Bevi bevat geen norm voor het GR; wel geldt op basis van het Bevi een verantwoordingsplicht ten aanzien van het GR in het invloedsgebied van de inrichting. De in het externe veiligheidsbeleid gehanteerde norm voor het GR geldt daarbij als oriëntatiewaarde.

Vervoer van gevaarlijke stoffen

Per 1 april 2015 is het Besluit externe veiligheid transportroutes (hierna: Bevt) en de regeling Basisnet in werking getreden. Het Bevt vormt de wet- en regelgeving en de concrete uitwerking volgt in het Basisnet. Het Basisnet beoogt voor de lange termijn (2020, met uitloop naar 2040) duidelijkheid te bieden over het maximale aantal transporten van, en de bijbehorende maximale risico's die het transport van gevaarlijke stoffen mag veroorzaken. Het Basisnet is onderverdeeld in drie onderdelen: Basisnet Spoor, Basisnet Weg en Basisnet Water. Het Bevt en het bijbehorende Basisnet maakt bij het PR onderscheid in bestaande en nieuwe situaties. Voor bestaande situaties geldt een grenswaarde voor het PR van 10-5 per jaar ter plaatse van kwetsbare en beperkt kwetsbare objecten en een streefwaarde van 10-6 per jaar. Voor nieuwe situaties geldt de 10-6 waarde als grenswaarde voor kwetsbare objecten en als richtwaarde bij beperkt kwetsbare objecten. In het Basisnet Weg en het Basisnet Water zijn veiligheidsafstanden (PR 10-6 contour) opgenomen vanaf het midden van de transportroute.

Tevens worden in het Basisnet de plasbrandaandachtsgebieden benoemd voor transportroutes waarbinnen beperkingen voor nieuwe ruimtelijke ontwikkelingen gelden. Het Basisnet vermeldt dat op een afstand van 200 m vanaf de rand van het tracé in principe geen beperkingen hoeven te worden gesteld aan het ruimtegebruik. Er geldt een oriënterende waarde voor het groepsrisico en onder voorwaarden een verantwoordingsplicht tot 200 meter binnen de transportroute.

Besluit externe veiligheid buisleidingen

In het Besluit externe veiligheid buisleidingen (hierna: Bevb) wordt aangesloten bij de risicobenadering uit het Bevi zodat ook voor buisleidingen normen voor het PR en het GR gelden. Op grond van het Bevb dient zowel bij consoliderende bestemmingsplannen als bij ontwikkelingen inzicht te worden gegeven in de afstand tot het PR en de hoogte van het GR als gevolg van het transport van gevaarlijke stoffen door buisleidingen.

Beleid Boxtel 2010

In het beleidsstuk externe veiligheid van gemeente Boxtel (2010 )zijn een aantal gebiedstypen beschreven. Een daarvan is het gebiedstype' risicoluw gebied'. Een risicoluw gebied kenmerkt zich door een hoge bevolkingsdichtheid. Nieuwe risicovolle activiteiten zijn hier niet gewenst. Bij bestaande risicovolle inrichtingen worden de noodzaak en mogelijkheden tot sanering onderzocht. In de nabijheid van risicovolle infrastructuur zijn nieuwe ruimtelijke ontwikkelingen toegestaan, mits het planontwerp wordt geoptimaliseerd (mogelijkheden voor beheersbaarheid van calamiteiten, zelfredzaamheid van de burgers etc.).

afbeelding "i_NL.IMRO.0757.BP06BARONIESTR-OTW1_0020.png"

Figuur 4.5.1 Risicoluw gebieden

4.5.2 Onderzoek

afbeelding "i_NL.IMRO.0757.BP06BARONIESTR-OTW1_0021.png"

Figuur 4.1 Uitsnede EV signaleringskaart

Uit de informatie op de signaleringskaart blijkt dat het plangebied zich buiten het invloedsgebied van de weg, het water en risicovolle inrichtingen bevindt waarover vervoer van gevaarlijke stoffen plaatsvindt.

Circa 380 m ten westen van het plangebied is een DPO-leiding gelegen. Deze leiding heeft geen plaatsgebonden risicocontour van 10-6 per jaar. De leiding heeft een effectafstand (dodelijk) van 25 meter. De leiding vormt dan ook geen extern veiligheidsrisico ter plaatse van het plangebied.

Circa 360 meter ten westen van het plangebied worden gevaarlijke stoffen van o.a. de stofcategorie B2 vervoerd over het spoor. De spoorlijn heeft een PR-plafond van 6 meter. Het plangebied ligt daar ruimschoots buiten. Het invloedsgebied van het spoortraject bedraagt 995 meter. Het plangebied is gelegen binnen het invloedsgebied, op circa 370 meter. Omdat het plangebied op meer dan 200 meter afstand is gelegen hoeven geen beperkingen te worden gesteld aan het ruimtegebruik ter plaatse van het plangebied. Wel is vanwege de ligging binnen het invloedsgebied een beknopte verantwoording van het groepsrisico noodzakelijk.

Beleid Boxtel 2010

Het plangebied bevindt zich in het gebiedstype 'risicoluw gebied'. Er is hier sprake van toxisch scenario. Als afstand wordt nu nog 1.500 meter aangehouden, mogelijk wordt deze op 300 afgekapt. Het advies van de Veiligheidsregio volstaat op dit vlak, ondanks het 3 jaar oud is. Ook hiervoor is een beknopte verantwoording opgesteld.

4.5.3 Verantwoording groepsrisico

In het kader van het wettelijk vooroverleg is voor de verantwoording aanvullend advies gevraagd aan de Veiligheidsregio. Het advies van de Veiligheidsregio is opgenomen in bijlage 11 bij deze toelichting. Het advies van de Veiligheidsregio is verwerkt in de beknopte verantwoording van het groepsrisico.

Zelfredzaamheid

In de toekomstige situatie worden woonzorgappartementen gerealiseerd. Gezien de aard en de activiteiten van de beoogde ontwikkeling wordt vanuit gegaan dat een groot deel van de aanwezigen gezien worden als verminderd zelfredzame personen. De mogelijkheden voor zelfredzaamheid bestaan globaal uit schuilen en ontvluchten. Als gevolg van een incident met toxische stoffen over het spoor en bij een inrichting geldt dat een toxische wolk zich snel kan ontwikkelen en verplaatsen. Dit effect is vaak niet zichtbaar. Zelfredzaamheid in deze scenario's is alleen mogelijk als er tijdig alarmering plaatsvindt en gebouwen geschikt zijn om enkele uren te schuilen. Denk hierbij aan het sluiten van ramen en deuren en met name het uitschakelen van aanwezige (mechanische) ventilatiesystemen. De Veiligheidsregio adviseert om middels een informatiebrief de ontwikkelaar en de toekomstige gebruikers, bewoners en personeel te informeren over de risico's en de handelingen die genomen kunnen worden bij een dreiging. Het is van belang dat er een duidelijk plan ligt voor het moment dat zich een incident voordoet. De aanwezige begeleiders/verzorgers moeten weten hoe te handelen. Hiermee wordt in optimale vorm invulling gegeven aan het risicobewustzijn van- en het nemen van een eigen verantwoordelijkheid door de burger. Deze informatie zorgt er ook voor dat de bewoners en personeel op het moment dat een incident plaats vindt direct weten hoe te handelen, dit heeft een positieve invloed op de mate van zelfredzaamheid. Dit scenario moet door de initiatiefnemer worden opgenomen in het bedrijfsnoodplan. Daarnaast wordt geadviseerd om dit te beoefenen met het personeel. Hiermee worden de aanwezigen beschermd tegen de blootstelling aan toxische gassen. De alarmering van de aanwezigen wordt momenteel nog gerealiseerd middels het waarschuwings- en alarmeringssysteem (WAS). Dit systeem wordt de komende jaren uitgefaseerd. Het waarschuwingssysteem wordt vervangen door een totaal pakket aan alarmeringsmiddelen, waaronder de calamiteitenzenders, de sirenes, crisis.nl, NL-Alert en het gebruik van sociale media.

Bestrijdbaarheid en bereikbaarheid

Voor zowel de bereikbaarheid en bestrijdbaarheid van 'dagelijkse incidenten', zoals brand of wateroverlast, als voor calamiteiten op het gebied van externe veiligheid, is het van belang dat de bereikbaarheid voor de hulpdiensten en bluswatervoorzieningen voldoende geborgd zijn. De bestrijdbaarheid is afhankelijk van de inzetbaarheid van hulpverleningsdiensten. De brandweer moet in staat zijn om hun taken goed uit te kunnen voeren om daarmee verdere escalatie van een incident te voorkomen. Hierbij kan gedacht worden aan het voldoende/adequaat aanwezig zijn van aanvalswegen en bluswatervoorzieningen. Het plangebied wordt op dit moment ontsloten via de Baroniestraat. De Baroniestraat gaat in oostelijke richting over op de Monseigneur Wilmerstraat. Via de Brederodeweg wordt in noordelijke en zuidelijke richting ontsloten op het hogere gelegen netwerk, de rijksweg A2. In oostelijke richting gaat de Monseigneur Wilmerstraat over op de Schijndelseweg, N618. Dit biedt vluchtmogelijkheden in verschillende richtingen, waardoor altijd van de bron af kan worden gevlucht. Het gedegen netwerk komt de bestrijdbaarheid ten goede.

4.5.4 Conclusie

Het plangebied ligt binnen het invloedsgebied van het spoor, waarover gevaarlijke stoffen worden vervoerd. Daarnaast bevindt het plangebied zich in het risicoluw gebied van de gemeente Boxtel. Uit de beknopte verantwoording komt naar voren dat de zelfredzaamheid, bestrijdbaarheid en bereikbaarheid van het plangebied als voldoende worden beschouwd. De veiligheidssituatie zal met de beoogde ontwikkeling niet verslechten en wordt als aanvaardbaar gezien. Het aspect externe veiligheid vormt geen belemmering voor de beoogde ontwikkeling.

4.6 Kabels en leidingen

4.6.1 Beleid en normstelling

Planologisch relevante leidingen en hoogspanningsverbindingen dienen te worden gewaarborgd. Tevens dient rond dergelijke leidingen rekening te worden gehouden met zones waarbinnen mogelijke beperkingen gelden. Planologisch relevante leidingen zijn leidingen waarin de navolgende producten worden vervoerd:

  • gas, olie, olieproducten, chemische producten, vaste stoffen/goederen;
  • aardgas met een diameter groter of gelijk aan 18 inch;
  • defensiebrandstoffen;
  • warmte en afvalwater, ruwwater of halffabrikaat voor de drink- en industriewatervoorziening met een diameter groter of gelijk aan 18 inch.
4.6.2 Onderzoek en conclusie

In en nabij het plangebied zijn geen planologisch relevante leidingen en/of telecommunicatieverbindingen aanwezig. Bij graafwerkzaamheden op het terrein dient overigens wel rekening te worden gehouden met eventueel aanwezige kabels en niet planologische leidingen. Hiervoor dient voorafgaand aan de werkzaamheden een KLIC-melding gedaan te worden.

4.7 Verkeer en parkeren

4.7.1 Toetsingskader

Op het gebied van verkeer en vervoer bestaat geen specifieke wetgeving die relevant is voor de voorgenomen activiteit. Wel dient in het kader van het ruimtelijk plan dat de activiteit mogelijk maakt, te worden onderbouwd dat het geheel voldoet aan een goede ruimtelijke ordening. Dit houdt onder meer in dat er voldoende parkeergelegenheid aanwezig dient te zijn en de eventuele verkeerstoename niet leidt tot knelpunten in de verkeersafwikkeling en/of verkeersveiligheid.

De parkeerbehoefte wordt berekend op basis van de gemeentelijke parkeernormen 'Parkeernormen Gemeente Boxtel Binnen de bebouwde kom'. De verkeersgeneratie wordt berekend op basis van kencijfers uit CROW-publicatie 381. Hierbij wordt op basis van de omgevingsadressendichtheid en het autobezit per kengetal het gemiddelde van de bandbreedte gehanteerd. De ontwikkeling ligt in het gebied 'rest bebouwde kom' en heeft een stedelijkheidsgraad 'matig stedelijk'.

Onderzoek

Ontsluiting

Het plangebied wordt ontsloten op de Baroniestraat, een gebiedsontsluitingsweg met een maximum snelheid van 50 km/u. De Baroniestraat gaat in oostelijke richting over op de Monseigneur Wilmerstraat. Via de Brederodeweg wordt in noordelijke en zuidelijke richting ontsloten op het hogere gelegen netwerk, de rijksweg A2. In oostelijke richting gaat de Monseigneur Wilmerstraat over op de Schijndelseweg, N618. Via meerdere straten wordt in zuidelijke richting vanaf de Baroniestraat het centrum van Boxtel bereikt. In meer westelijke richting wordt het treinstation van Boxtel bereikt en wordt ontsloten op de kernen ten westen van Boxtel. Met name door de ligging aan een gebiedsontsluitingsweg is het plangebied goed bereikbaar voor het gemotoriseerd verkeer.

De Baroniestraat is, net als de meest omliggende wegen, voorzien van fietssuggestiestroken en trottoirs aan beide zijden van de weg. Het openbaar vervoer is op loopafstand bereikbaar, de dichtstbijzijnde bushalte is op enkele minuten gelegen aan de Annastraat, het treinstation is op 5-10 minuten loopafstand bereikbaar. De ontsluiting per langzaam verkeer en openbaar vervoer is ook goed te noemen.

Beoogde ontwikkeling

De planontwikkeling omvat de realisatie van een nieuw zorgcomplex met 48 appartementen.

Verkeersgeneratie

Bij het bepalen van de verkeersgeneratie is gebruik gemaakt van CROW publicatie 381. Hierbij wordt op basis van de omgevingsadressendichtheid en het autobezit voor de kengetalen het gemiddelde van de bandbreedte gehanteerd. Voor het berekenen van de verkeersgeneratie wordt uitgegaan van de locatie 'rest bebouwde kom'. Verder geldt voor de locatie een stedelijkheidsgraad van 'matig stedelijk'.

De verkeersgeneratie is bepaald voor een gemiddelde weekdag en een gemiddelde werkdag. De CROW-kentallen gaan uit van weekdagintensiteiten. De gemiddelde werkdagintensiteit is bepaald door gebruik te maken van een omrekenfactor 1,11 welke CROW-381 noemt voor woonfuncties.

Huidige situatie

In de bestaande situatie betreft het plangebied een braakliggend terrein. Dit genereert geen verkeer.

Beoogde situatie

De beoogde ontwikkeling bestaat uit de realisatie van in totaal 48 zorgappartementen.

Tabel 4.7.1 Verkeersgeneratie planontwikkeling

Woningtype   Aantal   Functie CROW 381   Kengetal   Verkeersgeneratie  
        weekdag   werkdag  
Zorgappartementen   48   Aanleunwoning/serviceflat   2,45 per woning   117,6   130,5  
           
Totaal   48       118   131  

De beoogde ontwikkeling heeft een verkeersgeneratie van 118 mvt/weekdag en 131 mvt/werkdag. De verkeersgeneratie voor een gemiddelde werkdag is bepaald door de weekdagintensiteit te vermenigvuldigen met factor 1,11 (CROW publicatie 381).

Verkeerstoedeling

Het plan wordt via één aansluiting ontsloten op de Baroniestraat. Op basis van de navigatietool van Google Maps is een inschatting gemaakt van de toedeling van het verkeer vanaf het plangebied (zie onderstaande afbeelding).

afbeelding "i_NL.IMRO.0757.BP06BARONIESTR-OTW1_0022.png"

Figuur 4.2 Verkeerstoedeling plangebied

Verkeersafwikkeling en verkeersveiligheid

Voor beoordeling van de verkeersafwikkeling is de verkeersgeneratie tijdens het maatgevende uur van belang. Als vuistregel geldt dat de verkeersomvang tijdens het maatgegevens uur circa 10% van de etmaalwaarde bedraagt. In dit geval gaat het in het drukste uur op werkdagen dan om (131 *10%) om 14 voertuigen. Deze geringe toename van verkeer kan zonder problemen worden afgewikkeld op de omliggende kruispunten en wegen en zal niet leiden tot een verslechtering van de verkeersafwikkeling.

Voor de beoordeling van de verkeersveiligheid kan gesteld worden dat met de geringe toename van het verkeer na planontwikkeling (14 motorvoertuigen in het drukste uur) dit geen effect heeft op de verkeersveiligheid. De verkeersveiligheid wordt dan ook niet negatief beïnvloed als gevolg van het plan.

Parkeren

De parkeerbehoefte is berekend aan de hand van de gemeentelijke parkeernormen.

Toekomstige situatie

Woningtype   Functie p-beleid   Aantal   Parkeernorm   Parkeerbehoefte  
Zorgappartement   Zorgwoning, beschermd of verzorgd wonen   48   0,6 p. woning   29 pp  

De beoogde ontwikkeling heeft een parkeerbehoefte van 29 parkeerplaatsen. De totale parkeervraag zal worden opgelost binnen het plangebied zoals zichtbaar in onderstaande figuur. Daarmee wordt voldaan aan de parkeernorm van de gemeente Boxtel.

afbeelding "i_NL.IMRO.0757.BP06BARONIESTR-OTW1_0023.png"

Figuur 4.3 Situatie parkeerplaatsen

Conclusie

Het plangebied heeft voor alle vervoerswijzen een goede ontsluiting. De verkeerstoename als gevolg van de ontwikkeling zal niet leiden tot knelpunten in de verkeersafwikkeling en/of verkeersveiligheid. De totale parkeerbehoefte zal worden opgelost binnen het plangebied.

4.8 Wegverkeerslawaai

4.8.1 Beleid en normstelling

Langs alle wegen, met uitzondering van 30 km/u wegen en woonerven, bevinden zich op grond van de Wet geluidhinder (Wgh) geluidszones waarbinnen de geluidhinder van de weg moet worden getoetst. De geluidhinder wordt berekend aan de hand van de Europese dosismaat Lden. Deze dosismaat wordt weergegeven in dB. De waarde vertegenwoordigt het gemiddelde geluidsniveau over een etmaal.

Nieuwe woningen zijn geluidgevoelige functies, waarvoor in het kader van de Wet geluidhinder (hierna: Wgh), akoestisch onderzoek uitgevoerd dient te worden indien gelegen binnen de geluidzone van gezoneerde wegen. Het plangebied ligt binnen de geluidzone van gezoneerde wegen. Akoestisch onderzoek is uitgevoerd ten gevolge van wegverkeerslawaai. Het spoor heeft ter plaatse een geluidzone van 300 meter. Het plangebied is verder gelegen van het spoor. Onderzoek naar spoorweglawaai is daardoor niet noodzakelijk.

4.8.2 Onderzoek

De nieuwe woningen in het plangebied zijn geluidgevoelige functies en liggen binnen de geluidszone van de Baroniestraat, Annastraat en Pastoor Erasstraat (allen 50 km/u). De Ons Doelstraat en de Prins

Bernhardstraat (binnen de 30 km/uur zone) zijn alleen meegenomen in het kader van de cumulatieve geluidbelasting. Het akoestisch onderzoek is uitgevoerd onder de normen van de Wgh en conform de Standaard Rekenmethode II uit het Reken- en meetvoorschrift geluid 2012. De rapportage van het akoestisch onderzoek, waarin wordt ingegaan op de uitgangspunten en resultaten van het onderzoek, is opgenomen in bijlage 12 bij deze toelichting. Hierna worden de resultaten kort samengevat.

4.8.3 Resultaten

De geluidbelasting bedraagt op zijn hoogst 56 dB ter plaatse van gevel direct aan de Baroniestraat (alle etages). De voorkeursgrenswaarde van 48 dB wordt op zes beoordelingspunten overschreden (meerdere hoogtes). De hoogst toelaatbare geluidbelasting van 63 dB wordt nergens overschreden.

Bronmaatregelen

Het toepassen van geluidreducerend wegdek, het verlagen van verkeersintensiteiten of het

aanpassen van de maximale snelheid kan leiden tot lagere geluidniveaus. Gezien de mate waarin de voorkeursgrenswaarde wordt overschreden zal een meer geluidreducerend wegdek bij de Baroniestraat niet zorgen voor een situatie waarbij ter plaatse van de gewenste appartementen sprake zal zijn van een geluidbelasting onder de voorkeursgrenswaarde. Daarbij wordt opgemerkt dat het wegdek over een lang traject vervangen zou moeten worden, waardoor dit in relatie tot het aantal appartementen

financieel gezien niet mogelijk is. Maatregelen die de verkeersstromen wijzigen (zoals het verlagen van de verkeersintensiteiten of de maximumsnelheid) zullen niet ad hoc worden genomen, maar zijn

een onderdeel van een uitgebreide verkeersstudie. Het realiseren van dit kleine aantal woningen vormt doorgaans geen aanleiding voor een uitgebreide verkeersstudie. Daarnaast heeft de gemeente Boxtel ook aangegeven dat het verlagen van de maximumsnelheid op de Baroniestraat naar 30 km/u geen haalbare optie is.

Maatregelen bij de ontvanger

Bij het ontwerp van de wooneenheden wordt, waar nodig, rekening gehouden met de extra benodigde geluidwering en/of voorzieningen van de desbetreffende geveldelen. De gemeente zal bepalen welke voorzieningen/voorwaarden nodig zijn om de benodigde hogere waarden te verlenen. Bij de indeling van het beoogde appartementencomplex is al rekening gehouden met het aspect geluid. Door de gezamenlijke ruimtes zoveel mogelijk bij de voorgevel te plaatsen kan het aantal wooneenheden op de meest geluidbelaste gevel zo laag mogelijk worden gehouden.

Gemeentelijke beleid

Conform de Wgh kan er pas een hogere waarde worden verleend als voldaan wordt aan de

hoofdcriteria uit deze wet en aan de in het gemeentelijk beleid genoemde subcriteria. Voor

de gemeente Boxtel is het geluidbeleid beschreven in het document gBeleid hogere

grenswaarden gemeente Boxtelh ingesteld op 15-01-2008. In dit document worden algemene ontheffingscriteria genoemd en enkele bijzondere ontheffingscriteria voor de gemeente Boxtel. De algemene ontheffingscriteria zijn de bezwaren van stedenbouwkundige, landschappelijke, financiële, vervoerskundige of verkeerskundige bezwaren tegen het nemen van maatregelen. Deze zijn in de bovenstaande paragrafen reeds besproken. Bij de bijzondere ontheffingscriteria voor de gemeente Boxtel valt het project ook onder het criterium voor stationslocaties, dat van toepassing is bij woningen binnen 1500 meter van een treinstation. Het plangebied is gelegen op circa 600 meter van station Boxtel. Er kan worden gesteld dat het gemeentelijk beleid geen belemmering vormt voor het aanvragen van een hogere waarde.

Bouwbesluit

De gecumuleerde geluidbelasting bij het appartementencomplex bedraagt ten hoogste 61 dB

ter plaatse van de voorgevel aan de Baroniestraat (alle etages). De vereiste karakteristieke

geluidwering Ga;k bedraagt dan maximaal 61 - 33 = 28 dB. Het bevoegd gezag zal bepalen

of er nader onderzoek naar de geluidwering van de gevels dient te worden gedaan.

In het ontwerp zal hieraan worden voldaan. Om dit te borgen is het bestemmingsplan een voorwaardelijke verplichting opgenomen. In de fase van vergunningverlening wordt dit getoetst.

Woon- en leefklimaat

Voor het beoordelen van het woon- en verblijfsklimaat ter plaatse van de te realiseren appartementen wordt gebruik gemaakt van de 'kwaliteitsindicatie geluid' van het Rijksinstituut voor Volksgezondheid en Milieu (RIVM).

afbeelding "i_NL.IMRO.0757.BP06BARONIESTR-OTW1_0024.png"

De geluidniveaus ter plaatse van de gewenste appartementen variëren van 40 dB tot en met

61 dB. De milieukwaliteit wordt daarom over het algemeen gekwalificeerd als 'Zeer goedtot

Slecht'. Het woon- en verblijfsklimaat ter plaatse van de appartementen kan evengoed wel als

acceptabel worden aangemerkt wanneer de gevels over voldoende gevelwering beschikken

om een binnenniveau van 33 dB te kunnen garanderen. Daarbij kan ook in de overweging worden meegewogen dat het grootste deel van de appartementen de beschikking zullen hebben over een geluidluwe gevel. Daarnaast zullen er ook gezamenlijke geluidluwe verblijfsruimtes en buitenruimte aanwezig zijn.

Hogere waarden

Hogere waardes zijn nodig voor de Baroniestraat. De berekende geluidbelasting bedraagt

maximaal 56 dB. Maatregelen zijn niet doelmatig. Het verlenen van hogere waarden wordt mogelijk geacht. Het ontwerpbesluit hogere grenswaarden Wet geluidhinder is als bijlage 13 bijgevoegd.

4.8.4 Conclusie

Het aspect wegverkeerslawaai vormt geen belemmering voor de vaststelling van het bestemmingsplan. Ter plaatse is sprake van een aanvaardbaar woon- en leefklimaat.

Benodigde gevelwering (wegverkeerslawaai)

De gecumuleerde geluidbelasting bedraagt ten hoogste 56 dB. Voor de geveldelen van de gewenste appartementen bedraagt de vereiste karakteristieke geluidwering Ga;k dan maximaal 61 - 33 = 28 dB.

Woon- en leefklimaat

De milieukwaliteit wordt geclassificeerd als 'Zeer Goed' tot 'Slecht'. Het woon- en verblijfsklimaat ter plaatse van de appartementen kan evenwel als acceptabel worden aangemerkt. Op basis van de toelichting kan gesteld worden dat de cumulatieve geluidbelasting (wegverkeer) een aanvaardbaar woon- en verblijfsklimaat niet in de weg staat.

4.9 Luchtkwaliteit

4.9.1 Beleid en normstelling

In het kader van een goede ruimtelijke ordening wordt bij het opstellen van een ruimtelijk plan uit het oogpunt van de bescherming van de gezondheid van de mens rekening gehouden met de luchtkwaliteit. Het toetsingskader voor luchtkwaliteit wordt gevormd door hoofdstuk 5, titel 5.2 van de Wet milieubeheer. Dit onderdeel van de Wet milieubeheer (hierna: Wm) bevat grenswaarden voor zwaveldioxide, stikstofdioxide en stikstofoxiden, fijn stof, lood, koolmonoxide en benzeen. Hierbij zijn in de ruimtelijke ordeningspraktijk langs wegen vooral de grenswaarden voor stikstofdioxide (jaargemiddelde) en fijn stof (jaar- en daggemiddelde) van belang. De grenswaarden van de laatstgenoemde stoffen zijn in tabel 4.4 weergegeven.

Stof   Toetsing van   Grenswaarde  
stikstofdioxide (NO2)   jaargemiddelde concentratie   40 µg/m³  
fijn stof (PM10)   jaargemiddelde concentratie   40 µg/m³  
  24-uurgemiddelde concentratie   max. 35 keer p.j. meer dan 50 µg / m³  
fijn stof (PM2,5)   jaargemiddelde concentratie   25 µg /m³  

Tabel 4.4 Grenswaarden maatgevende stoffen Wm

Op grond van artikel 5.16 van de Wm kunnen bestuursorganen bevoegdheden, die gevolgen kunnen hebben voor de luchtkwaliteit, onder andere uitoefenen indien de bevoegdheden/ontwikkelingen niet leiden tot een overschrijding van de grenswaarden of de bevoegdheden/ontwikkelingen niet in betekenende mate bijdragen aan de concentratie in de buitenlucht.

Besluit niet in betekenende mate

In dit Besluit niet in betekenende mate is bepaald in welke gevallen een project vanwege de gevolgen voor de luchtkwaliteit niet aan de grenswaarden hoeft te worden getoetst. Hierbij worden twee situaties onderscheiden:

  • een project heeft een effect van minder dan 3% van de jaargemiddelde grenswaarde NO2 en PM10 (= 1,2 µg/m³);
  • een project die in een categorie valt, is vrijgesteld van toetsing aan de grenswaarden; deze categorieën betreffen onder andere woningbouw met niet meer dan 1.500 woningen bij één ontsluitingsweg en 3.000 woningen bij twee ontsluitingswegen.

In het kader van een goede ruimtelijke ordening wordt bij het opstellen van een ruimtelijk plan uit het oogpunt van de bescherming van de gezondheid van de mens rekening gehouden met de luchtkwaliteit.

4.9.2 Onderzoek

Het bestemmingsplan voorziet in de realisatie van maximaal 48 zorgappartementen. Door de beoogde ontwikkeling is er sprake van een toename van verkeer van 118 mvt/etmaal (weekdaggemiddelde). In de NIBM-tool (versie 23-04-2022) is worst-case 2022 als jaar van planrealisatie aangehouden. Uit de berekening blijkt dat deze verkeerstoename zorgt voor een toename van het gehalte stikstof in de lucht van 0,07 µg/m³ en van fijnstof van 0,02 µg/m³ (tabel 4.5). De toename van stikstof is onder 1,2 µg/m³. Het project draagt hierdoor niet in betekenende mate bij aan de toename van de hoeveelheid stikstofdioxide in de lucht. Een toetsing aan de grenswaarden is derhalve niet noodzakelijk.

afbeelding "i_NL.IMRO.0757.BP06BARONIESTR-OTW1_0025.png"

Tabel 4.5 Resultaten NIBM-Tool

In het kader van een goede ruimtelijke ordening is een indicatie van de luchtkwaliteit ter plaatse van het plangebied gegeven. Dit is gedaan aan de hand van de NSL-monitoringstool 2021 (http://www.nsl-monitoring.nl/viewer/) die bij het Nationaal Samenwerkingsprogramma Luchtkwaliteit hoort. De dichtstbijzijnde maatgevende weg betreft de Baroniestraat, direct ten zuiden van het plangebied. Uit de NSL-monitoringstool blijkt dat in 2020 de jaargemiddelde concentraties stikstofdioxide en fijn stof langs deze weg ruimschoots onder de grenswaarden lagen. De concentraties luchtverontreinigende stoffen bedroegen in 2020; 13,7 µg/m³ voor NO2, 16,7 µg/m³ voor PM10 en 9,5 µg/m³ voor PM2,5. Het aantal overschrijdingsdagen van de 24-uur gemiddelde concentratie PM10 bedroeg 6 dagen.

4.9.3 Conclusie

Het aspect luchtkwaliteit vormt geen belemmering voor de vaststelling van het bestemmingsplan. Ter plaatse is sprake van een aanvaardbaar woon- en leefklimaat.

4.10 Flora en fauna

4.10.1 Beleid en normstelling

Bij de voorbereiding van een ruimtelijk plan dient onderzocht te worden of de Wet natuurbescherming (hierna: Wnb) en het beleid van de provincie ten aanzien van de bescherming van dier- en plantensoorten en de bescherming van het Natuurnetwerk Nederland de uitvoering van het plan niet in de weg staan. In elk geval moet aannemelijk zijn dat vergunning of ontheffing van de bij of krachtens deze wet geldende verbodsbepalingen kan worden verkregen voor de activiteiten die met dit bestemmingsplan mogelijk worden gemaakt. Dit is anders indien uit de Wnb voortvloeit dat een passende beoordeling moet worden gemaakt. Deze dient te zijn verricht ten tijde van vaststelling van het bestemmingsplan.

Met de Wnb zijn alle bepalingen met betrekking tot de bescherming van natuurgebieden en dier- en plantensoorten samengebracht in één wet. De Wnb implementeert diverse Europeesrechtelijke regelgeving, zoals de Vogelrichtlijn en de Habitatrichtlijn in de Nederlandse wetgeving.

Gebiedsbescherming

De Wnb kent diverse soorten natuurgebieden, te weten:

  • a. Natura-2000 gebieden.
  • b. Natuurnetwerk Nederland (hierna: NNN);

Natura-2000 gebieden 

De Minister van Economische Zaken (EZ) wijst gebieden aan die deel uitmaken van het Europese netwerk van natuurgebieden: Natura 2000. Een dergelijk besluit bevat de instandhoudingsdoelstellingen voor de leefgebieden van vogelsoorten (Vogelrichtlijn) en de instandhoudingsdoelstellingen voor de natuurlijke habitats en habitats van soorten (Habitatrichtlijn).

Een bestemmingsplan, dat afzonderlijk of in combinatie met andere plannen of projecten significante gevolgen kan hebben voor een Natura 2000-gebied, kan uitsluitend vastgesteld worden indien uit een passende beoordeling de zekerheid is verkregen dat het plan, onderscheidenlijk het project de natuurlijke kenmerken van het gebied niet zal aantasten. Indien deze zekerheid niet is verkregen, kan het plan worden vastgesteld, indien wordt voldaan aan de volgende drie voorwaarden:

  • 1. alternatieve oplossingen zijn niet voor handen;
  • 2. het plan is nodig om dwingende redenen van groot openbaar belang, met inbegrip van redenen van sociale of economische aard, en
  • 3. de nodige compenserende maatregelen worden getroffen om te waarborgen dat de algehele samenhang van het Natura 2000-netwerk bewaard blijft.

De bescherming van deze gebieden heeft externe werking, zodat ook ingrepen die buiten deze gebieden plaatsvinden verstoring kunnen veroorzaken en moeten worden getoetst op het effect van de ingreep op soorten en habitats.

Bijzondere nationale natuurgebieden

De Minister van Economische Zaken (EZ) kan buitenom de gebieden, die deel uitmaken van het Europese netwerk van natuurgebieden Natura 2000, ook gebieden aanwijzen als Bijzonder nationaal natuurgebied. Dat kan wanneer het gebied is opgenomen op een lijst als bedoeld in artikel 4, eerste lid, van de Habitatrichtlijn of het gebied onderwerp is van een procedure als bedoeld in artikel 5 van de Habitatrichtlijn. De beschermende werking, die geldt voor gebieden die behoren tot Natura 2000, geldt in dat geval ook voor het bijzondere nationaal natuurgebied.

Natuurnetwerk Nederland (NNN)

Gebieden, die deel uitmaken van het NNN, worden aangewezen in de provinciale verordening. Voor dit soort gebieden geldt het 'nee, tenzij' principe, wat inhoudt dat binnen deze gebieden in beginsel geen nieuwe ruimtelijke ontwikkelingen mogen plaatsvinden.

Soortenbescherming

In de Wnb wordt een onderscheid gemaakt tussen:

  • a. soorten die worden beschermd in de Vogelrichtlijn;
  • b. soorten die worden beschermd in de Habitatrichtlijn; en
  • c. de bescherming van overige soorten.


De Wnb bevat onder andere verbodsbepalingen ten aanzien van het opzettelijk vernielen of beschadigen van nesten, eieren en rustplaatsen van vogels als bedoeld in artikel 1 van de Vogelrichtlijn. Gedeputeerde Staten (hierna: GS) kunnen hiervan ontheffing verlenen en bij verordening kunnen Provinciale Staten (hierna: PS) vrijstelling verlenen van dit verbod. De voorwaarden, waaraan voldaan moet worden om ontheffing of vrijstelling te kunnen verlenen, zijn opgenomen in de Wnb en vloeien direct voort uit de Vogelrichtlijn. Verder is het verboden in het wild levende dieren van soorten, genoemd in bijlage IV, onderdeel a, bij de Habitatrichtlijn, bijlage II bij het Verdrag van Bern of bijlage I bij het Verdrag van Bonn, in hun natuurlijk verspreidingsgebied opzettelijk te doden of te vangen of te verstoren. GS kunnen hiervan ontheffing verlenen en bij verordening kunnen PS vrijstelling verlenen van dit verbod. De gronden voor verlening van ontheffing of vrijstelling zijn opgenomen in de Wnb en vloeien direct voort uit de Habitatrichtlijn.

Ten slotte is een verbodsbepaling opgenomen voor overige soorten. Deze soorten zijn opgenomen in de bijlage onder de onderdelen A en B bij de Wnb. De provincie kan ontheffing verlenen van deze verboden. Verder kan bij provinciale verordening vrijstelling worden verleend van de verboden. De noodzaak tot ontheffing of vrijstelling kan hierbij ook verband houden met handelingen in het kader van de ruimtelijke inrichting of ontwikkeling van gebieden.

Uitwerking Verordening uitvoering Wet natuurbescherming Noord-Brabant

In de provincie Noord-Brabant wordt vrijstelling verleend voor het weiden van vee, voor het op of in de bodem brengen van meststoffen en voor agrarische beregening uit grondwater. In het kader van de ruimtelijke inrichting of ontwikkeling van gebieden worden vrijstellingen verleend ten aanzien van de soorten genoemd in bijlage 3 bij deze verordening. Het betreft aardmuis, bastaardkikker, bosmuis, bruine kikker, dwergmuis, dwergspitsmuis, egel, gewone bosspitsmuis, gewone pad, haas, huisspitsmuis, kleine watersalamander, konijn, meerkikker, ondergrondse woelmuis, ree, rosse woelmuis, tweekleurige bosspitsmuis, veldmuis, vos, wild zwijn en woelrat.

4.10.2 Onderzoek

Ten behoeve van de ontwikkeling van het plangebied is een quickscan flora en fauna uitgevoerd. Het onderzoeksrapport is opgenomen als bijlage 14 bij deze toelichting. Hierna wordt ingegaan op de bevindingen.

Natuurbescherming

Natura 2000

Het plangebied vormt geen onderdeel van een natuur- of groengebied met een beschermde status, zoals Natura-2000. Het gebied ligt op ruim twee kilometer afstand van Natura 2000-gebied Kampina & Oisterwijkse Vennen (zie figuur 4.3).

afbeelding "i_NL.IMRO.0757.BP06BARONIESTR-OTW1_0026.png"

Figuur 4.3: Ligging plangebied t.o.v. Natura 2000-gebied Kampina & Oisterwijkse Vennen

Stikstof

De wijzigingen in verkeersstromen zouden kunnen leiden tot een toename van stikstofdepositie in Natura 2000-gebieden. Om stikstofdepositie binnen Natura 2000-gebieden door emissies van de realisatie- en gebruiksfase van de beoogde ontwikkeling uit te sluiten is hier een onderzoek voor uitgevoerd. De memo van dit onderzoek is opgenomen in bijlage 16. De achterliggende stikstofberekeningen voor de realisatiefase is opgenomen in bijlagen 17 en 18 en de berekening voor de gebruiksfase is opgenomen in bijlage 19. In dit onderzoek wordt geconcludeerd dat er voor de realisatie- en gebruiksfase geen depositiebijdrage binnen Natura 2000-gebieden wordt berekend. Er zijn geen rekenresultaten hoger dan 0,00 mol/ha/jr. Op basis hiervan kan geconcludeerd worden dat ervoor de ontwikkeling geen vergunning op grond van de Wet natuurbescherming is verreist.

Natuur Netwerk Nederland

Het NNN is een samenhangend netwerk van bestaande en nog te ontwikkelen belangrijke natuurgebieden. De gebieden, die deel uitmaken van het NNN, worden door de provincie vastgesteld. De provincie kan ook gebieden aanwijzen die buiten het NNN liggen, maar wel belangrijk zijn vanwege hun natuur of landschap.

Het plangebied ligt niet binnen het Natuurnetwerk van de provincie Noord-Brabant (figuur 4.4) maar de waterloop Smalwater die het plangebied aan de noordzijde begrenst, valt wel binnen het NNN en vormt een belangrijke ecologische verbinding met de Dommel.

Het planvoornemen sluit nadrukkelijk aan op de instandhoudingsdoestelingen van het NNN door de verruiming van de ecologische verbindingszone ter plaatse en het creëren van en goede habitat voor de doelsoorten. De inrichting (zie ook bijlage is tot stand gekomen in samenwerking met provincie, het waterschap en de gemeente is een inrichtingsschets opgesteld om richting te geven aan de te ontwikkeling natuur in het plangebied. In paragraaf 2.2.1 wordt dit beschreven.

afbeelding "i_NL.IMRO.0757.BP06BARONIESTR-OTW1_0027.png"

afbeelding "i_NL.IMRO.0757.BP06BARONIESTR-OTW1_0028.png"

Figuur 4.4 Ligging plangebied (rode cirkel) t.o.v. beschermde natuurgebieden (bron: provincie Noord-Brabant)

Soortenbescherming

Voor het planvoornemen is een bronnenonderzoek (o.a.: Nationale Databank Flora en Fauna) verricht naar het voorkomen van beschermde soorten in het onderzoeksgebied en in de directe omgeving daarvan. Door middel van een veldbezoek is een inschatting gemaakt van de te verwachten beschermde soorten in het plangebied. Daarna is bekeken welke effecten de werkzaamheden kunnen hebben op de mogelijk aanwezige beschermde soorten.

Grondgebonden zoogdieren

Tijdens het veldbezoek zijn weinig sporen van grondgebonden zoogdieren waargenomen. In het plangebied waren enkele muizenholen en molshopen te zien. Algemene muizensoorten, bruine rat, konijn, egel en mol kunnen in (de omgeving van) het plangebied voorkomen.

In de buurt van de Dommel, zijn volgens het NDFF, bevers waargenomen. De Beerze, die ten noorden van het plangebied loopt, staat stroomafwaarts in verbinding met de Dommel. Echter, ter hoogte van het plangebied is de watergang te smal en zijn er te veel urbane invloeden om geschikt te zijn voor de bever. Het plangebied is potentieel wel geschikt voor eekhoorn en bunzing. Beide soorten zijn tijdens de veldbezoeken niet waargenomen. Ook zijn geen (vraat)sporen of aanwijzingen voor verblijfplaatsen waargenomen. Het plangebied biedt geen geschikt habitat voor andere beschermde grondgebonden zoogdieren. Er wordt voor deze soortgroep geen conflict verwacht in het kader van de Wnb.

Vleermuizen

In het plangebied zijn verschillende locaties waar vleermuizen zouden kunnen verblijven. Het plangebied is ook geschikt als foerageergebied voor vleermuizen. De Beerze als watergang is mogelijk onderdeel van een vliegroute. Omdat de potentie van het plangebied als leefgebied voor vleermuizen bij aanvang van de quickscan al duidelijk was, is een nader onderzoek naar vleermuizen uitgevoerd. De resultaten van het nader onderzoek zijn opgenomen in bijlage 15 van de toelichting.

Uit het nader onderzoek blijkt dat er paar- en kraamverblijfplaatsen van gewone dwergvleermuizen in de pastorie aanwezig zijn. De pastorie maakt geen onderdeel uit van het plangebied van dit bestemmingsplan. Voor de renovatie van de pastorie is middels een omgevingsvergunning vergund en inmiddels afgerond. Daar voorafgaand is een activiteitenplan opgesteld en is ontheffing verleend.

Daarnaast wordt er door gewone dwergvleermuizen en soms gewone grootoorvleermuizen gefoerageerd binnen het plangebied. Het plangebied blijft grotendeels functioneel als foerageergebied en er is ook nog voldoende alternatief foerageergebied in de omgeving aanwezig. Wel strekt het tot aanbeveling om zoveel mogelijk van het oude groen te integreren in de nieuwbouwplannen en kritisch te kijken naar de uitvoering van de (straat)verlichting van het terrein. Het plangebied is geen onderdeel van vliegroute vanuit de omgeving.

Vogels

Er zijn binnen het plangebied geen jaarrond beschermde nesten waargenomen. Binnen het plangebied staat een aantal bomen en struiken die gekapt zullen gaan worden en waar zich tijdens het broedseizoen nesten in kunnen bevinden. Indien bomen en struiken verwijderd moeten worden dient dit bij voorkeur buiten de broedperiode te gebeuren. Aangeraden wordt om kort voor de uitvoering van de werkzaamheden nog een inspectie door een deskundige op het gebied van vogels te laten doen op eventueel voorkomende nieuwe broedgevallen.

Reptielen, amfibieën en vissen

Door afwezigheid van geschikt habitat worden reptielen, beschermde amfibieën en vissen in het plangebied niet verwacht. Er wordt voor deze drie soortgroepen geen conflict verwacht in het kader van de Wnb.

Flora

Beschermde plantensoorten worden in het plangebied niet verwacht wegens het ontbreken van geschikt habitat. Er wordt voor deze soortgroep verder geen conflict verwacht in het kader van de Wnb.

Ongewervelden

Beschermde ongewervelden zijn niet waargenomen en worden gezien door het ontbreken van geschikt habitat binnen het plangebied niet verwacht. Er wordt voor deze soortgroep verder geen conflict verwacht in het kader van de Wnb.

4.10.3 Conclusie

Op basis van de uitgevoerde AERIUS berekening wordt geconcludeerd dat er geen stikstofdepositie is op het Natura 2000-gebied in de omgeving. Het ontwikkelen van natuur binnen het plangebied is van toegevoegde waarde op het Natuurnetwerk.

Voor de volgende soorten wordt geen conflict verwacht in het kader van de Wet natuurbescherming:

  • grondgebonden zoogdieren;
  • vogels;
  • reptielen, amfibieën en vissen;
  • beschermde plantensoorten;
  • ongewervelden.

De pastorie maakt geen onderdeel uit van het plangebied. Eerder werd vanwege de aanwezigheid van vleermuizen in de pastorie een activiteitenplan opgesteld en ontheffing verleend. De werkzaamheden aan de pastorie zijn afgerond. Ten behoeve van de nieuwbouw wordt aanbevolen om zoveel mogelijk van het oude groen te integreren in de nieuwbouwplannen en kritisch te kijken naar de uitvoering van de (straat)verlichting van het terrein. Daar is bij de beoogde inrichting rekening mee gehouden.

4.11 Duurzaamheid

4.11.1 Beleid en normstelling

De gemeente Boxtel kent uitgebreid beleid met betrekking tot duurzaamheid. In de paragrafen 3.4.4, 3.4.5 en 3.4.6 is ingegaan op dit beleid. Duurzame ontwikkeling betekent voor de gemeente Boxtel zorgen voor hier en nu en voor daar en later. Duurzame ontwikkeling richt zich dus op het eigen gebied, de eigen mensen, maar ook op de relaties met de wereld om ons heen en in de toekomst. De gemeente Boxtel heeft de ambitie om op het gebied van duurzaamheid voorop te lopen.

4.11.2 Onderzoek

De woningen en het openbaar gebied krijgen een hoog duurzaamheidsniveau in lijn met bovengenoemde ambitie. De woningen worden gerealiseerd als nul op de meter woningen. Conform wetgeving zullen de nieuwe woningen gasloos worden uitgevoerd. Alle overige maatregelen op het gebied van duurzaamheid worden verder uitgewerkt ter voorbereiding op een aanvraag omgevingsvergunning. Tussen gemeente en initiatiefnemer zijn als onderdeel van deze uitwerking de onderstaande afspraken gemaakt. Dit wordt vastgelegd in de anterieure overeenkomst.

Bij het ontwerpen van de woonzorgappartementen wordt op het thema energie en het thema toegankelijkheid hoog gescoord. Dit houdt in dat alle appartementen als energie neutrale woningen worden gebouwd. Dit geldt voor zover in huidige ontwerp bij dit type woningen/wooneenheden en deze oriëntatie ook mogelijk is. Indien dit niet mogelijk is, zal de initiatiefnemer aantonen dat alle technische mogelijkheden zijn aangewend om de "energie neutrale-woning" in de woonzorgappartementen te realiseren. Vervolgens zal de initiatiefnemer de maximale inspanningsverplichting hanteren om zo dicht mogelijk bij het uitgangspunt te komen van het realiseren van alle woonzorgappartementen op energie neutraal niveau. Vooralsnog is afgesproken dat de bebouwing voldoet aan de Bijna Energieneutrale Gebouwen (BENG) en de aanvullende eis TOjuli.

In het appartementencomplex wordt voorzien in een inpandige verzamelruimte voor afval. Initiatiefnemer maakt zelf afspraken met een afvalinzamelingsbedrijf.

4.12 Archeologie

4.12.1 Beleid en normstelling

Erfgoedwet

Sinds 1 juli 2016 is de Wet op de archeologische monumentenzorg vervangen door de Erfgoedwet. De uitgangspunten uit het 'Verdrag van Malta' blijven in de Erfgoedwet de basis van de Nederlandse omgang met archeologie. De Erfgoedwet regelt de bescherming van archeologisch erfgoed in de bodem, de inpassing ervan in de ruimtelijke ontwikkeling en de financiering van opgravingen. Voor gebieden waar archeologische waarden voorkomen of waar reële verwachtingen bestaan dat ter plaatse archeologische waarden aanwezig zijn, dient door de initiatiefnemer voorafgaand aan bodemingrepen archeologisch onderzoek te worden uitgevoerd. De uitkomsten van het archeologisch onderzoek dienen vervolgens volwaardig in de belangenafweging te worden betrokken. Het belangrijkste doel is de bescherming van het archeologische in de bodem (in situ) omdat de bodem doorgaans de beste garantie biedt voor een goede conservering. Er wordt uitgegaan van het basisprincipe de 'verstoorder' betaalt voor het opgraven en het documenteren van de aangetroffen waarden als behoud in de bodem niet tot de mogelijkheden behoort.

Besluit ruimtelijke ordening

Op basis van het Besluit ruimtelijke ordening (hierna: Bro) dient in de toelichting van elk bestemmingsplan een beschrijving te worden gegeven van de aanwezige cultuurhistorische en archeologische waarden van het plangebied.

Gemeentelijk beleid

In de 'Nota gemeentelijk archeologiebeleid Boxtel' heeft de gemeente vastgelegd hoe zij omgaat met het archeologisch erfgoed. Er staat in waar en wanneer archeologisch onderzoek nodig is en geeft tekst en uitleg bij de archeologische classificatiekaart. De classificatie gaat in op de mogelijkheid tot het aantreffen van archeologische vondsten.

4.12.2 Onderzoek

Archeologie

Op basis van de gemeentelijke beleidskaart heeft het plangebied een zeer hoge archeologische verwachtingswaarde. Archeologisch onderzoek is vereist bij bodemingrepen en te bebouwen oppervlakten die groter zijn dan 50 m2 en dieper gaan dan 0,4 meter onder maaiveld.

afbeelding "i_NL.IMRO.0757.BP06BARONIESTR-OTW1_0029.png"

Figuur 4.6 Uitsnede archeologische beleidskaart

Op basis van de zeer hoge archeologische verwachtingswaarde is een archeologisch onderzoek uitgevoerd. Dit onderzoek is als bijlage 20 opgenomen bij deze toelichting. Uit het onderzoek blijkt dat dat in het plangebied dekzanden of nat-eolische zanden voorkomen, waarin oorspronkelijk een beekeerdgrond is gevormd. In de Late Middeleeuwen of Nieuwe tijd is een dikke antropogene eerdlaag opgebracht. Er zijn geen restanten van een podzolbodem aangetroffen, wat betekent dat het gebied altijd nat is geweest en daarmee onaantrekkelijk voor bewoning of landbouw. De hoge verwachting voor bewoningssporen en sporen van landgebruik uit de periode Laat-Paleolithicum – Middeleeuwen kan dan ook worden bijgesteld van hoog naar laag. De verwachting voor bewoningssporen uit de Late Middeleeuwen en Nieuwe tijd was laag en blijft laag.

De archeoloog heeft door middel van een selectieadvies geoordeeld dat nu voldoende is onderbouwd dat de gespecificeerde archeologische verwachting voor het plangebied naar laag kan worden bijgesteld voor alle perioden. Het selectieadvies is opgenomen als bijlage 21 bij deze toelichting. Verder vervolgonderzoek binnen de AMZ-cyclus is daarom niet noodzakelijk.

4.12.3 Conclusie

Door middel van onderzoek is aangetoond dat ter plaatse van het plangebied geen sprake is van een zeer hoge archeologische verwachtingswaarde. De verwachtingswaarde kan dan ook worden bijgesteld naar laag. De geldende dubbelbestemming 'Waarde - Archeologie' kan dan ook verwijderd worden.

4.13 Cultuurhistorie

4.13.1 Beleid en normstelling

Per 1 januari 2012 is de wet Modernisering Monumentenzorg (hierna: MoMo) in werking getreden. Als gevolg van de MoMo wijzigt de Bro (artikel 3.1.6, lid 2). Wat eerst voor alleen archeologie gold, geldt nu ook voor al het cultureel erfgoed. In de toelichting van het bestemmingsplan dient een beschrijving te worden opgenomen hoe met de in het gebied aanwezige cultuurhistorische waarden en in de grond aanwezige of te verwachten monumenten rekening is gehouden.

4.13.2 Onderzoek

Op basis van de Iov Noord-Brabant en de Cultuurhistorische Waardenkaart (hierna: CHW) zijn diverse cultuurhistorisch waardevolle elementen ter hoogte van het plangebied aanwezig.

afbeelding "i_NL.IMRO.0757.BP06BARONIESTR-OTW1_0030.png"

Figuur 4.7 Uitsnede Cultuurhistorische Waardenkaart provincie Noord-Brabant.

Het plangebied ligt binnen een gebied dat is aangeduid als "Historische stedenbouw". Het noordelijke deel van het als historische stedenbouw begrensde gebied aan de Baroniestraat heeft gemengde bebouwing. De bebouwing bestaat uit woonhuizen en villa's uit de periode 1880-1910, het voormalig St. Ursulaklooster (1911), enkele jongere villa's en de parochiekerk van het Heilig Hart uit 1901. Het gebied wordt ontwikkeld met respect en met behoud van deze karakteristieke bebouwing.

De rijke historie van het plangebied is reeds beschreven in paragraaf 2.1.1. Onderhavig planvoornemen voorziet in het bebouwen van de tuin van de voormalige pastorie. Eerder werd met een afzonderlijke procedure voorzien in de duurzame instandhouding van de pastorie als rijksmonument. De pastorie maakt geen onderdeel uit van dit plangebied.

Dit planvoornemen is eerder besproken met de monumentencommissie en de welstandscommissie en ook goedgekeurd. Het planvoornemen doet geen afbreuk aan de cultuurhistorische waarden van het gebied en de monumentale status van de voormalige pastorie.

4.13.3 Conclusie

Het aspect cultuurhistorie vormt geen belemmering voor het planvoornemen.

Hoofdstuk 5 Uitvoerbaarheid

5.1 Financieel

Wanneer met een juridisch-planologisch plan een bouwplan, zoals gedefinieerd in artikel 6.2.1 lid 4 Besluit ruimtelijke ordening, mogelijk wordt gemaakt, dient conform artikel 6.12 lid 1 Wet ruimtelijke ordening een exploitatieplan te worden opgesteld. Deze eis geldt niet indien het kostenverhaal anderszins is verzekerd. In zo'n geval hoeft de gemeenteraad bij vaststelling van het bestemmingsplan geen exploitatieplan vast te stellen.

Met dit bestemmingsplan wordt een bouwplan in de zin van artikel 6.2.1 Bro mogelijk gemaakt. Echter, met de ontwikkelende eigenaar van de gronden is, zoals bepaald in artikel 6.24 Wro, een anterieure overeenkomst gesloten, voordat het bestemmingsplan wordt vastgesteld. Alle aanpassing in het openbaar gebied komen voor rekening van de ontwikkelaar. Ook schade veroorzaakt door de bouwwerkzaamheden komen voor rekening van de ontwikkelaar.

Een zakelijke beschrijving van de anterieure overeenkomst (en addendum) wordt door de gemeente ter inzage gelegd.

5.2 Maatschappelijk

Omgevingsdialoog

Op verschillende momenten in het proces is overleg gevoerd met omwonenden en andere belanghebbenden waaronder onder ander met omwonenden, bewonersvereniging Zandvliet, de Natuurwerkgroep Boxtel, directie van tegenover gelegen Ursulaschool, directie van woningbouwstichting Joost, provincie Noord-Brabant, bestuur stichting WoonGewoon, waterschap De Dommel en Werkgroep Uitvoering Bestemmingsplan Buitengebied Boxtel (WUBBB).


De eerste dialoog heeft plaatsgevonden in het voorjaar van 2017. Tijdens een rondgang door de buurt is gesproken met het parochiebestuur, de tuinploeg van de begraafplaats, de lokale woningbouwvereniging, de directeur van de tegenoverliggende Ursulaschool en omwonenden. Tijdens de rondgang is gesproken over de aankoop van de parochie en beoogde bestemming van de tuin.


In maart 2019 heeft een algehele informatieavond plaatsgevonden, waar de omwonenden voor waren uitgenodigd. Op grond van reacties is het ontwerp op onderdelen aangepast en besproken op bewonersbijeenkomsten in mei en september 2019. Ook dit heeft geleid tot aanpassingen in het ontwerp, mede onder advisering van specialisten op het gebied van landschapsarchitectuur en dementievriendelijke ontwerpen.


Voorafgaand aan de inloopavond in november 2002, heeft er in oktober 2022 een bijeenkomst plaatsgevonden waarvoor de directe achterburen wonende aan de Deken Broekmanlaan (nummers 16 t/m 32) zijn uitgenodigd. Tijdens deze avond was Vrijborg aanwezig. De Ecologische Verbindingszone is deze avond nader toegelicht evenals de procedure die voor deze ontwikkeling zal moeten worden doorlopen.


In november 2022 is er een inloopavond geweest voor de gehele buurt waarbij de ontwikkelaar, gemeente, architect en exploitant de omwonende hebben geïnformeerd over het aangepaste plan. Deze avond is de Ecologische Verbindingszone nader toegelicht. De exploitant was aanwezig om uitleg te geven over de zorgvisie, de te leveren zorg en criteria voor bewoning. De procedure die voor deze ontwikkeling zal moeten worden doorlopen is gepresenteerd.


Er is een communicatieplan opgesteld met als doel omwonenden, inwoners en andere belanghebbenden op de hoogte te houden van de ontwikkeling. Tijdens de bestemmingsplanprocedure en de bouwrealisatie zullen er communicatiemomenten zijn waarin de initiatiefnemer en/of de aannemer de doelgroepen zal informeren en betrekken bij het project.


De verslagen van de omgevingsdialoog zijn als bijlage 23 toegevoegd.

Ook tijdens de bestemmingsplanprocedure en bouwrealisatie zullen de initiatiefnemer en de aannemer verdere informatiemomenten inplannen om de omgeving te betrekken bij het project.


Wettelijk vooroverleg

In het kader van het wettelijk vooroverleg, conform artikel 3.1.1. Bro, is het concept ontwerpbestemmingsplan toegezonden aan de diverse overlegpartners zoals de provincie Noord-Brabant, het Waterschap de Dommel en de Rijksdienst voor het Cultureel Erfgoed. Deze instanties hebben een reactie ingediend (bijlage 22).

De Rijksdienst voor het Culturele Erfgoed adviseert positief over de duurzame transformatie van de pastorie. De werkzaamheden aan de pastorie zijn op grond van de eerder verleende omgevingsvergunning al uitgevoerd en de pastorie maakt geen onderdeel uit van het plangebied van dit bestemmingsplan. Daarnaast wordt geadviseerd de toekomstige ontwikkelingen in de pastorietuin te relateren aan de ruimtelijke en architectonische functies en gebouwen in de omgeving. In het ontwerp is hier rekening mee gehouden.

De reacties van de provincie en het waterschap hebben betrekking op een eerder ontwerp. Op grond van deze reacties hebben vele gesprekken tussen provincie, waterschap, gemeente en initiatiefnemer plaatsgevonden. Daarbij is overeenstemming bereikt over het ontwikkelen van natuur binnen het plangebied, de randvoorwaarden en de uiteindelijke inrichtingsschets.

Daarnaast is de paragraaf Verbreed Gemeentelijk Rioleringsplan 2020-2024 geactualiseerd en is de waterbergingsopgave verduidelijkt met dwarsprofielen, een berekening van de oppervlakte en is de bergingscapaciteit in beeld gebracht. Ook de planregels zijn aangepast. Ook de opmerkingen van het waterschap op het concept ontwerpbestemmingsplan zijn overgenomen.

Rijkswaterstaat, Gasunie en Brabant Water hebben aangegeven geen belang te hebben bij dit initiatief en hebben geen opmerkingen gemaakt.

 
Terinzagelegging ontwerpbestemmingsplan

Het ontwerpbestemmingsplan zal, tegelijk met de ontwerpbeschikking tot het verlenen van hogere waarden in het kader van de Wet geluidhinder, voor een periode van 6 weken ter visie worden gelegd. In deze periode is het voor een ieder mogelijk een zienswijze tegen de plannen in te brengen.


Na afloop van de tervisielegging worden de zienswijzen beoordeeld en wordt het bestemmingsplan en een zienswijzenverslag aangeboden aan de gemeenteraad.

<PM>

Hoofdstuk 6 Juridische plantoelichting

6.1 Plansystematiek

Bij het opstellen van het bestemmingsplan is aansluiting gezocht bij de in de Wet ruimtelijke ordening en het Besluit ruimtelijke ordening geformuleerde uitgangspunten. Daarnaast is voor het bestemmingsplan aangesloten bij de landelijke standaard voor bestemmingsplannen: de Standaard Vergelijkbare Bestemmingsplannen 2012 (hierna: SVBP2012).

Overeenkomstig SVBP2012 kent de indeling in hoofdstukken, waarin de regels zijn opgenomen, de volgende vaste volgorde:

  • In hoofdstuk 1 (inleidende regels) worden in de regels gehanteerde begrippen, voor zover nodig, gedefinieerd en wordt de wijze van meten bepaald.
  • In hoofdstuk 2 (bestemmingsregels) worden alfabetisch de regels gegeven waarmee de bestemmingen die op de verbeelding voorkomen nader worden omschreven.
  • Hoofdstuk 3 (algemene regels) bevat een aantal regels die voor alle bestemmingen gelden, zoals een anti-dubbeltelregel;
  • Hoofdstuk 4 (overgangs- en slotregels) ten slotte geeft overgangsrecht voor bestaand gebruik en bestaande bebouwing en de titel van het plan.

6.2 Bestemmingen

Hierna volgt een beschrijving van de bestemmingen die in dit bestemmingsplan voorkomen.

6.2.1 Inleidende regels

Artikel 1 Begrippen

In dit artikel zijn bepalingen (begrippen) opgenomen welke in het algemeen spraakgebruik onvoldoende vastliggen en waarbij verschillen in interpretatie bij toepassing van de planregels mogelijk zijn.

Artikel 2 Wijze van meten

Hierin wordt aangegeven op welke manier hoogte, lengte, breedte, inhoud en oppervlakte van bouwwerken/percelen gemeten moeten worden.

6.2.2 Bestemmingsregels

De regels van een bestemming worden als volgt opgebouwd en benoemd (niet altijd overal van toepassing):

  • Bestemmingsomschrijving
  • Bouwregels
  • Nadere eisen
  • Afwijken van de bouwregels
  • Specifieke gebruiksregels
  • Afwijken van de gebruiksregels
  • Omgevingsvergunning

Artikel 3 Groen

Een strook grond parallel aan de Baroniestraat is in dit bestemmingsplan bestemd als 'Groen'. Hier is geen woonfunctie beoogd en die functie is ter plaatse ook niet gewenst of mogelijk op basis van de Wet geluidhinder (zie ook paragraaf 4.8). Aangezien de gronden wel onderdeel uitmaken van het inrichtingsplan, is de bestemming 'Groen' opgenomen.

Hier zijn uitsluitend plantsoenen, parken, groenstroken en andere groenvoorzieningen en bovendien de inrichting met groenvoorzieningen en waterhuishoudkundige voorzieningen conform het inrichtingsplan toegestaan. Gebouwen zijn hier niet toegestaan.

Artikel 4 Maatschappelijk

De ontwikkeling wordt mogelijk gemaakt op grond van de bestemming 'Maatschappelijk'. De nieuwbouw wordt mogelijk gemaakt door het opgenomen bouwvlak en de daaraan gekoppelde maximale bouwhoogte van 10 meter. Door middel van een maatvoeringsaanduiding is vastgelegd dat hier maximaal 48 wooneenheden zijn toegestaan. Het gaat hier specifiek om zorgwoningen. Daaronder een woning wordt verstaan die gekoppeld is aan een zorgfunctie ten behoeve van de bewoner(s) met een geïndiceerde zorgbehoefte.

Binnen de bestemming is wel de voorwaardelijke verplichting opgenomen dat de inrichtingsschets (of een uitgewerkte versie daarvan) binnen de bestemming 'Natuur' binnen 3 jaar na een onherroepelijke omgevingsvergunning voor de bouw van het woonzorgcomplex en ook als zodanig in stand wordt gehouden.

Verder zijn er ook voorwaardelijke verplichtingen opgenomen voor de zekerstelling dat bij de nieuwbouw wordt voldaan aan de akoestisch binnenwaarde conform het bouwbesluit en de realisatie van voldoende waterberging.

Artikel 5 Natuur

Om de oever van Smalwater planologisch te kunnen beschermen en het inrichtingsplan, zoals opgenomen in bijlage 1 van de regels, te kunnen realiseren, is het betreffende gebied als 'Natuur' bestemd. Hiermee wordt een duidelijk onderscheid gemaakt tussen de bestemming 'Groen' in de omgeving en in het zuiden van het plangebied, en de betreffende gronden die als 'Natuur' worden bestemd. Met deze bestemming worden de compenserende maatregelen in het kader van de ecologische verbindingszone en de waterberging specifiek mogelijk gemaakt. Tevens is hier de aanduiding 'ecologische verbindingszone' opgenomen om duidelijk te maken dat deze gronden met name zijn bedoeld voor de realisatie en instandhouding van de ecologische zone zoals verwerkt in dit bestemmingsplan.

De gronden hier zijn met name bestemd voor het behoud, het herstel en/of de ontwikkeling van de natuurlijke en landschappelijke waarden. Groenvoorzieningen, water en waterhuishoudkundige functies zijn hier de voornaamste functies. Ter plaatse van de aanduiding ´ecologische verbindingszone´ zijn de gronden tevens bestemd voor het behoud, herstel of de duurzame ontwikkeling van de ecologische waarden.

Het bouwen van gebouwen is niet toegestaan.

Artikel 6 Tuin

Het gebied voor de voorgevelrooilijn alsmede het gebied tussen de nieuwe bebouwing en de Baroniestraat, heeft de bestemming 'Tuin' gekregen. Deze gronden mogen alleen gebruikt worden als tuin en hier mogen geen bouwwerken worden gerealiseerd. Het realiseren van vergunningsvrije bouwwerken is hier ook uitgesloten doordat deze gronden niet zijn aangemerkt als erf zoals bedoeld in artikel 1 van bijlage II van het Besluit omgevingsrecht.

6.2.3 Algemene regels

Artikel 7 Anti-dubbeltelregel

In de anti-dubbeltelregel wordt bepaald dat grond, die eenmaal in aanmerking is genomen bij het verlenen van een omgevingsvergunning, waarin uitvoering is gegeven of alsnog kan worden gegeven, deze bij de beoordeling van latere plannen buiten beschouwing blijft. Het nog overgebleven terrein mag dus niet nog eens meegenomen worden bij het toestaan van een ander bouwwerk.

In de algemene bouwregels is een bepaling opgenomen over bestaande maten.

In de algemene gebruiksregels is een nadere bepaling opgenomen met betrekking het gebruik van de gronden.

In dit artikel wordt omschreven in welke gevallen bij een omgevingsvergunning kan worden afgeweken van de bouwregels. Het gaat hier om de overschrijding van de bouwgrenzen, voor zover deze afwijkingen niet onder de regel 'algemene bouwregels' valt te scharen. Dit betreft bijvoorbeeld de bevoegdheid om af te wijken van de voorgeschreven maten en percentages. Afwijking is overigens alleen mogelijk wanneer hiermee geen onevenredige afbreuk wordt gedaan aan aspecten als de woon- en milieusituatie van aangrenzende percelen.

In dit artikel wordt aangegeven in hoeverre en in welke gevallen van een wijzigingsbevoegdheid gebruik kan worden gemaakt in geval van gewenste dan wel noodzakelijke geringe afwijkingen van de bestemmingsgrenzen.

Artikel 12 Overige regels

In deze bepaling is geregeld dat alle wettelijke regelingen, waarnaar in de regels wordt verwezen, gelden zoals deze luidden op het moment van vaststelling van het plan. Daarnaast is bepaald dat bij de oprichting van een nieuw bouwwerk, de vergroting van een bestaand bouwwerk en/of de verandering in functie van een bestaand bouwwerk voorzien dient te worden in de realisatie van voldoende parkeergelegenheid.

6.2.4 Overgangs- en slotregels

Artikel 13 Overgangsrecht

In dit artikel is het overgangsrecht ten aanzien van het gebruik en het bouwen in strijd met het plan geregeld. In artikel 23.1 is de in artikel 3.2.1 Bro voorgeschreven bepaling omtrent het overgangsrecht voor bouwwerken opgenomen. In artikel 23.2 is de in artikel 3.2.2 Bro voorgeschreven bepaling omtrent het overgangsrecht voor gebruik opgenomen.

Artikel 14 Slotregel

De regels kunnen worden aangehaald onder de naam: Regels van het bestemmingsplan 'Baroniestraat 24 Boxtel'.