direct naar inhoud van Toelichting
Plan: Achter den Eijngel
Status: ontwerp
Plantype: bestemmingsplan
IMRO-idn: NL.IMRO.0757.BP08AchterEijngel-otw1

Toelichting

Hoofdstuk 1 Inleiding

1.1 Aanleiding

Janssen de Jong Projectontwikkeling en Hazenberg Bouw zijn voornemens om in het gebied tussen de bestaande bebouwing aan de zuidzijde van de kern Lennisheuvel en de Heerenbeekloop woningbouw te ontwikkelen. Het betreft de ontwikkeling van ongeveer 85 grondgebonden woningen in de vorm van vrijstaande, twee-aaneen gebouwde, geschakelde en aaneengebouwde woningen. Tevens zijn eventueel boven-/benedenwoningen voorzien.

afbeelding "i_NL.IMRO.0757.BP08AchterEijngel-otw1_0001.png"

afbeelding "i_NL.IMRO.0757.BP08AchterEijngel-otw1_0002.png"

Impressie plangebied

Het realiseren van woningbouw op deze locatie is op grond van het ter plaatse geldende bestemmingsplannen 'Buitengebied 2011' en 'Lennisheuvel' niet toegestaan. Om dit planvoornemen mogelijk te maken is een bestemmingsplanherziening noodzakelijk, aangezien de vigerende bestemmingen woningbouw niet mogelijk maakt. Dit bestemmingsplan voorziet in de benodigde ruimtelijke onderbouwing c.q. verantwoording ten behoeve van de herziening, in de vorm van een toelichting.

1.2 Ligging en begrenzing van het plangebied

afbeelding "i_NL.IMRO.0757.BP08AchterEijngel-otw1_0003.png"

Luchtfoto van de kern Lennisheuvel met ligging van het plangebied aan zuidzijde van de kern

Het plangebied ligt ten zuiden van de kern Lennisheuvel tussen de bestaande bebouwing aan de zuidzijde van de kern en de Heerenbeekloop Het plangebied wordt globaal begrenst door de Lennisheuvel (noordzijde), aangrenzend buitengebied (oostzijde), de Heerenbeekloop (zuidzijde) en de Mijlstraat (westzijde). De bestaande woning aan het Rigtpad met de omliggende tuin behoord eveneens tot het plangebied.

afbeelding "i_NL.IMRO.0757.BP08AchterEijngel-otw1_0004.png"

Ligging en globale begrenzing van het plangebied

Het plangebied is kadastraal bekend als gemeente Boxtel, sectie N, perceelnummer 656 (ged.), 109, 140, 1000, 1007, 1009, 1019 (ged.), 1020, 1028, 1062 (ged.), 1126, 1165, 1166, 1167 (ged.) en 1169.

1.3 Vigerend bestemmingsplan

Ter plaatse van het plangebied vigeren de bestemmingsplannen 'Buitengebied 2011' en 'Lennisheuvel'. Deze bestemmingsplannen zijn vastgesteld op respectievelijk 10 april 2012 en 26 februari 2013. Voor een gedeelte overlappen deze bestemmingsplannen elkaar. Waar dit het geval is, is het bestemmingsplan 'Lennisheuvel' van toepassing. Daarnaast sluiten de bestemmingsplannen ter hoogte van de Ploeg niet volledig op elkaar aan. Hier is voor een klein gedeelte sprake van een zogenaamde 'witte vlek' waar het oude bestemmingsplan 'Landelijk gebied 1965' nog van toepassing is.

afbeelding "i_NL.IMRO.0757.BP08AchterEijngel-otw1_0005.png"

Uitsnede vigerende bestemmingsplannen (rode contour overlap bestemmingsplannen, paarse contour 'witte vlek')

afbeelding "i_NL.IMRO.0757.BP08AchterEijngel-otw1_0006.png"

Uitsnede geldend bestemmingsplan 'Lennisheuvel' ter plaatse van overlap

Ter plaatse van het plangebied zijn de bestemmingen 'Agrarisch (tevens in de 'witte vlek')', 'Natuur', 'Tuin', 'Wonen' en de dubbelbestemming 'Waarde - Archeologie' (categorie 3 en 4: buitengebied of categorie 4 en 5: Lennisheuvel) van kracht. Daar waar beide bestemmingsplannen elkaar overlappen (rode contour) zijn op basis van het bestemmingsplan 'Lennisheuvel' de bestemmingen 'Tuin' en 'Wonen' van kracht. Tevens zijn parallel aan de Heerenbeekloop de aanduidingen 'milieuzone - beekherstel' en milieuzone - ecologische verbindingen' van toepassing.

Op basis van de bestemming 'Agrarisch' zijn de gronden bestemd voor:

  • agrarisch grondgebruik;
  • water en waterhuishoudkundige voorzieningen;
  • de verwezenlijking en het behoud, beheer en herstel van een ecologische verbindingszone ter plaatse van de aanduiding 'milieuzone - ecologische verbindingen';
  • de verwezenlijking en het behoud, beheer en herstel van watersystemen ter plaatse van de aanduiding 'milieuzone - beekherstel';
  • extensief recreatief medegebruik;
  • doeleinden van openbaar nut;
  • het behoud, het herstel en de versterking van de landschappelijke en natuurwaarden, archeologische, cultuurhistorische en aardkundige waarden en kenmerken van de gronden;

een en ander met bijbehorende voorzieningen, zoals perceelsontsluitingen, onverharde wegen, kavelpaden, groenvoorzieningen en sloten.

De gronden grenzend aan de Heerenbeekloop zijn bestemd als 'Natuur' en bestemd voor:

  • het behoud, het herstel en/of de ontwikkeling van de natuurlijke, natuurwetenschappelijke en landschappelijke waarden, archeologische, cultuurhistorische en aardkundige waarden en kenmerken van de gronden;
  • infrastructurele voorzieningen;
  • water en waterhuishoudkundige voorzieningen, waaronder het winterbed van de waterlopen;
  • de verwezenlijking en het behoud, beheer en herstel van een ecologische verbindingszone ter plaatse van de aanduiding 'milieuzone - ecologische verbindingen';
  • de verwezenlijking en het behoud, beheer en herstel van watersystemen ter plaatse van de aanduiding ' milieuzone - beekherstel ';
  • extensief recreatief medegebruik in de vorm van voet-, fiets- en/of ruiterpaden alsmede kanoën;
  • agrarisch natuurbeheer;

een en ander met daarbij behorende voorzieningen.

De voor 'Wonen' aangewezen gronden zijn bestemd voor:

  • wonen, al dan niet in combinatie met kamerbewoning en/of de uitoefening van een beroep aan huis, met dien verstande dat maximaal 40% van de vloeroppervlakte van de begane grond van het hoofdgebouw en bijbehorende bouwwerken mag worden gebruikt ten behoeve van het beroep aan huis, met een maximum van 80 m²;

met de daarbijbehorende:

  • tuinen en erven;
  • parkeervoorzieningen;
  • water en waterhuishoudkundige voorzieningen.

De tot 'Tuin' bestemde gronden zijn bestemd voor:

  • tuinen behorende bij de op de aangrenzende gelegen hoofdgebouwen,

met de daarbij behorende:

  • erven;
  • parkeervoorzieningen;
  • overige verhardingen;
  • water en waterhuishoudkundige voorzieningen.

De realisatie van woningen is op basis van deze bestemmingsplanomschrijvingen niet toegestaan. Een uitzondering hierop zijn de gronden ten noorden van de bestaande woning aan de Mijlstraat. Hier is ter plaatse van de aanduiding 'specifieke bouwaanduiding - nieuwbouw toegestaan' de realisatie van een woning mogelijk. Met dit bestemmingsplan wordt het planvoornemen in de vorm van woningbouw planologisch-juridisch mogelijk gemaakt.

1.4 Leeswijzer

Na dit inleidende hoofdstuk wordt eerst een beschrijving van de huidige situatie en het planvoornemen aan de hand van een proefverkaveling gegeven in Hoofdstuk 2. Vervolgens wordt in Hoofdstuk 3 ingegaan op de relevante beleidskaders van het Rijk, de provincie, de regio en de gemeente. In Hoofdstuk 4 wordt ingegaan op de milieu- en omgevingsaspecten en Hoofdstuk 5 betreft de waterparagraaf. In Hoofdstuk 6 wordt aangegeven hoe het planvoornemen is verwoord in de planregels (juridische planopzet). Tot slot wordt in Hoofdstuk 7 en Hoofdstuk 8 ingegaan op respectievelijk de uitvoerbaarheid van het planvoornemen en de te doorlopen procedure.

Hoofdstuk 2 Projectbeschrijving

2.1 Inleiding

In dit hoofdstuk wordt ingegaan op de omgeving van het plangebied, de bestaande situatie en het planvoornemen binnen het plangebied zelf.

2.2 Bestaande situatie

2.2.1 Omgeving plangebied

Het plangebied is gelegen ten zuiden van de kern Lennisheuvel. De bebouwingsrand bestaat hier enerzijds uit de lintbebouwing aan de Lennisheuvel en anderzijds uit de meer complexgewijze bebouwing aan het Rigtpad en de Ploeg. De lintbebouwing aan de Lennisheuvel bestaat overwegend uit vrijstaande woningen in 1 bouwlaag met kap, waarvan de nokrichting parallel aan de weg gelegen is. Door de relatief grote percelen liggen de woningen hier enigzins in het groen. De woning aan Lennisheuvel 87 is aangemerkt als een gemeentelijk monument en de woning aan Lennisheuvel 93 is aangewezen als Rijksmonument. Dit laatste huis draagt de naam Den Eijngel en is een van de eerste stenen huizen in Boxtel en omgeving. Uit respect voor, en ter accentuering van, de cultuurhistorische waarde van dit huis is de voorgenomen woningbouwontwikkeling naar dit huis vernoemd. Dit huis komt eveneens aan bod in paragraaf 4.8.1 Cultuurhistorie.

afbeelding "i_NL.IMRO.0757.BP08AchterEijngel-otw1_0007.png"

afbeelding "i_NL.IMRO.0757.BP08AchterEijngel-otw1_0008.png"

Bebouwing Lennisheuvel

afbeelding "i_NL.IMRO.0757.BP08AchterEijngel-otw1_0009.png"

Gemeentelijk monument Rijksmonument Den Eijngel

De bebouwing aan het Rigtpad en de Ploeg bestaat eveneens uit vrijstaande woningen. Een uitzondering hierop zijn de woningen aan het Rigtpad 4 en 6. Dit betreffen twee-aaneen gebouwde woningen. De woningen aan Rigtpad bestaan net als de woonbebouwing aan de Lennisheuvel uit 1 bouwlaag met kap, waarbij de nokrichting parallel aan de weg gelegen is. Het Rigtpad loopt hierbij 'dood' tot aan het plangebied. De woningen aan de Ploeg hebben een projectmatig karakter en bestaan uit woningen in twee bouwlagen met kap. De nokrichting van deze woningen staat loodrecht op de weg. De Ploeg eindigt in een cul-de-sac. Aan het einde van deze cul-de-sac is nog een open plek gelegen met een vigerende woningbouwmogelijkheid.

afbeelding "i_NL.IMRO.0757.BP08AchterEijngel-otw1_0010.png"

Woningen Rigtpad

afbeelding "i_NL.IMRO.0757.BP08AchterEijngel-otw1_0011.png"

Woningen Ploeg aan cul-de-sac

Aan de Mijlstraat aan de westzijde van het plangebied zijn eveneens vrijstaande woningen op ruime percelen gelegen. Ook hier bestaan de woningen over het algemeen uit 1 bouwlaag met kap waarvan de nokrichting parallel aan de weg gelegen is.

Aan de zuidzijde en oostzijde grenst het plangebied aan het buitengebied. De zuidzijde is duidelijk afgebakend door de Heerenbeekloop, welke hier door het landschap meanderd met aan weerszijde van de waterloop natuurontwikkeling. Aansluitend hieraan zijn de gronden agrarisch in gebruik. De gronden worden hier overwegend gebruikt voor het opkweken van bomen. De gronden ten oosten van het plangebied zijn agrarisch in gebruik als weiland.

afbeelding "i_NL.IMRO.0757.BP08AchterEijngel-otw1_0012.png"

Meandering Heerenbeekloop met natuurontwikkeling

2.2.2 Huidige situatie plangebied

Het westelijk deel van het plangebied is grotendeels agrarisch in gebruik als weiland en gedeeltelijk ingericht als bossage. Dit betreffen de gronden behorende bij de woning Lennisheuvel 85. Tevens is aan de Mijlstraat 109 een vrijstaande woning gelegen met aan de noordzijde daarvan een woningbouwmogelijkheid voor een nieuwe woning. Het oostelijk deel van het plangebied bestaat enerzijds uit bossages en anderzijds vindt hier op een perceel opslag van gronden door een grondverzetbedrijf plaats. Dit perceel is te bereiken via het Rigtpad.

afbeelding "i_NL.IMRO.0757.BP08AchterEijngel-otw1_0013.png"

Ontsluiting/perceel grondverzetbedrijf

2.3 Toekomstige situatie/planvoornemen

2.3.1 Stedenbouwkundige randvoorwaarden en uitgangspunten

Voor de uitwerking van het planvoornemen c.q. de inrichting van het plangebied is in het beeldkwaliteitsplan (Bijlage 1) een ruimtelijke analyse van het gebied gemaakt. Aan de hand van deze ruimtelijke analyse zijn de volgende randvoorwaarden en uitgangspunten geformuleerd om te komen tot de ontwikkeling van de woningbouwlocatie:

  • De zuidrand van Lennisheuvel heeft een groene uitstraling langs de Heerenbeekloop, het stedenbouwkundig ontwerp speelt hierop in;
  • Geen dichtbebouwde wand maar een rafelige en grillige dorpsrand, dit sluit aan bij de ontstaangeschiedenis van het gebied;
  • Historische heggenstructuur en oude paden door het gebied dienen als referentie voor de ontworpen hoofdstructuur van de verkaveling en de openbare ruimte;
  • De dichtheid van de bebouwing neemt af vanaf noord naar zuid;
  • Contact tussen bestaande dorpsrand en landschap is van groot belang;
  • In de zuidrand van het plangebied is ruimte voor waterberging;
  • Hoofdontsluiting via de noordzijde van het plangebied;
  • Het Rigtpad zal worden verbreed.

Daarnaast zijn met de gemeente de volgende afspraken gemaakt welke eveneens als uitgangspunten gelden voor de verdere uitwerking van dit plan:

  • Er mogen ongeveer 85 woningen worden gerealiseerd;
  • Het aanbod moet bestaan uit verschillende woningcategorieën: minimaal 25% goedkope koop- en/of huurwoningen en het overige aanbod moet bestaan uit middel-dure en dure koop- en/of huurwoningen;
  • Het plan moet gefaseerd worden uitgevoerd, waarbij de indicatieve fasering uitgaat van de oplevering van ongeveer 45 woningen, fase 1, oostelijk deel plangebied, in de periode tot 2020 en de oplevering van de overige woningen, fase 2, westelijk deel plangebied, vanaf 2020 tot 2026;
  • De openbare ruimte zal gebruiksklaar opgeleverd worden door de initiatiefnemer;
  • De ontwikkeling krijgt een hoog duurzaamheidsniveau waarbij 50% van de woningen zal worden gerealiseerd als '0 op de meter' woningen. De overige woningen zullen worden aangeboden met '0 op de meter' als optie

afbeelding "i_NL.IMRO.0757.BP08AchterEijngel-otw1_0014.png"

Stedenbouwkundige en landschappelijke context, historische context met hagen, conceptueel ontwerp

afbeelding "i_NL.IMRO.0757.BP08AchterEijngel-otw1_0015.png"

Stedenbouwkundig vlekkenplan met daarbij aangegeven de belangrijkste kenmerken

Voorgaande uitgangspunten hebben de basis gevormd voor de verdere uitwerking van het beeldkwaliteitsplan. Het volledige beeldkwaliteitsplan is bijgevoegd als Bijlage 1.

2.3.2 Planbeschrijving

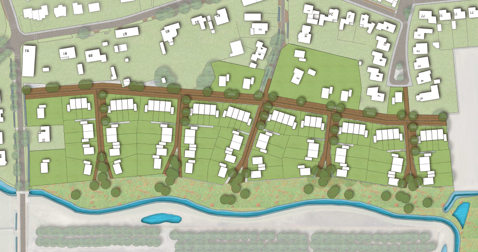
(Proef)verkaveling

Om te komen tot invulling van de woningbouwlocatie is aan de hand van de hiervoor benoemde randvoorwaarden en uitgangspunten de inrichting van het plangebied uitgewerkt in een proefverkaveling. Deze proefverkaveling dient als basis voor dit bestemmingsplan. Op basis van deze proefverkaveling ligt de ruimtelijke structuur vast. De 'woonvlekken' moeten qua invulling de nodige flexibiliteit bieden om in te kunnen spelen op de ontwikkelingen in de woningmarkt.

afbeelding "i_NL.IMRO.0757.BP08AchterEijngel-otw1_0016.png"

Proefverkaveling

De hoofdopzet van de ruimtelijke structuur bestaat uit een hoofdontsluitingsweg aan de noordzijde van het plangebied vanaf de Mijlstraat en grenzend aan de bestaande tuinen van de aangrenzende woonbebouwing. Vanuit deze hoofdontsluitingsweg zijn richting het buitengebied een aantal insteken in de vorm van cul-de-sacs voorzien. Hiervan liggen er twee vast, namelijk in het verlengde van het Rigtpad en in het verlengde van de Ploeg. De overige insteken zijn naar plaats nog nader te bepalen. Door deze gekozen ruimtelijke structuur ontstaat als het ware een kam met daar tussen 'woonvlekken' waar woningen georiënteerd op de ruimtelijke structuur gesitueerd kunnen worden.

Iedere insteek eindigt in een verbreding als venster richting de Heerenbeekloop en het aangrenzende buitengebied. Hierdoor blijft het zicht vanuit de plangebied en de hoofdontsluitingsweg richting het buitengebied gewaarborgd. Omgekeerd wordt door deze verbreding het buitengebied dan wel het natuurlijke karakter van de Heerenbeekloop het plangebied ingetrokken. Er ontstaat daarmee een aantrekkelijk woonmilieu.

Qua bebouwing is aan de hoofdontsluitingsweg met name de aaneengebouwde woning voorzien met aan de insteken de twee-aaneen gebouwde, geschakelde en vrijstaande woningen. De intensiteit van de bebouwing neemt daarmee af richting de Heerenbeekloop c.q. het buitengebied. Het houdt echter niet in dat aan de hoofdontsluitingsweg uitsluitend aaneengebouwde woningen worden gerealiseerd. Met deze ruimtelijke structuur is het ook mogelijk om een blok van aaneengebouwde woningen aan de hoofdontsluitingsweg te vervangen door bijvoorbeeld twee-aaneengebouwde woningen, al dan niet gedraaid. Door de beoogde flexibiliteit zijn in het plangebied minimaal 50 woningen en maximaal ongeveer 85 woningen voorzien.

Met de opzet van deze ruimtelijke structuur wordt per insteek een uniform beeld gecreëerd, waarbij er duidelijk voor gekozen wordt om het parkeren aan de hoofdontsluitingsweg te situeren. Langs de insteken is parkeren op eigen terrein voorzien om zo het doorzicht naar het buitengebied te optimaliseren. De verbredingen aan de zuidzijde van de insteken dienen vrij te blijven van parkeren om ook daarmee weer het doorzicht richting het aangrenzende buitengebied te waarborgen.

afbeelding "i_NL.IMRO.0757.BP08AchterEijngel-otw1_0017.png"

Opzet insteken

Gedurende de planontwikkeling zijn er gronden ten noorden van de toekomstige ontsluitingsweg bij het plan betrokken. Dit betreft de zuidelijkste kavel aan de Ploeg en de kavels Langs het Rigtpad. Voor deze kavels is gekozen voor een afwijkende verkaveling en regeling ten opzichte van het 'grote plangebied' ten zuiden van de ontsluitingsweg. Dit om beter aan te sluiten op de ruimtelijke opzet van de omliggende bebouwing. Er zullen op de 3 noordelijke percelen uiteindelijk tezamen maximaal 6 woningen worden gerealiseerd. 1 op de zuidelijkste kavel aan de Ploeg, 3 op de gronden ten oosten van het Rigtpad en 2 op de gronden ten westen van het Rigtpad.

Ontsluiting en inrichting openbaar gebied

Het plangebied wordt ontsloten door de hoofdontsluitingsweg vanaf de Mijlstraat op de overgang van het bestaande bebouwd gebied naar het plangebied. Vanuit de hoofdontsluitingsweg zijn in totaal 5 insteken, met aan het einde een verbreding, voorzien. Twee daarvan liggen vast op basis van de bestaande ontsluitingsstuctuur, namelijk in het verlengde van het Rigtpad en de Ploeg. Tussen deze twee insteken is een derde insteek, op de hoofdontsluitingsweg, gepland. Echter de situering van deze insteek ligt niet vast. Mogelijk dat hiermee nog geschoven wordt. Dit is afhankelijk van de uiteindelijke concrete inrichting van de aangrenzende 'woonvlekken'.

De andere twee insteken richting de Mijlstraat liggen nog niet vast qua plaats en richting. De uiteindelijke situering van deze twee insteken is afhankelijk van het definitieve woningbouwprogramma. Deze insteken zijn derhalve dan ook niet concreet bestemd maar mogelijk binnen de woonbestemming in de vorm van verkeersvoorzieningen. Op deze manier is er tot het laatste moment flexibiliteit mogelijk en kan de infrastructuur passend worden gemaakt bij de woningbouwprogrammering.

Het profiel van de hoofdontsluitingsweg bestaat uit een lage erfhaag op de perceelsgrens van de nieuwe woningen en biedt voldoende ruimte voor een trottoir, rijweg en parkeren (langs). Tevens wordt de mogelijkheid geboden tot toegang van de bestaande percelen c.q. tuinen van de woningen aan de Lennisheuvel. Bij de insteken wordt geen onderscheid gemaakt in trottoir, en rijbaan. Aan de entree van de insteek wordt het openbare parkeren geclusterd gesitueerd. De breedte van de insteek maakt verder geen parkeren binnen het straatprofiel mogelijk. Ook ter plaatse van de verbreding van de insteek is parkeren niet gewenst gezien de beoogde doorkijk richting de Heerenbeekloop en het aangrenzende buitengebied.

Parkeren

Voor woningbouw gelden op basis van de nota 'Parkeernormen gemeente Boxtel, binnen de bebouwde kom, de volgende parkeernormen:

afbeelding "i_NL.IMRO.0757.BP08AchterEijngel-otw1_0018.png"

Op basis van de proefverkaveling is de parkeerbehoefte berekend. Er dient daarbij uitgegaan te worden van:

  • 18 vrijstaande woningen (18 x 2 pp's + 18 x 0,3 pp's) 41,4 parkeerplaatsen
  • 22 twee-aaneengebouwde woningen (22 x 2 pp's + 22 x 0,3 pp's) 50,6 parkeerplaatsen
  • 38 aaneengebouwde woningen (38 x 1,8 + 38 x 0,3 pp's) 79,8 parkeerplaatsen

De maximale parkeerbehoefte komt hiermee op 171,8 parkeerplaatsen.

De benodigde parkeerplaatsen worden te allen tijde afgestemd op de geldende parkeernormen. Indien een wijziging in de verkaveling zorgt voor een wijziging in het aantal woningen en de parkeerbehoefte, dan zal het aantal parkeerplaatsen hierop worden aangepast.

2.3.3 Landschappelijke inpassing

Om het planvoornemen mogelijk te maken is een bestemmingsplanherziening noodzakelijk. Een voorwaarde vanuit het provinciale beleid is dat het nieuwe bestemmingplan gepaard gaat met investeringen in het landschap, waaronder een landschappelijke inpassing en kwaliteitsverbetering, zie tevens paragraaf 3.3.2.

De inpassing en vormgeving van het nieuwe woongebied richt zich op de uitstraling en de veran-kering van de ontwikkeling naar de omgeving toe en tevens op de interne ordening en inrichting. Aspecten zoals oriëntatie, ligging, ontsluiting en toe te passen groenelementen worden hierin meegenomen. Om de planontwikkeling mogelijk te maken zijn een aantal inrichtingsmaatregelen voorgesteld, die op basis van de gestelde kaders en kennis van het landschap en de betreffende locatie zijn vormgegeven. Met de duiding van de maatregelen is de codering van StiKa opgeno-men, wat correspondeert met de gemeentelijke opzet van landschapselementen.

Concreet is het volgende voorgesteld:

A. Omkadering woongebieden met erfhagen (L7);

B. Aanplant laanbomen (L8B);

C. Aanplant bomenrij (L8B);

D. Aanplant bomengroep(L8B);

E. Aanleg wadi's

F. Aanleg schanskorf (i.c.m. haag)

G. Aanplant fruitbomen (L10);

H. Behoud houtsingel (L1B)

I. Waterbergingsgebied

J. Maatregelen tbv Steenuil

K. Aanvullende maatregelen tbv Steenuil

afbeelding "i_NL.IMRO.0757.BP08AchterEijngel-otw1_0019.png"

Landschappelijke inpassingsplan

Voor het volledige landschappelijke inpassingsplan met daarin uitleg per letter op voorgaande afbeelding wordt verwezen naar het volledige landschappelijke inpassingsplan zoals opgenomen als Bijlage 1 bij de regels van dit bestemmingsplan.

Compensatie en kwaliteitsverbetering

Voor de inpassing van het groen binnen de plangrenzen ligt de verantwoordelijkheid bij de projectontwikkelaar. Dit zal gefaseerd plaatsvinden gelijktijdig met de realisatie van de woningen. Voor de bijdrage aan aanvullende kwaliteitsverbeteringen zal, in overleg met de gemeente, een storting worden gedaan in het landschapsfonds.

Hoofdstuk 3 Beleid

3.1 Inleiding

Gemeenten zijn niet geheel vrij in het voeren van hun eigen beleid. Rijk en provincies geven met het door hen gevoerde en vastgelegde beleid de kaders aan waar binnen gemeenten kunnen opereren. Hierna worden in het kort de voornaamste zaken uit het voor het plangebied relevante nationale en provinciale beleid weergegeven, aangevuld met het van toepassing zijnde beleid van de gemeente Boxtel.

3.2 Rijksbeleid

3.2.1 Structuurvisie Infrastructuur en Ruimte

Op 13 maart 2012 is de Structuurvisie Infrastructuur en Ruimte (SVIR) vastgesteld. Deze nieuwe structuurvisie vervangt onder andere de Nota Ruimte en de Nota Mobiliteit.

De Structuurvisie Infrastructuur en Ruimte (SVIR) speelt in op de volgende ontwikkelingen en uitdagingen:

  • de veranderende behoefte aan wonen en werken;
  • de mobiliteit van personen;
  • economische positie tussen de tien meest concurrerende landen vasthouden voornamelijk in de sectoren logistiek, water, hightech, creatieve industrie, chemie en voedsel en tuinbouw;
  • de bijzondere waarden (compacte steden omringd door open en natuurrijk landelijk gebied, cultuurhistorie en natuur) koesteren en versterken;
  • waterveiligheid en beschikbaarheid van voldoende zoetwater in verband met de klimaatverandering en stedelijke ontwikkeling;
  • aandeel duurzame energiebronnen als wind, zon, biomassa en bodemenergie moet worden vergroot;
  • deregulering.

Om goed op deze ontwikkelingen en eisen in te spelen is een beleid nodig dat toekomstbestendig is en de gebruiker ruimte geeft. Dit vraagt een grondige actualisatie van de bestaande beleidsnota's voor ruimte en mobiliteit. De structuurvisie voorziet hierin door overheden, burgers en bedrijven de ruimte te geven om oplossingen te creëren. Het rijk gaat zich meer richten op het versterken van de internationale positie van Nederland en het behartigen van belangen voor Nederland als geheel. Het rijk ziet verder toe op de deregulering waarmee jaarlijks vele miljoenen euro's kunnen worden bespaard.

De provincies en gemeenten zullen afspraken maken over verstedelijking, groene ruimte en landschap. Gemeenten krijgen ruimte voor kleinschalige natuurlijke groei en voor het bouwen van huizen die aansluiten bij de woonwensen van mensen. Het rijk verbindt ruimtelijke ontwikkeling en mobiliteit en zet de gebruikers centraal. Het zijn bewoners, ondernemers, reizigers en transporteurs die Nederland sterk maken. Provincies en gemeenten krijgen de ruimte zelf maatwerk te leveren. Zo werkt het rijk aan een concurrerend, bereikbaar, leefbaar en veilig Nederland.

Hiertoe zijn voor de middellange termijn (2028) drie doelen gesteld:

  • Het vergroten van de concurrentiekracht van Nederland door het versterken van de ruimtelijk-economische structuur van Nederland;
  • Het verbeteren en ruimtelijk zeker stellen van de bereikbaarheid waarbij de gebruiker voorop staat;
  • Het waarborgen van een leefbare en veilige omgeving waarin unieke natuurlijke en cultuurhistorische waarden behouden zijn.

Het rijk benoemt 13 nationale belangen; hiervoor is het rijk verantwoordelijk en wil het resultaten boeken. Deze belangen zijn gelijkwaardig aan elkaar en beïnvloeden elkaar onderling. In de SVIR is een eerste integrale afweging gemaakt van deze belangen. Dit heeft als gevolg dat het rijk in gebieden of projecten een gebieds- of projectspecifieke afweging zal maken. Indien nodig maakt het rijk duidelijk welke nationale belangen voorgaan.

Onderhavig bestemmingsplan betreft een ontwikkelingsplan om ter plaatse van het plangebied woningbouw in de vorm van maximaal 85 woningen mogelijk te maken. Als gevolg hiervan verandert de ruimtelijke situatie. De zuidelijke bebouwingsrand van de kern Lennisheuvel wordt met dit planvoornemen afgerond tussen de bestaande bebouwing en landschappelijke inrichting van de Heerenbeekloop. Met deze woningbouwontwikkeling zijn geen rijksbelangen in het geding aangezien met het planvoornemen de ruimtelijk-economische structuur ter plaatse wordt versterkt. Met de realisatie van de woningen wordt in een belangrijke behoefte voorzien voor de eigen bevolking en de leefbaarheid van de kern Lennisheuvel wordt versterkt.

3.2.2 Besluit algemene regels ruimtelijke ordening

De SVIR (zie paragraaf 3.2.1) bepaalt welke kaderstellende uitspraken zodanig zijn geformuleerd dat deze bedoeld zijn om beperkingen te stellen aan de ruimtelijke besluitvormingsmogelijkheden op lokaal niveau. Het Besluit algemene regels ruimtelijke ordening (Barro) bevestigt in juridische zin die kaderstellende uitspraken. Met het Barro geeft het rijk algemene regels voor bestemmingsplannen. Doel van dit Besluit is bepaalde onderwerpen uit de SVIR te verwezenlijken.

Door middel van het Barro worden voor een aantal specifieke onderwerpen algemene regels gesteld ten behoeve van de verwerking in bestemmingsplannen. In het SVIR is aangegeven wat het nationale belang is van het stellen van regels voor deze onderwerpen. Het Barro stelt in eerste instantie regels voor het project Mainportontwikkeling Rotterdam, het kustfundament, grote rivieren, de Waddenzee en het waddengebied, defensie en erfgoederen van uitzonderlijke universele waarde. Op een later moment zal het besluit worden aangevuld met andere onderwerpen uit de SVIR.

De algemene regels in het Barro hebben vooral een conserverend/beschermend karakter waardoor geformuleerde nationale belangen niet belemmerd worden door ontwikkelingen die middels bestemmingsplannen mogelijk worden gemaakt. Voor een aantal onderwerpen geeft het Barro de opdracht, dan wel de mogelijkheid aan provincies, om bij provinciale verordening regels te stellen.

Onderhavig planvoornemen voorziet in een ontwikkelingsplan om ter plaatse van het plangebied woningbouw in de vorm van maximaal 85 woningen mogelijk te maken. Als gevolg hiervan verandert de ruimtelijke situatie. De zuidelijke bebouwingsrand van de kern Lennisheuvel wordt met dit planvoornemen afgerond tussen de bestaande bebouwing en landschappelijke inrichting van de Heerenbeekloop. Echter het Barro voorziet niet in onderwerpen die op het plangebied en de bijbehorende regeling van toepassing zijn. Dit houdt in dat voor het planvoornemen geen beperkingen vanuit de Barro gelden.

3.2.3 Natuur

Wet Natuurbescherming

Sinds 1 januari 2017 is de Wet natuurbescherming van kracht. Deze vervangt drie wetten; de Natuurbeschermingswet 1998, de Boswet en de Flora- en Faunawet. De bescherming van Natura 2000-gebieden is geregeld in de Wet natuurbescherming, die de implementatie vormt van de Europese Vogelrichtlijn en Habitatrichtlijn. De Natura 2000-gebieden vormen samen een Europees netwerk van natuurgebieden: Natura 2000. Als ontwikkelingen (mogelijk) leiden tot aantasting van natuurwaarden binnen een Natura 2000-gebied, moet een vergunning worden aangevraagd. Gedeputeerde staten van de provincie zijn het bevoegd gezag voor verlening van deze vergunning. Indien eerst een omgevingsvergunning wordt aangevraagd voor een activiteit waarvoor tevens een vergunning op grond van de Wet natuurbescherming is vereist, dan haakt de natuurtoets aan bij de omgevingsvergunning.

Het plangebied is niet gelegen binnen de grenzen van een gebied dat aangewezen is als Natura 2000 - gebied of Beschermd Natuurmonument. Het meest nabijgelegen onderdeel van een conform de Wet Natuurbescherming beschermd gebied bevindt zich op ongeveer 700 meter ten oosten van het plangebied. Het betreft in dit geval het Natura 2000 - gebied 'Kampina & Oisterwijkse Vennen. Om aan te kunnen tonen dat het planvoornemen geen negatieve gevolgen heeft op dit gebied is een stikstofdepositieberekening gedaan welke verder wordt behandelt in paragraaf 4.5. Om verder aan te kunnen tonen dat de beoogde ontwikkeling geen negatieve invloed heeft op natuurgebieden danwel beschermde soorten wordt verwezen naar de onderzoeken welke aan bod komen in paragraaf 4.7.

afbeelding "i_NL.IMRO.0757.BP08AchterEijngel-otw1_0020.png"

Ligging plangebied ten opzichte van Natura 2000-gebied

afbeelding "i_NL.IMRO.0757.BP08AchterEijngel-otw1_0021.png"

Luchtfoto van Kampina

Natuurnetwerk Nederland

De Nederlandse Ecologische Hoofdstructuur (EHS, tegenwoordig Natuur netwerk Nederland) is een netwerk van gebieden dat planten- en diersoorten in staat stelt zich door en tussen verschillende natuurgebieden te verplaatsen. Het netwerk moet voorkomen dat planten en dieren in geïsoleerde gebieden uitsterven en dat gebieden hun ecologische waarde verliezen. De EHS is onderdeel van een Europees ecologisch netwerk en bestaat uit kerngebieden (in Nederland de Natura - 2000 gebieden, Beschermde Natuurmonumenten en de Wetlands) of verweven gebieden (gericht op de verweving van landbouw, wonen en natuur) die onderling verbonden worden door ecologische verbindingszones. Ecologische verbindingszones zijn stroken en stukjes natuur die de verspreid liggende natuurgebieden met elkaar verbinden. Op deze manier kunnen dieren en planten zich van het ene naar het andere leefgebied verplaatsen. Met name de kleine populaties die met uitsterven worden bedreigd, blijven hierdoor levensvatbaar. Negatieve invloed op de werking van een verbinding of aantasting van een verbinding dient vermeden en gecompenseerd te worden zodat het netwerk niet verslechterd.

Het plangebied maakt geen deel uit van het Natuurnetwerk Nederland, maar grenst volgens het Natuurbeheersplan van de provincie Noord-Brabant echter wel aan een Ecologische Verbindingszone (EVZ). Het betreft de Heerenbeekloop ten zuiden van het plangebied.

afbeelding "i_NL.IMRO.0757.BP08AchterEijngel-otw1_0022.png"

Ligging plangebied ten opzichte van de Ecologische Verbindingszone

Conclusie

Externe effecten als gevolg van de woningbouwontwikkeling binnen het plangebied zijn, vanwege de afstand (ongeveer 700 meter) tot het meest nabijgelegen onderdeel van een conform de Wet Natuurbescherming beschermd gebied in combinatie met de aard van het planvoornemen (realisatie nieuwbouw naast bestaande dorpsrand) niet te verwachten. Om dit zeker te kunnen stellen is een stikstofdepositieberekening gedaan welke zoals gezegd verder aan bod komt in paragraaf 4.5.

Echter is er wel sprake van directe ligging naast een gebied dat aangemerkt wordt als Ecologische Verbindingszone. De wetgeving voor de Ecologische Verbindingszone is bij provincie Noord-Brabant vergelijkbaar met de wetgeving voor de EHS. Dit houdt in dat de wezenlijke kenmerken en waarden van deze zone niet negatief beïnvloed mogen worden. Bij de realisatie van het planvoornemen zal hier mogelijk sprake van zijn. Een goede afscherming tussen de Ecologische Verbindingszone en de woningbouwontwikkeling, tezamen met het minimaliseren van verlichting richting de Ecologische Verbindingszone, kan mogelijk voldoende zijn om deze kenmerken en waarde te behouden. Om te zorgen voor een goede overgang tussen het plangebied en de Heerenbeekloop zal het planvoornemen landschappelijk worden ingepast. Hier is dieper op ingegaan in paragraaf 2.3.3.

Met de renaturering c.q. herstructurering van de Heerlenbeekloop is ter hoogte van het plangebied reeds invulling gegeven aan de Ecologische Verbindingszone. Om een geleidelijke overgang tussen de woningen naar de Ecologische Verbindingszone te waarborgen wordt aan noordzijde (aan de zijde van de woningbouwontwikkeling) de verbindingszone versterkt. De woningen worden niet direct tot aan Ecologische Verbindingszone gesitueerd. Er wordt in een 'zachte' overgang voorzien door de verbindingszone aan de zijde van de woningbouwontwikkeling te verbreden. Deze verbreding wordt met natuurlijk groen ingericht als overgang naar de verbindingszone maar tevens als uitloopgebied voor de woningbouwontwikkeling. Tevens neemt de bebouwingsintensiteit van de woningen van buiten naar binnen af, namelijk van gesloten/geschakelde bebouwing naar open bebouwing. Door het plangebied te ontsluiten via een hoofdontsluitings weg met haaks daarop insteken zijn de woning niet georiënteerd op de verbindingszone. Ter plaatse van de zogenaamde vensters richting de verbindingszone zijn in de openbare ruimte geen parkeervoorzieningen toegestaan. Tevens zal de verlichting hier in tot een minimum beperkt worden. De combinatie van deze opzet draagt er aan bij dat geen afbreuk wordt gedaan aan de Ecologische Verbindingszone maar dat deze hierdoor juist versterkt wordt.

3.2.4 Ladder van duurzame verstedelijking

Inleiding

Conform het bepaalde in artikel 3.1.6, lid 2 van het Besluit ruimtelijke ordening moet bij ruimtelijke ontwikkelingen sprake zijn van zorgvuldig ruimtegebruik en overprogrammering worden voorkomen. Door middel van de 'ladder van duurzame verstedelijking' (kortweg: duurzaamheidsladder) vindt een toetsing plaats.

Stedelijke ontwikkeling

Uit de redactie van artikel 6.1.2, lid 2 Bro blijkt dat de ladder slechts van toepassing is op ruimtelijke besluiten die een 'stedelijke ontwikkeling' mogelijk maken. Dit begrip is in artikel 1.1.1, lid 1, sub i gedefinieerd als: 'ruimtelijke ontwikkeling van een bedrijventerrein of zeehaventerrein, of van kantoren, detailhandel, woningbouwlocaties of andere stedelijke voorzieningen'. Uit de jurisprudentie die is verschenen sinds de inwerkingtreding van de ladder blijkt dat de Afdeling een zekere ondergrens stelt aan ontwikkelingen wanneer het gaat om de beoordeling of sprake is van een stedelijke ontwikkeling. Of er sprake is van een stedelijke ontwikkeling wordt bepaald door de aard en omvang van de ontwikkeling, in relatie tot de omgeving. Voor wonen geldt, dat voor woningbouwlocaties vanaf twaalf woningen sprake is van een stedelijke ontwikkeling die Ladderplichtig is. In dit geval is er dus sprake van een stedelijke ontwikkeling en één wonigbouwontwikkeling.

Wijziging ladder

In juli 2017 is het Bro gewijzigd, waarbij de afzonderlijke treden zijn losgelaten. De eerste en de tweede trede worden samengevoegd en de derde trede komt te vervallen, waardoor sprake zal zijn van een meer integraal afgewogen toets. Van een ladder kunnen we dan dus eigenlijk niet meer spreken. Daarnaast wordt de uitgebreide motivering beperkt tot nieuwe stedelijke ontwikkelingen buiten het bestaand stedelijk gebied. Verder wordt het in de praktijk als lastig ervaren begrip 'actuele regionale behoefte' vervangen door het eenvoudiger begrip 'behoefte' en wordt een nieuw onderdeel toegevoegd waarmee het mogelijk wordt een dubbele Laddertoets bij flexibele planvorming te voorkomen. Uiteindelijk zal de gewijzigde Ladder via het invoeringsbesluit van de Omgevingswet worden ingevoegd in het Besluit kwaliteit leefomgeving. De strekking van de Ladder blijft daarbij gelijk.

Toetsing conform gewijzigde ladder

Conform hiervoor reeds uiteengezet betreft dit planvoornemen een stedelijke ontwikkeling. Tevens is er sprake van nieuwe stedelijke ontwikkeling omdat er sprake is van een nieuw ruimtebeslag (ontwikkeling) in de ruimte en binnen het geldende planologische beleid is deze ontwikkeling niet mogelijk. Er is dus een bestemmingswijziging (van agrarisch naar wonen) noodzakelijk. Om te voldoen aan de eisen gesteld in de ladder dient allereerst de (regionale) behoefte te worden aangetoond. Daarnaast dient er, mits dit het geval is, te worden onderbouwd waarom een ontwikkeling buiten bestaand stedelijk gebied verantwoord is.

Beschrijving van de behoefte

In de 'Verordening ruimte' is het plangebied reeds aangemerkt als gebied voor stedelijke ontwikkeling (zie paragraaf 3.3.2). Als verdere uitwerking van de verordening stellen gemeentes en regio's samen woonvisies op, zo ook in de gemeente Boxtel. De behoefte moet worden bepaald binnen het ruimtelijk verzorgingsgebied van de woningbouwontwikkeling. De woningbouwbehoefte binnen de gemeente Boxtel is opgenomen en onderbouwd in de gemeentelijke woonvisie en de regionale agenda wonen (zie ook paragraaf 3.6). Hierin worden tevens aanvullende eisen gesteld inzake bijvoorbeeld de woningtypologie. De woningbouwopgave is daarnaast vastgesteld en afgestemd met de regio. De betreffende aantallen woningen, welke zijn opgenomen in de regionale agenda wonen, zijn gebaseerd op de provinciale bevolkings- en woningbehoefte prognose uit 2014. Dit planvoornemen is opgenomen in de harde plancapaciteit van de regionale agenda wonen (79 woningen). Zowel in provinciaal als gemeentelijk en regionaal beleid is er dus enerzijds aangetoond dat het plangebied geschikt is voor woningbouw en anderzijds dat er voldoende behoefte is naar de betreffende woningen.

Buiten bestaand stedelijk gebied

Als de woningbouwontwikkeling buiten bestaand stedelijk gebied is gepland, moet op grond van artikel 3.1.6 lid 2 Bro gemotiveerd worden waarom niet binnen bestaand stedelijk gebied in die behoefte kan worden voorzien. Daarbij spelen de beschikbaarheid en geschiktheid van locaties binnen bestaand stedelijk gebied een rol. Mogelijke argumenten voor bouwen buiten bestaand stedelijk gebied kunnen zijn:

  • kwalitatieve aspecten van de behoefte (denk bijvoorbeeld aan woonmilieus die niet binnen bestaand stedelijk gebied kunnen zoals waterrijk wonen, grote landgoederen);
  • andere functies die ter plaatse al aanwezig zijn of, op grond van ruimtelijk beleid zoals een structuurvisie worden beoogd. Bijvoorbeeld park, maatschappelijke functies maar ook andere woonplannen die later worden beoogd;
  • aanzienlijke investeringen die eerst nodig zijn voor de inbreidingsplekken, bijvoorbeeld vanwege milieuaspecten die kunnen spelen op inbreidingsplekken;

Deze ontwikkeling valt deels binnen bestaande stedelijk gebied en deels daarbuiten. In het provinciale beleid dat ter sprake komt in paragraaf 3.3 wordt onderbouwd waarom deze ontwikkeling mogelijk kan worden gemaakt buiten bestaand stedelijk gebied.

Conclusie

De woningbouwontwikkeling voorziet in een actuele (regionale) behoefte en daarnaast is er in het provinciale beleid verantwoord waarom er deels buiten bestaand stedelijk gebied kan worden gebouwd. Daarmee past dit planvoornemen binnen de eisen zoals gesteld in de 'Ladder voor duurzame verstedelijking'.

3.3 Provinciaal beleid

3.3.1 Structuurvisie ruimtelijke ordening 2014

Op 19 maart 2014 is de structuurvisie Ruimtelijke Ordening 2014 in werking getreden. Deze structuurvisie is een actualisatie van de visie die in 2010 werd vastgesteld. Belangrijke beleidswijzigingen hebben betrekking op de realisatie van natuur en de transitie naar zorgvuldige veehouderij in Brabant.

afbeelding "i_NL.IMRO.0757.BP08AchterEijngel-otw1_0023.png"

Structurenkaart structuurvisie Ruimtelijke Ordening 2014

(bestaand stedelijkgebied/rood, gemengd landelijk gebied/geel, buisleidingstrook/lijn)

De SVRO bevat de hoofdlijnen van het provinciaal ruimtelijk beleid tot 2025, met een doorkijk naar 2040. De visie is bindend voor het ruimtelijk handelen van de provincie Noord-Brabant en vormt de basis voor de wijze waarop de provincie de instrumenten inzet die de Wet ruimtelijke ordening biedt. De SVRO gaat in op de ruimtelijke kwaliteiten van de provincie Noord-Brabant. Mens, markt en milieu zijn binnen de provincie in evenwicht. Daarom kiest de provincie in haar ruimtelijk beleid tot 2025 voor de verdere ontwikkeling van gevarieerde en aantrekkelijke woon-, werk- en leefmilieus en voor een kennisinnovatieve economie met als basis een klimaatbestendig en duurzaam Brabant. Het principe van behoud en ontwikkeling van het landschap is in de structuurvisie de ‘rode’ draad die de ruimtelijke ontwikkelingen stuurt. De provincie wil het contrastrijke Brabantse landschap herkenbaar houden en verder versterken.

Bij de opvang van de verstedelijkingsbehoefte is het accent in de SVRO daarom verlegd van nieuwe uitleg naar het bestaand stedelijk gebied, door in te zetten op inbreiding, herstructurering en transformatie. Beheer en (her)ontwikkeling van de bestaande voorraad vragen specifieke aandacht. Er wordt ingezet op zorgvuldig ruimtegebruik door de ruimte binnen het bestaand bebouwd gebied zo goed mogelijk te benutten. Hierbij dient rekening te worden gehouden met de gebiedskenmerken en kwaliteiten van de omgeving. Bij de ontwikkeling van bedrijventerreinen vervult de provincie een regierol. Om het aansnijden van nieuwe ruimte te voorkomen, wordt de ladder van duurzame verstedelijking gehanteerd. Gemeenten en de provincie voeren in regionaal verband overleg om te komen tot een goede afstemming van de stedelijke ontwikkelingen (wonen, werken en voorzieningen) binnen de regio.

Voor onderhavig bestemmingsplan speelt het belang van concentratie van verstedelijking een rol. De provincie vindt het belangrijk dat er in Noord-Brabant verschil blijft tussen de steden en de kernen in het landelijk gebied. De provincie wil dat er verschillende kwaliteiten worden ontwikkeld voor wonen en werken rond de steden en in het landelijk gebied. In het landelijk gebied bieden vitale kernen landelijke en meer kleinschalige woon- en werkmilieus. Ontwikkelingen voor wonen, werken en voorzieningen zijn gericht op de eigen behoefte. Voor de opvang van de woningbouwbehoefte geldt het principe van bouwen voor migratiesaldo-nul

Zorgvuldig ruimtegebruik

De provincie wil dat de kansen voor functiemenging, inbreiding, herstructurering en zo nodig transformatie in het stedelijk gebied goed worden benut, inclusief de mogelijkheden voor intensivering en meervoudig ruimtegebruik. Hierdoor is minder ruimte nodig voor stedelijke uitbreidingen. Het 'aansnijden van nieuwe ruimte' voor verstedelijking wordt in samenhang bezien met deze mogelijkheden. Door meer aandacht te schenken aan beheer en onderhoud van het bestaand stedelijke gebied worden in de toekomst ingrijpende herstructurering van gebieden voorkomen.

Meer aandacht voor ruimtelijke kwaliteit

Karakteristieke verschillen tussen dorpen en steden vervagen. Uitbreidingswijken en werklocaties in steden en dorpen gaan steeds meer op elkaar lijken. De provincie wil dat nieuwe ontwikkelingen meer inspelen op het karakter en de kwaliteit van de plek. Door bij stedelijke ontwikkelingen uit te gaan van het verschil in omvang en karakter van de ver-schillende kernen, wordt het contrast tussen stad en dorp behouden. Dit versterkt de identiteit en aantrekkelijkheid van kernen en hun relatie met het omliggende landschap.

Met onderhavig bestemmingsplan wordt een ontwikkelingsplan om ter plaatse van het plangebied woningbouw in de vorm van ongeveer 85 woningen planologisch-juridisch mogelijk gemaakt. Deze woningen zijn bedoeld voor de eigen behoefte, waarbij uitgegaan wordt van het principe bouwen voor migratiesaldo nul. Daarnaast draagt de woningbouwontwikkeling bij aan de leefbaarheid van de kern Lennisheuvel zodat het draagvlak voor de aanwezige voorzieningen op peil blijft en daarmee de vitaliteit van deze kern wordt gewaarborgd. Tevens wordt met de woningbouw ontwikkeling voorzien in kleinschalige woonmilieu (maximaal 85 woningen) waarmee de zuidelijke bebouwingsrand wordt afgerond in aansluiting op de Heerenbeekloop, waardoor het geheel op een natuurlijke wijze wordt afgerond. Door de ruimtelijke opzet van de woningbouwontwikkeling en de landschappelijke inpassing (2.3.3) wordt eveneens de relatie met het buitengebied versterkt door middel van de vormgeving en en de doorzichten van de insteken.

3.3.2 Verordening Ruimte 2014

In de Wet ruimtelijke ordening (Wro) is vastgelegd hoe de bevoegdheden op het gebied van ruimtelijke ordening zijn verdeeld tussen rijk, provincies en gemeenten. De provincie kan door middel van een planologische verordening regels formuleren waarmee gemeenten bij het opstellen van ruimtelijke plannen rekening moeten houden.

De provincie Noord-Brabant heeft hiertoe de Verordening ruimte opgesteld. De Verordening ruimte is op 17 december 2010 vastgesteld en op 1 maart 2011 in werking getreden en wordt periodiek geactualiseerd. Op 7 februari 2014 hebben Provinciale Staten de Verordening ruimte 2014 vastgesteld. De Verordening ruimte 2014 is op 19 maart 2014 in werking getreden. Provinciale Staten hebben in hun vergadering op 10 juli 2015 de Verordening ruimte 2014 integraal opnieuw vastgesteld. De gewijzigde verordening is op 15 juli 2015 in werking getreden.

afbeelding "i_NL.IMRO.0757.BP08AchterEijngel-otw1_0024.png"

Stedelijke ontwikkeling

Het plangebied ligt binnen gronden die op de kaarten behorende bij de Verordening Ruimte zijn aangeduid als 'bestaand stedelijk gebied: stedelijk concentratiegebied' en 'zoekgebied stedelijke ontwikkeling'. Hoofdregel van het beleid is dat stedelijke ontwikkeling binnen het bestaand stedelijk gebied plaatsvindt. Alleen als daarvoor geen mogelijkheden bestaan, kan een stedelijke ontwikkeling buiten het bestaande stedelijke gebied plaatsvinden binnen daarvoor in de verordening aangeduide zoekgebieden.

De provincie ziet de stedelijke concentratiegebieden en de daarbij behorende zoekgebieden als ruimtelijk samenhangende verstedelijkte gebieden. Binnen deze gebieden liggen mogelijkheden voor verdere verstedelijking. Bij de begrenzing van de concentratiegebieden is aangesloten op bestaande, veelal historisch gegroeide, grote stedelijke concentraties alsmede de aanwezige natuur- en landschapswaarden. Daarnaast is de ligging aan belangrijke wegen, spoorwegen en vaarwater van belang omdat de stedelijke concentraties ook in de toekomst goed bereikbaar moeten zijn. De gebieden zijn dusdanig ruim dat ze de komende 20 à 25 jaar voorzien in de ruimtebehoefte.

Verordening Ruimte Artikel 4.3 Regels voor nieuwbouw van woningen

  • De toelichting bij een bestemmingsplan dat voorziet in nieuwbouw van woningen bevat een verantwoording over de wijze waarop:
    • 1. de afspraken die daarover zijn gemaakt in het regionaal ruimtelijk overleg, bedoeld in artikel 37.4, onder b, worden nagekomen;
    • 2. de beoogde nieuwbouw zich verhoudt tot de afspraken genoemd onder a en tot de beschikbare harde plancapaciteit voor woningbouw.
  • Onder harde plancapaciteit voor woningbouw, als bedoeld in het eerste lid, onder b, wordt verstaan de capaciteit voor nieuw te bouwen woningen waarover een gemeente beschikt:
    • 1. die wordt uitgedrukt in aantallen woningen, en
    • 2. die is opgenomen in een vastgesteld bestemmingsplan waarbij de bestemming nog niet is verwezenlijkt.

Verordening Ruimte 8.1 Regels zoekgebied voor stedelijke ontwikkeling

  • In afwijking van artikel 3.1, tweede lid, onder a (verbod op nieuwvestiging) en artikel 4.2 van de verordening (stedelijke ontwikkeling) kan een bestemmingsplan, ter plaatse van de aanduiding 'Zoekgebied voor stedelijke ontwikkeling' voorzien in een stedelijke ontwikkeling.
  • Een bestemmingsplan als bedoeld in het eerste lid strekt ertoe dat:
    • 1. de stedelijke ontwikkeling aansluit bij bestaand stedelijk gebied of plaatsvindt in een nieuw cluster van stedelijke bebouwing;
    • 2. bij de stedenbouwkundige en landschappelijke inrichting rekening wordt gehouden met de aanwezige ruimtelijke kwaliteiten en structuren in het gebied zelf en in de naaste omgeving, waaronder mede begrepen de ontwikkeling van een groene geleding ten behoeve van ecologische en landschappelijke verbindingen, door deze in de planontwikkeling te betrekken;
  • Voor zover een bestemmingsplan voorziet in een stedelijke ontwikkeling als bedoeld in het eerste lid, is artikel 2, vierde lid (zwaarste regiem geldt) niet van toepassing en heeft het tweede lid, onder 2 voorrang op de beschermingsregels die elders in deze verordening zijn opgenomen, behoudens in geval dat artikel 5 van de verordening (EHS) van toepassing is.
  • Op een bestemmingsplan als bedoeld in het eerste lid zijn de bepalingen uit artikel 4.3 tot en met artikel 4.11 van de verordening van overeenkomstige toepassing.

Met de woningbouwontwikkeling ten zuiden van de kern Lennisheuvel wordt het zoekgebied ter plaatse concreet ingevuld met woningbouw. De woningbouwontwikkeling voorziet daarbij in maximaal 85 grondgebonden woningen in de vorm van vrijstaande, twee-aaneen gebouwde, geschakelde en aaneengebouwde woningen. Tevens zijn eventueel boven-/benedenwoningen voorzien. Het betreft hier de ruimtelijke afronding van deze bebouwingsrand van de kern, waarbij aangesloten wordt op de herinrichting van de Heerenbeekloop. Er is hiermee sprake van een samenhangend geheel en het geheel wordt gelijktijdig landschappelijk ingepast. Tevens wordt voor een gedeelte voorrang gegeven op de beschermingsregels die gelden voor 'behoud en herstel watersystemen' en 'ecologische verbindingszone'.

afbeelding "i_NL.IMRO.0757.BP08AchterEijngel-otw1_0025.png"

Natuur en landschap

Ten zuiden van het plangebied zijn de gronden op basis van de Verordening ruimte aangeduid als 'behoud en herstel watersystemen' en 'ecologische verbindingszone'. Binnen de waterstructuur van beken, kreken en overige waterlopen ligt de focus op de gebieden voor behoud en herstel watersystemen. Hier is het beleid gericht op verbetering en herstel van het natuurlijke watersysteem. Maatregelen zijn nodig op het gebied van de morfologie zoals het laten hermeanderen van beken, het aanleggen van plas-draszones en het herstel van kwel. Er wordt gestreefd naar een breedte van 25 meter. De benodigde ruimte voor uitvoering kan variëren, bijvoorbeeld afhankelijk van of er sprake is van een bovenloop of een benedenloop van een beek.

Door het zo lang als mogelijk vasthouden van water kunnen natuurwaarden zich optimaal ontwikkelen en wordt verdroging van natuur en agrarisch gebied tegengegaan. Ook het behoud en het herstel van de kenmerkende natte natuur in beken, kreekrestanten, vennen en wielen vraagt daarbij aandacht. Voor het goed functioneren van de natuur is een goede koppeling aan het bodem- en watersysteem van groot belang.

De ecologische verbindingszones vormen de groene schakels die de Brabantse natuurgebieden in de EHS met elkaar verbinden. Planten en vooral dieren kunnen zich daardoor van het ene naar het ander natuurgebied verplaatsen. De verbindingszones functioneren als trekroutes en ook als leef- en voortplantingsgebied. Verbindingszones zijn veelal langgerekte landschapselementen langs waterlopen - de zogenaamde natte verbindingszones - of door het agrarische gebied - dezogenaamde droge verbindingszones.

De breedte en de inrichting van de ecologische verbindingszones is afhankelijk van de natuurfunctie die zij moeten vervullen. De provincie streeft naar een gemiddelde breedte van 25 meter. Voor verbindingen in stedelijk gebied is een breedte van ca. 50 meter nodig, omdat deze zones veelal een intensiever recreatief medegebruik hebben. Verbindingszones dragen ook bij aan het recreatieve medegebruik, het waterbeheer en versterken de kwaliteit van het landschap.

Verordening Ruimte Artikel 18.1 Regels behoud en herstel van watersystemen

  • In aanvulling op hoofdstuk 3 van de verordening 'Structuren' strekt een bestemmingsplan ter plaatse van de aanduiding 'Behoud en herstel van watersystemen' mede tot de verwezenlijking en het behoud, beheer en herstel van watersystemen waarbij het gebied een breedte heeft van ten minste 25 meter aan weerszijden van de waterloop.
  • Een bestemmingsplan als bedoeld in het eerste lid stelt regels om te voorkomen dat een gebied minder geschikt wordt voor de verwezenlijking en het behoud, beheer en herstel van watersystemen aangaande:
    • 1. beperkingen aan stedelijke, agrarische en recreatieve ontwikkelingen, in het bijzonder wat betreft de daarmee verband houdende bebouwing;
    • 2. het aanbrengen van oppervlakteverhardingen of verharde oppervlakten van meer dan 100 m2, anders dan een bouwwerk;
    • 3. het ophogen van gronden.
  • Een bestemmingsplan als bedoeld in het eerste lid bepaalt dat bij het toepassen van de regels bedoeld in het tweede lid onder b en c, het betrokken waterschapsbestuur wordt gehoord.

Verordening Ruimte Artikel 18.2 Regels wijziging van de begrenzing

  • Gedeputeerde Staten kunnen de begrenzing van de aanduiding 'Behoud en herstel van watersystemen' wijzigen, mits dit tot een beter resultaat leidt voor het beoogde doel waarvoor deze gebieden zijn aangewezen.
  • Alvorens Gedeputeerde Staten overgaan tot een wijziging van de begrenzing als bedoeld in het eerste lid, raadplegen zij het betrokken waterschapsbestuur.
  • Het college van burgemeester en wethouders kan Gedeputeerde Staten verzoeken om de begrenzing van de aanduiding 'Behoud en herstel watersystemen' te wijzigen mits uit het verzoek blijkt dat de waterbeheerder hiermee instemt.
  • Op een verzoek als bedoeld in het derde lid is artikel 36.5 van de verordening (procedure grenswijziging op verzoek) van toepassing.

Verordening Ruimte Artikel 11.1 Regels ecologische verbindingszone

  • In aanvulling op hoofdstuk 3 van de verordening 'Structuren' strekt een bestemmingsplan ter plaatse van de aanduiding 'Ecologische verbindingszone' tot de verwezenlijking, het behoud en het beheer van een ecologische verbindingszone met een breedte van:
    • 1. ten minste 50 meter in bestaand stedelijk gebied en zoekgebied voor stedelijke ontwikkeling;
    • 2. ten minste 25 meter in alle overige gebieden.
  • Een bestemmingsplan als bedoeld in het eerste lid, stelt regels voor zover dat nodig is om te voorkomen dat het gebied minder geschikt wordt voor de verwezenlijking, het behoud en het beheer van een ecologische verbindingszone, waarbij in ieder geval:
    • 1. beperkingen worden gesteld aan stedelijke, agrarische en recreatieve ontwikkelingen, in het bijzonder wat betreft de daarmee verband houdende bebouwing;
    • 2. regels ten aanzien van het aanbrengen van oppervlakteverhardingen of verharde oppervlakten van meer dan 100 m2, anders dan een bouwwerk.
  • Na realisatie van de ecologische verbindingszone is artikel 5.1 van de verordening (bescherming ehs) van overeenkomstige toepassing.

Verordening Ruimte Artikel 11.2 Regels wijziging van de begrenzing

  • Gedeputeerde Staten kunnen de begrenzing van de aanduiding 'Ecologische verbindingszone' wijzigen indien dit tot een beter resultaat leidt voor de verwezenlijking, het behoud en het beheer van een ecologische verbindingszone.
  • Het college van burgemeester en wethouders kan Gedeputeerde Staten verzoeken om de begrenzing van de aanduiding 'Ecologische verbindingszone' te wijzigen mits hiermee geen afbreuk wordt gedaan aan de functie van ecologische verbindingszone.
  • Op een verzoek als bedoeld in het tweede lid is artikel 36.5 van de verordening (procedure grenswijziging op verzoek) van toepassing.

De Heerenbeekloop is ter hoogte van het plangebied gerenatureerd en heringericht. De waterloop heeft hier een meandering gekregen over een breedte van 40 meter. Tevens zijn aan de zuidzijde van de waterloop poelen aangebracht en is de gehele zone natuurlijk ingericht. Aan de noordzijde van de waterloop worden ten behoeve van de woningbouwontwikkeling de benodigde waterbuffers aangelegd voor de opvang van het hemelwater. Er is en wordt daarmee ter hoogte van het plangebied concreet invulling gegeven aan het behoud en herstel van het watersysteem ter plaatse in combinatie met de ecologische verbindingszone.

Bij de herinrichting van de waterloop en de aangrenzende gronden is niet de volledige breedte benut. Gezien de breedte van 40 meter is hiermee concreet invulling gegeven aan het provinciale beleid, ondanks dat in de verordening een grotere breedte is aangeven. De woningbouwontwikkeling sluit hierop aan en versterkt dit zelf door aan de noordzijde van de waterloop de nodige natuurlijke waterbuffers aan te leggen. De natte natuur wordt hiermee ter plaatse extra versterkt. Daarnaast wordt het geheel landschappelijk ingepast (2.3.3) waarmee wordt aangesloten op de regelgeving uit de verordening zoals voorgaand omschreven.

3.4 Regionaal beleid

3.4.1 Regionale agenda wonen

In de regionale agenda wonen is de totale woningbouwopgave voor 2016-2026 voor de gemeente Boxtel opgenomen. Deze woningbouwopgave is vastgesteld in en dus afgestemd met de regio. De woningaantallen in deze agenda zijn onder andere gebaseerd op de provinciale bevolkings- en woningbehoefte prognose 2014. In de woningbouwprogrammering voor Boxtel is dit project (79 woningen) meegenomen, dit planvoornemen past dus binnen de woningbouwopgave binnen de gemeente Boxtel.

3.5 Gemeentelijk beleid

3.5.1 Structuurvisie verfrissend Boxtel 2011

De structuurvisie is het beleidskader voor ruimtelijke ontwikkelingen. Het is enerzijds een toetsingskader voor nieuwe initiatieven, anderzijds de basis voor concrete projecten en daarnaast een instrument om ondernemers en andere overheden bij de planvorming te betrekken en ze daarin te faciliteren. De plannen en ontwikkelingen op gemeentelijk niveau dienen daarnaast te matchen met de doelstellingen op rijks- en provinciaal niveau. De Structuurvisie is ook hiervoor het richtinggevende kader.

In de structuurvisie wordt de locatie Lennisheuvel-zuid / Heerenbeekloop aangemerkt als een te ontwikkelen woningbouwlocatie. Met onderhavig bestemmingsplan wordt de realisatie van woningen op deze locatie geconcretiseerd en planologisch-juridisch mogelijk gemaakt.

3.5.2 Strategische visie

De strategische visie 'Boxtel 2020, duurzaam en dynamisch centrum in het Groene Woud' is verwoord in zes ambities. Door de keuze hiervoor komen niet alle gemeentelijke taken en activiteiten in deze visie aan de orde; dat hoeft ook niet: een strategische visie geeft de hoofdrichting en de zwaartepunten aan. De zes ambities zijn ook niet echt verrassend, omdat deze door de gemeente Boxtel al een aantal jaren geleden in gang gezet zijn. Dat is ook begrijpelijk: de gemeente Boxtel ontwikkelt zich verder en "begint niet opnieuw". De ambities zijn ondersteund in de vele gesprekken die hebben plaatsgevonden en ze moeten worden voortgezet, zo mogelijk nog met meer kracht dan tot nu toe. De zes ambities zijn:

  • Boxtel blijft voorop met duurzaamheid;
  • Boxtel ontwikkelt toerisme en recreatie tot een volwaardige bedrijfstak;
  • Boxtel versterkt zijn positie als werkgelegenheidsgemeente;
  • Boxtel werkt aan een sterk centrum;
  • Boxtel is ook in 2020 een prima woongemeente;
  • Boxtel heeft een modern bestuur.

Voldoende woningen en goede woningen in alle kernen

Tot 2020 groeit de eigen bevolking van Boxtel nog aan met 700 inwoners tot een totaal van 30.900. Voor deze groei alleen zijn ongeveer 300 woningen nodig. Een veel groter aantal, plusminus 900 woningen, is nodig om de nog steeds doorgaande gezinsverdunning op te vangen. De gemiddelde woningbezetting bedroeg in 2008 namelijk 2,47 en zal dalen naar ongeveer 2,30 in 2020. Voor de eigen bevolking zijn er dus opgeteld zo'n 1200 woningen nodig.

Daarnaast wil Boxtel net als in de vorige periode in beperkte mate (bijvoorbeeld 200 woningen) bouwen voor mensen van "buiten", bijvoorbeeld omdat ze hier (komen) werken en daarom ook hier willen wonen. In de discussie over de strategische visie bleek er overwegend steun voor deze "kleine plus". Het totaal aantal te bouwen woningen, voor mensen van "binnen" en "buiten" Boxtel, komt dan op 1400 woningen. Van deze in totaal 1400 nieuwe woningen kunnen er zo'n 650 gebouwd worden binnen de kernen zonder dat de leefbaarheid door een te grote dichtheid wordt aangetast. Voor de rest zijn uitbreidingslocaties nodig. Naar de huidige inzichten zijn dat nog steeds de locaties "Selissen/Munsel" en "de Oksel" tussen de spoorlijnen.

Maar net zo belangrijk als de kwantiteit van de woningbouw is de kwaliteit van de woningvoorraad. De volgende aspecten zijn dan met name relevant:

  • De bestaande voorraad moet van een kwalitatief goed niveau blijven. Dit betekent in een aantal gevallen sloop en vervangende nieuwbouw. De aantallen tot 2020 zijn niet bekend, maar ter illustratie: als een woning na gemiddeld 120 jaar vervangen moet worden, betekent dit voor Boxtel dat er 100 woningen per jaar vervangen moeten worden;
  • Er moet voldoende groot onderhoud plaatsvinden, want als (om in hetzelfde voorbeeld te blijven) een woning 120 jaar mee moet, zal er een aantal keren groot onderhoud gepleegd moeten worden;
  • Er moet voorzien worden in de veranderende vraag naar woningen. Uit het woonwensenonderzoek blijkt dat de vraag zich richt op betaalbare (grondgebonden) woningen voor starters en senioren en op luxe appartementen in Liempde voor senioren. Met de nieuwbouw (voor uitbreiding én voor vervanging) en met een gedeelte van de grootonderhoudprojecten (door functiewijziging door te voeren) kan de gemeente aan deze nieuwe woonwensen tegemoet komen;
  • Bij het bouwen en renoveren van woningen moet gestreefd worden naar meer diversiteit in woonmilieus, om zodoende maatschappelijke segregatie tegen te gaan.

Bijzondere aandacht verdient de woningbouw in de kernen Liempde en Lennisheuvel. De leefbaarheid in deze kernen staat onder druk en voorkomen moet worden dat starters en senioren uit deze kernen (moeten) vertrekken omdat zij geen passende woning kunnen vinden. Dit vraagt op de lokale situatie toegesneden oplossingen waarbij zeker in Lennisheuvel geldt dat men meer gebaat is bij een geleidelijke bouwstroom van "kleine plukjes" dan bij een of enkele grotere projecten.

Ook wordt in deze kernen de leefbaarheid meer dan elders bedreigd door maatschappelijke en economische ontwikkelingen zoals ontgroening, vergrijzing en terugval in voorzieningenniveau. Het is voor de leefbaarheid in deze kernen van belang dat zowel jongeren als ouderen er kunnen blijven wonen. De gemeente zal hier met het woningbouwprogramma op inspelen maar realiseert zich tevens dat dit weliswaar een belangrijke randvoorwaarde is, maar dat er ook nog andere inspanningen nodig zijn om de leefbaarheid op peil te houden. Deze zullen in de context van de integrale dorpsontwikkelingsplannen nader vorm moeten krijgen. Bij wijze van voorbeeld zou gedacht kunnen worden aan het laten starten of eindigen van toeristische routes in deze kernen zodat de bestedingen in deze kernen toenemen waardoor voorzieningen beter in stand gehouden kunnen worden.

Met onderhavig planvoornemen worden maximaal 85 woningen mogelijk gemaakt, die gefaseerd in 2 tot 3 fases gerealiseerd zullen worden. De woningen zijn voor een groot gedeelte bedoeld voor zowel starters als senioren. Dit betreffen met name de woningen aan de hoofdontsluitingsweg. Er wordt daarmee nadrukkelijk voorzien in de locale behoefte voor de kern Lennisheuvel. Het planvoornemen draagt daarmee bij aan voldoende woningen en de juiste woningen voor de kern Lennisheuvel. Daarnaast draagt de toename van het aantal woningen eveneens bij aan de leefbaarheid van de kern Lennisheuvel.

3.6 Woonvisie Boxtel 2016 - 2025

Op 28 juni 2016 heeft de gemeenteraad de Boxtelse woonvisie 2016 – 2025 vastgesteld. De woonvisie biedt de kaders die de gemeente de komende jaren nodig heeft om samen met betrokken partijen vorm te geven aan wonen in Boxtel. In de woonvisie zijn vijf opgaven benoemd die de komende jaren centraal staan in het woonbeleid van de gemeente Boxtel, namelijk:

  • 1. Een betaalbare woning voor iedereen
  • 2. Verbeteren kwaliteit, geschiktheid, duurzaamheid woningvoorraad
  • 3. Huisvesting bijzondere (zorg)doelgroepen
  • 4. Vraaggericht bouwen met oog op de toekomst
  • 5. Boxtel aantrekkelijke woongemeente

Deze vijf woonopgaven zijn in een infographic weergegeven. Daarnaast worden deze opgaven ieder jaar concreter in een woonagenda. Op deze manier wordt op een actuele manier bekeken welke instrumenten nodig zijn om de woonvisie uit te voeren.

Binnen opgave 4 van de woonvisie hebben is bijzondere aandacht in het bouwprogramma benoemd voor:

  • a. Grondgebonden woningen voor middeninkomens (waaronder kleine huishoudens / starters) in het vrije huursegment;
  • b. Woningen voor senioren in het sociale en vrije huursegment;
  • c. Goedkope sociale huurwoningen voor starters (bij voorkeur met tijdelijke huurcontracten, zodat de woningen beschikbaar blijven voor de doelgroep);
  • d. Wonen met zorg voor kwetsbare inwoners;
  • e. Innovatieve (permanente en tijdelijke) woonvormen voor arbeidsmigranten en verblijfsgerechtigden;
  • f. Betaalbare koopwoningen voor starters met een middeninkomen;
  • g. Betaalbare koopwoningen, in middeldure en dure segment voor senioren die willen doorstromen uit hun gezinswoning;
  • h. Ruimte voor particuliere wooninitiatieven;

Verder is in de Woonvisie als woningmarktopgave voor Lennisheuvel het volgende benoemd:

  • Voorkomen dat starters en senioren uit de kern (moeten) vertrekken omdat zij geen passende woning kunnen vinden.
  • Samen met bewoners en woningzoekenden optrekken om kleinschalige nieuwbouw toe te voegen aan de kern Lennisheuvel.

Hoofdstuk 4 Sectorale aspecten

4.1 Inleiding

Milieubeleid wordt steeds meer geïncorporeerd in andere beleidsvelden. Verbreding van milieubeleid naar andere beleidsterreinen is dan ook een belangrijk uitgangspunt. Ook in de ruimtelijke planvorming is structureel aandacht voor milieudoelstellingen nodig. De milieudoelstellingen worden daartoe integraal en vanaf een zo vroeg mogelijk stadium in het planvormingsproces meegewogen. Een duurzame ontwikkeling van de gemeente is een belangrijk beleidsuitgangspunt dat zijn doorwerking heeft in meerdere beleidsterreinen.

Hierna worden de verschillende aspecten in relatie tot de woningbouwontwikkeling op deze locatie besproken. Indien aanvullend onderzoek nodig is, staat dat daarbij vermeld.

4.2 MER-beoordeling

Een milieueffectrapportage (m.e.r.) is verplicht voor besluiten van de overheid over initiatieven van particulieren of marktpartijen, zoals bij de bouw van woonwijken, de aanleg van auto(snel)wegen, spoorwegen, vliegvelden, pijpleidingen voor gas of olie en (stuw)dammen.

Een m.e.r. kan ook verplicht zijn voor plannen van de overheid, zoals een bestemmingsplan. Ingevolge het Besluit milieueffectrapportage (verder: Besluit m.e.r.) wordt getoetst of het bestemmingsplan voorziet in, of een kader vormt voor, activiteiten die (mogelijk) belangrijke nadelige gevolgen kunnen hebben voor het milieu. Hiervoor zijn in de bijlage bij het Besluit m.e.r. lijsten opgenomen waarin activiteiten zijn aangewezen die belangrijke nadelige gevolgen kunnen hebben voor het milieu (lijst C) of ten aanzien waarvan het bevoegd gezag moet beoordelen of zij belangrijke nadelige gevolgen voor het milieu kunnen hebben (lijst D). In de lijsten zijn (indicatieve) drempelwaarden opgenomen.

Onderhavig bestemmingsplan voorziet in een woningbouwontwikkeling. Woningbouwontwikkelingen zijn opgenomen op de D-lijst van het Besluit m.e.r., nummer 11.2. In geval van woningbouw is een (indicatieve) drempelwaarde opgenomen van >2000 woningen. Dit bestemmingsplan voorziet in de ontwikkeling van maximaal 85 woningen als afronding van de zuidelijke bebouwingsrand van de kern Lennisheuvel. Deze woningbouwontwikkeling ligt met maximaal 85 woningen ver beneden de genoemde drempelwaarde vam 2000 woningen. Ook gezien de in deze toelichting beschreven aspecten in navolgende paragrafen. wordt geconcludeerd dat er geen sprake is van significante effecten, die een m.e.r.(beoordelings)plicht noodzakelijk maken.

4.3 Bodem

Op basis van artikel 3.1.6 Besluit ruimtelijke ordening zijn gemeenten verplicht om in de toelichting een paragraaf over de bodemkwaliteit op te nemen. In deze paragraaf dient gemotiveerd te worden of de aanwezige bodemkwaliteit past bij het toekomstige gebruik van de bodem. Uitgangspunt van een goede ruimtelijke ordening is dat de bodemkwaliteit geschikt is voor de beoogde bestemming en de daarin toegestane gebruiksvormen.

In dat kader is voor het gehele plangebied een verkennend bodemonderzoek (Econsultancy, rapportnummer 15091801, 28 november 2016, Bijlage 2) uitgevoerd. Dit bodemonderzoek is onderverdeeld in een verdacht terreindeel en een onverdachtterreindeel.

afbeelding "i_NL.IMRO.0757.BP08AchterEijngel-otw1_0026.png"

Uitsnede van de kadastrale percelenkaart met geel omlijnd het onverdachte en rood omlijnd het verdachte terreindeel

Verdacht terreindeel

De bodem bestaat uit matig tot uiterst siltig, matig fijn zand. De bodem is bovendien minimaal tot 0,35 m -mv en maximaal tot 1,0 m -mv zwak humeus. Verder is deze humeuze bodemlaag zeer plaatselijk zwak tot matig grindig. De ondergrond is zeer plaatselijk zwak tot matig veenhoudend of matig leemhoudend. In de ondergrond komen verder plaatselijk in zwakke tot sterke mate gleyverschijnselen voor.

 

De bodem tot maximaal 1,0 m -mv is plaatselijk zwak baksteenhoudend. Verder zijn er zintuiglijk geen verontreinigingen in de bodem waargenomen. Verder is tijdens de veldwerkzaamheden ter plaatse van de aanwezige asfaltverharding een stabilisatielaag bestaande uit asfaltgranulaat en puin of baksteen aangetroffen. Ter plaatse van de aanwezige verharding (puin) zijn afwisselend lagen puin, asfaltgranulaat en stol aangetroffen. In deze stabilisatielagen en verhardingslagen bestaande uit asfaltgranulaat, puin, baksteen en stol zijn géén asbestverdachte (plaat)-materialen aangetroffen.

 

De zwak met baksteen verontreinigde, verdachte bodemlaag is licht verontreinigd met PAK. De zintuiglijk niet verontreinigde bovengrond is licht verontreinigd met PCB en plaatselijk licht verontreinigd met kwik, minerale olie en PAK. De zintuiglijk niet verontreinigde ondergrond direct onder de volledige puinlaag of baksteenlaag is licht verontreinigd met PCB.

 

Het grondwater is plaatselijk licht verontreinigd met barium en 1,2-dichloorethenen. De lichte verontreiniging met barium is hoogstwaarschijnlijk te relateren aan regionaal verhoogde achtergrondconcentraties van zware metalen in het grondwater. Voor de lichte verontreiniging met 1,2-dichloorethenen heeft het onderzoeksbureau vooralsnog geen verklaring.

 

Aangezien op een deel van het verdacht terreindeel stabilisatielagen en verhardingslagen bestaande uit puin of baksteen zijn aangetroffen, welke per definitie als asbestverdacht dienen te worden beschouwd, wordt geadviseerd om op termijn ter plaatse van deze stabilisatielagen en verhardingslagen een verkennend onderzoek asbest uit te voeren. Gezien het feit, dat buiten de asfaltverharding en de aanwezige verharding (puin) ter plaatse van het verdacht terreindeel in de bodem zintuiglijk alleen in zwakke mate baksteen is aangetroffen en géén asbestverdacht (plaat)materiaal, wordt geadviseerd vooralsnog ter plaatse geen verkennend onderzoek asbest uit te voeren. Dit vanwege het feit, dat niet verwacht wordt, dat ter plaatse asbesthoudend materiaal aanwezig is en zeker niet boven de interventiewaarde.

 

De vooraf gestelde hypothese, dat dit deel van de onderzoekslocatie als "verdacht" dient te worden beschouwd, wordt op basis van de onderzoeksresultaten, bevestigd. Gelet op de aard en mate van verontreiniging, bestaat er echter géén reden voor een nader bodemonderzoek en bestaan er met betrekking tot de milieuhygiënische kwaliteit van de bodem met uitzondering van de parameter asbest géén belemmeringen voor de voorgenomen nieuwbouw van woningen ter plaatse van dit deel van het plangebied ‘Lennisheuvel’.

Onverdacht terreindeel

De bovengrond bestaat voornamelijk uit zwak humeus, matig siltig, matig fijn zand. Zeer plaatselijk bestaat de bovengrond uit zwak siltig, matig fijn zand. De humeuze zandlaag bevindt zich tot minimaal 0,3 m -mv en maximaal tot 1,0 m -mv. De ondergrond bestaat uit zwak tot sterk siltig, matig fijn tot matig grof zand, sterk zandig leem en veen. Zeer plaatselijk is de zandige ondergrond matig leemhoudend.

 

Ter plaatse van het onverdacht terreindeel zijn in het opgeboorde materiaal zintuiglijk geen verontreinigingen waargenomen. In de bovengrond zijn geen verontreinigingen geconstateerd. In de ondergrond zijn eveneens geen verontreinigingen geconstateerd. Het grondwater is plaatselijk licht verontreinigd met barium, cadmium, koper, zink en xylenen.

 

Er zijn op basis van het vooronderzoek, tijdens de terreininspectie en bij de uitvoering van de veldwerkzaamheden géén aanwijzingen gevonden, die aanleiding geven een asbestverontreiniging in de bodem op het onverdacht terreindeel van de onderzoekslocatie te verwachten.

 

De vooraf gestelde hypothese, dat dit deel van de onderzoekslocatie als "onverdacht" kan worden beschouwd, wordt op basis van de onderzoeksresultaten niet geheel bevestigd. Gelet op de aard en mate van verontreiniging, bestaat er echter géén reden voor een nader onderzoek en bestaan er met betrekking tot de milieuhygiënische kwaliteit van de bodem géén belemmeringen voor de voorgenomen nieuwbouw van woningen ter plaatse van dit deel van het plangebied ‘Lennisheuvel’.

Conclusies bodemonderzoek

Op basis van voorgaande conclusies kan er voor zowel het verdachte als het onverdachte terreindeel worden geconcludeerd dat het aspect bodem geen belemmering vormt voor het planvoornemen. Wel wordt voor het verdachte deel, op basis van het advies, een verkennend asbest onderzoek uitgevoerd.

Actualiserend bodemonderzoek

Econsultancy heeft tevens een actualiserend bodemonderzoek uitgevoerd in het kader van de voorgenomen nieuwbouw van de woningen (rapport 2190.003 versie D1, 24 augustus 2017, Bijlage 3). In dit actualiserende onderzoek zijn eveneens de later aangekochte gronden opgenomen. Op basis van dit actualiserend bodemonderzoek zijn een aantal deellocaties geïdentificeerd, die nog niet of nog niet voldoende zijn onderzocht. In tabel I zijn de onderzoeksstrategieën, die van toepassing zijn op de betreffende deellocaties, weergegeven.

afbeelding "i_NL.IMRO.0757.BP08AchterEijngel-otw1_0027.png"

afbeelding "i_NL.IMRO.0757.BP08AchterEijngel-otw1_0028.png"

afbeelding "i_NL.IMRO.0757.BP08AchterEijngel-otw1_0029.png"

Verkennend bodemonderzoek en verkennend onderzoek asbest

Naar aanleiding van de resultaten van het actualiserend bodemonderzoek is een verkennend bodemonderzoek en verkennend asbest onderzoek (rapport 2190.004 versie D1, 13 september 2017, Bijlage 4) voor het verdachte deel uitgevoerd. De bevindingen uit dit onderzoek zijn nu volgend weer gegeven.

Ten behoeve van het verkennend bodemonderzoek en verkennend onderzoek asbest zijn op basis van het onlangs door Econsultancy uitgevoerde actualiserend bodemonderzoek (rapportnummer 2190.003; d.d. 24 augustus 2017), vier deellocaties geïdentificeerd. Op de onderzoekslocatie zijn de volgende deellocaties onderzocht:

Deellocatie A: Terreindeel met voormalige partijen grond en/of partijen niet vormgegeven bouwstof en het voormalige bedrijfsterrein van aannemersbedrijf h. Wagenaars beheer bv

Op basis van het onlangs door Econsultancy uitgevoerd actualiserend bodemonderzoek (rapportnummer 2190.003; d.d. 24 augustus 2017) is geconcludeerd, dat dit deel van de onderzoekslocatie onderzocht dient te worden volgens de strategie voor een "verdachte locatie met diffuse bodembelasting en een heterogene verontreiniging op schaal van monsterneming" (VED-HE).

De bovengrond bestaat voornamelijk uit zwak humeus, matig siltig en matig fijn zand. Zeer plaatselijk bestaat de bovengrond uit matig grof zand en is het matig fijn zand zwak grindig. De ondergrond bestaat voornamelijk uit zwak humeus, matig siltig en matig fijn zand. Plaatselijk is de ondergrond sterk tot uiterst siltig, zwak tot sterk gleyhoudend, matig kleihoudend en/of zwak tot matig oerhoudend. Bovendien bestaat de ondergrond zeer plaatselijk uit sterk zandige klei. De bodem is tot maximaal 0,7 m -mv plaatselijk zwak tot sterk betonhoudend, zwak tot matig baksteenhoudend, zwak puinhoudend, zwak slakhoudend en/of zwak aardewerkhoudend.

Verkennend bodemonderzoek (NEN 5740)

De zintuiglijk verontreinigde bodemlaag, tot maximaal 0,7 m -mv, is plaatselijk licht verontreinigd met lood, zink, minerale olie en PAK. De zintuiglijk schone ondergrond is plaatselijk licht verontreinigd met kwik. Het grondwater is licht verontreinigd met nikkel en plaatselijk eveneens licht verontreinigd met minerale olie. De metaalverontreiniging is hoogstwaarschijnlijk te relateren aan regionaal verhoogde achtergrondconcentraties van zware metalen in het grondwater. Voor de lichte verontreiniging met minerale olie heeft Econsultancy vooralsnog geen directe verklaring. Stroomopwaarts van de licht met minerale olie verontreinigde peilbuis (deellocatie C, ter plaatse van de mogelijke stort met materiaal van onbekende samenstelling) is ook in de ondergrond plaatselijk een verhoogd gehalte aan minerale olie aangetroffen (lichte verontreiniging).

Conclusie

De vooraf gestelde hypothese, dat dit deel van de onderzoekslocatie als "verdacht" dient te worden beschouwd, wordt op basis van de onderzoeksresultaten bevestigd. Gelet op de aard en mate van verontreiniging, bestaat er echter, met uitzondering van de parameter asbest (zie onderstaande alinea), géén reden voor een nader onderzoek en bestaan er met betrekking tot de milieuhygiënische kwaliteit van de bodem géén belemmeringen voor de voorgenomen nieuwbouw van woningen ter plaatse van dit deel van nieuwbouwplan “Lennisheuvel”.

Verkennend onderzoek asbest in bodem (NEN 5707)

Tijdens de visuele inspectie van het maaiveld en de toplaag (maaiveldinspectie) zijn op het maaiveld (voor zover waarneembaar) géén asbestverdachte (plaat)-materialen (fractie > 20 mm) waargenomen. Tijdens de werkzaamheden zijn er in de bodem zintuiglijk eveneens geen asbestverdachte (plaat)materialen waargenomen. In het geanalyseerde grondmengmonster (fractie < 20 mm) ASB-MMA1 is een gehalte van 120 mg/kg d.s asbest aangetoond. In het geanalyseerde grondmengmonster (fractie < 20 mm) ASB-MMA4 is een gehalte van 3,9 mg/kg d.s asbest aangetoond. In de overige twee geanalyseerde grondmengmonsters zijn geen gehalten aan asbest (fractie < 20 mm) aangetoond. Van de individuele mengmonsters, waaruit grondmengmonster ASB-MM1 is opgemengd, is ter plaatse van asbestinspectiegat A10 zintuiglijk het meeste bodemvreemd materiaal (max. 10 %) in de bodem aangetroffen. Vanwege dit feit, zal het totale asbestgehalte (fractie > 20 mm + fractie < 20 mm) ter plaatse van dit asbestinspectiegat het meest gunstig zijn van alle individuele mengmonsters, waaruit grondmengmonster ASB-MM1 is samengesteld. Het totale asbestgehalte (fractie > 20 mm + fractie < 20 mm) in de bovengrond ter plaatse van asbestinspectiegat A10 bedraagt 104,9 mg/kg. Dit gehalte bevindt zich boven de interventiewaarde voor (niet-)hechtgebonden asbest (gehalte < 100 mg/kg d.s.) en bevindt zich ruim boven de stopcriteria (= 0,5 * interventiewaarde van 100 mg/kg d.s.).

Conclusie

De vooraf gestelde hypothese, dat dit deel van de onderzoekslocatie als "verdacht" dient te worden beschouwd, wordt op basis van de onderzoeksresultaten bevestigd. Econsultancy adviseert om op termijn een nader onderzoek te laten instellen naar de aard en de omvang van de mogelijke verontreiniging met asbest ter plaatse van het westelijke terreindeel van deze deellocatie. Gelet op de aard en mate van de overige gehalten aan asbest, bestaat er verder géén andere reden voor een nader onderzoek. Met uitzondering van het westelijk terreindeel van deze deellocatie bestaan er met betrekking tot de milieuhygiënische kwaliteit van de bodem géén belemmeringen voor de voorgenomen nieuwbouw van woningen ter plaatse van dit deel van het nieuwbouwplan “Lennisheuvel”.

Deellocatie B: Voormalige asfaltverharding en verharding met gebroken puin

Op basis van het onlangs door Econsultancy uitgevoerde actualiserend bodemonderzoek (rapportnummer 2190.003; d.d. 24 augustus 2017) is geconcludeerd, dat dit deel van de onderzoekslocatie aanvullend onderzocht dient te worden op de parameter asbest.

Aanvullend onderzoek (deellocatie B: asbest)

Tijdens de visuele inspectie zijn op de putbodem en in de putwand (voor zover waarneembaar) van de onderzoekslocatie géén asbestverdachte (plaat)-materialen (fractie > 20 mm) waargenomen. Tijdens de werkzaamheden zijn er in de bodem en in de puinverharding (> 50 % bodemvreemd materiaal) zintuiglijk eveneens geen asbestverdachte (plaat)-materialen waargenomen. In putwand ASB-W1-1 (fractie < 20 mm) is een gehalte van 3,1 mg/kg d.s asbest aangetoond. In de overig geanalyseerde putwanden en putbodems zijn geen gehalten aan asbest (fractie < 20 mm) aangetoond.

Conclusie

Gezien het feit, dat in de putwanden en putbodems geen verontreinigingen met asbest zijn aangetoond, bestaat er volgens Econsultancy géén reden voor een nader onderzoek en bestaan er met betrekking tot de milieuhygiënische kwaliteit van de bodem géén belemmeringen voor de voorgenomen nieuwbouw van woningen ter plaatse van dit deel van het nieuwbouwplan “Lennisheuvel”.

Deellocatie C: Mogelijke stort met materiaal van onbekende samenstelling

Op basis van het onlangs door Econsultancy uitgevoerd actualiserend bodemonderzoek (rapportnummer 2190.003; d.d. 24 augustus 2017) is geconcludeerd, dat dit deel van de onderzoekslocatie onderzocht dient te worden volgens de strategie voor een "verdachte locatie met diffuse bodembelasting en een heterogene verontreiniging op schaal van monsterneming" (VED-HE). De bovengrond bestaat voornamelijk uit zwak humeus, matig siltig en matig fijn zand. Plaatselijk is de bovengrond sterk gleyhoudend. De ondergrond bestaat voornamelijk uit matig tot sterk siltig, zwak tot sterk gleyhoudend, zwak tot sterk oerhoudend en matig fijn zand. Plaatselijk is de ondergrond zwak humeus, uiterst siltig en/of matig tot sterk kleihoudend. Bovendien bestaat de ondergrond zeer plaatselijk uit sterk zandige klei. De bovengrond is zeer plaatselijk zwak baksteenhoudend en/of zwak baksteenhoudend.

Verkennend bodemonderzoek (NEN 5740)

De zintuiglijk zwak met baksteen en beton verontreinigde bovengrond is licht verontreinigd met lood en PAK. De zintuiglijk schone ondergrond is plaatselijk licht verontreinigd met minerale olie. In het grondwater zijn geen verontreinigingen aangetroffen.

Conclusie

De vooraf gestelde hypothese, dat dit deel van de onderzoekslocatie als "verdacht" dient te worden beschouwd, wordt op basis van de onderzoeksresultaten bevestigd. Gelet op de aard en mate van verontreiniging, bestaat er echter, met uitzondering van de parameter asbest (zie deellocatie A), géén reden voor een nader onderzoek en bestaan er met betrekking tot de milieuhygiënische kwaliteit van de bodem géén belemmeringen voor de voorgenomen nieuwbouw van woningen ter plaatse van dit deel van het nieuwbouwplan “Lennisheuvel”.

Deellocatie D: Perceel N1000

Op basis van het onlangs door Econsultancy uitgevoerd actualiserend bodemonderzoek (rapportnummer 2190.003; d.d. 24 augustus 2017) is geconcludeerd, dat dit deel van de onderzoekslocatie onderzocht kan worden volgens de strategie "onverdacht" (ONV). De bovengrond bestaat voornamelijk uit zwak humeus, matig siltig, matig fijn zand. Plaatselijk is de de bovengrond zwak siltig, sterk siltig of matig kleihoudend en bestaat de bovengrond zeer plaatselijk uit matig grof zand. De ondergrond bestaat voornamelijk uit matig siltig, matig fijn zand. Plaatselijk is het matig fijn zand zwak tot sterk gleyhoudend. Bovendien bestaat de ondergrond zeer plaatselijk uit matig siltig, matig grof zand of sterk zandige klei.

In het opgeboorde materiaal zijn zintuiglijk geen verontreinigingen waargenomen.

Verkennend bodemonderzoek (NEN 5740)

De zintuiglijk schone bovengrond is plaatselijk licht verontreinigd met kwik. In de ondergrond zijn geen verontreinigingen aangetroffen. Het grondwater is licht verontreinigd met nikkel. Deze metaalverontreiniging is hoogstwaarschijnlijk te relateren aan regionaal verhoogde achtergrondconcentraties van zware metalen in het grondwater.

Conclusie

De vooraf gestelde hypothese, dat dit deel van de onderzoekslocatie als "onverdacht" kan worden beschouwd, wordt op basis van de onderzoeksresultaten niet geheel bevestigd. Gelet op de aard en mate van verontreiniging, bestaat er echter géén reden voor een nader onderzoek en bestaan er met betrekking tot de milieuhygiënische kwaliteit van de bodem géén belemmeringen voor de voorgenomen nieuwbouw van woningen ter plaatse van dit deel van het nieuwbouwplan “Lennisheuvel”.

Nader onderzoek asbest: Deellocatie A

Het nader onderzoek asbest is uitgevoerd in het kader van de voorgenomen aankoop van de onderzoekslocatie en de voorgenomen nieuwbouw van woningen ter plaatse van het plangebied “Achter Den Eijngel”, alsmede de hierbij behorende bestemmingsplanherziening van dit plangebied.

Het nader onderzoek asbest is uitgevoerd naar aanleiding van de onderzoeksresultaten van het verkennend bodemonderzoek en verkennend onderzoek asbest, dat onlangs door Econsultancy is uitgevoerd (rapportnummer 2190.004; d.d. 13 september 2017). Uit dit onderzoek blijkt onder andere, dat de bovengrond ter plaatse van het terreindeel met voormalige partijen grond en/of partijen niet vormgegeven bouwstof en het voormalige bedrijfsterrein van aannemersbedrijf H. Wagenaars Beheer bv plaatselijk indicatief verontreinigd is met asbest.

Op het maaiveld ter plaatse van de onderzoekslocatie zijn tijdens de maaiveldinspectie ten behoeve van het reeds eerder door Econsultancy uitgevoerd verkennend bodemonderzoek en verkennend onderzoek asbest (rapportnummer 2190.004; d.d. 13 september 2017) zintuiglijk (fractie > 20 mm) géén asbestverdachte (plaat)-materialen waargenomen. Vanwege dit feit, is gedurende het onderhavig nader onderzoek asbest géén aanvullende visuele inspectie van het maaiveld en de toplaag (maaiveldinspectie) meer verricht.

De bodem bestaat voornamelijk uit matig tot uiterst siltig, matig fijn zand. Bovendien is de bodem tot minimaal 0,2 m -mv en grotendeels tot de gegraven diepte zwak humeus. Verder is de bovengrond plaatselijk zwak grindig en de ondergrond zeer plaatselijk zwak grindig. Zeer plaatselijk bevinden zich in zwakke mate keien in de bodem. Tevens bevinden zich in de bodem zeer plaatselijk in zwakke tot sterke mate gleyverschijnselen en/of is de bodem zwak tot sterk oerhoudend. Ter plaatse van sleuf 5-21 bestaat de bodem over het traject 0,0 - 0,3 m -mv uit zwak grindig, matig siltig, matig grof zand.

De bodem is tot maximaal 0,65 m -mv plaatselijk zwak betonhoudend en/of zwak baksteenhoudend. Ter plaatse van Ruimtelijke Eenheid RE-1 en RE-2 is de bodem tot maximaal 0,65 m -mv zeer plaatselijk eveneens zwak aardewerkhoudend. Ter plaatse van Ruimtelijke Eenheid RE-4 is de bovengrond ook plaatselijk zwak tot sterk slakhoudend en zeer plaatselijk sterk puinhoudend. Tijdens de werkzaamheden zijn er in de bodem zintuiglijk geen asbestverdachte (plaat)-materialen (fractie > 20 mm) aangetroffen. In de geanalyseerde grond(meng)monsters zijn nergens gehalten aan asbest (fractie < 20 mm) aangetoond.

Ondanks het feit, dat tijdens het reeds eerder door Econsultancy uitgevoerd verkennend bodemonderzoek en verkennend onderzoek asbest (rapportnummer 2190.004; d.d. 13 september 2017) een indicatieve verontreiniging met asbest (fractie < 20 mm) is aangetoond, is tijdens het onderhavig nader onderzoek asbest nergens asbest (zowel fractie > 20 mm als fractie < 20 mm) aangetoond. Hierdoor is ter plaatse van de onderzoekslocatie géén sprake van een bodemverontreiniging.

De vooraf gestelde hypothese, dat de onderzoekslocatie als "verdacht" dient te worden beschouwd met betrekking tot de parameter asbest, wordt op basis van de onderzoeksresultaten verworpen. Er bestaan volgens Econsultancy dan ook géén milieuhygiënische belemmeringen met betrekking tot de parameter asbest voor de voorgenomen nieuwbouw van woningen ter plaatse van het plangebied “Achter Den Eijngel”, alsmede de hierbij behorende bestemmingsplanherziening van dit plangebied. Uit voorgaande onderzoeken en conclusies blijkt dat het aspect bodem geen belemmering vormt voor het planvoornemen.

4.4 Geluid

Ten aanzien van geluid zijn de regels uit de Wet geluidhinder (verder: Wgh) van toepassing.

De Wet geluidhinder voorziet rond (gezoneerde) industrieterreinen, langs wegen en langs spoorwegen in (onderzoeks)zones. Een zone rond een industrieterrein moet tezamen met het bestemmingsplan dat de vestiging van geluidszoneringsplichtige bedrijven mogelijk maakt worden vastgesteld op basis van een akoestisch onderzoek. Het industrieterrein zelf maakt geen deel uit van de zone. De zones langs wegen en spoorwegen volgen uit de Wet geluidhinder in samenhang met het Besluit geluidhinder en de Regeling Zonekaart spoorwegen.

Het plangebied is niet gelegen binnen de onderzoekszone van een spoorlijn of de geluidzone van een gezoneerd bedrijventerrein. De aspecten railverkeerslawaai en industrielawaai zijn niet aan de orde. Het plangebied is wel gelegen binnen de onderzoekszone van de Mijlstraat. De overige wegen in de directe omgeving van het plangebied, namelijk de Lennishevel, het Rigtpad, en de Ploeg, zijn aangemerkt als 30 km wegen waarvoor geen onderzoekszone geldt.

Indien men voornemens is nieuwe woningen of andere geluidsgevoelige gebouwen te realiseren binnen een onderzoekszone, dan dient een akoestisch onderzoek te worden uitgevoerd waaruit blijkt dat aan de hoogst toelaatbare geluidsbelasting op de gevel, als opgenomen in de Wet geluidhinder c.q. het Besluit geluidhinder, kan worden voldaan. Voor de 30 km wegen geldt geen onderzoeksplicht, maar dient aangetoond te worden dat voor de nieuwe woningen sprake is van een goed woon- en leefklimaat.

Voor onderhavig planvoornemen is een akoestisch onderzoek wegverkeerslawaai uitgevoerd (Econsultancy, rapportnummer 15091803, 13 mei 2016).

Conclusie akoestisch onderzoek

Aan de hand van de door de gemeente Boxtel aangeleverde gegevens is de geluidsbelasting op het planvoornemen als gevolg van alle wegen berekend. Daaruit kan worden opgemaakt dat voor beide gezoneerde wegen kan worden voldaan aan de ten hoogste toelaatbare geluidsbelasting van 48 dB. Ook de geluidsbelasting als gevolg van de Lennisheuvel is lager dan 48 dB. Het aspect geluid vormt daarmee geen belemmering voor de gewenste woningbouw op deze locatie.

4.5 Luchtkwaliteit

Op 15 november 2007 is de Wet luchtkwaliteit in werking getreden en staan de hoofdlijnen voor regelgeving rondom luchtkwaliteitseisen beschreven in de Wet milieubeheer (hoofdstuk 5 Wm). Hiermee is het Besluit luchtkwaliteit 2005 vervallen. Er zijn nu meer mogelijkheden om kleine bouwprojecten door te laten gaan.

Artikel 5.16 Wm (lid 1) geeft weer, onder welke voorwaarden bestuursorganen bepaalde bevoegdheden (uit lid 2) mogen uitoefenen. Als aan minimaal één van de volgende voorwaarden wordt voldaan, vormen luchtkwaliteitseisen in beginsel geen belemmering voor het uitoefenen van de bevoegdheid:

  • er is geen sprake van een feitelijke of dreigende overschrijding van een grenswaarde;
  • een project leidt, al dan niet per saldo, niet tot een verslechtering van de luchtkwaliteit;
  • een project draagt 'niet in betekenende mate' (NIBM) bij aan de luchtverontreiniging;
  • een project past binnen het NSL (Nationaal Samenwerkingsprogramma Luchtkwaliteit), of binnen een regionaal programma van maatregelen.

Het besluit houdende regels omtrent het niet in betekenende mate bijdragen, bedoeld in artikel 5.16, eerste lid, onder c, van de Wet milieubeheer (Besluit niet in betekenende mate bijdragen) is een AMvB die vastlegt, wanneer een project niet in betekenende mate bijdraagt aan de concentratie van een bepaalde stof. Een project is NIBM, als aannemelijk is dat het project een toename van de concentratie veroorzaakt van maximaal 3%. De 3% grens wordt gedefinieerd als 3% van de grenswaarde voor de jaargemiddelde concentratie van fijn stof (PM10) of stikstofdioxide (NO2). Dit komt overeen met 1,2 microgram/m³ voor zowel fijn stof en NO2.

Er zijn twee mogelijkheden om aannemelijk te maken dat een project binnen de NIBM-grens blijft:

  • aantonen dat een project binnen de grenzen van een categorie uit de Regeling niet in betekenende mate bijdragen valt. Er is dan geen verdere toetsing nodig, het project is in ieder geval NIBM (artikel 4, lid 1, van het Besluit niet in betekenende mate bijdragen(luchtkwaliteitseisen);
  • op een andere manier aannemelijk maken dat een project voldoet aan het 3% criterium. Hiervoor kunnen berekeningen nodig zijn. Ook als een project niet kan voldoen aan de grenzen van de Regeling niet in betekenende mate bijdragen, is het mogelijk om alsnog via berekeningen aan te tonen, dat de 3% grens niet wordt overschreden.

Als de 3% grens voor PM10 of NO2 niet wordt overschreden, dan hoeft geen verdere toetsing aan grenswaarden plaats te vinden. Indien een project boven de getalsmatige grenzen uitkomt, is een project in betekenende mate (IBM), tenzij alsnog aannemelijk te maken is dat de bron minder dan 3% bijdraagt aan de concentratie. Behoort een project tot een niet in de Regeling niet in betekenende mate bijdragen genoemde categorie dan zal steeds met behulp van onderzoek dienen te worden aangetoond of het project NIBM is.

Deze regel komt voort uit het NSL. Deze 3%-grens is voor een aantal categorieën projecten in een ministeriële regeling omgezet in getalsmatige grenzen, bijvoorbeeld:

  • woningbouw: 1.500 woningen netto bij 1 ontsluitingsweg, 3.000 woningen bij 2 ontsluitingswegen;
  • kantoorlocaties: 100.000 m² bruto vloeroppervlak bij 1 ontsluitingsweg, 200.000 m² bruto vloeroppervlak bij 2 ontsluitingswegen.

Dus als een planvoornemen uitgaat van de realisatie van 1.500 woningen bij één ontsluitingsweg zal een plan mogelijk in betekenende mate bijdragen aan de luchtverontreiniging van de omgeving. Concreet wordt met dit planvoornemen de bouw van maximaal 85 woningen mogelijk gemaakt. Aangenomen wordt dat luchtkwaliteit dan ook geen belemmering vormt voor de realisatie van het plan omdat het aan te merken is als NIBM. Echter ligt plangebied op korte afstand van het beschermd Natura 2000-gebied “Kampina”, hierdoor is een effect van stikstofdepositie niet op voorhand uit te sluiten. In het kader van de Wet Natuurbescherming dient beoordeeld worden of een mogelijk effect van stikstofdepositie belemmeringen meebrengt voor de vaststelling van het bestemmingsplan. Om die reden heeft Aelmans een stikstofdepositieberekening (AERIUS-berekening) opgesteld (rapportnummer M183100.001/TCR, datum 21 februari 2018, Bijlage 6)

Conclusies stikstofdepositieberekening

Uit de AERIUS-berekening blijkt dat er geen significante toename van depositie te verwachten is aangezien de berekening een maximaal mogelijke toename van < 0,05 mol N/ha/jaar laat zien. Voor het Natura 2000 - gebied Kampina geldt dat de grenswaarde voor het indienen van een aanvraag voor vergunning in het kader van de Wet natuurbeheer 0,05 mol N/ha/jaar bedraagt. Aangezien uit de berekening blijkt dat de grens van 0,05 mol N/ha/jaar niet wordt overschreden er geen vergunningplicht bestaat.

Eveneens kan geconcludeerd worden dat voor het plan geen “passende beoordeling” ten aanzien van het Natura 2000 - gebied uitgevoerd hoeft te worden, daarmee bestaat voor het plan eveneens geen m.e.r.-plicht. Duidelijk is in ieder geval dat de Wet natuurbeheer de vaststelling van het bestemmingsplan niet in de weg staat. Uit voorgaande kan worden geconcludeerd dat het aspect luchtkwaliteit geen belemmering vormt voor het planvoornemen.

Goede ruimtelijke ordening (NSL-monitoringstool)

Buiten het feit dat dit project op basis van het aantal woningen, en aantoonbaar middels de Aerius berekening, NIBM bijdraagt aan de luchtkwaliteit is het daarnaast van belang dat er wordt aangetoond dat er ter plaatse van het plangebied geen sprake is van luchtverontreiniging welke de NSL doelstellingen overschrijden. In het kader van een goede ruimtelijke ordening zijn om die reden, middels de NSL-monitoringstool, de jaargemiddelde concentraties NO2, PM10 en PM2,5 bepaald ter plaatse van het plangebied. In de NSL-monitoringstool zijn langs Lennisheuvel en de Koevoortseweg de jaargemiddelde concentraties NO2, PM10 en PM2,5 bepaald. In de volgende afbeelding zijn de jaargemiddelde concentraties NO2, PM10 en PM2,5 weergegeven voor het peiljaar 2016.

afbeelding "i_NL.IMRO.0757.BP08AchterEijngel-otw1_0030.png"

Overzicht concentraties NO2, PM10 en PM2,5, peiljaar 2016 (NSL-monitoringstool)

Uit de afbeelding blijkt dat de jaargemiddelde concentraties NO2, PM10 en PM2,5 ter plaatse van het plangebied de jaargemiddelde grenswaarde van 40 µg/m3 (voor NO3 en PM10) en 25 µg/m3 (voor PM2,5) niet overschrijden. Daarnaast is de trend dat in de toekomst de emissies en de achtergrondconcentraties van deze stoffen zullen dalen, waardoor geen overschrijdingen van de grenswaarden zijn te verwachten. Uit voorgaande uiteenzetting en het gebruik van de NIBM en NSL-tool blijkt dat het aspect luchtkwaliteit geen belemmering vormt voor het planvoornemen.

4.6 Externe veiligheid

4.6.1 Inleiding

Externe veiligheid betreft het risico dat aan bepaalde activiteiten verbonden is voor niet bij de activiteit betrokken personen. Het externe veiligheidsbeleid richt zich op het beheersen van risicovolle bedrijfsactiviteiten en van risicovol transport. Het gaat daarbij om de bescherming van individuele burgers en groepen tegen ongevallen met gevaarlijke stoffen. Risicobronnen kunnen worden onderscheiden in risicovolle inrichtingen (onder andere lpg-tankstations), vervoer van gevaarlijke stoffen en leidingen (onder andere aardgas en vloeibare brandstof). Om voldoende ruimte te scheppen tussen een risicobron en personen of objecten die risico lopen (kwetsbare of beperkt kwetsbare objecten) moeten vaak afstanden in acht worden genomen. Ook ontwikkelingsmogelijkheden die ingrijpen in de personendichtheid kunnen om onderzoek vragen.

afbeelding "i_NL.IMRO.0757.BP08AchterEijngel-otw1_0031.png"

Uitsnede risicokaart

4.6.2 Risicovolle inrichtingen

In de direct omgeving, binnen een staal van 200 meter, van het plangebied zijn geen risicovolle inrichtingen op basis van het Besluit externe veiligheid inrichtingen (Bevi) gelegen. Wel is aan de noordzijde van het plangebied, aan de Industrieweg 18, op een afstand van meer dan 750 meter een LPG tankstation gelegen. Het invloedsgebied van 150 meter van dit tankstation is niet van invloed op het plangebied.

4.6.3 Transport van gevaarlijke stoffen

Transport van gevaarlijke stoffen vindt in de directe omgeving niet plaats. Het spoor (spoorlijn Eindhoven - 's-Hertogenbosch en Tilburg) is op ongeveer 1 km afstand gelegen. Voor zover transport van gevaarlijke stoffen plaats vindt over dit spoort is het invloedsgebied van 200 meter van dit spoor niet van invloed op het plangebied.

4.6.4 Leidingen

In zuidelijke richting zijn op minder dan 200 meter afstand buisleidingen aanwezig. Deze buisleidingen zijn eigendom van de Rotterdam-Rijn Pijpleiding (RRP). Overige transport-routes zijn op ten minste 350 meter afstand gelegen. Om die reden is er een quickscan Externe Veiligheid uitgevoerd door Econsultancy, rapportnummer 5705 versie D2, datum 15 maart 2018. Dit rapport is bijgevoegd als Bijlage 7. De belangrijkste bevindingen uit deze quickscan zijn nu volgend weergegeven.

In de bestaande situatie zijn ter hoogte van de leidingen meer dan twee woningen per hectare aanwezig. Ook binnen het plangebied zelf is sprake van meer dan twee woningen per hectare. Daarom worden de nieuwe woningen aangeduid als kwetsbaar object. In de volgende figuur wordt nader ingezoomd op het plan ter hoogte van de aanwezige buisleidingen.

afbeelding "i_NL.IMRO.0757.BP08AchterEijngel-otw1_0032.png"

Het plangebied en de betreffende buisleidingen met risicocontouren

Er is sprake van twee K1-leidingen. Uit de risicokaart volgen de gegevens zoals vermeld in de nu volgende tabel. In december 2016 en januari 2017 heeft een laatste actualisatie van de gegevens plaatsgevonden.

afbeelding "i_NL.IMRO.0757.BP08AchterEijngel-otw1_0033.png" Gegevens buisleidingen

In voorgaande tabel zijn de vermelde afstanden voor het plaatsgebonden risico van 10-6/jaar voor beide leidingen weergegeven als stippellijn. Deze afstand volgt uit het risicoscenario voor een plasbrand. Uit de afstanden volgt dat het plaatsgebonden risico ter plaatse van de rood omcirkelde woning niet voldoet aan de grenswaarde. Het realiseren van een woning binnen de aangegeven afstanden is niet mogelijk.

Volgens het Handboek buisleidingen in bestemmingsplannen (2010) strekt het invloedsgebied voor de bepaling van het groepsrisico zich uit tot 'maximaal enkele meters' buiten de 10-6/jaar-contour. De binnen het plangebied geprojecteerde woningen zijn met uitzondering van de in voorgaande afbeelding rood omcirkelde woning gelegen op beduidend grotere afstand. Hier kan wel worden voldaan aan de grenswaarde voor het plaatsgebonden risico. De verwachting is dat het groepsrisico lager is dan de oriëntatiewaarde. Een vuistregel voor K1-leidingen is dat het groepsrisico de oriëntatiewaarde overschrijdt bij een dichtheid van meer dan 255 personen per hectare buiten de 10-6/jaar-contour. Voor leidingen met lichte brandstoffen is geen sprake van een significant groepsrisico.

4.6.5 Getroffen maatregelen

Leidingbeheerder RRP geeft in een reactie op versie D1 van dit rapport aan dat ter hoogte van het plangebied risicoreducerende maatregelen zijn ingezet. Als gevolg hiervan zijn de afstanden zoals weergegeven in de volgende tabel van toepassing.

afbeelding "i_NL.IMRO.0757.BP08AchterEijngel-otw1_0034.png"

Gegevens buisleidingen na de ingezette maatregelen

De afstanden uit de laatste kolom van de tabel zijn grafisch weergegeven in de nu volgende figuur. Uit de figuur volgt dat het plaatsgebonden risico ter plaatse van de aangegeven woning lager is dan 10-6/jaar en daarmee voldoet aan de grenswaarde.

afbeelding "i_NL.IMRO.0757.BP08AchterEijngel-otw1_0035.png"

Risicocontrouren na getroffen maatregelen

Conclusie plaatsgebonden risico

Doordat de exploitant van de leidingen maatregelen heeft getroffen voldoet het plaatsgebonden risico ter plaatse van de geprojecteerde woning aan de grenswaarden.

4.6.6 Verantwoording groepsrisico

Bij calamiteiten vanwege de buisleidingen zal in eerste instantie sprake zijn van explosie. De drukgolf zal voornamelijk leiden tot materiële schade, waarbij kans op letsel aanwezig is als gevolg van rond-vliegend glas. Voor woningen gelegen op korte afstand tot de leidingen wordt daarom geadviseerd versterkt glas toepassen en raamoppervlakken tot een minimum te beperken.

Na explosie is er kans op brand, waarbij mogelijk toxische stoffen vrijkomen. Op meer dan 50 meter afstand zal de hittestraling voldoende laag zijn om veilig binnenshuis te kunnen schuilen. Omwonenden dienen te worden gewaarschuwd binnen te blijven en ramen en deuren te sluiten. Indien noodzakelijk en mogelijk kan worden overgegaan tot evacuatie. Het plangebied kan goed worden ontvlucht via de aan te leggen wegen.

Hulpdiensten zoals ambulance en brandweer benaderen de calamiteit uit noordelijke richting. De primaire aanrijroute via Lennisheuvel kan daarom niet als secundaire evacuatieroute worden gebruikt. De leidingen zijn ter hoogte van de kruising met de Mijlstraat goed te bereiken. De rest van het tracé is gelegen in landelijk gebied en is moeilijker toegankelijk.

Advies RRP (Rotterdam-Rijn Pijleiding)

Op verzoek van de RRP-organisatie, welke de leidingen beheert, is het invloedsgebied van de leidingen opgenomen op de verbeelding van dit bestemmingsplan.

Advies veiligheidsregio

Ook de Veiligheidsregio heeft advies uitgebracht. De Veiligheidsregio adviseert op het gebied van zelfredzaamheid en bestrijdbaarheid. Uitgangspunt bij dit advies is dat er uitsluitend sprake is van grondgebonden woningen en geen zorgwoningen.De Veiligheidsregio adviseert het volgende:

  • Richt het plangebied zo in dat een minimaal aantal woningen binnen de 10kW/m2 opgericht wordt.
  • Gebruik bij die woningen liggend binnen deze contour moeilijk of niet brandbare materialen voor het afwerken van de gevels gericht naar de watergang.
  • Informeer toekomstige bewoners over het aanwezige risico en handelingsperpectief = vluchten of schuilen in objecten buiten de van de 10kW/m2 stralingscontour. Deze informatie kan worden mee gewogen in het besluit om zich op deze locatie te vestigen. Hiermee wordt in optimale vorm inhoud gegeven aan het risicobewustzijn van de burger.

Conform het advies van de Veiligheidsregio dient in de regels van dit bestemmingsplan bepaald te worden:

  • dat er binnen het invloedsgebied alleen grondgebonden woningen mogen worden gerealiseerd en geen zorgwoningen of andere bestemmingen waarbij de zelfredzaamheid slechter wordt. In de regels is daarom opgenomen dat er enkel reguliere grondgebonden en geen zorgwoningen voor verminderd zelfredzame personen mogen worden gerealiseerd;
  • dat de gevels van (beperkt) kwetsbare objecten welke zijn gericht naar de leiding (zuizijde) binnen respectievelijk 61,8 en 70,3 gezien vanaf de leiding moeten zijn afgewerkt met moeilijk of niet brandbare materialen. Binnen deze zone gelden nadere eisen bij het oprichten van (beperkt) kwetsbare objecten. Dit is als zodanig geregeld in de nadere eisen behorend bij de aanduiding 'veiligheidszone - leiding'.

Gezien het bovenstaande en getoetst aan de Beleidsvisie externe veiligheid van de gemeente Boxtel is de conclusie dat het restrisico bestuurlijk acceptabel en dat het aspect externe veiligheid geen belemmering vormt voor het planvoornemen.

4.7 Flora en fauna

4.7.1 Inleiding

Bij elk ruimtelijk plan moet, met het oog op beschermenswaardige natuurwaarden, rekening worden gehouden met de regelgeving op het gebied van gebiedsbescherming en soortenbescherming.

4.7.2 Gebiedsbescherming

De bescherming van Natura 2000-gebieden is geregeld in de Wet natuurbescherming, die de implementatie vormt van de Europese Vogelrichtlijn en Habitatrichtlijn. In paragraaf 3.2.3 is de ligging en consequenties van de woningbouwlocatie ten opzichte van Natura 2000 - gebieden, beschermende natuurmonumenten en Natuurnetwerk Nederland beschreven. Daarnaast is een quickscan flora en fauna uitgevoerd (Econsultancy, rapportnummer 15091804, 29 april 2016, Bijlage 8). Daaruit is gebleken dat het planvoornemen geen significante nadelige effecten heeft op Natura - 2000 gebieden en beschermde natuurmonumenten. Echter is er wel sprake van hinder ten opzichte van de aangrenzende ecologische verbindingszone (Heerenbeekloop). Voor deze zone geldt dat ze beschermd dient te worden tegen de invloed van ontwikkelingen doormiddel van bijvoorbeeld het creëren van een groene buffer.

Echter met de renaturering c.q. herstructurering van de Heerlenbeekloop is ter hoogte van het plangebied reeds invulling gegeven aan de Ecologische Verbindingszone. Om een geleidelijke overgang tussen de woningen naar de Ecologische Verbindingszone te waarborgen wordt aan noordzijde (aan de zijde van de woningbouwontwikkeling) de verbindingszone versterkt. De woningen worden niet direct tot aan Ecologische Verbindingszone gesitueerd. Er wordt in een 'zachte' overgang voorzien door de verbindingszone aan de zijde van de woningbouwontwikkeling te verbreden. Deze verbreding wordt met natuurlijk groen ingericht als overgang naar de verbindingszone maar tevens als uitloopgebied voor de woningbouwontwikkeling. Tevens neemt de bebouwingsintensiteit van de woningen van buiten naar binnen af, namelijk van gesloten/geschakelde bebouwing naar open bebouwing. Door het plangebied te ontsluiten via een hoofdontsluitings weg met haaks daarop insteken zijn de woning niet georiënteerd op de verbindingszone. Ter plaatse van de zogenaamde vensters richting de verbindingszone zijn in de openbare ruimte geen parkeervoorzieningen toegestaan. Tevens zal de verlichting hier in tot een minimum beperkt worden. De combinatie van deze opzet draagt er aan bij dat geen afbreuk wordt gedaan aan de Ecologische Verbindingszone maar dat deze hierdoor juist versterkt wordt.

4.7.3 Soortenbescherming

De conclusies uit de quickscan wijzen erop dat er voor uitvoering van de plannen duidelijkheid dient te zijn verkregen omtrent het gebruik van de onderzoekslocatie door steenuil, hazelworm en kamsalamander. Ten aanzien van overige broedvogels geldt dat overtreding op voorhand kan worden voorkomen door het terrein buiten het broedseizoen bouwrijp te maken, geen verlichting te richten op de Heerenbeekloop en de bomen voor de kap te controleren op eventuele nieuwe nesten van sperwer, ransuil en eekhoorn. Verder dient te allen tijde de algemene zorgplicht in acht te worden genomen.

 

Conclusie uit de Quickscan

Gelet op de gevonden en mogelijk aanwezige ecologische waarden en de beoogde planontwikkeling is de verwachting dat de voorgenomen plannen uitvoerbaar zijn, mits in de planvorming en tijdens het uitvoeren van de plannen het bepaalde in de Flora- en faunawet in acht te worden genomen. Indien van toepassing kunnen, middels het tijdig treffen van de juiste maatregelen en het aanvragen van een ontheffing, de plannen alsnog worden uitgevoerd.

Nader onderzoek

Zoals hiervoor reeds omschreven is uit de quickscan gebleken dat er nader onderzoek uitgevoerd moet worden naar de steenuil, hazelworm en de kamsalamander. Dit onderzoek is gefaseerd uitgevoerd door Econsultancy, rapportnummer 2190.001 versie D1, uiteindelijke datum van oplevering rapportage: 16 mei 2018. Deze rapportage is bijgevoegd als Bijlage 9.

Onderzoeksresultaten steenuil

In de onmiddellijke nabijheid van de onderzoekslocatie bevinden zich 2 vaste rust- en/of verblijfplaatsen van steenuilen. De projectlocatie maakt deel uit van de functionele leefomgeving van in de omgeving verblijvende steenuilen Door de voorgenomen plannen zal echter maar een klein percentage foerageergebied verloren gaan. Dit zal geen essentiële verstoring opleveren, die de functionaliteit van de nestlocatie in het geding brengt, aangezien er in de omgeving genoeg ander foerageergebied voorhanden is. Wel dient bij de inrichting rekening gehouden te worden met de verlichting van de Heerenbeekloop. Aangeraden wordt om maatregelen voor verlichting te combineren met maatregelen die het gebied aantrekkelijker maken voor steenuilen. Dit omdat deze maatregelen zeer goed te combineren zijn.

Maatregelen voor de steenuil

In het landschappelijke inpassingsplan zullen in aanvulling op eventuele verplichte maatregelen, maatregelen getroffen worden om het gebied beter geschikt te maken voor de steenuil. In de zone ten zuiden van de woningen zijn met de wadi's reeds taluds en kruidenrijk grasland aanwezig. Dit bevordert de voedselbeschikbaarheid voor de uil, bijvoorbeeld doordat er door deze maatregel meer insecten en muizen in het gebied voor kunnen komen. Tevens zullen in deze zone enkele takkenrillen en zitgelegenheden voor de uil aangelegd worden zodat dit gebied beter geschikt wordt als fourageergebied.

 

Zoals bij bovenstaande maatregel beschreven is zullen enkele maatregelen genomen worden om het gebied beter geschikt te maken voor de steenuil die in het gebied voorkomt. De grootste kansen hiertoe liggen in het gebied tussen het plangebied en de Heerenbeekloop. Dit gebied ligt echter buiten het plangebied en is niet in eigendom van de initiatiefnemer. De initiatiefnemer wil hierin echter graag meedenken en zal met de eigenaar van deze percelen verkennen of er mogelijkheden zijn om faunamaatregelen op dit perceel te nemen. Voorbeelden van maatregelen zijn het aanleggen van houtsingels, takkenrillen, kruidenrijk grasland en poelen.

De voorgaand benoemde takkenrillen zijn niet enkel geschikt voor de steenuil. De betreffende rillen zullen namelijk zodanig worden gepositineerd dat er sprake is van minder lichthinder van auto's in de richting van de Heerenbeekloop. Dit is tevens van positieve invloed op de vleermuizen aldaar.

Onderzoeksresultaten hazelworm

Uit onderhavig onderzoek blijkt dat de onderzoekslocatie geen functie heeft voor de streng beschermde hazelworm. Verstoring van de hazelworm bij de voorgenomen plannen is dan ook redelijkerwijs uit te sluiten.

Onderzoeksresultaten kamsalamander

Uit onderhavig onderzoek blijkt dat de onderzoekslocatie geen functie heeft voor de streng beschermde kamsalamander. Verstoring van de kamsalamander bij de voorgenomen plannen is dan ook redelijkerwijs uit te sluiten.

Conclusie

Vervolgstappen ten aanzien van de hazelworm en de kamsalamander zijn niet aan de orde. Als gevolg van de werkzaamheden wordt geen vaste rust- en verblijfplaats van de steenuil aangetast. Wel gaat door de voorgenomen plannen een zeer klein gedeelte foerageerhabitat verloren. Daarom wordt ten aanzien van de steenuil aangeraden om de zuidzijde van de planlocatie steenuilvriendelijk in te richten. Deze maatregelen zijn te combineren met maatregelen om verlichting van de Heerenbeekloop te voorkomen. Deze maatregelen zijn als zodanig opgenomen in het landschappelijk inpassingsplan, conform hiervoor omschreven.

Gezien de conclusies uit het onderzoek en de aanvullende maatregelen die zullen worden getroffen vormt het aspect flora en fauna geen belemmering voor het planvoornemen.

4.8 Cultuurhistorie en archeologie

4.8.1 Cultuurhistorie

Het plangebied is momenteel onbebouwd, met uitzondering van de woning aan de Mijlstraat en de woning aan het Rigtpad, en agrarisch in gebruik. Deze woningen en gronden hebben geen cultuurhistorische waarden. In de direct omgeving van het plangebied zijn twee woningen gelegen die wel een cultuurhistorische waarde hebben. Dit zijn het Rijks- en gemeentelijk monument aan respectievelijk Lennisheuvel 87 en 93.

Lennisheuvel 87

Het pand Lennisheuvel 87 betreft een traditionele langgevelboerderij uit het midden van de 19de eeuw zoals deze veel voorkomen in Brabant. Kenmerkend voor dit soort boerderijen is de rechthoekige vorm waarbij voorhuis, stal en schuur aan elkaar zijn gebouwd en alle deuren zich in de lange gevel bevinden. De gave staat van de hoofdvorm en detaillering geven het pand een hoge architectonische en beeldbepalende waarde in Lennisheuvel. Dit wordt mede bepaald door de typerende erfbeplanting en het ongeplaveide voorerf.

afbeelding "i_NL.IMRO.0757.BP08AchterEijngel-otw1_0036.png"

Foto's van Lennisheuvel 87

Den Eijngel

Den Eijngel is een van de eerste stenen huizen in Boxtel en omgeving. De oudste delen van het huidige huis dateren uit ongeveer 1560 maar uit archeologisch onderzoek is, op basis van velerlei vondsten, gebleken dat de oudste voorganger van Den Eijngel teruggaat tot de 14e eeuw, mogelijk zelf tot de 13e of 12e eeuw. Kortom, het betreft een bijzonder huis op een bijzondere locatie, zeker ook gezien de vele archeologische vondsten. Na verschillende aanpassingen kreeg het huis zijn huidige vorm tussen 1650 en 1750.

afbeelding "i_NL.IMRO.0757.BP08AchterEijngel-otw1_0037.png"

Historische foto's van Den Eijngel

Dit bijzondere huis is van oorsprong een herberg en brouwerij geweest en is later in gebruik genomen als boerderij. Vanaf 1975 is ook de functie als boerderij komen te vervallen en is het pand enkel nog in gebruik als woning. De laatste decennia is het pand enigszins in verval geraakt maar sinds 2014 is men begonnen met een volledige renovatie welke naar verwachting in 2019 zal worden afgerond. Naast het huis zelf was er tevens sprake van een Vlaamsche schuur, een dwarsdeelschuur, een stal, een kippenhok een brouwhuis en een bakhuisje. Het volledige bakhuisje is nog steeds in tact (gerenoveerd) en in de toekomst zal de dwarsdeelschuur worden herbouwd.

afbeelding "i_NL.IMRO.0757.BP08AchterEijngel-otw1_0038.png"

Foto's van Den Eijngel in zijn huidige staat

Gezien de afstand door de tussenliggende tuinen en de tussengelegen hoofdontsluitingsweg heeft de woningbouwontwikkeling geen tot nauwelijks negatieve invloed op de aanwezige cultuurhistorische bebouwing (Lennisheuvel 87 en 93). Tijdens de realisatie van de plannen zal er extra waakzaam worden gewerkt in de directe omgeving van deze monumenten.

Om de cultuurhistorische waarde van Den Eijngel (Lennisheuvel 93) te benadrukken is de beoogde ontwikkeling naar dit huis vernoemd en zal er bij de verdere inpassing van de nieuwbouw rekening gehouden worden met zichtlijnen naar Den Eijngel vanuit het plangebied en vanaf de Mijlstraat. De bestaande voorgevelroolijn van Mijlstraat 109 zal worden aangehouden, hierdoor ontstaan ruime voortuinen die goed zicht op Den Eijngel vanaf de Mijlstraat garanderen. Ook bij de aanleg van groen en het planten van bomen zal hier rekening mee worden gehouden. Den Eijngel zal in de toekomst dus niet achter het groen of achter de bebouwing verdwijnen maar grotendeels goed zichtbaar blijven. Het doel is om Den Eijngel zoveel mogelijk te accentueren. De langgevelboerderij Lennisheuvel 87 is momenteel reeds visueel gescheiden van het plangebied en dit zal bij de verdere planontwikkeling ook zo blijven.

4.8.2 Archeologie

afbeelding "i_NL.IMRO.0757.BP08AchterEijngel-otw1_0039.png"

Uitsnede archeologische beleidskaart Boxtel. De zwarte stippellijn geeft de begrenzing van het bestemmingsplan 'Buitengebied' weer

De gemeente beschikt over een archeologische beleidskaart. Op basis van deze beleidskaart heeft het plangebied een hoge verwachtingswaarde (categorie 4: oppervlakte ondergrens buitengebied 125 m2 en binnenstedelijk gebied 250 m2) en een middelhoge verwachtingswaarde (categorie 5 oppervlakte ondergrens buitengebied 500 m2 en binnenstedelijk gebied 2.500 m2). Het plangebied maakt grotendeels onderdeel uit van het buitengebied. In overleg met de gemeente wordt het echter beoordeeld als binnenstedelijk gebied. Daarnaast is de locatie door de provincie Noord-Brabant aangemerkt als archeologisch landschap. Dit houdt in dat gestreefd wordt naar een duurzaam en in samenhang behoud van archeologische resten.

Gezien de aanwezige archeologische verwachting in combinatie met het oppervlak van de bodemingreept (> 125 m2) en de aanwijzing als archeologisch landschap is een geactualiseerd archeologisch onderzoek, bestaande uit een bureauonderzoek met een verkennend booronderzoek (Econsultancy, rapportnummer 4606.003 & 15091802 Versie C2, 28 augustus 2017) uitgevoerd. Dit onderzoek is bijgevoegd als Bijlage 10. De aanleiding van deze actualisatie van het eerdere onderzoek uit 2016 betreft de aankoop van extra gronden die aan het plangebied zijn toegevoegd. Uit dit onderzoek zijn de volgende zaken naar voren gekomen:

Het bureauonderzoek toonde aan dat er zich mogelijk archeologische waarden in het plangebied zouden kunnen bevinden. Daarom is aansluitend een inventariserend veldonderzoek in de vorm van een verkennend booronderzoek uitgevoerd. Op 9 en 25 augustus 2017 zijn aanvullingen uitgevoerd op het inventariserend veldonderzoek in de vorm van boringen en proefputten ter plekke van twee nieuwe percelen toegevoegd aan het plangebied en het oostelijke deel van het terrein van het gronddepot.

Resultaten inventariserend veldonderzoek

De hoge archeologische verwachtingswaarde voor de delen van het plangebied die als weiland in gebruik staan zijn bevestigd door het verkennend booronderzoek. De verwachtingswaarde voor het gronddepot in het oosten van het plangebied zijn op basis van in het booronderzoek en de proefputten deels naar laag en deels naar middenhoog voor alle perioden bijgesteld. De verwachtingswaarde in de tuin in het noorden van het plangebied kan op basis van de daar gezette boring nog niet naar laag worden weggeschreven. Voor de twee nieuw aan het plangebied toegevoegde percelen is deels een hoge, middenhoge en een lage archeologische verwachting van toepassing. Op basis van het behoud van een hoge trefkans voor een groot deel van het plangebied blijft de kans reëel dat archeologische resten binnen het plangebied aanwezig zijn.

Selectieadvies

Op grond van de resultaten van het bureau- en veldonderzoek adviseert Econsultancy om de delen van het plangebied die als weiland in gebruik zijn nader te onderzoeken door middel van een IVO karterende en waarderende fase, proefsleuven (IVO-P). Voor de delen van het plangebied die als gronddepot in gebruik zijn adviseert Econsultancy om deze deels vrij te geven. Voor het oostelijke deel van het terrein van het gronddepot tot aan de Ploeg, aan de noordzijde, waar relatief intacte gooreerdgronden aanwezig zijn wordt door Econsultancy ook een proefsleuvenonderzoek geadviseerd. Voor de tuin in het noorden van het plangebied adviseert Econsultancy om enkel indien in de directe omgeving in de rode zones vindplaatsen aangetroffen worden ook hier een proefsleuvenonderzoek uit te laten voeren. Voor het zuidelijke deel van het nieuwe perceel ter plekke van het Rigtpad 3 wordt tenslotte ook een proefsleuvenonderzoek aanbevolen. Bovenstaand advies vormt een selectieadvies. De resultaten van onderhavig onderzoek dienen te worden beoordeeld door het bevoegd gezag (gemeente Boxtel). Het bevoegd gezag neemt vervolgens een selectiebesluit.

De gemeente heeft het selectieadvies en het inventariserend veldonderzoek beoordeeld en is met beiden akkoord gegaan. Vervolgens is er een plan van eisen opgesteld dat wederom ter beoordeling is aangeboden aan de gemeente Boxtel.

afbeelding "i_NL.IMRO.0757.BP08AchterEijngel-otw1_0040.png"

Advieskaart archeologisch onderzoek

Plan van eisen 

Er is door Econsultancy een plan van eisen opgesteld (pve nummer 4606.001 Versie C2, 4 oktober 2017) voor het proefsleuven onderzoek (IVO-P), dit plan van eisen is opgenomen als Bijlage 11. Vanzelfsprekend is ook dit plan van eisen beoordeeld door de gemeente en vervolgens geaccordeerd, het getekende voorblad is opgenomen als Bijlage 12. Op basis van dit akkoord is Econsultancy van start gegaan met het proefsleuvenonderzoek.

Resultaten proefsleuvenonderzoek

Tijdens het proefsleuvenonderzoek in het onderzoeksgebied aan de Lennisheuvel te Boxtel zijn 32 proefsleuven aangelegd met een gezamenlijke oppervlakte van circa 3200 m². De rapportage van dit onderzoek is bijgevoegd als Bijlage 13. In 26 van de 32 proefsleuven zijn sporen aantroffen die dateren uit de Nieuwe tijd, in hoofdzaak greppels die samenhangen met de ontginningsgeschiedenis van het onderzoeksgebied, ontwaterring, landbouwactiviteiten en perceelindelingen. Tevens zijn verstoringen van de bodem aangetroffen, met name in het oostelijk deel van het onderzoeksgebied. Het aangetroffen vondstmateriaal dateert uit de Late-Middeleeuwen (13e/14e eeuw) tot en met de 20e eeuw. Het merendeel van het vondstmateriaal is aangetroffen als aanlegvondsten. Het vondstmateriaal uit de vulling van greppels dateert in hoofdzaak uit de 19e een eerste helft van de 20e eeuw.

afbeelding "i_NL.IMRO.0757.BP08AchterEijngel-otw1_0041.png"

Overzicht van de gegraven proefsleuven binnen het plangebied

Uit de waardering volgens door de KNA voorgeschreven wijze blijkt dat de vindplaats die is aangetroffen niet behoudenswaardig is.

Selectieadvies

De lage waardering van de vindplaats leidt tot een selectieadvies: niet behoudenswaardig. Het selectieadvies is daarom dan ook om geen vervolgonderzoek uit te voeren en het plangebied vrij te geven voor verdere ontwikkeling. Het definitieve selectiebesluit zal worden genomen door het bevoegd gezag, de gemeente Boxtel.

Er is geprobeerd een zo gefundeerd mogelijk advies te geven op grond van de gebruikte onderzoeksmethode. De aanwezigheid van archeologische sporen of resten in het plangebied kan nooit volledig worden uitgesloten. Econsultancy wil de opdrachtgever er daarom op wijzen dat, mochten tijdens de geplande werkzaamheden toch archeologische waarden worden aangetroffen, er conform artikel 5.10 van de Erfgoedwet uit juli 2016 een meldingsplicht geldt bij het Ministerie van OCW, de gemeente Boxtel of de provincie Noord-Brabant.

De rapportage van het proefsleuvenonderzoek is geaccordeerd door de gemeente Boxtel. Op basis van voorgaande resultaten concludeert de gemeente dat archeologisch vervolgonderzoek niet meer noodzakelijk is en dat het volledige plangebied archeologisch kan worden vrijgegeven. Daarmee is het aspect archeologie voldoende onderzocht en onderbouwd en vormt het geen belemmering meer voor het planvoornemen.

4.9 Bedrijven en milieuzonering

De directe omgeving van het plangebied wordt aan de noordzijde gekenmerkt als een woonomgeving en aan de zuidzijde als een buitengebied. Binnen een straal van meer dan 100 meter zijn geen bedrijven gelegen. Alleen aan de Lennisheuvel is een nutsvoorziening gelegen. Aan de westzijde van het plangebied ligt op ongeveer 150 meter aan de Koevoortseweg 3 een autoreparatiebedrijf. Op basis van de VNG-brochure: 'Bedrijven en milieuzonering' wordt een autoreparatiebedrijf aangemerkt als een categorie 2 bedrijf met een indicatieve richtafstand van 30 meter (aspect geluid). Aangezien de afstand meer dan 30 meter bedraagt vormt dit bedrijf geen belemmering voor de woningbouwontwikkeling.

Dit zelfde geldt voor de maatschappelijke voorziening en de horecagelegenheid aan de noordzijden van het plangebied. De afstand tussen het plangebied en deze voorzieningen bedraagt ongeveer 120 meter. Aangezien maatschappelijke voorzieningen en horecagelegenheden maximaal aangemerkt worden als categorie 2 wordt in voldoende mate voldaan aan de aan te houden afstand.

Veehouderijen

Vergunningplichtige veehouderijen moeten per 1 januari 2007 voor wat betreft geur van dierenverblijven voldoen aan de Wet geurhinder en veehouderij. Afhankelijk van het soort te houden dieren geldt een maximale geurbelasting op omliggende geurgevoelige objecten uitgedrukt in odour-units, welke belasting kan worden berekend aan de hand van de voor de betreffende diersoort vastgestelde geuremissiefactor, dan wel een aan te houden minimale afstand tot omliggende geurgevoelige objecten. Verder dienen op grond van de Wet milieubeheer beste beschikbare technieken te worden toegepast. Een vergelijkbare systematiek is neergelegd in het Activiteitenbesluit voor bedrijven die niet verguningplichtig zijn maar dienen te voldoen aan de algemene regels in dat besluit. Per 1 januari 2013 vallen ook mestbassins onder de werking van het Activiteitenbesluit.

Bij ruimtelijke ontwikkelingen komt aan voornoemd wettelijk kader een zogenoemde 'omgekeerde werking' toe. Bij de beoordeling of nieuwe geurgevoelige, zoals in dit geval woningen, mogelijk zijn in de nabijheid van agrarische bedrijven waar dieren worden gehouden zijn twee vragen van belang:

  • kan ter plaatse van de nieuwe woningen een goed woon- en leefklimaat worden gegarandeerd, en;
  • worden er geen bedrijven belemmerd in de voortzetting van hun bestaande bedrijfsvoering en kunnen concrete (vergunde/bestemde) uitbreidingsplannen nog worden gerealiseerd.

Voorgrondbelasting

Langs de Koevoortseweg zijn twee agrarische bedrijven gelegen. Het dichtsbijzijnde bedrijf ligt in dit geval op ruim 275 meter afstand van het plangebied en heeft een richtafstand van 200 meter (aspect geur). Deze bedrijven vormen geen belemmering voor het planvoornemen. Er is, voor wat betreft de voorgrondbelasting, sprake van een goed- woon en leefklimaat ter plaatse van het plangebied. Omgekeerd vormt de woningbouwontwikkeling geen belemmering voor voornoemde bedrijven gezien de afstand en het gegeven dat er reeds woningen op kortere afstanden van deze bedrijven zijn gelegen.

Achtergrondbelasting

In tegenstelling tot de voorgrond belasting, waarbij er wordt gekeken naar individuele bedrijven, wordt er bij achtergrondbelasting uitgegaan van het cumulatieve effect van de bedrijven in de omgeving samen. Uit gegevens van de gemeente blijkt dat de achtergrond belasting < 10 Ou/e m³ betreft. Afgaande op de tabellen uit de handreiking geurhinder blijkt het volgende:

afbeelding "i_NL.IMRO.0757.BP08AchterEijngel-otw1_0042.png"

afbeelding "i_NL.IMRO.0757.BP08AchterEijngel-otw1_0043.png"

Uit voorgaande tabellen blijkt dat het aantal geurgehinderden 12% betreft. Als dit vervolgens vertaald wordt naar de tweede tabel blijkt dat dit percentage in de categorie redelijk goed valt. Hieruit blijkt dat binnen de woonbestemmingen die binnen dit plan mogelijk worden gemaakt sprake is van een voldoende tot goed woon- en leefklimaat. Op dit punt vormt het aspect geur daarom geen belemmering voor het planvoornemen. De aspecten geurhinder en bedrijven en milieuzonering vormen daarmee geen belemmering voor het planvoornemen.

Wat betreft de nieuwe functie die mogelijk wordt gemaakt met dit plan, de functie ‘Wonen’, wordt opgemerkt dat deze functie niet wordt aangemerkt als een milieubelastende functie voor de omgeving. Van enige vorm van aantasting van het woon- en leefklimaat van omwonenden als gevolg van dit plan is dan ook geen sprake.

4.10 Kabels en leidingen

In het plangebied liggen geen kabels of leidingen die een planologische bescherming behoeven. De reguliere leidingen voor gas, water en elektra dan wel overige voorzieningen (telefonie/glasvezel, cai) welke nodig zijn voor de energievoorziening van de woningen worden binnen de openbare ruimte / ontsluitingsstructuur aangelegd. De nieuw te realiseren woningen worden hierop aangesloten. Dit heeft verder geen planologisch-juridische consequenties.

Hoofdstuk 5 Waterparagraaf

5.1 Inleiding

Het is verplicht om in de toelichting bij een bestemmingsplan te verantwoorden op welke wijze rekening is gehouden met de gevolgen van het plan voor de waterhuishouding. Dit is bepaald in artikel 3.1.6, eerste lid, sub b van het Besluit ruimtelijke ordening (Bro). Deze verantwoording wordt ook wel de waterparagraaf genoemd. Dit hoofdstuk kan als zodanig worden beschouwd.

5.2 Beleid Waterschap

Bij de voorbereiding van bestemmingsplannen is overleg met het waterschap verplicht. De resultaten van dat overleg en een beschrijving van de wijze waarop rekening wordt gehouden met de gevolgen voor het watersysteem, moeten in de toelichting vermeld staan. Waterschap Brabantse Delta blijft inzetten op een vroegtijdige inbreng van het waterbelang in alle vormen van ruimtelijke plannen en op uitbouw van de samenwerking met gemeenten op dit vlak.

 

Uitgangspunt bij de watertoets is het zoveel mogelijk voorkomen van negatieve gevolgen voor het watersysteem (waterkeringen, wateren en grondwater) door ruimtelijke plannen en besluiten. Dergelijke plannen moeten minstens waterneutraal zijn en waar mogelijk waterpositief. De waterveiligheid, de waterkwaliteit en de waterkwantiteit mogen door de plannen niet achteruitgaan. Als dit redelijkerwijs niet mogelijk is, dienen de negatieve gevolgen te worden gecompenseerd. De compenserende maatregelen worden bij voorkeur binnen het plangebied genomen, om afwenteling naar andere gebieden te voorkomen.

5.3 Watertoets

De watertoetst en het geohydrologisch onderzoek zijn beiden uitgevoerd door Econsultancy, rapportnummer 2190.002, versie D1, datum 27 oktober 2017. Dit rapport is bijgevoegd als Bijlage 14 en nu volgend zijn de conclusies weergegeven.

Bodemopbouw, doorlatendheid en grondwater

Op basis van locatiespecifiek (bodem)onderzoek blijkt de bodem sterk heterogeen van opbouw te zijn. De bodem bestaat daarbij overwegend uit zeer fijn matig siltig zand. In de ondergrond worden echter op wisselende diepten sterk siltige zandlagen aangetroffen. Ook komen vanaf 2,0 m -mv leemlagen voor.

De doorlatendheid van de in het veld gemeten zandlagen zijn over het algemeen geclassificeerd als matig tot vrij goed doorlatend, waarbij k-waarden van 0,1 en 1,3 m/dag zijn aangetoond. Op basis van de resultaten van het uitgevoerde geohydrologisch veldonderzoek wordt voor het dimensioneren van infiltratievoorzieningen een rekenwaarde gehanteerd van 0,5 m/dag. De Gemiddelde Hoogste Grondwaterstand (GHG) wordt ingeschat op ± 8,0 m +NAP.

Planontwikkeling

De initiatiefnemer is voornemens de locatie te herontwikkelen. De herontwikkeling voorziet in een nieuwbouwwijk met 82 woningen. Op basis van het af te koppelen verhard oppervlak en de bergingseis bedraagt de waterbergingsopgave voor het plangebied in totaal circa 1.500 m3 (25.000 m2 x 0,06 m).

Hemelwater

In de toekomstige situatie zal het schone hemelwater (zogenaamde hemelwaterafvoer; HWA) niet direct op het vuilwater (zogenaamde droogweerafvoer; DWA) worden aangesloten maar separaat binnen de plangrenzen worden verwerkt. Gestreefd wordt om hemelwater vanuit het plan zoveel mogelijk in het plan vast te houden (te bergen) om uiteindelijk vertraagd af te voeren naar de beekzone ten zuiden van het plan.

Aan de zuidzijde van het plan op de iets hoger gelegen percelen wordt het maaiveld verlaagd en een wadi aangelegd. Hier kan een gedeelte van wateropgave vanuit het plan tijdelijk in worden opgeslagen. Het uitgangspunt is om water vanuit de wadi zoveel mogelijk te infiltreren. Daarnaast kan water vanuit de voorziening ook vertraagd worden afgevoerd met een geknepen afvoer naar het beekdal van de Heerenbeekloop. Door de wadi in deze strook landschappelijk in te passen zal deze ontwikkeling bijdragen aan een verbetering van de huidige ecologische kwaliteiten van de beekzone. Van enige afbreuk is dan ook geen sprake.

Vanwege de doorkijk en behoud van de open landschappelijk structuur zijn binnen het plan enkele groenzones voorzien. In deze groenzones kan (extra) hemelwater geborgen worden door het maaiveld te verlagen. De wadi’s in deze groenzones worden eenzijdig voorzien van een damwand (stuwconstructie) met vertraagde afvoer en overstort richting de wadi’s in de beekzone. Met in acht neming van de infiltratiemogelijkheden kan in de wadi’s in een 24-uursperiode circa 1.040 m3 hemelwater geborgen worden. Dit betreft de dynamische (netto) bergingscapaciteit en omvat de som van de statische (bruto) bergingscapaciteit en de infiltratiecapaciteit.

Op basis van de bergingsmogelijkheden in de wadi’s in de beekzone en de groenzones zal binnen het plangebied in principe nog circa 460 m3 (1.500 m3 - 1.040 m3) geborgen moeten worden. Dit kan op verschillende manieren bijvoorbeeld door de aanleg van Stedelijke infiltratiestroken, waterberging op straat of waterberging direct onder de wegen.

Op basis van de bodemopbouw, textuur en de resultaten van het doorlatendheidsonderzoek zullen de voorzieningen aan de rand van het plan slechts deels door middel van infiltratie ledigen. Vanuit de tijdelijke bergingsvoorziening zal dan ook (hemel)water vertraagd worden afgevoerd op de beekzone en uiteindelijk de Heerenbeekloop. De vertraagde afvoer dient afgestemd te worden op de afvoernorm voor T=100 is dit 2,0 keer de maatgevende afvoer. Deze afvoer is het afgeronde gemiddelde van de drie Brabantse waterschappen, 1,0 l/s/ha. De maatgevende afvoer voor een T=100 situatie bedraagt derhalve 2,0 l/s/ha.

In een situatie waarbij in een korte tijd meer regen valt dan 60 mm kan overtollig water overstorten op de beekzone en de Heerenbeekloop. Afstroming van hemelwater binnen het plan richting gebouwen en/of aangrenzende percelen dient te worden voorkomen.

Vuilwater

Bij nieuwbouw dient hemelwater en afvalwater gescheiden aangeleverd te worden. Als gevolg van de ontwikkeling zal het aanbod van vuilwater toe nemen. Op basis van aannames zou de toename in aanbod van vuilwater circa 24,6 m³/dag bedragen. Het vuilwater (zogenaamde droogweerafvoer; DWA) zal in de toekomstige situatie worden aangesloten op het bestaande gemengde rioleringsstelsel van de Pastoor Manderstraat.

Watervergunning

Bij plannen waarbij sprake is van een toename in het verhard oppervlak van meer dan 10.000 m2, moet bij het waterschap een vergunning worden aangevraagd. Om deze vergunning te kunnen verkrijgen en om de vergunningsvoorschriften te kunnen bepalen, is een waterhuishoudkundigplan nodig. Hierbij is overleg met het waterschap van belang. Ten aanzien van de verdere planvorming in overleg met het waterschap derhalve nog een waterhuishoudkundigplan opgesteld moeten worden. In het waterhuishoudkundigplan kan dan het watersysteem verder in detail worden uitgewerkt.

Op basis van de randvoorwaarden en uitgangspunten is de ontwikkeling in zowel ruimte als tijd waterneutraal uit te voeren. Er worden dan ook vanuit het oogpunt van de waterhuishouding geen belemmeringen verwacht ten aanzien van de bestemmingswijziging en de uitvoering van het plan.

5.4 Aanleg Wadi's

Om in de waterbergingsopgave van 1.500 m³ te voorzien worden wadi's aangelegd. De gronden tussen schanskorf en erfgrens worden ingezet voor waterberging (nr. 4A & 4B op onderstaande afbeelding). Voor de situering van de gronden is rekening gehouden met de bouwvrije zone ten opzichte van de waterloop (25m). De inrichting van deze gronden sluit aan bij de inrichting van de beek, door het gebruik als natte graslanden. Op deze manier zullen deze gronden optisch onderdeel uitmaken van de beekloop en met de inrichting het ook functioneel versterken. In deze zones kan ruim 1.000 m³ water geborgen worden.

Daarnaast is het voorstel om een centrale wadi aan te leggen op de plaats waar vroeger een verbindingsweg heeft gelopen vanuit het Rigtpad naar de Mijlstraat. Op deze manier krijgt deze woonstraat meer ruimte en daarmee herkenbaarheid. De wadi bestaat uit twee componenten die samen voorzien in een capaciteit van ruim 250 m³ (nr. 1 & 2 op onderstaande afbeelding). Om de structuur stevig aan te zetten is hier een dubbele bomenrij voorgesteld.

afbeelding "i_NL.IMRO.0757.BP08AchterEijngel-otw1_0044.png"

Het voorgestelde landschappelijke inpassingsplan waarbij puur de maatregelen om te voldoen aan de waterbergingsopgave zijn weergegeven (blauw)

Om in de restopgave waterberging te voorzien worden de groene ruimtes ingezet aan het einde van de woonstraten (nr. 3A t/m 3D op onderstaande kaart). De wadi's zijn eenvoudig vormgege-ven met een maximale diepte van 0,5m ten opzichte van het maaiveld en taluds met een helling 1:3. Er kan hier een bergingscapaciteit van 440m³ worden gerealiseerd. De wadi's zelf worden ingezaaid met een meerjarig bloemrijk grasmengsel, wat ten goede komt aan de ecologie en het beheer. Dit mengel zal ten tijde van aanleg worden afgestemd met het grasmengsel van de Heerenbeekloop.

afbeelding "i_NL.IMRO.0757.BP08AchterEijngel-otw1_0045.png"

Locatie en inhoud wadi's Met bovenstaande weergave wordt aangetoond dat aan de waterbergingsopgave van 1500 m3 kan worden voldaan. De vorm en inhoud van elke afzonderlijke wadi kan in de nadere uitwerking enigszins afwijken van bovenstaande weergave.

afbeelding "i_NL.IMRO.0757.BP08AchterEijngel-otw1_0046.png"

Principeprofiel centrale wadi's zoals voorgesteld in het landschappelijk inpassingsplan

Hoofdstuk 6 Juridische aspecten

6.1 Inleiding

In een bestemmingsplan zijn de bouw- en gebruiksmogelijkheden voor een bepaald gebied opgenomen. Het onderhavige bestemmingsplan regelt de inrichting van het gebied door voor de gronden bestemmingen aan te wijzen. Het juridische deel van het bestemmingsplan bestaat uit de verbeelding (kaart) in samenhang met de regels. In deze paragraaf wordt het juridische deel van het bestemmingsplan nader toegelicht.

6.2 Uitgangspunten

6.2.1 Wettelijk kader

Het wettelijk kader wordt sinds 1 juli 2008 gevormd door de Wet ruimtelijke ordening (Wro). De wettelijke regeling voor bestemmingsplannen is vervolgens verder ingevuld door het Besluit ruimtelijke ordening (Bro) en de Regeling standaarden ruimtelijke ordening 2008. Het bestemmingsplan dient te voldoen aan de als bijlage bij de voornoemde Regeling opgenomen Standaard Vergelijkbare Bestemmingsplannen 2012 (SVBP2012). Dit betekent dat bestemmingsplannen kwalitatief gelijkwaardig zijn en uniform in aanpak, uitvoering, uitwisseling van gegevens en raadpleging daarvan.

6.2.2 Planonderdelen

Onderhavig bestemmingsplan 'Woningbouwlocatie Lennisheuvel' bestaat uit een verbeelding, de regels en een toelichting. De verbeelding en de regels tezamen vormen het juridisch bindende deel van het plan. Verbeelding en regels dienen te allen tijde in onderlinge samenhang te worden opgenomen en toegepast.

Op de verbeelding krijgen alle gronden binnen het plangebied een bestemming. Binnen een bestemming kunnen nadere aanduidingen zijn aangegeven. De juridische betekenis van deze bestemmingen en aanduidingen zijn terug te vinden in de regels. Een gedeelte van de informatie op de analoge verbeelding heeft geen juridische betekenis, maar is slechts opgenomen om de leesbaarheid van en oriëntatie op de verbeelding te vergroten, zoals een kadastrale/GBKN ondergrond. Alle letters, aanduidingen en lijnen worden verklaard in de legenda op de verbeelding. Bij eventuele verschillen tussen de digitale en analoge verbeelding is de digitale verbeelding juridisch bindend.

De regels bepalen de gebruiksmogelijkheden van de gronden binnen het plangebied en geven tevens de bouw- en gebruiksmogelijkheden met betrekking tot bouwwerken aan. De regels van het bestemmingsplan 'Woningbouwlocatie Lennisheuvel' zijn opgebouwd conform de door het SVBP2012 voorgeschreven systematiek en gebaseerd op de regels uit de vigerende beheersverordening. De regels omvatten inleidende regels, bestemmingsregels, algemene regels en ten slotte de overgangs- en slotregels.

6.3 Toelichting op de planregels

6.3.1 Inleidende regels

In de begripsbepalingen worden omschrijvingen gegeven van de in het bestemmingsplan gebruikte begrippen. Deze zijn opgenomen om onduidelijkheid door interpretatieverschillen te voorkomen. Er zijn alleen begripsbepalingen opgenomen die gebruikt worden in de regels en die tot verwarring kunnen leiden of voor meerdere uitleg vatbaar zijn. Een gedeelte van de begrippen is omschreven in het SVBP en dient letterlijk daaruit te worden overgenomen. Deze begrippen en de voorgeschreven omschrijvingen zijn overgenomen.

Ook over de bepaling van afstanden, hoogtes en oppervlaktes kunnen interpretatieverschillen ontstaan. Om op een eenduidige manier afstanden, hoogtes en oppervlakten te bepalen, wordt in de 'wijze van meten' uitleg gegeven wat onder de diverse begrippen wordt verstaan. Ten aanzien van de wijze van meten op de verbeelding geldt steeds dat het hart van een lijn moet worden aangehouden. Ook voor de wijze van meten worden in de SVBP2012 regels gegeven, welke in het plan letterlijk zijn overgenomen.

6.3.2 Bestemmingsregels

Per bestemming, die op de verbeelding wordt gebruikt, worden gebruiks- en bouwregels opgenomen. De opbouw van de bestemmingen ziet er in beginsel als volgt uit:

  • Bestemmingsomschrijving
  • Bouwregels
  • Afwijken van de bouwregels
  • Specifieke gebruiksregels
  • Afwijken van de gebruiksregels
  • Omgevingsvergunning voor het uitvoeren van werken, geen bouwwerk zijnde, of werkzaamheden

Niet alle onderdelen komen bij elke bestemming voor. Van de meest gebruikte onderdelen volgt hieronder een korte toelichting.

Bestemmingsomschrijving

In de bestemmingsomschrijving wordt een omschrijving gegeven van de aan de gronden toegekende functie(s). De hoofdfunctie(s) worden als eerste genoemd. Indien van toepassing worden ook de aan de hoofdfunctie ondergeschikte functies genoemd. De ondergeschiktheid kan worden aangegeven door de woorden 'met daaraan ondergeschikt'. De ondergeschikte functies staan ten dienste van de hoofdfunctie binnen de betreffende bestemming.

Bouwregels

In de bouwregels is bepaald welke bouwwerken mogen worden opgericht, waarbij in ieder geval een onderscheid wordt gemaakt tussen de regeling van gebouwen en bouwwerken, geen gebouwen zijnde en daar waar van toepassing ook tussen hoofdgebouwen en bijgebouwen. Voorts bevatten de bouwregels, voor zover van toepassing, minimale en maximale maatvoeringen voor de diverse bouwwerken zoals goothoogtes, bouwhoogtes, oppervlaktes en dakhellingen.

Afwijken van de bouwregels

Door het opnemen van afwijkingsbevoegdheden wordt flexibiliteit in bestemmingsregels gecreëerd door mogelijkheden te bieden om in beperkte mate af te wijken van de algemeen toegestane bouwregelingen. Deze bevoegdheden zijn niet bedoeld voor afwijkingen van de bouwregels, waarvan de verwachting is, dat ze veelal kunnen worden verleend. In dat geval zijn de bouwregels hierop aangepast. Voor elke afwijking is aangegeven waarvan een omgevingsvergunning voor het afwijken van de bouwregels wordt verleend, de maximale afwijking die met de omgevingsvergunning kan worden toegestaan en meestal de situaties of voorwaarden waaronder een omgevingsvergunning wordt verleend. Het gaat hier om afwijkingsbevoegdheden voor specifieke bestemmingen. Indien afwijkingsbevoegdheden gelden voor meerdere bestemmingen dan wel een algemene strekking hebben, zijn ze opgenomen in hoofdstuk 3 van de regels (zijnde algemene regels).

Specifieke gebruiksregels

Met de inwerkingtreding van de Wet algemene bepalingen omgevingsrecht is artikel 7.10 Wet ruimtelijke ordening vervallen. In dit artikel was het verbod opgenomen om gronden te gebruiken op een manier die in strijd is met het bestemmingsplan. Derhalve moeten in de specifieke gebruiksregels bepaalde functies concreet worden genoemd als zijnde verboden gebruik. Ook het laten gebruiken moet specifiek worden genoemd.

Afwijken van de gebruiksregels

Door middel van een omgevingsvergunning voor het afwijken van de gebruiksregels kan van de gebruiksregels in het plan worden afgeweken ten behoeve van een concrete vorm van grondgebruik. Dit mag echter niet leiden tot een feitelijke wijziging van de bestemming. Dat wil zeggen dat wel kan worden afgeweken van de gebruiksregels ten behoeve van functies die inherent zijn aan de in de bestemmingsomschrijving opgenomen functies, maar dat via het afwijken geen 'nieuwe' functies kunnen worden toegestaan. Het afwijken van de gebruiksregels dient te zien op kleinere, planologisch minder ingrijpende onderwerpen. Functiewijzigingen en grotere, ruimtelijke ingrepen dienen te worden geregeld via een wijzigingsbevoegdheid of een afzonderlijke bestemmingsplanherziening.

Omgevingsvergunning voor het uitvoeren van werken, geen bouwwerk zijden, of werkzaamheden

Met een omgevingsvergunning voor het uitvoeren van werken, geen bouwwerk zijnde, of werkzaamheden kunnen specifieke inrichtingsactiviteiten aan een werk of werkzaamheid worden verbonden. Onder deze inrichtingsactiviteiten valt niet het bouwen en het gebruiken. Een vergunningenstelsel wordt opgenomen om extra bescherming aan een specifieke waarde van de bestemming te bieden, zoals landschappelijke of natuurlijke waarden, ecologische waarden of de groen- en/of waterstructuur. Een vergunningenstelsel kan in specifieke en bijzondere situaties worden opgenomen in verband met bijvoorbeeld het verwijderen van waardevolle boombeplanting. In onderhavig bestemmingsplan is dit niet aan de orde omdat de gronden worden uitgegeven als bedrijventerrein.

6.4 Toelichting op de bestemmingen

Hierna zijn de binnen het plangebied gelegen bestemmingen afzonderlijk opgenomen. Daarbij wordt ingegaan op het van toepassing zijnde beleid en de bouw- en gebruiksmogelijkheden binnen de desbetreffende bestemming.

Het beleid dient ertoe om de toegankelijkheid en het begrip van de regels te vergroten. Op basis hiervan is het mogelijk om te bepalen of een bouwplan of ontwikkeling binnen het bestemmingsplan past. Het vastgestelde beleid vormt in geval van een ongewenste afwijking de basis voor een gemotiveerde weigeringsgrond.

6.4.1 Bestemming Natuur

De zone tussen de Heerenbeekloop en de bestemming 'Wonen' is overeenkomstig de vigerende bestemming bestemd tot 'Natuur'. Deze gronden zijn met name bestemd voor het behoudt, het herstel en/of de ontwikkeling van de natuurlijke, natuurwetenschappelijke en landschappelijke waarden, archeologische, cultuurhistorische en aardkundige waarden en kenmerken van de gronden.

Daarnaast zijn infrastructurele voorzieningen voor de aanleg van voetpaden als ook water en waterhuishoudkundige voorzieningen binnen deze bestemming toegestaan. De waterhuishoudkundige voorzieningen zijn met name noodzakelijke om de maatregelen voor de opvang van het hemelwater vanuit het plangebied mogelijk te maken.

Verder zijn ter plaatse van de bestemming 'Natuur' de aanduidingen 'milieuzone - ecologische verbindingen' en 'milieuzone - beekherstel' opgenomen. Ter plaatse van deze aanduidingen staat de verwezenlijking en het behoudt, beheer en herstel van een ecologische verbindingszone en van watersystemen voorop. Met de herinrichting c.q. meandering van de Heerenbeekloop is hieraan concreet invulling gegeven. Derhalve zijn deze aanduidingen In tegenstelling tot de vigerende aanduidingen ter hoogte van het plangebied beperkt tot de bestemming 'Natuur'.

6.4.2 Bestemming Verkeer - Verblijfsgebied

Voor het noodzakelijk ruimtebeslag nodig voor de ontsluitingsstructuur (hoofdontsluitingsweg en insteken is er voor gekozen om één bestemming op te nemen waarin het bestemmingsverkeer geregeld is. De hoofdontsluitingsweg en insteken in het verlengde van het Rigtpad en de Ploeg en daartussen in zijn als zodanig positief bestemd omdat de ligging en het ruimtebeslag van deze wegen vast ligt. Een uitzondering hierop is de insteek tussen de insteek in het verlengde van het Rigtpad en de Ploeg. Om eventueel (in de marge) te kunnen 'schuiven' met deze weg is binnen de bestemming 'Wonen' de aanduiding 'verkeer' opgenomen. Binnen het aangeduide ruimtebeslag van 10 meter aan weerszijde van deze insteek is het mogelijk om de positie van deze insteek nader te bepalen. De overige twee insteken zijn niet nader vastgelegd omdat de ligging en richting van deze insteken nog niet vaststaat. Deze kan als gevolg van ontwikkelingen op de woningbouwmarkt dan wel voortschrijdend inzicht nog wijzigen. Derhalve zijn verkeersvoorzieningen en parkeervoorzieningen binnen de bestemming 'Wonen' toegestaan.

In de bestemming 'Verkeer - Verblijfsgebied' is de mogelijkheid voor wegen, voet- en fietspaden, groen en parkeervoorzieningen opgenomen. Inrichting van de openbare ruimte is mogelijk binnen deze bestemming. Binnen deze bestemming zijn geen gebouwen toegestaan, met uitzondering van gebouwen ten dienste van nutsvoorzieningen. Voor bouwwerken, geen gebouwen zijnde, zijn bouwregels opgenomen. Aan het uiteinden van de insteken is de aanduiding 'parkeren uitgesloten' opgenomen. Hiermee wordt beoogd dat ter plaatse geen parkeervoorzieningen worden aangelegd waardoor het zicht op de aangrenzende natuurzone c.q. Heerenbeekloop wordt belemmerd.

6.4.3 Bestemming Wonen - 1

De gronden waar de woningen zijn beoogd zijn bestemd voor wonen. Vanwege de globaliteit en flexibiliteit is alleen het bestemmingsvlak aangegeven. Er zijn geen aanduidingen in de vorm van een bouwvlak of bijbouwvlak opgenomen. De regels ten aanzien bouwen zijn beschrijvend vastgelegd op basis van: minimum en maximum aantal woningen, de afstand tot de openbare ruimte, bouwdiepte, goot- en bouwhoogte alsmede afstand tot de zijdelingse perceelsgrens. Beroepen aan huis zijn direct toegestaan.

Verder is binnen de bestemming 'Wonen' de aanduiding 'verkeer' opgenomen voor de nadere plaats bepaling van de insteek tussen de insteken in het verlengde van het Rigtpad en de Ploeg. Zie tevens paragraaf 6.4.1.

6.4.4 Bestemming Wonen - 2

Binnen deze woonbestemming is minder flexibiliteit van toepassing, er is sprake van eisen met betrekking tot dieptes en breedte's van de woningen. Tevens geldt voor deze woningen een maximum goot- en bouwhoogte. Door het opnemen van striktere regels en minder flexibiliteit wordt beter aangesloten bij de bestaande woningen in de directe omgeving. Beroepen aan huis zijn direct toegestaan.

6.4.5 Dubbelbestemming Leiding - Olie

Ten zuidwesten van het plangebied zijn een tweetal leidingen gelegen welke een beschermingszone hebben die over het plangebied gelegen zijn. Deze veiligheidszones zijn vertaald naar een dubbelbestemming met de nodige voorwaarden.

6.5 Algemene regels

6.5.1 Anti-dubbeltelregel

Overeenkomstig het Besluit ruimtelijke ordening is de anti-dubbeltelregel opgenomen. Deze regel wordt opgenomen om bijvoorbeeld te voorkomen dat, wanneer volgens een bestemmingsplan bepaalde bouwwerken niet meer dan een bepaald deel of een bepaalde oppervlakte van een bouwperceel mogen beslaan, het resterende onbebouwde terrein ook nog eens meetelt bij het toestaan van een ander gebouw of bouwwerk, waaraan een soortgelijke eis wordt gesteld.

6.5.2 Algemene bouwregels

Voor het hele plangebied, en dus alle bestemmingen, gelden een aantal algemene bouwregels. Deze hoeven dus niet opgenomen te worden in de afzonderlijke bestemmingen.

In de algemene bouwregels van dit bestemmingsplan is enkel een regeling opgenomen omtrent ondergeschikte bouwonderdelen.

6.5.3 Algemene gebruiksregels

Algemene gebruiksregels zijn niet van toepassing. Deze zijn in voldoende mate geregeld per artikel in de bestemmingsomschrijving en de specifieke gebruiksregels.

6.5.4 Algemene aanduidingsregels

Hierin is een nadere regeling opgenomen voor de gebiedsaanduidingen 'milieuzone - beekherstel' en 'milieuzonde - ecologische verbindingen'. Hiervoor wordt verwezen naar de bestemming 'Natuur'.

6.5.5 Algemene afwijkingsregels

In deze regels wordt aangegeven in welke gevallen burgemeester en wethouders bevoegd zijn om af te wijken van bepaalde, in het bestemmingsplan geregelde, onderwerpen. Hierbij gaat het om, tenzij anders vermeld, afwijkingsregels die gelden voor alle bestemmingen in het plan.

6.5.6 Algemene wijzigingsregels

In deze regels wordt aangegeven in welke gevallen burgemeester en wethouders bevoegd zijn het bestemmingsplan te wijzigen. De voorwaarden, die bij toepassing van de wijzigingsbevoegdheid in acht moeten worden genomen, zijn daarbij aangegeven.

6.5.7 Overige regels

In dit artikel is een regeling opgenomen waarin verwezen wordt naar de parkeernormen van de gemeente Boxtel, welke gehanteerd moeten worden bij de realisatie van woningen. Hiermee wordt gewaarborgd dat in voldoende mate in parkeervoorzieningen wordt voorzien.

6.6 Overgangs- en slotregels

6.6.1 Overgangsrecht

In deze regels wordt het overgangsrecht, zoals voorgeschreven in het Besluit ruimtelijke ordening, overgenomen.

6.6.2 Slotregel

Als laatste wordt de slotregel opgenomen, ook zoals voorgeschreven in het Besluit ruimtelijke ordening. Deze regel schrijft voor hoe het plan kan worden aangehaald.

Hoofdstuk 7 Uitvoerbaarheid

7.1 Inleiding

Naast het toetsen van een bestemmingsplan aan diverse omgevingsaspecten, dient het bestemmingsplan ook getoetst te worden aan de uitvoerbaarheid van het plan. Hierbij wordt gekeken naar de economische en maatschappelijke uitvoerbaarheid.

7.2 Economische uitvoerbaarheid

Particulier initiatief

Het betreft hier een ontwikkeling van een projectontwikkelaar. In dat kader wordt tussen de gemeente Boxtel en de projectontwikkelaar een anterieure overeenkomst gesloten. In deze overeenkomst is vastgelegd dat de kosten volledig voor rekening van de projectontwikkelaar komen. Voor de gemeente Boxtel zijn aan de realisatie van de woningebouwlocatie an sich geen kosten verbonden.

Exploitatieplan

De gemeente is in beginsel verplicht om op grond van artikel 6.12 eerste lid Wro een exploitatieplan vast te stellen voor gronden waarop een bij algemene maatregel van bestuur (hierna: Bro) aangewezen bouwplan is voorgenomen. Het onderhavige plan maakt een bouwplan mogelijk zoals bedoeld in artikel 6.2.1 Bro. Het exploitatieplan biedt de grondslag voor het publiekrechtelijk kostenverhaal. Een exploitatieplan wordt gelijktijdig vastgesteld met het ruimtelijk plan of besluit waarop het betrekking heeft. Dat kan een bestemmingsplan, een wijzigingsplan, een projectbesluit en een buiten toepassing verklaring van een beheersverordening zijn.

De gemeente kan echter besluiten om geen exploitatieplan vast te stellen in die gevallen zoals vermeld in artikel 6.12 tweede lid Wro met een verwijzing naar artikel 6.2.1a Bro. Een van die gevallen is de situatie, waarin het verhaal van kosten van de grondexploitatie anderszins verzekerd is. Met de projectontwikkelaar is zoals aangegeven een anterieure overeenkomst gesloten. Hierin zijn de afspraken ten aanzien van het kostenverhaal vastgelegd. Daarnaast is er geen noodzaak tot fasering of locatie eisen. Het vaststellen van een exploitatieplan is dan ook niet vereist. Op grond hiervan kan worden geconcludeerd dat de economische en financiële uitvoerbaarheid van het project voldoende is gegarandeerd.

7.3 Maatschappelijk uitvoerbaarheid

Het planvoornemen betreft de realisatie van een woningbouwlocatie met maximaal 85 woningen aan de zuidzijde van de kern Lennisheuvel. Met deze woningbouwontwikkeling vindt afbouw van deze bebouwingsrand plaats. Met de realisatie van de woningen wordt voorzien in de eigen woningbehoefte zodat zowel jongeren en ouderen in Lennisheuvel kunnen blijven wonen. Daarnaast wordt de leefbaarheid van de kern verbeterd doordat het draagvlak voor de bestaande voorzieningen worden vergroot.

De bouwmogelijkheden zijn nader geconcretiseerd op basis van de bouwregels binnen de bestemming 'Wonen'. De afmetingen van de te realiseren woningen zijn hiermee afgestemd op de aangrenzende bebouwing en ruimtelijke structuur in de omgeving.

Aangezien het planvoornemen ruimtelijk gezien aansluiting maakt op de bestaande bebouwingsstructuur (zuidelijke bebouwingsrand Lennisheuvel), mag aangenomen worden dat tegen het planvoornemen geen overwegende bezwaren bestaan. Het bestemmingsplan is conform de gemeentelijke inspraakverordening in het kader van de inspraak gedurende 6 weken ter inzage gelegd. Gedurende deze termijn is een ieder in de gelegenheid gesteld om te reageren op het planvoornemen en zijn of haar inspraakreactie in te dienen. Tevens is gedurende deze termijn een inloopavond georganiseerd en zijn de omwonende nader geïnformeerd over het bestemmingsplan en de verder procedure. Hieromtrent en voor de verder procedure wordt verwezen naar hoofdstuk 8.

7.4 Conclusie

Het planvoornemen zal gezien het bovenstaande niet leiden tot overwegende planologische bezwaren. De herziening van het bestemmingsplan betekent, na een afweging van de verschillende belangen, een aanvaardbare invulling van deze locatie en afronding van de bestaande bebouwingsstructuur ter plaatse.

Hoofdstuk 8 Procedure

8.1 De te volgen procedure

Het bestemmingsplan doorloopt als (voor)ontwerp respectievelijk vastgesteld en onherroepelijk bestemmingsplan de volgende procedure, te weten:

a. Voorontwerpbestemmingsplan:

Vooroverleg met instanties

Watertoets

1e ter inzage legging/inspraak (voorontwerpbestemmingsplan)

b. Ontwerp:

2e ter inzage legging (ontwerpbestemmingsplan)

c. Vaststelling:

Vaststelling door de Raad

3e ter inzage legging (vastgesteld bestemmingsplan)

d. Reactieve aanwijzing

e. Beroep:

(Gedeeltelijk) onherroepelijk bestemmingsplan

Beroep bij Raad van State

In het kader van deze procedure kunnen gedurende de ter inzage ligging van het ontwerp bestemmingsplan (fase b) zienswijzen worden ingesteld. In publicaties met betrekking tot de diverse stappen die het plan moet doorlopen wordt daarvan steeds melding gemaakt. Uiteindelijk besluit de Afdeling bestuursrechtspraak van de Raad van State, indien nodig, over het plan en kan het onherroepelijk worden.

8.2 Klankbordgroep en informatieavond

Voorafgaand aan de ter inzagelegging van dit bestemmingsplan heeft er een ontmoeting plaatsgevonden met leden van de klankbordgroep uit Lennisheuvel. Dit betreft een groep betrokken bewoners die het algemeen belang van Lennisheuvel dienen en bewaken. De plannen zijn aan de klankbordgroep gepresenteerd en de reacties waren overwegend positief.

Tevens heeft er een inloop / informatie avond plaatsgevonden voor de bewoners en andere betrokkenen uit Lennisheuvel. Daarnaast is er regelmatig 1 op 1 overleg geweest met verschillende betrokkenen en direct omwonenden. Het doel hierbij is altijd geweest om een ieder zo goed mogelijk mee te nemen in het proces en waar mogelijk rekening te houden met ieders wensen.

8.3 Vooroverleg

Tot de voorbereiding van dit bestemmingsplan behoort het overleg met de daarvoor in aanmerking komende besturen van betrokken gemeenten, provincie en waterschappen en met diensten van het rijk (indien aan de orde). Instanties die blijkens hun werkterrein, belangen vertegenwoordigen of bevoegdheden krachtens de Wro hebben, worden bij de totstandkoming van bestemmingsplannen betrokken bij het overleg conform artikel 3.1.1. Bro.

In dit kader heeft er op verschillende momenten in het proces, wat reeds is opgestart eind 2016, overleg plaatsgevonden met betrokken partijen. Er is overleg gevoerd met de veiligheidsregio, de Rotterdam Rijn-pijpleiding, het waterschap, de provincie en verschillende afdelingen binnen de gemeente Boxtel. Aan de hand van deze overlegmomenten is het plan steeds verder aangepast naar wens van de verschillende partijen.

8.4 Vaststelling

Het ontwerp bestemmingsplan heeft vanaf ..... tot en met ..... ter inzage gelegen. Gedurende deze periode zijn ..... zienswijzen ontvangen. Deze zienswijzen hebben wel/niet geleid tot aanpassing van het bestemmingsplan. Het bestemmingsplan is vervolgens in de raadsvergadering van ..... door de raad van de gemeente Boxtel gewijzigd/ongewijzigd vastgesteld.