direct naar inhoud van Toelichting
Plan: Bogardeind 219 (the Stayy)
Status: concept
Plantype: bestemmingsplan
IMRO-idn: NL.IMRO.1771.BPBogardeind219-ON01

Toelichting

Hoofdstuk 1 Inleiding

1.1 Aanleiding

Bedoeling is om in de gemeente Geldrop-Mierlo de komende 10 jaar te komen tot de bouw van circa 3.000 nieuwe woningen. Nadruk hierbij ligt op het centrumgebied van Geldrop. Nog niet alle locaties voor de woningbouw zijn bekend, maar dit zijn de plekken waar in ieder geval woningen komen : De Bleekvelden, Bezorgershof, Marktplein, Bogardeind, Heggestraat, Parallelweg en Stationsstraat.

In aanvulling hierop is gekeken of binnen de gemeente Geldrop-Mierlo buiten het centrumgebied van Geldrop locaties zijn die voor woningbouw geschikt kunnen zijn, om hiermee aan de forse woningbehoefte te kunnen voldoen.

Hierbij is onderzocht wat de mogelijkheden zijn voor de locatie van het voormalige NH hotel aan het Bogardeind te Geldrop, waar vrij recent een tijdelijke transformatie heeft plaatsgevonden naar gebouw "The Stayy", met diverse wooneenheden in de bestaande bebouwing.

In aanvulling hierop is een plan tot ontwikkeling gekomen met permanente wooneenheden in de bestaande bebouwing en toevoeging van gestapelde woonbebouwing in twee aanvullende volumes, deels in het bestaande bouwvlak en deels in een woontoren gelegen nabij het Bogardeind.

In deze toelichting wordt de ontwikkeling nader beschreven en onderbouwd. Het project past niet binnen het vigerende bestemmingsplan. Dit bestemmingsplan is aldus opgesteld en voorziet in een passende juridische en planologische regeling om de herontwikkeling mogelijk te maken.

1.2 Het plangebied

Het plangebied ligt aan de zuidzijde van Geldrop aan het Bogardeind 219 in de nabijheid van de A67, zoals weergegeven op onderstaande afbeelding.

afbeelding "i_NL.IMRO.1771.BPBogardeind219-ON01_0001.png"

Afbeelding: plangebied en de omgeving

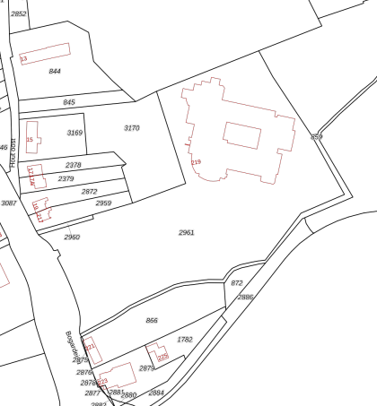
Het plangebied omvat de kadastrale percelen gemeente Geldrop, sectie E, nrs 2961 en 3170 en kent een oppervlakte van circa 28.000 m2.

afbeelding "i_NL.IMRO.1771.BPBogardeind219-ON01_0002.png"

Afbeelding: kadastrale aanduiding plangebied

afbeelding "i_NL.IMRO.1771.BPBogardeind219-ON01_0003.jpg"

Afbeelding: plangebied

1.3 Crisis- en Herstelwet

De Crisis- en herstelwet (Chw) is in het leven geroepen ten behoeve van versnelling van ruimtelijke projecten. Dit om de economische crisis en haar gevolgen te bestrijden. Per 25 april 2013 is deze wet permanent geworden (Staatsblad, jaargang 2013, nr. 144 en nr. 145).

De Chw is met name gericht op grote infrastructurele projecten en projecten gericht op duurzaamheid, innovatie en energie, alsmede woningbouwplannen, omvattende meer dan 11 woningen.

Aldus kan worden geconcludeerd dat de Chw op dit bestemmingsplan van toepassing is.

1.4 Vigerend plan

Op grond van het ter plaatse vigerende bestemmingsplan woongebied Zuid West Geldrop is de locatie aangewezen voor 'Horecadoeleinden (H)' (perceel gemeente Geldrop, sectie E, nr 2961) en 'Woondoeleinden 1 (W1)' (perceel gemeente Geldrop, sectie E, nr 3170).


De gronden met de bestemming 'Horecadoeleinden (H)' zijn bestemd voor :

  • a. horecabedrijven in categorie 1, 2 en 3;
  • b. dienstwoningen, uitsluitend ter plaatse van de aanduiding 'dienstwoning toegestaan' op de plankaart;
  • c. behoud, herstel en/of ontwikkeling van hydrologische waarden ter plaatse van de aanduiding 'natte natuurparel beschermingsgebied';

afbeelding "i_NL.IMRO.1771.BPBogardeind219-ON01_0004.jpg"

afbeelding "i_NL.IMRO.1771.BPBogardeind219-ON01_0005.jpg"

Afbeelding: verbeelding bestemmingsplan woongebied Zuid West Geldrop

Naast regels voor bebouwing en gebruik is een aanlegvergunningenstelsel in de regels opgenomen voor o.a. grondverzet en het aanbrengen van verhardingen. Aldus is een woonfunctie ter plaatse van dit onderdeel van het plangebied thans niet mogelijk.
De gronden met de bestemming 'Woondoeleinden 1 (W1)' maken de woonfunctie inclusief parkeren behorende bij deze bestemming mogelijk, waarbij echter een bouwblok ontbreekt.
Ter plaatse van het plangebied geldt tevens de aanduiding 'natte natuurparel beschermingsgebied', waardoor het verboden is zonder of in afwijking van een schriftelijke vergunning van burgemeester en wethouders (aanlegvergunning) op en in deze gronden navolgende werken, of werkzaamheden uit te voeren:

  • a. het verzetten van grond van meer dan 100 m3 of op een diepte van meer dan 60 centimeter onder maaiveld een en ander voorzover geen vergunning vereist is in het kader van de Ontgrondingenwet;
  • b. de aanleg van drainage ongeacht de diepte tenzij het gaat om ver- 12 vanging van een reeds bestaande drainage;
  • c. het verlagen van de waterstand anders dan door middel van het graven van sloten of het toepassen van drainagemiddelen, met uitzondering van grondwateronttrekkingen;
  • d. het aanbrengen van niet-omkeerbare verhardingen en/of verharde oppervlakten van meer dan 100 m² anders dan een bouwwerk.

Tevens zijn de bestemmingsplannen 'Parapluplan Parkeren Geldrop-Mierlo' (vastgesteld 17-06-2019) en 'Paraplubestemmingsplan Huisvesting Geldrop-Mierlo' (vastgesteld 02-03-2020) van toepassing op het plangebied.

1.5 Leeswijzer

Het bestemmingsplan 'Bogardeind 219 (the Stayy)' bestaat uit een digitale en analoge verbeelding met de daarbij behorende regels. De verbeelding vormt samen met de regels het juridisch bindende deel van het bestemmingsplan.

Bij (de regels van) het bestemmingsplan behoort het Besluit Hogere grenswaarde.

Bij het bestemmingsplan is een toelichting gevoegd. In de toelichting wordt aangegeven waarom het bestemmingsplan is opgesteld en welke afwegingen hebben plaatsgevonden in het kader van een goede ruimtelijke ordening.

De toelichting bestaat uit negen hoofdstukken. Na deze inleiding volgt hoofdstuk 2 met de beschrijving van de bestaande situatie in het plangebied en een beschrijving van het project en de randvoorwaarden. Hoofdstuk 3 bevat de uitgangspunten bij, de randvoorwaarden voor en het beleidskader voor de opstelling van het voorliggende bestemmingsplan. Hoofdstuk 4 geeft inzicht in de relevante milieuaspecten. Hoofdstuk 5 bevat de waterparagraaf. De juridische vormgeving van het bestemmingsplan is beschreven in hoofdstuk 6. Handhaving komt in hoofdstuk 7 aan de orde. De financiële uitvoerbaarheid is beschreven in hoofdstuk 8 en hoofdstuk 9 gaat ten slotte in op de gevolgde en te volgen procedure inclusief de maatschappelijke uitvoerbaarheid. (met name de resultaten van het gevoerde overleg en de samenspraak/inspraak).

Naast de digitale versie is er tevens een papieren versie van het bestemmingsplan beschikbaar. De digitale versie is juridisch bindend.

Hoofdstuk 2 Beschrijving plangebied

2.1 Historisch perspectief

Het Bogardeind, oorspronkelijke de Heezerweg, is één van de belangrijkste invalswegen van Geldrop. Op historische kaarten is de weg steeds terug te vinden. Aan het begin van de vorige eeuw is het deel van het Bogardeind wat nu het plangebied vormt nog niet of nauwelijks bebouwd.

Dat verandert pas in de jaren 50 van de vorige eeuw. In die tijd begint de lintbebouwing langs het Bogardeind zich geleidelijk te sluiten. De omvang van Geldrop blijft lang beperkt. Geldrop groeit nauwelijks en breidt zich voornamelijk uit in noordelijke richting. Pas in de jaren 70 komt hier verandering in en begint de uitbreiding aan de zuidkant met de Beekweide, de Akert en de Coevering.

Op onderstaande kaartweergaven is een "tijdreis" weergegeven van (de omgeving van) het plangebied, waarbij na de realisatie van de A67 en de aansluiting hierop van het Bogardeind op de locatie Bogardeind 219 in 1975 het inmiddels voormalige NH hotel ontstaat.

In 2021 wordt het hotel getransformeerd tot een tijdelijke woonlocatie "The Stayy", waarbij het welslagen en de positieve beoordeling bij gemeente en omgeving aanleiding geeft om in 2023 deze locatie in ogenschouw te nemen als een plek om te komen tot een permanente invulling met gestapelde woningen om hiermee invulling te geven aan de steeds groter wordende vraag naar woningen in de SGE regio in het algemeen en Geldrop-Mierlo in het bijzonder.

afbeelding "i_NL.IMRO.1771.BPBogardeind219-ON01_0006.jpg"

Afbeelding: Geldrop (omgeving) plangebied 1900

afbeelding "i_NL.IMRO.1771.BPBogardeind219-ON01_0007.jpg"

Afbeelding: Geldrop (omgeving) plangebied 1950

afbeelding "i_NL.IMRO.1771.BPBogardeind219-ON01_0008.jpg"

Afbeelding: Geldrop (omgeving) plangebied 1970

afbeelding "i_NL.IMRO.1771.BPBogardeind219-ON01_0009.jpg"

Afbeelding: Geldrop (omgeving) plangebied 1985

2.2 Bestaande situatie

2.2.1 Het plangebied

Het plangebied wordt omsloten door het Bogardeind, de A67, enkele omliggende woonbebouwing, een hotel-restaurant alsmede het buitengebied van Geldrop-Mierlo (het dal van de Kleine Dommel).

afbeelding "i_NL.IMRO.1771.BPBogardeind219-ON01_0010.jpg"

Afbeelding: plangebied en directe omgeving

Achter op het perceel staat het gebouw, bouwjaar 1975, wat tot eind 2020 dienstgedaan heeft als hotel onder de NH-organisatie, met hierbij een zelfstandig restaurant, zwembad, kantoorruimten en circa 2000 m2 evenementen c.q. bijeenkomsten. In 2021 is de bestaande toren van het gebouw getransformeerd naar 142 woonstudio's die sinds juni 2021 in exploitatie zijn genomen middels de door de gemeente Geldrop verleende (tijdelijke) vergunning tot wonen.

De overige ruimtes zijn deels ingericht als bergingen ter ondersteuning van de woonstudio's en overigens (ongewijzigd) bestemd als restaurant, kantoorruimten, zwembad en sportfaciliteiten.

Het buitenterrein omvat diverse bomen, een eenzijdige grastuin met daarin op een inefficiënte manier verwerkte verharde parkeercirkels (circa 225 plaatsen).

2.2.2 De omgeving van het plangebied

De omgeving van het plangebied kenmerkt zich door natuurgevoelige gebieden, waaronder het beekdal van de Kleine Dommel en de Natura 2000 gebieden van De Strabrechtse Heide en De Groote Heide.

Gezien de ligging van de twee Natura 2000 gebieden, aan de andere zijde van de A67, is het niet mogelijk om vanuit het plangebied een zachte overgang naar deze gebieden te realiseren. Wel zal bij de inrichting van het landschap aan worden gesloten bij de oorspronkelijke vegetatie van deze gebieden.

De omgeving van de Kleine Dommel is eenvoudiger te betrekken. De wijze waarop dit wordt vormgegeven in beschreven in paragraaf 2.3.

2.3 Beoogde ontwikkeling

2.3.1 Ambitieniveau ontwikkeling

Het is een frequent gehoorde mening, dat de entree van Geldrop aan de zuidzijde van het dorp geen representatieve uitstraling heeft. De omgeving van de Mc Donalds ligt sinds jaren braak in afwachting op passende ontwikkelingen. Het voormalige NH-Hotel, nu 'The Stayy", heeft daar tot op heden geen verschil in kunnen maken, ondanks de aanzet hiertoe middels de tijdelijke woonvergunning waardoor "nieuw leven" is gekomen in het gebied. Het blijft gezien de ligging van het gebouw echter wat "verscholen".

Het is de ambitie om van dit gebied een aantrekkelijke entree van het dorp Geldrop te maken. De lokale en regionale behoefte aan woningen maakt het mogelijk om het plangebied en het bestaande gebouw te revitaliseren en door de toevoeging van enkele volumes met gestapelde woningen uit te bouwen tot een representatief geheel.

De uitbreidingen van 'The Stayy' blinken uit van ambitie, zowel voor het landschap als voor de gebouwen. Het is de bedoeling om de lat hoog te leggen. Hierbij is de onderzoeksvraag gesteld of de gewenste uitbreidingen hoofdzakelijk in houtbouw kunnen worden gerealiseerd.

Het is bij de planontwikkeling doelstelling om oude structuren op deze locatie terug te brengen, waarbij de filosofie van de historie van "De Herdgang" en "De Barrier" centraal staan. Deze structuren zullen middels een moderne interpretatie terugkeren in het plangebied.

"De Herdgang" vormt het centrum van het plangebied waaromheen de bewoners in clusters een plek vinden en diverse voorzieningen delen. Een landmark in de vorm van een woontoren vormt "De Barrier". Van daaruit ontstaan verbindingen met "De Herdgang".

Het spreekt voor zich dat de nieuw te bouwen delen gas-loos van opzet zullen zijn, waarbij de nieuw te bouwen delen zoveel mogelijk zullen aansluiten bij BENG-normering en all-electric van opzet zijn.

Gezien de landelijke energie-situatie heeft het verder hoge prioriteit om het bestaande gebouw te verduurzamen. Recente onderzoeken naar de bestaande installaties hebben geleid tot een omvangrijk verduurzamingsplan. Met de installatie van zonnepanelen, een warmtepomp en nieuwe regeltechniek kan het gasverbruik 60% - 70% van worden gereduceerd.

Het in deze paragraaf beschreven ambitieniveau is vertaald in het hierna te bespreken kwaliteitsniveau van bebouwing en landschapsinrichting, dat is opgenomen in het beeldkwaliteitsplan "The Stayy" Geldrop en de hiermee samenhangende in de planregels opgenomen voorwaardelijke verplichting.

2.3.2 Programma ontwikkeling

Bedoeling is om in het plan te komen tot de realisatie van een programma bestaande uit in totaal maximaal 331 woningen, onderverdeeld in :

  • 142 bestaande studio's (24/30 m2) sociaal (flex-wonen)
  • 61 appartementen 2-kamer (ca. 45 m2) middenhuur laag
  • 70 appartementen 2-kamer (ca. 55 m2) middenhuur hoog
  • 58 appartementen 2, 3/4 kamer (65-125 m2) vrije sector

met daarbij een aantal ondersteunende functies :

  • horeca subcategorie 1 en 2 450 m2
  • kantoor/ flexwerken 1000 m2
  • buurtwinkel 250 m2
  • gebouwde parkeervoorziening

Aldus komt een woonprogramma tot stand bestaande uit :

  • Sociaal: 42,9%
  • Middenhuur: 39,6%
  • Vrije sector: 17,5%

Levensloopbestendigheid wordt in het bestemmingsplan gefaciliteerd doordat de appartementen nultredenwoningen betreffen, die zowel door starters als gezinnen worden bewoond terwijl de woningen ook geschikt zijn voor 55+ers.

In de regels wordt geborgd dat de sociale woningen alsook de woningen in de middenhuur na realisatie een instandhoudingstermijn kennen conform de gemeentelijke doelgroepenverordening. Hierbij zullen de sociale woningen als tijdelijke woningen in gemeubileerde en gestoffeerde vorm worden aangeboden, waardoor in aanvulling op de kale huur conform doelgroepenverordening een marktconforme toeslag van toepassing is.

De nieuw te bouwen appartementen hebben individuele balkons en de bewoners kunnen behalve van de landschapstuin ook gebruik maken van een daktuin op de 1ste verdieping boven het deel bestemd voor het Flexwerken. Binnen de landschapstuin zal worden gekomen tot aantrekkelijke verblijfsgebieden.

Doelstelling is de realisatie van een woonconcept waar wonen, werken en recreëren hand in hand kunnen gaan. Het is daarom dat op de begane grond van het nieuwe woongebouw ruimte is voorzien voor Flex-werkplekken, rekening is gehouden met een kleine vorm van horeca waar 's ochtends, 's middags en 's avonds genoten kan worden van eerlijke, betaalbare producten / gerechten.

De ruimte welke is voorzien voor het flexwerken wordt zodanig van opzet dat er een dubbelgebruik kan ontstaan in de avonduren. Beoogd wordt dat deze ruimte als soort van 'huiskamer' kan fungeren waarbij de bewoners van het flex-wonen concept, deze ruimte als uitbreiding kunnen zien van hun woonruimte en zo op een representatieve manier in de gelegenheid worden gesteld om bijvoorbeeld familie, vrienden of andere gasten te ontvangen.

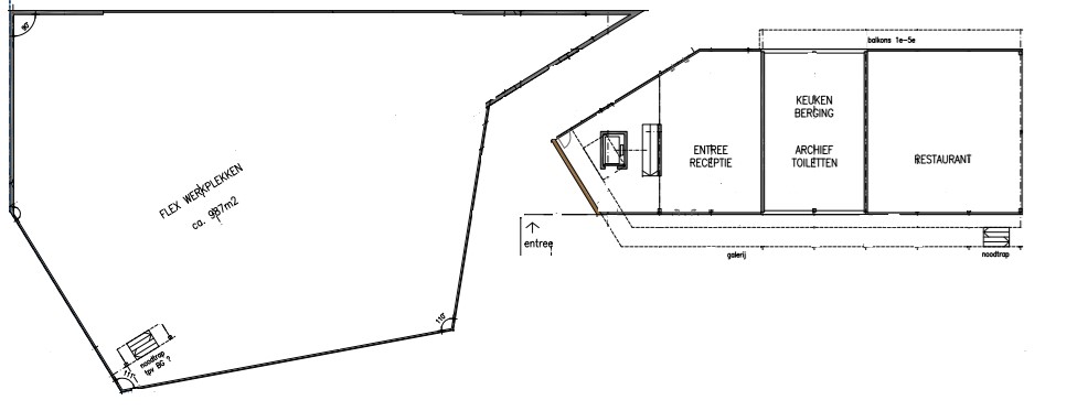
2.3.3 De bebouwing

De bebouwing in het plangebied zal bestaan uit drie volumes :

  • 1. het "NH-hotel" gebouw
  • 2. het nieuwe woongebouw
  • 3. de woontoren

afbeelding "i_NL.IMRO.1771.BPBogardeind219-ON01_0011.jpg"

Afbeelding: bebouwing plangebied

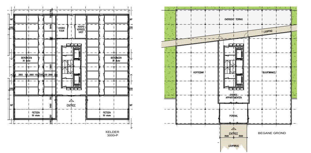
1. het "NH-hotel" gebouw
Het bestaande "NH-hotel gebouw" is thans op basis van een voorgaande ruimtelijke procedure in gebruik als woongebouw voor specifieke doelgroepen. Dit gebouw zal worden opgewaardeerd en verduurzaamd als onderdeel van de planontwikkeling, waarbij aan de westelijke zijde een beperkt bouwvolume wordt toegevoegd.

Het bestaande volume kent 142 wooneenheden, zes bouwlagen en een hoogte van circa 17 meter. De nieuwbouw zal vijf bouwlagen omvatten met een hoogte van circa 16 meter.

afbeelding "i_NL.IMRO.1771.BPBogardeind219-ON01_0012.jpg"

Afbeelding: 'NH-hotel' gebouw, begane grond


afbeelding "i_NL.IMRO.1771.BPBogardeind219-ON01_0013.jpg" Afbeelding: 'NH-hotel' gebouw, verdiepingen

afbeelding "i_NL.IMRO.1771.BPBogardeind219-ON01_0014.jpg"

Afbeelding: 'NH-hotel' gebouw, doorsnede westzijde/oostzijde

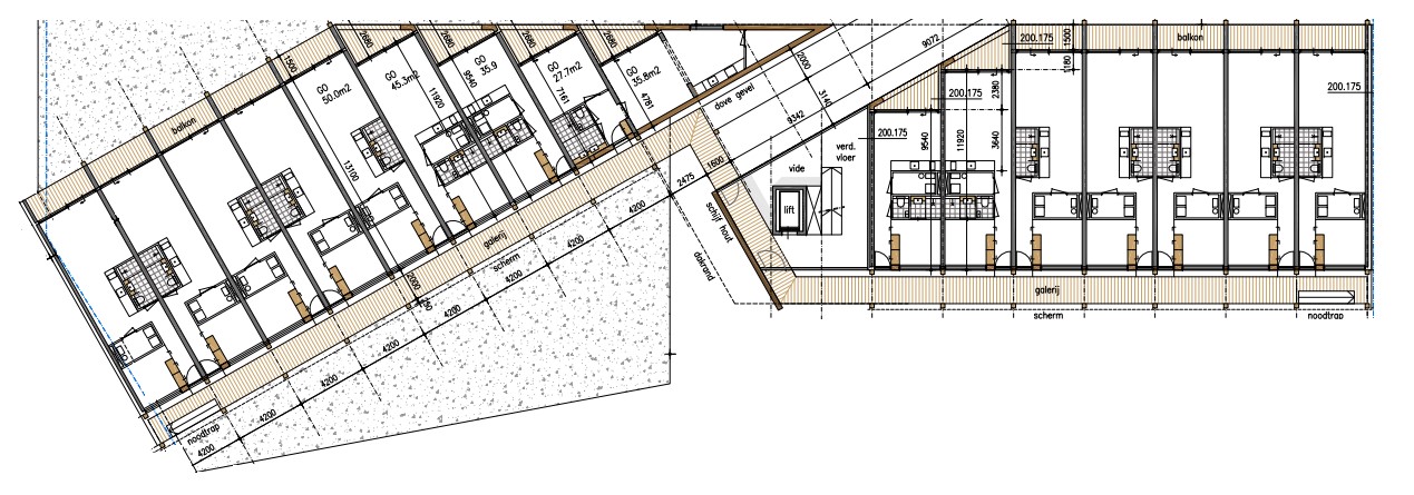
2. het nieuwe woongebouw

Het nieuwe woongebouw is grotendeels voorzien binnen het bestaande bouwvlak maar is marginaal breder dan dit bouwvlak om tot de conform doelgroepen-verordening gewenste oppervlakte van de woningen te kunnen komen.

Het gebouw kent 83 wooneenheden en een hoogte van circa 20 meter. Op de begane grond van dit gebouw zijn naast de entree tevens een kleine horeca subcategorie 1 en 2 voorziening alsmede de flex-kantoor-werkplekken voorzien, ondersteund en ondergeschikt aan de woonfunctie, zoals in paragraaf 2.3.2. beschreven.

Zoals bij de bespreking van het aspect "geluid" zal worden uiteengezet vormt dit nieuwe gebouw een geluidsschil voor het NH-hotel gebouw, waardoor dit bestaande gebouw ook aan de geluidsnormen kan voldoen.

afbeelding "i_NL.IMRO.1771.BPBogardeind219-ON01_0015.jpg"

Afbeelding: woongebouw, begane grond

afbeelding "i_NL.IMRO.1771.BPBogardeind219-ON01_0016.jpg"


Afbeelding: woongebouw, verdiepingen

afbeelding "i_NL.IMRO.1771.BPBogardeind219-ON01_0017.jpg" Afbeelding: woongebouw, doorsnede westzijde / ooostzijde

afbeelding "i_NL.IMRO.1771.BPBogardeind219-ON01_0018.jpg" Afbeelding: woongebouw, gevelbeeld

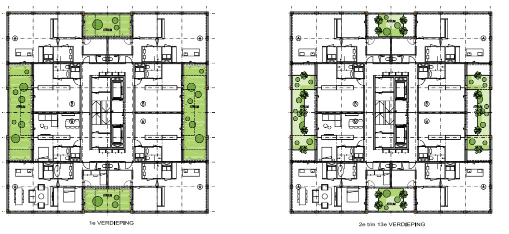
3. de woontoren

De woontoren zal voor Geldrop een beeldbepalend element worden door zowel omvang als verschijningsvorm. Het gebouw kent 106 woningen, 15 verdiepingen en een bouwhoogte van circa 50 meter. De footprint van het gebouw bedraagt circa 30 x 30 meter.

afbeelding "i_NL.IMRO.1771.BPBogardeind219-ON01_0019.jpg"

Afbeelding: woongebouw, gevelbeeld

afbeelding "i_NL.IMRO.1771.BPBogardeind219-ON01_0020.jpg"

Afbeelding: woongebouw, kelder en begane grond

afbeelding "i_NL.IMRO.1771.BPBogardeind219-ON01_0021.jpg"

Afbeelding: woongebouw, woningen 1e - 10e en 11e - 13e verdieping

afbeelding "i_NL.IMRO.1771.BPBogardeind219-ON01_0022.jpg"

Afbeelding: woongebouw woningen 14e en 15e verdieping

2.3.4 Vergelijking bestaand - nieuw

Een vergelijking met de bestaande planologische situatie leidt tot de conclusie, dat ten opzichte van het bestaande bouwvlak (5.238 m2) de oppervlakte van de nieuwe bouwvlakken voor de gebouwen (4.775 m2) afneemt. Het feitelijk dakoppervlak neemt ondanks de realisatie van twee nieuwe gebouwen slechts met 225 m2 toe.

Er is sprake van een toename van halfverharding met 2.000 m2. De hoeveelheid verharding neemt vervolgens met 3.250 m2 af. Per saldo neemt de totale hoeveelheid m2 onverhard toe met 975 m2.

De parkeergarage met groendak (waarmee maaiveldparkeren vrijwel geheel uit het plangebied verdwijnt) omvat 3.500 m2 en het resterend oppervlakte aan groen bedraag 13.525 m2.

afbeelding "i_NL.IMRO.1771.BPBogardeind219-ON01_0023.jpg"

Afbeelding: bestaand bouwvlak

Navolgende figuur geeft de beoogde situatie na herontwikkeling weer.

afbeelding "i_NL.IMRO.1771.BPBogardeind219-ON01_0024.jpg"
Afbeelding: nieuwe bouwvlakken woonbebouwing

2.3.5 Het stedenbouwkundig kader

Duidelijk is dat sprake is van forse bouwvolumes, die afwijken van de bebouwing ter plaatse. Bij het bestaande NH-hotel gebouw is dit al jaren het geval. Het nieuwe woongebouw direct voor het NH hotel kent een vergelijkbaar bouwvolume, zodat hiermee binnen het bestaande bouwvlak een woon-ensemble ontstaat van gestapelde woningen.

afbeelding "i_NL.IMRO.1771.BPBogardeind219-ON01_0025.jpg"

Afbeelding : woonomgeving Geldrop met plangebied

Beeldbepalend is uiteraard de woontoren die meer richting het Bogardeind is gelegen. Dit bouwvolume zal al vanaf de A67 zichtbaar zijn en markeert hiermee het oostelijke beginpunt van de SGE-regio.

In Geldrop is op meerdere locaties sprake van gestapelde woonbebouwing, zoals aan de Laan der Vier Heemskinderen en in de Coevering, waarbij ook het Anna Ziekenhuis een fors bouwvolume kent. Feit is echter ook dat het kenmerkende woonmilieu in Geldrop de grondgebonden woning is.

Met drie bouwvolumes in het plangebied kan echter een substantiële bijdrage worden geleverd aan de invulling van de regionale - en lokale woningbehoefte. Deze vorm van verdichting maakt het bovendien mogelijk elders in Geldrop het dorpse karakter te handhaven en toch aan de woningbouwdoelstelling te voldoen. In het kader van goede ruimtelijke ordening is het wel van belang deze specifieke keuze nader te borgen door zowel beeldkwaliteit van de bebouwing alsook landschappelijke inpassing hiervan in het plangebied.

afbeelding "i_NL.IMRO.1771.BPBogardeind219-ON01_0026.jpg"

Afbeelding: impressie bouwplan

Het (omliggend) landschap is als basis genomen voor de stedenbouwkundige opzet. Een goede landschappelijke inbedding van de gebouwen is daarbij een belangrijk vertrekpunt. De gebouwen duelleren met het landschap, waarbij extra aandacht is besteed aan de historische belijningen van het beekdallandschap door deze door te laten lopen in het plangebied. De belijningen van het gebiedseigen coulissenlandschap met haar haagstructuren lopen door in verkeersroutes, wandel- en/of fietspaden binnen het plangebied. Tussen deze structuren ontstaat op een natuurlijke manier ruimte voor gebouwen.

Het is de doelstelling om de geschiedenis op deze locatie verder invulling te geven waarbij de filosofie van de historie van "De Herdgang" en "De Barrier" centraal staan. Dit deel van Geldrop is immers ontstaan uit de samenvoeging van diverse Herdgangen; het ensemble van 'De Zes Gehuchten'. 'De Zes Gehuchten' werden voorgegaan door het gebied genaamd 'De Oude Barrier'. 'De Oude Barrier' fungeerde als entree/ voorportaal of handelsomgeving van dit gebied.

Deze van oudsher aanwezige structuren keren middels een moderne interpretatie terug in het plangebied. "De Herdgang" vormt het centrum van het plangebied waaromheen de bewoners in clusters een plek vinden en diverse voorzieningen delen. Een landmark in de vorm van een woontoren vormt "De Barrier". Vandaaruit ontstaan verbindingen met "De Herdgang".

In huidige tijdsgeest bezien fungeert deze locatie nog steeds als entree/ voorportaal van de gemeente Geldrop-Mierlo aan deze zijde. Daarnaast vormt dit gebied de entree/ voorportaal van de Brainport-regio Eindhoven. Vanuit Venlo bezien geeft de woontoren een markante markering van deze locatie.

2.3.6 Beeldkwaliteit

Het is een veel gehoorde mening, dat de entree van Geldrop aan deze zijde van het dorp geen representatieve uitstraling heeft. De omgeving van de Mc Donalds ligt sinds jaren braak in afwachting op passende ontwikkelingen. Het voormalige NH-Hotel, nu 'The Stayy" heeft daar tot op heden geen verschil in kunnen maken.

De in dit bestemmingsplan mogelijk gemaakte ontwikkeling biedt de gelegenheid om van dit gebied een aantrekkelijke entree van het dorp Geldrop te maken. De algemeen geldende behoefte aan (betaalbare) woningen kan worden gebruikt om het bestaande gebouw te revitaliseren en het plangebied uit te bouwen naar een representatief geheel.

De uitbreidingen van 'The Stayy' blinken uit in ambitie, zowel voor het landschap als voor de gebouwen. Door gebruik te maken van zoveel mogelijk biobased- en renawable materialen willen we de ecologische footprint zo laag mogelijk houden en door toepassing van biophilic design zorgen we voor een landschap dat niet alleen aansluit op de omgeving, maar ook zorgt voor een prettig leefklimaat. Biophilic architectuur brengt elementen van de natuurlijke wereld terug in onze leefomgeving. Dit resulteert in een vormentaal die gericht is op optimale leefomstandigheden.

De beeldkwaliteit van de nieuwbouw wordt geborgd in het beeldkwaliteitsplan "The Stayy" Geldrop, dat als bijlage bij de regels zal worden opgenomen en waarna in een voorwaardelijke verplichting wordt verwezen. Hiermee is geborgd dat de gewenste beeldkwaliteit in de opvolgende fase van omgevingsvergunning ook daadwerkelijk tot uitdrukking zal komen.

afbeelding "i_NL.IMRO.1771.BPBogardeind219-ON01_0027.jpg" Afbeelding: impressie invulling plangebied

afbeelding "i_NL.IMRO.1771.BPBogardeind219-ON01_0028.jpg" Afbeelding: impressie woongebouw

afbeelding "i_NL.IMRO.1771.BPBogardeind219-ON01_0029.jpg"

Afbeelding: impressie woontoren

2.3.7 Landschappelijke inpassing

Zoals reeds in paragraaf 2.2. aangegeven kenmerkt de omgeving van het plangebied zich door natuurgevoelige gebieden, waaronder het beekdal van de Kleine Dommel en de Natura 2000 gebieden van De Strabrechtse Heide en De Groote Heide.

Gezien de ligging van de twee Natura 2000 gebieden, aan de andere zijde van de A67, is het niet mogelijk om vanuit het plangebied een zachte overgang naar deze gebieden te realiseren. Wel bestaat de ambitie om de inrichting van het landschap aan te laten sluiten bij de oorspronkelijke vegetatie van deze gebieden.

De omgeving van de Kleine Dommel is eenvoudiger te betrekken. Bedoeling is om als onderdeel van de planontwikkeling de mogelijkheid te creëren van een passende overgang van het plangebied en het beekdal van de Kleine Dommel. Door de landschapsontwikkeling in het plangebied wordt de totale kwaliteit van plangebied naar een hoger niveau gebracht, waarbij de beekdalontwikkeling op termijn kan aansluiten.

Een goede landschappelijke inbedding van de gebouwen is een belangrijk vertrekpunt. De gebouwen duelleren met het landschap, waarbij binnen het nieuw aan te leggen regeneratieve landschap extra aandacht wordt besteed aan bijvoorbeeld CO2-reductie en stikstof opname.

Door gebruik te maken van zoveel mogelijk biobased- en renawable materialen willen we de ecologische footprint zo laag mogelijk houden en door toepassing van biophilic design zorgen we voor een landschap dat niet alleen aansluit op de omgeving, maar ook zorgt voor een prettig leefklimaat.

Biophilic architectuur brengt elementen van de natuurlijke wereld terug in onze leefomgeving. Dit resulteert in een vormentaal die gericht is op optimale leefomstandigheden binnen en door te werken met klimaat adaptieve beplanting en het vergroten van de biodiversiteit met gebiedseigen beplanting, wordt dit in het omliggende landschap voortgezet.

Het is verder doelstelling om het landschap meetbaar en kwantificeerbaar te maken wanneer het draait onder meer om CO2, stikstof, fijnstof en de biodiversiteit. Het is wetenschappelijk onderbouwd, dat een kwalitatief groene omgeving niet alleen bijdraagt een prettige leefomgeving, maar ook optimaal kan bijdragen aan de diverse uitdagingen als onderdeel van de economische vooruitgang in de Brainport regio. Het doel is om vanuit een nul-situatie te laten zien welke bijdrage hierin vanuit het plangebied kan worden verzorgd in de komende jaren.

Voor het totale landschapsplan kiezen we de '3-30-300 norm' als vertrekpunt, de nieuwe vuistregel voor de groene leefomgeving. Dit houdt in dat iedere stadsbewoner vanuit zijn woning tenminste 3 bomen moet kunnen zien, dat 30% van de oppervlakte in elke wijk voorzien moet zijn van een bladerdak en dat iedereen binnen 300 meter vanaf zijn woning een park of groene ruimte moet kunnen bereiken van tenminste 1 ha.

De landschappelijke inpassing wordt geborgd in het beeldkwaliteitsplan "The Stayy" Geldrop, dat als bijlage bij de regels zal worden opgenomen en waarna in een voorwaardelijke verplichting wordt verwezen. Hiermee is geborgd dat de gewenste kwaliteit van de onbebouwde ruimte in de opvolgende fase van omgevingsvergunning ook daadwerkelijk tot uitdrukking zal komen.

2.3.8 Planologische situatie

Beoogd wordt het plangebied te transformeren van een bestaande maatschappelijke (hotel-, restaurant-, congres-) voorziening naar een woonbestemming, met hierbij drie bouwvlakken voor de drie woongebouwen, een aanduiding voor de gebouwde parkeervoorziening en de mogelijkheid van enkele bijgebouwen.

De overige gronden worden bestemd voor o.a. wegen, straten, paden en overige verhardingen, groenvoorzieningen, tuinen, dakterrassen en erven, water en waterhuishoudkundige voorzieningen, nutsvoorzieningen en voorzieningen voor het opwekken van duurzame energie, voorzieningen voor ondergrondse afvalinzameling en gebouwen en bouwwerken, geen gebouwen zijnde.

Hoofdgebouwen dient te worden opgericht binnen het bouwvlak, waarbij zijn opgenomen maatvoeringen alsmede maximale aantallen woningen.

De gebouwde parkeervoorziening is specifiek aangeduid, waarbij op grond van het landschappelijke inpassingsplan - zoals voorgeschreven in de regels - deze bebouwing moet worden voorzien van een groendek.

2.4 Verkeer en parkeren

2.4.1 Verkeer, ligging plangebied

Autoverkeer

Het plangebied is direct gelegen aan en wordt ontsloten via het Bogardeind, zijnde vanuit de A67 de hoofdroute richting centrum Geldrop.

afbeelding "i_NL.IMRO.1771.BPBogardeind219-ON01_0030.jpg"

Afbeelding: aansluiting plangebied op Bogardeind (richting centrum Geldrop)

Fiets- en overig verkeer

Voormeld Bogardeind is aan beide zijden voorzien van vrijliggende fietspaden. Deze fietspaden zijn ook aanwezig op b.v. het Emopad en de Gijzenrooiseweg richting Eindhoven, zodat de fietsontsluiting van het plangebied optimaal is.

Openbaar Vervoer

Direct naast het plangebied is gelegen de bushalte voor buslijn 257 (van Geldrop Ziekenhuis naar Valkenswaard en vice versa) en buslijn 266 (van Geldrop Ziekenhuis, via Someren, Asten naar Deurne en vice versa). De afstand van plangebied tot busroute 324 naar Eindhoven centrum is circa 1 km en in ruim 10 minuten te voet bereikbaar, waarbij vanuit het plangebied het station Geldrop in 20 minuten te voet dan wel in 6 minuten op de fiets kan worden bereikt.

afbeelding "i_NL.IMRO.1771.BPBogardeind219-ON01_0031.jpg" Afbeelding: bushalte naast plangebied

2.4.2 Verkeer, verkeersgeneratie

Op basis van het vigerende bestemmingsplan was in het plangebied het NH hotel gevestigd met 131 kamers, diverse zalen alsmede horecaruimte(n). Dit geeft qua verkeersgeneratie navolgend beeld van nieuwe situatie ten opzichte van oorspronkelijke invulling (matig stedelijk gebied, rest bebouwde kom) :

Bestaande situatie

afbeelding "i_NL.IMRO.1771.BPBogardeind219-ON01_0032.jpg"

Bron: rapport Tritium 'berekening stikstofdepositie The Stayy te Geldrop

afbeelding "i_NL.IMRO.1771.BPBogardeind219-ON01_0033.jpg"

Nieuwe situatie

Bron: rapport Tritium 'berekening stikstofdepositie The Stayy te Geldrop

Uit bovenstaande berekening blijkt dat de verkeersgeneratie normatief met ca. 1640 - 1318 = 322 verkeerbewegingen zal toenemen.

2.4.3 Parkeren

Parkeerbeleid
Vanaf 1 juli 2018 zijn de stedenbouwkundige voorschriften uit de Bouwverordening komen te vervallen. Eén van de consequenties van het vervallen van de stedenbouwkundige voorschriften is dat vanaf dat moment het parkeren in de ruimtelijke plannen zelf geregeld moet worden.
Om ervoor te zorgen dat de parkeerbeleidsregels over parkeernormen in álle ruimtelijke plannen van de gemeente Geldrop-Mierlo wordt opgenomen, is het 'Parapluplan Parkeren Geldrop-Mierlo' opgesteld, dat regelt dat in alle bestemmingsplannen een zogenoemde 'voorwaardelijke verplichting' wordt opgenomen. Op basis van die regel is het gebruik van gronden en bouwwerken, alleen toegestaan als wordt voorzien in voldoende parkeergelegenheid op eigen terrein.
In onderhavig bestemmingsplan is hierbij aangesloten en is op grond van het gemeentelijke parkeerbeleid gekomen tot een beoordeling van de benodigde hoeveelheid parkeervoorzieningen.


Fietsparkeren
Het fietsparkeren kent een op grond van de Nota Parkeernormen Geldrop-Mierlo d.d. 1 november 2022 een normatieve opgave die aan de hand van onderstaande afbeelding kan worden bepaald op 590 plaatsen :

afbeelding "i_NL.IMRO.1771.BPBogardeind219-ON01_0034.jpg"

Deze fietsvoorzieningen zullen worden gevonden binnen de individuele bergingen van de diverse woningen, samen met de gemeenschappelijke bergingen van de kleinere woningen alsook een separate fietsenstalling op het terrein.

Autoparkeren 
Uitgaande van het in paragraaf 2.3.2. vernoemde programma en de normen zoals opgenomen in de 'Nota Parkeernormen Geldrop-Mierlo', zou in het plangebied (als zijnde "rest bebouwde kom" moeten worden gekomen tot 354 parkeerplaatsen.
De totale parkeerbehoefte van het plan wordt bepaald door de optelsom van de parkeerbehoefte van de afzonderlijke functies (bestaand + nieuw).

In de bestaande situatie zijn er ca 225 parkeerplaatsen aanwezig. Deze zijn destijds t.b.v. het NH-hotel aangelegd. Met de huidige tijdelijke invulling met 142 flexwoningen, kantoorruimten, beperkte horeca en een (klein) zwembad is er veel leegstand op dit parkeerterrein.

Uit parkeertellingen blijkt een maximale bezetting in de werkdagnacht van 61 geparkeerde voertuigen. Bij twee gereserveerde parkeerplaatsen voor deelauto's zijn er dan 63 parkeerplaatsen benodigd.

Wat betreft de nieuwe situatie is de te hanteren parkeernormering afgeleid van de Nota Parkeernormen Geldrop-Mierlo (december 2022). Het plangebied ligt in matig stedelijk gebied, 'rest bebouwde kom'. Niet alle functies worden op hetzelfde moment maximaal gebruikt. Om het maatgevend moment te bepalen wordt gerekend met aanwezigheidspercentages. De werkdagavond blijkt maatgevend te zijn voor de parkeerbehoefte. Onderstaande weergave geeft de cijfermatige onderbouwing van de maatgevende parkeerbehoefte :

Parkeerbehoefte werkdagavond:
Blok A (28 won middenhuur + 4 won dure huur):
28 won x 1,3 x 90% = 32,76 pp
28 won x 0,2 x 80% = 4,48 pp
4 won x 1,5 x 90% = 5,40 pp
4 won x 0,2 x 80% = 0,64 pp

Blok B (35 won middenhuur):
35 won x 1,3 x 90% = 40,95 pp
35 won x 0,2 x 80% = 5,60 pp

Blok C (16 won middenhuur):
16 won x 1,3 x 90% = 18,72 pp
16 won x 0,2 x 80% = 2,56 pp

Blok D (52 won middenhuur + 52 won dure koop + 2 won dure koop):
52 won x 1,3 x 90% = 60,84 pp
52 won x 0,2 x 80% = 8,32 pp
52 won x 1,7 x 90% = 79,56 pp
52 won x 0,2 x 80% = 8,32 pp
2 won x 1,7 x 90% = 3,06 pp
2 won x 0,2 x 80% = 0,32 pp

Blok D (overig):
450 m2 x 6,0/100 m2 bvo x 90% = 24,30 pp (café/bar)
1000 m2 x 2,1/100 m2 bvo x 5% = 1,05 pp (kantoor)
250 m2 x 3,5/100 m2 bvo x 0% = 0 pp (buurtwinkel)

Subtotaal nieuw: benodigd aantal parkeerplaatsen werkdagavond 296,88 pp.

Totaal benodigd werkdagavond: 296,88 + 59 = 356 pp (afgerond)

De berekening van de parkeerbehoefte op zaterdagavond leidt tot een totaal benodigd aantal van 334 parkeerplaatsen, waarbij voor de werkdagnacht een totaal van 332 parkeerplaatsen benodigd blijkt.

Dit leidt tot de conclusie dat in de nieuwe situatie de werkdagavond het maatgevend moment vormt, waardoor dit bestemmingsplan een parkeerbehoefte kent van 356 parkeerplaatsen. Deze kunnen redelijkerwijs op eigen terrein worden gerealiseerd, waarbij fysiek op het perceel ruimte is voor een tiental parkeerplaatsen extra indien hiertoe aanleiding zou bestaan.

Op onderstaande afbeelding zijn weergegeven de parkeerplaatsen in het plangebied.

afbeelding "i_NL.IMRO.1771.BPBogardeind219-ON01_0035.jpg"

Afbeelding: weergave feitelijke invulling parkeren

afbeelding "i_NL.IMRO.1771.BPBogardeind219-ON01_0036.jpg"
Afbeelding: parkeerplaatsen in gebouwde voorziening

Omdat de parkeerfaciliteiten een behoorlijke impact hebben op het kwaliteitsbeeld van het landschap zal het grootste deel van het parkeerterrein half verdiept aan worden gelegd. Met de juiste glooiingen in het landschap, beplantingen, dan wel groene afscheidingen kunnen de auto's uit het zicht worden geparkeerd.

Om de overloop van het parkeren naar het landschap zo zacht mogelijk te laten zijn (en ter bevordering van de waterhuishouding), wordt het grootste deel van de parkeerplaatsen en looppaden gerealiseerd in de halfverharding "Olivijn".

Deze steensoort heeft de unieke eigenschap om CO2 uit de lucht te binden. Het te verwerken gewicht aan Olivijn neemt een gelijke hoeveelheid kilo's CO2 op, wat een grote verbetering van het leefklimaat met zich meebrengt.

De hoofdrijbaan wordt ingericht met straatstenen die bewerkt zijn met titaandioxide, dat het stikstofgehalte in de lucht reduceert.

afbeelding "i_NL.IMRO.1771.BPBogardeind219-ON01_0037.jpg" Afbeelding: parkeerdek gebouwde voorziening met woontoren, groeninvulling en twee paviljoens

Om de auto's nog meer uit het zicht te halen wordt de gebouwde parkeervoorziening van een dek voorzien, waar het landschap "door kan lopen". Hiermee ontstaat er bovendien ruimte om op dat dek een kleinschaliger paviljoen te ontwikkelen wat het centrale middelpunt vormt van "De Herdgang" als plek van samenkomst en collectief gebruik/ sociale ontmoetingsplek (Horeca).

Aldus zijn de gemeentelijke parkeernormen uitgangspunt bij deze planontwikkeling, en vormt het aspect parkeren geen belemmering voor de vaststelling van dit bestemmingsplan.

2.4.4 De relatie met de plannen van Rijkswaterstaat betreffende de A67

Bij de planvorming is rekening gehouden met het voornemen op (op nader te bepalen) termijn te komen tot verbreding van de A67 en de opwaardering van de aansluiting Geldrop, zoals vervat in de Structuurvisie A67 Leenderheide - Zaarderheiken.

In de planvorming is Rijkswaterstaat gekomen tot een vijftal varianten, zoals onderstaand weergegeven.

afbeelding "i_NL.IMRO.1771.BPBogardeind219-ON01_0038.jpg" afbeelding "i_NL.IMRO.1771.BPBogardeind219-ON01_0039.jpg" afbeelding "i_NL.IMRO.1771.BPBogardeind219-ON01_0040.jpg" afbeelding "i_NL.IMRO.1771.BPBogardeind219-ON01_0041.jpg" afbeelding "i_NL.IMRO.1771.BPBogardeind219-ON01_0042.jpg"

Afbeelding; varianten aansluiting A67

Bij de planvorming op basis waarvan dit bestemmingsplan tot stand is gekomen is rekening gehouden - zowel qua de positionering van de bouwvlakken alsook bij de vaststelling van de geluidbelasting - met onderstaande "worst case" variant, zodat feitelijk alle varianten mogelijk blijven.

afbeelding "i_NL.IMRO.1771.BPBogardeind219-ON01_0043.jpg"

Afbeelding: als maatstaf aangehouden variant aansluiting A67

2.4.5 Conclusie

Bij deze ontwikkeling kan in voldoende mate in parkeerplaatsen worden voorzien, e.e.a. conform gemeentelijk beleid.

Van een onaanvaardbare verkeerstoename vanwege de ontwikkeling ten opzichte van de voorheen bestaande situatie is geen sprake.

Met ontwikkelingen in de verkeersstructuur in de nabijheid van het plangebied wordt in voldoende mate rekening gehouden.

Hoofdstuk 3 Uitgangspunten, randvoorwaarden en beleidskader

3.1 Inleiding

In dit hoofdstuk zijn de randvoorwaarden opgenomen waar bij de realisatie van het bestemmingsplan rekening mee dient te worden gehouden. De voorgenomen ontwikkeling moet passen in het (toekomstig) ruimtelijk beleid. Het is uitdrukkelijk niet de bedoeling in dit hoofdstuk een complete samenvatting te geven van het beleid. Uitsluitend de meest relevante beleidskaders voor het plangebied zijn in dit hoofdstuk weergegeven. Niet-ruimtelijk beleid is per onderwerp apart in dit hoofdstuk opgenomen. Het beleid dat gericht is op verschillende milieu- en andere planologische aspecten wordt toegelicht in de milieuparagraaf. Beleid met betrekking tot het aspect water wordt beschreven in de waterparagraaf.

3.2 Rijksbeleid

3.2.1 Nationale Omgevingsvisie 2020 (NOVI)

Op 11 september 2020 is de Nationale Omgevingsvisie (NOVI) 'Duurzaam perspectief voor onze leefomgeving' in werking getreden. Deze visie bevat de hoofdzaken van het strategisch rijksbeleid voor de fysieke leefomgeving. Dit is een combinatie van beleid uit de bestaande beleidsdocumenten, met en zonder wettelijke grondslag, en nieuw strategisch beleid. De grote en complexe opgaven, zoals klimaatverandering, energietransitie, circulaire economie, bereikbaarheid en woningbouw, zullen Nederland gaan veranderen. De NOVI bevat een toekomstperspectief met de ambities van het Rijk.

De opgaven die voortkomen uit de nationale belangen van het Rijk zijn vertaald in vier integrale prioriteiten :

  • 1. Ruimte maken voor klimaatadaptatie en energietransitie.
  • 2. Duurzaam economisch groeipotentieel bevorderen.
  • 3. Zorgen voor sterke en gezonde steden en regio's.
  • 4. Stimuleren van een toekomstbestendige ontwikkeling van het landelijk gebied.

Conclusie met betrekking tot het plangebied
Een in de NOVI opgenomen nationaal belang is het zorg dragen voor een woningvoorraad die aansluit op de woonbehoeften. Dit bestemmingsplan maakt het mogelijk om in het plangebied woningen te realiseren.

De ladder voor duurzame verstedelijking is opgenomen in artikel 3.1.6 lid 2 Bro. In paragraaf 3.2.2. en 3.5. wordt hier nader op ingegaan.

Het project voldoet aan de ambities uit de NOVI.

De NOVI krijgt doorwerking op lagere beleidsniveaus. De relevante beleidsstukken op provinciaal, regionaal en gemeentelijk niveau zijn in de navolgende paragrafen getoetst. Op rijksniveau geen belangen benoemd die rechtstreeks van invloed zijn op het plangebied

3.2.2 Duurzaamheidsladder

Regelgeving

Op 1 oktober 2012 is de Ladder voor duurzame verstedelijking opgenomen in artikel 3.1.6 lid 2 van het Besluit ruimtelijke ordening (Bro). De ladder vormt daarmee een bindend toetsingskader voor alle gemeentelijke bestemmingsplannen, provinciale inpassingsplannen en provinciale ruimtelijke verordeningen.

Per 1 juli 2017 is artikel 3.1.6. lid 2 Bro gewijzigd en komen te luiden als volgt :

"De toelichting bij een bestemmingsplan dat een nieuwe stedelijke ontwikkeling mogelijk maakt, bevat een beschrijving van de behoefte aan die ontwikkeling, en, indien het bestemmingsplan die ontwikkeling mogelijk maakt buiten het bestaand stedelijk gebied, een motivering waarom niet binnen het bestaand stedelijk gebied in die behoefte kan worden voorzien."

Uitgangspunt is dat een nieuwe stedelijke ontwikkeling in beginsel in bestaand stedelijk gebied wordt gerealiseerd en dat eerst als dat niet mogelijk is wordt gemotiveerd waarom die ontwikkeling niet in bestaand stedelijk gebied kan worden gerealiseerd.

De volgende stappen dienen doorlopen te worden:

  • 1. Uitgangspunten vaststellen: Wat zal met het bestemmingsplan mogelijk gemaakt worden. Is er sprake van een nieuwe stedelijke ontwikkeling?
  • 2. Afweging locatiekeuze: valt het bestemmingsplan binnen of buiten bestaand stedelijk gebied.
  • 3. Beschrijving van de behoefte: voorzien de diverse functies die het plan mogelijk maakt in een behoefte.

Ad. 1 Nieuwe stedelijke ontwikkeling

De eerste vraag die aan de orde blijft, is - op basis van planvergelijking - of het voorliggende bestemmingsplan voorziet in een nieuwe stedelijke ontwikkeling. Hierbij is van belang wat het voorgaande bestemmingsplan aan ruimtelijke mogelijkheden bood en in hoeverre het nieuwe bestemmingsplan hierop een toevoeging of wijziging mogelijk maakt.

Als een bestemmingsplan voorziet in functiewijziging en nieuwbouw van een zekere omvang dan is in beginsel sprake van een "stedelijke ontwikkeling" als bedoeld in artikel 1.1.1 lid 1 aanhef en onder i Besluit ruimtelijke ordening (Bro) :

"ruimtelijke ontwikkeling van een bedrijventerrein of zeehaventerrein, of van kantoren, detailhandel, woningbouwlocaties of andere stedelijke voorzieningen".

Consequentie daarvan is dat dan de plantoelichting een verantwoording aan de Ladder moet bevatten (artikel 3.1.6 lid 2 Bro). Zeer kleinschalige bebouwingsmogelijkheden of functiewijzigingen "sec" die niet voorzien in een toename van het ruimtebeslag kwalificeren niet als een stedelijke ontwikkeling. In dat geval hoeft de Ladder niet te worden toegepast.

Het bestemmingsplan voorziet in een transformatie van hotel naar een locatie met gestapelde woonbebouwing omvattende maximaal 314 woningen. De hoeveelheid woningen in het plangebied neemt dusdanig toe, dat op basis van geldende jurisprudentie op dit onderdeel zeker sprake is van een ontwikkeling die de grens van een kleinschalige ontwikkeling overstijgt en aldus een stedelijke ontwikkeling vormt als hier bedoeld. Aldus is een laddertoets aan de orde ten aanzien van de functie "wonen", waarbij de locatiekeuze gemotiveerd moet worden en een beschrijving van de behoefte nodig is.

Uitgaande van voormelde niet-woon-functies, kan worden vastgesteld dat de niet-woon-functies in dit bestemmingsplan niet kunnen worden gezien als een stedelijke ontwikkeling in de zin van artikel 3.1.6 lid 2. Bro. De beperkte toevoeging van aanvullende functies is niet van een aard of omvang dat dienaangaande een ladderonderzoek noodzakelijk c.q. zinvol mogelijk zou zijn. Wel dienen deze functies in het kader van het criterium "goede ruimtelijke ordening" te worden bezien, hetgeen wordt beschreven in paragraaf 3.6 van deze toelichting.

Ad. 2 Ontwikkeling binnen bestaand stedelijk gebied

Voor ontwikkelingen buiten bestaand stedelijk gebied dient gemotiveerd te worden of deze behoefte niet in stedelijk gebied kan worden gerealiseerd. Daarom is het van belang om te weten of het plangebied binnen of buiten stedelijk gebied is gelegen. In artikel 1.1.1 Bro wordt het stedelijk gebied als volgt gedefinieerd :

'Bestaand stedenbouwkundig samenstel van bebouwing ten behoeve van wonen, dienstverlening, bedrijvigheid of horeca, alsmede de daarbij behorende openbare of sociaal culturele voorzieningen, stedelijk groen en infrastructuur'.

Het plangebied is feitelijk gelegen binnen het bestaand stedelijk gebied van Geldrop-Mierlo. Ook in (hierna in paragraaf 3.4. te benoemen) gemeentelijke beleidsdocumenten wordt de locatie als stedelijk gebied gekenmerkt. Omdat in de Provinciale IOV de locatie als landelijk gebied is aangeduid (ondanks de feitelijke aanwezigheid van het voormalige hotel als evident stedelijke functie) zal in het kader van dit bestemmingsplan worden gekomen tot een verzoek tot wijziging van landelijk - naar stedelijk gebied.

Zoals in deze toelichting beschreven kiest de gemeente voor toevoeging van gestapelde woningbouw op deze locatie om hiermee te komen tot invulling van de vraag naar woningen in de brainport-regio in zijn algemeen en Geldrop-Mierlo in het bijzonder. Op basis van vaste jurisprudentie hoeft de gemeente - indien een behoefte bestaat waarin kan worden voorzien binnen bestaand stedelijk gebied - niet te beoordelen of ook elders binnen bestaand stedelijk gebied in de gemeente of de regio in deze behoefte zou kunnen worden voorzien. Aldus is op basis van gemeentelijk beleid deze onderbouwing niet aan de orde.

Voorzover de locatie op basis van provinciaal beleid (nog) niet als stedelijk gebied kan worden aangemerkt, kan worden vastgesteld dat de uitbreidingslocatie een welkome aanvulling biedt op enkele bestaande woningbouwlocaties binnen bestaand stedelijk gebied van de kern Geldrop.

Met de drie bouwvolumes in het plangebied - direct aansluitend aan bestaand stedelijk gebied en omringd door bestaande stedelijke functies - kan in deze tijd van forse "woningnood" een substantiële bijdrage worden geleverd aan de invulling van de regionale - en lokale woningbehoefte. Binnen het bestaand stedelijk gebied van de kern Geldrop zijn geen andere locaties beschikbaar waar ruimte is voor de voorziene 331 gestapelde woningen. Deze vorm van verdichting maakt het bovendien mogelijk elders in Geldrop het dorpse karakter te handhaven en toch aan de woningbouwdoelstelling te voldoen.

Ad 3. Beschrijving van de behoefte

In paragraaf 3.5 van dit bestemmingsplan wordt voor wat betreft de woningen uitgebreid ingegaan op de behoefteonderbouwing en de regionale afstemming. Conclusie is dat kan worden voldaan aan de eisen van artikel 3.1.6. lid 2 Bro en artikel 3.42 IOV, doordat voor de in dit bestemmingsplan vervatte stedelijke ontwikkeling wordt voorzien in een (regionale) behoefte, die direct aansluitend aan c.q. binnen bestaand stedelijk gebied kan worden voorzien.

De beoogde ontwikkeling waarvoor onderhavig bestemmingsplan is opgesteld ziet op het realiseren van gestapelde woningen binnen de hiertoe bestaande regionale woningbouwafspraken. Verder is sprake van herstructurering van een bestaande locatie, waarbij nieuwbouw wordt gekoppeld aan opwaardering van bestaande bebouwing alsmede van het direct omliggende gebied.

Vanuit de Ladder voor duurzame verstedelijking zijn er dan ook geen belemmeringen ten aanzien van de voorgenomen ontwikkeling.

3.2.3 Conclusie Rijksbeleid

Het bestemmingsplan conflicteert niet met nationale belangen (waaronder ook de in paragraaf 2.4.4 aangeduide Structuurvisie A67 Leenderheide - Zaarderheiken) en de voorgenomen ontwikkeling voldoet aan artikel 3.1.6. lid 2 Bro.

3.3 Provinciaal beleid

3.3.1 Omgevingsvisie

De Brabantse Omgevingsvisie bevat de belangrijkste ambities voor de fysieke leefomgeving voor de komende jaren. Op 14 december 2018 is de omgevingsvisie vastgesteld. Daarna volgt een doorvertaling in een Omgevingsverordening en programma's. Tot die zijn vastgesteld blijven bestaande beleidsplannen voor natuur, ruimtelijke ordening, verkeer en vervoer en milieu en water van kracht. Daarmee wil Brabant op tijd klaar zijn voor de Omgevingswet.

In de Omgevingswet staan waarden als veiligheid, gezondheid en duurzame omgevingskwaliteit centraal. De Brabantse Omgevingsvisie voegt daar ambities aan toe voor vier hoofdopgaven: de energietransitie, een klimaatproof Brabant, Brabant als slimme netwerkstad en een concurrerende, duurzame economie. Voor ieder van deze opgaven geeft de omgevingsvisie aan wat de ambities op lange termijn zijn: wat is er nodig om Brabant in 2050 een gezonde, veilige en prettige leefomgeving te laten zijn? Maar ook een concreet tussendoel: waar moeten we in 2030 op zijn minst staan om dat lange termijn doel te halen? De omgevingsvisie geeft ook aan op welke nieuwe manieren de provincie met betrokkenen wil samenwerken aan omgevingsvraagstukken en waarden die daarbij centraal staan.

3.3.2 Interim omgevingsverordening

De Interim omgevingsverordening is vastgesteld door Provinciale Staten op 25 oktober 2019 (inmiddels diverse male gewijzigd vastgesteld, laatstelijk 3 maart 2023) en vervangt een aantal provinciale verordeningen : de provinciale milieuverordening, de verordenring natuurbescherming, de verordening ontgrondingen, de verordening ruimte, de verordening water en de verordening wegen.

Om klaar te zijn als de Omgevingswet in werking treedt, heeft de provincie eerst een Interim omgevingsverordening vastgesteld. Het is een 'Interim' omgevingsverordening om zo te benadrukken dat dit een tussenstap is naar de 'definitieve' omgevingsverordening gebaseerd op de Omgevingswet. De Interim omgevingsverordening is gebaseerd op de huidige wetgeving. Dat betekent dat nieuwe mogelijkheden uit de Omgevingswet nog niet zijn verwerkt. Er is wel zo veel als mogelijk aansluiting gezocht bij de Omgevingswet en de voorwaarden voor een omgevingsverordening (bijvoorbeeld bij de opbouw en de digitale vormgeving). Deze Interim omgevingsverordening voegt de bestaande regels over de fysieke leefomgeving zoveel mogelijk samen in één verordening en is beleidsneutraal. Alleen aanpassingen die nodig zijn vanwege de samenvoeging of vanwege al vastgesteld beleid, zoals de omgevingsvisie, worden meegenomen.

In de Interim omgevingsverordening staan regels voor:

  • Burgers en bedrijven: dit zijn zogenaamde rechtstreeks werkende regels voor activiteiten. Deze regels bevatten voorwaarden om zo'n activiteit te verrichten en geven ook aan of je bijvoorbeeld eerst een melding moet doen voordat je mag beginnen.
  • Bestuursorganen van de overheid: dit zijn zogenaamde instructieregels. Met deze regels kan de provincie een opdracht geven aan gemeenten over onderwerpen die zij in het bestemmingsplan moeten opnemen of aan het waterschap over de manier waarop ze hun taken uitvoeren. Dit zijn de regels die tot voor kort waren opgenomen in de Verordening ruimte Noord-Brabant.

Rechtstreeks werkende regels voor burgers en bedrijven

Het gaat hier om regels die naast een eventuele vergunningplicht gelden. Er zijn in de Interim Omgevingsverordening voor de volgende thema's rechtstreekse regels opgenomen: grondwaterbescherming, grondwateronttrekking, bodemsanering, stortplaatsen, ontgrondingen, varend ontgassen, stiltegebied, wegen, natuur en landbouw. De meeste van deze regels waren eerst opgenomen in de Provinciale milieuverordening, de Verordening wegen, de Verordening ontgrondingen en de Verordening natuurbescherming.

Binnen het plangebied zijn rechtstreekse regels van toepassing voor grondwateronttrekking. Volgens Kaart 1: Rechtstreeks werkende regels: milieubeschermingsgebieden, natuur en wegen van de Interim omgevingsverordening Noord-Brabant is het plangebied in zijn geheel aangeduid als 'Diep grondwaterlichaam'. Volgens artikel 2.20 van de Interim omgevingsverordening is de onconventionele winning van koolwaterstoffen verboden boven, in of onder een diep grondwaterlichaam.

Volgens 'Kaart 2 Rechtstreeks werkende regels: landbouw' is het plangebied in zijn geheel aangeduid als 'landelijk gebied' en 'verbod uitbreiding veehouderij', 'bescherming natura 2000' en 'stalderingsgebied'. Dit werkingsgebied is relevant voor de rechtstreeks regels ten aanzien van landbouw. Binnen het plangebied is geen landbouw aanwezig of toegestaan. Om die reden zijn deze werkingsgebieden voor dit plangebied niet relevant.

Instructieregels

Dit zijn de regels die tot voor kort waren opgenomen in de Verordening ruimte Noord-Brabant. De regels zijn gekoppeld aan de aanduidingen die op de verschillende kaarten van de Interim omgevingsverordening zijn opgenomen.

Het provinciale beleid is er al decennia lang op gericht om stedelijke ontwikkeling in stedelijke concentratiegebieden te bundelen. Het doel daarvan is om voldoende draagvlak voor de steden als economische en culturele motor te creëren en om het dichtslibben van het landelijk gebied tegen te gaan. Op provinciale schaal betekent dit dat het merendeel van de woningbouw, de bedrijventerreinen, voorzieningen en bijbehorende infrastructuur moet plaatsvinden in of aansluitend op de stedelijke concentratiegebieden. Binnen het bestaand stedelijke gebied is de gemeente in het algemeen vrij om te voorzien in stedelijke ontwikkeling.

Op basis van artikel 3.42 duurzame stedelijke ontwikkeling dient een bestemmingsplan dat voorziet in de ontwikkeling van een locatie voor wonen, werken of voorzieningen binnen het Stedelijk gebied te liggen. Het bestemmingsplan dient daarbij te zijn voorzien van een onderbouwing dat de ontwikkeling past binnen de regionale afspraken alsmede dat het een duurzame stedelijke ontwikkeling is.

De onderbouwing dat de ontwikkeling past binnen de regionale afspraken is opgenomen in paragraaf 3.5. van deze toelichting.

In artikel 3.42 lid 2 staan de voorwaarden waaraan een duurzame stedelijke ontwikkeling aan moet voldoen. Deze voorwaarden staan hieronder beschreven met daarbij de manier waarop hiermee in het voorliggend plan wordt omgegaan :

Een duurzame stedelijke ontwikkeling voor wonen, werken of voorzieningen:

  • a. bevordert een goede omgevingskwaliteit met een veilige en gezonde leefomgeving

Het voorliggend plan voorziet in de realisatie van diverse gestapelde woningbouw waar nu sprake is van een wat verscholen gelegen en ietwat verouderde hotelomgeving met een groot buitenterrein grotendeels bestemd voor parkeren. Realisatie van deze ontwikkeling bestaande uit revitalisering van bestaande bebouwing, hoogwaardige nieuwbouw en kwalitatieve landschappelijke inpassing zal de omgevingskwaliteit in de buurt (aanzienlijk) verhogen.

Het plan voorziet in een verduurzaming van de bestaande bebouwing waardoor het huidige gebouw voor minimaal 65% van het gas af kan gaan en een energielabel sprong maakt van label C naar label A, hetgeen sterk bijdraagt aan de reductie van de uitstoot CO2. Tevens zal door het landschapsinrichtingsplan het landschap substantieel gaan bijdragen in de gemeten prestatie mbt het reduceren van de CO2, stikstof en fijnstof.

  • b. bevordert zorgvuldig ruimtegebruik, waaronder de transformatie van verouderde stedelijke gebieden

Deze locatieontwikkeling zorgt voor efficiënt ruimtegebruik, zoals onder sub a. beschreven en een transformatie van een verouderde (hotel)omgeving tot een aantrekkelijk groen woonmilieu. Door gestapelde woningbouw te realiseren, blijft er meer ruimte beschikbaar voor groen. Verder voorziet het plan in een half verdiepte parkeervoorziening met daarop een groendek. Hiermee wordt het spanningsveld tussen groen en parkeerbehoefte weggenomen en blijft de ambitie voor een kwalitatieve groene leefomgeving hoog.

  • c. geeft optimaal invulling aan de mogelijkheden voor productie en gebruik van duurzame energie

De woningen in het plangebied worden gasloos verwarmd, middels elektrisch aangedreven warmtepompen op basis van laag gestookte temperaturen. Ook het warmtapwater zal middels warmtepompen worden opgewekt. Verder worden de woningen met een WTW uitgevoerd, wat zorgt voor WarmteTerugWinning uit de ventilatie. Het gebruik van PV-panelen zal worden gemaximaliseerd daar waar mogelijk.

  • d. houdt rekening met klimaatverandering, waaronder het tegengaan van hittestress en voldoende ruimte voor de opvang van water

Nieuw en bestaande groen wordt zoveel mogelijk ingepast in de plannen, daarnaast worden daken waar mogelijk groen en wordt de gebouwde parkeervoorziening voorzien van een groendek aansluitend op de landschappelijke inpassing van het overige deel van de locatie. Waterberging zal binnen het plangebied worden verzorgd. Het totale oppervlakte aan bouwblok(ken) alsook het totaal verhard oppervlak zal in de ontwikkeling veel kleiner zijn dan in de huidige situatie (voormalig NH Hotel).

  • e. geeft optimaal invulling aan de mogelijkheden voor duurzame mobiliteit

De locatie is t.o.v. het bestaande OV goed ontsloten. Voldoende fietsvoorzieningen worden gerealiseerd en verder zullen er deelauto's en deelscooters / - fietsen beschikbaar komen voor bewoners. Het huidige, tijdelijke woonconcept 'The Stayy' (Flexwonen), heeft de voorgaande jaren een pilot gekend met 2 deelauto's. Gezien het succes hiervan is het de bedoeling om de deelauto's uit te breiden afgestemd op de feitelijk vraag hiernaar.

  • f. draagt bij aan een duurzame, concurrerende economie

De bouw van de woningen komt tegemoet aan de vraag naar woonruimte en zorgt daarmee voor meer mobiliteit op de woningmarkt.

Aldus is - zoals ook elders in deze toelichting op diverse onderdelen beschreven - sprake van een duurzame stedelijke ontwikkeling, die in kwantitatief en kwalitatief in een woonbehoefte voorziet, waarbij de locatie conform de 'Structuurvisie Gemeente Geldrop-Mierlo' van 2010 is gelegen binnen het stedelijk gebied in "bestaand woongebied", dat is gericht op beheer en waar mogelijk intensivering.

In de kaarten behorende bij de IOV Noord Brabant is de locatie echter niet in stedelijk gebied doch in landelijk gebied gelegen. Deze aanduiding van de locatie als landelijk gebied terwijl ter plaatse evident sprake was en is van een stedelijke voorziening (hotelfunctie c.q. gestapelde wooneenheden) waarbij tevens de locatie direct aansluitend aan stedelijk gebied is gelegen is niet evident.

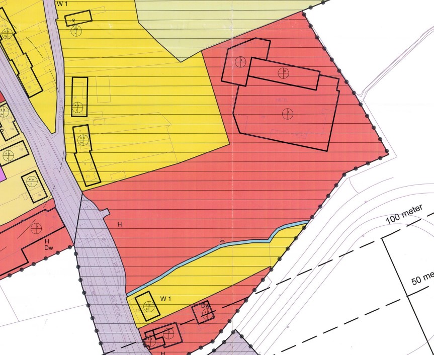
In onderstaande afbeelding zijn themakaart 6 en themakaart 3 van de interim omgevingsverordening opgenomen. Volgens deze kaarten valt het plangebied binnen het Landelijk gebied. Binnen het landelijk gebied is een nieuwe stedelijke ontwikkeling met woningbouw niet toegestaan (artikel 3.68 wonen in landelijk gebied).

afbeelding "i_NL.IMRO.1771.BPBogardeind219-ON01_0044.jpg"

afbeelding "i_NL.IMRO.1771.BPBogardeind219-ON01_0045.jpg"

Afbeelding: uitsnede kaart 6 en kaart 3 IOV Noord-Brabant: locatie in landelijk gebied direct aansluitend aan stedelijk gebied

De wijziging van de kaarten bij de IOV

Om op de locatie de herontwikkeling / herbestemming van de bestaande hotelfunctie en de hiermee samenhangende woningbouwontwikkeling mogelijk te maken is een zgn. herbegrenzing noodzakelijk om ter plaatse van het plangebied toe te voegen: het werkingsgebied 'Stedelijk gebied' en te verwijderen het werkingsgebied 'Landelijk gebied'.

Deze wijziging past in de gevallen waarin gebruik kan worden gemaakt van de bevoegdheid om de werkingsgebieden te wijzigen. Artikel 5.3.1 kent een vijftal gevallen waarbinnen gebruik kan worden gemaakt van de bevoegdheid om de grenzen van werkingsgebieden te wijzigen. Dit wordt in de Interim Omgevingsverordening de uniforme benadering van alle werkingsgebieden genoemd.

De grenzen van het werkingsgebied kunnen worden gewijzigd indien, of:

  • a. de wijziging nodig is voor een doelmatige uitvoering,
  • b. de wijziging bijdraagt aan het doel waarvoor het werkingsgebied is opgenomen,
  • c. de wijziging past binnen de uitgangspunten en basisprincipes van deze verordening,
  • d. er sprake is van kennelijke onjuistheid in de begrenzing of
  • e. de begrenzing van een gebied niet langer in overeenstemming is met een vastgesteld bestemmingsplan.

In onderhavig geval doen zich meerdere grondslagen voor wijziging voor. Dit kan worden toegelicht als volgt :

  • A. de wijziging nodig is voor een doelmatige uitvoering,

De woningbehoefte van de kern Geldrop kan niet in zijn geheel binnen het bestaand stedelijk gebied worden gerealiseerd. Om tot de gewenste woningbouwontwikkeling te kunnen komen in aanvulling op de bestaande bebouwing van het NH hotel is aanvullende bebouwing op de locatie gewenst. Aldus is de wijziging van het werkingsgebied "Landelijk gebied" in "Stedelijk gebied" nodig voor een doelmatige uitvoering van deze woningbouwontwikkeling.

  • B. de wijziging bijdraagt aan het doel waarvoor het werkingsgebied is opgenomen,

Het doel van het nieuwe werkingsgebied 'Stedelijk gebied' is het concentreren van bebouwing binnen het stedelijke gebied van de kern Geldrop. Door de wijziging ligt alle bebouwing van het te wijzigen gebied in het 'Stedelijk gebied'. Door de ontwikkeling wordt de zuidelijke kernrand van Geldrop op een logische manier (en conform voorgaand gebruik als stedelijke locatie) afgerond. De grenswijziging geeft de mogelijkheid van een opwaardering van de locatie en betere aansluiting hiervan op zowel de stedelijke omgeving (beeldkwaliteitsplan) alsook de oostelijk gelegen landelijke omgeving (landschappelijk inpassingsplan) en is daarmee doelmatig.

  • C. de wijziging past binnen de uitgangspunten en basisprincipes van deze verordening,

Uit artikel 3.5 Interim omgevingsverordening komt naar voren dat aan een drietal aspecten getoetst moet worden om een goede omgevingskwaliteit en een veilige, gezonde leefomgeving te waarborgen. Dit zijn de aspecten zorgvuldig ruimtegebruik (artikel 3.6), de waarden in een gebied met toepassing van de lagenbenadering (artikel 3.7) en meerwaardecreatie (artikel 3.8).

De Interim omgevingsverordening biedt weliswaar de mogelijkheid om voor stedelijke ontwikkelingen de grens van het 'Stedelijk gebied' aan te passen. Het ligt hierbij echter voor de hand dat in zo'n geval ook op basis van een voormelde aspecten onderbouwd moet kunnen worden dat de ontwikkelingsrichting aanvaardbaar is. Naar mate de ontwikkeling omvangrijker is, worden er ook zwaardere eisen gesteld aan de motivering.

Zorgvuldig ruimtegebruik

Het plan voorziet in de realisatie van maximaal 331 nieuwe woningen, grenzend aan de kern Geldrop. Onderhavig planvoornemen betreft de transformatie van een hotelfunctie tot een hoogwaardige woonomgeving in directe aansluiting op het bestaande stedelijk gebied van het dorp Geldrop.

Binnen het planvoornemen wordt een zorgvuldig ruimtegebruik verkregen middels gestapelde woonbebouwing, waardoor op de locatie een aanzienlijke bijdrage kan worden gegeven aan de lokale en regionale behoefte aan woningen voor een brede doelgroep. Binnen de kern Geldrop is momenteel geen locatie beschikbaar van een vergelijkbare omvang waar een dergelijke gestapelde woningbouwontwikkeling tot de reële mogelijkheden behoort. De toepassing van artikel 3.1.6. Bro is hiervoor beschreven.

Lagenbenadering

De lagenbenadering omvat de effecten op de ondergrond, de netwerklaag en de bovenste laag. De toepassing van de lagenbenadering is een hulpmiddel om de effecten van een ontwikkeling in beeld te brengen. Het gaat daarbij om het effect op de lagen in wisselwerking met elkaar waarbij de factor tijd actief wordt benut.

Bij de afweging gaat het niet alleen om de effecten op de omliggende functies in het gebied maar ook op effecten van een ontwikkeling elders. Niet alleen de effecten nu maar ook de effecten naar de toekomst. Een ander aspect betreft de onomkeerbaarheid. Als een functie onomkeerbare effecten heeft op een te beschermen belang, bijvoorbeeld een ernstige verontreiniging van het grondwater of de aantasting van niet vervangbare aardkundige waarden kan dat een reden zijn om zo'n ontwikkeling niet op die plek toe te lasten maar een andere plek.

De onderste laag wordt gevormd door de bodemtypologie, het grondwater en de archeologische waarden. Het grote belang van de onderste laag vindt zijn oorzaak in de lange reproductietijd en daarmee de onvervangbaarheid van deze waarden en systemen. In onderhavige toelichting is middels diverse (bureau)onderzoeken aangetoond dat als gevolg van de beoogde herontwikkeling geen waarden in de onderste laag verloren gaan.

De tweede netwerklaag wordt gevormd door de infrastructuur, natuurnetwerk, energienetwerk, waterwegen waaronder een goede, multimodale afwikkeling van het personen- en goederenvervoer. Voor de tweede laag is te vermelden dat het plangebied direct grenst aan, en tevens een logische afronding vormt van het huidige stedelijk gebied cq. de bebouwde kom van Geldrop. Het plangebied wordt aan de westzijde en de noordzijde begrensd door het bestaand stedelijk gebied van Geldrop. Ten zuiden van het plangebied is de A67 gelegen. Door de in de regels geborgde landschappelijke inpassing van de woningen in het plangebied met de mogelijkheid tot aansluiting hierop van de naastgelegen NNB gronden, die nog zodanig zijn ingericht, kan de ontwikkeling een positieve invloed hebben op het oostelijk gelegen natuurnetwerk. De beoogde ontwikkeling is dan ook passend binnen de bestaande netwerklaag.

De derde en bovenste laag wordt gevorm door cultuurhistorische en landschappelijke waarden, de omvang van de functie en de bebouwing, de effecten op bestaande en toekomstige functies, de effecten op volksgezondheid, veiligheid en milieu. Ook voor wat betreft de derde laag zijn geen belemmeringen voor deze ontwikkeling. Er is geen sprake van cultuurhistorische of aardkundige waarden die beschermd dienen te worden. Doordat er een ontwikkeling plaatsvindt, waarbij woongebouwen worden gerealiseerd, zorgt dit voor de verandering van de functie. Deze functie draagt bij aan het woonklimaat van Geldrop-Mierlo. In onderhavige toelichting is middels diverse (bureau)onderzoeken aangetoond dat als gevolg van de beoogde herontwikkeling geen negatieve effecten op bestaande en toekomstige functies, volksgezondheid, veiligheid en milieu te verwachten zijn

Meerwaardecreatie

Meerwaardecreatie omvat een evenwichtige benadering van de economische, ecologische en sociale aspecten die in een gebied en bij een ontwikkeling zijn betrokken, waaronder :

  • a. de mogelijkheid om opgaven en ontwikkelingen te combineren waardoor er meerwaarde ontstaat;
  • b. de bijdrage van een ontwikkeling aan andere opgaven en belangen dan die rechtstreeks met de ontwikkeling gemoeid zijn.

Onderhavig planvoornemen zorgt voor diverse sociaaleconomische meerwaardecreaties. Allereerst wordt gekomen tot transformatie van een weinig hoogwaardige hotellocatie tot een aantrekkelijk (gestapeld) woonmilieu, mede door de vormgeving en uitvoering van de nieuwbouw alsook de hoogwaardige vormgeving van de landschappelijke invulling. Daarnaast leidt de ingebruikname van de woningen tot uitgaven binnen de directe omgeving, wat de economische positie van dit gedeelte van Geldrop-Mierlo ten goede komt. Verder zorgt de ingebruikname van de nieuwe hoogwaardige woonlocatie op deze locatie voor een aantrekkelijke entree van Geldrop als zijnde een onderdeel van de Brainport-regio.

Onomkeerbaarheid 

Dit aspect heeft betrekking op de onomkeerbare effecten op te beschermen belangen. Als gevolg van de beoogde ontwikkeling wordt de bestaande maatschappelijk bestemming van de locatie omgevormd tot een woonbestemming.

Het totaal aan verharding zal afnemen alsook het totale oppervlakte aan bebouwing. In de toelichting is middels diverse (bureau)onderzoeken aangetoond dat de beoogde ontwikkeling geen onomkeerbare effecten heeft op te beschermen belangen en waarden. Bovendien gaat de ontwikkeling gepaard met een kwaliteitsverbetering van het landschap.

Kwaliteitsverbetering

Met betrekking tot de kwaliteitsverbetering van het landschap (artikel 3.9) dient het plan te voorzien in een investering van 1% van de totale gronduitgifteprijs.

De verwachte opbrengst uit gronduitgifte is bij deze ontwikkeling niet eenvoudig te duiden. De locatie heeft nu deels de bestemming horecadoeleinden en deels de bestemming wonen (zonder bouwvlak) en krijgt de bestemming "wonen" met een aantal bouwvlakken.

Bij de benadering van de gronduitgifteprijs kan worden uitgegaan van een 'footprint' van 4.797 m2. Als deze oppervlakte wordt vermenigvuldigd met een gemeentelijke (niet sociale) gronduitgifteprijs van de gemeente Geldrop-Mierlo van zeg € 500,- per m2, ontstaat een grondwaarde van in totaal € 2.398.500,-, en aldus een investeringsbedrag van € 23.985,- ten behoeve van kwaliteitsverbetering van het landschap.

Denkbaar is hierbij dat wordt gedacht dat de grondwaarde hoger is omdat sprake is van gestapelde woningbouw. Dat is echter in het concrete geval niet aan de orde, omdat de residuele grondwaarde van de ontwikkeling negatief is rekening houdend met de kosten van realisatie van de woningen en de inbrengwaarde van gronden en te amoveren opstallen.

Strikt genomen zou op eerstgenoemde "grondgebonden" grondwaarde nog in mindering moeten worden gebracht de waardevermindering vanwege het vervallen van de horecabestemming, waardoor het normbedrag met circa € 200,- per m2 lager zou moeten uitvallen. Gezien de groenambitie van deze ontwikkeling wordt voorgesteld deze vermindering niet toe te passen en het investeringsbedrag van € 23.985,- te investeren in de overgang van het plangebied naar het beekdal, e.e.a. te verwerken in het landschap inpassingsplan (dat hiertoe concreet wordt aangepast).

Op deze manier kan in het plan en in de directe nabijheid hiervan worden voorzien in een substantiële opwaardering van de locatie zoals vervat in het (beeldkwaliteits- annex) groenplan, waardoor een investering zal plaatsvinden in enkel de opwaardering en vergroening van het plangebied van circa € 1.5. mio.

Het plangebied grenst aan het beekdal van 'De Kleine Dommel'. Dit beekdal maakt onderdeel uit van het Natuur Netwerk Brabant. Hiervoor is een apart overheidsproject opgezet genaamd 'Dommeldal uit de verf'. Met de ontwikkeling (en met name via de in de regels geborgde landschappelijke inpassing) wordt een positieve bijdrage geleverd aan dit overheidsproject en ontstaat voor een aansluiting bij en zachte overgang van het plangebied naar het beekdal

  • D. er sprake is van kennelijke onjuistheid in de begrenzing

Zoals reeds beschreven is de locatie conform de 'Structuurvisie Gemeente Geldrop-Mierlo' van 2010 gelegen binnen het stedelijk gebied in "bestaand woongebied", dat is gericht op beheer en waar mogelijk intensivering.

afbeelding "i_NL.IMRO.1771.BPBogardeind219-ON01_0046.jpg"

afbeelding : weergave locatie op plankaart structuurvisie Geldrop-Mierlo

In de beheersverordering kern Geldrop is de locatie bovendien opgenomen onder "woongebieden Zuid-West Geldrop".

Aldus kan worden geconcludeerd dat de aanwijzing op de kaarten bij de IOV van de locatie (mede gezien de feitelijke aanwezigheid van stedelijke bebouwing met een fors volume in de vorm van het NH-hotel) als landelijk gebied kan worden gezien als een kennelijke onjuistheid.

  • E. de begrenzing van een gebied niet langer in overeenstemming is met een vastgesteld bestemmingsplan.

De aanwijzing op de kaarten bij de IOV van de locatie als landelijk gebied is ook niet in overeenstemming met het vigerende bestemmingsplan "Woongebieden Zuid-West Geldrop" op basis waarvan de locatie kan worden gebruikt als een grootschalige hotel-/horecafunctie.

afbeelding "i_NL.IMRO.1771.BPBogardeind219-ON01_0047.jpg"
afbeelding : weergave locatie op kaart beheersverordening kern Geldrop

Aldus komt de locatie in aanmerking voor een aanpassing van de kaarten behorende bij de IOV, waarmee de locatie zal worden aangeduid als "Stedelijk gebied" in plaats van "Landelijk gebied".

Deze aanpassing zal als onderdeel van de bestemmingsplanprocedure plaatsvinden.

3.3.3 Ontwerp omgevingsverordening Noord-Brabant

De provincie heeft als voormeld een Interim omgevingsverordening vastgesteld waarin de bestaande regels zijn samengevoegd. Provinciale Staten hebben vervolgens op 11 maart 2022 de nieuwe Omgevingsverordening Noord-Brabant vastgesteld. De verordening treedt gelijktijdig met de Omgevingswet in werking. In de definitieve verordening zijn, in tegenstelling tot de interim verordening, ook beleidswijzigingen verwerkt. De huidige regels in de Interim omgevingsverordening zijn gehanteerd als uitgangspunt.

De belangrijkste wijzigingen zijn:

  • Er is aansluiting gezocht bij de opbouw van de rijksregels. Diverse nadere regelingen zijn in de Omgevingsverordening verwerkt.
  • Vanwege het vervallen van de Wet bodembescherming zijn nieuwe regels opgenomen om verontreiniging van het grondwater te voorkomen. Het voorstel is om daarvoor ook voorbeschermingsregels vast te stellen.
  • De aanwijzing van voor verzuring gevoelige kwetsbare gebieden (Wav-kaarten) is vervallen.
  • De rechtstreeks werkende regels voor de ontwikkeling van veehouderij en mestbewerking vervallen. Het voorstel is om die te vervangen door voorbeschermingsregels.
  • Er is een attentiezone geluid opgenomen langs provinciale wegen waarbinnen aandacht wordt gevraagd voor het oprichten van geluidgevoelige bebouwing.

In de omgevingsverordenig Noord-Brabant zijn geen wijzigingen doorgevoerd ten opzichte van de interim omgevingsverordening die relevant zijn voor onderhavig plangebied.

3.3.4 Conclusie Provinciaal beleid

De ontwikkeling voldoet aan Provinciaal beleid.

3.4 Gemeentelijk beleid

3.4.1 Omgevingsvisie Geldrop-Mierlo

Op 6 februari 2023 is de Omgevingsvisie Geldrop-Mierlo vastgesteld. De gemeente Geldrop-Mierlo wil naar duurzame groene sociale woongebieden.

De ambities voor de toekomst zijn:

  • Woonwijken creëren waar inwoners op lange termijn prettig kunnen (blijven) wonen in een passende woning.
  • Energieneutraal in 2040.
  • Woonwijken die aangepast zijn aan het klimaat en stimuleren tot gezond gedrag.
  • Spreiden van groepen met sociaal economische problemen.

Bij deze ambities zijn de volgende doelen gesteld:

  • Het realiseren van een groene dooradering van de wijken en het nemen van andere klimaatbestendige maatregelen tegen wateroverlast en hitte.
  • Het vernieuwen, transformeren en verduurzamen van het woningaanbod. ? De fiets vooropzetten in de wijken.
  • Ruimte maken voor kansrijke ontmoetingsplekken.
  • Basisvoorzieningen op bereikbare afstand houden.

Toetsing

Met onderhavig plan worden nieuwe duurzame appartementen gerealiseerd. binnen deze ontwikkeling is er veel ruimte voor groen tussen de verschillende bouwvolumes. Het groen en de waterberging zijn klimaatbestendige maatregelen tegen wateroverlast en hitte. Hoewel er alle ruimte is om de fiets centraal te zetten met onderhavige ontwikkeling zal er toch voldoende parkeergelegenheid worden gerealiseerd, die anders dan in de bestaande situatie in een groene setting zal worden gerealiseerd, zodat maaiveldparkeren niet langer zichtbaar is op de locatie. De groene ruimte tussen de bebouwing is openbaar, waardoor hier ruimte is voor ontmoetingsplekken. De locatie is op bereikbare afstand van de het centrumgebied van Geldrop c.q. diverse basisvoorzieningen.

Voorliggend initiatief, waarbij een verouderd horeca-/hotelconcept in herontwikkeling wordt gebracht ten behoeve van de realisatie van 331 woningen in diverse omvang en prijscategorieën, draagt daarmee bij aan de ambitie die de gemeente beschrijft in haar Omgevingsvisie.

3.4.2 Structuurvisie gemeente Geldrop-Mierlo 2010

Hoewel de 'Structuurvisie Gemeente Geldrop-Mierlo' niet langer het meest recente gemeentelijk beleid omvat is dit document voor de duiding van deze ontwikkeling toch van belang. Deze visie (december 2010 vastgesteld) vormde een planologisch kader, waarbinnen concrete ruimtelijke plannen konden worden ontwikkeld en op elkaar kunnen worden afgestemd. Conform de plankaart van de structuurvisie is het plangebied gelegen binnen het stedelijk gebied in "bestaand woongebied".

afbeelding "i_NL.IMRO.1771.BPBogardeind219-ON01_0048.jpg"

afbeelding : weergave locatie op plankaart structuurvisie

Nieuwbouw in de woongebieden dient qua maat en schaal passend te zijn in de omgeving. Gezien het dorpskarakter van Geldrop-Mierlo, de bestaande woningvoorraad en de woonwensen van de inwoners, ligt de nadruk op c.q. de voorkeur bij de bouw van eengezinswoningen in een groenstedelijke setting.

Er zullen echter altijd locaties blijven, waar de bouw van gestapelde woningen wenselijk of (financieel) noodzakelijk is. De gemeentelijke woningbouwplanning zal hierbij leidend zijn. Daarbij zullen stedenbouwkundige randvoorwaarden moeten worden gehanteerd, om dissonanten te voorkomen. Toelaten en hoogte van gestapelde woningbouw is afhankelijk van de locatie.

Onderhavig planvoornemen, waarin een horeca-/hotellocatie omgezet wordt naar een woonbestemming, ligt in lijn met de beoogde ontwikkelrichting van de gemeente Geldrop-Mierlo voor dit gebied en vormt een welkome aanvulling op de woningbouwplannen in het centrum van Geldrop. Het initiatief is daarmee passend binnen het beleid als vervat in de 'Structuurvisie gemeente Geldrop-Mierlo'.

3.4.3 Programma duurzaamheid Geldrop-Mierlo

De gemeenteraad van Geldrop-Mierlo heeft op 6 februari 2023 het Programma duurzaamheid vastgesteld waarin staat hoe de gemeente de komende jaren (tot en met 2026) samen met inwoners aan de slag gaan met het besparen van energie, het vergroenen van onze omgeving en het verminderen van restafval.

Met vrijwilligers brengen we de mogelijkheden in kaart om de Kerkakkers en Coevering aardgasvrij te maken. Samen met het EnergieHuis Slim Wonen geven we voorlichting over duurzame maatregelen zoals isolatie, zonnepanelen en warmtepompen. In samenwerking met de LEVgroep helpen we mensen die moeite hebben met het betalen van de energierekening met behulp van een bespaarcoach. De gemeente neemt deel aan het regionale project 'Groene Zone Isoleren', zodat ook mensen met beperkte leencapaciteit verduurzamings-maatregelen kunnen doorvoeren.

De komende jaren zorgen we er ook voor dat het groen in onze gemeente versterkt wordt en dat er meer groen bij komt. Zo versterken we niet alleen de biodiversiteit, maar wordt onze leefomgeving ook nog een stuk mooier en gezonder. Door middel van vergroenen creëren we schaduwplekken en kunnen we het water beter opslaan. We zorgen er op die manier voor dat Geldrop-Mierlo is ingericht op de toekomst en goed kan omgaan met periodes van extreme hitte en extreme regenval.

We willen inwoners nog meer verleiden om zelf aan de slag te gaan met nemen van duurzame maatregelen en ze daarvoor de handvaten te geven. De komende jaren willen we het restafval bijvoorbeeld beperken tot 75 kg per persoon per jaar. Dat lijkt weinig, maar door inwoners tips te geven en te vertellen dat het meeste afval niet in de grijze bak hoort, wordt het doel behapbaar.

De in dit bestemmingsplan mogelijk gemaakte ontwikkeling draagt fors bij aan de doelstellingen van het Programma Duurzaamheid, met name op het gebied van aardgasvrije woningen en het vergroenen van de leefomgeving.

3.4.4 Conclusie Gemeentelijk beleid

De ontwikkeling voldoet aan huidig en voorgaand Gemeentelijk beleid.

3.5 Volkshuisvesting

3.5.1 Kwantitatieve en kwalitatieve behoefte

De woningbouwopgave

Geldrop-Mierlo valt binnen de regio Stedelijk Gebied Eindhoven. De behoefte dient dan ook in eerste instantie vanuit deze regio bepaald te worden. Kwantitatief vindt dit ook plaats in het regionale afstemmingsoverleg. De woningmarkt is echter vooral een lokale markt. De meeste verhuizingen vinden op korte afstand plaats, binnen de gemeente en zelfs binnen de kernen. Dit betekent dat de kwantitatieve en kwalitatieve analyse, primair op de lokale behoefte gericht dient te zijn.

De provinciale bevolkings- en woningbehoeftenprognose vormt de basis voor het maken van nieuwe regionale woningbouwafspraken. In 2020 heeft de Provincie Noord-Brabant haar bevolkings- en woningbehoefteprognose geactualiseerd. Uit deze prognose blijkt dat Noord-Brabant de komende jaren nog een behoorlijke woningbouwopgave wacht. De Brabantse bevolking zal van 2.563.400 inwoners in 2020 groeien tot ruim 2.841.800 inwoners in 2050.

Uit de Provinciale cijfers blijkt dat voor de gemeente Geldrop-Mierlo in de periode 2020 - 2040 een groei in inwoners wordt verwacht van circa 2060 personen :

afbeelding "i_NL.IMRO.1771.BPBogardeind219-ON01_0049.jpg" Met deze bevolkingsgroei is tevens sprake van een huishoudensgroei van 17.690 in 2020 naar 19.080 in 2040 :

afbeelding "i_NL.IMRO.1771.BPBogardeind219-ON01_0050.jpg" Op basis van de Provinciale cijfers geldt dus een forse woningbouwopgave voor de

gehele Provincie en voor de gemeenten in de Stadsregio Eindhoven en voor Geldrop-Mierlo.

Kwantitatieve aspecten: leeftijdsspecifieke bevolkingsontwikkeling

De Provinciale gegevens betreffende de leeftijdsspecifieke bevolkingsontwikkeling geven voor Geldrop-Mierlo het navolgende beeld :

afbeelding "i_NL.IMRO.1771.BPBogardeind219-ON01_0051.jpg" Het bovenstaande betekent dat een toenemende vraag zal zijn naar woningen die geschikt zijn voor senioren, maar ook dat de behoefte aan woningen voor starters en jonge gezinnen zal blijven bestaan.

Kwantitatieve woningbehoefte

Door de toename van de bevolking en een groeiend huishoudensaantal neemt de kwantitatieve behoefte aan woningen toe. Als afgeleide van de bevolkings- en huishoudensontwikkeling kan een raming worden gemaakt van de kwantitatieve woningbehoefte per gemeente.

Volgens de informatie uit het Afsprakenkader Wonen SGE 2022 'Bouwen aan de toekomst' bestaat er in de gemeente Geldrop-Mierlo tot 2040 een kwantitatieve woningbehoefte van circa 1.920 woningen :

afbeelding "i_NL.IMRO.1771.BPBogardeind219-ON01_0052.jpg"

Kwantitatief aanbod

In onderstaand is de meest actuele plancapaciteit weergegeven per 01-01-2021, gebaseerd op de 'Provinciale Matrix 2021'. De netto plancapaciteit in de gemeente Geldrop-Mierlo bedraagt circa 2.592 woningen.

afbeelding "i_NL.IMRO.1771.BPBogardeind219-ON01_0053.jpg"

Een aanzienlijk deel hiervan betreft ook zachte (potentiële) plannen, waar ook het voorliggende plan tot behoort. De harde (vastgestelde) plancapaciteit, bedraagt circa 986 woningen. Dit is lager dan de geprognosticeerde woningbehoefte in Geldrop-Mierlo (1.920 - 986 = 934).

Kwalitatieve aspecten: Regionaal woningbehoefteonderzoek SGE gebied

In opdracht van het Stedelijk Gebied Eindhoven is een regionaal woningbehoefteonderzoek uitgevoerd (juni 2021), waarin vraag naar (kwantitatief en kwalitatief) en aanbod aan woningen met elkaar is vergeleken. Op basis hiervan ontstaat een beeld welke woningen gebouwd dienen te worden om aan de vraag te voldoen.

Om het effect van doorstroming op de woningvraag te duiden zijn in het woningbehoefteonderzoek voor het Stedelijk Gebied Eindhoven twee scenario's gehanteerd :

  • 1. op basis van het doorstroommodel en het faciliteren van de doorstroming in de woningmarkt;
  • 2. op basis van het doorstroommodel rekening houdend met beperkte doorstroming.

De totale opgave (behoefte en theoretische overschotten) is in beeld gebracht middels een doorstroommodel, dat rekening houdt met de huidige woonsituatie, verhuisgeneigdheid en woonwensen van bestaande huishoudens, maar ook met de ontwikkeling van doelgroepen. Het doorstroommodel is een methode om de opgave in de woningmarkt te benaderen.

Het is een dynamisch en vraaggestuurd model dat jaarlijks de vraag en het aanbod van woningen tegen elkaar afzet. De bestaande voorraad, het verhuisgedrag (op basis van leeftijd, samenstelling en inkomen huishouden) en demografische ontwikkelingen liggen hieraan ten grondslag. Het model simuleert de jaarlijkse in- en uitgaande verhuizingen op basis van verhuis- en woonwensen (Microdata verhuisbewegingen CBS 2018-2020, WoON 2015 en WoON2018). Zo ontstaat een vraag-aanbodconfrontatie die per saldo een jaarlijkse opgave oplevert.

In beide scenario's blijkt dat er vooral vraag is naar appartementen en nultreden appartementen in de gemeente Geldrop-Mierlo.

De in dit bestemmingsplan vervatte ontwikkeling voldoet aan deze kwalitatieve aspecten, waarbij de woningen geschikt en bereikbaar zijn voor een brede doelgroep.

Conclusie 

De komende jaren nemen de bevolking en het aantal huishoudens in de gemeente Geldrop-Mierlo en het Stedelijk Gebied toe. Het aantal huishoudens groeit daarbij harder dan het aantal inwoners wat duidt op een toename van het kleinere huishoudens (een- en tweepersoons).

Als afgeleide van de bevolkings- en huishoudensontwikkeling en rekening houdend met bestaande tekorten (hoge scenario) is er in de gemeente Geldrop-Mierlo tot 2040 een kwantitatieve woningbehoefte aan 1.920 woningen.

De netto plancapaciteit in de gemeente Geldrop-Mierlo bedraagt circa 2.592 woningen. Een aanzienlijk deel hiervan betreft ook zachte (potentiële) plannen, waar ook het voorliggende plan tot behoort. De harde (vastgestelde) plancapaciteit, bedraagt circa 986 woningen. Dit is lager dan de geprognosticeerde woningbehoefte in Geldrop-Mierlo (1.920 - 986 = 934).

Het huidige initiatief dat voorziet in het toevoegen van 331 woningen geeft invulling aan zowel een kwantitatieve- alsook een kwalitatieve behoefte.

3.5.2 Regionaal beleid

In 2017 is in de negen gemeenten van het Stedelijk Gebied Eindhoven (hierna SGE) het Afsprakenkader Wonen vastgesteld. Dit is daarna op 13 december 2017 bekrachtigt in het Regionaal Ruimtelijk overleg van regio Zuidoost van de provincie Noord-Brabant. Daarnaast is in 2018 de SGE visie op wonen in de 9 gemeenten vastgesteld. Ten slotte is in maart 2019 een Woondeal gesloten tussen het SGE, het ministerie van BZK en de provincie Noord-Brabant. In 2021, 2022 en 2023 zijn afspraken omtrent woningbouw geactualiseerd.

Woondeals

Op 7 maart 2019 hebben de minister van Binnenlandse Zaken (BZK), de provincie Noord-Brabant en het Stedelijk Gebied Eindhoven (SGE) de Woondeal ondertekend. Met de ondertekening van de Woondeal zetten partijen zich in om de woonopgave in deze regio aan te pakken. Een grote variëteit aan woonmilieus draagt bij aan de ontwikkeling van de Brainportregio.

De Woondeal uit 2019 beschreef een woningbouwbehoefte van 27.000 extra woningen voor de periode 2020- 2024. Het zwaartepunt voor het realiseren van groen-stedelijke woonmilieus ligt hierin - zoals eerder ook vastgelegd in het 'Afsprakenkader Wonen SGE 2017' - bij negen prioritaire locaties in de SGE-gemeenten: Aarle, Brandevoort, Blixembosch, Ekenrooi Zuid, Nuenen West, Meerhoven, Tongelrese Akkers, Waalre Noord en Zilverackers.

Op 9 maart 2023 is de hernieuwde 'Regionale Woondeal Zuidoost-Brabant' ondertekend door alle 21 gemeenten uit de Metropool Regio Eindhoven (MRE), de 13 woningcorporaties in Zuidoost-Brabant, de provincie en de minister van BZK. In dit akkoord zijn, als gevolg van de toenemende druk op de woningmarkt, de ambities en uitgangspunten uit de Woondeal 2019 uitgebreid en aangescherpt.

Per gemeente is een minimaal te realiseren nieuwbouwprogramma opgenomen. Voor gemeente Geldrop-Mierlo is in de Woondeal 2023 een ondergrens vastgelegd van +/- 1575 nieuwe woningen tot en met 2030.

Daarnaast bevat de Woondeal 2023 ambities aangaande betaalbaarheid: minimaal 2/3 van de toe te voegen woningen dient te bestaan uit betaalbare huur- en koopwoningen, met een minimum van 30% sociale huur. De afspraken en ambities uit de Woondeal 2019 blijven onverkort van kracht. De Woondeal 2023 beschrijft, mede als gevolg van de grotere regioindeling, een totale regionale woningbouwopgave van minimaal 45.000 extra woningen in de periode 2023-2030.

Afsprakenkader Wonen SGE 2022 'Bouwen aan de toekomst'

De hogere ambities keren ook terug in het in 2022 geactualiseerde 'Afsprakenkader Wonen SGE 2022'. Hierin geven de negen SGE-gemeenten aan op welke manier ze invulling willen geven aan de gezamenlijke woningbouwopgave tot 2040, waarbij elke gemeente een redelijk aandeel in de opgave zal nemen.

In het nieuwe Afsprakenkader Wonen 'Bouwen aan de toekomst' zijn huidige en nieuwe ontwikkelingen meegenomen. Met dit Afsprakenkader wordt vooruit gekeken naar de periode tot 2040.

De onderlinge samenhang in het stedelijk gebied is groot. Het is dan ook logisch dat de gemeenten onderling woningbouwafspraken maken. Met het maken van deze afspraken voldoen de gemeenten daarnaast ook aan de verplichtingen vanuit de provinciale omgevingsverordening om met buurgemeenten af te stemmen. Deze afstemming verhoogt de kwaliteit van plannen, zonder het planvormingsproces negatief te beïnvloeden. De gezamenlijke monitoring van woningbouwplannen geeft inzicht in het speelveld van wonen in de regio en dat is belangrijk om te kunnen sturen op de woningbouw".

De ambitie is om tot 2040 ca. 62.000 nieuwe woningen bij te bouwen om aan de dringende vraag naar woningen te voldoen. In het nieuwe Afsprakenkader ligt de focus op het verder versnellen van de woningbouw. De focus van de gemeenten blijft liggen op inbreiding en het realiseren van de eerder afgesproken majeure locaties. De gemeenten vinden kwaliteit belangrijk en werken daarom aan de hand van voornoemde Brainport Principes waarop plannen worden getoetst op o.a. duurzaamheid, participatie, woonmilieus en innovatie.

3.5.3 De Brainportprincipes

Het Coördinatieteam Wonen heeft de opdracht gekregen om woningbouwplannen groter dan 75 woningen in stedelijke concentratiegebieden in het SGE gebied kwantitatief en kwalitatief te toetsen. Voor binnenstedelijke plannen is een uitzondering gemaakt vanuit de versnellingsopgave. Deze plannen worden niet meer kwantitatief getoetst, maar dienen nog wel te voldoen aan de Brainport principes om de kwaliteit van inbreidingslocaties te kunnen blijven garanderen.

Er zijn 7 Brainport Principes:

  • a. Koesteren van identiteit;
  • b. Ruimte voor innovatie;
  • c. Vraaggericht ontwikkelen;
  • d. Invloed voor bewoners;
  • e. Aantrekkelijke en gevarieerde woonmilieus;
  • f. Benutting regionaal schaalniveau;
  • g. Gezonde verstedelijking.

Doelen die moeten worden behaald zijn:

  • Van concurreren op kwantiteit naar samenwerken op kwaliteit;
  • Kwaliteitsverbetering (nieuwbouw-)woningaanbod in het gehele SGE; De principes gelden overal, maar het resultaat kan verschillend zijn (zgn. Level Playing Field)
  • Stap naar een completer en diverse woningaanbod in het SGE;
  • Woningbouwprojecten meer nadrukkelijk een bijdrage laten leveren aan de "gezonde, slimme en duurzame stad"..

De initiatiefnemer moet deze kwaliteitskenmerken kunnen toelichten en verantwoorden. Een team van specialisten uit de verschillende gemeenten beoordeelt en stelt de score vast op een schaal van 1 tot 10. Deze score wordt vervolgens grafisch weergegeven in onderstaand web. Op deze manier ontstaat voor ieder initiatief een uniek figuur en is direct zichtbaar op elke aspecten een project goed of minder goed scoort en is duidelijk of een project voldoende scoort om door te kunnen of dat aanpassingen noodzakelijk zijn.

afbeelding "i_NL.IMRO.1771.BPBogardeind219-ON01_0054.jpg"

Beoordeling plan

De kwalitatieve toetsing aan de brainport-principes door het Coördinatieteam en de hierop gebaseerde instemming vanuit het Portefeuillehoudersoverleg Wonen SGE is vervat in de hier als bijlage 1 opgenomen brief aan het College van B&W d.d. 20 november 2023 en het als bijlage 2 opgenomen "Advies toetsresultaat Brainport Principes" van het Coördinatieteam Wonen d.d. 9 november 2023, waarvan de inhoud als hier herhaald en ingelast dient te worden beschouwd.

Conclusie

Deze ontwikkeling houdt (ruim) voldoende rekening met de Brainport Principes.

3.5.4 Gemeentelijk beleid

Woonvisie Geldrop-Mierlo 2020-2028

De Woonvisie Geldrop-Mierlo 2020-2028 biedt een doorkijk naar de belangrijkste ontwikkelingen en uitdagingen op het thema 'wonen' van de gemeente, de ambities die daarbij gekoesterd worden en de gewenste beleidskaders om de ambities waar te kunnen maken. De woonvisie is een weerspiegeling van wat voor gemeente Geldrop-Mierlo wil zijn en speelt in op de woningmarkt en brede volkshuisvestelijke vraagstukken, zowel op korte als op langere termijn. Het laat zien welke vraagstukken prioriteit krijgen in de gemeente tot 2028. Het biedt de basis voor het aanbod van de woningcorporaties en daarmee ook voor de jaarlijkse prestatieafspraken die gemaakt worden.

De volgende hoofdlijnen zijn opgesteld:

  • Beperkt ruimte bovenop bestaande woningbouwplannen.
  • Sociale woningvoorraad: transformatie boven uitbreiding.
  • Aandacht voor doorstroming.
  • Aanpassing van het appartementenbeleid.
  • Inzet op levensloopbestendigheid en verduurzaming.
  • Meer ruimte voor vernieuwende concepten.
  • Beschermd wonen en maatschappelijke opvang.
  • Aanpak huisvestingsvraagstuk arbeidsmigranten op regionaal niveau.
  • Nieuw woonwagenbeleid.
  • Vitale kernen en wijken.

Toetsing (van de voor deze ontwikkeling relevante hoofdlijnen)

  • Beperkt ruimte bovenop bestaande woningbouwplannen.

Onderhavig plan komt bovenop de bestaande woningbouwplannen. Dankzij de mix van aanbod door het percentage sociale woningen richt dit plan zich op een doelgroep waarvoor extra plannen in aanmerking komen. Uit de ladderbeoordeling blijkt bovendien van voldoende ruimte voor de extra woningbouwimpuls.

  • Sociale woningvoorraad: transformatie boven uitbreiding.

Eén groot deel van de woningen valt in het segment sociale woning. Deze woningen komen tot stand door een transformatie van een bestaand hotel naar een specifieke woonomgeving voor diverse doelgroepen. Daarnaast is er sprake van een uitbreiding. Door de toevoeging wordt de druk op de woningmarkt verlicht.

  • Aandacht voor doorstroming.

Met de realisatie van appartementen wordt mede gericht op de doelgroep starters, alleenstaanden en senioren. Hierdoor wordt bijgedragen en een doorstroming en wordt scheefwonen tegengegaan.

  • Aanpassing van het appartementenbeleid.

Met de realisatie van appartementen wordt tegemoet gekomen aan de toenemende vraag naar kleinere en nultredenwoningen vanuit jongeren, starters en senioren.

  • Inzet op levensloopbestendigheid en verduurzaming.

Het bestaande NH-hotel gebouw zal worden verduurzaamd, waarbij de diverse woningen levensloopbestendig zullen worden gerealiseerd.

  • Meer ruimte voor vernieuwende concepten.

In onderhavig plan is ruimte voor vernieuwende concepten in het bestaande NH-hotel gebouw, waarbij de woningen gemeubileerd en gestoffeerd worden aangeboden.

  • Vitale kernen en wijken.

Onderhavig plan transformeert een wat gesloten en enigszins verouderde locatie tot een aantrekkelijk groen woonmilieu en draagt hierdoor bij aan een vitale wijk.

Onderhavige ontwikkeling past daarmee binnen de woonvisie van de gemeente. Vanuit de gemeente worden er echter wel een aantal voorwaarden gesteld. De bouw van appartementen is mogelijk, mits het past in de stedenbouwkundige context van de omgeving. De prijsklasse en ligging dienen passend te zijn voor de beoogde doelgroep, waarbij bovendien sprake moet zijn van voldoende hoogwaardige kwaliteit, met inachtneming van de geldende parkeernorm en een juiste vorm van ontsluiting.

De invulling van het woningbouwprogramma van deze ontwikkeling heeft in samenspraak met de gemeente conform de doelgroepenverordening plaatsgevonden. Bij het ontwerp is rekening gehouden met de stedenbouwkundige context van de omgeving, wordt een hoogwaardige kwaliteit nagestreefd van zowel bebouwing alsook de locatie en wordt voldaan aan de geldende parkeernorm.

Doelgroepenverordening Gemeente Geldrop-Mierlo 2022

De gemeente Geldrop-Mierlo heeft de komende jaren een ambitieus woningbouwprogramma, zoals bijvoorbeeld de 800 woningen in het centrum van Geldrop en de plannen in Luchen. De gemeente werkt daarom met een doelgroepenverordening, welke zorgt voor een (juridische) afdwingbare stok achter de deur bij het realiseren van een betaalbaar woningbouwprogramma.

Een doelgroepenverordening is een lokale verordening. In bestemmingsplannen kan de gemeente Geldrop-Mierlo eisen stellen aan het woningbouwprogramma (bijvoorbeeld minimaal 30% sociale huur en/of 30% middenhuur). Met een doelgroepenverordening legt de gemeente een doelgroepenbestemming (maximaal inkomen) op voor een bepaalde instandhoudingsperiode.

In de doelgroepenverordening zijn een aantal bepalingen opgenomen, zoals:

  • Definities van sociale woningbouwcategorieën
    • 1. Sociale koopwoningen max. € 355.000,00
    • 2. Sociale huurwoningen max. € 763,47
    • 3. Middenhuurwoningen max. € 1.000,00
  • De doelgroep voor woningbouwcategorieën (o.b.v. maximaal inkomen)
  • Instandhoudingstermijnen voor de verschillende woningbouwcategorieën.

Bovenstaande prijzen zijn prijspeil 2022 en worden geïndexeerd conform de MRE-begrippenlijst. Binnen de vastgestelde definities worden per categorie verschillende prijssegmenten onderscheiden (om de betaalbaarheid voor uiteenlopende lage en middeninkomens te borgen).

Belangrijk hierbij is ook de borging van een prijs-/kwaliteitverhouding.

  • 1. Sociale koopwoningen in het hoge segment dienen een gebruiksoppervlakte te hebben van ten minste 75 m2. Voor grondgebonden woningen in dit segment geldt als vereiste een gebruiksoppervlakte van ten minste 80 m2.
  • 2. Sociale koopwoningen in het middensegment en middenhuurwoningen in het hoge segment dienen een gebruiksoppervlakte te hebben van ten minste 55 m2. Voor grondgebonden woningen in deze segmenten geldt als vereiste een gebruiksoppervlakte van ten minste 60 m2.
  • 3. Sociale huurwoningen in het hoge segment dienen een gebruiksoppervlakte te hebben van ten minste 55 m2.
  • 4. Sociale koopwoningen in het lage segment, middenhuurwoningen in het lage segment en sociale huurwoningen in het lage segment dienen een gebruiksoppervlakte te hebben van ten minste 45 m2. Voor grondgebonden woningen in deze segmenten gelden geen oppervlaktevereisten.

De verordening bevat tenslotte een hardheidsclausule. Een hardheidsclausule is een clausule op grond waarvan een bepaling geheel of gedeeltelijk buiten toepassing kan worden gelaten als de toepassing ervan zou leiden tot uitzonderlijk onbillijke of onredelijke gevolgen. Hiermee kan een te rigide toepassing (waardoor een planontwikkeling en dus realisatie van woningen geen doorgang vindt wat door het College als niet wenselijk wordt gezien) worden voorkomen.

De voorliggende ontwikkeling omvat onderstaand programma :

  • 142 (bestaande) studio's (24/30 m2) sociaal (flexwonen)
  • 61 appartementen 2-kamer (ca. 45 m2) middenhuur laag
  • 70 appartementen 2-kamer (ca. 55 m2) middenhuur hoog
  • 58 appartementen 2, 3/4 kamer (65-125 m2) vrije sector

Belangrijk gegeven in deze ontwikkeling is dat deze bestaat uit deels bestaande bouw en deels nieuwbouw. Door de toevoeging van de nieuwbouw komt een totaal van 331 woningen op de locatie beschikbaar voor diverse doelgroepen. De omvang van de wooneenheden in de bestaande bouw is hierbij een gegeven.

Conform doelgroepenverordening zijn de 142 studio's in beginsel niet bedoeld voor (langdurige) permanente bewoning. Conform feitelijk gebruik worden deze thans ingezet voor de huisvesting van een brede doelgroep, zoals spoedzoekers, studenten, uitstomers uit intramurale setting, internationals, senioren en alleenstaanden.

Door deze eenheden een woonbestemming te geven blijven ze voor de diverse doelgroepen beschikbaar en aldus ruim inzetbaar. Hiermee voldoen deze studio's aan een grote concrete behoefte binnen Geldrop-Mierlo en leggen deze bewoners geen beslag op een sociale woning als bedoeld in de verordening, zodat deze woningen beschikbaar blijven voor anderen. Indirect wordt hiermee c.q. hierdoor aan het doel van de verordening voldaan.

De nieuwbouw woningen voldoen vervolgens wel aan de normen van de doelgroepenverordening, zowel qua oppervlakte alsook qua prijsstelling (voorzover van toepassing). De realisatie en instandhouding van de diverse woningen zal in de anterieure overeenkomsten worden beschreven en geborgd voor de hiertoe aan de orde zijnde termijnen (tevens geldend voor eventuele rechtsopvolgers van ontwikkelaars).

Aldus komt - alle woningen beschouwend - onderstaand woonprogramma tot stand bestaande uit :

  • Sociaal: 42,9%
  • Middenhuur: 39,6%
  • Vrije sector: 17,5%

Aldus komt - enkel de nieuwbouw beschouwend - een woonprogramma tot stand bestaande uit :

  • Middenhuur: 69,3%
  • Vrije sector: 28,6%
3.5.5 Conclusie

De voorziene woningen in het plangebied voldoen aan de uitgangspunten van de ladder voor duurzame verstedelijking, passen binnen de bestaande regionale woningbouwafspraken en het gemeentelijke beleid.

Het betreft zowel de kwantitatieve afspraken alsook de (regionale) kwalitatieve behoefte.

3.6 Overige functies in het plangebied

Naast de toevoeging van woningen zullen in het plangebied in beperkte mate aanvullende functies worden mogelijk gemaakt, om hiermee te komen tot een gevarieerde invulling, waarvan de wenselijkheid en aanvaardbaarheid in deze paragraaf zal worden besproken.

3.6.1 Detailhandel, horeca en overige functies

De ontwikkeling omvat allereerst een ruimte van 1000 m2 waarvan de functie vooralsnog wordt beperkt tot (flex)kantoren, (werk)ateliers en voorzieningen ten behoeve van wonen. Idee hierbij is dat deze ruimte nader zal worden ingevuld mede afhankelijk van de behoefte van de diverse bewoners, die daar een ruimte kunnen vinden als werkplek of bijeenkomstruimte (deels in aanvulling op de woonruimte in de kleinere wooneenheden).

Indien het op termijn wenselijk zou zijn om dit gebruik uit te breiden ter versterking van het concept kan hiervoor een separate ruimtelijke (vrijstellings) procedure worden doorlopen, waarmee gemeentelijke instemming wordt verkregen voor een concreet initiatief.

Verder is het de bedoeling om in het plangebied te komen tot een buurtwinkel met een oppervlakte van maximaal 250 m2 en een horecavoorziening met een oppervlakte van maximaal 450 m2 en omvattende horecabedrijven in de subcategorie 1 en 2b zoals genoemd in de `Lijst van horeca-activiteiten´ die als bijlage bij de regels wordt toegevoegd :

afbeelding "i_NL.IMRO.1771.BPBogardeind219-ON01_0055.jpg"

3.6.2 Geen laddertoets

Zoals in paragraaf 3.2. beschreven in een laddertoets als bedoeld in artikel 3.1.6 lid 2. Bro ten aanzien van de niet-woon-functies in het plangebied niet aan de orde, vanwege de beperkte omvang hiervan (kleiner dan 500 m2) dan wel omdat reeds sprake is van planologisch en feitelijk bestaand gebruik (kantoren).

Wel dient te worden beoordeeld - in het kader van het criterium "goede ruimtelijke ordening" of de wijziging van functies in bestaande gebouwen dan wel een niet substantiële ontwikkeling zodanige leegstand tot gevolg zal hebben dat dit tot een aantasting van het woon-, leef- en ondernemersklimaat zal leiden, die uit een oogpunt van een goede ruimtelijke ordening onaanvaardbaar moet worden geacht. Uiteraard dient ook het belang van de betreffende functiewijziging en/of niet substantiële ontwikkeling op een inhoudelijke wijze te worden verwoord.

Bij de toets of het plan in overeenstemming is met goede ruimtelijke ordening dient beoordeeld te worden of de in het plan voorziene bestemmingen passende bestemmingen zijn (ARRS 25-06-2014, ECLI:NL:RVS:2014:2294 (Weert) en of de ontwikkeling voorziet in een behoefte (ARRS 05-04-2017, ECLI:NL:RVS:2017:943 (Ermelo)). De behoefte aan de mogelijk gemaakte ontwikkeling dient met het oog op de uitvoerbaarheid van het plan te zijn onderbouwd ARRS 18-12-2013, ECLI:NL:RVS:2013:2471 (Weststellingwerf). In redelijkheid dient ervan te kunnen worden uitgegaan dat binnen de planperiode van in beginsel tien jaar behoefte zal bestaan aan de ontwikkeling die het plan mogelijk maakt (ARRS 18-11-2015, ECLI:NL: RVS:2015:3542 (Leek)).

Wat betreft de overige functies is duidelijk dat hierdoor geen sprake is van onnodig ruimtebeslag, omdat al deze functies zijn gelegen binnen de footprint van de primair voor woningen bestemde gebouwen. Gezien de beperkte oppervlakte van de plintfuncties zal deze ontwikkeling geen zodanige leegstand tot gevolg hebben dat dit tot een aantasting van het woon-, leef- en ondernemersklimaat zal leiden, die uit een oogpunt van een goede ruimtelijke ordening onaanvaardbaar moet worden geacht.

De plintfuncties kunnen als ter plaatse passende functies worden gezien, omdat hiermee de leefbaarheid van de locatie sterk wordt bevorderd. Enkel een woonmilieu (ook op de begane grond) zou de gebouwen een veel meer gesloten uitstraling geven, waarmee de gewenste levendigheid van de locatie niet tot stand zou komen. Juist de diversiteit ter plaatse middels de overige functies maakt het een meer aantrekkelijk gebied, waarbij deze functies bovendien een welkome aanvulling kunnen vormen voor en in een behoefte kunnen voorzien van de diverse bewoners in de nieuwe ontwikkeling alsmede in de omliggende bestaande (woon)omgeving. Aldus staat de behoefte aan de overige functies in het plangebied binnen de planperiode voldoende vast,

Consequentie daarvan is dat in de plantoelichting - in aanvulling op het vorenstaande - een verantwoording aan de Ladder ex artikel 3.1.6 lid 2 Bro achterwege kan blijven voorzover het betreft de overige functies in dit plangebied.

3.6.3 Conclusie

Er komt in deze ontwikkeling ruimte voor enkele kleinschalige functies ten behoeve van detailhandel, horeca en dienstverlening. Behalve dagelijkse artikelen winkels (food) betreft hier kleinschalige horeca en dienstverlening.

De aanwezigheid van dit type voorzieningen zorgt voor levendigheid / veiligheid (en daarmee leefbaarheid) en de woonkwaliteit van het plangebied en is in lijn met het gemeentelijke en (sub)regionale detailhandels- en horecabeleid.

3.7 Archeologische en cultuurhistorische waarden

3.7.1 Archeologie

Regelgeving

Het Verdrag van Valletta (Malta) verplicht de Europese overheden tot het beschermen van archeologisch erfgoed. Hierbij wordt als uitgangspunt gehanteerd dat archeologische waarden in situ bewaard moeten blijven. Dat wil zeggen, dat er naar gestreefd moet worden om de waarden op de locatie te behouden. Als dit niet mogelijk blijkt, bijvoorbeeld bij bouwplannen, dan moeten de waarden worden opgegraven en ex situ worden bewaard.

Het Verdrag van Valletta is doorvertaald in de Monumentenwet 1988, zoals deze gewijzigd is in september 2007. Sinds deze wijziging van september 2007 is de gemeente bevoegd gezag op het gebied van cultuurhistorie en archeologie.

Per 1 juli 2016 is de Erfgoedwet van kracht. De uitgangspunten uit het Verdrag van Valletta (Malta) blijven in de Erfgoedwet de basis van de omgang met archeologie. Gemeenten houden een belangrijke rol in het archeologische stelsel. In bestemmingsplannen houden ze rekening met (te verwachten) archeologische waarden. Dit wordt samen met de andere onderdelen rond de omgang met archeologie in de fysieke leefomgeving overgeheveld naar de toekomstige Omgevingswet.

Gemeentelijk beleid

Geldrop en Mierlo hebben archeologisch gezien een rijk verleden en kennen wat archeologisch onderzoek betreft een rijke traditie. De gemeente Geldrop-Mierlo beschikt over archeologiebeleid en een archeologische beleidskaart. Met het beleidsplan 'Archeologische Monumentenzorg' uit 2010 voldoet de gemeente aan de Erfgoedwet en heeft zij vastgelegd hoe de gemeente omgaat met het archeologisch erfgoed.

Om te voorkomen dat de meest waardevolle delen van het bodemarchief ongezien verdwijnen, moeten de uitgangspunten van het archeologiebeleid aansluiten op de ruimtelijke ambities en andere voornemens op het gebied van de ruimtelijke ordening, infrastructuur, landbouw, cultuur, monumenten en toerisme. Enerzijds vormen de activiteiten binnen en buiten de bebouwde kom weliswaar een risico voor archeologisch erfgoed, gelijktijdig bieden ze mogelijkheden voor onderzoek naar het verleden, het in stand houden van monumenten en een betekenisvolle inrichting van de ruimte.

De gemeente stelt zich concreet ten doel steeds een verantwoorde afweging te maken tussen wat in de bodem bewaard moet blijven, onderzocht dient te worden of verloren mag gaan. Centraal daarbij staat het behoud van representatieve delen van het verleden landschap en de archeologische vindplaatsen die daarin verborgen liggen. Bij de afweging over het al dan niet voorschrijven van (voor)onderzoek bij bodemingrepen gaat Geldrop-Mierlo uit van een zo effectief mogelijke inzet op archeologie. Centraal daarin staat de potentiële kenniswinst die daarbij te behalen valt.

Archeologische beleidskaart

De archeologische beleidskaart geeft een beschrijving van verschillende gronden met de daaraan gekoppelde archeologische verwachtingen. Aan de verwachtingen zijn voorschriften gekoppeld. Het plangebied is gelegen in :

  • een gebied met archeologische waarde,
  • een gebied met hoge verwachting,
  • een gebied met middelhoge verwachting, en
  • een gebied met lage verwachting.

In deze gebieden geldt op basis van geomorfologische en bodemkundige opbouw en aangetroffen archeologische vondsten en relicten een uiteenlopende archeologische verwachting. Om die reden is in de diverse gebied afhankelijk van de oppervlakte en de diepte van bodemingrepen een archeologisch onderzoek vereist.

In geval van een gebied met een lage archeologische verwachting rusten er geen beperkingen ten aanzien van archeologie. Wel zal bij m.e.r. plichtige en grootschalige inrichtingsprojecten vanaf 10.000 m² en projecten die onder de tracéwet vallen nader onderzoek worden verlangd. Dit alles is in het kader van dit bestemmingsplan niet aan de orde, zodat voor deze laatste categorie geen apart artikel in de regels is opgenomen.

afbeelding "i_NL.IMRO.1771.BPBogardeind219-ON01_0056.jpg"

afbeelding "i_NL.IMRO.1771.BPBogardeind219-ON01_0057.jpg"

afbeelding : uitsnede archeologische beleidskaart

Borging in regels

In de regels is in artikel 4, artikel 5 en artikel 6 een "Waarde - Archeologie" opgenomen voor respectievelijk de categorieën 2, 3 en 4 waarmee wordt geborgd dat aan voormelde archeologische kaders wordt voldaan in het kader van de herontwikkeling. Voorafgaand aan vergunningverlening zal middels archeologisch onderzoek worden vastgesteld of en zo ja welke maatregelen nodig zijn.

Aanvullend op voormeld artikel 4 in de regels, geldt dat als er archeologische resten (vondsten, sporen et cetera) worden aangetroffen bij de grondwerkzaamheden, die op grond van artikel 5.10 van de Erfgoedwet 2016 gemeld moeten worden bij de Minister van OCW en bij de (afdeling Omgevingskwaliteit van de) gemeente.

3.7.2 Cultuurhistorische waarden

Algemeen

Op grond van artikel 3.1.6, vijfde lid, onderdeel a van het Besluit ruimtelijke ordening (Bro) moeten naast de in de grond aanwezige of te verwachten monumenten ook cultuurhistorische waarden worden meegewogen bij het vaststellen van bestemmingsplannen.

Cultuurhistorische Waardenkaart Noord-Brabant

De provincie ziet het Brabantse erfgoed als belangrijk onderdeel van haar identiteit en wil het een plaats geven in de verdere ontwikkeling van Brabant. Daarom heeft ze haar ruimtelijk erfgoed opgenomen op de Cultuurhistorische Waardenkaart (CHW). De CHW is vastgesteld in 2010 en op kleine onderdelen aangepast in de herziening 2016.

Het plangebied is op de Cultuurhistorische Waardenkaart niet aangeduid als cultuurhistorisch waardevol gebied.

Cultuurhistorische beleidskaart 2012

afbeelding "i_NL.IMRO.1771.BPBogardeind219-ON01_0058.jpg" afbeelding : uitsnede cultuurhistorische beleidskaart Geldrop Mierlo

Bestudering van de cultuurhistorische beleidskaart 2012 Geldrop Mierlo ook niet tot beperkingen ten aanzien van het planvoornemen, waarbij zelf kan worden opgemerkt dat het planvoornemen in combinatie met de landschappelijke inpassing in een opwaardering van het gebied aansluitend op het achterliggende gebiedmet zeer hoge cultuurhistorische waarde, waarbij dit gebied ook in aanmerking kan komen voor een betere ontsluiting c.q. toegankelijkheid.

Gemeentelijke monumenten

De gemeente Geldrop-Mierlo heeft ook zelf objecten aangewezen als gemeentelijke monument. In of in de directe omgeving van het plangebied zijn geen gemeentelijke monumenten gelegen.

3.7.3 Conclusie

Gezien het voorgaande zorgen de aspecten "archeologie" en "cultuurhistorie" niet voor belemmeringen voor onderhavig planvoornemen c.q. de vaststelling van onderhavig bestemmingsplan.

3.8 Kabels, leidingen

Planologisch relevante leidingen dienen in het bestemmingsplan te worden bestemd. Tevens moeten relevante zones worden aangegeven, waarbinnen mogelijke beperkingen gelden. Planologisch relevante leidingen zijn leidingen waarin de navolgende producten worden vervoerd :

  • gas, olie, olieproducten, chemische producten, vaste stoffen/goederen;
  • aardgas;
  • defensiebrandstoffen;
  • warmte en afvalwater, ruwwater of halffabricaat voor de drink- en industriewatervoorziening met een diameter groter of gelijk aan 18 inch.

Daarnaast moeten optisch vrije paden in het bestemmingsplan worden opgenomen.

Binnen het plangebied liggen geen hoofdtransportleidingen en straalpaden die vanuit ruimtelijk oogpunt relevant zijn voor verwerking in het bestemmingsplan. Binnen het plangebied bevinden zich geen onder- of bovengrondse hoogspanningsleidingen. Ook in de nabijheid van het plangebied ontbreken dergelijke leidingen.

3.9 Windhiner, privacy en bezonning

3.9.1 Windhinder

In Nederland bestaat geen wetgeving ter voorkoming van windhinder of windgevaar. Op basis van artikel 3.1. Wro dient in het kader van de zorg voor een goede ruimtelijke ordening echter bij het opstellen van ruimtelijke plannen windhinder of windgevaar te worden meegenomen in de afwegingen, indien aard of omvang van de bebouwing en van de omgeving hiertoe aanleiding geeft.

In 2006 is de privaatrechtelijke norm NEN 8100 'Windhinder en windgevaar in de gebouwde omgeving' uitgekomen. Deze norm geeft richtlijnen (methodes) voor het uitvoeren van windtunnel- en CFD onderzoek. Daarnaast wordt een beoordelingsmethodiek van windhinder en windgevaar. Hierbij wordt gewerkt met uurgemiddelde windsnelheden (m/s) gerelateerd aan de overschrijdingskans in percentage van uren per jaar. In een tabel is voor verschillende situaties en activiteiten (doorlopen, slenteren, langdurig zitten) een beoordeling van het windklimaat gegeven (slecht, matig, goed). Daarnaast is een toetsingskader ten aanzien van windgevaar uitgewerkt.

Door SIMSTUDIO International Consultants is voor het plan een theoretische beschouwing van het windklimaat opgesteld d.d. 26 juni 2023, welke als bijlage 3 bij de toelichting is opgenomen.

Onderhavige rapportage omschrijft een windstudie uitgevoerd waarin het effect van de beoogde bouwmassa's inzichtelijk is gemaakt op het windklimaat nabij het plangebied. Deze studie is uitgevoerd conform NEN 8100. Als conclusie wordt vermeld :

4.1 Windhinder
Het windklimaat op alle paden en wegen rondom de ontwikkeling voldoen aan de gestelde kwaliteitsklasse 'doorlopen'. Het windklimaat op de bovengrondse parkeerplaatsen en rond de entree voldoen aan de gestelde kwaliteitsklasse 'slenteren'. Binnen het plan zijn geen locaties waar een kwaliteitsklasse voor 'langdurig zitten' is vereist.

Daarmee kan gesteld worden dat de ontwikkeling geen windhinder veroorzaakt.

4.2 Windgevaar
Het windklimaat binnen het ontwikkelingsplan is geheel vrij van kans op windgevaar of. Daarmee kan gesteld worden dat de ontwikkeling geen windgevaar veroorzaakt

In de regels van dit bestemmingsplan wordt - gezien de in het plangebied mogelijk gemaakte bouwhoogte - het aspect "windklimaat" geregeld middels een voorwaardelijke verplichting, zodat na vaststelling van het bestemmingsplan en voorafgaand aan aanvraag c.q. beoordeling omgevingsvergunning(en) bouw dit aspect voldoende is geborgd aanvullend aan de vaststelling zoals gedaan in voormelde onderzoeksrapportage.

3.9.2 Voorwaardelijke verplichting windklimaat
  • a. Bij het verlenen van een omgevingsvergunning voor het bouwen voor gebouwen met een bouwhoogte van 30 meter of meer staat vast dat sprake is van een acceptabel windklimaat;
  • b. Aan het bepaalde onder a wordt in ieder geval voldaan wanneer de maatregelen worden getroffen aan de in artikel 3.2.1 bedoelde gebouwen, zoals aangeduid in het als bijlage bij de toelichting van dit bestemmingsplan opgenomen windklimaatonderzoek of wordt voorzien in maatregelen die leiden tot een vergelijkbaar resultaat;
  • c. De in b bedoelde genoemde maatregelen dienen in stand gehouden te worden.

Conclusie is dat het aspect windhinder de totstandkoming van dit bestemmingsplan niet in de weg staat.

3.9.3 Privacy en bezonning

Privacy en uitzicht

Vastgesteld moet worden dat het aannemelijk is dat de aanwezigheid van de nieuwbouw, gelet op de ligging en de bouwmassa daarvan, zal leiden tot een beïnvloeding van het uitzicht vanuit enkele woningen en tuinen in de nabijheid van de planlocatie. Tevens zal sprake zijn van een beperking van de privacy.

Deze aspecten dienen te worden afgewogen tegen de belangen die zijn gebaat bij herontwikkeling van deze locatie c.q. het belang bij de realisatie van de nieuwe woningen.

afbeelding "i_NL.IMRO.1771.BPBogardeind219-ON01_0059.jpg"

afbeelding : omgeving plangebied met bestaande woningen

Met drie bouwvolumes in het plangebied wordt een substantiële bijdrage geleverd aan de invulling van de regionale - en lokale woningbehoefte. Deze vorm van verdichting maakt het bovendien mogelijk elders in Geldrop het dorpse karakter te handhaven en toch aan de woningbouwdoelstelling te voldoen.

In een stedelijk gebied als waarvan het plangebied onderdeel uitmaakt is een beperking van privacy en vrij uitzicht als gevolg van nieuwe ontwikkelingen inherent aan verdichting. Deze beperking mag echter niet onevenredig zijn.

De afstanden van de nieuw te bouwen woontoren naar de meest nabij gelegen woningen lopen uiteen van circa 68 meter tot circa 105 meter.

Voor enkele woningen zal sprake zijn van toegenomen inkijk op met name het perceel c,q, de achtertuinen. Inkijk in de woningen zelf zal beperkt zijn door zowel de afstand alsook de positionering van de woontoren ten opzichte van deze woningen.

Inkijk vanuit het bestaande NH gebouw of het nieuwe woongebouw zal niet plaatsvinden.

afbeelding "i_NL.IMRO.1771.BPBogardeind219-ON01_0060.jpg" afbeelding : afstand bouwvlakken tot bestaande woningen

Belangrijk aspect hierbij is de in de regels van het bestemmingsplan verankerde groeninvulling van de locatie door het landschappelijk inpassingsplan op te nemen als voorwaardelijke verplichting. De aanzienlijke hoeveelheid (te handhaven en aan te planten) bomen zullen - in aanvulling op de grote afstand - de inbreuk op de privacy beperken.

afbeelding "i_NL.IMRO.1771.BPBogardeind219-ON01_0061.jpg" afbeelding : bestaande woningen bezien vanuit planlocatie

Van (evidente) privaatrechtelijke belemmeringen is geen sprake. Gelet op de afstanden tussen nieuwbouw en bestaande bebouwing en gezien de aard van de centrum stedelijke omgeving kan worden geconcludeerd het uitzicht en de privacy ter plaatse van omliggende woningen niet onaanvaardbaar worden aangetast door de ontwikkeling die dit bestemmingsplan mogelijk maakt.

afbeelding "i_NL.IMRO.1771.BPBogardeind219-ON01_0062.jpg"

afbeelding : groeninvulling planlocatie

Bezonning

Er bestaan in Nederland geen formele wettelijke normen en eisen ten aanzien van de bezonning voor bebouwing. Gemeentes zijn vrij om een eigen invulling te geven aan de eisen omtrent bezonning. De schaduwwerking is over het algemeen het grootst op 19 februari en 21 oktober vanwege de lage stand van de zon. Na 19 februari zal de situatie elke dag verbeteren tot en met 21 juni, wanneer de zon op haar hoogst staat en er dus nauwelijks schaduwwerking is. Daarna wordt de schaduwwerking weer elke dag een beetje groter, tot het einde van de onderzoeksperiode op 21 oktober.

In het kader van de planontwikkeling is onderzoek gedaan inzake de bezonning, zoals neergelegd in het bezonningsonderzoek van "Bezonningsingenieur.nl" d.d. 03-08-2023, opgenomen als Bijlage 4 bij deze toelichting. Uit deze studie blijkt :

Kortom alle onderzochte woningen voldoen in zowel de bestaande als geplande situatie ruimschoots aan de lichte en strenge TNO-bezonningsnorm. Gesteld kan worden dat het bouwplan The Stayy niet zal leiden tot onevenredige vermindering van bezonning op de omliggende percelen.

zodat aldus het aspect bezonning de totstandkoming van dit bestemmingsplan niet in de weg staat.

3.9.4 Conclusie

Gezien het voorgaande zorgen de aspecten "windhinder" "privacy" en "bezonning" niet voor belemmeringen voor onderhavig planvoornemen c.q. de vaststelling van onderhavig bestemmingsplan.

Hoofdstuk 4 Milieuparagraaf

Op Grond van het bepaalde in het Besluit ruimtelijke ordening (Bro) is het bij het opstellen van een bestemmingsplan verplicht om inzicht te bieden in de relevante planologische en milieuhygiënisch aspecten. In dit hoofdstuk is een verantwoording voor deze aspecten opgenomen.

4.1 M.e.r.-beoordeling

Toetsingskader

Behalve aan de uitvoeringsaspecten bedoeld in de Awb en het Bro dient ook te worden getoetst aan de Wet milieubeheer en het Besluit m.e.r of er sprake is van een mogelijke verplichting tot het opstellen van een milieueffectrapportage. Een milieueffectrapportage (MER), en de bijbehorende procedure (m.e.r.), is een hulpmiddel om de belangen van het milieu volwaardig te betrekken bij de besluitvorming omtrent plannen en projecten. Het gaat hierbij wel enkel om plannen en projecten die kunnen leiden tot initiatieven waarmee het milieu mogelijk nadelig kan worden beïnvloed. Als uitgangspunt geldt voor plannen de onderstaande criteria om te beoordelen of een MER noodzakelijk is:

  • plannen die kaderstellend zijn voor toekomstige m.e.r.- (beoordelings)plichtige besluiten (boven de grenswaarden uit de C- of D-lijst van het Besluit m.e.r.);
  • plannen waarvoor een passende beoordeling nodig is in verband met een mogelijk significant negatief effect op Natura 2000-gebieden;
  • plannen en activiteiten die o.g.v. een provinciale verordening zijn aangewezen als MER-plichtig.

Per 1 april 2011 is het Besluit m.e.r gewijzigd. De belangrijkste aanleidingen hiervoor zijn de modernisering van de m.e.r wetgeving in 2010 en de uitspraak van het Europese Hof van 15 oktober 2009 (HvJ EG 15 oktober 2009, zaak C-255/08 - Commissie vs. Nederland). Deze wijziging heeft gevolgen voor eerstgenoemd criterium om te beoordelen of een MER noodzakelijk is. Uit deze uitspraak volgt dat de omvang van een project niet het enige criterium mag zijn om wel of geen me.r.(-beoordeling) uit te voeren. Ook als een project onder de drempelwaarde uit de C- of D-lijst blijft, kan een project belangrijke nadelige gevolgen hebben, als het bijvoorbeeld in of nabij een kwetsbaar natuurgebied ligt. Gemeenten en provincies moeten daarom per 1 april van 2011 ook bij 'kleine projecten' (projecten onder de drempelwaarden van de C- of D-lijst) beoordelen of een m.e.r.(-beoordeling) nodig is. Dit wordt de 'vormvrije m.e.r.-beoordeling' genoemd. Deze beoordeling houdt in dat er bekeken moet worden of er bij het initiatief sprake is van dusdanig bijzondere omstandigheden of milieueffecten dat er toch een MER moet worden opgesteld. Hierbij wordt gekeken naar de selectiecriteria uit bijlage III bij de m.e.r.-richtlijn (2011/92/EU), welke o.a. de omvang van het project, de cumulatie met andere projecten en het gebruik van natuurlijke hulpbronnen betreffen.

Op 7 juli 2017 is opnieuw een wijziging van het Besluit m.e.r. in werking getreden. Eén van de belangrijkste gevolgen van deze wetswijziging is dat het bevoegd gezag dient te beoordelen of het noodzakelijk is om een milieueffectrapportage op te stellen. De effecten van de onderhavige bestemmingswijziging dienen door middel van een vormvrije m.e.r.-beoordeling in beeld te worden gebracht.

Beoordeling

Om te bepalen of een m.e.r.-beoordeling noodzakelijk is dient bepaald te worden of de ontwikkeling de drempelwaarden uit lijst D van het Besluit m.e.r. overschrijdt, of de ontwikkeling in een kwetsbaar gebied ligt en of er belangrijke milieugevolgen zijn.

De in het kader van dit bestemmingsplan aan de orde zijnde planinvulling valt onder een stedelijke ontwikkeling zoals bedoeld in categorie D11.2 van het Besluit m.e.r. Het aantal woningen ligt echter ruim onder de drempelwaarde van 2.000 woningen. De voorgestane ontwikkeling binnen het plangebied past aldus ruimschoots binnen de genoemde drempelwaarden.

Ten aanzien van het tweede criterium inzake een mogelijke MER-plicht, geldt dat er bij onderhavige situatie geen sprake is van een plan waarvoor een passende beoordeling nodig is in verband met een mogelijk significant effect op de Natura 2000-gebieden.

Ten aanzien van het derde criterium geldt dat onderhavige activiteit niet is aangewezen als MER-plichtig op grond van de Interim omgevingsverordening Noord-Brabant. Er is dus geen sprake van de verplichting tot het opstellen van een MER en het doorlopen van de bijbehorende procedure.

Conclusie

Zoals beschreven is er bij onderhavig plan geen sprake van een verplichting tot het opstellen van een MER en het doorlopen van de m.e.r.-procedure o.g.v. het Besluit m.e.r., de Wet natuurbescherming of de Interim omgevingsverordening Noord-Brabant. Uit de - hier als bijlage 5 opgenomen - vormvrije m.e.r.-beoordeling volgt dat er geen sprake is van belangrijke nadelige milieugevolgen. Er is dus voldaan aan de wettelijke verplichtingen hieromtrent.

De beslissing op de vormvrije m.e.r.-beoordeling is voorafgaand aan het vrijgeven van het ontwerpbestemmingsplan genomen.

4.2 Bedrijven en milieuzonering

Op basis van milieuzonering wordt bepaald welke categorieën bedrijven en/of inrichtingen in het plangebied zijn toegestaan. Dit houdt in dat er voldoende ruimtelijke scheiding moet zijn tussen milieubelastende bedrijven/inrichtingen en woongebieden. Hoe zwaarder de toegestane milieucategorie, hoe groter de afstand. Bij het bepalen van deze afstand wordt gebruik gemaakt van de VNG - brochure 'Bedrijven en milieuzonering', editie 2009.

In deze brochure worden richtafstanden gegeven tot de omgevingstypen rustige woonwijk en gemengd gebied. Bij een gemengd gebied geldt een kortere afstand dan bij een rustige woonwijk. Een rustige woonwijk is een woonwijk die is ingericht volgens het principe van functiescheiding. Afgezien van wijkgebonden voorzieningen komen vrijwel geen andere functies voor. Een gemengd gebied is een gebied met een matige tot sterke functiemenging. Direct naast woningen komen andere functies voor zoals winkels, horeca en kleine bedrijven. Gebieden die direct langs de hoofdinfrastructuur liggen behoren ook tot gemengd gebied.

Door bureau Tritium Advies is gekomen tot een "Quickscan bedrijven en milieuzonering ontwikkeling The Stayy, Bogardeind 219 in Geldrop", d.d. 10 juli 2023 zoals neergelegd in de hier als bijlage 6 opgenomen memo.

Na een beschrijving van de in de omgeving van het plangebied aanwezige bedrijvigheid concludeert Tritium als volgt :

In het planvoornemen aan Bogardeind 219 in Geldrop zijn nieuwe functies voorzien namelijk woningen, flexwerkplekken, een restaurant en een buurtwinkel. In de directe omgeving van de projectlocatie liggen verschillende milieubelastende functies die mogelijk van invloed zijn op het voornemen en andersom. Woningen behoren tot de milieugevoelige functies. Vanuit een goede ruimtelijke ordening is het verplicht om een goed woon- en leefklimaat te creëren. In voorliggende quickscan zijn daarom alle relevante milieubelastende functies uit de omgeving beschouwd. Er is gekeken of er wordt voldaan aan de richtafstanden voor het omgevingstype 'gemengd gebied' uit de VNG-uitgave 'Bedrijven en milieuzonering, editie 2009'.

Uit de toetsing blijkt dat de beoogde nieuwbouw appartementen binnen het plangebied feitelijk op acceptabele afstand van de bedrijvigheid is gelegen ten aanzien van de aspecten geur, stof, geluid en externe veiligheid. Daarmee vormt de omliggende bedrijvigheid geen belemmering voor het planvoornemen en vormt andersom het planvoornemen er niet voor dat bedrijven in hun mogelijkheden worden beperkt.

Uit de toetsing blijkt tevens dat de voorziene flexwerkplekken, de buurtwinkel en het restaurant geen belemmering vormen voor gevoelige functies in de nabijheid. Dit aangezien er sprake is van een goede scheiding van functies waarbij kan worden voldaan aan de gestelde richtafstanden

Deze inventarisatie heeft plaatsgevonden voordat de nieuwe woontoren aan het Bogardeind onderdeel uitmaakte van de planvorming. De toevoeging van deze woontoren maakt de vorenstaande conclusie echter niet anders.

4.2.1 Conclusie

Het aspect Bedrijven en milieuzonering levert geen belemmering op voor het planvoornemen.

4.3 Geluid

4.3.1 Weg- en railverkeerslawaai en luchtvaartlawaai, normstelling en beleid

Wettelijke regeling

De normstelling voor geluid is geregeld in de Wet geluidhinder, de Wet milieubeheer en de Wet luchtvaart. Het betreft normen voor industrielawaai, weg- en railverkeerslawaai en luchtvaartlawaai. Er wordt uitgegaan van voorkeursgrenswaarden, waarvan met ontheffing tot een bepaald maximum in een aantal gevallen mag worden afgeweken.

Railverkeerslawaai

Overeenkomstig artikel 87e van de Wet geluidhinder geldt op de gevel van woningen binnen een zone van spoorweglawaai een voorkeursgrenswaarde van 55 dB. Indien hieraan niet kan worden voldaan, kunnen - indien maatregelen gericht op terugbrengen van de geluidbelasting tot de voorkeursgrenswaarde onvoldoende doeltreffend zijn dan wel op overwegende bezwaren stuiten van stedenbouwkundige, verkeerskundige, vervoerskundige, landschappelijke of financiële aard - Burgemeester en Wethouders een hogere toelaatbare waarde vaststellen tot maximaal 68 dB.

Het plangebied alwaar wordt voorzien in nieuwe woningen ligt nabij de spoorlijn Eindhoven-Weert, met ter plaatse een geluidproductieplafond tussen de 61 en 66 dB en aldus een zonebreedte van 300 meter. Binnen deze zone zullen geen woningen worden opgericht, zodat het aspect railverkeerslawaai verder buiten beschouwing kan blijven.

afbeelding "i_NL.IMRO.1771.BPBogardeind219-ON01_0063.jpg" afbeelding : geluidproductieplafond spoorlijn nabij plangebied

Wegverkeerslawaai

Langs alle wegen bevinden zich als gevolg van de Wet geluidhinder geluidzones, met uitzondering van woonerven en 30 km/h-gebieden. De zone is een gebied waarbinnen een nader akoestisch onderzoek verplicht is. De breedte van de zone, aan weerszijde van de weg, is afhankelijk van het aantal rijstroken en de aard van de omgeving. In onderstaande tabel zijn de zonebreedten weergegeven.

afbeelding "i_NL.IMRO.1771.BPBogardeind219-ON01_0064.jpg" Overeenkomstig artikel 82, lid 1 van de Wgh geldt voor woningen binnen een zone qua geluidbelasting op de gevel een voorkeursgrenswaarde van 48 dB. Indien hieraan niet kan worden voldaan, kunnen - indien maatregelen gericht op terugbrengen van de geluidbelasting tot de voorkeursgrenswaarde onvoldoende doeltreffend zijn dan wel op overwegende bezwaren stuiten van stedenbouwkundige, verkeerskundige, vervoerskundige, landschappelijke of financiële aard - Burgemeester en Wethouders een hogere toelaatbare waarde vaststellen voor een nieuw te bouwen woning in binnenstedelijk gebied tot maximaal 63 dB.

Industrielawaai

Wat betreft industrielawaai kan worden verwezen naar de paragraaf "bedrijven en milieuzonering" van deze toelichting en de bijbehorende bijlage 6.


Luchtvaartlawaai

Het plangebied ligt op hemelsbreed circa 5,5 km van de luchthaven Eindhoven. Het plangebied ligt niet binnen de vastgestelde geluidszone (35Ke-contouren. Luchtvaartlawaai werkt derhalve niet belemmerend voor onderhavig plangebied en is onderzoek op dit onderdeel niet aan de orde.

Gemeentelijk beleid

De gemeente Geldrop-Mierlo heeft geluidbeleid vastgesteld.

Om een hogere waarde te kunnen verlenen dient tevens voldaan te worden aan het document "Vaststellen hogere grenswaarden Weg geluidhinder" d.d. 11 juli 2007 van de gemeente Geldrop-Mierlo. Conform dit beleidsstuk kan pas een hogere waarde worden verleend als voldaan wordt aan de hoofdcriteria uit de Wgh en aan de in het beleidsstuk genoemde subcriteria, zijnde :

  • dorps- en of stadsvernieuwing;
  • verspreid gesitueerd wonen;
  • doelmatige afscherming;
  • grond- en/of bedrijfsgebondenheid;
  • opvullen open plaats;
  • vervanging bestaande bebouwing.

Als aanvullende eis wordt gesteld dat de woningen zullen beschikken over ten minste één geluidluwe gevel en dat voldoende is verzekerd dat de verblijfsruimten en de tot de woning behorende buitenruimte niet worden gesitueerd aan de gevel waar de hoogste geluidbelasting optreedt.

4.3.2 Weg- en railverkeerslawaai, onderzoek bestaande situatie

Voor het plangebied is door bureau Tritium Advies BV gekomen tot een akoestisch onderzoek (kenmerk : 2212/074/CK-01), d.d. 5 oktober 2023, dat als bijlage 7 bij deze toelichting is opgenomen.

In dit onderzoek is het effect van de reeds voorgenomen stedenbouwkundige en bouwkundige maatregelen onderzocht en wordt beoordeeld welke extra geluidwerende maatregelen noodzakelijk zijn om een goed akoestisch woon- en leefklimaat te kunnen waarborgen.

De rekenresultaten van de geluidbelasting ten gevolge van het wegverkeer op de beschouwde wegen worden in de rapportage van Tritium samengevat weergeven.

In onderstaande afbeeldingen is hiervan een grafische weergave opgenomen. Een geluidbelasting lager of gelijk aan de voorkeursgrenswaarde wordt in de figuren weergeven met de kleur groen. Een geluidbelasting hoger dan de maximale ontheffingswaarde wordt paars weergegeven. Het gebied hiertussen wordt aangegeven met de kleurenschaal geel (laag) naar rood (hoog).

afbeelding "i_NL.IMRO.1771.BPBogardeind219-ON01_0065.jpg"

afbeelding : gebouwen als genoemd in geluidsrapportage

afbeelding "i_NL.IMRO.1771.BPBogardeind219-ON01_0066.jpg" afbeelding "i_NL.IMRO.1771.BPBogardeind219-ON01_0067.jpg"

afbeelding : grafische weergave rekenresultaten A67

afbeelding "i_NL.IMRO.1771.BPBogardeind219-ON01_0068.jpg" afbeelding "i_NL.IMRO.1771.BPBogardeind219-ON01_0069.jpg"

afbeelding : grafische weergave rekenresultaten Bogardeind

Tritium geeft aan voor wat betreft de bestaande hoogbouw :

Uit de rekenresultaten blijkt dat de geluidbelasting op de voorgevel van de bestaande hoogbouw overal hoger is dan de voorkeursgrenswaarde. Anders dan uit eerdere onderzoeken is gebleken, wordt na afscherming door de blokken A en B de maximale ontheffingswaarde nergens meer overschreden. Derhalve kan deze afscherming zeker als doelmatig worden beschouwd. Desondanks zullen alsnog maatregelen moeten worden getroffen om ieder aan de voorgevel gelegen appartement te kunnen voorzien van een geluidluwe gevel (zie voorbeelden paragraaf 4.4). De achtergevel van de bestaande hoogbouw is volledig geluidluw.

Tritium geeft aan voor wat betreft de nieuwbouw nabij de bestaande hoogbouw

Blokken A en B :

Zoals verwacht wordt ter plaatse van de voorgevels van de blokken A en B de maximale ontheffingswaarde overschreden. Om woningbouw mogelijk te maken dienen deze gevels te worden uitgevoerd als "dove gevel", mits andere bouwkundige geluidreducerende oplossingen niet mogelijk worden geacht. Enkele principeoplossingen hiervoor worden in paragraaf 4.4 nader beschreven.

Geadviseerd wordt om de kopgevels van deze blokken niet te voorzien van te openen ramen en deze als "dove gevel" uit te voeren.

Tevens blijkt dat de geluidbelasting op de achtergevels van de beide blokken nagenoeg overal hoger is dan de voorkeursgrenswaarde, maar lager dan de maximale ontheffingswaarde. Derhalve dienen voor deze blokken maatregelen te worden getroffen om ieder appartement te kunnen voorzien van een geluidluwe gevel.

Blok C :

Voor de voorgevel en de kopgevel van blok C geldt dat de geluidbelasting hoger is dan de voorkeursgrenswaarde, maar lager dan de maximale ontheffingswaarde. De achtergevel van blok C is daarentegen volledig geluidluw. Het is derhalve niet noodzakelijk om bouwkundige maatregelen toe te passen om "dove gevels" te voorkomen.

Tritium geeft aan voor wat betreft de nieuwe woontoren :

Woontoren verdieping 1 t/m 13

Voor de 1e tot en met de 13e verdieping van de woontoren geldt dat zowel de oost- als de zuid- en de westgevel volledig geluidbelast zijn hoger dan de maximale ontheffingswaarde. Uit de rekenresultaten blijkt dat tevens een gedeelte van de noordgevel geluidbelast is hoger dan de maximale ontheffingswaarde. Deze gevels dienen derhalve "doof" te worden uitgevoerd. Uit de in bijlage 1 opgenomen plattegronden blijkt dat hier reeds rekening mee is gehouden in het gebouwontwerp. Conform deze plattegronden is de woontoren tevens aan vier zijden voorzien van atriums. Voor alle aan de atriums gelegen ruimten geldt dat de geluidbelasting dient te worden gereduceerd tot de maximale ontheffingswaarde. Tevens geldt voor de atriums aan de oost- en westzijde dat de geluidbelasting moet worden gereduceerd tot de voorkeursgrenswaarde om te kunnen waarborgen dat iedere woning kan beschikken over een geluidluwe gevel. De exacte afscherming dient in een later stadium te worden uitgewerkt. Randvoorwaarden hiervan worden nader beschreven in paragraaf 4.4.

Woontoren verdieping 14 en 15

Voor de 14e en 15e verdieping van de woontoren geldt dat de geluidbelasting op diverse geveldelen de maximale ontheffingswaarde overschrijdt. Om woningbouw mogelijk te maken dienen deze gevels te worden uitgevoerd als "dove gevel", mits andere bouwkundige geluidreducerende oplossingen niet mogelijk worden geacht. Voor de woontoren geldt tevens dat de geluidbelasting op diverse geveldelen voldoet aan de voorkeursgrenswaarde. Afhankelijk van de definitieve indeling van deze twee bouwlagen en de gekozen oplossingsrichting (dove gevels of bouwkundige maatregelen) dienen aanvullende maatregelen te worden toegepast om de woningen te kunnen voorzien van geluidluwe gevels.

Tritium vervolgt met onderstaande overwegingen en conclusies :

De toepassing van 2-laags ZOAB op de hoofdrijbaan en SMA-NL8 op de op- en afritten van de Rijksweg A67 als bronmaatregel wordt niet erg doeltreffend beschouwd. Als overdrachtsmaatregel kan worden overwogen om de galerijen van de blokken A en B volledig af te schermen, zodat een overschrijding van de maximale ontheffingswaarde op de voorgevels van deze blokken geheel kan worden voorkomen. Akoestisch gezien heeft deze maatregel vanwege de hoge doeltreffendheid, de voorkeur boven het toepassen van dove gevels. Tevens kan als overdrachtsmaatregel worden overwogen om de atriums van de woontoren zodanig af te schermen dat de maximale ontheffingswaarde niet langer wordt overschreden. Het wordt financieel niet realistisch geacht om de hoeken van de woontoren te voorzien van een afscherming middels een 'tweede gevel'.

Aangezien de balkons aan de achterzijde van de bouwblokken A tot en met C en binnen de oost- en westelijke atriums van de woontoren worden beoogd, wordt aan de aanvullende voorwaarde uit het gemeentelijk geluidbeleid voldaan.

Er zijn voldoende principeoplossingen mogelijk om ieder appartement te kunnen voorzien van een geluidluw geveldeel. Indien ieder appartement kan beschikken over ten minste één te openen geluidluw geveldeel, kan een goed akoestisch woon- en leefklimaat voldoende worden gewaarborgd.

Eventueel negatieve effecten op de akoestische situatie binnen het plangebied vanwege de herinrichting van de Rijksweg A67 kunnen worden ondervangen door de toepassing van stiller wegdek op de op- en afrit en de plaatsing van geluidschermen door de wegbeheerder. Derhalve wordt het niet noodzakelijk geacht om in de onderhavige procedure al maatregelen te treffen voor de toekomstige herinrichting.

Bij de transformatie en de ontwikkeling van de nieuwe woningen dient een procedure hogere waarde te worden doorlopen. De hogere grenswaarden kunnen worden verleend op basis van voormeld akoestisch onderzoek. Alvorens een aanvraag omgevingsvergunning kan worden ingediend, dienen de oplossingen in relatie tot dove gevels en de maximale ontheffingswaarde en de oplossingen om geluidluwe gevels te kunnen waarborgen te zijn uitgewerkt. Onderdeel hiervan zijn de eventuele aanvullende bouwfysische berekeningen.

Aangezien voor onderhavige appartementen sprake is van een procedure hogere waarde, wordt tevens een aanvullend onderzoek ter bepaling van de geluidwering van de gevels tevens noodzakelijk geacht. Bij toepassing van de juiste geluidwerende maatregelen (conform onderhavig onderzoek en nader uit te werken oplossingen) en materialen (conform een nader akoestisch onderzoek geluidwering gevels) kan een goed akoestisch woon- en leefklimaat worden gewaarborgd.

Het aanleggen van een geluidscherm (overdrachtsmaatregelen) gericht op het terugbrengen van de geluidbelasting ten gevolge van het wegverkeer tot de voorkeursgrenswaarde ontmoet in de onderhavige situatie overwegende bezwaren van stedenbouwkundige, landschappelijke en financiële aard.

Het vergroten van de afstand tussen geluidbron en ontvanger en/of het toepassen van stiller wegdek is in onderhavige situatie niet mogelijk.

4.3.3 Weg- en railverkeerslawaai, onderzoek toekomstige situatie

In aanvulling op het in paragraaf 4.3.2. beschrevene is door Tritium Advies in haar rapportage voormeld ook de mogelijk toekomstige situatie beschouwd, waarbij als onderdeel van de herinrichting van de Rijksweg A67 de hoofdrijbaan zal worden verbreed en de op- en afritconstructie ter hoogte van Geldrop zal worden gewijzigd.

Er is nog geen besluit genomen met betrekking van deze wijziging, derhalve dient formeel met de huidige situatie gerekend te worden. Echter, om inzicht te bieden in de akoestische situatie is de wijziging beschouwd in onderhavig onderzoek.

Tritium concludeert dienaangaande :

Uit de rekenresultaten blijkt dat de geluidbelasting voor alle beschouwde wegen wijzigt na herziening van de Rijksweg A67. Echter, de overschrijdingen van de maximale ontheffingswaarde en de geluidluwe gevels zijn vrijwel gelijk aan de huidige situatie. De in paragraaf 4.3 t/m 4.5 opgenomen maatregelen zijn na herinrichting onverminderd van toepassing.

4.3.4 Conclusie

Op grond van het vorenstaande zal een procedure hogere grenswaarde worden doorlopen, waarvan het ontwerp besluit hogere waarde samen met het bestemmingsplan ter inzage ligt. Het aspect geluid vormt aldus geen belemmering voor de voorgestane invulling van het plangebied c.q. totstandkoming van het onderhavige bestemmingsplan.

4.4 Luchtkwaliteit

4.4.1 Wettelijk kader

Hoofdstuk 5 (met name onder titel 5.2) van de Wet milieubeheer bevat bepalingen over luchtkwaliteit. Dit hoofdstuk voorziet onder meer in een gebiedsgerichte aanpak van de luchtkwaliteit via het Nationaal Samenwerkingsprogramma Luchtkwaliteit (NSL). Het Rijk, provincies en gemeenten werken in het NSL-programma samen aan maatregelen om de luchtkwaliteit te verbeteren. Dit gebeurt zodanig dat voldaan wordt aan de daartoe gestelde normen, ook in gebieden waar nu de normen voor luchtkwaliteit niet worden gehaald (overschrijdingsgebieden). De programma-aanpak zorgt voor een flexibele koppeling tussen ruimtelijke activiteiten en milieugevolgen. Hierdoor kunnen ruimtelijke ontwikkelingen doorgang vinden, terwijl ondertussen maatregelen ter verbetering van de luchtkwaliteit worden uitgevoerd.

Sinds 1 januari 2015 moet voldaan worden aan de Europese grenswaarden: voor stikstofdioxide (NO2) geldt een jaargemiddelde van 40 microgram/m3, voor fijnstof (PM10) geldt een jaargemiddelde van 40 microgram/m3 en een daggemiddelde van 50 microgram/m3. Het daggemiddelde mag jaarlijks maximaal 35 keer worden overschreden. Voor zwevende deeltjes (PM2,5) geldt met ingang van 1 januari 2015 een blootstellings-concentratieverplichting van ten hoogste 20 microgram per m3, gedefinieerd als gemiddelde blootstellingsindex.

4.4.2 Besluit niet in betekenende mate bijdragen

In artikel 4 van het 'Besluit niet in betekenende mate bijdragen (luchtkwaliteitseisen)' en de bijlagen van de 'Regeling niet in betekenende mate bijdragen (luchtkwaliteitseisen)' is voor bepaalde categorieën projecten met getalsmatige grenzen vastgesteld dat deze 'niet in betekenende mate' bijdragen aan de luchtverontreiniging. Deze mogen zonder toetsing aan de grenswaarden voor luchtkwaliteit uitgevoerd worden. Dit geldt o.a. voor woningbouw-locaties die niet meer dan 1500 nieuwe woningen omvatten in de situatie met 1 ontsluitingsweg.

4.4.3 Besluit gevoelige bestemmingen

Met deze Algemene Maatregel van Bestuur wordt de vestiging van zogeheten 'gevoelige bestemmingen' in de nabijheid van provinciale en rijkswegen beperkt. Dit heeft consequenties voor de ruimtelijke ordening. Het 'Besluit gevoelige bestemmingen (luchtkwaliteitseisen)' is gebaseerd op artikel 5.16a van de Wet milieubeheer.

Het besluit is gericht op de bescherming van mensen met een verhoogde gevoeligheid voor stikstofdioxide en fijnstof. Het gaat met name om kinderen, ouderen en zieken. Het besluit voorziet in zones waarbinnen luchtkwaliteitsonderzoek nodig is als een 'gevoelige bestemmingen' wordt mogelijk gemaakt. Voor rijkswegen geldt een zone van 300 meter aan weerszijden en langs provinciale wegen 50 meter, gemeten vanaf de rand van de weg.

De volgende gebouwen met de bijbehorende terreinen zijn aangemerkt als 'gevoelige bestemming': scholen, kinderdagverblijven, en verzorgings-, verpleeg- en bejaardentehuizen. Het gaat hierbij niet om bestemmingen in de meest enge zin van het woord, maar om alle vergelijkbare functies, ongeacht de exacte aanduiding ervan in bestemmingsplannen en andere besluiten. Van doorslaggevend belang is de (voorziene) functie van het gebouw en het bijbehorende terrein. In de context van dit besluit worden ziekenhuizen, woningen en sportaccommodaties niet als gevoelige bestemming gezien.

In aanvulling op het Besluit gevoelige bestemmingen is er een Brabantse "Handreiking gevoelige bestemmingen luchtkwaliteit" opgesteld. Deze Handreiking heeft als uitgangspunt geheel nieuwe bestemmingen voor kinderen en ouderen (conform de AMvB gevoelige bestemmingen) niet te situeren binnen 50 meter van de wegrand van drukke gemeentelijke wegen (als eerstelijns bebouwing) of binnen 300 meter van snelwegen, ongeacht de berekende concentraties.

4.4.4 Goede ruimtelijke ordening

Naast toetsing aan de 'Wet luchtkwaliteit' en het 'Besluit gevoelige bestemmingen' dient op basis van artikel 3.1. Wro altijd te worden onderzocht of sprake is van een goede ruimtelijke ordening. Die verplichting heeft in dit verband betrekking op situaties waarop het Besluit gevoelige bestemmingen niet ziet, maar die vanuit het oogpunt van goede ruimtelijke ordening onwenselijk zijn, bijvoorbeeld de bouw van woningen langs een snelweg of de bouw van een school langs een drukke binnenstedelijke weg.

In het algemeen is het verstandig om terughoudend te zijn met de vestiging van gevoelige bestemmingen nabij drukke (snel)wegen. De Gezondheidsraad concludeert niet voor niets dat ook bij concentraties beneden de grenswaarden gezondheidsschade kan optreden.

4.4.5 Planbeschrijving en toetsing

Het programma dat in het plangebied zal worden gerealiseerd omvat de realisatie van maximaal 331 woningen en in beperkte mate aanvullende functies.

In het plan is voorzien in de normatieve parkeerbehoefte van 354 parkeerplaatsen. Overigens wordt het gebruik van het OV, deelauto's en de fiets binnen het gebied gepromoot.

Uitgaande van de in paragraaf 2.4. beschreven extra verkeersgeneratie voortkomend uit de ontwikkeling, dan leidt invoering van deze gegevens in de NIBM-tool tot de conclusie, dat de ontwikkeling niet in betekenende mate bijdraagt aan de luchtkwaliteit ter plaatse.

afbeelding "i_NL.IMRO.1771.BPBogardeind219-ON01_0070.jpg"

afbeelding : uitkomst NIBM-tool

Het bouwplan binnen het plangebied voorziet niet in gevoelige bestemmingen. Om die reden vindt het Besluit gevoelige bestemmingen in dit gebied geen toepassing.

In het kader van een goede ruimtelijke ordening is het wenselijk om inzicht te verkrijgen in mate van luchtverontreiniging bij het plangebied. De omgeving moet geschikt zijn voor de beoogde functie. Op basis van de monitoringstool van het Nationaal Samenwerkingsprogramma Luchtkwaliteit is onderzocht in welke mate er sprake is van luchtverontreiniging in de nabijheid van het plangebied.

Hieruit blijkt (zoals weergegeven in onderstaande tabel) dat zowel voor de huidige als toekomstige situatie de grenswaarden van 40 microgram per kubieke meter lucht voor stikstofdioxide (NO2) en fijn stof (PM10) niet wordt overschreden. Doordat de grenswaarden van de Wet milieubeheer niet worden overschreden kan worden geconcludeerd dat sprake is van een goede ruimtelijke ordening.

afbeelding "i_NL.IMRO.1771.BPBogardeind219-ON01_0071.jpg" afbeelding : uitsnede viewer NSL-monitoringstool (NO 2 concentratie)

afbeelding "i_NL.IMRO.1771.BPBogardeind219-ON01_0072.jpg" afbeelding : uitsnede viewer NSL-monitoringstool (PM 10 concentratie)

Op basis van de gegevens van de NSL-monitoringstool zullen de concentraties de komende jaren vooral afnemen, mede ook vanwege de verwachte vermindering van uitstoot van auto's. Uit voormelde resultaten kan geconcludeerd worden dat de luchtkwaliteit geen belemmering vormt. Op en nabij de planlocatie wordt ook na realisatie van de ontwikkeling ruimschoots voldaan aan de wettelijke grenswaarden. Ter plaatse van zowel het plangebied, als omgeving zal sprake zijn van een goed woon- en leefklimaat.

Voormelde conclusie wordt bevestigd door de Grootschalige Concentratie- en Depositiekaart Nederland (RIVM), waarmee de jaargemiddelde achtergrondconcentratie worden achterhaald voor diverse stoffen waaronder stikstofdioxide en fijn stof.

Onderstaand kaartje geeft die weer voor fijn stof (PM 10), waaruit blijkt dat heersende achtergrondconcentratie PM 10 tussen 16 en 18 µg/m³ aanmerkelijk lager is dan de wettelijke jaargemiddelde concentratie van 40 µg/m³.

afbeelding "i_NL.IMRO.1771.BPBogardeind219-ON01_0073.jpg"

afbeelding : Grootschalige Concentratie- en Depositiekaart Nederland met jaargemiddelde concentratie PM10.

Voor wat betreft de achtergrondconcentratie van stikstofdioxide (NO2) geeft de onderstaande figuur de achtergrondconcentratie aan.

afbeelding "i_NL.IMRO.1771.BPBogardeind219-ON01_0074.jpg"

afbeelding : Grootschalige Concentratie- en Depositiekaart Nederland met jaargemiddelde concentratie stikstofdioxide (NO2)

Uit dit overzicht blijkt dat heersende achtergrondconcentratie stikstofdioxide tussen 16 en 18 ?g/m³ aanmerkelijk lager is dan de wettelijke jaargemiddelde concentratie van 40 ?g/m

4.4.6 Conclusie

Gezien het voorgaande kan geconcludeerd dat het aspect luchtkwaliteit geen belemmering vormt voor de ontwikkeling. c.q. geen invloed heeft op de ruimtelijke ontwikkelingsmogelijkheden van het plangebied. Het aspect luchtkwaliteit vormt geen belemmering voor onderhavig plan.

4.5 Externe veiligheid

In deze paragraaf wordt ingegaan op externe veiligheid. Eerst wordt het wettelijk kader op nationaal niveau beschreven, daarna het gemeentelijk beleid en de diverse risicobronnen. Tot slot wordt het groepsrisico verantwoord.

Het externe veiligheid beleid is gericht op het beheersen van risico´s en de effecten van calamiteiten en het bevorderen van de veiligheid van personen in de omgeving van activiteiten (bedrijven en transport) met gevaarlijke stoffen. Dat gebeurt door te voorkomen dat te dicht bij gevoelige bestemmingen activiteiten met gevaarlijke stoffen plaatsvinden, door de zelfredzaamheid te bevorderen en door de calamiteitenbestrijding te optimaliseren.

4.5.1 Wettelijk kader

Rijksbeleid

Het Rijksbeleid voor externe veiligheid is gericht op het beperken en beheersen van risico's voor de omgeving vanwege het :

  • gebruik, de opslag en de productie van gevaarlijke stoffen door bedrijven (inrichtingen);
  • transport van gevaarlijke stoffen (openbare wegen, waterwegen, spoorwegen en buisleidingen);
  • gebruik van luchthavens.

Dat gebeurt o.a. door te voorkomen dat te dicht bij kwetsbare bestemmingen activiteiten met gevaarlijke stoffen plaatsvinden, door de zelfredzaamheid te bevorderen en door de calamiteitenbestrijding te optimaliseren.

Voor ruimtelijke ontwikkelingen moet getoetst worden aan het Besluit externe veiligheid inrichtingen (Bevi), het Besluit externe veiligheid buisleidingen (Bevb) en het Besluit externe veiligheid transportroutes (Bevt).

Bij externe veiligheid wordt onderscheid gemaakt tussen Plaatsgebonden risico en Groepsrisico :

Plaatsgebonden Risico (PR)

Dit is een maat voor de kans dat iemand dodelijk getroffen kan worden door een calamiteit met een gevaarlijke stof. De gestelde norm is een ten minste in acht te nemen grenswaarde (PR 10-6/jr) die niet mag worden overschreden ten aanzien van 'kwetsbare objecten', alsmede een zoveel mogelijk te bereiken richtwaarde (PR 10-6/jr) ten aanzien van 'beperkt kwetsbare objecten';

Groepsrisico (GR)

Dit is een maat voor de kans dat een grotere groep tegelijkertijd dodelijk getroffen kan worden door een calamiteit met gevaarlijke stoffen. Voor het groepsrisico geldt een verantwoordingsplicht.

Basisnet vervoer gevaarlijke stoffen

Op 1 april 2015 is het Basisnet vervoer gevaarlijke stoffen van kracht geworden. Dit Basisnet geeft aan over welke routes (spoor, water en weg) gevaarlijke stoffen worden vervoerd. Het Basisnet spoor heeft betrekking op het vervoer van gevaarlijke stoffen over het hoofdspoorwegennet. Op basis van de wet- en regelgeving omtrent het Basisnet worden, rekening houdend met te verwachten groei van vervoer van gevaarlijke stoffen door Nederland en verdichting van de ruimte naast het spoor (binnen een afstand van 200 m van het spoor) in met name stedelijke kernen, afspraken gemaakt over de risicoruimte.

4.5.2 Risicobronnen

Risicobronnen nabij plangebied

Rondom het plangebied is sprake van enkele (potentiële) risicobronnen.

  • LPG-tankstation, Bogardeind 176 : De planlocatie is buiten het invloedgebied gelegen van dit station. Deze risicobron is niet relevant.
  • Hogedruk aardgasleiding (Z-514-01) : De planlocatie is buiten het invloedgebied gelegen van deze buisleiding. Deze risicobron is niet relevant.
  • Rijksweg A67. : De afstand van het pand tot de Rijksweg A67 bedraagt ca. 195 meter, en ligt daarmee binnen het invloedgebied van de deze weg. Het plaatsgebonden risico (PR 10-6) van de Rijksweg A67 vormt geen belemmering voor het plan. Het plasbrandaandachtsgebied (PAG, 30 meter) van deze Rijksweg is niet relevant voor dit plan. Het Groepsrisico moet worden verantwoord.
  • Spoorlijn Eindhoven - Weert : Het plangebied is op minimaal 230 meter gelegen van deze spoorlijn. Het invloedsgebied van dit spoor bedraagt 995 meter. Het plaatsgebonden risico (PR 10-6) van het spoor (1 - 5 meter) vormt geen belemmering voor het plan. Het plasbrandaandachtsgebied (PAG, 30 meter) van het spoor is niet relevant voor dit plan. Het Groepsrisico moet worden verantwoord.

afbeelding "i_NL.IMRO.1771.BPBogardeind219-ON01_0075.jpg"

afbeelding: risicokaart locatie en omgeving

afbeelding "i_NL.IMRO.1771.BPBogardeind219-ON01_0076.jpg" afbeelding "i_NL.IMRO.1771.BPBogardeind219-ON01_0077.jpg"

afbeelding : weergave Signaleringskaart Geldrop-Mierlo

Vervoer gevaarlijke stoffen over de weg

In de nabijheid van het plangebied bevinden zich twee LPG-tankstations binnen de bebouwde kom van Geldrop. De gemeente Geldrop-Mierlo heeft geen routes aangewezen voor het vervoer van gevaarlijke stoffen over de gemeentelijke wegen. Incidenteel zullen er vrachtwagens vanaf de ten zuiden van het plangebied gelegen Rijksweg A67 richting de LPG stations rijden. Gezien de omvang van dit transport en het feit dat het aantal aanwezigen binnen het plangebied niet significant toeneemt, zijn er geen belemmeringen te verwachten.

Hoogspanningsleidingen

Hoogspanningsleidingen gaan gepaard met magnetische velden. Met het oog op gezondheidsrisico's wordt uit voorzorg geadviseerd om bij bovengrondse hoogspanningsleidingen geen nieuwe gevoelige bestemmingen binnen de 0,4 micro-teslazone toe te staan. Binnen het plangebied bevinden zich geen onder- of bovengrondse hoogspanningsleidingen. Ook in de nabijheid van het plangebied ontbreken dergelijke leidingen.

Vliegveld

Het plangebied is gelegen op circa 4,5 km van de luchthaven Eindhoven. Dit is een militair vliegveld met medegebruik door de burgerluchtvaart (Eindhoven Airport). Vanaf 1 november 2009 geldt de Wet luchtvaart. Conform de systematiek van deze wet is voor luchthaven Eindhoven één luchthavenbesluit vastgesteld op 26 september 2014. In het kader van dit luchthavenbesluit is een milieueffectrapportage uitgevoerd. In het Milieueffectrapport Militair Luchtvaartterrein Eindhoven (MER) zijn onder andere de gevolgen voor geluid, de luchtkwaliteit en externe veiligheid weergegeven voor de maximaal mogelijke gebruiksruimte van de luchthaven. Het aanwijzingsbesluit komt overeen met planalternatief 2 uit het MER. Uit de rapportage blijkt dat het plangebied buiten de 10-6 contour van het vliegveld is gelegen. Het plangebied ondervindt dan ook geen belemmeringen als gevolg van de externe veiligheid van luchthaven Eindhoven.

4.5.3 Vergelijking invulling plangebied bestaand en nieuw

Voor het plangebied is door bureau Tritium Advies gekomen tot een "Quickscan externe veiligheid" d.d. 10 juli 2023, die als bijlage 8 bij deze toelichting is opgenomen.

Tritium concludeert in haar rapportage :

Uit de uitgevoerde inventarisatie is gebleken dat er een aantal risicobronnen in de omgeving van het plangebied liggen, namelijk de rijksweg A67, spoorlijn Eindhoven - Weert, twee buisleidingen en vier inrichtingen.

Plaatsgebonden risico

Het plangebied is niet gelegen binnen de PR-contour 10-6 van de verschillende risicobronnen. Ook is het plangebied niet gelegen binnen een plasbrandaandachtsgebied. Het plaatsgevonden risico vormt derhalve geen belemmering voor het planvoornemen.

Groepsrisico

Het plangebied is niet gelegen binnen het invloedsgebied van de buisleidingen en binnen het invloedsgebied van risicovolle inrichtingen. Deze risicobronnen vormen derhalve geen belemmering voor het planvoornemen.

Het plangebied en de locatie van de toekomstige bebouwing is wel gelegen binnen het invloedsgebied van de rijksweg A67 en binnen het invloedsgebied van de spoorlijn Eindhoven - Weert. Conform artikel 7 van de Bevt dient de verantwoordingsplicht voor het groepsrisico beperkt te worden verantwoord (aangaande de aspecten zelfredzaamheid en bestrijdbaarheid).

Het plangebied is tevens gedeeltelijk gelegen binnen 200 meter van de rijksweg A67, waarbij ook een deel van de nieuwe bebouwing is gesitueerd binnen deze afstand. Conform artikel 8, lid 1 van het Bevt dient het groepsrisico uitgebreid te worden verantwoord.

Hiervan kan conform artikel 8, lid 2, worden afgeweken indien:

  • het groepsrisico niet hoger is dan 0,1 maal de oriëntatiewaarde, of;
  • het groepsrisico, gelet op de redelijkerwijs te verwachten verandering van de dichtheid van personen, met niet meer dan tien procent toeneemt, en;
  • de oriëntatiewaarde, gelet op de dichtheid van personen, niet wordt overschreden.

Als onderdeel van een uitgebreide verantwoording van het groepsrisico, of om aan te tonen dat één van de uitzonderingsregels zoals hierboven genoemd van toepassing is, is een berekening van het groepsrisico noodzakelijk met het rekenprogramma RBM II.

Het bevoegd gezag is verantwoordelijk voor de verantwoording en afweging van de groepsrisico's als gevolg van het aspect externe veiligheid. Het is derhalve aan te raden om het bevoegd gezag (al dan niet in combinatie met de veiligheidsregio/brandweer/etc.) vroegtijdig bij de planvormingen te betrekken en voorliggende rapportage aan hen voor te leggen voor advies

Onderstaand is een vergelijking opgenomen van het aantal personen in de voormalige bestaande situatie (hotel / zalen / restaurant) en in de toekomstige situatie (woningen).

Uitgaande van een maximale planinvulling met 331 woningen en een bezettingsgraad van 2 personen per woning, zou een toekomstige representatieve invulling van het plangebied leiden tot een gelijktijdige aanwezigheid van 662 personen.

Onder het voorgaande bestemmingsplan was sprake van een hotel-/zalenfunctie met een capaciteit voor 370 hotelgasten, 865 gebruikers van de zaalfunctie, een restaurant, serre en brasserie met respectievelijk 160, 40 en 40 stoelen.

Dit geeft een theoretische maximale personendichtheid van 1475 personen. Uitgaande van een voorheen bestaande representatieve invulling van het plangebied met een 50% bezetting van al deze functies, zou dit leiden tot een gelijktijdige aanwezigheid van 737 personen.

Het aantal personen dat aanwezig is in de toekomstige situatie is dus kleiner dan het aantal in de voorheen bestaande situatie, zodat ook geen sprake is van een toename van het groepsrisico.

afbeelding "i_NL.IMRO.1771.BPBogardeind219-ON01_0078.jpg"

afbeelding : weergave bezettingsmogelijkheid NH hotel, zalen en overige functies

In aanvulling op deze vaststelling is voor het plangebied door bureau Tritium Advies gekomen tot een "QRA Snelweg A67" d.d. 25 juli 2023, die als bijlage 9 bij deze toelichting is opgenomen. Hierbij is geen vergelijking gemaakt tussen de bestaande en de nieuwe situatie en is dus sec. de ontwikkeling beschouwd.

Tritium stelt dienaangaande :

Het plan 'The Stayy' te Geldrop is gelegen binnen het invloedsgebied van de rijksweg A67 en de spoorlijn Eindhoven - Weert waarover vervoer van gevaarlijke stoffen plaatsvindt. Daarnaast is het plangebied gedeeltelijk gelegen binnen 200 meter van de rijksweg A67. Daarom is een groepsrisicoberekening uitgevoerd met het rekenpakket RBM II (versie 2.3) om de invloed van het voorgenomen plan op het groepsrisico te bepalen.

en concludeert

Uit de berekening blijkt dat het groepsrisico in de toekomstige situatie toeneemt ten opzichte van de huidige situatie als gevolg van het planvoornemen. Het groepsrisico blijft zowel in de huidige als toekomstige situatie wel onder de 0,1 maal de oriëntatiewaarde. Omdat het groepsrisico lager ligt dan 0,1 maal de oriëntatiewaarde kan worden volstaan met een beperkte verantwoording van het groepsrisico. Deze verantwoording is opgenomen in hoofdstuk 4 van deze rapportage

Gezien de toekomstige woonfunctie in gestapelde woonbebouwing is in het kader van het aspect "goede ruimtelijke ordening"" toch gekomen tot een beschouwing c.q. verantwoording van het groepsrisico. Deze is in bijlage 9 alsmede in aanvulling hierop in de navolgende paragraaf opgenomen.

4.5.4 Verantwoording groepsrisico

Als het groepsrisico door een bestemmingsplan dat geheel of gedeeltelijk gelegen is binnen 200 m van een transportroute meer dan 10% toeneemt ten opzichte van de bestaande situatie en groter is dan 10% van de oriëntatiewaarde dient het groepsrisico te worden verantwoord. Hierbij dienen ten minste de volgende gegevens worden opgenomen:

  • de dichtheid van personen in het invloedsgebied van de transportroute op het tijdstip waarop het plan of besluit wordt vastgesteld, rekening houdend met de in dat gebied reeds aanwezige personen en de personen die in dat gebied op grond van het geldende bestemmingsplan of de geldende bestemmingsplannen of een omgevingsvergunning redelijkerwijs te verwachten zijn, en
  • de als gevolg van het bestemmingsplan of de omgevingsvergunning redelijkerwijs te verwachten verandering van de dichtheid van personen in het gebied waarop dat plan of die vergunning betrekking heeft;
  • het groepsrisico op het tijdstip waarop het plan of de vergunning wordt vastgesteld en de bijdrage van de in dat plan of besluit toegelaten kwetsbare en beperkt kwetsbare objecten aan de hoogte van het groepsrisico, vergeleken met de oriëntatiewaarde;
  • de maatregelen ter beperking van het groepsrisico die bij de voorbereiding van het plan of de vergunning zijn overwogen en de in dat plan of die vergunning opgenomen maatregelen, waaronder de stedenbouwkundige opzet en voorzieningen met betrekking tot de inrichting van de openbare ruimte, en
  • de mogelijkheden voor ruimtelijke ontwikkelingen met een lager groepsrisico en de voor-en nadelen daarvan.

Hoewel formeel gezien dus niet aan de orde is gezien de toekomstige woonfunctie in het kader van het aspect "goede ruimtelijke ordening"" toch gekomen tot een beschouwing c.q. verantwoording van het groepsrisico, waarbij het navolgende als uitgangspunt is genomen :

  • I. algemene beschouwing veiligheidssituatie;

Scenario's

De A67 en de spoorlijn is een risicobron met verschillende scenario's. Er kan bij deze weg een plasbrand, een BLEVE of een gifwolk optreden. De gevolgen van deze scenario's zijn verschillend.

Plasbrandscenario

Bij een calamiteit met brandbare vloeistoffen kan een plasbrand (een plas van brandende vloeistof) ontstaan. Het gevolg is een korte, maar extreme hittestraling. De omvang van het effect wordt bepaald door de oppervlakte van de plas. Uitgaande van een calamiteit waarbij een gehele tankinhoud vrijkomt is het invloedsgebied van een plasbrand ongeveer 60 meter.

BLEVE-scenario

Een koude BLEVE ontstaat wanneer de tankwagen bezwijkt waardoor er plotseling gas kan ontsnappen, welke na ontsteking ontploft. Een warme BLEVE ontstaat door een (plas)brand in de nabijheid van een tankwagen. Door de hitte van de brand loopt de druk in een tankwagen hoog op, terwijl de sterkte van de metalen wand afneemt. Hierdoor kan de wand het begeven en de tank ontploffen.

Het maatgevende scenario is de warme BLEVE van een tankwagen. Wanneer wordt uitgegaan van de maatregelen uit het LPG-convenant is echter een koude BLEVE het maatgevende scenario. Met het LPG-convenant zijn tankauto's voorzien van een hittewerende coating die de kans op een warme BLEVE gedurende ten minste 75 minuten voorkomt. De brandweer is daardoor in staat de tank tijdig te koelen.

Gifwolk 

Een gifwolk heeft een groot invloedsgebied en drijft af met de wind. Het invloedsgebied van een gifwolk kan daarmee meerdere kilometers strekken. Afhankelijk van de eigenschappen van de toxische stoffen, kan een persoon bij inademen van de gifwolk komen te overlijden of schade aan de luchtwegen ondervinden.

Cumulatie en domino-effecten

Ten deze zijn ook de cumulatie en eventuele domino-effecten relevant.

Cumulatie is het optellen van afzonderlijk berekende groepsrisico's, van een domino-effect is sprake wanneer het falen van de ene risicobron leidt tot het falen van de ander. Beide aspecten zijn niet te kwantificeren en niet voorzien van een landelijk toetsingskader. Eventuele aanwezigheid van cumulatie- of domino-effecten wordt daarom alleen kwalitatief meegenomen in de totaalafweging in het kader van de groepsrisicoverantwoording.

Binnen de zone van de A67 is de spoorlijn aanwezig. De kans op een cumulatief effect of domino-effecten ten aanzien van het groepsrisico is echter dermate gering (ongeval op de A67 en tegelijkertijd ongeval op het spoor op deze locatie) dat dit buiten beschouwing kan blijven.

  • II. Motivering wenselijkheid ontwikkeling

Wat betreft de wenselijkheid van de wijziging van het gebruik kan worden verwezen naar deze toelichting. De gemeente acht deze ontwikkeling derhalve belangrijk en wenselijk, mits sprake is van een acceptabel veiligheidsniveau.

  • III. Maatregelen ter beperking groepsrisico

De maatregelen die genomen kunnen worden om de risico's te beperken en de hulpverlening te ondersteunen bij het bestrijden van de gevolgen van een incident kunnen worden onderverdeeld in bronmaatregelen, effectmaatregelen en maatregelen ten behoeve van de zelfredzaamheid. Maatregelen voor een effectieve zelfredzaamheid worden hieronder besproken.

Bronmaatregelen

Bronmaatregelen zijn de meest effectieve maatregelen die kunnen worden genomen om het risico te beperken, echter zijn deze maatregelen vaak niet mogelijk of gewenst. Opgemerkt kan worden dat het treffen van bronmaatregelen een landelijke afweging vergt. Ten aanzien van het spoor en/of de A67 zijn er geen realistische bronmaatregelen te treffen.

Effectmaatregelen

Een theoretische effect-beperkende maatregel zou bestaan uit een reductie van het aantal blootgestelde personen binnen het invloedsgebied van de inrichting. Dit zou betekenen dat een zone rondom de inrichting niet zou kunnen worden benut voor ontwikkelingen.

Bouwkundige maatregelen

Met betrekking tot het toxisch scenario kunnen als effectmaatregel worden gekomen tot het realiseren van een "Safe-Haven"; het gebouw wordt lekdicht gemaakt. Bij de verdere ontwikkeling van de gebouwen zal in detail worden ingegaan op eisen gesteld uit het Bouwbesluit en de uitvoering hiervan.

  • IV. Zelfredzaamheid

Zelfredzaamheid is de mate waarin personen in staat zijn zichzelf (zonder hulp van buitenaf) in geval van een calamiteit in veiligheid te brengen. Zelfredzaamheid hangt hierbij af van de zelfstandigheid van personen (ouderen en kinderen zijn bijvoorbeeld beperkt zelfredzaam) en de mate waarin personen in staat zijn te vluchten (aanwezigheid vluchtwegen).

De populatie aanwezige mensen binnen het plangebied bestaat hoofdzakelijk uit zelfredzame personen. De ontwikkeling voorziet niet in functies die bedoeld zijn voor verminderd zelfredzame personen. Wel kan sprake zijn van de huisvesting van kinderen, maar dit zal onder de supervisie van ouders plaatsvinden. Ouderen zijn ook een doelgroep, maar niet als deze hulpbehoevend zijn, omdat hiervoor specifieke voorzieningen ontbreken. In het gebied worden daarom geen grote groepen verminderd zelfredzame personen verwacht. Hierdoor hoeft zelfredzaamheid ten aanzien van beperkt zelfredzame groepen niet nader beschouwd te worden.

In het kader van effectieve zelfredzaamheid dienen de gebruikers van de objecten door risicocommunicatie te worden geïnstrueerd over de risico's en de mogelijke maatregelen die zij kunnen nemen. Dit valt onder de informatieplicht van de gemeente en daar wordt door de gemeente op toegezien. Verder moeten de gebruikers van de inrichtingen op worden gewezen dat de BHV-organisaties goed geïnformeerd zijn over de mogelijk optredende scenario's. Het is daarom te adviseren een adequaat ontruimingsplan/noodplan op te stellen.

Mogelijkheden van zelfredzaamheid bij een koude BLEVE-scenario

Een koude BLEVE kan plaatsvinden zonder enige aankondiging, hierdoor is er geen tijd om te vluchten vooraf en zullen alle personen binnen de 100 procent-letaliteitscontour slachtoffer worden. De afstand tot waar een koude BLEVE gevolgen heeft is indicatief en wordt mede bepaald door lokale omstandigheden. Indicatief kan worden gesteld dat de 100% letaliteitscontour op 100 meter ligt. De beoogde ontwikkeling valt niet binnen de 100 procent-letaliteitscontour.

Mogelijkheden van zelfredzaamheid bij een warme BLEVE-scenario

Bij een dreigende BLEVE is het gewenste handelingsperspectief vluchten van de risicobron. Een warme BLEVE scenario is op de weg niet mogelijk en is derhalve geen relevant scenario ten aanzien van de beoogde ontwikkeling. Wat het spoor betreft is in Geldrop-Mierlo sprake van diverse woonbebouwing veel dichter bij de spoorlijn, die ter plaatse aanvaardbaar wordt geacht, zodat een woongebruik op meer dan 300 m1 afstand op basis van dit aspect niet onaanvaardbaar geacht mag worden te zijn.

Mogelijkheden van zelfredzaamheid bij een gifwolk

In het geval van een gifwolk dient men te schuilen in een gebouw en de ramen en deuren gesloten te houden. Gebouwen kunnen geschikt worden gemaakt als schuillocatie.

Alarmering en oefening

In geval van een plasbrand of een BLEVE dienen personen uit het invloedsgebied te vluchten. Personen dienen hiervoor gewaarschuwd te worden. Gerichte risicocommunicatie (via interne communicatie en/of NL-Alert) kan ertoe bijdragen dat alarmering en ontruiming sneller verlopen. Om de effectiviteit van de alarmering en ontruiming te vergroten kan er op regelmatige basis (bijvoorbeeld eens in de twee jaar) een rampenoefening worden georganiseerd. Deze maatregel is echter niet te borgen in deze ruimtelijke procedure maar wel onderdeel van bedrijfsbeleid.

Vluchtwegen

Om uit de directe omgeving te kunnen vluchten is het van belang dat het gebouw over meerdere vluchtwegen beschikt, die vluchten weg van de calamiteit mogelijk maken. Daarvoor is een goede infrastructuur van belang, waarbij meerzijdig van de bron af kan worden gevlucht.

De gebouwen zullen van noodverlichting en vluchtroute-aanduidingen voorzien worden. Dit versterkt de zelfredzaamheid van de aanwezige personen.

  • V. Bestrijdbaarheid en bereikbaarheid

Bestrijdbaarheid

De bestrijdbaarheid is afhankelijke van de inzetbaarheid van hulpverleningsdiensten in hoeverre zij in staat zijn hun taken goed uit te kunnen voeren en om daarmee verdere escalatie van een incident te voorkomen. Hierbij kan gedacht worden aan het voldoende/ adequaat aanwezig zijn van aanvalswegen en bluswatervoorzieningen, maar ook de brandweerzorgnorm wordt hier onder geschaard.

Plasbrand

Bij een ongeval met brandbare vloeistoffen, waarbij een plasbrand kan ontstaan is het van belang dat de brandweer snel ter plaatse is. Een plasbrand is dan goed te bestrijden. Door het tijdig arriveren van de brandweer kan voorkomen worden dat het vuur zich snel kan uitbreiden en kan overslaan op gebouwen.

BLEVE-scenario

Het ontstaan van een koude BLEVE is niet te bestrijden, omdat de tank meteen explodeert. De branden die door de explosie ontstaan kunnen wel bestreden worden. Vanwege de in de praktijk bijna overal toegepaste, maar wettelijk niet vastgelegde maatregelen uit het LPG-convenant (hittewerende coating) wordt een warme BLEVE bij LPG-tankwagens gedurende ten minste 75 minuten voorkomen. De Brandweer is daardoor in staat de tank tijdig te koelen.

Gifwolk 

Een gifwolk is lastig te bestrijden. In sommige gevallen is het mogelijk om een gifwolk neer te slaan met een watergordijn.

De Veiligheidsregio heeft protocollen voor het bestrijden van deze scenario's.

Bereikbaarheid

Het plangebied, maar ook de genoemde risicobronnen dienen goed bereikbaar te zijn voor de hulpverleningsdiensten, waardoor in geval van calamiteiten het plangebied bereikbaar is. Het plangebied kan via het Bogardeind direct bereikt worden. Deze weg sluiten aan op het verdere wegennetwerk van Geldrop en de A67. Aanwezige personen kunnen via meerdere wegen van de bron af vluchten, omdat het omliggende natuurgebied vrij bereikbaar is.

Zorgnorm

De brandweerzorgnorm is een aanbevolen opkomsttijd die afhankelijk is van het soort object en de risico's voor de aanwezige personen. De opkomsttijd bestaat uit een optelsom van de uitruktijd en de aanrijdtijd. De uitruktijd betreft de tijd die men heeft vanaf het alarmeren totdat men gereed is om te vertrekken naar het plaats incident.

De uitruktijd voor een beroepskorps ligt lager dan die van een vrijwillig korps, omdat de beroepsmedewerkers zich in de directe nabijheid van de kazerne bevinden. De streefwaarde voor een beroepskorps is 1,0 minuut en voor een vrijwillige organisatie circa 3,5 minuten. De aanrijdtijd betreft de zuivere rijtijd. Deze is beperkt tot 3 minuten vanwege de brandweerkazerne op de Laan der Vier Heemskinderen, direct aansluitend op het Bogardeind. Het is de verwachting dat het plangebied zich binnen de normtijd bevindt op grond van artikel 3.2.1. Besluit veiligheidregio's.

Bluswatervoorziening

Het beschikbaar hebben van voldoende bluswater is voor het bestrijden van de brandrisico's van bijzonder belang en zijn reeds aanwezig. De benodigde hoeveelheid bluswater is afhankelijk van het risico en het mogelijke scenario.

Voorzieningen in de zorg

In Eindhoven is aan het Bogardeind een groot ziekenhuis aanwezig op korte afstand van de ontwikkeling. Dit ziekenhuis heeft een regionale opgave voor de hulpverlening. De ontwikkeling leidt niet tot een noodzakelijk capaciteitsuitbreiding van deze voorzieningen.

  • VI. Advies Veiligheidsregio Brabant-Zuidoost

De Veiligheidsregio heeft een standaard advisering opgesteld voor algemene situaties (januari 2020). De ontwikkeling voldoet aan de randvoorwaarden, zodat het standaard advies kan worden toegepast.

Het standaard advies van de Veiligheidsregio luidt als volgt :

  • Communiceer actief met de omwonenden in het plangebied over de risico's van de gevaarlijke stoffen. Geef daarbij aan wat omwonenden moeten doen bij een incident, namelijk vluchten van de risicobron af. Dit bevordert de zelfredzaamheid van omwonenden. Dit advies geldt ook voor bedrijfshulpverleningsorganisaties.
  • Pas de beleidsregels bereikbaarheid en bluswatervoorziening van de VRBZO toe. Wanneer een beoogde oplossing aan de beleidsregels voldoet, kunt u ervan uitgaan dat een goede bereikbaarheid voor de hulpdiensten en een adequate bluswatervoorziening gerealiseerd wordt. De beleidsregels staan op: https://www.vrbzo.nl/wp-content/uploads/2018/04/170307-beleidsregelsbereikbaarheid-enbluswatervoorziening-brabant-definitief-1-0-v astgesteld.pdf.
  • Nieuw op te richten gebouwen moeten aan het Bouwbesluit 2012 voldoen. In dit besluit is geregeld dat gebouwen uitgevoerd moeten worden met een mechanische ventilatie die uitgezet kan worden. Aanvullend op deze regelgeving adviseren wij om de aanzuigopeningen van deze ventilatie bij voorkeur hoog en afgekeerd van de risicobron te realiseren.

Reactie op het standaard advies van de Veiligheidsregio :

  • Voor een snelle berichtgeving os NL-Alert aanwezig. Tevens zijn WAS-palen (Waarschuwings-alarm-systeem) aanwezig.
  • De beleidsregels bereikbaarheid en bluswatervoorziening zullen worden toegepast. De bereikbaarheid van de locatie is goed. De locatie is vanuit het Bogardeind goed bereikbaar.
  • De bluswatervoorziening zal worden getoetst aan de beleidsregels bereikbaarheid en bluswatervoorziening.
  • De mogelijkheid tot het uitschakelen van mechanische ventilatie is geregeld in artikel 3.31 van het Bouwbesluit 2012.
4.5.5 Conclusie

Als conclusie betreffende het aspect externe veiligheid kan worden aangegeven :

  • Het plaatsgebonden risico vormt geen belemmering voor de ontwikkeling.
  • Het groepsrisico is hoger dan de oriëntatiewaarde en neemt beperkt toe door de ontwikkeling.
  • Het bevoegd gezag heeft geen mogelijkheden om maatregelen te treffen aangaande het transport van gevaarlijke stoffen over de spoorroute en/of de A67 het groepsrisico te beperken.
  • De bereikbaarheid van de locatie wijzigt niet door de gebiedsontwikkeling.
  • De bluswatervoorzieningen zijn in voldoende mate aanwezig.
  • Voor zover mogelijk zijn vluchtwegen binnen de panden zo gesitueerd dat van de risicobron af kan worden gevlucht.
  • De gebouwen zullen geen plaats bieden aan verminderd zelfredzame personen.
  • De nieuwe gebouwen worden voorzien van afsluitbare ventilatie.
  • Gezien de afstand tot het spoor is de warmtebelasting op de gevel van de gebouwen kleiner dan 10 kW/m2.

Door de realisatie van de voorgenomen ontwikkeling neemt het aantal personen in de nabijheid van het spoor en de A67 toe. In geval van een calamiteit met gevaarlijke stoffen kunnen daardoor meer mensen slachtoffer worden. De kans op een dergelijke calamiteit is erg klein. Met de voorziene te treffen maatregelen zijn de mogelijkheden voor zelfredzaamheid en bestrijdbaarheid geoptimaliseerd.

Gelet op het vorenstaande en met inachtneming van de opgesomde maatregelen wordt het groepsrisico aanvaardbaar geacht.

Het aspect externe veiligheid vormt geen belemmering voor onderhavige ontwikkeling.

4.6 Bodem

4.6.1 Algemeen

Op basis van art. 3.1.6, lid 1 onder f Bro geldt dat in een toelichting op een ruimtelijk besluit de inzichten over de uitvoerbaarheid van dat besluit worden neergelegd.

Ten aanzien van het aspect bodemkwaliteit staat, op basis van vaste jurisprudentie van de Afdeling Bestuursrechtspraak Raad van State (ABRvS), voorop dat de vaststelling van de aanwezigheid van verontreinigingen in de bodem, de noodzaak van sanering van verontreinigde locaties en de wijze waarop deze saneringen moeten worden uitgevoerd, zijn geregeld in afzonderlijke wetgeving met eigen procedures.

Dat doet er niet aan af dat het bevoegd gezag het ruimtelijk besluit pas kan nemen indien, voor zover redelijkerwijs valt in te zien, vaststaat dat een eventuele bodemverontreiniging niet aan de uitvoerbaarheid in de weg staat (22 december 2010, ECLI:NL:RVS:2010:BO8297, r.o. 2.18.4; 27 juni 2012, ECLI:NL:RVS:2012: BW9569, r.o. 2.10.3). Daarbij geldt als uitgangspunt dat de bodem in principe geschikt dient te zijn voor de beoogde functie. De bodemkwaliteit mag geen onaanvaardbaar risico vormen voor de gebruikers van de bodem.

4.6.2 Onderzoek

Voor het plangebied is door Strukton Milieutechniek gekomen tot een bodemonderzoek, d.d. 13 juli 2023, dat als bijlage 10 bij deze toelichting is opgenomen. Hierin is de kwaliteit van vaste bodem en grondwater beoordeeld, wat leidde tot de vaststelling - voor perceel Bogardeind 219 - van een plaatselijke matige verontreiniging met koper en zink ter plaatse van het (voormalige) zinkassenpad in de noordwestelijke hoek van de locatie.

Voor het overige (gehele) terrein blijkt dat in de boven- en ondergrond geen verontreinigingen zijn aangetoond met de parameters volgens het standaard pakket grond. De bovengrond van het gehele terrein is tevens onderzocht op de aanwezigheid van asbest. Er is geen asbest aangetroffen/aangetoond. In het grondwater is sprake van een plaatselijk verhoogd gehalte aan barium. Dit betreft mogelijk een verhoogde achtergrondwaarde.

Strukton Milieutechniek concludeert :

De onderzoeksresultaten van de locatie aan de Bogardeind 219 te Geldrop sluiten aan bij de onderzoeksresultaten uit 2019. Er is sprake van een mogelijke verontreiniging met zink (en koper) ter plaatse van het (voormalige) zinkassenpad in de noordwestelijke hoek van de locatie. Mogelijk dat in het kader van de geplande bestemmingswijziging van de locatie een eventuele sanering van het zinkassenpad noodzakelijk is en hiervoor nog een aanvullende kwaliteitsbepaling van het zinkassenmateriaal (repac) dient te worden uitgevoerd. Voor de verwijdering van het zinkassenpad moet een melding bij het bevoegd gezag ingediend worden.

De milieuhygiënische bodemkwaliteit (grond, grondwater en asbest) op het overige perceel (gehele perceel, incl. grond onder het zinkassenpad) en het perceel aan de Hout Oost vormen ons inziens geen belemmering voor de voorgenomen bestemmingswijziging (wonen).

4.6.3 Conclusie

Het aspect bodem levert aldus geen belemmeringen op de voor ontwikkelingen binnen het plangebied c.q. de vaststelling van onderhavig bestemmingsplan. In het kader van de te verlenen omgevingsvergunning bouw zal - indien en voorzover aan de orde - worden bezien of en zo ja welke maatregelen nog moeten worden genomen. Vooruitlopend hierop kan worden vastgesteld, dat aard en omvang van mogelijk aanwezige verontreiniging de voorgenomen ontwikkeling van het plangebied niet in de weg staat.

4.7 Natuur

4.7.1 Natuurbeschermingsgebied en - wetgeving

Het natuurbeschermingsbeleid en de wet- en regelgeving op het gebied van flora en fauna kennen twee sporen, namelijk een gebiedsgericht en een soortgericht spoor. Sinds 1 januari 2017 is de Wet natuurbescherming (Wnb) van kracht. Deze vervangt drie wetten; de Natuurbeschermingswet 1998, de Boswet en de Flora- en Faunawet.

Ruimtelijke plannen dienen te worden beoordeeld op de uitvoerbaarheid in relatie tot voormelde actuele natuurwetgeving. Er mogen geen ontwikkelingen plaatsvinden die op onoverkomelijke bezwaren stuiten door effecten op flora en fauna en/of beschermde natuurgebieden.

In navolgende paragrafen zal de toetsing van het voornemen plaatsvinden aan enerzijds de soortenbescherming en anderzijds de gebiedsbescherming.

4.7.2 Soortenbescherming

In verband met de uitvoerbaarheid van bestemmingsplannen dient rekening te worden gehouden met soortenbescherming en met name de aanwezigheid van beschermde soorten in het plangebied.

Op 1 januari 2017 is de Wet natuurbescherming in werking getreden. Als gevolg hiervan zijn veel soorten niet meer beschermd. Echter een aantal andere vlinder- en libellesoorten en florasoorten zijn nu wel beschermd. Tevens blijft de algemene zorgplicht gelden. Daarnaast geldt in bepaalde provincies voor een aantal van de Tabel 1-soorten uit de Flora- en faunawet wet geen vrijstelling meer. Dit zijn voor de provincie Noord-Brabant de bunzing, hermelijn en wezel. Voor de strikt beschermde soorten in de nieuwe Wet Natuurbescherming, namelijk de soorten die zijn beschermd in de Habitatrichtlijn en Vogelrichtlijn, geldt dat deze in de Flora- en faunawet gelijkwaardige bescherming genieten. De conclusies ten aanzien van deze soorten zullen dan ook niet veranderen met het van kracht worden van de nieuwe wet.

Ecologische quickscan mei 2023

Door Brabant Eco is voor wat betreft het onderwerp "soortenbescherming" gekomen tot een onderzoeksrapportage "Ecologische quickscan Bogardeind 219 Geldrop" (d.d. 27 mei 2023, projectnummer 2023-BE-0614), hier opgenomen als bijlage 11. Dit betrof het plangebied exclusief het kadastrale perceel gemeente Geldrop, sectie E, 3170 (zie afbeelding pagina 5 toelichting).

Op 18 mei 2023 is een veldbezoek uitgevoerd. Tijdens het veldonderzoek werd de ecologische potentie van de locatie en de directe omgeving in relatie met het mogelijk voorkomen van beschermde soorten onderzocht. Op de locatie werden alle aanwezige habitats opgenomen. Daarbij zijn de in het plangebied aanwezige ruimtelijke structuren en ecotopen geïnventariseerd. Naast de biotopen zijn directe en indirecte aanwijzingen opgenomen die kunnen duiden op het voorkomen van beschermde soorten. Op basis van deze vergelijking en expert judgement is beoordeeld welke van deze soorten in het plangebied kunnen voorkomen

Het onderzoek leidde voor wat betreft het onderdeel soortenbescherming tot navolgende conclusies (hier samengevat weergegeven) :

Onderzoek naar de soortbescherming toont aan dat beschermde soorten planten door gebrek aan geschikte biotopen niet zijn te verwachten in het gebied. Binnen het plangebied zijn houtopstanden aanwezig welke met de beoogde ontwikkelingen voornamelijk blijven bestaan. Tijdens het veldbezoek is er geconstateerd dat er mogelijk gebouw bewonende vleermuizen voorkomen in de te slopen bebouwing op het plangebied. Onderzoek naar vleermuizen volgens voorgeschreven protocol is noodzakelijk.
De zorgplicht is altijd van toepassing.
Natuurinclusief bouwen wordt aanbevolen.

Ecologische quickscan augustus 2023

Door Brabant Eco is voor wat betreft het onderwerp "soortenbescherming" gekomen tot een aanvullende onderzoeksrapportage "Toevoeging aan ecologische quickscan Bogardeind 219 Geldrop" (d.d. 14 augustus 2023, projectnummer 2023-BE-0614a), hier opgenomen als bijlage 12. Dit betrof het kadastrale perceel gemeente Geldrop, sectie E, 3170 (zie afbeelding pagina 5 toelichting).

Op 3 augustus 2023 is een veldbezoek uitgevoerd. Het onderzoek leidde voor wat betreft het onderdeel soortenbescherming tot navolgende conclusies (hier samengevat weergegeven) :

Op basis van het veldonderzoek en de analyse van de bestaande situatie kan het voorkomen van beschermde flora en fauna worden uitgesloten. Hierdoor wordt dan ook niet aanbevolen om een nadere inventarisatie door middel van extra veldonderzoek uit te voeren.
De zorgplicht is altijd van toepassing.
Natuurinclusief bouwen wordt aanbevolen.

Nader onderzoek vleermuizen september 2023

Door Brabant Eco is vanwege de in de rapportage van mei 2023 vernoemde vleermuizen gekomen tot een aanvullende onderzoeksrapportage "Nader onderzoek vleermuizen, Aanvullend onderzoek in het kader van de Wet natuurbescherming" (d.d. 26 september 2023, projectnummer 2023-BE-0614), hier opgenomen als bijlage 13.

Brabant Eco komt tot navolgende bevindingen :

  • Er zijn in en nabij het plangebied drie soorten vleermuizen waargenomen, de gewone dwergvleermuis (Pipistrellus pipistrellus), de laatvlieger (Nyctalus noctula) en de rosse vleermuis (Nyctalus noctula).
  • Het onderzoek vond plaats van juni tot en met september 2023.
  • Het gehele plangebied met daarbij alle structuren waren goed toegankelijk en visueel goed te onderzoeken.
  • Bij inspectie van het plangebied bij daglicht zijn geen vleermuiskeutels of andere sporen gevonden die duiden op vleermuisverblijfplaatsen.
  • Er is een kraamverblijf waargenomen in de hoge toren in het plangebied.
  • De omgeving rond het plangebied fungeert als foerageergebied voor maximaal vijf vleermuizen. Gelet op dit kleine aantal en het ruime aanbod aan vergelijkbaar foerageergebied in de omgeving is het geen essentieel foerageergebied. Een onmisbaar foerageergebied binnen de plangrenzen is niet aan de orde.
  • Er zijn geen waarnemingen gedaan die duiden op een essentiële vliegroute. Eventuele vliegroutes zullen behouden blijven.
  • Bestaande lijnvormige groenstructuren waarlangs migratie- of foerageerroutes van vleermuizen zouden kunnen liggen worden niet aangetast door de voorgenomen plannen.
  • De balts van de gewone dwergvleermuis is in september bij de hoge toren in het plangebied waargenomen. Hieruit kan geconcludeerd worden dat er zich een paarverblijf van de gewone dwergvleermuis in deze toren bevindt.
  • Het zogenaamde najaarszwermgedrag is niet waargenomen.
  • Het kraamverblijf van de laatvliegers en het paarverblijf van de gewone dwergvleermuis bevinden zich in de te behouden toren in het plangebied. Er dient een mitigatieplan opgesteld te worden om negatieve effecten van de uit te voeren werkzaamheden zo veel mogelijk te reduceren.

concludeert :

De voorgenomen ontwikkelingen zullen mogelijk invloed hebben op de in het plangebied voorkomende vleermuizen. Er worden mogelijk een kraamkolonie van de laatvlieger en een paarverblijf van de gewonde dwergvleermuis verstoort. Er worden geen essentiële vliegroutes of essentieel foerageergebied aangetast. Als de werkzaamheden op de begane grond zorgvuldig en met daglicht worden uitgevoerd dan zal er geen overtreding van de Wet natuurbescherming aan de orde zijn. Een ontheffing van de Wet natuurbescherming voor vleermuizen is dan niet noodzakelijk. Hiervoor zal wel een mitigatieplan met werkprotocol dienen te worden opgesteld. Daarnaast kan de nieuwbouw natuurinclusief ontworpen en uitgevoerd worden. Dit houdt in dat er definitieve verblijfplaatsen en een geschikte leefomgeving voor vleermuizen worden gerealiseerd in en om de nieuwbouw.

en geeft navolgende aanbevelingen

  • De zorgplicht is altijd van toepassing, op basis waarvan door iedereen voldoende zorg in acht moet worden genomen voor de in het wild levende dieren en hun leefomgeving. Dit kan bijvoorbeeld door buiten kwetsbare periodes (het voortplantings- en winterslaapseizoen) te starten met werkzaamheden en het gefaseerd werken om dieren de kans te geven om te vluchten. Verder kunnen er vogels broeden in de omgeving van het plangebied. Werkzaamheden die een verstorend effect op broedende vogels veroorzaken dienen daarom plaats te vinden buiten het broedseizoen (broedseizoen loopt globaal van half maart tot half juli).
  • Bij onvoorziene omstandigheden dient direct contact opgenomen te worden met een ter zake deskundige.

Gelet op het voorgaande kan het bestemmingsplan vastgesteld worden en is het onderdeel soortenbescherming voldoende geborgd middels de regels van de Wnb.

4.7.3 Gebiedsbescherming

Natura 2000 gebieden

Het plangebied ligt op minimaal 400 meter afstand van oostelijk gelegen gronden behorend tot Natura 2000 gebied Strabrechtse Heide & Beuven. Op ongeveer 2,2 kilometer afstand naar het westen ligt Natura 2000 gebied Leenderbos, Groote Heide & de Plateaux.

Op onderstaande afbeelding wordt de ligging van het plangebied met een rode cirkel aangegeven.

afbeelding "i_NL.IMRO.1771.BPBogardeind219-ON01_0079.jpg"

afbeelding : ligging plangebied t.o.v. natura 2000 gebieden

Door Brabant Eco is voor wat betreft het onderwerp "gebiedsbescherming" gekomen tot voormelde onderzoeksrapportage "Ecologische quickscan Bogardeind 219 Geldrop", hier opgenomen als bijlage 11. In dit onderzoek wordt geconcludeerd dat doordat het plangebied buiten het Natura 2000 gebied ligt kunnen alleen effecten optreden als gevolg van externe werking.

Ten aanzien van Natura 2000 gebieden dient er o.a. zekerheid geboden te worden betreffende het niet optreden van een verslechtering van de kwaliteit van de natuurlijke habitats en de habitats van soorten. Gezien de aard en omvang van het voornemen, de locatie, de effectafstand tot Natura 2000 gebieden en het effectbereik, zijn externe effecten op voorhand uit te sluiten.

Om het aspect stikstofdepositie te duiden is een berekening uitgevoerd voor bouw- en gebruikfase gerelateerd aan het bestaande gebruik voor herontwikkeling, neergelegd in de rapportage van Tritium Advies (kenmerk 2301/110/JOW-03.D), d.d. 14 november 2023. Deze rapportage is opgenomen als bijlage 14 bij deze toelichting.

Door Tritium is gekeken naar de referentie-situatie (bestaande uit het feitelijke planologisch legale gebruik), de realisatiefase en de gebruiksfase, e.e.a. zoals beschreven in voormelde rapportage.

Tritium komt tot de navolgende conclusies voor de aanleg- en gebruiksfase:

Uit de rekenresultaten van AERIUS Calculator 2023.0.1 blijkt dat er ten gevolge van het planvoornemen geen sprake is van een toename van stikstofdepositie waarbij significant negatieve effecten in Natura 2000-gebieden kunnen plaatsvinden ten gevolge van de aanlegfase en gebruiksfase, ten opzichte van de referentiesituatie (intern salderen). In overeenstemming met de uitspraak Raad van State in de zaak Logstebaan is (vooralsnog) geen vergunning nodig voor intern salderen. Een vergunning in het kader van de Wnb ten aanzien van het aspect stikstofdepositie is derhalve niet aan de orde. De berekening toont aan dat het aspect stikstofdepositie geen beperkingen oplevert ten aanzien van de uitvoering van het beoogde planvoornemen.

NNB gebieden

Het plangebied ligt aangrenzend aan gronden die tot het Natuurnetwerk Nederland behoren, natuurgebied de Dommel.

Dit betekent dat vanwege externe werking een NNB-effecten toets aan de orde is. Het betreft echter aangewezen NNB dat nog moet worden ingericht. Negatieve effecten zijn in dat geval uit te sluiten. Daarmee levert NNB geen belemmering op voor de voorgenomen ontwikkeling.

Onderstaand wordt ligging van het plangebied wordt met een rode cirkel aangegeven en de NNN-gebieden in diverse kleuren :

afbeelding "i_NL.IMRO.1771.BPBogardeind219-ON01_0080.jpg"

afbeelding : ligging plangebied t.o.v. NNN gebieden

4.7.4 Bomen

Het plangebied ligt binnen de 'bebouwde kom Boswet' van de Gemeente Geldrop-Mierlo waardoor eventueel aanwezige bomen geen deel uitmaken van beschermde houtopstand. Binnen het plangebied zijn diverse bomen aanwezig, waarvan 99 bomen bewaard blijven, 20 bomen worden verwijderd en 94 nieuwe bomen in de vaste grond worden gepland, zoals weergegeven op onderstaande afbeelding.

afbeelding "i_NL.IMRO.1771.BPBogardeind219-ON01_0081.jpg" afbeelding : bomen in het plangebied nieuwe situatie

Ten aanzien van deze bomen is gekomen tot een inventarisatie, zoals neergelegd in de rapportage van Cobra Groeninzicht d.d. 23 juni 2023, opgenomen als bijlage 15 bij deze toelichting.

Cobra concludeert een toename van 122 bomen naar 192 bomen in het plangebied

In het projectgebied staan 122 bomen als solitair tussen parkeervakken, als bomenrijen langs wegen en als bosschages langs de randen van het projectgebied. De bomen hebben volgens de site van de gemeente Geldrop-Mierlo geen bijzondere beleidsstatus. 24 bomen worden verwijderd en er worden 94 nieuwe bomen geplant. Dat maakt dat het totaal aantal bomen in het ontwikkelgebied uitkomt op 192 bomen.

met onderstaande toename van de groenwaarde ten gevolg :

Van deze 192 bomen hebben we berekend dat de groenwaarde, uitgedrukt in drie ecosysteemdiensten, in de komende dertig jaar toeneemt:

  • de vastgelegde CO2 in de bomen neemt toe van 91,3 ton naar bijna 226 ton en de jaarlijkse CO2-vastlegging stijgt van 7,8 ton naar 18.4 ton;
  • de jaarlijkse regenwaterafvang stijgt van 88 kuub naar bijna 198 kuub;
  • de jaarlijkse wegvang van luchtverontreinigende stoffen toeneemt van 50 kg naar 96 kg
4.7.5 Conclusie

De voorgenomen ingreep leidt niet tot overtreding van de verbodsbepalingen uit de Wet natuurbescherming. Het aspect natuurbescherming vormt geen belemmering voor realisatie van de voorgenomen herontwikkeling van de locatie.

4.8 Trillingshinder

Vanwege afstand tot de spoorlijn Eindhoven - Weert ( > 100 meter) is geen sprake van een te verwachten trillingsniveau vanwege met name railverkeer in de geprojecteerde woningen.

Hoofdstuk 5 Waterparagraaf

5.1 Inleiding

Doel van de waterparagraaf is de component water in een zo vroeg mogelijk stadium te adresseren in het besluitvormingsproces van ruimtelijke plannen. De paragraaf beschrijft de huidige watersituatie in het plangebied. Daarnaast legt het vast aan welke watereisen ontwikkelingen, binnen de gestelde randvoorwaarden van het bestemmingsplan, moeten voldoen.

Het Besluit ruimtelijke ordening (Bro) stelt een watertoets in ruimtelijke plannen verplicht. In het kader van dit bestemmingsplan is gekeken naar het vigerend waterbeleid voor onderhavig plangebied. Hierbij zijn de belangen van het Rijk, provincie Noord-Brabant, Waterschap De Dommel en gemeente Geldrop-Mierlo meegenomen.

5.2 Beleid

5.2.1 Rijksbeleid

Waterbeleid van de 21e eeuw

In de afgelopen decennia heeft Nederland meerdere keren te kampen gehad met wateroverlast. Dit heeft geresulteerd in een omslag in beleid en het denken over water, met hierbij drie uitgangspunten :

  • anticiperen in plaats van reageren,
  • niet afwentelen van waterproblemen op het volgende stroomgebied, maar handelen volgens de drietrapsstrategie van vasthouden-bergen-afvoeren en
  • meer ruimtelijke maatregelen naast technische ingrepen.

Belangrijk onderdeel in het waterbeleid is de watertoets. Nieuwe plannen en projecten moeten worden getoetst aan de effecten op veiligheid, wateroverlast en verdroging. Ruimte die nu beschikbaar is voor de bescherming tegen overstromingen en wateroverlast mag niet sluipenderwijs verloren gaan bij nieuwe projecten.

Het Waterbeleid 21e eeuw richt zich primair op het voorkomen van wateroverlast door overstroming vanwege veel neerslag in een korte tijd. Hieruit volgen richtlijnen voor de ruimtelijke inrichting van het gebied en technische maatregelen die kunnen worden ingezet. Hierbij geldt als voorkeursvolgorde : vasthouden, bergen en afvoeren. De doelstelling van deze maatregelen is een afvoer te realiseren die niet groter is dan de landbouwkundige afvoer.

Nationaal Water Programma 2022-2027

Om aan te geven hoe we omgaan met de uitdagingen van ons water, ontwikkelt de Rijksoverheid het Nationaal Water Programma 2022-2027 (NWP) met hierin de hoofdlijnen van het nationale waterbeleid en de uitvoering ervan in de Rijkswateren en -vaarwegen. Het NWP beschrijft de nationale beleids- en beheerdoelen op het gebied van klimaatadaptatie, waterveiligheid, zoetwater & waterverdeling, waterkwaliteit & natuur, scheepvaart, en de functies van de Rijkswateren

Daarnaast worden in beeld gebracht de raakvlakken zien tussen water en andere thema's als landbouw, landschap, bodem en het energie- en klimaatbeleid.

Het NWP 2022-2027 is op 18 maart 2022 vastgesteld. Gezien de kleinschaligheid van het initiatief en het gegeven dat het plangebied niet in de aangewezen gebieden van het Rijk zijn gelegen, zullen de rijksbelangen hieromtrent niet worden aangetast. Bovendien zijn de belangrijkste thema's hieruit doorvertaald naar het provinciaal- en waterschapsbeleid.

5.2.2 Provinciaal beleid

Regionaal Water en Bodem Programma 2022-2027

Het Regionaal Water en Bodem Programma (RWP) 2022-2027 van de provincie Noord-Brabant is de opvolger van het Provinciaal Milieu en Waterplan en is op 22 december 2021 in werking getreden. Het is onderdeel van het planstelsel voor de wateropgaven in Nederland, samen met het Nationaal Water Programma en de waterbeheerprogramma's van de waterschappen. Doel van dit nieuwe RWP is een klimaatadaptief Brabant met veilig, schoon en voldoende water en een vitale bodem. Deze opgaven zijn ook van belang voor vrijwel alle andere provinciale opgaven: wonen en werken, infrastructuur en mobiliteit, landbouw en voedsel, natuur en biodiversiteit, erfgoed, een concurrerende en duurzame economie, en de energietransitie.

Interim omgevingsverordening Noord-Brabant

De belangrijkste regels inzake het RWP zijn overgenomen in de Interim omgevingsverordening Noord-Brabant. Middels de themakaarten van deze verordening wordt inzicht gegeven in hoeverre er belangrijke waterhuishoudelijke thema's op het plangebied van toepassing zijn

afbeelding "i_NL.IMRO.1771.BPBogardeind219-ON01_0082.jpg"

afbeelding : kaartweergave IOV Noord Brabant

Uit de uitsnede blijkt dat ter plaatse van het plangebied de volgende regels van toepassing zijn:

  • 1. rechtstreeks werkende regels voor 'Diep grondwaterlichaam'

Ter plaatse geldt een verbod voor onconventionele koolwaterstofwinning vanwege een Diep grondwaterlichaam. Boven, in of onder een Diep grondwaterlichaam is de onconventionele winning van koolwaterstoffen verboden. Dit is niet van toepassing op het beoogd initiatief.

  • 2. instructieregels voor gemeenten voor 'Groenblauwe mantel'

Ter plaatse geldt dat een bestemmingsplan een beschrijving bevat van de aanwezige ecologische waarden en kenmerken en landschappelijke waarden. Een bestemmingsplan van toepassing op de Groenblauwe mantel strekt tot behoud, herstel of duurzame ontwikkeling van het watersysteem en de daarmee samenhangende ecologische waarden en kenmerken en landschappelijke waarden, stelt regels ter bescherming van de ecologische, landschappelijke en hydrologische waarden en kenmerken van het gebied en borgt dat een ontwikkeling gepaard gaat met een positieve bijdrage aan de bescherming en ontwikkeling van de ecologische waarden en kenmerken en landschappelijke waarden.

  • 3. instructieregels voor waterschappen voor 'Norm wateroverlast buiten Stedelijk gebied' , en
  • 4. instructieregels voor waterschappen voor 'Norm wateroverlast'

Ter plaatse geldt een inspanningsverplichting met betrekking tot een norm wateroverlast Stedelijk gebied. Met het oog op de bergings- en afvoercapaciteit waarop regionale wateren moeten zijn ingericht, geldt voor bebouwing die is gelegen buiten Stedelijk gebied de norm van het omringende landgebruik. Voor gebieden met de ruimtelijke bestemming hoofdinfrastructuur en spoorwegen geldt als norm een overstromingskans van 1/100 per jaar, voor glastuinbouw en hoogwaardige land- en tuinbouw 1/50 per jaar, voor akkerbouw 1/25 per jaar en voor grasland 1/10 per jaar. Deze norm betreft een inspanningsverplichting.

Gezien voorgaande zijn er slechts de reguliere rechtstreeks werkende regels en instructieregels voor gemeenten en waterschappen van toepassing. Het plangebied is voor het overige niet gelegen ter plaatse van een beschermd gebied inzake grondwater, drinkwater, boringen of andere beschermde gebieden inzake de waterhuishouding. Gezien voorgaande worden er vanuit het provinciale beleid geen belemmeringen verwacht met betrekking tot het thema 'water'.

5.2.3 Beleid Waterschap

Waterbeheerplan Waterschap de Dommel 2022 - 2027

In het waterbeheerplan (WBP) staan de doelstellingen van Waterschap De Dommel voor de periode 2022-2027 en wordt beschreven hoe die doelstelling gehaald gaan worden. Hiernaast wordt invulling gegeven aan de verplichting vanuit de Waterwet en de Verordening Water om een WBP op te stellen.

Het WBP staat in haar ambities voor onder andere een leefomgeving die klaar is voor de toekomst en een watersysteem dat daarbij past. Dat wil zeggen; een waterhuishouding die robuust, flexibel en in balans is met de natuur en de omgeving én zorgt voor een goede waterkwaliteit. De ambities en veranderingen zijn gericht op:

  • Van beekdalgericht naar gebiedsgericht;
  • Van sectorale aanpak naar een integrale aanpak;
  • Van 'water afvoeren' naar 'elke druppel telt'.

Daarbij werkt het waterschap aan drie waterdoelen met een programmatische aanpak :

  • droge voeten,
  • schoon water en
  • voldoende water.

Het waterschap heeft toegespitst beleid en beleidsregels op de verschillende thema's c.q. speerpunten uit het waterbeheerplan en een verordening; de Keur (met bijbehorende kaart beschermde gebieden) en de Legger.

Keur Waterschap de Dommel 2015

De 'Keur Waterschap De Dommel 2015' bevat regels met daarin verboden en verplichtingen ten aanzien van oppervlaktewater en grondwater, die gelden voor iedereen die woont of werkt binnen het gebied van Waterschap De Dommel. Hierin wordt het beheer en het onderhoud van watergangen geregeld en is aangegeven wanneer een vergunning of algemene regels van toepassing zijn voor ingrepen in de waterhuishouding. Verder zijn er beleidsregels voor het beschermingsbeleid van gebieden. Hierbij wordt onderscheid gemaakt tussen beschermde gebieden waterhuishouding, attentiegebieden, beekdalen en overige gebieden. Met deze beleidsregels wordt aangegeven op welke wijze gebiedsgericht wordt omgegaan met vergunningverlening. De Keur van het waterschap is onder andere van toepassing wanneer direct of indirect wordt geloosd naar een oppervlaktelichaam.

Beleidsregel Hydrologische uitgangspunten bij de Keurregels voor afvoeren van hemelwater

De waterschappen Aa en Maas, Brabantse Delta en De Dommel hebben in de Noord-Brabantse Waterschapsbond (NBWB) besloten om de keuren te uniformeren en tegelijkertijd te dereguleren. Hierbij is aangehaakt bij het landelijke uniformeringsproces van de Unie van Waterschappen. Er is conform het nieuwe landelijke model een sterk gedereguleerde keur opgesteld, met bijbehorende algemene regels en beleidsregels. Deze zijn voor de drie waterschappen gelijkluidend. De nieuwe uniforme keuren zijn gezamenlijk in werking getreden op 1 maart 2015. In de keur is onder andere opgenomen dat het in beginsel verboden is om zonder vergunning neerslag door toename van verhard oppervlak of door afkoppelen van bestaand oppervlak, tot afvoer naar een oppervlaktewaterlichaam te laten komen.

Dit verbod is van toepassing tenzij:

  • het afkoppelen van verhard oppervlak maximaal 10.000 m² is, of;
  • de toename van verhard oppervlak maximaal 500 m² is, of;
  • de toename van verhard oppervlak bestaat uit een groen dak;
  • de toename van verhard oppervlak tussen 500 m² en 10.000 m² is en compenserende maatregelen zijn getroffen om versnelde afvoer van hemelwater tegen te gaan, in de vorm van een voorziening met een minimale retentiecapaciteit conform de rekenregel: Benodigde retentiecapaciteit (m³) = toename verhard oppervlak (m²) x gevoeligheidsfactor x 0,06

Daarbij dient de voorziening te voldoen aan de volgende voorschriften:

  • de bodem van de voorziening dient boven de gemiddelde hoogste grondwaterstand (GHG) te liggen;
  • de afvoer uit de voorziening via een functionele bodempassage naar het grondwater en/of via een functionele afvoerconstructie naar het oppervlaktewater plaatsvindt. Indien een afvoerconstructie wordt toegepast, dient deze een diameter van 4 cm te hebben;
  • daarnaast moet er altijd een overloopconstructie zijn, om uitspoeling naar de sloot te voorkomen.

Beschermingszones en beschermde gebieden

In de keur zijn tevens diverse regels opgenomen om gebieden met een specifieke functie te beschermen, zoals de attentiegebieden en invloedsgebieden Natura-2000. Er geldt een specifiek beschermingsregime, afhankelijk van het type gebied en de ligging in of nabij een beschermd gebied.

Overeenkomstig de Leggerkaart ligt langs de zuidelijke rand van het plangebied een A-watergang met een beschermingszone. Op basis van de Keurkaart beschermde gebieden ligt het plangebied in een attentiegebied en de oostelijke rand van het plangebied is aangeduid als 'Beekdal'.

De A-waterloop heeft een beschermingszone ten behoeve van een onderhoudsstrook van 5 meter breed aan weerszijden van het oppervlaktewaterlichaam. Het is verboden zonder vergunning gebruik te maken van deze beschermingszone door binnen deze beschermingszone handelingen te verrichting of werken op te richten.

Voor attentiegebieden en beekdalen geldt voor zowel het grondwater- als het oppervlaktewatersysteem een beschermingsbeleid, de gebieden dienen onder andere beschermd te worden tegen verdroging. Dit betekent dat de algemene regels in veel gevallen niet gelden of er gelden beperkende regels voor onder andere beregening, drainage en het onttrekken van grondwater.

5.2.4 Gemeentelijk beleid

Het gemeentelijk rioleringsbeleid is vastgelegd in het gemeentelijk rioleringsplan (GRP 2023-2027). Hierin staat welke keuzes de gemeente maakt over hoe zij om gaat met afval-, regen- en grondwater.

In het GRP staan verschillende speerpunten beschreven waar de gemeente zich op gaat richten, zoals een duurzame waterketen, een klimaatbestendig watersysteem, grondwaterhuishouding in balans, water als ordenend principe, gezond, schoon en beleefbaar water en samen werken aan water. In de komende jaren wil de gemeente steeds meer klimaatadaptieve maatregelen nemen. Enerzijds wordt ingespeeld op de klimaatveranderingen door ruimte te maken voor water en actiever regenwater af te koppelen, anderzijds wordt de omgeving ook vergroend zodat dit bijdraagt aan het voorkomen van hittestress. De openbare ruimte wordt daarmee steeds bestendiger tegen de extreme situaties. Het inspelen op klimaatverandering kan de gemeente niet alleen. Ze gaan burgers en bedrijven actief opzoeken en proberen samen oplossingen te vinden voor de uitdagingen waar ze samen voor staan.

Zowel bij nieuwbouw als bij reconstructies is het streven om de openbare ruimte "klimaatadaptief" in te richten. Per 1 januari 2024 geldt bij alle bouwplannen het uitgangspunt dat elke m2 verhard oppervlak moet worden gecompenseerd met een regenwaterberging (60 liter per m2), waarbij het hieraan voorafgaand uiteraard wenselijk is als hieraan al wordt voldaan.

5.3 Beschrijving watersysteem plangebied van de huidige situatie

In het kader van onderhavige waterparagraaf c.q. de wateropgave behorende bij de ontwikkeling van het plangebied is door Tritium Advies BV een notitie opgesteld "Waterparagraaf The Stayy te Geldrop", kenmerk 2301/110/JOW-04" d.d. 7 december 2023, die als bijlage 16 bij deze toelichting is opgenomen.

Op basis van de kaartbank van de provincie Noord-Brabant is het plangebied gelegen ter plaatse van eerdgronden. Vanwege het nabijgelegen beekdallandschap is er kans dat er kwel voorkomt. Uit onderzoek blijkt van een bodemopbouw van matig fijn, zwak tot matig siltig, zwak humeus zand en leem met een matige tot slechte waterdoorlatendheid.

Op basis van het Actueel Hoogtebestand Nederland ligt het plangebied op circa 20 m +NAP. Het grondwater ter plaatse van het plangebied schommelt tussen 1,90 tot 0,40 m-mv.

afbeelding "i_NL.IMRO.1771.BPBogardeind219-ON01_0083.jpg"

afbeelding : verharding in het plangebied in bestaande situatie

Binnen het plangebied is er geen oppervlaktewater aanwezig. Langs de randen van het plangebied lopen een aantal waterlopen (sloten). Ten zuiden van het plangebied en gedeeltelijk aan de oostzijde ligt een A-waterloop. Deze A-waterloop stroomt in oostelijke richting verder en komt uit in de Kleine Dommel. Aan de noordzijde grenst een B-waterloop aan het plangebied. De waterlopen worden beheerd door waterschap De Dommel

In de voorheen bestaande situatie was het plangebied deels verhard. In onderstaande afbeelding is de bestaande verhardingssituatie zichtbaar.

Het regenwater dat op daken en wegen valt, stroomt overwegend af naar de riolering. De riolering in dit gebied is overwegend gemengd uitgevoerd waardoor regenwater samen met afvalwater naar de zuivering wordt afgevoerd. Overig regenwater infiltreert, afhankelijk van de doorlatendheid, in de bodem. Verdamping wordt in dit plan buiten beschouwing gelaten.

Alle panden in de omgeving van het plangebied zijn aangesloten op het gemengde rioolstelsel.

5.3.1 Toekomstige situatie van het watersysteem

In de toekomstige situatie zal het plangebied deels verhard zijn en deels als groene ruimte worden ingericht. Met de realisatie van de diverse gebouwen ontstaan verschillende dakvlakken met een variabele hoogte. In onderstaande figuur zijn de verhardingen en de niet verharde ruimte van de toekomstige situatie weergegeven.

afbeelding "i_NL.IMRO.1771.BPBogardeind219-ON01_0084.jpg"

afbeelding : impressie van toekomstig plangebied

Waterberging

Onderstaande tabel geeft voor wat betreft de verharding in het plangebied een vergelijking tussen de bestaande en de toekomstige situatie, waarbij sprake is van een toename van verharding van circa 809 m2 :

afbeelding "i_NL.IMRO.1771.BPBogardeind219-ON01_0085.jpg"

Op basis van het waterschapsbeleid geldt er geen compensatieplicht en is er geen watervergunning nodig.

Op basis van het gemeentelijk beleid geldt echter een bergingseis van 60 mm waterberging per m2 verhard oppervlak. Conform het gemeentelijk beleid worden groene daken in basis als verhard beschouwd maar tellen wel mee in de waterberging voor het aantal mm hemelwater dat op het groene dak kan worden geborgen.

De bergingseis voor het planvoornemen bedraagt in totaal 800 m3 (13.388 m2 x 60 mm). Het plangebied biedt voldoende ruimte en mogelijkheden om voldoende waterberging te realiseren.

Een deel van het plangebied wordt groen ingericht. Hemelwater kan hier ter plaatse infiltreren of op een natuurlijke wijze afvloeien naar de omliggende waterlopen. Een deel van het dakoppervlak van de toekomstige bebouwing zal bestaan uit groene daken, waarop het hemelwater kan worden vastgehouden. Het overige hemelwater afkomstig van de daken zal worden afgevoerd naar een wadi waar het ter plaatse in de bodem kan infiltreren. De wadi krijgt een overloopconstructie om te zorgen dat het water ook bij extreme neerslag kan worden afgevoerd. De overloopconstructie wordt aangesloten op de naastgelegen A-waterloop. Het hemelwater zal hiermee volledig gescheiden worden ingezameld van het afvalwater.

Middels een voorwaardelijke verplichting in de regels van dit bestemmingsplan wordt de realisatie van voldoende waterberging geborgd.

Riolering 

Het hemelwater en vuil afvalwater zullen gescheiden worden ingezameld en afgevoerd. Het afvalwater zal ter hoogte van de perceelsgrens worden aangesloten op de gemeentelijke riolering

Waterkwaliteit 

Bij het afkoppelen, en duurzame watersystemen in het algemeen, verdient de waterkwaliteit van het afstromende regenwater bijzondere aandacht. Sommige af te koppelen of nieuw aan te sluiten verharde oppervlakken kunnen de waterkwaliteit nadelig beïnvloeden (bv. olie van parkeerterreinen, en uitloogbare bouwmaterialen zoals zink, lood en koper verwerkt in daken). In het kader van duurzaamheid worden initiatiefnemers gestimuleerd om alleen met niet uitloogbare bouwmaterialen te werken. Bij de inrichting-, bouw- en beheerfasen worden zo min mogelijk vervuilende stoffen toegevoegd aan de bodem en het grond- en oppervlaktewatersysteem. Blootstelling van uitloogbare bouwmaterialen zoals zink, koper en lood aan hemelwater moet tot een minimum beperkt worden.

Advies / overleg Waterschap

Onderhavig planvoornemen is voorgelegd aan het waterschap.

5.3.2 Conclusie

Het aspect water staat aldus vaststelling van dit bestemmingsplan niet in de weg.

Hoofdstuk 6 Juridische vormgeving

6.1 Algemeen

Het bestemmingsplan "Woningbouw The Stayy" is te typeren als een gedetailleerd plan. De methodiek van het bestemmingsplan is gebaseerd op de SVBP2012. Waar dat noodzakelijk is, wordt afgeweken van de standaard en kan specifiek toegesneden worden op de feitelijke situatie in het onderhavige plangebied.

6.2 Planmethodiek

Er is, volgens de Wro, gekozen voor een analoge en digitale verbeelding van het plan. Aan de bestemmingen zijn bouw- en gebruiksregels gekoppeld die direct inzichtelijk maken welke ontwikkelingen zijn toegestaan. Verbeelding en regels bieden een directe bouwtitel voor bebouwing en gebruik.

6.3 Verbeelding

In de analoge en digitale verbeelding hebben alle gronden binnen het plangebied een bestemming gekregen. Binnen een bestemming kunnen nadere aanduidingen zijn aangegeven. Deze aanduidingen hebben slechts juridische betekenis indien en voor zover hier in de regels naar wordt verwezen. Ten behoeve van de leesbaarheid is het plan op een topografische ondergrond getekend. De bestemmingen en de aanduidingen zijn ingedeeld in de hoofdgroepen volgens de SVBP2012 en zijn op de verbeelding opgenomen in het renvooi. Opgemerkt wordt dat de analoge en digitale verbeelding qua verschijning van elkaar verschillen omdat de manier van raadplegen verschillend is. De digitale verbeelding is juridisch bindend.

6.4 Planregels

De planregels zijn ondergebracht in inleidende regels, in bestemmingsregels, in algemene regels en in overgangs- en slotregels.

De Inleidende regels bestaan uit begrippen en de wijze van meten, teneinde te voorkomen dat discussie ontstaat over de interpretatie van de regels. In Artikel 1 "Begrippen" wordt een omschrijving gegeven van de in de regels gehanteerde begrippen. Als in de regels gebruikte begrippen niet in dit artikel voorkomen, dan geldt de uitleg/interpretatie conform het normale taalgebruik. In Artikel 2 "Wijze van meten" worden de te gebruiken meetmethodes vastgelegd.

Het bestemmingsplan kent de bestemming "wonen", zoals vervat in artikel 3, op basis waarvan de gronden bestemd zijn voor het in deze toelichting beschreven ontwikkelingsplan. Bouwregels en de omschrijving van strijdig gebruik, diverse voorwaardelijke verplichtingen, afwijkingsmogelijkheden en een verbod tot het zonder omgevingsvergunning uitvoeren van een werk, geen bouwwerk zijnde, of van werkzaamheden completeren het betreffende artikel 3.

De bestemmingen "Waarde-Archeologie 2", "Waarde-Archeologie 3" en "Waarde-Archeologie 4" geven regels voor het behoud en de bescherming van de archeologische waarden van de gronden.

Onder de algemene regels zijn opgenomen de anti-dubbeltelregel, de algemene bouwregels, de algemene gebruiksregels, de algemene regels parkeren, de algemene afwijkingsregels en de algemene procedureregels.

Overeenkomstig het Besluit ruimtelijke ordening is de "Anti-dubbeltelregel" opgenomen. Deze regel wordt opgenomen om bijvoorbeeld te voorkomen dat, wanneer volgens een bestemmingsplan bepaalde bouwwerken niet meer dan een bepaald deel of een bepaalde oppervlakte van een bouwperceel mogen beslaan, het resterende onbebouwde terrein ook nog eens meetelt bij het toestaan van een ander gebouw of bouwwerk, waaraan een soortgelijke eis wordt gesteld.

In de "Algemene bouwregels" worden regels gegeven betreffende ondergeschikte bouwdelen en bestaande afwijkende maatvoering.

In de "Algemene gebruiksregels" worden regels opgenomen betreffende strijdig gebruik en parkeren.

In de "Algemene afwijkingsregels" wordt de mogelijkheid geboden om te komen tot algemene afwijkingen betreffende het beperkt overschrijden van bebouwingsgrenzen en het afwijken van maten tot een bepaald percentage.

De "Algemene wijzigingsregels" bevatten de mogelijkheid voor het College van B&W om het plan te wijzigen in de vorm van het aanbrengen van geringe veranderingen in de plaats, ligging en/of afmetingen van bestemmingsgrenzen.

In de "Algemene procedureregels" wordt uiteengezet de procedure bij toepassing van nadere eisen regeling.

De "Overige regels" geven de regels voor het aspect laden en lossen.

In de Overgangs- en slotregels zijn het "Overgangsrecht" en de "Slotregel" opgenomen, waarmee enerzijds het overgangsrecht, zoals voorgeschreven in het Besluit ruimtelijke ordening is overgenomen en anderzijds de in het Besluit ruimtelijke ordening voorgeschreven regel, die voorschrijft hoe het plan kan worden aangehaald.

Hoofdstuk 7 Financiële aspecten

Bij de vaststelling van een bestemmingsplan, waarin ontwikkelingen mogelijk worden gemaakt, dient de gemeenteraad eveneens een exploitatieplan vast te stellen. Dit heeft te maken met de wettelijke verplichting om de kosten; die de gemeente moet maken om deze ontwikkeling mogelijk te maken, te verhalen op de eigenaar/ontwikkelaar.

Van deze verplichting tot het vaststellen van een exploitatieplan kan worden afgezien indien het kostenverhaal op een andere manier is geregeld. Dit kan bijvoorbeeld door middel van gemeentelijke gronduitgifte of door het afsluiten van een overeenkomst.

In dit plangebied is sprake van gemeentelijke gronduitgifte. Er is met exploitant gekomen tot een uitvoerige anterieure overeenkomst waarin tevens de diverse grondtransacties zijn beschreven en overeengekomen.

Hoofdstuk 8 Procedure en maatschappelijke uitvoerbaarheid

8.1 Overleg ex artikel 3.1.1 Bro

Op grond van artikel 3.1.1. van het Besluit ruimtelijke ordening (Bro) moeten burgemeester en wethouders bij de voorbereiding van een bestemmingsplan overleg plegen met de besturen van betrokken gemeenten en waterschappen en met de rijks- en provinciale diensten die betrokken zijn bij de zorg voor de ruimtelijke ordening of belast zijn met de behartiging van belangen welke in het plan in het geding zijn.

Er heeft overleg plaatsgevonden met Rijkswaterstaat vanwege de nabijheid van de A67. Met de provincie heeft het vooroverleg plaatsgevonden middels het digitale vooroverlegformulier. Hieruit is gebleken dat er geen provinciale belangen in het geding zijn en dat aanpassing van de kaarten bij de IOV Noord Brabant aan de orde is. Met het Waterschap heeft vooroverleg plaatsgevonden. De resultaten van dit vooroverleg worden verwerkt in hoofdstuk 5 van de toelichting.

8.2 Omgevingsdialoog

Ter voorbereiding van het doorlopen van onderhavige procedure vindt de gemeente Geldrop-Mierlo het belangrijk om de plannen eerst te delen met de omwonende en hun reacties indien mogelijk mee te nemen in verdere uitwerking van de plannen.

Dit is gebeurd tijdens een omgevingsdialoog welke is gehouden op woensdag avond 5 juli 2023. Gepresenteerd en besproken zijn de inrichting van het plangebied en de realisatie van de diverse gebouwen alsmede de hiermee samenhangende aspecten als parkeren, verkeer en de ruimtelijke impact op de omgeving. De aanwezigen zijn in de gelegenheid gesteld tot mondeling en schriftelijke reacties.

De weergave van deze bijeenkomst en ingekomen reacties is opgenomen als bijlage 17 bij deze toelichting.

Na deze omgevingsdialoog vindt besluitvorming plaats in de gemeenteraad over de bestemmingsplanwijziging die noodzakelijk is om deze ontwikkeling te kunnen realiseren. Voor de ontwikkeling dient er daarna ook nog een omgevingsvergunning te worden verleend.

8.3 Zienswijzen

Het ontwerpbestemmingsplan heeft met ingang van donderdag ……… tot en met woensdag ……….. op de gebruikelijke wijze ter inzage gelegen. Gedurende deze termijn is iedereen in de gelegenheid gesteld om schriftelijk of mondeling een zienswijze ten aanzien van het ontwerp bestemmingsplan kenbaar te maken.

Kennisgeving van de ter inzage legging en de mogelijkheid om een zienswijze in te dienen is in de edities van de Staatscourant en het weekblad Groot Eindhoven van ……… gepubliceerd.

Ook is kennis gegeven van de mogelijkheid om de digitale versie van het ontwerp bestemmingsplan via de gemeentelijke website www.eindhoven.nl/bestemmingsplannen en de landelijke website www.ruimtelijkeplannen.nl te raadplegen.

Naar aanleiding van de tervisielegging zijn PM zienswijzen ontvangen.