direct naar inhoud van Toelichting
Plan: Willeskop 67/67a, Montfoort
Status: ontwerp
Plantype: bestemmingsplan
IMRO-idn: NL.IMRO.0335.BP21120-0001

Toelichting

Hoofdstuk 1 Inleiding

1.1 Aanleiding

Met voorliggend bestemmingsplan wordt een actueel planologisch kader geboden voor de exploitatie van een niet-agrarische bedrijfsactiviteit ter plaatse van het voormalige agrarisch bedrijf aan de Willeskop 67 en 67a te Montfoort. Op basis van bestemmingsplan "Buitengebied 2012" zoals dat geldt voor de planlocatie zijn de gronden (mede)bestemd voor agrarische activiteiten en bedrijfswoning. Niet-agrarische bedrijfsactiviteiten zijn daarentegen planologisch niet toegestaan. Derhalve wordt een nieuw kader opgesteld om te voorzien in een volledig planologisch regime waarin alle beoogde functies worden geregeld.

Het juridisch bindende gedeelte van het bestemmingsplan bestaat uit regels en de verbeelding (plankaart). Dit gaat vergezeld van voorliggende toelichting met bijlagen. In deze toelichting wordt een inventarisatie en analyse van de relevante ruimtelijke en milieutechnische aspecten gegeven en wordt de (haalbaarheid van) de toekomstige situatie omschreven en gemotiveerd.

1.2 Ligging en begrenzing plangebied

Het plangebied is gelegen aan de Willeskop 67 en 67a te Montfoort. De locatie behelst in totaal ca. 3 ha en ligt in het buitengebied van de gemeente Montfoort. Rondom het perceel wordt gewoond en gewerkt. Het perceel bereikt men via Willeskop (N228) gesitueerd aan de noordzijde van de gronden. Vanaf het plangebied bereikt men in 6,5 km de snelweg A12.

Voorheen is op het perceel een melkveehouderij geëxploiteerd. Naast de bedrijfswoning zijn er meerdere bedrijfsgebouwen op het perceel gesitueerd en is het erf ingericht met onder andere een sleufsilo en een hooiberg. In gevolge van de beëindiging van de melkveehouderij is de stalinrichting uit de voormalige ligboxenstal verwijderd. Daarnaast zijn de bijbehorende gronden grotendeels verkocht aan agrariërs uit de omgeving en beschikt de locatie hierdoor nog over circa drie hectare eigen grond. Het exploiteren van een grondgebonden agrarisch bedrijf zoals een melkveehouderij is omwille van onder andere de omvang van het perceel op onderhavige locatie niet meer mogelijk.

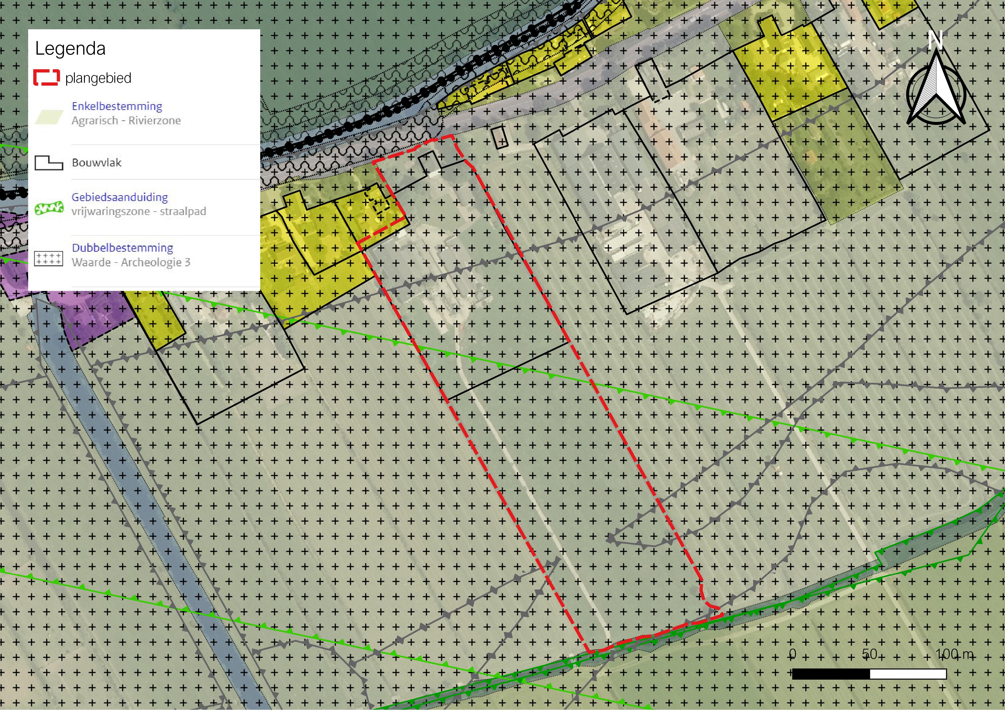
Figuur 1.1 toont het plangebied. Voor de exacte begrenzing van het plangebied wordt verwezen naar de verbeelding behorende bij dit bestemmingsplan.

afbeelding "i_NL.IMRO.0335.BP21120-0001_0003.jpeg"

Figuur 1.1 Begrenzing plangebied

1.3 Geldende bestemmingsplannen

Op het moment van schrijven is het bestemmingsplan "Buitengebied 2012", vastgesteld op 11 maart 2013, het geldende bestemmingsplan voor het plangebied. Er heeft een herziening van dit plan plaatsgevonden ("1e herziening bestemmingsplan Buitengebied 2012", 26 oktober 2015) welke eveneens betrekking heeft op de gronden behorende bij voorliggend bestemmingsplan. Tot slot geldt voor het hele grondgebied van Montfoort het paraplubestemmingsplan "Parkeernormen Montfoort" zoals vastgesteld op 29 oktober 2018. Figuur 1.2 toont de verbeelding van de geldende bestemmingsplannen ter plaatse van het plangebied.

afbeelding "i_NL.IMRO.0335.BP21120-0001_0004.jpeg"

Figuur 1.2 Uitsnede geldende bestemmingsplannen

Buitengebied 2012

Het plangebied is in het bestemmingsplan "Buitengebied 2012" grotendeels voorzien van de enkelbestemming 'Agrarisch - Rivierzone'. In de noordwestelijke hoek geldt voor een klein deel van het plangebied de enkelbestemming 'Wonen'. In het meest zuidelijke deel is een klein deel van het plangebied bestemd voor 'Natuur - Oeverstroken en water'. Op de verbeelding is een bouwvlak aangegeven. Verder kennen de gronden de gebiedsaanduidingen 'archeologisch waardevol gebied 4', 'archeologisch waardevol gebied 5' en 'archeologisch waardevol gebied 6'. Ook geldt een gebiedsaanduiding 'Vrijwaringszone - straalpad' en voor dezelfde gronden het maatvoeringsvoorschrift 'hoogte: 31 m'. Het exploiteren van een niet-agrarisch bedrijf is binnen de bestemming 'Agrarisch - Rivierzone' niet toegestaan.

1e herziening bestemmingsplan Buitengebied 2012

Het plangebied is via de "1e herziening bestemmingsplan Buitengebied 2012" voorzien van de dubbelbestemmingen 'Waarde - Archeologie 3', 'Waarde - Archeologie 4' en Waarde - Archeologie 5'.

Parkeernormen Montfoort

Het paraplubestemmingsplan "Parkeernormen Montfoort" zoals vastgesteld op 29 september 2018, regelt dat aan de 'Nota parkeernormen Montfoort 2015' dient te worden voldaan, dan wel dat indien dit beleid wijzigt, van het gewijzigde beleid uit dient te worden gegaan. In paragraaf 4.9 Verkeer en parkeren van deze toelichting wordt nader op dit aspect ingegaan.

1.4 Leeswijzer

De toelichting op het bestemmingsplan is als volgt ingedeeld. Het tweede hoofdstuk omschrijft de huidige en toekomstige situatie van het plangebied. In hoofdstuk 3 komen het beleid en algemene regels van het rijk, de provincie en de gemeente aan de orde. Omgevingsaspecten worden behandeld in hoofdstuk 5. Per aspect zijn de van toepassing zijnde regelgeving en het beleid genoemd. Vervolgens zijn de onderzoeken beschreven en conclusies getrokken. Daarna volgt het juridisch deel van de toelichting, waarin in hoofdstuk 6 wordt ingegaan op de juridische planopzet en in hoofdstuk 7 de financiële en maatschappelijke uitvoerbaarheid wordt behandeld.

Hoofdstuk 2 Planbeschrijving

2.1 Bestaande situatie

Op de gronden ter plaatse van het plangebied staat in de huidige situatie een vrijgekomen agrarisch bedrijf. In het plangebied, dat gelegen is in het buitengebied van de gemeente Montfoort, is voorheen een melkveehouderij geëxploiteerd. Het perceel is ontsloten via de Willeskop (N228), de doorgaande weg tussen Oudewater en Montfoort. Hierdoor is de locatie logistiek gezien gunstig gelegen gezien de goede aanrijroutes.

Naast de bedrijfswoning zijn op het plangebied meerdere bedrijfsgebouwen gesitueerd. Deze bebouwing herinnert nog aan de melkveehouderij, maar er worden geen dieren meer gehouden. De bijbehorende gronden zijn hierdoor grotendeels verkocht aan agrariërs uit de omgeving. Het plangebied beschikt hierdoor nog over circa drie hectare eigen grond. Het exploiteren van een grondgebonden agrarisch bedrijf is omwille van onder andere de omvang van het plangebied niet meer mogelijk.

afbeelding "i_NL.IMRO.0335.BP21120-0001_0005.jpg"

Figuur 2.1 Tekening bestaande situatie (bron: Ben Kraan Architecten)

2.2 Toekomstige situatie

Het voorgenomen initiatief betreft een functieverandering van een agrarisch bedrijf naar niet-agrarische bedrijvigheid. In gevolge van de landschappelijke inpassing en het treffen van de nodigde ecologische maatregelen, is het totale grondgebied van Willeskop 67 en 67a onderdeel van de functieverandering.

Een deel van de vrijgekomen bedrijfsbebouwing wordt gerenoveerd en hergebruikt. Een ander deel wordt gesloopt en elders op het perceel teruggebouwd. Het terrein wordt hierdoor functioneel en ruimtelijk beter ingericht.

Door in de toekomstige situatie op het vrijgekomen agrarisch perceel weer een bedrijfsactiviteit te vestigen wordt verpaupering en ongewenst gebruik tegen gegaan. Daarnaast levert vestiging van een niet-agrarisch bedrijf in het buitengebied een bijdrage aan een economisch en vitaal platteland. De niet-agrarische bedrijfsactiviteiten bestaan voornamelijk uit opslagactiviteiten van Werktent N.V. Voorafgaand aan het opslaan van de werktenten wordt het materiaal schoongemaakt. Daarnaast vindt op de locatie het laden en lossen van werktenten plaats. Tevens wordt een kleedruimte en kantine ingericht. In de toekomstige situatie ontstaat bedrijfsbebouwing van circa 1.275 m², dat voor een groot deel in gebruik wordt genomen voor het opslaan van werktenten. Onderdeel van de bedrijfsbebouwing in de toekomstige situatie is de bestaande hooiberg. Herstel van de hooiberg is beoogd en in het kader van de vestiging van Werktent N.V. wordt gedacht aan een opslagfunctie en/of kantoorruimte.

In de beoogde situatie wordt de oorspronkelijke bedrijfswoning afgesplitst van het agrarisch bedrijf. Dit heeft tot gevolg dat de bedrijfswoning een reguliere woonbestemming krijgt en ter plaatse van de bedrijfsbestemming geen bedrijfswoning wordt toegestaan. Uit de beoordeling van de omgevingsaspecten (zie 4 Omgevingsaspecten) blijkt dat er sprake is van een goede ruimtelijke ordening ter plaatse van de oorspronkelijke bedrijfswoning wanneer de toetsing plaatsvindt aan de hand van de beoogde bedrijfsactiviteiten en een reguliere woonbestemming. Hoewel het voor de exploitatie van een bedrijf in werktenten niet noodzakelijk is om bij het bedrijf te wonen, is het wel zeer wenselijk voor een familiebedrijf als Werktent N.V.

Voor de ontwikkeling is een ontwerp opgesteld door Ben Kraan Architecten en is door Ecogroen voorzien in een landschappelijk inpassingsplan gecombineerd met ecologische maatregelen. Het landschappelijk inpassingsplan en de ecologische maatregelen worden nader beschreven in paragraaf 2.2.2 Landschappelijke inpassing en ecologische maatregelen. Een situatietekening van de toekomstige situatie is opgenomen in figuur 2.2.

afbeelding "i_NL.IMRO.0335.BP21120-0001_0006.jpg"

Figuur 2.2 Situatietekening toekomstige situatie (bron: Ben Kraan Architecten)

2.2.1 Stedenbouwkundige inpassing

Het plangebied ligt in het buitengebied van de gemeente Montfoort. Aan de Willeskop, de doorgaande weg tussen Oudewater en Montfoort, liggen meerdere (agrarische en niet-agrarische) bedrijven en zijn verschillende woningen gesitueerd. De huidige bebouwing binnen het plangebied volgt de verkaveling van percelen en ligt evenwijdig aan bestaande watergangen en kavelgrenzen. Enkele bouwwerken (buiten het plangebied) zijn haaks op de verkaveling georiënteerd of zijn parallel aan de Willeskop gesitueerd.

Aan de Willeskop staan meerdere langhuisboerderijen, maar binnen het plangebied is sprake van een vrijstaande woning en schuin daarachter gelegen agrarische opstallen. Dat de agrarische opstallen niet achter de boerderijwoning gelegen zijn, is een uitzonderlijke situatie. De woning heeft derhalve stedenbouwkundig reeds een "eigen" erf.

De huidige bedrijfsbebouwing, welke het doorzicht aan een zijde van de woning naar het achterland belemmert, wordt gesloopt. Hierdoor wordt het cluster van bedrijfsbebouwing langer en smaller, in plaats van kort en diep. Dit is meer in overeenstemming met de kavelstructuur. Het beoogde plan voorziet in een verlenging van het bestaande te behouden en te renoveren bedrijfsgebouw. Het oppervlak aan bedrijfsbebouwing wordt niet uitgebreid. Daarnaast komt het doorzicht aan beide zijden van de woning vrij richting het achterland. De bestaande hooiberg blijft behouden als referentie naar het oorspronkelijke agrarische karakter van het erf.

2.2.2 Landschappelijke inpassing en ecologische maatregelen

De toekomstige situatie wordt landschappelijk ingepast. In dit kader zijn door het ervenconsulentschap randvoorwaarden opgesteld om te komen tot een goede landschappelijke inpassing van het plangebied. Samengevat zijn de randvoorwaarden voor ruimtelijke kwaliteit als volgt:

  • Landschap: zichtlijnen aan weerszijden van de woning op het achterland worden landschappelijke vista's, met op de voorgrond het woonerf en daar achter het agrarisch cultuurlandschap. Daarnaast wordt het bebouwingscluster op het erf versmald en verlengd, en wordt rondom de bedrijfsbebouwing een erfsilhouet gecreëerd.
  • Erf: het erfkarakter rondom de woning kan worden versterkt en nieuwe verharding kan deels worden voorzien van half-open verharding. Parkeervoorzieningen spelen geen hoofdrol in het beeld op het erf.
  • Gebouwen: de asbestdaken van de te behouden schuren worden vervangen en het landelijke, stoere karakter kan worden versterkt. De hooiberg wordt hersteld en krijgt een nieuwe invulling.
  • Klimaatadaptatie en ecologie: er zijn natuurlijke, groene kruidenrijke grasoevers en er wordt gebruik gemaakt van autochtone beplanting.

Het voorliggende plan is in afstemming met het ervenconsulentschap Mooisticht, gemeente Montfoort en provincie Utrecht nader uitgewerkt door Ecogroen. De landschappelijke inpassing is binnen de gestelde randvoorwaarden voor ruimtelijke kwaliteit zoals aangegeven door het ervenconsulentschap verder uitgewerkt door Ecogroen. In 1 Ecologisch advies en inrichting (Ecogroen, 2021) is de rapportage bijgevoegd. Deze paragraaf voorziet in een beknopte beschrijving.

Op basis van de ecologische, historische en geomorfologische analyse zijn door Ecogroen maatregelen geformuleerd om de natuur en biodiversiteit te versterken. Het doel is de openheid te behouden door ecologische maatregelen te richten op het grasland en watergangen. Bij de inrichting is uitgegaan van het historisch kavelpatroon en het versterken en behouden van de noordwest-zuidoost lopende belijning van de kavels en sloten. Maatregelen die in het kader van het aspect ecologie gewenst zijn, kunnen vanuit het aspect cultuurhistorie en landschap ongewenst zijn, en vice versa. Dit deed zich bijvoorbeeld voor bij het landschappelijk inpassen van het achterterrein met hoge bomen. Vanuit het ecologisch aspect bestaan hiervoor bezwaren in relatie tot het achtergelegen weidevogelgebied. Knotwilgen vormen dan een uitzichtpunt voor roofvogels en kraaien, met alle mogelijke gevolgen voor de weidevogels in het gebied. Afstemming tussen ervenconsulentschap Mooisticht en Ecogroen heeft geresulteerd in de keuze voor struwelen (die geschikt zijn voor zangvogels) in plaats van hoge bomen. In afstemming tussen de specialisten is bijvoorbeeld ook de wijze van het aanbrengen van water in het grasland overeengekomen. In het kader van landschap en cultuurhistorie draagt dit bij aan het herkennen van de kavelstructuur, terwijl vanwege het ecologisch belang losse elementen gewenst zijn. Dit heeft geleid tot de ondiepe vochtige en natte laagtes die geschikt zijn als voortplantingswater voor de rugstreeppad en kunnen dienen als foerageergebied van weidevogels.

Naast afstemming in het kader van de aspecten cultuurhistorie, landschap en ecologie, is op verzoek van de provincie Utrecht onderzoek gedaan naar recreatieve mogelijkheden binnen het plangebied. Uit onderzoek door Ecogroen (zie 1 Ecologisch advies en inrichting (Ecogroen, 2021)) is gebleken dat de locatie van het plangebied en hieruit voortkomende omstandigheden deze mogelijkheden belemmeren. Dit betreft onder andere verbindingen met bestaande fiets- en wandelroutes en het veiligheidsaspect (ligging aan de N-weg). Op verzoek van de provincie Utrecht is tevens onderzoek gedaan naar de mogelijkheden voor een verbinding met de Hollandse IJssel. De verbinding brengt echter ecologische bezwaren met zich mee, maar leidt ook tot praktische en financiële belemmeringen.

De inrichtingsmaatregelen op het achterterrein zijn als volgt (voor een uitgebreider toelichting wordt verwezen naar 1 Ecologisch advies en inrichting (Ecogroen, 2021)):

  • 1. Grasland op het hele achterterrein omvormen naar bloemrijke kruiden-/grasvegetatie;
  • 2. Graven van ondiepe vochtige tot natte laagtes met open zandige/zavelige plekken;
  • 3. Verflauwen noordoever tiendwetering en de ontwikkeling van een natte ruigte en Dotterbloemhooiland;
  • 4. Aanplant struweel langs de watergangen;
  • 5. Versterken beplanting van knotwilgen en solitaire elzen in combinatie met het aanbrengen van takkenrillen;
  • 6. Plaatsen torenvalkkast op een paal ten zuiden van het erf.

Bovenstaande inrichtingsmaatregelen verbeteren de ruimtelijke kwaliteit binnen het plangebied om meerdere redenen, enkele van deze redenen zijn: doordat het grasland wordt omgevormd naar een bloemrijke kruiden-/grasvegetatie ontstaat er een vegetatietype dat goed aansluit op het dichtstbijzijnde onderdeel van het Natuurnetwerk Nederland in de Snelrewaard. Verder wordt de noordelijke oever van de Tiendwetering ingericht met een flauw talud. Dit resulteert in een overgang voor de flora van natte naar droge omstandigheden. Het flauwe talud met vegetatie tot in het water is een geschikt voortplantingsbiotoop voor de heikikker.

Aanvullend op de inrichtingsmaatregelen op het achterterrein zijn maatregelen voorgesteld om de biodiversiteit op het erf en de tuin te vergroten. De maatregelen 7 tot en met 10 zijn optioneel en daarom cursief weergegeven. De maateregelen 11, 12 en 13 zijn noodzakelijk en worden derhalve onderstaand beschreven. De uitgebreidere omschrijving is opgenomen in 1 Ecologisch advies en inrichting (Ecogroen, 2021).

  • 7. Plaatsen van nestkasten;
  • 8. Plaatsen van een kerkuilkast;
  • 9. Ophangen van vleermuiskasten;
  • 10. Aanplan van nectarplanten of het plaatsen van een bijen-/insectenhotel;
  • 11. Het realiseren van een boomgaard op de plaats van de te slopen stal;
  • 12. Het planten van een haag op de grens van het woonerf en het bedrijfsgedeelte;
  • 13. De aanleg van een geriefhoutbosje.

De inrichtingsmaatregelen op het erf en de tuin voorzien tevens in een verbetering van de ruimtelijke kwaliteit. Uit onderzoek van het ervenconsulentschap blijkt dat historisch het zij-erf ook een boomgaard was. Daarnaast verzacht een boomgaard op het zij-erf van de boerderij het beeld. De situering van de boomgaard heeft tot gevolg dat de zichtlijnen op het achterland landschappelijke vista's worden. Het agrarisch cultuurlandschap wordt weer zichtbaar door het versmallen en verlengen van de bebouwing en hierdoor het slopen van de oostelijke schuur. Daarnaast voorzien maatregelen in het versterken van het erfkarakter rondom de woning en wordt parkeren/ stallingsvoorzieningen uit het zicht gerealiseerd, zodat dit geen hoofdrol speelt in het beeld. Doordat de te behouden leegstaande agrarische opstallen weer in gebruik worden genomen, worden deze gerenoveerd en voorziet dit in het versterken van het landelijke, stoere karakter van de schuren.

afbeelding "i_NL.IMRO.0335.BP21120-0001_0007.jpg"

Figuur 2.3 Landschappelijke inpassing en ecologische maatregelen (bron: Ecogroen)

Hoofdstuk 3 Beleidskader

3.1 Rijksbeleid

3.1.1 Nationale Omgevingsvisie

Per 11 september 2020 is de Nationale Omgevingsvisie vastgesteld. Hierin zijn de kaders van het nieuwe rijksbeleid opgenomen. Deze Omgevingsvisie vervangt de Structuurvisie Infrastructuur en Ruimte (2012). De NOVI is een instrument van de nieuwe Omgevingswet en loopt vooruit op de inwerkingtreding van die wet. Vanwege het uitstel van de inwerkingtreding van de Omgevingswet komt de NOVI als structuurvisie uit onder de Wet ruimtelijke ordening (Wro). Zodra de Omgevingswet in werking is getreden, zal deze structuurvisie gelden als de Nationale Omgevingsvisie, zoals in de nieuwe wet bedoeld.

In de Nationale Omgevingsvisie (NOVI) wordt door het Rijk een langetermijnvisie gegeven op de toekomstige ontwikkeling van de leefomgeving in Nederland. De NOVI bestaat uit een visie, toelichting en uitvoeringsagenda. De combinatie van deze drie documenten zorgt voor een toetsing die leidt tot nationale strategische keuzes en gebiedsgericht maatwerk.

afbeelding "i_NL.IMRO.0335.BP21120-0001_0008.png"

Figuur 3.1 Afwegen met de NOVI (bron: Nationale Omgevingsvisie)

De NOVI beschrijft een toekomstperspectief met de ambities: wat willen we bereiken? Vervolgens worden de 21 nationale belangen in de fysieke leefomgeving en de daaruit voortkomende opgaven beschreven. Die opgaven zijn in feite het verschil tussen de ambitie en de huidige situatie en verwachte ontwikkelingen.

De vier prioriteiten

De Uitvoeringsagenda beschrijft de vier prioriteiten. De opgaven uit de toelichting kunnen veelal niet apart van elkaar worden aangepakt. Als een samenhangende, integrale aanpak nodig is, over de sectoren heen, vraagt dit een andere inzet. De samenhang tussen opgaven manifesteert zich rond vier prioriteiten.

  • 1. Ruimte voor klimaatadaptie en energietransitie
  • 2. Duurzaam economisch groeipotentieel
  • 3. Sterke en gezonde steden en regio's
  • 4. Toekomstbestendige ontwikkeling van het landelijk gebied

Drie afwegingsprincipes
Het doel van de Omgevingswet is het bereiken van een balans tussen: '(a) het bereiken en in stand houden van een veilige en gezonde fysieke leefomgeving en een goede omgevingskwaliteit en (b) doelmatig beheren, gebruiken en ontwikkelen van de fysieke leefomgeving ter vervulling van maatschappelijke behoeften'. Beschermen en ontwikkelen sluiten elkaar niet per definitie uit en kunnen elkaar zelfs versterken. Echter, gaan beschermen en ontwikkelen niet altijd en overal zonder meer samen en zijn soms echt onverenigbaar. Een optimale balans tussen deze twee vergt steeds een zorgvuldige afweging en prioritering van ongelijksoortige belangen. Om dit afwegingsproces en de omgeving inclusieve benadering richting te geven, is in de NOVI een drietal afwegingsprincipes geformuleerd:

  • 1. Combineren boven enkelvoudig
  • 2. Kenmerken & identiteit
  • 3. Afwentelen voorkomen

Relatie tot bestemmingsplan

In de uitwerking van prioriteit 4 'Toekomstbestendige ontwikkeling van het landelijk gebied' zijn een aantal beleidskeuzes opgenomen. Eén van de beleidskeuzes is als volgt: "Unieke landschappelijke kwaliteiten worden versterkt en beschermd. Nieuwe ontwikkelingen in het landelijk gebied voegen landschapskwaliteit toe. Omgevingsbeleid wordt landschapsinclusief.". Onder unieke landschappen wordt onder andere het Groene Hart benoemd.

Naast de beleidskeuze, is ook het volgende nationaal belang opgenomen: "behouden en versterken van cultureel erfgoed en landschappelijke en natuurlijke kwaliteiten van (inter)nationaal belang". Het Rijk is medeverantwoordelijk voor het beschermen van waardevol landschap, zoals het Groene Hart, de Waddenzee en de Veluwe. De opgave bij dit nationale belang is om cultureel erfgoed en (inter)nationale unieke landschappelijke en natuurlijke kwaliteiten te ontwikkelen, te behouden, te versterken en te benutten bij gebiedsontwikkeling en transformatie.

Het plangebied is gelegen in het Groene Hart, dit gebied is aangewezen als Nationaal landschap. Het doel is om de kwaliteit te versterken en te beschermen. De voorgenomen ontwikkeling behelst de functiewijziging van 'Agrarisch' naar 'Bedrijf'. Daarnaast wordt de bestaande agrarische bedrijfswoning omgezet in een reguliere burgerwoning. De agrarische activiteiten zijn reeds beeïndigd en het object heeft meerdere jaren te koop gestaan. Ontwikkeling van een niet-agrarische bedrijfsactiviteit, namelijk de opslag van werktenten, geeft een impuls aan de kwaliteit van dit perceel in het buitengebied. Doordat dit bestemmingsplan geen uitbreiding van de bestaande bouwmogelijkheden mogelijk maakt en het plangebied wordt voorzien van een landschappelijke inpassing met ecologische maatregelen, wordt het behoud van landschappelijke waarden gegarandeerd.

Conclusie

De Nationale Omgevingsvisie staat de uitvoering van het bestemmingsplan niet in de weg.

3.1.2 Besluit algemene regels ruimtelijke ordening

Voor de doorwerking van de rijksbelangen in plannen van lagere overheden, is het Barro opgesteld. Het Besluit algemene regels ruimtelijke ordening (Barro) is op 30 december 2011 (grotendeels) in werking getreden en omvat alle ruimtelijke rijksbelangen die juridisch doorwerken op het niveau van bestemmingsplannen. Het Barro is op 1 januari 2017 geconsolideerd. Het gaat om kaders voor onder meer het bundelen van verstedelijking, de bufferzones, de Ecologische Hoofdstructuur, de kust, grote rivieren, militaire terreinen, mainportontwikkeling van Rotterdam en de Waddenzee.

Met het Barro maakt het Rijk proactief duidelijk waar provinciale verordeningen en gemeentelijke bestemmingsplannen aan moeten voldoen.

Ook de bescherming van erfgoederen van uitzonderlijke universele waarden, zoals de Limes, is in het Barro vastgelegd. Dit is inmiddels doorvertaald in de provinciale structuurvisie en verordening.

Relatie tot bestemmingsplan

Met het opstellen van dit bestemmingsplan is het Barro als uitgangspunt genomen. Het initiatief Willeskop 67/67a, Montfoort speelt zich af op lokaal niveau en conflicteert niet met het ruimtelijke ordeningsbeleid op nationaal niveau. Het Barro heeft geen doorwerking naar dit bestemmingsplan.

Conclusie

Het Besluit algemene regels ruimtelijke ordening staat de uitvoering van het bestemmingsplan niet in de weg.

3.1.3 Besluit ruimtelijke ordening

In het Besluit ruimtelijke ordening (Bro) is de verplichting opgenomen om in het geval van een nieuwe stedelijke ontwikkeling in de toelichting een onderbouwing op te nemen van nut en noodzaak van de nieuwe stedelijke ruimtevraag en de ruimtelijke inpassing. Hierbij wordt uitgegaan van de 'Ladder voor duurzame verstedelijking'.

Op 1 juli 2017 is het Besluit ruimtelijke ordening gewijzigd, waarbij een nieuwe laddersystematiek is ingevoerd ter vervanging van de voorheen geldende.

Het aangepaste artikel 3.1.6, lid 2 Bro luidt als volgt:

De toelichting bij een bestemmingsplan (of uitgebreide omgevingsvergunning, red.) dat een nieuwe stedelijke ontwikkeling mogelijk maakt, bevat een beschrijving van de behoefte aan die ontwikkeling, en, indien het bestemmingsplan die ontwikkeling mogelijk maakt buiten het bestaand stedelijk gebied, een motivering waarom niet binnen het bestaand stedelijk gebied in die behoefte kan worden voorzien.

Een stedelijke ontwikkeling wordt in het Bro gedefinieerd als een "ruimtelijke ontwikkeling van een bedrijventerrein of zeehaventerrein, of van kantoren, detailhandel, woningbouwlocaties of andere stedelijke voorzieningen".

Relatie tot bestemmingsplan

Om vast te stellen of sprake is van een nieuwe stedelijke ontwikkeling in de zin van het Bro, dienen diverse factoren in overweging te worden genomen. Om tot een goede afweging te komen kunnen daar de volgende beoordelingscriteria voor worden gehanteerd, waarbij de onderlinge samenhang bepalend is voor de vraag of sprake is van een nieuwe stedelijke ontwikkeling:

  • een (zodanige) functiewijziging;
  • omvang bebouwing;
  • ruimtebeslag in onderlinge samenhang met functiewijziging;
  • voorziene planologische mogelijkheden;
  • toegestane planologische mogelijkheden.


Middels voorliggend bestemmingsplan wordt de agrarische bestemming omgezet in de bestemming 'Bedrijf'. Binnen beide bestemmingen zijn bedrijfsactiviteiten toegestaan, echter geldt logischerwijs dat deze binnen bestemming 'Agrarisch' gericht dienen te zijn op de agrarische bedrijfsvoering. Conform de nu geldende bestemming is het mogelijk een agrarish bedrijf te doen landen waarbinnen activiteiten zijn toegestaan die vallen binnen milieucategorie 3.2. Als gevolg van de planologische wijziging, wordt deze milieucategorie teruggebracht naar categorie 2. Omdat in beide situaties sprake is van bedrijfsactiviteiten, maar de bijkomende milieuhinder afneemt, kan worden geconcludeerd dat geen sprake is van een zodanige functiewijziging of nieuwe planologische mogelijkheden dat gesproken zou moeten worden van een nieuwe stedelijke ontwikkeling.

Daarbij dient tevens in aanmerking te worden genomen dat bedrijfsbebouwing ook in de huidige situatie al is toegestaan. De gebruiksmogelijkheden wijzigen weliswaar, maar de bouwmogelijkheden blijven gelijk aan de mogelijkheden die het huidige planologisch kader biedt. Ten opzichte van de toegestane planologische mogelijkheden is dan ook geen sprake van een extra ruimtebeslag, zodat ook daaruit volgt dat geen sprake is van een nieuwe stedelijke ontwikkeling.

Gelet op het voorgaande is de ontwikkeling die middels voorliggend bestemmingsplan mogelijk wordt gemaakt, geen stedelijke ontwikkeling in de zin van het Bro. De Ladder voor duurzame verstedelijking is dan ook niet van toepassing op dit bestemmingsplan. Een Laddertoets kan achterwege blijven. Wel dient in het kader van een goede ruimtelijke ordening oog te zijn voor de nut en noodzaak van de ontwikkeling. De redenen waarom een actueel planologisch kader noodzakelijk wordt geacht, zijn reeds in hoofdstuk 1 Inleiding en 2 Planbeschrijving beschreven.

Conclusie

Het Besluit ruimtelijke ordening staat de uitvoering van het bestemmingsplan niet in de weg.

3.2 Provinciaal beleid

3.2.1 Omgevingsvisie provincie Utrecht

De Omgevingsvisie provincie Utrecht is vastgesteld op 10 maart 2021 en is opgesteld vooruitlopend op de inwerkingtreding van de Omgevingswet. Via haar ruimtelijke beleid draagt de provincie bij aan een kwalitatief hoogwaardige fysieke leefomgeving, waarin het ook in 2050 goed wonen, werken en recreëren is. In de Omgevingsvisie, die opgesteld is op basis van zeven samenhangende thema's, zijn per thema programma's opgenomen die zorgen voor de uitvoering van de hoofdlijnen van het beleid.

afbeelding "i_NL.IMRO.0335.BP21120-0001_0009.jpg"

Figuur 3.2 Zeven samenhangende beleidsthema's (bron: Omgevingsvisie provincie Utrecht)

Voor het omgevingsbeleid hanteert de provincie Utrecht twee centrale uitgangspunten:

  • 1. Gebiedsgerichte, integrale en toekomstgerichte oplossingen waarmee Utrechtse kwaliteiten per saldo behouden blijven of worden versterkt

De gebiedsgerichte uitwerking en (afspraken om te komen tot) keuzes stemt de provincie af met regionale partijen. Samen met gemeenten, waterschappen en andere partners pakt de provincie de regionale programmering op van woningbouw en werklocaties en mogelijk ook van energie en stedelijke voorzieningen zoals kantoren en retail.

De Utrechtse kwaliteiten zijn de kwaliteiten die belangrijk zijn voor de uitstraling en aantrekkelijkheid van de provincie Utrecht en voor het behoud van een duurzame en veilige leefomgeving. Het gaat om:

  • de groene kwaliteiten, zoals natuur, landschap en erfgoed;
  • de blauwe kwaliteiten, zoals bodem, water en lucht;
  • de rode kwaliteiten, zoals economische ontwikkeling, bereikbaarheid, energie en een vitaal bebouwd gebied;
  • de sociale kwaliteiten zoals voorzieningen, sociale samenhang, cultureel aanbod en inclusiviteit.
  • 2. Concentreren en combineren van nieuwe ontwikkelingen, zodat zorgvuldig wordt omgegaan met schaarse ruimte en kwaliteiten en door ontwerp en innovatie te stimuleren.

Voor sommige grote opgaven is veel ruimte nodig, zoals verstedelijking en de energietransitie. Daarom kiest de provincie Utrecht ervoor de schaarse ruimte efficiënt te benutten en functies slim te combineren. Daarbij wordt het principe ‘inbreiding gaat voor uitbreiding’ gehanteerd. Bij uitbreiding wordt gezocht naar grootschalige locaties waar nieuwe ontwikkelingen geconcentreerd en gecombineerd worden.

Relatie tot bestemmingsplan
De provincie legt het accent op de binnenstedelijke opgave en beoogt op die manier de druk op het landelijk gebied te verminderen en de beschikbare ruimte duurzaam te benutten. Uiteraard blijven er ook ontwikkelingen die naar aard en omvang minder passend zijn in een stedelijke omgeving. Voor dergelijke ontwikkelingen bestaat ruimte om in het buitengebied te landen, mits wordt voorzien in een goede ruimtelijke én landschappelijke inpassing. Daarbij dient oog te zijn voor (ten minste) behoud en bij voorkeur versterking van de aanwezige kwaliteit van het landelijk gebied.

Het bestemmingsplan behelst de functiewijziging van 'Agrarisch' naar 'Bedrijf'. Daarnaast wordt de bestaande agrarische bedrijfswoning omgezet in een reguliere burgerwoning. Het mogelijk maken van een woonbestemming op een voormalig agrarisch perceel is geen nieuw fenomeen en het toestaan van deze enkele burgerwoning op de locatie staat het voornemen om het grootste deel van de woningbouwopgave binnenstedelijk te realiseren ook niet in de weg. Rondom het plangebied is bovendien reeds sprake van diverse woonbestemmingen, zodat gesteld kan worden dat dit bestemmingsplan aansluit op het bestaande karakter van de directe omgeving.

De toegestane bedrijfsactiviteiten binnen voorliggend bestemmingsplan, passen naar aard en omvang minder goed binnen bestaand stedelijk gebied. Voor de opslag van werktenten is passende ruimte nodig, terwijl de binnenstedelijke mogelijkheden schaars zijn. Daarnaast hebben binnenstedelijke locaties logistiek gezien een minder gunstige ligging ten opzichte van de hoofdinfrastructuur, waardoor een dergelijke locatie zowel vanuit economisch oogpunt als met het oog op veiligheid en milieu, slechts beperkt kansen biedt. Het uitwijken naar de locatie aan de Willeskop is daarom een logisch gevolg, zonder dat dit in het gedrang komt met het doel zo veel mogelijk binnenstedelijke locaties te benutten.

Het gevolg van de locatiekeuze is automatisch dat er oog dient te zijn voor de kenmerken en kwaliteiten van het landschap. De ontwikkeling mag niet tot gevolg hebben dat deze landschappelijke waarden worden aangetast. Er dient dan ook zorg te worden gedragen voor een goede landschappelijke inpassing, waarbij waar mogelijk investeringen plaatsvinden die het karakter van het landelijk gebied doen versterken. In dit geval geldt in eerste instantie dat met de geplande ontwikkeling verval en verpaupering van de locatie wordt tegengegaan. Door het wegvallen van de agrarische bedrijfsactiviteiten is het perceel weer beschikbaar voor de markt, maar door de verkoop van diverse percelen die voorheen onderdeel uitmaakten van de locatie, is de locatie niet geschikt voor het oprichten van een nieuw agrarisch bedrijf. Met de beoogde ontwikkeling is een passende invulling gevonden voor de locatie. Zodoende faciliteert dit bestemmingsplan een duurzame ontwikkeling met het oog op de kwaliteit van de directe omgeving.

Daarnaast is door Ecogroen een landschappelijk inpassingsplan met ecologische maatregelen opgesteld, waarbij rekening wordt gehouden met de aanwezige waarden van het betreffende landschap. Welk landschap dit is en wat de daarbij behorende waarden zijn, komt nader aan bod in de behandeling van de 3.2.2 Interim Omgevingsverordening provincie Utrecht (paragraaf 3.2.2 Interim Omgevingsverordening provincie Utrecht). Onderhavig plan heeft, door behoud van het agrarisch karakter van het bestaande erf, geen onevenredig nadelig effect op de bestaande verkavelingsstructuur en op het karakter van het bebouwingslint. De huidige bedrijfsbebouwing, welke het doorzicht aan een zijde van de woning naar het achterland belemmert, wordt gesloopt. Hierdoor wordt het cluster van bedrijfsbebouwing langer en smaller, in plaats van kort en diep. Dit is meer in overeenstemming met de kavelstructuur. Daarbij worden tevens extra inspanningen geleverd om de bedrijfsbebouwing vanuit het achterliggende landschap alsook voor gebruikers van buurpercelen, verder uit het zich te onttrekken. Deze maatregelen bestaan vooral uit de aanleg/aanplant van groen, waarbij gekozen wordt voor streekeigen soorten, zodat de bestaande groenstructuur in de omgeving wordt versterkt. Er wordt onder andere voorzien in het versterken/uitbreiden van afschermende en historische beplanting van knotwilgen en het planten van enkele opgaande elzen in combinatie met het aanbrengen van takkenrillen. Ook de nieuwe aan te planten boomgaard ter plaatse van de te slopen stal zorgt voor het onttrekken van het zicht op de bedrijfsbebouwing.

Door bij de inrichting te kiezen voor het behoud van het historisch kavelpatroon en de noordwest-zuidoost lopende belijning van de kavels en sloten, richten een groot deel van de maatregelen zich op het grasland en de watergangen. Dit komt ten goede aan het weidevogelleefgebied in de weidevogelrandzone en het leefgebied voor de rugstreeppad en de heikikker. Het landschappelijk inpassingsplan en de ecologische maatregelen zijn besproken in paragraaf 2.2.2 Landschappelijke inpassing en ecologische maatregelen van deze toelichting. Daarnaast is het landschappelijk inpassingsplan met ecologische maatregelen opgenomen in 1 Ecologisch advies en inrichting (Ecogroen, 2021).

Voor de ruimtelijke en milieutechnische inpassing wordt verwezen naar hoofdstuk 4 Omgevingsaspecten van dit bestemmingsplan. Daarin worden de relevante omgevingsaspecten beschouwd en waar nodig voorzien van een (milieutechnisch) onderzoek.

Conclusie
Het bestemmingsplan en de daarin opgenomen ontwikkelingen zijn in lijn met de beleidsuitgangspunten zoals opgenomen in de Omgevingsvisie van de provincie Utrecht.

3.2.2 Interim Omgevingsverordening provincie Utrecht

De interim Omgevingsverordening provincie Utrecht bevat algemene regels die gemeenten in acht moeten nemen bij het opstellen van hun ruimtelijke plannen. In de Omgevingsverordening zijn regels opgenomen die noodzakelijk zijn voor het waarborgen van de provinciale belangen. De interim Omgevingsverordening is vastgesteld op 10 maart 2021 en in werking getreden op 1 april 2021. De interim Omgevingsverordening is een tijdelijke verordening, totdat de Omgevingswet van kracht is. De interim Omgevingsverordening vervangt onder andere de ruimtelijke verordening en de milieuverordening.

In deze paragraaf wordt ingegaan op de bepalingen uit de interim Omgevingsverordening, voor zover relevant en daarmee niet limitatief. Voor het beoordelen van de van toepassing zijnde onderdelen uit de interim Omgevingsverordening is gebruik gemaakt van de digitale planviewer, geraadpleegd op 8 april 2021 (https://ruimtelijkeplannen.provincie-utrecht.nl/). Hieruit blijkt dat een aantal onderwerpen relevant zijn om mee te nemen in dit bestemmingsplan. De onderwerpen worden in deze paragraaf behandeld.

Waterssyteem

In het kader van het waarborgen van de veiligheid en het voorkomen of beperkten van wateroverlast zijn in hoofdstuk 2 van de interim Omgevingsverordening regels opgenomen. Het plangebied ligt binnen een overstroombaar gebied. Daarnaast vindt gedeeltelijke overlap plaats met de vrijwaringszone in het kader van de versterking van een regionale waterkering.

afbeelding "i_NL.IMRO.0335.BP21120-0001_0010.jpg"

Figuur 3.3 Uitsnede kaart 'Watersysteem kaart 2' (bron: interim Omgevingsverordening)

Overstroombaar gebied
Het is belangrijk dat vitale en kwetsbare objecten, zoals elektriciteitscentrales en ziekenhuizen, woonwijken en bedrijventerreinen bestand zijn tegen overstromingen. Voor buitendijkse gebieden geldt dit ook voor individuele woningen en bedrijven. Door een goed doordachte locatiekeuze en inrichting kunnen de gevolgen van een overstroming aanzienlijk beperkt worden.

In dit bestemmingsplan worden geen nieuwe kwetsbare bestemmingen mogelijk gemaakt. Het doel van dit bestemmingsplan is herbestemming van 'Agrarisch' naar 'Bedrijf' en het afsplitsen en omzetten van een bedrijfswoning naar burgerwoning. De bestaande oppervlakte bedrijfsbebouwing wordt in de toekomstige situatie gebruikt voor de inpandige bedrijfsactiviteiten. De overstromingsrisico's blijven daarmee gelijk aan de huidige situatie. Aanpassing van de bestaande situatie of een gewijzigde positionering van bebouwing vermindert die risico's niet. Paragraaf 4.10 Water geeft een nadere omschrijving van de (effecten op de) waterhuishoudkundige situatie.

Vrijwaringszone regionale waterkering
Ter plaatse van de af te splitsen bedrijfswoning is in de interim Omgevingsverordening een vrijwaringszone opgenomen ter voorkoming dat functies worden mogelijk gemaakt die de versterking van de regionale kering bemoeilijken. Gemeenten dienen er zorg voor te dragen dat zij in hun bestemmingsplannen een passende regeling opnemen, op basis waarvan de realisatie van dergelijke functies niet zonder meer mogelijk is. In dit geval geldt de vrijwaringszone ter plaatse van de bestaande bedrijfswoning (af te splitsen in reguliere burgerwoning) en de bestaande hooiberg. De bestaande bebouwing ter plaatse van de vrijwaringszone blijft behouden en wordt ten delen gerenoveerd. De te slopen vierkante meters bebouwing zijn gesitueerd buiten de vrijwaringszone en worden tevens buiten de vrijwaringszone teruggebouwd. Hierdoor treden er ter plaatse van de vrijwaringszone geen wijzigingen op ten opzichte van de huidige situatie.

Het plangebied ligt niet in een beschermingsgebied ten behoeve van drinkwaterwinning. Er zijn tevens boringsvrije zones waar rekening mee dient te worden gehouden. Bepalingen ten aanzien van de bescherming van grondwater ten behoeve van winning van drinkwater zijn op dit bestemmingsplan niet van toepassing.

Bereikbaarheid en mobiliteit

Op grond van artikel 4.1 dient de toelichting op een bestemmingsplan waarmee een ruimtelijke ontwikkeling wordt voorzien, in te gaan op de gevolgen van die ontwikkeling voor de verkeersgeneratie en de ontsluiting van het gebied. Op het moment dat uit deze beschrijving blijkt dat er knelpunten kunnen ontstaan, dient een mobiliteitstoets te worden uitgevoerd. Paragraaf 4.9 Verkeer en parkeren van deze toelichting gaat in op het aspect verkeer en parkeren. Daarin is omschreven dat de bestemmingswijziging niet leidt tot een toenane van de verkeersdrukte. Daarnaast is het plangebied gunstig ontsloten op de Willeskop en de nabije ligging van diverse hoofdinfrastructurele voorzieningen. Van knelpunten is geen sprake. Een mobiliteitstoets is niet noodzakelijk. Voor een nadere omschrijving wordt verwezen naar de betreffende paragraaf.

Natuur

Met het oog op natuurbescherming zijn in hoofdstuk 6 van de interim Omgevingsverordening regels opgenomen. Het plangebied ligt niet binnen de Groene contour of het Weidevogelkerngebied, maar bevindt zich wel op korte afstand hiervan. Compensatie door aantasting van natuur is derhalve niet aan de orde. Wel is bij het landschappelijk inpassingsplan met ecologische maatregelen aangesloten op de ligging van het plangebied nabij het Weidevogelkerngebied, zie paragraaf 2.2.2 Landschappelijke inpassing en ecologische maatregelen en 1 Ecologisch advies en inrichting (Ecogroen, 2021).

Cultuurhistorie en landschap

Hoofdstuk 7 gaat in op cultuurhistorie en landschap, waaronder ook de cultuurhistorische hoofdstructuur. Het plangebied is onderdeel van het Agrarisch cultuurlandschap en ligt in het 'Landschap Groene Hart'. Voor wat betreft het gebied dat onderdeel uitmaakt van de cultuurhistorische hoofdstructuur geldt dat bestemmingsplannen binnen deze gebieden bestemmingen dienen te bevatten die de waarden binnen de afzonderlijke gebieden beschermen. Welke waarden dit zijn, is opgenomen in de bijlage 14 'Cultuurhistorie' bij de interim Omgevingsverordening.

afbeelding "i_NL.IMRO.0335.BP21120-0001_0011.jpg"

Figuur 3.4 Uitsnede kaart 'Cultuurhistorie en landschap kaart 1' (bron: interim Omgevingsverordening)

Het plangebied is gelegen binnen het agrarisch cultuurlandschap en binnen het gebied 'Uitzondering verstedelijkingsverbod Landelijk gebied'. De wijze waarop dit bestemmingsplan rekening houdt met de waarden binnen dit landschap, komt onder andere tot uiting in paragraaf 4.2 Cultuurhistorie, waarin het aspect cultuurhistorie nader wordt beschouwd. De ontwikkeling heeft geen effect op de verkavelingsstructuur van het agrarisch cultuurlandschap. Ook andere cultuurhistorische waarden die op deze kaart niet naar boven komen, blijven behouden. De verschillende onderdelen worden in de paragraaf '4.2 Cultuurhistorie' nader beschouwd. Doordat dit bestemmingsplan geen verstedelijking in het landelijk gebied toestaat, anders dan nieuwe bebouwing voor een stedelijke bestemming in plaats van bestaande (agrarische) bebouwing, ontstaat geen strijdigheid met de regels in het kader van het verstedelijkingsverbod.

Het plangebied van voorliggend bestemmingsplan is tevens gelegen in het landschap 'Groene Hart'. Een ruimtelijk besluit voor gronden binnen een bepaald landschap dient bestemmingen en regels te bevatten die strekken ter bescherming van de in het plangebied voorkomende kernkwaliteiten, zoals genoemd in bijlage 15 'Kernkwaliteiten landschap' behorende bij de interim Omgevingsverordening. Voor het Groene Hart zijn dit:

  • openheid;
  • (veen)weidekarakter (incl. strokenverkaveling, lintbebouwing, etc.);
  • landschappelijke diversiteit;
  • rust & stilte.

Een bestemmingsplan mag voorts geen regels bevatten die de genoemde kernkwaliteiten onevenredig aantasten. Daarnaast dient de toelichting op het plan een omschrijving te bevatten van de in het plangebied voorkomende kwaliteiten en de wijze waarop met de bescherming van deze kwaliteiten is omgegaan.

Voor de ontwikkeling waar dit bestemmingsplan voor is opgesteld, is door Ecogroen een landschappelijk inpassingsplan met ecologische maatregelen opgesteld. Hierin is rekening gehouden met de aanwezige kwaliteiten en karakteristieken van de omgeving. In hoofdstuk 2 Planbeschrijving van dit bestemmingsplan is een planbeschrijving gegeven, waarin tevens is ingegaan op de landschappelijke inpassing en ecologische maatregelen (zie paragraaf 2.2.2 Landschappelijke inpassing en ecologische maatregelen) van het geheel. Van negatieve effecten op de kernkwaliteiten van het Groene Hart is geen sprake. Voor een nadere toelichting wordt verwezen naar hoofdstuk 2 en naar 1 Ecologisch advies en inrichting (Ecogroen, 2021), waarin het landschappelijk inpassingsplan met ecologische maatregelen is opgenomen.

Wonen, werken en recreëren

Landelijk gebied

Het plangebied is onderdeel van het landelijk gebied. In hoofdstuk 9 van de interim Omgevingsverordening wordt ingegaan op onder andere verstedelijking in het landelijk gebied. Het noordelijk deel van het plangebied is tevens onderdeel van de 'kernrandzone'. Het gehele plangebied is gelegen in het gebied dat is aangemerkt voor 'Uitbreiding woningbouw en bedrijventerreinen onder voorwaarde mogelijk'.

afbeelding "i_NL.IMRO.0335.BP21120-0001_0012.jpg"

Figuur 3.5 Uitsnede kaart 'Wonen, werken en recreëren kaart 1' (bron: interim Omgevingsverordening)

In de verordening is aangegeven dat bij beëindiging van het agrarisch gebruik op een locatie in het landelijke gebied een stedelijke functie, niet zijnde wonen kan worden toegestaan, en dat een woonbestemming kan worden gegeven aan de bedrijfswoning van het voormalige agrarisch bedrijfsperceel. De voorwaarden zijn opgenomen in artikel 9.9 en 9.10 van de interim Omgevingsverordening. De voorwaarden uit artikel 9.9 zijn:

  • a. het bouwperceel is niet optimaal gesitueerd en uitgerust voor de grondgebonden landbouw of, in het geval van een glastuinbouwbedrijf, het bouwperceel ligt niet in een concentratiegebied glastuinbouw;
  • b. door sloop wordt de oppervlakte van de fysiek aanwezige bebouwing met 50% gereduceerd, waarbij te behouden historisch waardevolle of karakteristieke bebouwing niet in de berekening wordt betrokken, tenzij:
    • 1. het gaat om een nieuwe functie die voorziet in een kleinschalige woonzorgvoorziening, of
    • 2. het gaat om een nieuwe functie die bijdraagt aan recreatieve beleving of recreatief gebruik waaraan in het gebied nadrukkelijk behoefte bestaat;
    • 3. het gaat om de hervestiging van één of enkele bedrijven die op hun oorspronkelijke locatie een ruimtelijk obstakel vormden of de kwaliteit van de leefomgeving ernstig aantasten en die op de nieuwe locatie, nabij de kern, goed inpasbaar zijn;
    • 4. het gaat om vestiging van bedrijven die vanwege hun werkzaamheden met zwaar rijdend materieel zich voornamelijk richten op het landelijk gebied;
    • 5. er is sprake van twee of meer bouwpercelen waar de agrarische functie is beëindigd en op de betrokken bouwpercelen gezamenlijk wordt het vereiste slooppercentage van 50% wel gehaald; of
    • 6. de ruimtelijke kwaliteit wordt op een andere wijze verhoogd dan alleen door sloop van bebouwing, in een mate die een lager slooppercentage dan 50% rechtvaardigt;
  • c. te handhaven en nieuw op te richten bedrijfsgebouwen worden zo compact mogelijk gesitueerd binnen het voormalige bouwperceel en het bouwperceel wordt evenredig met de oppervlakte gesloopte gebouwen verkleind;
  • d. de bestaande cultuurhistorische, landschappelijke en natuurwaarden worden behouden; en
  • e. de omliggende agrarische bedrijven worden niet in hun bedrijfsvoering belemmerd.


Voor voorliggend bestemmingsplan kan als volgt worden gereageerd op de voorwaarden uit artikel 9.9:

Ad. a. Door verkoop van het overgrote deel van de bijbehorende gronden aan agrariërs uit de omgeving, beschikt het plangebied nog over circa drie hectare eigen grond. Het exploiteren van een grondgebonden agrarisch bedrijf is omwille van onder andere de omvang van het plangebied niet meer mogelijk;

Ad. b. Een deel van de huidige bedrijfsbebouwing, welke het doorzicht aan een zijde van de woning naar het achterland belemmert, wordt gesloopt. Het beoogde plan voorziet in een verlenging van het bestaande te behouden en te renoveren bedrijfsgebouw. Het totaal oppervlak aan bedrijfsbebouwing wordt hierbij niet met 50% gereduceerd. De ruimtelijke kwaliteit wordt op een andere wijze verhoogd, onder andere door het treffen van ecologische maatregelen, waardoor het lagere slooppercentage kan worden gerechtvaardigd. In paragraaf 2.2 Toekomstige situatie is dit uitgebreid gemotiveerd;

Ad. c. Het cluster van bebouwing wordt in de nieuwe situatie langer en smaller, in plaats van kort en diep. Dit is meer in overeenstemming met de kavelstructuur. Het zicht komt vrij richting het achterland en het bouwvlak wordt verkleind;

Ad. d. De bestaande cultuurhistorische, landschappelijke en natuurwaarden worden behouden én versterkt. In paragraaf 2.2 Toekomstige situatie is dit uitgebreid gemotiveerd;

Ad. e. De omliggende agrarische bedrijven worden niet belemmerd in hun bedrijfsvoering. Dit is toegelicht in paragraaf 4.3 Bedrijven en milieuzonering van deze plantoelichting.

Om een woonbestemming te geven aan de bedrijfswoning van het voormalige agrarisch bedrijfsperceel dient voldaan te worden aan de voorwaarden zoals opgenomen in artikel 9.10 van de interim Omgevingsverordening. De voorwaarden uit dit artikel zijn:

  • a. het bouwperceel is niet optimaal gesitueerd en uitgerust voor de grondgebonden landbouw, of, in het geval van een glastuinbouwbedrijf, het bouwperceel ligt niet in een concentratiegebied glastuinbouw;
  • b. de bestaande cultuurhistorische en landschappelijke waarden worden behouden of versterkt;
  • c. de omliggende agrarische bedrijven worden niet in hun bedrijfsvoering belemmerd; en
  • d. een kantoor of bedrijf aan huis is mogelijk indien de omvang van die activiteiten ondergeschikt blijft aan de woonfunctie.

Voor voorliggend bestemmingsplan kan als volgt worden gereageerd op de voorwaarden uit artikel 9.10:

Ad. a. Door verkoop van het overgrote deel van de bijbehorende gronden aan agrariërs uit de omgeving, beschikt het plangebied nog over circa drie hectare eigen grond. Het exploiteren van een grondgebonden agrarisch bedrijf is omwille van onder andere de omvang van het plangebied niet meer mogelijk;

Ad. b. De bestaande cultuurhistorische, landschappelijke en natuurwaarden worden behouden én versterkt. In paragraaf 2.2 Toekomstige situatie is dit uitgebreid gemotiveerd;

Ad. c. De omliggende agrarische bedrijven worden niet belemmerd in hun bedrijfsvoering. Dit is toegelicht in paragraaf 4.3 Bedrijven en milieuzonering van deze plantoelichting.

Ad. d. Dit bestemmingsplan maakt het mogelijk om een kantoor of bedrijf aan huis uit te oefenen mits dit ondergeschikt blijft aan de woonfunctie en voldaan wordt aan de overige voorwaarden in de regels van dit bestemmingsplan.

Dit bestemmingsplan voldoet hiermee aan zowel de voorwaarden uit artikel 9.9 als 9.10.

Stiltegebied

Daarnaast blijkt uit een uitsnede van kaart 4 (zie figuur 3.6) voor wonen, werken en recreëren dat het plangebied nabij een stiltegebied ligt en daardoor zelf onderdeel is van het 'Aandachtsgebied stiltegebied'.

afbeelding "i_NL.IMRO.0335.BP21120-0001_0013.jpg"

Figuur 3.6 Uitsnede kaart 'Wonen, werken en recreëren kaart 4' (bron: interim Omgevingsverordening)

In de interim Omgevingsverordening zijn regels gesteld ter bescherming van de in de provincie aangewezen stiltegebieden. Deze gebieden zijn nodig als tegenhanger van de drukte en bijkomende geluidhinder in en rondom Utrecht. Door de aanwijzing van stiltegebieden en bijbehorende regelgeving wordt voorzien in de behoefte aan stilte van recreanten en inwoners, met een gunstig effect voor de mens en natuur als gevolg.

Het plangebied zelf is niet gelegen in een stiltegebied. Het zuidelijk gelegen stiltegebied en het plangebied, liggen op zeer korte afstand van elkaar. Een aandachtsgebied stiltegebied is een zone van 1500 meter rondom het stiltegebied en hier ligt het plangebied derhalve geheel binnen. In artikel 9.27 van de interim Omgevingsverordening is opgenomen hoe omgegaan dient te worden met de doelstellingen voor het geluidsniveau in stiltegebied. Als richtwaarde voor het maximaal toelaatbare geluidsniveau vanwege een inrichting buiten een stiltegebied geldt een geluidsniveau van 35 dB(A) LAeq,24h op een afstand van 50 meter in een stiltegebied gerekend vanaf de grens van het stiltegebied. Gelet op de ruime afstand van het erf met de bedrijfsbebouwing tot het stiltegebied, worden op voorhand geen belemmeringen verwacht. Voor de volledigheid wordt hieronder nader ingegaan op mogelijke geluidhinder als gevolg van de bedrijfsbestemming.

In dit geval geldt dat de bedrijfsactiviteiten in hoofdzaak buiten de planlocatie plaatsvinden. Werktenten worden vervoerd en elders opgezet en tijdelijk in gebruik genomen. Activiteiten op het perceel bestaan daarom met name uit (inpandige) opslagactiviteiten. Het geluid afkomstig van de inrichting beperkt zich daarmee enkel tot geluid als gevolg van vervoersbewegingen, waarvan merendeel inpandig plaatsvindt ten behoeve van de opslagactiviteit.

In de huidige situatie is een melkveehouderij toegestaan. Verkeersbewegingen van en naar de Willeskop 67 en 67a bestaan uit onder andere aan- en afvoer van vee, melk en krachtvoer, maar ook uit bewegingen in verband met de afvoer van o.a. drijfmest en bijvoorbeeld in het kader van het inkuilen van gras en maïs. Door het mogelijk maken van de opslag van niet-agrarische producten in de vrijgekomen agrarische opstallen ontstaan nieuwe verkeersbewegingen van en naar het perceel; aan- en afvoer van werktenten. Echter kan gesteld worden dat de verkeersbewegingen ten behoeve van de opslag van werktenten vergelijkbaar of lager zullen uitvallen in vergelijking met de verkeersbewegingen ten behoeve van de melkveehouderij. Aangezien de beoogde bedrijfsvoering geen bezoekersfunctie kent, is daarnaast uitsluitend sprake van incidentele verkeersbewegingen van eigen voertuigen. Er is geen sprake van toename van de verkeersintensiteit.

Aangezien de nieuwe situatie als gevolg van voorliggend bestemmingsplan een vergelijkbaar of lagere verkeersintensiteit kent en vervoersbewegingen ten behoeve van de opslag activiteit voor een groot deel inpandig zullen plaatsvinden, wordt geconcludeerd dat het bestemmingsplan geen onaanvaardbare geluidhinder mogelijk maakt ter plaatse van het stiltegebied.

Conclusie
Met voorliggend bestemmingsplan wordt voldaan aan de voorwaarden zoals gesteld in de interim Omgevingsverordening van de provincie Utrecht. Het bestemmingsplan is daarmee in lijn met de provinciale regelgeving op de diverse deelonderwerpen. Voor het overige is het bestemmingsplan daar niet mee in strijd.

3.3 Gemeentelijk beleid

3.3.1 TotaalVisie Montfoort 2030

De gemeente Montfoort beschikt over de 'TotaalVisie Montfoort 2030' (de Totaalvisie of de visie) van 12 december 2011. In deze Totaalvisie wordt de toekomstvisie van de gemeente tot de periode 2030 omschreven. De Totaalvisie heeft de functie van structuurvisie en is daarmee de leidraad bij de beoordeling van nieuwe plannen en initiatieven, maar ook voor nieuw op te stellen bestemmingsplannen en planologische afwijkingen.

Het streven in de visie is dat de gemeente Montfoort in 2030 minimaal dezelfde kwaliteiten heeft als heden ten dage, maar dan met verbeterde voorzieningen, een betere en veiligere bereikbaarheid en een gevarieerder woonklimaat voor alle leeftijds- en inkomensgroepen. Montfoort behoudt haar imago als een groene gemeente in het open weidelandschap. De gemeente heeft daartoe aan de hand van de thema's Cultuurhistorie, Infrastructuur, Natuur & Landschap, Stedenbouwkundige ontwikkelingen, Recreatie en Duurzaamheid het toekomstbeeld tot 2030 uiteengezet.

Relatie tot bestemmingsplan
Onderdeel van de TotaalVisie betreft een Visiekaart, op basis waarvan kan worden beoordeeld welke toekomstvisie de gemeente voor een specifiek gebied voor ogen heeft. De locatie is deels gelegen in de lintbebouwing, waarbij is aangegeven dat behoud of versterking van de beeldkwaliteit ter plaatse gestimuleerd moet worden. Daarnaast maakt de locatie onderdeel uit van een landschap waarbinnen openheid van dat landschap waardevol is en deze openheid behouden dient te worden.

afbeelding "i_NL.IMRO.0335.BP21120-0001_0014.png"

Figuur 3.7 Uitsnede visiekaart TotaalVisie Montfoort 2030

Voor dit project geldt dat de bestaande structuren ter plaatse van het plangebied behouden blijven. Bestaande bebouwing wordt gerenoveerd en deels gesloopt en heropgericht. Hierdoor wordt leegstand en verder verval van de vrijgekomen agrarische bedrijfsbebouwing voorkomen en ondergaat het erf een kwalitatieve verbetering door investeringen in de bouwwerken en het terrein. De agrarische uitstraling blijft behouden. Zodoende blijft de waardevolle openheid in het landschap behouden en vindt een verbetering plaats ten aanzien van de aanwezige beeldkwaliteit ter plaatse.

Voor wat betreft het buitengebied wordt in de TotaalVisie aangegeven dat schaalvergroting en/of verbreding of bedrijfsbeëindiging speelt bij agrariërs. Op het moment dat een agrarisch bedrijf stopt te bestaan, zijn er verschillende mogelijkheden om het erf een nieuwe invulling te geven. Een optie is de ruimte voor ruimte regeling. Een andere mogelijkheid is het ontwikkelen van nieuwe landgoederen, buurtschappen of buitenplaatsen. Tenslotte vestigen zich nieuwe functies in vrijkomende agrarische gebouwen, waaronder niet-agrarische bedrijven. De vraag naar nieuwe bedrijfsruimte bestaat vooral uit de bouw van bedrijfshallen op bedrijventerreinen en verspreid aan de linten in het landelijk gebied.

In het beoogde plan worden voormalige agrarische opstallen in gebruik genomen ten behoeve van de opslag van niet-agrarische producten. Deze ontwikkeling past binnen het kernuitgangspunt uit de Totaalvisie Montfoort: “Vervolgfuncties dienen mogelijk gemaakt te worden in bestaande vrijkomende agrarische bebouwing om de vitaliteit van het buitengebied te versterken. Er geldt geen sloopverplichting.”

Conclusie
Geconcludeerd wordt dat het bestemmingsplan in lijn is met diverse doelstellingen uit de TotaalVisie Montfoort 2030. Voor het overige is het bestemmingsplan daarmee niet in strijd.

3.3.2 Duurzaamheidsvisie 'Montfoort Duurzaam'

Op 14 september 2015 is de gemeentelijke duurzaamheidsvisie 'Montfoort Duurzaam'. De duurzaamheidsvisie is opgesteld ter invulling van één van de actiepunten zoals verwoord in het toenmalige Collegeprogramma 2014-2018, waarin de gemeente heeft uitgesproken bij te dragen aan een duurzamere samenleving. Tot op dat moment was de aanpak van duurzaamheid ad hoc en op projectbasis, de behoefte was dan ook een weloverwogen en samenhangende visie op dit onderwerp te vormen. Deze visie is verwoord in de duurzaamheidsvisie.

Het beoogde resultaat van de duurzaamheidsvisie is een energieneutrale gemeente, waarin gemeente, ondernemers en inwoners komen tot een duurzame samenleving met als prioriteiten de afvalketen, gebouwenbeheer en energieverbruik, alsmede biodiversiteit, openbare ruimte en zorg voor de in de gemeente aanwezige natuurwaarden. De visie geldt voor de periode 2015 - 2020.

Relatie tot bestemmingsplan
Voor dit plan geldt dat een vormalige agrarische locatie die niet meer als zodanig kan worden gebruikt, een nieuwe functie krijgt dat past binnen de omgeving. Een deel van de bestaande bebouwing wordt in de huidige vorm in gebruik genomen. Voor het overige vindt renovatie en sloop/nieuwbouw plaats. Zo is sprake van een duurzame voortzetting van het perceel en aanwezige bebouwing, zodat verdere verpaupering wordt voorkomen en zowel de locatie zelf als de directe omgeving aantrekkelijk blijft voor gebruikers van nu en in de toekomst. Daarnaast is het de intentie om waar mogelijk te voorzien in maatregelen en toepassingen die het duurzame karakter van het bedrijf vergroten. De mogelijkheden hiertoe zullen na planrealisatie worden onderzocht.

3.3.3 Nota parkeernormen Montfoort 2020

Het huidige beleid ten aanzien van parkeren is vastgelegd in de Nota parkeernormen Montfoort 2020. De doelstelling van het beleid is als volgt samen te vatten: 'Het actualiseren van de vastgestelde Nota Parkeernormen uit 2015 en daarmee het opnieuw vaststellen van gemeentelijke parkeernormen voor het bepalen van de parkeerbehoefte van ruimtelijke plannen en -ontwikkelingen in de gemeente Montfoort om de bereikbaarheid en leefbaarheid in de gemeente Montfoort te waarborgen.'

Het meenemen van regels ten aanzien van parkeren in bestemmingsplan is nodig sinds de wijziging van de Woningwet per 1 juli 2018. Door deze wijziging is de borging van voldoende parkeerplaatsen op basis van het Bouwbesluit 2012 komen te vervallen. Omdat het wenselijk blijft te voorzien in voldoende parkeerruimte bij ruimtelijke ontwikkelingen, dient in nieuwe bestemmingsplannen in de bestemmingsplanregels een artikel te worden opgenomen die regelt dat aan de 'Nota parkeernormen Montfoort 2020' dient te worden voldaan, dan wel dat indien dit beleid wijzigt, van het gewijzigde beleid uit dient te worden gegaan. Bij bestaande bestemmingsplannen wordt dit geregeld middels het paraplubestemmingsplan "Parkeernormen Montfort" zoals vastgesteld op 29 september 2018.

De parkeernormen in de parkeernormennota zijn gebaseerd op de landelijke parkeerkencijfers uit de meest recente CROW-publicatie 381 (Toekomstbestendig parkeren, van parkeerkencijfers naar parkeernormen, 10 december 2018). De parkeernormen zijn ingedeeld in zeven hoofdcategorieën:

  • 1. wonen;
  • 2. werken;
  • 3. winkel en boodschappen;
  • 4. sport, cultuur en ontspanning;
  • 5. horeca en (verblijfs)recreatie;
  • 6. gezondheidszorg en (sociale) voorzieningen;
  • 7. onderwijs.

Relatie tot bestemmingsplan
De functies binnen dit bestemmingsplan die een mogelijke parkeerbehoefte met zich mee zullen brengen zijn wonen en werken. Afhankelijk van de uiteindelijke inrichting zal bij het verlenen van de vergunning voor het bouwen wordt beoordeeld hoeveel parkeergelegenheid gerealiseerd dient te worden. Daarnaast dient te worden voorzien in voldoende gelegenheid voor laden en lossen. Hiertoe is in de regels behorende bij het bestemmingsplan een parkeerregeling opgenomen.

Conclusie
Het voorzien in voldoende parkeerplaatsen is van belang bij de realisatie van functies die een parkeervraag met zich mee (kunnen) brengen. In de regels bij dit bestemmingsplan is een parkeerregeling opgenomen, op basis waarvan de functies niet in gebruik kunnen worden genomen, zonder dat wordt voorzien in het genoemde aantal parkeerplaatsen. Daarmee is de aanleg van voldoende parkeer- en laad- en losvoorzieningen geborgd. Voor een nadere toelichting op parkeren, wordt verwezen naar paragraaf 4.9 Verkeer en parkeren van deze toelichting.

Hoofdstuk 4 Omgevingsaspecten

4.1 Archeologie

Erfgoedwet 
Regels inzake archeologie waren voorheen geregeld in de Monumentenwet. Met het vervallen van deze wet in juli 2016, is een groot deel daarvan opgegaan in de Erfgoedwet. De Erfgoedwet betreft één integrale wet en bevat daarmee de geldende wet- en regelgeving voor behoud en beheer van het cultureel erfgoed in Nederland. De wet regelt tevens de bescherming van archeologisch erfgoed in de bodem. De uitvoering van de Erfgoedwet en de integratie van archeologie en ruimtelijke ordening is primair een gemeentelijke opgave. De gemeente is verplicht om in nieuwe bestemmingsplannen rekening te houden met de mogelijke aanwezigheid van archeologische waarden. Dit volgt uit een wijziging van het Besluit ruimtelijke ordening en maakt onderdeel uit van de modernisering van de monumentenzorg. Daar waar relevant dienen mogelijk aanwezige waarden middels een dubbelbestemming in het bestemmingsplan te worden beschermd. Daarnaast geldt de wettelijke meldingsplicht: indien per toeval een vondst wordt gedaan waarvan men vermoed dat deze archeologische relevantie kent, dient dit te worden gemeld aan het bevoegd gezag.

Een deel uit de Monumentenwet dat ziet op de besluitvorming in de fysieke leefomgeving (vergunningverlening en integratie in de planvorming), zal opgenomen worden in de Omgevingswet, die naar verwachting in 2022 in werking treedt. Vooruitlopend op de datum van ingang van de Omgevingswet zijn de relevante artikelen te vinden in het overgangsrecht in de Erfgoedwet, waar ze ongewijzigd van toepassing blijven zolang de Omgevingswet nog niet van kracht is.

Archeologiebeleid gemeente Montfoort
Gelet op voornoemde verplichting voor gemeenten ten aanzien van de bescherming van archeologische waarden, heeft de gemeente Montfoort samen met Lopik, Oudewater en Woerden een beleidsnota in het kader van archeologie opgesteld. In de Beleidsnota Archeologie wordt omschreven op welke manier de gemeente Montfoort archeologische waarden in de bodem wil beschermen. Doel van de beleidsnota is:

  • 1. Het in kaart brengen van waar in de gemeente de kans op het aantreffen van archeologie groot is en waar klein.
  • 2. Aangeven wanneer archeologisch onderzoek verplicht gesteld wordt en wanneer men hiervan vrijgesteld is.

Het grondgebied van Montfoort is verdeeld in verschillende verwachtingsgebieden:

  • Hoge verwachting
  • Middelhoge verwachting
  • Lage verwachting
  • Geen verwachting


De Beleidsnota Archeologie bestaat uit twee delen:

  • A. Beleidsnota gemeentelijke archeologische monumentenzorg;
  • B. Toelichting op de Archeologische Beleidskaart.

Bij het opstellen van nieuwe bestemmingsplan is dit gemeentelijk archeologiebeleid en de beleidskaart leidend.

Situatie plangebied
Voor dit bestemmingsplan is de Archeologische Beleidskaart geraadpleegd. De planlocatie ligt deels ter plaatse van categorie 4, 5 en 6. Ter plaatse van categorie 4 is in de bestaande situatie reeds bebouwing aanwezig en wordt in onderhavig plan geen bebouwing toegevoegd. Ter plaatse van categorie 5 wordt bebouwing opgericht, daar waar in de huidige situatie nog geen bebouwing aanwezig is. De gronden met categorie 6 ondervinden geen wijzigingen welke van invloed kunnen zijn op eventuele archeologische waarden in gevolge van dit bestemmingsplan.

afbeelding "i_NL.IMRO.0335.BP21120-0001_0015.png"

Figuur 4.1 Uitsnede archeologische beleidskaart. Planlocatie: oranje ster. (bron: Archeologische Beleidskaart Montfoort)

Ter plaatse van de bestaande woning en omliggende gronden geldt categorie 4. Hierbinnen is archeologisch onderzoek noodzakelijk indien grondroerende werkzaamheden plaatsvinden over een oppervlakte van meer dan 200 m2, die tevens dieper reiken dan 100 cm -mv. Ter plaatse wordt enkel voorzien in een planologische wijziging, waarbij de bestaande agrarische bedrijfswoning wordt afgesplitst en wordt bestemd als 'Wonen'. Van (ver)bouwactiviteiten is geen sprake. Archeologisch onderzoek is niet noodzakelijk.

De ontwikkeling zoals met onderhavig bestemmingsplan wordt mogelijk gemaakt heeft betrekking op een bouwplan ter plaatse van categorie 5. Ter plaatse van deze categorie geldt dat alleen bij grootschalige ruimtelijke ontwikkelingen en bodemingrepen een archeologisch vooronderzoek dient plaats te vinden. Er geldt namelijk een onderzoeksverplichting indien het plangebied groter is dan 2.500 m² én wanneer de bodemingreep dieper dan 100 cm beneden het maaiveld plaatsvindt. De nieuw op te richten bebouwing zoals in dit bestemmingsplan wordt toegestaan, overschrijdt deze oppervlaktemaat niet. Een archeologisch onderzoek is derhalve niet benodigd.

De vigerende dubbelbestemmingen zijn in het voorliggende bestemmingsplan opgenomen waarbij categorie 4 is vertaald naar de dubbelbestemming 'Waarde - Archeologie 3', waarbij categorie 5 is vertaald naar de dubbelbestemming 'Waarde - Archeologie 4' en waarbij categorie 6 is vertaald naar de dubbelbestemming 'Waarde - Archeologie 5'. Mogelijke archeologische waarden blijven hierdoor beschermd.

Conclusie
Archeologie vormt geen belemmering voor de vaststelling van het bestemmingsplan.

4.2 Cultuurhistorie

Nota Belvedère (1999)
Vanuit een ontwikkelingsgerichte visie op de omgang met cultuurhistorie worden in de Nota Belvedère beleidsmaatregelen voorgesteld die tot een kwaliteitsimpuls bij de toekomstige inrichting van Nederland zouden moeten leiden. Doelstelling van de nota is om de alom aanwezige cultuurhistorische waarden sterker richtinggevend te laten zijn bij de inrichting van Nederland. Dit met als doel het aanzien van Nederland aan kwaliteit te laten winnen en tegelijkertijd de onderlinge samenhang van cultuurhistorische waarden op het terrein van de archeologie, gebouwde monumenten en historische cultuurlandschap te versterken.

Nationaal Landschap het Groene Hart
Het grondgebied van Montfoort maakt deel uit van het Nationaal Landschap het Groene Hart en is cultuurhistorisch waardevol. Kenmerkend is het contrast tussen de open polders, die volgens het vaste copesysteem ontgonnen zijn, en de besloten lintbebouwingen langs de weteringen en de waterlopen. Parallel aan de ontginningsassen liggen de tiendwegen en houtkades. De grote verscheidenheid aan wateren (natuurlijk en gegraven) en watergebonden elementen zoals sluizen, dijken, molens, forten en bruggen verlenen dit landschap zijn eigenheid. De restanten daarvan – zowel onder- als bovengronds – vormen namelijk het archief voor de geschiedenis van de afgelopen 1.000 jaar. Er is sprake van cultuurhistorisch waardevolle objecten en structuren die zijn opgenomen op de thematische kaarten voor bewoning en waterstaat/verdediging.

Cultuurhistorische atlas (CHAT)
In de cultuurhistorische atlas van de provincie Utrecht (CHAT) zijn de cultuurhistorisch waardevolle elementen in beeld gebracht. Het plangebied ligt in het agrarisch cultuurlandschap en het bebouwingslint. In het agrarisch cultuurlandschap wordt ruimte geboden voor ontwikkeling, gericht op het creëren van economische dragers voor het behoud van de cultuurhistorische waarden van buitenplaatsen.

Relatie tot bestemmingsplan
Binnen het plangebied zijn geen gebouwde monumenten aanwezig. Ook ligt de planlocatie niet in een beschermd dorpsgezicht. Wel is de locatie onderdeel van een cultuurhistorisch waardevol gebied. Onderhavig plan heeft, door behoud van het agrarisch karakter van het bestaande erf, geen onevenredig nadelig effect op de bestaande verkavelingsstructuur en op het karakter van het bebouwingslint. De huidige bedrijfsbebouwing, welke het doorzicht aan een zijde van de woning naar het achterland belemmert, wordt gesloopt. Hierdoor wordt het cluster van bedrijfsbebouwing langer en smaller, in plaats van kort en diep. Dit is meer in overeenstemming met de kavelstructuur. Het beoogde plan voorziet in een verlenging van het bestaande te behouden en te renoveren bedrijfsgebouw. Het totaal oppervlak aan bedrijfsbebouwing wordt hierbij niet uitgebreid. Daarnaast komt het doorzicht aan beide zijden van de woning vrij richting het achterland.

Conclusie
Cultuurhistorie vormt geen belemmering voor de vaststelling van dit bestemmingsplan.

4.3 Bedrijven en milieuzonering

Om ervoor te zorgen dat nieuwe woningen op een verantwoorde afstand van bedrijven gesitueerd worden en dat nieuwe bedrijven een passende locatie in de nabijheid van woningen krijgen, is de handreiking 'Bedrijven en milieuzonering' in opdracht van de Vereniging van Nederlandse Gemeenten opgesteld. Hierdoor wordt in een vroeg stadium bij ruimtelijke ontwikkelingen rekening gehouden met de belangen van bedrijven en woningen. Zo wordt zoveel mogelijk voorkomen dat woningen hinder en gevaar ondervinden van bedrijven en dat bedrijven in hun milieugebruiksruimte worden beperkt door de komst van nieuwe woningen.

Milieuzonering is een hulpmiddel bij ruimtelijke planvorming. Het is een instrument dat helpt bij het afwegen en verantwoorden van keuzes aangaande nieuwe woningbouw- en bedrijvenlocaties. Milieuzonering beperkt zich tot milieuaspecten met een ruimtelijke dimensie. Het gaat hierbij om de milieuaspecten: geluid, geur, stof en gevaar, waarbij de belasting afneemt naarmate de afstand tot de bron toeneemt.

In de handreiking 'Bedrijven en milieuzonering' zijn richtafstanden opgenomen voor een scala aan milieubelastende activiteiten, opslagen en installaties. Hierbij worden richtafstanden gegeven per milieutechnisch aspect (geur, stof, geluid en gevaar), waarbij de grootste afstand bepalend is voor de indeling in een milieucategorie.

afbeelding "i_NL.IMRO.0335.BP21120-0001_0016.png"

tabel 4.1 Richtafstanden bedrijven en milieuzonering

De richtafstanden zijn afgestemd op het omgevingstype rustige woonwijk en rustig buitengebied. Zonder dat dit ten koste gaat van het woon- en leefklimaat kan de richtafstand met één stap worden verlaagd indien sprake is van een omgevingstype gemengd gebied. In een gemengd gebied is sprake van een matige tot sterke functiemenging. Direct naast woningen komen bijvoorbeeld winkels, horeca en kleine bedrijven voor. In dergelijke gebieden geldt dat toekomstige gebruikers meer milieuhinder kunnen ondervinden als gevolg van bedrijvigheid dan wanneer sprake is van een rustige woonwijk, maar dat dit gezien de gebiedstypering aanvaardbaar wordt geacht.

Relatie tot bestemmingsplan
In onderhavige situatie is sprake van een 'gemengd gebied', aangezien er sprake is van functiemenging in de omgeving. Het bedrijf bevindt zich tevens in de geluidzone van de provinciale weg N228, een 60km/u-weg waaraan meerdere bedrijven gelegen zijn. Dit betekent dat de richtafstand met één stap kan worden verlaagd.

De opslag van werktenten staat niet expliciet in de VNG-publicatie genoemd, maar kan gelet op de aard en omvang van de bedrijfsactiviteiten worden beschouwd als een bedrijf in milieucategorie 2. De bedrijfsactiviteiten zijn namelijk vergelijkbaar met opslaggebouwen en verhuurbedrijven voor roerende goederen n.e.g. Beide bedrijfsactiviteiten uit de VNG-publicatie hebben een milieucategorie 2, waardoor dat voor onderhavige activiteit ook aangehouden wordt.

afbeelding "i_NL.IMRO.0335.BP21120-0001_0017.png"

tabel 4.2 (fragment van) richtafstanden, excl. toepassing richtafstand 'gemengd gebied' (bron: VNG-brochure)

Voor dit type bedrijvigheid geldt een richtafstand van 30 meter tot hindergevoelige objecten voor het aspect geluid. Uitgaande van het omgevingstype 'gemengd gebied', kan in deze situatie echter een richtafstand van 10 meter tot hindergevoelige objecten worden aangehouden. Voor de overige aspecten, geldt dan een richtafstand van 0 meter.

De bedrijfsactiviteiten bevinden zich in de nieuwe situatie op een afstand van ca. 6 meter tot het meest dichtstbijzijnde omliggende hindergevoelige objecten. Het betreft de woning per adres Willeskop 67 en 67A te Montfoort, die middels dit bestemmingsplan een reguliere woonbestemming krijgt. De bestaande woning gelegen aan de Willeskop 69 is gesitueerd op een afstand van ca. 20 meter. Het bouwvlak van de woning bevindt zich op een afstand van ca. 10 meter tot de afstand van het bouwvlak van het bedrijf. Het voorgaande betekent, dat voor zover het de woningen Willeskop 67 en 67A betreft, niet voldaan wordt aan de richtafstand in verband met het aspect 'geluid'. Ook het bouwvlak van de woningen Willeskop 71 en 71a bevindt zich, in tegenstelling tot de bestaande woningen, binnen de richtafstand van het aspect 'geluid'. Derhalve is een akoestisch onderzoek uitgevoerd om aan te tonen of voldaan wordt aan de geluidgrenswaarden. Aan de richtafstanden voor de overige aspecten wordt wel voldaan.

Akoestisch onderzoek
Omdat de meest nabijgelegen hindergevoelige objecten op minder dan 10 meter gelegen zijn, is de ontwikkeling alleen gemotiveerd mogelijk indien onder andere aangetoond wordt dat ter plaatse van de woningen wordt voldaan aan geluidgrenswaarden. Daartoe is door bureau Cauberg-Huygen een akoestisch onderzoek opgesteld. Het onderzoek d.d. 15 april 2021 is opgenomen in 2 Akoestisch onderzoek (Cauberg Huygen, 2021). De resultaten zijn hieronder integraal weergegeven.

De oprit van de inrichting is op ca. zes meter van de dichtstbijzijnde woning gesitueerd. De minimale richtafstand voor het milieuaspect 'geluid' wordt hiermee overschreden. In de VNG-publicatie is aangegeven op welke wijze de toetsing op het geluidsaspect dient plaats te vinden, indien niet aan de richtafstand voldaan wordt. Voor die beoordeling is in de VNG-publicatie een kort stappenplan opgenomen, op basis waarvan bij stap 1 geldt dat in het geheel geen belemmeringen optreden en onderzoek nodig is, terwijl een ontwikkeling die geschaard kan worden onder stap 4 in principe geen doorgang kan vinden. Op basis van de stappen 2 en 3 kan, middels een akoestisch onderzoek en zo nodig een nadere motivatie, vrijstelling worden verleend van de richtafstanden die gelden voor het aspect geluid.

De stappen 2 en 3 bevatten de maximaal toelaatbare geluidbelasting (etmaalwaarde) conform onderstaande tabel:


afbeelding "i_NL.IMRO.0335.BP21120-0001_0018.png"

tabel 4.3 maximaal toelaatbare geluidbelasting stappenplan (bron: VNG-brochure)

Uit het akoestisch onderzoek blijkt dat de grenswaarden uit stap 2 worden overschreden. Aan stap 3 wordt wel voldaan. Dit betekent dat de ontwikkeling doorgang kan vinden, mits goed wordt gemotiveerd waarom de specifieke situatie acceptabel wordt geacht. Overeenkomstig stap 3 uit de VNG-publicatie kunnen maximale geluidniveaus ten gevolge van rijgeluid (onderbouwd) buiten beschouwing gelaten worden. Doordat op onderhavige projectlocatie sprake is van een hoog heersend achtergrondgeluid van 61-65 dB zal geen onderscheid te maken zijn in rijgeluid door Werktent of overige weggebruikers.

Verbetering woon- en leefklimaat
Aanvullend kan worden gesteld dat een verbetering plaatsvindt ten opzichte van de huidige planologische situatie, waarin ter plaatse van het te hergebruiken gebouw het houden van dieren is toegestaan. Daar waar in de vigerende situatie milieucategorie 3.2 is toegestaan, wordt het vrijgekomen bedrijfsgebouw in de nieuwe situatie in gebruik genomen ten behoeve van een activiteit die valt binnen milieucategorie 2. Ook vanuit dat oogpunt kan daarom gesteld worden dat er geen sprake is van een negatief effect op het woon- en leefklimaat ter plaatse van de nabij gelegen woningen.

afbeelding "i_NL.IMRO.0335.BP21120-0001_0019.png"
tabel 4.4 (fragment van) richtafstanden (bron: VNG-brochure)

Conclusie
Voor de diverse nieuwe functies die aan het gebied worden toegevoegd heeft een beoordeling plaatsgevonden in het kader van bedrijven en milieuzonering. Er is sprake van een verbetering van het woon- en leefklimaat voor bewoners van omliggende woonobjecten. Uit het akoestisch onderzoek blijkt bovendien dat het aspect geluid geen belemmeringen oplevert, omdat vanuit de richtlijnen zoals opgenomen in de VNG-publicatie kan worden geconcludeerd dat sprake is van een acceptabele akoestische situatie. Het aspect bedrijven en milieuzonering vormt daarmee geen belemmering voor de vaststelling van het bestemmingsplan.

4.4 Bodem

Voor bodem en bodemverontreiniging is de Wet bodembescherming (Wbb) inclusief de aanvullende besluiten leidend. In de Wbb wordt een algemeen beschermingsniveau ingesteld voor de bodem ten aanzien van het voorkomen van nieuwe verontreiniging van de bodem.

De Wbb geeft regels voor bodemverontreiniging, waarvan sprake is als het gehalte van een stof in de grond of in het grondwater de voor die stof geldende streefwaarde overschrijdt. Of een verontreiniging acceptabel is, hangt onder andere af van de aard van de verontreiniging en van de bestemming van de gronden.

Relatie tot bestemmingsplan
In het kader van de planontwikkeling heeft Kwinfra een verkennend bodemonderzoek uitgevoerd. De rapportage van het verkennend onderzoek is bijgevoegd in 3 Verkennend en nader bodemonderzoek (Kwinfra, 2021) (rapportnummer 20151-RAP-01 d.d. 29 juni 2021) bij voorliggende toelichting. Onderstaand worden de resultaten samenvattend weergegeven.

In het verkennend en nader bodemonderzoek is onderscheid gemaakt tussen deelgebied I (bestaande woning met tuin, diverse opstallen/schuren en deels asfalt-/betonverharding) en II (huidig weiland). In het onderzoek is geconcludeerd dat in deelgebied I twee sterk verontreinigde spots aanwezig zijn, deze spots worden de westelijke en oostelijke spot genoemd. In totaal is ter plaatse van de westelijk gelegen spot circa 145 m³ grond boven de interventiewaarde verontreinigd met zink. Ter plaatse van de oostelijke spot is in totaal circa 200 m³ grond boven de interventiewaarde verontreinigd met zware metalen en PCB. Derhalve is ter plaatse van beide spots meer dan 25 m³ grond boven de interventiewaarde verontreinigd. Uit de uitgevoerde risicobeoordeling blijkt dat bij het toekomstige gebruik als bedrijfsterrein/industrie geen sprake is van een spoedeisende saneringsnoodzaak. Indien de locatie ter plaatse van de oostelijke spot gebruikt gaat worden als moestuin (b.v. t.b.v. planten fruitbomen) dan is wel sprake van een spoedeisende sanering vanwege de aanwezigheid van humane risico’s.

Verder is de boven- en deels ondergrond niet tot plaatselijk matig verontreinigd met zink, cadmium, koper, lood, nikkel en PCB. De bovengrond is plaatselijk licht verontreinigd met kobalt, kwik, molybdeen en nikkel, en ook de ondergrond is plaatselijk licht verontreinigd met molybdeen en nikkel. Uit de toetsingsresultaten blijkt dat het grondwater matig tot plaatselijk sterk verontreinigd is met barium en plaatselijk licht verontreinigd is met zink, barium, molybdeen, minerale olie, naftaleen en xylenen. Ter plaatse van de oostelijke verontreinigde spot is dempings-/stortmateriaal aangetroffen vanaf circa 0,35 m-mv tot 1,5 m-mv. Dit betreft een gedempte sloot. Het materiaal bestaat o.a. uit afval, puin, plastic grofvuil, glasresten.

Ter plaatse van de (achter)tuin is aanvullend een nader onderzoek naar asbest in de grond uitgevoerd. Hierbij is uitgegaan van 1 ruimtelijke eenheid (RE3) met een oppervlakte van circa 550 m². Er is hierbij asbest in de grond aangetoond in gehalten boven de interventiewaarde. In totaal is naar verwachting circa 85 m³ grond over een oppervlakte van circa 165 m² verontreinigd met asbest. In verband met de gebruiksfunctie van tuin ter plaatse van RE3 dient de aanwezige asbesthoudende grond gesaneerd te worden middels ontgraving en afvoer naar erkende verwerker/ acceptant. Het niet treffen van sanerende maatregelen betekent in de praktijk dat er in de tuin asbesthoudend plaatmateriaal in de bovengrond, en mogelijk in de contactzone (0-0,2 m - mv) indien de bodem onafgedekt blijft, aanwezig zal zijn in een mate die plaatselijk de interventiewaarde overschrijdt.

Voor uitvoering van saneringswerkzaamheden ter plaatse van de westelijke spot en RE3 kan volstaan worden met het indienen van een BUS-melding bij het bevoegd gezag. Voor graafwerkzaamheden en/of sanerende maatregelen ter plaatse van de oostelijk gelegen verontreinigde spot is een saneringsplan benodigd.

Verder is in het onderzoek geconcludeerd dat in deelgebied II (het weiland) enkel sprake is van lichte verontreinigen in de grond. Het grondwater is sterk verontreinigd met barium en licht verontreinigd met zink.

Samenvattend kan voor beide deellocaties worden geconcludeerd dat de vooraf gestelde hypothese “deels verdacht” gedeeltelijk bevestigd is. Kwinfra constateert dat de milieuhygiënische bodemkwaliteit geen belemmering vormt voor dit bestemmingsplan en de daarmee samenhangende aanvraag van een omgevingsvergunning. De benodigde melding en/of vergunning zal aangevraagd worden en vormt hiermee geen belemmering voor de vaststelling van dit bestemmingsplan.

Conclusie
In het verkennend en nader bodemonderzoek is de milieuhygiënische bodemkwaliteit vastgesteld. Geconcludeerd is dat de bodemkwaliteit geen belemmering vormt voor de vaststelling van het bestemmingsplan. De benodigde melding en/of vergunning zal aangevraagd worden en vormt hiermee geen belemmering voor de vaststelling van dit bestemmingsplan.

4.5 Externe veiligheid

Externe veiligheid heeft betrekking op de gevaren die mensen lopen als gevolg van aanwezigheid in de directe omgeving van een ongeval waarbij gevaarlijke stoffen zijn betrokken.
Er kan onderscheid worden gemaakt tussen inrichtingen waar gevaarlijke stoffen worden bewaard en/of bewerkt, transportroutes waarlangs gevaarlijke stoffen worden vervoerd en ondergrondse buisleidingen. De aan deze activiteiten verbonden risico's moeten tot een aanvaardbaar niveau beperkt blijven.

Het wettelijk kader voor risicobedrijven is vastgelegd in het Besluit externe veiligheid inrichtingen (Bevi) en voor het vervoer van gevaarlijke stoffen in de Wet vervoer gevaarlijke stoffen. Normen voor ondergrondse buisleidingen is vastgelegd in het Besluit externe veiligheid buisleidingen (Bevb).

Bij de beoordeling van de externe veiligheidssituatie zijn twee begrippen van belang:

Plaatsgebonden risico (PR):
Risico op een plaats buiten een inrichting, uitgedrukt als de kans per jaar dat een persoon die onafgebroken en onbeschermd op die plaats zou verblijven, overlijdt als rechtstreeks gevolg van een ongewoon voorval binnen die inrichting waarbij een gevaarlijke stof betrokken is. Aan het PR is een wettelijke grenswaarde verbonden die niet mag worden overschreden. Het PR wordt 'vertaald' als een risicocontour rondom een risicovolle activiteit, waarbinnen geen kwetsbare objecten (bijvoorbeeld woningen) mogen liggen.

Groepsrisico (GR):
Cumulatieve kansen per jaar dat ten minste 10, 100 of 1.000 personen overlijden als rechtstreeks gevolg van hun aanwezigheid in het invloedsgebied van een inrichting en een ongewoon voorval binnen die inrichting waarbij een gevaarlijke stof betrokken is. Rondom een risicobron wordt een invloedsgebied gedefinieerd, waarbinnen grenzen worden gesteld aan het maximaal aanvaardbaar aantal personen, de zogenaamde oriëntatiewaarde (OW). Dit is een richtwaarde, waarvan het bevoegd gezag, mits afdoende gemotiveerd door middel van een verantwoordingsplicht, kan afwijken. De verantwoordingsplicht geldt voor elke toename van het GR.

Relatie tot bestemmingsplan
Inrichtingen
In de directe omgeving hiervan zijn geen bedrijven gevestigd die vallen onder het Besluit externe veiligheid. Dergelijke bedrijven in de omgeving zijn uitgesloten. De voorgenomen activiteit zelf betreft eveneens geen risicovolle activiteit.

Transport gevaarlijke stoffen over weg, spoor en water
Binnen en rondom Montfoort is sprake van enkele transportroutes voor gevaarlijke stoffen. De Rijksweg A12 vormt daarbij een belangrijke route, waarover structureel en grootschalig transport van gevaarlijke stoffen plaatsvindt. De A12 ligt hemelsbreed op een afstand van ca. 5,2 kilometer ten opzichte van het plangebied. Voor de A12 geldt een plaatsgebonden risicocontour van 26 meter. Het invloedsgebied voor het groepsrisico bedraagt 200 meter vanaf weerszijden van de weg. Het plasbrandaandachtsgebied tot slot, bedraagt 30 meter gemeten uit de rand van de rechter rijstrook. Gelet op de ruime afstand ten opzichte van de projectlocatie, vormt het transport van gevaarlijke stoffen over de A12 geen belemmering voor de bestemmingswijziging.

In aanvulling op het bovenstaande wordt vermeld dat het mogelijk is dat in de nabijheid van het plangebied transport plaatsvindt van niet-routeplichtige stoffen. De frequentie hiervan is echter dermate laag, dat geen ruimtelijk relevante risico's ontstaan. Mogelijk transport van dergelijke stoffen in de nabijheid van het plangebied, vormt dan ook geen belemmering voor de vaststelling van het bestemmingsplan.

Buisleidingen
Binnen of in de nabijheid van het plangebied zijn geen buisleidingen gesitueerd waarvan de PR- of GR-contour over de locatie valt.

Conclusie
Het aspect externe veiligheid vormt geen belemmering voor de vaststelling van het bestemmingsplan.

4.6 Ecologie

Sinds 1 januari 2017 is één wet van toepassing die de natuurwetgeving in Nederland regelt: de Wet natuurbescherming. De wet ligt in de lijn van Europese wetgeving, zoals de Vogelrichtlijn en de Habitatrichtlijn. De Wet natuurbescherming vervangt de Boswet, de Flora- en Faunawet en de Natuurbeschermingswet 1998.

Beleid en normstelling
Wet natuurbescherming
Via de Wet natuurbescherming wordt de soortenbescherming en gebiedsbescherming geregeld. De soortenbescherming heeft betrekking op alle, in Nederland in het wild voorkomende zoogdieren, (trek)vogels, reptielen en amfibieën, op een aantal vissen, libellen en vlinders, op enkele bijzondere en min of meer zeldzame ongewervelde diersoorten en op een honderdtal vaatplanten. Welke soorten planten en dieren wettelijke bescherming genieten, is vastgelegd in de bijlage van de Wet natuurbescherming. Dat houdt in dat, bij planvorming, uitdrukkelijk rekening gehouden moet worden met gevolgen, die ruimtelijke ingrepen hebben, voor instandhouding van de beschermde soort.

Gebiedsbescherming wordt geregeld middels de Natura 2000-gebieden. In het kader van de Wet natuurbescherming moet uitgesloten worden dat significante negatieve effecten optreden in Natura 2000-gebieden. Hier kan sprake van zijn wanneer een ontwikkeling binnen een Natura 2000-gebied plaatsvindt, maar ook stikstofdepositie kan verslechterende gevolgen hebben voor stikstofgevoelige habitattypen of leefgebieden die als Natura 2000-gebied zijn aangewezen. Deze gevolgen kunnen significant zijn wanneer een plan, project of handeling leidt tot een toename van stikstofdepositie op stikstofgevoelige habitattypen of leefgebieden die overbelast zijn. Voorheen gold hier de Regeling PAS (Programmatische aanpak Stikstof) voor, maar naar aanleiding een tweetal belangrijke uitstpraken van de Afdeling Bestuursrechtspraak van de Raad van State (mei 2019) is deze regeling komen te vervallen. Als gevolg hiervan dient in Nederland voor elk project een stikstofdepositieberekening uitgevoerd te worden, en kan al sprake zijn van een negatief effect op het moment dat de rekenresultaten meer depositie dan 0,00 mol/ha/jr weergeven.

Nationaal Natuurnetwerk
De term EHS werd in 1990 geïntroduceerd in het Natuurbeleidsplan (NBP) van het ministerie van Landbouw, Natuur en Voedselkwaliteit. In 2013 veranderde de naam van Ecologische Hoofdstructuur naar Nationaal Natuurnetwerk (NNN). NNN is een netwerk van gebieden in Nederland waar de natuur voorrang heeft. Het netwerk helpt voorkomen dat planten en dieren in geïsoleerde gebieden uitsterven en dat natuurgebieden hun waarde verliezen. Het NNN kan worden gezien als de ruggengraat van de Nederlandse natuur. NNN is tevens opgenomen in het streekplan van de provincie. Indien het projectgebied in of in de nabijheid van het NNN gelegen is, verlangt de provincie een 'nee-tenzij-toets'.

Onderzoek
In het kader van de planontwikkeling heeft ecologisch adviesbureau Bureau Buitenwaard een quickscan Wet natuurbescherming en een nader onderzoek naar de kerkuil uitgevoerd. Cauberg Huygen heeft een stikstofdepositieberekening uitgevoerd naar de effecten op beschermde gebieden. De rapportages zijn opgenomen in de bijlagen bij voorliggende toelichting. Onderstaand worden de resultaten samenvattend weergegeven.

Gebiedsbescherming
Natura 2000
Het plangebied ligt niet binnen een beschermd natuurgebied. De projectlocatie is gelegen op ruim 7 kilometer van Natura 2000-gebied Uiterwaarden Lek. Overige Natura 2000-gebieden liggen op een afstand van ruim 8 en 16 kilometer, en betreffen respectievelijk de gebieden Zouweboezem (zuidoosten) en Oostelijke Vechtplassen (noordoosten).

Ten behoeve van de ontwikkeling is door Cauberg Huygen een stikstofdepositieberekening uitgevoerd naar de effecten op beschermde gebieden (notitie d.d. 24 juni 2020, 4 Onderzoek stikstofdepositie (Cauberg Huygen, 2020)). Voor de invoer van de gegevens in het AERIUS-model wordt onderscheid gemaakt in de aanlegfase en de gebruiksfase. Voor de aanlegfase zijn de benodigde verkeersbewegingen en het materieel beschreven in het onderzoek. Daarnaast is voor de gebruiksfase meegenomen dat de woning gasloos worden opgeleverd en is uitgegaan van een worst case-scenario aan verkeersbewegingen. Met voormelde uitgangspunten van het rekenmodel in respectievelijk de aanlegfase en gebruiksfase zijn de berekeningen uitgevoerd in AERIUS. Uit de berekeningen blijkt dat in beide fases er geen rekenresultaten hoger zijn dan 0,00 mol/ha/jaar.

NNN
Het dichtstbijzijnde NNN-gebied bevindt ca. 50 meter ten noorden, aan de overzijde van de Hollandsche IJssel. Gelet op de aard en omvang van de planologische wijziging en het gegeven dat de ontwikkeling niet binnen het NNN plaatsvindt, worden negatieve effecten op het NNN niet verwacht.

Soortenbescherming
Voor de beoordeling in het kader van de Wet natuurbescherming heeft tevens is quickscan flora en fauna (5 Ecologische quickscan (Bureau Buitenwaard, 2020)). Daarbij is de geschiktheid van de locatie voor beschermde soorten beoordeeld. Gelet op de biotoopkenmerken van de locatie, kan de aanwezigheid voor een groot deel van beschermde soortgroepen worden uitgesloten. Het gaat dan bijvoorbeeld om grondgebonden zoogdieren en vleermuizen.

Voor vogels geldt dat onderscheid wordt gemaakt tussen soorten met jaarrond beschermde nesten en soorten met niet-jaarrond beschermde nesten. Daarnaast zijn er nog de zogeheten 'categorie 5' soorten, waarvoor geldt dat ze niet direct als jaarrond beschermd worden aangemerkt maar specifieke en zwaarwegende redenen een dergelijke status wel kunnen rechtvaardigen.

Het plangebied is potentieel geschikt voor vogels met niet-jaarrond beschermde nesten. Negatieve effecten kunnen worden voorkomen door verstorende werkzaamheden buiten het broedseizoen (grofweg 15 maart tot 15 juli) plaats te laten vinden. Indien dit niet mogelijk is, dient voorafgaand aan de werkzaamheden een aanvullende beoordeling plaats te vinden. Effecten op categorie 5-soorten kunnen gelet op de kenmerken van het plangebied, worden uitgesloten.

Voor broedvogels met jaarrond beschermde nesten, geldt dat rekening dient te worden gehouden met de Kerkuil. Er is derhalve nader onderzoek naar de aanwezigheid van een nestplaats en/of de functioneel leefgebied van de kerkuil uitgevoerd (6 Nader onderzoek kerkuil (Bureau Buitenwaard, 2021)). Uit dit nader onderzoek is gebleken dat in het onderzoeksgebied geen vaste rust of verblijfplaats van de kerkuil of andere voor deze soort essentiële gebiedsfuncties aanwezig is. Wel vormt het gebied onderdeel van het territorium van de bosuil en de ransuil. Het gebied wordt gebruikt als foerageergebied maar is niet van essentieel belang, aangezien de omliggende terreinen vergelijkbare kenmerken hebben. De rustplaats van de ransuil ligt buiten de invloedssfeer van de voorgenomen werkzaamheden. Derhalve kan geconcludeerd worden dat uitvoering van het voorgenomen plan geen gevolgen heeft voor de kerkuil en ook negatieve effecten op andere uilensoorten kunnen worden uitgesloten.

Conclusie
Het aspect ecologie vormt geen belemmering voor de vaststelling van het bestemmingsplan. Er is geen ontheffing nodig in het kader van de Wet natuurbescherming.

4.7 Geluid

Wet geluidhinder
In het kader van de Wet geluidhinder moeten geluidsgevoelige objecten voldoen aan de wettelijk bepaalde normering als het gaat om de maximale geluidsbelasting op de gevels. De limitatieve lijst geluidsgevoelige gebouwen bestaat uit:

  • woningen
  • onderwijsgebouwen
  • ziekenhuizen
  • verpleeghuizen
  • verzorgingstehuizen
  • psychiatrische inrichtingen
  • kinderdagverblijven.


Op het moment dat een van bovenstaande functies ontwikkeld wordt, zal middels een geluidsonderzoek aangetoond moeten worden of er voldaan wordt aan de wettelijke voorkeursgrenswaarde. Daarnaast kan als het gaat om bijvoorbeeld logiesruimtes (hotelkamers, recreatieve verblijven) wenselijk zijn om een goed en aangenaam binnenklimaat te kunnen waarborgen.

Activiteitenbesluit milieubeheer
Wanneer inrichtingen in de zin van de Wet milieubeheer worden gerealiseerd, dient er zorg voor te worden gedragen dat deze geen onacceptabele hinder richting de omgeving veroorzaken. In het Activiteitenbesluit milieubeheer zijn daarom normen opgenomen waaraan een inrichting dient te voldoen. Daarbij gelden verschillende normen voor de dag-, avond- en nachtperiode.

Relatie tot bestemmingsplan
Onderhavig bestemmingsplan maakt de vestiging van een niet-agrarische opslagactiviteit mogelijk (bestemming 'Bedrijf'). Binnen de plangrenzen bevindt zich daarnaast een bestaande woning die voorheen onderdeel heeft uitgemaakt van de agrarische inrichting. De bedrijfswoning wordt middels onderhavig bestemmingsplan afgesplitst en zodoende omgezet naar een reguliere burgerwoning. De woning krijgt de bestemming 'Wonen' (met 'Tuin') en maakt geen onderdeel uit van de inrichting van het achtergelegen bedrijf.

Bedrijf
Binnen de bestemming 'Bedrijf' worden niet-agrarische opslagactiviteiten mogelijk gemaakt. Als gevolg van de bedrijfsactiviteiten van Werktent B.V. is sprake van een inrichting in de zin van het Activiteitenbesluit, waardoor voor de toelaatbaarheid van de functie op deze plek getoetst dient te worden aan de daarin opgenomen normen en grenswaarden. Om die reden is door Cauberg-Huygen een akoestisch onderzoek uitgevoerd, waarbij middels een akoestisch rekenmodel de geluidsuitstraling van de inrichting richting woningen in kaart is gebracht. Daarin is onder meer rekening gehouden met de representatieve bedrijfssituatie en de incidentele bedrijfssituatie. Het onderzoek d.d. 15 april 2021 is opgenomen in 2 Akoestisch onderzoek (Cauberg Huygen, 2021) bij voorliggende toelichting.

De voor het akoestisch onderzoek relevante activiteiten van het bedrijf bestaan uit:

  • het laden en lossen van vrachtwagens en/ of bussen op het achterste deel van het terrein met behulp van twee diesel aangedreven heftrucks;
  • het parkeren door werknemers op het terrein;
  • laden en lossen van bestelbussen op het terrein;
  • werkzaamheden in de werkplaats, met behulp van handgereedschap;het schoonspuiten van materieel met behulp van een hogedrukspuit.


De grenswaarden voor de geluidsbelasting op de gevels van geluidgevoelige gebouwen zijn opgenomen in tabel 4.5. Op grond van het Activiteitenbesluit kunnen piekgeluiden ten gevolge van laad- en losactiviteiten in de dagperiode buiten beschouwing worden gelaten.

afbeelding "i_NL.IMRO.0335.BP21120-0001_0020.png" tabel 4.5 Grenswaarden o.g.v. artikel 2.17a Activiteitenbesluit

In aanvulling op bovenstaande normen geldt dat in het kader van de zorgplicht Activiteitenbesluit tevens de indirecte hinder als gevolg van de activiteiten beoordeelt dient te worden. De voorkeursgrenswaarde voor indirecte hinder is 50 dB(A) etmaalwaarde ter plaatse van de gevels van geluidgevoelige bestemmingen aan de toegangsweg. De maximale grenswaarde bedraagt 65 dB(A).

Voor de rekenresultaten wordt verwezen naar het akoestisch onderzoek en bijbehorende bijlagen (zie 2 Akoestisch onderzoek (Cauberg Huygen, 2021)). Daarbij is ten aanzien van de representatieve bedrijfssituatie enkel de dagperiode relevant. Activiteiten in de avondperiode vinden slechts incidenteel plaats en vormen daarmee geluidbronnen bij de incidentele bedrijfssituatie. Activiteiten in de nachtperiode vinden niet plaats. Uit de het onderzoek volgt dat de berekende langtijdgemiddelde en maximale maximale geluidniveaus voldoen aan de grenswaarden uit het Activiteitenbesluit. Daarnaast is gebleken dat de berekende indirecte geluidhinder eveneens voldoet aan voornoemde grenswaarden.

Wonen
Onderdeel van de voorgenomen ontwikkeling vormt de afsplitsing van de voormalig agrarische bedrijfswoning. De woning aan de Willeskop 67 en 67A krijgt in de nieuwe situatie een woonbestemming. Indien sprake is van nieuwe woningen, dient te worden voldaan aan de grenswaarden zoals opgenomen in de Wet geluidhinder. Het gaat daarbij om woningen binnen de geluidszones van:

  • industrieterreinen;
  • wegen;
  • spoorwegen.

De betreffende woning is niet gelegen binnen de geluidszones van een industrieterrein of spoorweg. Wel ligt de woning binnen de zone van de in de nabijheid gelegen provinciale weg N228. In dit geval hoeft echter niet getoetst te worden aan de grenswaarden voor wegverkeerslawaai, omdat sprake is van reeds aanwezige woningen. Deze woning was voorheen in gebruik als agrarische bedrijfswoning, waardoor het functioneel aan het agrarisch bedrijf was verboden en zodoende niet beschermd was tegen geluidhinder als gevolg van de activiteiten binnen de eigen inrichting. Voor wegverkeerslawaai geldt dit echter niet, omdat de geluidbelasting afkomstig van de N228 geen geluidhinder afkomstig van de eigen inrichting betreft. Aangezien die situatie in het nieuwe planologisch regime wordt voortgezet, is geen sprake van wijzigingen waarvoor een toets aan de Wgh nodig wordt geacht.

Conclusie
Het aspect geluid vormt geen belemmering voor de vaststelling van het bestemmingsplan.

4.8 Luchtkwaliteit

In bijlage 2 van de Wet milieubeheer zijn de luchtkwaliteitseisen opgenomen. Daarnaast zijn er luchtkwaliteitseisen opgenomen in het Besluit niet in betekende mate bijdragen (Besluit NIBM) en de bijbehorende ministeriële Regeling niet in betekende mate bijdragen (Regeling NIBM).

AMvB 'niet in betekenende mate'
In het Besluit NIBM en de bijbehorende ministeriële Regeling NIBM zijn de uitvoeringsregels vastgelegd die betrekking hebben op het begrip NIBM. In de Regeling NIBM is een lijst met categorieën van gevallen (inrichtingen, kantoor- en woningbouwlocaties) opgenomen die niet in betekenende mate bijdragen aan de luchtverontreiniging. Deze gevallen kunnen zonder toetsing aan de grenswaarden voor het aspect luchtkwaliteit uitgevoerd worden. Ook als het bevoegd gezag op een andere wijze, bijvoorbeeld door berekeningen, aannemelijk kan maken dat het geplande project NIBM bijdraagt, kan toetsing van de luchtkwaliteit achterwege blijven.

De definitie van 'niet in betekende mate' is 3% van de grenswaarde voor NO2 en PM10. De 3% komt overeen met 1,2 microgram/m3 (µg/m3). Als een project voor één stof de 3%-grens overschrijdt, dan verslechtert het project 'in betekenende mate' de luchtkwaliteit. De 3%-norm is in de Regeling niet in betekenende waarde uitgewerkt in concrete voorbeelden, waaronder:

  • woningbouw: 1.500 woningen netto bij één ontsluitende weg en 3.000 woningen bij twee ontsluitende wegen;
  • kantoorlocaties: 100.000 m2 brutovloeroppervlak bij één ontsluitende weg en 200.000 m2 brutovloeroppervlak bij twee ontsluitende wegen.


In onderhavig geval is sprake van een opslaglocatie voor werktenten. Werktenten worden ter plaatse opgeslagen en van en naar de locatie getransporteerd. Mede in verband met het akoestisch onderzoek in het kader van het Activiteitenbesluit is het aantal vervoersbewegingen in kaart gebracht. Deze gegevens hebben als input gediend voor de NIBM-rekentool. Omdat de berekening ziet op de bijdrage als gevolg van extra verkeer, is de verkeersgeneratie afkomstig van de woning niet bij de berekening betrokken. Deze woning is immers in de huidige situatie ook al aanwezig en leidt daarmee niet tot extra verkeersbewegingen ten opzichte van de huidige situatie. De uitkomsten van de worst-case berekening zijn weergegeven in onderstaande figuur.

afbeelding "i_NL.IMRO.0335.BP21120-0001_0021.png"

figuur 4.2 Worst-case berekening NIBM-tool (https://www.infomil.nl/onderwerpen/lucht-water/luchtkwaliteit/slag/hulpmiddelen/nibm-tool/)

Uit de berekening blijkt dat de bijdrage van het verkeer niet in betekenende mate bijdraagt aan verslechtering van de luchtkwaliteit ter plaatse. Nader onderzoek is niet noodzakelijk.

Achtergrondconcentraties stikstofdioxide en fijnstof
In het kader van een goede ruimtelijke ordening en met het oog op de gezondheid dient de luchtkwaliteit ter plaatse te worden beoordeeld. Hiertoe is gebruik gemaakt van de NSL Monitoringstool. De NSL Monitoringstool (geraadpleegd d.d. 24 juli 2020) laat zien dat ter hoogte van het plangebied (rekenpunt ID: 167236) de grootschalige achtergrondconcentraties in 2020 van stikstofdioxide NO2 15,6 µg/m3, van fijnstof PM10 18,0 µg/m3 en van fijnstof PM2,5 10,9 µg/m3 zijn. Deze achtergrondconcentraties lopen tot 2030 nog verder terug.

De grenswaarde voor toetsing van de jaargemiddelde concentratie voor stikstofdioxide NO2 is 40 µg/m3, voor fijnstof PM10 is 40 µg/m3 en voor fijnstof PM2,5 is 25 µg/m3. De maximale bijdrage van het extra verkeer is niet van zodanige omvang dat de concentraties van zowel fijnstof als stikstofdioxide de grenswaarden zullen overschrijden. Dit betekent dat ook na planrealisatie voor omwonenden in het gebied een goed woon- en leefklimaat kan worden gewaarborgd.

afbeelding "i_NL.IMRO.0335.BP21120-0001_0022.png"

tabel 4.6 Achtergrondconcentraties fijnstof en stikstofdioxide (bron: nsl-monitoring.nl)

Conclusie
De ingrepen die met dit bestemmingsplan worden voorzien dragen niet in betekenende mate bij aan verslechtering van de luchtkwaliteit ter plaatse. Daarnaast kan gelet op de huidige achtergrondconcentraties en de maximale extra bijdrage als gevolg van de ontwikkeling, gesteld worden dat een goed woon- en leefklimaat gewaarborgd blijft. Het aspect luchtkwaliteit vormt geen belemmering voor de vaststelling van het bestemmingsplan.

4.9 Verkeer en parkeren

Bij ruimtelijke ontwikkelingen dienen verkeer- en parkeeraspecten in kaart te worden gebracht. Daarbij is de parkeerbehoefte, verkeersgeneratie en de ontsluiting van belang. Hierdoor kan de realisatie van voldoende parkeerplaatsen worden gewaarborgd en worden ongewenste of onveilige verkeerssituaties tegengegaan. De genoemde verkeersaspecten worden hierna achtereenvolgens behandeld.

Parkeren
Voor het bepalen van de parkeerbehoefte wordt gebruik gemaakt van de Nota Parkeernormen Montfoort 2020 en het paraplubestemmingsplan "Parkeernormen Montfoort". De Nota Parkeernormen Montfoort is reeds besproken in paragraaf 3.3.3 Nota parkeernormen Montfoort 2020 van deze toelichting.

Met het verdwijnen van de grondslag voor het toetsen aan stedenbouwkundige aspecten in de gemeentelijke bouwverordeningen, is het wenselijk op een andere wijze te voorzien in een toetsingskader voor parkeren. Met het parapluplan wordt voor het gehele gemeentelijke grondgebied voorzien in een kader waaraan ontwikkelingen kunnen worden getoetst op parkeeraspecten. Het parapluplan legt de koppeling met de gemeentelijke “Nota Parkeernormen Montfoort 2020”. Een nieuwe ontwikkeling dient aan de regels uit deze parkeernota te voldoen.

Nieuwe bestemmingsplannen dienen op basis van het parapluplan een regeling te bevatten, waarmee wordt geborgd dat wordt voorzien in voldoende parkeergelegenheid. Deze regeling maakt onderdeel uit van de algemene bouwregels, zodat de gemeente bij het beoordelen van een ontwikkeling de juiste kaders in handen heeft voor het beoordelen van de parkeersituatie. Voorliggend bestemmingsplan bevat daarom een dergelijke regeling, op grond waarvan een omgevingsvergunning niet kan worden verleend zonder dat wordt voorzien in voldoende parkeergelegenheid conform de vigerende parkeernota of diens rechtsopvolger. De stedenbouwkundige beoordeling ten aanzien van parkeren wordt daarmee doorgeschoven naar de beoordeling van de bouwaanvraag.

Verkeersgeneratie
In de vigerende situatie is een melkveehouderij toegestaan. Verkeersbewegingen van en naar de Willeskop 67 – 67a bestaan uit onder andere aan- en afvoer van vee, melk en krachtvoer, maar ook uit bewegingen in verband met de afvoer van o.a. drijfmest en bijvoorbeeld in het kader van het inkuilen van gras en maïs. Door het mogelijk maken van de opslag van niet-agrarische producten in de vrijgekomen agrarische opstallen ontstaan nieuwe verkeersbewegingen van en naar het perceel; aan- en afvoer van werktenten. Echter kan gesteld worden dat de verkeersbewegingen ten behoeve van de opslag van werktenten vergelijkbaar of lager zullen uitvallen in vergelijking met de verkeersbewegingen ten behoeve van de melkveehouderij. Aangezien de beoogde bedrijfsvoering geen bezoekersfunctie kent, is uitsluitend sprake van verkeersbewegingen van eigen voertuigen. Er is geen toename van de verkeersintensiteit.

Ontsluiting
De ontsluiting van het plangebied gebeurt conform de huidige situatie op de Willeskop (N228). Van daaruit bereikt men in 6,5 km de snelweg A12. De verkeessituatie wijzigt niet zodanig dat een nieuwe of aangepaste ontsluiting noodzakelijk is.

Conclusie
Verkeer en parkeren vormt geen belemmering voor de vaststelling van het bestemmingsplan. In lijn met het paraplubestemmingsplan "Parkeren Montfoort" wordt voorzien in een parkeerregeling, zodat de realisatie van afdoende parkeerplaatsen is geborgd. Van een toename van de verkeersintensiteit is geen sprake. Zodoende is het ook niet noodzakelijk de ontsluiting van het gebied aan te passen, zodat de ontsluiting gelijk blijft aan de huidige situatie.

4.10 Water

Bij ruimtelijke ontwikkelingen is het van belang om aandacht te besteden aan de waterhuishoudkundige aspecten, zodat de waterhuishoudkundige doelstellingen worden gewaarborgd. De uitgangspunten voor het watersysteem dienen op een juiste wijze in het plan te worden verwerkt. Daarbij spelen over het algemeen aspecten zoals waterkwantiteit, waterkwaliteit, beschermde gebieden (zoals waterkeringen) en riolering een rol. Het waterkwaliteits- en waterkwantiteitsbeheer in het plangebied wordt uitgevoerd door het Hoogheemraadschap de Stichtse Rijnlanden (HDSR).

Waterkwantiteit
Bij de toename van het verhard oppervlak kan een watervergunning en watercompensatie nodig zijn om de gevolgen van de versnelde afvoer van het hemelwater als gevolg van de verharding op te vangen. De mate van compensatie is afhankelijk van diverse berekeningsfactoren en het gebied waarin een ontwikkeling plaatsvindt. Er hoeven geen compenserende maatregelen te worden getroffen indien het verhard oppervlak:

  • in landelijk gebied met niet meer dan 5.000 m2 toeneemt;
  • in stedelijk gebied met niet meer dan 500 m2 toeneemt.


De locatie maakt onderdeel uit van het landelijk gebied (zie paragraaf 3.2.2 Interim Omgevingsverordening provincie Utrecht). Het is afhankelijk van de uiteindelijke inrichting van een plangebied of sprake is van een toename van verharding waarvoor maatregelen getroffen dienen te worden. Alleen wanneer de vrijgestelde oppervlakte wordt overschreden dient een watervergunning te worden aangevraagd en zijn compenserende maatregelen benodigd. In dit geval geldt dat het plangebied reeds voor deel verhard is. Om de bedrijfsactiviteiten op het perceel mogelijk te maken is het noodzakelijk extra verharding toe te voegen zodat voertuigen zich goed over het terrein kunnen bewegen. Deze extra verharding overschrijdt de vrijgestelde 5.000 m2 niet. Hierdoor is watercompensatie en een watervergunning niet benodigd, maar wordt dit door het Hoogheemraadschap wel geadviseerd. In dit kader is het van belang te vermelden dat een deel van het verhard terrein in de toekomstige situatie aangelegd wordt met graskeien en derhalve water voldoende in de bodem kan infiltreren. Verder blijven de bestaande duikers behouden.

Waterkwaliteit
Er is geen sprake van toepassing van uitloogbare materialen, zoals lood, koper en zink, waardoor dit ook niet in aanraking kan komen met schoon hemelwater. De ontwikkeling heeft derhalve geen negatief op de waterkwaliteit.

Riolering
De bedrijfsbebouwing zal aangesloten worden op de riolering ter plaatse. Voor de af te splitsen woning geldt dat enkel de planologische status van de woning wijzigt. De bestaande situatie ten aanzien van riolering blijft daarmee gehandhaafd.

Veiligheid
Het plangebied is niet gelegen binnen een (beschermingszone van een) waterkering. Wel gelden op basis van provinciale regelgeving ten aanzien van de bescherming tegen mogelijke overstromingen. Dit aspect is reeds behandeld in paragraaf 3.2.2 Interim Omgevingsverordening provincie Utrecht. Gelet op de aard en omvang van de ontwikkeling is geen sprake van een significante wijziging ten opzichte van de huidige situatie.

Oppervlaktewater
Rondom het plangebied is sprake van enkele kavelslootjes. Het betreft tertiaire watergangen, deze oppervlaktewateren zijn als het ware de haarvaten van het watersysteem en hebben onder meer een belang voor de waterberging. Ze hebben geen belangrijke door- of afvoerfunctie.

Ter hoogte van de voorzijde van het perceel is een tertiaire watergang op de kaart opgenomen, die de bestaande woning van de rest van het perceel scheiden. Deze watergang is in het verleden al gedempt. Dit blijft ook in de toekomstige situatie zo. Er treden derhalve geen wijzigingen op ten opzichte van de huidige situatie.

afbeelding "i_NL.IMRO.0335.BP21120-0001_0023.png"

figuur 4.3 Uitsnede Leggerkaart HDSR (https://www.hdsr.nl/werk/leggers-watergangen/)

Conclusie
Het bestemmingsplan voorziet niet in ingrepen die een negatief effect op de waterhuishoudkundige situatie ter plaatse hebben. Het wateraspect vormt daarom geen belemmering voor de vaststelling van voorliggend bestemmingsplan.

4.11 Duurzaamheid

Wet Voortgang Energietransitie

In de Wet Voortgang Energietransitie is opgenomen dat nieuwbouw per 1 juli 2018 gasloos uitgevoerd dient te worden. Hieraan voorafgaand is de energieagenda gepubliceerd. De energieagenda beschrijft de overgang naar een gasloze maatschappij en stelt dat het beleid na 2023 moet leiden tot een vrijwel CO2-neutrale economie in 2050 in Nederland.

Bijna Energieneutraal Gebouw

Een belangrijk wettelijk instrument voor het duurzaam bouwen is het Bouwbesluit. In het Bouwbesluit is onder meer de energieprestatie in de vorm van BENG eisen (Bijna Energieneutraal Gebouw) opgenomen. Tot 31 december 2020 werd de energiezuinigheid uitgedrukt in de Energie Prestatie Coëfficient (EPC), maar de EPC is met ingang van 1 januari 2021 vervangen door de BENG eisen.

Montfoort Duurzaam

Met de Duurzaamheidsvisie Gemeente Montfoort 2015-2020 'Montfoort Duurzaam' wil de gemeente Montfoort een koers uitzetten naar de toekomst waarbij de middelen efficiënt worden ingezet en waarbij de kracht van maatschappelijke partners het uitgangspunt moet zijn. De visie dient daarom als uitgangpunt voor nieuw te ontwikkelen milieubeleid, maar ook om het aspect duurzaamheid te integreren in andere beleidsvelden, in projecten en activiteiten.

Duurzaamheid is een veelomvattend begrip. In het kader van deze visie is, naast acties voor het creëren van een stimulerende context, de keuze gemaakt om de focus te leggen op een aantal thema's. De concrete invulling van duurzaamheid in Montfoort bestaat uit:

  • Duurzaam ondernemen
  • Gebouwenbeheer en energiegebruik (incl. gemeentelijke projecten)
  • De afvalketen
  • Beheer van de openbare ruimte

De keuze is gebaseerd op de mogelijkheden die de markt en de maatschappij bieden en initiatieven en ontwikkelingen die regionaal en lokaal actueel zijn.

Relatie tot bestemmingsplan

In het advies van de ervenconsulent is opgenomen dat de ontwikkeling moet leiden tot een verbetering van de ruimtelijke kwaliteit. Gezien het feit dat het plan voorziet in een actueel planologisch kader voor de exploitatie van een niet-agrarische bedrijfsactiviteit, wordt een minder milieubelastende activiteit mogelijk gemaakt. Het advies ziet daarom ook vooral op het verduurzamen van de omgeving van het plangebied.

Met de ontwikkeling wordt rekening gehouden met een aantal randvoorwaarden voor klimaatadaptie en ecologie, zoals:

  • het aanleggen van natuurlijke, groene kruidenrijke grasoevers, al dan niet verstevigd met wilgentenen. Geen gebruik van (hoge) beschroeiingen;
  • gebruik van autochtone beplanting, bij voorkeur van biologische afkomst;
  • gebruik van bij- en vlindervriendelijk zaadmengsel en het afstemmen van tijd en frequentie van het maaien op deze insecten;
  • het niet-toestaan van het kappen of snoeien van bomen ten behoeve van zonnepanelen.

Naast het vestigen van een minder milieubelastende activiteit op het perceel en het verduurzamen van de omgeving van het plangebied, wordt bij de ontwikkeling rekening gehouden met meerdere duurzaamheidsaspecten. Zo zal er sprake zijn van de verduurzaming van de bestaande bebouwing en wordt, voor de te realiseren bebouwing, voldaan aan de normen uit het Bouwbesluit. Verder wordt bij de keuze voor het materiaalgebruik rekening gehouden met het gebruik van duurzame materialen.

Conclusie

Geconludeerd kan worden dat met dit plan rekening wordt gehouden met het verbeteren van de ruimtelijke kwaliteit van het plangebied, het verduurzamen van de omgeving en de verduurzaming van de bebouwing en het erf.

4.12 M.e.r - beoordeling

Op 1 april 2011 is het gewijzigde Besluit milieueffectrapportage in werking getreden. Een belangrijke wijziging betreft het indicatief maken van de drempelwaarden in onderdeel D (betreft de m.e.r.-beoordeling) van de bijlage bij het Besluit milieueffectrapportage.

Concreet betekent dit dat het bevoegd gezag zich er nog steeds van moet vergewissen of activiteiten geen aanzienlijke milieugevolgen kunnen hebben ook wel genoemd de 'vergewisplicht'. Het komt er op neer dat voor elk besluit of plan dat betrekking heeft op activiteiten die voorkomen op de D-lijst deze afweging gemaakt dient te worden. Deze lijst geeft namelijk aan of er voor activiteiten en projecten beoordeeld moet worden of er een MER gemaakt moet worden. Voor projecten of activiteiten die beneden de drempelwaarden vallen moet een toets worden uitgevoerd of belangrijke nadelige milieugevolgen kunnen worden uitgesloten. Voor deze toets wordt de term vormvrije m.e.r.-beoordeling gehanteerd.

Deze vormvrije m.e.r.-beoordeling kan tot twee conclusies leiden:

  • belangrijke nadelige milieugevolgen zijn uitgesloten: er is geen m.e.r. beoordeling noodzakelijk;
  • belangrijke nadelige gevolgen voor het milieu zijn niet uitgesloten: er moet een m.e.r.-beoordeling plaatsvinden of er kan direct worden gekozen voor m.e.r.


De toetsing in het kader van de vormvrije m.e.r.-beoordeling dient te geschieden aan de hand van de selectiecriteria in bijlage III van de EEG-richtlijn milieueffectbeoordeling. In deze bijlage staan drie hoofdcriteria centraal:

  • 1. de kenmerken van het project;
  • 2. de plaats van het project;
  • 3. de kenmerken van de potentiële effecten.


Procedure vormvrije m.e.r.
Op 7 juli 2017 is het gewijzigde Besluit m.e.r. in werking getreden. In het gewijzigde Besluit m.e.r. is de nieuwe procedure voor de vormvrije m.e.r.-beoordeling opgenomen. Voor projecten die beneden de drempelwaarden uit de D-lijst vallen, geldt de vormvrije m.e.r.-beoordeling zoals hierboven omschreven dient te worden doorlopen. Door het college van de gemeente Montfoort dient een afzonderlijk besluit genomen te worden of een vormvrije m.e.r.-beoordeling ook daadwerkelijk volstaat. Dit besluit nemen zij aan de hand van een door initiatiefnemer in te dienen Aanmeldnotitie vormvrije m.e.r.
 
Relatie tot bestemmingsplan
In het kader van het Besluit m.e.r. is voor de ontwikkeling een Aanmeldnotitie vormvrije m.e.r. opgesteld. Daarin is de planologische wijziging toegelicht en nader gemotiveerd aan de hand van de selectiecriteria. Voor de vormvrije m.e.r.-beoordeling wordt verwezen naar de Aanmeldnotitie vormvrije m.e.r., zoals opgenomen in 7 Aanmeldnotitie vormvrije m.e.r. (Mees Ruimte & Milieu, 2021 van deze bestemmingsplantoelichting. Uit de behandeling van de diverse criteria blijkt dat gelet op de aard en omvang van de ontwikkeling geen sprake is van significant negatieve effecten op het milieu. Een m.e.r.-beoordeling wordt daarom niet noodzakelijk geacht.

Hoofdstuk 5 Juridische planopzet

5.1 Inleidende regels

Het bestemmingsplan bestaat uit regels, een verbeelding en een toelichting. De regels en de verbeelding vormen het juridisch bindende deel van het bestemmingsplan. De verbeelding heeft de rol van visualisering van de bestemmingen. De regels bepalen de bouw- en gebruiksmogelijkheden van de gronden. De bestemming is zo opgenomen dat voldoende rechtszekerheid bestaat voor omwonenden en andere gebruikers van het gebied en de omliggende gebieden. In de toelichting wordt gemotiveerd waarom sprake is van een goede ruimtelijke ordening. Het plan is opgesteld op basis van de Standaard Vergelijkbare Bestemmingsplannen 2012 (SVBP2012).

Het bestemmingsplan is primair bedoeld om de beoogde ontwikkelingen juridisch-planologisch mogelijk te maken. Het bestemmingsplan betreft dan ook een ontwikkelingsplan. De ruimtelijke en functionele kaders zijn voldoende duidelijk, waardoor gekozen is voor directe bouwtitels.

5.1.1 Begrippen

In artikel 1 worden de begrippen die in de regels worden gebruikt omschreven. Sommige begrippen zijn voor meerdere uitleg vatbaar, daarom is het nodig om ze planologisch-juridisch af te bakenen en te preciseren, ten opzichte van het algemeen spraakgebruik. Zonder definitie zou een begrip tot verwarring kunnen leiden.

5.1.2 Wijze van meten

In artikel 2 wordt weergegeven hoe de in de regels opgenomen maten van een bouwwerk moeten worden gemeten.

5.2 Bestemmingsregels

5.2.1 Agrarisch met waarden - Landschap en natuur

De weidegronden gelegen ten zuiden van het bedrijfsperceel krijgen de bestemming 'Agrarisch met waarden - Landschap en natuur'. Middels een voorwaardelijke verplichting is geborgd dat de ecologische maatregelen worden uitgevoerd en instandgehouden.

5.2.2 Bedrijf

Bedrijven zijn binnen de bestemming toegestaan tot en met categorie 2. Afwijkingen hiervan zijn aangeduid en worden in de regels verklaard.

5.2.3 Natuur - Oeverstroken en water

Aan de zuidzijde van de bestemming 'Agrarisch - Rivierzone' is ter plaatse van de noordoever van de tiendwetering de bestemming 'Natuur - Oeverstroken en water' opgenomen.

5.2.4 Tuin

De bij de (af te splitsen) burgerwoning behorende tuin is als zodanig bestemd.

5.2.5 Wonen

De bestaande agrarische bedrijfswoning is afgesplitst en middels voorliggend bestemmingsplan bestemd tot 'Wonen'. Op de tot 'Wonen' bestemde gronden mag uitsluitend worden gebouwd ten dienste van de bestemming. De bestaande situatie wordt gehandhaafd, wat betekent dat binnen het bestemmingsplan maximaal één woning is toegestaan.

5.2.6 Waarde - Archeologie 3, 4 en 5

De aanwezige archeologische waarden worden middels deze bestemmingen beschermd.

5.3 Algemene regels

5.3.1 Antidubbeltelregel

Deze bepaling is opgenomen om te voorkomen dat, wanneer volgens een bestemmingsplan bepaalde gebouwen en bouwwerken niet meer dan een bepaald deel van een bouwperceel mogen beslaan, het opengebleven terrein nog eens meetelt bij het toestaan van een ander gebouw of bouwwerk, waaraan een soortgelijke eis wordt gesteld. De antidubbeltelregel is een verplichte regel die voortkomt uit het Besluit ruimtelijke ordening.

5.3.2 Algemene bouwregels

Hierin zijn algemene regels opgenomen voor bouwen en ondergeschikte bouwregels.

5.3.3 Algemene gebruiksregels

Onder dit artikel valt het verbod tot het oprichten van Bevi-inrichtingen en geluidszoneringsplichtige inrichtingen. Daarnaast wordt aangegeven welk gebruik in het kader van een goede ruimtelijke ordening in ieder geval dient te worden verstaan onder strijdig gebruik en is geregeld dat wonen in bijgebouwen niet is toegestaan.

Sinds een wijziging in de wetgeving geldt daarnaast vanaf 1 juli 2018 dat de aanvullende werking van het Bouwbesluit ten aanzien van parkeren komt te vervallen. Het blijft echter wenselijk om te regelen dat in voldoende mate in parkeergelegenheid wordt voorzien. Om die reden worden deze regels nu geïntegreerd in bestemmingsplannen. Middels het parapluplan "Parkeernormen Montfoort" dat voor het gehele gemeentelijke grondgebied geldt, wordt voorzien in een regeling die zorgt voor het vervangen van de parkeerregeling indien een dergelijke regeling al in vigerende plannen is opgenomen, dan wel een aanvullende regeling voor de bestemmingsplannen waarin de parkeerregeling ontbreekt.

5.3.4 Algemene aanduidingsregels

Binnen het plan komt een gebiedsaanduiding voor, namelijk de vrijwaringszone vanwege een straalpad. De regeling voorziet in een maximale bouwhoogte van bouwwerken in dit gebied. De aanduiding bestrijkt meerdere bestemmingen.

5.3.5 Algemene afwijkingsregels

Dit artikel is opgenomen om ondergeschikte afwijkingen van het bestemmingsplan met een algemene bevoegdheid mogelijk te maken. De regeling voorziet in een duidelijke begrenzing van het toepasbaar bereik van de afwijking.

5.3.6 Algemene wijzigingsregels

In dit artikel wordt aangegeven van de regels waarmee door middel van een wijzigingsbevoegdheid ex artikel 3.6 Wro het mogelijk is enige flexibiliteit in het plan aan te brengen. Het gaat hierbij om een bevoegdheid en houdt geen verplichting in. Deze bevoegdheid mag nadrukkelijk niet worden gebruikt om zodanig aanzienlijke wijzigingen van bestemmingen te bewerkstelligen, dat daarmee de essentie van het plan wezenlijk wordt veranderd. In voorliggend bestemmingsplan gaat het enkel om de bevoegdheid tot het wijzigen van de Staat van Bedrijfsactiviteiten zoals opgenomen in de bijlagen bij de regels en om een beperkte overschrijding van de bestemmingsgrenzen.

5.4 Overige regels

In dit artikel zijn de algemene bouw- en gebruiksregels opgenomen over parkeernormen overeenkomstig de gemeentelijke parkeernota, zoals deze geldt op het moment van indienen van een aanvraag omgevingsvergunning.

5.5 Overgangs- en slotregels

5.5.1 Overgangsrecht

Bouwwerken welke op het moment van inwerkingtreding van het bestemmingsplan bestaan (of waarvoor een bouwvergunning is aangevraagd) mogen blijven bestaan, ook al is er strijd met de bouwregels. De overgangsbepaling houdt niet in dat het bestaand, illegaal opgerichte, bouwwerk legaal wordt, noch brengt het met zich mee dat voor een dergelijk bouwwerk alsnog een omgevingsvergunning voor de activiteit bouwen kan worden verleend. Burgemeester en wethouders kunnen in beginsel dus nog gewoon gebruik maken van hun handhavingsbevoegdheid. Het gebruik van de grond en opstallen, dat afwijkt van de regels op het moment van inwerkingtreding van het plan, mag eveneens worden voortgezet.

5.5.2 Slotregel

Dit artikel geeft aan op welke manier de regels kunnen worden aangehaald.

Hoofdstuk 6 Uitvoerbaarheid

6.1 Economische uitvoerbaarheid

Op grond van het bepaalde in artikel 3.1.6 onder f. van het Besluit ruimtelijke ordening (Bro) dient in deze toelichting inzicht te worden gegeven in de uitvoerbaarheid van het bestemmingsplan. Deze uitvoerbaarheid heeft in het bijzonder betrekking op de financieel economische uitvoerbaarheid. Daarnaast moet worden aangegeven of er een exploitatieplan wordt opgesteld of dat er sprake is van een overeenkomst.

Initiatiefnemer is verantwoordelijk voor de financieel economische uitvoerbaarheid. Door het sluiten van een anterieure overeenkomst zijn gemeentelijke kosten gedekt, en zijn de planning en uitvoering vastgelegd. Ten behoeve van het bestemmingsplan hoeft geen exploitatieplan te worden vastgesteld. Alle kosten die gepaard gaan met de uitvoering van de plannen zullen door de initiatiefnemers worden gedragen. Het plan is derhalve economisch uitvoerbaar.

6.2 Maatschappelijke uitvoerbaarheid

6.2.1 Participatie

Naar aanleiding van het positieve principebesluit van de gemeente Montfoort is de voorgenomen ontwikkeling verder uitgewerkt. Parallel hieraan zijn enkele omwonenden en belanghebbenden geïnformeerd over het beoogde plan. De direct omwonenden zijn geïnformeerd middels een toelichting door de initiatiefnemer.

6.2.2 Wettelijk vooroverleg en inspraak

Bij het doorlopen van de bestemmingsplanprocedure bestaan er diverse momenten waarop overleg en inspraak plaatsvindt. Voor onderhavige ontwikkeling is een ontwerpbestemmingsplan opgesteld. Voordat het ontwerp ter inzage is gelegd, is het concept-ontwerp in het kader van het wettelijk vooroverleg conform artikel 3.1.1 Besluit ruimtelijke ordening naar de verschillende overlegpartners verzonden om hen in de gelegenheid te stellen op het plan te reageren. Er is door drie instanties gereageerd op het concept-ontwerp. In de bijlagen bij deze toelichting is een Nota van Beantwoording opgenomen (zie 8 Nota van Beantwoording (Mees Ruimte & Milieu, 2021)), waarin de reacties en de daaruit voortvloeiende aanpassingen inzichtelijk zijn gemaakt.

Het ontwerpbestemmingsplan is vervolgens gedurende zes weken ter inzage gelegd, waarbij een ieder in de gelegenheid is gesteld een schriftelijke of mondelinge zienswijze in te dienen.

Na vaststelling van het bestemmingsplan staat tot slot nog de gang naar de Raad van State open.