direct naar inhoud van Toelichting
Plan: Aardvletterweg1
Status: vastgesteld
Plantype: bestemmingsplan
IMRO-idn: NL.IMRO.0335.BPAardvletterweg1-Ow01

Toelichting

Hoofdstuk 1 Inleiding

De bebouwing op het bedrijfsperceel op hoek Aardvletterweg/Oeverweg is in verschillende fasen gebouwd. Het oudste bedrijfspand, met adres Aardvletterweg 1, is vervallen en in onbruik geraakt. Daarnaast voldoet de woning op Oeverweg 5 niet meer aan de actuele wooneisen. Er zijn dan ook plannen ontwikkeld om het genoemde bedrijfspand en de bestaande woning te slopen en ter plaatse van het te slopen bedrijfspand een nieuw gebouw te realiseren. In dit nieuwe pand op de hoek Aardvletterweg/Oeverweg wordt op de bovenste, derde bouwlaag een bedrijfswoning gerealiseerd, ter vervanging van de bedrijfswoning aan de Oeverweg 5.

In het vigerende bestemmingsplan 'Bedrijventerrein IJsselveld' heeft het bedrijfsperceel de bestemming ´bedrijventerrein´ en is er ter hoogte van de woning aan de Oeverweg 5 een functieaanduiding 'bedrijfswoning' opgenomen. Bebouwing mag maximaal 11 meter hoog zijn. De verplaatsing van de woning is niet mogelijk binnen het vigerende bestemmingsplan.

1.1 Doel

Met het voorliggende bestemmingsplan maakt de gemeente het verplaatsen van de bedrijfswoning mogelijk. Zo wordt tevens de mogelijkheid geboden om in een betere en efficiënter benutting (meervoudig intensief ruimtegebruik) van het bedrijfsperceel te voorzien.

1.2 Gekozen planopzet

Bij de planbeschrijving (hoofdstuk 2) wordt nader omschreven welke ontwikkeling wordt beoogd en hoe ze is vastgelegd in het bestemmingsplan. Er is gekozen om het gehele perceel in het bestemmingsplan op te nemen ten einde onduidelijkheden te voorkomen.

De beoogde verplaatsing wordt direct bestemd. De verplaatsing van de milieugevoelige functie binnen het bedrijventerrein wordt in dit bestemmingsplan per thema verantwoord.

1.3 Ligging en begrenzing

Het voorliggende bestemmingsplan is opgesteld voor het plangebied Aardvletterweg 1, gelegen op het bedrijventerrein IJsselveld te Montfoort.

 afbeelding "i_NL.IMRO.0335.BPAardvletterweg1-Ow01_0001.png"

Ligging plangebied (bron topografische ondergrond Kadaster)

1.4 Vigerende plan

In het plangebied van het voorliggende bestemmingsplan is momenteel het bestemmingsplan 'Bedrijventerrein IJsselveld' (vastgesteld op 25 januari 2010 door de gemeenteraad) van kracht.

In het bestemmingsplan Bedrijventerrein IJsselveld heeft het perceel de bestemming 'Bedrijventerrein'. Er geldt een maximale bouwhoogte 11 meter en bebouwing moet binnen het aangegeven bouwvlak worden gebouwd. De woning aan de Oeverweg 5 is aangeduid met de functieaanduiding 'bedrijfswoning', waarmee de bestaande woning binnen de bestemming Bedrijventerrein planologisch-juridisch mogelijk is gemaakt.

Ter hoogte van het wegtracé van de Oeverweg is de dubbelbestemming 'Leiding Riool' op de verbeelding opgenomen. Hier ligt een belangrijke rioolleiding richting de rioolwaterzuiveringsinstallatie verderop. Op de verbeelding is naast de leiding ook een beschermingszone opgenomen. Binnen de beschermingszone mag, in principe, niet gebouwd worden.

afbeelding "i_NL.IMRO.0335.BPAardvletterweg1-Ow01_0002.png"

Uitsnede verbeelding (bestemmingsplankaart), bestemmingsplan Bedrijventerrein IJsselveld

In het bestemmingsplan 'Bedrijventerrein IJsselveld' wordt benoemd dat nieuwe bedrijfswoningen niet zijn toegestaan. Bestaande bedrijfswoningen zijn met een aanduiding op de verbeelding aangegeven. Er mag onder geen beding burgerbewoning in de bedrijfswoningen plaatsvinden.

Als ruimtelijke uitgangspunt stelt het bestemmingsplan Bedrijventerrein IJsselveld dat de bestaande stedenbouwkundige structuur gehandhaafd zal worden. Wijzigingen in de hoofdstructuur (ruimte versus bebouwing) worden niet nagestreefd. Wel wordt binnen de hoofdstructuur gestreefd naar een verregaande ruimtelijke verbetering. In paragraaf 3.2.2 wordt hier nader op ingegaan.

1.5 Leeswijzer

Het voorliggende bestemmingsplan bestaat uit een verbeelding met bijbehorende regels, vergezeld van een toelichting. De regels en de verbeelding vormen de juridisch bindende elementen van het bestemmingsplan. In de toelichting is een beschrijving van het plangebied opgenomen en zijn de aan het plan ten grondslag gelegen keuzes en beleidsuitgangspunten beschreven.

De toelichting bestaat uit 9 hoofdstukken. Hoofdstuk 2 beschrijft de bestaande - en de toekomstige situatie. De voor het plan relevante beleidsuitspraken zijn in hoofdstuk 3 beschreven. Hoofdstuk 4 behandelt het thema water. In hoofdstuk 5 wordt ingegaan op de verschillende milieuaspecten en hoofdstuk 6 behandelt de relevante omgevingsaspecten. Hierbij vindt er een toets aan de diverse milieu- en omgevingsaspecten plaats.

Een toelichting op het juridische systematiek, een omschrijving van de afzonderlijke bestemmingen is beschreven in hoofdstuk 7. In hoofdstuk 8 wordt de economische uitvoerbaarheid beschreven en in hoofdstuk 9 de maatschappelijke uitvoerbaarheid en de te doorlopen procedures.

Hoofdstuk 2 Bestaande - en toekomstige situatie

2.1 Bestaande situatie

De locatie Aardvletterweg maakt onderdeel uit van het bedrijventerrein IJsselveld. Een enigszins verouderd bedrijventerrein dat vanaf de jaren '50 in verschillende fasen is ontwikkeld. Er is sprake van een divers bebouwingsbeeld, zowel in uitstraling en bouwstaat als in omvang van de bebouwing. Zo worden kleinschalige bedrijfspanden, bedrijfswoningen en kantoren afgewisseld met grootschalige bedrijfsloodsen en -hallen. Daarnaast komen op het terrein, zowel recente nieuwbouw en goed onderhouden panden voor, als zeer vervallen en in onbruik geraakte en leegstaande gebouwen.

Bedrijven hebben doorgaans maar beperkte buitenruimte op het eigen perceel. Door het hoge bebouwingspercentage verschuiven het parkeren en de opslag naar de openbare ruimte of direct in het zicht van de openbare ruimte. Het terrein doet daardoor stenig en rommelig aan. Groenvoorzieningen komen beperkt voor. In het wegprofiel van de Oeverweg zijn aan de zijde van het plangebied enkele bomen aanwezig.

afbeelding "i_NL.IMRO.0335.BPAardvletterweg1-Ow01_0003.png" 

Locatie Aardvletterweg 1 op luchtfoto (bron: Google)

Het bedrijventerrein IJsselveld is te kenmerken als een gemengd terrein. Veel verschillende typen bedrijvigheid komen er voor; zo is er in de nabije omgeving o.a. een rioolwaterzuivering, een trappenfabriek (welke recent haar bedrijfsvoering heeft gestaakt), perifere detailhandel, een autoschadebedrijf en kantoren. Binnen het plangebied zelf is naast de bedrijfswoning, een vleestransportbedrijf gevestigd, bestaande uit meerdere bedrijfsonderdelen.

Het bestaande bedrijfspand op de hoek Oeverweg / Aardvletterweg verkeert in slechte staat en is verouderd. Ook de bedrijfswoning is van matige kwaliteit en voldoet niet meer aan de actuele wooneisen. Daarnaast beperkt de positie van de woning een doelmatig gebruik van dit deel van het terrein.

Foto's bestaande situatie : bedrijfswoning Oeverweg 5 en rechts het te slopen bedrijfspand

Revitalisering 2007-2012

De gemeente Montfoort en het georganiseerde bedrijfsleven hebben een revitaliseringtraject doorlopen in de periode 2007 -2012, waarin onder andere verbeteringen aan wegen, groenvoorziening en bedrijfspanden zijn gedaan. Dit om de economische waarde van het terrein te behouden en te vergroten.

Het opstellen van een Plan van Aanpak Duurzame Revitalisering (2006) en een beeldkwaliteitskader zijn middelen geweest om het functioneren en aanzien van het bedrijventerrein te kunnen verbeteren. Verbeteringen vooral op het vlak van parkeren, opslag of stalling van bedrijfsmaterialen en de aantasting van de oorspronkelijke bedoelde groenstructuur in het gebied. Voor een nadere beschrijving van deze plannen wordt verwezen naar paragraaf 3.2.2.

2.2 Beoogde ontwikkeling

Op het bedrijfskavel aan de Aardvletterweg 1 zijn verschillende bedrijven / bedrijfsonderdelen van vleesverwerking en – transport aanwezig. Zij zijn al decennia lang op het terrein gesitueerd en vormen een belangrijke continue waarde op het bedrijventerrein. Net als het bedrijventerrein als geheel is ook op het bedrijfskavel zelf in verschillende fasen gebouwd. Ook nu is er behoefte aan aanpassing van de bebouwing op het kavel en breekt een volgende fase aan.

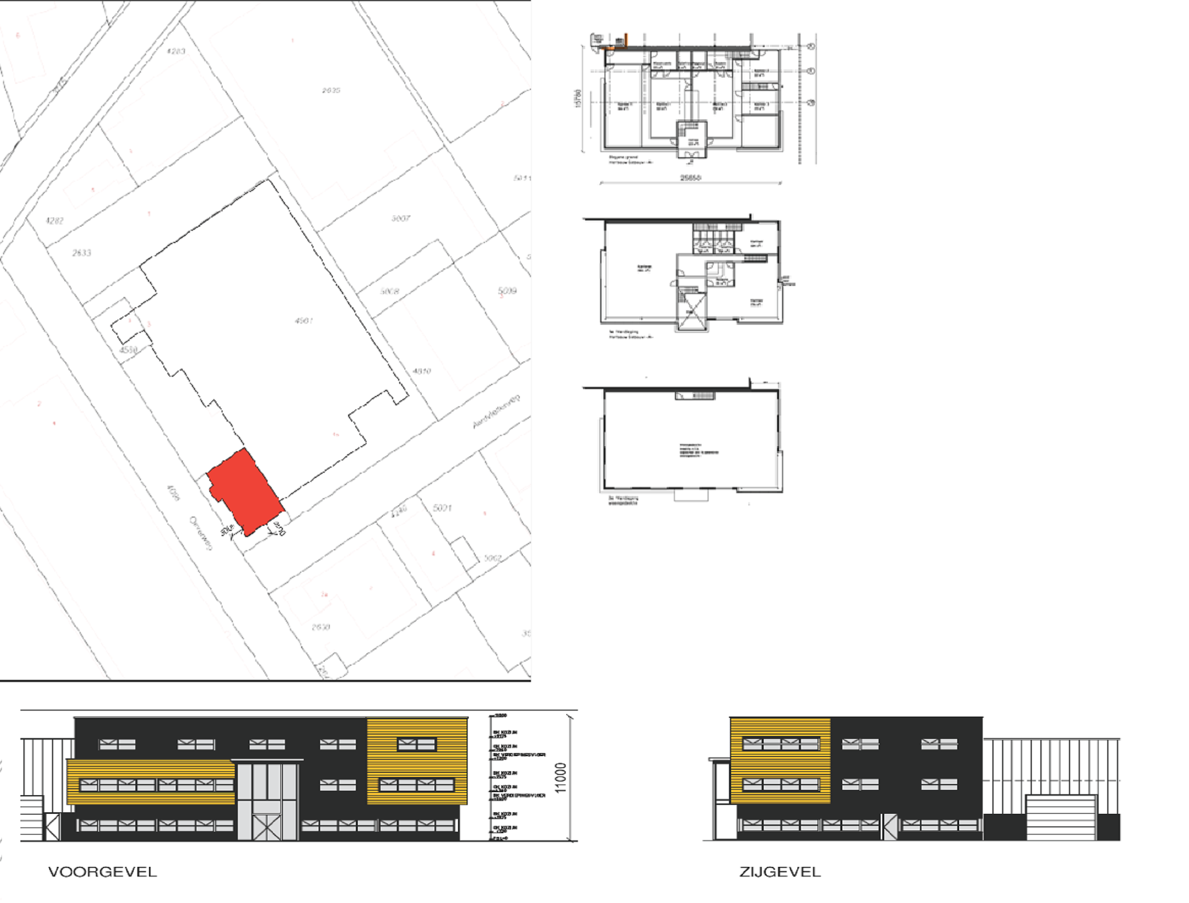
Om in de benodigde nieuwe bedrijfsbebouwing en een efficiëntere indeling en gebruik van het kavel te voorzien, worden het verouderde bedrijfspand op de hoek Oeverweg/ Aardvletterweg en de bedrijfswoning aan de Oeverweg 5 gesloopt. De sloop van deze bebouwing wordt gekoppeld aan het realiseren van nieuwbouw op de hoek Oeverweg/ Aardvletterweg. Het nieuwe pand biedt ruimte aan kantoorruimte, de kantine en een vervangende bedrijfswoning op de derde bouwlaag. Het nieuwe pand wordt een verdieping hoger dan het te slopen pand. Het wordt daarmee een aantrekkelijk hoekpand met vooruitgeschoven, herkenbare entree aan de Oeverweg. Zo wordt een kwaliteitsimpuls gerealiseerd op een belangrijke plek op het bedrijventerrein, namelijk in het hart van dit deel van het terrein en aan een kruising van wegen. Aan de straatzijde zijn de voorgevels in verschillende vlakken opgedeeld (geleed vormgegeven). Hiermee wordt in een soepele overgang voorzien tussen relatief kleinschalige bedrijfsruimten aan de zuidzijde van de Aardvletterweg en de omvangrijke bedrijfshallen, zoals de voormalige trappenfabriek.

afbeelding "i_NL.IMRO.0335.BPAardvletterweg1-Ow01_0004.png"

Nieuwe situatie : Situatietekening, plattegronden van begane grond, 1e verdieping, 2e (woon)verdieping en aanzichten (bron : Misura)

Hoofdstuk 3 Beleid

3.1 Rijksbeleid en provinciaal beleid

De ontwikkeling die met dit bestemmingsplan wordt mogelijk gemaakt heeft een kleinschalig en lokaal karakter. Het valt daarmee buiten de reikwijdte van het rijksbeleid, vastgelegd in de Structuurvisie Infrastructuur en Ruimte en het Besluit algemene regels ruimtelijke ordening (Barro). Om die reden wordt hier dan ook niet verder op het rijksbeleid ingegaan.

Provinciale Ruimtelijke Structuurvisie (PRS), provincie Utrecht

Op 4 februari 2013 is door Provinciale Staten de Provinciale Ruimtelijke Structuurvisie 2013-2028 (PRS) vastgesteld. In de PRS beschrijft de provincie Utrecht haar ruimtelijk beleid voor de periode tot 2018. De provincie geeft aan welke doelstellingen zij van provinciaal belang achten, welk beleid bij deze doelstellingen hoort en hoe zij uitvoering wil geven aan dit beleid.

De provinciale doelstellingen zijn in een drietal hoofdbelangen samengevat:

  • 1. duurzame leefomgeving;
  • 2. vitale dorpen en steden;
  • 3. landelijk gebied met kwaliteit.

De provincie Utrecht heeft economisch gezien een sterke uitgangspositie. Om deze positie te behouden en nieuwe kansen te benutten, is de (ruimtelijk-)economische strategie voor de komende jaren gericht op:

  • het versterken van die bedrijfssectoren die veel gebruikmaken van kennis en creativiteit;
  • het zoveel als mogelijk accommoderen van de dynamiek van de gevestigde bedrijven.

Het plangebied maakt onderdeel uit van het bestaand stedelijk gebied. Als onderdeel van de binnenstedelijke opgave wordt de herstructurering van bedrijventerreinen genoemd. Bestaande ruimte voor bedrijfs- en kantoorvestiging dient optimaal te worden benut en zo nodig wordt aangepast aan de huidige wensen van gebruikers.

afbeelding "i_NL.IMRO.0335.BPAardvletterweg1-Ow01_0005.png"

Uitsnede Themakaart Wonen en Werken (rood = bestaande stedelijk gebied) Provinciaal Ruimtelijke structuurvisie

Het accent van het provinciaal beleid ligt bij de herstructurering van bestaande bedrijventerreinen teneinde deze aantrekkelijk en duurzaam te maken. De Ontwikkelingsmaatschappij Utrecht (OMU) is opgericht om de herstructurering van bedrijventerreinen te stimuleren door de aanpak van private kavels en/of lege delen van terreinen.

Provinciaal Ruimtelijke Verordening, provincie Utrecht

Op 4 februari 2013 hebben Provinciale Staten van de provincie Utrecht de Provinciale Ruimtelijke Verordening (PRV) vastgesteld. Deze PRV is gebaseerd op de Provinciale Ruimtelijke Structuurvisie. De PRV regelt de uit- en doorwerking van provinciale belangen op het gebied van ruimtelijke ordening. In de verordening worden regels gegeven over de omgang met bodem, cultureel erfgoed, landelijk gebied, natuur, recreatie, stedelijk gebied en watersysteem.

De verordening schrijft de volgende gebruiksbepalingen voor aan een bedrijventerrein: een bedrijfsgebonden kantoor dat ondergeschikt is aan het bedrijf is mogelijk. Een bruto vloeroppervlakte dat ten hoogste 50% van het bedrijfsvloeroppervlakte bedraagt met een maximum van 2.000 m² ten behoeve van het bedrijfsgebonden kantoor is toegestaan. Indien een grotere oppervlakte voor het bedrijfsgebonden kantoor economische noodzakelijk is, dan moet dit worden onderbouwd en regionaal worden afgestemd. Deze afstemming kan onderdeel uitmaken van de regioconvenanten.

Aanvullend worden kleinschalige kantoren tot 1.500 m2 per vestiging in de provinciale verordening niet aangemerkt als zelfstandige kantoren.

Consequenties plangebied:

  • De beoogde sloop-nieuwbouw ontwikkeling geeft vorm aan de herstructurering op het bedrijventerrein. Het verplaatsen van de bedrijfswoning is geen onderwerp van het provinciaal beleid.
  • De kantoorruimte van een bedrijfsgebonden kantoor wordt in de PRV beperkt tot maximaal 50% van het bedrijfsvloeroppervlak, met een maximum van 2.000 m². Deze regeling is opgenomen in dit bestemmingsplan en voldoet daarmee aan de PRV.
  • Het plangebied is gelegen in 'Bedrijventerrein stedelijk gebied'. Hierin staan geen beperkingen voor het verplaatsen van een bedrijfswoning.
  • Beoogde ontwikkeling betreft geen nieuwvestiging of uitbreiding (buiten de bestaande plancapaciteit). Er is dan ook geen herstructureringsplan nodig.

3.2 Gemeentelijk beleid

3.2.1 Totaalvisie Montfoort 2030

De TotaalVisie Montfoort 2030 is op 12 december 2011 vastgesteld door de gemeenteraad. In de visie worden keuzes gemaakt hoe Montfoort zich verder kan ontwikkelen richting 2030. De structuurvisie Totaalvisie Montfoort dient als leidraad te worden gehanteerd bij de beoordeling van nieuwe plannen en initiatieven, maar ook voor nieuw op te stellen bestemmingsplannen en planologische afwijkingen.

De Totaalvisie Montfoort beschrijft beleid op hoofdlijnen. Het biedt daarom in dit geval ook geen houvast om als leidraad te dienen.

Voor de visie op bedrijventerreinen in de gemeente wordt onder meer verwezen naar het door Stogo uitgevoerde onderzoek over vitaliteit en de ruimtebehoefte van zowel de bedrijventerreinen als voor de bedrijvigheid in het buitengebied, dit zijn;

  • Vraag naar bedrijventerreinen Utrecht-West, 2011;
  • Vitale bedrijven en landschapskwaliteit in de Utrechtse Waarden, 2010.

Uitgangspunt voor de gemeente Montfoort is het behoud van de lokale werkgelegenheid. Uit het onderzoek 'Vraag naar bedrijventerreinen Utrecht-West' van Stogo is gebleken dat er in de gemeente Montfoort behoefte was aan extra bedrijventerrein om te voorkomen dat er bedrijven wegtrekken wegens beperkte uitbreidingsmogelijkheden. Het wegtrekken van bedrijven kan leiden tot verlies van werkgelegenheid. De gemeente zet zich in om te voldoen aan de sterke behoefte aan uitbreidingsmogelijkheden van het Montfoortse bedrijfsleven.

Consequentie plangebied

Het beleidskader Totaalvisie Montfoort 2030 heeft geen consequenties voor dit bestemmingsplan.

3.2.2 Gebiedsvisie, revitaliseringsplan

In het bestemmingsplan Bedrijventerrein IJsselveld is de visie van het revitaliseringsplan nader omschreven onder de noemer Gebiedsvisie. Basis hiervoor is de ter voorbereiding op dit bestemmingsplan vastgestelde Plan van Aanpak Duurzame Revitalisering (2006). In dit Plan van Aanpak worden twee scenario's geschetst voor de revitalisering van IJsselveld, namelijk een ''Terughoudend scenario'' en een ''Vooruitstrevend scenario''. De gemeente heeft gekozen voor het “Vooruitstrevende scenario”, dat dan ook een belangrijk uitgangspunt vormt voor het bestemmingsplan Bedrijventerrein IJsselveld. In dit scenario werden twee elkaar aanvullende ontwikkelrichtingen onderscheiden;

  • een opknapbeurt, met maatregelen die minimaal nodig zijn;
  • een meer ingrijpende revitalisering.

afbeelding "i_NL.IMRO.0335.BPAardvletterweg1-Ow01_0006.png"

Afbeelding Vooruitstrevend scenario Plan van Aanpak

Onder de 'opknapbeurt' werden de volgende maatregelen verstaan;

  • Verbeterde bestrating wegen binnenterrein
  • Verbeteren parkeersituatie oude terreindeel
  • Versterken groenstructuur
  • Opknappen bedrijfspanden en buitenruimte

Om bedrijventerrein IJsselveld vervolgens volledig aan de eisen van een modern bedrijventerrein te laten voldoen zijn meer ingrijpende aanpassingen nodig:

  • 1. goede kwaliteit van de wegen: in asfalt uitgevoerde wegen vergroten de functionaliteit en de uitstraling (duurzame variant uit de opties voor het verbeteren van straten);
  • 2. goede balans tussen parkeren en groenvoorzieningen in openbare ruimte: voorkomen nieuwe parkeerproblemen en een duidelijke groenstructuur realiseren;
  • 3. panden moeten voldoen aan de moderne eisen;
  • 4. optimale ontsluiting voor een optimale bereikbaarheid;
  • 5. uitnodigend bedrijventerrein, onder meer door een verbeterde entree;
  • 6. regulering opslag ter verbetering uitstraling bedrijventerrein.

Dit maatregelenpakket heeft tot de volgende regelgeving in het bestemmingsplan Bedrijventerrein IJsselveld geleid:

  • de mogelijkheden voor buitenopslag zijn beperkt;
  • er zijn parkeernormen opgenomen voor het parkeren op eigen terrein;
  • er is een milieuzonering opgenomen en er wordt intensivering mogelijk gemaakt door een (hogere) maximale bouwhoogte toe te staan van 11 meter.

In de gebiedsvisie wordt specifiek ingegaan op de herontwikkeling van verouderde bedrijfslocaties. De visie omvat de volledige herontwikkeling van een aantal locaties op het terrein. Door het vervangen van (zwaar) verouderde bedrijfsbebouwing door nieuwe bedrijfsbebouwing, worden deze locaties de visitekaartjes en voorbeeldlocaties van het oude terrein.

Een groot deel van de parkeerproblematiek doet zich voor in de directe omgeving van de bedoelde locaties. Bij de herontwikkeling dient rekening te worden gehouden met voldoende parkeerruimte op eigen terrein. De ruimte die daardoor in het openbaar gebied ontstaat, kan worden gebruikt voor de versterking van de groenstructuur. In het vooruitstrevende scenario wordt daarnaast rekening gehouden met het opknappen van panden met een verouderde uitstraling. Dit is een verantwoordelijkheid van de gevestigde bedrijven.

Op het bedrijventerrein zijn parkeerproblemen geconstateerd. Onder andere aan de Aardvletterweg, de Oeverweg en de Lijndraaierijweg. Om de parkeerproblematiek niet verder te laten toenemen is in het bestemmingsplan 'Bedrijventerrein IJsselveld' een parkeernorm opgenomen. Op de tot bedrijfsdoeleinden bestemde gronden dienen ten aanzien van het parkeren die normen in acht te worden genomen. Voor nieuwbouw en uitbreidingen dient het parkeren op eigen terrein te geschieden. De te hanteren parkeernorm zijn gebaseerd op de parkeerkencijfers ASVV 2004. Het bedrijf aan de Aardvletterweg valt onder de categorie arbeidsextensieve bedrijven; 'loods, opslag, groothandel, transportbedrijf, etc'. Hiervoor geldt dat tenminste 0,7 parkeerplaatsen per 100 m² bruto bedrijfsvloeroppervlak op eigen terrein gerealiseerd dient te worden.

Om tot een duurzame relatie te komen tussen het bedrijventerrein en de rondom het terrein gelegen woongebieden is in het bestemmingsplan IJsselveld een zonering voorgesteld. Met gebiedsaanduidingen 'Milieuzone – zone wet milieubeheer', wordt gestreefd naar het sturen op een zonering met bedrijven met lichtere categorieën richting de woongebieden (zone 1) en bedrijven van zwaardere milieucategorieën in het middengebied en aan de westrand (zone 2). Het gaat hierbij om een streefbeeld. Reeds bestaande rechten zijn gerespecteerd. Het plangebied maakt onderdeel uit van het middengebied waar bedrijven met een zwaardere milieucategorie (t/m categorie 4) zijn toegestaan.

Consequentie plangebied

Met voorliggend bestemmingsplan wordt de verplaatsing van de bedrijfswoning mogelijk gemaakt. Deze verplaatsing past binnen de gebiedsvisie (het revitaliseringsplan). Alle overige geldende gebruiks- en bouwregels van het bestemmingsplan 'Bedrijventerrein IJsselveld' blijven met dit bestemmingsplan behouden.

3.2.3 Beeldkwaliteitkader IJsselveld 2009

Het beeldkwaliteitskader IJsselveld 2009 is als bijlage van het bestemmingsplan Bedrijventerrein IJsselveld opgenomen en mede vastgesteld. Het beeldkwaliteitsplan is in 2010 vastgesteld. Het Beeldkwaliteitkader IJsselveld is in het kader van het revitaliseringproces opgesteld en dient als toetsingskader voor de uitwerking en de inrichting van het gebied. Bouwplannen worden door de welstandscommissie getoetst aan de in dit document vastgelegde randvoorwaarden. Daarbij is enerzijds sprake van harde eisen en anderzijds van aanbevelingen. De opgenomen richtlijnen geven sturing aan de gewenste samenhang in de architectonische verschijningsvorm en de inrichting van het voorterrein.

Het bestemmingsplan vormt het belangrijkste ruimtelijk en juridisch-planologisch kader. Daarbij gaat het om de puur ruimtelijk relevante randvoorwaarden, zoals situering en maatvoering. Om ook de vastgelegde ambitie ook in de toekomstige beeldkwaliteit van de gebouwen en openbare ruimte te kunnen realiseren, is het Beeldkwaliteitskader opgesteld. In het Beeldkwaliteitskader zijn zowel inhoudelijke als procedurele aspecten geregeld, waarmee de ambitie van de na te streven beeldkwaliteit concrete invulling krijgt.

Per samenhangende stedenbouwkundige eenheid (deelgebieden) is een visie gegeven op het karakter, de identiteit en beeldkwaliteit. Deze visie is per deelgebied vertaald in randvoorwaarden en richtlijnen voor de bebouwing en indien relevant, de inrichting van het perceel. Nieuwe bouwplannen worden getoetst aan zowel het bestemmingsplan als aan het Beeldkwaliteitskader. Het Beeldkwaliteitskader is afgestemd met de Welstandsnota en de criteria zoals geformuleerd voor Bedrijventerreinen.

Het plangebied maakt onderdeel van het deelgebied ´Oud IJsselveld´. In dit oudste deelgebied is een verscheidenheid aan met name kleinschalige bedrijven aanwezig met tevens een aantal woningen, die deels de functie van bedrijfswoning hebben. De huidige situatie met betrekking tot wonen (burgerwoning en bedrijfswoning) blijft gehandhaafd. Uitbreiding van deze functie wordt in het nieuwe bestemmingsplan echter niet meer toegestaan. De parkeerdruk in dit deelgebied is hoog en vormt een bijzonder aandachtspunt. De beeldkwaliteit in dit deelgebied wordt gekenmerkt door de combinatie van wonen en werken en de kleinschaligheid. Het gebied verdient extra aandacht met betrekking tot de inrichting van de erven en de erfafscheidingen.

Binnen dit deelgebied Oud IJsselveld wordt nog onderscheidt gemaakt in een zone langs de Hollandsche IJsselzone, Waardsedijk oostzone en een Interne zone. Het plangebied valt onder deze laatste. De hiervoor opgestelde relevante voorwaarden zijn

Situering

  • Het ruimtelijk karakter is gebaseerd op de gegroeide kleinschaligheid en diversiteit.
  • Nieuwbouw sluit aan bij de ritmiek van de bestaande bebouwing in de omgeving.
  • Het representatieve gedeelte van de bouwmassa is gelegen aan en gericht op de straat

Massa en vorm

  • Voor behoud van de samenhang in het bedrijventerrein moeten de massa en vorm van nieuwbouw zorgvuldig ingepast worden tussen de bestaande bebouwing.

Consequentie plangebied

De beoogde ontwikkeling sluit aan bij het Beeldkwaliteitskader. In de uitwerking zal rekening moeten worden gehouden met de gestelde beeldkwaliteitsrandvoorwaarden en –richtlijnen.

3.2.4 Welstandsnota

In de welstandsnota Montfoort (2011) worden naast de algemeen geldende welstandscriteria gebiedsgebonden criteria opgesteld per onderscheiden gebied. Het onderhavige plangebied maakt onderdeel uit van het gebied 'Bedrijventerrein IJsselveld'. Voor het plangebied geldt een regulier niveau van welstand.

Het bedrijventerrein IJsselveld heeft ook een beeldkwaliteitsplan. Het Beeldkwaliteitkader IJsselveld is in eerste instantie het toetsingskader voor de uitwerking en inrichting op het gebied van de bebouwing. De opgenomen richtlijnen geven sturing aan de gewenste samenhang in de architectonische verschijningsvorm en de inrichting van het voorterrein. De welstandscriteria in de welstandsnota gelden als aanvullend op het Beeldkwaliteitkader IJsselveld.

Relevante welstandscriteria:

  • 1. Situering van het bouwwerk:
  • Bij de situering van gebouwen dient aansluiting te worden gezocht bij de karakteristieke uniforme opbouw binnen het bedrijventerrein.
  • Het representatieve gedeelte van de bouwmassa is gelegen aan en gericht op de straat.
  • 2. Hoofdvormen van het bouwwerk:
  • Veranderingen en toevoegingen van nieuwe elementen dienen eenheid in en samenhang tussen de stedenbouwkundige opbouw van het bedrijventerrein te ondersteunen. Het gaat hierbij om een vriendelijke verschijningsvorm en een kwalitatieve uitstraling.
  • Nastreven van individuele uitstraling met een evenwichtige gevelopbouw en gevelindeling. Hoofdvorm is over het algemeen blokvormig of langwerpig met platte of schuine dakvlakken. Aansluiten bij de bouwhoogte van de gevelwand of het gebied.

Consequentie plangebied

De beoogde ontwikkeling sluit aan op de gestelde welstandscriteria. In de vergunningenprocedure zal de welstandscommissie het bouwplan nog beoordelen.

Hoofdstuk 4 Water

4.1 Kader

Het Rijk, de VNG, het IPO en de Unie van Waterschappen hebben in februari 2001 de startovereenkomst Waterbeheer 21ste eeuw ondertekend. Deze startovereenkomst is in 2003 omgezet in het Nationaal Bestuursakkoord Water dat in juni 2008 is geactualiseerd. Hiermee hebben deze partijen elkaar gecommitteerd om een watertoets toe te passen bij het opstellen van ruimtelijke plannen.

In het Besluit ruimtelijke ordening (Bro) is voorts bepaald dat waterbeheerders dienen te worden geraadpleegd bij het opstellen van bestemmingsplannen. De watertoets is een instrument om bij alle ruimtelijke plannen en besluiten waarin waterhuishoudkundige aspecten voorkomen te toetsen of in voldoende mate rekening wordt gehouden met die aspecten. Het gaat daarbij vooral om aandacht voor de waterkwantiteit (ruimte voor water, berging, infiltratie, aan- en afvoer), aandacht voor effecten op de waterkwaliteit en aandacht voor de veiligheid (overstroming).

Op 22 december 2009 is de Waterwet in werking getreden. Een achttal wetten is samengevoegd tot één wet: de Waterwet. De Waterwet regelt het beheer van oppervlaktewater en grondwater, en verbetert ook de samenhang tussen waterbeleid en ruimtelijke ordening. Daarnaast levert de Waterwet een flinke bijdrage aan kabinetsdoelstellingen zoals vermindering van regels, vergunningstelsels en administratieve lasten. Naast de Waterwet blijft de Waterschapswet als organieke wet voor de waterschappen bestaan.

Een belangrijk gevolg van de Waterwet is dat de huidige vergunningstelsels uit de afzonderlijke waterbeheerwetten worden gebundeld. Dit resulteert in één vergunning, de Watervergunning, die met een wettelijk vastgesteld aanvraagformulier kan worden aangevraagd.

Nationaal Waterplan 2009 - 2015

Het Nationaal Waterplan (NWP) is het rijksplan voor het waterbeleid voor de periode 2009-2015. Het NWP beschrijft welke maatregelen nodig zijn om Nederland ook in de toekomst veilig en leefbaar te houden. Ook de (economische) kansen die water biedt komen in het NWP aan bod. In het Nationaal Waterplan is een eerste uitwerking gegeven aan het Deltaprogramma dat wordt opgesteld naar aanleiding van het advies van de Deltacommissie in 2008. Dit programma is gericht op duurzame veiligheid en zoetwatervoorziening.

In december 2009 heeft het kabinet het Nationaal Waterplan vastgesteld. Dit plan geeft op hoofdlijnen aan welk beleid het Rijk in de periode 2009 - 2015 voert om te komen tot een duurzaam waterbeheer. Het Nationaal Waterplan richt zich op bescherming tegen overstromingen, voldoende en schoon water en diverse vormen van gebruik van water. Ook worden de maatregelen genoemd die hiervoor worden genomen. Het Nationaal Waterplan is de opvolger van de Vierde Nota Waterhuishouding uit 1998 en vervangt alle voorgaande nota's waterhuishouding. Het Nationaal Waterplan is opgesteld op basis van de Waterwet die met ingang van 22 december 2009 van kracht is. Op basis van de Wet ruimtelijke ordening heeft het Nationaal Waterplan voor de ruimtelijke aspecten de status van structuurvisie. Dit betekent dat het gestelde beleid leidend is voor uitwerking in het beleid van lagere overheden en uitwerking in projecten. Het rijksbeleid is dien overeenkomstig globaal en gericht op nationaal belang.

Het rijk verbreedt en versterkt de werking van de watertoets. De watertoets is een belangrijk instrument, formeel geregeld in het Besluit ruimtelijke ordening. Het doel van de watertoets is de vroegtijdige betrokkenheid van de waterbeheerder bij ruimtelijke planprocessen te borgen. Daarmee wordt beoogd alle doelstellingen van het waterbeleid expliciet en op evenwichtige wijze in beschouwing te nemen bij alle ruimtelijke plannen en besluiten die relevant zijn voor het watersysteem. De watertoets heeft daarmee meer een procesmatig karakter dan dat van een echte toets.

Ook onder de nieuwe Wet ruimtelijke ordening/Besluit ruimtelijke ordening is het overleg tussen initiatiefnemer en waterbeheerder en het opstellen van een waterparagraaf bij bestemmingsplannen verplicht. Voor het Besluit ruimtelijke ordening geldt de Bestuurlijke Notitie Watertoets (2001) onverminderd als de bestuurlijke afspraken waarin een nadere uitwerking is opgenomen van de processtappen en inhoudelijke aandachtspunten zoals bestuurlijk is overeengekomen. Wel zijn de provinciale toetsing op bestemmingsplannen en de verplichting van de watertoets voor provinciale en gemeentelijke structuurvisies vanwege de vormvrijheid formeel vervallen.

Anders omgaan met water, Waterbeleid voor de 21e eeuw, Ministerie van Verkeer en Waterstaat

Deze nota is uitgegeven door het Ministerie van Verkeer en Waterstaat. De nota heeft als doelstelling een ander waterbeleid te realiseren, aangezien het huidige watersysteem voor de toekomst niet op orde is. Door anders om te gaan met water moet er geanticipeerd worden op een stijgende zeespiegel een stijgende rivierafvoer, bodemdaling en een toename van de neerslag.

Voor de aanpak van het veiligheidsprobleem en de vermindering van de wateroverlast kiest het kabinet enkele hoofdlijnen, waarvan het 'niet afwentelen van waterhuishoudkundige problemen door het volgen van de drietrapsstrategie vasthouden-bergen-afvoeren' tot één van de belangrijkste hoofdlijnen behoort. Water zal, meer dan het nu het geval is, sturend zijn bij de ruimtelijke inrichting en grondgebruik in Nederland. Nieuwe ruimtelijke besluiten mogen de problematiek van veiligheid en wateroverlast niet ongemerkt vergroten. Bij nieuwe ruimtelijke besluiten moeten de gevolgen voor veiligheid en wateroverlast voortaan expliciet in beeld worden gebracht in een aparte paragraaf in de nota van toelichting en onderdeel vormen van de integrale afweging. Dit geldt voor alle fasen van de planontwikkeling.

Consequentie plangebied

De ontwikkeling die met dit bestemmingsplan mogelijk wordt gemaakt heeft een kleinschalig en lokaal karakter. Het valt dan ook buiten de reikwijdte van het NWP en de nota Anders omgaan met water. Om die reden wordt hier dan ook niet verder op het rijksbeleid ingegaan. Wel wordt onderstaand verder ingegaan op meer lokaal beleid en de Watertoets.

Waterplan 2010-2015, provincie Utrecht

Het waterhuishoudingplan geeft het waterbeleid weer van de provincie Utrecht. Op 23 november 2009 is het provinciaal Waterplan 2010-2015, inclusief Deelplan Kaderrichtlijn Water, vastgesteld.

In dit waterhuishoudingplan wordt, door middel van een aantal uitgangspunten, het waterbeleid vormgegeven:

  • Een maatschappelijk acceptabel overstromingsrisico. Het risico wordt bepaald door waterstanden op de buitenwateren, bodemdaling, occupatie en geïnvesteerd kapitaal. Hoogwaters zullen vaker voorkomen en de rivierafvoer wordt op termijn bemoeilijkt door een stijgende zeespiegel. Bodemdaling is een voortgaand proces in het westelijk deel van onze provincie en in het Eemland. Bevolkingsomvang en investeringsniveau in onze provincie nemen echter nog steeds toe.
  • Omgaan met wateroverlast èn waterschaarste. Meer neerslag zal vallen in hevigere buien. Afvoer- en bergingsmogelijkheden in het stedelijke en landelijk gebied worden zwaarder belast. Tegelijkertijd vergroten warmere en drogere perioden de vraag naar drink-, irrigatie- en koelwater, terwijl juist dan het aanbod onder druk staat. Onze natuurgebieden mogen niet verdrogen en moeten soortmigratie als gevolg van klimaatverandering kunnen faciliteren.
  • Een sterkere bijdrage van water aan ons leefklimaat. De behoefte aan vaar- en recreatiewater neemt toe. Laat zien dat water de drager is van veel van de Utrechtse landschappen. Maak water zichtbaar!

Consequentie plangebied

Geconcludeerd kan worden dat dit bestemmingsplan niet in strijd is met het beleid zoals neergelegd in het provinciaal Waterplan 2010-2015.

Keur Hoogheemraadschap Stichtse Rijnlanden

Nieuw toegevoegde bebouwing heeft gevolgen voor de snelheid waarmee het regenwater naar de sloten afstroomt. Hetzelfde geldt bij uitbreiding van (erf)verharding. In de Keur is daarom opgenomen dat het verboden is om zonder watervergunning hemelwater afkomstig van nieuw verhard oppervlak versneld af te voeren. Voor oppervlakken tot 500 m² in stedelijk gebied en 1000 m² in niet stedelijk gebied gelden algemene regels.

In het geval dat nieuwe verharding of uitbreiding van bestaande verharding aangebracht wordt boven de gestelde ondergrens (500 m² in stedelijk gebied en 1000 m² in niet stedelijk gebied) moeten compenserende maatregelen worden getroffen treffen die deze overlast voorkomen.

Consequentie plangebied

Dit bestemmingsplan maakt geen extra bouwmogelijkheden mogelijk ten opzichte van het tot op heden geldende bestemmingsplan 'Bedrijventerrein IJsselveld': er wordt geen toename van het verhard oppervlak mogelijk gemaakt.

4.2 Het plangebied

Het Besluit ruimtelijke ordening stelt dat overleg met het waterschap plaats moet vinden tijdens het voorbereiden van een bestemmingsplan (artikel 3.1.1). Ook staat er in dit besluit dat in de toelichting van het bestemmingsplan moet worden beschreven op welke manier rekening is gehouden met de gevolgen voor de waterhuishouding.

Onderdeel van het rijksbeleid 'Waterbeheer 21ste eeuw' is de watertoets. De watertoets moet ervoor zorgen dat alle wateraspecten expliciet worden betrokken bij alle waterhuishoudkundig relevante ruimtelijke plannen en besluiten van Rijk, provincies en gemeenten. Dit zijn onder meer de op de Wet op de Ruimtelijke Ordening (WRO) gebaseerde ruimtelijke plannen. In het Besluit op de ruimtelijke ordening (BRO) de watertoets verankerd. De wetswijziging verplicht om een waterparagraaf op te nemen in de toelichting van de ruimtelijke plannen. Voorliggende paragraaf geeft hieraan invulling.

Waterkwantiteit
In het bestemmingsplan zijn geen waterlopen aanwezig. De met dit bestemmingsplan mogelijk gemaakte vervangende nieuwbouw voorziet ook niet in een toename van verharding. Het bestemmingsplan heeft derhalve geen gevolgen voor de waterkwantiteit.

Waterkwaliteit

In het bestemmingsplan wordt niet voorzien in maatregelen die nadelige gevolgen kunnen hebben voor de waterkwaliteit omdat geen nieuw vervuilend gebruik of bebouwing mogelijk wordt gemaakt. Binnen het vigerende bestemmingsplan is de bebouwing en het gebruik (zij het op een andere plaats binnen het bedrijfskavel) reed mogelijk.

Riolering
Het algemeen beleid is dat schoon- en vuilwaterstromen worden gescheiden en gescheiden blijven tot aan het overnamepunt op de perceelsgrens. Schoon regenwater van gevels en daken dient bij voorkeur te worden benut (toiletspoeling, daktuinen e.d.) of te worden afgevoerd naar de bodem (infiltratie) en indien niet mogelijk of gewenst is dan rechtstreeks afgevoerd te worden naar het oppervlaktewater via een regenwaterriool. Het bestemmingsplan voorziet in dit kader niet in wijzigingen op dit punt.

Grondwater

Een eigenaar van een erf mag geen hinder aan eigenaren van andere erven toebrengen in de loop, hoeveelheid of hoedanigheid van over het erf stromend water of van het grondwater en dergelijke. Hier is in dit bestemmingsplan geen sprake van.

In geval van bouwactiviteiten dient er rekening gehouden te worden dat het niet is toegestaan om grondwateroverlast te veroorzaken door het aanbrengen van ondergrondse constructies en dat het verboden is om grondwater te onttrekken met als gevolg dat er sprake is van een grondwaterstandverlaging in de omgeving. Hier is in dit bestemmingsplan geen sprake van.

Belangrijk is dat ruimtelijke ontwikkelingen geen verslechtering van de oorspronkelijke grondwaterstand en -stroming mag veroorzaken (bodemdaling, grondwateroverlast en - onderlast, paalrot, zettingen). Daarom is versnelde afvoer van grondwater naar oppervlakte (permanente drainage) in principe niet toelaatbaar. De sponswerking van de bodem dient zoveel als mogelijk te worden benut.

Het gebruik van kunstmatige ontwateringmiddelen (drains en grindkoffers) is in principe niet toegestaan. Het grondwaterpeil is daarom bepalend voor de landgebruiksfunctie. Dit betekent dat het landgebruik zo wordt ingericht dat de actuele grondwater situatie gunstig is voor de betreffende landgebruiksfunctie (natuur voor hoge grondwaterstand, stedelijk gebied voor lagere grondwaterstanden).

Consequentie plangebied 

De beoogde ontwikkeling heeft geen gevolgen voor de waterhuishouding. Omdat het gaat om vervangende nieuwbouw is geen sprake van een toename van verhard oppervlak. Er is dus ook geen watercompensatie nodig.

Hoofdstuk 5 Milieu

5.1 Bedrijven en milieuzonering

Bedrijven zijn milieubelastende bestemmingen die hinder kunnen veroorzaken ten opzichte van milieugevoelige bestemmingen, zoals wonen. Om deze hindersituaties te voorkomen dient bij een bestemmingsplan(wijziging) waarin milieubelastende en milieugevoelige bestemmingen in elkaars nabijheid mogelijk worden gemaakt in principe uit te worden gegaan van (voldoende) scheiding van functies. Daartoe zijn in de VNG-brochure Bedrijven en Milieuzonering (2009; hierna te noemen B&M) richtafstanden opgesteld. Deze afstanden geven voor gemiddelde bedrijfssituaties aan op welke afstand geen hinder is te verwachten. De meer gedetailleerde afstemming voor de voorkoming van milieuhinder vindt vervolgens plaats in het kader van de Wet milieubeheer.

De betreffende VNG-publicatie vormt dus ook geen wettelijk kader. Op basis van de, in de publicatie opgenomen richtafstanden, wordt in dit bestemmingsplan een inschatting gemaakt van mogelijk overlast als gevolg van de nabijheid tussen milieubelastende bedrijvigheid en milieugevoelige bestemmingen.

Deze richtafstanden in B&M zijn naast de factoren aard en omvang van het bedrijf mede afhankelijk van de omgeving. Voor een rustige woonomgeving gelden andere afstanden (strengere eisen) dan voor andere gebieden, zoals drukke woonwijken, gemengde gebieden, bedrijventerreinen en landelijke gebieden. Het bestemmingsplangebied kan worden gekarakteriseerd als een bedrijventerrein. Een overschrijding van de wettelijke normen (qua geluidsbelasting, stof, geur en gevaar) is normaliter niet toelaatbaar.

afbeelding "i_NL.IMRO.0335.BPAardvletterweg1-Ow01_0007.png"

Afbeelding: huidige toegestane milieuhinder categorieën vigerende bestemmingsplannen (volgens de categorie-indeling van de VNG brochure 'bedrijven en milieuzonering') bron bestemmingsplan Bedrijventerrein IJsselveld

Het plangebied maakt onderdeel uit van het bedrijventerrein IJsselveld. Op dit terrein komen bedrijven voor met een verschillende milieucategorie, maar ook diverse bedrijfswoningen. Het plangebied ligt in en wordt omsloten door de categorie 'Industriële bedrijven'; bedrijven met een milieucategorie 1 t/m 4 zijn hier toegestaan.

Consequentie plangebied

Met dit bestemmingsplan wordt een verplaatsing van de bedrijfswoning mogelijk gemaakt binnen één perceel. De bedrijfswoning verschuift in zuidelijke richting. Er zijn in de directe omgeving een aantal bedrijven die in dit kader besproken worden: de Rioolwaterzuiveringsinstallatie, de trappenfabriek en de bouwbedrijf De Kamper.

Rioolwaterzuiveringsinstallatie

De Rioolwaterzuiveringsinstallatie (RWZI) aan de Oeverweg 7, valt onder Sbi code 3700 A1 (< 100.000 i.e.). De voorkeursafstand voor dit type nieuw te vestigen RWZI's tot een woning is 200 meter. Deze afstand wordt nu niet gehaald en wordt door de verplaatsing van betreffende bedrijfswoning verkleind naar circa 60 meter.

De te verplaatsen bedrijfswoning is niet de meest beperkende (bedrijfs-) woning voor de RWZI. Dit is de woning aan de Aardvletterweg 2/2a (bouwbedrijf De Kamper). Met de verplaatsing van de bedrijfswoning wordt de RWZI daarom niet in haar bedrijfsvoering beperkt.

Ondanks dat er niet wordt voldaan aan de voorkeursafstand van de nieuwe (bedrijfs)woning tot de RWZI, is te overwegen de korte afstand toe te staan. Met name omdat er dichterbij de RWZI een andere (bedrijfs)woning is gelegen, de overwegende windrichting niet gericht is op de te verplaatsen woning en er in 2002 voor het laatst bij de Omgevingsdienst een geurklacht is ingediend over de betreffende RWZI.

Trappenfabriek Hoograven B.V. Overweg 4 Montfoort

Het bedrijf heeft in het derde kwartaal van 2013 een doorstart gemaakt na een faillissement. Nu worden er uitsluitend nog houten trappen geproduceerd. Dit bedrijfsonderdeel is het dichtst bij de nieuwe locatie van de bedrijfswoning gelegen. Het bedrijfsgedeelte waar metalen trappen werden geconstrueerd is afgestoten.

Conform de VNG-uitgave bedrijven en milieuzonering vormt voor timmerfabrieken (SBI 162) met name het aspect geluidhinder een kritieke rol. In een akoestisch onderzoek (zie paragraaf 5.2) is vastgesteld dat, bij het treffen van maatregelen bij de bedrijfswoning, geen problemen zijn te verwachten voor wat betreft de geluidhindercontour. Aan de afstand voor stofhinder (30 meter) wordt voldaan.

Bouwbedrijf De Kamper BV Aardvletterweg 2 Montfoort

Dit bouwbedrijf is begin 2014 failliet gegaan. Voor dit bedrijf geldt ook SBI-code 162 timmerfabrieken. Er wordt voldaan aan de stofcontour (30 meter). Uit een akoestisch onderzoek (zie paragraaf 5.2) blijkt dat de geluidbelasting vanuit dit bedrijf op de gevel van de nieuwe locatie van de bedrijfswoning, na het treffen van maatregelen bij de woning, voldoet aan de criteria.

Consequentie plangebied

De bedrijven in de directe omgeving van de nieuwe locatie van de bedrijfswoning leveren geen belemmeringen op. De te verplaatsen bedrijfswoning levert geen belemmeringen op voor de omliggende bedrijven, mits de woning wordt uitgevoerd met een zgn. dove gevel (voor nadere toelichting, zie paragraaf 5.2). Daarbij is rekening gehouden met de aanwezige bedrijven, niet aan de maximale planologische mogelijkheden.

Het geldende bestemmingsplan maakt bedrijven met een maximale milieucategorie 4 mogelijk. Daarmee worden bedrijven met een milieucontour van 300 meter mogelijk. Momenteel zijn bedrijven met deze maximaal toelaatbare milieucategorie 4.2 niet aanwezig. Deze bedrijven hebben hier nooit gezeten en er zijn ook geen aanvragen bekend dat deze bedrijven zich hier willen vestigen.

Op het bedrijventerrein liggen, van oudsher, verspreid een aantal bedrijfswoningen. Nieuwe bedrijfswoningen zijn niet toegestaan; (bedrijfs-) woningen horen niet meer thuis op een bedrijventerrein. Bedrijfswoningen leiden voor bedrijven in de omgeving namelijk tot een gebruiksbeperking, welke over het algemeen niet wenselijk is op een bedrijventerrein. Gezien de verspreide ligging van de bedrijfswoningen, is het terrein geschikt voor bedrijven met een maximale milieucategorie 3. Nieuwvestiging van bedrijven met een milieucategorie 4.2 is alleen mogelijk, indien die bedrijven vergaande maatregelen nemen om overlast voor de bestaande bedrijfswoningen te beperken.

De verplaatsing van de bedrijfswoning verandert niets aan de hiervoor beschreven situatie.

afbeelding "i_NL.IMRO.0335.BPAardvletterweg1-Ow01_0008.png" afbeelding "i_NL.IMRO.0335.BPAardvletterweg1-Ow01_0009.png"

Overzicht van bedrijfswoningen op het bedrijventerrein

5.2 Geluid

5.2.1 Wegverkeerslawaai

De Wet geluidhinder (Wgh) bepaalt dat er akoestisch onderzoek verricht dient te worden gedurende de bestemmingsplanprocedure, indien het bestemmingsplan het volgende mogelijk maakt:

  • 1. nieuwe infrastructuur;
  • 2. nieuwe geluidsgevoelige functies.

De Wgh geeft aan dat wegen, met een rijsnelheid van 50 km/uur of hoger, wettelijke onderzoekzones heeft. Indien er binnen deze zones een nieuwe geluidgevoelige functie juridisch-planologisch wordt mogelijk gemaakt, dient er een akoestisch onderzoek plaats te vinden. Als uit het akoestisch onderzoek blijkt dat de voorkeursgrenswaarde van 48 dB op de gevel van een nieuwe geluidsgevoelige functie wordt overschreden, zal er een hogere grenswaarde vastgesteld moeten gaan worden (uitgaande dat er geen maatregelen te treffen zijn, waardoor de gevelbelasting wel aan de voorkeursgrenswaarde voldoet). Dit is een bevoegdheid van het college van burgemeester en wethouders. Het ontwerpbesluit van de hogere grenswaarde dient gelijktijdig met het ontwerpbestemmingsplan ter inzage gelegd te worden.

In het bestemmingsplan Bedrijventerrein IJsselveld wordt aangegeven dat afwijkend van het gemeentelijke verkeersplan de wegen op het bedrijventerrein als erftoegangsweg zijn ingericht met een maximum rijsnelheid van 50 km/h.

5.2.2 Industrielawaai

Op grond van artikel 40 van de Wgh kunnen industrieterreinen een zone hebben. Op grond van artikel 44 Wgh bedraagt de voorkeursgrenswaarde voor industrielawaai 50 dB(A). Op grond van artikel 45 Wgh kan voor nieuwe woningen een hogere waarde worden vastgesteld van 55 dB(A) en voor bestaande woningen 60 dB(A).

In het gebied waar dit bestemmingsplan betrekking op heeft is géén industrieterrein gelegen met een zone op grond van artikel 40 Wgh. Gezien de ligging van de woning op een bedrijventerrein, dient wel onderzocht te worden of de woning een beperkende werking heeft op de bedrijfsvoering van nabij gelegen bedrijven.

5.2.3 Railverkeer

Op grond van artikel 1 Wgh hebben spoorwegen een zone. Voor nieuwe geluidsgevoelige functies binnen deze zone dient er akoestisch onderzoek verricht te worden. In de nabijheid van het plangebied is geen spoorlijn aanwezig. Spoorweglawaai speelt daarmee geen rol voor dit bestemmingsplan.

5.2.4 Plangebied

Dit bestemmingsplan maakt een verplaatsing van een bedrijfswoning mogelijk. Een bedrijfswoning wordt aangemerkt als een geluidsgevoelige functie. Gezien de ligging aan een 50 km-weg, gelegen op een bedrijventerrein waar in de directe omgeving bedrijven met een milieucategorie 4 aanwezig mogen zijn, is er akoestisch onderzoek verricht. Dit onderzoek is als bijlage 1 toegevoegd.

In opdracht van de initiatienemer is er onderzoek verricht naar het geluid op de gevels van de nieuw te realiseren (bedrijfs-)woning aan de Oeverweg te Montfoort ten gevolge van inrichtingen en wegverkeer in de nabije omgeving.

De woning is gepland op het terrein van opdrachtgever gelegen op bedrijventerrein IJsselveld. Voor het geluid op de gevels van de te realiseren woning zijn de volgende inrichtingen relevant geacht:

  • De Kamper bouwbedrijf bv (Aardvletterweg 2 te Montfoort);
  • Hoograven Traptechniek (Oeverweg 4-6 te Montfoort).

Het doel van het onderzoek is het vaststellen van het langtijdgemiddelde beoordelingsniveau (LAr,LT) op de gevels van de te realiseren woning ten gevolge van de beschouwde inrichtingen (separaat) en deze te toetsen aan de van toepassing zijnde geluidgrenswaarden uit het Activiteitenbesluit. Tevens zijn de optredende geluidniveaus ten gevolge van de Oeverweg en Aardvletterweg beschouwd.

Uit het onderzoek volgt dat ten aanzien van het milieuaspect industrielawaai de geplande woning niet zonder meer kan worden gerealiseerd. Het optredende maximale geluidniveau ten gevolge van een aankomende/vertrekkende vrachtwagen bij De Kamper bedraagt op de gevels van de geplande woning meer dan de geluidgrenswaarde uit het Activiteitenbesluit.

Daarnaast treedt tevens een overschrijding op de geluidgrenswaarde voor het langtijdgemiddelde beoordelingsniveau in de avond- en nachtperiode ten gevolge van de activiteiten van Hoograven. Hierbij is reeds rekening gehouden met de geluidreducerende maatregel dat de ramen in de oostgevel van de werkplaats van Hoograven gesloten dienen te zijn.

Technische maatregelen (bron- of overdrachtsmaatregelen) zijn niet eenvoudig uitvoerbaar en/of relatief kostbaar. Daarnaast kunnen deze maatregelen (enigszins) beperkingen opleveren voor de bedrijfsvoering van de bedrijven.

Teneinde de woning te kunnen realiseren dienen de zuidoost- en zuidwestgevel van de woning uitgevoerd te worden als 'dove gevel' of dienen aan deze zijden geen geluidgevoelige ruimten te worden gesitueerd. In het onderzoek zijn twee mogelijke opties schematisch weergegeven. Teneinde een goed akoestisch binnenklimaat te realiseren dient de geluidwering van de gevels van de woning tenminste 21 dB(A) te bedragen. Een dergelijke geluidwering van de gevels is zonder meer (eenvoudig) realiseerbaar.

De geluidbelasting ten gevolge van de Oeverweg en Aardvletterweg sec ter plaatse van de gevels van de geplande woning bedraagt ten hoogste 47 dB. Hiermee wordt voldaan aan de voorkeursgrenswaarde uit de Wet geluidhinder van 48 dB. Voor het milieuaspect wegverkeerslawaai gelden om die reden geen belemmeringen voor realisatie van de geplande woning.

Het optredende gecumuleerde geluidniveau wordt bepaald door het industrielawaai. Derhalve wordt gesteld dat, rekening houdende met voornoemde minimaal te realiseren geluidwering van de gevels, op basis van het gecumuleerde geluidniveau ten gevolge van wegverkeerslawaai en industrielawaai ook sprake is van een goed akoestisch binnenklimaat.

Geconcludeerd wordt dat rekening houdende met de noodzakelijke bouwkundige maatregelen aan de woning geen belemmeringen bestaan voor het verlenen van een omgevingsvergunning voor realisatie van de woonbestemming.

In de regels is een voorwaardelijke verplichting opgenomen: de woning in de derde bouwlaag mag pas in gebruik worden genomen, indien de woning voorzien is van dove gevels.

5.3 Luchtkwaliteit

De belangrijkste wet- en regelgeving voor luchtkwaliteit is vanaf 15 november 2007 vastgelegd in hoofdstuk 5, Titel 5.2 van de Wet milieubeheer (Luchtkwaliteitseisen). Deze wet vervangt het Besluit luchtkwaliteit van november 2005. De wet is één van de maatregelen die de overheid heeft getroffen om:

  • 1. Negatieve effecten op de volksgezondheid als gevolg van te hoge niveaus van luchtverontreiniging aan te pakken;
  • 2. Mogelijkheden voor ruimtelijke ontwikkeling te creëren ondanks de overschrijdingen van de Europese grenswaarden voor luchtkwaliteit.

In de wet zijn onder andere regels en grenswaarden opgenomen voor zwaveldioxide en stikstofoxiden, zwevende deeltjes, lood, koolmonoxide en benzeen. Van deze grenswaarden mag niet worden afgeweken. De plandrempels zijn voor de jaren 2007 tot en met 2010 voor alle stoffen, behalve stikstofdioxide, gelijk aan de grenswaarden. Verder is er met deze wet een wettelijke basis voor een Nationaal Samenwerkingsprogramma Luchtkwaliteit (afgekort NSL) opgesteld.

Het Nationaal Samenwerkingsprogramma Luchtkwaliteit

Het Nationaal Samenwerkingsprogramma Luchtkwaliteit (NSL) is de kern van de Wet luchtkwaliteit. Het NSL is een bundeling van alle gebiedsgerichte programma's en alle Rijksmaatregelen om de luchtkwaliteit te verbeteren. Het NSL bevat alle maatregelen die de luchtkwaliteit verbeteren en alle ruimtelijke ontwikkelingen die de luchtkwaliteit in betekenende mate verslechteren. Het Rijk coördineert het nationale programma. Het Rijk maakt met provincies en gemeenten afspraken over toetsbare resultaten; in de gebieden moeten de normen voor luchtkwaliteit stap voor stap dichterbij komen. De overheden kunnen op die resultaten worden afgerekend. Het NSL is op 1 augustus 2009 in werking getreden.

De uitvoeringsregels behorende bij de wet zijn vastgelegd in Algemene Maatregelen van Bestuur (AMvB) en Ministeriële Regelingen (mr) die gelijktijdig met de „Wet luchtkwaliteit. in werking zijn getreden waaronder de AMvB en Ministeriele Regeling niet in betekenende mate (afgekort NIBM).

AMvB en Regeling niet in betekende mate (NIBM)

De Wet luchtkwaliteit maakt onderscheid tussen grote en kleine ruimtelijke projecten. Een project is klein als het slechts in geringe mate (ofwel niet in betekenende mate) leidt tot een verslechtering van de luchtkwaliteit. De grens ligt bij een verslechtering van maximaal 3% van de grenswaarden voor de luchtkwaliteit. Een verslechtering van maximaal 3% komt overeen met een nieuwbouwproject van 1.500 woningen. Grotere projecten daarentegen kunnen worden opgenomen in het NSL-programma, mits ook overtuigend wordt aangetoond dat de effecten van dat project worden weggenomen door de maatregelen van het NSL.

De AMvB en Regeling “niet in betekenende mate” bevatten criteria waarmee kan worden bepaald of een project van een bepaalde omvang wel of niet als “in betekenende mate” moet worden beschouwd. Deze AMvB is gelijktijdig met het NSL in werking getreden.
NIBM projecten kunnen zonder toetsing aan de grenswaarden voor het aspect luchtkwaliteit uitgevoerd worden. Ook als het bevoegd gezag op een andere wijze, bijvoorbeeld door berekeningen, aannemelijk kan maken dat het geplande project NIBM bijdraagt, kan toetsing van de luchtkwaliteit achterwege blijven.

Consequentie plangebied

De beoogde ontwikkeling (de verplaatsing van de bedrijfswoning) draagt ´niet in betekende mate´ bij aan een verslechtering van de luchtkwaliteit. Er zijn dan ook geen consequenties voor het plangebied.

5.4 Externe veiligheid

5.4.1 Kader / wetgeving

Besluit externe veiligheid inrichtingen

Het beleid voor externe veiligheid is gericht op het beperken en beheersen van risico's voor de omgeving vanwege handelingen met gevaarlijke stoffen. De handelingen kunnen zowel betrekking hebben op het gebruik, de opslag en de productie, als op het transport van gevaarlijke stoffen. Uit het Besluit externe veiligheid inrichtingen (Bevi) en de richtlijnen voor vervoer gevaarlijke stoffen vloeit de verplichting voort om in ruimtelijke plannen in te gaan op de risico's in het plangebied ten gevolge van handelingen met gevaarlijke stoffen. De risico's dienen te worden beoordeeld op twee maatstaven, te weten het plaatsgebonden risico en het groepsrisico.

Plaatsgebonden risico

Het plaatsgebonden risico beschrijft de kans per jaar dat een onbeschermd individu komt te overlijden door een ongeval met gevaarlijke stoffen. Het plaatsgebonden risico wordt uitgedrukt in risicocontouren rondom de risicobron (bedrijf, weg, spoorlijn etc.).

Groepsrisico

Het groepsrisico beschrijft de kans dat een groep van 10 of meer personen gelijktijdig komt te overlijden ten gevolge van een ongeval met gevaarlijke stoffen. Het groepsrisico geeft een indicatie van de maatschappelijke ontwrichting in geval van een ramp. Het groepsrisico wordt uitgedrukt in een grafiek, waarin de kans op overlijden van een bepaalde groep (bijvoorbeeld 10, 100 of 1000 personen) wordt afgezet tegen de kans daarop. Voor het groepsrisico geldt de oriëntatiewaarde als ijkpunt in de verantwoording (géén norm).

Voor elke verandering van het groepsrisico (af- of toename) in het invloedsgebied moet verantwoording worden afgelegd, over de wijze waarop de toelaatbaarheid van deze verandering in de besluitvorming is betrokken. Samen met de hoogte van het groepsrisico moeten andere kwalitatieve aspecten worden meegewogen in de beoordeling van het groepsrisico. Onder deze aspecten vallen zelfredzaamheid en bestrijdbaarheid. Onderdeel van deze verantwoording is overleg met (advies vragen aan) de regionale brandweer.

(Beperkt) kwetsbare objecten

Er moet getoetst worden aan het Bevi en de richtlijnen voor vervoer gevaarlijke stoffen wanneer bij een ontwikkeling (beperkt) kwetsbare objecten worden toegestaan. (Beperkt) kwetsbare objecten zijn o.a. woningen, scholen, ziekenhuizen, hotels restaurants.

Risicovolle activiteiten

In het kader van het plan moet bekeken worden of er in of in de nabijheid van het plan sprake is van risicovolle activiteiten (zoals Bevi-bedrijven, BRZO-bedrijven en transportroutes) of dat risicovolle activiteiten worden toegestaan.

Besluit externe veiligheid Buisleidingen

Per 1 januari 2011 is het Besluit externe veiligheid Buisleidingen (Bevb) in werking getreden. Het Bevb bevat regels voor de exploitant, regels voorgemeenten over het opnemen van buisleidingen in bestemmingsplannen en regels voor het melden van ongewone voorvallen. De afweging van de externe veiligheidssituatie van buisleidingen heeft op deze manier een grondslag in de Wet milieubeheer (Wm) en in de Wro. Daarnaast vervangt het Bevb de circulaires Zonering langs hogedrukaardgasleidingen (1984) en Zonering langs transportleidingen voor brandbare vloeistoffen van de K1-, K2- en K3-categorie (1991).

In en om het plangebied zijn geen buisleidingen aanwezig welke een beperking hebben voor het plangebied.

5.4.2 Plangebied

Op de uitsnede van de risicokaart is te zien dat in of in de nabijheid van de het plangebied geen risicovolle activiteiten aanwezig zijn (toegestaan). In rood zijn de risicodragende bedrijven en inrichtingen weergegeven. Op de uitsnede zijn er twee zichtbaar; te weten een opslag aan de IJsselveld 20 en, een bovengrondse tank aan de M.A. Reinaldaweg 70. Doordat zij op voldoende afstand van het plangebied zijn gelegen, en de afstand met de verplaatsing wordt vergroot, vormen zij geen belemmering voor dit bestemmingsplan.

afbeelding "i_NL.IMRO.0335.BPAardvletterweg1-Ow01_0010.png"

Uitsnede risicokaart, Interprovinciaal Overleg (bron : nederland.risicokaart.nl)

Gemeentelijke routering

Voor de gemeentelijke en provinciale wegen die aansluiten op de rijksweg A12 is in de gemeente Montfoort een routering voor gevaarlijke stoffen vastgesteld. Over de vastgestelde route mag uitsluitend bestemmingsverkeer rijden. Het bedrijventerrein maakt onderdeel uit van de gemeentelijke routering vanwege de noodzaak voor laden en lossen.

Er kan langs het plangebied dus transport van gevaarlijke stoffen plaatsvinden van de niet-routeplichtige stoffen (zoals benzine) en routeplichtige stoffen (zoals propaan), maar de frequentie daarvan is (door het lokale karakter van het transport) dermate laag dat daardoor geen risico's ontstaan die ruimtelijk relevant zijn. De toelichting is op dit onderdeel onvolledig.

Elektromagnetische straling

Er zijn in de omgeving geen hoogspanningslijnen aanwezig waarvan de indicatieve magneetveldzones tot het plangebied reiken. Uit de gegevens op de website www.antenneregister.nl blijkt dat in de omgeving van het plangebied geen zendmasten aanwezig zijn die overschrijdingen van de geldende blootstellingslimieten voor elektrische en magnetische veldsterkten veroorzaken.

Consequentie plangebied

Het plangebied ligt buiten de invloedsgebieden van bedrijven of buisleidingen. In de nabijheid vindt ook geen transport van gevaarlijke stoffen plaats. Externe veiligheidsaspecten spelen daarmee geen belemmerende rol voor dit bestemmingsplan.

5.5 Bodem

De bodemkwaliteit is in het kader van een bestemmingsplan van belang indien er sprake is van functieveranderingen of een ander gebruik. De bodem moet geschikt zijn voor de nieuwe functie. Ook wanneer werkzaamheden plaatsvinden die (grootschalige) verstoringen in de bodem tot gevolg hebben, is er de verplichting te onderzoeken wat de kwaliteit van de bodem is.

Het doel van de Wet Bodembescherming is het behoud en de verbetering van de milieu-hygiënische bodemkwaliteit. In geval van graafwerkzaamheden is een bodemonderzoek aan de orde om te bepalen of eventuele vervuilde grond gesaneerd dient te worden.

In juli 2010 is er ten behoeve van de gewenste (ver-)nieuwbouw bodemonderzoek verricht. Het gehele bodemonderzoek is als bijlage 2 toegevoegd. Sinds 2010 is het gebruik ter plaatse niet gewijzigd. Op basis van het vooronderzoek, afkomstig uit het rapport van het verkennend bodemonderzoek van AT MilieuAdvies BV (met kenmerk AT10135), is onduidelijk of, en zo ja welke, verontreinigingen er mogelijk op de Aardvletterweg 1 kunnen voorkomen afkomstig van het Wbb-geval. In mei 2014 is er daarom een aanvullend historisch (voor-) onderzoek verricht.

Voorgeschiedenis

Van de nabij gelegen Wbb-locatie Oeverweg 4-6 zijn veel documenten ter beschikking gesteld door de provincie Utrecht. Na beoordeling van alle toegestuurde rapporten, daterend vanaf midden jaren '80 tot het jaar 2014, blijkt dat aan de Oeverweg 4-6 sprake is van een geval van ernstige bodemverontreiniging met vluchtige gechloreerde koolwaterstoffen (VOCl) in grond en grondwater als gevolg van lekkage en morsen van een tri-bad in de periode van 1967- 1979. Tri, beter bekend als trichlooretheen, werd gebruikt als ontvettingsmiddel. De voormalige bron van verontreiniging bevond zich op een afstand van circa 60 meter ten zuiden van de Aardvletterweg 1, ter plaatse van de voormalige Trappenfabriek Hoograven BV.

Het geval van ernstige bodemverontreiniging met VOCl heeft zich vanaf het brongebied via het grondwater verspreid door een zandlaag binnen de deklaag, over een afstand van circa 120 meter in noordelijke richting. Mogelijk is ook verontreiniging in het riool terechtgekomen en van daaruit uitgelekt naar het freatisch grondwater. De stromingsrichting van het freatisch grondwater in de deklaag is noordoostelijk. Verontreinigde veen- en kleilagen in de deklaag met mogelijk daarop aanwezig puur product veroorzaken een langdurige nalevering van VOCl naar het grondwater. Aangezien bij de functiewijzing van de locatie niet tot beneden de deklaag van circa 8 meter dikte wordt gegraven, wordt het niet zinvol geacht de verontreinigingssituatie in de diepere watervoerende pakketten (eerste en tweede watervoerende pakket) uitgebreid te beschrijven.

In februari 1993 is gestart met de sanering van de VOCl-verontreiniging in grond en grondwater in de deklaag en het grondwater in het eerste watervoerend pakket (middels grondwateronttrekking/-infiltratie voor de grondwaterverontreiniging en bodemluchtonttrekking/persluchtinjectie voor de grondverontreiniging). Ten behoeve van de zuivering van het opgepompte grondwater en de bodemlucht is een zuiveringsinstallatie geplaatst op het nabij gelegen RWZI-terrein.

Resultaten bodemonderzoek

Uit de verrichte onderzoeken blijkt dat:

  • 1. Ter plaatse van de gedempte sloot is er een (matig) tot sterke verontreiniging met zware metalen in een puinhoudende zandlaag van 0,7-1,0 m –mv. De boven- en onderliggende grondlaag zijn geanalyseerd en niet noemenswaardig verontreinigd.
  • 2. In het verkennend bodemonderzoek van AT MilieuAdvies BV met rapportnr. AT10135 zijn in het ondiepe freatisch grondwater van 1,8-2,8 m –mv (bodemsamenstelling zand en kleiig zand) slechts licht verhoogde gehalten voor enkele VOCl (cis en vinylchloride) aangetoond.
  • 3. In het mengmonster van de zandige bovengrond tot circa 0,6 m –mv zijn geen verhoogde concentraties gemeten voor de onderzochte stoffen.
  • 4. De ondergrond (0,5 m – 1,5 m –nv) bevatten licht verhoogde concentraties voor koper, kwik en/of lood.

Ad.1:

Vanuit praktisch oogpunt wordt tijdens de sanering van de verontreiniging met zware metalen ter plaatse van de gedempte sloot de controlemonsters van de putwanden, te nemen door de milieukundig begeleider, eveneens gebruikt voor de horizontale afbakening van de verontreiniging. Dit ter bepaling van het verontreinigd volume op de locatie. Hierbij wordt uitgegaan van sanering door middel van ontgraving en dat er sprake is van een geval van ernstige bodemverontreiniging in het kader van de Wbb.

Graafwerkzaamheden in een (vermoedelijk) geval van ernstige bodemverontreiniging zijn niet toegestaan zonder instemming van het bevoegd gezag Wet bodembescherming, de provincie Utrecht. Deze instemming kan worden gevraagd door het indienen van een (deel)saneringsplan of een BUSmelding.

Om de omvang van de sterke verontreiniging vast te stellen, wordt voorafgaande aan de bouw een melding van een voornemen tot sanering gedaan (een BUS-melding).

Ad. 2:

Verder onderzoek naar de mate van verontreiniging met VOCl in het grondwater in de deklaag op de onderzoekslocatie wordt niet zinvol geacht. De kwaliteit van het ondiepe freatisch grondwater is door AT MilieuAdvies BV in juli 2010 vastgesteld en ook de verontreinigingscontour voor het diepe freatisch grondwater op de locatie is bekend.

Conclusie

Omdat de omvang van de sterke verontreiniging met koper en zink niet is vastgesteld, is het nodig een nader onderzoek uit te voeren of een BUS-melding te verrichten. De aanvrager heeft te kennen gegeven, voorafgaande aan de bouw, een BUS-melding te verrichten.

5.6 Duurzaamheid

De provinciale ruimtelijke verordening (4 februari 2013) schrijft voor dat ruimtelijke planning binnen het stedelijk gebied een beschrijving bevatten van de wijze waarop rekening is gehouden met energiebesparing en het toepassen van duurzame energiebronnen (art. 3.1, lid 3 van de verordening).

De gemeente concretiseert duurzaam bouwen door een ambitie te formuleren voor het programma 'GPR gebouw. GPR gebouw is een praktisch programma waarmee duurzaam bouwen in een rapportcijfer op vijf thema's wordt uitgewerkt: Energie, Milieu, Gezondheid, Gebruikskwaliteit en Toekomstwaarde.

De nieuwbouwplannen van de initiatiefnemer zijn nog niet concreet uitgewerkt. Daarom is het niet mogelijk om in deze fase van het planproces aan te geven welke energiebesparende maatregelen er getroffen worden en welke duurzaamheidscore nagestreefd wordt. Bij het verder vorm geven van het pand worden de richtlijnen van het programma 'GPR gebouw' gebruikt. De nieuwbouw zal tevens voldoen aan de wettelijke vereisten van het Bouwbesluit.

Hoofdstuk 6 Omgevingsaspecten

6.1 Flora en fauna

Flora en faunawet

Met de Flora- en faunawet worden dieren en planten beschermd. De bepalingen ten aanzien van de soortenbescherming uit de Vogelrichtlijn en de Habitatrichtlijn zijn overgenomen in de Flora- en faunawet. In de wet is onder meer bepaald dat beschermde dieren niet gedood, gevangen of verontrust mogen worden en planten niet geplukt, uitgestoken of verzameld mogen worden. De Flora- en faunawet gaat uit van het 'nee, tenzij'-beginsel. Dit betekent dat genoemde handelingen ten aanzien van planten en dieren niet mogelijk zijn, behalve onder strikte voorwaarden. Het beschermingsregime is afhankelijk van de status van de soort.

Sinds februari 2005 bestaat vrijstelling voor een lijst van veel voorkomende beschermde soorten ('tabel 1'). Hiervoor hoeft bij ruimtelijke ontwikkelingen geen ontheffing aangevraagd te worden. Bij negatieve effecten op strikt beschermde soorten ('tabel 3') is het verplicht voor overtreding van de verbodsbepalingen een ontheffing met een uitgebreide toets van de Flora- en faunawet aan te vragen bij Dienst Regelingen van het Ministerie van LNV. Voor effecten op soorten van 'tabel 2' (onder andere alle vogelsoorten) moet worden gewerkt volgens een door de minister goedgekeurde gedragscode. Zolang deze niet aanwezig is, is voor overtreding van de verbodsbepalingen een toets bij de ontheffingsaanvraag nodig.

Vogel- en Habitatrichtlijnen

De vogelrichtlijn beschermt de vogelsoorten die worden genoemd in de Bijlage I van de richtlijn. De Habitatrichtlijn omvat zowel de bescherming van planten en dieren in gebieden die worden aangeduid als Habitatgebied, als ook de bescherming van verschillende planten- en diersoorten op zich. De Vogel- en Habitatrichtlijngebieden zijn samengevoegd in “Natura 2000”.

Het plangebied valt niet binnen een Natura 2000 gebied. Ook ligt er geen Natura 2000 gebied in de directe omgeving van het plangebied.

Ecologische Hoofdstructuur

Binnen een straal van ruim 700 meter zijn geen gebieden behorend tot de EHS aanwezig. Dit aspect leidt daarom niet tot belemmeringen voor het plangebied.

Consequentie plangebied

Het is bekend dat langs de IJssel en de Waardsedijk-Oost een drukke vliegroute is voor verschillende soorten van vleermuizen. Vleermuizen houden lijnvormige landschapselementen aan voor hun vliegroute; in dit geval de Waardsedijk-Oost. Aan het einde van de Waardsewijk-Oost is ook een broedplaats bekend (in de woning bij de ingang van de manege). Andere vaste verblijf- of broedplaatsen zijn in de directe omgeving niet bekend. Aan de bomen langs het fietspad zijn een aantal broedkasten opgehangen voor de vleermuizen in verband met de geplande sloop van de woning nabij de entree van de manege.

Voor het plangebied is daarom een quick-scan voor de voorkomende flora- en faunawaarden uitgevoerd (zie bijlage 3). Hieruit blijkt dat de te slopen panden geschikt zijn als mogelijke verblijfplaatsen voor vleermuizen (de dwergvleermuizen, de gewone grootoorvleermuis en Meervleermuis). Momenteel wordt er daarom nader veldonderzoek verricht. In de periode half juni – half juli 2014 vinden de eerste veldbezoeken plaats. In de periode half augustus – begin oktober vinden er nog twee veldbezoeken plaats. Indien uit het nader onderzoek blijkt dat er verblijfplaatsen aanwezig zijn, wordt er een ontheffing van de Flora- en faunawet aangevraagd. Daarbij wordt een werkprotocol opgesteld waaruit blijkt welke maatregelen er genomen worden. Voor vaststelling van dit bestemmingsplan zijn de resultaten van het nadere onderzoek bekend.

Er is landelijk gezien veel ervaring met de genoemde vleermuizen soorten. Indien blijkt dat er verblijfplaatsen aanwezig zijn in de te slopen panden, dan zijn de te nemen maatregelen (te denken aan: het tijdig bieden van alternatieve locaties door vleermuizenkasten op te hangen in de directe omgeving, door de te slopen panden op het juiste moment onaantrekkelijk maken voor het verblijf van de vleermuizen en het realiseren van definitieve verblijfplaatsen in de vorm van bijvoorbeeld spouw-muren of definitieve kasten) heel goed te realiseren binnen het plangebied. Het geheel van de te nemen maatregelen wordt dan in een werkprotocol vastgelegd, welke een onderdeel vormt van de ontheffingsaanvraag van de Flora- en faunawet (Ffw). Voor aanvang van de sloopwerkzaamheden zal de ontheffing verkregen moeten zijn.

Uit de quick-scan blijkt dat er naast vleermuizen geen andere streng beschermde soorten aanwezig zijn binnen het plangebied. Door de ingreep worden mogelijk licht beschermde soorten verstoord (zoals de bruine kikker en de gewone pad), maar voor deze soorten geldt een algemene vrijstelling.

In het algemeen geldt dat de werkzaamheden ruim buiten het broedseizoen uitgevoerd dienen te worden; indien werkzaamheden binnen of rond het broedseizoen worden uitgevoerd, dient kort voor aanvang van de sloop te worden bepaald of er broedgevallen zullen worden verstoord. Pas als alle broedgevallen zijn uitgesloten, kan de ingreep worden uitgevoerd.

Voor alle soorten (beschermd en niet beschermd) geldt de algemene zorgplicht. Deze houdt in dat de werkzaamheden op een zodanige wijze worden uitgevoerd dat planten en dieren zo min mogelijk worden verstoord. In elk geval dient de verstoring beperkt te blijven tot het (netto) plangebied. Ook materialenopslag, bouwketen etc. dienen zo mogelijk binnen de begrenzing van het plangebied een plaats te krijgen en mogen in elk geval geen verstorend effect hebben buiten het plangebied. Ook dient de periode van uitvoering zo gekozen te worden, dat dieren zo min mogelijk worden verstoord. Aanwezige dieren (algemene soorten, en soorten zonder bijzondere beschermingsstatus) worden op een onschadelijke wijze verdreven naar een geschikt biotoop.

Gezien het voorgaande is voldoende inzichtelijk gemaakt dat de Ffw de uitvoerbaarheid van het plan niet in de weg staat: voor de drie hiervoor genoemde soorten zijn op relatief eenvoudige wijze maatregelen te nemen, om het voortbestaan van de vleermuizen te garanderen (en daarmee de mogelijk benodigde ontheffing te verkrijgen).

6.2 Archeologie en cultuurhistorie

6.2.1 Monumentenwet

De huidige juridische basis voor het omgaan met archeologische waarden is vastgelegd in de Monumentenwet uit 1988. De Provincie Zuid-Holland en de Rijksdienst voor Archeologie, Cultuurhistorie en Monumenten (RACM) hebben voor wat betreft het aspect archeologie, formeel een adviserende en toetsende rol op basis van de Wet ruimtelijke ordening. Volgens de Monumentenwet 1988 moeten (toevals) vondsten worden gemeld bij de burgemeester. Deze verwittigt het Rijk. In 1998 is het Verdrag van Valletta door de Staten Generaal geratificeerd. Het verdrag is geïmplementeerd door inwerkingtreding van de Wet op de archeologische monumentenzorg per 1 september 2007. De wet regelt de bescherming van archeologisch erfgoed in de bodem, de inpassing ervan in de ruimtelijke ontwikkeling en de financiering van opgravingen. Uitgangspunt is dat 'de veroorzaker betaalt'.

Consequentie voor plangebied

De te slopen panden aan de Oeverweg 5 en de Aardvletterweg 1 zijn niet aangewezen als monument. Er zijn dus ook geen consequenties voor het plangebied.

6.2.2 Nota Belvedere

Het beleid in de Nota Belvedère (Ministeries van OCW, VROM, LNV, V&W, 1999) is gericht op het scheppen van goede voorwaarden om de cultuurhistorische identiteit meer van invloed te laten zijn op de inrichting van de ruimte en expliciet te betrekken bij ruimtelijke ontwikkelingen en -planvormingsprocessen. Het doel is tweeledig, enerzijds verbetering van de kwaliteit van de leefomgeving en anderzijds behoud van het cultureel erfgoed. Dit wordt onder andere bereikt door het herkenbaar houden van de cultuurhistorische identiteit van zowel het stedelijk als het landelijk gebied, en het erkennen van deze kwaliteit als uitgangspunt voor verdere ontwikkelingen. Het centrale thema is 'behoud door ontwikkeling'. In de Nota zijn zogeheten Belvedèregebieden aangewezen. Dit zijn in cultuurhistorisch opzicht de meest waardevolle gebieden van Nederland waarbij wordt gestreefd om te komen tot een consistente inbreng vanuit het cultuurbeleid in het ruimtelijk beleid.

Het plangebied is gelegen in de Lopikerwaard, dat als Belvedèregebied is aangewezen. De Lopikerwaard vormt samen met de Krimpenerwaard, landschappelijk qua landschap en schaal één geheel, en daarmee het grootst aaneengesloten veenweidegebied van Nederland. Ze zijn op de Cultuurhistorische Waardenkaart aangegeven als gebieden met hoge gecombineerde cultuurhistorische waarden. Op de Stapelkaart zijn ze aangegeven als gebieden met hoge historisch-geografische waarden. De karakteristieke lange en smalle kavels van het slagenlandschap zijn typerend voor de cope-ontginningen van het veen. Het veenweidelandschap wordt gezien als fysieke drager met als specifieke kenmerken de visuele openheid en weidsheid. In het rivierbedijkingslandschap zijn de rivierdijken, karakteristieke lintbebouwing en dijkmagazijnen belangrijke cultuurhistorische waarden. Natuurontwikkelingsplannen worden bij voorkeur gebaseerd op cultuurhistorische waarden. In de toekomst is een betere inbreng van de cultuurhistorische waarden (onder andere het verkavelingspatroon, het slotenstelsel en de visuele openheid) bij landinrichting en natuurontwikkeling noodzakelijk om de waarden in stand te houden.

Consequentie plangebied

Het Belvedèregebied Lopikerwaard is vanuit landschappelijke oogpunt (cultuurhistorisch) waardevol. Het plangebied ligt op een bedrijventerrein. Het voorliggende bestemmingsplan heeft geen invloed op (de genoemde kenmerken van) het Belvedèregebied.

6.2.3 Gemeentelijk archeologiebeleid

In 2011 heeft de gemeenteraad van de gemeente Montfoort het Archeologiebeleid vastgesteld. Aanleiding is de Wet op de Archeologische Monumentenzorg. Deze wet, die op 1 september 2007 van kracht is geworden, geeft aan dat de gemeente inzicht dient te hebben in de (te verwachten) archeologische waarden binnen haar grondgebied. Tevens is het voor de gemeente gewenst om bij geplande bodemingrepen en wijzigingen in bestemmingsplannen de archeologie al in een vroeg stadium bij de planvorming te kunnen betrekken. Hiertoe is het formuleren van een gemeentelijk archeologiebeleid essentieel.

Voor het gehele grondgebied van de gemeente is een archeologische inventarisatie uitgevoerd en vervolgens een archeologische waarden en verwachtingenkaart en een maatregelenkaart opgesteld. Op de waarden- en verwachtingenkaart staan naast de reeds bekende archeologische waarden ook de te verwachte archeologische waarden in de vorm van zones met een bepaalde trefkans. Hiermee wordt een beeld verkregen waar archeologische sporen en vondsten in de bodem aanwezig kunnen zijn. Voor de verschillende archeologische verwachtingswaarden is een archeologiebeleid opgesteld. De archeologische maatregelenkaart is afgeleid uit de archeologische waarden- en verwachtingenkaart, waarbij de beleidsadviezen in de legenda zijn opgenomen.

afbeelding "i_NL.IMRO.0335.BPAardvletterweg1-Ow01_0011.png"

Waarden en verwachtingenkaart, Archeologiebeleid gemeente Montfoort (2010)

afbeelding "i_NL.IMRO.0335.BPAardvletterweg1-Ow01_0012.png"

Maatregelenkaart, Archeologiebeleid gemeente Montfoort (2010)

Het plangebied is gelegen in de zone 'geen archeologische verwachting' en valt onder de categorie gebieden 'geen archeologische verwachting'. In deze gebieden geldt dat is vastgesteld dat geen bodemarchief (meer) aanwezig is, of waar behoudenswaardige archeologische resten zijn veiliggesteld door opgraving. De beleidsdoelstelling voor deze beleidscategorie is een vrijgave voor andere ruimtelijke functies.

Consequentie plangebied

Op basis van het archeologiebeleid kan worden geconcludeerd dat archeologisch onderzoek niet nodig is.

Hoofdstuk 7 Juridische toelichting

7.1 Algemeen

Het juridisch bindende gedeelte van het bestemmingsplan bestaat uit de verbeelding en de regels (zogenaamde planregels). De regels zijn gerelateerd aan de verbeelding, zodat kaart en regels te allen tijde in onderlinge samenhang dienen te worden bezien en toegepast.

Verbeelding

De verbeelding heeft een ondersteunende rol voor toepassing van de regels alsmede de functie van visualisering van de bestemmingen. Op de verbeelding hebben alle gronden binnen het plangebied een bestemming gekregen. Binnen een bestemming kunnen nadere aanduidingen zijn aangegeven. Deze aanduidingen hebben slechts juridische betekenis indien, en voor zover, deze in de regels daaraan wordt gegeven. Soms heeft een aanduiding juridisch gezien geen enkele betekenis en is deze uitsluitend op de verbeelding aangegeven ten behoeve van de leesbaarheid van de kaart (bijvoorbeeld topografische gegevens). De verbeelding vormt samen met de regels het voor de burgers en overheid bindende deel van het bestemmingsplan.

Regels

De regels bevatten het juridisch instrumentarium voor het regelen van het gebruik van de gronden, bepalingen omtrent de toegelaten bebouwing, regelingen betreffende het gebruik van aanwezige en/of op te richten bouwwerken. De regels zijn onderverdeeld in meerdere hoofdstukken. Per hoofdstuk zullen de diverse bepalingen artikelsgewijs worden besproken.

Toelichting

De toelichting heeft géén bindende werking; de toelichting maakt juridisch ook geen onderdeel uit van het bestemmingsplan, maar heeft wel een belangrijke functie bij de weergave en onderbouwing van het plan en ook bij de uitleg van bepaalde bestemmingen en regels. Door de grote flexibiliteit, of beter vrijheid in de regels, kan de rechtszekerheid van belanghebbenden in het gedrang komen. In de toelichting dienen derhalve duidelijk de beleidsintenties te worden aangegeven met betrekking tot het toekomstig grondgebruik. De toelichting heeft echter géén rechtstreeks burgers bindende werking.

7.2 De bestemming

Het bestemmingsplan bevat één bestemming, namelijk ´bedrijventerrein´. Voor wat betreft de gebruiks/ en bouwbepalingen is maximaal aangesloten bij de bepalingen die voor deze bestemming gelden in bestemmingsplan ´Bedrijventerrein IJsselveld´.

Bedrijventerrein

Gebruik

De gronden met de bestemming bedrijventerrein mogen gebruikt worden voor het uitoefenen van bedrijfsmatige activiteiten die staan vermeld in de categorie 1 tot en met 4 van de Staat van bedrijfsactiviteiten. Als onderdeel van een bedrijf mag er een kantoor gerealiseerd worden, welke maximaal 50% van het bedrijfsvloeroppervlak bedraagt, met een maximum van 2000 m2. Tevens is volumineuze detailhandel toegestaan. Ter plaatse van de aanduiding ' bedrijfswoning' is een bedrijfwoning toegestaan. Gezien de te hoge geluidsbelasting, is er een voorwaardelijke verplichting opgenomen: de woning mag pas in gebruik genomen worden, nadat de voorgevel evenwijdig aan de Oeverweg en Aardvletterweg is uitgevoerd als dove gevel.

Daarnaast mogen de gronden gebruikt worden ten behoeve van een facility-point, parkeerplaatsen, opslag, laad- en losgelegenheden, groenvoorzieningen, nutsvoorzieningen, kunstwerken en water en waterberging. In de specifieke gebruiksregels is onder andere de parkeernorm opgenomen, is aangegeven hoe groot het facility-point mag zijn en waar er opslag mag plaats vinden.

Bouwen

Het bestemmingsplan voorziet in verschillende bouwregels. De gronden binnen het bouwvlak dienen voor ten minste 50% bebouwd te worden, maar mogen voor maximaal 80% bebouwd worden. Op de verbeelding is de maximale bouwhoogte van 11 meter opgenomen. Voor de bedrijfswoning geldt dat deze maximaal 600 m3 mag bedragen. Ook voor de verschiilende bouwwerken, geen gebouden zijnde, zijn bouwregels opgenomen.

Hoofdstuk 8 Economische uitvoerbaarheid

8.1 Financiële haalbaarheid

Bij het opstellen van een bestemmingsplan dient de financiële haalbaarheid van het plan aangetoond te worden. Dit om te voorkomen dat recht gaat gelden dat niet realistisch blijkt te zijn.

Op grond van artikel 6.12, lid 1, van de Wet ruimtelijke ordening (Wro) moet voor een bestemmingsplan een exploitatieplan worden vastgesteld indien er sprake is van een 'bouwplan'. Artikel 6.2.1 van het Besluit ruimtelijke ordening (Bro) beschrijft wat een 'bouwplan' is. De raad kan bij een besluit tot vaststelling van een bestemmingsplan, besluiten geen exploitatieplan vast te stellen, wanneer:

  • 5. het verhaal van kosten van de grondexploitatie over de in het plan begrepen gronden anderszins verzekerd is (art. 6.12 Wro);
  • 6. de te verhalen kosten minder dan € 10.000,- bedragen;
  • 7. er geen kosten te verhalen zijn (art 6.2.1a Bro).

De 'grex-wet' is erop gericht dat de overheid kosten kan verhalen die gemaakt worden naar aanleiding van een bouwplan. Indien er geen kosten gemaakt worden, hoeven deze ook niet verhaald te worden.

8.2 Plangebied

Uitgangspunt voor de beoogde ontwikkelingen is dat deze voor de gemeente budgetneutraal worden ontwikkeld. Op grond van artikel 6.12, lid 1, Wet ruimtelijke ordening (Wro) in samenhang met artikel 6.12, lid 4, Wro is de gemeenteraad verplicht om de kosten te verhalen en een exploitatieplan vast te stellen gelijktijdig met het besluit (het plan) waarop het exploitatieplan betrekking heeft.

Met onderhavig bestemmingsplan wordt een bouwplan in de zin van artikel 6.2.1 Bro mogelijk gemaakt. Daarmee is er een verplichting tot het vaststellen van een exploitatieplan. De kosten van de ontwikkeling zijn voor rekening van de initiatiefnemer. Er zijn geen kosten te verhalen, zodat de gemeenteraad voor vaststelling van het bestemmingsplan besluit dat er geen exploitatieplan opgesteld hoeft te worden.

De financieel-economische haalbaarheid is hiermee in voldoende mate aangetoond.

Hoofdstuk 9 Maatschappelijke uitvoerbaarheid

9.1 Overleg 3.1.1. Bro

Wettelijk gezien is vooroverleg met het hoogheemraadschap en de provincie noodzakelijk (overeenkomstig artikel 3.1.1. van het Besluit ruimtelijke ordening). Gezien de aard en omvang van de bouwactiviteit zijn er geen provinciale belangen van toepassing. Vooroverleg met de provincie is daarom niet nodig. Zoals in hoofdstuk 4 (water) is aangegeven wordt voldaan aan de belangen van het hoogheemraadschap. Vooroverleg met het hoogheemraadschap is daarom ook niet nodig.

9.2 Inspraak

Per 1 juli 2005 is de Wet Uniforme openbare voorbereidingsprocedure (Wet UOV) in werking getreden. Artikel 6a van de Wet ruimtelijke ordening is daarmee vervallen en daarmee ook de inspraakverplichting. Dat betekent dat ruimtelijke plannen (o.a. bestemmingsplannen) worden voorbereid met toepassing van de UOV (Awb). Dat neemt niet weg dat het de gemeente vrij staat toch inspraak te verlenen b.v. op grond van de gemeentelijke inspraakverordening. In relatie daarmee bepaalt artikel 150 van de Gemeentewet onder meer dat in een gemeentelijke inspraakverordening moet worden geregeld op welke wijze bovenbedoelde personen en rechtspersonen hun mening kenbaar kunnen maken.

In de gemeente Inspraakverordening wordt in Artikel 2 lid 3 gesteld dat geen inspraak wordt verleend ten aanzien van ondergeschikte herzieningen van een eerder vastgesteld beleidsvoornemen. Het voorliggende bestemmingsplan is ondergeschikt ten aanzien van het bestemmingsplan 'Bedrijventerrein IJsselveld'. Er hoeft dan ook geen inspraak te worden verleend.

9.3 Zienswijzen

Overeenkomstig artikel 3.8 van de Wet ruimtelijke ordening wordt uitvoering gegeven aan de eis het ontwerpbestemmingsplan gedurende 6 weken ter inzage te leggen. Gedurende deze periode kan een ieder een zienswijze indienen.