direct naar inhoud van Toelichting
Plan: Johan de Ridderlaan ten zuiden van nr. 1
Status: voorontwerp
Plantype: bestemmingsplan
IMRO-idn: NL.IMRO.0335.BPJohanRidderlaan1-VO01

Toelichting

Hoofdstuk 1 Inleiding

1.1 Aanleiding

Aan het einde van de Johan de Ridderlaan in Montfoort ligt een open terrein. De initiatiefnemer is voornemens dit terrein in te vullen met woningen.

Het plangebied is gelegen binnen het vigerende bestemmingsplan 'Woonwijken' (d.d. 31-01-2011). Binnen dit plan kent het plangebied de bestemming 'Wonen' maar er is geen bouwvlak opgenomen. In artikel 21 Wonen is bepaald dat gebouwen uitsluitend gebouwd worden ter plaatste van de aanduiding 'bouwvlak'. Deze aanduiding is niet opgenomen ter plaatste van het plangebied waardoor de realisatie van woningen niet mogelijk is.

Aanleiding voor het voorliggende bestemmingsplan is het mogelijk maken van de realisatie van 10 woningen. De nieuwe woonlocatie zal worden ontsloten vanaf de Johan de Ridderlaan. Het schetsvoorstel voor deze woningen is ingediend als zijnde principeverzoek. De gemeente Montfoort heeft uitgesproken in principe medewerking te willen verlenen aan de realisatie van het schetsvoorstel en daarmee de realisatie van 10 woningen op de locatie.

1.2 Ligging plangebied

Het plangebied is gelegen aan het einde van de Johan de Ridderlaan in het noordoosten van de gemeente Montfoort.

Het plangebied grenst aan de noordkant aan de bestaande woningen aan de Johan De Ridderlaan nrs. 1 en 2. Aan de westkant grenst het gebied aan de tuinen van de bestaande woningen aan de Jan Hoenlaan nrs. 2a en 2c.

Aan de zuidkant grenst het plangebied aan de bestaande woningen gelegen aan Heeswijk (provinciale weg N228) nrs. 23 en 25. Aan de zuidoostkant is een bestaand bedrijf, een dierenspeciaalzaak, gelegen aan Heeswijk 27.

Het plangebied grenst aan de oostkant aan het bedrijfsperceel gelegen achter de dierenspeciaalzaak en ten oosten van dit perceel ligt het buitengebied van Montfoort.

afbeelding "i_NL.IMRO.0335.BPJohanRidderlaan1-VO01_0001.jpg"

Afbeelding ligging en begrenzing plangebied

1.3 Vigerend bestemmingsplan

Het plangebied is gelegen binnen het vigerende bestemmingsplan 'Woonwijken' welke op 31 januari 2011 is vastgesteld. Het plangebied is bestemd met 'Wonen'. Ook gelden er twee gebiedsaanduidingen ter plaatste van het plangebied, 'milieuzone - grondwaterbeschermingsgebied' en 'archeologisch waardevol gebied 4'.

afbeelding "i_NL.IMRO.0335.BPJohanRidderlaan1-VO01_0002.jpg"

Afbeelding uitsnede vigerend bestemmingsplan

De met 'Wonen' aangewezen gronden zijn bestemd voor woningen, aan huis gebonden beroepen, parkeervoorzieningen, ontsluitingspaden en tuinen en erven. Op deze gronden mogen uitsluitend woningen worden gebouwd met daarbij behorende bijgebouwen, aanbouwen, uitbouwen en bouwwerken, geen gebouwen zijnde. Gebouwen mogen uitsluitend worden gebouwd ter plaatste van de aanduiding 'bouwvlak'. Deze is niet opgenomen ter plaatse van het plangebied.

Ter plaatse van de aanduiding 'milieuzone - grondwaterbeschermingszone' zijn de betreffende gronden tevens bestemd voor de bescherming van het grondwater. Burgemeester en wethouders zijn bevoegd het plan te wijzigen door de aanduiding geheel of gedeeltelijk te verwijderen, indien de grondwaterbeschermingszone niet langer aanwezig is.

Op basis van kaart behorende bij de provinciale milieuverordening (2013) kan worden gesteld dat dit gebied niet langer aanwezig is ter plaatse van het plangebied. Derhalve wordt deze gebiedsaanduiding niet opgenomen in de verbeelding van het voorliggende bestemmingsplan. Wel is het plangebied gelegen binnen een boringsvrije zone van een waterwingebied. Dit wordt nader toegelicht in paragraaf 4.3 Waterparagraaf.


Ter plaatse van de aanduiding 'archeologisch waardevol - gebied 4' zijn de betreffende gronden tevens bestemd voor bescherming en veiligstelling van archeologische (verwachtings-) waarden. Het is verboden om of in deze gronden zonder of in afwijking van een vergunning van burgemeester en wethouders (omgevingsvergunning) de volgende werkzaamheden of werken, niet zijnde bouwwerken uit te voeren:

  • afgraven, woelen, mengen, diepploegen, egaliseren, ontginnen, ophogen en aanleggen van drainage op een grotere diepte dan 50 cm;
  • heiwerkzaamheden en het op een of andere wijze indrijven van voorwerpen;
  • verlagen of verhogen van het waterpeil;
  • aanleggen of rooien van bos of boomgaard waarbij stobben worden verwijderd;
  • aanleggen van ondergrondse kabels en leidingen en het aanbrengen van daarmee verband houdende constructies, installaties of apparatuur;
  • het aanbrengen of verwijderen van diepgewortelde beplantingen.

Het verbod is niet van toepassing, indien de werkzaamheden of werken:

  • een oppervlakte beslaan van ten hoogste 200 m2;
  • reeds in uitvoering zijn op het tijdstip van inwerkingtreding van dit bestemmingsplan;
  • mogen worden uitgevoerd krachtens een reeds verleende omgevingsvergunning of een ontgrondingvergunning, of;
  • ten dienste van archeologisch onderzoek worden uitgevoerd.

Ter plaatse van het plangebied is een archeologisch onderzoek uitgevoerd. Dit wordt nader toegelicht in paragraaf 4.10.

1.4 Planvorm

Dit bestemmingsplan vormt het juridisch-planologisch kader waarbinnen de ontwikkeling van het perceel aan de Johan de Ridderlaan wordt vastgelegd. Naast deze toelichting bestaat het bestemmingsplan uit regels en een verbeelding. Het bestemmingsplan is een ontwikkelingsgericht bestemmingsplan, waarbinnen enkel de voorgenomen ontwikkeling van het perceel aan de Johan de Ridderlaan wordt vertaald. De gekozen juridische vorm voor dit bestemmingsplan is een gedetailleerd bestemmingsplan.

1.5 Leeswijzer

Na deze inleiding wordt in hoofdstuk 2 de planbeschrijving uiteengezet. Hierin wordt de huidige en de toekomstige situatie van het gebied beschreven. Hoofdstuk 3 behandelt vervolgens de relevante beleidsstukken. De uitvoerbaarheid van de beoogde ontwikkeling wordt bekeken in verschillende onderzoeken/ beoordelingen van omgevingsaspecten. Hierbij moet gedacht worden aan onderzoeken zoals luchtkwaliteit, akoestische onderzoeken, externe veiligheid en dergelijke. Dit is verwerkt in hoofdstuk 4. Hoofdstuk 5 gaat in op de maatschappelijke en economische haalbaarheid van het plan. Tot slot worden in hoofdstuk 6 de bestemmingen beschreven.

Hoofdstuk 2 Planbeschrijving

2.1 Bestaande situatie

Onderhavig plangebied aan de Johan de Ridderlaan 1 is een onbebouwd grasland gelegen in de Montfoortse wijk Keizerrijk. Het plangebied wordt begrensd door vrijstaande woningen die zijn gelegen aan de Jan Hoenlaan en de provinciale weg Heeswijk. De aangrenzende woningen hebben een goot- en nokhoogte van 6,5 m en 10 meter. Alleen de woning aan Heeswijk 25 heeft een lagere bouwhoogte.


De oostrand van deze wijk is pas in de jaren '90 gerealiseerd. De wijk wordt gekenmerkt door gevarieerde bebouwing. Een deel van de woningen aan het Wilhelminaplein bestaan nog uit de oorspronkelijke kleine arbeiderswoningen. Inmiddels zijn aan de Wilhelminastraat woningen vernieuwd en aan de Irenestraat staat een vrij nieuw appartementengebouw. In het midden van de wijk staat de Heeswijkschool die net als andere scholen in Montfoort in het begin van de jaren zeventig van de vorige eeuw is gebouwd. De toegang tot de wijk bevindt zich aan de Boslaan en de hoofd entree vanaf de Provinciale weg ligt aan de Jan de Rijkelaan met aan de linkerzijde opel garage De Goey. Achter in de wijk ligt zwembad Het Knopenbad aan de Godfried van Rhenenlaan.


De Jan Hoenlaan geeft duidelijk een grens aan van meer recente woningbouw. De vrijstaande woningen aldaar zijn met hun achtertuinen georiënteerd op de Hollandse IJssel.

afbeelding "i_NL.IMRO.0335.BPJohanRidderlaan1-VO01_0003.jpg"

Afbeelding ligging plangebied in Montfoort

Het plangebied is in de nabijheid van de Hollandse IJssel gelegen, in het veenweidegebied van het Groene Hart van de Randstad. De hoofdontsluiting binnen de gemeente Montfoort vindt plaats via de provinciale weg N228 (Gouda-De Meern) die Montfoort in oost-west richting doorsnijdt. Ten westen van Montfoort ligt de provinciale weg N204, waarover de ontsluiting richting A12 plaatsvindt. Oostelijk en zuidelijk van de kern Montfoort liggen respectievelijk de polders Heeswijk en Blokland.

2.2 Toekomstige situatie

Voor de stedenbouwkundige invulling van de locatie zijn meerdere varianten onderzocht. Het gekozen schetsvoorstel betreft de invulling van de locatie met 10 woningen, bestaande uit 3 twee-onder-één-kapwoningen en 4 (geschakelde) vrijstaande woningen. Ontsluiting van het plangebied zal plaatsvinden via de Johan de Ridderlaan die aansluit op de noordkant van het plangebied.

Voor de stedenbouwkundige uitgangspunten wordt aangesloten bij de omliggende bebouwing. Als bouwhoogte wordt dan ook een goot- en nokhoogte van 6 m en 10 meter aangehouden.

Stedenbouwkundig plan

Een heldere rechte ruimte biedt de meeste kwaliteit voor het gebied. Tenminste 5 van de 10 woningen liggen aan deze ruimte en dat biedt meerwaarde voor alle woningen en het gebied als geheel. Door één ruimte te maken waarin geen onderverdeling wordt gemaakt ontstaat een fraai hof. Doel is het realiseren van een eenduidige buitenruimte met woonkwaliteit. Daarom is gezocht naar een sterke binnenruimte die duidelijk ontworpen is als geheel.

Er is een hof gemaakt waaraan tenminste 5 van de 10 woningen gelegen zijn. Alle woningen kunnen nu een volwaardig gezicht aan de openbare ruimte krijgen evenals een goede toegang naar de parkeerplaatsen op eigen terrein. De tuinen worden omkaderd door hagen op de erfgrenzen. Aan de westzijde wordt op informele wijze ruimte geboden aan 4 parkeerplaatsen.

afbeelding "i_NL.IMRO.0335.BPJohanRidderlaan1-VO01_0004.jpg"

Afbeelding stedenbouwkundig plan, plangebied Johan de Ridderlaan

Parkeren

In het plangebied zijn parkeerplaatsen op eigen terrein ingepast. Bij elke woning is tenminste ruimte voor één en of twee parkeerplaatsen op eigen terrein. Ook zijn er 4 openbare parkeerplaatsen aan de westzijde van het plangebied ingepast. In paragraaf 4.11 wordt de beoordeling van de aspecten verkeer en parkeren nader toegelicht.

Water

Met het opstellen van het stedenbouwkundig plan heeft afstemming plaats gevonden met het Hoogheemraadschap. Het Hoogheemraadschap staat positief tegenover de oplossing van de waterberging door middel van bovengrondse infiltratievoorzieningen. Het voorstel is om bovengrondse infiltratievoorziening op het centrale hof in de vorm van een greppel aan te leggen. In paragraaf 4.3 wordt het aspect water nader toegelicht.

Openbare ruimte

De openbare ruimte in de vorm van een hof krijgt een kwalitatieve inrichting. Groen doormiddel van bomen, openbestrating en een greppel. Hagen en voortuinen zorgen voor het versterken van het groene karakter van het hof

De bestaande boom is eventueel in te passen. Dit wordt nog nader onderzocht. Bij de parkeerplaatsen worden ook bomen geplaatst.

Beeldkwaliteit

Voor het planvoornemen wordt een beeldkwaliteitsparagraaf opgesteld, deze wordt in het ontwerp bestemmingsplan opgenomen.

Hoofdstuk 3 Beleid

3.1 Inleiding

Ten behoeve van een goede ruimtelijke ordening wordt in dit bestemmingsplan inzicht gegeven op de invloed van het van toepassing zijnde beleid ten opzichte van de beoogde ruimtelijke ontwikkeling. In dit hoofdstuk worden de verschillende beleidskaders weergegeven waarmee rekening moet worden gehouden.

3.2 Rijksbeleid

3.2.1 Structuurvisie Infrastructuur en Ruimte

In maart 2012 is de Structuurvisie Infrastructuur en Ruimte (SVIR) vastgesteld. Nederland moet concurreren en daarnaast bereikbaar, leefbaar en veilig zijn, dat is het streven van het rijk. Het rijk voorziet dit door een krachtige aanpak die ruimte geeft aan regionaal maatwerk, de gebruiker voorop zet, investeringen scherp prioriteert en ruimtelijke ontwikkelingen en infrastructuur met elkaar verbindt. De ruimtelijke structuur van Nederland heeft zich ontwikkeld van steden in een landelijk gebied naar stedelijke regio's in interactie met landelijke en cultuurhistorische gebieden. Dit maakt Nederland sterk en onderscheidend in de wereld. Die samenhang van het internationale en regionale schaalniveau wil het rijk behouden, laten groeien en versterken. Nederland heeft met zijn internationale oriëntatie en open economie een hoog welvaartsniveau opgebouwd. Een netwerk van hoogwaardige internationale verbindingen van weg, spoor, water en lucht, met daarbinnen de mainports als belangrijke knooppunten is de basis voor die internationale concurrentiepositie. De 3 hoofddoelen van de structuurvisie zijn:

  • Het vergroten van de concurrentiekracht van Nederland door het versterken van de ruimtelijk-economische structuur van Nederland;
  • Het waarborgen van een leefbare en veilige omgeving waarin unieke natuurlijke en cultuurhistorische waarden behouden zijn.
  • Het verbeteren, in stand houden en ruimtelijk zeker stellen van de bereikbaarheid waarbij de gebruiker voorop staat.
3.2.2 Barro

Het Besluit algemene regels ruimtelijke ordening, ook wel het Barro genoemd, heeft medio 2009 als ontwerp ter inzage gelegen, destijds nog als AMvB Ruimte. Begin 2012 is de SVIR vastgesteld, de basis waarop de regelgeving van het Barro gebaseerd is. Op 1 oktober 2012 is het Barro volledig in werking getreden.

Het Barro heeft als doel om vanuit een concreet nationaal belang een goede ruimtelijke ordening te bevorderen. Het Barro is het inhoudelijke beleidskader van de rijksoverheid waaraan bestemmingsplannen van gemeenten moeten voldoen. Dit betekent dat het Barro regels geeft over bestemmingen en het gebruik van gronden en zich daarbij primair richt tot de gemeenten. Daarnaast kan het Barro aan de gemeenten opdragen om in de toelichting bij een bestemmingsplan bepaalde zaken uitdrukkelijk te motiveren. Het plangebied is niet gelegen binnen een invloedssfeer van het Barro.

3.2.3 Besluit ruimtelijke ordening

In het Besluit ruimtelijke ordening (Bro) is met ingang van 1 oktober 2012 de ladder voor duurzame verstedelijking' opgenomen (artikel 3.2). Deze schrijft voor dat gemeenten bij iedere nieuwe stedelijke ontwikkeling in de toelichting bij een bestemmingsplan moeten beschrijven (en onderbouwen) dat een voorgenomen ontwikkeling voorziet in een actuele regionale behoefte. En vervolgens moet er aangetoond worden dat die behoefte kan worden voorzien door benutting van gronden in bestaand stedelijk gebied door herstructurering, transformatie of anderszins. Als dat niet mogelijk is dan is onderbouwing noodzakelijk waarom de ontwikkeling past buiten stedelijk gebied.


Op 1 juli 2017 is een wijziging van het Besluit ruimtelijke ordening in werking getreden waarbij een nieuwe Laddersystematiek is gaan gelden. De kernbepaling van de nieuwe Ladder, artikel 3.1.6 lid 2 Bro, is als volgt komen te luiden:

De toelichting van een bestemmingsplan dat een nieuwe stedelijke ontwikkeling mogelijk maakt, bevat een beschrijving van de behoefte aan de voorgenomen stedelijke ontwikkeling. Indien blijkt dat de stedelijke ontwikkeling niet binnen het bestaand stedelijk gebied kan worden voorzien, bevat de toelichting een motivering daarvan en een beschrijving van de mogelijkheid om in die behoefte te voorzien op de gekozen locatie buiten het bestaand stedelijk gebied.

3.2.3.1 Ladder voor duurzame verstedelijking

De Ladder voor duurzame verstedelijking is van toepassing bij stedelijke ontwikkelingen. Op basis van jurisprudentie blijkt dat ontwikkeling dat de bouw van minder dan 11 woningen niet gezien wordt als een stedelijke ontwikkeling (Uitspraak Raad van State, 16 september 2015, 201501297/1/R4). De bouw van de woningen in het plangebied betreft de realisatie van maximaal 10 woningen, conform de uitspraak van de Raad van State wordt deze ontwikkeling niet gezien als stedelijke ontwikkeling.

In het kader van een goede ruimtelijke ordening wordt de ladder kort onderbouwd.

De woningen worden binnenstedelijk in Montfoort gerealiseerd. Voor de bouw wordt geen nieuwe grond aangewend buiten bestaand stedelijk gebied.

Voor de verdere bepaling van de vraag naar woningen in Montfoort is gekeken naar het woonbeleid van de gemeente. Uit de beschrijving van het gemeentelijk woonbeleid in 3.4.2 en een woningmarktonderzoek blijkt dat er vraag is naar grondgebonden duurdere koopwoningen en dat de behoefte aan deze woningen de komende jaren zal toenemen. Uit het gemeentelijk woonbeleid is op te maken dat er vooral ook vraag is naar twee-onder-één-kap woningen en vrijstaande woningen. Het voorgenomen woningbouwprogramma bestaande uit 6 twee-onder-één-kapwoningen en 4 (geschakelde) vrijstaande woningen voorziet in hierin.

Samenvattend, het planvoornemen voorziet in de vraag naar tweekappers en vrijstaande woningen in het duurdere segment. De woningen worden binnenstedelijk op een leegstaand stuk grond gerealiseerd.

In het kader van een goede ruimtelijke ordening is de ladder onderbouwd. Het planvoornemen voorziet in een woningbehoefte binnen het stedelijk gebied en voldoet hiermee aan de uitgangspunten van de ladder.

3.2.4 Conclusie Rijksbeleid

Specifiek beleid ten aanzien de locatie is in de Structuurvisie Infrastructuur en Ruimte niet opgenomen. Dit is gedecentraliseerd naar de provincie en de gemeente.

Het plangebied is niet gelegen binnen een invloedssfeer van het Barro.

Het onderhavige bestemmingsplan is niet in strijd met een van de onderwerpen uit het Barro.

De realisatie van 10 woningen in het plangebied betreft geen stedelijke ontwikkeling. In het kader van een goede ruimtelijke ordening is de ladder onderbouwd en het plan voldoet hieraan.

Het planvoornemen voldoet aan het Rijksbeleid.

3.3 Provinciaal beleid

3.3.1 Provinciale Ruimtelijke Structuurvisie en Ruimtelijke Verordening 2013-2025
3.3.1.1 Provinciale Ruimtelijke structuurvisie

De Provinciale ruimtelijke structuurvisie (PRS) en Provinciale ruimtelijke verordening (PRV) zijn op 4 februari 2013 door de Provinciale Staten vastgesteld. De PRS en PRV worden elke vier jaar opnieuw bekeken en eventueel aangepast, ofwel herijken.

De eerste herijking is in juni 2015 begonnen en op 12 december 2016 vastgesteld. Provinciale Staten hebben bij de vaststelling deze zienswijzen meegenomen in hun overwegingen. De PRS en PRV zijn op 12 december 2016 integraal vastgesteld, dus met inbegrip van de 1e en 2e partiële herziening.

In deze paragraaf zijn de hoofdlijnen, doelstellingen en het van toepassing zijnde beleid uit de PRV en PRS beschreven.

Bij het concretiseren van het ruimtelijk beleid binnen de hoofdlijnen van de Provinciale structuurvisie worden 2 prioritaire keuzes gemaakt: inzetten op binnenstedelijke ontwikkeling en het versterken van de kwaliteit van het landelijk gebied. Vanuit deze hoofdlijnen zijn de vier volgende pijlers voor ruimtelijke ontwikkeling opgesteld:

  • 1. een duurzame leefomgeving;
  • 2. beschermen kwaliteiten;
  • 3. vitale dorpen en steden;
  • 4. landelijk gebied met kwaliteit.

In de onderstaande afbeelding is een uitsnede van de Provinciale structuurvisie opgenomen. Het plangebied mis gelegen binnen een gebied dat is aangewezen als zijnde binnenstedelijke woningbouw. De Provincie zet in op de binnenstedelijke ontwikkeling. Het streven van de Provincie is dat ten minste twee derde van het woningbouwprogramma binnen de actuele rode contouren gerealiseerd wordt. Deze binnenstedelijke opgave biedt kansen om de leefbaarheid in de steden en dorpen te verbeteren, als er voldoende aandacht is voor de kwaliteit van de woningen en de woonomgeving. Daarom vindt de Provincie het belangrijk dat er aandacht is voor deze kwaliteit.

afbeelding "i_NL.IMRO.0335.BPJohanRidderlaan1-VO01_0005.jpg"
Afbeelding uitsnede Provinciale structuurvisie

3.3.1.2 Provinciale Ruimtelijke Verordening

Relevant voor het planvoornemen is artikel 4.1 uit de Provinciale Verordening. Het plangebied is gelegen binnen het stedelijk gebied. De PRV levert geen belemmeringen op voor het planvoornemen omdat de woningen binnen het stedelijk gebied gerealiseerd worden.

In de artikel is opgenomen dat de toelichting op een ruimtelijk besluit voor gronden die zijn aangewezen als ‘Stedelijk gebied’ bevat een beschrijving van de wijze waarop rekening is gehouden met energiebesparing en het toepassen van duurzame energiebronnen.

Bij zowel het bouwen als renoveren van kantoren en woningen als het herstructureren of aanleggen van woonwijken en bedrijventerreinen is het van belang dat gemeenten en initiatiefnemers nadenken over het gebruik van alternatieve vormen van energie en energiebesparende technieken. Hiermee dragen ruimtelijke plannen bij aan het doel van 10% duurzame energiegebruik in 2020 zoals verwoord in de PRS.

3.3.2 Conclusie Provinciaal Beleid

Het planvoornemen sluit aan bij de provinciale gedachte om woningbouw binnenstedelijk te ontwikkelen. Het voorliggende plan betreft een binnenstedelijke woningbouwontwikkeling waarbij er aandacht is besteed aan de kwaliteit van de woningen en de woonomgeving. In het stedenbouwkundig ontwerp is meegenomen dat de woningen moeten passen in de omgeving. Dit is bereikt doordat groen en water zijn opgenomen in het ontwerp.

Het aspect duurzaamheid in relatie tot het planvoornemen is nader toegelicht in paragraaf 4.12.

3.4 Gemeentelijk beleid

3.4.1 Structuurvisie 2030

Begin 2009 heeft het college van burgemeester en wethouders van gemeente Montfoort besloten om een dorpsvisie voor de kern Linschoten en een structuurvisie voor het gehele grondgebied van Montfoort opstellen. Dit is samengebracht in de TotaalVisie 2030. De TotaalVisie 2030 is door de gemeenteraad van Montfoort op 12 december 2011 vastgesteld.


Deze TotaalVisie 2030 geeft richting aan de (ruimtelijke) ontwikkelingen binnen de gemeente en is de basis voor bestemmingsplannen. Daar vallen ook de Visie Binnenstad Montfoort 2030 en Dorpsvisie Linschoten 2030 onder. In de TotaalVisie worden de volgende kernuitgangspunten voor stedenbouwkundige ontwikkelingen en wonen benoemd.

  • Bij woningbouwlocaties wordt nadrukkelijk gekeken naar inbreidingsmogelijkheden en herstructurering.
  • Bij bouw/inbreiding/herstructurering is het belangrijk de gewenste doelgroep te bedienen (met name senioren en starters). Gebieden met een eenzijdige bouw van eengezinswoningen worden gezien als transformatielocaties.
  • Bij het ontwikkelen van bouwlocaties zal rekening gehouden worden met de molenbiotoop van Molen De Valk.

Het planvoornemen betreft een woningbouwontwikkeling op een inbreidingslocatie aan het einde van de Johan de Ridderlaan. Dit sluit bij één van de kernuitgangspunten (woningbouw op inbreidingslocatie) voor stedenbouwkundige ontwikkeling uit de TotaalVisie 2030.

3.4.2 Nota Volkshuisvesting 2011-2020 Montfoort

De nota Volkshuisvesting is het document waarin de gemeenteraad het woonbeleid en haar ambities op het gebied van het wonen vastlegt. De nota Volkshuisvesting dient onder meer als basis en leidraad voor de beoordeling van nieuwbouwplannen, prestatieovereenkomsten met woningcorporaties, afspraken en overeenkomsten met marktpartijen alsmede ten behoeve van overleg in regionaal verband en met hogere overheden over het Structuurvisie en de Nota Ruimte. De volgende beleidslijnen worden benoemd.

  • Huisvesten specifieke doelgroepen: starters, senioren, statushouders, gehandicapten en huishoudens met een laag inkomen. De gemeente Montfoort wil in staat zijn een evenwichtige en rechtvaardige woonruimteverdeling te realiseren, de sociale samenhang en eigen identiteit op langere termijn behouden en haar inwoners van voldoende en kwalitatief goede woonruimte te voorzien. Er zal met name aandacht uit gaan naar specifieke doelgroepen die, gelet op hun financiële mogelijkheden of specifieke wensen, maar moeilijk aan bod komen op de woningmarkt in de gemeente. Het gaat om de doelgroepen starters, senioren, huishoudens met een laag inkomens, gehandicapten en statushouders.
  • Huisvesten met behoud leefbaarheid en identiteit: kernenbeleid. Door het ontstaan van één grote sociale huurwoningmarkt in het grootste deel van de provincie Utrecht, is het voor inwoners van kleine kernen veel moeilijker geworden om aan een sociale huurwoning in de eigen kern te komen. De leefbaarheid en sociale cohesie kan hierdoor onder druk komen te staan.
  • Huisvesten met Zorg, wonen-zorg-welzijn integraal benaderen. In de nota van 2005 is gesteld dat de gemeente Montfoort vindt dat alle inwoners van de gemeente vanuit de eigen woonsituatie zolang mogelijk mee moet kunnen doen aan de samenleving. De doelstellingen hier bij zijn: Inwoners met een hulpvraag moeten zo lang als mogelijk zelfstandig wonen buiten een instelling en er is voldoende aanbod van intramurale verpleeghuiszorg om aan de lokale vraag te voldoen.
  • Huisvesten met regie, de rol van de gemeente. Bij het bereiken van de beleidsdoelstellingen is samenwerking met woningcorporaties en marktpartijen noodzakelijk. De gemeente wil echter wel de regie in handen houden. De regierol van de gemeente is naar alle partijen helder geformuleerd, is de bijbehorende doelstelling.

In deze nota is opgenomen dat circa 1/3 van de woningvoorraad in Montfoort bestaat uit vrijstaande- en twee-onder-één-kap woningen.

Als er wordt gekeken naar de vraag in Montfoort dan komt naar voren dat in de koopsector er met name een grote vraag naar enerzijds twee-onder-één-kap woningen en anderzijds vrijstaande woningen is. Kanttekening bij de vraag naar twee-onder-één-kap woningen is dat deze vraag met name twee-onder-één-kap woningen betreft tot € 300.000.

Nieuwbouw binnen de gemeente dient zoveel mogelijk afgestemd te worden op de lokale woningbehoefte. Voor de koopsector geldt: hoe hoger de prijs, hoe vaker een grondgebonden woning wordt gevraagd.

In de Nota is opgenomen het nieuwbouwprogramma voor woningen dient vooral gericht te zijn op woningen in de dure sector (vrijstaand en twee-onder-één-kap) en seniorenwoningen en appartementen.

In deze nota zijn de redenen uiteengezet waarom mensen zich vestigen in Montfoort of willen verhuizen in Montfoort.

De belangrijkste redenen van vestigers om voor de gemeente Montfoort te kiezen zijn de volgende:

  • Rust en ruimte
  • Aanwezigheid vrienden/familie/kennissen
  • Beschikbaarheid van woningen
  • Ligging nabij Utrecht

Wanneer gekeken wordt naar de verhuismotieven van huishoudens die in Montfoort wonen en binnen nu en vijf jaar willen verhuizen, dan blijkt dat de verhuismotieven in de meeste gevallen woning gerelateerd zijn:

  • Grotere woning
  • Gelijkvloerse/aangepaste woning
  • Leeftijd
  • Kleinere woning
  • Grotere tuin

Woningmarktonderzoek

In december 2015 is een woningmarktonderzoek in Montfoort uitgevoerd. Uit de toelichting op de ontwikkeling van de woningbehoefte blijkt dat de vraag naar grondgebonden koopwoningen de komende jaren toeneemt. De verwachting is dat de behoefte aan koopwoningen in het duurdere segment zal toenemen. De behoefte aan koopwoningen van meer dan €400.000 neemt toe met 50 tot 170 woningen in de periode 2015 tot 2030. De conclusie dat de behoefte aan duurdere grondgebonden koopwoningen toeneemt de komende jaren is overeenkomstig de Nota volkshuisvesting waarin is opgenomen dat nieuwbouwprogramma voor woningen vooral gericht dient te zijn op woningen in de dure sector.

Op de planlocatie worden vrijstaande en twee-onder-één woningen gebouwd in het duurdere segment. De exacte prijs van de woningen is nog niet bekend. De woningen zijn gesitueerd op ruime kavels waar voldoende ruimte is voor een grotere tuin. De woningen zelf zijn qua oppervlakte ook ruim opgezet.

3.4.3 Parkeerbeleid

Op 25 mei 2016 heeft de gemeente Montfoort de Nota parkeernormen 2015 vastgesteld. Om te voorkomen dat door ruimtelijke ontwikkelingen bestaande parkeerknelpunten vergroot worden en/of dat nieuwe parkeerknelpunten ontstaan, worden alle ruimtelijke ontwikkelingen en –plannen getoetst op het onderdeel parkeren. Om een objectieve beoordeling van de parkeereffecten van een ruimtelijke ontwikkeling te kunnen maken bestaat behoefte aan eenduidig toe te passen toetsingskader. Een parkeernormen nota biedt hiervoor uitkomst. De parkeernormen in deze parkeernormen nota zijn gebaseerd op de landelijke parkeerkencijfers uit de meest recente CROW-publicatie 317 (Kencijfers parkeren en verkeersgeneratie, 8 oktober 2012). De parkeernormen zijn ingedeeld in zeven hoofdcategorieën waaronder wonen.

Bij het bepalen van de hoogte van de parkeernormen is gekeken naar:

  • Het aantal personenauto's per duizend inwoners in de gemeente Montfoort;
  • De stedelijkheidsgraad van de gemeente Montfoort.

Algemeen uitgangspunt is dat een ruimtelijk initiatief op eigen terrein kan voldoen aan de parkeervraag. Voor het plangebied geldt de stedelijkheidsgraad 'rest bebouwde kom'. Conform bijlage 2 van de Nota moeten er in de 'rest bebouwde kom' 2 parkeerplekken per woning worden gerealiseerd.

Aan de maatvoering en uitvoering van parkeervoorzieningen worden eisen gesteld. Deze eisen staan in het boekwerk ASVV 2012 (CROW, december 2012). Het ASVV bevat (technische) gegevens over de maatvoering en technische uitvoering van parkeervoorzieningen. Bij het bepalen van de parkeercapaciteit op eigen terrein worden daarom correctie factoren toegepast. In tabel 3.1 zijn de berekeningsaantallen voor de bepaling van het aantal parkeerplaatsen op eigen terrein bij woningen opgenomen.

  Berekeningsaantal   Ontwerpeis  
Woning met garage   0,0 pp   NVT  
Woning met oprit   1,0 pp   Oprit minimaal 6,0 meter diep en 2,5 breed  
Woning met carport   1,0 pp   Carport minimaal 6,0 meter diep en 2,5 breed  
Woning met dubbele oprit naast elkaar   2,0 pp   Oprit minimaal 6,0 meter diep en 5,0 breed  
Garagebox geclusterd   0,4 pp   Minimaal 5,0 meter diep  

Tabel berekeningsaantallen parkeerplaatsen op eigen terrein

Bij de woningen in het plangebied wordt parkeren op eigen terrein mogelijk gemaakt. Ook worden er vier parkeerplaatsen in de openbare ruimte aangelegd.

3.4.4 Conclusie gemeentelijk beleid

Het planvoornemen sluit aan bij de gemeentelijke structuurvisie. Er wordt voor de woningbouwlocaties een bestaand perceel in binnenstedelijk gebied aangewend, de planlocatie kan daarmee worden gezien als inbreidingslocatie. Het planvoornemen zorgt voor een specifiek woningaanbod in de vorm van vrijstaande woningen en tweekappers.

Door het realiseren van de woningen neemt het aanbod toe in Montfoort, hierdoor zijn er ook meer woningen beschikbaar voor mogelijk vestigers. Het planvoornemen sluit ook bij de verhuismotieven van inwoners van Montfoort namelijk; grotere woning en grotere tuin.

De voorgenomen woningbouw voorziet hierin. Het planvoornemen sluit aan bij de gedachte uit het de Nota Volkshuisvesting en het woningmartkonderzoek dat er een grote vraag is naar duurdere grondengebonden koopwoningen waaronder twee-onder-één-kap en vrijstaande woningen is. De voorgenomen nieuwbouw in het plangebied bestaat uit deze woningen. Samengevat kan worden gesteld dat het planvoornemen aansluit op de Nota Volkshuisvesting en het woningmartkonderzoek uit 2015.

Voor de nieuw te bouwen woningen wordt het parkeren geregeld op het eigen terrein en in de openbare ruimte mogelijk gemaakt. Voor het mogelijk maken van het voorliggende plan moet worden voor het onderdeel parkeren worden voldaan aan de Nota parkeernormen van de gemeente Montfoort.

3.5 Conclusie beleid

Het Rijksbeleid en Provinciaal beleid levert geen belemmering op voor het planvoornemen. Het voornemen betreft een binnenstedelijke realisatie van woningen, het plan voldoet aan het Provinciaal Beleid.

Het voorliggende plan sluit aan de bij gemeentelijke structuurvisie en de Nota Volkshuisvesting. Voor het mogelijk maken van de gewenste woningbouw is het van belang dat wordt voldaan aan de Nota parkeernormen van de gemeente Montfoort.

Hoofdstuk 4 Omgevingsaspecten

4.1 Inleiding

Ten behoeve van het voorliggende bestemmingsplan zijn de volgende omgevingsaspecten nader onderzocht of beoordeeld;

  • M.e.r.
  • Water
  • Flora en fauna
  • Bodem
  • Luchtkwaliteit
  • Geluid
  • Bedrijven- en milieuzonering
  • Externe veiligheid
  • Archeologie
  • Verkeer en parkeren

4.2 M.e.r.-beoordeling

4.2.1 Inleiding

Plannen en activiteiten kunnen nadelige gevolgen hebben voor het milieu. In hoofdstuk 7 van de Wet milieubeheer en in het Besluit milieueffectrapportage is geregeld dat in zulke gevallen een milieueffectrapport moet worden opgesteld. Er is een m.e.r.-plicht voor plannen (planMER) en een m.e.r.-plicht voor besluiten. Een plan is plan m.e.r.-plichtig als het plan kaders stelt voor m.e.r.-plichtige activiteiten. Een bestemmingplan (of wijzigingsplan) kan plan m.e.r.-plichtig zijn. Dit is het geval als het plan kaders stelt voor latere m.e.r.-plichtige activiteiten en/of als voor het plan een passende beoordeling nodig is. Daarnaast kan een plan ook m.e.r.-plichtig zijn als er een concreet (bouw)plan ter uitvoering ligt.

4.2.2 Kader

Per 7 juli 2017 is het Besluit m.e.r. gewijzigd. Hierin is een nieuwe procedure voor de vormvrije m.e.r.-beoordeling opgenomen. Een m.e.r.-procedure is noodzakelijk als een besluit wordt genomen over een activiteit waarbij belangrijke nadelige milieugevolgen kunnen optreden. De vraag of door voorgenomen activiteiten belangrijke nadelige milieugevolgen veroorzaakt kunnen worden staat dan ook centraal bij het beoordelen of een m.e.r. moet worden uitgevoerd. De Europese Unie heeft in de richtlijn m.e.r. aangegeven bij welke activiteiten er zeer waarschijnlijk sprake is van belangrijke nadelige milieugevolgen.

In de gewijzigde Besluit m.e.r. staat de nieuwe procedure voor de vormvrije m.e.r.-beoordeling. Voor elke aanvraag waarbij een vormvrije m.e.r.-beoordeling aan de orde is moet:

  • door de initiatiefnemer een aanmeldingsnotitie worden opgesteld;
  • het bevoegd gezag binnen 6 weken een m.e.r.-beoordelingsbesluit nemen. Dit besluit hoeft niet in de Staatscourant gepubliceerd te worden;
  • de initiatiefnemer het (vormvrije) m.e.r.-beoordelingsbesluit bij de vergunningaanvraag voegen (Artikel 7.28 Wet milieubeheer).

De artikelen 7.16 tot en met 7.20a van de Wet milieubeheer zijn in de nieuwe wetgeving voor alle in het Besluit m.e.r. genoemde activiteiten van de D-lijst van toepassing. Het maakt daarvoor niet uit of het een activiteit onder of boven de D-drempel betreft. Voorafgaand aan de vergunningaanvraag of de ruimtelijke procedure dient een aparte beslissing te worden genomen dat geen MER nodig is. Voor de initiatiefnemer geldt dat hij moet melden dat er sprake is van een vormvrije m.e.r.-beoordeling en dat hij hiervoor informatie moet aanleveren. Het bevoegd gezag moet vervolgens een formeel besluit nemen dat de initiatiefnemer bij zijn vergunningaanvraag moet voegen.

De nieuwe procedure is uitsluitend van toepassing op projecten die voorkomen in het Besluit m.e.r.. Indien kan worden aangetoond dat het project geen onderdeel uitmaakt van onderdeel C of D van het Besluit m.e.r., dan is de nieuwe procedure niet van toepassing. In onderdeel D van de bijlage van het Besluit m.e.r. is onder 11.2 de aanleg, wijziging of uitbreiding van een stedelijk ontwikkelingsproject, met inbegrip van de bouw van winkelcentra of parkeerterreinen, opgenomen.

4.2.3 Onderzoek

Het planvoornemen betreft het realiseren van 10 woningen. Het plan bevat een activiteit die genoemd wordt in onderdeel D van de bijlage behorende bij het Besluit milieueffectrapportage. De aanleg, wijziging of uitbreiding van een stedelijk ontwikkelingsproject met inbegrip van de bouw van winkelcentra of parkeerterreinen valt onder onderdeel D in de bijlage van het Besluit Milieueffectrapportage.

In de volgende gevallen waarop de activiteit betrekking heeft op is een aparte m.e.r.-beoordeling nodig;

  • 1. een oppervlakte van 100 hectare of meer,
  • 2. een aaneengesloten gebied en 2000 of meer woningen omvat, of
  • 3. een bedrijfsvloeroppervlakte van 200.000 m2 of meer.

De omvang van het planvoornemen blijft onder de drempelwaarden genoemd in onderdeel D.11.2 in de bijlage van het Besluit Milieueffectrapportage. De activiteit betreft de realisatie van 10 woningen en zit daarmee ruim onder de drempelwaarde van 2000 woningen waarvoor een aparte m.e.r.-beoordeling moet worden uitgevoerd. Wel is het nodig om voor het te nemen besluit kort uit te leggen dat er geen significante milieugevolgen voor de omgeving zijn.

Dit heet een vormvrije m.e.r.-beoordeling.

Vormvrije m.e.r. beoordeling

1 Kenmerken project / activiteit,

De omvang van het project betreft het realiseren van 10 woningen, deze activiteit zit ruim onder de drempelwaarden van 2000 woningen. Uit de beoordeling van verkeer blijkt dat de verkeerstoename opgevangen kan worden op de omliggende wegen. Uit de beoordeling van het aspect luchtkwaliteit blijkt dat het plan voldoet aan de wettelijke bepalingen voor de luchtkwaliteit en kan derhalve zonder verdere maatregelen worden uitgevoerd.

2 plaats van het project / activiteit

Het plangebied ligt in het bestaand stedelijk gebied van de gemeente Montfoort.

3 samenhang met andere activiteiten

Er is geen samenhang met plannen/ontwikkelingen buiten het plangebied. Binnen het plangebied wordt de uitbreiding mogelijk gemaakt. De onderzoeken naar de verscheidene milieueffecten worden toegelicht in dit hoofdstuk.

4 kenmerken van de (mogelijk belangrijke) nadelige milieugevolgen

De nieuwe ontwikkeling in het plangebied leidt niet tot belangrijke milieugevolgen. Er is geen sprake van een m.e.r.-beoordelingsplicht.

4.2.4 Conclusie

Gelet op bovenstaande overwegingen zijn er geen belangrijke nadelige gevolgen voor het milieu te verwachten. De effecten op het milieu worden voldoende beschreven in de navolgende paragrafen. Een formele m.e.r.-beoordeling is niet nodig. De gemeente moet hier een wel een m.e.r.- beoordelingsbesluit over nemen.

4.3 Waterparagraaf

4.3.1 Inleiding

In het kader van de Wet ruimtelijke ordening (Wro) en Besluit ruimtelijke ordening wordt voor dit ruimtelijke plan een watertoetsproces doorlopen. In alle ruimtelijke plannen moet een zogeheten waterparagraaf worden opgenomen. De waterparagraaf omvat het advies van de waterbeheerder en een gemotiveerd besluit ten aanzien van de wateraspecten. Eventuele afwijkingen van het advies van de waterbeheerder worden gemotiveerd. Daarbij moet door de initiatiefnemer worden aangegeven hoe met die afwijking wordt omgegaan. In laatste instantie kan worden teruggegrepen op het nemen van verzachtende maatregelen of compensatie inclusief afspraken over financiering en uitvoering.

De 'watertoets' is een instrument dat waterhuishoudkundige belangen expliciet en op evenwichtige wijze laat meewegen bij het opstellen van ruimtelijke plannen en besluiten. Het is niet een toets achteraf, maar een proces dat de gemeente en waterbeheerder met elkaar in gesprek brengt in een zo vroeg mogelijk stadium. De inzet daarbij is om in elk afzonderlijk plan met maatwerk het reeds bestaande waterhuishoudkundige en ruimtelijke beleid goed toe te passen en uit te voeren.

4.3.2 Kader

Nationaal Waterplan

Een belangrijke conclusie uit het Waterbeleid 21e eeuw - die overgenomen wordt in alle overige beleidsstukken - is om water meer ruimte te geven en te voorkomen dat de waterproblematiek in tijd of ruimte wordt afgewenteld. Er worden twee drietrapsstrategieën als uitgangspunten aangegeven:

  • Ten aanzien van waterkwantiteit: Vasthouden - Bergen - Afvoeren;
  • Ten aanzien van waterkwaliteit: Schoonhouden - Scheiden - Zuiveren.

Deze strategieën vertalen zich voor het stedelijk gebied naar de volgende aandachtspunten: Meer ruimte voor water en een relatie tussen het stedelijk water en het water in het omliggende gebied, vergroting van het waterbergend vermogen met name in de stadsranden, verbetering van de waterkwaliteit, vergroting van de belevingswaarde van water, en kansen voor natuur en recreatie in en rondom stedelijk water.

Waterplan 2010-2015, provincie Utrecht

Het waterhuishouding plan geeft het waterbeleid weer van de provincie Utrecht. Op 23 november 2009 is het provinciaal Waterplan 2010-2015, inclusief Deelplan Kaderrichtlijn Water, vastgesteld.

In dit waterhuishoudingsplan wordt, door middel van een aantal uitgangspunten, het waterbeleid vormgegeven:

  • een maatschappelijk acceptabel overstromingsrisico. Het risico wordt bepaald door waterstanden op de buitenwateren, bodemdaling, occupatie en geïnvesteerd kapitaal. Hoogwaters zullen vaker voorkomen en de rivierafvoer wordt op termijn bemoeilijkt door een stijgende zeespiegel. Bodemdaling is een voortgaand proces in het westelijk deel van onze provincie en in het Eemland. Bevolkingsomvang en investeringsniveau in onze provincie nemen echter nog steeds toe;
  • omgaan met wateroverlast èn waterschaarste. Wanneer er meer neerslag zal komen zullen de afvoer- en bergingsmogelijkheden in het stedelijke en landelijk gebied zwaarder worden belast. Tegelijkertijd vergroten warmere en drogere perioden de vraag naar drink-, irrigatie- en koelwater, terwijl juist dan het aanbod onder druk staat. Onze natuurgebieden mogen niet verdrogen en moeten soortmigratie als gevolg van klimaatverandering kunnen faciliteren;
  • een sterkere bijdrage van water aan ons leefklimaat. De behoefte aan vaar- en recreatiewater neemt toe. Laat zien dat water de drager is van veel van de Utrechtse landschappen. Maak water zichtbaar.


Beleid Waterschap de Stichtse Rijnlanden

Het plangebied valt onder het beheergebied van Hoogheemraadschap De Stichtse Rijnlanden, die verantwoordelijk is voor het waterkwaliteits- en waterkwantiteitsbeheer. Relevant beleid van het Hoogheemraadschap zijn het Waterbeheerplan Waterkoers 2016-2021, Keur en Legger.


Basisprincipes omgaan met water:

  • Vasthouden - bergen - afvoeren (waterkwantiteit)
  • Schoon houden - scheiden - zuiveren (waterkwaliteit)
  • Waarborg tegen overstroming - overstromingsrobuust bouwen (veiligheid)

Beleid hemel- en afvalwater

Bij de afvoer van overtollig hemelwater is infiltratie van water in de bodem het uitgangspunt, omdat dit het meest duurzaam is. Oppervlakkige afvoer naar de infiltratie voorziening en infiltratie via wadi's heeft daarbij de voorkeur. Als oppervlakkige infiltratie niet mogelijk is, is ondergrondse infiltratie door middel van bijvoorbeeld een infiltratie riool een optie. Als infiltratie niet mogelijk is, kan hemelwater via een bodempassage worden geloosd op oppervlaktewater. Schoon hemelwater (bijvoorbeeld vanaf dakoppervlakken) kan direct worden afgevoerd naar oppervlaktewater. Speciale aandacht wordt besteed aan duurzaam bouwen en een duurzaam gebruik van de openbare ruimte om een goede kwaliteit van het afgekoppelde hemelwater te garanderen.

Water in relatie tot de ruimtelijke ontwikkeling

Afvoer hemelwater

Hemelwater wordt rechtstreeks afgevoerd naar oppervlaktewater. Als de toename aan verharding ten gevolge van het plan kleiner is dan 500m2 in stedelijk gebied of 1000m2 in landelijk gebied, hoeft deze afvoer niet te worden gecompenseerd. Als infiltratie niet mogelijk is, kan hemelwater via een bodempassage worden geloosd op oppervlaktewater.

Schoon hemelwater (bijvoorbeeld vanaf dakoppervlakken) kan direct worden afgevoerd naar oppervlaktewater


Diffuse bronnen.

Het verdient de voorkeur om geen zware metalen, zoals lood, koper of zink toe te passen voor dak, dakgoot of regenpijp. Indien dit wel gebeurd, moet er een zuiveringsvoorziening worden aangelegd, zodat hemelwater geloosd kan worden op oppervlaktewater. Zware metalen vervuilen namelijk het oppervlaktewater.

Afvalwater

Het aspect riolering wordt in de civieltechnische uitwerking van het planvoornemen meegenomen. Zie hiervoor de waterparagraaf in Bijlage 8.

Milieubeleidsplan Montfoort en het Gemeentelijk Rioleringsplan (GRP)

Naast de bovengenoemde plannen zijn in de gemeente Montfoort het Milieubeleidsplan Montfoort en het Gemeentelijk Rioleringsplan (GRP) van toepassing. In het Milieubeleidsplan staat vermeld dat voor nieuwbouw rekening gehouden moet worden met het schoon houden van water. Dit heeft met name met betrekking tot bouwmaterialen: het is van belang dat uitlogende materialen als zink, lood, koper en bitumen zonder KOMO-keurmerk niet worden toegepast, daar waar deze materialen in contact komen met het hemelwater, zoals dak, dakgoot en regenpijpen.

Het Rioleringsplan 'verbreed gemeentelijke rioleringsplan is vastgesteld op 23 oktober 2012 voor de periode 2013-2017. Dit plan vermeld op welke manier afvalwater en regenwater wordt verwerkt en gezuiverd. De algemene doelstelling van riolering is bescherming van de volksgezondheid en het waarborgen van de leefomgeving van de inwoners. Uit deze algemene doelen zijn de volgende doelen ontleend, waaraan het systeem moet voldoen:

  • 1. Inzameling van stedelijk afvalwater (afvalwater).
  • 2. Transport van stedelijk afvalwater (afvalwater).
  • 3. Inzameling van hemelwater (hemelwater).
  • 4. Verwerking van ingezameld hemelwater (hemelwater).
  • 5. Zorgen dat (voor zover mogelijk) het grondwater de bestemming van een gebied niet structureel belemmeren.


Afvalwaterzorg  
Tot de afvalwaterzorg behoort de inzameling en afvoer van stedelijk afvalwater dat bestaat uit zowel huishoudelijk en bedrijfsmatig afvalwater als vervuild hemelwater. Qua systemen vallen de gemengde en vuilwaterstelsels onder deze zorg alsmede de mechanisch systemen als drukriolering, persleidingen en rioolgemalen.

Hemelwaterzorg
Deze nieuwe zorgplicht is vastgelegd in de Waterwet en vraagt specifieke aandacht van de gemeenten voor de omgang met hemelwater. Uitgangspunt is dat hemelwater van origine zodanig schoon is dat dit zonder bezwaar in het milieu (oppervlaktewater of bodem) geloosd kan worden (scheiden bij de bron overeenkomstig het overheidsbeleid).


Grondwaterzorg

Geldt voor de hemelwaterzorg dat de aandacht ten opzichte van de voorgaande situatie is verschoven, nieuw is de grondwaterzorg. Ook deze zorg is vastgelegd in de Waterwet. De gemeente Montfoort volgt hiervoor het beleid, definities en afwegingskaders zoals omschreven in het Regionaal Afvalwaterketenbeleid (2014) van WINNET.

4.3.3 Onderzoek

Waterkering

Het plangebied is gelegen buiten de beschermingszones van waterstaatswerken.

Waterwingebied

Het plangebied is gelegen binnen de boringsvrije zone van het waterwingebied Linschoten. Dit betekent dat ondergrondse activiteiten gevolgen kunnen hebben voor de waterkwaliteit. Activiteiten die dieper reiken dan -40 m onder het maaiveld zijn gebonden aan regels of verbodsbepalingen. Op grond van artikel 20 is bepaald dat het verboden is om grond- of funderingswerken uit te voeren op een diepte van 40 meter of meer onder het maaiveld. Gezien de grondslag en omvang van de woningen is het niet aannemelijk dat de fundering voorbij 40 m – mv gaat reiken. Voor de ontwikkeling gelden geen verdere regels.

Toename verharding

Door de realisatie van het planvoornemen neemt de verharding in het plangebied toe. Deze verharding moet gecompenseerd worden.

In onderstaande tabel is uiteengezet hoeveel m2 compensatie verhard oppervlak er benodigd is. De hoeveelheid compensatie is afhankelijk van het soort verharding. Bijvoorbeeld de toename van verharding ten gevolge van de aanleg van de openbaar verhard moet voor 100% worden gecompenseerd.

De totale toename van verharding die gecompenseerd moet worden bedraagt 3320 m2. Ter compensatie wordt een infiltratiesysteem aangelegd waarbij 45 mm water per m2 afgekoppeld moet worden conform afspraken.

Soort verharding   Compensatie verhard oppervlak (%)   Compensatie verhard oppervlak (m2)  
Daken   100   1011  
Groen   0   0  
Parkeren eigen terrein   50   175  
Tuinen   60   1214  
Openbaar verhard   100   893  
Openbaar parkeren   50   27,5  
Totaal     3320,5  

Tabel compensatie verhard oppervlak (concept)

Watercompensatie

Ten behoeve van de compensatie van het verhard oppervlak moet 0,045*3320= 149 m3 watercompensatie worden gerealiseerd.

In overleg met de gemeente en het waterschap Stichtse Rijnlanden is besloten om de watercompensatie te regelen in het plangebied middels de aanleg van een bovengrondse infiltratievoorziening(en). Op het centrale hof wordt deze voorziening aangelegd in de de vorm van een greppel.

Ter plaatse van het gehele plangebied is een aanduiding opgenomen ''wetgevingzone - waterberging''. In de regels behorende bij deze aanduiding is opgenomen dat 149 m3 aan waterberging in het plangebied gerealiseerd moet worden. In het bestemmingsplan worden de exacte locaties van de waterberging niet vastgelegd omdat de precieze afmetingen nog niet bekend zijn. Er wordt alleen geborgd dat binnen de grenzen van het plangebied deze berging gerealiseerd moet worden. In de notitie waterparagraaf, in Bijlage 8 bijgesloten, is het ontwerp van het watersysteem nader toegelicht.

4.3.4 Conclusie

Door de realisatie van het planvoornemen neemt de verharding toe in het plangebied. Deze toename wordt gecompenseerd middels de aanleg van een bovengrondse infiltratievoorziening(en). Het realiseren van voldoende waterberging is geborgd in de regels.

4.4 Flora en fauna

4.4.1 Inleiding

Bij ruimtelijke ontwikkelingen dient duidelijk te zijn welke invloed realisatie en aanpassing van gebouwen en bouwwerken heeft op de flora en fauna in en rond de projectlocatie. Het plangebied is momenteel braakliggend.

4.4.2 Kader

Per 1 januari 2017 is de Wet natuurbescherming in werking getreden. Deze wet integreert de Flora- en faunawet, Boswet en Natuurbeschermingswet 1998 tot één wet. Deze wet implementeert tevens de Vogel- en Habitatrichtlijn en andere verdragen in het nationaal natuurbeschermingsrecht. Het bevoegdheid van deze nieuwe wet is Gedeputeerde Staten van de Provincie(s) waar een project wordt gerealiseerd. Gedeputeerde Staten kunnen deze bevoegdheid ook overdragen conform lid 7 van deze wet. De Nieuwe Wet natuurbescherming sluit aan bij de internationale kaders zoals de Vogel- en Habitatrichtlijn. De soortbescherming richt zich dan ook op de bescherming van plant- en diersoorten die genoemd zijn in deze richtlijnen. Een uitzondering hierop vormt een deel van de Rode Lijst soorten. Deze soorten worden wel beschermd via de Nieuwe Wet natuurbescherming. Daarnaast geldt de algemene zorgplicht, zoals deze ook al geldt onder de Flora- en faunawet. Indien een plan resulteert in negatieve beïnvloeding van een soort of soorten kan ontheffing worden verleend conform artikel 3.3 van de Nieuwe Wet natuurbescherming voor soorten van artikel 3.1 en 3.2 (Vogelrichtlijnsoorten). Ontheffing kan worden verleend conform artikel 3.8 van de Nieuwe Wet natuurbescherming voor soorten van artikel 3.4 en 3.6 (Habitatrichtlijnsoorten). De criteria voor ontheffingsverlening zijn eender aan die van de Flora- en faunawet omdat de ontheffingsgronden van de Vogel- en Habitatrichtlijn gelijk zijn gebleven. Het nationaal recht staat het niet toe om hiervan af te wijken.

4.4.3 Onderzoek soortenbescherming

Adviesbureau Merten heeft een quickscan beschermde planten- en diersoorten. Het rapport behorende bij het onderzoek (d.d. oktober 2016) is opgenomen in Bijlage 1.De doelstelling van het onderzoek was tweeledig. Enerzijds is inzichtelijk gemaakt welke wettelijk beschermde natuurwaarden in het kader van de soortbescherming van planten- en diersoorten te verwachten zijn. Anderzijds zijn de consequenties van deze aanwezigheid voor de planontwikkeling weergegeven.

Op donderdag 8 september 2016 is een bezoek gebracht aan het plangebied de directe omgeving. Gedurende dit bezoek is dit gebied en de directe omgeving beoordeeld op het mogelijk voorkomen van beschermde planten- en diersoorten.

Conclusie

Er is aan de hand van het onderzoek vastgesteld dat het voorkomen van matig of zwaar beschermde soorten is uitgesloten. Het plangebied bezit geen mogelijkheden voor vleermuizen om te verblijven. Wel vliegen er vleermuizen in lage dichtheid. Gedurende en na realisatie van de plannen kunnen deze soorten er blijven vliegen. Effecten op vleermuizen worden derhalve uitgesloten. Er kunnen daarnaast algemene licht beschermde zoogdieren en amfibieën voorkomen. Voor deze algemene soorten bestaat een algemene vrijstelling van de Flora- en faunawet. Dit ontheffingenbeleid wordt voorgezet onder de Nieuwe Natuurwet. Verder komen er mogelijk algemene broedvogels voor in de twee te rooien bomen. Voor deze algemene broedvogels geldt dat werkzaamheden moeten worden uitgevoerd buiten het broedseizoen of op een manier dat nesten en eieren niet worden geschaad. Voor overige soort(groep)en is het gebied verder volledig ongeschikt. Op grond van bovenstaande analyse worden effecten op matig en zwaar beschermde planten- en diersoorten uitgesloten; het planvoornemen is niet in strijd met het gestelde binnen Wet natuurbescherming.

4.4.4 Beoordeling gebiedsbescherming

Met behulp van de Wet Natuurbescherming (de voormalige Natuurbeschermingswet 1998) worden Natura 2000-gebieden (habitat- en vogelrichtlijngebieden) beschermd. Voor Natura 2000-gebieden gelden algemene en gebiedsspecifieke doelstellingen.

Verder zijn gebieden die onderdeel uitmaken van het Natuur Netwerk Nederland (NNN; voormalige EHS) planologisch beschermd. Deze wettelijke bescherming van het NNN verloopt niet via de natuurwetgeving maar via het ruimtelijke ordeningsrecht (Barro, bestemmingsplannen).

In of in de nabijheid van de beschermde gebieden zijn handelingen verboden die de waarden, kenmerken of functies van het gebied kunnen aantasten.

Natura 2000 en NNN

Het plangebied is gelegen;

  • 9,5 km ten noorden van het Natura 2000-gebied ''Uiterwaarden Lek''
  • 10,5 km ten noorden van het Natura 2000-gebied ''Zouweboezem''
  • 12 km ten westen van het Natura 2000-gebied "Broekvelden, Vettenbroek & Polder Stein" gelegen.

Gezien de aard van de herontwikkeling en de afstand tot het Natura 2000-gebied wordt een toetsing van de voorgenomen herontwikkeling aan de instandhoudingsdoelstellingen van deze Natura 2000-gebieden niet noodzakelijk geacht.

Conclusie
Het plangebied ligt buiten (op een afstand van ca 430 meter) het Natuur Netwerk Nederland (NNN). Het dichtstbijzijnde deel van de NNN betreft een groenstrook in Mastwijk (een buurtschap en een polder in de gemeente Montfoort). Gezien de aard van de werkzaamheden en de afstand tussen het plangebied en het NNN wordt toetsing van de herinrichting aan de wezenlijke kenmerken en waarden van het NNN niet noodzakelijk geacht.

4.4.5 Conclusie

De aspecten soorten- en gebiedsbescherming zijn beoordeeld en leveren geen belemmeringen op voor de realisatie van de woningen.

4.5 Bodem

4.5.1 Inleiding

In het kader van de onderzoeksplicht dient onder andere de bodemgesteldheid in het projectgebied in kaart gebracht te worden. Onderzocht moet worden of de bodem verontreinigd is en wat voor gevolgen een eventuele bodemverontreiniging heeft voor de uitvoerbaarheid van het plan. Functiewijziging is pas toegestaan als is aangetoond dat de bodem geschikt (of geschikt te maken) is voor de nieuwe functie. Een bodemonderzoek heeft doorgaans een geldigheid van twee tot drie jaar als het gebruikt wordt ten behoeve van een bouwaanvraag. In veel gevallen kan deze termijn worden verruimd naar een periode van vijf jaar. Hierbij mag geen wezenlijke verandering in het gebruik of bodemgesteldheid van de locatie hebben plaatsgevonden.

4.5.2 Onderzoek

Adviesbureau Bottomline heeft in augustus 2016 een bodemonderzoek uitgevoerd en als Bijlage 3 toegevoegd. Het onderzoek had tot doel het actualiseren van het in 2006 uitgevoerde bodemonderzoek (projectnummer 212 d.d. april 2010, zie Bijlage 2).

Onderzoek 2010

Op basis van de verzamelde historische informatie is onderstaande hypothese opgesteld en de bijbehorende onderzoekstrategie gevolgd.

Hel bodemonderzoek is afgeleid van de NEN5740, onderzoeksstrategie bij verkennend bodemonderzoek. De onderzoeksopzet is gebaseerd op de hypothese onverdacht voor bodemverontreiniging. Er zijn geen bedrijfsmatige activiteiten in het verleden bekend en er zijn geen ex tra verdachte bronlocaties bekend. Ter plaatse van de onderzoekslocatie waren geen verhogingen van de onderzochte parameters verwacht.

Op 23 maart 20I0 zijn in totaal 17 boringen verricht, waarvan 1 boring is voorzien van een peilbuis. Van de 17 boringen zijn er 4 doorgezet tot een diepte van 2,0 meter minus maaiveld, en 13 boringen lot een diepte van 0,5 meter minus maaiveld. Het grondwater uil de peilbuis is bemonsterd op 30 maart 20 I D.

Uil de grondmonsters zijn er mengmonsters samengesteld van de bovengrond en van de ondergrond.

De gestelde hypothese, dal er geen aanleiding is een bodemverontreiniging te verwachten, is bevestigd.

In de bovengrond zijn geen van de onderzochte parameters verhoogd aangetoond ten opzichte van de achtergrondwaarde, behalve een enkele minimale verhoging ten opzichte van de achtergrondwaarde voor kwik.


In de ondergrond zijn er geen verhogingen ten opzichte van de achtergrondwaarde aangetoond voor de onderzochte parameters.


In het grondwater is de parameter barium licht verhoogd aangetoond ten opzichte van de streefwaarde, de tussen waarde wordt niet overschreden.

De verhogingen worden vermoedelijk veroorzaakt door een licht verhoogde achtergrondwaarde.


De lichte verhogingen vormen geen aanleiding tot het uitvoeren van een nader bodemonderzoek en/of bodemsanering.

De grond is schoon en op eigen terrein multifunctioneel te gebruiken. De grond mag niet zomaar van eigen terrein worden verplaatst. Indien de grond moel worden verplaatst vanaf het terrein moet de grond onderzocht worden volgens het Besluit Bodemkwaliteit.

Onderzoek 2016

Op basis van de historische informatie is onderstaande hypothese opgesteld en de bijbehorende onderzoekstrategie gevolgd. Het bodemonderzoek is afgeleid van de NEN5740, onderzoeksstrategie bij verkennend bodemonderzoek. De onderzoeksopzet is gebaseerd op de hypothese onverdacht voor bodemverontreiniging. Er zijn geen bedrijfsmatige activiteiten in het verleden bekend en er zijn geen extra verdachte bron locaties bekend.


In verband met actualisering van het in 2010 uitgevoerde onderzoek wordt echter alleen de bovengrond onderzocht en derhalve worden de boringen niet dieper doorgezet dan 0,5 m-mv Ter plaatse van de onderzoekslocatie worden geen verhogingen van de onderzochte parameters verwacht. Op 2 augustus zijn in totaal 17 boringen verricht tot een diepte van 0,5 meter minus maaiveld. Uit de grondmonsters zijn er mengmonsters samengesteld van de bovengrond.

De gestelde hypothese, dat de situatie niet veranderd is ten opzichte van 2006, is bevestigd.

In de bovengrond is in mengmonster 1 is nikkel verhoogd aangetoond ten opzichte van de achtergrondwaarde en in mengmonster 2 zijn nikkel, kwik en lood verhoogd aangetoond ten opzichte van de achtergrondwaarde.

Ten opzichte van het onderzoek van 2010 is alleen een licht hogere waarde aangetroffen voor de parameter lood.

De lichte verhogingen vormen geen aanleiding tot het uitvoeren van een nader bodemonderzoek en/of bodemsanering.


Indien de grond moet worden verplaatst vanaf het terrein moet de grond onderzocht worden volgens het Besluit Bodemkwaliteit.

4.5.3 Conclusie

Uit het onderzoek uit 2010 volgde dat de gestelde hypothese, dal er geen aanleiding is een bodemverontreiniging te verwachten, is bevestigd. Er was geen aanleiding tot het uitvoeren van nader bodemonderzoek. In het actualiserend onderzoek uit 2016 is naar voren gekomen dat de hypothese dat er niks is veranderd ten opzichte van 2006 is bevestigd. Ook uit dit onderzoek volgde dat er geen aanleiding was voor een nader bodemonderzoek.

Het aspect bodem levert geen belemmeringen op voor het voorliggende bestemmingsplan.

4.6 Luchtkwaliteit

4.6.1 Inleiding

Voor het bestemmingsplan is een onderzoek naar de luchtkwaliteit nodig. Het effect van en op de uitstoot van vervuilende stoffen door wegverkeer moet worden beschouwd. Voor het plan(gebied) dient te worden aangetoond dat het voldoet aan de wettelijke normen voor de concentraties stikstofdioxide (NO2) en fijn stof (PM10).

Met de realisatie van het plan en de bouw van tien nieuwe woningen verandert de ruimtelijke situatie en daarmee ook de situatie op de weg. Een verwachte toename van het verkeer op wegen rondom het plangebied kan invloed hebben op de leefbaarheid langs die wegen. Ten behoeve van het bestemmingsplan van het plan is een onderzoek naar de effecten voor de luchtkwaliteit uitgevoerd. Deze effecten zijn vervolgens beoordeeld op basis van de geldende wetgeving. Het onderzoek welke is uitgevoerd door Buro DB is als Bijlage 5 bijgevoegd.

Bij de beoordeling is naar twee aspecten van de luchtkwaliteit gekeken. Enerzijds de toets van de concentraties luchtverontreiniging als gevolg van de extra verkeersbewegingen door het plan. Hierbij wordt aangegeven of het plan al dan niet in betekenende mate bijdraagt aan een verslechtering van de luchtkwaliteit. Anderzijds de beoordeling van de (totale) concentraties stoffen ter plaatse van het plangebied

Bij de toets van de concentraties vervuilende stoffen is gekeken naar:

  • NO2 (Stikstofdioxide);
  • PM10 (Fijn stof);
  • PM2,5 (Zeer fijn stof).

Naast de wettelijke normen hanteren de WHO en de GGD afwijkende advieswaarden voor fijn stof en zeer fijn stof. De advieswaarde voor fijn stof (PM10) bedraagt 20 microgram per kuub en de advieswaarde voor zeer fijn stof (PM2,5) 10 microgram per kuub. Dat is lager dan de wettelijke grenswaarden. Pas als aan deze waarden wordt voldaan kan vanuit een goede motivering worden gesproken over acceptabele concentraties en een goed woon- en leefklimaat.

4.6.2 Onderzoek

Niet betekende mate bijdragen

In absolute zin neemt het verkeer op de ontsluitingsroute van het plangebied, via Johan de Ridderlaan, de Roelof de Roverlaan en de Jan de Rijkelaan, met circa 80 motorvoertuigen per etmaal toe. Hierbij is uitgegaan van een verkeersgeneratie van gemiddeld 8 ritten per woning per etmaal.


Met behulp van de NIBM-tool van het Kenniscentrum Infomil is op globale wijze beoordeeld of er hiermee sprake is van een al dan niet in betekenende mate bijdrage van het plan aan de verslechtering van de luchtkwaliteit. Het resultaat van deze (worst case) berekening met de tool geeft aan dat het plan hiermee niet in betekenende mate bijdraagt. In onderstaand afbeelding s de berekening gepresenteerd.

afbeelding "i_NL.IMRO.0335.BPJohanRidderlaan1-VO01_0006.jpg"

Afbeelding berekening NIBM-tool

De bijdrage van het extra verkeer op de concentratie NO2 is maximaal 0,10 ug/m3. De bijdrage van het extra verkeer op de concentratie PM10 is maximaal 0,02 ug/m3. De grens van 1,2 ug/m3 wordt hiermee niet overschreden.


Beoordeling concentraties stoffen

Voor heel Nederland zijn per vierkante kilometer de (heersende) achtergrondconcentraties van PM10 en NO2 bekend. Deze worden jaarlijks bijgehouden en bijgesteld in de zogenaamde GCN (Grootschalige concentratie- en depositiekaarten Nederland).


Met behulp van het Geoloket van de Omgevingsdienst regio Utrecht (ODRU) en de Monitoringstool van het NSL (Nationaal Samenwerkingsprogramma Luchtkwaliteit) zijn de achtergrondconcentraties stikstofdioxide (NO2) en fijn stof (PM10) bepaald voor de (worst case) situatie ter hoogte van het plangebied aan de Johan de Ridderlaan in Montfoort.


Stikstofdioxide

In onderstaande afbeelding s een weergave uit het Geoloket van de ODRU opgenomen. Het betreft de achtergrondconcentraties van NO2 in de worst case situatie (situatie 2015). Conform de modellen nemen de achtergrondconcentraties van de vervuilende stoffen in Nederland in de toekomst af. Bij een berekening voor een later (plan)jaar is het resultaat dan ook (per definitie) lager.

afbeelding "i_NL.IMRO.0335.BPJohanRidderlaan1-VO01_0007.jpg"

Afbeelding concentratie NO2 situatie 2015 (bron: ODRU)

Uit de bovenstaande afbeelding volgt dat de achtergrondconcentratie NO2 ter hoogte van het plangebied in 2015 circa 25 ug/m3 bedraagt. Dit is ruim onder de geldende wettelijke norm van maximaal 40 ug/m3.


Deze bevinding komt overeen met de informatie in de Monitoringstool van het NSL. De concentratie van het dichtstbijzijnde rekenpunt langs de Provincialeweg N228 bedraagt (in 2016) 23,2 ug/m3.


De toename van de concentratie NO2 als gevolg van het plan is circa 0,10 ug/m3. De planlocatie voldoet daarmee zowel in de huidige situatie als in de plansituatie ruim aan de wettelijke norm.

Fijn stof

In onderstaande afbeelding een weergave uit het Geoloket van de ODRU opgenomen voor de achtergrondconcentraties van fijn stof.

afbeelding "i_NL.IMRO.0335.BPJohanRidderlaan1-VO01_0008.jpg" Afbeelding concentratie PM10 situatie 2015 (bron: ODRU)

Uit bovenstaande afbeelding volgt dat de achtergrondconcentratie PM10 tussen de Heeswijk en de Johan de Ridderlaan in 2015 in de klasse van 18 tot 26 ug/m3 ligt. Dit voldoet (ruim) aan de wettelijke norm van maximaal 40 ug/m3.


Ook deze bevinding komt goed overeen met de informatie in de Monitoringstool van het NSL. De concentratie fijn stof van het dichtstbijzijnde rekenpunt langs de Provincialeweg N228 bedraagt (in 2016) 19,2 ug/m3.


De toename van de concentratie PM10 als gevolg van het plan is circa 0,02 ug/m3. De planlocatie voldoet daarmee zowel in de huidige situatie als in de plansituatie ruim aan de wettelijke norm voor fijn stof.

Met een concentratie van 19,2 ug/m3 wordt ook voldaan aan de advieswaarde van de WHO en landelijke GGD (handboek voor een gezonde inrichting van de leefomgeving).

4.6.3 Conclusie

Ten aanzien van het aspect luchtkwaliteit heeft het plan voor de bouw van tien woningen aan de Johan de Ridderlaan in Montfoort geen substantiële nadelige effecten voor de leefbaarheid van de omgeving. Het plan voldoet ruimschoots aan de wettelijke bepalingen voor de luchtkwaliteit en daarnaast ook aan de advieswaarden van de WHO en GGD. Vanuit het aspect luchtkwaliteit kan het plan daarom zonder verdere maatregelen worden uitgevoerd.

4.7 Geluid

4.7.1 Inleiding

Ten behoeve van het bestemmingsplan is een akoestisch onderzoek nodig naar de te verwachten geluidsbelasting op de gevels van de woningen. De geluidsbelasting dient te worden getoetst aan de wettelijke normen en de geluidssituatie van het plan dient te worden afgewogen binnen de kaders van een goede ruimtelijke ordening. Het plan moet voldoen aan de randvoorwaarden die horen bij een goed woon- en leefklimaat.

Het akoestisch onderzoek welke is uitgevoerd door Buro DB is als Bijlage 6 bijgevoegd.

4.7.2 Kader

Zonering

De wet- en regelgeving omtrent het geluid in Nederland is vastgelegd in de Wet geluidhinder (Wgh). In artikel 74 van de Wgh is bepaald dat zich langs alle wegen een geluidszone bevindt. Uitzonderingen hierop zijn wegen waarvoor een wettelijke maximum snelheid geldt van 30 km/uur en woonerven.

De breedte van de geluidszone hangt af van het aantal rijstroken waaruit de weg bestaat en van de ligging van de weg in stedelijk dan wel buitenstedelijk gebied. Doel van de geluidszone is het vaststellen van de geluidsgevoelige bestemmingen die deel (moeten) uitmaken van het akoestisch onderzoek. In onderstaande afbeelding is een overzicht gegeven van de geldende breedtes van de geluidszone per type weg.

afbeelding "i_NL.IMRO.0335.BPJohanRidderlaan1-VO01_0009.jpg" Afbeelding overzicht breedte wettelijke geluidszones per wegtype

Het plangebied ligt in zijn geheel binnen de geluidszone van de Heeswijk. De geluidsbelasting ten gevolge van het verkeer op deze weg moet worden bepaald en getoetst aan de wettelijke normen.

De overige wegen zijn 30 km/uur-wegen en zijn daarmee wettelijk niet gezoneerd. De geluidsbelasting van het wegverkeer op de wegen hoeft niet te worden getoetst. Wel dient de invloed van deze wegen op de nieuwe woningen van het plan te worden onderzocht en beoordeeld op de geldende randvoorwaarden voor een goede ruimtelijke ordening.

Geluidsbeperkende maatregelen

Bij geconstateerde overschrijding van de geluidsnormen (of de streefwaarden) dient het akoestisch onderzoek tevens in te gaan op de mogelijkheden en effecten van geluidsbeperkende maatregelen. Hierbij geldt de volgende prioriteitsvolgorde:

  • bronmaatregelen, zoals verkeers- en/of wegdekmaatregelen;
  • overdrachtsmaatregelen, zoals het vergroten van de afstand tussen de woning en de weg en/of het plaatsen van geluidsschermen en/of -wallen;
  • ontvangermaatregelen, zoals bijvoorbeeld het toepassen van 'dove gevels'. Dit zijn gevels zonder te openen delen die grenzen aan een geluidsgevoelige ruimte;
  • het aanvragen van ontheffing (in combinatie met geluidwering gevels).

De laatste optie is niet aan de orde langs 30 km/uur-wegen. Omdat 30 km/uur-wegen niet gezoneerd zijn is er geen juridische basis voor het verlenen van ontheffing.


Maximale geluidsbelasting binnen de bestemming

In het Bouwbesluit zijn eisen gesteld ten aanzien van de maximaal toegestane geluidsniveaus binnen woningen. De (geluidsbelaste) gevels van woningen moeten voldoende geluidsisolerend werken om hieraan te kunnen voldoen. In het Bouwbesluit is gesteld dat de karakteristieke gevelwering van nieuwe woningen minimaal 20 dB moet bedragen. Voor de maximale binnenwaarde van verblijfsgebieden in woningen geldt de norm van 33 dB. De gevelbelasting (geluidsbelasting buiten op de gevel) en de karakteristieke gevelwering (geluidsisolatie van de gevel) bepalen samen de binnenwaarde.

Om de binnenwaarde te kunnen bepalen moet de geluidsbelasting op de gevel(s) dus altijd bekend zijn. Bij wegverkeerslawaai dient daarbij te worden uitgegaan van de totale geluidsbelasting (de belasting ten gevolge van alle aanwezige wegen samen), zonder toepassing van de correctie volgens artikel 110g van de Wgh; de zogenaamde gecumuleerde geluidsbelasting van het wegverkeer.

Gemeentelijk geluidsbeleid

De gemeente Montfoort hanteert, naast het in de Wet geluidhinder gestelde, het Beleid Hogere Waarden Wet geluidhinder. Dit beleidsplan is opgesteld door de Milieudienst Noord-West Utrecht en dateert van 2010.

Het Beleid Hogere Waarden Wet geluidhinder bevat het afwegingskader dat bij het nemen van een hogere waardenbesluit wordt gehanteerd. Conform het plan dient naast de toetsing van geluidhinder in ruimtelijke plannen er ook aandacht te zijn voor een goede ruimtelijke ordening.

In de onderstaande afbeelding zijn de drie geluidsklassen uit het gemeentelijke geluidsbeleid weergegeven. Naar mate de overschrijding van de ten hoogst toelaatbare waarde groter is of dat er meerdere mogelijkheden voor de ruimtelijke inrichting van de betreffende locatie mogelijk zijn, wordt een betere onderbouwde afweging vereist van:

  • mogelijke maatregelen om de geluidsbelasting aan de gevels te beperken;
  • de wijze waarop een aanvaardbaar akoestisch klimaat kan worden gegarandeerd.

afbeelding "i_NL.IMRO.0335.BPJohanRidderlaan1-VO01_0010.jpg"
Afbeelding geluidsbelasting op basis van geluidsbelasting (bron: geluidsbeleid gemeente Montfoort


Ten aanzien van een aanvaardbaar akoestisch klimaat worden eisen gesteld aan een:

  • geluidsluwe zijde (van de woning);
  • geluidsluwe buitenruimte;
  • woningindeling en gebruik van de woning(en);
  • afschermende werking (van de woning(en)).
4.7.3 Onderzoek

De nieuwe woningen in het plangebied zijn gesitueerd tussen de woningen aan de Jan Hoenlaan, de Roelof de Roverlaan en de bestaande bebouwing aan de Heeswijk. De provinciale weg Heeswijk (N228) ontsluit Montfoort aan de oostzijde. Ter hoogte van de woning Heeswijk 29 ligt de komgrens. Dit is op een afstand van circa 130 meter ten oosten van de op de kruising met de Jan de Rijkelaan en Anne Franklaan aanwezige rotonde. Ten oosten van de komgrens heeft de weg een 80 km/uur-regime. Binnen de bebouwde kom is de wettelijke maximum snelheid op de Heeswijk 50 km/uur. De overige voor het onderzoek relevante wegen liggen in de woonwijk ten noorden van de Heeswijk. Het betreft (delen van) de volgende wegen:

  • Jan de Rijkelaan;
  • Burggraaf Zwederlaan;
  • Jan Hoenlaan;
  • Roelof de Roverlaan.
  • Johan de Ridderlaan.

Deze wegen hebben allemaal een 30 km/uur-regime.

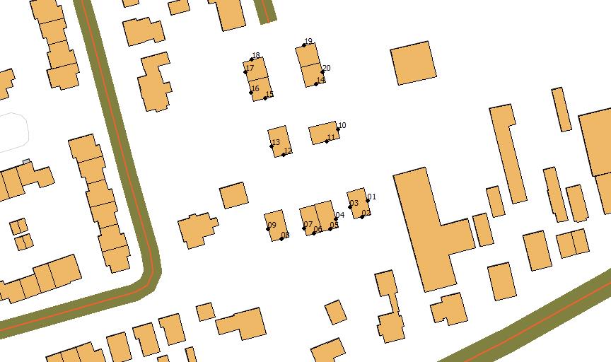
De geluidsberekeningen zijn uitgevoerd aan de hand van in totaal 20 toetspunten op de gevels van de geplande nieuwe woningen. In onderstaand figuur is de situering van de toetspunten weergegeven.

Per toetspunt is rekening gehouden met de relevante toetshoogtes per woning. Bij elk van de tien woningen is uitgegaan van de waarneemhoogtes 1,5, 4,5 en 7,5 meter boven maaiveldniveau. Deze hoogtes zijn representatief voor respectievelijk de begane grond, eerste en tweede verdieping van elke woning.

afbeelding "i_NL.IMRO.0335.BPJohanRidderlaan1-VO01_0011.jpg" Afbeelding situering waarneempunten plan Johan de Ridderlaan in Montfoort

Resultaten

Heeswijk (N228)

De te verwachten geluidsbelasting van het verkeer op de Heeswijk is opgenomen in tabel B3.1 van bijlage 3 van het onderzoek. Het gaat hier om de geluidsbelasting na toepassing van de correctie volgens artikel 110g Wgh.

Uit de tabel volgt dat er bij geen van de waarneempunten sprake is van een geluidsbelasting die hoger is dan 48 dB. De berekende maximale waarde is 48 dB op de derde bouwlaag van de woningen bij de toetspunten 02 en 05. De hoogste geluidsbelasting op het niveau van de begane grond (en tuinniveau) is 43 dB.

Op alle gevels van de nieuwe woningen wordt voldaan aan de voorkeursgrenswaarde. Er is geen sprake van een normoverschrijding en nader onderzoek naar geluidsbeperkende maatregelen is voor deze situatie dan ook niet nodig.


30 km/uur-wegen

De berekende geluidsbelasting ten gevolge van het verkeer op de 30 km/uur-wegen in de woonwijk aan de westzijde van het plangebied is gepresenteerd in tabel B3.2 van bijlage 3 van het onderzoek. Het betreft de geluidsbelasting zonder toepassing van de correctie volgens artikel 110g van de Wet geluidhinder.

Uit de tabel volgt dat de hoogste geluidsbelasting op de woningen 41 dB bedraagt. Dit is bij toetspunt 09. Hiermee wordt ruimschoots voldaan aan de grenswaarde van 55 dB van de MKM-classificatie. Met maximaal 41 dB ten gevolge van de 30 km/uur-wegen valt het plan in zijn geheel in de categorie (milieukwaliteit) 'goed'.

Bij deze geluidssituatie kan worden gesteld dat er sprake is van een goed woon- en leefklimaat. Ten aanzien van het aspect wegverkeerslawaai voldoet het plan aan de randvoorwaarden voor een goede ruimtelijke ordening. Het treffen van geluidsbeperkende maatregelen is voor deze situatie ook niet noodzakelijk.

Wegverkeer gecumuleerd

De berekende gecumuleerde geluidsbelasting ten gevolge van het wegverkeer op alle aanwezige wegen is weergegeven in tabel B3.3 van bijlage 3 behorende bij het rapport. Het betreft de totale geluidsbelasting zonder toepassing van de correctie volgens artikel 110g van de Wet geluidhinder.

Uit de tabel volgt dat de hoogste gecumuleerde geluidsbelasting van het wegverkeer op de woningen 52 dB bedraagt. Deze waarde komt voor bij de toetspunten 02, 05, 06 en 08, de toetspunten die het dichtst bij de Heeswijk zijn gelegen.

Met een maximale gecumuleerde waarde van 52 dB wordt voldaan aan de grenswaarde van 55 dB van de MKM-classificatie. Gesteld kan worden dat het plan, vanuit het aspect wegverkeerslawaai, voldoet aan de randvoorwaarden voor een goed woon- en leefklimaat. Het treffen van geluidsbeperkende maatregelen is voor deze situatie ook niet noodzakelijk.

Gevolgen elders

Het plangebied met de tien nieuwe woningen wordt aan de noordzijde ontsloten op de bestaande Johan de Ridderlaan. Het toekomstige verkeer van en naar het plangebied rijdt in de plansituatie op relatief korte afstand langs enkele van de bestaande woningen. De woningen die hiervan de meeste invloed zullen ondervinden zijn:

  • Roelof de Roverlaan 56;
  • Johan de Ridderlaan 1;
  • Johan de Ridderlaan 2 t/m 10 (even).


Uit de verkeerskundige beschouwing (zie ook paragraaf 4.11 Verkeer en parkeren) volgt dat de toekomstige verkeersintensiteit op de ontsluitingsweg circa 120 motorvoertuigen per etmaal zal zijn. Uit nader uitgevoerde geluidsberekeningen volgt dat de maximale, ongecorrigeerde geluidsbelasting die daardoor optreedt op de aanliggende (bestaande) woningen maximaal 47 dB bedraagt. Dit voldoet (ruim) aan de grenswaarde 55 dB en is daarom acceptabel.

4.7.4 Conclusie

Voor het plan is de provinciale weg Heeswijk (N228) de relevante, voor geluid gezoneerde weg. Daarnaast zijn er in de bestaande woonwijk ten westen van het plangebied enkele 30 km/uur-wegen aanwezig.

Uit het akoestisch onderzoek wegverkeer volgt dat ten gevolge van het verkeer op de Heeswijk de geluidsnorm (voorkeursgrenswaarde van 48 dB) niet wordt overschreden. Het treffen van geluidsbeperkende maatregelen is daarom niet nodig.

De te verwachten maximale geluidsbelasting ten gevolge van het verkeer op de aanwezige 30 km/uur-wegen valt in de MKM-classificatie 'goed' en daarmee voldoet het plan aan de randvoorwaarden voor een goede ruimtelijke ordening. Voor het aspect geluid is er bij het plan sprake van een goed woon- en leefklimaat.

Het toekomstige verkeer van en naar het plangebied zorgt op de ontsluitingsroute voor een (ongecorrigeerde) geluidsbelasting van maximaal 47 dB op de gevels van de bestaande woningen. Hiermee wordt ruim voldaan aan de grenswaarde van 55 dB voor een goed woon- en leefklimaat.

Nader onderzoek naar het beperken van het geluid van wegverkeer is voor dit plan niet nodig. Ook geldt er voor de nieuwe woningen geen verhoogde eis ten aanzien van de karakteristieke geluidwering van de gevels. Vanuit het aspect geluid kan het plan dan ook zonder verdere maatregelen worden uitgevoerd.

4.8 Bedrijven- en milieuzonering

4.8.1 Inleiding

In het kader van een goede ruimtelijke ordening is het van belang dat bij de aanwezigheid van bedrijven in de omgeving van milieugevoelige functies zoals woningen:

  • 1. ter plaatse van de woningen een goed woon- en leefmilieu kan worden gegarandeerd;
  • 2. rekening wordt gehouden met de bedrijfsvoering en milieuruimte van de betreffende bedrijven.

Voor het behoud en de verbetering van de kwaliteit van de woon- en leefomgeving is een juiste afstemming tussen de verschillende voorkomende functies noodzakelijk. Daarbij wordt gebruik gemaakt van een milieuzonering die uitgaat van richtinggevende afstanden tussen hinderlijke functies (in de vorm van gevaar, geluid, geur, stof) en gevoelige functies. In de brochure “Bedrijven en Milieuzonering” van de Vereniging van Nederlandse Gemeenten (VNG) (versie 2009) zijn deze richtafstanden opgenomen. Deze richtafstanden hebben betrekking op de aspecten geur, stof, geluid en gevaar. Van deze richtafstanden kan gemotiveerd worden afgeweken.

4.8.2 Beoordeling

Het planvoornemen is getoetst aan de richtafstanden vanuit bestaande bedrijven/activiteiten in de omgeving van de nieuwe woningen.


Voor de bepaling van de gewenste afstand is uitgegaan van het omgevingstype rustige woonwijk. In VNG brochure “Bedrijven en Milieuzonering” is opgenomen wat er wordt verstaan onder dit type;

''Omgevingstype rustige woonwijk''

Een rustige woonwijk is een woonwijk die is ingericht volgens het principe van functiescheiding. Afgezien van wijkgebonden voorziening en komen vrijwel geen andere functies (zoals bedrijven) voor. Langs de randen (in de overgang naar een mogelijke bedrijfsfunctie) is weinig verstoring door verkeer.


Uit de beoordeling van de omgeving blijkt dat er meerdere bedrijven, detailhandel en een school zich in de buurt van het plangebied bevinden. Ten oosten van het plangebied zijn agrarische gronden gelegen, onder meer een boomgaard is aanwezig op deze gronden. Dit is in onderstaand figuur verbeeld. Niet op de afbeelding weergegeven is het zwembad het Knopenbad Godfried van Rhenenlaan 55 ten noordwesten van het plangebied. Voor dit zwembad wordt wel onderzocht of er wordt voldaan aan de richtafstand.

Aan de oostkant van het plangebied is een perceel gelegen waar detailhandel in de vorm van een dierenwinkel is toegestaan. Ter plaatse van dit perceel zijn ook opslag en caravan stalling toegestaan. Het uitvoeren van bedrijfsactiviteiten die betrekking hebben op opslag en/of caravan stalling zijn alleen toegestaan als deze passend zijn binnen 'detailhandel'. Derhalve wordt voor de beoordeling of er wordt voldaan aan de richtafstand uitgegaan van de afstand die aangehouden moet worden tot 'detailhandel'.

afbeelding "i_NL.IMRO.0335.BPJohanRidderlaan1-VO01_0012.jpg"

Afbeelding bedrijven, detailhandel en een school in de buurt van het plangebied

Voor de bedrijven, detailhandel en de school moet een bepaalde richtafstand worden aangehouden tot de woningen. In de onderstaande tabel is de minimale gewenste afstand en milieucategorie per bedrijf / functie weergegeven. In de laatste kolom van de tabel is de huidige afstand van de gevel van de woning tot het bedrijf / functie opgenomen.

De richtafstand geldt tussen enerzijds de grens van de bestemming (conform het vigerende bestemmingsplan) die de milieubelastende functies toestaan en anderzijds de uiterste situering van de gevel van de woningen waarvoor voorliggende bestemmingsplan wordt opgesteld. Omdat de exacte situering van de woningen nog niet is bepaald, is de afstand gemeten vanaf het bestemmingsvlak ´Wonen´ conform het vigerende bestemmingsplan.

Ter plaatse van de dierenspeciaalzaak wordt er niet voldaan aan de minimaal gewenste afstand tot de nieuwe woningen. Derhalve is een aanvullend onderzoek uitgevoerd welke in subparagraaf 4.8.2.1 wordt toegelicht. Ook wordt niet voldaan aan de richtafstand tot de boomgaard ten oosten van het plangebied. Dit wordt nader toegelicht in subparagraaf 4.8.2.2.

Bedrijf/activiteiten   Omschrijving   Adres   SBI-2008   Milieu cat.   Minimale gewenste afstand (rustige woonwijk)   Huidige afstand tot de gevel van de nieuwe woningen  
Specifieke vorm van detailhandel - dierenspeciaalzaak   Detailhandel   Heeswijk 27 / 27a   47a   1   10m   0 m  
Opslag ondergeschikt aan detailhandel   Opslaggebouwen   Heeswijk 27 / 27a   52109 B   1   10m   0 m  
Caravan stalling ondergeschikt aan detailhandel   Opslaggebouwen   Heeswijk 27 / 27a   52109 B   1   10m   0 m  
Bedrijf   Bedrijven   Heeswijk 41   n.v.t.   3.1   50 m   91 m  
Bedrijf met verkooppunt motorbrandstoffen zonder lpg en carwash   Benzine service stations zonder LPG   Heeswijk 45   473 B   3.1   50 m   119 m  
Tuincentrum   Bouwmarkten, tuincentra, hypermarkten   Heeswijk 40   4752   2   30m   142 m  
School   Scholen voor basis- en algemeen voortgezet onderwijs   Jonker Fransstraat 1a   852, 8531   2   30 m   189 m  
Autobedrijf   Bedrijven   Heeswijk 9a /9   n.v.t.   1 / 2   10m / 30m   130 m  
Zwembad Knopenbad   Zwembaden niet overdekt   Godfried van Rhenenlaan 55   931, 2   4.1   200m   315 m  
Agrarische gronden - boomgaard   Akkerbouw en fruitteelt   Heeswijk 29   011, 012, 013   3.1   50 m   36,5 m  

Tabel bedrijven in de omgeving van het plangebied met de bijbehorende milieucategorie

4.8.2.1 Onderzoek bedrijven- en milieuzonering, dierenspeciaalzaak

Binnen 10 meter uit de grens van de toekomstige woningen is een dierenspeciaalzaak gevestigd aan Heeswijk 27. Vanwege de afstand van de te projecteren woningen en de dierenspeciaalzaak is een onderzoek benodigd naar de geluid- en geurinvloed op de nieuw te projecteren woningen. Adviesbureau DPA heeft in maart 2018 dit onderzoek uitgevoerd, het onderzoek is in Bijlage 7 toegevoegd.

Doel van het onderzoek is het bepalen van de optredende milieueffecten op de gevel van de geprojecteerde woonbebouwing. Dit ter voorkoming van het optreden van hinder teneinde een goed woon- en leefklimaat te waarborgen.

Uit het onderzoek volgt dat bij de nieuwe woning ten gevolge van de activiteiten op de inrichting Heeswijk 27:

  • Er alleen activiteiten gedurende de dagperiode plaats vinden.
  • Het hoogst op de nieuwe woningen optredende langtijdgemiddeld geluidniveau LAr,LT 46 dB(A) is. Aan de hieraan te stellen norm van 50 dB(A) voor een verantwoord woon- en leefmilieu wordt voldaan.
  • Het hoogst optredend maximaal geluidniveau LAmax 70 dB(A) is. Aan de hieraan te stellen norm van 70 dB(A) voor een verantwoord woon- en leefmilieu wordt voldaan.
  • Er geen geur producerende activiteiten worden uitgevoerd.

4.8.2.2 Beoordeling bedrijven- en milieuzonering, boomgaard

Ten oosten van het plangebied zijn gronden gelegen die bestemd zijn ''Agrarisch - Rivierzone'' (bestemmingsplan Buitengebied 2012, vastgesteld 11 maart 2013). De voor Agrarisch - Rivierzone aangewezen gronden zijn onder meer bestemd voor volwaardige veehouderijbedrijven, fruitteelt-, sierteelt- en tuinbouwbedrijven, akkerbouwbedrijven en intensieve veehouderij, uitsluitend als nevenactiviteit hobbymatige en productiegerichte paardenhouderijen met de bijbehorende voorzieningen.

Op basis van het Activiteitenbesluit mogen er op de agrarische gronden, die direct grenzen aan het plangebied, geen bedrijfsactiviteiten plaats vinden die een goed- en woonleefklimaat van de bestaande woningen aan de Johan de Ridderlaan in de weg staan. Omdat het plangebied direct grenst aan deze woningen is er ook sprake van een goed- en leefklimaat in het plangebied. In de bestaande situatie worden gebruiksmogelijkheden van deze gronden al beperkt door de bestaande woningen. Door het planvoornemen worden deze mogelijkheden niet verder beperkt.

afbeelding "i_NL.IMRO.0335.BPJohanRidderlaan1-VO01_0013.jpg"

Afbeelding plangebied en gronden met agrarische bestemming (bestemmingsplan Buitengebied)

Ten oosten van het plangebied is op de agrarische gronden een bestaande boomgaard aanwezig, deze grenst niet direct aan het plangebied.

De richtafstand die aangehouden moet worden tot een boomgaard bedraagt 50 meter. De werkelijke afstand van het plangebied tot de boomgaard bedraagt 36,5 meter. De boomgaard wordt gebruikt voor hobbymatige doeleinden, gewasbeschermingsmiddelen worden minder vaak gebruikt dan bij een professionele boomgaard. Omdat het planologisch wel mogelijk is om een professionele boomgaard als zijnde bedrijf op deze locatie te vestigingen is beoordeeld of het gebruik van de gronden wordt belemmerd door het planvoornemen.

Uit de jurisprudentie van de Afdeling bestuursrechtspraak van de Raad van State blijkt dat de Afdeling een afstand van vijftig meter tussen gevoelige functies en agrarische bedrijvigheid waarbij gewasbeschermingsmiddelen worden gebruikt, in het algemeen niet onredelijk acht (Uitspraak Raad van State 201402301/3/R3). Dit brengt echter niet met zich mee dat een kortere afstand in een bepaalde situaties niet onredelijk zou kunnen zijn, indien aan die afstand een deugdelijke motivering ten grondslag ligt.

Een mogelijkheid om de afstand te verkleinen is het nemen van locatie specifieke maatregelen.

Op grond van het (nieuwe) artikel 3.78a Activiteitenbesluit milieubeheer wordt het verplicht om bij open teelten te spuiten met een driftreductie van 75% (DRT75 techniek). Vanaf het moment dat het genoemde artikel in werking treedt, dient bij de ruimtelijke beoordeling met deze verplichting rekening te worden gehouden. Een driftreductie van 75% is relevant voor het bepalen van de omvang van de spuitzone tot gevoelige objecten. De nieuwe regeling leidt er toe, dat spuitzones over het algemeen minder breed hoeven te zijn. Aangezien het bestemmingsplan woningbouw mogelijk wordt welke in 2018 / 2019 wordt gerealiseerd wordt geanticipeerd op deze regeling. Dit betekent dat er als een professionele boomgaard wordt (of is) gevestigd er moet worden voldaan aan de regels voor drifreductie zoals vastgelegd in artikel 3.78a. Daarom kan basis van het nieuwe artikel de afstand, waarmee rekening moet worden gehouden, teruggebracht worden naar 25 meter in plaats van de 50 meter. De boomgaard is op meer dan 25 meter gelegen van het plangebied.

Met de inwerkingtreding van het artikel 3.78a Activiteitenbesluit milieubeheer is er geen sprake van belemmering van de voortzetting van de exploitatie van de boomgaard en ter plaatse van de woningen is sprake van een aanvaardbaar woon- en leefklimaat.

afbeelding "i_NL.IMRO.0335.BPJohanRidderlaan1-VO01_0014.jpg"

Afbeelding afstand plangebied tot bestaande boomgaard

4.8.3 Conclusie

De nieuwe woningen zijn op voldoende afstand gelegen van bijna alle inrichtingen en bedrijven in de nabijheid van het plangebied. Ter plaatse van de dierenspeciaalzaak aan de oostkant van het plangebied wordt niet voldaan aan de richtafstand. Derhalve is een aanvullend onderzoek uitgevoerd waaruit blijkt dat er sprake is van een goed- en woonleefklimaat ter plaatse van de nieuwe woningen.

Vanuit de planologische afweging kan worden gesteld dat indien de dierenspeciaalzaak vertrekt van de locatie en een ander bedrijf wordt gevestigd moet opnieuw worden beoordeeld of er afgeweken kan worden van de richtafstand. De verwachting is dat een mogelijk scenario pas ontstaat nadat de nieuwe woningen op de planlocatie al gerealiseerd zijn. Dit betekent dat middels het Activiteitenbesluit is geborgd dat een nieuw bedrijf op de locatie een goed woon- en leefklimaat van de nieuwe woningen niet in de weg mag staan.

Bedrijfsactiviteiten op de naastgelegen gelegen agrarische gronden worden reeds beperkt door de bestaande woningen aan de Johan de Ridderlaan en deze mogen een goed woon- en leefklimaat van deze woningen niet in de weg staan. Het planvoornemen zorgt niet voor een verdere beperking van de bedrijfsgronden. Op de grond van het Activiteitenbesluit mogen bedrijfsactiviteiten een goed woon- en leefklimaat van de nieuwe woningen ook niet in de weg staan.

Ter plaatse van de boomgaard ten oosten van het plangebied wordt ook niet voldaan aan de richtafstand. Met de inwerkingtreding van artikel 3.78a Activiteitenbesluit milieubeheer is er geen sprake van gebruiksbelemmeringen van de boomgaard en/of is er sprake van een goed woon- en leefklimaat ter plaatse van de nieuwe woningen in het plangebied.

Het aspect bedrijven- en milieuzonering levert geen belemmeringen op voor het vaststellen van het bestemmingsplan.

4.9 Externe veiligheid

4.9.1 Inleiding

Voor het milieuaspect externe veiligheid zijn een aantal bronnen van belang, namelijk het vervoer van gevaarlijke stoffen via de weg, het spoor of het water, het transport door ondergrondse leidingen en de opslag van gevaarlijke stoffen.

Het Externe veiligheidsbeleid heeft betrekking op het gebruik, productie, opslag en transport van gevaarlijke stoffen.

De overheid stelt grenzen aan de risico's van inrichtingen met gevaarlijke stoffen. De grenzen zijn vertaald in een norm voor het plaatsgebonden risico (PR), een oriëntatiewaarde en verantwoordingsplicht voor het groepsrisico (GR).

Bij externe veiligheid gaat het om de gevaren die de directe omgeving loopt in het geval er iets mis mocht gaan tijdens de opslag, productie of het transport van gevaarlijke stoffen. De daaraan verbonden risico's moeten aanvaardbaar blijven. Er worden in dit kader twee normstellingen gehanteerd, te weten:

  • het plaatsgebonden risico: richt zich vooral op de te realiseren basisveiligheid voor burgers;
  • het groepsrisico: stelt beperkingen aan de maatschappelijke ontwrichting als gevolg van calamiteiten met gevaarlijke stoffen.
4.9.2 Kader

Op 27 oktober 2004 is het Besluit externe veiligheid inrichtingen (Bevi) in werking getreden. Met het besluit wordt beoogd een wettelijke grondslag te geven aan het externe veiligheidsbeleid rondom risicovolle inrichtingen. Het doel van het besluit is de risico's waaraan burgers in hun leefomgeving worden blootgesteld vanwege risicovolle inrichtingen tot een aanvaardbaar minimum te beperken. Op basis van het Bevi geldt voor het PR rondom een risicovolle inrichting een grenswaarde voor kwetsbare objecten en een richtwaarde voor beperkt kwetsbare objecten. Beide liggen op een niveau van 10-6 per jaar. Bij de vaststelling van een bestemmingsplan moet aan deze normen worden voldaan. Het Bevi bevat geen norm voor het GR; wel geldt op basis van het Bevi een verantwoordingsplicht voor het GR in het invloedsgebied rondom de inrichting. De in het externe veiligheidsbeleid gehanteerde norm voor het GR geldt daarbij als buitenwettelijke oriëntatiewaarde.

Plaatsgebonden risico

Het PR kent een grenswaarde van 10-6. Binnen de PR 10-6 contour mogen geen kwetsbare objecten aanwezig zijn. Voor beperkt kwetsbare objecten geldt deze waarde als richtwaarde. In nieuwe situaties moet voor beperkt kwetsbare objecten in beginsel ook aan deze waarde worden voldaan.

Verantwoordingsplicht groepsrisico

Het groepsrisico is een maat voor de maatschappelijke ontwrichting in situaties waarin zich een ramp met gevaarlijke stoffen voordoet. De verantwoordingsplicht is erop gericht om een weloverwogen afweging te maken over de risico's in relatie tot de ontwikkelingen in het plangebied.

Het groepsrisico wordt vergeleken met de oriëntatiewaarde: de kans op een ongeval met 10 dodelijke slachtoffers van 10-5 per jaar, met de kans op een ongeval met 100 dodelijke slachtoffers van 10-7 per jaar, en met de kans op 1000 of meer dodelijke slachtoffers van 10-9 per jaar. Deze getallen gelden voor de oriëntatiewaarde in de omgeving van inrichtingen. Voor het transport van gevaarlijke stoffen over de weg en via buisleidingen ligt de oriëntatiewaarde een factor 10 lager.

In de verantwoording van het groepsrisico worden onderwerpen behandeld die van belang zijn bij het maken van een afweging over het risico. Behalve de hoogte van het groepsrisico zijn dat de noodzaak van de ruimtelijke ontwikkeling, risicoreducerende maatregelen en mogelijkheden tot rampenbestrijding.

Inrichtingen

Het beleid voor inrichtingen is vastgelegd in het Besluit externe veiligheid inrichtingen (Bevi) en de Regeling externe veiligheid inrichtingen (Revi).

Buisleidingen

Voor buisleidingen geldt het Besluit externe veiligheid buisleidingen (Bevb) en de Regeling externe veiligheid buisleidingen (Revb). Behalve met het PR en het GR moet voor buisleidingen rekening worden gehouden met de belemmeringenstrook aan weerszijden van de leidingen die moet worden vrijgehouden ten behoeve van onderhoud en werkzaamheden aan de buisleiding.

Vervoer over weg, water en spoor

Voor transportroutes geldt het Besluit externe veiligheid transportroutes (Bevt).

Bij de vaststelling van de veiligheidsafstanden is rekening gehouden met een toename van het transport van gevaarlijke stoffen. De afstand voor het risicoplafond is zodanig gekozen dat, het plaatsgebonden risico op de grens van de zone niet meer bedraagt dan 10-6 per jaar. Binnen de afstand voor het risicoplafond mogen geen kwetsbare of beperkt kwetsbare objecten worden gebouwd.

Binnen het PAG van 30 meter mag slechts bij hoge uitzondering en met een goede motivatie gebouwd worden.

4.9.3 Onderzoek

Het planvoornemen betreft het realiseren van kwetsbare objecten (woningen).

Het plan ligt niet in het invloedsgebied van een bedrijf waar gevaarlijke stoffen worden opgeslagen of geproduceerd en ligt niet in het invloedsgebied van een weg, spoorlijn, waterweg of buisleiding die wordt gebruikt voor het transport van gevaarlijke stoffen. De dichtstbijzijnde risicobron betreft de provincialeweg N228. Het plangebied is op circa 50 meter van deze weg gelegen. Over deze weg mogen geen gevaarlijke stoffen worden vervoerd. Over deze weg mogen wel gevaarlijke stoffen die niet routeplichtig zijn, zoals diesel, worden vervoerd. Het aantal transportbewegingen waarbij deze stoffen worden vervoerd is dusdanig laag dat er geen invloed op het plangebied wordt verwacht.

De provinciale weg levert geen belemmeringen op de realisatie van woningen op de locatie.

Ten noordwesten van het plangebied is het zwembad Knopenbad Montfoort gelegen aan de Godfried van Rhenenlaan 55. Op de locatie is een opslag aanwezig voor zwembadwater. De installatie valt binnen de categorie ''vloeistoffen die giftige gassen kunnen vormen''. Het plangebied is op voldoende afstand (315m) gelegen.

afbeelding "i_NL.IMRO.0335.BPJohanRidderlaan1-VO01_0015.jpg"

Afbeelding uitsnede risicokaart

Ten noorden van Montfoort (ter hoogte van de A12) is een hoogspanningsverbinding gelegen. Deze verbinding is op voldoende afstand (3,7 km) van het plangebied gelegen. Gezien de geruime afstand kan worden gesteld dat er geen sprake is van invloed van de verbinding op de woningen in het plangebied.

In de directe omgeving van het plangebied zijn geen zendmasten gesitueerd. De dichtszijnde mast (UMTS mast (Hannie Schaftstraat 24) is op geruime afstand gelegen (meer dan 400 meter).

afbeelding "i_NL.IMRO.0335.BPJohanRidderlaan1-VO01_0016.jpg"

Afbeelding hoogspanningsverbidingen ten noorden van Montfoort

4.9.4 Conclusie

Het plangebied is op voldoende afstand van de risicobronnen het zwembad en de N228 gelegen. Zendmasten en/of hoogspanningsverbindingen zijn op geruime afstand van het plangebied gelegen.

Er zijn geen andere risicobronnen gelegen in de buurt van het plangebied die gezien vanuit externe veiligheid een belemmering kunnen opleveren voor het planvoornemen.

Vanuit externe veiligheid gezien zijn er geen belemmeringen voor het vaststellen van het voorliggende bestemmingsplan.

4.10 Archeologie

4.10.1 Inleiding

Als gevolg van het Verdrag van Malta, dat in 1998 door het Nederlandse parlement is goedgekeurd en in 2007 zijn beslag heeft gekregen in de Wet op de Archeologische Monumentenzorg, is de Monumentenwet 1988 gewijzigd. Rijk en Provincie stellen zich op het standpunt dat in het ruimtelijk beleid zorgvuldig met het archeologische erfgoed moet worden omgegaan. Het behoud en beheer van het Nederlandse erfgoed is geregeld door één integrale Erfgoedwet welke in werking is getreden sinds juli 2016.

Eerst worden de relevante beleidsstukken behandeld waarna het onderzoek en conclusies beschreven worden.

4.10.2 Kader

Als gevolg van het Verdrag van Malta, dat in 1998 door het Nederlandse parlement is goedgekeurd en in 2007 zijn beslag heeft gekregen in de Wet op de Archeologische Monumentenzorg, is de Monumentenwet 1988 gewijzigd. Met de wijziging van de Monumentenwet (2007) is de verantwoordelijkheid voor het beheer van het cultureel erfgoed nadrukkelijk neergelegd bij de gemeenten. Uitgangspunt van de wetgeving is: behoud in situ van archeologische waarden, en alleen als behoud in situ niet mogelijk is, dient voorafgaand aan bodemverstorende activiteiten archeologisch onderzoek plaats te vinden. De kosten van het archeologisch onderzoek komen voor rekening van de verstoorder (de verstoorder betaalt).

Erfgoedwet

Met ingang van juli 2016 (Erfgoedwet) is het behoud en beheer van het Nederlandse erfgoed geregeld door één integrale Erfgoedwet. De omgang met archeologie in de fysieke leefomgeving zal in de nieuwe Omgevingswet worden geregeld. De Erfgoedwet legt de verantwoordelijkheid voor de bescherming van het archeologische erfgoed bij de gemeente. De taken in het kader van de Erfgoedwet behelzen o.a. het meewegen van archeologie in de besluiten op het gebied van de Ruimtelijke Ordening (zoals omgevingsvergunning) en de koppeling tussen bestemmingsplannen en archeologische waarden en verwachtingen.


De Erfgoedwet verplicht om bij de vaststelling van een bestemmingsplan rekening te houden met in de bodem aanwezige of te verwachten archeologische waarden. De feitelijke bescherming daarvan krijgt gestalte door het opnemen van voorschriften in het bestemmingsplan ten aanzien van de afgifte van een omgevingsvergunning voor bodemverstorende activiteiten in die gebieden die als archeologisch waardevol zijn aangemerkt. Deze voorschriften kunnen betrekking hebben op archeologisch onderzoek dat de aanvrager van de vergunning moet laten uitvoeren. Aan de vergunning zelf kunnen aanvullende voorwaarden worden verbonden, met als uiterste de verplichting tot planaanpassing of het laten verrichten van een opgraving.

Beleidsnota Archeologie gemeente Montfoort

Op 14 maart 2011 heeft de gemeenteraad besloten om de beleidsnota 'Archeologiebeleid gemeente Montfoort' vast te stellen. Hierin is de inrichting van het gemeentelijk archeologiebeleid opgenomen.

De waarden- en verwachtingenkaart vormt de basis voor de archeologische maatregelenkaart. In de beleidsnota zijn de bekende vindplaatsen en de verschillende verwachtingsgebieden op de maatregelenkaart vertaald in zeven beleidscategorieën. Dat wil zeggen soorten zones/terreinen, waaraan een eigen planologisch beschermingsregime wordt gekoppeld. De beleidscategorieën hebben op de maatregelenkaart elk een eigen kleur gekregen en zijn middels de legenda voorzien van aanduidingen/voorschriften over ontheffingen, onderzoekseisen en -methoden. Hiermee wordt inzichtelijk gemaakt of en waar nader archeologisch (voor)onderzoek nodig is bij ruimtelijke planvorming en bodemingrepen.

Uit de archeologische maatregelen kaart valt op te maken dat het plangebied is gelegen binnen een gebied waarvoor beleidscategorie 4 geldt. Voor deze categorie geldt dat archeologisch vooronderzoek bij ruimtelijke ontwikkeling nodig is om vast te stellen of er sprake is van behoudenswaardige vindplaatsen. Er geldt een onderzoeksverplichting indien het plangebied groter is dan 200 m2 en de bodemingrepen een diepte meer dan 50 cm -mv betreffen.

Ter plaatse van het plangebied is een archeologisch onderzoek uitgevoerd, zie hiervoor subparagraaf 4.10.3.

afbeelding "i_NL.IMRO.0335.BPJohanRidderlaan1-VO01_0017.jpg"

Afbeelding uitsnede maatregelenkaart - archeologisch beleid

4.10.3 Onderzoek

Adviesbureau Becker & Van de Graaf heeft in augustus 2010 een archeologisch onderzoek uitgevoerd ter plaatse van het plangebied, het onderzoek is als Bijlage 4 bijgevoegd.

Het onderzoek bestond uit een inventariserend veldonderzoek verkennende en karterende fase door middel van boringen.

Het doel van het veldonderzoek was het toetsen en zo nodig aanvullen van de gespecificeerde archeologische verwachting in het bureauonderzoek. Daarnaast is inzicht verkregen in de vormeenheden van het landschap in het plangebied, voor zover deze vormeenheden van invloed kunnen zijn geweest op de bruikbaarheid van de locatie door de mens in het verleden. Op basis van de resultaten van het onderzoek kunnen kansarme zones van het plangebied worden uitgesloten en kansrijke zones worden geselecteerd voor behoud of voor vervolgonderzoek.

4.10.4 Conclusie

Uit het onderzoek is gebleken dat;

  • Het plangebied is gelegen in het rivierengebied op de stroomgordel van de rivier de Hollandsche IJssel.
  • In de boringen kwamen fluviatiele afzettingen voor die bestaan uit een afwisseling van zand- en kleilagen. Geologisch gezien behoren deze afzettingen tot de Formatie van Echteld.
  • De afwisseling van dunne zand- en kleilagen onderin de boringen komt waarschijnlijk overeen met de afzettingen in kronelwaardgeulen. De bovenste kleilagen zijn over het algemeen de restanten van oeverafzettingen.
  • Binnen het gehele plangebied hebben afgravingen plaatsgevonden door steenfabrieken ten behoeve van de winning van zandige klei. Hierdoor zijn de oorspronkelijk aanwezige uiterwaardafzettingen evenals de top van de oeverafzettingen afgegraven. Later werd het plangebied hergebruikt door een zanddek op de nog aanwezige kleiafzettingen aan te brengen.

  • Tijdens het veldonderzoek zijn geen aanwijzingen gevonden voor de aanwezigheid van archeologische waarden in het plangebied. Dit is zeer waarschijnlijk veroorzaakt door de genoemde afgravingen. Hierdoor is de verwachting op in de ondergrond aanwezige intacte archeologische resten vanaf de Laat-Romeinse tijd laag.

Het onderzoek heeft geen aanwijzingen opgeleverd voor de aanwezigheid van archeologische vindplaatsen in het plangebied. Op basis van de resultaten van het inventariserend veldonderzoek wordt geadviseerd om ten aanzien van archeologie geen aanvullende maatregelen te treffen.

Ter plaatse van het plangebied wordt de archeologische dubbelbestemming, welke was opgenomen in het vigerende bestemmingsplan, niet overgenomen. Op basis van het vooronderzoek kan de hoge archeologische verwachting voor het plangebied naar een lage verwachting worden bijgesteld. Een dubbelbestemming archeologie is niet langer noodzakelijk.

Het aspect archeologie levert derhalve geen belemmeringen op voor het bestemmingsplan.

4.11 Verkeer en parkeren

4.11.1 Beoordeling

Ontsluiting

Het plangebied grenst aan de noordzijde aan de Johan de Ridderlaan en wordt ook ontsloten vanaf deze weg. Vanaf de Johan de Ridderlaan kan via de Roelof de Roverlaan en vervolgens via de Jan Hoenlaan en vervolgens via de Jan de Rijkelaan de provincialeweg N228 worden bereikt. Via deze weg kan de rest van Montfoort worden bereikt.

De Johan de Ridderlaan is een wijkontsluitingsweg. Langs deze weg wordt geparkeerd waardoor er geen ruimte beschikbaar is voor twee auto's om elkaar direct te kunnen passeren. Alle weggebruikers moeten gebruik maken van dezelfde rijbaan. Voetgangers kunnen gebruik maken van de trottoirs.

Aan de ontsluiting zoals bovengenoemd veranderd niks door het planvoornemen. De nieuwe woningen zullen via een nieuwe ontsluitingsweg worden aangesloten op de Johan de Ridderlaan. Deze weg grenst aan de bestaande percelen van de woningen aan de Johan de Ridderlaan nrs 1 en 2.

In het plangebied wordt een centraal verkeersplein gerealiseerd waar ruimte is voor openbare parkeergelegenheid en voor een vuilnisauto om te keren.

Verkeersgeneratie

Het plan aan de Johan de Ridderlaan omvat de realisatie van tien woningen. Uitgaande van de definities van het CROW gaat het om een 'matig stedelijke situatie' in de 'rest van de bebouwde kom'. Het kencijfer voor de verkeersgeneratie van nieuwe koopwoningen (vrijstaand en twee-onder-één-kap) ligt hierbij op 7,4 tot 8,6 ritten per woning per etmaal. Voor het plan kan worden uitgegaan van een gemiddelde verkeersgeneratie van 8,0 ritten per woning per etmaal.

De tien nieuwe woningen genereren daarmee gemiddeld tachtig ritten per etmaal. Dit verkeer rijdt voor het overgrote deel via de Roelof de Roverlaan en de Jan de Rijkelaan van en naar de rotonde met de Heeswijk en Anne Franklaan. In Bijlage 6 is het onderzoek akoestiek en verkeersgeneratie opgenomen.

In onderstaande tabel zijn de verkeersintensiteiten van de verschillende wegen samengevat weergegeven. Het betreft in alle gevallen de gegevens voor een gemiddelde weekdag.

afbeelding "i_NL.IMRO.0335.BPJohanRidderlaan1-VO01_0018.jpg"

* worst case aanname

** op basis van aantal te ontsluiten woningen en 8 autoritten per woning

Tabel overzicht gehanteerde etmaalintensiteiten (gemiddelde weekdag)


Het plan genereert circa tachtig extra autoritten op de wegen van en naar het plangebied. Op de ontsluiting van het plangebied (zuidelijke deel van de Johan de Ridderlaan) is de relatieve verkeerstoename groot, maar met maximaal 120 ritten per etmaal kan de weg het verkeer goed afwikkelen. Onderzoek naar de gevolgen elders toont aan dat de leefbaarheid voor de aanliggende zeer acceptabel blijft.

Op de Heeswijk veroorzaakt het plan een verkeerstoename van minder dan 1 procent. Op deze weg zal dit extra verkeer nauwelijks worden opgemerkt.

Op de 30 km/uur-wegen Jan de Rijkelaan en Roelof de Roverlaan zal de verkeersdruk met circa 80 autoritten toenemen. De gewenste maximale intensiteit van deze wegen wordt echter niet overschreden. De verkeerstoename als gevolg van het plan is acceptabel en zal niet leiden tot knelpunten in de verkeersafwikkeling en/of -veiligheid. Vanuit het aspect verkeer gezien kan het plan worden gerealiseerd.

Parkeren

Het planvoornemen voorziet in parkeermogelijkheden op eigen terrein en in het openbaar gebied. Er wordt in het plangebied minimaal één parkeerplaats per woning gerealiseerd.

Conform de parkeernorm (zie ook subparagraaf 3.4.3) zijn er in totaal 10 woningen x 2 parkeerplaatsen = 20 parkeerplaatsen nodig.

Soort parkeerplekken   Aantal woningen   Rekenwaarde   Aantal parkeerplaatsen  
Woning met dubbele oprit naast elkaar   6   2   12  
Woning met oprit   4   1   4  
Totaal   16  

Tabel berekening aantal parkeerplekken eigen terrein

Uit bovenstaande tabel blijkt dat er 16 parkeerplekken op eigen terrein worden gerealiseerd en er 4 parkeerplekken in de openbare ruimte worden gerealiseerd. Doordat er voldoende plekken op eigen terrein en in de openbare ruimte zijn ingepast levert het daarmee geen onaanvaardbare extra parkeerdruk op en wordt er voldaan aan de Nota parkeernormen.

4.11.2 Conclusie

De bouw van de 10 woningen ter plaatse van het plangebied zorgt voor een toename van het aantal verkeersbewegingen. Deze toename kan worden opgevangen op de omliggende wegen en levert geen belemmeringen op voor het uitvoeren van het plan.

Het parkeren wordt op eigen terrein en in de openbare ruimte geregeld. Uit de beschrijving van het aspect parkeren blijkt dat er voldaan aan de Nota Parkeernormen.

4.12 Duurzaamheid

Het voorliggende plan voorziet in de realisatie van 6 woningen en biedt mogelijkheden ten aanzien van de duurzaamheid.

Wettelijk kader

De wettelijke eisen aan nieuwbouw van woningen staan in het bouwbesluit. De volgende eisen worden gesteld bij nieuwbouw:

  • 1. Een minimale isolatiewaarde van: Rc=4,5 voor dichte uitwendige scheidingsconstructies, Rc=3,5 voor vloerconstructies en Rc=6,0 voor uitwendige dakconstructies;
  • 2. Een maximale U-waarde gemiddeld van 1,65 voor ramen (glas en kozijn) en deuren;
  • 3. Een minimale EPC waarde afhankelijk van het type gebouw.
  • 4. Een berekening van de Milieuprestatie Gebouw (MPG).


Om te voldoen aan punt 1 t/m 3 moet een EPC-berekening aangeleverd worden. Voor de MPG kan gekozen worden voor een SBK-bewijs of voor een berekening uit te voeren met bijvoorbeeld GPR Gebouw. De berekening zullen worden opgesteld bij de uitwerking van de bouwplannen.

Energie Prestatie Coëfficiënt (EPC)

Per 1 januari 2015 geldt voor een woonfunctie een eis van 0,4. Het plan moet voldoen minimaal aan de eisen ten aanzien van duurzaamheid uit het Bouwbesluit.


Provinciaal beleid

Het provinciaal beleid is vastgelegd in de Provinciale Structuurvisie herijking 2016. Bijbehorende kaders zijn vastgelegd in de Provinciale Ruimtelijke Verordening 2013. Hierin staat voor nieuwe ontwikkelingen binnen het stedelijk gebied dat het ruimtelijk plan een beschrijving moet bevatten van de wijze waarop rekening is gehouden met energiebesparing en het toepassen van duurzame energiebronnen.

Bij zowel het bouwen als renoveren van woningen is het van belang dat nagedacht wordt over het gebruik van alternatieve vormen van energie en energiebesparende technieken. Hiermee dragen ruimtelijke plannen bij aan het doel van 10% duurzame energiegebruik in 2020 zoals verwoord in de Provinciale Ruimtelijke Verordening 2013


Gemeentelijk beleid

De gemeente Montfoort heeft verklaard duurzaam bouwen als uitgangspunt te nemen bij nieuwbouwprojecten. De gemeente heeft zich aangesloten bij de systematiek van GPR gebouw. De ambitie is om per thema (milieu, energie, toekomstwaarde, gebruikskwaliteit en gezondheid) een GPR-score van minimaal 7 te realiseren.

Duurzaamheidsmaatregelen

Het aspect duurzaamheid wordt verankerd in de anterieure overeenkomst.

In deze overeenkomst worden het treffen van de volgende duurzaamheidsmaatregelen opgenomen;

  • alle woningen worden uitgevoerd met een ECP van maximaal 0,19
  • de woningen worden gerealiseerd zonder gasaansluiting
  • indien er gebruik wordt gemaakt van een afgekoppeld hemelwatersysteem worden er géén koper, lood en zink in gevel- en dakbekleding gebruikt.

Het streven van de initiatiefnemer is om een hoog mogelijke GPR scoren te halen voor de nieuwe woningen.

Hoofdstuk 5 Uitvoerbaarheid

5.1 Economische uitvoerbaarheid

Het voorliggende bestemmingsplan betreft een ontwikkeling van maximaal 10 woningen. Voor deze ontwikkeling is een anterieure overeenkomst gesloten tussen de initiatiefnemer en de gemeente Montfoort. In deze overeenkomst is onder andere vastgelegd dat alle planschade die voortvloeit uit bestemmingswijziging voor rekening van de initiatiefnemer is en dat alle kosten die gemeente moet maken voor het aanpassen van de infrastructuur en het rioolstelsel verhaald zullen worden op de eigenaar van het perceel Johan de Ridderlaan 1. Omdat het kostenverhaal via een anterieure overeenkomst verzekerd is, is het vaststellen van een exploitatieplan verder niet nodig.

5.2 Maatschappelijke uitvoerbaarheid

5.2.1 Inleiding

In dit hoofdstuk worden de uitkomsten van het bestuurlijke vooroverleg (conform artikel 3.1 Bro) met de besturen van de betrokken gemeenten en waterschappen en met die diensten van de provincie en rijk die betrokken zijn bij de zorg voor de ruimtelijke ordening of belast zijn met de behartiging van belangen welke in het plan in geding zijn. Het genoemde overleg zal plaatsvinden aan de hand van het concept ontwerp bestemmingsplan. De eventuele inspraakreacties en zienswijzen zullen in dit hoofdstuk verwoord worden.

Voorafgaand aan het opstellen van het bestemmingsplan heeft een voortraject plaatsgevonden waarin omwonenden hun reacties op het plan konden geven.

5.2.2 Inspraak en overleg

5.2.3 Zienswijzen

Hoofdstuk 6 Juridische planbeschrijving

6.1 Inleiding

In dit bestemmingsplan wordt gestreefd naar de juridische vastlegging van de bestaande en nieuw te ontwikkelen ruimtelijke en juridische functies binnen het plangebied. Voor dit bestemmingsplan wordt gebruik gemaakt van de landelijke richtlijn Standaard Vergelijkbare Bestemmingsplannen 2012 (SVBP2012). Hierin zijn verplichtingen opgenomen ten aanzien van de opbouw en presentatie van het bestemmingsplan. De landelijke richtlijn SVBP is opgenomen in de Wro.

Het bestemmingsplan bestaat, naast deze toelichting, uit een verbeelding en regels.

6.2 Planregels

6.2.1 Hoofdstuk 1 Inleidende regels

Hoofdstuk 1 bevat de inleidende regels. In Artikel 1 zijn de begrippen opgenomen die van belang zijn voor de toepassing van de regels. Artikel 2 betreft de wijze van meten, waarin is aangegeven hoe bij de toepassing van de bestemmingsregels wordt gemeten.

6.2.2 Hoofdstuk 2 Bestemmingsregels

Hoofdstuk 2 bevat de regels voor de bestemmingen. In dit hoofdstuk zijn per bestemming regels opgenomen voor het toegestane gebruik en de toegestane bebouwing van de gronden. In het navolgende wordt nader ingegaan op de bestemmingen die voorkomen binnen het plangebied.

Artikel 3 Tuin

De gronden met de bestemming 'Tuin' zijn bestemd voor toegangspaden, opritten en parkeervoorzieningen. Binnen deze bestemmingen mogen uitsluitend bouwwerken, geen gebouwen zijnde worden gebouwd. In de regels zijn nadere voorwaarden voor de bouw van bouwwerken, geen gebouwen zijnde gegeven. Verder is de mogelijkheid opgenomen om middels een omgevingsvergunning een entree of een erker te bouwen, mits wordt voldaan aan de gestelde voorwaarden.

Artikel 4 Verkeer - Verblijfsgebied

De gronden met de bestemming 'Verkeer - Verblijfsgebied' zijn bestemd voor verblijfsgebieden, langzaamverkeersroutes, water, parkeervoorzieningen, groenvoorzieningen en speelvoorzieningen. Binnen deze bestemmingen mogen uitsluitend abri's en bouwwerken, geen gebouwen zijnde worden gebouwd. In de regels zijn nadere voorwaarden voor de bouw van bouwwerken, geen gebouwen zijnde gegeven.

Artikel 5 Wonen

De gronden met de bestemming 'Wonen' zijn bestemd voor grondgebonden woningen met bijbehorende voorzieningen. Het maximaal aantal woningen in het plangebied is 10. Binnen deze bestemming mogen gebouwen, bijbehorende bouwwerken en bouwwerken, geen gebouwen zijnde worden gebouwd. De woningen mogen uitsluitend binnen het bouwvlak worden gebouwd. Op de verbeelding is de maximale goot- en bouwhoogte aangegeven.

De bijbehorende bouwwerken en overige bouwwerken mogen zowel binnen als buiten het bouwvlak worden gebouwd. In de regels zijn de nadere voorwaarden voor de bouw van bijhorende bouwwerken en overige bouwwerken gegeven.

Het is tevens toegestaan om een beroep-aan-huis uit te oefenen, mits wordt voldaan aan de in de regels gestelde voorwaarden.

6.2.3 Hoofdstuk 3 Algemene regels

Hoofdstuk 3 bevat algemene regels. Het betreft regels die voor het hele plangebied of voor verschillende bestemmingen van toepassing zijn. In dit hoofdstuk zijn onder andere de anti-dubbeltelregel, algemene bouw- en gebruiksregels, algemene aanduidingsregels en algemene afwijkingsregels opgenomen.

In de algemene aanduidingsregels zijn de regels voor de gebiedsaanduiding ''wetgevingzone - waterberging'' opgenomen. Deze aanduiding geldt voor het gehele plangebied en in de regels is bepaald dat de waterbergings-en infiltratievoorzieningen tezamen een minimale inhoud van 149 m3 moeten hebben en moeten worden gehandhaafd.

In de algemene gebruiksregels is de voorwaardelijke verplichting parkeren opgenomen. Alvorens gebruik te mogen maken van de functies, dient voldaan te worden aan deze voorwaardelijke verplichting.

6.2.4 Hoofdstuk 4 Overgangs- en slotregels

Hoofdstuk 4 bevat twee artikelen. In het eerste artikel is het overgangsrecht opgenomen, zoals dat ingevolge het Besluit ruimtelijke ordening is voorgeschreven. Het tweede artikel bevat de slotregel. In de slotregels is aangegeven hoe de regels kunnen worden aangehaald.