direct naar inhoud van Toelichting
Plan: A.C.M. Muskeijnplantsoen 18
Status: ontwerp
Plantype: bestemmingsplan
IMRO-idn: NL.IMRO.0335.BPMuskplantsoen18-OW01

Toelichting

Hoofdstuk 1 Inleiding

Voor de woning aan het A.C.M. Muskeijnplantsoen 18 in Montfoort bestaat de wens om een uitbouw te realiseren aan de zijkant van de woning. Deze aanbouw past niet in het vigerende bestemmingsplan 'Woonwijken'. Om de uitbouw mogelijk te maken is een bestemmingsplan nodig.

1.1 Doel

Met het voorliggende bestemmingsplan streeft de gemeente het volgende doel na: het mogelijk maken van een uitbouw aan de zijkant van de woning aan het A.C.M. Muskeijnplantsoen 18 te Montfoort.

1.2 Gekozen planopzet

Bij de planbeschrijving (hoofdstuk 2) wordt aangegeven welke ontwikkeling wordt beoogd en hoe ze is vastgelegd in het bestemmingsplan. Er is gekozen om het gehele perceel in het bestemmingsplan op te nemen ten einde onduidelijkheden te voorkomen.

De beoogde uitbouw wordt gerealiseerd in een bestaande woonwijk. In hoofdstuk 2 wordt daarom ook de relatie met deze situatie benoemd. Verder is per thema omschreven hoe het in het bestemmingsplan is geregeld.

1.3 Ligging en begrenzing

Het voorliggende bestemmingsplan is opgesteld voor het plangebied, A.C.M. Muskeijnplantsoen 18 te Montfoort.

afbeelding "i_NL.IMRO.0335.BPMuskplantsoen18-OW01_0001.png"

Ligging plangebied - luchtfoto

1.4 Vigerende plannen

In het plangebied van het voorliggende bestemmingsplan is momenteel het Bestemmingsplan 'Woonwijken' (vastgesteld op 31 januari 2011 door de gemeenteraad) van kracht. In paragraaf 3.2.2 wordt op dit bestemmingsplan nader ingegaan.

1.5 Leeswijzer

Het voorliggende bestemmingsplan bestaat uit een verbeelding met bijbehorende regels, vergezeld van een toelichting. De regels en de verbeelding vormen de juridisch bindende elementen van het bestemmingsplan. In de toelichting is een beschrijving van het plangebied opgenomen en zijn de aan het plan ten grondslag gelegen keuzes en beleidsuitgangspunten beschreven.

De toelichting bestaat uit 9 hoofdstukken. Hoofdstuk 2 beschrijft de bestaande situatie en toekomstige situatie. De voor het plan relevante beleidsuitspraken zijn in hoofdstuk 3 beschreven. In hoofdstuk 4 behandelt de waterparagraaf. De verschillende milieuaspecten worden beschreven in hoofdstuk 5. Hoofdstuk 6 behandelt de relevante omgevingsaspecten. Hierbij vindt er een toets van de diverse milieu- en omgevingsaspecten plaats.

Een toelichting op de juridische systematiek, een omschrijving van de afzonderlijke bestemmingen is beschreven in hoofdstuk 7. In hoofdstuk 8 wordt de economische uitvoerbaarheid beschreven en in hoofdstuk 9 de maatschappelijke uitvoerbaarheid en de te doorlopen procedures.

Hoofdstuk 2 Planbeschrijving

2.1 Bestaande situatie

Het woonkavel aan het A.C.M. Muskeijnplantsoen 18 is gelegen in de wijk Hofland. Hofland is een grote woonwijk aan de zuidzijde van de kern Montfoort, gebouwd tussen 1970 en 1980. In de wijk is sprake van een grote diversiteit aan woningtypen, zowel vrijstaande woningen, 2-onder-1-kappers en bungalows, als ook appartementen en rijtjeshuizen komen voor. Zo ook ter hoogte van het Muskeijplantsoen. Het woonhuis aan het A.C.M. Muskeijnplantsoen 18 zelf betreft een hoekhuis van een rij grondgebonden eengezinswoningen. De rijwoningen zijn georiënteerd op, en kijken uit over, het plantsoen.

afbeelding "i_NL.IMRO.0335.BPMuskplantsoen18-OW01_0002.jpg" afbeelding "i_NL.IMRO.0335.BPMuskplantsoen18-OW01_0003.jpg"

Foto : voorzijde Foto : achterzijde

Bijna haaks op de kopse kant van het rijtje woningen aan het plantsoen zijn, in een vergelijkbaar bouwvolume van 2 bouwlagen met kap, boven- en benedenwoningen gesitueerd. De verharde openbare ruimte tussen beide bouwvolumes is deels toegankelijk voor autoverkeer. Dit zal alleen gebruikt worden voor laden en lossen cq. in- en uitstappen. Er is hier geen gelegenheid voor parkeren. Paaltjes beperken de doorgang voor autoverkeer naar het achtergelegen pleintje.

2.2 Beoogde ontwikkeling

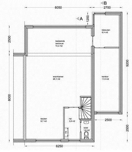
Op de kopse kant van de hoekwoning aan het Muskeijnplantsoen 18 wordt een uitbouw gerealiseerd over twee bouwlagen. Op de begane grond wordt voorzien in studeerkamer en een bijkeuken. Op de eerste verdieping komt een extra slaapkamer.

afbeelding "i_NL.IMRO.0335.BPMuskplantsoen18-OW01_0004.jpg" afbeelding "i_NL.IMRO.0335.BPMuskplantsoen18-OW01_0005.png"

Situering uitbouw Plattegrond begane grond nieuwe situatie

Doordat het bouwvolume van de uitbouw de vorm en uitstraling van het hoofdgebouw volgt, wordt een rustig, geleed bebouwingsbeeld verkregen. Zoals in onderstaande afbeelding duidelijk is te zien volgt de kap van uitbouw, de kap van het hoofdgebouw, zowel in vorm als hellingshoek. In alles is de uitbouw een duidelijk nevenvolume bij het hoofdgebouw. De uitbouw is 2,5 meter breed en gesitueerd op 2,5 meter achter de voorgevel.

afbeelding "i_NL.IMRO.0335.BPMuskplantsoen18-OW01_0006.jpg" afbeelding "i_NL.IMRO.0335.BPMuskplantsoen18-OW01_0007.jpg"

Verkeer

De woning ligt aan het A.C.M. Muskeijnplantsoen. De uitbouw vormt een geïntegreerd onderdeel van de woning; de woning wordt vergroot. Het aantal woningen neemt niet toe. De gewenst uitbouw heeft daarmee geen extra verkeersaantrekkende werking. Er is geen noodzaak om een extra parkeerplaats te realiseren. De bestaande parkeerplaatsen in het openbaar gebied zijn voldoende.

Hoofdstuk 3 Beleid

3.1 Rijks- en provinciaal beleid

De ontwikkeling die met dit bestemmingsplan wordt mogelijk gemaakt heeft een kleinschalig en lokaal karakter. Het valt dan ook buiten de reikwijdte van het rijksbeleid, vastgelegd in de Structuurvisie Infrastructuur en Ruimte en het Besluit algemene regels ruimtelijke ordening (Barro). Om die reden wordt hier dan ook niet verder op het rijksbeleid ingegaan.

De provincie Utrecht heeft haar ruimtelijk beleid vastgelegd in de Provinciale Ruimtelijke Structuurvisie 2013-2028 (PRS) en Provinciaal Ruimtelijke Verordening (PRV). Beiden zijn vastgesteld door de Provinciale Staten op 4 februari 2013. In deze beleidskaders geeft de provincie aan welke doelstellingen zij van provinciaal belang achten, welk beleid bij deze doelstellingen hoort en hoe zij uitvoering geven aan dit beleid. De met dit bestemmingsplan mogelijk gemaakte ontwikkeling valt niet binnen de reikwijdte van het provinciaal beleid. Om die reden wordt in dit bestemmingsplan dan ook niet verder op het provinciaal beleid ingegaan.

3.2 Gemeentelijk beleid

3.2.1 Totaalvisie Montfoort 2030

In de TotaalVisie Montfoort 2030 worden keuzes gemaakt hoe Montfoort zich verder kan ontwikkelen richting 2030. De structuurvisie Totaalvisie Montfoort dient als leidraad te worden gehanteerd bij de beoordeling van nieuwe plannen en initiatieven, maar ook voor nieuw op te stellen bestemmingsplannen en planologische afwijkingen.

De Totaalvisie Montfoort beschrijft alleen beleid op hoofdlijnen. Er worden geen beleidsuitspraken gedaan over aan- of uitbouwen en woningverbetering, zoals met dit voorliggende plan wordt beoogd. Het biedt daarom in dit geval ook geen houvast om als leidraad te dienen.

Consequentie plangebied

Het beleidskader Totaalvisie Montfoort 2030 heeft geen consequenties voor dit bestemmingsplan.

3.2.2 Bestemmingsplan Woonwijken

Voor alle woongebieden van de kern Montfoort is in 2009 een nieuw bestemmingsplan opgesteld, het bestemmingsplan 'Woonwijken'. De gemeente heeft gekozen voor een conserverend bestemmingsplan. De bestaande kwaliteiten (situatie 2009) worden behouden en ontwikkelingen zijn alleen in het bestemmingsplan opgenomen als die voldoende concreet waren. De bestemmingen liggen nauwkeurig omschreven vast en de bebouwingsregels geven precies aan waar en hoe gebouwd mag worden. De samenleving is niet statisch, maar altijd in beweging. Hier speelt het geldende bestemmingsplan op in, door een aantal ondergeschikte bouw- en gebruiksmogelijkheden onder voorwaarden mogelijk te maken.

Door enerzijds conserverend te bestemmen in de aanwezige hoofdbebouwing, die de structuur en beeldkwaliteit van het woongebied bepaalt, en anderzijds enige vorm van flexibiliteit aan te brengen, wordt in het bestemmingsplan Woonwijken een balans gevonden tussen openbare en collectieve kwaliteit en de individuele vrijheid. Op deze manier wordt ernaar gestreefd om de huidige ruimtelijke kwaliteiten van het gebied naar de toekomst toe te behouden. Tegelijkertijd wordt er ruimte geboden aan de dynamiek (vitaliteit) die nodig is om in de woonwijken de leefbaarheid en de woonkwaliteit op hoog niveau te houden en te bevorderen.

De contouren van de huidige hoofdbebouwing zijn in dit bestemmingsplan strak omlijnd opgenomen. Dit geldt ook voor de hoogte-opbouw. Het bieden van de flexibiliteit, die niet direct van invloed is op de 'openbare' kwaliteit van de woongebieden, is mogelijk gemaakt middels aangepaste regelingen met betrekking tot de bouwhoogte en een flexibele bijgebouwenregeling.

Om een goede afstemming te krijgen tussen de grootte van het bouwperceel en het gezamenlijk oppervlak van bijgebouwen, is er in het bestemmingsplan voor gekozen het gezamenlijk oppervlak van bijgebouwen te koppelen aan de grote van het bouwperceel met een maximale bebouwingspercentage van 60%. Aanvullend daarop geldt dat bij percelen tussen de 250 en 500 m² maximaal 80 m² aan bijgebouwen mag worden gerealiseerd.

Binnen het plangebied is het woonbeleid gericht op behoud van de woonfunctie. In het bestemmingsplan zijn alle bestaande woonfuncties daarom met de bestemming 'Wonen' vastgelegd. Voor 'Wonen' in het plangebied zijn werkfuncties alleen toegestaan onder de voorwaarden, zoals die worden gesteld aan 'aan-huis-verbonden beroepen', namelijk aan huis gebonden beroepen en/of bedrijf, tot een oppervlakte van 30 m². Naast 'Wonen' worden delen van het woonperceel bestemd als 'Tuin'. In deze 'Tuin'- bestemming worden gebouwen en bouwwerken in principe niet toegestaan, behalve daar waar dit wordt aangeduid.

afbeelding "i_NL.IMRO.0335.BPMuskplantsoen18-OW01_0008.jpg"

Uitsnede Bestemmingsplan Woonwijken, Gemeente Montfoort

Consequentie plangebied

De beoogde ontwikkeling sluit aan bij het uitgangspunt om dynamiek in de woonwijk te bieden. De actuele woonwensen vragen van de woning meer ruimte op de begane grond om hier, passend bij de regelingen in het bestemmingsplan Woonwijken, een kantoor aan huis te vestigen. Met de groei van het aantal kleine zelfstandigen of zzp-ers neemt ook de behoefte aan kleinschalige kantoorruimte aan huis toe. Met dit bestemmingsplan wordt ruimte geboden aan de gewenste dynamiek in de wijk. Door de uitbreiding op een hoogwaardige wijze (zie paragraaf 3.2.4) vorm te geven wordt met de 'openbare kwaliteit' zorgvuldig omgegaan.

Het perceel aan de Muskeijnplantsoen 18 is circa 255 m² groot. Dit betekent dat er maximaal 80 m2 aan bijgebouwen gesitueerd mogen worden en dat het geheel van bebouwing circa 153 m2 mag bedragen. De woning, inclusief de gewenste uitbouw, de serre en het schuurtje beslaat circa 95 m² grondoppervlak. Dit is ruim binnen de 153 m² het vigerende plan mogelijk maakt.

Enige strijd met het vigerende bestemmingsplan Woonwijken bestaat uit het bouwen van de uitbouw in de bestemming Tuin.

3.2.3 Planologische afwijkingsmogelijkheden Wabo

Sinds 2010 zijn de mogelijkheden tot afwijken van het bestemmingsplan geregeld in de Wet algemene bepalingen omgevingsrecht (Wabo). De Wabo biedt de mogelijkheid om voor bepaalde gevallen af te wijken van het bestemmingsplan met behulp van een 'omgevingsvergunning om planologisch af te wijken' van het bestemmingsplan (reguliere procedure). In de 'Beleidsregels planologische afwijkingsmogelijkheden in de Wet algemene bepalingen omgevingsrecht (Wabo)', Gemeente Montfoort vastgesteld op 20 juli 2010, zijn de afwijkingsmogelijkheden voor de gemeente Montfoort vastgelegd.

Naast de afwijkingsmogelijkheden conform de bovengenoemde beleidsregels bestaat ook nog de mogelijkheid om af te wijken van het bestemmingsplan door middel van een omgevingsvergunning op grond van artikel 2.12 lid 1 sub a onder 3 van de Wabo. Deze procedure staat ook wel bekend als het oude projectbesluit onder de Wet ruimtelijke ordening (uitgebreide procedure). De Wabo schrijft voor dat de gemeenteraad in deze gevallen een verklaring van geen bedenkingen (VVGB) dient af te geven voor het verkrijgen van de omgevingsvergunning. Om het besluitvormingsproces te versnellen, heeft de gemeenteraad van Montfoort op 28 juni 2010 een categorie van gevallen aangewezen waarvoor geen VVGB dient afgegeven te worden. Een dergelijke omgevingsvergunning dient voorzien te worden van een goede ruimtelijke onderbouwing.

Consequentie plangebied

De beoogde uitbouw valt vanwege de situering aan de zijkant van de woning en omvang niet binnen de afwijkingsmogelijkheden volgens de beleidsregels. De uitbouw valt wel binnen de categorieën waarvoor een verklaring van geen bedenkingen kan worden afgegeven. Er is gekozen voor het opstellen van een bestemmingsplan, omdat daarmee de nieuwe situatie planologisch-juridisch wordt vastgelegd.

3.2.4 Welstandsnota

In de welstandsnota Montfoort (2011) worden naast de algemeen geldende welstandscriteria gebiedsgebonden criteria opgesteld per onderscheiden gebied. Het onderhavige plangebied maakt onderdeel uit van het gebied 'Montfoort – Hofland'. Voor dit gebied geldt het regulier niveau van welstand.

De welstandsnota is erop gericht de bestaande karakteristiek te behouden. Bij de verschillende welstandscriteria wordt daarom ook veelvuldig, van aanpassingen aan het hoofdgebouw tot aan detaillering, verwezen naar de kenmerken van de hoofdmassa (bouwblok of cluster). Als algemene stelregel geldt; gewenste veranderingen dienen aan te sluiten bij deze karakteristiek.

Relevante criteria inzake situering en hoofdvorm van het bouwwerk:

  • 1. Aangesloten dient te worden bij de aanwezige rooilijn en de toegepaste richting van bouwmassa's ten opzichte van deze rooilijn: doorgaans volgt deze de weg
  • 2. Blokken en woningen onderling: respecteren toegepaste zijdelingse afstand.
  • 3. De op de straat gerichte oriëntatie handhaven.
  • 4. Bijgebouwen dienen terugliggend ten opzichte van het hoofdgebouw te worden geplaatst.
  • 5. Bouwmassa qua vorm, maat, schaal en geleding aansluiten bij de belendende bouwmassa/massaopbouw.
  • 6. In één bouwblok of cluster van rijtjeswoningen, 2 onder 1 kapwoningen en vrijstaande woningen het bestaande beeld handhaven.
  • 7. Aansluiten op bouwhoogte binnen bouwblok of cluster van rijtjeswoningen, 2 onder 1 kapwoningen en vrijstaande woningen.
  • 8. Op- en aanbouwen per woningtype in hetzelfde model uitvoeren. De eerste op- of aanbouw in zijn soort dient zorgvuldig te worden ontworpen in samenhang met de bestaande bouwmassa en architectonische opzet.
  • 9. Kapvorm en –richting dienen aan te sluiten bij de aanwezige kapvorm en –richting. Hoofdregel is dat dakkapellen op bouwblokken qua vorm, doorsnede en plaatsing dienen aan te sluiten bij de op de betreffende bouwblokken reeds aanwezige dakkapellen.

In de Welstandsnota wordt veelvuldig naar het bestemmingsplan gerefereerd als primair juridisch document en ook, zeker op het schaalniveau van het bouwvolume (bouwenvelop), inhoudelijk leidend. Zo ook als het gaat om aan- en uitbouwen: 'Plaats aan- en uitbouwen volgt uit bestemmingsplan'.

Consequentie plangebied

Door zowel in bouwvorm, contour, kapvorm, -richting, -hellingshoek, als ook in kleur- en materiaalgebruik aan te sluiten bij de aangrenzende woningen past de uitbouw naadloos in het bebouwingsbeeld. De toevoeging wordt in lijn met de architectuur van het geheel vormgegeven, zoals de welstandsnota ook voorschrijft. De beoogde uitbouw van de woning voldoet aan de gestelde criteria uit de welstandsnota.

In de welstandsnota wordt aangegeven dat de plaats (situering) van aan- en uitbouwen volgt uit het bestemmingsplan. In dit bestemmingsplan wordt de situering van de uitbouw aan het A.C.M. Muskeijnplantsoen 18 vastgelegd en bepaald.

De uitbouw vindt plaats binnen de perceelsgrenzen. Hiermee wordt de zijdelings afstand tot aangrenzende woningen voldoende gerespecteerd.

De regels van het bestemmingsplan hebben voorrang op de welstandscriteria. De uitbouw wordt overigens nog separaat door de welstandscommissie beoordeeld in het kader van de vergunningsaanvraag.

Hoofdstuk 4 Water

4.1 Kader

Wettelijk kader

Het Rijk, de VNG, het IPO en de Unie van Waterschappen hebben in februari 2001 de startovereenkomst Waterbeheer 21ste eeuw ondertekend. Deze startovereenkomst is in 2003 omgezet in het Nationaal Bestuursakkoord Water dat in juni 2008 is geactualiseerd. Hiermee hebben deze partijen elkaar gecommitteerd om een watertoets toe te passen bij het opstellen van ruimtelijke plannen.

In het Besluit ruimtelijke ordening (Bro) is voorts bepaald dat waterbeheerders dienen te worden geraadpleegd bij het opstellen van bestemmingsplannen. De watertoets is een instrument om bij alle ruimtelijke plannen en besluiten waarin waterhuishoudkundige aspecten voorkomen te toetsen of in voldoende mate rekening wordt gehouden met die aspecten. Het gaat daarbij vooral om aandacht voor de waterkwantiteit (ruimte voor water, berging, infiltratie, aan- en afvoer), aandacht voor effecten op de waterkwaliteit en aandacht voor de veiligheid (overstroming).

Op 22 december 2009 is de Waterwet in werking getreden. Een achttal wetten is samengevoegd tot één wet: de Waterwet. De Waterwet regelt het beheer van oppervlaktewater en grondwater, en verbetert ook de samenhang tussen waterbeleid en ruimtelijke ordening. Daarnaast levert de Waterwet een flinke bijdrage aan kabinetsdoelstellingen zoals vermindering van regels, vergunningstelsels en administratieve lasten. Naast de Waterwet blijft de Waterschapswet als organieke wet voor de waterschappen bestaan.

Een belangrijk gevolg van de Waterwet is dat de huidige vergunningstelsels uit de afzonderlijke waterbeheerwetten worden gebundeld. Dit resulteert in één vergunning, de Watervergunning, die met een wettelijk vastgesteld aanvraagformulier kan worden aangevraagd.

Nationaal Waterplan 2009 - 2015

Het Nationaal Waterplan (NWP) is het rijksplan voor het waterbeleid voor de periode 2009-2015. Het NWP beschrijft welke maatregelen nodig zijn om Nederland ook in de toekomst veilig en leefbaar te houden. Ook de (economische) kansen die water biedt komen in het NWP aan bod. In het Nationaal Waterplan is een eerste uitwerking gegeven aan het Deltaprogramma dat wordt opgesteld naar aanleiding van het advies van de Deltacommissie in 2008. Dit programma is gericht op duurzame veiligheid en zoetwatervoorziening.

In december 2009 heeft het kabinet het Nationaal Waterplan vastgesteld. Dit plan geeft op hoofdlijnen aan welk beleid het Rijk in de periode 2009 - 2015 voert om te komen tot een duurzaam waterbeheer. Het Nationaal Waterplan richt zich op bescherming tegen overstromingen, voldoende en schoon water en diverse vormen van gebruik van water. Ook worden de maatregelen genoemd die hiervoor worden genomen. Het Nationaal Waterplan is de opvolger van de Vierde Nota Waterhuishouding uit 1998 en vervangt alle voorgaande nota's waterhuishouding. Het Nationaal Waterplan is opgesteld op basis van de Waterwet die met ingang van 22 december 2009 van kracht is. Op basis van de Wet ruimtelijke ordening heeft het Nationaal Waterplan voor de ruimtelijke aspecten de status van structuurvisie. Dit betekent dat het gestelde beleid leidend is voor uitwerking in het beleid van lagere overheden en uitwerking in projecten. Het rijksbeleid is dien overeenkomstig globaal en gericht op nationaal belang.

Het rijk verbreedt en versterkt de werking van de watertoets. De watertoets is een belangrijk instrument, formeel geregeld in het Besluit ruimtelijke ordening. Het doel van de watertoets is de vroegtijdige betrokkenheid van de waterbeheerder bij ruimtelijke planprocessen te borgen. Daarmee wordt beoogd alle doelstellingen van het waterbeleid expliciet en op evenwichtige wijze in beschouwing te nemen bij alle ruimtelijke plannen en besluiten die relevant zijn voor het watersysteem. De watertoets heeft daarmee meer een procesmatig karakter dan dat van een echte toets.

Ook onder de nieuwe Wet ruimtelijke ordening/Besluit ruimtelijke ordening is het overleg tussen initiatiefnemer en waterbeheerder en het opstellen van een waterparagraaf bij bestemmingsplannen verplicht. Voor het Besluit ruimtelijke ordening geldt de Bestuurlijke Notitie Watertoets (2001) onverminderd als de bestuurlijke afspraken waarin een nadere uitwerking is opgenomen van de processtappen en inhoudelijke aandachtspunten zoals bestuurlijk is overeengekomen. Wel zijn de provinciale toetsing op bestemmingsplannen en de verplichting van de watertoets voor provinciale en gemeentelijke structuurvisies vanwege de vormvrijheid formeel vervallen.

De ontwikkeling die met dit bestemmingsplan mogelijk wordt gemaakt heeft een uiterst kleinschalig en lokaal karakter. Het valt dan ook buiten de reikwijdte van het NWP. Om die reden wordt hier dan ook niet verder op het rijksbeleid ingegaan. Wel wordt onderstaand verder ingegaan op meer lokaal beleid en de Watertoets.

Anders omgaan met water, Waterbeleid voor de 21e eeuw, Ministerie van Verkeer en Waterstaat

Deze nota is uitgegeven door het Ministerie van Verkeer en Waterstaat. De nota heeft als doelstelling een ander waterbeleid te realiseren, aangezien het huidige watersysteem voor de toekomst niet op orde is. Door anders om te gaan met water moet er geanticipeerd worden op een stijgende zeespiegel een stijgende rivierafvoer, bodemdaling en een toename van de neerslag.

Voor de aanpak van het veiligheidsprobleem en de vermindering van de wateroverlast kiest het kabinet enkele hoofdlijnen, waarvan het 'niet afwentelen van waterhuishoudkundige problemen door het volgen van de drietrapsstrategie vasthouden-bergen-afvoeren' tot één van de belangrijkste hoofdlijnen behoort. Water zal, meer dan het nu het geval is, sturend zijn bij de ruimtelijke inrichting en grondgebruik in Nederland. Nieuwe ruimtelijke besluiten mogen de problematiek van veiligheid en wateroverlast niet ongemerkt vergroten. Bij nieuwe ruimtelijke besluiten moeten de gevolgen voor veiligheid en wateroverlast voortaan expliciet in beeld worden gebracht in een aparte paragraaf in de nota van toelichting en onderdeel vormen van de integrale afweging. Dit geldt voor alle fasen van de planontwikkeling.

Waterplan 2010-2015, provincie Utrecht

Het waterhuishoudingplan geeft het waterbeleid weer van de provincie Utrecht. Op 23 november 2009 is het provinciaal Waterplan 2010-2015, inclusief Deelplan Kaderrichtlijn Water, vastgesteld.

In dit waterhuishoudingplan wordt, door middel van een aantal uitgangspunten, het waterbeleid vormgegeven:

  • Een maatschappelijk acceptabel overstromingsrisico. Het risico wordt bepaald door waterstanden op de buitenwateren, bodemdaling, occupatie en geïnvesteerd kapitaal. Hoogwaters zullen vaker voorkomen en de rivierafvoer wordt op termijn bemoeilijkt door een stijgende zeespiegel. Bodemdaling is een voortgaand proces in het westelijk deel van onze provincie en in het Eemland. Bevolkingsomvang en investeringsniveau in onze provincie nemen echter nog steeds toe.
  • Omgaan met wateroverlast èn waterschaarste. Meer neerslag zal vallen in hevigere buien. Afvoer- en bergingsmogelijkheden in het stedelijke en landelijk gebied worden zwaarder belast. Tegelijkertijd vergroten warmere en drogere perioden de vraag naar drink-, irrigatie- en koelwater, terwijl juist dan het aanbod onder druk staat. Onze natuurgebieden mogen niet verdrogen en moeten soortmigratie als gevolg van klimaatverandering kunnen faciliteren.
  • Een sterkere bijdrage van water aan ons leefklimaat. De behoefte aan vaar- en recreatiewater neemt toe. Laat zien dat water de drager is van veel van de Utrechtse landschappen. Maak water zichtbaar!

In het waterplan zijn verschillende kaarten weergegeven, waarvan de volgende relevantie hebben voor dit bestemmingsplan:

afbeelding "i_NL.IMRO.0335.BPMuskplantsoen18-OW01_0009.png"

Figuur Keringen. Waterplan 2010-2015, provincie Utrecht.

afbeelding "i_NL.IMRO.0335.BPMuskplantsoen18-OW01_0010.png"

Figuur Gebiedsfuncties. Waterplan 2010-2015, provincie Utrecht.

De locatie is gelegen in de dijkring 15 (1:2000) en binnen 'stedelijk gebied'. Dit bestemmingsplan verandert de functie van het plangebied niet. Voor de geelgekleurde “Dijkring 15” geldt dat dit theoretisch eens in de 2.000 jaar overstroomd.

Geconcludeerd kan worden dat dit bestemmingsplan niet in strijd is met het beleid zoals neergelegd in het provinciaal Waterplan 2010-2015.

Keur Hoogheemraadschap Stichtse Rijnlanden

Nieuw toegevoegde bebouwing heeft gevolgen voor de snelheid waarmee het regenwater naar de sloten afstroomt. Hetzelfde geldt bij uitbreiding van (erf-)verharding. In de Keur is daarom opgenomen dat het verboden is om zonder watervergunning hemelwater afkomstig van nieuw verhard oppervlak versneld af te voeren. Voor oppervlakken tot 500 m² in stedelijk gebied en 1.000 m² in niet stedelijk gebied gelden algemene regels (Algemene regels Keur nr.14). In het geval dat nieuwe verharding of uitbreiding van bestaande verharding aangebracht wordt boven de gestelde ondergrens (500 m² in stedelijk gebied en 1.000 m² in niet stedelijk gebied) moeten compenserende maatregelen worden getroffen die mogelijke overlast, als gevolg van de toename in verharding, voorkomen.

4.2 Het plangebied

Het Besluit ruimtelijke ordening stelt dat overleg met het waterschap plaats moet vinden tijdens het voorbereiden van een bestemmingsplan (artikel 3.1.1). Ook staat er in dit besluit dat in de toelichting van het bestemmingsplan moet worden beschreven op welke manier rekening is gehouden met de gevolgen voor de waterhuishouding.

Onderdeel van het rijksbeleid 'Waterbeheer 21ste eeuw' is de watertoets. De watertoets moet ervoor zorgen dat alle wateraspecten expliciet worden betrokken bij alle waterhuishoudkundig relevante ruimtelijke plannen en besluiten van Rijk, provincies en gemeenten. Dit zijn onder meer de op de Wet op de Ruimtelijke Ordening (WRO) gebaseerde ruimtelijke plannen. In 2003 is in het Besluit op de ruimtelijke ordening (BRO) de watertoets verankerd. De wetswijziging verplicht om een waterparagraaf op te nemen in de toelichting van de ruimtelijke plannen. Voorliggende paragraaf geeft hieraan invulling.

Waterkwantiteit
In het bestemmingsplan zijn geen waterlopen aanwezig. De met dit bestemmingsplan mogelijk gemaakte uitbouw voorziet planologisch gezien niet in een toename van verharding. Doordat het woonperceel in beginsel reeds geheel kan worden verhard. Bovendien blijft het totaal aan bij-, aan en uitbouwen binnen het reeds mogelijk gemaakte totaal van 60% het woonperceel. Het bestemmingsplan heeft derhalve geen gevolgen voor de waterkwantiteit.

Waterkwaliteit

In het bestemmingsplan wordt niet voorzien in maatregelen die nadelige gevolgen kunnen hebben voor de waterkwaliteit omdat geen (nieuwe) vervuilend gebruik of bebouwing mogelijk wordt gemaakt.

Riolering
Het algemeen beleid is dat schoon- en vuilwaterstromen worden gescheiden en gescheiden blijven tot aan het overnamepunt op de perceelsgrens. Schoon regenwater van gevels en daken dient bij voorkeur te worden benut (toiletspoeling, daktuinen e.d.) of te worden afgevoerd naar de bodem (infiltratie) en indien niet mogelijk of gewenst is dan rechtstreeks afgevoerd te worden naar het oppervlaktewater via een regenwaterriool. Het bestemmingsplan voorziet in dit kader niet in wijzigingen op dit punt.

Grondwater

Een eigenaar van een erf mag geen hinder aan eigenaren van andere erven toebrengen in de loop, hoeveelheid of hoedanigheid van over het erf stromend water of van het grondwater en dergelijke. Hier is in dit bestemmingsplan geen sprake van.

In geval van bouwactiviteiten dient er rekening gehouden te worden dat het niet is toegestaan om grondwateroverlast te veroorzaken door het aanbrengen van ondergrondse constructies en dat het verboden is om grondwater te onttrekken met als gevolg dat er sprake is van een grondwaterstandverlaging in de omgeving. Hier is in dit bestemmingsplan geen sprake van.

Belangrijk is dat ruimtelijke ontwikkelingen geen verslechtering van de oorspronkelijke grondwaterstand en -stroming mag veroorzaken (bodemdaling, grondwateroverlast en - onderlast, paalrot, zettingen). Daarom is versnelde afvoer van grondwater naar oppervlakte (permanente drainage) in principe niet toelaatbaar. De sponswerking van de bodem dient zoveel als mogelijk te worden benut.

Het gebruik van kunstmatige ontwateringmiddelen (drains en grindkoffers) is in principe niet toegestaan. Het grondwaterpeil is daarom bepalend voor de landgebruiksfunctie. Dit betekent dat het landgebruik zo wordt ingericht dat de actuele grondwater situatie gunstig is voor de betreffende landgebruiksfunctie (natuur voor hoge grondwaterstand, stedelijk gebied voor lagere grondwaterstanden).

Consequenties plangebied

Het watertoetsproces is digitaal doorlopen via www.dewatertoets.nl voor het project A.C.M. Muskeijnplantsoen 18 op datum (22-2-2014). Hoogheemraadschap De Stichtse Rijnlanden is via deze website door de initiatiefnemer van de ruimtelijke ontwikkeling op de hoogte gebracht van het plan. Uit de analyse blijkt dat er geen sprake is van een waterbelang.

De beoogde ontwikkeling heeft, mede gelet op de aard en beperkte omvang, geen gevolgen voor de waterhuishouding. Het Hoogheemraadschap de Stichtse Rijnlanden stelt in haar beleidsregels (Keur) ook dat bij een verhardingstoename vanaf 500 m² in stedelijk gebied watercompensatie dient plaats te vinden. De uitbouw die met dit bestemmingsplan mogelijk wordt gemaakt beslaat slecht 20 m². Deze uitbreiding is, qua oppervlakte, al juridisch-planologisch mogelijk in het geldende bestemmingsplan. Er is dus geen watercompensatie nodig.

Hoofdstuk 5 Milieu

5.1 Bedrijven en milieuzonering

Bedrijven zijn milieubelastende bestemmingen die hinder kunnen veroorzaken ten opzichte van milieugevoelige bestemmingen, zoals wonen. Om deze hindersituaties te voorkomen dient bij een bestemmingsplan(wijziging) waarin milieubelastende en milieugevoelige bestemmingen in elkaars nabijheid mogelijk worden gemaakt in principe uit te worden gegaan van (voldoende) scheiding van functies. Daartoe zijn in de VNG-brochure Bedrijven en Milieuzonering (2009; hierna te noemen B&M) richtafstanden opgesteld. Deze afstanden geven voor gemiddelde bedrijfssituaties aan op welke afstand geen hinder is te verwachten. De meer gedetailleerde afstemming voor de voorkoming van milieuhinder vindt vervolgens plaats in het kader van de Wet milieubeheer.

De betreffende VNG-publicatie vormt dus ook geen wettelijk kader. Op basis van de, in de publicatie opgenomen richtafstanden, wordt in dit bestemmingsplan een inschatting gemaakt van mogelijk overlast als gevolg van de nabijheid tussen milieubelastende bedrijvigheid en milieugevoelige bestemmingen.

Deze richtafstanden in B&M zijn naast de factoren aard en omvang van het bedrijf mede afhankelijk van de omgeving. Voor een rustige woonomgeving gelden andere afstanden (strengere eisen) dan voor andere gebieden, zoals drukke woonwijken, gemengde gebieden en landelijke gebieden. Het bestemmingsplangebied kan worden gekarakteriseerd als een rustige woonwijk. Een overschrijding van de wettelijke normen (qua geluidsbelasting, stof, geur en gevaar), zoals besproken in voorgaande en volgende hoofdstukken, is niet toelaatbaar.

Consequentie plangebied

Het plangebied is gelegen in een rustige woonwijk. In de nabije omgeving zijn geen milieubelastende functies aanwezig. Er zijn dan ook geen consequenties voor het bestemmingsplan

5.2 Geluid

5.2.1 Wegverkeerslawaai

De Wet geluidhinder (Wgh) bepaalt dat er akoestisch onderzoek verricht dient te worden gedurende de bestemmingsplanprocedure, indien het bestemmingsplan het volgende mogelijk maakt:

  • 1. nieuwe infrastructuur;
  • 2. nieuwe geluidsgevoelige functies.

De Wgh geeft aan dat wegen, met een rijsnelheid van 50 km/uur of hoger, wettelijke onderzoekzones heeft. Indien er binnen deze zones een nieuwe geluidgevoelige functie juridisch-planologisch wordt mogelijk gemaakt, dient er een akoestisch onderzoek plaats te vinden. Als uit het akoestisch onderzoek blijkt dat de voorkeursgrenswaarde van 48 dB op de gevel van een nieuwe geluidsgevoelige functie wordt overschreden, zal er een hogere grenswaarde vastgesteld moeten gaan worden (uitgaande dat er geen maatregelen te treffen zijn, waardoor de gevelbelasting wel aan de voorkeursgrenswaarde voldoet). Dit is een bevoegdheid van het college van burgemeester en wethouders. Het ontwerpbesluit van de hogere grenswaarde dient gelijktijdig met het ontwerpbestemmingsplan ter inzage gelegd te worden.

Consequentie plangebied

Er wordt geen nieuwe geluidsgevoelige functie toegevoegd. De uitbouw ligt in een rustig woongebied waar een 30 km-regime is gevestigd. De doorgaande weg met hogere snelheden (50km/uur of sneller) liggen op ruime afstand; de meest nabijgelegen 50 km-weg is de Bovenkerkweg op ongeveer 100 meter. Bovendien wordt eventuele geluidshinder beperkt door tussengelegen woningen. Met de uitbreiding van de woning wordt de woonfunctie vergroot. Akoestisch onderzoek is daarom niet nodig.

5.2.2 Industrielawaai

Op grond van artikel 40 van de Wgh kunnen industrieterreinen een zone hebben. In het gebied waar dit bestemmingsplan betrekking op heeft is géén industrieterrein gelegen met een zone op grond van artikel 40 Wgh. Op grond van artikel 44 Wgh bedraagt de voorkeursgrenswaarde voor industrielawaai 50 dB(A). Op grond van artikel 45 Wgh kan voor nieuwe woningen een hogere waarde worden vastgesteld van 55 dB(A) en voor bestaande woningen 60 dB(A). In het bestemmingsplangebied zijn bedrijventerreinen gesitueerd. Om het leefklimaat voor omwonenden in beeld te brengen wordt in de verdere uitwerking de geluidsbelasting van de bedrijven op de nieuw te bouwen woningen onderzocht.

Consequentie plangebied

Het plangebied ligt niet binnen een hindercontour van industrielawaai. Industrielawaai speelt daarom geen rol voor dit bestemmingsplan.

5.2.3 Railverkeer

Op grond van artikel 1 Wgh hebben spoorwegen een zone. Deze zone is weergegeven op een krachtens artikel 1.3 en 1.4 van het Besluit geluidhinder (Bgh) vastgestelde kaart.

Consequentie plangebied

In de omgeving van het plangebied is geen spoorweg aanwezig. Spoorweglawaai speelt daarom geen rol voor dit bestemmingsplan.

5.3 Luchtkwaliteit

De belangrijkste wet- en regelgeving voor luchtkwaliteit is vanaf 15 november 2007 vastgelegd in hoofdstuk 5, Titel 5.2 van de Wet milieubeheer (Luchtkwaliteitseisen). Deze wet vervangt het Besluit luchtkwaliteit van november 2005. De wet is één van de maatregelen die de overheid heeft getroffen om:

  • 1. Negatieve effecten op de volksgezondheid als gevolg van te hoge niveaus van luchtverontreiniging aan te pakken;
  • 2. Mogelijkheden voor ruimtelijke ontwikkeling te creëren ondanks de overschrijdingen van de Europese grenswaarden voor luchtkwaliteit.

In de wet zijn onder andere regels en grenswaarden opgenomen voor zwaveldioxide en stikstofoxiden, zwevende deeltjes, lood, koolmonoxide en benzeen. Van deze grenswaarden mag niet worden afgeweken. De plandrempels zijn voor de jaren 2007 tot en met 2010 voor alle stoffen, behalve stikstofdioxide, gelijk aan de grenswaarden. Verder is er met deze wet een wettelijke basis voor een Nationaal Samenwerkingsprogramma Luchtkwaliteit (afgekort NSL) opgesteld.

Het Nationaal Samenwerkingsprogramma Luchtkwaliteit

Het Nationaal Samenwerkingsprogramma Luchtkwaliteit (NSL) is de kern van de Wet luchtkwaliteit. Het NSL is een bundeling van alle gebiedsgerichte programma's en alle Rijksmaatregelen om de luchtkwaliteit te verbeteren. Het NSL bevat alle maatregelen die de luchtkwaliteit verbeteren en alle ruimtelijke ontwikkelingen die de luchtkwaliteit in betekenende mate verslechteren. Het Rijk coördineert het nationale programma. Het Rijk maakt met provincies en gemeenten afspraken over toetsbare resultaten; in de gebieden moeten de normen voor luchtkwaliteit stap voor stap dichterbij komen. De overheden kunnen op die resultaten worden afgerekend. Het NSL is op 1 augustus 2009 in werking getreden.

De uitvoeringsregels behorende bij de wet zijn vastgelegd in Algemene Maatregelen van Bestuur (AMvB) en Ministeriële Regelingen (mr) die gelijktijdig met de „Wet luchtkwaliteit. in werking zijn getreden waaronder de AMvB en Ministeriele Regeling niet in betekenende mate (afgekort NIBM).

AMvB en Regeling niet in betekende mate (NIBM)

De Wet luchtkwaliteit maakt onderscheid tussen grote en kleine ruimtelijke projecten. Een project is klein als het slechts in geringe mate (ofwel niet in betekenende mate) leidt tot een verslechtering van de luchtkwaliteit. De grens ligt bij een verslechtering van maximaal 3% van de grenswaarden voor de luchtkwaliteit. Een verslechtering van maximaal 3% komt overeen met een nieuwbouwproject van 1.500 woningen. Grotere projecten daarentegen kunnen worden opgenomen in het NSL-programma, mits ook overtuigend wordt aangetoond dat de effecten van dat project worden weggenomen door de maatregelen van het NSL.

De AMvB en Regeling “niet in betekenende mate” bevatten criteria waarmee kan worden bepaald of een project van een bepaalde omvang wel of niet als “in betekenende mate” moet worden beschouwd. Deze AMvB is gelijktijdig met het NSL in werking getreden.
NIBM projecten kunnen zonder toetsing aan de grenswaarden voor het aspect luchtkwaliteit uitgevoerd worden. Ook als het bevoegd gezag op een andere wijze, bijvoorbeeld door berekeningen, aannemelijk kan maken dat het geplande project NIBM bijdraagt, kan toetsing van de luchtkwaliteit achterwege blijven.

Consequentie plangebied

De beoogde ontwikkeling draagt ´niet in betekende mate´ bij aan een verslechtering van de luchtkwaliteit. Er zijn dan ook geen consequenties voor het plangebied.

5.4 Externe veiligheid

5.4.1 Kader / wetgeving

Besluit externe veiligheid inrichtingen

Het beleid voor externe veiligheid is gericht op het beperken en beheersen van risico's voor de omgeving vanwege handelingen met gevaarlijke stoffen. De handelingen kunnen zowel betrekking hebben op het gebruik, de opslag en de productie, als op het transport van gevaarlijke stoffen. Uit het Besluit externe veiligheid inrichtingen (Bevi) en de richtlijnen voor vervoer gevaarlijke stoffen vloeit de verplichting voort om in ruimtelijke plannen in te gaan op de risico's in het plangebied ten gevolge van handelingen met gevaarlijke stoffen. De risico's dienen te worden beoordeeld op twee maatstaven, te weten het plaatsgebonden risico en het groepsrisico.

Plaatsgebonden risico

Het plaatsgebonden risico beschrijft de kans per jaar dat een onbeschermd individu komt te overlijden door een ongeval met gevaarlijke stoffen. Het plaatsgebonden risico wordt uitgedrukt in risicocontouren rondom de risicobron (bedrijf, weg, spoorlijn etc.).

Groepsrisico

Het groepsrisico beschrijft de kans dat een groep van 10 of meer personen gelijktijdig komt te overlijden ten gevolge van een ongeval met gevaarlijke stoffen. Het groepsrisico geeft een indicatie van de maatschappelijke ontwrichting in geval van een ramp. Het groepsrisico wordt uitgedrukt in een grafiek, waarin de kans op overlijden van een bepaalde groep (bijvoorbeeld 10, 100 of 1000 personen) wordt afgezet tegen de kans daarop. Voor het groepsrisico geldt de oriëntatiewaarde als ijkpunt in de verantwoording (géén norm).

Voor elke verandering van het groepsrisico (af- of toename) in het invloedsgebied moet verantwoording worden afgelegd, over de wijze waarop de toelaatbaarheid van deze verandering in de besluitvorming is betrokken. Samen met de hoogte van het groepsrisico moeten andere kwalitatieve aspecten worden meegewogen in de beoordeling van het groepsrisico. Onder deze aspecten vallen zelfredzaamheid en bestrijdbaarheid. Onderdeel van deze verantwoording is overleg met (advies vragen aan) de regionale brandweer.

(Beperkt) kwetsbare objecten

Er moet getoetst worden aan het Bevi en de richtlijnen voor vervoer gevaarlijke stoffen wanneer bij een ontwikkeling (beperkt) kwetsbare objecten worden toegestaan. (Beperkt) kwetsbare objecten zijn o.a. woningen, scholen, ziekenhuizen, hotels restaurants.

Risicovolle activiteiten

In het kader van het plan moet bekeken worden of er in of in de nabijheid van het plan sprake is van risicovolle activiteiten (zoals Bevi-bedrijven, BRZO-bedrijven en transportroutes) of dat risicovolle activiteiten worden toegestaan.

Besluit externe veiligheid Buisleidingen

Per 1 januari 2011 is het Besluit externe veiligheid Buisleidingen (Bevb) in werking getreden. Het Bevb bevat regels voor de exploitant, regels voorgemeenten over het opnemen van buisleidingen in bestemmingsplannen en regels voor het melden van ongewone voorvallen. De afweging van de externe veiligheidssituatie van buisleidingen heeft op deze manier een grondslag in de Wet milieubeheer (Wm) en in de Wro. Daarnaast vervangt het Bevb de circulaires Zonering langs hogedrukaardgasleidingen (1984) en Zonering langs transportleidingen voor brandbare vloeistoffen van de K1-, K2- en K3-categorie (1991).

In het Bevb is geen sprake meer van veiligheids-/bebouwings- en toetsingsafstanden zoals deze werden voorgeschreven in de circulaires. Het Bevb gaat uit van grens- en richtwaarden voor het plaatsgebonden risico (PR) en een verantwoordingsplicht van het groepsrisico (GR). De regeling voor buisleidingen is hiermee vergelijkbaar met de regeling voor inrichtingen zoals vastgelegd in het Besluit externe veiligheid inrichtingen (Bevi). Waar relevant wordt in dit Handboek aangegeven op welke punten het Bevb afwijkt van de systematiek van het Bevi.

Het gaat bij externe veiligheid omtrent buisleidingen niet alleen om de gronden waar de buisleidingen zelf liggen met de belemmeringenstrook, maar ook om de zones aan beide zijden van de belemmeringenstrook waar het om veiligheidsredenen gewenst is bepaalde functies en gebouwen wel of niet toe te staan en nadere eisen te stellen.

In en om het plangebied zijn geen buisleidingen aanwezig welke een beperking hebben voor het plangebied.

afbeelding "i_NL.IMRO.0335.BPMuskplantsoen18-OW01_0011.png" afbeelding "i_NL.IMRO.0335.BPMuskplantsoen18-OW01_0012.png"

Uitsnede risicokaart, Interprovinciaal Overleg (bron : nederland.risicokaart.nl)

Op de uitsnede van de risicokaart is te zien dat in of in de nabijheid van de het plangebied geen risicovolle activiteiten aanwezig zijn (toegestaan). In rood zijn de risicodragende bedrijven en inrichtingen weergegeven. Op de uitsnede zijn er drie zichtbaar; te weten een opslag aan de IJsselveld 20, een bovengrondse tank aan de M A Reinaldaweg 70 en het risicodragend bedrijf aan de Blokland 95. Zij hebben alle drie geen invloed op het plangebied.

Ook het gevaarlijk transport over IJsselveld heeft geen gevolgen voor de externe veiligheid binnen het plangebied. Er is sprake van ruim voldoende afstand tot het plangebied.

Consequentie plangebied

Het plangebied ligt buiten de invloedsgebieden van bedrijven of buisleidingen. In de nabijheid vindt ook geen transport van gevaarlijke stoffen plaats. Externe veiligheidsaspecten spelen daarmee geen belemmerende rol voor dit bestemmingsplan.

5.5 Bodem

De bodemkwaliteit is in het kader van een bestemmingsplan van belang indien er sprake is van functieveranderingen of een ander gebruik. De bodem moet geschikt zijn voor de nieuwe functie. Ook wanneer werkzaamheden plaatsvinden die (grootschalige) verstoringen in de bodem tot gevolg hebben, is er de verplichting te onderzoeken wat de kwaliteit van de bodem is.

Het doel van de Wet Bodembescherming is het behoud en de verbetering van de milieu-hygiënische bodemkwaliteit. In geval van graafwerkzaamheden is een bodemonderzoek aan de orde om te bepalen of eventuele vervuilde grond gesaneerd dient te worden.

De grond is reeds in gebruik ten behoeve van de functie wonen. Alleen wanneer er sprake is van een omvangrijke bodemverstoring is bodemonderzoek noodzakelijk. Het is dus afhankelijk van de omvang van de uitbouw. Tot 50 m² is een bodemonderzoek niet nodig, tenzij er sprake is van een verdachte locatie. Het plangebied wordt niet aangemerkt als verdachte locatie.

Consequentie voor plangebied

De mogelijk gemaakte uitbouw beslaat minder dan 25 m². De bouwplannen duiden niet op significante bodemverstoring. Bovendien wordt de locatie als 'niet verdacht' aangemerkt. Bodemonderzoek is daarom niet noodzakelijk.

Hoofdstuk 6 Omgevingsaspecten

6.1 Flora en fauna

Flora en faunawet

Met de Flora- en faunawet worden dieren en planten beschermd. De bepalingen ten aanzien van de soortenbescherming uit de Vogelrichtlijn en de Habitatrichtlijn zijn overgenomen in de Flora- en faunawet. In de wet is onder meer bepaald dat beschermde dieren niet gedood, gevangen of verontrust mogen worden en planten niet geplukt, uitgestoken of verzameld mogen worden. De Flora- en faunawet gaat uit van het 'nee, tenzij'-beginsel. Dit betekent dat genoemde handelingen ten aanzien van planten en dieren niet mogelijk zijn, behalve onder strikte voorwaarden. Het beschermingsregime is afhankelijk van de status van de soort.

Sinds februari 2005 bestaat vrijstelling voor een lijst van veel voorkomende beschermde soorten ('tabel 1'). Hiervoor hoeft bij ruimtelijke ontwikkelingen geen ontheffing aangevraagd te worden. Bij negatieve effecten op strikt beschermde soorten ('tabel 3') is het verplicht voor overtreding van de verbodsbepalingen een ontheffing met een uitgebreide toets van de Flora- en faunawet aan te vragen bij Dienst Regelingen van het Ministerie van LNV. Voor effecten op soorten van 'tabel 2' (onder andere alle vogelsoorten) moet worden gewerkt volgens een door de minister goedgekeurde gedragscode. Zolang deze niet aanwezig is, is voor overtreding van de verbodsbepalingen een toets bij de ontheffingsaanvraag nodig.

Vogel- en Habitatrichtlijnen

De vogelrichtlijn beschermt de vogelsoorten die worden genoemd in de Bijlage I van de richtlijn. De Habitatrichtlijn omvat zowel de bescherming van planten en dieren in gebieden die worden aangeduid als Habitatgebied, als ook de bescherming van verschillende planten- en diersoorten op zich. De Vogel- en Habitatrichtlijngebieden zijn samengevoegd in “Natura 2000”.

Het plangebied valt niet binnen een Natura 2000 gebied. Ook ligt er geen Natura 2000 gebied in de directe omgeving van het plangebied

Consequentie voor plangebied

Gezien de ligging in een woonwijk is het niet aannemelijk dat hier beschermde soorten voorkomen. Indien deze hier onverwachts toch voorkomen, wordt het voortbestaan van de soorten niet aangetast. De met dit bestemmingsplan mogelijk gemaakte ontwikkeling is te kleinschalig om van invloed te zijn.

6.2 Archeologie en cultuurhistorie

6.2.1 Monumentenwet

De huidige juridische basis voor het omgaan met archeologische waarden is vastgelegd in de Monumentenwet uit 1988. De Provincie Zuid-Holland en de Rijksdienst voor Archeologie, Cultuurhistorie en Monumenten (RACM) hebben voor wat betreft het aspect archeologie, formeel een adviserende en toetsende rol op basis van de Wet ruimtelijke ordening. Volgens de Monumentenwet 1988 moeten (toevals) vondsten worden gemeld bij de burgemeester. Deze verwittigt het Rijk. In 1998 is het Verdrag van Valletta door de Staten Generaal geratificeerd. Het verdrag is geïmplementeerd door inwerkingtreding van de Wet op de archeologische monumentenzorg per 1 september 2007. De wet regelt de bescherming van archeologisch erfgoed in de bodem, de inpassing ervan in de ruimtelijke ontwikkeling en de financiering van opgravingen. Uitgangspunt is dat 'de veroorzaker betaalt'.

Consequentie voor plangebied

Het pand aan het A.C.M. Muskeijnplantsoen 18 is niet aangewezen als monument. Er zijn dus ook geen consequenties voor het plangebied.

6.2.2 Nota Belvedere

Het beleid in de Nota Belvedère (Ministeries van OCW, VROM, LNV, V&W, 1999) is gericht op het scheppen van goede voorwaarden om de cultuurhistorische identiteit meer van invloed te laten zijn op de inrichting van de ruimte en expliciet te betrekken bij ruimtelijke ontwikkelingen en -planvormingsprocessen. Het doel is tweeledig, enerzijds verbetering van de kwaliteit van de leefomgeving en anderzijds behoud van het cultureel erfgoed. Dit wordt onder andere bereikt door het herkenbaar houden van de cultuurhistorische identiteit van zowel het stedelijk als het landelijk gebied, en het erkennen van deze kwaliteit als uitgangspunt voor verdere ontwikkelingen. Het centrale thema is 'behoud door ontwikkeling'. In de Nota zijn zogeheten Belvedèregebieden aangewezen. Dit zijn in cultuurhistorisch opzicht de meest waardevolle gebieden van Nederland waarbij wordt gestreefd om te komen tot een consistente inbreng vanuit het cultuurbeleid in het ruimtelijk beleid.

Het plangebied is gelegen in de Lopikerwaard, dat als Belvedèregebied is aangewezen. De Lopikerwaard vormt samen met de Krimpenerwaard, landschappelijk qua landschap en schaal één geheel, en daarmee het grootst aaneengesloten veenweidegebied van Nederland. Ze zijn op de Cultuurhistorische Waardenkaart aangegeven als gebieden met hoge gecombineerde cultuurhistorische waarden. Op de Stapelkaart zijn ze aangegeven als gebieden met hoge historisch-geografische waarden. De karakteristieke lange en smalle kavels van het slagenlandschap zijn typerend voor de cope-ontginningen van het veen. Het veenweidelandschap wordt gezien als fysieke drager met als specifieke kenmerken de visuele openheid en weidsheid. In het rivierbedijkingslandschap zijn de rivierdijken, karakteristieke lintbebouwing en dijkmagazijnen belangrijke cultuurhistorische waarden. Natuurontwikkelingsplannen worden bij voorkeur gebaseerd op cultuurhistorische waarden. In de toekomst is een betere inbreng van de cultuurhistorische waarden (onder andere het verkavelingspatroon, het slotenstelsel en de visuele openheid) bij landinrichting en natuurontwikkeling noodzakelijk om de waarden in stand te houden.

Consequentie plangebied

Het Belvedèregebied Lopikerwaard is vanuit landschappelijke oogpunt (cultuurhistorisch) waardevol. Het plangebied ligt binnenin de kern. Het voorliggende bestemmingsplan heeft geen invloed op (de genoemde kenmerken van) het Belvedèregebied.

6.2.3 Gemeentelijke archeologiebeleid

In 2011 heeft de gemeenteraad van de gemeente Montfoort het Archeologiebeleid vastgesteld. Aanleiding is de Wet op de Archeologische Monumentenzorg. Deze wet, die op 1 september 2007 van kracht is geworden, geeft aan dat de gemeente inzicht dient te hebben in de (te verwachten) archeologische waarden binnen haar grondgebied. Tevens is het voor de gemeente gewenst om bij geplande bodemingrepen en wijzigingen in bestemmingsplannen de archeologie al in een vroeg stadium bij de planvorming te kunnen betrekken. Hiertoe is het formuleren van een gemeentelijk archeologiebeleid essentieel.

Voor het gehele grondgebied van de gemeente is een archeologische inventarisatie uitgevoerd en vervolgens een archeologische waarden en verwachtingenkaart en een maatregelenkaart opgesteld. Op de waarden- en verwachtingenkaart staan naast de reeds bekende archeologische waarden ook de te verwachte archeologische waarden in de vorm van zones met een bepaalde trefkans. Hiermee wordt een beeld verkregen waar archeologische sporen en vondsten in de bodem aanwezig kunnen zijn. Voor de verschillende archeologische verwachtingswaarden is een archeologiebeleid opgesteld. De archeologische maatregelenkaart is afgeleid uit de archeologische waarden- en verwachtingenkaart, waarbij de beleidsadviezen in de legenda zijn opgenomen.

afbeelding "i_NL.IMRO.0335.BPMuskplantsoen18-OW01_0013.jpg" afbeelding "i_NL.IMRO.0335.BPMuskplantsoen18-OW01_0014.png"

Waarden en verwachtingenkaart, Archeologiebeleid gemeente Montfoort (2011)

afbeelding "i_NL.IMRO.0335.BPMuskplantsoen18-OW01_0015.jpg" afbeelding "i_NL.IMRO.0335.BPMuskplantsoen18-OW01_0016.png"

Maatregelenkaart, Archeologiebeleid gemeente Montfoort (2011)

Het plangebied is gelegen in de zone 'geen archeologische verwachting' en valt onder de categorie gebieden 'geen archeologische verwachting'. In deze gebieden geldt dat is vastgesteld dat geen bodemarchief (meer) aanwezig is, of waar behoudenswaardige archeologische resten zijn veiliggesteld door opgraving. De beleidsdoelstelling voor deze beleidscategorie is een vrijgave voor andere ruimtelijke functies.

Consequentie plangebied

Op basis van het archeologiebeleid kan worden geconcludeerd dat archeologisch onderzoek niet nodig is.

Hoofdstuk 7 Juridische toelichting

7.1 Algemeen

Het juridisch bindende gedeelte van het bestemmingsplan bestaat uit de verbeelding en de regels (zogenaamde planregels). De regels zijn gerelateerd aan de verbeelding, zodat kaart en regels ten alle tijden in onderlinge samenhang dienen te worden bezien en toegepast.

Verbeelding

De verbeelding heeft een ondersteunende rol voor toepassing van de regels alsmede de functie van visualisering van de bestemmingen. Op de verbeelding hebben alle gronden binnen het plangebied een bestemming gekregen. Binnen een bestemming kunnen nadere aanduidingen zijn aangegeven. Deze aanduidingen hebben slechts juridische betekenis indien, en voor zover, deze in de regels daaraan wordt gegeven. Soms heeft een aanduiding juridisch gezien geen enkele betekenis en is uitsluitend op de verbeelding aangegeven ten behoeve van de leesbaarheid van de kaart (bijvoorbeeld topografische gegevens). De verbeelding vormt samen met de regels het voor de burgers en overheid bindende deel van het bestemmingsplan.

Regels

De regels bevatten het juridisch instrumentarium voor het regelen van het gebruik van de gronden, bepalingen omtrent de toegelaten bebouwing, regelingen betreffende het gebruik van aanwezige en/of op te richten bouwwerken. De regels zijn onderverdeeld in meerdere hoofdstukken. Per hoofdstuk zullen de diverse bepalingen artikelsgewijs worden besproken.

Toelichting

De toelichting heeft géén bindende werking; de toelichting maakt juridisch ook geen onderdeel uit van het bestemmingsplan, maar heeft wel een belangrijke functie bij de weergave en onderbouwing van het plan en ook bij de uitleg van bepaalde bestemmingen en regels. Door de grote flexibiliteit, of beter vrijheid in de regels, kan de rechtszekerheid van belanghebbenden in het gedrang komen. In de toelichting dienen derhalve duidelijk de beleidsintenties te worden aangegeven met betrekking tot het toekomstig grondgebruik. De toelichting heeft echter géén rechtstreeks burgers bindende werking.

7.2 De bestemmingen

De in hoofdstuk 2 genoemde ontwikkeling wordt met het voorliggende bestemmingsplan mogelijk gemaakt. Omdat de plannen reeds concreet zijn, en de milieukundige en economische haalbaarheid is aangetoond, worden de plannen direct (bij recht) opgenomen worden in het bestemmingsplan.

Om onduidelijkheden te voorkomen is ervoor gekozen om een postzegelbestemmingsplan te maken voor het gehele woonperceel en niet slechts alleen de uitbouw. Woonperceel, woning en uitbouw vormen ook één kadastraal geheel.

Tuin

De voor Tuin aangewezen gronden zijn bestemd voor tuin. Binnen deze bestemming zijn uitsluitend bouwwerken, geen gebouwen zijnde, toegestaan. Een erker is mogelijk met een afwijkingsbevoegdheid.

Wonen

Binnen deze bestemming zijn de belangrijkste toegestane functies: woningen, aan huis gebonden beroepen, tuinen en erven. Praktijkruimten, kantoren en zijn (onder voorwaarden) toegestaan.

Hoofdstuk 8 Economische uitvoerbaarheid

8.1 Financiële haalbaarheid

Bij het opstellen van een bestemmingsplan dient de financiële haalbaarheid van het plan aangetoond te worden. Dit om te voorkomen dat recht gaat gelden dat niet realistisch blijkt te zijn.

Op grond van artikel 6.12, lid 1, van de Wet ruimtelijke ordening (Wro) moet voor een bestemmingsplan een exploitatieplan worden vastgesteld indien er sprake is van een 'bouwplan'. Artikel 6.2.1 van het Besluit ruimtelijke ordening (Bro) beschrijft wat een 'bouwplan' is. De raad kan bij een besluit tot vaststelling van een bestemmingsplan, besluiten geen exploitatieplan vast te stellen, wanneer:

  • 1. het verhaal van kosten van de grondexploitatie over de in het plan begrepen gronden anderszins verzekerd is (art. 6.12 Wro);
  • 2. de te verhalen kosten maximaal € 10.000,- zijn;
  • 3. er geen kosten te verhalen zijn (art 6.2.1a Bro).

De 'grex-wet' is erop gericht dat de overheid kosten kan verhalen die gemaakt worden naar aanleiding van een bouwplan. Indien er geen kosten gemaakt worden, hoeven deze ook niet verhaald te worden.

8.2 Plangebied

Uitgangspunt voor de beoogde ontwikkelingen is dat deze voor de gemeente budgetneutraal worden ontwikkeld. Op grond van artikel 6.12, lid 1, Wet ruimtelijke ordening (Wro) in samenhang met artikel 6.12, lid 4, Wro is de gemeenteraad verplicht om de kosten te verhalen en een exploitatieplan vast te stellen gelijktijdig met het besluit (het plan) waarop het exploitatieplan betrekking heeft.

Met onderhavig bestemmingsplan wordt geen bouwplan in de zin van artikel 6.2.1 Bro mogelijk gemaakt. Daarmee is er geen verplichting tot het vaststellen van een exploitatieplan.

De kosten van de realisatie van de aanbouw zijn voor rekening van de initiatiefnemer. De financieel-economische haalbaarheid is hiermee in voldoende mate aangetoond.

Hoofdstuk 9 Maatschappelijke uitvoerbaarheid

9.1 Overleg 3.1.1. Bro

Wettelijk gezien is vooroverleg met het hoogheemraadschap en de provincie noodzakelijk (overeenkomstig artikel 3.1.1. van het Besluit ruimtelijke ordening). Gezien de aard en omvang van de bouwactiviteit zijn er geen provinciale belangen van toepassing. Vooroverleg met de provincie is daarom niet nodig. Zoals in hoofdstuk 4 (water) is aangegeven wordt voldaan aan de belangen van het hoogheemraadschap. Vooroverleg met het hoogheemraadschap is daarom ook niet nodig.

9.2 Inspraak

Per 1 juli 2005 is de Wet Uniforme openbare voorbereidingsprocedure (Wet UOV) in werking getreden. Artikel 6a van de Wet ruimtelijke ordening is daarmee vervallen en daarmee ook de inspraakverplichting. Dat betekent dat ruimtelijke plannen (o.a. bestemmingsplannen) worden voorbereid met toepassing van de UOV (Awb). Dat neemt niet weg dat het de gemeente vrij staat toch inspraak te verlenen b.v. op grond van de gemeentelijke inspraakverordening. In relatie daarmee bepaalt artikel 150 van de Gemeentewet onder meer dat in een gemeentelijke inspraakverordening moet worden geregeld op welke wijze bovenbedoelde personen en rechtspersonen hun mening kenbaar kunnen maken.

In de gemeente Inspraakverordening wordt in Artikel 2 lid 3 gesteld dat geen inspraak wordt verleend ten aanzien van ondergeschikte herzieningen van een eerder vastgesteld beleidsvoornemen. Het voorliggende bestemmingsplan is ondergeschikt ten aanzien van het bestemmingsplan Woonwijken. Er hoeft dan ook geen inspraak te worden verleend.

9.3 Zienswijzen

Overeenkomstig artikel 3.8 van de Wet ruimtelijke ordening wordt uitvoering gegeven aan de eis het ontwerpbestemmingsplan gedurende 6 weken ter inzage te leggen. Gedurende deze periode kan een ieder een zienswijze indienen.