direct naar inhoud van 2.2 Toekomstige situatie
Plan: Wederiksingel
Status: ontwerp
Plantype: bestemmingsplan
IMRO-idn: NL.IMRO.0335.BPWederiksingel-on01

2.2 Toekomstige situatie

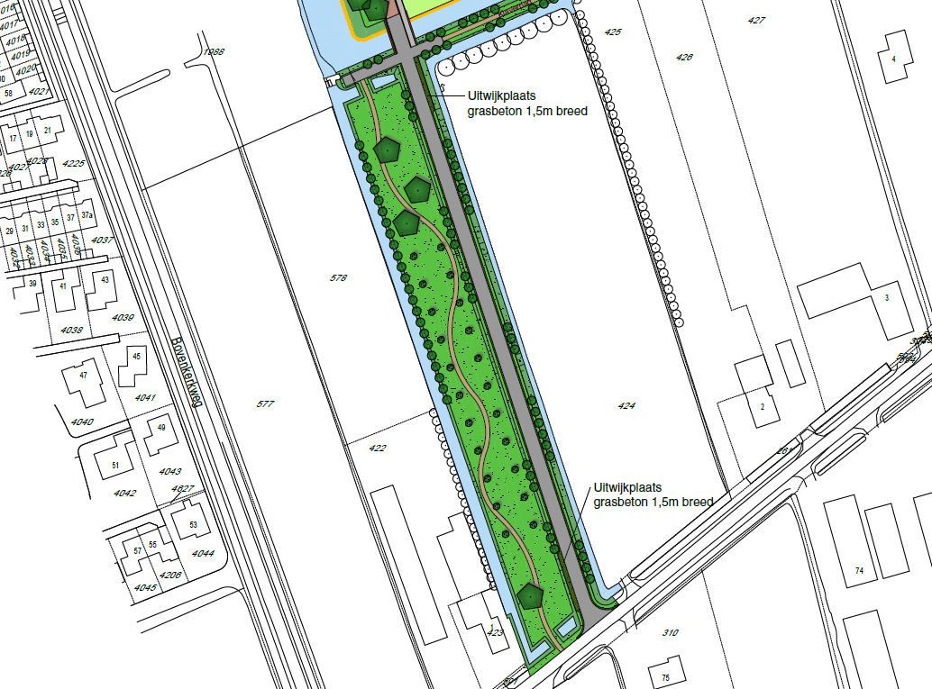
Voor het doortrekken van de Wederiksingel naar de Blokland is een wegontwerp opgesteld. Deze is op onderstaande afbeelding weergegeven.

afbeelding "i_NL.IMRO.0335.BPWederiksingel-on01_0004.png"
Noordelijk plandeel  
afbeelding "i_NL.IMRO.0335.BPWederiksingel-on01_0005.png"
Zuidelijk plandeel  

Wegontwerp verlenging Wederiksingel

De toekomstige weg loopt feitelijk in een rechte lijn van de rotonde Wederiksingel/Wollegras naar de Blokland.

Vanaf de kruising met het Klaverpad worden twee uitwijkplaatsen gerealiseerd. De weg wordt vanaf daar begeleid door een nieuw aan te leggen groenzone langs de westzijde van de weg. In deze groenzone wordt een voet- en fietspad aangelegd. Daarnaast wordt de bestaande watergang doorgetrokken. De weg zal als een gelijkvloerse kruising aansluiten op de Blokland.