direct naar inhoud van Toelichting
Plan: Oudewater, Hoenkoopse Buurtweg 55a
Status: ontwerp
Plantype: wijzigingsplan
IMRO-idn: NL.IMRO.0589.0000210313-OW01

Toelichting

Hoofdstuk 1 Inleiding

1.1 Aanleiding voor het plan

Voorliggend plan betreft een wijziging op het bestemmingsplan "Landelijk gebied Oudewater & Willeskop' " van gemeente Oudewater ten behoeve van de uitbreiding van een melkveehouderijbedrijf aan de Hoenkoopse Buurtweg 55a te Oudewater.

In hoofdstuk 2 wordt het initiatief verder toegelicht en daar is ook een situatietekening van de nieuwe situatie opgenomen.

De voorgenomen ontwikkeling is noodzakelijk om een aantal redenen. De huidige stalcapaciteit is reeds te klein en er is behoefte aan een verdere groei van de veestapel. Dit laatste is mede ingegeven door het feit dat het bedrijf beschikt over bedrijfsopvolging .

De voorgenomen ontwikkeling is strijdig met de regels uit het vigerende bestemmingsplan. Echter, omdat het initiatief past op de locatie en gewenst is, wordt door de gemeente in principe medewerking verleend. Middels voorliggend document wordt gemotiveerd waarom medewerking kan worden verleend op basis van onderzoeken en waarom dat kan in het kader van de Wet ruimtelijke ordening (Wro).

1.2 Plangebied

De planlocatie is circa 3 kilometer ten zuidwesten van Oudewater in het buurtschap Hoenkoop gelegen. Het plangebied maakt deel uit van een bebouwingslint ten zuiden van de Hoenkoopse Buurtweg. De betreffende locatie is kadastraal bekend onder gemeente Oudewater, sectie D, nummer 156. In de volgende figuur is de topografische ligging van de planlocatie weergegeven.

afbeelding "i_NL.IMRO.0589.0000210313-OW01_0003.png"
Topografische kaart.
Bron: Topografische Dienst Kadaster.

1.3 Leeswijzer

Dit wijzigingsplan is als volgt opgebouwd:

  • 1. Hoofdstuk 2 zal ingaan op de huidige en gewenste situatie en bevat een beschrijving van de situatie ter plaatse zoals momenteel bekend en de gewenste situatie ter plaatse na realisatie van de plannen van de initiatiefnemer;
  • 2. Hoofdstuk 3 zal ingaan op de vigerende beleidskaders. Hierin worden de plannen van de initiatiefnemer getoetst aan het ruimtelijk beleid van het rijk, de provincie en de gemeente;
  • 3. Hoofdstuk 4 zal ingaan op de toetsing van de plannen van de initiatiefnemer aan de aspecten milieu, ecologie, verkeer en parkeren, archeologie en cultuurhistorie en water. Hierin worden verschillende bureaustudies beschreven en, waar nodig, aanvullende onderzoeken uitgevoerd;
  • 4. Hoofdstuk 5 zal ingaan op de uitvoerbaarheid van het plan;
  • 5. Hoofdstuk 6 gaat tenslotte in op de wijze van bestemmen.

Hoofdstuk 2 Planbeschrijving

In dit hoofdstuk komt het initiatief aan bod. Daartoe wordt eerst inzicht gegeven in de huidige functie(s) en bebouwing in het plangebied. Daarbij wordt mede de relatie met de omgeving betrokken. Daarna wordt het voorgenomen initiatief behandeld.

2.1 Huidige situatie

Het projectgebied ligt aan Hoenkoopse Buurtweg 55a en is gelegen in het landelijk gebied van gemeente Oudewater. Het plangebied bestaat in de huidige situatie uit een bestaand melkveehouderijbedrijf met omliggende weidegronden. De bebouwing bestaat uit een ligboxenstal, een loods en een bedrijfswoning. Achter de ligboxenstal liggen enkele kuilvoeropslagen. De bedrijfswoning is op zeer korte afstand van de openbare weg gelegen.

Het landschap in de omgeving van de projectlocatie bestaat momenteel uit weidegronden en lintbebouwing. Ten oosten en ten westen van het plangebied liggen burgerwoningen.

Het huidige bouwvlak ter plaatse is 1,1 hectare groot. In de volgende figuur is de huidige situatie in een luchtfoto weergegeven.
afbeelding "i_NL.IMRO.0589.0000210313-OW01_0004.png"

Huidige situatie.
Bron: Bingmaps (Microsoft)

2.2 Toekomstige situatie

2.2.1 Ruimtelijke structuur

De initiatiefnemer is voornemens om ten zuiden van de huidige loods een nieuwe ligboxenstal te realiseren. Deze nieuwe stal biedt ruimte voor 145 melkkoeien. Om de bouw op de beoogde locatie te realiseren wordt een tweetal kuilplaten gesloopt. Ter vervaning worden twee nieuwe kuilplaten gerealiseerd met meer capaciteit. De bestaande ligboxstal blijft in gebruik voor het huisvesten van het jongvee

De nieuwe ligboxenstal bestaat uit vier rijen met boxen voor melkkoeien. Tussen de boxen ligt een centrale voergang. De goothoogte bedraagt 3,5 meter en de nokhoogte 9,2 meter. De stal biedt ruimte aan 145. In de stal worden ook andere een afkalfhok, een ziekenboeg een melkstal, een tanklokaal en een machinekamer gerealiseerd. Boven het tanklokaal en de machinekamer komt een opbergzolder. Onder de stal komt een mestkelder. De nieuwe ligboxenstal is in verhouding tot de overige bebouwing op het erf een fors gebouw. Door aan de voorzijde van de stal een uitbouw te realiseren met een lagere nokhoogte wordt de massa van de voorgevel doorbroken. Vanaf de straatzijde wordt de stal voor een groot deel aan het zicht onttrokken door de bestaande ligboxental en loods.

Door de bouw van de ligboxenstal kan een bestaande dam over de watergang ten westen van de stal niet langer worden gebruikt. Ter vervanging wordt tussen de nieuwe stal en de bestaande loods een nieuwe dam gerealiseerd.

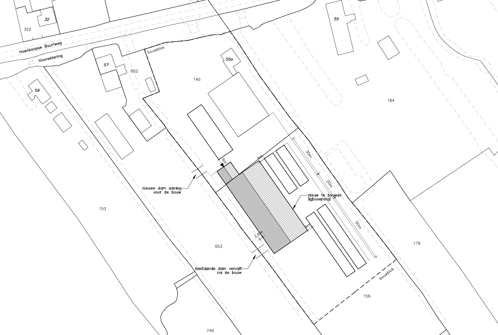
In de volgende figuren is de gewenste situatie in een situatietekening en een gevelaanzicht weergegeven.

afbeelding "i_NL.IMRO.0589.0000210313-OW01_0005.png"
Gewenste situatie.
Bron: DLV Bouw, Milieu en Techniek B.V.

afbeelding "i_NL.IMRO.0589.0000210313-OW01_0006.png"

Voorgevel ligboxenstal
Bron: DLV Bouw, Milieu en Techniek B.V.

Het huidige bouwvlak is niet groot genoeg om de voorgenomen ontwikkeling mogelijk te maken. Om de ontwikkeling mogelijk te maken wordt het bestemmingsplan gewijzigd in die zin dat het bouwvlak wordt vergroot tot een omvang van 1,5 hectare.

Hoofdstuk 3 Beleidskader

3.1 Rijksbeleid

3.1.1 Besluit algemene regels ruimtelijke ordening

Op 17 december 2011 is de Algemene Maatregel van Bestuur (AMvB) Ruimte (gedeeltelijk) in werking getreden. Deze nieuwe AMvB Ruimte heeft de eerdere ontwerp AMvB Ruimte 2009 vervangen. Juridisch wordt de AMvB Ruimte aangeduid als Besluit algemene regels ruimtelijke ordening (Barro).

In het Barro zijn de nationale belangen die juridische borging vereisen opgenomen. Het Barro is gericht op doorwerking van de nationale belangen in gemeentelijke bestemmingsplannen. Het Barro is deels opgebouwd uit hoofdstukken afkomstig van de ontwerp AMvB Ruimte die eind 2009 is aangeboden en deels uit nieuwe onderwerpen.

In het Barro wordt een aantal projecten die van nationaal belang zijn genoemd en met behulp van digitale kaartbestanden exact ingekaderd. Per project worden vervolgens regels gegeven, waaraan bestemmingsplannen zullen moeten voldoen.

Het besluit bepaalt tevens:

"Voor zover dit besluit strekt tot aanpassing van een bestemmingsplan dat van kracht is, stelt de gemeenteraad uiterlijk binnen drie jaar na het tijdstip van inwerking van dit besluit een bestemmingsplan vast met inachtneming van dit besluit."

Volgens de toelichting bij dit artikel geldt als hoofdregel, dat de regels van het Barro alleen van toepassing zijn wanneer na inwerkingtreding van het Barro een nieuw bestemmingsplan voor het eerst nieuwe ontwikkelingen mogelijk maakt. Alleen wanneer het Barro expliciet een aanpassing van bestemmingsplannen vergt, moet dat binnen drie jaar gebeuren.

In het Barro zijn voorlopig zes projecten van nationaal belang beschreven:

  • Mainport ontwikkeling Rotterdam;
  • Kustfundament;
  • Grote rivieren;
  • Waddenzee en Waddengebied;
  • Defensie;
  • Erfgoederen van uitzonderlijke universele waarde.

Binnenkort zullen nog volgen:

  • Hoofdwegen en hoofdspoorwegen;
  • Ektriciteitsvoorziening;
  • Buisleidingen van nationaal belang voor vervoer van gevaarlijke stoffen;
  • Ecologische hoofdstructuur;
  • Primaire waterkeringen buiten het kustfundament;
  • IJsselmeergebied.

Op termijn zal ook nog volgen, blijkens publicaties van de Rijksoverheid, een onderwerp “duurzame verstedelijking”.

Volgens de toelichting van de Rijksoverheid draagt het Barro bij aan versnelling van de besluitvorming bij ruimtelijke ontwikkelingen van nationaal belang en “vermindering van de bestuurlijke drukte”.
De bedoeling is duidelijk: belemmeringen die de realisatie van de genoemde projecten zouden kunnen frustreren of vertragen worden door het Barro op voorhand onmogelijk gemaakt. Dat zal inderdaad kunnen leiden tot een versnelde uitvoering van die projecten.

Daar staat tegenover dat de regelgeving voor lagere overheden weer wat ingewikkelder is geworden; gemeenten die een bestemmingsplan opstellen dat raakt aan een belang van één van de projecten in het Barro, zullen nauwkeurig de regelgeving van het Barro moeten controleren.

Het Barro vormt daarmee een nieuwe, dwingende checklist bij de opstelling van bestemmingsplannen.

Bij het Barro zijn kaarten opgenomen welke de genoemde projecten in beeld brengen. Het plangebied is niet in een van de aangewezen projectgebieden gelegen. Hiermee zijn de bepalingen uit het Barro niet van toepassing op het plangebied en is geen sprake van strijdigheid met de nationale belangen.

3.1.2 Structuurvisie Infrastructuur en Ruimte

Op 13 maart 2012 heeft het Ministerie van Infrastructuur en Milieu (I&M) de Structuurvisie Infrastructuur en Ruimte (SVIR) vastgesteld. In de SVIR geeft de Rijksoverheid haar visie op de ruimtelijke en mobiliteitsopgaven voor Nederland richting 2040 en op de manier waarop zij hiermee om zal gaan. Daarmee biedt het een kader voor beslissingen die de Rijksoverheid in de periode tot 2028 wil nemen, om Nederland concurrerend, bereikbaar, leefbaar en veilig te houden. In de SVIR maakt het Rijk helder welke nationale belangen zij heeft in het ruimtelijk en mobiliteitsdomein en welke instrumenten voor deze belangen door de Rijksoverheid worden ingezet.

Overheden, burgers en bedrijven krijgen de ruimte om oplossingen te creëren. Het Rijk gaat zo min mogelijk op de stoel van provincies en gemeenten zitten en richt zich op het versterken van de internationale positie van Nederland en het behartigen van de nationale belangen. De Rijksoverheid brengt het aantal procedures en regels stevig terug en brengt eenheid in het stelsel van regels voor infrastructuur, water, wonen, milieu, natuur en monumenten. Het Rijk wil de beperkte beschikbare middelen niet versnipperen. Het investeert dáár waar de nationale economie er het meest bij gebaat is, in de stedelijke regio’s rond de main-, brain- en greenports inclusief de achterlandverbindingen. Om nieuwe projecten van de grond te krijgen zoekt het Rijk samenwerking met marktpartijen en andere overheden.

Zo lang er geen sprake is van een nationaal belang zal het rijk de beoordeling en uitvoering van ontwikkelingen dus aan de provincies en gemeenten overlaten. In onderhavig geval is geen sprake van een nationaal belang, een gebied van nationaal belang of een nadelige invloed op ontwikkelingen van nationaal belang. Hiermee dient verdere toetsing dan ook plaats te vinden aan het provinciale beleid.

3.1.3 Conclusie

Vanuit het Besluit algemene regels ruimtelijke ordening (Barro) zijn projecten van nationaal belang in kaart gebracht. Binnen deze projectgebieden worden aan bestemmingsplannen van gemeenten bindende voorschriften opgelegd. Bij nieuwe ontwikkelingen dient aan deze bindende voorschriften te worden voldaan. Het plangebied is niet gelegen in een van de projectgebieden uit het Barro. Hiermee is geen sprake van strijdigheid met de nationale belangen.

Vanuit de Structuurvisie Infrastructuur en Ruimte worden beleidsuitgangspunten gesteld ten aanzien van gebieden van nationaal belang. Zo lang geen sprake is van nationale belangen wordt beoordeling van plannen in handen van provincies en gemeenten gegeven. In onderhavig geval is geen sprake van een nationaal belang, waarmee verdere toetsing plaats dient te vinden aan het provinciale beleid, zoals is verwoord in de structuurvisie en verordening Ruimte van de provincie Utrecht.

3.2 Provinciaal beleid

3.2.1 Provinciaal Plan

De provincie Utrecht heeft een nieuwe structuurvisie in procedure gebracht. De verwachting is dat deze in februari 2013 wordt vastgesteld. In de structuurvisie wordt gesteld dat de landbouw een proces van schaalvergroting doormaakt om zicht te kunnen handhaven. Om de landbouw een blijvend economisch perspectief te bieden, geeft de provincie de landbouw in algemene zin de ruimte om door te groeien tot een bouwperceel van maximaal 1,5 hectare. Dit is voldoende voor een normale bedrijfsvoering. Doorgroei naar een bouwperceel van 2,5 hectare wordt onder voorwaarden mogelijk. Voor grondgebonden melkveehouderij geldt dit voor de gehele provincie. Voor de niet-grondgebonden intensieve veehouderij is dit alleen mogelijk in delen van het Reconstructiegebied. Bij verplaatsing van melkveehouderij en fruitteelt binnen de provincie wordt uitgegaan van hervestiging doorgaans op een vrijkomend agrarisch perceel.

3.2.2 Verordening Ruimte

Met het oog op een goede ruimtelijke ordening kunnen Provinciale Staten regels stellen omtrent de inhoud, toelichting of onderbouwing van ruimtelijke plannen. Hieronder vallen ook bestemmingsplannen. Doel van de verordening is om een aantal provinciale belangen te laten doorwerken naar het gemeentelijk niveau.

Op grond van de verordening kan een ruimtelijk plan kan bestemmingen en regels bevatten die voorzien in een maximale oppervlaktemaat van 1,5 hectare bouwperceel ten behoeve van bestaande agrarische bedrijven. Hierbij is per bouwperceel een bedrijfswoning toegestaan en is binnen de agrarische bouwpercelen verbreding van de agrarische activiteiten mogelijk. Van de maximale oppervlaktemaat van 1,5 hectare kan afgeweken worden tot maximaal 2,5 hectare als dit noodzakelijk is voor plaatsing van gebouwen, bouwwerken voor het opwekken van duurzame energie.

3.2.3 Verordening Stikstof

Veehouderijen in de buurt van Natura 2000-gebieden binnen de provincie Utrecht krijgen de mogelijkheid om uit te breiden. Zij mogen meer stikstof gaan uitstoten als een ander bedrijf in hetzelfde gebied minder gaat uitstoten omdat het inkrimpt of stopt. Dit zogeheten salderen is vastgelegd in de Provinciale Verordening veehouderij, stikstof en Natura 2000.

3.2.4 Conclusie

Het project draagt bij aan de doelstelling om een duurzaam perspectief te bieden aan de landbouw door schaalvergroting mogelijk te maken. Het nieuwe bouwperceel krijgt een omvang van 1,5 hectare en past hiermee binnen de kaders van de structuurvisie en de Verordening Ruimte. In het kader van de Verordening Stikstof is een vergunning aangevraagd bij de provincie Utrecht. Vervolgens is op 25 mei 2012 de vergunning afgegeven.

3.3 Gemeentelijk beleid

3.3.1 Vigerend bestemmingsplan

Op de projectlocatie is het beleid uit het bestemmingsplan "Landelijk gebied Oudewater & Willeskop" van gemeente Oudewater, vastgesteld door de gemeenteraad op 4 juli 2011 van toepassing.

Zoals te zien in de volgende figuur is het huidige agrarische erf gelegen in een gebied met de bestemming 'Agrarisch - Agrarisch bedrijf' en een deel van de nieuwe ligboxenstal en sleufsilo's in de bestemming 'Agrarisch met waarden - Landschap'. De gronden binnen beide bestemmingen zijn bestemd voor de bedrijfsvoering ten behoeve van grondgebonden veehouderijbedrijven. Agrarische bedrijfsgebouwen zoals de beoogde ligboxenstal mogen bij recht echter uitsluitend worden opgericht binnen de bestemming 'Agrarisch - Agrarisch bedrijf'.

afbeelding "i_NL.IMRO.0589.0000210313-OW01_0007.png"
Uitsnede verbeelding vigerend bestemmingsplan.
Bron: Gemeente Oude Water

Overschrijding van het bestemmingsvlak met de bestemming 'Agrarisch - Agrarisch bedrijf' is mogelijk met een binnenplanse afwijking. Hierbij mag het bestemmingsvlak ten hoogste met 10% worden vergoot. Deze binnenplanse afwijking is niet van toepassing aangezien de vergroting meer bedraagt dan 10% en niet enkel bedoeld is voor het voldoen aan milieuvoorschriften.

In het bestemmingsplan is een wijzigingsbevoegdheid opgenomen voor het vergroten van een bestemmingsvlak met de bestemming 'Agrarisch - Agrarisch bedrijf' tot een omvang van maximaal 1,5 hectare. Daarbij moet aan een aantal voorwaarden worden voldaan en moet een evenredige belangenafweging plaats vinden. Zowel de voorwaarden als de belangenafweging zijn hieronder opgenomen. De beantwoording/toetsing is cursief weergegeven.

Voorwaarden

  • 1. de vergroting van het bouwperceel voor een doelmatige agrarische bedrijfsvoering en/of ontwikkeling noodzakelijk is;
    De huidige stallen van het bedrijf zijn te klein. Om de beoogde groei van de veestapel mogelijk te maken is een nieuwe stal noodzakelijk. Vervanging op de bestaande locatie is niet mogelijk omdat de huidige stal in gebruik wordt genomen voor het huisvesten van jongvee en de nieuwe stal aanzienlijk groter wordt. Groei van de veestapel is noodzakelijk om te kunnen voorzien in een gezinsinkomen en om op termijn bedrijfsopvolging mogelijk te maken.
  • 2. de vergroting is afgestemd op de voorgenomen bedrijfsuitbreiding;
    Het nieuwe bouwvperceel is afgestemd op de beoogde bedrijfsomvang. Uitgangspunt daarbij is dat zowel de kuilvoeropslag als de stal binnen het bouwperceel worden gesitueerd. De nieuwe grens van het bouwperceel ligt strak achter de kuilvoeropslag.
  • 3. het grondoppervlak van het bouwperceel niet meer bedraagt dan 1,5 ha;
    het nieuwe bouwperceel krijgt een omvang van 1,5 hectare
  • 4. de vergroting van het bouwperceel geen onevenredige afbreuk doet aan de in 4.1 onder c genoemde waarden;
    De genoemde waarden zijn omschreven in de bestemmingsomschrijving als "behoud en versterking van de aan de gronden eigen zijnde waarde voor wat betreft landschappelijke openheid, natuurwaarden in de vorm van weidevogels en waardevolle slootvegetaties en van de cultuurhistorische waarden zich uitende in het verkavelingspatroon".
    De nieuwe bebouwing sluit aan op een bestaand bebouwingslint. Het bebouwingslint is ter plaatse van het plangebied zeer gesloten. Door de bouw van de nieuwe ligboxenstal worden geen bestaande doorzichten op het achterliggende open landschap aangetast. Doordat de nieuwe stal direct achter de bestaande ligboxenstal en schuur wordt gesitueerd wordt de openheid van het achterliggende landschap niet aangetast.
    Achter het erf ligt een groot open weidegebied. Door de uitbreiding van het agrarisch bouwperceel wordt een zeer gering stukje weidegrond omgezet in erf. Gelet op de omvang van de resterende weidegronden zijn geen effecten op weidevogels te verwachten mits de start van de bouwwerkzaamheden buiten het broedseizoen plaatsvindt. Hiermee zal rekening worden gehouden.
    Langs het bestaande erf en de nieuwe ligboxenstal ligt een bestaande sloot. Deze blijft volledig behouden. Er wordt enkel een dam verplaatst. Tengevolge van deze verplaatsing zijn geen onevenredige effecten op waardevolle slootvegetaties te verwachten.
    Doordat de nokrichting van de nieuwe bebouwing evenwijdig loopt aan de kavelgrenzen wordt het cultuurhistorisch waardevolle verkavelingspatroon niet aangetast. Bovendien wordt er geen cultuurhistorische bebouwing gesloopt of nieuwe bebouwing opgericht in de directe omgeving van cultuurhistorisch waardevolle gebouwen.
  • 5. in overleg met het waterschap zorg wordt gedragen voor voldoende watercompensatie; uitgangspunt daarbij is dat niet minder dan 15% van de oppervlakte waarmee het bouwvlak wordt uitgebreid wordt gecompenseerd in de vorm van open water, indien infiltratie niet mogelijk is.
    In overleg met het waterschap wordt bepaald op welke wijze de benodigde toename van open water kan worden gerealiseerd. Op danwel aangrenzend aan de gronden van de initiatiefnemer zijn diverse watergangen gelegen die verbreed zouden kunnen worden om de gewenste toename van oppervlaktewater te realiseren. Gelet op de bodemsamenstelling en grondwaterstand vormt infiltratie geen alternatief.

Op grond van het bestemmingsplan moet bij toepassing van de wijzigingsbevoegdheid een evenredige belangenafweging plaatsvinden waarbij het onderstaande wordt betrokken:

  • a. de mate waarin de waarden, welke het bestemmingsplan beoogt te beschermen, kunnen worden geschaad;
    Uit deze toelichting blijkt dat er ter plaatse geen bijzondere waarden aanwezig zijn die worden geschaad door toepassing van de wijzigingsbevoegdheid.
  • b. de mate waarin de belangen van gebruikers en/of eigenaren van de aanliggende gronden kunnen worden geschaad;
    Het plangebied ligt in een bebouwingslint. De naastgelegen bebouwde percelen in de lint bestaan uit een agrarisch bedrijf en een woongperceel. De afstand ten opzichte van deze (bedrijfs)woningen wordt door de uitbreiding niet verkleind. De bewoners worden dan ook niet in hun belangen geschaad.
  • c. de mate waarin de uitvoerbaarheid is aangetoond, waaronder begrepen de toelaatbaarheid op het gebied van milieu, externe veiligheid, waterhuishouding, ecologie en archeologie;
    De uitvoerbaarheid van dit plan wordt aangetoond in de hoofdstukken 4 en 5 van deze toelichting.
  • d. de mate waarin de landschappelijke inpasbaarheid is aangetoond;
    Het plangebied is bezocht door de landschapscoördinator van de gemeene Oudewater. Zij is van oordeel dat voor het zicht vanaf de weg geen extra beplanting nodig is. De ooskant zit dik ingepakt met een beplanting bestaande uit knotbomen en aan de westkant staat de volgende woning.
  • e. de mate waarin de verkeerssituatie wordt beïnvloed, waaronder begrepen de gevolgen voor de infrastructuur.
    De mogelijke toename van verkeersbewegingen kan worden verwerkt door de bestaande infratructuur in paragraaf 4.3 wordt hier nader op ingegaan.

Gelet op het voorgaande past de ontwikkeling binnen de voorwaarden voor toepassing van de wijzigingsbevoegdheid.

Over het noordwestelijke deel van het bestemmingsvlak 'Agrarisch - Agrarisch bedrijf' ligt een dubbelbestemming 'Leiding - Gas'. De gronden binnen deze dubbel-bestemming zijn mede bestemd voor de aanleg en instandhouding van een ondergrondse hoge druk aardgastransportleiding met een belemmeringenstrook ter breedte van 4 m aan weerszijden van de leiding. Aangezien de stal wordt opgericht buiten de belemmeringenstrook vormt de dubbelbestemming hiervoor geen beperking. Wel zal voor het aanbrengen van erfverharding binnen de strook een omgevingsvergunning aangevraagd moeten worden.

Op het noordelijke deel van het plangebied rust de bestemming "Waarde - Archeologische verwachting hoog" en op het zuidelijke deel de bestemming "Waarde - Archeologische verwachting middelhoog". Op grond van de diepte en omvang van de bodemverstoring ten gevolge van de bouw van de nieuwe ligboxenstal is dan ook archeologisch onderzoek uitgevoerd. Hieruit blijkt dat het plan uitvoerbaar is. De resultaten van het archeologisch onderzoek worden nader toegelicht in paragraaf 4.4.1.

3.3.2 Conclusie

De beoogde ontwikkeling is op grond van de regels van het geldende bestemmingsplan niet bij recht mogelijk. Wel wordt voldaan aan de voorwaarden die worden gesteld aan het toepassen van de wijzigingsbevoegdheid voor het vergroten van het bestemmingsvlak 'Agrarisch - Agrarisch bedrijf'. Hiermee past de vergroting van het bedrijf binnen het gemeentelijk beleid.

Hoofdstuk 4 Ruimtelijke- en Milieuaspecten

De uitvoerbaarheid van een wijzigingsplan moet ingevolge de Wet ruimtelijke ordening (Wro) aangetoond worden (artikel 3.1.6 lid 1 van het Bro). Daaronder valt zowel de onderzoeksverplichting naar verschillende ruimtelijk relevante aspecten (geluid, bodem, ect.) maar ook de economische en maatschappelijke uitvoerbaarheid van het plan. Van de ruimtelijke- en milieuaspecten wordt in dit hoofdstuk verslag gedaan. De economische en maatschappelijke uitvoerbaarheid worden in het volgende hoofdstuk behandeld. De toets aan het beleid is in het vorige hoofdstuk al aan de orde gekomen.

4.1 Milieu

4.1.1 Bodem

De bodemkwaliteit is in het kader van de Wet ruimtelijke ordening (Wro) van belang indien er sprake is van functieveranderingen en/of een ander gebruik van de gronden. De bodem moet geschikt zijn voor de functie. Mocht er een verontreiniging te verwachten zijn dan wel mocht deze feitelijk aanwezig zijn, dan dient inzichtelijk gemaakt te worden dat na vaststelling van het plan de beoogde oplossing om dit probleem aan te pakken (milieu)technisch haalbaar is en dat er voldoende budget beschikbaar is.

Bodemverkenning

Bij de Omgevingsdienst regio Utrecht zijn op de locatie geen ondergrondse tanks en voorgaande bodemonderzoeken bekend. Bij de Omgevingsdienst is verder bekend dat op de locatie een veehouderij aanwezig is.

Noodzaak bodemonderzoek

Omdat bij de toekomstige bestemming geen sprake is van een verblijfplaats voor mensen hoeft ter plaatse van de bouwlocatie geen milieu hygiënisch bodemonderzoek te worden aangeleverd.

Aandachtspunten bij de voorgenomen werkzaamheden

De aanwezige dam wordt aangemerkt als verdachte deellocatie. Voordat graafwerkzaamheden worden uitgevoerd ter plaatse van deze dam is het nodig een onderzoek uit te voeren naar de kwaliteit van het materiaal, met extra aandacht voor bodemvreemd materiaal, waaronder asbest. Aan de hand daarvan kunnen de hergebruiksmogelijkheden vastgesteld worden.

Op de locatie zijn mogelijk gedempte sloten aanwezig. Indien tijdens graafwerkzaamheden waarnemingen gedaan worden welke kunnen duiden op de aanwezigheid van een gedempte sloot wordt contact opgenomen met de Omgevingsdienst regio Utrecht.

De grond ter plaatse van het onverdachte deel kan op het perceel worden hergebruikt zonder onderzoek. Hergebruik van vrijkomende grond buiten de aangrenzende percelen is alleen mogelijk op basis van een partijkeuring, uitgevoerd conform de regels van het Besluit bodemkwaliteit.

Hiermee vormt het aspect bodem geen belemmering voor de uitvoering van het wijzigingsoplan.

4.1.2 Geur

De Wet geurhinder veehouderij (Wgv) vormt vanaf 1 januari 2007 het toetsingskader voor de milieuvergunning, als het gaat om geurhinder vanwege dierenverblijven van veehouderijen. Het tijdstip van inwerkingtreding van de wet is vastgesteld bij Koninklijk Besluit van 12 december 2006. Op 18 december 2006 is de Wet geurhinder en veehouderij gepubliceerd.

De Wet geurhinder en veehouderij geeft normen voor de geurbelasting die een veehouderij mag veroorzaken op een geurgevoelig object (bijvoorbeeld een woning). De geurbelasting wordt berekend en getoetst met het verspreidingsmodel V-Stacks vergunning. Dit geldt alleen voor dieren waarvoor geuremissiefactoren zijn opgenomen in de Wet geurhinder en veehouderij.

Voor dieren zonder geuremissiefactor gelden minimaal aan te houden afstanden. Hiervoor dienen de minimale afstanden van 50 meter tot een geurgevoelig object buiten de bebouwde kom, en 100 meter tot een geurgevoelig object binnen de bebouwde kom te worden aangehouden.

Bij gemeentelijke verordening kunnen gemeenten afwijken van de wettelijke normen. De gemeente Oudewater heeft op 27 mei 2010 een eigen geurbeleid geformuleerd. Op grond hiervan wordt de hierboven genoemde vaste afstand van 50 meter tot een geurgevoelig buiten de bebouwde kom verkleind tot 25 meter als het een bestaand dierenverblijf en een bestaande woning betreft.

Onderhavig bedrijf betreft een melkveehouderij. Er worden uitsluitend dieren gehouden zonder geuremissiefactor, melkkoeien en jongvee. Omdat een nieuw dierenverblijf wordt opgericht geldt een minimale vaste afstand van 50 meter ten opzichte van geurgevoelige objecten buiten de bebouwde komt. De dichtstbijgelegen geurgevoelig objecten betreffen de woning Hoenkoopse Buurtweg 55 (op 70 meter van de bestaande ligboxenstal) en de bedrijfswoning Hoenkoopse Buurtweg 57 (op 65 meter van de bestaande ligboxenstal). In het gemeentelijk beleid staat ten aanzien van geur gesteld dat ten opzichte van burgerwoningen in het buitengebied een afstand van 50 meter en ten opzichte van burgerwoningen binnen de bebouwde kom een afstand van 100 meter aangehouden moet worden.

Aan de afstandeisen wordt dan ook voldaan. Bovendien wordt de afstand in de nieuwe situatie niet verkleind doordat het bestemmingsvlak niet in de richting van bovengenoemde woningen wordt vergroot. Daarnaast is de nieuwe ligboxenstal op grotere afstand van de woningen gelegen dan de huidige.

Gelet op het voorgaande levert het aspect geur geen belemmeringen op voor de uitvoering van dit plan.

4.1.3 Luchtkwaliteit

De Eerste Kamer heeft op 9 oktober 2007 het wetsvoorstel voor de wijziging van de Wet milieubeheer goedgekeurd (Stb. 2007, 414) en vervolgens is de wijziging op 15 november 2007 in werking getreden. De wet vervangt het Besluit Luchtkwaliteit 2005. Met name paragraaf 5.2 uit genoemde wet is veranderd. Omdat 5.2 handelt over luchtkwaliteit staat de nieuwe 5.2 bekend als de 'Wet luchtkwaliteit'. De Wet luchtkwaliteit introduceert het onderscheid tussen 'kleine' en 'grote' projecten. Kleine projecten dragen 'niet in betekenende mate' (NIBM) bij aan de luchtkwaliteit. Een paar honderd grote projecten dragen juist wel 'in betekenende mate' bij aan de verslechtering van de luchtkwaliteit. Het gaat hierbij vooral om bedrijventerreinen en infrastructuur (wegen).

De Eerste Kamer is op 9 oktober 2007 akkoord gegaan met het wetsvoorstel over luchtkwaliteitseisen. Projecten die 'niet in betekenende mate bijdragen' (NIBM) aan de luchtverontreiniging, hoeven volgens het wetsvoorstel niet meer afzonderlijk getoetst te worden aan de grenswaarden voor de buitenlucht. Het Besluit NIBM omschrijft het begrip nader: een project dat minder dan 3% van de grenswaarden bijdraagt is NIBM. Dit komt overeen met 1,2 microgram per m3 (µg/m3) voor fijn stof en stikstofoxiden (NO2).

Projecten die wel 'in betekenende mate' bijdragen, zijn vaak al opgenomen in het Nationaal Samenwerkingsprogramma Luchtkwaliteit (NSL). Het NSL is erop gericht om overal de Europese grenswaarden te halen. Daarom is ook een pakket aan maatregelen opgenomen: zowel (generieke) rijksmaatregelen als locatiespecifieke maatregelen van gemeenten en provincies. Dit pakket aan maatregelen zorgt ervoor dat alle negatieve effecten van de geplande ruimtelijke ontwikkelingen ruim worden gecompenseerd. Bovendien worden alle huidige overschrijdingen tijdig opgelost. In het NSL worden de effecten van alle NIBM-projecten verdisconteerd in de autonome ontwikkeling. Het NSL omvat dus alle cumulatieve effecten van (ruimtelijke) activiteiten op de luchtkwaliteit.

4.1.3.1 Uitbreiding in dieraantallen

In augustus 2009 heeft InfoMil de “Handreiking bij beoordelen fijn stof bij veehouderijen” gepubliceerd. In mei 2010 is deze vastgesteld en definitief gemaakt. Deze handleiding is bedoeld als ondersteuning voor de gemeente als bevoegd gezag, bij het beoordelen van vergunningaanvragen voor nieuwe vestigingen en uitbreidingen, die van invloed kunnen zijn op de luchtkwaliteit. De handreiking geeft op basis van rekenvoorbeelden aan wanneer een project als NIBM beschouwd kan worden.

In het onderhavige project is er een toename van de veestapel van 83 melkkoeien (RAV-nummer A1.100.1) en 42 stuks jongvee (RAV-nummer A3). Volgens de lijst Emissiefactoren fijn stof voor veehouderij, versie maart 2009, bedraagt de toename van de fijn stofemissie:
83 melkkoeien x 118 g/dier/jaar = 16.992 g/jaar;
42 stuks jongvee x 38 g/dier/jaar = 1.596 g/jaar.

De totale toename van fijnstofemissie bedraagt 18.588 g/jaar.

De handreiking bij beoordelen fijn stof bij veehouderijen geeft grenswaarden ten aanzien van de totale emissie bij afstanden oplopend van 70 – 160 meter. Bij 70 meter is de NIBM-vuistregelgrens 324.000 g/jaar oplopend tot 1.376.000 g/jaar bij 160 meter.

In onderhavig geval is sprake van een emissie van 20.222 g/jaar. De dichtstbijzijnde woning van derden is gelegen op een afstand van 65 meter van het dichtstbijzijnde dierenverblijf. Een emissie van 18.588 g/jaar zoals in het onderhavige geval, op 65 meter zal zeker niet leiden tot een IBM toename. Hiermee is het project als NIBM aan te merken en kan verdere toetsing achterwege blijven.

4.1.3.2 Uitbreiding van verkeersbewegingen

Naast uitbreiding in dieraantallen moet ook de uitbreiding van het aantal verkeersbewegingen meegenomen worden. In onderhavig geval zal het aantal verkeersbewegingen in geringe mate toenemen. De uitstoot van de toename in het aantal verkeersbewegingen is verwaarloosbaar ten opzichte van de uitstoot van de veehouderij en valt onder de noemer NIBM, waarmee verder onderzoek achterwege kan blijven.

4.1.3.3 Woon- en leefklimaat

Naast effecten op de omgeving moet ook onderzocht worden of ter plaatse van de voorgenomen ontwikkeling een goed woon- en leefklimaat kan worden gewaarborgd. Hierbij is het van belang te kijken naar de feitelijke luchtkwaliteit ter plaatse. Dit is echter alleen van belang als gevoelige objecten in het kader van de luchtkwaliteit worden opgericht. In onderhavig geval is geen sprake van het oprichten van een gevoelig object in het kader van de luchtkwaliteit. Hiermee kan verdere toetsing achterwege blijven.

Hiermee zijn ten aanzien van luchtkwaliteit geen belemmeringen te verwachten.

4.1.4 Geluid

De mate waarin het geluid, bijvoorbeeld veroorzaakt door het wegverkeer, het woonmilieu mag belasten, is geregeld in de Wet geluidhinder en het Besluit geluidhinder (Wgh en Bgh). De kern van de wet is dat geluidsgevoelige bestemmingen, worden beschermd tegen geluidhinder uit de omgeving ten gevolge van wegverkeer, spoorweg en industrie. De Wet geluidhinder kent de volgende geluidsgevoelige bestemmingen:

  • 1. woningen;
  • 2. onderwijsgebouwen (behoudens voorzieningen zoals een gymnastieklokaal);
  • 3. ziekenhuizen en verpleeghuizen en daarmee gelijk te stellen voorzieningen zoals verzorgingstehuizen, psychiatrische inrichtingen, medische centra, poliklinieken, medische kleuterdagverblijven, etc..

Het beschermen van bijvoorbeeld het woonmilieu gebeurd aan de hand van vastgestelde zoneringen. De belangrijkste geluidsbronnen die in de Wet geluidhinder worden geregeld zijn industrielawaai, wegverkeerslawaai en spoorweglawaai. Verder gaat deze wet onder meer ook in op geluidwerende voorzieningen en geluidbelastingkaarten en actieplannen.

Het aantal verkeersbewegingen zal bij de voorgenomen ontwikkeling niet in onevenredige mate toenemen. Tevens is een goede ontsluiting aan de Hoenkoopse Buurtweg gerealiseerd, waarbij op eigen terrein voldoende gelegenheid is om te keren en parkeren. Hiermee zal de geluidbelasting die wordt veroorzaakt door vrachtverkeer niet verder toenemen.

Bij de voorgenomen ontwikkeling worden geen geluidoverlast veroorzakende inrichtingen opgericht. Hiermee is geen sprake van een toename van het eventueel veroorzaakte industrielawaai van de planlocatie aan de omgeving.

Voor de voorgenomen ontwikkeling wordt een omgevingsvergunning aangevraagd. In de omgevingsvergunning worden maximale normen ten aanzien van de veroorzaakte geluidbelasting opgenomen. Bij uitoefening van het bedrijf zal zorg worden gedragen dat deze normen nergens worden overschreden.

Bij de voorgenomen ontwikkeling worden geen geluidgevoelige objecten opgericht. Hiermee kan verdere toetsing achterwege blijven.

4.1.5 Externe veiligheid

Externe veiligheid gaat over de beheersing van activiteiten met gevaarlijke stoffen. Die activiteiten kunnen bestaan uit het opslaan, verwerken of transporteren van gevaarlijke stoffen. Deze activiteiten kunnen een risico veroorzaken voor de leefomgeving. Daarnaast worden de risico's van het opstijgen en landen op vliegvelden ook onder het thema externe veiligheid gevangen. De risico's worden uitgedrukt in twee risicomaten; het plaatsgebonden risico en het groepsrisico.

Voor de beoordeling van een ruimtelijk project moet voor externe veiligheid worden vastgesteld of dit project is gelegen binnen het invloedsgebied van een inrichting die valt onder het Besluit externe veiligheid inrichtingen (Bevi). Daarnaast wordt gekeken of het plan ligt binnen het invloedsgebied van de transportroute (weg, spoor, water of buisleiding) waarover gevaarlijke stoffen (o.a. LPG en benzine) worden vervoerd.

Het Bevi is gericht aan het bevoegd gezag inzake de Wet milieubeheer en de Wet ruimtelijke ordening en heeft onder meer tot doel om bij nieuwe situaties toetsing aan de risiconormen te waarborgen. In de Regeling externe veiligheid inrichtingen (Revi) zijn standaard afstanden opgenomen waarbij wordt voldaan aan de grenswaarden van het plaatsgebonden risico. Het Bevi is van toepassing op vergunningplichtige risicovolle bedrijven en nabij gelegen, al dan niet geprojecteerde, (beperkt) kwetsbare objecten. In artikel 2 lid 1 van het Bevi is opgesomd wat wordt verstaan onder risicovolle bedrijven. Voor toepassing van het Bevi wordt een nieuw ruimtelijk besluit gezien als een nieuwe situatie.

Het aspect externe veiligheid is beoordeeld door de Omgevingsdienst regio Utrecht. De conclusies zijn hieronder weergegeven. Een eerste indruk van de risico's kan worden verkregen via de provinciale risicokaart. Daarna volgt per onderwerp een korte toelichting.

afbeelding "i_NL.IMRO.0589.0000210313-OW01_0008.png"

Risicokaart
Bron: Provincie Utrecht

4.1.5.1 Bedrijven – Besluit externe veiligheid inrichtingen (Bevi)

Er zijn in de directe omgeving van het plan geen bedrijven gevestigd die vallen onder het Besluit externe veiligheid inrichtingen (Bevi).

4.1.5.2 Bedrijven – Overige veiligheidswetgeving

Er zijn in de directe omgeving verder geen bedrijven gevestigd met een overig veiligheidsrisico. Propaantanks zijn in het bedrijvenbestand van de milieudienst in dit gedeelte van de gemeente Oudewater wel bekend. Vrijwel ieder perceel op de Hoenkoopsebuurtweg heeft een propaantank. Er gelden afstandseisen op grond van het Activiteitenbesluit. Deze afstandseisen moeten worden nageleefd. De afstand tot omringende percelen is dusdanig groot dat aan deze afstanden kan worden voldaan. Controle op de naleving van deze afstandseisen vindt plaats in het kader van milieutoezicht door de Omgevingsdienst.

4.1.5.3 Transport van gevaarlijke stoffen over weg, spoor en water

Er moet rekening gehouden worden met het vervoer van gevaarlijke stoffen over de weg, het spoor en water. Wegen, spoorwegen en vaarwegen met structureel en grootschalig vervoer van gevaarlijke stoffen liggen niet in de buurt van het plan.

Voor de gemeentelijke en provinciale wegen die aansluiten op de rijksweg A12 is in de gemeente Oudewater een routering voor gevaarlijke stoffen vastgesteld. Over de vastgestelde route mag uitsluitend bestemmingsverkeer rijden. De route loopt niet langs of door het plangebied.

Voor noodzakelijk transport ten behoeve van laden en/of lossen van gevaarlijke stoffen buiten de vastgestelde routes is een ontheffing nodig. Aan deze ontheffing kunnen voorwaarden worden verbonden om een veiligere leefomgeving te realiseren. Er kan langs het plangebied dus wel transport van gevaarlijke stoffen plaatsvinden van de nietrouteplichtige stoffen (zoals benzine) en routeplichtige stoffen met ontheffing (zoals propaan), maar de frequentie daarvan is dermate laag dat daardoor geen risico's ontstaan die ruimtelijk relevant zijn.

4.1.5.4 Transport van gevaarlijke stoffen door buisleidingen

Er moet rekening worden gehouden met transport van gevaarlijke stoffen door buisleidingen. Volgens de risicokaart ligt er in het plangebied een buisleiding voor transport van gevaarlijke stoffen zoals aardgas of benzine waar rekening mee gehouden moet worden. Dit betreft een hogedruk aardgastransportleiding van de Gasunie. Op deze leiding is het Besluit externe veiligheid buisleidingen (Bevb) van toepassing. Ter weerszijden van deze leiding geldt een belemmeringenstrook van 4 meter. Nieuwe bebouwing mag binnen deze strook (conform de regels van het bestemmingsplan) niet worden opgericht. De nieuwe ligboxenstal is buiten de belemmeringenstrook gesitueerd.

4.1.5.5 Plaatsgebonden risico

De agrarische bebouwing is niet geclassificeerd als kwetsbaar object. De agrarische bebouwing is ook niet geclassificeerd als beperkt kwetsbaar object. Er is geen strijd met het plaatsgebonden risico.

4.1.5.6 Groepsrisico

Het plan ligt in het invloedsgebied voor het groepsrisico. Door het vergroten van het agrarisch bouwvlak zal de personendichtheid niet significant toenemen. De personendichtheid in totaliteit is in dit deel van Oudewater dermate laag dat het groepsrisico niet boven één tiende van de oriëntatiewaarde zal liggen. Nader onderzoek naar en verantwoording van het groepsrisico is daarom niet nodig.

4.1.5.7 Overig

Het normale gasnet voor huishoudens en bedrijven valt niet binnen het kader van externe veiligheid.

4.1.5.8 Electromagnetische straling

Er zijn in de omgeving geen hoogspanningslijnen aanwezig waarvan de indicatieve magneetveldzones

tot het plangebied reiken. Uit de gegevens op de website www.antenneregister.nl blijkt dat in de omgeving van het plangebied geen zendmasten aanwezig zijn die overschrijdingen van de geldende blootstellingslimieten voor elektrische en magnetische veldsterkten veroorzaken.

4.1.5.9 Conclusie

De aanvrager dient te waarborgen dat aan afstanden ten opzichte van propaantanks wordt voldaan. Dit is het geval. Bij het toepassen van deze wijzigingsbevoegdheid wordt de belemmeringenstrook ter weerszijden van de gasleiding gerespecteerd doordat deze ook is opgenomen in het wijzigingsplan en doordat door de uitbreiding het deel van de leiding dat binnen het bestemmingsvlak is gelegen niet wordt vergroot.. Het verlenen van medewerking aan dit plan is dan ook niet in strijd met het beleid en regelgeving ten aanzien van externe veiligheid.

4.1.6 Milieuzonering

Milieuzonering beperkt zich tot milieuaspecten met een ruimtelijke dimensie, te weten: geluid, geur, gevaar en stof. De mate waarin de milieuaspecten gelden en waaraan de milieucontour wordt vastgesteld, is voor elk type bedrijvigheid verschillend. De 'Vereniging van Nederlandse Gemeenten' (VNG) geeft sinds 1986 de publicatie 'Bedrijven en Milieuzonering' uit. In deze publicatie is een lijst opgenomen met daarin de aan te houden richtafstanden tussen een gevoelige bestemming en bedrijven. Indien van deze richtafstand afgeweken wordt dient een nadere motivatie gegeven te worden waarom dat wordt gedaan. Het zo scheiden van milieubelastende en –gevoelige functies dient twee doelen:

  • 1. het reeds in het ruimtelijk spoor voorkomen of zoveel mogelijk beperken van hinder en gevaar bij gevoelige functies (bijvoorbeeld woningen);
  • 2. het bieden van voldoende zekerheid aan de milieubelastende activiteiten (bijvoorbeeld bedrijven) zodat zij de activiteiten duurzaam, en binnen aanvaardbare voorwaarden, kunnen uitoefenen.
4.1.6.1 Milieuzonering vanuit de planlocatie

Met de voorgenomen ontwikkeling wordt een melkveehouderij opgericht. In de VNG handreiking 'Bedrijven en Milieuzonering' zijn ten aanzien van een inrichting voor het houden van rundvee richtafstanden opgenomen ten aanzien van geluid, geur, fijn stof en gevaar. Als binnen deze afstanden gevoelige objecten gelegen kan de rundveehouderij hinder veroorzaken op deze gevoelige objecten en zullen eventueel maatregelen getroffen moeten worden deze hinder te beperken.

De grootste richtafstand uit de VNG handreiking bedraagt 100 meter (voor geur). Het dichtstbijzijnd gevoelig object bevindt zich op ongeveer 65 meter van de planlocatie. Voor geur gelden echter specifieke normen op grond van de Wet geurhinder en veehouderij. Aan deze normen wordt wel voldaan. Ten aanzien van andere milieuaspecten als stof en geluid bedraagt de minimale afstand slechts 30 meter. Hiermee is het dichtstbijzijnd gevoelig object ver genoeg van de planlocatie gelegen en wordt door melkveehoudrij geen hinder veroorzaakt.

4.1.6.2 Milieuzonering ten aanzien van de planlocatie

Als bij een inrichting nieuwe gevoelige objecten worden opgericht in het kader van geur, geluid, luchtkwaliteit of externe veiligheid, dan mag dit gevoelig object geen hinder ondervinden van eventueel omliggende hinder veroorzakende inrichtingen.Tevens mag de ontwikkeling van een nieuw gevoelig object geen belemmering zijn van de ontwikkelingsmogelijkheden van omliggende bestemmingen.

Bij de melkveehouderij wordt een gevoelig object opgericht in de vorm van een bedrijfswoning.

4.1.7 Voortoets MER-beoordeling
4.1.7.1 Algemeen

Op 1 april 2011 is het nieuwe Besluit milieueffectrapportage in werking getreden. Uit dit besluit blijkt dat toetsing aan de drempelwaarden in de D-lijst ontoereikend is om de vraag te beantwoorden of een m.e.r.-beoordelingsprocedure moet worden doorlopen. Indien een activiteit een omvang heeft die onder de grenswaarden ligt, dient op grond van de selectiecriteria in de EEG-richlijn milieu-effectbeoordeling te worden vastgesteld of belangrijke nadelige gevolgen van de activiteit voor het milieu kunnen worden uitgesloten. Pas als dat het geval is, is de activiteit niet m.e.r.-(beoordelings)plichtig. In het kader van de wijziging van het Besluit m.e.r. is een handreiking opgesteld. Deze handreiking geeft aan hoe moet worden vastgesteld of een activiteit, met een omvang onder de drempelwaarde, toch belangrijke nadelige gevolgen voor het milieu heeft. In de handreiking is opgenomen dat voor elk besluit of plan dat betrekking heeft op activiteit(en) die voorkomen op de D-lijst en die een omvang hebben die beneden de drempelwaarden liggen een toets moet worden uitgevoerd of belangrijke nadelige milieugevolgen kunnen worden uitgesloten. Voor deze toets wordt de term vormvrije m.e.r.-beoordeling gebruikt. Uit deze toets kunnen twee conclusies volgen:

  • 1. belangrijke nadelige milieueffecten zijn uitgesloten;
  • 2. of belangrijke nadelinge milieueffecten zijn niet uit te sluiten.

In het eerste geval is de activiteit niet m.e.r.(-beoordelings)-plichtig in het andere geval dient een m.e.r.-beoordeling te worden uitgevoerd en de bijbehorende procedure te worden gevolgd. Die toetsing in het kader van de vormvrije m.e.r.-beoordling dient te geschieden aan de hand van de selectiecriteria in bijlage III van de EEG-richtlijn milieu-effectbeoordeling.

4.1.7.2 Dit plan

Dit bestemmingsplan voorziet in de uitbreiding van een bestaande melkveehouderij. De beoordelingsplicht geldt vanaf een toename van 200 melkkoeien. Daarnaast is het plan niet gelegen in een kwetsbaar of waardevol gebied. In de uitgevoerde haalbaarheidsonderzoeken en de toetsing van haalbaarheidsaspecten in deze toelichting komen ook geen effecten op te beschermen waarden in of in de omgeving van het plangebied naar voren. Op basis hiervan kan geconcludeerd worden dat het milieubelang van de ontwikkeling die met dit plan wordt mogelijk gemaakt in voldoende mate is afgewogen en geen nadelige effecten zijn te verwachten.

4.2 Ecologie

In het kader van een goede ruimtelijke ordening moet worden getoetst of er sprake is van negatieve effecten op de (mogelijke) natuurwaarden. Daartoe wordt onderscheid gemaakt in gebiedsbescherming en soortenbescherming.

4.2.1 Gebiedsbescherming

De Natuurbeschermingswet richt zich op de bescherming van gebieden. Sinds 1 oktober 2005 zijn hierin ook de bepalingen vanuit de Europese Habitat- en Vogelrichtlijn, aangevuld met de vroegere Beschermde- en Staatsnatuurmonumenten en het Verdrag van Ramsar verwerkt. In de Natuurbeschermingswet zijn de volgende gronden aangewezen en beschermd:

  • 1. Natura 2000 gebieden (Vogelrichtlijn- en Habitatrichtlijngebieden);
  • 2. Beschermde Natuurmonumenten;
  • 3. Wetlands.

Naast deze drie soorten gebieden is er de (Provinciale) Ecologische Hoofdstructuur ((P)EHS) die in het kader van de gebiedsbescherming van belang is. De (P)EHS is een samenhangend netwerk van belangrijke natuurgebieden in Nederland. Zij bestaat uit bestaande natuurgebieden, nieuwe natuurgebieden en ecologische verbindingszones. De EHS draagt bij aan het bereiken van de hoofddoelstelling van het Nederlandse natuurbeleid, namelijk: 'Natuur en landschap behouden, versterken en ontwikkelen, als bijdrage aan een leefbaar Nederland en een duurzame samenleving'. Hiertoe zijn de volgende uitgangspunten van belang: 

  • 1. vergroten: het areaal natuur uitbreiden en zorgen voor grotere aaneengesloten gebieden;
  • 2. verbinden: natuurgebieden zoveel mogelijk met elkaar verbinden;
  • 3. verbeteren: de omgeving zo beïnvloeden dat in natuurgebieden een zo hoog mogelijke natuurkwaliteit haalbaar is.

Daarnaast is het bij uitbreiding van agrarische bedrijven van belang te kijken naar de invloed op mogelijke (zeer) kwetsbare gebieden in het kader van de Wet ammoniak en veehouderij, de zogenaamde Wav-gebieden. Dit zijn voor verzuring gevoelige gebieden waarbij toename van de uitstoot van ammoniak op deze gebieden kan leiden tot een onevenredige aantasting ervan.

4.2.1.1 Natura 2000 en beschermde natuurgebieden

De planlocatie niet in een Natura 2000 of een beschermd natuurgebied gelegen. De veerhouderij kan echter ook effecten hebben op gebieden die op afstand liggen. De effecten komen voort uit ammoniakdepositie op de voor verzuringgevoelige habitats binnen deze gebieden. Er is sprake van een toename op de volgende gebieden:

  • Kamerikse Nessen;
  • Moerasterreinen langs de Bijleveld;
  • Nieuwkoopse Plassen & De Haeck;
  • Oeverlanden Gein c.a.;
  • Oostelijke Vechtplassen;
  • Uiterwaarden Lek.

Op 30 mei 2012 is door de provincie Utrecht een besluit afgegeven op grond van de Natuurbeschermingswet. In de provinciale depositiebak was op dat moment voldoende saldo beschikbaar om de aangevraagde toename van stikstofdepostite te salderen. Hiermee vormt de Natuurbeschermingswet geen belemmering voor de uitvoering van dit plan. Het besluit is opgenomen in bijlage 1.

4.2.1.2 Ecologische Hoofdstructuur en Ecologische Verbindingszones

De Ecologische Hoofdstructuur (EHS) is een netwerk van grote en kleine natuurgebieden waarin de natuur (plant en dier) voorrang heeft en wordt beschermd. Daarmee wordt voorkomen dat natuurgebieden geïsoleerd komen te liggen en planten en dieren uitsterven, waardoor natuurgebieden hun waarde zouden verliezen. De EHS wordt gezien als de ruggengraat van de natuur.

De EHS bestaat uit:

  • Bestaande natuurgebieden, reservaten, natuurontwikkelingsgebieden en verbindingszones hiertussen;
  • Landbouwgebieden met mogelijkheden voor agrarisch natuurbeheer (beheersgebieden);
  • Grote wateren (zoals de kustzone van de Noordzee, het IJsselmeer en de Waddenzee);


Een Ecologische Verbindingszone (EVZ) is een verbinding tussen natuurgebieden (met nieuwe of herstelde natuur). Ecologische Verbindingszones worden aangelegd om migratie van dieren en planten tussen verschillende natuurgebieden mogelijk te maken.

De ligging van een projectlocatie binnen de EHS (met bijbehorende beheersgebieden) of een EVZ betekent een beperking in de ontwikkelingsmogelijkheden. Het uitgebreide netwerk van natuurgebieden mag niet in onevenredige mate worden verstoord. In enkele gevallen wordt uitbreiding of ontwikkeling in of nabij een natuurgebied toegestaan, mits de geschade natuur op passende wijze wordt gecompenseerd.

Zoals te zien in de volgende figuur is de planlocatie niet in de EHS of een EVZ gelegen.

afbeelding "i_NL.IMRO.0589.0000210313-OW01_0009.png"
Ecologische Hoofdstructuur en Ecologische Verbindingszones.
Bron: Provincie Utrecht

Gezien de planlocatie niet in de EHS of in een EVZ is gelegen zal de voorgenomen ontwikkeling geen nadelige invloed hebben op deze gebieden en staat het project de ontwikkeling van deze gebieden niet in de weg.

4.2.1.3 Kwetsbare gebieden ingevolge de Wet ammoniak en veehouderij

Op 8 mei 2002 is de Wet ammoniak en veehouderij (Wav) in werking getreden. De Wav vormt een onderdeel van de nieuwe ammoniakregelgeving voor dierenverblijven van veehouderijen. Deze nieuwe regelgeving kent een emissiegerichte benadering voor heel Nederland met daarnaast aanvullend beleid ter bescherming van de (zeer) kwetsbare gebieden. Deze (zeer) kwetsbare gebieden ingevolge de Wav (Wav-gebieden) zijn gebieden die nadelige invloed kunnen ondervinden als de uitstoot van ammoniak op deze gebieden toeneemt. Ter bescherming van deze gebieden is een zone van 250 meter rondom deze gebieden aangewezen als buffer om ontwikkelingen die schadelijk zijn voor deze gebieden te beperken.

Het plangebied is niet in een Wav-gebied of een zone van 250 meter daaromheen gelegen. Hiermee zullen geen Wav-gebieden onevenredig worden aangetast met de voorgenomen ontwikkeling.

4.2.2 Soortenbescherming

Sinds 1 april 2002 regelt de Flora- en faunawet de bescherming van in het wild voorkomende inheemse planten en dieren: de soortenbescherming. De wet richt zich vooral op het in stand houden van populaties van soorten die bescherming behoeven. Bekeken moet worden in hoeverre ruimtelijke plannen negatieve gevolgen hebben op beschermde dier- en plantensoorten en of er compenserende of mitigerende maatregelen genomen moeten worden.

Voor de soortenbescherming geldt dat deze voor elk plangebied geldt. In elk gebied kunnen bijzondere soorten voorkomen en/of elk plangebied kan geschikt zijn voor deze soorten. Voor alle aanwezige flora en fauna geldt de zorgplicht ex artikel 2 van de Flora- en faunawet, die van toepassing is op zowel beschermde als onbeschermde dier- en plantensoorten. Op grond hiervan dient men zoveel als redelijkerwijs mogelijk is te handelen op een wijze waarop nadelige gevolgen voor flora en fauna kunnen worden voorkomen of, voor zover die gevolgen niet kunnen worden voorkomen, deze zoveel mogelijk worden beperkt of ongedaan worden gemaakt. Bij realisatie van dit project zal deze zorgplicht in acht worden genomen.

In het kader van de soortenbescherming dient beoordeeld te worden wat via het ruimtelijke project wordt toegelaten in aanvulling op wat al mogelijk is. Zo is sloop van bebouwing of het verrichten van werken (maaien, kappen etc.) vaak ook al mogelijk zonder een ruimtelijk besluit in het kader van de Wet ruimtelijke ordening (Wro). Daarmee wordt voorliggend plan echter niet ontslagen van een integrale blik op het totale project: dus inclusief ingrepen die ook zonder het beoogde Wro-besluit mogelijk zijn.

De Flora- en faunawet maakt onderscheid in verschillende categorieën waarin de beschermde soorten flora en fauna zijn onderverdeeld. Hierbij wordt onderscheid gemaakt in de volgende categorieën:

  • Soorten van lijst 1 van de Flora- en faunawet;
  • Soorten van lijst 2 en/of 3 van de Flora- en faunawet;
  • Soorten van de Rode Lijst van het ministerie van ELI.

Voor mogelijk voorkomende soorten die op lijst 1 van de flora- en faunawet staan geldt een vrijstelling. Bij het uitvoeren van ruimtelijke ingrepen is het voor deze soorten niet noodzakelijk een ontheffing aan te vragen.

Voor mogelijk voorkomende soorten die op lijst 2 en/of 3 van de flora- en faunawet staan geldt dat deze ontheffingsplichtig zijn. Het is echter niet noodzakelijk een ontheffing aan te vragen wanneer mitigerende en compenserende maatregelen worden getroffen. Dit houdt in dat maatregelen moeten worden getroffen om mogelijke schade te voorkomen dan wel zoveel mogelijk te beperken.

Voor mogelijk voorkomende soorten die op de rode lijst van het Ministerie van LNV staan geldt dat bij het uitvoeren van ruimtelijke ingrepen geen ontheffing aangevraagd hoeft te worden.

Daarnaast zijn voor vogels richtlijnen opgenomen vanuit de Vogelrichtlijn. Alle vogels zijn namelijk beschermd in het kader van de vogelrichtlijn. Werkzaamheden in en in de omgeving van het plangebied tijdens de broedtijd (15 maart -15 juli) zullen sterke negatieve effecten hebben op de meeste vogelsoorten door vernietiging van broedplaatsen en verstoring van reproductie. Werkzaamheden in deze periode zijn dan ook niet toegestaan. Indien broedvogels binnen het broedseizoen worden verstoord, wordt wettelijk gezien geen ontheffing verleend. Buiten het broedseizoen kan wel ontheffing worden verleend.

Tevens zijn voor enkele soorten richtlijnen opgenomen vanuit de Habitatrichtlijn. Voor deze soorten zijn beschermde gebieden aangewezen (Natura 2000). Bescherming van deze soorten vindt plaats door de gebiedsbescherming.

De grond op de planlocatie bestaat uit een voormalig agrarisch erf dat regelmatig in beroering is geweest en aangrenzende weidegronden. Ten behoeve van de ontwikkeling worden geen gebouwen gesloopt of watergangen gedempt. Wel worden weidegronden die mogelijk geschikt zijn als geschikte biotoop voor weidevogels omgezet in agrarisch erf. Effecten kunnen worden uitgesloten indien de bouwwerkzaamheden worden gestart buiten het broedseizoen. Hiermee is het aannemelijk dat met de beoogde ontwikkeling geen beschermde soorten worden vernietigd of verstoordzich binnen het plangebied geen beschermde dier- en plantensoorten worden aangetast.

4.3 Verkeer en parkeren

Een onderdeel van een goede ruimtelijke ordening is het effect van een beoogd nieuw project op de verkeers- en infrastructuur. Hierbij is het van belang of de voorgenomen ontwikkeling grote veranderingen ten aanzien van verkeer en infrastructuur teweeg brengt.

4.3.1 Ontsluiting

Een goede ontsluiting is gerealiseerd op de Hoenkoopse Buurtweg. De planlocatie is voorzien van een enkel in- en uitrit op deze straat. Hierbij heeft het inkomend en vertrekkend verkeer voldoende ruimte om het bedrijf te betreden en verlaten, waardoor geen onnodige verkeershinder op de Hoenkoopse Buurtweg zal plaatsvinden.

Op het terrein zelf is voldoende gelegenheid voor personenauto's en vrachtwagens om te keren. Hierbij hoeft niet op de Hoenkoopse Buurtweg alsnog gekeerd te worden, waardoor geen achteruit rijdende personenauto's en/of vrachtwagens de Hoenkoopse Buurtweg op hoeven rijden. Dit bevordert de verkeersveiligheid.

4.3.2 Verkeersbewegingen

Bij de voorgenomen ontwikkeling zal het aantal verkeersbewegingen gering toenemen. De Hoenkoopse Buurtweg biedt, volgens gegevens van de gemeente, voldoende capaciteit om dit verkeer te kunnen verwerken. Het verkeer dat zich van en naar het bedrijf begeeft zal, mede door de capaciteit en drukte van de Hoenkoopse Buurtweg op gaan in het heersende verkeersbeeld.

4.3.3 Infrastructuur

Een nieuwe ontwikkeling mag geen nadelige gevolgen hebben op de bestaande infrastructuur. Hierbij is het van belang de bestaande infrastructuur zoveel mogelijk te behouden en, waar mogelijk, te versterken.

Bij de voorgenomen ontwikkeling zal uitsluitend gebruik worden gemaakt van de bestaande infrastructuur. Hierbij zal rekening worden gehouden met de capaciteit van de ontsluitingsweg, zodat geen situatie ontstaat waarbij meer verkeer over de ontsluitingsweg rijdt dan dat deze kan verwerken.

Hiermee kan worden gesteld dat geen sprake is van aantasting van de bestaande infrastructuur.

4.3.4 Parkeren

In de huidige situatie vindt het parkeren geheel op eigen terrein plaats. Bij de voorgenomen ontwikkeling is het vereist dat het parkeren ook na realisatie van de plannen geheel op eigen terrein plaatsvindt. Ook na realisatie van de plannen zal er op eigen terrein voldoende gelegenheid zijn voor zowel vracht- als personenauto's om te kunnen parkeren. Hiermee zal parkeren, ook na realisatie van de plannen, geheel op eigen terrein plaatsvinden.

4.3.5 Conclusie

De planlocatie is reeds voorzien van een goede ontsluiting. Deze ontsluiting zal na de realisatie van de plannen niet verslechteren.

Het is van belang te kijken of de capaciteit van de ontsluitingsweg voldoende groot is om een eventuele toename van het aantal verkeersbewegingen te kunnen verwerken. Bij de voorgenomen ontwikkeling is sprake van een toename van het aantal verkeersbewegingen. Uit gegevens van de gemeente blijkt dat de onsluitingsweg voldoende capaciteit biedt om deze toename te kunnen verwerken.

Bij ontwikkelingen mag de bestaande infrastructuur niet worden aangetast. Bij de voorgenomen ontwikkeling zal uitsluitend gebruik worden gemaakt van de bestaande infrastructuur. Hiermee is geen sprake van aantasting van de huidige infrastructuur.

Om verkeers- en parkeerdruk op de ontsluitingswegen dient parkeren geheel op eigen terrein plaats te vinden. In de huidige situatie is voldoende gelegenheid voor zowel vracht- als personenauto's om te kunnen keren en parkeren. Ook na realisatie van de plannen zal voldoende parkeergelegenheid op eigen terrein blijven bestaan. Hiermee zal parkeren van zowel vracht- als personenauto's geheel op eigen terrein plaatsvinden, ook na realisatie van de plannen.

Hiermee kan worden gesteld dat ten aanzien van het aspect verkeer en parkeren geen belemmeringen te verwachten zijn.

4.4 Archeologie en cultuurhistorie

4.4.1 Archeologie

Op 16 januari 1992 is in Valletta (Malta) het Europees Verdrag inzake de bescherming van het archeologisch erfgoed (Verdrag van Malta) ondertekend. Het Nederlandse parlement heeft dit verdrag in 1998 goedgekeurd. Het Verdrag van Malta voorziet in bescherming van het Europees archeologisch erfgoed onder meer door de risico's op aantasting van dit erfgoed te beperken. Deze bescherming is in Nederland wettelijk verankerd in de Monumentenwet. Op basis van deze wet zijn mogelijke (toevals)vondsten bij het verrichten van werkzaamheden in de bodem altijd beschermd. Er geldt een meldingsplicht bij het vinden van (mogelijke) waardevolle zaken. Dat melden dient terstond te gebeuren. In het kader van een goede ruimtelijke ordening in relatie tot de Monumentenwet kan vooronderzoek naar mogelijke waarden nodig zijn zodat, waar nodig, die waarden veilig gesteld kunnen worden en/of het initiatief aangepast kan worden.

De gemeente Oudewater heeft een eigen archeologiebeleid vastgesteld, waarbij de kans op het aantreffen van archeologische resten in de bodem in beeld is gebracht op een archeologische verwachtingskaart. Afhankelijk van de waarde stelt de gemeente voorwaarden voor het uitvoeren van archeologisch onderzoek.

Zoals te zien op de archeologische verwachtingskaart, welke is weergegeven in de volgende figuur, heeft het noordelijke deel van het plangebied met een hoge verwachtingswaarde en het zuidelijk deel een middelhoge verwachtingswaarden. De nieuw te bouwen stal ligt binnen beide verwachtingswaarden.
afbeelding "i_NL.IMRO.0589.0000210313-OW01_0010.png"
Archeologische verwachtingswaarde.
Bron: Archeologisch onderzoek ADC/gemeente Oudewater
Ten aanzien van gebieden met ee hoge verwachtingswaarde stelt de gemeente in haar beleid dat voor bouwwerken met een omvang van meer dan 200 m² en met een diepte van meer dan 0,3 meter niet mogen worden gebouwd tenzij:

  • a. op basis van aanvullend en/of definitief archeologisch onderzoek is aangetoond dat op de betrokken locatie geen archeologische waarden (meer) aanwezig zijn;
  • b. naar het oordeel van burgemeester en wethouders de archeologische waarde van het terrein in andere beschikbare informatie voldoende is vastgesteld;
  • c. het bouwplan betrekking heeft op wijziging of vervanging van bestaande bebouwing, waarbij de oppervlakte niet wordt uitgebreid en de bestaande fundering wordt gebruikt.

Voor gebieden met een middelhoge verwachtingswaarde geldt het bovenstaande vanaf een omvang van 2.500 m² en een diepte van 1 meter.

Gelet op de omvang van de nieuwe stal en de diepte van de mestkelder dient aangetoond te worden dat met de voorgenomen ontwikkeling geen archeologische resten zullen worden geschaad. Om dit aan te tonen is door ADC ArcheoProjecten in december 2012 een archeologisch onderzoek uitgevoerd. Dit onderzoek bestond uit een bureauonderzoek en Inventariserend veldonderzoek in de vorm van een verkennend booronderzoek uitgevoerd op de locatie van de nieuw te bouwen stal.

Volgens de gespecificeerde verwachting uit het bureauonderzoek werden in de diepere ondergrond van het plangebied oever- op beddingafzettingen van de Benschopse meandergordel (actief tussen 6.418-4.175 v. Chr.) verwacht. In de top van de oeverafzettingen van deze fossiele rivier kunnen archeologische resten voorkomen uit de perioden Mesolithicum en Neolithicum. Nadat de Benschopse meandergordel in het Neolithicum dichtgeslibd was, trad een sterke vernatting van het landschap op. Het plangebied maakte in de daarop volgende periode deel uit van een uitgestrekt komgebied, de voornamelijk veenvorming plaatsvond. Komgebieden waren doorgaans zeer nat en ongunstig voor bewoning. In de eerste helft van de 12e eeuw n. Chr. werden dijken aangelegd en werd de Lopikerwaard ontgonnen. De bewoning in het concentreerde zich op de koppen van langgerekte percelen, waardoor zogenoemde bewoningslinten ontstonden. Uit oude kaarten blijkt dat de bebouwing zich direct aan de voorloper van de huidige Hoenkoopse Buurtweg bevond. Het plangebied bevindt zich echter op enige afstand van de weg en kende, zo ver dat op basis van kaartmateriaal vastgesteld kan worden, vermoedelijk geen bebouwing. Indien toch nog resten uit de Late Middeleeuwen en Nieuwe tijd aanwezig zijn, bevinden deze zich direct aan het maaiveld.

Teneinde deze verwachting te toetsen werd in het plangebied een verkennend booronderzoek

uitgevoerd. Vanaf 600 cm -mv tot minimaal 180 cm -mv in boring 2 en maximaal 40 cm -mv in boring 4 is een afwisseling van matig humeuze kleilagen met plantenresten en veen aangetroffen. Deze bodemopbouw is kenmerkend voor natte komgebieden. Op het klei-/veenpakket zijn omgewerkte en/of opgebrachte lagen grond aanwezig, waarin puinresten, recent baksteen, plastic en recent glas aangetroffen zijn. Ter plaatse van boring 2 is een groot deel van de grond tot ca. 180 cm -mv afgegraven en vervolgens opgevuld met baksteen en puinresten, vermoedelijk om verzakking van het maaiveld tegen te gaan. Ook in boring 3 is dit pakket aangetroffen.

In het plangebied zijn tot een diepte van 600 cm -mv geen oeverafzettingen van de Benschopse meandergordel aanwezig. Mogelijk bevinden deze zich dieper in de ondergrond. Eventuele resten gerelateerd aan deze stroomgordel zullen slechts beperkt (ter plaatse van heipalen) worden aangetast. Er zijn geen aanwijzingen voor de aanwezigheid van resten uit de Late Middeleeuwen en Nieuwe tijd.

ADC ArcheoProjecten adviseert om het terrein vrij te geven voor de voorgenomen ontwikkeling. Het aspect archeologie vormt hiermee geen belemmering voor de uitvoering van dit plan.

Voor het volledige onderzoek wordt verwezen naar bijlage 2 van dit plan.

4.4.2 Cultuurhistorie

De locatie is gelegen in een bebouwingslint waarin diverse karakteristieke en monumentale boerderijen zijn gelegen. De bestaande boerderij is niet aangewezen als rijks- of gemeentelijk monument. Andere cultuurhistorische waarden zijn ook niet aanwezig.

4.4.3 Aardkundige waarden

Het doel van het beleid met betrekking tot aardkundige waarden is om de ontstaansgeschiedenis van het aardoppervlak zichtbaar, beleefbaar en begrijpelijk te houden. Om aardkundige waarden te beschermen zijn aardkundig waardevolle gebieden aangewezen. Gezien de planlocatie niet in een aardkundig waardevol gebied is gelegen zullen met de voorgenomen ontwikkeling geen aardkundige waarden worden aangetast.

4.5 Wateraspecten

Het aspect water is van groot belang binnen de ruimtelijke ordening. Door verstandig om te gaan met het water kan verdroging en wateroverlast (waaronder ook risico van overstromingen e.a.) voorkomen worden en kan ook de kwaliteit van het water hoog gehouden worden.

4.5.1 Waterparagraaf

Met ingang van 3 juli 2003 is een watertoets in de vorm van een waterparagraaf en de toelichting hierop een verplicht onderdeel voor ruimtelijke plannen van provincies, regionale openbare lichamen en gemeenten. Met dit besluit wordt de zogenaamde watertoets verankerd in het Besluit van ruimtelijke ordening 1985. Dit houdt in dat de toelichting bij het ruimtelijk plan een beschrijving dient te bevatten van de wijze waarop rekening is gehouden met de gevolgen voor de waterhuishouding. Dit beleid is voortgezet in het huidige Besluit ruimtelijke ordening.

In dit besluit wordt het begrip “waterhuishouding” breed opgevat. Aangesloten wordt bij de definitie zoals die is opgenomen in de Wet waterhuishouding (art. 1Wwh). Zowel het oppervlaktewater als het grondwater valt onder de zorg voor de waterhuishouding. Bij de voorbereiding van een waterparagraaf dienen alle van belang zijnde waterhuishoudkundige aspecten beoordeeld te worden. Naast veiligheid en wateroverlast (waterkwantiteit) zullen ook de gevolgen van het ruimtelijk plan voor de waterkwaliteit en verdroging bezien worden.

4.5.2 Waterbeleid

Bij de planvorming zijn er verschillende partijen betrokken met betrekking tot water.

  • Hoogheemraadschap De Stichtse Rijnlanden (belangrijkste beleidsnota's: Waterbeheerplan 2010-2015 'Water Voorop!' en Waterstructuurvisie, Keur en Legger);
  • Provincie Utrecht of de Provincie Zuid-Holland (Provinciaal waterplan, Grondwaterplan, provinciale milieuverordening);
  • Gemeente (Waterplan, GRP, Milieuplan).

In de beleidsstukken wordt uitgegaan van de volgende basisprincipes voor omgaan met water:

  • vasthouden - bergen - afvoeren (waterkwantiteit);
  • schoon houden - scheiden - zuiveren (waterkwaliteit);
  • waarborg tegen overstroming - overstromingsrobuust bouwen (veiligheid).
4.5.3 Overleg met hoogheemraadschap en waterwetvergunning

In het kader van de benodigde vergunningen op grond van de Waterwet, het Waterbesluit, de Waterregeling, de Keur vindt overleg plaats met het Hoogheemraadschap. De initiatiefnemer gaat er vanuit dat dit overleg zal resulteren in een vergunning op grond van de Waterwet en een positief advies inzake dit wijzigingsplan.

Uitgangspunt voor het overleg met het Hoogheemraadschap vormt de toename van verhard oppervlak.

Saldering verhard oppervlakte:

  • nieuwe stal 1.782 m²
  • nieuw aan te leggen verharding achter de stal 280 m²
  • aanleggen van twee nieuwe kuilplaten 800 m²
  • sloop twee bestaande kuilplaten - 760 m²
  • Gelet op het bovenstaande neemt het verhard oppervlak toe met 2.102 m².

Daarnaast wordt de bestaande watergang achter de bestaande kuilvoeropslagen gedempt. Deze heeft een oppervlakte van 125 m² ( 50 m X 2,5 m).

Voor de toename van het verhard oppervlak geldt een compensatie-eis van 15% open water. De te dempen watergang dient 100% gecompenseerd te worden. Dit betekent dat er in totaal 440,3 m² nieuw opperlvakte water moet worden gerealiseerd. Dit krijgt vorm door één of meerdere watergangen in de directe omgeving te verbreden.

Vuil water vanuit de nieuw op te richten stal zal niet worden geloosd op het oppervlaktewater maar op de mestkelder.

Gelet op het voorgaande wordt er vanuit gegaan dat het aspect water geen belemmering zal vormen voor de uitvoering van dit plan.

4.6 Kabels en leidingen

In de noordwesthoek van het plangebied ligt een bestaande hogedruk gasleiding. De leiding en de bijbehorende belemmeringsstrook van 4 meter aan weerszijden van de leiding worden in dit plan gerespecteerd doordat de nieuwe stal wordt opgericht buiten deze zone.. De nieuw op te richten bebouwing wordt ten noorden van deze leidingen opgericht. De leidingen vormen geen belemmering voor de uitvoering van dit project.

Hoofdstuk 5 Uitvoerbaarheid

5.1 Economische uitvoerbaarheid

Bij de voorbereiding van een nieuw ruimtelijk project dient op grond van artikel 3.1.6 lid 1, sub f van het Besluit ruimtelijke ordening (Bro) onderzoek plaats te vinden naar de uitvoerbaarheid van het plan. Onderdeel daarvan is een onderzoek naar de financiële haalbaar van het plan. Een tweede bepaling omtrent het financiële aspect is het eventueel verhalen van plankosten. In principe dient bij vaststelling van het ruimtelijke besluit tevens een exploitatieplan vastgesteld te worden om verhaal van plankosten zeker te stellen. Op basis van afdeling '6.4 grondexploitatie', artikel 6.12, lid 2 van de Wet ruimtelijke ordening (Wro) kan besloten worden geen exploitatieplan vast te stellen indien:

  • 1. het verhaal van kosten van de grondexploitatie over de in het plan of besluit begrepen gronden anderszins verzekerd is;
  • 2. het bepalen van een tijdvak of fasering als bedoeld in artikel 6.13, eerste lid, onder c, 4°, onderscheidenlijk 5°, niet noodzakelijk is, en het stellen van eisen, regels, of een uitwerking van regels als bedoeld in artikel 6.13, tweede lid, onderscheidenlijk b, c of d, niet noodzakelijk is.

Het bouwplan is een bij een Algemene Maatregel van Bestuur (AMvB) aangewezen bouwplan ex artikel 6.12 Wro. Hierin is het onderdeel grondexploitatie opgenomen. Gemaakte kosten door de gemeente worden middels het heffen van leges op de initiatiefnemer verhaald zoals is opgenomen in de legesverordening van de gemeente Oudewater.

Eventuele planschade wordt afgedekt via een planschade-verhaalsovereenkomst.Hiermee is het verhaal van kosten van de grondexploitatie over de in het plan begrepen gronden anderzijds verzekerd, waarmee geen exploitatieplan hoeft te worden opgesteld. Hiermee kan worden gesteld dat het plan financieel haalbaar wordt geacht.

5.2 Maatschappelijke uitvoerbaarheid

In artikel 4.6.1. van het ter plaatse geldende bestemmingsplan “Landelijk Gebied Oudewater en Willeskop” is een wijzigingsbevoegdheid opgenomen voor het vergroten van het agrarische bouwperceel tot een omvang van maximaal 1,5 ha, waarbij aan de vergroting van de agrarische bedrijfsomvang nadere voorwaarden worden gesteld.

Op grond van artikel 3.9a en 3.8 lid 3 van de Wet ruimtelijke ordening is de uniforme openbare voorbereidingsprocedure (ex afdeling 3.4 Algemene wet bestuursrecht) van toepassing. Het ontwerpwijzigingsbesluit heeft dan ook (na voorafgaande kennisgeving in de Staatscourant en het Gemeenteblad) van ……. tot ……. 2013 ter inzage gelegen. Gedurende deze zes weken zijn belanghebbenden in de gelegenheid gesteld zienswijzen op het ontwerpbesluit in te dienen.

Van deze mogelijkheid is wel/geen gebruik gemaakt.

Met de voorbereiding van het voorliggende wijzigingsplan wordt tevens het besluit op de aanvraag om omgevingsvergunning gecoördineerd voorbereid. Dit betekent dat de (ontwerp)besluiten gelijktijdig bekend zijn gemaakt en zijn aan te merken als een besluit, waartegen enkel beroep bij de Raad van State mogelijk is.

Hoofdstuk 6 Wijze van bestemmen


Dit wijzigingsplan bestaat uit een verbeelding, planregels en een toelichting. De verbeelding en de planregels vormen tezamen het juridisch bindende gedeelte van het bestemmingsplan. Beide planonderdelen dienen in onderlinge samenhang te worden bezien en toegepast. Op de verbeelding zijn de bestemmingen aangewezen. Aan deze bestemmingen zijn bouwregels en regels betreffende het gebruik gekoppeld.

De toelichting heeft geen rechtskracht, maar vormt niettemin een belangrijk onderdeel van het plan. De toelichting van dit bestemmingsplan geeft een weergave van de beweegredenen, de onderzoeksresultaten en de beleidsuitgangspunten die aan het bestemmingsplan ten grondslag liggen. Tot slot is de toelichting van wezenlijk belang voor een juiste interpretatie en toepassing van het bestemmingsplan.

Op dit wijzigingsplan worden de regels van het geldende bestemmingsplan "Landelijk gebied Oudewater en Willeskop" integraal van toepassing verklaard.

Voorliggend wijzigingsplan bevat de volgende bestemmingen:

  • 'Agrarisch - Agrarisch bedrijf', deze bestemming bevat de gebruiks- en bouwregels die van toepassing zijn op het agrarisch bedrijf;
  • 'Waarde Archeologische verwachting hoog';
  • 'Waarde Archeologische verwachting middelhoog';
  • 'Leiding - Gas', dubbelbestemming uit het ter plaatse geldende bestemmingsplan ter bescherming van de aanwezige hogedruk-gasleiding.