direct naar inhoud van Toelichting
Plan: Hessenweg 19
Status: ontwerp
Plantype: bestemmingsplan
IMRO-idn: NL.IMRO.0273.BPBGHessenweg19-ON01

Toelichting

Hoofdstuk 1 Inleiding

1.1 Aanleiding en doel

1.1.1 Aanleiding

Het voorliggend bestemmingsplan is een herziening van het op 4 juli 2013 vastgestelde bestemmingsplan Oostelijk Buitengebied. Het betreft de locatie Hessenweg 19 te Putten.

Op het perceel Hessenweg 19 heeft in 2010 een verbouwing plaatsgevonden. Uit controle is gebleken dat een deel van het bijgebouw wordt gebruikt als keuken bij de woning. Feitelijk betekent dit een vergroting van de woning. De vergroting bedraagt 154 m³.

Conform het geldende bestemmingsplan mag de inhoud van een woning niet meer bedragen dan de bestaande inhoud, vermeerderd met 100 m³, tot een maximum van 660 m³. In het bestemmingsplan is geen regeling opgenomen om bij recht de woning verder uit te breiden.

De gerealiseerde vergroting van de woning is hierdoor niet toegestaan conform het geldende bestemmingplan. Om de ontwikkeling te legaliseren is een nieuw juridisch-planologisch kader noodzakelijk. Dit bestemmingsplan voorziet daarin.

1.1.2 Doel

De inhoud van de woning, inclusief de inhoud van de keuken, overschrijdt de maximale inhoudsregeling zoals opgenomen in het bestemmingsplan Oostelijk Buitengebied.

De uitbreiding is gesitueerd tussen het bestaande woonhuis en het bestaande gastenverblijf. Door de uitbreiding zijn de twee gebouwen aan elkaar gekoppeld en bedraagt het totale inhoud van de woning 868 m3. Met dit bestemmingsplan wordt de aanwezige inhoud juridisch-planologisch geregeld.

1.2 Ligging plangebied

Het perceel Hessenweg 19 ligt ten oosten van de kern Putten en maakt deel uit van het buurtschap Koudhoorn. Het perceel is bereikbaar via de Hessenweg en wordt omgeven door agrarische gronden, bospercelen, woningen en een chaletpark. Het gebied ligt in het Nationaal Landschap Veluwe en maakt deel uit van het Natuurnetwerk Nederland (NNN) en het Natura 2000 gebied Veluwe.

In figuur 1.1. is de ligging van het plangebied weergegeven.

afbeelding "i_NL.IMRO.0273.BPBGHessenweg19-ON01_0001.png"

Figuur 1.1: Ligging plangebied (bron: Google)

1.3 Planologische juridisch kader

Het perceel Hessenweg 19 ligt in het bestemmingsplan 'Oostelijk Buitengebied' dat op 4 juli 2013 door de raad van de gemeente Putten is vastgesteld. In dit bestemmingsplan is voor het perceel de enkelbestemming 'Wonen - 1' met bouwvlak en dubbelbestemming 'Waarde - Archeologie 3' van toepassing. Binnen de woonbestemming is één woning toegestaan met een inhoud van maximaal 660 m3 en bijgebouwen met een oppervlakte tot maximaal 50 m².

Figuur 1.2 geeft een uitsnede weer van het geldende bestemmingsplan.

afbeelding "i_NL.IMRO.0273.BPBGHessenweg19-ON01_0002.png"

Figuur 1.2: Uitsnede geldende bestemmingsplan Oostelijk Buitengebied (bron: www.ruimtelijkeplannen.nl)

1.4 Leeswijzer

In hoofdstuk 2 wordt ingegaan op het relevante beleid op rijks-, provinciaal en gemeentelijk niveau. In hoofdstuk 3 wordt ingegaan op de huidige- en toekomstige situatie. In hoofdstuk 4 wordt ingegaan op de milieu- en omgevingsaspecten. Vervolgens wordt in hoofdstuk 5 uitleg gegeven over de planregels. De uitvoerbaarheid van het plan komt in hoofdstuk 6 aan bod, waarbij wordt ingegaan op de economische en maatschappelijke uitvoerbaarheid van dit bestemmingsplan.

Hoofdstuk 2 Beleidskader

Het beleid van de gemeente Putten vormt het kader waarbinnen de functionele en ruimtelijke ontwikkelingen worden vastgesteld. De ruimtelijke ontwikkelingsplannen van rijk en provincie vormen randvoorwaarden voor het gemeentelijke beleid. Voor zover relevant voor dit bestemmingsplan worden in de volgende paragrafen het rijks-, provinciaal, regionaal en gemeentelijk beleid toegelicht.

2.1 Rijksbeleid

2.1.1 Besluit ruimtelijke ordening (Bro)

In artikel 3.1.6 lid 2 van het Besluit ruimtelijke ordening (Bro) is de verplichting opgenomen om in de toelichting op een ruimtelijk besluit voor nieuw te realiseren stedelijke ontwikkelingen bepaalde duurzaamheidsaspecten van het voornemen te motiveren. Via deze duurzaamheidsladder stimuleert het Rijk de herstructurering van bestaand stedelijk gebied om de ontwikkeling van nieuwe terreinen te verminderen. Dit draagt bij aan economische dynamiek, zorgvuldig gebruik van ruimte en infrastructuur en behoud van de leefbaarheid van het stedelijk en landelijk gebied.

De 2 stappen van de Ladder

In het Bro staan de twee stappen van de Ladder beschreven:

  • 1. Voorziet de voorgenomen ontwikkeling in een behoefte?
  • 2. Kan in deze behoefte worden voorzien door herstructurering, intensivering of transformatie binnen bestaand stedelijk gebied?

Dit bestemmingsplan maakt geen nieuwe stedelijke ontwikkeling mogelijk. Het plan voorziet in de legalisering van de uitbreiding van een bestaande woning. Gelet op de relatieve kleinschaligheid wordt deze ontwikkeling niet gezien als een stedelijke ontwikkeling als bedoeld in artikel 1.1.1, eerste lid, aanhef en onder i, van het Bro. Toetsing aan de ladder voor duurzame verstedelijking is daarom niet aan de orde.

2.2 Provinciaal beleid

2.2.1 Omgevingsvisie Gelderland

De wijze waarop wordt omgegaan met ruimtelijke opgaven komt in de Omgevingsvisie Gelderland aan bod, waarbij de provincie partijen uitnodigt om deel te nemen.

De provincie wil minder sturen en meer begeleiden, inspireren en verbinden. De geldende afspraken over wonen en bedrijventerreinen in regionaal verband blijven bestaan. Verder zijn specifieke aandachtspunten: de leegstand en overcapaciteit, krimpgebieden, energietransitie, verblijfsrecreatie en de herijking van de EHS (Ecologische hoofdstructuur), die nu is opgedeeld naar een Gelders Natuurnetwerk (GNN) en een Gelderse Groene Ontwikkelingszone (GO). Ook de landbouwsector verandert en er zijn ambities op het gebied van mobiliteit en openbaar vervoer. De hoofddoelstellingen zijn:

  • 1. Het versterken van een duurzame economische structuur;
  • 2. Het borgen van de kwaliteit en veiligheid van onze leefomgeving.

Wat dit laatste betreft komt de nadruk meer te liggen op gezondheidseffecten. Specifieke gebiedskwaliteiten worden vastgelegd in een Gebiedsatlas en de provincie organiseert kwaliteitsateliers.

Ten aanzien van het wonen is de koers gewijzigd van kwantiteit naar kwaliteit. Regio's dienen zelf te letten op de aansluiting bij de vraag en de provincie vraagt aandacht voor het terugdringen van de algehele plancapaciteit.

Daarop aanvullend valt het plangebied binnen de Groene ontwikkelingszone (GO). De GO bestaat uit alle gebieden met een andere bestemming dan natuur binnen de voormalige Gelderse EHS. Het beleid met betrekking tot de GO is gericht op het versterken van de ecologische samenhang door de aanleg van ecologische verbindingszones, waaronder landgrensoverschrijdende klimaatcorridors. De ontwikkelingsdoelstelling is tweeledig: ontwikkeling van functies in combinatie met versterking van de kernkwaliteiten natuur en landschap.

Het plangebied is tevens gelegen op gronden met de status van Nationaal Landschap. Deze gronden geven op (inter)nationale schaal een afspiegeling van de landschappelijke diversiteit en krijgen daarom speciale aandacht. Het beleid is dan ook gericht op het behoud, herstel en versterking van de kernkwaliteiten in dit gebied waarbij de landschappelijke samenhang vergroot dient te worden.

Met dit plan gaan geen ontwikkelen gepaard die landschappelijk ingepast dienen te worden en/of een afbreuk zullen doen aan de omliggende natuurwaarden. Het perceel is reeds voorzien van een woonbestemming met de aanwezigheid van een woning. Dit bestemmingsplan voorziet in de legalisering van de uitbreiding van de bestaande woning. Gezien de ligging van het perceel tegen de bosrand en de oppervlakte van de kavel, zijn hiervoor geen bezwaren.

Vanuit de Omgevingsvisie zijn er geen tegenstrijdige belangen waarmee in de voorliggende ontwikkeling rekening moet worden gehouden.

2.2.2 Omgevingsverordening Gelderland

In de Omgevingsverordening Gelderland worden regels gesteld waaraan ontwikkelingen moeten voldoen. In de toelichting op een bestemmingsplan of de ruimtelijke onderbouwing dient te worden beoordeeld of aan gestelde regels wordt voldaan.

Ook vanuit de Omgevingsverordening zijn er geen tegenstrijdige belangen voor de voorgenomen vergroting van de aanwezige woning.

2.2.3 Functieveranderingsbeleid regio Food Valley

Op 21 maart 2017 heeft de gemeenteraad van Putten het functieveranderingsbeleid Regio Food Valley 2016 (versienr. 583635) als beleidskader vastgesteld. Dit beleid is ook van toepassing verklaard op het buitengebied van Putten dat buiten de begrenzing van het toepassingsgebied Regio Food Valley 2016 ligt, waaronder dus ook het Oostelijk buitengebied.

In het functieveranderingsbeleid Regio Foodvalley 2016 wordt de bredere inzet van sloopmeters voor woonfuncties omschreven. Met compensatie kan een grotere inhoudsmaat van woningen worden toegestaan. Het vergroten van een woning geeft een aanzienlijker kleiner ruimtebeslag, dan wanneer met de betreffende sloopmeters een extra nieuwe woning mogelijk wordt gemaakt. Als hoofdlijn voor de vergroting hanteert de Regio een maximale inhoudsmaat voor woningen van 1.000 m³ voor alle typen woningen.

In de gemeente Putten wordt echter een maximale inhoudsmaat van 990 m3 gehanteerd. Hiervoor geldt de onderstaande regeling:

Grotere inhoud van de woning   Compensatie sloopmeters  
Tot en met 990 m3   Per 1 m3 vergroting > 1,5 m2 sloopmeters  

Op basis van een berekening van de technische tekening behorend bij de afgegeven omgevingsvergunning 2010, is de bestaande inhoud 714 m³. Volgens het bestemmingsplan Oostelijk Buitengebied is de inhoud van een woning maximaal 660 m³. Tevens is een afwijkingsbevoegdheid van toepassing om de inhoud te vergroten tot maximaal 800 m³. Op het perceel Hessenweg 19 is een woning aanwezig met een totale inhoud 868 m³. Ten opzichte van de bestaande inhoud betekent dit een vergroting van 154 m³. Bij toepassen van het functieveranderingsbeleid kan een grotere inhoud worden toegestaan tot maximaal 990 m³. De inhoud van de woning (868 m³) blijft onder deze maximale inhoud. Voor de vergroting van de woning met 154 m³ geldt op basis van het beleid dat er sloopmeters moeten worden aangekocht. In totaal moet voor de uitbreiding (154 * 1.5) 231 m² aan inzetbare sloopmeters worden aangekocht.

De initiatiefnemer heeft de benodigde inzetbare sloopmeters aangekocht. Hiervoor is een koopovereenkomst gesloten. De sloopmeters zijn afkomstig van het perceel Hellerweg 7, 7a en 7b.

De voorgenomen ontwikkeling sluit daarmee aan bij de uitgangspunten van het functieveranderingsbeleid voor Regio Food Valley 2016.

2.3 Gemeentelijk beleid

2.3.1 Structuurvisie Putten 2030

In de gemeentelijke structuurvisie is aangegeven dat er tal van ruimtelijke ontwikkelingen spelen die vragen om een positiebepaling. Er is daarbij behoefte aan een actueel en samenhangend gemeentelijk ruimtelijk beleid. Met de structuurvisie wordt voorkomen dat ruimtelijke afwegingen slechts de korte

termijn en/of incidentele of individuele (sector)belangen dienen. Het plangebied is daarbij aangemerkt als onderdeel van Koudhoorn, waarin diverse functie voorkomen in de vorm van wonen, agrarische- en niet-agrarische bedrijven, maatschappelijke voorzieningen en recreatiebedrijven. Als ruimtelijke visie is aangegeven dat uitbreiding van bebouwing mogelijk is mits het groene en kleinschalige karakter behouden blijft. Het voorgenomen initiatief sluit hier dan ook op aan.

Hoofdstuk 3 Huidige situatie en beschrijving ontwikkeling

3.1 Huidige situatie

Het plangebied maakt onderdeel uit van de agrarische enclave Koudhoorn. Koudhoorn is één van de kenmerkende open agrarische enclaves op de westflank van de Veluwe. Hoewel de naam agrarische enclave anders doet vermoeden is de agrarische bedrijvigheid in het buurtschap tot een minimum beperkt. De enclave wordt gekenmerkt door ruim opgezette woonpercelen, open randen tussen de kern en het bos en cultuurhistorische structuren.

Voor het behoudt van de uitstraling van Koudhoorn wordt ingezet op verbetering van de beleving van de bosranden en de beeldkwaliteit. Nieuwe ontwikkelingen moeten zorgvuldig worden afgewogen en passend zijn binnen de uitstraling van het buurtschap.

Op het perceel Hessenweg 19 (circa 2,3 hectare) is woning aanwezig met een (vergunde) inhoud van 714 m3, een gastenverblijf ten zuiden daarvan en drie bijbehorende schuren. De woning wordt in de huidige situatie ontsloten via de Hessenweg en is gelegen nabij het bosgebied van het Veluwemassief.

In figuur 3.1 is een luchtfoto opgenomen van deze situatie.

afbeelding "i_NL.IMRO.0273.BPBGHessenweg19-ON01_0003.png"

Figuur 3.1: luchtfoto huidige situatie (bron: Google)

3.2 Beschrijving ontwikkeling

In 2010 is een uitbreiding gerealiseerd, waarbij een bijgebouw is gerealiseerd. Uit controle is gebleken dat een deel van het bijgebouw wordt gebruikt als keuken. De inhoud van de uitbreiding is 154 m³. Feitelijk is het een uitbreiding van de inhoud van de woning. De totale inhoud van de woning is na realisatie van de uitbreiding 868 m³. Deze uitbreiding is conform het geldende bestemmingsplan niet toegestaan en ook niet mogelijk.

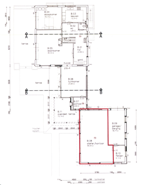
In figuur 3.2 is de vergroting weergegeven.

afbeelding "i_NL.IMRO.0273.BPBGHessenweg19-ON01_0004.png"

Figuur 3.2: Weergave vergroting woning (bron: VanWestreenen)

Op 21 maart 2017 heeft de gemeenteraad het functieveranderingsbeleid Regio Food Valley 2016 als beleidskader vastgesteld. Dit beleid is ook van toepassing verklaard op het oostelijk buitengebied.

In het functieveranderingsbeleid Regio Food Valley 2016 wordt de bredere inzet van sloopmeters voor woonfuncties beschreven. Met compensatie kan een grotere inhoudsmaat toe worden gestaan. Het vergroten van een woning geeft een aanzienlijk kleiner ruimtebeslag, dan wanneer met de betreffende sloopmeters een extra woning mogelijk wordt gemaakt. Als hoofdlijn voor deze vergroting hanteert de regio een maximale inhoudsmaat van 1.000 m³ voor alle typen woningen. In de gemeente Putten is deze maximum maat gezet op 990 m³.

In het Functieveranderingsbeleid is een systeem opgezet hoeveel sloopmeters er moeten worden ingezet om de vergroting van een woning mogelijk te maken. Hiervoor is binnen de regio FoodValley een basisregeling opgesteld. Per 1 m³ vergroting van de inhoud van de woning dienen 1,5 m² sloopmeters te worden ingezet.

Om de gewenste vergroting van 154 m³ van de inhoud te compenseren, dient er 231 m² aan inzetbare sloopmeters te worden aangekocht.

Hoofdstuk 4 Omgevingsaspecten

Inleiding

In dit hoofdstuk worden de voor dit bestemmingsplan relevante milieuaspecten beschreven. Het plan richt zich op een vergroting van de aanwezige woning. Om te toetsen of de vergroting mogelijk is wordt in dit hoofdstuk ingegaan op de uitkomsten van de verschillende uitgevoerde onderzoeken.

Milieuzonering

In de omgeving van Hessenweg 19 zijn recreatieterreinen, woningen en een bedrijf gelegen. Op grond van de VNG-publicatie 'Bedrijven en milieuzonering' kan de omgeving rond het perceel Hessenweg 19 tot een rustige woonomgeving worden gerekend.

Het perceel is al voorzien van een woonbestemming met de aanwezigheid van een woning en bijbehorende bebouwing. De uitbreiding is gesitueerd tussen de woning en bijgebouw. Het aspect milieu vorm daardoor geen belemmering voor dit plan.

Archeologie

Voor het betreffende perceel geldt op basis van de Archeologisch Waardenkaart van Putten een archeologische dubbelbestemming. Op het perceel geldt Waarde - Archeologie 3. Voor de bestemming 'Waarde - Archeologie 3' geldt een vrijstelling van archeologisch onderzoek een oppervlakte tot 500 m² en voor ingrepen dieper dan 40 cm bij bouwwerken.

Het plan betreft de legalisering van de uitbreiding van de bestaande woning met een oppervlakte van circa 55 m2, waardoor nader onderzoek niet noodzakelijk is. Archeologie vormt geen belemmering voor het plan.

Bodem

Op grond van het Besluit ruimtelijke ordening (Bro) dient er in verband met de uitvoerbaarheid van een plan rekening te worden gehouden met de bodemgesteldheid in het plangebied. Bij functiewijziging dient te worden bekeken of de bodemkwaliteit voldoende is voor de beoogde functie en moet worden vastgesteld of er sprake is van een saneringsnoodzaak. In de Wet bodembescherming is bepaald dat als de bodemkwaliteit niet voldoet aan de norm voor de beoogde functie, de grond zodanig gesaneerd wordt, dat het kan worden gebruikt voor de desbetreffende functie (functiegericht saneren). Nieuwe bestemmingen worden bij voorkeur op schone grond gerealiseerd. Verdachte plekken met betrekking tot de kwaliteit van de bodem dienen in het kader van de Wet bodembescherming bij ruimtelijke plannen en projecten te worden gesignaleerd vanuit een goede ruimtelijke ordening.

Voor het plangebied is geen sprake van een verdachte locatie. Ook ziet het plan er niet op toe om de functie te wijzigen. De woonbestemming is al aanwezig in het plangebied. Het aspect bodem vormt daardoor geen belemmering voor de voorgenomen ontwikkeling.

Verkeer

De bestaande functie maakt het wonen al mogelijk. Met dit plan gaan dan ook geen extra verkeersbewegingen gepaard. De ontsluiting vindt plaats via de Hessenweg.

Met betrekking tot het parkeren is het uitgangspunt dat dit geheel op eigen terrein zal plaatsvinden. In het plangebied zijn- en blijven daarvoor voldoende parkeerplaatsen aanwezig.

Water

Via de Digitale Watertoets is het Waterschap Vallei en Veluwe geïnformeerd over dit bestemmingsplan. Hiermee is bepaald dat het plan een geen invloed heeft op de waterhuishouding en/of de afvalwaterketen. Het Waterschap heeft een positief wateradvies gegeven (geen waterschapsbelang) en verder overleg is niet nodig. De resultaten van de Digitale Watertoets zijn opgenomen in bijlage 1.

Het waterschap geen aan dat rekening moet worden gehouden met een aantal algemene en gebiedsspecifieke aandachtspunten voor water.

Vasthouden - bergen - afvoeren

Een belangrijk principe is dat een deel van het hemelwater binnen het plangebied wordt vastgehouden en/of geborgen en dus niet direct afgevoerd wordt naar de riolering of het oppervlaktewater. Hiermee wordt bereikt dat de waterzuiveringsinstallatie beter functioneert, verdroging wordt tegen gegaan en piekafvoeren in het oppervlaktewater (met eventueel wateroverlast in benedenstrooms gelegen gebieden) wordt voorkomen. Bij lozing op oppervlaktewater zal hiervan een melding gedaan moeten worden bij het waterschap.

Grondwaterneutraal bouwen

Om grondwateroverlast te voorkomen adviseert het waterschap om boven de gemiddelde hoogste grondwaterstand (GHG) te ontwerpen. Dit betekent dat aspecten zoals ontwateringsdiepte en infiltratie van hemelwater, beschouwd worden ten opzichte van de GHG. Het structureel onttrekken / draineren van grondwater is geen duurzame oplossing en moet worden voorkomen. Het waterschap adviseert de initiatiefnemer dan ook om voorafgaand aan de ontwikkeling een goed beeld te krijgen van de heersende grondwaterstanden en GHG. Eventuele grondwateroverlast is in eerste instantie een zaak voor de betreffende perceeleigenaar.

Schoon houden - scheiden - schoon maken

Om verontreiniging van bodem, grond- en/of oppervlaktewater te voorkomen is het van belang dat het afstromende hemelwater niet verontreinigd raakt. Dit kan door nadere eisen of randvoorwaarden te stellen aan bijvoorbeeld de toegepaste (bouw)materialen. Het waterschap verzoekt de initiatiefnemer de beslisboom voor het afkoppelen van verhard oppervlak van ons waterschap toe te passen.

Geluid

Op grond van de Wet geluidhinder geldt rond wegen met een maximumsnelheid hoger dan 30 km/uur, spoorwegen en inrichtingen die 'in belangrijke mate geluidhinder veroorzaken', een geluidzone. Bij ontwikkeling van nieuwe geluidsgevoelige objecten binnen deze geluidzones moet akoestisch onderzoek worden uitgevoerd om aan te tonen dat de ontwikkeling voldoet aan de voorkeursgrenswaarden die in de wet zijn vastgelegd.

Indien niet aan de voorkeursgrenswaarde kan worden voldaan, kan het bevoegd gezag - in de meeste gevallen de gemeente - hogere grenswaarden vaststellen. Hiervoor geldt een bepaald maximum, de uiterste grenswaarde genoemd. Bij de vaststelling van hogere grenswaarden moet worden afgewogen of bronmaatregelen of maatregelen in de overdrachtssfeer kunnen worden getroffen.

Dit bestemmingsplan voorziet niet in de realisatie van nieuwe geluidsgevoelige objecten. De uitbreiding van de woning is gerealiseerd achter de voorgevellijn van de woning, waardoor de woning niet dichter bij de weg is komen te liggen. Onderzoek naar dit aspect is dan ook niet nodig. De Wet geluidhinder vormt verder hierdoor geen belemmering voor dit bestemmingsplan.

Luchtkwaliteit

In het kader van een goede ruimtelijke ordening wordt bij het opstellen van een ruimtelijk plan uit het oogpunt van de bescherming van de gezondheid van de mens rekening gehouden met de luchtkwaliteit. Het toetsingskader voor luchtkwaliteit wordt gevormd door hoofdstuk 5, titel 5.2 van de Wet milieubeheer. Dit onderdeel van de Wet milieubeheer (Wm) bevat grenswaarden voor zwaveldioxide, stikstofdioxide en stikstofoxiden, fijn stof, lood, koolmonoxide en benzeen. Hierbij zijn in de ruimtelijke ordeningspraktijk langs wegen vooral de grenswaarden voor stikstofdioxide (jaargemiddelde) en fijn stof (jaar- en daggemiddelde) van belang. Luchtkwaliteitseisen vormen onder de 'Wet luchtkwaliteit' geen belemmering voor ruimtelijke ontwikkeling als:

  • er geen sprake is van een feitelijke of dreigende overschrijding van een grenswaarden;
  • een project, al dan niet per saldo, niet tot een verslechtering van de luchtkwaliteit leidt;
  • een project 'niet in betekenende mate' bijdraagt aan de luchtverontreiniging (<3% van de jaargemiddelde grenswaarde);
  • een project is opgenomen in een regionaal programma van maatregelen of in het NSL, dat in werking treedt nadat de EU derogatie heeft verleend.

Dit bestemmingsplan voorziet niet in de toevoeging van nieuwe woningen en/of andere geurgevoelige objecten. Onderzoek naar dit aspect is dan ook niet nodig. De voorgenomen ontwikkeling wordt daardoor niet belemmerd door het aspect luchtkwaliteit.

Ecologie

De Wet Natuurbescherming kan worden onderverdeeld in gebiedsbescherming (Natura 2000 gebieden en Natuurnetwerk Nederland) en soortenbescherming. Het plangebied is daarbij onderdeel van de agrarische enclave Koudhoorn. Deze agrarische enclave ligt in het Nationaal Landschap Veluwe en maakt deel uit van het NNN en het Natura 2000-gebied Veluwe.

Beschermde soorten

Dit bestemmingsplan voorziet in de legalisering van de uitbreiding van de woning. Daar gingen geen sloopwerkzaamheden mee gepaard. Gedurende de bouwwerkzaamheden is de algemene zorgplicht gehandhaafd.

Gebiedsbescherming

Op basis van de ligging en aard van de ruimtelijke ingrepen is de conclusie dat deze ingreep

geen negatieve invloed heeft op de specifieke natuurwaarden. Het in de omgeving aanwezige Natura 2000 gebied Veluwe ligt op circa 900 meter afstand.

Gelders natuurnetwerk / Groene Ontwikkelzone

Het plan ligt buiten de begrenzing van het GNN. Op basis van de ligging van het plangebied ten opzichte van de begrenzing van het GNN mag worden aangenomen dat er geen effecten zijn te verwachten op de wezenlijke waarden en kenmerken van het GNN. Specifieke maatregelen of aanvullend onderzoek worden niet nodig geacht. Het plan ligt wel geheel in de GO.

Het betreft een legalisering van de toegestane inhoudsmaat van een bestaande uitbreiding. De kernkwaliteiten worden met dit bestemmingsplan niet aangetast. Het aspect ecologie vormt geen belemmering voor dit bestemmingsplan.

Externe veiligheid

Het beleid voor externe veiligheid is gericht op het verminderen en beheersen van risico's van zware ongevallen met gevaarlijke stoffen in inrichtingen en tijdens het transport ervan. Op basis van de criteria zoals onder andere gesteld in het Besluit externe veiligheid inrichtingen (Bevi) worden bedrijven en activiteiten geselecteerd die een risico op zware ongevallen met zich mee (kunnen) brengen. Daarbij gaat het vooral om de grote chemische bedrijven, maar ook om kleinere bedrijven als LPG-tankstations en opslagen van bestrijdingsmiddelen. Daarnaast zijn (hoofd)transportassen voor gevaarlijke stoffen, zoals buisleidingen, spoor-, auto-, en waterwegen, ook als potentiële gevarenbron aangemerkt.

Het externe veiligheidsbeleid heeft tot doel zowel individuele burgers als groepen burgers een minimum beschermingsniveau te bieden tegen een ongeval met gevaarlijke stoffen. Om dit doel te bereiken zijn gemeenten en provincies verplicht om bij besluitvorming in het kader van de Wet milieubeheer en de Wet op de ruimtelijke ordening de invloed van een risicobron op zijn omgeving te beoordelen. Daartoe wordt binnen het werkveld van de externe veiligheid veelal het plaatsgebonden risico en het groepsrisico gehanteerd.

Het plaatsgebonden risico (PR) is de kans dat een persoon die zich gedurende een jaar onafgebroken onbeschermd op een bepaalde plaats bevindt, overlijdt als gevolg van een ongeval met gevaarlijke stoffen. Dit risico wordt per bedrijf en transportas vastgelegd in contouren. Er geldt een contour waarbinnen deze kans 1x10-6 (één op de miljoen) bedraagt.

Het groepsrisico (GR) is een berekening van de kans dat een groep personen binnen een bepaald gebied overlijdt ten gevolge van een ongeval met gevaarlijke stoffen. De oriëntatiewaarde geeft hierbij de indicatie van een aanvaardbaar groepsrisico. Indien een ontwikkeling is gepland in de nabijheid van een risicobron geldt afhankelijk van de ontwikkeling een verantwoordingsplicht voor het toelaten van gevoelige functies.

Besluit externe veiligheid inrichtingen (Bevi)

Voor bepaalde risicovolle bedrijven geldt het Besluit externe veiligheid inrichtingen (Bevi). Hierin zijn de risiconormen voor externe veiligheid met betrekking tot bedrijven met gevaarlijke stoffen wettelijk vastgelegd.

Transport van gevaarlijke stoffen (water, spoor, weg)

Voor de beoordeling van de risico's vanwege transport van gevaarlijke stoffen geldt het Besluit externe veiligheid transportroutes (Bevt), met als uitvloeisel het zogeheten Basisnet en de bijbehorende regeling Basisnet.

Transport van gevaarlijke stoffen door buisleidingen

Voor de beoordeling van de risico's van transport van gevaarlijke stoffen door buisleidingen geldt het Besluit externe veiligheid buisleidingen (Bevb). Naast de toetsing aan het plaatsgebonden risico en het groepsrisico is hierin vastgelegd dat aan weerszijden van een buisleiding een bebouwingsvrije afstand moet worden aangehouden voor beheer en onderhoud aan de buisleidingen.

Beleidsvisie externe veiligheid

In april 2014 is de Beleidsvisie externe veiligheid vastgesteld. Uitgangspunt van deze beleidsvisie is de toepassing van verschillende restrictieniveaus voor het al dan niet toestaan van risicovolle bedrijven op bedrijventerreinen. Elk bedrijventerrein is gekoppeld aan een restrictieniveau. Nieuwe risicobedrijven die onder het Bevi vallen worden dus niet per definitie uitgesloten, maar dit is wel als restrictieniveau opgenomen. Het oprichten van nieuwe risicovolle bedrijven buiten bedrijventerreinen wordt tevens niet per definitie uitgesloten, al moet wel rekening worden gehouden met een optimale ruimtelijke ordening en veiligheid.

Risicobronnen

In of in de nabijheid van het plangebied is één relevante risicobron aanwezig. Het gaat hier om de Garderenseweg (N797), gedeelte vanaf het kruispunt Calcariaweg-Bosrand tot gemeentegrens Barneveld.

Ten noorden van het plangebied is op circa 900 meter afstand de Garderenseweg gelegen. De locatie is aangegeven op onderstaande figuur.

afbeelding "i_NL.IMRO.0273.BPBGHessenweg19-ON01_0005.png"

Figuur 4.1: Uitsnede overzichtskaart route gevaarlijke stoffen (bron: gemeente Putten)

Toetsing

Garderenseweg (N797)

Het plangebied ligt binnen het invloedsgebied groepsrisico van de Garderenseweg op een afstand van ongeveer 900 meter. Gezien de ligging van de weg op meer dan 200 meter van het plangebied volstaat een ‘beperkte’ verantwoording van het groepsrisico.

Conclusie

De ontwikkeling past binnen de geldende wet- en regelgeving over externe veiligheid.

Het betreffende plangebied valt binnen het effectgebied van de Garderenseweg (N797). Het groepsrisico wordt aanvaardbaar geacht omdat het gaat om een legalisering van de toegestane maximale inhoud. De woning is al aanwezig op het perceel. De personendichtheid in het gebied is laag. Op het perceel zijn alleen zelfredzame personen aanwezig.

Kabels en leidingen

In het plangebied zijn geen kabels en leidingen aanwezig die een planologische bescherming nodig hebben.

Hoofdstuk 5 Juridische plantoelichting

5.1 Algemeen

Dit bestemmingsplan bestaat uit een verbeelding, planregels en een toelichting. De verbeelding en de planregels vormen tezamen het juridisch bindende gedeelte van het bestemmingsplan. Beide planonderdelen dienen in onderlinge samenhang te worden bezien en toegepast. Op de verbeelding zijn de bestemmingen aangegeven. Aan deze bestemmingen zijn bouwregels en planregels betreffende het gebruik gekoppeld.

De toelichting heeft geen juridische betekenis, maar vormt niettemin een belangrijk onderdeel van het plan. De toelichting van dit bestemmingsplan geeft een weergave van de beweegredenen, de onderzoeksresultaten en de beleidsuitgangspunten die aan het bestemmingsplan ten grondslag liggen. Tot slot is de toelichting van wezenlijk belang voor een juiste interpretatie en toepassing van het bestemmingsplan.

De planregels van het bestemmingsplan zijn ondergebracht in vier hoofdstukken:

  • Hoofdstuk 1 bevat de inleidende regels. Deze regels beogen een eenduidige interpretatie en toepassing van de overige, meer inhoudelijke regels en van de verbeelding te waarborgen.
  • Hoofdstuk 2 bevat de planregels in verband met de bestemmingsregels. Per op de verbeelding aangegeven bestemming bevat dit hoofdstuk planregels, welke specifiek voor die bestemming gelden. Hierop wordt in de volgende paragraaf nader ingegaan.
  • Hoofdstuk 3 bevat de algemene regels. Hierbij gaat het om planregels die op nagenoeg alle bestemmingen betrekking hebben en die vooral om praktische redenen zijn ondergebracht in dit hoofdstuk, alsmede een aantal specifieke planregels, waaronder een anti-dubbeltelregel en procedureregels.
  • Tenslotte bevat hoofdstuk 4 de overgangs- en slotregels. Deze planregels bevatten het overgangsrecht en de titel.

5.2 Bestemmingsregels

De planregels bij de bestemmingen hebben voor elke bestemming dezelfde opbouw met achtereenvolgens, voor zover van toepassing, de volgende leden:

  • bestemmingsomschrijving;
  • bouwregels;
  • nadere eisen;
  • afwijken van de bouwregels;
  • omgevingsvergunning voor het uitvoeren van een werk, geen bouwwerk zijnde, of van werkzaamheden.

Wonen - 1

Deze bestemming is van toepassing op de woning met een inhoud tot maximaal 868 m3. Deze bestemming staat wonen (incl. aan huis verbonden beroepen en aan huis verbonden bedrijven) toe. Er gelden diverse bouwregels ten aanzien van hoofdgebouwen, bijbehorende bouwwerken (bijgebouwen) en bouwwerken, geen gebouwen zijnde. Het bouwvlak valt samen met de bestemmingsgrens.

Burgemeester en wethouders kunnen nadere eisen stellen aan de plaats van bouwwerken.

Er mag van een aantal bouwregels worden afgeweken middels een omgevingsvergunning, bijvoorbeeld ten behoeve van gedeeltelijk zelfstandige inwoning, het vergroten van onderbouwen, het vergroten van de oppervlakte aan bijbehorende bouwwerken.

Artikel 4 Waarde - Archeologie 3  

Deze gronden hebben een dubbelbestemming gekregen en zijn mede bestemd voor het behoud, de bescherming en/of het herstel van archeologische waarden in de bodem.

In de bouwregels is bepaald dat het verboden is om zonder of in afwijking van een omgevingsvergunning bebouwing op te (laten) richten. Er moet eerst duidelijkheid zijn over de vraag of door het verlenen van de omgevingsvergunning geen onevenredige afbreuk wordt of kan worden gedaan aan de archeologische waarden, en zo ja welke voorwaarden dienen te worden gesteld.

Er is een omgevingsvergunningstelsel opgenomen voor werken, geen bouwwerken zijnde, en werkzaamheden. Ook is er een wijzigingsbevoegdheid opgenomen om de dubbelbestemming geheel of gedeeltelijk te laten vervallen.

Hoofdstuk 6 Uitvoerbaarheid

6.1 Maatschappelijke uitvoerbaarheid

Het bestemmingsplan doorloopt de procedure zoals vastgelegd in artikel 3.6 lid 1 sub a van de Wet ruimtelijke ordening (Wro). Door het voeren van de genoemde procedure, wordt een ieder in de gelegenheid gesteld voor het indienen van zienswijzen.

Voorbereidingsfase

Gezien de omvang en aard van de functieverandering heeft de gemeente er voor gekozen om het bestemmingsplan als ontwerp ter inzage te leggen. In het kader van vooroverleg is het plan reeds besproken met het waterschap Vallei en Veluwe. Gelet op het feit dat het plan past binnen de kaders van het provinciaal beleid is het plan ter beoordeling niet afzonderlijk toegezonden aan de provincie.

Ontwerpfase

Het plan wordt vervolgens als ontwerp ter inzage gelegd. Het ontwerpbestemmingsplan doorloopt de in de Wet ruimtelijke ordening (Wro) opgenomen formele bestemmingsplanprocedure. Dit betekent dat het ontwerpbestemmingsplan gedurende zes weken ter inzage wordt gelegd. Een ieder krijgt de gelegenheid voor het indienen van zienswijzen.

6.2 Economische uitvoerbaarheid

In het bestemmingsplan worden geen ontwikkelingen mogelijk gemaakt waarbij het kostenverhaal een rol speelt. Het opstellen van een exploitatieplan, zoals bedoeld in de Wet ruimtelijke ordening, is daarom niet nodig.

De noodzakelijke kosten van de gemeente bestaan uit de gebruikelijke kosten voor de planbegeleiding en het voeren van de procedure. Deze kosten worden gedekt uit de legesopbrengsten. Daarnaast wordt er met de initiatiefnemer een planschadeovereenkomst afgesloten.