direct naar inhoud van Toelichting
Plan: Bosrand 70
Status: ontwerp
Plantype: bestemmingsplan
IMRO-idn: NL.IMRO.0273.BPBKBosrand70-ON01

Toelichting

Hoofdstuk 1 Inleiding

1.1 Aanleiding

De eigenaren van het perceel gelegen tussen de adressen Bosrand 68 en Bosrand 72 zijn voornemens een woning te realiseren op het perceel Bosrand 70, kadastraal bekend PTN01 - C - 11383.

De gemeente Putten had in het vigerende bestemmingsplan 'Kom Noord en Zuidoost' al rekening gehouden met de realisatie van een woning op dit perceel, en had hiertoe een wijzigingsbevoegdheid opgenomen. Per abuis is de wijzigingsbevoegdheid echter op het perceel PTN01 - C - 11382 geplaatst. Om de woning toch op de gewenste plaats te realiseren is dit bestemmingsplan opgesteld.

1.2 Plangebied

De locatie is gelegen aan de oostrand van de kern Putten. De locatie ligt vlak tegen het bos aan de oostzijde van de kern Putten aan. Op het moment wordt het plangebied niet gebruikt voor enige activiteiten en ligt het terrein braak. In de omgeving van het plangebied zijn voornamelijk particuliere woningen te vinden.

Op onderstaande afbeelding zijn de ligging en de begrenzing van het plangebied weergegeven.

afbeelding "i_NL.IMRO.0273.BPBKBosrand70-ON01_0001.png"

Ligging Bosrand 70 in Putten (plangebied rood omlijnd)

afbeelding "i_NL.IMRO.0273.BPBKBosrand70-ON01_0002.png"

Begrenzing plangebied Bosrand 70 (plangebied rood omlijnd)

1.3 Huidige planologische situatie

Ter plaatse van het perceel Bosrand 70 geldt het bestemmingsplan 'Kom Noord en Zuidoost', vastgesteld op 4 oktober 2018. De planlocatie heeft de enkelbestemming 'Wonen - Wonen in het bos', en de dubbelbestemming 'Waarde - Archeologie - hoge verwachting'. Aan de noordzijde is de gebiedsaanduiding 'wetgevingszone - wijzigingsbevoegdheid 2 opgenomen. Ter plaatse van deze wijzigingsbevoegdheid is tevens een bouwvlak aanwezig.

Op onderstaande afbeelding is een uitsnede van het vigerende bestemmingsplan opgenomen.

afbeelding "i_NL.IMRO.0273.BPBKBosrand70-ON01_0003.png"

Uitsnede vigerend bestemmingsplan Kom Noord en Zuidoost (plangebied rood omlijnd)

1.4 Leeswijzer

Na dit inleidende hoofdstuk wordt in Hoofdstuk 2 ingegaan op de huidige en toekomstige situatie. In Hoofdstuk 3 wordt het beleidskader behandeld. Hierbij is onderscheid gemaakt tussen rijks-, provinciaal- en gemeentelijk beleid. Bij nieuwe ruimtelijke ontwikkelingen moet aandacht worden besteed aan wet- en regelgeving voor de verschillende omgevingsaspecten. In Hoofdstuk 4 wordt hierop ingegaan. In Hoofdstuk 5 wordt een toelichting gegeven op de bestemmingen. Hoofdstuk 6 tenslotte gaat in op de uitvoerbaarheid van het plan. Hierbij is onderscheid gemaakt tussen maatschappelijke uitvoerbaarheid en economische uitvoerbaarheid.

Hoofdstuk 2 Huidige situatie en toekomstige ontwikkeling

2.1 Huidige situatie

Het plangebied is gelegen aan de oostzijde van de kern Putten, aan de weg Bosrand tussen de percelen Bosrand 68 en Bosrand 72. In de huidige situatie is het plangebied onbebouwd en ongebruikt. Aan de oostzijde wordt het plangebied omsloten door de ontsluitingsweg Bosrand. Aan de overige zijden wordt het plangebied omsloten door woningen.

Op onderstaande afbeeldingen zijn enkele impressies van het plangebied weergegeven.

afbeelding "i_NL.IMRO.0273.BPBKBosrand70-ON01_0004.png"

Begrenzing plangebied

afbeelding "i_NL.IMRO.0273.BPBKBosrand70-ON01_0005.png"

Plangebied gezien vanaf de noordzijde vanaf de Bosrand (bron: Google Maps)

afbeelding "i_NL.IMRO.0273.BPBKBosrand70-ON01_0006.png"

Plangebied gezien vanaf de zuidzijde vanaf de Bosrand (bron: Google Maps)

2.2 Toekomstige situatie

De initiatiefnemer is voornemens om ter plaatse van het perceel Bosrand 70 een woning te realiseren. De plannen voor de nieuwe woning betreffen een vrijstaande woning met een aangebouwde berging. De woning krijgt een goothoogte van circa 3 meter en een nokhoogte van circa 8,5 meter. Qua verschijningsvorm sluit de woning aan bij de recent gerealiseerde woning op het perceel Bosrand 72.

De woning houdt aan de zuid- en noordzijde voldoende afstand tot de zijdelingse perceelsgrens van respectievelijk 3 en 4 meter.

Aan de woning worden een carport en een veranda gebouwd. De bebouwing komt geclusterd op het perceel te staan. Met het beoogde bouwplan wordt op een goede wijze aangesloten bij het bestaande straatbeeld.

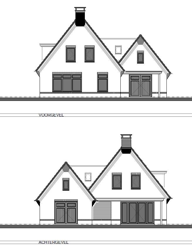
Op onderstaande afbeelding zijn enkele impressies van het voorgenomen initiatief weergegeven.

afbeelding "i_NL.IMRO.0273.BPBKBosrand70-ON01_0007.png" afbeelding "i_NL.IMRO.0273.BPBKBosrand70-ON01_0008.png"

Impressies initiatief

Hoofdstuk 3 Beleidskader

3.1 Rijksbeleid

3.1.1 Nationale Omgevingsvisie

Met de Nationale Omgevingsvisie (NOVI, 2020), geeft het Rijk een langetermijnvisie op de toekomst en ontwikkelingen van de leefomgeving in Nederland. In de NOVI wordt ingegaan op urgente opgaven die zowel lokaal, nationaal als wereldwijd spelen. Deze opgaven omvatten onder andere klimaatverandering, energietransitie, circulaire economie, bereikbaarheid en woningbouw. Het uitgangspunt in de aanpak is dat ingrepen in de leefomgeving niet los van elkaar plaatsvinden, maar in samenhang.


Nationale belangen en vier prioriteiten

Aan de hand van een toekomstperspectief op 2050 brengt de NOVI de langetermijnvisie in beeld. Er zijn 21 nationale belangen beschreven waarop de nationale overheid zich in de NOVI richt. Nationale belangen zijn de inhoudelijke belangen bij de fysieke leefomgeving waarbij het Rijk een rol voor zichzelf ziet en waarvoor het kabinet in politieke zin aanspreekbaar is. De behartiging van de nationale belangen en de realisatie van de daaruit voortvloeiende beleidsdoelen en opgaven gebeurt niet alleen door het Rijk.

Er zijn vier prioriteiten waar het Rijk op wil sturen en richting geven:

  • Prioriteit 1: Ruimte voor klimaatadaptatie en energietransitie.
  • Prioriteit 2: Duurzaam economisch groeipotentieel.
  • Prioriteit 3: Sterke en gezonde steden en regio's.
  • Prioriteit 4: Toekomstbestendige ontwikkeling van het landelijk gebied.


Afwegingsprincipes

De druk op de fysieke leefomgeving in Nederland is zo groot, dat belangen soms botsen. Het streven is combinaties te maken en win-win situaties te creëren, maar dit is niet altijd mogelijk. Soms zijn er scherpe keuzes nodig en moeten belangen worden afgewogen. Hiertoe gebruikt de NOVI drie afwegingsprincipes:

  • Combinaties van functies gaan voor enkelvoudige functies: Met de NOVI wordt gezocht naar maximale combinatiemogelijkheden tussen functies, gericht op een efficiënt en zorgvuldig gebruik van onze ruimte;
  • Kenmerken en identiteit van een gebied staan centraal: wat de optimale balans is tussen bescherming en ontwikkeling, tussen concurrentiekracht en leefbaarheid, verschilt van gebied tot gebied. Sommige opgaven en belangen wegen in het ene gebied zwaarder dan in het andere;
  • afwentelen wordt voorkomen: het is van belang dat de leefomgeving zoveel mogelijk voorziet in mogelijkheden en behoeften van de huidige generatie van inwoners zonder dat dit ten koste gaat van die van toekomstige generaties.


Uitvoering

De NOVI gaat vergezeld van een Uitvoeringsagenda, waarin staat aangegeven hoe het Rijk invulling geeft aan zijn rol bij de uitvoering van de NOVI. In de Uitvoeringsagenda vindt u onder andere een overzicht van instrumenten en (gebiedsgerichte) programma's op de verschillende beleidsterreinen. De Uitvoeringsagenda zal, indien nodig, jaarlijks worden geactualiseerd.


Ladder voor duurzame verstedelijking

In de Structuurvisie Infrastructuur en Ruimte (SVIR) is de Ladder voor duurzame verstedelijking geïntroduceerd. Deze verplichte toetsing is verder vastgelegd in het Besluit algemene regels ruimtelijke ordening (Barro). De Ladder houdt in dat overheden nieuwe stedelijke ontwikkelingen moeten motiveren met oog voor de onderliggende vraag in de regio, de beschikbare ruimte binnen het bestaande stedelijke gebied en een multimodale ontsluiting. Per 1 juli 2017 is een wijziging van de Ladder voor duurzame verstedelijking in werking getreden.

De ladder voor duurzame verstedelijking is van toepassing als er sprake is van een nieuwe 'stedelijke ontwikkeling' als bedoeld in artikel 1.1.1, eerste lid, aanhef en onder i Bro: een ruimtelijke ontwikkeling van een bedrijventerrein of zeehaventerrein, of van kantoren, detailhandel, woningbouwlocaties of andere stedelijke voorzieningen.

Als een ruimtelijk besluit, zoals een bestemmingsplan of een omgevingsvergunning met een goede ruimtelijke onderbouwing, voorziet in nieuwe planologische bouwmogelijkheden, dan kwalificeren deze bouwmogelijkheden in beginsel als een "stedelijke ontwikkeling" als bedoeld in artikel 1.1.1 lid 1 aanhef en onder i Besluit ruimtelijke ordening (Bro).

Het moet wel gaan om bouwmogelijkheden van enige omvang. Zeer kleinschalige bebouwingsmogelijkheden of functiewijzigingen "sec" die niet voorzien in een toename van het ruimtebeslag kwalificeren niet als een stedelijke ontwikkeling.

Dit bestemmingsplan voorziet in de ontwikkeling van een enkele woning. Conform jurisprudentie is een dergelijke ontwikkeling niet ladderplichtig. Deze verplichting geldt pas vanaf 11 woningen. Wel dient de behoefte aan de woning te worden aangetoond. Deze behoefte wordt verder beschreven in paragraaf 3.3.3.

3.1.2 Besluit algemene regels ruimtelijke ordening (Barro)

Het Besluit algemene regels ruimtelijke ordening (Barro), ook wel de AMvB Ruimte genoemd, is op 22 augustus 2011 vastgesteld en in oktober 2012 aangevuld. Het Barro heeft als doel om vanuit een concreet nationaal belang een goede ruimtelijke ordening te bevorderen. De AMvB is het inhoudelijke beleidskader van het rijk waaraan ruimtelijke besluiten op provinciaal en gemeentelijk niveau moeten voldoen. Dat betekent dat de AMvB regels geeft over bestemmingen en het gebruik van gronden. Daarnaast kan zij aan de gemeente opdragen in de toelichting bij een bestemmingsplan bepaalde zaken uitdrukkelijk te motiveren.

De algemene regels bewerkstelligen dat nationale ruimtelijke belangen doorwerken tot op lokaal niveau. Inhoudelijk gaat het om nationale belangen die samenhangen met het beschermen van ruimtelijke functies, zoals natuur in de Ecologische Hoofdstructuur (EHS), of met het vrijwaren van functies. Het besluit bevat alleen die nationale ruimtelijke belangen, die via het stellen van regels aan de inhoud of toelichting van bestemmingsplannen (of daarmee vergelijkbare besluiten) beschermd kunnen worden.

3.2 Provinciaal/regionaal beleid

3.2.1 Omgevingsvisie en Omgevingsverordening Gelderland

De Omgevingsvisie en Omgevingsverordening Gelderland zijn op 18 oktober 2014 in werking getreden en worden indien van toepassing twee keer per jaar geactualiseerd. Het betreft een integrale visie, niet alleen op het gebied van de ruimtelijke ordening, maar ook voor waterkwaliteit en veiligheid, bereikbaarheid, economische ontwikkeling, natuur en milieu, inclusief de sociale gevolgen daarvan. De Omgevingsvisie is de vervanger van het streekplan en Ruimtelijke Verordening Gelderland. De Omgevingsverordening voorziet ten opzichte van de Omgevingsvisie niet in nieuw beleid en bevat algemene verbindende voorschriften.

Programmering wonen

De kwantitatieve regionale opgave voor wonen wordt door Gedeputeerde Staten vastgesteld. Deze opgave werken partijen in de regio in het kader van de Regionale Woonagenda verder uit. De bestaande gebouwde voorraad staat daarbij centraal. Afspraken worden gemaakt over aanpassing van bestaande woningen, sloop met vervangende nieuwbouw, verdunning, het benutten van kansen van functieverandering en ten slotte de nieuwbouw.

Bij de programmering is flexibiliteit gewenst. Tijdelijke overcapaciteit kan gewenst zijn, bijvoorbeeld wanneer een gemeente een bepaald plan wil inwisselen voor een plan dat beter tegemoet komt aan de woningbehoefte of aan het (locatiekeuze)beleid in deze Omgevingsvisie. De provincie biedt daarvoor onder voorwaarden een mogelijkheid. Zij neemt hier eveneens een regierol.

Wonen in Noord-Veluwe

Een sterke gemeentelijke regie en regionale afstemming zijn op de woningmarkt onmisbaar: de gemeente stelt bestemmingsplannen vast, maakt afspraken met corporaties en andere partijen en koopt eventueel grond. Het inzicht groeit dat op termijn een vorm van strategisch voorraadbeheer nodig is. Dit beheer is gericht op alle woningen binnen een gemeente en liefst afgestemd met de regio. Dit is nodig om vraag en aanbod met elkaar in balans te brengen en houden. Dit vraagt om kennis van de kansen en mogelijkheden voor:

  • aanpassing van de bestaande voorraad;
  • sloop met vervangende nieuwbouw;
  • verdunning;
  • functieverandering van bestaand vastgoed.

Op basis van deze kennis kan de meest geschikte locatie bepaald worden voor:

  • eventuele nieuwbouw;
  • het benutten van mogelijkheden in de bestaande voorraad;
  • functieverandering.

Conclusie

Het initiatief is niet strijdig met het provinciale beleid. Er wordt voorzien in nieuwbouw op een daarvoor bedoelde en geschikte locatie. Een toetsing aan de ladder voor duurzame verstedelijking is niet noodzakelijk.

3.3 Gemeentelijk beleid

3.3.1 Toekomstvisie Putten

Voor het gehele gemeentelijk grondgebied is de 'Toekomstvisie Putten' opgesteld. Deze visie is vastgesteld door de gemeenteraad van Putten op 6 februari 2014. Met deze Toekomstvisie legt de gemeenteraad van Putten haar speerpunten voor de komende 10 tot 15 jaar neer. Speerpunten die tot stand zijn gekomen in een proces waarin de discussie met de gemeenschap nadrukkelijk is gezocht. In deze Toekomstvisie is een antwoord gegeven op de volgende vragen:

  • Wat voor samenleving wil Putten in 2030 zijn?
  • Wat is dan de kerntaak en -rol van de gemeente Putten?
  • Wat is de rol van de bewoners, ondernemers en (maatschappelijke) organisaties binnen de Puttense gemeenschap?

De Toekomstvisie Putten is een samenbundeling van richtinggevende ideeën en visies voor de toekomst van Putten. Met de visie geeft de gemeenteraad het bestuur een richtsnoer om naar te handelen. Dit maakt het mogelijk over 'de waan van de dag' heen te stappen en in te zetten op een koers die Putten ook in de toekomst actueel en urgent houdt voor haar gemeenschap. De toekomstvisie dient daarmee als basis voor de uitvoering van de gemeentelijke (beleids)programma's in de komende 10 tot 15 jaar.

De toekomstige samenleving van Putten is gestoeld op thema's die sterk naar voren zijn gekomen in het discussiëren over de toekomst van Putten. Het gaat om de volgende thema's:

  • een sociale vitale gemeenschap voor jong en oud;
  • een samenleving in een groene en gastvrije omgeving met ruimte voor rust en dynamiek;
  • een samenleving om je hele leven in te kunnen wonen;
  • een samenleving waarin ruimte is voor creativiteit en innovatie.
3.3.2 Structuurvisie Putten 2030

De gemeenteraad van Putten heeft op 5 maart 2015 de Structuurvisie Putten 2030 gewijzigd vastgesteld. De Structuurvisie Putten 2030 is opgesteld met de boodschap van de Toekomstvisie Putten als leidraad. Deze is gerelateerd aan actueel beleid ten aanzien van de verschillende beleidsvelden en vervolgens vertaald in een visie op de ruimtelijke ontwikkeling. De inhoud van de structuurvisie is leidend en in principe bindend voor het handelen van de gemeente richting initiatiefnemers, en nieuwe bestemmingsplannen moeten inhoudelijk passen binnen de visie van de structuurvisie.

Wonen - kwantitatief

In de gemeente Putten wordt gebouwd voor de lokale woningbehoefte. Putten hanteert daarbij de ladder van duurzame verstedelijking. Dat wil zeggen dat eerst wordt gekeken naar inbreidingsmogelijkheden en vervolgens pas naar uitbreidingsmogelijkheden. Het dorp Putten is de kern waar nieuwe woningbouw plaatsvindt.

Wonen - kwalitatief

In de gemeente Putten is plek voor jong en oud en is het mogelijk om er je hele leven te wonen. Putten richt zich daarbij primair op de behoeften van de eigen bevolking.

afbeelding "i_NL.IMRO.0273.BPBKBosrand70-ON01_0009.jpg"

Afbeelding: uitsnede kaart Structuurvisie Putten 2030

3.3.3 Woonvisie 2020-2025

De Woonvisie is door de gemeenteraad op 28 mei 2020 vastgesteld voor de periode 2020-2025.

Bij het opstellen van de woonvisie is zorgvuldig rekening gehouden met de regionale afspraken op de Noord-Veluwe. Er is afgestemd welke huishoudensprognoses worden gebruikt voor de woonvisie. Ook is er voor het bepalen van de woonopgaven gebruikgemaakt van gegevens uit regionaal woningmarktonderzoek.

De gemeente wil de woningvoorraad tussen 2019 tot 2025 uitbreiden met circa 700 woningen. En tot 2030 groeien met 1.100 woningen.

Tot 2025 worden nieuwe locaties gezocht voor nieuwbouw. Er worden volgens de Woonvisie minder woningen gerealiseerd dan de gemeente zou willen. Plannen komen nog onvoldoende tot uitvoering.

Op deze locatie wordt 1 woning extra gerealiseerd. De locatie aan Bosrand 70 leent zich, gezien de ligging aan de rand van Putten maar toch op kleine afstand van de voorzieningen. Het past hiermee binnen de Woonvisie.

Conclusie

Het voorliggend plan is in overeenstemming met de woonvisie. Er wordt slechts 1 woning bijgebouwd. Deze woning past binnen de programmering van 700 woningen.

3.3.4 Inbreidingsnota

De gemeente Putten heeft in 2017 de laatste versie van de inbreidingsnota vastgesteld. De inbreidingsnota heeft als doel de potentiële inbreidingslocaties in de gemeente Putten in beeld te brengen. Mede vanuit de Ladder voor Duurzame verstedelijking acht de gemeente het van belang deze locaties in beeld te hebben.

Voorliggende locatie is in de inbreidingsnota opgenomen als potentiële inbreidingslocatie. In de nota wordt beschreven dat ter plaatse van de percelen ten zuiden van Bosrand 68 twee vrijstaande woningen gerealiseerd kunnen worden, naast de reeds 2 bestaande woningen. In het bestemmingsplan Kom Noord en Zuidoost is voor deze woningen een wijzigingsbevoegdheid opgenomen. Dit bestemmingsplan maakt de bouw van één van de twee woningen mogelijk. De ontwikkeling van de andere woning op de hoek van de Bosrand en Prins Hendrikweg is een afzonderlijke ontwikkeling.


Conclusie

Het initiatief past in de inbreidingsnota van de gemeente Putten. De realisatie van een woning is opgenomen in dit beleid.


.

Hoofdstuk 4 Omgevingsaspecten

4.1 Bedrijven en milieuzonering

Toetsingskader

In het kader van de Wet milieubeheer dient in nieuwe situaties rekening te worden gehouden met (wenselijke) afstanden tussen bepaalde milieubelastende functies en milieugevoelige functies. In de uitgave Bedrijven en Milieuzonering (2009) is een richtafstandenlijst opgenomen. In de lijst is voor allerlei soorten "milieubelastende activiteiten" aangegeven welke richtafstanden vanwege geur, stof, geluid en gevaar bij voorkeur aangehouden moeten worden ten opzichte van "milieugevoelige activiteiten". De grootste van deze vier richtafstanden is bepalend voor de indeling van een activiteit in een milieucategorie.

Plangebied

In de nabijheid van het plangebied zijn geen bedrijven of inrichtingen gelegen die voorzien zijn van een milieucategorie, en waarvan de milieucontour tot in het plangebied reikt. In dit kader is aanvullend onderzoek in het kader van bedrijven en milieuzonering niet noodzakelijk.

Conclusie

Het aspect bedrijven en milieuzonering vormt geen belemmering voor het plan.

4.2 Geluid

Toetsingskader

In het kader van de Wet geluidhinder is bij de vaststelling of wijziging van een bestemmingsplan een akoestisch onderzoek vereist naar de geluidsbelasting op geluidgevoelige bestemmingen vanwege industrielawaai, weg- en railverkeerslawaai. Dit geldt alleen voor (geplande) geluidgevoelige bestemmingen die binnen de zone van een weg, spoorweg of industrieterrein liggen.

Situatie plangebied en onderzoek

Het bestemmingsplan maakt de bouw van geluidgevoelige objecten mogelijk namelijk een woning. De woning is gelegen aan de Bosrand. De Bosrand betreft een weg met een snelheidsregime van maximaal 30 km/u. Deze weg heeft om deze reden geen zonering in het kader van de Wet geluidhinder. Nader onderzoek in het kader van wegverkeerslawaai is niet noodzakelijk.

Conclusie

Het aspect geluidhinder vormt geen belemmering voor het bestemmingsplan.

4.3 Externe veiligheid

Toetsingskader

Bij ruimtelijke plannen dient ten aanzien van externe veiligheid naar verschillende aspecten te worden gekeken, namelijk:

  • bedrijven waar activiteiten plaatsvinden die gevolgen hebben voor de externe veiligheid;
  • vervoer van gevaarlijke stoffen over wegen, spoor, water of door buisleidingen.

Voor zowel bedrijvigheid als vervoer van gevaarlijke stoffen zijn twee aspecten van belang, te weten het plaatsgebonden risico (PR) en het groepsrisico (GR). Het PR is de kans per jaar dat een persoon dodelijk wordt getroffen door een ongeval, indien hij zich onafgebroken (dat wil zeggen 24 uur per dag gedurende het hele jaar) en onbeschermd op een bepaalde plaats zou bevinden. Het PR wordt weergegeven met risicocontouren rondom een inrichting dan wel infrastructuur. Het GR drukt de kans per jaar uit dat een groep van minimaal een bepaalde omvang overlijdt als direct gevolg van een ongeval waarbij gevaarlijke stoffen betrokken zijn. De norm voor het GR is een oriëntatiewaarde. het bevoegd gezag heeft een verantwoordingsplicht als het GR toeneemt en/of de oriëntatiewaarde overschrijdt.

Risicovolle inrichtingen

Het Besluit externe veiligheid inrichtingen (hierna: Bevi) geeft een wettelijke grondslag aan het externe veiligheidsbeleid rondom risicovolle inrichtingen. Op basis van het Bevi geldt voor het PR rondom een risicovolle inrichting een grenswaarde voor kwetsbare objecten en een richtwaarde voor beperkt kwetsbare objecten. Beide liggen op een niveau van 10-6 per jaar. Bij een ruimtelijke ontwikkeling moet aan deze normen worden voldaan.

Het Bevi bevat geen grenswaarde voor het GR; wel geldt op basis van het Bevi een verantwoordingsplicht ten aanzien van het GR in het invloedsgebied rondom de inrichting. De in het externe veiligheidsbeleid gehanteerde norm voor het GR geldt daarbij als oriëntatiewaarde. Deze verantwoordingsplicht geldt zowel in bestaande als in nieuwe situaties.

Vervoer van gevaarlijke stoffen

Per 1 april 2015 is het Besluit externe veiligheid transportroutes (BEVT) en het Basisnet in werking getreden. Het BEVT vormt de wet- en regelgeving, en de concrete uitwerking volgt in het Basisnet. Met het inwerking treden van het BEVT vervalt de circulaire Risiconormering vervoer gevaarlijke stoffen. Het Basisnet beoogt voor de lange termijn (2020, met uitloop naar 2040) duidelijkheid te bieden over het maximale aantal transporten van, en de bijbehorende maximale risico's die het transport van gevaarlijke stoffen mag veroorzaken. Het Basisnet is onderverdeeld in drie onderdelen: Basisnet Spoor, Basisnet Weg en Basisnet Water.

Het BEVT en het bijbehorende Basisnet maakt bij het PR onderscheid in bestaande en nieuwe situaties. Voor bestaande situaties geldt een grenswaarde voor het PR van 10-5 per jaar ter plaatse van kwetsbare en beperkt kwetsbare objecten en een streefwaarde van 10-6 per jaar. Voor nieuwe situaties geldt de 10-6 waarde als grenswaarde voor kwetsbare objecten, en als richtwaarde bij beperkt kwetsbare objecten. In het Basisnet Weg en het Basisnet Water zijn veiligheidsafstanden (PR 10-6 contour) opgenomen vanaf het midden van de transportroute.

Tevens worden in het Basisnet de plasbrandaandachtsgebieden benoemd voor transportroutes. Hiermee wordt geanticipeerd op de beperkingen voor ruimtelijke ontwikkelingen die samenhangen met deze plasbrandaandachtsgebieden.

Het Basisnet vermeldt dat op een afstand van 200 m vanaf de rand van het tracé in principe geen beperkingen hoeven te worden gesteld aan het ruimtegebruik.

Besluit externe veiligheid buisleidingen

Per 1 januari 2011 is het Besluit externe veiligheid buisleidingen in werking getreden. In dat besluit wordt aangesloten bij de risicobenadering uit het Besluit externe veiligheid inrichtingen (Bevi) zodat ook voor buisleidingen normen voor het PR en het GR gelden. Op advies van de minister wordt bij de toetsing van externe veiligheidsrisico's van buisleidingen rekening gehouden met deze risicobenadering.

Onderzoek

Risicovolle inrichtingen

Het plangebied en de omgeving is geïnventariseerd op de aanwezigheid van de mogelijke risicobronnen. In de nabijheid van het plangebied zijn geen risicovolle inrichten aanwezig.

Vervoer gevaarlijke stoffen

Op de Voorthuizerstraat (N303) vindt vervoer van gevaarlijke stoffen plaats. De Voorthuizerstraat is gelegen op een afstand van ruim 600 meter van het plangebied. Gezien de ligging van de weg op meer dan 200 meter, maar minder dan 4.000 meter van het plangebied volstaat een 'beperkte' verantwoording van het groepsrisico.

Buisleidingen

In de omgeving van het plangebied zijn geen buisleidingen aanwezig. Dit vormt geen belemmering voor het project.

Risicokaart

Op onderstaande afbeelding is een uitsnede van de risicokaart ter plaatse van het plangebied weergegeven.

afbeelding "i_NL.IMRO.0273.BPBKBosrand70-ON01_0010.png"

Uitsnede risicokaart (plangebied rood omlijnd)

Conclusie

In de directe omgeving van het plangebied is het aantal transporten met gevaarlijke stoffen over de weg zodanig gering, dat de PR-contouren van 10-6 per jaar binnen de rijbaan liggen en het groepsrisico verwaarloosbaar klein is.

4.4 Luchtkwaliteit

Toetsingskader

In het kader van een goede ruimtelijke ordening wordt bij het opstellen van een ruimtelijk plan uit het oogpunt van de bescherming van de gezondheid van de mens rekening gehouden met de luchtkwaliteit. Het toetsingskader voor luchtkwaliteit wordt gevormd door hoofdstuk 5, titel 5.2 van de Wet milieubeheer. Dit onderdeel van de Wet milieubeheer (Wm) bevat grenswaarden voor zwaveldioxide, stikstofdioxide en stikstofoxiden, fijn stof, lood, koolmonoxide en benzeen. Hierbij zijn in de ruimtelijke ordeningspraktijk langs wegen vooral de grenswaarden voor stikstofdioxide (jaargemiddelde) en fijn stof (jaar- en daggemiddelde) van belang.

Op grond van artikel 5.16 van de Wm kunnen bestuursorganen bevoegdheden die gevolgen kunnen hebben voor de luchtkwaliteit onder andere uitoefenen indien de bevoegdheden/ontwikkelingen niet leiden tot een overschrijding van de grenswaarden of de bevoegdheden/ontwikkelingen niet in betekenende mate bijdragen aan de concentratie in de buitenlucht.

Besluit niet in betekenende mate

In dit Besluit niet in betekenende mate is bepaald in welke gevallen een plan vanwege de gevolgen voor de luchtkwaliteit niet aan de grenswaarden hoeft te worden getoetst. Hierbij worden 2 situaties onderscheiden:

  • een plan heeft een effect van minder dan 3% van de jaargemiddelde grenswaarde NO2 en PM10 (= 1,2 µg/m³);
  • een plan valt in een categorie die is vrijgesteld aan toetsing aan de grenswaarden; deze categorieën betreffen onder andere woningbouw met niet meer dan 1.500 woningen bij één ontsluitingsweg en 3.000 woningen bij twee ontsluitingswegen, kantoorlocaties met een bruto vloeroppervlak van niet meer dan 100.000 m2 bij één ontsluitingsweg en 200.000 m2 bij twee ontsluitingswegen.

Onderzoek en conclusie

In dit plan wordt in totaal één woning gerealiseerd. Deze ontwikkeling is van dusdanig kleine omvang dat deze niet significant bij zal dragen aan de verslechting van de luchtkwaliteit.

Het aspect luchtkwaliteit vormt om deze reden dan ook geen verdere belemmering voor het initiatief.

4.5 Bodem

Toetsingskader

Op basis van de Wet bodembeheer mogen er geen gevoelige objecten op verontreinigde grond gebouwd worden. Een object wordt als gevoelig aangemerkt wanneer er 2 uur of langer per dag mensen in verblijven. De nieuw te bouwen woning is een locatie waar langer dan 2 uur per dag mensen zullen verblijven. Om deze reden is een bodemonderzoek noodzakelijk.

Situatie plangebied en onderzoek

Voor de planlocatie zijn twee bodemonderzoeken uitgevoerd. De onderzoeken zijn te vinden in Bijlage 2 en Bijlage 3. Op basis van de onderzoeken is vastgesteld dat er een bodemverontreiniging aanwezig is in het plangebied. Om deze reden is een sanering uitgevoerd waarbij 1 meter grond is afgegraven (zie Bijlage 4). Deze afgraving is opgevuld met schone grond. De grond is hiermee geschikt gemaakt voor de voorgenomen woonfunctie. Wel zijn er enkele beperkingen met betrekking tot grondroeringen.

Conclusie

De grond ter plaatse was in het verleden vervuild. In dit kader heeft een sanering plaatsgevonden. De grond is daarmee geschikt gemaakt voor de voorgenomen woonfunctie. Het aspect bodem vormt geen verdere belemmering voor het initiatief.

4.6 Ecologie

Toetsingskader

Wet natuurbescherming

Met de Wnb zijn alle bepalingen met betrekking tot de bescherming van natuurgebieden en dier- en plantensoorten samengebracht in één wet. De Wnb implementeert diverse Europeesrechtelijke regelgeving, zoals de Vogelrichtlijn en de Habitatrichtlijn in de Nederlandse wetgeving.

Gebiedsbescherming

De Wnb kent diverse soorten natuurgebieden, te weten:

  • Natura-2000 gebieden;
  • Natuurnetwerk Nederland (NNN).

Natura-2000 gebieden

De Minister van Economische Zaken (EZ) wijst gebieden aan die deel uitmaken van het Europese netwerk van natuurgebieden: Natura-2000. Een dergelijk besluit bevat de instandhoudingsdoelstellingen voor de leefgebieden van vogelsoorten (Vogelrichtlijn) en de instandhoudingsdoelstellingen voor de natuurlijke habitats en habitats van soorten (Habitatrichtlijn).

Een bestemmingsplan dat afzonderlijk of in combinatie met andere plannen of projecten significante gevolgen kan hebben voor een Natura 2000-gebied, kan uitsluitend vastgesteld worden indien uit een passende beoordeling de zekerheid is verkregen dat het plan, onderscheidenlijk het project de natuurlijke kenmerken van het gebied niet zal aantasten. Indien deze zekerheid niet is verkregen, kan het plan worden vastgesteld, indien wordt voldaan aan de volgende drie voorwaarden:

  • alternatieve oplossingen zijn niet voor handen;
  • het plan is nodig om dwingende redenen van groot openbaar belang, met inbegrip van redenen van sociale of economische aard, en
  • de nodige compenserende maatregelen worden getroffen om te waarborgen dat de algehele samenhang van het Natura 2000-netwerk bewaard blijft.

De bescherming van deze gebieden heeft externe werking, zodat ook ingrepen die buiten deze gebieden plaatsvinden verstoring kunnen veroorzaken en moeten worden getoetst op het effect van de ingreep op soorten en habitats.

Natuurnetwerk Nederland (NNN)

Gebieden die deel uitmaken van het Natuurnetwerk Nederland (NNN) worden aangewezen in de provinciale verordening. Voor dit soort gebieden geldt het 'nee, tenzij' principe, wat inhoudt dat binnen deze gebieden in beginsel geen nieuwe ruimtelijke ontwikkelingen mogen plaatsvinden.

Soortenbescherming

in de Wnb wordt een onderscheid gemaakt tussen:

  • soorten die worden beschermd in de Vogelrichtlijn;
  • soorten die worden beschermd in de Habitatrichtlijn;
  • overige soorten.

De Wnb bevat onder andere verbodsbepalingen ten aanzien van het opzettelijk vernielen of beschadigen van nesten, eieren en rustplaatsen van vogels als bedoeld in artikel 1 van de Vogelrichtlijn. Gedeputeerde Staten (hierna: GS) kunnen hiervan ontheffing verlenen en bij verordening kunnen Provinciale Staten (hierna: PS) vrijstelling verlenen van dit verbod. De voorwaarden waaraan voldaan moet worden om ontheffing of vrijstelling te kunnen verlenen zijn opgenomen in de Wnb en vloeien direct voort uit de Vogelrichtlijn. Verder is het verboden in het wild levende dieren van soorten, genoemd in bijlage IV, onderdeel a, bij de Habitatrichtlijn, bijlage II bij het Verdrag van Bern of bijlage I bij het Verdrag van Bonn, in hun natuurlijk verspreidingsgebied opzettelijk te doden of te vangen of te verstoren. GS kunnen hiervan ontheffing verlenen en bij verordening kunnen PS vrijstelling verlenen van dit verbod. De gronden voor verlening van ontheffing of vrijstelling zijn opgenomen in de Wnb en vloeien direct voort uit de Habitatrichtlijn.

Ten slotte is een verbodsbepaling opgenomen voor overige soorten. Deze soorten zijn opgenomen in de bijlage onder de onderdelen A en B bij de Wnb. De provincie kan ontheffing verlenen van deze verboden. Verder kan bij provinciale verordening vrijstelling worden verleend van de verboden. De noodzaak tot ontheffing of vrijstelling kan hierbij ook verband houden met handelingen in het kader van de ruimtelijke inrichting of ontwikkeling van gebieden.

Bij de voorbereiding van het bestemmingsplan moet worden onderzocht of de Wet natuurbescherming de uitvoering van het plan niet in de weg staat. Dit is het geval wanneer de uitvoering tot ingrepen noodzaakt waarvan moet worden aangenomen dat daarvoor geen vergunning of ontheffing ingevolge de wet zal kunnen worden verkregen.

Onderzoek

Ecologie

Het initiatief voorziet in de realisatie van een enkele woning. Ter plaatse van de voorziene woning zijn op het moment geen natuurwaarden aanwezig aangezien de grond braak ligt. Het initiatief voorziet niet in het graven van watergangen. De realisatie van de woning voorziet niet in de verwijdering van potentiële natuurwaarden.

Stikstof

Het plangebied is gelegen op geringe afstand van het Natura-2000 gebied Veluwe. Gelet op de aard en omvang van de ontwikkeling wordt er een stikstofonderzoek uitgevoerd door middel van een berekening met het programma Aerius. Naar verwachting levert dit geen problemen op, aangezien het slechts 1 woning betreft.

De extra woning was reeds voorzien in het moederplan. Omdat nog niet bekend is wanneer gebouwd gaat worden, zal het onderzoek voor vergunningverlening worden uitgevoerd.

4.7 Verkeer en parkeren

In deze paragraaf wordt getoetst of het plan de verkeer- en parkeersituatie niet nadelig beïnvloed.


Situatie plangebied

Dit plan maakt de realisatie van één woning maakt aan de Bosrand in Putten. Deze nieuwe woning zal voorzien in een aantal extra verkeersbewegingen. De omliggende wegen kunnen deze extra verkeersdruk goed verwerken. Parkeren wordt geheel op eigen terrein voorzien.

Conclusie

Het aspect verkeer en parkeren vormt geen belemmering voor het initiatief.

4.8 Water

Algemeen

Sinds 1 november 2003 is voor alle ruimtelijke plannen de watertoets verplicht. Het doel van de watertoets is waterbelangen evenwichtig mee te nemen in het planvormingsproces van Rijk, Provincies en gemeenten. Hiermee wordt een veilig, gezond en duurzaam watersysteem nagestreefd. De toets omvat het gehele proces van vroegtijdig informeren, adviseren, afwegen en uiteindelijk beoordelen van de in ruimtelijke plannen voorkomende waterhuishoudkundige aspecten. Via de digitale watertoets is beoordeeld of en welke waterbelangen voor het plan relevant zijn. De resultaten van de Digitale Watertoets zijn opgenomen in Bijlage 1 waarbij in deze paragraaf de aandachtspunten worden behandeld.

Beoordeling

In het plangebied liggen geen belangrijke oppervlaktewateren (zogenaamde primaire of A- watergangen), waterkeringen of gebieden die zijn aangewezen voor regionale waterberging. Dit betekent dat dit plan geen essentiële waterbelangen raakt. Op basis daarvan wordt door het waterschap voor het onderhavige plan een positief wateradvies gegeven.

Aandachtspunten

Voor de verdere uitwerking en concretisering van de beoogde ontwikkeling, geeft het waterschap aan dat rekening gehouden moet worden met een aantal algemene en gebiedsspecifieke aandachtspunten voor water.

Algemene aandachtspunten

Vasthouden - bergen - afvoeren

Een belangrijk principe is dat een deel van het hemelwater binnen het plangebied wordt vastgehouden en/of geborgen en dus niet direct afgevoerd wordt naar de riolering of het oppervlaktewater. Hiermee wordt bereikt dat de waterzuiveringsinstallatie beter functioneert, verdroging wordt tegen gegaan en piekafvoeren in het oppervlaktewater (met eventueel wateroverlast in benedenstrooms gelegen gebieden) wordt voorkomen. Bij lozing op oppervlaktewater zal hiervan een melding gedaan moeten worden bij het waterschap.

Grondwaterneutraal bouwen

Om grondwateroverlast te voorkomen adviseert het waterschap om boven de gemiddelde hoogste grondwaterstand (GHG) te ontwerpen. Dit betekent dat aspecten zoals ontwateringsdiepte en infiltratie van hemelwater, beschouwd worden ten opzichte van de GHG. Het structureel onttrekken / draineren van grondwater is geen duurzame oplossing en moet worden voorkomen. Het waterschap adviseert de initiatiefnemer dan ook om voorafgaand aan de ontwikkeling een goed beeld te krijgen van de heersende grondwaterstanden en GHG. Eventuele grondwateroverlast is in eerste instantie een zaak voor de betreffende perceeleigenaar.

Schoon houden - scheiden - schoon maken

Om verontreiniging van bodem, grond- en/of oppervlaktewater te voorkomen is het van belang dat het afstromende hemelwater niet verontreinigd raakt. Dit kan door nadere eisen of randvoorwaarden te stellen aan bijvoorbeeld de toegepaste (bouw)materialen.

Conclusie

Het aspect water vormt geen belemmering voor het initiatief.

4.9 Archeologie en cultuurhistorie

4.9.1 Archeologie

Toetsingskader

Rijk en provincie stellen zich op het standpunt dat in het ruimtelijk beleid zorgvuldig met het archeologisch erfgoed moet worden omgegaan. Voor gebieden waar archeologische waarden voorkomen of waar reële verwachtingen bestaan dat ter plaatse archeologische waarden aanwezig zijn, dient voorafgaand aan bodemingrepen archeologisch onderzoek te worden uitgevoerd. De uitkomsten van het archeologisch onderzoek dienen vervolgens volwaardig in de belangenafweging te worden betrokken.


Doelstelling van het Verdrag van Valetta is de bescherming en het behoud van archeologische waarden. Als gevolg van dit verdrag wordt in het kader van de ruimtelijke ordening het behoud van het archeologisch erfgoed meegewogen zoals alle andere belangen die bij de voorbereiding van het plan een rol spelen.


Bij het archeologiebeleid is ook een beleidskaart opgesteld die de zonering van de verschillende archeologische verwachtingswaarden aangeeft. Aan de verschillende verwachtingswaarden zijn voorwaarden gekoppeld wanneer bij bouw- en grondwerkzaamheden archeologisch onderzoek vereist wordt.


Situatie plangebied en onderzoek

Het initiatief voorziet in de realisatie van een woning. Op de planlocatie heeft reeds in het kader van bodemkwaliteit een bodemsanering plaatsgevonden. De aanwezigheid van archeologische waarden is hierdoor nihil. Vooralsnog wordt er van uitgegaan dat nader onderzoek niet nodig is.

4.9.2 Cultuurhistorie

Toetsingskader
De regering heeft in het Besluit ruimtelijke ordening (Bro) vastgelegd dat gemeenten vanaf 1 januari 2012 in hun bestemmingsplannen rekening moeten houden met aanwezige cultuurhistorische waarden. Burgers krijgen hiermee het recht om bij de planning van bouwwerkzaamheden aan te geven of er cultureel erfgoed wordt geraakt.


Situatie plangebied
In het plangebied bevinden zich geen Rijksmonumenten of gemeentelijke monumenten. Tevens zijn er geen landschappelijke waarden aanwezig welke gewaarborgd dienen te worden.

4.9.3 Conclusie

Er is geen sprake van cultuurhistorische waarden in het plangebied. De extra woning was reeds voorzien in het moederplan. Omdat reeds een bodemsanering heeft plaatsgevonden, worden er geen archeologische waarden verwacht.

4.10 Kabels en leidingen

In het plangebied zijn geen kabels en leidingen aanwezig die een planologische bescherming nodig hebben.

4.11 Vormvrije m.e.r.-beoordeling

In onderdeel C en D van de bijlage bij het Besluit m.e.r. is aangegeven welke activiteiten in het kader van het omgevingsvergunning plan-m.e.r.-plichtig, project-m.e.r.-plichtig of m.e.r.-beoordelingsplichtig zijn. Voor deze activiteiten zijn in het Besluit m.e.r. drempelwaarden opgenomen. Indien een activiteit onder de drempelwaarden blijft, dient alsnog een vormvrije m.e.r.-beoordeling uitgevoerd te worden, waarbij onderzocht dient te worden of de activiteit belangrijke nadelige gevolgen heeft voor het milieu, gelet op de omstandigheden als bedoeld in bijlage III van de EEG-richtlijn milieueffectbeoordeling. Deze omstandigheden betreffen de kenmerken van het project, de plaats van het project en de kenmerken van de potentiële (milieu)effecten.

Per 16 mei 2017 is de regelgeving voor de MER en m.e.r.-beoordeling gewijzigd met daarin een nieuwe procedure voor de vormvrije m.e.r.-beoordeling.

  • Voor de ontwerp-bestemmingsplanfase moet een m.e.r-beoordelingsbeslissing worden genomen, waarin wordt aangegeven of wel of geen MER nodig is, gelet op de kenmerken van het project, de plaats van het project en de kenmerken van de potentiële (milieu)effecten en mogelijke mitigerende maatregelen. Deze beslissing wordt als bijlage bij het bestemmingsplan opgenomen.
  • Voor elke aanvraag waarbij een vormvrije m.e.r.-beoordeling aan de orde komt moet de initiatiefnemer een aanmeldingsnotitie opstellen, waarbij ook mitigerende maatregelen mogen worden meegenomen. Het bevoegd gezag dient binnen zes weken na indienen een m.e.r.-beoordelingsbesluit af te geven. Een vormvrije m.e.r.-beoordelingsbeslissing hoeft echter niet gepubliceerd te worden.

In het Besluit milieueffectrapportage is opgenomen dat de aanleg, wijziging of uitbreiding van een stedelijk ontwikkelingsproject m.e.r.-beoordelingsplichtig is in gevallen waarin de activiteit betrekking heeft op een oppervlakte van 100 hectare of meer of een aaneengesloten gebied en 2000 of meer woningen omvat (Besluit milieueffectrapportage, Bijlage onderdeel D11.2). De beoogde ontwikkeling bestaat uit de toevoeging van één woning. Gelet op de aard van het project en de plaats van het project is geoordeeld dat er geen belangrijke negatieve milieugevolgen zullen optreden. Dit blijkt ook uit de onderzoeken van de verschillende milieuaspecten, zoals deze in de voorgaande paragrafen zijn opgenomen. Voor dit planvoornemen is dan ook geen m.e.r.-procedure noodzakelijk op grond van het Besluit m.e.r.

Hoofdstuk 5 Juridische plantoelichting

Bij het opstellen van het onderhavige bestemmingsplan is aansluiting gezocht bij de in de Wet ruimtelijke ordening (Wro), het Besluit ruimtelijke ordening (Bro) en de in de Wet algemene bepalingen overgangsrecht geformuleerde uitgangspunten. Daarnaast is het plan opgesteld conform de Standaard Vergelijkbare BestemmingsPlannen 2012 (SVBP2012).

De in dit bestemmingsplan voorkomende regeling zal hieronder kort worden besproken.

5.1 Planregels

Een bestemmingsplan kent aan gronden een bestemming toe en verbindt regels aan deze bestemming. Deze regels betreffen het gebruik van de gronden, maar onder meer ook de bouwmogelijkheden. De regels zijn nader onder te verdelen in:

  • inleidende regels;
  • bestemmingsregels;
  • algemene regels;
  • overgangs- en slotregels.


Inleidende regels

In deze regels staan de begrippen verklaard die in de planregels voorkomen en die om een nadere omschrijving vragen. Verder wordt aangegeven op welke wijze gemeten moet worden om bijvoorbeeld een goot- of bouwhoogte te bepalen.


Bestemmingsregels

Deze regels betreffen het hart van het bestemmingsplan. In de bestemmingsregels wordt aangegeven waarvoor en - zo nodig - hoe de betreffende gronden gebruikt en bebouwd mogen worden. In dit bestemmingsplan komt de bestemming 'Wonen - Wonen in het bos' voor. In de volgende paragraaf wordt op de bestemmingen nader ingegaan.


Algemene regels

Het gaat hier om algemene regels die betrekking hebben op alle bestemmingen in het plan. In plaats van bij elke bestemming dezelfde regel te plaatsen, kan gebruik worden gemaakt van een algemene regel.


Overgangs- en slotregels

Hieronder zijn het overgangsrecht en de slotregel opgenomen. Deze laatste regel geeft aan op welke wijze de regels van het bestemmingsplan kunnen worden aangehaald.

5.2 Bestemmingen

5.2.1 Wonen - Wonen in het bos

Het bestemmingsplan bevat een woonbestemmingsvlak, met een bouwvlak en een aanduiding voor het maximum aantal woningen (namelijk 1 woning). Deze bestemming is gelijk aan de bestemming die het perceel had in het bestemmingsplan Kom Noord en Zuidoost, met dien verstande dat de aanduiding voor 1 woning is toegevoegd. De bestemming 'Wonen - Wonen in het bos' geldt voor woningen op grote, meer bosachtige percelen en voorziet in een regeling die behoud van het bosachtige karakter tot doel heeft. In dat kader is een nadere eisenregeling opgenomen ten aanzien van de situering van bijgebouwen.

Binnen de woonbestemmingen geven bouwvlakken aan waar gebouwd mag worden. De goot- en bouwhoogte van een woning bedraagt niet meer dan 4 m respectievelijk 8,6 m. Tevens is bepaald dat de niet aangebouwde zijde van een woning ten minste 3 m van de erfgrens moet worden gesitueerd. Er dient namelijk voorkomen te worden dat een haast onbruikbare reststrook ontstaat.

Voor de bijgebouwen, aan- en uitbouwen op het zijerf en achtererf (buiten de bouwstroken waar hoofdgebouwen zijn gesitueerd) geldt een maximum gezamenlijke oppervlakte van 60 m². Voor carports en overkappingen mag de gezamelijke oppervlakte maximaal 50 m2 bedragen. Ten opzichte van de zijdelingse perceelgrens dient een afstand van minimaal 1 m aangehouden te worden.

Bepaald is dat de hoogte van erfafscheidingen vóór de voorgevellijn maximaal 1 m mag zijn en van overige bouwwerken, geen gebouwen zijnde, maximaal 2 m.

De zogenaamde aan-huis-verbonden beroepen zijn binnen de woonbestemming toegelaten. Dat geldt niet voor activiteiten die verband houden met prostitutie. Een afwijkingsbevoegdheid is opgenomen voor o.a. bedrijfsmatige activiteiten aan huis.

Hoofdstuk 6 Uitvoerbaarheid

6.1 Maatschappelijke uitvoerbaarheid

Het bestemmingsplan doorloopt de procedure zoals vastgelegd in artikel 3.6 lid 1 sub a van de Wet ruimtelijke ordening (Wro). Door het voeren van de genoemde procedure, wordt eenieder in de gelegenheid gesteld voor het indienen van zienswijzen. Er wordt geen vooroverleg gevoerd over dit plan, omdat er geen Rijks-, provinciale of waterschapsbelangen in het geding zijn.

Het wijzigingsplan wordt gedurende een periode van zes weken ter inzage gelegd. Gedurende deze periode heeft een ieder de mogelijkheid een zienswijze in te dienen.

6.2 Economische uitvoerbaarheid

Dit bestemmingsplan heeft betrekking op een particulier initiatief. De gemeente heeft hiermee geen directe financiële bemoeienis. De kosten met betrekking tot het opstellen van het wijzigingsplan worden gedragen door de initiatiefnemer en daaraan verwante procedurekosten worden verhaald via de leges van de gemeente. Het plan wordt hiermee economisch uitvoerbaar geacht.

6.3 Grondexploitatie

Bij wijzigingsplannen die bouwplannen mogelijk maken, is de grondexploitatieregeling uit de Wet ruimtelijke ordening van toepassing. De vaststelling van een exploitatieplan bij dit wijzigingsplan is in principe verplicht. Via dit bestemmingsplan wordt een bouwplan, zoals genoemd in het Besluit ruimtelijke ordening, mogelijk gemaakt. Het gaat om de bouw van een woning op het perceel. Van de vaststelling van een exploitatieplan kan worden afgezien wanneer onder meer het kostenverhaal anderszins verzekerd is. Dat is in deze situatie het geval.