direct naar inhoud van TOELICHTING
Plan: Putten Gervenhof & Dorpsstraat e.o.
Status: ontwerp
Plantype: bestemmingsplan
IMRO-idn: NL.IMRO.0273.BPBKGervDorps-ON01

TOELICHTING

Hoofdstuk 1 Inleiding

1.1 Aanleiding

In het centrum van de kern Putten bestaat het voornemen om de locatie van Kok Woninginrichters aan de Gervenhof en de Boni-locatie aan de Dorpsstraat te herontwikkelen. De herontwikkeling gaat uit van de nieuwbouw van een winkelpand met daarboven woningen, een nieuw appartementencomplex en ook de bouw van negen nieuwe grondgebonden woningen aan de Dorpsstraat. Daarnaast wordt voorzien in een bestemmingswijziging van het pand aan de Engweg 21. In hoofdstuk 2 wordt dit nader toegelicht.

Het initiatief kan niet worden gerealiseerd op grond van het ter plaatse geldende bestemmingsplan, omdat de bestemming voor de Gervenhof is toegespitst om volumineuze detailhandel. Daarnaast geldt voor het perceel aan de Dorpsstraat de bestemmingen 'Gemengd' en 'Detailhandel'. Om de gewenste ontwikkelingen planologisch-juridisch mogelijk te maken, is een procedure tot vaststelling van een nieuw bestemmingsplan als bedoeld in artikel 3.1 Wet ruimtelijke ordening (Wro) noodzakelijk. Met voorliggend bestemmingsplan wordt het plan voorzien van een ruimtelijk juridisch kader. In deze toelichting wordt de beoogde ontwikkeling beschreven en wordt aangetoond dat voldaan kan worden aan de eisen van een goede ruimtelijke ordening.

1.2 Ligging en begrenzing plangebied

Het plangebied is op te delen in twee locaties. In het vervolg van dit bestemmingsplan worden de verschillende locaties aangeduid als 'Locatie 1' en als 'Locatie 2'.

1.2.1 Locatie 1

Locatie 1 is gelegen aan de Gervenhof en grenst aan de noordzijde aan de Achterstraat. De locatie ligt in het centrum van de kern Putten. Op de planlocatie is nu het pand van Kok Interieurs en de kringloop gelegen. Aan de zuidzijde wordt het plangebied begrenst door de begraafplaats.De planlocatie is gelegen op meerdere percelen. Kadastraal staan de percelen die ontwikkeld gaan worden bekend als gemeente Putten, sectie C, nummers 11865, 11866, 11867 en 11868.

afbeelding "i_NL.IMRO.0273.BPBKGervDorps-ON01_0001.png"

Figuur: Uitsnede kadastrale kaart locatie 1 (bron: perceelloep.nl)

1.2.2 Locatie 2

Locatie 2 is eveneens gelegen in het centrum van de kern Putten. Op de planlocatie aan de Dorpsstraat 85-87 is nu de Boni-supermarkt samen met een bloemenwinkel gevestigd. Ten westen van het winkelpand is aan de Dorpsstraat 97 een kringloopwinkel gelegen. Daarnaast ligt ten zuiden van de planlocatie, aan de Engweg 21 eveneens een pand van de kringloopwinkel gelegen. Deze is te bereiken via een smalle steeg. De planlocaties zijn gelegen op meerdere percelen. Kadastraal staan de percelen die ontwikkeld gaan worden bekend als gemeente Putten, sectie C, nummers 2896, 8760, 9039, 9586. 9918 en 10205.

afbeelding "i_NL.IMRO.0273.BPBKGervDorps-ON01_0002.png"

Figuur:Uitsnede kadastrale kaart locatie 2 (bron: perceelloep.nl)

afbeelding "i_NL.IMRO.0273.BPBKGervDorps-ON01_0003.png"

Figuur: Globale aanduiding beide planlocaties (bron: google maps)

1.3 Vigerende planologische situatie

Beide plangebieden liggen binnen de begrenzing van het bestemmingsplan 'Putten Centrum'. Dit bestemmingsplan is vastgesteld door de raad van de gemeente Putten op 7 april 2011. Daarnaast geldt het bestemmingplan 'Parkeernormen', vastgesteld op 5 juli 2018.

1.3.1 Locatie 1

In het bestemmingsplan kent het plangebied de enkelbestemmingen 'Detailhandel' en 'Verkeer - verblijfsgebied'.

Enkelbestemming 'Detailhandel'

De voor "Detailhandel" aangewezen gronden zijn bestemd voor:

  • a. detailhandel, uitsluitend in de eerste bouwlaag, met uitzondering van bestaande detailhandel;
  • b. één woning, dan wel het bestaande aantal woningen;
  • c. uitsluitend volumineuze detailhandel, ter plaatse van de aanduiding 'detailhandel volumineus';
  • d. bij een en ander behorende in- en uitritten, parkeervoorzieningen, laad- en losvoorzieningen en andere voorzieningen, waaronder begrepen nutsvoorzieningen.

Het bebouwingspercentage binnen het bouwvlakmag 100% bedragen en er gelden enkele regels met betrekking tot de maatvoering.

Enkelbestemming 'Verkeer - Verblijfsgebied'

De voor "Verkeer - Verblijfsgebied" aangewezen gronden zijn bestemd voor:

  • a. verhardingen voor woonstraten, pleinen, auto-, fiets- en voetgangersverkeer en parkeervoorzieningen,
  • b. bermen, groen- en speelvoorzieningen,
  • c. watergangen,
  • d. evenementen, en
  • e. nutsvoorzieningen.

Bestemmingsplan 'Parkeernormen'

Vanuit dit bestemmingsplan geldt het volgende met betrekking tot parkeernormen en laden en lossen:

  • a. Bij het verlenen van een omgevingsvergunning voor het bouwen of een omgevingsvergunning voor een gebruiksverandering moet, indien de omvang of het gebruik van een gebouw daartoe aanleiding geeft, ten behoeve van het parkeren en stallen van auto's (motor)fietsen of andere voertuigen in voldoende mate ruimte zijn aangebracht in, op of onder het gebouw, dan wel op of onder het bijbehorend bouwperceel.
    Dit betekent dat moet worden voldaan aan de gemeentelijke parkeernormen.
  • b. Indien in verband met de bestemming/het gebruik van een gebouw behoefte bestaat aan ruimte voor het laden en lossen van goederen, moet in deze behoefte in voldoende mate zijn voorzien aan, in of onder dat gebouw, dan wel op het bijbehorend bouwperceel.
  • c. Gerealiseerde voorzieningen als bedoeld in sub a en b, dienen na realisering in stand te worden gehouden voor het gebruik waar de betreffende voorzieningen voor nodig zijn.
1.3.2 Locatie 2

Voor locatie 2 geldt de enkelbestemming 'Gemengd' en het bestemmingsplan 'Parkeernormen' in paragraaf 1.3.1. Daarnaast geldt voor het pand aan de Engweg de enkelbestemming 'Detailhandel'.

Enkelbestemming 'Gemengd'

De voor "Gemengd" aangewezen gronden zijn bestemd voor:

  • a. de hierna aangegeven doeleinden, op de daarbij aangegeven plaatsen

afbeelding "i_NL.IMRO.0273.BPBKGervDorps-ON01_0004.png"

  • b. bij een en ander behorende binnenplaatsen, tuinen en groenvoorzieningen;
  • c. bij een en ander behorende in- en uitritten, parkeervoorzieningen, laad- en losvoorzieningen en andere voorzieningen, waaronder begrepen nutsvoorzieningen.

afbeelding "i_NL.IMRO.0273.BPBKGervDorps-ON01_0005.png"

Figuur: Uitsnede bestemmingsplan met aanduiding planlocaties (bron: ruimtelijkeplannen.nl)

1.3.3 Conclusie

Onderhavig initiatief is in strijd met het vigerende bestemmingsplan 'Putten Centrum', omdat de enkelbestemming 'Detailhandel' slechts is bedoeld voor volumineuze detailhandel. Daarnaast geldt dat er ook woningen worden ontwikkeld op locatie 1. Voor locatie 2 geldt dat de enkelbestemming 'Gemengd' niet adequaat is voor de toekomstige functie van woningen.

1.4 Opzet bestemmingsplan en toelichting

Het bestemmingsplan 'Putten Gervenhof & Dorpsstraat e.o.' bestaat uit de volgende stukken:

  • toelichting;
  • verbeelding, schaal 1:1000 (IDN nummer: NL.IMRO.0273.BPBKGervDorps-ON01;
  • planregels.

De toelichting is niet juridisch bindend, maar vormt een belangrijk onderdeel van het bestemmingsplan. De toelichting geeft aan wat de beweegredenen en achtergronden zijn die aan het bestemmingsplan ten grondslag liggen. Tot slot heeft de toelichting als doel om het bestemmingsplan te begrijpen en de regels op een correcte manier na te leven.

De verbeelding en de planregels vormen samen het juridisch bindende gedeelte van het bestemmingsplan en kunnen enkel in samenhang met elkaar 'gelezen' worden.

Op de verbeelding zijn de bestemmingen van de in het plangebied begrepen gronden en opstallen aangegeven. Aan deze bestemmingen zijn regels en bepalingen gekoppeld om de uitgangspunten van het plan zeker te stellen.

De toelichting is als volgt opgebouwd:

  • Hoofdstuk 2 staat stil bij de huidige en toekomstige situatie van het plangebied;
  • in Hoofdstuk 3 is een beknopt overzicht opgenomen van de belangrijkste beleidsvisies van de verschillende overheden die relevant zijn voor het plangebied;
  • de gevolgen of effecten op de planologische- en milieutechnische aspecten worden in Hoofdstuk 4 beschreven;
  • in Hoofdstuk 5 worden de gehanteerde bestemmingen met bijbehorende regeling beschreven;
  • Hoofdstuk 6 behandelt ten slotte de economische uitvoerbaarheid en maatschappelijke uitvoerbaarheid. Hierin worden de resultaten beschreven van de gevolgde inspraakprocedure en het vooroverleg conform artikel 3.1.1 Bro.

Hoofdstuk 2 Beschrijving van de situatie

Dit hoofdstuk staat stil bij de historie van de kern Putten, de huidige situatie en de toekomstige situatie van de twee planlocaties.

2.1 Historie

2.1.1 Algemeen

De historische ontwikkeling vormt een belangrijke drager van de huidige ruimtelijke invulling. De geschiedenis van de kern Putten gaat ver terug. Het oudste schriftelijke bewijs dateert uit 855, waaruit blijkt dat sprake was van een gemeenschap van mensen. De aanleg van de spoorlijn in 1863 zorgde voor een versnelde ontwikkeling van Putten. In de kern kwamen pensions, hotels en andere voorzieningen te voorschijn.

De ligging van Putten in een natuurlijke omgeving heeft ervoor gezorgd dat rondom de kern Putten veel recreatiebedrijven aanwezig zijn. De aantrekkelijke omgeving, vanwege de ligging nabij de Veluwe, en de vele ontspanningsvoorzieningen maken Putten voor zowel recreanten als inwoners een geliefd dorp.

Het plaatselijk reliëf en de daaraan gerelateerde grondwaterstanden zijn in sterke mate bepalend geweest voor het nederzettingenpatroon. Putten is van oorsprong een kruispuntnederzetting. Het dorp is waarschijnlijk gevormd in de omgeving van het kruispunt 'de Pol'. De naam van het kruispunt duidt op een hoogte die ter plaatse aanwezig moet zijn geweest. Op deze hoogte kruisten oude wegen elkaar. Deze wegen heten nu de Achterstraat, Kerkstraat, Molenweg, Bakkerstraat en Garderenseweg.

afbeelding "i_NL.IMRO.0273.BPBKGervDorps-ON01_0006.png"

Figuur: Putten rond 1815 (bron: topotijdreis.nl)

2.1.2 Ruimtelijke ontwikkeling

Omstreeks 1850 bestond de dorpsstructuur uit de Dorpsstraat, de Verlengde Dorpsstraat, de Achterstraat, de Papiermakerstraat, de Kelnarijstraat, de Poststraat, de Molenstraat, de Krommestraat en de Kerkstraat. De bebouwing langs deze wegen bestond uit een mengeling van woonhuizen en boerderijen.

De unieke ligging aan de rand van het Veluwemassief en de aanleg van een spoorlijn in 1863 ten westen van het dorp hadden een toename van het toerisme en het forensisme tot gevolg. Tot 1950 is het dorp op organische wijze gegroeid. De oudere toegangswegen van Putten werden volgebouwd met lintbebouwing. Hierna vonden de planmatige uitbreidingen plaats tussen de linten in noordelijke en oostelijke richting.

afbeelding "i_NL.IMRO.0273.BPBKGervDorps-ON01_0007.png"

Fguur: Putten in 1850 (bron: topotijdreis.nl)

2.1.3 Dorpsstraten

De Dorpsstraat was de hoofdstraat van het dorp en werd ook wel Heerenstraat genoemd. Vanaf 1830 maakte de straat deel uit van de rijksstraatweg tussen Hoevelaken en Katerveer (Zwolle). In die tijd veranderde de naam in Zuiderzeesche Straatweg. Dit gold evenzeer voor de Verlengde Dorpsstraat. De Achterstraat was oorspronkelijk een steeg en liep in hoofdzaak langs de achterzijde van huizen, die aan de Dorpsstraat waren gelegen. Zuidelijk van de steeg strekte zich de Putter Eng uit. De Kerkstraat was vroeger onderdeel van een belangrijke verbinding tussen Putten en Voorthuizen.

Voor de planmatige uitbreidingen van het dorp liep de Kerkstraat door tot aan de Engweg en sloot direct aan op de Voorthuizerstraat. De Papiermakerstraat en de Telgterweg (nu aan de overzijde van de Oude Rijksweg) werden vroeger de Papiermakersteeg genoemd. De steeg liep door tot aan de kruising Telgterweg-Beekweg. Daar was een papiermolen gelegen aan de Schoonderbeek. De Weverstraat was oorspronkelijk een voetpad. In 1906 is het voetpad verbreed en in gebruik genomen als openbare weg.

afbeelding "i_NL.IMRO.0273.BPBKGervDorps-ON01_0008.png"

Putten rond 1960 (bron: topotijdreis.nl)

2.1.4 Gebouwen

De cultuurhistorie van Putten is deels af te lezen aan de historisch waardevolle gebouwen. Deze dragen tevens in belangrijke mate bij aan het ruimtelijk beeld van het centrum.

Nog steeds bestaande gebouwen zijn: de Oude Nederlands Hervormde kerk, de Gereformeerde Kerk, de Rooms Katholieke Kerk en het voormalig woonhuis van jonkheer Schimmelpenninck bij de kruising van de Dorpsstraat met de Oude Rijksweg (nu in gebruik als kantoor van de Woningstichting Putten).

Andere gebouwen zijn reeds afgebroken, zoals de eierhal, de graansilo en het "vacantiehuis" aan de vijfsprong. Op de plek van het huidige gemeentehuis stond vroeger een marktgebouw, de zogenaamde eierhal. Deze hal werd in 1898 gebouwd. Aan de Achterstraat werd in 1935 door de Coöperatieve Landbouwvereniging graansilo Gervenhorst gebouwd. In 1957 werd dit gebouw aanzienlijk uitgebreid. Later is het afgebroken ten faveure van de bouw van een woonwinkelcomplex.

De historisch waardevolle bebouwing draagt in positieve zin bij aan de verblijfskwaliteit van het centrumgebied. Oudere bebouwing in het centrumgebied wordt afgewisseld met nieuwbouw, waaronder appartementencomplexen. De bebouwingsdichtheid is relatief hoog; in sommige delen zijn ook de achterterreinen helemaal volgebouwd. De meeste bebouwing is direct aan de straat gelegen en staat in één rooilijn, waardoor het gebied een steenachtig karakter heeft. De bebouwing is echter nog steeds kleinschalig Samen met het nog grotendeels aanwezige wegen en paden patroon ademt het gebied de sfeer van een dorpscentrum uit.

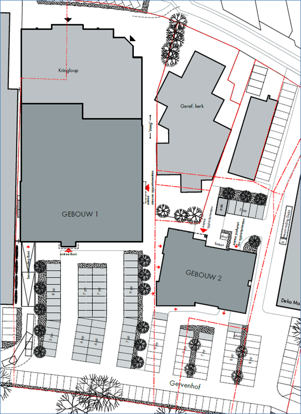
2.2 Huidige situatie

2.2.1 Locatie 1

Op locatie 1, tussen de Gervenhof en de Achtersstraat is het pand van Kok Interieurs gelegen. Dit is een meubelzaak welke een groot winkeloppervlakte in beslag neemt. Het pand heeft een oppervlakte van ruim 5.000 m2 en kent, zoals reeds benoemd, de bestemming 'Detailhandel' Volumineus. Er is in het verleden voor deze bestemming gekozen, omdat het pand niet in het kernwinkelgebied van Putten is gelegen. Kok Interieurs is al ruim twintig jaar op de centraal in Putten gelegen locatie gevestigd. Rond het pand zijn drie supermarkten en diverse andere winkels gelegen. Aan de zuidzijde van de planlocatie is ruimte ingericht voor parkeren en ook aan de kant van de Achterstraat zijn er parkeermogelijkheden. Boven het gedeelte dat grenst aan de Achterstraat zijn appartementen gelegen.

afbeelding "i_NL.IMRO.0273.BPBKGervDorps-ON01_0009.png"

Figuur: Pand bezien vanaf Gervenhof (zuidzijde)

afbeelding "i_NL.IMRO.0273.BPBKGervDorps-ON01_0010.png"

Figuur: Magazijn vanaf oostzijde

afbeelding "i_NL.IMRO.0273.BPBKGervDorps-ON01_0011.png"

Figuur: Pand bezien vanaf Achterstraat (noordzijde)

Uit de beelden is op te maken dat het plangebied rond locatie 1 erg versteend is en weinig architectonische uitstraling heeft.

2.2.2 Locatie 2

Locatie 2 is gelegen aan de Dorpsstraat 85-87 en 97, en de Engweg 21. Op de planlocatie aan de Dorpsstraat bevindt zich nu het pand van de Boni-supermarkt, een bloemenwinkel en een pand van de kringloopwinkel 'Overnodig'. Het andere pand van de kringloopwinkel is gelegen aan de Engweg 21. Het plangebied, heeft een oppervlakte van bijna 3.000 m2. Hiervoor is het grootste deel verhard. Rond het pand van de supermarkt is een straatje aangelegd zodat er een duidelijke rijroute is ontstaan voor klanten die met de auto komen.

afbeelding "i_NL.IMRO.0273.BPBKGervDorps-ON01_0012.png"

Figuur:Beeld op de supermarkt vanaf de Dorpsstraat (noordzijde)

afbeelding "i_NL.IMRO.0273.BPBKGervDorps-ON01_0013.png"

Figuur: Beeld op de kringloopwinkel vanaf de Dorpsstraat (noordzijde)

afbeelding "i_NL.IMRO.0273.BPBKGervDorps-ON01_0014.png"  

Figuur: Beeld achter Boni-supermarkt

2.3 Toekomstige situatie

De toekomstige situatie bestaat uit een wisselwerking tussen de beide locaties. Op hoofdlijnen bestaat de ontwikkeling uit de volgende onderdelen:

  • Het bestaande pand van Kok Interieurs wordt gedeeltelijk gesloopt (ca. 1000m2);
  • Het m2 winkelvloeroppervlak aan de Gervenhof wordt teruggebracht tot circa 1.600 m2 voor de Boni-supermarkt, circa 200 m2 voor de bloemenwinkel en circa 1.045 m2 winkelruimte aan de zijde van de Achterstraat ten behoeve van de kringloopwinkel;
  • Boven de supermarkt komen twee lagen met zestien appartementen;
  • Aan de Gervenhof wordt een nieuw gebouw gerealiseerd op de plaats van het huidige magazijn met op de begane grond commerciële ruimte voor winkel/lichtehoreca (200 m2) en parkeerplaatsen voor de twaalf appartementen op de eerste en tweede verdieping;
  • De parkeercapaciteit wordt uitgebreid;
  • Op de locatie aan de Dorpsstraat wordt het bestaande pand van de Boni-supermarkt en bloemenwinkel gesloopt en komen negen grondgebonden woningen. De winkelfunctie komt volledig te vervallen.
  • De panden van de kringloopwinkel aan de Dorpsstraat 97 en de Engweg 21 krijgen een gemengde functie met bedrijf aan huis/klein kantoor aan huis (inclusief woonmogelijkheid) en blijven grotendeels behouden in de huidige staat.

In onderstaande figuur is de stedenbouwkundig opzet voor locatie 1 weergegeven:

afbeelding "i_NL.IMRO.0273.BPBKGervDorps-ON01_0015.png"

Figuur: Stedenbouwkundige opzet locatie 1

afbeelding "i_NL.IMRO.0273.BPBKGervDorps-ON01_0016.png"

Figuur: Impressie nieuwe Boni-supermarkt met appartementen vanuit zuidzijde

afbeelding "i_NL.IMRO.0273.BPBKGervDorps-ON01_0017.png"

Figuur: Impressie nieuwe appartementen gebouw met twaalf appartementen vanuit zuidwesten

Door een deel van het bestaande pand te slopen wordt ruimte gecreëerd voor extra parkeerplaatsen. Dit is gezien de gewenste functie als supermarkt en detailhandel noodzakelijk om te zorgen voor een goede parkeersituatie (dit wordt nader toegelicht in paragraaf 4.6). Het laden en lossen zal verdiept plaatsvinden aan de westzijde van de parkeerplaats in een verdiepte opstelplaats.

De supermarkt krijgt een BVO van circa 1.600 m2. Voor de kringloopwinkel wordt gedacht aan circa 1.045 m2. Boven het nieuwe te ontwikkelen winkelpand zal ruimte komen voor zestien appartementen. Per appartement geldt een oppervlakte van 70 - 75 m2. De appartementen krijgen een eigen voordeur en balkon dat uitkijkt op de parkeerplaats voor de supermarkt. Door de appartementen te richten op de parkeerplaats aan de Gervenhof krijgt deze ruimte meer een pleinfunctie. Dit betekent dat er in de avonduren meer levendigheid is in het gebied wat bijdraagt aan de sociale veiligheid van het plangebied.

De appartementen worden aangeboden in verschillende prijsklassen. Twaalf appartementen worden in het goedkopere segment aangeboden, vier in de betaalbare koop (maximum 265.000 euro), zeven appartementen in de middeldure koop en de overige vijf appartementen zullen in het dure segment vallen. De nieuwe appartementen zullen geen gasaansluiting krijgen.

De appartementen aan de Achterstraat zullen ongewijzigd behouden blijven.

Voor locatie 2 geldt dat de panden van de kringloopwinkel worden omgezet in wonen en/of kantoren. Op de plaats waar nu de Boni-supermarkt gevestigd is zullen negen grondgebonden woningen worden ontwikkeld. Hiervoor is een nieuwe verkaveling noodzakelijk. De grondgebonden woningen zullen worden aangeboden in de vrije sector met vrij op naam prijzen boven de 300.000 euro.

afbeelding "i_NL.IMRO.0273.BPBKGervDorps-ON01_0018.png"

Figuur: Impressie planlocatie 2

Hoofdstuk 3 Beleidskader

3.1 Rijksbeleid

3.1.1 Structuurvisie Infrastructuur en Ruimte (SVIR)

De Structuurvisie Infrastructuur en Ruimte (SVIR), die op 13 maart 2012 door de minister is vastgesteld, vormt de overkoepelende rijksstructuurvisie voor de ruimtelijke ontwikkeling van Nederland tot 2028, met een doorkijk naar 2040.

Het rijksbeleid richt zich op het versterken van de internationale positie van Nederland en het behartigen van de nationale belangen, zoals de hoofdnetwerken voor personen- en goederenvervoer, energie, natuur, waterveiligheid, milieukwaliteit en bescherming van het werelderfgoed. Het Rijk streeft naar een concurrerend, bereikbaar, leefbaar en veilig Nederland. Daarbij wordt ingezet op een krachtige aanpak die ruimte geeft aan regionaal maatwerk, de gebruiker voorop zet, investeringen prioriteert en ruimtelijke ontwikkelingen en infrastructuur met elkaar verbindt.

Om dit doel te bereiken, werkt het Rijk samen met andere overheden. In de SVIR zijn ambities tot 2040 en doelen, belangen en opgaven tot 2028 geformuleerd. Het Rijk heeft drie hoofddoelen geformuleerd:

  • het vergroten van de concurrentiekracht van Nederland door het versterken van de ruimtelijk-economische structuur;
  • het verbeteren, instandhouden en ruimtelijk zekerstellen van de bereikbaarheid, waarbij de gebruiker voorop staat;
  • het waarborgen van een leefbare en veilige omgeving waarin natuurlijke en cultuurhistorische waarden behouden zijn.

Het beleid met betrekking tot verstedelijking, groene ruimte en landschap laat het Rijk, onder het motto 'decentraal wat kan, centraal wat moet', zoveel mogelijk over aan provincies en gemeenten. Gemeenten krijgen daarbij de ruimte voor kleinschalige natuurlijke groei en voor het bouwen van huizen die aansluiten bij de woonwensen van mensen. De sturing op verstedelijking, zoals afspraken over binnenstedelijk bouwen en doelstellingen voor herstructurering, laat het Rijk voor een groot deel los.

In totaal zijn 13 onderwerpen van nationaal belang benoemd, die bijdragen aan het realiseren van de drie hoofddoelen. Het betreft onder meer het borgen van ruimte voor de hoofdnetwerken (weg, spoor, vaarwegen, energievoorziening, buisleidingen), het verbeteren van de milieukwaliteit, ruimte voor waterveiligheid, ruimte voor klimaatbestendige stedelijke ontwikkeling, ruimte voor behoud van unieke cultuurhistorische en natuurlijke kwaliteiten en ruimte voor een nationaal netwerk voor natuur.

Verder is één van de nationale belangen die de SVIR benoemt, het belang van een 'zorgvuldige afweging en transparante besluitvorming bij alle ruimtelijke en infrastructurele besluiten'. Concreet betekent dit onder meer dat ruimte zorgvuldig moet worden benut en overprogrammering moet worden voorkomen. Om die doelstellingen te bereiken, is in 2012 de ladder voor duurzame verstedelijking opgenomen in het Besluit ruimtelijke ordening. Alle stedelijke ontwikkelingen dienen aan de Ladder voor duurzame verstedelijking getoetst te worden.

Conclusie

De ontwikkeling is passend binnen de SVIR. De ladder voor duurzame verstedelijking komt in paragraaf 3.1.3 Ladder voor duurzame verstedelijking aan de orde.

3.1.2 Besluit algemene regels ruimtelijke ordening (Barro)

Op 30 december 2011 is het Besluit algemene regels ruimtelijke ordening (Barro) in werking getreden. Gemeenten moeten bij het vaststellen van bestemmingsplannen, wijzigingsplannen of uitwerkingsplannen rekening houden met het Barro. Doel van het Barro is bepaalde onderwerpen uit de Structuurvisie Infrastructuur en Ruimte te verwezenlijken. In het Barro worden een aantal projecten opgesomd die een groot Rijksbelang hebben. Per project worden regels gegeven, waaraan bestemmingsplannen moeten voldoen. De regels zijn een uitwerking van de onderwerpen uit de Structuurvisie Infrastructuur en Ruimte.

In het Barro zijn veertien onderwerpen met bijzonder rijksbelang beschreven:

  • Rijksvaarwegen;
  • Project mainportontwikkeling Rotterdam;
  • Kustfundament;
  • Grote rivieren;
  • Waddenzee en waddengebied;
  • Defensie;
  • Hoofdvaarwegen en landelijke spoorwegen;
  • Elektriciteitsvoorziening;
  • Buisleidingen van nationaal belang voor het vervoer van gevaarlijke stoffen;
  • Natuurnetwerk Nederland;
  • Primaire waterkeringen buiten het kustfundament;
  • IJsselmeergebied (uitbreidingsruimte);
  • Erfgoederen van uitzonderlijke universele waarden;
  • Ruimtereservering parallelle Kaagbaan.

Conclusie

Het initiatief valt niet onder een van de projecten uit het Barro. Door de gewenste ontwikkeling zal geen nationaal belang worden geschaad.

3.1.3 Ladder voor duurzame verstedelijking

Nationaal belang 13, zoals geformuleerd in de Structuurvisie Infrastructuur en Ruimte (SVIR), vraagt om een zorgvuldige afweging en transparante besluitvorming bij alle ruimtelijke en infrastructurele besluiten. Dit moet met behulp van de ladder voor duurzame verstedelijking worden onderbouwd. Deze verplichte toetsing is vastgelegd in het Besluit algemene regels ruimtelijke ordening (Barro). Het Barro verwijst naar het Bro; geformuleerd is dat deze toetsing een procesvereiste is bij alle nieuwe ruimtelijke besluiten en plannen ten aanzien van bijvoorbeeld kantoorlocaties en woningbouwlocaties. Gemotiveerd dient te worden hoe een zorgvuldige afweging is gemaakt ten aanzien van het ruimtegebruik. De kernbepaling van de Ladder, artikel 3.1.6 lid 2 Bro, luidt:

'De toelichting van een bestemmingsplan dat een nieuwe stedelijke ontwikkeling mogelijk maakt, bevat een beschrijving van de behoefte aan de voorgenomen stedelijke ontwikkeling. Indien blijkt dat de stedelijke ontwikkeling niet binnen het bestaand stedelijk gebied kan worden voorzien, bevat de toelichting een motivering daarvan en een beschrijving van de mogelijkheid om in die behoefte te voorzien op de gekozen locatie buiten het bestaand stedelijk gebied.'

Om dit te onderbouwen dienen de volgende stappen te worden doorlopen:

  • 1. er dient een beoordeling plaats te vinden door betrokken overheden of de beoogde ontwikkeling voorziet in een behoefte;
  • 2. indien er een vraag is aangetoond, dient een beoordeling plaats te vinden door betrokken overheden of de ontwikkeling binnen bestaand stedelijk gebied kan worden gerealiseerd door locaties voor herstructurering of transformatie te benutten. Indien het bestemmingsplan de ontwikkeling mogelijk maakt buiten het bestaand stedelijk gebied, is een motivering benodigd waarom niet binnen het bestaand stedelijk gebied in die behoefte kan worden voorzien.

Stedelijke ontwikkeling

Om aan deze verplichting uit het Bro te kunnen voldoen dient allereerst te worden nagegaan of er sprake is van een stedelijke ontwikkeling.

In het Bro is het begrip stedelijke ontwikkeling als volgt vastgelegd:

'ruimtelijke ontwikkeling van een bedrijventerrein of zeehaventerrein, of van kantoren, detailhandel, woningbouwlocaties of andere stedelijke voorzieningen.'

In het Bro is geen ondergrens voor de minimale omvang vastgesteld. In de handreiking van het ministerie is echter te lezen dat de ondergrens in beginsel ligt op 500 m2 bvo. De nieuwe situatie voorziet in de onttrekking van 6.355 m2 bvo (Kok Interieurs, huidige Boni-supermarkt en huidige kringloopwinkel). Tegelijkertijd wordt een deel van de meubelzaak omgebouwd en uitgebreid ten behoeve van een nieuwe Boni-supermarkt en nieuwe kringloopwinkel. De nieuwe toevoeging bedraagt daarmee circa 2.600 m2 bvo. Per saldo neemt de totale oppervlakte detailhandel af met 3.755 m2 bvo. Er wordt echter nieuw oppervlakte toegevoegd, waardoor er sprake is van een nieuwe stedelijke ontwikkeling.

In maart 2019 is er door adviesbureau Seinpost een onderzoek gedaan naar de ruimtelijke- en economische effecten van de verplaatsing van de Boni-supermarkt (zie Bijlage 1). De omzet van de winkel in Putten blijft achter bij winkels in vergelijkbare plaatsen. Dit komt onder andere door het kleine winkelvloeroppervlak, het kleine winkelpand met geringe uitstraling aan het westelijke uiteinde van de Dorpsstraat en de weinige parkeerruimte. Daarbij komt dat het laden en lossen conflicteert met de parkeerplaatsen.

In Putten zijn zeven supermarkten. De Boni-supermarkt is kleiner dan de norm voor het type supermarkt. Op basis van aannames wordt gesteld dat met de verplaatsing en uitbreiding van de Boni-supermarkt de lichte overbewinkeling die er is in Putten afnemen. Er bestaat dus behoefte aan uitbreiding van het winkelvloeroppervlakte. Daarnaast geldt dat het plangebied binnen bestaand stedelijk gebied is gelegen. Voorts geldt dat het huidige pand van de Boni-supermarkt en de kringloopwinkel wordt onttrokken aan het winkelvloeroppervlak en hiermee wordt toekomstige leegstand voorkomen.

Daarnaast geldt dat uit jurisprudentie blijkt dat er sprake is van stedelijke ontwikkeling als er meer dan twaalf woningen worden toegevoegd. Aan de hand van de woonvisie (paragraaf 3.3.3) zal de behoefte aan woningen in Putten worden onderbouwd.

Conclusie

Op basis van het onderzoek van Seinpost is de behoefte en wenselijkheid van de verplaatsing van de Boni-supermarkt uitgebreid toegelicht. De behoefte aan woningen zal nader worden toegelicht.

3.2 Provinciaal beleid

3.2.1 Omgevingsvisie Gaaf Gelderland

Op 19 december 2018 hebben de Provinciale Staten van Gelderland de Omgevingsvisie Gaaf Gelderland vastgesteld. Het woord 'gaaf' heeft twee betekenissen. Gaaf betekent mooi, en gaat over wat - historisch en landschappelijk gezien - heel mooi en ongeschonden is. Gaaf verwijst ook naar wat nieuw en vernieuwend is; aantrekkelijk voor nieuwe generaties. Het ontwikkelen waard. Beide kanten zijn van toepassing op Gelderland en onlosmakelijk verbonden met de Gelderlanders. Beide aspecten zijn dan ook opgenomen in de Gelderse Omgevingsvisie. Een gezond, veilig, schoon en welvarend Gelderland staat bij de verschillende provinciale uitdagingen centraal. De focus ligt op duurzaamheid, verbondenheid en een economisch krachtig Gelderland. Met behulp van zeven ambities op het terrein van energietransitie, klimaatadaptatie, circulaire economie, biodiversiteit, bereikbaarheid, economisch vestigingsklimaat en op het woon- en leefklimaat, wordt richting gegeven aan de focuspunten.

De ambities op het gebied van woon- en leefomgeving zijn in een aparte paragraaf toegelicht. Om Gelderland voor mensen en bedrijven aantrekkelijk te houden is de kwaliteit van de leefomgeving van groot belang. Bovendien draagt een goede kwaliteit van de leefomgeving bij aan de gezondheid. Goed wonen hoort daarbij. Gelderland heeft op woongebied een bijzondere positie met uiteenlopende woonkwaliteiten, zowel stedelijke als landelijke. De Gelderse strekken hebben ieder hun eigen aard, waar mensen zich thuis en verbonden met elkaar voelen. Er wordt geïnvesteerd in een vitaal platteland. Bouwen binnen bestaand verstedelijkt gebied is het uitgangspunt. Het liefst wordt er getransformeerd, maar als het nodig is wordt uitbreiding aan de rand van steden of dorpen toegestaan.

Woonwensen veranderen door de tijd en met de leeftijd. De dynamiek op de woningmarkt is groot, ook als gevolg van ontwikkelingen in de Randstad. Het grootse deel van de woningen die in 2050 in Gelderland nodig zijn, staat er al. Deze moeten worden verduurzaamd, en bij nieuwe woningen wordt duurzaamheid meteen toegepast. Om tot voldoende aanbod te komen gaat de provincie in gesprek met de Gelderse regio's en worden regionale afspraken gemaakt over een goede balans tussen de vraag en het aanbod van woningen. Dit wordt toegelicht in paragraaf 3.3.

Daarnaast geldt op het gebied van vestigingsklimaat dat de provincie graag een duurzaam, dynamisch en economisch toegankelijk wil zijn. Hiervoor heeft het de volgende aanpak geformuleerd:

  • "Wij zorgen voor een gevarieerd aanbod aan goed ontsloten, kwalitatief hoogwaardige, duurzame werklocaties. We gaan hierover in gesprek met de Gelderse regio’s en maken regionale afspraken over een goede balans tussen de vraag en het aanbod van werklocaties. Het concentreren van economische activiteiten heeft daarbij onze voorkeur, boven versnippering. En: het omvormen van bestaande en leegstaande bedrijvenlocaties gaat boven de aanleg van nieuwe terreinen.
  • Samen met de regio’s spelen we in op veranderende behoeften van het bedrijfsleven. Toekomstige behoeften veranderen immers continue, dit vraagt om regelmatig herzien van de regionale afspraken. Ook stimuleren we het omvormen van bestaande gebouwen en locaties zodat deze weer aansluiten bij de wensen van bedrijven en werknemers.
  • We zorgen dat bedrijven die zich hier willen vestigen of die willen uitbreiden snel en effectief geholpen worden bij het vinden van een zo optimaal mogelijke locatie.
  • We stimuleren de aansluiting tussen het Gelderse onderwijs en de arbeidsmarkt. We stimuleren dit ook in fysieke zin met campusontwikkeling.
  • We stimuleren (kleinschalig) ondernemerschap en innovatie, ook met oog voor ontwikkeling van lokale arbeidsmarkten. Zeker wanneer ondernemers een duurzaam Gelderland dichterbij brengen."

Conclusie

De gewenste ontwikkeling past binnen de omgevingsvisie Gaaf Gelderland. De woningen worden duurzaam gebouwd op een binnenstedelijke locatie. Met de herontwikkeling van het bestaande winkelpand wordt een nieuwe werk- en woonlocatie gecreëerd op een plaats die anders leeg zou komen te staan. Dit past binnen de aanpak zoals geformuleerd.

3.2.2 Omgevingsverordening Gelderland

Bij de Omgevingsvisie is een omgevingsverordening opgenomen. Deze voorziet niet in nieuwe beleid, en is daarmee beleidsneutraal. De inzet van de verordening als juridisch instrument om de doorwerking van het provinciaal beleid af te dwingen is beperkt tot die onderdelen van het beleid waarvoor de inzet van algemene regels noodzakelijk is om provinciale belangen veilig te stellen of om uitvoering te geven aan wettelijke verplichtingen. Op 19 december 2018 is, gelijktijdig met de omgevingsvisie, Actualisatieplan 6 van de Omgevingsverordening vastgesteld.

Uit de verordening blijkt dat de planlocatie ligt binnen begrenzing van de regels voor Glastuinbouw, Water en milieu en Erfgoed. De regels voor Glastuinbouw zijn voor de gewenste ontwikkeling niet relevant. De overige regels worden hieronder nader toegelicht:

3.2.2.1 Water en milieu

De planlocaties zijn gelegen binnen de begrenzing van een Intrekgebied. Hiervoor geldt dat een bestemmingsplan voor gronden binnen een Intrekgebied de winning van fossiele energie niet mogelijk maakt (artikel 2.38). Een Intrekgebied wordt als volgt omschreven:

"beschermingsgebied grondwater waar het grondwater binnen duizend jaar bij een pompput voor de openbare drinkwatervoorziening kan zijn"

afbeelding "i_NL.IMRO.0273.BPBKGervDorps-ON01_0019.png"

Figuur: Uitsnede kaart Water en milieu

3.2.2.2 Erfgoed

De planlocaties vallen binnen de begrenzing van een molenbiotoop. In artikel 2.64 zijn de regels hieromtrent omschreven:

  • 1. Een bestemmingsplan maakt voor gronden binnen een Molenbiotoop geen nieuwe bebouwing of beplanting mogelijk als daardoor de windvang van een molen wordt beperkt.
  • 2. Het eerste lid is niet van toepassing op de molens in het Nederlands Openluchtmuseum te Arnhem.

Een molenbiotoop wordt omschreven als het gebied rondom een historische of monumentale molen met een straal van 400 meter gerekend vanaf het middelpunt van de molen.In hoofdstuk 4 wordt dit aspect nader toegelicht.

afbeelding "i_NL.IMRO.0273.BPBKGervDorps-ON01_0020.png"

Figuur: Uitsnede kaart Erfgoed

Conclusie

Vanuit de provinciale omgevingsvisie en verordening zijn er geen belemmeringen. In hoofdstuk 4 wordt nader toegelicht hoe wordt omgegaan met de ligging binnen de begrenzing van een molenbiotoop.

3.3 Gemeentelijk beleid

3.3.1 Structuurvisie Putten 2030

De gemeenteraad van Putten heeft op 5 maart 2015 de Structuurvisie Putten 2030 gewijzigd vastgesteld. De Structuurvisie Putten 2030 is opgesteld met de boodschap van de Toekomstvisie Putten als leidraad. Deze is gerelateerd aan actueel beleid ten aanzien van de verschillende beleidsvelden en vervolgens vertaald in een visie op de ruimtelijke ontwikkeling. De inhoud van de structuurvisie is leidend en in principe bindend voor het handelen van de gemeente richting initiatiefnemers. Nieuwe bestemmingsplannen moeten inhoudelijk passen binnen de visie van de structuurvisie.

Er zijn voor de verschillende onderdelen ambities geformuleerd. Voor de gewenste ontwikkeling zijn de ambities omtrent 'wonen - kwantitatief', 'wonen - kwalitatief' en 'werken' relevant.

Wonen - kwantitatief

In de gemeente Putten wordt gebouwd voor de lokale woningbehoefte. Putten hanteert daarbij de ladder van duurzame verstedelijking. Dat wil zeggen dat eerst wordt gekeken naar inbreidingsmogelijkheden en vervolgens pas naar uitbreidingsmogelijkheden. Het dorp Putten is de kern waar nieuwe woningbouw plaatsvindt.

Wonen - kwalitatief

In de gemeente Putten is plek voor jong en oud en is het mogelijk om er je hele leven te wonen. Putten richt zich daarbij primair op de behoeften van de eigen bevolking.

Werken

In Putten is een grote arbeidsethos, men werkt er hard en trouw. Landbouw, recreatie, het centrum en de 'maakindustrie' zijn de peilers van de lokale economie. In de gemeente Putten wordt ingezet op een kwaliteitsverbetering van de bedrijvigheidsstructuur. Dit geldt zowel in fysiek-visuele zin, als in organisatorische zin.

Bij de visie is een kaart opgesteld met gebiedsindelingen. Beide planlocaties zijn ingedeeld in een ander gebied, te weten 'Centrum' en 'Dorp Putten'.

afbeelding "i_NL.IMRO.0273.BPBKGervDorps-ON01_0021.png"

Figuur: Uitsnede kaart behorend bij Structuurvisie Putten 2030 met aanduiding planlocaties

Centrum

Voor het centrum zijn de volgende punten met betrekking tot de ruimtelijke visie geformuleerd:

  • het centrum is het kernwinkelgebied van Putten. Hier vindt de concentratie van detailhandel plaats;
  • horeca heeft een belangrijke functie voor de aantrekkelijkheid van het centrum als verblijfsgebied. In het centrum wordt de vestiging van horeca gestimuleerd, met name op en aan pleinen en kruisingen;
  • wonen in het centrum is geen primaire functie. Wel is wonen boven winkels mogelijk. Aan de randen van het centrum behoort versterking van de woonfunctie wel tot de mogelijkheden;
  • ruimtelijk wordt uitgegaan van een compact winkelgebied (geen grote loopafstanden) en een aaneengesloten winkelfront met zoveel mogelijk winkels aan beide zijden van de straten. Bij voorkeur dient er sprake te zijn van verschillende winkelcircuits;
  • het centrum wordt meer ingericht als verblijfsgebied met een aantrekkelijke openbare ruimte en een historische en/of kwalitatief hoogwaardig decor van bebouwing;
  • er wordt meer groen gebracht in het centrum, mede in relatie tot ontmoetingsruimten en evenementen;
  • een 'dorpse', relatief kleinschalige schaal is karakteristiek voor het centrum en bepalend voor toekomstige ruimtelijke ontwikkelingen;
  • naast detailhandel en horeca is in het centrum ruimte voor publieksvoorzieningen en andere (maatschappelijke, culturele) activiteiten die (veel) publiek trekken. Kantoren worden bij voorkeur buiten het centrum gevestigd.

Het Dorp Putten

Voor het Dorp Putten zijn de volgende punten met betrekking tot de ruimtelijke visie geformuleerd:

  • nieuwe woningbouw vindt plaats in of aan het dorp Putten. Er wordt ingezet op inbreiding voor uitbreiding ten aanzien van nieuwe woon- en werklocaties. De Inbreidingsnotitie bebouwde kom 2014 (concept) is hiervoor een leidraad. Deze inbreiding mag niet ten koste gaan van structurele en cultuurhistorisch waardevolle groene en/of open gebieden;
  • waar mogelijk wordt bij nieuwbouw versneld ingezet op energieneutraal bouwen;
  • leegstaande gebouwen worden hergebruikt, pas indien dit niet mogelijk is vindt nieuwbouw plaats;
  • woningen voor senioren worden in de omgeving van verzorgingshuizen, servicepunten en/of het centrum gebouwd;
  • nieuwe woningbouw draagt bij aan een meer gevarieerde woningvoorraad in het dorp Putten;
  • de verkeersveiligheid en oversteekbaarheid van de doorgaande wegen binnen het dorp worden gewaarborgd;
  • na het verlengen van de Henslare wordt de Stationsstraat afgesloten voor zwaar verkeer met uitzondering van bestemmingsverkeer en wordt de weg ingericht als 30 km/gebied;
  • er is ruimte voor beroep en bedrijf aan huis;
  • in het dorp ligt een veilig en comfortabel netwerk van fiets- en wandelverbindingen die de verschillende buurten met het centrum, het station, de belangrijkste maatschappelijke voorzieningen (zoals de sportvelden) en met het omliggende buitengebied verbinden;
  • de ruimtelijke relatie tussen het dorp, het stationsgebied en Strand Nulde wordt versterkt;
  • de vestiging van (nieuwe) detailhandel vindt in het centrum van Putten plaats. Indien hiervoor geen mogelijkheden zijn, wordt gekeken naar het gebied rondom het centrum of op bestaande detailhandelsconcentraties buiten het centrum. In het geval van supermarkten of meer grootschalige detailhandel wordt eerst gekeken naar mogelijke passende locaties direct aansluitend op het centrumgebied. Indien deze locaties er niet zijn kan grootschalige detailhandel ook op de bedrijventerreinen worden geplaatst;
  • horeca wordt bij voorkeur in het centrum gevestigd. Eventueel zijn horecavestigingen mogelijk langs de doorgaande wegen bij de entrees tot Putten en op locaties in relatie tot het recreatieve fiets- en wandelnetwerk;
  • de vestiging van tankstations vindt enkel plaats op de doorgaande wegen en niet in de directe omgeving van woongebieden;
  • de openbare ruimte heeft een omvang en invulling die refereren aan het dorpse karakter van Putten en is van een goede ruimtelijke kwaliteit. Gerelateerd aan deze ruimten zijn er openbare servicepunten, waarin bewoners en ondernemers bij elkaar kunnen komen in relatie tot werk, zorg, welzijn, onderwijs, sport, cultuur en spel;
  • in de openbare ruimte is, waar noodzakelijk, ruimte voor onder- en/of bovengrondse waterberging;
  • ter plaatse van de aanduiding 'Recirculatie doorgaand verkeer' geldt een aanvullende of afwijkende visie.

Conclusie

Uit vorenstaande kan worden geconcludeerd dat de plannen aansluiten bij de ruimtelijke visies die gelden voor de beide locaties. Voor locatie 1 geldt dat de openbare ruimte aantrekkelijk wordt ingericht en dat de woonfunctie op de verdiepingen wordt gerealiseerd. Voor locatie 2 is met name relevant dat de gewenste ontwikkeling bijdraagt aan een gevarieerd woningaanbod dat energiezuinig wordt gebouwd. Ook zorgt het voor meer vergroening in nu nog erg versteend gebied. De gewenste ontwikkeling past dus binnen de Structuurvisie van de gemeente Putten.

3.3.2 Detailhandelsstructuurvisie Putten

In 2016 is door MKB REVA een detailhandelsstructuurvisie opgesteld voor Putten. Hierin wordt als doelstelling geformuleerd dat Putten een compact winkelgebied met een aaneengesloten en zoveel als mogelijk tweezijdig winkelfront wil creëren. Er wordt geconstateerd dat de detailhandelsstructuur redelijk compact en onderling aansluitend is. Bijna alle supermarkten bevinden zich in of direct aansluitend op het kernwinkelgebied. Versterking van de winkelfunctie in het centrumgebied is een centraal uitgangspunt.

Gelet op de gevestigde supermarkten aan de oostelijke en westelijke entreepartijen van het centrum dienen supermarkten en warenhuizen zich daar te concentreren. De positionering aan de rand van het (kern)winkelgebied maakt combinatiebezoek mogelijk en zal zo mogelijk, middels op verzoek vanuit de markt te verplaatsen, verder versterkt kunnen worden. Verspreide bewinkeling moet worden tegengegaan met het het oog op een de concentratie van winkels in en direct om het centrum.

Conclusie

Middels de verplaatsing van de Boni-supermarkt komt de supermarkt dichter bij het kernwinkelgebied van Putten te liggen. Door de kringloopwinkel aan de Achterstraat te vestigen ontstaat er bovendien een tweezijdig winkelfront.

3.3.3 Woonvisie Putten

De gemeenteraad van Putten heeft op 28 mei 2020 de Woonvisie 2020 - 2025 vastgesteld. Het document heeft de titel 'Werken aan het Puttens Palet' gekregen. Er zijn verschillende opgaven in het dorp. Dit komt onder andere door de hoge waardering van het dorp. Hierdoor is het voor veel mensen lastig om een betaalbare woning te vinden. In het bestaande aanbod is het aantal betaalbare woningen beperkt, maar dit geldt ook voor nieuwbouw. De woonopgaven zijn vertaald naar drie ambities:

  • 1. Betaalbare en passende woningen voor de lokale behoefte;
  • 2. Zorgzame en inclusieve wijken;
  • 3. Een duurzaam huis.

Met name punten 1 en 3 zijn relevant om nader toe te lichten. Er worden in de gemeente te weinig en te weinig betaalbare woningen gebouwd om in de woonbehoefte te voorzien. Er is een schaarste en een plantekort van 180 woningen tot 2025. Vooral jongeren en starters hebben hier last van. Daarom wil de gemeente het volgende:

  • Bestaande plannen versnellen
  • Nieuwe locaties zoeken
  • Streefwoningbouwprogramma
  • Meer sociale huur woningen
  • Meer sociale- en betaalbare koopwoningen

Met betrekking tot het plan kan worden gesteld dat er voldoende ruimte is gecreëerd voor betaalbare woningen. Twaalf appartementen van de 28 worden aangeboden in het goedkope koopsegment (tot maximaal 210.000 euro). De gemeente heeft de sterke voorkeur uitgesporken om een deel van deze appartementen in de sociale huur te categoriseren. Als er sprake is van huurappartementen dan garandeert de initiatiefnemer dat deze appartementen voor een periode van minimaal 10 jaar na eerste ingebruikname voor de doelgroep beschikbaar zullen blijven en dat derhalve het huurniveau onder de door de Rijksoverheid jaarlijks vast te stellen liberalisatiegrens zal liggen.

Daarnaast staat genoemd dat starters gebaat zijn bij koopwoningen tot 265.000 euro. In deze prijsklasse worden 16 van de 28 appartementen aangeboden.

Op het gebied van duurzaamheid kan gesteld worden dat de ontwikkeling bijdraagt aan de door de gemeente gewenste maatregelen. De nieuwe woningen worden goed geïsoleerd, krijgen een laag-energielabel en zullen geen gasaansluiting krijgen. Daarnaast zal er met de ontwikkeling sprake zijn van ontharding van de plangebieden, waarmee een bijdrage wordt geleverd aan het voorkomen van wateroverlast en hittestress.

Conclusie

De voorgenomen ontwikkeling past binnen de gemeentelijke woonvisie. Er worden voldoende woningen gerealiseerd in het sociale huur/koop-segment. Daarnaast levert de ontwikkeling een bijdrage aan de duurzaamheidsdoelstellingen als geformuleerd in de woonvisie.

3.3.4 Welstandsnota

De welstandsnota voor de gemeente Putten beschrijft het welstandsbeleid en dient als toetsingskader voor het verlenen van omgevingsvergunning en het beoordelen van bestaande bouwwerken. De beide planlocaties zijn gelegen binnen het deelgebied 'Historische kern'.

De historische kern van Putten ligt binnen de Brinkstraat, Dorpsstraat, Engweg en Voorthuizerstraat. De kern is ontstaan op het kruispunt van de Achterstraat, Dorpsstraat, Molenweg, Bakkerstraat en Garderenseweg, waar het huidige (winkel)centrum is gevestigd. Het is een gebied waarin verschillende voorzieningen zijn geconcentreerd, zoals winkels, dienstverlening, horeca, enkele bedrijven en kantoren. Aan de randen van het gebied neemt het aandeel van de woonfunctie toe. De bebouwing in het centrum is zeer gevarieerd, mede doordat in de loop van de jaren open plekken zijn opgevuld en woningen zijn vervangen. De hoofdvorm staat direct aan de straat, terwijl aanbouwen en bijgebouwen vrijwel allemaal aan de achterzijde gelegen zijn. Door de grote variatie in bouwstijlen is er geen eenduidig beeld in de kaprichting. Een groot deel van de winkelpanden aan de Dorpsstraat heeft aan de voorzijde een luifel die boven- en onderpui van elkaar scheidt.

Er wordt benoemd dat het behoud van het karakter van het historische dorpsgebied belangrijk is voor het behoud van de identiteit van het gehele dorp. Het beleid is vooral gericht op het behoud van variatie binnen het samenhangende beeld van het gebied. Dit betekent dat het individuele karakter van de panden voorop staat. Om toch samenhang en harmonie in het historische dorpsbeeld te bewaren, is het bij nieuwbouw essentieel dat de gebiedskenmerken tot uitgangspunt worden genomen.

Conclusie

In de planvorming is rekening gehouden met de eisen als gesteld in de welstandsnota. Derhalve wordt geconcludeerd dat er geen strijdigheid bestaat met het welstandsbeleid van de gemeente Putten.

Hoofdstuk 4 Uitvoeringsaspecten

In dit hoofdstuk zullen de relevante uitvoeringsaspecten bij het plan worden besproken. Hierin is aandacht voor de verschillende milieuaspecten zoals flora en fauna en luchtkwaliteit, en is er aandacht voor milieuzonering, verkeer en parkeren en externe veiligheid.

4.1 Flora en fauna

4.1.1 Wettelijk kader

Wet natuurbescherming

Op 1 januari 2017 is de Wet natuurbescherming in werking getreden. Deze wet heeft de Natuurbeschermingswet 1998, de Boswet en de Flora- en faunawet vervangen. Het doel is om met één wet en minder regels de wet makkelijker te kunnen toepassen. Vanaf 1 januari 2017 bepalen de provincies wat wel en niet mag in de natuur in hun gebied. Ook zorgen de provincies vanaf deze datum voor vergunningen en ontheffingen. De Rijksoverheid blijft verantwoordelijk voor het beleid van grote wateren, zoals het IJsselmeer.

De Wet natuurbescherming regelt de bescherming van Natura 2000-gebieden. Ter bescherming van deze Natura 2000-gebieden voorziet de Wet natuurbescherming in een vergunningenregime voor het realiseren of verrichten van projecten en andere handelingen die de natuurlijke kenmerken van een aangewezen Natura 2000-gebied kunnen aantasten.

Voorts voorziet de Wet natuurbescherming in de bescherming van planten- en diersoorten binnen en buiten de beschermde natuurgebieden. Het uitgangspunt is dat beschermde planten- en diersoorten geen schade mogen ondervinden. Voor het uitvoeren van werkzaamheden in de openbare ruimte is het niet altijd nodig een vrijstelling of een ontheffing aan te vragen. Voor onder andere reguliere werkzaamheden of ruimtelijke ontwikkelingen geldt een vrijstelling voor beschermde soorten op voorwaarde dat gehandeld wordt volgens een goedgekeurde gedragscode. Verder worden vrijstellingsregelingen op de nationaal beschermde soorten per provincie vastgesteld.

Wanneer het onmogelijk is schade aan streng beschermde planten en dieren tijdens ruimtelijke ontwikkelingen en inrichting te voorkomen, moet altijd een ontheffing worden aangevraagd. De voorwaarden verbonden aan een vrijstelling of een ontheffing zijn afhankelijk van de status van de planten- en diersoorten die in het plangebied voorkomen.

Natuurnetwerk Nederland

Het Natuurnetwerk Nederland (NNN) is het Nederlands netwerk van bestaande en nieuw aan te leggen natuurgebieden. Het netwerk moet natuurgebieden beter verbinden met elkaar en met het omringende agrarisch gebied. In het NNN liggen onder andere bestaande natuurgebieden en alle Natura 2000- gebieden. Het NNN is op provinciaal niveau uitgewerkt en middels ruimtelijke nota's en verordeningen voorzien van juridische doorwerking. In sommige provincies bestaan er naast het NNN ook nog andere groene zones die een zekere mate van bescherming genieten.

4.1.2 Effect te vergunnen activiteiten

Beide plangebieden liggen niet binnen Natura 2000-gebied. Wel bevinden beide locaties zich hemelsbreed op circa 1.000 meter afstand van Natura 2000-gebied De Veluwe. Daarnaast geldt dat NNN gebied ook op circa 1.000 meter afstand is gelegen. De planlocaties ligging niet binnen een Groene Ontwikkelingszone. In onderstaande figuur is de situatie weergegeven:

afbeelding "i_NL.IMRO.0273.BPBKGervDorps-ON01_0022.png"

Figuur: Ligging ten opzichte van natuurgebieden (bron: Omgevingsverordening Gelderland)

Gezien de ligging en de gewenste ontwikkeling, waarbij een deel van de bestaande gebouwen wordt gesloopt is op 24 april 2019 een verkennend veldonderzoek uitgevoerd door Ecologicus. De rapportage is opgenomen als bijlage 2.

Tijdens het onderzoek is gelet op sporen, waarnemingen van soorten en geschikte of ongeschikte eigenschappen van de herontwikkellocaties, zodat er een uitspraak kan worden gedaan over de waarschijnlijkheid van het gebruik ervan door de huismus en/of de gierzwaluw.

Uit het onderzoek is gebleken dat er op beide locaties geen 'krijtsporen' aangetroffen zijn die duiden op de aanwezigheid van mogelijke broedsels of slaapplaatsen van vogels met jaarrond beschermde nesten. Daarnaast is de aanwezigheid van vleermuizen onderzocht. Tijdens het veldbezoek is gekeken naar potentiële verblijfplaatsen en vliegroutes op basis van expert judgement. Hierover wordt in de rapportage het volgende genoemd:

"De spouwen van het Boni-complex zijn dicht waardoor vleermuizen er niet in kunnen. De schuine daken lijken met name rond het dakkapel en in de hoeken redelijk geschikt voor vleermuizen. De Linde op de parkeerplaats van de Boni lijkt geen gaten of scheuren te hebben. Er worden door de nieuwbouw geen vliegroutes van vleermuizen aangetast. Er zal met de herontwikkeling van beide locaties geen (essentieel) foerageergebied verloren gaan. Het betreft beide zeer sterk versteende locaties met relatief weinig tot geen groen waardoor de locaties ook geen insecten aantrekkende werking hebben en als foerageergebied uitgesloten kunnen worden. Alleen het groen van de tuinen rondom de Boni, de Linde op de parkeerplaats van de Boni en met name de begraafplaats ten zuiden van de Gervenhof zullen naar verwachting een functie als foerageergebied voor vleermuizen hebben."

De conclusie van het onderzoek geeft aan dat voor beide locaties nader onderzoek voor huismussen en gierzwaluwen wordt geadviseerd. Dit is niet nodig om eventueel gebruik uit te sluiten, maar juist om het aan te tonen. Dit advies is opgevolgd. De rapportage hiervan is te vinden in bijlage 3.

In de periode van 14 juni tot en met 20 september zijn tien veldbezoeken uitgevoerd. De locatie aan de Dorpsstraat is vijf keer bezocht en de locatie aan de Gervenhof is zes keer bezocht. Uit het onderzoek blijkt dat er geen waarnemingen zijn gedaan op de toekomstige ontwikkellocaties. Daarnaast zijn er geen waarnemingen gedaan van gierzwaluwen met territorium-indicerend gedrag of nest-indicerend gedrag op beide herontwikkellocaties.

Tevens is aanvullend onderzoek gedaan naar vleermuizen. Hieruit bleek dat beide locaties niet van betekenis zijn voor de vastgestelde vleermuissoorten. Alle waarnemingen hebben buiten beide plangebieden plaatsgevonden en er zijn geen verblijfplaatsen vastgesteld. Wanneer de bebouwing geheel of ten delen verdwijnt, wordt er heringericht en komt er nieuwe bebouwing voor in de plaats. Dit heeft geen negatief effect op vleermuizen.

Voorts geldt bij uitvoering van werkzaamheden ten allen tijde een de algemene zorgplicht (artikel 1.11 Wet natuurbescherming). Deze schrijft voor dat nadelige gevolgen voor flora en fauna zoveel als mogelijk voorkomen moeten worden. Dit betekent dat wanneer tijdens uitvoering van de werkzaamheden een algemeen beschermde soort als konijn, veldmuis of gewone pad wordt aangetroffen zij de ruimte en tijd moet krijgen om een veilig heenkomen te zoeken. Indien nodig kunnen aangetroffen exemplaren verplaatst worden naar een naastgelegen ruimte waar geen werkzaamheden uitgevoerd worden.

4.1.3 Conclusie

Gelet op het voorgaande kan worden geconcludeerd dat er vanuit de flora- en faunaregelgeving geen beperkingen worden opgelegd aan onderhavig initiatief.

4.2 Stikstofdepositie

4.2.1 Wettelijk kader

Voorheen diende op grond van het Programma Aanpak Stikstof (PAS), welke in juli 2015 van kracht werd, berekend te worden of een nieuwe (bouw)activiteit tot een significante toename leidde van stikstofdepositie op Natura 2000-gebieden.

Onder het PAS golden enkele drempel- en grenswaarden. Deze waarden bepaalden of een toename van stikstofdepositie significant was en zo ja, of er dan een meldingsplicht of een vergunningplicht gold. Door te rekenen met het voorgeschreven rekenprogramma AERIUS Calculator werd automatisch met die drempelwaarden rekening gehouden. In het geval van de meldingsplicht kon de planontwikkeling aanspraak kan maken op benutting van de ontwikkelingsruimte die voor een Natura 2000-gebied gold, totdat deze niet meer voorradig was.

Als gevolg van de uitspraak van de Raad van State van 29 mei 2019 mag het PAS niet meer gebruikt worden als toestemmingskader voor ruimtelijke ontwikkelingen die leiden tot een toename van stikstofdepositie op stikstofgevoelige habitattypen in Natura 2000-gebieden. De drempel- en grenswaarden uit het PAS zijn daarmee ook niet meer van toepassing. Hierdoor kan een project met een geringe depositietoename van 0,01 mol/ha/jaar al vergunningplichtig zijn (artikel 2.7 en 2.8 Wnb). Dit betekent dat ook relatief kleinschalige projecten zorgvuldig dienen te worden getoetst op hun stikstofdepositie, om zo aan Europese regelgeving te kunnen voldoen (en stand te houden bij de Raad van State in geval van een beroep).

Met de AERIUS Calculator kan correct berekend worden of er überhaupt sprake is van stikstofdepositie op Natura 2000-gebied. Daarbij dient de gebruikersfase doorgerekend te worden. Zodra er geen rekenresultaten boven de 0,00 mol/ha/jaar zijn, is er geen belemmering voor een plan op het gebied van stikstofdepositie. Vanaf 1 juli 2021 geldt er een vrijstelling voor de bouwfase en hoeft deze dus niet meer in de berekening meegenomen te worden.

4.2.2 Beoordeling

De planlocaties zijn gelegen op circa 1.000 meter van Natura 2000-gebied de Veluwe. Dit is weergegeven in onderstaande figuur.

 afbeelding "i_NL.IMRO.0273.BPBKGervDorps-ON01_0023.png"

Figuur: Uitsnede AERIUS Calculator

Op 18 juni 2021 is er een stikstofdepositieberekening uitgevoerd. De rapportage en de berekeningen zijn opgenomen als bijlage. Uit de berekeningen blijkt dat er in de nieuwe gebruikersfase sprake is van stikstofdepositie op Natura 2000-gebieden. Dit is echter lager de stikstofdepositie in de referentiesituatie (zie bijlage 5). Door gebruik te maken van de provinciale beleidsregels omtrent intern salderen kan de gewenste ontwikkeling worden gerealiseerd (bijlage 4). De nieuwe gebruikersfase heeft een stikstofemissie die ongeveer negen keer lager is dan de referentiesituatie, zie onderstaande tabel.

afbeelding "i_NL.IMRO.0273.BPBKGervDorps-ON01_0024.png"

4.2.3 Conclusie

Om de gewenste ontwikkeling te realiseren is een provinciale ontheffing nodig. Er wordt voldaan aan de voorwaarden omtrent intern salderen.

4.3 Bodemkwaliteit

4.3.1 Wettelijk kader

De Wet Bodembescherming schrijft voor dat in het kader van een ruimtelijk planologische procedure moet worden aangetoond dat de kwaliteit van de bodem en het grondwater in het plangebied in overeenstemming zijn met het gewenste nieuwe gebruik. De bodemkwaliteit kan (negatief) van invloed zijn op de gewenste nieuwe ontwikkeling.

Indien sprake is van een functiewijziging zal er in veel gevallen een bodemonderzoek moeten worden uitgevoerd op de planlocatie. Door middel van een dergelijk onderzoek kan in beeld worden gebracht of de bodemkwaliteit en de beoogde functie van het plangebied bij elkaar passen.

4.3.2 Resultaten onderzoek

Voorliggend initiatief voorziet in een functiewijziging naar wonen en detailhandel. Aangezien er gegraven zal worden is er een verkennend bodemonderzoek uitgevoerd op beide locaties.

Locatie 1

Op 1 oktober 2019 is een verkennend bodemonderzoek in combinatie met een verkennend asbestonderzoek uitgevoerd op de locatie aan de Gervenhof. Dit is uitgevoerd door Hunneman Milieu-Advies Raalte BV. De rapportage is opgenomen in bijlage 6. De resultaten van het onderzoek en de bijbehorende aanbevelingen zijn als volgt samen te vatten:

"Zintuiglijk zijn in de vaste bodem sporen puin en lokaal in de ondergrond zwakke tot matige bijmengingen met puin- en kooldeeltjes waargenomen. In de bodem is zintuiglijk en analytisch geen asbest aangetroffen. In de ondergrond is na uitsplitsing een PAK-verontreiniging aangetoond. De verontreiniging is globaal ingekaderd en betreft naar verwachting een ernstige geval van bodemverontreiniging (> 25 m3 met gehalten > I-waarde). In de overige monsters zijn maximaal licht verhoogde gehalten aan zware metalen, PAK, en/of minerale olie aangetoond. In het grondwater zijn licht verhoogde gehalten aan barium en chroom aangetoond. De aangetoonde gehalten vormen geen aanleiding tot nader onderzoek.

Op basis van de analyseresultaten is de actuele bodemkwaliteit afdoende vastgelegd. Op basis van het huidige gebruik van de locatie en het feit dat de immobiele verontreiniging is afgedekt met klinkers bestaat er geen directe saneringsnoodzaak. Indien in de toekomst bij eventuele herontwikkeling graafwerkzaamheden op de locatie plaatsvinden, dient de PAK-verontreiniging, onder milieukundige begeleiding te worden verwijderd. Voorafgaand aan de sanering dient een BUS-melding te worden ingediend bij het bevoegd gezag, de Provincie Gelderland."

Locatie 2

Op 20 september 2019 is een verkennend bodemonderzoek in combinatie met een verkennend asbestonderzoek uitgevoerd op de locatie aan de Dorpsstraat. Dit onderzoek is eveneens uitgevoerd door Hunneman Milieu-Advies Raalte BV. De rapportage is opgenomen in bijlage 7. De resultaten van het onderzoek en de bijbehorende aanbevelingen zijn als volgt samen te vatten:

"Zintuiglijk zijn in de vaste bodem lokaal sporen puin waargenomen. In de bodem is zintuiglijk geen asbestverdacht materiaal aangetroffen. In de actuele contactzone uit RE- 01 en RE-02 is analytisch geen gewogen asbest aangetoond boven de bepalingsgrens. In de vaste bodem zijn licht verhoogde gehalten aan cadmium, lood, zink, PAK, PCB’s en/of minerale olie aangetoond. In het grondwater zijn licht verhoogde gehalten aan barium en tetrachlooretheen aangetoond. De aangetoonde gehalten vormen geen aanleiding tot nader onderzoek.

Op basis van de analyseresultaten is de actuele bodemkwaliteit afdoende vastgelegd en bestaan geen bezwaren voor de voorgenomen bestemmingsplanwijziging en nieuwbouw op de locatie."

4.3.3 Conclusie

Op basis van de resultaten van het bodemonderzoek blijkt er vanuit het aspect bodem geen belemmeringen zijn voor de ontwikkeling op locatie 2. Wel geldt voor locatie 1 dat er bij graafwerkzaamheden de PAK-verontreiniging onder milieukundige begeleiding verwijderd dient te worden. Daarnaast geldt dat voorafgaand aan de sanering een BUS-melding moet worden ingediend bij de provincie Gelderland. Dit zal worden gedaan conform de aanbevelingen.

4.4 Cultuurhistorie en archeologie

4.4.1 Wettelijk kader

Vanaf 1 juli 2016 is de Erfgoedwet van kracht. Doelstelling van de wet is de bescherming en het behoud van archeologische en cultuurhistorische waarden. In de Erfgoedwet is vastgelegd hoe met het erfgoed van nationaal belang wordt omgegaan, wie welke verantwoordelijkheden daarin heeft en hoe het toezicht wordt geregeld.

Als gevolg van deze wet wordt in het kader van de ruimtelijke ordening het behoud van het erfgoed meegewogen zoals alle andere aspecten die bij de voorbereiding van het plan een rol spelen.

4.4.2 Cultuurhistorie

Het pand kent geen aanduiding als rijks- of gemeentelijk monument en is niet aangemerkt als beeldbepalend of karakteristiek in het geldende bestemmingsplan. Ook worden de omgeving en het landschap niet aangeduid als cultuurhistorisch waardevol. Geconcludeerd kan worden dat met de gewenste ontwikkeling geen schade wordt toegebracht aan bestaande cultuurhistorische panden of structuren.

4.4.3 Archeologie

Gemeenten zijn verplicht om bij het vaststellen van bestemmingsplannen rekening te houden met de in de grond aanwezige dan wel te verwachten archeologische waarden.

Voorts geldt een meldingsplicht bij het vinden van (mogelijke) waardevolle zaken. Dat melden dient terstond te gebeuren.

Het plangebied heeft geen dubbelbestemming met betrekking tot archeologie. In plaats daarvan heeft de gemeente Putten een archeologische beleidskaart opgesteld. De planlocaties liggen binnen de begrenzing van het gebied met een 'hoge verwachting'. Dit betekent dat bij bodemverstoringen groter dan 100 m2 en dieper dan 40 centimeter archeologische onderzoek verplicht is. Het grootste gedeelte van de ontwikkeling zal plaatsvinden op grond die reeds is verstoord. Voorts zal de kritische grenswaarde niet worden overschreden. Nader onderzoek in het kader van archeologie is dan ook niet noodzakelijk.

afbeelding "i_NL.IMRO.0273.BPBKGervDorps-ON01_0025.png"

Figuur: Uitsnede archeologische kaart

4.4.4 Conclusie

Met de gewenste ontwikkeling worden cultuurhistorische panden of structuren niet aangetast. Voorts vindt de ontwikkeling niet plaats in beschermd archeologisch gebied. Er zijn dan ook geen belemmeringen vanuit cultuurhistorie en archeologie voor onderhavig initiatief.

4.5 Luchtkwaliteit

4.5.1 Wettelijk kader

Wet milieubeheer

Nederland heeft de Europese regels ten aanzien van de luchtkwaliteit geïmplementeerd in de Wet milieubeheer (Wm). De in deze wet gehanteerde normen gelden overal, met uitzondering van een arbeidsplaats (hierop is de Arbeidsomstandighedenwet van toepassing). In de Wet milieubeheer zijn onder andere regels en grenswaarden opgenomen voor zwaveldioxide, stikstofdioxide en stikstofoxiden, fijnstof, lood, koolmonoxide en benzeen.

Omdat titel 5.2 van de Wm ingaat op de luchtkwaliteit, staat dit ook wel bekend als de 'Wet luchtkwaliteit'. Hierin wordt gesteld dat ruimtelijke plannen doorgang kunnen vinden indien aan één van de onderstaande voorwaarden is voldaan:

  • de plannen leiden niet tot het overschrijden van een grenswaarde;
  • de luchtkwaliteit verbetert tengevolge van de plannen (per saldo) of blijft ten minste gelijk;
  • de plannen dragen niet in betekenende mate (NIBM) bij aan de concentratie van NO2 en PM10 in de buitenlucht. Vanaf het in werking treden van het Nationaal Samenwerkingsprogramma Luchtkwaliteit op 1 augustus 2009 wordt onder een NIBM bijdrage een bijdrage van minder dan 3% van de grenswaarde verstaan;
  • het project is opgenomen of past binnen het Nationaal Samenwerkingsprogramma Lucht (NSL).

AMvB en Regeling niet in betekenende mate (NIBM)

De Wet luchtkwaliteit maakt onderscheid tussen grote en kleine ruimtelijke projecten. Een project is klein als het niet in betekende mate (NIBM) leidt tot een verslechtering van de luchtkwaliteit. De grens ligt bij een toename van de NO2 en/of PM10 jaarconcentratie met maximaal 3% van de grenswaarden (of wel een toename van maximaal 1,2 µg/m3 NO2 en/of PM10). NIBM projecten kunnen zonder toetsing aan de grenswaarden voor het aspect luchtkwaliteit uitgevoerd worden. Grotere projecten daarentegen kunnen worden opgenomen in het NSLprogramma, mits ook overtuigend wordt aangetoond dat de effecten van dat project worden weggenomen door maatregelen.

De AMvB en Regeling NIBM bevatten criteria waarmee kan worden bepaald of een project van een bepaalde omvang wel of niet als NIBM moet worden beschouwd. Het betreft onder andere de onderstaande gevallen, waarbij een project als NIBM wordt beschouwd:

  • Woningbouw: = 1500 woningen (netto) bij minimaal 1 ontsluitingsweg, en = 3000 woningen bij minimaal 2 ontsluitingswegen met een gelijkmatige verkeersverdeling.
  • Kantoorlocaties: = 100.000 m2 bruto vloeroppervlakte bij minimaal 1 ontsluitingsweg, en = 200.000 m2 bruto vloeroppervlakte bij minimaal 2 ontsluitingswegen met een gelijkmatige verkeersverdeling.
  • Woningbouw en kantoorlocaties: 0,0008*aantal woningen+ 0,000012*bruto vloeroppervlak kantoren in m2 = 1,2 bij één ontsluitingsweg en 0,0004*aantal woningen+ 0,000006*bruto vloeroppervlak kantoren in m2 = 1,2 bij één ontsluitingsweg.

Ook als het bevoegd gezag op een andere wijze, bijvoorbeeld door berekeningen, aannemelijk kan maken dat het geplande project NIBM bijdraagt, kan toetsing van de luchtkwaliteit achterwege blijven. Tevens is in artikel 5 van het Besluit NIBM een anticumulatie bepaling opgenomen, die zegt dat de effecten van beoogde ontwikkelingen in de omgeving van het plangebied moeten worden meegenomen in de beoordeling van het betreffende plan. Hiermee wordt voorkomen dat verschillende NIBM-projecten samen toch in betekenende mate bijdragen aan verslechtering van de luchtkwaliteit.

4.5.2 Beoordeling

De ontwikkeling kan, gezien de beperkte omvang, aangemerkt worden als een project dat niet in betekenende mate van invloed is op de luchtkwaliteit. Toetsing van het aspect luchtkwaliteit is daardoor, op grond van artikel 4 van de Regeling NIBM niet noodzakelijk. Er behoeft dus wettelijk niet getoetst te worden aan de grenswaarden. Desondanks is bekeken of de luchtkwaliteit ten gevolge van de ontwikkeling onder de gestelde grenswaarden blijft.

afbeelding "i_NL.IMRO.0273.BPBKGervDorps-ON01_0026.png"

Tabel: NIBM-tool

Tevens is gekeken naar de huidige concentraties NO2 en PM10. Hiervoor is gebruik gemaakt van gegevens van de provincie Gelderland. De gemiddelde concentratie NO2 in 2017 bedroeg 15 - 17,5 µg/m3, bij een jaargemiddelde van 40 µg/m3. De gemiddelde concentratie PM10 bedroeg 17,5 - 20 µg/m3 bij een jaargemiddelde van 40 µg/m3. Gesteld kan worden dat de luchtkwaliteit ter plekke voldoet aan de voorkeurswaarden.

4.5.3 Conclusie

Het project kan worden beschouwd als een NIBM-project. Nader onderzoek naar de luchtkwaliteit kan dan ook achterwege blijven.

4.6 Parkeren en verkeer

4.6.1 Parkeren

De gemeente Putten heeft parkeernormen vastgelegd in de ‘Nota Parkeernormen Putten’, vastgesteld op 28 oktober 2016. De normen zijn gebaseerd op de kencijfers van CROW publicatie 317 waarbij de keuze is gemaakt voor weinig stedelijk gebied, gemiddelde CROW-parkeerkencijfers en een gebiedsindeling waarbij de voor deze rapportage betreffende locatie in het gebied ‘centrum’ is gelegen. Voor woningen en de meest voorkomende winkelfuncties zijn parkeernormen opgesteld.

In juni 2020 is er door adviesbureau Goudappel Coffeng onderzoek gedaan naar de parkeervraag door de verplaatsing van de Boni-supermarkt. Hierbij is onder andere gekeken naar de huidige parkeervraag en de toekomstige parkeerbehoefte. Het rapport is opgenomen als bijlage 8.

Zij hebben de stappen uit het gemeentelijke parkeerbeleid doorlopen in hun onderzoek. Hierbij is de parkeerbehoefte berekend incl. het dubbelgebruik en rekening houdend met het bestaande gebruik (stap 1).

Voor de toekomstige situatie is de parkeervraag bepaald aan de hand van de gemeentelijke parkeernormen (tabel 4.1) en het programma zoals dat met dit bestemmingsplan wordt mogelijk gemaakt. In onderstaande tabel (tabel 4.2) is de parkeerbehoefte weergegeven. Zaterdagmiddag wordt als piekmoment aangeduid, aangezien de parkeervraag op dat moment het hoogst is.

afbeelding "i_NL.IMRO.0273.BPBKGervDorps-ON01_0027.png"

Tabel 4.1: gehanteerde parkeernormen*

*noot: Voor de kringloopwinkel is gekozen voor de norm schil centrum omdat er geen normen beschikbaar zijn voor een kringloopwinkel in het centrum.

Functie   norm   aantal/oppervlak   behoefte pp  
Boni supermarkt   4,1   1.819 m2   74,6  
Kringloop   1,25   1.051 m2   13,1  
woningen boven Boni (90m2)   1,1   2   2,2  
Woningen boven Boni (76m2)   1,1   6   6,6  
Woningen boven Boni (62 m2)   1,0   8   8  
Multiruimte   6,0   202 m2   12,1  
Woningen (ca. 100m2)   1,1   12   13,2  

Tabel 4.2: parkeerbehoefte per functie

afbeelding "i_NL.IMRO.0273.BPBKGervDorps-ON01_0028.png"

Tabel 4.3: Benodigde parkeerplaatsen

Uit het onderzoek blijkt dat zonder dubbelgebruik voor de ontwikkeling 126,2 parkeerplaatsen nodig zijn. Voor de parkeervraag met dubbelgebruik op zaterdagmiddag zijn 115,7 parkeerplaatsen nodig. Als daarvan de parkeervraag wordt afgetrokken die in de huidige situatie bestaat, maar in de nieuwe situatie niet meer terugkomt blijft er een parkeervraag van 59,0 over.

Er is vervolgens gekeken naar de beschikbare ruimte op het eigen terrein (stap 2). Hieruit blijkt dat na uitbreiding van het parkeerterrein er nog een terkort is van 29,0 parkeerplaatsen.

Er wordt het volgende geconcludeerd:

Uit het onderzoek blijkt dat het realiseren van de Boni supermarkt en de kringloopwinkel op de locatie van Kok Interieur een toename in parkeervraag van 59,0 parkeerplaatsen tot gevolg heeft. Deze extra parkeervraag kan worden opgevangen door de bestaande en nieuwe aan te leggen parkeercapaciteit van het centrum:

  • Door het realiseren van extra parkeerplaatsen is er meer ruimte aan de Gervenhof (30,0 parkeerplaatsen);
  • Op 13, 15 en 16 februari 2019 is een parkeerdrukmeting gedaan in de directe omgeving van de ontwikkeling. De grenzen van het onderzoeksgebied zijn gebaseerd op de acceptabele loopafstanden die in de Nota Parkeernormen zijn vastgesteld voor kort- en langbezoekers. Uit deze parkeerdrukmeting blijkt dat voldoende restcapaciteit aanwezig is om de toename in parkeervraag op te vangen (130,4 parkeerplaatsen).

In tabelvorm geeft dat het volgende overzicht:

Toekomstige extra parkeerbehoefte   Parkeerbehoefte van functies die verdwijnen   Nieuw aan te leggen parkeerplaatsen   Parkeerplaatsen nodig in openbaar terrein   Parkeerplaatsen beschikbaar in openbaar terrein  
115,7   56,6   30   29,1   130,4  

Er zijn dus voldoende parkeerplaatsen beschikbaar voor de voorgenomen ontwikkelng.

Voor locatie 2 geldt dat hier 9 grondgebonden woningen worden gerealiseerd aan de Dorpsstraat. Zij krijgen parkeerplaatsen op eigen terrein. In het aangelegde straatje worden tevens 4 parkeerplaatsen gerealiseerd. De parkeernorm voor deze woningen is 1,6 parkeerplaats per woning (waarvan 0,3 voor bezoek) voor de 2 vrijstaande woningen aan de Dorpsstraat en 1,4 parkeerplaats per woning voor de 7 seniorenwoningen in het hofje (waarvan 0,3 voor bezoek), voor de 9 woningen betekent dat een behoefte van 13 parkeerplaatsen zonder dubbelgebruik. Omdat in de norm voor woningen 0,3 pp is opgenomen voor bezoek en bezoekers en bewoners niet gelijktijdig 100% gebruik maken van deze parkeerplaatsen zijn er minder parkeerplaatsen nodig, er kan dubbelgebruik plaatsvinden van dezelfde parkeerplaats. Met dit dubbelgebruik zijn in het plangebied 11,2 parkeerplaatsen nodig. In het plangebied worden 12,8 parkeerplaatsen gerealiseerd. Er wordt op locatie 2 dus voldaan aan de parkeernota. (Cijfers wijken iets af van rapport Goudappel, omdat het pand aan de Engweg geen woning meer wordt.)

afbeelding "i_NL.IMRO.0273.BPBKGervDorps-ON01_0029.png"  

Uit bovengaande blijkt dat het centrum van Putten ruim voldoende parkeergelegenheid biedt om de ontwikkeling mogelijk te maken. In de regels zal worden vastgelegd dat er aan de gemeentelijke parknorm voldaan moet worden.

4.6.2 Verkeer

Het plangebied wordt ontsloten via de Dorpsstraat en de Engweg in westelijke richting en de Engweg en de Achterstraat in westelijke richting. Dit zijn 50 km/u-wegen.

De verkeersgeneratie kan berekend worden aan de hand van de kencijfers van de publicatie 'CROW 381 Toekomstbestendig parkeren' uit 2018. Er is uitgegaan van de kencijfers voor een situatie in het centrum van weinig stedelijk gebied.

In de huidige situatie is de maximale verkeersgeneratie 1452,27 mvt/etmaal voor locatie 1 en 2. Dit is als volgt vastgesteld:

  • Kok Interieurs (4.980 m2); kencijfers voor woonwinkel per 100 m2 minimaal 5,2 en maximaal 7,8 mvt/etmaal. Totale verkeersgeneratie 258,96 - 388,44 mvt/etmaal.
  • Bestaande boni supermarkt, inclusief bloemenwinkel (1.070 m2); kencijfers voor supermarkt per 100 m2 minimaal 53,0 en maximaal 94,6 mvt/etmaal. Totale verkeersgeneratie 567,1 - 1012,22 mvt/etmaal.
  • Kringloopwinkelpanden (gezamenlijk 270 m2): kencijfers voor kringloopwinkel (schil centrum). Per 100 m2 minimaal 10,9 en maximaal 16,3 mvt/etmaal. Totale verkeersgeneratie 29,42 - 44,01 mvt/etmaal.
  • Appartement boven kringloopwinkel (huur appartement, duur). Totale verkeersgeneratie minimaal 6,8 en maximaal 7,6 mvt/etmaal.

Voor de nieuwe situatie is de maximale verkeersgeneratie op dezelfde manier te bepalen:

  • Nieuwe boni-supermarkt (1.765 m2): 935,45 - 1669,69 mvt/etmaal.
  • Nieuwe kringloopwinkel (1.025 m2): 111,725 - 167,075 mvt/etmaal.
  • Nieuwe bloemenwinkel (171 m2). Kencijfers voor een winkel in binnenstad. Per 100 m2 een verkeersgeneratie van minimaal 28,3 en maximaal 37,4. Totale verkeersgeneratie van 48,393 - 63,954 mvt/etmaal.
  • Nieuwe appartementen (28 totaal). Kencijfers voor appartement koop, duur. Minimale verkeersgeneratie van 6,8 en maximale verkeersgeneratie van 7,6 mvt/etmaal. Totale verkeersgeneratie van 190,4 - 212,8 mvt/etmaal.
  • Vijf nieuwe vrijstaande woningen (incl. kringlooppanden): 7,5 - 8,3 mvt/etmaal. Gezamenlijk 37,5 - 41,5 mvt/etmaal.
  • Zes nieuwe twee-onder-één-kap woningen (koop): 7,2 - 8,0 mvt/etmaal. Gezamenlijk 43,2 - 48,0 mvt/etmaal.

De maximale verkeersgeneratie in de nieuwe situatie is hiermee vastgesteld op 2.202,794 mvt/etmaal.

Dit betekent dat de gewenste ontwikkeling zorgt voor een toename van maximaal 750,524 mvt/etmaal.

Gezien de ligging van het plangebied en de verkeerssituatie ter hoogte van het plangebied wordt aangenomen dat de toename van de verkeersgeneratie niet tot problemen leidt met de verkeersafwikkling in het plangebied, te meer er is uitgegaan van een maximale verkeersgeneratie.

4.6.3 Conclusie

Voorgenomen initiatief zal niet leiden tot verkeerskundige en/of parkeertechnische problemen. Er wordt voldaan aan de parkeernormen en de verkeersgeneratie neemt slechts beperkt toe.

4.7 Geluidhinder

4.7.1 Wettelijk kader

Wegverkeer en railverkeer

Langs alle (spoor)wegen – met uitzondering van 30 km/u-wegen en woonerven – bevinden zich op grond van de Wet geluidhinder (Wgh) geluidszones waarbinnen de geluidshinder vanwege de (spoor)weg getoetst moet worden. De breedte van de geluidszone is afhankelijk van het aantal rijstroken/spoorstaven en van binnen- of buitenstedelijke ligging. Op basis van jurisprudentie dient in het kader van een goede ruimtelijke ordening ook bij 30 km/u-wegen de aanvaardbaarheid van de geluidsbelasting te worden onderbouwd.

Industrielawaai

Gezoneerde industrieterreinen hebben een vaste geluidzone die wordt vastgelegd door middel van een bestemmingsplan. Buiten de geluidszone wordt de voorkeurswaarde van 50 dB(A) niet overschreden. De maximale ontheffingswaarde binnen de geluidszone bedraagt 55 dB(A) etmaalwaarde voor nieuwe situaties. In tegenstelling tot weg- en railverkeer wordt voor industrielawaai niet getoetst aan de Lden waarde maar aan de etmaalwaarde. De dosismaat Lden is voor wegverkeerslawaai en spoorweglawaai met ingang van 1 januari 2007 in de gewijzigde Wgh vastgelegd. Voor industrielawaai wordt Lden in het kader van de Wgh voorlopig niet ingevoerd.

4.7.2 Onderzoek / beoordeling

De twee planlocaties zijn niet gelegen binnen de geluidzone van een industrieterrein. Wel ligt planlocatie 2 binnen de geluidzone van een aantal wegen. De nieuwe woningen die worden gerealiseerd aan de Gervenhof, maar ook de bestaande woningen, kunnen mogelijk geluidhinder ondervinden van de commerciële activiteiten op de begane grond. Voor beide locaties is een akoestisch onderzoek uitgevoerd door Buro Ontwerp & Omgeving. De rapportages zijn opgenomen als bijlagen. Hieronder worden de onderzoeken per locatie kort toegelicht en de resultaten samengevat.

Locatie 1

Voor locatie 1 (Gervenhof) is voornamelijk gekeken naar de optredende geluidhinder bij de nieuwe en de omliggende woningen (zie bijlage 9). De hoogste langtijdgemiddelde geluidsbelasting bedraagt 49 dB(A) door de realisatie van het plan (supermarkt en dagwinkels). Bij de nieuwe woningen en de omliggende woningen wordt voldaan aan de grenswaarde van 50 dB(A) uit het Activiteitenbesluit. Tevens wordt er voldaan aan de richtwaarde (stap 2) van 50 dB(A) uit de VNG-publicatie 'Bedrijven en milieuzonering, editie 2009’.

De hoogste maximale geluidsbelasting in de dagperiode worden veroorzaakt door de bevoorrading van de supermarkt (rijden van vrachtwagens). Het laden en lossen in uitgezonderd op basis van het Activiteitenbesluit op grond van artikel 2.17 lid 1b van het Activiteitenbesluit. Hierdoor is het laden en lossen mogelijk op basis van het Activiteitenbesluit Het rijden van de winkelwagens en de installaties van de supermarkt voldoen aan de normen uit het Activiteitenbesluit en de richtwaarden (stap 2) uit de VNG-publicatie “Bedrijven en milieuzonering”. De optredende maximale geluidsbelastingen zijn dan ook acceptabel. Overigens vinden de piekgeluiden vanwege het laden en lossen relatief weinig plaats. Door de lage frequentie van de piekgeluiden moet deze piekgeluiden als acceptabel worden geacht.

De hoogste geluidsbelasting afkomstig van de indirecte hinder bedraagt 58 dB(A) bij de nieuwe woningen en de omliggende woningen. Hiermee wordt bij de nieuwe woningen de omliggende woningen voldaan aan de richtwaarde (stap 3) van 65 dB(A) uit de VNG-publicatie ‘Bedrijven en milieuzonering, editie 2009’ en voldaan aan de maximaal toelaatbare geluidsbelasting van 65 uit de Schrikkelcirculaire. De optredende geluidsbelastingen ten gevolge van de indirecte hinder zijn daarmee acceptabel.

Hieruit volgt het volgende advies:

"Gezien de beperkte aanleveringen van goederen wordt geadviseerd om de gerapporteerde maximale geluidsbelastingen acceptabel te achten. De initiatiefnemer heeft conform het BBT-principe reeds in de planfase geluidsreducerende maatregelen getroffen aan bijvoorbeeld de verharding van het parkeerterrein, gebruik maken van stillere kunststof winkelwagens en het laden en lossen overdekt en afgeschermd van de omgeving door middel van een laad- en lossluis uit te voeren. De optredende hogere geluidspieken komen alleen in de dagperiode voor door het rijden van de vrachtwagen van en naar de laad- en loslocatie. Deze activiteiten zijn uitgezonderd voor de toetsing aan het Activiteitenbesluit. Het is dan ook niet noodzakelijk om middels maatwerkvoorschriften ontheffing te verlening voor de maximale geluidsniveaus. Uit dit onderzoek blijkt dat het plan vanuit akoestisch oogpunt uitvoerbaar is."

Locatie 2

Locatie 2 ligt binnen de geluidzone van de Engweg en de Oude Rijksstraatweg (N798). De Dorpsstraat is een 30 km/u-weg en heeft geen geluidzone. Voor een goede ruimtelijke ordening dient deze straat wel beschouwd te worden in een akoestisch onderzoek. De Engweg betreft een 50 km/u-weg met een klinkerverharding. Locatie 2 ligt binnen de geluidzone van deze weg. De Oude Rijksstraat is een 80 km/u-weg met dicht asfaltbeton. Locatie 2 ligt op ongeveer 175 meter afstand van de weg en valt hierdoor binnen de geluidzone.

De hoogste geluidsbelasting afkomstig van de Engweg bedraagt 60 dB, inclusief aftrek op grond van artikel 110g Wgh. De Dorpsstraat heeft op basis van de Wgh geen zone. Formeel gelden de normen uit de Wgh dan ook niet voor 30 km-wegen. Echter, in het kader van een goede ruimtelijke ordening, zijn bij de beoordeling van de geluidsbelastingen zijn de voorkeursgrenswaarde van 48 dB en de hoogste toelaatbare geluidsbelastingen van 63 dB gebruikt. Deze normen gelden voor een vergelijkbare weg met een 50 km-regime. Bij de nieuwe woningen wordt de voorkeursgrenswaarde van 48 dB uit de Wgh overschreden en er wordt voldaan aan de hoogste toelaatbare geluidsbelasting van 63 dB uit de Wgh. Bij vier woningen wordt de voorkeursgrenswaarde van 48 dB overschreden. De geluidsbelastingen liggen binnen de geluidsnormen uit de Wgh. Op grond van de Wgh zijn de optredende geluidsbelastingen dan ook acceptabel. .

De hoogste geluidsbelasting afkomstig van de Engweg bedraagt 32 dB, inclusief aftrek op grond van artikel 110g Wgh. Bij de nieuwe woningen wordt voldaan aan de voorkeursgrenswaarde van 48 dB uit de Wgh.

Hieruit volgt de volgende samenvatting: "Uit de geluidsberekeningen blijkt dat de woningen te realiseren zijn."

Het rapport van het onderzoek is toegevoegd als bijlage 10.

4.7.3 Conclusie

Vanuit akoestisch oogpunt blijkt dat het plan uitvoerbaar is, mits er wordt voldaan aan de aanbevelingen van het akoestisch onderzoek. Bij de omgevingsvergunning bouwen zal de geluidwering van de gevels getoetst moeten worden middels een akoestisch onderzoek om na te gaan of het geluidsniveau van 33 dB voor het binnenniveau kan worden gehaald.

4.8 Bedrijven en milieuzonering

4.8.1 Wettelijk kader

Zowel de ruimtelijke ordening als het milieubeleid stelt zich ten doel een goede kwaliteit van het leefmilieu te handhaven en te bevorderen. Dit gebeurt onder andere door milieuzonering. Onder milieuzonering verstaan we het aanbrengen van een voldoende ruimtelijke scheiding tussen milieubelastende bedrijven of inrichtingen enerzijds en milieugevoelige functies als wonen en recreëren anderzijds. De ruimtelijke scheiding bestaat doorgaans uit het aanhouden van een bepaalde afstand tussen milieubelastende en milieugevoelige functies. Die onderlinge afstand moet groter zijn naarmate de milieubelastende functie het milieu sterker belast. Milieuzonering heeft twee doelen:

  • het voorkomen of zoveel mogelijk beperken van hinder en gevaar bij woningen en andere gevoelige functies;
  • het bieden van voldoende zekerheid aan bedrijven dat zij hun activiteiten duurzaam onder aanvaardbare voorwaarden kunnen uitoefenen.

Voor het bepalen van de aan te houden afstanden wordt de VNG-uitgave 'Bedrijven en Milieuzonering' uit 2009 gehanteerd. Deze uitgave bevat een lijst, waarin voor een hele reeks van milieubelastende activiteiten (naar SBI-code gerangschikt) richtafstanden zijn gegeven ten opzichte van milieugevoelige functies. De lijst geeft richtafstanden voor de ruimtelijk relevante milieuaspecten geur, stof, geluid en gevaar. De grootste van de vier richtafstanden is bepalend voor de indeling van een milieubelastende activiteit in een milieucategorie en daarmee ook voor de uiteindelijke richtafstand. De richtafstandenlijst gaat uit van gemiddeld moderne bedrijven. Indien bekend is welke activiteiten concreet zullen worden uitgeoefend, kan gemotiveerd worden uitgegaan van de daadwerkelijk te verwachten milieubelasting, in plaats van de richtafstanden.

De afstanden worden gemeten tussen enerzijds de grens van de bestemming die de milieubelastende functie(s) toelaat en anderzijds de uiterste situering van de gevel van een milieugevoelige functie die op grond van het bestemmingsplan mogelijk is.

Hoe gevoelig een gebied is voor milieubelastende activiteiten is mede afhankelijk van het omgevingstype. De richtafstanden van de onderstaande richtafstandenlijst gelden ten opzichte van het omgevingstype 'rustige woonwijk' dan wel 'gemengd gebied'.

Milieucategorie     Richtafstand tot omgevingstype rustige woonwijk en rustig buitengebied     Richtafstand tot omgevingstype gemengd gebied    
1     10 m     0 m    
2     30 m     10 m    
3.1     50 m     30 m    
3.2     100 m     50 m    
4.1     200 m     100 m    
4.2     300 m     200 m    
5.1     500 m     300 m    
5.2     700 m     500 m    
5.3     1.000 m     700 m    
6     1.500 m     1.000 m    

Richtafstanden en omgevingstype

Hiernaast gelden ten aanzien van bedrijven die onder de werkingssfeer van de Wet milieubeheer vallen, deze Wet en haar uitvoeringsbesluiten als toetsingskader voor de toegestane bedrijfshinder.

4.8.2 Onderzoek / beoordeling

Voor onderhavig project dient te worden getoetst of de nieuwe functie mogelijk belemmeringen veroorzaakt voor bestaande functies in de omgeving en of de nieuwe functie mogelijk belemmeringen ondervindt als gevolg van de milieuhinder van naburige bedrijven en/of bedrijvigheid.

De omgeving van het plangebied kan gekarakteriseerd worden als gemengd gebied, omdat er naast winkels ook woningen voorkomen en er een doorlopende weg door het gebied loopt.

Locatie 1

Voor de locatie aan de Gervenhof geldt dat moet worden onderzocht of voor de nieuwe appartementen een goed woon- en leefklimaat gegarandeerd is. Anderzijds moet worden aangetoond dat omliggende bedrijven niet in hun mogelijkheden worden belemmerd. Voor supermarkten geldt milieucategorie 1. De richtafstand tot omliggende functies is hiermee 0 meter in gemengd gebied. Voor de omliggende bestaande functies (o.a. supermarkt en woningen) vormt de voorgenomen herontwikkeling ook geen belemmering. Tevens liggen de bestaande woningen op 5 meter van de naastgelegen kerk, conform de richtafstand dient bij een kerk in gemengd gebied de richtafstand 10 meter te zijn. Aangezien dit reeds een bestaande situatie betreft, is dit geen belemmering voor de ontwikkeling, de kerk moet reeds rekening houden met de bestaande woningen.

Locatie 2

Locatie 2 kan, gezien de ligging aan de doorlopende weg in de toekomstige situatie worden aangemerkt als gemengd gebied. Rond de planlocatie zijn enkele horecagelegenheden gelegen, maar ook winkels en woningen. Ten zuiden van de planlocatie is Autoschade bedrijf Asw gevestigd (Engweg 23a). Voor dit bedrijf geldt milieucategorie 2. Voor deze locatie is een 'quickscan bedrijven en milieuzonering' uitgevoerd door Buro Ontwerp en Omgeving'. Dit rapport is opgenomen als bijlage 11. Een woning is een gevoelige functie. De herontwikkeling dient dus getoetst te worden aan de milieuzonering. Voor gemengd gebied geldt een richtafstand van 0 meter tot omliggende functies voor de woningen. Voorts geldt dat de omliggende functies, uitgezonderd het garagebedrijf, een richtafstand van 0 meter hebben en dus niet worden belemmerd door de gewenste ontwikkeling.

Voor het garagebedrijf geldt een richtafstand van 10 meter in gemengd gebied. De nieuwe woningen zijn geprojecteerd op een grotere afstand. Ten oosten en westen van het garagebedrijf liggen reeds een aantal woningen. Geluid heeft voor het garagebedrijf de grootste richtafstand heeft. De voorgevels van het garagebedrijf zijn allen gericht op het zuiden, waardoor de geluidhinder richting het noorden minimaal is. De gevels van de nieuwe woningen zullen dan ook niet worden belast door het garagebedrijf. Het is hiermee aannemelijk dat er in de nieuwe woningen een goed woon- en leefklimaat is gerealiseerd. De gewenste ontwikkeling wordt derhalve niet belemmerd door de aanwezigheid van het garagebedrijf.

4.8.3 Conclusie

Gelet op het voorgaande vormen de milieubelastende functies vanuit het oogpunt van milieuzonering geen belemmering voor de in dit plan besloten ruimtelijke ontwikkeling. Andersom leiden de gewenste ontwikkelingen niet tot milieutechnische problemen voor de omliggende functies. Geconcludeerd kan worden dat de voorgenomen ontwikkeling in overeenstemming is te achten met een goede ruimtelijke ordening.

4.9 Externe veiligheid

4.9.1 Wettelijk kader

Sommige activiteiten brengen risico's op zware ongevallen met mogelijk grote gevolgen voor de omgeving met zich mee. Externe veiligheid richt zich op het beheersen van deze risico's. Het gaat daarbij om onder meer de productie, opslag, transport en het gebruik van gevaarlijke stoffen. Dergelijke activiteiten kunnen een beperking opleggen aan de omgeving. Door voldoende afstand tot de risicovolle activiteiten aan te houden kan voldaan worden aan de normen. Aan de andere kant is de ruimte schaars en het rijksbeleid erop gericht de schaarse ruimte zo efficiënt mogelijk te benutten. Het ruimtelijk beleid en het externe veiligheidsbeleid moeten dus goed worden afgestemd. De wetgeving rond externe veiligheid richt zich op de volgende risico's:

  • risicovolle (Bevi-)inrichtingen;
  • vervoer gevaarlijke stoffen door buisleidingen;
  • vervoer gevaarlijke stoffen over weg, water of spoor.

Daarnaast wordt er in de wetgeving onderscheid gemaakt tussen de begrippen kwetsbaar en beperkt kwetsbaar en plaatsgebonden risico en groepsrisico.

Kwetsbaar en beperkt kwetsbaar

Kwetsbaar zijn onder meer woningen, onderwijs- en gezondheidsinstellingen, kinderopvang- en dagverblijven en grote kantoorgebouwen (>1.500 m²). Beperkt kwetsbaar zijn onder meer kleine kantoren, winkels, horeca en parkeerterreinen. De volledige lijst wat onder (beperkt) kwetsbaar wordt verstaan is in het Besluit externe veiligheid inrichtingen (Bevi) opgenomen.

Plaatsgebonden risico en groepsrisico

Het plaatsgebonden risico wordt uitgedrukt in een contour van 10-6 als grenswaarde. Het realiseren van kwetsbare objecten binnen deze contour is niet toegestaan. Het realiseren van beperkt kwetsbare objecten binnen deze contour is in principe ook niet toegestaan. Echter, voor beperkte kwetsbare objecten is deze 10-6 contour een richtwaarde. Mits goed gemotiveerd kan worden afgeweken van deze waarde tot de 10-5 contour.

Het groepsrisico is gedefinieerd als de cumulatieve kansen per jaar dat ten minste 10, 100 of 1.000 personen overlijden als rechtstreeks gevolg van hun aanwezigheid in het invloedsgebied van een inrichting en een ongewoon voorval binnen die inrichting waarbij een gevaarlijke stof betrokken is. Het groepsrisico wordt niet in contouren vertaald, maar wordt weergegeven in een grafiek. In de grafiek wordt de groepsgrootte van aantallen slachtoffers (x-as) uitgezet tegen de cumulatieve kans dat een dergelijke groep slachtoffer wordt van een ongeval (y-as). Voor het groepsrisico geldt geen grenswaarde, maar een zogenaamde oriëntatiewaarde. Daarnaast geldt voor het groepsrisico een verantwoordingsplicht. Het bevoegd gezag moet aangeven welke mogelijkheden er zijn om het groepsrisico in de nabije toekomst te beperken, het moet aangeven op welke manier hulpverlening, zelfredzaamheid en bestrijdbaarheid zijn ingevuld. Het bevoegd gezag moet tevens aangeven waarom de risico's verantwoord zijn, en de veiligheidsregio moet in de gelegenheid zijn gesteld een brandweeradvies te geven. Hierbij geldt hoe hoger het groepsrisico, hoe groter het belang van een goede groepsrisicoverantwoording.

Risicovolle (Bevi-)inrichtingen

Voor (de omgeving van) de meest risicovolle bedrijven is het Besluit externe veiligheid inrichtingen (Bevi) van belang. Het Bevi legt veiligheidsnormen op aan bedrijven die een risico vormen voor mensen buiten de inrichting. Het Bevi is opgesteld om de risico's, waaraan burgers in hun leefomgeving worden blootgesteld vanwege risicovolle bedrijven, te beperken. Het besluit heeft tot doel zowel individuele als groepen burgers een minimaal (aanvaard) beschermingsniveau te bieden. Via een bijhorende ministeriële regeling (Revi) worden diverse veiligheidsafstanden tot kwetsbare en beperkt kwetsbare objecten gegeven. Aanvullend op het Bevi zijn in het Vuurwerkbesluit en het Activiteitenbesluit (Besluit algemene regels inrichtingen milieubeheer) veiligheidsafstanden genoemd die rond minder risicovolle inrichtingen moeten worden aangehouden.

Vervoer gevaarlijke stoffen door buisleidingen

Met betrekking tot het beleid en de regelgeving voor het vervoer van gevaarlijke stoffen door buisleidingen is het Besluit externe veiligheid buisleidingen (Bevb) en de Structuurvisie buisleidingen van belang. Deze structuurvisie bevat een lange termijnvisie op het buisleidingentransport van gevaarlijke stoffen.

 Het Bevb en de bijbehorende Regeling externe veiligheid buisleidingen (Revb) zijn op 1 januari 2011 in werking getreden. Het Bevb regelt onder andere welke veiligheidsafstanden moeten worden aangehouden rond buisleidingen met gevaarlijke stoffen. Op basis van het Bevb wordt het voor gemeenten verplicht om bij de vaststelling van een bestemmingsplan, op basis waarvan de aanleg van een buisleiding of een kwetsbaar object of een risicoverhogend object mogelijk is, de grenswaarde voor het plaatsgebonden risico in acht te nemen en het groepsrisico te verantwoorden.

Vervoer gevaarlijke stoffen over weg, water en spoor

Het Besluit externe veiligheid transportroutes (Bevt) stelt regels aan transportroutes en de omgeving daarvan. Zo moet een basisveiligheidsniveau rond transportassen (plaatsgebonden risico) en een transparante afweging van het groepsrisico worden gewaarborgd.

Als onderdeel van het Bevt is op 1 april 2015 tevens het basisnet in werking getreden. Het basisnet verhoogt de veiligheid van mensen die wonen of werken in de buurt van rijksinfrastructuur (auto-, spoor- en vaarwegen) waarover gevaarlijke stoffen worden vervoerd. In de regeling ligt vast wat de maximale risico's voor omwonenden mogen zijn. Die begrenzing was er tot nu toe niet. Bovendien zorgt het basisnet ervoor dat gevaarlijke stoffen tussen de belangrijkste industriële locaties in Nederland en het buitenland vervoerd kunnen blijven worden.

Indien een bestemmingsplan betrekking heeft op een gebied dat geheel of gedeeltelijk gelegen is binnen 200 m van een (basisnet)transportroute voor gevaarlijke stoffen, moet in de toelichting ingegaan worden op de dichtheid van personen in het invloedsgebied van de transportroute op het tijdstip waarop het plan wordt vastgesteld. Hierbij moet rekening worden gehouden met de personen die a) in dat gebied reeds aanwezig zijn, b) in dat gebied op grond van het geldende bestemmingsplan redelijkerwijs te verwachten zijn en c) de redelijkerwijs te verwachten verandering van de dichtheid van personen in het gebied waarop dat plan betrekking heeft.

4.9.2 Onderzoek / beoordeling

Een woning betreft een kwetsbaar object, waardoor de gewenste ontwikkeling getoetst dient te worden aan de wetgeving omtrent externe veiligheid. Voor de beoordeling of in de omgeving van het plangebied risicovolle inrichtingen en/of transportroutes gevaarlijke stoffen aanwezig zijn, is de risicokaart geraadpleegd. Navolgende afbeelding toont een uitsnede van deze kaart.

afbeelding "i_NL.IMRO.0273.BPBKGervDorps-ON01_0030.png"

Figuur: Uitsnede risicokaart met blauwe cirkel als globale aanduiding planlocaties (bron: arcgis.com)

Mobiele risicobronnen

N798

Locatie 2 ligt binnen het aandachtsgebied van de Oude Rijksweg (N798). Op een afstand van circa 180 meter ligt de provinciale weg. Deze weg is aangewezen als transportroute voor gevaarlijke stoffen. De N798 is een 80 km/u-weg. De weg heeft geen 10-6 contour, zoals bij uit het rapport 'Inventarisatie risicobronnen gemeente Putten' (29-12-2012, Tebodin). Wel dient risico gehouden te worden met het groepsrisico. Daarbij geldt dat voor het gedeelte van de weg dat binnen de bebouwde kom is gelegen een maximale bevolkingsdichtheid van 99p/ha uitgaande van tweezijdige bebouwing op een afstand van de weg. Ingeval van een grotere bevolkingsdichtheid is een nadere studie nodig. In de gewenste situatie zal het aantal personen dat aanwezig is op locatie 2 aanzienlijk lager zijn dan in de huidige piekmomenten van de Boni-supermarkt.

Spoorlijn Amersfoort - Zwolle

Op circa 1.700 meter ten oosten van locatie 2 is de spoorlijn Amersfoort-Zwolle gelegen. Deze spoorlijn heeft een plaatsgebonden risicocontour van 6 meter en een plasbrandaandachtsgebied (PAG) van 30 meter. Wel liggen beide locaties binnen het invloedsgebied toxisch (4.000 meter). Er dient te worden aangegeven hoe om te gaan met de zelfredzaamheid en rampenbestrijding. Hiervoor dient VNOG geconsulteerd te worden.

Inrichtingen

In de nabijheid van het plangebied zijn geen EV-relevantie inrichtingen gevestigd. Anderzijds is de voorgenomen planontwikkeling geen risicovolle inrichting in het kader van de BEVI en vormt de gewenste ontwikkeling geen gevaar voor de omgeving.

4.9.3 Conclusie

Er bestaat vanuit het thema externe veiligheid geen belemmering voor de voorgenomen ontwikkeling.

4.10 Kabels en leidingen

Planologisch relevante leidingen en hoogspanningsverbindingen dienen te worden gewaarborgd. Tevens dient rond dergelijke leidingen rekening te worden gehouden met zones waarbinnen mogelijke beperkingen gelden. Planologisch relevante leidingen zijn leidingen waarin de navolgende producten worden vervoerd:

  • gas, olie, olieproducten, chemische producten, vaste stoffen/goederen;
  • aardgasleidingen afhankelijk van druk;
  • defensiebrandstoffen;
  • warmte en afvalwater, ruwwater of halffabricaat voor de drink- en industriewatervoorziening met een diameter groter of gelijk aan 18 inch.

Uit de toelichting en verbeelding van bestemmingsplan 'Putten Centrum' is op te maken dat er geen planologisch relevante kabels en leidingen in het plangebied of in de directe omgeving daarvan aanwezig zijn.

Voor de verdere realisatie van het plan zal indien nodig een KLIC-melding gedaan worden om te achterhalen of er relevante kabels en leidingen in het plangebied of in de directe omgeving daarvan aanwezig zijn.

4.11 Water

4.11.1 Inleiding

Water en ruimtelijke ordening hebben veel met elkaar te maken. Aan de ene kant is water één van de sturende principes in de ruimtelijke ordening en kan daarmee beperkingen opleggen aan het ruimtegebruik zoals locaties voor stadsuitbreiding. Aan de andere kant kunnen ontwikkelingen in het ruimtegebruik ongewenste effecten hebben op de waterhuishouding.

Op Europees en nationaal niveau heeft water een eigen plaats gekregen in de ruimtelijke besluitvorming via de verplichte 'watertoets'. Een watertoets geeft aan wat de gevolgen zijn van een ruimtelijk plan voor de waterhuishouding in het betreffende gebied. Zo'n waterparagraaf moet sinds 1 januari 2003 worden opgenomen in de toelichting bij ruimtelijke plannen. Doel van de watertoets is de relatie tussen planvorming op het gebied van de ruimtelijke ordening en de waterhuishouding te versterken.

Een watertoets is verplicht als het gaat om een functieverandering en/of bestemmingswijziging. Op basis van informatie en randvoorwaarden vanuit waterbeheerder, het waterbeleid en relevante bodemgegevens worden de verschillende wateraspecten uitgewerkt in een waterparagraaf. De waterparagraaf beschrijft het huidige watersysteem alsmede de mogelijkheden en randvoorwaarden voor het toekomstig watersysteem. De waterparagraaf wordt afgestemd met de waterbeheerder.

4.11.2 Beleidskader

Op verschillende bestuursniveaus zijn de afgelopen jaren beleidsnota's verschenen aangaande de waterhuishouding. Deze paragraaf geeft een overzicht van de voor onderhavige ontwikkeling relevante nota's.

Europa

Met ingang van december 2000 is de Europese Kaderrichtlijn Water (KRW) van kracht geworden. In het kader van de Kaderrichtlijn worden kwaliteitseisen gesteld, gericht op het beschermen en verbeteren van de aquatische ecosystemen (verplichting per stroomgebied). Deze richtlijn stelt als norm dat oppervlaktewateren binnen 15 jaar na inwerkingtreding moeten voldoen aan een 'goede ecologische' toestand (GET). Voor kunstmatige wateren, zoals de meeste stadswateren, geldt dat de oppervlaktewateren minimaal moeten voldoen aan een 'goed ecologisch potentieel' (GEP). Inmiddels zijn de GEP-normen per stroomgebied uitgewerkt.

Rijk

De Waterwet, die in werking is getreden in 2009, regelt het beheer van oppervlaktewater en grondwater, en verbetert ook de samenhang tussen waterbeleid en ruimtelijke ordening. Op grond van deze wet moeten de provincies één of meer regionale waterplannen vaststellen die wat betreft de ruimtelijke aspecten de status van provinciale structuurvisie hebben. De Waterwet schrijft eveneens voor dat elke zes jaar een nieuw Nationaal Waterplan uitgebracht wordt. Op 10 december 2015 is het Nationaal Waterplan 2 (NWP2) vastgesteld. Het NWP2 is opgesteld vanuit het perspectief om een nationale Omgevingsvisie te ontwikkelen richting 2018 conform de Omgevingswet in wording. Het NWP2 geeft de hoofdlijnen, principes en richting van het nationale waterbeleid in de planperiode 2016-2021, met een vooruitblik richting 2050. Met dit NWP2 zet het kabinet een volgende ambitieuze stap in het robuust en toekomstgericht inrichten van ons watersysteem, gericht op een goede bescherming tegen overstromingen, het voorkomen van wateroverlast en droogte en het bereiken van een goede waterkwaliteit en een gezond ecosysteem als basis voor welzijn en welvaart. Het beleid en de maatregelen in het nieuwe Nationaal Waterplan dragen bij aan het vergroten van het waterbewustzijn in Nederland.

4.11.3 Watertoets

Om het voornemen te toetsen aan het waterbeleid, is de watertoets uitgevoerd. Aangezien alleen aan de Dorpsstraat (locatie huidige Boni-supermarkt) het oppervlakte dat bebouwd wordt toeneemt is de watertoets alleen voor dit deel van de ontwikkeling uitgevoerd. Daarbij wordt opgemerkt dat het gebied nu erg versteend is en dat in de toekomstige situatie sprake zal zijn van meer groen. Het toetsresultaat en de samenvatting zijn als bijlage bijgevoegd (12 en 13). Op basis van de watertoets blijkt dat er geen waterschapsbelang bestaat. Wel zijn er enkele algemene aandachtspunten geformuleerd.

"Vasthouden - bergen - afvoeren

Een belangrijk principe is dat een deel van het hemelwater binnen het plangebied wordt vastgehouden en/of geborgen en dus niet direct afgevoerd wordt naar de riolering of het oppervlaktewater. Hiermee wordt bereikt dat de waterzuiveringsinstallatie beter functioneert, verdroging wordt tegen gegaan en piekafvoeren in het oppervlaktewater (met eventueel wateroverlast in benedenstrooms gelegen gebieden) wordt voorkomen. Bij lozing op oppervlaktewater zal hiervan een melding gedaan moeten worden bij het waterschap.

Grondwaterneutraal bouwen

Om grondwateroverlast te voorkomen adviseert het waterschap om boven de gemiddelde hoogste grondwaterstand (GHG) te ontwerpen. Dit betekent dat aspecten zoals ontwateringsdiepte en infiltratie van hemelwater, beschouwd worden ten opzichte van de GHG. Het structureel onttrekken / draineren van grondwater is geen duurzame oplossing en moet worden voorkomen. Het waterschap adviseert de initiatiefnemer dan ook om voorafgaand aan de ontwikkeling een goed beeld te krijgen van de heersende grondwaterstanden en GHG. Eventuele grondwateroverlast is in eerste instantie een zaak voor de betreffende perceeleigenaar.

Schoon houden - scheiden - schoon maken

Om verontreiniging van bodem, grond- en/of oppervlaktewater te voorkomen is het van belang dat het afstromende hemelwater niet verontreinigd raakt. Dit kan door nadere eisen of randvoorwaarden te stellen aan bijvoorbeeld de toegepaste (bouw)materialen. Wij vragen de initiatiefnemer om duurzame bouwmaterialen te gebruiken. De gemeente kan u hierbij verder helpen."

Daarnaast is er een gebiedsspecifiek aandachtspunt geformuleerd met betrekking tot de grondwaterfluctuatiezone: "Het plangebied ligt binnen de grondwaterfluctuatiezone, zoals die door de Provincie Gelderland is bepaald. Dit is een zone langs de flanken van het Veluwemassief, waar de grondwaterstanden naar verwachting op termijn zullen stijgen. Afhankelijk van de verwachtte stijging kan het raadzaam zijn daar nu rekening mee te houden, om daarmee toekomstig grondwateroverlast te voorkomen."

4.11.4 Conclusie

Vanuit het aspect water zijn er geen belemmeringen voor onderhavig initiatief. Het waterschap adviseert positief over het voornemen. De aandachtspunten zullen worden meegenomen in het plan.

4.12 M.e.r.-beoordeling

4.12.1 Wettelijk kader

In de Besluit milieueffectrapportage is opgenomen dat op basis van selectiecriteria vastgesteld dient te worden of de activiteit belangrijke nadelige gevolgen voor het milieu zal hebben of niet. Onderdeel D van de bijlage bevat activiteiten, plannen en besluiten waarvoor het maken van een m.e.r.-beoordeling verplicht is. Voor elke activiteit die genoemd wordt in kolom 1 van onderdeel D van het Besluit m.e.r. moet beoordeeld worden of er sprake is van (mogelijke) nadelige milieugevolgen. Voor activiteiten die onder de drempelwaarde zoals genoemd in kolom 2 van onderdeel D vallen, volstaat een vormvrije m.e.r.-beoordeling. Deze motivering dient qua inhoud aan te sluiten bij de m.e.r.-beoordeling, maar heeft geen vormvereisten. Voorliggend initiatief kan gezien worden als 'stedelijk ontwikkelingsproject' (D 11.2). De gewenste ontwikkeling blijft ruim onder de drempelwaarde van 2.000 woningen en bedrijfsvloeroppervlakte van 200.000 m2, waardoor een vormvrije m.e.r.-beoordeling volstaat.

In een vormvrije m.e.r.-beoordeling dient aandacht te worden besteed aan drie criteria die zijn opgenomen in Bijlage III van de Europese richtlijn 'betreffende milieubeoordeling van bepaalde openbare en particuliere projecten'. Dit zijn achtereenvolgens de kenmerken van het project, de plaats van het project en de kenmerken van het potentiële effect.

4.12.2 Vormvrije m.e.r.-beoordeling

Kenmerken van het project

De ontwikkeling voorziet in de sloop van bestaande winkelpanden, alsmede in de realisatie van nieuwe commerciële ruimten en woningen. Daarnaast gaat de ontwikkeling uit van een herinrichting van een bestaand parkeerterrein en voorziet het twee bestaande panden van een andere bestemming.

Plaats van het project

De planlocaties zijn gelegen in het stedelijk gebied van Putten. Putten ligt aan de rand van de Veluwe. Natura 2000-gebieden en gebieden die onderdeel uitmaken van het Natuurnetwerk Nederland zijn gelegen op circa 1.000 meter van de planlocaties.

Kenmerken van het potentiële effect

Er is onderzoek gedaan naar de effecten op flora en fauna. Dit is in paragraaf 4.1 uitgebreid omschreven. Er is aanvullend onderzoek gedaan naar de aanwezigheid van huismussen, gierzwaluwen en vleermuizen. Deze soorten zijn niet waargenomen. Wel is er sprake van een stikstofdepositie hoger dan 0,00 mol/ha/jaar. Er kan echter intern worden gesaldeerd, waardoor de nieuwe situatie leidt tot een stuk minder depositie dan de huidige situatie. Derhalve is er geen belemmering voor de provincie om een vergunning te verlenen. De bodemkwaliteit ter plekke is in voldoende mate vastgesteld en akkoord bevonden voor de gewenste functies.

4.12.3 Conclusie

De kenmerken, plaats en potentiële effecten van de ontwikkeling geven op basis van het voorgaande geen aanleiding ernstige milieugevolgen te verwachten die het nodig maken om een m.e.r-procedure te doorlopen.

4.13 Molenbiotoop

Ten zuiden van het plangebied aan de Halvinkhuizerweg 1 staat de oude korenmolen ’t Hert. De biotoop van deze molen ligt voor een deel binnen het plangebied. De molen betreft een rijksmonument. Hoewel de molen buiten het plangebied ligt, moet wel rekening worden gehouden met de molenbiotoop.

De Gelderse Molenverordening en de Uitvoeringsregeling Gelderse molenverordening zijn specifiek geschreven om de omgeving van molens te beschermen tegen voor molens ongewenste activiteiten. Uitgangspunt is dat de vrije windvang en het zicht op de molen voldoende gegarandeerd zijn. Indien de wind gereduceerd wordt als gevolg van obstakels zal het vermogen van de molen afnemen.

Voor een stellingmolen zoals ’t Hert geldt, dat een obstakel toegestaan is indien de hoogte daarvan lager is dan het niveau van de molenstelling (=6,80 m boven het maaiveld) over een afstand tot de molen van 150 m. Na 150 m gelden omhoog lopende hoogtematen.

In bijlage 14 is een biotooprapport te vinden. Hieruit blijkt dat de huidige bebouwing de toegestane hoogte niet overschrijft. Wel is te zien dat de bomen op de begraafplaats ten zuiden van de planlocatie te hoog zijn voor een goede windvang van de molen. Aangezien de nieuwe bebouwing niet hoger zal worden dan de bestaande bomen zorgt de ontwikkeling niet voor strijdigheid met de aanwezige molenbiotoop.

Hoofdstuk 5 Juridische planbeschrijving

5.1 Inleiding

In een bestemmingsplan zijn de bouw- en gebruiksmogelijkheden voor een bepaald gebied opgenomen. Het onderhavige bestemmingsplan regelt de inrichting van het gebied op hoofdlijnen door de gronden te beleggen met een bestemming. Het juridische deel van het bestemmingsplan bestaat uit de verbeelding (kaart) in samenhang met de regels. In dit hoofdstuk wordt het juridische deel van het bestemmingsplan nader toegelicht.

De regels en verbeelding zijn opgesteld conform de RO-standaarden 2012, waarbij in het bijzonder het IMRO 2012 (Informatiemodel Ruimtelijke Ordening) en de SVBP 2012 (Standaard Vergelijkbare Bestemmingsplannen) van belang zijn. Voor de regels is aansluiting gezocht bij het vigerende bestemmingsplan 'Putten Centrum'.

Het bestemmingsplan 'Putten Gervenhof & Dorpsstraat e.o.' bestaat uit een verbeelding, regels en een toelichting. De verbeelding en de regels tezamen vormen het juridisch bindende deel van het plan. Verbeelding en regels dienen te allen tijde in onderlinge samenhang te worden bezien en toegepast. Op de verbeelding krijgen alle gronden binnen het plangebied een bestemming. Binnen een bestemming kunnen nadere aanduidingen zijn aangegeven. De juridische betekenis van deze bestemmingen en aanduidingen zijn terug te vinden in de regels. Een gedeelte van de informatie op de verbeelding heeft geen juridisch betekenis, maar is slechts opgenomen om de leesbaarheid van en oriëntatie op de verbeelding te vergroten, zoals een kadastrale/BGT ondergrond. Alle letters, aanduidingen en lijnen worden verklaard in de legenda op de verbeelding.

De regels bepalen de gebruiksmogelijkheden van de gronden binnen het plangebied en geven tevens de bouw- en gebruiksmogelijkheden met betrekking tot bouwwerken aan. De regels van het bestemmingsplan 'Putten Gervenhof & Dorpsstraat e.o.' zijn opgebouwd conform de door de SVBP 2012 voorgeschreven systematiek en omvatten inleidende regels, bestemmingsregels, algemene regels de overgangs- en slotregels.

5.2 Inleidende regels

De inleidende regels bestaan uit de volgende artikelen.

5.2.1 Begrippen

In de begripsregels worden omschrijvingen gegeven van de in het bestemmingsplan gebruikte begrippen. Deze worden opgenomen om interpretatieverschillen te voorkomen. Alleen die begripsregels worden opgenomen die gebruikt worden in de regels en die tot verwarring kunnen leiden of voor meerdere uitleg vatbaar zijn.

5.2.2 Wijze van meten

Om op een eenduidige manier afstanden en oppervlakten te bepalen, wordt in de 'wijze van meten' uitleg gegeven wat onder de diverse begrippen wordt verstaan. Dit artikel geeft aan hoe de lengte, breedte, hoogte, diepte en oppervlakte e.d. van gronden en bouwwerken wordt gemeten of berekend. Alle begrippen waarin maten en waarden voorkomen worden in dit artikel verklaard. Ten aanzien van de wijze van meten op de verbeelding geldt steeds dat het hart van een lijn moet worden aangehouden. Ook voor de 'wijze van meten' worden in de SVBP 2012 richtlijnen gegeven.

5.3 Bestemmingsregels

5.3.1 Opbouw bestemmingen

De gronden van het gehele plangebied hebben een positieve bestemming. Een positieve bestemming betekent dat het gebruik van de gronden voor de verschillende bestemmingen direct mogelijk is. Bovendien betekent het dat oprichting van gebouwen direct mogelijk is nadat burgemeester en wethouders een omgevingsvergunning hebben verleend, welke dient te voldoen aan onder meer de regels van het bestemmingsplan, het Bouwbesluit en de Bouwverordening. De opbouw van de bestemmingen ziet er in beginsel als volgt uit:

  • Bestemmingsomschrijving;
  • Bouwregels;
  • Nadere eisen;
  • Afwijken van de bouwregels;
  • Specifieke gebruiksregels;
  • Afwijken van de gebruiksregels;
  • Omgevingsvergunning voor het uitvoeren van werken, geen bouwwerk zijnde, of werkzaamheden;
  • Omgevingsvergunning voor het slopen van een bouwwerk;
  • Wijzigingsbevoegdheid.
5.3.2 Bestemmingen

Gemengd

De bestemming “Gemengd” is van toepassing op de secundaire winkelgebieden. Het verschil met de bestemming “Centrum” is dat wonen op de begane grond binnen deze bestemming wel mogelijk is. Naast het gebruik van de begane grond voor wonen mag dit ook gebruikt worden voor detailhandel, publieksgerichte dienstverlening, kantoren, (lichte) bedrijven en horeca (categorie a als recht; categorie b en c indien aangeduid).

Wonen

De woningen in het plangebied gelegen buiten het gebied bestemd als “Gemengd” hebben de bestemming “Wonen” gekregen. De bouwvlakken, welke ruim zijn opgenomen, in deze bestemming geven aan waar het hoofdgebouw gebouwd mag worden. De bouw aanduiding geeft aan wat de maximale goot- en bouwhoogte mag zijn. Met uitzondering van wijzigingen die dit wel mogelijk maken. Het is binnen deze bestemming tevens toegestaan om een aan huis verbonden beroep- of bedrijf uit te oefenen, mits aan een aantal voorwaarden wordt voldaan. De gronden achter de bouwvlakken zijn eveneens bestemd als "Wonen". Deze gronden kunnen worden ingericht als tuin.

Tuin

Voor de als “Wonen” bestemde gronden zijn stroken met de bestemming “Tuin” opgenomen. Binnen deze stroken mogen geen gebouwen worden gerealiseerd. Het is hier enkel mogelijk om bouwwerken met een maximale hoogte van 3 m te realiseren.Tevens mogen de voor tuin bestemde gronden tussen de weg en de bouwgrens ingericht en gebruikt worden als parkeerplaats.

Verkeer - Verblijfsgebied

Alle overige wegen, allen te beschouwen als verkeersluwe woonstraten, in het plangebied, mede gelet op de inrichting als 30 km-zone, bestemd tot "Verkeer - Verblijfsgebied". De parkeerterreinen hebben eveneens deze bestemming gekregen. In deze bestemming is een groot deel van de openbare straatruimte rond de centrumfuncties vastgelegd: behalve de wegen zijn veelal ook de aansluitende trottoirs, parkeerstroken en stroken (blok-)groen in deze bestemming opgenomen en zijn evenementen mogelijk. Binnen de bestemming zijn tevens ook water en nutsvoorzieningen toegestaan.

5.4 Algemene regels

5.4.1 Anti-dubbeltelregel

Een anti-dubbeltelregel wordt opgenomen om te voorkomen dat, wanneer volgens een bestemmingsplan bepaalde bouwwerken niet meer dan een bepaald deel van een bouwperceel mogen beslaan, het opengebleven terrein ook nog eens meetelt bij het toestaan van een ander gebouw of bouwwerk, waaraan een soortgelijke eis wordt gesteld. De opgenomen anti-dubbeltelregel is gelijkluidend aan de in het Besluit ruimtelijke ordening voorgeschreven formulering.

5.4.2 Overige algemene regels

Voor het hele plangebied geldt een aantal algemene regels. Het gaat hier om algemene bouw- en gebruiksregels, mogelijkheden om af te wijken van bepaalde, in het bestemmingsplan geregelde, onderwerpen, en procedureregels worden behandeld.

5.5 Overgangs- en slotregels

5.5.1 Overgangsregel

In deze regels wordt het overgangsrecht, zoals voorgeschreven in het Besluit ruimtelijke ordening en de Wabo, overgenomen.

5.5.2 Slotregel

Als laatste wordt de slotregel opgenomen, ook zoals voorgeschreven in het Besluit ruimtelijke ordening. Deze regel geeft aan hoe het plan kan worden aangehaald.

Hoofdstuk 6 Economische en maatschappelijke uitvoerbaarheid

6.1 Economische uitvoerbaarheid

De planontwikkeling komt geheel voor rekening en risico van de initiatiefnemer. De ontwikkeling zal geschieden conform hetgeen bepaald is in de Wet Ruimtelijke ordening. De verwezenlijking van het plan is dan ook niet afhankelijk van gemeentelijke investeringen. De kosten voor de ambtelijke afhandeling van de procedure worden verrekend op basis van de daarvoor geldende leges. Voor wat betreft planschade zal de gemeente met initiatiefnemer een planschadeverhaalsovereenkomst afsluiten. Het plan wordt dan ook economisch haalbaar geacht.

6.2 Maatschappelijke uitvoerbaarheid

Voor onderhavig bestemmingsplan wordt de uniforme voorbereidingsprocedure gevolgd als bedoeld in hoofdstuk 3.4 van de Algemene wet bestuursrecht, in samenhang met het gestelde in de Wet ruimtelijke ordening.

6.2.1 Overleg met omwonenden

Op 21 mei 2019 heeft Van De Kolk samen met de gemeente een informatie inloopavond georganiseerd voor de direct omwonenden en belanghebbenden.

De opkomst en de belangstelling was groot, overwegend is er positief gereageerd op het plan en zijn alle vragen beantwoord.

Naderhand zijn er nog 1 op 1 gesprekken gevoerd met de VVE Achterstraat 7, eigenaar en exploitant van de PLUS Supermarkt in Putten en de pand eigenaren van de Action en de Lidl.

Met de VVE zijn afspraken gemaakt over de uitstraling van de nieuwbouw en de onderlinge afstand, deze punten zijn verwerkt in het voorlopig ontwerp.

De pand eigenaren van de Action en de Lidl zijn positief over de voorgenomen plannen. Over de onderlinge erfgrens, de toegankelijkheid en aanpassing en behoud/verbetering daarvan zijn afspraken gemaakt. Voor de verdere uitwerking vindt nog nadere afstemming plaats.

Met de eigenaar en exploitant van de PLUS Supermarkt in Putten zijn meerdere gesprekken gevoerd, helaas heeft dit tot nu toe niet geleid tot een overeenstemming.

6.2.2 Overleg met overheidsinstanties

Het Besluit ruimtelijke ordening (artikel 3.1.1) geeft aan dat burgemeester en wethouders bij de voorbereiding van een bestemmingsplan overleg voeren met de besturen van betrokken gemeenten en waterschappen en met diensten van provincie en Rijk die betrokken zijn bij de zorg voor de ruimtelijke ordening of belast zijn met de behartiging van belangen welke in het plan in het geding zijn. De instanties worden in kennis gesteld en krijgen de mogelijkheid om te reageren.