direct naar inhoud van Toelichting
Plan: Terpweg 10
Status: ontwerp
Plantype: wijzigingsplan
IMRO-idn: NL.IMRO.0273.BPTerpweg10-ON01

Toelichting

Hoofdstuk 1 Inleiding

De eigenaar van het perceel Terpweg 10 heeft een verzoek ingediend voor een bestemmingsplanwijziging van een agrarische bestemming naar een woonbestemming. In de toekomst worden geen agrarische activiteit meer ontplooid op het perceel. De bestaande bedrijfswoning wordt in gebruik genomen als burgerwoning.

Er wordt gebruik gemaakt van de regelingen in het kader van het beleid voor functieverandering in het buitengebied. Hiervoor dient de agrarische bedrijfsbebouwing aan de Terpweg 10 te worden gesloopt, waarvoor in ruil twee extra woningen gebouwd zullen worden.

De gemeente is voornemens mee te werken aan dit verzoek. Dit wijzigingsplan bevat de juridisch planologische regeling die de ontwikkeling en realisatie van het verzoek mogelijk maakt.

Hoofdstuk 2 Planbeschrijving

2.1 Ligging

Het perceel ligt in het agrarisch gebied, ten zuidwesten van de bebouwde kom van Putten. Het perceel is kadastraal bekend als gemeente Putten, sectie M, nummers 880 en 881. Op de onderstaande kaarten is de ligging van het plangebied aangegeven.

afbeelding "i_NL.IMRO.0273.BPTerpweg10-ON01_0001.png"

Ligging plangebied ten opzichte van Putten, Nijkerk en Voorthuizen

2.2 Huidige situatie

Het perceel is gelegen in het agrarisch gebied, ten zuidwesten van de bebouwde kom van Putten. In de huidige situatie wordt er op de locatie een varkenshouderij geëxploiteerd. Op het perceel is een bedrijfswoning aanwezig en zijn meerdere stallen opgericht ten behoeve van de varkenshouderij. De totale oppervlakte aan bedrijfsbebouwing bedraagt 2.943 m2.

afbeelding "i_NL.IMRO.0273.BPTerpweg10-ON01_0002.png"

Perceel Terpweg 10 te Putten, bron: Google Earth

2.3 Nieuwe situatie

De bebouwing

Alle voormalige agrarische bebouwing op het perceel zal worden gesloopt, met uitzondering van de bedrijfswoning en de daaraan grenzende garage in het westen van het perceel.

In ruil voor de sloop van de voormalige agrarische bedrijfsgebouwen worden in het kader van functieverandering twee vrijstaande woningen gerealiseerd. De te realiseren vrijstaande woningen hebben elk een oppervlakte van ca. 120 m2 en worden afgedekt met een kap. De bouwhoogte van de woningen bedraagt maximaal 8 meter en de inhoud van een hoofdgebouw zal niet meer bedragen dan 660 m2. Per woning zal een bijgebouw worden gerealiseed van maximaal 80 m2.

De nieuw te realiseren woningen worden ten oosten van de huidige (bedrijfs) woning gerealiseerd. De twee nieuwe woningen krijgen een gezamenlijke inrit op de Terpweg.

Op de onderstaande afbeelding is de toekomstige situatie weergegeven.

afbeelding "i_NL.IMRO.0273.BPTerpweg10-ON01_0003.png" Toekomstige situatie plangebied

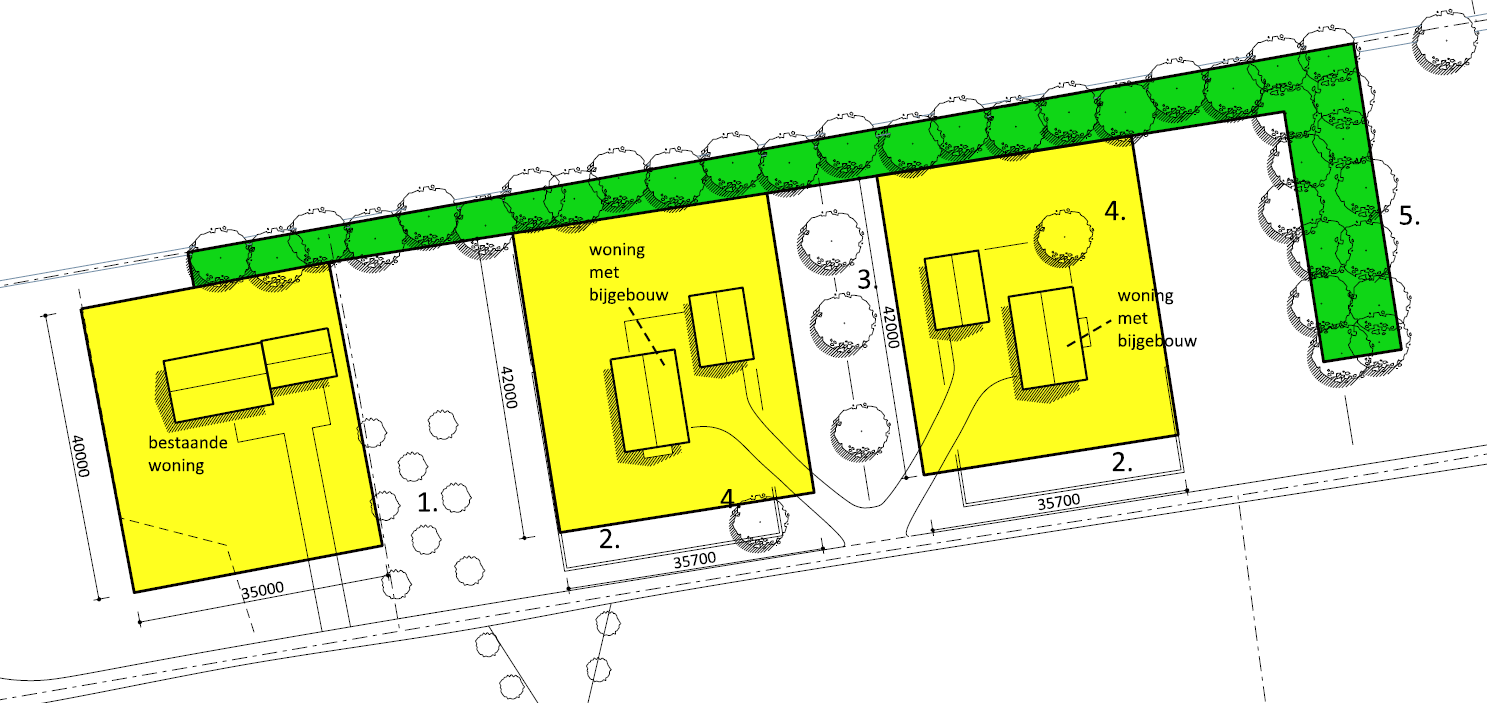
Schets Landschappelijke inpassing

Voor de nieuwe situatie is een schets landschappelijke inpassing opgesteld inclusief een beplantingsplan.

Landschap

Het perceel aan de Terpweg ligt ten zuidwesten van het dorp Putten. Het erf ligt in het jonge broekontginningslandschap en is tussen 1900 en 1930 ontgonnen. Dat het een jonge ontginning betreft is te herleiden uit de rationele kavelstructuur.

Kenmerkend voor het gebied zijn de elzensingels en het open karakter van het landschap. Woonerven liggen vaak ver van de weg en zijn voorzien van erfbeplanting in de vorm van solitaire bomen.

Beplantingsplan

Volgens het beplantingsplan worden er vijf beplantingselementen aan de bestaande en nieuwe kavels toegevoegd. Op onderstaande afbeelding zijn de verschillende locaties met een cijfer aangegeven, hier worden de volgende beplanting voorgesteld:

  • 1. aan te planten hoogstamvruchtenbomen (appel, peer, pruim, kers)
  • 2. aan te planten knip- en scheerheg (beuk)
  • 3. aan te planten bomenrij (zwarte els)
  • 4. aan te planten solitaire boom (zomereik)
  • 5. aan te planten bosje (zwarte els, ruwe berk, krentenboompje, hazelaar, Gelderse roos, sleedoorn en meidoorn)

afbeelding "i_NL.IMRO.0273.BPTerpweg10-ON01_0004.png"

Beplantingsplan, 24 november 2015

2.4 Geldend bestemmingsplan

Het perceel Terpweg 10 ligt binnen het bestemmingsplan Westelijk Buitengebied. Het bestemmingsplan is op 3 juli 2014 vastgesteld door de gemeenteraad van de gemeente Putten.


Het perceel heeft in dit bestemmingsplan de bestemming 'Agrarisch' met bouwvlak met de aanduidingen 'Intensieve veehouderij' en 'specifieke vorm van agrarisch - groot agrarisch bedrijf'. Daarnaast zijn de dubbelbestemmingen 'Waarde - Archeologie 3' en 'Waarde - Archeologie 4' opgenomen.

afbeelding "i_NL.IMRO.0273.BPTerpweg10-ON01_0005.png"

Uitsnede bestemmingsplan westelijk buitengebied

In het bestemmingsplan Westelijk Buitengebied is een wijzigingsbevoegdheid opgenomen voor B&W voor functieverandering naar wonen van een agrarisch bedrijf, waarbij de bouw van één extra woning of het realiseren van wooneenheden mogelijk wordt gemaakt. De bepalingen van deze wijzigingsbevoegdheid zijn hieronder opgenomen, waarbij steeds is aangegeven of en hoe aan de betreffende regels wordt voldaan.

Artikel 34.16 Bouw extra woning/wooneenheden na bedrijfsbeëindiging
Burgemeester en Wethouders kunnen, mits – voor zover gelegen in dan wel grenzend aan de als Natura 2000 gebied aangewezen gebieden ‘Veluwerandmeren’ en/of ‘Veluwe’ – een natuuronderzoek in het kader van de Natuurbeschermingswet heeft plaatsgevonden, overeenkomstig artikel 3.6 van de Wet ruimtelijke ordening de binnen de bestemming 'Agrarisch' en 'Agrarisch met waarden - Landschap' voor de op de verbeelding met ‘groot agrarisch bedrijf’ of ‘middelgroot agrarisch bedrijf’ aangewezen gronden en de bestemmingen 'Bedrijf', 'Wonen', 'Bedrijf - Landelijke bedrijven', 'Horeca' en 'Detailhandel' wijzigen in de bestemming 'Wonen' ten behoeve van de bouw van een extra woning c.q. het realiseren van wooneenheden, met inachtneming van de volgende voorwaarden:

  • a. de wijziging kan uitsluitend plaatsvinden indien er sprake is van bedrijfsbeëindiging;

Er wordt op het perceel een varkenshouderij geëxploiteerd. Dit bedrijf zal worden beëindigd.

  • b. indien het betreft een bedrijfslocatie gelegen binnen de op de verbeelding als ’reconstructiewetzone - landbouwontwikkelingsgebied’ aangegeven gronden, zijn de woning en de wooneenheden uitsluitend toegestaan indien is aangetoond dat de woning of wooneenheden geen enkele belemmering oplevert voor de omliggende bedrijven.

De gronden van het plangebied zijn niet gelegen binnen de op de verbeelding als ’reconstructiewetzone - landbouwontwikkelingsgebied’ aangegeven gronden.

  • c. de bepalingen bij of krachtens de Wet geluidhinder dienen in acht te worden genomen;

Hieraan wordt voldaan, zie paragraaf 3.6.

  • d. de wijziging is mogelijk indien alle aanwezige bebouwing wordt gesloopt overeenkomstig de onderstaande tabel en onder de volgende voorwaarden:
Minimaal te slopen fysiek legale bebouwing   Maximale inhoud woongebouw  
minimaal 1.000 m2   660 m3  
minimaal 2.000 m2   880 m3
2 x 440 m3 twee aaneengebouwd  
minimaal 3.000 m2   2x660 m3  
  • 1. indien ombouw van bestaande bebouwing naar wooneenheden niet mogelijk is, mogen maximaal twee (geschakelde) woongebouwen worden gebouwd;
  • 2. in geval van intensieve veehouderij in het op de verbeelding als ‘reconstructiewetzone - extensiveringsgebied’ aangegeven gebied wordt de in de tabel vermelde oppervlakte aan minimaal te slopen bebouwing met 20% verlaagd;
  • 3. het samenvoegen van de sloopoppervlakte van meerdere locaties is toegestaan om tot de ingevolge de tabel vereiste oppervlakte te komen, mits op deze locaties tegelijkertijd alle aanwezige bebouwing wordt gesloopt en van deze locaties in één en dezelfde wijzigingsprocedure de (agrarische) bedrijfsfunctie wordt verwijderd;

Het plangebied ligt niet in het extensiveringsgebied. Na de bedrijfsbeëindiging worden alle agrarische opstallen op het perceel gesloopt. In totaal bedraagt het te slopen oppervlak 2.943 m2. Om twee vrijstaande woningen met een maximale inhoud van 2x 660 m2 te mogen realiseren bedraagt de minimaal te slopen fysiek legale bebouwing 3.000 m2 . Er is daardoor een tekort van 57 m2 aan sloopmeters om twee extra woningen te kunnen bouwen. Het college is in principe bereid om in dit geval het tekort aan sloopmeters te compenseren met aan te leggen extra natuur (circa 370 m2). Deze extra natuur is in dit wijzigingsplan voorzien van de bestemming Natuur en opgenomen middels een voorwaardelijke verplichting in de regels.

Van het samenvoegen van de sloopoppervlakte van meerdere locaties is geen sprake.

  • e. de hierboven aangegeven sloopverplichting is niet van toepassing op bebouwing met karakteristieke en/of cultuurhistorische waarden. Deze bebouwing wordt echter wel meegeteld in de berekening;

Er is geen karakteristieke en/of cultuurhistorisch waardevolle bebouwing aanwezig.

  • f. voor de berekening van de benodigde sloopmeters geldt dat niet vergunde gebouwen van voor 1 januari 1993 kunnen worden meegeteld tot maximaal het bouwrecht van 1 woning;

Hiervan is geen sprake.

  • g. aangetoond dient te worden dat de extra woning of de wooneenheden passen in het gemeentelijk woningbouwprogramma;

Voor functieveranderingen is in het Kwalitatief Woningbouwprogramma voor Putten een post onvoorzien opgenomen. Het toevoegen van twee middeldure woningen wordt voorzien door deze post. Er is ruimte voor de realisatie van de woningen binnen het Kwalitatief Woningbouwprogramma voor Putten.

  • h. met de regels wordt aangesloten bij de regels die van toepassing zijn voor de bestemming 'Wonen';

De bestemming wonen en bijbehorende regeling uit het Bestemmingsplan Westelijk buitengebied is van toepassing verklaard.

  • i. de extra woning dient binnen het (voormalig) agrarisch bouwvlak te worden gesitueerd, of ter plaatse van de aanduidingen 'overige zone - intensief rood zwermgebied' en 'overige zone - extensief rood zwermgebied';

De te realiseren vrijstaande woningen zijn gesitueerd binnen het (voormalige) agrarisch bouwvlak.

  • j. de inhoud van de extra woning dan wel van een wooneenheid mag niet meer bedragen dan 660 m³;

De planregeling sluit hier op aan.

  • k. de oppervlakte aan bijgebouwen bedraagt per nieuw te bouwen woning c.q. wooneenheid maximaal 80 m²;

Per wooneenheid wordt een bijgebouw gerealiseerd van 80 m2. De maximaal toegestane oppervlakte aan bijgebouwen (80 m2 ) wordt daarmee niet overschreden.

  • l. de extra woning dient goed in het landschap te worden ingepast;

Een landschappelijke inpassing inclusief beplantingsplan is opgesteld en opgenomen als bijlage bij de planregels (voorwaardelijke verplichting).

  • m. de oppervlakte van het woonperceel (bebouwing met bijbehorend erf) mag niet meer bedragen dan 1.500 m²;

De oppervlakte van het woonperceel bedraagt 1.500 m2 per wooneenheid. De maximaal toegestane oppervlakte van het woonperceel (1.500 m2) wordt daarmee niet overschreden.

  • n. eventuele bijbehorende gronden die geen erffunctie hebben, blijven of komen beschikbaar voor de grondgebonden functies landbouw, natuur of recreatie, overeenkomstig de functie van het betrokken gebied.

De overige gronden van het (voormalige) agrarische bedrijf komen beschikbaar voor de grondgebonden functie landbouw. Deze functie komt overeen met de functie van het betrokken gebied. De overige gronden zijn in dit wijzigingsplan voorzien van de bestemming Agrarisch.

Conclusie
De wijziging van de agrarische bestemming naar de bestemming 'Wonen' waarbij twee extra woningen worden gerealiseerd is passend binnen de wijzigingsbevoegdheid van het bestemmingsplan. De regels van dit wijzigingsplan dienen aan de sluiten bij het bestemmingsplan Westelijk Buitengebied.
Het ingediende verzoek voldoet hiermee aan de voorwaarden voor het toepassen van de wijzigingsbevoegdheid van het bestemmingsplan.

Hoofdstuk 3 Milieuaspecten

Dit hoofdstuk geeft een toelichting op omgevingsaspecten van het plangebied om de uitvoerbaarheid van het plan aan te tonen. Uitgangspunt voor de uitvoerbaarheid is de realisatie van twee woningen die middels een wijzigingsbevoegdheid mogelijk wordt gemaakt.

3.1 Bodem

Onderzocht moet worden of de bodem verontreinigd is en wat voor gevolgen een eventuele bodemverontreiniging heeft voor de uitvoerbaarheid van het plan. Een nieuwe bestemming mag pas worden opgenomen als is aangetoond dat de bodem geschikt (of geschikt te maken) is voor de nieuwe of aangepaste bestemming.

Voor het plangebied is een verkennend bodemonderzoek opgesteld, zie Bijlage 1. Hierin wordt aangegeven dat er een licht verhoogde gehalte aan nikkel in de bovengrond, koper-, kwik-, lood- en PAK in de ondergrond en een licht verhoogde concentratie aan barium in het grondwater is gebleken. Nader onderzoek wordt niet noodzakelijk geacht gezien de geringe verhogingen. Geconcludeerd wordt dat er milieuhygienisch geen belemmeringen zijn voor de voorgenomen nieuwbouw op de locatie.

3.2 Archeologie en cultuurhistorie

Archeologie

Voor het overgrote deel van het bouwvlak gelegen aan de Terpweg 10 geldt op de archeologische verwachtingskaart van de gemeente Putten een 'lage archeologische verwachting'. Dit komt overeen met het bestemmingsplan waarin de gronden de dubbelbestemming 'Waarde - Archeologie 4' hebben. Hiervoor geldt dat archeologisch onderzoek noodzakelijk is bij bouwwerken groter dan 5.000 m². In het voorliggend bestemmingsplan is hiervan geen sprake. Derhalve is archeologisch onderzoek niet noodzakelijk.

Cultuurhistorie

Op het perceel, is voor zover bekend, geen waardevolle bebouwing aanwezig. De aanwezige schuren op het perceel vertegenwoordigen geen cultuurhistorische waarden.

3.3 Water

Algemeen

Sinds 1 november 2003 is voor alle ruimtelijke plannen de watertoets verplicht. Het doel van de watertoets is waterbelangen evenwichtig mee te nemen in het planvormingsproces van Rijk, Provincies en gemeenten. Hiermee wordt een veilig, gezond en duurzaam watersysteem nagestreefd. De toets omvat het gehele proces van vroegtijdig informeren, adviseren, afwegen en uiteindelijk beoordelen van de in ruimtelijke plannen voorkomende waterhuishoudkundige aspecten. Via de digitale watertoets is beoordeeld of en welke waterbelangen voor het plan relevant zijn.


Boordeling

In het plangebied liggen geen belangrijke oppervlaktewateren (zogenaamde primaire of A- watergangen), waterkeringen of gebieden die zijn aangewezen voor regionale waterberging. Dit betekent dat dit plan geen essentiële waterbelangen raakt. Op basis daarvan wordt door het waterschap voor het onderhavige plan een positief wateradvies gegeven.

Aandachtspunten

Voor de verdere uitwerking en concretisering van de beoogde ontwikkeling, geeft het waterschap aan dat rekening gehouden moet worden met een aantal algemene en gebiedsspecifieke aandachtspunten voor water.


Algemene aandachtspunten

Vasthouden - bergen - afvoeren

Een belangrijk principe is dat een deel van het hemelwater binnen het plangebied wordt vastgehouden en/of geborgen en dus niet direct afgevoerd wordt naar de riolering of het oppervlaktewater. Hiermee wordt bereikt dat de waterzuiveringsinstallatie beter functioneert, verdroging wordt tegen gegaan en piekafvoeren in het oppervlaktewater (met eventueel wateroverlast in benedenstrooms gelegen gebieden) wordt voorkomen. Bij lozing op oppervlaktewater zal hiervan een melding gedaan moeten worden bij het waterschap.


Grondwaterneutraal bouwen

Om grondwateroverlast te voorkomen adviseert het waterschap om boven de gemiddelde hoogste grondwaterstand (GHG) te ontwerpen. Dit betekent dat aspecten zoals ontwateringsdiepte en infiltratie van hemelwater, beschouwd worden ten opzichte van de GHG. Het structureel onttrekken / draineren van grondwater is geen duurzame oplossing en moet worden voorkomen. Het waterschap adviseert de initiatiefnemer dan ook om voorafgaand aan de ontwikkeling een goed beeld te krijgen van de heersende grondwaterstanden en GHG. Eventuele grondwateroverlast is in eerste instantie een zaak voor de betreffende perceeleigenaar.

Schoon houden - scheiden - schoon maken

Om verontreiniging van bodem, grond- en/of oppervlaktewater te voorkomen is het van belang dat het afstromende hemelwater niet verontreinigd raakt. Dit kan door nadere eisen of randvoorwaarden te stellen aan bijvoorbeeld de toegepaste (bouw)materialen. Wij vragen de initiatiefnemer de beslisboom voor het afkoppelen van verhard oppervlak van ons waterschap toe te passen.

3.4 Luchtkwaliteit

Beoordelingskader
Om een goede luchtkwaliteit in Europa te garanderen heeft de Europese Unie een viertal kaderrichtlijnen opgesteld. De hiervan afgeleide Nederlandse wetgeving is vastgelegd in hoofdstuk 5, titel 2 van de Wet milieubeheer. Deze wetgeving staat ook bekend als de Wet luchtkwaliteit. In de Wet luchtkwaliteit staan onder meer de grenswaarden voor de verschillende luchtverontreinigende stoffen. Onderdeel van de Wet luchtkwaliteit zijn de volgende Besluiten en Regelingen:

  • Besluit en de Regeling 'niet in betekenende mate' bijdragen (Luchtkwaliteitseisen);
  • Besluit gevoelige bestemmingen (Luchtkwaliteitseisen);
  • Regeling beoordeling luchtkwaliteit 2007.

Besluit en de Regeling 'niet in betekenende mate' bijdragen (luchtkwaliteitseisen)
Het Besluit 'niet in betekenende mate' bijdragen (NIBM) staat bouwprojecten toe wanneer de bijdrage aan de luchtkwaliteit van het desbetreffende project niet in betekenende mate is. Het begrip 'niet in betekenende mate' is gedefinieerd als 3% van de grenswaarden uit de Wet milieubeheer. Het gaat hierbij uitsluitend om stikstofdioxide (NO2) en fijn stof (PM10). Toetsing aan andere luchtverontreinigende stoffen uit de Wet luchtkwaliteit vindt niet plaats.

In de Regeling NIBM is een lijst met categorieën van gevallen (inrichtingen, kantoor- en woningbouwlocaties) opgenomen die niet in betekenende mate bijdragen aan de luchtverontreiniging. Enkele voorbeelden zijn:

  • woningen: 1.500 met een enkele ontsluitingsweg;
  • woningen: 3.000 met twee ontsluitingswegen;
  • kantoren: 100.000 m2 bruto vloeroppervlak met een enkele ontsluitingsweg.

Als een ruimtelijke ontwikkeling niet genoemd staat in de Regeling NIMB kan deze nog steeds niet in betekenende mate bijdragen. De bijdrage aan NO2 en PM10 moet dan minder zijn dan 3% van de grenswaarden. Met grenswaarden voor beide stoffen van 40 ug/m³ komt dit neer op een bijdrage van 1,2 ug/m³.


Besluit gevoelige bestemmingen (luchtkwaliteitseisen)
Dit besluit is opgesteld om mensen die extra gevoelig zijn voor een matige luchtkwaliteit aanvullend te beschermen. Deze 'gevoelige bestemmingen' zijn scholen, kinderdagverblijven en verzorgings-, verpleeg- en bejaardentehuizen. Woningen en ziekenhuizen zijn geen gevoelige bestemmingen.
De grootste bron van luchtverontreiniging in Nederland is het wegverkeer. Het Besluit legt aan weerzijden van rijkswegen en provinciale wegen zones vast. Bij rijkswegen is deze zone 300 meter, bij provinciale wegen 50 meter. Bij realisatie van 'gevoelige bestemmingen' binnen deze zones is toetsing aan de grenswaarden die genoemd zijn in de Wet luchtkwaliteit nodig.

Regeling Beoordeling luchtkwaliteit 2007
In deze regeling staan criteria en eisen vastgelegd waaraan de berekeningen en de rekenmodellen moeten voldoen. Hieronder een overzicht van de rekenmodellen:

  • CARII: berekening van emissies voor binnenstedelijk verkeer;
  • NIBM-tool: eenvoudige berekening van emissies van verkeer volgens worst case benadering;
  • ISL2: berekening van emissies voor buiten stedelijk verkeer;
  • ISL3a: berekening van emissies van industrie (onder meer veehouderijen).


Conclusie
Het plan is van dermate omvang dat het in niet betekende mate bijdraagt aan de luchtkwaliteit. Aanvullend onderzoek is niet noodzakelijk. Het plan is ten aanzien van het aspect luchtkwaliteit uitvoerbaar.

3.5 Ecologie

Om de uitvoerbaarheid van onderhavig plan te toetsen, is een quickscan Flora- en fauna uitgevoerd in het kader van de Flora- en faunawet en overige (natuur)wetgeving, zie Bijlage 2.

Beschermde gebieden

Het plangebied is niet gelegen in het GNN (gelegen op circa 600 meter), de GO of nabij (>3.000 meter) een Natura2000-gebied. Binnen het plangebied zijn geen beheertypen aanwezig. Negatieve effecten op natuurgebieden zijn derhalve niet te verwachten.

Beschermde soorten

Over beschermde soorten in het kader van de Flora- en faunawet wordt in de quickscan het volgende geconcludeerd.

Flora

Er zijn geen beschermde wilde soorten aangetroffen.


Vogels

In de te amoveren opstallen en de te rooien groenstructuren kunnen algemeen voorkomende vogels broeden. De rooi- en sloopwerkzaamheden dienen buiten het broedseizoen plaats te vinden.


In het verleden is er een enkele keer een steenuil waargenomen op het dak van een schuur. Er zijn geen concrete aanwijzingen/ sporen aangetroffen die duiden op de aanwezigheid/ nestlocatie van een exemplaar. Er zullen binnen het perceel speciale nestkasten voor de steenuil worden opgehangen. Er zal een extra controle komen in het voorjaar om met zekerheid te kunnen uitsluiten dat de soort een broedlocatie heeft binnen het plangebied. Het functionele leefgebied van de steenuil zal niet significant worden aangetast.


Grondgebonden zoogdieren

Er zijn geen exemplaren van streng of strikt (tabel 2 of 3) beschermde soorten of verblijf- en/of voortplantingsplaatsen ervan aangetroffen. Algemeen voorkomende soorten (tabel 1) kunnen voorkomen.


Vleermuizen

Er zijn geen geschikte verblijf- en/of voortplantingsplaatsen voor gebouw- of boombewonende soorten aanwezig binnen het plangebied. Tevens betreft het plangebied geen essentieel foerageergebied en zullen er door de ingreep geen essentiele vliegroutes verloren gaan.


Amfibieen, reptielen en vissen

Er zijn geen vaste verblijf- en/of voortplantingsplaatsen of exemplaren van streng en strikt beschermde overige soorten waargenomen. Algemeen voorkomende soorten (tabel 1) kunnen voorkomen.


Ongewervelden/ overige soorten

Er zijn geen vaste verblijf- en/of voortplantingsplaatsen of exemplaren van streng en strikt beschermde overige soorten waargenomen.

Conclusie Flora- en faunawet

Op basis van de bevindingen kan geconcludeerd worden dat in de huidige situatie er geen procedurele gevolgen zijn aangaande de voorgenomen ingreep.

  • De verwachting is dat er geen nestlocatie aanwezig is van de steenuil. Een nader onderzoek in het voorjaar van 2016 zal dit bevestigen of ontkrachten.
  • Bij de onverwachte aanwezigheid van een nestlocatie zal er een ontheffing Flora- en faunawet aangevraagd moeten worden en een ecologisch werkprotocol moeten worden opgesteld, met daarin o.a. de te nemen mitigerende maatregelen.
  • Er zijn voor de steenuil relatief eenvoudig maatregelen te nemen om een eventueel verlies aan een vaste verblijfplaats te mitigeren. De opdrachtgever wil graag de soort binnen het perceel krijgen. Er zullen in dat kader speciale steenuilkasten worden opgehangen.
  • De doorgang van het project zal bij een eventuele aanwezigheid van een steenuil niet in gevaar komen. Ook kan de bestemmingsplanwijziging alvast worden ingezet.
  • Overige nadere onderzoeken of ontheffingsaanvragen zijn niet noodzakelijk.
  • Op basis van de zorgplicht volgens artikel 2 van de Flora- en faunawet dient bij de uitvoering van de werkzaamheden voldoende zorg in acht te worden genomen voor in het wild levende dieren en hun leefomgeving.
  • Voor algemeen voorkomende soorten (Tabel 1) geldt een algemene vrijstelling als het ruimtelijke ingrepen betreft.

3.6 Geluid

In het kader van de Wet geluidhinder bevinden zich langs alle wegen zones. Het plan biedt de mogelijkheid tot het realiseren van twee extra woning. De Wet geluidhinder beschouwt een woning als een zogenaamd geluidsgevoelig object. Onderzocht dient te worden of toetsing aan de Wet geluidhinder dient plaats te vinden.


In het kader van de Wet geluidhinder bevinden zich langs alle wegen zones, met uitzondering van die wegen waar een maximumsnelheid van 30 km/uur geldt en die wegen die deel uitmaken van een woonerf.

Buiten de bebouwde kom bedraagt de zonebreedte voor tweestrookswegen die, gerekend vanuit de as van de weg, aan weerszijden van de weg in acht moet worden genomen 250 m. Daarmee ligt de woningbouwlocatie binnen de geluidszone van de Terpweg. Deze weg kent ter plaatse van de nieuw-bouwlocatie een maximum snelheid van 60 km/uur en kent formeel derhalve een zone.
De verkeersintensiteit op de Terpweg is echter zeer gering daar deze weg uitsluitend wordt gebruikt ter ontsluiting van een aantal agrarische bedrijven en enkele toekomstige woningen. Daarnaast gaat de weg over in een zandpad dat aansluit op de Roosendaalseweg. Vanaf de richting van de Roosendaalseweg geldt voor de Terpweg een inrijverbod voor gemotoriseerd verkeer.


Samengevat betekent dit dat de verkeersfunctie van de Terpweg zeer gering is en dat redelijkerwijs aangenomen mag worden dat de ten hoogst toelaatbare waarde van 48 dB niet wordt overschreden en daarmee verder akoestisch onderzoek wat betreft deze weg niet aan de orde is.

3.7 Geur

Vergunning
De Wet geurhinder en veehouderij vormt het toetsingskader voor geur vanwege dierenverblijven. De Wet geurhinder en veehouderij maakt onderscheid in dieren met en dieren zonder een vastgestelde geuremissiefactor. Voor de eerste soort wordt de geurbelasting bij geurgevoelige objecten berekend, voor de tweede gelden minimumafstanden tussen emissiepunt en dergelijke objecten.

Bedrijven
In het onderhavige geval betreft het twee te realiseren woningen aan de Terpweg 10 te Putten. In de nabijheid van deze woningen ligt één agrarische bedrijf, namelijk een melkveehouderij aan de Terpweg 13. Voor melkvee geldt buiten de bebouwde kom een minimum afstand van 50 m. Op onderstaande afbeelding is te zien dat zowel de nieuwe woningen als de bestaande bedrijfswoning niet binnen deze 50 m contour valt.

afbeelding "i_NL.IMRO.0273.BPTerpweg10-ON01_0006.png"

Conclusie
De normen zoals die in de Wet geurhinder en veehouderij zijn weergegeven, worden bij de realisatie van de twee nieuwe woningen niet overschreden. Dit betekent dat er vanuit deze wet geen beperkingen aan de komst van de woningen worden opgelegd.

3.8 Externe veiligheid

Beoordelingskader
Voor de beoordeling van het aspect externe veiligheid gelden de volgende kaders:

  • Besluit externe veiligheid inrichtingen (Bevi), inclusief de daaronder vallende Regeling externe veiligheid inrichtingen (Revi);
  • Basisnet externe veiligheid transportroutes (Bevt);
  • Besluit externe veiligheid buisleidingen (Bevb), inclusief de daaronder vallende Regeling externe veiligheid buisleidingen (Revb).

Daarnaast kunnen het Activiteitenbesluit en Vuurwerkbesluit van belang zijn.

Het Besluit externe veiligheid inrichtingen (Bevi) regelt hoe een gemeente of provincie moet omgaan met risico's voor mensen buiten een bedrijf als gevolg van de aanwezigheid van gevaarlijke stoffen in een bedrijf. In de Regeling externe veiligheid inrichtingen (Revi) staan regels over de veiligheidsafstanden en over de berekening van het plaatsgebonden risico en het groepsrisico.

Per 1 april 2015 is het Basisnet externe veiligheid transportroutes (Bevt) met bijbehorend informatiesysteem Basisnet in werking getreden. In Basisnet staan gegevens over het vervoer van gevaarlijke stoffen over de grote vaar-, spoor- en autowegen opgenomen. Het Bevt vervangt de circulaire Risiconormering vervoer gevaarlijke stoffen (cRNVGS).

Het Besluit externe veiligheid buisleidingen (Bevb) geeft onder andere veiligheidsafstanden rond buisleidingen met gevaarlijke stoffen aan. De normstelling is in lijn met het Bevi. De risicoafstanden en de manier van risicoberekening komen net als bij het Bevi in een regeling te staan. Deze regeling is nog niet gepubliceerd. Het Ministerie van Infrastructuur en Milieu adviseert om voor standaard buisleidingen met aardolieproducten de afstanden aan te houden uit het RIVM rapport Risicoafstanden voor buisleidingen met brandbare vloeistoffen K1K2K3 (augustus 2008). Voor afwijkende gevallen en andere brandbare chemische vloeistoffen zijn berekeningen nodig. Voor het berekenen van risico's van ondergrondse gasleidingen ('hogedruk aardgastransportleidingen') is het computerprogramma CAROLA beschikbaar.

afbeelding "i_NL.IMRO.0273.BPTerpweg10-ON01_0007.png"

Uitsnede risicokaart, Terpweg 10 te Putten rood omcirkeld


Conclusie
Het plangebied ligt niet binnen de invloedssfeer van inrichtingen, transportroutes gevaarlijke stoffen of buisleidingen. Het plan is ten aanzien van het aspect externe veiligheid uitvoerbaar.

3.9 Conclusie

Vanuit de uitvoeringsaspecten zoals behandeld in dit hoofdstuk, komen geen belemmeringen of aandachtspunten naar voren voor het omzetten van de bedrijfswoning naar burgerwoning en de realisatie van twee nieuwe woningen. Het plan is daarmee vanuit deze milieuaspecten uitvoerbaar.

Hoofdstuk 4 Uitvoerbaarheid

4.1 Maatschappelijke uitvoerbaarheid

Het voorliggend plan wordt gerealiseerd op particulier initiatief. De kosten die gepaard gaan met de bijbehorende uitvoeringskosten zijn voor rekening van de initiatiefnemer. Tevens zal via een privaatrechtelijke overeenkomst het afwentelen van eventuele planschade naar de initiatiefnemer geregeld worden.

4.2 Economische uitvoerbaardheid

Het ontwerp zal, overeenkomstig het bepaalde in artikel 3.1.1 Wro, gedurende zes weken voor een ieder ter inzage worden gelegd. Eventuele resultaten hiervan worden in deze paragraaf verwerkt.

Hoofdstuk 5 Juridische planopzet

Het wijzigingsplan heeft tot doel een juridisch-planologische regeling te scheppen voor het bouwen en het gebruik van gronden en gebouwen binnen het plangebied. Daarnaast worden in aanvulling op de vaststelling van dit wijzigingsplan, de nodige afspraken in een overeenkomst vastgelegd.


In de Wet ruimtelijke ordening is vastgelegd dat een wijzigingsplan deel uitmaakt van het bestemmingsplan. Dat betekent onder andere dat voor het plangebied de regels van het bestemmingsplan 'Westelijk Buitengebied' van toepassing zijn. Dat betekent ook dat de regels van het wijzigingsplan beperkt kunnen blijven.


Op de verbeelding van het wijzigingsplan zijn vijf bestemmingen opgenomen:

  • de bestemming 'Wonen' voor de drie woningen en bijbehorende erven;
  • de bestemming 'Natuur'
  • de bestemming 'Agrarisch' voor de omliggende agrarische gronden;
  • de dubbelbestemming 'Waarde - Archeologie 3' en 'Waarde - Archeologie 4', zoals die ook in het bestemmingsplan zijn opgenomen.


Naast de van toepassing verklaring zijn ook enkele voorwaardelijke verplichtingen opgenomen binnen de regels. Deze regelen dat binnen 2 jaar na het verlenen van de omgevingsvergunning voor bouwen het inrichtingsplan (zie paragraaf 2.3) inclusief de beoogde natuurcompensatie gerealiseerd moet zijn.