direct naar inhoud van Toelichting
Plan: Nijkerkerstraat - Handelsweg 22-24
Status: ontwerp
Plantype: wijzigingsplan
IMRO-idn: NL.IMRO.0273.WPBGNijkerkHandels-ON01

Toelichting

Hoofdstuk 1 Inleiding

1.1 Aanleiding

Het voorliggend plan betreft een wijzigingsplan ex artikel 3.6 Wet ruimtelijke ordening van het bestemmingsplan 'Nijkerkerstraat naast 22', zoals vastgesteld door de raad op 5 maart 2015.

Bij de gemeente Putten is door de initiatiefnemers een verzoek ingediend om de bestemming van het perceel Nijkerkerstraat naast nummer 22 en Handelsweg 22 en 24 te wijzigen om een woning te realiseren op het perceel Nijkerkerstraat alsmede de bedrijfswoningen aan de Handelsweg 22 en 24 weg te bestemmen. Met dit wijzigingsplan wordt medewerking verleend aan het verzoek van de initiatiefnemer.

1.2 Beschrijving van de situatie

Nijkerkerstraat naast 22

Het perceel Nijkerkerstraat is gelegen in het buitengebied van de gemeente Putten, aan de rand, net ten zuiden van de kern Putten. Het perceel is omgeven door woningen en enkele zelfstandige bedrijfslocaties. Het perceel behoorde oorspronkelijk tot een agrarisch bedrijf dat gevestigd was op het perceel. De voormalige bedrijfswoning is in het verleden al afgesplitst en het perceel met de agrarische schuren is opgedeeld in twee zelfstandige kavels. Hierdoor is ruimte ontstaan voor de realisatie van twee woningen. Het westelijke perceel heeft in het bestemmingsplan 'Nijkerkerstraat naast 22' een bestemming 'Wonen' gekregen. Het oostelijke deel heeft de agrarische bestemming gehouden waarop een wijzigingsbevoegdheid is gelegd voor de bouw van een extra woning.

De voormalige agrarische bedrijfsgebouwen zijn al gesloopt. Er vinden geen agrarische activiteiten meer plaats op het perceel. In figuur 1 is de huidige situatie van de Nijkerkerstraat weergegeven.

afbeelding "i_NL.IMRO.0273.WPBGNijkerkHandels-ON01_0001.jpg"

Figuur 1: Huidige situatie Nijkerkerstraat (bron: Luchtfoto PDOK-viewer 2019)

Handelsweg 22 en 24

De percelen Handelsweg 22 en 24 zijn gelegen op het bedrijventerrein Keizerswoert. Dit bedrijventerrein ligt ten westen van de kern Putten. Het betreft een gemengd bedrijventerrein waar bedrijvigheid varieert van categorie 1 tot en met categorie 4.2. Tevens zijn op het bedrijventerrein enkele bestaande bedrijfswoningen aanwezig. Op Handelsweg 22 en 24 is dat het geval. Het is in het algemeen niet wenselijk dat bedrijfswoningen aanwezig zijn op een bedrijventerrein waar een categorie 4.1 en 4.2 bedrijven zijn toegestaan. In het bestemmingsplan 'Nijkerkerstraat naast 22' is juridisch vastgelegd dat bij toepassing van de wijzigingsbevoegdheid, één nieuwe woning op het perceel Nijkerkerstraat te realiseren, de bedrijfswoningen op Handelsweg 22 en 24 worden gesaneerd. Deze bedrijfswoningen dienen te worden gesloopt of blijvend ongeschikt gemaakt te worden voor bewoning. In figuur 2 is de huidige situatie van Handelsweg 22 en 24 weergegeven.

afbeelding "i_NL.IMRO.0273.WPBGNijkerkHandels-ON01_0002.jpg"

Figuur 2: Huidige situatie Handelsweg 22 en 24 (bron: Luchtfoto PDOK-viewer 2019)

1.3 Planologische juridisch kader

Nijkerkerstraat naast 22

Het perceel ligt in het bestemmingsplan 'Nijkerkerstraat naast 22'. In dit bestemmingsplan heeft het perceel een bestemming 'Agrarisch' gekregen. Hierop is de gebiedsaanduiding 'wetgevingszone - wijzigingsgebied' van toepassing. Binnen dit gebied kan het College van Burgemeester en Wethouders medewerking verlenen om het bestemmingsplan te wijzigen voor de realisatie van één nieuwe woning. Hiervoor zijn enkele voorwaarden opgenomen.

De dubbelbestemming 'Waarde - Archeologie 3' is op het perceel van toepassing. Figuur 2 geeft een uitsnede weer van het geldende bestemmingsplan.

afbeelding "i_NL.IMRO.0273.WPBGNijkerkHandels-ON01_0003.jpg"

Figuur 3: Uitsnede geldende bestemmingsplan Nijkerkerstraat naast 22 (bron: www.ruimtelijkeplannen.nl)

Handelsweg 22 en 24

De percelen Handelsweg 22 en 24 liggen in het bestemmingsplan'Bedrijventerrein Keizerswoert'. In dit bestemmingsplan hebben de percelen de bestemming 'Bedrijventerrein' met een bouwvlak gekregen. Naast de bedrijfs bestemming is de aanduiding 'bedrijf van categorie 4.1' en 'bedrijf van categorie 4.2' opgenomen. Ter plaatse van de aanduiding 'bedrijfswoning' zijn bestaande bedrijfswoningen toegestaan. Figuur 4 geeft een uitsnede weer van het geldende bestemmingsplan.

afbeelding "i_NL.IMRO.0273.WPBGNijkerkHandels-ON01_0004.jpg"

Figuur 4: Uitsnede geldende bestemmingsplan Bedrijventerrein Keizerswoert (www.ruimtelijkeplannen.nl)

Op dit moment mag het perceel Nijkerkerstraat alleen worden gebruikt voor agrarisch grondgebruik. In het bestemmingsplan 'Nijkerkerstraat naast 22' is in artikel 3.3 een wijzigingsbevoegdheid opgenomen voor het college om de agrarische bestemming te wijzigen in een woonbestemming. Hieraan zijn een aantal voorwaarden verbonden. In hoofdstuk 2 wordt aangegeven hoe aan de voorwaarden van deze wijzigingsbevoegdheid wordt voldaan.

Voor een aanvullende uiteenzetting van zowel rijks, provinciaal als gemeentelijk beleid ten aanzien van de functieverandering van het agrarische perceel wordt kortheidshalve verwezen naar de toelichting van het bestemmingsplan 'Nijkerkerstraat naast 22'.

Hoofdstuk 2 Toetsing aan voorwaarden wijzigingsbevoegdheid

De wijzigingsbevoegdheid om de bestemming 'Agrarisch' om te zetten naar de bestemming 'Wonen' is opgenomen in artikel 3.3 van de regels van het vigerende bestemmingsplan 'Nijkerkerstraat naast 22'. Hieronder zijn de voorwaarden opgesomd en wordt aangegeven hoe aan de voorwaarde wordt voldaan.

1: indien er elders binnen de regio Gelderse Vallei minimaal 1.000 m2 aan voormalige agrarische bebouwing wordt gesloopt in het kader van functieverandering;
2: de sanering van twee bedrijfswoningen aan de Handelsweg 22 en 24 op het bedrijventerrein Keizerswoert. Deze bedrijfswoningen diene te worden gesloopt of blijvend ongeschikt gemaakt te worden voor bewoning.  
Om gebruik te kunnen maken van de wijzigingsbevoegdheid is afgesproken om de bedrijfswoningen aan de Handelsweg 22 en 24 weg te bestemmen. Planologisch wordt de aanduiding 'bedrijfswoning' verwijdert van de verbeelding. Hierdoor in het niet meer mogelijk om de bedrijfswoning te gebruiken voor bewoning.  
er bestaan vanuit het oogpunt van milieu geen bezwaren tegen de realisering van de woning en de inrichting van het erf   Er zijn geen bezwaren vanuit het oogpunt van milieu. Zie hiervoor ook paragraaf 4.1.  
er is geen sprake van een onevenredige aantasting van de gebruiksmogelijkheden van aangrenzende gronden en de belangen van derden worden niet onevenredig geschaad   Door de omzetting naar een woning worden de gebruiksmogelijkheden en belangen van derden niet aangetast. De woning wordt landschappelijk ingepast en terug gerooid ten opzichte van de bestaande woningen aan de Nijkerkerstraat.  
de situering en landschappelijke inpassing van de woning dient overeenkomstig het inrichtingsplan, dat is opgenomen in Bijlage 3 Inrichtingsplan wijzigingsbevoegdheid, te worden gerealiseerd   Voor de situering en landschappelijke inpassing wordt aangesloten op 'Bijlage 3 inrichtingsplan wijzigingsbevoegdheid. De locatie van de woning is met een bouwvlak vastgelegd op verbeelding en voor het inrichtingsplan is een voorwaardelijke verplichting opgenomen om de aanleg en instandhouding van de landschappelijke inpassing juridisch te borgen.  
met de regels wordt aangesloten bij de regels die van toepassing zijn voor de bestemming 'Wonen'   Doordat de bestemming 'Wonen' wordt opgenomen, zijn de regels van artikel 4 uit het bestemmingsplan 'Nijkerkerstraat naast 22' van overeenkomstige toepassing.  

Hoofdstuk 3 Ruimtelijke situatie

3.1 Ruimtelijke inpassing

Voor deze ontwikkeling heeft in 2013 een werkoverleg plaatsgevonden om concrete afspraken te maken over het ingediende initiatief. Ook zijn uitgangspunten voor de situering en inrichting op papier gezet. Dit heeft geleid tot een Landschappelijke en stedenbouwkundige inpassing (zie paragraaf 3.2).

Het plangebied is gelegen in een uitloper van het Jonge Heideontginningenlandschap, met een overgang richting het Enkdorpenlandschap en de bebouwde kom van Putten. Aan de zuidzijde grenst het Enkdorpenlandschap met een stevige groene structuur van houtwallen en bospercelen. Ten noorden en westen ligt de wijk Bijsteren.

Het jonge Heideontginningsplandschap is te herkennen aan de grote rechte percelen, rechte wegen en landschapselementen als kleine bosjes en solitaire bomen. Op deze locatie is er meer sprake van een half open landschap, waarbij sprake is van een afwisseling van landschapselementen, kleinschalige open ruimten en doorzichten.

In de landschapsvisie wordt het gebied aangeduid als 'zone inpassing (nieuwe) dorpsrand binnen landschappelijk raamwerk van groenstructuren'. Een groene uitstraling versterkt de gebiedskarakteristieken en de binding van het erf met zijn omgeving. Op historische kaarten is te zien dat de locatie tot begin van de 20e eeuw in een zeer groen en kleinschalig landschap heeft gelegen. Daarna heeft er verschraling van landschapselementen plaatsgevonden en heeft de kern Putten zich richting het plangebied ontwikkeld.

Het verbeteren van de beeldkwaliteit van erven is een doel in dit gebied. Daarnaast wordt ernaar gestreefd om het afwisselende, half open landschap te versterken. Bij dit initiatief wordt hierbij gekeken naar:

  • Het benadrukken van de rechte blokverkaveling en lijnen in het landschap;
  • Laanbeplanting langs wegen en eventueel langs de inrit;
  • Herstel en behoud van houtwallen/-singels;
  • Eventueel solitairen, boomgroepen en/of boomgaard op het erf.

Bij het opstellen van het erfinrichtingsplan (zie paragraaf 3.2) is met bovenstaande aspecten rekening gehouden.

In het bestemmingsplan 'Nijkerkerstraat naast 22' zijn uitgangspunten geformuleerd waarmee rekening moet worden gehouden bij het inpassen van de woning en het perceel. De uitgangspunten zijn:

Situering:

  • Het hoofdgebouw en het bijgebouw liggen vrijwel geheel binnen het huidige bouwvlak van de bestaande schuren;
  • De voorgevelrooilijn van het woongebouw staat op een minimale afstand van 25 m van de Nijkerkerstraat, ter hoogte van de huidige schuur;
  • Er is sprake van een losse opzet van de bebouwing;
  • De plaatsing van het bijgebouw is ondergeschikt aan het hoofdgebouw. Het bijgebouw is minimaal 5 m achter de voorgevelrooilijn van het hoofdgebouw gelegen;
  • De onderlinge afstand tussen het hoofdgebouw en het bijgebouw bedraagt minimaal 2 m.

De woning en het bijgebouw liggen vrijwel geheel in het voormalige bouwvlak van het agrarische bedrijf. Voor de voorgevelrooilijn wordt een afstand aangehouden van minimaal 25 meter. Hierdoor komt de woning achter de rooilijn van de woningen op nummer 20 en 22 ter liggen. De bebouwing (woning en bijgebouw) wordt vrijstaand gebouwd, waarbij het bijgebouw achter de woning wordt gesitueerd. De afstand tussen de woning en het bijgebouw is minimaal 2 meter.

Vormgeving:

  • Het hoofdgebouw bestaat uit één bouwlaag met kap;
  • De vormgeving is enkelvoudig en geometrisch;
  • Oriëntatie van het hoofdgebouw en de vormgeving van het dakvlak is vrij;
  • Er is sprake van een terughoudende detaillering.

De woning sluit aan op de bestaande woningen aan de Nijkerkerstraat. De woningen aan de Nijkerkerstraat hebben overwegend één bouwlaag met een kap. Meer dan twee bouwlagen komt niet voor langs de Nijkerkerstraat. De dakvorm van de bestaande woningen is verschillend. De vormgeving van de bebouwing is enkelvoudig en geometrisch. Er is sprake van een terughoudende detaillering.

Massa:

  • Het hoofdgebouw heeft een maximale vloeroppervlakte van 150 m2 en een maximale inhoud van 660 m3;
  • Het bijgebouw heeft een maximale vloeroppervlakte van 80 m2;
  • De gevelgeleding wordt gekenmerkt door een evenwichtige, hiërarchische opbouw.

De gevelgeleding wordt gekenmerkt door een evenwichtige, hiërarchische opbouw. De vloeroppervlakte van de woning wordt niet groter dan 150 m². De inhoud van de woning is maximaal 660 m³ wat overeenkomt met de standaard inhoud van woningen in de gemeente Putten. Het bijgebouw heeft een vloeroppervlakte van maximaal 80 m².

Materiaal- en kleurgebruik

  • De hoofdmaterialen zijn natuurlijke materialen.
  • De hoofdkleuren zijn gedempte (aard-)kleuren of stucwerk in gebroken wit of grijs.
  • Materiaalgebruik en kleuren van bijgebouwen zijn afgestemd op het hoofdgebouw.

Een rustige uitstraling van materiaal- en kleurgebruik (geen felle kleuren). De hoofdmaterialen zijn natuurlijke materialen: (bak-)steen, pleisterwerk, hout, gegolfde dakpannen, riet en grasdak. De hoofdkleuren zijn gedempte (aard-)kleuren of stucwerk in gebroken wit of grijs. Materiaalgebruik en kleuren van bijgebouwen zijn afgestemd op het hoofdgebouw.

Ontsluiting

  • Er is sprake van één ontsluiting op de Nijkerkerstraat.

Het perceel wordt ontsloten op de Nijkerkerstraat. Voor de nieuwe woning is een vergunning verleend voor een tweede ontsluiting.

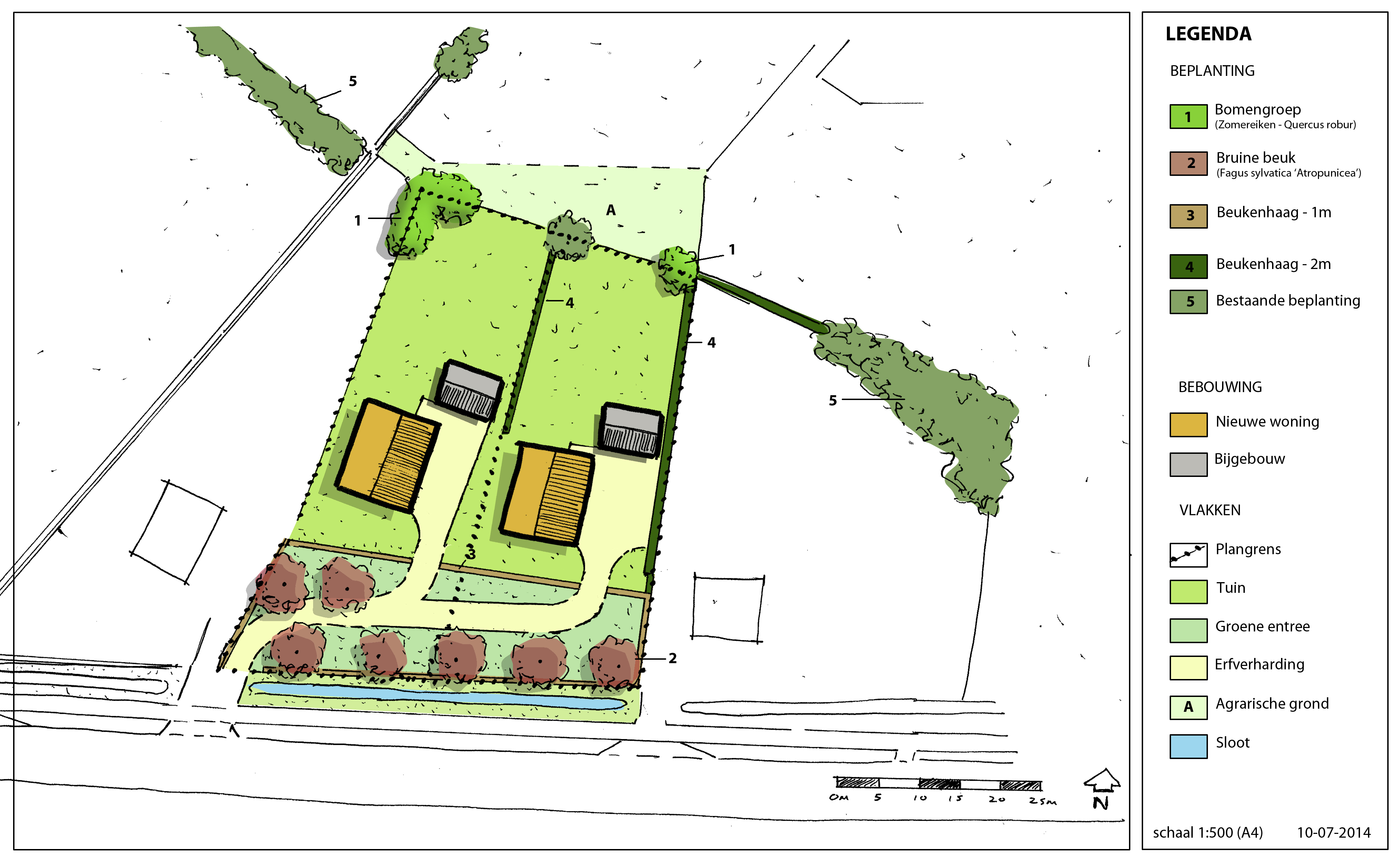
3.2 Erfinrichtingsplan

Om de wijzigingsbevoegdheid tot te kunnen passen en uit te kunnen voeren is een erfinrichtingsplan opgesteld. Voor het opstellen van dit plan zijn voorwaarden genoemd waaraan het erfinrichtingsplan moet voldoen. Het gaat hier om de volgende voorwaarden:

Erfbeplanting:

  • Aanplant van zomereiken aan de achterzijde van de kavels (bomengroep en solitair).
  • Behoud van de boomgaard met bruine (rode) beuken.
  • Omlijsting van de boomgaard met een beukenhaag van 1-1,5 m hoog.
  • Overige beukenhaag (naast boomgaard) mag hoger uitgroeien tot om en nabij 2 m.

Aan de achterzijde van de bouwkavels dient een overgang richting het achterliggende agrarische perceel gerealiseerd te worden. Door het strategisch aanplanten van bomen (zie nummer 1) wordt een verbinding gemaakt met beplantingsstructuren aan de oost- en westzijde (zie nummer 5) en ontstaan er zichtlijnen van en naar de Kraakweg.

Door de invulling van de tweede kavel verdwijnt de zichtrelatie tot de achterliggende agrarische percelen en de wijk Bijsteren. De kavels presenteren zich aan de Nijkerkerstraat met de boomgaard als groene kwaliteit aan de voorzijde (zie nummer 2). Om de boomgaard en de achterliggende woningen zichtbaar te maken is het nodig om de bestaande beukenhaag terug te snoeien tot 1-1,5 m hoog. Tussen de woningen en de bestaande beuken dient een nieuwe beukenhaag aangeplant te worden om de boomgaard als ruimte te markeren. (zie nummer 3).

De beukenhaag wordt met een hoogte van 1-1,5 m hoog doorgezet op de overgang tussen de twee bouwkavels en heeft ter hoogte van het bijgebouw en de achtertuin een hoogte van circa 2 m. De bestaande beukenhaag op de overgang richting de Nijkerkerstraat 20 mag tevens zijn hoogte van circa. 2 m behouden.

afbeelding "i_NL.IMRO.0273.WPBGNijkerkHandels-ON01_0005.jpg"

Figuur 5: Landschappelijke inpassing Nijkerkerstraat

Hoofdstuk 4 Omgevingsaspecten

Inleiding

In dit hoofdstuk worden de voor dit bestemmingsplan relevante milieuaspecten beschreven. Dit hoofdstuk bevat de uitkomsten van de benodigde onderzoeken met de daarbij behorende conclusies.

4.1 Milieuzonering

Toetsingskader

In het kader van een goede ruimtelijke ordening is het van belang dat bij de aanwezigheid van bedrijven in de omgeving van milieugevoelige functies zoals woningen:

  • ter plaatse van de woningen een goed woon- en leefmilieu kan worden gegarandeerd;
  • rekening wordt gehouden met de bedrijfsvoering en milieuruimte van de betreffende bedrijven.

Om in de planvorming de belangenafweging tussen bedrijvigheid en (nieuwe) woningen in voldoende mate mee te nemen, wordt in dit plan gebruikgemaakt van de VNG-publicatie Bedrijven en milieuzonering (editie 2009). In deze publicatie is een lijst opgenomen waarin de meest voorkomende bedrijven en bedrijfsactiviteiten zijn gerangschikt naar mate van milieubelasting. Voor elke bedrijfsactiviteit is de maximale richtafstand ten opzichte van milieugevoelige functies aangegeven op grond waarvan de categorie-indeling heeft plaatsgevonden. De richtafstanden gelden ten opzichte van het omgevingstype 'rustige woonwijk'.

Onderzoek

In de omgeving van Nijkerkerstraat bevinden zich enkele (agrarische) bedrijven en voornamelijk woningen. Op grond van de VNG-publicatie 'Bedrijven en milieuzonering' kan de omgeving rond het plangebied tot een rustig buitengebied worden gerekend. In de nabijheid van het plangebied zijn de volgende bedrijven gelegen:

Adres   SBI CODE 2008 met bedrijfsactiviteiten   Planologische bestemming   Milieuzone   Afstand tot initiatief   Belemmering  
Nijkerkerstraat 18   41,42,43   Bedrijf   3.1 (50 meter)   80 m   Nee  
Beitelweg 4   0146   Agrarisch   4.1 (200 meter)   160 m   Nee  

Conclusie

Het plangebied kan tot een 'gemengd gebied' worden gerekend wat betekent dat de richtafstanden met één afstandstap mogen worden verlaagd.

Gelet op het bovenstaande wordt voldaan aan de vereiste afstanden en wordt een goed woon- en leefklimaat in de woning gewaarborgd. Tussen de nieuwe woningen en de (agrarische) bedrijven zijn echter ook al woningen aanwezig die dichterbij zijn gelegen dan de locatie van de nieuwe woning. De aanwezige (agrarische) bedrijven worden ook niet beperkt in hun bedrijfsvoering en ontwikkelingsmogelijkheden door het voorgenomen initiatief. Het aspect milieuzonering vormt geen belemmering voor het wijzigingsplan.

4.2 Archeologie

Toetsingskader 

Rijk en provincie stellen zich op het standpunt dat in het ruimtelijk beleid zorgvuldig met het archeologisch erfgoed moet worden omgegaan. Voor gebieden waar archeologische waarden voorkomen of waar reële verwachtingen bestaan dat ter plaatse archeologische waarden aanwezig zijn, dient voorafgaand aan bodemingrepen archeologisch onderzoek te worden uitgevoerd. De uitkomsten van het archeologisch onderzoek dienen vervolgens volwaardig in de belangenafweging te worden betrokken.

Doelstelling van het Verdrag van Valetta is de bescherming en het behoud van archeologische waarden. Als gevolg van dit verdrag wordt in het kader van de ruimtelijke ordening het behoud van het archeologisch erfgoed meegewogen zoals alle andere belangen die bij de voorbereiding van het plan een rol spelen.

Bij het archeologiebeleid is ook een beleidskaart opgesteld die de zonering van de verschillende archeologische verwachtingswaarden aangeeft. Aan de verschillende verwachtingswaarden zijn voorwaarden gekoppeld wanneer bij bouw- en grondwerkzaamheden archeologisch onderzoek vereist wordt.

Onderzoek en conclusie

Voor het betreffende perceel geldt op basis van de Archeologisch Waardenkaart van Putten een archeologische dubbelbestemming. Op het perceel geldt de dubbelbestemming 'Waarde - Archeologie 3'. Voor de dubbelbestemming 'Waarde - Archeologie 3' geldt een vrijstelling van archeologisch onderzoek bij grondwerkzaamheden tot een diepte van 40 centimeter onder maaiveld over een oppervlakte van kleiner dan 500 m².

Het plan betreft een omzetting van een voormalige agrarisch bedrijfskavel naar een woonkavel. Er wordt één nieuwe woning gerealiseerd met een bijgebouw. Ter plaatse vindt enige bodemroering plaats. De nieuwe gebouwen worden in totaal niet groter dan 500 m², maar heeft echter wel een verstoringsdiepte die groter is dan 40 cm. .

Ter plaatse van de beoogde ingrepen mag echter worden aangenomen dat de bodem als gevolg van de eerdere aanleg van het agrarische bedrijf (en daarmee samenhangende aanleg van verhardingen, bedrijfsbebouwing, riolering en nutsvoorzieningen) al is geroerd. De kans dat ter plaatse een gaaf en ongeschonden bodemarchief wordt aangetroffen is daarom nihil. Nader onderzoek is dan ook niet noodzakelijk. Archeologie vormt geen belemmering voor het plan. Het aspect archeologie vormt geen belemmering voor het plan.

4.3 Cultuurhistorie

Toetsingskader

De regering heeft in het Besluit ruimtelijke ordening (Bro) vastgelegd dat gemeenten vanaf 1 januari 2012 in hun bestemmingsplannen rekening moeten houden met aanwezige cultuurhistorische waarden. Burgers krijgen hiermee het recht om bij de planning van bouwwerkzaamheden aan te geven of er cultureel erfgoed wordt geraakt.

Prestedelijk landschap: Buurtschap

Buiten het kerkdorp Putten lagen buurschapskernen waar de concentratie aan bebouwing hoger was dan de omliggende kampontginningen. Deze buurschappen lagen ooit op afstand van het dorp Putten, maar liggen nu aan de rand van de bebouwde kom. Bijsteren kenmerkt zich nog als bebouwingslint met enkele huizen uit de eerste helft van de 20e eeuw. De erven worden afgewisseld door percelen met landbouwgrond. Dit ijle lint vormt nu de rand van de bebouwde kom. Ook iets ten noorden van dit lint lag een kleine concentratie van enkele boerderijen, langs Mennestraat en Spruytengoed. Zowel de wegen, als enkele boerderijen, als een deel van de beplanting zijn nu opgenomen in de nieuwe wijk. In het uiterste zuiden van de bebouwde kom is gebiedje dat tot Halvinkhuizen hoorde tot deze eenheid gerekend, maar dit gebied is geheel overschreven door de nieuwe structuur.

afbeelding "i_NL.IMRO.0273.WPBGNijkerkHandels-ON01_0006.jpg"

Figuur 6: Uitsnede Nota Cultuurhistorie (bron: Raap, Archeologisch Adviesbureau).

Onderzoek en conclusie

Rond het plangebied komen cultuurhistorische waarden voor. Ten zuiden van het plangebied loopt een historische weg van voor 1832 (Nijkerkerstraat). Tevens zijn historische kavelgrenzen, voor 1832 aanwezig. Deze cultuurhistorische elementen worden in het plan niet aangetast. Het aspect cultuurhistorie vormt geen belemmering voor het plan.

4.4 Bodem

Toetsingskader

Op grond van het Besluit ruimtelijke ordening (Bro) dient er in verband met de uitvoerbaarheid van een plan rekening te worden gehouden met de bodemgesteldheid in het plangebied. Bij functiewijziging dient te worden bekeken of de bodemkwaliteit voldoende is voor de beoogde functie en moet worden vastgesteld of er sprake is van een saneringsnoodzaak. In de Wet bodembescherming is bepaald dat als de bodemkwaliteit niet voldoet aan de norm voor de beoogde functie, de grond zodanig gesaneerd wordt, dat het kan worden gebruikt voor de desbetreffende functie (functiegericht saneren). Nieuwe bestemmingen worden bij voorkeur op schone grond gerealiseerd.

Verdachte plekken met betrekking tot de kwaliteit van de bodem dienen in het kader van de Wet bodembescherming bij ruimtelijke plannen en projecten te worden gesignaleerd vanuit een goede ruimtelijke ordening.

Onderzoek en conclusie

In het najaar van 2013 is verkennend bodemonderzoek uitgevoerd (Econsultancy, Rapportnummer 13096000, 17 oktober 2013, zie bijlage 2) om de bodemgesteldheid in kaart te brengen. Uit het onderzoek komt naar voren dat op één locatie binnen het plangebied een sterke verontreiniging met minerale olie in de ondergrond is waargenomen. Op deze locatie heeft in het verleden een bovengrondse dieseltank gestaan. Vervolgens is voor deze locatie nader bodemonderzoek uitgevoerd (Econsultancy, Rapportnummer 13106098, 14 november 2013, zie bijlage 3). Uit dit onderzoek wordt geconcludeerd dat het naar alle waarschijnlijkheid geen geval van ernstige bodemverontreiniging betreft. Er zijn geen aanwijzingen dat het gaat om een nieuwe geval van bodemverontreiniging. Voor de vastgestelde verontreinigingssituatie geldt, uitgaande van een bestaand geval van bodemverontreiniging, conform de Wet bodembescherming geen saneringsplicht.

In 2017 is naar aanleiding van de bovengenoemde verontreiniging een sanering uitgevoerd. (PJ Milieu BV, Rapportnummer 1759402S, 6 december 2017, zie bijlage 4) De grond is geheel afgevoerd en bemonsterd.

Het aspect Bodem vorm geen belemmering voor het plan.

4.5 Verkeer en parkeren

Verkeer

Verkeersstructuur

Het plangebied wordt ontsloten vanaf de Nijkerkerstraat. Deze weg verbindt Putten met Nijkerk.

Verkeersgeneratie en verkeersafwikkeling

De verkeersgeneratie bedraagt 10 mvt/etmaal op basis van CROW publicatie 317. Dit geringe aandeel extra verkeer wikkelt zich af over de Nijkerkerstraat en zal niet leiden tot problemen in de verkeersafwikkeling.

Parkeren

De parkeerbehoefte bedraagt drie parkeerplaatsen. Met de aanleg van drie parkeerplaatsen wordt voorzien in de eigen parkeerbehoefte.

Conclusie

De ontsluiting van het plangebied is goed. De nieuwe ontwikkeling zal niet leiden tot problemen in de verkeersafwikkeling en parkeren. Het aspect verkeer staat het plan dan ook niet in de weg.

4.6 Water

Via de Digitale Watertoets is het Waterschap Vallei en Veluwe geïnformeerd over dit wijzigingsplan. Hiermee is bepaald dat het plan mogelijk invloed heeft op de waterhuishouding en/of de afvalwaterketen. Dit omdat binnen het plangebied een leggerwatergang met beschermingszone aanwezig is. Dit betekent dat met het voornemen eventuele waterbelangen worden geraakt. Op basis daarvan wil het waterschap graag in overleg met de initiatiefnemer over het plan. De resultaten van de Digitale Watertoets zijn opgenomen in bijlage 5 waarbij in deze paragraaf de aandachtspunten worden behandeld.

Vasthouden - bergen - afvoeren

Een belangrijk principe is dat een deel van het hemelwater binnen het plangebied wordt vastgehouden en/of geborgen en dus niet direct afgevoerd wordt naar de riolering of het oppervlaktewater. Hiermee wordt bereikt dat de waterzuiveringsinstallatie beter functioneert, verdroging wordt tegen gegaan en piekafvoeren in het oppervlaktewater (met eventueel wateroverlast in benedenstrooms gelegen gebieden) wordt voorkomen. Bij lozing op oppervlaktewater zal hiervan een melding gedaan moeten worden bij het waterschap.

Grondneutraal bouwen

Om grondwateroverlast te voorkomen adviseert het waterschap om boven de gemiddelde hoogste grondwaterstand (GHG) te ontwerpen. Dit betekent dat aspecten zoals ontwateringsdiepte en infiltratie van hemelwater, beschouwd worden ten opzichte van de GHG. Het structureel onttrekken/draineren van grondwater is geen duurzame oplossing en moet worden voorkomen. Het waterschap adviseert de initiatiefnemer dan ook om voorafgaand aan de ontwikkeling een goed beeld te krijgen van de heersende grondwaterstanden en GHG. Eventuele grondwateroverlast is in eerste instantie een zaak voor de betreffende perceeleigenaar.

Schoon houden - scheiden - schoon maken

Om verontreiniging van bodem, grond- en/of oppervlaktewater te voorkomen is het van belang dat het afstromende hemelwater niet verontreinigd raakt. Dit kan door nadere eisen/randvoorwaarden te stellen aan bijvoorbeeld de toegepaste (bouw)materialen. Hierbij wordt geadviseerd om de beslisboom voor het afkoppelen van verhard oppervlak van het waterschap toe te passen.

4.7 Geluid

Toetsingskader

Op grond van de Wet geluidhinder geldt rond wegen met een maximumsnelheid hoger dan 30 km/uur, spoorwegen en inrichtingen die 'in belangrijke mate geluidhinder veroorzaken', een geluidzone. Bij ontwikkeling van nieuwe geluidsgevoelige objecten binnen deze geluidzones moet akoestisch onderzoek worden uitgevoerd om aan te tonen dat de ontwikkeling voldoet aan de voorkeursgrenswaarden die in de wet zijn vastgelegd.

Indien niet aan de voorkeursgrenswaarde kan worden voldaan, kan het bevoegd gezag - in de meeste gevallen de gemeente - hogere grenswaarden vaststellen. Hiervoor geldt een bepaald maximum, de uiterste grenswaarde genoemd. Bij de vaststelling van hogere grenswaarden moet worden afgewogen of bronmaatregelen of maatregelen in de overdrachtssfeer kunnen worden getroffen.

Onderzoek en conclusie

Industrielawaai

In de omgeving van het plangebied zijn geen bedrijven aanwezig die geluidhinder veroorzaken. Onderzoek naar Industrielawaai kan achterwege blijven.

Wegverkeer

De locatie is gelegen aan de Nijkerkerstraat. Op deze weg geldt een maximum snelheid van 80 km/u. Hiervoor geldt een zonebreedte van 250 meter, gerekend vanuit de as van de weg. De nieuwe woning ligt binnen de zone van 250 meter.

Bij het opstellen van het bestemmingsplan Nijkerkerstraat naast 22 is voor de te realiseren woningen akoestisch onderzoek uitgevoerd. Hieruit blijkt dat de geprojecteerde woningen niet voldoen aan de wettelijke voorkeursgrenswaarden van 48 dB. De overschrijding van de voorkeursgrenswaarde vanwege de Nijkerkerstraat bedraagt 8 dB. Daarmee wordt de maximale ontheffingswaarden van 53 dB overschreden. Daarom wordt naar de wegzijde gelegen gevel uitgevoerd als een zogenaamde 'dove gevel'. Onder een 'dove gevel' wordt het volgende verstaan:

  • een bouwkundige constructie waarin geen te openen delen aanwezig zijn en met een in NEN 5077 bedoelde karakteristieke geluidwering die ten minste gelijk is aan het verschil tussen de geluidsbelasting van die constructie en 33 dB onderscheidenlijk 35 dB(A), alsmede
  • een bouwkundige constructie waarin alleen bij uitzondering te openen delen aanwezig zijn, mits de delen niet direct grenzen aan een geluidsgevoelige ruimte.

Omdat een dove gevel geen gevel is in de zin van de Wet geluidhinder behoeven hierop geen waarneempunten te worden gelegd. Deze zijn op de overige, in dit geval de zijgevels, gelegd.

Uit de berekeningen blijkt dat de geluidsbelasting op de zijgevels afhankelijk van de waarneemhoogte maximaal 53 dB bedraagt.

Hiervoor zal een hogere waarde bij het College van Burgemeester en Wethouders van de gemeente Putten aangevraagd worden. In 2014 is voor de realisatie van de eerste woning een procedure hogere grenswaarde voor beide woningen doorlopen.

4.8 Luchtkwaliteit

Toetsingskader

In het kader van een goede ruimtelijke ordening wordt bij het opstellen van een ruimtelijk plan uit het oogpunt van de bescherming van de gezondheid van de mens rekening gehouden met de luchtkwaliteit. Het toetsingskader voor luchtkwaliteit wordt gevormd door hoofdstuk 5, titel 5.2 van de Wet milieubeheer. Dit onderdeel van de Wet milieubeheer (Wm) bevat grenswaarden voor zwaveldioxide, stikstofdioxide en stikstofoxiden, fijnstof, lood, koolmonoxide en benzeen. Hierbij zijn in de ruimtelijke ordeningspraktijk langs wegen vooral de grenswaarden voor stikstofdioxide (jaargemiddelde) en fijnstof (jaar- en daggemiddelde) van belang. De grenswaarden van de laatstgenoemde stoffen zijn in tabel 4.1 weergegeven.

Tabel 4.1 Grenswaarden maatgevende stoffen Wm

Stof   Toetsing van   Grenswaarde  
stikstofdioxide (NO2)   jaargemiddelde concentratie   40 µg/m³  
fijn stof (PM10)   jaargemiddelde concentratie   40 µg/m³  
  24-uurgemiddelde concentratie   max. 35 keer p.j. meer dan 50 µg / m³  
fijn stof (PM2,5)   jaargemiddelde concentratie   25 µg /m³  

Op grond van artikel 5.16 van de Wm kunnen bestuursorganen bevoegdheden die gevolgen kunnen hebben voor de luchtkwaliteit onder andere uitoefenen indien de bevoegdheden/ontwikkelingen niet leiden tot een overschrijding van de grenswaarden of de bevoegdheden/ontwikkelingen niet in betekenende mate bijdragen aan de concentratie in de buitenlucht.

Besluit niet in betekenende mate

In dit Besluit niet in betekenende mate is bepaald in welke gevallen een plan vanwege de gevolgen voor de luchtkwaliteit niet aan de grenswaarden hoeft te worden getoetst. Hierbij worden 2 situaties onderscheiden:

  • een plan heeft een effect van minder dan 3% van de jaargemiddelde grenswaarde NO2 en PM10 (= 1,2 µg/m³);
  • een plan valt in een categorie die is vrijgesteld aan toetsing aan de grenswaarden; deze categorieën betreffen onder andere woningbouw met niet meer dan 1.500 woningen bij één ontsluitingsweg en 3.000 woningen bij twee ontsluitingswegen, kantoorlocaties met een bruto vloeroppervlak van niet meer dan 100.000 m2 bij één ontsluitingsweg en 200.000 m2 bij twee ontsluitingswegen.

Onderzoek en conclusie

Met behulp van de NIBM-tool is de toename van de stoffen NO2 en PM10 bepaald. Hierbij is uitgegaan van 1 woning met in totaal 9 extra verkeersbewegingen (weekdaggemiddelde). De conclusie is dan ook dat dit plangebied, niet in betekenende mate bijdraagt aan de luchtkwaliteit. Op basis van artikel 5.16, lid 1, aanhef en onder c kan het project zonder nader onderzoek doorgang vinden. De functieverandering wordt dan ook niet belemmerd door het aspect luchtkwaliteit.

afbeelding "i_NL.IMRO.0273.WPBGNijkerkHandels-ON01_0007.jpg"

Figuur 7 : NIBM-Tool (bron Ministerie van Infrastructuur en Milieu 2008)

4.9 Ecologie

Toetsingskader

Wet natuurbescherming

Met de Wnb zijn alle bepalingen met betrekking tot de bescherming van natuurgebieden en dier- en plantensoorten samengebracht in één wet. De Wnb implementeert diverse Europeesrechtelijke regelgeving, zoals de Vogelrichtlijn en de Habitatrichtlijn in de Nederlandse wetgeving.

Gebiedsbescherming

De Wnb kent diverse soorten natuurgebieden, te weten:

  • Natura-2000 gebieden;
  • Natuurnetwerk Nederland (NNN).

Natura-2000 gebieden

De Minister van Economische Zaken (EZ) wijst gebieden aan die deel uitmaken van het Europese netwerk van natuurgebieden: Natura 2000. Een dergelijk besluit bevat de instandhoudingsdoelstellingen voor de leefgebieden van vogelsoorten (Vogelrichtlijn) en de instandhoudingsdoelstellingen voor de natuurlijke habitats en habitats van soorten (Habitatrichtlijn).

Een bestemmingsplan dat afzonderlijk of in combinatie met andere plannen of projecten significante gevolgen kan hebben voor een Natura 2000-gebied, kan uitsluitend vastgesteld worden indien uit een passende beoordeling de zekerheid is verkregen dat het plan, onderscheidenlijk het project de natuurlijke kenmerken van het gebied niet zal aantasten. Indien deze zekerheid niet is verkregen, kan het plan worden vastgesteld, indien wordt voldaan aan de volgende drie voorwaarden:

  • alternatieve oplossingen zijn niet voor handen;
  • het plan is nodig om dwingende redenen van groot openbaar belang, met inbegrip van redenen van sociale of economische aard, en
  • de nodige compenserende maatregelen worden getroffen om te waarborgen dat de algehele samenhang van het Natura 2000-netwerk bewaard blijft.

De bescherming van deze gebieden heeft externe werking, zodat ook ingrepen die buiten deze gebieden plaatsvinden verstoring kunnen veroorzaken en moeten worden getoetst op het effect van de ingreep op soorten en habitats.

Natuurnetwerk Nederland (NNN)

Gebieden die deel uitmaken van het Natuurnetwerk Nederland (NNN) worden aangewezen in de provinciale verordening. Voor dit soort gebieden geldt het 'nee, tenzij' principe, wat inhoudt dat binnen deze gebieden in beginsel geen nieuwe ruimtelijke ontwikkelingen mogen plaatsvinden.

Soortenbescherming

In de Wnb wordt een onderscheid gemaakt tussen:

  • soorten die worden beschermd in de Vogelrichtlijn;
  • soorten die worden beschermd in de Habitatrichtlijn;
  • overige soorten.

De Wnb bevat onder andere verbodsbepalingen ten aanzien van het opzettelijk vernielen of beschadigen van nesten, eieren en rustplaatsen van vogels als bedoeld in artikel 1 van de Vogelrichtlijn. Gedeputeerde Staten (hierna: GS) kunnen hiervan ontheffing verlenen en bij verordening kunnen Provinciale Staten (hierna: PS) vrijstelling verlenen van dit verbod. De voorwaarden waaraan voldaan moet worden om ontheffing of vrijstelling te kunnen verlenen zijn opgenomen in de Wnb en vloeien direct voort uit de Vogelrichtlijn. Verder is het verboden in het wild levende dieren van soorten, genoemd in bijlage IV, onderdeel a, bij de Habitatrichtlijn, bijlage II bij het Verdrag van Bern of bijlage I bij het Verdrag van Bonn, in hun natuurlijk verspreidingsgebied opzettelijk te doden of te vangen of te verstoren. GS kunnen hiervan ontheffing verlenen en bij verordening kunnen PS vrijstelling verlenen van dit verbod. De gronden voor verlening van ontheffing of vrijstelling zijn opgenomen in de Wnb en vloeien direct voort uit de Habitatrichtlijn.

Ten slotte is een verbodsbepaling opgenomen voor overige soorten. Deze soorten zijn opgenomen in de bijlage onder de onderdelen A en B bij de Wnb. De provincie kan ontheffing verlenen van deze verboden. Verder kan bij provinciale verordening vrijstelling worden verleend van de verboden. De noodzaak tot ontheffing of vrijstelling kan hierbij ook verband houden met handelingen in het kader van de ruimtelijke inrichting of ontwikkeling van gebieden.

Bij de voorbereiding van het bestemmingsplan moet worden onderzocht of de Wet natuurbescherming de uitvoering van het plan niet in de weg staat. Dit is het geval wanneer de uitvoering tot ingrepen noodzaakt waarvan moet worden aangenomen dat daarvoor geen vergunning of ontheffing ingevolge de wet zal kunnen worden verkregen.

Onderzoek

In het kader van de bestemmingsplanprocedure is het plangebied onderzocht op beschermde soorten en gebieden. Uit het onderzoek worden de volgende conclusies getrokken:

Soortenbescherming:

Als gevolg van de ruimtelijke ontwikkeling kunnen verblijfplaatsen van enkele licht beschermde diersoorten worden verstoord en vernietigd. Zoals eerder in het bestemmingsplan genoemd gaat het hierbij om soorten zoals bosmuis, egel, gewone pad, huisspitsmuis en mol. Ook kunnen er enkele exemplaren worden gedood. De aanwezige licht beschermde soorten worden niet in hun voortbestaan bedreigd en vallen in de vrijstellingsregeling bij ruimtelijke ontwikkelingen. Voor deze soorten hoeft geen ontheffing te worden aangevraagd. Wel geldt voor deze soorten de zorgplicht van de Wet natuurbescherming.

Indien werkzaamheden, zoals de sloop van de schuren en het verwijderen van opgaand groen, tijdens het broedseizoen wordt uitgevoerd kunnen in gebruik zijnde nesten van vogels worden verstoord en vernietigd. Bij de inventarisatie zijn geen jaarrond beschermde nestplaatsen aangetroffen. Het is verboden nesten van vogels (indien nog in functie) te verstoren of te vernietigen. Met betrekking tot de planning en uitvoering van de werkzaamheden dient daarom rekening te worden gehouden met het broedseizoen. De Wet natuurbescherming kent geen standaardperiode voor het broedseizoen. Het is van belang of een broedgeval aanwezig is, ongeacht de periode. Voor de meeste vogels geldt dat het broedseizoen ongeveer van 15 maart tot 15 juli duurt.

Door de ontwikkelingen zal het foerageergebied van vleermuizen ter plaatse van het onderzoeksgebied aan de Nijkerkerstraat veranderen maar niet als zodanig verloren gaan. De nieuwe waarde van het gebied voor vleermuizen hangt af van de groene inrichting van de tuin. Het ligt in de verwachting dat de waarde van het foerageergebied voor vleermuizen zal toenemen. Op voorhand wordt op basis van de omvang van potentieel foerageergebied in de omgeving geen negatief effect op in de omgeving voorkomende populaties vleermuizen verwacht.

Gebiedsbescherming

Het onderzoeksgebied ligt niet in en grenst niet aan een beschermd gebied in het kader van de Wet natuurbescherming. Het meest nabijgelegen beschermde gebied nabij de locatie aan de Nijkerkerstraat betreft het Natura 2000-gebied Veluwe, dat gelegen is op ruim 2 kilometer afstand ten oosten van het onderzoeksgebied. Het onderzoeksgebied ligt verder niet binnen en grenst niet aan het Natuurnetwerk Nederland (NNN). Gezien de terreinomstandigheden en ligging van het onderzoeksgebied en de aard van de ontwikkeling wordt met betrekking tot het voorgenomen plan geen negatieve effecten op beschermde natuurgebieden verwacht.

Stikstof

Woningbouwplannen of vergelijkbare projecten kunnen leiden tot een toename van de stikstofdepositie ter plaatse van stikstofgevoelige habitattypen in een Natura 2000gebied. Deze toename van de stikstofdepositie kan het gevolg zijn van bouwwerkzaamheden in de aanlegfase (bijvoorbeeld als gevolg van de aanvoer van bouwmaterialen naar en grondverzet op de bouwplaats). Het gebruik van de woningen (de gebruiksfase) kan ook leiden tot een toename van de stikstofdepositie. Deze toename kan bijvoorbeeld het gevolg zijn van het gebruik van gas en het autoverkeer van bewoners en bezoekers van de woningen.

Bij kleine stedelijke ontwikkelingsprojecten, zoals woningbouwplannen, gemengde stedelijke functies of solitaire bedrijven met een beperkte milieubelasting geldt dat er in de gebruiksfase alleen vanuit verkeer enige stikstofemissie te verwachten, aangezien er vanaf nu gasloos gebouwd moet worden. Effecten van stikstof vanwege wegverkeer hebben een beperkt bereik. Dergelijke bronnen zijn namelijk dicht bij de grond geplaatst, waardoor de stikstof snel neerslaat. Onder de PAS werd een effectafstand voor hoofdwegen of hoofdvaarwegen van respectievelijk 3 of 5 kilometer ten opzichte van het dichtstbijzijnde stikstofgevoelige habitat gerekend. De potentiële effecten van kleine woningbouwlocaties zijn uitsluitend het gevolg van verkeer en tijdelijke werkzaamheden in de aanlegfase. Vanwege de aard van de emissie hiervan (beperkt in hoeveelheid en laag bij de grond) en op basis van honderden uitgevoerde AERIUSberekeningen wordt ingeschat dat een toename van de

stikstofdepositie niet zal optreden op een afstand meer dan 5 kilometer. Het gaat dan om stedelijke (gasloze) ontwikkelingen met een beperkte omvang, tot maximaal 100 woningen. Er hoeft in die gevallen geen vergunning op grond van de Wnb aangevraagd te worden. De emissie van stikstof vanuit het materieel dat wordt gebruikt in de realisatiefase is vergelijkbaar met dat van wegverkeer, dat tot op afstand van maximaal 5 kilometer relevant kan zijn. Ook deze emissie vindt vlak aan de grond plaats en wordt niet mechanisch hoog de lucht in geblazen.

Het plangebied ligt aan de rand van een stedelijk gebied op ruime afstand van beschermde natuurgebieden. Het dichtstbijzijnde stikstofgevoelig gebied, de Veluwe, ligt op ruim 2 kilometer van het plangebied. Stedelijke (gasloze) ontwikkelingen met een beperkte omvang, tot maximaal 100 woningen, zorgen niet voor een toename van de stikstofdepositie op het Natura-2000 gebied. Daarnaast wordt voor de woningen geen emissie gerekend omdat deze gasloos worden opgeleverd. Het verkeer gaat daarnaast vrijwel direct op in het heersende verkeersbeeld.

Met behulp van de nieuwe release van het rekenprogramma Aerius Calculator (release 16 september 2019) is gekeken naar de depositie op de meest nabijgelegen Natura 2000 gebieden (automatische berekening). Voor dit wijzigingsplan is alleen de gebruiksfase uitgerekend. Uitgangspunt is dat de nieuwe woning gasloos wordt opgeleverd. Hierdoor vervalt de emissie van de woning in de gebruiksfase. Voor het aantal verkeersbewegingen (lichte motorvoertuigen) is uitgegaan van 10 bewegingen per etmaal (vijf voertuigen heen en terug) Uit de resultaten blijkt dat het project-effect niet meer dan 0,00 mol/ha/jaar bedraagt. Negatieve effecten vanwege stikstofdepositie kunnen derhalve worden uitgesloten. Het aspect stikstof is daarmee dan ook geen belemmering voor het project.

De resultaten van de berekening zijn in onderstaande figuren weergegeven. (Bij de release van de Aerius Calculator, d.d. 16 september 2019, wordt uitsluitend een GML bestand gegenereerd.)

afbeelding "i_NL.IMRO.0273.WPBGNijkerkHandels-ON01_0008.jpg"

Figuur 8: Ligging ingevoerde bron in de Aerius Calculator (bron: www.calculator.aerius.nl)

afbeelding "i_NL.IMRO.0273.WPBGNijkerkHandels-ON01_0009.jpg"

Figuur 9: Rekenresultaat Aerius Calculator (bron: www.calculator.aerius.nl)

Conclusie

Op basis van de ecologische inventarisatie is een voldoende beeld ontstaan. Uit de ecologische inventarisatie is naar voren gekomen dat een vooronderzoek in het kader van de Wet natuurbescherming niet noodzakelijk is. Met in acht name van het broedseizoen van vogels is een ontheffing van de Wet natuurbescherming op voorhand niet nodig.

Het aspect ecologie vormt geen belemmering voor het wijzigingsplan.

4.10 Kabels en leidingen

In het plangebied zijn geen kabels en leidingen aanwezig die een planologische bescherming nodig hebben.

4.11 Externe veiligheid

Toetsingskader

Bij ruimtelijke plannen dient ten aanzien van externe veiligheid naar verschillende aspecten te worden gekeken, namelijk:

  • bedrijven waar activiteiten plaatsvinden die gevolgen hebben voor de externe veiligheid;
  • vervoer van gevaarlijke stoffen over wegen, spoor, water of door buisleidingen.

Voor zowel bedrijvigheid als vervoer van gevaarlijke stoffen zijn twee aspecten van belang, te weten het plaatsgebonden risico (PR) en het groepsrisico (GR). Het PR is de kans per jaar dat een persoon dodelijk wordt getroffen door een ongeval, indien hij zich onafgebroken (dat wil zeggen 24 uur per dag gedurende het hele jaar) en onbeschermd op een bepaalde plaats zou bevinden. Het PR wordt weergegeven met risicocontouren rondom een inrichting dan wel infrastructuur. Het GR drukt de kans per jaar uit dat een groep van minimaal een bepaalde omvang overlijdt als direct gevolg van een ongeval waarbij gevaarlijke stoffen betrokken zijn. De norm voor het GR is een oriëntatiewaarde. het bevoegd gezag heeft een verantwoordingsplicht als het GR toeneemt en/of de oriëntatiewaarde overschrijdt.

Risicovolle inrichtingen

Het Besluit externe veiligheid inrichtingen (hierna: Bevi) geeft een wettelijke grondslag aan het externe veiligheidsbeleid rondom risicovolle inrichtingen. Op basis van het Bevi geldt voor het PR rondom een risicovolle inrichting een grenswaarde voor kwetsbare objecten en een richtwaarde voor beperkt kwetsbare objecten. Beide liggen op een niveau van 10-6 per jaar. Bij een ruimtelijke ontwikkeling moet aan deze normen worden voldaan.

Het Bevi bevat geen grenswaarde voor het GR; wel geldt op basis van het Bevi een verantwoordingsplicht ten aanzien van het GR in het invloedsgebied rondom de inrichting. De in het externe veiligheidsbeleid gehanteerde norm voor het GR geldt daarbij als oriëntatiewaarde. Deze verantwoordingsplicht geldt zowel in bestaande als in nieuwe situaties.

Vervoer van gevaarlijke stoffen

Per 1 april 2015 is het Besluit externe veiligheid transportroutes (BEVT) en het Basisnet in werking getreden. Het BEVT vormt de wet- en regelgeving, en de concrete uitwerking volgt in het Basisnet. Met het inwerking treden van het BEVT vervalt de circulaire Risiconormering vervoer gevaarlijke stoffen. Het Basisnet beoogt voor de lange termijn (2020, met uitloop naar 2040) duidelijkheid te bieden over het maximale aantal transporten van, en de bijbehorende maximale risico's die het transport van gevaarlijke stoffen mag veroorzaken. Het Basisnet is onderverdeeld in drie onderdelen: Basisnet Spoor, Basisnet Weg en Basisnet Water. 

Het BEVT en het bijbehorende Basisnet maakt bij het PR onderscheid in bestaande en nieuwe situaties. Voor bestaande situaties geldt een grenswaarde voor het PR van 10-5 per jaar ter plaatse van kwetsbare en beperkt kwetsbare objecten en een streefwaarde van 10-6 per jaar. Voor nieuwe situaties geldt de 10-6 waarde als grenswaarde voor kwetsbare objecten, en als richtwaarde bij beperkt kwetsbare objecten. In het Basisnet Weg en het Basisnet Water zijn veiligheidsafstanden (PR 10-6 contour) opgenomen vanaf het midden van de transportroute.

Tevens worden in het Basisnet de plasbrandaandachtsgebieden benoemd voor transportroutes. Hiermee wordt geanticipeerd op de beperkingen voor ruimtelijke ontwikkelingen die samenhangen met deze plasbrandaandachtsgebieden.

Het Basisnet vermeldt dat op een afstand van 200 m vanaf de rand van het tracé in principe geen beperkingen hoeven te worden gesteld aan het ruimtegebruik.

Besluit externe veiligheid buisleidingen

Per 1 januari 2011 is het Besluit externe veiligheid buisleidingen in werking getreden. In dat besluit wordt aangesloten bij de risicobenadering uit het Besluit externe veiligheid inrichtingen (Bevi) zodat ook voor buisleidingen normen voor het PR en het GR gelden. Op advies van de minister wordt bij de toetsing van externe veiligheidsrisico's van buisleidingen al enkele jaren rekening gehouden met deze risicobenadering.

Onderzoek

Risicovolle inrichtingen

Het plangebied en de omgeving is geïnventariseerd op de aanwezigheid van de mogelijke risicobronnen (zie figuur 10). Rond het plangebied zijn geen risicobronnen aanwezig. Dit aspect vormt geen belemmering.

Vervoer gevaarlijke stoffen

Op de Nijkerkerstraat (N798) vindt vervoer van gevaarlijke stoffen plaats. (Zie figuur 11). Voor de Nijkerkerstraat geldt dat in de rapportage van Tebodin met behulp van tabellen uit de handleiding Risicoanalyse Transport bepaald is wat de bevolkingsdichtheid is die resulteert in een groepsrisico overeenkomend met 10% van de oriënterende waarde. De woning ligt op een afstand van 30 meter van de Nijkerkerstraat. Op 30 meter dient een nadere berekening van het groepsrisico plaats te vinden bij een bevolkingsdichtheid van 171 personen per hectare bij eenzijdige bebouwing en 88 personen per hectare bij tweezijdige bebouwing. Deze aantallen worden niet gehaald. Een nadere berekening van het groepsrisico is derhalve niet noodzakelijk. Omdat er wel sprake is van een toename van het aantal personen in het plangebied en derhalve ook een toename van het groepsrisico, dient het groepsrisico wel te worden verantwoord.

Buisleidingen

Ten noorden van het plangebied is een aardgastransportleiding aanwezig. Het betreft de volgende leiding:

Naam   Diameter   Werkdruk   PR-contour  
N-570-26   4,25 inch   40 bar   0 m  

De aardgastransportleiding heeft een plaatsgebonden risicocontour (PR-contour) die op het hart van de leiding ligt. Dit vormt geen belemmering voor het plangebied.

afbeelding "i_NL.IMRO.0273.WPBGNijkerkHandels-ON01_0010.jpg"

Figuur 10: Uitsnede risicokaart (bron: www.risicokaart.nl)

afbeelding "i_NL.IMRO.0273.WPBGNijkerkHandels-ON01_0011.jpg"

Figuur 11: Uitsnede overzichtskaart route gevaarlijke stoffen (bron: gemeente Putten)

Conclusie

In de directe omgeving van het plangebied is het aantal transporten met gevaarlijke stoffen over de weg zodanig gering, dat de PR-contouren van 10-6 per jaar binnen de rijbaan liggen en het groepsrisico verwaarloosbaar klein is. Zolang de bevolkingsdichtheden langs de transportroutes lager is dan de dichtheden zoals opgenomen in Tabel B6-11 (Tebodin) is het niet nodig om een nadere berekening uit te voeren.

Doordat er geen risicobronnen in de directe omgeving aanwezig zijn wordt het project als kansrijk aangemerkt en is verder onderzoek niet noodzakelijk.

De benoemde risicobronnen zijn op zodanige afstand gelegen dat deze niet van invloed zijn op de externe veiligheidssituatie in het plangebied. Het aspect externe veiligheid vormt geen belemmering voor het voorliggende plan.

Hoofdstuk 5 Planologische juridische regeling

Dit wijzigingsplan voorziet in een juridisch planologische regeling waarbij de bestemming 'Agrarisch' van het perceel Nijkerkerstraat wordt gewijzigd in een bestemming 'Wonen', voorzover gelegen binnen de gebiedsaanduiding 'wetgevingzone - wijzigingsgebied'. De dubbelbestemming 'Waarde - Archeologie 3' blijft van toepassing op het plangebied.

Voor de percelen Handelsweg 22 en 24 wordt de aanduiding 'bedrijfswoning' wegbestemd. Hierdoor verdwijnt de mogelijkheid om te wonen op het bedrijventerrein.

Het wijzigingsplan bestaat uit een toelichting, verbeelding en een toepassingsregel waarin wordt aangegeven dat met het wijzigingsplan alleen de verbeelding van het moederplan is aangepast. De regels uit de bestemmingsplannen 'Nijkerkerstraat naast 22' en 'Bedrijventerrein Keizerswoert' zijn dus van overeenkomstige toepassing. Tevens is een voorwaardelijke verplichting opgenomen tot het slopen van de bedrijfsgebouwen en de aanleg en instandhouding van de landschappelijke inpassing.

Hoofdstuk 6 Uitvoerbaarheid

Wettelijk bestaat de verplichting om inzicht te geven in de uitvoerbaarheid van een wijzigingsplan. Hierbij wordt een onderscheid gemaakt in de maatschappelijke en de economische uitvoerbaarheid.

6.1 Maatschappelijke uitvoerbaarheid

Het wijzigingsplan doorloopt de procedure zoals vastgelegd in artikel 3.6 lid 1 sub a van de Wet ruimtelijke ordening (Wro). Door het voeren van de genoemde procedure, wordt eenieder in de gelegenheid gesteld voor het indienen van zienswijzen.

Voorbereidingsfase

Gezien de omvang en aard van de functieverandering heeft de gemeente ervoor gekozen om het wijzigingsplan als ontwerp ter inzage te leggen. Er wordt geen vooroverleg gevoerd over dit plan, omdat er geen rijks-, provinciale of waterschapsbelangen in het geding zijn.

Ontwerpfase

Het plan wordt vervolgens als ontwerp ter inzage gelegd. Het ontwerpwijzigingsplan doorloopt de in de Wet ruimtelijke ordening (Wro) opgenomen formele bestemmingsplanprocedure. Dit betekent dat het ontwerpwijzigingsplan gedurende zes weken ter inzage wordt gelegd. Eenieder krijgt de gelegenheid voor het indienen van zienswijzen.

6.2 Economische uitvoerbaarheid

Het gaat hier niet om een wijzigingsplan dat een 'bouwplan' mogelijk maakt. De grondexploitatieregeling uit de Wet ruimtelijke ordening is dan ook niet van toepassing.

De noodzakelijke kosten van de gemeente bestaan uit de gebruikelijke kosten voor de planbegeleiding en het voeren van de procedure. Deze kosten worden gedekt uit de legesopbrengsten. Daarnaast wordt er met de initiatiefnemer een planschadeovereenkomst afgesloten.