direct naar inhoud van Toelichting
Plan: Wijzigingsplan Hellerweg 18
Status: ontwerp
Plantype: wijzigingsplan
IMRO-idn: NL.IMRO.0273.WPHellerweg18-ON01

Toelichting

Hoofdstuk 1 Inleiding

1.1 Doel

Bij de gemeente Putten is een verzoek ingediend betreffende het perceel Hellerweg 18 en 18A te Putten. Het verzoek is gericht om het voormalig agrarisch bedrijf om te zetten naar een woonbestemming waarbij gebruik gemaakt wordt van de regelingen in het kader van het beleid voor functieverandering in het buitengebied. Initiatiefnemer zal overtollige bebouwing (930m2) op het perceel slopen om op deze manier te voldoen aan het functieveranderingsbeleid. Daarbij zal een deel van de oorspronkelijke bijgebouwen blijven bestaan. Om een extra woning te kunnen realiseren moet minimaal 1.000 m2 worden gesloopt. Om hieraan te kunnen voldoen is elders de overige m2 sloopmeters gekocht.

De woning Hellerweg 18 en 18A veranderen beiden van een agrarische bestemming naar de bestemming 'Wonen'. 18A had in het vigerende bestemmingsplan de bestemming 'plattelandswoning' gekregen in verband met de op korte afstand gelegen agrarische opstallen.

afbeelding "i_NL.IMRO.0273.WPHellerweg18-ON01_0001.jpg"

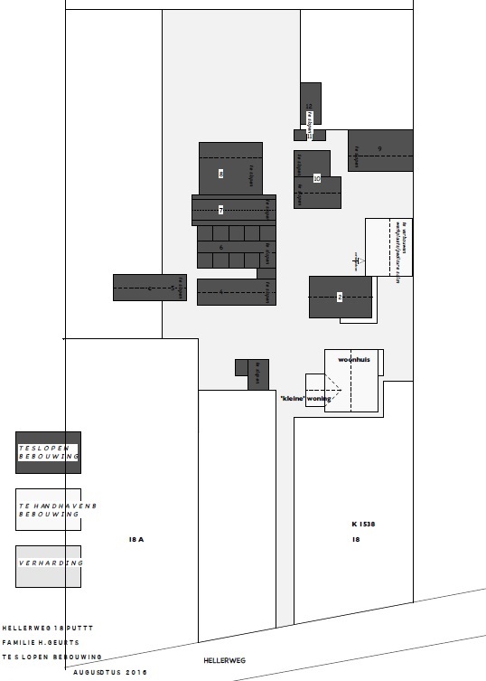
De familie Geurts is voornemens het perceel Hellerweg 18 (kadastraal sectie K, nummer 1538) opnieuw in te richten. De aanvraag behelst de wijziging van de bestemming 'Middelgroot agrarisch bedrijf 'naar de bestemming 'Wonen'. De bestemming 'Bed and Breakfast' is kort geleden vervallen, de bestemming 'Pedicure salon' verandert niet.

Het perceel is 2,65 hectare groot, 6.500 m2 hiervan wordt als erf opnieuw ingericht.

De overtollig geworden stallen en schuren zullen worden gesloopt. Het woonhuis met inwoonsituatie blijft gehandhaafd evenals een bijgebouw waarin o.a. de pedicuresalon is gehuisvest. In de brief van de gemeente Putten aan Schreuder Adviseurs van 4 september 2014 is vastgelegd dat het totale aantal sloopmeters 930 m2 bedraagt ( zie Bijlage 1 Principeverzoek). Het te behouden bijgebouw dient hierop in mindering te worden gebracht. Door de sloop met een aanvulling van rest meters uit de 'sloopmeterbank' tot in totaal 1.000 m2, verkrijgt men het recht op het perceel een nieuwe woning te bouwen met een bruto inhoud van maximaal 660 m3 en een bijgebouw van 80 m2.

Voor de verbouwing van het te behouden bijgebouw, werkplaats waarin opgenomen de pedicuresalon is in december 2015 een omgevingsvergunning afgegeven.

De bestaande woning blijft ongewijzigd.

In het vigerend bestemmingsplan 'Westelijk Buitengebied' is een algemene wijzigingsbevoegdheid opgenomen om agrarische bestemmingen om te kunnen zetten naar woonbestemmingen. Van deze bevoegdheid wordt in dit wijzigingsplan gebruik gemaakt.

1.2 De bij het plan behorende stukken

Het bestemmingsplan "Wijzigingsplan Hellerweg 18" bestaat uit de volgende stukken:

  • de verbeelding (tek.nr.:NL.IMRO.0273.WPHellerweg18-ON01 en een renvooi);
  • regels (en bijbehorende bijlage).

Op de verbeelding zijn de bestemmingen van de gronden binnen het plangebied aangegeven. In de regels zijn bepalingen opgenomen om de uitgangspunten van het plan zeker te stellen.

Het plan gaat vergezeld van een toelichting. De toelichting geeft een duidelijk beeld van het bestemmingsplan en van de daaraan ten grondslag liggende gedachten, maar maakt geen deel uit van het bestemmingsplan.

1.3 Ligging en begrenzing van het plangebied

Het plangebied Hellerweg 18/18A ligt ten zuidoosten van de kern Putten. De begrenzing van het plangebied is afgestemd op het bouwvlak zoals die geldt in het bestemmingsplan Westelijk Buitengebied.

afbeelding "i_NL.IMRO.0273.WPHellerweg18-ON01_0002.png" Ligging plangebied t.o.v. Putten

afbeelding "i_NL.IMRO.0273.WPHellerweg18-ON01_0003.png"

Ligging plangebied aan de Hellerweg te Putten

Het plangebied ligt te midden van een gebied waar verschillende functies naast elkaar voorkomen: woningen, bedrijven en agrarische bedrijven.

1.4 Vigerend bestemmingsplan

Voor het plangebied geldt het bestemmingsplan "Westelijk Buitengebied", vastgesteld op 3 juli 2014.

afbeelding "i_NL.IMRO.0273.WPHellerweg18-ON01_0004.png" Uitsnede vigerend bestemmingsplan

Voor de locatie geldt in het vigerend bestemmingsplan de bestemming 'agrarisch' en de dubbelbestemming 'Waarde - Archeologie 4'. Tevens gelden de functieaanduiding 'specifieke vorm van bedrijf - bed en breakfast en pedicuresalon', de functieaanduiding 'specifieke vorm van agrarisch - middelgroot agrarisch bedrijf' en de functieaanduiding 'intensieve veehouderij'.

In het bestemmingsplan Westelijk Buitengebied is een wijzigingsbevoegdheid opgenomen voor burgemeester en wethouders voor functieverandering naar wonen van een agrarisch bedrijf.

Artikel 34.16 Bouw extra woning/wooneenheden na bedrijfsbeëindiging

Burgemeester en Wethouders kunnen, mits – voor zover gelegen in dan wel grenzend aan de als Natura 2000 gebied aangewezen gebieden ‘Veluwerandmeren’ en/of ‘Veluwe’ – een natuuronderzoek in het kader van de Natuurbeschermingswet heeft plaatsgevonden, overeenkomstig artikel 3.6 van de Wet ruimtelijke ordening de binnen de bestemming 'Agrarisch' en 'Agrarisch met waarden - Landschap' voor de op de verbeelding met ‘groot agrarisch bedrijf’ of ‘middelgroot agrarisch bedrijf’ aangewezen gronden en de bestemmingen 'Bedrijf', 'Wonen', 'Bedrijf - Landelijke bedrijven', 'Horeca' en 'Detailhandel' wijzigen in de bestemming 'Wonen' ten behoeve van de bouw van een extra woning c.q. het realiseren van wooneenheden, met inachtneming van de volgende voorwaarden:

  • a. de wijziging kan uitsluitend plaatsvinden indien er sprake is van bedrijfsbeëindiging;
  • b. indien het betreft een bedrijfslocatie gelegen binnen de op de verbeelding als ’reconstructiewetzone - landbouwontwikkelingsgebied’ aangegeven gronden, zijn de woning en de wooneenheden uitsluitend toegestaan indien is aangetoond dat de woning of wooneenheden geen enkele belemmering oplevert voor de omliggende bedrijven;
  • c. de bepalingen bij of krachtens de Wet geluidhinder dienen in acht te worden genomen;
  • d. de wijziging is mogelijk indien alle aanwezige bebouwing wordt gesloopt overeenkomstig de onderstaande tabel en onder de volgende voorwaarden:
Minimaal te slopen fysiek legale bebouwing   Maximale inhoud woongebouw  
minimaal 1.000 m2   660 m3  
minimaal 2.000 m2   880 m3  
minimaal 3.000 m2   2 x 660 m3  

    • 1. indien ombouw van bestaande bebouwing naar wooneenheden niet mogelijk is, mogen maximaal twee (geschakelde) woongebouwen worden gebouwd;
    • 2. in geval van intensieve veehouderij in het op de verbeelding als ‘reconstructiewetzone - extensiveringsgebied’ aangegeven gebied wordt de in de tabel vermelde oppervlakte aan minimaal te slopen bebouwing met 20% verlaagd;
    • 3. het samenvoegen van de sloopoppervlakte van meerdere locaties is toegestaan om tot de ingevolge de tabel vereiste oppervlakte te komen, mits op deze locaties tegelijkertijd alle aanwezige bebouwing wordt gesloopt en van deze locaties in één en dezelfde wijzigingsprocedure de (agrarische) bedrijfsfunctie wordt verwijderd;
  • e. de hierboven aangegeven sloopverplichting is niet van toepassing op bebouwing met karakteristieke en/of cultuurhistorische waarden, deze bebouwing wordt echter wel meegeteld bij de berekening;
  • f. voor de berekening van de benodigde sloopmeters geldt dat niet vergunde gebouwen van voor 1 januari 1993 kunnen worden meegeteld tot maximaal het bouwrecht van 1 woning;
  • g. aangetoond dient te worden dat de extra woning of de wooneenheden passen in de gemeentelijke woningbouwprogrammering;
  • h. met de regels wordt aangesloten bij de regels die van toepassing zijn voor de bestemming 'Wonen';
  • i. de extra woning dient binnen het (voormalig) agrarisch bouwvlak te worden gesitueerd, of ter plaatse van de aanduidingen 'overige zone - intensief rood zwermgebied' en 'overige zone - extensief rood zwermgebied';
  • j. de inhoud van de extra woning dan wel van een wooneenheid mag niet meer bedragen dan 660 m³;
  • k. de oppervlakte aan bijgebouwen bedraagt per nieuw te bouwen woning c.q. wooneenheid maximaal 80 m²;
  • l. de extra woning dient goed in het landschap te worden ingepast;
  • m. de oppervlakte van het woonperceel (bebouwing met bijbehorend erf) mag niet meer bedragen dan 1.500 m²;
  • n. eventuele bijbehorende gronden die geen erffunctie hebben, blijven of komen beschikbaar voor de grondgebonden functies landbouw, natuur of recreatie, overeenkomstig de functie van het betrokken gebied.

1.5 Leeswijzer

Na deze inleiding wordt in hoofdstuk 2 een beschrijving van de bestaande en nieuwe situatie gegeven. In hoofdstuk 3 wordt ingegaan op het beleidskader. Hierin wordt het beleid van rijk, de provincie Gelderland en de gemeente Putten beschreven. Hoofdstuk 4 gaat in op alle relevante milieu- en omgevingsaspecten. In hoofdstuk 5 wordt een beschrijving gegeven van het plan en wordt ingegaan op de juridische aspecten. Hoofdstuk 6 gaat in op de economische en maatschappelijke uitvoerbaarheid van het plan.

Hoofdstuk 2 Bestaande en nieuwe situatie

De aanvrager wil 930 m2 bedrijfsbebouwing slopen en heeft elders de resterende sloopmeters gekocht. De aanvrager wil een extra woning op het perceel bouwen met een maximum inhoud van 660 m3.

De woningen 18 en 18A, nu bestemd als bedrijfswoning en plattelandswoning worden beiden reguliere woningen

Stedenbouwkundig en Landschappelijk kader

Het perceel ligt binnen het in 2014 vastgestelde Bestemmingsplan voor het Westelijk Buitengebied. Het is bestemd als 'Middelgroot Agrarisch bedrijf' en 'Pedicure salon'. Op de plankaart is een bestemmingsvlak aangegeven, alle voorziene bebouwing blijft ruim binnen dit vlak. De nieuwe bebouwing voldoet aan de regels gesteld in het bestemmingsplan.

Als kader voor de erfinrichting wordt het Landschap ontwikkelingsplan (LOP) Ermelo en Putten aangehouden. Het perceel valt binnen het gebied in het LOP aangegeven als 'Jonge Broekontginningen'. De richtlijnen, genoemd in het 'Beeldenboek landschap en erven' met betrekking tot de ruimtelijke indeling en het sortiment voor de beplanting worden aangehouden.

Het Beeldkwaliteitsplan Functieveranderingen Gelderse Vallei (april 2008) is van toepassing.

Erfinrichtingsplan

Voor de nieuwe erfinrichting wordt uitgegaan van de zogenaamde één erf gedachte. Het centrale erf wordt vanaf de Hellerweg ontsloten door een nieuwe laan, eenzijdig beplant met essen. De laan ontsluit ook het te verkopen land met agrarische bestemming wat achter het nieuwe erf ligt, tenzij dit op andere wijze bereikbaar wordt. Zo nodig wordt bij verkoop een recht van overpad geregeld. De aansluiting aan de Hellerweg schuift t.o.v. de huidige aansluiting circa 10 m op in westelijke richting. Zo ontstaat een beter bruikbare terrein inrichting. Het erfinrichtingsplan is als Bijlage 2 Inrichtingstekening toegevoegd aan dit plan.

In overeenstemming met het LOP Ermelo-Putten worden de lijnen haaks op de Hellerweg versterkt. Hierdoor ontstaat een wijd doorzicht op het achtergelegen land. Dit komt de karakteristiek van dit landschapstype ten goede. Bij de uitwerking van het beplantingsplan wordt dit uitgangspunt aangehouden.

Aan het centrale erf liggen de toegangen tot de bebouwing. De bestaande boerderij blijft op het erf door zijn vorm en nokhoogte het belangrijkste gebouw. De nieuwe woning met bijgebouw krijgt net als de te verbouwen werkplaats een strak volume, zonder aan- of uitbouwen, karakteristiek "schuur". De nok komt evenals de hoofdnok van de boerderij haaks op de Hellerweg. De nok blijft echter 1 meter lager dan de nok van de boerderij. Het nieuwe bijgebouw is nog lager met een nokrichting parallel aan de Hellerweg. Ook in het materiaal gebruik blijft de boerderij met baksteengevels dominant ten opzichte van de nieuwe woning met bijgebouwen, die grotendeels met hout beschoten worden.

Uitwerking

De bestaande werkplaats van 100 m2, waarin de pedicuresalon is ondergebracht, wordt opgeknapt. De omgevingsvergunning hiervoor is in december 2015 verleend. De dakbedekking van eterniet golfplaten wordt vervangen door gebakken dakpannen. De gemetselde gevels worden geïsoleerd en met hout gepotdekseld (zwart).

Het nieuw te bouwen woonhuis is opgezet als een simpel recht volume in één laag met kap. De nokrichting staat haaks op de Hellerweg.

De woning wordt dusdanig ontworpen dat men een wijds uitzicht heeft over de omliggende landerijen.

De woning krijgt een plint in een donkere steen en een opbouw beschoten in hout, geolied in een lichte neutrale kleur. Kozijnen worden gemaakt van hout en in een nadere te bepalen kleur geschilderd. Het dak wordt voorzien van gebakken pannen, gesmoord. Om eventueel de zuidwest kant te kunnen bekleden met zonnepanelen worden dakdoorbrekingen aan de noordoost kant gerealiseerd.

De schuur bij het nieuwe woonhuis heeft een oppervlak van 80 m2. Deze schuur wordt gepotdekseld, zwart met een dak van grijze pannen.

De landschapselementen

  • a. In het Landschapsontwikkelings plan (LOP) wordt voor het landschapstype 'Jonge broekontginningen' het accent gelegd op een streekeigen inrichting bij functie verandering en herinrichting van het erf. De herinrichting dient relatief open te zijn, rechte lijnen en kamers zijn karakteristiek.
  • b. De laan wordt aan de westzijde beplant met essen, Fraxinus excelsior. Deze boom past goed in het vochtige broekland, en wordt uiteindelijk circa 25 meter hoog en vormt een statige laan. Voor de verharding wordt de aanwezige bestrating hergebruikt. De laan is inclusief bermen circa 9 meter breed en 110 meter lang.
  • c. Het centrale erf ontsluit de woningen en bijgebouwen. Parkeren vindt plaats op eigen terrein. De inrichting is informeel. Op de erfgrens tussen het bestaande woonhuis en de werkplaats staat een haag. Een muur met poort scheidt de voorruimte van huis 1 van het erf. Voor de verharding wordt zoveel mogelijk gebruik gemaakt van de aanwezige bestrating. Een cluster notenbomen zorgt voor een centraal accent en maakt van het centrale erf een duidelijke ruimte. Het centrale erf is circa 20 bij 20 meter.
  • d. De voortuin aan de Hellerweg wordt een hoogstam boomgaard met fruitbomen. Op de vochtige grond zullen in het vroege voorjaar sneeuwklokjes en boerencrocus uitbundig bloeien. De boomgaard wordt omgeven door een strakke haag van circa anderhalve meter hoog. De aanwezige ligusterhaag wordt op termijn vervangen door een beukenhaag. De boomgaard wordt circa 30 bij 30 meter.
  • e. Direct aansluitend aan de woningen worden bloemen tuinen aangelegd (bijvoorbeeld een boerentuin met veel eenjarige planten en bloeiende heesters). Hagen gaan zorgen voor privacy onderling.
  • f. Op het gedeelte van het perceel wat achter nr. 18 A ligt wordt een bosplantsoen aangeplant in rechthoekige vakken. Er is in het plangebied ruimte voor een (gemeenschappelijke ) moestuin.
  • g. De bestaande wilgen langs de greppels op de erfgrenzen worden periodiek afgezet en in toom gehouden.

afbeelding "i_NL.IMRO.0273.WPHellerweg18-ON01_0005.jpg"

Foto's van de te slopen bebouwing

afbeelding "i_NL.IMRO.0273.WPHellerweg18-ON01_0006.jpg"

afbeelding "i_NL.IMRO.0273.WPHellerweg18-ON01_0007.jpg"

Foto van te handhaven bebouwing

afbeelding "i_NL.IMRO.0273.WPHellerweg18-ON01_0008.jpg"

afbeelding "i_NL.IMRO.0273.WPHellerweg18-ON01_0009.jpg"

Beeld vanaf de Hellerweg

afbeelding "i_NL.IMRO.0273.WPHellerweg18-ON01_0010.jpg"

Hoofdstuk 3 Beleid

3.1 Rijks beleid

3.1.1 Structuurvisie Infrastructuur en Ruimte

De kaders van het nieuwe rijksbeleid zijn opgenomen in de Structuurvisie Infrastructuur en Ruimte (SVIR) die op 13 maart 2012 door de Minister van I&M is vastgesteld. Deze structuurvisie vervangt de Nota Ruimte en heeft als credo "Nederland concurrerend, bereikbaar, leefbaar en veilig".

De SVIR omvat drie hoofddoelen, die als volgt zijn geformuleerd:

  • 1. Concurrerend: Het vergroten van de concurrentiekracht van Nederland door het versterken van de ruimtelijk-economische structuur van Nederland;
  • 2. Bereikbaar: Het verbeteren en ruimtelijk zeker stellen van de bereikbaarheid waarbij de gebruiker voorop staat;
  • 3. Leefbaar en veilig: Het waarborgen van een leefbare en veilige omgeving waarin unieke natuurlijke en cultuurhistorische waarden behouden zijn.

Voor een aanpak die Nederland concurrerend, bereikbaar, leefbaar en veilig maakt, moet het roer in het ruimtelijk en mobiliteitsbeleid om. Het Rijk kiest voor een selectievere inzet van rijksbeleid op 13 nationale belangen. De nationale belangen hebben onder andere betrekking op bijvoorbeeld ruimte voor waterveiligheid, behoud van nationale unieke cultuurhistorische kwaliteiten en ruimte voor een nationaal netwerk van natuur.

De juridische borging van de nationale belangen is vastgelegd in het Besluit algemene regels ruimtelijke ordening. In paragraaf 2.1.2 wordt hier nader op ingegaan.

3.1.2 Besluit algemene regels ruimtelijke ordening

Het Besluit algemene regels ruimtelijke ordening (Barro), ook wel de AMvB Ruimte genoemd, is op 22 augustus 2011 vastgesteld en in oktober 2012 aangevuld. Het Barro heeft als doel om vanuit een concreet nationaal belang een goede ruimtelijke ordening te bevorderen. De AMvB is het inhoudelijke beleidskader van het rijk waaraan ruimtelijke besluiten op provinciaal en gemeentelijk niveau moeten voldoen. Dat betekent dat de AMvB regels geeft over bestemmingen en het gebruik van gronden. Daarnaast kan zij aan opdragen in de toelichting bij een bestemmingsplan bepaalde zaken uitdrukkelijk te motiveren.

De algemene regels bewerkstelligen dat nationale ruimtelijke belangen doorwerken tot op lokaal niveau. Inhoudelijk gaat het om nationale belangen die samenhangen met het beschermen van ruimtelijke functies, zoals natuur in de Ecologische Hoofdstructuur (EHS), of met het vrijwaren van functies. Het besluit bevat alleen die nationale ruimtelijke belangen, die via het stellen van regels aan de inhoud of toelichting van bestemmingsplannen (of daarmee vergelijkbare besluiten) beschermd kunnen worden.

Onderhavig plan is niet in strijd met enig nationaal belang uit het Besluit algemene regels ruimtelijke ordening.

3.1.3 Nationaal Waterplan 2009 - 2015

Het Nationaal Waterplan is op 12 december 2009 vastgesteld en is het formele rijksplan voor het nationale waterbeleid. In de Waterwet is vastgelegd dat het rijk dit plan eens in de zes jaar opstelt. Het huidige plan geldt voor de periode 2009-2015. Het is de opvolger van de Vierde Nota waterhuishouding uit 1998 en vervangt alle voorgaande nota's waterhuishouding. Het plan bevat tevens de stroomgebiedbeheerplannen die op grond van de Kaderrichtlijn Water zijn opgesteld. Op basis van de Wet ruimtelijke ordening is het Nationaal Waterplan voor de ruimtelijke aspecten tevens aan te merken als structuurvisie.

Het Nationaal Waterplan heeft betrekking op het gehele watersysteem van Nederland, zowel oppervlaktewater, grondwater, als de bijbehorende waterkeringen, oevers en dergelijke.

Het kabinet kiest voor een strategie die bestaat uit "meebewegen, weerstand bieden, kansen pakken", adaptieve aanpak en samenwerking binnen en buiten het waterbeheer.

3.1.4 Waterbeleid in de 21e eeuw

Directe aanleiding voor deze nota is de zorg over het toenemend hoogwater in de rivieren, wateroverlast en de versnelde stijging van de waterspiegel. Ruimte die nu beschikbaar is voor de bescherming tegen overstromingen en wateroverlast, moet behouden blijven. Belangrijk onderdeel in het waterbeleid is de watertoets. Alle ruimtelijke plannen dienen een waterparagraaf te bevatten en aan een watertoets te worden onderworpen. De watertoets is geen toets achteraf, maar een procedure om tot een optimale inbreng van het waterbelang in ruimtelijke plannen te komen.

3.2 Provinciaal en regionaal beleid

3.2.1 Omgevingsvisie en -verordening Gelderland

Omgevingsvisie

Op 9 juli 2014 stelden Provinciale Staten de Omgevingsvisie Gelderland vast. In de Omgevingsvisie staan de hoofdlijnen van het provinciale beleid over onderwerpen als ruimte, water, mobiliteit, economie, natuur en landbouw. Op 24 september 2014 hebben Provinciale Staten de Omgevingsverordening vastgesteld.

De Omgevingsvisie geeft de visie voor vier grote opgaven in Gelderland:

  • 1. de economische kracht van de stedelijke netwerken (Arnhem-Nijmegen, Ede- Wageningen en de Stedendriehoek);
  • 2. de Gelderse corridor (de spoor-, weg en waterverbinding tussen de Rotterdamse haven en het Ruhrgebied);
  • 3. de versterking van de Veluwe als toeristisch aantrekkelijk natuurgebied;
  • 4. de krimp van de bevolking in de Achterhoek.

De Omgevingsvisie is opgebouwd uit verschillende thema's waarbij de provinciale doelstellingen zijn benoemd. In onderstaande wordt ingegaan op de thema's die van toepassing zijn op het plangebied.

Regio Noord-Veluwe

Het plangebied valt, net als de gehele gemeente Putten in de regio Noord-Veluwe. De dynamiek van het afwisselend landschap is kenmerkend voor de Noord-Veluwe. Het landschap bestaat uit drie onderdelen: het water van de beken, de randmeren en de IJssel, de bossen van de Veluwe en het gebied daartussen voor werken, wonen en welzijn met daarbij een rijke cultuurhistorie. Centraal staat de zorg voor mens, omgeving en economie. Rust en reuring zijn in evenwicht, mensen zien om naar elkaar en zijn ondernemend. Ondernemers zijn pro-actief en krijgen de ruimte.

De economische ontwikkeling is de motor van de regio. Het gaat daarbij om: versterking van de recreatieve en toeristische sector, de innovatie van het bedrijfsleven, het vasthouden en versterken van zorgondernemers en een toekomstbestendige agrarische sector. Het goud van de regio, de leefbaarheid in de kernen, de natuurgebieden en het waterlandschap, zijn in 2030 met elkaar verbonden.

Kenmerkend voor de regio Noord-Veluwe zijn:

  • rust en ruimte;
  • afwisselend landschap: water, boerenland, steden, dorpen, bos en hei;
  • een rijke cultuurhistorie;
  • gastvrijheid en mensen die omzien naar elkaar;
  • de recreatieve en toeristische sector en zorg;
  • goede verbindingen met omringende regio's.

De opgaven waar de regio voor staat:

  • Economische ontwikkeling is motor van de regio: versterking van de recreatieve en toeristische sector, innovatie in het bedrijfsleven, vasthouden en versterken van zorgondernemers, een toekomstbestendige agrarische sector.
  • Behouden, versterken en benutten van bestaande kwaliteiten: natuur, landschappen, water, gemeenschappen, steden en dorpen.
  • Verbinden van leefbaarheid in kernen met natuurgebieden en het waterlandschap.
  • Ruimte bieden aan ondernemers om een passend aanbod te ontwikkelen op deze opgaven.

Steden en omgeving

De provincie zet zich in voor vitale steden en dorpen en voor een duurzame verstedelijking. Daarvoor biedt deze Omgevingsvisie de volgende handvatten:

  • versterking van de stedelijke netwerken, gecombineerd met aandacht voor de vitaliteit van kleine kernen en dorpen;
  • een basis voor het terugdringen van leegstand en overcapaciteit in plannen;
  • zorgvuldige locatie-afwegingen die voortbouwen op de kwaliteit en de kracht van het bestaande en anticiperen opveranderingen in de toekomst, zonder het uitgaan van het bestaande tot dogma te verheffen;
  • een basis voor regionale afspraken over wonen en werken.

Ten aanzien van het bouwen van onder andere nieuwe woningen verschuift het accent van nieuwbouw naar het vitaliseren van bestaande gebieden en gebouwen. De provincie en partners gaan nieuwe ontwikkelingen bezien in samenhang met de bestaande voorraad. Dit vereist een denk- en cultuuromslag. Als leidend principe hanteren de provincie en partners de Gelderse ladder voor duurzaam ruimtegebruik.

Gelderse ladder voor duurzaam ruimtegebruik

Het accent van stedelijke ontwikkelingen verschuift van nieuwbouw naar het vitaliseren van bestaande gebieden en gebouwen. Voor een goede afweging van keuzes voor locaties van nieuwe gebouwen staat de Gelderse ladder voor duurzaam ruimtegebruik centraal. Met deze ladder wordt een transparante besluitvorming en een zorgvuldige ruimtelijke afweging nagestreefd. Het gaat om het tijdig afwegen van kansen en mogelijkheden om bestaande gebouwen te benutten bij overwegingen van nieuwe bebouwing. Als juridische basis gebruikt de provincie de ladder voor duurzame verstedelijking die het Rijk heeft vastgelegd in het Besluit ruimtelijke ordening (Bro).

Een goede afweging volgens de ladder vraagt om kennis van de bestaande voorraad.

Gekoppeld daaraan zijn er vragen over de opgaven en kwaliteiten in een gebied:

  • past de ontwikkeling bij de doelen in Gelderland? Zo ja:
  • hoe voegt de ontwikkeling extra kwaliteit toe aan een gebied?

afbeelding "i_NL.IMRO.0273.WPHellerweg18-ON01_0011.jpg"

Ladder voor duurzame verstedelijking

De rijksladder voor duurzame verstedelijking is van toepassing op elk ruimtelijk besluit dat voorziet in een stedelijke ontwikkeling. De provincie zal in samenwerking met haar partners aangeven over welke plannen zij in overleg wil. De systematiek van de ladder is het meest waardevol als deze op regionaal en structuurvisieniveau wordt toegepast. Alleen op die niveaus kan de samenhang tussen (de herstructureringsopgave van) de bestaande voorraad in de diverse kernen en de nieuwe ontwikkelingen op de diverse in- en uitbreidingslocaties beschouwd worden.

Uit Afdelingsjurisprudentie blijkt dat sprake is van een nieuwe stedelijke ontwikkeling bij een ontwikkeling van 10 à 15 woningen.

Conclusie

Met de ontwikkelingen binnen het plangebied zijn geen rijksbelangen gemoeid. De ontwikkeling draagt bij aan de ruimtelijke kwaliteit van de omgeving.

Toetsing aan de ladder van duurzame verstedelijking is voor de toevoeging van één woning in het buitengebied niet aan de orde.

Regionale beleidsinvulling functieverandering en neven-activiteiten

Voor regio De Vallei is op 4 april 2008 de uitwerking van het functieveranderingsbeleid van de provincie in regionaal verband vastgelegd (en aangevuld met een 'Nadere invulling' op 20 juni 2012). De algemene voorwaarden voor functieverandering dienen in acht te worden genomen. Daarnaast zijn in de regionale beleidsinvulling enkele criteria meegenomen die bijdragen aan de karakteristieken van de regio. Criteria:

  • de functieverandering wordt ingepast in het omringende landschap, bijvoorbeeld door de aanleg (en zo nodig bestemmen) van natuur- en landschapselementen. Daarbij moet aansluiting gezocht worden bij bestaande plannen voor natuur en landschap, zoals het Reconstructieplan en Landschapsontwikkelingsplannen. De initiatiefnemer zal daartoe een erfinrichtingsplan dienen te overleggen;
  • de functieverandering moet bijdragen aan de verbetering van de ruimtelijke en economische vitaliteit door middel van sloop van bebouwing al dan niet in combinatie met verbetering van publieke functies zoals natuurontwikkeling, bijdragen aan recreatieve routes of waterberging en dergelijke op plaatsen waar dit wenselijk is;
  • ingeval van sloop van bestaande legale bebouwing geldt als peildatum voor het aanwezig zijn van bestaande voormalige bedrijfsgebouwen: 2 jaar voor de datum dat de aanvraag voor functieveranderingen wordt ingediend. Voor deze methode met verschuivende datum is aan de ene kant gekozen om daarmee te voorkomen dat nieuwe bedrijfsbebouwing gebouwd worden, met als doel deze in te zetten voor het bereiken van sloopnormen in het kader van functieverandering. Aan de andere kant maakt het mogelijk dat ook relatief jonge gebouwen ingezet kunnen worden voor functieverandering, wat in de huidige economische tijd met snelle veranderingen gevraagd zal gaan worden;
  • opslag van goederen buiten gebouwen wordt niet toegestaan;
  • detailhandel wordt niet toegestaan, tenzij het betreft detailhandel in ter plaatse of in de regio geproduceerde producten;
  • de functieverandering mag niet leiden tot milieu hinder voor de omgeving;
  • in geval van vrijgekomen gebouwen van een stoppend agrarisch bedrijf dient de milieuvergunning te zijn ingetrokken;
  • indien sprake is van vervangende nieuwbouw en verbouw, zal de gemeentelijke Welstandsnota als toetsingskader gelden; - nevenactiviteit mag geen beperking opleveren voor omliggende agrarische bedrijven.

Functieverandering naar "wonen"

In het beleid voor functieverandering naar Wonen staat voor Regio De Vallei voorop, dat er sprake moet zijn van een verbetering van de ruimtelijke kwaliteit. In dat kader wordt het Wonen gezien als een aantrekkelijke vervangende functie in geval van stoppende of gestopte agrarische bedrijven. Er wordt in eerste instantie ingezet op het hergebruik van vrijkomende voormalige agrarische gebouwen.

Conclusie

Dit wijzigingsplan voldoet aan de voorwaarden die gesteld worden in het regionale functieveranderingsbeleid. De voormalige bedrijfswoning wordt omgezet naar een burgerwoning en overtollige bebouwing wordt gesloopt.

3.2.2 Woonbeleid provincie Gelderland

Provincie Gelderland, gemeenten en woningcorporaties pakken woonbeleid regionaal aan. Mensen zijn immers steeds minder gebonden aan een bepaalde gemeente. De provincie zorgt er via het Kwalitatief Woonprogramma voor dat het regionale aanbod van woningen zo goed mogelijk aansluit op de vraag. Zo heeft er een omslag plaatsgevonden van kwantiteit (contingenten) naar kwaliteit. Hierbij staat het bouwen naar de behoefte van woningen in de diverse woonmilieus voorop. Er wordt meer gekeken welke bevolkingsgroepen (starters, mensen met een laag inkomen en senioren) behoefte aan woonruimte hebben. De gemeente en de provincie hebben hierover, in het kader van het Kwalitatief Woonprogramma, afspraken gemaakt.

Het meest recente Kwalitatief Woonprogramma is het KWP3. Het Kwalitatief Woonprogramma 2010-2019 (KWP3) is een actualisering van het Kwalitatief Woonprogramma 2005-2014 (KWP2). Voor de regio Noord-Veluwe waar de kern Putten in gelegen is, wordt met name ingezet op kwalitatieve woningbehoefte. Om het woonbeleid op regionaal niveau zo goed mogelijk af te stemmen op de kwalitatieve woningbehoefte, zullen de gemeenten van de regio Noord-Veluwe en de in de regio werkzame woningcorporaties zich gezamenlijk met de provincie inspannen om ten aanzien van het regionaal woonprogramma 2010-2019:

  • 45 % van de nieuw te bouwen woningen in de betaalbare segmenten (de segmenten goedkope huur, betaalbare huur en goedkope koop opgeteld) te realiseren, gelijk aan het netto referentiekader. Dit komt overeen met bijna 3.000 woningen te bouwen voor de eigen bevolking, waarbij extra aandacht is voor de woonwensen van starters, ouderen en hulpbehoevenden;
  • in de periode 2010-2019 in de acht gemeenten van de regio Noord-Veluwe er een behoefte is geconstateerd van 6.700 woningen netto toe te voegen. Hiervan maken de op de planningslijst 2009 bekende plannen met minder dan 10 woningen voor in totaal 500 woningen onderdeel uit. De gemeenten gaan voor voldoende plancapaciteit, rekening houdend met de planuitval van 20 %. Dit komt neer op een totale capaciteit voor 8.000 à 8.100 woningen. Expliciet worden de visies van de woningcorporaties betrokken bij invulling van deze ruimte;
  • in samenspraak met de woningcorporaties is eind 2009 een lijst van uit te voeren projecten, welke als basis zal dienen voor de minimaal te realiseren woningbouw voor de jaren 2010, 2011 en 2012, opgesteld. Deze lijst zal als bijlage aan het Kwalitatief Woonprogramma 2010-2019 worden toegevoegd. Het initiatief ligt bij de provincie.

De realisatie van de extra woning is niet in strijd met het Woonbeleid van de provincie Gelderland.

3.2.3 Waterbeheersplan Veluwe 2010-2015

Voor de periode 2010-2015 heeft het Waterschap Veluwe het Waterbeheersplan Veluwe opgesteld. Op de onderdelen robuust watersysteem, waterkwaliteit en ecologie wordt er voor de periode 2010-2015 een doorkijk gegeven naar 2027. Op die manier maakt het Waterschap Veluwe de wateropgave voor wat betreft de Kaderrichtlijn Water, inclusief financiering, concreet. Dat wil zeggen dat de wateropgave voor de Veluwe wordt vertaald in de doelen die in 2015 zijn gehaald. Het waterbeheersplan heeft de volgende doelen:

  • 1. Veilige dijken.
  • 2. Gewenste grond- en oppervlaktewaterstanden.
  • 3. Vermindering wateroverlast en water voor droge tijden.
  • 4. Goede onderhoudssituatie.
  • 5. Herstel en behoud van bijzondere natuur.
  • 6. Goede waterkwaliteit.
  • 7. Stedelijk waterbeheer.
  • 8. Transport en zuivering van afvalwater.
  • 9. Brede kijk.

Per doel zijn verschillende opgaven van toepassing die in de periode 2010-2015 zullen worden aangepakt.

Voor dit wijzigingsplan is een waterparagraaf opgenomen in hoofdstuk 4. Hierin is opgenomen welke waterhuishoudkundige thema's relevant zijn voor het plangebied en op welke manier daarmee wordt om gegaan.

3.3 Gemeentelijk beleid

3.3.1 Structuurvisie Putten 2030

De gemeente heeft een Toekomstvisie Putten opgezet. Deze geeft op hoofdlijnen de koers voor de toekomst aan. Het is daarmee een belangrijk kader voor de meer concrete uitwerking van deze koers in sectoraal beleid. In de ruimtelijke Structuurvisie Putten 2030 vindt een nadere uitwerking plaats ten aanzien van het integrale ruimtelijke beleid van de gemeente.

Het plangebied ligt net op de rand van het landbouwontwikkelingsgebied met het agrarisch gebied. Ten aanzien van functieverandering naar niet-agrarische functies wordt gesteld dat deze alleen zijn toegestaan indien het functioneren van omliggende agrarische bedrijven niet wordt beperkt.

Het perceel ligt geheel binnen het bestemmingsplan Westelijk Buitengebied. In het bestemmingsplan Westelijk Buitengebied is een wijzigingsbevoegdheid opgenomen voor burgemeester en wethouders voor functieverandering naar wonen van een agrarisch bedrijf.

Burgemeester en wethouders kunnen, mits –voor zover gelegen in, dan wel grenzend aan de als Natura 2000-gebied aangewezen gebieden ‘Veluwerand-meren’ en/of ‘Veluwe’– een natuuronderzoek in het kader van de Natuurbeschermingswet heeft plaatsgevonden, overeenkomstig artikel 3.6 van de Wet ruimtelijke ordening de binnen de bestemming Agrarisch gebied en Agrarisch gebied met landschappelijke waarden voor de op de plankaart met ‘groot agrarisch bedrijf’ of ‘middelgroot agrarisch bedrijf’ aangewezen gronden en de bestemmingen ‘niet agrarische bedrijven’, ‘wonen met agrarische nevenactiviteiten’, Landelijke bedrijven’, ‘horeca’ en ‘detailhandel’ wijzigen in de bestemming Wonen ten behoeve van de bouw van een extra woning c.q. het realiseren van wooneenheden, mits wordt voldaan aan de volgende voorwaarden:

  • a. de wijziging kan uitsluitend plaatsvinden indien er sprake is van bedrijfsbeëindiging;
  • b. indien het een bedrijfslocatie betreft gelegen binnen de op de plankaart als ’landbouwontwikkelingsgebied’ aangegeven gronden, zijn de woning en de wooneenheden uitsluitend toegestaan in deelgebieden 4 en 5;
  • c. wijziging ten aanzien van de bestemmingen Horeca en Detailhandel is niet mogelijk in deelgebieden 4 en 5;
  • d. de bepalingen bij of krachtens de Wet geluidhinder dienen in acht te worden genomen;
  • e. de wijziging is mogelijk indien alle aanwezige bebouwing wordt gesloopt overeenkomstig de onderstaande tabel:
Minimaal te slopen fysiek legale bebouwing   Maximale inhoud woongebouw  
minimaal 1.000 m2   660 m3  
minimaal 2.000 m2   880 m3  
minimaal 3.000 m2   2 x 660 m3  

met dien verstande, dat:

indien ombouw van bestaande bebouwing naar wooneenheden niet mogelijk is, maximaal twee (geschakelde) woongebouwen mogen worden gebouwd;

in geval van intensieve veehouderij in het op de plankaart als extensiveringsgebied aangegeven gebied de in de tabel vermelde oppervlakte aan minimaal te slopen bebouwing met 20% wordt verlaagd;

het samenvoegen van de sloopoppervlakte van maximaal twee locaties is toegestaan om tot de ingevolge de tabel vereiste oppervlakte te komen, mits op beide locaties tegelijkertijd alle aanwezige bebouwing wordt gesloopt en van beide locaties in een en dezelfde wijzigingsprocedure de (agrarische) bedrijfsfunctie wordt verwijderd;

  • f. hiervoor aangegeven sloopverplichting is niet van toepassing op bebouwing met karakteristieke en/of cultuurhistorische waarden, deze bebouwing wordt echter wel meegeteld bij de berekening;
  • g. aangetoond dient te worden dat de extra woning of de wooneenheden passen in de gemeentelijke woningbouwprogrammering;
  • h. voor wat betreft de bouwvoorschriften voor de voormalige bedrijfswoning zijn de voorschriften zoals neergelegd in de bestemming wonen van overeenkomstige toepassing, met dien verstande dat de oppervlakte van de voormalige agrarische gebouwen dient te worden teruggebracht tot maximaal 150 m2 aan niet voor wonen bestemde gebouwen;
  • i. de extra woning dient binnen het (voormalig) agrarisch bouwvlak te worden gesitueerd, of in deelgebied 4 en 5;
  • j. de inhoud van de extra woning dan wel van een wooneenheid mag niet meer bedragen dan 600 m3;
  • k. de oppervlakte aan bijgebouwen mag per nieuw te bouwen wooneenheid maximaal 50 m2;
  • l. de extra woning dient goed in het landschap te worden ingepast;
  • m. met de voorschriften voor de extra woning en de woonheden wordt aangesloten bij de voorschriften die van toepassing zijn voor de bestemming wonen;
  • n. de oppervlakte van het woonperceel (bebouwing met bijbehorend erf) mag niet meer bedragen dan 1.500 m2;
  • o. eventuele bijbehorende gronden die geen erffunctie hebben, blijven of komen beschikbaar voor de grondgebonden functies landbouw, natuur of recreatie, overeenkomstig de functie van het betrokken gebied.
3.3.2 Woonvisie 2015 - 2020

In april 2015 is de Woonvisie 2015 - 2020 opgesteld. Samen met alle regiogemeenten en corporaties is er deelgenomen aan het WoON 2012 en is in regionaal verband een onderzoeksnotitie opgesteld. De regiogemeenten hebben vervolgens de ‘Woonvisie Regio Noord-Veluwe 2014’ opgesteld. Deze visie is de kapstok voor het lokaal woonbeleid van de regiogemeenten. De Woonvisie 2015 - 2020 is de lokale uitwerking van de gemeente Putten. De visie is bedoeld voor de periode van 2015-2020 met een doorkijk naar 2025.

De gemeente richt zich primair op het voorzien in de huisvesting van de lokale woningbehoefte. Dit komt neer op een beheerste groei, waarbij het dorpse karakter wordt behouden. Deze lijn wordt voortgezet vanuit het bestaande beleid. De gemeente sluit aan bij de afspraken die op regionaal niveau zijn gemaakt en streeft ernaar om in de periode (van 2013) tot 2025 in Putten 830 woningen toe te voegen aan de voorraad (circa 70 per jaar). Bij voldoende lokale behoefte zal dit in overleg met de regiogemeenten kunnen oplopen met maximaal 10%, tot 913. Rekening houdend met planuitval van 20%, mogen er voor deze periode maximaal 996 woningen in de planningslijst opgenomen worden.

Bij woningtoevoegingen hanteert Putten de ladder van duurzame verstedelijking (toepassing in bestemmingsplannen is sinds 2012 verplicht). Dat wil onder andere zeggen dat eerst wordt gekeken naar inbreidingsmogelijkheden en vervolgens pas naar uitbreidingsmogelijkheden. Het dorp Putten is de kern waar nieuwe woningbouw plaatsvindt. In de inbreidingsnota zijn onlangs mogelijke locaties voor inbreiding in beeld gebracht. Bij inbreiding zal vooral worden gekeken naar locaties waar kwaliteitswinst is te halen of waar door middel van functiewijziging, herstructurering of transformatie ruimte komt voor woningbouw.

3.3.3 Landschapsontwikkelingsplan Ermelo - Putten 2011-2021

De raad van de gemeente Putten heeft in zijn vergadering van 9 juni 2011 het Landschapsontwikkelingsplan Ermelo-Putten 2011-2021 vastgesteld. Het plangebied bestaat uit het buitengebied van de gemeente Ermelo en Putten, de kleine kernen en de randen van de kernen Ermelo en Putten.

In het Landschapontwikkelingsplan Ermelo-Putten 2011-2021 geven de gemeenten Ermelo en Putten hun visie op het landschap in de gemeenten. Er wordt daarbij onderscheid gemaakt in vier zones, namelijk de open randmerenzone, het 'agrarisch werklandschap' op de flank van het Veluwemassief, het bosrijke Veluwemassief met agrarische enclaves en het beekdal van de Leuvenumse / Staverdense Beek. Deze zones hebben elk een eigen karakteristiek die behouden wordt en verder wordt ontwikkeld en verbeterd. Deze karakteristiek vormt tevens het kader voor ruimtelijke ontwikkelingen.

Op hoofdlijnen is de visie gericht op:

  • actieve ontwikkeling van een landschappelijk raamwerk in gebieden waar veel ruimtelijke ontwikkelingen plaatsvinden (met name nieuwe dorpsranden en recreatiegebieden);
  • behoud en versterking van waardevolle landschappen door beheer en herstel van landschapselementen;
  • een landschappelijk kader voor te realiseren ecologische verbindingzones (combinatie versterking natuur én landschap);
  • verbeteren beeldkwaliteit van onder meer dorpsentrees en nieuwe en bestaande bebouwing en erven.

Per hoofdzone wordt ingezet op behoud en versterking van de kernkwaliteiten. Voor het bestemmingsplan Westelijk buitengebied Putten zijn de volgende drie zones en de visie hierop van belang:

  • Randmerenzone: De randmerenzone bestaat uit de twee delen: het bedijkte polderlandschap (Putterpolder) en het onbedijkte kustlandschap (kuststrook tussen de A28 en het Nuldernauw). Voor de Putterpolder wordt gestreefd naar behoud en versterking van het open polderlandschap met weidevogels. Aandachtspunten zijn de verbetering van de beeldkwaliteit van de polder (open landschap) en een goede invulling van de ecologische verbinding Veldbeekroute. Daarbij kan wellicht worden meegelift met de natuurmaatregelen die in het kader van het Natura 2000-gebied Arkemheen worden genomen. De kuststrook wordt verder ontwikkeld voor recreatie en natuur. De natuur krijgt vorm in de realisatie van het project Groene Kruispunt dat aansluit op de groene buffer ('landschapslijst') tussen Ermelo en Putten. Op de lange termijn zal de kuststrook worden vernat (vanwege peilverhoging van de randmeren).
  • Flank van het Veluwemassief: De flank is grotendeels 'agrarisch werklandschap' dat is opgebouwd uit een mozaïek van verschillende landschapstypen. Op de flank zijn gebieden te vinden met veel ruimtelijke ontwikkelingen, zoals de dorpsranden, gebieden met verblijfsrecreatie en landbouwontwikkelingsgebieden. Ook zijn er gebieden met weinig ontwikkelingen, zoals de landgoederenzone Gerven – Hell - Oldenaller (de 'waardevolle ruimtelijke eenheden' uit het kwaliteitsbeeld). In de gebieden met veel ruimtelijke ontwikkelingen wordt gestreefd naar de versterking dan wel aanleg van een landschappelijk raamwerk om de ruimtelijke ontwikkelingen in te bedden. Het raamwerk bestaat uit bouwstenen (landschapselementen zoals lanen) die passen bij het landschapstype. Ook bij kleinschalige ontwikkelingen, bijvoorbeeld op het niveau van erven, geldt dat de bouwstenen (eigenschappen) van de verschillende landschapstypen worden benut. Bijzondere aandacht gaat uit naar de ontwikkeling van een 'landschapslijst' tussen Ermelo en Putten, tevens fungerend als verbinding Veluwe - Nuldernauw. Bouwstenen zijn natuur, recreatie, landschapselementen (o.a. bosjes), landgoederen, cultuurhistorie en extensieve landbouw. In het gebied Gerven – Hell - Oldenaller wordt gestreefd naar behoud en versterking van de aanwezige natuur- en landschapswaarden, met behoud van de huidige agrarische gebruiksfunctie. Dit houdt in dat actief wordt ingezet op behoud en herstel van landschapselementen en erfbeplanting. Het gebied Veenhuizerveld / Huinerveld wordt ontwikkeld als verbinding (schakel) tussen de landgoederenzone Gerven-Hell en het Veluwemassief. Het landschap wordt versterkt door aanleg van landschapselementen en verbetering van de beeldkwaliteit met bijzondere aandacht voor het tegengaan van 'verhekking', overlast door verlichting, slechte beeldkwaliteit van paardenbakken en uitheemse beplanting. In 'de rest van' het agrarisch werklandschap, voornamelijk ten westen en zuiden van Putten, wordt gestreefd naar behoud van het half open landschap door ruimtelijke, ecologische en recreatieve versterking van de beken, behoud en beheer van de aanwezige landschapselementen en versterking van beeldkwaliteit van erven.
  • Veluwemassief – droog: Het droge westelijke deel van het Veluwemassief bestaat uit grote aaneengesloten bosgebieden en open heideterreinen en agrarische enclaves. Er wordt gestreefd naar meer afwisseling in de bosgebieden om de ecologische waarde en de belevingswaarde te verhogen. De toegankelijkheid voor recreanten wordt verbeterd door opstappunten en rustpunten te realiseren en door veilige oversteekplaatsen bij de provinciale wegen te realiseren.

Daarnaast geldt dat ter vergroting van de mogelijkheden van de beleving van het landschap routes vanuit de kernen (ommetjes), klompenpaden, rustplekken en opstapplekken worden gerealiseerd. Daarvoor kunnen schouwpaden van beken (i.s.m. het Waterschap), zandpaden, te herstellen kerkenpaden en andere historische routes worden benut.

Uit de visie blijkt dat er in de periode 2015 - 2025 naar verwachting circa 830 nieuwe woningen moeten worden gebouwd voor de lokale bevolking van Putten.

3.3.4 Welstandsnota

De gemeente Putten heeft een welstandsnota opgesteld in het kader van de Woningwet. De nota beschrijft het welstandsbeleid van de gemeente Putten en dient als toetsingskader voor het verlenen van omgevingsvergunningen en het beoordelen van bestaande bouwwerken.

De welstandsnota is het beleidsdocument dat voorziet in de criteria die het bevoegd gezang hanteert bij het beoordelen van een bouwplan op welstandsvereisten. Het bevoegd gezag is doorgaans het college van burgemeester en wethouders.

Algemene welstandscriteria

De welstandstoetsing vindt plaats aan de hand van de volgende aspecten:

  • Het gebouw in zijn omgeving.
  • Het gebouw op zichzelf.
  • De detaillering.
  • Het kleur- en materiaalgebruik.

Deze algemene welstandscriteria vormen een vangnet voor die gevallen waarin de overige criteria niet toereikend zijn. Welstandscriteria zijn beleidsregels waaraan het gemeentebestuur gehouden is, maar waarvan de burger mag vragen ze op zijn bouwplan niet van toepassing te laten zijn. In dat geval moet het bevoegd gezag over andere instructies aan de welstandscommissie kunnen beschikken.

Objectgerichte criteria buitengebied

Diverse bebouwingsvormen komen in de gemeente Putten veelvuldig voor, waarvoor het opstellen van objectcriteria relevant is. In het buitengebied betreft dat de historische agrarische bebouwing (het hallenhuis-type), de agrarische bedrijfsbebouwing, de agrarische woningen en de burgerwoningen, recreatieterreinen, landgoederen en windturbines.

Object niet agrarische woonbebouwing

Objectbeschrijving

Op diverse plekken in het buitengebied zijn van oudsher burgerwoningen aanwezig: bescheiden arbeidershuisjes, woningen en villa's. Het aantal burgerwoningen neemt de laatste jaren toe. Het gaat daarbij om toevoegingen en om veranderingen waarbij agrarische functies plaats maken voor woonfuncties. Het betreft veelal vrijstaande woningen die refereren aan een boerderijstijl of villa's met een historiserende maar ook met een moderne architectuur.

De woningen hebben overwegend één bouwlaag en nooit meer dan twee bouwlagen. Er komen veel verschillende dakvormen voor. De vormen van de massa zijn voornamelijk enkelvoudig en geometrisch. Detailleringen, kleur- en materiaalgebruik zijn zeer divers.

Objectcriteria

Ruimtelijke structuur

De bouwwerken passen in de omgevingskarakteristiek (bebouwing) en de bestaande organisatie op het perceel en zijn gerelateerd aan de landschappelijke inrichting.

Plaatsing

  • In de directe nabijheid van de weg, is de woning georiënteerd op de weg.
  • De plaatsing van bijgebouwen is ondergeschikt aan het hoofdgebouw.

Massa en vorm

  • De hoofdvorm is enkelvoudig en rechthoekig.
  • Aan- en uitbouwen zijn in de massa ondergeschikt aan het hoofdgebouw en worden terughoudend vormgegeven.
  • Er worden ononderbroken, forse kappen toegepast.
  • De nokrichting is in de verkavelingsrichting van het landschap.

Detaillering, kleur- en materiaalgebruik

  • De gevelgeleding wordt gekenmerkt door een evenwichtige, hiërarchische opbouw.
  • De hoofdmaterialen zijn natuurlijke materialen: (bak-)steen, pleisterwerk, hout, gegolfde dakpannen, riet en grasdak.
  • De hoofdkleuren zijn gedempte (aard-)kleuren of stucwerk in gebroken wit of grijs.
  • Kleurgebruik en detaillering van aan- en uitbouwen zijn afgestemd op de hoofdmassa.
  • Materiaalgebruik en kleuren van bijgebouwen in de nabijheid van het hoofdgebouw zijn afgestemd op het hoofdgebouw.
  • Bij verbouw worden bestaande details gerespecteerd.
  • De bebouwing is niet gebonden aan een bepaalde bouwstijl.
  • De woningen hebben een individuele uitstraling.

Eventuele nadere bepalingen per gebied zijn te vinden in de gebiedsbeschrijving en –criteria.

Gebiedsgerichte welstandcriteria buitengebied

Gebiedsindeling

De landschapstypenkaart van de 8 gemeenten van de Gelderse Vallei geeft globaal de verschillende landschappen aanwezig in de gemeente Putten aan (zie afbeelding hierna uitsnede Putten).

Voor de begrenzing van het buitengebied van Putten, ten behoeve van de gebiedsgerichte criteria van het buitengebied, zijn de nauwkeurige contouren vanuit de verschillende landschappen uit het Ontwerp Landschapsbeleidplan Putten (2001) aangehouden.

afbeelding "i_NL.IMRO.0273.WPHellerweg18-ON01_0012.jpg"

Het plangebied is gelegen in het gebied Heideontginningslandschap (zie navolgende afbeelding).

afbeelding "i_NL.IMRO.0273.WPHellerweg18-ON01_0013.jpg"

Hiervoor is geen aanleiding tot een verbijzondering van de loket- en objectcriteria voor de bebouwing in dit gebied. Om die reden wordt volstaan met een algemeen criterium, namelijk:

  • De bouwwerken passen in de omgevingskarakteristiek (bebouwing) en de bestaande organisatie op het perceel en zijn gerelateerd aan de landschappelijke inrichting.

Het bouwplan wordt ter zijner tijd voorgelegd aan Welstand.

Hoofdstuk 4 Milieu

Het voorliggend wijzigingsplan maakt een nieuwe ruimtelijke ontwikkeling mogelijk. Om deze reden is het noodzakelijk planologisch en milieukundig onderzoek uit te voeren teneinde de uitvoerbaarheid van het plan aan te tonen.

4.1 Geur

4.1.1 Algemeen

Relevante wet- en regelgeving

De Wet geurhinder Veehouderij (Wvg) geeft regels omtrent geurhinder van agrarische bedrijven. Dit is uitgewerkt in onder meer de handreiking Veehouderij en geurhinder. Hierin is opgenomen dat bij de beoordeling van het aspect geur van belang is om te toetsen of omliggende bedrijven niet in hun belangen (uitbreidingsmogelijkheden) worden geschaad. Daarnaast moet ter plaatse van de nieuwe functie sprake zijn van een goed woon- en leefklimaat voor het aspect geur. De nieuwe functie betreft in dit geval een woonbestemming in plaats van de huidige agrarische bestemming. Beide aspecten zijn hieronder nader toegelicht.

4.1.2 Onderzoek

Door Groenewold Adviesbureau voor Milieu & Natuur is in januari 2016 onderzoek gedaan naar het aspect geur.

Hierbij is gekeken naar:

  • 1. Worden omliggende veehouderijen in hun belangen geschaad
  • 2. Is er sprake van een goed woon- en leefklimaat.

ad 1

Voor de bepaling in hoeverre omliggende veehouderijen in hun uitbreidingsmogelijkheden worden beperkt, volstaat het om te toetsen aan de in artikel 14 lid 2 genoemde afstand van 50 meter. De wetgever heeft met dit artikel beoogd dat stoppende agrarische bedrijven, door functiewijziging, niet opeens een belemmering vormen voor omliggende bedrijven. In dergelijke situaties hoeft in de toekomst bij uitbreiding slechts getoetst te worden aan de vaste afstand van 50 meter.

ad 2

Voor deze vraag is conform de Handreiking geurhinder en veehouderij de achtergrondbelasting van belang. De achtergrondbelasting is de geurbelasting die alle bedrijven in een straal van 2 kilometer rond een planlocatie “cumulatief” veroorzaken. Het bepalen van deze achtergrondbelasting over een straal van 2 kilometer is voor één enkele functieverandering, waarvoor bovendien een regeling is opgenomen in de Wet geurhinder en veehouderij (artikel 14), een grote inspanning.

Uit het onderzoek blijkt dat burgerwoningen in het gebied eerder regel zijn dan uitzondering. Ook gezien de in de afgelopen jaren omgezette bestemmingen. Gelet op de aard van de omgeving rond het plangebied geldt dat de achtergrondbelasting niet anders zal zijn dan voor de omliggende burgerwoningen. Er is dan ook geen reden om aan te nemen dat voor de nieuwe woning het woon- en leefklimaat ten aanzien van geur slecht zal zijn. Een aanvullende geurberekening van alle bedrijven in een straal van 2 km rond het plangebied wordt dan ook niet nodig geacht.

4.1.3 Conclusie

De omzetting van het agrarische perceel Hellerweg 18/18A naar woonbestemming met gebruikmaking van artikel 14 lid 2 van de Wet geurhinder en veehouderij leidt niet tot belemmeringen voor omliggende bedrijven.

Op grond van de ontwikkelingen in het gebied rond Hellerweg 18/18A is er geen reden om aan te nemen dat er ter plaatse van het perceel een slecht woon- en leefklimaat zou zijn.

Het geuraspect is hiermee geen belemmering voor realisatie van het plan.

Het geuronderzoek is als Bijlage 3 Geur toegevoegd bij dit plan.

4.2 Bodem

4.2.1 Algemeen

Op basis van de Woningwet en het Bouwbesluit mag niet worden gebouwd op verontreinigde grond. Bij de aanvraag om een omgevingsvergunning moet vaak een bodemonderzoek worden geleverd. Dit is een verplichting uit de Woningwet om de gezondheid en veiligheid te garanderen van mensen die wonen, werken of verblijven in het gebouw waarvoor vergunning wordt aangevraagd. Een bodemonderzoek is noodzakelijk wanneer:

  • nog geen gegevens betreffende de bodemgesteldheid bekend zijn (dit betekent dus ook dat als er een bodemkwaliteitskaart is, er geen bodemonderzoek meer hoeft te komen);
  • er meer dan twee uur per dag mensen in verblijven;
  • als het bouwwerk de grond raakt en;
  • als er na sloop wordt herbouwd.
4.2.2 Onderzoek

In april 2016 is door Grondvitaal een verkennend bodemonderzoek uitgevoerd. Het doel van het verkennend bodemonderzoek is het vaststellen van de milieuhygiënische kwaliteit van de bodem met betrekking tot de eventuele aanwezigheid van bodemverontreiniging in de grond en het freatisch grondwater.

Bovengrond

Uit de toetsing van de analyseresultaten aan de Circulaire Bodemsanering 2013 blijkt dat in het bovengrondmengmonster vanaf het maaiveld tot 0,5 m.-mv. een overschrijding van de achtergrondwaarde is aangetroffen met PCB, koper, zink en PAK. De concentraties blijven echter beneden de grenswaarde voor nader onderzoek en zijn niet van een omvang waardoor de volksgezondheid of het milieu mogelijk schade zal worden toegebracht.

Ondergrond

Uit de toetsing van de analyseresultaten aan de Circulaire Bodemsanering 2013 blijkt dat de gemeten gehalten in de ondergrond vanaf 0,5 tot 2,0 m. -mv. beneden de achtergrondwaarden liggen.

Grondwater

Uit de toetsing van de analyseresultaten aan de Circulaire Bodemsanering 2013 blijkt dat het grondwater licht verontreinigd is met barium. De concentratie is niet van een omvang waardoor de volksgezondheid of het milieu mogelijk schade zal worden toegebracht.

Asbest

Tijdens de terreininspectie en de monstername van de grond zijn geen asbestverdachte materialen op of in de bodem aangetroffen.

4.2.3 Conclusie

De onderzoekshypothese ”onverdacht” wordt op grond van de analyseresultaten van de grond- en grondwatermonsters verworpen. De aangetroffen concentraties zijn echter van lichte aard geven geen aanleiding tot aanvullend onderzoek.

Het verkennend bodemonderzoek is als Bijlage 4 Verkennend bodemonderzoek toegevoegd bij dit plan.

4.3 Geluid

4.3.1 Algemeen

De Wet geluidhinder (Wgh) heeft tot doel de mensen te beschermen tegen geluidsoverlast ten gevolge van weg-, spoorweg- of industrielawaai. Op basis van deze wet dient bij het opstellen van het bestemmingsplan dan ook aandacht te worden geschonken aan het aspect "geluid". In de Wet geluidhinder is een zonering van industrieterreinen, wegen en spoorwegen geregeld. Enerzijds betekent dit dat (geluids)eisen worden gesteld aan de milieubelastende functies, anderzijds betekent dit dat beperkingen worden opgelegd aan milieugevoelige functies. De verplichting tot het uitvoeren van een akoestisch onderzoek in relatie tot het opstellen van een bestemmingsplan geldt niet indien in dat bestemmingsplan geen mogelijkheden worden geboden voor het realiseren van nieuwe woningen en andere geluidgevoelige objecten.

Aangezien er woningen (geluidgevoelige object) in het plangebied wordt gerealiseerd, dient er akoestisch onderzoek uitgevoerd te worden.

Met betrekking tot geluid veroorzaakt door het wegverkeer is in de Wet geluidhinder de verplichting opgenomen tot het verrichten van onderzoek naar de geluidsbelasting op de gevels van (nieuw geprojecteerde) woningen en andere geluidgevoelige objecten. Op grond van artikel 74 van de Wet geluidhinder (Wgh) hoofdstuk VI, afdeling 1 bevindt zich aan weerszijden van een weg een zone. Als in deze zone geluidgevoelige bebouwing wordt geprojecteerd dan dient akoestisch onderzoek te worden uitgevoerd. De breedte van deze zone is afhankelijk van:

  • de ligging van de weg in stedelijk of buitenstedelijk gebied;
  • het aantal rijstroken.

In stedelijk gebied worden twee typen wegen onderscheiden, met aan weerszijden van de weg de volgende zonebreedtes:

  • wegen met een of twee rijstroken: 200 meter;
  • wegen met drie of meer rijstroken: 350 meter.

In buitenstedelijk gebied worden drie typen wegen onderscheiden, met aan weerszijden van de weg de volgende zonebreedtes:

  • wegen met een of twee rijstroken: 250 meter;
  • wegen met drie of vier rijstroken: 400 meter;
  • wegen met vijf of meer rijstroken: 600 meter.

De volgende wegen hebben op grond van artikel 74 Wgh geen zone:

  • wegen gelegen in een als woonerf aangeduid gebied;
  • wegen met een maximum snelheid van 30 km/uur.
4.3.2 Onderzoek

Voor de realisatie van woningen langs wegen is in veel gevallen een akoestisch onderzoek noodzakelijk. De toekomstige woning is gelegen aan de Hellerweg waarvoor een maximum snelheid geldt van 60 km/uur. Vanuit de wet gezien is dus akoestisch onderzoek noodzakelijk. Echter de verkeersintensiteit van de Hellerweg is dusdanig laag dat geen overschrijding van de grenswaarde zal optreden. Zeker gezien het feit dat de nieuw te realiseren woning geprojecteerd wordt achter de reeds twee bestaande woningen en daardoor voor afscherming zorgen.

4.3.3 Conclusie

Het aspect geluid vormt geen belemmering voor de nieuw te bouwen woning.

4.4 Externe veiligheid

4.4.1 Algemeen

Het beleid voor externe veiligheid is gericht op het verminderen en beheersen van risico's van zware ongevallen met gevaarlijke stoffen in inrichtingen en tijdens het transport. Het doel van het veiligheidsbeleid is zowel individuele burgers als groepen burgers een minimum beschermingsniveau te bieden tegen een ongeval met gevaarlijke stoffen. Om dit doel te bereiken verplicht het Besluit externe veiligheid inrichtingen (Bevi) en het Besluit externe veiligheid buisleidingen (Bevb) en op termijn ook het Besluit transportroutes externe veiligheid (Btev) gemeenten en provincies bij besluitvorming in het kader van de Wet algemene bepalingen omgevingsrecht en de Wet op de ruimtelijke ordening afstand te houden tussen gevoelige objecten (zoals woningen) en risicovolle activiteiten. In de bovengenoemde wetgeving wordt onderscheid gemaakt tussen het plaatsgebonden risico en het groepsrisico. Beide begrippen worden hier onder uitgelegd.

Plaatsgebonden Risico (PR)

Het plaatsgebonden risico is de kans dat een persoon die zich gedurende een jaar onafgebroken en onbeschermd op een bepaalde plaats bevindt, overlijdt als gevolg van een ongeval met gevaarlijke stoffen. Dit risico wordt per risicobron vastgelegd in contouren. Er geldt een contour waarbinnen deze kans 10-6 (één op 1.000.000) per jaar bedraagt. Deze contour is wettelijk vastgesteld als grens- of richtwaarde. Kwetsbare objecten zoals bijvoorbeeld woningen, ziekenhuizen, verpleeghuizen, grote (kantoor)gebouwen en grotere recreatieterreinen zijn niet toegestaan binnen deze 10-6 contour.

Groepsrisico

Het groepsrisico is een berekening van de kans dat een groep personen binnen een bepaald gebied overlijdt tengevolge van een ongeval met gevaarlijke stoffen. De oriëntatiewaarde geeft hierbij de indicatie van een aanvaardbaar groepsrisico. Het groepsrisico is gedefinieerd als de cumulatieve kansen per jaar dat ten minste 10, 100 of 1000 personen overlijden als rechtstreeks gevolg van hun aanwezigheid in het invloedsgebied van een inrichting, transportroute gevaarlijke stoffen of buisleiding en als gevolg van een ongewoon voorval in dit invloedsgebied waarbij een gevaarlijke stof betrokken is. Het invloedsgebied is het gebied waarin personen nog worden meegeteld voor de berekening van het groepsrisico. Het groepsrisico legt een relatie tussen de kans op een ramp en het aantal mogelijke slachtoffers.

Het groepsrisico geeft aan hoe groot de kans is dat bij een ongeval bij een risicolocatie 10, 100 of 1000 slachtoffers tegelijk vallen. Bij transportrisico's geldt dat de oriëntatie waarde voor het groepsrisico overeen komt met de kans op 10 slachtoffers gelijk aan één op de tienduizend (10-4). De kans op 100 slachtoffers gelijk aan één op de miljoen (10-6) enzovoorts. Voor stationaire bronnen geldt dat de oriëntatiewaarde een factor 10 lager ligt. De oriëntatiewaarde voor het groepsrisico is geen wettelijke norm, het is bedoeld als een ijkpunt. Er kunnen redenen zijn dat een gemeente meer of juist minder risico's accepteert. De gemeente is verplicht om bij risicovolle situatie een belangenafweging te maken (verantwoording groepsrisico). Daarbij spelen onder anderen beheersbaarheid en bestrijdbaarheid van een incident, de zelfredzaamheid van bewoners, vluchtwegen, economische en maatschappelijke belangen een rol. Indien een ontwikkeling is gepland in de nabijheid van een risicobron geldt in principe een verantwoordingsplicht voor de gemeente voor de toename van het groepsrisico ten gevolge van een verhoogde personendichtheid.

4.4.2 Onderzoek

Om in beeld te brengen of er in het plangebied of in de nabijheid daarvan stationaire bronnen aanwezig zijn, is de provinciale risicokaart geraadpleegd. Een uitsnede daarvan is op de navolgende afbeelding weergegeven.

afbeelding "i_NL.IMRO.0273.WPHellerweg18-ON01_0014.jpg"

Uitsnede www.risicokaart.nl

In de nabijheid van het plangebied lopen geen wegen die een route voor gevaarlijke stoffen betreffen. Daarnaast is er in de omgeving van het plangebied ook geen sprake van vervoer van gevaarlijk stoffen over water/per spoor. In het plangebied ligt derhalve geen 10-6 plaatsgebonden risicocontour als gevolg van een vervoersstroom. In en in de nabijheid van het plangebied zijn geen buisleidingen aanwezig die in het kader van de externe veiligheid relevant zijn.

4.4.3 Conclusie

Het aspect externe veiligheid vormt voor dit plan geen belemmering.

4.5 Luchtkwaliteit

4.5.1 Algemeen

Op 15 november 2007 is de zogeheten 'Wet luchtkwaliteit' in werking getreden. Met de 'Wet luchtkwaliteit' wordt de wijziging van de 'Wet milieubeheer' op het gebied van luchtkwaliteitseisen bedoeld. De 'Wet luchtkwaliteit' vervangt het 'Besluit luchtkwaliteit 2005'.

De 'Wet luchtkwaliteit' voorziet onder meer in een gebiedsgerichte aanpak van de luchtkwaliteit via het 'Nationaal Samenwerkingsprogramma Luchtkwaliteit (NSL)'. De programma-aanpak zorgt voor een flexibele koppeling tussen ruimtelijke activiteiten en milieugevolgen. Van bepaalde projecten met getalsmatige grenzen is vastgesteld dat deze 'Niet in betekenende mate (NIBM)' bijdragen aan de luchtverontreiniging. Deze mogen zonder toetsing aan de grenswaarden voor luchtkwaliteit uitgevoerd worden.

Luchtkwaliteitseisen vormen onder de nieuwe 'Wet luchtkwaliteit' geen belemmering voor een ruimtelijke ontwikkeling als:

  • er geen sprake is van een feitelijke of dreigende overschrijding van een grenswaarde;
  • een project, al dan niet per saldo, niet tot een verslechtering van de luchtkwaliteit leidt;
  • een project 'niet in betekenende mate' bijdraagt aan de luchtverontreiniging;
  • een project is opgenomen in een regionaal programma van maatregelen of in het NSL, dat op 1 augustus 2009 in werking is getreden.

In de algemene maatregel van bestuur 'Niet in betekenende mate bijdragen' (Besluit NIBM) en de ministeriële regeling NIBM (Regeling NIBM) zijn de uitvoeringsregels vastgelegd die betrekking hebben op het begrip NIBM. Het begrip 'niet in betekenende mate bijdragen' is gedefinieerd als 3% van de grenswaarde voor NO2 en PM10.

In de Regeling NIBM is een lijst met categorieën van gevallen (inrichtingen, kantoor- en woningbouwlocaties) opgenomen die 'niet in betekenende mate' bijdragen aan de luchtverontreiniging. Deze gevallen kunnen zonder toetsing aan de grenswaarden voor het aspect luchtkwaliteit uitgevoerd worden. Het betreft de volgende categorieën:

  • kantoorlocaties groter dan 33.333 m² bruto vloeroppervlak bij één ontsluitingsweg;
  • kantoorlocaties groter dan 66.667 m² bruto vloeroppervlak met twee ontsluitingswegen;
  • woningbouwlocaties met meer dan 500 woningen met één ontsluitingsweg;
  • woningbouwlocaties met meer dan 1000 woningen met twee ontsluitingswegen;
  • voor projecten die combinaties hiervan vormen geldt een speciale formule, zie bijlage 3b van de Regeling NIBM;
  • projecten die gebruik maken van dezelfde ontsluitingsstructuur dienen bij elkaar te worden opgeteld.
4.5.2 Conclusie

Ten behoeve van het onderhavige wijzigingsplan is het uitvoeren van berekeningen niet nodig, omdat het plan niet in betekenende mate bijdraagt aan de luchtverontreiniging ter plaatse (conform besluit NIBM). De luchtkwaliteit vormt geen belemmering voor het plan.

4.6 Natuur

4.6.1 Algemeen

In verband met de Flora- en Faunawet en de geldende regelgeving op basis van de Natuurbeschermingswet 1998 en het Gelders Natuurnetwerk (GNN, voormalige EHS) is het noodzakelijk om vooraf te toetsen of ruimtelijke ingrepen en andere activiteiten niet strijdig zijn met aanwezige beschermde plant- en diersoorten of een beschermde leefomgeving.

Als beschermde soorten aanwezig zijn is er mogelijk een ontheffing nodig op grond van artikel 75 van de Flora- en faunawet (3e, 5e en 6e lid, onderdeel c). Voor ruimtelijke ingrepen zijn de soorten ingedeeld in drie categorieën van bescherming (zgn. Tabel 1, 2 en 3 soorten). Als er alleen soorten leven zoals aangegeven in Tabel 1 (algemene soorten) is er meestal geen ontheffing nodig. Als er soorten leven zoals vermeld in Tabel 3 (zwaar beschermd) of Tabel 2 (overige soorten) is mogelijk een ontheffing vereist. In ieder geval is dan nader onderzoek noodzakelijk en meestal ook het treffen van mitigerende of compenserende maatregelen.

Als door het treffen van maatregelen tijdens de werkzaamheden en na de realisatie van het project, wordt voorkomen dat er verbodsbepalingen uit de Flora- en faunawet worden overtreden én de functionaliteit van beschermde vaste rust- en verblijfplaatsen komt niet in het geding, is er geen ontheffing nodig. In sommige gevallen is het noodzakelijk of raadzaam om vooraf een ontheffing aan te vragen bij de Dienst Regelingen van het Ministerie van EL&I.

Als het plan invloed heeft op Natura 2000 gebied of gelegen is in het GNN moet dit inzichtelijk worden gemaakt en is mogelijk een vergunning noodzakelijk. Hiervoor is de provincie het bevoegd gezag.

4.6.2 Onderzoek

In december 2015 is door Groenewold Adviesbureau voor Milieu & Natuur een natuurtoets uitgevoerd voor de sloop van een aantal agrarische opstallen en de realisatie van een nieuwe woning op het terrein ten noordwesten van de bestaande woning Hellerweg 18 te Putten om de eventuele gevolgen voor de flora en fauna in beeld te brengen.

4.6.3 Conclusie

Flora- en Faunawet

Er zijn geen beschermde soorten gevonden of te verwachten. In de agrarische opstallen zijn geen nesten gevonden van vogels. In de broedtijd is het niet onmogelijk dat soorten als merel en roodborst in één van de opstallen gaan nestelen. Voor broedende vogels wordt geen ontheffing verleend. Vaste verblijfplaatsen van vleermuizen zijn niet op voorhand waarschijnlijk.

Er geldt een vrijstelling voor de algemeen beschermde soorten (Tabel 1). Voor aanvang van de werkzaamheden is het niet noodzakelijk om een ontheffing ex. art. 75 van de Flora- en Faunawet aan te vragen voor de soorten uit Tabel 2/3.

Er vindt door realisatie van het plan/uitvoering van de activiteiten dan geen overtreding plaats van de verbodsbepalingen van art. 11 Flora- en Faunawet.

Natuurbeschermingswet

Op basis van de ligging en aard van de ruimtelijke ingrepen is heeft deze ingreep geen negatieve invloed op de specifieke natuurwaarden. De in de omgeving aanwezige Natura 2000 gebieden Veluwe en Arkemheem liggen op respectievelijk ruim 3.600m en 2.950m afstand.

De activiteiten bestaan uit bewoning en de agrarische activiteiten worden beëindigd. Er zijn daarmee geen negatieve gevolgen te verwachten voor de instandhoudingsdoelstellingen en externe werking kan worden uitgesloten. Aanvullend onderzoek of een vergunning in het kader van de Natuurbeschermingswet zijn niet nodig.

Gelders Natuurnetwerk

De ingreep vindt plaats buiten de begrenzing van het GNN. Op basis van de ligging van het plangebied ten opzichte van de begrenzing van het GNN mag worden aangenomen dat er geen effecten zijn te verwachten op de wezenlijke waarden en kenmerken van het GNN. Specifieke maatregelen of aanvullend onderzoek worden niet nodig geacht.

Indien tijdens de uitvoering van de werkzaamheden beschermde soorten worden waargenomen dienen maatregelen te worden genomen om schade aan deze individuen zo veel mogelijk te voorkomen (bijvoorbeeld wegvangen en verplaatsen).

Het aspect natuur vormt geen belemmering voor de realisatie van de woning. Het uitgevoerde onderzoek is als Bijlage 5 Natuur toegevoegd bij dit plan.

4.7 Archeologie

4.7.1 Algemeen

Archeologie

De Monumentenwet 1988 verplicht gemeenten bij de vaststelling van een bestemmingsplan en bij de bestemming van de in het plan begrepen gronden, rekening te houden met de in de bodem aanwezige dan wel te verwachten archeologische waarden. Dit is in lijn met het Europese Verdrag van Malta.

Archeologische waarden zijn in Nederland veelal onzichtbaar, omdat ze grotendeels verborgen liggen in de bodem, waardoor ze niet eenvoudig te karteren zijn. Voor de onbekende waarden heeft de Rijksdienst voor het Cultureel Erfgoed de Indicatieve Kaart van Archeologische Waarden (IKAW) opgesteld. Voor de bekende waarden is de Archeologische Monumentenkaart (AMK) opgesteld.

Cultuurhistorische waarden

Als gevolg van het rijksbeleid ten aanzien van de monumentenzorg, is per 1 januari 2012 een wijziging van het Besluit ruimtelijke ordening van kracht. De wijziging betreft artikel 3.1.6, tweede lid, onderdeel a, als gevolg waarvan alle cultuurhistorische waarden uitdrukkelijk dienen te worden meegewogen bij het vaststellen van ruimtelijke ingrepen. Dit betekent dat in aanvulling op de archeologische aspecten nu ook de overige cultuurhistorische waarden moeten worden betrokken in het onderzoek.

Tot de overige cultuurhistorische waarden worden gerekend:

  • de historisch-geografische waarden (cultuurlandschap, structuren/lijnen en bijzondere punten);
  • de historisch-stedenbouwkundige waarden (stedenbouwkundige opbouw en identiteit);
  • de architectuurhistorische waarden (waardevolle kenmerken van gebouwen).
4.7.2 Onderzoek

De beoogde ontwikkeling ligt volgens het vigerende bestemmingsplan binnen de dubbelbestemming 'Waarde - Archeologie 4'. Binnen de dubbelbestemming 'Waarde - Archeologie 4' dient archeologisch onderzoek te worden verricht indien een bouwwerk wordt opgericht met een grotere oppervlakte dan 5.000 m² en dieper dan 40 cm. Bij de realisatie van de voorliggende ontwikkeling worden de genoemde drempelwaarden niet overschreden.

4.7.3 Conclusie

Doordat de genoemde drempelwaarde niet worden overschreden en een groot deel van het plangebied reeds geroerd is vormt het aspect archeologie geen belemmering voor de voorgestane ontwikkeling.

4.8 Water

4.8.1 Algemeen

Sinds 1 november 2003 is voor alle ruimtelijke plannen de watertoets verplicht. Het doel van de watertoets is waterbelangen evenwichtig mee te ne-men in het planvormingsproces van het Rijk, provincies en gemeenten. Hierm

ee wordt een veilig, gezond en duurzaam watersysteem nagestreefd. De toets omvat het gehele proces van vroegtijdig informeren, adviseren, afwegen en uiteindelijk beoordelen van de in ruimtelijke plannen voorkomende water-huishoudkundige aspecten. Via de digitale watertoets is beoordeeld of en wel-ke waterbelangen voor het plan relevant zijn.

In het plangebied liggen geen belangrijke oppervlaktewateren (zogenaamde primaire of A-watergangen), waterkeringen of gebieden die zijn aangewezen voor regionale waterberging. Dit betekent dat dit plan geen essentiële waterbelangen raakt.

Aandachtspunten

Voor de verdere uitwerking en concretisering van de beoogde ontwikkeling, geeft het waterschap aan dat rekening gehouden moet worden met een aantal algemene en gebiedsspecifieke aandachtspunten voor water.

Algemene aandachtspunten

Vasthouden - bergen - afvoeren

Een belangrijk principe is dat een deel van het hemelwater binnen het plangebied wordt vastgehouden en/of geborgen en dus niet direct afgevoerd wordt naar de riolering of het oppervlaktewater. Hiermee wordt bereikt dat de waterzuiveringsinstallatie beter functioneert, verdroging wordt tegen gegaan en piekafvoeren in het oppervlaktewater (met eventueel wateroverlast in benedenstrooms gelegen gebieden) wordt voorkomen. Bij lozing op oppervlaktewater zal hiervan een melding gedaan moeten worden bij het waterschap.

Grondwaterneutraal bouwen

Om grondwateroverlast te voorkomen adviseert het waterschap om boven de gemiddelde hoogste grondwaterstand (GHG) te ontwerpen. Dit betekent dat aspecten zoals ontwateringsdiepte en infiltratie van hemelwater, beschouwd worden ten opzichte van de GHG. Het structureel onttrekken / draineren van grondwater is geen duurzame oplossing en moet worden voorkomen. Het waterschap adviseert de initiatiefnemer dan ook om voorafgaand aan de ontwikkeling een goed beeld te krijgen van de heersende grondwaterstanden en GHG. Eventuele grondwateroverlast is in eerste instantie een zaak voor de betreffende perceeleigenaar.

Schoon houden - scheiden - schoon maken

Om verontreiniging van bodem, grond- en/of oppervlaktewater te voorkomen is het van belang dat het afstromende hemelwater niet verontreinigd raakt. Dit kan door nadere eisen of randvoorwaarden te stellen aan bijvoorbeeld de toegepaste (bouw)materialen. De initiatiefnemer past de beslisboom voor het afkoppelen van verhard oppervlak van het waterschap toe.

4.8.2 Onderzoek

Voor dit plan is in januari 2016 door EDOK-RO de digitale watertoets uitgevoerd. De watertoets en de samenvatting zijn als Bijlage 6 Watertoets en als Bijlage 7 Samenvatting watertoets toegevoegd bij dit plan. Op basis hiervan heeft het Waterschap Vallei en Veluwe voor dit plan een positief wateradvies gegeven.

4.8.3 Conclusie

Het aspect water vormt geen belemmering voor de realisatie van de woningen.

Hoofdstuk 5 Juridische planopzet

5.1 Algemeen

Het bestemmingsplan voldoet aan alle vereisten die zijn opgenomen in de Wet ruimtelijke ordening (Wro) en het Besluit ruimtelijke ordening (Bro). Inherent hieraan is de toepassing van de Standaard Vergelijkbare Bestemmingsplannen (SVBP) 2012. De SVBP maakt het mogelijk om bestemmingsplannen te maken die op vergelijkbare wijze zijn opgebouwd en op een zelfde manier worden verbeeld. De SVBP 2012 is toegespitst op de regels die voorschrijven hoe bestemmingsplannen conform de Wro en het Bro moeten worden gemaakt. De SVBP geeft bindende standaarden voor de opbouw en de verbeelding van het bestemmingsplan, zowel digitaal als analoog. De regels van dit bestemmingsplan zijn opgesteld conform deze standaarden, met inachtneming van de Wet algemene bepalingen omgevingsrecht (Wabo).

Het bestemmingsplan regelt de gebruiks- en bebouwingsmogelijkheden van de gronden in het plangebied. De juridische regeling is vervat in een verbeelding en bijbehorende regels. Op de verbeelding zijn de verschillende bestemmingen vastgelegd, in de regels (per bestemming) de bouw- en gebruiksmogelijkheden.

5.2 Toelichting op de bestemmingen

In deze paragraaf wordt een korte toelichting gegeven op de inhoud van de bestemmingen in dit wijzigingsplan.

Wonen

Op het gehele bestemmingsvlak is de bestemming “Wonen” van toepassing. De drie woningen zijn mogelijk binnen de bouwvlakken.

Het bestemmingsplan bevat een drietal bestemmingsvlakken, met elk een bouwvlak waarbinnen het hoofdgebouw en de bijgebouwen moeten worden opgericht. De gronden voor de woningen hebben elk een bestemmingsvlak op maat gekregen. De inpassing van de woningen in deze omgeving vraagt om dit maatwerk. Juist vanwege deze bijzondere locatie is een erfinrichtingsplan opgesteld, met daarin drie kavels van circa 1.500 m2. 

Hoofdstuk 6 Economische en maatschappelijke uitvoerbaarheid

6.1 Economische uitvoerbaarheid

Ingevolge het bepaalde in artikel 3.1.6 van het Besluit ruimtelijke ordening, gaat een plan vergezeld van een toelichting, waarin ook inzicht wordt gegeven in de uitvoerbaarheid van het plan. Het uitvoeren van het plan heeft mogelijk financiële gevolgen. Deze gevolgen komen voor rekening van de initiatiefnemer. De economische uitvoerbaarheid hoeft derhalve niet te worden aangetoond. Er zal een anterieure overeenkomst met de initiatiefnemers worden afgesloten zodat er geen financiële gevolgen voor de gemeente zijn.

6.2 Maatschappelijke uitvoerbaarheid

De procedures voor de vaststelling van een plan zijn door de wetgever geregeld. Met betrekking tot de inspraak bevat de Wet ruimtelijke ordening (Wro) geen procedureregels en is in de Wro zelf niet verplicht gesteld. Het betreft een ontwikkeling op slechts één perceel, die passend is binnen het provinciaal en gemeentelijk beleid. Het onderhavig plangebied is gering van omvang en de ruimtelijke consequenties zijn beperkt. Tevens raakt het plan geen (beleids)belangen van ketenpartners, zoals de provincie of het waterschap.

Besloten is om het wijzigingsplan als ontwerp ter inzage te leggen, uiteraard wel met behoud van de mogelijkheid tot het indienen van zienswijzen.

Ook wordt het plan voorgelegd aan de overlegpartners in het kader van art. 3.1.1 van het Besluit ruimtelijke ordening.

Van de te doorlopen procedure en daaraan verbonden ter inzage termijn wordt openbare kennisgeving gedaan volgens de wettelijk voorgeschreven kennisbronnen.

6.3 Overleg

Gezien de geringe omvang van het onderhavige plan is van het maken van een voorontwerp afgezien en is besloten om het ontwerpwijzigingsplan ter inzage te leggen, uiteraard wel met behoud van de mogelijkheid tot het eventueel indienen van zienswijzen.

De naaste buren zijn door de initiatiefnemer op de hoogte gesteld van de voorgenomen plannen. Zij hebben aangegeven positief tegenover de plannen te staan.