direct naar inhoud van Toelichting
Plan: Woonzorgcomplex Oslolaan 2-4
Status: vastgesteld
Plantype: bestemmingsplan
IMRO-idn: NL.IMRO.0184.BP2018Osla24-0301

Toelichting

Hoofdstuk 1 Inleiding

1.1 Aanleiding en doelstelling

Net ten noorden van het centrum van Urk stond aan de Oslolaan 2 en 4 en Nieuw Guineastraat 1 en 1a de Wilhelminaschool. De school is buiten gebruik geraakt en vervolgens gesloopt. De locatie is daarmee vrij gekomen voor een nieuwe ontwikkeling.

Wonen en zorg is in de laatste jaren sterk in ontwikkeling. Daarbij is een steeds grotere vraag naar langer zelfstandig wonen. De gemeente Urk wil, in verband met deze ontwikkelingen, zorgen voor passende woningen. De locatie van de voormalige Wilhelminaschool is hiervoor geschikt.

Het doel is om op de locatie een gebouw te realiseren waarin onder andere 64 levensloopbestendige appartementen, een wijkcentrum en bedrijfsruimtes een plaats krijgen. Deze ontwikkeling past niet in het geldende bestemmingsplan voor de locatie. De gemeente Urk heeft daarom besloten een nieuw bestemmingsplan op te stellen, om hiermee de gewenste ontwikkeling juridisch-planologisch mogelijk te maken. Dit bestemmingsplan voorziet daarin.

1.2 Ligging en begrenzing plangebied

Het plangebied betreft de voormalige schoollocatie en de daaraan grenzende percelen aan de Oslolaan 2 en 4 en de Nieuw Guineastraat 1 en 1a. Het plangebied ligt direct noordelijk van het centrum van Urk, dichtbij het voorzieningencentrum De Hofstee. Aan de noord-, oost- en zuidzijde wordt het plangebied begrensd door woningbouw in verschillende vormen. Westelijk grenst het plangebied aan de Westermeerdijk (dijk langs IJsselmeer). De volgende afbeeldingen geven een indicatie van de locatie en grens van het plangebied.

afbeelding "i_NL.IMRO.0184.BP2018Osla24-0301_0001.jpeg"

Locatie van het plangebied

afbeelding "i_NL.IMRO.0184.BP2018Osla24-0301_0002.jpeg"

Begrenzing van het plangebied

1.3 Geldende bestemmingsplan

Voor het plangebied geldt het bestemmingsplan De Noord, dat is vastgesteld op 26 juni 2008. Het plangebied heeft daarin vier bestemmingen, namelijk "Maatschappelijke doeleinden", "Woondoeleinden", "Groenvoorzieningen" en "Verkeers- en verblijfsdoeleinden". Daarnaast is de dubbelbestemming "Zone ten behoeve van de archeologische waarden" van toepassing op het hele plangebied. Langs de Westermeerdijk ten westen van het plangebied ligt de dubbelbestemming "Waterstaat - Vrijwaringszone". Een groot deel van het plangebied heeft daarnaast de aanduiding "wijzigingsgebied 1".

afbeelding "i_NL.IMRO.0184.BP2018Osla24-0301_0003.jpg"

Fragment bestemmingsplan De Noord

De gewenste nieuwe ontwikkeling past niet binnen de bestemmingen zoals deze nu gelden. Enerzijds omdat de gewenste ontwikkeling niet in de bestemmingsomschrijving van deze bestemmingen past en anderzijds omdat de nieuwbouw buiten de geldende bouwvlakken van dit bestemmingsplan komt.

Bij de dubbelbestemming voor de archeologische waarden zijn regels opgenomen die voorschrijven dat een vergunning nodig is bij verschillende bodemroerende werken en werkzaamheden. Via een onderzoek moet daarbij aangetoond worden dat geen archeologische waarden aanwezig zijn. In paragraaf 4.4.1 wordt nader ingegaan op dit onderwerp.

De dubbelbestemming voor de vrijwaringszone heeft betrekking op het vrijhouden van deze zone van bebouwing rond het waterstaatkundig werk (de Westermeerdijk). Vrijstelling hiervan is mogelijk wanneer geen onevenredige afbreuk wordt gedaan aan deze vrijwaringszone. Over de dijk en de daar omheen liggende vrijwaringszone is meer beschreven in paragraaf 4.10.

De regels voor het opgenomen wijzigingsgebied 1 zijn opgenomen in de algemene wijzigingsregels. Deze geven de mogelijkheid om het bestemmingsplan onder voorwaarden te wijzigen voor grondgebonden woningen. De gewenste ontwikkeling betreft geen grondgebonden woningen, waardoor geen toepassing gegeven kan worden aan de wijzigingsbevoegdheid. De wijzigingsbevoegdheid is bovendien niet van toepassing op de woning Oslolaan 4, die wel in het plangebied is meegenomen. Daarom is voor de gewenste ontwikkeling ingezet op een bestemmingsplan.

Voor het plangebied is hiernaast ook de Parapluherziening Parkeernormen Urk (vastgesteld 19 maart 2015) van toepassing. Hierin zijn regels opgenomen die een aanvulling zijn op onder andere het bestemmingsplan De Noord. De regeling betreft de realisatie van voldoende parkeerplaatsen. Hiervoor is in dit plan een regel opgenomen die voorschrijft dat een omgevingsvergunning voor het bouwen , het uitbreiden en het wijzigen van de functie van gebouwen en gronden alleen wordt verleend wanneer bij de aanvraag aangetoond is dat wordt voorzien in voldoende parkeergelegenheid. De normering die is opgenomen in de 'Notitie Parkeernormen Urk 2014 (1e herziening)' (vastgesteld d.d. 4 november 2014) is hierbij kaderstellend. In paragraaf 4.3 wordt nader op het parkeren ingegaan.

1.4 Opbouw van het bestemmingsplan

In deze toelichting komen achtereenvolgens de volgende aspecten aan de orde:

  • In hoofdstuk 2 'Planbeschrijving' wordt de bestaande en toekomstige invulling van het plangebied beschreven;
  • In hoofdstuk 3 'Beleidskader' volgt vervolgens een beschrijving van het beleidskader dat van toepassing is op het plan;
  • In hoofdstuk 4 'Planologische en milieutechnische randvoorwaarden' worden de relevante milieu- en omgevingsaspecten behandeld;
  • In hoofdstuk 5 'Juridische aspecten' wordt ingegaan op de juridische aspecten van het bestemmingsplan. Daarbij wordt ook ingegaan op invulling van de mogelijkheden die de Crisis- en herstelwet biedt voor onderhavig plan;
  • In hoofdstuk 6 'Uitvoerbaarheid' komen de economische en maatschappelijke uitvoerbaarheid aan bod.

Hoofdstuk 2 Planbeschrijving

Dit hoofdstuk beschrijft het plangebied en haar omgeving in de huidige situatie en na realisatie van de gewenste ontwikkeling. De gewenste ontwikkeling is de basis voor dit bestemmingsplan en moet op een goede manier ingepast zijn in de bestaande omgeving.

2.1 De omgeving

Het plangebied is aan de noord-, oost- en zuidzijde omgeven door woningen. Daarnaast is, aan de noordoostzijde het voorzieningencentrum De Hofstee aanwezig (zie onderstaande foto's). Hierin zijn onder meer een supermarkt, een bakkerij, een cafetaria en een kerk te vinden. Bij dit voorzieningencentrum is een parkeerterrein aanwezig, dat vanaf verschillende zijden bereikbaar is. Dit biedt voldoende parkeergelegenheid voor de omliggende voorzieningen. De belangrijkste ontsluitingswegen voor het voorzieningencentrum en daarmee ook het te realiseren woonzorgcomplex zijn de Oslolaan (vanuit het oude dorp) en de Almerelaan vanaf de Singel (ontsluitingsweg voor Urk).

afbeelding "i_NL.IMRO.0184.BP2018Osla24-0301_0004.jpeg" afbeelding "i_NL.IMRO.0184.BP2018Osla24-0301_0005.jpeg"

Voorzieningencentrum De Hofstee

Het bebouwingsbeeld in de omgeving van het plangebied is divers. Bij de grondgebonden woningen (noord- en zuidzijde) gaat het hoofdzakelijk om bebouwing in twee lagen met een kap. Het betreft rijwoningen met een voor- en achtertuin. De bebouwing aan de Oslolaan heeft meer massa. Direct grenzend aan het plangebied betreft dit een woongebouw van 3 lagen met een kap. De volgende foto's geven een beeld van de bebouwing aan de Oslolaan.

afbeelding "i_NL.IMRO.0184.BP2018Osla24-0301_0006.jpeg" afbeelding "i_NL.IMRO.0184.BP2018Osla24-0301_0007.jpeg"

Bebouwingsbeeld aan de Oslolaan

De Oslolaan is een ontsluitingsroute vanuit het centrum van Urk, via de Almerelaan naar de Singel. De weg hierop ingericht met een hoofdrijbaan voor auto's, fietsstroken en voetpaden (zie ook voorgaande foto's). Langs de Oslolaan zijn voor aanwonenden parkeerplaatsen aangelegd. De andere straten rondom het plangebied betreffen woonstraten. Deze hebben één rijbaan voor alle verkeer met aan één of twee zijden een voetpad. Parkeren in deze woonstraten vindt plaats in parkeervakken, op het erf van de woning of langs de straat.

De westelijke grens van het plangebied is de Westermeerdijk, waarachter het IJsselmeer ligt. Het is daarmee een belangrijke waterkering voor Urk. Tussen de dijk en het plangebied liggen een watergang en een brede groenstrook. Over de waterkerende functie en de gevolgen daarvan voor het bestemmingsplan staat meer beschreven in paragraaf 4.10.

afbeelding "i_NL.IMRO.0184.BP2018Osla24-0301_0008.jpeg"

De Westermeerdijk

2.2 Het plangebied

In het plangebied was voorheen de Wilhelminaschool aanwezig. Dit betrof een schoolgebouw dat gericht was op de Oslolaan en Nieuw Guineastraat. Aan de achterzijde van het gebouw was een gymzaal aanwezig. De school is gesloten en de genoemde bebouwing is inmiddels gesloopt.

 afbeelding "i_NL.IMRO.0184.BP2018Osla24-0301_0009.jpeg"

Luchtfoto van de situatie zonder de Wilhelminaschool

Na de sloop van de school en (even later) de daarbij horende gymzaal, heeft de grond een periode braak gelegen. Al snel is het ingezaaid met gras, waardoor het als trapveldje in gebruik is genomen. Daarnaast zijn hierin enkele speeltoestellen geplaatst. Op die manier is het plangebied tijdelijk in gebruik en verwaarloost het niet.

afbeelding "i_NL.IMRO.0184.BP2018Osla24-0301_0010.jpeg"

Huidige situatie plangebied vanaf de hoek Oslolaan - Nieuw Guineastraat

De Oslolaan 2 en 4 betreffen twee vrijstaande grondgebonden woningen. De woningen hebben twee bouwlagen met een kap en passen daarmee in het huidige bebouwingsbeeld langs de Oslolaan. De woningen hebben een achtertuin waarin de nodige aan- en uitbouwen zijn geplaatst. De bebouwing op deze percelen wordt binnenkort gesloopt, zodat ook dit deel van het plangebied gebruikt kan worden voor de nieuwe invulling van het plangebied.

afbeelding "i_NL.IMRO.0184.BP2018Osla24-0301_0011.jpeg"

Aanblik van de bebouwing aan de Oslolaan (vanaf de Nieuw Guineastraat)

2.3 Gewenste ontwikkeling

2.3.1 Veranderende zorgvraag

Het laatste decennium is (al) veel veranderd op het gebied van wonen met zorg. Het ingezette beleid door Den Haag op het terrein van scheiden van wonen en zorg zorgt voor grote vraagstukken op landelijk, regionaal, maar vooral lokaal niveau, voor gemeentes, woningbouwcorporaties en zorgorganisaties. Mensen worden door het landelijk beleid gevraagd langer zelfstandig thuis te blijven wonen, waarbij de financiering voor bijvoorbeeld huishoudelijke zorg, met een korting, is overgedragen aan gemeentes. Daarnaast verandert de behoefte van ouderen; waarbij meer service wordt gevraagd. De cliënt is steeds mondiger en heeft behoefte aan veiligheid in de omgeving en het eigen huis. Daarnaast is eenzaamheid een groeiend probleem. De behoefte aan beschut en beschermd wonen voor ouderen blijft bestaan. Dit heeft bij de gemeente Urk geleid tot het opstellen van nieuw beleid voor wonen en zorg.

Met het landelijk beleid, de veranderende zorgvraag en het nieuwe gemeentelijke zorgbeleid als basis heeft de gemeente Urk onderzoek laten doen naar de mogelijkheden voor de herinvulling van het plangebied met een accommodatie waarin wonen en zorg een plaats krijgen. Dit onderzoek is verwoord in de Haalbaarheidsstudie 2de zorgcluster Urk en de Analyse behoefte en aanbod woonvormen met zorg (zie bijlagen 1 en 2).

2.3.2 Samenwerking

Om het gewenste zorgcluster tot stand te brengen hebben de gemeente en zorgorganisatie Talma een intentieovereenkomst getekend (2016). Het doel van de overeenkomst was het uitvoeren van het haalbaarheidsonderzoek dat duidelijkheid verschaft over de programmatische, markttechnische, kwalitatieve, ruimtelijk-planologische, organisatorische en financiële haalbaarheid van de voorziene ontwikkeling. In de haalbaarheidsstudie zijn ook de mogelijkheden onderzocht om te komen tot een vervolgovereenkomst. In die overeenkomst wordt de samenwerking tussen de partijen bij de verdere planuitwerking en realisatie en de daaraan verbonden voorwaarden geregeld.

Voordat het bestemmingsplan als ontwerp ter inzage gaat wordt deze vervolgovereenkomst gesloten. De afspraken voor de herinvulling van het gebied worden daarin vastgelegd. De gemeente is eigenaar van de te herontwikkelen gronden en faciliteert het planologische traject. Talma zorgt voor de realisatie en exploitatie van het gebouw.

2.3.3 Het programma

In het kader van het haalbaarheidsonderzoek zijn inloopavonden met de omwonenden georganiseerd. De algemene conclusie hieruit was dat de noodzaak van de komst van het nieuwe zorgcluster onderstreept werd en dat het plangebied hiervoor als geschikte locatie gezien werd. Daarnaast zijn de eerste plannen voor het gebouw tijdens de avonden besproken. Hierbij is rekening gehouden met de wensen van de omwonenden. Kort samengevat heeft dit geleid tot het volgende programma voor de invulling van het gebied:

  • een gebouw dat bestaat uit twee volumes;
  • het volume aan de Oslolaan is hoger (3 lagen) dan het volume bij de dijk (2 lagen);
  • de bovenste bouwlaag aan de Oslolaan is terugliggend ten opzichte van onderliggende lagen of voorzien van een kapconstructie;
  • het gebouw krijgt 64 levensloopbestendige (tweekamer- en driekamer-)appartementen;
  • een plaats voor het wijkcentrum;
  • 2 gemeenschappelijke huiskamers;
  • een ruimte voor dagbesteding;
  • bedrijfsruimtes (bijvoorbeeld fysiotherapie, kapper);
  • ondersteunende ruimtes als kantoor voor het zorgpersoneel, scootmobielruimte(s)/fietsenstalling, sanitaire voorzieningen;
  • voldoende parkeergelegenheid bij het gebouw;
  • een tuin en een dakterras.
2.3.4 Het plan

Als resultaat van de inloopavonden en het daaruit resulterende programma is een plan voor het plangebied gemaakt. Ruimtelijk lijkt op de locatie sprake te zijn van twee hoofdvolumes van 3 (oostelijk) en 2 (westelijk) bouwlagen hoog. Op de begane grond zijn deze twee met elkaar verbonden. De verbinding ligt zo veel mogelijk zuidelijk op het perceel en is één bouwlaag hoog. Hiermee wordt het beeld van de twee hoofdvolumes zo veel mogelijk gerealiseerd. De verbinding biedt plaats voor het wijkcentrum, toegang tot de tuin, de dagbestedingsruimte en gemeenschappelijke huiskamer.

Door de situering van de gebouwen wordt ‘inkijk’ naar omliggende tuinen zo veel mogelijk voorkomen. Hiermee ontstaat bovendien ruimte voor parkeren tussen de gebouwen. Tot slot wordt een beperking van zonlicht en zichtlijnen hiermee zo veel mogelijk voorkomen.

afbeelding "i_NL.IMRO.0184.BP2018Osla24-0301_0012.jpg"

Impressie nieuwe situatie (begane grond, bron: Korfker architecten)

afbeelding "i_NL.IMRO.0184.BP2018Osla24-0301_0013.jpg"

Dwarsdoorsneden nieuwbouw

De bebouwing aan de Oslolaan heeft een gevarieerde architectuur. Ook heeft de bebouwing in verhouding tot de andere bebouwing in de omgeving een groter volume. In de plint van de bestaande bebouwing is sprake van verschillende functies en op de verdieping(en) vooral van wonen.

Met de nieuwbouw voor het plangebied is rekening gehouden met de bestaande functionele en ruimtelijke situatie. Het nieuwe volume aan de Oslolaan is passend bij de omgeving (3 bouwlagen, 10 meter). Het ligt gedeeltelijk iets naar achteren ten opzichte van de naastgelegen bebouwing. Hiermee wordt het profiel van deze straat breder en krijgt meer 'lucht'. Dit voorkomt een grotere schaduwwerking op de bestaande bebouwing aan de overzijde van de Oslolaan. Een ander voordeel is dat hiermee aan de straatzijde de mogelijkheid wordt gecreëerd voor een voorrijdmogelijkheid voor hulp- en taxidiensten.

Aan de dijkzijde wordt de bebouwing twee bouwlagen (6,5 meter) hoog. Dit deel van het gebouw wordt vooral gebruikt voor appartementen. Ook deze zijn vanuit de binnenzijde van het gebouw bereikbaar.

Het gebouw heeft aan de zijde van de Oslolaan en in de verbinding naast wonen ook andere functies, waaronder de bedrijfsruimten en het wijkcentrum. Deze functies zijn ondergeschikt aan de woonzorgfunctie en maken hiervan deel uit. Hiermee ontstaat een nieuwe plint aan deze straat. De toegang tot de functies is alleen via de binnenzijde van het gebouw mogelijk. Aan de straatzijde heeft het gebouw slechts één hoofdentree. Een tweede hoofdentree is in het verbindingsstuk aanwezig, nabij het nieuwe parkeerterrein en de gewenste gezamenlijke tuin. De tuin wordt dusdanig ingericht dat deze ruimtelijk duidelijk bij het gebouw hoort.

afbeelding "i_NL.IMRO.0184.BP2018Osla24-0301_0014.jpg"

Impressie van de nieuwbouw vanuit het noorden (bron: gemeente Urk)

Rondom het gebouw wordt op meerdere plaatsen nieuwe parkeergelegenheid gerealiseerd. De grootste parkeercapaciteit wordt gerealiseerd tussen de twee grotere bouwdelen van het gebouw. De bestaande straat (aftakking Nieuw Guineastraat) met parkeervakken wordt hier verlengd en heringericht. Dit parkeerterrein biedt ruimte voor bewoners en bezoekers van de nieuwbouw en aangrenzende (bestaande woningen). Daarnaast wordt aan de zuidzijde van de verbinding een nieuw parkeerterrein aangelegd. Dit terrein is vooral bedoeld voor de gebruikers van het wijkcentrum in de nieuwbouw. Aan de Oslolaan komt parkeergelegenheid voor bezoekers van de bedrijfsruimten en voor hulp- en taxidiensten. In paragraaf 4.3 staat een onderbouwing van de parkeerbalans.

Hoofdstuk 3 Beleidskader

Dit hoofdstuk beschrijft het van belang zijnde rijks-, provinciale en gemeentelijke beleid. Daarbij worden, waar nodig uitgangspunten voor dit bestemmingsplan geformuleerd.

3.1 Rijksbeleid

3.1.1 Structuurvisie Infrastructuur en Ruimte (2012)

Per 1 juli 2008 is de Wet ruimtelijke ordening (Wro) in werking getreden. Een van de centrale uitgangspunten is de scheiding tussen beleid en normstelling. Het beleid wordt in eerste aanzet vormgegeven in een structuurvisie en is juridisch alleen nog bindend voor de rijksoverheid. Naast integraal planologisch beleid, kunnen bij Algemene Maatregel van Bestuur regels worden gesteld omtrent onder andere bestemmingsplannen. De algemene regels bewerkstelligen, dat nationale ruimtelijke belangen doorwerken tot op lokaal niveau, in die zin, dat respectievelijk provinciale inpassingsplannen en gemeentelijke bestemmingsplannen daarop moeten worden afgestemd.

In de structuurvisie schetst het Rijk de ambities voor concurrentiekracht, bereikbaarheid, leefbaarheid en veiligheid tot 2040 (lange termijn) en doelen, belangen en opgaven tot 2028 (middellange termijn). De centrale visie wordt uiteengezet in drie hoofddoelstellingen voor de middellange termijn (2028), namelijk “concurrerend, bereikbaar en leefbaar&veilig”. Voor de drie rijksdoelen zijn de onderwerpen van nationaal belang benoemd waarmee het Rijk aangeeft waarvoor het verantwoordelijk is en waarop het resultaten wil boeken.

De SVIR benoemd 14 nationale belangen. De belangrijkste nationale belangen die van toepassing zijn op het plangebied zijn:

  • Nationaal belang 4: efficiënt gebruik van de ondergrond. Dit belang heeft een relatie met de gebruiksmogelijkheden van de ondergrond van het Nederlandse vasteland, bijvoorbeeld voor de winning van oppervlaktedelfstoffen of drinkwater. Hiervan is op dit moment in dit plangebied geen sprake en dit wijzigt met de gewenste ontwikkeling niet. Dit belang heeft geen directe doorwerking in dit bestemmingsplan.
  • Nationaal belang 8: verbeteren van de milieukwaliteit (lucht, bodem, water) en bescherming tegen geluidsoverlast en externe veiligheidsrisico’s. Deze aspecten hebben een grote samenhang met andere nationale belangen. Om schade te voorkomen moeten deze aspecten bij ruimtelijke ontwikkelingen afgewogen worden. In dit bestemmingsplan vindt dat plaats in hoofdstuk 4.
3.1.2 Besluit algemene regels ruimtelijke ordening (Barro)

Kern van de Wro is dat alle overheden hun ruimtelijke belangen vóóraf kenbaar maken en aangeven langs welke weg zij die belangen denken te realiseren. Het rijk en de provincies bemoeien zich voortaan uitsluitend met wat daadwerkelijk van nationaal respectievelijk van provinciaal belang is. Ook moeten rijk en provincies duidelijk maken of de borging van een belang gevolgen heeft voor ruimtelijke besluitvorming door provincies en gemeenten.

Het Besluit algemene regels ruimtelijke ordening (Barro) is 17 december 2011 in werking getreden en heeft als doel om vanuit een concreet nationaal belang een goede ruimtelijke ordening te bevorderen. De AMvB is het inhoudelijke beleidskader van het rijk waaraan bestemmingsplannen van gemeenten moeten voldoen. Dat betekent dat de AMvB regels geeft over bestemmingen en het gebruik van gronden en zich primair richt tot de gemeente. Daarnaast kan zij aan de gemeente opdragen in de toelichting bij een bestemmingsplan bepaalde zaken uitdrukkelijk te motiveren.

De algemene regels bewerkstelligen dat nationale ruimtelijke belangen doorwerken tot op lokaal niveau. Inhoudelijk gaat het om nationale belangen die samenhangen met het beschermen van ruimtelijke functies, zoals natuur in het Natuurnetwerk Nederland (NNN), of met het vrijwaren van functies.

Niet alle nationale ruimtelijke belangen staan in het Barro. Het besluit bevat alleen die nationale ruimtelijke belangen, die via het stellen van regels aan de inhoud of toelichting van bestemmingsplannen (of daarmee vergelijkbare besluiten) beschermd kunnen worden. Belangen waarvoor regels zijn opgenomen zijn onder andere grote rivieren, defensie, waterkeringen, ecologische hoofdstructuur en erfgoederen.

Geen van de in het Barro opgenomen nationale ruimtelijke belangen zijn van toepassing op het plangebied.

3.2 Provinciaal en regionaal beleid

3.2.1 Omgevingsvisie Flevoland - FlevolandStraks

Op 8 november 2017 heeft de provincie Flevoland deze omgevingsvisie vastgesteld. De Omgevingsvisie FlevolandStraks geeft de visie van de provincie Flevoland op de toekomst van dit gebied. De visie gaat over de periode tot 2030 en verder. Het geeft aan welke kansen en opgaven er voor Flevoland liggen en welke ambities voor de toekomst er zijn. Het bijzondere verleden van de jongste provincie van Nederland vormt de basis van de visie.

Flevoland is gemaakt voor ontwikkeling. De ontwikkelingsgerichtheid is onderdeel van onze identiteit. Hier grijpt de provincie met lef de kansen van nieuwe ontwikkelingen. En de ontwikkelingen blijven doorgaan. Denk aan opgaven zoals woningbouw, bedrijvigheid, herontwikkelingen, nieuwe voorzieningen, klimaatverandering, bodemdaling, waterveiligheid, transformatie in landbouw, duurzame energie. Alle opgaven - klein of groot - omarmt de provincie op een wijze, waarbij ze de kenmerkende elementen van de polder koesteren. Binnen deze kenmerken geven ze ruimte aan ontwikkelingen. De overheden hebben de polders aangelegd en ingericht. Het is een plek waar inwoners, organisaties en ondernemers hun idealen kunnen realiseren. Hierdoor krijgt de provincie meer verrassing, spontaniteit en variatie. Mensen maken Flevoland.

Meer specifieke uitspraken over de toekomstige invulling van de provincie worden in de visie niet beschreven. De provincie faciliteert de ontwikkelende partijen zo veel mogelijk, zo ook bij de ontwikkeling in het plangebied.

Onderhavig plan voorziet in levensloopbestendige appartementen. Er wordt een voorziening gerealiseerd voor mensen die vanwege hun leeftijd, lichamelijke of geestelijke beperkingen zijn aangewezen op enige zorg en ondersteuning. Dit project draagt daarmee bij aan de opgave Krachtige Samenleving uit de omgevingsvisie.

3.2.2 Provinciaal Omgevingsplan Flevoland 2006

De provincie Flevoland heeft een Omgevingsplan vastgesteld voor de periode 2006-2015 (OPF 2006), met een doorkijk naar 2030. Het OPF 2006 is een samenbundeling van de vier wettelijke plannen op provinciaal niveau: Streekplan, Milieubeleidsplan, Waterhuishoudingsplan en Provinciaal Verkeer- en Vervoerplan. Door de vier plannen in één integraal plan samen te voegen, zijn de hoofdlijnen van het beleid van de provincie Flevoland compact en is de samenhang tussen de diverse beleidsterreinen het best gewaarborgd. Het plan bevat tevens de hoofdlijnen van het economische, sociale en culturele beleid. In dit Omgevingsplan worden normen en kaders die in Europese en nationale regelgeving zijn vastgelegd niet herhaald wanneer dit niet expliciet is voorgeschreven. Wel wordt waar nodig een doorvertaling gemaakt naar de Flevolandse situatie. Omdat beleid niet statisch is, zijn er sinds de vaststelling op 2 november 2006 veel beleidsaanpassingen geweest. Deze zijn alle verwerkt en te vinden in een zogenaamde geconsolideerde versie van het Omgevingsplan op de website van de provincie.

De Omgevingsvisie Flevoland - FlevolandStraks is vastgesteld (zie paragraaf 3.2.1) ter vervanging van de OPF 2006, maar het daarbij behorende Uitvoeringsprogramma is nog niet vastgesteld. Voorlopig blijven de delen II en verder van het OPF 2006 daarom nog van kracht; in deel II is het beleidskader opgenomen en in deel III de uitvoeringsagenda.

3.2.3 Verordening voor de fysieke leefomgeving Flevoland

Deze verordening is een juridische vertaling van het beleid op provinciaal niveau. In de verordening is een aantal regels opgenomen met betrekking tot belangrijke ruimtelijke elementen die een doorwerking hebben in het bestemmingsplan. Op onderdelen is de verordening in de loop van de jaren gewijzigd. Voor het plangebied zijn vanuit de verordeningen en daarbij horende wijzigingen is het volgende relevant:

Provinciaal archeologisch en aardkundig kerngebied

Urk is aangewezen als Provinciaal archeologisch en aardkundig kerngebied. Voor deze gebieden zet de provincie in op behoud van archeologische waarden in deze gebieden. Dit is voorheen vertaald in de archeologische dubbelbestemming. Paragraaf 4.4.1 gaat verder in op archeologie.

afbeelding "i_NL.IMRO.0184.BP2018Osla24-0301_0015.jpg"

Beschermingszone van het provinciaal archeologisch en aardkundig kerngebied

3.3 Gemeentelijk beleid

3.3.1 Structuurvisie Urk 2035+

Binnen de Structuurvisie wordt aangegeven hoe de gemeente de komende jaren haar ruimtelijke beleid vorm en inhoud geeft. De Structuurvisie geeft een ruimtelijk en realistisch beeld van de verwachte en wenselijke ontwikkelingen en de daarbij behorende randvoorwaarden. Zo wordt op het hoogste abstractieniveau afstemming aangebracht binnen het ruimtelijke beleid.

afbeelding "i_NL.IMRO.0184.BP2018Osla24-0301_0016.jpg"

Fragment Structuurvisie Urk 2035+

Naast de algemene beleidsopgaven die de gemeente in de structuurvisie formuleert, worden ook specifieke binnenstedelijke ontwikkelingsgebieden aangegeven. De locatie van de Wilhelminaschool is daarbij genoemd. De gemeente voorziet hierbij een 'verkleuring' naar een woninbouwlocatie. De locatie is geschikt voor de ontwikkeling van een woonzorg-servicezone, vooral door de directe nabijheid van het voorzieningencentrum De Hofstee. In het gebied wordt ingezet op een combinatie van woonzorg-concepten, woningbouw en zorgvoorzieningen voor de oudere doelgroep. Door de ligging aan de Westermeerdijk is dat gebied vooral geschikt voor specifiek woningbouw. In de uitvoeringsparagraaf is de herontwikkeling van deze locatie voorzien voor de korte termijn. De ontwikkeling die in dit bestemmingsplan mogelijk wordt gemaakt past dan ook goed binnen de Structuurvisie.Urk 2035+.

3.3.2 Strategische Woonvisie Urk 2035+

Op 30 april 2015 heeft de gemeenteraad van Urk de Strategische Woonvisie Urk 2035+ vastgesteld. Deze visie is tot stand gekomen in nauw overleg met actoren die werkzaam zijn binnen het betreffende werkveld, zoals de plaatselijke woningbouwvereniging, bouwers, ontwikkelaars, makelaars en zorgpartijen. De 'consumenten' i.c. de (toekomstige) inwoners van de gemeente Urk, staan binnen deze visie centraal.

De gemeente Urk streeft naar een toekomstbestendig Urk en wil gepast anticiperen op groei. Urk heeft de inwoners veel te bieden door de unieke ligging, het hoge voorzieningenniveau, uitstekende infrastructuur en bijzondere omgevingskwaliteiten. Een breed en gedifferentieerd aanbod aan woningen en aan woon- en leefomgevingen zorgt ervoor dat inwoners nu en in de toekomst goede huisvestingsmogelijkheden op Urk houden. Er wordt gewerkt aan een toekomstbestendig Urk.

De gemeente heeft de volgende ambities op het gebied van het wonen. De nieuwbouw in de gemeente Urk is afgestemd op de vraag van de Urker bevolking. Starters, gezinnen, huishoudens met lage inkomens en ouderen zijn belangrijke doelgroepen. Specifieke aandacht krijgt de leefbaarheid van de woonomgeving en de duurzaamheid en betaalbaarheid van woningen. Deze doelen bereikt de gemeente Urk met de meest betrokken partijen door samen maatregelen uit te voeren. De ambities van de gemeente Urk zijn vervat in 5 thema´s:

  • 1. Vraaggerichte kwantitatieve toevoeging. De omvang van het nieuwbouwprogramma wordt afgestemd op de groei van het aantal huishoudens op Urk. Wat betreft samenstelling wordt de nieuwbouw van woningen in uitbreidingsgebieden en de toevoeging van woningen op binnenstedelijke ontwikkelingslocaties en gebieden (herstructurering) afgestemd op de vraag van de Urker bevolking. Er wordt gestreefd naar een samenstelling van de woningvoorraad die past bij de toekomstige bevolking. De gebieden waar, na de Zeewijk en Oranjewijk, conform de Structuurvisie 2035+ woningen worden gerealiseerd (binnenstedelijke ontwikkelingslocaties en gebieden (herstructurering) en uitbreidingsgebieden), geldt het bouwprogramma uit de Woonvisie 2035+. Er wordt gestuurd op nieuwe woonmilieus en innovatieve woonconcepten
  • 2. Urker doelgroepen. De gemeente Urk zorgt voor voldoende passende woningen voor starters, 1-2 persoonshuishoudens < 55 jaar, gezinnen en huishoudens met een laag inkomen (aandachtsgroep). Betrokken actoren dragen zorg voor de huisvesting van statushouders en arbeidsmigranten. De doelgroep ouderen (55-plus) komt terug onder thema 3.
  • 3. Ouderen met en zonder zorgvraag. De gemeente Urk zorgt in samenwerking met de betrokken partijen voor voldoende zelfstandige woningen voor ouderen. Afspraken over intramurale onzelfstandige woonvormen voor ouderen en mensen met een beperking worden met de zorgaanbieders binnen een ander kader dan de Woonvisie gemaakt.
  • 4. Leefbaarheid en duurzaamheid. De gemeente Urk bevordert de leefbaarheid in bestaande en nieuwe woonwijken en draagt bij aan de verbetering van de duurzaamheid en betaalbaarheid van woningen.
  • 5. Gezamenlijke uitvoering. De gemeente Urk realiseert samen met betrokken partners de doelstellingen van de Woonvisie en voert samen met deze partijen de maatregelen uit. De burger is als woonconsument een belangrijke partij voor het gemeentelijke Woonbeleid.

De nieuwbouw in het plangebied wordt gerealiseerd volgens het beleid zoals in de woonvisie opgenomen. Bij de ontwikkeling in het plangebied werkt de gemeente samen met Talma aan de ontwikkeling van de nieuwbouw. Deze nieuwbouw is gericht op het bieden van een nieuw woonmilieu voor ouderen, waarbij deze zelfstandig kunnen wonen met zorgfaciliteiten in de buurt. De woningen zijn levensloopbestendig.

3.3.3 Handhavingsbeleid

Het handhavingsbeleid van gemeente Urk is vastgelegd in de nota Handhavingsbeleid gemeente Urk 2016-2020.

De visie van de gemeente Urk is dat overheid en de samenleving een gezamenlijke verantwoordelijkheid hebben voor de naleving van de wet- en regelgeving om de fysieke leefomgeving schoon, veilig en leefbaar te houden. Primair ligt de naleving bij de gebruikers van de fysieke leefomgeving. Wordt deze verantwoordelijkheid niet genomen dan is de overheid aan zet.

Het accent van het handhaving ligt op de preventie, zodat zo min mogelijk een beroep gedaan hoeft te worden op de handhavingsinstrumenten. Bij het constateren van een overtreding wordt in eerste instantie gekeken of legalisatie tot de mogelijkheden behoort. Is dit niet het geval dan wordt pas doortastend handhavend opgetreden. De uitgangspunten die de gemeente Urk hanteert bij de handhaving zijn:

  • 1. Voorlichting en preventie waar het kan, handhaving waar nodig.
  • 2. Burgers, bedrijven en verenigingen zijn primair zelf verantwoordelijk voor naleving. Regie handhaving ligt bij de gemeente.
  • 3. Belonen van goede naleving, daadkrachtige aanpak slechte naleving.
  • 4. Handhaving voldoet aan de wettelijke eisen.
  • 5. Afspraken met handhavingspartners in de regio worden nageleefd.
  • 6. Handhaving wordt zoveel mogelijk integraal opgepakt.

Het handhavingsbeleid is van toepassing op gemeentelijke handhavingstaken op het gebied van de fysieke leefomgeving (Wabo, APV, AVS, winkeltijden, marktverordening, DHW, Wet kinderopvang, Opiumwet en jeugdhonken). Voor de taken op het gebied van milieu die zijn overgedragen aan de OFGV geldt het handhavingsbeleid niet, de OFGV stelt zelf een uitvoeringskader op voor deze taken.

Vanwege het feit dat gemeenten te maken hebben met een groot aantal handhavingstaken en beperkte middelen en capaciteit, is het niet mogelijk om alle handhavingstaken uit te voeren. Om te bepalen welke taken de grootste risico's vormen en de meeste aandacht moeten krijgen is een risicoanalyse uitgevoerd om te bepalen waar de grootste risico's liggen.

Zoals hierboven aangegeven vormt preventie een belangrijk element om te voorkomen dat handhavend opgetreden moet worden. Hiertoe is voor het onderdeel bouw/sloop de mogelijkheid voor burgers en bedrijven vooraf informatie in te winnen bij de gemeente. Voor de Drank- en Horecawet is een apart preventie- en handhavingsplan opgesteld.

De mate van toezicht is afhankelijk van de prioritering op grond van de risicoanalyse. Is het risico hoog dan is het toezicht actiever dan wanneer het risico laag is.

Bij de sanctiestrategie zijn een aantal sanctiestrategieën die specifiek zien op bepaalde handhavingstaken. Het gemeenschappelijk kader voor bouw, milieu en de openbare ruimte en het preventie- en handhavingsplan voor het sanctioneren op grond van de Drank- en Horecawet.

Om de effecten van toezicht en handhaving te meten worden de bepaalde zaken gemonitord en geregistreerd en weergegeven in het verslag. Elke vier jaar wordt het handhavingsbeleid worden geëvalueerd en waar nodig opnieuw vastgesteld.

Hoofdstuk 4 Planologische en milieuhygiënische randvoorwaarden

4.1 Vormvrije milieueffectbeoordeling (m.e.r.)

Kader

In het Besluit milieueffectrapportage (m.e.r.) is aangegeven welke activiteiten in het kader van het bestemmingsplan planm.e.r.-plichtig, projectm.e.r.-plichtig of m.e.r.-beoordelingsplichtig zijn. Voor deze activiteiten zijn in het Besluit m.e.r. drempelwaarden opgenomen. Ook wanneer de drempelwaarden niet worden overschreden moet het bevoegd gezag bij de betreffende activiteiten nagaan of mogelijk sprake is van belangrijke nadelige gevolgen voor het milieu, zie aanleiding geven om een milieueffectrapport (MER) op te stellen. Daarbij moet worden gelet op de omstandigheden als bedoeld in bijlage III van de EEG-richtlijn milieueffectbeoordeling. Deze omstandigheden betreffen:

  • de kenmerken van de projecten;
  • de plaats van de projecten;
  • de kenmerken van de potentiële effecten.

In de bijlage van het Besluit m.e.r. is aangegeven welke activiteiten in het kader van het de ruimtelijke onderbouwing planm.e.r.-plichtig (onderdelen C en D), projectm.e.r.-plichtig (onderdeel C) of m.e.r.-beoordelingsplichtig (onderdeel D) zijn. Voor deze activiteiten zijn in het Besluit m.e.r. drempelwaarden opgenomen. In de bijlage van het Besluit m.e.r. is in categorie (D11.2) de aanleg, wijziging of uitbreiding van een stedelijk ontwikkelingsproject opgenomen. De drempelwaarde voor een formele m.e.r.-beoordeling in het Besluit m.e.r. ligt op:

  • een oppervlakte van 100 hectare of meer;
  • een aaneengesloten gebied met 2000 of meer woningen;
  • een bedrijfsvloeroppervlakte van 200.000 m2 of meer.

Onderzoek

In de ruimtelijke procedure worden slechts 64 levensloopbestendige appartementen, een wijkcentrum en bedrijfsruimtes gerealiseerd. De ruimtelijke ontwikkeling ligt daarmee ruimschoots onder de drempelwaarden uit het Besluit m.e.r. en is niet rechtstreeks planm.e.r.-, projectm.e.r. of m.e.r.-beoordelingsplichtig.

Sinds 7 juli 2017 is een aanpassing van het Besluit m.e.r. in werking getreden. Hierin is geregeld dat ook voor projecten die zijn opgenomen in bijlage onderdeel D, maar beneden de drempelwaarden vallen, een besluit moet worden genomen of een MER nodig is. In dat kader wordt afgewogen of het plan - ondanks dat het ruim onder de drempelwaarde blijft - mogelijk toch belangrijke negatieve milieueffecten heeft, op basis van de eerder genoemde omstandigheden. Dit is een “vormvrije” m.e.r.-beoordeling.

Conclusie

De conclusies van de verschillende onderdelen uit de vormvrije m.e.r.-beoordeling zijn uitgebreid beschreven in bijlage 3. De volgende paragrafen geven een meer uitgebreid beeld van de verschillende milieu- en omgevingsaspecten, waaronder de aspecten die in de vormvrije m.e.r.-beoordeling zijn behandeld. De algemene conclusie hieruit is dat de aspecten geen belemmering vormen voor de ontwikkeling en geen uitgangspunten bieden voor dit bestemmingsplan.

4.2 Bedrijven en milieuzonering

Kader

De aanwezigheid van bedrijven kan de kwaliteit van de leefomgeving beïnvloeden. Voorkomen moet worden, dat bedrijven hinder veroorzaken naar de omgeving, vooral indien het woongebieden of andere gevoelige bestemmingen betreft. Daarnaast moeten bedrijven zich kunnen ontwikkelen en kunnen uitbreiden. Om dit te bereiken is het van belang, dat bedrijven en gevoelige bestemmingen ruimtelijk goed gesitueerd worden, zodat de bedrijven zo min mogelijk overlast opleveren en woongebieden de bedrijven zo min mogelijk beperken in hun bedrijfsuitvoering.

Ten behoeve van milieuzonering is door de Vereniging Nederlandse Gemeenten (VNG) een bedrijvenlijst opgesteld, waarin bedrijfsactiviteiten op hun milieueffecten zijn gecategoriseerd (Bedrijven en milieuzonering, 2009). Afhankelijk van de mate waarin de in deze lijst opgenomen activiteiten milieuhinder kunnen veroorzaken (uitgaande van de gemiddelde bedrijfssituatie), kent de lijst aan de bedrijven een categorie toe. Naarmate de milieuhinder toeneemt, loopt de categorie op van 1 tot en met 6, met bijbehorende minimale afstanden tot woongebieden. In de uitgave "Bedrijven en milieuzonering" (VNG, 2009) is per bedrijfstype een globale indicatie gegeven van het invloedsgebied voor de aspecten geur, stof, geluid en gevaar. De afstanden in bovengenoemde uitgave zijn indicatief. Wanneer aan de afstanden wordt voldaan is het aannemelijk dat het plan planologisch (vanuit het oogpunt van een goede ruimtelijke ordening) acceptabel is. Deze afstanden gelden niet wanneer voor de aspecten specifieke wetgeving is.

De VNG-handreiking 'Bedrijven- en milieuzonering' (editie 2009) geeft adviesafstanden voor de thema's geur, geluid, stof en gevaar afhankelijk van de gebiedskenmerken. Bij ontwikkelingen is sprake van een inwaartse en uitwaartse zonering. De inwaartse zonering gaat om de invloed van de omgeving op de ontwikkeling. De uitwaartse zonering gaan om de invloed van de ontwikkeling op de omgeving.

Onderzoek

Inwaartse zonering

De nieuwbouw is, door de woonfunctie, een milieugevoelig object. In de omgeving ervan zijn functies aanwezig die mogelijk hinder veroorzaken, hiermee is vooral het voorzieningencentrum De Hofstee van belang. In dit centrum zijn een supermarkt, andere winkels en een cafetaria aanwezig. Deze winkels hebben allemaal een categorie 1 met een richtafstand van 10 meter voor hinder. De afstand tussen de voorzieningen in De Hofstee en deze functies is overal groter dan deze afstand. Van hinder van de omliggende voorzieningen op de nieuwbouw is geen sprake.

Uitwaartse zonering

In het plangebied wordt een gebouw met verschillende functies gerealiseerd. Daarbij gaat het om wonen, maar ook ondergeschikt een wijkcentrum en bedrijfsruimtes. Deze functies maken deel uit van het woonzorgcomplex. Af en toe is het wijkcentrum extern toegankelijk. Ditzelfde geldt voor de bedrijfsruimtes. Deze functies worden voornamelijk gebruikt door de bewoners van het gebouw. Het woonzorgcomplex heeft een milieucategorie 1 (richtafstand 10 meter). Een dergelijke functie is goed verenigbaar met de woonomgeving. Van hinder op omliggende woningen is dan ook geen sprake.

Conclusie

Vanuit de omgeving wordt op de nieuwbouw geen hinder verwacht. Andersom geeft de nieuwbouw ook geen milieuhinder op de omgeving vanuit de Bedrijven en milieuzonering.

4.3 Verkeer en parkeren

Voorheen was in het plangebied een basisschool aanwezig. Hiervoor in de plaats komt een gebouw met onder andere (verpleeg)appartementen en ondergeschikt een wijkcentrum en bedrijfsruimten. De verkeersstromen van en naar het plangebied gaan daarom wijzigen. Daarbij wijzigt ook de parkeerbehoefte.

4.3.1 Verkeer

Bij een basisschool vinden de meeste verkeersbewegingen plaats tijdens de start en het einde van de schooldag. Deze pieken ontstaan doordat ouders hun kinderen naar school brengen en van school halen. Deze piekmomenten geven een extra druk op de wegen om het plangebied. Met de nieuwbouw verdwijnen deze piekmomenten en verspreiden de verkeersbewegingen zich meer over de hele dag, waardoor het in verhouding minder druk wordt. De bewoners van de appartementen gebruiken hun auto verspreid over de dag. Het aantal verkeersbewegingen van de bewoners is relatief laag, in relatie tot de doelgroep voor de appartementen. De hulpverleners en gebruikers van de bedrijfsruimten komen veelal in de spitsmomenten. Hun aantal is echter relatief beperkt, zodat een grote verkeersstroom niet verwacht wordt. De gebruikers van het wijkcentrum komen uit het gebouw zelf en af en toe uit de omliggende wijk en daarom vooral te voet of met de fiets.

Aan de Oslolaan en de Nieuw Guineastraat worden ingrepen gedaan, waardoor de wegprofielen enigszins aangepast worden. Hiervoor worden aan de Oslolaan onder meer parkeerplaatsen voor hulp- en taxidiensten aangelegd. Ook komt hier meer ruimte voor de voetganger, omdat het voetpad bij de nieuwbouw breder wordt. Nieuwe voetpaden en een tuin worden ook aangelegd langs de Nieuw Guineastraat, zodat de nieuwe bewoners hier veilig kunnen wandelen en/of fietsen.

Conclusie

Door de ontwikkeling in het plangebied verbetert de verkeerssituatie voor de omgeving, omdat het aantal verkeersbewegingen afneemt en minder sprake is van piekmomenten van verkeer.

4.3.2 Parkeren

Voor de nieuwbouw is, in het kader van de haalbaarheidsstudie (zie bijlage 1) een parkeerbalans opgesteld. De Notitie Parkeernormen Urk 2014 - 1e herziening is hiervoor de belangrijkste basis. Deze was ook de basis voor de "Parapluherziening Parkeernormen Urk".

In het plangebied worden 63 parkeerplaatsen gerealiseerd. Een deel hiervan wordt als openbare parkeerplaatsen gerealiseerd. Dit aantal is gebaseerd op de berekende parkeerbehoefte. Deze is kort samengevat als volgt:

  • 38,4 parkeerplaatsen voor de 64 (verpleeg)appartementen;
  • 4,8 parkeerplaatsen voor het wijkcentrum;
  • 11,1 parkeerplaatsen voor de 3 bedrijfsruimtes (bijv. fysiotherapeut, kapper).

Gezamenlijk maakt dit een aantal van 55 (54,3) parkeerplaatsen. Bij de 63 in het plangebied te realiseren parkeerplaatsen is rekening gehouden met een reserve van 8 parkeerplaatsen. In en rondom het plangebied worden voor de nieuwbouw voldoende parkeerplaatsen gerealiseerd.

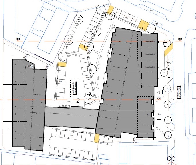
De positionering van de parkeerplaatsen is naar aanleiding van de inspraakreacties, in overleg met de insprekers aangepast. De parkeerplaatsen welke pal voor de bestaande woningen aan de Nieuw Guineastraat waren gedacht, zijn grotendeels verplaatst naar de zuidzijde van het plangebied. De overige van deze parkeerplaatsen worden aan de zijde van de Oslolaan gesitueerd, wat mogelijk is door de langsparkeerplaatsen om te zetten naar schuine parkeerplaatsen. De gewijzigde inrichting van de parkeerplaatsen is in onderstaande afbeelding weergegeven.

afbeelding "i_NL.IMRO.0184.BP2018Osla24-0301_0017.jpg"

Gewijzigde positionering van de aan te leggen parkeerplaatsen

Conclusie

Voor de nieuwbouw wordt voldoende parkeergelegenheid gerealiseerd, er is zelfs sprake van een reserve. Parkeerhinder voor de omgeving wordt dan ook niet verwacht.

4.4 Archeologie en cultuurhistorie

4.4.1 Archeologie

Kader

Voor het aspect archeologie is de Erfgoedwet van toepassing. De gemeenteraad is op grond van de wet verplicht bij de vaststelling van bestemmingsplannen rekening te houden met de in de grond aanwezige of te verwachten archeologische waarden. Om dit te kunnen onderbouwen dient de gemeente er voor te zorgen dat de archeologische waarden en verwachtingen binnen het gemeentelijk grondgebied bekend zijn. Deze waarden en verwachtingen zijn aangegeven op de Archeologische Beleidskaart van de gemeente Urk.

Het archeologische beleid is vertaald in onder meer het bestemmingsplan Het Noord, waarin het plangebied een archeologische dubbelbestemming heeft. Aan die dubbelbestemming is bij ontwikkelingen een onderzoeksplicht gekoppeld. In dat kader is voor de gewenste nieuwbouw een archeologisch vooronderzoek (uitgevoerd in 2017), dat is toegevoegd in bijlage 4.

Onderzoek

Voor het onderzoek is het hele plangebied onderzocht via een bureau- en booronderzoek. Uit het onderzoek blijkt dat archeologische maatregelen niet nodig zijn wanneer de grond niet dieper dan 1,5 meter onder maaiveld wordt geroerd. Dit omdat tot die diepte een kleilaag aanwezig is en de daaronder liggende veengrond vroeger niet geschikt was voor vondsten.

De onder het veen liggende dekzandlaag (op één plaats 2,9 m, verder op 3,9 m - 4,4 m onder maaiveld) was wel geschikt voor bewoning en bevat mogelijk nog wel bewoningssporen. De hoge archeologie verwachting voor het dekzand blijft dan ook gehandhaafd. In dit bestemmingsplan wordt voor het plangebied een regeling opgenomen waarbij onderzoek vereist wordt bij een diepte van ten minste 2,9 m onder maaiveld.

Conclusie

In het bestemmingsplan wordt een archeologische dubbelbestemming opgenomen. De onderzoeksnorm wordt daarbij gesteld op een diepte van 2,9 meter onder maaiveld, omdat vanaf die diepte mogelijk nog archeologische waarden aanwezig zijn.

4.4.2 Cultuurhistorie

Kader

De modernisering van de monumentenzorg (MoMo) heeft geresulteerd in een aanpassing van het Besluit ruimtelijke ordening. Met deze aanpassing is cultureel erfgoed ingebed in de ruimtelijke ordening. Het is verplicht om in bestemmingsplannen aandacht te geven aan cultuurhistorie en aan de effecten van het initiatief op cultuurhistorische waarden die in het plangebied voorkomen. Landschappelijke en cultuurhistorische waarden zijn in dit plangebied zodanig met elkaar verweven dat de beide onderwerpen gezamenlijk behandeld zijn.

Onderzoek

Bij het aspect cultuurhistorie zijn bijvoorbeeld historische kavelvormen en waardevolle bebouwing van belang. In het plangebied is geen sprake van cultuurhistorische waarden waar in het bestemmingsplan rekening mee gehouden moet worden.

Conclusie

Dit aspect geeft geen belemmeringen en uitgangspunten voor dit bestemmingsplan.

4.5 Bodem

Kader

De Wet bodembescherming ziet, vanuit een goed milieubeheer, op de bodembescherming en bodemsanering. Met deze wet moet rekening worden gehouden met het ontwikkelen en realiseren van ruimtelijke plannen. Volgens deze wet is het verplicht lokale bodemverontreinigingen aan te pakken of functiegericht te saneren. Dit houdt in dat het niet meer altijd nodig is de hele locatie aan te pakken. Ook kan sprake zijn van deelsaneringen of een gefaseerde aanpak. Wanneer economische of maatschappelijke omstandigheden rond de vervuilde locatie uitstel vragen, kunnen tijdelijke maatregelen worden genomen, op voorwaarde dat risico's voldoende worden beheerst. Belangrijk is dat de bodemkwaliteit voldoende is voor de functies die beoogd worden in het gebied. Daarnaast gelden vanuit het Besluit bodemkwaliteit beperkingen voor het toepassen van grond waarin vervuiling aanwezig is. In dit kader wordt, voorafgaand aan ontwikkelingen, de kwaliteit van de bodem onderzocht om vast te stellen welke maatregelen genomen moeten worden. De toets voor het Besluit bodemkwaliteit is niet toegepast, omdat deze niet noodzakelijk is.

De provincie hanteert de richtlijn, dat bij de beoordeling van ruimtelijke plannen tenminste het eerste deel van het verkennend bodemonderzoek, het historisch onderzoek, moet worden verricht. Wanneer uit historisch onderzoek wordt geconcludeerd, dat op de betreffende locatie sprake is geweest van activiteiten met een verhoogd risico op verontreiniging, dan moet het volledig verkennend bodemonderzoek worden verricht.

Onderzoek

In het kader van de nieuwbouw is voor de oude schoollocatie (Nieuw Guineastraat 1 en 1a) een verkennend bodemonderzoek (2015) uitgevoerd. Dit is toegevoegd in bijlage 5. Voor het onderzoek is het hele plangebied beschouwd. Op basis van het onderzoek is de conclusie dat de bovengrond plaatselijk licht verontreinigd is met PAK. De ondergrond is niet verontreinigd. In het grondwater zijn voor barium en naftaleen licht verhoogde gehalten aangetroffen.

De verwachting is dat de aangetroffen verontreinigingen geen risico's voor de volksgezondheid met zich meebrengen. De aangetroffen waarden zijn aanvaardbaar, in relatie tot de geplande inrichting van het plangebied. Wel wordt geadviseerd bij de herontwikkeling in het plangebied te werken met een gesloten grondbalans. Zo worden de aangetroffen verontreinigingen niet verspreid. Wanneer wel sprake is van afvoer van de licht verontreinigde grond, dan kan dit beperkingen opleveren voor het hergebruik ervan. Op het hergebruik van de grond buiten het plangebied is het Besluit Bodemkwaliteit van toepassing. Afhankelijk van de kwaliteit, hoeveelheid en beoogde bestemming van de vrijkomende grond wordt het uitvoeren van een partijkeuring overwogen, om zo de hergebruikmogelijkheden te bepalen. Dit aspect geeft geen belemmeringen en uitgangspunten voor dit bestemmingsplan.

Conclusie

Het onderzoek heeft een geldigheidsduur van 5 jaar. Dit betekent dat voor de verdere ontwikkeling in het plangebied geen vervolgonderzoek meer nodig is. Wel is nog een verkennend onderzoek nodig voor de percelen Oslolaan 2 en 4. Dit kan pas worden uitgevoerd na de sloop van deze panden. Dit onderzoek wordt in ieder geval aangeleverd bij de aanvraag omgevingsvergunning voor de nieuwbouw.

4.6 Externe veiligheid

Kader

Bij ruimtelijke ontwikkelingen wordt aandacht besteed aan de veiligheidsrisico's die zware bedrijven of risicovolle inrichtingen kunnen veroorzaken. Daarnaast kan transport van gevaarlijke stoffen risico's opleveren (transport over weg, spoor en water en door buisleidingen). De normen en richtlijnen voor externe veiligheid komen onder meer uit het Besluit externe veiligheid inrichtingen (Bevi) het Besluit externe veiligheid transportroutes en het Besluit externe veiligheid buisleidingen.

Onderzoek

De risicokaart geeft een goede indicatie van de aanwezigheid van risicovolle inrichtingen, transportroutes en buisleidingen. Uit de risicokaart blijkt dat in en in de omgeving van het plangebied geen risicobronnen aanwezig zijn.

afbeelding "i_NL.IMRO.0184.BP2018Osla24-0301_0018.jpg"

Fragment risicokaart (plangebied bij de (i)

Conclusie

Dit aspect geeft geen belemmeringen of uitgangspunten voor dit bestemmingsplan.

4.7 Natuur

Kader

Ruimtelijke plannen moeten worden beoordeeld op de uitvoerbaarheid in relatie tot de Wet natuurbescherming. Er mogen geen ontwikkelingen plaatsvinden, die op onoverkomelijke bezwaren stuiten door effecten op beschermde natuurgebieden en soorten. Om de gevolgen van de nieuwbouw op de natuurwaarden te achterhalen is een natuurtoets (2017) uitgevoerd. Deze is toegevoegd in bijlage 6.

Onderzoek

Gebieden

Direct achter de Westermeerdijk ligt het Natura 2000-gebied IJsselmeer. In een wijdere omtrek zijn ook andere Natura 2000-gebieden begrensd. Het gaat in alle gevallen om een aanwijzing voor soorten van meren en moerassen. De ontwikkeling in het plangebied heeft hierop geen negatieve effecten. In eerste instantie omdat het binnen de bebouwde kom plaatsvindt en ook omdat het geen substantiële oppervlakte open water en/of moerasbiotoop biedt.

De Wieden en Weerribben en het Zwarte Meer zijn aangewezen voor stikstofgevoelige habitats. De stikstofdepositie als gevolg van de ontwikkeling is berekend. De conclusie hiervan is dat van een dergelijke depositie geen sprake is. Ditzelfde geldt voor het IJsselmeer en de gebieden op grotere afstand.

Soorten

In het onderzoek zijn de gevolgen van de ontwikkeling op beschermde soorten onderzocht. Daarbij ging het om planten, ongewervelden, vissen, amfibieën, grondgebonden zoogdieren, vleermuizen en vogels. De conclusie is dat in het plangebied mogelijk verblijfplaatsen van de beschermde gewone pad, bruine kikker, huisspitsmuis, veldmuis en bosmuis voorkomen. Hierdoor kunnen verbodsbepalingen overtreden worden. Voor deze algemeen voorkomende soorten uit het ‘Beschermingsregime overige soorten’ verleent de Provincie Flevoland vrijstelling van verbodsbepalingen bij ruimtelijke ingrepen.

De beplanting in het plangebied kan betekenis hebben voor algemeen voorkomende vogels. Het is nog niet zeker of het kappen van bomen noodzakelijk zal zijn, is dat wel het geval dan zal dit buiten het broedseizoen worden gedaan. Het is daarnaast niet duidelijk of de twee te slopen woonhuizen (Oslolaan 2 en 4) een functie hebben voor vogels met een jaarrond beschermd nest. Evenmin is duidelijk of de woonhuizen vleermuizen verblijfplaatsen bieden.

Een overtreding van verbodsbepalingen is niet uit te sluiten. Voor vleermuizen en vogels wordt daarbij geen vrijstelling verleend. Wanneer verbodsbepalingen overtreden worden, is het nodig ontheffing aan te vragen. Bij de vaststelling van het bestemmingsplan moet hierover duidelijkheid zijn.

Randvoorwaarden en maatregelen in het kader van de zorgplicht:

  • Om invulling te geven aan de zorgplicht moet de watergang worden gedempt buiten de kwetsbare periode (dus buiten de periode maart-juli).
  • Om effecten op algemeen voorkomende broedende vogels te voorkomen, moet beplanting buiten het broedseizoen worden gekapt (dus buiten de periode maart - juli).
  • Op grond van het onderzoek blijkt nader onderzoek naar het voorkomen van vleermuizen en vogels met jaarrond beschermd nest (gierzwaluw, huismus) nodig. Hiervoor is onderzoek volgens de per soort(groep) vastgestelde protocollen in 2018 nodig.

Conclusie

De nieuwbouw heeft geen negatieve effecten op de rondom gelegen beschermde natuurgebieden en gebieden die vallen onder het Natuurnetwerk Nederland. Op de locatie van de gesloopte school zijn geen beschermde soorten aanwezig. Voor de te slopen panden aan de Oslolaan 2 en 4 wordt een vervolgonderzoek aanbevolen. De sloop vindt plaats na de vaststelling van het bestemmingsplan, pas dan is dit onderzoek nodig. Aangenomen wordt echter dat het ook mogelijk is te werken met een werkprotocol en/of een ontheffing aan te vragen. Het werkprotocol wordt toegepast op het moment dat soorten aangetroffen worden waarvoor dit nodig is. Wanneer een ontheffing aangevraagd moet worden is de verwachting dat deze voor de aangetroffen soorten verkregen wordt. Dit heeft op dit moment geen consequenties voor het bestemmingsplan.

4.8 Geluid

Kader

Bij het aspect geluid kunnen verschillende bronnen voor hinder zorgen. Het is dan ook van belang om bij ontwikkelingen waarbij sprake is van de realisatie van geluidgevoelige objecten (bijvoorbeeld woningen), het aspect geluid te onderzoeken.

Onderzoek

In het plangebied is sprake van de realisatie van appartementen. Uit paragraaf 4.2 blijkt al dat geluidhinder vanaf de omliggende voorzieningen op het gebouw niet verwacht wordt. In en rondom het plangebied is ook geen sprake van mogelijke hinder van spoorweg-, vlieg- en vaarverkeer.

Het plangebied ligt aan de Oslolaan. Ondanks de ontsluitingsfunctie van deze weg, geldt hierop een maximumsnelheid van 30 km/uur. Dergelijke wegen hebben in het kader van de Wet geluidhinder geen geluidzone. Een onderzoek naar de geluidbelasting op de nieuwbouw is dan ook wettelijk niet nodig. Wel is het wenselijk het geluid te beoordelen in het kader van een goede ruimtelijke ordening.

Het aantal verkeersbewegingen van en naar het plangebied, verspreid over de dag, wijzigt ten opzichte van de huidige situatie. In 2016 is volgens het gemeentelijk verkeersmodel sprake van 204 motorvoertuigen per etmaal op de Oslolaan. Het aantal verkeersbewegingen neemt met de realisatie van de nieuwbouw in eerste instantie enigszins toe, omdat het aantal inwoners van het gebied groeit. De autonome ontwikkeling laat zien dat het aantal verkeersbewegingen vanaf nu tot 2030 verminderd, ook na de realisatie van de nieuwbouw. In de autonome situatie betreft dit een afname naar 164 motorvoertuigen per etmaal. Na de nieuwbouw ligt dit aantal iets hoger, maar nog wel lager dan de in 2016 getelde 204 motorvoertuigen per etmaal. Met de afname van het aantal motorvoertuigen neemt ook de geluidbelasting op de omgeving af.

Conclusie

De geluidsituatie op de omgeving verbetert met de afname van het aantal motorvoertuigen dat - ook na realisatie van de nieuwbouw - over de Oslolaan komt. Een aanvullend onderzoek is niet nodig.

4.9 Luchtkwaliteit

Kader

Het kader ten aanzien van luchtkwaliteit wordt gevormd door de Wet milieubeheer. Een onderdeel van deze wet betreft het aspect luchtkwaliteit. De wet is enerzijds bedoeld om de negatieve effecten op de volksgezondheid aan te pakken, als gevolg van te hoge niveaus van luchtverontreiniging. Anderzijds heeft de wet tot doel mogelijkheden te creëren voor ruimtelijke ontwikkeling, ondanks overschrijdingen van de Europese grenswaarden voor luchtkwaliteit.

Bij luchtkwaliteit wordt voorzien in onder meer een gebiedsgerichte aanpak via het Nationaal Samenwerkingsprogramma Luchtkwaliteit (NSL). De programma-aanpak zorgt voor een flexibele koppeling tussen ruimtelijke activiteiten en milieugevolgen. Luchtkwaliteitseisen vormen onder de Wet luchtkwaliteit geen belemmering voor ruimtelijke ontwikkeling als:

  • 1. er geen sprake is van een feitelijke of dreigende overschrijding van een grenswaarde;
  • 2. een project, al dan niet per saldo, niet tot een verslechtering van de luchtkwaliteit leidt;
  • 3. een project is opgenomen in een regionaal programma van maatregelen of in het NSL;
  • 4. een project “niet in betekenende mate” bijdraagt aan de luchtverontreiniging.

Onderzoek

De ontwikkeling in het plangebied is een project dat niet in betekenende mate bijdraagt aan de luchtverontreiniging. Dit omdat het aantal woningen (64) veel kleiner is dan de norm vanuit het Nibm (1.500 woningen). Uit de berekening met toepassing van de Nibm-tool blijkt bovendien dat de afname van het aantal motorvoertuigen ter plaatse van de Oslolaan, zoals ook besproken in paragraaf 4.8, geen negatieve effecten heeft op de luchtkwaliteit. Voor de berekening is de autonome ontwikkeling van de verkeersbewegingen gehanteerd van 204 (in 2016) naar 164 (in 2030). Zoals aangegeven daalt het aantal verkeersbewegingen ten opzichte van 2016 ook na realisatie van de nieuwbouw. Een verbetering van de luchtkwaliteit blijft daarbij aan de orde.

afbeelding "i_NL.IMRO.0184.BP2018Osla24-0301_0019.jpg"

Weergave berekening Nibm tool

Conclusie

Een nader onderzoek naar het aspect luchtkwaliteit is niet nodig. De situatie in het kader van de luchtkwaliteit wordt in de toekomst beter, omdat het aantal motorvoertuigen afneemt.

4.10 Water

Kader

Afspraken over het toepassen van de watertoets bij ruimtelijke plannen zijn gemaakt in het Nationaal Bestuursakkoord Water. In het akkoord zijn maatregelen afgesproken met als doel het watersysteem in 2015 'op orde' te hebben. In het bestuursakkoord zijn taakstellende afspraken opgenomen over veiligheid en wateroverlast. Ook is een impuls gegeven aan het gebruik van de watertoets. Het doel van de watertoets is het waarborgen van waterhuishoudkundige belangen in ruimtelijke plannen.

Onderzoek

Waterschap Zuiderzeeland is waterbeheerder in het plangebied en is verantwoordelijk voor de waterhuishoudkundige verzorging (waterkwaliteit, -kwantiteit en -veiligheid) binnen het plangebied. Voor de ontwikkeling in het plangebied is dan ook bij dit waterschap een watertoets uitgevoerd. De samenvatting en het toetsresultaat zijn bijgevoegd in bijlage 8.

Waterkering

Uit de watertoets blijkt dat het plangebied deel uitmaakt van de kern-, binnenbeschermings- en buitenbeschermingszone van de Westermeerdijk. Voor de kernzone geldt dat hierin in beginsel geen bouwactiviteiten toegestaan zijn. De bebouwing in het plangebied komt hier niet binnen en ook bij de terreininrichting wordt rekening gehouden met het behoud van deze zone. Een deel van de bebouwing komt wel in de binnenbeschermingszone direct rond de kernzone. Bebouwing van deze zone is niet toegestaan, tenzij hiervoor onder voorwaarden een ontheffing van de Keur is verleend. Voor de ontheffing moet in ieder geval aangetoond worden dat de stabiliteit van de kering door de ontwikkeling niet in het gedrang komt. In de buitenbeschermingszone bestaan geen beperkingen voor bouwactiviteiten. Wel geldt hierin een verbod voor diepe ontgrondingen en afgravingen en het hebben van explosiegevaarlijk materiaal of explosiegevaarlijke inrichtingen. Deze komen echter niet voor in de ontwikkeling.

Voor het deel van de kernzone en de binnenbeschermingszone dat in het plangebied ligt wordt de dubbelbestemming "Waterstaat - Waterkering" opgenomen. Voor deze zones geldt een zelfde toetsingskader als het gaat om bouwen en bouwwerken. De buitenbeschermingszone wordt aangeduid als vrijwaringszone. De regels bij de bestemming en aanduiding bieden een beschermende regeling.

Goede oppervlaktewaterkwaliteit & Goed omgaan met afvalwater

Voor de nieuw te ontwikkelen terreinen geldt dat het hemelwater niet naar een centrale waterzuivering wordt afgevoerd. Het regenwater afkomstig van schone oppervlakken wordt geïnfiltreerd of direct afgevoerd naar open water. Oppervlakken die vervuild zijn of waar de kans op vervuiling groot is (wegen, parkeerplaatsen, e.d.), worden bij voorkeur afgevoerd via een lokale zuivering, bijvoorbeeld een (in)filtratievoorziening, naar het oppervlaktewater. Een bodempassage wordt gedimensioneerd volgens de Leidraad Riolering. De afvoer van minder schone oppervlakken via het vuilwaterstelsel vindt plaats op basis van expert-judgement.

Voor hemelwater dat afstroomt van 50 of meer parkeerplaatsen geldt dat dit door het Waterschap (op grond van het Waterkader) niet als schoon wordt gezien. Voor onderhavig plan geldt dat er 63 parkeerplaatsen worden aangelegd, maar verspreid over het plangebied; er is geen sprake van een parkeerterrein met 50 of meer parkeerplaatsen (zie paragraaf 2.3.4).

Uitgangspunt voor het gebouw is dat geen gebruik zal worden gemaakt van (sterk) uitlogende materialen. De definitieve materiaalkeuze kan niet worden vastgelegd in het bestemmingsplan, maar volgt bij de aanvraag om omgevingsvergunning. Er zal te zijner tijd afstemming plaatsvinden tussen initiatiefnemer en het waterschap.

Conclusie

Een positief wateradvies van het waterschap Zuiderzeeland voor de gewenste ontwikkeling is verkregen ten tijde van het wettelijke overleg over het bestemmingsplan (artikel 3.1.1. Besluit ruimtelijke ordening). Het advies is overgenomen in dit bestemmingsplan (zie bijlage 8).

In het kader van de bouw- en aanleg van het project zal nadere afstemming tussen initiatiefnemer en het waterschap plaatsvinden, dit maakt geen onderdeel uit van de bestemmingsplanprocedure.

4.11 Ladder voor duurzame verstedelijking

Kader

In de SVIR is de Ladder voor Duurzame Verstedelijking (LDV) geïntroduceerd. Deze ladder is per 1 oktober 2012 als motiveringseis in het Besluit ruimtelijke ordening opgenomen, waarna de regeling is gewijzigd per 1 juli 2017. De Ladder voor Duurzame Verstedelijking dient ter ondersteuning van provincies en gemeenten in vraaggerichte programmering van hun grondgebied, het voorkomen van overprogrammering en de keuzes die daaruit volgen.

De "Ladder" heeft tot doel een goede ruimtelijke ordening door een optimale benutting van de ruimte in stedelijke gebieden. Deze beoogt daarbij een zorgvuldige afweging en transparante besluitvorming bij alle ruimtelijke en infrastructurele besluiten.

De Ladder van Duurzame Verstedelijking vraagt van gemeenten bij nieuwe ontwikkelingen eerst naar herstructurering binnen of aan de rand van het bestaande stedelijk gebied te kijken, voordat een nieuwe perifere locatie wordt overwogen. Zo wordt een duurzame structuur met een beperkt aantal sterke locaties nagestreefd, wordt leegstand tegengegaan en wordt zuinig omgegaan met de schaarse ruimte.

Onderzoek

De gemeente moet een nieuwe stedelijke ontwikkeling motiveren volgens de treden van de Ladder. Van een nieuwe stedelijke ontwikkeling is sprake wanneer in een gebied een ruimtelijke ontwikkeling van onder andere woningbouwlocaties of andere stedelijke voorzieningen plaatsvindt. Bij woningen geldt daarbij een minimum aantal van 11 woningen (jurisprudentie). Bij de ontwikkeling in het plangebied is sprake van een nieuwe stedelijke ontwikkeling. De treden van de (gewijzigde) Ladder betreffen:

  • 1. Is er sprake van een behoefte binnen het ruimtelijk verzorgingsgebied van de ontwikkeling?

Door het landelijk beleid, het scheiden van wonen en zorg, wordt mensen gevraagd langer zelfstandig thuis te blijven wonen, waarbij de financiering voor bijvoorbeeld huishoudelijke zorg is overgedragen aan gemeentes. Daarnaast verandert de behoefte van ouderen; er wordt meer service gevraagd. Ook is eenzaamheid een groeiend probleem. De behoefte aan beschut en beschermd wonen voor ouderen blijft bestaan. Dit heeft bij de gemeente Urk geleid tot het opstellen van nieuw beleid voor wonen en zorg.

De gemeente Urk heeft onderzoek laten doen naar de mogelijkheden voor de herinvulling van het plangebied met een accommodatie waarin wonen en zorg een plaats krijgen. Dit onderzoek is verwoord in de Haalbaarheidsstudie 2de zorgcluster Urk en de Analyse behoefte en aanbod woonvormen met zorg (zie bijlagen 1 en 2), waaruit blijkt dat sprake is van een behoefte aan een tweede zorgcluster. De ontwikkeling in het plangebied geeft hiervoor een goede invulling. Het vult de bestaande zorgvoorzieningen op Urk aan en heeft dan ook geen leegstand van andere voorzieningen tot gevolg.

In de Strategische Woonvisie Urk 2035+ is een tabel opgenomen met daarin het kader voor het bouwprogramma voor de periode 2015 - 2035. In deze tabel is onder meer de realisatie van levensloopbestendige appartementen opgenomen. Uit zowel de demografische cijfers, de notitie van Companen als uit de Strategische Woonvisie, alsmede het gegeven dat er zich al huishoudens bij Talma hebben aangemeld met interesse, blijkt dat er behoefte is aan extra woningen voor ouderen. De ontwikkeling van het 2e zorgcluster aan de Oslolaan voorziet daarin.

Hiermee is de behoefte aan deze ontwikkeling aangetoont en wordt voldaan aan de 1e trede van de Ladder.

  • 2. Ligt de ontwikkeling binnen bestaand stedelijk gebied?

Het plangebied ligt in een bestaande woonbuurt van Urk. Het gebied is tot kort geleden altijd bebouwd geweest (school). Door de sloop van de school is de locatie vrijgekomen voor een nieuwe invulling. Met de komst van de nieuwe ontwikkeling wordt het gebied opnieuw ingevuld (inbreiding). Er is dan ook sprake van een ontwikkeling binnen bestaand stedelijk gebied, waarmee wordt voldaan aan de 2e trede van de Ladder.

Conclusie

Voor het plan is voldoende behoefte, daarnaast ligt het binnen het bestaand stedelijk gebied. De Ladder voor duurzame verstedelijking is succesvol doorlopen.

4.12 Duurzaam bouwen

Bij het plan wordt waar mogelijk ingezet op een zo duurzaam mogelijk gebouw. Daarbij wordt onderzoek gedaan naar gasloos bouwen. Dit is vooral van belang voor de uitvoering van het plan. Hierover worden dan ook bij de vergunningaanvraag nadere uitspraken gedaan. Voor het bestemmingsplan geeft het geen uitgangspunten en/of belemmeringen.

Hoofdstuk 5 Juridische aspecten

5.1 Opzet regels

Voor de opzet van de regels is zo veel mogelijk aangesloten bij de SVBP 2012. De regels zijn opgebouwd uit vier hoofdstukken:

  • hoofdstuk 1. Inleidende regels;
  • hoofdstuk 2. Bestemmingsregels;
  • hoofdstuk 3. Algemene regels;
  • hoofdstuk 4. Overgangs- en slotregels.

De inleidende regels bevatten:

  • de begrippen (artikel 1). In dit artikel zijn definities van de in de regels gebruikte begrippen opgenomen. Hiermee is een eenduidige interpretatie van deze begrippen vastgelegd;
  • wijze van meten (artikel 2). Dit artikel geeft onder meer bepalingen waar mag worden gebouwd en hoe voorkomende eisen betreffende de maatvoering begrepen moeten worden.

De bestemmingsregels bevatten de juridische vertaling van de bestemmingen die in het plangebied voorkomen (artikel 3 tot en met 7).

De algemene regels bestaan uit:

  • anti-dubbeltelregel (artikel 8). De anti-dubbeltelregel is opgenomen om er voor te zorgen dat grond die eenmaal in aanmerking is genomen bij het toestaan van een bouwplan waaraan uitvoering is of alsnog kan worden gegeven, bij de beoordeling van latere bouwplannen buiten beschouwing wordt gelaten;
  • algemene aanduidingsregels (artikel 9). De bestemmingoverschrijdende aanduidingen zijn geregeld in dit artikel. Hierin staan aanvullende regels voor de onderliggende gronden;
  • algemene bouwregels (artikel 10). Deze regels gelden algemeen en naast de specifieke bouwregels die in de bestemmingen zijn opgenomen;
  • algemene gebruiksregels (artikel 11). In dit artikel is aangegeven welke vormen van gebruik strijdig zijn met de aan de grond gegeven bestemming;
  • algemene afwijkingsregels (artikel 12). Ten aanzien van ondergeschikte punten wat betreft de maatvoering kan bij omgevingsvergunning worden afgeweken van de regels;
  • algemene wijzigingsregels (artikel 13). De regels van de aanduidingen die over verschillende bestemmingen en vlakken heen gaan staat in dit artikel;
  • Algemene procedureregels (artikel 14). Dit artikel geeft de procedure voor het stellen van nadere eisen. Deze procedure is bij wet niet geregeld.
  • Overige regels (artikel 15). Algemene nadere eisen en de werking van wettelijke regelingen staan in dit artikel beschreven.

In hoofdstuk 4 van de regels staan de overgangs- en slotregels (artikel 16 en artikel 17). De overgangsbepalingen zijn standaardbepalingen die uit het Bro zijn overgenomen.

5.2 Bestemmingen

5.2.1 Groen

Bij de nieuwbouw is een groenvoorziening aanwezig. Deze heeft deels een openbaar karakter en heeft daarom in dit bestemmingsplan de bestemming 'Groen'. Deze bestemming is bedoeld om het groene karakter ervan te behouden. Bouwwerken zijn dan ook alleen toegestaan wanneer deze ten dienst staan van de bestemming. Het kan daarbij gaan om verlichting of een erfafscheiding. Gebouwen zijn niet toegestaan. Voor de nodige flexibiliteit zijn ondergeschikt onder meer parkeervoorzieningen, wegen en paden toegestaan. Hiermee kunnen aangrenzende functies deels in het groen een plaats krijgen.

5.2.2 Wonen - Zorgwonen

Het belangrijkste doel van dit bestemmingsplan is het gewenste appartementengebouw (woonzorgcomplex) mogelijk te maken. Het zwaartepunt ligt daarbij op de functie wonen, ondergeschikt zijn het wijkcentrum en de bedrijfsruimten mogelijk. Het gebouw en de direct daaraan verbonden gronden hebben dan ook de bestemming 'Wonen - Zorgwonen'. Het wijkcentrum en de bedrijfsruimten zijn ondergeschikt mogelijk en alleen toegankelijk vanuit het gebouw. In de bedrijfsruimten zijn voorzieningen als een fysiotherapiepraktijk en kapsalon voorzien. Aanvullende voorzieningen als parkeren zijn binnen deze bestemming ook mogelijk.

Voor de plaats van het hoofdgebouw is een bouwvlak opgenomen. Hierbij zijn de contouren van het gebouw het uitgangspunt. Buiten het bouwvlak zijn gebouwen niet toegestaan. Andere bouwwerken zijn hier ook niet van toepassing; bergingen en dergelijke maken allemaal deel uit van het nieuwe gebouw. In het bouwvlak is door middel van aanduidingen de gewenste maximale bouwhoogte per bouwdeel opgenomen. De hoogten vanuit de gewenste ontwikkeling zijn hiervoor de basis.

5.2.3 Verkeer - Verblijfsgebied

De bestemming 'Verkeer - Verblijfsgebied' ligt op de delen van het plangebied waar het nieuwe parkeerterrein komen (verlengde van de Nieuw Guineastraat) en langs het opnieuw in te richten van de Oslolaan. Daaronder vallen de wegen, (voet)paden en parkeervakken. Ondergeschikt zijn groenvoorzieningen toegestaan, om flexibiliteit in het enigszins verschuiven van voorzieningen mogelijk te maken.

Bebouwing is in de bestemming niet toegestaan, behalve als het gaat om bouwwerken ten gunste van de bestemming. Hierbij gaat het onder meer om hekwerken en verlichtingsmasten. De hoogte is geregeld in de regels.

5.2.4 Waarde - Archeologie

Ter plaatse van het plangebied geldt een dubbelbestemming voor archeologie, vanwege de op de Archeologische Beleidskaart opgenomen archeologische verwachtingswaarde (zie ook paragraaf 4.4.1). De dubbelbestemming 'Waarde - Archeologie' voorkomt dat de mogelijk in de bodem aanwezige archeologische resten worden verstoord. Voor bodemingrepen groter en dieper dan opgenomen in de betreffende regels geldt een verplichting tot het uitvoeren van archeologisch onderzoek.

5.2.5 Waterstaat - Waterkering

De Westermeerdijk maakt deel uit van de primaire waterkering langs het IJsselmeer. Op deze dijk is sprake van een kernzone, met daarbuiten een binnen- en een buitenbeschermingszone. De dubbelbestemming 'Waterstaat - Waterkering' heeft betrekking op de gronden waarop volgens de keur van het Waterschap Zuiderzeeland de kernzone en de binnenbeschermingszone van toepassing zijn. De bestemming biedt een beschermende regeling in verband met de waterkerende functie van deze gronden. Voor werken en werkzaamheden binnen deze bestemming is een vergunning van het waterschap nodig. Het waterschap weegt de mogelijkheid hiervoor af.

5.2.6 Algemene aanduidingsregels

Rond de kernzone en binnenbeschermingszone van de Westermeerdijk is een buitenbeschermingszone aangeduid in de Keur van het waterschap. Voor deze zone is de aanduiding 'Vrijwaringszone - dijk 2' opgenomen. Deze aanduiding is op basis van het Besluit algemene regels ruimtelijke ordening toegekend aan het deel van waterkerende dijk dat valt binnen het plangebied. De regels bieden een bescherming voor de waterkerende functie van de dijk.

Hoofdstuk 6 Economische uitvoerbaarheid

De economische uitvoerbaarheid van een plan wordt aangetoond via de financiële haalbaarheid ervan en de grondexploitatieregeling uit de Besluit ruimtelijke ordening.

Financiële haalbaarheid

In het kader van de Haalbaarheidsstudie (bijlage 1) is ook een financiële onderbouwing opgenomen. Talant ontwikkelt de opstallen en voor het project gerekend aan de opstalexploitatie, de huurprijzen, de grondexploitatie en de zorgexploitatie. Het rendement van de ontwikkeling wordt bepaald door de huurinkomsten die de verschillende onderdelen van het plan (woningen, dagbesteding, wijkcentrum, bedrijfsruimtes) opbrengen. Uit de berekening blijkt dat het project financieel haalbaar is. De opbrengsten leveren voldoende op om de kosten van de realisatie van het gebouw (terug) te kunnen betalen.

Grondexploitatieregeling

Het bestemmingsplan biedt nieuwe aangewezen bouwplannen zoals bedoeld in artikel 6.2.1 Bro en artikel 6.12 lid 1 Wro. Dit betekent dat de grondexploitatieregeling uit het Bro van toepassing is en dat de gemeenteraad bij de vaststelling van het bestemmingsplan ook een exploitatieplan vaststelt. Hiervan kan afgezien worden wanneer het kostenverhaal van de grondexploitatie anderszins verzekerd is.

De gronden zijn in gemeentelijk eigendom. Talma ontwikkelt de nieuwbouw. Beide partijen hebben hiervoor een overeenkomst gesloten. Dit geldt dus voor de gronden van de voormalige schoollocatie en van de twee woningen aan de Oslolaan. In de overeenkomst worden ook financiële afspraken gemaakt over de ontwikkeling en het beheer van de gronden. Het kostenverhaal is hiermee anderszins verzekerd en de vaststelling van een exploitatieplan bij dit bestemmingsplan niet meer nodig.

Hoofdstuk 7 Maatschappelijke uitvoerbaarheid

Vooruitlopend op de officiële bestemmingsplanprocedure zijn de plannen besproken met belanghebbenden, dit is beschreven in paragraaf 2.3. In het kader van de bestemmingsplanprocedure zijn meer momenten waarop gereageerd kan worden op dit bestemmingsplan, namelijk via:

7.1 Vooroverleg ex artikel 3.1.1 Bro

In het kader van het wettelijke verplichte overleg op grond van artikel 3.1.1 van het Besluit ruimtelijke ordening is het voorontwerpbestemmingsplan toegezonden aan onder andere Rijkswaterstaat, de Provincie Flevoland, de buurgemeenten en het Waterschap Zuiderzeeland met de mogelijkheid tot het geven van een reactie. De ontvangen reacties zijn samengevat en beantwoord in de Nota van beantwoording vooroverlegreacties (bijlage 10). Waar nodig is het bestemmingsplan aangepast naar aanleiding van de ingediende reacties, dit is vermeld bij de beantwoording.

Wijzigingen hebben vooral betrekking op de waterparagraaf, het beleidskader ten aanzien van het provinciaal beleid en de toets in het kader van de Ladder voor duurzame verstedelijking.

7.2 Inspraak

Op basis van de gemeentelijke inspraakverordening heeft het voorontwerpbestemmingsplan ter inzage gelegen. Een ieder is daarbij in de mogelijkheid gesteld een mondelinge of schriftelijke inspraakreactie in te dienen. De ingediende reacties zijn samengevat en beantwoord in de Nota van beantwoording vooroverlegreacties (bijlage 11). Waar nodig is het bestemmingsplan aangepast naar aanleiding van de ingediende inspraakreacties, dit is vermeld bij de beantwoording. Wijzigingen hebben vooral betrekking op de inrichting van de parkeerplaatsen. De indeling van de parkeerplaatsen aan de zuidzijde is in overleg met de insprekers gewijzigd. Dit is verwerkt in de toelichting, en op de verbeelding heeft dit gebied nu de bestemming 'Verkeer - Verblijfsgebied' gekregen, in plaats van 'Wonen - Zorgwonen'.

7.3 Zienswijzen

Het ontwerpbestemmingsplan heeft met ingang van 14 december 2018 gedurende zes weken ter inzage gelegen. Tijdens de terinzageleggingstermijn is een ieder in de gelegenheid gesteld om zienswijzen in te dienen op het plan. Van deze gelegenheid is door één persoon gebruik gemaakt. Een samenvatting van de betreffende zienswijze en de reactie daarop van de gemeente, is opgenomen als Bijlage 12. Er zijn geen inhoudelijke gevolgen voor het bestemmingsplan.

7.4 Beroep

Het bestemmingsplan wordt ongewijzigd ter vaststelling aan de gemeenteraad van Urk aangeboden. Daarna wordt het vaststellingsbesluit en het bestemmingsplan 6 weken ter inzage gelegd, gedurende welke periode beroep kan worden aangetekend bij de Afdeling bestuursrechtspraak van de Raad van State.