direct naar inhoud van Toelichting
Plan: Zeeheldenwijk
Status: voorontwerp
Plantype: bestemmingsplan
IMRO-idn: NL.IMRO.0184.BP2019ZHW-0101

Toelichting

Hoofdstuk 1 Inleiding

1.1 Aanleiding en doelstelling

Het geldende bestemmingsplan Schokkerhoek is opgesteld onder de Crisis- en Herstelwet en betreft een bestemmingsplan verbrede reikwijdte. Het plan is 29 juni 2017 vastgesteld. Er is aanleiding dit plan te herzien.

Ten eerste geldt, dat vanwege de uitspraak van 2 mei 2018 in een beroepszaak tegen het bestemmingsplan het besluit van de gemeenteraad van de gemeente Urk, voor zover het betreft de plandelen met in dit plan de bestemming "Woongebieden - Uit te werken" binnen een afstand van 100 meter vanaf het bouwblok van het perceel Karel Doormanweg 60 door de Afdeling bestuursrechtspraak van de Raad van State is vernietigd. Deze uitspraak is verwerkt in voorliggende herziening.

Onder invloed van voortschrijdend inzicht is bovendien het stedenbouwkundig ontwerp aangepast. Deze nieuwe stedenbouwkundige opzet is de onderlegger voor de herziening van dit bestemmingsplan. Tevens is er behoefte aan een meer flexibele regeling. Het plandeel Het Nieuwe Dorp krijgt een minder gedetailleerde opzet dan in het vigerende bestemmingsplan. De voorheen zo genoemde deelgebieden De Akkers en Het Eiland worden met een uit te werken bestemming opgenomen in plaats van een gedetailleerde bestemming. Deze gronden zijn opgenomen in de bestemming Uit te werken - Woongebied.

Daarnaast is het programma van het plangebied deels gewijzigd. De locatie van de beoogde kinderboerderij, gelegen ten noorden van de geprojecteerde centrumvoorzieningen wordt anders ingericht, waarbij nabij de nieuwe kinderboerderij ook een zorglocatie mogelijk moet worden gemaakt met partnerwoninge en daaraan gekoppeld ondergeschikte voorzieningen als horeca en detailhandel. De zorglocatie wordt nader beschreven in paragraaf 2.2.2.2. Deze gronden zijn in dit plan bestemd als Gemengd - 2'.

Op de locatie van de bestaande kinderboerderij aan de Urkerweg 62 is een bushalte,een kiosk en lichte horeca beoogd. Deze gronden zijn bestemd als Gemengd - 3.

Tot slot biedt het plan ruimte voor een medisch cluster, een kinderdagverblijf, een sporthal bij de scholen.

Er wordt opnieuw gebruik gemaakt van de mogelijkheid van artikel 7c van de Crisis- en herstelwet (Chw), dat de mogelijkheid biedt voor een zogenaamd bestemmingsplan verbrede reikwijdte. De 14e tranche van het Besluit uitvoering van de Chw, waarin het gehele grondgebied van Urk is aangewezen is in oktober 2016 in werking getreden. Het plangebied van voorliggende plan is net als het bedrijventerrein aan de westkant (Zwolschehoek) tevens als ontwikkelingsgebied aangewezen, waarvoor op grond van de Chw een bestemmingsplan-plus moet worden gemaakt (zie paragraaf 5.1).

1.2 Ligging en begrenzing plangebied

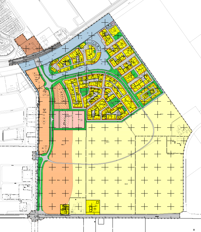
Het plangebied is circa 85 hectare groot en bestaat in de huidige situatie voornamelijk uit agrarische percelen en enkele woningen (zie figuur 1.1) en omvat grotendeels dezelfde gronden als het geldende bestemmingsplan Schokkerhoek. Het plangebied is alleen aangepast aan de noordzijde van de Urkerweg, waar de gronden ten oosten van de bestaande kinderboerderij met bestemming Maatschappelijk in het bestemmingsplan Buitengebied aan het bestemmingsplan zijn toegevoegd.

Aan de westzijde van het plangebied ligt het bedrijventerrein 'Zwolschehoek'. De grens van het plangebied wordt hier gevormd door het hart van de Zuidermeertocht. Aan de zuidzijde wordt het plangebied begrensd door de Domineesweg, inclusief de nieuwe rotonde aan de westkant waar de ontsluitingsweg van het plangebied op de Domineesweg aantakt. De Domineesweg vormt hier tevens de gemeentegrens met de gemeente Noordoostpolder. Aan de oostzijde bepaalt de gemeentegrens van Urk de grens van het plangebied, deze ligt deels ter hoogte van de Karel Doormanweg. De noordzijde, tenslotte, wordt begrensd door de Urkervaart, behalve ter plaatse van de geprojecteerde brug over de Urkervaart. Hier ligt de begrenzing van het plangebied deels op de noordzijde van de Urkerweg inclusief de noordgrens van de nieuw te realiseren rotonde.

afbeelding "i_NL.IMRO.0184.BP2019ZHW-0101_0001.png"

Figuur 1.1: Ligging en globale begrenzing plangebied Zeeheldenwijk (gele contour)

1.3 Vigerende bestemmingsplan

Het geldende bestemmingsplan Schokkerhoek is opgesteld onder de Crisis- en herstelwet (Chw) en betreft een bestemmingsplan verbrede reikwijdte. Dat plan is op 29 juni 2017 vastgesteld. Het plangebied blijft, zoals hierboven aangegeven, nagenoeg hetzelfde. De verbeelding van het geldende bestemmingsplan is in figuur 1.2 weergegeven.

afbeelding "i_NL.IMRO.0184.BP2019ZHW-0101_0002.png"

Figuur 1.2: Verbeelding vigerende bestemmingsplan Schokkerhoek

1.4 Opzet bestemmingsplan en toelichting

In deze toelichting komen achtereenvolgens de volgende aspecten aan de orde:

  • In hoofdstuk 2 'Planbeschrijving' wordt de bestaande en toekomstige invulling van het plangebied beschreven;
  • In hoofdstuk 3 'Beleidskader' volgt vervolgens een beschrijving van het beleidskader dat van toepassing is op het plan;
  • In hoofdstuk 4 'Planologische en milieutechnische randvoorwaarden' worden de relevante milieu- en omgevingsaspecten behandeld;
  • In hoofdstuk 5 'Juridische aspecten' wordt ingegaan op de juridische aspecten van het bestemmingsplan. Daarbij wordt ook ingegaan op invulling van de mogelijkheden die de Crisis- en herstelwet biedt voor onderhavig plan;
  • In hoofdstuk 6 'Uitvoerbaarheid' komen de economische en maatschappelijke uitvoerbaarheid aan bod.

Bij het opstellen van het bestemmingsplan is zoveel mogelijk aangesloten bij de opzet en inhoud van het geldende bestemmingsplan Schokkerhoek. De toelichting gaat met name in op de aanpassingen ten opzichte van het geldende plan, waarbij uitgangspunt is, dat onderhavig bestemmingsplan goed zelfstandig kan worden gelezen en de context van het plan inzichtelijk blijft. Van belang is, dat het grootste deel van het programma reeds is vastgelegd in het geldende bestemmingsplan, dat onherroepelijk is. Dat programma is beschreven in paragraaf 2.2.2.1. De aanvulling op het programma is beschreven in paragraaf 2.2.2.2. De naam van de ontwikkelingslocatie is inmiddels aangepast in Zeeheldenwijk. Voorliggend plan heet dan ook bestemmingsplan Zeeheldenwijk.

Hoofdstuk 2 Planbeschrijving

2.1 Beschrijving plangebied

2.1.1 Ruimtelijk

Omgeving

Het plangebied ligt aan de zuidoostzijde van Urk, ongeveer drie kilometer van het dorpscentrum op het voormalige eiland. Aan de westzijde wordt het plangebied van het bedrijventerrein 'Zwolschehoek' gescheiden door een watergang, de Zuidermeertocht. Aan de oost- en zuidzijde grenst het plangebied aan het landelijk gebied. Ten noorden van het plangebied ligt het woongebied ‘Oranjewijk’, van het plangebied gescheiden door de Urkerweg en het kanaal de Urkervaart.

afbeelding "i_NL.IMRO.0184.BP2019ZHW-0101_0003.png"

Figuur 2.1: Plangebied en omgeving (globaal aangeduid met blauwe contour)

Bebouwing

De geclusterde agrarische bouwpercelen aan de Karel Doormanweg en de Domineesweg en de aanwezigheid van een rijtje (vier) woningen nabij genoemde clusters zijn karakteristiek voor het Zuiderzeeproject. Het rijtje woningen verwijst naar de periode, dat de stand van de technologische ontwikkelingen in de landbouw in relatie tot de toen uitzonderlijke bedrijfsgrootte noodzaakte tot het in dienst hebben van landarbeiders. Voor het personeel werd een zelfstandige behuizing geboden in de directe nabijheid van de boerderijen in verband met de beperkte mobiliteit. Hoewel deze woningen hun oorspronkelijke functie al lang hebben verloren, zijn ze voor het gebied van de Noordoostpolder karakteristiek en daarmee van cultuurhistorische betekenis.

Ontsluiting

De agrarische bedrijven en woningen aan de zuidzijde van het plangebied liggen aan de Domineesweg (N352). De twee agrarische bedrijven aan de oostzijde zijn ontsloten op de Karel Doormanweg. Ten noorden van het plangebied ligt de Urkervaart met evenwijdig daaraan de Urkerweg (N351). Het plangebied heeft nog geen directe ontsluiting op de Urkerweg.

Het plangebied is over de weg goed bereikbaar via de A6/N352. Daarnaast grenst het plangebied aan de noordzijde aan de Urkervaart, die Urk per water verbindt met (onder andere) Emmeloord en Nagele.

Groen

Het plangebied kent een overwegend agrarisch gebruik als akkerbouwgebied. Kenmerkend voor de Noordoostpolder zijn de verschillende boerderijtypen, rondom voorzien van erfbeplanting en daartussen groepjes voormalige arbeiderswoningen, die bestemd waren voor de arbeiders op de boerderijen. Binnen het plangebied zijn beide vormen van bebouwing aan de Domineesweg en de Karel Doormanweg terug te vinden.

afbeelding "i_NL.IMRO.0184.BP2019ZHW-0101_0004.png"

Figuur 2.2: Karakteristieke bouwpercelen aan de Domineesweg

Cultuurhistorie

De verkavelingsstructuur met een standaard kavelmaat van 300x800 meter is karakteristiek voor het plangebied. De kavels worden omsloten door watergangen. Ten gevolge van de polderinrichting en de vormgeving van de Urkervaart vindt binnen het plangebied een hoek verdraaiing plaats in de verkavelingsrichting welke loodrecht op de vaart is gericht. Dit gegeven levert voor de locatie een extra karakteristiek op. In de nota Belvedère (1999) was het grondgebied van de gemeenten Noordoostpolder en Urk aangemerkt als Belvederegebied. De Noordoostpolder wordt van uitzonderlijk universele betekenis geacht, als duidelijk voorbeeld van een rationeel landschap uit de twintigste eeuw waarin twee voormalige eilanden, Urk en Schokland, als zelfstandige elementen zijn opgenomen. Eind 2009 verliep de geldigheidsduur van de Nota Belvedere. Vanaf 2009 werd Belvedere in het rijksbeleid vervangen door de MoMo (Modernisering Monumentenzorg), die uiteindelijk leidde tot verplichtingen met betrekking tot cultuurhistorie in de ruimtelijke ordening. In de planvorming is hier rekening mee gehouden.

Water

Aan de noordzijde van het plangebied ligt het kanaal de Urkervaart. De Urkervaart loopt vanaf de Zwolse Vaart bij Emmeloord naar Urk. Het Gemaal Vissering pompt het water bij Urk in en uit het IJsselmeer.

In figuur 2.3 is de legger waterlopen weergegeven met de waterlopen (blauw) gelegen in en om het plangebied (globaal aangegeven met en rode stippellijn). Op de figuur is direct ten noorden van het plangebied de Urkervaart zichtbaar en direct ten westen van het plangebied de Zuidermeertocht. Verder zijn in en rond het plangebied diverse kavelsloten gelegen die voor de aanvoer, afvoer en ontwatering van het gebied zorgen.

De aanwezige kavelsloten zijn afgestemd op het huidige agrarische gebruik van de gronden. Deze kavelsloten staan in open verbinding met de aan het plangebied grenzende Urkervaart. De tochten (hoofdwatergangen) liggen op zo'n 300 m afstand van elkaar. Alle kavels tussen de kavelsloten zijn tweezijdig gedraineerd.

afbeelding "i_NL.IMRO.0184.BP2019ZHW-0101_0005.png"

Figuur 2.3: Legger waterlopen

2.1.2 Functioneel

Het plangebied wordt momenteel voornamelijk gebruikt als agrarisch productiegebied (akkerbouw) in overeenstemming met het primaire doel waartoe de Noordoostpolder in 1942 is drooggelegd en ingericht. Voor het gebied geldt bestemmingsplan Schokkerhoek, dat reeds een ontwikkeling mogelijk maakt, zoals in paragraaf 2.2.2.1 wordt beschreven.

2.2 Beschrijving ontwikkeling

2.2.1 Uitgangspunten

De uitgangspunten voor het plan voor Zeeheldenwijk zijn in het geldende bestemmingsplan Schokkerhoek uitgebreid beschreven en blijven onveranderd, In deze paragraaf worden alleen de elementen toegelicht die relevant zijn vanwege de aanpassingen van het plan ten opzichte van het geldende plan.

Milieuzonering

Aan de randen van het bedrijventerrein Zwolschehoek zijn, conform de beheersverordening Bedrijventerrein Fase 5 maximaal categorie 3.2 bedrijven toegestaan. Meer in het centrum hebben de categorie 4.2 bedrijven ontwikkelruimte gekregen. De percelen van dit bedrijventerrein zijn grotendeels ingevuld. Het bestemmingsplan Bedrijventerrein fase 1 t/m 4 en de genoemde beheersverordening zijn onherroepelijk. Dit betekent, dat vanuit planologisch opzicht de ruimtebesteding vast ligt en daarmee bepalend is voor nieuwe ontwikkelingen ten oosten van het bedrijventerrein.

Vanuit het bedrijventerrein Zwolschehoek gelden richtafstanden, waarbinnen op basis van het bestemmingsplan Schokkerhoek geen milieugevoelige functies gerealiseerd mogen worden. Niet-milieugevoelige functies kunnen binnen dit gebied wel gerealiseerd worden, zoals lichte bedrijvigheid, parkeren, ontsluitingswegen en dergelijke. Door deze functies in die zone te projecteren wordt de beschikbare ruimte efficiënt gebruikt.

Binnen het plangebied Zeeheldenwijk zijn alleen nieuwe bedrijfsmatige functies mogelijk die geen grote richtafstanden (meestal gepaard gaand met een hoge milieucategorie) hebben.

De woningen op de aangepaste verkaveling van Het Nieuwe Dorp liggen buiten deze richtafstanden. Deze woningen liggen in een omgevingsgebied, dat wordt beschouwd als een rustige woonwijk. De zorgwoningen en woningen ten westen van het Nieuwe Dorp en de woningen in het centrumgebied liggen in een omgevingstype gemengd gebied. Dit geldt ook voor woningen die op gronden met de bestemming Gemengd - Uit te werken 1 en Gemengd - Uit te werken 2 zijn toegestaan. Dit wordt nader onderbouwd in paragraaf 4.2

Geluidcontouren

Vanwege aanpassingen aan het plan is voor deze herziening een nieuw akoestisch onderzoek uitgevoerd. Onderzocht is of bij de ontsluitingsweg sprake is van een mogelijke overschrijding van de norm van 5 dB bij reconstructie. Hieruit blijkt, dat aan de Wet geluidhinder wordt voldaan; wel is nog steeds een hogere grenswaarde noodzakelijk voor de woning Urkerweg 60. Die hogere grenswaarde is met het vigerende bestemmingsplan al vastgesteld (zie paragraaf 4.4).

Het bedrijventerrein Zwolschehoek is een niet gezoneerd industrieterrein. Er is in dat geval geen wettelijk kader om akoestisch onderzoek uit te voeren.

In het kader van een goede ruimtelijke ordening is het uitgevoerde akoestisch onderzoek vanwege de aangepaste invulling van het voorliggende plan opnieuw gedaan. Uit de berekeningsresultaten blijkt, dat de cumulatieve geluidbelasting van het bedrijventerrein en het wegverkeer nog steeds een aandachtspunt is, met name voor milieugevoelige functies in het gebied direct ten oosten van het bedrijventerrein. In dat gebied zijn daarom alleen niet-milieugevoelige functies als bedrijven en voorzieningen inclusief leisure geprojecteerd. Bij milieugevoelige functies moet in het kader van de bouwaanvraag worden aangetoond, dat er sprake is van een goed woon- en leefklimaat. Wat hieronder wordt verstaan, is aangegeven in de beleidsregels 'Goed woon- en leefklimaat'.

Programma

Bij een bestemmingswijziging dient rekening te worden gehouden met de ladder voor duurzame verstedelijking. Dat betekent, dat de actuele behoefte aan de ontwikkeling moet worden onderbouwd. Tevens moet worden gemotiveerd waarom er elders binnen bestaand stedelijk gebied daarvoor geen mogelijkheden zijn en geen onaanvaardbare leegstandseffecten zijn te verwachten. Kortom, een duurzame gebiedsontwikkeling.

In het geldende plan is in het kader van de ladder reeds onderbouwd dat er binnen de planperiode van 20 jaar ruimte is voor de realisatie van 1.438 woningen en circa 11 hectare voor het gemengd gebied en het centrumgebied met een kerk, een versmarkt, 2 basisscholen, een wijkgebouw en voor lichte bedrijfs- en woonwerkfuncties (inclusief maximaal 30 bedrijfswoningen), kleinschalige indoor-leisure en een kinderboerderij.

Daarnaast is er ruimte voor grootschalige detailhandel met een maximum winkelvloeroppervlakte van 1.000 m2.

Het programma is ten opzicht van het geldende plan aangepast. Ten eerste zijn er maximaal 1.650 woningen toegestaan (inclusief bedrijfswoningen en partnerwoningen). Dit is met een toets aan de ladder voor duurzame verstedelijking onderbouwd. Daarnaast zijn er zorgwoningen en partnerwoningen en extra ruimte voor ondergeschikte detailhandel en horeca voorzien.

Bij de scholen is in dit plan ook een sporthal met ondergeschikte horeca mogelijk gemaakt. Dit nieuwe programma en de relatie met de ladder voor duurzame verstedelijking wordt in paragraaf 2.2.2 nader gespecificeerd.

Het plan biedt tevens ruimte voor extra maatschappelijkevoorzieningen in de vorm van een medisch cluster en een kinderdagverblijf.

Het vigerende bestemmingsplan staat een versmarkt (maximaal 650 m2 bvo) toe. Via een wijzigingsbevoegdheid is in dat plan tevens een supermarkt toegestaan, mits aan de ladder voor duurzame verstedelijking wordt voldaan. Het aantal supermarkten en versmarkten mag in het geldende plan in totaal niet meer bedraagt dan één. In voorliggend plan wordt in de bestemming Gemengd - Uit te werken 2 naast de versmarkt direct ook een supermarkt toegestaan. De versmarkt kan bovendien via een wijzgingsbevoegdheid worden uitgebouwd tot een supermarkt, mits dit uit een laddertoets volgt. De laddertoets hiervoor is in in voorbereiding en wordt opgegenomen in het bestemmingsplan zodra deze gereed is. Anticiperend op het resultaat is de regeling alvast in de planregels opgenomen.

Tot slot wordt op de locatie van de huidige kinderboerderij aan de Urkerweg 62 een bushalte voor streekvervoer mogelijk gemaakt met daarbij lichte horeca en een kiosk. De realisatie van de bushalte volgt uit de door de gemeenteraad vastgestelde visie Openbaar busvervoer op Urk (2019).

De wateropgave

Het Waterschap Zuiderzeeland geeft aan, dat bij plannen groter dan 25 ha zogenaamde maatwerkberekeningen nodig zijn. Op basis van indicatieve berekeningen was de conclusie voor het geldende plan, dat er voor het hele plangebied circa 2,5 ha open water moet worden gerealiseerd. Deze randvoorwaarde blijft gelden bij de planvorming voor dit plan. De huidige oostelijke gelegen watergang dient blijvend op de Urkervaart af te wateren. De aanleg van de nieuwe brug over de Urkervaart geeft aan de noordoostkant van het plangebied beperkingen op de vaarroute rondom het geprojecteerde eiland. Aan de oostkant van de brug wordt in het verlengde van het eiland in het nieuw aan te leggen water een afscherming geplaatst langs de Urkervaart, zodat boten niet vanaf die kant en omgekeerd de Urkervaart op /af kunnen varen. Dit wordt geregeld in de uitwerkingsregels.

2.2.2 Functioneel

Het programma is hieronder gespecificeerd, waarbij eerst wordt ingegaan op het planologisch al toegestane programma en vervolgens het aanvullende programma wordt beschreven.

2.2.2.1 Onderbouwde programma in geldende plan

Woningen

Er is op basis van het onderzoek, dat is uitgevoerd in het kader van de ladder voor duurzame verstedelijking uitgegaan van maximaal 1.438 woningen in het gehele plangebied dat de komende 20 jaar wordt gerealiseerd. Er is een gedifferentieerd woningbouwprogramma voorzien, zodat alle doelgroepen op de woningmarkt de komende jaren kunnen worden bediend. Er worden zowel huur- als koopwoningen gerealiseerd. Een deel van de woningen wordt gebouwd bij wijze van (collectief) particulier opdrachtgeverschap.

Maatschappelijke voorzieningen

Onder ‘maatschappelijk’ wordt een brede mix van functies verstaan. Het betreft circa 1 ha aan functies zoals basisscholen, een kerk, buitenschoolse opvang en een wijkgebouw. Een wijkgebouw is een plek waar verschillende wijkverzorgende functies terecht kunnen en dito activiteiten worden georganiseerd. Denk daarbij bijvoorbeeld aan kleinschalige ruimteverhuur, een jeugdcentrum, een steunpunt, een centrum voor jeugd en gezin, de GGD, etc. Een wijkcentrum functioneert als ontmoetingsplek.

Kleinschalige indoor-leisure

Diverse voorzieningen (circa 1,5 ha), bestaande uit een brede mix van functies als bowlingcentrum, fitnesscentrum, museum, poolcentrum, sauna en wellness.

Kinderboerderij

Er is een nieuwe kinderboerderij toegestaan, waarbij tevens dagbesteding voor mensen met een beperking, ondersteunende horeca, detailhandel in zelfgemaakte artikelen, een speeltuin en natuur- en milieueducatie is toegestaan.

Centrumvoorzieningen

Bij centrumvoorzieningen wordt uitgegaan van detailhandelsbedrijven, zoals een versmarkt, een bakker en voorzieningen als een kapper en kleinschalige horeca. Het gaat bij de kleinschalige horeca en om horeca met een beperkte functie en omvang zoals een café, viskraam of snackbar; geen restaurant of hotel bijvoorbeeld. Er is een versmarkt (maximaal 650 m2 bvo) toegestaan. Via een wijzigingsbevoegdheid is een supermarkt toegestaan, mits uit onderzoek volgt dat aan de ladder voor duurzame verstedelijking wordt voldaan.

Lichte bedrijfs- en woonwerkfuncties

Er is circa 5 ha aan lichte bedrijfs- en woonwerkfuncties voorzien. Hieronder worden functies verstaan als bedrijven in milieucategorie 1 en 2 (maximaal 2 ha), woonwerk-units (maximaal 3 ha). Daarnaast is er perifere (zie lid 1.67 van de planregels) en grootschalige detailhandel (zie lid 1.42 van de planregels) toegestaan met een maximum winkelvloeroppervlak van 1.000 m2.

2.2.2.2 Aanvullend programma Zeeheldenwijk

Zorg

Het zorginitiatief omvat zorgwoningen en partnerwoningen enbijbehorende voorzieningen als ruimte voor onder andere dagbesteding, een winkel, een stiltecentrum en een restaurant.

Het zorgprogramma omvat 43 zorgwoningen van voor mensen met psychogeriatrische en somatische problemen met een bezoekersruimte voor familiebezoek en 34 zorgwoningen voor mensen met ernstige meervoudige beperkingen moeilijk verstaanbaar gedrag met dagbesteding.

Daarnaast wordt voorzien in een medische cluster met de volgende functies: verloskundige, tandarts, apotheek, fysiotherapie, huisartsen, kinder- en jeugdpsychologie, een laboratorium, ziekenhuis/diagnostiek en bijbehorende ruimtes als koffiekamer, frontoffice, wachtkamer en groepsruimte.

Maatschappelijke voorzieningen

Er is ruimte voor kinderopvang geboden.

Sportvoorziening

Bij de scholen is aanvullend aan het vigerende plan een sporthal geprojecteerd met ondergeschikte horeca. Het betreft een gebouw van circa 2.500 m2.

Wonen

Aanvullend aan de 1.438 woningen die al zijn toegestaan wordt binnen de uit te werken bestemming voor het woongebied extra woningbouw toegestaan tot en maximum van 1.650 woningen. Deze behoefte is aangetoond met een onderzoek in het kader van de ladder voor duurzame verstedelijking. Voorwaarde is dat dit niet leidt tot knelpunten in de verkeersafwikkeling.

Bushalte en licht horeca / kiosk

Er wordt een bushaltes gerealiseerd met daarbij voldoende fietsparkeervoorzieningen en lichte horeca (horeca I en hoec II) en een kiosk.

2.2.3 Ruimtelijk

Na de vaststelling van het geldende bestemmingsplan medio 2017 is het stedenbouwkundig plan verder uitgewerkt. De aanpassing van het programma leidde ertoe, dat het deelgebied Het Nieuwe Dorp qua omvang is veranderd, waardoor ook de stedenbouwkundige verkaveling is aangepast. De hoofdopzet van Zeeheldenwijk zoals vastgelegd in het bestemmingsplan Schokkerhoek is echter hetzelfde gebleven.

Ten westen van Zeeheldenwijk ligt het bedrijventerrein Zwolschehoek. De Urkervaart vormt de scheiding tussen de nieuwe wijk en het dorp Urk (zowel het nabij gelegen Urkerhard met diverse dagelijkse voorzieningen als het centrum in het oude dorp).

Om goede voorwaarden te creëren voor een nieuwe woonwijk op deze plek, is de verbinding met het dorp Urk als een zogenaamd verlengstuk van groot belang. Om deze te bewerkstelligen wordt Zeeheldenwijk in de noordwestelijke hoek met een brug over de Urkervaart met (het dorp) Urk voor zowel auto's als fietsers verbonden. Tegelijkertijd wordt ingezet op een diversiteit aan woonmilieus. Hierdoor wordt het enerzijds mogelijk voor verschillende vragen uit de markt ook verschillende opties te kunnen aanbieden.

Het Nieuwe Dorp omvat wonen in een eigentijds Urker woonmilieu, dat gericht is op een dorpse uitstraling. Het Nieuwe Dorp vormt de kern van Zeeheldenwijk waar omheen alle andere deelgebieden zijn gesitueerd.

afbeelding "i_NL.IMRO.0184.BP2019ZHW-0101_0006.png"

Figuur 2.1: Indicatieve opzet verkaveling Het Nieuwe Dorp

De overige woonbuurten zijn niet meer gedetailleerd verkaveld, maar opgenomen als uit te werken woongebied. Het uitgangspunt, dat een deel van het wonen moet worden gerealiseerd op een eiland in het noorden van het plangebied is nog steeds aan de orde.

In de overgangszone van het bedrijventerrein Zwolschehoek naar Zeeheldenwijk zijn aan de westzijde kleinschalige bedrijven gesitueerd. Aan de oostzijde van de hoofdontsluitingsweg is in deze zone een kinderboerderij opgenomen. De kinderboerderij vormt een groene entree van de wijk. Ten oosten van de kinderboerderij zijn de zorgvoorzieningen en partnerwoningen geprojecteerd.

De hoofdinfrastructuur is ongewijzigd en bestaat nog steeds uit een gebiedsontsluitingsweg en een erftoegangsweg met een belangrijke lokale functie, de zogenaamde wijkring. De gebiedsontsluitingsweg verbindt de Urkerweg met de Domineesweg. Deze weg met een laanprofiel is gelegen langs de westzijde van het plangebied als overgang tussen het werken in de Zwolschehoek en het wonen in Zeeheldenwijk. Deze weg ligt over de nieuwe aan te leggen brug over de Urkervaart; een icoon van Zeeheldenwijk. Aan deze weg liggen de twee entrees van de nieuwe woonwijk. De wijkring verbindt alle deelgebieden in Zeeheldenwijk intern met elkaar. Deze weg krijgt een herkenbaar en continu profiel.

Water vormt de andere verbindende lijnstructuur. Water hoort bij Urk. In het noordelijk deel van het plangebied wordt een nieuw eiland beoogd, omgeven door water, waarbij de uiteindelijke ligging en vorm van het eiland / water mede wordt bepaald door de archeologische waarden. Aan de oostzijde van De Akkers is een watergang gesitueerd die het plangebied onderscheidt van de polder.

Ten aanzien van parkeren is voor Zeeheldenwijk het parkeerbeleid van de gemeente Urk van toepassing.

2.2.4 Beeldkwaliteit

Er wordt per uitwerkingsplan een beleidsregel Beeldkwaliteit opgesteld. De beleidsregels vormen een aanvulling op de regels van het bestemmingsplan ten aanzien van beeldaspecten en materiaalgebruik. De beleidsregels 'Beeldkwaliteit' worden vastgesteld door de gemeenteraad. In de beleidsregels Beeldkwaliteit wordt een nadere toelichting gegeven op de stedenbouwkundige kwaliteit en eisen aan de architectuur en inrichting. Deze beleidsregel wordt separaat vastgesteld. Deze beleidsregel doorloopt een zelfstandige procedure, los van het bestemmingsplan.

In de bouwregels wordt opgenomen, dat bij de beoordeling van de aanvraag om een omgevingsvergunning voor het bouwen wordt beoordeeld of er wordt voldaan aan redelijke eisen van welstand, waarbij in de beleidsregels 'Beeldkwaliteit' wordt beschreven wat daaronder wordt verstaan.

Hoofdstuk 3 Beleidskader

Het vigerende bestemmingsplan is uitgebreid getoetst aan het geldende beleid. De programmatische aanpassing is dusdanig beperkt van aard, dat de beoordeling ervan in de basis niet verandert. In onderstaande toets aan het beleidskader is alleen daar waar relevant de programmatische aanpassing aan het vigerende beleid getoetst.

3.1 Rijksbeleid

3.1.1 Ladder voor duurzame verstedelijking

In het Besluit ruimtelijke ordening (Bro) is de verplichting opgenomen om in het geval van een nieuwe stedelijke ontwikkeling in de plantoelichting een onderbouwing op te nemen van nut en noodzaak van de nieuwe stedelijke ruimtevraag en de ruimtelijke inpassing.

Per 1 juli 2017 is het Bro gewijzigd met als doel om de ladder te vereenvoudigen en de onderzoekslasten te verminderen, waarbij de effectiviteit van het instrument behouden blijft. Met deze wijzigingen is niet beoogd het doel van de regeling te wijzigen. De nieuwe ladder voor duurzame verstedelijking bevat geen treden meer. De treden 1 en 2 zijn samengevoegd en trede 3 is geschrapt.

Artikel 3.1.6 tweede lid van het nieuwe Besluit ruimtelijke ordening bepaalt, dat de toelichting bij een bestemmingsplan, dat een nieuwe stedelijke ontwikkeling mogelijk maakt, een beschrijving bevat van de behoefte aan die ontwikkeling, en, indien het bestemmingsplan die ontwikkeling mogelijk maakt buiten het bestaand stedelijk gebied, een motivering waarom niet binnen het bestaand stedelijk gebied in die behoefte kan worden voorzien. Ook wanneer er geen sprake is van een nieuwe stedelijke ontwikkeling moet in het kader van een goede ruimtelijke ordening worden gemotiveerd of de mogelijk gemaakte ontwikkeling voorziet in een behoefte. Eerst wordt beoordeeld of er sprake is van een nieuwe stedelijke ontwikkeling.

Reeds aangetoonde behoefte / programma uit geldende plan

  • maximaal 1.438 woningen
  • maatschappelijke functies: circa 1 ha, zoals basisscholen, een kerk, buitenschoolse opvang en een wijkgebouw. Een wijkgebouw is een plek waar verschillende wijkverzorgende functies terecht kunnen en dito activiteiten worden georganiseerd. Denk daarbij bijvoorbeeld aan kleinschalige ruimteverhuur, een jeugdcentrum, een steunpunt, een centrum voor jeugd en gezin, de GGD, etc. Een wijkcentrum functioneert als ontmoetingsplek.
  • Kleinschalige indoor-leisure diverse voorzieningen (circa 1,5 ha), bestaande uit een brede mix van functies als bowlingcentrum, fitnesscentrum, museum, poolcentrum, sauna en wellness.
  • Centrumvoorzieningen: Bij centrumvoorzieningen wordt uitgegaan van detailhandelsbedrijven, zoals een versmarkt, een bakker en voorzieningen als een kapper en kleinschalige horeca. Het gaat bij de kleinschalige horeca en om horeca met een beperkte functie en omvang zoals een café, viskraam of snackbar; geen restaurant of hotel (hofeca I en horeca II). Er is een versmarkt (maximaal 650 m2 bvo) toegestaan. Via een wijzigingsbevoegdheid is een supermarkt toegestaan, mits de behoefte daaraan is aangetoond (laddertoets).
  • Lichte bedrijfs- en woonwerkfuncties: Er is circa 5 ha aan lichte bedrijfs- en woonwerkfuncties voorzien. Hieronder worden functies verstaan als bedrijven in milieucategorie 1 en 2 (circa 2 ha), woonwerk-units (circa 2 à 3 ha). Daarnaast is er perifere (zie lid 1.67 van de planregels) en grootschalige detailhandel (zie lid 1.42 van de planregels) toegestaan met een maximum winkelvloeroppervlak van 1.000 m2.

Voor de vestiging van een supermarkt is in het geldende bestemmingsplan een wijzigingsbevoegdheid opgenomen. Daarnaast is in het geldende plan conform het ladderonderzoek grootschalige en perifere detailhandel toegestaan met in totaal een maximum winkelvloeroppervlakte van 1.000 m2. In de bestemming Uit te werken - Gemengd is aanvullend nog eens 1.000 m2 toegestaan. Ook bij het toepassen van deze wijzigingsbevoegdheid en uitwerkingsplicht geldt dat aangetoond moet worden, dat er behoefte is en dat er aan de ladder voor duurzame verstedelijking wordt voldaan (uitgestelde laddertoets).

Voorliggend plan voorziet grotendeels opnieuw in dit programma. Conform jurisprudentie geldt derhalve , dat dit bestemmingsplan voor zover het bestaande programma opnieuw wordt bestemd, geen nieuwe stedelijke ontwikkelingen mogelijk maakt in de zin van artikel 3.1.6, tweede lid van het Bro, zodat reeds daarom die bepaling niet van toepassing is. Op basis hiervan hoeft het plan voor zover het gaat om het programma dat in het geldende bestemmingsplan reeds is toegestaan, al dan niet direct of via een uitwerkingsplicht, niet te worden getoetst aan de ladder voor duurzame verstedelijking. Wel moet de behoefte worden gemotiveerd in het kader van een goede ruimtelijke ordening.

Nieuw programma ten opzichte van geldende bestemmingsplan

Maatschappelijke voorzieningen, medisch cluster en een sporthal

Het voorliggende plan voorziet in een aanvulling op het geldende programma met zorgwoningen en daaraan ondergeschikte detailhandel en horeca en een sporthal. Deze functies zijn met een directe bestemming Gemengd - 3 in het bestemmingsplan opgenomen. Voor de zorgwoningen (intramuraal), het medisch cluster, kindedagverblijf en een sporthal is een ladderonderzoek uitgevoerd. Deze is als bijlage 1 opgenomen.

Uit het rapport volgt dat aan de geplande maatschappelijke voorzieningen (kinderdagverblijf, verloskundige, tandarts, apotheek, fysiotherapeut, huisarts, kinder- en jeugdpsycholoog, laboratorium, 1e lijnsvoorziening, dagbehandeling met kantoor) en de sporthal behoefte bestaat. Ook aan de intramurale zorgwoningen bestaat voldoende behoefte.

Wonen

De laddertoets met betrekking tot wonen is in 2019 geactualiseerd. Het onderzoek is als bijlage 2 bijgevoegd.

Op Urk is er in totaal behoefte aan 1.805 woningen, bovenop de bestaande plancapaciteit in de gemeente. Dit is het maximale aantal woningen dat kwantitatief te onderbouwen is in Zeeheldenwijk. Kwalitatief gezien is er ruimte voor een gedifferentieerd woningprogramma, met de nadruk op grondgebonden koopwoningen. Ook aan appartementen en huurwoningen bestaat een significante extra behoefte. Voorliggend plan biedt ruimte voor maximaal 1.650 woningen. De resterende behoefte is gereserveerd voor andere woningbouwlocaties op Urk.

Het bestemmingsplan past binnen het hierboven beschreven rijksbeleid.

3.2 Provinciaal en regionaal beleid

Het vigerende bestemmingsplan Schokkerhoek is vastgesteld in 2017 en uitgebreid getoetst aan het vigerende provinciale en regionale beleid. De beperkte aanpassing van het programma past binnen dit vigerende beleid. Ten aanzien van proviciaal beleid wordt benadrukt, dat de gemaakte afspraken met betrekking tot verkeer ook in dit plan worden gerespecteerd, zie paragraaf 4.1. Het provinciaal en regionaal beleid zijn sinds juni 2017 nauwelijks gewijzigd, voor zover relevant voor het plangebied. Hieronder wordt ingegaan op provinciaal beleid, dat na 29 juni 2017 is vastgesteld.

3.2.1 Verordening voor de fysieke leefomgeving Flevoland 2012

De vijfde en zesde wijziging van de verordening voor de fysieke leefomgeving Fevoland 2012, die na 29 juni 2017 zijn vastgesteld, omvatten geen bepalingen die voor voorliggend plan relevant zijn.

3.2.2 Omgevingsvisie Flevoland – FlevolandStraks

De Omgevingsvisie FlevolandStraks, vastgesteld op 8 november 2017, geeft de visie van de provincie Flevoland op de toekomst van Flevoland. De Omgevingsvisie vervangt het visiedeel uit het Omgevingsplan 2006. Vervolgens worden de beleids- en uitvoeringsdelen uit het Omgevingsplan 2006 gefaseerd vervangen door onder meer programma´s en regels in een omgevingsverordening. Hierbij biedt de provincie waar mogelijk en wenselijk lokaal maatwerk. Vanaf de vaststelling van de Omgevingsvisie werkt de provincie vanuit de geest van deze visie.

De visie gaat over de periode tot 2030 en verder. Het geeft aan welke kansen en opgaven er voor Flevoland liggen en welke ambities de provincie heeft voor de toekomst. Het bijzondere verleden van de jongste provincie van Nederland vormt de basis van de visie.

Flevoland is gemaakt voor ontwikkeling. De ontwikkelingsgerichtheid is onderdeel van de identiteit van de provincie. Hier grijpt de provincie met lef de kansen van nieuwe ontwikkelingen. En de ontwikkelingen blijven doorgaan. Denk aan opgaven zoals woningbouw, bedrijvigheid, herontwikkelingen, nieuwe voorzieningen, klimaatverandering, bodemdaling, waterveiligheid, transformatie in landbouw, duurzame energie. Alle opgaven - klein of groot - omarmt de provincie op een wijze, waarbij ze de kenmerkende elementen van de polder koesteren. Binnen deze kenmerken geven ze ruimte aan ontwikkelingen. De overheden hebben de polders aangelegd en ingericht. Het is een plek waar inwoners, organisaties en ondernemers hun idealen kunnen realiseren. Hierdoor krijgt de provincie meer verrassing, spontaniteit en variatie. Mensen maken Flevoland.

In de Omgevingsvisie wordt onderscheid gemaakt in kernopgaven en strategische opgaven. Deze opgaven hebben een tijdshorizon van circa tien tot vijftien jaar.

Kernopgaven

Er zijn drie kernopgaven:

  • het Verhaal van Flevoland (fysieke omgeving);
  • Krachtige Samenleving (sociaal-economische omgeving);
  • Ruimte voor Initiatief (bestuurlijke omgeving).

Deze opgaven vormen de kern voor alle ontwikkelingen waar de provincie Flevoland bij betrokken is. Zowel voor de strategische opgaven uit de Omgevingsvisie, als andere vraagstukken van de provincie Flevoland

Strategische opgaven

Veranderende maatschappelijke opvattingen en technologische mogelijkheden bepalen in grote mate de manier waarop we in de toekomst gaan wonen, werken en leven in Flevoland. Deze veranderingen krijgen een grote impact. Niet van de ene op de andere dag, het gaat om veranderingen die zich over vele jaren uitstrekken. De provincie gaat Flevoland hierop voorbereiden. Sterker nog, de provincie wil dat inwoners en bedrijven optimaal profiteren van deze ontwikkelingen. In de strategische opgaven staan deze vraagstukken en ambities voor de toekomst beschreven. Het gaat om de volgende opgaven:

  • duurzame energie;
  • regionale kracht;
  • circulaire economie;
  • landbouw: meerdere smaken.

Meer specifieke uitspraken over de toekomstige invulling van de provincie worden in de visie niet beschreven. De provincie faciliteert de ontwikkelende partijen zo veel mogelijk, zo ook bij de ontwikkeling in het plangebied. Samen met partners en inwoners wil de provincie het Verhaal van Flevoland verder brengen.

3.2.3 Omgevingsverordening Provincie Flevoland

In de Omgevingsverordening Provincie Flevoland (vastgesteld op 29 februari 2019) zijn bestaand beleid en regels voor de fysieke leefomgeving uit provinciale beleidsnota’s en verordeningen bij elkaar gebracht in een nieuwe opzet. Het betreft een actualisatie en een beleidsneutrale omzetting van bestaand beleid. Het plan past binnen de Omgevingsverordening.

3.3 Gemeentelijk beleid

Het relevante gemeentelijke beleid is sinds medio 2017, met uitzondering van de op 19 februari 2018 vastgestelde gemeentelijke visie Werklocaties Noordelijk Flevoland, niet gewijzigd voor zover relevant voor het plangebied. Voor de aanpassing van het programma wordt aan dat beleid en aan de gemeentelijk woonvisie getoetst..

3.3.1 Strategische Woonvisie Urk 2035+

Op 30 april 2015 heeft de gemeenteraad van Urk de Strategische Woonvisie Urk 2035+ vastgesteld. Deze visie is tot stand gekomen in nauw overleg met actoren die werkzaam zijn binnen het betreffende werkveld, zoals de plaatselijke woningbouwvereniging, bouwers, ontwikkelaars, makelaars en zorgpartijen. De 'consumenten' i.c. de (toekomstige) inwoners van de gemeente Urk, staan binnen deze visie centraal.

De komende jaren vindt er een duidelijke verschuiving plaats in de huishoudenssamenstelling. Het aantal huishoudens groeit in alle leeftijdsklassen. Vooral het aantal 55-plussers groeit sterk. Binnen deze groep groeit het aantal 75- plus huishoudens zelfs van ongeveer 460 in 2014 naar circa 1.800 in 2040. Vanwege de vergrijzing moet er vroegtijdig rekening worden gehouden met de specifieke woonwensen van de diverse doelgroepen. Belangrijk om mee te nemen bij de woningprogrammering is dat het gemiddelde besteedbare huishoudeninkomen op Urk hoger ligt dan het landelijk gemiddelde. Dat heeft te maken met de grotere huishoudens (meer leden van een huishouden dat een inkomen heeft).

In het bestemmingsplan Schokkerhoek werd reeds rekening gehouden met een gedifferentieerd woningbouwprogramma, waarbij tevens voldoende woningen die geschikt zijn voor ouderen worden gebouwd. Het aanvullen de programma met zorgwoningen sluit aan op de groei van de 55-plussers en de 75-plussers. In bijlage 1 is dit onderbouwd.

Het plan past daarmee binnen het gemeentelijk beleid.

3.3.2 Visie Werklocaties Noordelijk Flevoland

De Visie Werklocaties is gericht op het beleid op formele bedrijventerreinen in Noordelijk Flevoland. In deze Visie Werklocaties werken de gemeente Urk en Noordoostpolder hun ambities en beleid op de bedrijfslocaties verder uit, zodat Noordelijk Flevoland de komende jaren economisch kan groeien, kansen kan pakken en bedrijven bovenal de ruimte kan geven. Belangrijk is daarbij:

  • dat nieuw aanbod van bedrijfsgrond meerwaarde heeft ten opzichte van het bestaande aanbod;
  • dat ruimte kan worden geboden aan lokaal gebonden bedrijven;
  • dat werkgelegenheid lokaal behouden blijft;
  • dat de leefbaarheid in de kernen ook de komende jaren geborgd blijft;
  • dat de sterke positie van Noordelijk Flevoland voor onder meer Agrofood, Composieten, Maritiem, en Visserij verstevigt.

De Visie Werklocaties biedt de kaders en uitgangspunten voor een zorgvuldige ontwikkeling van en een goede ruimtelijke ordening voor de bedrijfslocaties in Noordelijk Flevoland, bestaande uit de gemeenten Noordoostpolder en Urk:

  • De gemeenten richten zich met deze Visie Werklocaties op beleid met aandacht voor het bestaande aanbod en in regionaal perspectief, zodat ze ook het vestigingsklimaat voor ondernemers op niveau houden en de economie regionaal sterk op de kaart zetten.
  • De gemeenten richten zich ons op beleid met aandacht voor de ladder voor duurzame verstedelijking en met het oog op flexibiliteit, waardoor ze hun risico's beperken en planologische ruimte houden voor lokaal maatwerk.
  • De gemeenten richten zich op beleid dat past bij provinciale uitgangspunten, die door de provincie zijn uiteengezet in de RO Visie Werklocaties.

De mogelijkheden die in dit plan zijn vastgelegd voldoen aan de ladder voor duurzame verstedelijking. Het plan past daarmee binnen het gemeentelijk beleid.

3.3.3 Visie Openbaar busvervoer op Urk

Urk is een van de sterkst groeiende gemeenten van Nederland. Ruim vijftig jaar geleden woonden er minder dan 6.000 mensen op Urk, maar inmiddels zijn dit er meer dan 20.000 met de verwachting dat dit aantal zal oplopen naar 30.000. Het openbaar vervoer op Urk is de afgelopen jaren nauwelijks veranderd. Het huidige aanbod van openbaar vervoer sluit niet langer aan op de ontwikkelingen binnen de gemeente. De bussen rijden op Urk lange stukken door woongebieden. Dit past niet bij kwalitatief hoogstaand en aantrekkelijk openbaar vervoer. Het openbaar vervoer op Urk moet toekomstbestendig gemaakt worden. Hiervoor zijn een aantal verbeteringen nodig ten opzichte van de huidige situatie:

  • het strekken van de routes op Urk;
  • een directe verbinding tussen Urk en Lelystad;
  • een centrale eindhalte om bovenstaande ontwikkelingen te kunnen faciliteren;
  • een buurtbus om een goede halte afstand te kunnen faciliteren.

Relevant voor voorliggend plan is dat de busroutes op Urk worden gestrekt. Om dit te faciliteren is het nodig om een centrale eindhalte te realiseren, met onder andere goede fietsparkeervoorzieningen. Hier kunnen de bussen keren en wachten tot de geplande vertrektijden. De mogelijke inzet van elektrische bussen versterkt de behoefte aan een centrale halte op Urk omdat deze bussen tijd nodig hebben om opgeladen te worden.

De meest kansrijke locatie voor een centrale eindhalte op Urk is nabij het gemeentehuis. Eén centrale (eind)halte voor de reguliere buslijnen op Urk is onvoldoende. Om te
grote drukte van reizigers te vermijden en de afstand tot de halte te beperken is het van belang ook een halte voor de streekbussen nabij de huidige kinderboerderij in te passen. Met twee haltes worden de bushaltes op Urk beter verdeeld en en wordt voorkomen dat er te veel fietsen op één halte komen te staan en dat er te veel bussen op de eindhalte moeten wachten. Een passende dienstregeling voor de beschreven situatie moet nog uitgewerkt worden. In dit bestemmingsplan wordt de bushalte met bijbehorende voorzieningen op de locatie van de huidge kinderboerderij mogelijk gemaakt.

Hoofdstuk 4 Planologische en milieuhygiënische randvoorwaarden

Het programma is ten opzichte van het geldende plan aangepast, doordat er zorgwoningen en extra ruimte voor ondergeschikte detailhandel en horeca zijn voorzien.

Het vigerende bestemmingsplan is uitgebreid getoetst aan de relevante omgevingsfactoren. De onderzoeken die daarvoor zijn gedaan zijn recent uitgevoerd en actueel.

Deze aanpassing heeft geen relatie met de aspecten archeologie, bodem, niet gesprongen exlosieven, parkeren, natuur, spuitzone, nautische aspecten en duurzaamheid. Deze onderdelen worden daarom in dit plan niet meer beoordeeld.

4.1 Verkeer

Kader

Er is voor het vigerende plan een verkennend verkeersonderzoek gedaan naar de verkeersgeneratie en de gevolgen van de ontsluiting van de nieuwe woonwijk op het bestaande wegennet van de gemeente Urk. In het geldende plan is geconcludeerd, dat ten aanzien van de intensiteit op wegvakken in beginsel geen knelpunten worden verwacht, de intensiteit blijft onder de grenswaarden.

Voor de Domineesweg werd beoordeeld, dat de intensiteit op de Domineesweg toeneemt tot boven de provinciale grenswaarde voor gemengde afwikkeling snel en langzaam verkeer op provinciale wegen (12.000 mvt/etmaal). De intensiteit blijft wel onder theoretische maximale capaciteit (20.000 mvt/etmaal).

In het kader hiervan is bij de totstandkoming van het vigerende bestemmingsplan op ambtelijk niveau afgesproken, dat gekeken moet worden naar een robuuste oplossing ten aanzien van de ontsluiting van Urk/Noordelijk Flevoland als geheel. Immers, de toename van de intensiteit op de Domineesweg is niet alleen het gevolg van de ontwikkeling van Zeeheldenwijk, maar het gevolg van de autonome groei van Urk en ontwikkelingen binnen Noordelijk Flevoland. Daar deze robuuste oplossing nader onderzoek vergt, hebben de gemeente en provincie een bestuursovereenkomst gesloten, waarin afspraken zijn gemaakt over de wijze waarop partijen gaan samenwerken in het zoeken naar een gezamenlijke oplossing voor de Domineesweg. Onderdeel van de bestuursovereenkomst zijn de uitgangspunten voor het verkeersonderzoek (t.b.v. monitoring).

Middels een monitoringsregeling zal inzicht worden verkregen op de daadwerkelijke effecten van de verkeersintensiteiten op de Domineesweg. De monitoring zal beginnen bij aanvang van de realisatie van Zeeheldenwijk, door middel van een jaarlijkse rapportage over de verkeersbelasting van de Domineesweg, gecombineerd met een verplichting voor het college om, in samenspraak met partijen, maatregelen te treffen als een overschrijding dreigt van de beschikbare capaciteit. Eenzelfde monitoringsverplichting kan in andere ruimtelijke plannen worden opgenomen. Omdat nog niet duidelijk is welke maatregelen er zullen worden getroffen en wanneer dat dan gebeurt, terwijl tegelijkertijd wel op voorhand moet worden verzekerd, dat geen onaanvaardbare situatie ontstaat, is in het bestemmingsplan een uiterste maatregel in de vorm van een bouwstop opgenomen. Deze geldt dan dus gelijktijdig voor alle ontwikkelingen waarbij dezelfde monitoringsverplichting wordt toegepast.

In samenspraak met de provincie is bepaald, dat de bouwstop niet eerder zal plaatsvinden op het moment dat er 1.200 woningen in Zeeheldenwijk zijn gerealiseerd. Dit aantal is gebaseerd op de planologische mogelijkheden van het voormalige uit te werken bestemmingsplan Waterschapwijk.

Onderzoek

Via haar verkeersmodel heeft de gemeente de verkeerscijfers aan de hand van het aangepaste programma in 2018 geactualiseerd. Hieruit volgt dat het verschil tussen het oude programma en het nieuwe programma met zorgwoningen voor de verkeersafwikkeling niet tot een significant verschil leidt.

Conclusie

Tussen de gemeenten de provincie zijn afspraken gemaakt over een monitoring van de verkeersafwikkeling die start bij aanvang van de realisatie van Zeeheldenwijk door middel van een jaarlijkse rapportage over de verkeersbelasting van de Domineesweg, gecombineerd met een verplichting maatregelen te treffen als een overschrijding dreigt van de beschikbare capaciteit.

Deze verkeersmonitoring wordt door de gemeente en de provincie nader uitgewerkt in een bestuursakkoord. In dat kader is in onderhavig plan een regel opgenomen voor de monitoring van het verkeer (lid 18.5) en een maximum aantal te realiseren woningen van 1.200. Er kunnen maximaal 1.650 woningen worden gerealiseerd indien dit niet tot verkeersproblemen leidt. Hiermee is het aspect verkeer geen belemmering voor de uitvoering van het plan.

4.2 Bedrijven en Milieuzonering

Kader

De aanwezigheid van bedrijven kan de kwaliteit van de leefomgeving beïnvloeden. Voorkomen moet worden, dat bedrijven hinder veroorzaken naar de omgeving, vooral indien het woongebieden of andere gevoelige bestemmingen betreft. Daarnaast moeten bedrijven zich kunnen ontwikkelen en kunnen uitbreiden. Om dit te bereiken is het van belang, dat bedrijven en gevoelige bestemmingen ruimtelijk goed gesitueerd worden, zodat de bedrijven zo min mogelijk overlast opleveren en woongebieden de bedrijven zo min mogelijk beperken in hun bedrijfsuitvoering.

Ten behoeve van milieuzonering is door de Vereniging Nederlandse Gemeenten (VNG) een bedrijvenlijst opgesteld, waarin bedrijfsactiviteiten op hun milieueffecten zijn gecategoriseerd (Bedrijven en milieuzonering, 2009). De VNG-handreiking geeft adviesafstanden voor de thema's geur, geluid, stof en gevaar afhankelijk van de gebiedskenmerken. Onderstaande tabel is gebaseerd op de VNG-handreiking waarin de richtafstanden zijn weergegeven per categorie.

afbeelding "i_NL.IMRO.0184.BP2019ZHW-0101_0007.png"

Tabel 1: Richtafstanden VNG-Handreiking Bedrijven en milieuzonering (VNG, 2009)

Wanneer er sprake is van een gemengd gebied kunnen richtafstanden die gelden volgens de VNG-handreiking, zonder dat dit ten koste gaat van het woon- en leefklimaat, met één afstandsstap worden verlaagd. Een gemengd gebied is volgens de VNG-handreiking een gebied met een matige tot sterke functiemenging. Direct naast woningen komen ook andere functies voor, zoals winkels, horeca en kleine bedrijven. Gebieden die direct langs de hoofdinfrastructuur liggen behoren eveneens tot het omgevingstype ‘gemengd gebied’.

De gronden direct ten westen van de nieuwe ontsluitingsweg zijn bestemd als Gemengd - 2, Gemengd - Uit te werken 1 en Gemengd - Uit te werken 2 waar afhankelijk van de bestemming centrumvoorzieningen, kleinschalige indoor-leisure, maatschappelijke voorzieningen, lichte bedrijfsfuncties en (zorg)woningen in een gemengde zone kunnen worden gerealiseerd. Deze gronden worden derhalve beschouwd als omgevingstype gemengd gebied. Bij het opstellen van het bestemmingsplan is rekening gehouden met de richtafstanden die gelden vanwege het bedrijventerrein Zwolschehoek. Concreet betekent dit, dat de milieugevoelige functies in Zeeheldenwijk in beginsel op meer dan 200 meter moeten worden gesitueerd gerekend vanaf de grens van de bedrijfspercelen waar maximaal categorie 4.2- bedrijven zijn toegestaan. Vanaf de gronden met een bestemming waar bedrijven in milieucategorie 3.2 zijn toegestaan geldt een richtafstand van 50 meter.

Onderzoek

In het vigerende bestemmingsplan is rekening gehouden met de richtafstanden. Ten aanzien van het vigerende plan is het volgende aangepast:

Agrarische bedrijven

Op grond van de uitspraak van de Afdeling bestuursrechtspraak van de Raad van State van 2 mei 2018 (ECLI:NL:RVS:2018:1458) zijn binnen een afstand van 100 meter vanaf het bouwblok van het perceel Karel Doormanweg 60 geen woningen toegestaan.

Bedrijven en milieuzonering Zeeheldenwijk - bedrijventerrein Zwolschehoek

Voor de invloed van het bedrijventerrein Zwolschehoek op het voorliggende plangebied is rekening gehouden met de maximale planologische invulling van het bedrijventerrein, waar deels bedrijven tot maximaal categorie 4.2 en tot maximaal categorie 3.2 zijn toegestaan. De ligging van die richtafstanden die daarbij horen zijn weergegeven in figuur 4.1.

afbeelding "i_NL.IMRO.0184.BP2019ZHW-0101_0008.png"

Figuur 4.1: Richtafstanden Zwolshehoek, gemengd gebied.

In het stedenbouwkundig plan is als volgt rekening gehouden met de richtafstanden:

  • de geprojecteerde woningen zijn buiten de richtafstanden geprojecteerd;
  • binnen de richtafstanden van het bedrijventerrein Zwolschehoek zijn binnen de bestemming Gemengd - 1 geen milieugevoelige functies toegestaan;
  • voor de gronden met de bestemming Gemengd -2, Gemengd - Uit te werken 1 en Gemengd - Uit te werken 2 zijn de milieugevoelige functies scholen, woonwerkclusters, wonen en zorgwonen toegestaan. De zorgwoningen en partnerwoningen liggen buiten de richtafstanden en zijn derhalve direct toegestaan in de bestemming Gemengd - 2. Bij het opstellen van de uitwerkingsplannen moet rekening worden gehouden met de richtafstanden. Milieugevoelige functies, zoals de scholen en (bedrijfs)woningen moeten in de Uitwerkingsplannen buiten de relevante richtafstanden van het bedrijventerrein worden gesitueerd. Daarnaast moete er in de Uitwerkingsplannen voldoende afstand worden aangehouden tussen de in dat plan te realiseren milieugevoelige functies en de in dat plan te realiseren milieuhinderlijke activiteiten, waarbij uitgegaan wordt van de richtafstanden die horen bij een omgevingstype gemengd gebied.
  • Tevens moet worden voldaan aan de beleidsregel Goed woon- en leefklimaat. In dit kader is van belang, dat in een bestemmingsplan Verbrede Reikwijdte, waartoe voorliggend bestemmingsplan behoort, het mogelijk is een functie toe te staan, waarbij wordt bepaald binnen welke randvoorwaarden dit mogelijk is (de of-vraag). Dit kunnen specifieke (milieu)normen zijn (zoals geluidsnormen), maar ook open normen, die worden uitgewerkt in beleidsregels, waaraan een omgevingsvergunningaanvraag wordt getoetst. Pas als zich een concreet initiatief aandient, kan onderzoek plaatsvinden naar de precieze invulling (de hoe-vraag). Door de juiste randvoorwaarden op een heldere wijze in het bestemmingsplan op te nemen is er vooraf duidelijkheid. In dit plan is een regeling opgenomen die milieugevoelige functies in gemengd gebied toestaat. Milieugevoelige functies zijn daarbij uitsluitend toegestaan, indien wordt aangetoond, dat er sprake is van een goed woon- en leefklimaat. De wijze waarop wordt beoordeeld of er sprake is van een goed woon- en leefklimaat is vastgelegd in de beleidsregels 'Goed woon- en leefklimaat'. Als hieraan wordt voldaan worden ook de bedrijven niet in hun bedrijfsvoering belemmerd.

Bushalte en lichte horeca - kiosk op terrein voormalige kinderboerderij

Op het perceel Urkerweg 62 wordt een bushalte mogelijk gemaakt inclusief lichte horeca (horeca I en II) en een kiosk. De locatie kan worden beschouwd als een gemengd gebied aangezien deze direct aan hoofdinfrastructuur is gelegen, i.c.de Urkerweg. De bushalte is voor wat betreft milieu-uitstraling vergeleken met een autoparkeerterrein. Hiervoor geldt volgens de Handreiking Bedrijven en milieuzonering (VNG, 2009) een richtafstand van 10 meter in gemengd gebied. Horeca I en II kennen een richtafstand van maximaal 10 meter. Voor een kiosk (detailhandel) geldt een richtafstand van nul meter. De afstand vanaf de perceelsgrens van de bestemming (Gemengd - 3) tot de gevels van omliggende woningen is meer dan 10 meter, ook wanneer rekening wordt gehouden met de bouwmogelijkheden voor de woningen vanuit het vergunningvrij bouwen (artikel 2 bijlage II) van het Besluit omgevingsrecht.

Conclusie

Een gedeelte aan de westzijde van het plangebied Zeeheldenwijk is deels niet geschikt voor de ontwikkeling van milieugevoelige functies vanwege de milieu-richtafstanden van de bedrijven op Zwolschehoek. In dat gebied met de bestemming Gemengd - 1 zijn in onderhavig plan geen milieugevoelige functies mogelijk gemaakt.

De realisatie van de bushalte, de kiosk en lichte horeca past in de omgeving en is direct toegestaan, evenals de zorgwoningen en partnerwoningen ten oosten van de nieuwe kinderboerderij.

Voor de gronden met een uit te werken gemengde bestemming zijn milieugevoelige functies alleen toegestaan, wanneer is aangetoond, dat er ter plaatse sprake is van een goed woon- en leefklimaat en dat de bedrijfsvoering van bedrijven niet wordt belemmerd. Voor wat onder een goed woon- en leefklimaat moet worden verstaan is een beleidsregel vastgesteld, die aan de planregels is gekoppeld.

De contouren van agrarische activiteiten overlappen het plangebied aan de oost- en zuidzijde. Met betrekking tot de agrarische bouwvlakken aan de oostkant is een milieuzone opgenomen, waarbinnen geen nieuwe milieugevoelige functies zijn toegestaan. Verder geldt dat bij het opstellen van de Uitwerkingsplannen die op grond van voorliggend plan worden opgesteld, met die agrarische activiteiten rekening moet worden gehouden.

4.3 Externe veiligheid

Kader

Bij ruimtelijke ontwikkelingen wordt aandacht besteed aan de veiligheidsrisico's die zware bedrijven of risicovolle inrichtingen kunnen veroorzaken. Daarnaast kan transport van gevaarlijke stoffen risico's opleveren (transport over weg, spoor en water en door buisleidingen). De normen en richtlijnen voor externe veiligheid komen uit het Besluit externe veiligheid inrichtingen (Bevi), het Besluit externe veiligheid buisleidingen en het Activiteitenbesluit.

Onderzoek

Binnen het plangebied is een risicobron aanwezig, namelijk een propaantank met een inhoud van 4,2 m3 op het terrein aan de Domineesweg 26 (zie figuur 4.8).In en in de directe omgeving van het plangebied liggen geen buisleidingen die relevant zijn in het kader van de externe veiligheid. In het plangebied ligt ten noorden van de Urkervaart wel een gasleiding met een werkdruk van 8 bar langs de Urkerweg. Deze is op de verbeelding en in de regels opgenomen (Artikel 15 Leiding - Gas)

afbeelding "i_NL.IMRO.0184.BP2019ZHW-0101_0009.png"

Figuur 4.8: uitsnede van de provinciale risicokaart

De propaantank valt onder het Activiteitenbesluit en niet onder het Bevi. In het Activiteitenbesluit is aan een dergelijke tank een veiligheidsafstand van 10 meter gekoppeld (bevoorradingsregiem . 5 x/jaar ). Deze contour ligt geheel op het eigen perceel van de inrichting. Voor objecten die speciaal bestemd of bedoeld zijn voor doelgroepen met een verminderde zelfredzaamheid geldt een veiligheidszone van 25 meter rondom de tank. Een dergelijke bestemming is niet aan de orde. Aangezien er voldaan wordt aan genoemde veiligheidsafstanden uit het Activiteitenbesluit voldoet de situatie. Een verantwoording van het groepsrisico is niet verplicht.

Transporten van gevaarlijke stoffen over de N351 (Urkerweg) en N352 (Domineesweg) resulteren in een invloedsgebied, dat overlap heeft met het plangebied. Dat is in het vigerende plan reeds verantwoord. De verantwoordingsparagraaf is hieronder school weergegeven. in paragraaf 4.3.1. Waar nodig is deze aangevuld aan de hand van de beoogde zorgwoningen.

Conclusie

De propaantank levert geen belemmeringen op voor het bestemmingsplan; de PR 10-6 contour ligt niet binnen het plangebied. Vanwege de aanwezigheid van twee routes waarover transport van gevaarlijke stoffen verondersteld wordt, is in het vigerende bestemmingsplan aandacht besteed aan een verantwoording van het groepsrisico. De veronderstelling, dat transport van gevaarlijke stoffen plaatsvindt over de N352 is gebaseerd op het feit, dat er meerdere LPG-tankstations op Urk aanwezig zijn en dat de levering van benzine, diesel en LPG waarschijnlijk vanaf de A6 via de N352 plaatsvindt. De N351 is op de Provinciale risicokaart opgenomen voor het transport van brandbare vloeistoffen.

4.3.1 Verantwoording groepsrisico externe veiligheid

In relatie tot de twee transportroutes gevaarlijke stoffen dient de verantwoording van het groepsrisico aandacht te krijgen. Voor de propaantank geldt vanuit het Activiteitenbesluit geen groepsrisicobeleid). Het verschil met het vorige plan voor zover relevant voor externe veiligheid is dat er zorgwoningen worden voorzien. Deze liggen op meer dan 200 meter van de Urkerweg en meer dan 500 meter van de Domineesweg.

Plasbrandscenario

Het plangebied ligt binnen het invloedsgebied van de N351 en N352. Bij deze wegen kan een plasbrand optreden. Bij een calamiteit met brandbare vloeistoffen kan een plasbrand ontstaan (een plas van brandende vloeistof). Het gevolg is een korte, maar extreme hittestraling. De omvang van het effect wordt bepaald door de oppervlakte van de plas. Uitgaande van een calamiteit waarbij een gehele tankinhoud vrijkomt is het invloedsgebied van een plasbrand ongeveer 45 meter. De gevolgen van een plasbrandscenario ter hoogte van het plangebied hangen eveneens af van de wijze waarop het plangebied in de toekomstige situatie precies zal worden ingericht.

Zelfredzaamheid

Zelfredzaamheid is de mate waarin personen in staat zijn zichzelf (zonder hulp van buitenaf) in geval van een calamiteit in veiligheid te brengen. In het plangebied zijn binnen de invloedsgebieden van de N351 en de N352 geen ontwikkelingen opgenomen die langdurig verblijf van beperkt zelfredzame personen, zoals kinderen, ouderen en gehandicapten, faciliteren. De scholen, de zorgwoningen en de geprojecteerde kinderboerderij waar dagbesteding plaatsvindt voor mensen met een beperking liggen op minimaal 200 meter afstand van de N351 en de N352.

Alarmering

In geval van een incident met gevaarlijke stoffen dienen personen uit het invloedsgebied van de N-wegen te vluchten. Personen dienen hiervoor gewaarschuwd te worden. Gerichte risicocommunicatie met bewoners, werknemers en andere aanwezigen (bijvoorbeeld via NL-Alert) kan ertoe bijdragen dat alarmering van het gebied sneller verloopt. Hierbij dient aan te worden gegeven wat het gewenste handelingsperspectief is (schuilen of vluchten) en op welke wijze hieraan invulling kan worden gegeven.

Handelingsperspectief

Bij een calamiteit met brandbare vloeistoffen moeten aanwezige personen zich in veiligheid brengen op ruime afstand van de incidentlocatie, buiten het invloedsgebied van brandbare vloeistoffen (45 meter). Personen binnen het invloedsgebied kunnen ernstige (dodelijke) brandverwondingen oplopen. De omgeving biedt mogelijkheden om (zowel binnen als buiten het plangebied) in meerdere richtingen van de wegen af te vluchten.

Bestrijdbaarheid

Bestrijdbaarheid is de mate waarin een rampscenario door de brandweer te bestrijden is. De mate waarin uitvoering aan deze aanvalsstrategieën kan worden gegeven hangt af van de capaciteit van de brandweer (opkomsttijd en beschikbare blusmiddelen) en de bereikbaarheid van het plangebied (opstelplaatsen).

Bij een ongeval met brandbare vloeistoffen, waarbij een plasbrand kan ontstaan, kan de brandweer snel ter plaatse zijn. Een plasbrand is dan goed te bestrijden. Door het tijdig arriveren van de brandweer wordt voorkomen dat het vuur zich snel kan uitbreiden en kan overslaan.

4.4 Geluid

Kader

De ontwikkeling van Zeeheldenwijk vergroot de verkeersaantrekkende werking van het gebied. Daarnaast wordt er een nieuwe gebiedsontsluitingsweg gerealiseerd voor de ontsluiting van het gebied. De binnen het plangebied gelegen erftoegangsweg met een belangrijke functie voor lokaal verkeer (wijkring) kent voor het noordelijk, oostelijk en zuidelijk deel een 30 kilometer per uur regime. Voor de gebiedsontsluitingsweg geldt een maximum snelheid van 50 km per uur.

In het vigerende bestemmingsplan is onderzoek gedaan naar geluid:

  • vanwege wegverkeer (nieuwe weg)
  • reconstructie (wijziging van de indeling of inrichting van een bestaande weg);
  • vanwege bedrijventerrein;
  • cumulatie (wegverkeer en bedrijventerrein).

De Wet geluidhinder beschermt de volgende objecten:

  • woningen
  • andere geluidsgevoelige gebouwen
  • geluidsgevoelige terreinen

Woningen: Onder "woning" wordt verstaan (art. 1 Wgh): gebouw of gedeelte van een gebouw waar bewoning is toegestaan op grond van de geldende planologische status (bestemmingsplan, de beheersverordening, omgevingsvergunning afwijken bestemmingsplan of beheersverordening). Een bedrijfswoning wordt ook als een woning beschouwd.

Andere geluidsgevoelige gebouwen: Het Besluit geluidhinder wijst onderstaande gebouwen aan als "ander geluidsgevoelig gebouw":

  • onderwijsgebouwen;
  • ziekenhuizen en verpleeghuizen;
  • verzorgingstehuizen;
  • psychiatrische inrichtingen;
  • kinderdagverblijven;

Alle objecten die niet onder bovenstaande categorieën zijn te scharen, zijn op basis van de Wet geluidhinder niet beschermd tegen geluidhinder. In twijfelgevallen (valt een bepaalde bestemming onder een bepaalde categorie) is een goede motivering van belang.

Geluidsgevoelige terreinen: Het Besluit geluidhinder wijst onderstaande terreinen aan als 'geluidsgevoelig terrein': woonwagenstandplaatsen en ligplaatsen voor woonschepen

Onderzoek

Er is voor vanwege het nieuwe programma een nieuw akoestisch onderzoek uitgevoerd voor onderhavig bestemmingsplan. Dit onderzoek is bijgevoegd als bijlage 5. In het akoestisch onderzoek zijn de volgende aspecten onderzocht:

  • 1. In het kader van de Wet geluidhinder is de geluidbelasting vanwege bestaande en nieuwe wegen op het plangebied bepaald;
  • 2. In het kader van de Wet geluidhinder is de geluidbelasting vanwege nieuwe wegen op bestaande woningen bepaald;
  • 3. In het kader van de Wet geluidhinder is het geluideffect worden beschouwd vanwege de wijzigingen (rotondes) aan de Urkerweg en de Domineesweg.
  • 4. In het kader van een goede ruimtelijke ordening is de verwachte geluidbelasting als gevolg van het bestaande en nieuwe bedrijventerrein op het plangebied bepaald.

Wet geluidhinder

Wegverkeerslawaai op de nieuwbouw

In de voor geluidgevoelige bestemmingen bestemde gronden binnen het plangebied wordt , behoudens de Domineesweg (N352), als gevolg van de afzonderlijke wegen de maximaal toelaatbare geluidbelasting op de nieuwbouw niet overschreden. Dit houdt in dat inpassing van geluidgevoelige bestemmingen, eventueel met hogere grenswaarde, mogelijk is.

Aan de zuidzijde wordt in een zone van circa 30 meter planinwaarts als gevolg van de Domineesweg (N352) de maximaal toelaatbare geluidbelasting overschreden. In dit gebied is zonder het toepassen van maatregelen het inpassen van geluidgevoelige bestemmingen in principe niet mogelijk.

Wegverkeerslawaai op de bestaande bouw

Uit de berekeningsresultaten blijkt dat op de gevels van de bestaande woningen de geluidbelasting ten hoogste 46 dB inclusief aftrek ex artikel 110g Wgh bedraagt. De voorkeursgrenswaarde van 48 dB wordt niet overschreden waarmee nader onderzoek naar maatregelen achterwege kan blijven.

Wegverkeerslawaai gewijzigde situaties (reconstructies)

Uit de berekeningsresultaten blijkt dat de geluidbelasting vanwege het wegverkeer op gewijzigde Urkerweg (N351) zal toenemen met ten hoogste +3,32 dB ter plaatse van de gevels van de bestaande woning Urkerweg 60. Voor de Urkerweg 60 bedraagt de toename daarmee meer dan 2 dB en is er sprake van een reconstructie in de zin van de Wet geluidhinder. De maximaal te ontheffen toename van maximaal 5 dB wordt echter niet overschreden.

Gelet op de overschrijding van de grenswaarde dient te worden onderzocht of er maatregelen ter beperking van het geluid mogelijk zijn. De analyse (zie bijlage 5) laat zien dat maatregelen niet haalbaar zijn.

Het bevoegd gezag kan derhalve voor genoemd plan gemotiveerd een hogere waarde vaststellen. In onderstaande tabel is de aan te vragen hogere waarden weergegeven.

afbeelding "i_NL.IMRO.0184.BP2019ZHW-0101_0010.png"

Bij de overige woningen bedraagt de toename minder dan 2 dB of blijft onder de voorkeursgrenswaarde van 48 dB. Voor deze woningen is er geen sprake van een reconstructie in de zin van de Wet geluidhinder. Verdere toetsing kan achterwege blijven voor deze woningen. Binnen de zone van het fysiek aan te passen gedeelte van de Domineesweg (N352) zijn geen geluidgevoelige objecten gelegen.

Goede ruimtelijke ordening

Wegverkeerslawaai gewijzigde situaties (reconstructies)

Het effect voor de wegen rondom de aan te passen Urkerweg (N351), Domineesweg (N352) en Ransuil is beperkt: ter plaatse van de woningen en andere (geluidgevoelige) bestemmingen is er sprake van een toename van de geluidbelasting van ten hoogste 2 dB als gevolg van de toename van het verkeer. Over een periode van 21 jaar is het effect maximaal 5 dB.

Omdat deze woningen en andere (geluidgevoelige) bestemmingen zijn gelegen buiten het fysiek te reconstrueren gedeelte van de weg, geldt dat toetsing aan de normering van de Wet geluidhinder niet nodig is. Vanuit het oogpunt van een 'goede ruimtelijke ordening' kan wel door het bevoegd gezag worden overwogen de geluidbelasting langs deze wegen te beperken.

Aangezien de geluidtoename in 11 jaar ten hoogste 2 dB is en over 21 jaar het effect ten hoogste 5 dB (maximale toename conform Wet geluidhinder is 5 dB), is de toename akoestisch beperkt en aanvaardbaar.

Industrielawaai op de nieuwbouw

Ten gevolge van het industrielawaai van de niet-gezoneerde industrieterreinen, is de geluidbelasting in alle deelgebieden waar geluidgevoelige functies mogelijk zijn lager dan 50 dB(A). Derhalve wordt het akoestisch klimaat als gevolg van industrielawaai aanvaardbaar geacht.

Cumulatie

De kwaliteit per fase is te classificeren van redelijk tot goed. Indien er naar de deelgebieden afzonderlijk wordt gekeken dan ligt het accent met name op de classificering goed. Binnen deze gebieden kunnen de milieugevoelige functies zoals (bedrijfs)woningen, schoolgebouwen, zorgwoningen en de dagbesteding / zonder nadere geluidtoets worden toegestaan.`

Conclusie

Er is geen geen hogere waarde geluid nodig vanwege het wegverkeer voor de nieuwe woningen, voor zover deze een directe bouwtitel hebben (Woongebied, Gemengd - 2). De overige geluidsgevoelige functies liggen op gronden met een Uit te werken bestemming. Bij het opstellen van het uitwerkingsplan moet worden onderzocht of in dat kader een hogere waarde moet worden verleend. Uit de resultaten van het onderzoek blijkt, dat de uitwerkingsplicht uitvoerbaar is voor wat betreft geluid.

Daarnaast dient een hogere waarde te worden vastgesteld vanwege de reconstructie van de Urkerweg voor de woning op het perceel Urkerweg 60 (zie paragraaf 4.5).

In het kader van een goede ruimtelijke ordening wordt geconcludeerd, dat er voor wat betreft geluid voor het grootste deel van het plangebied sprake is van een goed woon- en leefklimaat. Bij de vergunningverlening wordt hieraan voor wat betreft geluid getoetst aan de hand van een beleidsregel 'goed woon- en leefklimaat'. Hierbij geldt dat de milieugevoelige functies een maximale gecumuleerde geluidbelasting mogen hebben van 61 dB, hetgeen uit een geluidskaart kan worden afgeleid die in de beleidsregel Goed woon- en leefklimaat is opgenomen.

4.5 Motivatie hogere grenswaarde geluid

In het kader van het geldende bestemmingsplan is voor Urkerweg 60 reeds een hogere waarde vastgesteld van 54 dB vanwege het geluid ten gevolge van de reconstructie. Uit het geactualiseerde geluidonderzoek volgt dat de reeds vastgestelde hogere waarde voldoet.

4.6 Spuitzone

Kader

Er gelden in Nederland geen wettelijke bepalingen over minimaal aan te houden afstanden tussen gronden waarop gewassen in de open lucht worden geteeld en nabij gelegen, voor gewasbeschermingsmiddelen gevoelige objecten, zoals woningen met tuinen. Vanwege mogelijk vrijkomende drift (verwaaiing van spuitvloeistof) bij het bespuiten van fruitbomen wordt in de bestemmingsplanpraktijk een vuistregel gehanteerd om een afstand van 50 meter aan te houden tussen een fruitboomgaard en een gevoelige bestemming. Dit is een in de praktijk gegroeide vuistregel.

Gevoelige functies zijn plaatsen waar regelmatig en voor een groot gedeelte van de dag mensen verblijven of samenkomen. Een woning met tuin wordt als zodanig aangemerkt. Bij de afstand van 50 meter wordt ervan uitgegaan dat enerzijds de bedrijfsvoering van de agrariër niet wordt belemmerd en anderzijds dat er geen nadelige effecten optreden voor de gezondheid van de bewoners van de woning. De 50 meter afstand is echter een indicatieve en willekeurige afstand. Een verantwoorde afstand hangt onder meer af van het soort teelt ter plaatse en de plaatselijke omstandigheden.

Voor het betrokken bestuursorgaan bestaat zowel bij toepassing als afwijking van deze afstand een onderzoeksplicht. Een kortere afstand is mogelijk, mits voorzien van een deugdelijke motivering.

Onderzoek

Uit jurisprudentie van de Afdeling bestuursrechtspraak van de Raad van State en onderzoek komen de volgende aandachtspunten naar voren:

  • 1. wat wordt planologisch mogelijk gemaakt en geldende bestemming(en);
  • 2. welke gewasbeschermingsmiddelen worden gebruikt;
  • 3. wat zijn de effecten van de gewasbeschermingsmiddelen voor de mens bij blootstelling en het gebruik van driftreducerende middelen of maatregelen;
  • 4. overheersende windrichting.

Aan de hand van bovengenoemde stappen is onderbouwd waarom in het kader van onderhavig bestemmingsplan al dan niet een kleinere spuitzone kan worden aangehouden dan 50 meter in verband met het gebruik van gewasbeschermingsmiddelen. De onderbouwing is bijgevoegd in bijlage 3.

De agrarische percelen aan de oost- en zuidzijde van het plangebied zijn momenteel in gebruik ten behoeve van akkerbouw. Op grond van het bestemmingsplan is er echter ook fruitteelt mogelijk. Vanwege de planologisch-juridische mogelijkheid voor fruitteelt wordt in dit onderzoek uitgegaan van het meest intensieve gebruik van gewasbeschermingsmiddelen in de fruitteelt: de teelt van appels en peren. Dit is het worstcase scenario.

Uit het onderzoek volgt dat er minimaal een afstand van 26 meter moet worden aangehouden tussen de woonbestemmingen en de agrarische perceelsgrenzen aan de oost- en zuidkant van het plangebied om te kunnen spreken van een aanvaardbaar woon- en leefklimaat. Deze afstand kan worden verminderd indien er maatregelen worden genomen, bijvoorbeeld in de vorm van de realisatie van een groenblijvende en bladdragende haag op de rand van het woonperceel met een minimale hoogte van 3 meter.

In het bestemmingsplan zijn gronden nabij de agrarische bestemming aangewezen voor woningbouw via een uit te werken woonbestemming. Voor de woningen en andere milieugevoelige functies (tuinen) die kunnen worden gerealiseerd via een uitwerkingsplicht geldt dat in de uit te werken bestemmingen uitwerkingsregels zijn opgenomen die ervoor zorgen dat er tussen de percelen van milieugevoelige functies en de omliggende agrarische gronden ten oosten van de Karel Doormanweg en ten zuiden van de Domineesweg een minimale afstand moet worden aangehouden van 26 meter. Van deze afstand mag worden afgeweken indien in het uitwerkingsplan wordt aangetoond, dat er sprake is van een goed woon- en leefklimaat en dat de agrarische bedrijfsvoering niet wordt belemmerd.

Conclusie

In de uitwerkingsregels is bepaald, dat bij het opstellen van het uitwerkingsplan de afstand van 26 meter in acht moet worden genomen, waarbij onder voorwaarden kan worden afgeweken. Op deze wijze is er sprake van een goede ruimtelijke ordening. De kwaliteit van fysieke leefomgeving is hiermee geborgd. Het bedrijf wordt niet in zijn bedrijfsvoering belemmerd. De spuitzone is geen belemmering voor de uitvoering van dit plan.

4.7 Luchtkwaliteit

Kader

De Nederlandse wet- en regelgeving voor luchtkwaliteit vloeit voort uit titel 5.2 van de Wet milieubeheer (Wm), ook wel de Wet luchtkwaliteit genoemd. Deze wet implementeert onder andere de normen uit Europese regelgeving. Op grond van artikel 5.16 Wm dient een bestuursorgaan, in geval van de in dit artikel genoemde gevallen, een besluit te nemen met in achtneming van één van de volgende gronden:

  • 1. het project leidt niet tot overschrijding van een grenswaarde;
  • 2. het project leidt per saldo tot gelijk blijven of verbetering van de luchtkwaliteit;
  • 3. het project draagt 'niet in betekenende mate' bij aan de concentratie van een stof;
  • 4. het project is genoemd in of past binnen het Nationaal Samenwerkingsprogramma Luchtkwaliteit (NSL).

Het NSL is een programma waarbij rekening is gehouden met (toekomstige) projecten en maatregelen door middel van een pakket van maatregelen waardoor er binnen een bepaalde termijn aan de grenswaarden voor fijn stof (PM10) en stikstofdioxide (NO2) wordt voldaan. De ontwikkelingen binnen het plan 'Zeeheldenwijk' zijn niet opgenomen in het NSL. Dit betekent dat de eventuele effecten van het plan op de luchtkwaliteit moeten worden onderzocht en dat getoetst moet worden aan de grenswaarden uit de Wet luchtkwaliteit. Vanwege de verandering van het programma is het luchtkwaliteit onderzoek dat in het kader van het plan Schokkerhoek was uitgevoerd geactualiseerd.

De normen voor de NO2-, PM10- en PM2,5-concentraties zijn in de hierna opgenomen figuur 4.2 weergegeven.

afbeelding "i_NL.IMRO.0184.BP2019ZHW-0101_0011.png"

Figuur 4.2 : Overzicht normen luchtverontreinigende stoffen.

Deze grenswaarden vertegenwoordigen het niveau waaronder geen onacceptabele gezondheidseffecten of onaanvaardbare nadelige milieueffecten optreden als gevolg van de heersende concentraties aan luchtverontreiniging.

Naast een jaargemiddelde grenswaarde voor de NO2-concentratie geldt voor deze stof ook een grenswaarde voor de uurgemiddelde NO2-concentratie. Deze 1-uurs gemiddelde grenswaarde bedraagt 200 ìg/m3. Voor deze norm geldt dat deze niet vaker dan 18 keer per jaar overschreden mag worden. Uit metingen blijkt dat een overschrijding van deze grenswaarde, behalve in uitzonderlijk drukke stadssituaties, al lang niet meer aan de orde is. Omdat ook in deze situatie de uurgrenswaarde geen rol speelt, is deze beoordeling buiten beschouwing gelaten.

Naast stikstofdioxide en (zeer) fijn stof zijn er in de Wet milieubeheer ook grenswaarden opgenomen voor zwaveldioxide, lood, koolmonoxide en benzeen. Voor deze stoffen geldt dat het verschil tussen de grenswaarde en de som van de bijdrage van het wegverkeer en de achtergrondconcentratie zo groot is, dat een overschrijding van de grenswaarden wordt uitgesloten. Om deze reden zijn deze stoffen buiten beschouwing gelaten.

Onderzoek

Onderzocht is in hoeverre de emissies van het totale aangepast programma de totale concentraties luchtverontreinigende stoffen beïnvloeden. Dit onderzoek is als bijlage 6 bijgevoegd.

Conclusie

Gezien de planontwikkeling van woningbouw en bedrijven is met name onderzoek uitgevoerd naar de voor deze situatie maatgevende stoffen NO2, PM10 en PM2,5.

Uit het onderzoek blijkt dat op 10 meter uit de rand van de beschouwde wegen, ter plaatse van de bestaande woningen in de omgeving van het plan en op de grens van de bedrijfsbestemming concentraties optreden die ruimschoots lager zijn dan de grenswaarden. Omdat de ontwikkelingen in het plan niet leiden tot concentraties die de grenswaarden overschrijden leidt de Wet luchtkwaliteit niet tot belemmeringen voor de ontwikkelingen in dit plan.

4.8 Waterparagraaf

Kader

Nationaal Bestuursakkoord Water

Afspraken over het toepassen van de watertoets bij ruimtelijke plannen zijn gemaakt in het Nationaal Bestuursakkoord Water. In het akkoord zijn maatregelen afgesproken met als doel het watersysteem in 2015 'op orde' te hebben. In het bestuursakkoord zijn taakstellende afspraken opgenomen over veiligheid en wateroverlast. Ook is een impuls gegeven aan het gebruik van de watertoets. Het doel van de watertoets is het waarborgen van waterhuishoudkundige belangen in ruimtelijke plannen.

Waterschap Zuiderzeeland

Waterschap Zuiderzeeland is waterbeheerder in het plangebied en is verantwoordelijk voor de waterhuishoudkundige verzorging (waterkwaliteit en waterkwantiteit) binnen het plangebied. Het beleid van het waterschap is verwoord in de volgende documenten en wordt hierna kort besproken:

  • Waterbeheerplan 2016 – 2021;
  • Keur Waterschap Zuiderzeeland 2011 gewijzigd en uitgebreid op 28 januari 2014;
  • De Uitbeelding;
  • Het Waterkader.

Waterbeheerplan 2016 - 2021

Het waterbeheerplan beschrijft hoe het waterschap nu en in de toekomst blijft zorgen voor waterveiligheid en voor voldoende en schoon water. In het plan staan de doelen en de maatregelen die het waterschap de komende 6 jaar gaat nemen om die doelen te realiseren.

Flevoland is een uniek stukje Nederland. Vrijwel het gehele beheergebied ligt onder zeeniveau. Het bestaat uit de Flevopolder en de Noordoostpolder, polders die zijn onttrokken aan het water en waar het nu goed wonen, werken en recreëren is met water in vaarten, tochten, sloten en in de randmeren dat het gebied zijn eigen fraaie karakter geeft. Waterschap Zuiderzeeland staat voor veiligheid, voldoende water en schoon water. De wijze waarop het waterschap hier in deze planperiode invulling aan wil geven, is beschreven in het Waterbeheerplan 2016-2021.

Keur Waterschap Zuiderzeeland 2011 gewijzigd en uitgebreid op 28 januari 2014

De Keur is een wettelijke regeling die van toepassing is op o.a.: de schouw, grondwaterbeheer, veranderingen in het watersysteem, het aanleggen van duikers, dammen of werkzaamheden bij de dijk.

Waterkwantiteit

De Keur is de verordening (wettelijke regeling) van het waterschap en gaat vooral over het waterkwantiteitaspect. De Keur is van toepassing op het aanbrengen van veranderingen aan het watersysteem (o.a. aanleggen van duikers, dammen en werkzaamheden op of aan de dijken). Ook het onttrekken van water aan de bodem of aan oppervlaktewater is geregeld in de Keur. Voor handelingen in het watersysteem is een watervergunning nodig of kan volstaan worden met een melding.

Schouw

Tevens valt de schouw onder de Keur. Waterschap schouwt sloten die niet in beheer zijn, maar wel een belangrijke functie in het watersysteem hebben. Het gaat hierbij met name om het (maai)onderhoud aan waterkeringen (dijken) en oppervlaktewaterlichamen, zoals (erf-)sloten en tochten. Waterschap Zuiderzeeland voert een schouw op de watergangen (sloten en tochten) uit.

Legger

Op de legger staan alle oppervlaktewateren en dijken aangegeven. De legger maakt duidelijk wat u waar van Waterschap Zuiderzeeland mag verwachten. Voor het waterschap is de legger, samen met de keur, hét instrument om te zorgen voor veilige dijken, droge voeten en voldoende en schoon water. De legger is van toepassing op alle water en de daarvoor benodigde kunstwerken. De legger bestaat uit een set van kaarten. Op deze kaarten staat welke dijken, vaarten, tochten, stedelijk water en kunstwerken (bruggen, stuwen, gemalen, sluizen) Waterschap Zuiderzeeland in beheer heeft en waar ze liggen. De legger bevat ook een register waarin staat wie waar en waarvoor het onderhoud moet doen. Tot slot bevat de legger zones (zoneringen) voor toekomstige ontwikkelingen en bescherming van het watersysteem. De legger is in te zien op de website van het waterschap: http://www.zuiderzeeland.nl/werk/werk-in-uitvoering/legger/).

De uitbeelding

Voor de beoordeling van ruimtelijke plannen heeft het waterschap (in samenwerking met de gemeenten) een zogenaamd waterkader opgesteld en het document 'De uitbeelding' waarin de kaders en richtlijnen van het waterschap zijn opgenomen. De uitgangspunten, randvoorwaarden en ontwerprichtlijnen zijn analoog aan het Waterbeheerplan onderverdeeld in de thema's veiligheid, voldoende water en schoon water.

Water is mede ordenend in de ruimtelijke inrichting. Waterschap Zuiderzeeland streeft er naar dat alle wateraspecten – veiligheid (V), schoon water (S), voldoende water (W) en doelmatig beheer en onderhoud - een integraal onderdeel vormen van de ruimtelijke planvorming.

Het Waterkader

Om bij de ruimtelijke planvorming het belang van water goed te borgen en te anticiperen op klimaatverandering, hebben het Rijk, het Interprovinciaal overleg (IPO), de Vereniging van Nederlandse Gemeenten (VNG) en de Unie van Waterschappen (UvW) in 2001 het proces van de watertoets in het leven geroepen en in 2003 verankerd in het Besluit ruimtelijke ordening. Waterbeheerders adviseren bij de totstandkoming van ruimtelijke plannen. Dit proces heet kortweg 'de watertoets'. Om aan te geven wat er voor het waterbeheer in, maar ook ná het watertoetsproces belangrijk is, heeft Waterschap Zuiderzeeland het Waterkader opgesteld. Het Waterkader geeft richting en houvast voor waterzaken binnen ruimtelijke plannen. Samen met de Uitbeelding is het bedoeld als gids en inspiratie voor het verbond tussen water en ruimte.

Gemeente Urk

In het verbreed gemeentelijk rioleringsplan Urk 2016 - 2021 staat:

  • het stedelijk waterbeleid van de gemeente;
  • de ontwikkeling van het waterbeheer voor de lange termijn;
  • concrete waterplannen voor de korte termijn.

In het VGRP staat beschreven op welke wijze de gemeente – nu én in de toekomst - invulling geeft aan haar zorgplicht voor het inzamelen en afvoeren van het stedelijk afvalwater. Daarnaast bevat het ook beleid voor de zorg voor hemelwater en grondwater. Dit is de verbreding van het rioleringsplan. Tot slot bevat het VGRP een kostendekkingsplan waarin uiteengezet wordt hoe er voor drie zorgplichten wordt betaald.

Huidige situatie

Bodem

De maaiveldhoogte in het plangebied ligt globaal tussen de NAP -4,00 m (centraal in het gebied) en NAP -4,70 m (noordwest hoek). De dikte van de deklaag in het plangebied varieert van circa 5 m tot 10 m. Deze bestaat voornamelijk uit lichte klei en kleiig zand. In de ondergrond komen veenlagen voor. De aanwezigheid van veen en in mindere mate lichte klei maken dat het ingepolderde gebied waaronder het plangebied op sommige plaatsen gevoelig is voor zetting.

Grondwater

Uit meetgegevens in de omgeving van het plangebied blijkt dat de stijghoogte in het 1e watervoerende pakket tussen NAP -4,80 m en NAP -5,50 m ligt. Het plangebied is gelegen in het zuidwesten van de Noordoostpolder waar een kwelstroom tot 2 mm per dag kan worden verwacht. Er moet rekening gehouden worden met een toename van kwel en risico op opbarsten van de bodem bij ontgravingen dieper dan 1,0 meter. Dit dient meegewogen te worden bij de planuitwerking en inrichting van compenserende maatregelen voor waterberging.

Oppervlaktewater

Het watersysteem in het plangebied behoort tot peilgebied Lage afdeling met peil van NAP -5,70 m met een marge van +- 0,20 m. Het waterschap heeft aangegeven dat het peil in extreme situaties kan stijgen tot NAP -4,70 m. Het totale peilgebied heeft een oppervlakte van 24.770 ha. Het peilbeheer wordt gereguleerd door de hoofdgemalen Vissering en Buma. De volgende waterlopen zijn gelegen in en om het plangebied:

  • Direct ten noorden van het plangebied is de Urkervaart gelegen;
  • Direct ten westen van het plangebied is de Zuidermeertocht gelegen;
  • Verder zijn in en rond het plangebied diverse kavelsloten gelegen die voor de aanvoer, afvoer en ontwatering van het gebied zorgen.

De aanwezige kavelsloten zijn afgestemd op het huidige agrarische gebruik van de gronden.

De Urkervaart en de Zuidermeertocht zijn beide aangewezen als KRW-waterlichaam. Voor de Zuidermeertocht is in het kader van de voorgenomen 'Kaderrichtlijn-water-maatregelen' de aanleg van duurzame/natuurvriendelijke oevers en het optimaliseren van het maaibeheer beoogd om de ecologische effecten te minimaliseren. Dit staat op de planning na 2016.

Verwacht wordt dat de oppervlaktewaterkwaliteit in het plangebied redelijk voedselrijk is. Dit komt onder andere door uitspoeling van meststoffen uit landbouwgronden (fosfaat en stikstof) en kwel dat naar verwachting voedselrijk is.

Waterkering

Het plangebied is gelegen binnen Dijkring 7. Binnen het plangebied zijn geen waterkeringen gelegen.

Riolering

Ten noorden van het plangebied (ten noorden van de Urkervaart en Urkerweg) is een transportleiding richting AWZI Tollebeek gelegen.

Toekomstige situatie

Oppervlaktewater en kavelsloten

  • Aan de noordzijde en westzijde van het plangebied zijn grote nieuwe waterpartijen geprojecteerd. De nieuwe watervoerende waterpartijen en watergangen krijgen conform de richtlijnen van het waterschap Zuiderzeeland een waterdiepte bij streefpeil van 1,2 meter. Indien het oppervlaktewater rondom het eiland aan de noordzijde bevaarbaar moet zijn dient dit een waterdiepte bij streefpeil van 1,5 meter te hebben.
  • Per fase dient het landbouwgebied (ten noorden van de Domineesweg) wat afwatert via de kavelsloten in het plangebied richting de Urkervaart ten alle tijden te kunnen blijven afwateren en ontwateren.
  • Op basis van de beschikbare informatie is er bij het graven van nieuwe watergangen en oppervlaktewater een risico op opbarsten en toename van kwel. Bij de verdere planuitwerking wordt geadviseerd dit nader te beschouwen middels een kwelberekening en opbarstberekening.
  • De nieuwe watergangen binnen het plan worden dusdanig ontworpen dat voldaan wordt aan de beheer- en onderhoudsrichtlijnen van het waterschap. Over het beheer en onderhoud worden op een later moment nadere afspraken gemaakt tussen het waterschap en de gemeente.

Waterkwaliteit

Het hemelwater dat terecht komt op de bebouwing en terreinverharding wordt beschouwd als schoon wanneer rekening wordt gehouden met het gebruik van niet-uitlogende bouwmaterialen. Dit water kan direct worden afgevoerd naar het oppervlaktewater.

Hemelwater- en vuilwatersysteem

Het hemelwater in het plangebied wordt gescheiden van het vuilwater verwerkt. Voor het afvalwater wordt een centrale ondergrondse inzameling aangelegd in het plangebied. Centraal in het plangebied wordt een nieuw rioolgemaal geplaatst dat het vuilwater vanuit het plangebied verpompt naar de transportleiding gelegen ten noorden van de Urkerweg.

Watercompensatie extra verhard oppervlak

Op basis van de oppervlakten van de stedenbouwkundige tekening op hoofdlijnen is een bergingsberekening gemaakt op basis van de bergingsnorm van 5,5% over de netto toename aan verharding binnen peilgebied Lage Afdeling. In het huidige plan is circa 5 ha. aan nieuw oppervlaktewater opgenomen welke in open verbinding staat met de Urkervaart. De benodigde watercompensatie voor de netto toename aan verhard oppervlak en te dempen sloten bedraagt samen circa 2,5 ha. Geconcludeerd wordt dat ruim voldoende watercompensatie in het plan aanwezig is voor geheel Zeeheldenwijk. Het overschot aan compensatie is in te zetten voor andere plannen binnen het peilvak Lage Afdeling. Daarnaast kan worden overwogen om wat minder nieuw water te graven om het risico op kwel en opbarsten te reduceren. Na realisatie van fase 1 tot en met 3 leggen gemeente en waterschap vast hoeveel de eventuele overcompensatie binnen het plan Zeeheldenwijk betreft. Op deze wijze is geborgd dat deze overcompensatie is vastgelegd en in de toekomst ingezet kan worden voor andere plannen.

Drooglegging plangebied

Het waterpeil van het omliggend oppervlaktewater gelegen in peilgebied Lage Afdeling is NAP -5,70 m met een marge van +- 0,20 m. Het waterschap heeft aangegeven dat het peil in extreme situaties een meter kan stijgen tot NAP -4,70 m.

Op basis van deze gegeven wordt het peil van de wegen in het plangebied naar verwachting NAP -4,20 m en het peil van de woningen zo'n 0,20 tot 0,30 m hoger (NAP -4,00 m tot NAP -3,90 m). Bij streefpeil heeft het plangebied een drooglegging van minimaal 1,5 m en bij extreme situaties is de drooglegging van de wegen nog circa 0,5 m.

Nieuwe brug over Urkervaart

Aan de noordzijde is een nieuwe brug voorzien over de Urkervaart. De nieuwe brug vormt een verbinding voor (auto)verkeer tussen het plangebied Zeeheldenwijk en de bestaande infrastructuur ten noorden van de Urkervaart.

Waterveiligheid

Het plangebied is niet buitendijks gelegen. Ook liggen binnen het plangebied geen waterkeringen. De ontwikkeling voorziet ook niet in de aanleg van nieuwe waterkeringen en/of werkzaamheden aan bestaande waterkeringen. Het plan heeft dus geen effecten op de waterveiligheid van een waterkering. Ten aanzien van de veiligheid van het vaarverkeer over de Urkervaart wordt aan de oostkant van de nieuwe brug in het verlengde van het eiland in het nieuw aan te leggen water een afscherming geplaatst langs de Urkervaart, zodat boten niet vanaf die kant en omgekeerd de Urkervaart op /af kunnen varen.

Beleving

Zoals bekend is het grondwater in het plangebied van relatief slechte kwaliteit. De oorzaak daarvan is natuurlijke kwel met daarin een hoge concentratie ijzer. Hierdoor krijgt het oppervlaktewater een bruinige kleur, wat een matig beeld geeft qua beleving. Het is echter binnen de Noordoostpolder geen onbekend fenomeen en komt ook voor in ander (stedelijk) oppervlaktewater. De waterkwaliteit op zich zal niet minder goed zijn dan dat van de Urkervaart, waarmee een open verbinding wordt gecreëerd. De Urkervaart is met het oog op waterkwaliteit doorgaans robuust (fosfaat en stikstof).

KRW

De Urkervaart is een aangewezen KRW-waterlichaam, met een daarbij behorende opgave. Deze opgave bestaat uit de aanleg van 40% zachte oevers, waarmee in 2008 is begonnen. Het aanleggen van nieuw open water, wat in verbinding staat met een reeds aangewezen KRW-waterlichaam, heeft geen gevolgen voor deze opgave. Wel is het zo, dat bij herijking van de KRW-waterlichamen (elke zes jaar), het nieuw aan te leggen oppervlaktewater onderdeel wordt van het KRW-waterlichaam, wanneer dit in directe verbinding staat. Dit brengt dan geen nieuwe opgave met zich mee.

Blauwalg

In exceptionele gevallen kan er blauwalgbloei optreden. Via een betere sturing van de waterinlaten naar stedelijk Urk (project Robuust watersysteem Urk) wordt gestreefd dit te voorkomen.

Conclusie

Er zijn tussen de gemeente en het waterschap afspraken vastgelegd in de vorm van een uitgangspuntennotitie die als toetsingskader dient bij de verdere uitwerking van de plannen. Het waterrapport is als bijlage 4 opgenomen.

In de bestemmingsregels is bepaald dat in bepaalde gevallen een 'omgevingsvergunning voor het bouwen' of een 'omgevingsvergunning voor het uitvoeren van werk, geen bouwwerk zijnde, of van werkzaamheden' slechts wordt verleend, indien bij de aanvraag wordt aangetoond, dat er sprake is van een goede waterhuishouding volgens de regels, zoals deze hiervoor zijn opgenomen in de beleidsregels 'Goede waterhuishouding.' In die beleidsregels is de open norm 'goede waterhuishouding' samen met het waterschap nader uitgewerkt en is aangegeven hoe de beoordeling van de aanvraag om omgevingsvergunning plaatsvindt. Het waterrapport uit bijlage 4 is de onderlegger van de beleidsregels 'Goede waterhuishouding'.

4.9 Vormvrije m.e.r.-beoordeling

Kader

Een m.e.r.-beoordeling is een toets om te beoordelen of bij een project belangrijke nadelige milieugevolgen kunnen optreden, waarvoor een m.e.r. nodig is.

In het Besluit milieueffectrapportage (in het vervolg Besluit m.e.r.) zijn in de bijlage, onderdeel C en D activiteiten opgenomen, waarbij op grond van artikel 7.2b van de Wet milieubeheer besloten moet worden of bij de voorbereiding van het plan of besluit voor die activiteiten een milieueffectrapport (MER) moet worden opgesteld. Hierin is onder andere "de aanleg, wijziging of uitbreiding van een stedelijk ontwikkelingsproject met inbegrip van de bouw van winkelcentra of parkeerterreinen" (categorie D 11.2) als m.e.r.-beoordelingsplichtig aangeduid. Bij stedelijke ontwikkelingen gaat het om de realisatie van woningen, bedrijven, winkelcentra en parkeerterreinen.

De aanpassing van de gebiedsontwikkeling betreft de realisatie van zorgwoningen en extra ruimte voor ondergeschikte detailhandel en horeca. Het programma is in paragraaf 2.2.2 nader gespecificeerd.

Het bestemmingsplan overschrijdt de genoemde drempelwaarde van de genoemde gevallen niet (i.c. betreft het geen oppervlakte van 100 ha of meer, geen aaneengesloten gebied met 2000 of meer woningen of een bedrijfsvloeroppervlakte van meer dan 200.000 m2 of meer).

Conform het Besluit m.e.r. (art. 2, lid 5, sub b) dient, voor activiteiten die wel in de D-lijst zijn opgenomen, maar niet aan de drempelwaarden voldoen, beoordeeld te worden of zich geen belangrijke nadelige gevolgen voor het milieu voordoen. Deze toets wordt een vormvrije m.e.r.-beoordeling genoemd. Hierin worden wel de potentiële milieugevolgen in beeld gebracht, maar behoeft de procedure (inclusief separate ter inzagelegging van het m.e.r.-beoordelingsbesluit) niet doorlopen te worden.

Behalve via de C- en D-lijst van het Besluit m.e.r. kan ook op grond van het opstellen van een passende beoordeling in het kader van de Natuurbeschermingswet de verplichting ontstaan om een (plan-)m.e.r.-procedure te doorlopen. Voor Zeeheldenwijk is het op basis van het natuuronderzoek, dat bij het geldende plan is uitgevoerd, niet noodzakelijk een passende beoordeling op te stellen.

Onderzoek

In het kader van dit bestemmingsplan is een Aanmeldingsnotitie vormvrije m.e.r. opgesteld, waarin wordt beoordeeld in hoeverre er sprake is van belangrijke gevolgen voor het milieu en of er een m.e.r-plicht aan de orde is. Hierover wordt een apart besluit genomen door het bevoegd gezag voordat het ontwerpbestemmingsplan wordt vrijgegeven, De resultaten van de aanmeldingsnotitie zijn beschreven in bijlage 7.

Bij de vormvrije m.e.r.-beoordeling moet worden getoetst of er sprake is van mogelijke belangrijke nadelige milieueffecten. De criteria staan benoemd in Bijlage III van de Europese richtlijn 2011/92/EU en betreffen:

  • 1. de kenmerken van het project;
  • 2. de plaats van het project;
  • 3. de kenmerken van het potentiële effect.

Conclusie

In het kader van het bestemmingsplan Zeeheldenwijk en het vigerende bestemmingsplan Schokkerhoek zijn alle relevante milieuaspecten onderzocht en beschouwd op mogelijke nadelige gevolgen. De behandelde milieuaspecten zijn bodem, archeologie, landschap en cultuurhistorie, waterhuishouding, lucht, licht, verkeer en transport, geluid, natuur, bedrijven en milieuzonering, gezondheid en veiligheid en calamiteiten. Aan de hand van de criteria uit de Europese richtlijn zijn per milieuaspect getoetst of er belangrijke nadelige milieugevolgen kunnen worden uitgesloten. Op grond hiervan kan geconcludeerd worden dat, gelet op artikel 7.17, van de Wet milieubeheer, het project niet leidt tot belangrijke nadelige milieueffecten.

Nu uitgesloten kan worden, dat de activiteit belangrijke nadelige gevolgen voor het milieu kan hebben, is er geen aanleiding om een m.e.r.-beoordeling of m.e.r.-procedure uit te voeren.

Hoofdstuk 5 Juridische aspecten

5.1 Bestemmingsplan verbrede reikwijdte

Onderhavig bestemmingsplan is een zogenaamd bestemmingsplan Verbrede Reikwijdte. Met een bestemmingsplan Verbrede Reikwijdte kunnen gemeenten sinds 2014 vooruit lopen (anticiperen) op de komst van het omgevingsplan uit de Omgevingswet. Dat doen zij als experimenten onder de werking van de Crisis- en herstelwet. Een dergelijk bestemmingsplan wordt een Chw bestemmingsplan genoemd of een bestemmingsplan Verbrede Reikwijdte.

Gemeente Urk heeft voor het grondgebied van de gehele gemeente een aanvraag ingediend bij het ministerie van IenM (nu: IenW). Zoals in paragraaf 1.1 reeds aangegeven is de 14e tranche van het Besluit uitvoering van de Chw, waarin het gehele grondgebied van Urk is aangewezen, in oktober 2016 in werking getreden. Het bedrijventerrein Zwolschehoek en het plangebied Schokkerhoek zijn tevens als ontwikkelingsgebied aangewezen, waarvoor een bestemmingsplan-plus moet worden gemaakt.

De ontwikkelingsgebieden (afdeling 1 Hoofdstuk 2) van de Chw bieden de mogelijkheid om in aangewezen gebieden flexibeler om te gaan met de beschikbare milieuruimte. Dit heeft als doel om bijvoorbeeld ruimte te creëren voor nieuwe bedrijven of voor nieuwe functies zoals wonen. In de eerste plaats kan de gemeente de beschikbare milieugebruiksruimte binnen een ontwikkelingsgebied opnieuw verdelen en daarvoor maatregelen vastleggen in het bestemmingsplan. Op die manier ontstaat de nodige flexibiliteit in de uitvoering en is een voorwaardelijk verband aan te brengen tussen milieubelastende ontwikkelingen en maatregelen die meer milieugebruiksruimte creëren.

In de tweede plaats kan in het bestemmingsplan voor een ontwikkelingsgebied voor een periode van maximaal 10 jaar worden afgeweken van enkele specifieke in de Chw genoemde wettelijke normen. Van de mogelijkheden, die de aanwijzing als ontwikkelingsgebied biedt, is in dit bestemmingsplan net als in het vigerende plan geen gebruik gemaakt.

5.2 Toepassing instrumenten artikel 7c Chw

Het bestemmingsplan is zoveel mogelijk vormgegeven als een traditioneel bestemmingsplan. Daar waar de toepassing van mogelijkheden die artikel 7c van de Chw nodig is, wordt hiervan afgeweken. Deze regels zijn integraal opgenomen in de bestemmingsregels.

5.2.1 Mogelijkheden Chw

Met dit bestemmingsplan wordt geëxperimenteerd met de in de toekomstige Omgevingswet beoogde verbreding van het bestemmingsplan tot een omgevingsplan. Zolang de beoogde Omgevingswet niet is vastgesteld en in werking is getreden, geldt een experimenteel omgevingsplan als een buitenwettelijk en vormvrij plan.

Met artikel 7c van de Chw wordt een wettelijke grondslag gegeven aan deze experimentele bestemmingsplannen. In het kader van dit experiment mag worden afgeweken van de aangegeven onderdelen van onder meer de Wet ruimtelijke ordening (Wro), het Besluit ruimtelijke ordening (Bro), de Wet geluidhinder (Wgh), het Besluit geluidhinder (Bgh) en de Wet milieubeheer (Wm). Artikel 7c biedt de volgende instrumenten, waarbij we per instrument met 'ja/nee' aangeven of er in dit plan gebruik van wordt gemaakt:

  • Looptijd: 20 jaar in plaats van 10 jaar. Een bestemmingsplan met verbrede reikwijdte kent een looptijd van 20 jaar. De wettelijk vastgestelde plantermijn in de Wet ruimtelijke ordening van 10 jaar vormt vaak een belemmering, omdat niet aannemelijk kan worden gemaakt dat de ontwikkelingen, waarin het bestemmingsplan voorziet, binnen 10 jaar gerealiseerd kunnen worden. De verlengde looptijd is net dat extra steuntje in de rug om de uitvoerbaarheid wel aannemelijk te kunnen maken. In de toelichting van het bestemmingsplan hoeft geen inzicht te worden geboden in de uitvoerbaarheid van het plan. Ja.
  • Voorlopige bestemmingen: tijdelijk gebruik, maximaal 10 jaar. Dit instrument geeft de mogelijkheid om bij een flexibele invulling van een plangebied dat een lange doorlooptijd kent tijdelijk gebruik ander gebruik dan beoogd toe te staan. Binnen het experiment de termijn van voorlopige bestemmingen verruimd van 5 naar 10 jaar. In een bestemmingsplan kunnen met dit instrument voorlopige bestemmingen worden opgenomen om het tijdelijke gebruik mogelijk te maken. Nee.
  • Verordeningen: toevoegen lokale verordeningen v.w.b. fysieke leefomgeving. De verbrede reikwijdte maakt het mogelijk om onderwerpen die gemeenten nu nog in lokale verordeningen regelen op te nemen in het bestemmingsplan met verbrede reikwijdte. Naar verwachting leidt dat tot minder en beter op elkaar afgestemde regels. Dat is wel zo gemakkelijk voor burgers die in één opslag willen zien wat er mag en kan op een locatie. Het vierde lid van artikel 7c bevat de grondslag om lokale verordeningen, die gebaseerd zijn op de Gemeentewet, in het bestemmingsplan met verbrede reikwijdte te integreren. Nee.
  • De ‘verbrede reikwijdte’ betekent dat het omgevingsplan niet alleen over een ‘goede ruimtelijke ordening’ gaat, maar net als onder de Omgevingswet de fysieke leefomgeving centraal stelt. In het bestemmingsplan met verbrede reikwijdte kunnen naast regels met een ruimtelijke relevantie, regels worden opgenomen ten behoeve van het bereiken en in stand houden van een veilige en gezonde fysieke leefomgeving en een goede omgevingskwaliteit en doelmatig beheren, gebruiken en ontwikkelen van de fysieke leefomgeving ter vervulling van maatschappelijke functies. Concreet betekent dit dat regels kunnen worden opgenomen over onder andere het uiterlijk van bouwwerken (welstand), duurzaamheid en een goed woon- en leefklimaat. Ja.
  • Meldingsplicht: activiteiten zijn verboden, tenzij initiatiefnemers dit vooraf melden: ruime en flexibele kaders stellen met behoud van controle en sturingsmogelijkheden, bijvoorbeeld voor beheer fysieke leefomgeving maatregel treffen die betere bescherming bieden aan de leefomgeving. Nee.
  • Beleidsregels: Het bestemmingsplan met verbrede reikwijdte kan open normen bevatten die – naar keuze – door de gemeenteraad of burgemeester en wethouders worden uitgewerkt in beleidsregels in de zin van 4:81 Awb. Deze constructie biedt flexibiliteit. Wijzigingen in beleid kunnen – los van het bestemmingsplan – zonder voorbereidingsprocedure worden vastgesteld. De gemeente is hiermee in staat sneller in te spelen op maatschappelijke behoeftes en ontwikkelingen, waardoor de robuustheid van het bestemmingsplan toeneemt. Dit neemt niet weg dat de totstandkoming van beleidsregels op zorgvuldige wijze moet geschieden. Hiervoor gelden dezelfde inhoudelijke eisen als voor gewone planregels. Ze moeten naleefbaar, uitvoerbaar en handhaafbaar zijn. Ja.
  • Planschade: Binnen het experiment met de verbrede reikwijdte bestaat geen recht op planschade bij het vervallen van planologische bouw- en gebruiksmogelijkheden, die ten minste drie jaar ongebruikt zijn gebleven. Niet specifiek.
  • Uitvoerbaarheid en milieukwaliteitseisen: In samenhang met de verlengde looptijd bestaat de mogelijkheid om van een tweetal bepalingen uit het Bro af te wijken. Beide artikelen hebben betrekking op verantwoording over de uitvoerbaarheid in de toelichting van het bestemmingsplan.
    • 1. Artikel 3.1.6, lid 1, onder f Bro;
    • 2. Artikel 3.1.6, lid 5, onder c Bro.

Met uitvoerbaarheid in de context van artikel 3.1.6, lid 1, onder f Bro wordt in hoofdlijnen gedoeld op drie aspecten: a) is realisatie van het plan mogelijk? (op grond van de jurisprudentie gaat het dan om realisatie binnen de planperiode), b) is het plan financieel-economisch uitvoerbaar? en c) is het plan maatschappelijk uitvoerbaar? In de toelichting van het bestemmingsplan hoeft aan deze aspecten geen aandacht te worden besteed. Daarnaast hoeft in de toelichting geen aandacht te worden besteed aan de wijze waarop krachtens hoofdstuk 5 van de Wet milieubeheer vastgestelde kwaliteiteisen bij het plan zijn betrokken. Dit geldt alleen als geen milieueffectrapport hoeft te worden opgesteld. Voorbeelden van milieukwaliteitseisen zijn luchtkwaliteit, maar ook externe veiligheid.

Het bovenstaande betekent niet dat deze onderwerpen geen rol meer spelen in het bestemmingsplan. Als het plan daar aanleiding toe geeft moet wel degelijk onderzoek naar luchtkwaliteit worden verricht. Hetzelfde geldt ook voor een thema als externe veiligheid. De essentie van deze mogelijkheden is, dat volstaan kan worden met een eenvoudiger plan / een kortere toelichting. Ook sluit deze mogelijkheid goed aan bij de gedachte om onderzoek gefaseerd uit te voeren. Het onderzoek bij de vaststelling van het bestemmingsplan sluit aan op het detailniveau van de informatie die op dat moment voorhanden is. Opgemerkt wordt dat besluiten (waaronder een bestemmingsplan) altijd zorgvuldig moeten worden voorbereid en gemotiveerd, c.q. voldoen aan de eisen die hiervoor zijn neergelegd in de Awb. Nee. 

De mogelijkheid cf. art. 7c Bu Chw lid 10 dat een exploitatieplan kan worden vastgesteld bij de omgevingsvergunning. (zie par. 6.1). Ja.

  • Maatwerkregels: Op basis van de Wet geluidhinder is het vaststellen van een hogere grenswaarde geluid een separaat besluit naast het ruimtelijke besluit. Omdat de grondslag en de ruimtelijke verantwoording van een ontheffing van de voorkeursgrenswaarde voortvloeit uit en is opgenomen in het bestemmingsplan met verbrede reikwijdte, wordt dit plan het vehikel voor het vaststellen van de hogere grenswaarde. Dit besluit is daarmee geïntegreerd in het bestemmingsplan. Dit besluit is reeds genomen in het kader van het vigerende plan en voldoet nog steeds. Nee.
5.2.2 Toepassing Chw

In de vorige paragraaf zijn de mogelijkheden van een bestemmingsplan Verbrede Reikwijdte beschreven. In deze paragraaf wordt toegelicht welke instrumenten voor dit plan zijn toegepast.

Planperiode

Vanwege de omvang van het plan kan het niet binnen de reguliere planperiode van 10 jaar worden gerealiseerd. Op basis van de Chw is de planperiode voor dit plan dan ook 20 jaar. Met een bouwvolume van gemiddeld circa 90-95 woningen per jaar kan het plan binnen deze planperiode worden gerealiseerd. Dit is een realistisch bouwvolume als het wordt vergelijken met de ervaringscijfers op Urk in de afgelopen jaren, waarin het bouwvolume ruim hoger is en de omstandigheid dat de realisatie van het plan start vanaf 2020.

Bedrijven en milieuzonering

Uit paragraaf 4.2 en 4.4 volgt, dat er vanwege het bedrijventerrein Zwolschehoek in een deel van het plangebied niet zonder meer milieugevoelige functies kunnen worden gerealiseerd. Dit wordt enerzijds veroorzaakt door de milieucontouren voor wat betreft de aspecten geur, geluid, stof en gevaar die vanwege de toegestane bedrijven op het terrein Zwolschehoek over het plangebied liggen. Daarnaast heeft dit te maken met het cumulatieve geluidniveau, dat optreedt in het plangebied vanwege het wegverkeer en de bedrijfsactiviteiten op Zwolschehoek.

Om die reden is in de planregels opgenomen, dat er bij de realisatie van mileugevoelige functies sprake moet zijn van een goed woon- en leefklimaat. De wijze waarop hieraan wordt getoetst is opgenomen in de beleidsregels 'Goed woon- en leefklimaat'. De beoordeling vindt plaats aan enerzijds de richtafstanden die op basis van de VNG-handreiking 'Bedrijven en Milieuzonering' (2009) moeten worden aangehouden. Anderzijds wordt beoordeeld of het plan in een gebied ligt waar de cumulatieve geluidbelasting niet meer bedraagt dan 61 dB exclusief aftrek. Daarvoor is in de beleidsregels een kaart opgenomen met de cumulatieve geluidscontouren.

Verkeersafwikkeling

Er dient zorgvuldig te worden omgegaan met de verkeerskundige situatie van het plan. Uit het verkeersonderzoek volgt, dat er in de toekomst mogelijk knelpunten zijn bij de verkeersafwikkeling op de kruispunten. De gemeente zal met de provincie afspraken maken over monitoring van de verkeerssituatie en hoe om te gaan met de mogelijke maatregelen. In dit bestemmingsplan is een koppeling gemaakt met deze verkeersmonitoring.

Geluid

Met het geldende plan zijn reeds hogere waarden vastgesteld. Nieuwbouw van woningen is alleen toegestaan indien aan de vastgelegde geluidnormen kan worden voldaan en de bebouwing voldoet aan de beleidsregels 'Hogere waarde geluid'.

Waterhuishouding

De nieuwe inrichting van het gebied heeft effecten op de waterhuishouding in het plangebied en zijn omgeving. Om een goede waterhuidhouding te borgen heeft de gemeente in overleg met het waterschap beleidsregels 'Goede waterhuishouding' opgesteld, waaraan bij omgevingsvergunningen moet worden voldaan.

Beleidsregels

De Chw biedt de mogelijkheid te werken met open normen, waarbij de uitleg nader wordt vastgelegd in een beleidsregel. De normen zijn dusdanig geformuleerd, dat deze naleefbaar, uitvoerbaar en handhaafbaar zijn. De gemeente stelt de volgende beleidsregels vast:

  • 1. Beleidsregels Parkeren: in deze beleidsregel worden de parkeernormen voor het plan Zeeheldenwijk vastgelegd. Bij bouwaanvragen en (wijziging van) gebruik wordt aan deze parkeernormen getoetst.
  • 2. Beleidsregels Goed woon- en leefklimaat: In deze beleidsregel wordt bepaald op welke wijze bij bouwaanvragen wordt getoetst aan de eis of er sprake is van een goed woon- en leefklimaat. In de beleidsregel worden daarvoor normen opgenomen.
  • 3. Beleidsregels Beeldkwaliteit: In deze beleidsregel worden de welstandseisen opgenomen in de vorm van een beeldkwaliteitplan (BKP). Er wordt per fase een BKP vastgesteld. De eerste versie van de beleidsregels Beeldkwaliteit geldt voor de eerste fase van het plan waarbij een directe bouwtitel is opgenomen. De beleidsregels Beeldkwaliteit voor de vervolgfasen worden tegelijk met het uitwerkingsplan, dat wordt gemaakt voor een vervolgfase vastgesteld.
  • 4. Beleidsregels Hogere waarde geluid: In deze beleidsregels is bepaald waar woningen aan moeten voldoen als ze worden gebouwd in een gebied waarvoor een hogere grenswaarde geluid is vastgelegd in het bestemmingsplan.
  • 5. Beleidsregels Goede waterhuishouding: De gemeente legt in een beleidsregels de uitgangpunten vast om te zorgen dat er sprake is van een goede waterhuishouding. Deze beleidsregels zijn opgesteld in overleg met het Waterschap Zuiderzeeland.
  • 6. Beleidsregels 'Duurzaamheid': In deze beleidsregel is bepaald bij welke bouwwerkzaamheden of het uitvoeren van werken, geen bouwwerk zijnde of werkzaamheden sprake moet zijn van een 'duurzame ontwikkeling' en welke criteria gelden bij de toetsing van de vergunningaanvraag,
  • 7. Beleidsregels 'Wonen en werken aan huis gemeente Urk 2008': Deze beleidsregel is in 2008 vastgesteld. Beroep en bedrijf is in de bestemming Wonen - 1 en Wonen - 2 niet toegestaan. Hiervan kan worden afgeweken, mits wordt voldaan aan de voorwaarden zoals in deze beleidsregel vastgelegd.
  • 8. Beleidsregels 'Archeologie': De bescherming van de archeologische belangen vindt plaats via de zogenaamde beslisboom Archeologie, die is vastgelegd in de beleidsregels 'Archeologie' en is gekoppeld aan dit bestemmingsplan.
  • 9. Beleidsregel 'Internetwinkels': Het gebruik van gebouwen voor internetwinkels wordt beschouwd als strijdig met het bestemmingsplan. Via een omgevingsvergunning kan hiervan worden afgeweken. Hierbij wordt getoetst aan de randvoorwaarden zoals opgenomen in de beleidsregels 'Internetwinkels'.

5.3 Bestemmingen

Over de wijze van het digitaal presenteren van de bestemmingsplannen is zoveel mogelijk aangesloten bij de RO Standaarden 2012. Er is niet altijd aangesloten op de benaming van aanduidingen die in de SVBP zijn voorgeschreven Dit is geen beperking bij het plaatsen van de plannen op www.ruimtelijkeplannen.nl, mits de objectenindeling maar blijft gehandhaafd: hoofdstukken, artikelen en (sub)leden.

Hoofdstuk 1 Inleidende regels

Artikel 1 Begrippen

In dit artikel worden de begrippen uitgelegd die voorkomen in de planregels. Deze begrippen zijn waar relevant afgestemd op de verplichte begripsomschrijvingen uit de SVBP 2008.

Uit de begripsomschrijving wordt één begrip gelicht, namelijk bouwperceel. Het bouwperceel wordt als volgt omschreven: 'een aaneengesloten stuk grond, waarop ingevolge de regels een zelfstandige, bij elkaar behorende bebouwing is toegelaten'. Hiermee wordt het deel van het eigendomsperceel bedoeld, welke in het bouwvlak valt. De onderstaande afbeelding illustreert het begrip bouwperceel.

afbeelding "i_NL.IMRO.0184.BP2019ZHW-0101_0012.png"

Artikel 2 Wijze van meten

In dit artikel is bepaald op welke wijze gemeten moet worden bij het toepassen van de regels.

Hoofdstuk 2 Bestemmingsregels

In dit tweede hoofdstuk zijn de regels van de bestemmingen opgenomen. Dit gebeurt in alfabetische volgorde. Per bestemming is het toegestane gebruik geregeld en zijn bouwregels en, eventueel, ook bepalingen met betrekking tot het uitvoeren van werken, geen bouwwerken zijnde, en werkzaamheden opgenomen.

De dubbelbestemmingen zijn ook in dit hoofdstuk opgenomen. Die komen, ook in alfabetische volgorde, achter de bestemmingsregels. Ieder artikel kent een vaste opzet. Eerst wordt het toegestane gebruik geformuleerd in de bestemmingsomschrijving. Vervolgens zijn bouwregels opgenomen. Aansluitend volgen afwijkingsregels met betrekking tot bouw- en/of gebruiksregels. Ten slotte zijn eventueel bepalingen met betrekking tot het uitvoeren van werken, geen bouwwerken zijnde, en werkzaamheden en/of wijzigingsbevoegdheden opgenomen. Belangrijk om te vermelden is dat naast de bestemmingsregels ook in andere artikelen relevante informatie staat die mede gelezen en geïnterpreteerd moet worden. Alleen zo ontstaat een volledig beeld van hetgeen is geregeld.

Artikel 3 Gemengd - 1

Deze gronden zijn in dit bestemmingsplan bestemd voor verschillende functies, namelijk bedrijfsmatige activiteiten (categorieën 1 tot en met 2), indoor-leisure, parkeervoorzieningen en ondersteunende horeca. Ter plaatse van de aanduiding 'detailhandel' is perifere detailhandel en grootschalige detailhandel toegestaan. Er zijn diverse maatvoeringseisen opgenomen. De bouwregels zijn afgestemd op de aangetoonde behoefte in het ladderonderzoek (zie paragraaf 3.1.1). Hierbij geldt ondermeer dat bouwkavels van de bedrijfsmatige activiteiten (categorieën 1 tot en met 2) maximaal 2.500 m2 groot mogen zijn. Onder deze bedrijfsactiviteiten vallen ook de perifere detailhandel en grootschalige detailhandel. Via een binnenplanse afwijking kan voor perifere detailhandel en grootschalige detailhandel onder voorwaarden een groter bouwperceel worden toegestaan.

Bij het verlenen van de omgevingsvergunningen wordt aan de bouw- en gebruiksregels getoetst. De regels ten aanzien van de beeldkwaliteit, parkeren, en een goede waterhuishouding zijn vastgelegd in zogenaamde beleidsregels. Ook aan deze regels moet worden voldaan.

Artikel 4 Gemengd - 2

Deze gronden zijn in dit bestemmingsplan bestemd voor verschillende functies, namelijk een kinderboerderij met bijbehorende voorzieningen, zorgwonen met bijbehorende voorzieningen en wonen en dagbesteding. Er zijn diverse maatvoeringseisen opgenomen. Het aantal zorgwoningen is afgestemd op de aangetoonde behoefte in het ladderonderzoek (zie paragraaf 3.1.1).

Artikel 5 Gemengd - 3

Deze gronden zijn bestemd voor verschillende functies, te weten verkeer, halte voor de streekbussen, fietsparkeervoorzieningen, horeca I en II en een kiosk. Er zijn diverse maatvoeringseisen opgenomen.

Artikel 6 Groen

Aan de gronden die deel uitmaken van de hoofdgroenstructuur is de bestemming Groen toegekend. Deze gronden zijn bestemd voor onder meer groenvoorzieningen, parkeren, ontsluitingswegen en voet- en fietspaden. Het aanleggen van waterpartijen en watergangen, parkeerplaatsen, terreinverharding en het aanleggen van wegen is alleen toegestaan via een omgevingsvergunning, waarbij getoetst wordt aan de beleidsregels 'Goede waterhuishouding'. Bij de aanleg van parkeerplaatsen wordt ook getoetst aan de beleidsregels 'Parkeren'. Speelvoorzieningen zijn uitsluitend toegestaan waar dit op de verbeelding met een aanduiding is aangegeven.

Artikel 7 Verkeer

De bestemming Verkeer is toegekend aan de Urkerweg, de Domineesweg en de nieuwe gebiedsontsluitingsweg die in noordzuidelijke richting loopt met de bijbehorende rotondes en bruggen.

De aanleg van watergangen en waterpartijen, dempen van oppervlaktewater, aanbrengen terreinverharding en de aanleg van wegen is alleen toegestaan via een omgevingsvergunning, waarbij getoetst wordt aan de beleidsregels 'Goede waterhuishouding'.

Artikel 8 Verkeer - Verblijf

De bestemming Verkeer - Verblijf is toegekend aan de erftoegangswegen in het plangebied. De gronden zijn bestemd voor woonerven, woonstraten, parkeerplaatsen, voet- en fietspaden, speelplaatsen en buurtgroen, water en bouwwerken, geen gebouwen zijnde.

De aanleg van watergangen en waterpartijen, dempen van oppervlaktewater, aanbrengen terreinverharding en de aanleg van wegen is alleen toegestaan via een omgevingsvergunning, waarbij getoetst wordt aan de beleidsregels 'Goede waterhuishouding'.

Bij de aanleg van parkeerplaatsen wordt ook getoetst aan de beleidsregels 'Parkeren'.

Artikel 9 Water

De Urkervaart en de tochten aan de oost en aan de westkant van het plangebied zijn bestemd als Water. De gronden zijn bestemd voor watergangen, waterpartijen, oevers, groen en taluds, waterhuishouding, aanbrengen terreinverharding, beroeps- en recreatievaart, instandhouding en ontwikkeling van daar voorkomende natuur- en landschapswaarden, het behoud van de vliegroute van vleermuizen, die is aangeduid met de aanduiding 'ecologie', i.c de Urkervaart, waarbij het bepaalde in lid 19.2 van toepassing is.

Artikel 10 Wonen

Dit artikel bevat de regeling voor de bestaande woningen die reeds als woning waren bestemd. De regeling is uit het vigerende plan integraal overgenomen in onderhavig plan.

Artikel 11 Woongebied

De gronden met de bestemming Woongebied zijn bestemd voor wonen. Daarbij zijn vrije beroepen bij recht toegestaan.

Er zijn diverse bouwregels opgenomen voor de woningen, zoals een minimale en maximale goothoogte, een minimale en maximale bouwhoogte en de verplichting om de voorgevel op de verbeelding aangegeven gevellijn te oriënteren.

Bij het verlenen van de omgevingsvergunningen wordt aan de bouw- en gebruiksregels getoetst. De regels ten aanzien van de beeldkwaliteit, parkeren, goed woon- en leefklimaat en een goede waterhuishouding zijn vastgelegd in zogenaamde beleidsregels. Ook aan deze regels moet worden voldaan.

Artikel 12 Gemengd - Uit te werken 1

Deze gronden zijn bestemd als Gemengd - Uit te werken 1. Deze gronden zijn bestemd voor wonen, bedrijfsmatige activiteiten die zijn genoemd in bijlage 1 behorende bij deze regels onder de categorieën 1 tot en met 2, maatschappelijke voorzieningen, indoor-leisure, bedrijfswoningen, perifere detailhandel en grootschalige detailhandel, parkeervoorzieningen en nutsvoorzieningen met de daarbij behorende ondersteunende horeca. Er mag pas een omgevingsvergunning worden verleend nadat het Uitwerkingsplan is vastgesteld.

Artikel 13 Gemengd - Uit te werken 2

In de regels zijn de uitwerkingsregels opgenomen. De gronden zijn bestemd voor verschillende functies, namelijk wonen, detailhandel, horeca I en II en maatschappelijke voorzieningen (scholen, een kerk, een medisch cluster en een sporthal. Er mag pas een omgevingsvergunning worden verleend nadat het Uitwerkingsplan is vastgesteld.

Artikel 14 Woongebied - Uit te werken,

In de regels zijn de uitwerkingsregels opgenomen. Er mag pas een omgevingsvergunning worden verleend nadat het betreffende Uitwerkingsplan is vastgesteld.

Om hinder op de woningen vanwege het mogelijke gebruik van gewasbeschermingsmiddelen op de agrarische gronden ten oosten van het plangebied te voorkomen is voldoende afstand tot die gronden aangehouden. Op een aantal plekken is de bouw van woningen alleen toegestaan wanneer en een haag wordt gerealiseerd op de erfgrens en rekening wordt gehouden met een bufferzone. Dit is via een voorwaardelijke verplichting geborgd. Met die regeling wordt ook voorkomen dat het agrarisch bedrijf in zijn bedrijfsvoering wordt belemmerd. Verder worden indien dit voldoende is aangetoond middels een ladderonderzoek ook scholen en zorgvoorzieningen toegestaan.

Artikel 15 Leiding - Gas en Artikel 16 Leiding - Riool

Deze dubbelbestemmingen dienen ter bescherming van de aanwezige gasleiding en rioolpersleiding aan de noordkant van het plangebied.

Hoofdstuk 3 Algemene regels

Artikel 17 Anti-dubbeltelregel

Hiermee blijven gronden die eenmaal in aanmerking zijn genomen bij het toestaan van een bouwplan waaraan uitvoering is gegeven of alsnog kan worden gegeven, buiten beschouwing bij de beoordeling van latere bouwplannen.

Artikel 18 Algemene bouwregels

18.1 Bestaande bebouwing

Dit lid bevat een bouwregel voor bestaande bebouwing die bepaalt dat indien de bestaande bebouwing op het tijdstip van inwerkingtreding van het bestemmingsplan afwijkt van de in de planregels gegeven regels, in afwijking van deze regels, de bestaande goot- en bouwhoogte, oppervlakte van een bouwwerk, oppervlakte van een bouwvlak, de inhoud en afstanden als maximaal toelaatbaar worden aangehouden, mits deze afwijkende maatvoering, inhoud of oppervlakte op een legale wijze bij of krachtens de Wet op de Ruimtelijke Ordening, Wet ruimtelijke ordening en -voorzover van toepassing- de Woningwet of Wet algemene bepalingen omgevingsrecht tot stand is gekomen.

18.2 Woningbouwcategorieën ex artikel 3.1 Wro

In dit lid is aangegeven welk percentage van de woningen minimaal als sociale woning moet worden gebouwd en welk percentage van de woningen minimaal bij wijze van particulier opdrachtgeverschap moet worden gerealiseerd.

18.3 Hogere waarde geluid

In dit lid is bepaald dat wanneer bij uitwerkingsplannen een besluit hogere waarde geluid moet worden vastgesteld de beleidsregels 'Hogere waarde geluid' gelden.

18.4 Duurzame ontwikkeling

In het kader van een duurzame ontwikkeling worden aanvragen om omgevingsvergunning getoetst aan de duurzaamheidscriteria zoals in de beleidsregels Duurzaamheid zijn verwoord. In deze beleidsregel zijn bijvoorbeeld regels opgenomen ten aanzien van het bouwen van meegroeiwoningen (kangoeroewoningen) en van levensloopbestendige woningen.

18.5 Verkeersmonitoring

Uit het verkeersonderzoek volgt dat er 1.200 woningen kunnen worden gebouwd zonder dat de huidige formele maximale capaciteit van de Domineesweg (12.000 voertuigen) wordt overschreden. Daarnaast wordt de verkeersintensiteit op de Dominees weg ook beïnvloed door andere ontwikkelingen. Tevens geldt dat het verkeersonderzoek met een looptijd van 20 jaar de nodige aannames en daardoor onzekerheden bevat. Ook zouden er verkeersmaatregelen kunnen worden getroffen met een andere capaciteit als gevolg. Tot slot zouden er grotere ingrepen kunnen worden gerealiseerd, zoals een alternatieve ontsluiting, met gevolgen voor de verkeersstromen en/of de capaciteit.

Met deze achtergrond worden tussen de gemeenten de provincie afspraken gemaakt over een monitoring van de verkeersafwikkeling die start bij aanvang van de realisatie van Zeeheldenwijk, door middel van een jaarlijkse rapportage over de verkeersbelasting van de Domineesweg, gecombineerd met een verplichting voor het college om, in samenspraak met de provincie, maatregelen te treffen als een overschrijding dreigt van de beschikbare capaciteit. Deze verkeersmonitoring wordt door de gemeente en de provincie nader uitgewerkt in een bestuursakkoord en vastgesteld als een beleidsregel 'Verkeer'. In dat kader is in onderhavig plan een regel opgenomen voor de monitoring van het verkeer (lid 18.5) en is een dynamische koppeling gemaakt met de vast te stellen beleidsregel.

18.6 Archeologie

Met deze regeling is een koppeling gemaakt met de beleidsregel Archeologie, waarbij de archeologische belangen worden beschermd aan de hand van een zogenaamde beslisboom.

Artikel 19 Algemene gebruiksregels

In dit artikel is ten eerste bepaald wat sowieso als strijdig met de bestemmingsregels wordt beschouwd.

Dit artikel bevat tevens een voorwaardelijke verplichting ter bescherming van de vliegroute voor vleermuizen (i.c. de Urkervaart). Hierbij is samengevat bepaald dat het op zodanig wijze aanbrengen van verlichting langs de Urkervaart waardoor de vliegroute van vleermuizen niet meer als zodanig zal worden gebruikt wordt gezien als strijdig met het bestemmingsplan. Met het oog hierop dient bij het aanbrengen van nieuwe verlichting langs de Urkervaart uit een door een deskundige opgestelde verklaring of rapport te blijken, dat deze verlichting de vliegroute van vleermuizen niet zodanig zal verstoren, dat het gebruik hiervan afneemt.

Tot slot bevat dit artikel een regeling die inhoud dat internetwinkel als strijdig met de bestemmingen wordt gezien. Een internetwinkel kan worden toegestaan als er sprake is van een acceptabele uitstraling, hetgeen is bepaald in de beleidsregels 'Internetwinkels'.

Artikel 20 Algemene afwijkingsregels

In dit artikel zijn algemene afwijkingsregels opgenomen voor:

  • het aanbrengen van geringe wijzigingen in de plaats, richting en/of afmetingen van bebouwingsgrenzen, voorzover niet zijnde bestemmingsgrenzen, mits het wijzigingen betreft ten behoeve van de praktische uitvoering van het plan, waarbij belangen van derden niet onevenredig worden geschaad, dan wel ter correctie van afwijkingen of onnauwkeurigheden in de analoge verbeelding;
  • het oprichten van bouwwerken, geen gebouwen zijnde, in de vorm van palen en masten, met een hoogte van niet meer dan 12 meter.

Artikel 21 Algemene wijzigingsregels

Dit artikel bevat een algemene wijzigingsregel die het mogelijk maakt dat burgemeester en wethouders het plan wijzigen voor wat betreft het aanbrengen van geringe wijzigingen in de plaats, richting en/of afmetingen van bestemmingsgrenzen, mits het wijzigingen betreft ten behoeve van de praktische uitvoering van het plan, waarbij belangen van derden niet onevenredig worden geschaad, dan wel ter correctie van afwijkingen of onnauwkeurigheden in de verbeelding.

Artikel 22 Algemene procedureregels

Dit artikel geeft de procedure voor het stellen van nadere eisen. Deze procedure is bij wet niet geregeld.

Artikel 23 Overige regels

23.1 Algemene nadere eisen

Hiermee wordt geregeld dat burgemeester en wethouders nadere eisen kunnen stellen aan de situering van bebouwing en beplanting in verband met het in acht te nemen van afstanden tot wegen ten aanzien van verkeersveiligheid en in verband met het in acht nemen van afstanden tot watergangen.

23.2 Werking wettelijke regelingen

Dit lid regelt dat de wettelijke regelingen waarnaar in de regels van dit plan wordt verwezen, gelden zoals deze gelden op het moment van vaststelling van dit plan.

Hoofdstuk 4 Overgangs- en slotregels

Artikel 24 Overgangsrecht

Het overgangsrecht ten aanzien van bouwen en gebruik is opgenomen conform de eisen van het Besluit ruimtelijke ordening.

Opgemerkt wordt, dat het bestaande gebruik van de agrarische gronden en gebouwen opnieuw onder het overgangsrecht wordt gebracht. Dit legale gebruik viel onder het vigerende bestemmingsplan al onder het overgangsrecht.

Hierbij geldt, dat wanneer een situatie reeds onder het overgangsrecht valt, en de gemeenteraad vervolgens een nieuw bestemmingsplan vaststelt, de raad moet beslissen wat het met deze overgangsrechtelijke situatie doet. Het opnieuw, voor een tweede maal, onder het overgangsrecht brengen van zo’n situatie is onder omstandigheden aanvaardbaar. Hiervoor is in ieder geval vereist dat de gerechtvaardigde verwachting bestaat dat het bestaande gebruik binnen de planperiode zal worden beëindigd. De planperiode van onderhavig plan is 20 jaar.

Ten opzichte van het ontwerpplan en het vigerende bestemmingsplan zijn de verschillende vooronderzoeken meer gedetailleerd uitgevoerd. Het bestemmingsplan en programma hebben een meer specifieke invulling gekregen. Het is aannemelijk dat binnen de planperiode de beoogde bestemming wordt gerealiseerd. Er hebben al onderhandelingen plaatsgevonden met de eigenaren van de betreffende percelen inzake de aankoop van de gronden en het positief bestemmen daarvan. Daarnaast heeft de raad uitgesproken tot onteigening over te zullen gaan indien het plan niet door derden wordt gerealiseerd, dan wel indien minnelijke verwerving van de gronden niet slaagt. Er bestaat derhalve concreet zicht op het einde van het huidige gebruik binnen de planperiode, waardoor het gebruik van de bestaande gronden en bebouwing voor een tweede maal onder het overgangsrecht kan worden opgenomen.

Artikel 25 Slotregel

Dit artikel bevat de citeertitel van het bestemmingsplan.

Hoofdstuk 6 Uitvoerbaarheid

6.1 Economische uitvoerbaarheid

Het bestemmingsplan Zeeheldenwijk maakt bouwplannen als bedoeld in artikel 6.2.1 van het Besluit ruimtelijke ordening (Bro) mogelijk. Op grond van artikel 6.12 lid 1 van de Wet op de ruimtelijke ordening (Wro) dient de gemeenteraad een exploitatieplan vast te stellen voor gronden waarop dergelijke bouwplannen zijn voorzien. De gemeenteraad kan bij een besluit tot vaststelling van een bestemmingsplan ook besluiten geen exploitatieplan vast te stellen indien het verhaal van kosten van de grondexploitatie van de gronden anderszins is verzekerd en het bepalen van een tijdvak of fasering en het stellen van eisen en regels niet noodzakelijk is.

Het overgrote deel van de gronden is in eigendom van de gemeente. Het kostenverhaal van deze gronden is anderszins verzekerd omdat dit deel van de kosten wordt verrekend met de gronduitgifteprijs. Het deel van de gronden welke niet in eigendom zijn bij de gemeente, en voor zover voor het kostenverhaal van belang, hebben een uit te werken bestemming. Voor deze gronden is (indien een bouwplan wordt gerealiseerd) het kostenverhaal niet verzekerd zodat de gemeente een exploitatieplan dient vast te stellen.

Het plangebied van Zeeheldenwijk (voorheen Schokkerhoek) is op grond van artikel 2 van het Besluit uitvoering Crisis- en herstelwet (Bu Chw) aangewezen als ontwikkelingsgebied als bedoeld in artikel 2.2. van de Crisis- en herstelwet. Op grond van het bepaalde in artikel 7g Bu Chw mag de gemeente Urk toepassing geven aan artikel 7c Bu Chw. Op grond van artikel 7c lid 10 Bu Chw kan de gemeenteraad bij de vaststelling van een bestemmingsplan besluiten om af te wijken van het bepaalde in artikel 6.12 lid 1 en 3 Wro met dien verstande dat een exploitatieplan door burgemeester en wethouders kan worden vastgesteld bij een omgevingsvergunning voor het bouwen.

De gemeente maakt bij onderhavig bestemmingsplan gebruik van deze mogelijkheid en heeft het plangebied van Zeeheldenwijk als exploitatiegebied aangewezen. Indien en voor zover op gronden die niet bij de gemeente in eigendom zijn en bij een uitwerking van de bestemmingen een bouwplan als bedoeld in artikel 6.2.1. Bro mogelijk wordt gemaakt dan zullen burgemeester en wethouders bij een omgevingsvergunning een exploitatieplan vast stellen.

De gemeentelijke grondexploitatie is minimaal sluitend. Hiermee is de financieel economische uitvoerbaarheid van het bestemmingsplan geborgd en daarmee economisch uitvoerbaar.

6.2 Maatschappelijke uitvoerbaarheid

Vooroverleg ex artikel 3.1.1 Bro

In het kader van het wettelijke verplichte overleg op grond van artikel 3.1.1 van het Besluit ruimtelijke ordening wordt het voorontwerpbestemmingsplan toegezonden aan het Rijk, de Provincie Flevoland, de buurgemeenten en het Waterschap Zuiderzeeland met de mogelijkheid tot het geven van een reactie.

Inspraak

In deze paragraaf worden de uitkomsten van inspraak verwerkt.

Tervisielegging ontwerpbestemmingsplan

Het ontwerpbestemmingsplan wordt gedurende zes weken ter inzage gelegen. Tijdens de terinzageleggingstermijn kan een ieder een zienswijze indienen tegen het plan.

Vaststelling bestemmingsplan

Het bestemmingsplan wordt ter vaststelling aan de gemeenteraad van Urk aangeboden. Daarna wordt het vaststellingsbesluit en het bestemmingsplan 6 weken ter inzage gelegd, gedurende welke periode beroep kan worden aangetekend bij de Afdeling bestuursrechtspraak van de Raad van State.

6.3 Handhaving bestemmingsplan

Het handhavingsbeleid van gemeente Urk is vastgelegd in de nota Handhavingsbeleid gemeente Urk 2016-2020.

De visie van de gemeente Urk is dat overheid en de samenleving een gezamenlijke verantwoordelijkheid hebben voor de naleving van de wet- en regelgeving om de fysieke leefomgeving schoon, veilig en leefbaar te houden. Primair ligt de naleving bij de gebruikers van de fysieke leefomgeving. Wordt deze verantwoordelijkheid niet genomen dan is de overheid aan zet.

  • 1. Het accent van het handhaving zal liggen op de preventie, zodat zo min mogelijk een beroep gedaan hoeft te worden op de handhavingsinstrumenten. Bij het constateren van een overtreding zal in eerste instantie worden gekeken of legalisatie tot de mogelijkheden behoort. Is dit niet het geval dan zal pas doortastend handhavend worden opgetreden.
    De uitgangspunten die de gemeente Urk hanteert bij de handhaving zijn:
    Voorlichting en preventie waar het kan, handhaving waar nodig.
  • 2. Burgers, bedrijven en verenigingen zijn primair zelf verantwoordelijk voor naleving. Regie handhaving ligt bij de gemeente.
  • 3. Belonen van goede naleving, daadkrachtige aanpak slechte naleving.
  • 4. Handhaving voldoet aan de wettelijke eisen.
  • 5. Afspraken met handhavingspartners in de regio worden nageleefd.
  • 6. Handhaving wordt zoveel mogelijk integraal opgepakt.

Het handhavingsbeleid is van toepassing op gemeentelijke handhavingstaken op het gebied van de fysieke leefomgeving (Wabo, APV, AVS, winkeltijden, marktverordening, DHW, Wet kinderopvang, Opiumwet en jeugdhonken). Voor de taken op het gebied van milieu die zijn overgedragen aan de OFGV geldt het handhavingsbeleid niet, de OFGV stelt zelf een uitvoeringskader op ten aanzien van deze taken.

Vanwege het feit dat gemeenten te maken hebben met een groot aantal handhavingstaken en beperkte middelen en capaciteit, is het niet mogelijk om alle handhavingstaken uit te voeren. Om te bepalen welke taken de grootste risico's vormen en de meeste aandacht zouden moeten krijgen is een risico analyse uitgevoerd om te bepalen waar de grootste risico's liggen.

Zoals hierboven aangegeven zal preventie een belangrijk element vormen om te voorkomen dat er handhavend dient te worden opgetreden. Hiertoe is voor het onderdeel bouw/sloop de mogelijkheid voor burgers en bedrijven vooraf informatie in te winnen bij de gemeente. Voor de Drank- en Horecawet is een apart preventie- en handhavingsplan opgesteld.

De mate van toezicht is afhankelijk van de prioritering op grond van de risico analyse. Is het risico hoog dan zal het toezicht actiever zijn dan wanneer het risico laag is.

Voor wat betreft de sanctiestrategie zijn er een aantal sanctiestrategieën die specifiek zien op bepaalde handhavingstaken. Het gemeenschappelijk kader voor bouw, milieu en de openbare ruimte en het preventie- en handhavingsplan voor het sanctioneren op grond van de Drank- en Horecawet.

Om de effecten van toezicht en handhaving te meten zullen de bepaalde zaken gemonitord en geregistreerd worden en weergegeven in het verslag. Elke vier jaar zal het handhavingsbeleid worden geëvalueerd en indien nodig opnieuw worden vastgesteld.