direct naar inhoud van Toelichting
Plan: Zeeheldenwijk
Status: vastgesteld
Plantype: bestemmingsplan
IMRO-idn: NL.IMRO.0184.BP2019ZHW-0301

Toelichting

Hoofdstuk 1 Inleiding

1.1 Aanleiding en doelstelling

Voor het plangebied Schokkerhoek is door diverse ontwikkelingen die hebben plaatsgevonden aanleiding een nieuw bestemmingsplan op te stellen. Het nu geldende bestemmingsplan is opgesteld onder de Crisis- en Herstelwet en betreft een bestemmingsplan verbrede reikwijdte. Het bestemmingsplan is 29 juni 2017 vastgesteld. Hieronder wordt aangegeven welke ontwikkelingen aanleiding zijn om een nieuw bestemmingsplan op te stellen.

Vanwege de uitspraak in een beroepszaak tegen het bestemmingsplan van 2 mei 2018 geldt voor zover het betreft de plandelen met in dit plan de bestemming "Woongebieden - Uit te werken" binnen een afstand van 100 meter vanaf het bouwblok van het perceel Karel Doormanweg 60 door de Afdeling bestuursrechtspraak van de Raad van State is vernietigd. De vernietiging van de plandelen moet eigenlijk hersteld worden in het voorliggende plan. Inmiddels heeft de gemeente het perceel Karel Doormanweg 60 verworven, waardoor een geheel andere situatie is ontstaan, die eveneens om aanpassing vraagt. Door verwerving is namelijk de geurhinder op grond van de agrarische bestemming niet meer aan de orde. De aanduiding 'milieuzone - geurzone' is daarom van de verbeelding geschrapt en uit de planregels verwijderd.

Onder invloed van voortschrijdend inzicht is bovendien het stedenbouwkundig ontwerp aangepast, waardoor het vigerend plan niet meer toereikend is. De nieuwe stedenbouwkundige opzet vormt namelijk de onderlegger voor het bestemmingsplan. Verder is behoefte ontstaan aan een meer flexibele planopzet en de daaraan gekoppelde regelgeving. Het plandeel Het Nieuwe Dorp krijgt een minder gedetailleerde opzet, dan in het vigerende bestemmingsplan. De voorheen zo genoemde deelgebieden De Akkers en Het Eiland worden met een uit te werken bestemming opgenomen in plaats van een gedetailleerde bestemming. Deze gronden hebben de bestemming 'Woongebied - Uit te werken'.

Daarnaast is het programma voor inrichting van het plangebied deels gewijzigd. De locatie voor de beoogde kinderboerderij, gelegen ten noorden van de geprojecteerde centrumvoorzieningen wordt anders ingericht. Nabij de nieuwe kinderboerderij wordt ook een zorglocatie mogelijk gemaakt met partnerwoningen en daaraan gekoppeld ondergeschikte voorzieningen als horeca en detailhandel. De zorglocatie wordt nader beschreven in paragraaf 2.2.2.2. Deze gronden zijn in dit plan bestemd als 'Maatschappelijk'.

De locatie van de bestaande kinderboerderij aan de Urkerweg 62 heeft een maatschappelijke functie gekregen, bedoeling is dat op termijn via een wijzigingsbevoegdheid een bushalte, een kiosk, lichte horeca een fietsenstalling en wellicht ook doelgroepbewoning ter ondersteuning van deze functies mogelijk worden gemaakt. Deze gronden zijn bestemd als 'Maatschappelijk'.

Tot slot biedt het plan binnen de bestemming 'Gemengd - 2' ruimte voor een kinderdagverblijf en een sporthal in combinatie met scholen.

De gemeente heeft inmiddels het merendeel van de gronden binnen het plangebied verworven. Voor de gronden die niet in eigendom zijn is het kostenverhaal anderszins verzekerd. Hiermee is de noodzaak voor een exploitatieplan komen te vervallen. Voor een nadere toelichting hierop wordt verwezen naar paragraaf 5.2.1.

Opnieuw wordt gebruik gemaakt van artikel 7c van de Crisis- en herstelwet (Chw), dat de mogelijkheid biedt voor een zogenaamd bestemmingsplan verbrede reikwijdte. De 14e tranche van het Besluit uitvoering van de Chw, waarin het gehele grondgebied van Urk is aangewezen is in oktober 2016 in werking getreden. Het plangebied van het voorliggende plan is net als het bedrijventerrein aan de westkant (Zwolschehoek) ook als ontwikkelingsgebied aangewezen, waarvoor op grond van de Chw een bestemmingsplan-plus moet worden gemaakt (zie paragraaf 5.1).

1.2 Ligging en begrenzing plangebied

Het plangebied is circa 94 hectare groot en bestaat in de huidige situatie voornamelijk uit agrarische percelen met enkele woningen (zie figuur 1.1) en komt grotendeels overeen met het plangebied van het geldende bestemmingsplan Schokkerhoek. Het plangebied is alleen aangepast aan de noordzijde van de Urkerweg, waar de gronden ten oosten van de bestaande kinderboerderij met bestemming 'Maatschappelijk' in het bestemmingsplan Buitengebied aan dit bestemmingsplan zijn toegevoegd.

Aan de westzijde van het plangebied ligt het bedrijventerrein 'Zwolschehoek'. De grens van het plangebied wordt hier gevormd door het hart van de Zuidermeertocht. Aan de zuidzijde wordt het plangebied begrensd door de Domineesweg, inclusief de nieuwe rotonde aan de zuidwestkant van het plangebied. De ontsluitingsweg van de Zeeheldenwijk wordt aangetakt op deze nieuwe rotonde. De Domineesweg vormt hier eveneens de gemeentegrens met de gemeente Noordoostpolder. Aan de oostzijde bepaalt de gemeentegrens van Urk de grens van het plangebied, de plangrens ligt deels ter hoogte van de Karel Doormanweg. De noordzijde, tenslotte, wordt begrensd door de Urkervaart, behalve ter plaatse van de geprojecteerde brug over de Urkervaart. Hier ligt de begrenzing van het plangebied deels op de noordzijde van de Urkerweg en het perceel Urkerweg 60, de bestaande kinderboerderij en bijbehorende gronden.

afbeelding "i_NL.IMRO.0184.BP2019ZHW-0301_0001.png"

Figuur 1.1: Ligging en globale begrenzing plangebied Zeeheldenwijk (gele contour)

1.3 Vigerende bestemmingsplan

Het plangebied van dit bestemmingsplan betreft nagenoeg het plangebied van het vigerende bestemmingsplan Schokkerhoek (vastgesteld door de gemeenteraad van de Urk op 29 juni 2017). Het geldende bestemmingsplan Schokkerhoek is zoals eerder is aangegeven opgesteld onder de Crisis- en herstelwet (Chw). Voor wat betreft de begrenzing van het plangebied blijft, zoals hierboven aangegeven, blijft deze nagenoeg hetzelfde. Ten noorden van de Urkervaart is het plangebied beperkt uitgebreid met gronden met de bestemming 'Water', 'Groen' en 'Verkeer' met een ecologische aanduiding om compensatie van areaalverlies vanwege de aanleg van de brug over de Urkervaart zeker te stellen. Daarnaast is de verbindingsweg tussen het plangebied en het bedrijventerrein Zwolsehoek iets naar boven in noordelijke richting verplaatst. De verbeelding van het geldende bestemmingsplan is in figuur 1.2 weergegeven.

afbeelding "i_NL.IMRO.0184.BP2019ZHW-0301_0002.png"

Figuur 1.2: Verbeelding vigerende bestemmingsplan Schokkerhoek

1.4 Opzet bestemmingsplan en toelichting

In deze toelichting komen achtereenvolgens de volgende aspecten aan de orde:

  • In hoofdstuk 2 'Planbeschrijving' wordt de bestaande en toekomstige invulling van het plangebied beschreven;
  • In hoofdstuk 3 'Beleidskader' volgt vervolgens een beschrijving van het beleidskader dat van toepassing is op het plan;
  • In hoofdstuk 4 'Planologische en milieutechnische randvoorwaarden' worden de relevante milieu- en omgevingsaspecten behandeld;
  • In hoofdstuk 5 'Juridische aspecten' wordt ingegaan op de juridische aspecten van het bestemmingsplan. Daarbij wordt ook ingegaan op invulling van de mogelijkheden die de Crisis- en herstelwet biedt voor het onderhavig plan;
  • In hoofdstuk 6 'Uitvoerbaarheid' komen de economische en maatschappelijke uitvoerbaarheid aan bod.

Naast de elementen die gelijk zijn gebleven, in vergelijk met het vigerende bestemmingsplan Schokkerhoek, wordt ook ingegaan op de wijzigingen die hebben plaatsgevonden in de doorontwikkeling naar het onderhavig bestemmingsplan, waarbij uitgangspunt is, dat onderhavig bestemmingsplan zelfstandig kan worden gelezen en de context van het plan inzichtelijk blijft. Van belang is, dat het grootste deel van het programma al is vastgelegd in het geldende bestemmingsplan, dat onherroepelijk is. Dat programma is beschreven in paragraaf 2.2.2.1. De aanvulling op het programma is beschreven in paragraaf 2.2.2.2. De naam van de ontwikkelingslocatie is inmiddels aangepast in Zeeheldenwijk. Voorliggend plan heet dan ook bestemmingsplan Zeeheldenwijk.

Hoofdstuk 2 Planbeschrijving

2.1 Beschrijving plangebied

2.1.1 Ruimtelijk

Omgeving

Het plangebied ligt aan de zuid oostzijde van Urk, ongeveer drie kilometer van het dorpscentrum op het voormalige eiland. Aan de westzijde wordt het plangebied van het bedrijventerrein 'Zwolschehoek' gescheiden door een watergang, de Zuidermeertocht. Aan de oost- en zuidzijde grenst het plangebied aan het landelijk gebied, waarvan het zuidelijk deel getransformeerd zal worden naar een nieuw Binnendijks bedrijventerrein . Ten noorden van het plangebied ligt het woongebied ‘Oranjewijk’, dat van het plangebied gescheiden wordt door de Urkerweg en het kanaal de Urkervaart.

afbeelding "i_NL.IMRO.0184.BP2019ZHW-0301_0003.png"

Figuur 2.1: Plangebied en omgeving (globaal aangeduid met blauwe contour)

Bebouwing

De geclusterde agrarische bouwpercelen aan de Karel Doormanweg en de Domineesweg en de aanwezigheid van een rijwoningen (vier) nabij genoemde clusters aan de Domineesweg zijn karakteristiek voor het Zuiderzeeproject. De rijenwoningen verwijzen naar de periode, waarin de technologische ontwikkelingen in de landbouw in verhouding tot de uitzonderlijke bedrijfsgrootte van toen noodzaakte het in dienst hebben van landarbeiders noodzakelijk maakte. In verband met de beperkte mobiliteit werd het personeel een woning aangehouden in de directe nabijheid van de boerderijen. Hoewel deze arbeiderswoningen hun oorspronkelijke functie al lang hebben verloren, zijn ze voor het gebied van de Noordoostpolder karakteristiek en daarmee van cultuurhistorische betekenis.

Ontsluiting

De agrarische bedrijven en woningen aan de zuidzijde van het plangebied liggen aan de Domineesweg (N352). De twee agrarische bedrijven aan de oostzijde zijn ontsloten via de Karel Doormanweg. Ten noorden van het plangebied ligt de Urkervaart, die Urk per water verbindt met (onder andere) Emmeloord en Nagele. Evenwijdig aan de Urkervaart ligt de Urkerweg (N351).

Het plangebied is over de weg goed bereikbaar via de A6/N352.

Groen

Het plangebied kent een overwegend agrarisch gebruik als akkerbouwgebied. Kenmerkend voor de Noordoostpolder zijn de verschillende boerderijtypen en groepjes voormalige bijbehorende arbeiderswoningen. Deze bebouwing is rondom voorzien van erfbeplanting. Erfbeplanting die in een brede strook van ongeveer 6 meter samen vaak met een erfsloot de bouwpercelen begrensd.

afbeelding "i_NL.IMRO.0184.BP2019ZHW-0301_0004.png"

Figuur 2.2: Karakteristieke bouwpercelen aan de Domineesweg

Cultuurhistorie

De verkavelingsstructuur van de landbouwgronden met een standaard kavelmaat van 300 x 800 meter is karakteristiek voor het plangebied. De kavels worden omsloten door watergangen. Door de polderinrichting en de vormgeving van de Urkervaart vindt binnen het plangebied een hoek verdraaiing plaats in de verkavelingsrichting welke loodrecht op de vaart is gericht. Deze hoekverdraaiing levert voor de locatie een extra karakteristiek op.

In de nota Belvedère (1999) was het grondgebied van de gemeenten Noordoostpolder en Urk aangemerkt als 'Belvedere' gebied. De Noordoostpolder heeft een uitzonderlijk universele betekenis, als duidelijk voorbeeld van een rationeel landschap uit de twintigste eeuw waarin twee voormalige eilanden, Urk en Schokland, als zelfstandige elementen zijn opgenomen. Eind 2009 verliep de geldigheidsduur van de Nota Belvedere. Vanaf 2009 werd Belvedere in het rijksbeleid vervangen door de MoMo (Modernisering Monumentenzorg), die uiteindelijk leidde tot verplichtingen met betrekking tot cultuurhistorie in de ruimtelijke ordening. In de planvorming is hier rekening mee gehouden.

Water

Aan de noordzijde van het plangebied ligt het kanaal de Urkervaart. De Urkervaart loopt vanaf de Zwolse Vaart bij Emmeloord naar Urk. Het Gemaal Vissering pompt het water bij Urk in en uit het IJsselmeer.

Figuur 2.3 geeft de Legger waterlopen weer met de waterlopen (blauwe kleur) gelegen in en om het plangebied. Het plangebied is globaal met een rode stippellijn weergegeven. De donkerblauwe lijn geeft de Urkervaart weer. De lichtblauwe lijn aan de westkant van het plangebied betreft de Zuidermeertocht. Verder zijn in en rond het plangebied diverse kavelsloten gelegen die voor de aanvoer, afvoer en ontwatering van het gebied zorgen.

De aanwezige kavelsloten zijn afgestemd op het huidige agrarische gebruik van de gronden. Deze kavelsloten staan in open verbinding met de aan en in het plangebied grenzende Urkervaart. De tochten (hoofdwatergangen) liggen op zo'n 300 m afstand van elkaar. Alle kavels tussen de kavelsloten zijn tweezijdig gedraineerd.

afbeelding "i_NL.IMRO.0184.BP2019ZHW-0301_0005.png"

Figuur 2.3: Legger waterlopen

2.1.2 Functioneel

Het plangebied wordt momenteel voornamelijk gebruikt als agrarisch productiegebied (akkerbouw) in overeenstemming met het primaire doel waartoe de Noordoostpolder in 1942 is drooggelegd en ingericht. Voor het gebied geldt het bestemmingsplan Schokkerhoek, dat al de ontwikkeling van woonwijk mogelijk maakt, zoals in paragraaf 2.2.2.1 wordt beschreven.

2.2 Beschrijving ontwikkeling

2.2.1 Uitgangspunten

Om de ontwikkelingsmogelijkheden binnen een plangebied helder in kaart te brengen zijn er verschillende omgevingsfactoren die hierop van invloed zijn. In deze paragraaf worden deze factoren kort beschreven. In hoofdstuk 4 vindt een toelichting plaats op deze factoren.

Landschap en cultuurhistorie; de archeologische waarden van de ondergrond en de kenmerken van de Noordoostpolder

Het plangebied maakt onderdeel uit van het gebied De Noordoostpolder. Kenmerkend voor de polder is de openheid met de vergezichten op de omgeving. Andere kenmerken van de locatie zijn de grote (agrarische) kavels met een rationeel slotenpatroon (ongeveer om de 300 meter).

Binnen het plangebied is sprake van een hoekverdraaiing in dit slotenpatroon waardoor 2 hoofdrichtingen in het slotenpatroon herkenbaar zijn. Binnen het plangebied zijn drie groene clusters gelegen die eveneens kenmerkend zijn voor de inrichting van de Noordoostpolder. Het betreffen door houtwallen / erfsingels omringde verzamelingen van enkele (voormalige) agrarische bedrijven (de woonhuizen met overige opstallen) aangevuld met rijenwoningen (voormalige arbeiderswoningen).

Binnen beide clusters is sprake van meerdere, met erfsingels omzoomde kavels. De rationele verschijningsvorm van het landschap en de karakteristieke vorm moeten behouden blijven. Het maakt deze locatie uniek en onderscheidend ten opzichte van vergelijkbare grote woningbouwontwikkelingen elders in het land (en op Urk). Binnen het plangebied de Zeeheldenwijk zijn de aanwezige voormalige agrarische erven als groene clusters opgenomen in het stedenbouwkundig plan. De clusters hebben een ontwikkelingsmogelijkheid, waarbij moet worden voldaan aan bepaalde eisen voor wat betreft de beeldkwaliteit, die van toepassing zijn op sloop, nieuwbouw en toevoeging van bebouwing binnen de erfsingel. Algemene voorwaarde is dat de erfsingel behouden en eventueel hersteld moet worden vanuit het belang van herkenbaarheid en de eigen identiteit.

Op enkele plekken in de ondergrond van het plangebied schuilen mogelijk archeologische waarden die te maken hebben met de aanwezigheid van rivierzandduinen uit de Swifterbantcultuur. Deze gronden kunnen een hoge archeologische verwachtingswaarde hebben. De archeologisch waardevolle gebieden zijn beschermd via een planologische gebiedsaanduiding, beleid op maat en een archeologische zorgplicht op basis van de Erfgoedwet en uitgewerkt op basis van de AMZ cyclus en de KNA normen.

In het plan worden de waardevolle kenmerken en elementen uit het verleden zo veel mogelijk betrokken en waar mogelijk behouden.

De wegenstructuur van Urk en ontsluiting van het plangebied

Een ontsluiting van een wijk vraagt om een goede inpassing in het bestaande wegennet van de omgeving. Uitgangspunt is dat de wijk goed bereikbaar is voor het autoverkeer en het fietsverkeer en daarnaast een goede verbinding mogelijk maakt van en naar de bestaande woongebieden ten noorden van de Urkervaart. Om tot een aantrekkelijke en toekomst bestendige woonwijk te komen is het nodig dat er een directe oeververbinding voor auto- en fietsverkeer, zodat de nieuwe wijk een verbinding krijgt die zo dicht mogelijk aansluit bij de kern van Urk.

Directe (fiets-)aansluiting van de Zeeheldenwijk op het bedrijventerrein Zwolschehoek is ook gewenst. Het bedrijfsterrein is momenteel alleen via de Meep (direct) of via de Domineesweg (indirect) verbonden met de kern van Urk. De ontwikkeling van de nieuwe woonwijk biedt ook de mogelijkheid het bedrijfsterrein beter te verbinden met de noordelijk gelegen woonwijken. Hierdoor wordt een groot aantal woonwerk- verplaatsingen korter en zal de verkeersintensiteit op de Meep afnemen. Op deze manier wordt een betere verkeersspreiding op Urk bereikt.

Bij het ontwerpen en de aanleg van wegen mag geen sprake zijn van of het ontstaan van verkeersoverlast in de wijk. Overlast kan zowel door eigen verkeer en/of 'gebiedsvreemd' verkeer ontstaan. Overlast ontstaat als er verkeersonveilige situaties ontstaan of de verkeersafwikkeling onvoldoende is (capaciteitsprobleem).

Met de ontworpen verkeersstructuur voor de Zeeheldenwijk wordt voor zoveel mogelijk spreiding gezorgd. Het wordt bereikt door de aansluiting van de Zeeheldenwijk op zowel de Domineesweg in het zuiden, de Urkerweg in het noorden en het bedrijventerrein Zwolschehoek in het westelijk deel van het plangebied. Deze aansluitingen zullen wel een kans geven op het feit dat gebiedsvreemd verkeer door het plangebied rijdt.

Zowel de inrichting van deze wegen (profielen) als het gebruik (intensiteiten en daarmee oversteekbaarheid en veiligheid) dienen te passen in het beeld dat op Urk normaal is. De wegen zijn derhalve afgestemd op het wegencategoriseringsplan en bijbehorende inrichtingskenmerken.

Het is niet uit te sluiten dat het verkeer in de toekomst toeneemt door de ontwikkeling van geheel Urk in combinatie met andere factoren. Hierop zal dan gereageerd moeten worden, waarbij de aanleg van extra infrastructurele werken mogelijk nodig zijn.

Milieuzonering

Aan de randen van het bedrijventerrein Zwolschehoek zijn, conform de beheersverordening Bedrijventerrein Fase 5 maximaal categorie 3.2 bedrijven toegestaan. Meer in het centrum van de Zwolschehoek hebben de categorie 4.2 bedrijven ontwikkelruimte gekregen. De percelen op dit bedrijventerrein zijn grotendeels ingevuld. Het bestemmingsplan Bedrijventerrein fase 1 t/m 4 en de genoemde beheersverordening zijn onherroepelijk. Vanuit planologisch oogpunt gezien ligt de ruimtebesteding daarmee vast en is daarmee bepalend voor nieuwe ontwikkelingen ten oosten van het bedrijventerrein.

Vanuit het bedrijventerrein Zwolschehoek gelden richtafstanden, waarbinnen geen milieugevoelige functies gerealiseerd mogen worden. Niet-milieugevoelige functies kunnen binnen dit gebied wel gerealiseerd worden, zoals lichte bedrijvigheid, parkeren, ontsluitingswegen en dergelijke. Door deze functies in die zone te projecteren wordt de beschikbare ruimte efficiënt gebruikt.

Binnen het plangebied Zeeheldenwijk zijn alleen nieuwe bedrijfsmatige functies mogelijk die geen grote richtafstanden (meestal gepaard gaande met een hoge milieucategorie) hebben.

De woningen op de aangepaste verkaveling van Het Nieuwe Dorp, de zorgwoningen en de woningen binnen de bestemming 'Gemengd - 2' liggen buiten deze richtafstanden Hetzelfde geldt voor woningen die op gronden met de bestemming 'Gemengd - Uit te werken'' worden toegestaan. Een nadere onderbouwing staat in paragraaf 4.2.

Geluidcontouren ontsluitingsweg

Er is een akoestisch onderzoek uitgevoerd. Onderzocht is of bij de ontsluitingsweg sprake is van een mogelijke overschrijding van de norm van 5 dB bij reconstructie. Hieruit blijkt, dat aan de Wet geluidhinder wordt voldaan; wel is nog steeds een hogere grenswaarde noodzakelijk voor de woning Urkerweg 60. Die hogere grenswaarde is met het vigerende bestemmingsplan al vastgesteld (zie paragraaf 4.7).

Het bedrijventerrein Zwolschehoek is een niet gezoneerd industrieterrein. Er is in dat geval geen wettelijk kader om akoestisch onderzoek uit te voeren.

In het kader van een goede ruimtelijke ordening is het uitgevoerde akoestisch onderzoek vanwege de aangepaste invulling van het voorliggende plan opnieuw gedaan. Uit de berekeningsresultaten blijkt, dat de cumulatieve geluidbelasting van het bedrijventerrein en het wegverkeer nog steeds een aandachtspunt is, met name voor milieugevoelige functies in het gebied direct ten oosten van het bedrijventerrein. In dat gebied zijn daarom alleen niet-milieugevoelige functies als bedrijven en voorzieningen inclusief leisure geprojecteerd. Bij milieugevoelige functies moet in het kader van de aanvraag omgevingsvergunning voor de bouw worden aangetoond, dat er sprake is van een goed woon- en leefklimaat. Wat hieronder wordt verstaan, is aangegeven in de beleidsregels 'Goed woon- en leefklimaat'.

Programma ontwikkeling Zeeheldenwijk

Bij een bestemmingswijziging moet rekening worden gehouden met de ladder voor duurzame verstedelijking. Dat betekent, dat de actuele behoefte aan de ontwikkeling moet worden onderbouwd. Ook moet worden gemotiveerd waarom er elders binnen bestaand stedelijk gebied daarvoor geen mogelijkheden zijn en geen onaanvaardbare leegstandseffecten zijn te verwachten. Kortom, dat het gaat om een duurzame gebiedsontwikkeling.

In het vigerende bestemmingsplan Schokkerhoek is in het kader van de ladder al onderbouwd dat er binnen de planperiode van 20 jaar ruimte is voor de realisatie van 1.438 woningen en circa 11 hectare voor het gemengd gebied en het centrumgebied met een kerk, een versmarkt, 2 basisscholen, een wijkgebouw en voor lichte bedrijfs- en woonwerkfuncties (inclusief maximaal 30 bedrijfswoningen), kleinschalige indoor-leisure en een kinderboerderij.

Daarnaast is er ruimte voor grootschalige detailhandel met een maximum van 1.000 m2 wvo/1.250 m2 bvo.

Het programma van de Zeeheldenwijk bestaat inmiddels uit maximaal 1.650 woningen (inclusief bedrijfswoningen en partnerwoningen). Onderbouwing hiervoor heeft met een toets aan de ladder voor duurzame verstedelijking plaatsgevonden. Daarnaast zijn er zorgwoningen en extra ruimte voor ondergeschikte detailhandel en horeca in het plangebied voorzien. Ten zuiden van de bestaande (voormalige) agrarische erven aan de Karel Doormanweg vindt invulling plaats van een zorginitiatief, door realisatie van zorgwoningen en voorzieningen voor dagbesteding. In het centrumgebied (bestemming 'Gemengd - 2') wordt invulling gegeven aan schoolgebouwen, een sporthal, een kerk, maatschappelijke voorzieningen, detailhandel, indoor-leisure en ondergeschikte horeca.

In de overgangszone tussen Zwolsehoek en de woonwijk (bestemming 'Gemengd - 1') zijn bedrijfsmatige activiteiten (milieucategorie 1 en 2), perifere en grootschalige detailhandel, indoor-leisure, kantoren en ondersteunende horeca voorzien.

Het plan biedt ook ruimte voor een extra maatschappelijke voorziening in de vorm van een kinderdagverblijf.

Voor de mogelijkheid tot het vestigen van supermarkten is een 'Ontwikkelingskader supermarkten' opgesteld. Dit ontwikkelingskader vormt de basis voor het reeds vastgestelde supermarktbeleid en is toegevoegd als Bijlage 4. Hieruit blijkt een behoefte aan supermarkten op de Zeeheldenwijk. Het bestemmingsplan staat na toepassing van een wijzigingsbevoegdheid de verplaatsing van een (niet wijkgebonden) discountersupermarkt van maximaal 1.100 m2 / 1.375 m2 bvo toe als tevens eerste dagelijkse steunpunt voor de Zeeheldenwijk. Een tweede supermarkt wordt daarna middels een wijzigingsbevoegdheid toegestaan, indien minimaal 520 m2 wvo / 650 m2 detailhandel wordt gewijzigd in deze supermarkt.

Tot slot kan op de locatie van de huidige kinderboerderij aan de Urkerweg 62 middels een wijzigingsbevoegdheid een bushalte voor streekvervoer gerealiseerd worden met daarbij lichte horeca, een kiosk en bovenwoningen voor begeleid wonen voor de doelgroep die deze functies ter plaatse ondersteunt. De realisatie van de bushalte volgt uit de door de gemeenteraad vastgestelde visie Openbaar busvervoer op Urk (2019). Alle ontwikkelingen zijn aan de criteria uit de ladder voor duurzame verstedelijking getoetst. Aan de criteria wordt voldaan.

Het aspect water

Het Waterschap Zuiderzeeland geeft aan, dat bij plannen groter dan 25 ha zogenaamde maatwerkberekeningen nodig zijn. Op basis van indicatieve berekeningen was de conclusie voor het geldende plan, dat er binnen het plangebied circa 2,5 ha open water moet worden gerealiseerd. Daar zal aan worden voldaan. Deze randvoorwaarde blijft gelden bij de ontwikkeling voor dit plan.

Daarnaast moet de huidige oostelijk gelegen watergang blijvend op de Urkervaart af te wateren. Aan de oostkant van de brug wordt in het verlengde van het eiland in het nieuw aan te leggen water een afscherming geplaatst langs de Urkervaart, zodat boten niet vanaf die kant en omgekeerd de Urkervaart op /af kunnen varen. Voorgaande wordt geregeld in de uitwerkingsregels.

2.2.2 Functioneel

Het programma is hieronder gespecificeerd, waarbij eerst wordt ingegaan op het planologisch al toegestane programma (paragraaf 2.2.2.1) en vervolgens het aanvullende programma wordt beschreven (paragraaf 2.2.2.2).

2.2.2.1 Onderbouwde programma in geldende plan

Woningen

Er wordt op basis van het onderzoek, dat is uitgevoerd in het kader van de ladder voor duurzame verstedelijking uitgegaan van maximaal 1.438 woningen in het gehele plangebied voor een periode van 20 jaar. Er is een gedifferentieerd woningbouwprogramma voorzien, zodat alle doelgroepen op de woningmarkt de komende jaren worden bediend. Er worden zowel huur- als koopwoningen gerealiseerd. Een deel van de woningen wordt gebouwd bij wijze van (collectief) particulier opdrachtgeverschap.

Maatschappelijke voorzieningen

Onder ‘maatschappelijk' wordt een brede mix van functies verstaan. Het betreft circa 1 ha aan functies zoals basisscholen, een kerk, buitenschoolse opvang en een wijkgebouw. Een wijkgebouw is een plek waar verschillende wijkverzorgende functies terecht kunnen komen en dito activiteiten kunnen worden georganiseerd. Denk daarbij bijvoorbeeld aan kleinschalige ruimteverhuur, een jeugdcentrum, een steunpunt, een centrum voor jeugd en gezin, de GGD enzovoort. Een wijkcentrum functioneert als ontmoetingsplek.

Kleinschalige indoor-leisure

Diverse voorzieningen (circa 1,5 ha), bestaande uit een brede mix van functies als bowlingcentrum, fitnesscentrum, museum, poolcentrum, sauna en wellness.

Kinderboerderij

Er is een nieuwe kinderboerderij voorzien in het plangebied, waarbij ook dagbesteding voor mensen met een beperking, ondersteunende horeca, detailhandel in zelfgemaakte artikelen, een speeltuin en natuur- en milieueducatie is toegestaan.

Centrumvoorzieningen

Bij centrumvoorzieningen wordt uitgegaan van detailhandelsbedrijven, zoals een versmarkt (maximaal 650 m2 wvo/812 m2 bvo), een bakker en voorzieningen als een kapper en kleinschalige horeca. Het gaat bij de kleinschalige horeca om horeca met een beperkte functie en omvang zoals een café, viskraam of snackbar. Een restaurant of hotel zijn bijvoorbeeld niet toegestaan.

Lichte bedrijfs- en woonwerkfuncties

Er is circa 5 ha aan lichte bedrijfs- en woonwerkfuncties voorzien. Hieronder worden functies verstaan als bedrijven in milieucategorie 1 en 2 (maximaal 2 ha), woonwerk-units (maximaal 3 ha). Daarnaast is er perifere (zie lid 1.66 van de planregels) en grootschalige detailhandel (zie lid 1.40 van de planregels) toegestaan met een maximum van 1.000 m2 wvo/1.250 m2 bvo in totaliteit.

2.2.2.2 Aanvullend programma Zeeheldenwijk

Zorg

Het zorginitiatief in het centrale deel van de Zeeheldenwijk omvat zorgwoningen en partnerwoningen en bijbehorende voorzieningen als ruimte voor onder andere dagbesteding, een winkel, een stiltecentrum en een restaurant.

Het zorgprogramma omvat 43 zorgwoningen van voor mensen met psychogeriatrische en somatische problemen met een bezoekersruimte voor familiebezoek en 34 zorgwoningen voor mensen met ernstige meervoudige beperkingen en moeilijk verstaanbaar gedrag met dagbesteding.

Maatschappelijke voorzieningen

Er is ruimte voor kinderopvang geboden.

Sportvoorzieningen

Bij de scholen is aanvullend op het vigerende plan een sporthal geprojecteerd met ondergeschikte horeca. Het betreft een gebouw van circa 2.500 m² bruto vloeroppervlak.

Wonen

Aanvullend aan de 1.438 woningen die al zijn toegestaan wordt binnen de uit te werken bestemming voor het woongebied extra woningbouw toegestaan tot een maximum van 1.650 woningen. Deze behoefte is aangetoond met een onderzoek in het kader van de ladder voor duurzame verstedelijking. Voorwaarde is dat dit niet leidt tot knelpunten in de verkeersafwikkeling.

Bushalte en lichte horeca / kiosk

Via een wijzigingsbevoegdheid is het mogelijk om op de locatie van de huidige kinderboerderij op termijn een bushalte te realiseren met daarbij voldoende fietsparkeervoorzieningen en lichte horeca (horeca 1 en horeca 2), een kiosk en zorgwoningen ter ondersteuning van de aangehaalde functies.

2.2.3 Beeldkwaliteit

Er wordt per deelgebied, ontwikkelveld en/of onderwerp een beeldkwaliteitsplan opgesteld. Het beeldkwaliteitsplan vormt een aanvulling op de regels van het bestemmingsplan ten aanzien van beeldaspecten en materiaalgebruik. In het beeldkwaliteitsplan wordt een nadere toelichting gegeven op de stedenbouwkundige kwaliteit en eisen aan de architectuur en inrichting. Het beeldkwaliteitsplan kan separaat aan het bestemmingsplan vastgesteld worden door de gemeenteraad en kan door de gemeenteraad worden aangepast.

2.2.4 Stedenbouwkundig plan

De gebiedsontwikkeling Zeeheldenwijk is gelegen aan de zuidoostzijde van Urk. Hierbij wordt voor het eerst in de geschiedenis van Urk aan de zuidzijde van de Urkervaart op grotere schaal een woon- en voorzieningengebied ontwikkeld en gerealiseerd. Door middel van een brugverbinding is het gebied fysiek gekoppeld aan het bestaande woon- en voorzieningengebied dat gelegen is aan de noordzijde van het plangebied. De ontwikkeling van de Zeeheldenwijk voorziet de komende jaren in de woningbouwvraag en -behoefte voor Urk en haar inwoners. Op deze locatie kunnen niet alleen woningen worden gerealiseerd, maar zal ook ruimte geboden worden voor de realisatie van een onlosmakelijk wijkcentrumgebied met voorzieningen ten behoeve van het basis- en bewegingsonderwijs, maatschappelijke voorzieningen (onder andere ten behoeve van de zorg en een kerk), detailhandel en een gemengde zone voor met name de lichte bedrijvigheid.

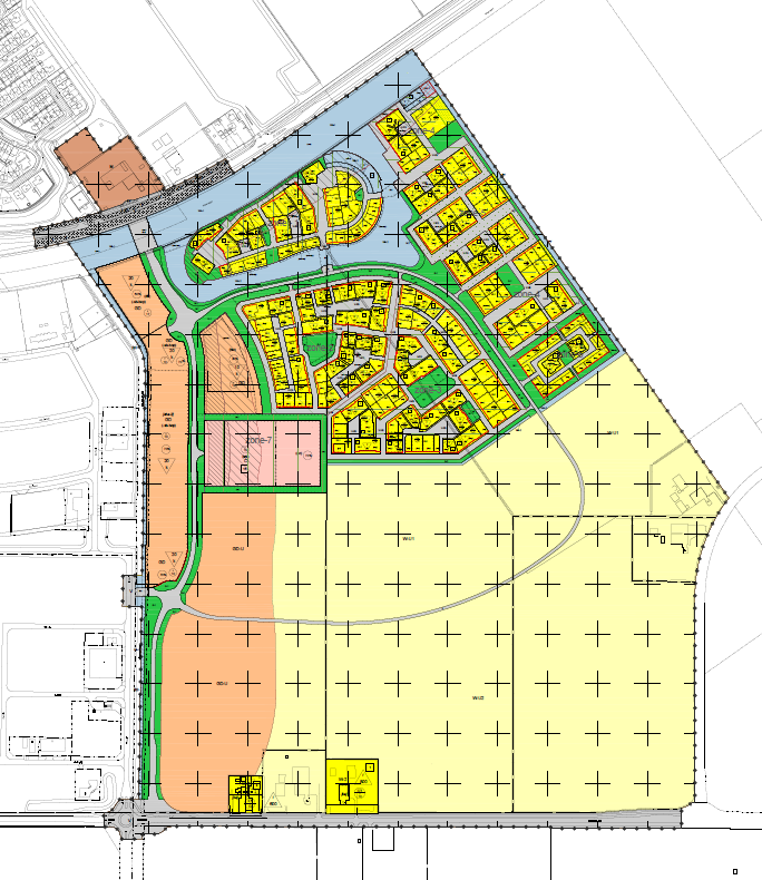
In figuren 2.4 en 2.5 is het stedenbouwkundig plan Zeeheldenwijk opgenomen, op basis waarvan het bestemmingsplan tot stand is gekomen. Het stedenbouwkundig plan Zeeheldenwijk wordt gezien als basisdocument. Het stedenbouwkundig plan Zeeheldenwijk bestaat uit diverse themakaarten. Het stedenbouwkundig plan Zeeheldenwijk en/of de afzonderlijke themakaarten kunnen door het college van burgemeester en wethouders worden aangepast of aangevuld als dat voor de uitvoerbaarheid van het plan noodzakelijk wordt geacht.

In Bijlage 1 is het stedenbouwkundig plan Zeeheldenwijk als principe opgenomen als leesbaar document.

afbeelding "i_NL.IMRO.0184.BP2019ZHW-0301_0006.png"

Figuur 2.4 Principe stedenbouwkundig plan Zeeheldenwijk

afbeelding "i_NL.IMRO.0184.BP2019ZHW-0301_0007.png"

Figuur 2.5 Legenda stedenbouwkundig plan

Stedenbouwkundige hoofdstructuren

Stedenbouw heeft tot doel om initiatieven te stimuleren en te structureren binnen ruimtelijke ontwikkelingen als belangrijke pijler voor de ruimtelijke ordening. Structureren zorgt voor verbondenheid, waarbij wat wenselijk is op zijn plek valt door middel van de aanwijzing van gebieden, lijnen, knooppunten en vlakken. Binnen de Zeeheldenwijk vormen vier hoofdstructuren de stedenbouwkundige structuur van de wijk:

  • Bebouwingsstructuur (deelgebieden): De Zeeheldenwijk worden enerzijds organisch gevormd en anderzijds orthogonaal ingericht. Binnen de Zeeheldenwijk kan daarom ingezet worden op de realisatie van diverse (nieuwe) woonmilieus in verschillende soorten deelgebieden. Hierdoor wordt het mogelijk om voor verschillende vragen uit de markt verschillende oplossingen te kunnen aanbieden. Ook is er binnen de Zeeheldenwijk de unieke kans om een nieuwe Urker woonsfeer te realiseren, duidelijk afwijkend van de al gerealiseerde recente woonwijken. Hierbij worden belangrijke knooppunten door middel van aantrekkelijke en afwijkende bebouwing geaccentueerd.
  • Verkeerstructuur: De bebouwingsstructuur heeft invloed op de erftoegangswegen en de gebiedsontsluitingswegen. De insteek van de Zeeheldenwijk is om door middel van noord-zuid verbindingen en oost-west verbindingen de koppeling te leggen met het omliggende gebied. Om goede voorwaarden te creëren voor een nieuw woon- een voorzieningengebied op deze locatie, is de verbinding met de bestaande woonkernen van Urk als een zogenaamd verlengstuk van groot belang. Om deze te bewerkstelligen wordt de Zeeheldenwijk in de noordwestelijke hoek met een brug over de Urkervaart met (de bestaande woonkernen van) Urk voor zowel gemotoriseerd en langzaam verkeer verbonden. Een wijkring verbind alle buurten onderling. Deze weg begrenst het deelgebied Het Nieuwe Dorp. Aan de buitenzijde bevinden zich de buurten Het Eiland, De Akkers, Het Wooncluster en De Terpen.
  • Waterstructuur: Het plangebied heeft door zijn ligging een sterke relatie met de Urkervaart. Water hoort bij Urk en bij de polder. In het noordelijk deel van het plangebied is een nieuw eiland gesitueerd. Aan de noordzijde grenst Het Eiland aan de Urkervaart, aan de zuidzijde aan een ruime waterpartij. De maat aan de zuidzijde is ruim voldoende om de beleving van een eiland optimaal te maken. Daarnaast is een zichtlijn tussen de Wijkring en de Urkervaart opgenomen in het plan. Deze is gelegen tussen het Eiland en de Akkers. Op deze wijze wordt het mogelijk om vanaf de Wijkring boten op de Urkervaart te zien varen terwijl je je in de woonwijk bevindt. Door de realisatie van een Het Eiland en een havenachtige kop van het deelgebied De Akkers wordt een nieuw woonmilieu geïntroduceerd binnen de Zeeheldenwijk, waarbij het water een prominente rol speelt. Centraal door de Zeeheldenwijk wordt een water- en groenrijke zone opgenomen die de verbinding vormt tussen het groen omzoomde Centrumcluster en Het Groencluster.
  • Groenstructuur: Het groen omzoomde Centrumcluster alsmede Het Groencluster wordt gecreëerd door middel van relatief hoge en robuuste bomen. Op deze wijze worden voorzieningen en woningen die gelegen zijn binnen deze zones afgeschermd van de naastgelegen gebieden. Langs de hoofdinfrastructuur en de wijkring wordt eveneens ingezet op een duidelijke groene begeleiding door middel van bomen. Op een kleinschaliger niveau wordt er binnen de deelgebieden ingezet op het multifunctioneel gebruik van groenvelden (bijvoorbeeld de combinatie tussen groen, openheid door middel van hof bebouwing, fietsstructuren en speelvoorzieningen).

Deelgebieden

De Zeeheldenwijk is ruimtelijk opgedeeld in verschillende deelgebieden (buurten). Een deelgebied is een ruimtelijk samenhangend gedeelte van de totale wijk, welke is opgebouwd uit meerdere ontwikkelvelden (samenhangende straten binnen een deelgebied). De volgende deelgebieden worden binnen de Zeeheldenwijk onderscheiden:

  • De Gemengde zone: De Gemengde zone is gelegen langs de Zuidermeertocht en de nieuw te realiseren gebiedsontsluitingsweg. Deze zone fungeert als overgangsgebied tussen het naastgelegen bedrijvengebied Zwolsehoek en de Zeeheldenwijk. Langs de Zuidermeertocht verschijnen bedrijfsruimtes met een eigen ontsluitingsweg. Langs de grens met het woongebied en het Centrumcluster worden functies gesitueerd die meer aansluiten bij het woongebied Zeeheldenwijk, zoals een kinderboerderij (ten noorden van het Centrumcluster) of eventueel woon/werk woningen (ten zuiden van Het Centrumcluster).
  • Het Centrumcluster: De centrumfuncties worden voor een groot deel centraal in de wijk gerealiseerd binnen een herkenbaar met bomen omzoomde zone met een eigen karakter. Buiten het omzoomde gebied worden enkele (centrum)voorzieningen gerealiseerd, die meer aansluiten bij het aangrenzende woongebied.
  • Het Nieuwe Dorp: Het Nieuwe Dorp is centraal gelegen binnen de Zeeheldenwijk. Deze buurt vormt de verbinding tussen de omliggende buurten (het Eiland, de Akkers, het Groencluster en de Terpen) en het Centrumcluster.
  • Het Eiland: In het noorden van het plangebied Zeeheldenwijk wordt een eiland gerealiseerd. Het wonen op een eiland verwijst naar het verleden van Urk. De ligging langs de Urkervaart biedt unieke kansen voor de ontwikkeling van een eigentijds statig karakter.
  • De Akkers: De Akkers wordt ingevuld door middel van kleine akkervormige (rechthoekige) kavels. Het wonen op kleine 'akkervormige' kavels is een verwijzing naar kenmerken uit de polder. Met name de orthogonale vormen van de akkers met zichtlijnen op de polder, maar ook de aanwezigheid van de Urkervaart biedt kansen om het wonen grenzend aan de polder als nieuw woonmilieu in het plan in te passen. 'De Kop van de Akkers' en 'Het Groencluster' zijn verbijzonderingen binnen dit deelgebied. 'De Kop van de Akkers' is een verwijzing naar een aan de Urkervaart gesitueerde 'havenachtige' omgeving. Het wonen binnen Het Groencluster betekent het wonen binnen een met een met bomen omzoomd gebied met een eigen erf karakter. Dit met bomen omzoomd cluster is een directe verwijzing naar een kenmerk vanuit de polder, waarin de agrarische bebouwing ook in dergelijke clusters zijn gesitueerd. Een dergelijk woonmilieu biedt veel flexibiliteit in de uitwerking binnen een modern landelijke stijl.
  • De Terpen: In de zuidzijde van de Zeeheldenwijk wordt het deelgebied De Terpen gerealiseerd. De benaming 'terp' is een kenmerk uit de ondergrond van het plangebied in de vorm van aanwezige zandduinen. In dit gebied vormen de terpen eilandjes op het droge waartussen een groene inrichting de laagtes vormen.

Hoofdstuk 3 Beleidskader

Het vigerende bestemmingsplan is uitgebreid getoetst aan het geldende beleid. De programmatische aanpassing is dusdanig beperkt van aard, dat de beoordeling ervan in de basis niet verandert. In onderstaande toets aan het beleidskader is alleen daar waar relevant de programmatische aanpassing aan het vigerende beleid getoetst.

3.1 Rijksbeleid

3.1.1 Ladder voor duurzame verstedelijking

In het Besluit ruimtelijke ordening (Bro) is de verplichting opgenomen om in het geval van een nieuwe stedelijke ontwikkeling in de plantoelichting een onderbouwing op te nemen van nut en noodzaak van de nieuwe stedelijke ruimtevraag en de ruimtelijke inpassing.

Per 1 juli 2017 is het Bro gewijzigd met als doel om de ladder te vereenvoudigen en de onderzoekslasten te verminderen, waarbij de effectiviteit van het instrument behouden blijft. Met deze wijzigingen is niet beoogd het doel van de regeling te wijzigen. De nieuwe ladder voor duurzame verstedelijking bevat geen treden meer. De treden 1 en 2 zijn samengevoegd en trede 3 is geschrapt.

Artikel 3.1.6 tweede lid van het nieuwe Besluit ruimtelijke ordening bepaalt, dat de toelichting bij een bestemmingsplan, dat een nieuwe stedelijke ontwikkeling mogelijk maakt, een beschrijving bevat van de behoefte aan die ontwikkeling, en, indien het bestemmingsplan die ontwikkeling mogelijk maakt buiten het bestaand stedelijk gebied, een motivering waarom niet binnen het bestaand stedelijk gebied in die behoefte kan worden voorzien. Ook wanneer er geen sprake is van een nieuwe stedelijke ontwikkeling moet in het kader van een goede ruimtelijke ordening worden gemotiveerd of de mogelijk gemaakte ontwikkeling voorziet in een behoefte. Eerst wordt beoordeeld of er sprake is van een nieuwe stedelijke ontwikkeling.

Reeds aangetoonde behoefte / programma uit geldende plan

  • maximaal 1.438 woningen
  • maatschappelijke functies: circa 1 ha, zoals basisscholen, een kerk, buitenschoolse opvang en een wijkgebouw. Een wijkgebouw is een plek waar verschillende wijkverzorgende functies terecht kunnen en dito activiteiten worden georganiseerd. Denk daarbij bijvoorbeeld aan kleinschalige ruimteverhuur, een jeugdcentrum, een steunpunt, een centrum voor jeugd en gezin, de GGD enzovoort. Een wijkcentrum functioneert als ontmoetingsplek.
  • Kleinschalige indoor-leisure diverse voorzieningen (circa 1,5 ha), bestaande uit een brede mix van functies als bowlingcentrum, fitnesscentrum, museum, poolcentrum, sauna en wellness.
  • Centrumvoorzieningen: Bij centrumvoorzieningen wordt uitgegaan van detailhandelsbedrijven, zoals een versmarkt, een bakker en voorzieningen als een kapper en kleinschalige horeca. Het gaat bij de kleinschalige horeca en om horeca met een beperkte functie en omvang zoals een café, viskraam of snackbar; geen restaurant of hotel (horeca 1 en horeca 2). Er is een versmarkt (maximaal 650 m2 wvo/812 m2 bvo) toegestaan. Via een wijzigingsbevoegdheid worden twee supermarkten toegestaan, mits de behoefte daaraan is aangetoond (laddertoets).
  • Lichte bedrijfs- en woonwerkfuncties: Er is circa 5 ha aan lichte bedrijfs- en woonwerkfuncties voorzien. Hieronder worden functies verstaan als bedrijven in milieucategorie 1 en 2 (circa 2 ha), woonwerk-units (circa 2 à 3 ha). Daarnaast is er perifere (zie lid 1.66 van de planregels) en grootschalige detailhandel (zie lid 1.40 van de planregels) toegestaan met een maximum van 1.000 m2 wvo/1.250 m2 bvo in totaliteit.

In het geldende plan is conform het ladderonderzoek grootschalige en perifere detailhandel toegestaan met in totaal een maximum van 1.000 m2 wvo/1.250 m2 bvo. In de bestemming 'Uit te werken - Gemengd' is aanvullend in totaliteit nog eens 1.000 m2 wvo/1.250 m2 bvo toegestaan. Ook bij de uitwerkingsplicht geldt dat aangetoond moet worden, dat er behoefte is en dat er aan de ladder voor duurzame verstedelijking wordt voldaan (uitgestelde laddertoets).

Voorliggend plan voorziet grotendeels opnieuw in dit programma conform het vigerend plan. Volgens jurisprudentie geldt , dat dit bestemmingsplan voor zover het bestaande programma opnieuw wordt bestemd, geen nieuwe stedelijke ontwikkelingen mogelijk maakt in de zin van artikel 3.1.6, tweede lid van het Bro, zodat daarom die bepaling niet van toepassing is.

Nieuw programma ten opzichte van geldende bestemmingsplan

Maatschappelijke voorzieningen en een sporthal

Het voorliggende plan voorziet in een aanvulling op het geldende programma in zorgwoningen en daaraan ondergeschikte detailhandel en horeca en een sporthal. Deze functies zijn met een directe bestemming 'Maatschappelijk' en 'Gemengd - 2' in het bestemmingsplan opgenomen. Voor de zorgwoningen (intramuraal), een kinderdagverblijf en een sporthal is een ladderonderzoek uitgevoerd. Deze is als Bijlage 2 opgenomen.

Uit het rapport volgt dat aan de geplande maatschappelijke voorzieningen (kinderdagverblijf) en de sporthal behoefte bestaat. Ook aan de intramurale zorgwoningen bestaat voldoende behoefte.

Wonen

De laddertoets met betrekking tot wonen is in 2019 geactualiseerd. Het onderzoek is als Bijlage 3 bijgevoegd.

Op Urk is er in totaal behoefte aan 1.805 woningen. Dit is het maximale aantal woningen dat kwantitatief te onderbouwen is. Kwalitatief gezien is er ruimte voor een gedifferentieerd woningprogramma, met de nadruk op grondgebonden koopwoningen. Ook aan appartementen en huurwoningen bestaat een significante extra behoefte. Voorliggend plan biedt ruimte voor maximaal 1.650 woningen. Het bestemmingsplan past binnen het hierboven beschreven rijksbeleid.

3.2 Provinciaal en regionaal beleid en normstelling

Sinds de vaststelling van het plan Schokkerhoek is het provinciaal en regionale beleid nauwelijks gewijzigd, voor zover relevant voor het plangebied. De beperkte aanpassing van de inhoud van de ruimtelijke ontwikkeling past nog altijd binnen dit provinciaal beleid. Ten aanzien van provinciaal beleid wordt benadrukt, dat de gemaakte afspraken met betrekking tot verkeer ook in dit plan worden gerespecteerd, zie paragraaf 4.1. Hieronder wordt daarom ingegaan op provinciaal beleid, dat na 29 juni 2017 is vastgesteld. Vermelding verdient daarbij dat er binnen de Provincie voor de komende jaren een opgave ligt voor 100.000 extra woningen. De Provincie heeft in dat kader een beroep gedaan op de Gemeente Urk. Ook dat ondersteunt daarmee de ruimtelijke ontwikkeling.

3.2.1 Omgevingsvisie Flevoland – FlevolandStraks

De Omgevingsvisie FlevolandStraks, vastgesteld op 8 november 2017, geeft de visie van de provincie Flevoland op de toekomst van Flevoland. De visie gaat over de periode tot 2030 en verder. Het geeft aan welke kansen en opgaven er voor Flevoland liggen en welke ambities de provincie heeft voor de toekomst. Het bijzondere verleden van de jongste provincie van Nederland vormt de basis van de visie.

In de Provinciale omgevingsvisie wordt onderscheid gemaakt tussen kernopgaven en strategische opgaven. Deze opgaven hebben een tijdshorizon van circa tien tot vijftien jaar.

De kernopgaven zijn:

  • Het verhaal van Flevoland (fysieke omgeving);
  • Krachtige Samenleving (sociaal-economische omgeving);
  • Ruimte voor Initiatief (bestuurlijke omgeving).

De strategische opgaven:

  • duurzame energie;
  • regionale kracht;
  • circulaire economie;
  • landbouw: meer smaken.

De onderhavige ruimtelijke ontwikkeling geeft de volgende invulling op de kernopgaven en strategische opgaven:

Verhaal van Flevoland (kernopgave)

Bij de planontwikkeling wordt in het kader van het Verhaal van Flevoland rekening gehouden met de karakteristieke verkavelingsstructuur, met een standaard kavelmaat van 300 x 800 meter, waarbij de kavels worden omsloten door watergangen. Ten gevolge van de polderinrichting en de vormgeving van de Urkervaart vindt binnen het plangebied een hoekverdraaiing plaats in de verkavelingsrichting die loodrecht op de vaart is gericht. Dit gegeven levert voor de locatie een extra karakteristiek op.

Krachtige samenleving (kernopgave)

Binnen Flevoland heeft het voormalig eiland Urk een eigen profiel. Op Urk tref je het grootste saamhorigheidsgevoel en de laagste werkloosheid van de Provincie Flevoland aan. De samenleving op Urk bestaat voor een groot deel uit mensen, die maatschappelijk betrokken en plichtsgetrouw zijn. Het plan maakt onder meer de bouw van een gedifferentieerd woningbouwprogramma mogelijk, waaronder ook zorgwoningen en kangoeroewoningen. Hiermee biedt het plan voor zowel de Urker starters, de Urker ouderen en de Urker mensen met een zorgvraag de mogelijkheid om op Urk te kunnen blijven wonen. Samen met de kleinschalige 'indoor leisure' voorzieningen, de centrumvoorzieningen en de lichte bedrijfs- en woonwerkfuncties betekent dit naast een ruimtelijke ook een sociaal-economische versterking van Urk.

Ruimte voor initiatief (kernopgave)

Het plan biedt mogelijkheden te over voor initiatief: ruimte voor balans tussen archeologische waarden en ruimtelijke ontwikkeling, ruimte voor versterking van het eigen eiland karakter van Urk middels het creëren van een eiland te midden van innovatieve combinaties tussen wonen, werken en verzorgen, die de ontstaansgeschiedenis, het bestaansrecht en de kracht van Urk treffend benadrukken. Het verzorgingsaspect is daarbij een sprekend voorbeeld dat al door marktpartijen is opgepakt.

De invulling van de Strategische opgaven.

Met de voorgenomen ontwikkeling vervolgt Urk tevens de ingeslagen weg naar verduurzaming waarmee Urk de toekomstbestendigheid van Urk nog eens extra benadrukt. Zo is het uitgangspunt gasloos bouwen, wordt een collectief en milieuvriendelijk warmtenet gerealiseerd en wordt een robuust open watersysteem gecreëerd, zowel vanuit kwantitatief als kwalitatief oogpunt.

3.2.2 Omgevingsprogramma Provincie Flevoland

Het omgevingsprogramma bevat een verdere uitwerking van de hoofdlijnen van het provinciale beleid. In het Omgevingsprogramma Provincie Flevoland (vastgesteld 27 februari 2019) is het bestaande provinciale beleid gebundeld.

De provincie heeft voor haar ruimtelijke beleid een aantal essentiële elementen van beleid geformuleerd. Het accent van eventuele provinciale bemoeienis op het vlak van de ruimtelijke ordening ligt voor wat betreft de Zeeheldenwijk bij deze essentiële elementen

  • 1. Bij stedelijke uitbreiding moet worden aangesloten bij bestaande ruimtelijke structuren, zodat de vitaliteit van de steden en dorpen wordt ondersteund. Urk sluit met de Zeeheldenwijk aan op de bestaande ruimtelijke structuren op Urk en versterkt die zoals ook eerder beschreven.
  • 2. Nieuwe solitaire clusters van bebouwing buiten de aangegeven stedelijke gebieden, weergegeven in de kaart Stedelijk gebied, worden in principe uitgesloten. Zie bij 1.; de Zeeheldenwijk is geen solitair cluster, maar sluit aan op bestaand stedelijk gebied, met respect voor de bestaande Erfsingels binnen het plangebied.
  • 3. De omvang van nieuwe ruimte voor wonen, werken en voorzieningen moet in verhouding staan tot de grootte van de kern en de positie ervan in de stedelijke en groenblauwe hoofdstructuur. Zeeheldenwijk staat in verhouding tot de grootte / positie van Urk; de behoefte van de verschillende in de wijk opgenomen functies is aangetoond.
  • 4. Infrastructuur wordt zo gebundeld dat versnippering van ruimtelijke eenheden wordt voorkomen en geen omvangrijke barrières in stedelijk en ecologisch waardevolle gebieden ontstaan. Hieraan wordt met voorliggende ruimtelijke ontwikkeling voldaan.
  • 5. Bij de locatiekeuze en invulling van werklocaties dient rekening te worden gehouden met:
      • versterking van de economische ontwikkeling van Flevoland;
      • beheersing van de mobiliteit door een goede bereikbaarheid per openbaar vervoer;
      • efficiënt gebruik van infrastructuur en vervoermiddelen;
      • verbeteren van de ruimtelijke kwaliteit en leefbaarheid, waarbij het parkeerbeleid een belangrijk ondersteunend instrument is;
      • tevens moet rekening worden gehouden met de potenties van de gemeenten en de positie van de kernen in de stedelijke en groenblauwe hoofdstructuur. Ook aan dit element wordt voldaan. De ruimtelijke ontwikkeling past daarbij volledig in de regionale afstemming hierover.
  • 6. Doel van het NNN is de realisatie van een robuust, samenhangend netwerk van natuurgebieden dat voldoende (leef)ruimte biedt voor soorten en waarden die karakteristiek zijn voor de Flevolandse natuur. Voor het NNN geldt in beginsel een 'nee tenzij-regime, maar wanneer door toepassing van de saldobenadering de maatschappelijke en ecologische ontwikkelingen zodanig worden vormgegeven, dat zij elkaar niet belemmeren, maar versterken en daarmee bijdragen aan het totale netwerk van het NNN kan dit regime worden omgebogen in een 'ja want'. Compensatie aan de Urkerweg t.h.v. de vaarduiker met otter en rugstreeppad oplossing zorgt ervoor dat met deze ruimtelijke ontwikkeling volledig wordt voldaan aan dit belangrijke element;
  • 7. De ontsluiting en integrale instandhouding van de archeologische waarden in Provinciaal Archeologische Kerngebieden (PArK'en) in samenhang met aardkundige en landschappelijke waarden is een essentieel element. De ruimtelijke ontwikkeling is voor een uiterst beperkt deel binnen PArK gelegen, maar de archeologische kernlagen worden niet geroerd. Desalniettemin heeft de Gemeente Urk een archeologische kernwaarde vastgesteld, namelijk de Swifterbantcultuur, en brengt de daarvoor van belang zijnde relevante gave podsolbodems in de voormalige rivierduinruggen en flanken uit die tijd in kaart. De andere archeologische waarden borgt de Gemeente met behulp van een protocol. In het kader van woningbouw omarmt de Gemeente de Handreiking Archeologie vriendelijk bouwen. Tenslotte zal de Gemeente Urk archeologische waarden zoveel als mogelijk in situ bewaren, onder andere door alsdan de ruimtelijke ontwikkeling archeologievriendelijk aan en in te passen.
  • 8. De top-10 archeologische locaties vormen essentiële elementen. Het plangebied valt hier niet onder.
  • 9. De provincie wil de cultuurhistorische kernkwaliteiten en het landschappelijke casco behouden en inzetten als ruimtelijke kwaliteit ter versterking van nieuwe ontwikkelingen. De ruimtelijke ontwikkeling voldoet ook aan dit laatste element uit het Provinciale Omgevingsprogramma, doordat het de bestaande erfsingels respecteert en versterkt met een nieuwe erfsingel.
3.2.3 Omgevingsverordening Provincie Flevoland

In de Omgevingsverordening Provincie Flevoland (vastgesteld op 29 februari 2019) zijn bestaand beleid en regels voor de fysieke leefomgeving uit provinciale beleidsnota’s en verordeningen bij elkaar gebracht in een nieuwe opzet. Het betreft een actualisatie en een beleidsneutrale omzetting van bestaand beleid. Het bestemmingsplan past binnen de uitgangspunten van de Omgevingsverordening.

3.2.4 Conclusie

In de provinciale omgevingsvisie wordt onomwonden gesteld dat Flevoland is gemaakt voor ontwikkeling, in het provinciale programma worden daartoe de belangrijke elementen aangegeven en in de provinciale verordening worden de spelregels daartoe vastgelegd.

De ruimtelijke ontwikkelingen op Urk, zoals die van de Zeeheldenwijk, passen daar heel goed in. Maar ook ontwikkelingen in bedrijvigheid, herontwikkelingen, nieuwe voorzieningen, klimaatverandering, bodemdaling, waterveiligheid, transformatie in landbouw en duurzame energie hebben de bijzondere belangstelling, ook vanuit de Provincie. Binnen de kenmerken die de polder heeft, geeft de Provincie ruimte aan ontwikkelingen. De Provincie kiest binnen die bandbreedte voor meer verrassing, spontaniteit en variatie. Dat is nu net waarin de Zeeheldenwijk zich onderscheidt van de rest van Urk. De ruimtelijke ontwikkeling versterkt daarmee niet alleen Urk, maar ook de daaromheen gelegen omgeving. Sterker nog, de provincie wil dat inwoners en bedrijven optimaal profiteren van dit soort ontwikkelingen. De Provincie ondersteunt die doelstelling en daarmee deze ruimtelijke ontwikkeling.

3.3 Gemeentelijk beleid

Het relevante gemeentelijke beleid is sinds medio 2017, met uitzondering van de op 19 februari 2018 vastgestelde gemeentelijke visie Werklocaties Noordelijk Flevoland en het supermarktbeleid in 2019, niet gewijzigd voor zover relevant voor het plangebied. Voor de aanpassing van het programma wordt aan dat beleid en aan de gemeentelijk woonvisie getoetst. Dit zelfde geldt voor de structuurvisie van 2019.

3.3.1 Strategische Woonvisie Urk 2035+

Op 30 april 2015 heeft de gemeenteraad van Urk de Strategische Woonvisie Urk 2035+ vastgesteld. Deze visie is tot stand gekomen in nauw overleg met actoren die werkzaam zijn binnen het betreffende werkveld, zoals de plaatselijke woningbouwvereniging, bouwers, ontwikkelaars, makelaars en zorgpartijen. De 'consumenten' i.c. de (toekomstige) inwoners van de gemeente Urk, staan binnen deze visie centraal.

De komende jaren vindt er een duidelijke verschuiving plaats in de huishoudenssamenstelling. Het aantal huishoudens groeit in alle leeftijdsklassen. Vooral het aantal 55-plussers groeit sterk. Binnen deze groep groeit het aantal 75-plus huishoudens zelfs van ongeveer 460 in 2014 naar circa 1.800 in 2040. Vanwege de vergrijzing moet er vroegtijdig rekening worden gehouden met de specifieke woonwensen van de diverse doelgroepen. Belangrijk om mee te nemen bij de woningprogrammering is dat het gemiddelde besteedbare huishoudeninkomen op Urk hoger ligt dan het landelijk gemiddelde, dat heeft te maken met de grotere huishoudens (meer leden van een huishouden dat een inkomen heeft).

In het bestemmingsplan Schokkerhoek werd al rekening gehouden met een gedifferentieerd woningbouwprogramma, waarbij ook voldoende woningen voor ouderen worden gebouwd. Het aanvullen de programma met zorgwoningen sluit aan op de groei van de groepen 55-plussers en de 75-plussers. In Bijlage 2 is dit onderbouwd.

Het plan past daarmee binnen het gemeentelijk beleid.

3.3.2 Visie Werklocaties Noordelijk Flevoland

De Visie Werklocaties is gericht op het beleid over formele bedrijventerreinen in Noordelijk Flevoland. In deze Visie Werklocaties werken de gemeente Urk en Noordoostpolder hun ambities en beleid op de bedrijfslocaties verder uit, zodat Noordelijk Flevoland de komende jaren economisch kan groeien, kansen kan pakken en bedrijven bovenal de ruimte kan geven. Belangrijk is daarbij:

  • dat nieuw aanbod van bedrijfsgrond meerwaarde heeft ten opzichte van het bestaande aanbod;
  • dat ruimte kan worden geboden aan lokaal gebonden bedrijven;
  • dat werkgelegenheid lokaal behouden blijft;
  • dat de leefbaarheid in de kernen ook de komende jaren geborgd blijft;
  • dat de sterke positie van Noordelijk Flevoland voor onder meer Agrofood, Composieten, Maritiem, en Visserij verstevigt.

De Visie Werklocaties biedt de kaders en uitgangspunten voor een zorgvuldige ontwikkeling van en een goede ruimtelijke ordening voor de bedrijfslocaties in Noordelijk Flevoland, bestaande uit de gemeenten Noordoostpolder en Urk:

  • De gemeenten richten zich met deze Visie Werklocaties op beleid met aandacht voor het bestaande aanbod en in regionaal perspectief, zodat ze ook het vestigingsklimaat voor ondernemers op niveau houden en de economie regionaal sterk op de kaart zetten.
  • De gemeenten richten zich op beleid met aandacht voor de ladder voor duurzame verstedelijking en met het oog op flexibiliteit, waardoor de risico's worden beperkt en planologische ruimte wordt behouden voor lokaal maatwerk.
  • De gemeenten richten zich op beleid dat past bij provinciale uitgangspunten, uiteengezet in de RO Visie Werklocaties.

De mogelijkheden die in dit plan zijn vastgelegd voldoen aan de ladder voor duurzame verstedelijking. Het plan past daarmee binnen het gemeentelijk beleid.

3.3.3 Visie Openbaar busvervoer op Urk

Urk is een van de sterkst groeiende gemeenten van Nederland. Ruim vijftig jaar geleden woonden er minder dan 6.000 mensen op Urk, maar inmiddels zijn dit er meer dan 20.000 met de verwachting dat dit aantal zal oplopen naar 30.000. Het openbaar vervoer op Urk is de afgelopen jaren nauwelijks veranderd. Het huidige aanbod van openbaar vervoer sluit niet langer aan op de ontwikkelingen binnen de gemeente. De bussen rijden op Urk lange stukken door woongebieden, dit past niet bij kwalitatief hoogstaand en aantrekkelijk openbaar vervoer. Het openbaar vervoer op Urk moet toekomstbestendig worden gemaakt. Hiervoor zijn een aantal verbeteringen nodig ten opzichte van de huidige situatie:

  • het strekken van de routes op Urk;
  • een directe verbinding tussen Urk en Lelystad;
  • een centrale eindhalte om bovenstaande ontwikkelingen te kunnen faciliteren;
  • een buurtbus om een goede halte afstand te kunnen faciliteren.

Relevant voor voorliggend plan is dat de busroutes op Urk worden gestrekt. Om dit te faciliteren is het nodig om een centrale eindhalte te realiseren, met onder andere goede fietsparkeervoorzieningen. Hier kunnen de bussen keren en wachten tot de geplande vertrektijden. De mogelijke inzet van elektrische bussen versterkt de behoefte aan een centrale halte op Urk omdat deze bussen tijd nodig hebben om opgeladen te worden.

De meest kansrijke locatie voor een centrale eindhalte op Urk is nabij het gemeentehuis. Eén centrale (eind)halte voor de reguliere buslijnen op Urk is onvoldoende. Om de
grote drukte van reizigers te vermijden en de afstand tot de halte te beperken is het van belang ook een halte voor de streekbussen nabij de huidige kinderboerderij in te passen. Met twee haltes worden de bushaltes op Urk beter verdeeld en wordt voorkomen dat er te veel fietsen op één halte komen te staan en dat er te veel bussen op de eindhalte moeten wachten. Een passende dienstregeling voor de beschreven situatie moet nog uitgewerkt worden. In dit bestemmingsplan wordt de bushalte met bijbehorende voorzieningen op de locatie van de huidige kinderboerderij mogelijk gemaakt.

Hoofdstuk 4 Planologische en milieuhygiënische randvoorwaarden

Het programma is ten opzichte van het geldende plan aangepast, doordat er zorgwoningen en extra ruimte voor ondergeschikte detailhandel en horeca zijn voorzien.

Het vigerende bestemmingsplan is uitgebreid getoetst aan de relevante omgevingsfactoren. De onderzoeken die daarvoor zijn gedaan zijn recent uitgevoerd en actueel.

4.1 Verkeer

Domineesweg

De ontwikkeling van de Zeeheldenwijk heeft een effect op de verkeersgeneratie op het bestaande wegennet van de gemeenten Urk en Noordoostpolder en dan met name op de Domineesweg. Dit effect wordt versterkt als gevolg van de autonome groei van Urk, de ontwikkeling van Port of Urk - Binnendijks bedrijventerrein door de gemeente Urk en de ontwikkeling van de Maritieme Servicehaven Noordelijk Flevoland door de provincie Flevoland.

De maximale intensiteit van de provinciale weg N352; Domineesweg, is door de provincie Flevoland in haar verkeersbeleid bepaald op 12.000 motorvoertuigen per etmaal. Deze intensiteit zal in de toekomst overschreden worden, mede als gevolg van de vier ontwikkelingen. Derhalve dient er een robuuste oplossing te komen voor de toename van de verkeersintensiteit op de Domineesweg en mede daarmee de bereikbaarheid van Urk. Deze oplossing zal vorm krijgen in een randweg om Urk. Hiertoe is onderzoek uitgevoerd naar de gewenste uitvoering van de randweg. De gemeenten Urk en Noordoostpolder en de provincie Flevoland erkennen allen de noodzaak van een randweg en de uitkomsten van het onderzoek. Om er zeker van te zijn dat de randweg daadwerkelijk aangelegd zal worden, sluiten de gemeenten Urk en Noordoostpolder tezamen met de provincie Flevoland een bestuursovereenkomst waarin alle relevante afspraken worden vastgelegd om te komen tot de robuuste oplossing in de vorm van een randweg.

4.2 Bedrijven en Milieuzonering

Kader

De aanwezigheid van bedrijven kan de kwaliteit van de leefomgeving beïnvloeden. Voorkomen moet worden, dat bedrijven hinder veroorzaken naar de omgeving, vooral indien het woongebieden of andere gevoelige bestemmingen betreffen. Daarnaast moeten bedrijven zich kunnen ontwikkelen en kunnen uitbreiden. Om dit te bereiken is het van belang, dat bedrijven en gevoelige bestemmingen ruimtelijk goed gesitueerd worden, zodat de bedrijven zo min mogelijk overlast opleveren en woongebieden de bedrijven zo min mogelijk beperken in hun bedrijfsuitvoering.

Ten behoeve van milieuzonering is door de Vereniging Nederlandse Gemeenten (VNG) een bedrijvenlijst opgesteld, waarin bedrijfsactiviteiten op hun milieueffecten zijn gecategoriseerd (Bedrijven en milieuzonering, 2009). De VNG-handreiking geeft adviesafstanden voor de thema's geur, geluid, stof en gevaar afhankelijk van de gebiedskenmerken. Onderstaande tabel is gebaseerd op de VNG-handreiking waarin de richtafstanden zijn weergegeven per categorie.

afbeelding "i_NL.IMRO.0184.BP2019ZHW-0301_0008.png"

Tabel 1: Richtafstanden VNG-Handreiking Bedrijven en milieuzonering (VNG, 2009)

Wanneer er sprake is van een gemengd gebied kunnen richtafstanden die gelden volgens de VNG-handreiking, zonder dat dit ten koste gaat van het woon- en leefklimaat, met één afstandsstap worden verlaagd. Een gemengd gebied is volgens de VNG-handreiking een gebied met een matige tot sterke functiemenging. Direct naast woningen komen ook andere functies voor, zoals winkels, horeca en kleine bedrijven. Gebieden die direct langs de hoofdinfrastructuur liggen behoren eveneens tot het omgevingstype ‘gemengd gebied’.

Ondanks de ligging aan de Domineesweg, de hoofdtoegangsweg van Urk, en de nabijheid van Zwolsehoek, wordt het overgrote deel van de Zeeheldenwijk beschouwd als het omgevingstype rustige woonwijk. Het grootste deel van het plangebied wordt namelijk gekenmerkt door een rustig woon- en leefklimaat in het buitengebied. Enkel de gronden die in het bestemmingsplan Zeeheldenwijk zijn bestemd als 'Gemengd' en 'Gemengd – Uit te werken' worden beschouwd als omgevingstype gemengd gebied.

 

Onderzoek

Voor een goede ruimtelijke inpassing van zogenaamde milieubelastende en milieugevoelige activiteiten is onderzoek gedaan naar bedrijven- en milieuzoneringen en de agrarische bedrijven. Bij dit onderzoek is zowel van 'buiten naar binnen' als van 'binnen naar buiten' gekeken. Dit betekent, dat de externe effecten van buiten het plangebied beschouwd zijn en de effecten vanuit het plangebied op de omgeving.

Agrarische bedrijven

Op grond van de uitspraak van de Afdeling bestuursrechtspraak van de Raad van State van 2 mei 2018 (ECLI:NL:RVS:2018:1458) zijn binnen een afstand van 100 meter vanaf het bouwblok van het perceel Karel Doormanweg 60 geen woningen toegestaan. De gemeente heeft de cultuurgrond aan de Karel Doormanweg 60 inmiddels verworven. In de koopovereenkomst is geborgd dat het gebruik van het overblijvende deel, wat niet door de gemeente is aangekocht, geen (milieu)hinder mag veroorzaken voor de Zeeheldenwijk. Daarnaast borgt de gemeente als eigenaar in de pachtovereenkomst dat het gebruik van de cultuurgrond geen (milieu)hinder voor Zeeheldenwijk mag veroorzaken.

Bedrijven en milieuzonering Zeeheldenwijk - bedrijventerrein Zwolsehoek

De VNG-publicatie Bedrijven en milieuzonering geeft richtafstanden tot gevoelige bestemmingen vanwege geluid, geur, stof en gevaar voor verschillende bedrijfsactiviteiten. Met behulp van deze richtafstanden kan een eerste indicatie verkregen worden van de inpasbaarheid van de gevoelige functies binnen de Zeeheldenwijk nabij het bedrijventerrein Zwolsehoek. Voor de invloed van het bedrijventerrein Zwolsehoek op het voorliggende plangebied is daarom in eerste instantie rekening gehouden met de maximale planologische invulling van het bedrijventerrein, waar deels bedrijven tot maximaal categorie 4.2 en tot maximaal categorie 3.2 zijn toegestaan.

Volgens de VNG-handreiking kunnen richtafstanden elkaar overlappen, reden waarom binnen het plangebied van de Zeeheldenwijk nader onderzoek is uitgevoerd naar de ter plaatse feitelijk aanwezige bedrijvigheid. De contouren op basis van de feitelijke bedrijvigheid op Zwolsehoek zijn in kaart gebracht in het onderzoek Inventarisatie milieuhinder bedrijven op Bedrijventerrein van Antea Group d.d. 23 januari 2019 (zie Bijlage 5). Uit dit onderzoek blijkt dat er diverse milieuhindercirkels overlappen met delen van het plangebied waar milieugevoelige functies zijn beoogt. De grootste milieuhindercirkels betreffen die als gevolg van geurhinder, zoals weergegeven in figuur 4.1.

afbeelding "i_NL.IMRO.0184.BP2019ZHW-0301_0009.png"

Figuur 4.1: Richtafstand “geur” relevante bedrijven in rustige woonwijk (Antea Group, 23 januari 2019)

Voor de bedrijven met de grootste milieuhindercirkel (11a en 13b in figuur 4.1) is nader onderzoek uitgevoerd naar de feitelijke milieubelasting (zie Bijlage 6, Urk bedrijventerrein fase 5: onderzoek milieugebruiksruimte van Rho Adviseurs d.d. 1 juli 2019). Onderstaand zijn de resultaten van dit nadere onderzoek naar de milieubelasting van deze bedrijven samenvattend weergegeven.

11a: Rodé Vis

Rodé Vis is een zalmverwerkend bedrijf. De verwerking vindt in hoofdzaak plaats door het prepareren en roken van zalmfilets. Volgens de VNG-Handreiking valt het bedrijf onder milieucategorie 4.2, waarvoor een adviesafstand voor het aspect geur geldt van 300 m voor een rustige woonomgeving.

Uit het nadere onderzoek blijkt dat de belangrijkste invloed van de bedrijfsvoering binnen de inrichting van Rodé Vis op haar omgeving samenhangt met het verkeer van personen en goederen van en naar het bedrijf en de emissie van het rookgas. De invloed van het verkeer van en naar de inrichting is wat betreft de akoestische beïnvloeding van het plangebied, ondergeschikt aan de verkeersbelasting door het verzamelde verkeer van de inrichtingen op het bedrijventerrein, over De Meer en de Ensgat. De geuremissie door uitstoot van de rookgassen uit de rookkast, zullen een grotere invloed op de kwaliteit van de leefomgeving hebben. Uit het onderzoek kan worden opgemaakt dat bij een geconditioneerde rokerij, waarvan in dit geval sprake is, op 200 m van het emissiepunt sprake

is van een acceptabel geurhinderniveau (2 ouE/m3 als 98 onderschrijdingspercentiel). Anders dan uit de VNG-Handreiking volgt, moet voor de inrichting van Rodé Vis rekening gehouden worden met een milieugebruiksruimte van 200 m.

13 b: Korf Vis

Korf Vis is een visverwerkend bedrijf, waarbij geen sprake is van roken of drogen, met een oppervlak van meer dan 1.000 m². Op grond van de VNG-Handreiking is voor het bedrijf uitgegaan van de bedrijfscategorie visverwerkingsbedrijven, productieoppervlak groter dan 1.000 m² (SBI-code 102.4), dat ingedeeld is in milieucategorie 4.2, waarvoor een adviesafstand van 300 m geldt voor geur en 50 m voor geluid voor een rustige woonomgeving.

Uit nader onderzoek blijkt dat de belangrijkste invloed van de bedrijfsvoering binnen de inrichting van Korf Vis op haar omgeving, samenhangt met het verkeer van personen en goederen van en naar het bedrijf en het gebruik van klimaatinstallaties in de buitenlucht. De invloed van het verkeer van en naar de inrichting is wat betreft de akoestische beïnvloeding van het plangebied, ondergeschikt aan de verkeersbelasting door het verzamelde verkeer van de inrichtingen op het bedrijventerrein, over De Meer en de Ensgat. Voor het gebruik van klimaatinstallaties geldt een kleinere milieugebruiksruimte (in verband met de geluidsuitstraling die daarmee samenhangt) dan de ongeveer 200 m tussen deze installaties (doorgaans met een bronvermogen van 85 dB(A)) en de grens van het plangebied. Dit maakt dat de projectie van gevoelige gebouwen binnen het plangebied niet leidt tot een beperking van de bedrijfsvoering binnen de inrichting van Korf Vis.

Figuur 4.2 geeft, op basis van het uitgevoerde nadere onderzoek, de milieucontouren van 200 meter gerekend vanaf de bebouwing van Rodé Vis en Korf Vis weer.

afbeelding "i_NL.IMRO.0184.BP2019ZHW-0301_0010.png"

Figuur 4.2: milieucontouren bedrijven 11a en 13b

In het stedenbouwkundig plan en bestemmingsplan is als volgt rekening gehouden met de milieucontouren van Zwolsehoek:

  • de woningen, zorgwoningen en partnerwoningen binnen de bestemmingen 'Woongebied', 'Maatschappelijk' en 'Woongebied – Uit te werken' liggen buiten de milieucontouren van Zwolsehoek;
  • binnen de milieucontouren van Zwolsehoek zijn in dit geval de bestemming 'Gemengd - 1' geen milieugevoelige functies toegestaan;
  • binnen de milieucontouren van Zwolsehoek zijn in het plangebied binnen de bestemmingen Gemengd - 2 en Gemengd - Uit te werken zijn wel milieugevoelige functies toegestaan. In de (uitwerkings)regels is echter opgenomen dat bij omgevingsvergunning respectievelijk uitwerking moet worden voldaan aan de beleidsregels Goed woon- en leefklimaat. In dit kader is van belang, dat in een bestemmingsplan Verbrede Reikwijdte, waartoe voorliggend bestemmingsplan behoort, het mogelijk is een functie toe te staan, waarbij wordt bepaald binnen welke randvoorwaarden dit mogelijk is (de of-vraag). Dit kunnen specifieke (milieu)normen zijn (zoals geluidsnormen), maar ook open normen, die worden uitgewerkt in beleidsregels, waaraan een omgevingsvergunningaanvraag wordt getoetst. Pas als zich een concreet initiatief aandient, kan onderzoek plaatsvinden naar de precieze invulling (de hoe-vraag). In dit plan is een regeling opgenomen, die milieugevoelige functies in gemengd gebied toestaat, als wordt aangetoond, dat er sprake is van een goed woon- en leefklimaat. De wijze waarop wordt beoordeeld of er sprake is van een goed woon- en leefklimaat is vastgelegd in de beleidsregels 'Goed woon- en leefklimaat'. Als hieraan wordt voldaan worden ook de bedrijven niet in hun bedrijfsvoering belemmerd.

Bushalte en lichte horeca - kiosk op terrein voormalige kinderboerderij

Op het perceel Urkerweg 62 wordt een bushalte mogelijk gemaakt met onder andere lichte horeca (horeca 1 en 2) en een kiosk. De locatie kan worden beschouwd als een gemengd gebied aangezien deze direct aan hoofdinfrastructuur is gelegen, i.c.de Urkerweg. De bushalte is voor wat betreft milieu-uitstraling vergeleken met een autoparkeerterrein. Hiervoor geldt volgens de Handreiking Bedrijven en milieuzonering (VNG, 2009) een richtafstand van 10 meter in gemengd gebied. Horeca I en II kennen een richtafstand van maximaal 10 meter. Voor een kiosk (detailhandel) geldt een richtafstand van nul meter. De afstand vanaf de perceelgrens van de bestemming (Gemengd - 3) tot de gevels van omliggende woningen is meer dan 10 meter, ook wanneer rekening wordt gehouden met de bouwmogelijkheden voor de zorgwoningen vanuit het vergunningsvrij bouwen (artikel 2 bijlage II) van het Besluit omgevingsrecht.

Conclusie

Een gedeelte aan de westzijde van het plangebied Zeeheldenwijk is deels niet geschikt voor de ontwikkeling van milieugevoelige functies vanwege de milieu-richtafstanden van de bedrijven op Zwolsehoek. In dat gebied met de bestemming Gemengd - 1 zijn in onderhavig plan geen milieugevoelige functies mogelijk gemaakt. Binnen de bestemmingen Gemengd – 2 en Gemengd - Uit te werken zijn milieugevoelige functies toegestaan indien bij omgevingsvergunning respectievelijk uitwerking wordt aangetoond, dat er sprake is van een goed woon- en leefklimaat. De wijze waarop wordt beoordeeld of er al dan niet sprake is van een goed woon- en leefklimaat is vastgelegd in de beleidsregels 'Goed woon- en leefklimaat'. Als hieraan wordt voldaan worden ook de bedrijven niet in hun bedrijfsvoering belemmerd. De beoogde woningen (bestemmingen Woongebied en Woongebied – Uit te werken), zorgwoningen en partnerwoningen (bestemming Maatschappelijk) zijn buiten de milieucontouren gesitueerd.

De realisatie van de bushalte, de kiosk en lichte horeca past qua bedrijven en milieuzonering in de omgeving en is direct toegestaan,

4.3 Archeologie, landschap en cultuurhistorie

4.3.1 Archeologie

Kader

De gemeente Urk moet en wenst te voldoen aan de Erfgoedwet. Op basis van deze wet zijn de belangrijkste bevoegdheden aangaande de archeologie bij de gemeente neergelegd. De gemeenteraad is op grond van de wet verplicht bij de vaststelling van bestemmingsplannen rekening te houden met de in de grond aanwezige of te verwachten archeologische waarden.

Om dit te kunnen onderbouwen dient de gemeente er voor te zorgen dat de archeologische waarden en verwachtingen binnen het gemeentelijk grondgebied bekend zijn. Deze waarden en verwachtingen zijn aangegeven op de Archeologische Beleidskaart van de gemeente.

Binnen Zeeheldenwijk hebben de gronden een dubbelbestemming archeologie. Er worden drie verwachtingszones met bijbehorende oppervlakte- en dieptecriteria onderscheiden:

Hieronder valt het geregistreerde AMK-terrein. Deze gronden hebben een hoge archeologische waarde. Om die reden is een beschermingsregime op zijn plaats. Een omgevingsvergunning is vereist voor werkzaamheden en ingrepen over iedere oppervlakte en dieper dan 30 cm.

Deze dubbelbestemming betreft de gebieden met een archeologisch hoge verwachtingswaarde. Een omgevingsvergunning is nodig voor werkzaamheden en ingrepen over een oppervlakte groter dan 50m2 en dieper dan 30 centimeter.

Deze dubbelbestemming betreft de gebieden met een archeologisch hoge verwachtingswaarde. Een omgevingsvergunning is nodig voor werkzaamheden en ingrepen over een oppervlakte groter dan 50m2 en dieper dan 50 centimeter.

Archeologische ontwikkeling

De kern van Urk wordt gevormd door een keileembult, die deel uitmaakt van een stelsel van lage stuwwallen, waar omheen zich in het Pleistoceen dekzandvlaktes en -ruggen hebben gevormd. In de Zeeheldenwijk bevindt zich deze dekzandvlakte voor een belangrijk deel op grotere diepte: 9,5 tot 10 meter onder NAP. Een deel van deze vlakte binnen de Zeeheldenwijk is namelijk doorsneden door de geul met oeverwallen van het fossiele Vechtdal, tot circa 12,5 meter onder NAP. In het vroege Holoceen zijn mariene afzettingen (Unioklei) in de geul afgezet. Het Vechtdal is circa 1 kilometer breed en ligt ongeveer rond de huidige Urkervaart. Langs het rivierdal komen verspreid enkele hoge rivierduinen voor, tot 4 meter onder NAP. In het Holoceen is het oude landschap afgedekt met veen en sedimenten van het voormalige Almere en Zuiderzee.

Binnen de Zeeheldenwijk kunnen, met name op de intacte rivierduinen, oeverwallen en dekzandruggen, bewoningssporen (vuursteen werktuigen en resten van kleine jachtkampementen) uit de Midden-Steentijd en de Nieuwe Steentijd worden aangetroffen; de zogenaamde Swifterbantcultuur. De zone langs het Vechtdal vormde in de Nieuwe Steentijd tot Midden-IJzertijd een zeer aantrekkelijk gebied voor jagers, vissers, akkerbouw, veeteelt en verzamelaars. Vanaf de Midden-IJzertijd tot aan de 10e eeuw voor Christus lijkt het gebied door voortschrijdende vernatting en veengroei niet geschikt geweest voor bewoning. Het zuidoostelijk deel van het eiland zal nadien nooit erg geschikt zijn geweest voor bewoning. Het bestaat voor een groot deel uit laag gelegen gronden en wordt in de historische bronnen en op oude kaarten aangeduid als het "verdronken land". Incidenteel zouden er resten van de rijke scheepvaarthistorie van de Zuiderzee aan het licht kunnen komen, hierover is echter geen voorspelling te doen.

Archeologiebeleid

De gemeente Urk beschikt over een gemeentebrede Beleidsnota Archeologie (inclusief een archeologische beleidskaart en een beslisboom). Op de gemeentebrede beleidskaart zijn de verschillende archeologische (verwachtings)waarden aangegeven. In de gemeentebrede beleidsnota zijn de beleidsregels per (verwachtings)waarde nader onderbouwd.

afbeelding "i_NL.IMRO.0184.BP2019ZHW-0301_0011.png"

Figuur 4.3: Archeologische waarden - en verwachtingskaart Urk, Bron: Buro de Brug (2015)

afbeelding "i_NL.IMRO.0184.BP2019ZHW-0301_0012.png"

Figuur 4.4: Uitsnede Archeologische Beleidskaart Urk, Bron: Buro de Brug (2015)

Oranje = hoge verwachting; geel = middelhoge verwachting; lichtgeel = lage verwachting

Onderbouwing archeologische waarden Zeeheldenwijk

Er zijn in de Zeeheldenwijk reeds verschillende inventariserende onderzoeken uitgevoerd:

  • Buro de Brug: Sueur, C., J.M. Brijker & G. Overmars, 2017. Archeologisch bureauonderzoek en verkennend booronderzoek te Urk, gemeente Urk, Buro de Brug rapport B16-275, z.p
  • ADC: Bouter, H.E., 2020. Zeeheldenwijk, Urk, gemeente Urk. Een Inventariserend Veldonderzoek in de vorm van een verkennend booronderzoek, fase 2, en een karterend booronderzoek ten behoeve van de aanleg van watergangen. ADC-rapport 4643, Amersfoort

afbeelding "i_NL.IMRO.0184.BP2019ZHW-0301_0013.png"

Figuur 4.5: Uitsnede kaart Hoogteligging top dekzand en Profieltypen, Bron: Buro de Brug (2017)

afbeelding "i_NL.IMRO.0184.BP2019ZHW-0301_0014.png"

Figuur 4.6: Uitsnede kaart Locaties van verkennende boringen en diepteligging van het pleistocene zand, Bron: ADC (2020)

Aangezien deze onderzoeken voor meerdere interpretaties vatbaar waren, is een specifiek verwachtingsmodel gemaakt voor de Zeeheldenwijk. Dit model dient als uitgangspunt voor verder archeologisch onderzoek:

RAAP interpretatie rapport specifieke verwachting: 5040 Titel: Een archeologisch verwachtingsmodel voor Zeeheldenwijk, gemeente Urk; Versie: 11-03-2021; dr. T.J. ten Anscher; RAAPrap_5040_URAD_20210311

afbeelding "i_NL.IMRO.0184.BP2019ZHW-0301_0015.jpg"

Figuur 4.7: Archeologisch verwachtingsmodel dubbelbestemming archeologie Zeeheldenwijk, Bron: RAAP (2021)

Donkerrood = Waarde - Archeologie 1; rood = Waarde - Archeologie 2; oranje = Waarde - Archeologie 3

Conclusie

Op basis van het gemeentelijke beleid en het specifieke verwachtingsmodel zoals hierboven genoemd, heeft het hele plangebied Zeeheldenwijk meerdere dubbelbestemminge gekregen. Hier mogen uitsluitend bouwwerken worden gebouwd of werkzaamheden en werken geen bouwwerk zijnde worden uitgevoerd, mits op basis van archeologisch onderzoek is vastgesteld, dat ter plaatse geen behoudenswaardige archeologische waarden aanwezig zijn, of de aanwezige archeologische waarden in voldoende mate zijn zeker gesteld dan wel de aanwezige behoudenswaardige archeologische waarden niet onevenredig worden geschaad. Hiermee zijn de archeologische belangen beschermd en is het aspect archeologie geen belemmering voor de uitvoering van dit bestemmingsplan.

4.3.2 Landschap en cultuurhistorie

Kader

Cultureel erfgoed is ingebed in de ruimtelijke ordening. Het is verplicht om in bestemmingsplannen aandacht te geven aan cultuurhistorie en aan de effecten van het initiatief op cultuurhistorische waarden die in het plangebied voorkomen. Landschappelijk en cultuurhistorische waarden zijn in dit plangebied zodanig met elkaar verweven dat de beide onderwerpen in deze paragraaf gezamenlijk behandeld zijn.

Bevindingen

Cultuurhistorie

Het besef van de aanwezigheid van cultureel erfgoed is van groot belang voor de kwaliteit van onze omgeving. Het beheer daarvan vraagt om voortdurende zorg, vooral als het gaat om nieuwe ruimtelijke ontwikkelingen. In het kader van dit bestemmingsplan worden cultuurhistorische waarden onderscheiden in fysiek herkenbare waarden (landschap / bebouwing) en verborgen bodemschatten. We spreken in dat geval van bodemarchief, het kennisgebied van de archeologie (zie paragraaf 4.3.1).

Gelet op de voor het Zuiderzeeproject karakteristieke kenmerken beschikt het gebied over elementen die vanuit het cultuurhistorisch perspectief als bijzonder kunnen worden aangeduid. In dit verband worden als elementen van betekenis genoemd:

  • de verkavelingsstructuur met een standaard kavelmaat van 300 m x 800 m;
  • de geclusterde agrarische bouwpercelen aan de Karel Doormanweg en de Domineesweg;
  • de erfsingels om de agrarische bouwpercelen;
  • de aanwezigheid van een rijenwoningen (4) nabij genoemde cluster.

Het plangebied wordt momenteel voornamelijk gebruikt als agrarisch productiegebied (akkerbouw) in overeenstemming met het primaire doel waartoe de Noordoostpolder in 1942 is drooggelegd en ingericht. De aanwezige woningen verwijzen naar de periode dat de stand van de technologische ontwikkelingen in de landbouw in verhouding tot de toen uitzonderlijke bedrijfsgrootte noodzakelijk maakte tot het in dienst hebben van landarbeiders. Voor het personeel werd een zelfstandige behuizing geboden in de directe nabijheid van de boerderijen in verband met de beperkte mobiliteit. Hoewel deze woningen hun oorspronkelijke functie al lang hebben verloren, zijn ze voor het gebied van de Noordoostpolder zeer karakteristiek en daarom van cultuurhistorische betekenis.

Landschap

Het plangebied maakt in de bestaande situatie nog onderdeel uit van het karakteristieke open polderlandschap. De invloed van het bedrijventerrein Zwolschehoek op de directe omgeving is echter al zodanig dat van een landschappelijk waardevol gebied al nauwelijks meer sprake is. Deze waarde speelt wel een rol bij de nadere invulling van het stedelijk gebied als gradiënt. Daarnaast zijn, zoals onder het kopje 'cultuurhistorie' al aangegeven, de gebroeide en geclusterde bouwpercelen karakteristieke landschapselementen die hun plaats aan de rand van het gebied innemen. Ook de singelbeplanting langs de Domineesweg en de Karel Doormanweg valt onder de Flevolandsche landschappelijke karakteristiek.

Conclusie

Met het bebouwen van het bestaande agrarische landschap gaat een groot deel van het huidige karakter van het plangebied (de openheid en grootschaligheid) verloren. De bestaande singelbeplanting om de agrarische bouwpercelen aan de Karel Doormanweg en de Domineesweg blijven conform de bestaande situatie gehandhaafd en worden ingepast in het plan. Dit geldt ook voor de singelbeplanting om de genoemde rijenwoningen aan de westkant van de agrarische bouwpercelen aan de Domineesweg. Bij de uitwerking van de plannen wordt een link gelegd tussen de bestaande rationele verkaveling en indeling en de vroegere ontwikkeling van het gebied in de vorm van rivierduinen (zie archeologie). Het eiland aan de noordzijde van het plangebied verwijst bovendien naar het (voormalige) eilandkarakter van Urk. De bestaande erfsingels blijven behouden en er worden nieuwe erfsingels toegevoegd, waarbij met verwijzing naar het BKP in het groenclusterbeleid slechts een ondergeschikte uitbreiding van bebouwing wordt toegestaan.

4.4 (Water-)bodemonderzoek en asbestonderzoek

Kader 

Bij het actualiseren van het bestemmingsplan 'Schokkerhoek' is een inventarisatie uitgevoerd naar alle beschikbare bodeminformatie. Bronnen die in het kader van deze inventarisatie geraadpleegd zijn:

  • Het Kadaster
  • Bodemloket
  • Omgevingsrapportage Omgevingsdienst Flevoland & Gooi en Vechtstreek (OFGV)
  • Gemeente Urk
  • Tankenbestand
  • Historisch bodembestand (HBB)
  • Provincie Flevoland

Onderzoek

Plangebied  

Het plangebied betreft agrarische gronden in wat nu nog het huidige buitengebied van de gemeente Urk genoemd kan worden. De huidige functie van het plangebied betreft 'overig (landbouw/natuur)'. De toekomstige functie wordt 'wonen en industrie/bedrijvigheid'.

Grondwaterbeschermingsgebieden

Het plangebied is niet in een grondwaterbeschermingsgebied gelegen.

Nota Bodembeheer

De gemeente Urk heeft in samenwerking met de gemeenten Almere, Dronten, Lelystad, Zeewolde en Noordoostpolder een Nota Bodembeheer opgesteld die tot doel heeft om de toepassing van grond en baggerspecie optimaal af te stemmen op de plaatselijke bodemfunctie en bodemkwaliteit. Ten behoeve van de Nota Bodembeheer is een bodemkwaliteits- en bodemfunctiekaart opgesteld. Het plangebied is gelegen in het werkgebied van de Omgevingsdienst Flevoland, Gooi en Vechtstreek (OFGV). In het Grondstromenbeleid van de OFGV is informatie te vinden die gebruikt moet worden bij grondverzet in het werkgebied van de OFGV.

Bodemkwaliteitskaart

De provinciebrede bodemkwaliteitskaart is geactualiseerd voor PFAS-verbindingen. De toe te passen grond en baggerspecie moet voldoen aan de tijdelijke landelijke achtergrondwaarden voor PFAS-verbindingen: < 1,9 ìg/kg ds voor PFOA en < 1,4 ìg/kg ds voor de overige PFAS-verbindingen.

Uit de provinciebrede bodemkwaliteitskaart blijkt dat in de bodemlaag vanaf het maaiveld tot 50 centimeter onder maaiveld (cm- mv) en de bodemlaag 50–100 cm- mv, de gemiddelde waarden van de PFAS-verbindingen lager zijn dan de landelijke vastgestelde achtergrondwaarden. Voor het toepassen van PFAS-houdende grond op of in de landbodem buiten de waterwin- en grondwaterbeschermingsgebieden, zijn er geen toepassingsbeperkingen. De bodemlaag 50–100 cm- mv is daarom niet als aparte bodemlaag meegenomen. De bodemlaag vanaf 100 cm- mv en dieper is niet verdacht voor het voorkomen van verhoogde gehalten aan PFAS-verbindingen. PFAS-verbindingen leiden ook in deze bodemlaag nergens tot toepassingsbeperkingen.

Waterwin- en grondwaterbeschermingsgebieden

Dit aspect is van toepassing omdat de Zeeheldenwijk tot het gebied van de bodemkwaliteitskaart behoort. In dat kader is een meldplicht bij grondtransport noodzakelijk. Het gemiddelde van een aantal PFAS-verbindingen in de bodemlagen 0–50 cm- mv en 50–100 cm- mv zijn boven de bepalingsgrens vastgesteld. Dit leidt tot beperkingen van de toepassing van grond in waterwin- en grondwaterbeschermingsgebieden en in oppervlaktewater (toepassingseis PFAS-verbindingen: 0,1 ìg/kg ds). Voor hergebruik van grond uit de bodemlaag 50–100 cm- mv in de waterwin- en grondwaterbeschermingsgebieden moet standaard contact worden opgenomen met de OFGV.

Tenminste vijf werkdagen voorafgaand aan het transport van grond dient een melding gedaan te worden bij Meldpunt Bodemkwaliteit.

Aanvullende onderzoeken

De bodemkwaliteit voor de bovengrond (0–50 cm- mv) en de ondergrond (50–200 cm- mv) is vastgesteld als zijnde 'landbouw/natuur'/kwaliteitsklasse AW2000. Op basis van de Bodemfunctieklassenkaart is het plangebied ingedeeld in 'overig (landbouw/natuur)'. Dit is de schoonste bodemkwaliteitsklasse. Deze grond is bij grondverzet, op basis van de bodem- kwaliteitskaart en binnen de contouren daarvan vrij toepasbaar.

Onderzoek

Het Milieueffectrapport woningbouw- en werklocaties Urk 2005 – 2025 (Tauw, 2005) beschrijft op basis van onderzoeken, dat de bodem in het plangebied voornamelijk bestaat uit kleiig zand of lichte klei. In de noord-westelijke hoek komt veen aan de oppervlakte voor. Er zijn geen locaties bekend met grondwaterverontreiniging en ook geen aanwijzingen voor verontreiniging van de bodem en/of het grondwater. Het plangebied is tot op heden gebruikt voor de gangbare agrarische bedrijfsvoering in de akkerbouw. In opdracht van gemeente Urk zijn in 2018/2019 een vooronderzoek en een drietal bodemonderzoeken uitgevoerd:

  • Milieuhygiënisch vooronderzoek landbodem en waterbodem, Projectnummer: 180120, dd 19 februari 2018
  • Verkennend bodemonderzoek Schokkerhoek (brughoofden) te Urk, Projectnummer: 180248, dd 17 mei 2018.
  • Verkennend (water-) bodemonderzoek Schokkerhoek Urk, Projectnummer:180120, dd 22 mei 2018
  • Verkennend asbest- en waterbodemonderzoek Schokkerhoek te Urk, Projectnummer: 190319, 10 oktober 2019 (Bijlage 10).

Conclusie en advies

Er is geen aanleiding te verwachten dat de bodemkwaliteit verslechterd is sinds het opstellen van het genoemde Milieueffectrapport.

Op basis van beschreven bodeminformatie kan worden geconcludeerd dat de algemene bodemkwaliteit voldoet aan de bestemming op de locatie en er geen milieuhygiënische belemmeringen aanwezig zijn voor de voorgenomen bestemmingsplanherziening en de aan de ruimtelijke ontwikkelingen verbonden ontgrondingswerkzaamheden.

Vrijkomende grond wordt in principe binnen het plangebied hergebruikt. Indien grond overtollig is kan deze op basis van de bodemkwaliteitskaart elders binnen de contouren van de bodemkwaliteitskaart hergebruikt worden. Indien vrijkomende grond buiten de contouren van de bodemkwaliteitskaart wordt afgevoerd zal deze grond geclassificeerd moeten worden conform Besluit Bodemkwaliteit middels een partijkeuring grond BRL SIKB 1000/protocol 1001.

De bodemkwaliteit wordt na het bouwrijpmaken volledigheidshalve ook nog per fase door middel van een actualiserend verkennend bodemonderzoek onderzocht en vastgelegd.

4.5 Niet gesprongen explosieven (NGE)

Kader

Er kunnen als gevolg van gevechtshandelingen in de Tweede Wereldoorlog conventionele explosieven (CE) in het plangebied zijn achtergebleven. Er ontstaat bij het spontaan aantreffen en beroeren van CE uit de Tweede Wereldoorlog mogelijk een verhoogd veiligheidsrisico. Onbedoelde detonaties kunnen bij de uitvoering van werkzaamheden in het ergste geval leiden tot dodelijk letsel en zware schade aan materieel en omgeving. Spontane CE vondsten kunnen resulteren in meerwerkkosten door stagnatie van de uitvoeringswerkzaamheden.

Onderzoek

Vooronderzoek

Er is in het kader van het bestemmingsplan een vooronderzoek gedaan naar de aanwezigheid van niet gesprongen explosieven (NGE).

Het doel van het vooronderzoek is om aan de hand van een breed scala aan historisch feitenmateriaal een antwoord te geven op de vraag of en zo ja in welke delen van het onderzoeksgebied sprake is van een verhoogd risico op het aantreffen van CE. Er wordt daarnaast ingegaan op de te verwachten soort(en) CE, de verschijningsvorm en de mogelijke hoeveelheid. Het onderzoek resulteert in een horizontale en verticale afbakening van het verdachte gebied door middel van GIS kaartmateriaal en het advies om de werkzaamheden onder reguliere omstandigheden uit te voeren, of om vervolgstappen te zetten in de vorm van bijvoorbeeld een (projectgebonden) risicoanalyse, of direct een detectieonderzoek uit te voeren.

Op basis van de beoordeling van de feiten van het vooronderzoek is geconcludeerd dat er indicaties zijn voor de mogelijke aanwezigheid van CE in het onderzoeksgebied.

De volgende gevechtshandelingen hebben in het onderzoeksgebied plaatsgevonden:

  • het neerkomen van projectielen (vermoedelijk noodafworp);

De volgende CE kunnen mogelijk in het onderzoeksgebied worden aangetroffen:

  • afwerpmunitie vanaf 4 lb. t/m 1000 lb.

Er zijn relevante contra-indicaties gevonden. Er is na de Tweede Wereldoorlog sprake geweest van naoorlogse bodemingrepen. De bebouwing van Urk is uitgebreid tot aan de westelijke begrenzing van het onderzoeksgebied. In het onderzoeksgebied is een aantal erven bebouwd.

afbeelding "i_NL.IMRO.0184.BP2019ZHW-0301_0016.png"

Figuur 4.8: Feitenkaart

afbeelding "i_NL.IMRO.0184.BP2019ZHW-0301_0017.png"

Figuur 4.9: Bodembelastingskaart

Het onderzoeksgebied is gedeeltelijk verdacht op CE. Het verdachte gebied is horizontaal afgebakend op de CE-bodembelastingkaart. De afbakening is situationeel bepaald. De verticale afbakening van het CE verdachte gebied kan als volgt worden gedefinieerd:

  • Bovengrens: het maaiveld
  • Ondergrens: tot een maximale conusweerstand van 10 MPa met een minimale laagdikte van 1 meter.

Op basis van het vooronderzoek heeft de gemeente nader onderzoek (detectieonderzoek) laten uitvoeren.

Detectieonderzoek

In het detectieonderzoek van AVG zijn in het onderzoeksgebied 16 verdachte objecten gedetecteerd. De ligging ervan is in figuur 4.10 weergegeven.

afbeelding "i_NL.IMRO.0184.BP2019ZHW-0301_0018.png"

Figuur 4.10: Resultaten detectieonderzoek

Opsporingswerkzaamheden

Naar aanleiding van de uitgevoerde onderzoeken heeft AVG onderzocht of er daadwerkelijk niet gesprongen explosieven aanwezig zijn. De resultaten hiervan zijn weergegeven in een procesverbaal van oplevering. Dit procesverbaal is bijgevoegd als Bijlage 11.

Het gedefinieerde opsporingsgebied (verdacht gebied in figuur 4.9) is onderzocht op de aanwezigheid van conventionele explosieven tot een diepte van 4,50meter -mv (9,00meter -NAP). Het gebied is afgezocht om de in de toekomst geplande werkzaamheden veilig uit te kunnen voeren. De aangetroffen verstoringen zijn geïdentificeerd en verwijderd.

Daarmee kan verklaard worden dat er met de gebruikte onderzoeksmethode verder geen verdachte objecten zijn gesignaleerd in het onderzochte gebied. Het onderzochte gebied en het overige niet verdachte gebied uit het vooronderzoek worden vrijgegeven in munitietechnische zin voor het uitvoeren van vervolgwerkzaamheden.

Conclusie

Alle verdachte objecten tot een diepte van 4,50meter -mv zijn geïdentificeerd en verwijderd. Gesteld kan worden dat er geen niet gesprongen explosieven meer aangetroffen zullen worden. Daarmee is het bestemmingsplan uitvoerbaar voor wat betreft het aspect NGE.

4.6 Externe veiligheid

Kader

Bij ruimtelijke ontwikkelingen wordt aandacht besteed aan de veiligheidsrisico's die zware bedrijven of risicovolle inrichtingen kunnen veroorzaken. Daarnaast kan transport van gevaarlijke stoffen risico's opleveren (transport over weg, spoor en water en door buisleidingen). De normen en richtlijnen voor externe veiligheid komen uit het Besluit externe veiligheid inrichtingen (Bevi), het Besluit externe veiligheid buisleidingen en het Activiteitenbesluit.

Onderzoek

Binnen het plangebied is een risicobron aanwezig, namelijk een propaantank met een inhoud van 4,2 m³ op het terrein aan de Domineesweg 26 (zie figuur 4.11).In en in de directe omgeving van het plangebied liggen geen buisleidingen die relevant zijn in het kader van de externe veiligheid. In het plangebied ligt ten noorden van de Urkervaart wel een gasleiding met een werkdruk van 8 bar langs de Urkerweg. Deze is op de verbeelding en in de regels opgenomen (Artikel 14 Leiding - Gas)

afbeelding "i_NL.IMRO.0184.BP2019ZHW-0301_0019.png"

Figuur 4.11: uitsnede van de provinciale risicokaart

De propaantank valt onder het Activiteitenbesluit en niet onder het Bevi. In het Activiteitenbesluit is aan een dergelijke tank een veiligheidsafstand van 10 meter gekoppeld (bevoorradingsregiem . 5 x/jaar ). Deze contour ligt geheel op het eigen perceel van de inrichting. Voor objecten die speciaal bestemd of bedoeld zijn voor doelgroepen met een verminderde zelfredzaamheid geldt een veiligheidszone van 25 meter rondom de tank. Een dergelijke bestemming is binnen deze zone niet aan de orde. Er wordt voldaan wordt aan genoemde veiligheidsafstanden uit het Activiteitenbesluit. Een verantwoording van het groepsrisico is niet verplicht.

Transporten van gevaarlijke stoffen over de N351 (Urkerweg) en N352 (Domineesweg) resulteren in een invloedsgebied, dat overlap heeft met het plangebied. De verantwoordingsparagraaf groepsrisico is hieronder weergegeven in paragraaf 4.6.1. Waar nodig is deze aangevuld aan de hand van de beoogde zorgwoningen.

 

Conclusie

De propaantank levert geen belemmeringen op voor het bestemmingsplan; de PR 10-6 contour ligt niet binnen het plangebied. Vanwege de aanwezigheid van twee routes voor transport van gevaarlijke stoffen, is in het vigerende bestemmingsplan aandacht besteed aan een verantwoording van het groepsrisico. Het transport van gevaarlijke stoffen over de N352 is gebaseerd op het feit, dat er meerdere LPG-tankstations op Urk aanwezig zijn en dat de levering van benzine, diesel en LPG waarschijnlijk vanaf de A6 via de N352 plaatsvindt. De N351 is op de Provinciale risicokaart opgenomen voor het transport van brandbare vloeistoffen.

4.6.1 Verantwoording groepsrisico externe veiligheid

Door de aanwezigheid van twee transportroutes gevaarlijke stoffen in de directe omgeving van het plangebied moet de verantwoording van het groepsrisico aandacht krijgen. Voor de propaantank geldt vanuit het Activiteitenbesluit geen groepsrisicobeleid). Het verschil met het vorige plan voor zover relevant voor externe veiligheid is dat er zorgwoningen worden voorzien. Ten opzichte van de Urkerweg liggen de zorgwoningen op een afstand van tenminste 200 meter. De geplande zorgwoningen nabij de Domineesweg liggen op tenminste 260 meter afstand van de weg.

Plasbrandscenario

Het plangebied ligt binnen het invloedsgebied van de N351 en N352. Bij deze wegen kan een plasbrand optreden. Bij een calamiteit met brandbare vloeistoffen kan een plasbrand ontstaan (een plas van brandende vloeistof). Het gevolg is een korte, maar extreme hittestraling. De omvang van het effect wordt bepaald door de oppervlakte van de plas. Uitgaande van een calamiteit waarbij een gehele tankinhoud vrijkomt is het invloedsgebied van een plasbrand ongeveer 45 meter. De gevolgen van een plasbrandscenario ter hoogte van het plangebied hangen eveneens af van de wijze waarop het plangebied in de toekomstige situatie precies zal worden ingericht.

Zelfredzaamheid

Zelfredzaamheid is de mate waarin personen in staat zijn zichzelf (zonder hulp van buitenaf) in geval van een calamiteit in veiligheid te brengen. In het plangebied zijn binnen de invloedsgebieden van de N351 en de N352 geen ontwikkelingen opgenomen die langdurig verblijf van beperkt zelfredzame personen, zoals kinderen, ouderen en gehandicapten, faciliteren. De minimale afstand van de scholen, de geplande zorgwoningen en de geprojecteerde kinderboerderij waar dagbesteding plaatsvindt voor mensen met een beperking bedraagt minimaal 200 meter tot één van beide wegen.

 

Alarmering

In geval van een incident met gevaarlijke stoffen moeten personen uit het invloedsgebied van de N-wegen te vluchten. Personen moeten hiervoor gewaarschuwd worden. Gerichte risicocommunicatie met bewoners, werknemers en andere aanwezigen (bijvoorbeeld via NL-Alert) kan ertoe bijdragen dat alarmering van het gebied sneller verloopt. Hierbij moet worden aangegeven wat het gewenste handelingsperspectief is (schuilen of vluchten) en op welke wijze gevolg moet worden gegeven.

Handelingsperspectief

Bij een calamiteit met brandbare vloeistoffen moeten de aanwezige personen zich in veiligheid brengen op ruime afstand van de incidentlocatie, buiten het invloedsgebied van brandbare vloeistoffen (tenminste een afstand van 45 meter). Personen binnen het invloedsgebied kunnen ernstige (dodelijke) brandverwondingen oplopen. De omgeving biedt mogelijkheden om (zowel binnen als buiten het plangebied) in meerdere richtingen van de wegen te vluchten.

Brandbestrijding

Brandbestrijding is de mate waarin een rampscenario door de brandweer te bestrijden is. De mate waarin uitvoering aan deze aanvalsstrategieën kan worden gegeven hangt af van de capaciteit van de brandweer (opkomsttijd en beschikbare blusmiddelen) en de bereikbaarheid van het plangebied (opstelplaatsen).

Bij een ongeval met brandbare vloeistoffen, waarbij een plasbrand kan ontstaan, kan de brandweer snel ter plaatse zijn. Een plasbrand is dan goed te bestrijden. Door het tijdig arriveren van de brandweer wordt voorkomen dat het vuur zich snel kan uitbreiden en kan overslaan.

4.7 Geluid

Kader

De ontwikkeling van Zeeheldenwijk vergroot de verkeersaantrekkende werking van het gebied. Daarnaast wordt er een nieuwe gebiedsontsluitingsweg gerealiseerd voor de ontsluiting van het gebied. De binnen het plangebied gelegen erftoegangsweg met een belangrijke functie voor lokaal verkeer (wijkring) kent voor het noordelijk, oostelijk en zuidelijk deel een 30 kilometer per uur regime. Voor de gebiedsontsluitingsweg geldt een maximum snelheid van 50 km per uur.

In het vigerende bestemmingsplan is onderzoek gedaan naar het aspect geluid:

  • vanwege wegverkeer (nieuwe weg)
  • reconstructie (wijziging van de indeling of inrichting van een bestaande weg);
  • vanwege bedrijventerrein;
  • cumulatie (wegverkeer en bedrijventerrein).

De Wet geluidhinder beschermt de volgende objecten:

  • woningen
  • andere geluidsgevoelige gebouwen
  • geluidsgevoelige terreinen

Woningen: Onder "woning" wordt verstaan (art. 1 Wgh): gebouw of gedeelte van een gebouw waar bewoning is toegestaan op grond van de geldende planologische status (bestemmingsplan, de beheersverordening, omgevingsvergunning afwijken bestemmingsplan of beheersverordening). Een bedrijfswoning wordt ook als een woning beschouwd.

Andere geluidsgevoelige gebouwen: Het Besluit geluidhinder wijst onderstaande gebouwen aan als "ander geluidsgevoelig gebouw":

  • onderwijsgebouwen;
  • ziekenhuizen en verpleeghuizen;
  • verzorgingstehuizen;
  • psychiatrische inrichtingen;
  • kinderdagverblijven;

Alle objecten die niet onder bovenstaande categorieën zijn te scharen, zijn op basis van de Wet geluidhinder niet beschermd tegen geluidhinder. In twijfelgevallen (valt een bepaalde bestemming onder een bepaalde categorie) is een goede motivering van belang.

Geluidsgevoelige terreinen: Het Besluit geluidhinder wijst onderstaande terreinen aan als 'geluidsgevoelig terrein': woonwagenstandplaatsen en ligplaatsen voor woonschepen.

Onderzoek

Er is vanwege het nieuwe inrichting een nieuw akoestisch onderzoek uitgevoerd voor onderhavig bestemmingsplan. Dit onderzoek is bijgevoegd als Bijlage 12. In het akoestisch onderzoek zijn de volgende aspecten onderzocht:

  • 1. In het kader van de Wet geluidhinder is de geluidbelasting vanwege bestaande en nieuwe wegen op het plangebied bepaald;
  • 2. In het kader van de Wet geluidhinder is de geluidbelasting vanwege nieuwe wegen op bestaande woningen bepaald;
  • 3. In het kader van de Wet geluidhinder is het geluideffect nader beschouwd vanwege de wijzigingen (rotondes) aan de Urkerweg en de Domineesweg.
  • 4. In het kader van een goede ruimtelijke ordening is de verwachte geluidbelasting als gevolg van het bestaande en nieuwe bedrijventerrein op het plangebied bepaald.

Wet geluidhinder

Wegverkeerslawaai op de nieuwbouw

In de voor geluidgevoelige bestemmingen aangewezen gronden binnen het plangebied wordt , behoudens de Domineesweg (N352), als gevolg van de afzonderlijke wegen de maximaal toelaatbare geluidbelasting op de nieuwbouw niet overschreden. De betekenis hiervan is dat inpassing van geluidgevoelige bestemmingen, eventueel met hogere grenswaarde, mogelijk is.

In het gebied ten oosten van de Nieuwe ontsluitingsweg worden geluidsgevoelige functies mogelijk gemaakt en wordt de voorkeursgrenswaarde overschreden. Gelet op de overschrijding dient te worden onderzocht of maatregelen ter beperking van het geluid mogelijk zijn. De analyse (zie paragraaf 4.1 van Bijlage 12) laat zien dat maatregelen niet haalbaar zijn. Het bevoegd gezag kan voor genoemd plan gemotiveerd een hogere waarde vaststellen. Het gaat om twee zones met een te verlenen hogere waarde van respectievelijk 53 en 58 dB.

De overige gebieden waarbinnen geluidgevoelige functies zijn beoogd en waar de voorkeursgrenswaarde als gevolg van wegverkeerslawaai op de nieuwbouw wordt overschreden, betreffen gronden met een uit te werken bestemming. Bij het opstellen van het uitwerkingsplan moet worden onderzocht of er maatregelen ter beperking van het geluid mogelijk zijn of dat een hogere waarde moet worden verleend. Uit de resultaten van het onderzoek blijkt dat de uitwerkingsplicht uitvoerbaar is voor wat betreft geluid.

Aan de zuidzijde wordt in een zone van circa 30 meter planinwaarts als gevolg van de Domineesweg (N352) de maximaal toelaatbare geluidbelasting overschreden. In dit gebied is zonder het toepassen van maatregelen het inpassen van geluidgevoelige bestemmingen in principe niet mogelijk.

Wegverkeerslawaai op de bestaande bouw

Uit de berekeningsresultaten blijkt dat op de gevels van de bestaande woningen de geluidbelasting ten hoogste 45 dB (inclusief aftrek ex artikel 110g Wgh) bedraagt. De voorkeursgrenswaarde van 48 dB wordt niet overschreden waarmee nader onderzoek naar te nemen maatregelen achterwege kan blijven.

Wegverkeerslawaai gewijzigde situaties (reconstructies)

Uit de berekeningsresultaten blijkt dat de geluidbelasting vanwege het wegverkeer op de gewijzigde Urkerweg (N351) zal toenemen met ten hoogste +3,31 dB in 2031 en +3,82 dB in 2041 ter plaatse van de gevels van de bestaande woning Urkerweg 60. Voor de Urkerweg 60 bedraagt de toename daarmee meer dan 2 dB en is er sprake van een reconstructie in de zin van de Wet geluidhinder. De maximaal te ontheffen toename van maximaal 5 dB wordt echter niet overschreden.

Gelet op de overschrijding van de grenswaarde dient te worden onderzocht of er maatregelen ter beperking van het geluid mogelijk zijn. De analyse (zie paragraaf 4.3 in Bijlage 12) laat zien dat maatregelen niet haalbaar zijn.

Het bevoegd gezag kan derhalve voor genoemd plan gemotiveerd een hogere waarde vaststellen. In onderstaande tabel is de aan te vragen hogere waarden weergegeven.

Object   Bron   Hogere waarde (dB)  
Urkerweg 60   Urkerweg (N351)   54  

Bij de overige woningen bedraagt de toename minder dan 2 dB of blijft onder de voorkeursgrenswaarde van 48 dB. Voor deze woningen is er geen sprake van een reconstructie in de zin van de Wet geluidhinder. Verdere toetsing kan achterwege blijven voor deze woningen.

Binnen de invloedssfeer van het fysiek aan te passen gedeelte van de Domineesweg (N352) zijn geen geluidgevoelige objecten gelegen. Hierbij wordt opgemerkt dat het akoestisch onderzoek is uitgevoerd op basis van het uitgangspunt dat de Domineesweg en de toekomstige ovonde twee rijbanen hebben. In het geval dat bij de daadwerkelijke inrichting en realisatie van de ovonde blijkt dat deze aanname onjuist is, zal alsdan worden getoetst of het akoestisch onderzoek moet worden herzien en in hoeverre de daadwerkelijke wijziging invloed heeft op de geluidsgevoelige objecten in de omgeving.

Goede ruimtelijke ordening

Wegverkeerslawaai gewijzigde situaties (reconstructies)

Het effect voor de wegen rondom de aan te passen Urkerweg (N351), Domineesweg (N352) en Ransuil is beperkt: ter plaatse van de woningen en andere (geluidgevoelige) bestemmingen is er sprake van een toename van de geluidbelasting van ten hoogste 2 dB als gevolg van de toename van het verkeer. Over een periode van 21 jaar is het effect maximaal 3 dB.

Deze woningen en andere (geluidgevoelige) bestemmingen zijn gelegen buiten het fysiek te reconstrueren gedeelte van de weg, daarvoor geldt dat toetsing aan de normering van de Wet geluidhinder niet nodig is. Vanuit het oogpunt van een 'goede ruimtelijke ordening' kan wel door het bevoegd gezag worden overwogen de geluidbelasting langs deze wegen te beperken.

Aangezien de geluidtoename in 11 jaar ten hoogste 2 dB is en over 21 jaar het effect ten hoogste 3 dB (maximale toename conform Wet geluidhinder is 5 dB), is de toename akoestisch beperkt en aanvaardbaar.

Industrielawaai op de nieuwbouw

Ten gevolge van het industrielawaai van de niet-gezoneerde industrieterreinen, is de geluidbelasting in alle deelgebieden waar geluidgevoelige functies mogelijk zijn lager dan 50 dB(A). Derhalve wordt het akoestisch klimaat als gevolg van industrielawaai aanvaardbaar geacht.

Cumulatie

Het woon- en leefklimaat binnen het plangebied is te classificeren als redelijk tot goed. Het accent ligt voor 32% op redelijk en voor 43% op goed. Bij de vergunningverlening wordt het woon- en leefklimaat voor wat betreft geluid getoetst aan de hand van een beleidsregel 'Goed woon- en leefklimaat'. Hierbij geldt dat de milieugevoelige functies een maximale gecumuleerde geluidbelasting mogen hebben van 61 dB, hetgeen uit een geluidskaart kan worden afgeleid, die in de beleidsregel 'Goed woon- en leefklimaat' is opgenomen. Het woon- en leefklimaat wordt daarmee aanvaardbaar geacht.

Conclusie

Er is een gebiedsgerichte hogere waarde geluid nodig vanwege het wegverkeer voor de nieuwe woningen gelegen ten oosten van de Nieuwe ontsluitingsweg. De overige geluidsgevoelige functies liggen op gronden met een uit te werken bestemming. Bij het opstellen van het uitwerkingsplan moet worden onderzocht of in dat kader een hogere waarde moet worden verleend. Uit de resultaten van het onderzoek blijkt, dat de uitwerkingsplicht uitvoerbaar is voor wat betreft geluid.

Daarnaast dient een hogere waarde te worden vastgesteld vanwege de reconstructie van de Urkerweg voor de woning op het perceel Urkerweg 60 (zie paragraaf 4.8).

In het kader van een goede ruimtelijke ordening wordt geconcludeerd, dat er voor wat betreft geluid voor het grootste deel van het plangebied sprake is van een redelijk tot goed woon- en leefklimaat. Bij de vergunningverlening wordt hieraan voor wat betreft geluid getoetst aan de hand van een beleidsregel 'Goed woon- en leefklimaat'. Hierbij geldt dat de milieugevoelige functies een maximale gecumuleerde geluidbelasting mogen hebben van 61 dB, wat van de geluidskaart kan worden afgeleid die in de beleidsregel Goed woon- en leefklimaat is opgenomen.

4.8 Motivatie hogere grenswaarde geluid

Hogere waarde reconstructie: Urkerweg 60

Uit het akoestisch onderzoek blijkt dat de geluidbelasting vanwege het wegverkeer op de gewijzigde Urkerweg (N351) voor de Urkerweg 60 met meer dan 2 dB toeneemt en dat er daardoor sprake is van een reconstructie in de zin van de Wet geluidhinder.

Gelet op de overschrijding van de grenswaarde dient te worden onderzocht of er maatregelen ter beperking van het geluid mogelijk zijn. De analyse (zie paragraaf 4.3 van Bijlage 12) laat zien dat bron- en overdrachtsmaatregelen niet haalbaar en doelmatig zijn. Het bevoegd gezag kan in deze situatie een hogere waarde vaststellen.

In het kader van het geldende bestemmingsplan is voor Urkerweg 60 al een hogere waarde vastgesteld van 54 dB vanwege het geluid ten gevolge van de reconstructie. Uit het geactualiseerde geluidonderzoek volgt dat de al vastgestelde hogere waarde voldoet en wordt daarom met de vaststelling van onderhavig plan opnieuw vastgesteld.

Hogere waarde wegverkeerslawaai op nieuwbouw: gebiedsgericht

Uit het akoestisch onderzoek blijkt verder dat in een deel ten oosten van de nieuwe ontsluitingsweg de voorkeursgrenswaarde van 48 dB wordt overschreden. De ten hoogste toelaatbare geluidbelasting van 63 dB wordt in deze gebieden echter niet overschreden.

Gelet op de overschrijding is een analyse naar maatregelen ter beperking van geluid noodzakelijk. De analyse (zie paragraaf 4.1 van Bijlage 12) laat zien dat bron- en overdrachtsmaatregelen niet haalbaar zijn. Het bevoegd gezag kan ook in deze situatie een hogere waarde vaststellen.

Voor een gebied ten oosten van de nieuwe ontsluitingsweg wordt om deze reden met de vaststelling van dit plan gebiedsgericht een hogere waarde vastgesteld. De hogere waarde vanwege de nieuwe ontsluitingsweg is opgedeeld in twee zones tot respectievelijk maximaal 53 dB (gebied geel gearceerd in figuur 4.12) en 58 dB (rood gearceerd in figuur 4.12).

afbeelding "i_NL.IMRO.0184.BP2019ZHW-0301_0020.png"

Figuur 4.12: Geluidcontour nieuwe ontsluitingsweg inclusief aftrek ex. Artikel 110 Wgh (Antea)

De maximale hogere grenswaarden zijn geborgd in Artikel 26 in de planregels.

4.9 Ecologie

4.9.1 Wettelijk kader

Algemeen

De bescherming van natuur in Nederland is vastgelegd in Europese en nationale wet- en regelgeving, waarin een onderscheid wordt gemaakt tussen soortenbescherming en gebiedsbescherming. Voorheen was de soortenbescherming in Nederland geregeld in de Flora- en faunawet en de gebiedsbescherming in de Natuurbeschermingswet 1998. Sinds 1 januari 2017 zijn de Natuurbeschermingswet, Flora- en faunawet en de Boswet opgegaan in één nieuwe wet: de Wet natuurbescherming (Wnb).

De Wnb heeft tot doel in het wild voorkomende planten- en diersoorten in stand te houden en te beschermen. De wet kent daardoor zowel verbodsbepalingen, gebiedsbescherming als een algemene zorgplicht. De zorgplicht geldt te allen tijde voor alle in het wild levende dieren en planten en hun leefomgeving. De verbodsbepalingen zijn gebaseerd op het 'nee, tenzij'-principe. Alle schadelijke handelingen ten aanzien van beschermde planten- en diersoorten zijn in principe verboden, maar er kan worden afgeweken van de verbodsbepalingen middels ontheffingen. Door middel van gebiedsbescherming wordt een beschermingskader geboden voor de flora en fauna binnen aangewezen beschermde gebieden. Hieronder vallen de speciale beschermingszones volgens de Europese Vogel- en Habitatrichtlijn, gebieden die deel uitmaken van het Natuurnetwerk Nederland (NNN, voormalige EHS), beschermde natuurmonumenten en staatsnatuurmonumenten.

Gebiedsbescherming

Door middel van gebiedsbescherming wordt een beschermingskader geboden voor de flora en fauna binnen aangewezen beschermde gebieden. Hieronder vallen de speciale beschermingszones volgens de Europese Vogel- en Habitatrichtlijn, gebieden die deel uitmaken van het NNN, beschermde natuurmonumenten en staatsnatuurmonumenten. Een belangrijk onderdeel van de Wet Natuurbescherming is dat er geen vergunning gegeven mag worden voor handelingen of projecten die schadelijk kunnen zijn voor de kwaliteit van de habitats van soorten, waarvoor een gebied is aangewezen. Wanneer niet op voorhand uitgesloten kan worden dat er schadelijke effecten kunnen optreden, dan dienen de initiatiefnemers een 'passende beoordeling' te maken. Dat betekent een onderzoek naar alle aspecten van het project en welke gevolgen die kunnen hebben voor datgene wat bescherming geniet.

Soortenbescherming

Het doel van de Flora- en faunawet is het instandhouden en beschermen van in het wild voorkomende planten- en diersoorten. De Flora- en faunawet kent zowel een zorgplicht als verbodsbepalingen. De zorgplicht geldt te allen tijde voor alle in het wild levende dieren en planten en hun leefomgeving. De verbodsbepalingen zijn gebaseerd op het 'nee, tenzij'-principe. Alle schadelijke handelingen ten aanzien van beschermde planten- en diersoorten zijn in principe verboden, maar er kan worden afgeweken van de verbodsbepalingen middels ontheffingen. Er bestaan drie beschermingsregimes voor drie verschillende groepen van beschermde soorten. Voor de algemeen beschermde soorten geldt een algemene ontheffing voor ruimtelijke ingrepen. Ook voor de overige beschermde soorten is ontheffing mogelijk, als wordt gewerkt volgens een goedgekeurde gedragscode. Voor strikt beschermde soorten kan enkel afgeweken worden na een uitgebreide toetsing.

4.9.2 Situatie plangebied

Vergelijk Schokkerhoek en Zeeheldenwijk

In het kader van het bestemmingsplan Schokkerhoek is inzicht gegeven in de aanwezige natuurwaarden en de mogelijk daarmee samenhangende consequenties. De natuurtoets en ook de voortoets zijn uitgevoerd door Antea Group. Het gaat hierbij om hetzelfde planologische gebied, maar nu met de naam Zeeheldenwijk. Daar waar Schokkerhoek staat moet Zeeheldenwijk worden gelezen. In de voortoets is voorgesteld om nader onderzoek te doen naar een aantal beschermde soorten. Dit nadere onderzoek is, tezamen met een herziening van de analyse van beschermde gebieden (Natuurnetwerk Nederland) in de voortoets, uitgevoerd door Landschapsbeheer Flevoland.

De Natuurtoets (Flora en faunawet en NNN) is als Bijlage 13 bijgevoegd. De Voortoets is als Bijlage 14 bij deze toelichting gevoegd. Het nadere onderzoek is als Bijlage 15 bij deze toelichting gevoegd.

Consequenties inwerkingtreding Wet natuurbescherming

De Natuurtoets en de Voortoets zijn opgesteld in 2016. Per 1 januari 2017 is de Wnb in werking getreden. De Wnb brengt enkele wijzigingen met zich mee voor wat betreft natuurbescherming. In de nieuwe wet treedt de provincie op als bevoegd gezag (met uitzondering van landelijke projecten). Inhoudelijk zijn als gevolg van de wetswijziging voornamelijk (maar niet uitsluitend) veranderingen opgetreden in de soortenbescherming (voorheen geborgd door de Flora- en faunawet). Zo zijn na de inwerkingtreding veel zeevissen, zoetwatervissen, dagvlinders en plantensoorten niet meer beschermd. Er zijn echter ook een aantal vlinder,- libel- en plantensoorten die bij de inwerkingtreding van de Wnb juist wel een beschermde status hebben gekregen. Provincies hebben gebruik gemaakt van de mogelijkheid om middels de provinciale verordeningen (een deel van) de zogenaamde 'andere soorten' (art 3.10 Wnb) vrij te stellen van de ontheffingsplicht. Provincie Flevoland is bij de implementatie van de wet uitgegaan van het bestaande beleid van het rijk op het gebied van soortenbescherming (Verordening uitvoering Wet Natuurbescherming Flevoland 2016, 1-11-2016). Bij het opstellen van de lijst van vrijgestelde soorten heeft de provincie rekening gehouden met de lijst van beschermde dier- en plantensoorten die voorkomen in de provincie Flevoland. Soorten die niet voorkomen in de provincie Flevoland zijn niet vrijgesteld (en opgenomen in bijlage 3 van de Verordening van Flevoland). In een oplegnotitie is onderzocht of de wetswijziging van 1 januari 2017 invloed heeft op de conclusies van de eerder opgestelde Natuurtoets en Voortoets. Deze oplegnotitie is Bijlage 16 als bijgevoegd.

4.9.3 Natuurtoets

Soortenbescherming plangebied

Met de uitgevoerde natuurtoets (zie Bijlage 13) kan worden uitgesloten, dat de gunstige staat van beschermde soorten in gevaar komt door activiteiten die mogelijk gemaakt worden door het bestemmingsplan, mits rekening wordt gehouden met de maatregelen zoals aangegeven in figuur 4.13.

afbeelding "i_NL.IMRO.0184.BP2019ZHW-0301_0021.png"

Figuur 4.13: Mogelijk voorkomen van en effecten op beschermde soorten in het plangebied.

Ten aanzien van de rugstreeppad wordt voor de volledigheid het volgende opgemerkt. Het is aannemelijk dat de rugstreeppad in het plangebied aanwezig is; de soort is veelvuldig aanwezig in de Noordoostpolder. In het verleden kon in de Noordoostpolder voor de rugstreeppad gebruik worden gemaakt van het soortmanagement plan voor de rugstreeppad (De Nooij, 2007). De ontheffing die hiervoor gold is echter verlopen wat betekent dat in de huidige situatie voor nieuwe ontwikkelingen een ontheffing moet worden aangevraagd wanneer het overtreden van verbodsbepalingen niet uitgesloten kan worden.

Ten aanzien van de soortenbescherming van beschermde soorten in relatie tot de activiteiten die mogelijk gemaakt worden door het bestemmingsplan, concludeert Landschapsbeheer Flevoland in het nadere onderzoek (zie Bijlage 15) het volgende:

  • Rugstreeppad: ondanks dat er geen rugstreeppadden zijn aangetroffen wordt geadviseerd om toch een ontheffing Wnb aan te vragen. Het is verstandig om nu al na te denken hoe tijdens de ontwikkeling van de nieuwe wijk rekening gehouden gaat worden met de rugstreeppad, omdat het vrijwel zeker is dat er tijdens de ontwikkeling rugstreeppadden aangetroffen gaan worden.
  • Jaarrond beschermde nesten (boomvalk, buizerd, huismus en ransuil): er hoeft geen rekening gehouden te worden met jaarrond beschermde nesten.
  • Vleermuizen verblijfplaatsen: nader onderzoek naar verblijfplaatsen van vleermuizen en een ontheffing Wnb is niet nodig vanwege het ontbreken van holle bomen.
  • Vleermuizen met vliegroutes langs de Urkerweg: een ontheffing Wnb is niet nodig voor de kap van eventuele bomen langs de Urkerweg, omdat het aantal gewone dwergvleermuizen langs de Urkerweg te gering is om van groot belang te zijn voor de Urker populatie. Het is wel waarschijnlijk dat de Urkerweg op termijn een belangrijkere rol krijgt voor deze soort. Binnen het landschapsplan is het daarnaast niet de bedoeling dat veel bomen verdwijnen langs deze weg.
  • Vleermuizen met vliegroutes of jachtgebieden boven de Urkervaart: een ontheffing Wnb wordt geadviseerd voor de meervleermuis in relatie met de ontwikkeling van de brug waarbij getoetst wordt in hoeverre bij het ontwerp van de verlichting bij de brug rekening gehouden is met de meervleermuis.
  • Vleermuizen en de omzetting van akkerland in woningbouw: nader onderzoek naar en een eventuele ontheffing voor de vleermuizen voor het realiseren van de woonwijk is niet nodig.
  • Otter: bij het ontwerp van de brug over de Urkervaart dient rekening gehouden te worden met de otter. Een ontheffing Wnb is wenselijk om te laten toetsen of de brug zowel zwemmend als lopend voldoende passeerbaar is voor de otter.
  • Steenmarter: bij het ontwerp hoeft geen rekening gehouden te worden met deze beschermde soort, omdat de impact van het plan zeer beperkt zal zijn en de eisen die de vleermuizen en otter stellen aan de uiteindelijke vormgeving van de oevers gunstig zijn voor de steenmarter.

Ten aanzien van de rugstreeppad wordt opgemerkt dat er, als gevolg van het bouwrijp maken en de realisatie van ondiep water, in eerste instantie een ideaal leefgebied ontstaat voor deze soort. Pas in de laatste fase van de ontwikkeling zal een situatie ontstaan waarin de rugstreeppad een definitieve plek nodig heeft. Om de rugstreeppad te verleiden om zich te vestigen op een gunstige locatie is een inrichtingsplan opgesteld, op basis waarvan de gemeente Urk compensatiegebied ten behoeve van de rugstreeppad zal (laten) inrichten. Daarmee vormt het (eventuele) voorkomen van de rugstreeppad voor het vaststellen van het bestemmingsplan geen belemmering. Voor het verstoren van de meervleermuis en de otter is - in verband met de herinrichting langs de Urkervaart - op 29 januari 2020 door de provincie Flevoland een ontheffing Wnb verleend. Aan deze ontheffing zijn voorwaarden verbonden. In aanvulling op voorgaande gemeld dienen deze voorschriften nageleefd te worden.

Gelet op deze conclusies kan er vanuit worden gegaan dat de Wnb ten aanzien van de soortenbescherming de uitvoering van het plan niet in de weg staat.

4.9.4 Gebiedsbescherming / Natuurnetwek Nederland

De Urkervaart, liggend direct ten noorden van het plangebied, maakt deel uit van het Natuurnetwerk Nederland. Daarnaast maakt de Urkervaart deel uit van een ecologische verbindingszone. De Urkervaart wordt beheerd als zoete plas (Natuurbeheerplan 2016, Provincie Flevoland). In het rapport Wezenlijke kenmerken en waarden EHS gemeenten Noordoostpolder en Urk (A&W rapport) zijn de doelsoorten voor de verbindende functie van deze vaart benoemd.

Het voornemen voor planontwikkeling heeft geen effect op het natuurdoeltype. In het kader van de ecologische verbindingszone moet rekening worden gehouden met de functie van de verbinding als vliegroute voor vleermuizen, voor landzoogdieren en voor de rugstreeppad. Hierbij geldt dat de volgende maatregelen worden genomen:

  • 1. voor zoogdieren en rugstreeppad: bij de aanleg van de nieuwe brug over de Urkervaart moet voorkomen worden, dat de oeverzone wordt onderbroken;
  • 2. voor vleermuizen: de mogelijke vliegroute langs de Urkervaart moet functioneel blijven. Mogelijke maatregelen zijn:
    • a. er moet worden voorkomen dat lichten worden gericht op de Urkervaart of dat de vaart (tijdelijk) wordt geblokkeerd. Om te voorkomen dat (openbare) verlichting de mogelijke vliegroute van vleermuizen langs de Urkervaart belemmert is een regeling opgenomen in lid 21.3.
    • b. bij het ontwerp van de brug over de Urkervaart dient rekening te worden gehouden met de barrièrewerking van wegen voor vleermuizen. Er zijn mogelijkheden om deze te beperken (bijvoorbeeld hopovers; sommige vleermuizen kunnen onder bepaalde omstandigheden ook onder een viaduct passeren). Boven het wateroppervlak moet daarom een doorvliegroute van minstens 4 meter breed en 1,5 meter hoog mogelijk blijven. Er mag geen voor vleermuizen hinderlijke lichtuitstraling zijn op het wateroppervlak. Bij voorkeur dient amberkleurig licht gebruikt te worden. De brug voldoet aan deze maatvoeringseisen. Deze zijn middels bouwregels in de planregels geborgd.
  • 3. voor rugstreeppad: de inrichting van de oeverzone wordt afgestemd op de (verbindende functie voor de) rugstreeppad.

In het nadere onderzoek (zie Bijlage 15) concludeert Landschapsbeheer Flevoland ten aanzien van de gebiedsbescherming van de NNN het volgende:

  • 1. De aanleg van het wandelpad langs de Urkerweg in combinatie met meer open groenstructuren komt niet ten goede aan de wezenlijke kenmerken en waarden van de Urkervaart.
  • 2. Het aanbieden van rustgebied aan de andere zijde van de Urkerweg in combinatie met een voor otters goed passeerbare duiker onder de Urkerweg kan gezien worden als een goede mitigatie voor de realisatie van het pad en aanpassing van de beplanting.
  • 3. Het realiseren van de brug in combinatie met in- en uitvoegstroken vraagt aandacht omdat daarmee oppervlak NNN verloren gaat.
  • 4. Het realiseren van de woonwijk met daarbij enkele waterpartijen die gekoppeld zijn aan de Urkervaart heeft twee kanten. Enerzijds positief voor met name de onderwatergebonden soorten vanwege het ondiepere en waterplantenrijkere deel dat aangekoppeld wordt. Anderzijds is het voor met name oevergebonden soorten lastiger en voorkomen moet worden dat de oevers aan deze zijde van de Urkervaart voorzien worden van steile of harde oevers, aanlegsteigers of andere constructies die de doorgang van dieren hindert. Het is daarom waarschijnlijk minder handig om tuinen op deze oevers te laten uitkomen omdat dit op termijn handhaving van de gemeente gaat vragen om ongewenste ontwikkelingen tegen te gaan.
4.9.5 Voortoets

Uit de voortoets (Bijlage 14), inclusief stikstof depositieonderzoek (Bijlage 17), blijkt, dat een negatief effect uit te sluiten is. Nu het bestemmingsplan geen negatieve gevolgen kan hebben voor een Natura 2000-gebied, hoeft geen passende beoordeling te worden gemaakt (en er hoeft ook geen plan-MER opgesteld te worden). Dit volgt uit de Natuurbeschermingswet 1998 (Nbwet), thans Wet natuurbescherming (Wnb).

Natura 2000

In navolgende tabel zijn alle storingsfactoren benoemd die in de voortoets beschreven zijn. Conclusie is dat negatieve effecten op Natura 2000-gebieden als gevolg van de ontwikkelingen die het bestemmingplan mogelijk maakt (woningbouw, bedrijven en voorzieningen) met zekerheid zijn uit te sluiten.

afbeelding "i_NL.IMRO.0184.BP2019ZHW-0301_0022.png"

Het is op basis van deze voortoets met zekerheid uit te sluiten, dat de natuurlijke kenmerken van Natura 2000-gebieden, als gevolg van de ontwikkelingen die het bestemmingplan Zeeheldenwijk mogelijk maakt worden aangetast. Daarmee staat de Natuurbeschermingswet de uitvoerbaarheid van het bestemmingsplan niet in de weg.

Beschermden natuurwaarden

Er zijn geen negatieve effecten te verwachten op het beschermd natuurmonument Toppad Urk en op het beschermd natuurmonument Staartweg Urk als gevolg van de ontwikkelingen die het bestemmingsplan Zeeheldenwijk mogelijk maakt.

4.9.6 Oplegnotitie Zeeheldenwijk

De inwerkingtreding van de Wet natuurbescherming per 1 januari 2017 leidt niet tot verandering van de conclusies gesteld in de Natuurtoets (Antea Group, 2016a) en Voortoets (Antea Group, 2016b).

De bescherming van op de planlocaties voorkomende kleine modderkruiper is met de komst van de nieuwe wet komen te vervallen. Bij uitvoering van het plan dient men rekening te houden met het voorkomen van broedende vogels. Bij de daadwerkelijke ontwikkeling van Zeeheldenwijk zal onderzoek plaatsvinden naar het voorkomen van de rugstreeppad. De verwachting is dat een ontheffing verleenbaar is. Vanuit de gebiedsbescherming zijn er geen belemmeringen voor de uitvoering van het project wat Natura 2000-gebieden betreft. De status van de beschreven en getoetste Beschermde natuurmonumenten is vervallen.

4.9.7 Samenvatting natuurparagraaf

Voor de realisatie van de Zeeheldenwijk op Urk is inzicht nodig in de verplichtingen ten aanzien van de Wet natuurbescherming. De Wet natuurbescherming kent een aantal onderdelen, waaronder module de Natura-2000 gebieden, de module Soorten en de module Houtopstanden. Geen van deze onderdelen zal de bestemmingswijziging tegenhouden, maar bij de realisatie van de Zeeheldenwijk zal wel rekening gehouden moeten worden met deze drie onderdelen van de Wet natuurbescherming. Daarnaast is de Urkervaart aangewezen als onderdeel van het Natuurnetwerk Nederland, dit blokkeert de bestemmingswijziging niet maar er zal wel rekening mee gehouden moeten worden.

Onderdeel soorten

De toekomstige Zeeheldenwijk bestaat op dit moment uit akkers en enkele boerderijen met bijbehorende erven en wordt begrensd door onder andere de Urkervaart.

Binnen de Wet natuurbescherming, onderdeel soorten, worden tal van dier- en plantsoorten beschermd. Er heeft een bureaustudie plaatsgevonden naar het plangebied van de Zeeheldenwijk, hierin is bepaald welke beschermde planten en dieren mogelijk in het gebied voorkomen (Reinhold, 2019). In totaal kwamen uit die studie zo'n 35 beschermde soorten (exclusief alle broedende vogels). Een flink deel hiervan staat op de vrijstellingslijst van de Provincie Flevoland. Dit zijn soorten waarvan de Provincie verwacht dat ze zo algemeen zijn dat ruimtelijke ontwikkelingen geen invloed hebben op de staat van instandhouding van de soort (in Flevoland). Nader onderzoek naar deze soorten is derhalve niet noodzakelijk.

De overige soorten zijn in Flevoland schaars tot redelijk algemeen. De Zeeheldenwijk is voor geen van de beschermde soorten zodanig belangrijk in zijn voortbestaan dat de ontwikkeling van de Zeeheldenwijk niet door zou kunnen gaan vanwege de aanwezigheid van een beschermde plant of diersoort. Wel kan het betekenen dat de aanwezigheid van de beschermde soorten invloed heeft op de manier waarop het gebied vormgegeven wordt en/of hoe de werkzaamheden uitgevoerd worden. Hierbij kan gedacht worden aan de realisatie van compensatiegebieden voor de rugstreeppad en de otter en het natuur-inclusief bouwen van woningen om de vestigingsmogelijkheid van de huismus en de kerkuil te continueren na de eventuele sloop van boerenschuren. De perioden waarop deze eventueel gesloopt worden kunnen ook worden beperkt. Denk daarnaast ook aan het realiseren van verblijfplaatsen voor diverse vleermuissoorten.

Reeds is er een inchtingsplan opgesteld voor de inrichting van een compensatiegebied voor de rugstreeppad. Voor het verstoren van de meervleermuis en de otter is - in verband met de herinrichting langs de Urkervaart - reeds een ontheffing Wnb verleend.

Onderdeel houtopstanden

Binnen het plangebied liggen houtopstanden, die mogelijk gekapt moeten worden. Deze houtopstanden zullen de bestemmingswijziging niet tegenhouden. Maar er geldt mogelijk een meldingsplicht en, afhankelijk van de precieze invulling, mogelijk een herplantingsplicht.

Onderdeel Natura-2000

Bekeken moet worden of door de ruimtelijke ontwikkeling stikstof mogelijk een rol speelt in of invloed heeft op stikstofgevoelige Natura-2000 gebieden in de omgeving. Het dichtstbijzijnde stikstofgevoelige Natura-2000 gebied betreft de Weerribben en de Wieden (24 km). Hoewel het IJsselmeer en de Rijntakken (IJssel) de dichtsbijzijnde Natura 2000-gebieden zijn, hebben deze gebieden in de directe omgeving geen stikstofgevoelige habitattypes liggen. Uit de Aeriusberekeningen voor de aanleg en het gebruik, blijkt dat er geen toename van stikstofdepositie op de stikstofgevoelige gebieden plaatsvindt ten opzichte van de referentiesituatie (bemest bouwland).

Natuurnetwerk Nederland

De oeverzone van de Urkervaart behoort tot het Natuurnetwerk Nederland (NNN) (Provincie Flevoland, 2020). Het betreft een netwerk aan groen/natuur, dat samen ervoor zorgt dat tal van dieren en planten van het ene naar het andere natuurgebied kunnen trekken en de NNN functioneert eveneens als leefgebied voor veel soorten. Voor de NNN-gebieden zijn de wezenlijke kenmerken en waarden beschreven. Voor de Urkervaart is het gebied vooral van belang als migratiegebied voor o.a. otter, meervleermuis, watervleermuis en ringslang. Tevens is het gebied een natte verbindingszone voor vissen, waaronder de blankvoorn. Ook is het gebied belangrijk als verbindingszone voor verschillende libellensoorten.

De aanwezigheid van het NNN als grens van de woonwijk hoeft niet betekenen dat de ontwikkeling van de Zeeheldenwijk geen doorgang kan vinden. Wel betekent het dat nabij de oevers van de Urkervaart op basis van daartoe gespecialiseerd ecologisch onderzoek, voor deze soorten beschermende en geleidende aanpassingen moeten worden verricht. Dat heeft geleid tot het vastleggen van aanpassingen op maat voor een aantal soorten.

Bij de ontwikkeling van de Michiel de Ruyterbrug en het recreatieve wandelpad met bijbehorende ingrepen in de vegetatie aan de noordelijke oever van de Urkervaart speelt de Wet natuurbescherming, onderdeel beschermde gebieden een rol. Het gebied maakt deels onderdeel uit van het Natuurnetwerk Nederland. De effecten hebben betrekking op het oppervlakverlies van de NNN door de komst van de brug en door het verlies aan kwaliteit van de wezenlijke kenmerken en waarden door de realisatie van het wandelpad. Er wordt een gedeelte onttrokken aan de NNN (landhoofden). Het wandelpad blijft deel uitmaken van de NNN. Zonder mitigatie blijven er echter teveel negatieve effecten over. Met behulp van mitigatie door de aanwijzing en inrichting van een rietstrook als nieuwe NNN bij Oranjewijk (zie aanduiding Ecologie op de verbeelding) en de realisatie van een vaarduiker met otterplanken onder de Urkerweg naar deze rietstrook wordt de schade aan de NNN-Urkervaart gemitigeerd; zowel in oppervlak als in kwaliteit. Het noordelijke landhoofd van de brug wordt tevens voorzien van een otterplank wat contractueel is vastgelegd. Het in dit rapport genoemde gedeelte van het NNN gaat beheerd worden door de gemeente Urk conform het in bijlage 1 beschreven beheerplan, zie rapport Landschapsbeheer 25022020.

Bronnen:

Provincie Flevoland. (2020). Opgehaald van https://geo2.flevoland.nl/viewer/app/natuurnetwerk/

Reinhold, J. (2019). Beschermde soorten bij Binnendijks Bedrijventerrein Urk . Lelystad: Landschapsbeheer Flevoland.

4.10 Spuitzone

Bij de opzet van het bestemmingsplan (voorontwerp) moest rekening worden gehouden met een afstand tot agrarische gronden, waarbij op grond van het bestemmingsplan ook fruitteelt mogelijk was. Vanwege de planologisch-juridische mogelijkheid voor fruitteelt is toen rekening gehouden met het worstcase scenario. Bij het onderzoek is daarbij uitgegaan van het meest intensieve gebruik van gewasbeschermingsmiddelen in de fruitteelt: de teelt van appels en peren.

Het betreft de gronden globaal gelegen ten zuiden en ten oosten van het plangebied. Op basis van onderzoek moest rekening houdend met een afstand van 26 meter tussen een (eventuele) fruitboomgaard en een gevoelige bestemming, wil sprake zijn van een aanvaardbaar woon- en leefklimaat. Op de verbeelding was dit weergegeven met een milieuzone.

Door verwerving van het agrarisch bedrijf door de gemeente is contractueel vastgelegd dat de agrarische gronden niet meer gebruikt mogen worden voor de fruitteelt. Met voorgaande is bereikt dat binnen het plangebied geen rekening meer gehouden hoeft te worden met de genoemde afstand. Binnen de regels hoeft met de eerdere spuitzone geen rekening te worden gehouden en is woningbouw binnen een kortere afstand mogelijk.

Conclusie

Van de eerder opgenomen spuitzone (milieuzone) is door verwerving van het agrarische bedrijf geen sprake meer. De 'voormalige' spuitzone vormt geen belemmering voor de uitvoering van het plan.

4.11 Luchtkwaliteit

Kader

De Nederlandse wet- en regelgeving voor luchtkwaliteit vloeit voort uit titel 5.2 van de Wet milieubeheer (Wm), ook wel de Wet luchtkwaliteit genoemd. Deze wet implementeert onder andere de normen uit Europese regelgeving. Op grond van artikel 5.16 Wm dient een bestuursorgaan, in geval van de in dit artikel genoemde gevallen, een besluit te nemen met in achtneming van één van de volgende gronden:

  • 1. het project leidt niet tot overschrijding van een grenswaarde;
  • 2. het project leidt per saldo tot gelijk blijven of verbetering van de luchtkwaliteit;
  • 3. het project draagt 'niet in betekenende mate' bij aan de concentratie van een stof;
  • 4. het project is genoemd in of past binnen het Nationaal Samenwerkingsprogramma Luchtkwaliteit (NSL).

Het NSL is een programma waarbij rekening is gehouden met (toekomstige) projecten en maatregelen door middel van een pakket van maatregelen waardoor er binnen een bepaalde termijn aan de grenswaarden voor fijn stof (PM10) en stikstofdioxide (NO2) wordt voldaan. De ontwikkelingen binnen het plan 'Zeeheldenwijk' zijn niet opgenomen in het NSL. Reden waarom het plan op de luchtkwaliteit moet worden onderzocht en dat getoetst moet worden aan de grenswaarden uit de Wet luchtkwaliteit. Vanwege de verandering in het programma is het luchtkwaliteitsonderzoek dat in het kader van het plan Schokkerhoek was uitgevoerd geactualiseerd.

De normen voor de NO2-, PM10- en PM2,5-concentraties zijn in de hierna opgenomen figuur 4.14 weergegeven.

afbeelding "i_NL.IMRO.0184.BP2019ZHW-0301_0023.png"

Figuur 4.14: Overzicht normen luchtverontreinigende stoffen.

Deze grenswaarden vertegenwoordigen het niveau waaronder geen onacceptabele gezondheidseffecten of onaanvaardbare nadelige milieueffecten optreden als gevolg van de heersende concentraties aan luchtverontreiniging.

Naast een jaargemiddelde grenswaarde voor de NO2-concentratie geldt voor deze stof ook een grenswaarde voor de uurgemiddelde NO2-concentratie. De gemiddelde 1-uurs grenswaarde bedraagt 200 ìg/m3. Voor deze norm geldt dat deze niet vaker dan 18 keer per jaar overschreden mag worden. Uit metingen blijkt dat een overschrijding van deze grenswaarde, behalve in uitzonderlijk drukke stadssituaties, al lang niet meer aan de orde is. Nu ook in deze situatie de uurgrenswaarde geen rol speelt, is deze beoordeling buiten beschouwing gelaten.

Naast stikstofdioxide en (zeer) fijn stof zijn er in de Wet milieubeheer ook grenswaarden opgenomen voor zwaveldioxide, lood, koolmonoxide en benzeen. Voor deze stoffen geldt dat het verschil tussen de grenswaarde en de som van de bijdrage van het wegverkeer en de achtergrondconcentratie zo groot is, dat een overschrijding van de grenswaarden wordt uitgesloten. Om deze reden zijn deze stoffen buiten beschouwing gelaten.

Onderzoek

Onderzocht is in hoeverre de emissies van het totale aangepast programma de totale concentraties luchtverontreinigende stoffen beïnvloeden. Dit onderzoek is als Bijlage 18 bijgevoegd.

De uitgangspunten in het onderzoek zijn verouderd; inmiddels is er een nieuw verkeersmodel en is het aantal te ontwikkelen woningen toegenomen. Nu in het onderzoek al geconcludeerd is dat de op te treden concentraties ruimschoots lager zijn dan de grenswaarden en omdat de grenswaarden in de tussentijd niet veranderd zijn, kan op basis van expert judgement geconcludeerd worden dat de conclusies uit het onderzoek stand kunnen houden ook na aanpassing van deze uitgangspunten.

Conclusie

Gezien de planontwikkeling voor woningbouw en bedrijven is met name onderzoek uitgevoerd naar de voor deze situatie maatgevende stoffen NO2, PM10 en PM2,5.

Uit het onderzoek blijkt dat op 10 meter uit de rand van de beschouwde wegen, ter plaatse van de bestaande woningen in de omgeving van het plan en op de grens van de bedrijfsbestemming concentraties optreden die ruimschoots lager zijn dan de grenswaarden. Nu de ontwikkelingen in het plan niet leiden tot concentraties die de grenswaarden overschrijden leidt de Wet luchtkwaliteit niet tot belemmeringen voor de ontwikkelingen in dit plan.

4.12 Waterparagraaf

4.12.1 Kader

Algemeen

Voor wat betreft het wettelijk kader zijn diverse wetten en plannen bepalend voor het aspect water. In dit kader en als basis voor de beoordeling kunnen in ieder geval worden genoemd: Waterbeleid voor de 21e eeuw, de Waterwet en het Nationaal Waterplan. Er wordt gestreefd naar een duurzaam en veerkrachtig watersysteem met minimale risico's op wateroverlast of watertekorten. Belangrijk instrument bij het beoordelen van bestemmingsplannen is de watertoets. Doel is om te kunnen garanderen dat waterhuishoudkundige doelstellingen expliciet en op evenwichtige wijze worden afgewogen. Deze doelstelling betreft zowel de waterkwantiteit (veiligheid, wateroverlast en tegengaan van verdroging) als de waterkwaliteit (riolering, omgang met hemelwater en lozingen op het oppervlaktewater). In dit onderdeel wordt verder ingegaan op de verschillende wateraspecten.

Nationaal Bestuursakkoord Water

Afspraken over het toepassen van de watertoets bij ruimtelijke plannen zijn gemaakt in het Nationaal Bestuursakkoord Water. In het akkoord zijn maatregelen afgesproken met als doel het watersysteem in 2015 'op orde' te hebben. Op 31 oktober 2018 zijn met de waterpartners aanvullende afspraken gemaakt op het Bestuursakkoord Water. In het bestuursakkoord zijn taakstellende afspraken opgenomen over veiligheid en wateroverlast. Ook is een impuls gegeven aan het gebruik van de watertoets. Het doel van de watertoets is het waarborgen van waterhuishoudkundige belangen in ruimtelijke plannen.

Waterschap Zuiderzeeland

Waterschap Zuiderzeeland is waterbeheerder in het plangebied en is verantwoordelijk voor de waterhuishoudkundige verzorging (waterkwaliteit en waterkwantiteit) binnen het plangebied. Het beleid van het waterschap is verwoord in de volgende documenten en wordt hierna kort besproken:

  • Waterbeheerplan 2016 – 2021 / Waterbeheerprogramma 2022-2027;
  • Keur Waterschap Zuiderzeeland (april 2017);
  • De Uitbeelding;
  • Het Waterkader.

4.12.2 Onderzoek

De gemeente Urk heeft een Watervisie opgesteld voor drie ruimtelijke ontwikkelingen. Het Binnendijks bedrijventerrein, de Maritieme Servicehaven en de woonontwikkeling Zeeheldenwijk. De ambitie van de watervisie is een toekomstig bestendig en duurzaam (afval)watersysteem wat voldoet aan het huidige eisen met betrekking tot oppervlaktewater, hemelwater en afvalwater. De 'Basis op Orde'. De watervisie staat niet op zichzelf. Een basis is gelegd in het Verbreed Gemeentelijk Rioleringsplan (VGRP Urk 2016 - 2021). Daarnaast heeft Urk haar Structuurvisie (2019) geactualiseerd en sluit de watervisie aan op de ambities van het Deltaplan Ruimtelijke Adaptatie.

In het kader van het bestemmingsplan is een geactualiseerde watertoets uitgevoerd. Deze is opgenomen in Bijlage 19.

4.12.2.1 Huidige situatie plangebied

Huidige situatie

Het plangebied is circa 94 hectare groot en bestaat in de huidige situatie voornamelijk uit agrarische percelen en enkele woningen. Aan de westzijde is het bedrijventerrein 'Zwolsche Hoek' gelegen, gescheiden door de Zuidermeertocht. Aan de zuidzijde wordt het plangebied begrensd door de Domineesweg. De noordzijde tenslotte wordt begrensd door de Urkervaart. Aan de zuid- en de oostzijde van het plangebied bevinden zich op dit moment agrarische bedrijven.

De kern van Urk bevindt zich op een keileemopduiking uit het Pleistoceen, waardoor zich daar weinig tot geen (slecht doorlatende) Holocene afzettingen bevinden. Maar de - lagergelegen - omgeving van Urk is in het verleden met regelmaat overstroomd, waardoor afwisselend klei, leem en zand is afgezet. Daarnaast is er veenvorming opgetreden. De Zeeheldenwijk bevindt zich in deze lagergelegen delen. De huidige, gemiddelde maaiveldhoogte van het plangebied is circa NAP - 4,1 m.

Top
[m NAP]  
Basis
[m NAP]  
Formatie   Lithologie   Doorlatendheid
/ weerstand  
Geohydrologische interpretatie  
-4,1   -5,5   Holoceen   zandige klei / kleiig zand   0,5 m/d   WVP 1  
-5,5   -10   Holoceen   klei, veen   450 tot 4500 d   SDL 1  
-10   -12   Boxtel   matig fijn zand   4 m/d   WVP 2  
-12   -20   Kreftenheye   matig grof zand   25 m/d    
-20   -22   Urk   klei   500 tot 1000 d   lokale basis  

Tabel 2: Bodemopbouw en geohydrologische interpretatie ter plaatse van het plangebied (fase 1a)

  • WVP = watervoerend pakket, SDL = scheidende laag, GHB = geohydrologische basis
  • De weerstand van de deklaag is berekend op basis van een verticale doorlatendheid van 0.001 tot 0.05 m/d

Door het waterschap en de gemeente is het risico op opbarsting door ontgraving dieper dan 1,0 m als groot ingeschat. Dit aspect dient meegewogen te worden bij de planuitwerking en de inrichting van compenserende maatregelen voor de waterberging.

In het plangebied is de te verwachten bodemdaling tot 2050 nul tot enkele centimeters. Door de geplande verstedelijking van deze voormalige agrarische percelen is sprake van ophoging. Zonder maatregelen zal door de ophoging zetting optreden. Om dit te voorkomen wordt het terrein voorbelast met als doel de restzetting te minimaliseren tot 10 cm per 30 jaar.

Om meer inzicht te krijgen in de optredende freatische grondwaterstanden en stijghoogten in het onderliggende watervoerende pakket (WVP2) zijn in het plangebied van de Zeeheldenwijk ondiepe en diepe peilbuizen geplaatst. De peilbuizen meten de freatische grondwaterstanden (ondiep filter) en de stijghoogte in het onderliggende watervoerende pakket (diep filter).

In zowel het freatische als het watervoerende pakket (onder de deklaag) stroomt het grondwater (in grote lijnen) richting de Urkervaart. Oftewel, de stromingsrichting is noordwestelijk. Er is geen eenduidige kwel- of wegzijgingssituatie in het plangebied. Dit wijst erop dat er afhankelijk van de neerslag en lokale samenstelling/ weerstand van de deklaag er wisselend sprake is van kwel of wegzijging.

 

In of nabij het plangebied zijn geen recente, langjarige metingen van de freatische grondwaterstand of stijghoogte beschikbaar. Dit maakt het lastig een betrouwbare schatting van de gemiddelde laagste grondwaterstand (GLG) en gemiddeld hoogste grondwaterstand (GHG) uit te voeren. Op de bodemkaart (1 op 50.000) is in het plangebied een grondwatertrap IV aangegeven; GHG > 0,4 m – maaiveld, GLG tussen 0,8 en 1,2 m – maaiveld. Oftewel, een GHG van maximaal NAP -4,5 m NAP, en een GLG van maximaal NAP -5,3 m NAP. Afgezien van peilbuis 1 – gelegen nabij open water – lijken deze waarden redelijk aan te sluiten bij de bovengenoemde grondwaterstanden.

In de landbouwpercelen bevindt zich momenteel buisdrainage. De buisdrainage wordt onderhouden door de perceeleigenaren en functioneren momenteel goed daarmee ook mogelijk een belangrijke bijdrage leveren aan de huidige ontwatering. De buisdrainage is daarentegen wel gevoelig voor verstopping - ten gevolge van de neerslag van ijzer, vanuit opkomend ijzerhoudend kwelwater. Het grondwater is van relatief slechte kwaliteit. De oorzaak daarvan is natuurlijke kwel met daarin een hoge concentratie ijzer. Hierdoor krijgt het oppervlaktewater een bruinige kleur, wat een matig beeld geeft qua beleving. Het is echter binnen de Noordoostpolder geen onbekend fenomeen en komt ook voor in ander (stedelijk) oppervlaktewater. De waterkwaliteit op zich zal niet minder goed zijn dan dat van de Urkervaart, waarmee een open verbinding wordt gecreëerd. De Urkervaart is met het oog op waterkwaliteit doorgaans robuust (fosfaat en stikstof). Tegelijkertijd is de huidige kwelstroom juist in droge periode gewenst om nog aanvulling en doorstroming te verkrijgen in het oppervlaktewatersysteem.

De Urkervaart is een aangewezen KRW-waterlichaam, met een daarbij behorende opgave. Deze opgave bestaat uit de aanleg van 40% zachte oevers, waarmee in 2008 is begonnen. Deze opgave heeft geen invloed op de ontwikkeling van de Zeeheldenwijk waarin het oppervlaktewater in open verbinding met de Urkervaart onderdeel uit gaat maken van een KRW-waterlichaam."

Verwacht wordt dat de oppervlaktewaterkwaliteit in het plangebied redelijk voedselrijk is. Dit komt onder andere door uitspoeling van meststoffen uit landbouwgronden (fosfaat en stikstof) en kwel dat naar verwachting voedselrijk is.

Het plangebied is gelegen binnen Dijkring 7. Binnen het plangebied zijn geen waterkeringen gelegen. De ontwikkeling voorziet ook niet in de aanleg van nieuwe waterkeringen en/of werkzaamheden aan bestaande waterkeringen.

Ten noorden van het plangebied (ten noorden van de Urkervaart en Urkerweg) is een transportpersleiding richting AWZI Tollebeek gelegen. Het betreft één van de twee transportleidingen naar de AWZI. In 2020 is waterschap een onderzoek gestart naar de afvoercapaciteit van beide transportleidingen, uitgaande van de toekomstige ontwikkelingen, waar onder andere de Zeeheldenwijk onder valt.

Het huidige inzicht is dat het transportleidingsysteem van het waterschap de eerste groei van Zeeheldenwijk kan transporteren. Het volledig geprognotiseerde aanbod kan echter niet worden verwerkt. Het waterschap en de gemeente zullen, gezamenlijk en vroegtijdig vóór het bereiken van de maximale toevoer, een plan opstellen voor het uitbreiden van het afvalwatertransportsysteem van het waterschap. Dit plan zal worden vastgelegd in een 'Bestuursakkoord Afvalwater Urk'.

Randvoorwaarden

In het watertoetsrapport zijn randvoorwaarden, uitgangspunten en ontwerprichtlijnen opgenomen relevant voor het planontwikkeling Zeeheldenwijk. Aspecten die aan de orde komen zijn:

  • Voldoende water - Voorkomen van wateroverlast
  • Voldoende water - Goed functionerend watersysteem
  • Voldoende water - Anticiperen op watertekort
  • Schoon water - Goede structuurdiversiteit
  • Schoon water - Goede waterkwaliteit
  • Schoon water - Goed omgaan met afvalwater.

NB. Het plangebied wordt gefaseerd aangelegd, fase 1 start 2021 en fase 4 zal grofweg in 2036 zijn afgerond. De beoordeling van de wateraspecten binnen de nog uit te werken inrichtingsplannen gebeurt altijd op basis van de (op dat moment) actuele randvoorwaarden.

4.12.2.2 Toekomstige situatie plangebied

Oppervlaktewater

Aan de noordzijde van het plangebied is een grote nieuwe waterpartij voorzien met een eiland. In het midden loopt een nieuwe watergang van oost naar west, deze heeft een open verbinding met enerzijds een te verruimen kavelsloot aan de oostzijde van het plangebied en anderzijds de Zuidermeertocht.

De nieuwe watervoerende watergangen ten zuiden van fase 1 krijgen een waterdiepte bij streefpeil van 1,2 m, een bodembreedte van 2,0 m en een talud in de verhouding 1:3. De watergang is grotendeels voorzien van een eenzijdig obstakelvrij onderhoudspad van 5,0 m breed. Aan de andere zijde grenst het water aan uitgeefbaar terrein waarbij de toekomstige bewoner een onderhoudsplicht voor de kade heeft.
Het oppervlaktewater rondom het eiland aan de noordzijde heeft een waterdiepte van 1,5 m bij streefpeil en kent natuurvriendelijke oevers aan de buitenrand. Voor de grote waterpartij is het uitgangspunt om rijdend onderhoud uit te voeren. Daar waar rijdend onderhoud niet haalbaar is moet varend onderhoud plaatsvinden, waarbij ruimtes worden gereserveerd voor een inlaatplaats voor de maaiboot.

afbeelding "i_NL.IMRO.0184.BP2019ZHW-0301_0024.png"

Figuur 4.15: Te realiseren watergangen (donkerblauw) in de 1e bouwfase, aanvullend toekomstig open water (licht blauw)

Duikers en bruggen

In het plangebied zijn 5 duikers en 3 brugconstructies voorzien (zie respectievelijk rode en gele arcering in figuur 4.15). De gemeente heeft in eerdere projecten muilvormige multiplate duikers toegepast in overeenstemming met de eisen van het waterschap Zuiderzeeland. Deze duikers worden opnieuw toegepast waarbij voldoen moet worden aan onderstaande randvoorwaarden:

  • maximale lengte van 50 meter.
  • een maximale opstuwing van 2 cm bij een maatgevende afvoer (13 mm/dag + kwel);
  • 1/3 lucht in het dwarsprofiel bij streefpeil;
  • Onderkant duiker 10 cm boven waterbodem (hoger is niet wenselijk in verband met vispasseerbaarheid);
  • Duiker Zuidermeertocht; huidige doorstromingsprofiel behouden.


De nieuwe brug over de Urkervaart (Michiel de Ruyterbrug) vormt een verbinding voor (auto)verkeer tussen het plangebied Zeeheldenwijk en de bestaande infrastructuur ten noorden van de Urkervaart. Ten behoeve van de nieuwe brug is een nautisch onderzoek uitgevoerd. Afstemming tussen gemeente en provincie (vaarwegbeheerder) over de nieuwe beweegbare verkeersbrug heeft plaatsgevonden. De uitvoering, bediening en het onderhoud worden door de provincie verzorgd. De twee brugconstructies vanaf het eiland (fase 3.1) worden in een latere fase in nauw overleg tussen gemeente en waterschap uitgewerkt.

 

Maatregelen tegen opbarsting

Bij het uitgraven van de waterpartijen kan stabiliteitsverlies van de ondoorlatende deklaag optreden, doordat de waterdruk in het watervoerende pakket hoger ligt dan het gewicht van de ondoorlatende deklaag erboven. Bij het uitgraven van de waterpartijen wordt het gewicht van de grond op de ondoorlatende laag verminderd en het risico op opbarsten vergroot. Op basis van berekeningen is onderzocht of opbarsten een risico vormt en/of er maatregelen noodzakelijk zijn om opbarsten van de ondoorlatende deklaag te voorkomen. Hierbij is zowel rekening gehouden met de eindsituatie als met de stabiliteit tijdens de uitvoering in het geval een grondverbetering noodzakelijk is.

Uit de opbarstberekeningen blijkt dat geen enkel vak zonder maatregelen bestand is tegen opbarsten van de waterbodem. Er zijn per berekend vak maatregelen voorgeschreven om opbarsten te voorkomen.

De te onderscheiden maatregelen zijn:

  • ontgraven van de ondoorlatende lagen;
  • grondverbetering met zand;
  • grondverbetering met klei.


De nieuwe watergangen binnen het plan worden dusdanig ontworpen dat voldaan wordt aan de
beheer- en onderhoudsrichtlijnen van het waterschap. Over het beheer en onderhoud worden
op een later moment nadere afspraken gemaakt tussen waterschap en gemeente.

4.12.2.3 Waterberging

Verhardingshoeveelheden

In onderstaande tabel zijn de verhardingshoeveelheden weergegeven. Daar waar het inrichtingsplan niet definitief is, is gerekend met percentages over het bruto planoppervlak. De verhardings-hoeveelheden zijn gebruikt om de wateropgave vast te stellen. De fasering correspondeert met de fasering uit onderstaande tabel.

Fase en type bebouwing   Bruto oppervlak in ha   Openbaar verhard
in ha  
Daken
in ha  
Overig Particulier
in ha  
Verharding totaal
in ha  
Fase 1a woningbouw
 
9,39   2,9   1,89   0,76   5,55  
Fase 1a extra woningbouw   1,11   Inrichtingsplan ontbreekt 60% t.o.v. bruto is verhard   0,67  
Fase 1b Hoofdontsluitingswegen   10,70   Bruto oppervlak is inclusief bermen en bestaande
Verhardingen, 70% is nieuw verhard oppervlak  
7,49  
Fase 1c Bedrijven, droge industrie   2,94   Inrichtingsplan ontbreekt 90% uitgeefbaar is verhard   2,64  
Fase 1d Wonen en voorzieningen   2,91   Inrichtingsplan ontbreekt 80% t.o.v. bruto is verhard   2,33  
Fase 1e Wonen en voorzieningen   3,73   Inrichtingsplan ontbreekt 80% t.o.v. bruto is verhard   2,98  
Fase 2 woningbouw   11,50   Inrichtingsplan ontbreekt 60% t.o.v. bruto is verhard   6,90  
Fase 3 woningbouw   14,38   Inrichtingsplan ontbreekt 60% t.o.v. bruto is verhard   8,63  
Fase 4 woningbouw   22,13   Inrichtingsplan ontbreekt 60% t.o.v. bruto is verhard   13,28  
    Totaal
 
50,46  

Tabel 3: Verhardingshoeveelheden Zeeheldenwijk per fase

Wateropgave

Op basis van de verhardingshoeveelheden is de totale wateropgave bepaald. Hierbij is ook rekening gehouden met de huidige te dempen kavelsloten.

Te compenseren totaal (fase 1 t/m 4)        
Te dempen watergangen   -3150,30     m²  
Wateropgave totaal door toename AO   -27.753,05     m²  
       
Beschikbaar nieuw Open water        
Nieuwe watergang centraal oost west (west)     496,63   m²  
Nieuwe watergang centraal oost west (mid-1)     2.420,06   m²  
Nieuwe watergang centraal oost west (mid-2)     5.259,49   m²  
Nieuwe watergang centraal oost west (oost)     2.155,46   m²  
Waterpartij rondom eiland fase 3.1     20.580,00   m²  
       
Subtotaal   -30.903,35   30.911.64   m²  
Overschot wateroppervlak Totaal     8,29   m²  

Tabel 4: Verhardingshoeveelheden Zeeheldenwijk per fase

De waterpartij om het eiland fase 3.1 is geel gearceerd. Het betreft hier nog nader in te richten watersystemen.

Het beschikbaar wateroppervlak van de waterpartij zoals nu globaal ontworpen betreft 24.375 m2 . In bovengenoemde tabel is maar 20.580 m² opgenomen als benodigd wateroppervlak en is de ter verruimen watergang nog niet opgenomen. Het halen van de wateropgave is daarmee aantoonbaar gehaald.

Tijdens de verdere uitwerking van de inrichtingsplannen zal per fase een hydraulische maatwerkberekening worden uitgevoerd om de plannen te blijven toetsen en uiteindelijk om de watervergunning te verlenen per fase.

Hemelwaterafvoer

Het hemelwater in het plangebied wordt gescheiden van het vuilwater verwerkt. Het hemelwater afkomstig van particulier terrein wordt bovengronds op de perceelsgrens aangeboden om foutieve aansluitingen te voorkomen. Het hemelwater dat terechtkomt op de bebouwing en terreinverharding is volgens de randvoorwaarden voldoende schoon om direct af te voeren op oppervlaktewater. In de Zeeheldenwijk wordt het afstromend hemelwater grotendeels in kolken opgevangen en via het regenwaterriool direct afgevoerd op het oppervlaktewater.

 

Op locaties waar het kan, bijvoorbeeld hoofdontsluitingswegen, stroomt hemelwater oppervlakkig af naar het openbaar groen om het vervolgens te bergen (vasthouden) en te laten wegzijgen/infiltreren in de ondergrond (vertraagd afvoeren). Als de capaciteit van de berging volledig is benut en wegzijgen/ infiltreren niet meer mogelijk is kan het water via een overloop worden afgevoerd om wateroverlast te voorkomen. Bij verhardingen gelegen nabij oppervlaktewater wordt hemelwater afgevoerd via de afvoer de berm naar het oppervlaktewater.

Het stelsel voor de verwerking en afvoer van het hemelwater is/wordt ontworpen op basis van de volgende kenmerken:

  • De minimale dekking op de buis 1,0 m op bovenkant buis;
  • Rioolstreng boven waterpeil op afschot 1‰;
  • Rioolstreng onder waterpeil (5,50 m -NAP) vlak;
  • Uitstroomriool onder waterpeil lozen en minimaal 20 cm boven bodempeil;
  • Uitstroomriool afwerken met betonnen uitstroombak in het talud van het ontvangend oppervlaktewater;
  • Afvoerend verhard oppervlak op basis maatvast inrichtingsplan:
    • 1. Openbare (weg)verhardingen 100%;
    • 2. Daken 100%;
    • 3. 40% van dakoppervlak betreft overig particuliere verharding;
  • Achterpaden voorzien van kolken, kolkenleiding 160mm;
  • Riolering hydraulisch ontwerpen op:
    • 1. Bui 09 geen water op straat (29 mm in 60 min, piek 160 l/se/ha);
    • 2. Bui 10 geen wateroverlast (35,7 mm in 45 min, piek 210l/sec/ha);
    • 3. Klimaatbui (90 mm in 2u, blokbui) geen waterschade (op particulier terrein);
    • 4. Het streefpeil is 5,70 m–NAP, er worden twee scenario's doorgerekend;
    • 5. Ontwerpen met een waterpeil 5,5 m-NAP (peilstijging van 20 cm vooraf aan de ontwerpbui);
    • 6. stresstest met een waterpeil 4,8 m-NAP: (peilstijging van 90 cm bij calamiteiten).

Drooglegging / ontwatering

Het plangebied Zeeheldenwijk moet over een watersysteem beschikken dat over voldoende drooglegging en ontwatering biedt om (toekomstige bewoners) droge voeten te kunnen garanderen.

Voor de ontwateringssituatie is een drainageplan opgesteld. Er wordt voldoende ontwatering gehaald door de combinatie van ophogen en het toepassen van drainage. In verband met de aanwezigheid van ijzerrijk grondwater en de kans van dichtslibben (oxidatie/ijzervlokken) is gekozen voor de aanleg van onderwaterdrainage, wat geheel gescheiden is van het hemelwaterafvoersysteem.

Hieronder de belangrijkste ontwerpuitgangspunten:

  • Drooglegging is > 1,20 m bij streefpeil van 5,70 m – NAP uitgaande van:
    • 1. Wegpeilen 4,10 m – NAP;
    • 2. Vloerpeilen 3,80 m – NAP;
    • 3. Drooglegging bij maximaal waterpeil 4,80 m – NAP is 70 cm.;
  • Voldoende ontwatering met behulp van drainage:
    • 1. Drainage onder laagste grondwaterniveau aanleggen 5,90 m – NAP (permanent onder water);
    • 2. Ontwateringinstelniveau moet flexibel instelbaar zijn, ontwateringspeil 5,40 m - NAP;
    • 3. Drainage is volledig gescheiden van het HWA-riool;
    • 4. Ontwateringspeil wordt in een aparte regelput (bij de HWA uitstroomputten) aangelegd;
    • 5. De uitstroomleidingen HWA en drainage komen uit in één gecombineerde uitstroombak;
    • 6. Drain PVC 100 mm omhuld met PP450 en 20 cm aan drainzand;
    • 7. Doorspuitputten toepassen (max afstand 250m):
      • a. Achterpaden verdekt onder bestrating (goede revisie vereist);
      • b. In de rijbanen worden inspectieputten toegepast met opschrift 'drainage';
      • c. Onderhoud op basis van monitoring grondwaterstanden door plaatsen peilbuizen aan te sluiten op het gemeentelijk meetnet. (onderwaterdrainage is onderhoudsarm, alleen optreden bij niet functioneren).


Vuilwatersysteem

Het huishoudelijk en bedrijfsafvalwater van de Zeeheldenwijk wordt ingezameld via een traditionele huisaansluiting en aangesloten op een vrij verval riool of rechtstreeks op een vacuüm bufferput. Het vrijverval riool kent korte afstanden (maximaal 15 woningen) naar een vacuüm bufferput.  De bufferput wordt onder vacuüm leeggezogen en afgevoerd naar het vacuüm pompstation. Het vacuüm pompstation en het leidingnetwerk is ontworpen op het gefaseerd aanleggen van de verschillende deelgebieden. De totale belasting ligt rond de 75 m³/u. Ten tijde van het opstellen van dit bestemmingsplan voeren het waterschap en de gemeente een gezamenlijke variantenstudie uit om een voorkeursvariant vast te stellen voor het transport van het afwater van de nieuwe ontwikkelgebieden van Urk naar de afvalwaterzuivering in Tollebeek. De gemalen van Port of Urk maken hier deel van uit en worden conform de voorkeursvariant aangesloten.

Het huishoudelijk en bedrijfsafvalwater van heel Zeeheldenwijk wordt ingezameld via een traditionele huisaansluiting en aangesloten op een vrij verval riool of rechtstreeks op een vacuüm bufferput. Het vrij verval riool kent korte afstanden (maximaal 15 woningen) naar een vacuüm bufferput. De bufferput wordt onder vacuüm leeggezogen en afgevoerd naar het vacuüm pompstation.
Het vacuüm pompstation en het leidingnetwerk is ontworpen op het gefaseerd aanleggen van de verschillende deelgebieden. De totale belasting ligt rond de 75 m³/u. Ten tijde van het opstellen van dit bestemmingsplan voeren het waterschap en de gemeente een gezamenlijke variantenstudie uitvoeren om een voorkeursvariant vast te stellen voor het transport van het afwater van de nieuwe ontwikkelgebieden van Urk naar de afvalwaterzuivering in Tollebeek. Het vacuümgemaal van de Zeeheldenwijk wordt conform de voorkeursvariant aangesloten.

Conclusie
De waterhuishoudkundige situatie is uitgebreid behandeld en besproken met het waterschap Zuiderzeeland. Het bestemmingsplan voldoet rekening houdend met de aangegeven randvoorwaarden aan de Watervisie van het waterschap. Daarmee is dit bestemmingsplan uitvoerbaar ten aanzien van het aspect water.

4.13 Vormvrije m.e.r.-beoordeling

Kader

Een m.e.r.-beoordeling is een toets om te beoordelen of bij een project belangrijke nadelige milieugevolgen kunnen optreden.

In het Besluit milieueffectrapportage (in het vervolg Besluit m.e.r.) zijn in de bijlage, onderdeel C en D activiteiten opgenomen, waarbij op grond van artikel 7.2b van de Wet milieubeheer besloten moet worden of bij de voorbereiding van het plan of besluit voor die activiteiten een milieueffectrapport (MER) moet worden opgesteld. Hierin is onder andere "de aanleg, wijziging of uitbreiding van een stedelijk ontwikkelingsproject met inbegrip van de bouw van winkelcentra of parkeerterreinen" (categorie D 11.2) als m.e.r.-beoordelingsplichtig aangeduid. Daaraan zijn drempelwaarden verbonden. De ruimtelijke ontwikkeling en daarmee het bestemmingsplan overschrijden de genoemde drempelwaarden niet. Het betreft namelijk geen oppervlakte van 100 ha of meer, het betreft geen aaneengesloten gebied met 2000 of meer woningen en geen bedrijfsvloeroppervlakte van 200.000 m2 of meer.

 

Conform het Besluit m.e.r. (art. 2, lid 5, sub b) dient, voor activiteiten die wel in de D-lijst zijn opgenomen, maar niet aan de drempelwaarden voldoen, beoordeeld te worden op belangrijke nadelige gevolgen voor het milieu. Deze toets wordt een vormvrije m.e.r.-beoordeling genoemd. Hierin worden wel de potentiële milieugevolgen in beeld gebracht, maar behoeft de procedure (inclusief separate ter inzagelegging van het m.e.r.-beoordelingsbesluit) niet doorlopen te worden.

Behalve via de C- en D-lijst van het Besluit m.e.r. kan echter ook op grond de Natuurbeschermingswet de verplichting ontstaan om een (plan-)m.e.r.-procedure te doorlopen. Voor de Zeeheldenwijk is het op basis van het uitgevoerde natuuronderzoek, niet noodzakelijk een passende beoordeling op te stellen.

Onderzoek

In het kader van dit bestemmingsplan is derhalve op grond van bovenstaande een 'Aanmeldingsnotitie vormvrije m.e.r.' opgesteld, waarin wordt beoordeeld in hoeverre er sprake is van belangrijke gevolgen voor het milieu en of er een m.e.r-plicht aan de orde is.

Bij de vormvrije m.e.r.-beoordeling moet worden getoetst of er sprake is van mogelijke belangrijke nadelige milieueffecten. De criteria staan benoemd in Bijlage III van de Europese richtlijn 2014/52/EU en betreffen:

    • a. de kenmerken van het project;
    • b. de plaats van het project;
    • c. de kenmerken van het potentiële effect.

Conclusie

In het kader van het bestemmingsplan Zeeheldenwijk en het vigerende bestemmingsplan Schokkerhoek zijn alle relevante milieuaspecten onderzocht en beschouwd op mogelijke nadelige gevolgen. De behandelde milieuaspecten zijn bodem, archeologie, landschap en cultuurhistorie, waterhuishouding, lucht, licht, verkeer en transport, geluid, natuur, bedrijven en milieuzonering, gezondheid en veiligheid en calamiteiten. Aan de hand van de criteria uit de Europese richtlijn zijn per milieuaspect getoetst of er belangrijke nadelige milieugevolgen kunnen worden uitgesloten. Op grond hiervan kan geconcludeerd worden dat, gelet op artikel 7.17, van de Wet milieubeheer, het project niet leidt tot belangrijke nadelige milieueffecten.

Nu uitgesloten kan worden, dat de activiteit belangrijke nadelige gevolgen voor het milieu kan hebben, is er geen aanleiding om een m.e.r.-procedure uit te voeren.

Hierover is een apart besluit genomen door het bevoegd gezag voordat het ontwerpbestemmingsplan

wordt vrijgegeven. De resultaten van de aanmeldingsnotitie zijn beschreven in Bijlage 20.

4.14 Duurzaamheid

Beleidskader

In 2015 sloten 194 landen het Klimaatakkoord van Parijs, waarin is afgesproken om de uitstoot van schadelijke broeikasgassen voor 2050 met 100% te reduceren ten opzichte van het jaar 1990. Ook is afgesproken om de opwarming van de aarde te beperken tot minder dan twee graden Celsius. Nederland stelt als tussendoel om in 2030 een reductie van de CO2 uitstoot met

49% te behalen. Het nationale pakket aan afspraken en maatregelen door de regering is gepresenteerd in het Klimaatakkoord, dat op 28 juni 2019 het licht zag. De gemeente Urk heeft dit vervolgens vertaald naar een Duurzaamheidsvisie voor de gemeente Urk, waarin beschreven wordt welke bijdrage de gemeente Urk moet leveren voor het bereiken van de landelijke doelstellingen.

Situatie plangebied

Voor de Zeeheldenwijk vinden we dat we vanuit goed rentmeesterschap de inrichting van deze wijk op een voor de aarde/het landschap zorgvuldige wijze moeten realiseren. Bij de uitwerking van de plannen is gestreefd naar de ontwikkeling van een zo duurzaam mogelijke wijk, waarbij we zeker als gemeente het goede voorbeeld moeten geven. Aan de hand van de thema's Energie, Circulaire economie, Klimaatadaptatie en Mobiliteit wordt aangegeven hoe het Klimaatakkoord van Parijs en het Nationale Klimaatakkoord doorwerkt op de ontwikkeling van de Zeeheldenwijk.

Energie

In 2018 is door het Rijk het besluit genomen dat alle nieuw te bouwen woningen geen gasaansluiting meer krijgen. Voor de gemeente betekent dit dat naar een alternatief moet worden gezocht voor warmte. De insteek is om voor deze wijk een collectief warmtenet aan te leggen. In combinatie met de door het Rijk verlangde zeer hoge isolatie eisen in de Beng-normering zorgt dit voor een zeer duurzame warmtevoorziening. Bewoners houden de vrijheid om een alternatief te kiezen. Echter het gekozen alternatief moet wel dezelfde of betere duurzaamheidsprestatie leveren dan het collectieve warmtenet.

Circulaire economie

De insteek is dat de gemeente het gebruik van primaire grondstoffen zoveel als mogelijk beperkt. De regels voor materiaalgebruik staan beschreven in het Bouwbesluit en geeft slechts beperkt de ruimte om hier verdere invulling aan te geven. Voor de inrichting van de openbare ruimte is het de insteek om het goede voorbeeld te geven op het gebied van circulariteit. Via bewustwording streven wij er binnen deze ontwikkeling naar om het gebruik van primaire bouwstoffen te beperken. Daarnaast is het ook heel belangrijk dat de bouw rekening houdt met de herbruikbaarheid van materialen voor langere termijn. Vandaar dat richting ontwikkelaars aandacht gevraagd zal worden voor uitneembaarheid van materialen (demontabel bouwen), maar ook registratie van de materialen. Hiervoor dient bij het ontwerp al rekening gehouden te worden met circulair bouwen. Dit zijn hele mooie stappen om in de toekomst het hergebruik mogelijk te gaan maken.

Klimaatadaptatie

De gevolgen van klimaatverandering zijn ook in Nederland merkbaar. Extreme neerslag komt nu al duidelijk meer voor dan in de jaren vijftig en ook hittegolven dienen zich vaker aan. Nederland moet daarom adaptief inspelen op veranderende inzichten en ontwikkelingen in het klimaat. Dit geldt zeker voor nieuw te ontwikkelen gebieden. Voor deze wijk is het de insteek om deze klimaatrobuust te ontwikkelen. Bij extreem weer moet daarom de schade aan gebouwen, infrastructuur of vitale functies zoveel mogelijk beperkt blijven. De aanpak bij klimaatadaptatie richt zich op vier onderdelen, namelijk; het beperken van de gevolgen van wateroverlast, droogte, hittestress en overstromingen. Voorafgaand aan de ontwikkeling van deze wijk is een stresstest uitgevoerd om de uitkomsten al mee te kunnen nemen bij het ontwerpen van de wijk. Belangrijk aspect daarbij is het voorkomen van het volledig verharden van de buitenruimte. Door middel van bewustwording en het opnemen van maatregelen in dit bestemmingsplan wordt een begin gemaakt met het klimaatrobuust maken van Urk.

Mobiliteit

Vervoer van mensen en goederen zorgt voor circa 20% van de totale CO2-uitstoot van Nederland. Mobiliteit is dan ook een belangrijk thema in het Klimaatakkoord. Urk wil emissieloze mobiliteit stimuleren. Zeker bij de ontwikkeling van een nieuw gebied biedt dit kansen. Bij het ontwerp van dit gebied is hier extra rekening mee gehouden in de zin van goede wandel- en fietsverbindingen, maar ook door de infrastructuur (leidingen en laadpalen) voor elektrisch rijden op te nemen.

Conclusie

In het kader van klimaatadaptatie is middels de planregels geregeld dat niet het hele perceel verhard mag worden. Voor het overige wordt vooral een beroep gedaan op de initiatiefnemers en geeft de gemeente Urk zelf het goede voorbeeld door waar mogelijk duurzaamheidsmaatregelen toe te passen bij de realisatie van de Zeeheldenwijk. Ten aanzien van het aspect duurzaamheid kan het bestemmingsplan daarmee uitvoerbaar worden geacht.

Hoofdstuk 5 Juridische aspecten

5.1 Bestemmingsplan verbrede reikwijdte

Onderhavig bestemmingsplan is een zogenaamd 'bestemmingsplan Verbrede Reikwijdte'. Met een bestemmingsplan Verbrede Reikwijdte kunnen gemeenten sinds 2014 vooruit lopen (anticiperen) op de komst van het omgevingsplan uit de Omgevingswet. Dat doen zij als experimenten onder de werking van de Crisis- en herstelwet. Een dergelijk bestemmingsplan wordt een 'Chw bestemmingsplan' genoemd of een 'bestemmingsplan Verbrede Reikwijdte'.

Gemeente Urk heeft voor het grondgebied van de gehele gemeente destijds een aanvraag ingediend bij het ministerie van Infrastructuur en Milieu (nu: Ministerie van Infrastructuur en Waterstaat). Zoals in paragraaf 1.1 al aangegeven, is de 14e tranche van het Besluit uitvoering van de Chw,in oktober 2016 in werking getreden, waarin het gehele grondgebied van Urk is aangewezen. Het bedrijventerrein Zwolschehoek en het plangebied Zeeheldenwijk zijn tevens als ontwikkelingsgebied aangewezen, waarvoor een bestemmingsplan-plus moet worden gemaakt.

De ontwikkelingsgebieden (afdeling 1 Hoofdstuk 2) van de Chw bieden de mogelijkheid om in aangewezen gebieden flexibeler om te gaan met de beschikbare milieuruimte. Dit heeft als doel om bijvoorbeeld ruimte te creëren voor nieuwe bedrijven of voor nieuwe functies zoals wonen. In de eerste plaats kan de gemeente de beschikbare milieugebruiksruimte binnen een ontwikkelingsgebied opnieuw verdelen en daarvoor maatregelen vastleggen in het bestemmingsplan. Op die manier ontstaat de nodige flexibiliteit in de uitvoering en is een voorwaardelijk verband aan te brengen tussen milieubelastende ontwikkelingen en maatregelen die meer milieugebruiksruimte creëren.

In de tweede plaats kan in het bestemmingsplan voor een ontwikkelingsgebied worden afgeweken van enkele specifieke in de Chw genoemde wettelijke normen. Van de mogelijkheden, die de aanwijzing als ontwikkelingsgebied biedt, is in dit bestemmingsplan net als in het vigerende plan geen gebruik gemaakt.

5.2 Toepassing instrumenten artikel 7c Chw

Het bestemmingsplan is zoveel mogelijk vormgegeven als een traditioneel bestemmingsplan. Daar waar de toepassing nodig is van mogelijkheden die artikel 7c van de Chw biedt, wordt hiervan afgeweken. Deze regels zijn integraal opgenomen in de bestemmingsregels.

5.2.1 Mogelijkheden Chw

Met dit bestemmingsplan wordt geëxperimenteerd met de in de toekomstige Omgevingswet beoogde verbreding van het bestemmingsplan tot een omgevingsplan. Zolang de beoogde Omgevingswet niet is vastgesteld en in werking is getreden, geldt een experimenteel omgevingsplan als een buitenwettelijk en vormvrij plan.

Met artikel 7c van de Chw wordt een wettelijke grondslag gegeven aan deze experimentele bestemmingsplannen. In het kader van dit experiment mag worden afgeweken van de aangegeven onderdelen van onder meer de Wet ruimtelijke ordening (Wro), het Besluit ruimtelijke ordening (Bro), de Wet geluidhinder (Wgh), het Besluit geluidhinder (Bgh) en de Wet milieubeheer (Wm). Artikel 7c biedt de volgende instrumenten, waarbij we per instrument met 'ja/nee' aangeven of er in dit plan gebruik van wordt gemaakt:

  • Looptijd: 20 jaar in plaats van 10 jaar. Een bestemmingsplan met verbrede reikwijdte kent een looptijd van 20 jaar. De wettelijk vastgestelde plantermijn in de Wet ruimtelijke ordening van 10 jaar vormt vaak een belemmering, omdat niet aannemelijk kan worden gemaakt dat de ontwikkelingen, waarin het bestemmingsplan voorziet, binnen 10 jaar gerealiseerd kunnen worden. De verlengde looptijd is net dat extra steuntje in de rug om de uitvoerbaarheid wel aannemelijk te kunnen maken. In de toelichting van het bestemmingsplan hoeft geen inzicht te worden geboden in de uitvoerbaarheid van het plan. Ja.
  • Voorlopige bestemmingen: tijdelijk gebruik, maximaal 10 jaar. Dit instrument geeft de mogelijkheid om bij een flexibele invulling van een plangebied dat een lange doorlooptijd kent tijdelijk gebruik ander gebruik dan beoogd toe te staan. Binnen het experiment de termijn van voorlopige bestemmingen verruimd van 5 naar 10 jaar. In een bestemmingsplan kunnen met dit instrument voorlopige bestemmingen worden opgenomen om het tijdelijke gebruik mogelijk te maken. Nee.
  • Verordeningen: toevoegen lokale verordeningen voor wat betreft de fysieke leefomgeving. De verbrede reikwijdte maakt het mogelijk om onderwerpen die gemeenten nu nog in lokale verordeningen regelen op te nemen in het bestemmingsplan met verbrede reikwijdte. Naar verwachting leidt dat tot minder en beter op elkaar afgestemde regels. Dat is wel zo gemakkelijk voor burgers die in één opslag willen zien wat er mag en kan op een locatie. Het vierde lid van artikel 7c bevat de grondslag om lokale verordeningen, die gebaseerd zijn op de Gemeentewet, in het bestemmingsplan met verbrede reikwijdte te integreren. Nee.
  • De ‘verbrede reikwijdte’ betekent dat het omgevingsplan niet alleen over een ‘goede ruimtelijke ordening’ gaat, maar net als onder de Omgevingswet de fysieke leefomgeving centraal stelt. In het bestemmingsplan met verbrede reikwijdte kunnen naast regels met een ruimtelijke relevantie, regels worden opgenomen ten behoeve van het bereiken en in stand houden van een veilige en gezonde fysieke leefomgeving en een goede omgevingskwaliteit en doelmatig beheren, gebruiken en ontwikkelen van de fysieke leefomgeving ter vervulling van maatschappelijke functies. Concreet betekent dit dat regels kunnen worden opgenomen over onder andere het uiterlijk van bouwwerken (welstand), duurzaamheid en een goed woon- en leefklimaat. Ja.
  • Meldingsplicht: activiteiten zijn verboden, tenzij initiatiefnemers dit vooraf melden: ruime en flexibele kaders stellen met behoud van controle en sturingsmogelijkheden, bijvoorbeeld voor beheer fysieke leefomgeving maatregels treffen die een betere bescherming bieden aan de leefomgeving. Nee.
  • Beleidsregels: Het bestemmingsplan met verbrede reikwijdte kan open normen bevatten die – naar keuze – door de gemeenteraad of burgemeester en wethouders worden uitgewerkt in beleidsregels in de zin van 4:81 Awb. Deze constructie biedt flexibiliteit. Wijzigingen in beleid kunnen – los van het bestemmingsplan – zonder voorbereidingsprocedure worden vastgesteld. De gemeente is hiermee in staat sneller in te spelen op maatschappelijke behoeftes en ontwikkelingen, waardoor de robuustheid van het bestemmingsplan toeneemt, dit neemt niet weg dat de totstandkoming van beleidsregels op zorgvuldige wijze moet geschieden. Hiervoor gelden dezelfde inhoudelijke eisen als voor gewone planregels. Ze moeten naleefbaar, uitvoerbaar en handhaafbaar zijn. Ja.
  • Planschade: Binnen het experiment met de verbrede reikwijdte bestaat geen recht op planschade bij het vervallen van planologische bouw- en gebruiksmogelijkheden, die ten minste drie jaar ongebruikt zijn gebleven. Niet specifiek.
  • Uitvoerbaarheid en milieukwaliteitseisen: In samenhang met de verlengde looptijd bestaat de mogelijkheid om van een tweetal bepalingen uit het Bro af te wijken. Beide artikelen hebben betrekking op verantwoording over de uitvoerbaarheid in de toelichting van het bestemmingsplan.
    • 1. Artikel 3.1.6, lid 1, onder f Bro;
    • 2. Artikel 3.1.6, lid 5, onder c Bro.
      • a. Met uitvoerbaarheid in de context van artikel 3.1.6, lid 1, onder f Bro wordt in hoofdlijnen gedoeld op drie aspecten:
      • 1. is realisatie van het plan mogelijk? (op grond van de jurisprudentie gaat het dan om realisatie binnen de planperiode),
      • 2. is het plan financieel-economisch uitvoerbaar? en
      • 3. is het plan maatschappelijk uitvoerbaar?

In de toelichting van het bestemmingsplan hoeft aan deze aspecten geen aandacht te worden besteed. Daarnaast hoeft in de toelichting geen aandacht te worden besteed aan de wijze waarop krachtens hoofdstuk 5 van de Wet milieubeheer vastgestelde kwaliteitseisen bij het plan zijn betrokken. Voorgaande geldt alleen als geen milieueffectrapport hoeft te worden opgesteld. Voorbeelden van milieukwaliteitseisen zijn luchtkwaliteit, maar ook externe veiligheid.

      • a. Het bovenstaande betekent niet dat deze onderwerpen geen rol meer spelen in het bestemmingsplan. Als het plan daar aanleiding toe geeft moet wel degelijk onderzoek naar luchtkwaliteit worden verricht. Hetzelfde geldt ook voor een thema als externe veiligheid. De essentie van deze mogelijkheden is, dat volstaan kan worden met een eenvoudiger plan / een kortere toelichting. Ook sluit deze mogelijkheid goed aan bij de gedachte om onderzoek gefaseerd uit te voeren. Het onderzoek bij de vaststelling van het bestemmingsplan sluit aan op het detailniveau van de informatie die op dat moment voorhanden is. Opgemerkt wordt dat besluiten (waaronder een bestemmingsplan) altijd zorgvuldig moeten worden voorbereid en gemotiveerd, c.q. voldoen aan de eisen die hiervoor zijn neergelegd in de Awb. Nee.
      • b. De mogelijkheid conform artikel 7c Bu Chw lid 10 dat een exploitatieplan kan worden vastgesteld bij de omgevingsvergunning. (zie par. 6.1). Hiermee kan het kostenverhaal worden geregeld op het moment dat zich een concrete ontwikkeling voordoet. Indien toepassing wordt gegeven aan het tiende lid, geldt (onder andere) dat afdeling 3.4 van de Algemene wet bestuursrecht niet van toepassing is op de voorbereiding van het exploitatieplan, in het bestemmingsplan een of meer exploitatiegebieden worden aangewezen en de omgevingsvergunning voor het bouwen kan worden geweigerd als de exploitatieopzet, een tekort bevat, dat niet is gedekt. In het bestemmingsplan is ten behoeve van de ontwikkelingen een exploitatiegebied aangewezen. Ja.
  • Maatwerkregels: Op basis van de Wet geluidhinder is het vaststellen van een hogere grenswaarde geluid een separaat besluit naast het ruimtelijke besluit. Nu de grondslag en de ruimtelijke verantwoording van een ontheffing van de voorkeursgrenswaarde voortvloeien uit en zijn opgenomen in het bestemmingsplan met verbrede reikwijdte, wordt dit plan het vehikel voor het vaststellen van de hogere grenswaarde. Dit besluit is daarmee geïntegreerd in het bestemmingsplan. Dit besluit is al genomen in het kader van het vigerende plan en voldoet nog steeds. Nee.
5.2.2 Toepassing Chw

In de vorige paragraaf zijn de mogelijkheden van een bestemmingsplan Verbrede Reikwijdte beschreven. In deze paragraaf wordt toegelicht welke instrumenten voor dit plan zijn toegepast.

Planperiode

Vanwege de omvang van het plan kan het niet binnen de reguliere planperiode van 10 jaar worden gerealiseerd. Op basis van de Chw is de planperiode voor dit plan dan ook 20 jaar. Met een bouwvolume van gemiddeld circa 90-95 woningen per jaar kan het plan binnen deze planperiode worden gerealiseerd. Dit is een realistisch bouwvolume als het wordt vergelijken met de ervaringscijfers op Urk in de afgelopen jaren, waarin het bouwvolume ruim hoger is en de omstandigheid dat de realisatie van het plan start vanaf 2021.

Bedrijven en milieuzonering

Uit paragraaf 4.2 en 4.7 volgt, dat er vanwege het bedrijventerrein Zwolschehoek in een deel van het plangebied niet zonder meer milieugevoelige functies kunnen worden gerealiseerd. Het wordt enerzijds veroorzaakt door de milieucontouren voor wat betreft de aspecten geur, geluid, stof en gevaar die vanwege de toegestane bedrijven op het terrein Zwolschehoek over het plangebied liggen. Daarnaast heeft dit te maken met het cumulatieve geluidniveau, dat optreedt in het plangebied vanwege het wegverkeer en de bedrijfsactiviteiten op Zwolschehoek.

Om die reden is in de planregels opgenomen, dat er bij de realisatie van milieugevoelige functies sprake moet zijn van een goed woon- en leefklimaat. De wijze waarop hieraan wordt getoetst is opgenomen in de beleidsregels 'Goed woon- en leefklimaat'. De beoordeling vindt plaats enerzijds aan de richtafstanden, die op basis van de VNG-handreiking 'Bedrijven en Milieuzonering' (2009) moeten worden aangehouden. Anderzijds wordt beoordeeld of het plan in een gebied ligt waar de cumulatieve geluidbelasting niet meer bedraagt dan 61 dB exclusief aftrek. Daarvoor is in de beleidsregels een kaart opgenomen met de cumulatieve geluidscontouren.

Verkeersafwikkeling

Er dient zorgvuldig te worden omgegaan met de verkeerskundige situatie van het plan. Uit het verkeersonderzoek volgt, dat er in de toekomst mogelijk knelpunten te verwachten zijn bij de verkeersafwikkeling op de kruispunten. De gemeente zal met de provincie afspraken maken over monitoring van de verkeerssituatie en hoe om te gaan met de mogelijke maatregelen.

Geluid

Met het geldende plan zijn al hogere waarden vastgesteld. Nieuwbouw van woningen is alleen toegestaan als aan de vastgelegde geluidnormen kan worden voldaan en de bebouwing voldoet aan de beleidsregels 'Hogere waarde geluid'.

Waterhuishouding

De nieuwe inrichting van het gebied heeft effecten op de waterhuishouding in het plangebied en zijn omgeving. Om een goede waterhuishouding te borgen heeft de gemeente in overleg met het waterschap beleidsregels 'Goede waterhuishouding' opgesteld. Bij het aanvragen/verlenen van omgevingsvergunningen moet aan deze beleidsregels worden voldaan.

Beleidsregels

De Chw biedt de mogelijkheid te werken met open normen, waarbij de uitleg nader wordt vastgelegd in een beleidsregel. De normen zijn dusdanig geformuleerd, dat deze naleefbaar, uitvoerbaar en handhaafbaar zijn. De gemeente stelt de volgende beleidsregels vast:

  • 1. Beleidsregels Parkeren: in deze beleidsregel worden de parkeernormen voor Urk vastgelegd. Bij aanvragen omgevingsvergunning en (wijziging van) het gebruik wordt aan deze parkeernormen getoetst.
  • 2. Beleidsregels Goed woon- en leefklimaat: In deze beleidsregel wordt bepaald op welke wijze bij aanvragen omgevingsvergunning wordt getoetst aan de eis of er sprake is van een goed woon- en leefklimaat.
  • 3. Stedenbouwkundig plan: In het stedenbouwkundig plan worden middels themakaarten de stedenbouwkundige eisen aan bebouwing en inrichting van de openbare ruimte vastgelegd.
  • 4. Beleidsregels Beeldkwaliteit onderdeel groene clusters: In deze beleidsregels is bepaald hoe de oorspronkelijke agrarische bouwpercelen ingericht dienen te worden.
  • 5. Beleidsregels Hogere waarde geluid: In deze beleidsregels is bepaald waar woningen aan moeten voldoen als ze worden gebouwd in een gebied waarvoor een hogere grenswaarde geluid is vastgelegd in het bestemmingsplan.
  • 6. Beleidsregels 'Wonen en werken aan huis gemeente Urk 2008': Deze beleidsregel is in 2008 vastgesteld. Uitgangspunt is dat een beroep en/of bedrijf in de bestemming 'Wonen - 1' en 'Wonen - 2' niet is toegestaan. Hiervan kan worden afgeweken, mits wordt voldaan aan de voorwaarden zoals in deze beleidsregel zijn vastgelegd.
  • 7. Beleidsregel 'Internetwinkels': Het gebruik van gebouwen voor internetwinkels wordt beschouwd als strijdig met het bestemmingsplan. Via een omgevingsvergunning kan hiervan worden afgeweken. Hierbij wordt getoetst aan de randvoorwaarden zoals opgenomen in de beleidsregels 'Internetwinkels'.

5.3 Bestemmingen

Over de wijze van het digitaal presenteren van de bestemmingsplannen is zoveel mogelijk aangesloten bij de RO Standaarden 2012. Er is niet altijd aangesloten op de benaming van aanduidingen die in de SVBP zijn voorgeschreven Dit is geen beperking bij het plaatsen van de plannen op www.ruimtelijkeplannen.nl, mits de objectenindeling maar blijft gehandhaafd: hoofdstukken, artikelen en (sub)leden.

Hoofdstuk 1 Inleidende regels

Artikel 1 Begrippen

In dit artikel worden de begrippen uitgelegd die voorkomen in de planregels. Deze begrippen zijn waar relevant afgestemd op de verplichte begripsomschrijvingen uit de SVBP 2008.

Uit de begripsomschrijving wordt één begrip gelicht, namelijk bouwperceel. Het bouwperceel wordt als volgt omschreven: 'een aaneengesloten stuk grond, waarop ingevolge de regels een zelfstandige, bij elkaar behorende bebouwing is toegelaten'. Hiermee wordt het deel van het eigendomsperceel bedoeld, welke in het bouwvlak valt. De onderstaande afbeelding illustreert het begrip bouwperceel.

afbeelding "i_NL.IMRO.0184.BP2019ZHW-0301_0025.png"

Achtererfgebied is over het algemeen een moeilijk uit te leggen begrip. Ter verduidelijking en ter illustratie van dit begrip is onderstaande afbeelding in deze toelichting opgenomen.

afbeelding "i_NL.IMRO.0184.BP2019ZHW-0301_0026.png"

Artikel 2 Wijze van meten

In dit artikel is bepaald op welke wijze gemeten moet worden bij het toepassen van de regels.

Hoofdstuk 2 Bestemmingsregels

In dit tweede hoofdstuk zijn de regels van de bestemmingen opgenomen. Dit gebeurt in alfabetische volgorde. Per bestemming is het toegestane gebruik geregeld en zijn bouwregels en, eventueel, ook regels met betrekking tot het uitvoeren van werken, geen bouwwerken zijnde, en werkzaamheden opgenomen.

De dubbelbestemmingen zijn ook in dit hoofdstuk opgenomen. Deze volgen in alfabetische volgorde, op de bestemmingsregels, de enkelbestemmingen. Ieder artikel kent een vaste opzet. Eerst wordt het toegestane gebruik geformuleerd in de bestemmingsomschrijving. Vervolgens zijn bouwregels opgenomen. Aansluitend volgen afwijkingsregels met betrekking tot bouw- en/of gebruiksregels. Ten slotte zijn eventueel regels met betrekking tot het uitvoeren van werken, geen bouwwerken zijnde, en werkzaamheden en/of wijzigingsbevoegdheden opgenomen. Belangrijk om te vermelden is dat naast de bestemmingsregels ook in andere artikelen relevante informatie staat die mede gelezen en geïnterpreteerd moet worden. Alleen zo ontstaat een volledig beeld van wat in dit plan is geregeld.

Artikel 3 Gemengd - 1

Deze gronden zijn bestemd voor verschillende functies, namelijk bedrijfsmatige activiteiten (categorieën 1 tot en met 2), indoor-leisure, parkeervoorzieningen en ondersteunende horeca. Binnen de bestemming is perifere detailhandel en grootschalige detailhandel toegestaan. Er zijn diverse maatvoeringseisen opgenomen. De bouwregels zijn afgestemd op de aangetoonde behoefte in het ladderonderzoek (zie paragraaf 3.1.1). Hierbij geldt ondermeer dat bouwkavels van de bedrijfsmatige activiteiten (categorieën 1 tot en met 2) maximaal 2.500 m² groot mogen zijn. Een bouwperceel ten behoeve van perifere detailhandel en grootschalige detailhandel mag niet groter zijn dan 1.250 m2. Via een binnenplanse afwijking kan voor perifere detailhandel en grootschalige detailhandel onder voorwaarden een groter bouwperceel worden toegestaan.

Bij het verlenen van de omgevingsvergunningen wordt aan de bouw- en gebruiksregels getoetst. De regels ten aanzien van parkeren zijn vastgelegd in zogenaamde beleidsregels. Ook aan deze regels moet uiteraard worden voldaan.

Artikel 4 Gemengd - 2

De gronden globaal gelegen in het centrum van het plangebied hebben deze bestemming gekregen. Enerzijds wordt een aantal maatschappelijke functies hier ondergebracht, maar ook is detailhandel mogelijk in combinatie met woningbouw. De bouwregels zijn ook hier afgestemd op de aangetoonde behoefte van het ladderonderzoek (zie paragraaf 3.1.1). Bij de maatschappelijke functies moet in het bijzonder gedacht worden aan scholen, een sporthal, kerk, wijkgebouw en gezondheidszorg.
Er is een wijzigingsbevoegdheid die het mogelijk maakt om meer woningbouw te realiseren mocht blijken dat de behoefte aan de maatschappelijke functies minder groot zijn dan nu wordt ingeschat. Er kan daarbij zowel grondgebonden als gestapelde woningbouw mogelijk worden gemaakt.

Een supermarkt is middels een wijzigingsbevoegdheid toegestaan, mits de behoefte hieraan aangetoond is. Een tweede supermarkt is eveneens middels een wijzigingsbevoegdheid toegestaan, deze supermarkt kan enkel in de plaats komen van minimaal 650 m2 detailhandel, ook hiertoe dient de behoefte aangetoond te zijn.

Artikel 5 Groen

Aan de gronden die deel uitmaken van de hoofdgroenstructuur is de bestemming Groen toegekend. Deze gronden zijn bestemd voor onder meer groenvoorzieningen, speelvoorzieningen en voet- en fietspaden. Het aanleggen van waterpartijen en watergangen, het dempen van watergangen en de aanleg van fiets- en voetpaden is alleen toegestaan via een omgevingsvergunning.

Artikel 6 Maatschappelijk

Deze gronden zijn in dit bestemmingsplan bestemd voor verschillende functies, namelijk een kinderboerderij met bijbehorende voorzieningen, zorgwonen met bijbehorende voorzieningen en wonen en dagbesteding. Er zijn diverse maatvoeringseisen opgenomen. Het aantal zorgwoningen is afgestemd op de aangetoonde behoefte in het ladderonderzoek (zie paragraaf 3.1.1 

De gronden met de huidige kinderboerderij hebben ook een maatschappelijke bestemming gekregen. Binnen de bestemming Maatschappelijk als geheel is slechts 1 kinderboerderij toegestaan. Er is een wijzigingsbevoegdheid opgenomen voor het perceel met de bestaande kinderboerderij. Deze wordt geëffectueerd als de nieuwe kinderboerderij is aangelegd. Deze vrijkomende gronden zijn bestemd voor verschillende functies, te weten verkeer, halte voor de streekbussen, fietsparkeervoorzieningen, horeca 1 en 2, een kiosk en zorgwoningen. Er zijn diverse maatvoeringseisen opgenomen.

Artikel 7 Verkeer

De bestemming Verkeer is toegekend aan de Urkerweg, de Domineesweg en de nieuwe gebiedsontsluitingsweg die in noordzuidelijke richting loopt met de bijbehorende rotondes en bruggen.

De aanleg van watergangen en waterpartijen, dempen van oppervlaktewater, aanbrengen terreinverharding en de aanleg van wegen is alleen toegestaan via een omgevingsvergunning.

Artikel 8 Verkeer - Verblijfsgebied

De bestemming Verkeer - Verblijfsgebied is toegekend aan de erftoegangswegen in het plangebied. De gronden zijn bestemd voor woonerven, woonstraten, parkeerplaatsen, voet- en fietspaden, speelplaatsen en buurtgroen, water en bouwwerken, geen gebouwen zijnde.

De aanleg van watergangen en waterpartijen, dempen van oppervlaktewater, aanbrengen terreinverharding en de aanleg van wegen is alleen toegestaan via een omgevingsvergunning.

Bij de aanleg van parkeerplaatsen wordt ook getoetst aan de beleidsregels 'Parkeren'.

Artikel 9 Water

De Urkervaart en de tochten aan de oost- en aan de westkant van het plangebied zijn bestemd als Water. De gronden zijn bestemd voor watergangen, waterpartijen, oevers, groen en taluds, waterhuishouding, aanbrengen terreinverharding, beroeps- en recreatievaart, instandhouding en ontwikkeling van daar voorkomende natuur- en landschapswaarden, het behoud van de vliegroute van vleermuizen, die is aangeduid met de aanduiding 'ecologie', i.c de Urkervaart, waarbij het bepaalde in lid 21.3 van toepassing is. Deels voorziet de bestemming nog in de realisatie van natuurcompensatie.

Artikel 10 Wonen - Erfsingel

Dit artikel bevat de regeling voor de bestaande woningen die al als woning waren bestemd. De regeling is uit het vigerende plan integraal overgenomen in onderhavig plan. De bestemming voorziet eveneens in de instandhouding en ontwikkeling van afschermende erfbeplanting met bijbehorende erfsloot.

Artikel 11 Woongebied

De gronden met de bestemming Woongebied zijn bestemd voor wonen. Daarbij zijn beroep en bedrijf aan huis bij recht toegestaan.

Er zijn diverse bouwregels opgenomen voor de woningen, zoals een minimale en maximale goothoogte, een minimale en maximale bouwhoogte en een maximaal aantal woningen.

Bij het verlenen van de omgevingsvergunningen wordt aan de bouw- en gebruiksregels getoetst. De regels ten aanzien van de goed woon- en leefklimaat zijn vastgelegd in zogenaamde beleidsregels. Ook aan deze regels moet worden voldaan.

Artikel 12 Gemengd - Uit te werken

Deze gronden zijn bestemd als Gemengd - Uit te werken 1. Deze gronden zijn bestemd voor wonen, bedrijfsmatige activiteiten die zijn genoemd in Bijlage 2 behorende bij deze regels onder de categorieën 1 tot en met 2, maatschappelijke voorzieningen, indoor-leisure, bedrijfswoningen, perifere detailhandel en grootschalige detailhandel, parkeervoorzieningen en nutsvoorzieningen met de daarbij behorende ondersteunende horeca. Er mag pas een omgevingsvergunning worden verleend nadat het Uitwerkingsplan is vastgesteld.

Artikel 13 Woongebied - Uit te werken,

In de regels zijn de uitwerkingsregels opgenomen. Er mag pas een omgevingsvergunning worden verleend nadat het betreffende Uitwerkingsplan is vastgesteld.

De bestemming maakt wonen, maatschappelijke voorzieningen (onderwijs en intramurale zorg), woonerven, woonstraat, parkeervoorzieningen, voet- en fietspaden, groenvoorzieningen, kunstwerken, water en watervoorzieningen mogelijk. Voor wat betreft de scholen en zorgvoorzieningen zal de noodzaak via ladderonderzoek moeten worden aangetoond. Voor de uitwerking van het gebied zal moeten worden voldaan aan de normen in de verschillenden beleidsregels.

Artikel 14 Leiding - Gas en Artikel 15 Leiding - Riool

Deze dubbelbestemmingen dienen ter bescherming van de aanwezige gasleiding en rioolpersleiding aan de noordkant van het plangebied.

Artikel 16 Waarde - Archeologie 1, Artikel 17 Waarde - Archeologie 2 en Artikel 18 Waarde - Archeologie 3

Deze dubbelbestemmingen dienen ter bescherming van de aanwezige archeologische waarden en archeologische verwachtingswaarden. Middels de dubbelbestemming Waarde - Archeologie 1 worden gronden met een bekende archeologische waarde beschermd. Ter plaatse van de dubbelbestemmingen Waarde - Archeologie 2 en Waarde - Archeologie 3 geldt een hoge archeologische verwachtingswaarde.

Hoofdstuk 3 Algemene regels

Artikel 19 Anti-dubbeltelregel

Hiermee blijven gronden die eenmaal in aanmerking zijn genomen bij het toestaan van een bouwplan waaraan uitvoering is gegeven of alsnog kan worden gegeven, buiten beschouwing bij de beoordeling van latere bouwplannen.

Artikel 20 Algemene bouwregels

20.1 Bestaande bebouwing

Het gaat hierbij om een bouwregel voor bestaande bebouwing die bepaalt dat indien de bestaande bebouwing op het tijdstip van inwerkingtreding van het bestemmingsplan afwijkt van de in de planregels gegeven regels, in afwijking van deze regels, de bestaande goot- en bouwhoogte, oppervlakte van een bouwwerk, oppervlakte van een bouwvlak, de inhoud en afstanden als maximaal toelaatbaar worden aangehouden, mits deze afwijkende maatvoering, inhoud of oppervlakte op een legale wijze bij of krachtens de Wet op de Ruimtelijke Ordening, Wet ruimtelijke ordening en -voorzover van toepassing- de Woningwet of Wet algemene bepalingen omgevingsrecht tot stand is gekomen.

20.2 Hogere waarde geluid

In dit lid is bepaald dat wanneer bij uitwerkingsplannen een besluit hogere waarde geluid moet worden vastgesteld de beleidsregels 'Hogere waarde geluid' gelden.

Artikel 21 Algemene gebruiksregels

In dit artikel is ten eerste bepaald wat sowieso als strijdig met de bestemmingsregels wordt beschouwd.

Dit artikel bevat tevens een voorwaardelijke verplichting ter bescherming van de vliegroute voor vleermuizen (i.c. de Urkervaart). Hierbij is samengevat bepaald dat het op zodanig wijze aanbrengen van verlichting langs de Urkervaart waardoor de vliegroute van vleermuizen niet meer als zodanig zal worden gebruikt wordt gezien als strijdig met het bestemmingsplan. Met het oog hierop dient bij het aanbrengen van nieuwe verlichting langs de Urkervaart uit een door een deskundige opgestelde verklaring of rapport te blijken, dat deze verlichting de vliegroute van vleermuizen niet zodanig zal verstoren, dat het gebruik hiervan afneemt.

Verder zijn regels opgenomen voor wat betreft parkeergelegenheid en laad- en losmogelijkheden binnen het plangebied. Ook is bepaald dat een omgevingsvergunning slechts wordt verleend als sprake is van een duurzame ontwikkeling, zoals opgenomen in de beleidsregels.

Tot slot bevat dit artikel een regeling die inhoud dat internetwinkel als strijdig met de bestemmingen wordt gezien. Een internetwinkel kan worden toegestaan als er sprake is van een acceptabele uitstraling, hetgeen is bepaald in de beleidsregels 'Internetwinkels'.

Artikel 22 Algemene afwijkingsregels

In dit artikel zijn algemene afwijkingsregels opgenomen voor:

  • het aanbrengen van geringe wijzigingen in de plaats, richting en/of afmetingen van bebouwingsgrenzen, voorzover niet zijnde bestemmingsgrenzen, mits het wijzigingen betreft ten behoeve van de praktische uitvoering van het plan, waarbij belangen van derden niet onevenredig worden geschaad, dan wel ter correctie van afwijkingen of onnauwkeurigheden in de analoge verbeelding;
  • het oprichten van bouwwerken, geen gebouwen zijnde, in de vorm van palen en masten, met een hoogte van niet meer dan 12 meter.

Artikel 23 Algemene wijzigingsregels

Dit artikel bevat een algemene wijzigingsregel die het mogelijk maakt dat burgemeester en wethouders het plan wijzigen voor wat betreft het aanbrengen van geringe wijzigingen in de plaats, richting en/of afmetingen van bestemmingsgrenzen, mits het wijzigingen betreft ten behoeve van de praktische uitvoering van het plan, waarbij belangen van derden niet onevenredig worden geschaad, dan wel ter correctie van afwijkingen of onnauwkeurigheden in de verbeelding.

Artikel 24 Algemene procedureregels

Dit artikel geeft de procedure voor het stellen van nadere eisen. Deze procedure is bij wet niet geregeld.

Artikel 25 Overige regels

25.1 Algemene nadere eisen

Hiermee wordt geregeld dat burgemeester en wethouders nadere eisen kunnen stellen aan de situering van bebouwing en beplanting in verband met het in acht te nemen van afstanden tot wegen ten aanzien van verkeersveiligheid en in verband met het in acht nemen van afstanden tot watergangen.

25.2 Werking wettelijke regelingen

Dit lid regelt dat de wettelijke regelingen waarnaar in de regels van dit plan wordt verwezen, gelden zoals deze gelden op het moment van vaststelling van dit plan.

Hoofdstuk 4 Hogere grenswaarden Wet geluidhinder

Artikel 26 Hogere grenswaarden verkeerslawaai

Artikel 7c lid 9 van het Besluit Uitvoering Crisis- en Herstelwet biedt de mogelijkheid om een besluit tot het vaststellen van hogere grenswaarden voor industrie- en/of wegverkeerslawaai op te nemen in het bestemmingsplan met verbrede reikwijdte, in plaats van het nemen van aparte hogere waardenbesluiten.

Waar ter hoogte van de genoemde bestaande woning en toekomstige woningen een geluidbelasting als gevolg van wegverkeerslawaai optreedt van meer dan de voorkeursgrenswaarde van 48 dB, wordt met dit bestemmingsplan een hogere grenswaarde vastgesteld. Per adres/zone is genoemd wat de vastgestelde hogere waarde is.

Hoofdstuk 5 Overgangs- en slotregels

Artikel 27 Overgangsrecht

Het overgangsrecht ten aanzien van bouwen en gebruik is opgenomen conform de eisen van het Besluit ruimtelijke ordening.

Opgemerkt wordt, dat het bestaande gebruik van de agrarische gronden en gebouwen opnieuw onder het overgangsrecht wordt gebracht. Dit legale gebruik viel onder het vigerende bestemmingsplan al onder het overgangsrecht.

Hierbij geldt, dat wanneer een situatie reeds onder het overgangsrecht valt, en de gemeenteraad vervolgens een nieuw bestemmingsplan vaststelt, de raad moet beslissen wat het met deze overgangsrechtelijke situatie doet. Het opnieuw, voor een tweede maal, onder het overgangsrecht brengen van zo'n situatie is onder omstandigheden aanvaardbaar. Hiervoor is in ieder geval vereist dat de gerechtvaardigde verwachting bestaat dat het bestaande gebruik binnen de planperiode zal worden beëindigd. De planperiode van onderhavig plan is 20 jaar.

Ten opzichte van het ontwerpplan en het vigerende bestemmingsplan zijn de verschillende vooronderzoeken meer gedetailleerd uitgevoerd. Het bestemmingsplan en programma hebben een meer specifieke invulling gekregen. Het is aannemelijk dat binnen de planperiode de beoogde bestemming wordt gerealiseerd.

Artikel 28 Slotregel

Dit artikel bevat de citeertitel van het bestemmingsplan.

Hoofdstuk 6 Uitvoerbaarheid

6.1 Economische uitvoerbaarheid

Het bestemmingsplan Zeeheldenwijk maakt bouwplannen als bedoeld in artikel 6.2.1 van het Besluit ruimtelijke ordening (Bro) mogelijk. Op grond van artikel 6.12 lid 1 van de Wet op de ruimtelijke ordening (Wro) dient de gemeenteraad een exploitatieplan vast te stellen voor gronden waarop dergelijke bouwplannen zijn voorzien. De gemeenteraad kan bij een besluit tot vaststelling van een bestemmingsplan ook besluiten geen exploitatieplan vast te stellen als het verhaal van kosten van de grondexploitatie van de gronden anderszins is verzekerd en het bepalen van een tijdvak of fasering en het stellen van eisen en regels niet noodzakelijk is.

Het overgrote deel van de gronden in het bestemmingsplangebied is in eigendom van de gemeente, waardoor kostenverhaal op bouwplannen op grondeigendom van derden daarvoor niet aan de orde is. De gronden die niet in eigendom van de gemeente zijn, zijn of conserverend bestemd, waardoor er geen nieuw bouwplan mogelijk wordt gemaakt, of de kosten voor ontwikkeling van deze gronden zijn anderszins verzekerd. Hierdoor hoeft er geen exploitatieplan opgesteld te worden. Op de gronden vigeert momenteel een exploitatieplan, deze wordt bij vaststelling van het bestemmingsplan Zeeheldenwijk ingetrokken.

De gemeentelijke grondexploitatie is minimaal sluitend. Hiermee is de financieel economische uitvoerbaarheid van het bestemmingsplan geborgd en is het bestemmingsplan daarmee economisch uitvoerbaar.

6.2 Maatschappelijke uitvoerbaarheid

Maatschappelijke opgave

Met dit bestemmingsplan wordt uitvoering gegeven aan de opdracht van de provincie Flevoland om te voorzien in de bouw van woningen voor de eigen behoefte.

In het kader van de maatschappelijke uitvoerbaarheid wordt het bestemmingsplan voorgelegd aan een ieder.

Vooroverleg ex artikel 3.1.1 Bro

In het kader van het wettelijke verplichte overleg op grond van artikel 3.1.1 van het Besluit ruimtelijke ordening is het voorontwerpbestemmingsplan toegezonden aan de vooroverlegpartners met de mogelijkheid tot het geven van een reactie. De ingekomen vooroverlegreacties zijn verwerkt in de nota van beantwoording vooroverleg in Bijlage 21.

 

Inspraak

Het voorontwerpbestemmingsplan heeft gedurende zes weken ter inzage gelegen.

In de nota van beantwoording inspraak in Bijlage 22 zijn de uitkomsten van de inspraak verwerkt.

Tervisielegging ontwerpbestemmingsplan

Het ontwerpbestemmingsplan heeft gedurende zes weken ter inzage gelegen. Tijdens de terinzageleggingstermijn zijn zienswijzen op het plan ingediend. De zienswijzen zijn beantwoord in de nota van zienswijzen en wijzigingen in Bijlage 23.

Na onder meer afstemming met het waterschap Zuiderzeeland zijn enkele ambtshalve wijzigingen doorgevoerd in het vastgestelde bestemmingsplan. Deze ambtshalve wijzigingen zijn eveneens weergegeven in de Nota van zienswijzen en wijzigingen in Bijlage 23.

Vaststelling bestemmingsplan

Het bestemmingsplan is op 20 mei 2021 vastgesteld door de gemeenteraad van Urk. Het vaststellingsbesluit en het bestemmingsplan worden 6 weken ter inzage gelegd, gedurende welke periode beroep kan worden aangetekend bij de Afdeling bestuursrechtspraak van de Raad van State.