direct naar inhoud van 2.1 Een nieuwe hal
Plan: Alverna, Veenseweg 17
Status: vastgesteld
Plantype: bestemmingsplan
IMRO-idn: NL.IMRO.0296.ALVVEENSEWEG17-DFBP

2.1 Een nieuwe hal

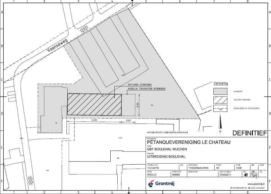
Op het terrein van pétanquevereniging Le Chateau aan de Veenseweg te Wijchen wordt uitbreiding van de bestaande bebouwing gepland; er komt een speelhal bij. De bestaande boulehal wordt behouden, evenals de aanwezige buitenbanen. De nieuwe hal wordt tegen het bestaande gebouw aangebouwd. De nieuwe hal heeft een lengte van 40 meter en een breedte van 16 meter. De nok van de kap bevindt zich op circa 7 meter hoogte. Het wordt opgebouwd uit dubbelwandige stalen panelen. Afbeelding 3 geeft een beeld van de nieuw te bouwen hal. Afbeelding 4 geeft de exacte ligging van de uitbreiding in het gebied weer.

afbeelding "i_NL.IMRO.0296.ALVVEENSEWEG17-DFBP_0005.jpg"

Afbeelding 3: Schetsplan nieuwe hal, aanzichten

afbeelding "i_NL.IMRO.0296.ALVVEENSEWEG17-DFBP_0006.jpg"

Afbeelding 4: ligging uitbreiding in het plangebied