direct naar inhoud van Toelichting
Plan: Hoekgraaf 11 Bergharen
Status: ontwerp
Plantype: bestemmingsplan
IMRO-idn: NL.IMRO.0296.BGBHoekgraaf11-OW01

Toelichting

Hoofdstuk 1 Inleiding

1.1 Aanleiding en doelstelling

Eigenaren van het perceel Hoekgraaf 11 te Bergharen zijn voornemens om op het bestaande woonperceel een duurzame (senioren)woning toe te voegen. De huidige bewoners van de bestaande woonboerderij willen daar gaan wonen. De extra woning op het perceel maakt eventuele mantelzorg in de toekomst mogelijk.

De bouw van de extra woning op het perceel is niet mogelijk binnen de kaders van het geldende bestemmingsplan. In mei 2021 heeft de gemeente Wijchen aangegeven in beginsel positief tegenover het voornemen te staan. Om de bouw juridisch planologisch mogelijk te maken is voorliggend bestemmingsplan opgesteld.

1.2 Ligging van het project

Het gedeelte van het perceel Hoekgraaf 11 in Bergharen waar dit bestemmingsplan betrekking op heeft omvat de kadastrale percelen BHR02 - H - 139 en BHR02 - H - 1323.

afbeelding "i_NL.IMRO.0296.BGBHoekgraaf11-OW01_0003.png"

Vanwege brandweervoorschriften (zie paragraaf 2.2) wordt op het aangrenzende perceel (1322) een strookje grond van 80 m2 aangekocht door de initiatiefnemers, om het bestaande onverharde pad te kunnen voorzien van een waterdoorlatende halfverharding zodat het toegankelijk wordt voor een brandweerwagen. Omdat dit niet strijdig is met de geldende bestemming, is het niet nodig dit stukje grond te betrekken in dit bestemmingsplan.

Hoofdstuk 2 Huidige en nieuwe situatie

2.1 Huidige situatie

In de huidige situatie is op het terrein een woonboerderij van 171 m2 (nummer 1) gebouwd met een bijbehorende schuur van 83 m2 (nummer 2) een kas van 22 m2 (nummer 3) en een carport van 21 m2 (nummer 4). Aan de zijde van de Hoekgraaf is op het kadastrale perceel H139 een verhard toegangspad dat dient als hoofdontsluiting. Verderop aan de Hoekgraaf (op kadastraal perceel 1322) is een "poort" met een onverhard pad en een hek dat ook toegang geeft tot het perceel.

afbeelding "i_NL.IMRO.0296.BGBHoekgraaf11-OW01_0004.png"

afbeelding "i_NL.IMRO.0296.BGBHoekgraaf11-OW01_0005.png"

Afbeelding: de bestaande woning met de ontsluiting vanaf de Hoekgraaf (foto: Blom Ecologie)

afbeelding "i_NL.IMRO.0296.BGBHoekgraaf11-OW01_0006.png"

Foto: de bestaande carport (foto: Blom Ecologie)

afbeelding "i_NL.IMRO.0296.BGBHoekgraaf11-OW01_0007.png"

Foto: het onverharde pad met hek (foto: initiatiefnemers)

2.2 Nieuwe situatie

2.2.1 Woning

Situering

Voor de nieuwe situatie wordt uitgegaan van het slopen van de bestaande carport en het ter plaatse realiseren van een duurzame woning (locatie 4 op onderstaande afbeelding). Met de gekozen situering wordt de woning gebouwd binnen de woonbestemming van het geldende bestemmingsplan, wordt de woning op enige afstand van de bestaande woonboerderij gesitueerd en wordt de bebouwing op het perceel gelijkmatig verdeeld. Met de gekozen locatie wordt voldoende afstand (minimaal ruim 60 meter) tot omliggende woningen aangehouden, zodat de nieuwe woning ruimtelijk goed inpasbaar is.

afbeelding "i_NL.IMRO.0296.BGBHoekgraaf11-OW01_0008.png"

Afbeelding: situatietekening nieuwe situatie (Architectuurstudio Zwijsen, d.d. 6 september 2021)

Bouwmassa

De woning wordt gebouwd in één bouwlaag met een (flauwe) kap, de goothoogte bedraagt 3 meter, de bouwhoogte bedraagt maximaal 5 meter. De omvang van de woning is circa 120 m2 (9x14 meter). De inhoud van de woning bedraagt maximaal 500 m3.

Architectuur

Qua architectuur wordt uitgegaan van een moderne scandinavische stijl waarbij veel gebruik wordt gemaakt van hout. Op deze wijze wordt de woning qua materiaal zo goed mogelijk ingepast in de bosrijke omgeving. Zie onderstaande afbeelding voor een referentiebeeld.

afbeelding "i_NL.IMRO.0296.BGBHoekgraaf11-OW01_0009.png"

Wat daar genoemd wordt valt meer onder duurzaam bouwen. Het sedumdak is wel natuurinclusief. Er kunnen nog dierverblijfplaatsen worden toegevoegd zoals vleermuiskasten of vogelkasten (huismus/ gierzwaluw). En denk aan een biodiverse groeninrichting.

Duurzaam en natuurinclusief bouwen

Duurzaam en natuurinclusief bouwen is het uitgangspunt voor de nieuwe woning. Daarbij wordt uitgegaan van:

  • energieconcept Nul-op-de-Meter en Passiefhuis
  • circulaire, biobased en hergebruikte materialen
  • seniorengeschikt en nultreden
  • moderne architectuur

In vorm en kleurgebruik is opgaan in de natuur het streven. De woning wordt opgenomen in het omliggende landschap doordat er uitsluitend een klein terras aan de zuidzijde wordt gerealiseerd wat overloopt in het omliggende maaiveld, verder wordt geen verharding toegevoegd. Er worden geen afrasteringen of andere erfafscheidingen gerealiseerd. Het dak wordt voorzien van een sedumdak waardoor de woning natuurinclusief wordt uitgevoerd. Duurzame energie wordt opgewekt met zonnepanelen op het dak. In het plan voor de landschappelijke inpassing (Bijlage 4 Landschappelijke inpassing (v3) 26.06.2023) zijn de maatregelen beschreven die worden getroffen.

2.2.2 Ontsluiting voor de brandweer

Aan de zijde van de Hoekgraaf is er in de huidige situatie een onverharde ontsluiting (pad) van het perceel, op kadastraal perceel 1322, zie onderstaande afbeelding.

afbeelding "i_NL.IMRO.0296.BGBHoekgraaf11-OW01_0010.png"

Uit het overleg met de brandweer is gebleken dat deze ontsluiting moet worden voorzien van een halfverharding (zoals bij de aangrenzende inrit van Hoekgraaf 9 reeds het geval is) zodat de inrit berijdbaar is voor de zware brandweerwagen. Met deze ontsluiting komt de nieuwe woning binnen de normafstand van 40 meter te liggen, dat voor de brandweer als maximum wordt aangehouden. De initiatiefnemers zijn met de huidige eigenaar van kadastraal perceel 1322 (Gelders Landschap) overeengekomen dat de grond van de inrit (circa 80 m2) wordt aangekocht en notarieel wordt vastgelegd.

Net als bij huisnummer 9 zal de inrit vanaf de weg tot aan het hek worden voorzien van een waterdoorlatende halfverharding waar het gras doorheen kan groeien, zodat de inrit een natuurlijke uitstraling behoudt. Voor deze halfverharding hoeven geen bomen te worden gekapt of planten te worden verwijderd. De ontsluiting zal uitsluitend voor calamiteitenverkeer (zoals de brandweer) worden gebruikt, zoals de impact op de bestaande natuurwaarden daarmee te verwaarlozen is. Vanaf de poort tot aan het huis komt geen verharding.

afbeelding "i_NL.IMRO.0296.BGBHoekgraaf11-OW01_0011.png"

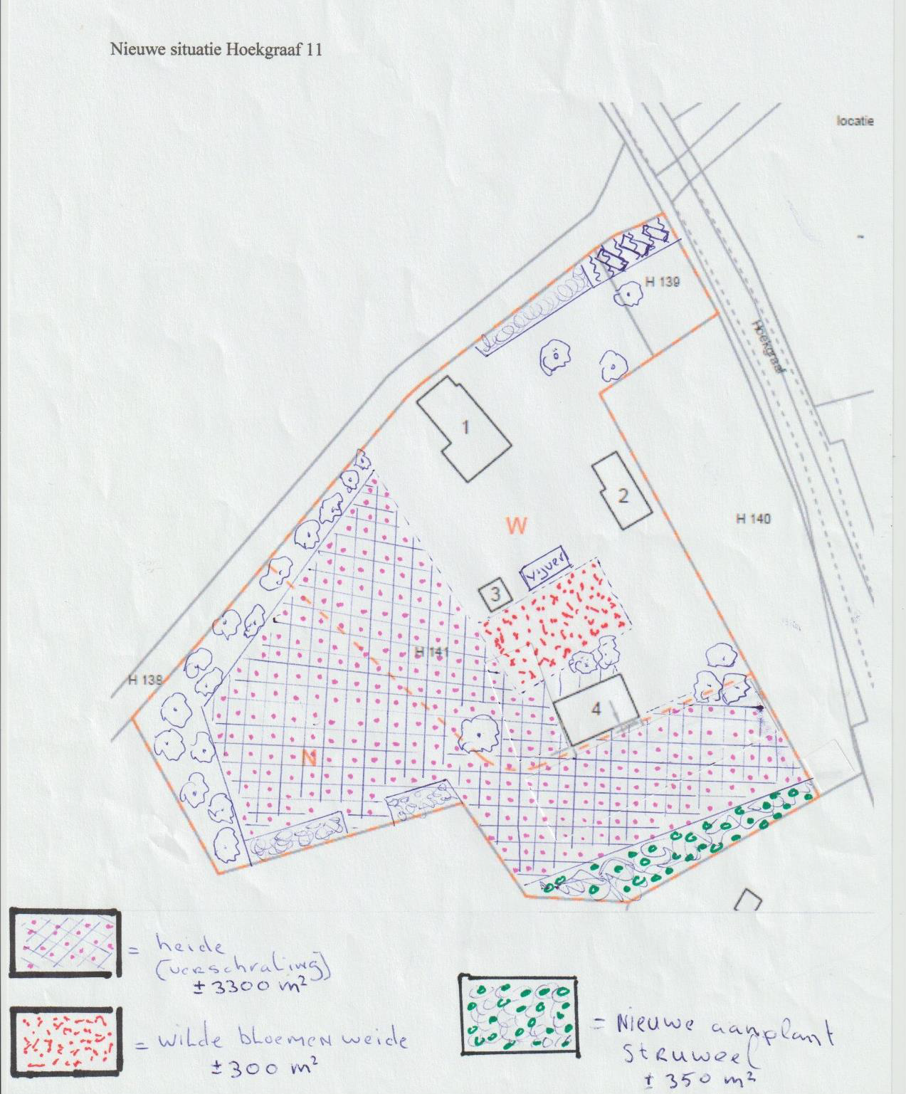
2.2.3 Aanplant/ontwikkeling natuur

Zoals aangegeven in het plan Landschappelijke inpassing (v3) 26.06.2023 wordt op eigen terrein natuurontwikkeling gerealiseerd dat dient ter versterking van de Groene Ontwikkelingszone zoals aangewezen door de provincie Gelderland. De maatregelen die getroffen worden betreffen:

  • 1. Het afplaggen van een groot deel van het perceel (braakliggend terrein van circa 3.300 m2) waardoor de heide zich op die plek kan herstellen en kan gaan groeien. Ter illustratie: op het aanliggende perceel staat aan de rand van het zandplateau een laatste stukje heide. Met het voorgenomen plan krijgt de rivierduin weer een rijkere begroeiing. Door verschraling worden de inheemse bloemen en kruidachtige in de gelegenheid gesteld om zich hier te vestigen. Nu groeit er vooral mos en gras op en rond de geplande locatie.
  • 2. Ter plaatse van een deel van het bestaande tuingras wordt een wilde bloemenweide aangelegd met een oppervlak van circa 300 m². Deze grond zal worden afgeplagd en vervolgens worden ingezaaid met een inheems bloemenmengsel voor schrale zandgrond, zoals: Geel walstro, Gewone rolklaver, Gewoon biggenkruid, Glad walstro, Grasklokje, Grijskruid, Grote klaproos, Hazenpootje, Karthuizer anjer, Kleine ratelaar, Kleine tijm, Echte korenbloem, Middelste teunisbloem, Muizenoor, Schapenzuring, Schermhavikskruid, Sint-janskruid, Steenanjer, Viltganzerik, Vlasbekje, Zandblauwtje. Deze wilde bloemenweide met kruiden geeft ruimte aan vlinders, hommels, wilde bijen en insecten. Aan de rand van deze weide worden stapelmuurtjes gerealiseerd die kunnen dienen als schuilplaats voor salamanders en hagedissen. Ook kunnen deze muurtjes dienen als een insectenhotel.
  • 3. De aanwezige randbeplanting (struweel) zal worden versterkt door nieuwe aanplant aan de rand van het perceel met een oppervlak van circa 350 m². Het struweel zal worden ingeplant met inheemse beplanting zoals: Meidoorn, sleedoorn, hazelaar, lijsterbes, Gelderseroos, hondsroos. Deze beplanting mag vrij groeien en zal bij grote uitdijing eens in de paar jaar worden afgezet om het gesloten karakter te behouden.

De bovengenoemde maatregelen zijn op onderstaande kaart weergegeven.

afbeelding "i_NL.IMRO.0296.BGBHoekgraaf11-OW01_0012.png"

De realisatie van deze maatregelen is als een voorwaardelijke verplichting opgenomen in dit bestemmingsplan. Zie voor een uitgebreide beschrijving van alle maatregelen Bijlage 4 Landschappelijke inpassing (v3) 26.06.2023.

Hoofdstuk 3 Planologisch kader

3.1 Bestemmingsplan Buitengebied Wijchen (2013), inclusief 1e herziening

Ter plaatse geldt het bestemmingsplan "Buitengebied Wijchen" dat is vastgesteld op 31 januari 2013. Het bestemmingsplan is gedeeltelijk herzien, de herziening "Buitengebied Wijchen 2014" is vastgesteld op 16 oktober 2014. Met de herziening in 2014 zijn de planregels van onder andere de bestemming "Wonen-1" en "Natuur-1" op onderdelen gewijzigd. Deze wijzigingen zijn in onderstaande tekst verwerkt.

Het gedeelte van het perceel waar de nieuwe woning wordt voorzien is bestemd als "Wonen-1". Op een deel van het perceel geldt een archeologische dubbelbestemming. Aan de zijde van de Hoekgraaf geldt een dubbelbestemming voor een gasleiding. Het hele perceel is voorzien van een gebiedsaanduiding "hydrologische beschermingszone". Tussen het woonperceel en de Hoekgraaf is het bestaande bosperceel bestemd als "Natuur-1".

afbeelding "i_NL.IMRO.0296.BGBHoekgraaf11-OW01_0013.png"

Wonen-1

Op grond van de bestemmingsomschrijving van de bestemming Wonen-1 is per perceel één woning toegestaan met bijbehorende voorzieningen, zoals tuinen en erven. Bed & breakfast is toegestaan met een omgevingsvergunning. Daarnaast zijn voorzieningen voor de opwekking van duurzame energie (windenergie, zonneenergie, warmte-koudeopslag) en waterhuishoudkundige doeleinden toegestaan. Voor woningen geldt een maximale goothoogte van 6 meter en een maximale nokhoogte van 10 meter.

Het voornemen voor de bouw van een extra woning past binnen de bestemmingsomschrijving en bouwbepalingen, op één punt na: met de bouw van de extra woning wordt het maximum aantal toegestane woningen op het perceel (1) overschreden (met één woning).

Natuur-1

Op grond van de bestemmingsomschrijving zijn de gronden met de bestemming "Natuur-1" onder andere bestemd voor het behoud, beheer, herstel en ontwikkeling van de cultuurhistorisch, aardkundige, natuur en landschappelijke waarden, extensief recreatief medegebruik, doeleinden van openbaar nut, tuin- en erfinrichting, wegbeplanting, landschapselementen en bosschages, een en ander met bijbehorende voorzieningen zoals zoals erfontsluitingen, groenvoorzieningen, wildbegeleidende en wildbeschermingsvoorzieningen, wandel- en/of fietspaden en onverharde wegen.

Voor het bestaande onverharde pad naar de Hoekgraaf voorziet het plan in het aanbrengen van een waterdoorlatende halfverharding, uitsluitend bedoeld voor hulpdiensten zoals de brandweer. De ligging of omvang van de ontsluiting wordt niet aangepast. Er hoeven geen bomen, struiken of andere natuurlijke vegetatie verwijderd te worden. De ontsluiting valt onder de noemer "erfontsluitingen" en is op basis van de natuurbestemming al toegestaan.

3.2 (paraplu)Bestemmingsplan cultuurhistorie

De voor Waarde - Cultuurhistorisch waardevol gebied aangewezen gronden zijn, behalve voor de andere daar voorkomende bestemming(en), mede bestemd voor het behoud, beheer en versterking van de cultuurhistorische waarden. Hoekgraaf 11 is conform de cultuurhistorische beleidskaart onderdeel van de "zone met beleidsmatige vertaling".

afbeelding "i_NL.IMRO.0296.BGBHoekgraaf11-OW01_0014.png"

In de beleidsnota cultuurhistorie zijn de verschillende delen van de gemeente voorzien van een culthuurhistorische waardering.

Cultuurlandschap

Het gebied ten noorden van Wijchen (waar Hoekgraaf onderdeel van is) is in de beleidsnota cultuurhistorie als volgt gewaardeerd:

afbeelding "i_NL.IMRO.0296.BGBHoekgraaf11-OW01_0015.png"

Stedenbouw

Voor het westelijk en oostelijk deel van Bergharen, waar de Hoekgraaf 11 onderdeel van is, geldt een lage stedenbouwkundige waardering:

afbeelding "i_NL.IMRO.0296.BGBHoekgraaf11-OW01_0016.png"

Inpassing

De extra woning op het perceel Hoekgraaf 11 wordt gebouwd ter plaatse van de bestaande carport op het gedeelte van het terrein dat een woonbestemming heeft. De omvang van de woning is beperkt (één bouwlaag, maximaal 5 meter hoog) en door de gekozen situering vrijwel niet zichtbaar vanaf de openbare weg. De hoofdstructuur van het gebied bestaande uit bossen afgewisseld met agrarische percelen wordt met de bouw van de extra woning niet aangetast.

Hoofdstuk 4 Beleidskader

4.1 Rijksbeleid

Structuurvisie Infrastructuur en Ruimte

De Structuurvisie Infrastructuur en Ruimte is op 13 maart 2012 vastgesteld. Het Rijk vindt de stedelijke regio's van de mainports, brainport, greenports en de valley's van nationale betekenis. Gebiedsontwikkelingen van nationaal belang zoals Zuidas (als het grootste internationale zakendistrict), de Structuurvisie Mainport Schiphol Amsterdam Haarlemmermeer, Rotterdam-Zuid en Brainport Avenue rond Eindhoven worden doorgezet. Met het toevoegen van een duurzame (senioren)woning op het perceel Hoekgraaf 11 worden geen Rijksbelangen geraakt.

Besluit en Regeling algemene regels ruimtelijke ordening (Barro en Rarro)

Het Barro is op 22 augustus 2011 vastgesteld en op 30 december 2011 in werking getreden. In het Barro zijn bepalingen opgenomen ter bescherming van nationale belangen, zoals de mainportontwikkeling van Rotterdam, bescherming van de waterveiligheid in het kustfundament en in en rond de grote rivieren, de uitoefening van defensietaken en bescherming en behoud van de Waddenzee en enkele werelderfgoederen, zoals de Beemster, de nieuwe Hollandse Waterlinie en de Stelling van Amsterdam. Met het toevoegen van een duurzame (senioren)woning op het perceel Hoekgraaf 11 worden geen Rijksbelangen geraakt.

Artikel 3.1.6 Bro: Ladder voor duurzame verstedelijking

Voor de Hoekgraaf 11 wordt uitgegaan van het toevoegen van een woning op een bestaand woonperceel. Of er sprake is van een stedelijke ontwikkeling wordt bepaald door de aard en omvang van de ontwikkeling in relatie tot de omgeving. Voor woningbouwlocaties geldt volgens de zogenaamde overzichtsuitspraak van de Afdeling bestuursrechtspraak Raad van State over de 'ladder voor duurzame verstedelijking' (ABRvS 28 juni 2017, ECLI:NL:RVS:2017:1724) dat 'in beginsel' sprake is van een nieuwe stedelijke ontwikkeling als er meer dan 11 woningen gerealiseerd worden. Voor wonen is daarmee de lijn dat er vanaf 12 woningen sprake is van een stedelijke ontwikkeling. Aan de Hoekgraaf 11 is sprake van een toename van 1 woning. Dit is in lijn met de jurisprudentie niet te beschouwen als een stedelijke ontwikkeling en hoeft niet te worden getoetst aan de Ladder voor duurzame verstedelijking. Wel is er sprake van efficiënt ruimtegebruik. Op een bestaand woonperceel wordt op de plek van huidige carport een nieuwe duurzame woning gebouwd waarbij de kernkwaliteiten van het omliggende landschap niet worden aangetast en de beschikbare ruimte zo optimaal mogelijk benut wordt. Hiermee sluit de ontwikkeling aan bij de doelstelling van de Ladder voor duurzame verstedelijking.

4.2 Provinciaal beleid

Omgevingsverordeing Gelderland (2021)

Het perceel waar de woning is voorzien (H139, H141) is onderdeel van de "Groene ontwikkelingszone" en de "beschermingzone natuur landnatuur". Het perceel waar de wijziging van het bestaande pad ten behoeve van de brandweer (H140) is voorzien is onderdeel van het Gelders Natuurnetwerk.

afbeelding "i_NL.IMRO.0296.BGBHoekgraaf11-OW01_0017.png"

Groene ontwikkelingszone

Voor de Groene Ontwikkelingszone geldt (artikel 2.52 en verder) dat een nieuwe activiteit of ontwikkeling alleen is toegestaan als blijkt dat de kernkwaliteiten of ontwikkelingsdoelstellingen per saldo worden verstrekt en de samenhang niet verloren gaat. Hiertoe is een plan voor landschappelijke inpassing opgesteld, zie Bijlage 4 Landschappelijke inpassing (v3) 26.06.2023. De kernkwaliteiten van de zandduin Bergharen bestaan onder meer uit schrale grond met bijzondere vegetatie en de aanwezigheid van het leefgebied van de kamsalamander. Het plan voorziet in de volgende wijze in het versterken van de natuur en landschap binnen de Groene Ontwikkelingszone:

  • Het braakliggend terrein wordt door verschraling omgevormd naar schraallanden met heide.
  • Verschralen van de grond en het realiseren van een wilde bloemenweide tuin stimuleert de ontwikkeling van biotopen voor vlinders, reptielen en amfibieën.
  • Door het aanplanten van een struweel (350 m2) aan de noord-oostkant van het perceel ontstaat voor de kamsalamander een ideale voortplantingsbiotoop.
  • In het nieuw aan te planten struweel en in het snoeihout dat niet wordt afgevoerd vindt de kamsalamander een hoger gelegen rustplek en winterverblijfplaats. Binnen een straal van ongeveer 50 meter bevindt zich een voortplantingswater en in de onmiddellijke nabijheid zijn ook poelen te vinden. Het Munnikhof van Gelders landschap, binnen een straal van 100 meter).

Geconcludeerd kan worden dat door de voorgenomen ingrepen op het perceel de bouw van de woning (120 m2 ter plaatse van een bestaande carport) ruimschoots kan worden gecompenseerd met de realisatie van 3.300 m² heide en 300 m² wilde bloemenweide. Daarmee worden de beschreven kernkwaliteiten versterkt.

Gelders Natuurnetwerk

Het kadastrale perceel H140 waar de wijziging van het toegangspad (voorzien van een halfverharding) ten behoeve van de brandweer wordt voorzien is onderdeel van het Gelders Natuurnetwerk. Conform artikel 2.39 en verder van de Omgevingsverordening kan een nieuwe activiteit of ontwikkeling alleen worden toegelaten als er geen nadelige gevolgen zijn voor de kernkwaliteitenm oppervlakte of samenhang van het Natuurnetwerk.

Voor de benodigde toegang van hulpdiensten (brandweer) wordt een stukje grond van 80 m², onderdeel van het kadastrale perceel H140, door de initiatiefnemers aangekocht van het Gelders Landschap. De toegang is altijd als inrit gebruikt en is op grond van het vigerende bestemmingsplan al mogelijk. Het pad ondergaat geen visuele verandering. Ook worden er ter plekke geen bomen/struiken of andere natuurlijke vegetatie verwijderd omdat deze er in de huidige situatie niet staan. Er is derhalve geen sprake van verlies van natuur. Op het pad wordt een waterdoorlatende erfverharding toegepast met gras beton blokken waardoor de landelijke uitstraling gehandhaafd blijft. De ontsluiting zal alleen worden gebruikt in geval van een calamiteit door bijvoorbeeld de brandweer. Het gebruik van het pad is daarmee zeer beperkt en de impact op de kernkwaliteiten is gelet op de beschreven ingreep verwaarloosbaar. Het is daarmee in overeenstemming met de provinciale Omgevingsverordening.

Instructieregel woningbouw

Voor woningbouw is in de Omgevingsverordening Gelderland (2021) het volgende bepaald (artikel 2.2: instructieregel bestemmingsplan doorwerking regionale woonagenda).

"Een bestemmingsplan maakt nieuwe woningen alleen mogelijk als die ontwikkeling past binnen een door Gedeputeerde Staten vastgestelde regionale woonagenda. Als een ontwikkeling niet past binnen de vigerende regionale woonagenda, kan een bestemmingsplan vooruitlopend op de eerstvolgende actualisatie van de regionale woonagenda nieuwe woningen toch mogelijk maken onder de volgende voorwaarden:

  • er wordt voldaan aan de eisen van de Ladder voor duurzame verstedelijking;
  • de ontwikkeling past binnen het meest recente provinciale beleid;
  • er heeft aantoonbaar regionale afstemming plaatsgevonden over deze ontwikkeling, en
  • Gedeputeerde Staten stemmen in met deze ontwikkeling".

Woonagenda subregio Nijmegen e.o. 2020-2030

Algemeen

De woonagenda voor de subregio Nijmegen (waar Wijchen onderdeel van is) is vastgesteld op 19 oktober 2020. Met de woonagenda leggen de samenwerkende gemeenten in de subregio Nijmegen e.o. (Berg en Dal, Beuningen, Druten, Heumen, Mook en Middelaar, Nijmegen en Wijchen) een gezamenlijke koers vast om tegemoet te komen aan de wonen opgaven voor de jaren 2020-2030. Het centrale doel is het zorgen voor een blijvend goed woon- en leefklimaat voor alle huidige en toekomstige inwoners van de subregio, met voldoende woningen, kwantitatief en kwalitatief voor iedereen die dat nodig heeft.

Woningbouwopgave

In de woonagenda is geconstateerd dat de woningbouw de komende jaren moet worden versneld om aan de groei van de woningbehoefte te kunnen voldoen en om het huidige woningtekort te kunnen inlopen. Vanwege planuitstel en planuitval en om rekening te kunnen houden met onzekerheden, kansen en nieuwe ontwikkelingen (adaptief programmeren) hanteert de subregio een plancapaciteit van 130% van de berekende woningbehoefte, 130% is ook het uitgangspunt per gemeente. In de Woondeal Regio Arnhem Nijmegen is afgesproken dat de gemeenten in de subregio tot 2025 zorgen voor een planvoorraad van meer dan 15.000 woningen. Van 2025 tot 2030 is vervolgens nog plancapaciteit voor 5.200 woningen nodig. In totaal 20.500 woningen, een enorme opgave.

Duurzaam bouwen

Alle gemeenten in de subregio hebben zich gecommitteerd aan de landelijke doelstellingen op het gebied van duurzaamheid. Getreefd wordt naar een energieneutrale gebouwde omgeving, gasloos wonen, een afvalloze samenleving in 2050 en een klimaatbestendige leefomgeving. In de Woondeal worden uitdagingen beschreven als het gaat om circulariteit, aanpasbaar en klimaatadaptief bouwen en circulair renoveren. In het uitvoeringsprogramma van de Woondeal wordt hier concrete invulling aan gegeven. Eén van de tempotafels van de Woondeal is gericht op circulair bouwen en duurzaamheid.

Bouwen voor specifieke groepen

In alle gemeenten van de subregio is sprake van vergrijzing en moet dus meer rekening worden gehouden met het toevoegen van woonvormen specifiek voor ouderen (levensloopgeschikt, geclusterd en verpleeghuiscapaciteit). Voor ouderen geldt dat zij niet erg verhuisgeneigd zijn en dat zij over het algemeen graag in de eigen wijk en of gemeente willen blijven wonen. Daarmee zien de subregio gemeenten de huisvesting van ouderen met en zonder zorg vooral als een lokale opgave, waarbij er voldoende woningen en woonruimten worden gerealiseerd of levensloopgeschikt gemaakt om aan de lokale behoefte te voldoen.

Conclusie

De bouw van een duurzame levensloopbestendige woning op een bestaand woonperceel in Bergharen waar ook mantelzorg mogelijk is, past binnen de doelen van de woonagenda om waar mogelijk woningen toe te voegen, duurzaam te bouwen en voor een specifieke doelgroep te bouwen.

4.3 Gemeentelijk beleid

Structuurvisie Wijchen (2009)

In de gemeentelijke structuurvisie van 2009 is aangegeven dat de gemeente wil doorgroeien met circa 3.500 woningen. Hierbij wil de gemeente de bestaande kwaliteiten qua geluidbelasting, leefbaarheid en duurzaamheid continueren. Het accent daarbij ligt op het bouwen van nieuwe woningen in het bestaande stedelijke gebied en bij enkele uitleglocaties (zoals Wijchen West). Wat betreft de ontwikkeling van nieuwe “woningen in het groen” is de gemeente terughoudend. De lokale woningbouwopgave van Wijchen gaat tot 2030 uit van 1.430 woningen.

afbeelding "i_NL.IMRO.0296.BGBHoekgraaf11-OW01_0018.png"

Afbeelding: uitsnede visiekaart

Hoekgraaf 11 ligt in het gebied waar gemengde functies voor het buitengebied en "verbreden landbouw" mogelijk wordt gemaakt. De locatie van de nieuwe woning ligt buiten het gebied dat is aangeduid als "behoud bos". Op de kaart "landschap" is het perceel onderdeel van de "rivierduinen". Voor de rivierduinen, vlakten en donken geldt als uitgangspunt: "behouden reliëfrijk, besloten gebied met historische bebouwing en beplantingen". Hoewel het plan uitgaat van de bouw van een woning kunnen de kernwaarden behouden blijven. De woning heeft een beperkte omvang (120 m2, één laag van maximaal 5 meter) en wordt gerealiseerd ter plaatse van de bestaande carport. Door de omliggende begroeiing en de natuurlijke materialen die worden toegepast wordt het nieuwe gebouw opgenomen in de omgeving. De bestaande woonboerderij die zichtbaar is vanaf de weg blijft behouden.

Woonvisie Thuis in Wijchen 2025

De woonvisie Gemeente Wijchen 2025 (2017) geeft richting aan de ontwikkelingen op het gebied van wonen. In deze visie wordt omschreven waar de gemeente moet bijsturen, afremmen of juist versnellen om haar doelen op het gebied van wonen te bereiken. Op het gebied van gemeentelijk woonmilieu zijn doelen geformuleerd voor een woningaanbod in balans. Zo wil de gemeente Wijchen voor starters, jonge gezinnen, (vitale) senioren en mensen met een zorgvraag meer mogelijkheden op de woningmarkt. Dit vraagt om speciale aandacht voor de woonwensen van deze groepen, maar ook om het aanpassen van het huidige aanbod op deze wensen. Het toevoegen van een duurzame seniorenwoning op het bestaande woonperceel aan de Hoekgraaf 11 past in het beleid om te voorzien in de woningbehoefte van senioren.

Hoofdstuk 5 Omgevingsaspecten

5.1 Duurzaamheid

Zero Emmission

Om C02-uitstoot te voorkomen en de carbon footprint zo laag mogelijk te houden, wordt de nieuwe woning volledig CO2-neutraal. Daarvoor heeft het de onderstaande energetische eigenschappen;

  • Nul-op-de-Meter (NOM)
  • Passiefhuis-isolatiewaarden
  • Bodemwarmtepomp met koeling
  • PV-panelen gecombineerd met sedumdak
  • Balansventilatie met warmteterugwinning (WTW)
  • Hoge luchtdichtheid (qv10 < 0,25)
  • Overstek aan zuidzijde voor ideale zoninstraling in de winter

Hergebruik en Biobased

Voor de bouw wordt gebruik gemaakt van hergebruikte materialen. Hier is al veel ervaring mee toen de schuur is gebouwd in 1993. Hiervoor is nagenoeg alleen gebruikt bouwmateriaal voor gebruikt. De overige materialen zullen worden toegepast, hebben de volgende eigenschappen:

  • lage milieubelasting
  • biobased en circulair; zoals lemen binnenwanden
  • circulaire isolatiematerialen; zoals Isovlas
  • verduurzaamd hout; platowood of thermowood

Waterneutraal

Water wordt steeds schaarser en waardevoller voor de mens en de omgeving. Bij het bouwen is daarom aandacht voor:

  • opvang van regenwater
  • gescheiden watersysteem
  • zuivering grijs water voor hergebruik in vijver met helofytenfilter.

5.2 Parkeren en verkeer

Huidige situatie

In de huidige situatie is het perceel ontsloten via een bestaande inrit vanaf de Hoekgraaf. Deze inrit blijft behouden. Op eigen terrein is voldoende parkeerruimte, er zijn geen gemarkeerde parkeervakken aanwezig.

Nieuwe situatie

De huidige bewoners van de bestaande woonboerderij verhuizen naar de nieuwe woning op het terrein en zullen gebruik kunnen blijven maken van de bestaande in- en uitrit. Conform het parkeerbeleidsplan van de gemeente Wijchen zijn voor de bouw van de extra woning afgerond 3 parkeerplaatsen op eigen terrein nodig. Deze extra plekken kunnen op het eigen erf worden gerealiseerd.

Het toevoegen van één woning leidt tot een zeer beperkt aantal extra verkeersbewegingen dat via de bestaande ontsluiting afgewikkeld kan worden. Er worden geen verkeerskundige knelpunten verwacht.

afbeelding "i_NL.IMRO.0296.BGBHoekgraaf11-OW01_0019.png"

Afbeelding: bestaande inrit vanaf de Hoekgraaf (foto: Google)

Toegang voor de brandweer

Aan de zijde van de Hoekgraaf is in de huidige situatie een onverhard toegangspad naar het perceel. Dit pad wordt net als bij het naastgelegen perceel voorzien van een waterdoorlatende halfverharding zodat een brandweerwagen gebruik kan maken van het pad in geval van een calamiteit. De omvang en de locatie van de bestaande inrit wordt niet gewijzigd, er wordt alleen halfverharding toegepast. Op de onderstaande foto is de bestaande inrit te zien. De toe te passen halfverharding zal vergelijkbaar zijn als bij de naastgelegen inrit naar Hoekgraaf 9 is gedaan.

afbeelding "i_NL.IMRO.0296.BGBHoekgraaf11-OW01_0020.png"

5.3 Geluid

Wettelijk kader

Overeenkomstig de Wet geluidhinder moet voor de bouw van nieuwe geluidgevoelige bestemmingen zoals woningen worden getoetst aan de Wet geluidhinder. Daarbij geldt een voorkeurgrenswaarde van 48 dB voor wegverkeerslawaai.

Onderzoek

Het bestemmingsplan maakt de bouw van een nieuwe woning (geluidgevoelige bestemming) mogelijk binnen de zone van een gezoneerde weg (Hoekgraaf). Door bureau Kragten is een akoestisch onderzoek uitgevoerd, zie Bijlage 1 Akoestisch onderzoek 09.09.2021. Uit het akoestisch onderzoek blijkt dat de geluidbelasting op de gevel van de nieuwe woning maximaal 44 dB bedraagt. De voorkeurgrenswaarde van 48 dB wordt daarmee niet overschreden. De woning kan worden gebouwd zonder dat daarvoor een hogere waarde conform de Wet geluidhinder vastgesteld hoeft te worden. Omdat er alleen sprake is van wegverkeerslawaai is er geen sprake van cumulatie van geluid.

Goede ruimtelijke ordening

Uit het akoestisch onderzoek is gebleken dat de maximale geluidbelasting op de nieuwe woning 44 dB bedraagt. Andere geluidbronnen zijn niet aan de orde. De woning wordt gebouwd in een bosgebied. Gelet op de beperkte geluidbelasting en de bosrijke omgeving is er sprake van een goed woon- en leefklimaat zodat voor wat betreft het aspect geluid sprake is van goede ruimtelijke ordening.

5.4 Water

5.4.1 Intro

Wettelijk kader

Op basis van de wet op de ruimtelijke ordening (Wro) en Besluit ruimtelijke ordening (Bro) is de watertoets verplicht bij o.a. bestemmingsplannen, inpassingsplannen, projectbesluiten en omgevingsvergunningen afwijking bestemmingsplan. Voor overige plannen, zoals een structuurvisie, dient een watertoets te worden uitgevoerd op basis van het Nationaal Be-stuursakkoord Water. Het Bro regelt de verplichte waterparagraaf in de plantoelichting (art 3.1.6 Bro) en het vooroverleg met de waterbeheerder (art 3.1.1 Bro).

Watertoets

De watertoets is bedoeld om ruimtelijke plannen en besluiten meer waterbestendig te ma-ken, doordat waterbelangen van gemeente, waterschap en eventueel andere waterbeheer-ders vroegtijdig en expliciet worden meegewogen. In het ruimtelijk plan moet voldoende rekening zijn gehouden met de waterhuishouding en -voorzieningen.

Waterparagraaf

De waterparagraaf beschrijft de wijze waarop rekening is gehouden met de eventuele ge-volgen van het ruimtelijk plan voor de waterhuishouding en vice versa. Onderdeel hiervan is een beschrijving van beleidsuitgangspunten en regelgeving, waterhuishoudkundige situa-tie en -opgaven, meest geschikte oplossingen (motiveren) en de ruimtelijke consequenties daarvan. In de waterparagraaf is tevens het advies van de waterbeheerder verwerkt.

5.4.2 Beschrijving watersysteem

Geomorfologie en geohydrologie

Het plangebied aan de Hoekgraaf 11 ligt in het landelijk gebied op zandgrond. Het grondwater bevindt zich ongeveer 2 meter onder maaiveld. Volgens het Actueel Hoogtebestand Nederland ligt het perceel op circa 10 meter boven NAP.

afbeelding "i_NL.IMRO.0296.BGBHoekgraaf11-OW01_0021.png"

Er zijn op het perceel geen watergangen.

5.4.3 Waterbeleid en waterbeheer

Het gemeentelijk waterbeleid is gericht op het voorkomen, beperken of tot een aanvaard-baar risico terugbrengen van wateroverlast en schade aan milieu en volksgezondheid. In de Strategische waternota Wijchen zijn thema's en uitgangspunten voor duurzaam waterbe-heer omschreven. Het Gemeentelijk rioleringsplan beschrijft de gemeentelijke zorgplicht voor rioolwater, hemelwater en grondwater. In het kader van de watertoets wordt een vertaalslag gemaakt naar de concrete plansituatie.

Een perceeleigenaar moet het huishoudelijk afvalwater of het bedrijfsafvalwater op de openbare riolering lozen (Besluit lozing afvalwater huishoudens art. 7 en 10 en Activiteiten-besluit art. 2.1 en 2.2). Als dit niet mogelijk (doelmatig) is, zorgt de perceeleigenaar voor een zo milieuvriendelijk mogelijke manier van verwerking of verwijdering van het afvalwa-ter. De gemeente heeft voor zover doelmatig een zorgplicht voor de inzameling en transport van stedelijk afvalwater dat binnen de gemeente vrijkomt (zie Wm art 10.33).

Een perceeleigenaar is zelf verantwoordelijk voor het verwerken van het hemelwater op het eigen terrein of voor het eventueel lozen van hemelwater op oppervlaktewater. Als dit niet mogelijk is zorgt de gemeente voor het inzamelen, transporteren en verwerken van het hemelwater, mits doelmatig (Waterwet art. 3.5).

Een perceeleigenaren is zelf verantwoordelijk voor het treffen van maatregelen op eigen terrein om structurele nadelige gevolgen van grondwater voor de aan de grond gegeven bestemming te voorkomen of beperken. Als dit niet mogelijk is treft de gemeente maatregelen in openbaar gebied, voor zover doelmatig en geen verantwoordelijkheid van provincie of waterschap (Waterwet art 3.6).

De gemeente valt binnen het beheersgebied van Waterschap Rivierenland. Voor lozing op oppervlaktewater (A-, B- en C-water) heeft de perceeleigenaar een vergunning van het waterschap nodig (Waterwet art. 6.2). Een perceeleigenaar (of aanliggende perceeleige-naar) is verantwoordelijk voor het beheer en onderhoud van oppervlaktewater (B- en C-water volgens de legger van het waterschap) dat op eigen terrein ligt. Het waterschap draagt zorg voor het onderhoud van A-watergangen. Voor ingrepen of activiteiten in of na-bij watergangen danwel in of nabij een waterkering heeft een perceeleigenaar een Keur-ontheffing van het waterschap nodig.

5.4.4 Beleidsuitgangspunten en consequenties voor het ruimtelijk plan

Deze paragraaf beschrijft en motiveert de wijze waarop op de planlocatie rekening is gehouden met het watersysteem, gelet op de waterhuishoudkundige situatie, beleid en regelgeving.

Leefomgeving en ruimtegebruik

Beleidsuitgangspunten

De gemeente streeft naar integrale inpassing van het watersysteem in de leefomgeving en afstemming op de gebruiksfuncties in het gebied. De ruimtelijke ontwikkeling mag geen nadelige gevolgen hebben voor de waterhuishouding en vice versa. De waterhuishoudkundige situatie moet in overeenstemming zijn met het beoogde grondgebruik.

Water is mede-ordenend bij de ruimtelijke ontwikkeling (juiste functie op de juiste plaats), waarbij tevens rekening is gehouden met de ruimteclaim van waterhuishoudkundige voorzieningen. Wateropgaven zijn gekoppeld aan andere gebiedsopgaven, zoals voor openbaar groen, welzijn, volkshuisvesting, verkeer/vervoer en energie.

Situatie Hoekgraaf 11

De nieuwe woning op het perceel Hoekgraaf 11 (120 m2) wordt gebouwd ter plaatse van de bestaande carport van 21 m2. De hoeveelheid bebouwing neemt daarmee met 100 m2 toe. Er hoeven geen waterlopen te worden gedempt of verplaatst. Er wordt geen ondergrondse bebouwing gerealiseerd die van invloed zou kunnen zijn op grondwaterstanden en -stromingen. Voor de woning wordt uitgegaan van een gescheiden watersysteem waarbij het hemelwater wordt opgevangen en wordt losgekoppeld van de riolering (afvalwater). Het Waterschap hanteert in het landelijk gebied als eis dat een toename van het verhard oppervlak groter dan 1500 m2 gecompenseerd dient te worden door de aanleg van waterberging. In geval van Hoekgraaf 11 is de toename circa 100 m2, zodat compensatie niet nodig is.

Kwaliteit en beleving

Beleidsuitgangspunten

De gemeente streeft naar schoon water en waterbodems die voldoen aan gestelde kwaliteitseisen en het behoud van (natte) natuurwaarden en biodiversiteit. Verontreiniging van grond- en oppervlaktewater wordt voorkomen en de waterkwaliteit zo mogelijk verbeterd. Schoon hemelwater mag rechtstreeks in bodem of op oppervlaktewater worden geloosd. Verontreiniging van hemelwater voorkomen, o.a. door toepassing van niet-uitlogende materialen (Dubo-bepalingen) en door beperking van toepassing van lood, koper, zink en zacht pvc. Verontreinigd hemelwater alleen lozen via een zuiverende voorziening.

Situatie Hoekgraaf 11
Bij de nieuwe woning aan de Hoekgraaf 11 wordt het schone hemelwater opgevangen op het sedumdak waar het vertraagd kan worden afgevoerd naar het omliggende oppervlak. Er wordt geen aansluiting op het riool gemaakt zodat het riool niet wordt belast met het afvoeren van hemelwater.

Klimaatadaptatie 

Beleidsuitgangspunten

De gemeent streeft naar een klimaatbestendige en waterrobuuste leefomgeving, anticipe-rend op hevigere perioden met hitte, neerslag en droogte. Bij ruimtelijke ontwikkelingen worden schadelijke effecten van klimaatverandering (wateroverlast en verdroging) voor het grondgebruik en vice versa beperkt of teruggebracht tot een acceptabel niveau. Waterhuishoudkundige voorzieningen zijn energiezuinig en duurzaam.

Komen tot een klimaatadaptieve ruimtelijke inrichting, o.a. voor wat betreft bebouwing, wegen, groen en water. Voorkomen dat water bij hevige neerslag in de bebouwing terecht komt of afstroomt buiten het plangebied. De hoeveelheid verhard oppervlak tot een minimum beperken. Zorgdragen voor voldoende waterberging, tegen hemelwateroverlast en ter buffering van water in droge tijden (zie ook waterberging). Groenstructuren klimaatro-buust aanleggen voor wat betreft areaal, type beplanting en waterbergend vermogen.

Grondwateronttrekking (verdroging) beperken door hoogwaardige toepassing van drinkwater en het treffen van waterbesparende voorzieningen. Zo mogelijk hemelwater gebruiken voor laagwaardige toepassingen. Verder bij de ruimtelijke ontwikkeling rekening houden met de droogtegevoeligheid van de locatie en mogelijke bodemdaling die daardoor kan ontstaan.

Situatie Hoekgraaf 11

Bij de bouw van de woning is veel aandacht voor het klimaat. De woning is beperkt van omvang (120 m2) en wordt uitgevoerd met een sedumdak. Dit heeft een positief effect op de omgeving, het dak biedt plek voor planten en insecten. Daarnaast zorgt het sedumdak ervoor dat het hemelwater wordt opgevangen en vertraagd wordt afgevoerd naar het omliggende maaiveld. Het hemelwater wordt niet afgevoerd via het riool maar kan door de vertraagde afvoer ook worden gebruikt voor het bewateren van planten in de tuin. Het vuilwater wordt eveneens niet afgevoerd via het riool maar in een helofytenfilter opgevangen en gezuiverd. Er vindt geen onttrekking van grondwater plaats.

Het perceel bevindt zich op zandgrond. Van wateroverlast is in de huidige situatie geen sprake en zal door de nieuwbouw ook niet optreden. Verdroging, voor zover de bouw van een enkele woning daar invloed op heeft, zal zoveel mogelijk worden tegengegaan door het realiseren van een sedumdak op de woning. Het hemelwater wordt daar opgevangen en vertraagd afgevoerd zodat het hemelwater meer gespreid in de tijd in de bodem kan infiltreren waarmee (zij het op kleine schaal) droogte wordt tegengegaan.

Waterberging

Beleidsuitgangspunten

De gemeente streeft naar het vasthouden van gebiedseigen water door benutting van de natuurlijke bergingscapaciteit van bodem en oppervlaktewater. Natuurlijke grondwater- en oppervlaktewaterstanden worden beschermd of hersteld. Hemelwater afkomstig van verharde oppervlakken zoveel mogelijk afkoppelen van de riolering met de voorkeursvolgorde: 1) Benutting, 2) Bodeminfiltratie binnen het gebied, 3) Berging binnen het gebied, 4) Vertraagde afvoer naar oppervlaktewater buiten het plangebied en 5) Afvoer naar riool.

Compenseren van het verlies aan waterberging, indien hemelwater direct of indirect wordt geloosd op oppervlaktewater. De compensatieplicht (Keur waterschap) houdt in dat de toename van verharding in het ruimtelijk plan moet worden gecompenseerd door aanleg van extra waterberging. Dit met een eenmalige uitzondering van 500 m2 (stedelijk gebied) en 1500 m2 (landelijk gebied) voor particulieren en kleine bedrijven. De compensatieplicht geldt niet in individuele gevallen als op een afstand van 100 m of meer van het oppervlaktewater wordt geinfiltreerd (beleidsregels Keur artikel 5.16 toetsingscriterium 2).

Infiltratie- en bergingsvoorzieningen, zoals bodempassages en open water, moeten voldoende capaciteit hebben om het hemelwater te kunnen verwerken. En zodanig ruimtelijk ingepast (ruimtebeslag, ligging) dat adequaat functioneren is gewaarborgd.

Situatie Hoekgraaf 11

De woning is beperkt van omvang (120 m2) en wordt uitgevoerd met een sedumdak. Dit heeft een positief effect op de omgeving, het dak biedt plek voor planten en insecten. Daarnaast zorgt het sedumdak ervoor dat het hemelwater wordt opgevangen en vertraagd wordt afgevoerd naar het omliggende maaiveld op eigen terrein of kan worden gebruikt voor het bewateren van planten in de tuin, eveneens op eigen terrein. Het hemelwater wordt niet afgevoerd via het riool en legt dus geen beslag op de capaciteit van het riool. Het hemelwater stroomt ook niet af naar naburige percelen. Aan de in de planregels opgenomen voorwaardelijke verplichting (zie 4.2.6) kan worden voldaan.

Het vuilwater wordt eveneens niet afgevoerd via het riool maar in een helofytenfilter opgevangen en gezuiverd. Er vindt geen onttrekking van grondwater plaats.

De nieuwe woning op het perceel Hoekgraaf 11 (120 m2) wordt gebouwd ter plaatse van de bestaande carport van 21 m2. De hoeveelheid bebouwing neemt daarmee met 100 m2 toe. Er hoeven geen waterlopen te worden gedempt of verplaatst. Er wordt geen ondergrondse bebouwing gerealiseerd die van invloed zou kunnen zijn op grondwaterstanden en -stromingen. Rondom de woning wordt geen verhard oppervlak toegevoegd. Het hemelwater kan dus probleemloos in de bodem infiltreren.

Het Waterschap hanteert in het landelijk gebied als eis dat een toename van het verhard oppervlak groter dan 1500 m2 gecompenseerd dient te worden door de aanleg van waterberging. In geval van Hoekgraaf 11 is de toename circa 100 m2, zodat compensatie niet nodig is. Er kan daarmee aan de bepalingen van de Keur worden voldaan, alsmede aan de voorwaardelijke verplichting zoals opgenomen in 4.2.7 van deze planregels.

Gezondheid en veiligheid

Beleidsuitgangspunten

De gemeente streeft naar een veilig watersysteem. Inrichting en beheer van het watersysteem op de planlocatie dient te zijn gericht op het voorkomen of beperken van risico's voor de volksgezondheid en veiligheid. Risico's van optrekkend vocht primair beperken door ter plaatse van bebouwing te voorzien in voldoende ontwateringsdiepte en drooglegging. Of, als dit niet mogelijk is, door het treffen van maatregelen (bv. kruipruimtevrij bouwen, waterdicht bouwen). Een permanente verandering (verlaging) van grondwaterstanden is daarbij niet toegestaan. Voorts in het plan rekening houden met eventuele risico's van bodemdaling als gevolg van grondwaterstandsdaling (verdroging) of -fluctuatie (zie ook Klimaatverandering).

Situatie Hoekgraaf 11

De woning wordt gebouwd op maaiveld. Het grondwater zit op ongeveer 2 meter onder maaiveld. De bouw van de woning heeft geen gevolgen voor her grondwater, er worden geen ondergrondse bouwdelen gerealiseerd.

5.4.5 Overwegingen en conclusie

De woning is beperkt van omvang (120 m2) en wordt uitgevoerd met een sedumdak. Dit heeft een positief effect op de omgeving, het dak biedt plek voor planten en insecten. Daarnaast zorgt het sedumdak ervoor dat het hemelwater wordt opgevangen en vertraagd wordt afgevoerd naar het omliggende maaiveld of kan worden gebruikt voor het bewateren van planten in de tuin. Het hemelwater wordt niet afgevoerd via het riool en legt dus geen beslag op de capaciteit van het riool.

Het vuilwater wordt eveneens niet afgevoerd via het riool maar in een helofytenfilter opgevangen en gezuiverd. Er vindt geen onttrekking van grondwater plaats.

De nieuwe woning op het perceel Hoekgraaf 11 (120 m2) wordt gebouwd ter plaatse van de bestaande carport van 21 m2. De hoeveelheid bebouwing neemt daarmee met 100 m2 toe. Er hoeven geen waterlopen te worden gedempt of verplaatst. Er wordt geen ondergrondse bebouwing gerealiseerd die van invloed zou kunnen zijn op grondwaterstanden en -stromingen. Rondom de woning wordt geen verhard oppervlak toegevoegd. Het hemelwater kan dus probleemloos in de bodem infiltreren.

Geconcludeerd kan worden dat het plan geen nadelige gevolgen voor de waterhuishouding heeft.

5.4.6 Overleg met waterbeheerder

Afhankelijk van de aard en locatie moet het ruimtelijk plan voor advies en/of vooroverleg worden voorgelegd aan de waterbeheerder en het advies van de waterbeheerder zijn verwerkt in de waterparagraaf.

5.5 Bodem

Door GRS milieu is een verkennend bodemonderzoek (NEN 5740) uitgevoerd, zie Bijlage 2 Verkennend bodemonderzoek 17.09.2021. In het onderzoek is geconcludeerd dat zowel in de grond als in het grondwater geen verontreinigingen zijn aangetoond. Met dit onderzoek zijn milieuhygiënisch gezien geen belemmeringen aangetroffen voor de voorgenomen bouwplannen. De Omgevingsdienst Regio Nijmegen heeft met de bevindingen van het onderzoek ingestemd, zie Bijlage 5 Bodemadvies 03.11.2021,

5.6 Externe veiligheid

Op de risicokaart van de provincie Gelderland is in de buurt van Hoekgraaf 11 een gasleiding aangeduid. De afstand van de nieuwe woning tot aan deze ondergrondse gasleiding is circa 250 meter. In het geldende bestemmingsplan Buitengebied Wijchen (2013) is aangegeven dat dit gasleiding "N-575-60" betreft met een druk van 40 bar en een diameter van 12”. Het plaatsgebonden risico (10-6) is nihil, de inventarisatieafstand bedraagt 140 meter. De nieuwe woning wordt buiten deze afstand gebouwd. Hetzelfde geldt voor de gasleiding N-575-45.

afbeelding "i_NL.IMRO.0296.BGBHoekgraaf11-OW01_0022.png"

Op een afstand van eveneems circa 250 meter bevindt zich een "regelmeet" installatie (GOS N702 RTL). Hiervoor geldt een 10-6 contour van 15 meter. De nieuwe woning wordt ruimschoots buiten deze afstand gebouwd, op een afstand van circa 250 meter.

5.7 Archeologie

Overeenkomstig het geldende bestemmingsplan Wijchen Buitengebied (2013) ligt de plek van de nieuwe woning buiten de zone waar archeologische resten verwacht kunnen worden, zie onderstaande afbeelding. Archeologisch onderzoek is daarmee niet nodig. Bovendien wordt niet uitgegaan van het reaeliseren van ondergrondse bebouwing waarmee eventuele archeologische resten verstoord zouden kunnen worden.

afbeelding "i_NL.IMRO.0296.BGBHoekgraaf11-OW01_0023.png"

5.8 Luchtkwaliteit

Wettelijk kader

Voor luchtkwaliteit is titel 5.2 van de Wet milieubeheer (luchtkwaliteitseisen) kader. Daarin is bepaald dat bij het vaststellen van een bestemmingsplan (of andere planologische procedure) moet worden voldaan aan grenswaarden voor onder meer stikstofdioxide en fijn stof. In het "Besluit niet in betekenende mate bijdragen" is bepaald dat indien een project kan worden beschouwd als "niet in betekenende mate" er geen toetsing aan de grenswaarden hoeft plaats te vinden. Deze grens is in het Besluit gesteld op 3%, wat betekent dat de concentratie stikstofdioxide of fijn stof met maximaal 3% mag toenemen als gevolg van de nieuwe ontwikkelingen die een planologische procedure toestaat. Als het meer is dan 3% moet worden getoetst aan de grenswaarden.

Niet in betekenende mate

In de "Regeling niet in betekenende mate bijdragen" is voor een aantal specifieke projecten een berekening gemaakt bij welk bouwprogramma er nog sprake is van "niet in betekenende mate". Dit is als het project betrekking heeft op maximaal 1.500 woningen of 100.000 m² kantoren (bij één ontsluitingsweg) of een combinatie van beiden.

Het voornemen gaat uit van het toevoegen van één woning op een bestaand woonperceel. Dit leidt tot een zeer beperkt aantal extra verkeersbewegingen. Overeenkomstig de NIBM-tool kan dit project worden beschouwd als "niet in betekenende mate" en daarmee kan worden voldaan aan de bepalingen in de Wet milieubeheer voor wat betreft luchtkwaliteit.

Luchtkwaliteit ter plaatse

In het kader van een goede ruimtelijke ordening zijn de jaargemiddelde concentraties NO2, PM10 en PM2,5 bepaald ter hoogte van het plangebied. Daaruit blijkt dat de jaargemiddelde concentraties in 2020 het volgende bedroegen:

  • Stikstofdioxide NO2: 9 microgram per m3
  • Fijn stof PM10: 7 microgram per m3
  • Ultra fijn stof PM2,5 : 8,9 microgram per m3

Daarmee worden de jaargemiddelde grenswaarden van 40 microgram per m3 (voor NO2 en PM10) en 25 microgram per m3 (voor PM2,5) niet overschreden. Op onderstaande afbeelding is de concentratie fijn stof weergegeven.

afbeelding "i_NL.IMRO.0296.BGBHoekgraaf11-OW01_0024.png"
Daarnaast is de trend dat in de toekomst de emissies en de achtergrondconcentraties van deze stoffen zullen dalen, waardoor geen overschrijdingen van de grenswaarden zijn te verwachten. Het aspect 'luchtkwaliteit' vormt geen belemmering voor de uitvoerbaarheid van dit bestemmingsplan.

5.9 Flora en fauna

Door bureau Blom Ecologie is voor Hoekgraaf 11 een ecologisch onderzoek uitgevoerd, mede aan de hand van een veldbezoek. Zie Bijlage 3 Ecologisch onderzoek 10.09.2021, update 17.03.2023. De update van 2023 heeft betrekking op de actualisatie vanwege de vervallen bouwvrijstelling voor de stikstofdepositie.

Soortbescherming

De planlocatie heeft geen essentiële betekenis voor beschermde soorten. Er wordt op het terrein één boom gekapt en de carport wordt verwijderd. De planlocatie is mogelijk geschikt leefgebied voor algemene zoogdieren, amfibieën, insecten, reptielen welke niet beschermd zijn (behoudens de Algemene zorgplicht) onder de Wet natuurbescherming. Voor broedvogels geldt dat de nesten van alle soorten beschermd zijn tijdens het broedseizoen (indicatief 15 maart – 15 juli).

In het ecologisch onderzoek zijn de volgende te treffen maatregelen benoemd:

  • Tijdens de werkzaamheden moet voorzichtig worden gehandeld met alle voorkomende flora en fauna (Algemene zorgplicht).
  • Wanneer ondanks zorgvuldig handelen, onderzoek en advies schade lijkt te ontstaan voor beschermde flora en fauna, dient direct contact opgenomen te worden met een ter zake deskundige.
  • Alle aanwezige vegetatie of bodemmateriaal (takken, stronken) gefaseerd verwijderen. Dit om bodembewonende dieren de kans te bieden in de nabijgelegen omgeving een ander leefgebied te benutten.
  • Er wordt gelegenheid gegeven aan dieren, die tijdens de werkzaamheden worden gevonden, te vluchten of zich te verplaatsen naar een schuilplaats buiten het bereik van de werkzaamheden.
  • De planlocatie tijdens de werkzaamheden en in de nieuwe situatie bij voorkeur niet verlichten en in de periode april-oktober de werkzaamheden tussen zonsopgang en zonsondergang uitvoeren (buiten schemerperiodes). Mocht verlichting noodzakelijk zijn hierbij een vleermuisvriendelijke verlichtingswijze toepassen (amberkleurig licht, lichtbundel nederwaarts richten, toepassen geconvergeerde lichtbundel).
  • Mogelijke overwinteringslocaties van reptielen/amfibieën (vorstvrije structuren als stenenstapels, houtwallen, dichte struwelen etc.) dienen verwijderd of ongeschikt gemaakt te worden buiten de overwinteringsperiode oktober – april.
  • De kap- en sloopwerkzaamheden opstarten of uitvoeren buiten het broedseizoen van vogels (indicatief medio maart t/m medio juli). Als dit niet mogelijk is dienen de potentiële nestlocaties van algemene broedvogels ruim voorafgaand aan het broedseizoen ongeschikt of ontoegankelijk gemaakt te worden. E.e.a. op aanwijzing van deskundige. Als werkzaamheden in het broedseizoen worden uitgevoerd die mogelijk resulteren in het wegnemen of verstoren van broedgevallen dient voor aanvang door een ter zake deskundig gecontroleerd te worden of er broedvogels aanwezig zijn.

Gebiedsbescherming

De planlocatie maakt geen deel uit van een Natura 2000-gebied. Op een afstand van circa 3,8 km ligt het Natura 2000-gebied ‘Rijntakken’. De beoogde ontwikkeling betreft de realisatie van een seniorenwoning. Ten opzichte van de huidige situatie leidt de beoogde ontwikkeling in de gebruiksfase tot een beperkte toename in het aantal verkeersbewegingen. De nieuwbouw zal zonder gasaansluiting in de gebruiksfase geen stikstofuitstoot hebben. Gedurende de bouwfase kan er een beperkte en tijdelijke stikstofemissie verwacht worden ten gevolge van het gebruik van mobiele werktuigen en bijbehorende verkeersbewegingen. De Wet natuurbescherming bevat ten gevolge van de Stikstofwet per d.d. 1 juli 2021 een partiële vrijstelling voor activiteiten gedurende de bouwfase.

Gezien er sprake is van een grote afstand (3,8 km) tussen het plangebied en het dichtstbijzijnde Natura 2000-gebied en er sprake is van een ontwikkeling van beperkte omvang wordt op voorhand uitgesloten dat er in de bouwfase of in de gebruiksfase sprake is van een verhoging van de stikstofdepositie in stikstofgevoelige habitattypen of leefgebieden binnen Natura 2000-gebieden. Een berekening middels de AERIUS Calculator kan derhalve achterwege blijven.

Conclusie

In het ecologisch onderzoek is geconcludeerd dat de beoogde ontwikkeling niet leidt tot overtreding van verbodsbepalingen omtrent soortenbescherming, gebiedsbescherming en houtopstanden in het kader van de Wet natuurbescherming. Tijdens de uitvoering van de werkzaamheden dient rekening te worden gehouden met de (mogelijke) aanwezigheid van zoogdieren en algemene broedvogels (in het kader van Algemene zorgplicht). Voor deze soorten dienen maatregelen te worden getroffen om effecten te voorkomen. De verwijdering van de carport en de realisatie van een seniorenwoning aan de Hoekgraaf 11 te Bergharen is uitvoerbaar in het kader van de Wet natuurbescherming.

Er is een plan voor de landschappelijke inpassing opgesteld, zie Bijlage 4 Landschappelijke inpassing (v3) 26.06.2023.

5.10 Milieueffectrapportage

Een m.e.r. is verplicht bij bestemmingsplannen indien de activiteiten in het plan mogelijk tot significante gevolgen leiden voor Natura 2000-gebieden, zodat een passende beoordeling nodig is en/of het plan kaders stelt voor activiteiten in het plangebied waarvoor volgens de Wet milieubeheer een besluit m.e.r.(-beoordeling) verplicht is.

In het Besluit milieueffectrapportage zijn m.e.r.-(beoordelings)plichtige activiteiten en indicatieve drempelwaarden opgenomen. Op de D-lijst onder categorie D 11.2 geldt voor het onderdeel 'aanleg, wijziging of uitbreiding van een stedelijk ontwikkelingsproject met inbegrip van de bouw van winkelcentra of parkeerterreinen' een drempelwaarde van 100 hectare en van 2.000 woningen. De onderhavige ontwikkeling heeft betrekking op het toevoegen van 1 woning en blijft daarmee ruim onder de drempelwaarden. Uit de uitgevoerde onderzoeken (zie voorgaande paragrafen) blijkt dat belangrijke nadelige gevolgen uitgesloten kunnen worden.

5.11 Bedrijven- en milieuzonering

De VNG-publicatie: “Bedrijven en milieuzonering” (versie 2009), geeft informatie over de ruimtelijk relevante milieuaspecten van diverse bedrijfsactiviteiten. Tevens geeft deze publicatie richtafstanden voor het ontwikkelen van bedrijfsactiviteiten in relatie tot het lokale omgevingstype. Van de richtafstanden kan gemotiveerd worden afgeweken. De publicatie is een hulpmiddel bij de ruimtelijke inpassing van plannen en vormt op basis van vaste jurisprudentie een goed vertrekpunt voor deze beoordeling. Voor de beoordeling van een goede inpassing wordt onderscheid gemaakt in twee omgevingstypes. De twee omgevingstypes die de VNG hanteert, zijn enerzijds “rustige woonwijk en rustig buitengebied” en anderzijds “gemengd gebied”. De omgeving van de Hoekgraaf kan worden getypeerd als "buitengebied".

De nieuwe woning aan de Hoekgraaf 11 wordt gerealiseerd in een bosgebied op een perceel waar reeds wordt gewoond. Er bevinden zich geen (agrarische)bedrijven in de directe nabijheid. Het meest nabij gelegen agrarische bedrijf bevindt zich op een afstand van circa 200 meter. Bij die gronden met een agrarische bestemming liggen op kortere afstand (0 meter) burgerwoningen. De bouw van een nieuwe woning op Hoekgraaf 11 leidt niet tot belemmeringen in de bedrijfsvoering van de bestaande agrarische gronden. Er zijn in de directe omgeving geen geitenhouderijen die voor eventuele geurhinder zouden kunnen zorgen.

Hoofdstuk 6 Juridische regeling in dit bestemmingsplan

Omdat voorliggend bestemmingsplan betrekking heeft op het toevoegen van een woning op het bestaande woonperceel Hoekgraaf 11 in Bergharen is de begrenzing van de bestemming "Wonen-1" uit het geldende bestemmingsplan (2014) aangehouden. De rest van het perceel behoudt de bestemming "Natuur-1". Op onderstaande afbeelding is de planverbeelding weergegeven:

afbeelding "i_NL.IMRO.0296.BGBHoekgraaf11-OW01_0025.png"

De woning wordt gebouwd binnen de grenzen van het bestemmingsvlak "Wonen - 1". In de planregels van voorliggend bestemmingsplan zijn de regels van het geldende bestemmingsplan "Buitengebied Wijchen" (inclusief de herziening uit 2014) overgenomen, voor zover deze van toepassing zijn voor het perceel Hoekgraaf 11. Niet alle regels van de bestemming "Wonen - 1" zijn overgenomen, zo zijn bijvoorbeeld de regels voor opslag niet overgenomen, omdat deze bepalingen alleen van toepassing zijn op plekken waar de aanduiding "opslag" van toepassing is, en deze ontbreekt bij Hoekgraaf 11.

Het voornaamste verschil van het voorliggende bestemmingsplan met het vigerende bestemmingsplan is dat op het perceel Hoekgraaf 11 de bestaande woning en de nieuwe woning zijn voorzien van een bouwvlak en een maximale goot- en bouwhoogte. Daarmee is duidelijker zichtbaar wat er gebouwd mag worden. Voor de bestemming "Natuur-1" geldt dat de bestaande regeling uit het geldende bestemmingsplan is overgenomen, voor zover relevant voor het perceel Hoekgraaf 11. Daarbij is als voorwaarde opgenomen dat het plan voor landschappelijke inpassing wordt gerealiseerd.

Omdat op een deel van het perceel dubbelbestemmingen en gebiedsaanduiding zijn opgenomen in het geldende bestemmingsplan (archeologie, gasleiding, hydrologische beschermingszone) zijn deze overgenomen in voorliggend bestemmingsplan. Inhoudelijk heeft dit geen consequenties aangezien de nieuwe woning buiten de dubbelbestemmingen wordt geprojecteerd.

Hoofdstuk 7 Uitvoerbaarheid

7.1 Overleg

Omwonenden

Door de initiatiefnemer is met de direct omwonenden overleg gevoerd over de voorgenomen bouw van de extra woning. De omwonenden hebben aangegeven daar geen bezwaar tegen te hebben.

Overleg met Rentmeester Gelders Landschap over inrit

Met het Gelders Landschap is overleg gevoerd over de (vanwege brandweervoorschriften) inrit aan de zijde van de Hoekgraaf. In de huidige situatie is er al een onverharde inrit aanwezig. Om het gewicht van een brandweerauto te kunnen dragen wordt een halfverharding aangebracht. Initiatiefnemer heeft met het Gelders Landschap overeenstemming bereikt over het aankopen van de betreffende gronden van de inrit, zodat de inrit ook duurzaam in stand kan worden gehouden.

Vooroverleg met provincie over inrit

Over de voorgenomen wijziging van de inrit vanwege brandweervoorschriften, waarbij het bestaande onverharde pad wordt vervangen door een pad met halfverharding (omvang en ligging blijven ongewijzigd), is overleg gevoerd met de provincie Gelderland. De provincie heeft aangegeven dat de wijziging met de provinciale ecoloog is besproken. De conclusie is dat de voorgestelde toegang (halfverharding) in het Gelders Natuurnetwerk (GNN) mogelijk is. De provincie is akkoord met de voorgenomen compensatie conform het Bijlage 4 Landschappelijke inpassing (v3) 26.06.2023. Belangrijk is dat de natuurbestemming gehandhaafd blijft en dat aangetoond wordt dat de kwaliteit van de natuur niet verloren gaat. In dit bestemmingsplan is de bestemming "Natuur-1" om die reden overgenomen.

De betreffende inrit is niet opgenomen, zodat de huidige bestemming "Natuur-1" gehandhaafd blijft. Een "erfontsluiting" is op basis van de planregels al mogelijk, dus een wijziging van de bestemming is in dit verband ook niet nodig. In de huidige situatie is er al sprake van een onverhard pad, waarbij uitsluitend een halfverharding zal worden gerealiseerd. Door de halfverharding kan gras groeien waardoor het geheel een groene uitstraling zal hebben. Er hoeven geen bomen of andere beplanting te worden verwijderd. De kwaliteit van de natuur gaat door het aanleggen van de halfverharding niet verloren.

7.2 Vooroverleg

Over het bestemmingsplan zal overeenkomstig artikel 3.1.1. van het Besluit ruimtelijke ordening overleg worden gevoerd met de wettelijke overlegpartners. Met provincie Gelderland wordt overleg gevoerd over het lanschappelijk inrichtingsplan. Met het waterschap wordt overleg gevoerd als er waterhuishoudkundige belangen worden geschaad en dat is bij de Hoekgraaf 11 niet aan de orde.