direct naar inhoud van Toelichting
Plan: Oosterweg 172
Status: ontwerp
Plantype: bestemmingsplan
IMRO-idn: NL.IMRO.0296.BGBOosterweg172-OW01

Toelichting

Hoofdstuk 1 Inleiding

1.1 Aanleiding en doelstelling

Aan de Oosterweg 172 te Wijchen is een voormalige agrarische bedrijfslocatie gesitueerd. Initiatiefnemer is voornemens op deze locatie een woonlocatie te realiseren van vier woningen, bestaand uit twee nieuwe vrijstaande woningen en de bestaande bedrijfswoning, die wordt gesplitst in twee wooneenheden. Op de locatie langs de Oosterweg berust momenteel een agrarische bestemming.

De gemeente Wijchen ziet aanknopingspunten om de locatie te herbestemmen van agrarische bedrijfslocatie naar kleinschalige woonlocatie. Het college van B&W heeft per brief aangegeven in principe medewerking te verlenen aan het plan door middel van een bestemmingsplanherziening. Om het voornemen te kunnen realiseren is het voorliggend bestemmingsplan opgesteld.

1.2 Plangebied

De locatie ligt aan de Oosterweg, een weg aan de dorpsrand ten zuidoosten van de kern van Wijchen. De Oosterweg is een belangrijke verkeesontsluitingsweg van en naar de N324. Het plangebied omvat kadastraal de percelen Wijchen, sectie P, nummers 1596, 2743 en 2744, de percelen hebben een oppervlakte van 10.804 m2.

afbeelding "i_NL.IMRO.0296.BGBOosterweg172-OW01_0001.png" Luchtfoto van Wijchen en de globale ligging van het plangebied

1.3 Aanpak

De voorgenomen locatieontwikkeling wordt mogelijk gemaakt met een herziening van het bestemmingsplan. Deze toelichting maakt onderdeel uit van het bestemmingsplan 'Oosterweg 172' en vormt de onderbouwing van het initiatief.

1.4 Geldend bestemmingsplan

De planologische situatie van het plangebied is vastgesteld in het bestemmingsplan 'Buitengebied Wijchen' uit 1998. Het plangebied is bestemd als 'Agrarisch gebied' voorzien van een agrarisch bouwperceel. Binnen het perceel, dat voorzien is van een agrarisch bouwvlak, is het toegestaan één bedrijfswoning op te richten.

Binnen het gedeelte van het plangebied met de bestemming 'Agrarisch bouwperceel' is de bestaande woning toegestaan. De toevoeging van woningen in dit plan is op basis van onderliggende bestemming niet realiseerbaar.

In het bestemmingsplan 'Paraplu Cultuurhistorie Wijchen' (vastgesteld, 3 mei 2017) is voor het gebied een dubbelbestemming 'Waarde - Cultuurhistorisch waardevol gebied' opgenomen.

afbeelding "i_NL.IMRO.0296.BGBOosterweg172-OW01_0002.png"

Fragment verbeelding 'Buitengebied Wijchen' uit 1998 met de ligging van het plangebied

1.5 Leeswijzer

In voorliggende toelichting wordt na dit inleidende hoofdstuk in Hoofdstuk 2 het plangebied beschreven, waarna in Hoofdstuk 3 het planvoornemen wordt toegelicht. Vervolgens wordt in Hoofdstuk 4 ingegaan op het beleid van de verschillende overheden dat van toepassing is. In Hoofdstuk 5 worden de effecten van het voornemen op de relevante milieu- en omgevingsaspecten getoetst. In Hoofdstuk 6 is de juridische toelichting beschreven. Ten slotte komt in hoofdstuk Hoofdstuk 7 de economische en maatschappelijke uitvoerbaarheid aan de orde.

Hoofdstuk 2 Plangebied en planvoornemen

2.1 Omgeving van het plangebied

De planlocatie bevindt zich in het landelijk gebied, maar ligt als locatie duidelijk in een overgangsgebied. De Oosterweg vormt de entree van Wijchen. De percelen ten zuiden van de Oosterweg vormen daarmee een kernrandzone en worden aan de zuidzijde begrensd door recente uitbreidingswijk van Wijchen. De locatie ligt ten noorden van de wijk Huurlingsedam. Huurlingsedam is een nieuwe wijk die zich kenmerkt door grote verscheidenheid aan bebouwings- en verschijningsvormen. Met het ontwikkelen van de wijk Huurlingsedam werkt de gemeente Wijchen aan een gedeelte van haar grote woningbouwopgave.

Aan de noordzijde van de Oosterweg liggen agrarische percelen, die worden afgewisseld door bospercelen. Dit afwisselende landschap is bekend als de 'Valendriese Heuvels' en versterkt het groene en open karakter van de oostelijke entree van Wijchen.

De Oosterweg is van oorsprong een historische weg vanuit het dorpshart van Wijchen richting het oosten. Deze weg is nog steeds zichtbaar in het landschap, maar is inmiddels grotendeels opgegaan in de kern Wijchen. Door verkeerskundige aanpassingen en infrastructurele wijzigingen is de historische as niet overal even zichtbaar als deze voorheen is geweest. Aan de oostzijde van Wijchen, in de directe omgeving van het plangebied, is het agrarische karakter van de (voormalige) bedrijven langs de weg nog zichtbaar en wordt de weg begeleidt door een kenmerkende bomenlaan.

Het plangebied zelf wordt ingesloten door de woningen van de wijk Huurlingsedam en een watergang aan de zuidzijde en de Oosterweg aan de noordzijde. Aan de oostkant wordt het plangebied begrensd door de 30 km/u-weg Huurlingsedam (waar de wijk haar naam aan ontleent). De Huurlingsedam is ter hoogte van de Houtzager afgesloten door autoverkeer. Aan de westkant wordt het plangebied begrensd door de perceelsgrens met woning Oosterweg 144.

afbeelding "i_NL.IMRO.0296.BGBOosterweg172-OW01_0003.png" Aanblik van de planlocatie vanaf de kruising met de Zuiderdreef

2.2 Huidige situatie

De planlocatie Oosterweg 172 te Wijchen is momenteel sprake van een agrarisch bedrijf. De volledige planlocatie bestaat uit een bouwperceel van ruim 1 ha, maar daarvan wordt slechts het oostelijke gedeelte benut.

Er is sprake van één bedrijfswoning en twee agrarische bedrijfsgebouwen. De agrarische bedrijfsgebouwen hebben een gezamenlijke oppervlakte van 706 m2. Daarnaast is ca. 1.300 m2 verharding aanwezig.

Het westelijk gedeelte van het bouwperceel, waarop geen gebouwen zijn gesitueerd, is in gebruik als agrarisch bouwland.

afbeelding "i_NL.IMRO.0296.BGBOosterweg172-OW01_0004.png" Gedetailleerde luchtfoto van de planlocatie.

Hoofdstuk 3 Planvoornemen

3.1 Locatieontwikkeling

De initiatiefnemer heeft het voornemen het agrarisch bedrijf definitief te beëindigen, de voormalige agrarische bedrijfsgebouwen te slopen en de locatie te herontwikkelen tot woonlocatie.

3.1.1 Bedrijfsbeëindiging

De bestaande 706 m2 vrijkomende agrarische bebouwing (VAB) wordt gesloopt, waarbij ook de asbestdaken worden verwijderd. Naast de voormalig agrarische bedrijfsgebouwen wordt ook ca. 1.300 m2 aan erfverharding verwijderd. Op de onderstaande afbeelding is weergegeven welke bebouwing en verharding wordt verwijderd.

afbeelding "i_NL.IMRO.0296.BGBOosterweg172-OW01_0005.png"

3.1.2 Particulier woningbouwinitiatief

De voormalige agrarische locatie wordt omgevormd tot woonlocatie waarbij langs de Oosterweg meerdere woonkavels ontstaan. De bestaande bedrijfswoning blijft behouden en wordt gesplitst in een woongebouw met twee wooneenheden. Beide wooneenheden hebben een inhoudsmaat van 590 m3 en worden voorzien van een eigen kavel. Beide kavels bieden de mogelijkheid voor realisatie van een bijgebouw. De noordelijke woning wordt ontsloten via de bestaande inrit aan de Oosterweg. De afgesplitste woning aan de zuidzijde krijgt een eigen inrit aan de Huurlingsedam.

Ten westen van de bestaande woning worden op twee ruime kavels twee nieuwe woningen gerealiseerd. Deze vrijstaande woningen krijgen een oriëntatie richting de Oosterweg. In totaal bestaat de nieuwe woonlocatie daarmee uit drie woongebouwen met in totaal vier wooneenheden.

Qua karakter wordt aangesloten bij de stedenbouwkundige structuur van de Oosterweg. De situering van de nieuwe woningen in het plangebied sluit aan bij de Oosterweg als dorpslint en het plan van Oosterweg 265 en 273, waar de sloop van de bedrijfsgebouwen heeft geresulteerd in de realisatie van een vijftal nieuwe woningen.

Bij de realisatie van de nieuwe woningen wordt rekening gehouden met de meest recente duurzaamheidseisen (o.a. gasloos bouwen) en worden daarnaast extra duurzaamheidsmaatregelen genomen. De woningen worden gerealiseerd volgens het principe 'nul op de meter' (EPC=0), waardoor over het hele gebruiksjaar gezien minimaal evenveel energie wordt opgewekt als er wordt verbruikt. De nieuwe woningen worden op een circulaire wijze gerealiseerd, waarbij sloopmaterialen worden hergebruikt. De te splitsen woning wordt eveneens volledig gerenoveerd en verduurzaamd, waardoor een woonlocatie ontstaat met vier toekomstbestendige woningen.

3.1.3 Natuurinclusief bouwen

Door structureel een serieuze plek in te ruimen voor natuur en biodiversiteit wordt op projectniveau invulling gegeven aan landelijke en internationale duurzaamheidsdoelstellingen. Het landschapsplan biedt met bosschages, weide (bloemrijk grasland) en fruitboomgaard ruime mogelijkheden voor fauna uit de omgeving. Er wordt natuurinclusief gebouwd, door onder andere ruimte te geven aan steenuil, huismus, zwaluw en vleermuis, zie ook paragraaf 5.9 Natuur.

3.2 Beeldkwaliteit

Het plangebied ligt ten zuiden van de Oosterweg en valt daarom binnen het gebied rondom de wijk Huurlingsedam, waarvoor de gemeente streeft naar een eenduidige stedenbouwkundige kwaliteit en beeldkwaliteit. De wijk Huurlingsedam is opgezet in de oorsprong om een echt dorp te willen realiseren. Dit betekent dat er een zeer grote variatie aan woningtypes wordt gerealiseerd, die op een toevallige wijze door en naast elkaar staan, waardoor het lijkt dat het geheel in de loop der tijd is ontstaan. De individualiteit van de woningen staat daarbij voorop. Ook bij de rijbebouwing in de wijk is elk huis afleesbaar en verschilt deze in meer- of mindere mate van het huis ernaast. De vrijstaande woningen die in het plan worden gerealiseerd volgen ook dit ontwerpprincipe.

Er zijn voor deze woningen een aantal spelregels opgesteld, waar het ontwerp aan moet voldoen. Toetsing en goedkeuring van het ontwerp geschiedt door de supervisor van de wijk Huurlingsedam. Vanwege de ligging van het plangebied Oosterweg 172 direct tegen de wijk Huurlingsedam, dient het bouwplan voor de nieuwe vrijstaande woningen, evenals de bouwplannen in de wijk, te worden getoetst door de supervisor.

Het hoofdvolume van de vrijstaande woningen wordt uitgevoerd in twee bouwlagen met een kap. De kapvorm is eenvoudig van vorm en heeft een duidelijke richting. De toetsing van het bouwplan van de twee nieuwe woningen de supervisor heeft inmiddels plaatsgevonden. De supervisor is akkoord met de voorgelegde bouwplannen. In de navolgende afbeeldingen zijn de voorgevels van de beoogde woningen weergegeven.

afbeelding "i_NL.IMRO.0296.BGBOosterweg172-OW01_0006.png"

Bouwplan nieuwe woning (bouwvlak midden)

afbeelding "i_NL.IMRO.0296.BGBOosterweg172-OW01_0007.png"

Bouwplan nieuwe woning (bouwvlak west)

3.3 Landschapsplan

Voor de locatieontwikkeling is een landschapsplan opgesteld voor een goede landschappelijke inpassing en kwaliteitsverbeterende maatregelen. Het landschapsplan is toegevoegd als Bijlage 1 bij de toelichting.

Een van de kwalitatieve aandachtspunten bij de ontwikkeling van het plan, is het zorgdragen voor een zorgvuldige overgang naar het buitengebied. Het plangebied ligt op de overgang tussen de nieuwbouwwijk Huurlingsedam en het buitengebied van Wijchen. De gemeente Wijchen hecht waarde aan het behoud van een open en agrarisch karakter om zo de overgang tussen de kern en het buitengebied te benadrukken. De percelen rondom de nieuwe woningen behouden hun open, agrarische karakter. Daarnaast wordt een brede strook fruitbomen aangeplant ten westen van het bestaande woongebouw. Het perceel tussen de twee nieuwe woningen blijft open en wordt ingericht als weide, bestaande uit bloemrijk grasland. Daarnaast wordt ook ten zuiden van het bestaande woongebouw het open karakter behouden.

Naast de landschappelijke inpassing van de nieuwe woonlocatie, wordt binnen het plangebied een informatiepunt c.q. rustpunt gerealiseerd, als extra kwaliteitsverbetering en verevening. Het rustpunt wordt in overleg met de gemeente nader ingevuld en kan bestaan uit voorzieningen voor een korte rustpauze voor fietsers en wandelaars en een historisch informatiepunt over de Huurlingsedam. Vanuit het rustpunt is zicht over het omliggend agrarisch landschap.

Om het behoud van het agrarisch karakter en openheid juridisch te borgen, is in artikel 5.1.2 een voorwaardelijke verplichting opgenomen.

afbeelding "i_NL.IMRO.0296.BGBOosterweg172-OW01_0008.png"

Landschapsplan

3.4 Totaalontwikkeling

Concreet bestaat de totale ontwikkeling uit:

  • Het beëindigen van het agrarisch bedrijf en het slopen van alle (voormalige) agrarische bedrijfsgebouwen;
  • Het herontwikkelen van de agrarische locatie tot duurzame woonlocatie, bestaande uit:
    • 1. Het splitsen van de bestaande bedrijfswoning tot een woongebouw met twee wooneenheden;
    • 2. Het oprichten van twee nieuwe vrijstaande woningen op twee ruime kavels;
  • Inrichten van een rust-/informatiepunt langs de fietsroute Huurlingsedam;
  • Landschappelijke inpassing van de gehele locatie met behoud van agrarisch karakter en openheid;

3.5 Afwijking vigerend bestemmingsplan

Ter plekke van de bestemming 'Agrarisch gebied' zijn de gronden bestemd voor de uitoefening van een agrarisch bedrijf inclusief bedrijfswoning. De geldende bestemming maakt het niet mogelijk om de locatie te herontwikkelen tot woonlocatie.

Om het agrarisch bedrijf definitief te beëindigen en de voorgenomen woningbouwontwikkeling mogelijk te maken, is een herziening van het bestemmingsplan noodzakelijk.

Hoofdstuk 4 Beleidskader

4.1 Rijksbeleid

4.1.1 Structuurvisie Infrastructuur en Ruimte

De Structuurvisie Infrastructuur en Ruimte (SVIR) is op 13 maart 2012 vastgesteld en in werking getreden. In deze visie schetst het Rijk de ambities tot 2040 en de doelen, belangen en opgaven tot 2028. Daarmee moet Nederland concurrerend, bereikbaar en veilig worden. Het Rijk kiest voor een selectieve inzet van rijksbeleid op 13 nationale belangen. Voor deze belangen is het Rijk verantwoordelijk en wil het resultaten boeken. Buiten deze 13 belangen hebben decentrale overheden beleidsvrijheid.

Afspraken over verstedelijking, groene ruimte en landschap laat het Rijk over aan de provincies en gemeenten. Gemeenten krijgen ruimte voor kleinschalige natuurlijke groei en voor het bouwen van huizen die aansluiten bij de woonwensen van mensen. Bij het beheren en ontwikkelen van natuur krijgen boeren en particulieren in het landelijk gebied een grotere rol.

Het gebied is niet gelegen binnen een door het Rijk aangewezen nationaal belang. De Structuurvisie Infrastructuur en Ruimte heeft daarom geen consequenties voor het planvoornemen.

4.1.2 Besluit algemene regels ruimtelijke ordening

In het Besluit algemene regels ruimtelijke ordening (Barro), ook wel bekend als de AMvB Ruimte, zijn 13 nationale belangen opgenomen die juridische borging vereisen met het oog op een goede ruimtelijke ordening. Het Barro is op 30 december 2011 deels in werking getreden en met enkele onderwerpen aangevuld per 1 oktober 2012. Het besluit is gericht op doorwerking van de nationale belangen in gemeentelijke bestemmingsplannen. Dit betreft onder meer het Nationale Natuurnetwerk (voorheen de Ecologische Hoofdstructuur) en Erfgoederen van uitzonderlijke universele waarde.

Deze ontwikkeling is niet gelegen in of nabij een gebied waarin het Rijk een nationaal belang heeft aangewezen. Het Barro heeft daarom geen consequenties voor het planvoornemen.

4.1.3 Besluit ruimtelijke ordening; ladder voor duurzame verstedelijking

Het Besluit ruimtelijke ordening (Bro) is per juli 2017 op onderdelen gewijzigd. In artikel 3.1.6 van het Bro is de 'motivering duurzame verstedelijking' opgenomen. Deze ladder stelt eisen aan de onderbouwing in bestemmingsplannen die nieuwe stedelijke ontwikkelingen mogelijk maken. De motivering duurzame verstedelijking richt zich op substantiële veranderingen en bouwplannen, die qua aard en omvang zodanig zijn, dat voor mogelijke leegstand elders gevreesd zou kunnen worden. Het doel is om overbodige bouwplannen (kantoren, woningen) te voorkomen en hergebruik te stimuleren.

Per 1 juli 2017 zijn een aantal wijzigingen op de eerdere ladder van kracht geworden. Op basis van deze gewijzigde tekst geldt in het geval dat het bestemmingsplan een nieuwe stedelijke ontwikkeling mogelijk maakt, dat de toelichting een beschrijving dient te bevatten van de behoefte aan de voorgenomen stedelijke ontwikkeling, de zogeheten Laddertoets.

Voor woningbouwplannen geldt dat voor woningbouwlocaties vanaf twaalf woningen sprake is van een stedelijke ontwikkeling die ladderplichtig is. De Laddertoets moet alleen worden uitgevoerd indien deze stedelijke ontwikkeling ook 'nieuw' is.

Voorliggende planontwikkeling betreft de realisatie van vier woningen waardoor geen sprake is van een stedelijke ontwikkeling die ladderplichting is.

4.2 Provinciaal beleid

4.2.1 Omgevingsvisie Gaaf Gelderland

Op 19 december 2018 hebben de Provinciale Staten de nieuwe omgevingsvisie van de provincie Gelderland vastgesteld. De omgevingsvisie is op 1 maart 2019 in werking getreden. De Omgevingsvisie Gaaf Gelderland is een structuurplan van de provincie Gelderland, met als doel een gaaf Gelderland te behouden en te ontwikkelen voor de toekomst. Daarbij staat een gezond, veilig, schoon en welvarend Gelderland centraal.

In de omgevingsvisie is een zevental ambities opgenomen. Deze omvatten, in grote lijnen, de volgende onderwerpen:

  • Energietransitie: van fossiel naar duurzaam
  • Klimaatadaptatie: omgaan met veranderend weer
  • Circulaire economie: sluiten van kringlopen
  • Biodiversiteit: werken met de natuur
  • Bereikbaarheid: duurzaam verbonden
  • Vestigingsklimaat: een krachtige, duurzame topregio
  • Woon- en leefomgeving: dynamisch, divers, duurzaam

afbeelding "i_NL.IMRO.0296.BGBOosterweg172-OW01_0009.png"

Omgevingsvisie Gaaf Gelderland: Woon- en leefomgeving

Op het gebied van Woon- en leefomgeving hanteert de Provincie Gelderland de volgende kernbegrippen: dynamisch, divers en duurzaam. Binnen het hoofdstuk Woon- en leefomgeving toont de Provincie het streven een duurzaam en divers woon- en leefklimaat te willen dat weet te anticiperen op ontwikkelingen. Hieruit vloeit de ambitie voort binnen Gelderland een aanbod aan woningtypen en woonmilieus passend bij de diversiteit aan woningvraag te realiseren; voor ieder een passende, duurzame woning. Daarbij geldt dat in het Land van Maas en Waal, waar Wijchen onderdeel van uit maakt, wordt gestreefd naar een klimaataanpak voor stedelijke gebieden.

De realisatie van vier woningen in Wijchen draagt bij aan de ambitie van de Provincie Gelderland te voldoen aan de diversiteit van woningvraag. Conform de landelijke vereiste worden de woningen geheel gasloos gerealiseerd. Als onderdeel van het streven naar een duurzaam leefklimaat wordt de planontwikkeling op circulaire wijze gebouwd. Hoogwaardig hergebruik van sloopmaterialen is hierbij van belang. Bovendien wordt het plan klimaatadaptief door de afname van verhard oppervlak en het toevoegen van groene elementen in een landschappelijke verevening. Voor toelichting op de landschappelijk verevening zie paragraaf 3.3 Landschapsplan.

Gelet op het bovenstaande kan geconcludeerd worden dat het voornemen past binnen de Omgevingsvisie Gaaf Gelderland.

4.2.2 Omgevingsverordening Gelderland

De Omgevingsverordening Gelderland is vastgesteld door Provinciale Staten op 24 september 2014 en in werking getreden op 18 oktober 2014. De Omgevingsverordening is voor het laatst geactualiseerd op 19 december 2018. Voorliggende ontwikkeling zal moeten voldoen aan de regels in de Omgevingsverordening.

De Omgevingsverordening richt zich op de fysieke leefomgeving in de Provincie Gelderland. Het gaat hierbij om regels op het gebied van ruimtelijke ordening, milieu, water, verkeer en bodem. De verordening voorziet ten opzichte van de Omgevingsvisie niet in nieuw beleid en is daarmee dus beleidsneutraal.

afbeelding "i_NL.IMRO.0296.BGBOosterweg172-OW01_0010.png"

Uitsnede geconsolideerde versie Omgevingsverordening Gelderland met ligging planlocatie

De voorliggende ontwikkeling ligt niet binnen een Nationaal Landschap, de Romeinse Limes, de Groene Ontwikkelingszone (GO), het Gelders Natuurnetwerk (GNN) en de Hollandse Waterlinie. De locatie maakt ook geen deel uit van een ganzenfoerageergebied of beschermingsgebied natte landnatuur.

Artikel 4.9 (realisatie van waterfuncties):  Het plangebied ligt binnen de zone "Specifiek ecologische doelstellingen wateren", zoals is aangegeven op de themakaart waterbeleid bij de omgevingsvisie Gaaf Gelderland. Het gaat om waterecologische doelstellingen voor het gebied tussen Wijchen en Heumen. Het plangebied ligt in de meest noordwestelijke punt van dit gebied. Artikel 4.9 maakt het realiseren van waterfuncties onder voorwaarden mogelijk en heeft als doel de waterecologische kwaliteiten te beschermen. Het plan heeft geen betrekking op waterfuncties en leidt niet tot negatieve effecten op de waterkwaliteit in de naastgelegen A-watergang.

Gelet op het bovenstaande kan worden gesteld dat het ruimtelijk voornemen past binnen de provinciale kaders die worden gesteld in de Omgevingsverordening Gelderland.

4.3 Regionaal beleid

4.3.1 Woonagenda Subregio Nijmegen

In de woonagenda Subregio Nijmegen en omstreken is door de gemeenten Berg en Dal, Beuningen, Druten, Heumen, Mook en Middelaar, Nijmegen en Wijchen afgesproken gemeentelijke woningbouwprogramma's in lijn te brengen met de bevolking en woningbehoefteprognose. Hierin is opgenomen dat binnen de regio tot 2027 in totaal 16.500 woningen bijgebouwd moeten worden. In de gemeente Wijchen wordt gestreefd naar de nieuwbouw van 1.100 woningen.

Elke gemeente heeft een eigen woonagenda of woonvisie vastgesteld of in afronding. In al deze visies is opgenomen welke lokale thema's er spelen en wat als kwaliteit wordt gezien. Veel thema´s spelen binnen de gehele regio, maar het belang en de prioriteit die aan bepaalde thema´s wordt gegeven kan per gemeente verschillen. Deze verschillen werken ook door in de woningbouwprogramma´s en de keuzes die daarin worden gemaakt. De gemeentelijke woonagenda's en –visies zijn vertaald in de subregionale woonagenda.

De ambities van de Woonagenda Subregio Nijmegen en omstreken omvatten:

      • Snel én verantwoord inspelen op woningbehoefte
      • Diversiteit van het woonmilieu versterken
      • Een duurzame en flexibele woningvoorraad

De gemeente Wijchen kent een grote woningbouwopgave. De ontwikkeling van het woongebied Huurlingsedam heeft de afgelopen jaren bijgedragen aan het voorzien in een behoefte. In de toekomst zal ook aan de westkant van Wijchen worden gebouwd. De drie extra woningen die met het voorliggend bestemmingsplan worden gerealiseerd, voorzien in de behoefte om 1.100 nieuwe woningen toe te voegen aan de woningvoorraad. De eindgebruikers voor de betreffende ontwikkeling zijn al bekend, waarmee sprake is van een rechtstreekse behoefte.

Gelet op bovenstaande kan worden gesteld dat het vooornemen past binnen de regionale kaders die worden gesteld in de Woonagenda Subregio Nijmegen.

4.3.2 Notitie functieverandering buitengebied

De Notitie functieverandering buitengebied is vastgesteld door de KAN-raad op 18 oktober 2007 en wordt door de gemeente Wijchen gehanteerd bij bedrijfsbeëindiging van agrarische bedrijven in het buitengebied.

Het beleid bevat de regionale beleidsinvulling voor functieverandering van vrijkomende agrarische bedrijfsgebouwen in het buitengebied. Aanleiding hiervoor zijn de voortschrijdende ontwikkelingen in de agrarische sector, waardoor veel ondernemers noodgedwongen stoppen met het uitoefenen van hun bedrijf of genoodzaakt zijn met nevenactiviteiten aanvullende inkomsten te verwerven.

Op grond van artikel 3.1.2 'Sloop en vervangende nieuwbouw' van de Notitie functieverandering buitengebied is functieverandering naar wonen mogelijk door sloop van alle voormalige bedrijfsgebouwen en herbouw in de vorm van woongebouwen. In het functieveranderingsbeleid is opgenomen dat de bij de sloop van agrarische bebouwing meerdere wooneenheden kunnen worden gerealiseerd, met een opervlakte ter grootte van maximaal 50% van de gesloopte agrarische bebouwing.

Uitgangspunt is het slopen van 706 m2 agrarische bebouwing en het verwijderen van een groot oppervlak aan verhardingen. Er is uitgegaan van het uitgangspunt dat 50% van de te slopen agrarische bedrijfsbebouwing terug komt in de vorm van woonbebouwing. De gezamenlijke oppervlakte van de twee vrijstaande woningen bedraagt 353 m2.

Bij de bouw van vrijstaande woningen dient nadrukkelijk aandacht te worden besteed aan een proportionele invulling van de verevening. Ook is een goede inpassing van de nieuwe situatie in de omgeving belangrijk.

De verevening vindt plaats in de vorm van een verkleining van het bouwperceel (oorspronkelijk oppervlak van het bouwvlak ca. 1 ha) en het inrichten van een openbare voorziening in de vorm van een recreatief rust- en informatiepunt in de noordoosthoek van het plangebied. Er is sprake van een goede landschappelijke inpassing na realisatie van het landschapsplan (zie ook paragraaf 3.3 Landschapsplan).

Op basis van het voorgaande heeft het college van B&W van de gemeente Wijchen principemedewerking verleend aan het voorliggend plan.

Gelet op het bovenstaande kan worden gesteld dat het voornemen past binnen de gemeentelijke kaders die worden gesteld in de Notitie functieverandering buitengebied.

4.4 Gemeentelijk beleid

4.4.1 Structuurvisie Wijchen

Op 29 mei 2009 is de Structuurvisie Wijchen 2009 vastgesteld. In deze visie wordt een doorkijk gegeven naar de gewenste ontwikkeling van Wijchen. In deze structuurvisie worden de aspecten bodem en water, natuur, landschap, cultuurhistorie en archeologie, wonen, bedrijvigheid, landbouw, recreatie, verkeer en milieu behandeld. Deze structuurvisie geeft een overzicht van de verwachte ontwikkelingen binnen de gemeente Wijchen.

afbeelding "i_NL.IMRO.0296.BGBOosterweg172-OW01_0011.png"

Ligging plangebied binnen Structuurvisie Wijchen 2009

De planlocatie wordt binnen de structuurvisie aangeduid op de overgang van enerzijds 'Ontwikkelen wonen' en anderzijds 'Ontwikkelen landgoedwonen/burchbebouwing en wonen in het groen'. De gemeente kiest in de nieuwbouwwijk Huurlingsedam voor een concentratie van de bouwopgave voor de kern Wijchen, waar mogelijk een duidelijke relatie met groen en water. Het voorliggende bestemmingsplan speelt een rol als verbinding van het stedelijke gebied met het omliggende, relatief open landschap. De beëindiging van het agrarisch bedrijf en de ontwikkeling van de locatie tot een woonlocatie gaat gepaard met de landschappelijke inrichting van het plangebied, waardoor een overgang ontstaat tussen de nieuwbouwwijk Huurlingsedam en de ontwikkelingszone waarin 'wonen in het groen' wordt gestimuleerd. Het landschapsplan is toegelicht in paragraaf 3.3 Landschapsplan.

Het planvoornemen past binnen de gemeentelijke kaders die worden gesteld in de Structuurvisie Wijchen.

4.4.2 Woonvisie Gemeente Wijchen 2025

De woonvisie Gemeente Wijchen 2025 is opgesteld in februari 2017 als kader dat richting geeft aan ontwikkelingen die Wijchen raken op het gebied van woonmilieu. In deze visie wordt omschreven waar de gemeente moet bijsturen, afremmen of juist versnellen om haar doelen op het gebied van wonen te bereiken.

Op het gebied van gemeentelijk woonmilieu zijn doelen geformuleerd voor een woningaanbod in balans. Zo wil de gemeente Wijchen een plek bieden voor iedereen die in de gemeente Wijchen wil wonen. De aandacht gaat daarbij naar kwaliteit en diversiteit van de woningen. Om kwaliteitsverbetering mogelijk te maken zijn er genoeg woningen nodig.

De gemeente Wijchen vindt het belangrijk dat er aandacht is voor verduurzaming met het oog op een energieneutraal Wijchen in 2040. Proeftuinen met nieuwe bouwmaterialen of gasloze wijken kunnen nieuwe woonvormen en duurzamer wonen mogelijk maken.

Het voorliggende bestemmingsplan valt binnen de structurele aanpak om kwalitietverbetering mogelijk te maken door het realiseren van 4 woningen aan de rand van het stedelijk gebied. Voor de woningen wordt zowel bij het ontwerp als bij de bouw rekeningen gehouden met de effecten op het milieu, waardoor duurzamer wonen mogelijk wordt gemaakt. Er wordt gasloos gebouwd en er wordt gebruik gemaakt van circulaire materialen.

Het planvoornemen past binnen de kaders van de Woonvisie Gemeente Wijchen 2025.

Hoofdstuk 5 Milieu- en omgevingsaspecten

5.1 Bedrijven en milieuzonering

Vanuit het aspect 'goede ruimtelijke ordening' dient er voldoende ruimtelijke scheiding te zijn tussen hinderveroorzakende (o.a. bedrijven) en hindergevoelige functies (waaronder woningen). Dit wordt op twee manieren getoetst. Enerzijds wordt er gekeken of het perceel zelf veroorzaker is van hinder en anderzijds wordt bekeken of het perceel kwetsbaar is voor hinder. Hiervoor worden de afstanden uit de VNG-publicatie 'Bedrijven milieuzondering' als maatgevend beschouwd.

Het plan voorziet in een planlogische functiewijziging van een voormalig agrarische bedrijf naar een woonlocatie. Omdat in de toekomstige situatie sprake is van een woonfunctie, is geen sprake meer van externe milieueffecten op gevoelige objecten in de omgeving. Wel moet ter plekke van de nieuwe woningen sprake zijn van een goed woon- en leefklimaat en mag de nieuwe ontwikkeling niet leiden tot een belemmering in de bedrijfsvoering voor omliggende functies. Hiertoe zijn de functies in de omgeving beoordeeld.

afbeelding "i_NL.IMRO.0296.BGBOosterweg172-OW01_0012.png"

Tabel met afstanden tot hinderveroorzakende functies t.o.v. het plangebied

Het plangebied ligt binnen de richtafstanden voor de bedrijven aan de Oosterweg 144 en de Oosterweg 186. Voor deze bedrijven is nader beschouwd wat de milieugevolgen zijn en welke toekomstige gebruiksmogelijkheden er worden toebedeeld binnen het plangebied.

De locatie Oosterweg 144 is bestemd als agrarisch bedrijf met een bouwperceel en maakte voorheen onderdeel uit van een grotere bedrijfslocatie met bedrijfsgebouwen aan de zuidzijde van de watergang. De bedrijfslocatie is beëindigd en gesaneerd voor de woningbouwontwikkeling Huurlingsedam. De woning Oosterweg 144 is de voormalige bedrijfswoning en is ook nog als zodanig bestemd in het geldend bestemmingsplan uit 1998. Na beëindiging van het bedrijf en de verkoop van de achterliggende percelen, is de locatie niet herbestemd. De locatie is echter niet meer als agrarische locatie in gebruik. Aangezien het agrarisch bedrijf is beëindigd en grotendeels is bebouwd met woningen, kan worden gesteld dat de voormalige bedrijfswoning wordt bewoond zonder binding met het agrarisch bedrijf. In het voorliggend plan is daarom uitgegaan van de feitelijke situatie waarbij de woning Oosterweg 144 is beschouwd als burgerwoning. Daarmee vormt de ligging nabij de locatie Oosterweg 144 geen belemmering voor het planvoornemen.

De locatie Oosterweg 186 is bestemd als niet-agrarisch bedrijf, specifiek bestemd voor de groothandel voor bloemen. Voor deze bedrijfsvoering is een maximum bebouwd oppervlak aan bedrijfsgebouwen toegestaan van 150 m2. Groothandels worden ingedeeld onder verschillende categorieën, waarbij onderscheid wordt gemaakt tussen groothandels met een bedrijfsvloeroppervlak van meer dan 2.000 m2 en groothandels met een bedrijfsvloeroppervlak tot 2.000 m2, waarbij gebruik mag worden gemaakt van een lagere milieucategorie. Het gaat om een kleinschalige groothandel (ruim onder de drempel voor een zwaardere milieucategorie) met weinig externe milieueffecten, die op basis van de VNG-publicatie 'Bedrijven en milieuzonering' kan worden ingedeeld als 'overige groothandel' met milieucategorie 2 en een bijbehorende richtafstand van 30 m. De afstand tussen de bedrijfslocatie en de te splitsen woning bedraagt 30 m. Daarmee is het woon- en leefklimaat in de af te splitsen woning voldoende gegarandeerd. Tevens vormt de aanwijzing van een woonfunctie geen belemmering voor de bedrijfsvoering van de groothandel.

Naar aanleiding van bovenstaande beoordeling kan geconcludeerd worden dat het plan niet leidt tot beperkingen voor omliggende functies. Ook vormen omliggende functies geen belemmering voor het plan. Gelet op vorenstaande vormt het aspect bedrijven en milieuzonering geen belemmering voor het planvoornemen.

5.2 Bodem

Indien er sprake is van een planologische functiewijziging, dient te worden onderzocht of de milieuhygiënische kwaliteit van de bodem ter plaatse geschikt is voor het voorgenomen gebruik. Om inzicht te krijgen in de milieuhygiënische kwaliteit van de bodem ter plaatse is een verkennend bodemonderzoek uitgevoerd conform NEN-5740 en een verkennend onderzoek asbest in grond en puin conform NEN-5707 en NEN-5897. De resultaten van het onderzoek zijn weergegeven in Bijlage 2 (rapportnr. N200604.004/JKM, d.d. 8 oktober 2020).

5.2.1 Resultaten bodemonderzoek

Uit het verrichte onderzoek kunnen de volgende conclusies worden getrokken:

  • de bovengrond ter plaatse van de voormalige boven- of ondergrondse tank licht verontreinigd is met minerale olie. De bodemlaag rondom het grondwater en het grondwater zijn niet verontreinigd met minerale olie of BTEXN;
  • de bijmenginghoudende bodemlaag onder de betonverharding is licht verontreinigd met zware metalen en bevat een gehalte aan asbest boven de interventiewaarde van 100 mg/kg d.s. waardoor sprake is van een ernstig geval van bodemverontreiniging. De omvang van de verontreiniging wordt ingeschat op 332 m3 (oppervlakte 830 m², diepte 0,4 meter). De bodem ter plaatse dient gesaneerd te worden;
  • in de zintuiglijk schone boven- en ondergrond geen verontreinigingen zijn aangetoond;
  • het grondwater is licht verontreinigd met zware metalen. Deze hebben waarschijnlijk een natuurlijke herkomst;
  • de bodem van de zuidelijke drupzone van de zuidelijk gelegen stal bevat een gehalte aan asbest boven de interventiewaarde van 100 mg/kg d.s., waardoor sprake is van een ernstig geval van bodemverontreiniging. De drupzone van de noordelijke zijde van de betreffende stal is niet onderzocht, omdat ter plaatse een klinkerverharding aanwezig is. Echter gezien de kwaliteit van het dak aan beide zijde vergelijkbaar is, wordt vanuit gegaan dat het voegzand van de noordelijk gelegen drupzone eveneens verontreinigd zal zijn met asbest. De bodem ter plaatse van beide drupzones dient gesaneerd te worden;
  • in de aanwezige puinverharding is zowel zintuiglijk als analytisch asbesthoudend materiaal aangetroffen. Het gehalte aan asbest overschrijdt de interventiewaarde en de actiewaarde voor nader onderzoek niet.

Zowel de bijmenghoudende bodemlaag onder de betonvloer als de drupzones van de zuidelijke stal dienen, voorafgaand aan de geplande herontwikkeling gesaneerd te worden. Alvorens tot saneren over te kunnen gaan dient toestemming over de saneringsaanpak verkregen te worden bij het bevoegd gezag. Dit kan middels het indienen van een melding volgens het Besluit Uniforme Saneringen. De sanering dient te worden uitgevoerd te worden door een BRL 7000 gecertificeerde aannemer en begeleidt te worden door een BRL 6001 gecertificeerde milieukundige begeleider.

5.2.2 Vervolgstappen en financiële uitvoerbaarheid

Voor herbestemming naar een woonfunctie is het op basis van het Besluit bodemkwaliteit (Bbk) noodzakelijk om de genoemde verontreinigingen te saneren. De initiatiefnemer houdt in de uitvoering van het plan rekening met de noodzaak tot het uitvoeren van deze bodemsanering.

In het kader van het bestemmingsplan is het van belang dat sprake is van een financiële uitvoerbaarheid. De financiële lasten voor het saneren van de aangetroffen verontreiniging moeten opwegen tegen de opbrengsten van het plan. Initiatiefnemer houdt rekening met de bijkomende kosten van de noodzakelijke sanering en heeft de kosten meegewogen in de totale exploitatieberekening van de woonlocatie. Daarmee kan worden gesteld dat sprake is van een uitvoerbaar planvoornemen (zie ook paragraaf 7.1 Economische haalbaarheid).

Gelet op de schaal van de bodemverontreiniging en de financiële lasten die kunnen worden gedragen door initiatiefnemer, kan worden gesteld dat sprake is van een uitvoerbaar planvoornemen. Initiatiefnemer zal bij de gemeente een Plan van Aanpak voorleggen voor de uit te voeren sanering. Het bevoegd gezag zal na de uitvoering van de sanering het evaluatieverslag controleren, waarna de locatie kan worden goedgekeurd voor de toekomstige functie. Bij graafwerkzaamheden in (al dan niet) verontreinigde grond en wanneer deze grond wordt ontgraven en/of afgevoerd, zijn de Wet bodembescherming en Besluit bodemkwaliteit van toepassing. Afvoer en hergebruik van grond dient afgestemd te worden met het bevoegd gezag.

Na uitvoering van de genoemde saneringen vormt het aspect bodem geen verdere belemmering voor het uitvoeren van het plan.

5.2.3 Eindbeoordeling en conclusie

Het uitgevoerde bodemonderzoek is in samenhang met het voorliggend bestemmingsplan beoordeeld door de omgevingsdienst. Het advies dat is afgegeven door de omgevingsdienst is toegevoegd als Bijlage 3 bij de toelichting (kenmerk W.Z21.100475.02, d.d. 20 mei 2021). De omgevingsdienst deelt de constateringen in de voorgaande paragraaf met betrekking tot de noodzakelijke vervolgstappen en de financiële haalbaarheid van het bestemmingsplan. Aanvullend geeft de omgevingsdienst aan dat, afhankelijk van de keuze die bij de sanering van de verontreiniging wordt gemaakt, een aanvullend asbest-in-grond onderzoek noodzakelijk is. Dit is een aandachtspunt, waaraan in het Plan van Aanpak voor de sanering aandacht moet worden besteed. Dit heeft geen consequenties voor de haalbaarheid van de voorliggende bestemmingsplanherziening.

Het aspect bodem vormt daarmee geen belemmering voor het voorliggend bestemmingsplan.

5.3 Externe veiligheid

Externe veiligheid heeft betrekking op locaties waar een ongeval met gevaarlijke stoffen kan plaatsvinden, waardoor personen die geen directe relatie hebben tot de risicovolle activiteit zouden kunnen komen te overlijden. Bij een ruimtelijke besluit voor het toelaten van (beperkt) kwetsbare objecten moet worden getoetst aan risiconormen en veiligheidsafstanden. Dit is met name relevant op korte afstand van risicobronnen. Indien een (beperkt) kwetsbaar object wordt toegelaten binnen het invloedsgebied van een belangrijke risicobron, moet ook het groepsrisico worden verantwoord. Bovendien is het van belang om af te wegen in hoeverre nieuwe risicobronnen binnen een plangebied worden toegestaan.

Voor de beoordeling van een ruimtelijk plan moet voor externe veiligheid worden vastgesteld of het plangebied is gelegen binnen het invloedsgebied van specifieke risicovolle inrichtingen, relevante transportroutes voor het vervoer van gevaarlijke stoffen of relevante buisleidingen. Toetsingskaders zijn het "Besluit externe veiligheid inrichtingen" (Bevi), het "Besluit externe veiligheid transportroutes" (Bevt) en het "Besluit externe veiligheid buisleidingen" (Bevb). Daarnaast zijn in het Vuurwerkbesluit en het Activiteitenbesluit milieubeheer veiligheidsafstanden genoemd die rond stationaire risicobronnen, niet zijnde een Bevi-inrichting, moeten worden aangehouden.

Een voormalig agrarisch bedrijf wordt in het kader van externe veiligheid gekenmerkt als een 'beperkt kwetsbaar object'. Bij functiewijziging naar een woonlocatie wordt het plangebied aangemerkt als een 'kwetsbaar object'. Echter zijn in de direct omgeving geen risicobronnen aanwezig, zie onderstaande risicobeoordeling:

afbeelding "i_NL.IMRO.0296.BGBOosterweg172-OW01_0013.png" Uitsnede risicokaart met ligging van het plangebied

Risicovolle inrichtingen: Uit de risicokaart (www.risicokaart.nl) blijkt dat het plangebied niet is gelegen op korte afstand van een Bevi-inrichting. Het plangebied ligt dan ook buiten het invloedsgebied van Bevi-bedrijven.

Transport gevaarlijke stoffen en leidingen:   Uit de risicokaart blijkt dat het plangebied buiten het invloedsgebied van wegen, spoor en/of buisleidingen ligt.

Het aspect externe veiligheid vormt geen belemmering voor de planontwikkeling. Een nadere toets aan het aspect externe veiligheid kan achterwege blijven.

5.4 Geluid

Bij ruimtelijke ontwikkelingen dient op basis van de Wet geluidhinder te worden onderzocht of sprake is van geluidsoverlast, in het bijzonder in verband met verkeer, spoor of bedrijven. In de Wet geluidhinder is bepaald dat ten aanzien van zogenaamde 'geluidsgevoelige objecten' wettelijke eisen gelden ten aanzien van de maximale belasting.

Omdat het plangebied ligt in de geluidzone van de Oosterweg is door Aelmans Ruimte, Omgeving & Milieu een akoestisch onderzoek wegverkeerslawaai uitgevoerd. De rapportage bij dit onderzoek is toegevoegd als Bijlage 4 bij deze toelichting (rapportnr. M202833.002.001.R1/GGO, d.d. 13 april 2021).

In dit onderzoek is de geluidbelasting op de gevel (gevelbelasting) berekend ten gevolge van het omliggende wegennet voor het jaar 2021 + 10 jaar na realisatie en getoetst aan de normstelling uit de Wet geluidhinder. De resultaten van het onderzoek zijn onderstaand omschreven.

Wet geluidhinder: Uit de toets in het kader van de Wet geluidhinder kunnen de volgende conclusies worden getrokken:

afbeelding "i_NL.IMRO.0296.BGBOosterweg172-OW01_0014.png"

Tabel: conclusies Wet geluidhinder

Het aanleggen van een geluidwal of geluidscherm (overdrachtsmaatregelen) of het toepassen van stiller wegdek (bronmaatregel) om de geluidbelasting terug te brengen tot de voorkeursgrenswaarde ontmoet overwegende bezwaren van stedenbouwkundige, landschappelijke, civieltechnische, verkeerskundige en financiële aard. Derhalve wordt onderbouwd verzocht hogere waarde te verlenen conform artikel 110a, lid 5 van de Wet geluidhinder.

Gemeentelijk geluidbeleid:

Voor woning 3 en 4, waarbij de geluidbelasting hoger is dan de voorkeursgrenswaarde + 5 dB, dient rekening gehouden te worden met het volgende:

  • a. verblijfsruimten moeten zoveel mogelijk aan de geluidluwe zijde liggen;
  • b. ten minste één slaapkamer moet aan de geluidsluwe zijde liggen;
  • c. er is sprake van tenminste één geluidluwe gevel;
  • d. indien er sprake is van een buitenruimte, dan dient deze gelegen te zijn aan de geluidluwe zijde. Tevens mag het geluidniveau in de buitenruimte niet meer dan 5 dB hoger liggen dan bij een geluidluwe gevel.

Voor woning 2, waarbij de gluidbelasting lager is dan de voorkeursgrenswaarde + 5dB, dient er rekening gehouden te worden met bovengenoemde punten c en d.

In het akoestisch onderzoek is aangetoond dat zowel woning 2, 3 als 4 kan voldoen aan een acceptabele geluidbelasting. Bij rekening houden met de woningindeling wordt voldaan aan voorgenoemde eisen. Derhalve wordt onderbouwd verzocht hogere waarde te verlenen conform artikel 110a, lid 5 van de Wet geluidhinder.

Cumulatie:   Ter bepaling van de gecumuleerde waarde dient de totale geluidbelasting (exclusief aftrek artikel 110g Wet geluidhinder) te worden berekend van alle zoneplichtige wegen met een geluidbelasting boven de voorkeursgrenswaarde. In het onderhavige geval is dit niet aan de orde.

In het kader van een goede ruimtelijke ordening is de cumulatie bepaald inclusief alle gemodelleerde geluidbronnen. Ter bepaling van de milieukwaliteit in de omgeving is deze gecumuleerde waarde getoetst aan de 'methode Miedema'. De maximale gecumuleerde waarde, welke voornamelijk wordt bepaald door de Oosterweg, bedraagt 61 dB, voor nieuw te realiseren woningen. Hiermee kan gesteld worden dat er sprake is van de kwalificatie 'slecht' en daarmee dient bezien te worden of maatregelen mogelijk zijn. Daar maatregelen aan de bron en overdrachtsmaatregelen op overwegende bezwaren stuiten, dient de oplossing gezocht te worden in geluidwerende maatregelen in de gevel en/of dak.

Karakteristieke geluidwering van de gevel:   De hoogst gecumuleerde geluidbelasting voor een nieuwbouwwoning is 61 dB. Aangezien de cumulatieve geluidbelasting hoger is dan 53 dB dient er een nader onderzoek te worden uitgevoerd ter bepaling van de geluidwering van de gevel. Bij toepassing van de juiste geluidwerende materialen en maatregelen (conform dat nader onderzoek) is een binnenniveau van 33 dB en daarmee een aanvaardbaar woon- en leefklimaat gewaarborgd. Voor de bestaande woning is geen hogere waarde nodig. Bij verbouwingen aan de woning dient wel rekening te worden gehouden met de geluidbelasting op de gevel door wegverkeer.

Conclusie: Uit het bovenstaande volgt dat de gemeente onderbouwd verzocht wordt hogere waarde te verlenen conform artikel 110a, lid 5 van de Wet geluidhinder. Met het verlenen van deze hogere waarde, vormt het aspect geluid geen belemmering voor onderhavig plan.

5.5 Geur

De wet geurhinder en veehouderij (Wgv) is op 1 januari 2007 in werking getreden. Met de Wet geurhinder en veehouderij geldt één toetsingskader voor vergunningplichtige veehouderij in de gehele gemeente. Voor niet vergunningverplichte veehouderijen en overige agrarische niet vergunningplichtige bedrijven is het Activiteitenbesluit het toetsingskader. De Wet geurhinder en veehouderij bevat normen en afstanden die bedrijven moeten aanhouden ten opzichte van geurgevoelige objecten. Daarnaast geeft de Wet geurhinder en veehouderij gemeenten de beleidsvrijheid om maatwerk te leveren dat is afgestemd op de ruimtelijke en milieuhygiënische feiten en omstandigheden in een concreet gebied en de gewenste (toekomstige) ruimtelijke inrichting.

Het plan ziet uitsluitend toe op een planologische functiewijziging van een voormalige agrarische bedrijfslocatie naar een woonlocatie. De meest nabijgelegen veehouderij is gesitueerd op een afstand van ruim 1 km van het plangebied. Derhalve kan geconcludeerd worden dat het aspect geur geen belemmering vormt voor de gewenste herbestemming naar 'Wonen'.

5.6 Luchtkwaliteit

In hoofdstuk 5, titel 5.2 van de Wet milieubeheer (hierna: Wm), zijn de belangrijkste bepalingen inzake de luchtwaliteit opgenomen. Dit hoofdstuk staat ook wel bekend als de 'Wet luchtkwaliteit'. Het doel van titel 5.2 Wm is om de mensen te beschermen tegen de negatieve gevolgen van luchtverontreiniging op hun gezondheid. In de wet- en regelgeving zijn de richtlijnen uit de Europese regelgeving opgenomen, waaraan voorgenomen ontwikkelingen dienen te voldoen.

5.6.1 Bijdrage van de ontwikkeling aan de luchtkwaliteit

Indien een project aangeduid kan worden als Niet in betekenende mate (NIBM) vormen de luchtkwaliteitseisen in beginsel geen belemmering voor het uitoefenen van de bevoegdheid van een bestuursorgaan ex artikel 5.16 Wm. In het besluit NIBM (niet in betekenende mate) wordt gesteld dat een project NIBM is wanneer het aannemelijk is dat het een toename van de concentratie veroorzaakt van maximaal 3%. De 3% grens wordt gedefinieerd als 3% van de grenswaarde voor de jaargemiddelde concentratie van fijn stof (PM10) of stikstofdioxide (NO2). Dit komt overeen met 1,2 microgram/m3 voor zowel PM10 als NO2.

In de regeling NIBM is (onder andere) aangegeven dat een plan tot 1.500 woningen niet in betekenende mate bijdraagt aan de toename van de concentratie fijn stof en stikstofdioxide in de lucht.

De voorgenomen planontwikkeling betreft het planologisch mogelijk maken van 4 woningen en is daarom aan te merken als NIBM en hoeft daarom niet nader te worden getoetst aan de Wet milieubeheer.

5.6.2 De luchtkwaliteit ter plekke van de voorgenomen planontwikkeling

Naast het feit dat de bijdrage van de ontwikkeling zelf aan de concentraties PM10 en NO2, dient te worden beschouwd of ter plekke van de nieuwe woningen sprake is van een goed woon- en leefklimaat.

In het kader van een goede ruimtelijke ordening zijn de jaargemiddelde concentraties NO2, PM10 en PM2,5 bepaald ter plaatse van het plangebied. In de NSL-monitoringstool is langs de Oosterweg de jaargemiddelde concentraties NO2, PM10 en PM2,5 bepaald. In afbeelding 8.3 zijn de jaargemiddelde concentraties NO2, PM10 en PM2,5 weergegeven voor het peiljaar 2020.

afbeelding "i_NL.IMRO.0296.BGBOosterweg172-OW01_0015.png"

NSL-monitoringstool met ligging van het plangebied en rekenpunten

Uit de afbeelding blijkt dat de jaargemiddelde concentraties NO2, PM10 en PM2,5 ter plaatse van het projectgebied de jaargemiddelde grenswaarde van 40 µg/m3 (voor NO2 en PM10) en 25 µg/m3 (voor PM2,5) niet overschrijden. Daarnaast is de trend dat in de toekomst de emissies en de achtergrondconcentraties van deze stoffen zullen dalen, waardoor geen overschrijdingen van de grenswaarden zijn te verwachten.

5.6.3 Conclusie

Geconcludeerd kan worden dat de ontwikkeling niet in betekenende mate bijdraagt aan de luchtkwaliteit en de luchtkwaliteit ter plaatse voldoet voor het toekennen van een nieuwe woonfunctie. Daarmee vormt het aspect luchtkwaliteit geen belemmering voor het voorliggend plan.

5.7 Archeologie

In Europees verband is als wettelijk toetsingskader het zogenaamde 'Verdrag van Malta' tot stand gekomen. Uitgangspunt van dit verdrag is het archeologisch erfgoed zo veel mogelijk te behouden. Waar dit niet mogelijk is, dient het bodemarchief met zorg ontsloten te worden. Bij het ontwikkelen van ruimtelijk beleid moet het archeologisch belang vanaf het begin worden meegewogen in de besluitvorming.

In de Erfgoedwet is vastgelegd dat Rijk, provincies en gemeenten in ruimtelijke plannen rekening houden met het aspect 'archeologie'. De wet beoogt het archeologische erfgoed in hoofdzaak in situ te beschermen.

Om de bescherming op gemeentelijk niveau te borgen heeft de gemeente Wijchen een archeologische beleidskaart opgesteld (archeologische beleidskaart, RAAP-rapport 1828, kaartbijlage 2; 2009). Op deze kaart is aangegeven op welke gronden archeologische resten zijn te verwachten. Op de onderstaande afbeelding is een uitsnede weergegeven van de archeologische beleidskaart en de ligging van de planlocatie.

afbeelding "i_NL.IMRO.0296.BGBOosterweg172-OW01_0016.png" Uitsnede van de 'Archeologische beleidskaart' met de ligging van het plangebied.

Het plangebied, waarbinnen de voorgenomen ontwikkeling plaatsvindt, ligt voor het grootste gedeelte in een gebied met een hoge archeologische verwachting. Op basis van de archeologische verwachtingskaart van de gemeente Wijchen uit 2009 geldt een onderzoeksplicht voor bodemingrepen met een oppervlakte groter dan 100 m2. Daarnaast is op de beleidskaart een vindplaats aangewezen (vindplaats nr. 457) met een aandachtszone van 50 m. Gelet op de voorgenomen bouw van twee nieuwwe woningen binnen gronden met een hoge verwachtingswaarde, moet het aspect archeologie zorgvuldig worden beschouwd.

5.7.1 Vindplaats

Vindplaats 457 is aangewezen naar aanleiding van eerder uitgevoerd archeologisch onderzoek in 2005. Deze vondst heeft geleid tot een doorvertaling op de beleidskaart in 2009. RAAP Archeologisch Adviesbureau BV heeft het plangebied onderzocht in het kader van de woningbouwontwikkeling Huurlingsedam ten zuiden van het plangebied en heeft haar bevindingen gerapporteerd aan de gemeente (RAAP-rapport 1174, juli 2005). In het kader van het bestemmingsplan Huurlingsedam fase 2 zijn deze bevindingen in 2012 nogmaals tegen het licht gehouden door Hazenberg Archeologie Leiden BV.

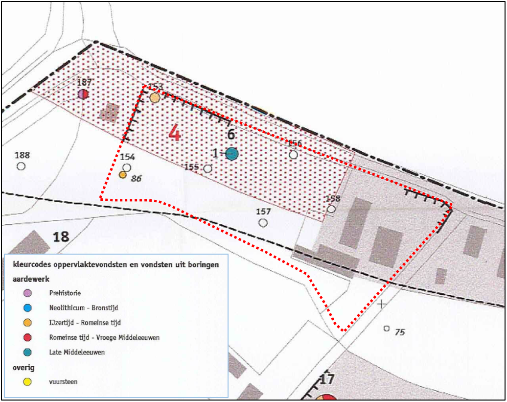
Vondsten: Het betreft enkele fragmenten handgevormd aardewerk uit de Prehistorie en enkele fragmenten gedraaid aardewerk met een datering uiteenlopend van de Romeinse tijd t/m de Late Middeleeuwen. Mede als gevolg van bodemverstoring is het karakter van de vindplaats onduidelijk. Op de onderstaande afbeeldingen zijn de vondsten uit boringen (kleine cirkels) en oppervlaktevondsten (grotere cirkels) weergegeven.

afbeelding "i_NL.IMRO.0296.BGBOosterweg172-OW01_0017.png"

Uitsnede kaartbijlage 1 uit het onderzoek van RAAP (RAAP-rapport 1174, juli 2005)

Vindplaats 4 (op de beleidskaart nr. 457) betreft een relatief kleine archeologische zone van ca. 0,70 ha in het meest noordwestelijke deel van het totale onderzoeksgebied uit het RAAP-rapport. De vindplaats ligt op de zuidelijke flank van een groot rivierduinencomplex, dat zich tot enkele kilometers ten noorden van het plangebied voortzet. De vindplaats kent rommelige en slechts deels intacte bodemprofielen. Het betreft de randzone van vroegere bewoningsactiviteiten uit de periode prehistorie tot en met de middeleeuwen. Landschappelijk gezien vormen vindplaats 4 (op de beleidskaart nr. 457) en vindplaats 5 (op de beleidskaart nr. 465) één geheel, maar zij zijn gescheiden door een diepe verstoring.

5.7.2 Aanpak planvoornemen

Gezien de hoge archeologische verwachting en eerdere vondsten binnen het plangebied, is voor het voorgenomen plan gekozen om eventuele archeologische resten in situ te beschermen. Binnen het plangebied worden alle werkzaamheden zodanig uitgevoerd, dat onverstoorde bodemlagen niet of nauwelijks worden verstoord.

Om eventuele archeologische resten te beschermen wordt een zorgvuldige archeologische dubbelbestemming toegepast. Aangezien het geldend bestemmingsplan dateert van 1998, is niet eerder een archeologische dubbelbestemming opgenomen voor de planlocatie. Op basis van de gemeentelijke beleidskaart en de gebruikelijke doorvertaling van de gemeente Wijchen in het buitengebied, zijn in het voorliggend bestemmingsplan de archeologische dubbelstemmingen 'Waarde - Archeologie 1' en 'Waarde - Archeologie 2' opgenomen.

Met inachtneming van de archeologische verwachtingswaarden wordt een aanpak gehanteerd, waarbij de resten in situ worden behouden. In de dubbelbestemmingen is geregeld dat het uitvoeren van een archeologisch onderzoek noodzakelijk is, wanneer de bodem wordt verstoord. Daarbij wordt het bestaande maaiveld als peil gehanteerd.

Voor de bouw van twee nieuwe woningen wordt de locatie met ca. 1 m opgehoogd, waardoor de bodem onder het bestaande maaiveld niet wordt verstoord met uitzondering van de aan te brengen funderingspalen. De geringe bodemverstoring die plaatsvindt bij het aanbrengen van funderingspalen betreft een verstoring van zeer beperkte omvang (< 1% van het plangebied).

Met ophoging van de percelen met ca. 1 m is zijn eventuele archeologische resten in de bodem voldoende beschermd en kan op de bovenlaag uitvoering worden gegeven aan de voorgenomen bouwplannen, die met het voorliggend bestemmingsplan mogelijk worden gemaakt. Er wordt gekozen om de archeologische waarden in situ te beschermen. Daarmee is het voorliggend bestemmingsplan uitvoerbaar, zonder dat daarbij eventuele archeologische waarden worden verstoord. Een nader onderzoek is niet noodzakelijk.

De voorgenomen ophoging van het perceel leidt tot een landschappelijke c.q. geomorfologische wijziging, waarbij het oorspronkelijke maaiveld wordt aangepast. De op te richten woningen komen hoger te liggen dan de omliggende gronden. De Oosterweg ligt op ca. 8,6 m +NAP ter hoogte van de oostelijke woning en ca. 8,3 m +NAP ter hoogte van de westelijke woning. Het bestaande maailveld ter plekke van de op te richten woningen ligt op ca. 8,0 m +NAP (oostelijke woning) en 7,8 m +NAP (westelijke woning). Bij ophoging van de gronden met ca. 1 m komen de nieuwe woningen ten opzichte van de Oosterweg circa 40 cm hoger te liggen. De woningen komen niet op een terp te liggen maar het woonperceel wordt vanaf de Oosterweg gezien geleidelijk opgehoogd tot aan de voorgevel van de woning. De ophoging is wel aanwezig in het landschap maar heeft, mede gelet op de grootte van de percelen, geen grote impact op de landschappelijke kenmerken en karakteristiek.

5.7.3 Selectiebesluit

De voorgenomen aanpak is afgestemd met het bevoegd gezag. Het bevoegd gezag geeft aan dat de archeologische waarden op het terrein met de aanpak voldoende worden beschermd. De aanpak sluit aan bij de voorkeur om archeologische resten in situ te beschermen. De gemeente Wijchen neemt voor vaststelling van het bestemmingsplan een selectiebesluit.

5.7.4 Conclusie

Op basis van het genomen selectiebesluit kan worden geconcludeerd dat het bestemmingsplan uitvoerbaar is. Daarmee vormt het aspect archeologie geen belemmering voor het voorliggend bestemmingsplan.

5.8 Cultuurhistorie

Per 1 juli 2016 is de Erfgoedwet in werking getreden. In een bestemmingsplan dient op grond van het Bro artikel 3.1.6. een beschrijving te worden opgenomen hoe met de in het gebied aanwezige cultuurhistorische waarden en in de grond aanwezige of te verwachten monumenten, rekening is gehouden. Ook de facetten historische bouwkunde en historische geografie dienen te worden meegenomen in de belangenafweging. Hierbij gaat het om zowel beschermde als niet formeel beschermde objecten en structuren.

5.8.1 Regeling

Om cultuurhistorische waarden in de gemeente te borgen hanteert de gemeente Wijchen het paraplubestemmingplan 'Parapluplan Cultuurhistorie Wijchen' (vastgesteld op 3 mei 2017). In het parapluplan is voor het gehele plangebied de dubbelbestemming 'Waarde - Cultuurhistorisch waardevol gebied' opgenomen. Deze dubbelbestemming is opgenomen voor gronden bestemd voor het behoud, beheer en versterking van de cultuurhistorische waarden.

Deze dubbelbestemming stelt voor uitsluitend de agrarische bestemmingen de voorwaarde voor het verlenen van een omgevingsvergunning dat de werkzaamheden geen onevenredige aantasting tot gevolg mogen hebben van de cultuurhistorische waarden wanneer de benodigde werkzaamheden voor beoogd planvoornemen plaatsvinden. Op de onderstaande afbeelding is een uitsnede weergegeven van de kaartbijlage die hoort bij deze dubbelbestemming. Daarop is de Oosterweg weergegeven als cultuurhistorisch lint.

afbeelding "i_NL.IMRO.0296.BGBOosterweg172-OW01_0018.png"

Uitsnede kaartbijlage Cultuurhistorische waarden (zie Bijlage 2 bij de regels)

5.8.2 Cultuurhistorische waarden

Het plangebied bevindt zich in een gebied waar de oude bebouwingslinten en de belangrijkste (historische) doorgaande wegen en waterlopen bevinden. De cultuurhistorische waarden voor deze locatie bestaat uit de overwegend agrarische oorsprong van de bebouwing in de linten en de agrarische uitstraling van de percelen. De huidige kavel- en beplantingsstructuur is terug te vinden op de topografische kaart van 1900. Met het planvoornemen blijft deze structuur behouden.

afbeelding "i_NL.IMRO.0296.BGBOosterweg172-OW01_0019.png" Uitsnede topografische kaart omstreeks 1900

De gemeente Wijchen heeft een cultuurhistorische inventarisatie uitgevoerd (RAAP-rapport 3040, september 2015). Op de navolgende afbeelding is een uitsnede van de inventarisatiekaart weergegeven.

afbeelding "i_NL.IMRO.0296.BGBOosterweg172-OW01_0020.png"

Uitsnede inventarisatiekaart van cultuurlandschappen, landschapselementen en bouwkunst (RAAP-rapport 3040)

Uit de inventarisatiekaart kan worden afgeleid dat binnen het plangebied de volgende historische landschappen aanwezig zijn:

  • Rds1 (bruin): hoger gelegen stroomrugontginning met gevarieerde structuur;
  • Td2 (groen): oude bossen op hogere plateaus;
  • Ms1 (lichtgeel) lagergelegen stroomrugontginning met gevarieerde structuur.

Het agrarisch karakter van het plangebied blijft behouden, door gedeelten van het gebied als open grasland te behouden. Deze openheid is vastgelegd in het landschapsplan (zie ook paragraaf 3.3 Landschapsplan). Het planvoornemen leidt, gelet op de sloop van bedrijfsbebouwing en het wegbestemmen van het agrarisch bouwvlak, niet tot een verdichting van de stroomrugontginningen. Binnen het plangebied zijn geen cultuurhistorische elementen meer aanwezig, die onderdeel hebben uitgemaakt van de 'oudere bossen op hogere plateaus'.

In het plangebied zijn geen monumentale panden aanwezig zoals vastgelegd door Rijk, provincie of gemeente. Ook in de nabije omgeving zijn geen (Rijks)monumenten die aangetast worden door het planvoornemen.

Geconcludeerd kan worden dat het aspect cultuurhistorie geen belemmering vormt voor het planvoornemen.

5.9 Natuur

5.9.1 Beschermde gebieden

Natura2000: Gezien de relatief grote afstand tot het dichtstbijzijnde Natura 2000-gebied (8,4 kilometer) is het voor de meeste effecten redelijkerwijs uit te sluiten dat negatieve effecten ontstaan op Natura 2000-gebieden als gevolg van de voorgenomen plannen. Om aan te tonen dat het plan niet leidt tot significant negatieve effecten is een stikstofberekening uitgevoerd. Het stikstofonderzoek is toegevoegd als Bijlage 5 bij deze toelichting (rapportnr. P202833.009/MBA, d.d. 12 april 2021).

Uit het stikstofonderzoek kan het volgende worden geconcludeerd: Het planvoornemen (tijdelijke realisatiefase en de gebruiksfase) leidt niet tot een toename van stikstofdepositie op Natura 2000-gebieden. Negatieve effecten ten gevolge van stikstof op de instandhoudingsdoelen van Natura 2000-gebieden kunnen op basis van de notitie beoordeling stikstof worden uitgesloten, waardoor een vergunning in het kader van de Wet natuurbescherming niet vereist is.

GNN en GO: De voorgenomen plannen hebben door de afstand en de relatief kleinschalige aard van de werkzaamheden geen (significant) negatief effect op de wezenlijke kenmerken en waarden van het NNN en de GO.

5.9.2 Beschermde soorten

Quickscan flora en fauna: Om in beeld te brengen of de ontwikkeling in strijd is met natuurwetgeving en hoe eventuele strijdigheid met de wet voorkomen kan worden, is door Staro B.V. een quickscan flora en fauna uitgevoerd (rapportnr. 20-0280, september 2020). Het rapport is bijgevoegd als Bijlage 6 bij deze toelichting.

In het plangebied komen mogelijk verschillende soorten voor die zijn beschermd onder paragrafen 3.1, 3.2 en 3.3 van de Wet natuurbescherming.

Om te voorkomen dat de voorgenomen plannen leiden tot overtreding van de Wet natuurbescherming dienen de volgende maatregelen en vervolgstappen te worden genomen:

  • 1. Nader onderzoek wordt uitgevoerd naar huismus, gierzwaluw en vleermuizen bij werkzaamheden aan het dak van het woonhuis;
  • 2. Nader onderzoek wordt uitgevoerd naar kerkuil en steenuil voorafgaand aan het slopen van de schuur;
  • 3. De bomen en struiken worden gesnoeid en gekapt buiten het broedseizoen van vogels en wanneer geen broedgeval aanwezig is;
  • 4. Graafwerkzaamheden onder bomen en struiken en het verwijderen van beplanting in de akkerranden en de tuin plaatsvindt tussen 15 april en 15 oktober in verband met de overwintering van Alpenwatersalamander.
  • 5. Geen verlichting plaatsen aan de zuidzijde van het plangebied, die de migratieroute van dassen verlicht.
  • 6. Tijdens de (bouw) werkzaamheden dient het plangebied tijdelijk met een bouwhek te worden afgezet om te voorkomen dat dassen de bouwplaats kunnen betreden.
  • 7. Geen gebouwen positioneren aan de zuidzijde van het perceel, naast de sloot.
  • 8. Aanbevolen wordt voor landschappelijke aankleding inheemse dasvriendelijke plantsoorten gebruiken.

Nader onderzoek kerkuil en steenuil: Naar aanleiding van de conclusies uit de quickscan flora en fauna is door Staro B.V. een aanvullend onderzoek verricht naar kerkuil en steenuil (rapportnr. P20-0349, d.d. 22 april 2021). Dit rapport is bijgevoegd als Bijlage 7 bij deze toelichting. Het onderzoek heeft uitgewezen dat:

  • het plangebied mogelijk incidenteel gebruikt wordt door steenuilen als foerageergebied. Binnen het plangebied zijn echter geen steenuilen waargenomen. De voorgenomen plannen hebben geen significant negatief effect op de steenuil, omdat er in de het plangebied geen vaste rust- en verblijfplaatsen aanwezig zijn en het plangebied geen onderdeel vormt van het functionele leefgebied van een steenuilpaar. Daarnaast worden bij de realisatie van de voorgenomen plannen een boomgaard en een weide en een landschappelijke inrichting aan de zuidzijde gerealiseerd, die kunnen dienen als foerageergebied voor steenuil. De verbodsbepalingen van de Wet natuurbescherming worden niet overtreden bij het uitvoeren van de voorgenomen plannen en de werkzaamheden.
  • er geen territorium of nestlocaties van kerkuil in het plangebied en de directe omgeving aanwezig zijn. De voorgenomen plannen hebben geen negatief effect op het leefgebied van de kerkuil. De verbodsbepalingen van de Wet natuurbescherming worden niet overtreden bij het uitvoeren van de voorgenomen plannen en de werkzaamheden.
  • het plangebied mogelijk onderdeel is van het essentieel leefgebied van ransuil. Op Oosterweg 186 heeft in het verleden een ransuil gebroed. Het is onduidelijk of deze locatie nog als nestlocatie dient voor ransuil. Binnen het plangebied en de omgeving is geen ransuil waargenomen tijdens de veldbezoeken. De voorgenomen plannen hebben geen significant negatief effect op de ransuil, omdat er in de omgeving van het plangebied voldoende geschikt foerageergebied aanwezig blijft en bij de realisatie van de voorgenomen plannen een weide en boomgaard wordt aangelegd, die kunnen dienen als foerageerplaats voor ransuil. De verbodsbepalingen van de Wet natuurbescherming worden niet overtreden bij het uitvoeren van de voorgenomen plannen en de werkzaamheden.

Nadere toelichting leefgebied voor de das:

Aanwijzing als compensatiegebied: De landbouwgronden binnen het plangebied zijn eerder in het kader van de ontwikkeling van woonwijk Huurlingsedam aangewezen als gebied met foerageermogelijkheden voor de das in de vorm van akkerland. Voor de oprichting van de woonwijk is in juni 2016 een dassencompensatieplan opgesteld. Daarin is het plangebied aangewezen als compensatiegebied voor het verlies van foerageergebied elders (Dassencompensatieplan Huurlingsedam, juni 2016). Het gedeelte van het plangebied dat in 2016 is aangewezen als foerageergebied heeft een oppervlakte van circa 6.000 m2 en is landbouwkundig in gebruik als akker. De afgelopen jaren is het perceel hoofdzakelijk gebruikt voor de teelt van maïs. De planontwikkeling vindt gedeeltelijk plaats binnen het foerageergebied en leidt tot een afname van de oppervlakte van het foerageergebied. Daarom is onderstaand nader gemotiveerd hoe wordt omgegaan met het gebruik van het plangebied door de das.

Wettelijk kader: De bescherming van de das is geregeld in paragraaf 3.3 van de Wet natuurbescherming. Op basis artikel 3.10 van de Wet natuurbescherming mogen geen vaste voortplantingsplaatsen of rustplaatsen worden beschadigd. Verlies aan foerageergebied van de das is niet rechtstreeks strafbaar onder de Wet natuurbescherming. Het verdwijnen van foerageergebied kan indirect wel leiden tot het verdwijnen van de das uit de omgeving. Met de voorliggende planontwikkeling dient rekening te worden houden met het feit dat het plangebied momenteel wordt gebruikt als foerageergebied. Onttrekking van foerageergebied dient gecompenseerd te worden.

Primair en secundair foerageergebied: Bij de kwalificatie van foerageergebied wordt onderscheid gemaakt tussen primair foerageergebied, waar jaarrond foerage kan plaatsvinden, en secundair foerageergebied, waar een gedeelte van het jaar foerage kan plaatsvinden. Grasland wordt geclassificeerd als primair foerageergebied. Maïsakkers worden geclassificeerd als secundair foerageergebied. Alleen in de maanden dat de maïskolven eetbaar zijn voor de das (augustus – november) maakt de das veelvuldig gebruik van maïsakkers.

Voor het verdwijnen van foerageergebied kunnen de volgende maatregelen worden genomen:

  • compenseren van verlies van primair foerageergebied (o.a. grasland) in oppervlakte met 120% door kwaliteitsverbetering, bijvoorbeeld in de vorm van lijnvormige beplantingen (hagen en/of houtwallen) en hoogstamboomgaarden;
  • compenseren van het verlies van secundair foerageergebied (o.a. maïsakkers) in oppervlakte met 50% door realisatie van primair foerageergebied.

Inrichtingsplan in relatie tot de das: Met het planvoornemen wordt secundair foerageergebied in de vorm van een maïsakker onttrokken aan de leefomgeving van de das. Het oppervlak van het secundair foerageergebied dat wordt onttrokken bedraagt circa 6.000 m2. Verlies aan oppervlakte van secundair foerageergebied moet voor minimaal 50% worden gecompenseerd.

Voor het verbeteren van bestaand leefgebied wordt aangesloten bij de maateregelen uit paragraaf 3.4 van het Kennisdocument Das van BIJ12. In het beplantingsplan, dat is opgenomen als bijlage bij de regels, zijn drie plantvlakken opgenomen waar grasland wordt gerealiseerd (grasklavermengsel met een max. hoogte van 10 cm). Het gaat om de vlakken A, B en D met een totale oppervlakte van 4.201 m2. Plantvak B wordt aangeplant met een fruitbomen, waarmee het gebied extra geschikt wordt gemaakt voor de das. De plantvakken kunnen worden geclassificeerd als primair foerageergebied.

De realisatie van primair foerageergebied met een oppervlakte van circa 4.200 m2 compenseert het verlies van secundair foerageergebied met een oppervlakte van circa 6.000 m2. Daarmee wordt ruim voldaan aan de compensatievereiste van 50% en is sprake van een opwaardering van secundair naar primair foerageergebied.

Langs de watergang is sprake van een verbindingszone voor dassen. Dankzij een beschermingszone van 5 meter langs de watergang, waarbinnen geen bebouwing en opgaande beplanting mag worden aangebracht, is geborgd dat deze verbindingszone ook in de toekomstige situatie gebruikt kan blijven worden door de das. Het primair foerageergebied in de plantvakken A, B en D is voor de das goed bereikbaar vanaf de verbindingszone.

Conclusie: Het plan leidt per saldo tot een verbetering van de foerageermogelijkheden voor de das. Het gebruik van dasvriendelijke plantsoorten (o.a. fruitbomen) heeft een positief effect voor de das. Het plan leidt niet tot een overtreding van de verbodsbepalingen uit artikel 3.10 van de Wet natuurbescherming. Het aanvragen van een ontheffing op de Wet natuurbescherming is daarom niet noodzakelijk.

5.9.3 Conclusie

Het plan zal niet leiden tot overtreding van de Wet natuurbescherming, mits de bovenstaande adviezen en aanbevelingen in acht worden genomen. Het nader onderzoek heeft uitgewezen dat de steenuil en kerkuil geen belemmering vormen voor het planvoornemen. Per saldo leidt het plan tot een verbetering van de foerageermogelijkheden voor de das. Aangezien geen werkzaamheden worden verricht aan het dak van het woonhuis, is geen vervolgonderzoek naar huismus, gierzwaluw en vleermuizen noodzakelijk.

Met inachtneming van de door de ecoloog opgestelde conclusies en aanbevelingen, kan worden gesteld dat sprake is van een uitvoerbaar planvoornemen. Uit het bovenstaande kan worden opgemaakt dat het aspect natuur geen belemmering vormt voor de uitvoerbaarheid van het bestemmingsplan.

5.10 Leidingen

Door het plangebied lopen geen boven- en/of ondergrondse leidingen. Er is op dat gebied derhalve geen sprake van bijbehorende (planologische) beschermingszones en/of belangen van derden op dit punt. Het aspect leidingen vormt geen belemmering voor het plan.

5.11 Verkeer en parkeren

Voor het berekenen van de verkeersgeneratie en het bepalen van de parkeerbehoefte wordt gebruik gemaakt van de normen uit publicatie 381 van het CROW. Op basis van het Parkeerbeleidsplan gemeente Wijchen (2020), wordt gebruik gemaakt van de maximumnormen voor rest bebouwde kom in een matig stedelijk gebied. Aangezien het hier gaat om een kleinschalige ontwikkeling wordt maatwerk verricht.

5.11.1 Verkeer

De totale verkeersgeneratie bij de realisatie van drie nieuwe woningen is beperkt. Om de verkeersgeneratie van en naar het plangebied te bepalen is gebruik gemaakt van de maximumnormen van het CROW voor 2 vrijstaande koopwoningen en 2 twee-onder- een-kapwoningen in de rest bebouwde kom in een matig stedelijk gebied.

Uitgaande van de CROW-normen bedraagt de gemiddelde verkeersgeneratie per weekdaggemiddelde:

  • Koop, twee-onder-een-kap: 8,2 * 2 woningen = 16,4 verkeersbewegingen
  • Koop, vrijstaand: 8,6 * 2 woningen = 17,2 verkeersbewegingen

De totale verkeersgeneratie bedraagt daarmee gemiddeld 34 verkeersbewegingen per weekdag.

De Oosterweg is een hoofdontsluiting van Wijchen, die de toekomstige verkeersgeneratie kan verwerken. Het plangebied ligt aan de Oosterweg en is daarmee goed ontsloten. In het landschapsplan is weergegeven dat elke woning een eigen inrit krijgt. Bij de locatie van de inritten wordt rekening gehouden met de bestaande (en te handhaven) bomen. De inritten worden zodanig gesitueerd dat sprake is van ruime zichthoeken op de Oosterweg bij het afrijden van het eigen terrein. Voor de zuidelijke woning in het bestaande woongebouw wordt gebruik gemaakt van de bestaande inrit op de Oosterweg. De af te splitsen woning krijgt een inrit op de Huurlingsedam (zie Bijlage 1). Voor de drie nieuwe uit-/inritten wordt een uitritvergunning aangevraagd. Het planvoornemen leidt niet tot negatieve effecten op de verkeersafwikkeling en de verkeersveiligheid.

5.11.2 Parkeren

Op basis van het Parkeerbeleidsplan gemeente Wijchen (2020) kan gebruik worden gemaakt van CROW-normen. De daadwerkelijke parkeerbehoefte is met name afhankelijk van de levensstandaard van de toekomstige gebruikers. Aangezien het gaat om zeer ruime percelen, is op eigen terrein zonder meer voldoende ruimte om per woning voldoende parkeerplaatsen te realiseren. Daarbij kan een perceel worden voorzien van meerdere parkeerplaatsen op eigen terrein om te kunnen voorzien in de eigen parkeerbehoefte. De bewoners van de toekomstige woningen kunnen daarbij naar eigen inzicht parkeerplaatsen inrichten, afhankelijk van de behoefte van de betreffende bewoner(s). Daarbij wordt de gemeentelijke vereiste om 100% van de parkeerbehoefte op eigen terrein te realiseren in acht genomen. Daarmee wordt voldaan aan de parkeerbehoefte en voldoet het plan aan het Parkeerbeleidsplan gemeente Wijchen.

Uit het bovenstaande kan worden concluderend dat het aspect verkeer en parkeren geen belemmering oplevert voor het planvoornemen.

5.12 Water

Op basis van de Wro en het Bro is de watertoets verplicht bij bestemmingsplannen, inpassingsplannen, buitenplanse omgevingsvergunningen en, buiten toepassing verklaringen van beheerverordeningen. Voor overige plannen dient een watertoets te worden uitgevoerd op basis van het nationaal bestuursakkoord water. De watertoets is bedoeld om ruimtelijke plannen meer waterbestendig te maken, waarbij wateraspecten vroegtijdig en expliciet worden meegenomen in ruimtelijke plannen en bij locatiekeuzen. Het Bro regelt de verplichte waterparagraaf in de toelichting bij genoemde ruimtelijke plannen en het overleg met de waterbeheerder (wateradvies).

De waterparagraaf beschrijft de wijze waarop rekening wordt gehouden met eventuele gevolgen van het ruimtelijk plan voor de waterhuishouding. De waterparagraaf geeft een beschrijving van beleidsuitgangspunten, waterhuishoudkundige situatie en wateropgaven in het plangebied, (motivatie van) meest geschikte oplossingen en ruimtelijke consequenties daarvan. Indien aan de orde is tevens het advies van het waterschap in de waterparagraaf verwerkt.

5.12.1 Beschrijving van het watersysteem

In deze paragraaf wordt de huidige situatie van het watersysteem ter plekke omschreven.

Geomorfologie en grondwatersysteem: Het plangebied is gesitueerd aan de zuidoostelijke rand van het bebouwd gebied van Wijchen en ligt in het buitengebied. Het maaiveld ter plaatse varieert in hoogte en ligt tussen 7,3 en 8,1 meter +N.A.P. (op basis van actueel hoogtebestand Nederland). De bodem op de planlocatie bestaat uit kalkloze poldervaaggronden; zware zavel en lichte klei (Rn95C) aan de zuidzijde en hoge bruine enkeerdgronden; grof zand (bEZ30) aan de noordzijde.

Uit de bodemgesteldheid en het maaiveld is op te maken dat de locatie aan de noordzijde langs de Oosterweg (relatief) hoger en droger is en dat het plangebied richting de watergang aan de zuidzijde (relatief) lager en natter wordt.

afbeelding "i_NL.IMRO.0296.BGBOosterweg172-OW01_0021.png"

Bodemkaart van NL (bron: Atlas van de Leefomgeving) met ligging planlocatie

Oppervlaktewatersysteem:   Aan de zuidzijde ligt direct grenzend aan de planlocatie een A-watergang. De betreffende watergang maakt geen onderdeel uit van het plangebied. De noordoever van de watergang maakt wel onderdeel uit van het plangebied. De stroomrichting van de watergang is richting het westen.

De A-watergang heeft een beschermingszone van 5 meter aan weerszijden. De beschermingszone ligt binnen het plangebied en moet dus in acht worden genomen bij de planvorming. Op de onderstaande afbeelding is een uitsnede van de legger weergegeven, waarop de ligging van de A-watergang zichtbaar is.

De duiker in de A-watergang aan de westzijde (stroomafwaarts; achter Oosterweg 144) is feitelijk niet meer aanwezig.

afbeelding "i_NL.IMRO.0296.BGBOosterweg172-OW01_0022.png"

Uitsnede legger waterschap Rivierenland met ligging van het plangebied en A-watergang

Natuurwaarden: Het plangebied ligt binnen een zone met specifieke ecologische doelstellingen; vastgelegd in de Omgevingsverordening Gelderland. Het gaat om de aanwezigheid van speciale waterecologie in het gebied tussen Wijchen en Heumen. Dit is vastgeleged in artikel 4.9 van de Omgevingsverordening (zie ook paragraaf 4.2.2).

5.12.2 Beleid

Europese Kaderrichtlijn Water (2000): Met ingang van december 2000 is de Europese Kaderrichtlijn Water (KRW) van kracht. In de Kaderrichtlijn worden kwaliteitseisen gesteld gericht op het beschermen en verbeteren van de aquatische ecosystemen (verplichtingen per stroomgebied). Deze richtlijn stelt als norm dat oppervlaktewater binnen 15 jaar na inwerkingtreding moeten voldoen aan een ‘goede ecologische toestand’ (GET). Voor kunstmatige wateren, zoals de meeste stadswateren, geldt dat de oppervlaktewateren minimaal moeten voldoen aan een ‘goede ecologisch potentieel’(GEP). Inmiddels zijn de GEP-normen per stroomgebied uitgewerkt.

Waterwet: Op 22 december 2009 is de Waterwet in werking getreden. Kort samengevat regelt de Waterwet het beheer van oppervlaktewater en grondwater. De Waterwet biedt instrumenten om het waterbeheer op een doeltreffende en doelmatige manier op te pakken. Ook vervangt de Waterwet een groot aantal wetten op het gebied van water. Hieruit is op rijksniveau een Nationaal Waterplan ontwikkeld. Dit plan bevat de hoofdlijnen van het nationale waterbeleid en de daartoe behorende aspecten van het nationale ruimtelijke beleid.

De provincie Gelderland heeft een Regionaal Waterplan opgesteld. De bedoeling is dat op basis van deze structuurvisies plannen van de Waterwet doorwerken in de ruimtelijke ordening en ervoor zorgen dat de waterbelangen op een goede manier worden geborgd.

De op 1 januari 2008 ingevoerde Wet gemeentelijke watertaken is opgenomen in de Waterwet. Door deze wetgeving kunnen gemeenten een verbrede zorgplicht op zich nemen. Deze wetgeving maakt het mogelijk om rioolheffing te heffen voor zuiveringstechnisch werk dat door de gemeente (of waterschap/derde) wordt beheerd op grond van de Gemeentewet.

Nationaal Waterplan 2016-2021: Het nationaal waterbeleid voor de komende jaren is in 2015 vastgesteld door het kabinet in het Nationaal Waterplan 2016-2021. Het Rijk streeft naar een duurzaam en klimaatbestendig waterbeheer en heeft de ambitie om de komende decennia te investeren in bescherming tegen overstromingen en in de zoetwatervoorziening. Voor een duurzaam en klimaatbestendig watersysteem is het van belang bij ruimtelijke ontwikkelingen rekening te houden met waterhuishoudkundige eisen op korte termijn.

Waterbeheerprogramma 2016-2021 ‘Koers houden, kansen benutten’: Met ingang van 27 november 2015 is het Waterbeheerprogramma 2016-2021 bepalend voor het waterbeleid. Met dit programma blijft het Waterschap Rivierenland op koers om het rivierengebied veilig te houden tegen overstromingen, om voldoende en schoon water te hebben en om afvalwater effectief te zuiveren. De speerpunten hierin zijn:

  • Een veilig rivierengebied. Verbeteren en versterken dijken en boezemkades. Met daarnaast oog voor oplossingen door een aangepast ruimtelijke inrichting en door risicobeheersing (bijv. evacuatie);
  • Anticiperen op klimaatveranderingen. Een robuust en ecologisch gezond watersysteem dat voldoende water van goede kwaliteit biedt aan landbouw, natuur, stedelijke gebieden en recreatie;
  • Het duurzaam en doelmatig zuiveren van afvalwater door o.a. centralisatie van zuiveringen en van slibverwerkingen.

Gemeentelijk waterbeleid en waterbeheer: In de Strategische waternota van de gemeente Wijchen zijn de thema’s en uitgangspunten voor duurzaam waterbeheer omschreven. Deze zijn ook onder de alinea met beleidsuitgangspunten samengevat. In het kader van de watertoets moet een vertaalslag worden gemaakt naar de concrete plansituatie.

Tevens beschikt de gemeente over een Gemeentelijk rioleringsplan GRP, waarin de gemeente invulling geeft aan haar zorgplicht voor afvalwater, hemelwater en grondwater. Het gemeentelijk waterbeleid is met name gericht op het voorkomen, beperken of tot een aanvaardbaar risico terugbrengen van wateroverlast en schade aan milieu en volksgezondheid.

Op grond van de Waterwet (artikel 3.5 en 3.6) heeft de gemeente een zorgplicht voor inzameling en verwerking van overtollig hemel- en grondwater. Perceeleigenaren dienen hemelwater op eigen perceel te verwerken. Indien dit redelijkerwijs niet kan worden verlangd treedt de gemeentelijke zorgplicht in werking. Daarnaast heeft de gemeente een zorgplicht bij het treffen van maatregelen in openbaar gebied om structureel de gevolgen van grondwaterstand voor de aan de grond gegeven bestemming te voorkomen c.q. te beperken, tenzij dit niet doelmatig is of de verantwoordelijkheid van de provincie of het waterschap.

5.12.3 Planvoornemen in relatie tot de waterhuishouding

Het plan voorziet in een planologische functiewijziging, waarin het agrarisch gebruik van het plangebied wordt beëindigd en een woonbestemming wordt toegekend. Ten behoeve van de nieuwe te realiseren woningen worden de bestaande agrarische bebouwingen gesloopt en verhardingen verwijderd.

Hemelwater:  Het volledige plangebied is momenteel bestemd als agrarisch bouwperceel, met bouwmogelijkheden en mogelijkheden voor het aanbrengen van verhardingen. In de nieuwe situatie worden gedeelten bestemd als 'Tuin'. In de voorwaardelijke verplichting, die is opgenomen als Bijlage 1 bij de regels is vastgelegd dat gedeelten van het plangebied open en onbebouwd blijven en worden ingericht als grasland of boomgaard. In de eindsituatie is sprake van minder mogelijkheden voor het aanbrengen van verhardingen. Daarmee is het planvoornemen niet compensatieplichtig op basis van de Keur.

Wel dient het hemelwater, afkomstig van de nieuwe woningen en verhardingen, op zorgvuldige wijze op eigen terrein te worden verwerkt. Er is voldoende ruimte en mogelijkheid op het perceel om waterbergende voorzieningen te realiseren. Gelet op de beperkte infiltratiecapaciteit van de bodem kunnen deze waterbergende voorzieningen vertraagd worden afgevoerd op het oppervlaktewater.

Omdat de waterberging plaatsvindt op minder dan 100 m afstand van een A-watergang, moet worden voldaan aan de eis om minimaal 436 m3 per ha hemelwater in de infiltratievoorziening te bergen voor T=10+10% (Keur Waterschap Rivierenland). Voor het realiseren van voldoende hemelwaterberging is geborgd door middel van een voorwaardelijke verplichting in artikel 5.1.2. De uitwerking van de hemelwaterberging wordt nader vormgegeven in het kader van de omgevingsvergunning voor bouwen.

De locatie wordt ter plekke van de nieuwbouwwoningen opgehoogd met ca. 1 m in verband met een hoge archeologische verwachting (zie paragraaf 5.7 Archeologie). Daarmee is verzekerd dat geen wateroverlast optreedt in de nieuwe woningen.

Grondwater:  De grondwaterstand fluctueert tussen 7,0 en 7,3 m +NAP. Het maaiveld ligt op 8,1 m + NAP aan de noordzijde tot 7,3 m NAP langs de watergang (bron: Algemeen Hoogtebestand Nederland). De locatie wordt ter plekke van de nieuwbouwwoningen opgehoogd met ca. 1 m in verband met een hoge archeologische verwachting (zie paragraaf 5.7 Archeologie). Daarmee is eveneens een vereiste ontwateringsdiepte van 70 cm verzekerd.

Afvalwater: De woningen krijgen een individuele aansluiting op de bestaande riolering. Langs de Oosterweg ligt een openbare drukriolering, waarop de woningen kunnen worden aangesloten.

Oppervlaktewater:  de beschermingszone van de A-watergang wordt vrij gehouden van nieuwe beplanting en bebouwing. De gronden binnen de beschermingszone worden niet voorzien van een woonbestemming. Ter plekke wordt de bestemming 'Agrarisch met waarden - 1' toegekend. In het landschapsplan voor de nieuwe locatie is de beschermingszone opgenomen en is weergegeven dat geen nieuwe beplanting wordt toegevoegd binnen deze zone (zie Bijlage 1 Landschapsplan). Door de dubbelbestemming 'Waterstaat - Waterlopen' op te nemen is de onbebouwde status van de beschermingszone geborgd in de regels.

Het planvoornemen leidt niet tot negatieve effecten op de speciale waterecologische doelstellingen zoals vastgelegd in de Omgevingsverordening Gelderland (zie ook paragraaf 4.2.2).

5.12.4 Digitale watertoets

Voor het planvoornemen is de watertoets uitgevoerd. De watertoets is bedoeld om ruimtelijke plannen meer waterbestendig te maken, waarbij wateraspecten vroegtijdig en expliciet worden meegenomen in ruimtelijke plannen en bij locatiekeuzen.

De watertoets voor dit plan heeft plaatsgevonden via de Digitale Watertoets (www.dewatertoets.nl) en is bijgevoegd als Bijlage 8 bij deze toelichting. Uit de ligging van het plangebied nabij de A-watergang (beschermingszone), dient het waterschap betrokken te worden bij de planvorming. Het waterschap kan de onderdelen die in de voorgaande paragraaf zijn besproken betrekken bij de beoordeling. Het voorontwerpbestemmingsplan wordt toegezonden aan het Waterschap Rivierenland. Het waterschapsbelang is voldoende geborgd.

5.12.5 Conclusie

Realisatie van het planvoornemen leidt niet tot negatieve effecten op de aspecten met betrekking tot de waterhuishouding. Het aspect water vormt daarom geen belemmering voor het voorgenomen initiatief.

Hoofdstuk 6 Juridische regeling

6.1 Algemeen

Op de verbeelding is met behulp van de methode uit SVBP 2012 de bestemming van de gronden aangegeven. De bijbehorende bepalingen zijn vervolgens opgenomen in de planregels. De verbeelding brengt de planregels in beeld. De planregels bestaan uit de volgende vier hoofdstukken:

1. Inleidende regels

Dit hoofdstuk bestaat uit twee delen. Het eerste deel betreft het artikel 'begripsbepalingen' waarin is toegelicht wat onder bepaalde begrippen wordt verstaan. Het tweede artikel is 'Wijze van meten', waarin is aangegeven hoe de benoemde maatvoering moet worden gemeten.

2. Bestemmingsregels

Dit hoofdstuk betreft een nadere verklaring van de bestemmingen die op de verbeelding zijn aangegeven. De gehanteerde bestemmingen zijn in paragraaf 6.2 kort toegelicht.

3. Algemene regels

In dit hoofdstuk zijn regelingen opgenomen die zijn bedoeld voor meer dan één bestemming. De gehanteerde algemene bepalingen zijn kort toegelicht in paragraaf 6.3

4. Overgangs- en slotregels

Binnen de overgangsbepalingen is geregeld dat bouwwerken en plannen die (legaal) bestaan op het moment dat het bestemmingsplan in werking treedt, maar die in strijd zijn met het bestemmingsplan, mogen worden herbouwd mits er geen veranderingen plaatsvinden in aard en omvang. In de slotregel is de officiële naam van het bestemmingplan genoemd. Deze naam moet worden gebruikt om te verwijzen naar het plan.

6.2 Bestemmingen

Binnen dit bestemmingsplan zijn de volgende bestemmingen en dubbelbestemmingen opgenomen:

6.2.1 Agrarisch met waarden - 1

De bestemming 'Agrarisch met waarden - 1' is opgenomen om het groene en agrarische karakter van het gebied te waarborgen. De bestemming is aangewezen ter plekke van de voortuinen van de nieuwe woningen, maar ook voor het waarborgen van de landschappelijke openheid. Direct grenzend aan de woonbestemming zijn de gronden bestemd voor de inrichting en het gebruik van de gronden als tuin.

In het landschapsplan zijn verschillende onderdelen opgenomen voor de inpassing van de locatie, waaronder het open houden van enkele perceelgedeelten. Deze maatregelen zijn geborgd via een voorwaardelijke verplichting gekoppeld aan de bouw en/of verbouw van de nieuwe woningen, maar wordt gerealiseerd ter plekke van de gronden met een agrarische bestemming.

Daarnaast is de bestemming 'Agrarisch met waarden - 1' aangewezen voor de beschermingszone van de A-watergang. Daarmee is het bouwen van bijgebouwen ten behoeve van artikel 'Wonen - 1' uitgesloten.

6.2.2 Groen

Een gedeelte aan de noordoostzijde van het plangebied is bestemd als 'Groen'. Deze bestemming is toegewezen voor het perceelgedeelte waar een rust- en informatiepunt wordt gerealiseerd voor (recreatieve) fietsers. De groenbestemming maakt de realisatie hiervan mogelijk en schept hiervoor mogelijkheden voor de landschappelijke verevening van het initiatief.

6.2.3 Wonen - 1

De bestemming Wonen - 1 is ontleend aan en afgestemd op de planregels van het bestemmingsplan 'Geconsolideerde versie Buitengebied en herziening 2014'. Door op de verbeelding bouwvlakken op te nemen, is de plaats van de nieuwe woningen vastgelegd. De bestaande woning wordt gesplitst; dit is geregeld door een bouwvlak op te nemen waarbinnen door middel van een maatvoering twee woningen zijn toegestaan.

6.2.4 Waarde - Archeologie 1

Naast de enkelbestemmingen is ook de archeologische dubbelbestemming 'Waarde - Archeologie 1' opgenomen. Dit ter bescherming van de eventuele archeologische waarden in de bodem rondom de vindplaats.

6.2.5 Waarde - Archeologie 2

Daarnaast is voor de overige gronden de archeologische dubbelbestemming 'Waarde - Archeologie 2' opgenomen. Dit ter bescherming van de eventuele archeologische waarden in de bodem.

6.2.6 Waarde - Cultuurhistorisch waardevol gebied

De dubbelbestemming 'Waarde - Cultuurhistorisch waardevol gebied' is overgenomen uit het bestemmingsplan 'Parapluplan Cultuurhistorie Wijchen'.

6.2.7 Waterstaat - Waterlopen

De dubbelbestemming 'Waterstaat - Waterlopen' is opgenomen ter borging van de beschermingszone van de A-watergang, die direct ten zuiden van het plangebied ligt. Het oprichten van gebouwen en bouwwerken ten dienste van de onderliggende enkelbestemming is ter plekke van deze dubbelbestemming niet toegestaan.

6.3 Algemene regels

De algemene regels omvatten de standaardregels zoals de anti-dubbeltelregel. Voor de regeling binnen dit bestemmingsplan is bovendien het bestaande Wijchense parkeerbeleid opgenomen, als ook de standaard afwijkingsmogelijkheden van de bouwregels.

Er is ook een algemene aanduidingsregel opgenomen:

Hoofdstuk 7 Economische en maatschappelijke uitvoerbaarheid

7.1 Economische haalbaarheid

De ontwikkeling die mogelijk wordt gemaakt betreft een particulier initiatief waarbij alle plankosten voor rekening komen van de initiatiefnemer. Daarnaast houdt de initiatiefnemer rekening met financiële lasten bij het uitvoeren van de noodzakelijke bodemsanering (zie paragraaf 5.2 Bodem). Voor de gemeente zijn aan de ontwikkeling van dit plan geen kosten verbonden.

De gemeente Wijchen heeft met de initiatiefnemer een anterieure overeenkomst afgesloten, waarin wordt vastgelegd dat de verantwoordelijkheid voor gemaakte kosten betreffende eventuele planschade bij de initiatiefnemer ligt. De exploitatie is op deze manier anderszins verzekerd.

Het opstellen van een exploitatieplan is daarom niet nodig. Het plan is economisch uitvoerbaar en heeft verder geen consequenties voor de gemeentelijke kas.

7.2 Maatschappelijke aanvaardbaarheid

7.2.1 Vooroverleg

In het kader van het wettelijk vooroverleg is het bestemmingsplan toegezonden aan de provincie en het waterschap.

Provincie Gelderland: De provincie heeft in haar vooroverlegreactie aangegeven dat het plan niet raakt aan provinciale belangen.

Waterschap Rivierenland: Er heeft in het kader van het vooroverleg afstemming plaatsgevonden met het waterschap. Dit heeft niet geleid tot aanpassing van het plan. Het waterschapsbelang is voldoende geborgd in het plan.

7.2.2 Procedure

Het ontwerpbestemmingsplan zal gedurende zes weken ter inzage liggen. Na het in procedure brengen van het ontwerpbestemmingsplan heeft een ieder de mogelijkheid om te reageren op dit plan.