direct naar inhoud van Toelichting
Plan: Woeziksestraat 617, Wijchen
Status: ontwerp
Plantype: bestemmingsplan
IMRO-idn: NL.IMRO.0296.BGBWoeziksestr617-OW01

Toelichting

Hoofdstuk 1 Inleiding

1.1 Aanleiding voor het bestemmingsplan

De initiatiefnemer is voornemens om op het perceel Woeziksestraat 617 in Wijchen een levensloopbestendige woning te realiseren. Hiermee wordt er één nieuwe woning toegevoegd aan het plangebied. Ten behoeve van voorliggende bestemmingsplan wordt een schuur in het plangebied gesloopt.

Deze ontwikkeling past niet in het geldende bestemmingsplan. Omdat het initiatief wel passend is op de locatie, wordt medewerking verleend aan een herziening van het bestemmingsplan. In dit document wordt dit toegelicht en gemotiveerd waarom dat kan volgens de Wet ruimtelijke ordening (Wro).

1.2 Ligging plangebied

Het perceel Woeziksestraat 617 is aan de oostzijde van Wijchen gelegen, direct ten zuiden van bedrijventerrein Bijsterhuizen. Het plangebied staat kadastraal bekend gemeente Wijchen, sectie K, nr. 448.

Navolgende afbeelding toont globaal de ligging van het plangebied in de omgeving.

afbeelding "i_NL.IMRO.0296.BGBWoeziksestr617-OW01_0002.jpg"

Globale ligging plangebied ten opzichte van omgeving, plangebied rood omlijnd (bron: openstreetmaps.org)

1.3 Leeswijzer

Hoofdstuk 2 bevat een beschrijving van de bestaande situatie en van het plan. Daarna wordt in hoofdstuk 3 ingegaan op het relevante Rijks-, provinciale-, en gemeentelijke beleid. In hoofdstuk 4 wordt de haalbaarheid van het project getoetst op grond van het geldende beleid en (milieu)wetgeving. Ook wordt ingegaan op de economische haalbaarheid van het plan. Hoofdstuk 5 geeft een toelichting op de juridische opzet van het plan. Tot slot gaat hoofdstuk 6 in op de wijze hoe burgers en andere belanghebbenden betrokken zijn bij het plan (maatschappelijke uitvoerbaarheid). Hierin zijn de uitkomsten van inspraak, vooroverleg en zienswijzen opgenomen.

Hoofdstuk 2 Het initiatief

In dit hoofdstuk wordt het initiatief beschreven en van een toelichting voorzien. Hierbij wordt nader ingegaan op de aanleiding, de bestaande en de nieuwe situatie waarbij de zorgvuldige landschappelijke inpassing in het bijzonder onder de aandacht wordt gebracht. Voorts volgt een korte beschrijving van het woonconcept en de aandacht die in de uitwerking wordt besteed aan innovatie en duurzaamheid.

2.1 Huidige situatie

Het perceel aan de Woeziksestraat 617 maakt deel uit van het historische bebouwingslint dat zich op het grensvlak van klei en zandgronden bevindt. Het is was een van oorsprong agrarische verbindingsweg waaraan veelal kleinschalige boerderijtjes en landbouwperceeltjes waren gelegen. Met de komst van bedrijventerrein Bijsterhuizen in het noorden en de oprukkende bedrijfsbebouwing vanuit het zuiden, is rond 2004 besloten het gebied als landschapspark ('Landschapspark Woezik, 02 november 2005) te ontwikkelen: een gebied waarin de bestaande landschappelijke kwaliteiten verder worden versterkt en waarin het kleinschalige en afwisselende karakter aan het zogenaamde veldlint dat wordt gevormd door de Woeziksestraat met daaraan een gevarieerde lappendeken aan perceeltjes, struwelen, landweggetjes en boerderijtjes behouden zou blijven.

Voor het perceel aan de Woeziksestraat 617 geldt dat het al vanaf het begin van de 19e eeuw bebouwd is geweest. Het huidige (voormalige) boerderij complex is bestaat uit een woonhuis met voormalige stallen (herbouwd in 1950) een oude schuur annex stal waarvan de wanden dateren uit het begin van de 19e eeuw en een tweetal kleinere schuren die vermoedelijk werden gebruikt als respectievelijk geitenstal en kippenhok. De meeste bebouwing is geclusterd rondom een (boeren-) erf dat, zoals de meeste voormalige boerderijen, wordt ontsloten vanaf de Woeziksestraat. De kippenschuur is rond 2010 wegens instortingsgevaar gesloopt en in het gebied bevond zich aan de achterzijde van de grote (hoofd-)schuur.

In de huidige situatie is het perceel aan de vrijwel alle zijden, met uitzondering van de zuidoostzijde omzoomd met heggen en struweel/ houtwal. Aan de Noordzijde bevindt zich een meidoornhaag, een hoofdwatergang (B-watergang), en een circa 15 m brede houtwal die die het industrie terrein Bijsterhuizen scheiden van het landelijke gebied rondom de Woeziksestraat. Aan de Noord-westzijde wordt het perceel afgescheiden van haar buurperceel door een dichte 4 meter brede houtwal. Aan de ander zijde scheidt een voormalig landbouwpad (inmiddels behorend bij nr 617) het perceel van haar buren. De gehele voorzijde van het perceel is beplant met een beukenhaag, ter hoogte van het woonhuis bepalen vier leilinden en de beukenhaag het beeld. Het open landschap (weiland/ grasland) strekt zich uit vanaf de linkerzijde voorzijde van het perceel, achter de bebouwing langs tot aan de meidoornhaag aan de achterzijde. In 2005 zijn is in overleg met de gemeente, in lijn met het plan voor het Landschapspark Woezik een viertal gebiedseigen boomsoorten op het weiland aangeplant.

Op bijgevoegde afbeelding is aangegeven wat hoe het perceel in de huidige situatie is gesitueerd en hoe de verschillende elementen: bebouwing, erf, struwelen, hagen zich tot elkaar verhouden.

afbeelding "i_NL.IMRO.0296.BGBWoeziksestr617-OW01_0003.jpg"

Huidige situatie ter plaatse van voorliggende ontwikkeling, plangebied rood omlijnd (bron: googlemaps)

Oppervlakte bestaande bebouwing opstallen

Het perceel met een totale oppervlakte van circa 4.058m2 is momenteel nog bebouwd met een drietal opstallen die worden ontsloten via een centraal gelegen (boeren-) erf.

Het huidige woonhuis kent een oppervlakte van 9*14 meter en beslaat anderhalve woonlaag. De hoofdschuur – stal heeft een oppervlakte van in totaal 100m2 en bestaat uit een hoog gedeelte en een lager gedeelte dat aan de zijde van het woonhuis is gelegen. Aan de westzijde van erf staat momenteel een schuurtje van 6*4=24 m2. De voormalige kippenschuur rond 2010 afgebroken. Deze schuur had een oppervlakte van 7 * 4 = 28m2. Het erf aan de voorzijde bestaat voor het merendeel uit een halfverharding (grind 100m2) gecombineerd met een betonnen plaveisel tussen de (af te breken) kleine schuur en de hoofdschuur (ca 30m2)

2.2 Toekomstige situatie

Aanleiding voor het initiatief

De huidige eigenaren/ bewoners van het woonhuis aan de Woeziksestraat zijn al redelijk op leeftijd en denken sinds enige tijd na over hun toekomstige woonbehoeften. De huidige woning voldoet nog volledig aan hun wensen, maar het onderhoud van de opstallen en het perceel vragen voortdurende aandacht en kan hen met het toenemen van de jaren wel eens boven het hoofd groeien. Daarentegen zijn zij erg gehecht aan de plek en willen zouden zij het spijtig vinden om de komende jaren te moeten verhuizen. In dat licht onderzoeken zij de mogelijkheid om binnen een aantal jaar kleiner en overzichtelijker te gaan wonen zonder dat zij de plek te hoeven verlaten. De mogelijkheid die daarbij de voorkeur geniet is om op het perceel een onafhankelijke, gelijkvloerse seniorenwoning te bouwen. Daarbij zouden de bestaande opstallen (het woonhuis en de hoofdschuur) en het grootste deel van het perceel idealiter aan een van de kinderen worden verkocht zodat zij zelf op de plek kunnen blijven woningen maar verder inspanningen meer hoeven te leveren op het gebied van onderhoud.

Het bebouwingsinitiatief - Landschappelijke inpassing

Het initiatief bestaat uit de toevoeging van een onafhankelijke/ zelfstandige seniorenwoning met een bruto vloeroppervlakte van circa 70m2. Daarbij is het uitgangspunt dat de bestaande (landschappelijke) waarden van het veldlint (de Woeziksestraat) als geheel als de waarden op perceelniveau overeind moeten blijven. Met andere woorden: de toevoeging van een nieuw woongebouw mag geen afbreuk doen aan de bestaande kwaliteiten en moet zich schikken naar het ruimtelijke karakter van de bestaande omgeving.

De nieuwe woning maakt op natuurlijke wijze onderdeel uit van het reeds bestaande boerenhof: een cluster van gebouwen rondom maakt dan ook op natuurlijke wijze een erf, omzoomd door een open weidelandschap dat op haar beurt weer onderdeel is van het eerder geschetste afwisselende beeld langs het lint van de Woeziksestraat.

Door de woning te positioneren op de plaats van (het nog af te breken) bakstenen schuurtje en dezelfde (voorgevel-) rooilijn aan te houden, wordt weliswaar een groter bouwwerk aan het boerenerf toegevoegd maar wordt het nieuwe bouwwerk ondergeschikt en vanzelfsprekend, onderdeel van een groter geheel. Het tast de kenmerkende opbouw van het veldlint met daaraan een opeenvolging van struwelen, hagen, weiden en achtergelegen erven niet of nauwelijks aan. De bomen die in 2004 in het kader van de ontwikkeling van het Landschapspark blijven allen behouden. De poel wordt met

Het nieuwe bouwwerk (ca 6 *12m) krijgt de vorm van een (moderne) schuur en wordt in dezelfde richting van het woonhuis en de hoofschuur geplaatst. Zo ontstaat een evenwichtig ensemble dat de landschappelijke waarden van het perceel en de waarneming vanaf de Woeziksestraat respecteert. Door de toepassing van houten delen aan de buitenzijde verwijst het bouwwerk eveneens naar de boerenschuren die in de directe omgeving te vinden zijn.

Vanaf de straatzijde gezien ontstaat een nieuw maar bescheiden bebouwingssilhouet dat wordt ingekaderd door het bestaande landschap. Onderstaande afbeelding toont de toekomstige situatie ter plaatse van voorliggende ontwikkeling.

afbeelding "i_NL.IMRO.0296.BGBWoeziksestr617-OW01_0004.jpg"

Toekomstige situatie plangebied.

Ruimtegebruik

De reeds afgebroken kippenschuur en de nog te slopen kleine schuur kennen een gezamenlijk oppervlak van totaal 52m2. De nieuwe woning krijgt een bruto oppervlakte van circa 70m2.

Hergebruik van de bestaande schuur is daarbij geen optie. Het bouwwerk is in slechte bouwkundige staat en is heeft vanuit cultuurhistorisch perspectief nagenoeg geen waarde. Ook is het bouwwerk niet bruikbaar als basis voor een nieuwe woning ook omdat de hoogte ervan te beperkt is.

Navolgende afbeelding laat zien dat de woning geheel gelijkvloers te realiseren is.

afbeelding "i_NL.IMRO.0296.BGBWoeziksestr617-OW01_0005.png"

Concept plattegrond

2.3 Duurzaamheid en innovatie

Voor de bouw van de nieuwe woning is het uitgangspunt dat deze duurzaam, circulair, CO2 en energieneutraal is in zowel de bouw als de gebruiksfase. De woning wordt met uitzondering van de fundering en de dakafwerking volledig in hout uitgevoerd. Daarbij is het de bedoeling om van een modulair en demontabel systeem gebruik te maken dat voor een groot deel in de fabriek wordt voorbereid. Zo kan de hoofdstructuur van de woning binnen enkele dagen worden opgetrokken en kan de woning binnen twee maanden worden afgebouwd op locatie. Vrijwel alle elementen kunnen afzonderlijk worden hergebruikt en de gehele woning kan worden gedemonteerd en elders worden opgebouwd. Door de wanden uit verschillende lagen hout op te trekken ontstaat energetisch stabiel bouwwerk dat zonder toevoeging van steenwol of andere milieubelastende isolatiematerialen, en (dampremmende/kunststoffen) folies opgetrokken kan worden. De toepassing van beton en metselwerk wordt vanwege de hoge emissie waarde zoveel mogelijk vermeden.

Met het oog op klimaat adaptatie en natuur-inclusief bouwen is het de bedoeling om zo min mogelijk verhard oppervlak aan het perceel toe te voegen. Zowel het dak als de oostgevel van de nieuwe ontwikkeling worden groen uitgevoerd. Enerzijds om water te kunnen vasthouden en anderzijds om bij te dragen aan de biodiversiteit op het perceel.

In beginsel wordt het huis all-electric. De energievoorziening van de woning wordt een combinatie van elektriciteit (deels via het net deels via zonnepanelen) een elektrische installatie en warmte panelen voor het na-verwarmen van water.

Hoofdstuk 3 Beleidskader

3.1 Rijksbeleid

Nationale Omgevingsvisie (NOVI)

Per januari 2021 is de Nationale Omgevingsvisie (NOVI) van kracht. De NOVI biedt een langetermijnperspectief op de ontwikkeling van de leefomgeving in Nederland tot 2050. Met de NOVI geeft het kabinet richting aan de grote opgaven die het aanzien van Nederland de komende dertig jaar ingrijpend zullen veranderen. Denk aan het bouwen van nieuwe woningen, ruimte voor opwekking van duurzame energie, aanpassing aan een veranderend klimaat, ontwikkeling van een circulaire economie en omschakeling naar kringlooplandbouw. Alles met zorg voor een gezonde bodem, schoon water, behoud van biodiversiteit en een aantrekkelijke leefomgeving.

Met de NOVI benoemt het Rijk nationale belangen, geeft het richting op de vier prioriteiten en helpt keuzes maken waar dat moet. Want niet alles kan overal. Deze visie is ontwikkeld in nauwe samenwerking met provincies, gemeenten, waterschappen, maatschappelijke instellingen en burgers.

De NOVI is vastgesteld op grond van de geldende regelgeving omdat de Omgevingswet nog niet in werking is. De NOVI voldoet tevens aan de eisen die de Omgevingswet stelt aan een omgevingsvisie. Zodra de Omgevingswet in werking is getreden, zal deze omgevingsvisie dan ook gelden als de Nationale Omgevingsvisie in de zin van deze wet.

Met de komst van de NOVI komen meerdere nationale beleidsstukken te vervallen, waaronder de Structuurvisie Infrastructuur en Ruimte (SVIR) en het Besluit algemene regels ruimtelijke ordening (Barro). Strategisch relevante delen van de SVIR en het Barro worden echter opgenomen in de NOVI en blijven daarmee ook na inwerkingtreding van de NOVI gelden. Dit bestemmingsplan zal daarom ook aan dit beleid worden getoetst.

Gebiedsgericht

De NOVI benoemt een aantal aspecten van nationaal ruimtelijk belang. Het betreft de bescherming van de waterveiligheid aan de kust en rond de grote rivieren, bescherming en behoud van de Waddenzee en enkele werelderfgoederen, de uitoefening van defensietaken, het Natuurnetwerk Nederland (voorheen de ecologische hoofdstructuur), de elektriciteitsvoorziening, de toekomstige uitbreiding van het hoofd(spoor)wegennet en de veiligheid rond rijksvaarwegen.

In het Barro waren regels opgesteld waarmee deze gebiedsbescherming juridisch verankerd is richting lagere overheden. Via het Besluit ruimtelijke ordening en het Besluit omgevingsrecht zijn deze regels aanvullend vastgelegd.

Ladder duurzame verstedelijking

Een meer algemeen onderwerp uit de SVIR is 'duurzame verstedelijking'. Via de 'ladder voor duurzame verstedelijking' wordt een zorgvuldige afweging en besluitvorming geborgd bij ruimtelijke vraagstukken in stedelijk gebied. Het gebruik van deze ladder is opgenomen in het Bro (artikel 3.1.6 onder 2).

De ladder richt zich op nieuwe stedelijke ontwikkelingen. In de toelichting van een bestemmingsplan dat een nieuwe stedelijke ontwikkeling mogelijk maakt, dient de behoefte aan die ontwikkeling te worden beschreven. Als de ontwikkeling buiten het bestaand stedelijk gebied plaatsvindt, moet bovendien gemotiveerd worden waarom niet binnen het bestaand stedelijk gebied in die behoefte kan worden voorzien.

Het Bro beschrijft wat een stedelijke ontwikkeling is: "een ruimtelijke ontwikkeling van een bedrijventerrein of zeehaventerrein, of van kantoren, detailhandel, woningbouwlocaties of andere stedelijke voorzieningen." Onder 'bestaand stedelijk gebied' wordt het volgende verstaan: "bestaand stedenbouwkundig samenstel van bebouwing ten behoeve van wonen, dienstverlening, bedrijvigheid, detailhandel of horeca, alsmede de daarbij behorende openbare of sociaal culturele voorzieningen, stedelijk groen en infrastructuur."

Planspecifiek

Gebiedsgericht

Het plangebied ligt niet in een van de aangewezen gebieden van de NOVI/SVIR en het Barro. In het plangebied zijn geen nationale belangen in het geding.

Ladder duurzame verstedelijking

Voorliggend initiatief betreft het mogelijk maken van één (levensloopbestendige) woning. Uit jurisprudentie blijkt dat er pas vanaf twaalf woningen sprake is van een stedelijke ontwikkeling zoals bedoeld in artikel 3.1.6. Bro. Toetsing aan de ladder voor duurzame verstedelijking is daarom niet nodig.

Voorliggend initiatief past binnen het rijksbeleid.

3.2 Provinciaal beleid

Algemeen

In de Omgevingsvisie Gaaf Gelderland (december 2018) staan de hoofdlijnen van het provinciale ruimtelijk beleid. Op 24 september 2014 is door Provinciale Staten van Gelderland de Omgevingsverordening Gelderland vastgesteld. Deze is op 19 december 2018 geactualiseerd op basis van de nieuwe omgevingsvisie. De Omgevingsverordening is een uitwerking van de Omgevingsvisie en stelt regels waaraan bestemmingsplannen moeten voldoen.

Omgevingsvisie Gaaf Gelderland

De provincie wil de focus leggen op een duurzaam, verbonden en een economisch krachtig Gelderland. Door daarin te investeren wil de provincie werken aan een gezond, veilig, schoon en welvarend Gelderland centraal. Om dat te bereiken wordt de focus gelegd op zeven ambities op het gebied van energietransitie, klimaatadaptatie, circulaire economie, biodiversiteit, bereikbaarheid, vestigingsklimaat en woon- en leefomgeving. Deze ambities worden hieronder kort samengevat:

  • Een versnelde energietransitie, gericht op forse vergroting van het aandeel duurzame energie en passend bij de Gelderse kwaliteiten;
  • Een op de toekomst toegerust beschermend klimaatbeleid;
  • Een voortvarend en innovatief circulair beleid;
  • Een stimulerend en beschermend beleid voor biodiversiteit;
  • Efficiënte, duurzame en innovatieve bereikbaarheid, toegesneden op de veranderende vraag;
  • Een duurzaam, dynamisch en toegankelijk economisch vestigingsklimaat, waar voor ondernemers en inwoners een sterke aantrekkingskracht vanuit gaat;
  • Een duurzaam en divers woon- en leefklimaat, dat steeds weet te anticiperen op ontwikkelingen.

Omgevingsverordening Gelderland

De verordening voorziet ten opzichte van de Omgevingsvisie niet in nieuw beleid en is daarmee dus beleidsneutraal. De inzet van de verordening als juridisch instrument om de doorwerking van het provinciaal beleid af te dwingen is beperkt tot die onderdelen van het beleid waarvoor de inzet van algemene regels noodzakelijk is om provinciale belangen veilig te stellen of om uitvoering te geven aan wettelijke verplichtingen.

Planspecifiek

Voorliggend plan maakt één levensloopbestendige woning mogelijk op een bestaand woonperceel binnen bestaand stedelijk gebied. Door het toevoegen van één levensloopsbestendige woning wordt direct ingespeeld op een provinciaal (alsook een nationaal- en gemeentelijk) streven om voor senioren nieuwe vormen van wonen en zorg te stimuleren. De provinciale Omgevingsvisie en Omgevingsverordening stellen geen specifieke eisen aan voorliggende locatie.

Het initiatief past binnen het provinciale beleid.

3.3 Regionaal beleid

3.3.1 Woonagenda subregio Nijmegen 2020 - 2030

Met de woonagenda leggen de samenwerkende gemeenten in de subregio Nijmegen (Berg en Dal, Beuningen, Druten, Heumen, Mook en Middelaar, Nijmegen en Wijchen) een gezamenlijke koers vast om tegemoet te komen aan de wonen opgaven voor de jaren 2020-2030. Het centrale doel is het zorgen voor een blijvend goed woon- en leefklimaat voor alle huidige en toekomstige inwoners van de subregio, met voldoende woningen, kwantitatief en kwalitatief voor iedereen die dat nodig heeft.

De kernkwaliteiten van de subregio Nijmegen bestaan uit, een diversiteit aan woonmilieus en woningtypen voor een diversiteit aan huishoudens in een groene omgeving met veel voorzieningen en met goede verbindingen met de rest van Nederland. De gemeenten proberen gezamenlijk de kracht van de subregio en de regio te versterken door verbeteringen te realiseren op de gebieden wonen en leefbaarheid, duurzaamheid, zorg en welzijn en werk, innovatie en onderwijs. De diversiteit aan woonmilieus is een van de sterke punten die wordt behouden en verder uitgebouwd. Deze woonagenda levert daaraan een bijdrage.

Thema's van de woonagenda

Voortbordurend op de thema's uit de vorige woonagenda, de Woondeal Regio Arnhem Nijmegen en de actualiteit pakken we in de Woonagenda subregio Nijmegen e.o. 2020-2030 de volgende thema's op:

  • Verantwoord versnellen: programmeren en afstemmen.
  • Bestaande woningvoorraad en betaalbaarheid.
  • Duurzaam en toekomstbestendig.
  • Huisvesting specifieke doelgroepen.

De woningbouwopgave voor Wijchen tot 2030 bedraagt 1.430 woningen.

3.4 Gemeentelijk beleid

3.4.1 Strategische visie en Structuurvisie Wijchen

Strategische Visie Wijchen
In maart 2007 is de Strategische Visie Wijchen 2025 vastgesteld. In deze visie wordt een doorkijk gegeven naar de gewenste ontwikkeling van de gemeente Wijchen tot het jaar 2025. De visie richt zich op een viertal leidende thema's, te weten: bedrijvig Wijchen, sociaal sterk, duurzaam groen en de Wijchense identiteit.


Duurzaam en kwalitatief zijn ook sleutelwoorden voor de ontwikkeling van het buitengebied en de kleine kernen. De grote rijkdom aan natuur- en landschapswaarden vormt het uitgangspunt voor verdere ontwikkeling. Wijchen zet in op een beheerste groei van recreatie, verbrede landbouw, ontwikkeling van groene en blauwe diensten en vitale kernen. Er wordt een groene relatie tussen het stedelijk gebied met het buitengebied nagestreefd met zo weinig mogelijk barrières. De groen-blauwe relatie tussen de kern Wijchen en het omringende buitengebied wordt verbeterd teneinde groen en water tot in de kern te laten doorlopen.
In de Strategische visie 2025 zijn de belangrijkste 'groene' ambities als volgt verwoord:

  • 1. verdere ontwikkeling alleen met respect voor landschap, cultuurhistorie en natuur;
  • 2. meer ruimte voor water;
  • 3. duurzame inrichting;
  • 4. nieuwe ontwikkelingen worden getoetst aan hun bijdrage aan het verhogen van de ruimtelijke kwaliteit.


De groene ambities zijn nader vorm gegeven in het gemeentelijke Groenstructuurplan kleine kernen (april 2004) en het Landschapsontwikkelingsplan (december 2006).


Structuurvisie Wijchen
De Structuurvisie Wijchen, die door de gemeenteraad op 9 juli 2009 is vastgesteld, betreft een doorvertaling van de strategische opgaven die zijn geformuleerd in de strategische visie Wijchen 2025. Uitgegaan wordt van een compacte groei en het benutten van de potenties van bestaand stedelijk gebied zonder daarbij de bestaande kwaliteit aan te tasten, in combinatie met een vitaal platteland en sterke kleine kernen.
De gemeente wil de komende 10 jaar onder meer:

  • 1. herstel hydrologie kwelgebieden in Oost Wijchen;
  • 2. ontwikkeling en versterking van de EVZ Heumen - Horssen;
  • 3. aanleg van landschapselementen en (erf)beplantingen, die passen bij het gebied;
  • 4. versterken van cultuurhistorische landschapselementen en patronen;
  • 5. nieuwe woningen in het buitengebied alleen in geval van functieverandering of landgoederen in het kader van de Natuurschoonwet;
  • 6. kleinschalige bedrijvigheid in het kader van verbreding van de landbouw in het buitengebied;
  • 7. ruimte voor versterking en ontwikkeling agrarische sector;
  • 8. behoud en versterking bestaande recreatie terreinen;
  • 9. extensieve recreatie in het landelijk gebied door een goede en aantrekkelijke ontsluiting;
  • 10. behoud en versterking van een goede woon- en leefomgeving.


Voor het aspect wonen worden met name het gebruik van bestaande bebouwing voor woonfuncties en het toevoegen van nieuwe landelijke woonmilieus onderscheiden. Een bebouwing met een grote landschappelijke meerwaarde is van belang voor het handhaven van sociale verbanden in het landelijk gebied. Voor de eigen bevolking is er gebrek aan passende woonruimte. Door deze ontwikkeling met ruimtelijk beleid te begeleiden is er geen sprake van aantasting van ruimtelijke kwaliteit, maar veeleer van behoud en versterking van kwaliteiten.
Bij de vaststelling van een wijzigingsplan of projectbesluit dienen de uitgangspunten uit de structuurvisie in acht genomen te worden.

Planspecifiek

Voorliggende ontwikkeling betreft de realisatie van één (levensloopbestendige) woning ter plaatse van een bestaand woonperceel. De gemeente Wijchen streeft naar het zo goed mogelijk benutten van de ruimte in bestaand stedelijk gebied voor het bouwen van woningen (inbreiding en revitalisering). Met de realisatie van één woning ter vervanging van een schuur sluit voorliggend plan aan bij het beleid uit de Strategische visie en Structuurvisie Wijchen.

3.4.2 Woonvisie 'Thuis in Wijchen' 2025

Om de woningvoorraad duurzaam en gevarieerd te houden wil de gemeente flexibel om kunnen gaan met nieuwe initiatieven. In de beoordeling van nieuwe aanvragen voor woningen zal de gemeente onder meer beoordelen of het initiatief meerwaarde heeft voor de leefbaarheid. Belangrijke relevante aandachtspunten daarbij zijn o.a.:

  • De (lokale) behoefte is leidend. Plannen moeten kwantitatief en kwalitatief aansluiten bij de behoefte.
  • Nieuwbouw moet bijdragen aan de identiteit van een wijk of dorp. Daarbij gaat het zowel om de ruimtelijke als de sociale kwaliteit.
  • Vervanging en verbetering van bestaande bebouwing, gaat vóór uitbreiding.
  • Waar mogelijk tenminste energieneutraal en gasloos.

De gemeente Wijchen heeft de ambitie uitgesproken om de 'mismatch' tussen vraag en aanbod weg te nemen. In de woonvisie 'Thuis in Wijchen' wordt de wens uitgesproken om alle woningen zo goed mogelijk aan te laten sluiten bij de kwalitatieve eisen en wensen van bewoners. Het gaat daarbij niet alleen om de huidige bewoners van een woning, maar zeker ook de toekomstige bewoners. De gemeente Wijchen streeft naar een duurzame en meer flexibele woningvoorraad, zodat geanticipeerd kan worden op huidige en toekomstige behoeften en woonwensen.

Planspecifiek

Met onderhavig plan wordt één (levensloopbestendige) woning gerealiseerd. Hiermee voorziet de ontwikkeling in de aanwezige vraag naar passende woonruimte voor senioren in de gemeente. Derhalve is het plan passend binnen de woonvisie 'Thuis in Wijchen'.

3.4.3 Geldend bestemmingsplan

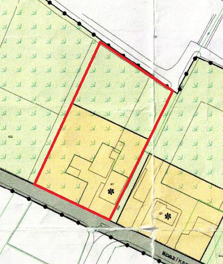
Voor de in het bestemmingsplan begrepen gronden vigeert thans het bestemmingsplan 'Woeziksestraat e.o.', vastgesteld door de gemeenteraad op 25 maart 2004. Het plangebied heeft hierin de enkelbestemmingen bestemmingen 'Agrarisch gebied' en 'Woondoeleinden'. Ter plaatse van het plangebied vigeren ook de dubbelbestemming 'Archeologisch attentiegebied' en de aanduiding 'burger- /bedrijfswoning'. De onderstaande afbeelding toont een uitsnede van het geldende bestemmingsplan.

afbeelding "i_NL.IMRO.0296.BGBWoeziksestr617-OW01_0006.jpg"

Uitsnede vigerende bestemmingsplan ten hoogte van plangebied (bron: ruimtelijkeplannen)

Strijdigheid met het vigerende bestemmingsplan

Het plangebied beschikt in het vigerende bestemmingsplan over de enkelbestemming 'Woondoeleinden' Binnen een woonbestemming is maximaal één woning toegestaan. Deze is in de huidige situatie al aanwezig. Het realiseren van een extra woning in het plangebied is daarmee strijdig met het geldende bestemmingsplan. Daarom is voorliggende herziening van het bestemmingsplan opgesteld.

Hoofdstuk 4 Uitvoerbaarheid

De uitvoerbaarheid van een bestemmingsplan moet als gevolg van het Besluit ruimtelijke ordening (Bro) aangetoond worden (artikel 3.1.6 van het Bro). Daaronder valt zowel de onderzoeksverplichting naar verschillende ruimtelijk relevante aspecten (geluid, bodem, etc.) als ook de economische uitvoerbaarheid van het plan.

4.1 Milieu

4.1.1 Bodem

Op grond van de Wet Bodembescherming (Wbb) moet aangetoond worden dat de kwaliteit van de bodem en het grondwater in het plangebied in overeenstemming zijn met het beoogde gebruik. De bodemkwaliteit kan namelijk van invloed zijn op de beoogde functie van het plangebied. Bij een functiewijziging zal in veel gevallen een specifiek bodemonderzoek moeten worden uitgevoerd.

Planspecifiek

Ten behoeve van voorliggende ontwikkeling is een bodemonderzoek uitgevoerd, welke is opgenomen in bijlage 1. In het onderzoek is geconcludeerd dat in geen van de parameters van de grond en het grondwater de waarde voor nader onderzoek of de interventiewaarde is overschreden. Aangetroffen verhoogde gehalten zijn slechts lichte gehaltes die geen belemmering vormen voor het toekomstig gebruik. Nader onderzoek is niet nodig. De bodemkwaliteit van één van de mengmonsters voldoet niet aan de bodemkwaliteitsklasse Wonen, waarmee rekening gehouden dient te worden in de uitvoering.

Het initiatief is uitvoerbaar met betrekking tot het aspect bodem.

4.1.2 Lucht

De mate van blootstelling aan luchtverontreiniging speelt een rol in het kader van een goede ruimtelijke ordening. Met betrekking tot 'luchtkwaliteit' zijn twee aspecten van belang. Ten eerste of de luchtkwaliteit ter plaatse de nieuwe functie toelaat (de gevoeligheid van de bestemming) en ten tweede wat de bijdrage is van het plan aan die luchtkwaliteit.

Luchtkwaliteit ter plaatse

In de Wet milieubeheer zijn normen opgenomen voor de concentraties van een aantal stoffen in de buitenlucht ter bescherming van de mens. De twee belangrijkste stoffen zijn PM10 en PM2,5(fijnstof) en NO2 (stikstofdioxide). Voor grenswaarde van PM10 en NOx bedraagt 40 µg/m3, van PM2,5 is dat 25 µg/m3.

Bijdrage aan luchtkwaliteit

In de Wet milieubeheer zijn de belangrijkste bepalingen over luchtkwaliteitseisen opgenomen. De Wet maakt een onderscheid tussen 'kleine' en 'grote' projecten. Kleine projecten dragen 'niet in betekenende mate' (NIBM) bij aan verslechtering van de luchtkwaliteit. Een paar honderd grote projecten dragen juist wel 'in betekenende mate' bij aan de verslechtering van de luchtkwaliteit. Het gaat hierbij vooral om bedrijventerreinen en infrastructuur (wegen).

Wat het begrip 'in betekenende mate' precies inhoudt, staat in de algemene maatregel van bestuur "Niet in betekenende mate bijdragen" (Besluit NIBM). Op hoofdlijnen komt het erop neer dat 'grote' projecten die jaarlijks meer dan 3 procent bijdragen aan de jaargemiddelde norm voor fijn stof en stikstofdioxide (1,2 microgram per m3) een 'betekenend' negatief effect hebben op de luchtkwaliteit. 'Kleine' projecten die minder dan 3 procent bijdragen, kunnen doorgaan zonder toetsing. Dat betekent bijvoorbeeld dat lokale overheden een toevoeging van minder dan 1.500 huizen niet hoeven te toetsen aan de normen voor luchtkwaliteit, omdat een dergelijk project per definitie niet boven de 3%-norm komt.

Planspecifiek

Luchtkwaliteit ter plaatse van het initiatief

Vanuit een goede ruimtelijke ordening is de huidige luchtkwaliteit ter plaatse getoetst met behulp van de NSL Monitoringstool (www.nsl-monitoring.nl). Door de metingen ter plaatse te toetsen aan de grenswaarden is gekeken of er sprake is van een goed woon- en leefklimaat. Uit metingen van het rekenpunt 15551143 (aan de Wijchenseweg ter hoogte van plangebied) zijn de volgende concentraties naar voren gekomen:

  NO2 
(stikstofdioxide)  
PM10
(fijnstof)  
PM2,5 (fijnere fractie van fijnstof)  
Gemeten totale concentratie jaargemiddelde 2020 (µg/m3)   23.8 µg/m3   18.4 µg/m3   11.2 µg/m3  
Grenswaarde concentratie (µg/m3)   40 µg/m3   40 µg/m3   25 µg/m3  

De gemeten concentraties stikstofdioxide en fijn stof liggen ruim onder de gestelde grenswaarden. Met betrekking tot de luchtkwaliteit zijn geen belemmeringen voor onderhavig initiatief.

Bijdrage initiatief

Ten aanzien van de bijdrage aan luchtkwaliteit is het initiatief (toevoegen 1 woning) van geringe omvang ten opzichte van de benoemde grenswaarde (3%, toevoegen 1.500 woningen). Op basis van de te verwachten toename aan verkeersbewegingen ten gevolge van het project is te concluderen dat dit project 'niet in betekende mate' bijdraagt aan de verslechtering van de luchtkwaliteit. Een nadere toetsing ten aanzien van het aspect luchtkwaliteit kan daarom achterwege blijven.

Het initiatief is uitvoerbaar met betrekking tot het aspect luchtkwaliteit.

4.1.3 Geluid

De mate waarin het geluid het woonmilieu mag belasten, is geregeld in de Wet geluidhinder (Wgh). De kern van de wet is dat geluidsgevoelige objecten worden beschermd tegen geluidhinder uit de omgeving. In de Wgh worden de volgende objecten beschermd:

  • woningen;
  • geluidgevoelige gebouwen, zoals scholen, ziekenhuizen, verzorgings- en verpleeghuizen, psychiatrische instellingen en kinderdagverblijven;
  • geluidsgevoelige terreinen (woonwagenstandplaatsen en bestemde ligplaatsen voor woonschepen).

Het beschermen van deze geluidsgevoelige objecten gebeurt aan de hand van vastgestelde zoneringen. Binnen deze zones bepaalt het bevoegd gezag de te hanteren grenswaarden. Er geldt een voorkeursgrenswaarde en een bovengrens (hoger mag niet). De Wgh gaat verder onder meer ook in op geluidwerende voorzieningen. De belangrijkste bronnen van geluidhinder die bij een ruimtelijke ontwikkeling aan de orde kunnen zijn betreffen: industrielawaai, wegverkeerslawaai en spoorweglawaai.

Planspecifiek

In het plangebied wordt met de woning een geluidgevoelige functie toegevoegd. Hiertoe is een akoestisch onderzoek uitgevoerd, welke is opgenomen in bijlage 2 . Navolgend wordt op de conclusies van het onderzoek ingegaan.

Wegverkeer

Uit het onderzoek is op te maken dat de geluidbelasting door wegverkeer op de Woeziksestraat op de woning ten hoogste 50 dB bedraagt na aftrek van 5 dB ex art 110g Wgh. De voorkeursgrenswaarde van 48 dB wordt overschreden door wegverkeer op deze weg. De maximale hogere waarde van 63 dB wordt niet overschreden. Omdat maatregelen om financiële en civieltechnische redenen niet haalbaar zijn, wordt voor de geluidbelasting door wegverkeer op de Wijchenseweg wordt een hogere waarde aangevraagd. Aan het hogere waarden beleid van de gemeente Wijchen wordt voldaan. Het ontwerpbesluit hogere waarden is opgenomen in bijlage 5.

Railverkeer

De geluidbelasting voor railverkeer bedraagt op de woningen ten hoogste 44 dB. De voorkeursgrenswaarde van 55 dB door railverkeer wordt niet overschreden. Er zijn voor de geluidbelasting door railverkeer geen hogere waarden nodig.

Industrie

De locatie is gelegen binnen de geluidzone van industrieterrein Bijsterhuizen. Dit is geen geluidzone op grond van de Wet geluidhinder (vrijwillige zonering). In beleidsregel “Bedrijventerrein Bijsterhuizen. Beleidsnotitie geluid. Zonebeheer” zijn de geluidscontouren rondom dit industrieterrein opgenomen. De geluidbelasting op de locatie ligt tussen de 45 en de 50 dB. Omdat de geluidbelasting beneden de 50 dB ligt hoeft er geen cumulatie plaats te vinden van wegverkeerslawaai en industrielawaai.

Het initiatief is uitvoerbaar met betrekking tot het aspect geluid.

4.1.4 Geur

De Wet geurhinder en veehouderij (Wgv) vormt het toetsingskader voor milieuvergunningen als het gaat om geurhinder van veehouderijen met landbouwhuisdieren. De Wgv maakt onderscheid in dieren met en dieren zonder een vastgestelde geuremissiefactor. Voor de eerste soort wordt de geurbelasting bij geurgevoelige objecten berekend, voor de tweede gelden minimumafstanden tot dergelijke objecten (ook wel bekend onder de term 'vaste afstandsdieren'). De Regeling geurhinder en veehouderij (Rgv) bepaald in bijlage 1 voor welke dieren geuremissies zijn vastgelegd. Als het (beoogde) veehouderijbedrijf niet in deze regeling wordt genoemd betreft het vaste afstandsdieren.

De Wet geurhinder en veehouderij kent een omgekeerde werking. Dat wil zeggen dat ook bij plannen die woningbouwlocaties mogelijk maken wordt getoetst aan de normen van de Wet geurhinder en veehouderij. Bij ruimtelijke ordeningsplannen moet worden beoordeeld of sprake is van een goed woon- en verblijfklimaat.

Planspecifiek

In de nabije omgeving van het plangebied zijn geen veehouderijen gevestigd. Derhalve vormt het aspect 'geur' geen belemmering voor voorliggende ontwikkeling.

Het initiatief is uitvoerbaar met betrekking tot het aspect geur.

4.1.5 Milieuzonering

Milieuzonering is het aanbrengen van een ruimtelijke scheiding tussen milieubelastende en milieugevoelige functies. Doel is om bij het opstellen van een ruimtelijk plan een goed en veilig leefklimaat te waarborgen, maar tegelijkertijd ook aan bedrijven voldoende milieuruimte te bieden voor het uitoefenen van hun activiteiten.

De mate waarin bedrijven invloed hebben op hun omgeving is afhankelijk van de aard van de bedrijvigheid en de afstand tot een gevoelige bestemming. Milieugevoelige bestemmingen zijn gebouwen en terreinen die naar hun aard bestemd zijn voor het verblijf van personen gedurende de dag of nacht of een gedeelte daarvan (bijvoorbeeld woningen). Daarnaast kunnen ook landelijke gebieden en/of andere landschappen belangrijk zijn bij een zonering tot andere, minder gevoelige, functies zoals bedrijven.

Milieuzonering heeft betrekking op aspecten met een ruimtelijke dimensie, zoals geluid, geur, gevaar en stof. De mate van belasting, en daarmee de gewenste aan te houden afstand, kan per aspect en per bedrijfstype en verschillen. In de publicatie 'Bedrijven en Milieuzonering' van de Vereniging van Nederlandse Gemeenten (VNG) is een lijst opgenomen met daarin de minimale richtafstanden tussen een gevoelige bestemming en bedrijven. Van deze richtafstanden kan worden afgeweken, mits wordt onderbouwd waarom de feitelijke milieuhinder als minder belastend wordt gezien.

Het belang van milieuzonering wordt steeds groter aangezien functiemenging steeds vaker voorkomt. Hierbij is het motto: 'scheiden waar het moet, mengen waar het kan'.

Planspecifiek

In het plangebied wordt een extra woning gerealiseerd op een locatie waar in het vigerende bestemmingsplan ook al woondoeleinden zijn toegestaan. De directe omgeving van het plangebied is op basis van de VNG-brochure aan te merken als een 'gemengd gebied'. Aan de noordzijde grenst het plangebied aan het bedrijventerrein Bijsterhuizen. Ook ten zuiden van het plangebied is een bedrijventerrein gevestigd. Zodoende is er sprake van het omgevingstype 'gemengd gebied', waardoor de richtafstanden terug kunnen worden gebracht met één categorie/afstandsstap.

Binnen het vigerende bestemmingsplan 'Bijsterhuizen' is het toegestaan ten noorden van het plangebied bedrijvigheid van categorie 4.2 te huisvesten, met dien verstande dat grote lawaaimakers en risicovolle inrichtingen niet zijn toegestaan. In de feitelijke situatie bevinden zich ten hoogste categorie 3.1 op het terrein. Onderstaande tabel toont de in de omgeving van het plangebied aanwezige bedrijvigheid met de bijbehorende gereduceerde richtafstand.

Bedrijfslocatie   type   categorie   gereduceerde richtafstand (meters)   feitelijke afstand (meters)  
Bijsterhuizen 3004   Tuincentrum   2   10   125  
Bijsterhuizen 3005   Bedrijfverzamelgebouw   3.1   30   130  
Bijsterhuizen 3011   Groothandel tapijten   2   10   140  
Bijsterhuizen 3009   Installatiebedrijf   3.1   30   120  

Gelet op de feitelijk aanwezige bedrijven, afstand tot deze bedrijven en de richtafstanden, met een stap teruggebracht, kan worden geconcludeerd dat er sprake is van een goed woon en leefklimaat ter plaatse van het plangebied. Het bouwvlak van de nieuwe woning komt op even grote afstand van het bedrijventerrein te liggen als het de achtergevel van de bestaande woning aan de Woeziksestraat 617 en het nieuwe bestemmingsvlak Wonen is qua ligging en omvang gelijk aan de geldende bestemming Woondoeleinden. Als bedrijven van categorie 3.2 tot 4.2 zich willen vestigen op het bedrijventerrein, was de bestaande woning aan de Woeziksestraat 617 en het bijbehorende bestemmingsvlak al maatgevend. Daarmee wordt het bedrijventerrein niet belemmerd in de bedrijfsvoering, uitbreidingsmogelijkheden of nieuwvestiging door de nieuwe woning.

Het initiatief is uitvoerbaar vanuit het aspect bedrijven en milieuzonering.

4.1.6 Externe veiligheid

Het beleid voor externe veiligheid is gericht op het beperken en beheersen van risico's voor de omgeving die ontstaan door opslag, productie, gebruik en vervoer van gevaarlijke stoffen. Hierbij gaat het om risicovolle inrichtingen, transportroutes voor het vervoer van gevaarlijke stoffen en buisleidingen.

De verplichting om in een ruimtelijk plan in te gaan op deze risico's komt voort uit het 'Besluit externe veiligheid inrichtingen' (Bevi), het 'Besluit externe veiligheid transportroutes' (Bevt) en het 'Besluit externe veiligheid buisleidingen' (Bevb). Daarnaast zijn in het Activiteitenbesluit milieubeheer en het Vuurwerkbesluit veiligheidsafstanden genoemd die moeten worden aangehouden rond stationaire risicobronnen, niet zijnde een Bevi-inrichting.

De wetgeving richt zich op het beschermen van kwetsbare en beperkt kwetsbare objecten. Kwetsbaar zijn onder meer woningen, onderwijs- en gezondheidsinstellingen, en kinderopvang- en dagverblijven, en grote kantoorgebouwen (>1500 m²). Beperkt kwetsbaar zijn kleinere kantoren en winkels, horeca, kampeerterreinen en bedrijfsgebouwen waarin geen grote aantallen personen aanwezig zijn.

Binnen het beoordelingskader voor externe veiligheid staan twee kernbegrippen centraal: het plaatsgebonden risico (PR) van 10-6 per jaar en het groepsrisico (GR). Het plaatsgebonden risicobeleid bestaat uit harde afstandscontouren tussen risicobron en (beperkt) kwetsbaar object. Het wordt uitgedrukt in een contour van 10-6 per jaar (de kans dat per jaar 1 persoon overlijdt door een ongeluk met een gevaarlijke stof mag niet groter zijn dan 1 op een miljoen). Het groepsrisico legt een relatie tussen de kans op een ramp en het aantal mogelijke slachtoffers. Bij de berekening van het groepsrisico spelen mee de aard en hoeveelheid van de gevaarlijke stoffen en het aantal potentiële slachtoffers.

Voor de beoordeling van een ruimtelijk plan moet worden vastgesteld of het plangebied is gelegen binnen de PR en/of de invloedsgebieden van het GR. Binnen de 10-6-contour is het realiseren van kwetsbare objecten niet toegestaan.

Planspecifiek

Via de website risicokaart.nl kan voor de locatie worden vastgesteld of er in de directe omgeving inrichtingen, buisleidingen en/ of belangrijke transportroutes aanwezig zijn die in het kader van de externe veiligheid van belang zijn. Bijgevoegd een screenshot van die website.

afbeelding "i_NL.IMRO.0296.BGBWoeziksestr617-OW01_0007.jpg"

Uitsnede risicokaart ter hoogte van plangebied (bron: risicokaart.nl)

Hieruit is op te maken dat in de directe omgeving van het plangebied geen risicovolle inrichtingen en/of buisleidingen aanwezig zijn. Ten zuidoosten van het plangebied ligt de spoorlijn Oss - Nijmegen. Het plangebied bevindt zich op ca. 400 meter van het traject. Hiermee valt het buiten de meest relevante zone voor het groepsrisico (200 meter).

Op grond van artikel 7 van het Bevt moet voor de (spoor-)wegen, gezien de ligging, worden ingegaan op de mogelijkheden voor:

  • de bestrijdbaarheid van een zwaar ongeval op deze transportroute en
  • de zelfredzaamheid met betrekking tot nog niet aanwezige (beperkt) kwetsbare objecten binnen het plangebied.

Volgens artikel 9 van het Bevt moet de veiligheidsregio in de gelegenheid worden gesteld om hierover een advies uit te brengen. In dit geval is sprake van een standaardsituatie, waarvoor onderstaande verantwoordingstekst kan worden gehanteerd. Relevant hierbij is ook dat het ruimtelijke besluit geen betrekking heeft op het mogelijk maken van een (nog niet aanwezig) "bijzonder kwetsbare object", bestemd voor verminderd zelfredzame personen.

Bestrijdbaarheid

Bij een calamiteit, waarbij toxische vloeistoffen of gassen (kunnen) vrijkomen, zal de brandweer inzetten op het beperken of voorkomen van effecten. Deze inzet zal voornamelijk plaatsvinden bij de bron. De brandweer richt zich dan niet direct op het bestrijden van effecten in of nabij het plangebied. De mogelijkheden voor bestrijdbaarheid worden daarom niet verder in beschouwing genomen.

Mogelijkheden tot zelfredzaamheid

Bij een calamiteit, waarbij toxische vloeistoffen of gassen vrijkomen, is het belangrijk dat de aanwezigen in het plangebied worden geïnformeerd hoe te handelen bij dat incident. Hiervoor wordt gebruik gemaakt van de zogenaamde waarschuwings- en alarmeringspalen (WAS-palen) of NL-alert. Bij het genoemde incidentscenario is het advies om te schuilen in een gebouw en de ramen, deuren en ventilatieopeningen te sluiten. Er zijn voldoende mogelijkheden om dit advies tijdig op te volgen.

Het initiatief is uitvoerbaar vanuit het aspect externe veiligheid.

4.2 Water

Wettelijk kader

Op basis van de wet op de ruimtelijke ordening (Wro) en Besluit ruimtelijke ordening (Bro) is de watertoets verplicht bij o.a. bestemmingsplannen, inpassingsplannen, projectbesluiten en omgevingsvergunningen afwijking bestemmingsplan. Voor overige plannen, zoals een structuurvisie, dient een watertoets te worden uitgevoerd op basis van het Nationaal Bestuursakkoord Water. Het Bro regelt de verplichte waterparagraaf in de plantoelichting (art 3.1.6 Bro) en het vooroverleg met de waterbeheerder (art 3.1.1 Bro).

Watertoets

De watertoets is bedoeld om ruimtelijke plannen en besluiten meer waterbestendig te maken, doordat waterbelangen van gemeente, waterschap en eventueel andere waterbeheerders vroegtijdig en expliciet worden meegewogen. In het ruimtelijk plan moet voldoende rekening zijn gehouden met de waterhuishouding en -voorzieningen.

Waterparagraaf

De waterparagraaf beschrijft de wijze waarop rekening is gehouden met de eventuele gevolgen van het ruimtelijk plan voor de waterhuishouding en vice versa. Onderdeel hiervan is een beschrijving van beleidsuitgangspunten en regelgeving, waterhuishoudkundige situatie en –opgaven, meest geschikte oplossingen (motiveren) en de ruimtelijke consequenties daarvan. Indien aan de orde is tevens het advies van het waterschap in de waterparagraaf verwerkt.

4.2.1 Beschrijving watersysteem

Geomorfologie en geohydrologie

Het plangebied ligt in de bebouwde kom van Wijchen, op een hoogte van circa 9,04 m +NAP (Bron: AHN).

De bodem ter plaatse bestaat uit zand, zeer grof tot 0,8 meter daaronder bestaat de bodem voornamelijk uit leem.

Op ongeveer 500 m ten westen van het plangebied bevindt zich een peilbuis (nr. B40C0345). Volgens deze peilbuis heeft de grondwaterstand in de periode januari 1956 t/m december 2003 niet hoger gestaan dan 7 m +NAP en niet lager dan 5,1 m +NAP. De gemiddelde grondwaterstand in deze peilbuis was 6 m +NAP. Voor het plangebied betekent dat naar verwachting deze grondwaterstand ongeveer 0,10 m hoger staat, dus niet hoger dan 7,1 m +NAP en niet lager dan 5,2 m +NAP en het gemiddelde op 6,1 m +NAP.

Bij het uitgevoerde bodemonderzoek is het grondwater vastgesteld op 2,69 m -mv. Ter plaatse van de desbetreffende peilbuis bedraagt het maaiveld ca. 9,04 m +NAP. Hiermee valt de gemeten grondwaterstand van 6,35 m +NAP binnen de hiervoor genoemde grondwaterrange.

Oppervlakte- en afvalwatersysteem

Aan de noordelijke grens van het plangebied loopt een B - watergang (id: 112353). Het plan heeft hier geen invloed op. Binnen het plangebied zelf liggen geen watergangen of beschermingszones. De nieuwe woning wordt aangesloten op het bestaande rioleringssysteem. Het plangebied maakt onderdeel uit van het Peilbesluit Bloemers (2014) hierin is het winterpeil bepaald op 5,75 m+ NAP en het zomerpeil op 5,75 m +NAP.

Ecosysteem

Het plangebied ligt niet binnen het Gelders natuurnetwerk of een beschermingszone voor natte natuur.

4.2.2 Gemeentelijk waterbeleid en waterbeheer

Waterbeleid

Het gemeentelijk waterbeleid is met name gericht op het voorkomen, beperken of tot een aanvaardbaar risico terugbrengen van wateroverlast en schade aan milieu en volksgezondheid. In de Strategische waternota Wijchen zijn de thema's en uitgangspunten voor duurzaam waterbeheer omschreven (zie ook punt 3). Het Gemeentelijk rioleringsplan beschrijft de gemeentelijke zorgplicht voor rioolwater, hemelwater en grondwater. In het kader van de watertoets wordt een vertaalslag gemaakt naar de concrete plansituatie.

Zorgplicht afvalwater en hemelwater

De gemeente heeft voor zover doelmatig een zorgplicht voor de inzameling en transport van stedelijk afvalwater dat binnen de gemeente vrijkomt (zie Wmb art 10.33). Perceeleigenaren dienen hemelwater in eerste instantie op eigen terrein te verwerken of op oppervlaktewater te lozen. Als dit redelijkerwijs niet mogelijk is draagt de gemeente zorg voor de doelmatige inzameling en verwerking van afvloeiend hemelwater (Waterwet art 3.5).

Zorgplicht grondwater

In eerste instantie zijn perceeleigenaren zelf verantwoordelijk voor het treffen van maatregelen op eigen terrein om structurele nadelige gevolgen van grondwater voor de aan de grond gegeven bestemming te voorkomen of beperken. De gemeente heeft een zorgplicht bij het treffen van maatregelen in openbaar gebied, voor zover doelmatig en geen verantwoordelijkheid van provincie of waterschap (Waterwet art 3.6).

Waterschap

De gemeente valt binnen het beheersgebied van Waterschap Rivierenland. Het Waterschap geeft in het kader van de Waterwet een vergunning af voor lozing op oppervlaktewater (Waterwet art 6.2) en in het kader van de Keur een ontheffing voor ingrepen/ activiteiten in/nabij watergangen en waterkeringen. Daarnaast verzorgt het waterschap het onderhoud van A-watergangen en draagt zorg voor het zuiveren van afvalwater (Waterwet art. 3.4).

4.2.3 Beleidsuitgangspunten en consequenties voor het ruimtelijk plan

Deze paragraaf beschrijft op welke wijze op de planlocatie rekening is gehouden met het watersysteem, gelet op de waterhuishoudkundige situatie, beleid en regelgeving. Als onderdeel hiervan een motivering van getroffen maatregelen om negatieve effecten op/van het watersysteem tot een minimum te beperken, inclusief de ruimtelijke consequenties daarvan.

4.2.3.1 Leefomgeving algemeen

Beleidsuitgangspunten 

De gemeente streeft naar integrale inpassing van het watersysteem in de leefomgeving en afstemming op de gebruiksfuncties in het gebied. De ruimtelijke ontwikkeling mag in beginsel geen nadelige gevolgen hebben voor de waterhuishouding en vice versa. De waterhuishoudkundige situatie moet in overeenstemming zijn met het beoogde grondgebruik.

Water is mede-ordenend bij de ruimtelijke ontwikkeling (juiste functie op de juiste plaats), waarbij tevens rekening wordt gehouden met de ruimteclaim van waterhuishoudkundige voorzieningen. Wateropgaven worden gekoppeld aan andere gebiedsopgaven, zoals voor openbaar groen, riolering, welzijn en energiewinning (zie ook Klimaatverandering).

Gevolgen van/voor het plan 

Voorliggend initiatief heeft geen negatieve gevolgen voor de waterhuishouding of watergangen en oppervlaktewater in de omgeving. Zo worden de woningen hydrologisch neutraal gebouwd en zal het hemelwater op eigen terrein worden opgevangen en hergebruikt. Onder punt 3.2 tot en met 3.5 is in meer detail weergegeven welke concrete invulling aan het aspect water is gegeven.

4.2.3.2 Kwaliteit en beleving

Beleidsuitgangspunten 

De gemeente streeft naar schoon water en waterbodems die voldoen aan gestelde eisen en het behoud van (natte) natuurwaarden en biodiversiteit. Verontreiniging van grond- en oppervlaktewater dient te worden voorkomen en de waterkwaliteit zo mogelijk verbeterd. Natuurlijke grondwater- en oppervlaktewaterstanden worden beschermd of hersteld.

Schoon hemelwater mag rechtstreeks in bodem of op oppervlaktewater worden geloosd. Verontreiniging van hemelwater voorkomen, o.a. door toepassing van niet-uitlogende materialen (Dubo-bepalingen) en door beperking van toepassing van lood, koper, zink en zacht pvc. Verontreinigd hemelwater mag alleen worden geloosd via een zuiverende voorziening.

De kwaliteit van oppervlaktewater zo mogelijk verbeteren door aanleg van natuurvriendelijke oevers en verbetering van de doorstroming. Het beheer mag geen verstoring geven van waterkwaliteit en biodiversiteit. Ecologisch natte zones of natte natuurwaarden behouden of verder ontwikkelen door bijbehorende waterhuishoudkundige omstandigheden te beschermen of herstellen.

De gemeente streeft naar versterking van de belevingswaarde van water en daarmee het waterbewustzijn. Hierbij worden water, waterhuishoudkundige elementen en cultuurhistorische structuren en landschapselementen herkenbaar verweven in de ruimtelijke inrichting en beleefbaar gemaakt. Waterstromen zichtbaar (bovengronds) afvoeren.

Gevolgen van/voor het plan 

De noordelijke grens van het plangebied wordt gevormd door een B - watergang. Het plan heeft geen invloed op deze watergang. Het plangebied maakt geen onderdeel uit van een beschermingszone voor Ecologische natte zones of natte natuur. Met betrekking tot het thema 'beleving van water' is er geen relatie met voorliggend initiatief. Het hemelwater zal worden opgevangen op eigen terrein. Bij de bouw worden niet-loggende materialen gebruikt. Afvalwater wordt met een nieuwe aansluiting op het bestaande rioolsysteem afgevoerd. De capaciteit van de riolering is voldoende om het afvalwater van de woningen te ontvangen.

4.2.3.3 Klimaatverandering

Beleidsuitgangspunten 

De gemeente streeft naar een klimaatbestendige en waterrobuuste leefomgeving. Bij ruimtelijke ontwikkelingen dienen schadelijke effecten van klimaatverandering (wateroverlast en verdroging) voor het grondgebruik en vice versa te worden beperkt of teruggebracht tot een acceptabel niveau. Waterhuishoudkundige voorzieningen zijn energiezuinig en duurzaam.

Komen tot een klimaatadaptieve ruimtelijke inrichting, o.a. voor wat betreft bebouwing, wegen, groen en water. Voorkomen dat water bij hevige neerslag in de bebouwing terecht komt of afstroomt buiten het plangebied. De hoeveelheid verhard oppervlak tot een minimum beperken. Groenstructuren klimaatrobuust aanleggen voor wat betreft areaal, type beplanting en waterbergend vermogen.

Grondwateronttrekking beperken door hoogwaardige toepassing van drinkwater en het treffen van waterbesparende voorzieningen. Zo mogelijk hemelwater gebruiken voor laagwaardige toepassingen.

Gevolgen van/voor het plan 

Het aanplanten van groen is goed voor de klimaatbestendigheid, omdat het bijdraagt aan het verminderen van de hittestress en het verbeteren van het watervasthoudend vermogen van het gebied. De geplande woning zal worden voorzien van een groendak. Dit ten behoeve van waterberging en het bevorderen van biodiversiteit ter plaatse van het plangebied. Daarbij wordt ten behoeve van voorliggende ontwikkeling opstallen gesloopt van het voormalige agrarische bedrijf. Hiermee neemt het verhard oppervlakte in het plangebied in zeer geringe mate toe.

In navolgend onderdeel 4.2.3.4 in uiteengezet hoe er wordt omgegaan met de toevoeging van verharding in het plangebied en welke maatregelen worden getroffen met betrekking tot het opvangen van regenwater.

Drinkwaterbesparing is bijvoorbeeld mogelijk door een opslagsysteem voor hemelwater te realiseren en bij droogte met het opgeslagen regenwater de tuin te besproeien.

4.2.3.4 Waterberging

Beleidsuitgangspunten 

De gemeente streeft naar het vasthouden van gebiedseigen water door benutting van de natuurlijke bergingscapaciteit van bodem en oppervlaktewater. Hemelwater afkomstig van verharde oppervlakken dient zoveel mogelijk te worden afgekoppeld van de riolering met de voorkeursvolgorde: 1) Benutting, 2) Bodeminfiltratie binnen het gebied, 3) Berging binnen het gebied, 4) Vertraagde afvoer naar oppervlaktewater buiten het plangebied en 5) Afvoer naar riool.

Wanneer hemelwater direct of indirect wordt geloosd op oppervlaktewater, moet dit volgens de Keur (Waterschap Rivierenland) worden gecompenseerd. De compensatieplicht houdt in dat de toename van verharding in het ruimtelijk plan moet worden gecompenseerd door aanleg van extra waterberging. Met een eenmalige uitzondering van 500 m2 (stedelijk gebied) en 1500 m2 (landelijk gebied) voor particulieren en kleine bedrijven.

Infiltratie- en bergingsvoorzieningen, zoals bodempassages en open water, moeten voldoende capaciteit hebben om het hemelwater te kunnen verwerken. En zodanig ruimtelijk ingepast (ruimtebeslag, ligging) dat adequaat functioneren is gewaarborgd.

Gevolgen van/voor het plan

In de huidige situatie is reeds circa 330 m² verhard. Voor de toekomstige verharding wordt uitgegaan van een oppervlakte van circa 376 m². In totaal is er daarmee een toename van verharding van circa (376 - 330 =) 46 m². Deze toename valt binnen de eenmalige uitzondering voor particulieren en kleine bedrijven van het waterschap Rivierenland. Conform het gemeentelijke uitgangspunt dient al het hemelwater op eigen terrein te worden verwerkt. Daarbij wordt uitgegaan van de totale hoeveelheid verharding binnen het plangebied in de toekomstige situatie: circa 376 m². Er is gerekend met 15 millimeter waterberging per m2. Dit staat voor een bui die 1 keer per jaar valt. Dit komt neer op een capaciteit van 5,64 m³.

Om deze benodigde capaciteit binnen het plangebied op te kunnen vangen worden maatregelen getroffen. Onder andere het plaatsen van infiltratiekratten of grindkoffers bij de nieuwe woning kan ervoor zorgen dat hemelwater binnen eigen terrein opgevangen wordt en de gronden van de naastgelegen percelen en de weg niet te maken krijgen met wateroverlast. Ook kan gedacht worden aan het plaatsen van regentonnen om zo hemelwater te kunnen hergebruiken. Daarnaast is het mogelijk om bij de aanleg en inrichting van de tuin rekening te houden met de waterberging. Hemelwater dat valt op terrassen kan in de tuin infiltreren. De exacte uitvoering van de compensatiemaatregelen worden nader uitgewerkt bij de aanvraag van de omgevingsvergunning voor het bouwen.

4.2.3.5 Gezondheid en veiligheid

Beleidsuitgangspunten

De gemeente streeft naar een veilig watersysteem. Inrichting en beheer van het watersysteem op de planlocatie dient te zijn gericht op het voorkomen of beperken van risico's voor de volksgezondheid en veiligheid.

Risico's van optrekkend vocht primair beperken door ter plaatse van bebouwing te voorzien in voldoende ontwateringsdiepte en drooglegging. Of, als dit niet mogelijk is, door het treffen van maatregelen (bv. kruipruimtevrij bouwen, waterdicht bouwen). Een permanente verandering (verlaging) van grondwaterstanden is daarbij niet toegestaan. Voorts in het plan rekening houden met eventuele gevolgen van bodemdaling als gevolg van grondwaterstandsdaling of –fluctuatie.

Inrichting en beheer van oppervlaktewater in bebouwd gebied afstemmen op potentieel verdrinkingsgevaar (veilige oevers). Bij de ruimtelijke inrichting rekening houden met locaties waar waterkwaliteit een gezondheidsrisico kan vormen (zoals bij overstorten en stilstaand water).

Gevolgen van/voor het plan

Wateroverlast is als gevolg van het plan niet te verwachten. Voor de ontwateringsdiepte is de gemiddeld hoogste grondwaterstand (GHG) relevant. Om grondwateroverlast te voorkomen, moet de GHG meer dan 1,00 m onder vloerpeil begane grond komen te liggen. In een worstcase scenario is er sprake van een hoogste grondwaterstand van 7,1 m+NAP (zie punt 1). Het vloerpeil van de woning zal daarom minimaal op 9,04 m+NAP gerealiseerd worden. Doordat de woning enigszins verhoogd wordt gerealiseerd ten opzichte van het omliggende maaiveld kan ook bij klimaatbuien het hemelwater niet de woning in stromen.

Voor de drooglegging dient het oppervlaktewaterpeil meer dan 1,30 m onder het vloerpeil te liggen. Het zomerpeil betreft 5,75 m+NAP. Bij de exacte uitwerking ten tijde van het aanvragen voor een vergunning van het bouwen wordt het exacte vloerpeil bepaald en wordt rekening gehouden met het voorkomen van wateroverlast.

Bij dit plan zijn verdrinkingsgevaar en gezondheidsrisico's vanwege een ligging nabij overstorten of stilstaand water niet aan de orde.

4.2.4 Overwegingen en conclusie

Overwegingen

Voorliggend initiatief voorziet de realisatie van één woning. Ten behoeve van deze ontwikkeling worden bestaande opstallen gesloopt die van oudsher onderdeel uitmaakt van het reeds beëindigde agrarische bedrijf dat zich in het plangebied had gevestigd. De nieuwe woning wordt voorzien van een groen dak, hiermee wordt een bijdrage geleverd aan hemelwater berging in het plangebied. Daarbij is er in het plangebied voldoende ruimte om hemelwater te bergen of te laten infiltreren. Afvalwater zal via het bestaande stelsel worden verwerkt.

Conclusie

Het plan is uitvoerbaar wat betreft het aspect water.

4.2.5 Overleg met waterbeheerder

Advies waterbeheerder

Afhankelijk van de aard en locatie moet het ruimtelijk plan voor advies en/of vooroverleg worden voorgelegd aan de waterbeheerder. Veelal is de waterbeheerder het waterschap, maar kan ook Rijkswaterstaat of de Provincie zijn. Het advies of resultaat van het vooroverleg dient te worden verwerkt in de waterparagraaf.

Voor wat betreft het waterschapsbelang geldt voor alle ruimtelijke plannen dat bij aanvang van het planproces een digitale watertoets moet worden ingevuld door de initiatiefnemer (www.digitalewatertoets.nl). Het hieruit voortvloeiende advies moet, in geval van een relevant waterschapsbelang, worden uitgewerkt in de waterparagraaf.

Gevolgen voor het plan

Het waterschap Rivierenland is middels het uitvoeren van de watertoets op de hoogte gebracht van voorliggende ontwikkeling. De uitkomst van de toets is toegevoegd als bijlage 3 en verwerkt in deze paragraaf. Het waterschap heeft aangegeven positief te adviseren over het plan, mits in acht wordt genomen dat ten noorden van het plangebied een B - watergang loopt. Voorliggende ontwikkeling voorziet geen ingrepen die tot mogelijke belemmering kunnen leiden aan de genoemde watergang. Daarmee hoeft het plan in het kader van het wettelijk vooroverleg ook niet meer toegezonden te worden aan Waterschap Rivierenland.

4.3 Ecologie

Bij ruimtelijke ingrepen dient rekening te worden gehouden met de natuurwaarden ter plaatse. Per 01-01-2017 zijn de Natuurbeschermingswet 1998, de Flora en faunawet en de Boswet opgegaan in de nieuwe Wet natuurbescherming. De Wet natuurbescherming beschermt natuurgebieden, inheemse soorten en het bosopstanden in Nederland.

Gebiedsbescherming

In de Wet natuurbescherming worden de zogenoemde Natura 2000-gebieden beschermd. Natura 2000 is de overkoepelende naam voor gebieden die worden beschermd vanuit de Vogel- en Habitatrichtlijn. Volgens deze Europese richtlijnen moeten lidstaten specifieke diersoorten en hun natuurlijke leefomgeving (habitat) beschermen om de biodiversiteit te behouden. Natura 2000-gebieden kennen een zogenaamde 'externe werking'. Dit betekent dat ontwikkelingen die buiten de begrenzing van de Natura 2000-gebieden gelegen zijn, ook getoetst moeten worden of er significant negatieve effecten optreden op het betreffende gebied.


Soortenbescherming

Een hoofdstuk in de Wet natuurbescherming regelt de bescherming van de in het wild voorkomende inheemse planten en dieren: de soortenbescherming. De wet richt zich vooral op het in stand houden van populaties van soorten die bescherming behoeven. In de wet zijn algemene en specifieke verboden vastgelegd ten aanzien van beschermde dier- en plantensoorten. Bekeken moet worden in hoeverre ruimtelijke plannen negatieve gevolgen hebben op beschermde dier- en plantensoorten en of er compenserende of mitigerende maatregelen genomen moeten worden. De wet geeft de mogelijkheid aan provincies om voor een bepaald aantal soorten via een verordening een algemene vrijstelling op bepaalde verbodsbepalingen te geven.

Daarnaast geldt voor iedereen in Nederland altijd, dus ook los van het voorliggende beoogde ruimtelijke project, dat de zorgplicht nageleefd moet worden bij het verrichten van werkzaamheden. Voor menige soort geldt dat indien deze zorgplicht nagekomen wordt een bepaald beoogd project uitvoerbaar is.

Planspecifiek

Gebiedsbescherming

Het plangebied heeft geen status in het kader van de Wet natuurbescherming (Natura 2000-gebied, Nederlands Natuurnetwerk of Gelders Natuurnetwerk). Het dichtstbijzijnde gebied dat onder bescherming van de Wet natuurbescherming valt is Natura 2000-gebied 'Rijntakken', circa 6 kilometer ten noorden van het plangebied.
Gezien de aard, omvang, het effectbereik en de grote afstand, worden er geen significante nadelige effecten op de aangewezen gronden van het Natura 2000-gebied verwacht als gevolg van verstoring door geluid, licht, trillingen en dergelijke. Nadere toetsing is daarom niet aan de orde.

Daarbij zijn nadelige effecten betreffende stikstof depositie niet aannemelijk, gezien de afstand tot het gebied en de beperkte omvang van het plan (realiseren 1 woning, gasloos gebouw). Nadere toetsing is niet aan de orde.

Soortenbescherming

Ten behoeve van voorliggende ontwikkeling wordt ter plaatse een schuurtje gesloopt. Het te slopen schuurtje betreft een klein open bakstenen schuurtje. Gezien de openheid van het schuurtje is het niet aannemelijk dat deze een verblijfplaats vormt voor beschermde soorten. Tevens staat er een generator in het schuurtje die soms aangaat, waardoor dieren van schrik zullen weggaan. Ook worden er met voorliggende ontwikkeling geen watergangen gedempt of groen verwijderd.

De uitvoerbaarheid van het initiatief voor ecologie is hiermee aangetoond.

4.4 Verkeer

Onderdeel van goede ruimtelijke ordening is het effect van een beoogd nieuw project op de verkeersstructuur. Met voorliggende ontwikkeling wordt er één woning toegevoegd aan het plangebied. Hiermee neemt het aantal verkeersbewegingen in zeer geringe mate toe. De woning zal worden ontsloten op de Woeziksestraat via de bestaande inrit. Deze weg beschikt over voldoende capaciteit om de beperkte toename aan verkeersbewegingen op te vangen.

Parkeren

Ter waarborging van voldoende parkeervoorzieningen hanteert de gemeente Wijchen de gemiddelde parkeernormen uit CROW-publicatie 317 'Kencijfers parkeren en verkeersgeneratie'. Dit is bepaald in het 'Parkeerbeleidsplan gemeente Wijchen', dat op 16 juni 2016 in werking is getreden.

Voor vrijstaande woningen geldt een gemiddelde parkeernorm van 2,6 parkeerplaatsen per woning. Bij de nieuwe woning is voldoende ruimte om 3 parkeerplaatsen op eigen terrein te realiseren. Onderstaande afbeelding toont de beoogde situatie betreffende parkeren ter plaatse van het plangebied.

afbeelding "i_NL.IMRO.0296.BGBWoeziksestr617-OW01_0008.jpg"

Impressie toekomstige situatie plangebied betreffende parkeren, parkeerplaatsen geduid met grijze rechthoeken.

Hiermee wordt aan de parkeernorm voldaan. In de regels van voorliggend bestemmingsplan is geborgd dat er moet worden voldaan aan deze parkeernorm en daarmee voldoende parkeerplaatsen worden aangelegd en in stand worden gehouden op eigen terrein.

Het plan is uitvoerbaar met betrekking tot het aspect verkeer

4.5 Cultuurhistorie en archeologie

In elk bestemmingsplan moet een beschrijving worden opgenomen van de wijze waarop met de in het gebied aanwezige cultuurhistorische waarden wordt omgegaan. Denk aan aanwezige monumenten, historische gebieden, kenmerkende (straat)beelden en landschapselementen. Bij het maken van plannen kan ook (weer) rekening gehouden worden met al deze elementen die er vroeger wel waren maar nu niet meer. Een bijzonder onderdeel van cultuurhistorie is archeologie.

Cultuurhistorie

Het belang van cultuurhistorie is wettelijk vastgelegd in het Besluit ruimtelijke ordening. Het Besluit geeft aan dat “een beschrijving van de wijze waarop met de in het gebied aanwezige cultuurhistorische waarden en in de grond aanwezige of te verwachten monumenten rekening is gehouden” in het bestemmingsplan opgenomen moet worden. Het voornaamste doel hiervan is om het cultuurhistorische karakter van Nederland op gebiedsniveau te behouden en te versterken.

Archeologie

De bescherming van archeologische waarden bij ruimtelijke ontwikkelingen is geregeld in de Erfgoedwet. De essentie van de wettelijke bescherming is dat archeologische resten zoveel mogelijk in de bodem bewaard blijven. Bij ruimtelijke plannen geldt de verplichting om rekening te houden met bekende en te verwachten archeologische waarden. Indien ingrepen gepaard gaan met een verstoring van de bodem, kan het nodig zijn om nader onderzoek te doen, zodat - waar nodig - de archeologische waarden veiliggesteld kunnen worden en/of het plan aangepast kan worden. De verantwoordelijkheid voor archeologische waarden ligt bij de gemeente.

Op basis van artikel 5.10 van de Erfgoedwet zijn mogelijke (toevals)vondsten bij het verrichten van werkzaamheden in de bodem altijd beschermd. Er geldt een meldingsplicht bij het vinden van (mogelijke) waardevolle zaken.

Planspecifiek

Cultuurhistorie

Op basis van de kaart 'Historisch landschap, historische stedenbouw en archeologie' van de provincie Gelderland zijn er geen cultuurhistorische waardevolle objecten of structuren in of nabij het plangebied aanwezig waar het plan een effect op kan hebben.

Archeologie

Ten behoeve van voorliggende ontwikkeling is een archeologisch onderzoek uitgevoerd. Het onderzoek is bijgevoegd als bijlage 4. Uit het onderzoek is op te maken dat verschillende sporen en een oude cultuurlaag zijn aangetroffen. Daarom is nader onderzoek noodzakelijk als in een bepaalde omvang en diepte gebouwd wordt. In de regels is daarom een dubbelbestemming voor archeologie opgenomen.

Het initiatief is uitvoerbaar vanuit de aspecten cultuurhistorie en archeologie.

4.6 Economische uitvoerbaarheid

Bij de voorbereiding van een bestemmingsplan dient, op grond van artikel 3.1.6 lid 1, sub f van het Bro, onderzoek plaats te vinden naar de (economische) uitvoerbaarheid van het plan. In principe dient bij vaststelling van een ruimtelijk besluit tevens een exploitatieplan vastgesteld te worden om verhaal van plankosten zeker te stellen. Op basis van 'afdeling 6.4 grondexploitatie', artikel 6.12, lid 2 van de Wro kan de gemeenteraad bij het besluit tot vaststelling van het bestemmingsplan echter besluiten geen exploitatieplan vast te stellen indien:

  • het verhaal van kosten van de grondexploitatie over de in het plan of besluit begrepen gronden anderszins verzekerd is;
  • het bepalen van een tijdvak of fasering als bedoeld in artikel 6.13, eerste lid, onder c, 4°, onderscheidenlijk 5°, niet noodzakelijk is;
  • het stellen van eisen, regels, of een uitwerking van regels als bedoeld in artikel 6.13, tweede lid, onderscheidenlijk b, c of d, niet noodzakelijk is.

Planspecifiek

De ontwikkelingskosten komen geheel voor rekening van de initiatiefnemer. Hiertoe zal de gemeente voorafgaand aan de planologische procedure met de initiatiefnemer een exploitatieovereenkomst afsluiten. Voor de realisatie van het plan hoeft de gemeente geen investering te doen. De kosten die door de gemeente gemaakt worden voor het voeren van de planologische procedure zijn verrekend in de leges. Eventuele extra gemeentelijke kosten worden gedekt door de exploitatieovereenkomst.

Tevens zal een overeenkomst betreffende planschade worden afgesloten. Deze kosten komen eveneens geheel voor rekening van de initiatiefnemer.

Op basis van het bovenstaande kan geconcludeerd worden dat het plan economisch uitvoerbaar is.

Hoofdstuk 5 Juridische planbeschrijving

5.1 Algemeen

Het bestemmingsplan is opgezet volgens de in de Wet ruimtelijke ordening opgenomen standaardvorm van de Standaard Vergelijkbare Bestemmingplannen 2012 (SVBP 2012).

Het bestemmingsplan bestaat uit een verbeelding, planregels en een toelichting. De verbeelding en de planregels vormen samen het juridisch bindende gedeelte van het bestemmingsplan. Beide planonderdelen dienen in onderlinge samenhang te worden bezien en toegepast. Op de verbeelding zijn de bestemmingen aangewezen. Aan deze bestemmingen zijn bouwregels en regels betreffende het gebruik gekoppeld.

De toelichting heeft geen rechtskracht, maar is wel een belangrijk onderdeel van het plan. De toelichting geeft een weergave van de beweegredenen, de onderzoeksresultaten en de beleidsuitgangspunten die aan dit plan ten grondslag liggen. De toelichting is van wezenlijk belang voor een juiste interpretatie en toepassing.

Daarnaast maken ook eventuele bijlagen onlosmakelijk onderdeel uit van het bestemmingsplan.

Verbeelding

De verbeelding is een digitale kaart, waarop bestemmingen en aanduidingen zijn weergegeven. Aanduidingen worden gebruikt om bepaalde zaken specifieker te regelen, bijvoorbeeld in de vorm van gebiedsaanduidingen, bouwaanduidingen, bouwvlakken, functieaanduidingen etc.

Voor de analoge verbeelding is gebruik gemaakt van een digitale ondergrond (Grootschalige Basiskaart en/of kadastrale kaart). Daar waar een verschil is tussen de digitale en de analoge verbeelding, is de digitale versie leidend.

Regels

De planregels zijn standaard onderverdeeld in vier hoofdstukken.

  • Hoofdstuk I : Inleidende regels, deze bevatten de begrippen en wijze van meten;
  • Hoofdstuk II: Bestemmingsregels, dit zijn de verschillende bestemmingen op alfabetische volgorde. De regels bevatten een bestemmingsomschrijving en regels voor het bouwen en het gebruik.
  • Hoofdstuk III: Algemene regels, dit zijn regels die gelden voor alle bestemmingen. Dit zijn onder meer (mogelijke) flexibiliteitsbepalingen in de vorm van wijzigings- en afwijkingsbevoegdheden.
  • Hoofdstuk IV: Overgangs- en slotbepalingen.

5.2 Wijze van bestemmen

Voorliggend bestemmingsplan bevat de volgende bestemmingen:

  • Tuin. De noordwestelijke zijde van het perceel is voorzien van de bestemming 'Tuin'. Het is niet wenselijk deze gronden aan te merken als achtererfgebied bij de woning, gelet op de ligging nabij bedrijventerrein Bijsterhuizen. De bouwmogelijkheden binnen deze bestemming zijn beperkt. Binnen deze bestemming zijn in principe alleen bouwwerken, geen bouwwerken zijnde toegestaan.
  • Wonen - 1. De gronden met de bestemming 'Wonen -1' zijn bestemd voor wonen, waarbij een bouwvlak is opgenomen voor de woningen. Voor de bouwmogelijkheden binnen deze bestemming wordt onderscheid gemaakt in het hoofdgebouwen, bijhorende bouwwerken en bouwwerken, geen bouwwerken zijnde.

Dit plan kent verder geen noemenswaardige bijzonderheden.

Met dit hoofdstuk is voldaan aan artikel 3.1.3 van het Bro.

Hoofdstuk 6 Procedure

6.1 Algemeen

Bij de voorbereiding van een (voor)ontwerp bestemmingsplan dient overleg te worden gevoerd als bedoeld in artikel 3.1.1 Bro. Dit is het vooroverleg, waarin het conceptplan wordt voorgelegd aan het waterschap en aan die diensten van provincie en Rijk die betrokken zijn bij de zorg voor de ruimtelijke ordening of belast zijn met de behartiging van belangen welke in het plan in het geding zijn. Voor wat kleinere plannen kan, in overleg, afgezien worden van dit overleg.

Op basis van artikel 3.1.6 Bro dient verslag te worden gedaan van de wijze waarop burgers en maatschappelijke organisaties bij de voorbereiding van het bestemmingsplan zijn betrokken. Dit is de inspraak. Van (formele) inspraak kan, zeker bij wat kleinere plannen, worden afgezien. De gemeentelijke inspraakverordening is daarbij ook van belang.

Een ontwerpbestemmingsplan dient conform afdeling 3.4 Awb gedurende 6 weken ter inzage gelegd te worden. Hierbij is er de mogelijkheid voor een ieder om zienswijzen in te dienen op het plan. Na vaststelling door de Raad wordt het vaststellingsbesluit bekend gemaakt. Het bestemmingsplan ligt na bekendmaking 6 weken ter inzage. Gedurende deze termijn is er de mogelijkheid voor belanghebbenden beroep in te dienen bij de Afdeling bestuursrechtspraak Raad van State. Het bestemmingsplan treedt vervolgens daags na afloop van de tervisielegging in werking als er geen beroep is ingesteld.

6.2 Verslag vooroverleg ex artikel 3.1.1 Bro

Dit bestemmingsplan is in het kader van het wettelijk overleg niet toegezonden aan de provincie omdat geen sprake is van een bovenlokaal belang. Samen met het waterschap Rivierenland zijn de aan de orde zijnde waterhuishoudkundige aspecten behandeld door middel van de digitale Watertoets. Het waterschap heeft positief geoordeeld over het plan.

6.3 Verslag inspraak ex artikel 3.1.6 Bro

In deze paragraaf, of in een separate bijlage, worden te zijner tijd de resultaten van de inspraak ex artikel 3.1.6 Bro opgenomen.

6.4 Verslag zienswijzen

In deze paragraaf, of in een separate bijlage, worden te zijner tijd de zienswijzen op het ontwerpbestemmingsplan en de gemeentelijke reactie hierop opgenomen.