direct naar inhoud van Toelichting
Plan: Spoorstraat-Herenstraat
Status: ontwerp
Plantype: bestemmingsplan
IMRO-idn: NL.IMRO.0296.CTRSpoorstraatHere-OW01

Toelichting

Hoofdstuk 1 Inleiding

1.1 Aanleiding en doelstelling

Op de hoek Herenstraat / Spoorstraat in het centrum van Wijchen is in de huidige situatie een bedrijfspand van de Bristol aanwezig. Het bedrijfspand wordt omgeven door enkele verouderde grondgebonden woningen en bedrijvigheid. De initiatiefnemers streven naar een passende herontwikkeling voor de Bristol-locatie in het centrum van Wijchen.

Aanleiding voor het opstellen van voorliggend bestemmingsplan is het voornemen om een nieuw appartementencomplex te realiseren op de hoek van de Herenstraat en de Spoorstraat in het centrum van Wijchen. Het planvoornemen voorziet in de sloop van het oude bedrijfspand van de Bristol én de verouderde grondgebonden woningen aan de Spoorstraat en de Herenstraat om de herontwikkeling naar een appartementencomplex mogelijk te maken.

Concreet voorziet de ontwikkeling in de realisatie van een vijflaags appartementencomplex bestaande uit 51 appartementen. Om te voorzien in de parkeervraag, wordt onder het appartementencomplex een parkeerkelder aangelegd. De 51 appartementen bestaan uit 26 koopwoningen (duurkoop), 17 middenhuurwoningen en 8 huurwoningen in de vrije sector. Door de variatie in koop-, middenhuur en vrije sector huurwoningen van verschillende grootte wordt met het planvoornemen een brede doelgroep aangesproken. Op basis van een groot aantal levensloopbestendige woningen zijn de appartementen tevens geschikt voor ouderen.

Om de voorgenomen ontwikkeling planologisch-juridisch mogelijk te maken is voorliggend bestemmingsplan opgesteld. Met het planvoornemen wordt de huidige centrumbestemming binnen het plangebied vervangen door een woonbestemming waarbinnen maximaal 51 woningen en een verdiepte parkeerkelder gerealiseerd mogen worden.

afbeelding "i_NL.IMRO.0296.CTRSpoorstraatHere-OW01_0001.png"

Figuur: Plattegrond ontwerp wooncomplex

1.2 Ligging en begrenzing plangebied

Het plangebied ligt in het centrum van Wijchen op het knooppunt van de Spoorstraat en de Herenstraat Het plangebied is kadastraal bekend als gemeente Wijchen, sectie H, nummers 2180, 3011, 4561, 4659, 4660, 5088, 5365, 5366, 5367 met een gezamenlijk oppervlak van circa 2.230 m².

afbeelding "i_NL.IMRO.0296.CTRSpoorstraatHere-OW01_0002.png"

Figuur: Globale ligging plangebied rood omcirkeld (bron: kadviewer.map5.nl)

Hieronder is een luchtfoto opgenomen met de begrenzing van het plangebied.

afbeelding "i_NL.IMRO.0296.CTRSpoorstraatHere-OW01_0003.png"

Figuur: Luchtfoto met begrenzing plangebied rood omkaderd (Bron: ruimtelijkeplannen.nl)

1.3 Aanpak

De voorgenomen locatieontwikkeling wordt mogelijk gemaakt met een herziening van het bestemmingsplan. De voorliggende toelichting maakt onderdeel uit van het bestemmingsplan 'Spoorstraat/ Herenstraat, Wijchen' en vormt de onderbouwing van het initiatief.

1.4 Geldend bestemmingsplan

De planologische situatie van het plangebied is vastgelegd in het bestemmingsplan 'Centrum Wijchen 2013' (vastgesteld, 26 maart 2015). In dit bestemmingsplan kent het plangebied de enkelbestemmingen 'Centrum' en 'Wonen'. Naast de enkelbestemmingen zijn binnen het plangebied de dubbelbestemmingen 'Waarde - Archeologie 1', 'Waarde - Archeologie 2' en 'Waarde - Beschermd dorpsgezicht' opgenomen.

Voor het perceel met de enkelbestemming 'Wonen' binnen het plangebied is een bouwvlak opgenomen, met de bouwaanduiding 'vrijstaand'. Die bouwvlak heeft een maatvoering, waarmee de maximum bouwhoogte van 10 meter en een maximum goothoogte van 6 meter zijn vastgelegd.

Voor de percelen met de enkelbestemming 'Centrum' is een bouwvlak opgenomen. Binnen dit bouwlak geldt deels een maximum goot- en bouwhoogte van respectievelijk 4,5 en 5,5 meter. Tevens is op de bebouwing aan de straat een maximum bouwhoogte van 8 meter van toepassing. Een perceel aan de Herenstraat heeft de functieaanduiding 'specifieke vorm van centrum - detailhandel op de verdieping'.

Op het plangebied is aanvullend op het bovenstaande tevens de gebiedsaanduiding 'vrijwaringszone - molenbiotoop' van toepassing. Hieraan wordt in paragraaf 5.11 getoetst.

Naast de bestemmingen binnen het bestemmingsplan 'Centrum Wijchen 2013' is in het Parapluplan Cultuurhistorie Wijchen voor het gehele gebied de dubbelbestemming 'Waarde - Cultuurhistorisch waardevol gebied' opgenomen.

afbeelding "i_NL.IMRO.0296.CTRSpoorstraatHere-OW01_0004.png"

Figuur: Fragment verbeelding 'Centrum Wijchen 2013' 

1.5 Leeswijzer

Voorliggend bestemmingsplan bestaat uit een verbeelding, regels en deze toelichting. De regels en de verbeelding vormen de juridisch bindende elementen van het bestemmingsplan. De toelichting vormt de ruimtelijke onderbouwing van het initiatief en is als volgt opgebouwd:

  • in Hoofdstuk 2 wordt de bestaande situatie in het plangebied beschreven;
  • in Hoofdstuk 3 wordt het voorgenomen plan beschreven;
  • in Hoofdstuk 4 volgt een beschrijving van het ruimtelijke beleidskader dat van toepassing is op het bestemmingsplan;
  • in Hoofdstuk 5 komen de relevante milieu- en omgevingsaspecten aan bod;
  • in Hoofdstuk 6 komen de relevante milieu- en omgevingsaspecten aan bod;
  • in Hoofdstuk 7 komt de economische uitvoerbaarheid aan bod;
  • in Hoofdstuk 8 worden de resultaten uit overleg en inspraak besproken en behandeld.

Hoofdstuk 2 Plangebied

2.1 Omgeving van het plangebied

Het plangebied bevindt zich in het centrum van Wijchen. Het centrum van van Wijchen bevindt zich grofweg tussen de spoorlijn Nijmegen - 's-Hertogenbosch, de Hogeweg, de Meerdreeg en het Kasteelpark Wijchen.

Wijchen is van oorsprong een landbouwdorp, waar bewoning ontstond in de steentijd. Later ontstonden er woonplaatsen van met name Romeinen. De huidige kern en ook de naam Wijchen stammen echter uit de middeleeuwen. Kenmerkend voor het centrum van Wijchen zijn het Kasteel Wijchen, bijbehorend Kasteelpark en de Wijchense molen.

Het historische karakter van de bebouwing in de directe omgeving van het plangebied heeft de overhand in het straatbeeld. De gedetailleerde gevels van de omliggende bebouwing verzorgen in het straatbeeld een pittoresk en rijk karakter, waarbij de verspringen van geveldelen en aanbouwen als erkers, bakgoten, luiken en dakkapellen een extra dimensie aan het straatbeeld geven.

Kenmerkend in de directe omgeving van het plangebied is het open karakter van het straatbeeld, met veel vrijstaande panden (ook wel omschreven als "stadsvilla's"), grote lanen en een groen karakter. In het straatbeeld zijn veel verspringende voorgevelrooilijnen zichtbaar en komen veel subtiele hoogteverschillende tussen naastliggende bebouwing voor.

In de oriënterende fase van voorliggend plan is er een analyse van het plangebied uitgevoerd, waarna een stedenbouwkundig concept is opgesteld. In de analyse wordt uitgebreid ingegaan op de kenmerken van het plangebied en de nabije omgeving. Deze analyse is toegevoegd als Bijlage 1 bij deze toelichting.

Verkeerskundig wordt verkeer afgewikkeld via zowel de Spoorstraat als ook de Herenstraat naar de Stationslaan, die een verkeersader van oost naar west vormt door het stedelijk gebied van Wijchen. Deze doorgaande oost-west route ontsluit het plangebied in de richting van de A50 in het westen en de A73 en Nijmegen in het oosten.

afbeelding "i_NL.IMRO.0296.CTRSpoorstraatHere-OW01_0005.png"

Figuur: Globale ligging van het plangebied binnen het stedelijk gebied van Wijchen (bron: ruimtelijkeplannen.nl)

2.2 Huidige situatie

Momenteel staat er binnen het plangebied een zogenoemde "stadsvilla", waarvan er binnen (en buiten) het beschermd dorpsgezicht van Wijchen een groot aantal gerealiseerd zijn. Zij hebben in de ontwikkeling van de kern Wijchen een belangrijke rol gespeeld in het bepalen van de stedenbouwkundige structuur. Naast deze stadsvilla is moderne bebouwing opgetrokken waarin momenteel winkels zijn ondergebracht.

De bedrijfspanden en woningen die zich aan kruising van Spoorstraat en de Herenstraat bevinden, worden aan de achterzijde verbonden met een binnenplein en tuinen. Concreet bestaat de bebouwing in het plangebied in de huidige situatie uit:

  • 3 bedrijfspanden en één twee-onder-één-kapwonig aan de Spoorstraat ;
  • 2 bedrijfspanden en één vrijstaande woning aan de Herenstraat.

afbeelding "i_NL.IMRO.0296.CTRSpoorstraatHere-OW01_0006.png"  Figuur: aanblik van plangebied gezien vanuit het Kasteelpark Wijchen (bron: analyse ontwikkellocatie)

Hoofdstuk 3 Planvoornemen

3.1 Herontwikkeling

Het planvoornemen bestaat uit de realisatie van een appartementengebouw van 51 appartementen voor een gemengde doelgroep op het knooppunt van de Spoorstraat en de Herenstraat aan het Kasteelpark in Wijchen.

Voor de realisatie van het gebouw worden drie verouderde bedrijfspanden, een twee-onder-één-kapwonig en een vrijstaande woning gesloopt. De realisatie van deze appartementen past binnen de vernieuwing van het centrum van Wijchen, zoals met onder andere door het project 'Tussen Kasteel & Wijchens Meer'. Doel van onder andere het genoemde project is het compact houden van het winkelbestand in de kern om de bestaande winkels bezet te houden.

De ontwikkeling van een appartementencomplex op de locatie Spoorstraat/ Herenstraat sluit aan op de vraag naar meer woningen in het centrum.

3.2 Voorlopig ontwerp bouwplan

De positionering van de bestaande bebouwing binnen het plangebied en de ligging van het plangebied an sich vormen een bijzondere relatie met het kasteel en haar tuinen. Voor een toekomstige ontwikkeling is het daarom van belang dat deze waarden erkent worden en in de vernieuwde architectuurstijl terug komen.

Doordat de locatie op het knooppunt van twee taps toelopende straten gepositioneerd is en aansluit op verschillende uitvalswegen, ontstaat er een bijzondere potentie voor accenten in de architectuur. Deze accenten kunnen de zichtlijnen benadrukken naar zowel de uitvalswegen als het kasteel en haar rijkelijk groene tuinen. Tegelijkertijd biedt een gevarieerd bebouwingsvolume van de toekomstige bebouwing met slim gepositioneerde accenten een verrijking voor de omgeving. De zichtlijnen en accentpotenties voor het ontwerp zijn in de analyse van de ontwikkellocatie uitvoering omschreven. Deze analyse is toegevoegd als Bijlage 1 bij deze toelichting.

3.3 Doelgroep

Conform het collegebesluit, waarin principemedewerking aan voorliggend plan is verleend, richt het voornemen zich op de realisatie van 51 levensloopbestendige appartementen. De 51 appartementen bestaan uit 26 koopwoningen, 17 huurwoningen in de middenhuur sector en 8 huurwoningen in de vrije huursector.

De appartementen en de bijbehorende parkeergarage worden voorzien van een lift. Bij het ontwerp is rekening gehouden met draaicirkels van rolstoelen en rollators. De woningen worden drempelloos gerealiseerd: niet alleen bij de voordeur, maar ook de deur naar het balkon wordt drempelloos gerealiseerd. Ook de bergingen worden zodanig uitgevoerd dat ze toegankelijk zijn voor rollators en scootmobielen. Daarnaast worden de appartementen voorzien van automatische deuropenemers, zodat de toegangsdeuren van het gebouw en de gangen niet tot belemmeringen leiden.

De definitie van een levensloopgeschikte woning is hieronder weergegegeven. Deze defintie is pgenomen in de regels van het onderliggende plan.

"Een woning die geschikt is voor bewoning in alle levensfasen. De woning is rollator toe- en doorgankelijk voor mensen met een lichamelijke beperking. Alle primaire leefruimten (woonkamer, keuken, slaapkamer, badkamer, toilet) bevinden zich op dezelfde verdieping. De leefruimten zijn zowel inpandig als vanuit het aansluitende terrein zo veel mogelijk drempelloos toegankelijk. Daarnaast zijn woongebouwen voorzien van automatische deuropeners op de deuren naar verkeersruimten. Er is voldoende bereikbare stallingsruimte voor zowel fietsen met een hulpmotor als scootmobielen."

Hiermee worden de woningen levenloopbestendig ingericht en geschikt gemaakt voor bewoners in alle doelgroepen. Door de verschillende segmenten waarin de appartementen worden aangeboden, wordt bovendien met het planvoornemen een groot aantal potentiële huurders aangesproken.

3.4 Parkeervoorzieningen

Met het planvoornemen wordt een vijflaags appartementencomplex bestaande uit 51 appartementen gerealiseerd. Onder het appartementencomplex wordt een parkeerkelder aangelegd. Aan de noordzijde wordt de parkeerkelder van het appartementencomplex via een inrit op de Herenstraat ontsloten. De parkeerkelder voorziet in 68 parkeerplaatsen. De bergingen van de toekomstige bewoners worden tevens gevestigd binnen de parkeerkelder.

In totaal worden er voor het planvoornemen 92 parkeerplaatsen mogelijk gemaakt. Deze kunnen als volgt worden uitgesplitst:

  • 65 parkeerplaatsen voor bewoners in de parkeergarage;
  • 3 deelauto parkeerplaatsen in de parkeergarage (maximale mobiliteitscorrectie deelauto's 15% van 76);
  • 12 parkeerplaatsen in openbare ruimte.

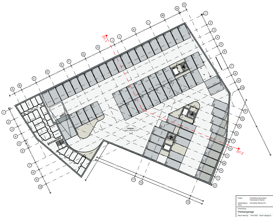
In paragraaf 5.8 wordt uitvoerig ingegaan op het aspect verkeer en parkeren. Hier is de berekening opgenomen om tot het genoemde aantal parkeerplaatsen te komen. Op onderstaand figuur wordt de situering en indeling van de parkeergarage gevisualiseerd.

afbeelding "i_NL.IMRO.0296.CTRSpoorstraatHere-OW01_0007.png"

Figuur: Parkeergarage

3.5 Afwijking geldend bestemmingsplan

De ontwikkeling past (zoals reeds omschreven in paragraaf 1.4) qua functie, maatvoering en aantal wooneenheden niet rechtstreeks binnen het geldende bestemmingsplan. Om de beoogde ontwikkeling juridisch-planologisch mogelijk te maken is een bestemmingsplanwijziging ex. artikel 3.1 Wro noodzakelijk. Met deze herziening van het bestemmingsplan dient aan de hand van deze toelichting aangetoond te worden dat de ontwikkeling voldoet aan de eis van een goede ruimtelijke ordening.

Hoofdstuk 4 Beleidskader

4.1 Rijksbeleid

4.1.1 Nationale Omgevingsvisie (NOVI)

De Nationale Omgevingsvisie (NOVI) is op 11 september 2020 vastgesteld. Deze visie is door het Rijk opgesteld in het kader van de nieuwe Omgevingswet, die op 1 januari 2024 in werking treedt. Aan de hand van een toekomstperspectief is hierin de lange termijnvisie in beeld gebracht. Op nationale belangen wil het Rijk (net als nu) sturen en richting geven. Hiervoor worden de volgende vier prioriteiten onderscheiden:

  • 1. Ruimte voor klimaat adaptatie.
  • 2. Duurzaam economisch groeipotentieel.
  • 3. Sterke en gezonde steden en regio's.
  • 4. Toekomstbestendige ontwikkeling van het landelijk gebied.

Om invulling te kunnen geven aan deze vier prioriteiten hanteert het Rijk de volgende drie afwegingsprincipes:

  • 1. Combinaties van functies gaat voor enkelvoudige functies.
  • 2. Kenmerken en identiteit van een gebied staan centraal.
  • 3. Afwentelen wordt voorkomen.

Met de NOVI wordt gebouwd aan sterke, aantrekkelijke en gezonde steden, waarbij wordt gestreefd naar de verdere ontwikkeling van het Stedelijk Netwerk Nederland. De wens is om daar naar toe te groeien en een goed bereikbaar netwerk van steden en regio's te realiseren. De grote actuele woningbehoefte vraagt tegelijkertijd om oplossingen op korte termijn. Het voormalig kabinet heeft voor de korte termijn daarom een pakket aan maatregelen voorgesteld om de woningbouw een nieuwe, stevige impuls te geven. Het planvoornemen vindt plaats in lijn met de ambities van de integrale verstedelijkingsstrategie door binnen bestaand stedelijk gebied woningen te realiseren.

Een belangrijk aspect van de NOVI betreft het creëren van prettige woonmilieu's (prioriteit 'Sterke en gezonde steden en regio's). Hierbij wordt vooral gestuurd op inbreiding in plaats van uitbreiding. Het planvoornemen past binnen dit beleid aangezien de ontwikkeling plaatsvindt binnen de bebouwde kom in een bebouwde omgeving. Het betreft de herontwikkeling van verouderde grondgebonden woningen en bedrijfspanden naar een vijflaags appartementencomplex bestaande uit 51 appartementen. Hiermee wordt op termijn afwenteling op locatie voorkomen. Het plangebied is in de huidige situatie volledig verhard. Met het planvoornemen wordt met de aanleg van onverharde zones bijgedragen aan het klimaatadaptatief inrichten van het plangebied.

Gelet op bovenstaande is het planvoornemen in lijn met de NOVI.

4.1.2 Besluit algemene regels ruimtelijke ordening

In het Besluit algemene regels ruimtelijke ordening (Barro), ook wel bekend als de AMvB Ruimte, zijn 13 nationale belangen opgenomen die juridische borging vereisen met het oog op een goede ruimtelijke ordening. Het Barro is op 30 december 2011 deels in werking getreden en met enkele onderwerpen aangevuld per 1 oktober 2012. Het besluit is gericht op doorwerking van de nationale belangen in gemeentelijke bestemmingsplannen. Dit betreft onder meer het Nationale Natuurnetwerk (voorheen de Ecologische Hoofdstructuur) en Erfgoederen van uitzonderlijke universele waarde.

Deze ontwikkeling is niet gelegen in of nabij een gebied waarin het Rijk een nationaal belang heeft aangewezen. Het Barro heeft daarom geen consequenties voor het planvoornemen.

4.1.3 Besluit ruimtelijke ordening; ladder voor duurzame verstedelijking

In artikel 3.1.6 van het Bro is de 'motivering duurzame verstedelijking' opgenomen. Dit stelt eisen aan de onderbouwing in bestemmingsplannen die nieuwe stedelijke ontwikkelingen mogelijk maken. De motivering duurzame verstedelijking richt zich op substantiële veranderingen en bouwplannen, die qua aard en omvang zodanig zijn, dat voor mogelijke leegstand elders gevreesd zou kunnen worden. Het doel is om overbodige bouwplannen (kantoren, woningen) te voorkomen en hergebruik te stimuleren. In het geval dat een bestemmingsplan een nieuwe stedelijke ontwikkeling mogelijk maakt, dient de toelichting een beschrijving te bevatten van de behoefte aan de voorgenomen stedelijke ontwikkeling. Indien de nieuwe stedelijke ontwikkeling mogelijk wordt gemaakt buiten het bestaand stedelijk gebied, dient de toelichting, aanvullend op de beschrijving van de behoefte tevens een motivering te bevatten waarom niet binnen het bestaand stedelijk gebied in de behoefte kan worden voorzien. Daarbij kunnen de beschikbaarheid en geschiktheid van de ontwikkelingsmogelijkheden in bestaand stedelijk gebied een rol spelen.

Voor woningbouwplannen geldt dat voor woningbouwlocaties vanaf twaalf woningen sprake is van een stedelijke ontwikkeling die Ladderplichtig is. De Laddertoets moet alleen worden uitgevoerd indien deze stedelijke ontwikkeling ook 'nieuw' is. Het planvoornemen betreft een nieuwe stedelijke ontwikkeling van 51 appartementen. Netto vindt er een toename van 48 wooneenheden plaats binnen het plangebied. Hiermee is de planontwikkeling officieel Ladderplichtig volgens de ladder duurzame verstedelijking.

Behoefte

Vanuit de Woonagenda Subregio Nijmegen en de Woonvisie Gemeente Wijchen 2025 wordt invulling gegeven aan de wens voor kleinschalige nieuwbouw in de kernen van de gemeente. Uit afspraken met de provincie Gelderland omtrent de Primos-prognose kan de gemeente Wijchen 800 nieuwe woningen bouwen. Lokale behoefte is hierin leidend. Plannen moeten in aantallen én programmering aansluiten bij de behoefte.

De lokale behoefte en vraag gaat vooral om kwalitatieve en betaalbare woningen voor jongeren, (vitale) senioren, middeninkomens en mensen met een zorgvraag. Eén- en tweepersoonshuishoudens maken een groot deel uit van deze groepen. Dat vertaalt zich in een behoefte aan meer kleine en betaalbare woningen, zowel in de huursector (sociale en vrije sector) als in de koopsector.

De met het planvoornemen te realiseren levensloopbestendige appartementen maken het tevens mogelijk dat ouderen in de buurt kunnen blijven wonen. Daarnaast voorziet het planvoornemen in de behoefte aan kleinere woningen op een aantrekkelijke locatie. Zulke woningen zijn gewild bij zowel jongeren als ouderen. Met het oog op de toenemende vergrijzing, de toename van eenpersoonshuishoudens en de toename van alleenstaande ouderen kan nieuw aanbod van een- en tweepersoonsappartementen mogelijkheden bieden voor de doorstroming op de woningmarkt. Met het planvoornemen worden woningen toegevoegd aan de woningmarkt die de mogelijkheid geven (aan ouderen) om kleiner te gaan wonen.

Het ruimtelijk verzorgingsgebied van het woningbouwproject is gering. Het project faciliteert voornamelijk voor inwoners uit het dorp Wijchen en de directe omgeving. Op basis van de Woonvisie Gemeente Wijchen 2025 en de trend van vergrijzing in het gebied en vertrekkende starters en jongeren naar buiten het gebied, kan er gesteld worden dat er behoefte is aan de voorgenomen ontwikkeling.

Binnen of buiten stedelijk gebied

Voor ontwikkelingen buiten bestaand stedelijk gebied dient gemotiveerd te worden of deze behoefte niet in stedelijk gebied kan worden gerealiseerd. Daarom is het van belang om te weten of het plangebied binnen of buiten stedelijk gebied is gelegen. In artikel 1.1.1 Bro wordt het stedelijk gebied als volgt gedefinieerd:

'Bestaand stedenbouwkundig samenstel van bebouwing ten behoeve van wonen, dienstverlening, bedrijvigheid of horeca, alsmede de daarbij behorende openbare of sociaal culturele voorzieningen, stedelijk groen en infrastructuur'.

Het plangebied is gelegen binnen de bebouwde kom van de kern Wijchen. Dit is aan te merken als bestaand stedelijk gebied. Aangezien de ontwikkeling plaatsvindt binnen bestaand stedelijk gebied dient er geen aanvullende motivering opgesteld te worden ten behoeve van de ligging van de ontwikkeling.

Het planvoornemen is in lijn met de Ladder voor duurzame verstedelijking.

4.2 Provinciaal beleid

4.2.1 Omgevingsvisie Gaaf Gelderland

Op 19 december 2018 hebben de Provinciale Staten de omgevingsvisie van de provincie Gelderland vastgesteld. De omgevingsvisie is op 1 maart 2019 in werking getreden. De Omgevingsvisie Gaaf Gelderland is een structuurplan van de provincie Gelderland, met als doel een gaaf Gelderland te behouden en te ontwikkelen voor de toekomst. Daarbij staat een gezond, veilig, schoon en welvarend Gelderland centraal.

In de omgevingsvisie is een zevental ambities opgenomen. Deze omvatten, in grote lijnen, de volgende onderwerpen:

  • Energietransitie: van fossiel naar duurzaam
  • Klimaatadaptatie: omgaan met veranderend weer
  • Circulaire economie: sluiten van kringlopen
  • Biodiversiteit: werken met de natuur
  • Bereikbaarheid: duurzaam verbonden
  • Vestigingsklimaat: een krachtige, duurzame topregio
  • Woon- en leefomgeving: dynamisch, divers, duurzaam

afbeelding "i_NL.IMRO.0296.CTRSpoorstraatHere-OW01_0008.png"

Figuur: Omgevinsvisie Gaaf Gelderland: Woon- en leefomgeving

Op het gebied van Woon- en leefomgeving hanteert de Provincie Gelderland de volgende kernbegrippen: dynamisch, divers en duurzaam. Binnen het hoofdstuk Woon- en leefomgeving is opgenomen dat de Provincie streeft naar een duurzaam en divers woon- en leefklimaat dat weet te anticiperen op ontwikkelingen. Hieruit vloeit de ambitie voort binnen Gelderland een aanbod aan woningtypen en woonmilieus passend bij de diversiteit aan woningvraag te realiseren; voor ieder een passende, duurzame woning.

Die 51 wooneenheden worden grotendeels levensloopbestendig gerealiseerd. Het appartementencomplex voorziet in een divers aanbod in het dynamische centrum van Wijchen waarmee een duurzaam woningaanbod voor de toekomst van Wijchen gegarandeerd wordt. Doel is het om in de behoefte van verschillende leeftijdscategorieën te kunnen voorzien. Dit betreft het toevoegen van levensloopbestendige woningen voor ouderen en een gevarieerd woningaanbod voor jongeren én ouderen. Met het planvoornemen worden de doorstromingsmogelijkheden op de woningmarkt vergroot.

Gelet op vorenstaande is het planvoornemen in lijn met de woonvisie zoals vastgesteld in de Omgevingsvisie Gaaf Gelderland.

4.2.2 Omgevingsverordening Gelderland

De Omgevingsverordening Gelderland is vastgesteld door Provinciale Staten op 24 september 2014 en in werking getreden op 18 oktober 2014. De Omgevingsverordening is voor het laatst geactualiseerd op 21 december 2022. Voorliggende ontwikkeling zal moeten voldoen aan de regels in de Omgevingsverordening.

De Omgevingsverordening richt zich op de fysieke leefomgeving in de Provincie Gelderland. Het gaat hierbij om regels op het gebied van ruimtelijke ordening, milieu, water, verkeer en bodem. De verordening voorziet ten opzichte van de Omgevingsvisie niet in nieuw beleid en is daarmee dus beleidsneutraal.

De voorliggende ontwikkeling ligt niet binnen een Nationaal Landschap, de Romeinse Limes, de Groene Ontwikkelingszone (GO), het Gelders Natuurnetwerk (GNN) en de Hollandse Waterlinie. De locatie maakt ook geen deel uit van een ganzenfoerageergebied of beschermingsgebied natte landnatuur.

Wonen

Voor het plangebied zijn de sectorale bepaling met betrekking tot nieuwe woonlocaties (artikel 2.2.1) van belang. Nieuwe woonlocaties kunnen slechts worden toegestaan wanneer dit past in het vigerende door Gedeputeerde Staten vastgestelde Kwalitatief Woonprogramma successievelijk de door Gedeputeerde Staten vastgestelde kwantitatieve opgave wonen voor de betreffende regio.

Omdat op de planlocatie deels al woningen zijn toegestaan, is de realisatie van woningen (van een ander type) reeds mogelijk gemaakt. Daarnaast is de locatie in het regionale beleid aangewezen voor woningen. Het vastgestelde woonbeleid voor de regio waarin de planlocatie is gelegen betreft de Woonagenda Regio Nijmegen 2018-2027. In paragraaf 4.3.2 is toegelicht hoe het voornemen binnen deze woonagenda past.

Het plangebied is conform de Omgevingsverordening Gelderland gelegen binnen een molenbiotoop. Deze zonering is doorvertaald in het geldende bestemmingsplan op locatie. Toetsing hieraan heeft in paragraaf 1.4 reeds plaatsgevonden.

Gelet op het bovenstaande kan worden gesteld dat het ruimtelijk voornemen past binnen de provinciale kaders die worden gesteld in de Omgevingsverordening Gelderland.

4.3 Regionaal beleid

4.3.1 Woondeal 2.0 Regio Arnhem-Nijmegen

In 2020 zijn gemeenten binnen de Groene Metropoolregio Arnhem-Nijmegen, provincie Gelderland en Rijk een langjarig partnerschap aangegaan voor een beter werkende woningmarkt. Het partnerschap is vastgelegd in de woondeal uit 2020. Marktpartijen en woningcorporaties hebben hun ondersteuning hierbij uitgesproken. Met de geactualiseerde Woondeal 2.0, vastgesteld op 8 maart 2023, onderkennen partijen de bovengemiddeld grote woonopgave, continueren de samenwerking uit 2020 en geven het partnerschap verder vorm. De Woondeal 2.0 zet in op zeven werkafspraken:

  • 1. Woningbouwopgave en versnelling
  • 2. Betaalbare woningen voor lage en middeninkomens
  • 3. Huisvesting aandachtsgroepen
  • 4. Klimaatadaptief, conceptueel en circulair bouwen
  • 5. Leefbaarheid en stadsvernieuwing
  • 6. Verstedelijking en gebiedsontwikkeling
  • 7. Overige thema's als vakantieparken, stikstof en elektriciteitsnetwerken

Partijen streven naar de bouw van 33.000 woningen tot en met 2030 in de Groene Metropoolregio. En richting 2040 zo'n 55.000 woningen. De woningbouwopgave voor gemeente Wijchen is 2.060 woningen tot en met 2030. Op dit moment is er tot en met 2030 voldoende plancapaciteit om de opgave in te vullen. Deze capaciteit ligt geleidelijk boven 130% van de geambieerde nieuwbouw. Daarmee is in theorie voldoende plancapaciteit. Voorliggend plan met 37 woningen is opgenomen in de plancapaciteit en draagt dus bij om de gestelde kwantitatieve woningbouwopgave te behalen.

In lijn met de nationale doelstelling om toe te groeien naar 2/3e betaalbare nieuwbouwwoningen, wordt ingezet op een vergroting van de beschikbaarheid van woningen voor mensen met lage en middeninkomens, waaronder veel starters. Iedere gemeente zorgt vanaf 2025 binnen de gemeentebrede nieuwbouwopgave voor minimaal 30% sociale huur en minimaal 35% middenhuur en betaalbare koop (tot € 355.000, landelijke betaalbaarheidsgrens, prijspeil 2023). Op basis van het woningbehoefteonderzoek zet de regio zich ervoor in dat een deel van het middensegment bestaat uit betaalbare koopwoningen voor lagere inkomens, met een prijs van maximaal € 250.000 of middenhuur (woningen tussen € 808-€ 1.123, prijspeil 2023). Op basis van het woningbehoefteonderzoek is er ruimte voor uitwisseling tussen de betaalbare segmenten, met dien verstande dat er voldoende sociale huurwoningen en middenhuur/betaalbare koopwoningen voor lagere inkomens worden toegevoegd.

Er wordt gezorgd voor voldoende betaalbare woningen voor aandachtsgroepen en een evenwichtige spreiding daarvan over de gemeenten. Specifieke aandacht is nodig voor de ondersteuning van de woonbehoeften van ouderen. Er is een toenemende behoefte aan woningen die aansluiten bij de wensen van ouderen.

Voorliggend initiatief sluit hiermee aan op de uitgangspunten van de Woondeal 2.0.

4.3.2 Woonagenda Subregio Nijmegen

Voor plannen waar per 1 juli 2023 nog geen bestemmingsplan of overeenkomst is gesloten, gelden de uitgangspunten van de Woondeal 2.0 Regio Arnhem-Nijmegen. Voorliggend initiatief is echter opgestart toen de Woondeal 2.0 nog niet van kracht was en gaat dus uit van de uitgangspunten in het regionale woonbeleid door de Woondeal 2.0; de Woonagenda subregio Nijmegen e.o. 2020-2030.

In de woonagenda wordt onder meer gesteld dat minimaal 50% van de nieuwbouwwoningen in het betaalbare segment moeten worden gerealiseerd. De Woondeal 2.0 stelt dat op regionaal niveau wordt toegewerkt naar twee derde deel betaalbare huur- en koopwoningen. Met 33% van de te realiseren woningen die in het betaalbare segment vallen, sluit het initiatief aan op de uitgangspunten van de Woonagenda en werkt het toe naar de ambities van de huidige Woondeal 2.0. Daarnaast zet de Woonagenda in op ouderenhuisvesting. Dit is ook een thema in de huidige Woondeal 2.0. Ook hier sluit het plan aan omdat het initiatief voorziet in de realisatie van een deel levensloopbestendige woningen. Tenslotte voorziet het initiatief in transformatie door vervangende nieuwbouw.

Voorliggend initiatief sluit hiermee aan op de uitgangspunten van de Woonagenda Subregio Nijmegen.

4.4 Gemeentelijk beleid

4.4.1 Stragisch kompas: Wijchen 2035 'De kracht van Wijchen'

Op 20 oktober 2022 heeft de gemeenteraad van de gemeente Wijchen vastgesteld. Het Strategisch kompas vormt het koersdocument van de gemeente tot het jaar 2035. Het document vormt een toetsingskader voor toekomstig beleid en formuleert de opgaven van de gemeente voor deze periode. De gemeente Wijchen voorziet tot 2035 een groei naar circa 45.000 - 50.000 inwoners. De vergrijzing van de gemeente leidt tot opgaven, bijvoorbeeld door het trekken van meer jongeren. Brede welvaart en duurzaamheid zijn aspecten waar aandacht aan besteed wordt. De gemeente wil zich daarnaast nog meer richten op de verbindende rol die het heeft: inwoners, partners en ondernemers werken aan prettig wonen, werken en leven.

Speerpunten uit het Strategisch Kompas zijn:

  • 1. Voldoende woningen voor inwoners in elke levensfase;
  • 2. Aantrekkelijke groene wijken en kernen, met goede voorzieningen en bereikbaarheid;
  • 3. Iedereen aan het werk. Bij het vestigen van bedrijven geldt kwaliteit boven kwantiteit;
  • 4. Een sterke, gezonde en sociale samenleving, met oog voor mentale en fysieke gezondheid, preventie, maatwerk en zorg dichtbij huis;
  • 5. Energieneutrale en fossielvrije toekomst;
  • 6. Krachtige samenwerking tussen gemeente(n), inwoners, ondernemers en partners.

Wat betreft het eerste speerpunt is het in 2035 goed wonen in Wijchen, omdat de mogelijkheden aansluiten bij de wensen en behoeften van onze inwoners. Er zijn voldoende betaalbare en geschikte woningen voor alle inwoners, van jong tot oud. Inwoners hebben de mogelijkheid om hun eigen woning aan te passen of binnen de gemeente te verhuizen naar een woning die hen past. Daarnaast is er ruimte voor specifieke doelgroepen als ouderen en mensen met een beperking. We groeien door naar een gemeente met ongeveer 45.000-50.000 inwoners en werken aan verdere groei om ervoor te zorgen dat we de vergrijzing tegengaan en jongeren een plek kunnen geven in Wijchen. Daarnaast speelt er de regionale woningbouwopgave waaraan we graag een bijdrage leveren. Dit betekent dat er de komende jaren ongeveer 4.000 woningen worden bijgebouwd. Er zijn dan genoeg passende woningen beschikbaar, voor zowel de toenemende groep eenpersoonshuishoudens als de toenemende groep ouderen en jongeren. Naast het tegengaan van vergrijzing en ontgroening zien we ook een opgave in het versterken van de sociale cohesie, door onder andere nieuwe woonvormen te creëren. Doorstroming van generaties draagt bij aan passend wonen. Door een goede mix van woningen worden de wijken divers en inclusief. Dit betekent verschillende woningtypen, doelgroepen en prijsklassen naast elkaar, waardoor de wijk ook op lange termijn

veerkrachtig en leefbaar blijft. Het is belangrijk dat het dorpse karakter van Wijchen behouden blijft. Daarom vindt de uitbreiding van woningen vooral in de kern van Wijchen plaats.

Beoordeling

Het planvoornemen draagt bij aan het realiseren van verschillende ambities uit het Strategisch Kompas Wijchen 2035. Zo wordt er met het planvoornemen door de realisatie van 26 koopwoningen, 17 huurwoningen in het middensegment en 8 huurwoningen in de vrije sector bijgedragen aan de realisatie van een gedifferentieerd woningaanbod voor jongeren en ouderen in het centrum van Wijchen. Voornamelijk de centrale ligging in de nabijheid van de voorzieningen en de levenloopbestindige realisatie, zorgen ervoor dat het plan in lijn is met de speerpunten van de Strategisch Kompas Wijchen 2035.

Het plan draagt bij aan de volgende drie punten:

  • Voldoende woningen voor inwoners in elke levensfase;
  • Aantrekkelijke groene wijken en kernen, met goede voorzieningen en bereikbaarheid;
  • Een sterke, gezonde en sociale samenleving, met oog voor mentale en fysieke gezondheid, preventie, maatwerk en zorg dichtbij huis.

Conclusie

Het planvoornemen is hiermee in lijn met het Strategisch kompas Wijchen 2035 'De kracht van Wijchen'.

4.4.2 Structuurvisie Wijchen

Op 29 mei 2009 is de Structuurvisie Wijchen 2009 vastgesteld. In deze visie wordt een doorkijk gegeven naar de gewenste ontwikkeling van Wijchen. In deze structuurvisie worden de aspecten bodem en water, natuur, landschap, cultuurhistorie en archeologie, wonen, bedrijvigheid, landbouw, recreatie, verkeer en milieu behandeld. Deze structuurvisie geeft een overzicht van de verwachte ontwikkelingen binnen de gemeente Wijchen voor een periode van tien jaar.

De gemeente gaat uit van een compacte groei en het benutten van potenties van bestaand stedelijk gebied zonder daarbij de bestaande kwaliteit aan te tasten, in combinatie met een vitaal platteland en sterke kleine kernen. De planlocatie maakt deel uit van de zone 'bestaand stedelijk gebied'. De Structuurvisie staat alleen nieuwe woningbouwlocaties toe, als er sprake is van kwaliteitsverbetering of transformatie. Dit geldt zowel voor Wijchen als voor de kleinere kernen.

Ten aanzien van nieuwe woningbouwprojecten in het stedelijk gebied zal een zeer zorgvuldige afweging plaats moeten vinden. Bestaande kwaliteiten (zoals de groenstructuur en de essentiële open ruimtes rondom de woonkernen) mogen niet zomaar opgeofferd worden ten behoeve van woningbouw. Indien er sprake is van transformatie of herstructurering van bestaande locaties dan liggen er kansen voor nieuwe woningbouwprojecten.

Binnen de Structuurvisie Wijchen wordt er tevens gesproken over een structurele aanpak van het tekort aan huisvesting voor jongeren, starters en ouderen op korte termijn door deze groepen voorrang te geven in de verschillende woningbouwprogramma's.

afbeelding "i_NL.IMRO.0296.CTRSpoorstraatHere-OW01_0009.png"

Figuur: Kaart Structuurvisie Wijchen

Beoordeling

Op de kaart is het plangebied gekenmerkt als 'Kwaliteitsimpuls centrum', waarbij het Kasteel Wijchen omschreven is als 'Recreatieve ontwikkeling cultuurhistorisch object'.

Dit bestemmingsplan geeft een maatwerkinvulling binnen het gebied waar transformatie of herstructurering kan worden toegepast voor het realiseren van nieuwe woningen. Daarbij wordt de groenstructuur gespaard als bestaande waarde en zorgt een transformatie voor nieuwe woningaanbod en een kwaliteitsverbetering van het centrum. Een verdere toevoeging waarom het initiatief kwalitatief passend is in de Structuurvisie is het levensloopbestendig inrichting van het complex.

Definitie

De definitie van een levensloopgeschikte woning is hieronder weergegegeven. Deze defintie zal opgenomen worden in de regels van het onderliggende plan.

"Een woning die geschikt is voor bewoning in alle levensfasen. De woning is rollator toe- en doorgankelijk voor mensen met een lichamelijke beperking. Alle primaire leefruimten (woonkamer, keuken, slaapkamer, badkamer, toilet) bevinden zich op dezelfde verdieping. De leefruimten zijn zowel inpandig als vanuit het aansluitende terrein zo veel mogelijk drempelloos toegankelijk. Daarnaast zijn woongebouwen voorzien van automatische deuropeners op de deuren naar verkeersruimten. Er is voldoende bereikbare stallingsruimte voor zowel fietsen met een hulpmotor als scootmobielen."

Conclusie

Het initiatief past daarmee binnen de Structuurvisie Wijchen.

4.4.3 Woonvisie Gemeente Wijchen 2025

De Woonvisie Gemeente Wijchen 2025 is opgesteld in februari 2017 als kader dat richting geeft aan ontwikkelingen die Wijchen raken op het gebied van woonmilieu. In deze visie wordt omschreven waar de gemeente moet bijsturen, afremmen of juist versnellen om haar doelen op het gebied van wonen te bereiken.

Op het gebied van het gemeentelijk woonmilieu zijn doelen geformuleerd voor een woningaanbod in balans. Zo wil de gemeente Wijchen voor starters, jonge gezinnen, (vitale) senioren en mensen met een zorgvraag meer mogelijkheden op de woningmarkt. Dit vraagt om speciale aandacht voor de woonwensen van deze groepen, maar ook om het aanpassen van het huidige aanbod op deze wensen.

De gemeente vindt het belangrijk dat er aandacht is voor innovatie en vernieuwing in haar visie op wonen om in te spelen op de veranderende woningvraag in de komende jaren. Hierbij ziet de gemeente dat het aantal een- en tweepersoonshuishoudens de komende tijd toeneemt door trends zoals vergrijzing en de toename van alleenstaanden. Meer één- en tweepersoons huishoudens betekent een grotere vraag naar kleinere woningen, iets wat vooralsnog veel ontbreekt in de gemeente.

De realisatie van 51 appartementen voorziet in deze transitie naar een woningmarkt met kleinere woningen, bedoeld voor verschillende doelgroepen. Ook voorziet het plan in de woonbehoefte ouderen door het levensloopbestendige karakter. Hiermee past het planvoornemen binnen de Woonvisie Gemeente Wijchen 2025.

4.4.4 Woonzorgvisie Wijchen 2021-2025

De gemeente Wijchen heeft een Woonzorgvisie opgesteld voor de periode 2021-2025. Deze visie is opgesteld omdat nieuwbouw- of herontwikkelingsplannen voor woon/zorg locaties niet of moeilijk van de grond kwamen. Ook bleek er behoefte aan een duidelijk beleidskader en afwegingskader om richting te geven aan de opgave. Juist vanwege de grote urgentie om tot een passend aanbod te komen. In opdracht van de gemeente is RuimteVisie met alle partijen aan de slag gegaan om een vervolgstap te zetten. Dat heeft geleid tot de Woonzorgvisie. Hiermee is de gemeente beter in staat om de grote opgave samen met de maatschappij aan te pakken.

De vraag van inwoners naar geschikte woonruimte en goede zorg groeit de komende jaren sterk. Dit wordt hoofdzakelijk veroorzaakt door de sterke vergrijzing. In absolute zin is de opgave voor ouderen dan ook veruit het grootst. De zorgvraag neemt door het groeiende aantal ouderen toe, terwijl er steeds minder mantelzorgers per oudere beschikbaar zijn en de zwaarte van de mantelzorg toeneemt. Ook is er een toenemend tekort aan personeel in de zorg. Daarnaast voldoet het merendeel van het bestaande woonzorgvastgoed niet langer aan de eisen om goede zorg te leveren. Ook past dit vastgoed niet langer bij de woonwensen van de inwoners. Deze trends leiden tot een groeiende zorgvraag.

Voor de oudere inwoners en voor de zorgaanbieders is het cruciaal dat ouderen in Wijchen zo lang mogelijk zelfstandig thuis kunnen blijven wonen. Dit vraagt om meer zorggeschikte woningen, beschutte woonvormen (met name appartementen), in de nabijheid van geschikte voorzieningen zijn (ontmoeting, dagbesteding, behandeling, etc.). Daarnaast is er urgentie in de vervangende nieuwbouw van de verpleeghuizen. De verpleeghuizen uit het verleden voldoen niet meer aan de woonwensen, en wat nodig is om kwalitatief goede zorg te leveren. De urgentie voor nieuwbouw neemt dus toe. In de woonzorgvisie zijn negen uitgangspunten opgenomen.

  • 1. Vraaggericht aanbod
  • 2. Samenwerking is de basis
  • 3. Langer zelfstandig thuis wonen
  • 4. Ontwikkelen passende woonzorg locaties
  • 5. Spreiding, menselijke maat en verbinding met de buurt
  • 6. Keuzemogelijkheid
  • 7. Passende en goede zorg
  • 8. Inwoners zelf ook aan zet
  • 9. Fysieke leefomgeving en sociale veiligheid

Voorliggend initiatief sluit vooral aan op uitgangspunt 3 'Langer zelfstandig thuis wonen' en uitgangspunt 5 'Spreiding, menselijke maat en verbinding met de buurt'.

Langer zelfstandig thuis wonen

  • De bestaande woningvoorraad (zowel van de corporaties als particulier) moet een bijdrage leveren aan het langer zelfstandig thuis wonen. Gemeente en corporaties maken afspraken over aanpassingen van corporatiewoningen en de gemeente stimuleert dat woningeigenaren tijdig zelf hun woning aanpassen.
  • In het woningbouwprogramma moeten voldoende nieuwe levensloopbestendige woningen ontwikkeld worden op locaties nabij voorzieningen.
  • Tevens moeten meer beschutte woonvormen voor ouderen (wonen met een plus/tussenvorm) ontwikkeld worden. Het gaat hier zowel om het gebouwconcept als de bijbehorende infrastructuur van zorg- en dienstverlening.

Spreiding, menselijke maat en verbinding met de buurt

  • We vermijden concentratie van woonzorgvastgoed en zetten in op spreiding binnen de gemeente. Woonzorgvoorzieningen mogen niet te veel druk leggen op één wijk of dorp. Hiermee bevorderen we de inclusieve samenleving: gemengde dorpen en wijken met een gezonde mix aan inwoners.
  • Uitzondering op bovenstaande vormen de woonservice gebieden, zoals Hof van De Elst en het woonservicegebied van LuciVer in Alverna. Daarnaast zien we kansen voor een woonservicegebied in Hart van Zuid.
  • We sturen zoveel mogelijk op woonzorg locaties nabij voorzieningen. Dit gaat zowel om beschermd en beschut wonen, maar ook om ouderen die in reguliere woningen wonen.
  • Woonzorgvastgoed met intensieve zorg houdt een menselijke maat. Zowel in de persoonlijke benadering van de inwoners als door de omvang van de woonzorgcomplexen. Inzet is kleinschaligheid, rekening houdend met een toekomstbestendige bedrijfsvoering van de woonzorgorganisaties.
  • Locaties voor wonen en zorg houden zoveel mogelijk verbinding met de buurt, en kunnen rekenen op draagvlak uit de buurt. Er wordt zo veel als mogelijk gezocht naar kansen om bewoners te laten meedoen in de samenleving.

Voorliggend initiatief voor het realiseren van 51 appartementen met grotendeels levensloopbestendige appartementen sluit aan bij het bovenstaande.

Met dit plan worden nieuwe levensloopbestendige woningen ontwikkeld nabij de lokale voorzieningen binnen het centrum van Wijchen. Het project bevorderd bovendien door de realisatie van 51 appartementen voor een brede doelgroep de inclusieve samenleving. Hierbij is er sprake van een gemengd Wijchen met een gezonde mix aan inwoners.

Conclusie

Gelet op bovenstaande is het planvoornemen in lijn met de Woonvisie Gemeente Wijchen 2025.

4.4.5 MobiliteitsvisieDruten Wijchen, duurzaam onderweg tussen Maas en Waal' en Parkeerbeleidsplan gemeente Wijchen 2016

De gemeentelijke Beleidsvisie is vastgesteld op 28 januari 2021 en schetst de hoofdlijnen van het verkeers- en vervoersbeleid voor een periode van tien jaar. Daarnaast wordt sinds 25 oktober 2016 het Parkeerbeleidsplan gemeente Wijchen gehanteerd. Het parkeerbeleidsplan is op 10 mei 2016 vastgesteld en aangevuld en opnieuw vastgesteld in 2020.

Een belangrijk aandachtsveld is het parkeren. In de parkeerbehoefte wordt voorzien door een passend aanbod van parkeerruimte.

Gezien de ligging van onderhavige locatie, de goede bereikbaarheid van voorzieningen en openbaar vervoeren de doelgroepen waarvoor gebouwd wordt, wordt er binnen het plangebied voorzien in een parkeerhoefte ter hoogte 76 parkeerplaatsen. Dit aantal wordt deels mogelijk gemaakt door de beschikbaarheid van deelauto's.

In paragraaf 5.8 wordt verder ingegaan op het bovenstaande.

4.4.6 Beleidsplan Natuur & Biodiversiteit Wijchen

Biodiversiteit als integraal duurzaamheidsthema

Biodiversiteit en natuur zijn onlosmakelijk verbonden aan duurzame gebiedsontwikkelingen. Gelukkig heeft biodiversiteit veel koppelkansen met andere duurzaamheidsthema’s als klimaatadaptatie, gezonde leefomgeving, energietransitie en circulariteit. In ieder project en elke handeling zijn mogelijkheden om biodiversiteit (op termijn) te versterken. Hiervoor is het belangrijk biodiversiteit integraal op te nemen in plannen, projecten en besluitvorming.

Biodiversiteit als integraal duurzaamheidsthema staat voor een natuurinclusieve aanpak. Natuurinclusief wil zeggen dat gezorgd wordt dat plannen, projecten en handelingen een bijdrage leveren aan de lokale biodiversiteit en natuurwaarden. Tegelijk draagt dit bij aan een gezonde, evenwichtige leefomgeving én voorkomt het vertraging in het proces en onverwachtse verrassingen vanuit de wet- en regelgeving.

Huidige stand van zaken

In de meeste gevallen wordt in voldoende mate rekening gehouden met de wet- en regelgeving. Bovenwettelijke maatregelen en kansen voor biodiversiteit worden echter niet opgenomen als criteria bij uitvragen vanuit de gemeente. Bij beheer en onderhoud wordt in specifieke gevallen rekening gehouden met natuurwaarden. De laatste jaren wordt biodiversiteit steeds meer meegenomen bij ontwikkelingen om een meerwaarde te creëren. Voorbeelden hiervan zijn natuurinclusief bouwen bij renovaties van huurwoningen en de komende herinrichting van het gebied tussen het kasteel en het Wijchens meer.

De gemeente Wijchen gaat stappen zetten om biodiversiteit als volwaardig duurzaamheidsthema te integreren in de organisatie. De gemeente gaat zich inzetten om natuurinclusief bouwen en handelen de norm te laten worden. Door het te stimuleren en zelf het goede voorbeeld te geven.

Overal waar gebouwd, verbouwd, heringericht en vergroend wordt liggen kansen voor biodiversiteit. Alleen door biodiversiteit standaard aan de voorzijde van het proces mee te nemen, kunnen deze kansen herkend en verzilverd worden. Dit speerpunt vergt een integrale aanpak waarbij biodiversiteit als thema beter opgenomen wordt in de besluitvorming. Zowel bij gemeentelijke projecten, uitvragen, toetsing van projecten en inrichtingen als bij beheer en onderhoud.

Planspecifieke beoordeling op basis natuurinclusiviteit

We kunnen geen aansluiting vinden bij nabijgelegen ecologische structuren, vanwege de centrumdorpse ligging. Wel zal er een groen dak worden gerealiseerd dat naast de bufferwerking van hemelwater, ook een bijdrage lever aan het ecologische system. Naast de waterbufing in de vorm van een groen dak, wordt een meer duurzaam gescheiden watersysteem aangelegd, waardoor de nu bestaande afvoer van schoon water naar riool wordt beeindigd.

Ook worden in het gebied de buitenruimten en gevels van adaptieve maatregelen die aantrekkelijk zijn voor bijvoorbeeld de huismus, zwaluw of vleermuis. Vanuit het ecologisch bureau Buiting Advies is er gereagereerd op het aspect natuurinclusief bouwen. Buiting Advies wordt in een groot aantal projecten betrokken om het advies over natuurinclusief bouwen te verzorgen. Ook binnen dit project zien wij veel kansen voor het opnemen van nestvoorzieningen voor vogels, insecten of vleermuizen.  Buiting Advies is bekend met mogelijke natuurinclusieve maatregelen die genomen kunnen worden. Hiervoor moet vooral gekeken te worden naar de betreffende ontwikkelingen (met tekeningen) en de manier waarop voorzieningen in het plan ingebracht kunnen worden. Deze voorzieningen kunnen voor de aanvraag van de omgevingsvergunning in een Plan van Aanpak worden voorgesteld en ingetekend. Daarnaast kan nog advies gegeven worden over in te brengen groenelementen ten behoeve van verschillende soorten (waaronder de huismus). Deze natuurinclusieve aanpak sluit aan de bij de conclusies voor het aspect soortenbescherming in paragraaf 5.7.3.

Conclusie

Bij de aanvraag omgevingsvergunning in een volgende fase, zal door middel van een Plan van Aanpak gekeken worden naar de exacte adaptieve maatregelen voor bijvoorbeeld nestgelegenheid voor vogels en insecten en andere duurzaamheidsmaatregelen.

Adaptieve maatregelen ten behoeve van een natuurinclusieve maatregelen, worden verder uitgewerkt in het PvA in het kader van de ontheffing Wnb. De aspecten soortenbescherming, ontheffing en het Plan van Aanpak, worden verder omschreven in paragraaf 5.7.3.6.

Hoofdstuk 5 Milieuaspecten- en omgevingsaspecten

5.1 Bedrijven- en milieuzonering

Vanuit het aspect 'goede ruimtelijke ordening' dient er voldoende ruimtelijke scheiding te zijn tussen hinderveroorzakende (o.a. bedrijven) en hindergevoelige functies (waaronder woningen). Voorgaande moet op twee manieren getoetst worden. Enerzijds wordt er gekeken of het perceel zelf veroorzaker is van hinder en anderzijds wordt bekeken of het perceel kwetsbaar is voor hinder. Voor het toetsen van deze ruimtelijke scheiding is de VNG-publicatie 'Handreiking Bedrijven- en milieuzonering' leidend. In deze publicatie zijn voor verschillende soorten bedrijven richtafstanden opgenomen betreffende geluid, geur, gevaar en stof.

De indicatieve richtafstanden uit de VNG-brochure gaan uit van de afstand die dient te worden gehouden van het gebiedstype 'rustige woonwijk'. Indien sprake is van een 'gemengd gebied' mogen de richtafstanden met één afstandsstap worden verkleind (uitzondering is de richtafstand voor gevaar). Een gemengd gebied is een gebied met matige tot sterke functiemenging. Direct naast woningen komen andere functies voor zoals winkels, horeca en kleine bedrijven. Gebieden die direct langs de hoofdinfrastructuur liggen, behoren eveneens tot het omgevingstype gemengd gebied. In onderhavig geval is het plangebied door de ligging aan gebiedsontsluitingsweg de Herenstraat en de ligging nabij gemengde en centrumbestemmingen aan te merken als gemengd gebied. Hierdoor mogen de richtafstanden binnen het plangebied met één afstandsstap verkleind worden.

Het plan bestaat uit de oprichting van 51 wooneenheden. Er is sprake van reguliere woningen. Een woning is aan te merken als gevoelig object. Daarom dient ter plekke van de te realiseren woning een goed woon- en leefklimaat gegarandeerd te worden. Bovendien mag het planvoornemen niet leiden tot een belemmering in de bedrijfsvoering voor omliggende bedrijven.

Op basis van het vigerende bestemmingsplan voor de locatie, zijn in de directe omgeving van het plangebied de bestemmingen 'Wonen', 'Gemengd' en 'Centrum' gesitueerd. Binnen deze bestemmingen zijn woningen, kantoren, horeca, detailhandel en dergelijke toegestaan. Deze activiteiten zijn in te delen in maximaal milieucategorie 1. Door de ligging binnen gemengd gebied geldt hiervoor een richtafstand van 0 meter. Het planvoornemen wordt van buitenaf niet gehinderd door bedrijven die afbreuk doen aan een goed woon- en leefklimaat binnen het plangebied. Omgekeerd vormt de realisatie van de 51 appartementen geen beperking in de bedrijfsvoering van omliggende bedrijven. Een appartement vormt geen hinderveroorzakend object. Hiermee wordt voldaan aan de omgekeerde werking.

Conclusie

Dit betekent dat er, vanuit het aspect bedrijven en milieuzonering, geen belemmeringen bestaan voor de realisatie van het project.

5.2 Geluid

Bij ruimtelijke ontwikkelingen dient op basis van de Wet geluidhinder (Wgh) te worden onderzocht of sprake is van geluidsoverlast, in het bijzonder in verband met verkeer, spoor of bedrijven. In de Wet geluidhinder is bepaald dat ten aanzien van zogenaamde 'geluidsgevoelige objecten' wettelijke eisen gelden ten aanzien van de maximale belasting.

De locatie is gelegen in de wettelijke zone (akoestisch aandachtsgebied) van de Stationslaan en van de spoorlijn tussen Nijmegen en ’s Hertogenbosch. De locatie ondervindt ook mogelijk een geluidbelasting van de niet geluidgezoneerde Herenstraat. Dit is een 30 kilometer per uur weg waarvan de geluidbelasting in het kader van een goede ruimtelijke ordening is beschouwd.

De nabij gelegen Spoorstraat (buiten het winkelgebied) is geen doorgaande weg, en heeft volgens opgave een verkeersintensiteit van circa 260 motorvoertuigen per etmaal (zie bijlage akoetisch onderzoek). De weg heeft zodoende een te verwaarlozen geluidemissie ten opzichte van de Herenstraat (1760 voertuigen per etmaal) en is verder niet in dit onderzoek betrokken.

5.2.1 Akoestiek onderzoek weg- en railverkeerslawaai

Door Nipa milieutechniek b.v. is er een akoestisch onderzoek weg- en railverkeerslawaai uitgevoerd (rapprtnummer N222451.001/LHO, d.d. 28 november 2023, Bijlage 2). De resulaten van het onderzoek zijn hieronder weergegeven.

Wegverkeerslawaai gezoneerde wegen

Uit de berekeningsresultaten blijkt dat op de gevels van de nieuwe woonfunctie een geluidbelasting van ten hoogste 46 dB inclusief aftrek ex. artikel 110g Wgh vanwege het wegverkeer op de Stationslaan. Er wordt voldaan aan de voorkeursgrenswaarde van 48 dB. Een aanvraag om een hogere waarde voor wegverkeerslawaai is niet aan de orde.

Wegverkeerslawaai niet gezoneerde 30 kilometer per uur wegen

Uit de berekeningsresultaten blijkt dat op de gevels van de nieuwe woonfunctie een geluidbelasting van ten hoogste 60 dB vanwege het wegverkeer op de Herenstraat. De richtwaarde voor het woon- en leefklimaat wordt met ten hoogste 7 dB overschreden. Aanvullend onderzoek naar de geluidwering van de gevel is noodzakelijk.

afbeelding "i_NL.IMRO.0296.CTRSpoorstraatHere-OW01_0010.png"

Figuur: Waarneempunten met geluidbelasting Lden van de gevel in dB, t.g.v. wegverkeer niet gezoneerde weg (Herenstraat)

Railverkeerslawaai

Uit de berekeningsresultaten blijkt dat op de gevels van de nieuwe woonfunctie de geluidbelasting ten hoogste 65 dB bedraagt. De overschrijding van de voorkeursgrenswaarde bedraagt ten hoogste 10 dB in waarneempunt 01/4 en 1/5 op 13,5 meter hoogte. Aan de maximale ontheffingswaarde wordt voldaan. Een aanvraag om een ‘hogere waarde’ is noodzakelijk. Voor de geluidbelastingen en de motivatie wordt verwezen naar het voorgaande hoofdstuk.

Gemeentelijk geluidbeleid

Niet alle appartementen kunnen gerealiseerd worden binnen de voorwaarden van het gemeentelijk geluidbeleid. De buitenruimten (balkons) aan de zijde van de Herenstraat (noord en oostgevel) zijn geluidbelast (hoger dan de richtwaarde) en moeten middels een voorziening de mogelijkheid hebben om tot geluidluwe buitenruimte te worden getransformeerd. Dit kan bijvoorbeeld door het balkon uit te voeren met een serreachtige constructie en/of als een afsluitbare loggia die naar wens open en dicht kan worden gezet. De geluidwering van een dergelijke voorziening is in gesloten toestand circa 15 tot 20 dB.

Woon- en leefklimaat

Er van uitgaand dat er wordt voldaan aan de minimale eis op grond van het Bouwbesluit voor de geluidwering van de woning van 20 dB mag de (gecumuleerde) geluidbelasting niet hoger zijn dan 53 dB om aan de richtwaarde van het binnengeluidniveau van 33 dB te voldoen. Met de berekende geluidbelastingen tot ten hoogste 66 dB is het woon- en leefklimaat in een aantal woningen zonder nadere maatregelen gewaarborgd. Bij de berekende geluidbelasting is een geluidwering van maximaal 33 dB vereist voor de gevels van de appartementen aan de zijde van de Herenstraat. Een onderzoek naar de geluidwering van de gevel moet dit aantonen.

In het kader van het Bouwbesluit moet ook worden aangetoond dat er wordt voldaan aan de eis aan de karakteristieke geluidwering.

5.2.2 Conclusie

Om aan te tonen dat er sprake is van een goed woon- en leefklimaat dient een aanvullend onderzoek naar de geluidwering van de gevels worden uitgevoerd. In het kader van het Bouwbesluit moet ook worden aangetoond dat er wordt voldaan aan de eis aan de karakteristieke geluidwering. Voor het aspect railverkeerslawaai is bovendien een aanvraag om een ‘hogere waarde’ noodzakelijk.

De nabij gelegen Spoorstraat (buiten het winkelgebied) is geen doorgaande weg, en heeft volgens opgave een verkeersintensiteit van circa 260 motorvoertuigen per etmaal (zie bijlage akoetisch onderzoek). De weg heeft zodoende een te verwaarlozen geluidemissie ten opzichte van de Herenstraat (1760 voertuigen per etmaal).

Wanneer voldaan aan de bovenstaande eisen met betrekking tot de gevelwering en railverkeerslawaai, vormt het aspect geluid geen belemmering voor het planvoornemen. Een nader onderzoek naar de gevelwering zal worden uitgevoerd bij de omgevingsvergunning bouwen.

5.3 Externe veiligheid

Externe veiligheid heeft betrekking op locaties waar een ongeval met gevaarlijke stoffen kan plaatsvinden, waardoor personen die geen directe relatie hebben tot de risicovolle activiteit zouden kunnen komen te overlijden. Bij een ruimtelijk besluit voor het toelaten van (beperkt) kwetsbare objecten moet worden getoetst aan risiconormen en veiligheidsafstanden. Dit is met name relevant op korte afstand van risicobronnen. Indien een (beperkt) kwetsbaar object wordt toegelaten binnen het invloedsgebied van een belangrijke risicobron, moet ook het groepsrisico worden verantwoord. Bovendien is het van belang om af te wegen in hoeverre nieuwe risicobronnen binnen een plangebied worden toegestaan.

Voor de beoordeling van een ruimtelijk plan moet voor externe veiligheid worden vastgesteld of het plangebied is gelegen binnen het invloedsgebied van specifieke risicovolle inrichtingen, relevante transportroutes voor het vervoer van gevaarlijke stoffen of relevante buisleidingen. Toetsingskaders zijn het "Besluit externe veiligheid inrichtingen" (Bevi), het "Besluit externe veiligheid transportroutes" (Bevt) en het "Besluit externe veiligheid buisleidingen" (Bevb). Daarnaast zijn in het Vuurwerkbesluit en het Activiteitenbesluit milieubeheer veiligheidsafstanden genoemd die rond stationaire risicobronnen, niet zijnde een Bevi-inrichting, moeten worden aangehouden.

Door het planvoornemen zal het aantal aanwezige personen binnen het plangebied toenemen. Aangezien de planlocatie op korte afstand van de spoorlijn Den Bosch Diezebrug aansl. – Nijmegen is gesitueerd, zijn de externe veiligheidsrisico’s van deze spoorlijn nader onderzocht. Daarnaast is er een verantwoording van het groepsrisico uitgevoerd.

5.3.1 Externe veiligheid Spoor

Door Kragten is een onderzoek naar de veiligheidsrisico's van de spoortlijn uitgevoerd (Kragten, rapportnummer 20230208-POU038-RAP-RBM 1.0, d.d. 8 februari 2023, Bijlage 3). De belangrijkste kenmerken van de fN-curves zijn onderstaand samenvattend weergegeven.

afbeelding "i_NL.IMRO.0296.CTRSpoorstraatHere-OW01_0011.png"

Figuur: Samenvatting kenmerken fN-curves

Uit de resultaten blijkt dat zowel vóór als na planrealisatie sprake is van een groepsrisico dat lager is dan de oriëntatiewaarde (OW), zelfs lager dan 0,1 * OW. Er is geen sprake van een rekenkundige toename van de hoogte van het groepsrisico.

Op grond van de beleidsvisie externe veiligheid van de gemeente Wijchen, ligt het plangebied binnen zone 2 van de spoorlijn. Voor kwetsbare gebouwen binnen deze zone geldt een zware verantwoording van de hoogte van het groepsrisico.

5.3.2 Verantwoording groepsrisico

Door Kragten is er bovedien een verantwoording van het groepsrisico opgesteld (Kragten, rapportnummer 20230208-POU038-NOT-VGR 1.0, d.d. 8 februari 2023). Deze is toegevoegd als Bijlage 4 bij deze toelichting.

Het plangebied is gelegen binnen het invloedsgebied van een spoorlijn en een weg, waardoor conform het Besluit externe veiligheid transport (Bevt) invulling gegeven moet worden aan de verantwoordingsplicht. In de Beleidsvisie wordt voor de verschillende verantwoordingniveau’s aangegeven hoe de invulling van deze verantwoording uitgewerkt dient te worden. Ter plaatse van het plangebied is er op basis van de beleidsvisie sprake van een zware verantwoordingsplicht.

De bijbehorende verantwoordingsaspecten bij een zware verantwoording zijn weergegeven in de volgende tabel.

afbeelding "i_NL.IMRO.0296.CTRSpoorstraatHere-OW01_0012.png"

Figuur: Nadere specificatie verantwoording (bron: Beleidsvisie)

De algemene beschouwing van het plan is hieronder verder uitgewerkt.

Personendichtheid binnen invloedsgebied

Het plangebied ligt binnen het invloedsgebied van een spoorlijn. Als gevolg van de ontwikkeling wijzigt de personendichtheid binnen het plangebied. In de huidige situatie is op de planlocatie een winkelfunctie, een sportfunctie en woningen aanwezig. Deze functies worden vervangen door woonfuncties in de toekomstige situatie. In de toekomstige situatie worden binnen de planlocatie 44 woningen gerealiseerd. Als gevolg van het planvoornemen neemt de personendichtheid af.

Hoogte groepsrisico

Uit de kwantitatieve berekeningen blijkt dat de hoogte van het groepsrisico van het spoor lager is dan deoriëntatiewaarde (OW), zelfs lager dan 0,1 * OW. Als gevolg van de planvorming heeft geen rekenkundigeinvloeds op de hoogte van het groepsrisico.

Maatgevende scenario’s

Als gevolg van vervoer van gevaarlijke stoffen over het spoor en door buisleidingen dient binnen de planlocatie rekening gehouden te worden met verschillende scenario’s.

BLEVE-scenario

Een BLEVE is een afkorting voor “Boiling Liquid Expanding Vapour Explosion” (kokende vloeistof-gasexpansie- explosie). Er bestaat een koude en een warme BLEVE. Bij een koude BLEVE explodeert de tank meteen. Bij een warme BLEVE explodeert de tank als gevolg van een brandhaard.

Toxisch scenario

Toxische vloeistoffen en gassen kunnen vrijkomen als de tankwagon, of -container met toxische stoffen het begeeft als gevolg van bijvoorbeeld een incident. Hierbij komen de toxische stoffen vrij in de vorm van een plas of een wolk. Bij een toxische plas zal deze vervolgens (gedeeltelijk) verdampen, waarbij een toxische wolk wordt gevormd. Afhankelijk van de windrichting en de weersomstandigheden kan de toxische wolk richting het plangebied drijven.

Noodzaak ruimtelijke ontwikkeling

Het plan omvat de realisatie van woningen. Door de sloop van de bestaande woningen en bedrijvigheid, wordt de mogelijkheid gecreëerd om meer woningen op deze centrale locatie te realiseren. Aangezien binnen de gemeente Wijchen vraag is naar woningen, sluit dit aan bij deze woningbehoefte.

Ruimtelijke veiligheidsmaatregelen

Het plangebied valt geheel binnen het invloedsgebied van het spoor. Het plaatsen van de bebouwing buiten het invloedsgebied van het spoor is dan ook geen optie. Aangetoond is dat de planvorming geen rekenkundige invloed heeft op de hoogte van het groepsrisico waardoor zowel vóór als na de planvorming sprake is van een laag groepsrisico. Ruimtelijke veiligheidsmaatregelen zijn dan ook niet aan de orde.

Bronmaatregelen

Bronmaatregelen aan de spoorlijn zijn doorgevoerd in het kader van het Basisnet Spoor. Hierdoor is de hoogte van het groepsrisico als gevolg van het spoortransport de afgelopen jaren gedaald.

Object gerelateerde veiligheidsmaatregelen

Het planvoornemen betreft de realisatie van een appartementengebouw. Het plan betreft vervangende nieuwbouw op een locatie die door bestaande bebouwing wordt afgeschermd van de spoorlijn.

Bestrijdbaarheid/beheersbaarheid

De bestrijdbaarheid en beheersbaarheid is afhankelijk van de inzetbaarheid van hulpverleningsdiensten. De brandweer moet in staat zijn om haar taken goed uit te kunnen voeren om daarmee verdere escalatie van een incident te voorkomen. Hierbij kan gedacht worden aan het voldoende/adequaat aanwezig zijn van aanvalswegen en bluswatervoorzieningen, maar ook de brandweerzorgnorm wordt hier onder geschaard. Hierbij hanteert de regionale brandweer richtlijnen zoals beschreven in de publicatie “Handleiding bluswatervoorziening en bereikbaarheid” van brandweer Nederland.

Uit bovengenoemde handleiding volgt het advies dat het plangebied en de risicobronnen goed bereikbaar moeten zijn voor de hulpverleningsdiensten via twee van elkaar onafhankelijke aanvalswegen, waardoor in geval van calamiteiten het plangebied en de risicobronnen goed bereikbaar zijn. Opgemerkt wordt dat de vaststelling van het bestemmingsplan geen invloed heeft op de bereikbaarheid en bluswatervoorziening ter plaatse van de risicobronnen.

Zorgnorm

De brandweerzorgnorm is een aanbevolen opkomsttijd die afhankelijk is van het soort object en de risico’s voor de aanwezige personen. De opkomsttijd bestaat uit een optelsom van de uitruktijd en de aanrijdtijd. De uitruktijd betreft de tijd die men nodig heeft vanaf het alarmeren totdat men gereed is om te vertrekken naar de plaats van het incident. De uitruktijd voor een beroepskorps ligt lager dan die van een vrijwillig korps omdat de beroepsmedewerkers zich in de directe nabijheid van de kazerne bevinden.

Bestrijdbaarheid per scenario

Een koude BLEVE is niet te bestrijden omdat de tankwagon of -container meteen explodeert. Gezien de snelle ontwikkeltijd zijn er geen mogelijkheden voor bronbestrijding en primaire effectbestrijding. De effectbestrijding zal daarom gericht zijn op het bestrijden van secundaire branden.

Ten behoeve van het voorkomen van een warme BLEVE dient een aangestraalde tankwagen, -wagon of - container tijdig te worden gekoeld en de brandhaard te worden geblust. Hiervoor dient voldoende bluswater nabij de risicobron aanwezig te zijn.

Bij een ongeval met toxische gassen en vloeistoffen kan de brandweer, afhankelijk van de stofintensiteit en het groeiscenario, optreden door de gaswolk neer te slaan of te verdunnen/op te nemen met water. Hiertoe dienen voldoende bluswatervoorzieningen nabij de risicobron aanwezig te zijn. De aanwezigheid van bluswatervoorzieningen binnen het plangebied is met het oog op een toxische scenario niet relevant.

Ook ten aanzien van de bereikbaarheid is bij een toxisch scenario met name de bereikbaarheid van de risicobron maatgevend. De inrichting van het plangebied heeft geen invloed op de bereikbaarheid en de bluswatervoorzieningen ter plaatse van de risicobron.

Doordat het plan vervangende nieuwbouw betreft, heeft de planvorming geen invloed op de bereikbaarheid van zowel de risicobronnen als het plangebied.

Zelfredzaamheid

Zelfredzaamheid is het zichzelf kunnen onttrekken aan een dreigend gevaar, zonder daadwerkelijke hulp van hulpverleningsdiensten. De mogelijkheden voor zelfredzaamheid bestaan globaal uit schuilen en ontvluchten.

Mobiliteit van de aanwezigen

Binnen het plangebied zijn geen nieuwe functies voorzien die specifiek gericht zijn op minder zelfredzame personen. Dit betekent dat personen zich bij een eventuele dreigende situatie op eigen kracht in veiligheid kunnen brengen danwel in veiligheid gebracht kunnen worden door valide personen.

Mogelijkheden voor ontvluchting/schuilen per scenario

Bij incidenten zal een afweging gemaakt moeten worden tussen schuilen of vluchten. Binnen het invloedsgebied van een BLEVE-scenario is vluchten het uitgangspunt. Bij een koude BLEVE op het spoor of weg, ter hoogte van het plangbied, is van zelfredzaamheid geen sprake, aangezien onmiddellijk onherstelbare schade zal ontstaan. Aangezien het echter lijnbronnen betreft waar een incident zich overal kan voordoen, kan indien een incident verder weg plaatsvindt, wel sprake zijn van zelfredzaamheid.

Indien een warme BLEVE dreigt ter hoogte van het plangebied, is de vluchttijd ook bijzonder kort. In geval van een calamiteit is een vroegtijdige alarmering van levensbelang om ervoor te zorgen dat de aanwezigen veilig kunnen vluchten. De mogelijkheden om op eigen kracht te kunnen vluchten nemen toe door (nood)uitgangen en vluchtroutes zoveel mogelijk loodrecht van de weg en de spoorlijn af te richten. Op die manier worden vluchtende personen afgeschermd door de bebouwing zelf.

Bij een toxische wolk kunnen mensen komen te overlijden als gevolg van blootstelling aan de toxische stof. Of mensen daadwerkelijk komen te overlijden is afhankelijk van de dosis, die bestaat uit de blootstellingsduur en de concentratie waaraan de persoon is blootgesteld. Aangenomen wordt dat personen die zich binnen in een van de buitenlucht afgesloten ruimte bevinden een 10 keer lagere kans hebben te overlijden dan personen die zich bevinden in de buitenlucht (PGS3).

Het beste advies bij het vrijkomen van een toxische wolk als gevolg van een incident op de weg, het spoor en het water is schuilen, mits ramen, deuren en ventilatie kunnen worden gesloten. Om personen goed te kunnen beschermen tegen de effecten van een giftige gaswolk dienen ramen en deuren dan ook goed gesloten te kunnen worden. Het onderhavige plan betreft een nieuwbouwplan waar hoge eisen aan de luchtdichtheid gesteld worden. Aanwezige luchtbehandelingsinstallaties moeten met één handeling zijn uit te schakelen. Indien desalniettemin bij een toxische wolk wordt besloten het gebied te ontruimen, is het van belang dat personen haaks op de wolk kunnen vluchten. De toxische wolk kan van alle kanten komen, waardoor het nodig is dat er haaks op elkaar staande vluchtwegen beschikbaar zijn, die van de bron af gericht zijn. Het gebied kent naar bijna alle richtingen vluchtroutes.

Risicocommunicatie

In zijn algemeenheid kan worden gesteld dat de zelfredzaamheid kan worden verbeterd door maatregelen een waarschuwings- en alarmeringssysteem en risicocommunicatie (hoe te handelen bij een incident, gebaseerd op de eerder genoemde scenario’s BLEVE en toxisch). In geval van een calamiteit is het van levensbelang aanwezigen tijdig gewaarschuwd worden.

Volgens de Wet veiligheidsregio’s draagt het bestuur van de Veiligheidsregio er zorg voor dat de noodzakelijk informatie wordt verschaft ter voorkoming en bestrijding of beheersing van een ramp. De Veiligheidsregio adviseert hierin de gemeenten. In het regionaal beleidsplan dient uitgewerkt te zijn hoe binnen de regio aan risicocommunicatie vorm gegeven wordt.

5.3.3 Advies Veiligheidsregio en Brandweer Gelderland-Zuid

Bovengenoemde punten ten aanzien van bestrijdbaarheid en zelfredzaamheid dienen voor advies te worden voorgelegd aan de regionale Brandweer dan wel de Veiligheidsregio.

Op grond van artikel 7 van het Besluit externe veiligheid transport dient de VRGZ in de gelegenheid te worden gesteld advies uit te brengen. De aanvullende adviezen van de brandweer of veiligheidsregio dient de gemeente Wijchen mee te wegen in haar besluitvorming.

Vanuit de Brandweer Gelderland-Zuid is er op 28 november 2023 een reactie ontvangen. De reactie van de Brandweer Gelderland-Zuid is toegevoegd als Bijlage 5.

Beoordeling Brandweer

In de nabijheid van de planlocatie zijn de volgende relevante risicobronnen aanwezig (bron: EV Signaleringskaart)

De planlocatie ligt in zijn geheel binnen het invloedsgebied (gelegen binnen de 200 meter zone) van een basisnetroute spoor. Het betreft de spoorlijn Den Bosch Diezebrug aansl. – Ressen Noord. De afstand tot objecten in het plangebied +/- 120 meter.

Het betreffende spoortracé heeft geen plasbrandaandachtsgebied. Vanwege de ligging van het plangebied binnen het toekomstig explosieaandachtsgebied, resteert het volgende scenario.

Scenario-omschrijving: ketelwagon LPG

afbeelding "i_NL.IMRO.0296.CTRSpoorstraatHere-OW01_0013.png"

Figuur: Scenarioboek Externe veiligheid NIPV

Het maatgevende scenario binnen het explosieaandachtsgebied is een koude BLEVE die wordt veroorzaakt door een externe beschadiging, bijvoorbeeld een botsing. Dit is een explosie die kan voorkomen als een houder met een vloeistof onder druk openscheurt. Afkorting ‘Boiling Liquid Expanding Vapour Explosion'. Hierdoor scheurt de ketel op. LPG komt vrij en ontsteekt direct. Er ontstaat een vuurbal en een drukgolf. De effecten van een koude BLEVE zijn warmtestraling, overdruk en scherfwerking. Deze effecten kunnen slachtoffers, schade en brand in de omgeving veroorzaken.

Groepsrisico

Uit het onderzoek ‘Externe veiligheid spoor – Spoorstraat/Herenstraat te Wijchen’ blijkt dat er geen rekenkundige toename is van het groepsrisico in de huidige- en toekomstige situatie. Het groepsrisico blijft daarmee onder 0,1 x de oriëntatiewaarde. Wij zijn daarbij uitgegaan van de cijfers en de fN-curve zoals getoond in afbeelding 4 van de rapportage. Gelet op de uitkomst van het groepsrisico is slechts lid 2 artikel 8 Bevt van toepassing. Er dient daarbij ingegaan te worden op de maatregelen ter beperking van het groepsrisico en de mogelijkheden voor ruimtelijke ontwikkelingen met een lager groepsrisico en de voor- en nadelen daarvan. Tevens is er sprake van een zware verantwoording gelet op de beleidsvisie externe veiligheid van de gemeente Wijchen.

Bereikbaarheid en bluswatervoorziening

Gelet op de geografisch (beperkte) omvang van het plan zal er bij de aanvraag omgevingsvergunning bouw een advies volgen inzake de bereikbaarheid en bluswatervoorziening.

Conclusie

Op basis van de aangeleverde documenten voor het bestemmingsplan: Spoorstraat-Herenstraat te Wijchen heeft de Brandweer Gelderland-Zuid het volgende geconstateerd:

  • Er is in de toelichting van het voorliggende bestemmingsplan voldoende ingegaan op de mogelijkheden voor bestrijdbaarheid en zelfredzaamheid;
  • Over de aspecten bereikbaarheid en bluswatervoorziening wordt in een later stadium geadviseerd.
5.3.4 Conclusie

Gelet op het bovenstaande vormt het aspect Externe veiligheid geen belemmering voor het planvoornmen.

5.4 Bodem

Indien sprake is van een planologische functiewijziging, dient te worden bezien of de milieuhygiënische kwaliteit van de bodem ter plaatse geschikt is voor het voorgenomen gebruik.

5.4.1 Verkennend bodem- en asbestonderzoek

Voor voorliggende ontwikkeling is er door Buro Antares is een Verkennend bodemonderzoek en een verkennend asbestonderzoek uitgevoerd ter plaatse van de percelen gelegen aan de Herenstraat 36 en 42 en de Spoorstraat 53 en 57 te Wijchen (Buro Antares, rapportnummer MRO\400333\24-03-2020\Versie 2, d.d. 24 maart 2020, Bijlage 6). De resultaten hiervan zijn hieronder weergegeven.

Verkennend bodemonderzoek

Op basis van het uitgevoerde bodemonderzoek kan geconcludeerd dat de bovengrond ter plaatse van de boringen 04 en 07 sterk verontreinigd is met PAK. De omvang van de PAK-verontreiniging en de eventuele spoedeisendheid dient vastgesteld te worden middels de uitvoering van een nader bodemonderzoek conform de NTA-5755. Afhankelijk van de omvang van de verontreiniging wordt bepaald wie het Bevoegd gezag is voor deze bodemverontreiniging (gemeente Wijchen <25 m3 of provincie Gelderland >25 m3). Nadat de omvang van de verontreiniging is vastgesteld dient ten behoeve van de voorgenomen ontwikkeling op locatie eerst de verontreiniging gesaneerd te worden. Dit kan eventueel middels een BUSmelding of een saneringsplan, welke goedgekeurd dient te worden door het bevoegd gezag.

Verder kan geconcludeerd worden dat de overige bovengrond licht verontreinigd is met kobalt, lood, nikkel, minerale olie, PAK en/of som PCBfs en dat de ondergrond en het grondwater geen verhoogde gehalten/ concentraties bevatten.

Verkennend asbestonderzoek

Op basis van het uitgevoerde asbest in bodemonderzoek kan geconcludeerd worden dat in de bovengrond ter plaatse van het bedrijfs-/winkelpand en in het puin afkomstig uit boring 03 geen asbest is aangetoond.

Wel is in de bovengrond van het buitenterrein een asbestconcentratie van 1,0 mg/kg ds. gewogen aangetoond. Deze asbestconcentratie ligt ruim beneden de interventiewaarde/restconcentratienorm van 100 mg/kg ds., maar ook nog ruim beneden de norm voor nader asbestonderzoek van 50 mg/kg ds., waardoor het uitvoeren van een nader asbestonderzoek niet noodzakelijk is.

Op basis van het uitgevoerde asbest in bodemonderzoek zien wij geen belemmeringen voor de voorgenomen ontwikkeling van de locatie.

5.4.2 Nader bodemonderzoek conform NTA-5755

Door Buro Antares is er een nader onderzoek uitgevoerd naar aanleiding van de aangetroffen verontreinig tijdens het verkennend bodemonderzoek. Het onderzoek is toegevoegd als Bijlage 7 bij deze toelichting.

Op basis van het geheel aan onderzoeksresultaten kan geconcludeerd worden dat binnen de projectlocatie ter plaatse van de boringen 04, 04.1 en 07 sprake is van een sterke bodemverontreiniging met PAK.

Ter plaatse van de boringen 04 en 04.1 is de bodemlaag 0,22 tot 0,70 a 1,10 m-mv sterk verontreinigd met PAK. De omvang van de sterke bodemverontreiniging met PAK is afgeperkt tot gehalten beneden de interventiewaarde. In de boringen 04.2 en 04.5 is er sprake van een overschrijding van de tussenwaarde en in 4 afperkende boringen zijn overschrijdingen van de achtergrondwaarde aanwezig.

Ter plaatse van boring 07 is de bodemlaag 0,08 tot 1,20 m-mv sterk verontreinigd met PAK. De omvang van de sterke bodemverontreiniging met PAK is afgeperkt tot gehalten beneden de interventiewaarde. In boring 07.4 is er sprake van een overschrijding van de tussenwaarde en in 4 andere boringen zijn overschrijdingen van de achtergrondwaarde aanwezig.

De aangetoonde verontreinigingen met PAK zijn hoogstwaarschijnlijk te relateren aan de visueel aangetroffen bijmengingen met kolengruis. De totale omvang van de sterke bodemverontreiniging met PAK binnen de projectlocatie wordt ingeschat op ongeveer 62,5 m3, waardoor er sprake is van een geval van ernstige bodemverontreiniging (meer dan 25 m3 sterk verontreinigd). Uit het vooronderzoek blijkt dat op de locatie al jarenlang bedrijvigheid aanwezig is, waardoor ervan uitgegaan kan worden dat de aangetoonde bodemverontreiniging met PAK voor 1987 is ontstaan. Hierdoor is er sprake van een 'historisch' geval.

Op basis van de conclusies van het nader bodemonderzoek geldt het volgende:

Op basis van de onderzoeksresultaten is er momenteel sprake van een milieuhygienische belemmering voor de voorgenomen nieuwbouw door de aanwezigheid van de sterke bodemverontreiniging met PAK. In het kader van de voorgenomen ontwikkeling van de projectlocatie dient de aangetoonde bodemverontreiniging met PAK gesaneerd te worden tot deze voldoet aan het beoogde gebruik (functie wonen). Geadviseerd wordt om de saneringsvoorbereiding op te starten. Het is namelijk niet toegestaan om werkzaamheden in de sterke bodemverontreiniging uit te voeren zonder toestemming van het bevoegd gezag, in dit geval de Provincie Gelderland. Vanwege de voorgenomen ontwikkelingen adviseren wij om een BUS-melding of een saneringsplan op te laten stellen en ter goedkeuring in te dienen bij het bevoegd gezag.

Na instemming van het bevoegd gezag kan de startdatum gemeld worden aan het bevoegd gezag. Vervolgens kan de bodemverontreiniging volgens de geldende wet- en regelgeving worden gesaneerd. De sanering moet begeleid worden door een BRL SIKB 6000, protocol 6001 erkend adviesbureau en de sanering mag alleen door een BRL SIKB 7000, protocol 7001 erkend aannemer uitgevoerd worden.

Gezien het beoogde toekomstige gebruik, “functie wonen”, dient als saneringsdoelstelling in de BUSmelding of saneringsplan de kwaliteitsklasse ‘wonen’ opgenomen te worden. Dit houdt in dat naast de sterk verontreinigde grond (circa 65 m3) ook de grond welke geclassificeerd is als klasse ‘industrie’ (circa 500 m3) ontgraven en afgevoerd dient te worden naar een erkend verwerker.

5.4.3 Conclusie

Gelet op bovenstaande vormt het aspect bodem geen belemmering voor de vaststelling van voorliggend bestemmingsplan, maar dient de grond bij de realisatie van voorliggend plan conform de conclusies van het nader bodemonderzoek gesaneerd te worden.

5.5 Geur

De Wet geurhinder en veehouderij (Wgv) is op 1 januari 2007 in werking getreden. Met de Wet geurhinder en veehouderij geldt één toetsingskader voor vergunningplichtige veehouderij in de gehele gemeente. Voor niet vergunningverplichte veehouderijen en overige agrarische niet vergunningplichtige bedrijven is het Activiteitenbeluit het toetsingskader.

De Wet geurhinder en veehouderij bevat normen en afstanden die bedrijven moeten aanhouden ten opzichte van geurgevoelige objecten. Daarnaast geeft de Wet geurhinder en veehouderij gemeenten de beleidsvrijheid om maatwerk te leveren dat is afgestemd op de ruimtelijke en milieuhygiënische feiten en omstandigheden in een concreet gebied en de gewenste (toekomstige) ruimtelijke inrichting.

Beoordeling

Het planvoornemen voorziet in het toevoegen van woningen, zijnde geurgevoelige objecten. Het plangebied is niet gelegen in de nabijheid van geuremissiebronnen, zo blijkt uit een quickscan op dit aspect. Een nadere toetsing is daarom niet nodig.

Conclusie

Het aspect geur vormt geen belemmering voor het planvoornemen.

5.6 Luchtkwaliteit

De gevolgen voor de luchtkwaliteit worden beoordeeld op basis van de Wet ruimtelijke ordening, de Wet milieubeheer luchtkwaliteitseisen (ook wel Wet luchtkwaliteit genoemd, Wlk), de AMvB 'Niet in betekenende mate' (het Besluit NIBM) en de ministeriële regeling NIBM. Er dient, ook na realisatie van het planvoornemen, sprake te zijn van een goede ruimtelijke ordening. Daarbij moet voldaan worden aan de geldende grenswaarden en luchtkwaliteitseisen.

Het toetsingskader voor luchtkwaliteit wordt gevormd door hoofdstuk 5, titel 5.2 van de Wet milieubeheer. Dit onderdeel van de Wet milieubeheer (Wm) bevat grenswaarden voor zwaveldioxide, stikstofdioxide en stikstofoxiden, fijn stof, lood, koolmonoxide en benzeen. Hierbij zijn in de ruimtelijke ordeningspraktijk langs wegen vooral de grenswaarden voor stikstofdioxide (jaargemiddelde) en fijn stof (jaar- en daggemiddelde) van belang. De grenswaarden van de laatstgenoemde stoffen zijn in onderstaande tabel weergegeven.

afbeelding "i_NL.IMRO.0296.CTRSpoorstraatHere-OW01_0014.png"

Figuur: Grenswaarden stikstofdioxide en fijn stof

NIBM

In het Besluit niet in betekenende mate bijdragen (luchtkwaliteitseisen) is bepaald in welke gevallen een project vanwege de gevolgen voor de luchtkwaliteit niet aan de grenswaarden hoeft te worden getoetst.

Hierbij worden 2 situaties onderscheiden:

  • een project heeft een toename van minder dan 3% van de jaargemiddelde concentratie NO2 en PM10 (= 1,2 µg/m³);
  • een project valt in een categorie die is vrijgesteld aan toetsing aan de grenswaarden; deze categorieën betreffen onder andere woningbouw met niet meer dan 1.500 woningen aan één ontsluitingsweg of kantoorlocaties met maximaal 100.000 m² bvo bij één ontsluitingsweg.

Beoordeling

De beoogde ontwikkeling heeft betrekking op de realisatie van maximaal 51 appartementen. Een dergelijke ontwikkeling valt onder het 'Besluit niet in betekenende mate' onder de categorie woningbouw tot 1.500 woningen aan één ontsluitingsweg. Dit betekent dat de ontwikkeling niet in betekenende mate bijdraagt aan de luchtkwaliteit ter plaatse, en dat nader onderzoek niet noodzakelijk wordt geacht. Onderhavige ontwikkeling betreft geen permanente toevoeging aan de woningvoorraad, maar is redelijkerwijs wel met een dergelijke ontwikkeling gelijk te stellen.

Uit oogpunt van goede ruimtelijke ordening is eveneens gekeken naar de concentraties stikstofdioxide (NO2) en fijnstof (zowel PM10 als PM2.5) ter plaatse van de voorgenomen ontwikkeling. Om een goed beeld te krijgen van deze concentraties is gebruik gemaakt van de resultaten uit kaarten van de Atlas Leefomgeving, een initiatief van de Rijksoverheid. De Atlas Leefomgeving biedt informatie over de kwaliteit van de Nederlandse leefomgeving. Om de huidige stikstofdioxide en fijnstof (PM10) concentraties in beeld te brengen zijn actueleluchtkwaliteitskaarten beschikbaar. Voor fijnstof (PM2,5) bestaat er geen kaart van de actuele PM2,5-concentratie, hierom is gekozen om gebruik te maken van de meest recente concentratiekaart uit 2021.

De Wereldgezondheidsorganisatie (WHO) adviseert veel lagere concentraties fijnstof voor een gezonde leefomgeving. Zij adviseren sinds 22 september 2021 de volgende normen: 15 µg/m³ PM10 en 5 µg/m³ PM2,5.

afbeelding "i_NL.IMRO.0296.CTRSpoorstraatHere-OW01_0015.png"

Figuur: Uitsnede Actuele concentratie stikstofdioxide in Nederland (Bron: Atlas Leefomgeving)

afbeelding "i_NL.IMRO.0296.CTRSpoorstraatHere-OW01_0016.png"

Figuur: Uitsnede Actuele concentratie fijnstof PM10 in Nederland (Bron: Atlas Leefomgeving)

afbeelding "i_NL.IMRO.0296.CTRSpoorstraatHere-OW01_0017.png"

Figuur: Uitsnede kaart Fijnstof 2021 PM2,5 (Bron: Atlas Leefomgeving)

Uit bovenstaande kaarten blijkt dat de jaargemiddelde grenswaarden voor NO2, PM10 en  PM2,5 ter plaatse van de locatie niet overschreden worden. De bijdrage van het initiatief op de luchtkwaliteit is verwaarloosbaar/ niet aanwezig en er wordt geen NO2, PM10 of PM2,5 producerende activiteit op locatie mogelijk gemaakt.

Voor fijnstof PM2,5 geldt dat de concentratie met (10-11) boven de WHO advieswaarde ligt, maar dat deze nog steeds ruim aan de gestelde Europese-norm van maximaal 25 µg/m³ PM2,5 voldoet en hierom geen belemmering vormt voor het planvoornemen.

Conclusie

Gelet op bovenstaande vormt het aspect luchtkwaliteit geen belemmering voor het planvoornemen.

5.7 Natuur

De bescherming van plant- en diersoorten is geregeld in de Wet natuurbescherming (Wnb). Om kwetsbare soorten te beschermen bevat de Wnb enkele verbodsbepalingen, zoals het verbod op het doden of verontrusten van dieren, en het beschadigen van voortplantings- of rustplaatsen. Dit houdt concreet in, dat voor bepaalde ruimtelijke ontwikkelingen zoals het verwijderen van bebouwing en beplanting en het bouwen dient te worden vastgesteld of daarin, of in de directe nabijheid beschermde soorten aanwezig zijn.

Bij nieuwe ruimtelijke ingrepen en activiteiten dient daarom te worden nagegaan of deze ingrepen en/of activiteiten eventueel negatieve gevolgen hebben voor aanwezige dier- en plantensoorten.

5.7.1 Gebiedsbescherming

Er dient aannemelijk te worden gemaakt dat het plan geen negatieve effecten heeft op de instandhoudingsdoelstellingen van Europees beschermde Natura2000-gebieden en het Natuur Netwerk Nederland (NNN), waaronder het provinciaal natuurnetwerk (Gelders Natuurnetwerk en de Groene Ontwikkelingszone).

Natura 2000-gebieden

De onderzoekslocatie is niet gelegen binnen de grenzen, of in de directe nabijheid van een gebied dat aangewezen is als Natura 2000. Hierdoor is er uitsluitend sprake van externe werking.

Gezien de kleinschalige aard van het planvoornemen (planologisch mogelijk maken van de bouw van één gebouw binnen bestaand stedelijk gebied) en de afstand tot de dichtstbijzijnde Natura 2000-gebieden Rijntakken (ca. 7,8 km), Sint Jansberg (ca. 14,5 km); Vogelschutzgebiet 'Unterer Niederrhein (ca. 15,2 km) en De Bruuk (ca. 16,2 km), s geen sprake van verstoring door licht, trilling, optische verstoring of verstoring door mechanische effecten. Externe effecten als gevolg van een toename van stikstofdepositie zijn vanwege de afstand tot de dichtstbijzijnde Natura 2000-gebieden op voorhand echter niet uit te sluiten. Derhalve is een nadere beoordeling stikstofeffecten uitgevoerd, zie hiervoor paragraaf 5.7.2 van deze toelichting.

afbeelding "i_NL.IMRO.0296.CTRSpoorstraatHere-OW01_0018.png"

Figuur: Ligging plangebied t.o.v. Natura2000-gebieden

Gelders Natuurnetwerk en de Groene Ontwikkelingszone

Het plangebied ligt, overeenkomstig de Omgevingsverordening Gelderland (januari 2023), niet in het Gelders natuurnetwerk. Daarom is er met het voornemen geen sprake van aantasting van NNN.

Doordat het plangebied eveneens niet is gelegen binnen het NNN, is er uitsluitend sprake is van een externe werking. Op een afstand van circa 2,2 km ten oosten van het plangebied is het Gelders Natuurnetwerk gelegen. Ten zuiden van het plangebied is op circa 1,4 km afstand ook een onderdeel van Gelders Natuurnetwerk gelegen.

afbeelding "i_NL.IMRO.0296.CTRSpoorstraatHere-OW01_0019.png"

Figuur: Ligging plangbied t.o.v. NNG 

Gezien de relatief kleinschalige aard van het voorgenomen plan en de afstanqwd is het uit te sluiten dat het voornemen een (significant) negatief effect heeft op de kernkwaliteiten van het Natuurnetwerk Gelderland.

5.7.2 Stikstof

Gezien de ligging ten opzichte van de Natura 2000-gebieden en uit te voeren activiteiten, sloop en nieuwbouw, zijn geen directe effecten op de Natura 2000-gebieden te verwachten. Wel kan een mogelijk indirecte effect stikstofdepositie optreden.

Daarom is een afzonderlijke notitie beoordeling stikstofeffecten opgesteld (Pouderoyen Tonnaer, rapportnummer P204641, d.d. 21 februari 2023, Bijlage 8). Op basis van de onderzoeksresultaten kunnen negatieve effecten als gevolg van een toename van stikstofdepositie op de instandhoudingsdoelen van Natura 2000-gebieden worden uitgesloten, waardoor een vergunning in het kader van de Wet natuurbescherming niet vereist is.

Bouwfase

Er worden met het voornemen 51 appartementen gerealiseerd op het achtererf van het plangebied. Op dit moment is er nog geen informatie over de in te zetten mobiele werktuigen, de duur van de inzet en de bouwjaren/ stageklassen van de mobiele werktuigen die tijdens de bouwfase ingezet worden. Om toch een beoordeling te maken ten aanzien van de emissies in de realisatiefase is een worst-case scenario uitgewerkt. Er is in dit kader aansluiting gezocht bij de ‘Handreiking woningbouw en AERIUS’ opgesteld door het Rijk, bijgevoegd in bijlage 1. Hierin wordt voor de realisatie van woningen een gemiddelde emissie in de realisatiefase verondersteld van 3 kg NOx/jaar. Voor de realisatie van appartementen, welke kleiner zijn, zal de emissie echter lager uitvallen: eengezinswoningen zijn gemiddeld 1,6 keer zo groot als appartementen3. Er worden met het bouwplan appartementen van verschillende formaten gerealiseerd. Daarom is aangenomen dat de emissie per appartement voor de bouwfase gemiddeld 2 kg NOx/jaar zal bedragen. Voor 51 appartementen bedraagt de totale emissie tijdens de bouwfase 102 kg NOx/jaar.

Gebruiksfase

Het project zal gasloos worden uitgevoerd. In de gebruiksfase is derhalve alleen sprake van een verkeersgeneratie.

Er worden met het planvoornemen 51 appartementen gerealiseerd. De prijsklasse van deze appartementen is nog onbekend. Daarom wordt er bij de berekening voor de verkeersgeneratie uitgegaan van de hoogste verkeersgeneratie door appartementen. Op basis van de CROW normen geldt een maximumnorm van 1,8 bewegingen per wooneenheid per etmaal voor een duur koopappartement in een sterk stedelijk gebied in de rest bebouwde kom. Voor 51 appartementen bedraagt de verkeersgeneratie dus 92 bewegingen per etmaal.

Ten aanzien van het modelleren van verkeerstromen in de Aerius calculator is de vraag aan de orde op welk moment het verkeer op gaat in het heersende verkeersbeeld en dus niet meer onderscheidend is door het planvoornemen. Er wordt verondersteld dat het verkeer via de Herenstraat op de Stationslaan zal afwikkelen, waar het verkeer niet langer te onderscheiden is van het heersend verkeersbeeld. Daarbij wordt een stagnatiepercentage van 10% verondersteld.

Conclusies

De bovenstaande gegevens zijn ingevoerd in de AERIUS calculator (versie 2023). Uit deze berekening volgen geen rekenresultaten die leiden tot een toename van de stikstofdepositie op nabijgelegen Natura 2000-gebieden groter dan 0,00 mol/ha/jaar. Rekening houdend met voorgaande conclusies kunnen significant nadelige effecten op Natura 2000-gebieden ten gevolge van de gebruiksfase worden uitgesloten.

5.7.2.1 Conclusie Stikstof

Het bouwplan leidt niet tot een toename van stikstofdepositie op Natura 2000-gebieden. Negatieve effecten ten gevolge van stikstof op de instandhoudingsdoelen van Natura 2000-gebieden kunnen op basis van het voorgaande worden uitgesloten, waardoor een vergunning in het kader van de Wet natuurbescherming niet vereist is.

5.7.3 Soortenbescherming

Wat betreft soortenbescherming is de Wet Natuurbescherming (Wnb) van toepassing. De soortenbescherming heeft betrekking op alle in Nederland in het wild voorkomende zoogdieren, (trek)vogels, reptielen en amfibieën, een aantal vissen, libellen en vlinders, enkele bijzondere en min of meer zeldzame ongewervelde dierensoorten en een aantal vaatplanten. Voor alle soorten, dus ook voor de soorten die niet onder de aangewezen bescherming vallen, of die zijn vrijgesteld van de ontheffingsplicht, geldt de zogenaamde 'algemene zorgplicht' (art. 1.10 Wnb). Deze zorgplicht houdt in dat de initiatiefnemer passende maatregelen neemt om schade aan aanwezige soorten te voorkomen of zoveel mogelijk te beperken. Hierbij gaat het bijvoorbeeld om het niet verontrusten of verstoren in de kwetsbare perioden zoals de winterslaap, de voortplantingstijd en de periode van afhankelijkheid van de jongen. De zorgplicht geldt altijd en voor alle planten en dieren, of ze beschermd zijn of niet, en in het geval dat ze beschermd zijn ook als er een ontheffing of vrijstelling is verleend.

Tevens geldt onder de Wet Natuurbescherming dat bij ruimtelijke ontwikkelingen naast de zorgplicht ook rekening gehouden moet worden met juridisch zwaarder beschermde soorten vanuit nationaal en Europees oogpunt. Beschermde soorten vanuit nationaal oogpunt betreffen soorten uit 'bijlage A en B' van de Wet Natuurbescherming. Beschermde soorten vanuit Europees oogpunt betreffen soorten uit Bijlage IV van de Habitatrichtlijn, de soorten uit Bijlage 1 en 2 Verdrag van Bern, en Bijlage 1 verdrag van Bonn, en alle in Europa inheemse vogels (Vogelrichtlijn).

Met voorliggend plan wordt de bestaande bebouwing binnen de planlocatie volledig gesloopt. Om vast te stellen of er geen negatieve gevolgen zijn voor aanwezige flora en fauna, zijn er diverse onderzoeken uitgevoerd. Deze worden in de onderstaande paragrafen toegelicht.

5.7.3.1 Quickscan Flora & Fauna (1)

In het kader van het planvoornemen is een eerste Quickscan Flora & Fauna uitgevoerd ter plaats van de bebouwing van huisnummer 36 (Buiting advies B.V., rapportnummer 19063, d.d. juni 2019, Bijlage 9).

Hieronder is de conclusie van het onderzoek opgenomen. Voor het volledige onderzoek wordt verwezen naar Bijlage 9.

Door de voorgenomen sloop worden mogelijk geschikte voortplantings- en/of rustplaatsen van huismussen, gierzwaluwen, steenmarters en vleermuizen aangetast. Het uitvoeren van aanvullend onderzoek is noodzakelijk om vast te stellen of er voortplantings- en/of rustplaatsen van deze soorten aanwezig zijn.

5.7.3.2 Aanvullend Fauna onderzoek (1)

Op basis van de resultaten van de Quickscan Wet natuurbescherming is een vervolgonderzoek (Buiting Advies B.V., rapportnummer 2020-062, d.d. oktober 2020, Bijlage 10) uitgevoerd. Dit onderzoek is op 4 december 2023 aangepast.

afbeelding "i_NL.IMRO.0296.CTRSpoorstraatHere-OW01_0020.png"

Figuur: Weergave onderzoekslocatie

De resultaten van het aanvullend onderzoek zijn hieronder weergegeven. Het volledige onderzoek is als Bijlage 10 bij dit bestemmingsplan gevoegd.

Huismus, gierzwaluw, steenmarter

Tijdens het onderzoek is geen voortplantings- of rustplaats van een huismus, gierzwaluw of steenmarter vastgesteld. Uit dit onderzoek blijkt daarmee dat de voorgenomen werkzaamheden niet zullen leiden tot vernieling of beschadiging van een voortplantingsplaats of rustplaats van de steenmarter. Van een overtreding van de Wet natuurbescherming ten aanzien van de steenmarter, gierzwaluw en steenmarter is dan ook geen sprake.

Vleermuizen

Paarverblijfplaats

Tijdens het onderzoek is een paarverblijfplaats van twee gewone dwergvleermuizen aangetroffen. Het verstoren of vernietigen van vaste rust- of verblijfplaatsen in niet toegestaan.

Het aanvragen van een ontheffing op de Wet Natuurbescherming is noodzakelijk om de geplande werkzaamheden uit te voeren.

Vliegroutes en foerageerplatsen

Tijdens het onderzoek is binnen het plangebied is geen essentiële vliegroute vastgesteld.

Er zijn foerageerplekken nabij het kasteel vastgesteld. Voorgenomen plannen hebben geen effect op deze gebieden en hebben geen invloed op de functionele leefomgeving.

Het verdient de aanbeveling om tijdens werkzaamheden rekening te houden met de aanwezigheid van vleermuizen door het plangebied (en omgeving) tussen zonsondergang en zonsopkomst niet extra te verlichten.

Conclusie

Bij doorgang van de werkzaamheden is het aanvragen van een ontheffing met betrekking tot vleermuizen noodzakelijk. Dit gaat om een ontheffing voor het vernielen van een paarverblijfplaats met twee individuen. De ontheffing wordt aangevraagd bij de Provincie Gelderland, welke momenteel een doorlooptijd van 20 weken kent.

Bij tijdelijke mitigatie van paarverblijfplaatsen geldt een gewenningsperiode van 6 maanden voor de aanvang van het paarseizoen. Dit betekent dat de voorzieningen uiterlijk half februari aanwezig moeten zijn alvorens er aangevangen kan worden met werkzaamheden.

5.7.3.3 Quickscan Flora & Fauna (2)

Met het bovenstaande onderzoek is nog niet het gehele plangebied afgedekt. Om deze reden is er een verdere Quickscan uitgevoerd ter plaatse van de huisnummers 28,30 en 32 aan de Herenstraat (Buiting Advies B.V., rapportnummer 2020-176, d.d. januari 2021, Bijlage 11). Dit onderzoek is op 4 december 2023 aangepast. Hieronder is de conclusie van het onderzoek opgenomen. Voor het volledige onderzoek wordt verwezen naar Bijlage 11.

Negatieve effecten op huismussen, vleermuizen en steenmarters kunnen als gevolg van de voorgenomen werkzaamheden niet worden uitgesloten. Voor deze soortgroepen is aanvullend onderzoek noodzakelijk om vast te stellen of deze soorten gebruik maken van het gebouw.

5.7.3.4 Aanvullend Fauna onderzoek (2)

Op basis van de resultaten van de Quickscan Wet natuurbescherming is een vervolgonderzoek (Buiting Advies B.V. ,rapportnummer 2021-018, d.d. 28 oktober 2021, Bijlage 12) uitgevoerd.

afbeelding "i_NL.IMRO.0296.CTRSpoorstraatHere-OW01_0021.png"

Figuur: Weergave onderzoekslocatie

De resultaten van het aanvullend onderzoek zijn hieronder weergegeven. Voor het volledige onderzoek wordt verwezen naar Bijlage 12 bij dit bestemmingsplan.

Huismus en steenmarter

Tijdens het onderzoek is geen voortplantings- of rustplaats van een huismus of steenmarter vastgesteld. Wel zijn huismussen in de tuin aangetroffen. De huismussen hadden echter geen binding met de woning. Het groen dat verdwijnt betreft geen onderdeel van hun essentiële leefgebied. De constarering dat het verdwijnende groen geen onderdeel van het essentiële leefgbied uitmaakt, wordt verder onderbouwd in paragraaf 5.7.3.5.

Uit dit onderzoek blijkt daarmee dat de voorgenomen werkzaamheden niet zullen leiden tot vernieling of beschadiging van een voortplantingsplaats of rustplaats van de steenmarter.

Van een overtreding van de Wet natuurbescherming ten aanzien van de huismus en steenmarter is dan ook geen sprake.

Vleermuizen

Tijdens het onderzoek zijn geen voortplantings- of rustplaatsen van vleermuizen aangetroffen. Uit dit onderzoek blijkt daarmee dat de voorgenomen werkzaamheden niet zullen leiden tot vernieling of beschadiging van voortplantings- of rustplaatsen van vleermuizen

Van een overtreding van de Wet natuurbescherming ten aanzien van de steenmarter, gierzwaluw en steenmarter een vleermuizen is dan ook geen sprake.

Vliegroutes en foerageerplaatsen

Tijdens het onderzoek zijn binnen het plangebied geen essentiële vliegroutes of foerageerplaatsen vastgesteld.

5.7.3.4.1 Advies op basis van de algemene zorgplicht

Broedperiode

De werkzaamheden die bestaan uit vellen van bomen en struiken of andere werkzaamheden die tot verstoring kunnen leiden van broedende vogels dienen buiten de indicatieve broedtijd (1 maart - 31 juli) uitgevoerd te worden. Echter is het ook buiten de indicatieve broedperiode is nog mogelijk dat vogels broeden. Daarnaast zijn coniferen jaarrond groen, waardoor een visuele inspectie lastig is. Om uit te sluiten dat er gebroed

wordt dient een check uitgevoerd te worden door een ecoloog of er geen in gebruik zijnd nest aanwezig is, maximaal drie dagen voordat de werkzaamheden van start gaan.

Aanwezige bomen

De in het openbaar gebied aanwezige bomen moeten blijven gehandhaafd. Omdat ze vlak tegen het plan aan staan is het noodzakelijk hier tijdens de bouw afdoende beschermende maatregelen voor te treffen.

Deze maatregelen moeten, niet alleen dienen voor de bescherming van stam en kroon, maar ter bescherming van de ondergrondse groeiplaats. De maatregelen voor de bescherming van de ondergrondse groeiplaats, beschermen tegen het optreden van verdichting van de bodem door bouwverkeer en plaatsen materiaal of materieel. Dit alles geldt ook voor het groen en de bomen aan de overzijde van de straat.

5.7.3.4.2 Conclusie ecologische onderzoeken

Met de uitvoering van de twee aanvullende onderzoeken is de gehele onderzoeklocatie onderzocht. Op basis van de resultaten zal er een ontheffing voor dwergvleermuizen moeten worden aangevraagd voor de locatie van het eerste aanvullende onderzoek bij de Provincie Gelderland. Dit betreft de kadastrale percelen, gemeente Wijchen, sectie H, 2180; 3011; 4659; 4660; 5365; 5367. Deze percelen behoren bij de huisnummers, Herenstraat 36 en 40 en de Spoorstraat 49; 51; 53; 55 en 57.

5.7.3.5 Notitie Essentieel leefgebied voor de huismus

De gemeente heeft in de conceptfase van het voorliggende plan gereageerd op het nader ecologisch onderzoek aan de Herenstraat 28,30 en 32. In het onderzoek is geconstateerd dat de huismussen geen binding met de woning hadden en het groen dat verdwijnt geen onderdeel van hun essentiële leefgebied betreft. Vanuit de gemeente Wijchen werd gevraagd om deze constatering verder te onderbouwen. De ecoloog van Buiting Advies is gevraagd om hierop te reageren. De reactie op de vraag van de gemeente is hieronder uitgewerkt.

In het naderonderzoek (Bijlage 12) wordt geconcludeerd dat in de woning geen nestgelegenheden van huismus zijn aangetroffen. Hiermee wordt een functie als voortplantingsplaats binnen de onderzochte woningen op basis van het Aanvullend onderzoek voldoende uitgesloten. Tevens wordt gesignaleerd dat in de tuin huismussen zijn waargenomen. Vervolgens wordt de conclusie getrokken dat deze huismussen geen directe binding met de woningen hebben. En dat klopt natuurlijk omdat er in de woningen geen nestlocaties van huismus zijn aangetroffen.

Is het groen dat verdwijnt ook geen onderdeel van het essentiële leefgebied?

Waarnemingen van huismussen in de tuin impliceert in ieder geval dat het plangebied door huismus bezocht wordt. Tijdens het onderzoek is goed opgelet hoe huismussen verder gebruik van het plangebied maken (dus rustend in struiken, foeragerend in het plangebied etc.) en ook hoe het gebruik van de omgeving is. Als bijlage is de afbeelding uit de Nationale Databank Flora en Fauna (NDFF) met waarnemingen van huismus in de laatste 5 jaar toegevoegd. Deze waarneming worden weergegeven op onderstaande afbeelding.

afbeelding "i_NL.IMRO.0296.CTRSpoorstraatHere-OW01_0022.png"

Figuur: Uitsnede waarnemingen Huismus (Bron: NDDF)

Op de bovenstaande kaart is te zien dat de meeste waarnemingen van huismus westelijk, redelijk ver van het plangebied, liggen. In die omgeving is de groenopbouw ook veel geschikter voor huismus. Dat laat ook de als onderstaande afbeelding met 'geschiktheid huismussen' zien.

afbeelding "i_NL.IMRO.0296.CTRSpoorstraatHere-OW01_0023.png"

Figuur: Geschiktheid huismussen, waarbij blauw geschikt is en rood niet geschikt (Bron: Buiting Advies)

Rond het plangebied (in rood) is sprake van een meer versteende omgeving, terwijl meer (noord)westelijk (blauw) wel geschikt leefgebied aanwezig is. Huismuspopulaties zullen waarschijnlijk in het versteende gebied (rood) niet genoeg dekking en voedsel kunnen vinden, ondanks dat hier mogelijk wel kansrijke broedplaatsen liggen (vandaar dat in QS huismus niet kan worden uitgesloten, terwijl Naderonderzoek toch uitwijst dat er geen nestlocaties aanwezig zijn, alhoewel het dak wel geschikt is).

Concluderend ligt het plangebied waarschijnlijk aan de randzone van een huismussenpopulatie. Of de waarneming in de tuin incidenteel is geweest of dat de tuin inderdaad een deel uit maakt van de functionele leefomgeving is niet eenduidig te beantwoorden. Wat we wel weten is dat het om een beperkte hoeveelheid 'groen' gaat en dat er in westelijke richting veel geschikt leefgebied aanwezig is. Leefgebied dat ook wordt gebruikt. Ons voorstel is dan ook om in de nieuwbouw (voldoende) nestlocaties voor huismus op te nemen en de groene omgeving rond de bebouwing (vooral) als leefgebied voor huismus in te richten. De kans is dan groot dat het leefgebied van huismus hierdoor in oostelijke richting wordt uitgebreid. Het creëren van leefgebied voor huismus kan (naast het aanbrengen van nestlocaties) door:

Ontwikkelen van dekkingsmogelijkheid

  • Aanplant van doornige struiken als vuurdoorn en meidoorn, groenblijvende heesters, klimplanten als klimop of wingerd, beukenhagen, en dergelijke binnen 5 à 10 meter (bij voorkeur binnen 2,5 meter) van plekken waar gefoerageerd wordt.
  • Aanplant van opgaand groen binnen 5 à 10 meter (bij voorkeur binnen 2,5 meter) van de plekken waar (door het realiseren van nestlocaties) gebroed kan worden.

Ontwikkeling van slaapgelegenheid

  • Aanbrengen van groenblijvende gevelbegroeiing of ander verticaal groen, bijvoorbeeld met vuurdoorn, klimop en aanplant van groenblijvende heesters (bijvoorbeeld liguster, hulst) of coniferen (bijvoorbeeld taxus).

Ontwikkeling van plekken waar gefoerageerd kan worden

  • In stand houden of ontwikkelen van overhoekjes of stroken ruigte met onkruid als bron voor zaden en kleine zachte insecten;
  • Extensiever beheer van gazons door het terugbrengen van de maaifrequentie naar 1 maal per jaar. Het maaien vindt niet in het najaar plaats.
5.7.3.6 Ontheffing

De ontheffingsaanvragen zijn reeds ingediend voor Buiting Advies. De Provincie Gelderland heeft de aanvraag inmiddels verwerkt. De samenvatting van de ontheffingsaanvraag is toegevoegd als Bijlage 13 bij deze toelichting. De periode waarvoor de ontheffing wordt aangevraagd, begon op 1-5-2022. De periode waarvoor de ontheffing is aangevraagd, eindigt op 1-5-2025.

5.7.3.7 Conclusie Soortenbescherming

Beoogd wordt dat de werkzaamheden, waarvoor een ontheffing is aangevraagd tot mei 2025 zijn afgerond. Op basis van de verleende ontheffing vormt het aspect soortenbescherming geen belemmering voor de periode tot 1 mei 2025.

Voor de aanvraag van de omgevingsvergunning zal een plan van aanpak worden aangeleverd waarin alle zaken rondom de ontheffing en het mitigatieplan staan. In dit PvA zal verwerk worden uitgewerkt dat er rekening gehouden wordt met de huidige bomen en bestaand groen, zodat zorg gedragen wordt voor de bescherming hiervan tijdens de werkzaamheden.

In de omgevingsvergunning moet op aanraden van de gemeente een tekening en PvA komen over hoe de bomen beschermd worden. Met hekwerken onder de kroon- en stambescherming. Op bouwtekeningen moeten deze bomen ook weergeven worden, zodat er voldoende rekening mee gehouden wordt. In de omgevingsvergunning moet de ontheffing Wnb toegevoegd worden. Daarbij moet in tekeningen en plannen duidelijk worden hoe de mitigerende maatregelen en maatregelen uit de ontheffing worden toegepast.

Met behulp van dit PvA, wordt voor het verkrijgen van den omgevingsvergunning aangetoond, hoe invulling wordt gegeven aan alle voorschriften uit de ontheffing, de voorgaande ecologische onderzoeken en de algemene zorgplicht. Dit PvA sluit aan de in paragraaf Paragraaf 4.4.6.besproken aspecten duurzaamheid en natuurinclusief bouwen.

Bij naleving van de vereisten bij de omgevingsvergunningsaanvraag binnen de ontheffingstermijn vormt het aspect soortenbescherming geen belemmering voor het planvoornemen. Binnen de bestemmingsplanprocedure bestaan er geen belemmeringen voor de realisatie van het project.

5.8 Verkeer en parkeren

5.8.1 Verkeer

Voor een goede infrastructurele inpassing van het planvoornemen is een onderbouwing met betrekking tot de verkeersgeneratie uitgewerkt. Hier is rekening is gehouden met het effect van het wegvallen van de bestaande functies en de nieuwe verkeersgeneratie als gevolg van het woningbouwplan.

Gekozen is om de toegang naar de parkeergarage bij het appartementencomplex aan de Herenstraat te realiseren. Aan de hand van de CROW-kengetallen is voor de typen en aantallen woningen aan de hand van de kengetallen de verkeersgeneratie bepaald. De uitkomsten met betrekking tot de verkeersgeneratie is hieronder weergegeven in een resultatentabel.

Type woning   Aantal woningen   Verkeersgeneratie   Totaal Verkeersgeneratie  
Koop (Duur)   26   7,2   187,2  
Huur Midden   17   3,6   61,2  
Huur Vrije Sector   8   5,5   44  
Totaal   51     292,40  

Figuur: Verkeersgeneratie

De Herenstraat ligt in een matig stedelijk gebied in het centrum. De maximum verkeersgeneratie is 7,2 motorvoertuigen(mvt) voor de koopappertementen. Voor de huurappartmenten duur betreft dit een maximum verkeersgeneratie van 5,5 mvt. Bij de middenhuur appartementen is dit 3,6 mvt.

Volgens de CROW norm is de verkeersgeneratie (26x7,2=187,2)+(17x3,6=61,2)+(8x5,5=44) =292,4 verkeersbewegingen. Afgerond moet er dus gerekening gehouden worden met 293 verkeersbewegingen per dag. Uitgaand van 146,5 aankomende en 146,5 vertrekkende auto's op een etmaal, is dat een gemiddelde van nog geen 25 auto's per uur aankomend en vertrekkend.

In de huidige situatie zijn er bedrijven en woningen gesitueerd die eveneens verkeer generen. Bovendien is de locatie gelegen in het centrum, waar vele bezoekers de locatie winkels en horece bezoeken. Deze bezoekers zorgen in de huidige situatie niet voor een hinderlijke verkeersdruk. Door de verkeersgeneratie van de winkels en horece gevestigd in het centrum, kan geconcludeerd worden dat de woningen niet voorzien in een sterk toenemde verkeersdruk in de omgeving.

Bij de uitwerking van de civieltechnische inrichtingsplannen voor de openbare ruimte, zal nader afgestemd worden met de gemeente of er nog verkeersmaatregelen wenselijk zijn daar waar het plangebied aansluit op de omliggende wegen.

5.8.2 Parkeren

Om de parkeerbalans voor de locatieontwikkeling aan de Spoorstraat/ Herenstraat op te maken, is de locatie van het woonprogramma getoetst aan de bestaande en toekomstige situatie. De vergelijking met uiteindelijke verschilbereking is in onderstaande onderbouwing uitgewerkt.

5.8.2.1 Bestaande situatie

In de bestaande situatie is er een parkeerbehoefte voor 7 (gemiddeld) middeldure reguliere woningen, 673 m² winkelvloeroppervlak en 230 m² sportvoorziening (fitness). Daarbij is een maatgevende parkeerbehoefte berekend van maximaal 17.03 parkeerplaatsen, ofwel afgerond naar boven 18 parkeerplaatsen.

In de bestaande situatie is er op eigen terrein voorzien in 6 parkeerplaatsen, c.q. mogelijk te parkeren auto's. Deze mogelijkheden zijn aan de Herenstraat, links (1) en rechts (5) van de fitnessstudio, zie ook navolgend beeld. Dit impliceert dat de overige behoefte van 12 plaatsen is opgelost in het openbaar gebied. Aan de Spoorstraat zijn ter hoogte van het plangebied geen parkeergelegenheden.

5.8.2.2 Toekomstige situatie

Benodigde parkeerplaatsen inclusief bezoekersparkeren

In woningbouwprogramma wordt het gebied gekenmerkt als matig stedelijk, centrum gebied.

In de toekomstige situatie is er een parkeerbehoefte voor:

  • 26 koop appartementen (etages, gemiddeld middelduur in de CROW categorisering);
  • 17 huurappartementen midden huur (etages, gemiddeld middelduur in de CROW categorisering)
  • 8 huurappartementen vrije secter (etages, huur duur in de CROW categorisering).

De gehanteerde norm voor koop/ duur is 2 parkerplaatsen. De huur appartementen worden gesplitst in midden huur met een parkeernorm van 1,5 per appartement en in huur duur (vrije sector) met een parkeernorm van 1,8 per appartement. De berekening van het benodige aantal parkeerplaatsen is weergeven in onderstaande tabel.

Type woning   Aantal   Parkeernorm   Totaal parkeerplaatsen  
Koop (Duur)   26   2   52  
Huur Midden   17   1.5   25,5  
Huur Vrije Sector   8   1,8   14.4  
Totaal   51     91.9  

Daarbij is een maatgevende parkeerbehoefte berekend van maximaal 91,9 parkeerplaatsen, ofwel afgerond naar boven 92 parkeerplaatsen.

afbeelding "i_NL.IMRO.0296.CTRSpoorstraatHere-OW01_0024.png"

Figuur: Uitsnede parkeergarage

Bezoekersparkeren

De gebruikte CROW-normen houden rekening met 0,3 parkeerplaatsen per woning voor bezoekersparkeren. Het aantal parkeerplaatsen voor bezoekers komt neer op afgerond 16 parkeerplaatsen (51 appartementen * 0,3 = 15,3). Deze zijn al meegeteld in het totale aantal van 92 parkeerplaatsen.

Aandeel parkeerplaatsen stallingsgarage bewoners

De parkeerplaatsen in openbaar gebied zijn ook als zodanig benodigd om het bezoekersparkeren (volgens de CROW-systematiek gemiddeld 0,3 per wooneenheid) goed te kunnen faciliteren, aangezien niet alle bezoekers gebruik zullen maken van de parkeervoorzieningen op eigen terrein.

Wanneer er van uitgegaan wordt dat alle bezoekers op openbaar terrein parkeren, moeten op zijn minst alle bewoners kunnen parkeren in de stallingsgarage.

Het aandeel parkeerplaatsen in de stallingsgarage voor bewoners komt hierdoor op 76 parkeersplaatsen (92 pp - 16 pp).

Mobiliteitscorrectie deelauto's

Er bestaat de mogelijkheid om een mobiliteitscorrectie te hanteren door het gebruik van deelauto's. Voor het toepassen van deelauto's geldt echter een maximum van 15%. Dit komt voor het aantal parkeerplaatsen neer op 11 parkeerplaatsen die mogen worden opgevangen met deelauto's (76 x 15% = 11,4).

Benodigde individuele parkeerplaatsne in stallingsgarage

Het aantal benodigde parkeerplaatsen voor individuele bewoners binnen de parkeergarage komt hierdoor neer op 65 parkeerplaatsen (76 pp - 11 pp = 65 pp).

Aantal parkeerplaatsen per saldo

Voor deelauto's wordt de normt 1:5 gehanteerd. Het maximale aantal met deelauto's op te vangen parkeerplaatsen bedraagt 11 pp. 11 pp / 5 = 2,2 deelauto's. Binnen de garage worden 3 deelauto's geplaatst.

Samen met de 65 parkeerplaatsen komt het totale aantal parkeerplaatsen binnen de stallingsgarage op 68 fysieke parkeerplaatsen, die goed zijn voor een parkeerbalans van 76 parkeerplaatsen.

In de huidige situatie wordt gebruik gemaakt van 12 openbare parkeerplaatsen. Wanneer deze 12 parkeerplaasten worden opgeteld bij de 76 parkeerplaatsen op eigen terrein, zal de parkeerdruk op openbaar terrein niet worden vergroot. Zowel in de huidige als ook de toekomstige situatie blijft de daadwerkelijke parkeerdruk 12 parkeerpalatsen. Het totale gerealiseerde aantal parkeerplaatsen komt hiermee op 88.

Effectief gerekend treedt er door de derde deelauto een overschot op van 0,8 deelauto. Dit overschot ligt buiten de toegestane mobiliteitscorrectie van 15% (2,2 deelauto). Door de benodigde 2,2 deelauto's, worden drie auto's geplaatst. In principe blijft er 0,8 onbenut op basis van de mobilteitscorrectie. In werkelijkheid zou het zonde zijn om deze ruimte niet te benutten. Bij een gehanteerde norm van 1:5 betekent, kan dit een overschot van 4 parkeerplaatsen (0,8x5) .

Dispensatie bezoeksparkeren

Totaal worden er 16 bezoekers parkeerplaatsen benodigd. Er zijn er echter buiten de parkeergarage maar 12 beschikbaar. Dit betekent een tekort van 4 parkeerplaatsen. De gemeente heeft aangegeven hiervoor dispensatie te willen verlenen, omdat genoemde 4 plaatsen binnen een redelijke loopafstand van 200 meter van de planlocatie aanwezig zijn.

5.8.2.3 Conclusie

In de bestaande situatie wordt er, zoals hiervoor berekend, reeds gebruik gemaakt van 12 parkeerplaatsen in openbaar gebied. Het uitgangspunt voor de te hanteren parkeeroplossing is dat dit gebruik niet mag toenemen. Dit zou betekenen dat bij een behoefte van 92 plaatsen er minimaal 80 plaatsen op eigen terrein dienen te worden gerealiseerd.

In het bouwplan is een parkeercapaciteit opgenomen van 76 plaatsen op eigen terrein, oftewel 4 plaatsen te weinig. Hierbij zijn de bezoekersparkeerplaatsen meegerekend. Ervan uitgaande dat bezoekers buiten de garage parkeren, moeten 4 bezoekersplaatsen buiten het plangebied worden opgevangen.

Dit betekent per saldo dat er nog een parkeerbehoefte in openbaar gebied resteert die zal toenemen van 12 (bestaand) naar 16 (toekomstig).

De gemeente heeft ingestemd met de dispensatie van 4 parkeerplaatsen voor de planontwikkeling. Dit is in een centrumgebied als in Wijchen inpasbaar omdat genoemde 4 plaatsen binnen een redelijke loopafstand van 200 meter van de planlocatie aanwezig zijn. Daarnaast bestaat de mogelijkheid om een deel van de benodigde bezoekersparkeerplaatsen op te vangen door bezoekers toe te laten in de garage.

Met de verleende dispensatie vanwege voldoende parkeerruimte op loopstand van 200 meter en de mogelijkheid om bezoekers toe te laten in de parkeergarage door het overschot van de deelauto's, kan geconcludeerd worden dat aan de parkeeropgave is voldaan.

5.9 Archeologie

Als wettelijk toetsingskader In Europees verband is het zogenaamde 'Verdrag van Malta' tot stand gekomen. Uitgangspunt van dit verdrag is het archeologisch erfgoed zo veel mogelijk te behouden. Waar dit niet mogelijk is, dient het bodemarchief met zorg ontsloten te worden. Bij het ontwikkelen van ruimtelijk beleid moet het archeologisch belang vanaf het begin meewegen in de besluitvorming.

Sinds 1 september 2007 is de Wet op de Archeologische Monumentenzorg (Wamz) in werking getreden. Deze wet is de Nederlandse uitwerking van het Verdrag van Malta uit 1992. De Wamz is in zijn geheel opgenomen in de Monumentenwet 1988 (Mw art. 38 t/m 60). In de Wamz is vastgelegd dat Rijk, provincies en gemeenten in ruimtelijke plannen rekening houden met het aspect 'archeologie'. De wet beoogt het archeologische erfgoed in hoofdzaak in situ te beschermen.

De op 1 juli 2016 in werking getreden Erfgoedwet heeft de Monumentenwet 1988 deels vervangen als het gaat om archeologie. In de Erfgoedwet is vastgelegd wat onder cultureel erfgoed (waar archeologie onder valt) wordt verstaan. Onderdelen van de Monumentenwet 1988 die de omgang met archeologie in de fysieke leefomgeving betreffen, gaan naar de Omgevingswet. Voor een aantal onderdelen (onder andere bestemmingsplannen) is voor de periode tot inwerkingtreding van de Omgevingswet een overgangsregeling in de Erfgoedwet opgenomen.

Archeologie beleidskaart Gemeente Wijchen

Gemeenten zijn met de inwerkingtreding van Wamz in grote mate verantwoordelijk voor hun eigen bodemarchief. De gemeente Wijchen heeft in 2010 een erfgoedverordening met een in 2009 door RAAP Archeologisch Adviesbureau opgestelde bijbehorende archeologische beleidskaart. Deze archeologische beleidskaart vormt de onderlegger voor het Wijchense archeologiebeleid en is het gemeentelijk toetsingsinstrument voor archeologie bij ruimtelijke ontwikkelingen, bouwplannen en andere bodemverstoringen. Op deze kaart wordt een archeologische verwachtingswaarde toegekend aan een plangebied.

afbeelding "i_NL.IMRO.0296.CTRSpoorstraatHere-OW01_0025.png"

Figuur: Archeologische beleidskaart (Bron: 2009)

Op deze kaart is het plangebied aangewezen als een gebied met een hoge archeologische verwachting, mede door de ligging van de Laag van Wijchen en het feit dat vlak naast een archeologisch zeer waardevol terrein dat is opgenomen in de Archeologische Monumenten Kaart (AMK).

Op korte afstand van het plangebied is eerder onderzoek verricht. Op deze kaart zijn enkele vindplaatsen weergeven in de directe omgeving. Hierbij zijn sporen vondsten uit de Romeinse tijd tot en met de Nieuwe tijd aangetroffen.

Volgens de kaart is archeologisch onderzoek verplicht bij een ingrepen met een oppervlakte groter dan 60m². Aangezien het planvoornemen voorziet in een ontwikkeling groter dan 60m² is archeologisch onderzoek noodzakelijk.

afbeelding "i_NL.IMRO.0296.CTRSpoorstraatHere-OW01_0026.png"

Figuur: Archeologische terreinen, vondslocaties en onderzoeken uit Archis (Bureau voor Archeologie, Rapportnr. 1286)

5.9.1 Archeologisch Bureau- en inventariserend veldonderzoek

Vanwege de hoge archeologische verwachting is door Bureau voor Archeologie een bureauonderzoek in combinatie met een inventariserend veldonderzoek uitgevoerd (Bureau voor Archeologie; rapportnr. 1286; Onderzoeksmeldingsnummer ISSN 2214-6687; d.d 2 november 2023). Dit onderzoek is als Bijlage 14 bij deze Toelichting.

Resultaten bureauonderzoek

Uit het bureauonderzoek blijkt dat het plangebied op de noordflank van een rivierduin ligt. Onder de rivierduinafzettingen liggen Pleistocene afzettingen (Formatie van Kreftenheye en Laag van Wijchen). In de top van de rivierduinafzettingen heeft zich waarschijnlijk een podzolprofiel gevormd. Hierop ligt vermoedelijk een humeus (plaggen)dek en een ophogingspakket.

Sinds het ontstaan van de rivierduinen in het Laat Paleolithicum is het gebied geschikt voor bewoning. In en rondom Wijchen en het plangebied zijn vindplaatsen bekend uit de Bronstijd tot en met de Middeleeuwen en zijn vondsten gedaan die op zijn vroegst dateren uit de prehistorie. Aan het begin vande 19e eeuw is bebouwing aanwezig in het plangebied. Mogelijk heeft deze bebouwing middeleeuwse voorlopers, mede gezien de aanwezigheid van het aangrenzende kasteelterrein waar al bebouwing heeft gestaan in de 14e eeuw. De 19e eeuwse bebouwing wordt rond 1900 gesloopt. De oudste huidige bebouwing dateert uit 1937 en 1938.

Archeologische verwachting

Tijdens het booronderzoek zijn vijf boringen gezet met einddieptes tussen 320 en 450 cm -mv. Hieruit blijkt dat de bodem bestaat uit rivierduinafzettingen op rivierafzettingen (de Laag van Wijchen) en Pleistocene beddingafzettingen.

Aanbevolen wordt om eventuele archeologisch resten op te sporen (kartering) en daarna te waarderen. Rondom boorpunten 2, 3 en 4 betreft dit de resten in de top van rivierduinafzettingen en de eventuele resten van historische erven. Bij boorpunten 1 en 5 betreft het resten uit het Paleolithicum op de overgang van de rivierduinafzettingen naar de Laag van Wijchen.

Archeologische resten uit het Neolithicum tot en met de Middeleeuwen in de top van de rivierduinafzettingen zullen zich voornamelijk manifesteren als een sporenniveau. Dit geldt tevens voor de resten van historische erven uit de Nieuwe tijd. De meest geschikte methode voor het karteren en waarderen van dergelijke resten is een proefsleuvenonderzoek. Omdat de zone gedeeltelijk bebouwd is, wordt aanbevolen om het onderzoek uit te voeren na de sloop van de huidige bebouwing.

Archeologische resten uit het Paleolithicum zullen zich voornamelijk manifesteren als een strooiing van artefacten. Dergelijke resten zijn op te sporen door middel van een karterend booronderzoek of proefputten. Gezien de diepteligging van het niveau wordt aanbevolen eerst een karterend booronderzoek uit te voeren. Mogelijk is dit niveau ook onder de bebouwing nog intact, dus dienen de boringen na de sloop van de huidige bebouwing uitgevoerd te worden in de groen gearceerde zone in onderstaand figuur. Het waarderen van eventuele archeologische resten in dit niveau zou daarna met proefputten moeten worden gedaan.

Advies

In het midden, noorden en oosten van het plangebied kunnen nog archeologische resten van historische erven en resten in de top van rivierduinafzettingen aanwezig zijn. Door de beoogde ingrepen kunnen eventuele archeologische resten vergraven worden. Bureau voor Archeologie adviseert om in deze zones een proefsleuvenonderzoek uit te voeren met het doel eventuele archeologische resten te karteren en te waarderen, zoals weergegeven in onderstaand figuur.

afbeelding "i_NL.IMRO.0296.CTRSpoorstraatHere-OW01_0027.png"

Figuur: Verwachtingen en advieskaart op basis van het bureau- en veldonderzoek (Bureau voor Archeologie, Rapportnr. 1286)

De werkwijze van het proefsleuvenonderzoek dient vastgelegd te worden in een door de bevoegde overheid goed te keuren Programma van Eisen (PvE).

In het zuiden en oosten van het plangebied kunnen archeologische resten uit het Paleolithicum aanwezig zijn op de overgang van de rivierduinafzettingen naar de Laag van Wijchen, zoals weergegeven in bovenstaande figuur. Bureau voor Archeologie adviseert om in deze zone na de sloop van de huidige bebouwing een karterend booronderzoek uit te voeren met het doel eventuele archeologische resten te karteren.

5.9.2 Selectieadvies Onderzoeksbureau

Door Bureau voor Archeologie wordt aanbevolen om eventuele archeologisch resten op te sporen (kartering) en daarna te waarderen.

Proefsleuvenonderzoek

Archeologische resten uit het Neolithicum tot en met de Middeleeuwen in de top van de rivierduinafzettingen zullen zich voornamelijk manifesteren als een sporenniveau. Dit geldt tevens voor de resten van historische erven uit de Nieuwe tijd. De meest geschikte methode voor het karteren en waarderen van dergelijke resten is een proefsleuvenonderzoek in de rode zone in figuur 30. Omdat deze zone gedeeltelijk bebouwd is, wordt aanbevolen om het onderzoek uit te voeren na de sloop van de huidige bebouwing.

Karterend booronderzoek

Archeologische resten uit het Paleolithicum zullen zich voornamelijk manifesteren als een strooiing van artefacten. Dergelijke resten zijn op te sporen door middel van een karterend booronderzoek of proefputten. Gezien de diepteligging van het niveau wordt aanbevolen eerst een karterend booronderzoek uit te voeren. Mogelijk is dit niveau ook onder de bebouwing nog intact, dus dienen de boringen na de sloop van de huidige bebouwing uitgevoerd te worden in de groen gearceerde zone in bovenstaand figuur. Het waarderen van eventuele archeologische resten in dit niveau zou daarna met proefputten moeten worden gedaan.

5.9.3 Selectiebesluit Gemeente Wijchen

Aan de hand van het bureau- en inventariserend veldonderzoek is er een selectieadvies afgegeven. Het bovenstaande selectieadvies van Bureau voor Archeologie wordt overgenomen door het bevoegd gezag de gemeente Wijchen.

Dit betekent het volgende:

  • Er is een proefsleuvenonderzoek nodig in de rode zone op bovenstaande advieskaart uit het archeologisch rapport. Dit moet gebeuren na de sloop van de bestaande bebouwing. De bestaande bebouwing moet in verband hiermee zonder extra bodemverstoringen worden uitgevoerd.
  • In de groen gearceerde zone zijn karterende boringen nodig om het diepste potentiële archeologische niveau in kaart te brengen en proefputten om eventuele archeologische resten te waarderen.
  • Deze onderzoeken moeten gezamenlijk een rapport opleveren waaruit de archeologische waardering van het plangebied blijkt. Als blijkt dat er sprake is van behoudenswaardige archeologische vindplaats(en), dan is vervolgonderzoek nodig (archeologische opgraving).
5.9.4 Conclusie & Aanpak aanvullend onderzoek in het kader van de herontwikkeling

Na de sloop van de huidige bebouwing dienten er karterende boringen en onderzoek in de vorm proefsleuvenonderzoek worden uitgevoerd op basis van de advieskaart uit het archeologisch bureau- en verkennend booronderzoek.

De werkwijze van het proefsleuvenonderzoek dient vastgelegd te worden in een door de bevoegde overheid goed te keuren Programma van Eisen (PvE). Doordat dit pas na de sloop kan gebeuren heeft het selectieadvies geen invloed op de bestemmingsplanprodure. Wel wordt de verplichting opgenomen om het bovenstaande besluit op de volgen.

Het aspect archeologie is zodoende afgesloten tot na de vaststelling en begin van de herontwikkeling.

5.10 Cultuurhistorie

Op basis van het Besluit ruimtelijke ordening (Bro) heeft de gemeente Wijchen besloten om samen met de gemeenten Beuningen, Druten en Heumen een beleidsnota cultuurhistorie op te stellen. Deze beleidsnota is de planologische borging van cultuurhistorische waarden binnen de Gemeente Wijchen in de vorm van het 'Parapluplan Cultuurhistorie Wijchen'.

Dit parapluplan voegt een dubbelbestemming toe aan het vigerend bestemmingsplan: 'Waarde - Cultuurhistorisch waardevol gebied'. Op de cultuurhistorische waardenkaart van de gemeente Wijchen is het plangebied aangeduid met een middelmatige tot hoge cultuurhistorische waarde.

In een gebied van middelhoge stedenbouwkundige waarde is dat verband in potentie aanwezig of nog herkenbaar maar aangetast. Het zijn gebieden met een gemiddelde cultuurhistorische en ruimtelijke kwaliteit in de samenhang tussen bebouwing, openbare ruimte en beplanting, en/of enige relatie met de historische en landschappelijke hoofdstructuren.

afbeelding "i_NL.IMRO.0296.CTRSpoorstraatHere-OW01_0028.png"

Figuur: Uitsnede cultuurlandschappelijke waardering (Parapluplan Cultuurhistorie Wijchen)

Het centrum van Wijchen en het beschermd dorpsgezicht vormen een interessant en belangrijk gebied. Om deze reden is er door Pouderoyen Tonnaer al in de voorbereidsfase van het project een Cultuurhistorisch onderzoek uitvoerd (projectnummer P204641, d.d. oktober 2021, Bijlage 16). De Resultaten, conclusies en aanbevelingen van dit onderzoek zijn hier onderzoek weergegeven.

Resultaten

Algemeen

Het centrum van Wijchen en het beschermd dorpsgezicht vormen een interessant en belangrijk gebied. Het oorspronkelijke historische dorpscentrum langs de twee hoofdaders gelegen nabij het Wijchens meer hebben invloed op het dorpse karakter dat in grote delen van Wijchen terug te vinden is. Voor dorpsbewoners heeft het centrum een speciale betekenis, niet alleen de winkelstraten en horeca zijn hier te vinden, ook de cultuurhistorie van Wijchen met het Kasteel, de molen en de omliggende straten is hier terug te vinden. Het dorp is vanuit de kern aan de Markt en het Kasteel uitgegroeid tot wat het nu is, een waardevol gebied dat zich onderscheid ten opzichte van de omliggende gebieden. Het bouwkundig oog ziet in de huidige dorpskern nog steeds de restanten terug van de oorspronkelijke structuren. De aanwezigheid van oude karakteristieke bebouwing en openbare ruimte met verwijzingen naar vroegere tijden zorgt voor een interessante cultuur binnen de dorpskern. Het historische dorpsweefsel is terug te vinden in de korrelgrote, fijnmazigheid en materiaalgebruik terwijl de 20e -eeuwse ontwikkeling Wijchen wel een nieuw gedaante heeft gegeven. De drie periodes waaruit Wijchen is opgebouwd, van agrarisch dorp, tot fabrieksdorp naar de naoorlogse ontwikkeling weven naadloos in elkaar over en vormen het geheel van tegenwoordig. Door middel van de Toelichting beschermd dorpsgezicht is in 2009 een goede stap gezet voor het handhaven van het cultureel materieel erfgoed, want het is van grote waarde voor Wijchen om deze structuren in stand te houden.

Waardering van stedenbouwkundige inpassing

Dat gezegd hebbende, is voor het dubbelpand Spoorstraat 57 Herenstraat 42 geconstateerd dat de relatie en verankering binnen het beschermd dorpsgezicht nauwelijks terug te vinden is. Het gebouw is in haar bouwvorm, ruimtelijke functie en als entree van het winkelgebied van Wijchen een markant element in de route naar het dorpscentrum. Tegelijkertijd vormt het pand een op zichzelf staand element zonder een context van bebouwing met een historische betekenis. Bovendien zorgt de afscheiding van het dorpsgezicht door het kasteel met dichte bebossing ervoor dat een sterke relatie met de verdere bebouwing in dit deel van Wijchen achtergesteld is geraakt. Wij vinden dan ook nader beschouwd de gekozen begrenzing van het dorpsgezicht ter plaatse niet logisch; het bestaande gebouw maakt deel uit van bebouwingswanden langs straten waarvan het wegbeloop en de rooilijnen historische betekenis hebben, maar de bebouwingsstructuur niet. De belangrijkste functie van het gebouw is dat het onderdeel dat het uitmaakt van de gevelwanden langs routes van noord naar zuid over de Herenstraat vanaf de Stationslaan en van oost naar west over de Spoorstraat langs het de kasteeltuin. Het gebouw staat hierbij meer in het zicht als waardig visueel eindpunt dan als hoogwaardig historisch gebouw. Waar de waarde beter is terug te vinden in de aanliggende openbare ruimte, het wegbeloop de rooilijnen daarbij en het contrast met het kasteelpark. De routes langs en tussen de bomenlanen door bieden een aantrekkelijke entree van het winkelgebied en de zichtlijnen naar het kasteel toe zorgen voor een interessant punt om het dorp te verkennen.

Waardering van architectonisch beeld ten opzichte van de bebouwde omgeving

Net zoals het ontbreken van een voormalige relatie met het beschermd dorpsgezicht kan dit ook gezegd worden over de relatie met de bebouwde omgeving. De naastgelegen bebouwing van Bristol en Jumbo zorgen ervoor dat de potentie van de noordelijke entree in enige mate wordt verzwakt, met name de achterkantarchitectuur zorgt voor onaantrekkelijke gevels op een locatie waar je dit niet zou verwachten. Hetzelfde gebeurd door de achterkant van de Bristol, waar de relatie van het hoekpand met de woningen Herenstraat 26 tot 32 wordt onderbroken door witte achterkantarchitectuur. Een betere samenhang binnen de verschillende gebouwen zou een sterkere stedenbouwkundige structuur kunnen bieden binnen het straatbeeld van de Herenstraat. In de huidige situatie is het gebouw samen met vergelijkbare panden in haar omgeving niet meer dan een laatste overblijfsel uit de vooroorlogse geschiedenis, verdere stedenbouwkundige historische verwantschap is in de bebouwde omgeving niet meer afleesbaar.

Advisering

Uit de conclusie blijkt dat de huidige stedenbouwkundige omgeving van het plangebied zodanig is veranderd (in met name de 20e eeuw) dat de sterke historische stedenbouwkundige relatie met de omgeving en de gebieden benoemd in de beschermde dorpskern is afgezwakt. De drie tijdsperiodes die het dorp Wijchen hebben gemaakt tot wat het is hebben gezorgd voor afbrokkeling van de oorspronkelijke samenhang. Het advies om bij nieuwe ontwikkelingen op de locatie van het plangebied terug te verwijzen naar het verleden zal hierbij lastig uit te leggen zijn en zal ook redelijkerwijs niet uitvoerbaar zijn in deze schil rond het centrum. Door de voornaamste functie als entree van het winkelgebied over de Spoorstraat en de recent aangelegde brug naar het kasteelterrein is het aannemelijker om de focus van nieuwe ontwikkeling te leggen op deze routes, dit kan bijvoorbeeld invloed hebben op de oriëntatie en relatie met het dorpscentrum. Kijkend naar de aanvulling op de routes naar het zuidoosten lijkt het logisch om op de locatie een ondersteunde en begeleidende rol te kiezen voor bebouwing (bestaand of nieuw) met een juiste inpassing in de ruimtelijke setting in dit deel van Wijchen. Hieruit kan worden geadviseerd om:

  • Spoorstraat 57 en Herenstraat 42 te behouden dan wel nieuwbouw te plegen waarbij historisch bepaald wegbeloop, rooilijnen en het realiseren van meer samenhangende gevelreeksen ter versterking van de aanlooproute naar het centrum vereist zijn. Tegelijkertijd is behoud van de asymmetrische wegopzet met enerzijds kasteelpark en anderzijds de bebouwingsreeks van belang, waarbij panden naar het kasteelpark en de weg worden gericht.
  • Het Bristol gebouw, en met name de achterkantarchitectuur aan de Herenstraat, te amoveren.
  • De oriëntatie onderdeel te maken van de hoek waarin het pand zich bevindt, het pand heeft een begeleidende rol en het is aan te raden dit voor alle langslopende routes in stand te houden.
  • De korrelgrootte te laten aansluiten op het dorpscentrum.
  • Een waardige relatie te bieden met het kasteelterrein en tegelijkertijd eventuele vervangende nieuwbouw een betere samenhang te geven met omliggende bebouwing als deel van een bebouwingsreeks.
  • Eventuele nieuwbouw ondergeschikt te maken aan het kasteel en het kasteelterrein.

Conclusie

De betekenis van de bebouwing Spoorstraat 57 en Herenstraat 42, bezien vanuit de historische stedenbouwkundige beoordeling, is beperkt tot het element op zich, als zijnde een laatste element met historische betekenis in een verder meer recent getransformeerd bouwblok. Het stratenbeloop, de rooilijntoepassingen en de relatie met het kasteelpark zijn behoudenswaardig en te respecteren. Het gebouw draagt verder niet bij aan de historische stedenbouwkundige context. De betekenis is wat dat betreft nihil vanuit stedenbouwkundig oogpunt, omdat een historische bebouwingsstructuur verwijzend naar het verleden, niet realistisch is en niet terug kan komen in deze omgeving. Vanuit dat oogpunt is behoud van de huidige bebouwing ook niet vereist en is sloop en vervangende bebouwing aanvaardbaar, zolang rooilijnen, wegbeloop en zichtrelatie met het park (park – en straatgerichte voorgevels) worden gerealiseerd.

De structuur van de huidige wijk wordt hiermee niet aangetast en het voornemen wordt zorgvuldig ingepast in het wijkbeeld zonder historische waarden aan te tasten.

afbeelding "i_NL.IMRO.0296.CTRSpoorstraatHere-OW01_0029.png"

Figuur: Omgeving van het plangebied in de loop van de jaren (linksboven 1880, rechtsboven 1940, linksonder 1980, rechtsonder 2020, bron: TopoTijdreis)

De locatie van het plangebied heeft al in 1880 onderdeel uitgemaakt van de bebouwde kom in het centrum naar het kasteel. De topografische kaarten laten zien dat het plangebied teruggaand tot 1880 bebouwd is geweest. Het centrum heeft zoals hierboven omschreven door de loop der jaren een gedaantewisseling ondergaan. Hierbij zijn gebouwen gesloopt en herbouwd en mee gegroeid met de tijd. Met het planvoornemen worden panden gesloopt om weer aan te sluiten bij de huidige vraag. Hiermee wordt meer aangesloten op de huidige tijd en de benodigde woningvoorraad in de centrumomgeving van Wijchen.

Hiermee kan worden geconcludeerd dat het aspect cultuurhistorie geen belemmeringen oplevert voor het planvoornemen.

5.11 Molenbiotoop

Het plangebied ligt binnen de molenbiotoop van de Wijchense Molen. De Wijchense Molen is gebouwd in 1799 in opdracht van de kasteelheer van het Kasteel van Wijchen. De molen wordt nog steeds professioneel gebruikt als korenmolen. In het vigerend bestemmingsplan 'Centrum Wijchen 2013' is ter bescherming van de molenbiotoop de gebiedsaanduiding 'vrijwaringszone - molenbiotoop' opgenomen.

afbeelding "i_NL.IMRO.0296.CTRSpoorstraatHere-OW01_0030.png"

Figuur: De Wijchense Molen

Ter plaatse van de vrijwaringszones gelden, aanvullend op de voor deze gronden aangegeven bestemmingen, nadere regels voor het beschermen van de functie van de molen als werktuig en van de waarde als landschapsbepalend element. Bij nieuwe ruimtelijke ontwikkeling dient rekening gehouden te worden met de biotoop van de molen.

afbeelding "i_NL.IMRO.0296.CTRSpoorstraatHere-OW01_0031.png"

Figuur: Ligging molenbiotoop en molen ten opzichte van het plangebied tussen de Spoorstraat en de Herenstraat in het centrum van Wijchen

De aanduiding 'vrijwaringszone - molenbiotoop' is overgenomen in het bestemmingsplan 'Tussen Kasteel en Wijchens Meer'. Ter plaatse van de aanduiding 'vrijwaringszone - molenbiotoop' worden voorwaarden geschept voor nieuwe bebouwing. In één van de uitwerkingsregels is opgenomen dat bij uitwerking een maximale bouwhoogte moet worden gehanteerd, die op de verbeelding is opgenomen als maatvoering. Bij het bepalen van deze maximale bouwhoogte is vooraf beschouwd of de molenbiotoop wordt gerespecteerd.

Voor het bepalen van de bouwhoogtes binnen een molenbiotoop worden binnen de Gelderse Molenverordening, afhankelijk van de afstand tot de molen, verschillende criteria gehanteerd. Er wordt het volgende onderscheid gemaakt tussen de volgende drie categorieën op basis van de afstand tot de molen.

  • I. Afstand: 0-100 meter

De eerste 100 meter rond een molen moet vrij zijn van obstakels.

Echter:

  • In het geval van een verhoogde molen, zoals een zogenaamde stellingmolen of beltmolen, geldt dat obstakels de eerste 100 meter lager moeten zijn dan het niveau van het laagste punt van de onderste wiek (ondergrens). De ondergrens is bij stellingmolens het stellingniveau.
  • Bij zogenaamde grondzeilers zal het maaiveld de ondergrens vormen.
  • Binnen een afstand van 100 m van de molen mag gebouwd worden tot een bouwhoogte die gelijk is aan de onderste punt van de verticaalstaande wiek van de molen;

afbeelding "i_NL.IMRO.0296.CTRSpoorstraatHere-OW01_0032.png"

Figuur: Visuele weergave van de normen

  • II. Afstand: 100 tot 400 meter
  • Met dit criterium wordt een toegestane hoogte berekend, op basis van een bepaalde afstand van de molen, de lengte van de wieken en de eventueel aanwezige stelling.
  • De met de biotoopformule berekende norm is een oplopende lijn gezien vanuit de molen. Zie punt twee op de bovenstaande afbeelding.

Nieuw te bouwen gebouwen of bouwwerken geen gebouwen zijnde moeten qua hoogte voldoen aan de volgende eisen:

  • Binnen een afstand van 100 m tot 400 m van de molen mag gebouwd worden tot een bouwhoogte gelijk aan de hoogte bepaald met de biotoopformule4 : H(x) = x/n + c*z, waarin:

  • H(x) = maximaal toelaatbare hoogte van een obstakel op afstand x (m);
  • x = afstand van een obstakel tot de molen (m);
  • n = een constante, afhankelijk van de ruwheid van de omgeving en de maximaal toelaatbare windreductie;
  • c = een constante, afhankelijk van de maximaal toelaatbare windreductie;
  • z = askophoogte (helft van de lengte gevlucht
  • + eventueel de hoogte van de belt, berg of stelling).

  • III. Afstand: Groter dan 400 meter
  • Bij een afstand boven de 400 meter wordt de molenbiotoop losgelaten

5.11.1 De berekening van de maximale bouwhoogte

Voor dit planvoornemen geldt dat de oostelijke perceelgrens gelegen is op 280 meter en de westelijke perceelgrens gelegen is op circa 300 meter afstand tot aan de molen.

Binnen een afstand gelegen tussen 100 m en 400 m vanaf de molen moet de bouwhoogte worden bepaald met behulp van de molenbiotoop formule: H(x) = x/n + c*z.

In het geval van de Wijchense Molen worden voor de variebelen de volgende gegevens aangehouden

  • n = 50

Dit is de gegeven constante op basis van de ruwheid van de omgeving en de maximaal toelaatbare windreductie.

  • c = 0,2

Dit is de gegeven constante op basis van de maximaal toelaatbare windreductie.

  • z = 12,75

De vlucht oftewel de spanwijdte van de wieken bedraagt 25,5 meter. De helft hiervan ins 12,75 meter.

  • c*z = 2,55

De berekening van c*z komt neer op 0,2*12.75 = 2,55 meter.

  • +18,4 meter +NAP: De hoogte van de Wijchense Molenbelt

De hoogte van de belt bedraagt op basis van de AHN-kaart van Argisonline gemiddeld 18,4 meter.

afbeelding "i_NL.IMRO.0296.CTRSpoorstraatHere-OW01_0033.png"

Figuur: NAP-Hoogte ter plaatste van de wieken van de molen (bron: AHN-viewer.)

Het bovenstaande betekent dat de bouwhoogte van bouwwerken niet meer bedragen dan de afstand gemeten tussen het bouwwerk en de voet van de molen gedeeld door 50, vermeerderd met 2,55 m. Deze maximale bouwhoogte is gebaseerd op de hoogte van bovenzijde van de molenbelt van 18,4 m +N.A.P. Wanneer het peil ter plekke van de bouwlocatie lager is, mag deze hoogte daarbij opgeteld worden.

Binnen het plangebied worden globaal nieuwe bouwmogelijkheden mogelijk gemaakt. Het peil ter plekke van deze bestemming bedraagt 7,98 tot 8,77 meter ten opzichte van NAP. Dit komt neer op een gemiddelde van 8,4 (8,375) meter ten opzichte van het NAP Het verschil tussen het peil van de molen en het peil van het plangebied bedraagt daarmee minimaal 10 meter.

De afstand tussen de uit te werken bestemming en de molen bedraagt minimaal 280 meter. De maximale bouwhoogte die volgt uit de molenbiotoop, op het dichtst bij de molen gelegen punt van de uit te werken bestemming, bedraagt daarmee:

x = (280 / 50) + 2,55 + (18,4 - 8,375) = 5,6 + 2,55 + 10,025 = 18,175 meter

Op dit gedeelte van het plangebied is een maximale bouwhoogte opgenomen van 16 meter. Daarmee voldoet de maximale bouwhoogte aan de molenbiotoop.

In het westelijke deel van het gebouw aan de zijde van de Spoorstraat bedraagt de maximale bouwhoogte 18.230 meter. Hier bedraagt de afstand echter 300 meter tot aan de molen. Voor deze bouwhoogte geldt dus ook een andere berekening.

x = (300 / 50) + 2,55 + (18,4 - 8,375) = 6 + 2,55 + 10,025 = 18,8 meter

De beoogde bebouwing blijft hiermeer ruim een halve meter onder de toegenane hoogte op basis van de molenbiotoop (18,8 - 18,23 = 0,57 meter).

afbeelding "i_NL.IMRO.0296.CTRSpoorstraatHere-OW01_0034.png"

Figuur: Hoogte Herenstraat

afbeelding "i_NL.IMRO.0296.CTRSpoorstraatHere-OW01_0035.png"

Figuur: Hoogte Spoorstraat 

5.11.2 De ondergrens van de verticale wiek als uitgangspunt

Op basis van een uitspraak 201902226/2/R1 van de Raad van State is het onderste punt van de verticaal staande wiek van de molen het uitgangspunt van de berekening. Ook is er uitgebreid overleg gevoerd met de gemeente Wijchen. Uit dit overleg kwam naar voren dat de hoogte van de molenbelt als uitgangspunt van de berekening dient.

Hierbij kan nog toegevoegd worden, dat de wieken van de molen komen niet in aanraking met het maaiveld. Wanneer de verticale wiek zich op het onderste punt bevindt, blijven er nog een tiental centimeres tussen de onderkant van de wiek het het maaiveld van de molenbelt.

Wanneer de maaiveldhoogte van de bovenkant van de molenbelt aangehouden wordt, kan aangenomen worden dat aan de akkoordbevinding van de Raad van State ruimt wordt voldaan. De NAP-hoogtes van de van digitale hoogtekaart Actuel Hoogtebestand Nederland (AHN) worden als nauwkeurig en geldend bevonden.

5.11.3 Conclusie

Er wordt in het plangebied geen bebouwing mogelijk gemaakt hoger de berekende 18,175 of 18,8 meter. Daarmee voldoen de uitwerkingsregels aan de molenbiotoop en is het belang van de molen als werktuig en de waarde van de molen als landschapsbepalend element geborgd.

5.12 Trillingshinder

Voor het aspect trillingen wordt teruggegrepen op een onderzoek van Peutz ten behoeve van bestemmingsplan CPO Duurzaam Wonsick Wijchen (Peutz b.v., rapportnummer H-7525-3-RA, d.d. 2 oktober 2020, Bijlage 17). Dit plan bevindt zich op ca. 1 kilometer van het planvoornemen langs dezelfde spoorweg. Net als deze locatie is de locatie aan de Sleedoornweg/ Kelvinstraat te Wijchen gelegen binnen een afstand van 100 meter van de spoorlijn Nijmegen-Wijchen. Op deze afstand is er een verhoogde kans op trillingshinder in het plangebied.

Het onderzoek van Peutz b.v. voor de locatie aan de Sleedoornweg/ Klevinstraat op ca. 1 kilometer van het plangebied aan de Spoorstraat/ Herenstraat geeft een beoordeling van de verwachte trillingen in de woningen. Door Peutz zijn in de periode 6 t/m 14 augustus 2020 metingen in de bodem van het plangebied verricht ter hoogte van de woningen die het dichtst bij de spoorlijn zijn geprojecteerd.

Op basis van de verrichte metingen kan worden geconcludeerd dat de, in het kader van trillingshinder, in woningen na te streven waarden voor nieuwe situaties (herhaald voorkomende trillingen) kunnen worden overschreden.

De nieuwbouwlocatie van het bestemmingsplan CPO Wonsick was net als het planvoornemen aan de Spoorstraat/ Herenstraat gelegen in de kern van Wijchen en sluit aan op bestaande bebouwing en vult een bestaande reeds bebouwde ruimte op. De spoorlijn gaat dwars door de kern van Wijchen en dat betekent dat er veel bestaande woningen zijn die veel dichter bij de spoorlijn zijn gelegen dan deze nieuwbouwlocatie. Volgens het onderzoek van Peutz wordt op de nieuwbouwlocatie voldaan aan de normen die gelden in bestaande situaties.

Door bij het ontwerp van de woningen rekening te houden met de mogelijkheid dat er trillingen optreden, kan trillingshinder door treffen van technische maatregelen worden voorkomen. Er is, gezien de conclusie dat het bestemmingsplan uitvoerbaar is en met technische maatregelen bij de uitvoering van de bouw een goed woon- en leefklimaat geborgd kunnen worden, geen aanleiding om hiervoor aanvullende bepalingen op te nemen in de bestemmingsplanregels.

5.13 Leidingen

Door het plangebied lopen geen boven- en/of ondergrondse leidingen die een planologische bescherming genieten (zie paragraaf 5.3). Er is dus op dat gebied geen sprake van (planologische) beschermingszones en/of belangen van derden. Het aspect leidingen vormt geen belemmering voor het planvoornemen.

5.14 Water

Op basis van de wet op de ruimtelijke ordening (Wro) en Besluit ruimtelijke ordening (Bro) is de watertoets verplicht bij o.a. bestemmingsplannen, inpassingsplannen, projectbesluiten en omgevingsvergunningen afwijking bestemmingsplan. Voor overige plannen, zoals een structuurvisie, dient een watertoets te worden uitgevoerd op basis van het Nationaal Bestuursakkoord Water. Het Bro regelt de verplichte waterparagraaf in de plantoelichting (art 3.1.6 Bro) en het vooroverleg met de waterbeheerder (art 3.1.1 Bro).

5.14.1 Watertoets

De watertoets is bedoeld om ruimtelijke plannen en besluiten meer waterbestendig te maken, doordat waterbelangen van gemeente, waterschap en eventueel andere waterbeheerders vroegtijdig en expliciet worden meegewogen. In het ruimtelijk plan moet voldoende rekening zijn gehouden met de waterhuishouding en -voorzieningen.

Voor dit bestemmingsplan is een digitale watertoets uitgevoerd, de resultaten hiervan zijn bijgevoegd als Bijlage 18 bij deze toelichting. Uit deze toets blijkt dat er een korte procedure gevolgd dient te worden. De gemeente doet dit in het regulier overleg met het waterschap.

Op grond van het Besluit Ruimtelijke Ordening moet in de toelichting van ruimtelijke plannen een waterparagraaf worden opgenomen. Hierin wordt beschreven hoe rekening is gehouden met de gevolgen van het plan voor de taken en belangen van het waterschap. Uit de ingevoerde gegevens volgt dat er sprake is van een ruimtelijk plan dat een geringe invloed heeft op de taken en belangen van het waterschap. In deze fase van de planvorming (bestemmingsplan) kan volgens het waterschap worden volstaan met dit automatisch gegeneerd wateradvies. Een aanvraagformulier is vanwege het geringe waterschapsbelang in dit geval niet nodig.

5.14.2 Waterparagraaf

De waterparagraaf beschrijft de wijze waarop rekening is gehouden met de eventuele gevolgen van het ruimtelijk plan voor de waterhuishouding en vice versa. Onderdeel hiervan is een beschrijving van beleidsuitgangspunten en regelgeving, waterhuishoudkundige situatie en –opgaven, meest geschikte oplossingen (motiveren) en de ruimtelijke consequenties daarvan. In de waterparagraaf is tevens het advies van de waterbeheerder verwerkt.

5.14.2.1 Beschrijvingwatersysteem

Het plangebied is gelegen in het centrum van de kern Wijchen. Het maaiveld varieert qua hoogte, maar ligt tussen 8,0 tot 8,8 meter +NAP. Het maaiveld ter plaatse van de onderzoekslocatie is hiermee gelegen op circa 8,4 m+NAP.

De regeionale bodemopbouw en de geohydrologische situatie in het gebied van de onderzoekslocatie zijn samengevat in onderstaande tabel.

afbeelding "i_NL.IMRO.0296.CTRSpoorstraatHere-OW01_0036.png"

Figuur: Schematische voorstelling van de (hydro)geologische situatie (DINOloket, boring B45F0082)

Het freatisch grondwater in de omgeving van de onderzoekslocatie heeft een niveau van circa 5,7 m+NAP. Het grondwater stroomt, indien het niet wordt beïnvloed door lokale factoren zoals ligging van sloten,putten, de aanwezigheid van zandlichamen voor kabels en leidingen of funderingen e.d., in westelijke richting, waarbij mogelijk invloed van de Maas kan worden verwacht.

Doordat de locatie zijn in de bebouwde centrumomgeving van Wijchen bevindt is de origele bodemsoort geroerd. Op basis van bodemkaarten blijkt dat de gronden rondom het centrum van Wijchen voornamelijk bestaan uit grof zand. Uit de beoordeling van globale bodemeigenschappen per te onderscheiden bodemlaag van een bemonstering binnen de locatie valt ook op dat de grond voornamelijk als zandig omschreven kan worden.

afbeelding "i_NL.IMRO.0296.CTRSpoorstraatHere-OW01_0037.png"

Figuur: globale bodemopbouw plangebied

Het plangebied ligt in het peilvak CIT008. De grondwaterstand, gemeten met behulp van een peilbuis, bedraagt 2,70 m-mv. Dit komt neer op circa 5,7 m+NAP (Bron: bodemonderzoek Bijlage 6). In of nabij het plangebied zijn geen A-, B, of C-watergangen gelegen. Op circa 120 meter ter noorden van het plangebied ligt een B-watergang langs het spoor. Op circa 400 meter van het plangebied bevindt zich het Wijchens Meer dat gekenmerkt is al A-watergang.

Hemelwater wordt in de huidige situatie afgevoerd naar het bestaande gemengde rioolsysteem, evenals het afvalwater.

5.14.2.2 Waterbeleid en waterbeheer

Gemeentelijk waterbeleid

Het gemeentelijk waterbeleid is gericht op het voorkomen, beperken of tot een aanvaardbaar risico terugbrengen van wateroverlast en schade aan milieu en volksgezondheid. In de Strategische waternota Wijchen zijn thema's en uitgangspunten voor duurzaam waterbeheer omschreven. Het Gemeentelijk rioleringsplan beschrijft de gemeentelijke zorgplicht voor rioolwater, hemelwater en grondwater. In het kader van de watertoets wordt een vertaalslag gemaakt naar de concrete plansituatie.

Zorgplicht afvalwater

Een perceeleigenaar moet het huishoudelijk afvalwater of het bedrijfsafvalwater op de openbare riolering lozen (Besluit lozing afvalwater huishoudens art. 7 en 10 en Activiteitenbesluit art. 2.1 en 2.2). Als dit niet mogelijk (doelmatig) is, zorgt de perceeleigenaar voor een zo milieuvriendelijk mogelijke manier van verwerking of verwijdering van het afvalwater. De gemeente heeft voor zover doelmatig een zorgplicht voor de inzameling en transport van stedelijk afvalwater dat binnen de gemeente vrijkomt (zie Wm art 10.33).

Zorgplicht hemelwater

Een perceeleigenaar is zelf verantwoordelijk voor het verwerken van het hemelwater op het eigen terrein of voor het eventueel lozen van hemelwater op oppervlaktewater. Als dit niet mogelijk is zorgt de gemeente voor het inzamelen, transporteren en verwerken van het hemelwater, mits doelmatig (Waterwet art. 3.5).

Zorgplicht grondwater

Een perceeleigenaren is zelf verantwoordelijk voor het treffen van maatregelen op eigen terrein om structurele nadelige gevolgen van grondwater voor de aan de grond gegeven bestemming te voorkomen of beperken. Als dit niet mogelijk is treft de gemeente maatregelen in openbaar gebied, voor zover doelmatig en geen verantwoordelijkheid van provincie of waterschap (Waterwet art 3.6).

Zorgplicht oppervlaktewater (Waterschap)

De gemeente valt binnen het beheersgebied van Waterschap Rivierenland. Voor lozing op oppervlaktewater (A-, B- en C-water) heeft de perceeleigenaar een vergunning van het waterschap nodig (Waterwet art. 6.2). Een perceeleigenaar (of aanliggende perceeleigenaar) is verantwoordelijk voor het beheer en onderhoud van oppervlaktewater (B- en C-water volgens de legger van het waterschap) dat op eigen terrein ligt. Het waterschap draagt zorg voor het onderhoud van A-watergangen. Voor ingrepen of activiteiten in of nabij watergangen danwel in of nabij een waterkering heeft een perceeleigenaar een Keur-ontheffing van het waterschap nodig.

5.14.2.3 Leefomgeving en ruimtegebruik

Beleidsuitgangspunten

De gemeente streeft naar integrale inpassing van het watersysteem in de leefomgeving en afstemming op de gebruiksfuncties in het gebied. De ruimtelijke ontwikkeling mag geen nadelige gevolgen hebben voor de waterhuishouding en vice versa. De waterhuishoudkundige situatie moet in overeenstemming zijn met het beoogde grondgebruik.

Water is mede-ordenend bij de ruimtelijke ontwikkeling (juiste functie op de juiste plaats), waarbij tevens rekening is gehouden met de ruimteclaim van waterhuishoudkundige voorzieningen. Wateropgaven zijn gekoppeld aan andere gebiedsopgaven, zoals voor openbaar groen, welzijn, volkshuisvesting, verkeer/vervoer en energie.

Gevolgen van/ voor het plan

In het plan worden aanpassingen gemaakt aan het bestaande watersysteem. Het nu nog volledig verharde en op riool aangesloten gebied wordt ontkoppeld bij de nieuwbouwfase.

Een deel van het hemelwater zal daarbij infiltreren (waar mogelijk) en het resterende deel zal gescheiden worden aangeboden voor aansluiting op een (gescheiden) rioolstelsel.

Uitgangspunt is dat het hemelwater op eigen terrein wordt geborgen en verwerkt. Mocht blijken dat niet de gehele opgave op eigen terrein verwerkt kan worden dan wordt onderbouwd aangegeven op welke wijze het restant wordt verwerkt (openbare ruimte). Dit wordt in samenhang ontworpen met de parkeergarage, waarvan de verdiepte ligging moet aansluiten bij de hemelwatervoorzieningen, zonder dat overlast ontstaat.

De ruimtelijke ontwikkeling heeft geen nadelige gevolgen voor de waterhuishouding en de waterhuishouding heeft geen nadelige gevolgen voor de ruimtelijke ontwikkeling.

5.14.2.4 Kwaliteit en beleving

Beleidsuitgangspunten

De gemeente streeft naar schoon water en waterbodems die voldoen aan gestelde kwaliteitseisen en het behoud van (natte) natuurwaarden en biodiversiteit. Verontreiniging van grond- en oppervlaktewater wordt voorkomen en de waterkwaliteit zo mogelijk verbeterd.

Schoon hemelwater mag rechtstreeks in bodem of op oppervlaktewater worden geloosd. Verontreiniging van hemelwater voorkomen, o.a. door toepassing van niet-uitlogende materialen (Dubo-bepalingen) en door beperking van toepassing van lood, koper, zink en zacht pvc. Verontreinigd hemelwater alleen lozen via een zuiverende voorziening.

De kwaliteit van oppervlaktewater moet zo mogelijk verbeterd worden door de aanleg van natuurvriendelijke oevers en een verbetering van de doorstroming. Het beheer mag geen verstoring geven van waterkwaliteit en biodiversiteit. Ecologisch natte zones of natte natuurwaarden moeten behouden worden of verder ontwikkeld worden door bijbehorende waterhuishoudkundige omstandigheden te beschermen of herstellen.

De gemeente streeft naar versterking van de belevingswaarde van water en daarmee het waterbewustzijn. Hierbij zijn water, waterhuishoudkundige elementen en cultuurhistorische structuren en landschapselementen herkenbaar verweven in de ruimtelijke inrichting en beleefbaar gemaakt. Waterstromen zichtbaar (bovengronds) afvoeren.

Gevolgen van/ voor het plan

Verontreiniging van hemelwater afkomstig van het dak wordt primair voorkomen door toepassing van niet-uitlogende materialen, zoals omschreven in de Dubo-bepalingen, maar ook door beperking van de toepassing van lood, koper, zink en zacht pvc. Hierdoor wordt vervuiling van oppervlaktewater voorkomen.

Voor de afvoer van afval- en hemelwater wordt gebruik gemaakt van de bestaande aansluitingen op het openbare rioolsysteem. Of de bestaande aansluiting daarvoor geschikt is wordt nader bepaald

Er worden geen waterpartijen aangelegd of aangepast. Voor het afvalwater wordt gebruik gemaakt van de bestaande aansluitingen op de openbare riolering. Voor het hemelwater kunnen door de hoogte van het grondwater geen infiltratiekratten worden aangebracht onder de parkeergarage. Doordat de parkeergarage over de gehele oppervlakte van het plangebied wordt gerealiseerd, bestaat er nauwelijks mogelijkheid om infiltratiekratten op eigen terrein te realiseren. De stoep behoort tot de openbare ruimte, waar géén particuliere voorzieningen worden geaccepteerd. Hierdoor zal waterverwerking op eigen terrein moeten worden gerealiseerd.

Er zal worden voorzien in een tussenkomst van waterberging op groene daken met een aansluiting naar het riool (gescheiden aangeboden zodat eventueel op termijn aansluiting op een gescheiden hemelwaterriool mogelijk is).

Daarnaast bestaat er de mogelijkheid om infiltratiemogelijkheden onder groenstrook langs het complex aan te brengen. Een mogelijke oplossing voor regenwaterafvoer en -buffering in stedelijk gebied biedt voor dit project mogelijk de Bufferblock. De werking is vergelijkbaar met die van infiltratiekratten, maar door de hogere sterkte is er een veel dunnere toplaag nodig. Dit resulteert in een minder diepe constructie en een hogere buffercapaciteit. Deze blokken kunnen langs het complex en mogelijk worden aangebracht. Verder wordt onderzocht welke mogelijkheden de parkeergarage en ruimte eronder kan bieden.

Als uit de nadere onderbouwing blijkt dat een gedeelte van het hemelwater niet op eigen terrein verwerkt kan worden, dan mag dit gedeelte lozen op de openbare voorziening. Het hemelwater moet dan op maaiveldniveau aangeboden worden. Daartoe wordt een waterhuishoudingsplan uitgewerkt, waarin wordt onderzocht welke maximale maatregelen mogelijk zijn in eigen gebied (combinatie van grasdaken, onverhard terrein en infitratievoorzieningen onder o.a. parkeerplaatsen.

afbeelding "i_NL.IMRO.0296.CTRSpoorstraatHere-OW01_0038.png"

Figuur: Weergave infiltratie- en bergingsmogelijkheden in aangebracht groen /groen dak

Conclusie

Er is een in wateropgaven gespecialiseerd civieltechnisch bureau ingeschakeld om kwetsbaarheden op het gebied van afstromend hemelwater voor het plangebied in beeld te krijgen. Om dit inzichtelijk te maken wordt een mini-stresstest voor de huidige situatie uitgevoerd. Met deze resultaten kan in de ontwerpfase rekening worden gehouden. Zo kunnen er bijvoorbeeld maatregelen getroffen worden om toestromend hemelwater uit omringend gebied te bergen in randvoorzieningen voordat het voor overlast kan zorgen binnen het plangebied.

5.14.2.5 Klimaatadaptatie

Beleidsuitgangspunten

De gemeente streeft naar een klimaatbestendige en waterrobuuste leefomgeving, anticiperend op hevigere perioden met hitte, neerslag en droogte. Bij ruimtelijke ontwikkelingen worden schadelijke effecten van klimaatverandering (wateroverlast en verdroging) voor het grondgebruik en vice versa beperkt of teruggebracht tot een acceptabel niveau. Waterhuishoudkundige voorzieningen zijn energiezuinig en duurzaam.

Er moet gekomen worden tot een klimaatadaptieve ruimtelijke inrichting, o.a. voor wat betreft bebouwing, wegen, groen en water. Ook is het uitgangspunt dat water bij hevige neerslag in de bebouwing terecht komt of afstroomt buiten het plangebied. De hoeveelheid verhard oppervlak tot een minimum beperken. Zorgdragen voor voldoende waterberging, tegen hemelwateroverlast en ter buffering van water in droge tijden (zie ook waterberging). Groenstructuren klimaatrobuust aanleggen voor wat betreft areaal, type beplanting en waterbergend vermogen.

Grondwateronttrekking (verdroging) beperken door hoogwaardige toepassing van drinkwater en het treffen van waterbesparende voorzieningen. Zo mogelijk hemelwater gebruiken voor laagwaardige toepassingen. Verder bij de ruimtelijke ontwikkeling rekening houden met de droogtegevoeligheid van de locatie en mogelijke bodemdaling die daardoor kan ontstaan.

Gevolgen van/ voor het plan

In onderstaande paragraaf is het aspect waterberging verder toegelicht. Er vindt geen grondwateronttrekking plaats. Bij extreme buien, die vaker kunnen ontstaan door klimaatverandering, is er voldoende afwatering naar het eerder genoemde gemengde rioolstelsel, de infiltratiemogelijkheden langs het complex en de dakbegroening, die nader toegelicht wordt in 5.14.2.6

De openbare riolering van Wijchen is niet ontworpen op klimaatbuien. Dit betekent dat de eventuele afvoer van overtollig hemelwater van het particuliere terrein naar de openbare riolering nooit groter kan zijn dan de bui waarop de openbare riolering is ontworpen. Met andere woorden bij een klimaatbui blijft een deel van de neerslag op het particulierterrein.

Doordat woningen boven straatpeil worden aangelegd en in de omgeving ook de bebouwing boven straatpeil is aangelegd, zal bij een extreme bui allereerst de straat vollopen. bij toepassing van een parkeerkelder zal een drempel worden voorzien, zodat ook die niet volloopt.

Conclusie

Basis het thema klimaatadaptatie en mogelijke klimaatbuien, wordt er voor de ingang van de parkeergarage een drempel aangelegd. De hoogte van de drempel wordt verder uitgewerkt in paragraaf 5.14.2.7 Extreme buien.

Hiermee wordt er voldaan aan de eisen van klimaatadapatatie.

5.14.2.6 Waterberging

Beleidsuitgangspunten

De gemeente streeft naar het vasthouden van gebiedseigen water door benutting van de natuurlijke bergingscapaciteit van bodem en oppervlaktewater. Natuurlijke grondwater- en oppervlaktewaterstanden worden beschermd of hersteld.

Hemelwater afkomstig van verharde oppervlakken zoveel mogelijk afkoppelen van de riolering met de voorkeursvolgorde: 1) Benutting, 2) Bodeminfiltratie binnen het gebied, 3) Berging binnen het gebied, 4) Vertraagde afvoer naar oppervlaktewater buiten het plangebied en 5) Afvoer naar riool.

Compenseren van het verlies aan waterberging, indien hemelwater direct of indirect wordt geloosd op oppervlaktewater. De compensatieplicht (Keur waterschap) houdt in dat de toename van verharding in het ruimtelijk plan moet worden gecompenseerd door aanleg van extra waterberging. Dit met een eenmalige uitzondering van 500 m2 (stedelijk gebied) en 1500 m2 (landelijk gebied) voor particulieren en kleine bedrijven. De compensatieplicht geldt niet in individuele gevallen als op een afstand van 100 m of meer van het oppervlaktewater wordt geïnfiltreerd (beleidsregels Keur artikel 5.16 toetsingscriterium 2).

Infiltratie- en bergingsvoorzieningen, zoals bodempassages en open water, moeten voldoende capaciteit hebben om het hemelwater te kunnen verwerken. En zodanig ruimtelijk ingepast (ruimtebeslag, ligging) dat adequaat functioneren is gewaarborgd.

Gevolgen van/ voor het plan

Op basis van het bodemonderzoek heeft de zandige bodem voldoende infiltratiemogelijkheden. Door het aanbrengen van een groen dak, zal in het plangebied sprake zijn van een effecte afname in oppervlakte van bebouwing en verharding. De oppervlakte van van totale dakbegroening mag worden beschouwd als een reductie van 50%. De bijbehorende rekensom uit uitgewerkt in onderstaande tabel.

Huidige situatie     Nieuwe situatie    
Totale Oppervlakte   2287   Totale Oppervlakte   2287  
Bebouwing   1667   Bebouwing   2087  
Verharding   400   Verharding   100  
Tussensom   2035 m²   Tussensom   2187 m² (+ 152 m²)  
Reductie   Reductie  
Groen dak   0   Groen dak   (-) 50% van 430 m² =
(-)214 m²  
Totaal huidig   2035 m²   Totaal toekomstig   1973 m²  

Figuur: Effectieve afname verhard oppervlak

Perceel 4561 heeft in de huidige situatie nog een tuin van circa 220 m². In de nieuwe situatie wordt ook deze bebouwd. Het perceel 4561 heeft een oppervlak van 472 m². In de nieuwe situatie wordt echter een smalle groenstrook langs het appartementencomplex aangebracht van circa 100 m². Zonder het toevoegen van een groen dak zou er sprake zijn een toename van 152m² aan verharding. Door het toevoegen van een groen dak met behorende reductieregeling van 50 m², wordt de totale toekomstige bebouwde oppervlakte verminderd met circa 62 m².

Overtollig hemelwater opgevangen in het groen dak, kan op maaiveldhoogte worden aangebracht op de groenstrook langs het complex. De waterberging voor het afstromende hemelwater met infiltratiemogelijkheid, wordt gerealiseerd in het plangebied. Zodoende worden hemelwater en vuilwater gescheiden afgevoerd.

Omdat per saldo de oppervlakte bebouwing en verharding in het plangebied bovendien zal afnemen en er in plaats van een geheel gesloten aansluiting op het gemengde stelsel met tussenkomst van infiltratiekoffers een aansluiting wordt gecreëerd met een gescheiden stelsel voor hemelwater, zal de natuurlijke waterhuishouding ter plaatse worden verbeterd.

Daarnaast blijft bij een mogelijke toename de eenmalige toegestane uitzondering van 500 m2 binnen stedelijk gebied. Als eerder aangegeven wordt door initiatiefnemers een waterhuishoudkundig plan uitgewerkt voor de locatie waarin wordt onderzocht hoe een zo groot als mogelijke infiltratiecapaciteit binnen de planlocatie gerealiseerd kan worden. Gezien de centrumligging en te realiseren bouwtaakstelling, zal evenwel er wellicht onvoldoende fysieke ruimte zijn om de bergings- en infiltratieopgave geheel op eigen terrein in te vullen. Zodra inzage bestaat over de mogelijkheden en oplossingen, zal het college van b&w beoordelen of er in deze situatie gemotiveerd afgeweken kan worden van het beleidsuitgangspunt om al het hemelwater op eigen terrein te verwerken.

Het watersysteem zal in de nieuwe situatie hoe dan ook meer robuust en flexibel zijn, omdat nu nog al het water versneld naar een gemengd rioolstelsel wordt afgevoerd. Daar voor in de plaats zal bij het nieuwe plan een zo groot mogelijk deel op eigen gronden geïnfiltreerd worden en alleen dat deel, waarvoor geen fysieke ruimte is voor infiltratie, gescheiden worden aangeboden en aangesloten op een (hemelwater-)afvoer.

Conclusie

Afwijking van de verplichting het hemelwater op het eigen terrein te verwerken is alleen mogelijk als de gemiddeld hoogste grondwaterstand (GHG) te hoog staat en de doorlatendheid van de bodem te slecht is. Beide zijn in dit plan niet aan de orde. De stoep behoort tot de openbare ruimte, waar géén particuliere voorzieningen worden geaccepteerd. Hierdoor zal waterverwerking op eigen terrein moeten worden gerealiseerd.

Om deze reden zal worden voorzien in een tussenkomst van waterberging op groene daken met een aansluiting naar het riool (gescheiden aangeboden zodat eventueel op termijn aansluiting op een gescheiden hemelwaterriool mogelijk is). Daarnaast bestaat er de mogelijkheid om infiltratiemogelijkheden onder groenstrook langs het complex aan te brengen. Een mogelijke oplossing voor regenwaterafvoer en -buffering in stedelijk gebied biedt voor dit project mogelijk de Bufferblock. De werking is vergelijkbaar met die van infiltratiekratten, maar door de hogere sterkte is er een veel dunnere toplaag nodig. Dit resulteert in een minder diepe constructie en een hogere buffercapaciteit. Deze blokken kunnen langs het complex en mogelijk worden aangebracht. Verder wordt onderzocht welke mogelijkheden de parkeergarage en ruimte eronder kan bieden.

Er is een civieltechnisch bureau ingeschakeld om kwetsbaarheden op het gebied van afstromend hemelwater voor het plangebied in beeld te krijgen. Om dit inzichtelijk te maken wordt een mini-stresstest voor de huidige situatie uitgevoerd. Met deze resultaten kan in de ontwerpfase rekening worden gehouden. Zo kunnen er bijvoorbeeld maatregelen getroffen worden om toestromend hemelwater uit omringend gebied te bergen in randvoorzieningen voordat het voor overlast kan zorgen binnen het plangebied.

Vervolg

Op basis van de uitkomsten van het civieltechnisch bureau wordt een overleg met de gemeente gevoerd over de verplichting van waterberging en de mogelijkheden om het hemelwater op het eigen particuliere terrein te verwerken.

Het uitwerken van een wateradies is niet meer mogelijk binnen de ontwerpfase van het voorliggende bestemmingsplan. Het wateradvies en het afstemmingsoverleg met de gemeente zal in een latere fase worden gevoerd. Het deskundige civieltechnische bureau zal adviseren bij het overleg met de gemeente. Voor vaststelling van het plan wordt de oplossing voor waterberging uitgewerkt.

5.14.2.7 Extreme buien

De gemeente Wijchen heeft in 2021 een maaiveldanalyse (stresstest) uitgevoerd. Hieruit blijkt dat de directe omgeving van het plangebied gevoelig is voor water op straat bij extreme neerslag. Bij een bui van 70 mm kan er behoorlijk wat water op straat komen te staan.

afbeelding "i_NL.IMRO.0296.CTRSpoorstraatHere-OW01_0039.png"

Figuur: Uitsnede maaiveldanalyse ter plaatse van het plangebied

Advies

De gemeente Wijchen heeft op basis van de maaiveldanalyse aangegeven dat er aandacht besteed worden aan de gevoelig van het plangbeid bij extreme neerslag. Doordat uit de eerdere stresstest blijkt dat het gebied gevoelig is voor overlast door hevige buien, dient aangetoond te worden dat het plan hier geen effect op heeft en dat mogelijk water op straat geen effect heeft op het plan.

Gevolgen van/ voor het plan

Op aanraden van de gemeente Wijchen is een civieltechnisch bureau ingeschakeld. Dit bureau zal een mini-stresstest uitvoeren die zich richt op het hemelwater over het maaiveld. Op basis van de resulateten wordt er een advies afgegeven over de benodige minimale drempelhoogte bij de inrit van de parkeergarage. Daarnaast zal het bureau adviseren bij het overleg met de gemeente over de verplichting van waterberging en de mogelijkheden om het hemelwater op het eigen particuliere terrein te verwerken.

De aanpak van het onderzoek is hieronder verder uitgewerkt.

Doel

Doel van de mini-stresstest is om kwetsbaarheden op het gebied van afstromend hemelwater voor het plangebied in beeld te krijgen. Om dit inzichtelijk te maken wordt een mini-stresstest voor de huidige situatie uitgevoerd. Met deze resultaten kan in de ontwerpfase rekening worden gehouden. Zo kunnen er bijvoorbeeld maatregelen getroffen worden om toestromend hemelwater uit omringend gebied te bergen in randvoorzieningen voordat het voor overlast kan zorgen binnen het plangebied.

Aanpak

Het bureau berekent de afstroming van hemelwater over het maaiveld vanuit de omgeving en binnen het plangebied. Hierbij wordt op basis van de klimaatbuien zoals aangeven, bepaald op welke plekken binnen het plangebied water zich verzameld en hoe het afstroomt. Deze analyse wordt uitgevoerd door middel van Tygron en gaat uit van de huidige situatie op basis van het Algemeen Hoogtebestand Nederland (AHN4). Door gebruik te maken van situaties met verschillende neerslagintensiteiten wordt de stroomrichting en intensiteit berekend van hemelwater op en over maaiveld.

Het bureau berekent de situatie met de volgende uitgangspunten:

  • Eén berekening met neerslagsituatie 70mm/uur;
  • Eén berekening met neerslagsituatie 90mm/uur;
  • Droge periode van 1 dag na neerslaggebeurtenis;
  • Indien het bureau geen rioleringsdata beschikbaar heeft wordt een aanname op basis van meest waarschijnlijke situatie gedaan;
  • De berekening gebeurt op basis van openbaar beschikbare data.

Middels deze methode kunnen aandachtspunten m.b.t. mogelijk wateroverlast voor het ontwerp in kaart worden gebracht.

Drempelhoogte

In hetzelfde model modelleert het bureau de drempel van de parkeerkelder. Het bureau toetst daarmee welke hoogte deze moet krijgen om instroming van hemelwater te voorkomen.

Rapportage

De resultaten vanuit de mini-stresstest worden samengevat in een notitie met begeleidend kaartmateriaal.

Conclusie

Met behulp van de conclusies uit het onderzoek kunnen de mogelijkheden voor waterberging voldoende in kaart worden gebracht.

5.14.2.8 Gezondheid en veiligheid

Beleidsuitgangspunten

De gemeente streeft naar een veilig watersysteem. Inrichting en beheer van het watersysteem op de planlocatie dient te zijn gericht op het voorkomen of beperken van risico's voor de volksgezondheid en veiligheid.

Risico's van optrekkend vocht primair beperken door ter plaatse van bebouwing te voorzien in voldoende ontwateringsdiepte en drooglegging. Of, als dit niet mogelijk is, door het treffen van maatregelen (bv. kruipruimtevrij bouwen, waterdicht bouwen). Een permanente verandering (verlaging) van grondwaterstanden is daarbij niet toegestaan. Voorts in het plan rekening houden met eventuele risico's van bodemdaling als gevolg van grondwaterstandsdaling (verdroging) of –fluctuatie (zie ook Klimaatverandering). Inrichting en beheer van oppervlaktewater in bebouwd gebied afstemmen op potentieel verdrinkingsgevaar (veilige oevers). Bij de ruimtelijke inrichting rekening houden met locaties waar waterkwaliteit een gezondheidsrisico kan vormen (zoals bij overstorten en stilstaand water).

Gevolgen van/voor het plan

Met het voornemen wordt er een appartementencomplex en grondgebonden woningen gerealiseerd. Het bouwpeil van alle gebouwen binnen het plangebied is gelegen op het maaiveld, behalve het appartementencomplex. Deze krijgt een verdiepte parkeerkelder.

De eerste etage is ten opzichte van de straat licht opgehoogd en is gelegen op ca. 8,4 m + N.A.P. Gelet op wat gesteld is in 5.14.2.1 , kan hiermee voldaan worden aan de eisen voor ontwatering.

5.14.2.9 Advies van de gemeente Wijchen

Vanuit de gemeente zijn op basis van een eerste beoordeling een aantal adviespunten ontvangen. Deze zijn hieronder weergegeven.

  • Er moet aandacht besteed worden aan de maaiveldanalyse van de gemeente. Hieruit blijkt dat het gebied gevoelig is voor overlast door hevige buien. Er dient aangetoond te worden dat het plan hier geen effect op heeft en dat mogelijk water op straat geen effect heeft op het plan.
  • Er dient een indicatie gegeven te worden van hoe hoog de drempel voor de parkeergarage gaat worden om instromend water te voorkomen. Dit dient ook in de conclusie benoemd te worden, aangezien dit een belangrijk punt is om overlast te voorkomen.
  • Er dient in overleg met de gemeente gegaan te worden voor de verplichting om het hemelwater op het eigen particuliere terrein te verwerken.
5.14.2.10 Overleg met waterbeheerder

Formeel overleg met de Waterschap Rivierenland in het kader van de watertoets is volgens de nieuwe beleidslijn van het Waterschap verplicht indien toename verharding > 500 m² (stedelijk gebied) en >1500 m2 (landelijk gebied). Hierop volgt een wateradvies van de waterbeheerder. Het advies van de waterbeheerder dient in de waterparagraaf te worden opgenomen. In overige gevallen kan het ruimtelijke plan (i.c. waterparagraaf) ter kennisneming worden toegezonden aan het waterschap.

Er is een digitale watertoets uitgevoerd. Uitkomst van deze watertoets is dat het initiatief een verkorte watertoetsprocedure kan doorlopen.

Op basis van het advies van de gemeente Wijchen om in overleg te gaan voor de verplichting om het hemelwater op het eigen terrein te verwerken, zal er in het vervolg een ambtelijk overleg plaatsvinden met de gemeente Wijchen, waarin afspraken worden gemaakt over de aanpak en de verplichting van waterberging en de mogelijkheden om het hemelwater op het eigen particuliere terrein te verwerken.

Bij dit overleg zal een civieltechnisch bureau adviseren over de waterhuishoundige mogelijkheden.

5.14.2.11 Conclusie

Op aanraden van de gemeente is er een civieltechnisch bureau ingeschakeld dat bekend is met waterhuishoudkundige opgaven. Voorwaarde voor het plan is het realiseren van een drempel voor de parkeergarage met de minimale aangegeven hoogte. De minimale hoogte van de drempel wordt bepaald door het eerder genoemde civieltechnische bureau.

Zoals hierboven omschreven zullen infiltratiemogelijkheden toenemen in vergelijking met de bestaande situatie. Om de waterverwerking op eigen particulier terrein op te lossen, zal in de volgende fase wordt nader onderzocht welke mogelijkheden daar zijn voor de waterverwerking. Hierbij gemoet gedacht worden aan zowel technisch mogelijkheden als de zoektocht naar fysiek geschikte ruimte.

Het aspect waterhuishouding levert tot dusver geen belemmeringen op voor de uitvoerbaarheid van het voornemen. Naar verwachting worden met het planvoornemen geen ruimtelijke ingrepen gedaan die een negatief effect hebben op waterhuishouding.

5.15 MER beoordeling

Algemeen

Op 21 februari 2011 heeft de wetgever het Besluit milieueffectrapportage en het Besluit omgevingsrecht gewijzigd. De belangrijkste wijziging is onder andere: het meer in overeenstemming brengen van het Besluit m.e.r. met de Europese richtlijn m.e.r. Hierbij hebben onder andere de zogenaamde drempelwaarde voor activiteiten een indicatief karakter gekregen.

Met deze wijziging is bepaald dat voor activiteiten die op de bij het besluit m.e.r. behorende C- en D lijst zijn opgenomen, áltijd aandacht aan m.e.r. geschonken dient te worden. Hierbij dient te worden bepaald of een m.e.r. of m.e.r.-beoordeling noodzakelijk is. In algemene zin komt het erop neer dat voor activiteiten die behoren tot de C-lijst een m.e.r.-plicht volgt en voor activiteiten op die op de D-lijst zijn vermeld volgt óf een m.e.r.-beoordelingsplicht óf een motivering dat een m.e.r.(beoordeling) niet noodzakelijk is. Hierbij is de bij de activiteit behorende drempelwaarde onder andere van belang. Om te bepalen of een activiteit m.e.r.-plichtig of m.e.r.-beoordelingsplichtig is, conform het aangepaste Besluit m.e.r., is het type plan en het soort ontwikkeling van het plan van belang, zoals opgenomen in de Structuurvisie Ruimte (SVIR).

De activiteit die door dit bestemmingsplan mogelijk wordt gemaakt, behoren niet tot de C-lijst, waardoor er geen directe m.e.r.-plicht is. De voorgenomen ontwikkeling, behoort echter wel tot de D-lijst, namelijk onder nummer 11.2 ‘de aanleg, wijziging of uitbreiding van een stedelijk ontwikkelingsproject met inbegrip van de bouw van een winkelcentra of parkeerterrein’.

Met het planvoornemen wordt de woningbouw van 51 woningen mogelijk gemaakt. Gezien de kenmerken van dit plan, betreft dit geen 'stedelijk ontwikkelingsproject' in het kader van het Besluit milieueffectrapportage, omdat:

  • het plangebied in de stedelijk gebied van Wijchen ligt en het niet bouwen van buitengebied betreft;
  • het plangebied al bestemd is met de bestemmingen voor stedelijk gebied;
  • het plangebied momenteel al bouwvlakken en bouwmogelijkheden heeft.

Er is geen sprake van een ‘stedelijke ontwikkeling’ en daarom is het opstellen van een vormvrije m.e.r.-beoordeling niet noodzakelijk. De drempelwaarde voor een m.e.r.-beoordeling is opgenomen in lijst D van het besluit m.e.r. Voor projecten groter dan 100 hectare en meer dan 2000 woningen dient altijd een m.e.r.- beoordeling plaats te vinden. De omvang van de woningbouw is zodanig beperkt dat er geen sprake is van overschrijding van de drempelwaarden is. Dit betekent dat er een vormvrije m.e.r.-beoordeling uitgevoerd kan (maar niet hoeft te) worden.

In bijlage III van de EEG-richtlijn milieueffectenbeoordeling is een aantal beoordelingscriteria opgenomen.

Planbeoordeling (conform bijlage III EEG-richtlijn)

Kenmerken van het project

De realisatie van de woningen en de gebiedstransformatie van een bestaande centrumomgeving is een project van beperkte omvang. Er is in onderhavig plan sprake van een kleine gebiedsontwikkeling met woningbouw. Er is geen sprake van gebruik van natuurlijke grondstoffen, productie van afvalstoffen, verontreiniging en hinder of risico op ongevallen.

Plaats van het project

De gronden zijn gelegen binnen de bebouwde kom van Wijchen, aan de Spoorstraat/ Herenstraat in het centrumgebied. De gronden zijn al bebouwd en verhard.

Kenmerken van het potentiële effect

Gezien de aard van de ontwikkeling zijn er geen negatieve effecten te verwachten. Relatieve rijkdom aan kwaliteit en het regeneratievermogen van natuurlijke hulpbronnen van het gebied is niet aan de orde. Realisatie van het plan heeft geen relevante / significante effecten op bodem, waterhuishouding, verkeersaantrekkende werking luchtkwaliteit, bedrijfshinder en externe veiligheid.

Dit geldt ook voor het aspect flora en fauna. Dit blijkt uit de vorenstaande verantwoording die in dit bestemmingsplan is vervat. Het plangebied ligt op voldoende afstand van Natura 2000 (Uiterwaarden Waal) en het Gelders NatuurNetwerk en zal geen relevante / significante invloed op deze gebieden hebben, zo blijkt uit de stikstioftoets.

Conclusie

De resultaten uit de milieuonderzoeken leveren geen belemmering op voor de beoogde woningbouw.

Hoofdstuk 6 Juridische aspecten

6.1 Algemeen

De in deze toelichting beschreven aspecten hebben als basis gediend voor het opstellen van een juridisch plan, dat zoveel mogelijk is afgestemd op de geldende bestemmingsplannen binnen de gemeente Wijchen. Teneinde het voorgenomen initiatief te kunnen realiseren heeft een juridische vertaling van het plan in planregels en verbeelding plaatsgevonden. De planregels zijn gerelateerd aan de verbeelding. Verbeelding en planregels dienen in onderlinge samenhang te worden bezien en toegepast conform de bepalingen in Wro, Bro en SVBP2012.

6.2 Verbeelding

Op de verbeelding hebben alle gronden binnen het plangebied de bestemming 'Wonen' met bijbehorend bouwvlak en maatvoeringsaanduidingen. Een aantal aanduidingen heeft geen juridische betekenis en is uitsluitend op de analoge verbeelding aangegeven ten behoeve van de leesbaarheid, zoals kadastrale en topografische gegevens op basis van de BGT/BAG.

6.3 Planregels

De planregels zijn opgesteld op basis van de landelijke standaarden zoals vastgelegd in het rapport Standaard Vergelijkbare Bestemmingsplannen (SVBP2012). De planregels zijn conform deze standaard verdeeld in vier hoofdstukken, te weten hoofdstuk 1 'Inleidende regels', hoofdstuk 2 'Bestemmingsregels', hoofdstuk 3 'Algemene regels' en hoofdstuk 4 'Overgangs- en slotregels'.

Hoofdstuk 1, 3 en 4 zijn vrij algemeen van aard en worden niet nader beschreven in deze paragraaf. Onderstaand wordt de gebruikte bestemming toegelicht, zoals opgenomen in hoofdstuk 2 van de planregels.

Wonen (artikel 3)

Binnen de bestemming 'Wonen' zijn binnen het bouwvlak gestapelde levensloopbestendige woningen toegestaan ter plaatse van de aanduiding 'gestapeld' in het aangegeven aantal overeenkomstig de aanduiding 'maximum aantal wooneenheden'. Daarnaast zijn gerelateerd aan de woonbestemming: erven en terreinen, verkeer- en parkeervoorzieningen, groenvoorzieningen, water en waterhuishoudkundige voorzieningen én nutsvoorzieningen toegestaan.

Hoofdstuk 7 Economische uitvoerbaarheid

Volgens artikel 6.12 van de Wro dient tegelijk met de vaststelling van een bestemmingsplan een exploitatieplan worden vastgesteld voor de gronden waarop een bij algemene maatregel van bestuur aangewezen bouwplan is voorgenomen, tenzij het verhaal van kosten van de grondexploitatie anderszins verzekerd is.

Tussen de gemeente Wijchen en de initiatiefnemer is een anterieure overeenkomst en planschade overeenkomst gesloten. Hierin zijn afspraken gemaakt over de verdeling van de kosten en afwenteling van eventuele planschade. De (eventuele) kosten zijn hiermee in voldoende mate anderszins verzekerd. Op grond van het voorgaande kan worden geconcludeerd dat de economische en financiële uitvoerbaarheid van het planvoornemen voldoende is gegarandeerd.

Hoofdstuk 8 Maatschappelijke uitvoerbaarheid

Het planvoornemen bestaat uit de herontwikkeling van bestaande grondgebonden woningen en bedrijfspanden naar een appartementencomplex bestaande uit 51 appartementen. De 51 appartementen bestaan uit 26 koopwoningen, 17 huurwoningen in de middenhuur sector en 8 huurwoningen in de vrije huursector. Hiermee is sprake van een breed aanbod voor een brede doelgroep. In Hoofdstuk 4 is het planvoornemen getoetst aan het geldende Rijks-, provinciaal, regionaal en gemeentelijk beleid én in Hoofdstuk 5 is aangetoond dat met voorliggend plan sprake is van een goed woon- en leefklimaat. Hiermee is sprake van een maatschappelijk aanvaardbaar plan.

Het bestemmingsplan wordt conform de gebruikelijke procedure gedurende zes weken ter inzage gelegd. Tijdens de periode van ter inzage legging kunnen omwonenden, bedrijven, dorps- en stadsraden en andere geïnteresseerden of belanghebbenden reageren op het plan. In dezelfde periode is ook overleg gevoerd met andere overheden over het plan. De resultaten van de terinzagelegging kunnen leiden tot aanpassingen, verbeteringen of wijzigingen van het plan.