direct naar inhoud van Toelichting
Plan: Huurlingsedam 81, Wijchen
Status: ontwerp
Plantype: bestemmingsplan
IMRO-idn: NL.IMRO.0296.HUURlingsedam81-OW01

Toelichting

Hoofdstuk 1 Inleiding

1.1 Aanleiding en doelstelling

Aanleiding voor het opstellen van voorliggend bestemmingsplan is het realiseren van een gedeeltelijke functieverandering en herinrichting van de percelen aan de Huurlingsedam 81 en 81A te Wijchen.

Op het perceel Huurlingsedam 81a is Praktijk voor Kinder- en Jeugdpsychologie Maas en Waal gevestigd. De praktijk kampt met lange wachtlijsten, met als gevolg lange wachttijden voor nieuwe cliënten uit de gemeente Wijchen. De praktijk wil de zorg voor cliënten uit de gemeente Wijchen uitbreiden en zich voor langere tijd vestigen. Zodoende kan men meer cliënten tijdig van passende zorg voorzien en voorkomen dat problemen toenemen, met als gevolg dat zwaardere en ook duurdere zorg nodig is. De huidige praktijkruimte biedt deze mogelijkheden echter onvoldoende.

Het plan is om een nieuwe praktijkruimte te bouwen om beter te kunnen voldoen aan de zorgvragen in de gemeente Wijchen. Daarnaast wordt met de huidige praktijkruimte die vrijkomt bijgedragen aan het oplossen van de wooncrisis. Dit is mogelijk door het perceel Huurlingsedam 81A een nieuwe woonfunctie te geven. Tevens wordt een tweede woontitel toegevoegd met dit plan.

De toevoeging van een nieuwe woonbestemming is planologisch een nieuwe ontwikkeling die als zodanig getoetst wordt door uw gemeente. Binnen de gemeente Wijchen is voor zulke ontwikkelingen het KPI-beleid van toepassing.

afbeelding "i_NL.IMRO.0296.HUURlingsedam81-OW01_0001.png"

Figuur: Globale ligging plangebied (bron: kadviewer.map5.nl)

1.2 Plangebied

Het plangebied ligt in de wijk Huurlingsedam in het stedelijk gebied van Wijchen, aan de Huurlingsedam 81 en 81a, en omvat de kadastrale percelen, gemeente Wijchen, Sectie P nummers 1143, 2756, 2762, 2763, 3097, 3098, 3101 en 3102 met een gezamenlijk oppervlak van ca. 3800m².

afbeelding "i_NL.IMRO.0296.HUURlingsedam81-OW01_0002.png"

Figuur: Plangebied

1.3 Aanpak

De voorgenomen locatieontwikkeling wordt mogelijk gemaakt met een herziening van het bestemmingsplan. De voorliggende toelichting maakt onderdeel uit van het bestemmingsplan 'Huurlingsedam 81, Wijchen' en vormt de juridisch-planologische onderbouwing van het initiatief.

1.4 Geldend bestemmingsplan

De huidige planologische situatie van het plangebied is vastgelegd in het bestemmingsplan 'Buitengebied 1998' (vastgesteld, 26 maart 1998). In dit bestemmingsplan is het plangebied bestemd als 'Woondoeleinden' en als 'Agrarisch gebied, inclusief een agrarisch bouwvlak'.

afbeelding "i_NL.IMRO.0296.HUURlingsedam81-OW01_0003.png"

Figuur: Uitsnede Vigerend bestemmingsplan 'Buitengebied Wijchen 1998'

afbeelding "i_NL.IMRO.0296.HUURlingsedam81-OW01_0004.png"

Figuur: Uitsnede Legenda vigerend bestemmingsplan 'Buitengebied Wijchen 1998'

afbeelding "i_NL.IMRO.0296.HUURlingsedam81-OW01_0005.png"

Figuur: Uitsnede 'Streefbeeld Wijchen' uit het vigerend bestemmingsplan

Het gebied heeft daarnaast de functieaanduiding 'Kernen/ recreatieterreinen buiten plangebied'. Naast de enkelbestemming en functieaanduiding heeft het plangebied een hoge archeologische verwachting.

Overkoepelend is er voor Wijchen het 'Parapluplan Cultuurhistorie Wijchen' opgesteld. Het plangebied valt binnen dit plan, waardoor het plangebied naast archeologisch waardevol ook als cultuurhistorisch waardevol gebied is aangeduid.

Rondom het plangebied bevinden zich de bestemmingsplannen 'Huurlingsedam, fase 1' en 'Huurlingsedam, fase 2'. Deze bestemmingsplan zijn beide vastgesteld in 2017.

Het plangebied is niet meegenomen in deze bestemmingsplannen. Hierdoor is het verouderde bestemmingsplan uit 1998 van toepassing. Doel is om de enkelbestemming 'Agrarisch' te wijzigen naar 'Wonen' en 'Maatschappelijk' en de woonbestemming te actualiseren. Immers is het niet wenselijk dat op locatie de agrarische bedrijfsbestemming zou herleven en daarnaast zijn voor de in de wijk passende woon- en zorgfunctie de bestemmingen wonen en maatschappelijk benodigd.

1.5 Leeswijzer

Dit bestemmingsplan bestaat uit een verbeelding, regels en deze toelichting. De regels en de verbeelding vormen de juridisch bindende elementen van het bestemmingsplan. De toelichting vormt de ruimtelijke onderbouwing van het initiatief en is als volgt opgebouwd:

  • in Hoofdstuk 2 wordt de bestaande situatie in het plangebied beschreven;
  • in Hoofdstuk 3 wordt het voorgenomen plan beschreven;
  • in Hoofdstuk 4 volgt een beschrijving van het ruimtelijke beleidskader dat van toepassing is op het bestemmingsplan;
  • in Hoofdstuk 5 komen de relevante milieu- en omgevingsaspecten aan bod;
  • in Hoofdstuk 6 volgt de beschrijving van het juridische deel van het plan;
  • in Hoofdstuk 7 komt de economische en maatschappelijke aanvaardbaarheid aan bod; hier worden ook de resultaten uit overleg en inspraak besproken en behandeld.

Hoofdstuk 2 Plangebied

2.1 Omgeving van het plangebied

Wijchen is een oude plaats met een geschiedenis die teruggaat tot de middeleeuwen. De plaats heeft een middelgrote bevolking en is bekend om zijn historische kern. Wijchen beschikt over verschillende voorzieningen voor alle leeftijdscategoriën, zoals winkels, restaurants, speeltuinen en scholen.

Het plangebied aan de Huurlingsedam 81 bevindt zich in de wijk Huurlingsdam aan de oostzijde van Wijchen. De wijk Huurlingsedam is een relatief nieuwe buurt waar voorheen nog agrarisch buitengebied was met daarin de straat Huurlingsedam als plattelandslint. Er staat een mix van oude en nieuwe woningen.

De wijk is gelegen ten oosten van de wijk Valendries en ten zuiden van de wijk bekend als de 'Verspreide huizen van Valendries'. Aan de zuidkant wordt de wijk afgesloten door het Wijchens Meer. Aan de andere kant van het Wijchens Meer bevinden zich de wijken De Meren, De Gamert en De Lingert.

Aan de oostkant wordt de wijk afgesloten door de Graafseweg (N324). De weg genaamd Huurlingsdam sluit tevens aan op de Graafseweg, via welke de wijk wordt ontsloten in noordelijke en zuidelijke richting.

Ten oosten van de Graafseweg begint het buitengebied van Wijchen, waar zich vrijstaande huizen, open weilanden en enkele boerderijen bevinden.

afbeelding "i_NL.IMRO.0296.HUURlingsedam81-OW01_0006.png"

Figuur: Uitsnede omgeving plangebied (Bron: Ruimtelijkeplannen.nl)

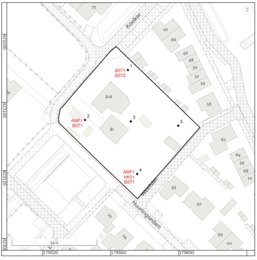
2.2 Huidige situatie

In de huidige situatie zijn op de locatie een praktijkruimte met aanleunwoning en een woonhuis gesitueerd. De praktijk bevindt zich aan de westelijke plangrens. De aanleunwoning is verbonden met de praktijk. Het bestaande woonhuis sluit daarnaast ook aan op zuidelijke gevel van het praktijkgebouw met aanleunwoning. Op dit moment bevinden zich zodoende twee gebouwen op het terrein.

De parkeerplaats behorende tot de praktijk en de woning bevindt zich in de noordwestelijke hoek van de locatie.

In het midden van de tuin bevindt zich nog een tuinhuisje. Aan de oostelijke plangrens is een zwembad gesitueerd langs de Weefster.

De zuidelijke plangrens wordt in de huidige situatie afgesloten met een wintergroene laurierhaag. Daarnaast bevinden zich enkele loofbomen verdeeld over het plangebied.

afbeelding "i_NL.IMRO.0296.HUURlingsedam81-OW01_0007.png"

Figuur: Geo-Obliek bestaande situatie planlocatie

Omdat de bestemmingsplanbegrenzingen aansluiten bij de plannen voor de recentere woonwijkontwikkeling Huurlingsedam, is in dit bestemmingsplan ook een deel van de achtertuin meegenomen, behorende bij de woning aan de Wagenmaker 56. Hier wordt eveneens de woonbestemming aan toegekend, zodat de bestaande situatie ook feitelijk goed bestemd wordt.

Hoofdstuk 3 Planvoornemen

3.1 Herontwikkeling

Het planvoornemen bestaat uit de realisatie van een vrijstaande woning, het transformeren van de huidige praktijkruimte naar een woning met gastenverblijf en het realiseren van een nieuwe praktijkruimte (maatschappelijke functie) naast de Huurlingsedam 81. De gebouwen met de huisnummeraanduidingen Wagenmaker 56 en Huurlingsedam 81 en 81a blijven behouden. Er zullen twee nieuwe gebouwen gerealiseerd worden, een bedrijfspand en een woning. In de nieuwe situatie wordt het aantal hoofdgebouwen op het terrein vergroot van twee naar vier. Planologisch gezien wordt het aantal woningen dus met twee wooneenheden vergroot, waarbij de praktijkruimte tot woning met gastenverblijf wordt omgezet en er aan de noordzijde een nieuwe vrijstaande woning wordt gerealiseerd.

Daarnaast wordt de bedrijfsfunctie (praktijk) verplaatst naar een nieuwbouw. Deze sluit beter aan bij de behoefte aan een ruimere praktijk die ook voldoet aan de hedendaagse wet- en regelgeving. Hier kan aldus op een toekomstbestendige wijze de kinderpsychologiepraktijk worden voortgezet. Deze verplaatsing is daarmee planologisch neutraal evenals de te behouden woning Huurlingsedam 81.

De initiatiefnemers zijn voornemens om op de bovengenoemde locatie, nu nog agrarisch bestemd, maar gelegen binnen de wijkontwikkeling Huurlingsedam, het volgende te realiseren:

  • Behoud van de bestaande woning Huurlingsedam 81 als burgerwoning;
  • Verplaatsing van de carport naar een plek dichter bij de bestaande bebouwing. Ter versterking van het beeld Huurlingsedam wordt de bocht in de Huurlingsedam meer open en groen ingericht ten behoeve van een beter doorzicht en fraaier straatbeeld;
  • Omvorming van het bijgebouw bij de woning, nu aanleunwoning en praktijkruimte, tot woning met gastenverblijf (de huidige aanleunwoning), waarbij het gebouw en het buitenterrein (straatbeeld) worden opgewaardeerd ter versterking van het straatbeeld;
  • Toevoeging van een vrijstaande woning aan de noordzijde van de bestaande praktijkruimte, te ontsluiten vanaf de Huurlingsedam via een dubbele oprit met voornoemd pand;
  • Nieuwbouw van een praktijkruimte met maatschappelijke functie in de zuidoostelijke hoek van het plangebied aan de Huurlingsedam en Weefster;
  • Aanleg van 6 parkeerplaatsen en een representatieve buitenruimte rond de praktijk, waardoor de functie van de praktijk verplaatst wordt (geen nieuwvestiging).

Het college heeft besloten om in te stemmen met het verzoek om principemedewerking te verlenen aan het realiseren van een levensloopbestendige woning, het transformeren van de huidige praktijkruimte naar woning en het realiseren van een nieuwe praktijkruimte aan Huurlingsedam 81 Wijchen.

De aanvraag bestaande uit het principeverzoek met de de aanvulling op het aspect duurzaamheid en het bijbehorende inrichtingsplan zijn toegevoegd als Bijlage 1; Bijlage 2 en Bijlage 3 bij deze toelichting. Het principebesluit tot medewerking is toegevoegd als Bijlage 4 bij deze toelichting. De voorwaarden voor de principemedewerking zijn:

  • Afsluiten van een realisatieovereenkomst met de gemeente.
  • Voeren van een omgevingsdialoog met omwonenden.
  • Uitvoeren van archeologisch inventariserend onderzoek door een gecertificeerd bureau. Het rapport moet worden ingediend bij en goedgekeurd door het bevoegd gezag, de gemeente Wijchen.
  • Naleving van de voornemens uit het principeverzoek (levensloopbestendigheid, duurzaamheid, etc.).

Om de ontwikkeling van de nieuwe praktijk met benodigde parkeervoorzieningen op perceel 3097 mogelijk te maken, zijn het bestaande zwembad en het bijbehorende tuinhuis reeds verder naar het noordoosten in de richting van de Wagemaker 56 verplaatst. Hierdoor is ter plaatse bouwruimte vrijgekomen voor de realisatie van het praktijkgebouw en bijbehorende parkeerplaatsen.

Daarnaast dient de haag aan de zuidelijke plangrens te worden verwijderd om de realisatie van het bedrijfspand mogelijk te maken. De parkeerplaatsen voor het bedrijfspand worden gesitueerd aan de Weefster en Huurlingsedam op het perceel van de eigenaar.

Ter plaatse van de nieuwe woning aan de noordelijke locatiegrens op perceel 3102, zal de bestaande parkeerplaats worden verplaatst om de nieuwe woning mogelijk te maken. In de nieuwe situatie worden nieuwe functies aan de bestaande percelen toegevoegd. Tevens wordt parkeergelegenheid gecreëerd voor de toekomstige woning in het huidige pand.

3.2 Voorlopig ontwerp bouwplan

Er is voor de locatie een inrichtingsplan uitgewerkt. Onderstaande afbeelding geeft de gewenste bebouwing en terreinindeling weer.

afbeelding "i_NL.IMRO.0296.HUURlingsedam81-OW01_0008.png"

Figuur: Figuur beoogde ontwikkeling

De inrichtingsschets is opgenomen als Bijlage 3 bij deze toelichting. De nieuwe woning en het nieuwe bedrijfspand zullen bestaan uit twee woonlagen met een lage kap of één laag met een iets hogere kap. Wat betreft de lanschappelijke inriching zullen de bomen aan de Huurlingsedam behouden blijven. De wintergroene laurierhaag zal worden verwijderd om plaats te maken voor een meer open groenstructuur van gebiedseigen,inheemse beplanting om het straatbeeld te verbeteren.

3.3 Doelgroep

Praktijk (vervangend pand, maatschappelijke functie)

De doelgroep voor de praktijk richt zich op kinderen en jongeren met psychische aandoeningen. Praktijk voor Kinder- en Jeugdpsychologie Maas en Waal heeft een intensieve samenwerking met de gemeente Wijchen. Er is regelmatig contact met jeugdconsulenten om af te stemmen over passende zorg voor kinderen en jongeren en daarnaast is de praktijk betrokken bij ontwikkelingen in de gemeente (in de vorm van deelname aan perceelgesprekken, samenwerking met vaktherapeuten en andere zorginstanties, actieve deelname in het IMH-netwerk etc.). De praktijk levert ook een grote bijdrage aan preventieve zorg voor jongeren in de gemeente Wijchen. Zo heeft de praktijk een samenwerking met het Maaswaal College en met de gemeente en wordt de STAR training aangeboden aan scholieren met milde angst-/ en stemmingsklachten. Het doel is dat zij in de training handvatten krijgen, waardoor zij meer grip krijgen op hun klachten. Daarmee wordt voorkomen dat zij grotere problemen krijgen en zwaardere (en duurdere) zorg nodig hebben. Ook in dat kader is het wenselijk dat de praktijk in de wijk gevestigd blijft, zodoende is deze dichtbij de scholen en gemakkelijk bereikbaar voor samenwerkingspartners.

Het bedrijfspand kent in het plan de volgende kenmerken:

  • Gebruiksfunctie/activiteit: psychologenpraktijk;
  • Vrijstaand pand met twee bouwlagen en een zolder (geen verblijfsruimte, vliering);
  • Afmetingen ca. 10 x 14m;
  • 4 spreekkamers, 1 wachtkamer, 1 ruimte voor backoffice, 2 flexibele ruimten;
  • Max. 6 behandelaren, 6 cliënt(systemen) en 1 backoffice medewerker tegelijktijdig aanwezig;
  • 5 dagen per week geopend van 09.00 t/m 17.00u;
  • Op de begane grond worden behandelkamers gerealiseerd zodat mindervaliden ook gebruik kunnen blijven maken van psychologische hulp.

Levensloopbestendige (senioren)woning (bestaande pand Huurlingsedam 81a)

In het bestaande pand van de Huurlingsedam 81a, waar in de bestaande situatie de praktijk is gevestigd, wordt een woning met (te behouden bestaand) gastenverblijf gerealiseerd waarbij de tuin gericht wordt op de Huurlingsedam. De woning wordt hierbij volledig levensloopbestendig gerealiseerd.

De woning zal worden aangeboden als huurwoning. Hierdoor kunnen de woonmogelijkheden voor senioren, maar ook starters binnen Wijchen en omgeving worden verbeterd. Het woning heeft de volgende kenmerken:

  • Gebruiksfunctie/activiteit: woonfunctie;
  • 1 woonlaag;
  • Afmetingen conform bestaande gebouw;
  • Geschikt als levensloopbestendige seniorenwoning of voor een doelgroep met een levensloopbestendige behoefte;
  • De bestaande ruimte is reeds volledige gelijkvloers en zonder drempels.

Starters (Nieuwe woning)

Aan de noordzijde van het perceel wordt een nieuw woonhuis gerealiseerd. De tuin van deze woning wordt gesitueerd op het zuidoosten. De nieuwbouwwoning wordt gerealiseerd voor één van de dochters uit de familie. Hierdoor kan deze woning worden gezien als starterswoning. De nieuwbouwwoning zal met het oog op de toekomst levensloopbestendig worden ingericht.

Doordat er bij de verhuizing elders een woning vrijkomt, zorgt de realisatie van de nieuwbouw woning voor een verbetering van de woningvoorraad. Hierdoor worden kansen gecreëerd voor starters, maar door het levensloopbestendige karakter ook voor senioren en zorgbehoevenden op de woningmarkt binnen Wijchen en omgeving.

Voor de nieuwe toe te voegen woning aan de noordzijde van het perceel gelden de volgende kenmerken:

  • Twee woonlagen, maar levensloopbestendig;
  • Starterswoning;
  • Oppervlakte ca. 7 x 11 meter;
  • Maximale nokhoogte: 9 meter;
  • Maximale goothoogte: 5 meter.

3.4 Parkeervoorzieningen

De bestaande situatie bij de praktijk is dat er 5 parkeerplekken bij 3 behandelkamers zijn. Er is een ruime parkeerplaats voor fietsen, aangezien er veel cliënten en behandelaren met de fiets komen, omdat de praktijk in de wijk gevestigd is. De 5 plekken zijn nooit allen gelijktijdig bezet; de praktijk wijst uit dat er maximaal 2 a 3 plaatsen gelijktijdig bezet worden.

Rondom de huidige kruising Huurlingsedam/Weefster is een beperkt aantal openbare parkeerplekken aanwezig. Daarom en ook omdat het gemeentelijk beleid vereist dat op eigen terrein wordt voorzien in de parkeerbehoefte, zal er bij de te verplaatsen praktijkruimte een 6-tal parkeerplaatsen worden gerealiseerd, conform het ingediende en goedgekeurde KPI-voorstel.

De psychologenpraktijk heeft geen grote verkeer-aantrekkende werking, zoals ook beschreven in de omgevingsvergunning voor de huidige praktijkruimte OV 20190164 dd. 12-06-2019 art. 3. Gezien het een praktijk betreft voor kind en jeugd komen veel cliënten op de fiets. Om in de parkeerbehoefte te voorzien, wil de initiatiefnemer op eigen terrein 4 parkeerplekken realiseren langs de Weefster en 2 langs de Huurlingsedam voor de parktijkruimte. Voor de woningen blijven of worden 2 parkeerplaatsen per woning op eigen terrein behouden / gerealiseerd en is daarnaast op de ruime opritten bij iedere woning aanvullend parkeergelegenheid aanwezig op eigen terrein. Voor onderbouwing zie Paragraaf 5.8.2.

Tijdens kantooruren dienen de plekken bij de praktijk beschikbaar te zijn voor cliënten en behandelaren. In de avonduren en weekenden wil de initiatiefnemer de parkeerplaatsen beschikbaar stellen aan de omwonenden en haar bezoekers en zo een oplossing bieden voor het gebrek aan openbare parkeerplaatsen. Omdat in de praktijk door de week overdag in woonwijken geen parkeerdruk is, maar in de avonden en weekenden wel, sluit deze overloopmogelijkheid prima aan bij de feitelijke behoefte. Tijdens de openingstijden van de praktijk zijn er in de wijk op voorhand geen parkeerproblemen.

De parkeerplaatsen zijn weergegeven op de tekening van de landschappelijke inpassing. De landschappelijke inrichtingstekening is toegevoegd als Bijlage 3 bij deze toelichting.

3.5 Afwijking geldend bestemmingsplan

De planlocatie is in het geldend bestemmingsplan bestemd met de bestemmingen 'Agrarisch gebied' en 'Woondoeleinden'. Tevens zijn er bouwvlakken opgenomen op dit bestemmingsplan. De nieuwe plannen vallen buiten dit bouwvlak en passen niet in het bestemmingsplan van 1998.

De bouwwerken ter plaatse van huisnummer 81a (voormalig 15A) zijn inmiddels deels gesloopt en maakten voorheen deel uit van de stallen van de voormalige eigenaar.

Om de beoogde ontwikkeling mogelijk te maken dient het huidige bestemmingsplan te worden herzien.

In de nieuwe situatie zullen de burgerwoningen de bestemming 'Wonen' en de praktijk de bestemming 'Maatschappelijk' krijgen.

afbeelding "i_NL.IMRO.0296.HUURlingsedam81-OW01_0009.png"

Figuur: Uitsnede bestemmingsplan Buitengebied 1998

Hoofdstuk 4 Beleidskaders

4.1 Rijksbeleid

4.1.1 Nationale Omgevingsvisie (NOVI)

De Nationale Omgevingsvisie (NOVI) is door het Rijk opgesteld. Aan de hand van een toekomstperspectief op 2050 wordt hierin de langetermijnvisie in beeld gebracht. Op nationale belangen wil het Rijk (net als nu) sturen en richting geven. Hiervoor worden vier prioriteiten onderscheiden:

  • 1. Ruimte voor klimaat adaptatie.
  • 2. Duurzaam economisch groeipotentieel.
  • 3. Sterke en gezonde steden en regio's.
  • 4. Toekomstbestendige ontwikkeling van het landelijk gebied.

Om invulling te kunnen geven aan deze vier prioriteiten hanteert het rijk de volgende drie afwegingsprincipes:

  • 1. Combinaties van functies gaat voor enkelvoudige functies.
  • 2. Kenmerken en identiteit van een gebied staan centraal.
  • 3. Afwentelen wordt voorkomen.

Verduurzaming is het meest urgent in de meest milieubelaste en kwetsbare gebieden, zoals nabij waardevolle natuurgebieden (bijv. met een grote culturele waarde) en grondwaterbeschermingsgebieden, bij gebieden waar de concentratie van bedrijven groot is of aar bedrijven dicht op bewoond gebied zijn gesitueerd.

4.1.2 Besluit algemene regels ruimtelijke ordening

In het Besluit algemene regels ruimtelijke ordening (Barro), ook wel bekend als de AMvB Ruimte, zijn 13 nationale belangen opgenomen die juridische borging vereisen met het oog op een goede ruimtelijke ordening. Het Barro is op 30 december 2011 deels in werking getreden en met enkele onderwerpen aangevuld per 1 oktober 2012. Het besluit is gericht op doorwerking van de nationale belangen in gemeentelijke bestemmingsplannen. Dit betreft onder meer het Nationale Natuurnetwerk (voorheen de Ecologische Hoofdstructuur) en Erfgoederen van uitzonderlijke universele waarde.

Deze ontwikkeling is niet gelegen in of nabij een gebied waarin het Rijk een nationaal belang heeft aangewezen. Het Barro heeft daarom geen consequenties voor het planvoornemen.

4.1.3 Besluit ruimtelijk ordening; ladder voor duurzame verstedelijking

Het Besluit ruimtelijke ordening (Bro) is per juli 2017 op onderdelen gewijzigd. In artikel 3.1.6 van het Bro is de 'motivering duurzame verstedelijking' opgenomen. Deze ladder stelt eisen aan de onderbouwing in bestemmingsplannen die nieuwe stedelijke ontwikkelingen mogelijk maken. De motivering duurzame verstedelijking richt zich op substantiële veranderingen en bouwplannen, die qua aard en omvang zodanig zijn, dat voor mogelijke leegstand elders gevreesd zou kunnen worden. Het doel is om overbodige bouwplannen (kantoren, woningen) te voorkomen en hergebruik te stimuleren.

Per 1 juli 2017 is een aantal wijzigingen op de eerdere ladder van kracht geworden. Op basis van deze gewijzigde tekst geldt in het geval dat het bestemmingsplan een nieuwe stedelijke ontwikkeling mogelijk maakt, dat de toelichting een beschrijving dient te bevatten van de behoefte aan de voorgenomen stedelijke ontwikkeling, de zogeheten Laddertoets.

Voor woningbouwplannen geldt dat voor woningbouwlocaties vanaf twaalf woningen sprake is van een stedelijke ontwikkeling die Ladderplichtig is. Netto vindt er een toename plaats van twee wooneenheden. Een nieuw woonhuis aan de noordkant van het perceel en de functiewijziging van het voormalige praktijkgebouw naar woning. In dit geval is het initiatief dus niet ladderplichtig.

Vanuit de Woondeal 2.0, Woonagenda Subregio Nijmegen en de Woonvisie Gemeente Wijchen 2025 wordt invulling gegeven aan de wens voor kleinschalige nieuwbouw in de kernen van de gemeente. Lokale behoefte is hierin leidend. Plannen moeten in aantallen én programmering aansluiten bij de behoefte.

Het ruimtelijk verzorgingsgebied van het woningbouwproject is beperkt. Het project faciliteert voornamelijk voor inwoners uit het dorp Wijchen en de directe omgeving. De nieuwbouw zal gerealiseerd worden in de nieuwbouwwijk Huurlingsedam. Dit is een wijk waarin veel jonge gezinnen wonen. Binnen de kern van Wijchen is er over het algemeen ook een trend van vergrijzing zichtbaar is. Het plan voorziet in woningen voor beide doelgroepen.

Beoordeling

Met de realisatie van het planvoornemen wordt een levensloopbestendige woningen toegevoegd. Daarnaast wordt er met de realisatie van de starterswoning, elders aanbod gecreëerd.

4.2 Provinciaal beleid

4.2.1 Omgevingsvisie Gaaf Gelderland

Op 19 december 2018 hebben de Provinciale Staten de omgevingsvisie van de provincie Gelderland vastgesteld. De omgevingsvisie is op 1 maart 2019 in werking getreden. De Omgevingsvisie Gaaf Gelderland is een structuurplan van de provincie Gelderland, met als doel een gaaf Gelderland te behouden en te ontwikkelen voor de toekomst. Daarbij staat een gezond, veilig, schoon en welvarend Gelderland centraal.

In de omgevingsvisie is een zevental ambities opgenomen. Deze omvatten, in grote lijnen, de volgende onderwerpen:

  • Energietransitie: van fossiel naar duurzaam
  • Klimaatadaptatie: omgaan met veranderend weer
  • Circulaire economie: sluiten van kringlopen
  • Biodiversiteit: werken met de natuur
  • Bereikbaarheid: duurzaam verbonden
  • Vestigingsklimaat: een krachtige, duurzame topregio
  • Woon- en leefomgeving: dynamisch, divers, duurzaam

afbeelding "i_NL.IMRO.0296.HUURlingsedam81-OW01_0010.png"

Figuur: Omgevingsvisie Gaaf Gelderland: Woon- en leefomgeving

Op het gebied van Woon- en leefomgeving hanteert de Provincie Gelderland de volgende kernbegrippen: dynamisch, divers en duurzaam. Binnen het hoofdstuk Woon- en leefomgeving is opgenomen dat de Provincie streeft naar een duurzaam en divers woon- en leefklimaat dat weet te anticiperen op ontwikkelingen. Hieruit vloeit de ambitie voort binnen Gelderland een aanbod aan woningtypen en woonmilieus passend bij de diversiteit aan woningvraag te realiseren; voor ieder een passende, duurzame woning.

Beoordeling

De twee wooneenheden worden levensloopbestendig gerealiseerd voor een brede doelgroep. Hiermee draagt het initiatief bij aan een divers aanbod in een dynamische wijk. Daarnaast wordt het bestaande gebouw hergebruikt. Het hergebruik van bestaande bebouwing kan als uitermate duurzaam worden omschreven. Het planvoornemen sluit hiermee aan op de kernbegrippen van de Provincie Gelderland.

Gelet op vorenstaande is het planvoornemen in lijn met de woonvisie (vertaald in de Woondeal 2.0) zoals vastgesteld in de Omgevingsvisie Gaaf Gelderland.

4.2.2 Omgevingsverordening Gelderland

De Omgevingsverordening Gelderland is vastgesteld door Provinciale Staten op 24 september 2014 en in werking getreden op 18 oktober 2014. De Omgevingsverordening is voor het laatst geactualiseerd in januari 2023. Voorliggende ontwikkeling zal moeten voldoen aan de regels in de Omgevingsverordening.

De Omgevingsverordening richt zich op de fysieke leefomgeving in de Provincie Gelderland. Het gaat hierbij om regels op het gebied van ruimtelijke ordening, milieu, water, verkeer en bodem. De verordening voorziet ten opzichte van de Omgevingsvisie niet in nieuw beleid en is daarmee dus beleidsneutraal.

De voorliggende ontwikkeling ligt niet binnen een Nationaal Landschap, de Romeinse Limes, de Groene Ontwikkelingszone (GO), het Gelders Natuurnetwerk (GNN) en de Hollandse Waterlinie. De locatie maakt ook geen deel uit van een ganzenfoerageergebied of beschermingsgebied natte landnatuur.

Beoordeling

Voor het plangebied zijn de sectorale bepaling met betrekking tot nieuwe woonlocaties (artikel 2.1.1) van belang. Nieuwe woonlocaties kunnen slechts worden toegestaan wanneer dit past in het vigerende door Gedeputeerde Staten vastgestelde Kwalitatief Woonprogramma successievelijk de door Gedeputeerde Staten vastgestelde kwantitatieve opgave wonen voor de betreffende regio.

Omdat op de planlocatie binnen de wijken van Huurlingsedam reeds woningen zijn voorzien, is deze ook reeds onderdeel van het KWP / Woondeal 2.0. Het vastgestelde Kwalitatief Woonprogramma voor de regio waarin de planlocatie is gelegen betreft de Woonagenda subregio Nijmegen e.o. 2020-2030 (per 1-7-2023 geldt de Woondeal 2.0). In paragraaf 4.3.1 is toegelicht hoe het voornemen binnen deze woonagenda past.

Gelet op het bovenstaande kan worden gesteld dat het ruimtelijk voornemen past binnen de provinciale kaders die worden gesteld in de Omgevingsverordening Gelderland.

4.3 Regionaal beleid

4.3.1 Woondeal 2.0

In de Woondeal 2.0 hebben partijen het streven om 33.000 woningen van 2022 tot en met 2030 toe te voegen; dit betekent een ophoging van de realisatie van nu 3.300 woningen per jaar naar zo’n 3.700 woningen per jaar. Op dit moment is er voor de periode tot en met 2030 voldoende plancapaciteit van minimaal 48.000 woningen, waarvan 13.800 woningen harde plancapaciteit. Deze plancapaciteit ligt geleidelijk boven 130% van de geambieerde nieuwbouw van 33.000 woningen. Daarmee is er in theorie voldoende plancapaciteit en zijn er mogelijkheden om eventueel een grotere productie te realiseren ten behoeve van een toenemende woningbehoefte. Voor de gemeente Wijchen geldt een te realiserenwoningen bruto opgave van 2.080 woningen.

De Woondeal 2.0 richt zich primair op:

  • Continuïteit en versnelling van de bouwproductie;
  • Betaalbare woningen voor lage en middeninkomens;
  • Verstedelijking en gebiedsontwikkeling;
  • Speciale aandacht voor huisvesting van aandachtsgroepen;
  • Klimaatadaptieve, conceptuele en circulaire woningbouw als hefboom voor versnelling en leidend motief voor verduurzaming;
  • Leefbaarheid.

Beoordeling

Het planvoornemen voorziet voornamelijk in het realiseren van de eerste en derde ambitie van de Woonagenda Subregio Nijmegen. Door lokaal in te spelen op de woningbehoefte van de wijkbewoners wordt invulling gegeven aan de wens om voor starters en volgende generaties nieuw woningaanbod te realiseren.

Daarnaast wordt er door bewoning van de te realiseren grondgebonden woningen door familieleden gezorgd voor ruimte op de woningvoorraad. Zodoende zorgt het planvoornemen voor een duurzaam en flexibel woningvoorraad. Verder wordt het met het planvoornemen aangesloten op het karakter binnen de wijk Huurlingsedam.

Hiermee past het plan binnen de ambities, die worden gesteld in de Woondeal Subregio Nijmegen.

4.4 Gemeentelijk beleid

4.4.1 Strategisch Kompas Wijchen

Na een interactief proces is in het Strategisch kompas een overzicht van de volgende zes speerpunten opgenomen:

  • 1. Voldoende woningen voor inwoners in elke levensfase;
  • 2. Aantrekkelijke groene wijken en kernen, met goede voorzieningen en goede bereikbaarheid;
  • 3. Iedereen aan het werk. Bij het vestigen van bedrijven geldt kwaliteit boven kwantiteit;
  • 4. Een sterke, gezonde, sociale samenleving, met oog voor mentale en fysieke gezondheid, preventie, maatwerk en zorg dichtbij huis;
  • 5. Energieneutrale en fossielvrije toekomst;
  • 6. Krachtige samenwerking tussen gemeente(n), inwoners, ondernemers en partners.

Beoordeling

In Wijchen zet de Strategisch Kompas op het behalen van de woningbouwopgaven door de bouw van Wijchen-West, Huurlingsedam, Kraanvogel en Tussen Kasteel en Wijchens Meer. Deze planning loopt op dit moment.

De planlocatie maakt deel uit van de wijk Huurlingsedam. Met het planvoornemen worden er binnen deze wijk twee nieuwe woningen mogelijk gemaakt. Zo wordt er met het planvoornemen bijgedragen aan de realisatie van een gedifferentieerd woningaanbod en er wordt bijgedragen aan de verbetering van de stedenbouwkundige en ruimtelijke kwaliteit en duurzaamheid in de wijk.

Het planvoornemen draagt bij aan het realiseren van verschillende ambities uit dit Strategisch Kompas Wijchen 2035. Het planvoornemen is in lijn met de Stragisch Kompas Wijchen 2035.

4.4.2 Structuurvisie Wijchen

Op 29 mei 2009 is de Structuurvisie Wijchen 2009 vastgesteld. In deze visie wordt een doorkijk gegeven naar de gewenste ontwikkeling van Wijchen. In deze structuurvisie worden de aspecten bodem en water, natuur, landschap, cultuurhistorie en archeologie, wonen, bedrijvigheid, landbouw, recreatie, verkeer en milieu behandeld. Deze structuurvisie geeft een overzicht van de verwachte ontwikkelingen binnen de gemeente Wijchen voor een periode van tien jaar.

De gemeente gaat uit van een compacte groei en het benutten van potenties van bestaand stedelijk gebied zonder daarbij de bestaande kwaliteit aan te tasten, in combinatie met een vitaal platteland en sterke kleine kernen. De planlocatie maakt deel uit van de zone 'bestaand stedelijk gebied'. De Structuurvisie staat alleen nieuwe woningbouwlocaties toe, als er sprake is van kwaliteitsverbetering of transformatie. Dit geldt zowel voor Wijchen als voor de kleinere kernen.

Ten aanzien van nieuwe woningbouwprojecten in het stedelijk gebied zal een zeer zorgvuldige afweging plaats moeten vinden. Bestaande kwaliteiten (zoals de groenstructuur en de essentiële open ruimtes rondom de woonkernen) mogen niet zomaar opgeofferd worden ten behoeve van woningbouw. Indien er sprake is van transformatie of herstructurering van bestaande locaties dan liggen er kansen voor nieuwe woningbouwprojecten.

Binnen de Structuurvisie Wijchen wordt er tevens gesproken over een structurele aanpak van het tekort aan huisvesting voor jongeren, starters en ouderen op korte termijn door deze groepen voorrang te geven in de verschillende woningbouwprogramma's.

afbeelding "i_NL.IMRO.0296.HUURlingsedam81-OW01_0011.png"

Figuur: Kaart Structuurvisie Wijchen

Beoordeling

Op de kaart is de Huurlingsdam gekenmerkt als 'Ontwikkelen Wonen'. Dit bestemmingsplan geeft een maatwerkinvulling binnen het gebied waar transformatie of herstructurering kan worden toegepast voor het realiseren van nieuwe woningbouwprojecten.

Door de herstructurering van de bestaande locatie worden twee nieuwe woningen mogelijk gemaakt. De bestaande kwaliteiten blijven hiermee behouden en zelfs versterkt. Het planvoornemen versterkt de bestaande groenstructuur om het huidige straatbeeld te verbeteren. De bestaande waarde wordt hierdoor niet opgeofferd.

Het initiatief past daarmee binnen de Structuurvisie Wijchen.

4.4.3 Woonvisie Gemeente Wijchen 2025

De Woonvisie Gemeente Wijchen 2025 is opgesteld in februari 2017 als kader dat richting geeft aan ontwikkelingen die Wijchen raken op het gebied van woonmilieu. In deze visie wordt omschreven waar de gemeente moet bijsturen, afremmen of juist versnellen om haar doelen op het gebied van wonen te bereiken

Op het gebied van het gemeentelijk woonmilieu zijn doelen geformuleerd voor een woningaanbod in balans. Zo wil de gemeente Wijchen voor starters, jonge gezinnen, (vitale) senioren en mensen met een zorgvraag meer mogelijkheden op de woningmarkt. Dit vraagt om speciale aandacht voor de woonwensen van deze groepen, maar ook om het aanpassen van het huidige aanbod op deze wensen.

De gemeente vindt het belangrijk dat er aandacht is voor innovatie en vernieuwing in haar visie op wonen om in te spelen op de veranderende woningvraag in de komende jaren. Hierbij ziet de gemeente dat het aantal een- en tweepersoonshuishoudens de komende tijd toeneemt door trends zoals vergrijzing en de toename van alleenstaanden. Meer één- en tweepersoons huishoudens betekent een grotere vraag naar kleinere woningen.

Beoordeling

Het planvoornemen zorgt per saldo voor twee nieuwe, maar kleine wooneenheden die levensloopbestendig worden ingericht. Het realiseren van kleine woonheden is een wens van de gemeente die naar voren kwam in de voorbereidende fase. Kleine wooneenheden behoren tevens tot de behoefte van de gemeente. Het planvoornemen is hiermee in lijn met de transitie naar een woningmarkt met kleinere woningen, bedoeld voor een brede doelgroep. Door de levensloopbestendige inrichting voorziet het plan in toekomst mogelijk in de woonbehoefte van mensen met een zorgvraag.

Hiermee past het planvoornemen binnen de Woonvisie Gemeente Wijchen 2025.

4.4.4 Mobiliteitsvisie Druten Wijchen 'uurzaam onderweg tussen Maas en Waal' en Parkeerbeleidsplan gemeente Wijchen 2016

De gemeentelijke Beleidsvisie is vastgesteld op 28 januari 2021 en schetst de hoofdlijnen van het verkeers- en vervoersbeleid voor een periode van tien jaar. Daarnaast wordt sinds 25 oktober 2016 het Parkeerbeleidsplan gemeente Wijchen gehanteerd. Het parkeerbeleidsplan is op 10 mei 2016 vastgesteld en aangevuld en opnieuw vastgesteld in 2020.

Een belangrijk aandachtsveld is het parkeren. In de parkeerbehoefte wordt voorzien door een passend aanbod van parkeerruimte.

Beoordeling

Gezien de ligging van onderhavige locatie, de goede bereikbaarheid van voorzieningen en openbaar vervoer en de doelgroepen waarvoor gebouwd wordt, wordt er binnen het plangebied voorzien in 12 parkeerplaatsen; 2 per woning en 6 bij de praktijk. Daarnaast zijn er op eigen terrein informeel parkeermogelijkheden op de ruime toeritten bij de woningen.

In paragraaf 5.8 wordt verder ingegaan op het bovenstaande.

4.4.5 Kleinschalige planinitiatieven (KPI)

De toevoeging van een woonbestemming en praktijkgebouw is planologisch een nieuwe ontwikkeling die als zodanig getoetst wordt door de gemeente. Daarvoor is het KPI-beleid van de gemeente Wijchen van toepassing.

Als een inwoner een kleinschalig woningbouwplan wil realiseren, kan hij of zij een principeverzoek indienen. De gemeente Wijchen gebruikt een puntensysteem voor kleinschalige planinitiatieven (KPI) om te beoordelen of het initiatief kans maakt en of het zin heeft om een principeverzoek in te dienen. Door de kwaliteit van het plan te meten aan de hand van verschillende aspecten, kan de gemeente dus bepalen of het plan voldoende potentieel heeft om verder te gaan in de procedure.

Het initiatief is getoetst aan de toetsingscriteria die gelden voor kleinschalig woningbouwinitiatieven. Op thema's 1 tot en met 4 dienen minimaal 4 punten te worden gehaald. Hieraan wordt voldaan; er worden 5 punten of wellicht meer punten behaald. Daarnaast moet op thema 5 minimaal 2 punten worden gehaald. Ook dit is mogelijk. In geen geval komt het verzoek uit op de 'score' XXX, die het initiatief niet aanvaardbaar zou maken. Hieronder is de toetsing van het initiatief aan de KPI beleid nader toegelicht.

Thema 1: puntentabel ruimtelijke kwaliteit

1.1. Locatie binnen de bebouwde kom. (Bordje bebouwde kom is niet altijd de wettelijk bebouwde kom)

Antwoord: ja, de locatie is gelegen binnen de bebouwde kom;

2 punten

1.2. Locatie gelegen in een historisch bebouwingslint, kernrand of een woongebied (bebouwingscluster) in een buurtschap, maar buiten de bebouwde kom.

Antwoord: nee.

1.3. Locatie gelegen buiten de bebouwde kom

Antwoord: nee.

1.4.Locatie gelegen binnen het landschapspark

Antwoord: nee.

Thema 2: puntentabel duurzaam ruimtegebruik

Functieveranderingsbeleid

Duurzaam ruimtegebruik als u een agrarische bestemming met waarde (-1, -2, of -3) of een bedrijfsbestemming omzet naar wonen, en u sloopt daarbij alle op het perceel aanwezige bedrijfsmatige (agrarische) bebouwing?

Antwoord: nee.

Transformatie of herbestemming van bestaand gebouw

Duurzaam ruimtegebruik omdat u een bestaand gebouw gaat gebruiken als woning en/of het gebouw omzet naar de bestemming wonen?

Antwoord: Huurlingsedam 81A, nu nog een aanleunwoning en praktijkruimte, zal als gebouw behouden blijven maar ruimtelijk worden opgewaardeerd door de beeldkwaliteit van de gevels en van de representatieve ruimte tussen het gebouw en de straat op te waarderen, zodat dit beter bijdraagt aan het straatbeeld van de Huurlingsedam.

De kwalitatieve uitwerking hiervan is nader te bepalen in overleg met de Supervisor Huurlingsedam zodra de gemeente in principe akkoord gaat met voorliggende planologische ontwikkeling. Wel wordt het pand behouden en hergebruikt en blijven de aanwezige zonnepanelen behouden. Gevelmatarialisering en -indeling worden verbeterd en de voorruimte wordt van parkeerplaats heringericht tot passende groene inrichting.

1 punt

Transformatie of herbestemming van bestaand gebouw

Duurzaam ruimtegebruik omdat u een bestaande woning splitst in twee woningen waarbij de beide woningen ieder minimaal 300 m³ inhoud hebben?

Antwoord: nee.

Thema 3: puntentabel passende ontwikkeling

3.1 Een passende ontwikkeling, omdat uw initiatief bijdraagt aan de verbetering van de woon- en leefkwaliteit voor de omgeving van uw initiatief.

Antwoord: nee.

3.2 Geen passende ontwikkeling, want u voegt een extra woning toe binnen de bestemming 'agrarisch zonder waarden'?

Antwoord: nee; de locatie is binnen de bebouwde kom gelegen en dient als binnenstedelijk gebied beschouwd te worden zonder een nog uitvoerbare agrarische bestemming.

3.3 Geen passende ontwikkeling omdat u in een woonwijk een bestaand bijgebouw afsplitst van de woning om dat gebouw te gaan gebruiken als woning? (verdichting van de wijk, dit komt de ruimtelijke kwaliteit van de wijk niet ten goede).

Antwoord: nee, dit initiatief behelst een vervangende nieuwbouw voor de op zich in de woonwijk passende praktijkruimte, waarbij de vrijkomende bedrijfsbebouwing wordt hergebruikt voor wonen. De beoogde bebouwingsdichtheid in het plangebied is overigens passend in de wijk en in het straatbeeld van de Huurlingsedam.

3.4 Geen passende ontwikkeling omdat u een woning wilt realiseren achter een bestaande woning waardoor altijd recht van overpad nodig is om de nieuwe woning te bereiken? (dit is tweede lijns bebouwing, een stedenbouwkundig ongewenste ontwikkeling).

Antwoord: nee, er wordt alleen voorzien in eerstelijns bebouwing die aansluit bij de korrel, maat en diversiteit van de lintbebouwing aan de Huurlingsedam. Daarbij wordt meer dan nu ruimte gelaten aan de straatzijde om te komen tot representatieve en overwegend groene en open straatbeelden, ter versterking van het dorpsbeeld. De twee toe te voegen woonfuncties worden met één dubbele, gezamenlijke oprit ontsloten.

Voor een optimale ruimtelijke inpassing is nadere afstemming nodig met de gemeente over een goede aansluiting op de kadastrale scheiding tussen gemeentegrond en gronden van initiatiefnemers. 

Thema 4: puntentabel behoefte

4.1 Voorziet in de behoefte, de woning(en) wordt levensloopbestendig, met alle primaire voorzieningen (o.a. badkamer en slaapkamer) op de begane grond.

Antwoord: ja, zowel de bestaande tot woning om te vormen praktijkruimte als de nieuw toe te voegen woning worden levensloopbestendig gerealiseerd.

2 punten

4.2 Voorziet in behoefte omdat u een gelijkvloerse woning (seniorenwoning) bouwt tot maximaal 100 m² vloeroppervlakte (begane grond) met een dak tot max. 7,5 meter hoog en maximaal 450 m³ inhoud?

Antwoord: de functieverandering van praktijkruimte naar wonen kan hieraan voldoen. Evenwel is nog niet zeker of deze woning ook (uitsluitend) als seniorenwoning benut zal gaan worden, ook al voldoet deze wel aan de daarvoor geldende criteria.

4.3 Voorziet in de behoefte, omdat u een woning splitst waarna de afgesplitste woning een starterswoning is.

Antwoord: nee. De nieuwbouwwoning zal wel als starterswoning worden gerealiseerd, voor één van de dochters uit de familie.

Tabel: puntentabel Duurzaamheid

Omdat initiatiefnemers eerst van de gemeente willen vernemen of de gemeente op stedenbouwkundig niveau en planologisch zal instemmen met dit verzoek, zijn er nog geen bouwplannen uitgewerkt waarmee kan worden aangetoond welke duurzaamheidsaspecten zullen worden uitgevoerd. Maar op voorhand staat vast dat de vereiste 2 punten eenvoudig zullen worden behaald. Zo is de tot woning om te vormen praktijkruimte belegd met zonnepanelen, waardoor in ieder geval meer energie wordt opgewekt dan voor de woning nodig is. Voor het aspect duurzaamheid is er op verzoek van de gemeente een memo opgesteld, zie hiervoor de Aanvulling Duurzaamheid op het PrincipeverzoekHuurlingsedam 81-81A, toegevoegd als Bijlage 2 bij deze toelichting.

Conclusie

In beginsel past deze totaalontwikkeling binnen de planologische mogelijkheden van het KPI-beleid. De vraag die dan resteert is of de gemeente (stedenbouwkundig, op basis van principeverzoek) en de door de gemeente aangestelde Supervisor, ook vanuit stedenbouw en ruimtelijke kwaliteit/ architectuur met deze ontwikkeling kunnen instemmen. Om deze vraag te beantwoorden, wordt er verwezen naar het principebesluit, toegevoegd als Bijlage 4 bij deze toelichting.

Hoofdstuk 5 Milieu- en omgevingsaspecten

5.1 Bedrijven- en milieuzonering

Vanuit het aspect 'goede ruimtelijke ordening' dient er voldoende ruimtelijke scheiding te zijn tussen hinderveroorzakende (o.a. bedrijven) en hindergevoelige functies (waaronder woningen). Voorgaande moet op twee manieren getoetst worden. Enerzijds wordt er gekeken of het perceel zelf veroorzaker is van hinder en anderzijds wordt bekeken of het perceel kwetsbaar is voor hinder. Voor het toetsen van deze ruimtelijke scheiding is de VNG-publicatie 'Handreiking Bedrijven- en milieuzonering' leidend. In deze publicatie zijn voor verschillende soorten bedrijven richtafstanden opgenomen betreffende geluid, geur, gevaar en stof.

Het plan bestaat uit de oprichting van 2 nieuwe wooneenheden en verplaatsing van een maatschappelijke voorziening. Een woning is aan te merken als gevoelig object. Daarom dient ter plekke van de te realiseren woning een goed woon- en leefklimaat gegarandeerd te worden. Bovendien mag het planvoornemen niet leiden tot een belemmering in de bedrijfsvoering voor omliggende bedrijven of hinder voor omliggende woningen. Hiervoor gelden wettelijke normen.

Beoordeling initiatief als ontvanger

In de nieuwe wijk Huurlingsedam, gebaseerd op de bestemmingsplan, Huurlingsedam Fase 1&2, is uitsluitend sprake van woon- en maatschappelijke functies. Op basis van het vigerende bestemmingsplan voor de locatie, zijn in de directe omgeving van het plangebied de bestemmingen 'wonen' en 'agrarisch'gesitueerd. Ter plaatse van de enkelbestemming 'agrarisch' zijn naast agrarisch gebruik ook een bouwvlak met mogelijk een bedrijfslocatie ten behoeve van agrarische doeleinden mogelijk. Binnen de richtafstanden zijn geen andere maatschappelijke functies of bedrijven aanwezig. Omdat de agrarische bestemming wordt weggenomen, bliojven er geen functies of bestemmingen bestaan die tot hinder kunnen leiden van de te realiseren woningen en praktijkruimte in het plangebied.

Beoordeling initiatief als veroorzaker

Agrarische doeleinden en wonen vormen in zeker opzicht een belemmering voor elkaar. Doordat met dit planvoornemen de agrarische functie echter wordt gewijzigd naar wonen, komt deze belemmering te vervallen. De te bestemmen woningen vormen geen belemmering voor de woonomgeving. Dit geldt ook voor de praktijkruimte, die als functie prima passend is in een woonomgeving, zeker wanneer die zoals hier door tussenliggende straten gescheiden is van de meest nabij gelegen woningen. Een praktijkruimte voor kinderpsychologie kan worden aangemerkt als een categorie 2 object, dat passend is in een reguliere woonomgeving.

Dit betekent dat er, ook vanuit de omgekeerde werking, vanuit het aspect bedrijven en milieuzonering, geen belemmeringen bestaan voor de realisatie van het project.

5.2 Geluid

Bij ruimtelijke ontwikkelingen dient op basis van de Wet geluidhinder (Wgh) te worden onderzocht of sprake is van geluidsoverlast, in het bijzonder in verband met verkeer, spoor of bedrijven. In de Wet geluidhinder is bepaald dat ten aanzien van zogenaamde 'geluidsgevoelige objecten' wettelijke eisen gelden ten aanzien van de maximale belasting.

Beoordeling

Het planvoornemen voorziet in het oprichten van 2 nieuwe woningen. Dit zijn verblijfsobjecten die worden gekenmerkt als nieuwe geluidsgevoelige objecten. Wonen is op deze locatie echter al toegestaan. Omliggende wegen zijn 30 km/uur wegen, waardoor een akoestisch onderzoek niet noodzakelijk is. Ook vanuit een goed woon- en leefklimaat is onderzoek niet nodig omdat de wegen in hoofdzaak doodlopend zijn ter plaatse van het plangebied of het einde van een lusvormige ontsluiting vormen en alleen bestemmingsverkeer gebruik maakt van de wegen. Vanwege de zeer beperkte verkeersintensiteiten op de wegen waaraan het plangebied is gelegen, is een goed woon- en leefklimaat geborgd.

Het plangebied ligt daarnaast niet binnen de richtafstand van bedrijven en tevens niet binnen de geluidzone van zoneplichtige (spoor)wegen.

Het initiatief veroorzaakt geen geluidshinder. Derhalve is het aspect "geluid" geen belemmering voor de realisatie van het plan.

Conclusie

Het planvoornemen hoeft in het kader van goede ruimtelijke ordening niet getoetst te worden op geluidbelasting ten gevolge van wegverkeer-; spoorweg- of industrielawaai. Het aspect geluid vormt geen belemmering voor het planvoornemen.

5.3 Externe veiligheid

Externe veiligheid heeft betrekking op locaties waar een ongeval met gevaarlijke stoffen kan plaatsvinden, waardoor personen die geen directe relatie hebben tot de risicovolle activiteit zouden kunnen komen te overlijden. Bij een ruimtelijke besluit voor het toelaten van (beperkt) kwetsbare objecten moet worden getoetst aan risiconormen en veiligheidsafstanden. Dit is met name relevant op korte afstand van risicobronnen. Indien een (beperkt) kwetsbaar object wordt toegelaten binnen het invloedsgebied van een belangrijke risicobron, moet ook het groepsrisico worden verantwoord. Bovendien is het van belang om af te wegen in hoeverre nieuwe risicobronnen binnen een plangebied worden toegestaan.

Voor de beoordeling van een ruimtelijk plan moet voor externe veiligheid worden vastgesteld of het plangebied is gelegen binnen het invloedsgebied van specifieke risicovolle inrichtingen, relevante transportroutes voor het vervoer van gevaarlijke stoffen of relevante buisleidingen. Toetsingskaders zijn het "Besluit externe veiligheid inrichtingen" (Bevi), het "Besluit externe veiligheid transportroutes" (Bevt) en het "Besluit externe veiligheidbuisleidingen" (Bevb). Daarnaast zijn in het Vuurwerkbesluit en het Activiteitenbesluit milieubeheer veiligheidsafstanden genoemd die rond stationaire risicobronnen, niet zijnde een Bevi-inrichting, moeten worden aangehouden.

Het voornemen bestaat uit de realisatie van een vrijstaande woning, het transformeren van de huidige praktijkruimte naar een woning en het realiseren van een vervangende praktijkruimte (maatschappelijke functie). Daarmee worden per saldo twee nieuwe kwetsbare object toegevoegd.

In het kader van externe veiligheid moet worden beoordeeld of het plangebied ligt binnen het invloedsgebied van specifieke risicovolle inrichtingen, relevante transportroutes voor het vervoer van gevaarlijke stoffen of relevante buisleidingen.

Middels Atlas leefomgeving is beoordeeld of de genoemde risicobronnen mogelijk een belemmering vormen voor de invulling van het plangebied. Uit deze boordeling blijkt het volgende:

Transport over het water: Het plangebied bevindt zich niet binnen een invloedsgebied van een waterweg waarover transport van gevaarlijke stoffen plaatsvindt. Een verantwoordingsplicht is derhalve niet aan de orde.

Transport over de weg: Het plangebied ligt niet binnen een plaatsgebonden risicocontour of PAG van wegen in de omgeving. Op basis van de afstand is het niet noodzakelijk de hoogte van het groepsrisico kwantitatief vast te stellen.

Transport over het spoor: Het plangebied bevindt zich niet binnen een invloedsgebied van een spoorweg. Een verantwoordingsplicht is derhalve niet aan de orde.

Buisleiding: Het plangebied bevindt zich niet binnen een 1% letaliteitsafstand of invloedsgebied van een buisleiding waardoor transport van gevaarlijke stoffen plaatsvindt. Een verantwoordingsplicht is derhalve niet aan de orde.

Inrichtingen: Het plangebied ligt niet binnen een veiligheidsafstand of invloedsgebied van een risicovolle inrichting in de omgeving van het plangebied. Een verantwoordingsplicht is derhalve niet aan de orde.

Op basis van de kaart van Atlas Leefomgeving blijkt dat de locatie niet is gelegen op korte afstand van het plangebied. Dichtsbijzijnde risicovolle inrichting is een propaangasopslag ten noordwesten van het plangebied op circa 370 meter afstand gevolgd door een hoogspanningleiding op circa 900 meter afstand ten zuiden van het plangebied.

Conclusie:

Het plangebied bevindt zich hierdoor niet in een aandachtsgebied, waardoor er geen verantwoording van het groepsrisico noodzakelijk is om aan te tonen dat sprake is van een aanvaardbare situatie met betrekking tot externe veiligheid.

Het aspect Externe veiligheid vormt geen risico vormt voor het planvoornemen.

5.4 Bodem

Indien sprake is van een planologische functiewijziging, dient te worden bezien of de milieuhygiënische kwaliteit van de bodem ter plaatse geschikt is voor het voorgenomen gebruik. Voor de ontwikkelingen is door Aelmans Milieu Oss B.V. een verkennend bodemonderzoek uitgevoerd (rapportnummer N2304500.005, 3 november 2023, Bijlage 5). Het veldbezoek heeft plaatsgevonden op 11 oktober 2023. De conclusies van dit onderzoek zijn hieronder weergegeven.

5.4.1 Resultaten verkennend bodemonderzoek

Het verkennend bodemonderzoek is uitgevoerd op de percelen gemeente Wijchen, sectie P nummers 1143; 2756; 2762; 2763; 3097; 3098; 3099; 3101 en 3102. Uit de analyseresultaten kan het navolgende worden geconcludeerd.

Grond

Uit de analyse resultaten blijkt er sprake te zijn van lichte overschrijdingen van de achtergrondwaarde. In mengmonsters MM01, MM03 van de bovengrond en MM04 van de ondergrond is een licht verhoogde waarde aan PCB aangetroffen. In MM01 (0,0-0,5 m-mv) is er daarnaast een lichte verontreiniging met minerale olie aangetoond en een matig waarde aan PAK.

De analyseresultaten van de grond(meng)monsters staan in onderstaande tabel samengevat. In de kolommen zijn alleen die parameters vermeld, waarvan de concentraties minimaal hoger zijn dan de vastgestelde achtergrondwaarden vermeld in de Circulaire Bodemsanering (Wbb).

afbeelding "i_NL.IMRO.0296.HUURlingsedam81-OW01_0012.png"

Figuur: Overschrijdingstabel grond

Hierop is aanvullend onderzoek uitgevoerd waarbij de separate monsters van dit mengmonster (MM01) zijn geanalyseerd op PAK. Uit deze analyseresultaten van monsters 01-1, 04-1, 05-1 en 08-1 is er geen PAK meer aangetoond boven het detectielimiet. Het gemeten PAK in het mengmonster is te relateren aan de bijmengingen met puin.

afbeelding "i_NL.IMRO.0296.HUURlingsedam81-OW01_0013.png"

Figuur: Uitspliting mengmonster MM01

Grondwater

Peilbuis 01 is op 11 oktober 2023 geplaatst. De grondwaterbemonstering heeft op 17 oktober 2023 plaatsgevonden. In onderstaande tabel is een overzicht gegeven van de gemeten grondwaterstand, zuurgraad, troebelheid, elektrische geleidbaarheid en de uitgevoerde analyse. Tijdens de bemonstering van het grondwater zijn geen bijzonderheden waargenomen.

afbeelding "i_NL.IMRO.0296.HUURlingsedam81-OW01_0014.png"

Figuur: Meting grondwater

In het genomen grondwatermonster is er aangetoond dat de streefwaarde wordt overschreden met cadmium en xylenen. De overschrijding door cadmium heeft een index van 0,03 en van xylenen met een factor die dusdanig klein is dat die niet wordt aangegeven.

De analyseresultaten van de grond(meng)monsters staan in onderstaande tabel samengevat. In de kolommen zijn alleen die parameters vermeld, waarvan de concentraties minimaal hoger zijn dan de vastgestelde streefwaarde vermeld in de Circulaire Bodemsanering (Wbb).

afbeelding "i_NL.IMRO.0296.HUURlingsedam81-OW01_0015.png"

Figuur: Overschrijdingstabel grondwater

Doorlatendheid

De waterdoorlaatbaarheid is op twee punten op het terrein onderzocht. De berekende k-waarde op locatie K1 behoort tot de kwaliteit goed tot zeer goed. Op locatie K2 ligt de gemeten waterdoorlatendheid significant lager dan op K1, en beschouwen we als redelijk.

De beoordeling van de doorlatendheid is conform de classificatie in de onderstaande tabel vastgesteld.

afbeelding "i_NL.IMRO.0296.HUURlingsedam81-OW01_0016.png"

Figuur: Meetresultaten en interpretatie doorlatendheid bodem

5.4.2 Conclusie

Op de onderzoekslocatie zijn zintuigelijk bijmengingen van baksteen, beton, kooldeeltjes, metselpuin en puin aangetroffen, echter enkel in de categorieën sporen tot zwak.

Op delen van het terrein is er sprake van een lichte verontreiniging met PCB in zowel de boven als de ondergrond. In een enkel mengmonster is er ook een lichte verontreiniging met minerale olie en PAK aangetoond. Bij verdere analyse is PAK niet meer aangetoond.

De waterdoorlatendheid is op twee punten onderzocht. De berekende k-waarde vallen in de verwachting voor zandgronden in Nederland. De k- waarde wordt beïnvloed door velen factoren, waaronder de aanwezigheid van grote holten, scheuren en/of gangen in de grond en bodemverdichting. Concreet betekent dit dat er lokaal relatief grote verschillen kunnen voorkomen in de waterdoorlaatbaarheid en de berekende waarde enkel een indicatie is voor de locatie.

Op basis van de resultaten van het onderzoek bestaat er geen aanleiding voor het uitvoeren van nader onderzoek. Tegen voorgenomen bestemmingswijziging op de onderzoekslocatie zijn, ons inziens, geen zwaarwegende milieuhygiënische bezwaren aan te voeren.

Het aspect bodem vormt zodoende geen belemmering voor het planvoornemen.

5.5 Geur

De Wet geurhinder en veehouderij (Wgv) is op 1 januari 2007 in werking getreden. Met de Wet geurhinder en veehouderij geldt één toetsingskader voor vergunningplichtige veehouderij in de gehele gemeente. Voor niet vergunningverplichte veehouderijen en overige agrarische niet vergunningplichtige bedrijven is het Activiteitenbeluit het toetsingskader.

De Wet geurhinder en veehouderij bevat normen en afstanden die bedrijven moeten aanhouden ten opzichte van geurgevoelige objecten. Daarnaast geeft de Wet geurhinder en veehouderij gemeenten de beleidsvrijheid om maatwerk te leveren dat is afgestemd op de ruimtelijke en milieuhygiënische feiten en omstandigheden in een concreet gebied en de gewenste (toekomstige) ruimtelijke inrichting.

Het planvoornemen voorziet in het toevoegen van woningen, zijnde geurgevoelige objecten. Het plangebied is niet gelegen in de nabijheid van geuremissiebronnen, zo blijkt uit een quickscan op dit aspect. Een nadere toetsing is daarom niet nodig.

Het aspect geur vormt geen belemmering voor het planvoornemen.

5.6 Luchtkwaliteit

De gevolgen voor de luchtkwaliteit worden beoordeeld op basis van de Wet ruimtelijke ordening, de Wet milieubeheer luchtkwaliteitseisen (ook wel Wet luchtkwaliteit genoemd, Wlk), de AMvB 'Niet in betekenende mate' (het Besluit NIBM) en de ministeriële regeling NIBM. Er dient, ook na realisatie van het planvoornemen, sprake te zijn van een goede ruimtelijke ordening. Daarbij moet voldaan worden aan de geldende grenswaarden en luchtkwaliteitseisen.

Het toetsingskader voor luchtkwaliteit wordt gevormd door hoofdstuk 5, titel 5.2 van de Wet milieubeheer. Dit onderdeel van de Wet milieubeheer (Wm) bevat grenswaarden voor zwaveldioxide, stikstofdioxide en stikstofoxiden, fijn stof, lood, koolmonoxide en benzeen. Hierbij zijn in de ruimtelijke ordeningspraktijk langs wegen vooral de grenswaarden voor stikstofdioxide (jaargemiddelde) en fijn stof (jaar- en daggemiddelde) van belang. De grenswaarden van de laatstgenoemde stoffen zijn in onderstaande tabel weergegeven.

afbeelding "i_NL.IMRO.0296.HUURlingsedam81-OW01_0017.png"

Figuur: Grenswaarden stikstofdioxide en fijn stof

NIBM

In het Besluit niet in betekenende mate bijdragen (luchtkwaliteitseisen) is bepaald in welke gevallen een project vanwege de gevolgen voor de luchtkwaliteit niet aan de grenswaarden hoeft te worden getoetst. Hierbij worden 2 situaties onderscheiden:

  • een project heeft een toename van minder dan 3% van de jaargemiddelde concentratie NO2 en PM10 (= 1,2 µg/m³);
  • een project valt in een categorie die is vrijgesteld aan toetsing aan de grenswaarden; deze categorieën betreffen onder andere woningbouw met niet meer dan 1.500 woningen aan één ontsluitingsweg of kantoorlocaties met maximaal 100.000 m² bvo bij één ontsluitingsweg.

Beoordeling

De beoogde ontwikkeling heeft betrekking op de realisatie van maximaal twee toegevoegde wooneenheden en een te verplaatsen praktijkgebouw. Een dergelijke ontwikkeling valt onder het 'Besluit niet in betekenende mate' onder de categorie woningbouw tot 1.500 woningen aan één ontsluitingsweg. Dit betekent dat de ontwikkeling niet in betekenende mate bijdraagt aan de luchtkwaliteit ter plaatse, en dat nader onderzoek niet noodzakelijk wordt geacht. Onderhavige ontwikkeling betreft geen permanente toevoeging aan de woningvoorraad, maar is redelijkerwijs wel met een dergelijke ontwikkeling gelijk te stellen.

Uit oogpunt van goede ruimtelijke ordening is eveneens gekeken naar de concentraties stikstofdioxide (NO2) en fijnstof (zowel PM10 als PM2.5) ter plaatse van de voorgenomen ontwikkeling. Om een goed beeld te krijgen van deze concentraties is gebruik gemaakt van de resultaten uit kaarten van de Atlas Leefomgeving, een initiatief van de Rijksoverheid. De Atlas Leefomgeving biedt informatie over de kwaliteit van de Nederlandse leefomgeving. Om de concentratiegemiddeldes van stikstofdioxide, fijnstof (PM10) en fijnstof (PM2,5) in kaart te brengen, is gebruik gemaakt van de meest recente concentratiekaarten uit 2021.

De Wereldgezondheidsorganisatie (WHO) adviseert veel lagere concentraties fijnstof voor een gezonde leefomgeving. Zij adviseren sinds 22 september 2021 de volgende normen: 10 µg/m³ NO2, 15 µg/m³ PM10 en 5 µg/m³ PM2,5. De normen voor de Europese Unie liggen vaak echter beduidend hoger.

afbeelding "i_NL.IMRO.0296.HUURlingsedam81-OW01_0018.png"

Figuur: Uitsnede kaart Stikstofdioxide (NO2) 2021 (Bron: Atlas Leefomgeving)

afbeelding "i_NL.IMRO.0296.HUURlingsedam81-OW01_0019.png"

Figuur: Uitsnede kaart Fijnstof 2021 PM10 (Bron: Atlas Leefomgeving)

afbeelding "i_NL.IMRO.0296.HUURlingsedam81-OW01_0020.png"

Figuur: Uitsnede kaart Fijnstof 2021 PM2,5 (Bron: Atlas Leefomgeving)

Uit bovenstaande kaarten blijkt dat de jaargemiddelde grenswaarden voor NO2, PM10 en  PM2,5 ter plaatse van de locatie licht overschreden worden. De bijdrage van het initiatief op de luchtkwaliteit is echter verwaarloosbaar/ niet aanwezig en er wordt geen NO2, PM10 of PM2,5 producerende activiteit op locatie mogelijk gemaakt.

Vanaf 2010 houdt de EU voor stikstofdioxide NO2 een jaargemiddelde van 40 µg/m3 en een uurgemiddelde grenswaarde van 200 µg/m3 aan. Voor stikstofdioxide NO2 geldt dat de concetratie met de score 13.44 boven de WHO advieswaarde van 10 µg/m³ NO2 ligt, maar dat deze nog steeds ruim aan de gestelde Europese-norm van maximaal 40 µg/m³ NO2 voldoet en hierom geen belemmering vormt voor het planvoornemen.

De Europese Unie voerde in 1999 grenswaarden voor fijn stof (PM10) in. Volgens de Europese Richtlijn 1999/30/EG mogen vanaf 2005, de jaargemiddelde PM10 concentraties niet hoger zijn dan 40 µg/m³. Voor fijnstof PM10 geldt dat de concetratie met de score 16.67 net boven de WHO advieswaarde van 15 µg/m³ PM10 ligt, maar dat deze nog steeds ruim aan de gestelde Europese-norm van maximaal 40 µg/m³ PM10 voldoet en hierom geen belemmering vormt voor het planvoornemen.

De jaargemiddelde EU-grenswaarde van 25 µg/m3 voor fijnstof PM2,5 is sinds 1 januari 2015 van kracht. Voor fijnstof PM2,5 geldt dat de concentratie met de score 10.04 weliswaar boven de WHO advieswaarde van 5 µg/m³ PM2,5 ligt, maar dat deze nog steeds ruim aan de gestelde Europese-norm van maximaal 25 µg/m³ PM2,5 voldoet en hierom geen belemmering vormt voor het planvoornemen.

Gevolg planvoornemen

Gelet op bovenstaande valt het planvoornemen onder de categorie 'Niet in betekende mate (NIBM)'. Op basis van deze categorisering. Ook op basis van de beoordeling vormt het aspect luchtkwaliteit geen belemmering voor het planvoornemen.

5.7 Natuur

Voor de planologische procedure dient te worden vastgelegd dat de voorgenomen ontwikkeling uitvoerbaar is binnen de geldende natuurwetgeving. In de wetgeving op het gebied van natuurbescherming wordt onderscheid gemaakt tussen beschermde gebieden en beschermde soorten.

5.7.1 Soortenbescherming

Wat betreft soortenbescherming is de Wet Natuurbescherming (Wnb) van toepassing. De soortenbescherming heeft betrekking op alle in Nederland in het wild voorkomende zoogdieren, (trek)vogels, reptielen en amfibieën, een aantal vissen, libellen en vlinders, enkele bijzondere en min of meer zeldzame ongewervelde dierensoorten en een aantal vaatplanten. Voor alle soorten, dus ook voor de soorten die niet onder de aangewezen bescherming vallen, of die zijn vrijgesteld van de ontheffingsplicht, geldt de zogenaamde 'algemene zorgplicht' (art. 1.10 Wnb). Deze zorgplicht houdt in dat de initiatiefnemer passende maatregelen neemt om schade aan aanwezige soorten te voorkomen of zoveel mogelijk te beperken. Hierbij gaat het bijvoorbeeld om het niet verontrusten of verstoren in de kwetsbare perioden zoals de winterslaap, de voortplantingstijd en de periode van afhankelijkheid van de jongen. De zorgplicht geldt altijd en voor alle planten en dieren, of ze beschermd zijn of niet, en in het geval dat ze beschermd zijn ook als er een ontheffing of vrijstelling is verleend.

Tevens geldt onder de Wet Natuurbescherming dat bij ruimtelijke ontwikkelingen naast de zorgplicht ook rekening gehouden moet worden met juridisch zwaarder beschermde soorten vanuit nationaal en Europees oogpunt. Beschermde soorten vanuit nationaal oogpunt betreffen soorten uit 'bijlage A en B' van de Wet Natuurbescherming. Beschermde soorten vanuit Europees oogpunt betreffen soorten uit Bijlage IV van de Habitatrichtlijn, de soorten uit Bijlage 1 en 2 Verdrag van Bern, en Bijlage 1 verdrag van Bonn, en alle in Europa inheemse vogels (Vogelrichtlijn).

5.7.2 Quickscan Flora & Fauna

Beoordeling

Met het planvoornemen wordt de bouw van een vervangend praktijkgebouw mogelijk gemaakt en van een woning. Om dit mogelijk te maken moet de functie van het perceel worden aangepast. Daarnaast moet mogelijk een stuk haag worden verwijderd. Om de functiewijziging en de bouw van een gebouw mogelijk te maken moet aangetoond worden dat met het planvoornemen geen negatieve invloed wordt uitgeoefend op de op basis van de Wnb beschermde soorten.

Hierom is een Quickscan Flora en Fauna (Aelmans Milieu Oss B.V., rapportnummer N230452, d.d. 24 oktober 2023, Bijlage 6) uitgevoerd. Het locatiebezoek heeft plaatsgevonden op 29 september 2023. De resultaten van de Quickscan Flora en Fauna worden hieronder weergegeven.

Resultaten

Op de onderzoekslocatie zullen bouwwerkzaamheden worden verricht. Voor de geplande ingreep wordt de laurierhaag en delen van de conifeerhaag gerooid. Bomen en struiken kunnen tijdens het broedseizoen gebruikt worden door algemene (niet-jaarrond beschermde) vogelsoorten. Door de geplande ingreep kunnen deze nesten verstoord worden. In de bomen zijn geen gaten of holen aanwezig en zijn voor vleermuizen derhalve ongeschikt als verblijfplaats. De bomen maken mogelijk onderdeel uit van een lijnvormig element echter is hier geen sprake van een essentiële vliegroute.

Zoals beschreven in de rapportage kunnen er op de onderzoekslocatie soorten voorkomen die beschermd zijn onder de Wet natuurbescherming (Wnb). Deze soorten, waaronder algemene vogelsoorten of provinciaal vrijgestelde soorten, ondervinden geen negatieve invloed van de beoogde werkzaamheden. Bij naleving van de zorgplicht (artikel 1.11 van de Wnb) is er voor deze soorten geen sprake van een overtreding van de Wnb.

Conclusie

Op basis van de quickscan die is uitgevoerd ter plaatse van het perceel Huurlingsedam 81(A) te Wijchen kan worden uitgesloten dat de voorgenomen bouwwerkzaamheden een negatieve invloed hebben op beschermde soorten vanuit de Wet natuurbescherming en natuurgebieden.

Op basis van bovenstaande resultaten kan geconcludeerd worden dat er geen nadere onderzoeken of ontheffingsaanvragen noodzakelijk zijn. Het aspect soortenbescherming vormt hiermee geen belemmering voor het planvoornemen.

5.7.3 Beschermde gebieden

Er dient aannemelijk te worden gemaakt dat het plan geen negatieve effecten heeft op de instandhoudingsdoelstellingen van Europees beschermde Natura2000-gebieden en het Natuur Netwerk Nederland (NNN), waaronder het provinciaal natuurnetwerk (Gelders Natuurnetwerk en de Groene Ontwikkelingszone).

Natura 2000 gebieden

De onderzoekslocatie is niet gelegen binnen de grenzen, of in de directe nabijheid van een gebied dat aangewezen is als Natura 2000. Hierdoor is er uitsluitend sprake van externe werking.

Gezien de kleinschalige aard van het planvoornemen (planologisch mogelijk maken van de bouw van twee hoofdgebouwen binnen bestaand stedelijk gebied) en de afstand tot de dichtstbijzijnde Natura 2000-gebieden Rijntakken (ca. 8,6 km), Sint Jansberg (ca. 12,8 km); Vogelschutzgebiet 'Unterer Niederrhein (ca. 14,2 km) en De Bruuk (ca. 14,6 km), is geen sprake van verstoring door licht, trilling, optische verstoring of verstoring door mechanische effecten. Externe effecten als gevolg van een toename van stikstofdepositie zijn vanwege de afstand tot de dichtstbijzijnde Natura 2000-gebieden op voorhand echter niet uit te sluiten. Derhalve is een nadere beoordeling stikstofeffecten uitgevoerd, zie hiervoor paragraaf 4.7.3 van deze toelichting.

afbeelding "i_NL.IMRO.0296.HUURlingsedam81-OW01_0021.png"

Figuur: Ligging plangebied t.o.v. Natura2000-gebieden

Gelders Natuurnetwerk en de Groene Ontwikkelingszone

Het plangebied is eveneens niet gelegen binnen het NNN, zodat er uitsluitend sprake is van een externe werking. Op een afstand van circa 0,7 km ten noordoosten van het plangebied is het Gelders Natuurnetwerk gelegen. Ten zuidwesten van het plangebied is op circa 1 km afstand ook een onderdeel van Gelders Natuurnetwerk gelegen.

afbeelding "i_NL.IMRO.0296.HUURlingsedam81-OW01_0022.png"

Figuur: Ligging plangbied t.o.v. NNG

Gezien de relatief kleinschalige aard van het voorgenomen plan is het uit te sluiten dat het voornemen een (significant) negatief effect heeft op de kernkwaliteiten van het Natuurnetwerk Gelderland.

5.7.4 Stikstof

De uitspraak van de Raad van State op 29 mei 2019 heeft bepaald dat het Programma Aanpak Stikstof (PAS) niet meer als basis gebruikt mag worden voor toestemming voor activiteiten in het kader van de Wnb en dat de “standaard grenswaarde” uit het PAS niet meer gebruikt mag worden. Dit houdt in dat voor planologische procedures en bij de verlening van een omgevingsvergunning een stikstofbeoordeling en, afhankelijk van een stikstofberekening en/of voortoets, mogelijk ook een vergunning Wet natuurbescherming nodig is. Voor elke toename in stikstofneerslag boven de 0,00 mol/ha/jaar, hoe klein dan ook, is een onderbouwing nodig. Voor het onderhavige plan is daarom een beoordeling van zowel de bouwactiviteiten als de gebruiksfase aan de orde. Om de gevolgen van het planvoornemen op omliggende Natura2000-gebieden inzichtelijk te maken is een notitie stikstof (Pouderoyen Tonnaer, rapportnummer P222442.011, d.d. 10 oktober 2023, Bijlage 7) opgesteld.

Omschrijving realisatiefase

Op het moment is voor het realiseren en verbouwen van de panden niet bekend welke mobiele werktuigen ingezet worden. Hierom is voor de bouwfase aangesloten bij de kengetallen zoals aangegeven in de “Handreiking woningbouwen en Aerius” van het Rijk (Bijlage 1). Hierin wordt het kengetal van 3 kg NOx per woning gehanteerd. Dit kengetal wordt in de voorliggende notitie vervolgens als referentie gebruikt om tot een emissie inschatting te komen voor het te realiseren bouwvolume.

  • Vrijstaande woning 3 kg NOx;
  • Inpandige verbouwing 1 kg NOx;
  • Bedrijfspand 6 kg NOx

De werkzaamheden zullen mogelijk binnen één kalenderjaar plaatsvinden. Het voorstaande resulteert in een totale emissievracht van 10 kg NOx.

De bovenstaande gegevens zijn ingevoerd in de AERIUS calculator en bijgevoegd in Bijlage 7. De totale emissievracht van de realisatiefase komt uit op 10 kg NOx.

Het rekenjaar van de berekening is 2024. Uit deze berekening volgen geen rekenresultaten die leiden tot een toename van de stikstofdepositie op nabijgelegen Natura 2000-gebieden groter dan 0,00 mol/ha/jaar. Rekening houdend met voorgaande conclusies kunnen significant nadelige effecten op Natura 2000-gebieden ten gevolge van de realisatie fase (sloop en bouw) worden uitgesloten.

Omschrijving gebruiksfase - Verkeer

De woning en het bedrijfspand zullen gasloos gerealiseerd worden. In de gebruiksfase is derhalve alleen sprake van een verkeersgeneratie. Er worden met het projectvoornemen uitgegaan van een verkeersgeneratie van twee vrijstaande woningen (de bestaande woning en praktijkfunctie zijn er al en vormen geen nieuwe ontwikkeling). Door de functiewijzingen blijft de overige verkeersgeneratie ongewijzigd ten opzichte van de huidige situatie. Voor de berekening wordt de typologie van een “koop, vrijstaand” gehanteerd. Op basis van de CROW normen geldt een maximumnorm van 8,2 bewegingen per wooneenheid per etmaal voor 1 woning in een matig stedelijk gebied in de rest bebouwde kom. Dit resulteert in 17 verkeersbewegingen bij twee woningen. Er wordt verondersteld dat het verkeer via de Huurlingsedam, over de Veldwachter tot aan de Zuiderdreef zal moeten rijden om op te gaan in het heersende verkeersbeeld. Er is een stagnatiepercentage van 8% verondersteld op dit traject.

De bovenstaande gegevens zijn ingevoerd in de AERIUS calculator en bijgevoegd in Bijlage 7. De totale emissievracht van de gebruiksfase komt uit op 1,0 kg NOx per jaar, en 35,6 gram NH3 per jaar. Het rekenjaar van de berekening is 2024. Uit deze berekening volgen geen rekenresultaten die leiden tot een toename van de stikstofdepositie op nabijgelegen Natura 2000-gebieden groter dan 0,00 mol/ha/jaar. Rekening houdend met voorgaande conclusies kunnen significant nadelige effecten op Natura 2000-gebieden ten gevolge van de realisatie fase (sloop en bouw) worden uitgesloten.

Conclusie

Op basis van het voorgaande kan worden geconcludeerd dat significant negatieve effecten kunnen worden uitgesloten op de instandhoudingsdoelstellingen voor Natura 2000 gebieden. Het planvoornemen is hierdoor niet vergunningplichtig in het kader van de Wet Natuurbescherming.

5.7.5 Conclusuie

Het aspect natuurbescherming vormt geen belemmering voor het planvoornemen.

5.8 Verkeer en parkeren

5.8.1 Verkeer

Voor een goede infrastructurele inpassing van het planvoornemen is een onderbouwing met betrekking tot de verkeersgeneratie uitgewerkt waarbij rekening is gehouden met het effect van het verschuiven en veranderen van de bestaande functies en de nieuwe verkeersgeneratie als gevolg van het toevoegen van een nieuwe woning.

Gekozen is om de toegang (toerit) naar het parkeren bij de woningen en het parkeren bij het praktijkgebouw gescheiden te houden. De parkeerplaatsen voor het praktijkgebouw worden op twee plaatsen aan de Huurlingsedam en langs de Weefster gerealiseerd.

De Huurlingsedam ligt in een matig stedelijk gebied. Voor de maximale waarden wordt de factor 'rest bebouwde kom' aangehouden. Aan de hand van de CROW-kengetallen is voor de typen en aantallen woningen aan de hand van de digitale rekentool de verkeersgeneratie bepaald, zie ook Bijlage 8. Dit is ook voor de praktijkruimte gedaan.

Van de in totaal berekende 88,3 verkeersbewegingen per etmaal, worden er 65 toeberekend aan de praktijkruimte. Omdat evenwel de CROW-systematiek uitgaat van een (meest vergelijkbare) praktijk voor fysiotherapie, is het de verwachting dat het gebruik voor de kinderpsychologiepraktijk lager zal liggen. Worst case wordt echter uitgegaan van de 65 bewegingen, ofwel bij een opening gedurende 8 uren op een dag, gemiddeld 8 verkeersbewegingen per etmaal; 4 aankomend en 4 vertrekkend, verdeeld over 2 rij-richtingen. Dit is voor de wegenstructuur en de capaciteit daarvan geen enkel probleem, als ook niet voor de woon- en leefkwaliteit in de wijk. Bovendien betreft het hier de verplaatsing van een reeds bestaande functie.

Via het westelijke deel van de Huurlingsdam worden de 3 woningen ontsloten. De bestaande woning daargelaten, zal er een toename zijn van verkeer door 2 extra woningen. Afgerond naar boven betreft dit gemiddeld 17 autobewegingen per etmaal, ofwel ca. 1 beweging per uur gedurende de dag en avond. Ook dit is geen wezenlijke verandering in het bestaande verkeersbeeld. Daar komt bij dat de praktijkfunctie aan deze zijde wordt weggenomen en wordt verplaatst naar de oostzijde, waardoor per saldo er een verkeersafname is via de westzijde Huurlingsedam.

Aldus zal vanuit het plangebied de verkeerstoename in westelijke richting (2 woningen) en in oostelijke richting (praktijk) aanvaardbaar zijn.

5.8.2 Parkeren

Om de parkeerbehoefte voor het project te kunnen bepalen is gebruik gemaakt van de normen voor parkeren zoals gehanteerd in de CROW-publicatie 381: 'Toekomstbestendig parkeren: van parkeerkencijfers naar parkeernormen'. Hierin is aangesloten bij de parkeernormen voor de categorie 'rest bebouwde kom' in een 'matig stedelijk gebied'. De berekening op basis van de CROW is toegevoegd als Bijlage 8 bij deze toelichting.

Voor de duidelijk worden de berekeningen van de woningen en het praktijkgebouw gescheiden gehouden.

5.8.2.1 Praktijk

Omdat er geen kengetallen bestaan voor het aantal parkeerplaatsen bij een psychologiepraktijk, zijn de kengetallen voor fysiotherapiepraktijken gehanteerd. Behandelingen bij fysiotherepiepraktijk duren over het algemeen langer, maar nog altijd minder lang dan bij de kinderpsychologiepraktijk en er zijn nauwelijks of geen cliënten aan het wachten op hun behandeling, terwijl er nog een behandeling gaande is. Dit komt doordat de praktijk in 1 uur een consult van maximaal 45 minuten houdt en dan minimaal 15 minuten voorbereiding en dossierafronding doet in de tussentijd. Voordat een nieuwe cliënt komt, en wellicht een parkeerplaats bezet, is de vorige cliënt dus al vertrokken. Derhalve is ingeschat dat deze kengetallen dicht bij de te verwachten benodigde parkeerplaatsen van een psychologiepraktijk liggen, maar toch nog te ruim zijn. De praktijk bevestigd dit. Zoals eerder in deze toelichting aangegeven, wijst de praktijk uit dat er 2, maximaal 3 plaatsen bezet zijn bij de huidige praktijk met 3 behandelkamers.

Afhankelijk van het aantal behandelkamers, in dit geval 4, komt men voor fysiotherapiepraktijken uit op de onderstaande parkeerbehoefte op een maatgevend moment (door de week, overdag, bij openingsuren praktijk) van 7 plaatsen. Dit is wel uitgaande van een volledige bezetting van alle behandelkamers gelijktijdig gedurende de dag.

afbeelding "i_NL.IMRO.0296.HUURlingsedam81-OW01_0023.png"

Tabel: benodigde parkeerplaatsen (maatgevend moment gedurende de openingstijden)

Als aangegeven, is vooral het aandeel voor cliënten aan de hoge kant. Dit omdat:

  • behandelingen/consulten netto maximaal 45 minuten duren en bruto 1 uur, waardoor er geen dubbele bezetting en wachttijden zijn;
  • volledige bezetting van alle behandelkamers, achtereenvolgens gedurende meerdere uren, komt nauwelijks voor;
  • de praktijk een zeer lokaal verzorgingsgebied kent, waardoor het merendeel van de cliënten per fiets komt.

Daarnaast is de resterende norm voor personeel, zijnde 3 plaatsen, aan de hoge kant, omdat:

  • de eigenaar bij de praktijk woont en bij de eigen woning parkeert.

Al met al is het aldus redelijk om in afwijking van de gemiddelde parkeernorm op een maatgevend moment 1 parkeerplaats minder te realiseren. Op locatie wordt aldus voorzien in 6 plaatsen wat overeen komt met de gemotiveerde maximale behoefte en wat tevens 2 plaatsen meer is dan op basis van de ervaringen in de praktijk bij de bestaande praktijk benodigd is.

Naast de praktijk is een paaltje gesitueerd op de Huurlingsedam. Om de parkeerplaatsen voor de praktijk toegankelijk te maken is het echter niet nodig het paaltje van de bestande knip in de Huurlingsedam te verplaatsen. Doordat de parkeervlakken zoals getekend op het landschappelijk inrichtingsplan gestoken worden gerealiseerd, vormt het paaltje aan de zijde van de Brink geen hindernis.

5.8.2.2 Woningen

De gehanteerde parkeernormering betreft 2,6 parkeerplaatsen per wooneenheid op eigen terrein. Om de wijk te ontlasten is ervoor gekozen om de parkeerplaatsen voor het bezoekersparkeren (3x 0,3 = 0,9) van de woningen ook op eigen terrein te realiseren en wel bij iedere woning meerdere parkeermogelijkheden. Gezien de doelgroep en aard van de woningen, is voor de bestaande en de nieuwe vrijstaande woningen voorzien in 2 vaste parkeerplaatsen op eigen terrein en opritten waarop aanvullend 2 auto's of meer geparkeerd kunnen worden. Bij iedere woning is aldus parkeergelegenheid voor 4 of meer auto's op eigen terrein, waarmee aan de parkeerbehoefte bij iedere woning wordt voldaan.

5.8.3 Conclusie verkeer en parkeren

Verkeerstechnisch gezien wordt er door de planontwikkeling geen verkeers- en parkeerprobleem verwacht. Dit omdat de verkeerseffecten per wegvak beperkt blijven tot hooguit 4 autobewegingen in een uur, gedurende de dag. Daarnaast wordt bij iedere woning en bij de praktijk op eigen terrein voorzien in voldoende parkeerplaatsen. Dit is enerzijds gemotiveerd vanuit de CROW-richtlijnen en anderzijds gesteund op de feitelijke situatie in de praktijk.

Desalniettemin heeft een aantal omwonenden tijdens de omgevingsdialoog hun zorgen uitgesproken over de verkeerssituatie en de parkeertoename. In dat kader hebben initiatiefnemers een aantal toezeggingen gedaan die zullen leiden tot een verbetering van de verkeersveiligheid en tot een ruimer aanbod van parkeervoorzieningen voor de wijk, buiten de openstellingsuren van de praktijk. Zie ook Bijlage 11 waarin de reacties van omwonenden zijn aangegeven en Bijlage 12 waarin de toezeggingen van de initiatiefnemers zijn opgenomen.

De veiligheid wordt vergroot door de volgende maatregelen:

  • innemen van de wintergroen haag in de bocht van de Huurlingsedam aan de zuidwestzijde van de locatie en wegnemen van bebouwing aldaar, waardoor de weggebruiker beter 'door de bocht' kan kijken;
  • wegnemen van hagen op eigen terrein bij de kruising Weefster/Huurlingsedam, waardoor ook hier een ruimer zicht ontstaat;
  • bieden van extra parkeergelegenheid in de avonduren en weekenden, juist wanneer in de wijk gebrek is aan parkeerplaatsen en (vooral bezoekers) soms genoodzaakt zijn om half op de weg te parkeren. De weg blijft hiermee meer vrij en overzichtelijk.
  • haaksparkeren bij de praktijk (aan de Huurlingsedam) wordt gerealiseerd op extra diepe en brede parkeerplaatsen, waardoor gebruikers eenvoudig en in één overzichtelijke beweging in en uit kunnen rijden.

De parkeermogelijkheden voor omwonenden aan de zuid- en oostzijde van het plangebied worden verruimd door de 6 parkeerplaatsen bij de praktijk in de avonduren en weekenden beschikbaar te stellen voor openbaar gebruik, zodat bezoekers van omwonenden niet langer op de weg en/of in de wegberm behoeven te parkeren.

5.9 Archeologie

Als wettelijk toetsingskader In Europees verband is het 'Verdrag van Malta' tot stand gekomen. Uitgangspunt van dit verdrag is het archeologisch erfgoed zo veel mogelijk in situ te behouden. Waar dit niet mogelijk is, dient het bodemarchief met zorg ontsloten te worden. Bij het ontwikkelen van ruimtelijk beleid moet het archeologisch belang vanaf het begin meewegen in de besluitvorming.

Op 1 september 2007 is de Wet op de Archeologische Monumentenzorg (Wamz) in werking getreden. Deze wet is de Nederlandse uitwerking van het Verdrag van Malta uit 1992. In de Wamz is vastgelegd dat Rijk, provincies en gemeenten in ruimtelijke plannen rekening houden met het aspect 'archeologie'. De wet beoogt het archeologische erfgoed in hoofdzaak in situ te beschermen.

5.9.1 Archeologische beleidskaart Wijchen

Gemeenten zijn met de inwerkingtreding van de Wamz in grote mate verantwoordelijk voor hun eigen bodemarchief. De gemeente Wijchen heeft in 2009 een archeologische beleidskaart vastgesteld. Deze kaart vormt de onderlegger voor het Wijchens archeologiebeleid en is het gemeentelijk toetsingsinstrument voor archeologie bij ruimtelijke ontwikkelingen, bouwplannen en andere bodemverstoringen.

Op de archeologische beleidskaart (RAAP-rapport 1828, kaartbijlage 2; 2009) is aangegeven op welke gronden archeologische resten zijn te verwachten. Op de onderstaande afbeelding is een uitsnede weergegeven van de archeologische beleidskaart.

afbeelding "i_NL.IMRO.0296.HUURlingsedam81-OW01_0024.png"

Figuur: Uitsnede archeologische beleidskaart Wijchen

Op basis van de archeologische beleidskaart is er binnen het plangebied sprake van een hoge archeologische verwachting. Bovendien behoort het plangebied tot terrein van de Archeologische Monumenten (AMK). Daarnaast is er rondom het plangebied nog sprake van een archeologische vindplaats met een aandachtszone van 50 meter. Aangezien de locatie niet in het buitengebied maar in de bebouwde kom is gelegen, is archeologisch onderzoek in deze gevallen verplicht bij ingrepen met een oppervlakte groter dan 30 m².

In verband met deze archeologische verwachting is in de omliggende bestemmingsplannen de dubbelbestemming 'Waarde - Archeologie' opgenomen. Voor een aantal werkzaamheden op of in deze gronden is een omgevingsvergunning (voor het uitvoeren van een werk, geen bouwwerk zijnde, of van werkzaamheden) vereist in het kader waarvan een afweging kan worden gemaakt tussen de activiteit en de te beschermen waarden. Het planvoornemen betreft een ingreep groter dan de drempelwaarde voor archeologisch onderzoek. Nadere archeologische toetsing is daarom noodzakelijk.

5.9.2 Archeologisch bureau- en inventariserend booronderzoek

Om de archeologische verwachting in het plangebied nader in beeld te brengen is door Bureau voor Archeologie onder begeleiding van BOOT Advies een bureau- en inventariserend veldonderzoek door middel van boringen uitgevoerd op de planlocatie. De rapportage van dit onderzoek is bijgevoegd als Bijlage 9 bij de toelichting (Bureau voor Archeologie, rapportnummer 1389, Onderzoeksmeldingsnummer ISSN 2214-6687, d.d. 21 november 2023).

Archeologisch verwachting

Het plangebied ligt in een bekende archeologische vindplaats op een rivierduincomplex dat langdurig bewoond is geweest. In de directe omgeving van het plangebied bleken bij archeologische onderzoeken bewoningsresten uit het Neolithicum tot en met de Romeinse tijd aanwezig te zijn. De onderstaande figuur geeft deze verwachting goed weer.

afbeelding "i_NL.IMRO.0296.HUURlingsedam81-OW01_0025.png"

Figuur: Archeologische terreinen, vondstlocaties en onderzoeken in de omgeving

De aanwezigheid van bewoning uit het Laat Paleolithicum, Mesolithicum, de Middeleeuwen en de Nieuwe tijd kunnen niet worden uitgesloten. Het plangebied ligt aan de Huurlingsedam, een weg die in ieder geval reeds in de 18e eeuw aanwezig is.

Ten westen van het plangebied staat boerderij ‘t Slotje. Op deze plek heeft omgrachte en versterkte boerderij gestaan, eventueel met een voorloper in de Middeleeuwen. Op kaarten uit de 18e, 19e en begin 20e eeuw is het plangebied in gebruik als bouwland. De huidige bebouwing stamt uit de jaren ‘70 en ‘80 van de 20e eeuw. In 2019 is in het noorden van het plangebied een sanering uitgevoerd.

In het plangebied kunnen archeologische resten aanwezig zijn uit het Laat Paleolithicum tot en met de Nieuwe tijd. Het zwaartepunt van de verwachting ligt in het Neolithicum tot en met de Middeleeuwen. De verwachting is dat de bodem grotendeels intact is. Met uitzondering van de gesaneerde zone in het noorden van het plangebied, het zwembad en ter plaatse van de bebouwing. Bij een intacte bodem zijn archeologische resten aanwezig onder een humeus dek van 30 tot 50 cm dik.

Archeologische interpreatie van het booronderzoek

Uit het bureauonderzoek blijkt dat het plangebied in een archeologisch kansrijke zone ligt. In de directe omgeving is veel gevonden. De vijf geplaatste boringen moeten dus uitsluitsel geven over de bovengenoemde verwachting. De locatie van de boringen is weergeven op onderstaand figuur.

afbeelding "i_NL.IMRO.0296.HUURlingsedam81-OW01_0026.png"

Figuur: Boorpuntenkaart met archeologische indicatoren

Uit de boringen blijkt dat de top van het rivierduinzand door de mens is omgewerkt. Ter hoogte van boring 1 in het noorden van het plangebied is het oorspronkelijke bodemprofiel geheel vergraven. Op deze plek worden geen archeologische resten meer verwacht.

In de overige boringen is (een restant van) een bouwlanddek aanwezig (A-horizont). Dit dek is van vergelijkbare dikte als is gevonden bij onderzoeken in de omgeving van het plangebied (zie hoofdstuk 2.7 van de rapportage). In boringen 2 en 4 zijn baksteenresten aanwezig. Hoewel baksteen al in de Romeinse tijd wordt vervaardigd komt het gebruik van baksteen op het platteland pas in de Nieuwe tijd veel voor. In boring 3 is een 20e-eeuws stuk touw aanwezig dat een recente verstoring aanduidt. De A-horizont is waarschijnlijk een bouwlanddek dat in ieder geval van de 18e eeuw tot in de jaren ‘60 van de 20e eeuw is gebruikt. Spreidingen van artefacten en ondiepe sporen zijn in deze bouwvoor opgenomen. Het is mogelijk dat de A-horizont vondsten bevat maar deze zijn in dat geval uit hun oorspronkelijke context gehaald of zijn van elders opgebracht (mestvondsten).

De top van het ongeroerde rivierduinzand, de B-horizont, vormt een potentieel archeologisch niveau en is aanwezig in boringen 2, 3, 4 en 5. De top van de B-horizont kan een archeologisch sporenniveau bevatten zoals is aangetroffen bij opgravingen in de omgeving van het plangebied. Het vermoedelijke keramische gruis in de B-horizont kan gefragmenteerd aardewerk zijn uit de IJzertijd of Romeinse tijd. Gezien de vondst van dit mogelijke aardewerk moet er rekening mee worden gehouden dat de B-horizont wellicht (deels) een oude akkerlaag is. Een dergelijke bruine akkerlaag is aangetroffen bij proefsleuvenonderzoek nabij het plangebied (zie zaak 2.447.378.100 in hoofdstuk 2.7 van het rapport).

In de dieper gelegen rivierduinafzettingen, de Laag van Wijchen en het Maasterras zijn sporen van bodemvorming afwezig. Afgedekte vegetatie- of loopniveaus zijn tevens afwezig. Daarnaast is de Laag van Wijchen afgezet in een riviervlakte en is waarschijnlijk ongeschikt voor bewoning.

5.9.3 Conclusie en aanbevelingen

Op basis van het onderzoek blijkt dat in het plangebied mogelijk archeologische resten aanwezig zijn en de bodem is nog grotendeels intact. Bureau voor Archeologie adviseert daarom een proefsleuvenonderzoek uit te voeren op plaatsen buiten de gesaneerde zone waar dieper wordt gegraven dan 30 cm -mv. Dit geldt voor het nieuw te bouwen bedrijfspand (zie de figuur achterin het rapport). De werkwijze van het onderzoek dient vastgelegd te worden in een door de bevoegde overheid goed te keuren Programma van Eisen (PvE).

Bureau voor Archeologie adviseert het noordelijk deel van het plangebied, waar de sanering heeft plaatsgevonden en waar ook in het verleden onderkelderde bebouwing is gesaneerd, vrij te geven voor de voorgenomen ontwikkeling.

5.10 Cultuurhistorie

Op basis van het Besluit ruimtelijke ordening (Bro) heeft de gemeente Wijchen besloten om samen met de gemeenten Beuningen, Druten en Heumen een beleidsnota cultuurhistorie op te stellen. Deze beleidsnota is de planologische borging van cultuurhistorische waarden binnen de Gemeente Wijchen in de vorm van het 'Parapluplan Cultuurhistorie Wijchen'.

Dit parapluplan voegt een dubbelbestemming toe aan het vigerend bestemmingsplan: 'Waarde - Cultuurhistorisch waardevol gebied'. Op de cultuurhistorische waardenkaart van de gemeente Wijchen is het plangebied aangeduid met een middelhoge cultuurhistorische waarde. In een gebied van middelhoge stedenbouwkundige waarde is dat verband in potentie aanwezig of nog herkenbaar maar aangetast. Het zijn gebieden met een gemiddelde cultuurhistorische en ruimtelijke kwaliteit in de samenhang tussen bebouwing, openbare ruimte en beplanting, en/of enige relatie met de historische en landschappelijke hoofdstructuren.

afbeelding "i_NL.IMRO.0296.HUURlingsedam81-OW01_0027.png"

Figuur: Uitsnede kaart cultuurlandschappelijle waardering (Parapluplan Cultuurhistorie Wijchen)

afbeelding "i_NL.IMRO.0296.HUURlingsedam81-OW01_0028.png"

Figuur: Uitsnede kaart cultuurhistorisch historisch beleid (Parapluplan Cultuurhistorie Wijchen)

Op basis van de bovenstaande kaarten blijkt dat de planlocatie een lage cultuurlandschappelijke verwachten heeft. Er is voor dit gebied dan ook geen beleidsmatige vertaling van de cultuurhistorische verwachting.

afbeelding "i_NL.IMRO.0296.HUURlingsedam81-OW01_0029.png" Figuur: Omgeving van het plangebied in de loop van de jaren (linksboven 1880, rechtsboven 1940, linksonder 1980, rechtsonder 2020, bron: TopoTijdreis)

De locatie van het plangebied heeft lang onderdeel uitgemaakt van het agrarische gebied ten oosten van het centrum van de kern Wijchen. De topografische kaart van 1880 en 1940 laat zien dat het plangebied lang onbebouwd is geweest. Duidelijk is echter wel dat 't Slotje door de jaren heen altijd aanwezig was op het naastgelegen perceel. Ook is duidelijk te zien dat de weg Huurlingsedam al in 1880 dezelfde ligging had.

Rond het jaar 2000 is pas de wijk Kerkeveld ontwikkeling. In 2008 is begonnen met de bouw van de wijk Huurlingsedam. Voor die tijd was het gebied voornamelijke gekenmerkt als agrarische grond.

Hiermee heeft de omgeving van het plangebied in de afgelopen decennia een gedaantewisseling ondergaan en is de onbebouwde landelijke structuur getransformeerd naar wijkontwikkeling, voornamelijk bestaand uit een variatie van grondgebonden woningen, appartementen en bedrijvigheid.

Met het planvoornemen worden twee gebouwen toegevoegd en vindt er een functiewijziging plaats. Hiermee wordt meer aangesloten op de woningvoorraad rondom van het plangebied. De structuur van de Huurlingsedam wordt hiermee niet aangetast. Het voornemen wordt zorgvuldig ingepast in het wijkbeeld. Daarnaast wordt het straatbeeld van de Huurlingsedam, door realisatie van meer en meer open voortuinen, versterkt als contrast met de nieuwbouw-woonstraten in de omgeving. Ook de blijvend ruime bebouwingsopzet draagt bij aan het van ouds her karakteristieke beeld van de Huurlingsedam, als verbijzondering in de recentelijk gerealiseerde woonwijk.

Doordat er nauwelijks historische waarden aanwezig zijn, kan worden geconcludeerd dat het aspect cultuurhistorie geen belemmeringen oplevert voor het planvoornemen.

5.11 Leidingen

Door het plangebied lopen geen boven- en/of ondergrondse leidingen die een planologische bescherming genieten (zie paragraaf 5.3). Er is dus op dat gebied geen sprake van (planologische) beschermingszones en/of belangen van derden. Het aspect leidingen vormt geen belemmering voor het planvoornemen.

5.12 Water

Op basis van de wet op de ruimtelijke ordening (Wro) en Besluit ruimtelijke ordening (Bro) is de watertoets verplicht bij o.a. bestemmingsplannen, inpassingsplannen, projectbesluiten en omgevingsvergunningen afwijking bestemmingsplan. Voor overige plannen, zoals een structuurvisie, dient een watertoets te worden uitgevoerd op basis van het Nationaal Bestuursakkoord Water. Het Bro regelt de verplichte waterparagraaf in de plantoelichting (art 3.1.6 Bro) en het vooroverleg met de waterbeheerder (art 3.1.1 Bro).

5.12.1 Watertoets

De watertoets is bedoeld om ruimtelijke plannen en besluiten meer waterbestendig te maken, doordat waterbelangen van gemeente, waterschap en eventueel andere waterbeheerders vroegtijdig en expliciet worden meegewogen. In het ruimtelijk plan moet voldoende rekening zijn gehouden met de waterhuishoudingen -voorzieningen.

Voor dit bestemmingsplan is een digitale watertoets uitgevoerd, de resultaten hiervan zijn bijgevoegd als Bijlage 10 bij deze toelichting. Uit deze blijkt dat er een korte procedure gevolgd dient te worden. De gemeente doet dit in het regulier overleg met het waterschap.

Op grond van het Besluit Ruimtelijke Ordening moet in de toelichting van ruimtelijke plannen een waterparagraaf worden opgenomen. Hierin wordt beschreven hoe rekening is gehouden met de gevolgen van het plan voor de taken en belangen van het waterschap en de gemeente. Uit de ingevoerde gegevens volgt dat er sprake is van een ruimtelijk plan dat een geringe invloed heeft op de taken en belangen van het waterschap.

In deze fase van de planvorming (bestemmingsplan) kan volgens het waterschap worden volstaan met dit automatisch gegeneerd wateradvies. Vanwege het gering waterschapsbelang is een aanvraagformulier tevens niet nodig.

5.12.2 Waterparagraaf

De waterparagraaf beschrijft de wijze waarop rekening is gehouden met de eventuele gevolgen van het ruimtelijk plan voor de waterhuishouding en vice versa. Onderdeel hiervan is een beschrijving van beleidsuitgangspunten en regelgeving, waterhuishoudkundige situatie en –opgaven, meest geschikte oplossingen (motiveren) en de ruimtelijke consequenties daarvan. In de waterparagraaf is tevens het advies van de waterbeheerder verwerkt.

5.12.2.1 Beschrijving van het watersysteem

Het plangebied is gelegen in de woonwijk Huurlingsedam van Wijchen. Het maaiveld varieert qua hoogte, tussen 8,2 m 8,6 meter +NAP. Het maaiveld ter plaatse van de onderzoekslocatie is hiermee gelegen op circa 8,4 m+NAP.

De bodemsoort ter plaatse van het plangebied is geclassificeerd als 'Ooivaaggrond, lichte zavel'. Dit zijn oude rivierkleigronden zonder minerale eerdlaag en geen roest en grijze vlekken beginnend binnen 50 cm. De bouwvoor bestaat uit lichte zavel.

Ooivaaggronden zijn gronden die voorkomen in laaggelegen gebieden, vaak in de buurt van rivieren of andere waterlopen. Ze worden gekenmerkt door een hoge grondwaterstand en een hoge vochtigheidsgraad. Licht zavel is een bodemtype dat vaak voorkomt in dergelijke gebieden en wordt gekenmerkt door een relatief hoge concentratie aan zavel (klei- en siltdeeltjes). Deze bodems zijn vaak vruchtbaar en geschikt voor landbouwdoeleinden.

De locatie bevindt zich op een Terrasrest-rug. Vormsubgroep B43 omvat rivierterrasresten die als zwak ontwikkelde ruggen in het landschap liggen. De ruggen vormen de hogere delen van een door een voornamelijk vlechtend riviersysteem opgebouwd dan wel versneden rivierterras. In hoeverre erosie bij het ontstaan een rol heeft gespeeld, is niet altijd duidelijk. De soms aanwezige dekzand- of rivierduinafzettingen op de rug maken de vorm wat beter zichtbaar.

afbeelding "i_NL.IMRO.0296.HUURlingsedam81-OW01_0030.png"

Figuur: bodemtypologie ter plaatse van het plangebied

Doordat de locatie zich in de bebouwde kom van Wijchen bevindt, is de originele bodemsoort geroerd. Op basis van classificering als Ooivaaggronden aan de hand van de bodemkaart zou verwacht worden dat de bodem een hoog klei- en siltgehalte heeft.

Uit de beoordeling van de globale bodemeigenschappen per te onderscheiden bodemlaag bij een tijdens het bodemonderzoek genomen boring, valt op dat de grond voornamelijk als zandig omschreven kan worden. Wel is er een concentratie klei- en siltdeeltjes aanwezig, die mogelijk terug te voeren op de ooivaaggronden. Deze concentratie is echter lager dan de bodemkaart deed vermoeden.

De weergave van de boorstaat is weergegeven in onderstaande figuur. De volledige rapportage van bodemonderzoek is toegevoegd als Bijlage 5.

afbeelding "i_NL.IMRO.0296.HUURlingsedam81-OW01_0031.png"

Figuur: Globale bodemopbouw plangebied ter plaatse van Boring 01

Het plangebied ligt in peilvak CIT009. Volgens de bodemkaarten ligt de gemiddeld hoogste grondwaterstand GHG op 7,5 m+NAP (90cm m-mv). De gemiddeld laagste grondwaterstand GLG is circa 6,9 m+NAP (151 cm m-mv). De grondwaterstand behoort hiermee tot grondwatertrap VIIo. Het stuwpeil (SP) is binnen het peilvak CIT009 bedraagt 5,5 m + NAP.

Op basis van het milieukundig bodemonderzoek (Bijlage 5) bleek de actuele grondwaterstand op 2,4 meter onder maaiveld te liggen. Dit is lager dan de algemene bodemdata deed vermoeden.

In het plangebied zijn geen A-, B- of C-watergangen gelegen. Op circa 200 meter van het plangeb ied bevindt zich het Wijchens Meer, geclassificeerd als A-Watergang met naast gelegen C-Watergang t.b.v. waterbuffering.

Hemelwater wordt in de huidige situatie afgevoerd naar het bestaande gemengde rioolsysteem, evenals het afvalwater. Daarnaast infitreert hemelwater dat valt op terreinverhardingen en in de tuin, rechtstreeks in de bodem. In de praktijk wordt, ook bij sterke regenval, geen stagnerend water op het perceel waargenomen door eigenaren.

De bovenstaande waarneming sluit aan bij de tijdens het bodemonderzoek als zandig geclassificeerde bodemopbouw. In algemeen, heeft zand een relatief hoge infiltratiesnelheid, wat betekent dat water snel in het zand kan infiltreren. De waterdoorlatendheid van zand is echter afhankelijk van de korrelgrootte. Grovere zanddeeltjes hebben meestal een lagere waterdoorlatendheid dan fijne zanddeeltjes.

Om meer te weten te komen over de bodemeigenschappen ten behoeve van infiltratie in het plangebied, is de waterdoorlatendheid bepaald aan de hand van de K-waarde. De waterdoorlaatbaarheid is op twee punten op het terrein onderzocht.

afbeelding "i_NL.IMRO.0296.HUURlingsedam81-OW01_0032.png"

Figuur: Meetresultaten en interpretatie doorlatendheid bodem

De berekende K-waarde op locatie K1 behoort tot de kwaliteit goed tot zeer goed. Op locatie K2 ligt de gemeten waterdoorlatendheid significant lager dan op K1, en wordt de score als redelijk geschouwd.

Aan de hand van de beoordeling van de doorlatendheid door middel van de K-waarde, kan worden gesteld dat de infiltratie binnen het plangebied als redelijk tot zeer goed omschreven kan worden.

De waterdoorlatendheid is onder andere afhankelijk van de bodemgesteldheid (het bodemtype, aanwezigheid van grote holten, scheuren en/of gangen in de grond etc.) en het grondwaterniveau. Er zijn verschillende methodieken en diverse interpretatie mogelijkheden om de doorlatendheid te meten. Voor het bepalen van de waterdoorlatendheid is gekozen om gebruik te maken van de omgekeerde boorgatmethode.

Geconcludeerd kan worden dat de berekende k-waarden vallen in de verwachting voor zandgronden in Nederland. Concreet betekent dit dat er lokaal relatief grote verschillen kunnen voorkomen in de waterdoorlaatbaarheid en de berekende waarde enkel een indicatie is voor de locatie.

De bepaling van de k-waarde aan de hand van een buis, kan als heel punctueel worden omschreven. In de praktijk gebeurt de infiltratie over een groter oppervlak. Op basis van de uitslag van de k-waarden, kan de bodem de bodem als uitmate geschikt voor infiltratie op eigen terrein worden omschreven.

In de nieuwe situatie zal het water worden geborgen en geïnfiltreerd binnen het plangebied. Dit zorgt voor een waterhuishoudkundige verbetering.

5.12.2.2 Waterbeleid en waterbeheer

Gemeentelijk waterbeleid

Het gemeentelijk waterbeleid is gericht op het voorkomen, beperken of tot een aanvaardbaar risico terugbrengen van wateroverlast en schade aan milieu en volksgezondheid. In de Strategische waternota Wijchen zijn thema's en uitgangspunten voor duurzaam waterbeheer omschreven. Het Gemeentelijk rioleringsplan beschrijft de gemeentelijke zorgplicht voor rioolwater, hemelwater en grondwater. In het kader van de watertoets wordt een vertaalslag gemaakt naar de concrete plansituatie.

Zorgplicht afvalwater

Een perceeleigenaar moet het huishoudelijk afvalwater of het bedrijfsafvalwater op de openbare riolering lozen (Besluit lozing afvalwater huishoudens art. 7 en 10 en Activiteitenbesluit art. 2.1 en 2.2). Als dit niet mogelijk (doelmatig) is, zorgt de perceeleigenaar voor een zo milieuvriendelijk mogelijke manier van verwerking of verwijdering van het afvalwater. De gemeente heeft voor zover doelmatig een zorgplicht voor de inzameling en transport van stedelijk afvalwater dat binnen de gemeente vrijkomt (zie Wm art 10.33).

Zorgplicht hemelwater

Een perceeleigenaar is zelf verantwoordelijk voor het verwerken van het hemelwater op het eigen terrein of voor het eventueel lozen van hemelwater op oppervlaktewater. Als dit niet mogelijk is zorgt de gemeente voor het inzamelen, transporteren en verwerken van het hemelwater, mits doelmatig (Waterwet art. 3.5).

Zorgplicht grondwater

Een perceeleigenaren is zelf verantwoordelijk voor het treffen van maatregelen op eigen terrein om structurele nadelige gevolgen van grondwater voor de aan de grond gegeven bestemming te voorkomen of beperken. Als dit niet mogelijk is treft de gemeente maatregelen in openbaar gebied, voor zover doelmatig en geen verantwoordelijkheid van provincie of waterschap (Waterwet art 3.6).

Zorgplicht oppervlaktewater (waterschap)

De gemeente valt binnen het beheersgebied van Waterschap Rivierenland. Voor lozing op oppervlaktewater (A-, B- en C-water) heeft de perceeleigenaar een vergunning van het waterschap nodig (Waterwet art. 6.2). Een perceeleigenaar (of aanliggende perceeleigenaar) is verantwoordelijk voor het beheer en onderhoud van oppervlaktewater (B- en C-water volgens de legger van het waterschap) dat op eigen terrein ligt. Het waterschap draagt zorg voor het onderhoud van A-watergangen. Voor ingrepen of activiteiten in of nabij watergangen danwel in of nabij een waterkering heeft een perceeleigenaar een Keur-ontheffing van het waterschap nodig.

5.12.2.3 Leefomgeving en ruimtegebruik

Beleidsuitgangspunten

De gemeente streeft naar integrale inpassing van het watersysteem in de leefomgeving en afstemming op de gebruiksfuncties in het gebied. De ruimtelijke ontwikkeling mag geen nadelige gevolgen hebben voor de waterhuishouding en vice versa. De waterhuishoudkundige situatie moet in overeenstemming zijn met het beoogde grondgebruik.

Water is mede-ordenend bij de ruimtelijke ontwikkeling (juiste functie op de juiste plaats), waarbij tevens rekening is gehouden met de ruimteclaim van waterhuishoudkundige voorzieningen. Wateropgaven zijn gekoppeld aan andere gebiedsopgaven, zoals voor openbaar groen, welzijn, volkshuisvesting, verkeer/vervoer en energie.

Gevolgen van/voor het plan

In het plan worden nauwelijks aanpassingen gemaakt aan het bestaande watersysteem. De planlocatie is in de huidige situatie voor ongeveer de helft verhard. De afwatering van de daken is in de huidige situatie nog aangesloten op het riool. In de nieuwe situatie zullen de nieuwe woning en het nieuwe praktijkgebouw volledig worden ontkoppeld van het riool. Doordat de bestaande gebouwen niet worden gesloopt heeft de ontkoppeling betrekking op de nieuwbouwfase. De afwatering van het hemelwater afkomstig van de bestaande gebouwen blijft ongewijzigd.

Uitgangspunt is dat het hemelwater van de nieuwbouw op eigen terrein wordt verwerkt. Het hemelwater zal in de nieuwe situatie infiltreren op eigen terrein, door hemelwatergoten en pijpen aan te sluiten op infitratievoorzieningen op eigen terrein in de vorm van kratten.

Daarbij zal aan de bergingsnorm worden voldaan. Dit is geconstrateerd bij de bepaling van de k-waarde. De bodem is tijdens het milieukundig bodemonderzoek gecategoriseerd als zandbodem en de waterdoorlatendheid van deze bodem valt in de verwachting voor zandgronden in Nederland. Infiltratie op eigen terrein zorgt hierdoor niet tot een waterhuishoudkundig probleem.

De ruimtelijke ontwikkeling heeft geen nadelige gevolgen voor de waterhuishouding en de waterhuishouding heeft geen nadelige gevolgen voor de ruimtelijke ontwikkeling.

5.12.2.4 Kwaliteit en beleving

Beleidsuitgangspunten

De gemeente streeft naar schoon water en waterbodems die voldoen aan gestelde kwaliteitseisen en het behoud van (natte) natuurwaarden en biodiversiteit. Verontreiniging van grond- en oppervlaktewater wordt voorkomen en de waterkwaliteit zo mogelijk verbeterd.

Schoon hemelwater mag rechtstreeks in bodem of op oppervlaktewater worden geloosd. Verontreiniging van hemelwater voorkomen, o.a. door toepassing van niet-uitlogende materialen (Dubo-bepalingen) en door beperking van toepassing van lood, koper, zink en zacht pvc. Verontreinigd hemelwater alleen lozen via een zuiverende voorziening.

De kwaliteit van oppervlaktewater moet zo mogelijk verbeterd worden door de aanleg van natuurvriendelijke oevers en een verbetering van de doorstroming. Het beheer mag geen verstoring geven van waterkwaliteit en biodiversiteit. Ecologisch natte zones of natte natuurwaarden moeten behouden worden of verder ontwikkeld worden door bijbehorende waterhuishoudkundige omstandigheden te beschermen of herstellen.

De gemeente streeft naar versterking van de belevingswaarde van water en daarmee het waterbewustzijn. Hierbij zijn water, waterhuishoudkundige elementen en cultuurhistorische structuren en landschapselementen herkenbaar verweven in de ruimtelijke inrichting en beleefbaar gemaakt. Waterstromen zichtbaar (bovengronds) afvoeren.

Gevolgen van/ voor het plan

Verontreiniging van hemelwater afkomstig van het dak wordt primair voorkomen door toepassing van niet-uitlogende materialen, zoals omschreven in de Dubo-bepalingen, maar ook door beperking van de toepassing van lood, koper, zink en zacht pvc. Hierdoor wordt vervuiling van oppervlaktewater voorkomen. Ook terreinverhardingen worden half doorlatend en van niet uitlogende materialen voorzien, zodat hemelwater ter plaatse en aan de randen van paden en parkeerplaatsen infiltreert.

Er worden geen waterpartijen aangelegd of aangepast. Voor het afvalwater wordt gebruik gemaakt van de bestaande aansluitingen op de openbare riolering. Voor het hemelwater wordt een tussenkomst vanwadi's en/of infiltratiekratten onder parkeerplaatsen voorzien, met zo nodig een oppervlakkige en zichtbare aansluiting naar het bestaande hemelwaterstelsel in de wijk (op straat en/of wadi).

5.12.2.5 Klimaatadaptatie

Beleidsuitgangspunten

De gemeente streeft naar een klimaatbestendige en waterrobuuste leefomgeving, anticiperend op hevigere perioden met hitte, neerslag en droogte. Bij ruimtelijke ontwikkelingen worden schadelijke effecten van klimaatverandering (wateroverlast en verdroging) voor het grondgebruik en vice versa beperkt of teruggebracht tot een acceptabel niveau. Waterhuishoudkundige voorzieningen zijn energiezuinig en duurzaam.

Er moet gekomen worden tot een klimaatadaptieve ruimtelijke inrichting, o.a. voor wat betreft bebouwing, wegen, groen en water. Ook is het uitgangspunt dat water bij hevige neerslag in de bebouwing terecht komt of afstroomt buiten het plangebied. De hoeveelheid verhard oppervlak tot een minimum beperken. Zorgdragen voor voldoende waterberging, tegen hemelwateroverlast en ter buffering van water in droge tijden (zie ook waterberging). Groenstructuren klimaatrobuust aanleggen voor wat betreft areaal, type beplanting en waterbergend vermogen.

Grondwateronttrekking (verdroging) beperken door hoogwaardige toepassing van drinkwater en het treffen van waterbesparende voorzieningen. Zo mogelijk hemelwater gebruiken voor laagwaardige toepassingen. Verder bij de ruimtelijke ontwikkeling rekening houden met de droogtegevoeligheid van de locatie en mogelijke bodemdaling die daardoor kan ontstaan.

Gevolgen van/ voor het plan

In onderstaande paragraaf is het aspect waterberging verder toegelicht. Er vindt geen grondwateronttrekking plaats. Per saldo zal door de nieuwe ontwikkeing meer water kunnen infitreren in het eigen plangebied dan in de bestaande situatie. Dit maakt het plangebied meer robuust en beperkt de verdroging. Door blijvend relatief grote tuinen toe te passen in deze wijk, wordt bijgedragen aan het beperken van warmtestress.

Doordat woningen boven straatpeil worden aangelegd en in de omgeving ook de bebouwing boven straatpeil is aangelegd, zal bij een extreme bui allereerst de straat vollopen. Het straatpeil in de omgeving ligt op circa NAP + 8,0 m en het beoogde bouwperceel is hoger gelegen. Wanneer een bouwpeil van minimaal NAP + 8,4 m wordt aangehouden is dit voldoende hoog zodat water op straat niet tot overlast in de woningen en praktijkruimte gaat leiden.

Daarnaast is er bij de aanleg van de omliggende wijken van Huurlingsedam een nieuw rioolstelsel aangelegd dat water beter kan afvoeren dan rioolstelsels in de oude kernen.

5.12.2.6 Waterberging

Beleidsuitgangspunten

De gemeente streeft naar het vasthouden van gebiedseigen water door benutting van de natuurlijke bergingscapaciteit van bodem en oppervlaktewater. Natuurlijke grondwater- en oppervlaktewaterstanden worden beschermd of hersteld.

Hemelwater afkomstig van verharde oppervlakken zoveel mogelijk afkoppelen van de riolering met de voorkeursvolgorde: 1) Benutting, 2) Bodeminfiltratie binnen het gebied, 3) Berging binnen het gebied, 4) Vertraagde afvoer naar oppervlaktewater buiten het plangebied en 5) Afvoer naar riool. Compenseren van het verlies aan waterberging, indien hemelwater direct of indirect wordt geloosd op oppervlaktewater. De compensatieplicht (Keur waterschap) houdt in dat de toename van verharding in het ruimtelijk plan moet worden gecompenseerd door aanleg van extra waterberging. Dit met een eenmalige uitzondering van 500 m² (stedelijk gebied) en 1500 m² (landelijk gebied) voor particulieren en kleine bedrijven. De compensatieplicht geldt niet in individuele gevallen als op een afstand van 100 m of meer van het oppervlaktewater wordt geïnfiltreerd (beleidsregels Keur artikel 5.16 toetsingscriterium 2).

Infiltratie- en bergingsvoorzieningen, zoals bodempassages en open water, moeten voldoende capaciteit hebben om het hemelwater te kunnen verwerken. En zodanig ruimtelijk ingepast (ruimtebeslag, ligging) dat adequaat functioneren is gewaarborgd.

Gevolgen van/ voor het plan

Op basis van de aanwezige grondsoort kan er vanuit gegaan worden dat hemelwater voldoende kan infiltreren. Ooivaaggronden en lichte zavelgronden hebben over het algemeen voldoende infiltratiemogelijkheden. De bodem is vaak vruchtbaar en heeft een goede waterdoorlatendheid, wat betekent dat regenwater en neerslag makkelijk in de bodem kunnen infiltreren.

Toelichting

De toename van de bebouwing heeft betrekking op de bouw van de praktijk van 172m² (11.5x15m) en de bouw van de vrijstaande woning van 77m² (7x11). In totaal betekent dit een toename van 249,5 m².

Doel is om de zuid- en noordwestelijke hoek een groene structuur te geven. De afname van het verharde oppervlakte heeft dan ook betrekking op de te verwijderen bestrating aan de zuid- en de noordweselijke hoek langs de Huurlingsedam. De vier parkeerplaatsen voor de nieuwe woning en huisnummer 81a en de oprit aan de huurlingsedam 81 krijgen in de toekomst een groener karakter. Hiervoor wordt er verharding verwijderd en een carport verwijderd. Door het toevoegen van groen neemt het oppervlakte aan onverharde ruimte toe. De afname in m² is geschat op 100 m². Dit komt het totale verharde oppervlakte ten goede, zoals aangegeven in onderstaande tabel.

Huidige situatie   m²   Nieuwe situatie   m²  
Oppervlak terrein   3800   Oppervlak terrein totaal   3800  
Bebouwing   500   Bebouwing   750 (+250)  
Verharding   750   Verharding   650 (-100)  
Totaal huidig   1250 m²   Totaal toekomstig   1400 m²  

Figuur: Indicatieve toename verhard oppervlak

Binnen het plangebied zal een minimale toename zijn van het oppervlakte bebouwing en verharding. Ondanks de toevoeging van een woning en een praktijk gebouw zal door het verwijderen van de verharding van de huidige parkeerplaats en het verwijderen van de carport meer groen aanwezig zijn op het terrein. Per saldo zal voor het aspect waterinfiltratie sprake zijn van een verbetering, omdat de nieuwbouw geheel wordt voorzien van infiltratievoorzieningen op eigen terrein, daar waar de weg te enemen bebouwing en verharding nog aangesloten is op het riool.

De waterberging voor het afstromende hemelwater met infiltratiemogelijkheid wordt gerealiseerd in het plangebied. Zodoende worden hemelwater en vuilwater gescheiden afgevoerd. Omdat er in plaats van een geheel gesloten aansluiting op het gemengde stelsel met tussenkomst van infiltratiekoffers een aansluiting wordt gecreëerd met een gescheiden stelsel voor hemelwater, zal de natuurlijke waterhuishouding ter plaatse worden hersteld.

Gezien de ligging in de bestaande woonwijk en te realiseren bebouwing, zal er ruim voldoende fysieke ruimte zijn in de tuinen om de bergings- en infiltratieopgave geheel op eigen terrein in te vullen. Het watersysteem zal in de nieuwe situatie hoe dan ook meer robuust en flexibel zijn, omdat nu nog een grotere hoeveelheid water versneld naar het rioolstelsel wordt afgevoerd. Daar voor in de plaats zal bij het nieuwe plan een groter deel op eigen gronden geïnfiltreerd worden.

Op basis van de eisen van de gemeente wordt de wateropgave berekend. Vanuit het waterschap geldt geen compensatieverplichting door de geringe toename in het verhard oppervlak. De gemeente eist dat binnen het eigen perceel het hemelwater verwerkt wordt. Het staat de initiatiefnemer vrij op welke manier hij met deze waterbergingsopgave omgaat en welke maatregelen hij treft. De benodigde totale waterberging binnen het plangebied is berekend volgens Buishand & Veld bij een T=5+10% situatie. Rekening houdend met een totaal afvoerend verhard oppervlak van 3.169 m² bedraagt de totale statische waterbergingsopgave 6 m³. Deze berging wordt binnen het plangebied gevonden in een combinatie van maatregelen met een statische en dynamische berging middels infiltratiekratten (ca. 2 m3 bij de woning en ca. 4 m3 bij de praktijkruimte). Bij de aanvraag activiteit bouwen zal per gebouw de exacte inhoud, vorm en situering van de kratten worden bepaald.

5.12.2.7 Gezondheid en veiligheid

Beleidsuitgangspunten

De gemeente streeft naar een veilig watersysteem. Inrichting en beheer van het watersysteem op de planlocatie dient te zijn gericht op het voorkomen of beperken van risico's voor de volksgezondheid en veiligheid.

Risico's van optrekkend vocht primair beperken door ter plaatse van bebouwing te voorzien in voldoende ontwateringsdiepte en drooglegging. Of, als dit niet mogelijk is, door het treffen van maatregelen (bv. kruipruimtevrij bouwen, waterdicht bouwen). Een permanente verandering (verlaging) van grondwaterstanden is daarbij niet toegestaan. Voorts in het plan rekening houden met eventuele risico's van bodemdaling als gevolg van grondwaterstandsdaling (verdroging) of –fluctuatie (zie ook Klimaatverandering).

Inrichting en beheer van oppervlaktewater in bebouwd gebied afstemmen op potentieel verdrinkingsgevaar (veilige oevers). Bij de ruimtelijke inrichting rekening houden met locaties waar waterkwaliteit een gezondheidsrisico kan vormen (zoals bij overstorten en stilstaand water).

Gevolgen van/ voor het plan

Met het voornemen worden een nieuwe grondgebonden woningen, een nieuw praktijkgebouw en een nieuwe woonfunctie door functieverandering mogelijk gemaakt. Het bouwpeil van alle gebouwen binnen het plangebied is gelegen boven het maaiveld. Het maaiveld is ten opzichte van de omgeving licht verhoogd en is gelegen op ca. 8,4 m + N.A.P. De Huurlingsedam is met ca. 8,0 m + NAP duidelijk lagen gelegen. Gelet op wat gesteld is in paragraaf 5.12.2.1 kan hiermee voldaan worden aan de eisen voor veiligheid. Vanwege het ontbreken van oppervlaktewater is gezondheid hier geen knelpunt.

5.12.3 Conclusie

Het aspect waterhuishouding levert geen belemmeringen op voor de uitvoerbaarheid van het voornemen. Met het planvoornemen worden geen ruimtelijke ingrepen gedaan die een negatief effect hebben op de waterhuishouding. Infiltratiemogelijkheden zullen toenemen in vergelijking met de bestaande situatie. Nader wordt onderzocht welke mogelijkheden daarvoor zijn, zowel technisch als qua fysiek geschikte ruimte. Daartoe wordt de k-waarde (infitratiemogelijkheid) bepaald, zodat bij de bouwaanvraag ook een technisch uitgewerkt infitratieplan kan worden bijgevoegd.

5.12.4 Overleg met de waterbeheerder

Formeel overleg met de Waterschap Rivierenland in het kader van de watertoets is volgens de nieuwe beleidslijn van het Waterschap verplicht indien toename verharding > 500 m² (stedelijk gebied) en >1500 m2 (landelijk gebied). Hierop volgt een wateradvies van de waterbeheerder. Het advies van de waterbeheerder dient in de waterparagraaf te worden opgenomen. In overige gevallen kan het ruimtelijke plan (i.c. waterparagraaf) ter kennisneming worden toegezonden aan het waterschap.

Er is een digitale watertoets uitgevoerd. Uitkomst van deze watertoets is dat het initiatief een verkorte watertoetsprocedure kan doorlopen.

5.13 MER beoordeling

Algemeen

Op 21 februari 2011 heeft de wetgever het Besluit milieueffectrapportage en het Besluit omgevingsrecht gewijzigd. De belangrijkste wijziging is onder andere: het meer in overeenstemming brengen van het Besluit m.e.r. met de Europese richtlijn m.e.r. Hierbij hebben onder andere de zogenaamde drempelwaarde voor activiteiten een indicatief karakter gekregen.

Met deze wijziging is bepaald dat voor activiteiten die op de bij het besluit m.e.r. behorende C- en D lijst zijn opgenomen, áltijd aandacht aan m.e.r. geschonken dient te worden. Hierbij dient te worden bepaald of een m.e.r. of m.e.r.-beoordeling noodzakelijk is. In algemene zin komt het erop neer dat voor activiteiten die behoren tot de C-lijst een m.e.r.-plicht volgt en voor activiteiten op die op de D-lijst zijn vermeld volgt óf een m.e.r.-beoordelingsplicht óf een motivering dat een m.e.r.(beoordeling) niet noodzakelijk is. Hierbij is de bij de activiteit behorende drempelwaarde onder andere van belang. Om te bepalen of een activiteit m.e.r.-plichtig of m.e.r.-beoordelingsplichtig is, conform het aangepaste Besluit m.e.r., is het type plan en het soort ontwikkeling van het plan van belang.

De activiteit die door dit bestemmingsplan mogelijk wordt gemaakt, behoren niet tot de C-lijst, waardoor er geen directe m.e.r.-plicht is. De voorgenomen ontwikkeling, behoort echter wel tot de D-lijst, namelijk onder nummer 11.2 ‘de aanleg, wijziging of uitbreiding van een stedelijk ontwikkelingsproject met inbegrip van de bouw van een winkelcentra of parkeerterrein’.

Met het planvoornemen worden de bouw van een woning, twee nieuwe woningen door functiewijziging en de bouw van een praktijkgebouw mogelijk gemaakt. Gezien de kenmerken van dit plan, betreft dit geen 'stedelijk ontwikkelingsproject' in het kader van het Besluit milieueffectrapportage, omdat:

  • het plangebied in de stedelijk gebied van Wijchen ligt en het niet bouwen van buitengebied betreft;
  • het plangebied al (deels) bestemd is met de bestemmingen voor stedelijk gebied;
  • het plangebied momenteel al (meer dan in de nieuwe situatie) bouwvlakken en bouwmogelijkheden heeft.

Er is geen sprake van een ‘stedelijke ontwikkeling’ en daarom is het opstellen van een vormvrije m.e.r.-beoordeling niet noodzakelijk. De drempelwaarde voor een m.e.r.-beoordeling is opgenomen in lijst D van het besluit m.e.r. Voor projecten groter dan 100 hectare en meer dan 2000 woningen dient altijd een m.e.r.- beoordeling plaats te vinden. De omvang van de woningbouw is zodanig beperkt dat er geen sprake is van overschrijding van de drempelwaarden is. Dit betekent dat er een vormvrije m.e.r.-beoordeling uitgevoerd kan (maar niet hoeft te) worden.

In bijlage III van de EEG-richtlijn milieueffectenbeoordeling is een aantal beoordelingscriteria opgenomen.

Planbeoordeling (conform bijlage III EEG-richtlijn)

Kenmerken van het project

De realisatie van de woningen en de gebiedstransformatie van een bestaande dorpsomgeving is een project van beperkte omvang. Er is in onderhavig plan sprake van een kleine gebiedsontwikkeling met woningbouw. Er is geen sprake van gebruik van natuurlijke grondstoffen, productie van afvalstoffen, verontreiniging en hinder of risico op ongevallen.

Plaats van het project

De gronden zijn gelegen binnen de bebouwde kom van Wijchen, aan de Huurlingsedam, als onderdeel van een bestaande woonwijk. De gronden zijn al bebouwd en verhard.

Kenmerken van het potentiële effect

Gezien de aard van de ontwikkeling zijn er geen negatieve effecten te verwachten. Relatieve rijkdom aan kwaliteit en het regeneratievermogen van natuurlijke hulpbronnen van het gebied is niet aan de orde.

Realisatie van het plan heeft geen relevante / significante effecten op bodem, waterhuishouding, verkeersaantrekkende werking luchtkwaliteit, bedrijfshinder en externe veiligheid. Dit geldt ook voor het aspect flora en fauna. Dit blijkt uit de vorenstaande verantwoording die in dit bestemmingsplan is vervat. Het plangebied ligt op voldoende afstand van Natura 2000 (Uiterwaarden Waal) en het Gelders NatuurNetwerk en zal geen relevante / significante invloed op deze gebieden hebben, zo blijkt uit de stikstoftoets.

De resultaten uit de milieuonderzoeken leveren geen belemmering op voor de beoogde woningbouw.

Hoofdstuk 6 Juridische regeling

6.1 Algemene plansystematiek

Het voorliggende bestemmingsplan bestaat uit een verbeelding, regels en een toelichting. De verbeelding en regels tezamen vormen het juridisch bindende deel van het plan. De toelichting bevat een motivatie en verantwoording van de keuzes die gemaakt zijn. Het plan voldoet aan de Standaard Vergelijkbare Bestemmingsplannen 2012 (SVBP 2012). Hiermee is het plan digitaal uitwisselbaar conform de laatste standaarden.

6.2 De bestemmingen

Het voorliggend bestemmingsplan bevat een nieuwe juridische regeling. De reden voor de bestemmingsplanherziening is het realiseren van een nieuwe woning, functiewijziging van bestaande bebouwing en het realiseren van een praktijkgebouw.

Binnen het plangebied komen de bestemming 'Wonen' (W), 'Maatschappelijk' (M) en Verkeer' (V) voor.

Op de verbeelding zijn bij deze bestemming de aanduidingen 'bouwvlak' met de bouwaanduidingen 'bijgebouwen' en 'vrijstaand' aangebracht. Deze aanduidingen bepalen op welke locaties de typen woningen en gebouwen gerealiseerd kunnen worden.

Ook zijn er maatvoeringsaanduidingen opgenomen voor de maximale bouw- en goothoogte en het maximaal aantal toegestane wooneenheden. Met een bouwvlak is de situering van de woningen vastgelegd. Ook de bijgebouwenregeling is hierop afgestemd; zowel hoofd- als bijgebouwen dienen binnen het bouwvlak te worden gesitueerd en bijgebouwen mogen ook binnen de zone 'bijgebouwen' worden opgericht.

Daarnaast is binnen de bestemming Wonen ook aanleg van paden, groen, parkeervoorzieningen en waterbergende voorzieningen mogelijk gemaakt.

Op een deel van het plangebied ligt de dubbelbestemming "Waarde - Archeologie 2". Binnen deze dubbelbestemming gelden er regels voor bouwactiviteiten en het uitvoeren van werken en werkzaamheden.

Verder ligt er op de zuidwestelijke hoek de gebiedsaanduiding "vrijwaringszone - molenbiotoop". Binnen deze zone gelden regels ten aanzien van de maximale bouwhoogte, zodat de molen voldoende wind kan vangen om functioneel te zijn. Deze dubbelbestemming belemmert overigens de bestaande en nieuwe bebouwing niet.

afbeelding "i_NL.IMRO.0296.HUURlingsedam81-OW01_0033.png"

Figuur: de bestemmingen en aanduidingen geldend in het plangebied

Het kleine hoekje met een verkeersbestemming betreft een deel van een perceel dat gemeentelijk eigendom is, maar waar nog geen actueel bestemmingsplan geldt. Vandaar dat dit deel is meegenomen in voorliggend plan.

Hoofdstuk 7 Economische en maatschappelijk aanvaardbaarheid

7.1 Economische aanvaardbaarheid

De economische uitvoerbaarheid komt geheel voor het risico van de initiatiefnemers, het plan kan voldoende haalbaar worden geacht. De plan- en procedurekosten voor dit bestemmingsplan worden door de initiatiefnemers voldaan. Tussen de gemeente Wijchen en de initiatiefnemer wordt een realisatieovereenkomst gesloten, voorafgaand aan de bestemmingsplanprocedure.

7.2 Maatschappelijke aanvaardbaarheid

Vooroverleg

Het concept ontwerp bestemmingsplan zal is voorgelegd aan de vaste overlegpartners. Daaruit volgt een reactie van de provincie die als volgt luidt:

PM 

Omgevingsdialoog

Op dinsdag 10 oktober 2023 heeft er een inloopavond plaatsgevonden in zaal De Brink. Van 19:00 t/m 21:30 konden omwonenden en andere geïnteresseerden informatie opdoen over de plannen aan de Huurlingsedam. Het verslag van de omgevingsdialoog is als Bijlage 11 toegevoegd bij de toelichting. Tijdens de avond waren 24 personen aanwezig. Hiervan waren er vier personen aanwezig namens de initiatiefnemers en twee namens Pouderoyen Tonnaer. De avond is gestart met de benoeming van het nut van een omgevingsdialoog. Hierna is het planvoornemen omschreven en is de opbouw van het bestemmingsplan inclusief regels en de toetsing van de milieu-aspecten uitgelegd. Er is hier uitvoering aandacht besteed aan de aspecten cultuurhistorie, water en het doel van de regels.

Naast het delen van informatie is de tijd benut voor de beantwoording van vragen en het inventariseren van zorgen in de omgeving. Het merendeel van de aanwezigen had geen vragen of bezwaren tegen het plan. Dit waren met name buurtbewoners die op enige afstand wonen. Kritische vragen en zorgen, werden door enkele directe omwonenden gesteld of geuit.

Opvallend tijdens de vragenrondes waren de zorgen over verkeer en parkeren, privacy, uitzicht en schaduw voor en door de directe omwonenden.

Samenvattend kunnen de zorgen in twee kernpunten samengevat worden.

  • Parkeer- en verkeershinder en verminderd uitzicht door de nieuwe praktijk;
  • Privacybeperking, verminderd uitzicht en toenemende schaduw door de nieuwe woning.

Reactie van de initiatiefnemers o.b.v. de aandachtspunten van de participatie

Tijdens de informatieavond op 10 oktober in wijkcentrum de Brink in Wijchen is het plan uitvoering besproken en zijn de zorgen van omwonenden gehoord. De familie Berens heeft middels een memo gereageerd op de zorgen over verkeer & parkeren, privacy, uitzicht en schaduw die ze gehoord hebben in de dialoog. Deze memo is toegevoegd als Bijlage 12 bij deze toelichting en naar aanleiding daarvan is het plan op een aantal wezenlijke punten aangepast. Zo is de bouw- en goothoogte van de nieuwe woning en de praktijkruimte teruggebracht (3 meter lager dan de toegestane bouwhoogte van omliggende woningen), is toegezegd dat de parkeerplaatsten bij de praktijk ruim worden ingericht en de kruisingen en bocht in de Huurlingsedam meer open worden ingericht ten behoeve van de verkeersveiligheid. Ook mogen de parkeerplaatsen bij de praktijk, gelegen op eigen terrein, buiten de bedrijfsuren om door de buurt worden gebruikt voor bijvoorbeeld hun bezoek.

Middels deze memo wil de familie Berens aantonen alles te doen om het plan acceptabel te maken voor de buurt. Voor een fijne toekomst is het wenselijk dat de belangen van de buurt serieus genomen worden.

Zienswijzen

PM