direct naar inhoud van Toelichting
Plan: Zesweg naast 14, Wijchen
Status: ontwerp
Plantype: bestemmingsplan
IMRO-idn: NL.IMRO.0296.NRDZeswegnaast14-OW01

Toelichting

Hoofdstuk 1 Inleiding

1.1 Aanleiding voor het bestemmingsplan

De initiatiefnemer is voornemens om twee levensloopbestendige woningen en één seniorenwoning te realiseren op een perceel ten westen van Zesweg 14-16 in Wijchen. Op deze locatie staan momenteel bijgebouwen welke zullen worden gesloopt.

De voorgenomen ontwikkeling past niet in het geldende bestemmingsplan. Omdat het initiatief wel passend is op de locatie, wordt medewerking verleend aan een herziening van het bestemmingsplan. In dit document wordt dit toegelicht en gemotiveerd waarom dat kan volgens de Wet ruimtelijke ordening (Wro).

1.2 Ligging plangebied

Het plangebied is gelegen ten westen van Zesweg 14 in de kern Wijchen. Bijgevoegde afbeelding toont globaal de ligging van het plangebied in de omgeving.

afbeelding "i_NL.IMRO.0296.NRDZeswegnaast14-OW01_0002.jpg"

Globale ligging plangebied (bron: openstreetmap.org)

1.3 Leeswijzer

Hoofdstuk 2 bevat een beschrijving van de bestaande situatie en van het plan. Daarna wordt in hoofdstuk 3 ingegaan op het relevante Rijks-, provinciale-, en gemeentelijke beleid. In hoofdstuk 4 wordt de haalbaarheid van het project getoetst op grond van het geldende beleid en (milieu)wetgeving. Ook wordt ingegaan op de economische haalbaarheid van het plan. Hoofdstuk 5 geeft een toelichting op de juridische opzet van het plan. Tot slot gaat hoofdstuk 6 in op de wijze hoe burgers en andere belanghebbenden betrokken zijn bij het plan (maatschappelijke uitvoerbaarheid). Hierin zijn de uitkomsten van inspraak, vooroverleg en zienswijzen opgenomen.

Hoofdstuk 2 Het initiatief

In dit hoofdstuk wordt het initiatief beschreven. Eerst wordt ingegaan op de bestaande situatie van het plangebied en de relatie met de omgeving. Daarna wordt ingezoomd op het beoogde initiatief.

2.1 Huidige situatie

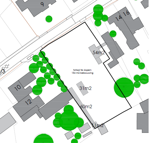
Het plangebied ligt ten westen van de woning aan de Zesweg 14-16 in de kern Wijchen. De Zesweg is gelegen ten noorden van de spoorlijn Tilburg - Nijmegen en ten noordoosten van het centrum van Wijchen. De woningen aan de aan de Zesweg 14 en 16 vormen een twee-onder-een-kapwoning. In het plangebied staan momenteel meerdere bijgebouwen met een totaaloppervlakte 156 m2. Daarnaast bestaat het voorste deel van het perceel uit gras, het achterliggende deel doet in de huidige situatie dienst als tuin toebehorend aan de woning aan de Zesweg 14. De onderstaande afbeeldingen tonen een luchtfoto van het plangebied met het plangebied rood omkaderd en de bestaande bebouwing in het plangebied.

afbeelding "i_NL.IMRO.0296.NRDZeswegnaast14-OW01_0003.jpg"

Luchtfoto van het plangebied

afbeelding "i_NL.IMRO.0296.NRDZeswegnaast14-OW01_0004.png"

Bestaande bebouwing in plangebied (bron: Buro Ariëns)

2.2 Toekomstige situatie

In de toekomstige situatie worden de bijgebouwen die in de huidige situatie in het plangebied aanwezig zijn met een totaaloppervlakte van 156 m2 gesloopt. Dit ten behoeve van de realisatie van twee levensloopbestendige woningen en één seniorenwoning. De twee levensloopbestendige woningen worden direct aan de Zesweg gesitueerd en zorgen voor een logische invulling van het bestaande bebouwingslint. De seniorenwoning wordt in de tweede lijn achter de twee andere woningen gerealiseerd. Bij de woningen is voldoende ruimte om op eigen terrein te parkeren. Verspreid over het plangebied worden verschillende nieuwe bomen aangeplant. Langs de randen van de percelen worden groene erfafscheidingen gerealiseerd met o.a. hagen en leibomen. In het plangebied worden tevens borders aangelegd met verschillende soorten struiken en planten. Om de verharding in het plangebied te beperken wordt tevens gebruik gemaakt van grasstenen en halfverharding. De onderstaande afbeelding geeft een impressie van de toekomstige situatie.

afbeelding "i_NL.IMRO.0296.NRDZeswegnaast14-OW01_0005.png"

Impressie toekomstige situatie (bron: Buro Ariëns)

De woningen zullen worden gerealiseerd bestaande uit één bouwlaag met een kap. De woningen zullen met een eigen inrit direct worden ontsloten via de Zesweg. De woning in de tweede lijn wordt ontsloten via een pad vanaf de Zesweg. Bij de woningen is voldoende ruimte aanwezig om te parkeren op eigen terrein. Qua architectuur, materiaal en kleur zal aansluiting worden gezocht met de omgeving en naastgelegen woningen. De woningen zullen landschappelijk worden ingepast middels de plaatsing van beukenhagen en het aanplanten van nieuwe bomen.

De gemeente Wijchen ontvangt meer kleinschalige woningbouwinitiatieven dan er gebouwd mogen worden.

Daarom heeft zij een toetsingssysteem voor kleine particuliere initiatieven, waarbij zij kijkt naar ruimtelijke

kwaliteit, woonbehoefte en duurzaamheid. De gemeente heeft op basis van deze afwegingscriteria een

positief besluit genomen ten aanzien van dit plan.

2.3 Duurzame stedenbouw

In een duurzame leefomgeving wordt bewust omgegaan met energie, klimaat, grondstoffen, ruimte, water en groen. Ruimtelijke ontwikkelingen zijn een logisch moment om de verschillende aspecten van duurzame stedenbouw vanaf het begin in de planvorming mee te nemen. Ook bij kleine planontwikkelingen zoals deze kunnen duurzaamheidsprincipes worden meegenomen in de opzet van het plan.

Bouwbesluit

Het Bouwbesluit stelt eisen aan energiezuinigheid van nieuwe woningen en utiliteitsgebouwen. De maat voor energiezuinigheid heet Energie Prestatie Coëfficiënt (EPC). Voor woningen geldt sinds 2015 een Energie Prestatie Coëfficiënt van 0,4 op gebouwniveau. Vanaf 2020 wordt deze verlaagd richting een coëfficiënt dichter bij de nul. Vanaf 2020 moeten alle nieuwe gebouwen voldoen aan de BENG-eisen. Dit is rijksbeleid, waarbij BENG staat voor Bijna EnergieNeutrale Gebouwen.

Kansen

Bij de herinrichting van een perceel en bij nieuwbouw liggen kansen om duurzaamheid te verbeteren. Het energieneutraal maken van een gebouw kan beter bij de bouw dan achteraf. Nieuwbouw biedt de kans om meteen voor een duurzame wijze van verwarming te kiezen, maar ook andere duurzaamheidsaspecten zijn bij nieuwbouw relatief eenvoudig te realiseren, zoals het opwekken van duurzame energie. Het is van belang de kansen voor het opwekken van duurzame energie te benutten om de gestelde toename van duurzaam opgewerkte energie te behalen. Sinds 01-07-2018 moeten nieuwe woningen gasloos worden gebouwd. Daarnaast kan bij de inrichting van de buitenruimte rekening worden gehouden met water- en hittestress. Het aanplanten van groen is goed voor de klimaatbestendigheid, omdat het bijdraagt aan het verminderen van de hittestress en het verbeteren van het watervasthoudend vermogen van het gebied. Tevens is natuurinclusief bouwen een kans, waarbinnen diverse mogelijkheden voor het ondersteunen van natuur en biodiversiteit liggen.

Planspecifiek

Met voorliggend plan worden meerdere bijgebouwen gesloopt en daarvoor in de plaats drie woningen teruggebouwd in bestaand stedelijk gebied. Hiermee is sprake van duurzaam ruimtegebruik. De nieuwe te bouwen woningen zal qua bouw en gebruik duurzaam worden uitgevoerd. Het streven is om energieneutraal of BENG (bijna energieneutraal gebouw) te ontwikkelen. De woningen worden ontwikkeld met het oog op duurzaamheid maar ook op levensloopbestendigheid. Dit betekent dat er de mogelijkheid is om vele jaren in de woning te wonen.

Hoofdstuk 3 Beleidskader

3.1 Rijksbeleid

Nationale Omgevingsvisie (NOVI)

Per januari 2021 is de Nationale Omgevingsvisie (NOVI) van kracht. De NOVI biedt een langetermijnperspectief op de ontwikkeling van de leefomgeving in Nederland tot 2050. Met de NOVI geeft het kabinet richting aan de grote opgaven die het aanzien van Nederland de komende dertig jaar ingrijpend zullen veranderen. Denk aan het bouwen van nieuwe woningen, ruimte voor opwekking van duurzame energie, aanpassing aan een veranderend klimaat, ontwikkeling van een circulaire economie en omschakeling naar kringlooplandbouw. Alles met zorg voor een gezonde bodem, schoon water, behoud van biodiversiteit en een aantrekkelijke leefomgeving.

Met de NOVI benoemt het Rijk nationale belangen, geeft het richting op de vier prioriteiten en helpt keuzes maken waar dat moet. Want niet alles kan overal. Deze visie is ontwikkeld in nauwe samenwerking met provincies, gemeenten, waterschappen, maatschappelijke instellingen en burgers.

De NOVI is vastgesteld op grond van de geldende regelgeving omdat de Omgevingswet nog niet in werking is. De NOVI voldoet tevens aan de eisen die de Omgevingswet stelt aan een omgevingsvisie. Zodra de Omgevingswet in werking is getreden, zal deze omgevingsvisie dan ook gelden als de Nationale Omgevingsvisie in de zin van deze wet.

Met de komst van de NOVI komen meerdere nationale beleidsstukken te vervallen, waaronder de Structuurvisie Infrastructuur en Ruimte (SVIR) en het Besluit algemene regels ruimtelijke ordening (Barro). Strategisch relevante delen van de SVIR en het Barro worden echter opgenomen in de NOVI en blijven daarmee ook na inwerkingtreding van de NOVI gelden. Dit bestemmingsplan zal daarom ook aan dit beleid worden getoetst.

Gebiedsgericht

De NOVI benoemt een aantal aspecten van nationaal ruimtelijk belang. Het betreft de bescherming van de waterveiligheid aan de kust en rond de grote rivieren, bescherming en behoud van de Waddenzee en enkele werelderfgoederen, de uitoefening van defensietaken, het Natuurnetwerk Nederland (voorheen de ecologische hoofdstructuur), de elektriciteitsvoorziening, de toekomstige uitbreiding van het hoofd(spoor)wegennet en de veiligheid rond rijksvaarwegen.

In het Barro waren regels opgesteld waarmee deze gebiedsbescherming juridisch verankerd is richting lagere overheden. Via het Besluit ruimtelijke ordening en het Besluit omgevingsrecht zijn deze regels aanvullend vastgelegd.

Ladder duurzame verstedelijking

Een meer algemeen onderwerp uit de SVIR is 'duurzame verstedelijking'. Via de 'ladder voor duurzame verstedelijking' wordt een zorgvuldige afweging en besluitvorming geborgd bij ruimtelijke vraagstukken in stedelijk gebied. Het gebruik van deze ladder is opgenomen in het Bro (artikel 3.1.6 onder 2).

De ladder richt zich op nieuwe stedelijke ontwikkelingen. In de toelichting van een bestemmingsplan dat een nieuwe stedelijke ontwikkeling mogelijk maakt, dient de behoefte aan die ontwikkeling te worden beschreven. Als de ontwikkeling buiten het bestaand stedelijk gebied plaatsvindt, moet bovendien gemotiveerd worden waarom niet binnen het bestaand stedelijk gebied in die behoefte kan worden voorzien.

Het Bro beschrijft wat een stedelijke ontwikkeling is: "een ruimtelijke ontwikkeling van een bedrijventerrein of zeehaventerrein, of van kantoren, detailhandel, woningbouwlocaties of andere stedelijke voorzieningen." Onder 'bestaand stedelijk gebied' wordt het volgende verstaan: "bestaand stedenbouwkundig samenstel van bebouwing ten behoeve van wonen, dienstverlening, bedrijvigheid, detailhandel of horeca, alsmede de daarbij behorende openbare of sociaal culturele voorzieningen, stedelijk groen en infrastructuur."

Planspecifiek

Gebiedsgericht

Het plangebied ligt niet in een van de aangewezen gebieden van de NOVI/SVIR en het Barro.

Ladder duurzame verstedelijking

Met voorliggend plan worden drie nieuwe woningen mogelijk gemaakt. Uit jurisprudentie blijkt dat er pas vanaf 12 woningen sprake is van een stedelijke ontwikkeling zoals bedoeld in artikel 3.1.6. Bro. Toetsing aan de ladder voor duurzame verstedelijking is daarom niet nodig.

Het voorliggende plan past binnen het rijksbeleid.

3.2 Provinciaal beleid

Algemeen

In de Omgevingsvisie Gaaf Gelderland (december 2018) staan de hoofdlijnen van het provinciale ruimtelijk beleid. Op 24 september 2014 is door Provinciale Staten van Gelderland de Omgevingsverordening Gelderland vastgesteld. Deze is op 19 december 2018 geactualiseerd op basis van de nieuwe omgevingsvisie. De Omgevingsverordening is een uitwerking van de Omgevingsvisie en stelt regels waaraan bestemmingsplannen moeten voldoen.

Omgevingsvisie Gaaf Gelderland

De provincie wil de focus leggen op een duurzaam, verbonden en een economisch krachtig Gelderland. Door daarin te investeren wil de provincie werken aan een gezond, veilig, schoon en welvarend Gelderland centraal. Om dat te bereiken wordt de focus gelegd op zeven ambities op het gebied van energietransitie, klimaatadaptatie, circulaire economie, biodiversiteit, bereikbaarheid, vestigingsklimaat en woon- en leefomgeving. Deze ambities worden hieronder kort samengevat:

  • Een versnelde energietransitie, gericht op forse vergroting van het aandeel duurzame energie en passend bij de Gelderse kwaliteiten;
  • Een op de toekomst toegerust beschermend klimaatbeleid;
  • Een voortvarend en innovatief circulair beleid;
  • Een stimulerend en beschermend beleid voor biodiversiteit;
  • Efficiënte, duurzame en innovatieve bereikbaarheid, toegesneden op de veranderende vraag;
  • Een duurzaam, dynamisch en toegankelijk economisch vestigingsklimaat, waar voor ondernemers en inwoners een sterke aantrekkingskracht vanuit gaat;
  • Een duurzaam en divers woon- en leefklimaat, dat steeds weet te anticiperen op ontwikkelingen.

Omgevingsverordening Gelderland

De verordening voorziet ten opzichte van de Omgevingsvisie niet in nieuw beleid en is daarmee dus beleidsneutraal. De inzet van de verordening als juridisch instrument om de doorwerking van het provinciaal beleid af te dwingen is beperkt tot die onderdelen van het beleid waarvoor de inzet van algemene regels noodzakelijk is om provinciale belangen veilig te stellen of om uitvoering te geven aan wettelijke verplichtingen.

Planspecifiek

Onderhavig initiatief maakt twee levensloopbestendige woningen en één seniorenwoning mogelijk in een bestaande woonwijk binnen stedelijk gebied. Door het toevoegen van deze woningen wordt direct ingespeeld op een provinciaal (alsook een nationaal- en gemeentelijk) streven om voor senioren nieuwe vormen van wonen en zorg te stimuleren. De omgevingsverordening stelt voor de locatie van de nieuwe woningen geen nadere regels.

De woningen worden energieneutraal of BENG (bijna energie neutraal gebouw) ontwikkeld. Hiermee draagt het plan bij aan de ambitie uit de Omgevingsvisie voor een duurzaam en divers woon- en leefklimaat, dat steeds weet te anticiperen op ontwikkelingen. De omgevingsverordening stelt voor de locatie van de nieuwe woningen geen nadere regels.

Het initiatief past binnen het provinciaal beleid.

3.3 Regionaal beleid

3.3.1 Regionale woonagenda subregio Nijmegen e.o. 2020-2030

In de woonagenda Subregio Nijmegen en omstreken is door de gemeenten Berg en Dal, Beuningen, Druten, Heumen, Mook en Middelaar, Nijmegen en Wijchen afgesproken gemeentelijke woningbouwprogramma's in lijn te brengen met de bevolking en woningbehoefteprognose. Vanwege planuitsel en planuitval en om rekening te kunnen houden met onzekerheden, kansen en nieuwe ontwikkelingen hanteert de subregio een plancapaciteit van 130% van de berekende woningbehoefte, 130% is ook het uitgangspunt per gemeente. In de Woondeal Regio Arnhem Nijmegen is afgesproken dat de gemeenten in de subregio tot 2025 zorgen voor een planvoorraad van meer dan 15.000 woningen. Van 2025 tot 2030 is vervolgens nog plancapaciteit voor 5.200 woningen nodig. In totaal betekent dit 20.500 woningen, een enorme opgave. In de planningslijsten 2020 zijn voor de subregio Nijmegen e.o. tot 2030 woningbouwplannen opgenomen met een netto capaciteit van 21.400 woningen. De totale capaciteit lijkt daarmee voldoende groot tot 2030.

Elke gemeente heeft een eigen woonagenda of woonvisie vastgesteld of in afronding. In al deze visies is opgenomen welke lokale thema's er spelen en wat als kwaliteit wordt gezien. Veel thema´s spelen binnen de gehele regio, maar het belang en de prioriteit die aan bepaalde thema´s wordt gegeven kan per gemeente verschillen. Deze verschillen werken ook door in de woningbouwprogramma´s en de keuzes die daarin worden gemaakt. De gemeentelijke woonagenda's en –visies zijn vertaald in de subregionale woonagenda.

Na afspraken met de provincie Gelderland kan de gemeente tot 230 1.430 nieuwe woningen bouwen. Indien er aanleiding toe is, wordt het aantal bijgesteld.

Planspecifiek

Het plan draagt summier bij aan een toename van het aantal woningen binnen de gemeente Wijchen. Vanuit kwalitatief oogpunt speelt het plan, door het mogelijk maken van twee levensloopbestendige woningen en één seniorenwoning, in op een actuele lokale vraag naar meer geschikte woningen voor o.a. senioren. Dit wordt nader onderbouwd in paragraaf 3.4. Het plan past daarmee binnen de Regionale Woonagenda.

3.4 Gemeentelijk beleid

3.4.1 Strategische visie en Structuurvisie Wijchen

Strategische Visie Wijchen
In maart 2007 is de Strategische Visie Wijchen 2025 vastgesteld. In deze visie wordt een doorkijk gegeven naar de gewenste ontwikkeling van de gemeente Wijchen tot het jaar 2025. De visie richt zich op een viertal leidende thema's, te weten: bedrijvig Wijchen, sociaal sterk, duurzaam groen en de Wijchense identiteit.


Duurzaam en kwalitatief zijn ook sleutelwoorden voor de ontwikkeling van het buitengebied en de kleine kernen. De grote rijkdom aan natuur- en landschapswaarden vormt het uitgangspunt voor verdere ontwikkeling. Wijchen zet in op een beheerste groei van recreatie, verbrede landbouw, ontwikkeling van groene en blauwe diensten en vitale kernen. Er wordt een groene relatie tussen het stedelijk gebied met het buitengebied nagestreefd met zo weinig mogelijk barrières. De groen-blauwe relatie tussen de kern Wijchen en het omringende buitengebied wordt verbeterd teneinde groen en water tot in de kern te laten doorlopen.
In de Strategische visie 2025 zijn de belangrijkste 'groene' ambities als volgt verwoord:

  • 1. verdere ontwikkeling alleen met respect voor landschap, cultuurhistorie en natuur;
  • 2. meer ruimte voor water;
  • 3. duurzame inrichting;
  • 4. nieuwe ontwikkelingen worden getoetst aan hun bijdrage aan het verhogen van de ruimtelijke kwaliteit.


De groene ambities zijn nader vorm gegeven in het gemeentelijke Groenstructuurplan kleine kernen (april 2004) en het Landschapsontwikkelingsplan (december 2006).


Structuurvisie Wijchen
De gemeente Wijchen heeft een structuurvisie opgesteld in het kader van de nieuwe Wro. De structuurvisie is grotendeels gebaseerd op de - in 2007 vastgestelde - strategische visie. De Structuurvisie Wijchen is op 9 juli 2009 vastgesteld.

De structuurvisie geeft een overzicht van de verwachte ontwikkelingen binnen de gemeente Wijchen voor de komende tien jaar. De gemeente gaat uit van een compacte groei en het benutten van de potenties van bestaand stedelijk gebied zonder daarbij de bestaande kwaliteit aan te tasten, in combinatie met een vitaal platteland en sterke kleine kernen. Specifiek over woningbouw in het buitengebied staat in de structuurvisie het volgende opgemerkt: het buitengebied is in principe niet de plek om (grote hoeveelheden) nieuwe woningen toe te voegen.

Bovendien streeft de gemeente naar een meer vroegtijdige afstemming tussen de ruimtelijke planvorming en knelpunten die samenhangen met de verschillende milieufactoren zoals geluidhinder, luchtkwaliteit, geurhinder en risico's die samenhangen met de externe veiligheid. Derhalve is in het vervolg van dit bestemmingsplan per milieuaspect beoordeeld of sprake is van een goed woon- en leefklimaat. Daaruit blijkt dat er geen belemmeringen zijn die de beoogde ontwikkeling in de weg staan.

Planspecifiek

De navolgende afbeelding toont een uitsnede van de structuurvisiekaart van de gemeente Wijchen. Het plangebied ligt in bestaand stedelijk gebied, op de grens met bestaand bedrijventerrein/werkmilieu. De gemeente Wijchen streeft naar het zo goed mogelijk benutten van de ruimte in bestaand stedelijk gebied voor het bouwen van woningen (inbreiding en revitalisering). Met de realisatie van drie woningen in bestaand stedelijk gebied sluit voorliggend plan aan bij het beleid uit de Strategische visie en Structuurvisie Wijchen.

afbeelding "i_NL.IMRO.0296.NRDZeswegnaast14-OW01_0006.png"

Uitsnede structuurvisiekaart, plangebied rood omcirkeld

3.4.2 Woonvisie Wijchen 2025

De Woonvisie Wijchen zet de koers van het gemeentelijk woonbeleid uit naar de toekomst. Hierin wordt omschreven waar moet worden bijgestuurd, afgeremd of versneld om de doelen van het woonbeleid te bereiken. De woonvisie heeft twee uitgangspunten: het thuisgevoel versterken en verder kijken dan de trends van nu. Om het woningaanbod in balans te krijgen wordt in de woonvisie gesproken over meer mogelijkheden voor starters, jonge gezinnen, (vitale) senioren en mensen met een zorgvraag. Het is de bedoeling dat starters en jonge gezinnen in de gemeente kunnen blijven of komen wonen. Dit kan onder andere door mogelijkheden te bieden voor splitsing van bestaande woningen, waardoor een koopwoning binnen het financiële bereik van starters kan komen. Daarnaast blijven mensen met een zorgvraag langer thuiswonen. Dit leidt tot een toenemende behoefte aan een meer divers woningaanbod, met woonvormen die we er nu nog niet of onvoldoende beschikbaar zijn, zoals vormen waarbij verschillende generaties onder één dak wonen of woningen waarbij de eindgebruiker een centrale rol bij de ontwikkeling van de woning speelt.

Planspecifiek

Dit plan maakt de komst van twee levensloopbestendige woningen en één seniorenwoning binnen het plangebied mogelijk. In de woonvisie benadrukt de gemeente het belang van passende woningen voor senioren en mensen met een zorgvraag. Het plan speelt daarmee direct in op een actuele behoefte binnen de gemeente. Het initiatief is passend binnen de woonvisie.

3.4.3 Geldend bestemmingsplan

Ter plaatse van het plangebied geldt het bestemmingplan "Wijchen Noord", vastgesteld op 10 november 2011. Het plangebied heeft de bestemming 'Woongebied - uit te werken'. De navolgende afbeelding toont een uitsnede van het geldende bestemmingsplan.

afbeelding "i_NL.IMRO.0296.NRDZeswegnaast14-OW01_0007.jpg"

Uitsnede geldend bestemmingsplan (bron: ruimtelijkeplannen.nl)

Indien en zolang een uitwerkingsplan als bedoeld binnen de bestemming 'Woongebied - uit te werken' in het geldende bestemmingsplan nog niet van kracht is geworden, mag op de gronden niet worden gebouwd. Daarom is voorliggend initiatief strijdig met het geldende bestemmingplan.

Hoofdstuk 4 Uitvoerbaarheid

De uitvoerbaarheid van een bestemmingsplan moet als gevolg van het Besluit ruimtelijke ordening (Bro) aangetoond worden (artikel 3.1.6 van het Bro). Daaronder valt zowel de onderzoeksverplichting naar verschillende ruimtelijk relevante aspecten (geluid, bodem, etc.) als ook de economische uitvoerbaarheid van het plan.

4.1 Milieu

4.1.1 Bodem

Op grond van de Wet Bodembescherming (Wbb) moet aangetoond worden dat de kwaliteit van de bodem en het grondwater in het plangebied in overeenstemming zijn met het beoogde gebruik. De bodemkwaliteit kan namelijk van invloed zijn op de beoogde functie van het plangebied. Bij een functiewijziging zal in veel gevallen een specifiek bodemonderzoek moeten worden uitgevoerd.

Planspecifiek

Voorliggende ontwikkeling voorziet in de realisatie van drie woningen. Hiermee wordt een bodemgevoelige functie toegevoegd aan het plangebied. Daarom is een verkennend bodemonderzoek uitgevoerd. Het onderzoeksrapport is toegevoegd als bijlage 1. Hierin wordt geconcludeerd dat zintuiglijke bijmenging met baksteen is aangetroffen. In geen van de geanalyseerde parameters in zowel grond als grondwater is de waarde voor naderonderzoek (tussenwaarde) en/of de interventiewaarde overschreden. De aangetroffen licht verhoogde gehalten in de grond en in het grondwater vormen geen belemmering voor het toekomstige gebruik.

Zie de beoordeling van het bodemonderzoek van de ODRN in bijlage 2.

Het initiatief is uitvoerbaar met betrekking tot het aspect bodem.

4.1.2 Lucht

De mate van blootstelling aan luchtverontreiniging speelt een rol in het kader van een goede ruimtelijke ordening. Met betrekking tot 'luchtkwaliteit' zijn twee aspecten van belang. Ten eerste of de luchtkwaliteit ter plaatse de nieuwe functie toelaat (de gevoeligheid van de bestemming) en ten tweede wat de bijdrage is van het plan aan die luchtkwaliteit.

Luchtkwaliteit ter plaatse

In de Wet milieubeheer zijn normen opgenomen voor de concentraties van een aantal stoffen in de buitenlucht ter bescherming van de mens. De twee belangrijkste stoffen zijn PM10 en PM2,5(fijnstof) en NO2 (stikstofdioxide). Voor grenswaarde van PM10 en NOx bedraagt 40 µg/m3, van PM2,5 is dat 25 µg/m3.

Bijdrage aan luchtkwaliteit

In de Wet milieubeheer zijn de belangrijkste bepalingen over luchtkwaliteitseisen opgenomen. De Wet maakt een onderscheid tussen 'kleine' en 'grote' projecten. Kleine projecten dragen 'niet in betekenende mate' (NIBM) bij aan verslechtering van de luchtkwaliteit. Een paar honderd grote projecten dragen juist wel 'in betekenende mate' bij aan de verslechtering van de luchtkwaliteit. Het gaat hierbij vooral om bedrijventerreinen en infrastructuur (wegen).

Wat het begrip 'in betekenende mate' precies inhoudt, staat in de algemene maatregel van bestuur "Niet in betekenende mate bijdragen" (Besluit NIBM). Op hoofdlijnen komt het erop neer dat 'grote' projecten die jaarlijks meer dan 3 procent bijdragen aan de jaargemiddelde norm voor fijn stof en stikstofdioxide (1,2 microgram per m3) een 'betekenend' negatief effect hebben op de luchtkwaliteit. 'Kleine' projecten die minder dan 3 procent bijdragen, kunnen doorgaan zonder toetsing. Dat betekent bijvoorbeeld dat lokale overheden een toevoeging van minder dan 1.500 huizen niet hoeven te toetsen aan de normen voor luchtkwaliteit, omdat een dergelijk project per definitie niet boven de 3%-norm komt.

Planspecifiek

Luchtkwaliteit ter plaatse van het initiatief

Vanuit een goede ruimtelijke ordening is de huidige luchtkwaliteit ter plaatse getoetst met behulp van de NSL Monitoringstool (www.nsl-monitoring.nl). Door de metingen ter plaatse te toetsen aan de grenswaarden is gekeken of er sprake is van een goed woon- en leefklimaat. Uit metingen van het rekenpunt 15555798 (aan de Schoenaker ten noorden van het plangebied) zijn de volgende concentraties naar voren gekomen:

  NO2 
(stikstofdioxide)  
PM10
(fijnstof)  
PM2,5 (fijnere fractie van fijnstof)  
Gemeten totale concentratie jaargemiddelde 2020 (µg/m3)   26,2 µg/m3   19,9 µg/m3   12,4 µg/m3  
Grenswaarde concentratie (µg/m3)   40 µg/m3   40 µg/m3   25 µg/m3  

De gemeten concentraties stikstofdioxide en fijn stof liggen ruim onder de gestelde grenswaarden. Met betrekking tot de luchtkwaliteit zijn geen belemmeringen voor onderhavig initiatief.

Bijdrage initiatief

Ten aanzien van de bijdrage aan luchtkwaliteit is het initiatief (toevoegen drie woningen) van geringe omvang ten opzichte van de benoemde grenswaarde (3%, toevoegen 1.500 woningen). Op basis van de te verwachten toename aan verkeersbewegingen ten gevolge van het project is te concluderen dat dit project 'niet in betekenende mate' bijdraagt aan de verslechtering van de luchtkwaliteit. Een nadere toetsing ten aanzien van het aspect luchtkwaliteit kan daarom achterwege blijven.

Het initiatief is uitvoerbaar met betrekking tot het aspect luchtkwaliteit.

4.1.3 Geluid

De mate waarin het geluid het woonmilieu mag belasten, is geregeld in de Wet geluidhinder (Wgh). De kern van de wet is dat geluidsgevoelige objecten worden beschermd tegen geluidhinder uit de omgeving. In de Wgh worden de volgende objecten beschermd:

  • woningen;
  • geluidgevoelige gebouwen, zoals scholen, ziekenhuizen, verzorgings- en verpleeghuizen, psychiatrische instellingen en kinderdagverblijven;
  • geluidsgevoelige terreinen (woonwagenstandplaatsen en bestemde ligplaatsen voor woonschepen).

Het beschermen van deze geluidsgevoelige objecten gebeurt aan de hand van vastgestelde zoneringen. Binnen deze zones bepaalt het bevoegd gezag de te hanteren grenswaarden. Er geldt een voorkeursgrenswaarde en een bovengrens (hoger mag niet). De Wgh gaat verder onder meer ook in op geluidwerende voorzieningen. De belangrijkste bronnen van geluidhinder die bij een ruimtelijke ontwikkeling aan de orde kunnen zijn betreffen: industrielawaai, wegverkeerslawaai en spoorweglawaai.

Planspecifiek

In het kader van de voorgenomen ontwikkeling zijn een tweetal akoestische onderzoeken uitgevoerd. De gehele onderzoeksrapportages zijn toegevoegd als bijlage 3 (wegverkeerslawaai) en bijlage 4 (spoorweglawaai). Hieronder worden de conclusies van de onderzoeken beschreven.

Wegverkeerslawaai

Het plangebied is gelegen in stedelijk gebied binnen de geluidzones van de wegen Hoefsestraat en Stationslaan waarvoor een snelheidsregime geldt van 50 km/uur. Uit het onderzoek blijkt dat de geluidsbelasting door wegverkeer op de Hoefsestraat en Stationslaan de voorkeursgrenswaarde van 48 dB niet overschrijdt. Ten aanzien van wegverkeerslawaai hoeft daarom geen hogere waarde te worden aangevraagd. Daarnaast zijn op kortere afstand de Zesweg en de Sleedoornweg gelegen. Voor deze wegen geldt een snelheidsregime van 30 km/uur. Dergelijke wegen hebben volgens artikel 74 lid 2 van de Wgh geen geluidszone en zijn daarmee niet onderzoeksplichtig. Uit het onderzoek blijkt echter dat de geluidbelasting door wegverkeer op de Zesweg op de twee woningen direct aan de Zesweg 56 dB bedraagt. In het kader van een goede ruimtelijke ordening is in de regels van dit plan daarom een voorwaardelijke verplichting opgenomen dat in het kader van het verlenen van de omgevingsvergunning voor het bouwen voldaan moet worden aan een binnenniveau van 33 dB.

Spoorweglawaai

Voor de spoorlijn Nijmegen - Oss geldt dat de voorkeursgrenswaarde voor spoorweglawaai van 55 dB op meerdere locaties wordt overschreden. De maximale ontheffingswaarde van 68 dB wordt echter niet overschreden. Uit het onderzoek blijkt dat maatregelen aan de bron of de overdracht onvoldoende doeltreffend zijn of stuiten op overwegende bezwaren van stedenbouwkundige, landschappelijke of financiële aard. Daarom wordt verzocht een hogere waarde te verlenen ten aanzien van spoorweglawaai. Ten behoeve van het akoestisch onderzoek is tevens rekening gehouden met gemeentelijk geluidbeleid van de gemeente Wijchen. Conform het beleidsstuk 'Notitie Hogere Waarden' kan pas een hogere waarde worden verleend als voldaan wordt aan de in voornoemd beleidsstuk genoemde eisen. De voorkeursgrenswaarde voor spoorweglawaai van 55 dB wordt met maximaal 5 dB overschreden. Derhalve dienen alle woningen te beschikken over een geluidluwe gevel. Uit de rekenresultaten blijkt dat alle woningen beschikken over een geluidluwe noord- en oostgevel. Bij de indeling van de woning geldt dat de verblijfsruimten zoveel mogelijk dienen te zijn gelegen aan de geluidluwe gevels. Tevens dient een van de slaapkamers aan een geluidluwe gevel te worden gesitueerd. De voorkeursgrenswaarde wordt met maximaal 5 dB overschreden. Derhalve zijn de bij de woningen behorende buitenruimtes nooit hoger geluidbelast dan de voorkeursgrenswaarde + 5 dB. Indien rekening wordt gehouden met het vorenstaande, wordt voldaan aan de eisen conform het gemeentelijk geluidbeleid. Daarom zal een hogere waarde procedure worden doorlopen gelijktijdig met de procedure van dit bestemmingsplan.

Als aanvulling op de hierboven beschreven onderzoeken is een memo cumulatie geluid toegevoegd, zie bijlage 5. Hierin is een cumulatieve berekening gemaakt aan de hand van het akoestisch onderzoek wegverkeerslawaai en het akoestisch onderzoek spoorweglawaai. Op basis van deze cumulatieve berekening mag aangenomen worden dat de milieukwaliteit ten aanzien van geluid enkel aan de noordwestzijde van de woningen direct aan de Zesweg gelegen matig is. Aan deze zijde van de woningen zijn parkeerplaatsen beoogd. Voor de overige zijden van de woningen kan gesteld worden dat er sprake is van een redelijke tot goede milieukwaliteit ten aanzien van geluid.

Het initiatief is uitvoerbaar met betrekking tot het aspect geluid.

4.1.4 Milieuzonering

Milieuzonering is het aanbrengen van een ruimtelijke scheiding tussen milieubelastende en milieugevoelige functies. Doel is om bij het opstellen van een ruimtelijk plan een goed en veilig leefklimaat te waarborgen, maar tegelijkertijd ook aan bedrijven voldoende milieuruimte te bieden voor het uitoefenen van hun activiteiten.

De mate waarin bedrijven invloed hebben op hun omgeving is afhankelijk van de aard van de bedrijvigheid en de afstand tot een gevoelige bestemming. Milieugevoelige bestemmingen zijn gebouwen en terreinen die naar hun aard bestemd zijn voor het verblijf van personen gedurende de dag of nacht of een gedeelte daarvan (bijvoorbeeld woningen). Daarnaast kunnen ook landelijke gebieden en/of andere landschappen belangrijk zijn bij een zonering tot andere, minder gevoelige, functies zoals bedrijven.

Milieuzonering heeft betrekking op aspecten met een ruimtelijke dimensie, zoals geluid, geur, gevaar en stof. De mate van belasting, en daarmee de gewenste aan te houden afstand, kan per aspect en per bedrijfstype en verschillen. In de publicatie 'Bedrijven en Milieuzonering' van de Vereniging van Nederlandse Gemeenten (VNG) is een lijst opgenomen met daarin de minimale richtafstanden tussen een gevoelige bestemming en bedrijven. Van deze richtafstanden kan worden afgeweken, mits wordt onderbouwd waarom de feitelijke milieuhinder als minder belastend wordt gezien.

Het belang van milieuzonering wordt steeds groter aangezien functiemenging steeds vaker voorkomt. Hierbij is het motto: 'scheiden waar het moet, mengen waar het kan'.

Planspecifiek

Het plangebied wordt voornamelijk omsloten door woningen. Ten zuidoosten van de locatie ligt een bedrijventerrein op circa 130 meter afstand. De dichtst bijgelegen bedrijven betreffen bedrijven in maximaal milieucategorie 3.2. Hiervoor geldt in een rustige woonwijk een richtafstand van minimaal 100 meter. Daarmee wordt aan de richtafstand voldaan. Met voorliggend plan is sprake van een goed woon- en leefklimaat bij de nieuw te realiseren woningen en er worden met het plan geen bedrijven belemmerd in hun bedrijfsvoering.

Het initiatief is uitvoerbaar vanuit het aspect bedrijven en milieuzonering.

4.1.5 Externe veiligheid

Het beleid voor externe veiligheid is gericht op het beperken en beheersen van risico's voor de omgeving die ontstaan door opslag, productie, gebruik en vervoer van gevaarlijke stoffen. Hierbij gaat het om risicovolle inrichtingen, transportroutes voor het vervoer van gevaarlijke stoffen en buisleidingen.

De verplichting om in een ruimtelijk plan in te gaan op deze risico's komt voort uit het 'Besluit externe veiligheid inrichtingen' (Bevi), het 'Besluit externe veiligheid transportroutes' (Bevt) en het 'Besluit externe veiligheid buisleidingen' (Bevb). Daarnaast zijn in het Activiteitenbesluit milieubeheer en het Vuurwerkbesluit veiligheidsafstanden genoemd die moeten worden aangehouden rond stationaire risicobronnen, niet zijnde een Bevi-inrichting.

De wetgeving richt zich op het beschermen van kwetsbare en beperkt kwetsbare objecten. Kwetsbaar zijn onder meer woningen, onderwijs- en gezondheidsinstellingen, en kinderopvang- en dagverblijven, en grote kantoorgebouwen (>1500 m²). Beperkt kwetsbaar zijn kleinere kantoren en winkels, horeca, kampeerterreinen en bedrijfsgebouwen waarin geen grote aantallen personen aanwezig zijn.

Binnen het beoordelingskader voor externe veiligheid staan twee kernbegrippen centraal: het plaatsgebonden risico (PR) van 10-6 per jaar en het groepsrisico (GR). Het plaatsgebonden risicobeleid bestaat uit harde afstandscontouren tussen risicobron en (beperkt) kwetsbaar object. Het wordt uitgedrukt in een contour van 10-6 per jaar (de kans dat per jaar 1 persoon overlijdt door een ongeluk met een gevaarlijke stof mag niet groter zijn dan 1 op een miljoen). Het groepsrisico legt een relatie tussen de kans op een ramp en het aantal mogelijke slachtoffers. Bij de berekening van het groepsrisico spelen mee de aard en hoeveelheid van de gevaarlijke stoffen en het aantal potentiële slachtoffers.

Voor de beoordeling van een ruimtelijk plan moet worden vastgesteld of het plangebied is gelegen binnen de PR en/of de invloedsgebieden van het GR. Binnen de 10-6-contour is het realiseren van kwetsbare objecten niet toegestaan.

Naast deze veiligheidsafstanden volgens het Revi wordt voor LPG-tankstations een aanvullend effectgericht beleid gevoerd, waarmee de gevolgen van een ongeval bij een LPG-tankstation worden beperkt (i.c. de verantwoordingsplicht voor het groepsrisico). Met de effectgerichte benadering wordt deels een verantwoordelijkheid bij het bevoegd gezag gelegd: het is aan het bevoegd gezag om een afweging te maken of een object binnen het aangegeven effectgebied mag worden gerealiseerd. Rekening moet worden gehouden met een effectafstand van 60 meter van het LPG-tankstation voor (beperkt) kwetsbare objecten en een afstand van 160 meter voor zeer kwetsbare objecten (dit zijn objecten waar groepen personen verblijven met een beperkte zelfredzaamheid, zoals minderjarigen, ouderen, zieken of gehandicapten).

Planspecifiek

Via de website risicokaart.nl kan voor de locatie worden vastgesteld of er in de directe omgeving inrichtingen, buisleidingen en / of belangrijke transportroutes aanwezig zijn die in het kader van de externe veiligheid van belang zijn. Bijgevoegd een screenshot van die website.

afbeelding "i_NL.IMRO.0296.NRDZeswegnaast14-OW01_0008.png"

Uitsnede risicokaart

Uit de risicokaart is op te maken dat ten oosten van het plangebied op circa 80 meter afstand een buisleiding van de Gasunie ligt. Op circa 130 meter afstand ten zuiden van het plangebied ligt spoorlijn Tilburg - Nijmegen. Dit is een transportroute voor het vervoer van gevaarlijke stoffen. Voor zowel de buisleiding als spoorlijn als de buisleiding is de plaatsgebonden risico-contour 10-6 0 meter. Een nadere verantwoording met betrekking tot het plaatsgebonden risico kan hierdoor achterwege blijven. Wat betreft het groepsrisico heeft de nabijgelegen aardgastransportleiding een druk van 40 bar en een doorsnede van 114 mm. Daarmee is het invloedsgebied van de leiding 45 meter. De afstand tot het plangebied bedraagt circa 80 meter, waarmee de planlocatie buiten het invloedsgebied ligt van de buisleiding.

Het plangebied ligt wel binnen het invloedsgebied (355 meter) en de meest relevante zone voor het groepsrisico (de 200 meter zone) van de spoorweg. Omdat het plangebied binnen 200 m van het spoor ligt, is conform artikel 8 uit het Bevt een groepsrisicoberekening nodig. In 2014 is een groepsrisico van het spoor berekend ten noordwesten van het plangebied ten behoeve van het bestemmingsplan voor de nieuwe woonwijk Tuin van Woezik. Hieruit is gebleken dat het groepsrisico onder de 10% van de oriëntatiewaarde blijft. Met voorliggend plan worden drie woningen toegevoegd, waarmee het aantal personen in het plangebied met 7,2 toeneemt ten opzichte van de huidige situatie (2,4 personen per woning). Daarmee gaat de personendichtheid nauwelijks omhoog. Het aantal transporten over het spoor is gelijk aan waar in 2014 mee is gerekend (Basisnet). De invloed van het planvoornemen op het huidige groepsrisico zal zeer gering zijn. Daarom kan volstaan worden met een beperkte verantwoording van het groepsrisico.

Op grond van artikel 7 van het Bevt moet voor de (spoor-)wegen, gezien de ligging, worden ingegaan op de mogelijkheden voor:

  • de bestrijdbaarheid van een zwaar ongeval op deze transportroute en
  • de zelfredzaamheid met betrekking tot nog niet aanwezige (beperkte) kwetsbare objecten binnen het plangebied.

Volgens artikel 9 van het Bevt moet de veiligheidsregio in de gelegenheid worden gesteld om hierover een advies uit te brengen. In dit geval is sprake van een standaardsituatie, waarvoor onderstaande verantwoordingstekst kan worden gehanteerd. Relevant hierbij is ook dat het ruimtelijke besluit geen betrekking heeft op het mogelijk maken van een (nog niet aanwezig) "bijzonder kwetsbare object", bestemd voor verminderd zelfredzame personen.

Bestrijdbaarheid

Bij een calamiteit, waarbij toxische vloeistoffen of gassen (kunnen) vrijkomen, zal de brandweer inzetten op het beperken of voorkomen van effecten. Deze inzet zal voornamelijk plaatsvinden bij de bron. De brandweer richt zich dan niet direct op het bestrijden van effecten in of nabij het plangebied. De mogelijkheden voor bestrijdbaarheid worden daarom niet verder in beschouwing genomen.

Mogelijkheden tot zelfredzaamheid

Bij een calamiteit, waarbij toxische vloeistoffen of gassen vrijkomen, is het belangrijk dat de aanwezigen in het plangebied worden geïnformeerd hoe te handelen bij dat incident. Hiervoor wordt gebruik gemaakt van de zogenaamde waarschuwings- en alarmeringspalen (WAS-palen) of NL-alert. Bij het genoemde incidentscenario is het advies om te schuilen in een gebouw en de ramen, deuren en ventilatieopeningen te sluiten. Er zijn voldoende mogelijkheden om dit advies tijdig op te volgen. Met voorliggend plan kan geschuild worden in de nieuw te realiseren woningen.

Het initiatief is uitvoerbaar met betrekking tot het aspect externe veiligheid.

4.1.6 Trillingen

Bij het aspect trillingen gaat het in de afweging meestal om bescherming van personen tegen trillingshinder. Er kan echter ook sprake zijn van verstoring van activiteiten door trillingen (bijvoorbeeld laboratoria of computercentra). In Nederland bestaat tot op heden geen wetgeving voor het voorkomen van hinder of schade door trillingen. In de praktijk wordt veelal aangesloten bij de SBR-richtlijn "Meet- en beoordelingsrichtlijnen voor trillingen". Deze richtlijn bestaat uit drie delen:

  • Deel A, Schade aan gebouwen
  • Deel B, Hinder voor personen in gebouwen
  • Deel C, Storing aan apparatuur

Hoewel er geen wettelijke normen bestaan voor trillinghinder, dient het aspect trillingen in het kader van de goede ruimtelijke ordening en de zorgvuldige voorbereiding van besluiten wel te worden afgenomen als er een trillingsbron in de omgeving aanwezig is.

Planspecifiek

De nieuwe woningen uit voorliggend plan zijn beoogd op minimaal 135 meter afstand van de spoorlijn Nijmegen - Oss. Het aspect trillingen is van belang in het kader van een goed woon- en leefklimaat. Het plangebied is gelegen in de kern van Wijchen en sluit aan op de bebouwing aan de Sleedoornweg en vult een open ruimte op. De spoorlijn gaat dwars door de kern van Wijchen en dat betekent dat er veel bestaande woningen zijn die veel dichter bij de spoorlijn zijn gelegen dan onderhavig plangebied. Uit een eerder trillingsonderzoek circa 70 meter ten oosten van het plangebied (ten behoeve van het bestemmingsplan CPO Wonsick), waarbij de woningen op een kortere afstand van het spoor liggen (circa 80 meter), blijkt dat wordt voldaan aan de normen die gelden in bestaande situaties. Het is daarmee aannemelijk dat dit ook voor de woningen uit voorliggend plan geldt. Bovendien staat er reeds deels bebouwing tussen onderhavig plangebied en het spoor. Bij de overgang van bodem naar gebouwfundatie treedt een verzwakking op van trillingen. Daarnaast zijn er verschillende maatregelen mogelijk bij de bouw om eventuele trillingshinder te ondervangen, zoals trillingsisolatie of een minder trillingsgevoelig funderingssysteem (bijvoorbeeld op palen).

Het plan is daarmee uitvoerbaar op het gebied van trillingen.

4.2 Water

Wettelijk kader

Op basis van de wet op de ruimtelijke ordening (Wro) en Besluit ruimtelijke ordening (Bro) is de watertoets verplicht bij o.a. bestemmingsplannen, inpassingsplannen, projectbesluiten en omgevingsvergunningen afwijking bestemmingsplan. Voor overige plannen, zoals een structuurvisie, dient een watertoets te worden uitgevoerd op basis van het Nationaal Bestuursakkoord Water. Het Bro regelt de verplichte waterparagraaf in de plantoelichting (art 3.1.6 Bro) en het vooroverleg met de waterbeheerder (art 3.1.1 Bro).

Watertoets

De watertoets is bedoeld om ruimtelijke plannen en besluiten meer waterbestendig te maken, doordat waterbelangen van gemeente, waterschap en eventueel andere waterbeheerders vroegtijdig en expliciet worden meegewogen. In het ruimtelijk plan moet voldoende rekening zijn gehouden met de waterhuishouding en -voorzieningen.

Waterparagraaf

De waterparagraaf beschrijft de wijze waarop rekening is gehouden met de eventuele gevolgen van het ruimtelijk plan voor de waterhuishouding en vice versa. Onderdeel hiervan is een beschrijving van beleidsuitgangspunten en regelgeving, waterhuishoudkundige situatie en –opgaven, meest geschikte oplossingen (motiveren) en de ruimtelijke consequenties daarvan. Indien aan de orde is tevens het advies van het waterschap in de waterparagraaf verwerkt.

4.2.1 Beschrijving watersysteem

Geomorfologie en geohydrologie

Het plangebied ligt in het buitengebied van Wijchen, op een hoogte van circa 7,5 m +NAP (Bron: AHN). De bodem ter plaatse bestaat uit voornamelijk uit zand. De bovengrond bestaat overwegend uit grijsbruin, matig fijn zand. Direct daaronder bestaat de ondergrond overwegend uit oranjegeel, matig fijn zand.

In de onderstaande tabel is van 3 peilbuizen in de omgeving van het plangebied de hoogste, laagste en gemiddelde grondwaterstand weergegeven van een afgelopen periode van tenminste 8 jaar. Overige peilbuizen in de omgeving van het plangebied zijn niet gebruikt, omdat hierbij sprake is van te weinig metingen per jaar.

Peilbuisnummer   Afstand plangebied   Periode   Gemiddeld
Hoogste Grondwaterstand  
Gemiddeld
Laagste Grondwaterstand  
Gemiddelde grondwaterstand  
B45F0072   670   1976-1983   6,33   5,72   6,03  
B39H0037   770   1995-2002   6,08   5,71   5,90  
B40C0048   1290   1996-2003   6,3   5,67   5,99  
B45F0073   770         te weinig metingen  
B45F0071   580         te weinig metingen  
B39H0004   730         te weinig metingen  
B40C0202   1020         te weinig metingen  
Gemiddelde       6,24   5,70   5,97  

Op basis van de gegevens uit bovenstaande tabel is te concluderen dat de gemiddelde laagste grondwaterstand (GLG) circa 5,70 m+NAP bedraagt en de gemiddelde hoogste grondwaterstand (GHG) circa 6,24 m+NAP.

Uit het bodemonderzoek, zie bijlage 1, is op te maken dat de grondwaterstand in het plangebied op ± 6,00 m+NAP ligt. Deze conclusie sluit aan op de gegevens in bovenstaande tabel.

Oppervlakte- en afvalwatersysteem

Binnen het plangebied en in de directe omgeving is geen oppervlakte aanwezig. Het plangebied maakt onderdeel uit van het Peilbesluit Bloemers (2014). In het deelgebied waar het plan zich bevindt (Citter, peilvak CIT008) is het stedelijke gebied van de kern Wijchen en derhalve aangemerkt als 'niet peilbeheerst' (kent geen zomer- en winterpeil).

In het plangebied liggen geen inrichtingen die zijn aangesloten op de gemeentelijke riolering. Bij de ontwikkeling van de woning moet deze op het bestaande rioleringsnet van de gemeente worden aangesloten. In de Zesweg is sprake van een openbaar vuilwaterriool onder vrij verval. Afvalwater zal via dit rioleringsnet worden verwerkt.

Ecosysteem

Het plangebied ligt niet binnen het Gelders natuurnetwerk of een beschermingszone voor natte natuur.

4.2.2 Gemeentelijk waterbeleid en waterbeheer

Gemeentelijk waterbeleid

Het gemeentelijk waterbeleid is gericht op het voorkomen, beperken of tot een aanvaardbaar risico terugbrengen van wateroverlast en schade aan milieu en volksgezondheid. In de Strategische waternota Wijchen zijn thema's en uitgangspunten voor duurzaam waterbeheer omschreven. Het Gemeentelijk rioleringsplan beschrijft de gemeentelijke zorgplicht voor rioolwater, hemelwater en grondwater. In het kader van de watertoets wordt een vertaalslag gemaakt naar de concrete plansituatie.

Zorgplicht afvalwater

Een perceeleigenaar moet het huishoudelijk afvalwater of het bedrijfsafvalwater op de openbare riolering lozen (Besluit lozing afvalwater huishoudens art. 7 en 10 en Activiteitenbesluit art. 2.1 en 2.2). Als dit niet mogelijk (doelmatig) is, zorgt de perceeleigenaar voor een zo milieuvriendelijk mogelijke manier van verwerking of verwijdering van het afvalwater. De gemeente heeft voor zover doelmatig een zorgplicht voor de inzameling en transport van stedelijk afvalwater dat binnen de gemeente vrijkomt (zie Wm art 10.33).

Zorgplicht hemelwater

Een perceeleigenaar is zelf verantwoordelijk voor het verwerken van het hemelwater op het eigen terrein of voor het eventueel lozen van hemelwater op oppervlaktewater. Als dit niet mogelijk is zorgt de gemeente voor het inzamelen, transporteren en verwerken van het hemelwater, mits doelmatig (Waterwet art. 3.5).

Zorgplicht grondwater

Een perceeleigenaren is zelf verantwoordelijk voor het treffen van maatregelen op eigen terrein om structurele nadelige gevolgen van grondwater voor de aan de grond gegeven bestemming te voorkomen of beperken. Als dit niet mogelijk is treft de gemeente maatregelen in openbaar gebied, voor zover doelmatig en geen verantwoordelijkheid van provincie of waterschap (Waterwet art 3.6).

Zorgplicht oppervlaktewater (waterschap)

De gemeente valt binnen het beheersgebied van Waterschap Rivierenland. Voor lozing op oppervlaktewater (A-, B- en C-water) heeft de perceeleigenaar een vergunning van het waterschap nodig (Waterwet art. 6.2). Een perceeleigenaar (of aanliggende perceeleigenaar) is verantwoordelijk voor het beheer en onderhoud van oppervlaktewater (B- en C-water volgens de legger van het waterschap) dat op eigen terrein ligt. Het waterschap draagt zorg voor het onderhoud van A-watergangen. Voor ingrepen of activiteiten in of nabij watergangen danwel in of nabij een waterkering heeft een perceeleigenaar een Keur-ontheffing van het waterschap nodig.

4.2.3 Beleidsuitgangspunten en consequenties voor het ruimtelijk plan

Deze paragraaf beschrijft en motiveert de wijze waarop op de planlocatie rekening is gehouden met het watersysteem, gelet op de waterhuishoudkundige situatie, beleid en regelgeving.

4.2.3.1 Leefomgeving algemeen

Beleidsuitgangspunten

De gemeente streeft naar integrale inpassing van het watersysteem in de leefomgeving en afstemming op de gebruiksfuncties in het gebied. De ruimtelijke ontwikkeling mag geen nadelige gevolgen hebben voor de waterhuishouding en vice versa. De waterhuishoudkundige situatie moet in overeenstemming zijn met het beoogde grondgebruik.

Water is mede-ordenend bij de ruimtelijke ontwikkeling (juiste functie op de juiste plaats), waarbij tevens rekening is gehouden met de ruimteclaim van waterhuishoudkundige voorzieningen. Wateropgaven zijn gekoppeld aan andere gebiedsopgaven, zoals voor openbaar groen, welzijn, volkshuisvesting, verkeer/vervoer en energie.

Gevolgen van/voor het plan

Voorliggend initiatief heeft geen negatieve gevolgen voor de waterhuishouding of watergangen en oppervlakte water in de omgeving. Zo worden de woningen hydrologisch neutraal gebouwd en zal het hemelwater op eigen terrein worden opgevangen en hergebruikt. Onder punt 4.2.3.2 tot en met 4.2.3.5 is in meer detail weergegeven welke concrete invulling aan het aspect water is gegeven.

4.2.3.2 Kwaliteit en beleving

Beleidsuitgangspunten

De gemeente streeft naar schoon water en waterbodems die voldoen aan gestelde kwaliteitseisen en het behoud van (natte) natuurwaarden en biodiversiteit. Verontreiniging van grond- en oppervlaktewater wordt voorkomen en de waterkwaliteit zo mogelijk verbeterd.

Schoon hemelwater mag rechtstreeks in bodem of op oppervlaktewater worden geloosd. Verontreiniging van hemelwater voorkomen, o.a. door toepassing van niet-uitlogende materialen (Dubo-bepalingen) en door beperking van toepassing van lood, koper, zink en zacht pvc. Verontreinigd hemelwater alleen lozen via een zuiverende voorziening.

De kwaliteit van oppervlaktewater zo mogelijk verbeteren door aanleg van natuurvriendelijke oevers en verbetering van de doorstroming. Het beheer mag geen verstoring geven van waterkwaliteit en biodiversiteit. Ecologisch natte zones of natte natuurwaarden behouden of verder ontwikkelen door bijbehorende waterhuishoudkundige omstandigheden te beschermen of herstellen.

De gemeente streeft naar versterking van de belevingswaarde van water en daarmee het waterbewustzijn. Hierbij zijn water, waterhuishoudkundige elementen en cultuurhistorische structuren en landschapselementen herkenbaar verweven in de ruimtelijke inrichting en beleefbaar gemaakt. Waterstromen zichtbaar (bovengronds) afvoeren.

Gevolgen van/voor het plan

In de directe omgeving van het plangebied zijn geen watergangen of andere vormen van oppervlaktewater aanwezig. Ook ligt het plangebied niet binnen een beschermingszone voor Ecologisch natte zones of natte natuur. Het regenwater zal worden opgevangen op eigen terrein, bijvoorbeeld door het plaatsen van regentonnen bij de woningen. Ook kan een poel of vijver in de tuin worden aangelegd. Hiermee wordt een bijdrage geleverd aan de beleefbaarheid van water. Bij de bouw worden niet-uitlogende materialen gebruikt. Afvalwater wordt met een nieuwe aansluiting op het bestaande rioolsysteem afgevoerd. De capaciteit van de riolering is voldoende om het afvalwater van de woning te ontvangen. Mocht er een zwembad worden gerealiseerd, zal het zwembadwater niet via de openbare riolering worden afgevoerd.

4.2.3.3 Klimaatverandering

Beleidsuitgangspunten

De gemeente streeft naar een klimaatbestendige en waterrobuuste leefomgeving, anticiperend op hevigere perioden met hitte, neerslag en droogte. Bij ruimtelijke ontwikkelingen worden schadelijke effecten van klimaatverandering (wateroverlast en verdroging) voor het grondgebruik en vice versa beperkt of teruggebracht tot een acceptabel niveau. Waterhuishoudkundige voorzieningen zijn energiezuinig en duurzaam.

Komen tot een klimaatadaptieve ruimtelijke inrichting, o.a. voor wat betreft bebouwing, wegen, groen en water. Voorkomen dat water bij hevige neerslag in de bebouwing terecht komt of afstroomt buiten het plangebied. De hoeveelheid verhard oppervlak tot een minimum beperken. Zorgdragen voor voldoende waterberging, tegen hemelwateroverlast en ter buffering van water in droge tijden (zie ook waterberging). Groenstructuren klimaatrobuust aanleggen voor wat betreft areaal, type beplanting en waterbergend vermogen.

Grondwateronttrekking (verdroging) beperken door hoogwaardige toepassing van drinkwater en het treffen van waterbesparende voorzieningen. Zo mogelijk hemelwater gebruiken voor laagwaardige toepassingen. Verder bij de ruimtelijke ontwikkeling rekening houden met de droogtegevoeligheid van de locatie en mogelijke bodemdaling die daardoor kan ontstaan.

Gevolgen van/voor het plan

Het aanplanten van groen is goed voor de klimaatbestendigheid, omdat het bijdraagt aan het verminderen van de hittestress en het verbeteren van het watervasthoudend vermogen van het gebied.

In navolgend onderdeel 4.2.3.4 in uiteengezet hoe er wordt omgegaan met de toevoeging van verharding in het plangebied en welke maatregelen worden getroffen met betrekking tot het opvangen van regenwater.

Drinkwaterbesparing is bijvoorbeeld mogelijk door een opslagsysteem voor hemelwater te realiseren en bij droogte met het opgeslagen regenwater de tuin te besproeien.

4.2.3.4 Waterberging

Beleidsuitgangspunten

De gemeente streeft naar het vasthouden van gebiedseigen water door benutting van de natuurlijke bergingscapaciteit van bodem en oppervlaktewater. Natuurlijke grondwater- en oppervlaktewaterstanden worden beschermd of hersteld.

Hemelwater afkomstig van verharde oppervlakken zoveel mogelijk afkoppelen van de riolering met de voorkeursvolgorde: 1) Benutting, 2) Bodeminfiltratie binnen het gebied, 3) Berging binnen het gebied, 4) Vertraagde afvoer naar oppervlaktewater buiten het plangebied en 5) Afvoer naar riool.

Compenseren van het verlies aan waterberging, indien hemelwater direct of indirect wordt geloosd op oppervlaktewater. De compensatieplicht (Keur waterschap) houdt in dat de toename van verharding in het ruimtelijk plan moet worden gecompenseerd door aanleg van extra waterberging. Dit met een eenmalige uitzondering van 500 m2 (stedelijk gebied) en 1500 m2 (landelijk gebied) voor particulieren en kleine bedrijven. De compensatieplicht geldt niet in individuele gevallen als op een afstand van 100 m of meer van het oppervlaktewater wordt geïnfiltreerd (beleidsregels Keur artikel 5.16 toetsingscriterium 2).

Infiltratie- en bergingsvoorzieningen, zoals bodempassages en open water, moeten voldoende capaciteit hebben om het hemelwater te kunnen verwerken. En zodanig ruimtelijk ingepast (ruimtebeslag, ligging) dat adequaat functioneren is gewaarborgd.

Gevolgen van/voor het plan

In de huidige situatie is reeds 156 m2 verhard (betreffende bijgebouwen). Voor de toekomstige verharding wordt uitgegaan van een oppervlakte van circa 600 m2 (3 woningen en opritten). In totaal is er daarmee een toename van verharding van circa (600 - 156 =) 444 m2. Met een bui die 1 maal per 5 jaar valt (circa 29 mm in een uur) moet hierbij rekening gehouden worden met een waterbergingscapaciteit van circa 12,8 m³. Om deze benodigde capaciteit binnen het plangebied op te kunnen vangen worden maatregelen getroffen. Zo wordt bij de te ontwikkelen woningen een regenton geplaatst. Daarnaast wordt een hemelwatersysteem toegepast, waarbij zowel het toilet, de wasmachine en de buitenkraan structureel van hemelwater wordt voorzien na filtering. Verder kan onder andere het plaatsen van infiltratiekratten, grindkoffers, een greppel, wadi of vijver/poel bij de nieuwe woningen ervoor zorgen dat hemelwater binnen eigen terrein opgevangen wordt en de gronden van de naastgelegen percelen en de weg niet te maken krijgen met wateroverlast. Ook kan gedacht worden aan het plaatsen van regentonnen om zo hemelwater te kunnen hergebruiken. Daarnaast is het mogelijk om bij de aanleg en inrichting van de tuin rekening te houden met de waterberging. Hemelwater dat valt op terrassen kan in de tuin infiltreren. De bodem ter plaatse van het plangebied bestaat voornamelijk uit zand, dit biedt voldoende mogelijkheden tot infiltratie binnen het plangebied.

Ook is er ruimte voor infiltratiekratten in het plangebied. Uit paragraaf 4.2.1 blijkt dat de gemiddelde hoogste grondwaterstand (GHG) circa 6,24 m+NAP bedraagt. Infiltratiekratten dienen 0,50 m boven de GHG geplaatst te worden dus in dit geval op circa 6,74 m+NAP. Infiltratiekratten hebben een hoogte van 0,40 m en over de kratten dient minimaal 0,20 m gronddekking geplaatst te worden. Hiermee bedraagt de minimale peilhoogte circa 7,34 m+NAP. Bij de naastgelegen woning aan de westzijde van het plangebied aan de Zesweg 10 ligt de dorpel op 8,28 m+NAP. De ingeschatte peilhoogte bedraagt circa 7,90 m+NAP, waarmee dit voldoet aan het voorgaande. Op basis hiervan kan gesteld worden dat er in onderhavig plangebied voldoende ruimte is voor het plaatsen van infiltratiekratten.

De exacte uitvoering van de compensatiemaatregelen worden nader uitgewerkt bij de aanvraag van de omgevingsvergunning voor het bouwen. Om dit te borgen is een voorwaardelijke verplichting in de regels opgenomen waarin is bepaald dat hydrologisch neutraal moet worden gebouwd.

4.2.3.5 Gezondheid en veiligheid

Beleidsuitgangspunten

De gemeente streeft naar een veilig watersysteem. Inrichting en beheer van het watersysteem op de planlocatie dient te zijn gericht op het voorkomen of beperken van risico's voor de volksgezondheid en veiligheid.

Risico's van optrekkend vocht primair beperken door ter plaatse van bebouwing te voorzien in voldoende ontwateringsdiepte en drooglegging. Of, als dit niet mogelijk is, door het treffen van maatregelen (bv. kruipruimtevrij bouwen, waterdicht bouwen). Een permanente verandering (verlaging) van grondwaterstanden is daarbij niet toegestaan. Voorts in het plan rekening houden met eventuele risico's van bodemdaling als gevolg van grondwaterstandsdaling (verdroging) of –fluctuatie (zie ook Klimaatverandering).

Inrichting en beheer van oppervlaktewater in bebouwd gebied afstemmen op potentieel verdrinkingsgevaar (veilige oevers). Bij de ruimtelijke inrichting rekening houden met locaties waar waterkwaliteit een gezondheidsrisico kan vormen (zoals bij overstorten en stilstaand water).

Gevolgen van/voor het plan

Wateroverlast is als gevolg van het plan niet te verwachten.

Voor de ontwateringsdiepte is de gemiddeld hoogste grondwaterstand (GHG) relevant. Om grondwateroverlast te voorkomen, moet de GHG meer dan 1,00 m onder vloerpeil begane grond komen te liggen. Uit paragraaf 4.2.1 blijkt dat de gemiddelde hoogste grondwaterstand (GHG) circa 6,24 m+NAP bedraagt. Het vloerpeil van de woning zal daarom minimaal op circa 7,24 m+NAP gerealiseerd worden. In paragraaf 4.2.3.4 is toegelicht dat de minimale peilhoogte circa 7,34 m+NAP bedraagt. De ingeschatte peilhoogte bedraagt circa 7,90 m+NAP, waarmee dit voldoet aan het voorgaande.

Bij dit plan zijn verdrinkingsgevaar en gezondheidsrisico's vanwege een ligging nabij overstorten of stilstaand water niet aan de orde.

4.2.4 Overwegingen en conclusie

Overwegingen

Voorliggende ontwikkeling voorziet de realisatie van drie woongebouw ter plaatse van een bestaand erf in het bestaand bebouwde gebied van de kern Wijchen. Met onderhavig plan wordt circa 444 m2 aan verharding toegevoegd aan het plangebied (woningen en opritten). Het overgrote deel van het plangebied zal in de toekomstige situatie onverhard blijven. Het hemelwater wordt op eigen terrein geïnfiltreerd en verwerkt.

In de omgeving is verder geen (beschermingszone van) oppervlaktewater aanwezig waar dit plan een negatief effect op kan hebben. Iedere nieuwe woning wordt afzonderlijk op de openbare afvalwaterriolering aangesloten. Voorliggend plan heeft daarmee geen noemenswaardige effecten op het aspect water.

Conclusie

Het plan is uitvoerbaar op het gebied van water.

4.2.5 Overleg met waterbeheerder

Advies waterbeheerder

Afhankelijk van de aard en locatie moet het ruimtelijk plan voor advies en/of vooroverleg worden voorgelegd aan de waterbeheerder en het advies van de waterbeheerder zijn verwerkt in de waterparagraaf. Veelal zijn de waterbeheerders het waterschap, maar dit kunnen ook gemeente, Rijkswaterstaat of de Provincie zijn. Voor wat betreft het waterschapsbelang geldt voor alle ruimtelijke plannen dat bij aanvang van het planproces een digitale watertoets moet worden ingevuld door de initiatiefnemer (www.digitalewatertoets.nl), waarna zo nodig een vooroverleg volgt.

Gevolgen voor het plan

Het waterschap Rivierenland is middels het uitvoeren van de watertoets op de hoogte gebracht van voorliggende ontwikkeling. De uitkomst van de toets is toegevoegd als bijlage 8 en verwerkt in deze paragraaf. Het waterschap heeft aangegeven in te stemmen met het plan. Het advies van de gemeente met betrekking tot water is tevens verwerkt in dit bestemmingsplan.

4.3 Ecologie

Bij ruimtelijke ingrepen dient rekening te worden gehouden met de natuurwaarden ter plaatse. De Wet natuurbescherming beschermt natuurgebieden, inheemse soorten en bosopstanden in Nederland.

Gebiedsbescherming

In de Wet natuurbescherming worden de zogenoemde Natura 2000-gebieden beschermd. Natura 2000 is de overkoepelende naam voor gebieden die worden beschermd vanuit de Vogel- en Habitatrichtlijn. Volgens deze Europese richtlijnen moeten lidstaten specifieke diersoorten en hun natuurlijke leefomgeving (habitat) beschermen om de biodiversiteit te behouden. Natura 2000-gebieden kennen een zogenaamde 'externe werking'. Dit betekent dat ontwikkelingen die buiten de begrenzing van de Natura 2000-gebieden gelegen zijn, ook getoetst moeten worden of er significant negatieve effecten optreden op het betreffende gebied.


Soortenbescherming

Een hoofdstuk in de Wet natuurbescherming regelt de bescherming van de in het wild voorkomende inheemse planten en dieren: de soortenbescherming. De wet richt zich vooral op het in stand houden van populaties van soorten die bescherming behoeven. In de wet zijn algemene en specifieke verboden vastgelegd ten aanzien van beschermde dier- en plantensoorten. Bekeken moet worden in hoeverre ruimtelijke plannen negatieve gevolgen hebben op beschermde dier- en plantensoorten en of er compenserende of mitigerende maatregelen genomen moeten worden. De wet geeft de mogelijkheid aan provincies om voor een bepaald aantal soorten via een verordening een algemene vrijstelling op bepaalde verbodsbepalingen te geven.

Daarnaast geldt voor iedereen in Nederland altijd, dus ook los van het voorliggende beoogde ruimtelijke project, dat de zorgplicht nageleefd moet worden bij het verrichten van werkzaamheden. Voor menige soort geldt dat indien deze zorgplicht nagekomen wordt een bepaald beoogd project uitvoerbaar is.

Planspecifiek

Gebiedsbescherming

Het dichtstbij gelegen Natura 2000-gebied ligt ruim 7 kilometer ten noorden van het plangebied. Dit betreft het Natura 2000-gebied 'Rijntakken'. Gezien de aard en de omvang van de werkzaamheden (realiseren drie woningen) en de afstand tot beschermde gebieden, worden negatieve effecten op de Natura 2000-gebieden uitgesloten.

Soortenbescherming

Ten behoeve van voorliggende ontwikkeling is een quickscan flora en fauna uitgevoerd. Het onderzoeksrapport is bijgevoegd als bijlage 6. Hierin wordt geconcludeerd dat de voorgenomen ontwikkelingen niet kunnen leiden tot een negatief effect op vleermuizen. Voor de overige beschermde soorten is het plangebied ongeschikt door het ontbreken van geschikt habitat. Aanvullend onderzoek is daarom niet noodzakelijk. Tijdens de werkzaamheden blijft te allen tijde de zorgplicht van kracht.

In het rapport worden tevens een aantal aanbevelingen gedaan om natuurinclusief te bouwen en in het plan voorzieningen te treffen die de natuur ondersteunen, zoals het ophangen van nestkasten voor vogels of vleermuiskasten, het toepassen van groene gevels of daken en het inmetselen van vogel- en vleermuiskasten. Verder kan gedacht worden aan het inrichten van de tuin met zoveel mogelijk divers groen, zo min mogelijk verharding en groene erafscheidingen. Zie de toepassing van deze maatregelen in paragraaf 2.2 Toekomstige situatie. De concrete toepassing van deze maatregelen wordt uitgewerkt bij de verdere uitwerking van het plan.

De uitvoerbaarheid van het initiatief voor ecologie is hiermee aangetoond.

4.4 Verkeer

Onderdeel van goede ruimtelijke ordening is het effect van een beoogd nieuw project op de verkeersstructuur. Het plangebied wordt ontsloten via de Zesweg. Met het toevoegen van drie nieuwe woningen zal de verkeersintensiteit zeer beperkt toenemen. De Zesweg en omliggende wegen hebben voldoende capaciteit om deze beperkte verkeerstoename op te vangen.

Wat betreft parkeren is in het 'Parkeerbeleidsplan gemeente Wijchen' uit 2016 aangegeven dat voor de gemeente Wijchen de parkeernormen uit de CROW publicatie 381 worden gehanteerd. Voor een matig stedelijke gemeente geldt voor een vrijstaande woning in de rest bebouwde kom een maximale parkeernorm van 2,6 parkeerplaatsen per woning. Voor twee-aaneen gebouwde woningen geldt een parkeernorm van 2,5 parkeerplaatsen per woning. Dit is afgerond 3 parkeerplaatsen per woning. Er is in het plangebied bij alle drie de woningen voldoende ruimte om op eigen terrein aan de parkeernorm te voldoen, zie ook onderstaande afbeelding. In de regels van dit plan is geborgd dat er voldoende parkeerplaatsen op eigen terrein dienen te worden gerealiseerd en vervolgens in stand dienen te worden gehouden.

afbeelding "i_NL.IMRO.0296.NRDZeswegnaast14-OW01_0009.png"

Parkeerplaatsen op eigen terrein

Het initiatief is uitvoerbaar met betrekking tot het aspect verkeer.

4.5 Cultuurhistorie en archeologie

In elk bestemmingsplan moet een beschrijving worden opgenomen van de wijze waarop met de in het gebied aanwezige cultuurhistorische waarden wordt omgegaan. Denk aan aanwezige monumenten, historische gebieden, kenmerkende (straat)beelden en landschapselementen. Bij het maken van plannen kan ook (weer) rekening gehouden worden met al deze elementen die er vroeger wel waren maar nu niet meer. Een bijzonder onderdeel van cultuurhistorie is archeologie.

Cultuurhistorie

Het belang van cultuurhistorie is wettelijk vastgelegd in het Besluit ruimtelijke ordening. Het Besluit geeft aan dat “een beschrijving van de wijze waarop met de in het gebied aanwezige cultuurhistorische waarden en in de grond aanwezige of te verwachten monumenten rekening is gehouden” in het bestemmingsplan opgenomen moet worden. Het voornaamste doel hiervan is om het cultuurhistorische karakter van Nederland op gebiedsniveau te behouden en te versterken.

Archeologie

De bescherming van archeologische waarden bij ruimtelijke ontwikkelingen is geregeld in de Erfgoedwet. De essentie van de wettelijke bescherming is dat archeologische resten zoveel mogelijk in de bodem bewaard blijven. Bij ruimtelijke plannen geldt de verplichting om rekening te houden met bekende en te verwachten archeologische waarden. Indien ingrepen gepaard gaan met een verstoring van de bodem, kan het nodig zijn om nader onderzoek te doen, zodat - waar nodig - de archeologische waarden veiliggesteld kunnen worden en/of het plan aangepast kan worden. De verantwoordelijkheid voor archeologische waarden ligt bij de gemeente.

Op basis van artikel 5.10 van de Erfgoedwet zijn mogelijke (toevals)vondsten bij het verrichten van werkzaamheden in de bodem altijd beschermd. Er geldt een meldingsplicht bij het vinden van (mogelijke) waardevolle zaken.

Planspecifiek

Cultuurhistorie

De gemeente Wijchen heeft in 2017 een 'Parapluplan Cultuurhistorie Wijchen' vastgesteld met als doel om via beleid en regels waardevolle gebouwen en gebieden binnen de gemeente te beschermen. De gemeente vindt het daarbij van belang dat, bijvoorbeeld bij functiewijziging, de historische- en beeldwaarde van gebieden of panden niet worden aangetast. Onderhavig plangebied ligt binnen het gebied dat is aangeduid als cultuurhistorisch waardevol gebied (paarse zone op navolgende kaart). Navolgend een uitsnede van de cultuurhistorische beleidskaart van de gemeente Wijchen. Hierop is te zien dat zich in of nabij het plangebied geen karakteristieke of beeldbepalende gebouwen bevinden.

afbeelding "i_NL.IMRO.0296.NRDZeswegnaast14-OW01_0010.jpg"

Uitsnede cultuurhistorische beleidskaart gemeente Wijchen.

Archeologie

De navolgende afbeelding toont een uitsnede van de archeologische beleidskaart van de gemeente Wijchen. Hierop is te zien dat het plangebied een hoge archeologische verwachting heeft. Hierbij geldt een onderzoeksplicht bij bodemingrepen met een oppervlakte groter dan 60 m². Met voorliggend plan wordt deze drempelwaarde overschreden. Daarom is in het kader van de voorgenomen ontwikkeling een archeologisch onderzoek uitgevoerd. Het onderzoeksrapport is opgenomen in bijlage 7. Hierin wordt geconcludeerd dat op grond van de ligging binnen een uitstuivingslaagte, de aangetroffen bodemverstoringen in het plangebied, het ontbreken van archeologische indicatoren en de van oorsprong natte situatie vanwege de ondiep aanwezig leemlaag en daarmee lage archeologische verwachting geen archeologisch vervolgonderzoek wordt geadviseerd. Het rapport is door het bevoegd gezag beoordeeld en zij nemen het advies over. Er is geen vervolgonderzoek nodig. Het plangebied kan archeologisch worden vrijgegeven voor de ontwikkeling.

afbeelding "i_NL.IMRO.0296.NRDZeswegnaast14-OW01_0011.png"

Uitsnede archeologische beleidskaart.

4.6 Economische uitvoerbaarheid

Bij de voorbereiding van een bestemmingsplan dient, op grond van artikel 3.1.6 lid 1, sub f van het Bro, onderzoek plaats te vinden naar de (economische) uitvoerbaarheid van het plan. In principe dient bij vaststelling van een ruimtelijk besluit tevens een exploitatieplan vastgesteld te worden om verhaal van plankosten zeker te stellen. Op basis van 'afdeling 6.4 grondexploitatie', artikel 6.12, lid 2 van de Wro kan de gemeenteraad bij het besluit tot vaststelling van het bestemmingsplan echter besluiten geen exploitatieplan vast te stellen indien:

  • het verhaal van kosten van de grondexploitatie over de in het plan of besluit begrepen gronden anderszins verzekerd is;
  • het bepalen van een tijdvak of fasering als bedoeld in artikel 6.13, eerste lid, onder c, 4°, onderscheidenlijk 5°, niet noodzakelijk is;
  • het stellen van eisen, regels, of een uitwerking van regels als bedoeld in artikel 6.13, tweede lid, onderscheidenlijk b, c of d, niet noodzakelijk is.

Planspecifiek

De ontwikkelingskosten komen geheel voor rekening van de initiatiefnemer. Hiertoe zal de gemeente voorafgaand aan de planologische procedure met de initiatiefnemer een exploitatieovereenkomst afsluiten. Voor de realisatie van het plan hoeft de gemeente geen investering te doen. De kosten die door de gemeente gemaakt worden voor het voeren van de planologische procedure zijn verrekend in de leges. Eventuele extra gemeentelijke kosten worden gedekt door de exploitatieovereenkomst.

Tevens zal een overeenkomst betreffende planschade worden afgesloten. Deze kosten komen eveneens geheel voor rekening van de initiatiefnemer.

Op basis van het bovenstaande kan geconcludeerd worden dat het plan economisch uitvoerbaar is.

Hoofdstuk 5 Juridische planbeschrijving

5.1 Algemeen

Het bestemmingsplan is opgezet volgens de in de Wet ruimtelijke ordening opgenomen standaardvorm van de Standaard Vergelijkbare Bestemmingplannen 2012 (SVBP 2012).

Het bestemmingsplan bestaat uit een verbeelding, planregels en een toelichting. De verbeelding en de planregels vormen samen het juridisch bindende gedeelte van het bestemmingsplan. Beide planonderdelen dienen in onderlinge samenhang te worden bezien en toegepast. Op de verbeelding zijn de bestemmingen aangewezen. Aan deze bestemmingen zijn bouwregels en regels betreffende het gebruik gekoppeld.

De toelichting heeft geen rechtskracht, maar is wel een belangrijk onderdeel van het plan. De toelichting geeft een weergave van de beweegredenen, de onderzoeksresultaten en de beleidsuitgangspunten die aan dit plan ten grondslag liggen. De toelichting is van wezenlijk belang voor een juiste interpretatie en toepassing.

Daarnaast maken ook eventuele bijlagen onlosmakelijk onderdeel uit van het bestemmingsplan.

Verbeelding

De verbeelding is een digitale kaart, waarop bestemmingen en aanduidingen zijn weergegeven. Aanduidingen worden gebruikt om bepaalde zaken specifieker te regelen, bijvoorbeeld in de vorm van gebiedsaanduidingen, bouwaanduidingen, bouwvlakken, functieaanduidingen etc.

Voor de analoge verbeelding is gebruik gemaakt van een digitale ondergrond (Grootschalige Basiskaart en/of kadastrale kaart). Daar waar een verschil is tussen de digitale en de analoge verbeelding, is de digitale versie leidend.

Regels

De planregels zijn standaard onderverdeeld in vier hoofdstukken.

  • Hoofdstuk I : Inleidende regels, deze bevatten de begrippen en wijze van meten;
  • Hoofdstuk II: Bestemmingsregels, dit zijn de verschillende bestemmingen op alfabetische volgorde. De regels bevatten een bestemmingsomschrijving en regels voor het bouwen en het gebruik.
  • Hoofdstuk III: Algemene regels, dit zijn regels die gelden voor alle bestemmingen. Dit zijn onder meer (mogelijke) flexibiliteitsbepalingen in de vorm van wijzigings- en afwijkingsbevoegdheden.
  • Hoofdstuk IV: Overgangs- en slotbepalingen.

5.2 Wijze van bestemmen

Voorliggend bestemmingsplan bevat de volgende bestemmingen:

  • 'Wonen' voor het gehele plangebied. Voor de woningen is een passend bouwvlak opgenomen. Hoofdgebouwen zijn alleen binnen dit bouwvlak toegestaan. Voor het noordelijk bouwvlak zijn de aanduiding 'twee-aaneen' en 'specifieke vorm van wonen - levensloopbestendige woning' opgenomen. Voor het zuidelijk bouwvlak is zijn de aanduidingen 'vrijstaand' en 'specifieke vorm van wonen - seniorenwoning' opgenomen. Tevens zijn de de maatvoeringsaanduidingen 'maximum goothoogte (m), maximum bouwhoogte (m)' en 'maximum bebouwd oppervlak (m²)' opgenomen.
  • 'Waarde - Cultuurhistorisch waardevol gebied', ter behoud, beheer en versterking van de cultuurhistorische waarden.

Dit plan kent verder geen noemenswaardige bijzonderheden.

Met dit hoofdstuk is voldaan aan artikel 3.1.3 van het Bro.

Hoofdstuk 6 Procedure

6.1 Algemeen

Bij de voorbereiding van een (voor)ontwerp bestemmingsplan dient overleg te worden gevoerd als bedoeld in artikel 3.1.1 Bro. Dit is het vooroverleg, waarin het conceptplan wordt voorgelegd aan het waterschap en aan die diensten van provincie en Rijk die betrokken zijn bij de zorg voor de ruimtelijke ordening of belast zijn met de behartiging van belangen welke in het plan in het geding zijn. Voor wat kleinere plannen kan, in overleg, afgezien worden van dit overleg.

Op basis van artikel 3.1.6 Bro dient verslag te worden gedaan van de wijze waarop burgers en maatschappelijke organisaties bij de voorbereiding van het bestemmingsplan zijn betrokken. Dit is de inspraak. Van (formele) inspraak kan, zeker bij wat kleinere plannen, worden afgezien. De gemeentelijke inspraakverordening is daarbij ook van belang.

Een ontwerpbestemmingsplan dient conform afdeling 3.4 Awb gedurende 6 weken ter inzage gelegd te worden. Hierbij is er de mogelijkheid voor een ieder om zienswijzen in te dienen op het plan. Na vaststelling door de Raad wordt het vaststellingsbesluit bekend gemaakt. Het bestemmingsplan ligt na bekendmaking 6 weken ter inzage. Gedurende deze termijn is er de mogelijkheid voor belanghebbenden beroep in te dienen bij de Afdeling bestuursrechtspraak Raad van State. Het bestemmingsplan treedt vervolgens daags na afloop van de tervisielegging in werking als er geen beroep is ingesteld. Is er wel beroep ingesteld dan treedt het bestemmingsplan ook in werking, tenzij naast het indienen van een beroepschrift ook om een voorlopige voorziening is gevraagd. De schorsing van de inwerkingtreding eindigt indien de voorlopige voorziening wordt afgewezen. De procedure eindigt met de uitspraak van de Afdeling bestuursrechtspraak van de Raad van State.

6.2 Verslag vooroverleg ex artikel 3.1.1 Bro

Dit bestemmingsplan is in het kader van het wettelijk overleg niet toegezonden aan de provincie omdat er geen sprake is van een bovenlokaal belang. Samen met het waterschap Rivierenland zijn de aan de orde zijnde waterhuishoudkundige aspecten behandeld door middel van de digitale Watertoets. Het waterschap heeft positief geoordeeld over het plan.

6.3 Verslag inspraak ex artikel 3.1.6 Bro

Voor dit plan wordt geen formele inspraakprocedure gehouden. Het plan wordt direct als ontwerp ter inzage gelegd. De omwonenden worden geïnformeerd over het plan.

6.4 Verslag zienswijzen

In deze paragraaf, of in een separate bijlage, worden te zijner tijd de zienswijzen op het ontwerpbestemmingsplan en de gemeentelijke reactie hierop opgenomen.