direct naar inhoud van Toelichting
Plan: Everardusplein naast 17, Wijchen
Status: ontwerp
Plantype: bestemmingsplan
IMRO-idn: NL.IMRO.0296.OOSTEVERARDUSPLEIN-OW01

Toelichting

Hoofdstuk 1 Inleiding

1.1 Aanleiding voor het bestemmingsplan

De initiatiefnemers willen op een perceel aan het Everardusplein in Wijchen een twee levensloopbestendige woningen bouwen. De bouw van woningen op deze locatie past niet in het geldende bestemmingsplan. Omdat het initiatief wel passend is op de locatie, wordt medewerking verleend aan een herziening van het bestemmingsplan. In dit document wordt dit toegelicht en gemotiveerd waarom dat kan volgens de Wet ruimtelijke ordening (Wro).

1.2 Ligging plangebied

Het plangebied is gelegen aan het Everardusplein, naast nr. 17. Bijgevoegde afbeelding toont globaal de ligging van het plangebied in de omgeving.

afbeelding "i_NL.IMRO.0296.OOSTEVERARDUSPLEIN-OW01_0002.png"

Kaart omgeving plangebied, plangebied rood omcirkeld (bron: openstreetmap.org)

1.3 Leeswijzer

Hoofdstuk 2 bevat een beschrijving van de bestaande situatie en van het plan. Daarna wordt in hoofdstuk 3 ingegaan op het relevante Rijks-, provinciale-, en gemeentelijke beleid. In hoofdstuk 4 wordt de haalbaarheid van het project getoetst op grond van het geldende beleid en (milieu)wetgeving. Ook wordt ingegaan op de economische haalbaarheid van het plan. Hoofdstuk 5 geeft een toelichting op de juridische opzet van het plan. Tot slot gaat hoofdstuk 6 in op de wijze hoe burgers en andere belanghebbenden betrokken zijn bij het plan (maatschappelijke uitvoerbaarheid). Hierin zijn de uitkomsten van inspraak, vooroverleg en zienswijzen opgenomen.

Hoofdstuk 2 Het initiatief

In dit hoofdstuk wordt het initiatief beschreven. Eerst wordt ingegaan op de bestaande situatie van het plangebied en de relatie met de omgeving. Daarna wordt ingezoomd op het beoogde initiatief.

2.1 Huidige situatie

Het plangebied ligt tussen de bebouwing aan het Everardusplein en de bebouwing aan de Meidoorstraat. In de huidige situatie staan op het perceel een kippenhok en een tuinhuisje. De rest van het perceel is dicht begroeid. Rondom het perceel staan woningen, voornamelijk tweekappers. Bijgevoegde afbeelding geeft de huidige situatie in het gebied weer.

afbeelding "i_NL.IMRO.0296.OOSTEVERARDUSPLEIN-OW01_0003.png"

Luchtfoto plangebied, plangebied in rood (bron: ruimtelijkeplannen.nl)

2.2 Toekomstige situatie

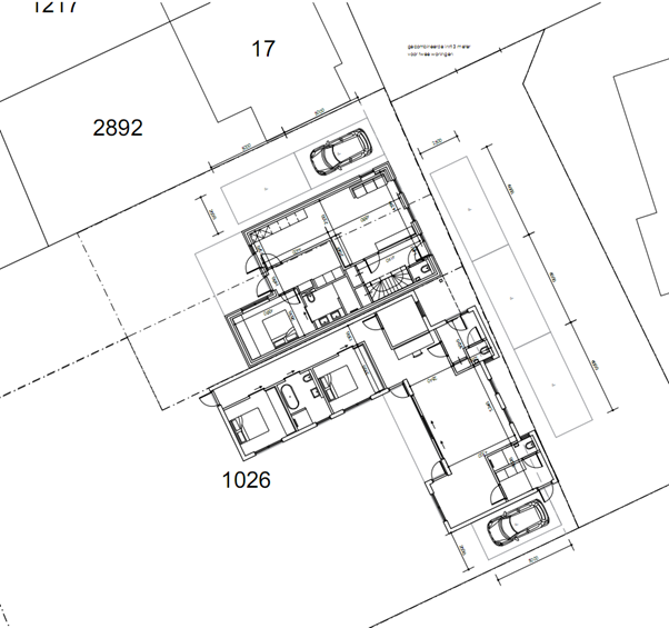
In de toekomstige situatie zullen het kippenhok en het tuinhuisje worden gesloopt, en zullen op dit perceel twee aan elkaar gebouwde levensloopbestendige woningen gerealiseerd worden. De zuidelijke woning zal bestaan uit één bouwlaag met een plat dak, met een breedte van 14,5 meter, een diepte van 17 meter en een hoogte van maximaal 4,5 meter. De noordelijke woning bestaat deels uit twee bouwlagen met een schuin aflopend dak. Deze woning krijgt een breedte van ca 8 meter, een diepte van ruim 13 meter en een maximale goot- en bouthoogte van respectievelijk 4,5 en 7,5 meter. De woningen worden ontsloten via het Everardusplein. Naast en voor de woningen is voldoende ruimte aanwezig voor het aanleggen van in totaal zes parkeerplaatsen, waarmee wordt voldaan aan de gemeentelijke parkeernormen. In paragraaf 4.4 wordt uitgebreider ingegaan op het aspect parkeren. Navolgende afbeeldingen geven de toekomstige situatie weer.

afbeelding "i_NL.IMRO.0296.OOSTEVERARDUSPLEIN-OW01_0004.png"

Situatietekening toekomstige situatie (ontwerp: Ariëns Groep)

afbeelding "i_NL.IMRO.0296.OOSTEVERARDUSPLEIN-OW01_0005.png"

Aanzicht op de beoogde woningen vanaf het Everardusplein (ontwerp: Ariëns Groep)

Hoofdstuk 3 Beleidskader

3.1 Rijksbeleid

Structuurvisie Infrastructuur en Ruimte (SVIR) en Besluit algemene regels ruimtelijke ordening (Barro)

Gebiedsgericht

De SVIR benoemt een aantal aspecten van nationaal ruimtelijk belang. Het betreft de bescherming van de waterveiligheid aan de kust en rond de grote rivieren, bescherming en behoud van de Waddenzee en enkele werelderfgoederen, de uitoefening van defensietaken, het Natuurnetwerk Nederland (voorheen de ecologische hoofdstructuur), de elektriciteitsvoorziening, de toekomstige uitbreiding van het hoofd(spoor)wegennet en de veiligheid rond rijksvaarwegen. Voorts betreft het enkele specifieke gebieden zoals de mainportontwikkeling van Rotterdam en Schiphol.

In het Barro heeft het Rijk voor deze onderwerpen regels opgesteld waarmee de SVIR juridisch verankerd is richting lagere overheden. Via het Besluit ruimtelijke ordening en het Besluit omgevingsrecht zijn deze regels aanvullend vastgelegd.

In de SVIR worden, naast de onderwerpen van nationaal belang, accenten geplaatst op het gebied van bestuurlijke verantwoordelijkheden. Het beleid betekent een decentralisatie van rijkstaken en bevoegdheden. Het Rijk gaat zo min mogelijk op de stoel van provincies en gemeenten zitten en lagere overheden, burgers en bedrijven krijgen, zolang het nationaal belang niet in het geding is, de ruimte om oplossingen te creëren.

Ladder duurzame verstedelijking

Een meer algemeen onderwerp uit de SVIR is 'duurzame verstedelijking'. Via de 'ladder voor duurzame verstedelijking' wordt een zorgvuldige afweging en besluitvorming geborgd bij ruimtelijke vraagstukken in stedelijk gebied. Het gebruik van deze ladder is opgenomen in het Bro (artikel 3.1.6 onder 2).

De ladder richt zich op nieuwe stedelijke ontwikkelingen. In de toelichting van een bestemmingsplan dat een nieuwe stedelijke ontwikkeling mogelijk maakt, dient de behoefte aan die ontwikkeling te worden beschreven. Als de ontwikkeling buiten het bestaand stedelijk gebied plaatsvindt, moet bovendien gemotiveerd worden waarom niet binnen het bestaand stedelijk gebied in die behoefte kan worden voorzien.

Het Bro beschrijft wat een stedelijke ontwikkeling is: "een ruimtelijke ontwikkeling van een bedrijventerrein of zeehaventerrein, of van kantoren, detailhandel, woningbouwlocaties of andere stedelijke voorzieningen." Onder 'bestaand stedelijk gebied' wordt het volgende verstaan: "bestaand stedenbouwkundig samenstel van bebouwing ten behoeve van wonen, dienstverlening, bedrijvigheid, detailhandel of horeca, alsmede de daarbij behorende openbare of sociaal culturele voorzieningen, stedelijk groen en infrastructuur."

Per 01 juli 2017 is de ladder voor duurzame verstedelijking herzien. Bij de herziening zijn onder meer de drie afzonderlijke 'treden' van de ladder losgelaten en is het begrip 'actuele regionale behoefte' gewijzigd in 'behoefte'. Nieuw is dat de laddertoets bij flexibele plannen kan worden doorgeschoven naar het moment van vaststelling van een wijzigings- of uitwerkingsplan.

Planspecifiek

Gebiedsgericht

Het plangebied ligt niet in een van de aangewezen gebieden van de SVIR en het Barro.

Ladder duurzame verstedelijking

In het initiatief worden twee nieuwe woningen gerealiseerd. Volgens de geldende jurisprudentie is er bij een woningbouwontwikkeling van 11 woningen of minder geen sprake van een stedelijke ontwikkeling. Het toetsen van dit initiatief aan de Ladder is dan ook niet aan de orde.

3.2 Provinciaal beleid

Algemeen

In de Omgevingsvisie Gaaf Gelderland (december 2018) staan de hoofdlijnen van het provinciale ruimtelijk beleid. Op 24 september 2014 is door Provinciale Staten van Gelderland de Omgevingsverordening Gelderland vastgesteld. Deze is op 19 december 2018 geactualiseerd op basis van de nieuwe omgevingsvisie. De Omgevingsverordening is een uitwerking van de Omgevingsvisie en stelt regels waaraan bestemmingsplannen moeten voldoen.

Omgevingsvisie Gaaf Gelderland

De provincie wil de focus leggen op een duurzaam, verbonden en een economisch krachtig Gelderland. Door daarin te investeren wil de provincie werken aan een gezond, veilig, schoon en welvarend Gelderland centraal. Om dat te bereiken wordt de focus gelegd op zeven ambities op het gebied van energietransitie, klimaatadaptatie, circulaire economie, biodiversiteit, bereikbaarheid, vestigingsklimaat en woon- en leefomgeving. Deze ambities worden hieronder kort samengevat:

  • Een versnelde energietransitie, gericht op forse vergroting van het aandeel duurzame energie en passend bij de Gelderse kwaliteiten;
  • Een op de toekomst toegerust beschermend klimaatbeleid;
  • Een voortvarend en innovatief circulair beleid;
  • Een stimulerend en beschermend beleid voor biodiversiteit;
  • Efficiënte, duurzame en innovatieve bereikbaarheid, toegesneden op de veranderende vraag;
  • Een duurzaam, dynamisch en toegankelijk economisch vestigingsklimaat, waar voor ondernemers en inwoners een sterke aantrekkingskracht vanuit gaat;
  • Een duurzaam en divers woon- en leefklimaat, dat steeds weet te anticiperen op ontwikkelingen.

Omgevingsverordening Gelderland

De verordening voorziet ten opzichte van de Omgevingsvisie niet in nieuw beleid en is daarmee dus beleidsneutraal. De inzet van de verordening als juridisch instrument om de doorwerking van het provinciaal beleid af te dwingen is beperkt tot die onderdelen van het beleid waarvoor de inzet van algemene regels noodzakelijk is om provinciale belangen veilig te stellen of om uitvoering te geven aan wettelijke verplichtingen.

Planspecifiek

Voorliggend plan maakt twee nieuwe seniorenwoningen mogelijk in een bestaande woonwijk binnen stedelijk gebied. In de omgevingsvisie zijn ambities van de provincie uiteengezet. Door het toevoegen van twee levensloopbestendige seniorenwoningen wordt direct ingespeeld op een provinciaal (alsook een nationaal- en gemeentelijk) streven om voor senioren nieuwe vormen van wonen en zorg te stimuleren.

De omgevingsverordening stelt voor de locatie van de nieuwe woningen geen nadere regels. Het initiatief past binnen het provinciale beleid.

3.3 Regionaal beleid

3.3.1 Regionale woonagenda

In de Gelderse Omgevingsvisie en de Omgevingsverordening is voor het provinciale woonbeleid opgenomen dat de regiogemeenten in Gelderland als onderdeel van de regionale woonagenda komen tot afspraken over de kwantitatieve opgave voor woningbouwprogrammering. Hierbij hebben partijen gedeeld dat dit kader voor regiogemeenten zowel als basis dient voor programmatische afwegingen volgende de Rijksladder voor Duurzame verstedelijking als het adaptief programmeren.

Op 7 februari 2018 is door de Regio Nijmegen een nieuwe Woonagenda ondertekend. Als gevolg hiervan stijgt het totaal aantal te bouwen woningen met ongeveer 350 woningen tot 1.100 woningen. Uitgangspunt daarbij is dat met name vraaggerichte woningbouw voorrang krijgt op standaard woningbouwprojecten.

Planspecifiek

Het plan draagt summier bij aan een toename van het aantal woningen binnen de gemeente Wijchen. Vanuit kwalitatief oogpunt speelt het plan, door het mogelijk maken van twee seniorenwoningen, in op een actuele lokale vraag naar meer geschikte woningen voor senioren. Dit wordt nader onderbouwd in paragraaf 3.4.

Het initiatief past binnen de regionale woonagenda.

3.4 Gemeentelijk beleid

3.4.1 Strategische visie en Structuurvisie Wijchen

Strategische Visie Wijchen
In maart 2007 is de Strategische Visie Wijchen 2025 vastgesteld. In deze visie wordt een doorkijk gegeven naar de gewenste ontwikkeling van de gemeente Wijchen tot het jaar 2025. De visie richt zich op een viertal leidende thema's, te weten: bedrijvig Wijchen, sociaal sterk, duurzaam groen en de Wijchense identiteit.


Duurzaam en kwalitatief zijn ook sleutelwoorden voor de ontwikkeling van het buitengebied en de kleine kernen. De grote rijkdom aan natuur- en landschapswaarden vormt het uitgangspunt voor verdere ontwikkeling. Wijchen zet in op een beheerste groei van recreatie, verbrede landbouw, ontwikkeling van groene en blauwe diensten en vitale kernen. Er wordt een groene relatie tussen het stedelijk gebied met het buitengebied nagestreefd met zo weinig mogelijk barrières. De groen-blauwe relatie tussen de kern Wijchen en het omringende buitengebied wordt verbeterd teneinde groen en water tot in de kern te laten doorlopen.
In de Strategische visie 2025 zijn de belangrijkste 'groene' ambities als volgt verwoord:
1. verdere ontwikkeling alleen met respect voor landschap, cultuurhistorie en natuur;
2. meer ruimte voor water;
3. duurzame inrichting;
4. nieuwe ontwikkelingen worden getoetst aan hun bijdrage aan het verhogen van de ruimtelijke kwaliteit.


De groene ambities zijn nader vorm gegeven in het gemeentelijke Groenstructuurplan kleine kernen (april 2004) en het Landschapsontwikkelingsplan (december 2006).


Structuurvisie Wijchen
De Structuurvisie Wijchen, die door de gemeenteraad op 9 juli 2009 is vastgesteld, betreft een doorvertaling van de strategische opgaven die zijn geformuleerd in de strategische visie Wijchen 2025. Uitgegaan wordt van een compacte groei en het benutten van de potenties van bestaand stedelijk gebied zonder daarbij de bestaande kwaliteit aan te tasten, in combinatie met een vitaal platteland en sterke kleine kernen.
De gemeente wil de komende 10 jaar onder meer:
1. herstel hydrologie kwelgebieden in Oost Wijchen;

2. ontwikkeling en versterking van de EVZ Heumen - Horssen;

3. aanleg van landschapselementen en (erf)beplantingen, die passen bij het gebied;

4. versterken van cultuurhistorische landschapselementen en patronen;

5. nieuwe woningen in het buitengebied alleen in geval van functieverandering of landgoederen in het kader van de Natuurschoonwet;

6. kleinschalige bedrijvigheid in het kader van verbreding van de landbouw in het buitengebied;

7. ruimte voor versterking en ontwikkeling agrarische sector;

8. behoud en versterking bestaande recreatie terreinen;

9. extensieve recreatie in het landelijk gebied door een goede en aantrekkelijke ontsluiting;

10. behoud en versterking van een goede woon- en leefomgeving.


Voor het aspect wonen worden met name het gebruik van bestaande bebouwing voor woonfuncties en het toevoegen van nieuwe landelijke woonmilieus onderscheiden. Een bebouwing met een grote landschappelijke meerwaarde is van belang voor het handhaven van sociale verbanden in het landelijk gebied. Voor de eigen bevolking is er gebrek aan passende woonruimte. Noodgedwongen verhuizen starters naar de omliggende dorpen of de verder weg gelegen steden. Hierdoor vergrijst de plattelandsbevolking, neemt de economische activiteit op het platteland af en gaat de leefbaarheid achteruit. Om deze ontwikkeling te keren worden meer woonfuncties toegestaan. Door deze ontwikkeling met ruimtelijk beleid te begeleiden is er geen sprake van aantasting van ruimtelijke kwaliteit, maar veeleer van behoud en versterking van kwaliteiten.
Bij de vaststelling van een wijzigingsplan of projectbesluit dienen de uitgangspunten uit de structuurvisie in acht genomen te worden.


Planspecfiek

afbeelding "i_NL.IMRO.0296.OOSTEVERARDUSPLEIN-OW01_0006.png"

Uitsnede structuurvisiekaart, plangebied ter hoogte van de gele stip


Het plangebied (gele stip) ligt binnen de concessiecontour woonkern. Voor deze gebieden is geen specifiek beleid in de structuurvisie opgenomen. In algemene kan worden aangenomen dat het toevoegen van twee woningen binnen een 'concessiegebied woonkern' passend is.

Het initiatief past binnen de gemeentelijke strategische- en structuurvisie.

3.4.2 Woonvisie Wijchen 2025

De Woonvisie Wijchen zet de koers van het gemeentelijk woonbeleid uit naar de toekomst. Hierin wordt omschreven waar moet worden bijgestuurd, afgeremd of versneld om de doelen van het woonbeleid te bereiken. De woonvisie heeft twee uitgangspunten: het thuisgevoel versterken en verder kijken dan de trends van nu. Om het woningaanbod in balans te krijgen wordt in de woonvisie gesproken over meer mogelijkheden voor starters, jonge gezinnen, (vitale) senioren en mensen met een zorgvraag. Het is de bedoeling dat starters en jonge gezinnen in de gemeente kunnen blijven of komen wonen. Dit kan onder andere door mogelijkheden te bieden voor splitsing van bestaande woningen, waardoor een koopwoning binnen het financiële bereik van starters kan komen. Daarnaast is het de bedoeling dat (vitale) senioren en mensen met een zorgvraag langer zelfstandig kunnen wonen. Dit leidt tot een toenemende behoefte aan nieuwe woonvormen, zoals verschillende generaties onder één dak en het toevoegen van woningen in een vorm waarbij de eindgebruiker centraal staat.

Planspecifiek

Dit plan maakt de komst van twee levensloopbestendige woningen binnen het plangebied mogelijk. In de woonvisie benadrukt de gemeente het belang van passende woningen voor senioren en mensen met een zorgvraag. Het plan speelt daarmee direct in op een actuele behoefte binnen de gemeente.

Het initiatief is passend binnen de woonvisie.

3.4.3 Geldend bestemmingsplan

Het geldende bestemmingsplan voor het plangebied is het bestemmingsplan "Bedrijventerrein Oost", vastgesteld op 10 november 2011. Binnen dit bestemmingsplan heeft het plangebied grotendeels de bestemming 'Wonen', waarbij de noordoostzijde van het bestemmingsplan de bestemming 'Verkeer - verkeer en verblijf' heeft, met de aanduiding 'Groen'. op een deel van het gebied ligt de dubbelbestemming 'Molenbeschermingszone'. In het plangebied zijn geen bouwvlakken opgenomen. Onderstaande uitsnede geeft het plangebied in het huidige bestemmingsplan weer.

afbeelding "i_NL.IMRO.0296.OOSTEVERARDUSPLEIN-OW01_0007.png"

Uitsnede bestemmingplan, plangebied lichtbouw weergegeven

In het geldende bestemmingsplan is het niet toegestaan om een woning te bouwen buiten een bouwvlak. Daarnaast is binnen de aanduiding 'Groen' in de verkeersbestemming alleen het gebruik als groen toegestaan. Het initiatief is dus strijdig met het bestemmingsplan. Omdat het initiatief wel passend en gewenst is op deze locatie, wordt medewerking verleent aan een herziening van het bestemmingsplan.

Hoofdstuk 4 Uitvoerbaarheid

De uitvoerbaarheid van een bestemmingsplan moet als gevolg van het Besluit ruimtelijke ordening (Bro) aangetoond worden (artikel 3.1.6 van het Bro). Daaronder valt zowel de onderzoeksverplichting naar verschillende ruimtelijk relevante aspecten (geluid, bodem, etc.) als ook de economische uitvoerbaarheid van het plan.

4.1 Milieu

4.1.1 Bodem

Op grond van de Wet Bodembescherming (Wbb) moet aangetoond worden dat de kwaliteit van de bodem en het grondwater in het plangebied in overeenstemming zijn met het beoogde gebruik. De bodemkwaliteit kan namelijk van invloed zijn op de beoogde functie van het plangebied. Bij een functiewijziging zal in veel gevallen een specifiek bodemonderzoek moeten worden uitgevoerd.

Planspecifiek

Om de bodemkwaliteit van het gebied te bepalen is een bodemonderzoek uitgevoerd. Het rapport van dit onderzoek is te lezen in bijlage 1. Uit dit onderzoek blijkt dat er geen verontreiniging is aangetroffen die een risico voor de volksgezondheid opleveren. Ook zijn er geen sporen van asbestverontreiniging gevonden.

Het inintiatief is uitvoerbaar met betrekking tot het aspect bodem.

4.1.2 Lucht

De mate van blootstelling aan luchtverontreiniging speelt een rol in het kader van een goede ruimtelijke ordening. Met betrekking tot 'luchtkwaliteit' zijn twee aspecten van belang. Ten eerste of de luchtkwaliteit ter plaatse de nieuwe functie toelaat (de gevoeligheid van de bestemming) en ten tweede wat de bijdrage is van het plan aan die luchtkwaliteit.

Luchtkwaliteit ter plaatse

In de Wet milieubeheer zijn normen opgenomen voor de concentraties van een aantal stoffen in de buitenlucht ter bescherming van de mens. De twee belangrijkste stoffen zijn PM10 en PM2,5(fijnstof) en NO2 (stikstofdioxide). Voor grenswaarde van PM10 en NOx bedraagt 40 µg/m3, van PM2,5 is dat 25 µg/m3.

Bijdrage aan luchtkwaliteit

In de Wet milieubeheer zijn de belangrijkste bepalingen over luchtkwaliteitseisen opgenomen. De Wet maakt een onderscheid tussen 'kleine' en 'grote' projecten. Kleine projecten dragen 'niet in betekenende mate' (NIBM) bij aan verslechtering van de luchtkwaliteit. Een paar honderd grote projecten dragen juist wel 'in betekenende mate' bij aan de verslechtering van de luchtkwaliteit. Het gaat hierbij vooral om bedrijventerreinen en infrastructuur (wegen).

Wat het begrip 'in betekenende mate' precies inhoudt, staat in de algemene maatregel van bestuur "Niet in betekenende mate bijdragen" (Besluit NIBM). Op hoofdlijnen komt het erop neer dat 'grote' projecten die jaarlijks meer dan 3 procent bijdragen aan de jaargemiddelde norm voor fijn stof en stikstofdioxide (1,2 microgram per m3) een 'betekenend' negatief effect hebben op de luchtkwaliteit. 'Kleine' projecten die minder dan 3 procent bijdragen, kunnen doorgaan zonder toetsing. Dat betekent bijvoorbeeld dat lokale overheden een toevoeging van minder dan 1.500 huizen niet hoeven te toetsen aan de normen voor luchtkwaliteit, omdat een dergelijk project per definitie niet boven de 3%-norm komt.

Planspecifiek

Luchtkwaliteit ter plaatse van het initiatief

Vanuit een goede ruimtelijke ordening is de huidige luchtkwaliteit ter plaatse getoetst met behulp van de NSL Monitoringstool (www.nsl-monitoring.nl). Door de metingen ter plaatse te toetsen aan de grenswaarden is gekeken of er sprake is van een goed woon- en leefklimaat. Uit metingen van het rekenpunt 225529 (aan de Oosterweg ter hoogte van plangebied) zijn de volgende concentraties naar voren gekomen:

  NO2 
(stikstofdioxide)  
PM10
(fijnstof)  
PM2,5 (fijnere fractie van fijnstof)  
Gemeten totale concentratie jaargemiddelde 2017 (µg/m3)   18,46 µg/m3   19,78 µg/m3   12,46 µg/m3  
Grenswaarde concentratie (µg/m3)   40 µg/m3   40 µg/m3   25 µg/m3  

De gemeten concentraties stikstofdioxide en fijn stof liggen ruim onder de gestelde grenswaarden. Met betrekking tot de luchtkwaliteit zijn geen belemmeringen voor onderhavig initiatief.

Bijdrage initiatief

Ten aanzien van de bijdrage aan luchtkwaliteit is het initiatief van geringe omvang ten opzichte van de benoemde grenswaarde (3%, gelijk aan ca. 1.500 woningen). Op basis van de te verwachten toename aan verkeersbewegingen ten gevolge van het project is te concluderen dat dit project 'niet in betekende mate' bijdraagt aan de verslechtering van de luchtkwaliteit. Een nadere toetsing ten aanzien van het aspect luchtkwaliteit kan daarom achterwege blijven.

Het initiatief is uitvoerbaar met betrekking tot het aspect luchtkwaliteit.

4.1.3 Geluid

De mate waarin het geluid het woonmilieu mag belasten, is geregeld in de Wet geluidhinder (Wgh). De kern van de wet is dat geluidsgevoelige objecten worden beschermd tegen geluidhinder uit de omgeving. In de Wgh worden de volgende objecten beschermd:

  • woningen;
  • geluidgevoelige gebouwen, zoals scholen, ziekenhuizen, verzorgings- en verpleeghuizen, psychiatrische instellingen en kinderdagverblijven;
  • geluidsgevoelige terreinen (woonwagenstandplaatsen en bestemde ligplaatsen voor woonschepen).

Het beschermen van deze geluidsgevoelige objecten gebeurt aan de hand van vastgestelde zoneringen. Binnen deze zones bepaalt het bevoegd gezag de te hanteren grenswaarden. Er geldt een voorkeursgrenswaarde en een bovengrens (hoger mag niet). De Wgh gaat verder onder meer ook in op geluidwerende voorzieningen. De belangrijkste bronnen van geluidhinder die bij een ruimtelijke ontwikkeling aan de orde kunnen zijn betreffen: industrielawaai, wegverkeerslawaai en spoorweglawaai.

Planspecifiek

Voor voorliggend document is het van belang te kijken naar de mogelijke gevolgen van wegverkeerslawaai. Het Everardusplein en de andere wegen in de omgeving hebben een maximumsnelheid van 30 km per uur, In artikel 74 lid 2 van de Wgh wordt een uitzondering gemaakt voor wegen met een 30 km-regime en woonerven. Deze wegen hebben geen geluidszone en zijn daarmee niet onderzoeksplichtig. Wel dient er sprake te zijn van een goede ruimtelijke ordening. Gezien de ligging van het plangebied in een rustige woonwijk, is geluidshinder niet te verwachten en is er sprake van goede ruimtelijke ordening.

Het initiatief is uitvoerbaar met betrekking tot het aspect geluid.

4.1.4 Milieuzonering

Milieuzonering is het aanbrengen van een ruimtelijke scheiding tussen milieubelastende en milieugevoelige functies. Doel is om bij het opstellen van een ruimtelijk plan een goed en veilig leefklimaat te waarborgen, maar tegelijkertijd ook aan bedrijven voldoende milieuruimte te bieden voor het uitoefenen van hun activiteiten.

De mate waarin bedrijven invloed hebben op hun omgeving is afhankelijk van de aard van de bedrijvigheid en de afstand tot een gevoelige bestemming. Milieugevoelige bestemmingen zijn gebouwen en terreinen die naar hun aard bestemd zijn voor het verblijf van personen gedurende de dag of nacht of een gedeelte daarvan (bijvoorbeeld woningen). Daarnaast kunnen ook landelijke gebieden en/of andere landschappen belangrijk zijn bij een zonering tot andere, minder gevoelige, functies zoals bedrijven.

Milieuzonering heeft betrekking op aspecten met een ruimtelijke dimensie, zoals geluid, geur, gevaar en stof. De mate van belasting, en daarmee de gewenste aan te houden afstand, kan per aspect en per bedrijfstype en verschillen. In de publicatie 'Bedrijven en Milieuzonering' van de Vereniging van Nederlandse Gemeenten (VNG) is een lijst opgenomen met daarin de minimale richtafstanden tussen een gevoelige bestemming en bedrijven. Van deze richtafstanden kan worden afgeweken, mits wordt onderbouwd waarom de feitelijke milieuhinder als minder belastend wordt gezien.

Het belang van milieuzonering wordt steeds groter aangezien functiemenging steeds vaker voorkomt. Hierbij is het motto: 'scheiden waar het moet, mengen waar het kan'.

Planspecifiek

Het plan bestaat uit de realisatie van twee nieuwe milieugevoelige bestemmingen in een bestaande woonwijk. In de omgeving van het plangebied zijn geen milieubelastende functies aanwezig met een milieuzonering die tot in het plangebied reikt. Het woon en leefklimaat in het pplangebied zal niet negatief beïnvloed worden door omliggende milieubelastende functies en er worden geen bedrijven in de bedrijfsvoering belemmerd . Het intiatief is uitvoerbaar met betrekking tot het aspect milieuzonering.

4.1.5 Externe veiligheid

Het beleid voor externe veiligheid is gericht op het beperken en beheersen van risico's voor de omgeving die ontstaan door opslag, productie, gebruik en vervoer van gevaarlijke stoffen. Hierbij gaat het om risicovolle inrichtingen, transportroutes voor het vervoer van gevaarlijke stoffen en buisleidingen.

De verplichting om in een ruimtelijk plan in te gaan op deze risico's komt voort uit het 'Besluit externe veiligheid inrichtingen' (Bevi), het 'Besluit externe veiligheid transportroutes' (Bevt) en het 'Besluit externe veiligheid buisleidingen' (Bevb). Daarnaast zijn in het Activiteitenbesluit milieubeheer en het Vuurwerkbesluit veiligheidsafstanden genoemd die moeten worden aangehouden rond stationaire risicobronnen, niet zijnde een Bevi-inrichting.

De wetgeving richt zich op het beschermen van kwetsbare en beperkt kwetsbare objecten. Kwetsbaar zijn onder meer woningen, onderwijs- en gezondheidsinstellingen, en kinderopvang- en dagverblijven, en grote kantoorgebouwen (>1500 m²). Beperkt kwetsbaar zijn kleinere kantoren en winkels, horeca, parkeerterreinen en bedrijfsgebouwen waarin geen grote aantallen personen aanwezig zijn.

Binnen het beoordelingskader voor externe veiligheid staan twee kernbegrippen centraal: het plaatsgebonden risico (PR) van 10-6 per jaar en het groepsrisico (GR). Het plaatsgebonden risicobeleid bestaat uit harde afstandscontouren tussen risicobron en (beperkt) kwetsbaar object. Het wordt uitgedrukt in een contour van 10-6 per jaar (de kans dat per jaar 1 persoon overlijdt door een ongeluk met een gevaarlijke stof mag niet groter zijn dan 1 op een miljoen). Het groepsrisico legt een relatie tussen de kans op een ramp en het aantal mogelijke slachtoffers. Bij de berekening van het groepsrisico spelen mee de aard en hoeveelheid van de gevaarlijke stoffen en het aantal potentiële slachtoffers.

Voor de beoordeling van een ruimtelijk plan moet worden vastgesteld of het plangebied is gelegen binnen de PR en/of de invloedsgebieden van het GR. Binnen de 10-6-contour is het realiseren van kwetsbare objecten niet toegestaan.

Planspecifiek

Via de website risicokaart.nl kan voor de locatie worden vastgesteld of er in de directe omgeving inrichtingen, buisleidingen en / of belangrijke transportroutes aanwezig zijn die in het kader van de externe veiligheid van belang zijn. Bijgevoegd een screenshot van die website.

afbeelding "i_NL.IMRO.0296.OOSTEVERARDUSPLEIN-OW01_0008.png"

Screenshot risicokaart.nl, Plangebied ter hoogte van de groene stip

Hieruit is op te maken dat het plangebied niet in de 10-6-contour van het PR of het invloedsgebied voor enige risicovolle inrichtingen of transportroutes voor gevaarlijke stoffen ligt. Het initiatief is heirmee uitvoerbaar met betrekking tot het aspect externe veiligheid.

4.2 Water

Water is een belangrijk thema in de ruimtelijke ordening. Door verstandig om te gaan met het water kan verdroging en wateroverlast voorkomen worden en de kwaliteit van het water hoog gehouden worden.
Op Rijksniveau en Europees niveau zijn de laatste jaren veel plannen en wetten gemaakt met betrekking tot water. De belangrijkste hiervan zijn het Waterbeleid voor de 21e eeuw, de Waterwet en het Nationaal Waterplan.

Wettelijk kader

Op basis van de wet op de ruimtelijke ordening (Wro) en Besluit ruimtelijke ordening (Bro) is de watertoets verplicht bij o.a. bestemmingsplannen, inpassingsplannen, projectbesluiten en omgevingsvergunningen afwijking bestemmingsplan. Voor overige plannen, zoals een structuurvisie, dient een watertoets te worden uitgevoerd op basis van het Nationaal Bestuursakkoord Water. Het Bro regelt de verplichte waterparagraaf in de plantoelichting (art 3.1.6 Bro) en het vooroverleg met de waterbeheerder (art 3.1.1 Bro).


Watertoets

De watertoets is bedoeld om ruimtelijke plannen en besluiten meer waterbestendig te maken, doordat waterbelangen van gemeente, waterschap en eventueel andere waterbeheerders vroegtijdig en expliciet worden meegewogen. In het ruimtelijk plan moet voldoende rekening zijn gehouden met de waterhuishouding en -voorzieningen.


Waterparagraaf

De waterparagraaf beschrijft de wijze waarop rekening is gehouden met de eventuele gevolgen van het ruimtelijk plan voor de waterhuishouding en vice versa. Onderdeel hiervan is een beschrijving van beleidsuitgangspunten en regelgeving, waterhuishoudkundige situatie en -opgaven, meest geschikte oplossingen (motiveren) en de ruimtelijke consequenties daarvan. Indien aan de orde is tevens het advies van het waterschap in de waterparagraaf verwerkt.

1. Beschrijving watersysteem

Geomorfologie en grondwatersysteem

Het plangebied ligt in de schil van het centrum van Wijchen, op een hoogte van circa 8,5 m +NAP volgens het Actueel Hoogtebestand Nederland (AHN). Op ongeveer 400 m ten oosten van het plangebied bevindt zich een peilbuis (nr. B45F0072-001). Volgens deze peilbuis heeft de grondwaterstand in de periode september 1950 t/m oktober 1999 niet hoger gestaan dan 7,30 m+NAP en niet lager dan 5,55 m+NAP. De gemiddelde grondwaterstand in deze peilbuis was 6,30 m+NAP. Voor het plangebied betekent dit dat naar verwachting deze grondwaterstand ongeveer 0,10 m hoger staat, dus niet hoger dan 7,40 m+NAP en niet lager dan 5,65 m+NAP en het gemiddelde op 6,40 m+NAP.

Tijdens het bodemonderzoek (zie bijlage 1) is vastgesteld dat het grondwater zich op circa 6,5 m -mv bevindt. Hiermee valt de gemeten grondwaterstand binnen de hiervoor genoemde grondwaterrange. De bodem ter plaatse bestaat uit zeer fijn zand.

Oppervlakte- en afvalwatersysteem

In of rond het plangebied lopen geen watergangen. In de huidige situatie is er geen sprake van afvalwater.

Ecosysteem

Op basis van de gegevens van de provincie Gelderland ligt het plangebied niet in het Gelders Natuur Netwerk of een groene ontwikkelingszone. Op basis van de website natura2000.nl ligt het plangebied niet in een Natura 2000-gebied. In het plangebied is geen natte natuur aanwezig.

2. Gemeentelijk beleid en waterschap

Waterbeleid

Het gemeentelijk waterbeleid is met name gericht op het voorkomen, beperken of tot een aanvaardbaar risico terugbrengen van wateroverlast en schade aan milieu en volksgezondheid. In de Strategische waternota Wijchen zijn de thema's en uitgangspunten voor duurzaam waterbeheer omschreven (zie ook punt 3). Het Gemeentelijk rioleringsplan beschrijft de gemeentelijke zorgplicht voor rioolwater, hemelwater en grondwater. In het kader van de watertoets wordt een vertaalslag gemaakt naar de concrete plansituatie.

Zorgplichten afvalwater en hemelwater

De gemeente heeft voor zover doelmatig een zorgplicht voor de inzameling en transport van stedelijk afvalwater dat binnen de gemeente vrijkomt (zie Wmb art 10.33). Perceeleigenaren dienen hemelwater in eerste instantie op eigen terrein te verwerken of op oppervlaktewater te lozen. Als dit redelijkerwijs niet mogelijk is draagt de gemeente zorg voor de doelmatige inzameling en verwerking van afvloeiend hemelwater (Waterwet art 3.5).

Zorgplicht grondwater

In eerste instantie zijn perceeleigenaren zelf verantwoordelijk voor het treffen van maat-regelen op eigen terrein om structurele nadelige gevolgen van grondwater voor de aan de grond gegeven bestemming te voorkomen of beperken. De gemeente heeft een zorgplicht bij het treffen van maatregelen in openbaar gebied, voor zover doelmatig en geen verantwoordelijkheid van provincie of waterschap (Waterwet art 3.6).

Waterschap

De gemeente Wijchen valt binnen het beheersgebied van Waterschap Rivierenland. Het Waterschap geeft in het kader van de Waterwet een vergunning af voor lozing van afvalwater op oppervlaktewater (Waterwet art 6.2) en in het kader van de Keur een ontheffing voor ingrepen in/nabij watergangen en waterkeringen. Daarnaast verzorgt de waterbeheerder het onderhoud van A-watergangen en draagt zorg voor het zuiveren van afvalwater (Waterwet art. 6.4).

3. Beleidsuitgangspunten en consequenties voor het ruimtelijk plan

Deze paragraaf beschrijft op welke wijze op de planlocatie rekening is gehouden met het watersysteem, gelet op de waterhuishoudkundige situatie, beleid en regelgeving. Als onderdeel hiervan een motivering van getroffen maatregelen om negatieve effecten op/van het watersysteem tot een minimum te beperken, inclusief de ruimtelijke consequenties daarvan.

3.1 Leefomgeving algemeen

Beleidsuitgangspunten

De gemeente streeft naar integrale inpassing van het watersysteem in de leefomgeving en afstemming op de gebruiksfuncties in het gebied. De ruimtelijke ontwikkeling mag in beginsel geen nadelige gevolgen hebben voor de waterhuishouding en vice versa. De waterhuishoudkundige situatie moet in overeenstemming zijn met het beoogde grondgebruik.
Water is mede-ordenend bij de ruimtelijke ontwikkeling (juiste functie op de juiste plaats), waarbij tevens rekening wordt gehouden met de ruimteclaim van waterhuishoudkundige voorzieningen. Wateropgaven worden gekoppeld aan andere gebiedsopgaven, zoals voor openbaar groen, riolering, welzijn en energiewinning (zie ook Klimaatverandering).


Gevolgen van/voor het plan 

Voorliggend initiatief heeft geen negatieve gevolgen voor de waterhuishouding of watergangen en oppervlakte water in de omgeving. Zo worden de woningen hydrologisch neutraal gebouwd en zal het hemelwater op eigen terrein worden opgevangen en hergebruikt. Onder punt 3.2 tot en met 3.5 is in meer detail weergegeven welke concrete invulling aan het aspect water is gegeven.

3.2 Kwaliteit en beleving

Beleidsuitgangspunten 

De gemeente streeft naar schoon water en waterbodems die voldoen aan gestelde eisen en het behoud van (natte) natuurwaarden en biodiversiteit. Verontreiniging van grond- en oppervlaktewater dient te worden voorkomen en de waterkwaliteit zo mogelijk verbeterd. Natuurlijke grondwater- en oppervlaktewaterstanden worden beschermd of hersteld.

Schoon hemelwater mag rechtstreeks in bodem of op oppervlaktewater worden geloosd. Verontreiniging van hemelwater voorkomen, o.a. door toepassing van niet-uitlogende materialen (Dubo-bepalingen) en door beperking van toepassing van lood, koper, zink en zacht pvc. Verontreinigd hemelwater mag alleen worden geloosd via een zuiverende voorziening.

De kwaliteit van oppervlaktewater zo mogelijk verbeteren door aanleg van natuurvriendelijke oevers en verbetering van de doorstroming. Het beheer mag geen verstoring geven van waterkwaliteit en biodiversiteit. Ecologisch natte zones of natte natuurwaarden behouden of verder ontwikkelen door bijbehorende waterhuishoudkundige omstandigheden te beschermen of herstellen. De gemeente streeft naar versterking van de belevingswaarde van water en daarmee het waterbewustzijn. Hierbij worden water, waterhuishoudkundige elementen en cultuurhistorische structuren en landschapselementen herkenbaar verweven in de ruimtelijke inrichting en beleefbaar gemaakt. Waterstromen zichbaar (bovengronds) afvoeren.

Gevolgen van/voor het plan 

In het plangebied is geen oppervlaktewater aanwezig. In het plangebied zijn ook geen natte natuurwaarden aanwezig die beïnvloed kunnen worden door het initiatief. Verontreiniging van het hemelwater zal worden voorkomen door het gebruik van de juiste materialen voor de woning. Het hemelwater zal in de bodem worden geïnfiltreerd.

3.3 Klimaatverandering

Beleidsuitgangspunten 

De gemeent streeft naar een klimaatbestendige en waterrobuuste leefomgeving. Bij ruimtelijke ontwikkelingen dienen schadelijke effecten van klimaatverandering (wateroverlast en verdroging) voor het grondgebruik en vice versa te worden beperkt of teruggebracht tot een acceptabel niveau. Waterhuishoudkundige voorzieningen zijn energiezuinig en duurzaam.


Komen tot een klimaatadaptieve ruimtelijke inrichting, o.a. voor wat betreft bebouwing, wegen, groen en water. Voorkomen dat water bij hevige neerslag in de bebouwing terecht komt of afstroomt buiten het plangebied. De hoeveelheid verhard oppervlak tot een minimum beperken. Groenstructuren klimaatrobuust aanleggen voor wat betreft areaal, type beplanting en waterbergend vermogen.


Grondwateronttrekking beperken door hoogwaardige toepassing van drinkwater en het treffen van waterbesparende voorzieningen. Zo mogelijk hemelwater gebruiken voor laagwaardige toepassingen.


Gevolgen van/voor het plan 

Met het initiatief zal de verharding in het plangebied met een beperkte mate toenemen. Hiervoor wordt voldoende waterberging gerealiseerd. In navolgend onderdeel 3.4 in uiteengezet hoe er wordt omgegaan met de toevoeging van verharding in het plangebied en welke maatregelen worden getroffen met betrekking tot het opvangen van regenwater.

Drinkwaterbesparing is bijvoorbeeld mogelijk door een opslagsysteem voor hemelwater te realiseren en bij droogte met het opgeslagen regenwater de tuin te besproeien. Het ontwerp van de woning is nog niet bekend, en daarmee is nog niet te bepalen of in dit ontwerp het hemelwatet wordt benut. Bij het aanvragen van de omgevingsvergunning voor de woning zal dit bekend zijn.

3.4 Waterberging

Beleidsuitgangspunten 

De gemeente streeft naar het vasthouden van gebiedseigen water door benutting van de natuurlijke bergingscapaciteit van bodem en oppervlaktewater. Hemelwater afkomstig van verharde oppervlakken dient zoveel mogelijk te worden afgekoppeld van de riolering met de voorkeursvolgorde: 1) Benutting, 2) Bodeminfiltratie binnen het gebied, 3) Berging binnen het gebied, 4) Vertraagde afvoer naar oppervlaktewater buiten het plangebied en 5) Afvoer naar riool.


Wanneer hemelwater direct of indirect wordt geloosd op oppervlaktewater, moet dit volgens de Keur (Waterschap Rivierenland) worden gecompenseerd. De compensatieplicht houdt in dat de toename van verharding in het ruimtelijk plan moet worden gecompenseerd door aanleg van extra waterberging. Met een eenmalige uitzondering van 500 m2 (stedelijk gebied) en 1500 m2 (landelijk gebied) voor particulieren en kleine bedrijven.


Infiltratie- en bergingsvoorzieningen, zoals bodempassages en open water, moeten voldoende capaciteit hebben om het hemelwater te kunnen verwerken. En zodanig ruimtelijk ingepast (ruimtebeslag, ligging) dat adequaat functioneren is gewaarborgd.


Gevolgen van/voor het plan

In de huidige situatie is reeds circa 100 m² verhard. Voor de toekomstige verharding wordt uitgegaan van een oppervlakte van circa 200 m². In totaal is er daarmee een toename van verharding van circa 100 m². Deze toename valt binnen de eenmalige uitzondering voor particulieren en kleine bedrijven van het waterschap Rivierenland. Conform het gemeentelijke uitgangspunt dient al het hemelwater op eigen terrein te worden verwerkt. Daarbij wordt uitgegaan van de totale hoeveelheid verharding binnen het plangebied in de toekomstige situatie: circa 200 m². Er is gerekend met 15 millimeter waterberging per m2 per uur. Dit staat voor een bui die 1 keer per jaar valt. Dit komt neer op een capaciteit van 3 m³.

Om deze benodigde capaciteit binnen het plangebied op te kunnen vangen worden maatregelen getroffen. Onder andere het plaatsen van infiltratiekratten, grindkoffers, een greppel, wadi of vijver/poel bij de nieuwe woningen kan ervoor zorgen dat hemelwater binnen eigen terrein opgevangen wordt en de gronden van de naastgelegen percelen en de weg niet te maken krijgen met wateroverlast. Ook kan gedacht worden aan het plaatsen van regentonnen om zo hemelwater te kunnen hergebruiken. Daarnaast is het mogelijk om bij de aanleg en inrichting van de tuin rekening te houden met de waterberging. Hemelwater dat valt op terrassen kan in de tuin infiltreren. De exacte uitvoering van de compensatiemaatregelen worden nader uitgewerkt bij de aanvraag van de omgevingsvergunning voor het bouwen. Om dit te borgen is een voorwaardelijke verplichting in de regels opgenomen waarin is bepaald dat hydrologisch neutraal moet worden gebouwd.

3.5 Gezondheid en veiligheid

Beleidsuitgangspunten

De gemeente streeft naar een veilig watersysteem. Inrichting en beheer van het watersysteem op de planlocatie dient te zijn gericht op het voorkomen of beperken van risico's voor de volksgezondheid en veiligheid.


Risico's van optrekkend vocht primair beperken door ter plaatse van bebouwing te voorzien in voldoende ontwateringsdiepte en drooglegging. Of, als dit niet mogelijk is, door het treffen van maatregelen (bv. kruipruimtevrij bouwen, waterdicht bouwen). Een permanente verandering (verlaging) van grondwaterstanden is daarbij niet toegestaan. Voorts in het plan rekening houden met eventuele gevolgen van bodemdaling als gevolg van grondwaterstandsdaling of -fluctuatie.


Inrichting en beheer van oppervlaktewater in bebouwd gebied afstemmen op potentieel verdrinkingsgevaar (veilige oevers). Bij de ruimtelijke inrichting rekening houden met locaties waar waterkwaliteit een gezondheidsrisico kan vormen (zoals bij overstorten en stilstaand water).

Afvalwater afkomstig van de nieuwe woningen wordt afgevoerd naar het bestaande riool. Iedere woning krijgt een afzonderlijke aansluiting op het riool. De noordelijk gelegen woning zal direct worden verbonden met de hoofdaansluiting via het Everardusplein. De zuidelijke woning ontsluiting zal lopen via het oostelijke deel van het plangebied, dat nu nog openbaar gebied is. Hierdoor hoeven de leidingen elkaar niet te kruisen en kan voor beide woningen de aansluiting vanaf de perceelgrens gekoppeld worden aan de hoofdaansluiting van de gemeente.

Gevolgen van/voor het plan

Wateroverlast is als gevolg van het plan niet te verwachten.

Voor de ontwateringsdiepte is de gemiddeld hoogste grondwaterstand (GHG) relevant. Om grondwateroverlast te voorkomen, moet de GHG meer dan 1,00 m onder vloerpeil begane grond komen te liggen. In een worstcase scenario is er sprake van een hoogste grondwaterstand van 7,40 m+NAP (zie punt 1). Dit ligt meer dan 1,00 meter onder het vloerpeil in het plangebied.

Voor de drooglegging dient het oppervlaktewaterpeil meer dan 1,30 m onder het vloerpeil te liggen. Met een vloerpeil van 8,50 m+NAP is dit voldoende gewaarborgd. Bij dit plan zijn verdrinkingsgevaar en gezondheidsrisico's vanwege een ligging nabij overstorten of stilstaand water niet aan de orde.

4. Overwegingen en conclusie

Overwegingen

Met dit plan worden op een perceel waar nu enkele bijgebouwen staan deze bijgebouwen gesloopt en worden twee nieuwe seniorenwoningen mogelijk gemaakt. Het verhard oppervlak van de locatie neemt hierdoor in beperkte mate toe. Gezien de grondwaterstand in het gebied wordt voldaan aan de ontwateringseisen.

In de omgeving is verder geen (beschermd) oppervlaktewater aanwezig waar dit plan een negatief effect op kan hebben. Afvalwater afkomstig van de nieuwe woningen wordt afgevoerd naar het riool. Voorliggend plan heeft daarmee geen noemenswaardige effecten op het aspect water.

Conclusie

Het plan is uitvoerbaar op het gebied van water.

5. Overleg met waterbeheerder

Advies waterbeheerder

Afhankelijk van de aard en locatie moet het ruimtelijk plan voor advies en/of vooroverleg worden voorgelegd aan de waterbeheerder. Veelal is de waterbeheerder het waterschap, maar kan ook Rijkswaterstaat of de Provincie zijn. Het advies of resultaat van het vooroverleg dient te worden verwerkt in de waterparagraaf.

Voor wat betreft het waterschapsbelang geldt voor alle ruimtelijke plannen dat bij aanvang van het planproces een digitale watertoets moet worden ingevuld door de initiatiefnemer (www.digitalewatertoets.nl). Het hieruit voortvloeiende advies moet, in geval van een relevant waterschapsbelang, worden uitgewerkt in de waterparagraaf.

Gevolgen voor het plan

Het waterschap Rivierenland is middels het uitvoeren van de watertoets op de hoogte gebracht van voorliggende ontwikkeling. De uitkomst van de toets is toegevoegd als bijlage 2. Het waterschap heeft aangegeven positief te adviseren over het plan. Daarmee hoeft het plan in het kader van het wettelijk vooroverleg ook niet toegezonden te worden aan Waterschap Rivierenland.

4.3 Ecologie

Bij ruimtelijke ingrepen dient rekening te worden gehouden met de natuurwaarden ter plaatse. Per 01-01-2017 zijn de Natuurbeschermingswet 1998, de Flora en faunawet en de Boswet opgegaan in de nieuwe Wet natuurbescherming. De Wet natuurbescherming beschermt natuurgebieden, inheemse soorten en het bosopstanden in Nederland.

Gebiedsbescherming

In de Wet natuurbescherming worden de zogenoemde Natura 2000-gebieden beschermd. Natura 2000 is de overkoepelende naam voor gebieden die worden beschermd vanuit de Vogel- en Habitatrichtlijn. Volgens deze Europese richtlijnen moeten lidstaten specifieke diersoorten en hun natuurlijke leefomgeving (habitat) beschermen om de biodiversiteit te behouden. Natura 2000-gebieden kennen een zogenaamde 'externe werking'. Dit betekent dat ontwikkelingen die buiten de begrenzing van de Natura 2000-gebieden gelegen zijn, ook getoetst moeten worden of er significant negatieve effecten optreden op het betreffende gebied.


Soortenbescherming

Een hoofdstuk in de Wet natuurbescherming regelt de bescherming van de in het wild voorkomende inheemse planten en dieren: de soortenbescherming. De wet richt zich vooral op het in stand houden van populaties van soorten die bescherming behoeven. In de wet zijn algemene en specifieke verboden vastgelegd ten aanzien van beschermde dier- en plantensoorten. Bekeken moet worden in hoeverre ruimtelijke plannen negatieve gevolgen hebben op beschermde dier- en plantensoorten en of er compenserende of mitigerende maatregelen genomen moeten worden. De wet geeft de mogelijkheid aan provincies om voor een bepaald aantal soorten via een verordening een algemene vrijstelling op bepaalde verbodsbepalingen te geven.

Daarnaast geldt voor iedereen in Nederland altijd, dus ook los van het voorliggende beoogde ruimtelijke project, dat de zorgplicht nageleefd moet worden bij het verrichten van werkzaamheden. Voor menige soort geldt dat indien deze zorgplicht nagekomen wordt een bepaald beoogd project uitvoerbaar is.

Planspecifiek

Gebiedsbescherming

Het plangebied ligt niet in een Natura 2000-gebied of het Gelders Natuur Netwerk. Het dichtstbijzijnde Natura 2000-gebied is het gebied Rijntakken, op een afstand van ca. 8 kilometer. Gezien de aard van de werkzaamheden en de afstand tot de omliggende Natura 2000-gebieden, worden negatieve effecten op de Natura 2000-gebieden uitgesloten.

Soortenbescherming

Om de gevolgen van van het initiatief te beoordelen is een quickscan Flora en Fauna uitgevoerd. Het rapport van dit onderzoek is te lezen in bijlage 3. Uit het onderzoek blijkt dat er geen aanleiding is tot nader onderzoek, en dat het initiatief uitvoerbaar is. Bij de werkzaamheden blijft ten alle tijde de zorgplicht van kracht. Als de werkzaamheden in het broedseizoen plaatsvinden, zal nogmaals gecontroleerd worden op de aanwezigheid van beschermde soorten.

De uitvoerbaarheid van het initiatief voor ecologie is hiermee aangetoond.

4.4 Verkeer

Onderdeel van goede ruimtelijke ordening is het effect van een beoogd nieuw project op de verkeersstructuur. Het bestemmingsplan wordt ontsloten via het Everardusplein. Hiermee zal de verkeersintensiteit toenemen. Op basis van CROW-publicatie 381 zorgt een twee-aaneengebouwde woning in de schil van het centrum van Wijchen (matig stedelijke gemeente) voor een maximaal aantal verkeersbewegingen van 8 per dag. In totaal worden er daarmee voor de twee woningen gemiddeld 16 nieuwe verkeersbewegingen per dag verwacht. Het Everardusplein heeft voldoende capaciteit om deze bewegingen te verwerken. Voor de aansluiting op het Everhardusplein zal een uitwegvergunning worden aangevraagd.

Als gevolg van het plan zal ook de vraag naar parkeervoorzieningen in het plangebied toenemen. In het 'Parkeerbeleidsplan gemeente Wijchen' uit 2016 is aangegeven dat voor de gemeente Wijchen de parkeernormen uit de CROW publicatie 381, waarbij voor de schil van het centrum van Wijchen gebruikt gemaakt wordt van de maximale norm voor een matig stedelijke gemeente. In het gebied worden twee nieuwe aaneengebouwde woningen gerealiseerd. Voor deze twee woningen geld een parkeernorm van 2,2 parkeerplaatsen per woning, waarmee afgerond 5 nieuwe parkeerpaatsen in het plangebeid nodig zijn. Binnen het plangebied is voldoende ruimte aanwezig om deze parkeerplaatsen te realiseren, zie de situatietekening in paragraaf 2.2. Om te garanderen dat voldoende parkeerplaaten bij de woning gerealiseerd worden, is in artikel 8 van de regels een verplichting opgenomen dat voldaan dient te worden aan de regels van het 'Parkeerbeleidsplan gemeente Wijchen', dat op 16 juni 2016 in werking is getreden, of de rechtsopvolger(s) daarvan.

Het initiatief is uitvoerbaar vanuit het aspect verkeer.

4.5 Cultuurhistorie en archeologie

In elk bestemmingsplan moet een beschrijving worden opgenomen van de wijze waarop met de in het gebied aanwezige cultuurhistorische waarden wordt omgegaan. Denk aan aanwezige monumenten, historische gebieden, kenmerkende (straat)beelden en landschapselementen. Bij het maken van plannen kan ook (weer) rekening gehouden worden met al deze elementen die er vroeger wel waren maar nu niet meer. Een bijzonder onderdeel van cultuurhistorie is archeologie.

Cultuurhistorie

Het belang van cultuurhistorie is wettelijk vastgelegd in het Besluit ruimtelijke ordening. Het Besluit geeft aan dat “een beschrijving van de wijze waarop met de in het gebied aanwezige cultuurhistorische waarden en in de grond aanwezige of te verwachten monumenten rekening is gehouden” in het bestemmingsplan opgenomen moet worden. Het voornaamste doel hiervan is om het cultuurhistorische karakter van Nederland op gebiedsniveau te behouden en te versterken.

Archeologie

De bescherming van archeologische waarden bij ruimtelijke ontwikkelingen is geregeld in de Erfgoedwet. De essentie van de wettelijke bescherming is dat archeologische resten zoveel mogelijk in de bodem bewaard blijven. Bij ruimtelijke plannen geldt de verplichting om rekening te houden met bekende en te verwachten archeologische waarden. Indien ingrepen gepaard gaan met een verstoring van de bodem, kan het nodig zijn om nader onderzoek te doen, zodat - waar nodig - de archeologische waarden veiliggesteld kunnen worden en/of het plan aangepast kan worden. De verantwoordelijkheid voor archeologische waarden ligt bij de gemeente.

Op basis van artikel 5.10 van de Erfgoedwet zijn mogelijke (toevals)vondsten bij het verrichten van werkzaamheden in de bodem altijd beschermd. Er geldt een meldingsplicht bij het vinden van (mogelijke) waardevolle zaken.

Planspecifiek

Cultuurhistorie

De gemeente Wijchen heeft in 2017 een 'Parapluplan Cultuurhistorie Wijchen' vastgesteld met als doel om via beleid en regels waardevolle gebouwen en gebieden binnen de gemeente te beschermen. De gemeente vindt het daarbij van belang dat, bijvoorbeeld bij functiewijziging, de historische- en beeldwaarde van gebieden of panden niet worden aangetast. In het plangebied zijn geen waardevolle gebouwen aanwezig. De huidige inrichting van het gebied heeft ook geen cultuurhistorische meerwaarde.

In het parapluplan heeft het plangebied de dubbelbestemming 'Waarde - Cultuurhistorisch waardevol gebied'. Om mogelijke toekomstige cultuurhistorische waarden te beschermen, zal deze dubbelbestemming in het voorliggend bestemmingsplan worden overgenomen.

Het plangebied ligt tevens binnen de molenbiotoop van een nabijgelegen molen. Met de molenbiotoop worden de belangen van een buiten het plangebied gelegen molen beschermd, als werktuig en beeldbepalend element van Wijchen. Het initiatief heeft geen negatieve effecten op de molen. In het voorliggende bestemmingsplan worden de regels voor de molenbiotoop opgenomen.

Archeologie

Volgens de archeologische beleidskaart van de gemeente Wijchen heeft het gebied een hoge archeologische verwachting. Om deze reden is voor het initiatief een archeologisch onderzoek uitgevoerd. Het rapport van dit onderzoek is na te lezen in bijlage 4. Uit het onderzoek blijkt dat de verwachtingswaarde voor archeologische vondsten in het plangebied laag is. Het rapport concludeert dat de locatie vrijgegeven kan worden voor de realisatie van de nu geplande woningen. Voor de geplande woningen is daarmee geen nader archeologisch onderzoek nodig. Om de locatie te beschermen tegen ingrepen in diepere bodemlagen dan de lagen die met dit plan worden geroerd, wordt een dubbelbestemming ter bescherming van de mogelijke archeologische waarden in de grond opgenomen in dit bestemmingsplan. Er zijn daarmee geen belemmeringen voor het initiatief vanuit het aspect archeologie.

Het initiatief is uitvoerbaar met betrekking to de aspecten cultuurhistorie en en archeologie.

4.6 Economische uitvoerbaarheid

Bij de voorbereiding van een bestemmingsplan dient, op grond van artikel 3.1.6 lid 1, sub f van het Bro, onderzoek plaats te vinden naar de (economische) uitvoerbaarheid van het plan. In principe dient bij vaststelling van een ruimtelijk besluit tevens een exploitatieplan vastgesteld te worden om verhaal van plankosten zeker te stellen. Op basis van 'afdeling 6.4 grondexploitatie', artikel 6.12, lid 2 van de Wro kan de gemeenteraad bij het besluit tot vaststelling van het bestemmingsplan echter besluiten geen exploitatieplan vast te stellen indien:

  • het verhaal van kosten van de grondexploitatie over de in het plan of besluit begrepen gronden anderszins verzekerd is;
  • het bepalen van een tijdvak of fasering als bedoeld in artikel 6.13, eerste lid, onder c, 4°, onderscheidenlijk 5°, niet noodzakelijk is;
  • het stellen van eisen, regels, of een uitwerking van regels als bedoeld in artikel 6.13, tweede lid, onderscheidenlijk b, c of d, niet noodzakelijk is.

Planspecifiek

De ontwikkelingskosten komen geheel voor rekening van de initiatiefnemer. Hiertoe zal de gemeente voorafgaand aan de planologische procedure met de initiatiefnemer een exploitatieovereenkomst afsluiten. Voor de realisatie van het plan hoeft de gemeente geen investering te doen. De kosten die door de gemeente gemaakt worden voor het voeren van de planologische procedure zijn verrekend in de leges. Eventuele extra gemeentelijke kosten worden gedekt door de exploitatieovereenkomst.

Tevens zal een realisatieovereenkomst worden afgesloten met de initiatiefnemer. Hiermee komen planschadekosten eveneens geheel voor rekening van de initiatiefnemer. Op basis van het bovenstaande kan geconcludeerd kan worden dat het plan economisch uitvoerbaar is.

Hoofdstuk 5 Juridische planbeschrijving

5.1 Algemeen

Het bestemmingsplan is opgezet volgens de in de Wet ruimtelijke ordening opgenomen standaardvorm van de Standaard Vergelijkbare Bestemmingplannen 2012 (SVBP 2012).

Het bestemmingsplan bestaat uit een verbeelding, planregels en een toelichting. De verbeelding en de planregels vormen samen het juridisch bindende gedeelte van het bestemmingsplan. Beide planonderdelen dienen in onderlinge samenhang te worden bezien en toegepast. Op de verbeelding zijn de bestemmingen aangewezen. Aan deze bestemmingen zijn bouwregels en regels betreffende het gebruik gekoppeld.

De toelichting heeft geen rechtskracht, maar is wel een belangrijk onderdeel van het plan. De toelichting geeft een weergave van de beweegredenen, de onderzoeksresultaten en de beleidsuitgangspunten die aan dit plan ten grondslag liggen. De toelichting is van wezenlijk belang voor een juiste interpretatie en toepassing.

Daarnaast maken ook eventuele bijlagen onlosmakelijk onderdeel uit van het bestemmingsplan.

Verbeelding

De verbeelding is een digitale kaart, waarop bestemmingen en aanduidingen zijn weergegeven. Aanduidingen worden gebruikt om bepaalde zaken specifieker te regelen, bijvoorbeeld in de vorm van gebiedsaanduidingen, bouwaanduidingen, bouwvlakken, functieaanduidingen etc.

Voor de analoge verbeelding is gebruik gemaakt van een digitale ondergrond (Grootschalige Basiskaart en/of kadastrale kaart). Daar waar een verschil is tussen de digitale en de analoge verbeelding, is de digitale versie leidend.

Regels

De planregels zijn standaard onderverdeeld in vier hoofdstukken.

  • Hoofdstuk I : Inleidende regels, deze bevatten de begrippen en wijze van meten;
  • Hoofdstuk II: Bestemmingsregels, dit zijn de verschillende bestemmingen op alfabetische volgorde. De regels bevatten een bestemmingsomschrijving en regels voor het bouwen en het gebruik.
  • Hoofdstuk III: Algemene regels, dit zijn regels die gelden voor alle bestemmingen. Dit zijn onder meer (mogelijke) flexibiliteitsbepalingen in de vorm van wijzigings- en afwijkingsbevoegdheden.
  • Hoofdstuk IV: Overgangs- en slotbepalingen.

5.2 Wijze van bestemmen

Voorliggend bestemmingsplan bevat de volgende bestemmingen:

  • Wonen voor het gehele plangebied. Voor de twee nieuwe woningen is één gezamenlijk bouwvlak opgenomen met de functieaanduiding 'twee-aaneen'. De hoofdgebouwen zijn alleen binnen het bouwvlak toegestaan. In dit geval worden beide te realiseren woningen in zijn geheel als hoofdgebouw beschouwd (zowel de delen in één bouwlaag als de delen met twee bouwlagen en een kap). Via maatvoeringsaanduidingen zijn de maximale goot- en bouwhoogte (noordelijke woning) of alleen de bouwhoogte (zuidelijke woning met plat dak) opgenomen. Aan- en uitbouwen, bijgebouwen en overkappingen zijn toegestaan binnen het bouwvlak en ter plaatse van de aanduiding 'bijgebouwen'.
  • Waarde - Cultuurhistorisch waardevol gebied, ter behoud, beheer en versterking van de cultuurhistorische waarden.

Daarnaast bevat het plan de gebiedsaanduiding 'Vrijwaringszone – molenbiotoop', waarbinnen nadere bouwregels gelden voor het beschermen van de functie van de in dit gebied voorkomende molen als werktuig en van de waarde als landschapsbepalend element.

Met dit hoofdstuk is voldaan aan artikel 3.1.3 van het Bro.

Hoofdstuk 6 Procedure

6.1 Algemeen

Bij de voorbereiding van een (voor)ontwerp bestemmingsplan dient overleg te worden gevoerd als bedoeld in artikel 3.1.1 Bro. Dit is het vooroverleg, waarin het conceptplan wordt voorgelegd aan het waterschap en aan die diensten van provincie en Rijk die betrokken zijn bij de zorg voor de ruimtelijke ordening of belast zijn met de behartiging van belangen welke in het plan in het geding zijn. Voor wat kleinere plannen kan, in overleg, afgezien worden van dit overleg.

Op basis van artikel 3.1.6 Bro dient verslag te worden gedaan van de wijze waarop burgers en maatschappelijke organisaties bij de voorbereiding van het bestemmingsplan zijn betrokken. Dit is de inspraak. Van (formele) inspraak kan, zeker bij wat kleinere plannen, worden afgezien. De gemeentelijke inspraakverordening is daarbij ook van belang.

Een ontwerpbestemmingsplan dient conform afdeling 3.4 Awb gedurende 6 weken ter inzage gelegd te worden. Hierbij is er de mogelijkheid voor een ieder om zienswijzen in te dienen op het plan. Na vaststelling door de Raad wordt het vaststellingsbesluit bekend gemaakt. Het bestemmingsplan ligt na bekendmaking 6 weken ter inzage. Gedurende deze termijn is er de mogelijkheid voor belanghebbenden beroep in te dienen bij de Afdeling bestuursrechtspraak Raad van State. Het bestemmingsplan treedt vervolgens daags na afloop van de tervisielegging in werking als er geen beroep is ingesteld.

6.2 Verslag vooroverleg ex artikel 3.1.1 Bro

Dit bestemmingsplan is in het kader van het wettelijk overleg niet toegezonden aan de provincie omdat geen sprake is van een bovenlokaal belang. Samen met het waterschap Rivierenland zijn de aan de orde zijnde waterhuishoudkundige aspecten behandeld door middel van de digitale Watertoets. Het waterschap heeft positief geoordeeld over het plan.

6.3 Verslag inspraak ex artikel 3.1.6 Bro

In deze paragraaf, of in een separate bijlage, worden te zijner tijd de resultaten van de inspraak ex artikel 3.1.6 Bro opgenomen.

6.4 Verslag zienswijzen

In deze paragraaf, of in een separate bijlage, worden te zijner tijd de zienswijzen op het ontwerpbestemmingsplan en de gemeentelijke reactie hierop opgenomen.