direct naar inhoud van 3.1 Bouwplan
Plan: Burgerveld 17-39, Zeeland
Status: ontwerp
Plantype: bestemmingsplan
IMRO-idn: NL.IMRO.1685.bpze2012burgerveld-ON01

3.1 Bouwplan

Alle bebouwing binnen het plangebied is reeds afgebroken. Er worden vijftien nieuwe grondgebonden woningen gebouwd in drie blokken (A, B en C). Blok A bestaat uit zes woningen, blok B uit vier en blok C uit vijf woningen. Alle vijftien woningen worden zogenaamde nultredenwoningen. Dit houdt in dat vanuit de woonkamer op de begane grond, de keuken, het sanitair en tenminste één slaapkamer, zonder traplopen te bereiken zijn.

De drie bouwblokken hebben een soortgelijke opbouw. Aan de doorgaande straat Burgerveld wordt op ieder blok (westzijde) een hoekwoning gesitueerd met een kap evenwijdig aan deze straat. Daarnaast worden aan de binnenzijde (oostzijde) tussenwoningen gerealiseerd waarvan de kap evenwijdig is aan twee toegangspaden.

Alle woningen bestaan uit één laag met een zadeldak en een ruime dakkapel aan de voorzijde. Aan de achterzijde (tuinzijde) is sprake van één bouwlaag met een plat dak. De woningen op de kopse kant krijgen een goothoogte van 3,5 m en een nokhoogte van 7,2 m. De tussen woningen hebben een goothoogte van 3,2 m en een nokhoogte van 6,8 m. Achter op de percelen zijn tevens bergingen voorzien. De hoogte van deze bijgebouwen bedraagt 2,75 m.

Hiermee blijft de stedenbouwkundige situatie nagenoeg gelijk aan de bestaande situatie.

De perceelsgrootte varieert van ca 130 m² voor de tussenwoningen en de hoekwoningen tot ca 155 m² en 245 m² voor de eindwoningen aan de uiterste oostzijde van blok A en C. De bebouwde oppervlakte per woning bedraagt 75 m². Hierdoor kan een groot deel van de functies (inclusief een slaap- en badkamer) op de begane grond worden gesitueerd.

Onderstaande afbeelding geeft het vooraanzicht van de hoekwoningen aan de doorgaande straat weer.

afbeelding "i_NL.IMRO.1685.bpze2012burgerveld-ON01_0010.jpg"

voorgevel hoekwoning doorgaande straat

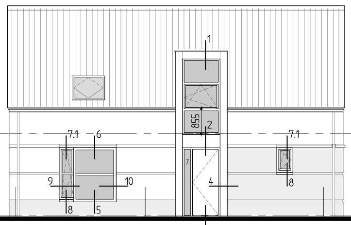
Onderstaande afbeelding geeft het aanzicht van de woningen aan de toegangspaden weer.

afbeelding "i_NL.IMRO.1685.bpze2012burgerveld-ON01_0011.jpg"

gevels tussenwoningen toegangspad

Onderstaande afbeelding geeft een impressie van het plan weer.

afbeelding "i_NL.IMRO.1685.bpze2012burgerveld-ON01_0012.jpg"

impressie