direct naar inhoud van Toelichting
Plan: TAM-omgevingsplan Jutrijp - Riperwei 2
Status: ontwerp
Plantype: bestemmingsplan
IMRO-idn: NL.IMRO.1900.2025TAMOJutRipw2-ontw

Toelichting

Hoofdstuk 1 Inleiding

1.1 Aanleiding

Initiatiefnemer wil de stallen van de voormalige melkveehouderij aan de Riperwei 2 te Jutrijp een nieuwe passende functie geven. Initiatiefnemer exploiteerde hier een melkveehouderij maar gestopt met de agrarische bedrijfsvoering. Daarom is het plan om de voormalige stallen, die niet langer in gebruik zijn voor veehouderijactiviteiten, te gebruiken als ruimte voor de opslag kampeermiddelen en boten. Daarvoor is het nodig de huidige agrarische functie van het perceel te wijzigen. Gekozen moet worden voor een functiewijziging die bijdraagt aan een duurzaam gebruik van de bestaande gebouwen. De gemeente heeft laten weten dat het omgevingsplan de mogelijkheid biedt om medewerking te verlenen aan het plan (artikel 3.7.1) door de bestemming van de locatie te wijzigen in de functie 'Wonen - Woonboerderij'. Binnen deze functie is de stalling en/of opslag van vaartuigen of kampeermiddelen bij recht toegestaan.

Om de ontwikkeling mogelijk te maken is een herziening van het (tijdelijk) omgevingsplan noodzakelijk. Dat zal worden gedaan door middel van een TAM-omgevingsplan. Dit TAM-omgevingsplan 'Jutrijp - Riperwei 2' heeft als doel de voorziene situatie vast te leggen in een adequaat en actueel ruimtelijk- en juridisch kader en dient aantoonbaar te maken dat het plan in overeenstemming is met een evenwichtige toedeling van functies aan locaties (ETFAL). Dat betekent dat er een balans bestaat tussen verschillende functies die locaties binnen een gebied kunnen vervullen.

1.2 Plangebied

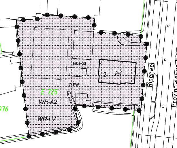
De locatie van de initiatiefnemer ligt aan de Riperwei 2, 8623XH te Jutrijp. Kadastraal bekend bij gemeente Oppenhuizen, sectie E nummers 725. Het plangebied ligt op ongeveer 3 kilometer ten zuiden van Sneek.

In afbeelding 1 is de begrenzing van het plangebied zichtbaar. De functiewijziging naar de functie 'Wonen – Woonboerderij' betreft het geel gearceerde vlak.

afbeelding "i_NL.IMRO.1900.2025TAMOJutRipw2-ontw_0001.png"

Afbeelding 1 : plangebied

1.3 Het omgevingsplan

Het geldend planologisch regime is vastgesteld in het omgevingsplan van de gemeente Súdwest-Fryslân. Ter plekke van de locatie geldt het tijdelijk deel van het omgevingsplan 'Bestemmingsplan Buitengebied Súdwest-Fryslân II' zoals is vastgesteld door de gemeente Súdwest-Fryslân op 28 september 2023. Dit bestemmingsplan is van rechtswege onderdeel van het tijdelijk deel van het omgevingsplan.

De locatie heeft de functie 'Agrarisch' met de functieaanduiding 'Agrarisch bedrijf'. Deze gronden zijn bestemd voor onder andere grondgebonden agrarische bedrijven. Binnen de agrarische functie is één bedrijfswoning toegestaan. Deze bestaande woning heeft de bouwaanduiding 'karakteristiek', waarvoor nadere beschermingseisen zijn opgenomen (artikel 6.4).

Aanvullende aanwezig regels van deze locatie zijn 'Waarde - landschap verkaveling' en 'Waarde- archeologie 2'. De gronden met 'Waarde - landschap verkaveling' zijn mede bestemd voor het behoud, het herstel en de uitbouw van de landschappelijke en cultuurhistorische waarden van de bijzondere kavelstructuur en kavelsloten (inclusief dijksloten). De gronden met de 'Waarde - Archeologie 2' zijn mede bestemd voor het behoud van de aldaar in of op de grond aanwezige archeologische (verwachtings)waarden.

Tot slot is in artikel 3.7 een wijzigingsbevoegdheid opgenomen waarin voorwaarden staan die gelden voor het wijzigen van een agrarische functie naar de functie 'Wonen - Woonboerderij'.

afbeelding "i_NL.IMRO.1900.2025TAMOJutRipw2-ontw_0002.png" Afbeelding 2 : Verbeelding planlocatie (Bron: regels op de kaart)

1.4 Leeswijzer

Na dit inleidende hoofdstuk wordt in hoofdstuk 2 een omschrijving gegeven van de huidige situatie en de voorgenomen planontwikkeling. In hoofdstuk 3 komen de verschillende relevante beleidsstukken voorbij die van toepassing zijn op het plan en die daarbij zijn uitgewerkt van rijksniveau naar provinciaal niveau tot op gemeentelijk niveau. Hoofdstuk 4 geeft de invloed weer van het plan tot de verschillende aspecten van de fysieke leefomgeving en het milieu. In hoofdstuk 5 staat de juridische vormgeving van het plan centraal. Hoofdstuk 6 gaat tenslotte in op de financieel economische en maatschappelijke uitvoerbaarheid

Hoofdstuk 2 Planbeschrijving

2.1 Huidige situatie

Het plangebied aan de Riperwei 2 te Jutrijp ligt op één kadastraal perceel, te weten E-725. De (bedrijfs)woning van initiatiefnemer ligt aan de oostzijde. Ten zuiden van de woning ligt de oprit die toegang tot de stallen geeft. Het gaat om een ligboxstal (westelijke stal) en een jongveestal (zie afbeelding 3).

De stallen werden tot 1 augustus 2024 gebruikt voor de melkveehouderij. Initiatiefnemer houdt geen melkkoeien meer en alle agrarische activiteiten zijn beëindigd. Er vindt momenteel geen bedrijfsactiviteit meer plaats in de voormalige ligboxenstal en de jongveestal.

Het zuiden van perceel E- 725 betreft verharding (gestort beton) die voorheen werd gebruikt voor de opslag van kuilvoer. Ten noorden van het perceel lag een mestzak. Deze is in september 2024 verwijderd.

afbeelding "i_NL.IMRO.1900.2025TAMOJutRipw2-ontw_0003.png"

Afbeelding 3: Overzicht percelen op en nabij plangebied

Aan de noordzijde van de ligboxenstal en de jongveestal is verharding aanwezig in de vorm van gestort beton met 8 mixergaten. Deze verharding is aangebracht met de bouw van de stallen (ligboxenstal uit 1983 en jongveestal uit 1994).

De voormalige stallen en de huidige woning zijn vanaf het zuiden gezien afgeschermd met een rij bomen. Afbeelding 4 laat het zuid aanzicht vanaf de Riperwei zien. De huidige begroeiing zorgt ervoor dat de woning en stallen niet zichtbaar zijn voor voorbijgangers. Het noord aanzicht (afbeelding 5) laat zien dat de voormalige stallen vanaf het noorden momenteel zichtbaar zijn voor voorbijgangers. De woning wordt door de huidige begroeiing wel aan het zicht onttrokken.

afbeelding "i_NL.IMRO.1900.2025TAMOJutRipw2-ontw_0004.png"

Afbeelding 4: Aanzicht perceel zuidzijde

afbeelding "i_NL.IMRO.1900.2025TAMOJutRipw2-ontw_0005.png"

Afbeelding 5: Aanzicht perceel noordzijde

2.2 Beoogde situatie

2.2.1 Opstallen en Erf

De bestaande bedrijfswoning zal als een reguliere woning worden gebruikt, in dit geval de functie 'Wonen - Woonboerderij'. De huidige inrit blijft bestaan.

De wens bestaat om de oude stallen te gebruiken als stallingsruimte voor kampeermiddelen en boten. Omdat de stallen momenteel niet in gebruik zijn wil initiatiefnemer er een nuttige toepassing aan geven. Dit voorkomt leegstand en verloedering. De stallen kunnen in huidige staat worden gebruikt voor de opslag van caravans, campers en boten. De gebouwen zijn in goede staat en behoeve geen verbouwing voor de nieuwe bedrijfsactiviteit. In de (voorheen) ligboxenstal zal deze stalling plaatsvinden. De kleinere jongveestal zal daarnaast ook worden gebruikt voor privé-opslag en als garage. In totaal denkt initiatiefnemer circa 50-60 caravans, campers en/of boten te gaan stallen.

Ten zuiden van de stallen, op het deel van het perceel dat voorheen gebruikt werd voor opslag van veevoer, zal worden gebruikt als parkeerplaats voor de bezoekers die hun kampeermiddel of boot komen brengen of halen. Ook wordt deze verharding gebruikt als logistieke ruimte door initiatiefnemer bij het klaarzetten van een caravan of boot voor de klant. Zie het gele vlak in afbeelding 6.

afbeelding "i_NL.IMRO.1900.2025TAMOJutRipw2-ontw_0006.png"

Afbeelding 6: parkeerruimte en logistieke ruimte + aanrijroute naar jongveestal

Aan de zuidzijde van de voormalige jongveestal staat het voormalig tanklokaal. Tussen de bedrijfswoning en het voormalig tanklokaal en tussen de jongveestal en het voormalig tanklokaal is te weinig ruimte om te manoeuvreren met een camper, auto met caravan of een trailer met boot.

Het plaatsen van de caravans en boten in de voormalige jongveestal moet daarom plaatsvinden vanaf de noordzijde over de aanwezig betonverharding. In afbeelding 6 met een rode lijn aangegeven.

Het handhaven van de betonverharding aan de noordzijde van de voormalige stallen is ook belangrijk om ervoor te zorgen dat er nog een vluchtroute is wanneer er brand uitbreekt. Allebei de stallen hebben een deur aan de achterkant, waardoor de kampeermiddelen over de verharding sneller kunnen worden verwijderd. Door de erfverharding aan de achterkant, zijn de stallen ook beter bereikbaar voor de brandweer.

Landschappelijke inpassing

Een strook grenzend ten noorden aan de stallen zal landschappelijk worden aangekleed door de aanplant van streekeigen beplanting, zodat de stallen ook van deze zijde landschappelijk ingepast worden.

Aan de oostzijde, rondom de boerderij en aan de zuidzijde is het erf al fraai met grote bomen aangekleed. Zie ook afbeelding 4 en afbeelding 7.

afbeelding "i_NL.IMRO.1900.2025TAMOJutRipw2-ontw_0007.png"

Afbeelding 7: bestaand groen

In afbeelding 8 is het bestaande groen ingetekend en het nieuw aan te planten groen. De nieuwe aanplant vindt plaats aan de noordzijde van de voormalige stallen aansluitend aan de erfverharding. De nieuwe aanplant bestaat uit wilgen. Wilgen zijn snelgroeiende bomen en passen goed in het Friese landschap. De aan te planten bomenrij vormt een streekeigen landschapselement.

afbeelding "i_NL.IMRO.1900.2025TAMOJutRipw2-ontw_0008.png"

Afbeelding 8: landschappelijke inpassing

De gemaatvoerde tekening van de landschappelijke inpassing is bijgevoegd als Bijlage 1 aan deze motivering.

2.2.2 Functiewijziging naar 'Woonboerderij'

Binnen de bestemming 'Wonen - Woonboerderij' zoals gehanteerd in het bestemmingsplan 'Buitengebied Súdwest-Fryslân II' is het stallen van kampeermiddelen mogelijk. In artikel 28, lid 1, staat dat de voor 'Wonen - Woonboerderij' aangewezen gronden bestemd voor: wonen (a) en met inbegrip van de nevenactiviteiten stalling en/of opslag van vaartuigen of kampeermiddelen (ab). Met de functiewijziging is het voor de initiatiefnemer dus mogelijk de geplande bedrijfsactiviteit, het stallen/opslaan van vaartuigen of kampeermiddelen, te realiseren. In dit TAM-omgevingsplan wordt bij de functie woonboerderij hier bij aangesloten.

Voor de nevenactiviteiten is gesteld dat voor de opslag van stalling en/of opslag van vaartuigen of kampeermiddelen geldt dat deze uitsluitend zijn toegestaan in voormalige bedrijfsgebouwen en bedrijfswoningen. De plannen voldoen hieraan.

De begrenzing van de functiewijziging betreft het grijs gearceerde gebied zoals weergeven in afbeelding 9. Hierbij zal het volledig grijs gearceerde gebied de functie 'Woonboerderij' krijgen. Het mestbassin valt buiten het plangebied waarop de functie 'Woonboerderij' wordt gelegd. Deze is inmiddels verwijderd.

afbeelding "i_NL.IMRO.1900.2025TAMOJutRipw2-ontw_0009.png"

Afbeelding 9 : Begrenzing functiewijziging

In verband met de bereikbaarheid van de stallen is het noodzakelijk dat de aanwezige betonverharding aan noordzijde van de voormalige stallen blijft liggen. Om die reden is deze betonverharding ook binnen het werkingsgebied 'Functie - Woonboerderij' gelegd.

Hoofdstuk 3 Beleidskader

3.1 Inleiding

Bij het opstellen het TAM-omgevingsplan dient de gemeente rekening te houden met het door hogere overheden vastgestelde beleid. Tussen enerzijds beleid van hogere overheden waar decentrale/lagere overheden rekening mee moeten houden en gemotiveerd van kunnen afwijken en anderzijds instructieregels van hogere overheden in omgevingsverordeningen. Deze instructieregels uit het Bkl komen terug in hoofdstuk 5. Ze worden namelijk gemotiveerd getoetst aan de activiteit.

3.2 Rijksbeleid

3.2.1 Nationale Omgevingsvisie (NOVI)

Met de Nationale omgevingsvisie (NOVI) wordt de langetermijnvisie op de toekomst en de ontwikkeling van de leefomgeving in Nederland beschreven. Dat ingrepen in de leefomgeving in samenhang plaatsvinden en niet los van elkaar wordt als uitgangspunt gezien. Vanwege deze rede delegeert het Rijk de taak om de fysieke leefomgeving in te richten aan decentrale overheden. Daarbij komt de gebruiker centraal te staan.

De NOVI heeft een toekomstperspectief gericht op 2050. Het Rijk wil op nationale belangen sturen en richting geven. Deze belangen komen samen in de volgende vier prioriteiten:

  • Ruimte voor klimaatadaptatie en energietransitie;
  • Duurzaam economisch groeipotentieel;
  • Sterke en gezonde steden en regio's;
  • Toekomstbestendige ontwikkeling van het landelijk gebied.

Omdat de druk op de fysieke leefomgeving zo groot is in Nederland, botsen belangen wel eens. Er wordt gestreefd om combinaties en win-win situaties te creëren. Dit is helaas niet altijd mogelijk. Als dat het geval is dienen belangen afgewogen te worden. In de NOVI staan daarom drie afwegingsprincipes:

  • Combineren van functies gaat voor enkelvoudige functies; Het scheiden van functies is vaak in het verleden te rigide gehanteerd. Met de NOVI wordt er gezocht naar maximale combinatiemogelijkheden tussen functies. Dit is gericht op efficiënt en zorgvuldig gebruik van onze ruimte;
  • Kenmerken en identiteit van een gebied centraal; Het verschilt van gebied tot gebied wat de optimale balans is tussen bescherming en ontwikkeling en tussen concurrentiekracht en leefbaarheid. In het ene gebied liggen opgaven en belangen zwaarder dan in het andere gebied;
  • Afwentelen voorkomen staan; Het is belangrijk dat er, in onze samenleving, voorzien wordt in mogelijkheden en behoeften van de huidige generatie van inwoners zonder dat dit ten koste gaat van toekomstige generaties

Toetsing aan de Novi

De functiewijziging van agrarisch naar wonen - woonboerderij, met nevenfunctie stallen van kampeermiddelen, sluit aan hergebruik van bestaande gebouwen in het landelijk gebied. Het plan sluit aan bij het streven naar toekomstbestendige ontwikkeling van het buitengebied waarbij kleinschalige economische activiteiten mogelijk worden gemaakt.

Het voorliggende plan heeft een dusdanige kleine omvang dat het verder geen Rijksbelangen raakt en er is geen sprake van enige belemmering met betrekking tot de prioriteiten zoals verwoord in de NOVI.

3.2.2 Instructieregels Rijk (AMvB’s)
3.2.2.1 Besluit kwaliteit leefomgeving (Bkl)

In hoofdstuk 5 van het Besluit kwaliteit leefomgeving (Bkl) staan instructieregels voor een omgevingsplan. Het grootste deel heeft betrekking op een evenwichtige toedeling van functies aan locaties (afdeling 5.1 Bkl). Deze instructieregels zijn van toepassing op het stellen van regels in het omgevingsplan als bedoeld in artikel 4.2, eerste lid, van de het stellen van regels in het omgevingsplan als bedoeld in artikel 4.2, eerste lid, van de Omgevingswet. Aan deze regels mogen geen economische motieven ten grondslag liggen, die leiden tot strijd met de dienstenrichtlijn (artikel 5.1a Bkl).

Het Bkl bevat instructieregels voor de volgende hoofdonderwerpen:

  • Waarborgen van veiligheid (paragraaf 5.1.2);
  • Beschermen van waterbelangen (paragraaf 5.1.3);
  • Beschermen van gezondheid en milieu (paragraaf 5.1.4), waaronder instructieregels voor de kwaliteit van de buitenlucht, trillingen, geluid en geur en bodemkwaliteit;
  • Beschermen van landschappelijke of stedenbouwkundige waarden en cultureel erfgoed (paragraaf 5.1.5), waaronder de ladder voor duurzame verstedelijking;
  • Het behoud van ruimte voor toekomstige functies (paragraaf 5.1.6) voor autowegen, buisleidingen, natuur- en recreatiegebieden;
  • Het behoeden van de staat en werking van infrastructuur of voorzieningen voor nadelige gevolgen van activiteiten (paragraaf 5.1.7), waaronder landsverdediging en nationale veiligheid, elektriciteitsvoorziening, rijksvaarwegen en luchtvaart, fiets- en wandelroutes, aanwijzing van woningbouwcategorieën;
  • Het bevorderen van de toegankelijkheid van de openbare buitenruimte voor personen (paragraaf 5.1.8).

Daarnaast bevat afdeling 5.2 van het Bkl instructieregels voor de uitoefening van taken voor de fysieke leefomgeving. Daarbij gaat het onder meer om het voorkomen van belemmeringen van gebruik en beheer van spoorwegen en rijkswegen.

In heel bijzondere gevallen kan het college van burgemeester en wethouders de Minister vragen om een ontheffing van bepaalde instructieregels te verlenen. Dit volgt uit afdeling 5.3 van het Bkl.

Instructieregels van afdeling 5.1 Bkl gelden, zoals gezegd, alleen voor de omgevingsplanregels die nodig zijn met het oog op een evenwichtige toedeling van functies aan locaties. Het grootste deel van de Bkl-instructieregels is dus niet van toepassing op omgevingsplanregels met een ander oogmerk. Over de onderwerpen waarvoor het Bkl geen instructieregels heeft opgenomen (onderwerpen die buiten het toepassingsbereik van de instructieregels vallen) is de gemeente vrij om regels te stellen, mits dat past binnen de andere kaders natuurlijk.

Het Rijk hanteert verschillende typen instructieregels, die meer of minder afwegingsruimte bieden:

  • 1. Betrekken bij: de gemeente moet aandacht schenken aan feiten of verwachtingen over feiten, maar heeft daarbij veel keuzeruimte;
  • 2. Rekening houden met: deze formulering stuurt inhoudelijk de belangenafweging; als de gemeente daar goede redenen voor heeft, is afwijken gemotiveerd toegestaan;
  • 3. In acht nemen of een vergelijkbare dwingende formulering: de gemeente moet zich bij de uitoefening van de bevoegdheid aan de achterliggende norm houden.

Een belangrijke verbeterdoelstelling van de Omgevingswet is dat decentrale overheden meer bestuurlijke afwegingsruimte krijgen. Deze afwegingsruimte is in de instructieregels van het Bkl vormgegeven door voor een aantal thema´s (geluid, geur en trillingen) standaardwaarden en grenswaarden op te nemen. Overname van de standaardwaarde kan in beginsel zonder aanvullende motivering. Gebruikmaking van de ruimte tussen standaard- en grenswaarde vergt wel een aanvullende motivering.

Samenvattend is de afwegings- of beslisruimte afhankelijk van:

  • 1. het type instructieregel (zie hierboven);
  • 2. de aard van de norm (open of gesloten); en
  • 3. flexibiliteitsopties die binnen de instructieregel worden geboden.

Toetsing aan BKL

In het Bkl staan in hoofdstuk 5 instructieregels die bij het opstellen van een omgevingsplan moeten worden nagekomen. Het grootste deel bestaat uit instructieregels met het oog op een evenwichtige toedeling van functies aan locaties (afdeling 5.1 Bkl). Deze instructieregels zijn van toepassing op het stellen van regels in het omgevingsplan als bedoeld in artikel 4.2, eerste lid, van de wet. In hoofdstuk 4 van dit Omgevingsplan zijn de verschillende instructieregels getoetst en kan alles overziend geconcludeerd dat het plan voldoet aan een evenwichtige toedeling van functies aan locaties.

3.2.2.2 Besluit activiteiten leefomgeving (Bal) en Besluit bouwwerken leefomgeving (Bbl)

Als het Besluit activiteiten leefomgeving (Bal) of het Besluit bouwwerken leefomgeving (Bbl) voor een bepaalde activiteit geen regels stellen, heeft de gemeente in principe de beleidsvrijheid om in het omgevingsplan daar zelf regels over te stellen. Daarbij gelden uiteraard grenzen:

  • het moet de fysieke leefomgeving betreffen;
  • als het al uitputtend geregeld is in wetgeving die niet opgaat in de Omgevingswet, kan het niet in het omgevingsplan geregeld worden, tenzij het met een ander oogmerk gebeurt;
  • de instructieregels van het Bkl kunnen bepalen dat voor een bepaald onderwerp regels moeten worden gesteld in het omgevingsplan en daarbij ook hoe - denk aan het hiervoor genoemde onderwerp geluid.

Als het Bal of Bbl voor bepaalde activiteiten of bouwwerken wel regels stellen, is het mogelijk dat er maatwerkregels kunnen worden opgenomen in het omgevingsplan, bijvoorbeeld om cumulatie van de gevolgen van effecten van Bal-activiteiten te beperken. Maatwerkregels zijn gebiedsgerichte algemene regels in het omgevingsplan waarmee wordt afgeweken van Bal- of Bbl-regels of waarmee een nadere invulling of concretisering wordt gegeven van Bal- of Bbl-regels. Bij de regels uit het Bal is generiek maatwerk mogelijk, tenzij er specifieke uitzonderingen worden aangegeven. Bij de regels in het Bbl is dat andersom: maatwerkregels zijn alleen mogelijk als dat specifiek wordt toegestaan. Als maatwerkregels mogelijk zijn, geven Bal en Bbl aan binnen welke grenzen daarmee kan worden afgeweken of nader worden ingevuld ten opzichte van de Bal-/Bbl-regels.

De gemeente heeft op grond van het Bal en Bbl vaak ook de bevoegdheid om maatwerkvoorschriften te stellen. Maatwerkvoorschriften landen niet in het omgevingsplan, maar zijn afzonderlijke besluiten die gericht zijn tot één initiatiefnemer. Toch zijn ook verleende maatwerkvoorschriften van belang bij het opstellen van het omgevingsplan. In ieder geval moet de gemeente, bij het beoordelen of maatwerkregels zullen worden gesteld, ook nagaan of over het betreffende onderwerp al eerder maatwerkvoorschriften zijn gesteld. Die maatwerkvoorschriften kunnen mogelijk worden geïntegreerd in de maatwerkregels, en dan (na inwerkingtreding van de wijziging van het omgevingsplan) worden ingetrokken. Met name als er voor een bepaald onderwerp in het verleden veel maatwerkvoorschriften zijn gesteld, is het aan te raden om te bekijken of maatwerkregels in het omgevingsplan niet tot een evenwichtiger en toekomstbestendiger resultaat kunnen leiden.

Toetsing aan Bal en Bbl

In het Bal en Bbl zijn mogelijkheden opgenomen om (maatwerk)regels te stellen die opgenomen kunnen worden in het omgevingsplan. Dergelijke regels zijn voor dit plan niet nodig en daarom niet opgenomen in dit TAM-omgevingsplan. Ook zijn voor dit plan geen maatwerkvoorschriften bekend die van invloed zijn op het TAM-omgevingsplan.

Daarnaast zijn de (bouw)regels in het Bbl onverkort van toepassing op te nieuw te bouwen bouwwerken en vormt het Bbl een beoordelingsregel voor de (technische) bouwactiviteit (afdeling 8.3 Bkl).

3.3 Provinciaal beleid

3.3.1 Omgevingsvisie Fryslân

De Omgevingsvisie Fryslân (vastgesteld op 22 april 2020) schetst de ruimtelijke en maatschappelijke ambities van de provincie voor de lange termijn. De visie is gebaseerd op het principe 'streek eigen en toekomstbestendig'. Dat betekent dat ontwikkelingen worden beoordeeld op de mate waarin ze passen bij de identiteit van Fryslân én bijdragen aan een duurzame, leefbare en vitale toekomst. De provincie Fryslân streeft naar een gezonde, veilige en aantrekkelijke leefomgeving, waarbij het behoud van ruimtelijke kwaliteit, cultuurhistorie en het Friese landschap centraal staat. Tegelijkertijd wordt ruimte geboden aan initiatieven die bijdragen aan leefbaarheid, klimaatadaptatie en duurzame economie.

Binnen de visie wordt het buitengebied beschouwd als een dynamisch gebied, waar ontwikkelingen mogelijk zijn mits deze passen binnen de karakteristieken van het landschap en bijdragen aan de kwaliteit van de leefomgeving. Functieveranderingen van agrarisch naar wonen zijn onder voorwaarden mogelijk, mits sprake is van zorgvuldig ruimtegebruik en landschappelijke inpassing.

3.3.2 Omgevingsverordening Fryslân

De Omgevingsverordening Fryslân, herziening vastgesteld op 28 januari 2025, vertaalt de ambities uit de Omgevingsvisie naar concrete regels en afwegingskaders. Voor functieveranderingen in het buitengebied, zoals een wijziging van 'agrarisch' naar 'wonen', gelden de volgende relevante bepalingen:

Wonen in het buitengebied

Volgens de verordening is functieverandering naar wonen in het buitengebied onder voorwaarden toegestaan. Onderstaande artikel gaat over het hergebruik van agrarische bebouwing.

Artikel 2.24 - Hergebruik vrijkomende (niet-)agrarische bebouwing

Staat hergebruik, verbouw of vervanging van bestaande gebouwen toe voor nieuwe stedelijke functies, waaronder wonen, mits:

  • De functie qua aard en schaal passend is bij de omgeving.
  • Wonen is toegestaan in voormalige bedrijfswoningen en karakteristieke gebouwen.
  • Zorgwoningen en huisvesting voor arbeidsmigranten zijn ook toegestaan in niet-karakteristieke gebouwen.

Landschapsbeleid Fryslân

De provincie Fryslân zet in op het behoud van karakteristieke landschappen en het versterken van ruimtelijke kwaliteit. Het gebied rond Jutrijp maakt deel uit van het Friese Greidegebied, een open weidegebied met cultuurhistorische waarden. Bij functieveranderingen wordt gevraagd om een goede landschappelijke inpassing, met aandacht voor bestaande structuren, erfbeplanting en karakteristieke elementen. Onderstaand een overzicht van de relevante artikelen.

Artikel 2.1 - Omgevingskwaliteiten als basis

In een omgevingsplan wordt aangegeven op welke wijze het plan rekening houdt met de archeologische waarden en de archeologische verwachtingswaarden, waarbij gebruik wordt gemaakt van de Friese archeologische monumentenkaart extra of van een met de provincie afgestemde gemeentelijke verdiepingsslag.

Artikel 2.3 - Zuinig en meervoudig ruimtegebruik

Een omgevingsplan, dat voorziet in nieuwe functies of uitbreiding van bestaande functies buiten het bestaand stedelijk gebied, bevat voor die functies een onderbouwing van het principe van zuinig- en meervoudig ruimtegebruik, waaruit tenminste blijkt:

  • De nieuwe functie voorziet in een behoefte.
  • Gebruik van bestaande bouwpercelen redelijkerwijs niet mogelijk is.
  • Meervoudig ruimtegebruik is afgewogen en indien mogelijk benut wordt.


Toetsing projectvoornemen aan de omgevingsvisie en -verordening

Het plan tot functiewijziging van agrarisch naar wonen aan de Riperwei 2 te Jutrijp is in overeenstemming met de Omgevingsvisie Fryslân 2020 en de Omgevingsverordening Fryslân 2023. Het plan voldoet aan de regels voor omzetten van agrarisch naar wonen. Het initiatief draagt bij aan het zorgvuldig hergebruik van het bestaande erf, versterkt de landschappelijke kwaliteit van het gebied en sluit aan bij de bredere ambities op het gebied van leefbaarheid, duurzaamheid en klimaatadaptatie.

3.4 Gemeentelijk beleid

3.4.1 Omgevingsvisie Súdwest-Fryslân 1.0 - Ruimte voor initiatief

De gemeente Súdwest-Fryslân hanteert in haar Omgevingsvisie 1.0 een uitnodigende benadering voor ruimtelijke ontwikkelingen. Centraal staat het principe: "Denk vanuit de klant en de initiatiefnemer". De visie is gericht op het bieden van ruimte aan initiatieven die bijdragen aan een leefbare en toekomstbestendige gemeente. Daarbij wordt uitgegaan van de kracht van de gemeenschap en de identiteit van de streek.

3.4.2 Woonbeleid - Woonvisie en Woonstrategie 2020-2030

In de Woonvisie en de Strategie Woningbouw 2020-2030 van de gemeente Súdwest-Fryslân wordt stevig ingezet op het behouden en versterken van de leefbaarheid, zowel in stedelijke kernen als in het buitengebied. De gemeente erkent dat de woningvraag verandert en speelt daar actief op in met flexibel en toekomstbestendig beleid. Onderdeel hiervan is onder andere de transformatie van vrijkomende agrarische bebouwing naar passende woonfuncties. Dit draagt niet alleen bij aan het voorkomen van leegstand, maar ook aan het behoud van de ruimtelijke en landschappelijke kwaliteit.

Naast de Strategie woningbouw 2020-2030 vormen het Ambitiedocument wonen SWF en het Actieplan SWF bouwt 2023-2024 het kader voor de gewenste woningbouwontwikkelingen. Uitgangspunt is dat het voor iedereen mogelijk moet zijn om een fijne woon- en leefomgeving te vinden. Er wordt gestuurd op kwantitatieve doelstellingen in verschillende deelgebieden. Ook is er aandacht voor de kwalitatieve woningbouwopgaven, zodat er voldoende passende woningen voor starters, ouderen en aandachtgroepen worden gerealiseerd.

3.4.3 Regionale Woondeal Zuidwest Friesland

Op 20 april 2023 is de regionale woondeal 2022-2030 regio Zuidwest Friesland ondertekend waarin het Rijk met de provincie Fryslân en gemeente De Fryske Marren en gemeente Súdwest-Fryslân afspraken heeft gemaakt om de woningbouw te versnellen en de betaalbaarheid van woningen te vergroten. Afgesproken is dat van alle nieuwbouw 2/3 betaalbaar is, evenredig verdeeld over koop en sociale huur. De regionale woondeals worden gezien als de aftrap voor een langjarige samenwerking tussen Het Rijk, de provincies en de woningmarktregio’s. In de regionale woondeals worden onder andere afspraken gemaakt over de kwantitatieve opgave, het vergoten van het aandeel betaalbare woningen en het versnellen van de bouwproductie. De regionale woondeals worden op dit moment beschouwd als het belangrijkste en meest recente kader ten aanzien van woningbouw.

Met het Rijk is afgesproken deze woondeal in het tweede kwartaal van 2025 te herijken. Deze herijking, in de vorm van aanvullingen op de regionale woondeals 2022–2030 is op 3 juli 2025 tijdens de Fryske Wentafel ondertekend. In de oorspronkelijke woondeal was het aantal voor deze regio (gemeente De Fryske Marren en Súdwest-Fryslân) vastgesteld op minimaal 3.130 woningen. Met deze herijking worden daar minimaal 500 extra woningen, waarvan 317 in Súdwest-Fryslân, aan toegevoegd naar een totaal van 3.630 woningen in de regio. Voor Súdwest-Fryslân betekent dit een inspanningsverplichting voor 2.297 nieuwe woningen in de periode van 1 januari 2022 tot en met 31 december 2030.

In de herijkte Regionale woondeal zijn ook afspraken gemaakt voor voldoende planologische ruimte voor de gewenste woningbouw. Binnenstedelijke programmering krijgt daarbij prioriteit boven buitenstedelijke programmering (afdeling 2.2 en 2.1 Omgevingsverordening van de provincie Fryslân). Het uitgangspunt is een goede balans tussen beide.

3.4.4 Transformatie van boerenerven - Taskforce Wonen

Om de transformatie van boerenerven naar nieuwe woonvormen in goede banen te leiden, heeft de gemeente de Taskforce Wonen in het leven geroepen. Deze taskforce fungeert als een loket en begeleidingsinstrument voor initiatiefnemers die agrarische erven een nieuwe bestemming willen geven. De gemeente ziet hierbij kansen om verpaupering tegen te gaan door het herbestemmen van leegstaande stallen en schuren tot meerdere wooneenheden. Hiermee wordt niet alleen het erf behouden als waardevol onderdeel van het landschap, maar wordt ook de sociale en economische vitaliteit van het platteland versterkt. De Taskforce stimuleert een integrale aanpak waarin ruimtelijke kwaliteit, duurzaamheid en maatschappelijke meerwaarde samenkomen.

Toetsing projectvoornemen aan gemeentelijk beleid

Het initiatief aan de Riperwei 2 te Jutrijp, waarbij een agrarische functie wordt gewijzigd naar een woonfunctie, sluit aan bij het gemeentelijk beleid. Het draagt bij aan het behoud van het karakteristieke erf, voorkomt leegstand en versterkt de ruimtelijke kwaliteit.

3.4.5 Bestemmingsplan Buitengebied Súdwest-Fryslân II

Het omgevingsplan biedt, via onderstaand artikel, een mogelijkheid om medewerking te verlenen aan het plan, Artikel 3.7.1 Wijziging:

Burgemeester en Wethouders kunnen het plan wijzigen mits dit geen afbreuk doet aan de gebruiksmogelijkheden van de aangrenzende gronden in die zin dat:

b. de bestemming wordt gewijzigd in de bestemming ‘Wonen - Woonboerderij’ met dien verstande dat:

  • 1. de wijziging uitsluitend betrekking kan hebben op de voormalige agrarische bebouwing met bijbehorende erven, binnen een bestaande denkbeeldige rechthoek of bouwvlak, en niet ter plaatse van de aanduiding 'specifieke vorm van agrarisch-veldschuur';
  • 2. de woonfunctie uitsluitend gerealiseerd kan worden binnen de contouren van de oorspronkelijke boerderijvorm waarin de dienstwoning was gesitueerd;
  • 3. de wijziging uitsluitend wordt toegepast indien de agrarische bedrijfsactiviteiten ter plaatse volledig zijn beëindigd;
  • 4. ten hoogste 3 woningen ten behoeve van permanente bewoning zijn toegestaan;
  • 5. de wijziging slechts wordt toegepast indien een toename van het aantal woningen past binnen een goedgekeurd woningbouwprogramma;
  • 6. indien de geluidsbelasting ten gevolge van het wegverkeer meer dan de voorkeursgrenswaarde bedraagt, de wijziging slechts wordt toegepast in overeenstemming met een verkregen hogere grenswaarde;
  • 7. de wijziging slechts wordt toegepast indien er sprake is van een goede landschappelijke inpassing;
  • 8. voor het overige de regels van de bestemming 'Wonen - Woonboerderij' van overeenkomstige toepassing zijn.

Toetsing aan wijzigingsbevoegdheid

  • 1. Initiatiefnemer is gestopt met de agrarische bedrijfsvoering waardoor er sprake is van voormalige agrarische bebouwing met bijbehorende erven. Op de bij het TAM-omgevingsplan behorende verbeelding is te zien waar de functie 'Wonen- Woonboerderij' is gelegd.
  • 2. De woonfunctie wordt gerealiseerd binnen de contouren van de oorspronkelijke boerderijvorm. Dit betreft overigens een karakteristiek pand.
  • 3. Het agrarisch bedrijf is volledig beëindigd.
  • 4. Op dit moment is er 1 woning aanwezig;
  • 5. Er is geen sprake van een toename van het aantal woningen;
  • 6. Er wordt geen nieuwe woning toegevoegd. Toetsing aan de voorkeursgrenswaarde is daarom niet aan de orde;
  • 7. De locatie is in de huidige situatie al voor een groot deel landschappelijke ingepast. Aan de noordzijde wordt streekeigen beplanting toegevoegd. Zie ook paragraaf 2.2.
  • 8. De overige regels van de bestemming 'Wonen - Woonboerderij' zijn van toepassing. Artikel 28.1 onder ab maakt de gewenste stalling en/of opslag van vaartuigen of kampeermiddelen mogelijk.
3.4.6 Omgevingswet

Het opstellen van een Wijzigingsplan is sinds de inwerkingtreding van de Omgevingswet niet meer mogelijk. Dit kan alleen nog door het wijzigen van het omgevingsplan. Er geldt wel een delegatiebesluit. Op basis van dit delegatiebesluit is het college van B&W bevoegd om een TAM-omgevingsplan vast te stellen mits deze voldoet aan de wijzigingsvoorwaarden opgenomen in het onderliggende geldende bestemmingsplan. Het plan voldoet hieraan.

3.5 Conclusie beleid

De conclusie van de in dit TAM-omgevingsplan Jutrijp - Riperwei 2 beschreven beleidsuitgangspunten is dat het rijksbeleid niet direct doorwerkt voor het plan. Hierdoor is het TAM-omgevingsplan niet in strijd met het rijksbeleid. Het rijksbeleid werkt indirect door via het provinciaal beleid. Het provinciaal beleid vormt op zijn beurt weer de input voor het gemeentelijk beleid. Voor het voorliggende TAM-omgevingsplan kan eveneens geconcludeerd worden dat het plan passend is in het provinciale en gemeentelijk beleid. Wat betreft het beleid kan gesteld worden dat de gewenste ontwikkeling op deze locatie passend is.

Hoofdstuk 4 Fysieke leefomgeving

In dit hoofdstuk wordt beschreven op welke manier bij de voorgenomen functies en activiteiten rekening is gehouden met diverse aspecten uit de fysieke leefomgeving om te komen tot een evenwichtige toedeling van functies aan locaties. Voor een aantal aspecten zijn nadere onderzoeken uitgevoerd. De resultaten van deze onderzoeken zijn opgenomen in dit hoofdstuk. De rapportages zijn als bijlage aan deze ruimtelijke motivering toegevoegd.

4.1 Besluit milieueffectrapportage

4.1.1 Kader

Een milieueffectrapportage (m.e.r.) brengt het effect van een project op het milieu in beeld. De regelgeving voor de m.e.r. is te vinden in afdeling 16.4 van de Omgevingswet (Ow) en in hoofdstuk 11 en bijlage V bij het Omgevingsbesluit (Ob). Uit bijlage V van het Ob kan worden bepaald of een plan mer-plichtig of mer-beoordelingsplichtig is. In deze bijlage is een tabel opgenomen met vier kolommen:

  • In kolom 1 staan de projecten opgesomd;
  • In kolom 2 zijn de gevallen genoemd waarin een project-mer verplicht is;
  • In kolom 3 staan de gevallen genoemd waarin de project-mer-beoordelingsplicht geldt;

Tot slot bevat kolom 4 de besluiten waarvoor dan de mer-verplichtingen gelden. Het gaat dan om besluiten waarmee de toestemming voor het project wordt verleend.

Indien een wijziging van het omgevingsplan wordt opgesteld dat een kader vormt voor een project-mer-(beoordelings)plichtige projecten dan is een plan-mer aan de orde (artikel 16.36 lid 1 Ow). Ook is een plan-mer aan de orde als Voor plan/ programma een passende beoordeling voor natuur moet worden opgesteld zoals bedoeld in artikel 16.53c Ow (artikel 16.36 lid 2 Ow). Als een plan wordt gemaakt voor een klein gebied op lokaal niveau of het plan maakt een kleine wijziging mogelijk, kan worden volstaan met een plan-mer-beoordeling (artikel 16.36 lid 3 Ow) als uit de beoordeling blijkt dat het plan geen aanzienlijke milieueffecten heeft.

4.1.2 Toetsing planvoornemen

Woningbouw valt op basis van kolom 1 van bijlage V Ob onder een 'stedelijk ontwikkelingsproject met inbegrip van de bouw van winkelcentra en parkeerterreinen'. In dit geval is er sprake van een (zeer) kleinschalige ontwikkeling waarbij het aantal verkeersbewegingen niet (onevenredig) toeneemt. Verder is sprake van een functie die niet leidt tot een aantasting van het woon- en leefklimaat van omliggende woningen of een beperking voor andere functies in de omgeving. Gelet op de kenmerken van dit plan en de plaats van het plan zal dit geen gevolgen voor het milieu met zich meebrengen. In de overige paragrafen van dit hoofdstuk wordt dit aangetoond. Er wordt geconcludeerd dat er geen sprake is van een stedelijk ontwikkelingsproject als bedoeld in het Besluit m.e.r..

4.1.3 Conclusie

Gelet op de beoordeling van de bovengenoemde kenmerken van de ontwikkeling en de kenmerken van de potentiële effecten, zijn er geen belangrijke negatieve milieugevolgen te verwachten. Het opstellen van een milieueffectrapport is niet nodig. Er is sprake van een evenwichtige toedeling van functies aan locaties.

4.2 Geluid

4.2.1 Kader

In het kader van het beschermen van de gezondheid en het milieu stelt het Besluit kwaliteit leefomgeving regels voor het beheersen van geluid door wegen, spoorwegen en industrieterreinen en de bescherming van geluidgevoelige gebouwen en andere gebouwen en plekken (afdeling 3.5 Bkl). De wetgever maakt onderscheid tussen geluidbronnen met een geluidproductieplafond als omgevingswaarde (gpp) en bronnen met een basisgeluidemissie (bge).

Voor een aantal geluidgevoelige gebouwen en stiltegebieden (artikel 7.11 Bkl) gelden specifieke regels. In de aanwijzing van geluidgevoelige gebouwen is de functie (zoals wonen, onderwijs of zorg) bepalend (artikel 3.20 Bkl). Voor andere gebouwen of locaties bepaalt de gemeente zelf de mate van bescherming tegen geluid. Dat doet de gemeente vanuit haar taak 'evenwichtige toedeling van functies aan locaties'.

In dat kader zijn de regels in paragraaf 22.3.4 Bruidsschat van toepassing. Daarin staan regels over geluid door een activiteit op of in een geluidgevoelig gebouw die op een locatie is toegelaten op grond van een omgevingsplan of een omgevingsvergunning voor een omgevingsplanactiviteit. In de Bruidsschat zijn waarden bepaald (artikel 22.57 Bruidsschat). Daarbij is onderscheid gemaakt in geluid door de volgende activiteiten:

  • activiteiten anders dan door windturbines en windparken en civiele buitenschietbanen, militaire buitenschietbanen en militaire springterreinen (par. 22.3.4.2 BS);
  • geluid door windturbines en windparken (par. 22.3.4.3 BS);
  • geluid door civiele buitenschietbanen, militaire buitenschietbanen en militaire springterreinen (par. 22.3.4.4 BS).

Geluidsgevoelige gebouwen

De geluidsgevoelige gebouwen worden aangewezen in artikel 3.20 Bkl. Het betreft gebouwen, waaronder een gebouw of een gedeelte van een gebouw dat een woonfunctie heeft. De geluidsnormen hebben betrekking op het geluid op de gevel van een geluidsgevoelig gebouw en hebben primair als doel het beschermen van de gezondheid door het stellen van eisen aan het geluid op en rond woningen, waar mensen langdurig verblijven en slapen. Hierbij wordt onderscheid gemaakt tussen de voorgevel, zijgevel en achtergevel.

Ter bescherming van de gezondheid zijn voor het aspect geluid instructieregels opgenomen in paragraaf 5.1.4.2 Bkl. Het omgevingsplan bevat op grond van en in overeenstemming met instructieregels waarden voor geluid (immissienormen) die leiden tot een evenwichtige toedeling van functies aan locaties.

4.2.2 Toetsing planvoornemen

Het planvoornemen voorziet in de wijziging van een agrarische bedrijfslocatie naar 'Wonen - Woonboerderij'. Zowel een bedrijfswoning als een burgerwoning worden beschouwd als geluidsgevoelige functies. Omdat er geen nieuw geluidgevoelig object wordt toegevoegd, is een nadere toetsing aan het Bkl niet aan de orde.

Als gevolg van de functiewijziging zal het aantal verkeersbewegingen afnemen. De daarmee gepaarde geluidbelasting op de omgeving door verkeer neemt ten opzichte van de huidige situatie af. Het planvoornemen heeft in die zin een positief effect op het verminderen van de geluidbelasting door verkeer.

4.2.3 Conclusie

De geluidsbelasting op de omgeving in de huidige situatie is reeds aanvaardbaar. Gezien de afname van het verkeerslawaai verbeterd deze situatie. Het aspect geluid staat de uitvoering van het project niet in de weg.

4.3 Luchtkwaliteit

4.3.1 Kader

Om een goede luchtkwaliteit in Europa te garanderen heeft de Europese Unie een viertal kaderrichtlijnen opgesteld. Om de luchtkwaliteit in Nederland te beschermen geeft het Besluit kwaliteit leefomgeving in hoofdstuk 5 instructieregels om de luchtkwaliteit te beschermen.

De gemeente moet voor een aantal activiteiten de rijksomgevingswaarden voor stikstofdioxide (NO2) en fijnstof (PM10) in acht nemen, behalve als een activiteit niet in betekenende mate bijdraagt aan de luchtverontreiniging. Een project of activiteit draagt niet in betekenende mate bij als de toename van de concentratie NO2 en PM10 niet hoger is dan 1,2 microgram/m3. Dat is 3% van de omgevingswaarde voor de jaargemiddelde concentraties. Deze grenswaarde volgt uit artikel 5.53 en 5.54 van het Besluit kwaliteit leefomgeving. Aantonen dat een project of activiteit valt onder NIBM kan op twee manieren:

  • 1. Het project valt binnen de getalsmatige grenzen van een aangewezen categorie (standaardgevallen NIBM, artikel 5.54 Bkl). Dit betreffen onder andere projecten voor kantoren, woonwijken en het telen van gewassen.
  • 2. Middels kwalitatieve beschrijving of berekening (NIBM-tool) aannemelijk maken dat een project niet in betekenende mate bijdraagt.

In artikel 5.54 Bkl is een lijst met categorieën van gevallen (inrichtingen, kantoor- en woningbouwlocaties) opgenomen die niet in betekenende mate bijdragen aan de luchtverontreiniging. Enkele voorbeelden zijn:

  • woningen: 1.500 met een enkele ontsluitingsweg;
  • woningen: 3.000 met twee ontsluitingswegen;
  • kantoren: 100.000 m² bruto vloeroppervlak met een enkele ontsluitingsweg.
4.3.2 Toetsing planvoornemen

Gezien er momenteel al één bedrijfswoning aanwezig is, worden er geen woningen toegevoegd. De voorgenomen functiewijziging van agrarisch naar wonen zorgt daarnaast voor een sterke verlaging van het aantal verkeersbewegingen, zoals omschreven in paragraaf 4.12. De voorgenomen ontwikkeling draagt om deze reden niet in betekenende mate bij aan de verslechtering van de luchtkwaliteit. Het uitvoeren van een luchtkwaliteitsonderzoek is niet noodzakelijk.

4.3.3 Conclusie

Geconcludeerd wordt dat er vanuit het aspect luchtkwaliteit geen belemmeringen bestaan ten aanzien van de voorgenomen ontwikkeling in het plangebied. Vanuit het aspect luchtkwaliteit is er sprake van een evenwichtige toedeling van functies aan locaties.

4.4 Geur

4.4.1 Kader

De gemeente moet in het omgevingsplan rekening houden met de geur door activiteiten op geurgevoelige gebouwen. Dit volgt uit artikel 5.92 lid 1 van het Besluit kwaliteit leefomgeving. Rekening houden met geur werkt 2 kanten op:

  • Bij het mogelijk maken van het verrichten van activiteiten in de buurt van gevoelige gebouwen;
  • Bij het toelaten van geurgevoelige gebouwen in de buurt van bestaande geurveroorzakende bedrijven.

De geur van een activiteit moet op een geurgevoelig gebouw aanvaardbaar zijn (artikel 5.92 lid 2 Bkl). Dit betekent dat het bevoegd gezag moet beoordelen of waarden, afstanden of gebruiksregels in het omgevingsplan leiden tot een aanvaardbaar hinderniveau. Het bevoegd gezag bepaalt zelf welke mate van geurhinder ze aanvaardbaar vindt.

Voor geur afkomstig van onder andere het bedrijfsmatig houden van landbouwhuisdieren gelden vanuit het omgevingsplan geurregels. Voor landbouwhuisdieren met een geuremissiefactor gelden conform artikel 22.98 van het omgevingsplan waarden gegeven waaraan voldaan dient te worden bij een geurgevoelig object. Voor landbouwhuisdieren zonder geuremissiefactor kan gebruik gemaakt worden van de richtafstanden uit de VNG-publicatie 'Milieuzonering Nieuwe Stijl'.

Een geurgevoelig object is een gebouw dat is bestemd voor en geschikt om te worden gebruikt voor menselijk wonen of menselijk verblijf. Tuinen vallen dus niet onder de noemer geurgevoelige objecten.

4.4.2 Toetsing planvoornemen

In de huidige situatie als veehouderij was er sprake van geuremissies als gevolg van het houden van dieren, het opslaan van veevoer en mest. Met de beëindiging van de veehouderij vervallen deze geuremissies. Als gevolg van het planvoornemen treedt er een vermindering op van de milieubelasting op de omgeving.

4.4.3 Conclusie

Geconcludeerd wordt dat er vanuit het aspect geur geen belemmeringen bestaan ten aanzien van de voorgenomen ontwikkeling in het plangebied.

4.5 Bodemkwaliteit

4.5.1 Kader

Ter bescherming van de gezondheid en het milieu zijn voor het aspect bodem instructieregels in het Bkl opgenomen. De inhoud van deze regels is via het aanvullingsbesluit bodem Omgevingswet opgenomen in paragraaf 5.1.4.5 Bkl. Het aanvullingsbesluit bepaalt voor welke activiteiten kan worden volstaan met een melding. Er worden drie basisvormen van bodemgebruik onderscheiden: landbouw/natuur, wonen en industrie. De kaders zijn gebaseerd op de risicogrenswaarden die voor de betreffende situaties zijn afgeleid.

De algemene doelstelling van het bodembeleid is het waarborgen van de gebruikswaarde van de bodem en het faciliteren van het duurzaam gebruik van de functionele eigenschappen van de bodem, door in onderlinge samenhang;

  • beschermen van de bodem tegen nieuwe verontreinigen en aantastingen;
  • evenwichtig toedeling van functies aan locaties, rekening houdend met de kwaliteiten van de bodem;
  • duurzaam en doelmatig beheren van de resterende historische verontreinigingen en -aantastingen.

De gemeente stelt de waarde voor de toelaatbare kwaliteit van de bodem vast. Deze waarde mag niet hoger zijn dan het blootstellingsniveau van het maximaal toelaatbaar risico voor de mens. Dit is opgenomen in bijlage VA van het Bkl. De toelaatbare kwaliteit van de bodem is een voorwaarde voor bouwen op verontreinigde bodem en is geen omgevingswaarde.

Het Rijk stelt instructieregels aan gemeenten voor het toelaten van een bouwactiviteit op een bodemgevoelige locatie. De gemeente moet:

  • Op grond van artikel 5.89i en artikel 5.89j Bkl de waarde vaststellen waarboven er bij de realisatie van gebouwen op bodemgevoelige locaties maatregelen nodig zijn.
  • Op grond van artikel 5.89k Bkl aangeven welke sanerende of andere beschermende maatregelen nodig zijn bij overschrijding van de waarde.
  • Op grond van artikel 5.89l Bkl een meldingsplicht instellen voor locaties die op grond van het omgevingsplan niet vergunningplichtig zijn.
  • Op grond van artikel 5.89m Bkl een bepaling opnemen over de ingebruikname.

Deze regels zorgen voor zowel een evenwichtige toedeling van functies aan locaties als het beschermen van de gezondheid en van het milieu, in het bijzonder van de bodemkwaliteit.

4.5.2 Toetsing planvoornemen

Ten opzichte van het gebruik van de gebouwen voor melkveehouderij en de stalling van machines en werktuigen zal het nieuwe gebruik geen andere eisen stellen aan de bodemkwaliteit. In de toekomstige situatie wordt de bebouwing gebruikt voor de opslag van kampeermiddelen en boten. Omdat de nieuwe functie geen verzwaring is van het gebruik van de bebouwing is het uitvoeren van een bodemonderzoek niet noodzakelijk.

4.5.3 Conclusie

De bodemkwaliteit vormt geen belemmering voor de aangevraagde ontwikkeling ter plaatse van de voormalige stallen. De bestaande bodemkwaliteit is geschikt is voor het voorgenomen gebruik.

4.6 Omgevingsveiligheid

4.6.1 Kader

Een van de uitgangspunten van de Omgevingswet is dat overheden bij hun plannen zo vroeg mogelijk kijken naar veiligheid zodat de gevolgen van een brand, ramp of crisis voorkomen kan worden of de gevolgen zoveel mogelijk beperkt kunnen worden. Externe veiligheid heeft derhalve een belangrijke plaats in de omgevingsvisie en het omgevingsplan.
Het Besluit activiteiten leefomgeving omvat met name de regelgeving op het gebied van externe veiligheid als het gaat over het aanwijzen van milieubelastende activiteiten en vergunningplichten (afdeling 5.1.2 Bkl). In het Besluit kwaliteit leefomgeving komen de instructieregels voor omgevingsplannen van gemeenten terug. Dit betreffen onder andere regels over het plaatsgebonden, risico, aandachtsgebieden, belemmeringengebieden voor buisleidingen en risico- en explosieaandachtsgebieden. Ook zijn in bijlage 7 van het Bkl activiteiten aangewezen als risicobronnen. Deze risicobronnen zijn van belang voor de regels over het plaatsgebonden risico en aandachtsgebieden. Het betreffen de volgende activiteiten:

  • Activiteiten met gevaarlijke stoffen bij bedrijven; dit zijn verschillende milieubelastende activiteiten uit het Besluit activiteiten leefomgeving.
  • Het basisnet vervoer gevaarlijke stoffen (weg, water en spoor).
  • Buisleidingen met gevaarlijke stoffen die zijn aangewezen als milieubelastende activiteit in het Besluit activiteiten leefomgeving.
  • Windturbines die zijn aangewezen als milieubelastende activiteit in het Besluit activiteiten leefomgeving.

Aandachtsgebieden

Onder de Omgevingswet werken gemeenten met aandachtsgebieden voor het aspect externe veiligheid. Hiermee is beoogd dat het gemeentebestuur externe veiligheid eerder in ruimtelijke plannen meeneemt. Aandachtsgebieden laten zien waar extra aandacht nodig is om aanwezigen te beschermen tegen mogelijke ongevallen bij activiteiten met gevaarlijke stoffen.

4.6.2 Toetsing planvoornemen

Door middel van onderstaande uitsnede van de Atlas Leefomgeving zijn de volgende aspecten van externe veiligheid onderzocht:

  • Risicovolle inrichtingen;
  • Hogedruk aardgas transportleidingen en K1-, K2- en K3 brandstofleidingen;
  • Bovengrondse hoogspanningslijnen.

afbeelding "i_NL.IMRO.1900.2025TAMOJutRipw2-ontw_0010.png" Afbeelding 9: uitsnede risicokaart (plangebied bij blauwe cirkel)

Risicovolle inrichtingen

De dichtstbijzijnde risicovolle inrichting van derden betreft een propaantank aan de Riperwei 1, gelegen aan de overzijde van de N-weg, op ongeveer 180 meter afstand. Het stallen van caravans kent geen externe veiligheidsrisico's en vormt op deze afstand dan ook geen belemmering of risico in relatie tot deze inrichting.

Risicovol wegtransport en transport via spoor- en waterwegen

In de omgeving van het plangebied worden geen gevaarlijke stoffen getransporteerd over de weg, het spoor of via het water.

Risicovolle (buis)leidingen

In de omgeving van het plangebied worden geen gevaarlijke stoffen getransporteerd door buisleidingen

4.6.3 Conclusie

Geconcludeerd wordt dat er vanuit het aspect externe veiligheid geen belemmeringen bestaan ten aanzien van de voorgenomen ontwikkeling in het plangebied.

4.7 Bedrijven en milieuzonering

4.7.1 Kader

Onder de Omgevingswet worden aspecten als geluid- en geurhinder niet meer in het milieuspoor geregeld, zoals voorheen in het Activiteitenbesluit of een milieuvergunning, maar direct in het omgevingsplan. Dit is een van de redenen waarom de VNG heeft besloten dat de VNG-handreiking 'Bedrijven en Milieuzonering' uit 2009 met de richtafstanden per bedrijfsactiviteit niet meer goed past bij het integrale karakter van de Omgevingswet en het omgevingsplan. Milieuzonering nieuwe stijl (VNG handreiking mei 2019) anticipeert hierop en gaat uit van de beschikbare gebruiksruimte om activiteiten uit te voeren, onder meer voor geluid. De werkelijke milieubelasting van een bedrijfsactiviteit is dan bepalend of een activiteit op een bepaalde locatie past, en niet meer een richtafstand.

De systematiek uit de publicatie 'Bedrijven en milieuzonering' is opgenomen in veel bestemmingen. Zolang die bestemmingsplannen van kracht zijn - ook na overgang in het tijdelijke omgevingsplan van rechtswege - wordt deze systematiek nog toegepast. Ter plaatse van het plangebied is sprake van het tijdelijk deel van het omgevingsplan 'veegplan bestemmingsplan Kernen', waardoor deze systematiek kan worden toegepast.

Onder milieuzonering wordt verstaan: het bij nieuwe ruimtelijke ontwikkelingen in acht nemen van voldoende afstand, een richtafstand, tussen milieubelastende activiteiten (zoals bedrijven) en milieugevoelige functies (zoals wonen).

Om de richtafstanden te bepalen wordt in de VNG-uitgave 'Bedrijven en Milieuzonering' onderscheid gemaakt tussen gebiedstypen. Het plangebied bevindt zich gelet op de functionele structuur van de omgeving in een 'rustige woonwijk'. In onderstaande tabel zijn de richtafstanden opgenomen.

Tabel 4.2: richtafstanden Bedrijven en milieuzonering

afbeelding "i_NL.IMRO.1900.2025TAMOJutRipw2-ontw_0011.png"

De afstanden worden gemeten tussen enerzijds de grens van de bestemming die de milieubelastende functie(s) toelaat en anderzijds de uiterste situering van de gevel van een milieugevoelige functie die op grond van het TAM-omgevingsplan mogelijk is. Hoe gevoelig een gebied is voor milieubelastende activiteiten is mede afhankelijk van het omgevingstype.

Er zijn twee omgevingstypen gedefinieerd, te weten de omgevingstype rustige woonwijk / rustig buitengebied en de omgevingstype gemengd gebied. Bij het gemengd gebied wordt een kleinere richtafstand aangehouden.

Daarnaast gelden ten aanzien van bedrijven die onder de werkingssfeer van de Wet milieubeheer vallen, deze Wet en haar uitvoeringsbesluiten als toetsingskader voor de toegestane bedrijfshinder.

4.7.2 Toetsing planvoornemen

Hinderveroorzakende functies in het plangebied

Op basis van de VNG-uitgave 'Bedrijven en milieuzonering' geldt voor het stallen van caravans e.d. in een 'rustig gebied' een grootste richtafstand van 30 meter voor geluid.

Binnen 30 meter uit de locatie van initiatiefnemers zijn geen gevoelige functies aanwezig. De dichtstbijzijnde woning aan de Riperwei 1 ligt op ruim 180 meter afstand. Er wordt ruimschoots aan de richtafstand voldaan.

De dichtstbijzijnde milieugevoelige functie betreft de woning die ligt aan de Riperwei 1. Het bestemmingsvlak van de woning aan de Riperwei 1 ligt op circa 157 meter vanuit de voormalige stallen waarin de stalling zal gaan plaatsvinden. Overige gevoelige functies liggen allen op een verdere afstand van het plangebied.

Hinderveroorzakende functies in de omgeving van het plangebied

In het voorliggend geval worden geen nieuwe milieugevoelige functies toegevoegd. De bestaande bedrijfswoning wordt bestemd als 'Wonen - Woonboerderij' en wordt als gevolg van voorliggend bestemmingsplan niet verplaatst.

De bestaande woning komen niet dichter op omliggende milieubelastende bedrijven te liggen. Ter plaatse van de huidige woning is nu en in de toekomst sprake van een aanvaardbaar woon- en leefklimaat. Tevens worden omliggende (agrarische) bedrijven als gevolg van de in dit plan besloten ontwikkeling niet in hun bedrijfsvoering belemmerd.

4.7.3 Conclusie

Geconcludeerd wordt dat er vanuit het aspect bedrijven en milieuzonering geen belemmeringen bestaan ten aanzien van de voorgenomen ontwikkeling in het plangebied.

4.8 Water

4.8.1 Kader

De gemeente moet bij het vaststellen van het omgevingsplan rekening houden met het aspect water. Specifiek zijn in hoofdstuk 5 van het Bkl bepalingen opgenomen over de omgang met water in de fysieke leefomgeving.

Artikel 5.77 Bkl - Doelmatig beheer van watersystemen

Dit artikel verplicht bestuursorganen om bij omgevingsplannen, omgevingsvergunningen en andere besluiten rekening te houden met een doelmatig beheer van het watersysteem. Het plan mag de werking van het watersysteem niet belemmeren en moet ruimte laten voor voldoende berging en afvoer van water.

Artikel 5.79 Bkl - Voorkomen van wateroverlast, waterschaarste en verontreiniging

Dit artikel verplicht tot het treffen van maatregelen die wateroverlast, schaarste en verontreiniging voorkomen of beperken. Bij nieuwe functies dient geborgd te zijn dat deze geen onevenredige druk uitoefenen op het watersysteem

4.8.2 Toetsing planvoornemen

Het doel van de watertoets is waarborgen dat waterhuishoudkundige doelstellingen expliciet en op evenwichtige wijze in beschouwing worden genomen bij alle waterhuishoudkundige relevante ruimtelijke plannen en besluiten van Rijk, provincies en gemeenten. Ruimtelijke plannen moeten voorzien zijn van een waterparagraaf. Hiervoor moet het proces van de watertoets worden doorlopen. Het waterschap kijkt of in een plan voldoende rekening is gehouden met de waterhuishouding ter plaatse en geeft een wateradvies.

Op 16 april 2025 is de digitale watertoets uitgevoerd. Het resultaat van de watertoets is toegevoegd als Bijlage 2. Omdat er sprake is van alleen een functiewijziging van bestaande bebouwing zijn er geen waterschap belangen in het geding.

Het plangebied valt bovendien niet binnen een waterwingebied of de beschermingszone van een waterkering. Van een belemmering is geen sprake.

4.8.3 Conclusie

Er zijn geen waterstaatkundige aspecten in het geding. Het aspect water staat de uitvoering van het plan niet in de weg.

4.9 Ecologie

4.9.1 Kader

De Omgevingswet regelt het belang van natuur als onderdeel van de fysieke leefomgeving. De wet borgt het welzijn van de mens, verbetert de bescherming van natuurkwaliteiten en breidt deze zo nodig uit. In de Omgevingswet worden zowel soortenbescherming als gebiedsbescherming geregeld.

Flora- en fauna-activiteiten
Sommige activiteiten kunnen gevolgen hebben voor dieren en planten in het wild. Dat zijn flora- en fauna-activiteiten. De Omgevingswet definieert een flora- en fauna-activiteit als volgt: 'Activiteiten met mogelijke gevolgen voor van nature in het wild levende dieren of planten'.

Door deze brede formulering van een flora- en fauna-activiteit is het bij activiteiten in de fysieke leefomgeving nodig om te controleren of:

  • Er soorten aanwezig zijn;
  • Welke soorten dat zijn.

Gebiedsbescherming

Indien een projectgebied in of nabij een beschermd gebied is gelegen, dan dient te worden bepaald of er een (extern) effect valt te verwachten. Het gaat daarbij om Natura 2000-gebieden en gebieden behorend tot het Natuurnetwerk Nederland.

Natura 2000

De Europese Vogel- en Habitatrichtlijn beschermt Natura 2000-gebieden. De minister van Landbouw, Natuur en Voedselkwaliteit (LNV) wijst de Natura 2000-gebieden aan. Ook worden de instandhoudingsdoelstellingen vastgelegd in artikel 2.44 van de Omgevingswet. Dit gebeurt in een aanwijzingsbesluit. In Nederland voor ruim 160 gebieden. Gezamenlijk hebben ze een oppervlak van ruim 1,1 miljoen hectare. Ze maken deel uit van een samenhangend netwerk van natuurgebieden in de Europese Unie die zijn aangewezen op grond van de vogelrichtlijn en habitatrichtlijn. Het doel van Natura 2000 is het keren van de achteruitgang van de biodiversiteit.

Handelingen die een negatieve invloed hebben op Natura 2000-gebieden, worden slechts onder strikte voorwaarden toegestaan. Een vergunning is vereist. Door middel van het Nederlandse vergunningsstelsel wordt een zorgvuldige afweging gewaarborgd. De vergunningen zullen beoordeeld en afgegeven worden door de desbetreffende provincie.

Natuurnetwerk Nederland (NNN)

Het Natuurnetwerk Nederland (NNN) is het Nederlands netwerk van bestaande en nieuw aan te leggen natuurgebieden. Het netwerk moet natuurgebieden beter verbinden met elkaar en met het omringende agrarisch gebied.

Het Natuurnetwerk Nederland bestaat uit:

  • 1. bestaande natuurgebieden, waaronder de 20 Nationale Parken;
  • 2. gebieden waar nieuwe natuur aangelegd wordt;
  • 3. landbouwgebieden, beheerd volgens agrarisch natuurbeheer;
  • 4. ruim 6 miljoen hectare grote wateren: meren, rivieren, de Noordzee en de Waddenzee;
4.9.2 Toetsing planvoornemen

Gebiedsbescherming

Natura 2000

Het plangebied ligt op meer dan 500 meter van het Natura2000 gebied. Op de onderstaande afbeelding wordt de ligging van de Natura 2000-gebieden in de omgeving van het plangebied weergegeven.

Natuurnetwerk Nederland

Het plangebied ligt buiten de begrenzing van Natuurnetwerk. In afbeelding 10 wordt de ligging van Natuurnetwerk Nederland in de omgeving van het plangebied weergegeven. Omdat het plangebied buiten Natuurnetwerk Nederland ligt, hoeft voorgenomen initiatief niet getoetst te worden aan provinciaal beleid.

afbeelding "i_NL.IMRO.1900.2025TAMOJutRipw2-ontw_0012.png"

Afbeelding 10: Ligging van Natuurnetwerk Nederland (NNN) en Natura-2000 in de omgeving van het plangebied. 

De functie 'Wonen - Woonboerderij' is een functie zonder relevante externe werking op beschermde natuurgebieden. Er worden geen emissie-intensieve activiteiten uitgevoerd en er is een sterke afname van de hoeveelheid verkeersbewegingen.

Op basis hiervan kan worden geconcludeerd dat de functiewijziging geen significante gevolgen heeft voor nabijgelegen Natura 2000-gebieden of andere beschermde natuurgebieden. Het opstellen van een voortoets of passende beoordeling in het kader van gebiedsbescherming is derhalve niet noodzakelijk.

Stikstof

Voor het planvoornemen is alleen de gebruiksfase relevant. Er vinden geen sloop- en/of bouwwerkzaamheden plaats, waardoor deze fase niet in beeld gebracht hoeft te worden.

Om op de juiste wijze de stikstofdepositie van de gebruisfase te bepalen is in kaart gebracht welke verkeersbewegingen optreden. Voor de privé-verkeersbewegingen is uitgegaan van de CROW norm van 3.139 verkeersbewegingen per jaar. Voor de stallingsactiviteiten betreffen het 300 verkeersbewegingen per jaar. Verder is rekening gehouden in de gebruiksfase met het verwarmen van de woning.

De toelichting op de stikstofberekening is bijgevoegd als Bijlage 3 bij deze motivering. De AERIUSberekening is bijgevoegd al Bijlage 4.

Voor de gebruiksfase is de berekende stikstofdepositie in alle omliggende stikstofgevoelige en overbelaste habitats en leefgebieden lager dan 0,005 mol/ha/jr. Er zijn daarom geen significante gevolgen te verwachten voor Natura 2000-gebieden.

Soortenbescherming

In het kader van de voorgenomen functiewijziging van de bestemming van 'agrarisch' naar Wonen - Woonboerderij , waarbij de bestaande stallen wordt benut voor de stalling van caravans e.d., is onderzocht of er sprake is van mogelijke effecten op beschermde soorten.

Voor de beoogde activiteit geldt dat er geen fysieke werkzaamheden plaatsvinden. Er worden geen sloopwerkzaamheden verricht, er vinden geen grondroerende activiteiten plaats en er worden geen constructieve aanpassingen aan de bestaande melkveestal gedaan. De stal blijft in zijn huidige staat behouden. Omdat er geen sprake is van fysieke ingrepen in of aan het gebouw of in de omgeving ervan, wordt geen effect verwacht op aanwezige flora of fauna. Daarnaast betreft het een reeds bestaande, gesloten bebouwing die al langere tijd in gebruik is en derhalve geen geschikt leefgebied vormt voor beschermde soorten, zoals broedvogels, vleermuizen of andere gebouwbewonende soorten.

Op basis hiervan kan worden geconcludeerd dat de voorgenomen functiewijziging geen negatief effect heeft op wettelijk beschermde soorten en dat geen aanvullend ecologisch onderzoek noodzakelijk is.

4.9.3 Conclusie

Gelet op de aard van de voorgenomen activiteiten en de ligging t.o.v. Natura2000-gebied is het aannemelijk dat uitvoering van de voorgenomen activiteiten niet zal leiden tot een negatief effect op Natura2000-gebied. Dat geldt ook voor het NNN gebied.

Uit het uitgevoerde stuikstofonderzoek blijkt dat het planvoornemen geen significante stikstofdepositie veroorzaakt. Er hoeft hiervoor geen vergunning voor een Natura 2000-activiteit aangevraagd te worden.

Tot slot heeft het planvoornemen geen gevolgen ten aanzien van de soortenbescherming. Het aspect 'ecologie' vormt geen belemmering voor de voorgenomen ontwikkeling.

4.10 Archeologie en cultuurhistorie

4.10.1 kader

De gemeente moet bij het vaststellen van het omgevingsplan rekening houden met het belang van het behoud van cultureel erfgoed. Hieronder vallen ook bekend of aantoonbaar te verwachten archeologische monumenten. Dit staat in artikel 5.130 Bkl. De gemeente kan in het belang van archeologische monumentenzorg regels stellen in het omgevingsplan over archeologisch onderzoek.

Uit het Besluit kwaliteit leefomgeving volgt dat gemeenten voor cultureel erfgoed dat voor bescherming in aanmerking komt een toereikend beschermingsregime moeten opnemen in het omgevingsplan. Het Bkl bevat hiervoor instructieregels in artikel 5.130.

4.10.2 Toetsing planvoornemen

Archeologie

In het omgevingsplan zijn regels opgenomen voor de bescherming en behoud van archeologische (verwachtings)waarden. De locatie ligt binnen de bestemming 'Waarde - Archeologie 2'. De voor 'Waarde - Archeologie 2' aangewezen gronden (land- en waterbodems) zijn, behalve voor de andere daar voorkomende bestemming(en), ook bestemd voor het behoud van de aldaar in of op de grond aanwezige archeologische (verwachtings) waarden (artikel 35 Bestemmingsplan Buitengebied Sudwest - Fryslân II'.

De voorgenomen activiteit betreft uitsluitend een wijziging van het gebruik van een bestaand stallen. Er worden geen grondroerende werkzaamheden uitgevoerd, er vindt geen sloop of nieuwbouw plaats en ook de fundering en de bodem blijven volledig ongemoeid.

Omdat er geen fysieke ingrepen in de bodem plaatsvinden, is er geen risico op verstoring van mogelijk aanwezige archeologische waarden. Daarmee is het aspect archeologie niet relevant voor deze ontwikkeling. Er is dan ook geen archeologisch onderzoek noodzakelijk.

Cultuurhistorie

De voor 'Waarde - Landschap verkaveling' aangewezen gronden zijn, naast de aangegeven andere bestemming (basisbestemming), ook bestemd voor het behoud, het herstel en de uitbouw van de landschappelijke en cultuurhistorische waarden van de bijzondere kavelstructuur en kavelsloten (inclusief dijksloten).

De woonboerderij heeft de aanduiding 'karakteristiek', waarvoor nadere beschermingseisen zijn opgenomen (artikel 6.4).

4.10.3 Conclusie

Het aspect archeologie staat de uitvoering van het project niet in de weg. Omdat er geen wijzigingen aan de karakteristieke woning plaatsvinden, is er geen sprake van inbreuk op de cultuurhistorische waarde van deze woning. Daarnaast blijft de bestaande kavelstructuur en het bijbehorende slotenpatroon volledig in stand. Daarmee blijft ook de landschappelijke en cultuurhistorische waarde van het gebied behouden.

4.11 Verkeer en parkeren

4.11.1 Kader

Op basis van de instructieregels zoals opgenomen in paragraaf 5.1.7 en 5.1.8 houdt het bevoegd gezag bij het evenwichtig toedelen van functies aan locaties rekening met het behoeden van de staat en werking van infrastructuur en het bevorderen van de toegankelijkheid van de openbare buitenruimte voor personen. In deze paragraaf wordt ingegaan op de verkeerssituatie en parkeerbehoefte van het plangebied. Daarnaast wordt ingegaan op de bereikbaarheid van het plangebied voor openbaar vervoer, gemotoriseerd verkeer en de toegankelijk van de openbare ruimte.

4.11.2 Toetsing planvoornemen

Verkeer

Het planbied wordt via een de bestaande oprit ontsloten op de Riperwei. Als gevolg van de beoogde functiewijziging zal er sprake zijn van een verandering van het aantal verkeersbewegingen.

De verkeersbewegingen verbonden aan de exploitatie van het agrarisch bedrijf bedroegen 1.540 verkeersbewegingen op jaarbasis met licht en zwaar verkeer. Voor een totaal overzicht van alle bewegingen wordt verwezen naar Bijlage 5.

In de nieuwe situatie is er capaciteit voor de stalling van maximaal 60 caravans. Deze hoeveelheid caravans resulteert in een maximale hoeveelheid van 300 verkeersbewegingen met enkel licht verkeer. Hierbij is uitgegaan van iets meer dan 2 maal brengen en halen van het gestalde voertuig per jaar.

De functiewijziging heeft dus een forse afname van het aantal verkeersbewegingen tot gevolg. Bovendien vervallen de bewegingen met zwaar verkeer, omdat er geen melkwagens en of ander vrachtverkeer meer komen. Per saldo heeft de functiewijziging dus een aanzienlijke vermindering van de verkeersbelasting.

Parkeren

Conform het geldende omgevingsplan, het deel Bestemmingsplan Buitengebied Súdwest-Fryslân II, geldt de verplichting om bij functieveranderingen van gebouwen of gronden te voorzien in voldoende parkeergelegenheid op eigen terrein.

Binnen het plangebied is reeds een verhard oppervlak aanwezig dat dienst kan doen als parkeervoorziening. Zie ook afbeelding 6 van deze motivering. Deze parkeervoorziening is gesitueerd op het erf en heeft een totale oppervlakte van circa 600 m². Aangezien de parkeerplaats primair wordt benut voor kortdurend parkeren, is dit ruim afdoende voor de beoogde gebruiksfunctie.

4.11.3 Conclusie

Het aspect 'verkeer' vormt geen belemmering voor de voorgenomen ontwikkeling. Verder kan op eigen terrein worden voorzien in voldoende parkeerruimte. Het plan kan en zal daarmee voorzien in voldoende parkeergelegenheid.

4.12 Duurzaamheid

4.12.1 Kader

In bijlage 1 van de Omgevingswet (Ow) is het begrip duurzame ontwikkeling gedefinieerd. Het gaat om "een ontwikkeling die voorziet in de behoeften van de huidige generatie zonder de mogelijkheden voor toekomstige generaties om in hun eigen behoeften te voorzien in gevaar te brengen." Artikel 1.3 en 2.1 Ow borgen het belang van duurzaamheid. In artikel 1.3 zijn de maatschappelijke doelen van de wet verwoord: "Deze wet is, met het oog op duurzame ontwikkeling, de bewoonbaarheid van het land en de bescherming en verbetering van het leefmilieu, gericht op het in onderlinge samenhang:

  • a. bereiken en in stand houden van een veilige en gezonde fysieke leefomgeving en een goede omgevingskwaliteit, en
  • b. doelmatig beheren, gebruiken en ontwikkelen van de fysieke leefomgeving ter vervulling van maatschappelijke behoeften."

Artikel 2.1 geeft aan dat een bestuursorgaan zijn taken en bevoegdheden op grond van de wet uitoefent met het oog op de doelen van de wet, tenzij daarover specifieke regels zijn gesteld.

Artikel 1.3 geeft ook richting aan de voor burgers en bedrijven opgenomen zorgplicht in artikel 1.6 Ow, namelijk dat men "voldoende zorg draagt voor een goede leefomgeving". Met deze bepalingen wordt een duurzame ontwikkeling voor het gehele domein van de fysieke leefomgeving geborgd. Het vergt een samenhangende benadering vanaf het begin van de planvorming van alle relevante belangen, waaronder: ruimte, water, natuur, gezondheid en wonen

4.12.2 Toetsing planvoornemen

Op rijksniveau is duurzaamheid vooral geregeld in het Besluit bouwwerken leefomgeving (Bbl). In het Bbl zijn in afdeling 4.4. regels voor duurzaamheid opgenomen. Deze (bouw)regels in het Bbl onverkort van toepassing op te nieuw te bouwen bouwwerken. Het Bbl een beoordelingsregel voor de (technische) bouwactiviteit (afdeling 8.3 Bkl).

Omdat er geen sprake is van bouwwerkzaamheden, is dit aspect verder niet relevant voor het planvoornemen.

4.13 Gezonde fysieke leefomgeving

4.13.1 Kader

Conform artikel 1.3 sub a Omgevingswet is het bereiken en in stand houden van een veilige en gezonde fysieke leefomgeving en een goede omgevingskwaliteit een belangrijk maatschappelijk doel van de Omgevingswet. De aspecten veilige en gezonde fysieke leefomgeving en een goede omgevingskwaliteit hangen nauw met elkaar samen. Gelet op de centrale rol van het gezondheidsaspect binnen de Omgevingswet dient dit aspect breed te worden gemotiveerd.

Omdat het bereiken en in stand houden van een gezonde fysieke leefomgeving een belangrijk doel is van de Omgevingswet bevat het Bkl een aantal instructieregels die specifiek de bescherming van de gezondheid en het milieu tot doel hebben. De instructieregels hebben onder andere betrekking tot de aspecten geluid, geur, trillingen, luchtkwaliteit en bodem. Deze aspecten zijn in voorgaande paragrafen reeds behandeld gemotiveerd. Het is wenselijk om daarnaast aan te geven op welke wijze het gezondheidsaspect bij de motivering is meegenomen. Dit niet alleen omdat het bereiken en in stand houden van een gezonde fysieke leefomgeving een belangrijk maatschappelijk doel is van de Omgevingswet, waar logischerwijs bij het nemen van een besluit op grond van deze wet aandacht voor moet zijn. Ook omwonenden en rondom het project gevestigde bedrijven zijn vaak geïnteresseerd in de gezondheidssituatie die ten gevolge van de activiteit optreedt.

4.13.2 Toetsing voornemen

Het planvoornemen heeft een positief effect op de fysieke leefomgeving. Met de beëindiging van de veehouderij nemen emissies zoals stikstof en geur in belangrijke mate af. Ook is vastgesteld dat het aantal verkeersbewegingen verminderen ten opzichte van de huidige situatie. Ook op de gezondheid van de bewoners van het erf zal het beëindigen van de veehouderij en de functieverandering een positief effect hebben. Gelet op de positieve uitkomst aan de toetsing aan de overige omgevingsaspecten zal een woonfunctie op deze locatie ook een positief effect sorteren op de gezondheid. Het planvoornemen draagt dan ook bij aan het bewerkstelligen van een goede gezondheid en een gezonde fysieke leefomgeving.

4.13.3 Conclusie

Het aspect 'gezonde fysieke leefomgeving' vormt geen belemmering voor de voorgenomen ontwikkeling.

4.14 Kabels, leidingen en straalpaden

In het plangebied zijn geen relevante kabels en straalpaden aanwezig waarmee rekening moet worden gehouden.

4.15 Conclusie fysieke leefomgeving

Met inachtneming van hetgeen omschreven in dit hoofdstuk en de bijbehorende onderzoeksrapportages, is er met uitvoering van voorliggend plan sprake van een gezonde en veilige fysieke leefomgeving, en daarmee sprake van een evenwichtige toedeling van functies aan locaties.

Hoofdstuk 5 Juridische vormgeving

5.1 Wijziging omgevingsplan

5.1.1 Omgevingsplan van rechtswege

Op 1 januari 2024 is het omgevingsplan van rechtswege ontstaan. Dit omgevingsplan bestaat uit alle ruimtelijke plannen, waaronder bestemmingsplannen en wijzigingsplannen, en uit de Bruidsschat die de gemeente van het Rijk heeft ontvangen.

In deze Bruidsschat zitten onder meer regels voor milieubelastende activiteiten en bouwactiviteiten. Ook twee bodemkaarten en de hogere waarde besluiten maken deel uit van het omgevingsplan van rechtswege. Gemeenten krijgen tot 1 januari 2032 de tijd om het omgevingsplan van rechtswege en andere regels over de fysieke leefomgeving om te zetten naar een nieuw omgevingsplan. Op grond van artikel 2.4 en 22.6 van de Omgevingswet kan de gemeenteraad het omgevingsplan van rechtswege (laten) wijzigen.

5.1.2 Toepassing TAM-IMRO

De Omgevingswet integreert wetgeving en regels voor ruimte, wonen, infrastructuur, milieu, natuur en water. Het DSO ondersteunt bij de uitvoering van de wet en bestaat uit lokale systemen van overheden en de landelijke voorziening (DSO-LV), zoals Regels op de kaart en het Omgevingsloket. Er zijn tijdelijke alternatieve maatregelen (TAMs) ontwikkeld. Een van deze TAMs is TAM-IMRO. Bij TAM-IMRO wordt het omgevingsplan gewijzigd via de - onder de Wet ruimtelijke ordening gebruikte - IMRO-standaard (Informatiemodel Ruimtelijke Ordening) en de voorziening ruimtelijkeplannen.nl.

Het gebruik van TAM-IMRO is toegestaan tot en met 31 december 2025. Als het ontwerp van een TAM-IMRO omgevingsplan uiterlijk 31 december 2025 ter inzage is gelegd, mag het ook na 1 januari 2026 worden afgemaakt met TAM-IMRO. Het ministerie van Binnenlandse Zaken en Klimaat geeft aan dat TAM-IMRO plannen uiterlijk voor 1 januari 2032 moeten worden omgezet naar de nieuwe Standaard officiële publicaties (STOP) met de bijbehorende Toepassingsprofielen omgevingsdocumenten (TPOD). Binnen de gemeente Súdwest-Fryslân wordt het TAM-IMRO plan beschreven als 'deel-omgevingsplan'.

5.1.3 Overzicht wijzigingen

De planregels van het omgevingsplan worden met dit deel omgevingsplan gewijzigd. De volgende wijzigingen zijn aangebracht:

  • 1. De functie is gewijzigd naar 'Functie - Woonboerderij' toe en daarbij zijn bouw- en gebruiksregels opgesteld.

5.2 Artikelsgewijze toelichting

Preambule

De preambule is direct zichtbaar boven de regels. In de preambule staat dat het deel- omgevingsplan gelezen moet worden als hoofdstuk en de artikelen als paragrafen van dat hoofdstuk. Dit om onduidelijkheden met het omgevingsplan te voorkomen.

Hoofdstuk 1 Inleidende regels

Artikel 1 Algemene begripsbepalingen

In het eerste lid is bepaald dat de ruimtelijke plannen uit het tijdelijk deel van het omgevingsplan niet van toepassing zijn op de locatie waarvoor het TAM-omgevingsplan is opgesteld.

In het tweede lid is bepaald dat de regels uit de Bruidsschat niet van toepassing zijn, als deze regels in strijd zijn met de regels uit het TAM-omgevingsplan.

In het derde lid worden de regels uit het TAM-omgevingsplan gekoppeld aan de bijbehorende verbeelding.

Het tweede lid is een verwijzing opgenomen naar de algemeen geldende begrippen.

Artikel 2 Meet- en rekenbepalingen

Het omgevingsplan van rechtswege bevat in artikel 22.24 al meetbepalingen. In dit artikel zijn alleen meet- en rekenbepalingen opgenomen die specifiek gelden voor het TAM-omgevingsplan.

Hoofdstuk 2 Functies en activiteiten

Functie Woonboerderij

De functie van het werkingsgebied is “Woonboerderij”. Deze functie maakt het Wonen mogelijk en richt zich daarbij op grondgebonden woningen, al dan niet in combinatie met ruimte voor een aan-huis-gebonden beroep en/ of bedrijf.

Bij de woning horende functies worden ook mogelijk gemaakt in dit TAM-omgevingsplan. Daarbij gaat het onder meer om parkeren, tuinen en erven.

Bij de bouwregels van een woonboerderij is een maximum oppervlakte opgenomen van 150 m2. Per bestemmingsvlak is er één woning toegestaan, in dit geval binnen het bouwvlak.

Naast hoofdgebouwen zijn ook bijbehorende bouwwerken toegestaan in het gebied met de aanduiding 'gebouwen toegestaan'. In totaal mogen de bijbehorende bouwwerken maximaal 90% van de oppervlakte van het hoofdgebouw bedragen met een maximum van 100 m². Het bij de woning behorende erf mag daarbij voor maximaal 50% worden bebouwd. Ook andere bouwwerken zijn toegestaan, waarbij rekening is gehouden met vergunningvrije mogelijkheden en de voorwaarden vanuit het Bouwbesluit.

Waarde-Archeologie 2
In deze dubbelbestemming zijn regels gesteld waaraan voldaan moet worden indien de grond geroerd zal worden.

De dubbelbestemming ‘Waarde - Archeologie 2’ wordt gehanteerd voor gebieden die op de FAMKE het advies ‘karterend onderzoek’ en ‘quickscan’ hebben gekregen en derhalve de gebieden met een archeologische verwachtingswaarde.

Waarde - Landschap verkaveling

In deze dubbelbestemming zijn regels gesteld voor het behoud, het herstel en de uitbouw van de landschappelijke en cultuurhistorische waarden van de bijzondere kavelstructuur en kavelsloten (inclusief dijksloten).

Karakteristiek

Ter plaatse van de bestaande woonboerderij is de aanduiding karakteristiek van toepassing. Hiervoor zijn in hoofdstuk 3 algemene regels, aanvullende beoordelingsregels opgenomen.

Hoofdstuk 3 Algemene regels

Artikel 8 Anti-dubbeltelregel

In dit artikel is aangegeven dat grond die één keer in beschouwing is genomen voor het toestaan van gebouwen, niet een tweede keer mag meetellen voor de toelaatbaarheid van andere gebouwen, als die grond inmiddels tot een ander bouwperceel is gaan behoren.
Artikel 9 Algemene regels voor bouwactiviteiten

In dit artikel zijn regels voor bouwactiviteiten opgenomen die gelden voor het gehele werkingsgebied.

Artikel 10 Algemene regels voor functies en activiteiten

In dit artikel zijn regels voor functies opgenomen die gelden voor het gehele werkingsgebied. In het omgevingsplan geldt dat een activiteit zonder meer mag worden uitgevoerd en dat er geen beperkingen voor die activiteit op grond van het omgevingsplan gelden als er geen regels voor die activiteit zijn opgenomen in het omgevingsplan. Het gebruik van gronden of bouwwerken in strijd met het TAM-omgevingsplan moet nadrukkelijk vergunningplichtig worden gemaakt of verboden. In dit geval is gekozen voor een algemeen gebruiksverbod. Aanvullend gelden enkele specifieke gebruiksverboden.

Artikel 11 Overige regels

In dit artikel zijn regels voor parkeren opgenomen. Tevens bevat dit artikel een verwijzing aar de aanvraagvereisten uit paragraaf 22.5.2 van de Bruidsschat.

Hoofdstuk 6 Uitvoerbaarheid

6.1 Economische uitvoerbaarheid

6.1.1 Algemeen

In deze paragraaf wordt getoetst of de betreffende ontwikkeling niet evident onuitvoerbaar is. Vastgesteld moet kunnen worden dat er geen financieel-economische redenen zijn waardoor het op voorhand aannemelijk is dat de ontwikkeling niet uitgevoerd kan worden.

6.1.2 Kostenverhaal

Op grond van artikel 13.11 Omgevingswet is de gemeente verplicht tot kostenverhaal, indien sprake is van één of meerdere aangewezen bouwactiviteiten. Het gaat om zogenaamde kostenverhaalsplichtige activiteiten zoals genoemd in artikel 8.13 Omgevingsbesluit (hierna: 'een aangewezen bouwactiviteit'). Dit houdt in dat de gemeenteraad kostenverhaalsregels dient vast te stellen in het omgevingsplan, tenzij middels onder andere een anterieure overeenkomst de kosten die het vanwege artikel 8.15 Omgevingsbesluit maakt, anderszins verzekerd zijn dan wel vrijstelling wordt verleend voor de kosten in de gevallen genoemd in artikel 8.14 Omgevingsbesluit.

Voor de voorgenomen ontwikkeling aan de Riperwei 2 te Jutrijp is het voeren van een kostenverhaal niet aan de orde. Het initiatief betreft uitsluitend een functiewijziging van 'Agrarisch' naar 'Functie - woonboerderij', zonder dat sprake is van fysieke ingrepen zoals (ver)bouw, aanleg van infrastructuur of andere voorzieningen die bekostigd moeten worden vanuit de overheid of op grond van het kostenverhaal verhaald zouden moeten worden op de initiatiefnemer.

De bestaande stallen verkeren in goede staat en kunnen zonder aanpassingen worden hergebruikt voor de beoogde nevenactiviteit, namelijk het stallen van caravans, campers en/of boten. Aangezien er geen bouw- of civieltechnische maatregelen nodig zijn en ook geen planbaten ontstaan, is er geen sprake van kosten die via een exploitatieplan of anterieure overeenkomst moeten worden verhaald.

Op basis van het voorgaande wordt geconcludeerd dat het kostenverhaal voor deze ontwikkeling is verzekerd. Er is geen aanleiding voor het opstellen van een exploitatieplan.

6.2 Maatschappelijke uitvoerbaarheid

Voor de uitvoerbaarheid van het plan is het van belang dat het initiatief maatschappelijk wordt gedragen. In het kader van de Omgevingswet geldt op grond van artikel 16.55 van het Omgevingsbesluit een participatieverplichting: de aanvrager moet aangeven of en hoe belanghebbenden bij het plan zijn betrokken. Deze verplichting beoogt de kwaliteit van besluiten te vergroten en de kans op draagvlak te versterken. De participatie maakt, samen met de mogelijkheid tot het indienen van zienswijzen tijdens de formele terinzagelegging, onderdeel uit van de bredere maatschappelijke verankering van het besluit.'

In het kader van participatie is de 'Quickscan Participatie Ruimtelijke Initiatieven' van de gemeente Súdwest-Fryslân doorlopen. De uitkomst is bijgevoegd als Bijlage 6. Het initiatief valt onder 'Niveau 1: Beperkte participatie'. De wijze van participatie ziet toe op het informeren van de buren. De bewoners van Riperwei 1 en de bewoners van de Riperwei 3 zijn ingelicht over het voornemen. Beide bewoners hebben aangegeven geen bezwaar te hebben tegen het plan.

Zienswijzen

Het ontwerpbesluit tot wijziging van het omgevingsplan wordt overeenkomstig afdeling 3.4 van de Awb gedurende zes weken ter inzage gelegd. Tijdens deze periode kunnen belanghebbenden zienswijzen indienen op het ontwerpbesluit.