direct naar inhoud van Motivering
Plan: TAM-omgevingsplan Hoofdstuk 22L Lagestraat 20 Niftrik
Status: ontwerp
Plantype: bestemmingsplan
IMRO-idn: NL.IMRO.0296.TAMLagestraat20-OW01

Motivering

Hoofdstuk 1 Inleiding

1.1 Aanleiding

De initiatiefnemer is voornemens om aan de Lagestraat 20 in Niftrik de werkzaamheden van de bestaande intensieve varkenshouderij te beëindigen en enkel het bestaande akkerbouwbedrijf voort te zetten. Op de vrijgekomen gronden is het voornemen om maximaal 28 woningen te realiseren.

Omdat deze ontwikkeling niet past in het omgevingsplan van de gemeente Wijchen dat sinds de invoering van de Omgevingswet per 01-01-2024 van kracht is (voorheen: het bestemmingsplan), maar dit initiatief wel wenselijk is, wordt middels voorliggende wijziging omgevingsplan (middels TAM-IMRO) medewerking verleend aan de voorgenomen activiteit. In dit document wordt toegelicht waarom er sprake is van een evenwichtige toedeling van functies aan locaties conform de Omgevingswet.

1.2 Ligging plangebied

Het plangebied is gelegen aan de Lagestraat 20 te Niftrik, gemeente Wijchen. De bijgevoegde afbeelding geeft een globale indruk van de ligging van het plangebied.

afbeelding "i_NL.IMRO.0296.TAMLagestraat20-OW01_0002.png"

Ligging plangebied ten opzichte van de omgeving (bron: openstreetmap.org)

1.3 Huidige planologische situatie

Huidige bouw- en gebruiksmogelijkheden

Het tijdelijk deel van het omgevingsplan bestaat uit de geldende bestemmingsplannen, de verordeningen tijdelijk deel omgevingsplan (archeologieverordening (artikel 38, Monumentenwet 1988), geurverordening (artikel 6, Wet geurhinder en veehouderij), verordening afvoer regen- en grondwater (artikel 10.32a, Wet milieubeheer), hogere waarde besluiten (artikel 110a, Wet geluidhinder), vastgestelde veiligheidscontouren (artikel 14, Besluit externe veiligheid inrichtingen) en de bruidsschat. Hierna wordt per aspect de ontwikkeling getoetst op strijdigheden. Om te bepalen of het initiatief past binnen het omgevingsplan, wordt getoetst aan het voorheen geldende bestemmingsplan dat één op één is overgenomen in het tijdelijk deel van het omgevingsplan.

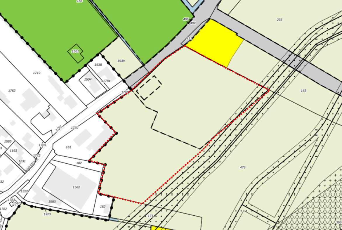
Op grond van het tijdelijk deel van het omgevingsplan, meer specifiek het voorheen geldende bestemmingsplan 'Buitengebied Wijchen' (vastgesteld op 31 januari 2013 en herzien in 2014), heeft het plangebied de bestemming 'Agrarisch'. In het noordelijk deel van het plangebied bevindt zich een bouwvlak, met de functieaanduiding 'intensieve veehouderij'. Ter plaatse van de T-boerderij bevindt zich een functieaanduiding 'cultuurhistorische waarden'. Over een klein deel van de noordoosthoek van het plangebied ligt de dubbelbestemming 'Leiding - Gas'. Navolgende afbeelding geeft dit weer.

afbeelding "i_NL.IMRO.0296.TAMLagestraat20-OW01_0003.png"

Uitsnede vigerende planologische situatie (bron: ruimtelijkeplannen.nl)

1.4 Wat is een TAM-Omgevingsplan?

'TAM' staat voor Tijdelijke Alternatieve Maatregel. Met een TAM-omgevingsplan is het mogelijk om met de IMRO-standaard voor bestemmingsplannen en bijbehorende software het omgevingsplan te wijzigen.

Bij inwerkingtreding van de Omgevingswet is onderkend dat de planapplicaties voor het maken en publiceren van het omgevingsplan in combinatie met het DSO (Digitaal Stelsel Omgevingswet) vaak nog onvoldoende functioneren. Daarom is het TAM-omgevingsplan mogelijk gemaakt.

Dit TAM-omgevingsplan is dus opgesteld op basis van de IMRO-standaard voor bestemmingsplannen. Juridisch is het een wijziging van het omgevingsplan. Dit TAM-omgevingsplan wordt een apart hoofdstuk van het tijdelijke omgevingsplan. Uiteindelijk zal het verwerkt worden in het definitieve omgevingsplan.

1.5 Leeswijzer

Na dit inleidende hoofdstuk is in hoofdstuk 2 het initiatief beschreven. In hoofdstuk 3 wordt ingegaan op het relevante Rijks-, provinciale-, en gemeentelijke beleid. In hoofdstuk 4 is het project inhoudelijk getoetst op grond van het geldende beleid en (milieu)wetgeving. Hoofdstuk 5 gaat in op de juridische planbeschrijving en in hoofdstuk 6 wordt de economische haalbaarheid van het initiatief behandeld. Tot slot gaat hoofdstuk 7 in op het onderdeel participatie.

Hoofdstuk 2 Gebiedsvisie

2.1 Bestaande situatie

De planlocatie is gelegen aan de Lagestraat 20, aan de noordoostzijde van de dorpskern van Niftrik. De Lagestraat is een karakteristiek lint met verspreid gelegen (voormalige) agrarische bebouwing, woonhuizen en enkele kleinschalige bedrijven. In de directe omgeving bevinden zich onder andere sportpark De Eik en het verenigingsgebouw de Waayershof. De locatie ligt buiten de formele bebouwde kom maar sluit fysiek en functioneel aan op het dorp. Ten zuiden van het projectgebied ligt de Maasbandijk met daarachter de rivier de Maas. Het gebied maakt deel uit van het Maasoeverwal-landschap, gekenmerkt door vlakke, kalkloze rivierkleigronden en een open, agrarisch karakter.

Op het perceel zelf is een agrarisch bedrijf gevestigd, dat momenteel bestaat uit een varkenshouderij, een tak met (zoog)koeien en een akkerbouwbedrijf. Centraal op het erf staat een monumentale T-boerderij welke dient als bedrijfswoning, met houten karnemolen en voor het voorhuis een geschoren erfbeplanting. In een deel van de T-boerderij zijn de zoogkoeien gehuisvest. Daarnaast zijn er vijf stallen met een totale oppervlakte van ruim 3.100 m² en twee schuren van samen bijna 1.200 m². Verder is er erfverharding en zijn er voorzieningen voor mest- en voeropslag aanwezig. Rond het erf ligt de huiskavel van circa 4 hectare grasland, die deel uitmaakt van de agrarische bedrijfsvoering.

Navolgende afbeelding geeft het plangebied weer middels een luchtfoto.

afbeelding "i_NL.IMRO.0296.TAMLagestraat20-OW01_0004.png"

Luchtfoto plangebied (bron: ruimtelijkeplannen.nl)

2.2 Toekomstige situatie

In de toekomstige situatie wordt het huidige agrarische erf aan de Lagestraat 20 in Niftrik herontwikkeld tot een kleinschalige, erfgerichte woonlocatie met maximaal 28 nieuwe woningen. De woningen worden gesitueerd rondom een centraal erf aan de zuidwestzijde van het plangebied, in een opzet die refereert aan een traditioneel boerenerf. Het plan bestaat uit een mix van woningtypen: 2 vrijstaande woningen, 16 rijwoningen (waarvan 3 levensloopbestendig) en 10 rug-aan-rugwoningen (sociale huurwoningen). Om de ontwikkeling mogelijk te maken wordt op de locatie de bestaande veehouderij beëindigd. Het bestaande akkerbouwbedrijf dat op de locatie aanwezig is, blijft in de toekomstige situatie behouden. Tevens worden hobbymatig 10 koeien gehouden voor beweiding van de graslanden.

De nieuwe bebouwing wordt op een zorgvuldige manier in het bestaande dorpslint geplaatst. Hoofdgebouwen oriënteren zich op de straat of op het centrale erf en sluiten daarmee aan bij het bestaande straatprofiel van de Lagestraat. Door de aanleg van ondiepe voortuinen en de toepassing van kleinschalige korrelgrootte ontstaat een overgang van privé naar openbaar gebied die past binnen het karakter van het dorp. Het plan is landschappelijk ingepast met behoud van open doorzichten, toepassing van inheemse erfafscheidingen en een groene overgang naar het omliggende landschap.

Navolgende afbeelding geeft een impressie van de toekomstige situatie. Het volledige stedenbouwkundige ontwerp is toegevoegd als bijlage 1.

afbeelding "i_NL.IMRO.0296.TAMLagestraat20-OW01_0005.png"

Impressie toekomstige situatie (ontwerp: Quadrant architecten bna)

Voor de landschappelijke inpassing van de nieuwe woningen is een landschappelijk inpassingsplan opgesteld, welke is toegevoegd als bijlage 2 bij de regels. Onderstaande afbeelding toont een uitsnede van het landschappelijk inpassingsplan. Tussen de nieuwe bebouwing en de monumentale boerderij wordt onder andere een robuuste groenstructuur in de vorm van een fruitboomgaard aangelegd, waarmee de monumentale waarde wordt gerespecteerd en versterkt. Daarnaast wordt de bestaande haag voor de bedrijfswoning behouden. Het openbare gebied wordt ingericht met waterdoorlatende verharding en een centrale ruimte voor waterberging. Parkeren wordt deels opgelost in het openbaar gebied en deels op eigen terrein. De ontwikkeling zorgt voor een kwaliteitsimpuls voor het erf en draagt bij aan een landschappelijk en sociaal passende uitbreiding van Niftrik. Onderstaand een uitsnede van het landschappelijk inpassingsplan.

afbeelding "i_NL.IMRO.0296.TAMLagestraat20-OW01_0006.png"

Uitsnede landschappelijk inpassingsplan ((ontwerp: Quadrant architecten bna)

Voor de beoogde beeldkwaliteit is een beeldkwaliteitsplan opgesteld. Het beeldkwaliteitsplan is opgenomen als bijlage 3 bij de regels.

2.3 ETFAL

Met het initiatief worden functies mogelijk gemaakt die niet reeds op de locatie toegestaan zijn. Het initiatief is hiermee in strijd met het omgevingsplan (activiteit gebruik). De voorgenomen ontwikkeling wordt daarom mogelijk gemaakt door middel van onderhavige wijziging omgevingsplan (middels TAM-IMRO). In dit document wordt gemotiveerd dat met de ontwikkeling sprake is van een evenwichtige toedeling van functies aan locaties.

Hoofdstuk 3 Beleidskader

In dit hoofdstuk wordt het beleidskader dat relevant is voor de activiteit toegelicht en wordt de activiteit hieraan getoetst.

3.1 Nationaal beleid

3.1.1 NOVI

De Nationale Omgevingsvisie (NOVI) is de opvolger van de Structuurvisie Infrastructuur en Ruimte (SVIR), waarin het Rijk een lange termijn visie geeft op de toekomstige ontwikkeling van de leefomgeving in Nederland. De NOVI geeft richting en helpt keuzes te maken. Bij de afweging van keuzes wordt bij voorkeur gekozen voor slimme combinaties van functies, wordt uitgegaan van de specifieke kenmerken en kwaliteiten van gebieden en worden beslissingen niet uitgesteld of doorgeschoven.

De nationale belangen en opgaven waarop het Rijk wil sturen en richting wil geven, komen samen in de volgende vier prioriteiten:

  • Ruimte maken voor klimaatadaptatie en energietransitie;
  • De economie van Nederland verduurzamen en ons groeipotentieel behouden;
  • Steden en regio's sterker en leefbaarder maken;
  • Het landelijk gebied toekomstbestendig ontwikkelen.

Planspecifiek

Het plangebied ligt niet in één van de aangewezen beschermde gebieden uit de NOVI. Het initiatief heeft daarmee op voorhand geen effect op één of meerdere aspecten met een nationaal ruimtelijk belang.

3.1.2 Instructieregels rijk (AMvBs)

De Omgevingswet werkt door in vier algemene maatregelen van bestuur (AMvB's):

  • 1. het Omgevingsbesluit (Ob);
  • 2. het Besluit kwaliteit leefomgeving (Bkl);
  • 3. het Besluit activiteiten leefomgeving (Bal);
  • 4. het Besluit bouwwerken leefomgeving (Bbl).

In deze AMvB's staan regels voor het praktisch uitvoeren van de wet. Voor de volgende onderwerpen gelden er op grond van het Besluit kwaliteit leefomgeving instructieregels voor het vaststellen van een (wijziging van het) omgevingsplan:

  • De dienstenrichtlijn (art 5.1a Bkl);
  • Waarborgen van veiligheid (§ 5.1.2 Bkl);
  • Beschermen van waterbelangen (§ 5.1.3 Bkl);
  • Beschermen van gezondheid en milieu, waaronder instructieregels voor de kwaliteit van de buitenlucht, trillingen, geluid en geur en bodemkwaliteit (§ 5.1.4 Bkl);
  • Beschermen van landschappelijke of stedenbouwkundige waarden en cultureel erfgoed, waaronder de ladder voor duurzame verstedelijking (§ 5.1.5 Bkl);
  • Het behoud van ruimte voor toekomstige functies voor autowegen, buisleidingen, natuur- en recreatiegebieden (§ 5.1.6 Bkl);
  • Het behoeden van de staat en werking van infrastructuur of voorzieningen voor nadelige gevolgen van activiteiten, waaronder landsverdediging en nationale veiligheid, elektriciteitsvoorziening, rijksvaarwegen en luchtvaart, fiets- en wandelroutes, aanwijzing van woningbouwcategorieën (§ 5.1.7 Bkl);
  • Het bevorderen van de toegankelijkheid van de openbare buitenruimte voor personen (§ 5.1.8 Bkl).

Planspecifiek

De toetsing aan de eventueel van toepassing zijnde omgevingswaarden vindt plaats in hoofdstuk 4. Met onderhavig initiatief is geen sprake van een nieuwe stedelijke ontwikkeling in de zin van de Ladder. Een nadere onderbouwing van de Ladder voor duurzame verstedelijking is niet aan de orde.

3.1.3 Conclusie nationaal beleid

Het initiatief is passend binnen het nationale beleid.

3.2 Provinciaal beleid

3.2.1 Omgevingsvisie Provincie Gelderland

De komende decennia komt er veel op Gelderland af: het energievraagstuk, klimaatverandering, uitputting van grondstoffen, kwetsbare biodiversiteit, digitalisering, internationalisering. Deze zaken vragen stevige antwoorden en oplossingen als investering in de toekomst. Met de schaarse ruimte en de vele uiteenlopende belangen en inzichten gaat dit niet vanzelf. De provincie zet in de Omgevingsvisie een gezond, veilig, schoon en welvarend Gelderland centraal.

  • Gezond en veilig; dat is een gezonde leefomgeving, schone en frisse lucht, een schoon milieu, een niet vervuilde bodem, voldoende schoon en veilig (drink)water, bescherming van onze flora en fauna. Dat is ook voorbereid zijn op klimaatverandering, verkeersveiligheid en veilige bedrijvigheid.
  • Schoon en welvarend; dat is een dynamisch, duurzaam en aantrekkelijk woon-, werk- en ondernemersklimaat, goed bereikbaar en met een goed functionerende arbeidsmarkt en dito kennis- en onderwijsinstellingen. Maar dat is ook het tegengaan van schadelijke uitstoot, afval en uitputting van grondstoffen, alsmede het investeren in nieuwe, alternatieve vormen van energie.

Om Gelderland voor mensen en bedrijven aantrekkelijk te houden, is de kwaliteit van de leefomgeving van groot belang, zoals goed bereikbare voorzieningen, aansprekende evenementen, unieke cultuurhistorie, inspirerende culturele voorzieningen en een mooie natuur. Ook goed wonen hoort daarbij. Gelderland heeft op woongebied een bijzondere positie met uiteenlopende stedelijke en landelijke woonkwaliteiten. Om het landschap open, groen en het voorzieningenniveau op peil te houden en leegstand te voorkomen, is bouwen binnen bestaand verstedelijkt gebied het vertrekpunt. Pas als er geen andere goede mogelijkheden zijn, kan er aan de randen van steden of dorpen uitgebreid worden.

Voor de provincie staat een goede balans tussen de vraag en aanbod van woningen in verschillende prijscategorieën voorop, ook voor specifieke doelgroepen. De meeste woningen zijn verre van energieneutraal en klimaatbestendig. De provincie stimuleert innovaties op dit terrein, zoals het aardgasloos maken van bestaande woningen en het verduurzamen van woonwijken. Daarnaast is de provincie met haar partners in gesprek over hoe het vraagstuk van klimaatadaptatie en wonen slimmer aangepakt kan worden. Voldoende groene ruimte, koele plekken, opvang van water in het licht van de klimaatverandering is immers van belang, zeker met het oog op de gezondheid van de Gelderlanders.

Planspecifiek

Door de sanering van de intensieve veehouderij wordt de omgevingskwaliteit verbeterd en ontstaat ruimte voor duurzame woningbouw in een landschappelijk passende vorm, aansluitend op de kern Niftrik. Het initiatief draagt bij aan meerdere provinciale ambities zoals verbetering van het woon- en leefklimaat, behoud van cultuurhistorische waarden en het verminderen van emissies, en sluit daarmee aan op het streven naar een duurzaam, verbonden en economisch krachtig Gelderland.

Het initiatief is passend binnen de Omgevingsvisie.

3.2.2 Omgevingsverordening Provincie Gelderland

De Omgevingsverordening vormt de juridische doorwerking in regels van het beleid uit de Omgevingsvisie. De verordening voorziet ten opzichte van de Omgevingsvisie niet in nieuw beleid en is daarmee dus beleidsneutraal. De inzet van de verordening als juridisch instrument om de doorwerking van het provinciaal beleid af te dwingen is beperkt tot die onderdelen van het beleid waarvoor de inzet van algemene regels noodzakelijk is om provinciale belangen veilig te stellen of om uitvoering te geven aan wettelijke verplichtingen. De Omgevingsverordening richt zich net zo breed als de Omgevingsvisie op de fysieke leefomgeving in de Provincie Gelderland. Dit betekent dat vrijwel alle regels die betrekking hebben op de fysieke leefomgeving opgenomen zijn in de Omgevingsverordening.

Planspecifiek

Navolgend worden de relevante thema's uit de provinciale verordening toegelicht:

Gelderse streek 'Land van Maas en Waal'

Het plangebied is gelegen binnen de Gelderse streek 'Land van Maas en Waal'. Voor dit gebied dient rekening gehouden te worden met de kernkwaliteiten en ontwikkeldoelen van dit gebied. Onderhavig initiatief wordt landschappelijk ingepast conform bijlage 2 bij de regels. De opzet van het plan versterkt het kleinschalige, landschappelijke karakter met behoud van de bestaande taxushaag, zichtlijnen, aanleg van een fruitboomgaard en gebruik van inheemse beplanting. Door de kleinschalige opzet en inrichting en het behoud van openheid rondom het erf sluit het plan aan op de ambities voor deze streek.

Conclusie

Het initiatief is passend binnen de provinciale omgevingsverordening.

3.2.3 Conclusie provinciaal beleid

Het initiatief is passend binnen het provinciale beleid.

3.3 Regionaal beleid

3.3.1 Woondeal 2.0 groene metropoolregio Arnhem-Nijmegen

In 2020 zijn gemeenten binnen de Groene Metropoolregio Arnhem-Nijmegen, provincie Gelderland en Rijk een langjarig partnerschap aangegaan voor een beter werkende woningmarkt. Het partnerschap is vastgelegd in de woondeal uit 2020. Marktpartijen en woningcorporaties hebben hun ondersteuning hierbij uitgesproken. Met de geactualiseerde Woondeal 2.0, vastgesteld op 8 maart 2023, onderkennen partijen de bovengemiddeld grote woonopgave, continueren de samenwerking uit 2020 en geven het partnerschap verder vorm.

De Woondeal 2.0 zet in op zeven werkafspraken:

  • 1. Woningbouwopgave en versnelling
  • 2. Betaalbare woningen voor lage en middeninkomens
  • 3. Huisvesting aandachtsgroepen
  • 4. Klimaatadaptief, conceptueel en circulair bouwen
  • 5. Leefbaarheid en stadsvernieuwing
  • 6. Verstedelijking en gebiedsontwikkeling
  • 7. Overige thema's als vakantieparken, stikstof en elektriciteitsnetwerken

Partijen streven naar de bouw van 33.000 woningen tot en met 2030 in de Groene Metropoolregio. En richting 2040 zo'n 55.000 woningen. De woningbouwopgave voor gemeente Wijchen bedraagt 2.060 tot en met 2030.

In lijn met de nationale doelstelling om toe te groeien naar 2/3e betaalbare nieuwbouwwoningen, wordt ingezet op een vergroting van de beschikbaarheid van woningen voor mensen met lage en middeninkomens, waaronder veel starters. Iedere gemeente zorgt vanaf 2025 binnen de gemeentebrede nieuwbouwopgave voor minimaal 30% sociale huur en minimaal 35% middenhuur en betaalbare koop (tot € 390.000, landelijke betaalbaarheidsgrens, prijspeil 2024). Op basis van het woningbehoefteonderzoek zet de regio zich ervoor in dat een deel van het middensegment bestaat uit betaalbare koopwoningen voor lagere inkomens, met een prijs van maximaal € 250.000 of middenhuur (woningen tussen € 808-€ 1.123, prijspeil 2023). Op basis van het woningbehoefteonderzoek is er ruimte voor uitwisseling tussen de betaalbare segmenten, met dien verstande dat er voldoende sociale huurwoningen en middenhuur/betaalbare koopwoningen voor lagere inkomens worden toegevoegd.

Aanvullend op het bouwprogramma wordt ingezet op extra kansen door betere benutting van de bestaande woningvoorraad, herstructurering of transformatie van bestaand vastgoed. Transformatie van zelfstandige woningen naar woonruimten voor meerdere kleine huishoudens met gemeenschappelijke voorzieningen biedt kansen. Ook flexibele en tijdelijke woningen en vernieuwende bouwconcepten bieden kansen, waardoor op een snelle manier voorzien kan worden in de woningbehoefte. Daarnaast spant de regio zich in om sterke, toekomstbestendige en gedifferentieerde wijken te realiseren.

Er wordt gezorgd voor voldoende betaalbare woningen voor aandachtsgroepen en een evenwichtige spreiding daarvan over de gemeenten. Specifieke aandacht is nodig voor de ondersteuning van de woonbehoeften van ouderen. Er is een toenemende behoefte aan woningen die aansluiten bij de wensen van ouderen.

In lijn met de nationale doelstelling om toe te groeien naar 2/3e betaalbare nieuwbouwwoningen, wordt ingezet op een vergroting van de beschikbaarheid van woningen voor mensen met lage en middeninkomens, waaronder veel starters. Iedere gemeente zorgt vanaf 2025 binnen de gemeentebrede nieuwbouwopgave voor minimaal 30% sociale huur en minimaal 35% middenhuur en betaalbare koop (tot € 405.000, landelijke betaalbaarheidsgrens, prijspeil 2025). Op basis van het woningbehoefteonderzoek zet de regio zich ervoor in dat een deel van het middensegment bestaat uit betaalbare koopwoningen voor lagere inkomens, met een prijs van maximaal € 250.000 of middenhuur (woningen tussen € 900-€ 1.185, prijspeil 2025). Op basis van het woningbehoefteonderzoek is er ruimte voor uitwisseling tussen de betaalbare segmenten, met dien verstande dat er voldoende sociale huurwoningen en middenhuur/betaalbare koopwoningen voor lagere inkomens worden toegevoegd.

Partijen werken samen aan een regionaal programma circulair en conceptueel bouwen. De regio spant zich in om in 2025 minimaal 25% en in 2030 minimaal 50% van het aantal woningen industrieel te laten bouwen. En om in 2025 minimaal 25% en in 2030 minimaal 50% minder primaire grondstoffen in projecten te gebruiken. Ook wordt klimaatbestendigheid meegenomen in het ontwerp van gebouwen en buitenruimte.

Planspecifiek
Binnen de Woondeal 2.0 heeft de gemeente Wijchen zich gecommitteerd aan de bouw van 2.080 woningen tot en met 2030. Het initiatief levert hieraan een bijdrage door het ontwikkelen van nieuwe woningen met een mix aan verschillende woningtypes. Meer specifiek wordt ook een bijdrage geleverd aan het creëren van sociale huurwoningen, waarmee ingespeeld wordt op de kwalitatieve behoefte naar dit soort woningen. Het initiatief ondersteunt hiermee de doelstellingen van de Woondeal en past binnen de afgesproken lokale bijdrage aan de woningbouwopgave in de regio Arnhem-Nijmegen.

3.3.2 Verstedelijkingsstrategie

De regio's Arnhem-Nijmegen en Foodvalley spraken in het najaar van 2019 hun ambitie uit om samen door te ontwikkelen tot een Groene Metropool van internationale betekenis. Eind 2021 stelden de gemeenteraden binnen de twee regio's en de Provinciale Staten van Utrecht en Gelderland het Verstedelijkingsconcept vast. Dit concept vormt het eerste deel van de Verstedelijkingstrategie Arnhem Nijmegen Foodvalley. Het tweede deel bevat de onderzoeksagenda voor de zeven deelgebieden binnen de verstedelijkingsstrategie. Dit deel is eind 2022 door alle raden en staten vastgesteld.

De verstedelijkingsstrategie is een uitwerking van de NOVI en beschrijft welke voorwaarden en principes er zijn om te komen tot nieuwe locaties voor wonen en werken. Er wordt globaal een beeld geschetst waar op de middellange (2030) en lange termijn (2040) de extra woon-en werklocaties voor de komende jaren een plek kunnen krijgen. De strategie reikt ontwerpprincipes en levert handvatten voor verder uitwerking en samenwerking. De verstedelijkingsstrategie is opgebouwd vanuit vier bouwstenen:

  • Leefomgeving;
  • Mobiliteit;
  • Economie;
  • Wonen.

Planspecifiek

De ruimtelijke kwaliteit ter plaatse verbetert door beëindiging van de veehouderij en versterking van het landschap, waarmee een bijdrage geleverd wordt aan het creëren van leefbare dorpen en de verweving van woningbouw met landbouwtransitie.

Het initiatief is daarmee passend binnen de Verstedelijkingsstrategie.

3.3.3 Conclusie regionaal beleid

Het initiatief is passend binnen het regionale beleid.

3.4 Waterschap

Het Waterbeheerprogramma 2022-2027 'Versterken, verbinden, vergroenen' beschrijft wat Waterschap Rivierenland in de planperiode 2022-2027 wil bereiken: met wie, hoe men dat wil gaan doen en waarom. In het waterbeheerprogramma zijn voor het waterbeheer de kaders gegeven en de opgaven gedefinieerd. De visie van Waterschap Rivierenland is vertaald in 8 hoofdthema's: beschermen tegen overstromingen; water eerlijk verdelen; voorbereiden op extreem weer; streven naar schoon water van een goede biologische kwaliteit; bijdragen aan een fijne leefomgeving voor mens en natuur; kwaliteitsverbetering zwemwater; toewerken naar klimaat- en energieneutraliteit; toewerken naar circulariteit.

Daarnaast beschikt het Waterschap Rivierenland over een Waterschapsverordening. Hierin staan de geboden en verboden die betrekking hebben op watergangen en waterkeringen. Voor het uitvoeren van werkzaamheden kan een vergunning nodig zijn. De werkzaamheden in of nabij de watergangen en waterkeringen worden getoetst aan de beleidsregels.

Het Waterschap Rivierenland hanteert de beleidsregel 'Nieuwe lozingen vanaf verhard oppervlak'. Deze heeft als doel de versnelde afvoer van hemelwater als gevolg van de uitbreiding van het verhard oppervlak te beperken tot de maatgevende afvoer van het landelijk gebied. Een uitbreiding van het verhard oppervlak moet vanuit waterhuishoudkundig opzicht dus waterbalans-neutraal plaatsvinden.

Om te voorkomen dat individuele bewoners voor kleine voorzieningen zoals serres, tuinschuurtjes, enkele woning, etc., moeten compenseren geldt er een eenmalige vrijstelling van de compensatieplicht van 500 m² voor stedelijk gebied en 1.500 m² voor landelijk gebied. Deze vrijstelling geldt alleen voor particulieren.

Er moet voldoende berging zijn bij extremere omstandigheden. Voor ontwikkeling met een toename van verhard oppervlak tot 5.000 m² kan een standaardberekening worden toegepast, waarbij wordt uitgegaan van een maatgevende bui die eenmaal in de 10 jaar voorkomt. Vuistregel daarbij is dat 436 m³ waterberging per hectare verhard oppervlak nodig is*.

Uit deze vuistregel volgt de volgende berekening:

Benodigde compensatie = Toename verhard opp (in m²) * 0,0436

* De aangegeven bergingsnorm is alleen van toepassing ingeval van lozing op het oppervlaktewater. Als op/in de bodem geloosd wordt binnen 100 m uit het oppervlaktewater, geldt een andere bergingsnorm (664 m³ per ha verhard oppervlak).

3.4.1 Conclusie waterschapsbeleid

In paragraaf 4.9 wordt het initiatief getoetst aan het waterschapsbeleid. Hieruit komen geen belemmeringen ten aanzien van het initiatief naar voren.

3.5 Gemeentelijk beleid

3.5.1 Strategisch Kompas: Wijchen 2035 'De kracht van Wijchen'

Op 20 oktober 2022 heeft de gemeenteraad van de gemeente Wijchen het Strategisch Kompas vastgesteld. Het Strategisch kompas vormt het koersdocument van de gemeente tot het jaar 2035. Het document vormt een toetsingskader voor toekomstig beleid en formuleert de opgaven van de gemeente voor deze periode. De gemeente Wijchen voorziet tot 2035 een groei naar circa 45.000 - 50.000 inwoners. De vergrijzing van de gemeente leidt tot opgaven, bijvoorbeeld door het trekken van meer jongeren. Brede welvaart en duurzaamheid zijn aspecten waar aandacht aan besteed wordt. De gemeente wil zich daarnaast nog meer richten op de verbindende rol die het heeft: inwoners, partners en ondernemers werken aan prettig wonen, werken en leven.

Speerpunten uit het Strategisch Kompas zijn:

  • a. Voldoende woningen voor inwoners in elke levensfase;
  • b. Aantrekkelijke groene wijken en kernen, met goede voorzieningen en bereikbaarheid;
  • c. Iedereen aan het werk. Bij het vestigen van bedrijven geldt kwaliteit boven kwantiteit;
  • d. Een sterke, gezonde en sociale samenleving, met oog voor mentale en fysieke gezondheid, preventie, maatwerk en zorg dichtbij huis;
  • e. Energieneutrale en fossielvrije toekomst;
  • f. Krachtige samenwerking tussen gemeente(n), inwoners, ondernemers en partners.

In 2035 is het goed wonen in Wijchen, omdat de mogelijkheden aansluiten bij de wensen en behoeften van de inwoners van gemeente Wijchen. Er zijn voldoende betaalbare en geschikte woningen voor alle inwoners, van jong tot oud. Inwoners hebben de mogelijkheid om hun eigen woning aan te passen of binnen de gemeente te verhuizen naar een woning die hen past. Daarnaast is er ruimte voor specifieke doelgroepen als ouderen en mensen met een beperking.

De gemeente groeit door naar een gemeente met ongeveer 45.000-50.000 inwoners en er wordt gewerkt aan verdere groei om ervoor te zorgen dat de vergrijzing wordt tegen gegaan en jongeren een plek kunnen krijgen in Wijchen. Daarnaast speelt er de regionale woningbouwopgave waaraan de gemeente een bijdrage aan levert. Dit betekent dat er de komende jaren ongeveer 4.000 woningen worden bijgebouwd. Er zijn dan genoeg passende woningen beschikbaar, voor zowel de toenemende groep eenpersoonshuishoudens als de toenemende groep ouderen en jongeren.

Naast het tegengaan van vergrijzing en ontgroening is er ook een opgave in het versterken van de sociale cohesie, door onder andere nieuwe woonvormen te creëren. Doorstroming van generaties draagt bij aan passend wonen. Door een goede mix van woningen worden de wijken divers en inclusief. Dit betekent verschillende woningtypen, doelgroepen en prijsklassen naast elkaar, waardoor de wijk ook op lange termijn veerkrachtig en leefbaar blijft. Het is belangrijk dat het dorpse karakter van Wijchen behouden blijft. Daarom vindt de uitbreiding van woningen vooral in de kern van Wijchen plaats.

De gemeente gaat actief aan de slag met flexibele woonvormen. De huidige samenleving vraagt om adaptief bouwen, om grote projecten gefaseerd te realiseren en telkens te kijken of plannen bijgesteld moeten worden. Op deze manier blijft er goede aansluiting op de behoeften van inwoners en bij de maatschappelijke (regionale) opgave.

Om groene wijken te realiseren, wordt gewerkt met het groen-blauwraamwerk. Er is ruimte voor hogere woongebouwen, vooral bij nieuwe wijkontwikkeling in en rond de kern Wijchen. Zo kunnen er meer woningen worden gerealiseerd, zonder dat het ten koste gaat van een groene woonomgeving. Er geldt geen harde (maximale) hoogtegrens. Op projectniveau wordt gekeken wat passend en mogelijk is om goed een gevarieerde wijken te realiseren. Waar mogelijk wordt gekozen voor inbreiding boven uitbreiding.

Planspecifiek  

Het plan draagt door het mogelijk maken van woningen voor verschillende doelgroepen bij aan een evenwichtige bevolkingsopbouw, bevordert doorstroming op de woningmarkt en versterkt de leefbaarheid van het dorp. Door herontwikkeling van een bestaande agrarische locatie, inclusief de sanering van een intensieve veehouderij, ontstaat ruimte voor een duurzame, sociale en groene woonomgeving. Dit past bij de gemeentelijke ambitie om voldoende betaalbare en geschikte woningen te realiseren en het dorpse karakter te behouden.

Het initiatief is passend binnen het Strategisch Kompas.

3.5.2 Omgevingsvisie Wijchen

De Omgevingsvisie Wijchen 2035 vormt het toekomstbeeld voor de ontwikkeling van de fysieke leefomgeving van de gemeente Wijchen. De visie geeft richting aan hoe de gemeente ook in 2035 een fijne plek wil blijven om te wonen, werken, recreëren en ondernemen. De omgevingsvisie beschrijft de gewenste ruimtelijke, maatschappelijke en economische koers en vormt daarmee een belangrijk toetsingskader voor nieuwe initiatieven en wijzigingen van het omgevingsplan.

De visie is gebaseerd op het Strategisch Kompas Wijchen 2035 – De kracht van Wijchen en vertaalt deze naar de fysieke leefomgeving. Daarbij staan integraliteit, duurzaamheid en samenwerking centraal. Het document schetst hoe de gemeente met haar partners werkt aan een aantrekkelijke, gezonde en toekomstbestendige leefomgeving.

De omgevingsvisie is opgebouwd rond vijf speerpunten:

  • 1. Voldoende woningen – inzet op een groeiende en evenwichtige woningvoorraad met aandacht voor betaalbaarheid, doorstroming en nieuwe woonvormen;
  • 2. Aantrekkelijke wijken en kernen – versterking van de leefbaarheid, vergroening, klimaatadaptatie en behoud van het dorpse karakter;
  • 3. Iedereen aan het werk – een sterk en duurzaam ondernemersklimaat, met focus op kwaliteit, innovatie en circulaire economie;
  • 4. Sterke en sociale samenleving – een gezonde en inclusieve leefomgeving waarin ontmoeting, preventie en welzijn centraal staan;
  • 5. .Energieneutraal en fossielvrij – toewerken naar een duurzame, klimaatneutrale gemeente door energiebesparing, hernieuwbare energie en bewust ruimtegebruik.

Deze speerpunten geven samen richting aan een evenwichtige ontwikkeling van Wijchen, waarin groei hand in hand gaat met leefkwaliteit en brede welvaart. De omgevingsvisie vormt daarmee een belangrijk beleidskader bij de beoordeling van nieuwe ruimtelijke ontwikkelingen binnen de gemeente.

Planspecifiek

De herontwikkeling van een agrarisch erf naar een kleinschalige, erfgerichte woonlocatie draagt bij aan de speerpunten “Voldoende woningen ”en “Aantrekkelijke wijken en kernen” door het toevoegen van een gevarieerd woningaanbod, inclusief sociale huur, binnen de bestaande dorpsstructuur. Het plan bevordert de leefbaarheid van Niftrik en zorgt voor een ingepaste uitbreiding met behoud van het dorpse karakter en landschappelijke kwaliteiten. De beëindiging van de veehouderij past bij de transitie naar een gezonde en duurzame leefomgeving, in lijn met de doelen voor klimaatbestendigheid. Daarmee is het initiatief passend binnen de Omgevingsvisie.

3.5.3 Woonvisie

In de woonvisie wordt omschreven hoe de gemeente Wijchen zich de komende jaren inzetten om prettig wonen voor iedereen mogelijk te maken.

De visie richt zich op vijf ambities:

1. Een toekomstbestendige woningvoorraad. Er wordt gewerkt aan de volgende deelambities:

  • Inzetten op verduurzaming van woningen.
  • Investeren in de kwaliteit van de bestaande woningen en woonomgeving.
  • Mogelijkheden creëren voor woningaanpassingen. Inwoners krijgen de mogelijkheid om zo lang mogelijk comfortabel te wonen op de plek die zij willen, ook als zij een zorgvraag krijgen.
  • Nieuwe woningen toevoegen in de bestaande voorraad. Er wordt gezocht naar meer mogelijkheden om woningen toe te voegen binnen de bestaande voorraad, bijvoorbeeld woningsplitsing, woningdelen en transformatie van ander vastgoed naar wonen.

2. Nieuwe woningen, passend bij de behoefte. Er wordt ingezet op de volgende deelambities:

  • Toevoegen van een divers woningaanbod: in ieder geval 2.060 woningen tot en met 2030. Dat is in lijn met de Woondeal 2.0. Met een ruime planvoorraad van 130% wordt geanticipeerd op eventuele planuitval. Er wordt ingezet op een divers aanbod. De vraag naar compactere, levensloopgeschikte en gezamenlijke woonconcepten groeit. Ook wordt ingezet op doorstroming.
  • Sturen op een betaalbaar programma. Er wordt ingezet op het realiseren van betaalbare woningen, zowel koop- als huurwoningen. In lijn met de Woondeal 2.0 wordt twee derde van de nieuwbouwwoningen betaalbaar. Binnen de huursector wordt ingezet op sociale- en middenhuur. In de koopsector wordt de ontwikkeling van goedkope koopwoningen rond de € 200.000. Het grootste deel van de opgave landt in de kern Wijchen. Ook in de andere kernen wordt naar mogelijkheden gezocht, passend bij de schaal van de kern.
  • Bouwen aan kwaliteit. Er wordt ingezet op nieuwe woningen met een hoge kwaliteit: woningen die duurzaam en klimaatbestendig zijn, die zoveel mogelijk circulair en natuurinclusief gebouwd worden.
  • Behouden betaalbaar aanbod.
  • Inspelen op een veranderende behoefte. Er wordt gezorgd voor voldoende plannen, en er wordt flexibiliteit geboden binnen de omgevingsplannen.

3. Versnellen door slim samenwerken en prioriteren. Er wordt gewerkt via de volgende sporen:

  • Inzetten op 260 woningen per jaar. Er wordt met name ingezet op Wijchen-West en Huurlingsedam. Ook worden mogelijkheden geboden aan andere locaties, ook in de kleinere kernen, van verschillende omvang. CPO-projecten vallen hier ook onder.
  • Samenwerken met ontwikkelende partijen en de regio.
  • Flexwoningen toevoegen. Vooralsnog wordt ingezet op het realiseren van 150 flexwoningen voor de periode 2022 tot en met 2030.

4. Woonaanbod voor alle inwoners. Er wordt ingezet op de volgende deelambities:

  • Passende woonmogelijkheden bieden voor alle doelgroepen. Er wordt geïnvesteerd in voldoende (nieuwe) woonruimte voor verschillende nieuwbouwwoningen levensloopgeschikt is.
  • Slim faciliteren van wonen en zorg/ondersteuning. Er wordt gezocht naar woonmogelijkheden die aansluiten op de zorg- of ondersteuningsvraag van mensen. Inwonersinitiatieven voor woonzorgconcepten worden gestimuleerd en met de 'Zorg-voor-elkaar' woningen wordt er ruimte geboden om bijgebouwen te gebruiken voor het ontvangen of verlenen van zorg. Daarnaast wordt met nieuwbouw ingezet op het toevoegen van levensloopgeschikte woningen en eventueel geclusterde, beschermde of beschutte woonvormen.
  • Inzet op gemengde en gevarieerde buurten.

5. Leefbare kernen en buurten. Er wordt ingezet op de volgende deelambities:

  • Behouden en versterken van het groene, dorpse karakter. Waar mogelijk wordt gekozen voor inbreiding boven uitbreiding. Er wordt bijvoorbeeld gekeken naar vrijkomend (maatschappelijk) vastgoed om woning te realiseren. Inbreiding betekent desalniettemin dat op sommige plekken compacter of hoger moet worden gebouwd. Vooral bij ontwikkelingen in de kern Wijchen wordt meer ruimte gegeven aan hogere woongebouwen. Uitgangspunt is dat de woningbouw bijdraagt aan het gemengder maken van kernen en buurten, en de ruimtelijke kwaliteit versterkt.
  • Versterken van sociale cohesie. Er wordt ondersteuning geboden aan CPO-projecten.
  • Inzetten op toegankelijke kernen en buurten.
  • Woonomgeving aanpassen aan het klimaat van morgen. Er wordt waterrobuust en klimaatbestendig ontwikkeld.

Planspecifiek  

Met het plan wordt bijgedragen aan een toekomstbestendige en gevarieerde woningvoorraad voor verschillende doelgroepen. De herontwikkeling van het agrarisch erf tot een kleinschalige, erfgerichte woonlocatie met maximaal 28 woningen past bij de behoefte naar woningen in de gemeente. Onder de woningen vallen ook tien sociale huurwoningen. Het plan sluit daarmee aan bij de behoefte aan betaalbare woningen binnen de kleinere kernen. De opzet rondom een centraal erf versterkt het dorpse karakter van Niftrik en past binnen de ambities van de woonvisie voor leefbare en sociaal verbonden kernen.

Daarnaast draagt het plan bij aan de ruimtelijke en landschappelijke kwaliteit van het gebied. De bebouwing wordt zorgvuldig ingepast, met behoud van doorzichten en toepassing van streekeigen erfbeplanting. De aanleg van een fruitboomgaard en groene erfafscheidingen zorgt voor een vloeiende overgang naar het omliggende landschap. Hiermee wordt de identiteit van Niftrik versterkt.

Het initiatief is hiermee passend binnen de Woonvisie.

3.5.4 Waterbeleid gemeente Wijchen

Beleidsplan water en riolering Wijchen 2023-2027

De gemeente Wijchen heeft, als opvolger van het Gemeentelijk Rioleringsplan, het Beleidsplan water en riolering Wijchen 2023-2027 vastgesteld. Het Beleidsplan heeft tot doel de volkgsgezondheid en het milieu te beschermen, dit tegen maatschappelijk aanvaardbare kosten:

  • Het voorkomen van verontreiniging van bodem, grond- en oppervlaktewater;
  • Voorkomen van letsel en schade door wateroverlast

Met het Beleidsplan geeft de gemeente Wijchen invulling aan de zorgplichten en wordt een financiële onderbouwing van de rioolheffing gegeven. Het Beleidsplan vormt hiermee de input voor de Omgevingsvisie, Omgevingsplan en Omgevingsprogramma's.

Strategische waternota 2019-2028

Met de Waternota anticipeert de gemeente Wijchen op het verwerken van het waterbeleid in een Omgevingsvisie. In de waternota wordt onder meer het streefbeeld voor de periode tot 2028 op het gebied van water geschetst. Daarnaast omvat de Waternota per hoofdthema de ambities voor het waterbeleid, als ook een uitvoeringsstrategie, monitoring en financiën.

Planspecifiek

In paragraaf 4.9 wordt het initiatief getoetst aan het waterschapsbeleid. Hieruit komen geen belemmeringen ten aanzien van het initiatief naar voren.

3.5.5 Conclusie gemeentelijk beleid

Gelet op het voorgaande kan gesteld worden dat het initiatief passend is binnen de doelstellingen en het beleid van de gemeente Wijchen. De activiteit is echter in strijd met de regels van het (tijdelijke) omgevingsplan (zie paragraaf 2.3). Daarom wordt het omgevingsplan gewijzigd waarvoor onderhavige motivering is opgesteld.

Hoofdstuk 4 Milieu- & omgevingsaspecten

4.1 Verkeer & parkeren

De omgevingsvisie van de gemeente moet een visie op verkeer en vervoer op gemeentelijk niveau bevatten. Het initiatief dient hieraan getoetst te worden. Daarnaast blijven de bekende richtlijnen vanuit het CROW bestaan.

Een toename aan functies zorgt voor extra verkeer. Bij het toelaten van een nieuwe functie moet daarom worden aangetoond wat het effect is op de bereikbaarheid en verkeersafwikkeling. Daarbij dient in beeld te worden gebracht of er sprake is van een (extra) parkeerbehoefte voor auto's (en evt. ook fietsen en/of scooters). Er mag geen onaanvaardbaar effect zijn.

De gemeente stelt parkeerbeleid op met daarin parkeernormen waaraan nieuwe ontwikkelingen moeten voldoen. De activiteit dient dus aan het gemeentelijk beleid getoetst te worden.

Planspecifiek

Verkeersgeneratie en ontsluiting

De ontwikkeling leidt tot een verandering van de verkeersgeneratie ten opzichte van de bestaande situatie. Door de beëindiging van de intensieve veehouderij vervalt een groot deel van het agrarisch verkeer. In plaats daarvan worden maximaal 28 woningen toegevoegd, die op basis van CROW-gegevens zorgen voor maximaal 8,6 verkeersbewegingen per dag. Voor 28 woningen zijn dit circa 240,8 verkeersbewegingen. De ontsluiting van het plangebied vindt plaats via de Lagestraat, waar een maximumsnelheid van 30 tot 60 km/h geldt. Het betreft een straat met doorgaande functie naar het buitengebied. Hiermee bedraagt de capaciteit (voor het 60 km/u-deel) 5.000-6.000 bewegingen per etmaal. Gelet op de verhouding van nieuw verkeer tot de capaciteit, wordt verwacht dat de omliggende wegen ruimschoots voldoende capaciteit hebben om een toename van het verkeer op te vangen en af te wikkelen.

Parkeren

Om de parkeerbehoefte voor het plan te bepalen, zijn de 'Beleidsregels Parkeernormen Wijchen' geraadpleegd. Uit deze beleidsregels komt de volgende parkeerbehoefte naar voren:

Type woning   Aantal   Parkeernorm   Behoefte  
Rijwoningen   16   1,8   28,8  
Sociale huurwoningen   10   1,4   14  
Vrijstaande woningen   2   2,1   4,2  
       
Totaal       47  

Met het plan worden 40 parkeerplaatsen in openbaar gebied mogelijk gemaakt. Daarnaast worden bij woningen 4 brede opritten mogelijk gemaakt. Deze kunnen op basis van het parkeerbeleid gerekend worden als 1,8 parkeerplaats per brede oprit. Daarmee zijn in totaal 47,2 parkeerplaatsen beschikbaar in het plangebied, waarmee voldaan wordt aan de parkeerbehoefte. Voor de opritten wordt voldaan aan het Uitwegenbeleid Wijchen 2023.

Hiermee bestaat er voldoende inzicht in dit aspect dat wordt meegewogen in paragraaf 4.16.

4.2 Bodem

Wettelijk kader

Op basis van het Besluit kwaliteit leefomgeving (Bkl) en het lokale Omgevingsplan is het noodzakelijk om rekening te houden met de bodemgesteldheid bij de uitvoering van een project om de uitvoerbaarheid ervan te waarborgen. Bij de bouw van een bodemgevoelig gebouw op een bodemgevoelige locatie moet de bodemkwaliteit voldoen aan de beoogde functie, en moet worden vastgesteld of er een noodzaak tot sanering bestaat.

Volgens het Besluit kwaliteit leefomgeving dient, indien de betreffende bodemkwaliteit niet aan de norm voor de beoogde functie voldoet, de grond zodanig gesaneerd of anderzijds beschermende maatregelen genomen te worden dat deze geschikt is voor de beoogde functie. Zowel op basis van het Besluit kwaliteit leefomgeving als de Bouwverordening moet voor elke individuele bouwlocatie worden aangetoond dat de bodem geschikt is voor de beoogde bebouwing voordat een vergunning kan worden verleend.

Bij nieuwe ontwikkelingen moet worden beoordeeld of de bodemkwaliteit een belemmering kan vormen voor de realisatie ervan. In de meeste gevallen is het mogelijk om de bodem geschikt te maken voor het beoogde gebruik. Echter, er bestaat een risico dat een plan financieel onuitvoerbaar wordt, bijvoorbeeld vanwege te hoge saneringskosten. Bij een wijziging van de bestemming of functie wordt een bodemonderzoek alleen noodzakelijk geacht als deze wijziging tevens een meer gevoelige vorm van bodemgebruik inhoudt.

Planspecifiek

Ten aanzien van de ontwikkeling is een bodemonderzoek uitgevoerd (zie bijlage 2). Uit het onderzoek blijkt dat er geen belemmeringen bestaan ten aanzien van de realisatie van de woonfunctie. De aangetroffen gehalten bieden geen aanleiding tot het verrichten van nader onderzoek.

Hiermee bestaat er voldoende inzicht in dit aspect dat wordt meegewogen in paragraaf 4.16.

4.3 Geluid

Veel functies in de fysieke leefomgeving hebben te maken met geluid. Ze maken geluid of ze worden eraan blootgesteld. De regels over geluid gaan over het beheersen van geluid door wegen, spoorwegen en industrieterreinen en de bescherming van geluidgevoelige functies. In het Besluit kwaliteit leefomgeving (Bkl) zijn instructieregels opgenomen hoe om te gaan met geluid m.b.t. geluidgevoelige functies en stiltegebieden. Bij geluidgevoelige functies gaat het om gebouwen ten behoeve van functies zoals wonen, onderwijs of zorg. Voor andere gebouwen (functies) of locaties bepaalt de gemeente zelf de mate van bescherming tegen geluid. Dat doet de gemeente vanuit haar taak 'evenwichtige toedeling van functies aan locaties'.

In de Bruidsschat is het onderdeel geluid geregeld in paragraaf 22.3.4. Daarin staan regels over geluid door een activiteit op of in een geluidgevoelig functie die op een locatie is toegelaten op grond van een omgevingsplan of een omgevingsvergunning voor een omgevingsplanactiviteit. In de bruidsschat zijn waarden bepaald (zie artikel 22.57 Bruidsschat waar waarden gelden).

Het Bkl bevat standaardwaarden en grenswaarden voor geluid en staan in de volgende tabel.

Geluidbronsoort   Standaardwaarde, in dB.   Grenswaarde, in dB.  
Rijks- en provinciale wegen. In Lden   50   60  
Gemeente- en waterschapswegen. In Lden   53   70  
Hoofd- en lokale spoorwegen. In Lden   55   65  
Industrieterrein   Lden   50   55  
  Lnight   40   45  

Standaardwaarde en grenswaarde op de gevel van een geluidgevoelig gebouw bij toelaten geluidbron, Tabel 3.34 en .3.35 Bkl

Het bevoegd gezag moet voorzien in een aanvaardbaar geluid door een lokale (spoor)weg op een geluidgevoelig gebouw (artikel 5.78l, lid 2 Bkl). De kans op gezondheidsschade is klein als het geluid voldoet aan de standaardwaarde. Minder geluid dan de standaardwaarde of het geluid op het tijdstip van de wijziging van het omgevingsplan, is aanvaardbaar (artikel 5.78m, lid 1 en lid 2 Bkl). Het bevoegd gezag mag meer geluid dan de standaardwaarde als aanvaardbaar beoordelen. Het besluit moet dan voldoen aan de eisen uit de instructieregels (artikelen 5.78m tot en met 5.78q Bkl). Op grond van artikel 5.78, lid 3 Bkl bepaalt het omgevingsplan dat de waarden gelden:

  • op een aangewezen geluidgevoelig gebouw:
    • 1. op de gevel, als het gaat om een aanwezig geluidgevoelig gebouw
    • 2. op de locatie waar een gevel mag komen, als het gaat om een nieuw te bouwen geluidgevoelig gebouw
  • op de begrenzing van de locatie voor het plaatsen van een woonschip of woonwagen en in geval van een binnenwaarde, in een geluidgevoelige ruimte

Het bevoegd gezag kan alleen geluid tot en met de grenswaarde op de gevel van een geluidgevoelig gebouw toestaan als ze:

  • 1. geen geluidbeperkende maatregelen kan treffen om aan de standaardwaarde te voldoen (artikel 5.78n, lid 1, onder a Bkl);
  • 2. de overschrijding van de standaardwaarde zoveel mogelijk heeft beperkt door het treffen van geluidbeperkende maatregelen (artikel 5.78n, lid 1b Bkl);
  • 3. bij voorwaarde 1 en 2 geluidbeperkende maatregelen overweegt die financieel doelmatig zijn en tegen het treffen geen overwegende bezwaren van stedenbouwkundige, verkeerskundige, vervoerskundige, landschappelijke of technische aard bestaan (artikel 5.78n, lid 2 Bkl);
  • 4. besluit tot geluidwerende maatregelen als het geluid in een geluidgevoelige ruimte hoger is dan de grenswaarde in geluidgevoelig ruimte (binnenwaarde) (artikel 3.52 Bkl). De karakteristieke geluidwering van deze ruimte is minstens 3 dB groter dan het verschil tussen het gezamenlijk geluid en de grenswaarde. Deze grenswaarde in geluidgevoelig ruimte is meestal 36 dB. In een beperkt aantal bestaande situaties is de grenswaarde 41 dB (artikel 3.52, lid 1, onder a sub 1 Bkl);
  • 5. het gecumuleerd geluid beoordeelt (artikel 5.78p Bkl);
  • 6. het gezamenlijk geluid bepaalt (artikel 5.78q Bkl).

In lijn met het Bkl dient bij het realiseren van geluidgevoelige functies gekeken te worden naar het aandachtsgebied. De omvang van dit aandachtsgebied is afhankelijk van de verkeerdrukte, rijsnelheid, afstand van het project tot de weg en eventuele afschermende bebouwing. Wegen met een verkeersintensiteit van in elk geval minder dan 1.000 motorvoertuigen per etmaal als kalenderjaargemiddelde hebben geen aandachtsgebied.

Planspecifiek

Met onderhavig initiatief worden nieuwe geluidgevoelige objecten mogelijk gemaakt. Om de situatie met betrekking tot geluid te beoordelen, is een akoestisch onderzoek uitgevoerd (zie bijlage 3). Uit het onderzoek blijkt dat de geluidbelasting op de woningen geen grenswaarden overschrijdt. Bij de bouw zijn voldoende mogelijkheden voorhanden om te voorzien in eventueel benodigde gevelwering. Er wordt bij de indeling van de woningen rekening gehouden met de gevelbelasting als een gevolg van verkeersgeluid. Daarmee levert het aspect geluid geen belemmeringen op ten aanzien van het initiatief.

Hiermee bestaat er voldoende inzicht in dit aspect dat wordt meegewogen in paragraaf 4.16.

4.4 Bedrijven en milieuzonering

Bedrijven (die activiteiten uitvoeren/ ondernemen) kunnen niet zomaar naast een gevoelige functie, zoals een woning, gerealiseerd worden. Ook andersom moet zorgvuldig gemotiveerd worden dat een nieuwe woning bij bestaande bedrijven gerealiseerd kan worden.

Milieuzonering is het aanbrengen van een noodzakelijke ruimtelijke scheiding tussen milieubelastende en milieugevoelige functies ter bescherming of vergroting van de leefkwaliteit. Ook zorgt dit ervoor dat (bestaande) bedrijven niet onevenredig in hun belangen worden geschaad. De publicatie “Bedrijven Milieuzonering” van de VNG is, zeker ook gezien jurisprudentie, een goed houvast hierbij. De in deze publicatie genoemde richtafstanden gelden voor gemiddelde situaties. Er kunnen omstandigheden zijn waarom er toch van een andere afstanden uitgegaan kan of moet worden.

Op weg naar de inwerkingtreding van de Omgevingswet is door de VNG een nieuwe publicatie uitgegeven: Activiteiten en milieuzonering Omgevingswet 2023. Kern van deze publicatie is om de toelating van bedrijven te reguleren op basis van een beschikbaar gestelde milieuruimte per bedrijf, aan de hand van concrete milieunormen. In de nieuwe systematiek wordt de toelating van activiteiten niet meer gekoppeld aan een bij de regels behorende Staat van bedrijfsactiviteiten met milieucategorieën. Dit maakt het ook niet mogelijk de ontwikkeling van nieuwe gevoeligere objecten te toetsen aan bestaande bedrijven. Om die reden wordt voor de beoordeling van de omliggende activiteiten/ functies nog aangesloten bij de richtafstanden uit de publicatie 'Bedrijven en milieuzonering'.

Planspecifiek

Algemeen

Met het initiatief worden nieuwe milieugevoelige objecten mogelijk gemaakt. Het woon- en leefklimaat van deze woningen dient in het kader van milieuzonering benaderd te worden. Daarnaast blijft het bestaande akkerbouwbedrijf ter plaatse van het plangebied behouden. Dit betreft geen nieuw bedrijf en hoeft dus niet opnieuw getoetst te worden ten aanzien van bestaande woningen. Wel worden de effecten van het bedrijf meegewogen ten aanzien van de nieuwe woningen.

Gemengd gebied

De directe omgeving van het plangebied kent een afwisseling van functies, waaronder woningen en (agrarische) bedrijvigheid. Deze diversiteit aan functies zonder specifieke scheiding, als ook de ligging aan een doorgaande weg richting het buitengebied, maakt dat er sprake is van een gemengd gebied in de zin van de VNG-brochure 'Bedrijven en milieuzonering'. In een dergelijk gebied gelden verkorte richtafstanden voor milieuzonering. Deze worden teruggebracht met 1 afstandsstap.

Woon- en leefklimaat

Navolgende tabel geeft een overzicht van de in de omgeving van het plangebied aanwezige bedrijven.

Type bedrijf, adres   Milieucategorie   Richtafstand*   Feitelijke afstand  
Keukenbedrijf, Lagestraat 14   3.1   30 m (geluid)   0 m  
Autogarage, Lagestraat 15a   2   10 m (geluid)   ca. 40 m  
Voetbalvereniging, Lagestraat 19   3.1   30 m (geluid)   ca. 10 m  

*richtafstand teruggebracht voor gemengd gebied

Keukenbedrijf

Uit de voorgaande tabel blijkt dat voor het keukenbedrijf niet aan de richtafstand van 30 meter voldaan wordt. Het betreft een kleinschalig bedrijf waar de activiteiten vrijwel uitsluitend overdag en inpandig plaatsvinden. Het bedrijfsgebouw bevindt zich op circa 30 meter afstand van de te realiseren woningen en voldoet daarmee aan de richtafstand. Van de inpandige activiteiten is daarmee geen hinder te verwachten. Wel bevindt zich aan de noordoostzijde het laad- en lospunt van het bedrijf. Dit punt bevindt zich op circa 20 m van de woningen. Er is geen sprake van nachttransport en daarnaast is de activiteit van korte duur. Materialen van een keukenbedrijf zijn doorgaans verpakt of dienen in het geheel te worden verplaatst. Dit levert minder lawaai op dan wanneer los materiaal wordt gelost. Het geluid is daarmee voornamelijk afkomstig van het openen van laadkleppen, van zwaar machinelawaai is geen sprake. Tevens dient het bedrijf in de huidige situatie al rekening te houden met de bestaande aangrenzende woning. Gelet op deze situatie kan gesteld worden dat er van de richtafstand afgeweken kan worden.

Voetbalvereniging

Ook ligt het plangebied binnen de richtafstand van de voetbalvereniging. De nieuwe woningen worden echter op ruime afstand van de voetbalvereniging (>60 m) gerealiseerd, waarmee hiervoor aan de richtafstand wordt voldaan. Voor de bestaande woning verandert niets aan de situatie.

Akkerbouwbedrijf

Ter plaatse van het plangebied blijft een akkerbouwbedrijf actief, waarvoor milieucategorie 2 van toepassing is. In een gemengd gebied geldt hiervoor een richtafstand van 10 meter voor geluid. In het planontwerp is rekening gehouden met een contour van 30 meter rondom het akkerbouwbedrijf tot de nieuwe woningen. Hiermee levert de aanwezigheid van het akkerbouwbedrijf geen belemmeringen op.

Andersom levert het plan geen belemmeringen op voor de bedrijfs- en ontwikkelingsmogelijkheden van de omliggende bedrijven. Daarmee zijn er voor het plan geen negatieve effecten vanuit milieuzonering.

Hiermee bestaat er voldoende inzicht in dit aspect dat wordt meegewogen in paragraaf 4.16.

4.5 Luchtkwaliteit

De hoofdlijnen voor regelgeving rondom luchtkwaliteitseisen staan beschreven in de instructieregels opgenomen in het Bkl. Ter bescherming van de gezondheid zijn voor het aspect luchtkwaliteit instructieregels opgenomen in paragraaf 5.1.4.1 Bkl en zijn de 'omgevingswaarden richtlijn luchtkwaliteit' opgenomen in paragraaf 2.2.1.1 Bkl. Volgens deze regels gelden zogeheten omgevingswaarden voor onder andere de in de buitenlucht voorkomende stikstofdioxide (NO2) en fijnstof (PM10).

Een activiteit is toelaatbaar als aan één van de volgende voorwaarden wordt voldaan:

  • er is geen sprake van een feitelijke of dreigende overschrijding van een resultaatverplichting;
  • het project leidt per saldo niet tot een verslechtering van de luchtkwaliteit;
  • het project draagt alleen niet in betekenende mate bij aan de luchtverontreiniging.

Mede door het Nationaal Samenwerkingsprogramma Luchtkwaliteit (NSL) is in de afgelopen jaren in Nederland de luchtkwaliteit aanzienlijk verbeterd. Vanwege deze verbetering komt het NSL na de inwerkingtreding van de Omgevingswet dan ook te vervallen.

Niet in betekende mate (NIBM)

Voor een activiteit die niet in betekende mate (NIBM) bijdraagt aan de luchtverontreiniging, is geen toetsing aan de rijksomgevingswaarden voor stikstofdioxide en fijnstof nodig. Uit artikel 5.53 en 5.54 Bkl volgt dat een project niet in betekende mate bijdraagt aan de luchtkwaliteit als de toename van de concentratie NO2 en PM10 niet hoger is dan 1,2 ug/m3. Dat is 3% van de omgevingswaarde voor de jaargemiddelde concentraties. Er zijn twee mogelijkheden om aannemelijk te maken dat een project binnen de NIBM-grens blijft:

  • 1. Motiveren dat het project binnen de getalsmatige grenzen van een aangewezen categorie blijft. Onder deze 'standaardgevallen NIBM' vallen kantoren, woonwijken en het telen van gewassen. Dit moet wel onder een bepaalde omvang blijven conform artikel 5.54 Bkl. Valt een project binnen de genoemde categorie, maar niet binnen de gestelde grenzen? Het is dan mogelijk om alsnog via detailberekeningen aannemelijk te maken dat de 3%-grens niet wordt overschreden.
  • 2. Op een andere manier aannemelijk maken dat een project de 3%-grens niet overschrijdt. Soms kan een kwalitatieve berekening voldoende zijn. Veel mensen bepalen met de NIBM-tool op een eenvoudige en snelle manier of een project in betekende mate bijdraagt aan de luchtverontreiniging. Soms zijn detailberekeningen nodig als aanvulling op de NIBM-tool.

Aandachtsgebieden

Aandachtsgebieden zijn locaties met hogere concentraties stikstofdioxide (NO2) en/of fijnstof (PM10). De aandachtsgebieden staan in artikel 5.51 lid 2 (aandachtsgebieden voor zowel stikstofdioxide als fijnstof) en lid 3 (aandachtsgebieden voor fijnstof) Bkl. Gemeenten die onder agglomeraties vallen staan in artikel 2.38 (aanwijzing agglomeraties richtlijn luchtkwaliteit en richtlijn gevaarlijke stoffen in de lucht) Omgevingsregeling. In enkele situaties moet de luchtkwaliteit altijd worden beoordeeld:

  • bij een omgevingsvergunning voor een milieubelastende activiteit;
  • bij de aanleg van een tunnel langer dan 100 meter, of als een tunnel wijzigt en daarbij minimaal 100 meter toeneemt;
  • bij de aanleg van een autoweg of een autosnelweg.

Planspecifiek

Het dichtstbijzijnde toetspunt voor luchtkwaliteit bij het plangebied is de receptor wegverkeer 27364178_57644 aan de A50. In de tabel hieronder zijn de totale concentraties van stikstofdioxide, fijnstof en de fijnere fractie van fijnstof weergeven.

  NO2 (stikstofdioxide)   PM10 
(fijnstof)  
PM2,5 (fijnere fractie van fijnstof)  
Gemeten totale concentratie jaargemiddelde 2018 (µg/m3)   20,0 µg/m3   16,3 µg/m3   9,1 µg/m3  
Resultaatverplichting concentratie (µg/m3) kalenderjaargemiddelde   40 µg/m3   40 µg/m3   25 µg/m3  

De gemeten concentraties stikstofdioxide en fijn stof liggen ruim onder de gestelde grenswaarden. Met betrekking tot de luchtkwaliteit zijn geen belemmeringen voor onderhavig initiatief.

Bijdrage van het initiatief

Ten aanzien van de bijdrage aan luchtkwaliteit is het initiatief (toevoegen 28 woningen) van geringe omvang ten opzichte van de benoemde grenswaarde (3%, vergelijkbaar met 1.500 woningen). Op basis van de te verwachten toename aan verkeersbewegingen ten gevolge van het project is te concluderen dat dit project 'niet in betekenende mate' bijdraagt aan de verslechtering van de luchtkwaliteit. Bovendien worden met het plan de agrarische bedrijfsactiviteiten t.a.v. de intensieve veehouderij definitief beëindigd, waardoor er juist sprake is van een verbetering van de luchtkwaliteit. Een nadere toetsing aan de rijksomgevingswaarden voor stikstofdioxide en fijnstof kan daarom achterwege blijven. Tevens ligt het projectgebied niet binnen de genoemde aandachtsgebieden (artikel 5.51 luchtkwaliteit in aandachtsgebieden) voor stikstofdioxide en/of fijnstof.

Hiermee bestaat er voldoende inzicht in dit aspect dat wordt meegewogen in paragraaf 4.16.

4.6 Geur

In de regelgeving is bepaald dat een omgevingsplan erin voorziet dat de geur van een activiteit op een geurgevoelig gebouw (artikel 5.91 Bkl) aanvaardbaar moet zijn (artikel 5.92, tweede lid, Bkl). In artikel 5.91 van het Bkl is de definitie van een geurgevoelig gebouw opgenomen. Het gaat dan in ieder geval om woningen, onderwijsinstellingen, gebouwen met gezondheidszorgfuncties en kinderopvang met bedgebied (wat inhoudt dat er slaapgelegenheid is). Dit betekent dat de gemeente moet beoordelen of waarden, afstanden of gebruiksregels leiden tot een aanvaardbaar hinderniveau. De gemeente moet onder de Omgevingswet rekening houden met mogelijke cumulatie van geur door meerdere activiteiten.

De activiteiten dienen te voldoen aan de regels die in het tijdelijk omgevingsplan staan. Indien er nog geen aanpassing heeft plaatsgevonden van het tijdelijk omgevingsplan en sprake is van een activiteit/inrichting die/dat voorheen onder het Activiteitenbesluit milieubeheer viel, dan gelden de regels uit de Bruidsschat. De Bruidsschat bevat regels over:

  • Geur door het houden van landbouwhuisdieren en paarden en pony's voor het berijden in een dierenverblijf (par. 22.3.6.2 BS);
  • Geur door andere agrarische activiteiten, zoals o.a. het opslaan van vaste mest, champost of dikke fractie en het composteren of opslaan van groenafval (par. 22.3.6.4 BS);
  • Geur door het exploiteren van zuiveringstechnische werken (par. 22.3.6.5 BS).

Voor geur zijn er voor dierenverblijven voor landbouwhuisdieren specifieke instructieregels waar de gemeente zich aan moet houden. In deze instructieregels zijn voor landbouwhuisdieren met een geuremissiefactor, twee typen normen opgenomen: standaardwaarden en grenswaarden. In een omgevingsplan kan de gemeente afwijken van deze standaardwaarden, zolang dit onder de gestelde grenswaarden blijft.

Geurgevoelig gebouw   Standaardwaarde   Grenswaarde  
Gelegen binnen de bebouwingscontour geur en buiten een concentratiegebied   2,0 ouE/m3   8,0 ouE/m3  
Gelegen binnen de bebouwingscontour geur en binnen een concentratiegebied   3,0 ouE/m3   14,0 ouE/m3  
Gelegen buiten de bebouwingscontour geur en buiten een concentratiegebied   8,0 ouE/m3   20,0 ouE/m3  
Gelegen buiten de bebouwingscontour geur en binnen een concentratiegebied   14,0 ouE/m   35,0 ouE/m3  

Tabel Standaardwaarde en grenswaarde toelaatbare geur (ouE/m3 als 98-percentiel) door houden landbouwhuisdieren met geuremissiefactor op een geurgevoelig gebouw

In het Bkl wordt onderscheid gemaakt tussen concentratiegebieden en niet-concentratiegebieden en binnen en buiten de bebouwingscontour. Het onderscheid tussen concentratiegebieden en niet-concentratiegebieden valt terug te voeren op een verschil in de relatie tussen geurbelasting en geurhinder. Het RIVM geeft aan dat er geen gezondheidskundige grenswaarden zijn voor geurbelasting of geurhinder. Welk percentage door geur gehinderde omwonenden aanvaardbaar is, is een beleidsmatige keuze.

Planspecifiek

Met het initiatief worden nieuwe geurgevoelige gebouwen mogelijk gemaakt. Ten aanzien van de ontwikkeling is een geuronderzoek uitgevoerd (zie bijlage 4). Uit het onderzoek volgt dat ter plaatse van het plangebied sprake is van een acceptabel woon- en leefklimaat met betrekking tot het aspect geur. Daarnaast blijkt uit het onderzoek dat omliggende veehouderijbedrijven niet worden belemmerd in hun bedrijfsvoering. Bovendien worden met het plan de agrarische bedrijfsactiviteiten t.a.v. intensieve veehouderij in het plangebied definitief beëindigd. Dit betekent een vermindering van de geurbelasting ter plaatse.

Hiermee bestaat er voldoende inzicht in dit aspect dat wordt meegewogen in paragraaf 4.16.

4.7 Externe veiligheid

Omgevingsveiligheid beschrijft de risico's die ontstaan als gevolg van opslag, productie, gebruik en vervoer van gevaarlijke stoffen en windturbines. Voor omgevingsveiligheid zijn regels opgenomen in paragraaf 5.1.2 van het Besluit kwaliteit leefomgeving (Bkl van het Bkl). De paragrafen 5.1.2.2 tot en met 5.1.2.6 van het Bkl gaan over het toelaten van beperkt kwetsbare, kwetsbare en zeer kwetsbare gebouwen en beperkt kwetsbare en kwetsbare locaties in verband met het externe veiligheidsrisico van een activiteit die op een locatie is toegelaten op grond van een omgevingsplan of een omgevingsvergunning voor een buitenplanse omgevingsplanactiviteit.

Plaatsgebonden risico

Grenswaarden en standaardwaarden voor het Plaatsgebonden Risico (PR) ten aanzien van (zeer) (beperkt) kwetsbare gebouwen en (beperkt) kwetsbare locaties zijn opgenomen in artikel 5.6 tot en met artikel 5.11a van het Bkl. Grenswaarden voor kwetsbare en zeer kwetsbare gebouwen en kwetsbare locaties (art. 5.7 lid 1 Bkl) worden in een Omgevingsplan in acht genomen. Met standaardwaarden voor beperkt kwetsbare gebouwen en locaties wordt in een omgevingsplan rekening gehouden (art. 5.11 Bkl). Voor het plaatsgebonden risico gelden, afhankelijk van de activiteit, vastgestelde afstanden of te berekenen afstanden (bijlage VII Bkl).

Groepsrisico

Bij groepsrisico is sprake van 'aandachtsgebieden'. Risicovolle activiteiten hebben van rechtswege aandachtsgebieden (art. 5.12 Bkl). Dit zijn gebieden rond activiteiten met gevaarlijke stoffen die zichtbaar maken waar mensen binnenshuis, zonder aanvullende maatregelen onvoldoende beschermd zijn tegen de gevolgen van ongevallen met gevaarlijke stoffen (RIVM a, z.d.). Aandachtsgebieden zijn er voor brand, explosie en gifwolk. Afhankelijk van het type activiteit met gevaarlijke stoffen, zijn er voor het aandachtsgebied in de regelgeving vaste afstanden vastgesteld of zijn deze afstanden rekenkundig te bepalen (bijlage VII Bkl). Aandachtsgebieden worden zichtbaar gemaakt in het Register externe veiligheidsrisico's (REV).

Binnen een aandachtsgebied kan sprake zijn van een voorschriftengebied. Een gemeente kan in het omgevingsplan afzien van aanwijzing van een brand- of explosievoorschriftengebied of een kleiner brand- of explosievoorschriftengebied aanwijzen (art. 5.14 Bkl). Als het initiatief ligt in een voorschriftengebied, dan gelden voor nieuwbouw aanvullende bouweisen uit het Besluit bouwwerken leefomgeving (art. 4.90 tot en met 4.96 Bbl). Voor zeer kwetsbare gebouwen, zoals scholen, kinderdagopvang, en verzorgingstehuizen, geldt altijd een voorschriftengebied, en gelden er dus altijd aanvullende bouweisen bij nieuwbouw (art. 5.14 Bkl).

Los van een eventueel voorschriftengebied kan een gemeente aanvullende eisen stellen, bijvoorbeeld aan vluchtroutes en de bereikbaarheid van het gebied door hulpdiensten. Dergelijke eisen worden dan opgenomen in de omgevingsvergunning.

Een berekening van het groepsrisico is onder de Omgevingswet optioneel; het is niet meer verplicht om het groepsrisico te bepalen, maar een gemeente mag hier nog wel om vragen (via een voorschrift) om de toelaatbaarheid van de situatie te beoordelen. Uitgangspunt is dat personen buiten een aandachtsgebied in een gebouw (dat voldoet aan de eisen uit het BBL) voldoende zijn beschermd tegen de mogelijke effecten van een grootschalig ongeval met gevaarlijke stoffen bij de risicobron.

Planspecifiek

Via de website atlasleefomgeving.nl kan voor de locatie worden vastgesteld of er in de directe omgeving inrichtingen, buisleidingen en/of belangrijke transportroutes aanwezig zijn die in het kader van de omgevingsveiligheid van belang zijn. Bijgevoegd een screenshot van die website. Het plangebied is hier globaal aangegeven met de rode cirkel.

afbeelding "i_NL.IMRO.0296.TAMLagestraat20-OW01_0007.png"

Uitsnede risicokaart (bron: atlasleefomgeving.nl)

Uit de risicokaart blijkt dat het plangebied volledig binnen een aandachtsgebied is gelegen. Dit vanwege de buisleidingen aan de rand van het plangebied. Om de risico's te beoordelen is een onderzoek externe veiligheid uitgevoerd (zie bijlage 5). Hierin zijn de risico's van de nabijgelegen aardgasbuisleidingen beschouwd. Uit de rapportage volgt dat het plaatsgebonden risico geen belemmering vormt voor het planvoornemen. Ten aanzien van de ligging in een aandachtsgebied kan het volgende worden gesteld:

  • Het aanwijzen van een voorschriftengebied is niet verplicht;
  • De woningen liggen binnen de 100%-letaliteitscontour van één of meerdere leidingen. De ontwikkeling is daarmee van invloed op het groepsrisico;
  • Uit de groepsrisicoberekening is gebleken dat sprake is van een laag groepsrisico. Het hoogste groepsrisico in de toekomstige situatie is 0,016 maal de oriëntatiewaarde (kleiner dan 10%);

Verder legt het belemmeringengebied geen beperkingen op aan het plangebied.

Vanwege de ligging in het aandachtsgebied is het nodig om het groepsrisico te verantwoorden en aan te geven waarom het groepsrisico acceptabel is in relatie tot de gehele planontwikkeling. Om sprake is van een groepsrisico kleiner dan 10% van de oriëntatiewaarde, kan worden volstaan met een beperkte verantwoording hiervan. Een nadere beschouwing van risicoreducerende maatregelen en ruimtelijke alternatieven met een lager groepsrisico is in dat geval niet nodig. In een beperkte verantwoording van het groepsrisico wordt ingegaan op de volgende punten:

  • a. De personendichtheid in het invloedsgebied van de buisleidingen;
  • b. De hoogte van het groepsrisico;
  • c. De bestrijdbaarheid;
  • d. De zelfredzaamheid.

Ad.

De verantwoording ten aanzien van punt a. en b. zijn opgenomen in de rapportage. Ten aanzien van de bestrijdbaarheid en zelfredzaamheid kan het volgende worden gesteld:

Bestrijdbaarheid

Het is vanuit bestrijdbaarheid van een incident belangrijk dat er voldoende bluswatervoorzieningen aanwezig zijn. Dit wordt in de civieltechnische uitwerking van het plan vormgegeven in samenwerking met de bevoegde instanties.

Zelfredzaamheid

De zelfredzaamheid van bewoners is eveneens van belang bij een calamiteit. Het is belangrijk dat de aanwezigen in het plangebied worden geïnformeerd hoe te handelen bij een incident. Hiervoor wordt gebruikgemaakt van de zogenaamde waarschuwings- en alarmeringspalen of NL-alert. Ook is het zo dat de zelfredzaamheid zo groot mogelijk kan zijn door actieve informatie over vluchtroutes en een handelingsperspectief bij incidenten te delen. Dit kan nader worden vormgegeven in samenwerking met de bevoegde instantie(s).

Hiermee bestaat er voldoende inzicht in dit aspect dat wordt meegewogen in paragraaf 4.16.

4.8 Trillingen

Trillingen kunnen nadelige gevolgen hebben voor de kwaliteit van de fysieke leefomgeving. Ze kunnen effect hebben op het welzijn of schade aan gebouwen veroorzaken. De Omgevingswet beschermt (delen van) gebouwen. Trilling wordt gezien als een milieubelastende activiteit. In het omgevingsplan neemt de gemeente regels op voor trillingen door milieubelastende activiteiten. Vastgelegd wordt welke trillingen door een activiteit in trillinggevoelige ruimten van trillinggevoelige gebouwen aanvaardbaar zijn. Hiervoor gelden de instructieregels over trillingen door activiteiten op trillinggevoelige gebouwen in het Besluit kwaliteit leefomgeving (Bkl).

Het onderdeel Trillingen is geregeld in paragraaf 22.3.5 van de Bruidsschat. Daarin worden regels gesteld aan trillingen in een frequentie van 1 tot 80 Hz door een activiteit in een trillinggevoelige ruimte van een trillinggevoelig gebouw, die op een locatie is toegelaten op grond van een omgevingsplan of een omgevingsvergunning voor een omgevingsplanactiviteit. Er gelden maximale waarden voor continue trillingen en voor herhaald voorkomende trillingen. De maximale waarden zijn opgenomen in de tabellen in artikel 22.88 en de uitzondering in artikel 22.87a (in verband met agrarische bedrijvigheid) van de Bruidsschat.

Planspecifiek

In de ruime omgeving van het projectgebied zijn geen activiteiten aanwezig die trillingen kunnen veroorzaken zoals grote wegen, spoorlijnen en/of industriële machines. Dit aspect leidt daarmee niet tot belemmeringen ten aanzien van het initiatief.

Hiermee bestaat er voldoende inzicht in dit aspect dat wordt meegewogen in paragraaf 4.16.

4.9 Waterparagraaf

Wettelijk kader

Uit de Omgevingswet en paragraaf 5.1.3 van het Bkl volgt, dat het bevoegd gezag rekening dient te houden met de waterbelangen. Deze waterbelangen zijn belegd bij verschillende overheden. Wanneer een ruimtelijke ontwikkeling de belangen van de andere overheden/waterbeheerders raakt, moet vroegtijdig afstemming plaatsvinden over manieren waarop de ruimtelijke ontwikkeling en de waterbelangen optimaal kunnen samengaan.

Weging van het waterbelang

De weging van het waterbelang (voorheen: watertoets) geldt bij het vaststellen van het omgevingsplan. Dit volgt uit artikel 5.37 van het Bkl. De gemeente moet de opvattingen van de waterbeheerder betrekken bij het omgevingsplan. Dit geldt in het algemeen voor alle waterbelangen. Er gelden geen regels voor hoe de gemeente de waterbeheerder hierbij betrekt. De gemeente is vrij om hier zelf invulling aan te geven.

Waterparagraaf

De waterparagraaf beschrijft de wijze waarop rekening is gehouden met de eventuele gevolgen van het ruimtelijk plan voor de waterhuishouding en vice versa. Onderdeel hiervan is een beschrijving van beleidsuitgangspunten en regelgeving, waterhuishoudkundige situatie en –opgaven, meest geschikte oplossingen (motiveren) en de ruimtelijke consequenties daarvan. In de waterparagraaf is tevens het advies van de waterbeheerder verwerkt.

Planspecifiek

Ten aanzien van de ontwikkeling is waterhuishoudkundig onderzoek uitgevoerd, zie bijlage 6. Navolgend is een overzicht opgenomen van de hieruit afkomstige resultaten.

4.9.1 WATERHUISHOUDING
4.9.1.1 Wettelijk kader

Op basis van de Omgevingswet is de weging van het waterbelang verplicht bij o.a. omgevingsplannen. Voor overige plannen, zoals een structuurvisie, dient een weging van het waterbelang te worden uitgevoerd op basis van het Nationaal Bestuursakkoord Water.

4.9.1.2 Weging van het waterbelang

De weging van het waterbelang is bedoeld om ruimtelijke plannen en besluiten meer waterbestendig te maken, doordat waterbelangen van gemeente, waterschap en eventueel andere waterbeheerders vroegtijdig en expliciet worden meegewogen. In het ruimtelijk plan moet voldoende rekening zijn gehouden met de waterhuishouding en -voorzieningen.

4.9.1.3 Waterparagraaf

De waterparagraaf beschrijft de wijze waarop rekening is gehouden met de eventuele gevolgen van het ruimtelijk plan voor de waterhuishouding en vice versa. Onderdeel hiervan is een beschrijving van beleidsuitgangspunten en regelgeving, waterhuishoudkundige situatie en .opgaven, meest geschikte oplossingen (motiveren) en de ruimtelijke consequenties daarvan. In de waterparagraaf is tevens het advies van de waterbeheerder verwerkt.

4.9.2 Beschrijving watersysteem
4.9.2.1 Geomorfologie en geohydrologie

De agrarische grond binnen het plangebied ligt op circa NAP +7,2 m. Ter hoogte van de huidige bebouwing ligt het maaiveld hoger namelijk op circa NAP +7,8 m. De Lagestraat ligt op circa NAP +7,5 m ter hoogte van het plangebied. Op enige afstand is goed te zien dat de dijk van de rivier de Maas een stuk hoger ligt t.o.v. het omliggende landschap.

De lokale bodemopbouw is bepaald aan de hand van het bodemonderzoek uitgevoerd door M&A Milieuadviesbureau op 10 en 17 april 2025. Tijdens het bodemonderzoek zijn 14 boringen uitgevoerd tot 0,5 m-mv en 4 boringen tot 2,0 m-mv. Daarnaast zijn er 2 boringen tot 5,0 m-mv geplaatst t.b.v. 2 peilbuizen. De boringen laten zien dat de bovenste 0,5 m bestaat uit klei die licht humeus en matig zandig is. Van 0,5 tot 4,9 m-mv is in de 2 diepe boringen klei aangetroffen.

Gezien de dikte van de kleilaag (5 m) is de verwachte kwel toename beperkt. Wel wordt geadviseerd een aanvullende kwelberekening uit te voeren om de gevolgen van de ontwikkeling in kaart te brengen. Voor deze kwelberekening zijn veldwerk en grondwater-/stijghoogtemonitoring noodzakelijk. Hiermee kan de dikte van de kleilaag en de actuele grondwaterstand en stijghoogte bepaald worden en daarmee ook de te verwachten kwelflux. Dit dient uitgevoerd te zijn voor het opstellen van het WHH2.

De doorlatendheid van de kleiige toplaag zal nihil zijn. De doorlatendheid van de zandbaan, welke overigens niet is aangetroffen bij het bodemonderzoek, is onbekend. De doorlatendheid van het eerste watervoerende pakket wordt ingeschat op 50-100 m/dag.

De GHG wordt op basis van de huidige openbare informatie ingeschat op 1,5 m-mv (NAP +6,0 m). De GLG wordt ingeschat op 2,5 m-mv (NAP +5,0 m).

Het plangebied ligt in een gebied met wegzijging van circa 0,4 mm/dag op basis van het Landelijk Hydrologisch Model (LHM). Op basis van kaarten van waterschap Rivierenland ligt het plangebied op de grens van kwel bij een hoge rivierstand.

Het afgraven van de kleiige deklaag kan beperkte toename van kwel tot gevolg hebben. De toename van kwelflux is op basis van Expert Judgement zeer beperkt. Er is sprake van een kleilaag van circa 5,0 m die circa 1,5 m afgegraven wordt. Er blijft dus een 3,5 m klei over. Er is dus geen significante impact verwacht. Aanbevolen is om bij de verdere uitwerking een kwelfluxberekening toe te voegen.

4.9.2.2 Oppervlakte- en afvalwatersysteem

Het plangebied ligt in peilgebied CIT010 van het waterschap Rivierenland, dit peilgebied heeft een vastgesteld peil van NAP +5,2 m.

Parallel aan de Lagestraat ligt een primaire watergang (volledig met duikers), deze watert af richting het noorden. Dit primaire (overkluisde) watersysteem binnen de dorpskern Niftrik wordt door gemeente Wijchen ook als HWAsysteem beschouwd.

Op circa 200 meter ten zuidoosten van het plangebied stroomt de Maas, de ligging van de Maas is weergeven in onderstaandee figuur. De Maas is een gestuwde rivier en heeft daardoor beperkte waterniveauwisselingen. Het rioolstelsel van Niftrik bestaat uit drukriolering ten behoeve van het vuilwater en overkluisde watergangen ten behoeve van het hemelwater.

afbeelding "i_NL.IMRO.0296.TAMLagestraat20-OW01_0008.png"

Legger oppervlaktewater Waterschap Rivierenland, overzicht watergangen

4.9.2.3 Ecosysteem

Binnen een straal van 1,0 km is geen HEN, SED of KRW waterlichaam aanwezig.

4.9.3 Waterbeleid en waterbeheer
4.9.3.1 Gemeentelijk waterbeleid

Het gemeentelijk waterbeleid is gericht op het voorkomen, beperken of tot een aanvaardbaar risico terugbrengen van wateroverlast en schade aan milieu en volksgezondheid. In de Strategische waternota Wijchen 2019-2028 zijn thema's en uitgangspunten voor duurzaam waterbeheer omschreven. Het Beleidsplan water en riolering 2023-2027 beschrijft de gemeentelijke zorgplicht voor afvalwater, hemelwater en grondwater. In het kader van de weging van het waterbelang wordt een vertaalslag gemaakt naar de concrete plansituatie.

4.9.3.2 Zorgplicht afvalwater

Een perceeleigenaar moet het huishoudelijk afvalwater of het bedrijfsafvalwater op de openbare riolering lozen (Omgevingswet artikel 1.7, 1.7a en 2.16 lid 1.a.3, Omgevingsbesluit artikel 1.3 en Besluit activiteit leefomgeving). Als dit niet mogelijk (doelmatig) is, zorgt de perceeleigenaar voor een zo milieuvriendelijk mogelijke manier van verwerking of verwijdering van het afvalwater. De gemeente heeft voor zover doelmatig een zorgplicht voor de inzameling en transport van stedelijk afvalwater dat binnen de gemeente vrijkomt (zie Wm art 10.33).

4.9.3.3 Zorgplicht hemelwater

Een perceeleigenaar is zelf verantwoordelijk voor het verwerken van het hemelwater op het eigen terrein of voor het eventueel lozen van hemelwater op oppervlaktewater. Als dit niet mogelijk is zorgt de gemeente voor het inzamelen, transporteren en verwerken van het hemelwater, mits doelmatig (Omgevingswet artikel 2.16 lid 1.a.1).

4.9.3.4 Zorgplicht grondwater

Een perceeleigenaren is zelf verantwoordelijk voor het treffen van maatregelen op eigen terrein om structurele nadelige gevolgen van grondwater voor de aan de grond gegeven bestemming te voorkomen of beperken. Als dit niet mogelijk is treft de gemeente maatregelen in openbaar gebied, voor zover doelmatig en geen verantwoordelijkheid van provincie of waterschap (Omgevingswet artikel 2.16 lid 1.a.2).

4.9.3.5 Zorgplicht oppervlaktewater (waterschap)

De gemeente valt binnen het beheersgebied van Waterschap Rivierenland. Voor lozing op oppervlaktewater (primair, secundair en tertiair water) heeft de perceeleigenaar een vergunning van het waterschap nodig (Omgevingswet artikel 1.7, 1.7a en 2.17 lid 1.a.1, Omgevingsbesluit artikel 1.3 en Besluit activiteit leefomgeving hoofdstuk 3). Een perceeleigenaar (of aanliggende perceeleigenaar) is verantwoordelijk voor het beheer en onderhoud van oppervlaktewater (secundair en tertiair water volgens de legger van het waterschap) dat op eigen terrein ligt. Het waterschap draagt zorg voor het onderhoud van primaire watergangen. Voor ingrepen of activiteiten in of nabij watergangen dan wel in of nabij een waterkering heeft een perceeleigenaar een ontheffing op de Waterschapsverordening van het waterschap nodig.

4.9.4 Beleidsuitgangspunten en consequenties voor het ruimtelijk plan

Deze paragraaf beschrijft en motiveert de wijze waarop op de planlocatie

rekening is gehouden met het watersysteem, gelet op de

waterhuishoudkundige situatie, beleid en regelgeving.

4.9.4.1 Leefomgeving en ruimtegebruik

Beleidsuitgangspunten

De gemeente streeft naar integrale inpassing van het watersysteem in de leefomgeving en afstemming op de gebruiksfuncties in het gebied. De ruimtelijke ontwikkeling mag geen nadelige gevolgen hebben voor de waterhuishouding en vice versa. De waterhuishoudkundige situatie moet in overeenstemming zijn met het beoogde grondgebruik.

Water is ordenend bij de ruimtelijke ontwikkeling (juiste functie op de juiste plaats), waarbij tevens rekening is gehouden met de ruimteclaim van waterhuishoudkundige voorzieningen. Wateropgaven zijn gekoppeld aan andere gebiedsopgaven, zoals voor openbaar groen, welzijn, volkshuisvesting, verkeer/vervoer en energie.

Gevolgen van/voor het plan

Agrarisch gebied

In de huidige situatie is een groot deel van het agrarische gebied verhard. De bestaande woning heeft een rietdak en heeft daarom geen regenpijpen. Het overtollige water stroomt oppervlakkig af richting de Lagestraat. De schuren wateren in de huidige situatie af via dakgoten en regenpijpen. De regenpijpen zijn ondergronds aangesloten en wateren af richting de secundaire watergang aan de Niftriksestraat.

De terreinverharding watert oppervlakkig af richting de omliggende en tussengelegen onverharde oppervlakken. Een deze verharding is gerealiseerd voor 1997. De te handhaven verharding zal daarom in de toekomstige situatie op een vergelijkbare manier afwateren. Een deel van de verharding zal afwateren naar wadi's in het woningbouwgebied.

Woningbouwgebied

In de toekomstige situatie zal de neerslag dat binnen het woningbouwgebied valt binnen het plangebied geborgen worden. De hoeveelheid neerslag dat tot afstroming komt richting de buurpercelen zal dus verminderen. Het hemelwater voert vanaf het plangebied vertraagd (landelijke afvoernorm) af richting oppervlaktewatersysteem parallel aan de Lagestraat.

4.9.4.2 Kwaliteit en beleving

Beleidsuitgangspunten

De gemeente streeft naar schoon water en waterbodems die voldoen aan gestelde kwaliteitseisen en het behoud van (natte) natuurwaarden en biodiversiteit. Verontreiniging van grond- en oppervlaktewater wordt voorkomen en de waterkwaliteit zo mogelijk verbeterd.

Schoon hemelwater mag rechtstreeks in bodem of op oppervlaktewater worden geloosd. Verontreiniging van hemelwater voorkomen, o.a. door toepassing van niet-uitlogende materialen (Dubo-bepalingen) en door beperking van toepassing van lood, koper, zink en zacht pvc. Verontreinigd hemelwater alleen lozen via een zuiverende voorziening.

De kwaliteit van oppervlaktewater zo mogelijk verbeteren door aanleg van natuurvriendelijke oevers en verbetering van de doorstroming. Het beheer mag geen verstoring geven van waterkwaliteit en biodiversiteit. Ecologisch natte zones of natte natuurwaarden behouden of verder ontwikkelen door bijbehorende waterhuishoudkundige omstandigheden te beschermen of herstellen.

De gemeente streeft naar versterking van de belevingswaarde van water en daarmee het waterbewustzijn. Hierbij zijn water, waterhuishoudkundige elementen en cultuurhistorische structuren en landschapselementen herkenbaar verweven in de ruimtelijke inrichting en beleefbaar gemaakt. Waterstromen zichtbaar (bovengronds) afvoeren.

Gevolgen van/voor het plan

Om vervuiling van het hemelwater te beperken, worden géén uitlogende materialen gebruikt en worden eventuele verontreinigingen in de toplaag van de wadi's gefilterd conform beleid gemeente en waterschap. In het plan wordt hemelwater gescheiden van het vuilwater gehouden. Het hemelwater stroomt oppervlakkig richting de wadi's. De wadi's zuiveren het hemelwater dat vertraagd naar het oppervlaktewatersysteem wordt afgevoerd.

4.9.4.3 Klimaatadaptatie

Beleidsuitgangspunten

De gemeente streeft naar een klimaatbestendige en waterrobuuste leefomgeving, anticiperend op hevigere perioden met hitte, neerslag en droogte. Bij ruimtelijke ontwikkelingen worden schadelijke effecten van klimaatverandering (wateroverlast en verdroging) voor het grondgebruik en vice versa beperkt of teruggebracht tot een acceptabel niveau. Waterhuishoudkundige voorzieningen zijn energiezuinig en duurzaam.

Komen tot een klimaatadaptieve ruimtelijke inrichting, o.a. voor wat betreft bebouwing, wegen, groen en water. Voorkomen dat water bij hevige neerslag in de bebouwing terecht komt of afstroomt buiten het plangebied. De hoeveelheid verhard oppervlak tot een minimum beperken. Zorgdragen voor voldoende waterberging, tegen hemelwateroverlast en ter buffering van water in droge tijden (zie ook waterberging). Groenstructuren klimaatrobuust aanleggen voor wat betreft areaal, type beplanting en waterbergend vermogen.

Grondwateronttrekking (verdroging) beperken door hoogwaardige toepassing van drinkwater en het treffen van waterbesparende voorzieningen. Zo mogelijk hemelwater gebruiken voor laagwaardige toepassingen. Verder bij de ruimtelijke ontwikkeling rekening houden met de droogtegevoeligheid van de locatie en mogelijke bodemdaling die daardoor kan ontstaan.

Gevolgen van/voor het plan

Om binnen het plangebied klimaatadaptieve kansen te benutten op het

gebied van verkoeling en biodiversiteit kunnen onderstaande

meekoppelkansen toegepast worden:

  • Biodiverse beplanting toepassen rond de wadifs;
  • Realiseren van flora- en faunavoorzieningen;
  • Realiseren van schaduw door het aanplanten van bomen langs langzame verkeersroutes;
  • Realiseren van groenparkeervakken;
  • Realiseren van voorzieningen om (hemel)water op te slaan en te benutten
4.9.4.4 Waterberging

Beleidsuitgangspunten

De gemeente streeft naar het vasthouden van gebiedseigen water door benutting van de natuurlijke bergingscapaciteit van bodem en oppervlaktewater. Natuurlijke grondwater- en oppervlaktewaterstanden worden beschermd of hersteld.

Hemelwater afkomstig van verharde oppervlakken zoveel mogelijk afkoppelen van de riolering met de voorkeursvolgorde: 1) Benutting, 2) Bodeminfiltratie binnen het gebied, 3) Berging binnen het gebied, 4) Vertraagde afvoer naar oppervlaktewater buiten het plangebied en 5) Afvoer naar riool.

Compenseren van het verlies aan waterberging, indien hemelwater direct of indirect wordt geloosd op oppervlaktewater. De compensatieplicht (Waterschapsverordening) houdt in dat de toename van verharding in het ruimtelijk plan moet worden gecompenseerd door aanleg van extra waterberging. Dit met een eenmalige uitzondering van 500 m2 (stedelijk gebied) en 1.500 m2 (landelijk gebied) voor particulieren en kleine bedrijven.

De compensatieplicht geldt niet in individuele gevallen als op een afstand van 100 m of meer van het oppervlaktewater wordt geïnfiltreerd (beleidsregels Keur artikel 5.16 toetsingscriterium 2). Infiltratie- en bergingsvoorzieningen, zoals bodempassages en open water, moeten voldoende capaciteit hebben om het hemelwater te kunnen verwerken. En zodanig ruimtelijk ingepast (ruimtebeslag, ligging) dat adequaat functioneren is gewaarborgd.

Gevolgen van/voor het plan

Waterberging wordt gerealiseerd in de vorm van twee wadi's, de locaties zijn weergegeven in de figuur onderaan deze paragraaf. De kenmerken van de wadi's zijn beschreven in navolgende tabel.

Tot peilopzet wordt binnen het plangebied 494 m³ aan statische waterberging binnen de waterbergende voorzieningen gerealiseerd. Hiermee wordt voldaan aan de statische waterbergingseis (487 m³) van het bevoegd gezag.

afbeelding "i_NL.IMRO.0296.TAMLagestraat20-OW01_0009.png"

Kenmerken wadi’s

Indien de overstort niet functioneert en er een extreme neerslagsituatie zich voor doet dan een T=100+10% (66,4 mm in één uur) zal het waterpeil in de wadi's stijgen en zal water op straat komen te staan.

Tot aan het maaiveldniveau is de berging in de wadi's 686 m3. Daarbij kan over een oppervlak van 3.000 m² gemiddeld 0,02 m (stijging tot NAP +7,47 m) water staan zonder dat er water in de gebouwen of naar buiten het plangebied stroomt. Dit betreft een waterberging op straat van 60 m³. In navolgende figuur is de globale ligging van water-op-straat weergegeven.

Het plangebied kan dus een neerslagsituatie van 101 mm (746 m³ / (5.948 m² + 1.392 m²)) bergen zonder dat er water naar buiten het plangebied stroomt of water in de woningen stroomt. Bij nog extremere neerslag zal het overtollige water in de oostelijke rand het plangebied uitstromen waar geen bebouwing aanwezig is.

afbeelding "i_NL.IMRO.0296.TAMLagestraat20-OW01_0010.png"

Globale ligging water-op-straat (met een hoogte van NAP +7,47 m) bij onvoldoende capaciteit van de overstort.

7.4.5. Gezondheid en veiligheid

Beleidsuitgangspunten

De gemeente streeft naar een veilig watersysteem. Inrichting en beheer van het watersysteem op de planlocatie dient te zijn gericht op het voorkomen of beperken van risico's voor de volksgezondheid en veiligheid.

Risico's van optrekkend vocht primair beperken door ter plaatse van bebouwing te voorzien in voldoende ontwateringsdiepte en drooglegging. Of, als dit niet mogelijk is, door het treffen van maatregelen (bv. kruipruimtevrij bouwen, waterdicht bouwen). Een permanente verandering (verlaging) van grondwaterstanden is daarbij niet toegestaan. Voorts in het plan rekening houden met eventuele risico's van bodemdaling als gevolg van grondwaterstandsdaling (verdroging) of -fluctuatie (zie ook

Klimaatverandering).

Inrichting en beheer van oppervlaktewater in bebouwd gebied afstemmen op potentieel verdrinkingsgevaar (veilige oevers). Bij de ruimtelijke inrichting rekening houden met locaties waar waterkwaliteit een gezondheidsrisico kan vormen (zoals bij overstorten en stilstaand water).

Gevolgen van/voor het plan

De GHG wordt ingeschat op 1,5 m-mv (NAP +6,0 m). Hiermee wordt met het bestaande maaiveld voldaan aan de ontwateringseisen. Het waterpeil is NAP +5,2 m. De drooglegging is dus circa 2,3 m en dus ruim voldoende. Het toekomstige wegpeil komt op de huidige maaiveldhoogte. De vloerpeilen zullen minimaal 0,2 m boven het wegpeil gelegen komen.

Binnen de wadifs is de maximale waterdiepte 0,3 m.

4.9.5 Conclusie

Het plan is zo ontworpen en in het plan worden zodanige maatregelen getroffen, dat negatieve effecten op de waterhuishouding worden voorkomen of bestreden.

4.9.6 Overleg met waterbeheerder

Beleidsuitgangspunt

Afhankelijk van de aard en locatie moet het ruimtelijk plan voor advies en/of vooroverleg worden voorgelegd aan de waterbeheerder en het advies van de waterbeheerder zijn verwerkt in de waterparagraaf. Veelal zijn de waterbeheerders het waterschap, maar kunnen ook Rijkswaterstaat of de Provincie zijn. Vooroverleg heeft plaatsgevonden tussen (de adviseur van) de initiatiefnemer en de waterbeheerders (waterschap en gemeente). Hierbij zijn de uitgangs- en aandachtspunten meegegeven om in het plan (waterhuishoudkundig) te verwerken.

Gevolgen voor het plan

Het plan is voorgelegd aan waterschap en gemeente voor advies en het

gegeven advies is verwerkt in het plan.

Hiermee bestaat er voldoende inzicht in dit aspect dat wordt meegewogen in paragraaf 4.16.

4.10 Ecologie

De Wet natuurbescherming (Wnb) is opgenomen in de Omgevingswet: de Aanvullingswet natuur het Aanvullingsbesluit natuur en de Aanvullingsregeling natuur. Er is sprake van een beleidsneutrale overgang. Het huidige normenkader, de instrumenten en de bevoegdheidsverdeling voor het natuurbeschermingsrecht blijft ongewijzigd. Uitgezonderd van de toets ten aanzien van stikstof. Het beoordelen van de effecten van een planontwikkeling op beschermde gebieden is geregeld in artikel 11.6 van het Besluit activiteiten leefomgeving. De regels van artikel 5.5a van de Wet natuurbescherming (Wnb) blijven gelden tot een bij koninklijk besluit te bepalen datum. Hier vindt, vooralsnog, dus geen verandering plaats ten opzichte van oorspronkelijke wet- en regelgeving. Na de -nog te bepalen- datum dient stikstof te worden gemonitord als omgevingswaarde.

Ter bescherming van de natuur zijn in het Bkl diverse regels opgenomen. Deze regels komen grotendeels overeen met de regels die zijn opgenomen in de huidige Wet natuurbescherming. Het gaat hierbij in de eerste plaats om regels voor de gebiedsbescherming van aangewezen Natura 2000-gebieden, regels voor de soortenbescherming van te beschermen planten diersoorten (waaronder vogels) en regels ter bescherming van houtopstanden. Het gebieds- en soortenbeschermingsregime vloeit voor een belangrijk deel voort uit twee Europese richtlijnen, te weten de Vogelrichtlijn (79/409/EEG) en de Habitatrichtlijn (92/43/EEG).

Gebiedsbescherming

De Europese Vogel- en Habitatrichtlijn beschermt Natura 2000-gebieden. Als er naar aanleiding van projecten, plannen en activiteiten, afzonderlijk of in combinatie met andere plannen of projecten, mogelijkerwijs significante effecten optreden, dienen deze bij de voorbereiding van een ruimtelijk besluit in kaart te worden gebracht en beoordeeld. Natura 2000-gebieden hebben een externe werking, zodat ook ingrepen die buiten deze gebieden plaatsvinden en verstoring kunnen veroorzaken, moeten worden getoetst op het effect van de ingreep op soorten en habitats. Een ruimtelijk plan dat significante gevolgen kan hebben voor een Natura 2000-gebied kan alleen worden vastgesteld indien uit een passende beoordeling de zekerheid is verkregen dat het plan de natuurlijke kenmerken van het gebied niet zal aantasten. Indien deze zekerheid niet is verkregen, kan het plan worden vastgesteld, indien wordt voldaan aan de volgende drie voorwaarden:

  • 1. Alternatieve oplossingen zijn niet voorhanden;
  • 2. Het plan is nodig om dwingende redenen van groot openbaar belang, met inbegrip van redenen van sociale of economische aard; en
  • 3. De noodzakelijke compenserende maatregelen worden getroffen om te waarborgen dat de algehele samenhang van het Natura 2000-netwerk bewaard blijft. In afdeling 8.6 Bkl staat het beoordelingskader voor de omgevingsvergunning voor Natura 2000-activiteiten. Dit is door middel van het aanvullingsspoor Natuur gebeurd.

Soortenbescherming

Onder de Omgevingswet zijn veel dier- en plantsoorten beschermd. De bescherming richt zich op soorten van Europees belang, die onder de reikwijdte van de Vogel- en Habitatrichtlijn vallen, als om bepaalde soorten van nationaal belang. Soortenbescherming kan de vorm hebben van wet- en regelgeving, maar ook van fysieke maatregelen die bescherming, vestiging of uitbreiding van een soortenpopulatie stimuleren. Op grond van artikel 2.18 lid 1 sub f Omgevingswet zijn in beginsel de provincies hiervoor verantwoordelijk. Echter, ook decentrale overheden kunnen hierover actief beleid voeren. Hierbij kan worden gedacht aan het vaststellen van bijvoorbeeld een programma voor soortenbescherming. Door strikte formulering van een flora- en fauna-activiteit moet bij vrijwel alle activiteiten in de fysieke leefomgeving nagegaan worden of:

  • er soorten aanwezig zijn; en
  • welke soorten dat zijn.

In hoofdstuk 11 van het Besluit activiteiten leefomgeving wordt bepaald wanneer een vergunning nodig is.

Planspecifiek

Soortenbescherming

Om de effecten met betrekking tot soortenbescherming te beoordelen, is een Quickscan Flora en Fauna (zie bijlage 7) uitgevoerd. Uit het onderzoek blijkt dat voor verschillende soorten vervolgonderzoek nodig is voordat werkzaamheden uitgevoerd kunnen worden. Een dergelijk onderzoek vindt plaats in het kader van de omgevingsvergunningaanvraag voor het slopen en/of bouwen.

Indien er sprake is van overtreding van verbodsbepalingen, kan het bevoegd gezag onder voorwaarden een omgevingsvergunning flora- en fauna-activiteit verlenen. Er is geen reden om aan te nemen dat een eventueel benodigde vergunning, mits de juiste maatregelen worden getroffen, niet verleend zou kunnen worden. Ontheffing is daarmee haalbaar.

Daarnaast dient te allen tijde rekening gehouden te worden met de (algemene en specifieke) zorgplicht.

Gebiedsbescherming

Het plangebied ligt op ruime afstand van Natura 2000-gebied (ca. 10 km tot Rijntakken). Om de situatie met betrekking tot stikstof te beoordelen, is een voortoets stikstofdepositie uitgevoerd (zie bijlage 8). Uit de rapportage volgt dat er met betrekking tot stikstof geen significante effecten optreden. Conform de LBV-regeling behoudt het bedrijf 15% van de stikstofruimte. Andere effecten met betrekking tot gebiedsbescherming (zoals licht, geluid, trillingen) kunnen, vanwege de afstand, aard en omvang van het initiatief, eveneens uitgesloten worden.

Hiermee bestaat er voldoende inzicht in dit aspect dat wordt meegewogen in paragraaf 4.16.

4.11 Archeologie, cultuurhistorie en landschap

De essentie van het Europees beleid is dat voorafgaand aan de uitvoering van projecten onderzoek moet worden gedaan naar de aanwezigheid van waarden en daar in de ontwikkeling van plannen zoveel mogelijk rekening mee te houden. De essentie van deze wetgeving is behoud van archeologische resten zoveel mogelijk in de bodem en de bescherming van het cultureel erfgoed en landschap.

De Erfgoedwet en de Omgevingswet vormen samen het fundament voor de duiding en de bescherming van het cultureel erfgoed. De vuistregel voor de verdeling tussen Erfgoedwet en Omgevingswet is als volgt: de duiding van cultureel erfgoed en de zorg voor cultuurgoederen in overheidsbezit staat in de Erfgoedwet; de omgang met het cultureel erfgoed in de fysieke leefomgeving is geregeld in de Omgevingswet.

Voor gebouwde of aangelegde monumenten betekent dit dat de vergunningverlening voor het wijzigen van rijksmonumenten is geregeld via de Omgevingswet. Ook aanwijzing en omgang met beschermde stads- en dorpsgezichten gebeurt straks op grond van de Omgevingswet. Datzelfde geldt voor de omgang met archeologie in de fysieke leefomgeving (vergunningverlening en integratie in de planvorming). Deze aspecten vallen nu nog onder het Overgangsrecht in de Erfgoedwet.

Besluit kwaliteit leefomgeving

In het Bkl is ten aanzien van de bescherming een aantal beginselen geformuleerd (art. 5.130 Bkl). Deze beginselen richten zich op de omgang met monumenten die op grond van het omgevingsplan zijn beschermd, archeologische monumenten, (voorbeschermde) rijksmonumenten, beschermde stads- en dorpsgezichten en beschermde cultuurlandschappen. Daarnaast zijn in afdeling 8.8 van het Bkl regels gesteld voor de beoordeling van rijksmonumentenactiviteit en het verplaatsen van gebouwde monumenten.

Het gemeentelijk beleid over archeologie en cultuurhistorie is veelal opgenomen op de archeologische beleidskaart en/of de cultuurhistorische waardenkaart. Deze archeologische waarden en verwachtingen en de cultuurhistorische waarden zijn veelal vertaald in respectievelijk archeologische dubbelbestemmingen en cultuurhistorische dubbelbestemmingen opgenomen in het (tijdelijk deel van het) omgevingsplan of activiteitgericht in het gemeentebrede omgevingsplan. Indien het initiatief in deze (werkings)gebieden is gelegen, wordt hieraan getoetst.

Planspecifiek

Cultuurhistorie en landschap

De gemeente Wijchen heeft in 2016 het 'Parapluplan Cultuurhistorie Wijchen' vastgesteld met als doel om via beleid en regels waardevolle gebouwen en gebieden binnen de gemeente te beschermen. Dit parapluplan is opgenomen in het tijdelijk deel van het omgevingsplan. Binnen dit plan is het plangebied aangeduid met de dubbelbestemming 'Waarde - Cultuurhistorisch waardevol gebied'. Op de waarderingskaart krijgt het gebied een middelhoge waardering, aansluitend bij de historische lintstructuur van de Lagestraat en het agrarische cultuurlandschap dat zich kenmerkt door open ruimten en doorzichten richting het achterliggende rivierenlandschap

Uit de cultuurhistorische inventarisatie (RAAP, rapport 3040) blijkt dat het gebied is gelegen binnen het cultuurlandschapstype ‘hoger gelegen stroomrugontginning met gevarieerde structuur’ (rds1). Het plan versterkt de landschappelijke kenmerken hiervan door behoud van de doorzichtrelaties naar het achterliggende landschap, het handhaven van de openheid achter het lint en het zorgvuldig inpassen van nieuwe bebouwing in de erfstructuren. Daarmee blijft de landschappelijke en cultuurhistorische context van het gebied herkenbaar.

Op de kaart is te zien dat de boerderij in het plangebied aangewezen is als gemeentelijk monument. Dit gebouw blijft in de toekomstige situatie behouden en ongewijzigd, waarmee het cultuurhistorisch waardevolle karakter ervan in stand blijft. De ruimtelijke structuur blijft als gevolg van het plangebied behouden. Invloed op de historische wegenstructuur is uitgesloten. Het plan introduceert nieuwe bebouwing in een erfensemble dat qua schaal, kapvorm en positionering refereert aan historische erven in Niftrik. Afbreuk aan cultuurhistorische elementen is hiermee niet aan de orde.

afbeelding "i_NL.IMRO.0296.TAMLagestraat20-OW01_0011.png"

Uitsnede cultuurhistorische waarderingskaart (bron: gemeente Wijchen)

Archeologie

Ten aanzien van de ontwikkeling is een archeologisch onderzoek uitgevoerd. (zie bijlage 9). Uit het onderzoek volgt dat er geen archeologische indicatoren, lagen of oude loopoppervlakken zijn aangetroffen.De archeologische verwachting is daarom bijgesteld van middelhoog naar laag, en de kans op aanwezigheid of verstoring van waardevolle resten wordt als zeer gering beoordeeld. Vervolgonderzoek is niet nodig, en er zijn vanuit archeologie geen belemmeringen voor de voorgenomen planontwikkeling.

Naar aanleiding van de onderzoeksresultaten heeft de gemeente het rapport beoordeeld en goedgekeurd (zie bijlage 10). Hieruit volgt dat het plangebied kan worden vrijgegeven wat betreft het aspect archeologie.

Mochten tijdens de werkzaamheden onverwachts toch archeologische vondsten worden aangetroffen, moeten deze en de locatie waar ze zijn gevonden worden aangemeld. Dit is geregeld in de Erfgoedwet door middel van een meldingsplicht. De aangetroffen locaties en gevonden objecten kunnen het onderwerp zijn van verder onderzoek.

Hiermee bestaat er voldoende inzicht in dit aspect dat wordt meegewogen in paragraaf 4.16.

4.12 Leidingen

Planologisch relevante leidingen dienen te worden gewaarborgd. Tevens dient rond dergelijke leidingen rekening te worden gehouden met zones waarbinnen mogelijke beperkingen gelden. Planologisch relevante leidingen zijn leidingen waarin de navolgende producten worden vervoerd:

  • gas, olie, olieproducten, chemische producten, vaste stoffen/goederen;
  • aardgasleidingen afhankelijk van druk;
  • defensiebrandstoffen;
  • warmte en afvalwater, ruwwater of halffabricaat voor de drink- en industriewatervoorziening met een diameter groter of gelijk aan 18 inch.

Planspecifiek

In paragraaf 4.7 is toegelicht wat de effecten van de aardgasleidingen aan de rand van het plangebied zijn voor het initiatief. Ter plaatse van deze leidingen vinden geen ingrepen plaats. De voorgeschreven zondering wordt in acht genomen. Verder zijn er ter plaatse van het plangebied geen relevante leidingen aanwezig.

Hiermee bestaat er voldoende inzicht in dit aspect dat wordt meegewogen in paragraaf 4.16.

4.13 Duurzaamheid en klimaatadaptatie

Het klimaat verandert en steeds vaker worden we geconfronteerd met de gevolgen, zoals hitte, droogte, extreme neerslag en overstromingen. Klimaatverandering is in een vergaand stadium en de effecten en risico's voor onze samenleving worden steeds groter. Aan de ene kant moeten we de uitstoot van broeikasgassen verminderen, zodat de opwarming beperkt blijft. Aan de andere kant is het noodzakelijk om ons als samenleving aan te passen en voor te bereiden op de reeds ingezette klimaatveranderingen en de gevolgen daarvan. Niet alleen om schade te beperken, maar ook om kansen te benutten.

De nationale opgave voor klimaatadaptatie is beschreven in het Bestuursakkoord Klimaatadaptatie en het Deltaplan Ruimtelijke Adaptatie met daarin een prominente rol voor gemeenten. Lokale gevoeligheden voor klimaatverandering moeten in kaart worden gebracht en als integraal onderdeel van beleid daadkrachtig worden aangepakt. Daarbij is het van belang zowel te kijken naar aanpassingen aan de bestaande openbare ruimte als naar nieuwe ruimtelijke ontwikkelingen.

Planspecifiek

Wateroverlast

Door klimaatverandering neemt de kans op extreme neerslag toe. In het plan wordt ingezet op een grotendeels onverharde inrichting met voldoende ruimte voor waterberging en infiltratie. Regenwater wordt zoveel mogelijk op eigen terrein verwerkt. Hierdoor wordt wateroverlast bij piekbuien beperkt.

Hittestress

Om hittestress tegen te gaan, wordt het plangebied ingericht met behoud en aanplant van bomen en vegetatie rond de woningen. Door toepassing van erfbeplanting en het vermijden van grootschalige verharding ontstaat een koele omgeving dat ook bijdraagt aan de gezondheid van bewoners. De toekomstige woningen voldoen daarnaast aan de actuele bouweisen, waarmee ze goed bestendig zijn tegen hitte.

Droogte

In droge periodes is water vasthouden van belang. Door het toepassen van groen en infiltratievoorzieningen wordt regenwater lokaal geborgen en langzaam afgevoerd. Dit draagt bij aan het op peil houden van het grondwaterniveau en het verminderen van verdroging van de bodem.

Overstroming

Door de open en lage bebouwingsdichtheid, waterpasserende inrichting en opvang op eigen terrein, wordt het risico op schade bij wateroverlast of extreme omstandigheden beperkt. Daarnaast bestaan ter plaatse van het plangebied voldoende mogelijkheden tot schuilen.

Hiermee bestaat er voldoende inzicht in dit aspect dat wordt meegewogen in paragraaf 4.16.

4.14 Gezondheid

Wettelijk kader

In paragraaf 5.1.4 van het Bkl wordt het wettelijk kader voor het beschermen van de gezondheid en het milieu gegeven. In deze paragraaf worden instructieregels gegeven voor luchtkwaliteit (paragraaf 5.1.4.1), geluid (paragraaf 5.1.4.2 en 5.1.4.3), trilling (paragraaf 5.1.4.4), bodem (paragraaf 5.1.4.5) en geur (paragraaf 5.1.4.6).

Planspecifiek

Bij de planontwikkeling is aandacht besteed aan het bevorderen van een gezonde leefomgeving, in lijn met de uitgangspunten van de Omgevingswet. De nieuwe woningen worden ruim opgezet in een groene, klimaatadaptieve omgeving met veel aandacht voor verblijfskwaliteit, sociale interactie en beweging. Dit draagt bij aan zowel de fysieke als mentale gezondheid van bewoners. De aspecten luchtkwaliteit, geluid, trilling, bodem en geur leveren daarnaast geen belemmeringen op.

Hiermee bestaat er voldoende inzicht in dit aspect dat wordt meegewogen in paragraaf 4.16.

4.15 Vormvrije MER-beoordeling

De wetgeving omtrent de milieueffectrapportage (m.e.r) is opgenomen in afdeling 16.4 van de Omgevingswet en in hoofdstuk 11 en bijlage V bij het Omgevingsbesluit.

In artikel 16.34, tweede lid van de Omgevingswet is aangegeven dat onder een plan of programma, als bedoeld in artikel 2, onder a, van de SMB-richtlijn (richtlijn 2001/42/EG (Strategische milieubeoordeling), in ieder geval wordt verstaan een omgevingsvisie, een programma, een omgevingsplan en een voorkeursbeslissing. Het bevoegd gezag zal per specifiek geval na moeten gaan of er sprake is van een plan of programma in de zin van de SMB-richtlijn.

Beoordeling of een M.e.r. procedure of beoordeling plaats moet vinden volgt uit Bijlage V van het Omgevingsbesluit.

  • 1. De eerste stap is te kijken of het project voldoet aan de omschrijving van een project in kolom 1.
  • 2. Vervolgens moet gekeken worden of in kolom 4 'de omgevingsvergunning' of 'het omgevingsplan' staat. Het omgevingsplan is relevant als in het plan vergunningplichtige activiteiten worden aangewezen.
  • 3. Als bovenstaande stappen van toepassing zijn op het project, moet bepaald worden of voor het project een mer-plicht of een mer-beoordelingsplicht geldt. Dit gebeurt door te kijken naar de kolommen 2 en 3.
    • a. Voldoet het project aan de voorwaarden van kolom? Dan geldt voor het project een 'project-mer-plicht'.
    • b. Voldoet het project aan de voorwaarden van kolom 3? Dan geldt voor het project een 'project-mer-beoordelingsplicht'.

Planspecifiek

Onderhavig initiatief valt aan te merken als een stedelijk ontwikkelingsproject (categorie J11 Bijlage V Omgevingsbesluit). Het opstellen van een mer-beoordeling is daarom nodig. Voorliggend plan is die vormvrije m.e.r.-beoordeling omdat in het kader van dit plan de belangrijkste milieuaspecten in beeld zijn gebracht. In Hoofdstuk 2 van dit plan is ingegaan op de kenmerken van de activiteit en de locatie van de activiteit. In hoofdstuk 4 wordt de aard en omvang van de milieueffecten beschreven. Hieruit is niet gebleken dat er sprake is van een ontwikkeling welke een forse invloed heeft op het milieu in de omgeving. Belangrijke milieugevolgen kunnen worden uitgesloten. Hetgeen beschreven wordt in dit plan geeft voldoende inzicht op de milieugevolgen om een gewogen besluit omtrent dit plan te nemen. Verder onderzoek in het kader van het Besluit milieueffectrapportage is niet nodig: het plan is niet mer-plichtig.

Hiermee bestaat er voldoende inzicht in dit aspect dat wordt meegewogen in paragraaf 4.16.

4.16 Conclusie

Artikel 1.3 van de Omgevingswet, “maatschappelijke doelen van de wet”, bepaalt het volgende:

Deze wet is, met het oog op duurzame ontwikkeling, de bewoonbaarheid van het land en de bescherming en verbetering van het leefmilieu, gericht op het in onderlinge samenhang:

  • 4. bereiken en in stand houden van een veilige en gezonde fysieke leefomgeving en een goede omgevingskwaliteit, ook vanwege de intrinsieke waarde van de natuur, en
  • 5. doelmatig beheren, gebruiken en ontwikkelen van de fysieke leefomgeving ter vervulling van maatschappelijke behoeften.

De Memorie van toelichting licht dit verder toe:

Met behulp van de wet moet de samenleving in staat zijn om de fysieke leefomgeving op de gewenste kwaliteit te brengen, te houden én tegelijkertijd voldoende ruimte te laten voor activiteiten van burgers en bedrijven. Centraal staat de samenhangende zorg voor de fysieke leefomgeving welke integrale oplossingen moet bevorderen. Integraal betekent niet dat er geen sectorale beleidsdoelen meer zullen zijn. Zo zullen er doelen en randvoorwaarden blijven op het gebied van veiligheid, gezondheid, kwaliteit van ecosystemen, beschikbaarheid van hulpbronnen en behoud van cultureel erfgoed. Het is voor een goede integratie van belang dat sectorale doelen en randvoorwaarden helder en eenduidig zijn, omdat deze het uitgangspunt vormen voor de integrale zorg voor de fysieke leefomgeving. Mocht het zo zijn dat er in een bepaald geval een norm wordt overschreden dan is er de bestuurlijke afwegingsruimte. Die ruimte kan nodig zijn om (gemotiveerd) af te wijken van een norm in verband met bijvoorbeeld (bijzondere) lokale situaties, complexe gebieden of gebiedsoverstijgende belangen.

Om een plan te kunnen vergunnen dient het te voldoen aan de wettelijk eis dat sprake is van een evenwichtige toedeling van functies aan locaties. Om deze vraag te beantwoorden is een afweging nodig tussen alle aspecten met betrekking tot het plan. Van belang daarbij is dat voldaan wordt aan de eisen voor gezondheid en veiligheid. Dit is van belang omdat hiervoor niet één algemene norm is maar dit tot stand komt als optelsom – en weging – van het totaal. Het kan gewenst zijn af te wijken van een, of meerdere, sectorale aspecten om uitvoering van een maatschappelijk gewenste activiteit of maatwerk in het individuele geval mogelijk te maken. Op deze manier kan afgewogen worden waarom een ontwikkeling bijdraagt aan de evenwichtige toedeling van functies aan locaties. Aan de hand van een voorbeeld is dit makkelijk duidelijk te maken: dat een woning meer geluid ontvangt van wegverkeer dan gewenst maakt nog niet dat het onaanvaardbaar is. Dat geldt voor veel woningen waar mensen gezond en veilig wonen. Dat geldt ook voor geur, omgevingsveiligheid, trilling, luchtkwaliteit of bodemkwaliteit. Maar als álle zes deze aspecten wat hoger zijn, of drie flink hoger of twee heel hoog – maar binnen de maximale norm – dan kan de conclusie anders zijn.

In voorgaande hoofdstukken is ingegaan op die regels, beleidsonderwerpen en onderzoeksaspecten die relevant zijn voor de beoordeling of bij dit project sprake is van een evenwichtige toedeling van functies aan locaties. Overige regels, beleidsonderwerpen en onderzoeksaspecten zijn niet relevant voor de beoordeling van dit project en daarom niet beschreven. Dit is in lijn met de Memorie van toelichting paragraaf 2.2 en 4.16.4.

Planspecifiek

De ontwikkeling versterkt de omgevingskwaliteit door het beëindigen van de intensieve veehouderij, het toevoegen van passende woningen binnen de bestaande erfstructuur en de landschappelijke inpassing met behoud van openheid en zichtlijnen. De ruimtelijke, ecologische en cultuurhistorische omgevingswaarden blijven behouden of worden versterkt. Uit de voorgaande paragrafen blijkt dat er geen aspecten zijn die, mogelijk met maatregelen, beperkend werken op de gewenste ontwikkeling. Als optelsom - en de weging daarbij - geldt dat dit plan voldoet aan een evenwichtige toedeling van functies aan locaties.

Hoofdstuk 5 Juridisch bestuurlijke aspecten

5.1 Inleiding

Het TAM-IMRO omgevingsplan is een tijdelijke alternatieve maatregel (TAM) voor gemeenten die in de beginperiode van de Omgevingswet om enige reden nog niet in staat zijn om een omgevingsplan in STOP/TPOD op te stellen of te wijzigen. De TAM is primair bedoeld om urgente gebiedsontwikkeling te kunnen blijven faciliteren. Kort gezegd houdt TAM-IMRO omgevingsplan in dat de oude IMRO-standaard voor planvorming tijdelijk kan worden gebruikt onder de Omgevingswet (nieuw juridisch kader, oude techniek).

5.2 Juridische systematiek

Hoewel onderhavig initiatief gebruik maakt van bestaande techniek, wordt juridisch wel voldaan aan de regels van de Omgevingswet. De regels en verbeelding van voorliggend TAM-omgevingsplan zijn dan ook opgesteld conform de Standaard Vergelijkbare Bestemmingsplannen (SVBP). De SVBP geeft normen voor de opbouw van de planregels en voor de digitale verbeelding bij het plan. Dit plan is opgesteld conform de normen van de SVBP2012.

Het juridisch bindend gedeelte van het TAM-omgevingsplan bestaat uit planregels en bijbehorende verbeelding waarop de functies zijn aangegeven. De regels zijn onderverdeeld in een preambule en vier hoofdstukken:

  • Preambule;
  • Hoofdstuk 1: Algemene regels;
  • Hoofdstuk 2: Functieregels;
  • Hoofdstuk 3: Algemene regels;
  • Hoofdstuk 3: Overgangsregels:

5.3 Werkingsbereik/toepassingsbereik TAM-Omgevingsplan

Dit TAM-omgevingsplan (hierna: plan) wijzigt het omgevingsplan in die zin dat na hoofdstuk 22 van het omgevingsplan een hoofdstuk 22L wordt ingevoegd, bestaande uit de regels van dit plan. De hoofdstukken in de regels moeten gelezen worden als paragrafen van hoofdstuk 22L van het omgevingsplan Wijchen.

Dit plan komt in het tijdelijke deel van het omgevingsplan. In de regels staat de verhouding tot de rest van het tijdelijke omgevingsplan (zie artikel 1.2 en 1.3).

5.4 Beschrijving per functie

Onderhavig plan kent de volgende functies:

Agrarisch

Ter plaatse van het bestaande akkerbouwbedrijf wordt de functie 'Agrarisch' overgenomen, zodat deze werkzaamheden voortgezet kunnen worden. Het bestaande bouwvlak wordt verkleind en de aanduiding 'intensieve veehouderij' komt te vervallen. Rondom 50 meter van de nieuwe woningen is de gebiedsaanduiding 'milieuzone - spuitvrijezone' opgenomen waarbinnen het gebruik van chemische gewasbeschermings- en bestrijdingsmiddelen en/of andere verspuitbare middelen die leiden tot schadelijke effecten op het goed woon- en leefklimaat niet is toegestaan.

Groen

De functie 'Groen' wordt opgenomen mede ten behoeve van de aanleg van plantsoenen, groenstroken, overige groenelementen en waterhuishoudkundige voorzieningen.

Verkeer - verblijfsgebied

Deze gronden zijn onder meer bedoeld voor voorzieningen voor verkeer en verblijf, parkeervoorzieningen en groenvoorzieningen.

Wonen

Deze gronden zijn bedoeld voor wonen, parkeervoorzieningen, tuinen en erven, in- en uitritten en ontsluitingspaden. Binnen de functie 'Wonen' zijn bouwvlakken opgenomen met daarin de bij de woningen behorende typologieën en maatvoeringen.

Overig

Het plan voorziet in regels ten behoeve van de bescherming van cultuurhistorische waarden.

Hoofdstuk 6 Economische uitvoerbaarheid

Het kostenverhaal is het door de overheid verhalen van kosten op een initiatiefnemer. Het gaat over overheidskosten voor werken, werkzaamheden en maatregelen. Bijvoorbeeld kosten voor het wijzigen van het omgevingsplan en het aanleggen van openbare voorzieningen. Met de inwerkingtreding van de Omgevingswet is het exploitatieplan komen te vervallen. Het publiekrechtelijk kostenverhaal is daarmee geïntegreerd in het omgevingsplan, het projectbesluit of de omgevingsvergunning voor een buitenplanse omgevingsplanactiviteit. 

De overheid (meestal een gemeente) en een initiatiefnemer kunnen een overeenkomst sluiten over kostenverhaal voorafgaand aan het besluit dat de aangewezen activiteit mogelijk maakt: een zogenoemde 'anterieure overeenkomst'. De Omgevingswet biedt daarvoor een grondslag in paragraaf 13.6.2 van de Omgevingswet. Onderdeel van deze overeenkomst is ook dat hier wordt vastgelegd op welke wijze omgegaan wordt met de nadeelcompensatie.

Naast het kostenverhaal kan ook een vrijwillige 'financiële bijdrage gebiedsontwikkeling' worden afgesproken. Dat is een bijdrage voor ontwikkelingen die niet onder het kostenverhaal vallen, maar wel bijdragen aan de kwaliteit van een gebied.

Hoofdstuk 7 Participatie

7.1 Participatie

De directe omgeving is op de hoogte gesteld van het plan. Een participatieverslag is opgenomen in bijlage 11.

7.2 Vooroverleg

Het initiatief wordt in het kader van het wettelijk overleg voorgelegd aan de relevante instanties.

7.3 Zienswijzen

In deze paragraaf, of in een separate bijlage, zullen te zijner tijd de resultaten met betrekking tot zienswijzen worden opgenomen.